Одноэтажный дом 137.48 м2 за руб.
Планировки
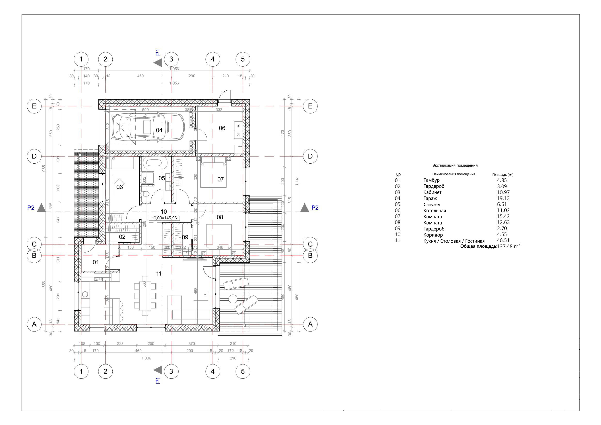
План первого этажа
- 1. Тамбур 4,85 м²
- 2. Гардероб 3,09 м²
- 3. Кабинет 10,97 м²
- 4. Гараж 19,13 м²
- 5. Санузел 6,61 м²
- 6. Котельная 11,02 м²
- 7. Комната 15,42 м²
- 8. Комната 12,63 м²
- 9. Гардероб 2,70 м²
- 10. Коридор 4,55 м²
- 11. Кухня-Гостиная-Столовая 46,51 м²
- Общая площадь 137,48 м²
Площади дома
| № п/п | Наименование | Ед. из. | Строительная площадь | Полезная площадь |
| 1 | 1 этаж | м2 | 169.42 | 137.48 |
| 2 | Итого | м2 | 169.42 | 137.48 |
154 м2
Полезная
площадь
площадь
1 этаж
Этажей
26 м2
Террасы
и балконы
и балконы
1Без
гаража
гаража
3
Количество
спален
спален
1
Количество
санузлов
санузлов
Калькулятор опций
0₽
В ипотеку от 22 256 ₽/мес.
0₽
0 дней
stdClass Object
(
[id] => 1
[attribute_id] => 1
[name] => Ленточный монолитный ж/б
[material_modifier] => 1
[work_modifier] => 1
[options] => Array
(
[0] => размер 200 х 700 мм
[1] => размер 300 х 900 мм
[2] => размер 400 х 1 000 мм
[3] => размер 500 х 1 100 мм
[4] => размер 600 х 1 200 мм
)
[days] => [20,21,22,25,30]
[material_price] => [2823,3630,4475,5210,12047]
[work_price] => [2154,2826,3731,4577,5293]
[image] => https://akademik-stroy.ru/wp-content/uploads/materials/lentochnyj-monolitnyj-zh-b.jpg
[area_modifier] => 169.42
[parent_name] => Фундамент
[parent_id] => 1
[material_sum] => 631320
[work_sum] => 401424
[total_sum] => 1032744
[total_days] => 20
[display_material_sum] => 631 320
[display_work_sum] => 401 424
[display_total_sum] => 1 032 744
)
1
1 032 744₽
Работа:401 424 ₽
Материалы:631 320 ₽
Дни:20
stdClass Object
(
[id] => 2
[attribute_id] => 1
[name] => Забивные Ж/Б сваи
[material_modifier] => 1
[work_modifier] => 1
[options] => Array
(
[0] => 150х150х3000мм
[1] => 150х150х4000мм
[2] => 200х200х3000мм
[3] => 200х200х4000мм
[4] => 200х200х5000мм
[5] => 200х200х6000мм
)
[days] => [2,2,2,2,2,2]
[material_price] => [1990,2850,3255,4360,5120,6837]
[work_price] => [1002,1185,1336,1438,1574,1839]
[image] => https://akademik-stroy.ru/wp-content/uploads/materials/zabivnye-zh-b-svai.png
[area_modifier] => 169.42
[parent_name] => Фундамент
[parent_id] => 1
[material_sum] => 445032
[work_sum] => 186735
[total_sum] => 631767
[total_days] => 2
[display_material_sum] => 445 032
[display_work_sum] => 186 735
[display_total_sum] => 631 767
)
1
631 767₽
Работа:186 735 ₽
Материалы:445 032 ₽
Дни:2
stdClass Object
(
[id] => 71
[attribute_id] => 1
[name] => Свайно-ростверковый ж/б
[material_modifier] => 1
[work_modifier] => 1
[options] => Array
(
[0] => ростверк 200х300 мм
[1] => ростверк 300х600 мм
[2] => ростверк 400х900 мм
[3] => ростверк 500х1200 мм
)
[days] => [20,23,25,27]
[material_price] => [3018,3474,7109,9792]
[work_price] => [2024,3012,5635,7022]
[image] => https://akademik-stroy.ru/wp-content/uploads/materials/svajno-rostverkovyj-monolitnyj-zh-b-3.png
[area_modifier] => 169.42
[parent_name] => Фундамент
[parent_id] => 1
[material_sum] => 674929
[work_sum] => 377197
[total_sum] => 1052126
[total_days] => 20
[display_material_sum] => 674 929
[display_work_sum] => 377 197
[display_total_sum] => 1 052 126
)
1
1 052 126₽
Работа:377 197 ₽
Материалы:674 929 ₽
Дни:20
stdClass Object
(
[id] => 72
[attribute_id] => 1
[name] => Монолитная ж/б плита
[material_modifier] => 1
[work_modifier] => 1
[options] => Array
(
[0] => 200 мм
[1] => 300 мм
[2] => 400 мм
[3] => 500 мм
[4] => 600 мм
)
[days] => [30,33,35,37,40]
[material_price] => [5348,8555,12788,14388,15189]
[work_price] => [4314,4881,7037,8061,10230]
[image] => https://akademik-stroy.ru/wp-content/uploads/materials/monolitnaya-zhb-plita.png
[area_modifier] => 169.42
[parent_name] => Фундамент
[parent_id] => 1
[material_sum] => 1195997
[work_sum] => 803966
[total_sum] => 1999963
[total_days] => 30
[display_material_sum] => 1 195 997
[display_work_sum] => 803 966
[display_total_sum] => 1 999 963
)
1
1 999 963₽
Работа:803 966 ₽
Материалы:1 195 997 ₽
Дни:30
stdClass Object
(
[id] => 73
[attribute_id] => 1
[name] => Утепленная шведская плита
[material_modifier] => 1
[work_modifier] => 1
[options] => Array
(
[0] => 200 мм
[1] => 300 мм
[2] => 400 мм
[3] => 500 мм
[4] => 600 мм
)
[days] => [32,37,39,42,45]
[material_price] => [10249,12692,13760,14936,16230]
[work_price] => [5960,7337,8072,8878,9765]
[image] => https://akademik-stroy.ru/wp-content/uploads/materials/uteplennaya-shvedskaya-plita.jpg
[area_modifier] => 169.42
[parent_name] => Фундамент
[parent_id] => 1
[material_sum] => 2292029
[work_sum] => 1110718
[total_sum] => 3402747
[total_days] => 32
[display_material_sum] => 2 292 029
[display_work_sum] => 1 110 718
[display_total_sum] => 3 402 747
)
1
3 402 747₽
Работа:1 110 718 ₽
Материалы:2 292 029 ₽
Дни:32
stdClass Object
(
[id] => 75
[attribute_id] => 1
[name] => Ленточный из ФБС
[material_modifier] => 1
[work_modifier] => 1
[options] => Array
(
[0] => толщ. 300 мм
[1] => толщ. 400 мм
[2] => толщ. 500 мм
[3] => толщ. 600 мм
)
[days] => [20,20,20,20]
[material_price] => [3675,4902,6126,7350]
[work_price] => [2451,3264,4083,4902]
[image] => https://akademik-stroy.ru/wp-content/uploads/materials/lentochnyj-iz-fbs.png
[area_modifier] => 169.42
[parent_name] => Фундамент
[parent_id] => 1
[material_sum] => 821856
[work_sum] => 456773
[total_sum] => 1278629
[total_days] => 20
[display_material_sum] => 821 856
[display_work_sum] => 456 773
[display_total_sum] => 1 278 629
)
1
1 278 629₽
Работа:456 773 ₽
Материалы:821 856 ₽
Дни:20
stdClass Object
(
[id] => 76
[attribute_id] => 1
[name] => Цокольный этаж из ФБС
[material_modifier] => 1
[work_modifier] => 1
[options] => Array
(
[0] => толщ. 300 мм
[1] => толщ. 400 мм
[2] => толщ. 500 мм
[3] => толщ. 600 мм
)
[days] => [30,32,34,36]
[material_price] => [20916,23299,26680,29060]
[work_price] => [17524,18700,19873,21046]
[image] => https://akademik-stroy.ru/wp-content/uploads/materials/cokolnyj-ehtazh-iz-fbs.jpg
[area_modifier] => 169.42
[parent_name] => Фундамент
[parent_id] => 1
[material_sum] => 4677537
[work_sum] => 3265808
[total_sum] => 7943345
[total_days] => 30
[display_material_sum] => 4 677 537
[display_work_sum] => 3 265 808
[display_total_sum] => 7 943 345
)
1
7 943 345₽
Работа:3 265 808 ₽
Материалы:4 677 537 ₽
Дни:30
stdClass Object
(
[id] => 77
[attribute_id] => 1
[name] => Цокольный этаж монолитный ж/б
[material_modifier] => 1
[work_modifier] => 1
[options] => Array
(
[0] => толщ. 200 мм
[1] => толщ. 300 мм
[2] => толщ. 400 мм
[3] => толщ. 500 мм
[4] => толщ. 600 мм
)
[days] => [40,42,44,46,48]
[material_price] => [25421,29148,32275,35602,37326]
[work_price] => [20441,21907,23375,24841,26306]
[image] => https://akademik-stroy.ru/wp-content/uploads/materials/cokolnyj-etazh-zh-b.jpg
[area_modifier] => 169.42
[parent_name] => Фундамент
[parent_id] => 1
[material_sum] => 5685010
[work_sum] => 3809426
[total_sum] => 9494436
[total_days] => 40
[display_material_sum] => 5 685 010
[display_work_sum] => 3 809 426
[display_total_sum] => 9 494 436
)
1
9 494 436₽
Работа:3 809 426 ₽
Материалы:5 685 010 ₽
Дни:40
stdClass Object
(
[id] => 191
[attribute_id] => 1
[name] => Винтовые сваи
[material_modifier] => 1
[work_modifier] => 1
[options] => Array
(
[0] => 57х200мм
[1] => 76х250мм
[2] => 108х300мм
[3] => 133х350мм
)
[days] => [1,1,2,2]
[material_price] => [1200,1300,1450,1600]
[work_price] => [400,600,900,1100]
[image] => https://akademik-stroy.ru/wp-content/uploads/materials/vintovye-svai.png
[area_modifier] => 169.42
[parent_name] => Фундамент
[parent_id] => 1
[material_sum] => 268361
[work_sum] => 74545
[total_sum] => 342906
[total_days] => 1
[display_material_sum] => 268 361
[display_work_sum] => 74 545
[display_total_sum] => 342 906
)
1
342 906₽
Работа:74 545 ₽
Материалы:268 361 ₽
Дни:1
stdClass Object
(
[id] => 3
[attribute_id] => 2
[name] => Деревянные балки
[material_modifier] => 1
[work_modifier] => 1
[options] => Array
(
[0] => без утепления
[1] => утепление 200 мм
[2] => утепление 250 мм
[3] => утепление 300 мм
[4] => утепление 350 мм
[5] => утепление 400 мм
[6] => утепление 450 мм
[7] => утепление 500 мм
)
[days] => [8,9,9,9,11,12,13,14]
[material_price] => [1634,2042,2344,2947,3149,3652,3354,3557]
[work_price] => [1230,1339,1393,1426,1460,1513,1587,1620]
[image] => https://akademik-stroy.ru/wp-content/uploads/materials/derevyannye-balki.png
[area_modifier] => 169.42
[parent_name] => Перекрытие цоколя
[parent_id] => 2
[material_sum] => 365419
[work_sum] => 229225
[total_sum] => 594644
[total_days] => 8
[display_material_sum] => 365 419
[display_work_sum] => 229 225
[display_total_sum] => 594 644
)
1
594 644₽
Работа:229 225 ₽
Материалы:365 419 ₽
Дни:8
stdClass Object
(
[id] => 4
[attribute_id] => 2
[name] => Сборные ж/б плиты
[material_modifier] => 1
[work_modifier] => 1
[options] => Array
(
[0] => без утепления
[1] => утепление 150мм
[2] => утепление 200мм
[3] => утепление 250мм
[4] => утепление 300мм
[5] => утепление 350мм
[6] => утепление 400мм
[7] => утепление 450мм
[8] => утепление 500мм
)
[days] => [13,15,15,15,15,15,15,15,15]
[material_price] => [3067,5577,5928,6679,7730,8782,9833,10884,11935]
[work_price] => [1520,1956,2102,2247,2392,2537,2684,2829,2974]
[image] => https://akademik-stroy.ru/wp-content/uploads/materials/sbornye-zh-b-plity-2.jpg
[area_modifier] => 169.42
[parent_name] => Перекрытие цоколя
[parent_id] => 2
[material_sum] => 685887
[work_sum] => 283270
[total_sum] => 969157
[total_days] => 13
[display_material_sum] => 685 887
[display_work_sum] => 283 270
[display_total_sum] => 969 157
)
1
969 157₽
Работа:283 270 ₽
Материалы:685 887 ₽
Дни:13
stdClass Object
(
[id] => 78
[attribute_id] => 2
[name] => Монолитная ж/б плита
[material_modifier] => 1
[work_modifier] => 1
[options] => Array
(
[0] => без утепления
[1] => утепление 150 мм
[2] => утепление 200 мм
[3] => утепление 250 мм
[4] => утепление 300 мм
[5] => утепление 350 мм
[6] => утепление 400 мм
[7] => утепление 450 мм
[8] => утепление 500 мм
)
[days] => [18,20,20,20,20,20,20,20,20]
[material_price] => [4837,6572,7224,7375,79426,8177,8728,9180,10031]
[work_price] => [3348,3921,4112,4302,4493,4684,4875,5066,5256]
[image] => https://akademik-stroy.ru/wp-content/uploads/materials/monolitnaya-zh-b-plita-2.jpg
[area_modifier] => 169.42
[parent_name] => Перекрытие цоколя
[parent_id] => 2
[material_sum] => 1081720
[work_sum] => 623940
[total_sum] => 1705660
[total_days] => 18
[display_material_sum] => 1 081 720
[display_work_sum] => 623 940
[display_total_sum] => 1 705 660
)
1
1 705 660₽
Работа:623 940 ₽
Материалы:1 081 720 ₽
Дни:18
stdClass Object
(
[id] => 6
[attribute_id] => 3
[name] => Пеноблок
[material_modifier] => 1
[work_modifier] => 1
[options] => Array
(
[0] => 300 мм
[1] => 400 мм
[2] => 500 мм
[3] => 600 мм
)
[days] => [29,31,34,39]
[material_price] => [3000,4000,4500,4937]
[work_price] => [5033,5805,6400,8710]
[image] => https://akademik-stroy.ru/wp-content/uploads/materials/penoblok.jpg
[area_modifier] => 169.42
[parent_name] => Стены 1 этаж (несущие)
[parent_id] => 3
[material_sum] => 670903
[work_sum] => 937960
[total_sum] => 1608863
[total_days] => 29
[display_material_sum] => 670 903
[display_work_sum] => 937 960
[display_total_sum] => 1 608 863
)
1
1 608 863₽
Работа:937 960 ₽
Материалы:670 903 ₽
Дни:29
stdClass Object
(
[id] => 79
[attribute_id] => 3
[name] => Керамический блок
[material_modifier] => 1
[work_modifier] => 1
[options] => Array
(
[0] => 380 мм
[1] => 380 мм Thermo
[2] => 440 мм
[3] => 510 мм
)
[days] => [23,23,24,25]
[material_price] => [4510,5098,6093,8013]
[work_price] => [4737,4937,5903,6958]
[image] => https://akademik-stroy.ru/wp-content/uploads/materials/keramicheskij-blok.jpg
[area_modifier] => 169.42
[parent_name] => Стены 1 этаж (несущие)
[parent_id] => 3
[material_sum] => 1008591
[work_sum] => 882797
[total_sum] => 1891388
[total_days] => 23
[display_material_sum] => 1 008 591
[display_work_sum] => 882 797
[display_total_sum] => 1 891 388
)
1
1 891 388₽
Работа:882 797 ₽
Материалы:1 008 591 ₽
Дни:23
stdClass Object
(
[id] => 80
[attribute_id] => 3
[name] => Кирпич
[material_modifier] => 1
[work_modifier] => 1
[options] => Array
(
[0] => Кирпич 250 мм
[1] => Кирпич 380 мм
[2] => Кирпич 510 мм
[3] => Кирпич 640 мм
[4] => Кирпич 770 мм
)
[days] => [30,30,31,33,36]
[material_price] => [5500,7142,9206,10171,12235]
[work_price] => [8736,10041,12018,15240,18462]
[image] => https://akademik-stroy.ru/wp-content/uploads/materials/kirpich.jpg
[area_modifier] => 169.42
[parent_name] => Стены 1 этаж (несущие)
[parent_id] => 3
[material_sum] => 1229989
[work_sum] => 1628058
[total_sum] => 2858047
[total_days] => 30
[display_material_sum] => 1 229 989
[display_work_sum] => 1 628 058
[display_total_sum] => 2 858 047
)
1
2 858 047₽
Работа:1 628 058 ₽
Материалы:1 229 989 ₽
Дни:30
stdClass Object
(
[id] => 81
[attribute_id] => 3
[name] => Монолитные
[material_modifier] => 1
[work_modifier] => 1
[options] => Array
(
[0] => 150 мм
[1] => 200 мм
[2] => 250 мм
[3] => 300 мм
[4] => 350 мм
[5] => 400 мм
)
[days] => [45,46,47,49,50,53]
[material_price] => [6545,7876,10175,12011,13908,15204]
[work_price] => [5106,6444,7698,8552,9807,11461]
[image] => https://akademik-stroy.ru/wp-content/uploads/materials/monolitnye.jpg
[area_modifier] => 169.42
[parent_name] => Стены 1 этаж (несущие)
[parent_id] => 3
[material_sum] => 1463687
[work_sum] => 951564
[total_sum] => 2415251
[total_days] => 45
[display_material_sum] => 1 463 687
[display_work_sum] => 951 564
[display_total_sum] => 2 415 251
)
1
2 415 251₽
Работа:951 564 ₽
Материалы:1 463 687 ₽
Дни:45
stdClass Object
(
[id] => 82
[attribute_id] => 3
[name] => Клееный брус
[material_modifier] => 1
[work_modifier] => 1
[options] => Array
(
[0] => 160 мм
[1] => 175 мм
[2] => 200 мм
[3] => 215 мм
[4] => 240 мм
[5] => 270 мм
[6] => 282 мм
)
[days] => [24,28,32,37,40,42,48]
[material_price] => [16975,18773,19950,20545,21599,22159,23275]
[work_price] => [4806,5287,5815,6397,7036,7740,8514]
[image] => https://akademik-stroy.ru/wp-content/uploads/materials/kleenyj-brus.jpg
[area_modifier] => 169.42
[parent_name] => Стены 1 этаж (несущие)
[parent_id] => 3
[material_sum] => 3796194
[work_sum] => 895656
[total_sum] => 4691850
[total_days] => 24
[display_material_sum] => 3 796 194
[display_work_sum] => 895 656
[display_total_sum] => 4 691 850
)
1
4 691 850₽
Работа:895 656 ₽
Материалы:3 796 194 ₽
Дни:24
stdClass Object
(
[id] => 83
[attribute_id] => 3
[name] => Каркасные
[material_modifier] => 1
[work_modifier] => 1
[options] => Array
(
[0] => 150 мм
[1] => 200 мм
[2] => 250 мм
[3] => 300 мм
)
[days] => [15,16,17,18]
[material_price] => [2379,2639,2898,3258]
[work_price] => [2418,2686,2985,3716]
[image] => https://akademik-stroy.ru/wp-content/uploads/materials/karkasnye.jpg
[area_modifier] => 169.42
[parent_name] => Стены 1 этаж (несущие)
[parent_id] => 3
[material_sum] => 532026
[work_sum] => 450623
[total_sum] => 982649
[total_days] => 15
[display_material_sum] => 532 026
[display_work_sum] => 450 623
[display_total_sum] => 982 649
)
1
982 649₽
Работа:450 623 ₽
Материалы:532 026 ₽
Дни:15
stdClass Object
(
[id] => 84
[attribute_id] => 3
[name] => СИП-панели
[material_modifier] => 1
[work_modifier] => 1
[options] => Array
(
[0] => 120 мм
[1] => 170 мм
[2] => 220 мм
)
[days] => [7,7,7]
[material_price] => [1210,1856,2292]
[work_price] => [1410,1551,1706]
[image] => https://akademik-stroy.ru/wp-content/uploads/materials/sip-paneli.jpg
[area_modifier] => 169.42
[parent_name] => Стены 1 этаж (несущие)
[parent_id] => 3
[material_sum] => 270598
[work_sum] => 262770
[total_sum] => 533368
[total_days] => 7
[display_material_sum] => 270 598
[display_work_sum] => 262 770
[display_total_sum] => 533 368
)
1
533 368₽
Работа:262 770 ₽
Материалы:270 598 ₽
Дни:7
stdClass Object
(
[id] => 85
[attribute_id] => 3
[name] => Сухой брус
[material_modifier] => 1
[work_modifier] => 1
[options] => Array
(
[0] => 150 мм
[1] => 180 мм
[2] => 200 мм
)
[days] => [7,8,9]
[material_price] => [6010,7190,8709]
[work_price] => [3204,3845,4229]
[image] => https://akademik-stroy.ru/wp-content/uploads/materials/suhoj-brus.jpg
[area_modifier] => 169.42
[parent_name] => Стены 1 этаж (несущие)
[parent_id] => 3
[material_sum] => 1344043
[work_sum] => 597104
[total_sum] => 1941147
[total_days] => 7
[display_material_sum] => 1 344 043
[display_work_sum] => 597 104
[display_total_sum] => 1 941 147
)
1
1 941 147₽
Работа:597 104 ₽
Материалы:1 344 043 ₽
Дни:7
stdClass Object
(
[id] => 86
[attribute_id] => 3
[name] => Профилированный брус
[material_modifier] => 1
[work_modifier] => 1
[options] => Array
(
[0] => 150 мм
[1] => 180 мм
[2] => 200 мм
)
[days] => [7,8,9]
[material_price] => [8190,9228,10051]
[work_price] => [3845,4614,5075]
[image] => https://akademik-stroy.ru/wp-content/uploads/materials/profilirovannyj-brus.jpg
[area_modifier] => 169.42
[parent_name] => Стены 1 этаж (несущие)
[parent_id] => 3
[material_sum] => 1831566
[work_sum] => 716562
[total_sum] => 2548128
[total_days] => 7
[display_material_sum] => 1 831 566
[display_work_sum] => 716 562
[display_total_sum] => 2 548 128
)
1
2 548 128₽
Работа:716 562 ₽
Материалы:1 831 566 ₽
Дни:7
stdClass Object
(
[id] => 87
[attribute_id] => 3
[name] => Оцилиндрованное бревно
[material_modifier] => 1
[work_modifier] => 1
[options] => Array
(
[0] => 180 мм
[1] => 220 мм
[2] => 260 мм
[3] => 320 мм
)
[days] => [7,8,9,10]
[material_price] => [75190,9532,10868,13116]
[work_price] => [3845,4691,5535,6863]
[image] => https://akademik-stroy.ru/wp-content/uploads/materials/ocilindrovannoe-brevno-1.jpg
[area_modifier] => 169.42
[parent_name] => Стены 1 этаж (несущие)
[parent_id] => 3
[material_sum] => 16815071
[work_sum] => 716562
[total_sum] => 17531633
[total_days] => 7
[display_material_sum] => 16 815 071
[display_work_sum] => 716 562
[display_total_sum] => 17 531 633
)
1
17 531 633₽
Работа:716 562 ₽
Материалы:16 815 071 ₽
Дни:7
stdClass Object
(
[id] => 88
[attribute_id] => 3
[name] => Срубы
[material_modifier] => 1
[work_modifier] => 1
[options] => Array
(
[0] => 260 мм
[1] => 320 мм
[2] => 360 мм
[3] => 400 мм
[4] => 500 мм
)
[days] => [7,8,9,10,11]
[material_price] => [37975,46709,52314,58069,73167]
[work_price] => [4806,5911,6621,7349,9260]
[image] => https://akademik-stroy.ru/wp-content/uploads/materials/sruby.jpg
[area_modifier] => 169.42
[parent_name] => Стены 1 этаж (несущие)
[parent_id] => 3
[material_sum] => 8492516
[work_sum] => 895656
[total_sum] => 9388172
[total_days] => 7
[display_material_sum] => 8 492 516
[display_work_sum] => 895 656
[display_total_sum] => 9 388 172
)
1
9 388 172₽
Работа:895 656 ₽
Материалы:8 492 516 ₽
Дни:7
stdClass Object
(
[id] => 174
[attribute_id] => 3
[name] => Брус
[material_modifier] => 1
[work_modifier] => 1
[options] => Array
(
[0] => 150 мм
[1] => 180 мм
[2] => 200 мм
)
[days] => [7,8,9]
[material_price] => [5127,6152,7367]
[work_price] => [1602,1922,2115]
[image] => https://akademik-stroy.ru/wp-content/uploads/materials/brus.jpg
[area_modifier] => 169.42
[parent_name] => Стены 1 этаж (несущие)
[parent_id] => 3
[material_sum] => 1146574
[work_sum] => 298552
[total_sum] => 1445126
[total_days] => 7
[display_material_sum] => 1 146 574
[display_work_sum] => 298 552
[display_total_sum] => 1 445 126
)
1
1 445 126₽
Работа:298 552 ₽
Материалы:1 146 574 ₽
Дни:7
stdClass Object
(
[id] => 175
[attribute_id] => 3
[name] => Газобетон
[material_modifier] => 1
[work_modifier] => 1
[options] => Array
(
[0] => 300 мм
[1] => 375 мм
[2] => 400 мм
[3] => 500 мм
[4] => 600 мм
)
[days] => [29,31,35,37,44]
[material_price] => [4298,5573,6356,7288,9119]
[work_price] => [4538,5251,5926,6733,7195]
[image] => https://akademik-stroy.ru/wp-content/uploads/materials/gazobeton.jpg
[area_modifier] => 169.42
[parent_name] => Стены 1 этаж (несущие)
[parent_id] => 3
[material_sum] => 961181
[work_sum] => 845711
[total_sum] => 1806892
[total_days] => 29
[display_material_sum] => 961 181
[display_work_sum] => 845 711
[display_total_sum] => 1 806 892
)
1
1 806 892₽
Работа:845 711 ₽
Материалы:961 181 ₽
Дни:29
stdClass Object
(
[id] => 176
[attribute_id] => 3
[name] => Блок
[material_modifier] => 1
[work_modifier] => 1
[options] => Array
(
[0] => 300 мм
[1] => 375 мм
[2] => 400 мм
[3] => 500 мм
[4] => 600 мм
)
[days] => [29,31,35,37,44]
[material_price] => [2698,3973,4356,6588,7119]
[work_price] => [5038,5851,6426,8733,9195]
[image] => https://akademik-stroy.ru/wp-content/uploads/materials/blok.jpg
[area_modifier] => 169.42
[parent_name] => Стены 1 этаж (несущие)
[parent_id] => 3
[material_sum] => 603366
[work_sum] => 938892
[total_sum] => 1542258
[total_days] => 29
[display_material_sum] => 603 366
[display_work_sum] => 938 892
[display_total_sum] => 1 542 258
)
1
1 542 258₽
Работа:938 892 ₽
Материалы:603 366 ₽
Дни:29
stdClass Object
(
[id] => 177
[attribute_id] => 3
[name] => Газосиликатный блок
[material_modifier] => 1
[work_modifier] => 1
[options] => Array
(
[0] => 300 мм
[1] => 375 мм
[2] => 400 мм
[3] => 500 мм
[4] => 600 мм
)
[days] => [29,31,35,37,44]
[material_price] => [4298,5573,6356,7288,9119]
[work_price] => [4538,5251,5926,6733,7195]
[image] => https://akademik-stroy.ru/wp-content/uploads/materials/gazosilikatnyj-blok.jpg
[area_modifier] => 169.42
[parent_name] => Стены 1 этаж (несущие)
[parent_id] => 3
[material_sum] => 961181
[work_sum] => 845711
[total_sum] => 1806892
[total_days] => 29
[display_material_sum] => 961 181
[display_work_sum] => 845 711
[display_total_sum] => 1 806 892
)
1
1 806 892₽
Работа:845 711 ₽
Материалы:961 181 ₽
Дни:29
stdClass Object
(
[id] => 178
[attribute_id] => 3
[name] => Керамзитобетонный блок
[material_modifier] => 1
[work_modifier] => 1
[options] => Array
(
[0] => 300 мм
[1] => 375 мм
[2] => 400 мм
[3] => 500 мм
[4] => 600 мм
)
[days] => [23,23,24,25,28]
[material_price] => [3641,4298,5693,7613,9612]
[work_price] => [5737,5737,6903,7958,8901]
[image] => https://akademik-stroy.ru/wp-content/uploads/materials/keramzitobetonnyj-blok.jpg
[area_modifier] => 169.42
[parent_name] => Стены 1 этаж (несущие)
[parent_id] => 3
[material_sum] => 814253
[work_sum] => 1069159
[total_sum] => 1883412
[total_days] => 23
[display_material_sum] => 814 253
[display_work_sum] => 1 069 159
[display_total_sum] => 1 883 412
)
1
1 883 412₽
Работа:1 069 159 ₽
Материалы:814 253 ₽
Дни:23
stdClass Object
(
[id] => 179
[attribute_id] => 3
[name] => Деревянные
[material_modifier] => 1
[work_modifier] => 1
[options] => Array
(
[0] => 180 мм
[1] => 220 мм
[2] => 260 мм
[3] => 320 мм
)
[days] => [7,8,9,10]
[material_price] => [7950,9458,11961,14472]
[work_price] => [4037,4925,5812,7207]
[image] => https://akademik-stroy.ru/wp-content/uploads/materials/derevyannye.jpg
[area_modifier] => 169.42
[parent_name] => Стены 1 этаж (несущие)
[parent_id] => 3
[material_sum] => 1777893
[work_sum] => 752343
[total_sum] => 2530236
[total_days] => 7
[display_material_sum] => 1 777 893
[display_work_sum] => 752 343
[display_total_sum] => 2 530 236
)
1
2 530 236₽
Работа:752 343 ₽
Материалы:1 777 893 ₽
Дни:7
stdClass Object
(
[id] => 181
[attribute_id] => 3
[name] => Камень
[material_modifier] => 1
[work_modifier] => 1
[options] => Array
(
[0] => 300 мм
[1] => 400 мм
[2] => 500 мм
[3] => 600 мм
)
[days] => [25,27,31,34]
[material_price] => [5262,6844,8330,9815]
[work_price] => [8331,9135,10427,11069]
[image] => https://akademik-stroy.ru/wp-content/uploads/materials/kamen.jpg
[area_modifier] => 169.42
[parent_name] => Стены 1 этаж (несущие)
[parent_id] => 3
[material_sum] => 1176764
[work_sum] => 1552582
[total_sum] => 2729346
[total_days] => 25
[display_material_sum] => 1 176 764
[display_work_sum] => 1 552 582
[display_total_sum] => 2 729 346
)
1
2 729 346₽
Работа:1 552 582 ₽
Материалы:1 176 764 ₽
Дни:25
stdClass Object
(
[id] => 182
[attribute_id] => 3
[name] => Каркасно-щитовые
[material_modifier] => 1
[work_modifier] => 1
[options] => Array
(
[0] => 150 мм
[1] => 200 мм
[2] => 250 мм
[3] => 300 мм
[4] => 350 мм
[5] => 400 мм
)
[days] => [15,16,17,18,19,20]
[material_price] => [2379,2639,2898,3458,3601,4175]
[work_price] => [2538,2820,3134,3483,4062,5642]
[image] => https://akademik-stroy.ru/wp-content/uploads/materials/karkasno-shchitovye.jpg
[area_modifier] => 169.42
[parent_name] => Стены 1 этаж (несущие)
[parent_id] => 3
[material_sum] => 532026
[work_sum] => 472987
[total_sum] => 1005013
[total_days] => 15
[display_material_sum] => 532 026
[display_work_sum] => 472 987
[display_total_sum] => 1 005 013
)
1
1 005 013₽
Работа:472 987 ₽
Материалы:532 026 ₽
Дни:15
stdClass Object
(
[id] => 183
[attribute_id] => 3
[name] => Рубленные
[material_modifier] => 1
[work_modifier] => 1
[options] => Array
(
[0] => 150 мм
[1] => 200 мм
[2] => 250 мм
[3] => 300 мм
[4] => 350 мм
[5] => 400 мм
)
[days] => [15,16,17,18,17,18]
[material_price] => [35950,50267,60583,75900,80217,100533]
[work_price] => [9612,12816,16020,19224,22428,25632]
[image] => https://akademik-stroy.ru/wp-content/uploads/materials/rublennye.jpg
[area_modifier] => 169.42
[parent_name] => Стены 1 этаж (несущие)
[parent_id] => 3
[material_sum] => 8039657
[work_sum] => 1791312
[total_sum] => 9830969
[total_days] => 15
[display_material_sum] => 8 039 657
[display_work_sum] => 1 791 312
[display_total_sum] => 9 830 969
)
1
9 830 969₽
Работа:1 791 312 ₽
Материалы:8 039 657 ₽
Дни:15
stdClass Object
(
[id] => 185
[attribute_id] => 3
[name] => Теплоблок
[material_modifier] => 1
[work_modifier] => 1
[options] => Array
(
[0] => 300 мм (с облицовкой, не покрашенный)
[1] => 400 мм (с облицовкой, не покрашенный)
[2] => 300 мм (с облицовкой, покрашенный)
[3] => 400 мм (с облицовкой, покрашенный)
)
[days] => [15,16,15,16]
[material_price] => [2888,3729,3957,4258]
[work_price] => [2564,3229,2949,3713]
[image] => https://akademik-stroy.ru/wp-content/uploads/materials/teploblok.jpg
[area_modifier] => 169.42
[parent_name] => Стены 1 этаж (несущие)
[parent_id] => 3
[material_sum] => 645856
[work_sum] => 477832
[total_sum] => 1123688
[total_days] => 15
[display_material_sum] => 645 856
[display_work_sum] => 477 832
[display_total_sum] => 1 123 688
)
1
1 123 688₽
Работа:477 832 ₽
Материалы:645 856 ₽
Дни:15
stdClass Object
(
[id] => 186
[attribute_id] => 3
[name] => Арболитовые блоки
[material_modifier] => 1
[work_modifier] => 1
[options] => Array
(
[0] => 300 мм
[1] => 400 мм
[2] => 600 мм
)
[days] => [19,22,27]
[material_price] => [3210,4475,5852]
[work_price] => [4214,4788,5866]
[image] => https://akademik-stroy.ru/wp-content/uploads/materials/arbolitovye-bloki.png
[area_modifier] => 169.42
[parent_name] => Стены 1 этаж (несущие)
[parent_id] => 3
[material_sum] => 717866
[work_sum] => 785329
[total_sum] => 1503195
[total_days] => 19
[display_material_sum] => 717 866
[display_work_sum] => 785 329
[display_total_sum] => 1 503 195
)
1
1 503 195₽
Работа:785 329 ₽
Материалы:717 866 ₽
Дни:19
stdClass Object
(
[id] => 187
[attribute_id] => 3
[name] => Полистиролбетон
[material_modifier] => 1
[work_modifier] => 1
[options] => Array
(
[0] => 300 мм
[1] => 400 мм
[2] => 600 мм
)
[days] => [29,31,35]
[material_price] => [2798,4573,5256]
[work_price] => [5038,5851,6426]
[image] => https://akademik-stroy.ru/wp-content/uploads/materials/polistirolbeton.jpg
[area_modifier] => 169.42
[parent_name] => Стены 1 этаж (несущие)
[parent_id] => 3
[material_sum] => 625729
[work_sum] => 938892
[total_sum] => 1564621
[total_days] => 29
[display_material_sum] => 625 729
[display_work_sum] => 938 892
[display_total_sum] => 1 564 621
)
1
1 564 621₽
Работа:938 892 ₽
Материалы:625 729 ₽
Дни:29
stdClass Object
(
[id] => 188
[attribute_id] => 3
[name] => Шлакоблок
[material_modifier] => 1
[work_modifier] => 1
[options] => Array
(
[0] => 400 мм
[1] => 600 мм
)
[days] => [15,16]
[material_price] => [2391,3471]
[work_price] => [2642,3662]
[image] => https://akademik-stroy.ru/wp-content/uploads/materials/shlakoblok.jpg
[area_modifier] => 169.42
[parent_name] => Стены 1 этаж (несущие)
[parent_id] => 3
[material_sum] => 534710
[work_sum] => 492368
[total_sum] => 1027078
[total_days] => 15
[display_material_sum] => 534 710
[display_work_sum] => 492 368
[display_total_sum] => 1 027 078
)
1
1 027 078₽
Работа:492 368 ₽
Материалы:534 710 ₽
Дни:15
stdClass Object
(
[id] => 189
[attribute_id] => 3
[name] => Теплая керамика
[material_modifier] => 1
[work_modifier] => 1
[options] => Array
(
[0] => 380 мм
[1] => 380 мм Thermo
[2] => 440 мм
[3] => 510 мм
)
[days] => [23,23,24,25]
[material_price] => [4510,5098,6093,8013]
[work_price] => [4737,4937,5903,6958]
[image] => https://akademik-stroy.ru/wp-content/uploads/materials/teplaya-keramika.jpg
[area_modifier] => 169.42
[parent_name] => Стены 1 этаж (несущие)
[parent_id] => 3
[material_sum] => 1008591
[work_sum] => 882797
[total_sum] => 1891388
[total_days] => 23
[display_material_sum] => 1 008 591
[display_work_sum] => 882 797
[display_total_sum] => 1 891 388
)
1
1 891 388₽
Работа:882 797 ₽
Материалы:1 008 591 ₽
Дни:23
stdClass Object
(
[id] => 190
[attribute_id] => 3
[name] => Несъемная опалубка
[material_modifier] => 1
[work_modifier] => 1
[options] => Array
(
[0] => 200 мм
[1] => 250 мм
[2] => 300 мм
[3] => 350 мм
)
[days] => [15,17,19,21]
[material_price] => [3302,3902,4108,5008]
[work_price] => [2100,2100,2300,2534]
[image] => https://akademik-stroy.ru/wp-content/uploads/materials/nesemnaya-opalubka.jpg
[area_modifier] => 169.42
[parent_name] => Стены 1 этаж (несущие)
[parent_id] => 3
[material_sum] => 738441
[work_sum] => 391360
[total_sum] => 1129801
[total_days] => 15
[display_material_sum] => 738 441
[display_work_sum] => 391 360
[display_total_sum] => 1 129 801
)
1
1 129 801₽
Работа:391 360 ₽
Материалы:738 441 ₽
Дни:15
stdClass Object
(
[id] => 251
[attribute_id] => 3
[name] => Бревно
[material_modifier] => 1
[work_modifier] => 1
[options] => Array
(
[0] => 260 мм
[1] => 320 мм
[2] => 360 мм
[3] => 400 мм
[4] => 500 мм
)
[days] => [7,8,9,10,11]
[material_price] => [1874,24045,26930,30972,38825]
[work_price] => [5046,6207,6952,7716,9723]
[image] => https://akademik-stroy.ru/wp-content/uploads/materials/sruby.jpg
[area_modifier] => 169.42
[parent_name] => Стены 1 этаж (несущие)
[parent_id] => 3
[material_sum] => 419091
[work_sum] => 940383
[total_sum] => 1359474
[total_days] => 7
[display_material_sum] => 419 091
[display_work_sum] => 940 383
[display_total_sum] => 1 359 474
)
1
1 359 474₽
Работа:940 383 ₽
Материалы:419 091 ₽
Дни:7
stdClass Object
(
[id] => 7
[attribute_id] => 4
[name] => Деревянные балки
[material_modifier] => 1
[work_modifier] => 1
[options] => Array
(
[0] => без утепления
[1] => утепление 200 мм
[2] => утепление 250 мм
[3] => утепление 300 мм
[4] => утепление 350 мм
[5] => утепление 400 мм
[6] => утепление 450 мм
[7] => утепление 500 мм
)
[days] => [8,9,9,9,11,12,13,14]
[material_price] => [1634,2042,2344,2947,3149,3652,3354,3557]
[work_price] => [1230,1339,1393,1426,1460,1513,1587,1620]
[image] => https://akademik-stroy.ru/wp-content/uploads/materials/derevyannye-balki.png
[area_modifier] => 169.42
[parent_name] => Перекрытие первого этажа
[parent_id] => 4
[material_sum] => 365419
[work_sum] => 229225
[total_sum] => 594644
[total_days] => 8
[display_material_sum] => 365 419
[display_work_sum] => 229 225
[display_total_sum] => 594 644
)
1
594 644₽
Работа:229 225 ₽
Материалы:365 419 ₽
Дни:8
stdClass Object
(
[id] => 8
[attribute_id] => 4
[name] => Сборные ж/б плиты
[material_modifier] => 1
[work_modifier] => 1
[options] => Array
(
[0] => без утепления
[1] => утепление 150 мм
[2] => утепление 200 мм
[3] => утепление 250 мм
[4] => утепление 300 мм
[5] => утепление 350 мм
[6] => утепление 400 мм
[7] => утепление 450 мм
[8] => утепление 500 мм
)
[days] => [13,15,15,15,15,15,15,15,15]
[material_price] => [3067,5577,5928,6679,7730,8782,9833,10884,11935]
[work_price] => [1520,1956,2102,2247,2392,2537,2684,2829,2974]
[image] => https://akademik-stroy.ru/wp-content/uploads/materials/sbornye-zh-b-plity-2.jpg
[area_modifier] => 169.42
[parent_name] => Перекрытие первого этажа
[parent_id] => 4
[material_sum] => 685887
[work_sum] => 283270
[total_sum] => 969157
[total_days] => 13
[display_material_sum] => 685 887
[display_work_sum] => 283 270
[display_total_sum] => 969 157
)
1
969 157₽
Работа:283 270 ₽
Материалы:685 887 ₽
Дни:13
stdClass Object
(
[id] => 89
[attribute_id] => 4
[name] => Монолитная ж/б плита
[material_modifier] => 1
[work_modifier] => 1
[options] => Array
(
[0] => без утепления
[1] => утепление 150 мм
[2] => утепление 200 мм
[3] => утепление 250 мм
[4] => утепление 300 мм
[5] => утепление 350 мм
[6] => утепление 400 мм
[7] => утепление 450 мм
[8] => утепление 500 мм
)
[days] => [18,20,20,20,20,20,20,20,20]
[material_price] => [4837,6572,7224,7375,79426,8177,8728,9180,10031]
[work_price] => [3348,3921,4112,4302,4493,4684,4875,5066,5256]
[image] => https://akademik-stroy.ru/wp-content/uploads/materials/monolitnaya-zh-b-plita-2.jpg
[area_modifier] => 169.42
[parent_name] => Перекрытие первого этажа
[parent_id] => 4
[material_sum] => 1081720
[work_sum] => 623940
[total_sum] => 1705660
[total_days] => 18
[display_material_sum] => 1 081 720
[display_work_sum] => 623 940
[display_total_sum] => 1 705 660
)
1
1 705 660₽
Работа:623 940 ₽
Материалы:1 081 720 ₽
Дни:18
stdClass Object
(
[id] => 164
[attribute_id] => 37
[name] => Металлочерепица
[material_modifier] => 1
[work_modifier] => 1
[options] => Array
(
)
[days] => [20]
[material_price] => [6112]
[work_price] => [5726]
[image] => https://akademik-stroy.ru/wp-content/uploads/materials/metallocherepica.jpg
[area_modifier] => 169.42
[parent_name] => Крыша (Скатная)
[parent_id] => 37
[material_sum] => 1366853
[work_sum] => 1067109
[total_sum] => 2433962
[total_days] => 20
[display_material_sum] => 1 366 853
[display_work_sum] => 1 067 109
[display_total_sum] => 2 433 962
)
1
2 433 962₽
Работа:1 067 109 ₽
Материалы:1 366 853 ₽
Дни:20
stdClass Object
(
[id] => 165
[attribute_id] => 37
[name] => Гибкая черепица
[material_modifier] => 1
[work_modifier] => 1
[options] => Array
(
)
[days] => [20]
[material_price] => [6980]
[work_price] => [5950]
[image] => https://akademik-stroy.ru/wp-content/uploads/materials/gibkaya-cherepica.jpg
[area_modifier] => 169.42
[parent_name] => Крыша (Скатная)
[parent_id] => 37
[material_sum] => 1560968
[work_sum] => 1108854
[total_sum] => 2669822
[total_days] => 20
[display_material_sum] => 1 560 968
[display_work_sum] => 1 108 854
[display_total_sum] => 2 669 822
)
1
2 669 822₽
Работа:1 108 854 ₽
Материалы:1 560 968 ₽
Дни:20
stdClass Object
(
[id] => 166
[attribute_id] => 37
[name] => Цементно-песчаная черепица
[material_modifier] => 1
[work_modifier] => 1
[options] => Array
(
)
[days] => [20]
[material_price] => [10560]
[work_price] => [9456]
[image] => https://akademik-stroy.ru/wp-content/uploads/materials/cementno-peschanaya-cherepica.jpg
[area_modifier] => 169.42
[parent_name] => Крыша (Скатная)
[parent_id] => 37
[material_sum] => 2361579
[work_sum] => 1762239
[total_sum] => 4123818
[total_days] => 20
[display_material_sum] => 2 361 579
[display_work_sum] => 1 762 239
[display_total_sum] => 4 123 818
)
1
4 123 818₽
Работа:1 762 239 ₽
Материалы:2 361 579 ₽
Дни:20
stdClass Object
(
[id] => 167
[attribute_id] => 37
[name] => Композитная черепица
[material_modifier] => 1
[work_modifier] => 1
[options] => Array
(
)
[days] => [20]
[material_price] => [9506]
[work_price] => [8905]
[image] => https://akademik-stroy.ru/wp-content/uploads/materials/kompozitnaya-cherepica.jpg
[area_modifier] => 169.42
[parent_name] => Крыша (Скатная)
[parent_id] => 37
[material_sum] => 2125869
[work_sum] => 1659554
[total_sum] => 3785423
[total_days] => 20
[display_material_sum] => 2 125 869
[display_work_sum] => 1 659 554
[display_total_sum] => 3 785 423
)
1
3 785 423₽
Работа:1 659 554 ₽
Материалы:2 125 869 ₽
Дни:20
stdClass Object
(
[id] => 168
[attribute_id] => 37
[name] => Керамическая черепица
[material_modifier] => 1
[work_modifier] => 1
[options] => Array
(
)
[days] => [20]
[material_price] => [12750]
[work_price] => [9456]
[image] => https://akademik-stroy.ru/wp-content/uploads/materials/keramicheskaya-cherepica.jpg
[area_modifier] => 169.42
[parent_name] => Крыша (Скатная)
[parent_id] => 37
[material_sum] => 2851339
[work_sum] => 1762239
[total_sum] => 4613578
[total_days] => 20
[display_material_sum] => 2 851 339
[display_work_sum] => 1 762 239
[display_total_sum] => 4 613 578
)
1
4 613 578₽
Работа:1 762 239 ₽
Материалы:2 851 339 ₽
Дни:20
stdClass Object
(
[id] => 169
[attribute_id] => 37
[name] => Металлическая фальцевая
[material_modifier] => 1
[work_modifier] => 1
[options] => Array
(
)
[days] => [20]
[material_price] => [8550]
[work_price] => [8190]
[image] => https://akademik-stroy.ru/wp-content/uploads/materials/metallicheskaya-falcevaya.jpg
[area_modifier] => 169.42
[parent_name] => Крыша (Скатная)
[parent_id] => 37
[material_sum] => 1912074
[work_sum] => 1526305
[total_sum] => 3438379
[total_days] => 20
[display_material_sum] => 1 912 074
[display_work_sum] => 1 526 305
[display_total_sum] => 3 438 379
)
1
3 438 379₽
Работа:1 526 305 ₽
Материалы:1 912 074 ₽
Дни:20
stdClass Object
(
[id] => 170
[attribute_id] => 37
[name] => Медная фальцевая
[material_modifier] => 1
[work_modifier] => 1
[options] => Array
(
)
[days] => [20]
[material_price] => [20450]
[work_price] => [16750]
[image] => https://akademik-stroy.ru/wp-content/uploads/materials/mednaya-falcevaya.jpg
[area_modifier] => 169.42
[parent_name] => Крыша (Скатная)
[parent_id] => 37
[material_sum] => 4573323
[work_sum] => 3121564
[total_sum] => 7694887
[total_days] => 20
[display_material_sum] => 4 573 323
[display_work_sum] => 3 121 564
[display_total_sum] => 7 694 887
)
1
7 694 887₽
Работа:3 121 564 ₽
Материалы:4 573 323 ₽
Дни:20
stdClass Object
(
[id] => 171
[attribute_id] => 37
[name] => Зеленая кровля
[material_modifier] => 1
[work_modifier] => 1
[options] => Array
(
)
[days] => [20]
[material_price] => [19850]
[work_price] => [16780]
[image] => https://akademik-stroy.ru/wp-content/uploads/materials/zelenaya-krovlya.jpg
[area_modifier] => 169.42
[parent_name] => Крыша (Скатная)
[parent_id] => 37
[material_sum] => 4439143
[work_sum] => 3127154
[total_sum] => 7566297
[total_days] => 20
[display_material_sum] => 4 439 143
[display_work_sum] => 3 127 154
[display_total_sum] => 7 566 297
)
1
7 566 297₽
Работа:3 127 154 ₽
Материалы:4 439 143 ₽
Дни:20
stdClass Object
(
[id] => 172
[attribute_id] => 37
[name] => Профлист
[material_modifier] => 1
[work_modifier] => 1
[options] => Array
(
)
[days] => [20]
[material_price] => [3450]
[work_price] => [3750]
[image] => https://akademik-stroy.ru/wp-content/uploads/materials/proflist.jpg
[area_modifier] => 169.42
[parent_name] => Крыша (Скатная)
[parent_id] => 37
[material_sum] => 771539
[work_sum] => 698858
[total_sum] => 1470397
[total_days] => 20
[display_material_sum] => 771 539
[display_work_sum] => 698 858
[display_total_sum] => 1 470 397
)
1
1 470 397₽
Работа:698 858 ₽
Материалы:771 539 ₽
Дни:20
stdClass Object
(
[id] => 51
[attribute_id] => 26
[name] => Есть
[material_modifier] => 1
[work_modifier] => 1
[options] => Array
(
[0] => Профиль 58 мм, 3-камерный, стеклопакет 2-камерный до 32 мм
[1] => Профиль 60 мм, 4-камерный, стеклопакет 2-камерный до 32 мм
[2] => Профиль 70 мм, 5-камерный, стеклопакет 2-камерный до 40 мм
[3] => Профиль 72 мм, 5-камерный, стеклопакет 2-камерный до 40 мм
[4] => Алюминиевые окна Alutech профиль 72 мм, стеклопакет 2-камерный
)
[days] => [3,3,3,3,3]
[material_price] => [1339,2124,2867,3023,29596]
[work_price] => [635,647,659,668,2579]
[image] => https://akademik-stroy.ru/wp-content/uploads/materials/okna.jpg
[area_modifier] => 137.48
[parent_name] => Окна
[parent_id] => 26
[material_sum] => 242993
[work_sum] => 96030
[total_sum] => 339023
[total_days] => 3
[display_material_sum] => 242 993
[display_work_sum] => 96 030
[display_total_sum] => 339 023
)
1
339 023₽
Работа:96 030 ₽
Материалы:242 993 ₽
Дни:3
stdClass Object
(
[id] => 52
[attribute_id] => 26
[name] => Нет
[material_modifier] => 2
[work_modifier] => 1
[options] =>
[days] => null
[material_price] => null
[work_price] => null
[image] => https://akademik-stroy.ru/wp-content/uploads/materials/okna.jpg
[area_modifier] => 137.48
[parent_name] => Окна
[parent_id] => 26
[material_sum] => 0
[work_sum] => 0
[total_sum] => 0
[total_days] => 0
[display_material_sum] => 0
[display_work_sum] => 0
[display_total_sum] => 0
)
1
0₽
Работа:0 ₽
Материалы:0 ₽
Дни:0
stdClass Object
(
[id] => 53
[attribute_id] => 27
[name] => Есть
[material_modifier] => 1
[work_modifier] => 1
[options] => Array
(
)
[days] => [1]
[material_price] => [10000]
[work_price] => [5500]
[image] => https://akademik-stroy.ru/wp-content/uploads/materials/dveri.jpg
[area_modifier] => 1
[parent_name] => Двери входные
[parent_id] => 27
[material_sum] => 13200
[work_sum] => 6050
[total_sum] => 19250
[total_days] => 1
[display_material_sum] => 13 200
[display_work_sum] => 6 050
[display_total_sum] => 19 250
)
1
19 250₽
Работа:6 050 ₽
Материалы:13 200 ₽
Дни:1
stdClass Object
(
[id] => 54
[attribute_id] => 27
[name] => Нет
[material_modifier] => 1
[work_modifier] => 1
[options] => Array
(
)
[days] => [0]
[material_price] => [0]
[work_price] => [0]
[image] => https://akademik-stroy.ru/wp-content/uploads/materials/dveri.jpg
[area_modifier] => 1
[parent_name] => Двери входные
[parent_id] => 27
[material_sum] => 0
[work_sum] => 0
[total_sum] => 0
[total_days] => 0
[display_material_sum] => 0
[display_work_sum] => 0
[display_total_sum] => 0
)
1
0₽
Работа:0 ₽
Материалы:0 ₽
Дни:0
stdClass Object
(
[id] => 25
[attribute_id] => 13
[name] => Нет
[material_modifier] => 1
[work_modifier] => 1
[options] => Array
(
)
[days] => [0]
[material_price] => [0]
[work_price] => [0]
[image] => https://akademik-stroy.ru/wp-content/uploads/materials/mineralovata-krov.jpg
[area_modifier] => 169.42
[parent_name] => Утепление кровли (Мансарда)
[parent_id] => 13
[material_sum] => 0
[work_sum] => 0
[total_sum] => 0
[total_days] => 0
[display_material_sum] => 0
[display_work_sum] => 0
[display_total_sum] => 0
)
1
0₽
Работа:0 ₽
Материалы:0 ₽
Дни:0
stdClass Object
(
[id] => 26
[attribute_id] => 13
[name] => Минераловатный
[material_modifier] => 1
[work_modifier] => 1
[options] => Array
(
[0] => 50 мм
[1] => 100 мм
[2] => 150 мм
[3] => 200 мм
[4] => 250 мм
[5] => 300 мм
[6] => 350 мм
[7] => 400 мм
[8] => 450 мм
[9] => 500 мм
)
[days] => [5,5,6,6,6,7,7,7,8,8]
[material_price] => [1158,1414,1772,2230,3602,4060,4974,5890,6408,7718]
[work_price] => [650,846,846,1098,1318,1450,1596,1754,1930,2122]
[image] => https://akademik-stroy.ru/wp-content/uploads/materials/mineralovata-krov.jpg
[area_modifier] => 169.42
[parent_name] => Утепление кровли (Мансарда)
[parent_id] => 13
[material_sum] => 258969
[work_sum] => 121135
[total_sum] => 380104
[total_days] => 5
[display_material_sum] => 258 969
[display_work_sum] => 121 135
[display_total_sum] => 380 104
)
1
380 104₽
Работа:121 135 ₽
Материалы:258 969 ₽
Дни:5
stdClass Object
(
[id] => 123
[attribute_id] => 13
[name] => Эковата (целлюлозная вата)
[material_modifier] => 1
[work_modifier] => 1
[options] => Array
(
[0] => 50 мм
[1] => 100 мм
[2] => 150 мм
[3] => 200 мм
[4] => 250 мм
[5] => 300 мм
[6] => 350 мм
[7] => 400 мм
[8] => 450 мм
[9] => 500 мм
)
[days] => [3,3,4,4,4,5,5,5,5,5]
[material_price] => [820,1638,2458,3276,5734,6552,8190,9828,11466,13104]
[work_price] => [234,304,304,396,474,522,574,632,694,764]
[image] => https://akademik-stroy.ru/wp-content/uploads/materials/ehkovata-krov.jpg
[area_modifier] => 169.42
[parent_name] => Утепление кровли (Мансарда)
[parent_id] => 13
[material_sum] => 183380
[work_sum] => 43609
[total_sum] => 226989
[total_days] => 3
[display_material_sum] => 183 380
[display_work_sum] => 43 609
[display_total_sum] => 226 989
)
1
226 989₽
Работа:43 609 ₽
Материалы:183 380 ₽
Дни:3
stdClass Object
(
[id] => 124
[attribute_id] => 13
[name] => Экструдированный пенополистирол
[material_modifier] => 1
[work_modifier] => 1
[options] => Array
(
[0] => 50 мм
[1] => 100 мм
[2] => 150 мм
[3] => 200 мм
[4] => 250 мм
[5] => 300 мм
[6] => 350 мм
[7] => 400 мм
[8] => 450 мм
[9] => 500 мм
)
[days] => [3,3,4,4,4,5,5,5,5,6]
[material_price] => [1146,2292,3438,4584,8020,9166,11458,13750,16040,18332]
[work_price] => [390,508,508,660,790,870,958,1052,1158,1274]
[image] => https://akademik-stroy.ru/wp-content/uploads/materials/epps-krov.jpg
[area_modifier] => 169.42
[parent_name] => Утепление кровли (Мансарда)
[parent_id] => 13
[material_sum] => 256285
[work_sum] => 72681
[total_sum] => 328966
[total_days] => 3
[display_material_sum] => 256 285
[display_work_sum] => 72 681
[display_total_sum] => 328 966
)
1
328 966₽
Работа:72 681 ₽
Материалы:256 285 ₽
Дни:3
stdClass Object
(
[id] => 125
[attribute_id] => 13
[name] => ПСБ (ППС-пенополистирол)
[material_modifier] => 1
[work_modifier] => 1
[options] => Array
(
[0] => 50 мм
[1] => 100 мм
[2] => 150 мм
[3] => 200 мм
[4] => 250 мм
[5] => 300 мм
[6] => 350 мм
[7] => 400 мм
[8] => 450 мм
[9] => 500 мм
)
[days] => [3,3,4,4,4,5,5,5,5,6]
[material_price] => [476,954,1430,1906,3336,3814,4766,5720,6674,7626]
[work_price] => [390,508,508,660,790,870,958,1052,1158,1274]
[image] => https://akademik-stroy.ru/wp-content/uploads/materials/psb-krov.jpg
[area_modifier] => 169.42
[parent_name] => Утепление кровли (Мансарда)
[parent_id] => 13
[material_sum] => 106450
[work_sum] => 72681
[total_sum] => 179131
[total_days] => 3
[display_material_sum] => 106 450
[display_work_sum] => 72 681
[display_total_sum] => 179 131
)
1
179 131₽
Работа:72 681 ₽
Материалы:106 450 ₽
Дни:3
stdClass Object
(
[id] => 126
[attribute_id] => 13
[name] => ППУ (Пенополиуретан)
[material_modifier] => 1
[work_modifier] => 1
[options] => Array
(
[0] => 50 мм
[1] => 100 мм
[2] => 150 мм
[3] => 200 мм
[4] => 250 мм
[5] => 300 мм
[6] => 350 мм
[7] => 400 мм
[8] => 450 мм
[9] => 500 мм
)
[days] => [2,2,3,3,3,3,4,4,4,4]
[material_price] => [2080,4160,6240,8320,14560,16640,20800,24960,29120,33280]
[work_price] => [234,304,304,396,474,522,574,632,694,764]
[image] => https://akademik-stroy.ru/wp-content/uploads/materials/ppu-krov.jpg
[area_modifier] => 169.42
[parent_name] => Утепление кровли (Мансарда)
[parent_id] => 13
[material_sum] => 465160
[work_sum] => 43609
[total_sum] => 508769
[total_days] => 2
[display_material_sum] => 465 160
[display_work_sum] => 43 609
[display_total_sum] => 508 769
)
1
508 769₽
Работа:43 609 ₽
Материалы:465 160 ₽
Дни:2
stdClass Object
(
[id] => 127
[attribute_id] => 13
[name] => PIR-плиты (пенополиизоцианурат)
[material_modifier] => 1
[work_modifier] => 1
[options] => Array
(
[0] => 50 мм
[1] => 100 мм
[2] => 150 мм
[3] => 200 мм
[4] => 250 мм
[5] => 300 мм
[6] => 350 мм
[7] => 400 мм
[8] => 450 мм
[9] => 500 мм
)
[days] => [3,3,4,4,4,5,5,5,5,6]
[material_price] => [2646,5290,7936,10580,18516,21162,26452,31742,37032,42324]
[work_price] => [390,508,508,660,790,870,958,1052,1158,1274]
[image] => https://akademik-stroy.ru/wp-content/uploads/materials/pir-krov.jpg
[area_modifier] => 169.42
[parent_name] => Утепление кровли (Мансарда)
[parent_id] => 13
[material_sum] => 591737
[work_sum] => 72681
[total_sum] => 664418
[total_days] => 3
[display_material_sum] => 591 737
[display_work_sum] => 72 681
[display_total_sum] => 664 418
)
1
664 418₽
Работа:72 681 ₽
Материалы:591 737 ₽
Дни:3
stdClass Object
(
[id] => 27
[attribute_id] => 14
[name] => Нет
[material_modifier] => 1
[work_modifier] => 1
[options] => Array
(
)
[days] => [0]
[material_price] => [0]
[work_price] => [0]
[image] => https://akademik-stroy.ru/wp-content/uploads/materials/mansardnye-okna-2.jpg
[area_modifier] => 1
[parent_name] => Мансардные окна
[parent_id] => 14
[material_sum] => 0
[work_sum] => 0
[total_sum] => 0
[total_days] => 0
[display_material_sum] => 0
[display_work_sum] => 0
[display_total_sum] => 0
)
1
0₽
Работа:0 ₽
Материалы:0 ₽
Дни:0
stdClass Object
(
[id] => 28
[attribute_id] => 14
[name] => Есть
[material_modifier] => 1
[work_modifier] => 1
[options] => Array
(
[0] => 55x78
[1] => 55x98
)
[days] => [6,7]
[material_price] => [47480,68700]
[work_price] => [17900,19500]
[image] => https://akademik-stroy.ru/wp-content/uploads/materials/mansardnye-okna-2.jpg
[area_modifier] => 1
[parent_name] => Мансардные окна
[parent_id] => 14
[material_sum] => 62674
[work_sum] => 19690
[total_sum] => 82364
[total_days] => 6
[display_material_sum] => 62 674
[display_work_sum] => 19 690
[display_total_sum] => 82 364
)
1
82 364₽
Работа:19 690 ₽
Материалы:62 674 ₽
Дни:6
stdClass Object
(
[id] => 29
[attribute_id] => 15
[name] => Нет
[material_modifier] => 1
[work_modifier] => 1
[options] => Array
(
)
[days] => [0]
[material_price] => [0]
[work_price] => [0]
[image] => https://akademik-stroy.ru/wp-content/uploads/materials/sofit.jpg
[area_modifier] => 169.42
[parent_name] => Подшивка кровли
[parent_id] => 15
[material_sum] => 0
[work_sum] => 0
[total_sum] => 0
[total_days] => 0
[display_material_sum] => 0
[display_work_sum] => 0
[display_total_sum] => 0
)
1
0₽
Работа:0 ₽
Материалы:0 ₽
Дни:0
stdClass Object
(
[id] => 30
[attribute_id] => 15
[name] => Есть
[material_modifier] => 1
[work_modifier] => 1
[options] => Array
(
[0] => Софиты (ПВХ)
[1] => Cedral
[2] => ДПК
[3] => Планкен
)
[days] => [7,10,9,8]
[material_price] => [1803,3213,3025,3150]
[work_price] => [1529,2188,2075,1923]
[image] => https://akademik-stroy.ru/wp-content/uploads/materials/sofit.jpg
[area_modifier] => 169.42
[parent_name] => Подшивка кровли
[parent_id] => 15
[material_sum] => 403213
[work_sum] => 284947
[total_sum] => 688160
[total_days] => 7
[display_material_sum] => 403 213
[display_work_sum] => 284 947
[display_total_sum] => 688 160
)
1
688 160₽
Работа:284 947 ₽
Материалы:403 213 ₽
Дни:7
stdClass Object
(
[id] => 31
[attribute_id] => 16
[name] => Нет
[material_modifier] => 1
[work_modifier] => 1
[options] => Array
(
)
[days] => [0]
[material_price] => [0]
[work_price] => [0]
[image] => https://akademik-stroy.ru/wp-content/uploads/materials/docke-standard-pvh.jpg
[area_modifier] => 169.42
[parent_name] => Водосточная система
[parent_id] => 16
[material_sum] => 0
[work_sum] => 0
[total_sum] => 0
[total_days] => 0
[display_material_sum] => 0
[display_work_sum] => 0
[display_total_sum] => 0
)
1
0₽
Работа:0 ₽
Материалы:0 ₽
Дни:0
stdClass Object
(
[id] => 32
[attribute_id] => 16
[name] => Есть
[material_modifier] => 1
[work_modifier] => 1
[options] => Array
(
[0] => Döcke Standard (ПВХ)
[1] => Металлические Grand Line
)
[days] => [7,7]
[material_price] => [1842,2703]
[work_price] => [1491,1529]
[image] => https://akademik-stroy.ru/wp-content/uploads/materials/docke-standard-pvh.jpg
[area_modifier] => 169.42
[parent_name] => Водосточная система
[parent_id] => 16
[material_sum] => 411935
[work_sum] => 277866
[total_sum] => 689801
[total_days] => 7
[display_material_sum] => 411 935
[display_work_sum] => 277 866
[display_total_sum] => 689 801
)
1
689 801₽
Работа:277 866 ₽
Материалы:411 935 ₽
Дни:7
stdClass Object
(
[id] => 33
[attribute_id] => 17
[name] => Нет
[material_modifier] => 1
[work_modifier] => 1
[options] => Array
(
)
[days] => [0]
[material_price] => [0]
[work_price] => [0]
[image] => https://akademik-stroy.ru/wp-content/uploads/materials/mineralovata.jpg
[area_modifier] => 169.42
[parent_name] => Дополнительное утепление наружных стен
[parent_id] => 17
[material_sum] => 0
[work_sum] => 0
[total_sum] => 0
[total_days] => 0
[display_material_sum] => 0
[display_work_sum] => 0
[display_total_sum] => 0
)
1
0₽
Работа:0 ₽
Материалы:0 ₽
Дни:0
stdClass Object
(
[id] => 34
[attribute_id] => 17
[name] => Минераловатный
[material_modifier] => 1
[work_modifier] => 1
[options] => Array
(
[0] => 50 мм
[1] => 100 мм
[2] => 150 мм
[3] => 200 мм
[4] => 250 мм
[5] => 300 мм
)
[days] => [7,8,10,12,14,15]
[material_price] => [3437,3613,3803,3915,4601,4830]
[work_price] => [2325,2423,2523,2749,2859,3025]
[image] => https://akademik-stroy.ru/wp-content/uploads/materials/mineralovata.jpg
[area_modifier] => 169.42
[parent_name] => Дополнительное утепление наружных стен
[parent_id] => 17
[material_sum] => 768631
[work_sum] => 433292
[total_sum] => 1201923
[total_days] => 7
[display_material_sum] => 768 631
[display_work_sum] => 433 292
[display_total_sum] => 1 201 923
)
1
1 201 923₽
Работа:433 292 ₽
Материалы:768 631 ₽
Дни:7
stdClass Object
(
[id] => 128
[attribute_id] => 17
[name] => Эковата (целлюлозная вата)
[material_modifier] => 1
[work_modifier] => 1
[options] => Array
(
[0] => 50 мм
[1] => 100 мм
[2] => 150 мм
[3] => 200 мм
[4] => 250 мм
[5] => 300 мм
)
[days] => [3,4,5,6,7,8]
[material_price] => [810,1319,1629,1838,2267,2676]
[work_price] => [1225,1323,1423,1549,1659,1725]
[image] => https://akademik-stroy.ru/wp-content/uploads/materials/ehkovata.jpg
[area_modifier] => 169.42
[parent_name] => Дополнительное утепление наружных стен
[parent_id] => 17
[material_sum] => 181144
[work_sum] => 228293
[total_sum] => 409437
[total_days] => 3
[display_material_sum] => 181 144
[display_work_sum] => 228 293
[display_total_sum] => 409 437
)
1
409 437₽
Работа:228 293 ₽
Материалы:181 144 ₽
Дни:3
stdClass Object
(
[id] => 129
[attribute_id] => 17
[name] => Экструдированный пенополистирол
[material_modifier] => 1
[work_modifier] => 1
[options] => Array
(
[0] => 50 мм
[1] => 100 мм
[2] => 150 мм
[3] => 200 мм
[4] => 250 мм
[5] => 300 мм
)
[days] => [5,6,7,8,9,10]
[material_price] => [4560,4300,5119,6292,7010,8583]
[work_price] => [1795,1954,2254,2330,2595,2735]
[image] => https://akademik-stroy.ru/wp-content/uploads/materials/epps.jpg
[area_modifier] => 169.42
[parent_name] => Дополнительное утепление наружных стен
[parent_id] => 17
[material_sum] => 1019773
[work_sum] => 334520
[total_sum] => 1354293
[total_days] => 5
[display_material_sum] => 1 019 773
[display_work_sum] => 334 520
[display_total_sum] => 1 354 293
)
1
1 354 293₽
Работа:334 520 ₽
Материалы:1 019 773 ₽
Дни:5
stdClass Object
(
[id] => 130
[attribute_id] => 17
[name] => ПСБ (ППС-пенополистирол)
[material_modifier] => 1
[work_modifier] => 1
[options] => Array
(
[0] => 50 мм
[1] => 100 мм
[2] => 150 мм
[3] => 200 мм
[4] => 250 мм
[5] => 300 мм
)
[days] => [5,6,7,8,9,10]
[material_price] => [4822,5200,5819,6292,7010,7583]
[work_price] => [1795,1954,2254,2330,2595,2735]
[image] => https://akademik-stroy.ru/wp-content/uploads/materials/psb.jpg
[area_modifier] => 169.42
[parent_name] => Дополнительное утепление наружных стен
[parent_id] => 17
[material_sum] => 1078365
[work_sum] => 334520
[total_sum] => 1412885
[total_days] => 5
[display_material_sum] => 1 078 365
[display_work_sum] => 334 520
[display_total_sum] => 1 412 885
)
1
1 412 885₽
Работа:334 520 ₽
Материалы:1 078 365 ₽
Дни:5
stdClass Object
(
[id] => 131
[attribute_id] => 17
[name] => ППУ (Пенополиуретан)
[material_modifier] => 1
[work_modifier] => 1
[options] => Array
(
[0] => 50 мм
[1] => 100 мм
[2] => 150 мм
[3] => 200 мм
[4] => 250 мм
[5] => 300 мм
)
[days] => [3,4,5,6,7,8]
[material_price] => [2860,3400,4219,4592,5010,5583]
[work_price] => [729,900,980,1120,1280,1530]
[image] => https://akademik-stroy.ru/wp-content/uploads/materials/ppu.jpg
[area_modifier] => 169.42
[parent_name] => Дополнительное утепление наружных стен
[parent_id] => 17
[material_sum] => 639594
[work_sum] => 135858
[total_sum] => 775452
[total_days] => 3
[display_material_sum] => 639 594
[display_work_sum] => 135 858
[display_total_sum] => 775 452
)
1
775 452₽
Работа:135 858 ₽
Материалы:639 594 ₽
Дни:3
stdClass Object
(
[id] => 132
[attribute_id] => 17
[name] => PIR-плиты (пенополиизоцианурат)
[material_modifier] => 1
[work_modifier] => 1
[options] => Array
(
[0] => 50 мм
[1] => 100 мм
[2] => 150 мм
[3] => 200 мм
[4] => 250 мм
[5] => 300 мм
)
[days] => [5,6,7,8,9,10]
[material_price] => [8323,15645,20968,25900,29258,30581]
[work_price] => [800,900,970,1150,1280,1330]
[image] => https://akademik-stroy.ru/wp-content/uploads/materials/pir.jpg
[area_modifier] => 169.42
[parent_name] => Дополнительное утепление наружных стен
[parent_id] => 17
[material_sum] => 1861309
[work_sum] => 149090
[total_sum] => 2010399
[total_days] => 5
[display_material_sum] => 1 861 309
[display_work_sum] => 149 090
[display_total_sum] => 2 010 399
)
1
2 010 399₽
Работа:149 090 ₽
Материалы:1 861 309 ₽
Дни:5
stdClass Object
(
[id] => 37
[attribute_id] => 19
[name] => Нет
[material_modifier] => 1
[work_modifier] => 1
[options] => Array
(
)
[days] => [0]
[material_price] => [0]
[work_price] => [0]
[image] => https://akademik-stroy.ru/wp-content/uploads/materials/imitaciya-brusa.jpg
[area_modifier] => 169.42
[parent_name] => Наружная отделка фасада
[parent_id] => 19
[material_sum] => 0
[work_sum] => 0
[total_sum] => 0
[total_days] => 0
[display_material_sum] => 0
[display_work_sum] => 0
[display_total_sum] => 0
)
1
0₽
Работа:0 ₽
Материалы:0 ₽
Дни:0
stdClass Object
(
[id] => 38
[attribute_id] => 19
[name] => Имитация бруса
[material_modifier] => 1
[work_modifier] => 1
[options] => Array
(
[0] => Сосна
[1] => Ель
[2] => Лиственница
)
[days] => [20,20,20]
[material_price] => [2994,2762,4954]
[work_price] => [1397,1231,1577]
[image] => https://akademik-stroy.ru/wp-content/uploads/materials/imitaciya-brusa.jpg
[area_modifier] => 169.42
[parent_name] => Наружная отделка фасада
[parent_id] => 19
[material_sum] => 669561
[work_sum] => 260348
[total_sum] => 929909
[total_days] => 20
[display_material_sum] => 669 561
[display_work_sum] => 260 348
[display_total_sum] => 929 909
)
1
929 909₽
Работа:260 348 ₽
Материалы:669 561 ₽
Дни:20
stdClass Object
(
[id] => 136
[attribute_id] => 19
[name] => Планкен
[material_modifier] => 1
[work_modifier] => 1
[options] => Array
(
[0] => Сосна
[1] => Ель
[2] => Лиственница
)
[days] => [20,20,20]
[material_price] => [3194,2862,5154]
[work_price] => [1537,1354,1735]
[image] => https://akademik-stroy.ru/wp-content/uploads/materials/planken.jpg
[area_modifier] => 169.42
[parent_name] => Наружная отделка фасада
[parent_id] => 19
[material_sum] => 714288
[work_sum] => 286438
[total_sum] => 1000726
[total_days] => 20
[display_material_sum] => 714 288
[display_work_sum] => 286 438
[display_total_sum] => 1 000 726
)
1
1 000 726₽
Работа:286 438 ₽
Материалы:714 288 ₽
Дни:20
stdClass Object
(
[id] => 137
[attribute_id] => 19
[name] => Штукатурка
[material_modifier] => 1
[work_modifier] => 1
[options] => Array
(
[0] => Цементно-песчаная (минеральная)
[1] => Мокрый фасад
)
[days] => [35,35]
[material_price] => [2231,3938]
[work_price] => [1202,2422]
[image] => https://akademik-stroy.ru/wp-content/uploads/materials/shtukaturka.jpg
[area_modifier] => 169.42
[parent_name] => Наружная отделка фасада
[parent_id] => 19
[material_sum] => 498928
[work_sum] => 224007
[total_sum] => 722935
[total_days] => 35
[display_material_sum] => 498 928
[display_work_sum] => 224 007
[display_total_sum] => 722 935
)
1
722 935₽
Работа:224 007 ₽
Материалы:498 928 ₽
Дни:35
stdClass Object
(
[id] => 138
[attribute_id] => 19
[name] => Облицовочный кирпич
[material_modifier] => 1
[work_modifier] => 1
[options] => Array
(
[0] => Керамический
[1] => Клинкерный
[2] => Ручной формовки
[3] => Гиперпрессованный
[4] => Силикатный кирпич
)
[days] => [45,45,45,45,45]
[material_price] => [8174,9148,1040,1257,5876]
[work_price] => [3240,3758,4536,4017,3369]
[image] => https://akademik-stroy.ru/wp-content/uploads/materials/oblicovochnyj-kirpich.jpg
[area_modifier] => 169.42
[parent_name] => Наружная отделка фасада
[parent_id] => 19
[material_sum] => 1827988
[work_sum] => 603813
[total_sum] => 2431801
[total_days] => 45
[display_material_sum] => 1 827 988
[display_work_sum] => 603 813
[display_total_sum] => 2 431 801
)
1
2 431 801₽
Работа:603 813 ₽
Материалы:1 827 988 ₽
Дни:45
stdClass Object
(
[id] => 139
[attribute_id] => 19
[name] => Фасадная плитка
[material_modifier] => 1
[work_modifier] => 1
[options] => Array
(
[0] => Клинкерная
[1] => Керамическая
[2] => Плитка ручной формовки
)
[days] => [40,40,40]
[material_price] => [2974,1487,3470]
[work_price] => [3007,2592,3629]
[image] => https://akademik-stroy.ru/wp-content/uploads/materials/fasadnaya-plitka.jpg
[area_modifier] => 169.42
[parent_name] => Наружная отделка фасада
[parent_id] => 19
[material_sum] => 665089
[work_sum] => 560391
[total_sum] => 1225480
[total_days] => 40
[display_material_sum] => 665 089
[display_work_sum] => 560 391
[display_total_sum] => 1 225 480
)
1
1 225 480₽
Работа:560 391 ₽
Материалы:665 089 ₽
Дни:40
stdClass Object
(
[id] => 140
[attribute_id] => 19
[name] => Сайдинг
[material_modifier] => 1
[work_modifier] => 1
[options] => Array
(
[0] => Виниловый
[1] => Металлический
[2] => Фиброцементный
)
[days] => [20,20,20]
[material_price] => [1263,1944,4147]
[work_price] => [1263,1944,2074]
[image] => https://akademik-stroy.ru/wp-content/uploads/materials/sajding.jpg
[area_modifier] => 169.42
[parent_name] => Наружная отделка фасада
[parent_id] => 19
[material_sum] => 282450
[work_sum] => 235375
[total_sum] => 517825
[total_days] => 20
[display_material_sum] => 282 450
[display_work_sum] => 235 375
[display_total_sum] => 517 825
)
1
517 825₽
Работа:235 375 ₽
Материалы:282 450 ₽
Дни:20
stdClass Object
(
[id] => 141
[attribute_id] => 19
[name] => Камень
[material_modifier] => 1
[work_modifier] => 1
[options] => Array
(
[0] => Травертин
[1] => Дагестанский
[2] => Искусственный
[3] => Натуральный
[4] => Керамогранит
)
[days] => [45,45,45,45,45]
[material_price] => [4536,3888,2592,3240,2462]
[work_price] => [3240,3240,2462,3110,1944]
[image] => https://akademik-stroy.ru/wp-content/uploads/materials/kamen-1.jpg
[area_modifier] => 169.42
[parent_name] => Наружная отделка фасада
[parent_id] => 19
[material_sum] => 1014406
[work_sum] => 603813
[total_sum] => 1618219
[total_days] => 45
[display_material_sum] => 1 014 406
[display_work_sum] => 603 813
[display_total_sum] => 1 618 219
)
1
1 618 219₽
Работа:603 813 ₽
Материалы:1 014 406 ₽
Дни:45
stdClass Object
(
[id] => 142
[attribute_id] => 19
[name] => Термопанели
[material_modifier] => 1
[work_modifier] => 1
[options] => Array
(
)
[days] => [20]
[material_price] => [6221]
[work_price] => [2333]
[image] => https://akademik-stroy.ru/wp-content/uploads/materials/termo.png
[area_modifier] => 169.42
[parent_name] => Наружная отделка фасада
[parent_id] => 19
[material_sum] => 1391230
[work_sum] => 434783
[total_sum] => 1826013
[total_days] => 20
[display_material_sum] => 1 391 230
[display_work_sum] => 434 783
[display_total_sum] => 1 826 013
)
1
1 826 013₽
Работа:434 783 ₽
Материалы:1 391 230 ₽
Дни:20
stdClass Object
(
[id] => 143
[attribute_id] => 19
[name] => Плитка HAUBERK
[material_modifier] => 1
[work_modifier] => 1
[options] => Array
(
)
[days] => [20]
[material_price] => [2786]
[work_price] => [1944]
[image] => https://akademik-stroy.ru/wp-content/uploads/materials/hauberk.jpg
[area_modifier] => 169.42
[parent_name] => Наружная отделка фасада
[parent_id] => 19
[material_sum] => 623045
[work_sum] => 362288
[total_sum] => 985333
[total_days] => 20
[display_material_sum] => 623 045
[display_work_sum] => 362 288
[display_total_sum] => 985 333
)
1
985 333₽
Работа:362 288 ₽
Материалы:623 045 ₽
Дни:20
stdClass Object
(
[id] => 144
[attribute_id] => 19
[name] => Фальцевый фасад
[material_modifier] => 1
[work_modifier] => 1
[options] => Array
(
)
[days] => [20]
[material_price] => [3240]
[work_price] => [2592]
[image] => https://akademik-stroy.ru/wp-content/uploads/materials/falcevyj-fasad.jpg
[area_modifier] => 169.42
[parent_name] => Наружная отделка фасада
[parent_id] => 19
[material_sum] => 724575
[work_sum] => 483050
[total_sum] => 1207625
[total_days] => 20
[display_material_sum] => 724 575
[display_work_sum] => 483 050
[display_total_sum] => 1 207 625
)
1
1 207 625₽
Работа:483 050 ₽
Материалы:724 575 ₽
Дни:20
stdClass Object
(
[id] => 145
[attribute_id] => 19
[name] => Комбинированный
[material_modifier] => 1
[work_modifier] => 1
[options] => Array
(
)
[days] => [20]
[material_price] => [4629]
[work_price] => [3499]
[image] => https://akademik-stroy.ru/wp-content/uploads/materials/Kombinirovannyj.jpg
[area_modifier] => 169.42
[parent_name] => Наружная отделка фасада
[parent_id] => 19
[material_sum] => 1035204
[work_sum] => 652081
[total_sum] => 1687285
[total_days] => 20
[display_material_sum] => 1 035 204
[display_work_sum] => 652 081
[display_total_sum] => 1 687 285
)
1
1 687 285₽
Работа:652 081 ₽
Материалы:1 035 204 ₽
Дни:20
stdClass Object
(
[id] => 257
[attribute_id] => 19
[name] => Японские фиброцементные
[material_modifier] => 1
[work_modifier] => 1
[options] => Array
(
)
[days] => [20]
[material_price] => [7043]
[work_price] => [2993]
[image] => https://akademik-stroy.ru/wp-content/uploads/materials/paneli.jpg
[area_modifier] => 169.42
[parent_name] => Наружная отделка фасада
[parent_id] => 19
[material_sum] => 1575057
[work_sum] => 557781
[total_sum] => 2132838
[total_days] => 20
[display_material_sum] => 1 575 057
[display_work_sum] => 557 781
[display_total_sum] => 2 132 838
)
1
2 132 838₽
Работа:557 781 ₽
Материалы:1 575 057 ₽
Дни:20
stdClass Object
(
[id] => 258
[attribute_id] => 19
[name] => Панели Каньон
[material_modifier] => 1
[work_modifier] => 1
[options] => Array
(
)
[days] => [20]
[material_price] => [4543]
[work_price] => [2592]
[image] => https://akademik-stroy.ru/wp-content/uploads/materials/kanon.png
[area_modifier] => 169.42
[parent_name] => Наружная отделка фасада
[parent_id] => 19
[material_sum] => 1015971
[work_sum] => 483050
[total_sum] => 1499021
[total_days] => 20
[display_material_sum] => 1 015 971
[display_work_sum] => 483 050
[display_total_sum] => 1 499 021
)
1
1 499 021₽
Работа:483 050 ₽
Материалы:1 015 971 ₽
Дни:20
stdClass Object
(
[id] => 39
[attribute_id] => 20
[name] => Нет
[material_modifier] => 1
[work_modifier] => 1
[options] => Array
(
)
[days] => [0]
[material_price] => [0]
[work_price] => [0]
[image] => https://akademik-stroy.ru/wp-content/uploads/materials/terrasy.jpg
[area_modifier] => 30
[parent_name] => Террасы, крыльца, навесы
[parent_id] => 20
[material_sum] => 0
[work_sum] => 0
[total_sum] => 0
[total_days] => 0
[display_material_sum] => 0
[display_work_sum] => 0
[display_total_sum] => 0
)
1
0₽
Работа:0 ₽
Материалы:0 ₽
Дни:0
stdClass Object
(
[id] => 40
[attribute_id] => 20
[name] => Есть
[material_modifier] => 1
[work_modifier] => 1
[options] => Array
(
)
[days] => [5]
[material_price] => [10450]
[work_price] => [1950]
[image] => https://akademik-stroy.ru/wp-content/uploads/materials/terrasy.jpg
[area_modifier] => 30
[parent_name] => Террасы, крыльца, навесы
[parent_id] => 20
[material_sum] => 413820
[work_sum] => 64350
[total_sum] => 478170
[total_days] => 5
[display_material_sum] => 413 820
[display_work_sum] => 64 350
[display_total_sum] => 478 170
)
1
478 170₽
Работа:64 350 ₽
Материалы:413 820 ₽
Дни:5
stdClass Object
(
[id] => 41
[attribute_id] => 21
[name] => Нет
[material_modifier] => 1
[work_modifier] => 1
[options] => Array
(
)
[days] => [0]
[material_price] => [0]
[work_price] => [0]
[image] => https://akademik-stroy.ru/wp-content/uploads/materials/balkony.jpg
[area_modifier] => 30
[parent_name] => Балконы
[parent_id] => 21
[material_sum] => 0
[work_sum] => 0
[total_sum] => 0
[total_days] => 0
[display_material_sum] => 0
[display_work_sum] => 0
[display_total_sum] => 0
)
1
0₽
Работа:0 ₽
Материалы:0 ₽
Дни:0
stdClass Object
(
[id] => 42
[attribute_id] => 21
[name] => Есть
[material_modifier] => 1
[work_modifier] => 1
[options] => Array
(
)
[days] => [12]
[material_price] => [3600]
[work_price] => [1950]
[image] => https://akademik-stroy.ru/wp-content/uploads/materials/balkony.jpg
[area_modifier] => 30
[parent_name] => Балконы
[parent_id] => 21
[material_sum] => 142560
[work_sum] => 64350
[total_sum] => 206910
[total_days] => 12
[display_material_sum] => 142 560
[display_work_sum] => 64 350
[display_total_sum] => 206 910
)
1
206 910₽
Работа:64 350 ₽
Материалы:142 560 ₽
Дни:12
stdClass Object
(
[id] => 43
[attribute_id] => 22
[name] => Нет
[material_modifier] => 1
[work_modifier] => 1
[options] => Array
(
)
[days] => [0]
[material_price] => [0]
[work_price] => [0]
[image] => https://akademik-stroy.ru/wp-content/uploads/materials/uteplennaya.jpg
[area_modifier] => 169.42
[parent_name] => Отмостка
[parent_id] => 22
[material_sum] => 0
[work_sum] => 0
[total_sum] => 0
[total_days] => 0
[display_material_sum] => 0
[display_work_sum] => 0
[display_total_sum] => 0
)
1
0₽
Работа:0 ₽
Материалы:0 ₽
Дни:0
stdClass Object
(
[id] => 44
[attribute_id] => 22
[name] => Утепленная отмостка
[material_modifier] => 1
[work_modifier] => 1
[options] => Array
(
)
[days] => [15]
[material_price] => [2550]
[work_price] => [1750]
[image] => https://akademik-stroy.ru/wp-content/uploads/materials/uteplennaya.jpg
[area_modifier] => 169.42
[parent_name] => Отмостка
[parent_id] => 22
[material_sum] => 570268
[work_sum] => 326134
[total_sum] => 896402
[total_days] => 15
[display_material_sum] => 570 268
[display_work_sum] => 326 134
[display_total_sum] => 896 402
)
1
896 402₽
Работа:326 134 ₽
Материалы:570 268 ₽
Дни:15
stdClass Object
(
[id] => 146
[attribute_id] => 22
[name] => Не утепленная отмостка
[material_modifier] => 1
[work_modifier] => 1
[options] => Array
(
)
[days] => [10]
[material_price] => [1650]
[work_price] => [1450]
[image] => https://akademik-stroy.ru/wp-content/uploads/materials/ne-uteplennaya.jpg
[area_modifier] => 169.42
[parent_name] => Отмостка
[parent_id] => 22
[material_sum] => 368997
[work_sum] => 270225
[total_sum] => 639222
[total_days] => 10
[display_material_sum] => 368 997
[display_work_sum] => 270 225
[display_total_sum] => 639 222
)
1
639 222₽
Работа:270 225 ₽
Материалы:368 997 ₽
Дни:10
stdClass Object
(
[id] => 45
[attribute_id] => 23
[name] => Нет
[material_modifier] => 1
[work_modifier] => 1
[options] => Array
(
)
[days] => [0]
[material_price] => [0]
[work_price] => [0]
[image] => https://akademik-stroy.ru/wp-content/uploads/materials/drenazh-2.jpg
[area_modifier] => 169.42
[parent_name] => Дренаж вокруг дома
[parent_id] => 23
[material_sum] => 0
[work_sum] => 0
[total_sum] => 0
[total_days] => 0
[display_material_sum] => 0
[display_work_sum] => 0
[display_total_sum] => 0
)
1
0₽
Работа:0 ₽
Материалы:0 ₽
Дни:0
stdClass Object
(
[id] => 46
[attribute_id] => 23
[name] => Есть
[material_modifier] => 1
[work_modifier] => 1
[options] => Array
(
)
[days] => [5]
[material_price] => [2366]
[work_price] => [1911]
[image] => https://akademik-stroy.ru/wp-content/uploads/materials/drenazh-2.jpg
[area_modifier] => 169.42
[parent_name] => Дренаж вокруг дома
[parent_id] => 23
[material_sum] => 529119
[work_sum] => 356138
[total_sum] => 885257
[total_days] => 5
[display_material_sum] => 529 119
[display_work_sum] => 356 138
[display_total_sum] => 885 257
)
1
885 257₽
Работа:356 138 ₽
Материалы:529 119 ₽
Дни:5
stdClass Object
(
[id] => 47
[attribute_id] => 24
[name] => Нет
[material_modifier] => 1
[work_modifier] => 1
[options] => Array
(
)
[days] => [0]
[material_price] => [0]
[work_price] => [0]
[image] => https://akademik-stroy.ru/wp-content/uploads/materials/septik.jpg
[area_modifier] => 1
[parent_name] => Автономная канализация (септики)
[parent_id] => 24
[material_sum] => 0
[work_sum] => 0
[total_sum] => 0
[total_days] => 0
[display_material_sum] => 0
[display_work_sum] => 0
[display_total_sum] => 0
)
1
0₽
Работа:0 ₽
Материалы:0 ₽
Дни:0
stdClass Object
(
[id] => 48
[attribute_id] => 24
[name] => Есть
[material_modifier] => 1
[work_modifier] => 1
[options] => Array
(
[0] => Для дачи на 4 человека
[1] => Для дома на 5 человек
[2] => Для дома на 6 человек
[3] => Для дома на 7 человек
[4] => Для дома на 10 человек
)
[days] => [7,7,7,8,8]
[material_price] => [196340,220500,240940,264200,293340]
[work_price] => [50000,55000,60500,66550,73206]
[image] => https://akademik-stroy.ru/wp-content/uploads/materials/septik.jpg
[area_modifier] => 1
[parent_name] => Автономная канализация (септики)
[parent_id] => 24
[material_sum] => 259169
[work_sum] => 55000
[total_sum] => 314169
[total_days] => 7
[display_material_sum] => 259 169
[display_work_sum] => 55 000
[display_total_sum] => 314 169
)
1
314 169₽
Работа:55 000 ₽
Материалы:259 169 ₽
Дни:7
stdClass Object
(
[id] => 49
[attribute_id] => 25
[name] => Нет
[material_modifier] => 1
[work_modifier] => 1
[options] => Array
(
)
[days] => [0]
[material_price] => [0]
[work_price] => [0]
[image] => https://akademik-stroy.ru/wp-content/uploads/materials/gkl.jpg
[area_modifier] => 169.42
[parent_name] => Внутренние (не несущие) перегородки
[parent_id] => 25
[material_sum] => 0
[work_sum] => 0
[total_sum] => 0
[total_days] => 0
[display_material_sum] => 0
[display_work_sum] => 0
[display_total_sum] => 0
)
1
0₽
Работа:0 ₽
Материалы:0 ₽
Дни:0
stdClass Object
(
[id] => 147
[attribute_id] => 25
[name] => Каркасно-обшивные
[material_modifier] => 1
[work_modifier] => 1
[options] => Array
(
[0] => 75 мм (без шумоизоляции)
[1] => 75 мм (с шумоизоляцией)
)
[days] => [11,11]
[material_price] => [580,970]
[work_price] => [380,570]
[image] => https://akademik-stroy.ru/wp-content/uploads/materials/gkl.jpg
[area_modifier] => 169.42
[parent_name] => Внутренние (не несущие) перегородки
[parent_id] => 25
[material_sum] => 129708
[work_sum] => 70818
[total_sum] => 200526
[total_days] => 11
[display_material_sum] => 129 708
[display_work_sum] => 70 818
[display_total_sum] => 200 526
)
1
200 526₽
Работа:70 818 ₽
Материалы:129 708 ₽
Дни:11
stdClass Object
(
[id] => 148
[attribute_id] => 25
[name] => Пазогребневые
[material_modifier] => 1
[work_modifier] => 1
[options] => Array
(
[0] => 80 мм
[1] => 100 мм
)
[days] => [5,5]
[material_price] => [1022,1313]
[work_price] => [600,700]
[image] => https://akademik-stroy.ru/wp-content/uploads/materials/pazogrebnevye-bloki.jpg
[area_modifier] => 169.42
[parent_name] => Внутренние (не несущие) перегородки
[parent_id] => 25
[material_sum] => 228554
[work_sum] => 111817
[total_sum] => 340371
[total_days] => 5
[display_material_sum] => 228 554
[display_work_sum] => 111 817
[display_total_sum] => 340 371
)
1
340 371₽
Работа:111 817 ₽
Материалы:228 554 ₽
Дни:5
stdClass Object
(
[id] => 149
[attribute_id] => 25
[name] => Газобетонные
[material_modifier] => 1
[work_modifier] => 1
[options] => Array
(
[0] => 100 мм
[1] => 200 мм
)
[days] => [11,11]
[material_price] => [1160,1920]
[work_price] => [700,900]
[image] => https://akademik-stroy.ru/wp-content/uploads/materials/gazobeton-2.jpg
[area_modifier] => 169.42
[parent_name] => Внутренние (не несущие) перегородки
[parent_id] => 25
[material_sum] => 259416
[work_sum] => 130453
[total_sum] => 389869
[total_days] => 11
[display_material_sum] => 259 416
[display_work_sum] => 130 453
[display_total_sum] => 389 869
)
1
389 869₽
Работа:130 453 ₽
Материалы:259 416 ₽
Дни:11
stdClass Object
(
[id] => 150
[attribute_id] => 25
[name] => Кирпичные
[material_modifier] => 1
[work_modifier] => 1
[options] => Array
(
[0] => 120 мм
[1] => 250 мм
[2] => 360 мм
)
[days] => [7,7,7]
[material_price] => [1785,3570,5355]
[work_price] => [900,1600,1800]
[image] => https://akademik-stroy.ru/wp-content/uploads/materials/kirpich-1.jpg
[area_modifier] => 169.42
[parent_name] => Внутренние (не несущие) перегородки
[parent_id] => 25
[material_sum] => 399187
[work_sum] => 167726
[total_sum] => 566913
[total_days] => 7
[display_material_sum] => 399 187
[display_work_sum] => 167 726
[display_total_sum] => 566 913
)
1
566 913₽
Работа:167 726 ₽
Материалы:399 187 ₽
Дни:7
stdClass Object
(
[id] => 55
[attribute_id] => 28
[name] => Нет
[material_modifier] => 1
[work_modifier] => 1
[options] => Array
(
)
[days] => [0]
[material_price] => [0]
[work_price] => [0]
[image] => https://akademik-stroy.ru/wp-content/uploads/materials/ehlektrika.jpg
[area_modifier] => 137.48
[parent_name] => Электрика
[parent_id] => 28
[material_sum] => 0
[work_sum] => 0
[total_sum] => 0
[total_days] => 0
[display_material_sum] => 0
[display_work_sum] => 0
[display_total_sum] => 0
)
1
0₽
Работа:0 ₽
Материалы:0 ₽
Дни:0
stdClass Object
(
[id] => 56
[attribute_id] => 28
[name] => Есть
[material_modifier] => 1
[work_modifier] => 1
[options] => Array
(
)
[days] => [10]
[material_price] => [650]
[work_price] => [950]
[image] => https://akademik-stroy.ru/wp-content/uploads/materials/ehlektrika.jpg
[area_modifier] => 137.48
[parent_name] => Электрика
[parent_id] => 28
[material_sum] => 117958
[work_sum] => 143667
[total_sum] => 261625
[total_days] => 10
[display_material_sum] => 117 958
[display_work_sum] => 143 667
[display_total_sum] => 261 625
)
1
261 625₽
Работа:143 667 ₽
Материалы:117 958 ₽
Дни:10
stdClass Object
(
[id] => 57
[attribute_id] => 29
[name] => Нет
[material_modifier] => 1
[work_modifier] => 1
[options] => Array
(
)
[days] => [0]
[material_price] => [0]
[work_price] => [0]
[image] => https://akademik-stroy.ru/wp-content/uploads/materials/santekhnika-kanalizaciya-1.jpg
[area_modifier] => 137.48
[parent_name] => Сантехника, канализация в доме
[parent_id] => 29
[material_sum] => 0
[work_sum] => 0
[total_sum] => 0
[total_days] => 0
[display_material_sum] => 0
[display_work_sum] => 0
[display_total_sum] => 0
)
1
0₽
Работа:0 ₽
Материалы:0 ₽
Дни:0
stdClass Object
(
[id] => 58
[attribute_id] => 29
[name] => Есть
[material_modifier] => 1
[work_modifier] => 1
[options] => Array
(
)
[days] => [10]
[material_price] => [600]
[work_price] => [730]
[image] => https://akademik-stroy.ru/wp-content/uploads/materials/santekhnika-kanalizaciya-1.jpg
[area_modifier] => 137.48
[parent_name] => Сантехника, канализация в доме
[parent_id] => 29
[material_sum] => 108884
[work_sum] => 110396
[total_sum] => 219280
[total_days] => 10
[display_material_sum] => 108 884
[display_work_sum] => 110 396
[display_total_sum] => 219 280
)
1
219 280₽
Работа:110 396 ₽
Материалы:108 884 ₽
Дни:10
stdClass Object
(
[id] => 59
[attribute_id] => 30
[name] => Нет
[material_modifier] => 1
[work_modifier] => 1
[options] => Array
(
)
[days] => [0]
[material_price] => [0]
[work_price] => [0]
[image] => https://akademik-stroy.ru/wp-content/uploads/materials/otoplenie-1.jpg
[area_modifier] => 137.48
[parent_name] => Отопление
[parent_id] => 30
[material_sum] => 0
[work_sum] => 0
[total_sum] => 0
[total_days] => 0
[display_material_sum] => 0
[display_work_sum] => 0
[display_total_sum] => 0
)
1
0₽
Работа:0 ₽
Материалы:0 ₽
Дни:0
stdClass Object
(
[id] => 60
[attribute_id] => 30
[name] => Есть
[material_modifier] => 1
[work_modifier] => 1
[options] => Array
(
)
[days] => [5]
[material_price] => [610]
[work_price] => [560]
[image] => https://akademik-stroy.ru/wp-content/uploads/materials/otoplenie-1.jpg
[area_modifier] => 137.48
[parent_name] => Отопление
[parent_id] => 30
[material_sum] => 110699
[work_sum] => 84688
[total_sum] => 195387
[total_days] => 5
[display_material_sum] => 110 699
[display_work_sum] => 84 688
[display_total_sum] => 195 387
)
1
195 387₽
Работа:84 688 ₽
Материалы:110 699 ₽
Дни:5
stdClass Object
(
[id] => 61
[attribute_id] => 31
[name] => Нет
[material_modifier] => 1
[work_modifier] => 1
[options] => Array
(
)
[days] => [0]
[material_price] => [0]
[work_price] => [0]
[image] => https://akademik-stroy.ru/wp-content/uploads/materials/vodyanye.jpg
[area_modifier] => 30
[parent_name] => Теплые полы
[parent_id] => 31
[material_sum] => 0
[work_sum] => 0
[total_sum] => 0
[total_days] => 0
[display_material_sum] => 0
[display_work_sum] => 0
[display_total_sum] => 0
)
1
0₽
Работа:0 ₽
Материалы:0 ₽
Дни:0
stdClass Object
(
[id] => 151
[attribute_id] => 31
[name] => Водяные
[material_modifier] => 1
[work_modifier] => 1
[options] => Array
(
)
[days] => [9]
[material_price] => [10200]
[work_price] => [2500]
[image] => https://akademik-stroy.ru/wp-content/uploads/materials/vodyanye.jpg
[area_modifier] => 30
[parent_name] => Теплые полы
[parent_id] => 31
[material_sum] => 403920
[work_sum] => 82500
[total_sum] => 486420
[total_days] => 9
[display_material_sum] => 403 920
[display_work_sum] => 82 500
[display_total_sum] => 486 420
)
1
486 420₽
Работа:82 500 ₽
Материалы:403 920 ₽
Дни:9
stdClass Object
(
[id] => 152
[attribute_id] => 31
[name] => Электро
[material_modifier] => 1
[work_modifier] => 1
[options] => Array
(
)
[days] => [5]
[material_price] => [6300]
[work_price] => [1500]
[image] => https://akademik-stroy.ru/wp-content/uploads/materials/ehlektricheskij.jpg
[area_modifier] => 30
[parent_name] => Теплые полы
[parent_id] => 31
[material_sum] => 249480
[work_sum] => 49500
[total_sum] => 298980
[total_days] => 5
[display_material_sum] => 249 480
[display_work_sum] => 49 500
[display_total_sum] => 298 980
)
1
298 980₽
Работа:49 500 ₽
Материалы:249 480 ₽
Дни:5
stdClass Object
(
[id] => 63
[attribute_id] => 32
[name] => Нет
[material_modifier] => 1
[work_modifier] => 1
[options] => Array
(
)
[days] => [0]
[material_price] => [0]
[work_price] => [0]
[image] => https://akademik-stroy.ru/wp-content/uploads/materials/shtukaturka-shpatlevka-1.jpg
[area_modifier] => 137.48
[parent_name] => Черновая отделка стен
[parent_id] => 32
[material_sum] => 0
[work_sum] => 0
[total_sum] => 0
[total_days] => 0
[display_material_sum] => 0
[display_work_sum] => 0
[display_total_sum] => 0
)
1
0₽
Работа:0 ₽
Материалы:0 ₽
Дни:0
stdClass Object
(
[id] => 153
[attribute_id] => 32
[name] => Штукатурка и шпатлевка
[material_modifier] => 1
[work_modifier] => 1
[options] => Array
(
)
[days] => [20]
[material_price] => [1850]
[work_price] => [2600]
[image] => https://akademik-stroy.ru/wp-content/uploads/materials/shtukaturka-shpatlevka-1.jpg
[area_modifier] => 137.48
[parent_name] => Черновая отделка стен
[parent_id] => 32
[material_sum] => 335726
[work_sum] => 393193
[total_sum] => 728919
[total_days] => 20
[display_material_sum] => 335 726
[display_work_sum] => 393 193
[display_total_sum] => 728 919
)
1
728 919₽
Работа:393 193 ₽
Материалы:335 726 ₽
Дни:20
stdClass Object
(
[id] => 154
[attribute_id] => 32
[name] => Гипсокортон на стены
[material_modifier] => 1
[work_modifier] => 1
[options] => Array
(
)
[days] => [15]
[material_price] => [950]
[work_price] => [2100]
[image] => https://akademik-stroy.ru/wp-content/uploads/materials/gkl-1.jpg
[area_modifier] => 137.48
[parent_name] => Черновая отделка стен
[parent_id] => 32
[material_sum] => 172400
[work_sum] => 317579
[total_sum] => 489979
[total_days] => 15
[display_material_sum] => 172 400
[display_work_sum] => 317 579
[display_total_sum] => 489 979
)
1
489 979₽
Работа:317 579 ₽
Материалы:172 400 ₽
Дни:15
stdClass Object
(
[id] => 155
[attribute_id] => 32
[name] => Вагонка
[material_modifier] => 1
[work_modifier] => 1
[options] => Array
(
)
[days] => [15]
[material_price] => [1250]
[work_price] => [950]
[image] => https://akademik-stroy.ru/wp-content/uploads/materials/vagonka.jpg
[area_modifier] => 137.48
[parent_name] => Черновая отделка стен
[parent_id] => 32
[material_sum] => 226842
[work_sum] => 143667
[total_sum] => 370509
[total_days] => 15
[display_material_sum] => 226 842
[display_work_sum] => 143 667
[display_total_sum] => 370 509
)
1
370 509₽
Работа:143 667 ₽
Материалы:226 842 ₽
Дни:15
stdClass Object
(
[id] => 65
[attribute_id] => 33
[name] => Нет
[material_modifier] => 1
[work_modifier] => 1
[options] => Array
(
)
[days] => [0]
[material_price] => [0]
[work_price] => [0]
[image] => https://akademik-stroy.ru/wp-content/uploads/materials/styazhka.jpg
[area_modifier] => 137.48
[parent_name] => Черновая отделка полов
[parent_id] => 33
[material_sum] => 0
[work_sum] => 0
[total_sum] => 0
[total_days] => 0
[display_material_sum] => 0
[display_work_sum] => 0
[display_total_sum] => 0
)
1
0₽
Работа:0 ₽
Материалы:0 ₽
Дни:0
stdClass Object
(
[id] => 156
[attribute_id] => 33
[name] => Стяжка + наливные полы
[material_modifier] => 1
[work_modifier] => 1
[options] => Array
(
)
[days] => [10]
[material_price] => [1000]
[work_price] => [900]
[image] => https://akademik-stroy.ru/wp-content/uploads/materials/styazhka.jpg
[area_modifier] => 137.48
[parent_name] => Черновая отделка полов
[parent_id] => 33
[material_sum] => 181474
[work_sum] => 136105
[total_sum] => 317579
[total_days] => 10
[display_material_sum] => 181 474
[display_work_sum] => 136 105
[display_total_sum] => 317 579
)
1
317 579₽
Работа:136 105 ₽
Материалы:181 474 ₽
Дни:10
stdClass Object
(
[id] => 157
[attribute_id] => 33
[name] => ОСБ на пол
[material_modifier] => 1
[work_modifier] => 1
[options] => Array
(
)
[days] => [7]
[material_price] => [580]
[work_price] => [350]
[image] => https://akademik-stroy.ru/wp-content/uploads/materials/osb-1.jpg
[area_modifier] => 137.48
[parent_name] => Черновая отделка полов
[parent_id] => 33
[material_sum] => 105255
[work_sum] => 52930
[total_sum] => 158185
[total_days] => 7
[display_material_sum] => 105 255
[display_work_sum] => 52 930
[display_total_sum] => 158 185
)
1
158 185₽
Работа:52 930 ₽
Материалы:105 255 ₽
Дни:7
stdClass Object
(
[id] => 67
[attribute_id] => 34
[name] => Нет
[material_modifier] => 1
[work_modifier] => 1
[options] => Array
(
)
[days] => [0]
[material_price] => [0]
[work_price] => [0]
[image] => https://akademik-stroy.ru/wp-content/uploads/materials/chistovaya-otdelka.jpg
[area_modifier] => 137.48
[parent_name] => Чистовая отделка стен и полов
[parent_id] => 34
[material_sum] => 0
[work_sum] => 0
[total_sum] => 0
[total_days] => 0
[display_material_sum] => 0
[display_work_sum] => 0
[display_total_sum] => 0
)
1
0₽
Работа:0 ₽
Материалы:0 ₽
Дни:0
stdClass Object
(
[id] => 68
[attribute_id] => 34
[name] => Есть
[material_modifier] => 1
[work_modifier] => 1
[options] => Array
(
)
[days] => [50]
[material_price] => [6000]
[work_price] => [3500]
[image] => https://akademik-stroy.ru/wp-content/uploads/materials/chistovaya-otdelka.jpg
[area_modifier] => 137.48
[parent_name] => Чистовая отделка стен и полов
[parent_id] => 34
[material_sum] => 1088842
[work_sum] => 529298
[total_sum] => 1618140
[total_days] => 50
[display_material_sum] => 1 088 842
[display_work_sum] => 529 298
[display_total_sum] => 1 618 140
)
1
1 618 140₽
Работа:529 298 ₽
Материалы:1 088 842 ₽
Дни:50
stdClass Object
(
[id] => 69
[attribute_id] => 35
[name] => Нет
[material_modifier] => 1
[work_modifier] => 1
[options] => Array
(
)
[days] => [0]
[material_price] => [0]
[work_price] => [0]
[image] => https://akademik-stroy.ru/wp-content/uploads/materials/mnogourovnevyj-gkl.jpg
[area_modifier] => 137.48
[parent_name] => Отделка потолка
[parent_id] => 35
[material_sum] => 0
[work_sum] => 0
[total_sum] => 0
[total_days] => 0
[display_material_sum] => 0
[display_work_sum] => 0
[display_total_sum] => 0
)
1
0₽
Работа:0 ₽
Материалы:0 ₽
Дни:0
stdClass Object
(
[id] => 70
[attribute_id] => 35
[name] => Есть
[material_modifier] => 1
[work_modifier] => 1
[options] => Array
(
[0] => Многоуровневый потолок из гипсокартона
[1] => Многоуровневый потолок из гипсокартона и натяжного потолка
[2] => Одноуровневый потолок из гипсокартона
[3] => Одноуровневый натяжной потолок
)
[days] => [10,10,1,1]
[material_price] => [900,700,700,600]
[work_price] => [1000,800,500,300]
[image] => https://akademik-stroy.ru/wp-content/uploads/materials/mnogourovnevyj-gkl.jpg
[area_modifier] => 137.48
[parent_name] => Отделка потолка
[parent_id] => 35
[material_sum] => 163326
[work_sum] => 151228
[total_sum] => 314554
[total_days] => 10
[display_material_sum] => 163 326
[display_work_sum] => 151 228
[display_total_sum] => 314 554
)
1
314 554₽
Работа:151 228 ₽
Материалы:163 326 ₽
Дни:10
Преимущества работы с нами
7 этапов оплаты
Независимый строительный надзор
Экологически чистые материалы
16 лет гарантии
Онлайн-кабинет с веб-камерой
Строители с опытом более 15 лет
Собственное производство




