Одноэтажный дом 159.66 м2 за руб.
Планировки
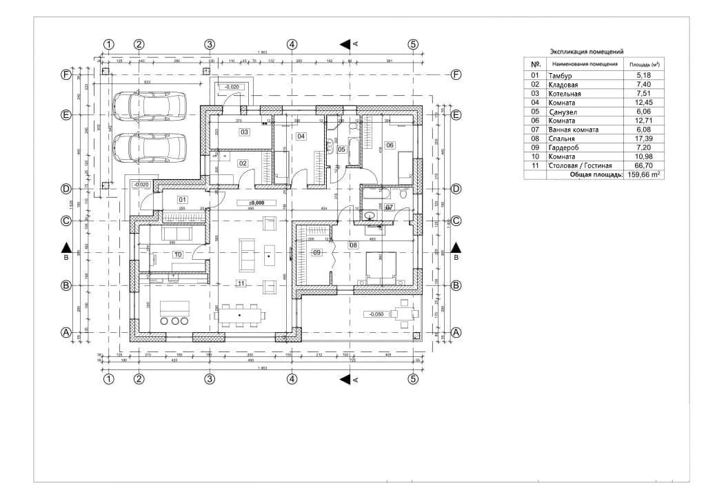
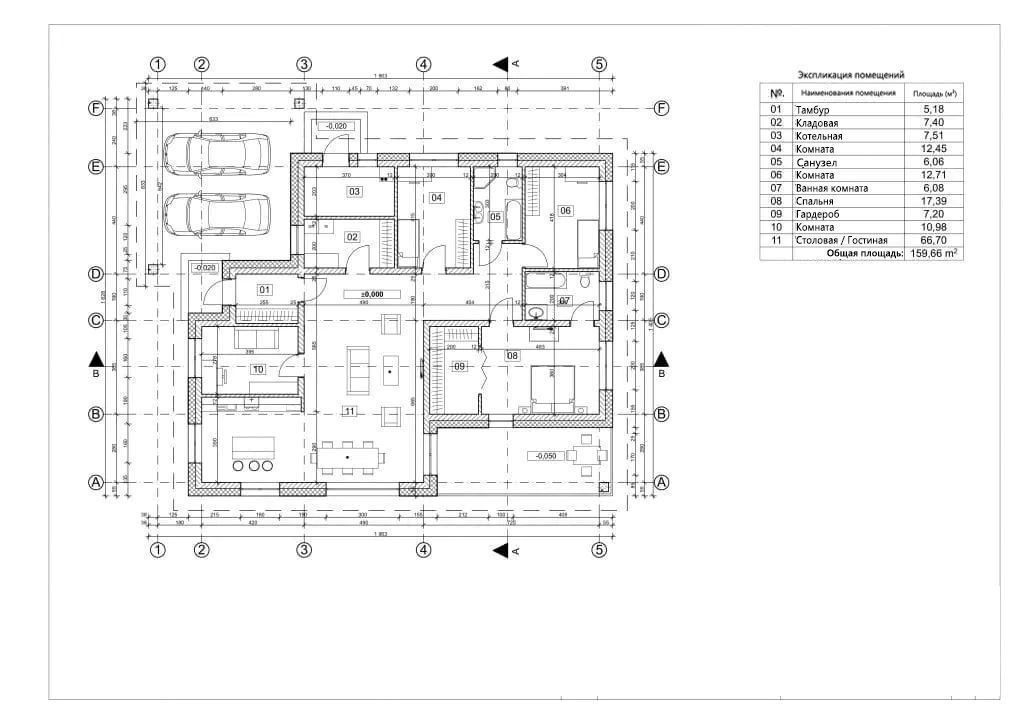
План первого этажа
- 1. Тамбур 5,18 м²
- 2. Кладовая 7,40 м²
- 3. Котельная 7,51 м²
- 4. Комната 12,45 м²
- 5. Санузел 6,06 м²
- 6. Комната 12,71 м²
- 7. Ванная комната 6,08 м²
- 8. Спальня 17,39 м²
- 9. Гардероб 7,20 м²
- 10. Комната 10,98 м²
- 11. Столовая-Гостиная 66,70 м²
- Общая площадь первый этаж 159,66 м²
Площади дома
| № п/п | Наименование | Ед. из. | Строительная площадь | Полезная площадь |
| 1 | 1 этаж | м2 | 196.75 | 159.66 |
| 2 | Итого | м2 | 196.75 | 159.66 |
154 м2
Полезная
площадь
площадь
1 этаж
Этажей
26 м2
Террасы
и балконы
и балконы
0Без
гаража
гаража
3
Количество
спален
спален
2
Количество
санузлов
санузлов
Калькулятор опций
0₽
В ипотеку от 27 468 ₽/мес.
0₽
0 дней
1 077 147₽
Работа:466 179 ₽
Материалы:610 968 ₽
Дни:20
647 544₽
Работа:216 858 ₽
Материалы:430 686 ₽
Дни:2
1 091 215₽
Работа:438 044 ₽
Материалы:653 171 ₽
Дни:20
2 091 098₽
Работа:933 657 ₽
Материалы:1 157 441 ₽
Дни:30
3 508 033₽
Работа:1 289 893 ₽
Материалы:2 218 140 ₽
Дни:32
1 325 820₽
Работа:530 458 ₽
Материалы:795 362 ₽
Дни:20
8 319 377₽
Работа:3 792 632 ₽
Материалы:4 526 745 ₽
Дни:30
9 925 683₽
Работа:4 423 943 ₽
Материалы:5 501 740 ₽
Дни:40
346 280₽
Работа:86 570 ₽
Материалы:259 710 ₽
Дни:1
619 841₽
Работа:266 203 ₽
Материалы:353 638 ₽
Дни:8
992 741₽
Работа:328 966 ₽
Материалы:663 775 ₽
Дни:13
1 771 439₽
Работа:724 591 ₽
Материалы:1 046 848 ₽
Дни:18
1 738 542₽
Работа:1 089 267 ₽
Материалы:649 275 ₽
Дни:29
2 001 282₽
Работа:1 025 205 ₽
Материалы:976 077 ₽
Дни:23
3 081 027₽
Работа:1 890 689 ₽
Материалы:1 190 338 ₽
Дни:30
2 521 568₽
Работа:1 105 066 ₽
Материалы:1 416 502 ₽
Дни:45
4 713 953₽
Работа:1 040 139 ₽
Материалы:3 673 814 ₽
Дни:24
1 038 191₽
Работа:523 316 ₽
Материалы:514 875 ₽
Дни:15
567 033₽
Работа:305 159 ₽
Материалы:261 874 ₽
Дни:7
1 994 140₽
Работа:693 426 ₽
Материалы:1 300 714 ₽
Дни:7
2 604 675₽
Работа:832 154 ₽
Материалы:1 772 521 ₽
Дни:7
17 105 150₽
Работа:832 154 ₽
Материалы:16 272 996 ₽
Дни:7
9 258 878₽
Работа:1 040 139 ₽
Материалы:8 218 739 ₽
Дни:7
1 456 324₽
Работа:346 713 ₽
Материалы:1 109 611 ₽
Дни:7
1 912 332₽
Работа:982 137 ₽
Материалы:930 195 ₽
Дни:29
1 674 264₽
Работа:1 090 349 ₽
Материалы:583 915 ₽
Дни:29
1 912 332₽
Работа:982 137 ₽
Материалы:930 195 ₽
Дни:29
2 029 633₽
Работа:1 241 630 ₽
Материалы:788 003 ₽
Дни:23
2 594 287₽
Работа:873 708 ₽
Материалы:1 720 579 ₽
Дни:7
2 941 865₽
Работа:1 803 037 ₽
Материалы:1 138 828 ₽
Дни:25
1 064 162₽
Работа:549 287 ₽
Материалы:514 875 ₽
Дни:15
9 860 756₽
Работа:2 080 277 ₽
Материалы:7 780 479 ₽
Дни:15
1 179 949₽
Работа:554 914 ₽
Материалы:625 035 ₽
Дни:15
1 606 739₽
Работа:912 015 ₽
Материалы:694 724 ₽
Дни:19
1 695 906₽
Работа:1 090 349 ₽
Материалы:605 557 ₽
Дни:29
1 089 267₽
Работа:571 795 ₽
Материалы:517 472 ₽
Дни:15
2 001 282₽
Работа:1 025 205 ₽
Материалы:976 077 ₽
Дни:23
1 169 128₽
Работа:454 493 ₽
Материалы:714 635 ₽
Дни:15
1 497 661₽
Работа:1 092 081 ₽
Материалы:405 580 ₽
Дни:7
619 841₽
Работа:266 203 ₽
Материалы:353 638 ₽
Дни:8
992 741₽
Работа:328 966 ₽
Материалы:663 775 ₽
Дни:13
1 771 439₽
Работа:724 591 ₽
Материалы:1 046 848 ₽
Дни:18
2 562 040₽
Работа:1 239 250 ₽
Материалы:1 322 790 ₽
Дни:20
2 798 376₽
Работа:1 287 729 ₽
Материалы:1 510 647 ₽
Дни:20
4 331 963₽
Работа:2 046 515 ₽
Материалы:2 285 448 ₽
Дни:20
3 984 601₽
Работа:1 927 265 ₽
Материалы:2 057 336 ₽
Дни:20
4 805 934₽
Работа:2 046 515 ₽
Материалы:2 759 419 ₽
Дни:20
3 622 955₽
Работа:1 772 521 ₽
Материалы:1 850 434 ₽
Дни:20
8 051 010₽
Работа:3 625 119 ₽
Материалы:4 425 891 ₽
Дни:20
7 927 648₽
Работа:3 631 612 ₽
Материалы:4 296 036 ₽
Дни:20
1 558 260₽
Работа:811 594 ₽
Материалы:746 666 ₽
Дни:20
346 686₽
Работа:111 523 ₽
Материалы:235 163 ₽
Дни:3
0₽
Работа:0 ₽
Материалы:0 ₽
Дни:0
17 050₽
Работа:6 050 ₽
Материалы:11 000 ₽
Дни:1
0₽
Работа:0 ₽
Материалы:0 ₽
Дни:0
0₽
Работа:0 ₽
Материалы:0 ₽
Дни:0
391 296₽
Работа:140 676 ₽
Материалы:250 620 ₽
Дни:5
228 112₽
Работа:50 643 ₽
Материалы:177 469 ₽
Дни:3
332 429₽
Работа:84 406 ₽
Материалы:248 023 ₽
Дни:3
187 424₽
Работа:84 406 ₽
Материалы:103 018 ₽
Дни:3
500 807₽
Работа:50 643 ₽
Материалы:450 164 ₽
Дни:2
657 067₽
Работа:84 406 ₽
Материалы:572 661 ₽
Дни:3
0₽
Работа:0 ₽
Материалы:0 ₽
Дни:0
71 918₽
Работа:19 690 ₽
Материалы:52 228 ₽
Дни:6
0₽
Работа:0 ₽
Материалы:0 ₽
Дни:0
721 128₽
Работа:330 914 ₽
Материалы:390 214 ₽
Дни:7
0₽
Работа:0 ₽
Материалы:0 ₽
Дни:0
721 345₽
Работа:322 690 ₽
Материалы:398 655 ₽
Дни:7
0₽
Работа:0 ₽
Материалы:0 ₽
Дни:0
1 247 041₽
Работа:503 188 ₽
Материалы:743 853 ₽
Дни:7
440 425₽
Работа:265 121 ₽
Материалы:175 304 ₽
Дни:3
1 375 381₽
Работа:388 483 ₽
Материалы:986 898 ₽
Дни:5
1 432 084₽
Работа:388 483 ₽
Материалы:1 043 601 ₽
Дни:5
776 750₽
Работа:157 774 ₽
Материалы:618 976 ₽
Дни:3
1 974 445₽
Работа:173 140 ₽
Материалы:1 801 305 ₽
Дни:5
0₽
Работа:0 ₽
Материалы:0 ₽
Дни:0
950 322₽
Работа:302 346 ₽
Материалы:647 976 ₽
Дни:20
1 023 906₽
Работа:332 645 ₽
Материалы:691 261 ₽
Дни:20
742 987₽
Работа:260 143 ₽
Материалы:482 844 ₽
Дни:35
2 470 275₽
Работа:701 217 ₽
Материалы:1 769 058 ₽
Дни:45
1 294 438₽
Работа:650 790 ₽
Материалы:643 648 ₽
Дни:40
546 690₽
Работа:273 345 ₽
Материалы:273 345 ₽
Дни:20
1 682 921₽
Работа:701 217 ₽
Материалы:981 704 ₽
Дни:45
1 851 300₽
Работа:504 920 ₽
Материалы:1 346 380 ₽
Дни:20
1 023 690₽
Работа:420 730 ₽
Материалы:602 960 ₽
Дни:20
1 262 191₽
Работа:560 974 ₽
Материалы:701 217 ₽
Дни:20
1 759 102₽
Работа:757 271 ₽
Материалы:1 001 831 ₽
Дни:20
2 172 041₽
Работа:647 760 ₽
Материалы:1 524 281 ₽
Дни:20
1 544 193₽
Работа:560 974 ₽
Материалы:983 219 ₽
Дни:20
0₽
Работа:0 ₽
Материалы:0 ₽
Дни:0
409 200₽
Работа:64 350 ₽
Материалы:344 850 ₽
Дни:5
0₽
Работа:0 ₽
Материалы:0 ₽
Дни:0
183 150₽
Работа:64 350 ₽
Материалы:118 800 ₽
Дни:12
0₽
Работа:0 ₽
Материалы:0 ₽
Дни:0
930 628₽
Работа:378 744 ₽
Материалы:551 884 ₽
Дни:15
670 917₽
Работа:313 816 ₽
Материалы:357 101 ₽
Дни:10
0₽
Работа:0 ₽
Материалы:0 ₽
Дни:0
925 650₽
Работа:413 588 ₽
Материалы:512 062 ₽
Дни:5
0₽
Работа:0 ₽
Материалы:0 ₽
Дни:0
270 974₽
Работа:55 000 ₽
Материалы:215 974 ₽
Дни:7
0₽
Работа:0 ₽
Материалы:0 ₽
Дни:0
207 769₽
Работа:82 242 ₽
Материалы:125 527 ₽
Дни:11
351 041₽
Работа:129 855 ₽
Материалы:221 186 ₽
Дни:5
402 551₽
Работа:151 498 ₽
Материалы:251 053 ₽
Дни:11
581 102₽
Работа:194 783 ₽
Материалы:386 319 ₽
Дни:7
0₽
Работа:0 ₽
Материалы:0 ₽
Дни:0
281 002₽
Работа:166 845 ₽
Материалы:114 157 ₽
Дни:10
0₽
Работа:0 ₽
Материалы:0 ₽
Дни:0
233 583₽
Работа:128 207 ₽
Материалы:105 376 ₽
Дни:10
0₽
Работа:0 ₽
Материалы:0 ₽
Дни:0
205 483₽
Работа:98 351 ₽
Материалы:107 132 ₽
Дни:5
0₽
Работа:0 ₽
Материалы:0 ₽
Дни:0
419 100₽
Работа:82 500 ₽
Материалы:336 600 ₽
Дни:9
257 400₽
Работа:49 500 ₽
Материалы:207 900 ₽
Дни:5
0₽
Работа:0 ₽
Материалы:0 ₽
Дни:0
781 536₽
Работа:456 628 ₽
Материалы:324 908 ₽
Дни:20
535 660₽
Работа:368 815 ₽
Материалы:166 845 ₽
Дни:15
386 378₽
Работа:166 845 ₽
Материалы:219 533 ₽
Дни:15
0₽
Работа:0 ₽
Материалы:0 ₽
Дни:0
333 689₽
Работа:158 063 ₽
Материалы:175 626 ₽
Дни:10
163 332₽
Работа:61 469 ₽
Материалы:101 863 ₽
Дни:7
0₽
Работа:0 ₽
Материалы:0 ₽
Дни:0
1 668 447₽
Работа:614 691 ₽
Материалы:1 053 756 ₽
Дни:50
0₽
Работа:0 ₽
Материалы:0 ₽
Дни:0
333 689₽
Работа:175 626 ₽
Материалы:158 063 ₽
Дни:10
Преимущества работы с нами
7 этапов оплаты
Независимый строительный надзор
Экологически чистые материалы
16 лет гарантии
Онлайн-кабинет с веб-камерой
Строители с опытом более 15 лет
Собственное производство





