Одноэтажный дом 140.24 м2 за руб.
Планировки
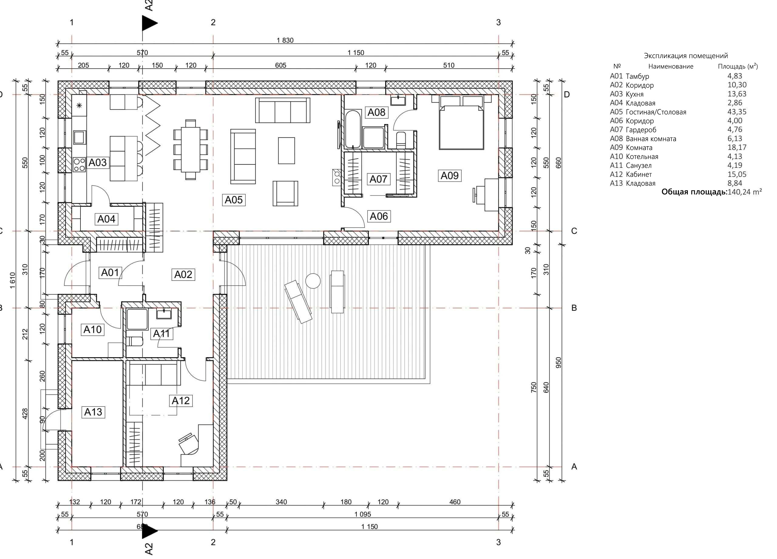
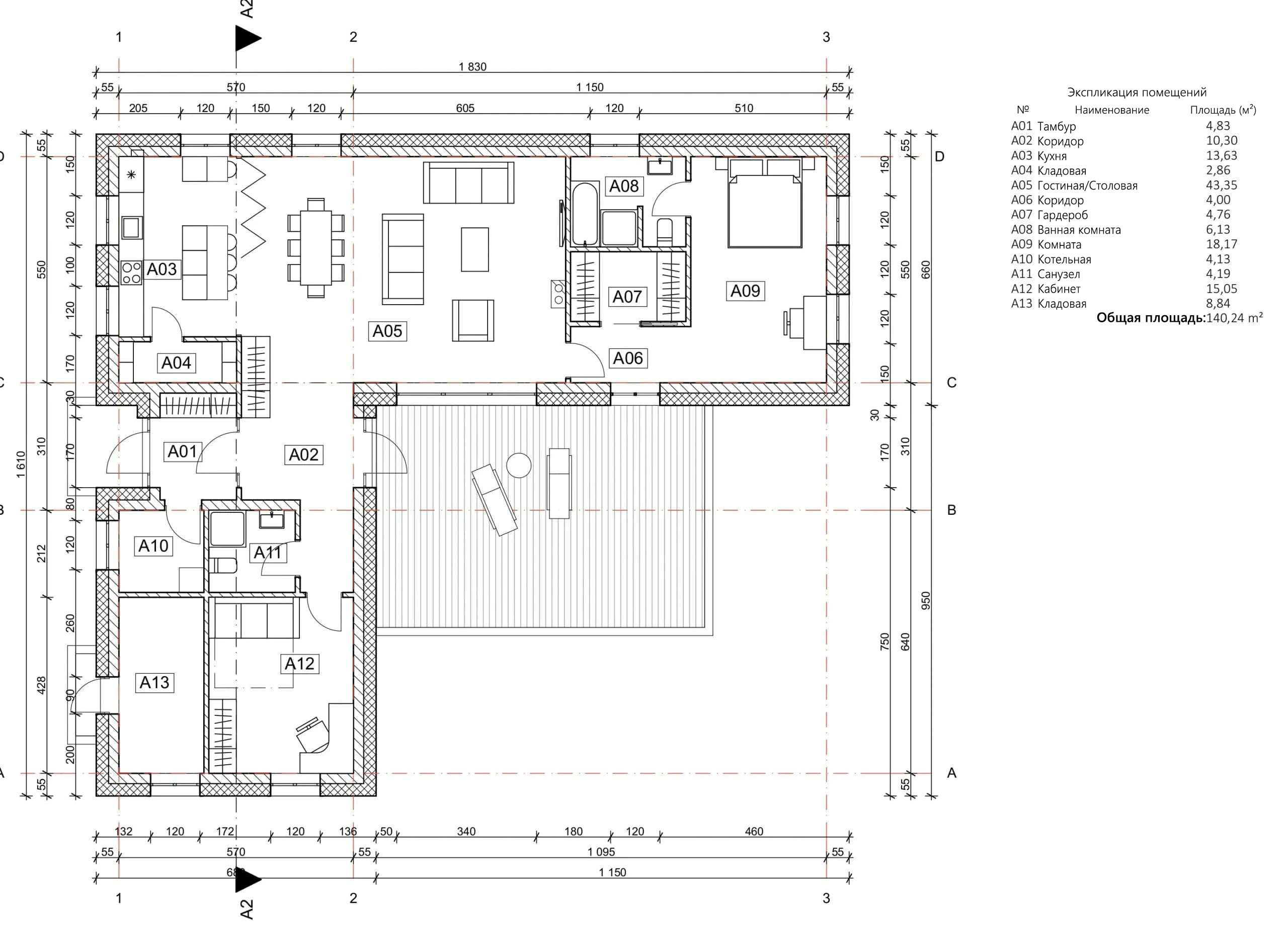
План первого этажа
- 1. Тамбур 4,83 м²
- 2. Коридор 10,30 м²
- 3. Кухня 13,63 м²
- 4. Кладовая 2,86 м²
- 5. Гостиная-Столовая 43,35 м²
- 6. Коридор 4,00 м²
- 7. Гардероб 4,76 м²
- 8. Ванная комната 6,13 м²
- 9. Комната 18,17 м²
- 10. Котельная 4,13 м²
- 11. Санузел 4,19 м²
- 12. Кабинет 15,05 м²
- 13. Кладовая 8,84 м²
- Общая площадь первый этаж 140,24 м²
Площади дома
| № п/п | Наименование | Ед. из. | Строительная площадь | Полезная площадь |
| 1 | 1 этаж | м2 | 172.82 | 140.24 |
| 2 | Итого | м2 | 172.82 | 140.24 |
154 м2
Полезная
площадь
площадь
1 этаж
Этажей
26 м2
Террасы
и балконы
и балконы
0Без
гаража
гаража
3
Количество
спален
спален
2
Количество
санузлов
санузлов
Калькулятор опций
0₽
В ипотеку от 22 659 ₽/мес.
0₽
0 дней
stdClass Object
(
[id] => 1
[attribute_id] => 1
[name] => Ленточный монолитный ж/б
[material_modifier] => 1
[work_modifier] => 1
[options] => Array
(
[0] => размер 200 х 700 мм
[1] => размер 300 х 900 мм
[2] => размер 400 х 1 000 мм
[3] => размер 500 х 1 100 мм
[4] => размер 600 х 1 200 мм
)
[days] => [20,21,22,25,30]
[material_price] => [2823,3630,4475,5210,12047]
[work_price] => [2154,2826,3731,4577,5293]
[image] => https://akademik-stroy.ru/wp-content/uploads/materials/lentochnyj-monolitnyj-zh-b.jpg
[area_modifier] => 172.82
[parent_name] => Фундамент
[parent_id] => 1
[material_sum] => 643990
[work_sum] => 409480
[total_sum] => 1053470
[total_days] => 20
[display_material_sum] => 643 990
[display_work_sum] => 409 480
[display_total_sum] => 1 053 470
)
1
1 053 470₽
Работа:409 480 ₽
Материалы:643 990 ₽
Дни:20
stdClass Object
(
[id] => 2
[attribute_id] => 1
[name] => Забивные Ж/Б сваи
[material_modifier] => 1
[work_modifier] => 1
[options] => Array
(
[0] => 150х150х3000мм
[1] => 150х150х4000мм
[2] => 200х200х3000мм
[3] => 200х200х4000мм
[4] => 200х200х5000мм
[5] => 200х200х6000мм
)
[days] => [2,2,2,2,2,2]
[material_price] => [1990,2850,3255,4360,5120,6837]
[work_price] => [1002,1185,1336,1438,1574,1839]
[image] => https://akademik-stroy.ru/wp-content/uploads/materials/zabivnye-zh-b-svai.png
[area_modifier] => 172.82
[parent_name] => Фундамент
[parent_id] => 1
[material_sum] => 453964
[work_sum] => 190482
[total_sum] => 644446
[total_days] => 2
[display_material_sum] => 453 964
[display_work_sum] => 190 482
[display_total_sum] => 644 446
)
1
644 446₽
Работа:190 482 ₽
Материалы:453 964 ₽
Дни:2
stdClass Object
(
[id] => 71
[attribute_id] => 1
[name] => Свайно-ростверковый ж/б
[material_modifier] => 1
[work_modifier] => 1
[options] => Array
(
[0] => ростверк 200х300 мм
[1] => ростверк 300х600 мм
[2] => ростверк 400х900 мм
[3] => ростверк 500х1200 мм
)
[days] => [20,23,25,27]
[material_price] => [3018,3474,7109,9792]
[work_price] => [2024,3012,5635,7022]
[image] => https://akademik-stroy.ru/wp-content/uploads/materials/svajno-rostverkovyj-monolitnyj-zh-b-3.png
[area_modifier] => 172.82
[parent_name] => Фундамент
[parent_id] => 1
[material_sum] => 688473
[work_sum] => 384766
[total_sum] => 1073239
[total_days] => 20
[display_material_sum] => 688 473
[display_work_sum] => 384 766
[display_total_sum] => 1 073 239
)
1
1 073 239₽
Работа:384 766 ₽
Материалы:688 473 ₽
Дни:20
stdClass Object
(
[id] => 72
[attribute_id] => 1
[name] => Монолитная ж/б плита
[material_modifier] => 1
[work_modifier] => 1
[options] => Array
(
[0] => 200 мм
[1] => 300 мм
[2] => 400 мм
[3] => 500 мм
[4] => 600 мм
)
[days] => [30,33,35,37,40]
[material_price] => [5348,8555,12788,14388,15189]
[work_price] => [4314,4881,7037,8061,10230]
[image] => https://akademik-stroy.ru/wp-content/uploads/materials/monolitnaya-zhb-plita.png
[area_modifier] => 172.82
[parent_name] => Фундамент
[parent_id] => 1
[material_sum] => 1219999
[work_sum] => 820100
[total_sum] => 2040099
[total_days] => 30
[display_material_sum] => 1 219 999
[display_work_sum] => 820 100
[display_total_sum] => 2 040 099
)
1
2 040 099₽
Работа:820 100 ₽
Материалы:1 219 999 ₽
Дни:30
stdClass Object
(
[id] => 73
[attribute_id] => 1
[name] => Утепленная шведская плита
[material_modifier] => 1
[work_modifier] => 1
[options] => Array
(
[0] => 200 мм
[1] => 300 мм
[2] => 400 мм
[3] => 500 мм
[4] => 600 мм
)
[days] => [32,37,39,42,45]
[material_price] => [10249,12692,13760,14936,16230]
[work_price] => [5960,7337,8072,8878,9765]
[image] => https://akademik-stroy.ru/wp-content/uploads/materials/uteplennaya-shvedskaya-plita.jpg
[area_modifier] => 172.82
[parent_name] => Фундамент
[parent_id] => 1
[material_sum] => 2338026
[work_sum] => 1133008
[total_sum] => 3471034
[total_days] => 32
[display_material_sum] => 2 338 026
[display_work_sum] => 1 133 008
[display_total_sum] => 3 471 034
)
1
3 471 034₽
Работа:1 133 008 ₽
Материалы:2 338 026 ₽
Дни:32
stdClass Object
(
[id] => 75
[attribute_id] => 1
[name] => Ленточный из ФБС
[material_modifier] => 1
[work_modifier] => 1
[options] => Array
(
[0] => толщ. 300 мм
[1] => толщ. 400 мм
[2] => толщ. 500 мм
[3] => толщ. 600 мм
)
[days] => [20,20,20,20]
[material_price] => [3675,4902,6126,7350]
[work_price] => [2451,3264,4083,4902]
[image] => https://akademik-stroy.ru/wp-content/uploads/materials/lentochnyj-iz-fbs.png
[area_modifier] => 172.82
[parent_name] => Фундамент
[parent_id] => 1
[material_sum] => 838350
[work_sum] => 465940
[total_sum] => 1304290
[total_days] => 20
[display_material_sum] => 838 350
[display_work_sum] => 465 940
[display_total_sum] => 1 304 290
)
1
1 304 290₽
Работа:465 940 ₽
Материалы:838 350 ₽
Дни:20
stdClass Object
(
[id] => 76
[attribute_id] => 1
[name] => Цокольный этаж из ФБС
[material_modifier] => 1
[work_modifier] => 1
[options] => Array
(
[0] => толщ. 300 мм
[1] => толщ. 400 мм
[2] => толщ. 500 мм
[3] => толщ. 600 мм
)
[days] => [30,32,34,36]
[material_price] => [20916,23299,26680,29060]
[work_price] => [17524,18700,19873,21046]
[image] => https://akademik-stroy.ru/wp-content/uploads/materials/cokolnyj-ehtazh-iz-fbs.jpg
[area_modifier] => 172.82
[parent_name] => Фундамент
[parent_id] => 1
[material_sum] => 4771408
[work_sum] => 3331347
[total_sum] => 8102755
[total_days] => 30
[display_material_sum] => 4 771 408
[display_work_sum] => 3 331 347
[display_total_sum] => 8 102 755
)
1
8 102 755₽
Работа:3 331 347 ₽
Материалы:4 771 408 ₽
Дни:30
stdClass Object
(
[id] => 77
[attribute_id] => 1
[name] => Цокольный этаж монолитный ж/б
[material_modifier] => 1
[work_modifier] => 1
[options] => Array
(
[0] => толщ. 200 мм
[1] => толщ. 300 мм
[2] => толщ. 400 мм
[3] => толщ. 500 мм
[4] => толщ. 600 мм
)
[days] => [40,42,44,46,48]
[material_price] => [25421,29148,32275,35602,37326]
[work_price] => [20441,21907,23375,24841,26306]
[image] => https://akademik-stroy.ru/wp-content/uploads/materials/cokolnyj-etazh-zh-b.jpg
[area_modifier] => 172.82
[parent_name] => Фундамент
[parent_id] => 1
[material_sum] => 5799100
[work_sum] => 3885875
[total_sum] => 9684975
[total_days] => 40
[display_material_sum] => 5 799 100
[display_work_sum] => 3 885 875
[display_total_sum] => 9 684 975
)
1
9 684 975₽
Работа:3 885 875 ₽
Материалы:5 799 100 ₽
Дни:40
stdClass Object
(
[id] => 191
[attribute_id] => 1
[name] => Винтовые сваи
[material_modifier] => 1
[work_modifier] => 1
[options] => Array
(
[0] => 57х200мм
[1] => 76х250мм
[2] => 108х300мм
[3] => 133х350мм
)
[days] => [1,1,2,2]
[material_price] => [1200,1300,1450,1600]
[work_price] => [400,600,900,1100]
[image] => https://akademik-stroy.ru/wp-content/uploads/materials/vintovye-svai.png
[area_modifier] => 172.82
[parent_name] => Фундамент
[parent_id] => 1
[material_sum] => 273747
[work_sum] => 76041
[total_sum] => 349788
[total_days] => 1
[display_material_sum] => 273 747
[display_work_sum] => 76 041
[display_total_sum] => 349 788
)
1
349 788₽
Работа:76 041 ₽
Материалы:273 747 ₽
Дни:1
stdClass Object
(
[id] => 3
[attribute_id] => 2
[name] => Деревянные балки
[material_modifier] => 1
[work_modifier] => 1
[options] => Array
(
[0] => без утепления
[1] => утепление 200 мм
[2] => утепление 250 мм
[3] => утепление 300 мм
[4] => утепление 350 мм
[5] => утепление 400 мм
[6] => утепление 450 мм
[7] => утепление 500 мм
)
[days] => [8,9,9,9,11,12,13,14]
[material_price] => [1634,2042,2344,2947,3149,3652,3354,3557]
[work_price] => [1230,1339,1393,1426,1460,1513,1587,1620]
[image] => https://akademik-stroy.ru/wp-content/uploads/materials/derevyannye-balki.png
[area_modifier] => 172.82
[parent_name] => Перекрытие цоколя
[parent_id] => 2
[material_sum] => 372752
[work_sum] => 233825
[total_sum] => 606577
[total_days] => 8
[display_material_sum] => 372 752
[display_work_sum] => 233 825
[display_total_sum] => 606 577
)
1
606 577₽
Работа:233 825 ₽
Материалы:372 752 ₽
Дни:8
stdClass Object
(
[id] => 4
[attribute_id] => 2
[name] => Сборные ж/б плиты
[material_modifier] => 1
[work_modifier] => 1
[options] => Array
(
[0] => без утепления
[1] => утепление 150мм
[2] => утепление 200мм
[3] => утепление 250мм
[4] => утепление 300мм
[5] => утепление 350мм
[6] => утепление 400мм
[7] => утепление 450мм
[8] => утепление 500мм
)
[days] => [13,15,15,15,15,15,15,15,15]
[material_price] => [3067,5577,5928,6679,7730,8782,9833,10884,11935]
[work_price] => [1520,1956,2102,2247,2392,2537,2684,2829,2974]
[image] => https://akademik-stroy.ru/wp-content/uploads/materials/sbornye-zh-b-plity-2.jpg
[area_modifier] => 172.82
[parent_name] => Перекрытие цоколя
[parent_id] => 2
[material_sum] => 699651
[work_sum] => 288955
[total_sum] => 988606
[total_days] => 13
[display_material_sum] => 699 651
[display_work_sum] => 288 955
[display_total_sum] => 988 606
)
1
988 606₽
Работа:288 955 ₽
Материалы:699 651 ₽
Дни:13
stdClass Object
(
[id] => 78
[attribute_id] => 2
[name] => Монолитная ж/б плита
[material_modifier] => 1
[work_modifier] => 1
[options] => Array
(
[0] => без утепления
[1] => утепление 150 мм
[2] => утепление 200 мм
[3] => утепление 250 мм
[4] => утепление 300 мм
[5] => утепление 350 мм
[6] => утепление 400 мм
[7] => утепление 450 мм
[8] => утепление 500 мм
)
[days] => [18,20,20,20,20,20,20,20,20]
[material_price] => [4837,6572,7224,7375,79426,8177,8728,9180,10031]
[work_price] => [3348,3921,4112,4302,4493,4684,4875,5066,5256]
[image] => https://akademik-stroy.ru/wp-content/uploads/materials/monolitnaya-zh-b-plita-2.jpg
[area_modifier] => 172.82
[parent_name] => Перекрытие цоколя
[parent_id] => 2
[material_sum] => 1103428
[work_sum] => 636461
[total_sum] => 1739889
[total_days] => 18
[display_material_sum] => 1 103 428
[display_work_sum] => 636 461
[display_total_sum] => 1 739 889
)
1
1 739 889₽
Работа:636 461 ₽
Материалы:1 103 428 ₽
Дни:18
stdClass Object
(
[id] => 6
[attribute_id] => 3
[name] => Пеноблок
[material_modifier] => 1
[work_modifier] => 1
[options] => Array
(
[0] => 300 мм
[1] => 400 мм
[2] => 500 мм
[3] => 600 мм
)
[days] => [29,31,34,39]
[material_price] => [3000,4000,4500,4937]
[work_price] => [5033,5805,6400,8710]
[image] => https://akademik-stroy.ru/wp-content/uploads/materials/penoblok.jpg
[area_modifier] => 172.82
[parent_name] => Стены 1 этаж (несущие)
[parent_id] => 3
[material_sum] => 684367
[work_sum] => 956783
[total_sum] => 1641150
[total_days] => 29
[display_material_sum] => 684 367
[display_work_sum] => 956 783
[display_total_sum] => 1 641 150
)
1
1 641 150₽
Работа:956 783 ₽
Материалы:684 367 ₽
Дни:29
stdClass Object
(
[id] => 79
[attribute_id] => 3
[name] => Керамический блок
[material_modifier] => 1
[work_modifier] => 1
[options] => Array
(
[0] => 380 мм
[1] => 380 мм Thermo
[2] => 440 мм
[3] => 510 мм
)
[days] => [23,23,24,25]
[material_price] => [4510,5098,6093,8013]
[work_price] => [4737,4937,5903,6958]
[image] => https://akademik-stroy.ru/wp-content/uploads/materials/keramicheskij-blok.jpg
[area_modifier] => 172.82
[parent_name] => Стены 1 этаж (несущие)
[parent_id] => 3
[material_sum] => 1028832
[work_sum] => 900513
[total_sum] => 1929345
[total_days] => 23
[display_material_sum] => 1 028 832
[display_work_sum] => 900 513
[display_total_sum] => 1 929 345
)
1
1 929 345₽
Работа:900 513 ₽
Материалы:1 028 832 ₽
Дни:23
stdClass Object
(
[id] => 80
[attribute_id] => 3
[name] => Кирпич
[material_modifier] => 1
[work_modifier] => 1
[options] => Array
(
[0] => Кирпич 250 мм
[1] => Кирпич 380 мм
[2] => Кирпич 510 мм
[3] => Кирпич 640 мм
[4] => Кирпич 770 мм
)
[days] => [30,30,31,33,36]
[material_price] => [5500,7142,9206,10171,12235]
[work_price] => [8736,10041,12018,15240,18462]
[image] => https://akademik-stroy.ru/wp-content/uploads/materials/kirpich.jpg
[area_modifier] => 172.82
[parent_name] => Стены 1 этаж (несущие)
[parent_id] => 3
[material_sum] => 1254673
[work_sum] => 1660731
[total_sum] => 2915404
[total_days] => 30
[display_material_sum] => 1 254 673
[display_work_sum] => 1 660 731
[display_total_sum] => 2 915 404
)
1
2 915 404₽
Работа:1 660 731 ₽
Материалы:1 254 673 ₽
Дни:30
stdClass Object
(
[id] => 81
[attribute_id] => 3
[name] => Монолитные
[material_modifier] => 1
[work_modifier] => 1
[options] => Array
(
[0] => 150 мм
[1] => 200 мм
[2] => 250 мм
[3] => 300 мм
[4] => 350 мм
[5] => 400 мм
)
[days] => [45,46,47,49,50,53]
[material_price] => [6545,7876,10175,12011,13908,15204]
[work_price] => [5106,6444,7698,8552,9807,11461]
[image] => https://akademik-stroy.ru/wp-content/uploads/materials/monolitnye.jpg
[area_modifier] => 172.82
[parent_name] => Стены 1 этаж (несущие)
[parent_id] => 3
[material_sum] => 1493061
[work_sum] => 970661
[total_sum] => 2463722
[total_days] => 45
[display_material_sum] => 1 493 061
[display_work_sum] => 970 661
[display_total_sum] => 2 463 722
)
1
2 463 722₽
Работа:970 661 ₽
Материалы:1 493 061 ₽
Дни:45
stdClass Object
(
[id] => 82
[attribute_id] => 3
[name] => Клееный брус
[material_modifier] => 1
[work_modifier] => 1
[options] => Array
(
[0] => 160 мм
[1] => 175 мм
[2] => 200 мм
[3] => 215 мм
[4] => 240 мм
[5] => 270 мм
[6] => 282 мм
)
[days] => [24,28,32,37,40,42,48]
[material_price] => [16975,18773,19950,20545,21599,22159,23275]
[work_price] => [4806,5287,5815,6397,7036,7740,8514]
[image] => https://akademik-stroy.ru/wp-content/uploads/materials/kleenyj-brus.jpg
[area_modifier] => 172.82
[parent_name] => Стены 1 этаж (несущие)
[parent_id] => 3
[material_sum] => 3872378
[work_sum] => 913630
[total_sum] => 4786008
[total_days] => 24
[display_material_sum] => 3 872 378
[display_work_sum] => 913 630
[display_total_sum] => 4 786 008
)
1
4 786 008₽
Работа:913 630 ₽
Материалы:3 872 378 ₽
Дни:24
stdClass Object
(
[id] => 83
[attribute_id] => 3
[name] => Каркасные
[material_modifier] => 1
[work_modifier] => 1
[options] => Array
(
[0] => 150 мм
[1] => 200 мм
[2] => 250 мм
[3] => 300 мм
)
[days] => [15,16,17,18]
[material_price] => [2379,2639,2898,3258]
[work_price] => [2418,2686,2985,3716]
[image] => https://akademik-stroy.ru/wp-content/uploads/materials/karkasnye.jpg
[area_modifier] => 172.82
[parent_name] => Стены 1 этаж (несущие)
[parent_id] => 3
[material_sum] => 542703
[work_sum] => 459667
[total_sum] => 1002370
[total_days] => 15
[display_material_sum] => 542 703
[display_work_sum] => 459 667
[display_total_sum] => 1 002 370
)
1
1 002 370₽
Работа:459 667 ₽
Материалы:542 703 ₽
Дни:15
stdClass Object
(
[id] => 84
[attribute_id] => 3
[name] => СИП-панели
[material_modifier] => 1
[work_modifier] => 1
[options] => Array
(
[0] => 120 мм
[1] => 170 мм
[2] => 220 мм
)
[days] => [7,7,7]
[material_price] => [1210,1856,2292]
[work_price] => [1410,1551,1706]
[image] => https://akademik-stroy.ru/wp-content/uploads/materials/sip-paneli.jpg
[area_modifier] => 172.82
[parent_name] => Стены 1 этаж (несущие)
[parent_id] => 3
[material_sum] => 276028
[work_sum] => 268044
[total_sum] => 544072
[total_days] => 7
[display_material_sum] => 276 028
[display_work_sum] => 268 044
[display_total_sum] => 544 072
)
1
544 072₽
Работа:268 044 ₽
Материалы:276 028 ₽
Дни:7
stdClass Object
(
[id] => 85
[attribute_id] => 3
[name] => Сухой брус
[material_modifier] => 1
[work_modifier] => 1
[options] => Array
(
[0] => 150 мм
[1] => 180 мм
[2] => 200 мм
)
[days] => [7,8,9]
[material_price] => [6010,7190,8709]
[work_price] => [3204,3845,4229]
[image] => https://akademik-stroy.ru/wp-content/uploads/materials/suhoj-brus.jpg
[area_modifier] => 172.82
[parent_name] => Стены 1 этаж (несущие)
[parent_id] => 3
[material_sum] => 1371016
[work_sum] => 609087
[total_sum] => 1980103
[total_days] => 7
[display_material_sum] => 1 371 016
[display_work_sum] => 609 087
[display_total_sum] => 1 980 103
)
1
1 980 103₽
Работа:609 087 ₽
Материалы:1 371 016 ₽
Дни:7
stdClass Object
(
[id] => 86
[attribute_id] => 3
[name] => Профилированный брус
[material_modifier] => 1
[work_modifier] => 1
[options] => Array
(
[0] => 150 мм
[1] => 180 мм
[2] => 200 мм
)
[days] => [7,8,9]
[material_price] => [8190,9228,10051]
[work_price] => [3845,4614,5075]
[image] => https://akademik-stroy.ru/wp-content/uploads/materials/profilirovannyj-brus.jpg
[area_modifier] => 172.82
[parent_name] => Стены 1 этаж (несущие)
[parent_id] => 3
[material_sum] => 1868322
[work_sum] => 730942
[total_sum] => 2599264
[total_days] => 7
[display_material_sum] => 1 868 322
[display_work_sum] => 730 942
[display_total_sum] => 2 599 264
)
1
2 599 264₽
Работа:730 942 ₽
Материалы:1 868 322 ₽
Дни:7
stdClass Object
(
[id] => 87
[attribute_id] => 3
[name] => Оцилиндрованное бревно
[material_modifier] => 1
[work_modifier] => 1
[options] => Array
(
[0] => 180 мм
[1] => 220 мм
[2] => 260 мм
[3] => 320 мм
)
[days] => [7,8,9,10]
[material_price] => [75190,9532,10868,13116]
[work_price] => [3845,4691,5535,6863]
[image] => https://akademik-stroy.ru/wp-content/uploads/materials/ocilindrovannoe-brevno-1.jpg
[area_modifier] => 172.82
[parent_name] => Стены 1 этаж (несущие)
[parent_id] => 3
[material_sum] => 17152523
[work_sum] => 730942
[total_sum] => 17883465
[total_days] => 7
[display_material_sum] => 17 152 523
[display_work_sum] => 730 942
[display_total_sum] => 17 883 465
)
1
17 883 465₽
Работа:730 942 ₽
Материалы:17 152 523 ₽
Дни:7
stdClass Object
(
[id] => 88
[attribute_id] => 3
[name] => Срубы
[material_modifier] => 1
[work_modifier] => 1
[options] => Array
(
[0] => 260 мм
[1] => 320 мм
[2] => 360 мм
[3] => 400 мм
[4] => 500 мм
)
[days] => [7,8,9,10,11]
[material_price] => [37975,46709,52314,58069,73167]
[work_price] => [4806,5911,6621,7349,9260]
[image] => https://akademik-stroy.ru/wp-content/uploads/materials/sruby.jpg
[area_modifier] => 172.82
[parent_name] => Стены 1 этаж (несущие)
[parent_id] => 3
[material_sum] => 8662948
[work_sum] => 913630
[total_sum] => 9576578
[total_days] => 7
[display_material_sum] => 8 662 948
[display_work_sum] => 913 630
[display_total_sum] => 9 576 578
)
1
9 576 578₽
Работа:913 630 ₽
Материалы:8 662 948 ₽
Дни:7
stdClass Object
(
[id] => 174
[attribute_id] => 3
[name] => Брус
[material_modifier] => 1
[work_modifier] => 1
[options] => Array
(
[0] => 150 мм
[1] => 180 мм
[2] => 200 мм
)
[days] => [7,8,9]
[material_price] => [5127,6152,7367]
[work_price] => [1602,1922,2115]
[image] => https://akademik-stroy.ru/wp-content/uploads/materials/brus.jpg
[area_modifier] => 172.82
[parent_name] => Стены 1 этаж (несущие)
[parent_id] => 3
[material_sum] => 1169584
[work_sum] => 304543
[total_sum] => 1474127
[total_days] => 7
[display_material_sum] => 1 169 584
[display_work_sum] => 304 543
[display_total_sum] => 1 474 127
)
1
1 474 127₽
Работа:304 543 ₽
Материалы:1 169 584 ₽
Дни:7
stdClass Object
(
[id] => 175
[attribute_id] => 3
[name] => Газобетон
[material_modifier] => 1
[work_modifier] => 1
[options] => Array
(
[0] => 300 мм
[1] => 375 мм
[2] => 400 мм
[3] => 500 мм
[4] => 600 мм
)
[days] => [29,31,35,37,44]
[material_price] => [4298,5573,6356,7288,9119]
[work_price] => [4538,5251,5926,6733,7195]
[image] => https://akademik-stroy.ru/wp-content/uploads/materials/gazobeton.jpg
[area_modifier] => 172.82
[parent_name] => Стены 1 этаж (несущие)
[parent_id] => 3
[material_sum] => 980470
[work_sum] => 862683
[total_sum] => 1843153
[total_days] => 29
[display_material_sum] => 980 470
[display_work_sum] => 862 683
[display_total_sum] => 1 843 153
)
1
1 843 153₽
Работа:862 683 ₽
Материалы:980 470 ₽
Дни:29
stdClass Object
(
[id] => 176
[attribute_id] => 3
[name] => Блок
[material_modifier] => 1
[work_modifier] => 1
[options] => Array
(
[0] => 300 мм
[1] => 375 мм
[2] => 400 мм
[3] => 500 мм
[4] => 600 мм
)
[days] => [29,31,35,37,44]
[material_price] => [2698,3973,4356,6588,7119]
[work_price] => [5038,5851,6426,8733,9195]
[image] => https://akademik-stroy.ru/wp-content/uploads/materials/blok.jpg
[area_modifier] => 172.82
[parent_name] => Стены 1 этаж (несущие)
[parent_id] => 3
[material_sum] => 615474
[work_sum] => 957734
[total_sum] => 1573208
[total_days] => 29
[display_material_sum] => 615 474
[display_work_sum] => 957 734
[display_total_sum] => 1 573 208
)
1
1 573 208₽
Работа:957 734 ₽
Материалы:615 474 ₽
Дни:29
stdClass Object
(
[id] => 177
[attribute_id] => 3
[name] => Газосиликатный блок
[material_modifier] => 1
[work_modifier] => 1
[options] => Array
(
[0] => 300 мм
[1] => 375 мм
[2] => 400 мм
[3] => 500 мм
[4] => 600 мм
)
[days] => [29,31,35,37,44]
[material_price] => [4298,5573,6356,7288,9119]
[work_price] => [4538,5251,5926,6733,7195]
[image] => https://akademik-stroy.ru/wp-content/uploads/materials/gazosilikatnyj-blok.jpg
[area_modifier] => 172.82
[parent_name] => Стены 1 этаж (несущие)
[parent_id] => 3
[material_sum] => 980470
[work_sum] => 862683
[total_sum] => 1843153
[total_days] => 29
[display_material_sum] => 980 470
[display_work_sum] => 862 683
[display_total_sum] => 1 843 153
)
1
1 843 153₽
Работа:862 683 ₽
Материалы:980 470 ₽
Дни:29
stdClass Object
(
[id] => 178
[attribute_id] => 3
[name] => Керамзитобетонный блок
[material_modifier] => 1
[work_modifier] => 1
[options] => Array
(
[0] => 300 мм
[1] => 375 мм
[2] => 400 мм
[3] => 500 мм
[4] => 600 мм
)
[days] => [23,23,24,25,28]
[material_price] => [3641,4298,5693,7613,9612]
[work_price] => [5737,5737,6903,7958,8901]
[image] => https://akademik-stroy.ru/wp-content/uploads/materials/keramzitobetonnyj-blok.jpg
[area_modifier] => 172.82
[parent_name] => Стены 1 этаж (несущие)
[parent_id] => 3
[material_sum] => 830594
[work_sum] => 1090615
[total_sum] => 1921209
[total_days] => 23
[display_material_sum] => 830 594
[display_work_sum] => 1 090 615
[display_total_sum] => 1 921 209
)
1
1 921 209₽
Работа:1 090 615 ₽
Материалы:830 594 ₽
Дни:23
stdClass Object
(
[id] => 179
[attribute_id] => 3
[name] => Деревянные
[material_modifier] => 1
[work_modifier] => 1
[options] => Array
(
[0] => 180 мм
[1] => 220 мм
[2] => 260 мм
[3] => 320 мм
)
[days] => [7,8,9,10]
[material_price] => [7950,9458,11961,14472]
[work_price] => [4037,4925,5812,7207]
[image] => https://akademik-stroy.ru/wp-content/uploads/materials/derevyannye.jpg
[area_modifier] => 172.82
[parent_name] => Стены 1 этаж (несущие)
[parent_id] => 3
[material_sum] => 1813573
[work_sum] => 767442
[total_sum] => 2581015
[total_days] => 7
[display_material_sum] => 1 813 573
[display_work_sum] => 767 442
[display_total_sum] => 2 581 015
)
1
2 581 015₽
Работа:767 442 ₽
Материалы:1 813 573 ₽
Дни:7
stdClass Object
(
[id] => 181
[attribute_id] => 3
[name] => Камень
[material_modifier] => 1
[work_modifier] => 1
[options] => Array
(
[0] => 300 мм
[1] => 400 мм
[2] => 500 мм
[3] => 600 мм
)
[days] => [25,27,31,34]
[material_price] => [5262,6844,8330,9815]
[work_price] => [8331,9135,10427,11069]
[image] => https://akademik-stroy.ru/wp-content/uploads/materials/kamen.jpg
[area_modifier] => 172.82
[parent_name] => Стены 1 этаж (несущие)
[parent_id] => 3
[material_sum] => 1200380
[work_sum] => 1583740
[total_sum] => 2784120
[total_days] => 25
[display_material_sum] => 1 200 380
[display_work_sum] => 1 583 740
[display_total_sum] => 2 784 120
)
1
2 784 120₽
Работа:1 583 740 ₽
Материалы:1 200 380 ₽
Дни:25
stdClass Object
(
[id] => 182
[attribute_id] => 3
[name] => Каркасно-щитовые
[material_modifier] => 1
[work_modifier] => 1
[options] => Array
(
[0] => 150 мм
[1] => 200 мм
[2] => 250 мм
[3] => 300 мм
[4] => 350 мм
[5] => 400 мм
)
[days] => [15,16,17,18,19,20]
[material_price] => [2379,2639,2898,3458,3601,4175]
[work_price] => [2538,2820,3134,3483,4062,5642]
[image] => https://akademik-stroy.ru/wp-content/uploads/materials/karkasno-shchitovye.jpg
[area_modifier] => 172.82
[parent_name] => Стены 1 этаж (несущие)
[parent_id] => 3
[material_sum] => 542703
[work_sum] => 482479
[total_sum] => 1025182
[total_days] => 15
[display_material_sum] => 542 703
[display_work_sum] => 482 479
[display_total_sum] => 1 025 182
)
1
1 025 182₽
Работа:482 479 ₽
Материалы:542 703 ₽
Дни:15
stdClass Object
(
[id] => 183
[attribute_id] => 3
[name] => Рубленные
[material_modifier] => 1
[work_modifier] => 1
[options] => Array
(
[0] => 150 мм
[1] => 200 мм
[2] => 250 мм
[3] => 300 мм
[4] => 350 мм
[5] => 400 мм
)
[days] => [15,16,17,18,17,18]
[material_price] => [35950,50267,60583,75900,80217,100533]
[work_price] => [9612,12816,16020,19224,22428,25632]
[image] => https://akademik-stroy.ru/wp-content/uploads/materials/rublennye.jpg
[area_modifier] => 172.82
[parent_name] => Стены 1 этаж (несущие)
[parent_id] => 3
[material_sum] => 8201000
[work_sum] => 1827260
[total_sum] => 10028260
[total_days] => 15
[display_material_sum] => 8 201 000
[display_work_sum] => 1 827 260
[display_total_sum] => 10 028 260
)
1
10 028 260₽
Работа:1 827 260 ₽
Материалы:8 201 000 ₽
Дни:15
stdClass Object
(
[id] => 185
[attribute_id] => 3
[name] => Теплоблок
[material_modifier] => 1
[work_modifier] => 1
[options] => Array
(
[0] => 300 мм (с облицовкой, не покрашенный)
[1] => 400 мм (с облицовкой, не покрашенный)
[2] => 300 мм (с облицовкой, покрашенный)
[3] => 400 мм (с облицовкой, покрашенный)
)
[days] => [15,16,15,16]
[material_price] => [2888,3729,3957,4258]
[work_price] => [2564,3229,2949,3713]
[image] => https://akademik-stroy.ru/wp-content/uploads/materials/teploblok.jpg
[area_modifier] => 172.82
[parent_name] => Стены 1 этаж (несущие)
[parent_id] => 3
[material_sum] => 658817
[work_sum] => 487422
[total_sum] => 1146239
[total_days] => 15
[display_material_sum] => 658 817
[display_work_sum] => 487 422
[display_total_sum] => 1 146 239
)
1
1 146 239₽
Работа:487 422 ₽
Материалы:658 817 ₽
Дни:15
stdClass Object
(
[id] => 186
[attribute_id] => 3
[name] => Арболитовые блоки
[material_modifier] => 1
[work_modifier] => 1
[options] => Array
(
[0] => 300 мм
[1] => 400 мм
[2] => 600 мм
)
[days] => [19,22,27]
[material_price] => [3210,4475,5852]
[work_price] => [4214,4788,5866]
[image] => https://akademik-stroy.ru/wp-content/uploads/materials/arbolitovye-bloki.png
[area_modifier] => 172.82
[parent_name] => Стены 1 этаж (несущие)
[parent_id] => 3
[material_sum] => 732273
[work_sum] => 801090
[total_sum] => 1533363
[total_days] => 19
[display_material_sum] => 732 273
[display_work_sum] => 801 090
[display_total_sum] => 1 533 363
)
1
1 533 363₽
Работа:801 090 ₽
Материалы:732 273 ₽
Дни:19
stdClass Object
(
[id] => 187
[attribute_id] => 3
[name] => Полистиролбетон
[material_modifier] => 1
[work_modifier] => 1
[options] => Array
(
[0] => 300 мм
[1] => 400 мм
[2] => 600 мм
)
[days] => [29,31,35]
[material_price] => [2798,4573,5256]
[work_price] => [5038,5851,6426]
[image] => https://akademik-stroy.ru/wp-content/uploads/materials/polistirolbeton.jpg
[area_modifier] => 172.82
[parent_name] => Стены 1 этаж (несущие)
[parent_id] => 3
[material_sum] => 638286
[work_sum] => 957734
[total_sum] => 1596020
[total_days] => 29
[display_material_sum] => 638 286
[display_work_sum] => 957 734
[display_total_sum] => 1 596 020
)
1
1 596 020₽
Работа:957 734 ₽
Материалы:638 286 ₽
Дни:29
stdClass Object
(
[id] => 188
[attribute_id] => 3
[name] => Шлакоблок
[material_modifier] => 1
[work_modifier] => 1
[options] => Array
(
[0] => 400 мм
[1] => 600 мм
)
[days] => [15,16]
[material_price] => [2391,3471]
[work_price] => [2642,3662]
[image] => https://akademik-stroy.ru/wp-content/uploads/materials/shlakoblok.jpg
[area_modifier] => 172.82
[parent_name] => Стены 1 этаж (несущие)
[parent_id] => 3
[material_sum] => 545441
[work_sum] => 502249
[total_sum] => 1047690
[total_days] => 15
[display_material_sum] => 545 441
[display_work_sum] => 502 249
[display_total_sum] => 1 047 690
)
1
1 047 690₽
Работа:502 249 ₽
Материалы:545 441 ₽
Дни:15
stdClass Object
(
[id] => 189
[attribute_id] => 3
[name] => Теплая керамика
[material_modifier] => 1
[work_modifier] => 1
[options] => Array
(
[0] => 380 мм
[1] => 380 мм Thermo
[2] => 440 мм
[3] => 510 мм
)
[days] => [23,23,24,25]
[material_price] => [4510,5098,6093,8013]
[work_price] => [4737,4937,5903,6958]
[image] => https://akademik-stroy.ru/wp-content/uploads/materials/teplaya-keramika.jpg
[area_modifier] => 172.82
[parent_name] => Стены 1 этаж (несущие)
[parent_id] => 3
[material_sum] => 1028832
[work_sum] => 900513
[total_sum] => 1929345
[total_days] => 23
[display_material_sum] => 1 028 832
[display_work_sum] => 900 513
[display_total_sum] => 1 929 345
)
1
1 929 345₽
Работа:900 513 ₽
Материалы:1 028 832 ₽
Дни:23
stdClass Object
(
[id] => 190
[attribute_id] => 3
[name] => Несъемная опалубка
[material_modifier] => 1
[work_modifier] => 1
[options] => Array
(
[0] => 200 мм
[1] => 250 мм
[2] => 300 мм
[3] => 350 мм
)
[days] => [15,17,19,21]
[material_price] => [3302,3902,4108,5008]
[work_price] => [2100,2100,2300,2534]
[image] => https://akademik-stroy.ru/wp-content/uploads/materials/nesemnaya-opalubka.jpg
[area_modifier] => 172.82
[parent_name] => Стены 1 этаж (несущие)
[parent_id] => 3
[material_sum] => 753260
[work_sum] => 399214
[total_sum] => 1152474
[total_days] => 15
[display_material_sum] => 753 260
[display_work_sum] => 399 214
[display_total_sum] => 1 152 474
)
1
1 152 474₽
Работа:399 214 ₽
Материалы:753 260 ₽
Дни:15
stdClass Object
(
[id] => 251
[attribute_id] => 3
[name] => Бревно
[material_modifier] => 1
[work_modifier] => 1
[options] => Array
(
[0] => 260 мм
[1] => 320 мм
[2] => 360 мм
[3] => 400 мм
[4] => 500 мм
)
[days] => [7,8,9,10,11]
[material_price] => [1874,24045,26930,30972,38825]
[work_price] => [5046,6207,6952,7716,9723]
[image] => https://akademik-stroy.ru/wp-content/uploads/materials/sruby.jpg
[area_modifier] => 172.82
[parent_name] => Стены 1 этаж (несущие)
[parent_id] => 3
[material_sum] => 427501
[work_sum] => 959255
[total_sum] => 1386756
[total_days] => 7
[display_material_sum] => 427 501
[display_work_sum] => 959 255
[display_total_sum] => 1 386 756
)
1
1 386 756₽
Работа:959 255 ₽
Материалы:427 501 ₽
Дни:7
stdClass Object
(
[id] => 7
[attribute_id] => 4
[name] => Деревянные балки
[material_modifier] => 1
[work_modifier] => 1
[options] => Array
(
[0] => без утепления
[1] => утепление 200 мм
[2] => утепление 250 мм
[3] => утепление 300 мм
[4] => утепление 350 мм
[5] => утепление 400 мм
[6] => утепление 450 мм
[7] => утепление 500 мм
)
[days] => [8,9,9,9,11,12,13,14]
[material_price] => [1634,2042,2344,2947,3149,3652,3354,3557]
[work_price] => [1230,1339,1393,1426,1460,1513,1587,1620]
[image] => https://akademik-stroy.ru/wp-content/uploads/materials/derevyannye-balki.png
[area_modifier] => 172.82
[parent_name] => Перекрытие первого этажа
[parent_id] => 4
[material_sum] => 372752
[work_sum] => 233825
[total_sum] => 606577
[total_days] => 8
[display_material_sum] => 372 752
[display_work_sum] => 233 825
[display_total_sum] => 606 577
)
1
606 577₽
Работа:233 825 ₽
Материалы:372 752 ₽
Дни:8
stdClass Object
(
[id] => 8
[attribute_id] => 4
[name] => Сборные ж/б плиты
[material_modifier] => 1
[work_modifier] => 1
[options] => Array
(
[0] => без утепления
[1] => утепление 150 мм
[2] => утепление 200 мм
[3] => утепление 250 мм
[4] => утепление 300 мм
[5] => утепление 350 мм
[6] => утепление 400 мм
[7] => утепление 450 мм
[8] => утепление 500 мм
)
[days] => [13,15,15,15,15,15,15,15,15]
[material_price] => [3067,5577,5928,6679,7730,8782,9833,10884,11935]
[work_price] => [1520,1956,2102,2247,2392,2537,2684,2829,2974]
[image] => https://akademik-stroy.ru/wp-content/uploads/materials/sbornye-zh-b-plity-2.jpg
[area_modifier] => 172.82
[parent_name] => Перекрытие первого этажа
[parent_id] => 4
[material_sum] => 699651
[work_sum] => 288955
[total_sum] => 988606
[total_days] => 13
[display_material_sum] => 699 651
[display_work_sum] => 288 955
[display_total_sum] => 988 606
)
1
988 606₽
Работа:288 955 ₽
Материалы:699 651 ₽
Дни:13
stdClass Object
(
[id] => 89
[attribute_id] => 4
[name] => Монолитная ж/б плита
[material_modifier] => 1
[work_modifier] => 1
[options] => Array
(
[0] => без утепления
[1] => утепление 150 мм
[2] => утепление 200 мм
[3] => утепление 250 мм
[4] => утепление 300 мм
[5] => утепление 350 мм
[6] => утепление 400 мм
[7] => утепление 450 мм
[8] => утепление 500 мм
)
[days] => [18,20,20,20,20,20,20,20,20]
[material_price] => [4837,6572,7224,7375,79426,8177,8728,9180,10031]
[work_price] => [3348,3921,4112,4302,4493,4684,4875,5066,5256]
[image] => https://akademik-stroy.ru/wp-content/uploads/materials/monolitnaya-zh-b-plita-2.jpg
[area_modifier] => 172.82
[parent_name] => Перекрытие первого этажа
[parent_id] => 4
[material_sum] => 1103428
[work_sum] => 636461
[total_sum] => 1739889
[total_days] => 18
[display_material_sum] => 1 103 428
[display_work_sum] => 636 461
[display_total_sum] => 1 739 889
)
1
1 739 889₽
Работа:636 461 ₽
Материалы:1 103 428 ₽
Дни:18
stdClass Object
(
[id] => 164
[attribute_id] => 37
[name] => Металлочерепица
[material_modifier] => 1
[work_modifier] => 1
[options] => Array
(
)
[days] => [20]
[material_price] => [6112]
[work_price] => [5726]
[image] => https://akademik-stroy.ru/wp-content/uploads/materials/metallocherepica.jpg
[area_modifier] => 172.82
[parent_name] => Крыша (Скатная)
[parent_id] => 37
[material_sum] => 1394284
[work_sum] => 1088524
[total_sum] => 2482808
[total_days] => 20
[display_material_sum] => 1 394 284
[display_work_sum] => 1 088 524
[display_total_sum] => 2 482 808
)
1
2 482 808₽
Работа:1 088 524 ₽
Материалы:1 394 284 ₽
Дни:20
stdClass Object
(
[id] => 165
[attribute_id] => 37
[name] => Гибкая черепица
[material_modifier] => 1
[work_modifier] => 1
[options] => Array
(
)
[days] => [20]
[material_price] => [6980]
[work_price] => [5950]
[image] => https://akademik-stroy.ru/wp-content/uploads/materials/gibkaya-cherepica.jpg
[area_modifier] => 172.82
[parent_name] => Крыша (Скатная)
[parent_id] => 37
[material_sum] => 1592294
[work_sum] => 1131107
[total_sum] => 2723401
[total_days] => 20
[display_material_sum] => 1 592 294
[display_work_sum] => 1 131 107
[display_total_sum] => 2 723 401
)
1
2 723 401₽
Работа:1 131 107 ₽
Материалы:1 592 294 ₽
Дни:20
stdClass Object
(
[id] => 166
[attribute_id] => 37
[name] => Цементно-песчаная черепица
[material_modifier] => 1
[work_modifier] => 1
[options] => Array
(
)
[days] => [20]
[material_price] => [10560]
[work_price] => [9456]
[image] => https://akademik-stroy.ru/wp-content/uploads/materials/cementno-peschanaya-cherepica.jpg
[area_modifier] => 172.82
[parent_name] => Крыша (Скатная)
[parent_id] => 37
[material_sum] => 2408973
[work_sum] => 1797605
[total_sum] => 4206578
[total_days] => 20
[display_material_sum] => 2 408 973
[display_work_sum] => 1 797 605
[display_total_sum] => 4 206 578
)
1
4 206 578₽
Работа:1 797 605 ₽
Материалы:2 408 973 ₽
Дни:20
stdClass Object
(
[id] => 167
[attribute_id] => 37
[name] => Композитная черепица
[material_modifier] => 1
[work_modifier] => 1
[options] => Array
(
)
[days] => [20]
[material_price] => [9506]
[work_price] => [8905]
[image] => https://akademik-stroy.ru/wp-content/uploads/materials/kompozitnaya-cherepica.jpg
[area_modifier] => 172.82
[parent_name] => Крыша (Скатная)
[parent_id] => 37
[material_sum] => 2168532
[work_sum] => 1692858
[total_sum] => 3861390
[total_days] => 20
[display_material_sum] => 2 168 532
[display_work_sum] => 1 692 858
[display_total_sum] => 3 861 390
)
1
3 861 390₽
Работа:1 692 858 ₽
Материалы:2 168 532 ₽
Дни:20
stdClass Object
(
[id] => 168
[attribute_id] => 37
[name] => Керамическая черепица
[material_modifier] => 1
[work_modifier] => 1
[options] => Array
(
)
[days] => [20]
[material_price] => [12750]
[work_price] => [9456]
[image] => https://akademik-stroy.ru/wp-content/uploads/materials/keramicheskaya-cherepica.jpg
[area_modifier] => 172.82
[parent_name] => Крыша (Скатная)
[parent_id] => 37
[material_sum] => 2908561
[work_sum] => 1797605
[total_sum] => 4706166
[total_days] => 20
[display_material_sum] => 2 908 561
[display_work_sum] => 1 797 605
[display_total_sum] => 4 706 166
)
1
4 706 166₽
Работа:1 797 605 ₽
Материалы:2 908 561 ₽
Дни:20
stdClass Object
(
[id] => 169
[attribute_id] => 37
[name] => Металлическая фальцевая
[material_modifier] => 1
[work_modifier] => 1
[options] => Array
(
)
[days] => [20]
[material_price] => [8550]
[work_price] => [8190]
[image] => https://akademik-stroy.ru/wp-content/uploads/materials/metallicheskaya-falcevaya.jpg
[area_modifier] => 172.82
[parent_name] => Крыша (Скатная)
[parent_id] => 37
[material_sum] => 1950447
[work_sum] => 1556935
[total_sum] => 3507382
[total_days] => 20
[display_material_sum] => 1 950 447
[display_work_sum] => 1 556 935
[display_total_sum] => 3 507 382
)
1
3 507 382₽
Работа:1 556 935 ₽
Материалы:1 950 447 ₽
Дни:20
stdClass Object
(
[id] => 170
[attribute_id] => 37
[name] => Медная фальцевая
[material_modifier] => 1
[work_modifier] => 1
[options] => Array
(
)
[days] => [20]
[material_price] => [20450]
[work_price] => [16750]
[image] => https://akademik-stroy.ru/wp-content/uploads/materials/mednaya-falcevaya.jpg
[area_modifier] => 172.82
[parent_name] => Крыша (Скатная)
[parent_id] => 37
[material_sum] => 4665103
[work_sum] => 3184209
[total_sum] => 7849312
[total_days] => 20
[display_material_sum] => 4 665 103
[display_work_sum] => 3 184 209
[display_total_sum] => 7 849 312
)
1
7 849 312₽
Работа:3 184 209 ₽
Материалы:4 665 103 ₽
Дни:20
stdClass Object
(
[id] => 171
[attribute_id] => 37
[name] => Зеленая кровля
[material_modifier] => 1
[work_modifier] => 1
[options] => Array
(
)
[days] => [20]
[material_price] => [19850]
[work_price] => [16780]
[image] => https://akademik-stroy.ru/wp-content/uploads/materials/zelenaya-krovlya.jpg
[area_modifier] => 172.82
[parent_name] => Крыша (Скатная)
[parent_id] => 37
[material_sum] => 4528230
[work_sum] => 3189912
[total_sum] => 7718142
[total_days] => 20
[display_material_sum] => 4 528 230
[display_work_sum] => 3 189 912
[display_total_sum] => 7 718 142
)
1
7 718 142₽
Работа:3 189 912 ₽
Материалы:4 528 230 ₽
Дни:20
stdClass Object
(
[id] => 172
[attribute_id] => 37
[name] => Профлист
[material_modifier] => 1
[work_modifier] => 1
[options] => Array
(
)
[days] => [20]
[material_price] => [3450]
[work_price] => [3750]
[image] => https://akademik-stroy.ru/wp-content/uploads/materials/proflist.jpg
[area_modifier] => 172.82
[parent_name] => Крыша (Скатная)
[parent_id] => 37
[material_sum] => 787022
[work_sum] => 712883
[total_sum] => 1499905
[total_days] => 20
[display_material_sum] => 787 022
[display_work_sum] => 712 883
[display_total_sum] => 1 499 905
)
1
1 499 905₽
Работа:712 883 ₽
Материалы:787 022 ₽
Дни:20
stdClass Object
(
[id] => 51
[attribute_id] => 26
[name] => Есть
[material_modifier] => 1
[work_modifier] => 1
[options] => Array
(
[0] => Профиль 58 мм, 3-камерный, стеклопакет 2-камерный до 32 мм
[1] => Профиль 60 мм, 4-камерный, стеклопакет 2-камерный до 32 мм
[2] => Профиль 70 мм, 5-камерный, стеклопакет 2-камерный до 40 мм
[3] => Профиль 72 мм, 5-камерный, стеклопакет 2-камерный до 40 мм
[4] => Алюминиевые окна Alutech профиль 72 мм, стеклопакет 2-камерный
)
[days] => [3,3,3,3,3]
[material_price] => [1339,2124,2867,3023,29596]
[work_price] => [635,647,659,668,2579]
[image] => https://akademik-stroy.ru/wp-content/uploads/materials/okna.jpg
[area_modifier] => 140.24
[parent_name] => Окна
[parent_id] => 26
[material_sum] => 247871
[work_sum] => 97958
[total_sum] => 345829
[total_days] => 3
[display_material_sum] => 247 871
[display_work_sum] => 97 958
[display_total_sum] => 345 829
)
1
345 829₽
Работа:97 958 ₽
Материалы:247 871 ₽
Дни:3
stdClass Object
(
[id] => 52
[attribute_id] => 26
[name] => Нет
[material_modifier] => 2
[work_modifier] => 1
[options] =>
[days] => null
[material_price] => null
[work_price] => null
[image] => https://akademik-stroy.ru/wp-content/uploads/materials/okna.jpg
[area_modifier] => 140.24
[parent_name] => Окна
[parent_id] => 26
[material_sum] => 0
[work_sum] => 0
[total_sum] => 0
[total_days] => 0
[display_material_sum] => 0
[display_work_sum] => 0
[display_total_sum] => 0
)
1
0₽
Работа:0 ₽
Материалы:0 ₽
Дни:0
stdClass Object
(
[id] => 53
[attribute_id] => 27
[name] => Есть
[material_modifier] => 1
[work_modifier] => 1
[options] => Array
(
)
[days] => [1]
[material_price] => [10000]
[work_price] => [5500]
[image] => https://akademik-stroy.ru/wp-content/uploads/materials/dveri.jpg
[area_modifier] => 1
[parent_name] => Двери входные
[parent_id] => 27
[material_sum] => 13200
[work_sum] => 6050
[total_sum] => 19250
[total_days] => 1
[display_material_sum] => 13 200
[display_work_sum] => 6 050
[display_total_sum] => 19 250
)
1
19 250₽
Работа:6 050 ₽
Материалы:13 200 ₽
Дни:1
stdClass Object
(
[id] => 54
[attribute_id] => 27
[name] => Нет
[material_modifier] => 1
[work_modifier] => 1
[options] => Array
(
)
[days] => [0]
[material_price] => [0]
[work_price] => [0]
[image] => https://akademik-stroy.ru/wp-content/uploads/materials/dveri.jpg
[area_modifier] => 1
[parent_name] => Двери входные
[parent_id] => 27
[material_sum] => 0
[work_sum] => 0
[total_sum] => 0
[total_days] => 0
[display_material_sum] => 0
[display_work_sum] => 0
[display_total_sum] => 0
)
1
0₽
Работа:0 ₽
Материалы:0 ₽
Дни:0
stdClass Object
(
[id] => 25
[attribute_id] => 13
[name] => Нет
[material_modifier] => 1
[work_modifier] => 1
[options] => Array
(
)
[days] => [0]
[material_price] => [0]
[work_price] => [0]
[image] => https://akademik-stroy.ru/wp-content/uploads/materials/mineralovata-krov.jpg
[area_modifier] => 172.82
[parent_name] => Утепление кровли (Мансарда)
[parent_id] => 13
[material_sum] => 0
[work_sum] => 0
[total_sum] => 0
[total_days] => 0
[display_material_sum] => 0
[display_work_sum] => 0
[display_total_sum] => 0
)
1
0₽
Работа:0 ₽
Материалы:0 ₽
Дни:0
stdClass Object
(
[id] => 26
[attribute_id] => 13
[name] => Минераловатный
[material_modifier] => 1
[work_modifier] => 1
[options] => Array
(
[0] => 50 мм
[1] => 100 мм
[2] => 150 мм
[3] => 200 мм
[4] => 250 мм
[5] => 300 мм
[6] => 350 мм
[7] => 400 мм
[8] => 450 мм
[9] => 500 мм
)
[days] => [5,5,6,6,6,7,7,7,8,8]
[material_price] => [1158,1414,1772,2230,3602,4060,4974,5890,6408,7718]
[work_price] => [650,846,846,1098,1318,1450,1596,1754,1930,2122]
[image] => https://akademik-stroy.ru/wp-content/uploads/materials/mineralovata-krov.jpg
[area_modifier] => 172.82
[parent_name] => Утепление кровли (Мансарда)
[parent_id] => 13
[material_sum] => 264166
[work_sum] => 123566
[total_sum] => 387732
[total_days] => 5
[display_material_sum] => 264 166
[display_work_sum] => 123 566
[display_total_sum] => 387 732
)
1
387 732₽
Работа:123 566 ₽
Материалы:264 166 ₽
Дни:5
stdClass Object
(
[id] => 123
[attribute_id] => 13
[name] => Эковата (целлюлозная вата)
[material_modifier] => 1
[work_modifier] => 1
[options] => Array
(
[0] => 50 мм
[1] => 100 мм
[2] => 150 мм
[3] => 200 мм
[4] => 250 мм
[5] => 300 мм
[6] => 350 мм
[7] => 400 мм
[8] => 450 мм
[9] => 500 мм
)
[days] => [3,3,4,4,4,5,5,5,5,5]
[material_price] => [820,1638,2458,3276,5734,6552,8190,9828,11466,13104]
[work_price] => [234,304,304,396,474,522,574,632,694,764]
[image] => https://akademik-stroy.ru/wp-content/uploads/materials/ehkovata-krov.jpg
[area_modifier] => 172.82
[parent_name] => Утепление кровли (Мансарда)
[parent_id] => 13
[material_sum] => 187060
[work_sum] => 44484
[total_sum] => 231544
[total_days] => 3
[display_material_sum] => 187 060
[display_work_sum] => 44 484
[display_total_sum] => 231 544
)
1
231 544₽
Работа:44 484 ₽
Материалы:187 060 ₽
Дни:3
stdClass Object
(
[id] => 124
[attribute_id] => 13
[name] => Экструдированный пенополистирол
[material_modifier] => 1
[work_modifier] => 1
[options] => Array
(
[0] => 50 мм
[1] => 100 мм
[2] => 150 мм
[3] => 200 мм
[4] => 250 мм
[5] => 300 мм
[6] => 350 мм
[7] => 400 мм
[8] => 450 мм
[9] => 500 мм
)
[days] => [3,3,4,4,4,5,5,5,5,6]
[material_price] => [1146,2292,3438,4584,8020,9166,11458,13750,16040,18332]
[work_price] => [390,508,508,660,790,870,958,1052,1158,1274]
[image] => https://akademik-stroy.ru/wp-content/uploads/materials/epps-krov.jpg
[area_modifier] => 172.82
[parent_name] => Утепление кровли (Мансарда)
[parent_id] => 13
[material_sum] => 261428
[work_sum] => 74140
[total_sum] => 335568
[total_days] => 3
[display_material_sum] => 261 428
[display_work_sum] => 74 140
[display_total_sum] => 335 568
)
1
335 568₽
Работа:74 140 ₽
Материалы:261 428 ₽
Дни:3
stdClass Object
(
[id] => 125
[attribute_id] => 13
[name] => ПСБ (ППС-пенополистирол)
[material_modifier] => 1
[work_modifier] => 1
[options] => Array
(
[0] => 50 мм
[1] => 100 мм
[2] => 150 мм
[3] => 200 мм
[4] => 250 мм
[5] => 300 мм
[6] => 350 мм
[7] => 400 мм
[8] => 450 мм
[9] => 500 мм
)
[days] => [3,3,4,4,4,5,5,5,5,6]
[material_price] => [476,954,1430,1906,3336,3814,4766,5720,6674,7626]
[work_price] => [390,508,508,660,790,870,958,1052,1158,1274]
[image] => https://akademik-stroy.ru/wp-content/uploads/materials/psb-krov.jpg
[area_modifier] => 172.82
[parent_name] => Утепление кровли (Мансарда)
[parent_id] => 13
[material_sum] => 108586
[work_sum] => 74140
[total_sum] => 182726
[total_days] => 3
[display_material_sum] => 108 586
[display_work_sum] => 74 140
[display_total_sum] => 182 726
)
1
182 726₽
Работа:74 140 ₽
Материалы:108 586 ₽
Дни:3
stdClass Object
(
[id] => 126
[attribute_id] => 13
[name] => ППУ (Пенополиуретан)
[material_modifier] => 1
[work_modifier] => 1
[options] => Array
(
[0] => 50 мм
[1] => 100 мм
[2] => 150 мм
[3] => 200 мм
[4] => 250 мм
[5] => 300 мм
[6] => 350 мм
[7] => 400 мм
[8] => 450 мм
[9] => 500 мм
)
[days] => [2,2,3,3,3,3,4,4,4,4]
[material_price] => [2080,4160,6240,8320,14560,16640,20800,24960,29120,33280]
[work_price] => [234,304,304,396,474,522,574,632,694,764]
[image] => https://akademik-stroy.ru/wp-content/uploads/materials/ppu-krov.jpg
[area_modifier] => 172.82
[parent_name] => Утепление кровли (Мансарда)
[parent_id] => 13
[material_sum] => 474495
[work_sum] => 44484
[total_sum] => 518979
[total_days] => 2
[display_material_sum] => 474 495
[display_work_sum] => 44 484
[display_total_sum] => 518 979
)
1
518 979₽
Работа:44 484 ₽
Материалы:474 495 ₽
Дни:2
stdClass Object
(
[id] => 127
[attribute_id] => 13
[name] => PIR-плиты (пенополиизоцианурат)
[material_modifier] => 1
[work_modifier] => 1
[options] => Array
(
[0] => 50 мм
[1] => 100 мм
[2] => 150 мм
[3] => 200 мм
[4] => 250 мм
[5] => 300 мм
[6] => 350 мм
[7] => 400 мм
[8] => 450 мм
[9] => 500 мм
)
[days] => [3,3,4,4,4,5,5,5,5,6]
[material_price] => [2646,5290,7936,10580,18516,21162,26452,31742,37032,42324]
[work_price] => [390,508,508,660,790,870,958,1052,1158,1274]
[image] => https://akademik-stroy.ru/wp-content/uploads/materials/pir-krov.jpg
[area_modifier] => 172.82
[parent_name] => Утепление кровли (Мансарда)
[parent_id] => 13
[material_sum] => 603612
[work_sum] => 74140
[total_sum] => 677752
[total_days] => 3
[display_material_sum] => 603 612
[display_work_sum] => 74 140
[display_total_sum] => 677 752
)
1
677 752₽
Работа:74 140 ₽
Материалы:603 612 ₽
Дни:3
stdClass Object
(
[id] => 27
[attribute_id] => 14
[name] => Нет
[material_modifier] => 1
[work_modifier] => 1
[options] => Array
(
)
[days] => [0]
[material_price] => [0]
[work_price] => [0]
[image] => https://akademik-stroy.ru/wp-content/uploads/materials/mansardnye-okna-2.jpg
[area_modifier] => 1
[parent_name] => Мансардные окна
[parent_id] => 14
[material_sum] => 0
[work_sum] => 0
[total_sum] => 0
[total_days] => 0
[display_material_sum] => 0
[display_work_sum] => 0
[display_total_sum] => 0
)
1
0₽
Работа:0 ₽
Материалы:0 ₽
Дни:0
stdClass Object
(
[id] => 28
[attribute_id] => 14
[name] => Есть
[material_modifier] => 1
[work_modifier] => 1
[options] => Array
(
[0] => 55x78
[1] => 55x98
)
[days] => [6,7]
[material_price] => [47480,68700]
[work_price] => [17900,19500]
[image] => https://akademik-stroy.ru/wp-content/uploads/materials/mansardnye-okna-2.jpg
[area_modifier] => 1
[parent_name] => Мансардные окна
[parent_id] => 14
[material_sum] => 62674
[work_sum] => 19690
[total_sum] => 82364
[total_days] => 6
[display_material_sum] => 62 674
[display_work_sum] => 19 690
[display_total_sum] => 82 364
)
1
82 364₽
Работа:19 690 ₽
Материалы:62 674 ₽
Дни:6
stdClass Object
(
[id] => 29
[attribute_id] => 15
[name] => Нет
[material_modifier] => 1
[work_modifier] => 1
[options] => Array
(
)
[days] => [0]
[material_price] => [0]
[work_price] => [0]
[image] => https://akademik-stroy.ru/wp-content/uploads/materials/sofit.jpg
[area_modifier] => 172.82
[parent_name] => Подшивка кровли
[parent_id] => 15
[material_sum] => 0
[work_sum] => 0
[total_sum] => 0
[total_days] => 0
[display_material_sum] => 0
[display_work_sum] => 0
[display_total_sum] => 0
)
1
0₽
Работа:0 ₽
Материалы:0 ₽
Дни:0
stdClass Object
(
[id] => 30
[attribute_id] => 15
[name] => Есть
[material_modifier] => 1
[work_modifier] => 1
[options] => Array
(
[0] => Софиты (ПВХ)
[1] => Cedral
[2] => ДПК
[3] => Планкен
)
[days] => [7,10,9,8]
[material_price] => [1803,3213,3025,3150]
[work_price] => [1529,2188,2075,1923]
[image] => https://akademik-stroy.ru/wp-content/uploads/materials/sofit.jpg
[area_modifier] => 172.82
[parent_name] => Подшивка кровли
[parent_id] => 15
[material_sum] => 411305
[work_sum] => 290666
[total_sum] => 701971
[total_days] => 7
[display_material_sum] => 411 305
[display_work_sum] => 290 666
[display_total_sum] => 701 971
)
1
701 971₽
Работа:290 666 ₽
Материалы:411 305 ₽
Дни:7
stdClass Object
(
[id] => 31
[attribute_id] => 16
[name] => Нет
[material_modifier] => 1
[work_modifier] => 1
[options] => Array
(
)
[days] => [0]
[material_price] => [0]
[work_price] => [0]
[image] => https://akademik-stroy.ru/wp-content/uploads/materials/docke-standard-pvh.jpg
[area_modifier] => 172.82
[parent_name] => Водосточная система
[parent_id] => 16
[material_sum] => 0
[work_sum] => 0
[total_sum] => 0
[total_days] => 0
[display_material_sum] => 0
[display_work_sum] => 0
[display_total_sum] => 0
)
1
0₽
Работа:0 ₽
Материалы:0 ₽
Дни:0
stdClass Object
(
[id] => 32
[attribute_id] => 16
[name] => Есть
[material_modifier] => 1
[work_modifier] => 1
[options] => Array
(
[0] => Döcke Standard (ПВХ)
[1] => Металлические Grand Line
)
[days] => [7,7]
[material_price] => [1842,2703]
[work_price] => [1491,1529]
[image] => https://akademik-stroy.ru/wp-content/uploads/materials/docke-standard-pvh.jpg
[area_modifier] => 172.82
[parent_name] => Водосточная система
[parent_id] => 16
[material_sum] => 420201
[work_sum] => 283442
[total_sum] => 703643
[total_days] => 7
[display_material_sum] => 420 201
[display_work_sum] => 283 442
[display_total_sum] => 703 643
)
1
703 643₽
Работа:283 442 ₽
Материалы:420 201 ₽
Дни:7
stdClass Object
(
[id] => 33
[attribute_id] => 17
[name] => Нет
[material_modifier] => 1
[work_modifier] => 1
[options] => Array
(
)
[days] => [0]
[material_price] => [0]
[work_price] => [0]
[image] => https://akademik-stroy.ru/wp-content/uploads/materials/mineralovata.jpg
[area_modifier] => 172.82
[parent_name] => Дополнительное утепление наружных стен
[parent_id] => 17
[material_sum] => 0
[work_sum] => 0
[total_sum] => 0
[total_days] => 0
[display_material_sum] => 0
[display_work_sum] => 0
[display_total_sum] => 0
)
1
0₽
Работа:0 ₽
Материалы:0 ₽
Дни:0
stdClass Object
(
[id] => 34
[attribute_id] => 17
[name] => Минераловатный
[material_modifier] => 1
[work_modifier] => 1
[options] => Array
(
[0] => 50 мм
[1] => 100 мм
[2] => 150 мм
[3] => 200 мм
[4] => 250 мм
[5] => 300 мм
)
[days] => [7,8,10,12,14,15]
[material_price] => [3437,3613,3803,3915,4601,4830]
[work_price] => [2325,2423,2523,2749,2859,3025]
[image] => https://akademik-stroy.ru/wp-content/uploads/materials/mineralovata.jpg
[area_modifier] => 172.82
[parent_name] => Дополнительное утепление наружных стен
[parent_id] => 17
[material_sum] => 784057
[work_sum] => 441987
[total_sum] => 1226044
[total_days] => 7
[display_material_sum] => 784 057
[display_work_sum] => 441 987
[display_total_sum] => 1 226 044
)
1
1 226 044₽
Работа:441 987 ₽
Материалы:784 057 ₽
Дни:7
stdClass Object
(
[id] => 128
[attribute_id] => 17
[name] => Эковата (целлюлозная вата)
[material_modifier] => 1
[work_modifier] => 1
[options] => Array
(
[0] => 50 мм
[1] => 100 мм
[2] => 150 мм
[3] => 200 мм
[4] => 250 мм
[5] => 300 мм
)
[days] => [3,4,5,6,7,8]
[material_price] => [810,1319,1629,1838,2267,2676]
[work_price] => [1225,1323,1423,1549,1659,1725]
[image] => https://akademik-stroy.ru/wp-content/uploads/materials/ehkovata.jpg
[area_modifier] => 172.82
[parent_name] => Дополнительное утепление наружных стен
[parent_id] => 17
[material_sum] => 184779
[work_sum] => 232875
[total_sum] => 417654
[total_days] => 3
[display_material_sum] => 184 779
[display_work_sum] => 232 875
[display_total_sum] => 417 654
)
1
417 654₽
Работа:232 875 ₽
Материалы:184 779 ₽
Дни:3
stdClass Object
(
[id] => 129
[attribute_id] => 17
[name] => Экструдированный пенополистирол
[material_modifier] => 1
[work_modifier] => 1
[options] => Array
(
[0] => 50 мм
[1] => 100 мм
[2] => 150 мм
[3] => 200 мм
[4] => 250 мм
[5] => 300 мм
)
[days] => [5,6,7,8,9,10]
[material_price] => [4560,4300,5119,6292,7010,8583]
[work_price] => [1795,1954,2254,2330,2595,2735]
[image] => https://akademik-stroy.ru/wp-content/uploads/materials/epps.jpg
[area_modifier] => 172.82
[parent_name] => Дополнительное утепление наружных стен
[parent_id] => 17
[material_sum] => 1040238
[work_sum] => 341233
[total_sum] => 1381471
[total_days] => 5
[display_material_sum] => 1 040 238
[display_work_sum] => 341 233
[display_total_sum] => 1 381 471
)
1
1 381 471₽
Работа:341 233 ₽
Материалы:1 040 238 ₽
Дни:5
stdClass Object
(
[id] => 130
[attribute_id] => 17
[name] => ПСБ (ППС-пенополистирол)
[material_modifier] => 1
[work_modifier] => 1
[options] => Array
(
[0] => 50 мм
[1] => 100 мм
[2] => 150 мм
[3] => 200 мм
[4] => 250 мм
[5] => 300 мм
)
[days] => [5,6,7,8,9,10]
[material_price] => [4822,5200,5819,6292,7010,7583]
[work_price] => [1795,1954,2254,2330,2595,2735]
[image] => https://akademik-stroy.ru/wp-content/uploads/materials/psb.jpg
[area_modifier] => 172.82
[parent_name] => Дополнительное утепление наружных стен
[parent_id] => 17
[material_sum] => 1100006
[work_sum] => 341233
[total_sum] => 1441239
[total_days] => 5
[display_material_sum] => 1 100 006
[display_work_sum] => 341 233
[display_total_sum] => 1 441 239
)
1
1 441 239₽
Работа:341 233 ₽
Материалы:1 100 006 ₽
Дни:5
stdClass Object
(
[id] => 131
[attribute_id] => 17
[name] => ППУ (Пенополиуретан)
[material_modifier] => 1
[work_modifier] => 1
[options] => Array
(
[0] => 50 мм
[1] => 100 мм
[2] => 150 мм
[3] => 200 мм
[4] => 250 мм
[5] => 300 мм
)
[days] => [3,4,5,6,7,8]
[material_price] => [2860,3400,4219,4592,5010,5583]
[work_price] => [729,900,980,1120,1280,1530]
[image] => https://akademik-stroy.ru/wp-content/uploads/materials/ppu.jpg
[area_modifier] => 172.82
[parent_name] => Дополнительное утепление наружных стен
[parent_id] => 17
[material_sum] => 652430
[work_sum] => 138584
[total_sum] => 791014
[total_days] => 3
[display_material_sum] => 652 430
[display_work_sum] => 138 584
[display_total_sum] => 791 014
)
1
791 014₽
Работа:138 584 ₽
Материалы:652 430 ₽
Дни:3
stdClass Object
(
[id] => 132
[attribute_id] => 17
[name] => PIR-плиты (пенополиизоцианурат)
[material_modifier] => 1
[work_modifier] => 1
[options] => Array
(
[0] => 50 мм
[1] => 100 мм
[2] => 150 мм
[3] => 200 мм
[4] => 250 мм
[5] => 300 мм
)
[days] => [5,6,7,8,9,10]
[material_price] => [8323,15645,20968,25900,29258,30581]
[work_price] => [800,900,970,1150,1280,1330]
[image] => https://akademik-stroy.ru/wp-content/uploads/materials/pir.jpg
[area_modifier] => 172.82
[parent_name] => Дополнительное утепление наружных стен
[parent_id] => 17
[material_sum] => 1898663
[work_sum] => 152082
[total_sum] => 2050745
[total_days] => 5
[display_material_sum] => 1 898 663
[display_work_sum] => 152 082
[display_total_sum] => 2 050 745
)
1
2 050 745₽
Работа:152 082 ₽
Материалы:1 898 663 ₽
Дни:5
stdClass Object
(
[id] => 37
[attribute_id] => 19
[name] => Нет
[material_modifier] => 1
[work_modifier] => 1
[options] => Array
(
)
[days] => [0]
[material_price] => [0]
[work_price] => [0]
[image] => https://akademik-stroy.ru/wp-content/uploads/materials/imitaciya-brusa.jpg
[area_modifier] => 172.82
[parent_name] => Наружная отделка фасада
[parent_id] => 19
[material_sum] => 0
[work_sum] => 0
[total_sum] => 0
[total_days] => 0
[display_material_sum] => 0
[display_work_sum] => 0
[display_total_sum] => 0
)
1
0₽
Работа:0 ₽
Материалы:0 ₽
Дни:0
stdClass Object
(
[id] => 38
[attribute_id] => 19
[name] => Имитация бруса
[material_modifier] => 1
[work_modifier] => 1
[options] => Array
(
[0] => Сосна
[1] => Ель
[2] => Лиственница
)
[days] => [20,20,20]
[material_price] => [2994,2762,4954]
[work_price] => [1397,1231,1577]
[image] => https://akademik-stroy.ru/wp-content/uploads/materials/imitaciya-brusa.jpg
[area_modifier] => 172.82
[parent_name] => Наружная отделка фасада
[parent_id] => 19
[material_sum] => 682998
[work_sum] => 265572
[total_sum] => 948570
[total_days] => 20
[display_material_sum] => 682 998
[display_work_sum] => 265 572
[display_total_sum] => 948 570
)
1
948 570₽
Работа:265 572 ₽
Материалы:682 998 ₽
Дни:20
stdClass Object
(
[id] => 136
[attribute_id] => 19
[name] => Планкен
[material_modifier] => 1
[work_modifier] => 1
[options] => Array
(
[0] => Сосна
[1] => Ель
[2] => Лиственница
)
[days] => [20,20,20]
[material_price] => [3194,2862,5154]
[work_price] => [1537,1354,1735]
[image] => https://akademik-stroy.ru/wp-content/uploads/materials/planken.jpg
[area_modifier] => 172.82
[parent_name] => Наружная отделка фасада
[parent_id] => 19
[material_sum] => 728623
[work_sum] => 292187
[total_sum] => 1020810
[total_days] => 20
[display_material_sum] => 728 623
[display_work_sum] => 292 187
[display_total_sum] => 1 020 810
)
1
1 020 810₽
Работа:292 187 ₽
Материалы:728 623 ₽
Дни:20
stdClass Object
(
[id] => 137
[attribute_id] => 19
[name] => Штукатурка
[material_modifier] => 1
[work_modifier] => 1
[options] => Array
(
[0] => Цементно-песчаная (минеральная)
[1] => Мокрый фасад
)
[days] => [35,35]
[material_price] => [2231,3938]
[work_price] => [1202,2422]
[image] => https://akademik-stroy.ru/wp-content/uploads/materials/shtukaturka.jpg
[area_modifier] => 172.82
[parent_name] => Наружная отделка фасада
[parent_id] => 19
[material_sum] => 508941
[work_sum] => 228503
[total_sum] => 737444
[total_days] => 35
[display_material_sum] => 508 941
[display_work_sum] => 228 503
[display_total_sum] => 737 444
)
1
737 444₽
Работа:228 503 ₽
Материалы:508 941 ₽
Дни:35
stdClass Object
(
[id] => 138
[attribute_id] => 19
[name] => Облицовочный кирпич
[material_modifier] => 1
[work_modifier] => 1
[options] => Array
(
[0] => Керамический
[1] => Клинкерный
[2] => Ручной формовки
[3] => Гиперпрессованный
[4] => Силикатный кирпич
)
[days] => [45,45,45,45,45]
[material_price] => [8174,9148,1040,1257,5876]
[work_price] => [3240,3758,4536,4017,3369]
[image] => https://akademik-stroy.ru/wp-content/uploads/materials/oblicovochnyj-kirpich.jpg
[area_modifier] => 172.82
[parent_name] => Наружная отделка фасада
[parent_id] => 19
[material_sum] => 1864672
[work_sum] => 615930
[total_sum] => 2480602
[total_days] => 45
[display_material_sum] => 1 864 672
[display_work_sum] => 615 930
[display_total_sum] => 2 480 602
)
1
2 480 602₽
Работа:615 930 ₽
Материалы:1 864 672 ₽
Дни:45
stdClass Object
(
[id] => 139
[attribute_id] => 19
[name] => Фасадная плитка
[material_modifier] => 1
[work_modifier] => 1
[options] => Array
(
[0] => Клинкерная
[1] => Керамическая
[2] => Плитка ручной формовки
)
[days] => [40,40,40]
[material_price] => [2974,1487,3470]
[work_price] => [3007,2592,3629]
[image] => https://akademik-stroy.ru/wp-content/uploads/materials/fasadnaya-plitka.jpg
[area_modifier] => 172.82
[parent_name] => Наружная отделка фасада
[parent_id] => 19
[material_sum] => 678436
[work_sum] => 571637
[total_sum] => 1250073
[total_days] => 40
[display_material_sum] => 678 436
[display_work_sum] => 571 637
[display_total_sum] => 1 250 073
)
1
1 250 073₽
Работа:571 637 ₽
Материалы:678 436 ₽
Дни:40
stdClass Object
(
[id] => 140
[attribute_id] => 19
[name] => Сайдинг
[material_modifier] => 1
[work_modifier] => 1
[options] => Array
(
[0] => Виниловый
[1] => Металлический
[2] => Фиброцементный
)
[days] => [20,20,20]
[material_price] => [1263,1944,4147]
[work_price] => [1263,1944,2074]
[image] => https://akademik-stroy.ru/wp-content/uploads/materials/sajding.jpg
[area_modifier] => 172.82
[parent_name] => Наружная отделка фасада
[parent_id] => 19
[material_sum] => 288119
[work_sum] => 240099
[total_sum] => 528218
[total_days] => 20
[display_material_sum] => 288 119
[display_work_sum] => 240 099
[display_total_sum] => 528 218
)
1
528 218₽
Работа:240 099 ₽
Материалы:288 119 ₽
Дни:20
stdClass Object
(
[id] => 141
[attribute_id] => 19
[name] => Камень
[material_modifier] => 1
[work_modifier] => 1
[options] => Array
(
[0] => Травертин
[1] => Дагестанский
[2] => Искусственный
[3] => Натуральный
[4] => Керамогранит
)
[days] => [45,45,45,45,45]
[material_price] => [4536,3888,2592,3240,2462]
[work_price] => [3240,3240,2462,3110,1944]
[image] => https://akademik-stroy.ru/wp-content/uploads/materials/kamen-1.jpg
[area_modifier] => 172.82
[parent_name] => Наружная отделка фасада
[parent_id] => 19
[material_sum] => 1034763
[work_sum] => 615930
[total_sum] => 1650693
[total_days] => 45
[display_material_sum] => 1 034 763
[display_work_sum] => 615 930
[display_total_sum] => 1 650 693
)
1
1 650 693₽
Работа:615 930 ₽
Материалы:1 034 763 ₽
Дни:45
stdClass Object
(
[id] => 142
[attribute_id] => 19
[name] => Термопанели
[material_modifier] => 1
[work_modifier] => 1
[options] => Array
(
)
[days] => [20]
[material_price] => [6221]
[work_price] => [2333]
[image] => https://akademik-stroy.ru/wp-content/uploads/materials/termo.png
[area_modifier] => 172.82
[parent_name] => Наружная отделка фасада
[parent_id] => 19
[material_sum] => 1419149
[work_sum] => 443508
[total_sum] => 1862657
[total_days] => 20
[display_material_sum] => 1 419 149
[display_work_sum] => 443 508
[display_total_sum] => 1 862 657
)
1
1 862 657₽
Работа:443 508 ₽
Материалы:1 419 149 ₽
Дни:20
stdClass Object
(
[id] => 143
[attribute_id] => 19
[name] => Плитка HAUBERK
[material_modifier] => 1
[work_modifier] => 1
[options] => Array
(
)
[days] => [20]
[material_price] => [2786]
[work_price] => [1944]
[image] => https://akademik-stroy.ru/wp-content/uploads/materials/hauberk.jpg
[area_modifier] => 172.82
[parent_name] => Наружная отделка фасада
[parent_id] => 19
[material_sum] => 635549
[work_sum] => 369558
[total_sum] => 1005107
[total_days] => 20
[display_material_sum] => 635 549
[display_work_sum] => 369 558
[display_total_sum] => 1 005 107
)
1
1 005 107₽
Работа:369 558 ₽
Материалы:635 549 ₽
Дни:20
stdClass Object
(
[id] => 144
[attribute_id] => 19
[name] => Фальцевый фасад
[material_modifier] => 1
[work_modifier] => 1
[options] => Array
(
)
[days] => [20]
[material_price] => [3240]
[work_price] => [2592]
[image] => https://akademik-stroy.ru/wp-content/uploads/materials/falcevyj-fasad.jpg
[area_modifier] => 172.82
[parent_name] => Наружная отделка фасада
[parent_id] => 19
[material_sum] => 739117
[work_sum] => 492744
[total_sum] => 1231861
[total_days] => 20
[display_material_sum] => 739 117
[display_work_sum] => 492 744
[display_total_sum] => 1 231 861
)
1
1 231 861₽
Работа:492 744 ₽
Материалы:739 117 ₽
Дни:20
stdClass Object
(
[id] => 145
[attribute_id] => 19
[name] => Комбинированный
[material_modifier] => 1
[work_modifier] => 1
[options] => Array
(
)
[days] => [20]
[material_price] => [4629]
[work_price] => [3499]
[image] => https://akademik-stroy.ru/wp-content/uploads/materials/Kombinirovannyj.jpg
[area_modifier] => 172.82
[parent_name] => Наружная отделка фасада
[parent_id] => 19
[material_sum] => 1055979
[work_sum] => 665167
[total_sum] => 1721146
[total_days] => 20
[display_material_sum] => 1 055 979
[display_work_sum] => 665 167
[display_total_sum] => 1 721 146
)
1
1 721 146₽
Работа:665 167 ₽
Материалы:1 055 979 ₽
Дни:20
stdClass Object
(
[id] => 257
[attribute_id] => 19
[name] => Японские фиброцементные
[material_modifier] => 1
[work_modifier] => 1
[options] => Array
(
)
[days] => [20]
[material_price] => [7043]
[work_price] => [2993]
[image] => https://akademik-stroy.ru/wp-content/uploads/materials/paneli.jpg
[area_modifier] => 172.82
[parent_name] => Наружная отделка фасада
[parent_id] => 19
[material_sum] => 1606666
[work_sum] => 568975
[total_sum] => 2175641
[total_days] => 20
[display_material_sum] => 1 606 666
[display_work_sum] => 568 975
[display_total_sum] => 2 175 641
)
1
2 175 641₽
Работа:568 975 ₽
Материалы:1 606 666 ₽
Дни:20
stdClass Object
(
[id] => 258
[attribute_id] => 19
[name] => Панели Каньон
[material_modifier] => 1
[work_modifier] => 1
[options] => Array
(
)
[days] => [20]
[material_price] => [4543]
[work_price] => [2592]
[image] => https://akademik-stroy.ru/wp-content/uploads/materials/kanon.png
[area_modifier] => 172.82
[parent_name] => Наружная отделка фасада
[parent_id] => 19
[material_sum] => 1036360
[work_sum] => 492744
[total_sum] => 1529104
[total_days] => 20
[display_material_sum] => 1 036 360
[display_work_sum] => 492 744
[display_total_sum] => 1 529 104
)
1
1 529 104₽
Работа:492 744 ₽
Материалы:1 036 360 ₽
Дни:20
stdClass Object
(
[id] => 39
[attribute_id] => 20
[name] => Нет
[material_modifier] => 1
[work_modifier] => 1
[options] => Array
(
)
[days] => [0]
[material_price] => [0]
[work_price] => [0]
[image] => https://akademik-stroy.ru/wp-content/uploads/materials/terrasy.jpg
[area_modifier] => 30
[parent_name] => Террасы, крыльца, навесы
[parent_id] => 20
[material_sum] => 0
[work_sum] => 0
[total_sum] => 0
[total_days] => 0
[display_material_sum] => 0
[display_work_sum] => 0
[display_total_sum] => 0
)
1
0₽
Работа:0 ₽
Материалы:0 ₽
Дни:0
stdClass Object
(
[id] => 40
[attribute_id] => 20
[name] => Есть
[material_modifier] => 1
[work_modifier] => 1
[options] => Array
(
)
[days] => [5]
[material_price] => [10450]
[work_price] => [1950]
[image] => https://akademik-stroy.ru/wp-content/uploads/materials/terrasy.jpg
[area_modifier] => 30
[parent_name] => Террасы, крыльца, навесы
[parent_id] => 20
[material_sum] => 413820
[work_sum] => 64350
[total_sum] => 478170
[total_days] => 5
[display_material_sum] => 413 820
[display_work_sum] => 64 350
[display_total_sum] => 478 170
)
1
478 170₽
Работа:64 350 ₽
Материалы:413 820 ₽
Дни:5
stdClass Object
(
[id] => 41
[attribute_id] => 21
[name] => Нет
[material_modifier] => 1
[work_modifier] => 1
[options] => Array
(
)
[days] => [0]
[material_price] => [0]
[work_price] => [0]
[image] => https://akademik-stroy.ru/wp-content/uploads/materials/balkony.jpg
[area_modifier] => 30
[parent_name] => Балконы
[parent_id] => 21
[material_sum] => 0
[work_sum] => 0
[total_sum] => 0
[total_days] => 0
[display_material_sum] => 0
[display_work_sum] => 0
[display_total_sum] => 0
)
1
0₽
Работа:0 ₽
Материалы:0 ₽
Дни:0
stdClass Object
(
[id] => 42
[attribute_id] => 21
[name] => Есть
[material_modifier] => 1
[work_modifier] => 1
[options] => Array
(
)
[days] => [12]
[material_price] => [3600]
[work_price] => [1950]
[image] => https://akademik-stroy.ru/wp-content/uploads/materials/balkony.jpg
[area_modifier] => 30
[parent_name] => Балконы
[parent_id] => 21
[material_sum] => 142560
[work_sum] => 64350
[total_sum] => 206910
[total_days] => 12
[display_material_sum] => 142 560
[display_work_sum] => 64 350
[display_total_sum] => 206 910
)
1
206 910₽
Работа:64 350 ₽
Материалы:142 560 ₽
Дни:12
stdClass Object
(
[id] => 43
[attribute_id] => 22
[name] => Нет
[material_modifier] => 1
[work_modifier] => 1
[options] => Array
(
)
[days] => [0]
[material_price] => [0]
[work_price] => [0]
[image] => https://akademik-stroy.ru/wp-content/uploads/materials/uteplennaya.jpg
[area_modifier] => 172.82
[parent_name] => Отмостка
[parent_id] => 22
[material_sum] => 0
[work_sum] => 0
[total_sum] => 0
[total_days] => 0
[display_material_sum] => 0
[display_work_sum] => 0
[display_total_sum] => 0
)
1
0₽
Работа:0 ₽
Материалы:0 ₽
Дни:0
stdClass Object
(
[id] => 44
[attribute_id] => 22
[name] => Утепленная отмостка
[material_modifier] => 1
[work_modifier] => 1
[options] => Array
(
)
[days] => [15]
[material_price] => [2550]
[work_price] => [1750]
[image] => https://akademik-stroy.ru/wp-content/uploads/materials/uteplennaya.jpg
[area_modifier] => 172.82
[parent_name] => Отмостка
[parent_id] => 22
[material_sum] => 581712
[work_sum] => 332679
[total_sum] => 914391
[total_days] => 15
[display_material_sum] => 581 712
[display_work_sum] => 332 679
[display_total_sum] => 914 391
)
1
914 391₽
Работа:332 679 ₽
Материалы:581 712 ₽
Дни:15
stdClass Object
(
[id] => 146
[attribute_id] => 22
[name] => Не утепленная отмостка
[material_modifier] => 1
[work_modifier] => 1
[options] => Array
(
)
[days] => [10]
[material_price] => [1650]
[work_price] => [1450]
[image] => https://akademik-stroy.ru/wp-content/uploads/materials/ne-uteplennaya.jpg
[area_modifier] => 172.82
[parent_name] => Отмостка
[parent_id] => 22
[material_sum] => 376402
[work_sum] => 275648
[total_sum] => 652050
[total_days] => 10
[display_material_sum] => 376 402
[display_work_sum] => 275 648
[display_total_sum] => 652 050
)
1
652 050₽
Работа:275 648 ₽
Материалы:376 402 ₽
Дни:10
stdClass Object
(
[id] => 45
[attribute_id] => 23
[name] => Нет
[material_modifier] => 1
[work_modifier] => 1
[options] => Array
(
)
[days] => [0]
[material_price] => [0]
[work_price] => [0]
[image] => https://akademik-stroy.ru/wp-content/uploads/materials/drenazh-2.jpg
[area_modifier] => 172.82
[parent_name] => Дренаж вокруг дома
[parent_id] => 23
[material_sum] => 0
[work_sum] => 0
[total_sum] => 0
[total_days] => 0
[display_material_sum] => 0
[display_work_sum] => 0
[display_total_sum] => 0
)
1
0₽
Работа:0 ₽
Материалы:0 ₽
Дни:0
stdClass Object
(
[id] => 46
[attribute_id] => 23
[name] => Есть
[material_modifier] => 1
[work_modifier] => 1
[options] => Array
(
)
[days] => [5]
[material_price] => [2366]
[work_price] => [1911]
[image] => https://akademik-stroy.ru/wp-content/uploads/materials/drenazh-2.jpg
[area_modifier] => 172.82
[parent_name] => Дренаж вокруг дома
[parent_id] => 23
[material_sum] => 539738
[work_sum] => 363285
[total_sum] => 903023
[total_days] => 5
[display_material_sum] => 539 738
[display_work_sum] => 363 285
[display_total_sum] => 903 023
)
1
903 023₽
Работа:363 285 ₽
Материалы:539 738 ₽
Дни:5
stdClass Object
(
[id] => 47
[attribute_id] => 24
[name] => Нет
[material_modifier] => 1
[work_modifier] => 1
[options] => Array
(
)
[days] => [0]
[material_price] => [0]
[work_price] => [0]
[image] => https://akademik-stroy.ru/wp-content/uploads/materials/septik.jpg
[area_modifier] => 1
[parent_name] => Автономная канализация (септики)
[parent_id] => 24
[material_sum] => 0
[work_sum] => 0
[total_sum] => 0
[total_days] => 0
[display_material_sum] => 0
[display_work_sum] => 0
[display_total_sum] => 0
)
1
0₽
Работа:0 ₽
Материалы:0 ₽
Дни:0
stdClass Object
(
[id] => 48
[attribute_id] => 24
[name] => Есть
[material_modifier] => 1
[work_modifier] => 1
[options] => Array
(
[0] => Для дачи на 4 человека
[1] => Для дома на 5 человек
[2] => Для дома на 6 человек
[3] => Для дома на 7 человек
[4] => Для дома на 10 человек
)
[days] => [7,7,7,8,8]
[material_price] => [196340,220500,240940,264200,293340]
[work_price] => [50000,55000,60500,66550,73206]
[image] => https://akademik-stroy.ru/wp-content/uploads/materials/septik.jpg
[area_modifier] => 1
[parent_name] => Автономная канализация (септики)
[parent_id] => 24
[material_sum] => 259169
[work_sum] => 55000
[total_sum] => 314169
[total_days] => 7
[display_material_sum] => 259 169
[display_work_sum] => 55 000
[display_total_sum] => 314 169
)
1
314 169₽
Работа:55 000 ₽
Материалы:259 169 ₽
Дни:7
stdClass Object
(
[id] => 49
[attribute_id] => 25
[name] => Нет
[material_modifier] => 1
[work_modifier] => 1
[options] => Array
(
)
[days] => [0]
[material_price] => [0]
[work_price] => [0]
[image] => https://akademik-stroy.ru/wp-content/uploads/materials/gkl.jpg
[area_modifier] => 172.82
[parent_name] => Внутренние (не несущие) перегородки
[parent_id] => 25
[material_sum] => 0
[work_sum] => 0
[total_sum] => 0
[total_days] => 0
[display_material_sum] => 0
[display_work_sum] => 0
[display_total_sum] => 0
)
1
0₽
Работа:0 ₽
Материалы:0 ₽
Дни:0
stdClass Object
(
[id] => 147
[attribute_id] => 25
[name] => Каркасно-обшивные
[material_modifier] => 1
[work_modifier] => 1
[options] => Array
(
[0] => 75 мм (без шумоизоляции)
[1] => 75 мм (с шумоизоляцией)
)
[days] => [11,11]
[material_price] => [580,970]
[work_price] => [380,570]
[image] => https://akademik-stroy.ru/wp-content/uploads/materials/gkl.jpg
[area_modifier] => 172.82
[parent_name] => Внутренние (не несущие) перегородки
[parent_id] => 25
[material_sum] => 132311
[work_sum] => 72239
[total_sum] => 204550
[total_days] => 11
[display_material_sum] => 132 311
[display_work_sum] => 72 239
[display_total_sum] => 204 550
)
1
204 550₽
Работа:72 239 ₽
Материалы:132 311 ₽
Дни:11
stdClass Object
(
[id] => 148
[attribute_id] => 25
[name] => Пазогребневые
[material_modifier] => 1
[work_modifier] => 1
[options] => Array
(
[0] => 80 мм
[1] => 100 мм
)
[days] => [5,5]
[material_price] => [1022,1313]
[work_price] => [600,700]
[image] => https://akademik-stroy.ru/wp-content/uploads/materials/pazogrebnevye-bloki.jpg
[area_modifier] => 172.82
[parent_name] => Внутренние (не несущие) перегородки
[parent_id] => 25
[material_sum] => 233141
[work_sum] => 114061
[total_sum] => 347202
[total_days] => 5
[display_material_sum] => 233 141
[display_work_sum] => 114 061
[display_total_sum] => 347 202
)
1
347 202₽
Работа:114 061 ₽
Материалы:233 141 ₽
Дни:5
stdClass Object
(
[id] => 149
[attribute_id] => 25
[name] => Газобетонные
[material_modifier] => 1
[work_modifier] => 1
[options] => Array
(
[0] => 100 мм
[1] => 200 мм
)
[days] => [11,11]
[material_price] => [1160,1920]
[work_price] => [700,900]
[image] => https://akademik-stroy.ru/wp-content/uploads/materials/gazobeton-2.jpg
[area_modifier] => 172.82
[parent_name] => Внутренние (не несущие) перегородки
[parent_id] => 25
[material_sum] => 264622
[work_sum] => 133071
[total_sum] => 397693
[total_days] => 11
[display_material_sum] => 264 622
[display_work_sum] => 133 071
[display_total_sum] => 397 693
)
1
397 693₽
Работа:133 071 ₽
Материалы:264 622 ₽
Дни:11
stdClass Object
(
[id] => 150
[attribute_id] => 25
[name] => Кирпичные
[material_modifier] => 1
[work_modifier] => 1
[options] => Array
(
[0] => 120 мм
[1] => 250 мм
[2] => 360 мм
)
[days] => [7,7,7]
[material_price] => [1785,3570,5355]
[work_price] => [900,1600,1800]
[image] => https://akademik-stroy.ru/wp-content/uploads/materials/kirpich-1.jpg
[area_modifier] => 172.82
[parent_name] => Внутренние (не несущие) перегородки
[parent_id] => 25
[material_sum] => 407198
[work_sum] => 171092
[total_sum] => 578290
[total_days] => 7
[display_material_sum] => 407 198
[display_work_sum] => 171 092
[display_total_sum] => 578 290
)
1
578 290₽
Работа:171 092 ₽
Материалы:407 198 ₽
Дни:7
stdClass Object
(
[id] => 55
[attribute_id] => 28
[name] => Нет
[material_modifier] => 1
[work_modifier] => 1
[options] => Array
(
)
[days] => [0]
[material_price] => [0]
[work_price] => [0]
[image] => https://akademik-stroy.ru/wp-content/uploads/materials/ehlektrika.jpg
[area_modifier] => 140.24
[parent_name] => Электрика
[parent_id] => 28
[material_sum] => 0
[work_sum] => 0
[total_sum] => 0
[total_days] => 0
[display_material_sum] => 0
[display_work_sum] => 0
[display_total_sum] => 0
)
1
0₽
Работа:0 ₽
Материалы:0 ₽
Дни:0
stdClass Object
(
[id] => 56
[attribute_id] => 28
[name] => Есть
[material_modifier] => 1
[work_modifier] => 1
[options] => Array
(
)
[days] => [10]
[material_price] => [650]
[work_price] => [950]
[image] => https://akademik-stroy.ru/wp-content/uploads/materials/ehlektrika.jpg
[area_modifier] => 140.24
[parent_name] => Электрика
[parent_id] => 28
[material_sum] => 120326
[work_sum] => 146551
[total_sum] => 266877
[total_days] => 10
[display_material_sum] => 120 326
[display_work_sum] => 146 551
[display_total_sum] => 266 877
)
1
266 877₽
Работа:146 551 ₽
Материалы:120 326 ₽
Дни:10
stdClass Object
(
[id] => 57
[attribute_id] => 29
[name] => Нет
[material_modifier] => 1
[work_modifier] => 1
[options] => Array
(
)
[days] => [0]
[material_price] => [0]
[work_price] => [0]
[image] => https://akademik-stroy.ru/wp-content/uploads/materials/santekhnika-kanalizaciya-1.jpg
[area_modifier] => 140.24
[parent_name] => Сантехника, канализация в доме
[parent_id] => 29
[material_sum] => 0
[work_sum] => 0
[total_sum] => 0
[total_days] => 0
[display_material_sum] => 0
[display_work_sum] => 0
[display_total_sum] => 0
)
1
0₽
Работа:0 ₽
Материалы:0 ₽
Дни:0
stdClass Object
(
[id] => 58
[attribute_id] => 29
[name] => Есть
[material_modifier] => 1
[work_modifier] => 1
[options] => Array
(
)
[days] => [10]
[material_price] => [600]
[work_price] => [730]
[image] => https://akademik-stroy.ru/wp-content/uploads/materials/santekhnika-kanalizaciya-1.jpg
[area_modifier] => 140.24
[parent_name] => Сантехника, канализация в доме
[parent_id] => 29
[material_sum] => 111070
[work_sum] => 112613
[total_sum] => 223683
[total_days] => 10
[display_material_sum] => 111 070
[display_work_sum] => 112 613
[display_total_sum] => 223 683
)
1
223 683₽
Работа:112 613 ₽
Материалы:111 070 ₽
Дни:10
stdClass Object
(
[id] => 59
[attribute_id] => 30
[name] => Нет
[material_modifier] => 1
[work_modifier] => 1
[options] => Array
(
)
[days] => [0]
[material_price] => [0]
[work_price] => [0]
[image] => https://akademik-stroy.ru/wp-content/uploads/materials/otoplenie-1.jpg
[area_modifier] => 140.24
[parent_name] => Отопление
[parent_id] => 30
[material_sum] => 0
[work_sum] => 0
[total_sum] => 0
[total_days] => 0
[display_material_sum] => 0
[display_work_sum] => 0
[display_total_sum] => 0
)
1
0₽
Работа:0 ₽
Материалы:0 ₽
Дни:0
stdClass Object
(
[id] => 60
[attribute_id] => 30
[name] => Есть
[material_modifier] => 1
[work_modifier] => 1
[options] => Array
(
)
[days] => [5]
[material_price] => [610]
[work_price] => [560]
[image] => https://akademik-stroy.ru/wp-content/uploads/materials/otoplenie-1.jpg
[area_modifier] => 140.24
[parent_name] => Отопление
[parent_id] => 30
[material_sum] => 112921
[work_sum] => 86388
[total_sum] => 199309
[total_days] => 5
[display_material_sum] => 112 921
[display_work_sum] => 86 388
[display_total_sum] => 199 309
)
1
199 309₽
Работа:86 388 ₽
Материалы:112 921 ₽
Дни:5
stdClass Object
(
[id] => 61
[attribute_id] => 31
[name] => Нет
[material_modifier] => 1
[work_modifier] => 1
[options] => Array
(
)
[days] => [0]
[material_price] => [0]
[work_price] => [0]
[image] => https://akademik-stroy.ru/wp-content/uploads/materials/vodyanye.jpg
[area_modifier] => 30
[parent_name] => Теплые полы
[parent_id] => 31
[material_sum] => 0
[work_sum] => 0
[total_sum] => 0
[total_days] => 0
[display_material_sum] => 0
[display_work_sum] => 0
[display_total_sum] => 0
)
1
0₽
Работа:0 ₽
Материалы:0 ₽
Дни:0
stdClass Object
(
[id] => 151
[attribute_id] => 31
[name] => Водяные
[material_modifier] => 1
[work_modifier] => 1
[options] => Array
(
)
[days] => [9]
[material_price] => [10200]
[work_price] => [2500]
[image] => https://akademik-stroy.ru/wp-content/uploads/materials/vodyanye.jpg
[area_modifier] => 30
[parent_name] => Теплые полы
[parent_id] => 31
[material_sum] => 403920
[work_sum] => 82500
[total_sum] => 486420
[total_days] => 9
[display_material_sum] => 403 920
[display_work_sum] => 82 500
[display_total_sum] => 486 420
)
1
486 420₽
Работа:82 500 ₽
Материалы:403 920 ₽
Дни:9
stdClass Object
(
[id] => 152
[attribute_id] => 31
[name] => Электро
[material_modifier] => 1
[work_modifier] => 1
[options] => Array
(
)
[days] => [5]
[material_price] => [6300]
[work_price] => [1500]
[image] => https://akademik-stroy.ru/wp-content/uploads/materials/ehlektricheskij.jpg
[area_modifier] => 30
[parent_name] => Теплые полы
[parent_id] => 31
[material_sum] => 249480
[work_sum] => 49500
[total_sum] => 298980
[total_days] => 5
[display_material_sum] => 249 480
[display_work_sum] => 49 500
[display_total_sum] => 298 980
)
1
298 980₽
Работа:49 500 ₽
Материалы:249 480 ₽
Дни:5
stdClass Object
(
[id] => 63
[attribute_id] => 32
[name] => Нет
[material_modifier] => 1
[work_modifier] => 1
[options] => Array
(
)
[days] => [0]
[material_price] => [0]
[work_price] => [0]
[image] => https://akademik-stroy.ru/wp-content/uploads/materials/shtukaturka-shpatlevka-1.jpg
[area_modifier] => 140.24
[parent_name] => Черновая отделка стен
[parent_id] => 32
[material_sum] => 0
[work_sum] => 0
[total_sum] => 0
[total_days] => 0
[display_material_sum] => 0
[display_work_sum] => 0
[display_total_sum] => 0
)
1
0₽
Работа:0 ₽
Материалы:0 ₽
Дни:0
stdClass Object
(
[id] => 153
[attribute_id] => 32
[name] => Штукатурка и шпатлевка
[material_modifier] => 1
[work_modifier] => 1
[options] => Array
(
)
[days] => [20]
[material_price] => [1850]
[work_price] => [2600]
[image] => https://akademik-stroy.ru/wp-content/uploads/materials/shtukaturka-shpatlevka-1.jpg
[area_modifier] => 140.24
[parent_name] => Черновая отделка стен
[parent_id] => 32
[material_sum] => 342466
[work_sum] => 401086
[total_sum] => 743552
[total_days] => 20
[display_material_sum] => 342 466
[display_work_sum] => 401 086
[display_total_sum] => 743 552
)
1
743 552₽
Работа:401 086 ₽
Материалы:342 466 ₽
Дни:20
stdClass Object
(
[id] => 154
[attribute_id] => 32
[name] => Гипсокортон на стены
[material_modifier] => 1
[work_modifier] => 1
[options] => Array
(
)
[days] => [15]
[material_price] => [950]
[work_price] => [2100]
[image] => https://akademik-stroy.ru/wp-content/uploads/materials/gkl-1.jpg
[area_modifier] => 140.24
[parent_name] => Черновая отделка стен
[parent_id] => 32
[material_sum] => 175861
[work_sum] => 323954
[total_sum] => 499815
[total_days] => 15
[display_material_sum] => 175 861
[display_work_sum] => 323 954
[display_total_sum] => 499 815
)
1
499 815₽
Работа:323 954 ₽
Материалы:175 861 ₽
Дни:15
stdClass Object
(
[id] => 155
[attribute_id] => 32
[name] => Вагонка
[material_modifier] => 1
[work_modifier] => 1
[options] => Array
(
)
[days] => [15]
[material_price] => [1250]
[work_price] => [950]
[image] => https://akademik-stroy.ru/wp-content/uploads/materials/vagonka.jpg
[area_modifier] => 140.24
[parent_name] => Черновая отделка стен
[parent_id] => 32
[material_sum] => 231396
[work_sum] => 146551
[total_sum] => 377947
[total_days] => 15
[display_material_sum] => 231 396
[display_work_sum] => 146 551
[display_total_sum] => 377 947
)
1
377 947₽
Работа:146 551 ₽
Материалы:231 396 ₽
Дни:15
stdClass Object
(
[id] => 65
[attribute_id] => 33
[name] => Нет
[material_modifier] => 1
[work_modifier] => 1
[options] => Array
(
)
[days] => [0]
[material_price] => [0]
[work_price] => [0]
[image] => https://akademik-stroy.ru/wp-content/uploads/materials/styazhka.jpg
[area_modifier] => 140.24
[parent_name] => Черновая отделка полов
[parent_id] => 33
[material_sum] => 0
[work_sum] => 0
[total_sum] => 0
[total_days] => 0
[display_material_sum] => 0
[display_work_sum] => 0
[display_total_sum] => 0
)
1
0₽
Работа:0 ₽
Материалы:0 ₽
Дни:0
stdClass Object
(
[id] => 156
[attribute_id] => 33
[name] => Стяжка + наливные полы
[material_modifier] => 1
[work_modifier] => 1
[options] => Array
(
)
[days] => [10]
[material_price] => [1000]
[work_price] => [900]
[image] => https://akademik-stroy.ru/wp-content/uploads/materials/styazhka.jpg
[area_modifier] => 140.24
[parent_name] => Черновая отделка полов
[parent_id] => 33
[material_sum] => 185117
[work_sum] => 138838
[total_sum] => 323955
[total_days] => 10
[display_material_sum] => 185 117
[display_work_sum] => 138 838
[display_total_sum] => 323 955
)
1
323 955₽
Работа:138 838 ₽
Материалы:185 117 ₽
Дни:10
stdClass Object
(
[id] => 157
[attribute_id] => 33
[name] => ОСБ на пол
[material_modifier] => 1
[work_modifier] => 1
[options] => Array
(
)
[days] => [7]
[material_price] => [580]
[work_price] => [350]
[image] => https://akademik-stroy.ru/wp-content/uploads/materials/osb-1.jpg
[area_modifier] => 140.24
[parent_name] => Черновая отделка полов
[parent_id] => 33
[material_sum] => 107368
[work_sum] => 53992
[total_sum] => 161360
[total_days] => 7
[display_material_sum] => 107 368
[display_work_sum] => 53 992
[display_total_sum] => 161 360
)
1
161 360₽
Работа:53 992 ₽
Материалы:107 368 ₽
Дни:7
stdClass Object
(
[id] => 67
[attribute_id] => 34
[name] => Нет
[material_modifier] => 1
[work_modifier] => 1
[options] => Array
(
)
[days] => [0]
[material_price] => [0]
[work_price] => [0]
[image] => https://akademik-stroy.ru/wp-content/uploads/materials/chistovaya-otdelka.jpg
[area_modifier] => 140.24
[parent_name] => Чистовая отделка стен и полов
[parent_id] => 34
[material_sum] => 0
[work_sum] => 0
[total_sum] => 0
[total_days] => 0
[display_material_sum] => 0
[display_work_sum] => 0
[display_total_sum] => 0
)
1
0₽
Работа:0 ₽
Материалы:0 ₽
Дни:0
stdClass Object
(
[id] => 68
[attribute_id] => 34
[name] => Есть
[material_modifier] => 1
[work_modifier] => 1
[options] => Array
(
)
[days] => [50]
[material_price] => [6000]
[work_price] => [3500]
[image] => https://akademik-stroy.ru/wp-content/uploads/materials/chistovaya-otdelka.jpg
[area_modifier] => 140.24
[parent_name] => Чистовая отделка стен и полов
[parent_id] => 34
[material_sum] => 1110701
[work_sum] => 539924
[total_sum] => 1650625
[total_days] => 50
[display_material_sum] => 1 110 701
[display_work_sum] => 539 924
[display_total_sum] => 1 650 625
)
1
1 650 625₽
Работа:539 924 ₽
Материалы:1 110 701 ₽
Дни:50
stdClass Object
(
[id] => 69
[attribute_id] => 35
[name] => Нет
[material_modifier] => 1
[work_modifier] => 1
[options] => Array
(
)
[days] => [0]
[material_price] => [0]
[work_price] => [0]
[image] => https://akademik-stroy.ru/wp-content/uploads/materials/mnogourovnevyj-gkl.jpg
[area_modifier] => 140.24
[parent_name] => Отделка потолка
[parent_id] => 35
[material_sum] => 0
[work_sum] => 0
[total_sum] => 0
[total_days] => 0
[display_material_sum] => 0
[display_work_sum] => 0
[display_total_sum] => 0
)
1
0₽
Работа:0 ₽
Материалы:0 ₽
Дни:0
stdClass Object
(
[id] => 70
[attribute_id] => 35
[name] => Есть
[material_modifier] => 1
[work_modifier] => 1
[options] => Array
(
[0] => Многоуровневый потолок из гипсокартона
[1] => Многоуровневый потолок из гипсокартона и натяжного потолка
[2] => Одноуровневый потолок из гипсокартона
[3] => Одноуровневый натяжной потолок
)
[days] => [10,10,1,1]
[material_price] => [900,700,700,600]
[work_price] => [1000,800,500,300]
[image] => https://akademik-stroy.ru/wp-content/uploads/materials/mnogourovnevyj-gkl.jpg
[area_modifier] => 140.24
[parent_name] => Отделка потолка
[parent_id] => 35
[material_sum] => 166605
[work_sum] => 154264
[total_sum] => 320869
[total_days] => 10
[display_material_sum] => 166 605
[display_work_sum] => 154 264
[display_total_sum] => 320 869
)
1
320 869₽
Работа:154 264 ₽
Материалы:166 605 ₽
Дни:10
Преимущества работы с нами
7 этапов оплаты
Независимый строительный надзор
Экологически чистые материалы
16 лет гарантии
Онлайн-кабинет с веб-камерой
Строители с опытом более 15 лет
Собственное производство







