Одноэтажный дом 213.2 м2 за руб.
Планировки
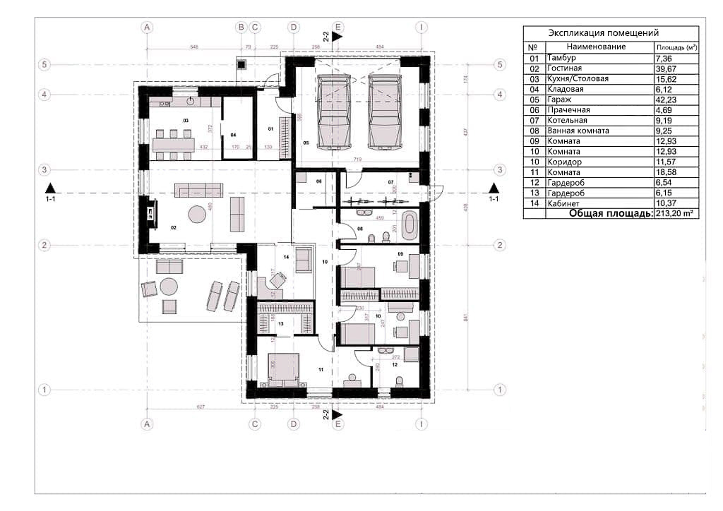
План первого этажа
- 1. Тамбур 7,36 м²
- 2. Гостиная 39,67 м²
- 3. Кухня-Столовая 15,62 м²
- 4. Кладовая 6,12 м²
- 5. Гараж 42,23 м²
- 6. Прачечная 4,69 м²
- 7. Котельная 9,19 м²
- 8. Ванная комната 9,25 м²
- 9. Комната 12,93 м²
- 10. Комната 12,93 м²
- 11. Кладовая 15,68 м²
- 12. Коридор 11,57 м²
- 13. Комната 18,58 м²
- 14. Гардероб 6,54 м²
- 15. Гардероб 6,15 м²
- 16. Кабинет 10,37 м²
- Общая площадь 213,20 м²
Площади дома
| № п/п | Наименование | Ед. из. | Строительная площадь | Полезная площадь |
| 1 | 1 этаж | м2 | 262.73 | 213.2 |
| 2 | Итого | м2 | 262.73 | 213.2 |
154 м2
Полезная
площадь
площадь
1 этаж
Этажей
26 м2
Террасы
и балконы
и балконы
1Без
гаража
гаража
4
Количество
спален
спален
2
Количество
санузлов
санузлов
Калькулятор опций
0₽
В ипотеку от 31 645 ₽/мес.
0₽
0 дней
1 372 987₽
Работа:594 216 ₽
Материалы:778 771 ₽
Дни:20
825 392₽
Работа:276 418 ₽
Материалы:548 974 ₽
Дни:2
1 390 919₽
Работа:558 354 ₽
Материалы:832 565 ₽
Дни:20
2 665 422₽
Работа:1 190 088 ₽
Материалы:1 475 334 ₽
Дни:30
4 471 520₽
Работа:1 644 164 ₽
Материалы:2 827 356 ₽
Дни:32
1 689 958₽
Работа:676 149 ₽
Материалы:1 013 809 ₽
Дни:20
10 604 309₽
Работа:4 834 285 ₽
Материалы:5 770 024 ₽
Дни:30
12 651 789₽
Работа:5 638 987 ₽
Материалы:7 012 802 ₽
Дни:40
441 387₽
Работа:110 347 ₽
Материалы:331 040 ₽
Дни:1
790 082₽
Работа:339 316 ₽
Материалы:450 766 ₽
Дни:8
1 265 400₽
Работа:419 317 ₽
Материалы:846 083 ₽
Дни:13
2 257 967₽
Работа:923 601 ₽
Материалы:1 334 366 ₽
Дни:18
2 216 036₽
Работа:1 388 436 ₽
Материалы:827 600 ₽
Дни:29
2 550 938₽
Работа:1 306 780 ₽
Материалы:1 244 158 ₽
Дни:23
3 927 236₽
Работа:2 409 970 ₽
Материалы:1 517 266 ₽
Дни:30
3 214 120₽
Работа:1 408 574 ₽
Материалы:1 805 546 ₽
Дни:45
6 008 648₽
Работа:1 325 814 ₽
Материалы:4 682 834 ₽
Дни:24
1 323 331₽
Работа:667 045 ₽
Материалы:656 286 ₽
Дни:15
722 770₽
Работа:388 972 ₽
Материалы:333 798 ₽
Дни:7
2 541 834₽
Работа:883 876 ₽
Материалы:1 657 958 ₽
Дни:7
3 320 054₽
Работа:1 060 707 ₽
Материалы:2 259 347 ₽
Дни:7
21 803 109₽
Работа:1 060 707 ₽
Материалы:20 742 402 ₽
Дни:7
11 801 844₽
Работа:1 325 814 ₽
Материалы:10 476 030 ₽
Дни:7
1 856 306₽
Работа:441 938 ₽
Материалы:1 414 368 ₽
Дни:7
2 437 556₽
Работа:1 251 882 ₽
Материалы:1 185 674 ₽
Дни:29
2 134 103₽
Работа:1 389 815 ₽
Материалы:744 288 ₽
Дни:29
2 437 556₽
Работа:1 251 882 ₽
Материалы:1 185 674 ₽
Дни:29
2 587 076₽
Работа:1 582 646 ₽
Материалы:1 004 430 ₽
Дни:23
3 306 812₽
Работа:1 113 673 ₽
Материалы:2 193 139 ₽
Дни:7
3 749 854₽
Работа:2 298 244 ₽
Материалы:1 451 610 ₽
Дни:25
1 356 435₽
Работа:700 149 ₽
Материалы:656 286 ₽
Дни:15
12 569 030₽
Работа:2 651 629 ₽
Материалы:9 917 401 ₽
Дни:15
1 504 024₽
Работа:707 322 ₽
Материалы:796 702 ₽
Дни:15
2 048 032₽
Работа:1 162 501 ₽
Материалы:885 531 ₽
Дни:19
2 161 689₽
Работа:1 389 815 ₽
Материалы:771 874 ₽
Дни:29
1 388 436₽
Работа:728 839 ₽
Материалы:659 597 ₽
Дни:15
2 550 938₽
Работа:1 306 780 ₽
Материалы:1 244 158 ₽
Дни:23
1 490 231₽
Работа:579 320 ₽
Материалы:910 911 ₽
Дни:15
1 908 996₽
Работа:1 392 022 ₽
Материалы:516 974 ₽
Дни:7
790 082₽
Работа:339 316 ₽
Материалы:450 766 ₽
Дни:8
1 265 400₽
Работа:419 317 ₽
Материалы:846 083 ₽
Дни:13
2 257 967₽
Работа:923 601 ₽
Материалы:1 334 366 ₽
Дни:18
3 265 708₽
Работа:1 579 612 ₽
Материалы:1 686 096 ₽
Дни:20
3 566 954₽
Работа:1 641 406 ₽
Материалы:1 925 548 ₽
Дни:20
5 521 744₽
Работа:2 608 594 ₽
Материалы:2 913 150 ₽
Дни:20
5 078 978₽
Работа:2 456 591 ₽
Материалы:2 622 387 ₽
Дни:20
6 125 892₽
Работа:2 608 594 ₽
Материалы:3 517 298 ₽
Дни:20
4 618 006₽
Работа:2 259 347 ₽
Материалы:2 358 659 ₽
Дни:20
10 262 234₽
Работа:4 620 764 ₽
Материалы:5 641 470 ₽
Дни:20
10 104 990₽
Работа:4 629 040 ₽
Материалы:5 475 950 ₽
Дни:20
1 986 238₽
Работа:1 034 499 ₽
Материалы:951 739 ₽
Дни:20
441 900₽
Работа:142 151 ₽
Материалы:299 749 ₽
Дни:3
0₽
Работа:0 ₽
Материалы:0 ₽
Дни:0
16 275₽
Работа:5 775 ₽
Материалы:10 500 ₽
Дни:1
0₽
Работа:0 ₽
Материалы:0 ₽
Дни:0
0₽
Работа:0 ₽
Материалы:0 ₽
Дни:0
498 766₽
Работа:179 313 ₽
Материалы:319 453 ₽
Дни:5
290 764₽
Работа:64 553 ₽
Материалы:226 211 ₽
Дни:3
423 731₽
Работа:107 588 ₽
Материалы:316 143 ₽
Дни:3
238 900₽
Работа:107 588 ₽
Материалы:131 312 ₽
Дни:3
638 355₽
Работа:64 553 ₽
Материалы:573 802 ₽
Дни:2
837 531₽
Работа:107 588 ₽
Материалы:729 943 ₽
Дни:3
0₽
Работа:0 ₽
Материалы:0 ₽
Дни:0
68 649₽
Работа:18 795 ₽
Материалы:49 854 ₽
Дни:6
0₽
Работа:0 ₽
Материалы:0 ₽
Дни:0
919 187₽
Работа:421 800 ₽
Материалы:497 387 ₽
Дни:7
0₽
Работа:0 ₽
Материалы:0 ₽
Дни:0
919 463₽
Работа:411 317 ₽
Материалы:508 146 ₽
Дни:7
0₽
Работа:0 ₽
Материалы:0 ₽
Дни:0
1 589 543₽
Работа:641 390 ₽
Материалы:948 153 ₽
Дни:7
561 388₽
Работа:337 936 ₽
Материалы:223 452 ₽
Дни:3
1 753 131₽
Работа:495 180 ₽
Материалы:1 257 951 ₽
Дни:5
1 825 408₽
Работа:495 180 ₽
Материалы:1 330 228 ₽
Дни:5
990 085₽
Работа:201 107 ₽
Материалы:788 978 ₽
Дни:3
2 516 730₽
Работа:220 693 ₽
Материалы:2 296 037 ₽
Дни:5
0₽
Работа:0 ₽
Материалы:0 ₽
Дни:0
1 211 330₽
Работа:385 386 ₽
Материалы:825 944 ₽
Дни:20
1 305 125₽
Работа:424 007 ₽
Материалы:881 118 ₽
Дни:20
947 050₽
Работа:331 592 ₽
Материалы:615 458 ₽
Дни:35
3 148 740₽
Работа:893 807 ₽
Материалы:2 254 933 ₽
Дни:45
1 649 958₽
Работа:829 531 ₽
Материалы:820 427 ₽
Дни:40
696 838₽
Работа:348 419 ₽
Материалы:348 419 ₽
Дни:20
2 145 137₽
Работа:893 807 ₽
Материалы:1 251 330 ₽
Дни:45
2 359 762₽
Работа:643 597 ₽
Материалы:1 716 165 ₽
Дни:20
1 304 848₽
Работа:536 284 ₽
Материалы:768 564 ₽
Дни:20
1 608 853₽
Работа:715 046 ₽
Материалы:893 807 ₽
Дни:20
2 242 243₽
Работа:965 257 ₽
Материалы:1 276 986 ₽
Дни:20
2 768 596₽
Работа:825 668 ₽
Материалы:1 942 928 ₽
Дни:20
1 968 308₽
Работа:715 046 ₽
Материалы:1 253 262 ₽
Дни:20
0₽
Работа:0 ₽
Материалы:0 ₽
Дни:0
390 600₽
Работа:61 425 ₽
Материалы:329 175 ₽
Дни:5
0₽
Работа:0 ₽
Материалы:0 ₽
Дни:0
174 825₽
Работа:61 425 ₽
Материалы:113 400 ₽
Дни:12
0₽
Работа:0 ₽
Материалы:0 ₽
Дни:0
1 186 226₽
Работа:482 766 ₽
Материалы:703 460 ₽
Дни:15
855 186₽
Работа:400 006 ₽
Материалы:455 180 ₽
Дни:10
0₽
Работа:0 ₽
Материалы:0 ₽
Дни:0
1 179 881₽
Работа:527 181 ₽
Материалы:652 700 ₽
Дни:5
0₽
Работа:0 ₽
Материалы:0 ₽
Дни:0
258 657₽
Работа:52 500 ₽
Материалы:206 157 ₽
Дни:7
0₽
Работа:0 ₽
Материалы:0 ₽
Дни:0
264 832₽
Работа:104 829 ₽
Материалы:160 003 ₽
Дни:11
447 456₽
Работа:165 520 ₽
Материалы:281 936 ₽
Дни:5
513 112₽
Работа:193 107 ₽
Материалы:320 005 ₽
Дни:11
740 702₽
Работа:248 280 ₽
Материалы:492 422 ₽
Дни:7
0₽
Работа:0 ₽
Материалы:0 ₽
Дни:0
358 176₽
Работа:212 667 ₽
Материалы:145 509 ₽
Дни:10
0₽
Работа:0 ₽
Материалы:0 ₽
Дни:0
297 734₽
Работа:163 418 ₽
Материалы:134 316 ₽
Дни:10
0₽
Работа:0 ₽
Материалы:0 ₽
Дни:0
261 917₽
Работа:125 362 ₽
Материалы:136 555 ₽
Дни:5
0₽
Работа:0 ₽
Материалы:0 ₽
Дни:0
400 050₽
Работа:78 750 ₽
Материалы:321 300 ₽
Дни:9
245 700₽
Работа:47 250 ₽
Материалы:198 450 ₽
Дни:5
0₽
Работа:0 ₽
Материалы:0 ₽
Дни:0
996 177₽
Работа:582 036 ₽
Материалы:414 141 ₽
Дни:20
682 773₽
Работа:470 106 ₽
Материалы:212 667 ₽
Дни:15
492 492₽
Работа:212 667 ₽
Материалы:279 825 ₽
Дни:15
0₽
Работа:0 ₽
Материалы:0 ₽
Дни:0
425 334₽
Работа:201 474 ₽
Материалы:223 860 ₽
Дни:10
208 190₽
Работа:78 351 ₽
Материалы:129 839 ₽
Дни:7
0₽
Работа:0 ₽
Материалы:0 ₽
Дни:0
2 126 670₽
Работа:783 510 ₽
Материалы:1 343 160 ₽
Дни:50
0₽
Работа:0 ₽
Материалы:0 ₽
Дни:0
425 334₽
Работа:223 860 ₽
Материалы:201 474 ₽
Дни:10
Преимущества работы с нами
7 этапов оплаты
Независимый строительный надзор
Экологически чистые материалы
16 лет гарантии
Онлайн-кабинет с веб-камерой
Строители с опытом более 15 лет
Собственное производство







