Одноэтажный дом 220.48 м2 за руб.
Планировки
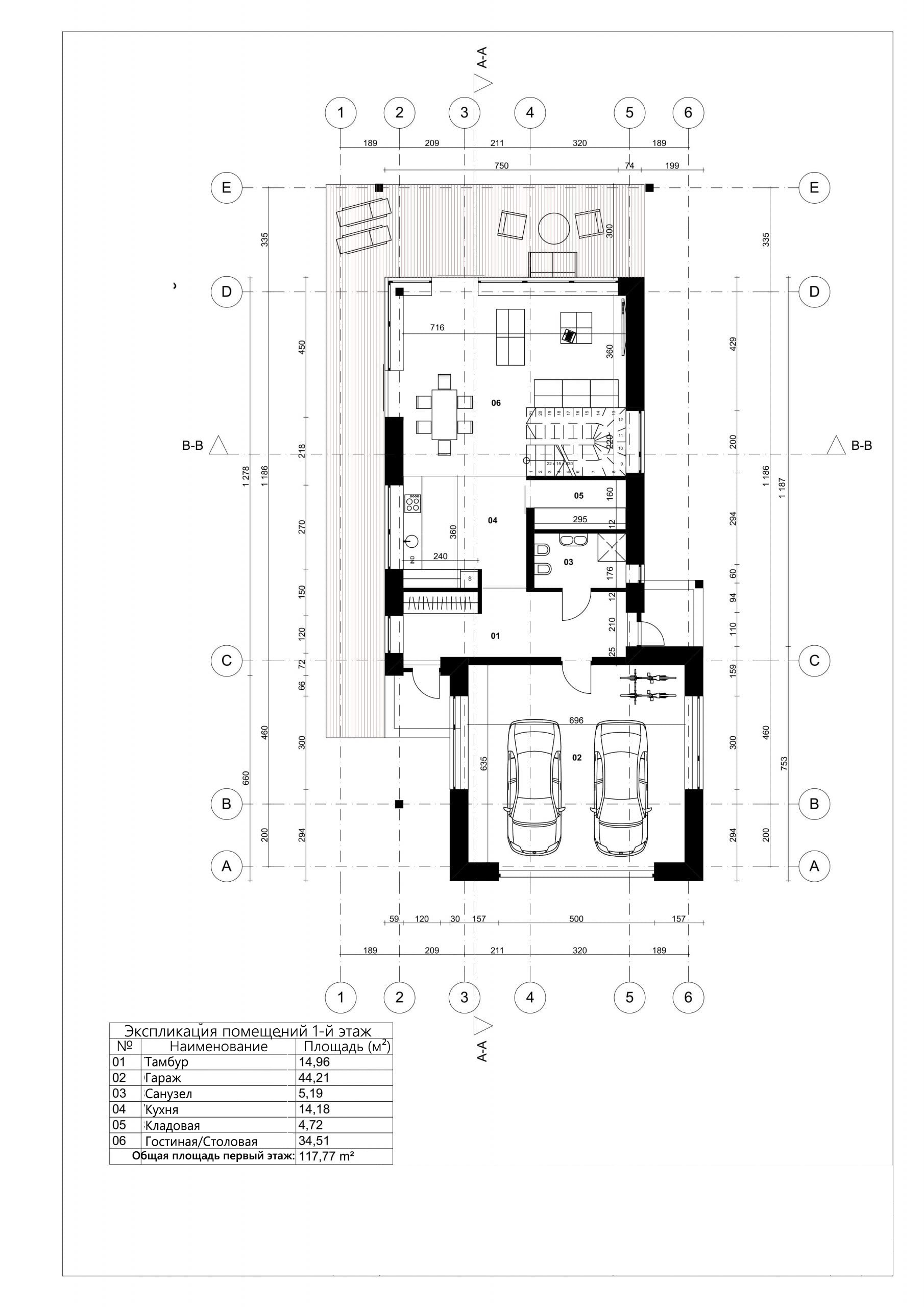
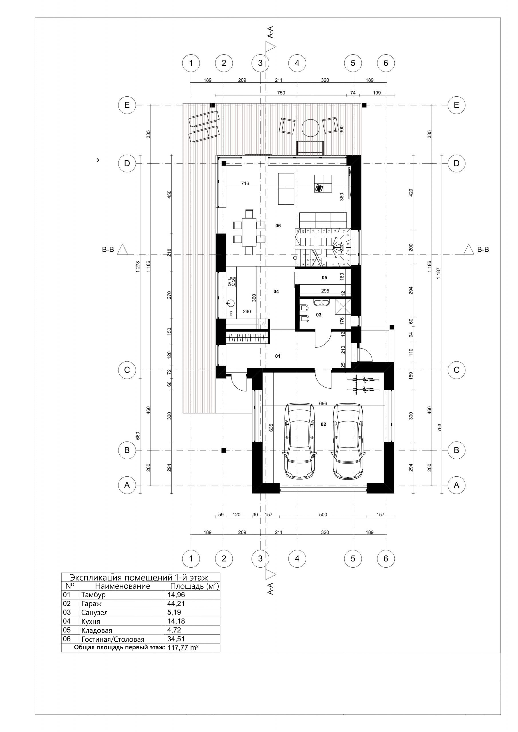
План первого этажа
- 1. Тамбур 14,96 м²
- 2. Гараж 44,21 м²
- 3. Санузел 5,19 м²
- 4. Кухня 14,18 м²
- 5. Кладовая 4,72 м²
- 6. Гостиная-Столовая 34,51 м²
- Общая площадь первый этаж 117,77 м²
План второго этажа
- 1. Коридор 8,95 м²
- 2. Комната 18,94 м²
- 3. Гардероб 5,50 м²
- 4. Ванная комната 8,05 м²
- 5. Комната 7,30 м²
- 6. Кабинет 12,74 м²
- 7. Комната 19,05 м²
- 8. Комната 15,88 м²
- 9. Гардероб 6,30 м²
- Общая площадь второй этаж 102,71 м²
Площади дома
| № п/п | Наименование | Ед. из. | Строительная площадь | Полезная площадь |
| 1 | 1 этаж | м2 | 145.13 | 117.77 |
| 2 | 2 этаж | м2 | 126.57 | 102.71 |
| 3 | Итого | м2 | 271.7 | 220.48 |
154 м2
Полезная
площадь
площадь
1 этаж
Этажей
26 м2
Террасы
и балконы
и балконы
1Без
гаража
гаража
4
Количество
спален
спален
3
Количество
санузлов
санузлов
Калькулятор опций
0₽
В ипотеку от 24 363 ₽/мес.
0₽
0 дней
stdClass Object
(
[id] => 1
[attribute_id] => 1
[name] => Ленточный монолитный ж/б
[material_modifier] => 1
[work_modifier] => 1
[options] => Array
(
[0] => размер 200 х 700 мм
[1] => размер 300 х 900 мм
[2] => размер 400 х 1 000 мм
[3] => размер 500 х 1 100 мм
[4] => размер 600 х 1 200 мм
)
[days] => [20,21,22,25,30]
[material_price] => [2823,3630,4475,5210,12047]
[work_price] => [2154,2826,3731,4577,5293]
[image] => https://akademik-stroy.ru/wp-content/uploads/materials/lentochnyj-monolitnyj-zh-b.jpg
[area_modifier] => 145.13
[parent_name] => Фундамент
[parent_id] => 1
[material_sum] => 516225
[work_sum] => 328241
[total_sum] => 844466
[total_days] => 20
[display_material_sum] => 516 225
[display_work_sum] => 328 241
[display_total_sum] => 844 466
)
1
844 466₽
Работа:328 241 ₽
Материалы:516 225 ₽
Дни:20
stdClass Object
(
[id] => 2
[attribute_id] => 1
[name] => Забивные Ж/Б сваи
[material_modifier] => 1
[work_modifier] => 1
[options] => Array
(
[0] => 150х150х3000мм
[1] => 150х150х4000мм
[2] => 200х200х3000мм
[3] => 200х200х4000мм
[4] => 200х200х5000мм
[5] => 200х200х6000мм
)
[days] => [2,2,2,2,2,2]
[material_price] => [1990,2850,3255,4360,5120,6837]
[work_price] => [1002,1185,1336,1438,1574,1839]
[image] => https://akademik-stroy.ru/wp-content/uploads/materials/zabivnye-zh-b-svai.png
[area_modifier] => 145.13
[parent_name] => Фундамент
[parent_id] => 1
[material_sum] => 363899
[work_sum] => 152691
[total_sum] => 516590
[total_days] => 2
[display_material_sum] => 363 899
[display_work_sum] => 152 691
[display_total_sum] => 516 590
)
1
516 590₽
Работа:152 691 ₽
Материалы:363 899 ₽
Дни:2
stdClass Object
(
[id] => 71
[attribute_id] => 1
[name] => Свайно-ростверковый ж/б
[material_modifier] => 1
[work_modifier] => 1
[options] => Array
(
[0] => ростверк 200х300 мм
[1] => ростверк 300х600 мм
[2] => ростверк 400х900 мм
[3] => ростверк 500х1200 мм
)
[days] => [20,23,25,27]
[material_price] => [3018,3474,7109,9792]
[work_price] => [2024,3012,5635,7022]
[image] => https://akademik-stroy.ru/wp-content/uploads/materials/svajno-rostverkovyj-monolitnyj-zh-b-3.png
[area_modifier] => 145.13
[parent_name] => Фундамент
[parent_id] => 1
[material_sum] => 551883
[work_sum] => 308430
[total_sum] => 860313
[total_days] => 20
[display_material_sum] => 551 883
[display_work_sum] => 308 430
[display_total_sum] => 860 313
)
1
860 313₽
Работа:308 430 ₽
Материалы:551 883 ₽
Дни:20
stdClass Object
(
[id] => 72
[attribute_id] => 1
[name] => Монолитная ж/б плита
[material_modifier] => 1
[work_modifier] => 1
[options] => Array
(
[0] => 200 мм
[1] => 300 мм
[2] => 400 мм
[3] => 500 мм
[4] => 600 мм
)
[days] => [30,33,35,37,40]
[material_price] => [5348,8555,12788,14388,15189]
[work_price] => [4314,4881,7037,8061,10230]
[image] => https://akademik-stroy.ru/wp-content/uploads/materials/monolitnaya-zhb-plita.png
[area_modifier] => 145.13
[parent_name] => Фундамент
[parent_id] => 1
[material_sum] => 977956
[work_sum] => 657395
[total_sum] => 1635351
[total_days] => 30
[display_material_sum] => 977 956
[display_work_sum] => 657 395
[display_total_sum] => 1 635 351
)
1
1 635 351₽
Работа:657 395 ₽
Материалы:977 956 ₽
Дни:30
stdClass Object
(
[id] => 73
[attribute_id] => 1
[name] => Утепленная шведская плита
[material_modifier] => 1
[work_modifier] => 1
[options] => Array
(
[0] => 200 мм
[1] => 300 мм
[2] => 400 мм
[3] => 500 мм
[4] => 600 мм
)
[days] => [32,37,39,42,45]
[material_price] => [10249,12692,13760,14936,16230]
[work_price] => [5960,7337,8072,8878,9765]
[image] => https://akademik-stroy.ru/wp-content/uploads/materials/uteplennaya-shvedskaya-plita.jpg
[area_modifier] => 145.13
[parent_name] => Фундамент
[parent_id] => 1
[material_sum] => 1874171
[work_sum] => 908224
[total_sum] => 2782395
[total_days] => 32
[display_material_sum] => 1 874 171
[display_work_sum] => 908 224
[display_total_sum] => 2 782 395
)
1
2 782 395₽
Работа:908 224 ₽
Материалы:1 874 171 ₽
Дни:32
stdClass Object
(
[id] => 75
[attribute_id] => 1
[name] => Ленточный из ФБС
[material_modifier] => 1
[work_modifier] => 1
[options] => Array
(
[0] => толщ. 300 мм
[1] => толщ. 400 мм
[2] => толщ. 500 мм
[3] => толщ. 600 мм
)
[days] => [20,20,20,20]
[material_price] => [3675,4902,6126,7350]
[work_price] => [2451,3264,4083,4902]
[image] => https://akademik-stroy.ru/wp-content/uploads/materials/lentochnyj-iz-fbs.png
[area_modifier] => 145.13
[parent_name] => Фундамент
[parent_id] => 1
[material_sum] => 672024
[work_sum] => 373499
[total_sum] => 1045523
[total_days] => 20
[display_material_sum] => 672 024
[display_work_sum] => 373 499
[display_total_sum] => 1 045 523
)
1
1 045 523₽
Работа:373 499 ₽
Материалы:672 024 ₽
Дни:20
stdClass Object
(
[id] => 76
[attribute_id] => 1
[name] => Цокольный этаж из ФБС
[material_modifier] => 1
[work_modifier] => 1
[options] => Array
(
[0] => толщ. 300 мм
[1] => толщ. 400 мм
[2] => толщ. 500 мм
[3] => толщ. 600 мм
)
[days] => [30,32,34,36]
[material_price] => [20916,23299,26680,29060]
[work_price] => [17524,18700,19873,21046]
[image] => https://akademik-stroy.ru/wp-content/uploads/materials/cokolnyj-ehtazh-iz-fbs.jpg
[area_modifier] => 145.13
[parent_name] => Фундамент
[parent_id] => 1
[material_sum] => 3824779
[work_sum] => 2670421
[total_sum] => 6495200
[total_days] => 30
[display_material_sum] => 3 824 779
[display_work_sum] => 2 670 421
[display_total_sum] => 6 495 200
)
1
6 495 200₽
Работа:2 670 421 ₽
Материалы:3 824 779 ₽
Дни:30
stdClass Object
(
[id] => 77
[attribute_id] => 1
[name] => Цокольный этаж монолитный ж/б
[material_modifier] => 1
[work_modifier] => 1
[options] => Array
(
[0] => толщ. 200 мм
[1] => толщ. 300 мм
[2] => толщ. 400 мм
[3] => толщ. 500 мм
[4] => толщ. 600 мм
)
[days] => [40,42,44,46,48]
[material_price] => [25421,29148,32275,35602,37326]
[work_price] => [20441,21907,23375,24841,26306]
[image] => https://akademik-stroy.ru/wp-content/uploads/materials/cokolnyj-etazh-zh-b.jpg
[area_modifier] => 145.13
[parent_name] => Фундамент
[parent_id] => 1
[material_sum] => 4648581
[work_sum] => 3114932
[total_sum] => 7763513
[total_days] => 40
[display_material_sum] => 4 648 581
[display_work_sum] => 3 114 932
[display_total_sum] => 7 763 513
)
1
7 763 513₽
Работа:3 114 932 ₽
Материалы:4 648 581 ₽
Дни:40
stdClass Object
(
[id] => 191
[attribute_id] => 1
[name] => Винтовые сваи
[material_modifier] => 1
[work_modifier] => 1
[options] => Array
(
[0] => 57х200мм
[1] => 76х250мм
[2] => 108х300мм
[3] => 133х350мм
)
[days] => [1,1,2,2]
[material_price] => [1200,1300,1450,1600]
[work_price] => [400,600,900,1100]
[image] => https://akademik-stroy.ru/wp-content/uploads/materials/vintovye-svai.png
[area_modifier] => 145.13
[parent_name] => Фундамент
[parent_id] => 1
[material_sum] => 219437
[work_sum] => 60955
[total_sum] => 280392
[total_days] => 1
[display_material_sum] => 219 437
[display_work_sum] => 60 955
[display_total_sum] => 280 392
)
1
280 392₽
Работа:60 955 ₽
Материалы:219 437 ₽
Дни:1
stdClass Object
(
[id] => 3
[attribute_id] => 2
[name] => Деревянные балки
[material_modifier] => 1
[work_modifier] => 1
[options] => Array
(
[0] => без утепления
[1] => утепление 200 мм
[2] => утепление 250 мм
[3] => утепление 300 мм
[4] => утепление 350 мм
[5] => утепление 400 мм
[6] => утепление 450 мм
[7] => утепление 500 мм
)
[days] => [8,9,9,9,11,12,13,14]
[material_price] => [1634,2042,2344,2947,3149,3652,3354,3557]
[work_price] => [1230,1339,1393,1426,1460,1513,1587,1620]
[image] => https://akademik-stroy.ru/wp-content/uploads/materials/derevyannye-balki.png
[area_modifier] => 145.13
[parent_name] => Перекрытие цоколя
[parent_id] => 2
[material_sum] => 298799
[work_sum] => 187435
[total_sum] => 486234
[total_days] => 8
[display_material_sum] => 298 799
[display_work_sum] => 187 435
[display_total_sum] => 486 234
)
1
486 234₽
Работа:187 435 ₽
Материалы:298 799 ₽
Дни:8
stdClass Object
(
[id] => 4
[attribute_id] => 2
[name] => Сборные ж/б плиты
[material_modifier] => 1
[work_modifier] => 1
[options] => Array
(
[0] => без утепления
[1] => утепление 150мм
[2] => утепление 200мм
[3] => утепление 250мм
[4] => утепление 300мм
[5] => утепление 350мм
[6] => утепление 400мм
[7] => утепление 450мм
[8] => утепление 500мм
)
[days] => [13,15,15,15,15,15,15,15,15]
[material_price] => [3067,5577,5928,6679,7730,8782,9833,10884,11935]
[work_price] => [1520,1956,2102,2247,2392,2537,2684,2829,2974]
[image] => https://akademik-stroy.ru/wp-content/uploads/materials/sbornye-zh-b-plity-2.jpg
[area_modifier] => 145.13
[parent_name] => Перекрытие цоколя
[parent_id] => 2
[material_sum] => 560843
[work_sum] => 231627
[total_sum] => 792470
[total_days] => 13
[display_material_sum] => 560 843
[display_work_sum] => 231 627
[display_total_sum] => 792 470
)
1
792 470₽
Работа:231 627 ₽
Материалы:560 843 ₽
Дни:13
stdClass Object
(
[id] => 78
[attribute_id] => 2
[name] => Монолитная ж/б плита
[material_modifier] => 1
[work_modifier] => 1
[options] => Array
(
[0] => без утепления
[1] => утепление 150 мм
[2] => утепление 200 мм
[3] => утепление 250 мм
[4] => утепление 300 мм
[5] => утепление 350 мм
[6] => утепление 400 мм
[7] => утепление 450 мм
[8] => утепление 500 мм
)
[days] => [18,20,20,20,20,20,20,20,20]
[material_price] => [4837,6572,7224,7375,79426,8177,8728,9180,10031]
[work_price] => [3348,3921,4112,4302,4493,4684,4875,5066,5256]
[image] => https://akademik-stroy.ru/wp-content/uploads/materials/monolitnaya-zh-b-plita-2.jpg
[area_modifier] => 145.13
[parent_name] => Перекрытие цоколя
[parent_id] => 2
[material_sum] => 884512
[work_sum] => 510190
[total_sum] => 1394702
[total_days] => 18
[display_material_sum] => 884 512
[display_work_sum] => 510 190
[display_total_sum] => 1 394 702
)
1
1 394 702₽
Работа:510 190 ₽
Материалы:884 512 ₽
Дни:18
stdClass Object
(
[id] => 6
[attribute_id] => 3
[name] => Пеноблок
[material_modifier] => 1
[work_modifier] => 1
[options] => Array
(
[0] => 300 мм
[1] => 400 мм
[2] => 500 мм
[3] => 600 мм
)
[days] => [29,31,34,39]
[material_price] => [3000,4000,4500,4937]
[work_price] => [5033,5805,6400,8710]
[image] => https://akademik-stroy.ru/wp-content/uploads/materials/penoblok.jpg
[area_modifier] => 145.13
[parent_name] => Стены 1 этаж (несущие)
[parent_id] => 3
[material_sum] => 548591
[work_sum] => 766961
[total_sum] => 1315552
[total_days] => 29
[display_material_sum] => 548 591
[display_work_sum] => 766 961
[display_total_sum] => 1 315 552
)
1
1 315 552₽
Работа:766 961 ₽
Материалы:548 591 ₽
Дни:29
stdClass Object
(
[id] => 79
[attribute_id] => 3
[name] => Керамический блок
[material_modifier] => 1
[work_modifier] => 1
[options] => Array
(
[0] => 380 мм
[1] => 380 мм Thermo
[2] => 440 мм
[3] => 510 мм
)
[days] => [23,23,24,25]
[material_price] => [4510,5098,6093,8013]
[work_price] => [4737,4937,5903,6958]
[image] => https://akademik-stroy.ru/wp-content/uploads/materials/keramicheskij-blok.jpg
[area_modifier] => 145.13
[parent_name] => Стены 1 этаж (несущие)
[parent_id] => 3
[material_sum] => 824716
[work_sum] => 721855
[total_sum] => 1546571
[total_days] => 23
[display_material_sum] => 824 716
[display_work_sum] => 721 855
[display_total_sum] => 1 546 571
)
1
1 546 571₽
Работа:721 855 ₽
Материалы:824 716 ₽
Дни:23
stdClass Object
(
[id] => 80
[attribute_id] => 3
[name] => Кирпич
[material_modifier] => 1
[work_modifier] => 1
[options] => Array
(
[0] => Кирпич 250 мм
[1] => Кирпич 380 мм
[2] => Кирпич 510 мм
[3] => Кирпич 640 мм
[4] => Кирпич 770 мм
)
[days] => [30,30,31,33,36]
[material_price] => [5500,7142,9206,10171,12235]
[work_price] => [8736,10041,12018,15240,18462]
[image] => https://akademik-stroy.ru/wp-content/uploads/materials/kirpich.jpg
[area_modifier] => 145.13
[parent_name] => Стены 1 этаж (несущие)
[parent_id] => 3
[material_sum] => 1005751
[work_sum] => 1331248
[total_sum] => 2336999
[total_days] => 30
[display_material_sum] => 1 005 751
[display_work_sum] => 1 331 248
[display_total_sum] => 2 336 999
)
1
2 336 999₽
Работа:1 331 248 ₽
Материалы:1 005 751 ₽
Дни:30
stdClass Object
(
[id] => 81
[attribute_id] => 3
[name] => Монолитные
[material_modifier] => 1
[work_modifier] => 1
[options] => Array
(
[0] => 150 мм
[1] => 200 мм
[2] => 250 мм
[3] => 300 мм
[4] => 350 мм
[5] => 400 мм
)
[days] => [45,46,47,49,50,53]
[material_price] => [6545,7876,10175,12011,13908,15204]
[work_price] => [5106,6444,7698,8552,9807,11461]
[image] => https://akademik-stroy.ru/wp-content/uploads/materials/monolitnye.jpg
[area_modifier] => 145.13
[parent_name] => Стены 1 этаж (несущие)
[parent_id] => 3
[material_sum] => 1196844
[work_sum] => 778085
[total_sum] => 1974929
[total_days] => 45
[display_material_sum] => 1 196 844
[display_work_sum] => 778 085
[display_total_sum] => 1 974 929
)
1
1 974 929₽
Работа:778 085 ₽
Материалы:1 196 844 ₽
Дни:45
stdClass Object
(
[id] => 82
[attribute_id] => 3
[name] => Клееный брус
[material_modifier] => 1
[work_modifier] => 1
[options] => Array
(
[0] => 160 мм
[1] => 175 мм
[2] => 200 мм
[3] => 215 мм
[4] => 240 мм
[5] => 270 мм
[6] => 282 мм
)
[days] => [24,28,32,37,40,42,48]
[material_price] => [16975,18773,19950,20545,21599,22159,23275]
[work_price] => [4806,5287,5815,6397,7036,7740,8514]
[image] => https://akademik-stroy.ru/wp-content/uploads/materials/kleenyj-brus.jpg
[area_modifier] => 145.13
[parent_name] => Стены 1 этаж (несущие)
[parent_id] => 3
[material_sum] => 3104113
[work_sum] => 732370
[total_sum] => 3836483
[total_days] => 24
[display_material_sum] => 3 104 113
[display_work_sum] => 732 370
[display_total_sum] => 3 836 483
)
1
3 836 483₽
Работа:732 370 ₽
Материалы:3 104 113 ₽
Дни:24
stdClass Object
(
[id] => 83
[attribute_id] => 3
[name] => Каркасные
[material_modifier] => 1
[work_modifier] => 1
[options] => Array
(
[0] => 150 мм
[1] => 200 мм
[2] => 250 мм
[3] => 300 мм
)
[days] => [15,16,17,18]
[material_price] => [2379,2639,2898,3258]
[work_price] => [2418,2686,2985,3716]
[image] => https://akademik-stroy.ru/wp-content/uploads/materials/karkasnye.jpg
[area_modifier] => 145.13
[parent_name] => Стены 1 этаж (несущие)
[parent_id] => 3
[material_sum] => 435033
[work_sum] => 368471
[total_sum] => 803504
[total_days] => 15
[display_material_sum] => 435 033
[display_work_sum] => 368 471
[display_total_sum] => 803 504
)
1
803 504₽
Работа:368 471 ₽
Материалы:435 033 ₽
Дни:15
stdClass Object
(
[id] => 84
[attribute_id] => 3
[name] => СИП-панели
[material_modifier] => 1
[work_modifier] => 1
[options] => Array
(
[0] => 120 мм
[1] => 170 мм
[2] => 220 мм
)
[days] => [7,7,7]
[material_price] => [1210,1856,2292]
[work_price] => [1410,1551,1706]
[image] => https://akademik-stroy.ru/wp-content/uploads/materials/sip-paneli.jpg
[area_modifier] => 145.13
[parent_name] => Стены 1 этаж (несущие)
[parent_id] => 3
[material_sum] => 221265
[work_sum] => 214865
[total_sum] => 436130
[total_days] => 7
[display_material_sum] => 221 265
[display_work_sum] => 214 865
[display_total_sum] => 436 130
)
1
436 130₽
Работа:214 865 ₽
Материалы:221 265 ₽
Дни:7
stdClass Object
(
[id] => 85
[attribute_id] => 3
[name] => Сухой брус
[material_modifier] => 1
[work_modifier] => 1
[options] => Array
(
[0] => 150 мм
[1] => 180 мм
[2] => 200 мм
)
[days] => [7,8,9]
[material_price] => [6010,7190,8709]
[work_price] => [3204,3845,4229]
[image] => https://akademik-stroy.ru/wp-content/uploads/materials/suhoj-brus.jpg
[area_modifier] => 145.13
[parent_name] => Стены 1 этаж (несущие)
[parent_id] => 3
[material_sum] => 1099011
[work_sum] => 488246
[total_sum] => 1587257
[total_days] => 7
[display_material_sum] => 1 099 011
[display_work_sum] => 488 246
[display_total_sum] => 1 587 257
)
1
1 587 257₽
Работа:488 246 ₽
Материалы:1 099 011 ₽
Дни:7
stdClass Object
(
[id] => 86
[attribute_id] => 3
[name] => Профилированный брус
[material_modifier] => 1
[work_modifier] => 1
[options] => Array
(
[0] => 150 мм
[1] => 180 мм
[2] => 200 мм
)
[days] => [7,8,9]
[material_price] => [8190,9228,10051]
[work_price] => [3845,4614,5075]
[image] => https://akademik-stroy.ru/wp-content/uploads/materials/profilirovannyj-brus.jpg
[area_modifier] => 145.13
[parent_name] => Стены 1 этаж (несущие)
[parent_id] => 3
[material_sum] => 1497655
[work_sum] => 585926
[total_sum] => 2083581
[total_days] => 7
[display_material_sum] => 1 497 655
[display_work_sum] => 585 926
[display_total_sum] => 2 083 581
)
1
2 083 581₽
Работа:585 926 ₽
Материалы:1 497 655 ₽
Дни:7
stdClass Object
(
[id] => 87
[attribute_id] => 3
[name] => Оцилиндрованное бревно
[material_modifier] => 1
[work_modifier] => 1
[options] => Array
(
[0] => 180 мм
[1] => 220 мм
[2] => 260 мм
[3] => 320 мм
)
[days] => [7,8,9,10]
[material_price] => [75190,9532,10868,13116]
[work_price] => [3845,4691,5535,6863]
[image] => https://akademik-stroy.ru/wp-content/uploads/materials/ocilindrovannoe-brevno-1.jpg
[area_modifier] => 145.13
[parent_name] => Стены 1 этаж (несущие)
[parent_id] => 3
[material_sum] => 13749529
[work_sum] => 585926
[total_sum] => 14335455
[total_days] => 7
[display_material_sum] => 13 749 529
[display_work_sum] => 585 926
[display_total_sum] => 14 335 455
)
1
14 335 455₽
Работа:585 926 ₽
Материалы:13 749 529 ₽
Дни:7
stdClass Object
(
[id] => 88
[attribute_id] => 3
[name] => Срубы
[material_modifier] => 1
[work_modifier] => 1
[options] => Array
(
[0] => 260 мм
[1] => 320 мм
[2] => 360 мм
[3] => 400 мм
[4] => 500 мм
)
[days] => [7,8,9,10,11]
[material_price] => [37975,46709,52314,58069,73167]
[work_price] => [4806,5911,6621,7349,9260]
[image] => https://akademik-stroy.ru/wp-content/uploads/materials/sruby.jpg
[area_modifier] => 145.13
[parent_name] => Стены 1 этаж (несущие)
[parent_id] => 3
[material_sum] => 6944253
[work_sum] => 732370
[total_sum] => 7676623
[total_days] => 7
[display_material_sum] => 6 944 253
[display_work_sum] => 732 370
[display_total_sum] => 7 676 623
)
1
7 676 623₽
Работа:732 370 ₽
Материалы:6 944 253 ₽
Дни:7
stdClass Object
(
[id] => 174
[attribute_id] => 3
[name] => Брус
[material_modifier] => 1
[work_modifier] => 1
[options] => Array
(
[0] => 150 мм
[1] => 180 мм
[2] => 200 мм
)
[days] => [7,8,9]
[material_price] => [5127,6152,7367]
[work_price] => [1602,1922,2115]
[image] => https://akademik-stroy.ru/wp-content/uploads/materials/brus.jpg
[area_modifier] => 145.13
[parent_name] => Стены 1 этаж (несущие)
[parent_id] => 3
[material_sum] => 937543
[work_sum] => 244123
[total_sum] => 1181666
[total_days] => 7
[display_material_sum] => 937 543
[display_work_sum] => 244 123
[display_total_sum] => 1 181 666
)
1
1 181 666₽
Работа:244 123 ₽
Материалы:937 543 ₽
Дни:7
stdClass Object
(
[id] => 175
[attribute_id] => 3
[name] => Газобетон
[material_modifier] => 1
[work_modifier] => 1
[options] => Array
(
[0] => 300 мм
[1] => 375 мм
[2] => 400 мм
[3] => 500 мм
[4] => 600 мм
)
[days] => [29,31,35,37,44]
[material_price] => [4298,5573,6356,7288,9119]
[work_price] => [4538,5251,5926,6733,7195]
[image] => https://akademik-stroy.ru/wp-content/uploads/materials/gazobeton.jpg
[area_modifier] => 145.13
[parent_name] => Стены 1 этаж (несущие)
[parent_id] => 3
[material_sum] => 785949
[work_sum] => 691530
[total_sum] => 1477479
[total_days] => 29
[display_material_sum] => 785 949
[display_work_sum] => 691 530
[display_total_sum] => 1 477 479
)
1
1 477 479₽
Работа:691 530 ₽
Материалы:785 949 ₽
Дни:29
stdClass Object
(
[id] => 176
[attribute_id] => 3
[name] => Блок
[material_modifier] => 1
[work_modifier] => 1
[options] => Array
(
[0] => 300 мм
[1] => 375 мм
[2] => 400 мм
[3] => 500 мм
[4] => 600 мм
)
[days] => [29,31,35,37,44]
[material_price] => [2698,3973,4356,6588,7119]
[work_price] => [5038,5851,6426,8733,9195]
[image] => https://akademik-stroy.ru/wp-content/uploads/materials/blok.jpg
[area_modifier] => 145.13
[parent_name] => Стены 1 этаж (несущие)
[parent_id] => 3
[material_sum] => 493367
[work_sum] => 767723
[total_sum] => 1261090
[total_days] => 29
[display_material_sum] => 493 367
[display_work_sum] => 767 723
[display_total_sum] => 1 261 090
)
1
1 261 090₽
Работа:767 723 ₽
Материалы:493 367 ₽
Дни:29
stdClass Object
(
[id] => 177
[attribute_id] => 3
[name] => Газосиликатный блок
[material_modifier] => 1
[work_modifier] => 1
[options] => Array
(
[0] => 300 мм
[1] => 375 мм
[2] => 400 мм
[3] => 500 мм
[4] => 600 мм
)
[days] => [29,31,35,37,44]
[material_price] => [4298,5573,6356,7288,9119]
[work_price] => [4538,5251,5926,6733,7195]
[image] => https://akademik-stroy.ru/wp-content/uploads/materials/gazosilikatnyj-blok.jpg
[area_modifier] => 145.13
[parent_name] => Стены 1 этаж (несущие)
[parent_id] => 3
[material_sum] => 785949
[work_sum] => 691530
[total_sum] => 1477479
[total_days] => 29
[display_material_sum] => 785 949
[display_work_sum] => 691 530
[display_total_sum] => 1 477 479
)
1
1 477 479₽
Работа:691 530 ₽
Материалы:785 949 ₽
Дни:29
stdClass Object
(
[id] => 178
[attribute_id] => 3
[name] => Керамзитобетонный блок
[material_modifier] => 1
[work_modifier] => 1
[options] => Array
(
[0] => 300 мм
[1] => 375 мм
[2] => 400 мм
[3] => 500 мм
[4] => 600 мм
)
[days] => [23,23,24,25,28]
[material_price] => [3641,4298,5693,7613,9612]
[work_price] => [5737,5737,6903,7958,8901]
[image] => https://akademik-stroy.ru/wp-content/uploads/materials/keramzitobetonnyj-blok.jpg
[area_modifier] => 145.13
[parent_name] => Стены 1 этаж (несущие)
[parent_id] => 3
[material_sum] => 665807
[work_sum] => 874241
[total_sum] => 1540048
[total_days] => 23
[display_material_sum] => 665 807
[display_work_sum] => 874 241
[display_total_sum] => 1 540 048
)
1
1 540 048₽
Работа:874 241 ₽
Материалы:665 807 ₽
Дни:23
stdClass Object
(
[id] => 179
[attribute_id] => 3
[name] => Деревянные
[material_modifier] => 1
[work_modifier] => 1
[options] => Array
(
[0] => 180 мм
[1] => 220 мм
[2] => 260 мм
[3] => 320 мм
)
[days] => [7,8,9,10]
[material_price] => [7950,9458,11961,14472]
[work_price] => [4037,4925,5812,7207]
[image] => https://akademik-stroy.ru/wp-content/uploads/materials/derevyannye.jpg
[area_modifier] => 145.13
[parent_name] => Стены 1 этаж (несущие)
[parent_id] => 3
[material_sum] => 1453767
[work_sum] => 615184
[total_sum] => 2068951
[total_days] => 7
[display_material_sum] => 1 453 767
[display_work_sum] => 615 184
[display_total_sum] => 2 068 951
)
1
2 068 951₽
Работа:615 184 ₽
Материалы:1 453 767 ₽
Дни:7
stdClass Object
(
[id] => 181
[attribute_id] => 3
[name] => Камень
[material_modifier] => 1
[work_modifier] => 1
[options] => Array
(
[0] => 300 мм
[1] => 400 мм
[2] => 500 мм
[3] => 600 мм
)
[days] => [25,27,31,34]
[material_price] => [5262,6844,8330,9815]
[work_price] => [8331,9135,10427,11069]
[image] => https://akademik-stroy.ru/wp-content/uploads/materials/kamen.jpg
[area_modifier] => 145.13
[parent_name] => Стены 1 этаж (несущие)
[parent_id] => 3
[material_sum] => 962229
[work_sum] => 1269532
[total_sum] => 2231761
[total_days] => 25
[display_material_sum] => 962 229
[display_work_sum] => 1 269 532
[display_total_sum] => 2 231 761
)
1
2 231 761₽
Работа:1 269 532 ₽
Материалы:962 229 ₽
Дни:25
stdClass Object
(
[id] => 182
[attribute_id] => 3
[name] => Каркасно-щитовые
[material_modifier] => 1
[work_modifier] => 1
[options] => Array
(
[0] => 150 мм
[1] => 200 мм
[2] => 250 мм
[3] => 300 мм
[4] => 350 мм
[5] => 400 мм
)
[days] => [15,16,17,18,19,20]
[material_price] => [2379,2639,2898,3458,3601,4175]
[work_price] => [2538,2820,3134,3483,4062,5642]
[image] => https://akademik-stroy.ru/wp-content/uploads/materials/karkasno-shchitovye.jpg
[area_modifier] => 145.13
[parent_name] => Стены 1 этаж (несущие)
[parent_id] => 3
[material_sum] => 435033
[work_sum] => 386757
[total_sum] => 821790
[total_days] => 15
[display_material_sum] => 435 033
[display_work_sum] => 386 757
[display_total_sum] => 821 790
)
1
821 790₽
Работа:386 757 ₽
Материалы:435 033 ₽
Дни:15
stdClass Object
(
[id] => 183
[attribute_id] => 3
[name] => Рубленные
[material_modifier] => 1
[work_modifier] => 1
[options] => Array
(
[0] => 150 мм
[1] => 200 мм
[2] => 250 мм
[3] => 300 мм
[4] => 350 мм
[5] => 400 мм
)
[days] => [15,16,17,18,17,18]
[material_price] => [35950,50267,60583,75900,80217,100533]
[work_price] => [9612,12816,16020,19224,22428,25632]
[image] => https://akademik-stroy.ru/wp-content/uploads/materials/rublennye.jpg
[area_modifier] => 145.13
[parent_name] => Стены 1 этаж (несущие)
[parent_id] => 3
[material_sum] => 6573954
[work_sum] => 1464739
[total_sum] => 8038693
[total_days] => 15
[display_material_sum] => 6 573 954
[display_work_sum] => 1 464 739
[display_total_sum] => 8 038 693
)
1
8 038 693₽
Работа:1 464 739 ₽
Материалы:6 573 954 ₽
Дни:15
stdClass Object
(
[id] => 185
[attribute_id] => 3
[name] => Теплоблок
[material_modifier] => 1
[work_modifier] => 1
[options] => Array
(
[0] => 300 мм (с облицовкой, не покрашенный)
[1] => 400 мм (с облицовкой, не покрашенный)
[2] => 300 мм (с облицовкой, покрашенный)
[3] => 400 мм (с облицовкой, покрашенный)
)
[days] => [15,16,15,16]
[material_price] => [2888,3729,3957,4258]
[work_price] => [2564,3229,2949,3713]
[image] => https://akademik-stroy.ru/wp-content/uploads/materials/teploblok.jpg
[area_modifier] => 145.13
[parent_name] => Стены 1 этаж (несущие)
[parent_id] => 3
[material_sum] => 528111
[work_sum] => 390719
[total_sum] => 918830
[total_days] => 15
[display_material_sum] => 528 111
[display_work_sum] => 390 719
[display_total_sum] => 918 830
)
1
918 830₽
Работа:390 719 ₽
Материалы:528 111 ₽
Дни:15
stdClass Object
(
[id] => 186
[attribute_id] => 3
[name] => Арболитовые блоки
[material_modifier] => 1
[work_modifier] => 1
[options] => Array
(
[0] => 300 мм
[1] => 400 мм
[2] => 600 мм
)
[days] => [19,22,27]
[material_price] => [3210,4475,5852]
[work_price] => [4214,4788,5866]
[image] => https://akademik-stroy.ru/wp-content/uploads/materials/arbolitovye-bloki.png
[area_modifier] => 145.13
[parent_name] => Стены 1 этаж (несущие)
[parent_id] => 3
[material_sum] => 586993
[work_sum] => 642157
[total_sum] => 1229150
[total_days] => 19
[display_material_sum] => 586 993
[display_work_sum] => 642 157
[display_total_sum] => 1 229 150
)
1
1 229 150₽
Работа:642 157 ₽
Материалы:586 993 ₽
Дни:19
stdClass Object
(
[id] => 187
[attribute_id] => 3
[name] => Полистиролбетон
[material_modifier] => 1
[work_modifier] => 1
[options] => Array
(
[0] => 300 мм
[1] => 400 мм
[2] => 600 мм
)
[days] => [29,31,35]
[material_price] => [2798,4573,5256]
[work_price] => [5038,5851,6426]
[image] => https://akademik-stroy.ru/wp-content/uploads/materials/polistirolbeton.jpg
[area_modifier] => 145.13
[parent_name] => Стены 1 этаж (несущие)
[parent_id] => 3
[material_sum] => 511653
[work_sum] => 767723
[total_sum] => 1279376
[total_days] => 29
[display_material_sum] => 511 653
[display_work_sum] => 767 723
[display_total_sum] => 1 279 376
)
1
1 279 376₽
Работа:767 723 ₽
Материалы:511 653 ₽
Дни:29
stdClass Object
(
[id] => 188
[attribute_id] => 3
[name] => Шлакоблок
[material_modifier] => 1
[work_modifier] => 1
[options] => Array
(
[0] => 400 мм
[1] => 600 мм
)
[days] => [15,16]
[material_price] => [2391,3471]
[work_price] => [2642,3662]
[image] => https://akademik-stroy.ru/wp-content/uploads/materials/shlakoblok.jpg
[area_modifier] => 145.13
[parent_name] => Стены 1 этаж (несущие)
[parent_id] => 3
[material_sum] => 437227
[work_sum] => 402605
[total_sum] => 839832
[total_days] => 15
[display_material_sum] => 437 227
[display_work_sum] => 402 605
[display_total_sum] => 839 832
)
1
839 832₽
Работа:402 605 ₽
Материалы:437 227 ₽
Дни:15
stdClass Object
(
[id] => 189
[attribute_id] => 3
[name] => Теплая керамика
[material_modifier] => 1
[work_modifier] => 1
[options] => Array
(
[0] => 380 мм
[1] => 380 мм Thermo
[2] => 440 мм
[3] => 510 мм
)
[days] => [23,23,24,25]
[material_price] => [4510,5098,6093,8013]
[work_price] => [4737,4937,5903,6958]
[image] => https://akademik-stroy.ru/wp-content/uploads/materials/teplaya-keramika.jpg
[area_modifier] => 145.13
[parent_name] => Стены 1 этаж (несущие)
[parent_id] => 3
[material_sum] => 824716
[work_sum] => 721855
[total_sum] => 1546571
[total_days] => 23
[display_material_sum] => 824 716
[display_work_sum] => 721 855
[display_total_sum] => 1 546 571
)
1
1 546 571₽
Работа:721 855 ₽
Материалы:824 716 ₽
Дни:23
stdClass Object
(
[id] => 190
[attribute_id] => 3
[name] => Несъемная опалубка
[material_modifier] => 1
[work_modifier] => 1
[options] => Array
(
[0] => 200 мм
[1] => 250 мм
[2] => 300 мм
[3] => 350 мм
)
[days] => [15,17,19,21]
[material_price] => [3302,3902,4108,5008]
[work_price] => [2100,2100,2300,2534]
[image] => https://akademik-stroy.ru/wp-content/uploads/materials/nesemnaya-opalubka.jpg
[area_modifier] => 145.13
[parent_name] => Стены 1 этаж (несущие)
[parent_id] => 3
[material_sum] => 603816
[work_sum] => 320012
[total_sum] => 923828
[total_days] => 15
[display_material_sum] => 603 816
[display_work_sum] => 320 012
[display_total_sum] => 923 828
)
1
923 828₽
Работа:320 012 ₽
Материалы:603 816 ₽
Дни:15
stdClass Object
(
[id] => 251
[attribute_id] => 3
[name] => Бревно
[material_modifier] => 1
[work_modifier] => 1
[options] => Array
(
[0] => 260 мм
[1] => 320 мм
[2] => 360 мм
[3] => 400 мм
[4] => 500 мм
)
[days] => [7,8,9,10,11]
[material_price] => [1874,24045,26930,30972,38825]
[work_price] => [5046,6207,6952,7716,9723]
[image] => https://akademik-stroy.ru/wp-content/uploads/materials/sruby.jpg
[area_modifier] => 145.13
[parent_name] => Стены 1 этаж (несущие)
[parent_id] => 3
[material_sum] => 342687
[work_sum] => 768942
[total_sum] => 1111629
[total_days] => 7
[display_material_sum] => 342 687
[display_work_sum] => 768 942
[display_total_sum] => 1 111 629
)
1
1 111 629₽
Работа:768 942 ₽
Материалы:342 687 ₽
Дни:7
stdClass Object
(
[id] => 7
[attribute_id] => 4
[name] => Деревянные балки
[material_modifier] => 1
[work_modifier] => 1
[options] => Array
(
[0] => без утепления
[1] => утепление 200 мм
[2] => утепление 250 мм
[3] => утепление 300 мм
[4] => утепление 350 мм
[5] => утепление 400 мм
[6] => утепление 450 мм
[7] => утепление 500 мм
)
[days] => [8,9,9,9,11,12,13,14]
[material_price] => [1634,2042,2344,2947,3149,3652,3354,3557]
[work_price] => [1230,1339,1393,1426,1460,1513,1587,1620]
[image] => https://akademik-stroy.ru/wp-content/uploads/materials/derevyannye-balki.png
[area_modifier] => 145.13
[parent_name] => Перекрытие первого этажа
[parent_id] => 4
[material_sum] => 298799
[work_sum] => 187435
[total_sum] => 486234
[total_days] => 8
[display_material_sum] => 298 799
[display_work_sum] => 187 435
[display_total_sum] => 486 234
)
1
486 234₽
Работа:187 435 ₽
Материалы:298 799 ₽
Дни:8
stdClass Object
(
[id] => 8
[attribute_id] => 4
[name] => Сборные ж/б плиты
[material_modifier] => 1
[work_modifier] => 1
[options] => Array
(
[0] => без утепления
[1] => утепление 150 мм
[2] => утепление 200 мм
[3] => утепление 250 мм
[4] => утепление 300 мм
[5] => утепление 350 мм
[6] => утепление 400 мм
[7] => утепление 450 мм
[8] => утепление 500 мм
)
[days] => [13,15,15,15,15,15,15,15,15]
[material_price] => [3067,5577,5928,6679,7730,8782,9833,10884,11935]
[work_price] => [1520,1956,2102,2247,2392,2537,2684,2829,2974]
[image] => https://akademik-stroy.ru/wp-content/uploads/materials/sbornye-zh-b-plity-2.jpg
[area_modifier] => 145.13
[parent_name] => Перекрытие первого этажа
[parent_id] => 4
[material_sum] => 560843
[work_sum] => 231627
[total_sum] => 792470
[total_days] => 13
[display_material_sum] => 560 843
[display_work_sum] => 231 627
[display_total_sum] => 792 470
)
1
792 470₽
Работа:231 627 ₽
Материалы:560 843 ₽
Дни:13
stdClass Object
(
[id] => 89
[attribute_id] => 4
[name] => Монолитная ж/б плита
[material_modifier] => 1
[work_modifier] => 1
[options] => Array
(
[0] => без утепления
[1] => утепление 150 мм
[2] => утепление 200 мм
[3] => утепление 250 мм
[4] => утепление 300 мм
[5] => утепление 350 мм
[6] => утепление 400 мм
[7] => утепление 450 мм
[8] => утепление 500 мм
)
[days] => [18,20,20,20,20,20,20,20,20]
[material_price] => [4837,6572,7224,7375,79426,8177,8728,9180,10031]
[work_price] => [3348,3921,4112,4302,4493,4684,4875,5066,5256]
[image] => https://akademik-stroy.ru/wp-content/uploads/materials/monolitnaya-zh-b-plita-2.jpg
[area_modifier] => 145.13
[parent_name] => Перекрытие первого этажа
[parent_id] => 4
[material_sum] => 884512
[work_sum] => 510190
[total_sum] => 1394702
[total_days] => 18
[display_material_sum] => 884 512
[display_work_sum] => 510 190
[display_total_sum] => 1 394 702
)
1
1 394 702₽
Работа:510 190 ₽
Материалы:884 512 ₽
Дни:18
stdClass Object
(
[id] => 10
[attribute_id] => 5
[name] => Пеноблок
[material_modifier] => 1
[work_modifier] => 1
[options] => Array
(
[0] => 300 мм
[1] => 400 мм
[2] => 500 мм
[3] => 600 мм
)
[days] => [29,31,34,39]
[material_price] => [3000,4000,4500,4937]
[work_price] => [5033,5805,6400,8710]
[image] => https://akademik-stroy.ru/wp-content/uploads/materials/penoblok.jpg
[area_modifier] => 126.57
[parent_name] => Стены 2 этаж (несущие)
[parent_id] => 5
[material_sum] => 478435
[work_sum] => 668878
[total_sum] => 1147313
[total_days] => 29
[display_material_sum] => 478 435
[display_work_sum] => 668 878
[display_total_sum] => 1 147 313
)
1
1 147 313₽
Работа:668 878 ₽
Материалы:478 435 ₽
Дни:29
stdClass Object
(
[id] => 90
[attribute_id] => 5
[name] => Керамический блок
[material_modifier] => 1
[work_modifier] => 1
[options] => Array
(
[0] => 380 мм
[1] => 380 мм Thermo
[2] => 440 мм
[3] => 510 мм
)
[days] => [23,23,24,25]
[material_price] => [4510,5098,6093,8013]
[work_price] => [4737,4937,5903,6958]
[image] => https://akademik-stroy.ru/wp-content/uploads/materials/keramicheskij-blok.jpg
[area_modifier] => 126.57
[parent_name] => Стены 2 этаж (несущие)
[parent_id] => 5
[material_sum] => 719247
[work_sum] => 629540
[total_sum] => 1348787
[total_days] => 23
[display_material_sum] => 719 247
[display_work_sum] => 629 540
[display_total_sum] => 1 348 787
)
1
1 348 787₽
Работа:629 540 ₽
Материалы:719 247 ₽
Дни:23
stdClass Object
(
[id] => 91
[attribute_id] => 5
[name] => Кирпич
[material_modifier] => 1
[work_modifier] => 1
[options] => Array
(
[0] => Кирпич 250 мм
[1] => Кирпич 380 мм
[2] => Кирпич 510 мм
[3] => Кирпич 640 мм
[4] => Кирпич 770 мм
)
[days] => [30,30,31,33,36]
[material_price] => [5500,7142,9206,10171,12235]
[work_price] => [8736,10041,12018,15240,18462]
[image] => https://akademik-stroy.ru/wp-content/uploads/materials/kirpich.jpg
[area_modifier] => 126.57
[parent_name] => Стены 2 этаж (несущие)
[parent_id] => 5
[material_sum] => 877130
[work_sum] => 1161001
[total_sum] => 2038131
[total_days] => 30
[display_material_sum] => 877 130
[display_work_sum] => 1 161 001
[display_total_sum] => 2 038 131
)
1
2 038 131₽
Работа:1 161 001 ₽
Материалы:877 130 ₽
Дни:30
stdClass Object
(
[id] => 92
[attribute_id] => 5
[name] => Монолитные
[material_modifier] => 1
[work_modifier] => 1
[options] => Array
(
[0] => 150 мм
[1] => 200 мм
[2] => 250 мм
[3] => 300 мм
[4] => 350 мм
[5] => 400 мм
)
[days] => [45,46,47,49,50,53]
[material_price] => [6545,7876,10175,12011,13908,15204]
[work_price] => [5106,6444,7698,8552,9807,11461]
[image] => https://akademik-stroy.ru/wp-content/uploads/materials/monolitnye.jpg
[area_modifier] => 126.57
[parent_name] => Стены 2 этаж (несущие)
[parent_id] => 5
[material_sum] => 1043785
[work_sum] => 678580
[total_sum] => 1722365
[total_days] => 45
[display_material_sum] => 1 043 785
[display_work_sum] => 678 580
[display_total_sum] => 1 722 365
)
1
1 722 365₽
Работа:678 580 ₽
Материалы:1 043 785 ₽
Дни:45
stdClass Object
(
[id] => 93
[attribute_id] => 5
[name] => Клееный брус
[material_modifier] => 1
[work_modifier] => 1
[options] => Array
(
[0] => 160 мм
[1] => 175 мм
[2] => 200 мм
[3] => 215 мм
[4] => 240 мм
[5] => 270 мм
[6] => 282 мм
)
[days] => [24,28,32,37,40,42,48]
[material_price] => [16975,18773,19950,20545,21599,22159,23275]
[work_price] => [4806,5287,5815,6397,7036,7740,8514]
[image] => https://akademik-stroy.ru/wp-content/uploads/materials/kleenyj-brus.jpg
[area_modifier] => 126.57
[parent_name] => Стены 2 этаж (несущие)
[parent_id] => 5
[material_sum] => 2707142
[work_sum] => 638710
[total_sum] => 3345852
[total_days] => 24
[display_material_sum] => 2 707 142
[display_work_sum] => 638 710
[display_total_sum] => 3 345 852
)
1
3 345 852₽
Работа:638 710 ₽
Материалы:2 707 142 ₽
Дни:24
stdClass Object
(
[id] => 94
[attribute_id] => 5
[name] => Каркасные
[material_modifier] => 1
[work_modifier] => 1
[options] => Array
(
[0] => 150 мм
[1] => 200 мм
[2] => 250 мм
[3] => 300 мм
)
[days] => [15,16,17,18]
[material_price] => [2379,2639,2898,3258]
[work_price] => [2418,2686,2985,3716]
[image] => https://akademik-stroy.ru/wp-content/uploads/materials/karkasnye.jpg
[area_modifier] => 126.57
[parent_name] => Стены 2 этаж (несущие)
[parent_id] => 5
[material_sum] => 379399
[work_sum] => 321349
[total_sum] => 700748
[total_days] => 15
[display_material_sum] => 379 399
[display_work_sum] => 321 349
[display_total_sum] => 700 748
)
1
700 748₽
Работа:321 349 ₽
Материалы:379 399 ₽
Дни:15
stdClass Object
(
[id] => 95
[attribute_id] => 5
[name] => СИП-панели
[material_modifier] => 1
[work_modifier] => 1
[options] => Array
(
[0] => 120 мм
[1] => 170 мм
[2] => 220 мм
)
[days] => [7,7,7]
[material_price] => [1210,1856,2292]
[work_price] => [1410,1551,1706]
[image] => https://akademik-stroy.ru/wp-content/uploads/materials/sip-paneli.jpg
[area_modifier] => 126.57
[parent_name] => Стены 2 этаж (несущие)
[parent_id] => 5
[material_sum] => 192969
[work_sum] => 187387
[total_sum] => 380356
[total_days] => 7
[display_material_sum] => 192 969
[display_work_sum] => 187 387
[display_total_sum] => 380 356
)
1
380 356₽
Работа:187 387 ₽
Материалы:192 969 ₽
Дни:7
stdClass Object
(
[id] => 96
[attribute_id] => 5
[name] => Сухой брус
[material_modifier] => 1
[work_modifier] => 1
[options] => Array
(
[0] => 150 мм
[1] => 180 мм
[2] => 200 мм
)
[days] => [7,8,9]
[material_price] => [6010,7190,8709]
[work_price] => [3204,3845,4229]
[image] => https://akademik-stroy.ru/wp-content/uploads/materials/suhoj-brus.jpg
[area_modifier] => 126.57
[parent_name] => Стены 2 этаж (несущие)
[parent_id] => 5
[material_sum] => 958464
[work_sum] => 425807
[total_sum] => 1384271
[total_days] => 7
[display_material_sum] => 958 464
[display_work_sum] => 425 807
[display_total_sum] => 1 384 271
)
1
1 384 271₽
Работа:425 807 ₽
Материалы:958 464 ₽
Дни:7
stdClass Object
(
[id] => 97
[attribute_id] => 5
[name] => Профилированный брус
[material_modifier] => 1
[work_modifier] => 1
[options] => Array
(
[0] => 150 мм
[1] => 180 мм
[2] => 200 мм
)
[days] => [7,8,9]
[material_price] => [8190,9228,10051]
[work_price] => [3845,4614,5075]
[image] => https://akademik-stroy.ru/wp-content/uploads/materials/profilirovannyj-brus.jpg
[area_modifier] => 126.57
[parent_name] => Стены 2 этаж (несущие)
[parent_id] => 5
[material_sum] => 1306126
[work_sum] => 510995
[total_sum] => 1817121
[total_days] => 7
[display_material_sum] => 1 306 126
[display_work_sum] => 510 995
[display_total_sum] => 1 817 121
)
1
1 817 121₽
Работа:510 995 ₽
Материалы:1 306 126 ₽
Дни:7
stdClass Object
(
[id] => 98
[attribute_id] => 5
[name] => Оцилиндрованное бревно
[material_modifier] => 1
[work_modifier] => 1
[options] => Array
(
[0] => 180 мм
[1] => 220 мм
[2] => 260 мм
[3] => 320 мм
)
[days] => [7,8,9,10]
[material_price] => [75190,9532,10868,13116]
[work_price] => [3845,4691,5535,6863]
[image] => https://akademik-stroy.ru/wp-content/uploads/materials/ocilindrovannoe-brevno-1.jpg
[area_modifier] => 126.57
[parent_name] => Стены 2 этаж (несущие)
[parent_id] => 5
[material_sum] => 11991166
[work_sum] => 510995
[total_sum] => 12502161
[total_days] => 7
[display_material_sum] => 11 991 166
[display_work_sum] => 510 995
[display_total_sum] => 12 502 161
)
1
12 502 161₽
Работа:510 995 ₽
Материалы:11 991 166 ₽
Дни:7
stdClass Object
(
[id] => 99
[attribute_id] => 5
[name] => Срубы
[material_modifier] => 1
[work_modifier] => 1
[options] => Array
(
[0] => 260 мм
[1] => 320 мм
[2] => 360 мм
[3] => 400 мм
[4] => 500 мм
)
[days] => [7,8,9,10,11]
[material_price] => [16175,23709,26314,29069,32167]
[work_price] => [4806,5911,6621,7349,9260]
[image] => https://akademik-stroy.ru/wp-content/uploads/materials/suhoj-brus.jpg
[area_modifier] => 126.57
[parent_name] => Стены 2 этаж (несущие)
[parent_id] => 5
[material_sum] => 2579560
[work_sum] => 638710
[total_sum] => 3218270
[total_days] => 7
[display_material_sum] => 2 579 560
[display_work_sum] => 638 710
[display_total_sum] => 3 218 270
)
1
3 218 270₽
Работа:638 710 ₽
Материалы:2 579 560 ₽
Дни:7
stdClass Object
(
[id] => 194
[attribute_id] => 5
[name] => Брус
[material_modifier] => 1
[work_modifier] => 1
[options] => Array
(
[0] => 150 мм
[1] => 180 мм
[2] => 200 мм
)
[days] => [10,13,15]
[material_price] => [5127,6152,7367]
[work_price] => [1602,1922,2115]
[image] => https://akademik-stroy.ru/wp-content/uploads/materials/brus.jpg
[area_modifier] => 126.57
[parent_name] => Стены 2 этаж (несущие)
[parent_id] => 5
[material_sum] => 817645
[work_sum] => 212903
[total_sum] => 1030548
[total_days] => 10
[display_material_sum] => 817 645
[display_work_sum] => 212 903
[display_total_sum] => 1 030 548
)
1
1 030 548₽
Работа:212 903 ₽
Материалы:817 645 ₽
Дни:10
stdClass Object
(
[id] => 195
[attribute_id] => 5
[name] => Газобетон
[material_modifier] => 1
[work_modifier] => 1
[options] => Array
(
[0] => 300 мм
[1] => 375 мм
[2] => 400 мм
[3] => 500 мм
[4] => 600 мм
)
[days] => [29,31,35,37,44]
[material_price] => [4298,5573,6356,7288,9119]
[work_price] => [4538,5251,5926,6733,7195]
[image] => https://akademik-stroy.ru/wp-content/uploads/materials/gazobeton.jpg
[area_modifier] => 126.57
[parent_name] => Стены 2 этаж (несущие)
[parent_id] => 5
[material_sum] => 685437
[work_sum] => 603093
[total_sum] => 1288530
[total_days] => 29
[display_material_sum] => 685 437
[display_work_sum] => 603 093
[display_total_sum] => 1 288 530
)
1
1 288 530₽
Работа:603 093 ₽
Материалы:685 437 ₽
Дни:29
stdClass Object
(
[id] => 196
[attribute_id] => 5
[name] => Блок
[material_modifier] => 1
[work_modifier] => 1
[options] => Array
(
[0] => 300 мм
[1] => 375 мм
[2] => 400 мм
[3] => 500 мм
[4] => 600 мм
)
[days] => [29,31,35,37,44]
[material_price] => [2698,3973,4356,6588,7119]
[work_price] => [5038,5851,6426,8733,9195]
[image] => https://akademik-stroy.ru/wp-content/uploads/materials/blok.jpg
[area_modifier] => 126.57
[parent_name] => Стены 2 этаж (несущие)
[parent_id] => 5
[material_sum] => 430272
[work_sum] => 669543
[total_sum] => 1099815
[total_days] => 29
[display_material_sum] => 430 272
[display_work_sum] => 669 543
[display_total_sum] => 1 099 815
)
1
1 099 815₽
Работа:669 543 ₽
Материалы:430 272 ₽
Дни:29
stdClass Object
(
[id] => 197
[attribute_id] => 5
[name] => Газосиликатный блок
[material_modifier] => 1
[work_modifier] => 1
[options] => Array
(
[0] => 300 мм
[1] => 375 мм
[2] => 400 мм
[3] => 500 мм
[4] => 600 мм
)
[days] => [29,31,35,37,44]
[material_price] => [4298,5573,6356,7288,9119]
[work_price] => [4538,5251,5926,6733,7195]
[image] => https://akademik-stroy.ru/wp-content/uploads/materials/gazosilikatnyj-blok.jpg
[area_modifier] => 126.57
[parent_name] => Стены 2 этаж (несущие)
[parent_id] => 5
[material_sum] => 685437
[work_sum] => 603093
[total_sum] => 1288530
[total_days] => 29
[display_material_sum] => 685 437
[display_work_sum] => 603 093
[display_total_sum] => 1 288 530
)
1
1 288 530₽
Работа:603 093 ₽
Материалы:685 437 ₽
Дни:29
stdClass Object
(
[id] => 198
[attribute_id] => 5
[name] => Керамзитобетонный блок
[material_modifier] => 1
[work_modifier] => 1
[options] => Array
(
[0] => 300 мм
[1] => 375 мм
[2] => 400 мм
[3] => 500 мм
[4] => 600 мм
)
[days] => [23,23,24,25,28]
[material_price] => [3641,4298,5693,7613,9612]
[work_price] => [5737,5737,6903,7958,8901]
[image] => https://akademik-stroy.ru/wp-content/uploads/materials/keramzitobetonnyj-blok.jpg
[area_modifier] => 126.57
[parent_name] => Стены 2 этаж (несущие)
[parent_id] => 5
[material_sum] => 580660
[work_sum] => 762439
[total_sum] => 1343099
[total_days] => 23
[display_material_sum] => 580 660
[display_work_sum] => 762 439
[display_total_sum] => 1 343 099
)
1
1 343 099₽
Работа:762 439 ₽
Материалы:580 660 ₽
Дни:23
stdClass Object
(
[id] => 199
[attribute_id] => 5
[name] => Деревянные
[material_modifier] => 1
[work_modifier] => 1
[options] => Array
(
[0] => 180 мм
[1] => 220 мм
[2] => 260 мм
[3] => 320 мм
)
[days] => [7,8,9,10]
[material_price] => [7950,9458,11961,14472]
[work_price] => [4037,4925,5812,7207]
[image] => https://akademik-stroy.ru/wp-content/uploads/materials/derevyannye.jpg
[area_modifier] => 126.57
[parent_name] => Стены 2 этаж (несущие)
[parent_id] => 5
[material_sum] => 1267852
[work_sum] => 536511
[total_sum] => 1804363
[total_days] => 7
[display_material_sum] => 1 267 852
[display_work_sum] => 536 511
[display_total_sum] => 1 804 363
)
1
1 804 363₽
Работа:536 511 ₽
Материалы:1 267 852 ₽
Дни:7
stdClass Object
(
[id] => 200
[attribute_id] => 5
[name] => Камень
[material_modifier] => 1
[work_modifier] => 1
[options] => Array
(
[0] => 300 мм
[1] => 400 мм
[2] => 500 мм
[3] => 600 мм
)
[days] => [25,27,31,34]
[material_price] => [5262,6844,8330,9815]
[work_price] => [8331,9135,10427,11069]
[image] => https://akademik-stroy.ru/wp-content/uploads/materials/kamen.jpg
[area_modifier] => 126.57
[parent_name] => Стены 2 этаж (несущие)
[parent_id] => 5
[material_sum] => 839174
[work_sum] => 1107177
[total_sum] => 1946351
[total_days] => 25
[display_material_sum] => 839 174
[display_work_sum] => 1 107 177
[display_total_sum] => 1 946 351
)
1
1 946 351₽
Работа:1 107 177 ₽
Материалы:839 174 ₽
Дни:25
stdClass Object
(
[id] => 201
[attribute_id] => 5
[name] => Каркасно-щитовые
[material_modifier] => 1
[work_modifier] => 1
[options] => Array
(
[0] => 150 мм
[1] => 200 мм
[2] => 250 мм
[3] => 300 мм
[4] => 350 мм
[5] => 400 мм
)
[days] => [15,16,17,18,19,20]
[material_price] => [2379,2639,2898,3458,3601,4175]
[work_price] => [2538,2820,3134,3483,4062,5642]
[image] => https://akademik-stroy.ru/wp-content/uploads/materials/karkasno-shchitovye.jpg
[area_modifier] => 126.57
[parent_name] => Стены 2 этаж (несущие)
[parent_id] => 5
[material_sum] => 379399
[work_sum] => 337296
[total_sum] => 716695
[total_days] => 15
[display_material_sum] => 379 399
[display_work_sum] => 337 296
[display_total_sum] => 716 695
)
1
716 695₽
Работа:337 296 ₽
Материалы:379 399 ₽
Дни:15
stdClass Object
(
[id] => 202
[attribute_id] => 5
[name] => Рубленные
[material_modifier] => 1
[work_modifier] => 1
[options] => Array
(
[0] => 150 мм
[1] => 200 мм
[2] => 250 мм
[3] => 300 мм
[4] => 350 мм
[5] => 400 мм
)
[days] => [15,16,17,18,17,18]
[material_price] => [35950,50267,60583,75900,80217,100533]
[work_price] => [9612,12816,16020,19224,22428,25632]
[image] => https://akademik-stroy.ru/wp-content/uploads/materials/rublennye.jpg
[area_modifier] => 126.57
[parent_name] => Стены 2 этаж (несущие)
[parent_id] => 5
[material_sum] => 5733241
[work_sum] => 1277420
[total_sum] => 7010661
[total_days] => 15
[display_material_sum] => 5 733 241
[display_work_sum] => 1 277 420
[display_total_sum] => 7 010 661
)
1
7 010 661₽
Работа:1 277 420 ₽
Материалы:5 733 241 ₽
Дни:15
stdClass Object
(
[id] => 203
[attribute_id] => 5
[name] => Теплоблок
[material_modifier] => 1
[work_modifier] => 1
[options] => Array
(
[0] => 300 мм (с облицовкой, не покрашенный)
[1] => 400 мм (с облицовкой, не покрашенный)
[2] => 300 мм (с облицовкой, покрашенный)
[3] => 400 мм (с облицовкой, покрашенный)
)
[days] => [15,16,15,16]
[material_price] => [2888,3729,3957,4258]
[work_price] => [2564,3229,2949,3713]
[image] => https://akademik-stroy.ru/wp-content/uploads/materials/teploblok.jpg
[area_modifier] => 126.57
[parent_name] => Стены 2 этаж (несущие)
[parent_id] => 5
[material_sum] => 460573
[work_sum] => 340752
[total_sum] => 801325
[total_days] => 15
[display_material_sum] => 460 573
[display_work_sum] => 340 752
[display_total_sum] => 801 325
)
1
801 325₽
Работа:340 752 ₽
Материалы:460 573 ₽
Дни:15
stdClass Object
(
[id] => 204
[attribute_id] => 5
[name] => Арболитовые блоки
[material_modifier] => 1
[work_modifier] => 1
[options] => Array
(
[0] => 300 мм
[1] => 400 мм
[2] => 600 мм
)
[days] => [19,22,27]
[material_price] => [3210,4475,5852]
[work_price] => [4214,4788,5866]
[image] => https://akademik-stroy.ru/wp-content/uploads/materials/arbolitovye-bloki.png
[area_modifier] => 126.57
[parent_name] => Стены 2 этаж (несущие)
[parent_id] => 5
[material_sum] => 511925
[work_sum] => 560034
[total_sum] => 1071959
[total_days] => 19
[display_material_sum] => 511 925
[display_work_sum] => 560 034
[display_total_sum] => 1 071 959
)
1
1 071 959₽
Работа:560 034 ₽
Материалы:511 925 ₽
Дни:19
stdClass Object
(
[id] => 205
[attribute_id] => 5
[name] => Полистиролбетон
[material_modifier] => 1
[work_modifier] => 1
[options] => Array
(
[0] => 300 мм
[1] => 400 мм
[2] => 600 мм
)
[days] => [29,31,35]
[material_price] => [2798,4573,5256]
[work_price] => [5038,5851,6426]
[image] => https://akademik-stroy.ru/wp-content/uploads/materials/polistirolbeton.jpg
[area_modifier] => 126.57
[parent_name] => Стены 2 этаж (несущие)
[parent_id] => 5
[material_sum] => 446220
[work_sum] => 669543
[total_sum] => 1115763
[total_days] => 29
[display_material_sum] => 446 220
[display_work_sum] => 669 543
[display_total_sum] => 1 115 763
)
1
1 115 763₽
Работа:669 543 ₽
Материалы:446 220 ₽
Дни:29
stdClass Object
(
[id] => 206
[attribute_id] => 5
[name] => Шлакоблок
[material_modifier] => 1
[work_modifier] => 1
[options] => Array
(
[0] => 400 мм
[1] => 600 мм
)
[days] => [15,16]
[material_price] => [2391,3471]
[work_price] => [2642,3662]
[image] => https://akademik-stroy.ru/wp-content/uploads/materials/shlakoblok.jpg
[area_modifier] => 126.57
[parent_name] => Стены 2 этаж (несущие)
[parent_id] => 5
[material_sum] => 381312
[work_sum] => 351118
[total_sum] => 732430
[total_days] => 15
[display_material_sum] => 381 312
[display_work_sum] => 351 118
[display_total_sum] => 732 430
)
1
732 430₽
Работа:351 118 ₽
Материалы:381 312 ₽
Дни:15
stdClass Object
(
[id] => 245
[attribute_id] => 5
[name] => Теплая керамика
[material_modifier] => 1
[work_modifier] => 1
[options] => Array
(
[0] => 380 мм
[1] => 380 мм Thermo
[2] => 440 мм
[3] => 510 мм
)
[days] => [10,10,11,12]
[material_price] => [4510,5098,6093,8013]
[work_price] => [4737,4937,5903,6958]
[image] => https://akademik-stroy.ru/wp-content/uploads/materials/teplaya-keramika.jpg
[area_modifier] => 126.57
[parent_name] => Стены 2 этаж (несущие)
[parent_id] => 5
[material_sum] => 719247
[work_sum] => 629540
[total_sum] => 1348787
[total_days] => 10
[display_material_sum] => 719 247
[display_work_sum] => 629 540
[display_total_sum] => 1 348 787
)
1
1 348 787₽
Работа:629 540 ₽
Материалы:719 247 ₽
Дни:10
stdClass Object
(
[id] => 246
[attribute_id] => 5
[name] => Несъемная опалубка
[material_modifier] => 1
[work_modifier] => 1
[options] => Array
(
[0] => 380 мм
[1] => 380 мм Thermo
[2] => 440 мм
[3] => 510 мм
)
[days] => [10,10,11,12]
[material_price] => [3302,3902,4108,5008]
[work_price] => [2100,2100,2300,2534]
[image] => https://akademik-stroy.ru/wp-content/uploads/materials/nesemnaya-opalubka.jpg
[area_modifier] => 126.57
[parent_name] => Стены 2 этаж (несущие)
[parent_id] => 5
[material_sum] => 526597
[work_sum] => 279087
[total_sum] => 805684
[total_days] => 10
[display_material_sum] => 526 597
[display_work_sum] => 279 087
[display_total_sum] => 805 684
)
1
805 684₽
Работа:279 087 ₽
Материалы:526 597 ₽
Дни:10
stdClass Object
(
[id] => 254
[attribute_id] => 5
[name] => Бревно
[material_modifier] => 1
[work_modifier] => 1
[options] => Array
(
[0] => 260 мм
[1] => 320 мм
[2] => 360 мм
[3] => 400 мм
[4] => 500 мм
)
[days] => [7,8,9,10,11]
[material_price] => [1874,24045,26930,30972,38825]
[work_price] => [5046,6207,6952,7716,9723]
[image] => https://akademik-stroy.ru/wp-content/uploads/materials/sruby.jpg
[area_modifier] => 126.57
[parent_name] => Стены 2 этаж (несущие)
[parent_id] => 5
[material_sum] => 298862
[work_sum] => 670606
[total_sum] => 969468
[total_days] => 7
[display_material_sum] => 298 862
[display_work_sum] => 670 606
[display_total_sum] => 969 468
)
1
969 468₽
Работа:670 606 ₽
Материалы:298 862 ₽
Дни:7
stdClass Object
(
[id] => 11
[attribute_id] => 6
[name] => Деревянные балки
[material_modifier] => 1
[work_modifier] => 1
[options] => Array
(
[0] => без утепления
[1] => утепление 200 мм
[2] => утепление 250 мм
[3] => утепление 300 мм
[4] => утепление 350 мм
[5] => утепление 400 мм
[6] => утепление 450 мм
[7] => утепление 500 мм
)
[days] => [8,9,9,9,11,12,13,14]
[material_price] => [1634,2042,2344,2947,3149,3652,3354,3557]
[work_price] => [1230,1339,1393,1426,1460,1513,1587,1620]
[image] => https://akademik-stroy.ru/wp-content/uploads/materials/derevyannye-balki.png
[area_modifier] => 126.57
[parent_name] => Перекрытие второго этажа
[parent_id] => 6
[material_sum] => 260587
[work_sum] => 163465
[total_sum] => 424052
[total_days] => 8
[display_material_sum] => 260 587
[display_work_sum] => 163 465
[display_total_sum] => 424 052
)
1
424 052₽
Работа:163 465 ₽
Материалы:260 587 ₽
Дни:8
stdClass Object
(
[id] => 12
[attribute_id] => 6
[name] => Сборные ж/б плиты
[material_modifier] => 1
[work_modifier] => 1
[options] => Array
(
[0] => без утепления
[1] => утепление 150 мм
[2] => утепление 200 мм
[3] => утепление 250 мм
[4] => утепление 300 мм
[5] => утепление 350 мм
[6] => утепление 400 мм
[7] => утепление 450 мм
[8] => утепление 500 мм
)
[days] => [13,15,15,15,15,15,15,15,15]
[material_price] => [3067,5577,5928,6679,7730,8782,9833,10884,11935]
[work_price] => [1520,1956,2102,2247,2392,2537,2684,2829,2974]
[image] => https://akademik-stroy.ru/wp-content/uploads/materials/sbornye-zh-b-plity-2.jpg
[area_modifier] => 126.57
[parent_name] => Перекрытие второго этажа
[parent_id] => 6
[material_sum] => 489120
[work_sum] => 202006
[total_sum] => 691126
[total_days] => 13
[display_material_sum] => 489 120
[display_work_sum] => 202 006
[display_total_sum] => 691 126
)
1
691 126₽
Работа:202 006 ₽
Материалы:489 120 ₽
Дни:13
stdClass Object
(
[id] => 100
[attribute_id] => 6
[name] => Монолитная ж/б плита
[material_modifier] => 1
[work_modifier] => 1
[options] => Array
(
[0] => без утепления
[1] => утепление 150 мм
[2] => утепление 200 мм
[3] => утепление 250 мм
[4] => утепление 300 мм
[5] => утепление 350 мм
[6] => утепление 400 мм
[7] => утепление 450 мм
[8] => утепление 500 мм
)
[days] => [18,20,20,20,20,20,20,20,20]
[material_price] => [4837,6572,7224,7375,79426,8177,8728,9180,10031]
[work_price] => [3348,3921,4112,4302,4493,4684,4875,5066,5256]
[image] => https://akademik-stroy.ru/wp-content/uploads/materials/monolitnaya-zh-b-plita-2.jpg
[area_modifier] => 126.57
[parent_name] => Перекрытие второго этажа
[parent_id] => 6
[material_sum] => 771396
[work_sum] => 444944
[total_sum] => 1216340
[total_days] => 18
[display_material_sum] => 771 396
[display_work_sum] => 444 944
[display_total_sum] => 1 216 340
)
1
1 216 340₽
Работа:444 944 ₽
Материалы:771 396 ₽
Дни:18
stdClass Object
(
[id] => 164
[attribute_id] => 37
[name] => Металлочерепица
[material_modifier] => 1
[work_modifier] => 1
[options] => Array
(
)
[days] => [20]
[material_price] => [6112]
[work_price] => [5726]
[image] => https://akademik-stroy.ru/wp-content/uploads/materials/metallocherepica.jpg
[area_modifier] => 145.13
[parent_name] => Крыша (Скатная)
[parent_id] => 37
[material_sum] => 1117664
[work_sum] => 872565
[total_sum] => 1990229
[total_days] => 20
[display_material_sum] => 1 117 664
[display_work_sum] => 872 565
[display_total_sum] => 1 990 229
)
1
1 990 229₽
Работа:872 565 ₽
Материалы:1 117 664 ₽
Дни:20
stdClass Object
(
[id] => 165
[attribute_id] => 37
[name] => Гибкая черепица
[material_modifier] => 1
[work_modifier] => 1
[options] => Array
(
)
[days] => [20]
[material_price] => [6980]
[work_price] => [5950]
[image] => https://akademik-stroy.ru/wp-content/uploads/materials/gibkaya-cherepica.jpg
[area_modifier] => 145.13
[parent_name] => Крыша (Скатная)
[parent_id] => 37
[material_sum] => 1276389
[work_sum] => 906700
[total_sum] => 2183089
[total_days] => 20
[display_material_sum] => 1 276 389
[display_work_sum] => 906 700
[display_total_sum] => 2 183 089
)
1
2 183 089₽
Работа:906 700 ₽
Материалы:1 276 389 ₽
Дни:20
stdClass Object
(
[id] => 166
[attribute_id] => 37
[name] => Цементно-песчаная черепица
[material_modifier] => 1
[work_modifier] => 1
[options] => Array
(
)
[days] => [20]
[material_price] => [10560]
[work_price] => [9456]
[image] => https://akademik-stroy.ru/wp-content/uploads/materials/cementno-peschanaya-cherepica.jpg
[area_modifier] => 145.13
[parent_name] => Крыша (Скатная)
[parent_id] => 37
[material_sum] => 1931042
[work_sum] => 1440967
[total_sum] => 3372009
[total_days] => 20
[display_material_sum] => 1 931 042
[display_work_sum] => 1 440 967
[display_total_sum] => 3 372 009
)
1
3 372 009₽
Работа:1 440 967 ₽
Материалы:1 931 042 ₽
Дни:20
stdClass Object
(
[id] => 167
[attribute_id] => 37
[name] => Композитная черепица
[material_modifier] => 1
[work_modifier] => 1
[options] => Array
(
)
[days] => [20]
[material_price] => [9506]
[work_price] => [8905]
[image] => https://akademik-stroy.ru/wp-content/uploads/materials/kompozitnaya-cherepica.jpg
[area_modifier] => 145.13
[parent_name] => Крыша (Скатная)
[parent_id] => 37
[material_sum] => 1738303
[work_sum] => 1357002
[total_sum] => 3095305
[total_days] => 20
[display_material_sum] => 1 738 303
[display_work_sum] => 1 357 002
[display_total_sum] => 3 095 305
)
1
3 095 305₽
Работа:1 357 002 ₽
Материалы:1 738 303 ₽
Дни:20
stdClass Object
(
[id] => 168
[attribute_id] => 37
[name] => Керамическая черепица
[material_modifier] => 1
[work_modifier] => 1
[options] => Array
(
)
[days] => [20]
[material_price] => [12750]
[work_price] => [9456]
[image] => https://akademik-stroy.ru/wp-content/uploads/materials/keramicheskaya-cherepica.jpg
[area_modifier] => 145.13
[parent_name] => Крыша (Скатная)
[parent_id] => 37
[material_sum] => 2331513
[work_sum] => 1440967
[total_sum] => 3772480
[total_days] => 20
[display_material_sum] => 2 331 513
[display_work_sum] => 1 440 967
[display_total_sum] => 3 772 480
)
1
3 772 480₽
Работа:1 440 967 ₽
Материалы:2 331 513 ₽
Дни:20
stdClass Object
(
[id] => 169
[attribute_id] => 37
[name] => Металлическая фальцевая
[material_modifier] => 1
[work_modifier] => 1
[options] => Array
(
)
[days] => [20]
[material_price] => [8550]
[work_price] => [8190]
[image] => https://akademik-stroy.ru/wp-content/uploads/materials/metallicheskaya-falcevaya.jpg
[area_modifier] => 145.13
[parent_name] => Крыша (Скатная)
[parent_id] => 37
[material_sum] => 1563485
[work_sum] => 1248045
[total_sum] => 2811530
[total_days] => 20
[display_material_sum] => 1 563 485
[display_work_sum] => 1 248 045
[display_total_sum] => 2 811 530
)
1
2 811 530₽
Работа:1 248 045 ₽
Материалы:1 563 485 ₽
Дни:20
stdClass Object
(
[id] => 170
[attribute_id] => 37
[name] => Медная фальцевая
[material_modifier] => 1
[work_modifier] => 1
[options] => Array
(
)
[days] => [20]
[material_price] => [20450]
[work_price] => [16750]
[image] => https://akademik-stroy.ru/wp-content/uploads/materials/mednaya-falcevaya.jpg
[area_modifier] => 145.13
[parent_name] => Крыша (Скатная)
[parent_id] => 37
[material_sum] => 3739565
[work_sum] => 2552474
[total_sum] => 6292039
[total_days] => 20
[display_material_sum] => 3 739 565
[display_work_sum] => 2 552 474
[display_total_sum] => 6 292 039
)
1
6 292 039₽
Работа:2 552 474 ₽
Материалы:3 739 565 ₽
Дни:20
stdClass Object
(
[id] => 171
[attribute_id] => 37
[name] => Зеленая кровля
[material_modifier] => 1
[work_modifier] => 1
[options] => Array
(
)
[days] => [20]
[material_price] => [19850]
[work_price] => [16780]
[image] => https://akademik-stroy.ru/wp-content/uploads/materials/zelenaya-krovlya.jpg
[area_modifier] => 145.13
[parent_name] => Крыша (Скатная)
[parent_id] => 37
[material_sum] => 3629846
[work_sum] => 2557045
[total_sum] => 6186891
[total_days] => 20
[display_material_sum] => 3 629 846
[display_work_sum] => 2 557 045
[display_total_sum] => 6 186 891
)
1
6 186 891₽
Работа:2 557 045 ₽
Материалы:3 629 846 ₽
Дни:20
stdClass Object
(
[id] => 172
[attribute_id] => 37
[name] => Профлист
[material_modifier] => 1
[work_modifier] => 1
[options] => Array
(
)
[days] => [20]
[material_price] => [3450]
[work_price] => [3750]
[image] => https://akademik-stroy.ru/wp-content/uploads/materials/proflist.jpg
[area_modifier] => 145.13
[parent_name] => Крыша (Скатная)
[parent_id] => 37
[material_sum] => 630880
[work_sum] => 571449
[total_sum] => 1202329
[total_days] => 20
[display_material_sum] => 630 880
[display_work_sum] => 571 449
[display_total_sum] => 1 202 329
)
1
1 202 329₽
Работа:571 449 ₽
Материалы:630 880 ₽
Дни:20
stdClass Object
(
[id] => 51
[attribute_id] => 26
[name] => Есть
[material_modifier] => 1
[work_modifier] => 1
[options] => Array
(
[0] => Профиль 58 мм, 3-камерный, стеклопакет 2-камерный до 32 мм
[1] => Профиль 60 мм, 4-камерный, стеклопакет 2-камерный до 32 мм
[2] => Профиль 70 мм, 5-камерный, стеклопакет 2-камерный до 40 мм
[3] => Профиль 72 мм, 5-камерный, стеклопакет 2-камерный до 40 мм
[4] => Алюминиевые окна Alutech профиль 72 мм, стеклопакет 2-камерный
)
[days] => [3,3,3,3,3]
[material_price] => [1339,2124,2867,3023,29596]
[work_price] => [635,647,659,668,2579]
[image] => https://akademik-stroy.ru/wp-content/uploads/materials/okna.jpg
[area_modifier] => 220.48
[parent_name] => Окна
[parent_id] => 26
[material_sum] => 371981
[work_sum] => 147005
[total_sum] => 518986
[total_days] => 3
[display_material_sum] => 371 981
[display_work_sum] => 147 005
[display_total_sum] => 518 986
)
1
518 986₽
Работа:147 005 ₽
Материалы:371 981 ₽
Дни:3
stdClass Object
(
[id] => 52
[attribute_id] => 26
[name] => Нет
[material_modifier] => 2
[work_modifier] => 1
[options] =>
[days] => null
[material_price] => null
[work_price] => null
[image] => https://akademik-stroy.ru/wp-content/uploads/materials/okna.jpg
[area_modifier] => 220.48
[parent_name] => Окна
[parent_id] => 26
[material_sum] => 0
[work_sum] => 0
[total_sum] => 0
[total_days] => 0
[display_material_sum] => 0
[display_work_sum] => 0
[display_total_sum] => 0
)
1
0₽
Работа:0 ₽
Материалы:0 ₽
Дни:0
stdClass Object
(
[id] => 53
[attribute_id] => 27
[name] => Есть
[material_modifier] => 1
[work_modifier] => 1
[options] => Array
(
)
[days] => [1]
[material_price] => [10000]
[work_price] => [5500]
[image] => https://akademik-stroy.ru/wp-content/uploads/materials/dveri.jpg
[area_modifier] => 1
[parent_name] => Двери входные
[parent_id] => 27
[material_sum] => 12600
[work_sum] => 5775
[total_sum] => 18375
[total_days] => 1
[display_material_sum] => 12 600
[display_work_sum] => 5 775
[display_total_sum] => 18 375
)
1
18 375₽
Работа:5 775 ₽
Материалы:12 600 ₽
Дни:1
stdClass Object
(
[id] => 54
[attribute_id] => 27
[name] => Нет
[material_modifier] => 1
[work_modifier] => 1
[options] => Array
(
)
[days] => [0]
[material_price] => [0]
[work_price] => [0]
[image] => https://akademik-stroy.ru/wp-content/uploads/materials/dveri.jpg
[area_modifier] => 1
[parent_name] => Двери входные
[parent_id] => 27
[material_sum] => 0
[work_sum] => 0
[total_sum] => 0
[total_days] => 0
[display_material_sum] => 0
[display_work_sum] => 0
[display_total_sum] => 0
)
1
0₽
Работа:0 ₽
Материалы:0 ₽
Дни:0
stdClass Object
(
[id] => 25
[attribute_id] => 13
[name] => Нет
[material_modifier] => 1
[work_modifier] => 1
[options] => Array
(
)
[days] => [0]
[material_price] => [0]
[work_price] => [0]
[image] => https://akademik-stroy.ru/wp-content/uploads/materials/mineralovata-krov.jpg
[area_modifier] => 145.13
[parent_name] => Утепление кровли (Мансарда)
[parent_id] => 13
[material_sum] => 0
[work_sum] => 0
[total_sum] => 0
[total_days] => 0
[display_material_sum] => 0
[display_work_sum] => 0
[display_total_sum] => 0
)
1
0₽
Работа:0 ₽
Материалы:0 ₽
Дни:0
stdClass Object
(
[id] => 26
[attribute_id] => 13
[name] => Минераловатный
[material_modifier] => 1
[work_modifier] => 1
[options] => Array
(
[0] => 50 мм
[1] => 100 мм
[2] => 150 мм
[3] => 200 мм
[4] => 250 мм
[5] => 300 мм
[6] => 350 мм
[7] => 400 мм
[8] => 450 мм
[9] => 500 мм
)
[days] => [5,5,6,6,6,7,7,7,8,8]
[material_price] => [1158,1414,1772,2230,3602,4060,4974,5890,6408,7718]
[work_price] => [650,846,846,1098,1318,1450,1596,1754,1930,2122]
[image] => https://akademik-stroy.ru/wp-content/uploads/materials/mineralovata-krov.jpg
[area_modifier] => 145.13
[parent_name] => Утепление кровли (Мансарда)
[parent_id] => 13
[material_sum] => 211756
[work_sum] => 99051
[total_sum] => 310807
[total_days] => 5
[display_material_sum] => 211 756
[display_work_sum] => 99 051
[display_total_sum] => 310 807
)
1
310 807₽
Работа:99 051 ₽
Материалы:211 756 ₽
Дни:5
stdClass Object
(
[id] => 123
[attribute_id] => 13
[name] => Эковата (целлюлозная вата)
[material_modifier] => 1
[work_modifier] => 1
[options] => Array
(
[0] => 50 мм
[1] => 100 мм
[2] => 150 мм
[3] => 200 мм
[4] => 250 мм
[5] => 300 мм
[6] => 350 мм
[7] => 400 мм
[8] => 450 мм
[9] => 500 мм
)
[days] => [3,3,4,4,4,5,5,5,5,5]
[material_price] => [820,1638,2458,3276,5734,6552,8190,9828,11466,13104]
[work_price] => [234,304,304,396,474,522,574,632,694,764]
[image] => https://akademik-stroy.ru/wp-content/uploads/materials/ehkovata-krov.jpg
[area_modifier] => 145.13
[parent_name] => Утепление кровли (Мансарда)
[parent_id] => 13
[material_sum] => 149948
[work_sum] => 35658
[total_sum] => 185606
[total_days] => 3
[display_material_sum] => 149 948
[display_work_sum] => 35 658
[display_total_sum] => 185 606
)
1
185 606₽
Работа:35 658 ₽
Материалы:149 948 ₽
Дни:3
stdClass Object
(
[id] => 124
[attribute_id] => 13
[name] => Экструдированный пенополистирол
[material_modifier] => 1
[work_modifier] => 1
[options] => Array
(
[0] => 50 мм
[1] => 100 мм
[2] => 150 мм
[3] => 200 мм
[4] => 250 мм
[5] => 300 мм
[6] => 350 мм
[7] => 400 мм
[8] => 450 мм
[9] => 500 мм
)
[days] => [3,3,4,4,4,5,5,5,5,6]
[material_price] => [1146,2292,3438,4584,8020,9166,11458,13750,16040,18332]
[work_price] => [390,508,508,660,790,870,958,1052,1158,1274]
[image] => https://akademik-stroy.ru/wp-content/uploads/materials/epps-krov.jpg
[area_modifier] => 145.13
[parent_name] => Утепление кровли (Мансарда)
[parent_id] => 13
[material_sum] => 209562
[work_sum] => 59431
[total_sum] => 268993
[total_days] => 3
[display_material_sum] => 209 562
[display_work_sum] => 59 431
[display_total_sum] => 268 993
)
1
268 993₽
Работа:59 431 ₽
Материалы:209 562 ₽
Дни:3
stdClass Object
(
[id] => 125
[attribute_id] => 13
[name] => ПСБ (ППС-пенополистирол)
[material_modifier] => 1
[work_modifier] => 1
[options] => Array
(
[0] => 50 мм
[1] => 100 мм
[2] => 150 мм
[3] => 200 мм
[4] => 250 мм
[5] => 300 мм
[6] => 350 мм
[7] => 400 мм
[8] => 450 мм
[9] => 500 мм
)
[days] => [3,3,4,4,4,5,5,5,5,6]
[material_price] => [476,954,1430,1906,3336,3814,4766,5720,6674,7626]
[work_price] => [390,508,508,660,790,870,958,1052,1158,1274]
[image] => https://akademik-stroy.ru/wp-content/uploads/materials/psb-krov.jpg
[area_modifier] => 145.13
[parent_name] => Утепление кровли (Мансарда)
[parent_id] => 13
[material_sum] => 87043
[work_sum] => 59431
[total_sum] => 146474
[total_days] => 3
[display_material_sum] => 87 043
[display_work_sum] => 59 431
[display_total_sum] => 146 474
)
1
146 474₽
Работа:59 431 ₽
Материалы:87 043 ₽
Дни:3
stdClass Object
(
[id] => 126
[attribute_id] => 13
[name] => ППУ (Пенополиуретан)
[material_modifier] => 1
[work_modifier] => 1
[options] => Array
(
[0] => 50 мм
[1] => 100 мм
[2] => 150 мм
[3] => 200 мм
[4] => 250 мм
[5] => 300 мм
[6] => 350 мм
[7] => 400 мм
[8] => 450 мм
[9] => 500 мм
)
[days] => [2,2,3,3,3,3,4,4,4,4]
[material_price] => [2080,4160,6240,8320,14560,16640,20800,24960,29120,33280]
[work_price] => [234,304,304,396,474,522,574,632,694,764]
[image] => https://akademik-stroy.ru/wp-content/uploads/materials/ppu-krov.jpg
[area_modifier] => 145.13
[parent_name] => Утепление кровли (Мансарда)
[parent_id] => 13
[material_sum] => 380357
[work_sum] => 35658
[total_sum] => 416015
[total_days] => 2
[display_material_sum] => 380 357
[display_work_sum] => 35 658
[display_total_sum] => 416 015
)
1
416 015₽
Работа:35 658 ₽
Материалы:380 357 ₽
Дни:2
stdClass Object
(
[id] => 127
[attribute_id] => 13
[name] => PIR-плиты (пенополиизоцианурат)
[material_modifier] => 1
[work_modifier] => 1
[options] => Array
(
[0] => 50 мм
[1] => 100 мм
[2] => 150 мм
[3] => 200 мм
[4] => 250 мм
[5] => 300 мм
[6] => 350 мм
[7] => 400 мм
[8] => 450 мм
[9] => 500 мм
)
[days] => [3,3,4,4,4,5,5,5,5,6]
[material_price] => [2646,5290,7936,10580,18516,21162,26452,31742,37032,42324]
[work_price] => [390,508,508,660,790,870,958,1052,1158,1274]
[image] => https://akademik-stroy.ru/wp-content/uploads/materials/pir-krov.jpg
[area_modifier] => 145.13
[parent_name] => Утепление кровли (Мансарда)
[parent_id] => 13
[material_sum] => 483858
[work_sum] => 59431
[total_sum] => 543289
[total_days] => 3
[display_material_sum] => 483 858
[display_work_sum] => 59 431
[display_total_sum] => 543 289
)
1
543 289₽
Работа:59 431 ₽
Материалы:483 858 ₽
Дни:3
stdClass Object
(
[id] => 27
[attribute_id] => 14
[name] => Нет
[material_modifier] => 1
[work_modifier] => 1
[options] => Array
(
)
[days] => [0]
[material_price] => [0]
[work_price] => [0]
[image] => https://akademik-stroy.ru/wp-content/uploads/materials/mansardnye-okna-2.jpg
[area_modifier] => 1
[parent_name] => Мансардные окна
[parent_id] => 14
[material_sum] => 0
[work_sum] => 0
[total_sum] => 0
[total_days] => 0
[display_material_sum] => 0
[display_work_sum] => 0
[display_total_sum] => 0
)
1
0₽
Работа:0 ₽
Материалы:0 ₽
Дни:0
stdClass Object
(
[id] => 28
[attribute_id] => 14
[name] => Есть
[material_modifier] => 1
[work_modifier] => 1
[options] => Array
(
[0] => 55x78
[1] => 55x98
)
[days] => [6,7]
[material_price] => [47480,68700]
[work_price] => [17900,19500]
[image] => https://akademik-stroy.ru/wp-content/uploads/materials/mansardnye-okna-2.jpg
[area_modifier] => 1
[parent_name] => Мансардные окна
[parent_id] => 14
[material_sum] => 59825
[work_sum] => 18795
[total_sum] => 78620
[total_days] => 6
[display_material_sum] => 59 825
[display_work_sum] => 18 795
[display_total_sum] => 78 620
)
1
78 620₽
Работа:18 795 ₽
Материалы:59 825 ₽
Дни:6
stdClass Object
(
[id] => 29
[attribute_id] => 15
[name] => Нет
[material_modifier] => 1
[work_modifier] => 1
[options] => Array
(
)
[days] => [0]
[material_price] => [0]
[work_price] => [0]
[image] => https://akademik-stroy.ru/wp-content/uploads/materials/sofit.jpg
[area_modifier] => 145.13
[parent_name] => Подшивка кровли
[parent_id] => 15
[material_sum] => 0
[work_sum] => 0
[total_sum] => 0
[total_days] => 0
[display_material_sum] => 0
[display_work_sum] => 0
[display_total_sum] => 0
)
1
0₽
Работа:0 ₽
Материалы:0 ₽
Дни:0
stdClass Object
(
[id] => 30
[attribute_id] => 15
[name] => Есть
[material_modifier] => 1
[work_modifier] => 1
[options] => Array
(
[0] => Софиты (ПВХ)
[1] => Cedral
[2] => ДПК
[3] => Планкен
)
[days] => [7,10,9,8]
[material_price] => [1803,3213,3025,3150]
[work_price] => [1529,2188,2075,1923]
[image] => https://akademik-stroy.ru/wp-content/uploads/materials/sofit.jpg
[area_modifier] => 145.13
[parent_name] => Подшивка кровли
[parent_id] => 15
[material_sum] => 329703
[work_sum] => 232999
[total_sum] => 562702
[total_days] => 7
[display_material_sum] => 329 703
[display_work_sum] => 232 999
[display_total_sum] => 562 702
)
1
562 702₽
Работа:232 999 ₽
Материалы:329 703 ₽
Дни:7
stdClass Object
(
[id] => 31
[attribute_id] => 16
[name] => Нет
[material_modifier] => 1
[work_modifier] => 1
[options] => Array
(
)
[days] => [0]
[material_price] => [0]
[work_price] => [0]
[image] => https://akademik-stroy.ru/wp-content/uploads/materials/docke-standard-pvh.jpg
[area_modifier] => 145.13
[parent_name] => Водосточная система
[parent_id] => 16
[material_sum] => 0
[work_sum] => 0
[total_sum] => 0
[total_days] => 0
[display_material_sum] => 0
[display_work_sum] => 0
[display_total_sum] => 0
)
1
0₽
Работа:0 ₽
Материалы:0 ₽
Дни:0
stdClass Object
(
[id] => 32
[attribute_id] => 16
[name] => Есть
[material_modifier] => 1
[work_modifier] => 1
[options] => Array
(
[0] => Döcke Standard (ПВХ)
[1] => Металлические Grand Line
)
[days] => [7,7]
[material_price] => [1842,2703]
[work_price] => [1491,1529]
[image] => https://akademik-stroy.ru/wp-content/uploads/materials/docke-standard-pvh.jpg
[area_modifier] => 145.13
[parent_name] => Водосточная система
[parent_id] => 16
[material_sum] => 336835
[work_sum] => 227208
[total_sum] => 564043
[total_days] => 7
[display_material_sum] => 336 835
[display_work_sum] => 227 208
[display_total_sum] => 564 043
)
1
564 043₽
Работа:227 208 ₽
Материалы:336 835 ₽
Дни:7
stdClass Object
(
[id] => 33
[attribute_id] => 17
[name] => Нет
[material_modifier] => 1
[work_modifier] => 1
[options] => Array
(
)
[days] => [0]
[material_price] => [0]
[work_price] => [0]
[image] => https://akademik-stroy.ru/wp-content/uploads/materials/mineralovata.jpg
[area_modifier] => 271.7
[parent_name] => Дополнительное утепление наружных стен
[parent_id] => 17
[material_sum] => 0
[work_sum] => 0
[total_sum] => 0
[total_days] => 0
[display_material_sum] => 0
[display_work_sum] => 0
[display_total_sum] => 0
)
1
0₽
Работа:0 ₽
Материалы:0 ₽
Дни:0
stdClass Object
(
[id] => 34
[attribute_id] => 17
[name] => Минераловатный
[material_modifier] => 1
[work_modifier] => 1
[options] => Array
(
[0] => 50 мм
[1] => 100 мм
[2] => 150 мм
[3] => 200 мм
[4] => 250 мм
[5] => 300 мм
)
[days] => [7,8,10,12,14,15]
[material_price] => [3437,3613,3803,3915,4601,4830]
[work_price] => [2325,2423,2523,2749,2859,3025]
[image] => https://akademik-stroy.ru/wp-content/uploads/materials/mineralovata.jpg
[area_modifier] => 271.7
[parent_name] => Дополнительное утепление наружных стен
[parent_id] => 17
[material_sum] => 1176629
[work_sum] => 663288
[total_sum] => 1839917
[total_days] => 7
[display_material_sum] => 1 176 629
[display_work_sum] => 663 288
[display_total_sum] => 1 839 917
)
1
1 839 917₽
Работа:663 288 ₽
Материалы:1 176 629 ₽
Дни:7
stdClass Object
(
[id] => 128
[attribute_id] => 17
[name] => Эковата (целлюлозная вата)
[material_modifier] => 1
[work_modifier] => 1
[options] => Array
(
[0] => 50 мм
[1] => 100 мм
[2] => 150 мм
[3] => 200 мм
[4] => 250 мм
[5] => 300 мм
)
[days] => [3,4,5,6,7,8]
[material_price] => [810,1319,1629,1838,2267,2676]
[work_price] => [1225,1323,1423,1549,1659,1725]
[image] => https://akademik-stroy.ru/wp-content/uploads/materials/ehkovata.jpg
[area_modifier] => 271.7
[parent_name] => Дополнительное утепление наружных стен
[parent_id] => 17
[material_sum] => 277297
[work_sum] => 349474
[total_sum] => 626771
[total_days] => 3
[display_material_sum] => 277 297
[display_work_sum] => 349 474
[display_total_sum] => 626 771
)
1
626 771₽
Работа:349 474 ₽
Материалы:277 297 ₽
Дни:3
stdClass Object
(
[id] => 129
[attribute_id] => 17
[name] => Экструдированный пенополистирол
[material_modifier] => 1
[work_modifier] => 1
[options] => Array
(
[0] => 50 мм
[1] => 100 мм
[2] => 150 мм
[3] => 200 мм
[4] => 250 мм
[5] => 300 мм
)
[days] => [5,6,7,8,9,10]
[material_price] => [4560,4300,5119,6292,7010,8583]
[work_price] => [1795,1954,2254,2330,2595,2735]
[image] => https://akademik-stroy.ru/wp-content/uploads/materials/epps.jpg
[area_modifier] => 271.7
[parent_name] => Дополнительное утепление наружных стен
[parent_id] => 17
[material_sum] => 1561080
[work_sum] => 512087
[total_sum] => 2073167
[total_days] => 5
[display_material_sum] => 1 561 080
[display_work_sum] => 512 087
[display_total_sum] => 2 073 167
)
1
2 073 167₽
Работа:512 087 ₽
Материалы:1 561 080 ₽
Дни:5
stdClass Object
(
[id] => 130
[attribute_id] => 17
[name] => ПСБ (ППС-пенополистирол)
[material_modifier] => 1
[work_modifier] => 1
[options] => Array
(
[0] => 50 мм
[1] => 100 мм
[2] => 150 мм
[3] => 200 мм
[4] => 250 мм
[5] => 300 мм
)
[days] => [5,6,7,8,9,10]
[material_price] => [4822,5200,5819,6292,7010,7583]
[work_price] => [1795,1954,2254,2330,2595,2735]
[image] => https://akademik-stroy.ru/wp-content/uploads/materials/psb.jpg
[area_modifier] => 271.7
[parent_name] => Дополнительное утепление наружных стен
[parent_id] => 17
[material_sum] => 1650773
[work_sum] => 512087
[total_sum] => 2162860
[total_days] => 5
[display_material_sum] => 1 650 773
[display_work_sum] => 512 087
[display_total_sum] => 2 162 860
)
1
2 162 860₽
Работа:512 087 ₽
Материалы:1 650 773 ₽
Дни:5
stdClass Object
(
[id] => 131
[attribute_id] => 17
[name] => ППУ (Пенополиуретан)
[material_modifier] => 1
[work_modifier] => 1
[options] => Array
(
[0] => 50 мм
[1] => 100 мм
[2] => 150 мм
[3] => 200 мм
[4] => 250 мм
[5] => 300 мм
)
[days] => [3,4,5,6,7,8]
[material_price] => [2860,3400,4219,4592,5010,5583]
[work_price] => [729,900,980,1120,1280,1530]
[image] => https://akademik-stroy.ru/wp-content/uploads/materials/ppu.jpg
[area_modifier] => 271.7
[parent_name] => Дополнительное утепление наружных стен
[parent_id] => 17
[material_sum] => 979098
[work_sum] => 207973
[total_sum] => 1187071
[total_days] => 3
[display_material_sum] => 979 098
[display_work_sum] => 207 973
[display_total_sum] => 1 187 071
)
1
1 187 071₽
Работа:207 973 ₽
Материалы:979 098 ₽
Дни:3
stdClass Object
(
[id] => 132
[attribute_id] => 17
[name] => PIR-плиты (пенополиизоцианурат)
[material_modifier] => 1
[work_modifier] => 1
[options] => Array
(
[0] => 50 мм
[1] => 100 мм
[2] => 150 мм
[3] => 200 мм
[4] => 250 мм
[5] => 300 мм
)
[days] => [5,6,7,8,9,10]
[material_price] => [8323,15645,20968,25900,29258,30581]
[work_price] => [800,900,970,1150,1280,1330]
[image] => https://akademik-stroy.ru/wp-content/uploads/materials/pir.jpg
[area_modifier] => 271.7
[parent_name] => Дополнительное утепление наружных стен
[parent_id] => 17
[material_sum] => 2849312
[work_sum] => 228228
[total_sum] => 3077540
[total_days] => 5
[display_material_sum] => 2 849 312
[display_work_sum] => 228 228
[display_total_sum] => 3 077 540
)
1
3 077 540₽
Работа:228 228 ₽
Материалы:2 849 312 ₽
Дни:5
stdClass Object
(
[id] => 37
[attribute_id] => 19
[name] => Нет
[material_modifier] => 1
[work_modifier] => 1
[options] => Array
(
)
[days] => [0]
[material_price] => [0]
[work_price] => [0]
[image] => https://akademik-stroy.ru/wp-content/uploads/materials/imitaciya-brusa.jpg
[area_modifier] => 271.7
[parent_name] => Наружная отделка фасада
[parent_id] => 19
[material_sum] => 0
[work_sum] => 0
[total_sum] => 0
[total_days] => 0
[display_material_sum] => 0
[display_work_sum] => 0
[display_total_sum] => 0
)
1
0₽
Работа:0 ₽
Материалы:0 ₽
Дни:0
stdClass Object
(
[id] => 38
[attribute_id] => 19
[name] => Имитация бруса
[material_modifier] => 1
[work_modifier] => 1
[options] => Array
(
[0] => Сосна
[1] => Ель
[2] => Лиственница
)
[days] => [20,20,20]
[material_price] => [2994,2762,4954]
[work_price] => [1397,1231,1577]
[image] => https://akademik-stroy.ru/wp-content/uploads/materials/imitaciya-brusa.jpg
[area_modifier] => 271.7
[parent_name] => Наружная отделка фасада
[parent_id] => 19
[material_sum] => 1024972
[work_sum] => 398543
[total_sum] => 1423515
[total_days] => 20
[display_material_sum] => 1 024 972
[display_work_sum] => 398 543
[display_total_sum] => 1 423 515
)
1
1 423 515₽
Работа:398 543 ₽
Материалы:1 024 972 ₽
Дни:20
stdClass Object
(
[id] => 136
[attribute_id] => 19
[name] => Планкен
[material_modifier] => 1
[work_modifier] => 1
[options] => Array
(
[0] => Сосна
[1] => Ель
[2] => Лиственница
)
[days] => [20,20,20]
[material_price] => [3194,2862,5154]
[work_price] => [1537,1354,1735]
[image] => https://akademik-stroy.ru/wp-content/uploads/materials/planken.jpg
[area_modifier] => 271.7
[parent_name] => Наружная отделка фасада
[parent_id] => 19
[material_sum] => 1093440
[work_sum] => 438483
[total_sum] => 1531923
[total_days] => 20
[display_material_sum] => 1 093 440
[display_work_sum] => 438 483
[display_total_sum] => 1 531 923
)
1
1 531 923₽
Работа:438 483 ₽
Материалы:1 093 440 ₽
Дни:20
stdClass Object
(
[id] => 137
[attribute_id] => 19
[name] => Штукатурка
[material_modifier] => 1
[work_modifier] => 1
[options] => Array
(
[0] => Цементно-песчаная (минеральная)
[1] => Мокрый фасад
)
[days] => [35,35]
[material_price] => [2231,3938]
[work_price] => [1202,2422]
[image] => https://akademik-stroy.ru/wp-content/uploads/materials/shtukaturka.jpg
[area_modifier] => 271.7
[parent_name] => Наружная отделка фасада
[parent_id] => 19
[material_sum] => 763765
[work_sum] => 342913
[total_sum] => 1106678
[total_days] => 35
[display_material_sum] => 763 765
[display_work_sum] => 342 913
[display_total_sum] => 1 106 678
)
1
1 106 678₽
Работа:342 913 ₽
Материалы:763 765 ₽
Дни:35
stdClass Object
(
[id] => 138
[attribute_id] => 19
[name] => Облицовочный кирпич
[material_modifier] => 1
[work_modifier] => 1
[options] => Array
(
[0] => Керамический
[1] => Клинкерный
[2] => Ручной формовки
[3] => Гиперпрессованный
[4] => Силикатный кирпич
)
[days] => [45,45,45,45,45]
[material_price] => [8174,9148,1040,1257,5876]
[work_price] => [3240,3758,4536,4017,3369]
[image] => https://akademik-stroy.ru/wp-content/uploads/materials/oblicovochnyj-kirpich.jpg
[area_modifier] => 271.7
[parent_name] => Наружная отделка фасада
[parent_id] => 19
[material_sum] => 2798304
[work_sum] => 924323
[total_sum] => 3722627
[total_days] => 45
[display_material_sum] => 2 798 304
[display_work_sum] => 924 323
[display_total_sum] => 3 722 627
)
1
3 722 627₽
Работа:924 323 ₽
Материалы:2 798 304 ₽
Дни:45
stdClass Object
(
[id] => 139
[attribute_id] => 19
[name] => Фасадная плитка
[material_modifier] => 1
[work_modifier] => 1
[options] => Array
(
[0] => Клинкерная
[1] => Керамическая
[2] => Плитка ручной формовки
)
[days] => [40,40,40]
[material_price] => [2974,1487,3470]
[work_price] => [3007,2592,3629]
[image] => https://akademik-stroy.ru/wp-content/uploads/materials/fasadnaya-plitka.jpg
[area_modifier] => 271.7
[parent_name] => Наружная отделка фасада
[parent_id] => 19
[material_sum] => 1018125
[work_sum] => 857852
[total_sum] => 1875977
[total_days] => 40
[display_material_sum] => 1 018 125
[display_work_sum] => 857 852
[display_total_sum] => 1 875 977
)
1
1 875 977₽
Работа:857 852 ₽
Материалы:1 018 125 ₽
Дни:40
stdClass Object
(
[id] => 140
[attribute_id] => 19
[name] => Сайдинг
[material_modifier] => 1
[work_modifier] => 1
[options] => Array
(
[0] => Виниловый
[1] => Металлический
[2] => Фиброцементный
)
[days] => [20,20,20]
[material_price] => [1263,1944,4147]
[work_price] => [1263,1944,2074]
[image] => https://akademik-stroy.ru/wp-content/uploads/materials/sajding.jpg
[area_modifier] => 271.7
[parent_name] => Наружная отделка фасада
[parent_id] => 19
[material_sum] => 432378
[work_sum] => 360315
[total_sum] => 792693
[total_days] => 20
[display_material_sum] => 432 378
[display_work_sum] => 360 315
[display_total_sum] => 792 693
)
1
792 693₽
Работа:360 315 ₽
Материалы:432 378 ₽
Дни:20
stdClass Object
(
[id] => 141
[attribute_id] => 19
[name] => Камень
[material_modifier] => 1
[work_modifier] => 1
[options] => Array
(
[0] => Травертин
[1] => Дагестанский
[2] => Искусственный
[3] => Натуральный
[4] => Керамогранит
)
[days] => [45,45,45,45,45]
[material_price] => [4536,3888,2592,3240,2462]
[work_price] => [3240,3240,2462,3110,1944]
[image] => https://akademik-stroy.ru/wp-content/uploads/materials/kamen-1.jpg
[area_modifier] => 271.7
[parent_name] => Наружная отделка фасада
[parent_id] => 19
[material_sum] => 1552863
[work_sum] => 924323
[total_sum] => 2477186
[total_days] => 45
[display_material_sum] => 1 552 863
[display_work_sum] => 924 323
[display_total_sum] => 2 477 186
)
1
2 477 186₽
Работа:924 323 ₽
Материалы:1 552 863 ₽
Дни:45
stdClass Object
(
[id] => 142
[attribute_id] => 19
[name] => Термопанели
[material_modifier] => 1
[work_modifier] => 1
[options] => Array
(
)
[days] => [20]
[material_price] => [6221]
[work_price] => [2333]
[image] => https://akademik-stroy.ru/wp-content/uploads/materials/termo.png
[area_modifier] => 271.7
[parent_name] => Наружная отделка фасада
[parent_id] => 19
[material_sum] => 2129710
[work_sum] => 665570
[total_sum] => 2795280
[total_days] => 20
[display_material_sum] => 2 129 710
[display_work_sum] => 665 570
[display_total_sum] => 2 795 280
)
1
2 795 280₽
Работа:665 570 ₽
Материалы:2 129 710 ₽
Дни:20
stdClass Object
(
[id] => 143
[attribute_id] => 19
[name] => Плитка HAUBERK
[material_modifier] => 1
[work_modifier] => 1
[options] => Array
(
)
[days] => [20]
[material_price] => [2786]
[work_price] => [1944]
[image] => https://akademik-stroy.ru/wp-content/uploads/materials/hauberk.jpg
[area_modifier] => 271.7
[parent_name] => Наружная отделка фасада
[parent_id] => 19
[material_sum] => 953765
[work_sum] => 554594
[total_sum] => 1508359
[total_days] => 20
[display_material_sum] => 953 765
[display_work_sum] => 554 594
[display_total_sum] => 1 508 359
)
1
1 508 359₽
Работа:554 594 ₽
Материалы:953 765 ₽
Дни:20
stdClass Object
(
[id] => 144
[attribute_id] => 19
[name] => Фальцевый фасад
[material_modifier] => 1
[work_modifier] => 1
[options] => Array
(
)
[days] => [20]
[material_price] => [3240]
[work_price] => [2592]
[image] => https://akademik-stroy.ru/wp-content/uploads/materials/falcevyj-fasad.jpg
[area_modifier] => 271.7
[parent_name] => Наружная отделка фасада
[parent_id] => 19
[material_sum] => 1109188
[work_sum] => 739459
[total_sum] => 1848647
[total_days] => 20
[display_material_sum] => 1 109 188
[display_work_sum] => 739 459
[display_total_sum] => 1 848 647
)
1
1 848 647₽
Работа:739 459 ₽
Материалы:1 109 188 ₽
Дни:20
stdClass Object
(
[id] => 145
[attribute_id] => 19
[name] => Комбинированный
[material_modifier] => 1
[work_modifier] => 1
[options] => Array
(
)
[days] => [20]
[material_price] => [4629]
[work_price] => [3499]
[image] => https://akademik-stroy.ru/wp-content/uploads/materials/Kombinirovannyj.jpg
[area_modifier] => 271.7
[parent_name] => Наружная отделка фасада
[parent_id] => 19
[material_sum] => 1584701
[work_sum] => 998212
[total_sum] => 2582913
[total_days] => 20
[display_material_sum] => 1 584 701
[display_work_sum] => 998 212
[display_total_sum] => 2 582 913
)
1
2 582 913₽
Работа:998 212 ₽
Материалы:1 584 701 ₽
Дни:20
stdClass Object
(
[id] => 257
[attribute_id] => 19
[name] => Японские фиброцементные
[material_modifier] => 1
[work_modifier] => 1
[options] => Array
(
)
[days] => [20]
[material_price] => [7043]
[work_price] => [2993]
[image] => https://akademik-stroy.ru/wp-content/uploads/materials/paneli.jpg
[area_modifier] => 271.7
[parent_name] => Наружная отделка фасада
[parent_id] => 19
[material_sum] => 2411115
[work_sum] => 853858
[total_sum] => 3264973
[total_days] => 20
[display_material_sum] => 2 411 115
[display_work_sum] => 853 858
[display_total_sum] => 3 264 973
)
1
3 264 973₽
Работа:853 858 ₽
Материалы:2 411 115 ₽
Дни:20
stdClass Object
(
[id] => 258
[attribute_id] => 19
[name] => Панели Каньон
[material_modifier] => 1
[work_modifier] => 1
[options] => Array
(
)
[days] => [20]
[material_price] => [4543]
[work_price] => [2592]
[image] => https://akademik-stroy.ru/wp-content/uploads/materials/kanon.png
[area_modifier] => 271.7
[parent_name] => Наружная отделка фасада
[parent_id] => 19
[material_sum] => 1555260
[work_sum] => 739459
[total_sum] => 2294719
[total_days] => 20
[display_material_sum] => 1 555 260
[display_work_sum] => 739 459
[display_total_sum] => 2 294 719
)
1
2 294 719₽
Работа:739 459 ₽
Материалы:1 555 260 ₽
Дни:20
stdClass Object
(
[id] => 39
[attribute_id] => 20
[name] => Нет
[material_modifier] => 1
[work_modifier] => 1
[options] => Array
(
)
[days] => [0]
[material_price] => [0]
[work_price] => [0]
[image] => https://akademik-stroy.ru/wp-content/uploads/materials/terrasy.jpg
[area_modifier] => 30
[parent_name] => Террасы, крыльца, навесы
[parent_id] => 20
[material_sum] => 0
[work_sum] => 0
[total_sum] => 0
[total_days] => 0
[display_material_sum] => 0
[display_work_sum] => 0
[display_total_sum] => 0
)
1
0₽
Работа:0 ₽
Материалы:0 ₽
Дни:0
stdClass Object
(
[id] => 40
[attribute_id] => 20
[name] => Есть
[material_modifier] => 1
[work_modifier] => 1
[options] => Array
(
)
[days] => [5]
[material_price] => [10450]
[work_price] => [1950]
[image] => https://akademik-stroy.ru/wp-content/uploads/materials/terrasy.jpg
[area_modifier] => 30
[parent_name] => Террасы, крыльца, навесы
[parent_id] => 20
[material_sum] => 395010
[work_sum] => 61425
[total_sum] => 456435
[total_days] => 5
[display_material_sum] => 395 010
[display_work_sum] => 61 425
[display_total_sum] => 456 435
)
1
456 435₽
Работа:61 425 ₽
Материалы:395 010 ₽
Дни:5
stdClass Object
(
[id] => 41
[attribute_id] => 21
[name] => Нет
[material_modifier] => 1
[work_modifier] => 1
[options] => Array
(
)
[days] => [0]
[material_price] => [0]
[work_price] => [0]
[image] => https://akademik-stroy.ru/wp-content/uploads/materials/balkony.jpg
[area_modifier] => 30
[parent_name] => Балконы
[parent_id] => 21
[material_sum] => 0
[work_sum] => 0
[total_sum] => 0
[total_days] => 0
[display_material_sum] => 0
[display_work_sum] => 0
[display_total_sum] => 0
)
1
0₽
Работа:0 ₽
Материалы:0 ₽
Дни:0
stdClass Object
(
[id] => 42
[attribute_id] => 21
[name] => Есть
[material_modifier] => 1
[work_modifier] => 1
[options] => Array
(
)
[days] => [12]
[material_price] => [3600]
[work_price] => [1950]
[image] => https://akademik-stroy.ru/wp-content/uploads/materials/balkony.jpg
[area_modifier] => 30
[parent_name] => Балконы
[parent_id] => 21
[material_sum] => 136080
[work_sum] => 61425
[total_sum] => 197505
[total_days] => 12
[display_material_sum] => 136 080
[display_work_sum] => 61 425
[display_total_sum] => 197 505
)
1
197 505₽
Работа:61 425 ₽
Материалы:136 080 ₽
Дни:12
stdClass Object
(
[id] => 43
[attribute_id] => 22
[name] => Нет
[material_modifier] => 1
[work_modifier] => 1
[options] => Array
(
)
[days] => [0]
[material_price] => [0]
[work_price] => [0]
[image] => https://akademik-stroy.ru/wp-content/uploads/materials/uteplennaya.jpg
[area_modifier] => 145.13
[parent_name] => Отмостка
[parent_id] => 22
[material_sum] => 0
[work_sum] => 0
[total_sum] => 0
[total_days] => 0
[display_material_sum] => 0
[display_work_sum] => 0
[display_total_sum] => 0
)
1
0₽
Работа:0 ₽
Материалы:0 ₽
Дни:0
stdClass Object
(
[id] => 44
[attribute_id] => 22
[name] => Утепленная отмостка
[material_modifier] => 1
[work_modifier] => 1
[options] => Array
(
)
[days] => [15]
[material_price] => [2550]
[work_price] => [1750]
[image] => https://akademik-stroy.ru/wp-content/uploads/materials/uteplennaya.jpg
[area_modifier] => 145.13
[parent_name] => Отмостка
[parent_id] => 22
[material_sum] => 466303
[work_sum] => 266676
[total_sum] => 732979
[total_days] => 15
[display_material_sum] => 466 303
[display_work_sum] => 266 676
[display_total_sum] => 732 979
)
1
732 979₽
Работа:266 676 ₽
Материалы:466 303 ₽
Дни:15
stdClass Object
(
[id] => 146
[attribute_id] => 22
[name] => Не утепленная отмостка
[material_modifier] => 1
[work_modifier] => 1
[options] => Array
(
)
[days] => [10]
[material_price] => [1650]
[work_price] => [1450]
[image] => https://akademik-stroy.ru/wp-content/uploads/materials/ne-uteplennaya.jpg
[area_modifier] => 145.13
[parent_name] => Отмостка
[parent_id] => 22
[material_sum] => 301725
[work_sum] => 220960
[total_sum] => 522685
[total_days] => 10
[display_material_sum] => 301 725
[display_work_sum] => 220 960
[display_total_sum] => 522 685
)
1
522 685₽
Работа:220 960 ₽
Материалы:301 725 ₽
Дни:10
stdClass Object
(
[id] => 45
[attribute_id] => 23
[name] => Нет
[material_modifier] => 1
[work_modifier] => 1
[options] => Array
(
)
[days] => [0]
[material_price] => [0]
[work_price] => [0]
[image] => https://akademik-stroy.ru/wp-content/uploads/materials/drenazh-2.jpg
[area_modifier] => 145.13
[parent_name] => Дренаж вокруг дома
[parent_id] => 23
[material_sum] => 0
[work_sum] => 0
[total_sum] => 0
[total_days] => 0
[display_material_sum] => 0
[display_work_sum] => 0
[display_total_sum] => 0
)
1
0₽
Работа:0 ₽
Материалы:0 ₽
Дни:0
stdClass Object
(
[id] => 46
[attribute_id] => 23
[name] => Есть
[material_modifier] => 1
[work_modifier] => 1
[options] => Array
(
)
[days] => [5]
[material_price] => [2366]
[work_price] => [1911]
[image] => https://akademik-stroy.ru/wp-content/uploads/materials/drenazh-2.jpg
[area_modifier] => 145.13
[parent_name] => Дренаж вокруг дома
[parent_id] => 23
[material_sum] => 432656
[work_sum] => 291211
[total_sum] => 723867
[total_days] => 5
[display_material_sum] => 432 656
[display_work_sum] => 291 211
[display_total_sum] => 723 867
)
1
723 867₽
Работа:291 211 ₽
Материалы:432 656 ₽
Дни:5
stdClass Object
(
[id] => 47
[attribute_id] => 24
[name] => Нет
[material_modifier] => 1
[work_modifier] => 1
[options] => Array
(
)
[days] => [0]
[material_price] => [0]
[work_price] => [0]
[image] => https://akademik-stroy.ru/wp-content/uploads/materials/septik.jpg
[area_modifier] => 1
[parent_name] => Автономная канализация (септики)
[parent_id] => 24
[material_sum] => 0
[work_sum] => 0
[total_sum] => 0
[total_days] => 0
[display_material_sum] => 0
[display_work_sum] => 0
[display_total_sum] => 0
)
1
0₽
Работа:0 ₽
Материалы:0 ₽
Дни:0
stdClass Object
(
[id] => 48
[attribute_id] => 24
[name] => Есть
[material_modifier] => 1
[work_modifier] => 1
[options] => Array
(
[0] => Для дачи на 4 человека
[1] => Для дома на 5 человек
[2] => Для дома на 6 человек
[3] => Для дома на 7 человек
[4] => Для дома на 10 человек
)
[days] => [7,7,7,8,8]
[material_price] => [196340,220500,240940,264200,293340]
[work_price] => [50000,55000,60500,66550,73206]
[image] => https://akademik-stroy.ru/wp-content/uploads/materials/septik.jpg
[area_modifier] => 1
[parent_name] => Автономная канализация (септики)
[parent_id] => 24
[material_sum] => 247388
[work_sum] => 52500
[total_sum] => 299888
[total_days] => 7
[display_material_sum] => 247 388
[display_work_sum] => 52 500
[display_total_sum] => 299 888
)
1
299 888₽
Работа:52 500 ₽
Материалы:247 388 ₽
Дни:7
stdClass Object
(
[id] => 49
[attribute_id] => 25
[name] => Нет
[material_modifier] => 1
[work_modifier] => 1
[options] => Array
(
)
[days] => [0]
[material_price] => [0]
[work_price] => [0]
[image] => https://akademik-stroy.ru/wp-content/uploads/materials/gkl.jpg
[area_modifier] => 271.7
[parent_name] => Внутренние (не несущие) перегородки
[parent_id] => 25
[material_sum] => 0
[work_sum] => 0
[total_sum] => 0
[total_days] => 0
[display_material_sum] => 0
[display_work_sum] => 0
[display_total_sum] => 0
)
1
0₽
Работа:0 ₽
Материалы:0 ₽
Дни:0
stdClass Object
(
[id] => 147
[attribute_id] => 25
[name] => Каркасно-обшивные
[material_modifier] => 1
[work_modifier] => 1
[options] => Array
(
[0] => 75 мм (без шумоизоляции)
[1] => 75 мм (с шумоизоляцией)
)
[days] => [11,11]
[material_price] => [580,970]
[work_price] => [380,570]
[image] => https://akademik-stroy.ru/wp-content/uploads/materials/gkl.jpg
[area_modifier] => 271.7
[parent_name] => Внутренние (не несущие) перегородки
[parent_id] => 25
[material_sum] => 198558
[work_sum] => 108408
[total_sum] => 306966
[total_days] => 11
[display_material_sum] => 198 558
[display_work_sum] => 108 408
[display_total_sum] => 306 966
)
1
306 966₽
Работа:108 408 ₽
Материалы:198 558 ₽
Дни:11
stdClass Object
(
[id] => 148
[attribute_id] => 25
[name] => Пазогребневые
[material_modifier] => 1
[work_modifier] => 1
[options] => Array
(
[0] => 80 мм
[1] => 100 мм
)
[days] => [5,5]
[material_price] => [1022,1313]
[work_price] => [600,700]
[image] => https://akademik-stroy.ru/wp-content/uploads/materials/pazogrebnevye-bloki.jpg
[area_modifier] => 271.7
[parent_name] => Внутренние (не несущие) перегородки
[parent_id] => 25
[material_sum] => 349874
[work_sum] => 171171
[total_sum] => 521045
[total_days] => 5
[display_material_sum] => 349 874
[display_work_sum] => 171 171
[display_total_sum] => 521 045
)
1
521 045₽
Работа:171 171 ₽
Материалы:349 874 ₽
Дни:5
stdClass Object
(
[id] => 149
[attribute_id] => 25
[name] => Газобетонные
[material_modifier] => 1
[work_modifier] => 1
[options] => Array
(
[0] => 100 мм
[1] => 200 мм
)
[days] => [11,11]
[material_price] => [1160,1920]
[work_price] => [700,900]
[image] => https://akademik-stroy.ru/wp-content/uploads/materials/gazobeton-2.jpg
[area_modifier] => 271.7
[parent_name] => Внутренние (не несущие) перегородки
[parent_id] => 25
[material_sum] => 397117
[work_sum] => 199700
[total_sum] => 596817
[total_days] => 11
[display_material_sum] => 397 117
[display_work_sum] => 199 700
[display_total_sum] => 596 817
)
1
596 817₽
Работа:199 700 ₽
Материалы:397 117 ₽
Дни:11
stdClass Object
(
[id] => 150
[attribute_id] => 25
[name] => Кирпичные
[material_modifier] => 1
[work_modifier] => 1
[options] => Array
(
[0] => 120 мм
[1] => 250 мм
[2] => 360 мм
)
[days] => [7,7,7]
[material_price] => [1785,3570,5355]
[work_price] => [900,1600,1800]
[image] => https://akademik-stroy.ru/wp-content/uploads/materials/kirpich-1.jpg
[area_modifier] => 271.7
[parent_name] => Внутренние (не несущие) перегородки
[parent_id] => 25
[material_sum] => 611080
[work_sum] => 256757
[total_sum] => 867837
[total_days] => 7
[display_material_sum] => 611 080
[display_work_sum] => 256 757
[display_total_sum] => 867 837
)
1
867 837₽
Работа:256 757 ₽
Материалы:611 080 ₽
Дни:7
stdClass Object
(
[id] => 55
[attribute_id] => 28
[name] => Нет
[material_modifier] => 1
[work_modifier] => 1
[options] => Array
(
)
[days] => [0]
[material_price] => [0]
[work_price] => [0]
[image] => https://akademik-stroy.ru/wp-content/uploads/materials/ehlektrika.jpg
[area_modifier] => 220.48
[parent_name] => Электрика
[parent_id] => 28
[material_sum] => 0
[work_sum] => 0
[total_sum] => 0
[total_days] => 0
[display_material_sum] => 0
[display_work_sum] => 0
[display_total_sum] => 0
)
1
0₽
Работа:0 ₽
Материалы:0 ₽
Дни:0
stdClass Object
(
[id] => 56
[attribute_id] => 28
[name] => Есть
[material_modifier] => 1
[work_modifier] => 1
[options] => Array
(
)
[days] => [10]
[material_price] => [650]
[work_price] => [950]
[image] => https://akademik-stroy.ru/wp-content/uploads/materials/ehlektrika.jpg
[area_modifier] => 220.48
[parent_name] => Электрика
[parent_id] => 28
[material_sum] => 180573
[work_sum] => 219929
[total_sum] => 400502
[total_days] => 10
[display_material_sum] => 180 573
[display_work_sum] => 219 929
[display_total_sum] => 400 502
)
1
400 502₽
Работа:219 929 ₽
Материалы:180 573 ₽
Дни:10
stdClass Object
(
[id] => 57
[attribute_id] => 29
[name] => Нет
[material_modifier] => 1
[work_modifier] => 1
[options] => Array
(
)
[days] => [0]
[material_price] => [0]
[work_price] => [0]
[image] => https://akademik-stroy.ru/wp-content/uploads/materials/santekhnika-kanalizaciya-1.jpg
[area_modifier] => 220.48
[parent_name] => Сантехника, канализация в доме
[parent_id] => 29
[material_sum] => 0
[work_sum] => 0
[total_sum] => 0
[total_days] => 0
[display_material_sum] => 0
[display_work_sum] => 0
[display_total_sum] => 0
)
1
0₽
Работа:0 ₽
Материалы:0 ₽
Дни:0
stdClass Object
(
[id] => 58
[attribute_id] => 29
[name] => Есть
[material_modifier] => 1
[work_modifier] => 1
[options] => Array
(
)
[days] => [10]
[material_price] => [600]
[work_price] => [730]
[image] => https://akademik-stroy.ru/wp-content/uploads/materials/santekhnika-kanalizaciya-1.jpg
[area_modifier] => 220.48
[parent_name] => Сантехника, канализация в доме
[parent_id] => 29
[material_sum] => 166683
[work_sum] => 168998
[total_sum] => 335681
[total_days] => 10
[display_material_sum] => 166 683
[display_work_sum] => 168 998
[display_total_sum] => 335 681
)
1
335 681₽
Работа:168 998 ₽
Материалы:166 683 ₽
Дни:10
stdClass Object
(
[id] => 59
[attribute_id] => 30
[name] => Нет
[material_modifier] => 1
[work_modifier] => 1
[options] => Array
(
)
[days] => [0]
[material_price] => [0]
[work_price] => [0]
[image] => https://akademik-stroy.ru/wp-content/uploads/materials/otoplenie-1.jpg
[area_modifier] => 220.48
[parent_name] => Отопление
[parent_id] => 30
[material_sum] => 0
[work_sum] => 0
[total_sum] => 0
[total_days] => 0
[display_material_sum] => 0
[display_work_sum] => 0
[display_total_sum] => 0
)
1
0₽
Работа:0 ₽
Материалы:0 ₽
Дни:0
stdClass Object
(
[id] => 60
[attribute_id] => 30
[name] => Есть
[material_modifier] => 1
[work_modifier] => 1
[options] => Array
(
)
[days] => [5]
[material_price] => [610]
[work_price] => [560]
[image] => https://akademik-stroy.ru/wp-content/uploads/materials/otoplenie-1.jpg
[area_modifier] => 220.48
[parent_name] => Отопление
[parent_id] => 30
[material_sum] => 169461
[work_sum] => 129642
[total_sum] => 299103
[total_days] => 5
[display_material_sum] => 169 461
[display_work_sum] => 129 642
[display_total_sum] => 299 103
)
1
299 103₽
Работа:129 642 ₽
Материалы:169 461 ₽
Дни:5
stdClass Object
(
[id] => 61
[attribute_id] => 31
[name] => Нет
[material_modifier] => 1
[work_modifier] => 1
[options] => Array
(
)
[days] => [0]
[material_price] => [0]
[work_price] => [0]
[image] => https://akademik-stroy.ru/wp-content/uploads/materials/vodyanye.jpg
[area_modifier] => 30
[parent_name] => Теплые полы
[parent_id] => 31
[material_sum] => 0
[work_sum] => 0
[total_sum] => 0
[total_days] => 0
[display_material_sum] => 0
[display_work_sum] => 0
[display_total_sum] => 0
)
1
0₽
Работа:0 ₽
Материалы:0 ₽
Дни:0
stdClass Object
(
[id] => 151
[attribute_id] => 31
[name] => Водяные
[material_modifier] => 1
[work_modifier] => 1
[options] => Array
(
)
[days] => [9]
[material_price] => [10200]
[work_price] => [2500]
[image] => https://akademik-stroy.ru/wp-content/uploads/materials/vodyanye.jpg
[area_modifier] => 30
[parent_name] => Теплые полы
[parent_id] => 31
[material_sum] => 385560
[work_sum] => 78750
[total_sum] => 464310
[total_days] => 9
[display_material_sum] => 385 560
[display_work_sum] => 78 750
[display_total_sum] => 464 310
)
1
464 310₽
Работа:78 750 ₽
Материалы:385 560 ₽
Дни:9
stdClass Object
(
[id] => 152
[attribute_id] => 31
[name] => Электро
[material_modifier] => 1
[work_modifier] => 1
[options] => Array
(
)
[days] => [5]
[material_price] => [6300]
[work_price] => [1500]
[image] => https://akademik-stroy.ru/wp-content/uploads/materials/ehlektricheskij.jpg
[area_modifier] => 30
[parent_name] => Теплые полы
[parent_id] => 31
[material_sum] => 238140
[work_sum] => 47250
[total_sum] => 285390
[total_days] => 5
[display_material_sum] => 238 140
[display_work_sum] => 47 250
[display_total_sum] => 285 390
)
1
285 390₽
Работа:47 250 ₽
Материалы:238 140 ₽
Дни:5
stdClass Object
(
[id] => 63
[attribute_id] => 32
[name] => Нет
[material_modifier] => 1
[work_modifier] => 1
[options] => Array
(
)
[days] => [0]
[material_price] => [0]
[work_price] => [0]
[image] => https://akademik-stroy.ru/wp-content/uploads/materials/shtukaturka-shpatlevka-1.jpg
[area_modifier] => 220.48
[parent_name] => Черновая отделка стен
[parent_id] => 32
[material_sum] => 0
[work_sum] => 0
[total_sum] => 0
[total_days] => 0
[display_material_sum] => 0
[display_work_sum] => 0
[display_total_sum] => 0
)
1
0₽
Работа:0 ₽
Материалы:0 ₽
Дни:0
stdClass Object
(
[id] => 153
[attribute_id] => 32
[name] => Штукатурка и шпатлевка
[material_modifier] => 1
[work_modifier] => 1
[options] => Array
(
)
[days] => [20]
[material_price] => [1850]
[work_price] => [2600]
[image] => https://akademik-stroy.ru/wp-content/uploads/materials/shtukaturka-shpatlevka-1.jpg
[area_modifier] => 220.48
[parent_name] => Черновая отделка стен
[parent_id] => 32
[material_sum] => 513939
[work_sum] => 601910
[total_sum] => 1115849
[total_days] => 20
[display_material_sum] => 513 939
[display_work_sum] => 601 910
[display_total_sum] => 1 115 849
)
1
1 115 849₽
Работа:601 910 ₽
Материалы:513 939 ₽
Дни:20
stdClass Object
(
[id] => 154
[attribute_id] => 32
[name] => Гипсокортон на стены
[material_modifier] => 1
[work_modifier] => 1
[options] => Array
(
)
[days] => [15]
[material_price] => [950]
[work_price] => [2100]
[image] => https://akademik-stroy.ru/wp-content/uploads/materials/gkl-1.jpg
[area_modifier] => 220.48
[parent_name] => Черновая отделка стен
[parent_id] => 32
[material_sum] => 263915
[work_sum] => 486158
[total_sum] => 750073
[total_days] => 15
[display_material_sum] => 263 915
[display_work_sum] => 486 158
[display_total_sum] => 750 073
)
1
750 073₽
Работа:486 158 ₽
Материалы:263 915 ₽
Дни:15
stdClass Object
(
[id] => 155
[attribute_id] => 32
[name] => Вагонка
[material_modifier] => 1
[work_modifier] => 1
[options] => Array
(
)
[days] => [15]
[material_price] => [1250]
[work_price] => [950]
[image] => https://akademik-stroy.ru/wp-content/uploads/materials/vagonka.jpg
[area_modifier] => 220.48
[parent_name] => Черновая отделка стен
[parent_id] => 32
[material_sum] => 347256
[work_sum] => 219929
[total_sum] => 567185
[total_days] => 15
[display_material_sum] => 347 256
[display_work_sum] => 219 929
[display_total_sum] => 567 185
)
1
567 185₽
Работа:219 929 ₽
Материалы:347 256 ₽
Дни:15
stdClass Object
(
[id] => 65
[attribute_id] => 33
[name] => Нет
[material_modifier] => 1
[work_modifier] => 1
[options] => Array
(
)
[days] => [0]
[material_price] => [0]
[work_price] => [0]
[image] => https://akademik-stroy.ru/wp-content/uploads/materials/styazhka.jpg
[area_modifier] => 220.48
[parent_name] => Черновая отделка полов
[parent_id] => 33
[material_sum] => 0
[work_sum] => 0
[total_sum] => 0
[total_days] => 0
[display_material_sum] => 0
[display_work_sum] => 0
[display_total_sum] => 0
)
1
0₽
Работа:0 ₽
Материалы:0 ₽
Дни:0
stdClass Object
(
[id] => 156
[attribute_id] => 33
[name] => Стяжка + наливные полы
[material_modifier] => 1
[work_modifier] => 1
[options] => Array
(
)
[days] => [10]
[material_price] => [1000]
[work_price] => [900]
[image] => https://akademik-stroy.ru/wp-content/uploads/materials/styazhka.jpg
[area_modifier] => 220.48
[parent_name] => Черновая отделка полов
[parent_id] => 33
[material_sum] => 277805
[work_sum] => 208354
[total_sum] => 486159
[total_days] => 10
[display_material_sum] => 277 805
[display_work_sum] => 208 354
[display_total_sum] => 486 159
)
1
486 159₽
Работа:208 354 ₽
Материалы:277 805 ₽
Дни:10
stdClass Object
(
[id] => 157
[attribute_id] => 33
[name] => ОСБ на пол
[material_modifier] => 1
[work_modifier] => 1
[options] => Array
(
)
[days] => [7]
[material_price] => [580]
[work_price] => [350]
[image] => https://akademik-stroy.ru/wp-content/uploads/materials/osb-1.jpg
[area_modifier] => 220.48
[parent_name] => Черновая отделка полов
[parent_id] => 33
[material_sum] => 161127
[work_sum] => 81026
[total_sum] => 242153
[total_days] => 7
[display_material_sum] => 161 127
[display_work_sum] => 81 026
[display_total_sum] => 242 153
)
1
242 153₽
Работа:81 026 ₽
Материалы:161 127 ₽
Дни:7
stdClass Object
(
[id] => 67
[attribute_id] => 34
[name] => Нет
[material_modifier] => 1
[work_modifier] => 1
[options] => Array
(
)
[days] => [0]
[material_price] => [0]
[work_price] => [0]
[image] => https://akademik-stroy.ru/wp-content/uploads/materials/chistovaya-otdelka.jpg
[area_modifier] => 220.48
[parent_name] => Чистовая отделка стен и полов
[parent_id] => 34
[material_sum] => 0
[work_sum] => 0
[total_sum] => 0
[total_days] => 0
[display_material_sum] => 0
[display_work_sum] => 0
[display_total_sum] => 0
)
1
0₽
Работа:0 ₽
Материалы:0 ₽
Дни:0
stdClass Object
(
[id] => 68
[attribute_id] => 34
[name] => Есть
[material_modifier] => 1
[work_modifier] => 1
[options] => Array
(
)
[days] => [50]
[material_price] => [6000]
[work_price] => [3500]
[image] => https://akademik-stroy.ru/wp-content/uploads/materials/chistovaya-otdelka.jpg
[area_modifier] => 220.48
[parent_name] => Чистовая отделка стен и полов
[parent_id] => 34
[material_sum] => 1666829
[work_sum] => 810264
[total_sum] => 2477093
[total_days] => 50
[display_material_sum] => 1 666 829
[display_work_sum] => 810 264
[display_total_sum] => 2 477 093
)
1
2 477 093₽
Работа:810 264 ₽
Материалы:1 666 829 ₽
Дни:50
stdClass Object
(
[id] => 69
[attribute_id] => 35
[name] => Нет
[material_modifier] => 1
[work_modifier] => 1
[options] => Array
(
)
[days] => [0]
[material_price] => [0]
[work_price] => [0]
[image] => https://akademik-stroy.ru/wp-content/uploads/materials/mnogourovnevyj-gkl.jpg
[area_modifier] => 220.48
[parent_name] => Отделка потолка
[parent_id] => 35
[material_sum] => 0
[work_sum] => 0
[total_sum] => 0
[total_days] => 0
[display_material_sum] => 0
[display_work_sum] => 0
[display_total_sum] => 0
)
1
0₽
Работа:0 ₽
Материалы:0 ₽
Дни:0
stdClass Object
(
[id] => 70
[attribute_id] => 35
[name] => Есть
[material_modifier] => 1
[work_modifier] => 1
[options] => Array
(
[0] => Многоуровневый потолок из гипсокартона
[1] => Многоуровневый потолок из гипсокартона и натяжного потолка
[2] => Одноуровневый потолок из гипсокартона
[3] => Одноуровневый натяжной потолок
)
[days] => [10,10,1,1]
[material_price] => [900,700,700,600]
[work_price] => [1000,800,500,300]
[image] => https://akademik-stroy.ru/wp-content/uploads/materials/mnogourovnevyj-gkl.jpg
[area_modifier] => 220.48
[parent_name] => Отделка потолка
[parent_id] => 35
[material_sum] => 250024
[work_sum] => 231504
[total_sum] => 481528
[total_days] => 10
[display_material_sum] => 250 024
[display_work_sum] => 231 504
[display_total_sum] => 481 528
)
1
481 528₽
Работа:231 504 ₽
Материалы:250 024 ₽
Дни:10
Преимущества работы с нами
7 этапов оплаты
Независимый строительный надзор
Экологически чистые материалы
16 лет гарантии
Онлайн-кабинет с веб-камерой
Строители с опытом более 15 лет
Собственное производство







