Одноэтажный дом 118.08 м2 за руб.
Планировки
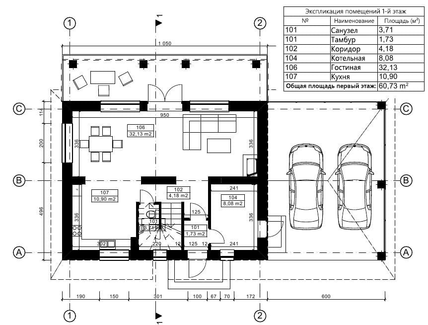
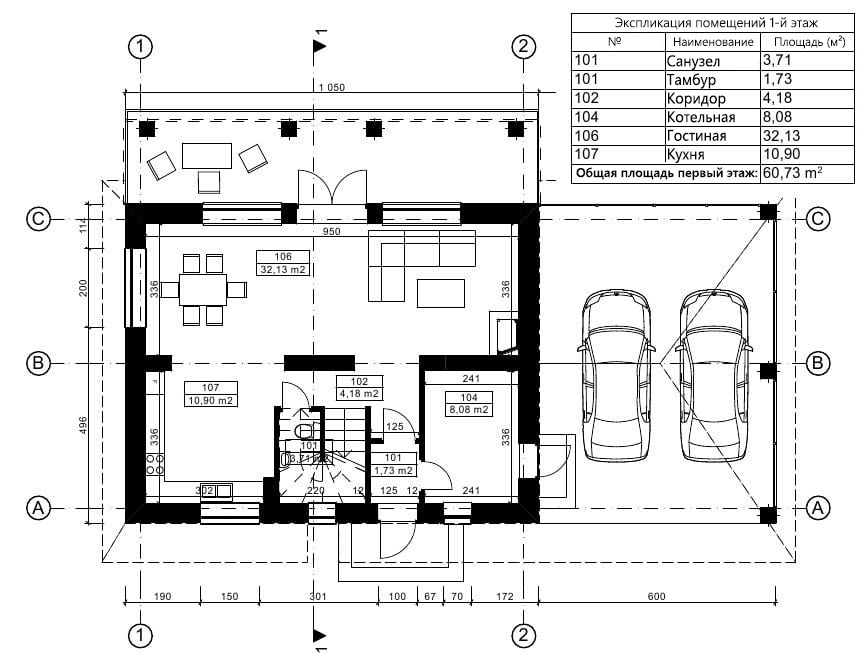
План первого этажа
- 1. Санузел 3,71 м²
- 2. Тамбур 1,73 м²
- 3. Коридор 4,18 м²
- 4. Котельная 8,08 м²
- 5. Гостиная 32,13 м²
- 6. Кухня 10,90 м²
- Общая площадь первый этаж 60,73 м²
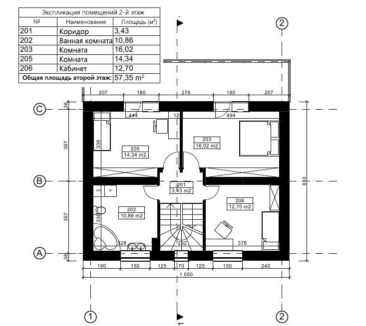
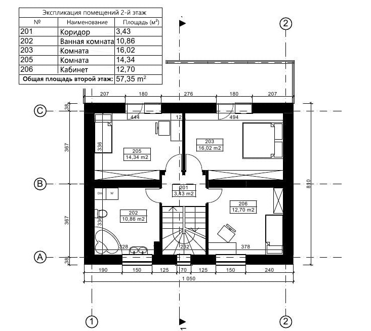
План второго этажа
- 1. Коридор 3,43 м²
- 2. Ванная комната 10,86 м²
- 3. Комната 16,02 м²
- 4. Комната 14,34 м²
- 5. Кабинет 12,70 м²
- Общая площадь второй этаж 57,35 м²
Площади дома
| № п/п | Наименование | Ед. из. | Строительная площадь | Полезная площадь |
| 1 | 1 этаж | м2 | 74.84 | 60.73 |
| 2 | 2 этаж | м2 | 70.67 | 57.35 |
| 3 | Итого | м2 | 145.51 | 118.08 |
154 м2
Полезная
площадь
площадь
1 этаж
Этажей
26 м2
Террасы
и балконы
и балконы
0Без
гаража
гаража
4
Количество
спален
спален
2
Количество
санузлов
санузлов
Калькулятор опций
0₽
В ипотеку от 14 977 ₽/мес.
0₽
0 дней
stdClass Object
(
[id] => 1
[attribute_id] => 1
[name] => Ленточный монолитный ж/б
[material_modifier] => 1
[work_modifier] => 1
[options] => Array
(
[0] => размер 200 х 700 мм
[1] => размер 300 х 900 мм
[2] => размер 400 х 1 000 мм
[3] => размер 500 х 1 100 мм
[4] => размер 600 х 1 200 мм
)
[days] => [20,21,22,25,30]
[material_price] => [2823,3630,4475,5210,12047]
[work_price] => [2154,2826,3731,4577,5293]
[image] => https://akademik-stroy.ru/wp-content/uploads/materials/lentochnyj-monolitnyj-zh-b.jpg
[area_modifier] => 74.84
[parent_name] => Фундамент
[parent_id] => 1
[material_sum] => 291557
[work_sum] => 185386
[total_sum] => 476943
[total_days] => 20
[display_material_sum] => 291 557
[display_work_sum] => 185 386
[display_total_sum] => 476 943
)
1
476 943₽
Работа:185 386 ₽
Материалы:291 557 ₽
Дни:20
stdClass Object
(
[id] => 2
[attribute_id] => 1
[name] => Забивные Ж/Б сваи
[material_modifier] => 1
[work_modifier] => 1
[options] => Array
(
[0] => 150х150х3000мм
[1] => 150х150х4000мм
[2] => 200х200х3000мм
[3] => 200х200х4000мм
[4] => 200х200х5000мм
[5] => 200х200х6000мм
)
[days] => [2,2,2,2,2,2]
[material_price] => [1990,2850,3255,4360,5120,6837]
[work_price] => [1002,1185,1336,1438,1574,1839]
[image] => https://akademik-stroy.ru/wp-content/uploads/materials/zabivnye-zh-b-svai.png
[area_modifier] => 74.84
[parent_name] => Фундамент
[parent_id] => 1
[material_sum] => 205526
[work_sum] => 86238
[total_sum] => 291764
[total_days] => 2
[display_material_sum] => 205 526
[display_work_sum] => 86 238
[display_total_sum] => 291 764
)
1
291 764₽
Работа:86 238 ₽
Материалы:205 526 ₽
Дни:2
stdClass Object
(
[id] => 71
[attribute_id] => 1
[name] => Свайно-ростверковый ж/б
[material_modifier] => 1
[work_modifier] => 1
[options] => Array
(
[0] => ростверк 200х300 мм
[1] => ростверк 300х600 мм
[2] => ростверк 400х900 мм
[3] => ростверк 500х1200 мм
)
[days] => [20,23,25,27]
[material_price] => [3018,3474,7109,9792]
[work_price] => [2024,3012,5635,7022]
[image] => https://akademik-stroy.ru/wp-content/uploads/materials/svajno-rostverkovyj-monolitnyj-zh-b-3.png
[area_modifier] => 74.84
[parent_name] => Фундамент
[parent_id] => 1
[material_sum] => 311697
[work_sum] => 174198
[total_sum] => 485895
[total_days] => 20
[display_material_sum] => 311 697
[display_work_sum] => 174 198
[display_total_sum] => 485 895
)
1
485 895₽
Работа:174 198 ₽
Материалы:311 697 ₽
Дни:20
stdClass Object
(
[id] => 72
[attribute_id] => 1
[name] => Монолитная ж/б плита
[material_modifier] => 1
[work_modifier] => 1
[options] => Array
(
[0] => 200 мм
[1] => 300 мм
[2] => 400 мм
[3] => 500 мм
[4] => 600 мм
)
[days] => [30,33,35,37,40]
[material_price] => [5348,8555,12788,14388,15189]
[work_price] => [4314,4881,7037,8061,10230]
[image] => https://akademik-stroy.ru/wp-content/uploads/materials/monolitnaya-zhb-plita.png
[area_modifier] => 74.84
[parent_name] => Фундамент
[parent_id] => 1
[material_sum] => 552337
[work_sum] => 371289
[total_sum] => 923626
[total_days] => 30
[display_material_sum] => 552 337
[display_work_sum] => 371 289
[display_total_sum] => 923 626
)
1
923 626₽
Работа:371 289 ₽
Материалы:552 337 ₽
Дни:30
stdClass Object
(
[id] => 73
[attribute_id] => 1
[name] => Утепленная шведская плита
[material_modifier] => 1
[work_modifier] => 1
[options] => Array
(
[0] => 200 мм
[1] => 300 мм
[2] => 400 мм
[3] => 500 мм
[4] => 600 мм
)
[days] => [32,37,39,42,45]
[material_price] => [10249,12692,13760,14936,16230]
[work_price] => [5960,7337,8072,8878,9765]
[image] => https://akademik-stroy.ru/wp-content/uploads/materials/uteplennaya-shvedskaya-plita.jpg
[area_modifier] => 74.84
[parent_name] => Фундамент
[parent_id] => 1
[material_sum] => 1058509
[work_sum] => 512953
[total_sum] => 1571462
[total_days] => 32
[display_material_sum] => 1 058 509
[display_work_sum] => 512 953
[display_total_sum] => 1 571 462
)
1
1 571 462₽
Работа:512 953 ₽
Материалы:1 058 509 ₽
Дни:32
stdClass Object
(
[id] => 75
[attribute_id] => 1
[name] => Ленточный из ФБС
[material_modifier] => 1
[work_modifier] => 1
[options] => Array
(
[0] => толщ. 300 мм
[1] => толщ. 400 мм
[2] => толщ. 500 мм
[3] => толщ. 600 мм
)
[days] => [20,20,20,20]
[material_price] => [3675,4902,6126,7350]
[work_price] => [2451,3264,4083,4902]
[image] => https://akademik-stroy.ru/wp-content/uploads/materials/lentochnyj-iz-fbs.png
[area_modifier] => 74.84
[parent_name] => Фундамент
[parent_id] => 1
[material_sum] => 379551
[work_sum] => 210948
[total_sum] => 590499
[total_days] => 20
[display_material_sum] => 379 551
[display_work_sum] => 210 948
[display_total_sum] => 590 499
)
1
590 499₽
Работа:210 948 ₽
Материалы:379 551 ₽
Дни:20
stdClass Object
(
[id] => 76
[attribute_id] => 1
[name] => Цокольный этаж из ФБС
[material_modifier] => 1
[work_modifier] => 1
[options] => Array
(
[0] => толщ. 300 мм
[1] => толщ. 400 мм
[2] => толщ. 500 мм
[3] => толщ. 600 мм
)
[days] => [30,32,34,36]
[material_price] => [20916,23299,26680,29060]
[work_price] => [17524,18700,19873,21046]
[image] => https://akademik-stroy.ru/wp-content/uploads/materials/cokolnyj-ehtazh-iz-fbs.jpg
[area_modifier] => 74.84
[parent_name] => Фундамент
[parent_id] => 1
[material_sum] => 2160188
[work_sum] => 1508221
[total_sum] => 3668409
[total_days] => 30
[display_material_sum] => 2 160 188
[display_work_sum] => 1 508 221
[display_total_sum] => 3 668 409
)
1
3 668 409₽
Работа:1 508 221 ₽
Материалы:2 160 188 ₽
Дни:30
stdClass Object
(
[id] => 77
[attribute_id] => 1
[name] => Цокольный этаж монолитный ж/б
[material_modifier] => 1
[work_modifier] => 1
[options] => Array
(
[0] => толщ. 200 мм
[1] => толщ. 300 мм
[2] => толщ. 400 мм
[3] => толщ. 500 мм
[4] => толщ. 600 мм
)
[days] => [40,42,44,46,48]
[material_price] => [25421,29148,32275,35602,37326]
[work_price] => [20441,21907,23375,24841,26306]
[image] => https://akademik-stroy.ru/wp-content/uploads/materials/cokolnyj-etazh-zh-b.jpg
[area_modifier] => 74.84
[parent_name] => Фундамент
[parent_id] => 1
[material_sum] => 2625461
[work_sum] => 1759275
[total_sum] => 4384736
[total_days] => 40
[display_material_sum] => 2 625 461
[display_work_sum] => 1 759 275
[display_total_sum] => 4 384 736
)
1
4 384 736₽
Работа:1 759 275 ₽
Материалы:2 625 461 ₽
Дни:40
stdClass Object
(
[id] => 191
[attribute_id] => 1
[name] => Винтовые сваи
[material_modifier] => 1
[work_modifier] => 1
[options] => Array
(
[0] => 57х200мм
[1] => 76х250мм
[2] => 108х300мм
[3] => 133х350мм
)
[days] => [1,1,2,2]
[material_price] => [1200,1300,1450,1600]
[work_price] => [400,600,900,1100]
[image] => https://akademik-stroy.ru/wp-content/uploads/materials/vintovye-svai.png
[area_modifier] => 74.84
[parent_name] => Фундамент
[parent_id] => 1
[material_sum] => 123935
[work_sum] => 34426
[total_sum] => 158361
[total_days] => 1
[display_material_sum] => 123 935
[display_work_sum] => 34 426
[display_total_sum] => 158 361
)
1
158 361₽
Работа:34 426 ₽
Материалы:123 935 ₽
Дни:1
stdClass Object
(
[id] => 3
[attribute_id] => 2
[name] => Деревянные балки
[material_modifier] => 1
[work_modifier] => 1
[options] => Array
(
[0] => без утепления
[1] => утепление 200 мм
[2] => утепление 250 мм
[3] => утепление 300 мм
[4] => утепление 350 мм
[5] => утепление 400 мм
[6] => утепление 450 мм
[7] => утепление 500 мм
)
[days] => [8,9,9,9,11,12,13,14]
[material_price] => [1634,2042,2344,2947,3149,3652,3354,3557]
[work_price] => [1230,1339,1393,1426,1460,1513,1587,1620]
[image] => https://akademik-stroy.ru/wp-content/uploads/materials/derevyannye-balki.png
[area_modifier] => 74.84
[parent_name] => Перекрытие цоколя
[parent_id] => 2
[material_sum] => 168758
[work_sum] => 105861
[total_sum] => 274619
[total_days] => 8
[display_material_sum] => 168 758
[display_work_sum] => 105 861
[display_total_sum] => 274 619
)
1
274 619₽
Работа:105 861 ₽
Материалы:168 758 ₽
Дни:8
stdClass Object
(
[id] => 4
[attribute_id] => 2
[name] => Сборные ж/б плиты
[material_modifier] => 1
[work_modifier] => 1
[options] => Array
(
[0] => без утепления
[1] => утепление 150мм
[2] => утепление 200мм
[3] => утепление 250мм
[4] => утепление 300мм
[5] => утепление 350мм
[6] => утепление 400мм
[7] => утепление 450мм
[8] => утепление 500мм
)
[days] => [13,15,15,15,15,15,15,15,15]
[material_price] => [3067,5577,5928,6679,7730,8782,9833,10884,11935]
[work_price] => [1520,1956,2102,2247,2392,2537,2684,2829,2974]
[image] => https://akademik-stroy.ru/wp-content/uploads/materials/sbornye-zh-b-plity-2.jpg
[area_modifier] => 74.84
[parent_name] => Перекрытие цоколя
[parent_id] => 2
[material_sum] => 316757
[work_sum] => 130820
[total_sum] => 447577
[total_days] => 13
[display_material_sum] => 316 757
[display_work_sum] => 130 820
[display_total_sum] => 447 577
)
1
447 577₽
Работа:130 820 ₽
Материалы:316 757 ₽
Дни:13
stdClass Object
(
[id] => 78
[attribute_id] => 2
[name] => Монолитная ж/б плита
[material_modifier] => 1
[work_modifier] => 1
[options] => Array
(
[0] => без утепления
[1] => утепление 150 мм
[2] => утепление 200 мм
[3] => утепление 250 мм
[4] => утепление 300 мм
[5] => утепление 350 мм
[6] => утепление 400 мм
[7] => утепление 450 мм
[8] => утепление 500 мм
)
[days] => [18,20,20,20,20,20,20,20,20]
[material_price] => [4837,6572,7224,7375,79426,8177,8728,9180,10031]
[work_price] => [3348,3921,4112,4302,4493,4684,4875,5066,5256]
[image] => https://akademik-stroy.ru/wp-content/uploads/materials/monolitnaya-zh-b-plita-2.jpg
[area_modifier] => 74.84
[parent_name] => Перекрытие цоколя
[parent_id] => 2
[material_sum] => 499561
[work_sum] => 288149
[total_sum] => 787710
[total_days] => 18
[display_material_sum] => 499 561
[display_work_sum] => 288 149
[display_total_sum] => 787 710
)
1
787 710₽
Работа:288 149 ₽
Материалы:499 561 ₽
Дни:18
stdClass Object
(
[id] => 6
[attribute_id] => 3
[name] => Пеноблок
[material_modifier] => 1
[work_modifier] => 1
[options] => Array
(
[0] => 300 мм
[1] => 400 мм
[2] => 500 мм
[3] => 600 мм
)
[days] => [29,31,34,39]
[material_price] => [3000,4000,4500,4937]
[work_price] => [5033,5805,6400,8710]
[image] => https://akademik-stroy.ru/wp-content/uploads/materials/penoblok.jpg
[area_modifier] => 74.84
[parent_name] => Стены 1 этаж (несущие)
[parent_id] => 3
[material_sum] => 309838
[work_sum] => 433170
[total_sum] => 743008
[total_days] => 29
[display_material_sum] => 309 838
[display_work_sum] => 433 170
[display_total_sum] => 743 008
)
1
743 008₽
Работа:433 170 ₽
Материалы:309 838 ₽
Дни:29
stdClass Object
(
[id] => 79
[attribute_id] => 3
[name] => Керамический блок
[material_modifier] => 1
[work_modifier] => 1
[options] => Array
(
[0] => 380 мм
[1] => 380 мм Thermo
[2] => 440 мм
[3] => 510 мм
)
[days] => [23,23,24,25]
[material_price] => [4510,5098,6093,8013]
[work_price] => [4737,4937,5903,6958]
[image] => https://akademik-stroy.ru/wp-content/uploads/materials/keramicheskij-blok.jpg
[area_modifier] => 74.84
[parent_name] => Стены 1 этаж (несущие)
[parent_id] => 3
[material_sum] => 465789
[work_sum] => 407695
[total_sum] => 873484
[total_days] => 23
[display_material_sum] => 465 789
[display_work_sum] => 407 695
[display_total_sum] => 873 484
)
1
873 484₽
Работа:407 695 ₽
Материалы:465 789 ₽
Дни:23
stdClass Object
(
[id] => 80
[attribute_id] => 3
[name] => Кирпич
[material_modifier] => 1
[work_modifier] => 1
[options] => Array
(
[0] => Кирпич 250 мм
[1] => Кирпич 380 мм
[2] => Кирпич 510 мм
[3] => Кирпич 640 мм
[4] => Кирпич 770 мм
)
[days] => [30,30,31,33,36]
[material_price] => [5500,7142,9206,10171,12235]
[work_price] => [8736,10041,12018,15240,18462]
[image] => https://akademik-stroy.ru/wp-content/uploads/materials/kirpich.jpg
[area_modifier] => 74.84
[parent_name] => Стены 1 этаж (несущие)
[parent_id] => 3
[material_sum] => 568036
[work_sum] => 751873
[total_sum] => 1319909
[total_days] => 30
[display_material_sum] => 568 036
[display_work_sum] => 751 873
[display_total_sum] => 1 319 909
)
1
1 319 909₽
Работа:751 873 ₽
Материалы:568 036 ₽
Дни:30
stdClass Object
(
[id] => 81
[attribute_id] => 3
[name] => Монолитные
[material_modifier] => 1
[work_modifier] => 1
[options] => Array
(
[0] => 150 мм
[1] => 200 мм
[2] => 250 мм
[3] => 300 мм
[4] => 350 мм
[5] => 400 мм
)
[days] => [45,46,47,49,50,53]
[material_price] => [6545,7876,10175,12011,13908,15204]
[work_price] => [5106,6444,7698,8552,9807,11461]
[image] => https://akademik-stroy.ru/wp-content/uploads/materials/monolitnye.jpg
[area_modifier] => 74.84
[parent_name] => Стены 1 этаж (несущие)
[parent_id] => 3
[material_sum] => 675962
[work_sum] => 439453
[total_sum] => 1115415
[total_days] => 45
[display_material_sum] => 675 962
[display_work_sum] => 439 453
[display_total_sum] => 1 115 415
)
1
1 115 415₽
Работа:439 453 ₽
Материалы:675 962 ₽
Дни:45
stdClass Object
(
[id] => 82
[attribute_id] => 3
[name] => Клееный брус
[material_modifier] => 1
[work_modifier] => 1
[options] => Array
(
[0] => 160 мм
[1] => 175 мм
[2] => 200 мм
[3] => 215 мм
[4] => 240 мм
[5] => 270 мм
[6] => 282 мм
)
[days] => [24,28,32,37,40,42,48]
[material_price] => [16975,18773,19950,20545,21599,22159,23275]
[work_price] => [4806,5287,5815,6397,7036,7740,8514]
[image] => https://akademik-stroy.ru/wp-content/uploads/materials/kleenyj-brus.jpg
[area_modifier] => 74.84
[parent_name] => Стены 1 этаж (несущие)
[parent_id] => 3
[material_sum] => 1753164
[work_sum] => 413633
[total_sum] => 2166797
[total_days] => 24
[display_material_sum] => 1 753 164
[display_work_sum] => 413 633
[display_total_sum] => 2 166 797
)
1
2 166 797₽
Работа:413 633 ₽
Материалы:1 753 164 ₽
Дни:24
stdClass Object
(
[id] => 83
[attribute_id] => 3
[name] => Каркасные
[material_modifier] => 1
[work_modifier] => 1
[options] => Array
(
[0] => 150 мм
[1] => 200 мм
[2] => 250 мм
[3] => 300 мм
)
[days] => [15,16,17,18]
[material_price] => [2379,2639,2898,3258]
[work_price] => [2418,2686,2985,3716]
[image] => https://akademik-stroy.ru/wp-content/uploads/materials/karkasnye.jpg
[area_modifier] => 74.84
[parent_name] => Стены 1 этаж (несущие)
[parent_id] => 3
[material_sum] => 245701
[work_sum] => 208108
[total_sum] => 453809
[total_days] => 15
[display_material_sum] => 245 701
[display_work_sum] => 208 108
[display_total_sum] => 453 809
)
1
453 809₽
Работа:208 108 ₽
Материалы:245 701 ₽
Дни:15
stdClass Object
(
[id] => 84
[attribute_id] => 3
[name] => СИП-панели
[material_modifier] => 1
[work_modifier] => 1
[options] => Array
(
[0] => 120 мм
[1] => 170 мм
[2] => 220 мм
)
[days] => [7,7,7]
[material_price] => [1210,1856,2292]
[work_price] => [1410,1551,1706]
[image] => https://akademik-stroy.ru/wp-content/uploads/materials/sip-paneli.jpg
[area_modifier] => 74.84
[parent_name] => Стены 1 этаж (несущие)
[parent_id] => 3
[material_sum] => 124968
[work_sum] => 121353
[total_sum] => 246321
[total_days] => 7
[display_material_sum] => 124 968
[display_work_sum] => 121 353
[display_total_sum] => 246 321
)
1
246 321₽
Работа:121 353 ₽
Материалы:124 968 ₽
Дни:7
stdClass Object
(
[id] => 85
[attribute_id] => 3
[name] => Сухой брус
[material_modifier] => 1
[work_modifier] => 1
[options] => Array
(
[0] => 150 мм
[1] => 180 мм
[2] => 200 мм
)
[days] => [7,8,9]
[material_price] => [6010,7190,8709]
[work_price] => [3204,3845,4229]
[image] => https://akademik-stroy.ru/wp-content/uploads/materials/suhoj-brus.jpg
[area_modifier] => 74.84
[parent_name] => Стены 1 этаж (несущие)
[parent_id] => 3
[material_sum] => 620708
[work_sum] => 275755
[total_sum] => 896463
[total_days] => 7
[display_material_sum] => 620 708
[display_work_sum] => 275 755
[display_total_sum] => 896 463
)
1
896 463₽
Работа:275 755 ₽
Материалы:620 708 ₽
Дни:7
stdClass Object
(
[id] => 86
[attribute_id] => 3
[name] => Профилированный брус
[material_modifier] => 1
[work_modifier] => 1
[options] => Array
(
[0] => 150 мм
[1] => 180 мм
[2] => 200 мм
)
[days] => [7,8,9]
[material_price] => [8190,9228,10051]
[work_price] => [3845,4614,5075]
[image] => https://akademik-stroy.ru/wp-content/uploads/materials/profilirovannyj-brus.jpg
[area_modifier] => 74.84
[parent_name] => Стены 1 этаж (несущие)
[parent_id] => 3
[material_sum] => 845857
[work_sum] => 330924
[total_sum] => 1176781
[total_days] => 7
[display_material_sum] => 845 857
[display_work_sum] => 330 924
[display_total_sum] => 1 176 781
)
1
1 176 781₽
Работа:330 924 ₽
Материалы:845 857 ₽
Дни:7
stdClass Object
(
[id] => 87
[attribute_id] => 3
[name] => Оцилиндрованное бревно
[material_modifier] => 1
[work_modifier] => 1
[options] => Array
(
[0] => 180 мм
[1] => 220 мм
[2] => 260 мм
[3] => 320 мм
)
[days] => [7,8,9,10]
[material_price] => [75190,9532,10868,13116]
[work_price] => [3845,4691,5535,6863]
[image] => https://akademik-stroy.ru/wp-content/uploads/materials/ocilindrovannoe-brevno-1.jpg
[area_modifier] => 74.84
[parent_name] => Стены 1 этаж (несущие)
[parent_id] => 3
[material_sum] => 7765563
[work_sum] => 330924
[total_sum] => 8096487
[total_days] => 7
[display_material_sum] => 7 765 563
[display_work_sum] => 330 924
[display_total_sum] => 8 096 487
)
1
8 096 487₽
Работа:330 924 ₽
Материалы:7 765 563 ₽
Дни:7
stdClass Object
(
[id] => 88
[attribute_id] => 3
[name] => Срубы
[material_modifier] => 1
[work_modifier] => 1
[options] => Array
(
[0] => 260 мм
[1] => 320 мм
[2] => 360 мм
[3] => 400 мм
[4] => 500 мм
)
[days] => [7,8,9,10,11]
[material_price] => [37975,46709,52314,58069,73167]
[work_price] => [4806,5911,6621,7349,9260]
[image] => https://akademik-stroy.ru/wp-content/uploads/materials/sruby.jpg
[area_modifier] => 74.84
[parent_name] => Стены 1 этаж (несущие)
[parent_id] => 3
[material_sum] => 3922028
[work_sum] => 413633
[total_sum] => 4335661
[total_days] => 7
[display_material_sum] => 3 922 028
[display_work_sum] => 413 633
[display_total_sum] => 4 335 661
)
1
4 335 661₽
Работа:413 633 ₽
Материалы:3 922 028 ₽
Дни:7
stdClass Object
(
[id] => 174
[attribute_id] => 3
[name] => Брус
[material_modifier] => 1
[work_modifier] => 1
[options] => Array
(
[0] => 150 мм
[1] => 180 мм
[2] => 200 мм
)
[days] => [7,8,9]
[material_price] => [5127,6152,7367]
[work_price] => [1602,1922,2115]
[image] => https://akademik-stroy.ru/wp-content/uploads/materials/brus.jpg
[area_modifier] => 74.84
[parent_name] => Стены 1 этаж (несущие)
[parent_id] => 3
[material_sum] => 529512
[work_sum] => 137878
[total_sum] => 667390
[total_days] => 7
[display_material_sum] => 529 512
[display_work_sum] => 137 878
[display_total_sum] => 667 390
)
1
667 390₽
Работа:137 878 ₽
Материалы:529 512 ₽
Дни:7
stdClass Object
(
[id] => 175
[attribute_id] => 3
[name] => Газобетон
[material_modifier] => 1
[work_modifier] => 1
[options] => Array
(
[0] => 300 мм
[1] => 375 мм
[2] => 400 мм
[3] => 500 мм
[4] => 600 мм
)
[days] => [29,31,35,37,44]
[material_price] => [4298,5573,6356,7288,9119]
[work_price] => [4538,5251,5926,6733,7195]
[image] => https://akademik-stroy.ru/wp-content/uploads/materials/gazobeton.jpg
[area_modifier] => 74.84
[parent_name] => Стены 1 этаж (несущие)
[parent_id] => 3
[material_sum] => 443894
[work_sum] => 390568
[total_sum] => 834462
[total_days] => 29
[display_material_sum] => 443 894
[display_work_sum] => 390 568
[display_total_sum] => 834 462
)
1
834 462₽
Работа:390 568 ₽
Материалы:443 894 ₽
Дни:29
stdClass Object
(
[id] => 176
[attribute_id] => 3
[name] => Блок
[material_modifier] => 1
[work_modifier] => 1
[options] => Array
(
[0] => 300 мм
[1] => 375 мм
[2] => 400 мм
[3] => 500 мм
[4] => 600 мм
)
[days] => [29,31,35,37,44]
[material_price] => [2698,3973,4356,6588,7119]
[work_price] => [5038,5851,6426,8733,9195]
[image] => https://akademik-stroy.ru/wp-content/uploads/materials/blok.jpg
[area_modifier] => 74.84
[parent_name] => Стены 1 этаж (несущие)
[parent_id] => 3
[material_sum] => 278647
[work_sum] => 433601
[total_sum] => 712248
[total_days] => 29
[display_material_sum] => 278 647
[display_work_sum] => 433 601
[display_total_sum] => 712 248
)
1
712 248₽
Работа:433 601 ₽
Материалы:278 647 ₽
Дни:29
stdClass Object
(
[id] => 177
[attribute_id] => 3
[name] => Газосиликатный блок
[material_modifier] => 1
[work_modifier] => 1
[options] => Array
(
[0] => 300 мм
[1] => 375 мм
[2] => 400 мм
[3] => 500 мм
[4] => 600 мм
)
[days] => [29,31,35,37,44]
[material_price] => [4298,5573,6356,7288,9119]
[work_price] => [4538,5251,5926,6733,7195]
[image] => https://akademik-stroy.ru/wp-content/uploads/materials/gazosilikatnyj-blok.jpg
[area_modifier] => 74.84
[parent_name] => Стены 1 этаж (несущие)
[parent_id] => 3
[material_sum] => 443894
[work_sum] => 390568
[total_sum] => 834462
[total_days] => 29
[display_material_sum] => 443 894
[display_work_sum] => 390 568
[display_total_sum] => 834 462
)
1
834 462₽
Работа:390 568 ₽
Материалы:443 894 ₽
Дни:29
stdClass Object
(
[id] => 178
[attribute_id] => 3
[name] => Керамзитобетонный блок
[material_modifier] => 1
[work_modifier] => 1
[options] => Array
(
[0] => 300 мм
[1] => 375 мм
[2] => 400 мм
[3] => 500 мм
[4] => 600 мм
)
[days] => [23,23,24,25,28]
[material_price] => [3641,4298,5693,7613,9612]
[work_price] => [5737,5737,6903,7958,8901]
[image] => https://akademik-stroy.ru/wp-content/uploads/materials/keramzitobetonnyj-blok.jpg
[area_modifier] => 74.84
[parent_name] => Стены 1 этаж (несущие)
[parent_id] => 3
[material_sum] => 376040
[work_sum] => 493761
[total_sum] => 869801
[total_days] => 23
[display_material_sum] => 376 040
[display_work_sum] => 493 761
[display_total_sum] => 869 801
)
1
869 801₽
Работа:493 761 ₽
Материалы:376 040 ₽
Дни:23
stdClass Object
(
[id] => 179
[attribute_id] => 3
[name] => Деревянные
[material_modifier] => 1
[work_modifier] => 1
[options] => Array
(
[0] => 180 мм
[1] => 220 мм
[2] => 260 мм
[3] => 320 мм
)
[days] => [7,8,9,10]
[material_price] => [7950,9458,11961,14472]
[work_price] => [4037,4925,5812,7207]
[image] => https://akademik-stroy.ru/wp-content/uploads/materials/derevyannye.jpg
[area_modifier] => 74.84
[parent_name] => Стены 1 этаж (несущие)
[parent_id] => 3
[material_sum] => 821070
[work_sum] => 347448
[total_sum] => 1168518
[total_days] => 7
[display_material_sum] => 821 070
[display_work_sum] => 347 448
[display_total_sum] => 1 168 518
)
1
1 168 518₽
Работа:347 448 ₽
Материалы:821 070 ₽
Дни:7
stdClass Object
(
[id] => 181
[attribute_id] => 3
[name] => Камень
[material_modifier] => 1
[work_modifier] => 1
[options] => Array
(
[0] => 300 мм
[1] => 400 мм
[2] => 500 мм
[3] => 600 мм
)
[days] => [25,27,31,34]
[material_price] => [5262,6844,8330,9815]
[work_price] => [8331,9135,10427,11069]
[image] => https://akademik-stroy.ru/wp-content/uploads/materials/kamen.jpg
[area_modifier] => 74.84
[parent_name] => Стены 1 этаж (несущие)
[parent_id] => 3
[material_sum] => 543455
[work_sum] => 717016
[total_sum] => 1260471
[total_days] => 25
[display_material_sum] => 543 455
[display_work_sum] => 717 016
[display_total_sum] => 1 260 471
)
1
1 260 471₽
Работа:717 016 ₽
Материалы:543 455 ₽
Дни:25
stdClass Object
(
[id] => 182
[attribute_id] => 3
[name] => Каркасно-щитовые
[material_modifier] => 1
[work_modifier] => 1
[options] => Array
(
[0] => 150 мм
[1] => 200 мм
[2] => 250 мм
[3] => 300 мм
[4] => 350 мм
[5] => 400 мм
)
[days] => [15,16,17,18,19,20]
[material_price] => [2379,2639,2898,3458,3601,4175]
[work_price] => [2538,2820,3134,3483,4062,5642]
[image] => https://akademik-stroy.ru/wp-content/uploads/materials/karkasno-shchitovye.jpg
[area_modifier] => 74.84
[parent_name] => Стены 1 этаж (несущие)
[parent_id] => 3
[material_sum] => 245701
[work_sum] => 218436
[total_sum] => 464137
[total_days] => 15
[display_material_sum] => 245 701
[display_work_sum] => 218 436
[display_total_sum] => 464 137
)
1
464 137₽
Работа:218 436 ₽
Материалы:245 701 ₽
Дни:15
stdClass Object
(
[id] => 183
[attribute_id] => 3
[name] => Рубленные
[material_modifier] => 1
[work_modifier] => 1
[options] => Array
(
[0] => 150 мм
[1] => 200 мм
[2] => 250 мм
[3] => 300 мм
[4] => 350 мм
[5] => 400 мм
)
[days] => [15,16,17,18,17,18]
[material_price] => [35950,50267,60583,75900,80217,100533]
[work_price] => [9612,12816,16020,19224,22428,25632]
[image] => https://akademik-stroy.ru/wp-content/uploads/materials/rublennye.jpg
[area_modifier] => 74.84
[parent_name] => Стены 1 этаж (несущие)
[parent_id] => 3
[material_sum] => 3712887
[work_sum] => 827266
[total_sum] => 4540153
[total_days] => 15
[display_material_sum] => 3 712 887
[display_work_sum] => 827 266
[display_total_sum] => 4 540 153
)
1
4 540 153₽
Работа:827 266 ₽
Материалы:3 712 887 ₽
Дни:15
stdClass Object
(
[id] => 185
[attribute_id] => 3
[name] => Теплоблок
[material_modifier] => 1
[work_modifier] => 1
[options] => Array
(
[0] => 300 мм (с облицовкой, не покрашенный)
[1] => 400 мм (с облицовкой, не покрашенный)
[2] => 300 мм (с облицовкой, покрашенный)
[3] => 400 мм (с облицовкой, покрашенный)
)
[days] => [15,16,15,16]
[material_price] => [2888,3729,3957,4258]
[work_price] => [2564,3229,2949,3713]
[image] => https://akademik-stroy.ru/wp-content/uploads/materials/teploblok.jpg
[area_modifier] => 74.84
[parent_name] => Стены 1 этаж (несущие)
[parent_id] => 3
[material_sum] => 298270
[work_sum] => 220673
[total_sum] => 518943
[total_days] => 15
[display_material_sum] => 298 270
[display_work_sum] => 220 673
[display_total_sum] => 518 943
)
1
518 943₽
Работа:220 673 ₽
Материалы:298 270 ₽
Дни:15
stdClass Object
(
[id] => 186
[attribute_id] => 3
[name] => Арболитовые блоки
[material_modifier] => 1
[work_modifier] => 1
[options] => Array
(
[0] => 300 мм
[1] => 400 мм
[2] => 600 мм
)
[days] => [19,22,27]
[material_price] => [3210,4475,5852]
[work_price] => [4214,4788,5866]
[image] => https://akademik-stroy.ru/wp-content/uploads/materials/arbolitovye-bloki.png
[area_modifier] => 74.84
[parent_name] => Стены 1 этаж (несущие)
[parent_id] => 3
[material_sum] => 331526
[work_sum] => 362682
[total_sum] => 694208
[total_days] => 19
[display_material_sum] => 331 526
[display_work_sum] => 362 682
[display_total_sum] => 694 208
)
1
694 208₽
Работа:362 682 ₽
Материалы:331 526 ₽
Дни:19
stdClass Object
(
[id] => 187
[attribute_id] => 3
[name] => Полистиролбетон
[material_modifier] => 1
[work_modifier] => 1
[options] => Array
(
[0] => 300 мм
[1] => 400 мм
[2] => 600 мм
)
[days] => [29,31,35]
[material_price] => [2798,4573,5256]
[work_price] => [5038,5851,6426]
[image] => https://akademik-stroy.ru/wp-content/uploads/materials/polistirolbeton.jpg
[area_modifier] => 74.84
[parent_name] => Стены 1 этаж (несущие)
[parent_id] => 3
[material_sum] => 288975
[work_sum] => 433601
[total_sum] => 722576
[total_days] => 29
[display_material_sum] => 288 975
[display_work_sum] => 433 601
[display_total_sum] => 722 576
)
1
722 576₽
Работа:433 601 ₽
Материалы:288 975 ₽
Дни:29
stdClass Object
(
[id] => 188
[attribute_id] => 3
[name] => Шлакоблок
[material_modifier] => 1
[work_modifier] => 1
[options] => Array
(
[0] => 400 мм
[1] => 600 мм
)
[days] => [15,16]
[material_price] => [2391,3471]
[work_price] => [2642,3662]
[image] => https://akademik-stroy.ru/wp-content/uploads/materials/shlakoblok.jpg
[area_modifier] => 74.84
[parent_name] => Стены 1 этаж (несущие)
[parent_id] => 3
[material_sum] => 246941
[work_sum] => 227386
[total_sum] => 474327
[total_days] => 15
[display_material_sum] => 246 941
[display_work_sum] => 227 386
[display_total_sum] => 474 327
)
1
474 327₽
Работа:227 386 ₽
Материалы:246 941 ₽
Дни:15
stdClass Object
(
[id] => 189
[attribute_id] => 3
[name] => Теплая керамика
[material_modifier] => 1
[work_modifier] => 1
[options] => Array
(
[0] => 380 мм
[1] => 380 мм Thermo
[2] => 440 мм
[3] => 510 мм
)
[days] => [23,23,24,25]
[material_price] => [4510,5098,6093,8013]
[work_price] => [4737,4937,5903,6958]
[image] => https://akademik-stroy.ru/wp-content/uploads/materials/teplaya-keramika.jpg
[area_modifier] => 74.84
[parent_name] => Стены 1 этаж (несущие)
[parent_id] => 3
[material_sum] => 465789
[work_sum] => 407695
[total_sum] => 873484
[total_days] => 23
[display_material_sum] => 465 789
[display_work_sum] => 407 695
[display_total_sum] => 873 484
)
1
873 484₽
Работа:407 695 ₽
Материалы:465 789 ₽
Дни:23
stdClass Object
(
[id] => 190
[attribute_id] => 3
[name] => Несъемная опалубка
[material_modifier] => 1
[work_modifier] => 1
[options] => Array
(
[0] => 200 мм
[1] => 250 мм
[2] => 300 мм
[3] => 350 мм
)
[days] => [15,17,19,21]
[material_price] => [3302,3902,4108,5008]
[work_price] => [2100,2100,2300,2534]
[image] => https://akademik-stroy.ru/wp-content/uploads/materials/nesemnaya-opalubka.jpg
[area_modifier] => 74.84
[parent_name] => Стены 1 этаж (несущие)
[parent_id] => 3
[material_sum] => 341028
[work_sum] => 180739
[total_sum] => 521767
[total_days] => 15
[display_material_sum] => 341 028
[display_work_sum] => 180 739
[display_total_sum] => 521 767
)
1
521 767₽
Работа:180 739 ₽
Материалы:341 028 ₽
Дни:15
stdClass Object
(
[id] => 251
[attribute_id] => 3
[name] => Бревно
[material_modifier] => 1
[work_modifier] => 1
[options] => Array
(
[0] => 260 мм
[1] => 320 мм
[2] => 360 мм
[3] => 400 мм
[4] => 500 мм
)
[days] => [7,8,9,10,11]
[material_price] => [1874,24045,26930,30972,38825]
[work_price] => [5046,6207,6952,7716,9723]
[image] => https://akademik-stroy.ru/wp-content/uploads/materials/sruby.jpg
[area_modifier] => 74.84
[parent_name] => Стены 1 этаж (несущие)
[parent_id] => 3
[material_sum] => 193545
[work_sum] => 434289
[total_sum] => 627834
[total_days] => 7
[display_material_sum] => 193 545
[display_work_sum] => 434 289
[display_total_sum] => 627 834
)
1
627 834₽
Работа:434 289 ₽
Материалы:193 545 ₽
Дни:7
stdClass Object
(
[id] => 7
[attribute_id] => 4
[name] => Деревянные балки
[material_modifier] => 1
[work_modifier] => 1
[options] => Array
(
[0] => без утепления
[1] => утепление 200 мм
[2] => утепление 250 мм
[3] => утепление 300 мм
[4] => утепление 350 мм
[5] => утепление 400 мм
[6] => утепление 450 мм
[7] => утепление 500 мм
)
[days] => [8,9,9,9,11,12,13,14]
[material_price] => [1634,2042,2344,2947,3149,3652,3354,3557]
[work_price] => [1230,1339,1393,1426,1460,1513,1587,1620]
[image] => https://akademik-stroy.ru/wp-content/uploads/materials/derevyannye-balki.png
[area_modifier] => 74.84
[parent_name] => Перекрытие первого этажа
[parent_id] => 4
[material_sum] => 168758
[work_sum] => 105861
[total_sum] => 274619
[total_days] => 8
[display_material_sum] => 168 758
[display_work_sum] => 105 861
[display_total_sum] => 274 619
)
1
274 619₽
Работа:105 861 ₽
Материалы:168 758 ₽
Дни:8
stdClass Object
(
[id] => 8
[attribute_id] => 4
[name] => Сборные ж/б плиты
[material_modifier] => 1
[work_modifier] => 1
[options] => Array
(
[0] => без утепления
[1] => утепление 150 мм
[2] => утепление 200 мм
[3] => утепление 250 мм
[4] => утепление 300 мм
[5] => утепление 350 мм
[6] => утепление 400 мм
[7] => утепление 450 мм
[8] => утепление 500 мм
)
[days] => [13,15,15,15,15,15,15,15,15]
[material_price] => [3067,5577,5928,6679,7730,8782,9833,10884,11935]
[work_price] => [1520,1956,2102,2247,2392,2537,2684,2829,2974]
[image] => https://akademik-stroy.ru/wp-content/uploads/materials/sbornye-zh-b-plity-2.jpg
[area_modifier] => 74.84
[parent_name] => Перекрытие первого этажа
[parent_id] => 4
[material_sum] => 316757
[work_sum] => 130820
[total_sum] => 447577
[total_days] => 13
[display_material_sum] => 316 757
[display_work_sum] => 130 820
[display_total_sum] => 447 577
)
1
447 577₽
Работа:130 820 ₽
Материалы:316 757 ₽
Дни:13
stdClass Object
(
[id] => 89
[attribute_id] => 4
[name] => Монолитная ж/б плита
[material_modifier] => 1
[work_modifier] => 1
[options] => Array
(
[0] => без утепления
[1] => утепление 150 мм
[2] => утепление 200 мм
[3] => утепление 250 мм
[4] => утепление 300 мм
[5] => утепление 350 мм
[6] => утепление 400 мм
[7] => утепление 450 мм
[8] => утепление 500 мм
)
[days] => [18,20,20,20,20,20,20,20,20]
[material_price] => [4837,6572,7224,7375,79426,8177,8728,9180,10031]
[work_price] => [3348,3921,4112,4302,4493,4684,4875,5066,5256]
[image] => https://akademik-stroy.ru/wp-content/uploads/materials/monolitnaya-zh-b-plita-2.jpg
[area_modifier] => 74.84
[parent_name] => Перекрытие первого этажа
[parent_id] => 4
[material_sum] => 499561
[work_sum] => 288149
[total_sum] => 787710
[total_days] => 18
[display_material_sum] => 499 561
[display_work_sum] => 288 149
[display_total_sum] => 787 710
)
1
787 710₽
Работа:288 149 ₽
Материалы:499 561 ₽
Дни:18
stdClass Object
(
[id] => 10
[attribute_id] => 5
[name] => Пеноблок
[material_modifier] => 1
[work_modifier] => 1
[options] => Array
(
[0] => 300 мм
[1] => 400 мм
[2] => 500 мм
[3] => 600 мм
)
[days] => [29,31,34,39]
[material_price] => [3000,4000,4500,4937]
[work_price] => [5033,5805,6400,8710]
[image] => https://akademik-stroy.ru/wp-content/uploads/materials/penoblok.jpg
[area_modifier] => 70.67
[parent_name] => Стены 2 этаж (несущие)
[parent_id] => 5
[material_sum] => 292574
[work_sum] => 409034
[total_sum] => 701608
[total_days] => 29
[display_material_sum] => 292 574
[display_work_sum] => 409 034
[display_total_sum] => 701 608
)
1
701 608₽
Работа:409 034 ₽
Материалы:292 574 ₽
Дни:29
stdClass Object
(
[id] => 90
[attribute_id] => 5
[name] => Керамический блок
[material_modifier] => 1
[work_modifier] => 1
[options] => Array
(
[0] => 380 мм
[1] => 380 мм Thermo
[2] => 440 мм
[3] => 510 мм
)
[days] => [23,23,24,25]
[material_price] => [4510,5098,6093,8013]
[work_price] => [4737,4937,5903,6958]
[image] => https://akademik-stroy.ru/wp-content/uploads/materials/keramicheskij-blok.jpg
[area_modifier] => 70.67
[parent_name] => Стены 2 этаж (несущие)
[parent_id] => 5
[material_sum] => 439836
[work_sum] => 384978
[total_sum] => 824814
[total_days] => 23
[display_material_sum] => 439 836
[display_work_sum] => 384 978
[display_total_sum] => 824 814
)
1
824 814₽
Работа:384 978 ₽
Материалы:439 836 ₽
Дни:23
stdClass Object
(
[id] => 91
[attribute_id] => 5
[name] => Кирпич
[material_modifier] => 1
[work_modifier] => 1
[options] => Array
(
[0] => Кирпич 250 мм
[1] => Кирпич 380 мм
[2] => Кирпич 510 мм
[3] => Кирпич 640 мм
[4] => Кирпич 770 мм
)
[days] => [30,30,31,33,36]
[material_price] => [5500,7142,9206,10171,12235]
[work_price] => [8736,10041,12018,15240,18462]
[image] => https://akademik-stroy.ru/wp-content/uploads/materials/kirpich.jpg
[area_modifier] => 70.67
[parent_name] => Стены 2 этаж (несущие)
[parent_id] => 5
[material_sum] => 536385
[work_sum] => 709979
[total_sum] => 1246364
[total_days] => 30
[display_material_sum] => 536 385
[display_work_sum] => 709 979
[display_total_sum] => 1 246 364
)
1
1 246 364₽
Работа:709 979 ₽
Материалы:536 385 ₽
Дни:30
stdClass Object
(
[id] => 92
[attribute_id] => 5
[name] => Монолитные
[material_modifier] => 1
[work_modifier] => 1
[options] => Array
(
[0] => 150 мм
[1] => 200 мм
[2] => 250 мм
[3] => 300 мм
[4] => 350 мм
[5] => 400 мм
)
[days] => [45,46,47,49,50,53]
[material_price] => [6545,7876,10175,12011,13908,15204]
[work_price] => [5106,6444,7698,8552,9807,11461]
[image] => https://akademik-stroy.ru/wp-content/uploads/materials/monolitnye.jpg
[area_modifier] => 70.67
[parent_name] => Стены 2 этаж (несущие)
[parent_id] => 5
[material_sum] => 638299
[work_sum] => 414967
[total_sum] => 1053266
[total_days] => 45
[display_material_sum] => 638 299
[display_work_sum] => 414 967
[display_total_sum] => 1 053 266
)
1
1 053 266₽
Работа:414 967 ₽
Материалы:638 299 ₽
Дни:45
stdClass Object
(
[id] => 93
[attribute_id] => 5
[name] => Клееный брус
[material_modifier] => 1
[work_modifier] => 1
[options] => Array
(
[0] => 160 мм
[1] => 175 мм
[2] => 200 мм
[3] => 215 мм
[4] => 240 мм
[5] => 270 мм
[6] => 282 мм
)
[days] => [24,28,32,37,40,42,48]
[material_price] => [16975,18773,19950,20545,21599,22159,23275]
[work_price] => [4806,5287,5815,6397,7036,7740,8514]
[image] => https://akademik-stroy.ru/wp-content/uploads/materials/kleenyj-brus.jpg
[area_modifier] => 70.67
[parent_name] => Стены 2 этаж (несущие)
[parent_id] => 5
[material_sum] => 1655480
[work_sum] => 390586
[total_sum] => 2046066
[total_days] => 24
[display_material_sum] => 1 655 480
[display_work_sum] => 390 586
[display_total_sum] => 2 046 066
)
1
2 046 066₽
Работа:390 586 ₽
Материалы:1 655 480 ₽
Дни:24
stdClass Object
(
[id] => 94
[attribute_id] => 5
[name] => Каркасные
[material_modifier] => 1
[work_modifier] => 1
[options] => Array
(
[0] => 150 мм
[1] => 200 мм
[2] => 250 мм
[3] => 300 мм
)
[days] => [15,16,17,18]
[material_price] => [2379,2639,2898,3258]
[work_price] => [2418,2686,2985,3716]
[image] => https://akademik-stroy.ru/wp-content/uploads/materials/karkasnye.jpg
[area_modifier] => 70.67
[parent_name] => Стены 2 этаж (несущие)
[parent_id] => 5
[material_sum] => 232011
[work_sum] => 196512
[total_sum] => 428523
[total_days] => 15
[display_material_sum] => 232 011
[display_work_sum] => 196 512
[display_total_sum] => 428 523
)
1
428 523₽
Работа:196 512 ₽
Материалы:232 011 ₽
Дни:15
stdClass Object
(
[id] => 95
[attribute_id] => 5
[name] => СИП-панели
[material_modifier] => 1
[work_modifier] => 1
[options] => Array
(
[0] => 120 мм
[1] => 170 мм
[2] => 220 мм
)
[days] => [7,7,7]
[material_price] => [1210,1856,2292]
[work_price] => [1410,1551,1706]
[image] => https://akademik-stroy.ru/wp-content/uploads/materials/sip-paneli.jpg
[area_modifier] => 70.67
[parent_name] => Стены 2 этаж (несущие)
[parent_id] => 5
[material_sum] => 118005
[work_sum] => 114591
[total_sum] => 232596
[total_days] => 7
[display_material_sum] => 118 005
[display_work_sum] => 114 591
[display_total_sum] => 232 596
)
1
232 596₽
Работа:114 591 ₽
Материалы:118 005 ₽
Дни:7
stdClass Object
(
[id] => 96
[attribute_id] => 5
[name] => Сухой брус
[material_modifier] => 1
[work_modifier] => 1
[options] => Array
(
[0] => 150 мм
[1] => 180 мм
[2] => 200 мм
)
[days] => [7,8,9]
[material_price] => [6010,7190,8709]
[work_price] => [3204,3845,4229]
[image] => https://akademik-stroy.ru/wp-content/uploads/materials/suhoj-brus.jpg
[area_modifier] => 70.67
[parent_name] => Стены 2 этаж (несущие)
[parent_id] => 5
[material_sum] => 586123
[work_sum] => 260391
[total_sum] => 846514
[total_days] => 7
[display_material_sum] => 586 123
[display_work_sum] => 260 391
[display_total_sum] => 846 514
)
1
846 514₽
Работа:260 391 ₽
Материалы:586 123 ₽
Дни:7
stdClass Object
(
[id] => 97
[attribute_id] => 5
[name] => Профилированный брус
[material_modifier] => 1
[work_modifier] => 1
[options] => Array
(
[0] => 150 мм
[1] => 180 мм
[2] => 200 мм
)
[days] => [7,8,9]
[material_price] => [8190,9228,10051]
[work_price] => [3845,4614,5075]
[image] => https://akademik-stroy.ru/wp-content/uploads/materials/profilirovannyj-brus.jpg
[area_modifier] => 70.67
[parent_name] => Стены 2 этаж (несущие)
[parent_id] => 5
[material_sum] => 798726
[work_sum] => 312485
[total_sum] => 1111211
[total_days] => 7
[display_material_sum] => 798 726
[display_work_sum] => 312 485
[display_total_sum] => 1 111 211
)
1
1 111 211₽
Работа:312 485 ₽
Материалы:798 726 ₽
Дни:7
stdClass Object
(
[id] => 98
[attribute_id] => 5
[name] => Оцилиндрованное бревно
[material_modifier] => 1
[work_modifier] => 1
[options] => Array
(
[0] => 180 мм
[1] => 220 мм
[2] => 260 мм
[3] => 320 мм
)
[days] => [7,8,9,10]
[material_price] => [75190,9532,10868,13116]
[work_price] => [3845,4691,5535,6863]
[image] => https://akademik-stroy.ru/wp-content/uploads/materials/ocilindrovannoe-brevno-1.jpg
[area_modifier] => 70.67
[parent_name] => Стены 2 этаж (несущие)
[parent_id] => 5
[material_sum] => 7332875
[work_sum] => 312485
[total_sum] => 7645360
[total_days] => 7
[display_material_sum] => 7 332 875
[display_work_sum] => 312 485
[display_total_sum] => 7 645 360
)
1
7 645 360₽
Работа:312 485 ₽
Материалы:7 332 875 ₽
Дни:7
stdClass Object
(
[id] => 99
[attribute_id] => 5
[name] => Срубы
[material_modifier] => 1
[work_modifier] => 1
[options] => Array
(
[0] => 260 мм
[1] => 320 мм
[2] => 360 мм
[3] => 400 мм
[4] => 500 мм
)
[days] => [7,8,9,10,11]
[material_price] => [16175,23709,26314,29069,32167]
[work_price] => [4806,5911,6621,7349,9260]
[image] => https://akademik-stroy.ru/wp-content/uploads/materials/suhoj-brus.jpg
[area_modifier] => 70.67
[parent_name] => Стены 2 этаж (несущие)
[parent_id] => 5
[material_sum] => 1577460
[work_sum] => 390586
[total_sum] => 1968046
[total_days] => 7
[display_material_sum] => 1 577 460
[display_work_sum] => 390 586
[display_total_sum] => 1 968 046
)
1
1 968 046₽
Работа:390 586 ₽
Материалы:1 577 460 ₽
Дни:7
stdClass Object
(
[id] => 194
[attribute_id] => 5
[name] => Брус
[material_modifier] => 1
[work_modifier] => 1
[options] => Array
(
[0] => 150 мм
[1] => 180 мм
[2] => 200 мм
)
[days] => [10,13,15]
[material_price] => [5127,6152,7367]
[work_price] => [1602,1922,2115]
[image] => https://akademik-stroy.ru/wp-content/uploads/materials/brus.jpg
[area_modifier] => 70.67
[parent_name] => Стены 2 этаж (несущие)
[parent_id] => 5
[material_sum] => 500009
[work_sum] => 130195
[total_sum] => 630204
[total_days] => 10
[display_material_sum] => 500 009
[display_work_sum] => 130 195
[display_total_sum] => 630 204
)
1
630 204₽
Работа:130 195 ₽
Материалы:500 009 ₽
Дни:10
stdClass Object
(
[id] => 195
[attribute_id] => 5
[name] => Газобетон
[material_modifier] => 1
[work_modifier] => 1
[options] => Array
(
[0] => 300 мм
[1] => 375 мм
[2] => 400 мм
[3] => 500 мм
[4] => 600 мм
)
[days] => [29,31,35,37,44]
[material_price] => [4298,5573,6356,7288,9119]
[work_price] => [4538,5251,5926,6733,7195]
[image] => https://akademik-stroy.ru/wp-content/uploads/materials/gazobeton.jpg
[area_modifier] => 70.67
[parent_name] => Стены 2 этаж (несущие)
[parent_id] => 5
[material_sum] => 419161
[work_sum] => 368806
[total_sum] => 787967
[total_days] => 29
[display_material_sum] => 419 161
[display_work_sum] => 368 806
[display_total_sum] => 787 967
)
1
787 967₽
Работа:368 806 ₽
Материалы:419 161 ₽
Дни:29
stdClass Object
(
[id] => 196
[attribute_id] => 5
[name] => Блок
[material_modifier] => 1
[work_modifier] => 1
[options] => Array
(
[0] => 300 мм
[1] => 375 мм
[2] => 400 мм
[3] => 500 мм
[4] => 600 мм
)
[days] => [29,31,35,37,44]
[material_price] => [2698,3973,4356,6588,7119]
[work_price] => [5038,5851,6426,8733,9195]
[image] => https://akademik-stroy.ru/wp-content/uploads/materials/blok.jpg
[area_modifier] => 70.67
[parent_name] => Стены 2 этаж (несущие)
[parent_id] => 5
[material_sum] => 263121
[work_sum] => 409441
[total_sum] => 672562
[total_days] => 29
[display_material_sum] => 263 121
[display_work_sum] => 409 441
[display_total_sum] => 672 562
)
1
672 562₽
Работа:409 441 ₽
Материалы:263 121 ₽
Дни:29
stdClass Object
(
[id] => 197
[attribute_id] => 5
[name] => Газосиликатный блок
[material_modifier] => 1
[work_modifier] => 1
[options] => Array
(
[0] => 300 мм
[1] => 375 мм
[2] => 400 мм
[3] => 500 мм
[4] => 600 мм
)
[days] => [29,31,35,37,44]
[material_price] => [4298,5573,6356,7288,9119]
[work_price] => [4538,5251,5926,6733,7195]
[image] => https://akademik-stroy.ru/wp-content/uploads/materials/gazosilikatnyj-blok.jpg
[area_modifier] => 70.67
[parent_name] => Стены 2 этаж (несущие)
[parent_id] => 5
[material_sum] => 419161
[work_sum] => 368806
[total_sum] => 787967
[total_days] => 29
[display_material_sum] => 419 161
[display_work_sum] => 368 806
[display_total_sum] => 787 967
)
1
787 967₽
Работа:368 806 ₽
Материалы:419 161 ₽
Дни:29
stdClass Object
(
[id] => 198
[attribute_id] => 5
[name] => Керамзитобетонный блок
[material_modifier] => 1
[work_modifier] => 1
[options] => Array
(
[0] => 300 мм
[1] => 375 мм
[2] => 400 мм
[3] => 500 мм
[4] => 600 мм
)
[days] => [23,23,24,25,28]
[material_price] => [3641,4298,5693,7613,9612]
[work_price] => [5737,5737,6903,7958,8901]
[image] => https://akademik-stroy.ru/wp-content/uploads/materials/keramzitobetonnyj-blok.jpg
[area_modifier] => 70.67
[parent_name] => Стены 2 этаж (несущие)
[parent_id] => 5
[material_sum] => 355087
[work_sum] => 466249
[total_sum] => 821336
[total_days] => 23
[display_material_sum] => 355 087
[display_work_sum] => 466 249
[display_total_sum] => 821 336
)
1
821 336₽
Работа:466 249 ₽
Материалы:355 087 ₽
Дни:23
stdClass Object
(
[id] => 199
[attribute_id] => 5
[name] => Деревянные
[material_modifier] => 1
[work_modifier] => 1
[options] => Array
(
[0] => 180 мм
[1] => 220 мм
[2] => 260 мм
[3] => 320 мм
)
[days] => [7,8,9,10]
[material_price] => [7950,9458,11961,14472]
[work_price] => [4037,4925,5812,7207]
[image] => https://akademik-stroy.ru/wp-content/uploads/materials/derevyannye.jpg
[area_modifier] => 70.67
[parent_name] => Стены 2 этаж (несущие)
[parent_id] => 5
[material_sum] => 775321
[work_sum] => 328089
[total_sum] => 1103410
[total_days] => 7
[display_material_sum] => 775 321
[display_work_sum] => 328 089
[display_total_sum] => 1 103 410
)
1
1 103 410₽
Работа:328 089 ₽
Материалы:775 321 ₽
Дни:7
stdClass Object
(
[id] => 200
[attribute_id] => 5
[name] => Камень
[material_modifier] => 1
[work_modifier] => 1
[options] => Array
(
[0] => 300 мм
[1] => 400 мм
[2] => 500 мм
[3] => 600 мм
)
[days] => [25,27,31,34]
[material_price] => [5262,6844,8330,9815]
[work_price] => [8331,9135,10427,11069]
[image] => https://akademik-stroy.ru/wp-content/uploads/materials/kamen.jpg
[area_modifier] => 70.67
[parent_name] => Стены 2 этаж (несущие)
[parent_id] => 5
[material_sum] => 513174
[work_sum] => 677065
[total_sum] => 1190239
[total_days] => 25
[display_material_sum] => 513 174
[display_work_sum] => 677 065
[display_total_sum] => 1 190 239
)
1
1 190 239₽
Работа:677 065 ₽
Материалы:513 174 ₽
Дни:25
stdClass Object
(
[id] => 201
[attribute_id] => 5
[name] => Каркасно-щитовые
[material_modifier] => 1
[work_modifier] => 1
[options] => Array
(
[0] => 150 мм
[1] => 200 мм
[2] => 250 мм
[3] => 300 мм
[4] => 350 мм
[5] => 400 мм
)
[days] => [15,16,17,18,19,20]
[material_price] => [2379,2639,2898,3458,3601,4175]
[work_price] => [2538,2820,3134,3483,4062,5642]
[image] => https://akademik-stroy.ru/wp-content/uploads/materials/karkasno-shchitovye.jpg
[area_modifier] => 70.67
[parent_name] => Стены 2 этаж (несущие)
[parent_id] => 5
[material_sum] => 232011
[work_sum] => 206265
[total_sum] => 438276
[total_days] => 15
[display_material_sum] => 232 011
[display_work_sum] => 206 265
[display_total_sum] => 438 276
)
1
438 276₽
Работа:206 265 ₽
Материалы:232 011 ₽
Дни:15
stdClass Object
(
[id] => 202
[attribute_id] => 5
[name] => Рубленные
[material_modifier] => 1
[work_modifier] => 1
[options] => Array
(
[0] => 150 мм
[1] => 200 мм
[2] => 250 мм
[3] => 300 мм
[4] => 350 мм
[5] => 400 мм
)
[days] => [15,16,17,18,17,18]
[material_price] => [35950,50267,60583,75900,80217,100533]
[work_price] => [9612,12816,16020,19224,22428,25632]
[image] => https://akademik-stroy.ru/wp-content/uploads/materials/rublennye.jpg
[area_modifier] => 70.67
[parent_name] => Стены 2 этаж (несущие)
[parent_id] => 5
[material_sum] => 3506009
[work_sum] => 781172
[total_sum] => 4287181
[total_days] => 15
[display_material_sum] => 3 506 009
[display_work_sum] => 781 172
[display_total_sum] => 4 287 181
)
1
4 287 181₽
Работа:781 172 ₽
Материалы:3 506 009 ₽
Дни:15
stdClass Object
(
[id] => 203
[attribute_id] => 5
[name] => Теплоблок
[material_modifier] => 1
[work_modifier] => 1
[options] => Array
(
[0] => 300 мм (с облицовкой, не покрашенный)
[1] => 400 мм (с облицовкой, не покрашенный)
[2] => 300 мм (с облицовкой, покрашенный)
[3] => 400 мм (с облицовкой, покрашенный)
)
[days] => [15,16,15,16]
[material_price] => [2888,3729,3957,4258]
[work_price] => [2564,3229,2949,3713]
[image] => https://akademik-stroy.ru/wp-content/uploads/materials/teploblok.jpg
[area_modifier] => 70.67
[parent_name] => Стены 2 этаж (несущие)
[parent_id] => 5
[material_sum] => 281651
[work_sum] => 208378
[total_sum] => 490029
[total_days] => 15
[display_material_sum] => 281 651
[display_work_sum] => 208 378
[display_total_sum] => 490 029
)
1
490 029₽
Работа:208 378 ₽
Материалы:281 651 ₽
Дни:15
stdClass Object
(
[id] => 204
[attribute_id] => 5
[name] => Арболитовые блоки
[material_modifier] => 1
[work_modifier] => 1
[options] => Array
(
[0] => 300 мм
[1] => 400 мм
[2] => 600 мм
)
[days] => [19,22,27]
[material_price] => [3210,4475,5852]
[work_price] => [4214,4788,5866]
[image] => https://akademik-stroy.ru/wp-content/uploads/materials/arbolitovye-bloki.png
[area_modifier] => 70.67
[parent_name] => Стены 2 этаж (несущие)
[parent_id] => 5
[material_sum] => 313054
[work_sum] => 342474
[total_sum] => 655528
[total_days] => 19
[display_material_sum] => 313 054
[display_work_sum] => 342 474
[display_total_sum] => 655 528
)
1
655 528₽
Работа:342 474 ₽
Материалы:313 054 ₽
Дни:19
stdClass Object
(
[id] => 205
[attribute_id] => 5
[name] => Полистиролбетон
[material_modifier] => 1
[work_modifier] => 1
[options] => Array
(
[0] => 300 мм
[1] => 400 мм
[2] => 600 мм
)
[days] => [29,31,35]
[material_price] => [2798,4573,5256]
[work_price] => [5038,5851,6426]
[image] => https://akademik-stroy.ru/wp-content/uploads/materials/polistirolbeton.jpg
[area_modifier] => 70.67
[parent_name] => Стены 2 этаж (несущие)
[parent_id] => 5
[material_sum] => 272874
[work_sum] => 409441
[total_sum] => 682315
[total_days] => 29
[display_material_sum] => 272 874
[display_work_sum] => 409 441
[display_total_sum] => 682 315
)
1
682 315₽
Работа:409 441 ₽
Материалы:272 874 ₽
Дни:29
stdClass Object
(
[id] => 206
[attribute_id] => 5
[name] => Шлакоблок
[material_modifier] => 1
[work_modifier] => 1
[options] => Array
(
[0] => 400 мм
[1] => 600 мм
)
[days] => [15,16]
[material_price] => [2391,3471]
[work_price] => [2642,3662]
[image] => https://akademik-stroy.ru/wp-content/uploads/materials/shlakoblok.jpg
[area_modifier] => 70.67
[parent_name] => Стены 2 этаж (несущие)
[parent_id] => 5
[material_sum] => 233181
[work_sum] => 214717
[total_sum] => 447898
[total_days] => 15
[display_material_sum] => 233 181
[display_work_sum] => 214 717
[display_total_sum] => 447 898
)
1
447 898₽
Работа:214 717 ₽
Материалы:233 181 ₽
Дни:15
stdClass Object
(
[id] => 245
[attribute_id] => 5
[name] => Теплая керамика
[material_modifier] => 1
[work_modifier] => 1
[options] => Array
(
[0] => 380 мм
[1] => 380 мм Thermo
[2] => 440 мм
[3] => 510 мм
)
[days] => [10,10,11,12]
[material_price] => [4510,5098,6093,8013]
[work_price] => [4737,4937,5903,6958]
[image] => https://akademik-stroy.ru/wp-content/uploads/materials/teplaya-keramika.jpg
[area_modifier] => 70.67
[parent_name] => Стены 2 этаж (несущие)
[parent_id] => 5
[material_sum] => 439836
[work_sum] => 384978
[total_sum] => 824814
[total_days] => 10
[display_material_sum] => 439 836
[display_work_sum] => 384 978
[display_total_sum] => 824 814
)
1
824 814₽
Работа:384 978 ₽
Материалы:439 836 ₽
Дни:10
stdClass Object
(
[id] => 246
[attribute_id] => 5
[name] => Несъемная опалубка
[material_modifier] => 1
[work_modifier] => 1
[options] => Array
(
[0] => 380 мм
[1] => 380 мм Thermo
[2] => 440 мм
[3] => 510 мм
)
[days] => [10,10,11,12]
[material_price] => [3302,3902,4108,5008]
[work_price] => [2100,2100,2300,2534]
[image] => https://akademik-stroy.ru/wp-content/uploads/materials/nesemnaya-opalubka.jpg
[area_modifier] => 70.67
[parent_name] => Стены 2 этаж (несущие)
[parent_id] => 5
[material_sum] => 322026
[work_sum] => 170668
[total_sum] => 492694
[total_days] => 10
[display_material_sum] => 322 026
[display_work_sum] => 170 668
[display_total_sum] => 492 694
)
1
492 694₽
Работа:170 668 ₽
Материалы:322 026 ₽
Дни:10
stdClass Object
(
[id] => 254
[attribute_id] => 5
[name] => Бревно
[material_modifier] => 1
[work_modifier] => 1
[options] => Array
(
[0] => 260 мм
[1] => 320 мм
[2] => 360 мм
[3] => 400 мм
[4] => 500 мм
)
[days] => [7,8,9,10,11]
[material_price] => [1874,24045,26930,30972,38825]
[work_price] => [5046,6207,6952,7716,9723]
[image] => https://akademik-stroy.ru/wp-content/uploads/materials/sruby.jpg
[area_modifier] => 70.67
[parent_name] => Стены 2 этаж (несущие)
[parent_id] => 5
[material_sum] => 182761
[work_sum] => 410091
[total_sum] => 592852
[total_days] => 7
[display_material_sum] => 182 761
[display_work_sum] => 410 091
[display_total_sum] => 592 852
)
1
592 852₽
Работа:410 091 ₽
Материалы:182 761 ₽
Дни:7
stdClass Object
(
[id] => 11
[attribute_id] => 6
[name] => Деревянные балки
[material_modifier] => 1
[work_modifier] => 1
[options] => Array
(
[0] => без утепления
[1] => утепление 200 мм
[2] => утепление 250 мм
[3] => утепление 300 мм
[4] => утепление 350 мм
[5] => утепление 400 мм
[6] => утепление 450 мм
[7] => утепление 500 мм
)
[days] => [8,9,9,9,11,12,13,14]
[material_price] => [1634,2042,2344,2947,3149,3652,3354,3557]
[work_price] => [1230,1339,1393,1426,1460,1513,1587,1620]
[image] => https://akademik-stroy.ru/wp-content/uploads/materials/derevyannye-balki.png
[area_modifier] => 70.67
[parent_name] => Перекрытие второго этажа
[parent_id] => 6
[material_sum] => 159355
[work_sum] => 99963
[total_sum] => 259318
[total_days] => 8
[display_material_sum] => 159 355
[display_work_sum] => 99 963
[display_total_sum] => 259 318
)
1
259 318₽
Работа:99 963 ₽
Материалы:159 355 ₽
Дни:8
stdClass Object
(
[id] => 12
[attribute_id] => 6
[name] => Сборные ж/б плиты
[material_modifier] => 1
[work_modifier] => 1
[options] => Array
(
[0] => без утепления
[1] => утепление 150 мм
[2] => утепление 200 мм
[3] => утепление 250 мм
[4] => утепление 300 мм
[5] => утепление 350 мм
[6] => утепление 400 мм
[7] => утепление 450 мм
[8] => утепление 500 мм
)
[days] => [13,15,15,15,15,15,15,15,15]
[material_price] => [3067,5577,5928,6679,7730,8782,9833,10884,11935]
[work_price] => [1520,1956,2102,2247,2392,2537,2684,2829,2974]
[image] => https://akademik-stroy.ru/wp-content/uploads/materials/sbornye-zh-b-plity-2.jpg
[area_modifier] => 70.67
[parent_name] => Перекрытие второго этажа
[parent_id] => 6
[material_sum] => 299108
[work_sum] => 123531
[total_sum] => 422639
[total_days] => 13
[display_material_sum] => 299 108
[display_work_sum] => 123 531
[display_total_sum] => 422 639
)
1
422 639₽
Работа:123 531 ₽
Материалы:299 108 ₽
Дни:13
stdClass Object
(
[id] => 100
[attribute_id] => 6
[name] => Монолитная ж/б плита
[material_modifier] => 1
[work_modifier] => 1
[options] => Array
(
[0] => без утепления
[1] => утепление 150 мм
[2] => утепление 200 мм
[3] => утепление 250 мм
[4] => утепление 300 мм
[5] => утепление 350 мм
[6] => утепление 400 мм
[7] => утепление 450 мм
[8] => утепление 500 мм
)
[days] => [18,20,20,20,20,20,20,20,20]
[material_price] => [4837,6572,7224,7375,79426,8177,8728,9180,10031]
[work_price] => [3348,3921,4112,4302,4493,4684,4875,5066,5256]
[image] => https://akademik-stroy.ru/wp-content/uploads/materials/monolitnaya-zh-b-plita-2.jpg
[area_modifier] => 70.67
[parent_name] => Перекрытие второго этажа
[parent_id] => 6
[material_sum] => 471726
[work_sum] => 272094
[total_sum] => 743820
[total_days] => 18
[display_material_sum] => 471 726
[display_work_sum] => 272 094
[display_total_sum] => 743 820
)
1
743 820₽
Работа:272 094 ₽
Материалы:471 726 ₽
Дни:18
stdClass Object
(
[id] => 164
[attribute_id] => 37
[name] => Металлочерепица
[material_modifier] => 1
[work_modifier] => 1
[options] => Array
(
)
[days] => [20]
[material_price] => [6112]
[work_price] => [5726]
[image] => https://akademik-stroy.ru/wp-content/uploads/materials/metallocherepica.jpg
[area_modifier] => 74.84
[parent_name] => Крыша (Скатная)
[parent_id] => 37
[material_sum] => 631242
[work_sum] => 492814
[total_sum] => 1124056
[total_days] => 20
[display_material_sum] => 631 242
[display_work_sum] => 492 814
[display_total_sum] => 1 124 056
)
1
1 124 056₽
Работа:492 814 ₽
Материалы:631 242 ₽
Дни:20
stdClass Object
(
[id] => 165
[attribute_id] => 37
[name] => Гибкая черепица
[material_modifier] => 1
[work_modifier] => 1
[options] => Array
(
)
[days] => [20]
[material_price] => [6980]
[work_price] => [5950]
[image] => https://akademik-stroy.ru/wp-content/uploads/materials/gibkaya-cherepica.jpg
[area_modifier] => 74.84
[parent_name] => Крыша (Скатная)
[parent_id] => 37
[material_sum] => 720889
[work_sum] => 512093
[total_sum] => 1232982
[total_days] => 20
[display_material_sum] => 720 889
[display_work_sum] => 512 093
[display_total_sum] => 1 232 982
)
1
1 232 982₽
Работа:512 093 ₽
Материалы:720 889 ₽
Дни:20
stdClass Object
(
[id] => 166
[attribute_id] => 37
[name] => Цементно-песчаная черепица
[material_modifier] => 1
[work_modifier] => 1
[options] => Array
(
)
[days] => [20]
[material_price] => [10560]
[work_price] => [9456]
[image] => https://akademik-stroy.ru/wp-content/uploads/materials/cementno-peschanaya-cherepica.jpg
[area_modifier] => 74.84
[parent_name] => Крыша (Скатная)
[parent_id] => 37
[material_sum] => 1090628
[work_sum] => 813840
[total_sum] => 1904468
[total_days] => 20
[display_material_sum] => 1 090 628
[display_work_sum] => 813 840
[display_total_sum] => 1 904 468
)
1
1 904 468₽
Работа:813 840 ₽
Материалы:1 090 628 ₽
Дни:20
stdClass Object
(
[id] => 167
[attribute_id] => 37
[name] => Композитная черепица
[material_modifier] => 1
[work_modifier] => 1
[options] => Array
(
)
[days] => [20]
[material_price] => [9506]
[work_price] => [8905]
[image] => https://akademik-stroy.ru/wp-content/uploads/materials/kompozitnaya-cherepica.jpg
[area_modifier] => 74.84
[parent_name] => Крыша (Скатная)
[parent_id] => 37
[material_sum] => 981772
[work_sum] => 766418
[total_sum] => 1748190
[total_days] => 20
[display_material_sum] => 981 772
[display_work_sum] => 766 418
[display_total_sum] => 1 748 190
)
1
1 748 190₽
Работа:766 418 ₽
Материалы:981 772 ₽
Дни:20
stdClass Object
(
[id] => 168
[attribute_id] => 37
[name] => Керамическая черепица
[material_modifier] => 1
[work_modifier] => 1
[options] => Array
(
)
[days] => [20]
[material_price] => [12750]
[work_price] => [9456]
[image] => https://akademik-stroy.ru/wp-content/uploads/materials/keramicheskaya-cherepica.jpg
[area_modifier] => 74.84
[parent_name] => Крыша (Скатная)
[parent_id] => 37
[material_sum] => 1316810
[work_sum] => 813840
[total_sum] => 2130650
[total_days] => 20
[display_material_sum] => 1 316 810
[display_work_sum] => 813 840
[display_total_sum] => 2 130 650
)
1
2 130 650₽
Работа:813 840 ₽
Материалы:1 316 810 ₽
Дни:20
stdClass Object
(
[id] => 169
[attribute_id] => 37
[name] => Металлическая фальцевая
[material_modifier] => 1
[work_modifier] => 1
[options] => Array
(
)
[days] => [20]
[material_price] => [8550]
[work_price] => [8190]
[image] => https://akademik-stroy.ru/wp-content/uploads/materials/metallicheskaya-falcevaya.jpg
[area_modifier] => 74.84
[parent_name] => Крыша (Скатная)
[parent_id] => 37
[material_sum] => 883037
[work_sum] => 704881
[total_sum] => 1587918
[total_days] => 20
[display_material_sum] => 883 037
[display_work_sum] => 704 881
[display_total_sum] => 1 587 918
)
1
1 587 918₽
Работа:704 881 ₽
Материалы:883 037 ₽
Дни:20
stdClass Object
(
[id] => 170
[attribute_id] => 37
[name] => Медная фальцевая
[material_modifier] => 1
[work_modifier] => 1
[options] => Array
(
)
[days] => [20]
[material_price] => [20450]
[work_price] => [16750]
[image] => https://akademik-stroy.ru/wp-content/uploads/materials/mednaya-falcevaya.jpg
[area_modifier] => 74.84
[parent_name] => Крыша (Скатная)
[parent_id] => 37
[material_sum] => 2112060
[work_sum] => 1441606
[total_sum] => 3553666
[total_days] => 20
[display_material_sum] => 2 112 060
[display_work_sum] => 1 441 606
[display_total_sum] => 3 553 666
)
1
3 553 666₽
Работа:1 441 606 ₽
Материалы:2 112 060 ₽
Дни:20
stdClass Object
(
[id] => 171
[attribute_id] => 37
[name] => Зеленая кровля
[material_modifier] => 1
[work_modifier] => 1
[options] => Array
(
)
[days] => [20]
[material_price] => [19850]
[work_price] => [16780]
[image] => https://akademik-stroy.ru/wp-content/uploads/materials/zelenaya-krovlya.jpg
[area_modifier] => 74.84
[parent_name] => Крыша (Скатная)
[parent_id] => 37
[material_sum] => 2050092
[work_sum] => 1444187
[total_sum] => 3494279
[total_days] => 20
[display_material_sum] => 2 050 092
[display_work_sum] => 1 444 187
[display_total_sum] => 3 494 279
)
1
3 494 279₽
Работа:1 444 187 ₽
Материалы:2 050 092 ₽
Дни:20
stdClass Object
(
[id] => 172
[attribute_id] => 37
[name] => Профлист
[material_modifier] => 1
[work_modifier] => 1
[options] => Array
(
)
[days] => [20]
[material_price] => [3450]
[work_price] => [3750]
[image] => https://akademik-stroy.ru/wp-content/uploads/materials/proflist.jpg
[area_modifier] => 74.84
[parent_name] => Крыша (Скатная)
[parent_id] => 37
[material_sum] => 356313
[work_sum] => 322748
[total_sum] => 679061
[total_days] => 20
[display_material_sum] => 356 313
[display_work_sum] => 322 748
[display_total_sum] => 679 061
)
1
679 061₽
Работа:322 748 ₽
Материалы:356 313 ₽
Дни:20
stdClass Object
(
[id] => 51
[attribute_id] => 26
[name] => Есть
[material_modifier] => 1
[work_modifier] => 1
[options] => Array
(
[0] => Профиль 58 мм, 3-камерный, стеклопакет 2-камерный до 32 мм
[1] => Профиль 60 мм, 4-камерный, стеклопакет 2-камерный до 32 мм
[2] => Профиль 70 мм, 5-камерный, стеклопакет 2-камерный до 40 мм
[3] => Профиль 72 мм, 5-камерный, стеклопакет 2-камерный до 40 мм
[4] => Алюминиевые окна Alutech профиль 72 мм, стеклопакет 2-камерный
)
[days] => [3,3,3,3,3]
[material_price] => [1339,2124,2867,3023,29596]
[work_price] => [635,647,659,668,2579]
[image] => https://akademik-stroy.ru/wp-content/uploads/materials/okna.jpg
[area_modifier] => 118.08
[parent_name] => Окна
[parent_id] => 26
[material_sum] => 218191
[work_sum] => 86228
[total_sum] => 304419
[total_days] => 3
[display_material_sum] => 218 191
[display_work_sum] => 86 228
[display_total_sum] => 304 419
)
1
304 419₽
Работа:86 228 ₽
Материалы:218 191 ₽
Дни:3
stdClass Object
(
[id] => 52
[attribute_id] => 26
[name] => Нет
[material_modifier] => 2
[work_modifier] => 1
[options] =>
[days] => null
[material_price] => null
[work_price] => null
[image] => https://akademik-stroy.ru/wp-content/uploads/materials/okna.jpg
[area_modifier] => 118.08
[parent_name] => Окна
[parent_id] => 26
[material_sum] => 0
[work_sum] => 0
[total_sum] => 0
[total_days] => 0
[display_material_sum] => 0
[display_work_sum] => 0
[display_total_sum] => 0
)
1
0₽
Работа:0 ₽
Материалы:0 ₽
Дни:0
stdClass Object
(
[id] => 53
[attribute_id] => 27
[name] => Есть
[material_modifier] => 1
[work_modifier] => 1
[options] => Array
(
)
[days] => [1]
[material_price] => [10000]
[work_price] => [5500]
[image] => https://akademik-stroy.ru/wp-content/uploads/materials/dveri.jpg
[area_modifier] => 1
[parent_name] => Двери входные
[parent_id] => 27
[material_sum] => 13800
[work_sum] => 6325
[total_sum] => 20125
[total_days] => 1
[display_material_sum] => 13 800
[display_work_sum] => 6 325
[display_total_sum] => 20 125
)
1
20 125₽
Работа:6 325 ₽
Материалы:13 800 ₽
Дни:1
stdClass Object
(
[id] => 54
[attribute_id] => 27
[name] => Нет
[material_modifier] => 1
[work_modifier] => 1
[options] => Array
(
)
[days] => [0]
[material_price] => [0]
[work_price] => [0]
[image] => https://akademik-stroy.ru/wp-content/uploads/materials/dveri.jpg
[area_modifier] => 1
[parent_name] => Двери входные
[parent_id] => 27
[material_sum] => 0
[work_sum] => 0
[total_sum] => 0
[total_days] => 0
[display_material_sum] => 0
[display_work_sum] => 0
[display_total_sum] => 0
)
1
0₽
Работа:0 ₽
Материалы:0 ₽
Дни:0
stdClass Object
(
[id] => 25
[attribute_id] => 13
[name] => Нет
[material_modifier] => 1
[work_modifier] => 1
[options] => Array
(
)
[days] => [0]
[material_price] => [0]
[work_price] => [0]
[image] => https://akademik-stroy.ru/wp-content/uploads/materials/mineralovata-krov.jpg
[area_modifier] => 74.84
[parent_name] => Утепление кровли (Мансарда)
[parent_id] => 13
[material_sum] => 0
[work_sum] => 0
[total_sum] => 0
[total_days] => 0
[display_material_sum] => 0
[display_work_sum] => 0
[display_total_sum] => 0
)
1
0₽
Работа:0 ₽
Материалы:0 ₽
Дни:0
stdClass Object
(
[id] => 26
[attribute_id] => 13
[name] => Минераловатный
[material_modifier] => 1
[work_modifier] => 1
[options] => Array
(
[0] => 50 мм
[1] => 100 мм
[2] => 150 мм
[3] => 200 мм
[4] => 250 мм
[5] => 300 мм
[6] => 350 мм
[7] => 400 мм
[8] => 450 мм
[9] => 500 мм
)
[days] => [5,5,6,6,6,7,7,7,8,8]
[material_price] => [1158,1414,1772,2230,3602,4060,4974,5890,6408,7718]
[work_price] => [650,846,846,1098,1318,1450,1596,1754,1930,2122]
[image] => https://akademik-stroy.ru/wp-content/uploads/materials/mineralovata-krov.jpg
[area_modifier] => 74.84
[parent_name] => Утепление кровли (Мансарда)
[parent_id] => 13
[material_sum] => 119597
[work_sum] => 55943
[total_sum] => 175540
[total_days] => 5
[display_material_sum] => 119 597
[display_work_sum] => 55 943
[display_total_sum] => 175 540
)
1
175 540₽
Работа:55 943 ₽
Материалы:119 597 ₽
Дни:5
stdClass Object
(
[id] => 123
[attribute_id] => 13
[name] => Эковата (целлюлозная вата)
[material_modifier] => 1
[work_modifier] => 1
[options] => Array
(
[0] => 50 мм
[1] => 100 мм
[2] => 150 мм
[3] => 200 мм
[4] => 250 мм
[5] => 300 мм
[6] => 350 мм
[7] => 400 мм
[8] => 450 мм
[9] => 500 мм
)
[days] => [3,3,4,4,4,5,5,5,5,5]
[material_price] => [820,1638,2458,3276,5734,6552,8190,9828,11466,13104]
[work_price] => [234,304,304,396,474,522,574,632,694,764]
[image] => https://akademik-stroy.ru/wp-content/uploads/materials/ehkovata-krov.jpg
[area_modifier] => 74.84
[parent_name] => Утепление кровли (Мансарда)
[parent_id] => 13
[material_sum] => 84689
[work_sum] => 20139
[total_sum] => 104828
[total_days] => 3
[display_material_sum] => 84 689
[display_work_sum] => 20 139
[display_total_sum] => 104 828
)
1
104 828₽
Работа:20 139 ₽
Материалы:84 689 ₽
Дни:3
stdClass Object
(
[id] => 124
[attribute_id] => 13
[name] => Экструдированный пенополистирол
[material_modifier] => 1
[work_modifier] => 1
[options] => Array
(
[0] => 50 мм
[1] => 100 мм
[2] => 150 мм
[3] => 200 мм
[4] => 250 мм
[5] => 300 мм
[6] => 350 мм
[7] => 400 мм
[8] => 450 мм
[9] => 500 мм
)
[days] => [3,3,4,4,4,5,5,5,5,6]
[material_price] => [1146,2292,3438,4584,8020,9166,11458,13750,16040,18332]
[work_price] => [390,508,508,660,790,870,958,1052,1158,1274]
[image] => https://akademik-stroy.ru/wp-content/uploads/materials/epps-krov.jpg
[area_modifier] => 74.84
[parent_name] => Утепление кровли (Мансарда)
[parent_id] => 13
[material_sum] => 118358
[work_sum] => 33566
[total_sum] => 151924
[total_days] => 3
[display_material_sum] => 118 358
[display_work_sum] => 33 566
[display_total_sum] => 151 924
)
1
151 924₽
Работа:33 566 ₽
Материалы:118 358 ₽
Дни:3
stdClass Object
(
[id] => 125
[attribute_id] => 13
[name] => ПСБ (ППС-пенополистирол)
[material_modifier] => 1
[work_modifier] => 1
[options] => Array
(
[0] => 50 мм
[1] => 100 мм
[2] => 150 мм
[3] => 200 мм
[4] => 250 мм
[5] => 300 мм
[6] => 350 мм
[7] => 400 мм
[8] => 450 мм
[9] => 500 мм
)
[days] => [3,3,4,4,4,5,5,5,5,6]
[material_price] => [476,954,1430,1906,3336,3814,4766,5720,6674,7626]
[work_price] => [390,508,508,660,790,870,958,1052,1158,1274]
[image] => https://akademik-stroy.ru/wp-content/uploads/materials/psb-krov.jpg
[area_modifier] => 74.84
[parent_name] => Утепление кровли (Мансарда)
[parent_id] => 13
[material_sum] => 49161
[work_sum] => 33566
[total_sum] => 82727
[total_days] => 3
[display_material_sum] => 49 161
[display_work_sum] => 33 566
[display_total_sum] => 82 727
)
1
82 727₽
Работа:33 566 ₽
Материалы:49 161 ₽
Дни:3
stdClass Object
(
[id] => 126
[attribute_id] => 13
[name] => ППУ (Пенополиуретан)
[material_modifier] => 1
[work_modifier] => 1
[options] => Array
(
[0] => 50 мм
[1] => 100 мм
[2] => 150 мм
[3] => 200 мм
[4] => 250 мм
[5] => 300 мм
[6] => 350 мм
[7] => 400 мм
[8] => 450 мм
[9] => 500 мм
)
[days] => [2,2,3,3,3,3,4,4,4,4]
[material_price] => [2080,4160,6240,8320,14560,16640,20800,24960,29120,33280]
[work_price] => [234,304,304,396,474,522,574,632,694,764]
[image] => https://akademik-stroy.ru/wp-content/uploads/materials/ppu-krov.jpg
[area_modifier] => 74.84
[parent_name] => Утепление кровли (Мансарда)
[parent_id] => 13
[material_sum] => 214821
[work_sum] => 20139
[total_sum] => 234960
[total_days] => 2
[display_material_sum] => 214 821
[display_work_sum] => 20 139
[display_total_sum] => 234 960
)
1
234 960₽
Работа:20 139 ₽
Материалы:214 821 ₽
Дни:2
stdClass Object
(
[id] => 127
[attribute_id] => 13
[name] => PIR-плиты (пенополиизоцианурат)
[material_modifier] => 1
[work_modifier] => 1
[options] => Array
(
[0] => 50 мм
[1] => 100 мм
[2] => 150 мм
[3] => 200 мм
[4] => 250 мм
[5] => 300 мм
[6] => 350 мм
[7] => 400 мм
[8] => 450 мм
[9] => 500 мм
)
[days] => [3,3,4,4,4,5,5,5,5,6]
[material_price] => [2646,5290,7936,10580,18516,21162,26452,31742,37032,42324]
[work_price] => [390,508,508,660,790,870,958,1052,1158,1274]
[image] => https://akademik-stroy.ru/wp-content/uploads/materials/pir-krov.jpg
[area_modifier] => 74.84
[parent_name] => Утепление кровли (Мансарда)
[parent_id] => 13
[material_sum] => 273277
[work_sum] => 33566
[total_sum] => 306843
[total_days] => 3
[display_material_sum] => 273 277
[display_work_sum] => 33 566
[display_total_sum] => 306 843
)
1
306 843₽
Работа:33 566 ₽
Материалы:273 277 ₽
Дни:3
stdClass Object
(
[id] => 27
[attribute_id] => 14
[name] => Нет
[material_modifier] => 1
[work_modifier] => 1
[options] => Array
(
)
[days] => [0]
[material_price] => [0]
[work_price] => [0]
[image] => https://akademik-stroy.ru/wp-content/uploads/materials/mansardnye-okna-2.jpg
[area_modifier] => 1
[parent_name] => Мансардные окна
[parent_id] => 14
[material_sum] => 0
[work_sum] => 0
[total_sum] => 0
[total_days] => 0
[display_material_sum] => 0
[display_work_sum] => 0
[display_total_sum] => 0
)
1
0₽
Работа:0 ₽
Материалы:0 ₽
Дни:0
stdClass Object
(
[id] => 28
[attribute_id] => 14
[name] => Есть
[material_modifier] => 1
[work_modifier] => 1
[options] => Array
(
[0] => 55x78
[1] => 55x98
)
[days] => [6,7]
[material_price] => [47480,68700]
[work_price] => [17900,19500]
[image] => https://akademik-stroy.ru/wp-content/uploads/materials/mansardnye-okna-2.jpg
[area_modifier] => 1
[parent_name] => Мансардные окна
[parent_id] => 14
[material_sum] => 65522
[work_sum] => 20585
[total_sum] => 86107
[total_days] => 6
[display_material_sum] => 65 522
[display_work_sum] => 20 585
[display_total_sum] => 86 107
)
1
86 107₽
Работа:20 585 ₽
Материалы:65 522 ₽
Дни:6
stdClass Object
(
[id] => 29
[attribute_id] => 15
[name] => Нет
[material_modifier] => 1
[work_modifier] => 1
[options] => Array
(
)
[days] => [0]
[material_price] => [0]
[work_price] => [0]
[image] => https://akademik-stroy.ru/wp-content/uploads/materials/sofit.jpg
[area_modifier] => 74.84
[parent_name] => Подшивка кровли
[parent_id] => 15
[material_sum] => 0
[work_sum] => 0
[total_sum] => 0
[total_days] => 0
[display_material_sum] => 0
[display_work_sum] => 0
[display_total_sum] => 0
)
1
0₽
Работа:0 ₽
Материалы:0 ₽
Дни:0
stdClass Object
(
[id] => 30
[attribute_id] => 15
[name] => Есть
[material_modifier] => 1
[work_modifier] => 1
[options] => Array
(
[0] => Софиты (ПВХ)
[1] => Cedral
[2] => ДПК
[3] => Планкен
)
[days] => [7,10,9,8]
[material_price] => [1803,3213,3025,3150]
[work_price] => [1529,2188,2075,1923]
[image] => https://akademik-stroy.ru/wp-content/uploads/materials/sofit.jpg
[area_modifier] => 74.84
[parent_name] => Подшивка кровли
[parent_id] => 15
[material_sum] => 186212
[work_sum] => 131595
[total_sum] => 317807
[total_days] => 7
[display_material_sum] => 186 212
[display_work_sum] => 131 595
[display_total_sum] => 317 807
)
1
317 807₽
Работа:131 595 ₽
Материалы:186 212 ₽
Дни:7
stdClass Object
(
[id] => 31
[attribute_id] => 16
[name] => Нет
[material_modifier] => 1
[work_modifier] => 1
[options] => Array
(
)
[days] => [0]
[material_price] => [0]
[work_price] => [0]
[image] => https://akademik-stroy.ru/wp-content/uploads/materials/docke-standard-pvh.jpg
[area_modifier] => 74.84
[parent_name] => Водосточная система
[parent_id] => 16
[material_sum] => 0
[work_sum] => 0
[total_sum] => 0
[total_days] => 0
[display_material_sum] => 0
[display_work_sum] => 0
[display_total_sum] => 0
)
1
0₽
Работа:0 ₽
Материалы:0 ₽
Дни:0
stdClass Object
(
[id] => 32
[attribute_id] => 16
[name] => Есть
[material_modifier] => 1
[work_modifier] => 1
[options] => Array
(
[0] => Döcke Standard (ПВХ)
[1] => Металлические Grand Line
)
[days] => [7,7]
[material_price] => [1842,2703]
[work_price] => [1491,1529]
[image] => https://akademik-stroy.ru/wp-content/uploads/materials/docke-standard-pvh.jpg
[area_modifier] => 74.84
[parent_name] => Водосточная система
[parent_id] => 16
[material_sum] => 190240
[work_sum] => 128324
[total_sum] => 318564
[total_days] => 7
[display_material_sum] => 190 240
[display_work_sum] => 128 324
[display_total_sum] => 318 564
)
1
318 564₽
Работа:128 324 ₽
Материалы:190 240 ₽
Дни:7
stdClass Object
(
[id] => 33
[attribute_id] => 17
[name] => Нет
[material_modifier] => 1
[work_modifier] => 1
[options] => Array
(
)
[days] => [0]
[material_price] => [0]
[work_price] => [0]
[image] => https://akademik-stroy.ru/wp-content/uploads/materials/mineralovata.jpg
[area_modifier] => 145.51
[parent_name] => Дополнительное утепление наружных стен
[parent_id] => 17
[material_sum] => 0
[work_sum] => 0
[total_sum] => 0
[total_days] => 0
[display_material_sum] => 0
[display_work_sum] => 0
[display_total_sum] => 0
)
1
0₽
Работа:0 ₽
Материалы:0 ₽
Дни:0
stdClass Object
(
[id] => 34
[attribute_id] => 17
[name] => Минераловатный
[material_modifier] => 1
[work_modifier] => 1
[options] => Array
(
[0] => 50 мм
[1] => 100 мм
[2] => 150 мм
[3] => 200 мм
[4] => 250 мм
[5] => 300 мм
)
[days] => [7,8,10,12,14,15]
[material_price] => [3437,3613,3803,3915,4601,4830]
[work_price] => [2325,2423,2523,2749,2859,3025]
[image] => https://akademik-stroy.ru/wp-content/uploads/materials/mineralovata.jpg
[area_modifier] => 145.51
[parent_name] => Дополнительное утепление наружных стен
[parent_id] => 17
[material_sum] => 690163
[work_sum] => 389057
[total_sum] => 1079220
[total_days] => 7
[display_material_sum] => 690 163
[display_work_sum] => 389 057
[display_total_sum] => 1 079 220
)
1
1 079 220₽
Работа:389 057 ₽
Материалы:690 163 ₽
Дни:7
stdClass Object
(
[id] => 128
[attribute_id] => 17
[name] => Эковата (целлюлозная вата)
[material_modifier] => 1
[work_modifier] => 1
[options] => Array
(
[0] => 50 мм
[1] => 100 мм
[2] => 150 мм
[3] => 200 мм
[4] => 250 мм
[5] => 300 мм
)
[days] => [3,4,5,6,7,8]
[material_price] => [810,1319,1629,1838,2267,2676]
[work_price] => [1225,1323,1423,1549,1659,1725]
[image] => https://akademik-stroy.ru/wp-content/uploads/materials/ehkovata.jpg
[area_modifier] => 145.51
[parent_name] => Дополнительное утепление наружных стен
[parent_id] => 17
[material_sum] => 162651
[work_sum] => 204987
[total_sum] => 367638
[total_days] => 3
[display_material_sum] => 162 651
[display_work_sum] => 204 987
[display_total_sum] => 367 638
)
1
367 638₽
Работа:204 987 ₽
Материалы:162 651 ₽
Дни:3
stdClass Object
(
[id] => 129
[attribute_id] => 17
[name] => Экструдированный пенополистирол
[material_modifier] => 1
[work_modifier] => 1
[options] => Array
(
[0] => 50 мм
[1] => 100 мм
[2] => 150 мм
[3] => 200 мм
[4] => 250 мм
[5] => 300 мм
)
[days] => [5,6,7,8,9,10]
[material_price] => [4560,4300,5119,6292,7010,8583]
[work_price] => [1795,1954,2254,2330,2595,2735]
[image] => https://akademik-stroy.ru/wp-content/uploads/materials/epps.jpg
[area_modifier] => 145.51
[parent_name] => Дополнительное утепление наружных стен
[parent_id] => 17
[material_sum] => 915665
[work_sum] => 300369
[total_sum] => 1216034
[total_days] => 5
[display_material_sum] => 915 665
[display_work_sum] => 300 369
[display_total_sum] => 1 216 034
)
1
1 216 034₽
Работа:300 369 ₽
Материалы:915 665 ₽
Дни:5
stdClass Object
(
[id] => 130
[attribute_id] => 17
[name] => ПСБ (ППС-пенополистирол)
[material_modifier] => 1
[work_modifier] => 1
[options] => Array
(
[0] => 50 мм
[1] => 100 мм
[2] => 150 мм
[3] => 200 мм
[4] => 250 мм
[5] => 300 мм
)
[days] => [5,6,7,8,9,10]
[material_price] => [4822,5200,5819,6292,7010,7583]
[work_price] => [1795,1954,2254,2330,2595,2735]
[image] => https://akademik-stroy.ru/wp-content/uploads/materials/psb.jpg
[area_modifier] => 145.51
[parent_name] => Дополнительное утепление наружных стен
[parent_id] => 17
[material_sum] => 968276
[work_sum] => 300369
[total_sum] => 1268645
[total_days] => 5
[display_material_sum] => 968 276
[display_work_sum] => 300 369
[display_total_sum] => 1 268 645
)
1
1 268 645₽
Работа:300 369 ₽
Материалы:968 276 ₽
Дни:5
stdClass Object
(
[id] => 131
[attribute_id] => 17
[name] => ППУ (Пенополиуретан)
[material_modifier] => 1
[work_modifier] => 1
[options] => Array
(
[0] => 50 мм
[1] => 100 мм
[2] => 150 мм
[3] => 200 мм
[4] => 250 мм
[5] => 300 мм
)
[days] => [3,4,5,6,7,8]
[material_price] => [2860,3400,4219,4592,5010,5583]
[work_price] => [729,900,980,1120,1280,1530]
[image] => https://akademik-stroy.ru/wp-content/uploads/materials/ppu.jpg
[area_modifier] => 145.51
[parent_name] => Дополнительное утепление наружных стен
[parent_id] => 17
[material_sum] => 574299
[work_sum] => 121988
[total_sum] => 696287
[total_days] => 3
[display_material_sum] => 574 299
[display_work_sum] => 121 988
[display_total_sum] => 696 287
)
1
696 287₽
Работа:121 988 ₽
Материалы:574 299 ₽
Дни:3
stdClass Object
(
[id] => 132
[attribute_id] => 17
[name] => PIR-плиты (пенополиизоцианурат)
[material_modifier] => 1
[work_modifier] => 1
[options] => Array
(
[0] => 50 мм
[1] => 100 мм
[2] => 150 мм
[3] => 200 мм
[4] => 250 мм
[5] => 300 мм
)
[days] => [5,6,7,8,9,10]
[material_price] => [8323,15645,20968,25900,29258,30581]
[work_price] => [800,900,970,1150,1280,1330]
[image] => https://akademik-stroy.ru/wp-content/uploads/materials/pir.jpg
[area_modifier] => 145.51
[parent_name] => Дополнительное утепление наружных стен
[parent_id] => 17
[material_sum] => 1671290
[work_sum] => 133869
[total_sum] => 1805159
[total_days] => 5
[display_material_sum] => 1 671 290
[display_work_sum] => 133 869
[display_total_sum] => 1 805 159
)
1
1 805 159₽
Работа:133 869 ₽
Материалы:1 671 290 ₽
Дни:5
stdClass Object
(
[id] => 37
[attribute_id] => 19
[name] => Нет
[material_modifier] => 1
[work_modifier] => 1
[options] => Array
(
)
[days] => [0]
[material_price] => [0]
[work_price] => [0]
[image] => https://akademik-stroy.ru/wp-content/uploads/materials/imitaciya-brusa.jpg
[area_modifier] => 145.51
[parent_name] => Наружная отделка фасада
[parent_id] => 19
[material_sum] => 0
[work_sum] => 0
[total_sum] => 0
[total_days] => 0
[display_material_sum] => 0
[display_work_sum] => 0
[display_total_sum] => 0
)
1
0₽
Работа:0 ₽
Материалы:0 ₽
Дни:0
stdClass Object
(
[id] => 38
[attribute_id] => 19
[name] => Имитация бруса
[material_modifier] => 1
[work_modifier] => 1
[options] => Array
(
[0] => Сосна
[1] => Ель
[2] => Лиственница
)
[days] => [20,20,20]
[material_price] => [2994,2762,4954]
[work_price] => [1397,1231,1577]
[image] => https://akademik-stroy.ru/wp-content/uploads/materials/imitaciya-brusa.jpg
[area_modifier] => 145.51
[parent_name] => Наружная отделка фасада
[parent_id] => 19
[material_sum] => 601207
[work_sum] => 233769
[total_sum] => 834976
[total_days] => 20
[display_material_sum] => 601 207
[display_work_sum] => 233 769
[display_total_sum] => 834 976
)
1
834 976₽
Работа:233 769 ₽
Материалы:601 207 ₽
Дни:20
stdClass Object
(
[id] => 136
[attribute_id] => 19
[name] => Планкен
[material_modifier] => 1
[work_modifier] => 1
[options] => Array
(
[0] => Сосна
[1] => Ель
[2] => Лиственница
)
[days] => [20,20,20]
[material_price] => [3194,2862,5154]
[work_price] => [1537,1354,1735]
[image] => https://akademik-stroy.ru/wp-content/uploads/materials/planken.jpg
[area_modifier] => 145.51
[parent_name] => Наружная отделка фасада
[parent_id] => 19
[material_sum] => 641367
[work_sum] => 257196
[total_sum] => 898563
[total_days] => 20
[display_material_sum] => 641 367
[display_work_sum] => 257 196
[display_total_sum] => 898 563
)
1
898 563₽
Работа:257 196 ₽
Материалы:641 367 ₽
Дни:20
stdClass Object
(
[id] => 137
[attribute_id] => 19
[name] => Штукатурка
[material_modifier] => 1
[work_modifier] => 1
[options] => Array
(
[0] => Цементно-песчаная (минеральная)
[1] => Мокрый фасад
)
[days] => [35,35]
[material_price] => [2231,3938]
[work_price] => [1202,2422]
[image] => https://akademik-stroy.ru/wp-content/uploads/materials/shtukaturka.jpg
[area_modifier] => 145.51
[parent_name] => Наружная отделка фасада
[parent_id] => 19
[material_sum] => 447993
[work_sum] => 201138
[total_sum] => 649131
[total_days] => 35
[display_material_sum] => 447 993
[display_work_sum] => 201 138
[display_total_sum] => 649 131
)
1
649 131₽
Работа:201 138 ₽
Материалы:447 993 ₽
Дни:35
stdClass Object
(
[id] => 138
[attribute_id] => 19
[name] => Облицовочный кирпич
[material_modifier] => 1
[work_modifier] => 1
[options] => Array
(
[0] => Керамический
[1] => Клинкерный
[2] => Ручной формовки
[3] => Гиперпрессованный
[4] => Силикатный кирпич
)
[days] => [45,45,45,45,45]
[material_price] => [8174,9148,1040,1257,5876]
[work_price] => [3240,3758,4536,4017,3369]
[image] => https://akademik-stroy.ru/wp-content/uploads/materials/oblicovochnyj-kirpich.jpg
[area_modifier] => 145.51
[parent_name] => Наружная отделка фасада
[parent_id] => 19
[material_sum] => 1641370
[work_sum] => 542170
[total_sum] => 2183540
[total_days] => 45
[display_material_sum] => 1 641 370
[display_work_sum] => 542 170
[display_total_sum] => 2 183 540
)
1
2 183 540₽
Работа:542 170 ₽
Материалы:1 641 370 ₽
Дни:45
stdClass Object
(
[id] => 139
[attribute_id] => 19
[name] => Фасадная плитка
[material_modifier] => 1
[work_modifier] => 1
[options] => Array
(
[0] => Клинкерная
[1] => Керамическая
[2] => Плитка ручной формовки
)
[days] => [40,40,40]
[material_price] => [2974,1487,3470]
[work_price] => [3007,2592,3629]
[image] => https://akademik-stroy.ru/wp-content/uploads/materials/fasadnaya-plitka.jpg
[area_modifier] => 145.51
[parent_name] => Наружная отделка фасада
[parent_id] => 19
[material_sum] => 597191
[work_sum] => 503181
[total_sum] => 1100372
[total_days] => 40
[display_material_sum] => 597 191
[display_work_sum] => 503 181
[display_total_sum] => 1 100 372
)
1
1 100 372₽
Работа:503 181 ₽
Материалы:597 191 ₽
Дни:40
stdClass Object
(
[id] => 140
[attribute_id] => 19
[name] => Сайдинг
[material_modifier] => 1
[work_modifier] => 1
[options] => Array
(
[0] => Виниловый
[1] => Металлический
[2] => Фиброцементный
)
[days] => [20,20,20]
[material_price] => [1263,1944,4147]
[work_price] => [1263,1944,2074]
[image] => https://akademik-stroy.ru/wp-content/uploads/materials/sajding.jpg
[area_modifier] => 145.51
[parent_name] => Наружная отделка фасада
[parent_id] => 19
[material_sum] => 253615
[work_sum] => 211346
[total_sum] => 464961
[total_days] => 20
[display_material_sum] => 253 615
[display_work_sum] => 211 346
[display_total_sum] => 464 961
)
1
464 961₽
Работа:211 346 ₽
Материалы:253 615 ₽
Дни:20
stdClass Object
(
[id] => 141
[attribute_id] => 19
[name] => Камень
[material_modifier] => 1
[work_modifier] => 1
[options] => Array
(
[0] => Травертин
[1] => Дагестанский
[2] => Искусственный
[3] => Натуральный
[4] => Керамогранит
)
[days] => [45,45,45,45,45]
[material_price] => [4536,3888,2592,3240,2462]
[work_price] => [3240,3240,2462,3110,1944]
[image] => https://akademik-stroy.ru/wp-content/uploads/materials/kamen-1.jpg
[area_modifier] => 145.51
[parent_name] => Наружная отделка фасада
[parent_id] => 19
[material_sum] => 910846
[work_sum] => 542170
[total_sum] => 1453016
[total_days] => 45
[display_material_sum] => 910 846
[display_work_sum] => 542 170
[display_total_sum] => 1 453 016
)
1
1 453 016₽
Работа:542 170 ₽
Материалы:910 846 ₽
Дни:45
stdClass Object
(
[id] => 142
[attribute_id] => 19
[name] => Термопанели
[material_modifier] => 1
[work_modifier] => 1
[options] => Array
(
)
[days] => [20]
[material_price] => [6221]
[work_price] => [2333]
[image] => https://akademik-stroy.ru/wp-content/uploads/materials/termo.png
[area_modifier] => 145.51
[parent_name] => Наружная отделка фасада
[parent_id] => 19
[material_sum] => 1249200
[work_sum] => 390396
[total_sum] => 1639596
[total_days] => 20
[display_material_sum] => 1 249 200
[display_work_sum] => 390 396
[display_total_sum] => 1 639 596
)
1
1 639 596₽
Работа:390 396 ₽
Материалы:1 249 200 ₽
Дни:20
stdClass Object
(
[id] => 143
[attribute_id] => 19
[name] => Плитка HAUBERK
[material_modifier] => 1
[work_modifier] => 1
[options] => Array
(
)
[days] => [20]
[material_price] => [2786]
[work_price] => [1944]
[image] => https://akademik-stroy.ru/wp-content/uploads/materials/hauberk.jpg
[area_modifier] => 145.51
[parent_name] => Наружная отделка фасада
[parent_id] => 19
[material_sum] => 559439
[work_sum] => 325302
[total_sum] => 884741
[total_days] => 20
[display_material_sum] => 559 439
[display_work_sum] => 325 302
[display_total_sum] => 884 741
)
1
884 741₽
Работа:325 302 ₽
Материалы:559 439 ₽
Дни:20
stdClass Object
(
[id] => 144
[attribute_id] => 19
[name] => Фальцевый фасад
[material_modifier] => 1
[work_modifier] => 1
[options] => Array
(
)
[days] => [20]
[material_price] => [3240]
[work_price] => [2592]
[image] => https://akademik-stroy.ru/wp-content/uploads/materials/falcevyj-fasad.jpg
[area_modifier] => 145.51
[parent_name] => Наружная отделка фасада
[parent_id] => 19
[material_sum] => 650604
[work_sum] => 433736
[total_sum] => 1084340
[total_days] => 20
[display_material_sum] => 650 604
[display_work_sum] => 433 736
[display_total_sum] => 1 084 340
)
1
1 084 340₽
Работа:433 736 ₽
Материалы:650 604 ₽
Дни:20
stdClass Object
(
[id] => 145
[attribute_id] => 19
[name] => Комбинированный
[material_modifier] => 1
[work_modifier] => 1
[options] => Array
(
)
[days] => [20]
[material_price] => [4629]
[work_price] => [3499]
[image] => https://akademik-stroy.ru/wp-content/uploads/materials/Kombinirovannyj.jpg
[area_modifier] => 145.51
[parent_name] => Наружная отделка фасада
[parent_id] => 19
[material_sum] => 929521
[work_sum] => 585510
[total_sum] => 1515031
[total_days] => 20
[display_material_sum] => 929 521
[display_work_sum] => 585 510
[display_total_sum] => 1 515 031
)
1
1 515 031₽
Работа:585 510 ₽
Материалы:929 521 ₽
Дни:20
stdClass Object
(
[id] => 257
[attribute_id] => 19
[name] => Японские фиброцементные
[material_modifier] => 1
[work_modifier] => 1
[options] => Array
(
)
[days] => [20]
[material_price] => [7043]
[work_price] => [2993]
[image] => https://akademik-stroy.ru/wp-content/uploads/materials/paneli.jpg
[area_modifier] => 145.51
[parent_name] => Наружная отделка фасада
[parent_id] => 19
[material_sum] => 1414261
[work_sum] => 500838
[total_sum] => 1915099
[total_days] => 20
[display_material_sum] => 1 414 261
[display_work_sum] => 500 838
[display_total_sum] => 1 915 099
)
1
1 915 099₽
Работа:500 838 ₽
Материалы:1 414 261 ₽
Дни:20
stdClass Object
(
[id] => 258
[attribute_id] => 19
[name] => Панели Каньон
[material_modifier] => 1
[work_modifier] => 1
[options] => Array
(
)
[days] => [20]
[material_price] => [4543]
[work_price] => [2592]
[image] => https://akademik-stroy.ru/wp-content/uploads/materials/kanon.png
[area_modifier] => 145.51
[parent_name] => Наружная отделка фасада
[parent_id] => 19
[material_sum] => 912252
[work_sum] => 433736
[total_sum] => 1345988
[total_days] => 20
[display_material_sum] => 912 252
[display_work_sum] => 433 736
[display_total_sum] => 1 345 988
)
1
1 345 988₽
Работа:433 736 ₽
Материалы:912 252 ₽
Дни:20
stdClass Object
(
[id] => 39
[attribute_id] => 20
[name] => Нет
[material_modifier] => 1
[work_modifier] => 1
[options] => Array
(
)
[days] => [0]
[material_price] => [0]
[work_price] => [0]
[image] => https://akademik-stroy.ru/wp-content/uploads/materials/terrasy.jpg
[area_modifier] => 30
[parent_name] => Террасы, крыльца, навесы
[parent_id] => 20
[material_sum] => 0
[work_sum] => 0
[total_sum] => 0
[total_days] => 0
[display_material_sum] => 0
[display_work_sum] => 0
[display_total_sum] => 0
)
1
0₽
Работа:0 ₽
Материалы:0 ₽
Дни:0
stdClass Object
(
[id] => 40
[attribute_id] => 20
[name] => Есть
[material_modifier] => 1
[work_modifier] => 1
[options] => Array
(
)
[days] => [5]
[material_price] => [10450]
[work_price] => [1950]
[image] => https://akademik-stroy.ru/wp-content/uploads/materials/terrasy.jpg
[area_modifier] => 30
[parent_name] => Террасы, крыльца, навесы
[parent_id] => 20
[material_sum] => 432630
[work_sum] => 67275
[total_sum] => 499905
[total_days] => 5
[display_material_sum] => 432 630
[display_work_sum] => 67 275
[display_total_sum] => 499 905
)
1
499 905₽
Работа:67 275 ₽
Материалы:432 630 ₽
Дни:5
stdClass Object
(
[id] => 41
[attribute_id] => 21
[name] => Нет
[material_modifier] => 1
[work_modifier] => 1
[options] => Array
(
)
[days] => [0]
[material_price] => [0]
[work_price] => [0]
[image] => https://akademik-stroy.ru/wp-content/uploads/materials/balkony.jpg
[area_modifier] => 30
[parent_name] => Балконы
[parent_id] => 21
[material_sum] => 0
[work_sum] => 0
[total_sum] => 0
[total_days] => 0
[display_material_sum] => 0
[display_work_sum] => 0
[display_total_sum] => 0
)
1
0₽
Работа:0 ₽
Материалы:0 ₽
Дни:0
stdClass Object
(
[id] => 42
[attribute_id] => 21
[name] => Есть
[material_modifier] => 1
[work_modifier] => 1
[options] => Array
(
)
[days] => [12]
[material_price] => [3600]
[work_price] => [1950]
[image] => https://akademik-stroy.ru/wp-content/uploads/materials/balkony.jpg
[area_modifier] => 30
[parent_name] => Балконы
[parent_id] => 21
[material_sum] => 149040
[work_sum] => 67275
[total_sum] => 216315
[total_days] => 12
[display_material_sum] => 149 040
[display_work_sum] => 67 275
[display_total_sum] => 216 315
)
1
216 315₽
Работа:67 275 ₽
Материалы:149 040 ₽
Дни:12
stdClass Object
(
[id] => 43
[attribute_id] => 22
[name] => Нет
[material_modifier] => 1
[work_modifier] => 1
[options] => Array
(
)
[days] => [0]
[material_price] => [0]
[work_price] => [0]
[image] => https://akademik-stroy.ru/wp-content/uploads/materials/uteplennaya.jpg
[area_modifier] => 74.84
[parent_name] => Отмостка
[parent_id] => 22
[material_sum] => 0
[work_sum] => 0
[total_sum] => 0
[total_days] => 0
[display_material_sum] => 0
[display_work_sum] => 0
[display_total_sum] => 0
)
1
0₽
Работа:0 ₽
Материалы:0 ₽
Дни:0
stdClass Object
(
[id] => 44
[attribute_id] => 22
[name] => Утепленная отмостка
[material_modifier] => 1
[work_modifier] => 1
[options] => Array
(
)
[days] => [15]
[material_price] => [2550]
[work_price] => [1750]
[image] => https://akademik-stroy.ru/wp-content/uploads/materials/uteplennaya.jpg
[area_modifier] => 74.84
[parent_name] => Отмостка
[parent_id] => 22
[material_sum] => 263362
[work_sum] => 150616
[total_sum] => 413978
[total_days] => 15
[display_material_sum] => 263 362
[display_work_sum] => 150 616
[display_total_sum] => 413 978
)
1
413 978₽
Работа:150 616 ₽
Материалы:263 362 ₽
Дни:15
stdClass Object
(
[id] => 146
[attribute_id] => 22
[name] => Не утепленная отмостка
[material_modifier] => 1
[work_modifier] => 1
[options] => Array
(
)
[days] => [10]
[material_price] => [1650]
[work_price] => [1450]
[image] => https://akademik-stroy.ru/wp-content/uploads/materials/ne-uteplennaya.jpg
[area_modifier] => 74.84
[parent_name] => Отмостка
[parent_id] => 22
[material_sum] => 170411
[work_sum] => 124796
[total_sum] => 295207
[total_days] => 10
[display_material_sum] => 170 411
[display_work_sum] => 124 796
[display_total_sum] => 295 207
)
1
295 207₽
Работа:124 796 ₽
Материалы:170 411 ₽
Дни:10
stdClass Object
(
[id] => 45
[attribute_id] => 23
[name] => Нет
[material_modifier] => 1
[work_modifier] => 1
[options] => Array
(
)
[days] => [0]
[material_price] => [0]
[work_price] => [0]
[image] => https://akademik-stroy.ru/wp-content/uploads/materials/drenazh-2.jpg
[area_modifier] => 74.84
[parent_name] => Дренаж вокруг дома
[parent_id] => 23
[material_sum] => 0
[work_sum] => 0
[total_sum] => 0
[total_days] => 0
[display_material_sum] => 0
[display_work_sum] => 0
[display_total_sum] => 0
)
1
0₽
Работа:0 ₽
Материалы:0 ₽
Дни:0
stdClass Object
(
[id] => 46
[attribute_id] => 23
[name] => Есть
[material_modifier] => 1
[work_modifier] => 1
[options] => Array
(
)
[days] => [5]
[material_price] => [2366]
[work_price] => [1911]
[image] => https://akademik-stroy.ru/wp-content/uploads/materials/drenazh-2.jpg
[area_modifier] => 74.84
[parent_name] => Дренаж вокруг дома
[parent_id] => 23
[material_sum] => 244359
[work_sum] => 164472
[total_sum] => 408831
[total_days] => 5
[display_material_sum] => 244 359
[display_work_sum] => 164 472
[display_total_sum] => 408 831
)
1
408 831₽
Работа:164 472 ₽
Материалы:244 359 ₽
Дни:5
stdClass Object
(
[id] => 47
[attribute_id] => 24
[name] => Нет
[material_modifier] => 1
[work_modifier] => 1
[options] => Array
(
)
[days] => [0]
[material_price] => [0]
[work_price] => [0]
[image] => https://akademik-stroy.ru/wp-content/uploads/materials/septik.jpg
[area_modifier] => 1
[parent_name] => Автономная канализация (септики)
[parent_id] => 24
[material_sum] => 0
[work_sum] => 0
[total_sum] => 0
[total_days] => 0
[display_material_sum] => 0
[display_work_sum] => 0
[display_total_sum] => 0
)
1
0₽
Работа:0 ₽
Материалы:0 ₽
Дни:0
stdClass Object
(
[id] => 48
[attribute_id] => 24
[name] => Есть
[material_modifier] => 1
[work_modifier] => 1
[options] => Array
(
[0] => Для дачи на 4 человека
[1] => Для дома на 5 человек
[2] => Для дома на 6 человек
[3] => Для дома на 7 человек
[4] => Для дома на 10 человек
)
[days] => [7,7,7,8,8]
[material_price] => [196340,220500,240940,264200,293340]
[work_price] => [50000,55000,60500,66550,73206]
[image] => https://akademik-stroy.ru/wp-content/uploads/materials/septik.jpg
[area_modifier] => 1
[parent_name] => Автономная канализация (септики)
[parent_id] => 24
[material_sum] => 270949
[work_sum] => 57500
[total_sum] => 328449
[total_days] => 7
[display_material_sum] => 270 949
[display_work_sum] => 57 500
[display_total_sum] => 328 449
)
1
328 449₽
Работа:57 500 ₽
Материалы:270 949 ₽
Дни:7
stdClass Object
(
[id] => 49
[attribute_id] => 25
[name] => Нет
[material_modifier] => 1
[work_modifier] => 1
[options] => Array
(
)
[days] => [0]
[material_price] => [0]
[work_price] => [0]
[image] => https://akademik-stroy.ru/wp-content/uploads/materials/gkl.jpg
[area_modifier] => 145.51
[parent_name] => Внутренние (не несущие) перегородки
[parent_id] => 25
[material_sum] => 0
[work_sum] => 0
[total_sum] => 0
[total_days] => 0
[display_material_sum] => 0
[display_work_sum] => 0
[display_total_sum] => 0
)
1
0₽
Работа:0 ₽
Материалы:0 ₽
Дни:0
stdClass Object
(
[id] => 147
[attribute_id] => 25
[name] => Каркасно-обшивные
[material_modifier] => 1
[work_modifier] => 1
[options] => Array
(
[0] => 75 мм (без шумоизоляции)
[1] => 75 мм (с шумоизоляцией)
)
[days] => [11,11]
[material_price] => [580,970]
[work_price] => [380,570]
[image] => https://akademik-stroy.ru/wp-content/uploads/materials/gkl.jpg
[area_modifier] => 145.51
[parent_name] => Внутренние (не несущие) перегородки
[parent_id] => 25
[material_sum] => 116466
[work_sum] => 63588
[total_sum] => 180054
[total_days] => 11
[display_material_sum] => 116 466
[display_work_sum] => 63 588
[display_total_sum] => 180 054
)
1
180 054₽
Работа:63 588 ₽
Материалы:116 466 ₽
Дни:11
stdClass Object
(
[id] => 148
[attribute_id] => 25
[name] => Пазогребневые
[material_modifier] => 1
[work_modifier] => 1
[options] => Array
(
[0] => 80 мм
[1] => 100 мм
)
[days] => [5,5]
[material_price] => [1022,1313]
[work_price] => [600,700]
[image] => https://akademik-stroy.ru/wp-content/uploads/materials/pazogrebnevye-bloki.jpg
[area_modifier] => 145.51
[parent_name] => Внутренние (не несущие) перегородки
[parent_id] => 25
[material_sum] => 205221
[work_sum] => 100402
[total_sum] => 305623
[total_days] => 5
[display_material_sum] => 205 221
[display_work_sum] => 100 402
[display_total_sum] => 305 623
)
1
305 623₽
Работа:100 402 ₽
Материалы:205 221 ₽
Дни:5
stdClass Object
(
[id] => 149
[attribute_id] => 25
[name] => Газобетонные
[material_modifier] => 1
[work_modifier] => 1
[options] => Array
(
[0] => 100 мм
[1] => 200 мм
)
[days] => [11,11]
[material_price] => [1160,1920]
[work_price] => [700,900]
[image] => https://akademik-stroy.ru/wp-content/uploads/materials/gazobeton-2.jpg
[area_modifier] => 145.51
[parent_name] => Внутренние (не несущие) перегородки
[parent_id] => 25
[material_sum] => 232932
[work_sum] => 117136
[total_sum] => 350068
[total_days] => 11
[display_material_sum] => 232 932
[display_work_sum] => 117 136
[display_total_sum] => 350 068
)
1
350 068₽
Работа:117 136 ₽
Материалы:232 932 ₽
Дни:11
stdClass Object
(
[id] => 150
[attribute_id] => 25
[name] => Кирпичные
[material_modifier] => 1
[work_modifier] => 1
[options] => Array
(
[0] => 120 мм
[1] => 250 мм
[2] => 360 мм
)
[days] => [7,7,7]
[material_price] => [1785,3570,5355]
[work_price] => [900,1600,1800]
[image] => https://akademik-stroy.ru/wp-content/uploads/materials/kirpich-1.jpg
[area_modifier] => 145.51
[parent_name] => Внутренние (не несущие) перегородки
[parent_id] => 25
[material_sum] => 358435
[work_sum] => 150603
[total_sum] => 509038
[total_days] => 7
[display_material_sum] => 358 435
[display_work_sum] => 150 603
[display_total_sum] => 509 038
)
1
509 038₽
Работа:150 603 ₽
Материалы:358 435 ₽
Дни:7
stdClass Object
(
[id] => 55
[attribute_id] => 28
[name] => Нет
[material_modifier] => 1
[work_modifier] => 1
[options] => Array
(
)
[days] => [0]
[material_price] => [0]
[work_price] => [0]
[image] => https://akademik-stroy.ru/wp-content/uploads/materials/ehlektrika.jpg
[area_modifier] => 118.08
[parent_name] => Электрика
[parent_id] => 28
[material_sum] => 0
[work_sum] => 0
[total_sum] => 0
[total_days] => 0
[display_material_sum] => 0
[display_work_sum] => 0
[display_total_sum] => 0
)
1
0₽
Работа:0 ₽
Материалы:0 ₽
Дни:0
stdClass Object
(
[id] => 56
[attribute_id] => 28
[name] => Есть
[material_modifier] => 1
[work_modifier] => 1
[options] => Array
(
)
[days] => [10]
[material_price] => [650]
[work_price] => [950]
[image] => https://akademik-stroy.ru/wp-content/uploads/materials/ehlektrika.jpg
[area_modifier] => 118.08
[parent_name] => Электрика
[parent_id] => 28
[material_sum] => 105918
[work_sum] => 129002
[total_sum] => 234920
[total_days] => 10
[display_material_sum] => 105 918
[display_work_sum] => 129 002
[display_total_sum] => 234 920
)
1
234 920₽
Работа:129 002 ₽
Материалы:105 918 ₽
Дни:10
stdClass Object
(
[id] => 57
[attribute_id] => 29
[name] => Нет
[material_modifier] => 1
[work_modifier] => 1
[options] => Array
(
)
[days] => [0]
[material_price] => [0]
[work_price] => [0]
[image] => https://akademik-stroy.ru/wp-content/uploads/materials/santekhnika-kanalizaciya-1.jpg
[area_modifier] => 118.08
[parent_name] => Сантехника, канализация в доме
[parent_id] => 29
[material_sum] => 0
[work_sum] => 0
[total_sum] => 0
[total_days] => 0
[display_material_sum] => 0
[display_work_sum] => 0
[display_total_sum] => 0
)
1
0₽
Работа:0 ₽
Материалы:0 ₽
Дни:0
stdClass Object
(
[id] => 58
[attribute_id] => 29
[name] => Есть
[material_modifier] => 1
[work_modifier] => 1
[options] => Array
(
)
[days] => [10]
[material_price] => [600]
[work_price] => [730]
[image] => https://akademik-stroy.ru/wp-content/uploads/materials/santekhnika-kanalizaciya-1.jpg
[area_modifier] => 118.08
[parent_name] => Сантехника, канализация в доме
[parent_id] => 29
[material_sum] => 97770
[work_sum] => 99128
[total_sum] => 196898
[total_days] => 10
[display_material_sum] => 97 770
[display_work_sum] => 99 128
[display_total_sum] => 196 898
)
1
196 898₽
Работа:99 128 ₽
Материалы:97 770 ₽
Дни:10
stdClass Object
(
[id] => 59
[attribute_id] => 30
[name] => Нет
[material_modifier] => 1
[work_modifier] => 1
[options] => Array
(
)
[days] => [0]
[material_price] => [0]
[work_price] => [0]
[image] => https://akademik-stroy.ru/wp-content/uploads/materials/otoplenie-1.jpg
[area_modifier] => 118.08
[parent_name] => Отопление
[parent_id] => 30
[material_sum] => 0
[work_sum] => 0
[total_sum] => 0
[total_days] => 0
[display_material_sum] => 0
[display_work_sum] => 0
[display_total_sum] => 0
)
1
0₽
Работа:0 ₽
Материалы:0 ₽
Дни:0
stdClass Object
(
[id] => 60
[attribute_id] => 30
[name] => Есть
[material_modifier] => 1
[work_modifier] => 1
[options] => Array
(
)
[days] => [5]
[material_price] => [610]
[work_price] => [560]
[image] => https://akademik-stroy.ru/wp-content/uploads/materials/otoplenie-1.jpg
[area_modifier] => 118.08
[parent_name] => Отопление
[parent_id] => 30
[material_sum] => 99400
[work_sum] => 76044
[total_sum] => 175444
[total_days] => 5
[display_material_sum] => 99 400
[display_work_sum] => 76 044
[display_total_sum] => 175 444
)
1
175 444₽
Работа:76 044 ₽
Материалы:99 400 ₽
Дни:5
stdClass Object
(
[id] => 61
[attribute_id] => 31
[name] => Нет
[material_modifier] => 1
[work_modifier] => 1
[options] => Array
(
)
[days] => [0]
[material_price] => [0]
[work_price] => [0]
[image] => https://akademik-stroy.ru/wp-content/uploads/materials/vodyanye.jpg
[area_modifier] => 30
[parent_name] => Теплые полы
[parent_id] => 31
[material_sum] => 0
[work_sum] => 0
[total_sum] => 0
[total_days] => 0
[display_material_sum] => 0
[display_work_sum] => 0
[display_total_sum] => 0
)
1
0₽
Работа:0 ₽
Материалы:0 ₽
Дни:0
stdClass Object
(
[id] => 151
[attribute_id] => 31
[name] => Водяные
[material_modifier] => 1
[work_modifier] => 1
[options] => Array
(
)
[days] => [9]
[material_price] => [10200]
[work_price] => [2500]
[image] => https://akademik-stroy.ru/wp-content/uploads/materials/vodyanye.jpg
[area_modifier] => 30
[parent_name] => Теплые полы
[parent_id] => 31
[material_sum] => 422280
[work_sum] => 86250
[total_sum] => 508530
[total_days] => 9
[display_material_sum] => 422 280
[display_work_sum] => 86 250
[display_total_sum] => 508 530
)
1
508 530₽
Работа:86 250 ₽
Материалы:422 280 ₽
Дни:9
stdClass Object
(
[id] => 152
[attribute_id] => 31
[name] => Электро
[material_modifier] => 1
[work_modifier] => 1
[options] => Array
(
)
[days] => [5]
[material_price] => [6300]
[work_price] => [1500]
[image] => https://akademik-stroy.ru/wp-content/uploads/materials/ehlektricheskij.jpg
[area_modifier] => 30
[parent_name] => Теплые полы
[parent_id] => 31
[material_sum] => 260820
[work_sum] => 51750
[total_sum] => 312570
[total_days] => 5
[display_material_sum] => 260 820
[display_work_sum] => 51 750
[display_total_sum] => 312 570
)
1
312 570₽
Работа:51 750 ₽
Материалы:260 820 ₽
Дни:5
stdClass Object
(
[id] => 63
[attribute_id] => 32
[name] => Нет
[material_modifier] => 1
[work_modifier] => 1
[options] => Array
(
)
[days] => [0]
[material_price] => [0]
[work_price] => [0]
[image] => https://akademik-stroy.ru/wp-content/uploads/materials/shtukaturka-shpatlevka-1.jpg
[area_modifier] => 118.08
[parent_name] => Черновая отделка стен
[parent_id] => 32
[material_sum] => 0
[work_sum] => 0
[total_sum] => 0
[total_days] => 0
[display_material_sum] => 0
[display_work_sum] => 0
[display_total_sum] => 0
)
1
0₽
Работа:0 ₽
Материалы:0 ₽
Дни:0
stdClass Object
(
[id] => 153
[attribute_id] => 32
[name] => Штукатурка и шпатлевка
[material_modifier] => 1
[work_modifier] => 1
[options] => Array
(
)
[days] => [20]
[material_price] => [1850]
[work_price] => [2600]
[image] => https://akademik-stroy.ru/wp-content/uploads/materials/shtukaturka-shpatlevka-1.jpg
[area_modifier] => 118.08
[parent_name] => Черновая отделка стен
[parent_id] => 32
[material_sum] => 301458
[work_sum] => 353059
[total_sum] => 654517
[total_days] => 20
[display_material_sum] => 301 458
[display_work_sum] => 353 059
[display_total_sum] => 654 517
)
1
654 517₽
Работа:353 059 ₽
Материалы:301 458 ₽
Дни:20
stdClass Object
(
[id] => 154
[attribute_id] => 32
[name] => Гипсокортон на стены
[material_modifier] => 1
[work_modifier] => 1
[options] => Array
(
)
[days] => [15]
[material_price] => [950]
[work_price] => [2100]
[image] => https://akademik-stroy.ru/wp-content/uploads/materials/gkl-1.jpg
[area_modifier] => 118.08
[parent_name] => Черновая отделка стен
[parent_id] => 32
[material_sum] => 154803
[work_sum] => 285163
[total_sum] => 439966
[total_days] => 15
[display_material_sum] => 154 803
[display_work_sum] => 285 163
[display_total_sum] => 439 966
)
1
439 966₽
Работа:285 163 ₽
Материалы:154 803 ₽
Дни:15
stdClass Object
(
[id] => 155
[attribute_id] => 32
[name] => Вагонка
[material_modifier] => 1
[work_modifier] => 1
[options] => Array
(
)
[days] => [15]
[material_price] => [1250]
[work_price] => [950]
[image] => https://akademik-stroy.ru/wp-content/uploads/materials/vagonka.jpg
[area_modifier] => 118.08
[parent_name] => Черновая отделка стен
[parent_id] => 32
[material_sum] => 203688
[work_sum] => 129002
[total_sum] => 332690
[total_days] => 15
[display_material_sum] => 203 688
[display_work_sum] => 129 002
[display_total_sum] => 332 690
)
1
332 690₽
Работа:129 002 ₽
Материалы:203 688 ₽
Дни:15
stdClass Object
(
[id] => 65
[attribute_id] => 33
[name] => Нет
[material_modifier] => 1
[work_modifier] => 1
[options] => Array
(
)
[days] => [0]
[material_price] => [0]
[work_price] => [0]
[image] => https://akademik-stroy.ru/wp-content/uploads/materials/styazhka.jpg
[area_modifier] => 118.08
[parent_name] => Черновая отделка полов
[parent_id] => 33
[material_sum] => 0
[work_sum] => 0
[total_sum] => 0
[total_days] => 0
[display_material_sum] => 0
[display_work_sum] => 0
[display_total_sum] => 0
)
1
0₽
Работа:0 ₽
Материалы:0 ₽
Дни:0
stdClass Object
(
[id] => 156
[attribute_id] => 33
[name] => Стяжка + наливные полы
[material_modifier] => 1
[work_modifier] => 1
[options] => Array
(
)
[days] => [10]
[material_price] => [1000]
[work_price] => [900]
[image] => https://akademik-stroy.ru/wp-content/uploads/materials/styazhka.jpg
[area_modifier] => 118.08
[parent_name] => Черновая отделка полов
[parent_id] => 33
[material_sum] => 162950
[work_sum] => 122213
[total_sum] => 285163
[total_days] => 10
[display_material_sum] => 162 950
[display_work_sum] => 122 213
[display_total_sum] => 285 163
)
1
285 163₽
Работа:122 213 ₽
Материалы:162 950 ₽
Дни:10
stdClass Object
(
[id] => 157
[attribute_id] => 33
[name] => ОСБ на пол
[material_modifier] => 1
[work_modifier] => 1
[options] => Array
(
)
[days] => [7]
[material_price] => [580]
[work_price] => [350]
[image] => https://akademik-stroy.ru/wp-content/uploads/materials/osb-1.jpg
[area_modifier] => 118.08
[parent_name] => Черновая отделка полов
[parent_id] => 33
[material_sum] => 94511
[work_sum] => 47527
[total_sum] => 142038
[total_days] => 7
[display_material_sum] => 94 511
[display_work_sum] => 47 527
[display_total_sum] => 142 038
)
1
142 038₽
Работа:47 527 ₽
Материалы:94 511 ₽
Дни:7
stdClass Object
(
[id] => 67
[attribute_id] => 34
[name] => Нет
[material_modifier] => 1
[work_modifier] => 1
[options] => Array
(
)
[days] => [0]
[material_price] => [0]
[work_price] => [0]
[image] => https://akademik-stroy.ru/wp-content/uploads/materials/chistovaya-otdelka.jpg
[area_modifier] => 118.08
[parent_name] => Чистовая отделка стен и полов
[parent_id] => 34
[material_sum] => 0
[work_sum] => 0
[total_sum] => 0
[total_days] => 0
[display_material_sum] => 0
[display_work_sum] => 0
[display_total_sum] => 0
)
1
0₽
Работа:0 ₽
Материалы:0 ₽
Дни:0
stdClass Object
(
[id] => 68
[attribute_id] => 34
[name] => Есть
[material_modifier] => 1
[work_modifier] => 1
[options] => Array
(
)
[days] => [50]
[material_price] => [6000]
[work_price] => [3500]
[image] => https://akademik-stroy.ru/wp-content/uploads/materials/chistovaya-otdelka.jpg
[area_modifier] => 118.08
[parent_name] => Чистовая отделка стен и полов
[parent_id] => 34
[material_sum] => 977702
[work_sum] => 475272
[total_sum] => 1452974
[total_days] => 50
[display_material_sum] => 977 702
[display_work_sum] => 475 272
[display_total_sum] => 1 452 974
)
1
1 452 974₽
Работа:475 272 ₽
Материалы:977 702 ₽
Дни:50
stdClass Object
(
[id] => 69
[attribute_id] => 35
[name] => Нет
[material_modifier] => 1
[work_modifier] => 1
[options] => Array
(
)
[days] => [0]
[material_price] => [0]
[work_price] => [0]
[image] => https://akademik-stroy.ru/wp-content/uploads/materials/mnogourovnevyj-gkl.jpg
[area_modifier] => 118.08
[parent_name] => Отделка потолка
[parent_id] => 35
[material_sum] => 0
[work_sum] => 0
[total_sum] => 0
[total_days] => 0
[display_material_sum] => 0
[display_work_sum] => 0
[display_total_sum] => 0
)
1
0₽
Работа:0 ₽
Материалы:0 ₽
Дни:0
stdClass Object
(
[id] => 70
[attribute_id] => 35
[name] => Есть
[material_modifier] => 1
[work_modifier] => 1
[options] => Array
(
[0] => Многоуровневый потолок из гипсокартона
[1] => Многоуровневый потолок из гипсокартона и натяжного потолка
[2] => Одноуровневый потолок из гипсокартона
[3] => Одноуровневый натяжной потолок
)
[days] => [10,10,1,1]
[material_price] => [900,700,700,600]
[work_price] => [1000,800,500,300]
[image] => https://akademik-stroy.ru/wp-content/uploads/materials/mnogourovnevyj-gkl.jpg
[area_modifier] => 118.08
[parent_name] => Отделка потолка
[parent_id] => 35
[material_sum] => 146655
[work_sum] => 135792
[total_sum] => 282447
[total_days] => 10
[display_material_sum] => 146 655
[display_work_sum] => 135 792
[display_total_sum] => 282 447
)
1
282 447₽
Работа:135 792 ₽
Материалы:146 655 ₽
Дни:10
Преимущества работы с нами
7 этапов оплаты
Независимый строительный надзор
Экологически чистые материалы
16 лет гарантии
Онлайн-кабинет с веб-камерой
Строители с опытом более 15 лет
Собственное производство






