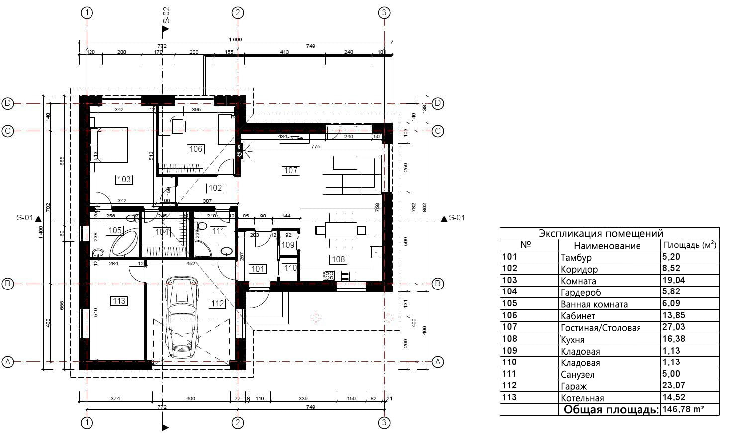
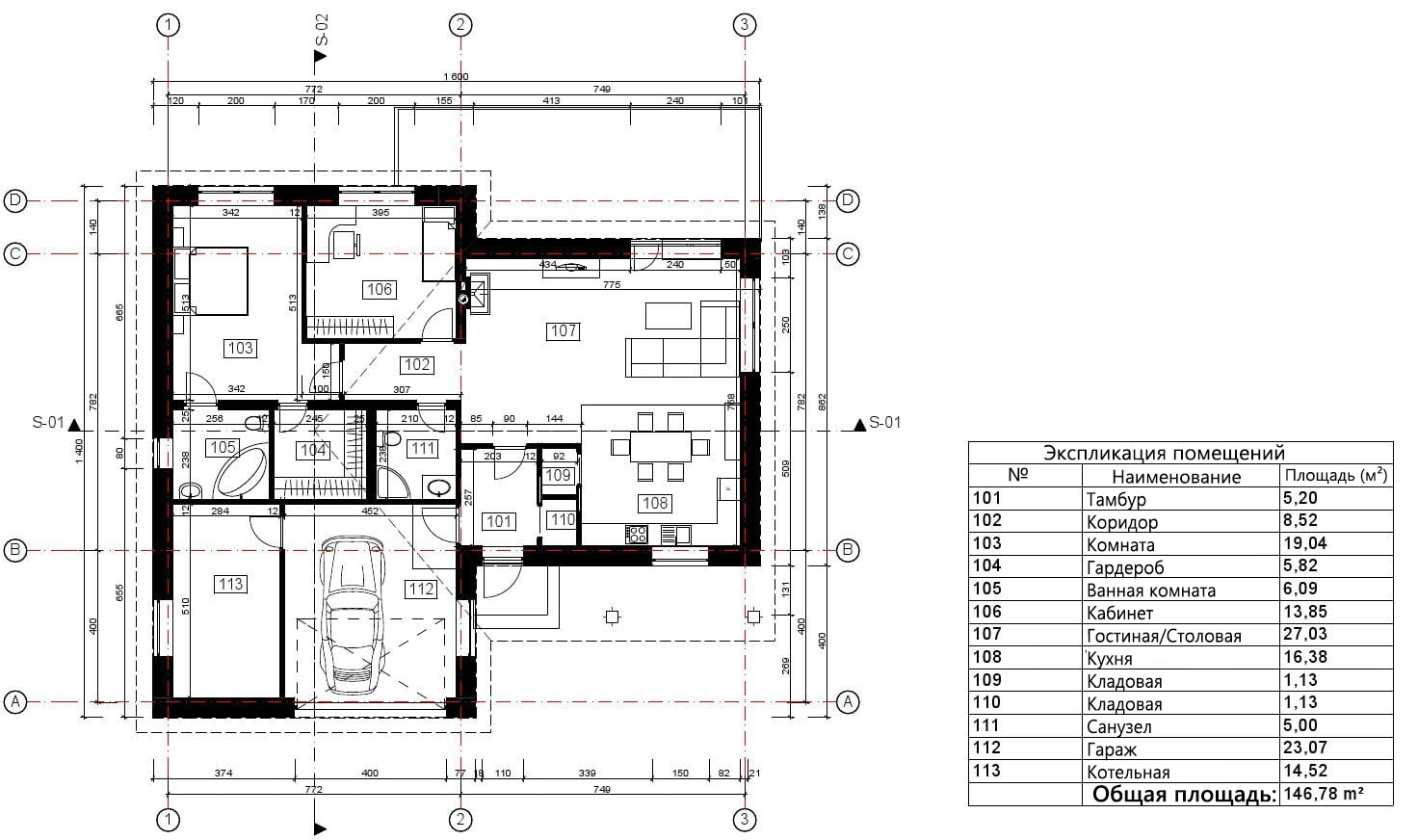
Одноэтажный дом 146.78 м2 за руб.
Планировки
План первого этажа
- 1. Тамбур 5,20 м²
- 2. Коридор 8,52 м²
- 3. Комната 19,04 м²
- 4. Гардероб 5,82 м²
- 5. Ванная комната 6,09 м²
- 6. Кабинет 13,85 м²
- 7. Гостиная-Столовая 27,03 м²
- 8. Кухня 16,38 м²
- 9. Кладовая 1,13 м²
- 10. Кладовая 1,13 м²
- 11. Санузел 5,00 м²
- 12. Гараж 23,07 м²
- 13. Котельная 14,52 м²
- Общая площадь первый этаж 146,78 м²
Площади дома
| № п/п | Наименование | Ед. из. | Строительная площадь | Полезная площадь |
| 1 | 1 этаж | м2 | 180.88 | 146.78 |
| 2 | Итого | м2 | 180.88 | 146.78 |
154 м2
Полезная
площадь
площадь
1 этаж
Этажей
26 м2
Террасы
и балконы
и балконы
1Без
гаража
гаража
2
Количество
спален
спален
2
Количество
санузлов
санузлов
Калькулятор опций
0₽
В ипотеку от 23 615 ₽/мес.
0₽
0 дней
stdClass Object
(
[id] => 1
[attribute_id] => 1
[name] => Ленточный монолитный ж/б
[material_modifier] => 1
[work_modifier] => 1
[options] => Array
(
[0] => размер 200 х 700 мм
[1] => размер 300 х 900 мм
[2] => размер 400 х 1 000 мм
[3] => размер 500 х 1 100 мм
[4] => размер 600 х 1 200 мм
)
[days] => [20,21,22,25,30]
[material_price] => [2823,3630,4475,5210,12047]
[work_price] => [2154,2826,3731,4577,5293]
[image] => https://akademik-stroy.ru/wp-content/uploads/materials/lentochnyj-monolitnyj-zh-b.jpg
[area_modifier] => 180.88
[parent_name] => Фундамент
[parent_id] => 1
[material_sum] => 674024
[work_sum] => 428577
[total_sum] => 1102601
[total_days] => 20
[display_material_sum] => 674 024
[display_work_sum] => 428 577
[display_total_sum] => 1 102 601
)
1
1 102 601₽
Работа:428 577 ₽
Материалы:674 024 ₽
Дни:20
stdClass Object
(
[id] => 2
[attribute_id] => 1
[name] => Забивные Ж/Б сваи
[material_modifier] => 1
[work_modifier] => 1
[options] => Array
(
[0] => 150х150х3000мм
[1] => 150х150х4000мм
[2] => 200х200х3000мм
[3] => 200х200х4000мм
[4] => 200х200х5000мм
[5] => 200х200х6000мм
)
[days] => [2,2,2,2,2,2]
[material_price] => [1990,2850,3255,4360,5120,6837]
[work_price] => [1002,1185,1336,1438,1574,1839]
[image] => https://akademik-stroy.ru/wp-content/uploads/materials/zabivnye-zh-b-svai.png
[area_modifier] => 180.88
[parent_name] => Фундамент
[parent_id] => 1
[material_sum] => 475136
[work_sum] => 199366
[total_sum] => 674502
[total_days] => 2
[display_material_sum] => 475 136
[display_work_sum] => 199 366
[display_total_sum] => 674 502
)
1
674 502₽
Работа:199 366 ₽
Материалы:475 136 ₽
Дни:2
stdClass Object
(
[id] => 71
[attribute_id] => 1
[name] => Свайно-ростверковый ж/б
[material_modifier] => 1
[work_modifier] => 1
[options] => Array
(
[0] => ростверк 200х300 мм
[1] => ростверк 300х600 мм
[2] => ростверк 400х900 мм
[3] => ростверк 500х1200 мм
)
[days] => [20,23,25,27]
[material_price] => [3018,3474,7109,9792]
[work_price] => [2024,3012,5635,7022]
[image] => https://akademik-stroy.ru/wp-content/uploads/materials/svajno-rostverkovyj-monolitnyj-zh-b-3.png
[area_modifier] => 180.88
[parent_name] => Фундамент
[parent_id] => 1
[material_sum] => 720583
[work_sum] => 402711
[total_sum] => 1123294
[total_days] => 20
[display_material_sum] => 720 583
[display_work_sum] => 402 711
[display_total_sum] => 1 123 294
)
1
1 123 294₽
Работа:402 711 ₽
Материалы:720 583 ₽
Дни:20
stdClass Object
(
[id] => 72
[attribute_id] => 1
[name] => Монолитная ж/б плита
[material_modifier] => 1
[work_modifier] => 1
[options] => Array
(
[0] => 200 мм
[1] => 300 мм
[2] => 400 мм
[3] => 500 мм
[4] => 600 мм
)
[days] => [30,33,35,37,40]
[material_price] => [5348,8555,12788,14388,15189]
[work_price] => [4314,4881,7037,8061,10230]
[image] => https://akademik-stroy.ru/wp-content/uploads/materials/monolitnaya-zhb-plita.png
[area_modifier] => 180.88
[parent_name] => Фундамент
[parent_id] => 1
[material_sum] => 1276897
[work_sum] => 858348
[total_sum] => 2135245
[total_days] => 30
[display_material_sum] => 1 276 897
[display_work_sum] => 858 348
[display_total_sum] => 2 135 245
)
1
2 135 245₽
Работа:858 348 ₽
Материалы:1 276 897 ₽
Дни:30
stdClass Object
(
[id] => 73
[attribute_id] => 1
[name] => Утепленная шведская плита
[material_modifier] => 1
[work_modifier] => 1
[options] => Array
(
[0] => 200 мм
[1] => 300 мм
[2] => 400 мм
[3] => 500 мм
[4] => 600 мм
)
[days] => [32,37,39,42,45]
[material_price] => [10249,12692,13760,14936,16230]
[work_price] => [5960,7337,8072,8878,9765]
[image] => https://akademik-stroy.ru/wp-content/uploads/materials/uteplennaya-shvedskaya-plita.jpg
[area_modifier] => 180.88
[parent_name] => Фундамент
[parent_id] => 1
[material_sum] => 2447068
[work_sum] => 1185849
[total_sum] => 3632917
[total_days] => 32
[display_material_sum] => 2 447 068
[display_work_sum] => 1 185 849
[display_total_sum] => 3 632 917
)
1
3 632 917₽
Работа:1 185 849 ₽
Материалы:2 447 068 ₽
Дни:32
stdClass Object
(
[id] => 75
[attribute_id] => 1
[name] => Ленточный из ФБС
[material_modifier] => 1
[work_modifier] => 1
[options] => Array
(
[0] => толщ. 300 мм
[1] => толщ. 400 мм
[2] => толщ. 500 мм
[3] => толщ. 600 мм
)
[days] => [20,20,20,20]
[material_price] => [3675,4902,6126,7350]
[work_price] => [2451,3264,4083,4902]
[image] => https://akademik-stroy.ru/wp-content/uploads/materials/lentochnyj-iz-fbs.png
[area_modifier] => 180.88
[parent_name] => Фундамент
[parent_id] => 1
[material_sum] => 877449
[work_sum] => 487671
[total_sum] => 1365120
[total_days] => 20
[display_material_sum] => 877 449
[display_work_sum] => 487 671
[display_total_sum] => 1 365 120
)
1
1 365 120₽
Работа:487 671 ₽
Материалы:877 449 ₽
Дни:20
stdClass Object
(
[id] => 76
[attribute_id] => 1
[name] => Цокольный этаж из ФБС
[material_modifier] => 1
[work_modifier] => 1
[options] => Array
(
[0] => толщ. 300 мм
[1] => толщ. 400 мм
[2] => толщ. 500 мм
[3] => толщ. 600 мм
)
[days] => [30,32,34,36]
[material_price] => [20916,23299,26680,29060]
[work_price] => [17524,18700,19873,21046]
[image] => https://akademik-stroy.ru/wp-content/uploads/materials/cokolnyj-ehtazh-iz-fbs.jpg
[area_modifier] => 180.88
[parent_name] => Фундамент
[parent_id] => 1
[material_sum] => 4993938
[work_sum] => 3486715
[total_sum] => 8480653
[total_days] => 30
[display_material_sum] => 4 993 938
[display_work_sum] => 3 486 715
[display_total_sum] => 8 480 653
)
1
8 480 653₽
Работа:3 486 715 ₽
Материалы:4 993 938 ₽
Дни:30
stdClass Object
(
[id] => 77
[attribute_id] => 1
[name] => Цокольный этаж монолитный ж/б
[material_modifier] => 1
[work_modifier] => 1
[options] => Array
(
[0] => толщ. 200 мм
[1] => толщ. 300 мм
[2] => толщ. 400 мм
[3] => толщ. 500 мм
[4] => толщ. 600 мм
)
[days] => [40,42,44,46,48]
[material_price] => [25421,29148,32275,35602,37326]
[work_price] => [20441,21907,23375,24841,26306]
[image] => https://akademik-stroy.ru/wp-content/uploads/materials/cokolnyj-etazh-zh-b.jpg
[area_modifier] => 180.88
[parent_name] => Фундамент
[parent_id] => 1
[material_sum] => 6069559
[work_sum] => 4067105
[total_sum] => 10136664
[total_days] => 40
[display_material_sum] => 6 069 559
[display_work_sum] => 4 067 105
[display_total_sum] => 10 136 664
)
1
10 136 664₽
Работа:4 067 105 ₽
Материалы:6 069 559 ₽
Дни:40
stdClass Object
(
[id] => 191
[attribute_id] => 1
[name] => Винтовые сваи
[material_modifier] => 1
[work_modifier] => 1
[options] => Array
(
[0] => 57х200мм
[1] => 76х250мм
[2] => 108х300мм
[3] => 133х350мм
)
[days] => [1,1,2,2]
[material_price] => [1200,1300,1450,1600]
[work_price] => [400,600,900,1100]
[image] => https://akademik-stroy.ru/wp-content/uploads/materials/vintovye-svai.png
[area_modifier] => 180.88
[parent_name] => Фундамент
[parent_id] => 1
[material_sum] => 286514
[work_sum] => 79587
[total_sum] => 366101
[total_days] => 1
[display_material_sum] => 286 514
[display_work_sum] => 79 587
[display_total_sum] => 366 101
)
1
366 101₽
Работа:79 587 ₽
Материалы:286 514 ₽
Дни:1
stdClass Object
(
[id] => 3
[attribute_id] => 2
[name] => Деревянные балки
[material_modifier] => 1
[work_modifier] => 1
[options] => Array
(
[0] => без утепления
[1] => утепление 200 мм
[2] => утепление 250 мм
[3] => утепление 300 мм
[4] => утепление 350 мм
[5] => утепление 400 мм
[6] => утепление 450 мм
[7] => утепление 500 мм
)
[days] => [8,9,9,9,11,12,13,14]
[material_price] => [1634,2042,2344,2947,3149,3652,3354,3557]
[work_price] => [1230,1339,1393,1426,1460,1513,1587,1620]
[image] => https://akademik-stroy.ru/wp-content/uploads/materials/derevyannye-balki.png
[area_modifier] => 180.88
[parent_name] => Перекрытие цоколя
[parent_id] => 2
[material_sum] => 390136
[work_sum] => 244731
[total_sum] => 634867
[total_days] => 8
[display_material_sum] => 390 136
[display_work_sum] => 244 731
[display_total_sum] => 634 867
)
1
634 867₽
Работа:244 731 ₽
Материалы:390 136 ₽
Дни:8
stdClass Object
(
[id] => 4
[attribute_id] => 2
[name] => Сборные ж/б плиты
[material_modifier] => 1
[work_modifier] => 1
[options] => Array
(
[0] => без утепления
[1] => утепление 150мм
[2] => утепление 200мм
[3] => утепление 250мм
[4] => утепление 300мм
[5] => утепление 350мм
[6] => утепление 400мм
[7] => утепление 450мм
[8] => утепление 500мм
)
[days] => [13,15,15,15,15,15,15,15,15]
[material_price] => [3067,5577,5928,6679,7730,8782,9833,10884,11935]
[work_price] => [1520,1956,2102,2247,2392,2537,2684,2829,2974]
[image] => https://akademik-stroy.ru/wp-content/uploads/materials/sbornye-zh-b-plity-2.jpg
[area_modifier] => 180.88
[parent_name] => Перекрытие цоколя
[parent_id] => 2
[material_sum] => 732282
[work_sum] => 302431
[total_sum] => 1034713
[total_days] => 13
[display_material_sum] => 732 282
[display_work_sum] => 302 431
[display_total_sum] => 1 034 713
)
1
1 034 713₽
Работа:302 431 ₽
Материалы:732 282 ₽
Дни:13
stdClass Object
(
[id] => 78
[attribute_id] => 2
[name] => Монолитная ж/б плита
[material_modifier] => 1
[work_modifier] => 1
[options] => Array
(
[0] => без утепления
[1] => утепление 150 мм
[2] => утепление 200 мм
[3] => утепление 250 мм
[4] => утепление 300 мм
[5] => утепление 350 мм
[6] => утепление 400 мм
[7] => утепление 450 мм
[8] => утепление 500 мм
)
[days] => [18,20,20,20,20,20,20,20,20]
[material_price] => [4837,6572,7224,7375,79426,8177,8728,9180,10031]
[work_price] => [3348,3921,4112,4302,4493,4684,4875,5066,5256]
[image] => https://akademik-stroy.ru/wp-content/uploads/materials/monolitnaya-zh-b-plita-2.jpg
[area_modifier] => 180.88
[parent_name] => Перекрытие цоколя
[parent_id] => 2
[material_sum] => 1154890
[work_sum] => 666145
[total_sum] => 1821035
[total_days] => 18
[display_material_sum] => 1 154 890
[display_work_sum] => 666 145
[display_total_sum] => 1 821 035
)
1
1 821 035₽
Работа:666 145 ₽
Материалы:1 154 890 ₽
Дни:18
stdClass Object
(
[id] => 6
[attribute_id] => 3
[name] => Пеноблок
[material_modifier] => 1
[work_modifier] => 1
[options] => Array
(
[0] => 300 мм
[1] => 400 мм
[2] => 500 мм
[3] => 600 мм
)
[days] => [29,31,34,39]
[material_price] => [3000,4000,4500,4937]
[work_price] => [5033,5805,6400,8710]
[image] => https://akademik-stroy.ru/wp-content/uploads/materials/penoblok.jpg
[area_modifier] => 180.88
[parent_name] => Стены 1 этаж (несущие)
[parent_id] => 3
[material_sum] => 716285
[work_sum] => 1001406
[total_sum] => 1717691
[total_days] => 29
[display_material_sum] => 716 285
[display_work_sum] => 1 001 406
[display_total_sum] => 1 717 691
)
1
1 717 691₽
Работа:1 001 406 ₽
Материалы:716 285 ₽
Дни:29
stdClass Object
(
[id] => 79
[attribute_id] => 3
[name] => Керамический блок
[material_modifier] => 1
[work_modifier] => 1
[options] => Array
(
[0] => 380 мм
[1] => 380 мм Thermo
[2] => 440 мм
[3] => 510 мм
)
[days] => [23,23,24,25]
[material_price] => [4510,5098,6093,8013]
[work_price] => [4737,4937,5903,6958]
[image] => https://akademik-stroy.ru/wp-content/uploads/materials/keramicheskij-blok.jpg
[area_modifier] => 180.88
[parent_name] => Стены 1 этаж (несущие)
[parent_id] => 3
[material_sum] => 1076815
[work_sum] => 942511
[total_sum] => 2019326
[total_days] => 23
[display_material_sum] => 1 076 815
[display_work_sum] => 942 511
[display_total_sum] => 2 019 326
)
1
2 019 326₽
Работа:942 511 ₽
Материалы:1 076 815 ₽
Дни:23
stdClass Object
(
[id] => 80
[attribute_id] => 3
[name] => Кирпич
[material_modifier] => 1
[work_modifier] => 1
[options] => Array
(
[0] => Кирпич 250 мм
[1] => Кирпич 380 мм
[2] => Кирпич 510 мм
[3] => Кирпич 640 мм
[4] => Кирпич 770 мм
)
[days] => [30,30,31,33,36]
[material_price] => [5500,7142,9206,10171,12235]
[work_price] => [8736,10041,12018,15240,18462]
[image] => https://akademik-stroy.ru/wp-content/uploads/materials/kirpich.jpg
[area_modifier] => 180.88
[parent_name] => Стены 1 этаж (несущие)
[parent_id] => 3
[material_sum] => 1313189
[work_sum] => 1738184
[total_sum] => 3051373
[total_days] => 30
[display_material_sum] => 1 313 189
[display_work_sum] => 1 738 184
[display_total_sum] => 3 051 373
)
1
3 051 373₽
Работа:1 738 184 ₽
Материалы:1 313 189 ₽
Дни:30
stdClass Object
(
[id] => 81
[attribute_id] => 3
[name] => Монолитные
[material_modifier] => 1
[work_modifier] => 1
[options] => Array
(
[0] => 150 мм
[1] => 200 мм
[2] => 250 мм
[3] => 300 мм
[4] => 350 мм
[5] => 400 мм
)
[days] => [45,46,47,49,50,53]
[material_price] => [6545,7876,10175,12011,13908,15204]
[work_price] => [5106,6444,7698,8552,9807,11461]
[image] => https://akademik-stroy.ru/wp-content/uploads/materials/monolitnye.jpg
[area_modifier] => 180.88
[parent_name] => Стены 1 этаж (несущие)
[parent_id] => 3
[material_sum] => 1562695
[work_sum] => 1015931
[total_sum] => 2578626
[total_days] => 45
[display_material_sum] => 1 562 695
[display_work_sum] => 1 015 931
[display_total_sum] => 2 578 626
)
1
2 578 626₽
Работа:1 015 931 ₽
Материалы:1 562 695 ₽
Дни:45
stdClass Object
(
[id] => 82
[attribute_id] => 3
[name] => Клееный брус
[material_modifier] => 1
[work_modifier] => 1
[options] => Array
(
[0] => 160 мм
[1] => 175 мм
[2] => 200 мм
[3] => 215 мм
[4] => 240 мм
[5] => 270 мм
[6] => 282 мм
)
[days] => [24,28,32,37,40,42,48]
[material_price] => [16975,18773,19950,20545,21599,22159,23275]
[work_price] => [4806,5287,5815,6397,7036,7740,8514]
[image] => https://akademik-stroy.ru/wp-content/uploads/materials/kleenyj-brus.jpg
[area_modifier] => 180.88
[parent_name] => Стены 1 этаж (несущие)
[parent_id] => 3
[material_sum] => 4052978
[work_sum] => 956240
[total_sum] => 5009218
[total_days] => 24
[display_material_sum] => 4 052 978
[display_work_sum] => 956 240
[display_total_sum] => 5 009 218
)
1
5 009 218₽
Работа:956 240 ₽
Материалы:4 052 978 ₽
Дни:24
stdClass Object
(
[id] => 83
[attribute_id] => 3
[name] => Каркасные
[material_modifier] => 1
[work_modifier] => 1
[options] => Array
(
[0] => 150 мм
[1] => 200 мм
[2] => 250 мм
[3] => 300 мм
)
[days] => [15,16,17,18]
[material_price] => [2379,2639,2898,3258]
[work_price] => [2418,2686,2985,3716]
[image] => https://akademik-stroy.ru/wp-content/uploads/materials/karkasnye.jpg
[area_modifier] => 180.88
[parent_name] => Стены 1 этаж (несущие)
[parent_id] => 3
[material_sum] => 568014
[work_sum] => 481105
[total_sum] => 1049119
[total_days] => 15
[display_material_sum] => 568 014
[display_work_sum] => 481 105
[display_total_sum] => 1 049 119
)
1
1 049 119₽
Работа:481 105 ₽
Материалы:568 014 ₽
Дни:15
stdClass Object
(
[id] => 84
[attribute_id] => 3
[name] => СИП-панели
[material_modifier] => 1
[work_modifier] => 1
[options] => Array
(
[0] => 120 мм
[1] => 170 мм
[2] => 220 мм
)
[days] => [7,7,7]
[material_price] => [1210,1856,2292]
[work_price] => [1410,1551,1706]
[image] => https://akademik-stroy.ru/wp-content/uploads/materials/sip-paneli.jpg
[area_modifier] => 180.88
[parent_name] => Стены 1 этаж (несущие)
[parent_id] => 3
[material_sum] => 288902
[work_sum] => 280545
[total_sum] => 569447
[total_days] => 7
[display_material_sum] => 288 902
[display_work_sum] => 280 545
[display_total_sum] => 569 447
)
1
569 447₽
Работа:280 545 ₽
Материалы:288 902 ₽
Дни:7
stdClass Object
(
[id] => 85
[attribute_id] => 3
[name] => Сухой брус
[material_modifier] => 1
[work_modifier] => 1
[options] => Array
(
[0] => 150 мм
[1] => 180 мм
[2] => 200 мм
)
[days] => [7,8,9]
[material_price] => [6010,7190,8709]
[work_price] => [3204,3845,4229]
[image] => https://akademik-stroy.ru/wp-content/uploads/materials/suhoj-brus.jpg
[area_modifier] => 180.88
[parent_name] => Стены 1 этаж (несущие)
[parent_id] => 3
[material_sum] => 1434957
[work_sum] => 637493
[total_sum] => 2072450
[total_days] => 7
[display_material_sum] => 1 434 957
[display_work_sum] => 637 493
[display_total_sum] => 2 072 450
)
1
2 072 450₽
Работа:637 493 ₽
Материалы:1 434 957 ₽
Дни:7
stdClass Object
(
[id] => 86
[attribute_id] => 3
[name] => Профилированный брус
[material_modifier] => 1
[work_modifier] => 1
[options] => Array
(
[0] => 150 мм
[1] => 180 мм
[2] => 200 мм
)
[days] => [7,8,9]
[material_price] => [8190,9228,10051]
[work_price] => [3845,4614,5075]
[image] => https://akademik-stroy.ru/wp-content/uploads/materials/profilirovannyj-brus.jpg
[area_modifier] => 180.88
[parent_name] => Стены 1 этаж (несущие)
[parent_id] => 3
[material_sum] => 1955458
[work_sum] => 765032
[total_sum] => 2720490
[total_days] => 7
[display_material_sum] => 1 955 458
[display_work_sum] => 765 032
[display_total_sum] => 2 720 490
)
1
2 720 490₽
Работа:765 032 ₽
Материалы:1 955 458 ₽
Дни:7
stdClass Object
(
[id] => 87
[attribute_id] => 3
[name] => Оцилиндрованное бревно
[material_modifier] => 1
[work_modifier] => 1
[options] => Array
(
[0] => 180 мм
[1] => 220 мм
[2] => 260 мм
[3] => 320 мм
)
[days] => [7,8,9,10]
[material_price] => [75190,9532,10868,13116]
[work_price] => [3845,4691,5535,6863]
[image] => https://akademik-stroy.ru/wp-content/uploads/materials/ocilindrovannoe-brevno-1.jpg
[area_modifier] => 180.88
[parent_name] => Стены 1 этаж (несущие)
[parent_id] => 3
[material_sum] => 17952485
[work_sum] => 765032
[total_sum] => 18717517
[total_days] => 7
[display_material_sum] => 17 952 485
[display_work_sum] => 765 032
[display_total_sum] => 18 717 517
)
1
18 717 517₽
Работа:765 032 ₽
Материалы:17 952 485 ₽
Дни:7
stdClass Object
(
[id] => 88
[attribute_id] => 3
[name] => Срубы
[material_modifier] => 1
[work_modifier] => 1
[options] => Array
(
[0] => 260 мм
[1] => 320 мм
[2] => 360 мм
[3] => 400 мм
[4] => 500 мм
)
[days] => [7,8,9,10,11]
[material_price] => [37975,46709,52314,58069,73167]
[work_price] => [4806,5911,6621,7349,9260]
[image] => https://akademik-stroy.ru/wp-content/uploads/materials/sruby.jpg
[area_modifier] => 180.88
[parent_name] => Стены 1 этаж (несущие)
[parent_id] => 3
[material_sum] => 9066972
[work_sum] => 956240
[total_sum] => 10023212
[total_days] => 7
[display_material_sum] => 9 066 972
[display_work_sum] => 956 240
[display_total_sum] => 10 023 212
)
1
10 023 212₽
Работа:956 240 ₽
Материалы:9 066 972 ₽
Дни:7
stdClass Object
(
[id] => 174
[attribute_id] => 3
[name] => Брус
[material_modifier] => 1
[work_modifier] => 1
[options] => Array
(
[0] => 150 мм
[1] => 180 мм
[2] => 200 мм
)
[days] => [7,8,9]
[material_price] => [5127,6152,7367]
[work_price] => [1602,1922,2115]
[image] => https://akademik-stroy.ru/wp-content/uploads/materials/brus.jpg
[area_modifier] => 180.88
[parent_name] => Стены 1 этаж (несущие)
[parent_id] => 3
[material_sum] => 1224131
[work_sum] => 318747
[total_sum] => 1542878
[total_days] => 7
[display_material_sum] => 1 224 131
[display_work_sum] => 318 747
[display_total_sum] => 1 542 878
)
1
1 542 878₽
Работа:318 747 ₽
Материалы:1 224 131 ₽
Дни:7
stdClass Object
(
[id] => 175
[attribute_id] => 3
[name] => Газобетон
[material_modifier] => 1
[work_modifier] => 1
[options] => Array
(
[0] => 300 мм
[1] => 375 мм
[2] => 400 мм
[3] => 500 мм
[4] => 600 мм
)
[days] => [29,31,35,37,44]
[material_price] => [4298,5573,6356,7288,9119]
[work_price] => [4538,5251,5926,6733,7195]
[image] => https://akademik-stroy.ru/wp-content/uploads/materials/gazobeton.jpg
[area_modifier] => 180.88
[parent_name] => Стены 1 этаж (несущие)
[parent_id] => 3
[material_sum] => 1026197
[work_sum] => 902917
[total_sum] => 1929114
[total_days] => 29
[display_material_sum] => 1 026 197
[display_work_sum] => 902 917
[display_total_sum] => 1 929 114
)
1
1 929 114₽
Работа:902 917 ₽
Материалы:1 026 197 ₽
Дни:29
stdClass Object
(
[id] => 176
[attribute_id] => 3
[name] => Блок
[material_modifier] => 1
[work_modifier] => 1
[options] => Array
(
[0] => 300 мм
[1] => 375 мм
[2] => 400 мм
[3] => 500 мм
[4] => 600 мм
)
[days] => [29,31,35,37,44]
[material_price] => [2698,3973,4356,6588,7119]
[work_price] => [5038,5851,6426,8733,9195]
[image] => https://akademik-stroy.ru/wp-content/uploads/materials/blok.jpg
[area_modifier] => 180.88
[parent_name] => Стены 1 этаж (несущие)
[parent_id] => 3
[material_sum] => 644179
[work_sum] => 1002401
[total_sum] => 1646580
[total_days] => 29
[display_material_sum] => 644 179
[display_work_sum] => 1 002 401
[display_total_sum] => 1 646 580
)
1
1 646 580₽
Работа:1 002 401 ₽
Материалы:644 179 ₽
Дни:29
stdClass Object
(
[id] => 177
[attribute_id] => 3
[name] => Газосиликатный блок
[material_modifier] => 1
[work_modifier] => 1
[options] => Array
(
[0] => 300 мм
[1] => 375 мм
[2] => 400 мм
[3] => 500 мм
[4] => 600 мм
)
[days] => [29,31,35,37,44]
[material_price] => [4298,5573,6356,7288,9119]
[work_price] => [4538,5251,5926,6733,7195]
[image] => https://akademik-stroy.ru/wp-content/uploads/materials/gazosilikatnyj-blok.jpg
[area_modifier] => 180.88
[parent_name] => Стены 1 этаж (несущие)
[parent_id] => 3
[material_sum] => 1026197
[work_sum] => 902917
[total_sum] => 1929114
[total_days] => 29
[display_material_sum] => 1 026 197
[display_work_sum] => 902 917
[display_total_sum] => 1 929 114
)
1
1 929 114₽
Работа:902 917 ₽
Материалы:1 026 197 ₽
Дни:29
stdClass Object
(
[id] => 178
[attribute_id] => 3
[name] => Керамзитобетонный блок
[material_modifier] => 1
[work_modifier] => 1
[options] => Array
(
[0] => 300 мм
[1] => 375 мм
[2] => 400 мм
[3] => 500 мм
[4] => 600 мм
)
[days] => [23,23,24,25,28]
[material_price] => [3641,4298,5693,7613,9612]
[work_price] => [5737,5737,6903,7958,8901]
[image] => https://akademik-stroy.ru/wp-content/uploads/materials/keramzitobetonnyj-blok.jpg
[area_modifier] => 180.88
[parent_name] => Стены 1 этаж (несущие)
[parent_id] => 3
[material_sum] => 869331
[work_sum] => 1141479
[total_sum] => 2010810
[total_days] => 23
[display_material_sum] => 869 331
[display_work_sum] => 1 141 479
[display_total_sum] => 2 010 810
)
1
2 010 810₽
Работа:1 141 479 ₽
Материалы:869 331 ₽
Дни:23
stdClass Object
(
[id] => 179
[attribute_id] => 3
[name] => Деревянные
[material_modifier] => 1
[work_modifier] => 1
[options] => Array
(
[0] => 180 мм
[1] => 220 мм
[2] => 260 мм
[3] => 320 мм
)
[days] => [7,8,9,10]
[material_price] => [7950,9458,11961,14472]
[work_price] => [4037,4925,5812,7207]
[image] => https://akademik-stroy.ru/wp-content/uploads/materials/derevyannye.jpg
[area_modifier] => 180.88
[parent_name] => Стены 1 этаж (несущие)
[parent_id] => 3
[material_sum] => 1898155
[work_sum] => 803234
[total_sum] => 2701389
[total_days] => 7
[display_material_sum] => 1 898 155
[display_work_sum] => 803 234
[display_total_sum] => 2 701 389
)
1
2 701 389₽
Работа:803 234 ₽
Материалы:1 898 155 ₽
Дни:7
stdClass Object
(
[id] => 181
[attribute_id] => 3
[name] => Камень
[material_modifier] => 1
[work_modifier] => 1
[options] => Array
(
[0] => 300 мм
[1] => 400 мм
[2] => 500 мм
[3] => 600 мм
)
[days] => [25,27,31,34]
[material_price] => [5262,6844,8330,9815]
[work_price] => [8331,9135,10427,11069]
[image] => https://akademik-stroy.ru/wp-content/uploads/materials/kamen.jpg
[area_modifier] => 180.88
[parent_name] => Стены 1 этаж (несущие)
[parent_id] => 3
[material_sum] => 1256364
[work_sum] => 1657602
[total_sum] => 2913966
[total_days] => 25
[display_material_sum] => 1 256 364
[display_work_sum] => 1 657 602
[display_total_sum] => 2 913 966
)
1
2 913 966₽
Работа:1 657 602 ₽
Материалы:1 256 364 ₽
Дни:25
stdClass Object
(
[id] => 182
[attribute_id] => 3
[name] => Каркасно-щитовые
[material_modifier] => 1
[work_modifier] => 1
[options] => Array
(
[0] => 150 мм
[1] => 200 мм
[2] => 250 мм
[3] => 300 мм
[4] => 350 мм
[5] => 400 мм
)
[days] => [15,16,17,18,19,20]
[material_price] => [2379,2639,2898,3458,3601,4175]
[work_price] => [2538,2820,3134,3483,4062,5642]
[image] => https://akademik-stroy.ru/wp-content/uploads/materials/karkasno-shchitovye.jpg
[area_modifier] => 180.88
[parent_name] => Стены 1 этаж (несущие)
[parent_id] => 3
[material_sum] => 568014
[work_sum] => 504981
[total_sum] => 1072995
[total_days] => 15
[display_material_sum] => 568 014
[display_work_sum] => 504 981
[display_total_sum] => 1 072 995
)
1
1 072 995₽
Работа:504 981 ₽
Материалы:568 014 ₽
Дни:15
stdClass Object
(
[id] => 183
[attribute_id] => 3
[name] => Рубленные
[material_modifier] => 1
[work_modifier] => 1
[options] => Array
(
[0] => 150 мм
[1] => 200 мм
[2] => 250 мм
[3] => 300 мм
[4] => 350 мм
[5] => 400 мм
)
[days] => [15,16,17,18,17,18]
[material_price] => [35950,50267,60583,75900,80217,100533]
[work_price] => [9612,12816,16020,19224,22428,25632]
[image] => https://akademik-stroy.ru/wp-content/uploads/materials/rublennye.jpg
[area_modifier] => 180.88
[parent_name] => Стены 1 этаж (несущие)
[parent_id] => 3
[material_sum] => 8583480
[work_sum] => 1912480
[total_sum] => 10495960
[total_days] => 15
[display_material_sum] => 8 583 480
[display_work_sum] => 1 912 480
[display_total_sum] => 10 495 960
)
1
10 495 960₽
Работа:1 912 480 ₽
Материалы:8 583 480 ₽
Дни:15
stdClass Object
(
[id] => 185
[attribute_id] => 3
[name] => Теплоблок
[material_modifier] => 1
[work_modifier] => 1
[options] => Array
(
[0] => 300 мм (с облицовкой, не покрашенный)
[1] => 400 мм (с облицовкой, не покрашенный)
[2] => 300 мм (с облицовкой, покрашенный)
[3] => 400 мм (с облицовкой, покрашенный)
)
[days] => [15,16,15,16]
[material_price] => [2888,3729,3957,4258]
[work_price] => [2564,3229,2949,3713]
[image] => https://akademik-stroy.ru/wp-content/uploads/materials/teploblok.jpg
[area_modifier] => 180.88
[parent_name] => Стены 1 этаж (несущие)
[parent_id] => 3
[material_sum] => 689544
[work_sum] => 510154
[total_sum] => 1199698
[total_days] => 15
[display_material_sum] => 689 544
[display_work_sum] => 510 154
[display_total_sum] => 1 199 698
)
1
1 199 698₽
Работа:510 154 ₽
Материалы:689 544 ₽
Дни:15
stdClass Object
(
[id] => 186
[attribute_id] => 3
[name] => Арболитовые блоки
[material_modifier] => 1
[work_modifier] => 1
[options] => Array
(
[0] => 300 мм
[1] => 400 мм
[2] => 600 мм
)
[days] => [19,22,27]
[material_price] => [3210,4475,5852]
[work_price] => [4214,4788,5866]
[image] => https://akademik-stroy.ru/wp-content/uploads/materials/arbolitovye-bloki.png
[area_modifier] => 180.88
[parent_name] => Стены 1 этаж (несущие)
[parent_id] => 3
[material_sum] => 766425
[work_sum] => 838451
[total_sum] => 1604876
[total_days] => 19
[display_material_sum] => 766 425
[display_work_sum] => 838 451
[display_total_sum] => 1 604 876
)
1
1 604 876₽
Работа:838 451 ₽
Материалы:766 425 ₽
Дни:19
stdClass Object
(
[id] => 187
[attribute_id] => 3
[name] => Полистиролбетон
[material_modifier] => 1
[work_modifier] => 1
[options] => Array
(
[0] => 300 мм
[1] => 400 мм
[2] => 600 мм
)
[days] => [29,31,35]
[material_price] => [2798,4573,5256]
[work_price] => [5038,5851,6426]
[image] => https://akademik-stroy.ru/wp-content/uploads/materials/polistirolbeton.jpg
[area_modifier] => 180.88
[parent_name] => Стены 1 этаж (несущие)
[parent_id] => 3
[material_sum] => 668055
[work_sum] => 1002401
[total_sum] => 1670456
[total_days] => 29
[display_material_sum] => 668 055
[display_work_sum] => 1 002 401
[display_total_sum] => 1 670 456
)
1
1 670 456₽
Работа:1 002 401 ₽
Материалы:668 055 ₽
Дни:29
stdClass Object
(
[id] => 188
[attribute_id] => 3
[name] => Шлакоблок
[material_modifier] => 1
[work_modifier] => 1
[options] => Array
(
[0] => 400 мм
[1] => 600 мм
)
[days] => [15,16]
[material_price] => [2391,3471]
[work_price] => [2642,3662]
[image] => https://akademik-stroy.ru/wp-content/uploads/materials/shlakoblok.jpg
[area_modifier] => 180.88
[parent_name] => Стены 1 этаж (несущие)
[parent_id] => 3
[material_sum] => 570879
[work_sum] => 525673
[total_sum] => 1096552
[total_days] => 15
[display_material_sum] => 570 879
[display_work_sum] => 525 673
[display_total_sum] => 1 096 552
)
1
1 096 552₽
Работа:525 673 ₽
Материалы:570 879 ₽
Дни:15
stdClass Object
(
[id] => 189
[attribute_id] => 3
[name] => Теплая керамика
[material_modifier] => 1
[work_modifier] => 1
[options] => Array
(
[0] => 380 мм
[1] => 380 мм Thermo
[2] => 440 мм
[3] => 510 мм
)
[days] => [23,23,24,25]
[material_price] => [4510,5098,6093,8013]
[work_price] => [4737,4937,5903,6958]
[image] => https://akademik-stroy.ru/wp-content/uploads/materials/teplaya-keramika.jpg
[area_modifier] => 180.88
[parent_name] => Стены 1 этаж (несущие)
[parent_id] => 3
[material_sum] => 1076815
[work_sum] => 942511
[total_sum] => 2019326
[total_days] => 23
[display_material_sum] => 1 076 815
[display_work_sum] => 942 511
[display_total_sum] => 2 019 326
)
1
2 019 326₽
Работа:942 511 ₽
Материалы:1 076 815 ₽
Дни:23
stdClass Object
(
[id] => 190
[attribute_id] => 3
[name] => Несъемная опалубка
[material_modifier] => 1
[work_modifier] => 1
[options] => Array
(
[0] => 200 мм
[1] => 250 мм
[2] => 300 мм
[3] => 350 мм
)
[days] => [15,17,19,21]
[material_price] => [3302,3902,4108,5008]
[work_price] => [2100,2100,2300,2534]
[image] => https://akademik-stroy.ru/wp-content/uploads/materials/nesemnaya-opalubka.jpg
[area_modifier] => 180.88
[parent_name] => Стены 1 этаж (несущие)
[parent_id] => 3
[material_sum] => 788391
[work_sum] => 417833
[total_sum] => 1206224
[total_days] => 15
[display_material_sum] => 788 391
[display_work_sum] => 417 833
[display_total_sum] => 1 206 224
)
1
1 206 224₽
Работа:417 833 ₽
Материалы:788 391 ₽
Дни:15
stdClass Object
(
[id] => 251
[attribute_id] => 3
[name] => Бревно
[material_modifier] => 1
[work_modifier] => 1
[options] => Array
(
[0] => 260 мм
[1] => 320 мм
[2] => 360 мм
[3] => 400 мм
[4] => 500 мм
)
[days] => [7,8,9,10,11]
[material_price] => [1874,24045,26930,30972,38825]
[work_price] => [5046,6207,6952,7716,9723]
[image] => https://akademik-stroy.ru/wp-content/uploads/materials/sruby.jpg
[area_modifier] => 180.88
[parent_name] => Стены 1 этаж (несущие)
[parent_id] => 3
[material_sum] => 447439
[work_sum] => 1003993
[total_sum] => 1451432
[total_days] => 7
[display_material_sum] => 447 439
[display_work_sum] => 1 003 993
[display_total_sum] => 1 451 432
)
1
1 451 432₽
Работа:1 003 993 ₽
Материалы:447 439 ₽
Дни:7
stdClass Object
(
[id] => 7
[attribute_id] => 4
[name] => Деревянные балки
[material_modifier] => 1
[work_modifier] => 1
[options] => Array
(
[0] => без утепления
[1] => утепление 200 мм
[2] => утепление 250 мм
[3] => утепление 300 мм
[4] => утепление 350 мм
[5] => утепление 400 мм
[6] => утепление 450 мм
[7] => утепление 500 мм
)
[days] => [8,9,9,9,11,12,13,14]
[material_price] => [1634,2042,2344,2947,3149,3652,3354,3557]
[work_price] => [1230,1339,1393,1426,1460,1513,1587,1620]
[image] => https://akademik-stroy.ru/wp-content/uploads/materials/derevyannye-balki.png
[area_modifier] => 180.88
[parent_name] => Перекрытие первого этажа
[parent_id] => 4
[material_sum] => 390136
[work_sum] => 244731
[total_sum] => 634867
[total_days] => 8
[display_material_sum] => 390 136
[display_work_sum] => 244 731
[display_total_sum] => 634 867
)
1
634 867₽
Работа:244 731 ₽
Материалы:390 136 ₽
Дни:8
stdClass Object
(
[id] => 8
[attribute_id] => 4
[name] => Сборные ж/б плиты
[material_modifier] => 1
[work_modifier] => 1
[options] => Array
(
[0] => без утепления
[1] => утепление 150 мм
[2] => утепление 200 мм
[3] => утепление 250 мм
[4] => утепление 300 мм
[5] => утепление 350 мм
[6] => утепление 400 мм
[7] => утепление 450 мм
[8] => утепление 500 мм
)
[days] => [13,15,15,15,15,15,15,15,15]
[material_price] => [3067,5577,5928,6679,7730,8782,9833,10884,11935]
[work_price] => [1520,1956,2102,2247,2392,2537,2684,2829,2974]
[image] => https://akademik-stroy.ru/wp-content/uploads/materials/sbornye-zh-b-plity-2.jpg
[area_modifier] => 180.88
[parent_name] => Перекрытие первого этажа
[parent_id] => 4
[material_sum] => 732282
[work_sum] => 302431
[total_sum] => 1034713
[total_days] => 13
[display_material_sum] => 732 282
[display_work_sum] => 302 431
[display_total_sum] => 1 034 713
)
1
1 034 713₽
Работа:302 431 ₽
Материалы:732 282 ₽
Дни:13
stdClass Object
(
[id] => 89
[attribute_id] => 4
[name] => Монолитная ж/б плита
[material_modifier] => 1
[work_modifier] => 1
[options] => Array
(
[0] => без утепления
[1] => утепление 150 мм
[2] => утепление 200 мм
[3] => утепление 250 мм
[4] => утепление 300 мм
[5] => утепление 350 мм
[6] => утепление 400 мм
[7] => утепление 450 мм
[8] => утепление 500 мм
)
[days] => [18,20,20,20,20,20,20,20,20]
[material_price] => [4837,6572,7224,7375,79426,8177,8728,9180,10031]
[work_price] => [3348,3921,4112,4302,4493,4684,4875,5066,5256]
[image] => https://akademik-stroy.ru/wp-content/uploads/materials/monolitnaya-zh-b-plita-2.jpg
[area_modifier] => 180.88
[parent_name] => Перекрытие первого этажа
[parent_id] => 4
[material_sum] => 1154890
[work_sum] => 666145
[total_sum] => 1821035
[total_days] => 18
[display_material_sum] => 1 154 890
[display_work_sum] => 666 145
[display_total_sum] => 1 821 035
)
1
1 821 035₽
Работа:666 145 ₽
Материалы:1 154 890 ₽
Дни:18
stdClass Object
(
[id] => 164
[attribute_id] => 37
[name] => Металлочерепица
[material_modifier] => 1
[work_modifier] => 1
[options] => Array
(
)
[days] => [20]
[material_price] => [6112]
[work_price] => [5726]
[image] => https://akademik-stroy.ru/wp-content/uploads/materials/metallocherepica.jpg
[area_modifier] => 180.88
[parent_name] => Крыша (Скатная)
[parent_id] => 37
[material_sum] => 1459311
[work_sum] => 1139291
[total_sum] => 2598602
[total_days] => 20
[display_material_sum] => 1 459 311
[display_work_sum] => 1 139 291
[display_total_sum] => 2 598 602
)
1
2 598 602₽
Работа:1 139 291 ₽
Материалы:1 459 311 ₽
Дни:20
stdClass Object
(
[id] => 165
[attribute_id] => 37
[name] => Гибкая черепица
[material_modifier] => 1
[work_modifier] => 1
[options] => Array
(
)
[days] => [20]
[material_price] => [6980]
[work_price] => [5950]
[image] => https://akademik-stroy.ru/wp-content/uploads/materials/gibkaya-cherepica.jpg
[area_modifier] => 180.88
[parent_name] => Крыша (Скатная)
[parent_id] => 37
[material_sum] => 1666556
[work_sum] => 1183860
[total_sum] => 2850416
[total_days] => 20
[display_material_sum] => 1 666 556
[display_work_sum] => 1 183 860
[display_total_sum] => 2 850 416
)
1
2 850 416₽
Работа:1 183 860 ₽
Материалы:1 666 556 ₽
Дни:20
stdClass Object
(
[id] => 166
[attribute_id] => 37
[name] => Цементно-песчаная черепица
[material_modifier] => 1
[work_modifier] => 1
[options] => Array
(
)
[days] => [20]
[material_price] => [10560]
[work_price] => [9456]
[image] => https://akademik-stroy.ru/wp-content/uploads/materials/cementno-peschanaya-cherepica.jpg
[area_modifier] => 180.88
[parent_name] => Крыша (Скатная)
[parent_id] => 37
[material_sum] => 2521322
[work_sum] => 1881441
[total_sum] => 4402763
[total_days] => 20
[display_material_sum] => 2 521 322
[display_work_sum] => 1 881 441
[display_total_sum] => 4 402 763
)
1
4 402 763₽
Работа:1 881 441 ₽
Материалы:2 521 322 ₽
Дни:20
stdClass Object
(
[id] => 167
[attribute_id] => 37
[name] => Композитная черепица
[material_modifier] => 1
[work_modifier] => 1
[options] => Array
(
)
[days] => [20]
[material_price] => [9506]
[work_price] => [8905]
[image] => https://akademik-stroy.ru/wp-content/uploads/materials/kompozitnaya-cherepica.jpg
[area_modifier] => 180.88
[parent_name] => Крыша (Скатная)
[parent_id] => 37
[material_sum] => 2269668
[work_sum] => 1771810
[total_sum] => 4041478
[total_days] => 20
[display_material_sum] => 2 269 668
[display_work_sum] => 1 771 810
[display_total_sum] => 4 041 478
)
1
4 041 478₽
Работа:1 771 810 ₽
Материалы:2 269 668 ₽
Дни:20
stdClass Object
(
[id] => 168
[attribute_id] => 37
[name] => Керамическая черепица
[material_modifier] => 1
[work_modifier] => 1
[options] => Array
(
)
[days] => [20]
[material_price] => [12750]
[work_price] => [9456]
[image] => https://akademik-stroy.ru/wp-content/uploads/materials/keramicheskaya-cherepica.jpg
[area_modifier] => 180.88
[parent_name] => Крыша (Скатная)
[parent_id] => 37
[material_sum] => 3044210
[work_sum] => 1881441
[total_sum] => 4925651
[total_days] => 20
[display_material_sum] => 3 044 210
[display_work_sum] => 1 881 441
[display_total_sum] => 4 925 651
)
1
4 925 651₽
Работа:1 881 441 ₽
Материалы:3 044 210 ₽
Дни:20
stdClass Object
(
[id] => 169
[attribute_id] => 37
[name] => Металлическая фальцевая
[material_modifier] => 1
[work_modifier] => 1
[options] => Array
(
)
[days] => [20]
[material_price] => [8550]
[work_price] => [8190]
[image] => https://akademik-stroy.ru/wp-content/uploads/materials/metallicheskaya-falcevaya.jpg
[area_modifier] => 180.88
[parent_name] => Крыша (Скатная)
[parent_id] => 37
[material_sum] => 2041412
[work_sum] => 1629548
[total_sum] => 3670960
[total_days] => 20
[display_material_sum] => 2 041 412
[display_work_sum] => 1 629 548
[display_total_sum] => 3 670 960
)
1
3 670 960₽
Работа:1 629 548 ₽
Материалы:2 041 412 ₽
Дни:20
stdClass Object
(
[id] => 170
[attribute_id] => 37
[name] => Медная фальцевая
[material_modifier] => 1
[work_modifier] => 1
[options] => Array
(
)
[days] => [20]
[material_price] => [20450]
[work_price] => [16750]
[image] => https://akademik-stroy.ru/wp-content/uploads/materials/mednaya-falcevaya.jpg
[area_modifier] => 180.88
[parent_name] => Крыша (Скатная)
[parent_id] => 37
[material_sum] => 4882675
[work_sum] => 3332714
[total_sum] => 8215389
[total_days] => 20
[display_material_sum] => 4 882 675
[display_work_sum] => 3 332 714
[display_total_sum] => 8 215 389
)
1
8 215 389₽
Работа:3 332 714 ₽
Материалы:4 882 675 ₽
Дни:20
stdClass Object
(
[id] => 171
[attribute_id] => 37
[name] => Зеленая кровля
[material_modifier] => 1
[work_modifier] => 1
[options] => Array
(
)
[days] => [20]
[material_price] => [19850]
[work_price] => [16780]
[image] => https://akademik-stroy.ru/wp-content/uploads/materials/zelenaya-krovlya.jpg
[area_modifier] => 180.88
[parent_name] => Крыша (Скатная)
[parent_id] => 37
[material_sum] => 4739418
[work_sum] => 3338683
[total_sum] => 8078101
[total_days] => 20
[display_material_sum] => 4 739 418
[display_work_sum] => 3 338 683
[display_total_sum] => 8 078 101
)
1
8 078 101₽
Работа:3 338 683 ₽
Материалы:4 739 418 ₽
Дни:20
stdClass Object
(
[id] => 172
[attribute_id] => 37
[name] => Профлист
[material_modifier] => 1
[work_modifier] => 1
[options] => Array
(
)
[days] => [20]
[material_price] => [3450]
[work_price] => [3750]
[image] => https://akademik-stroy.ru/wp-content/uploads/materials/proflist.jpg
[area_modifier] => 180.88
[parent_name] => Крыша (Скатная)
[parent_id] => 37
[material_sum] => 823728
[work_sum] => 746130
[total_sum] => 1569858
[total_days] => 20
[display_material_sum] => 823 728
[display_work_sum] => 746 130
[display_total_sum] => 1 569 858
)
1
1 569 858₽
Работа:746 130 ₽
Материалы:823 728 ₽
Дни:20
stdClass Object
(
[id] => 51
[attribute_id] => 26
[name] => Есть
[material_modifier] => 1
[work_modifier] => 1
[options] => Array
(
[0] => Профиль 58 мм, 3-камерный, стеклопакет 2-камерный до 32 мм
[1] => Профиль 60 мм, 4-камерный, стеклопакет 2-камерный до 32 мм
[2] => Профиль 70 мм, 5-камерный, стеклопакет 2-камерный до 40 мм
[3] => Профиль 72 мм, 5-камерный, стеклопакет 2-камерный до 40 мм
[4] => Алюминиевые окна Alutech профиль 72 мм, стеклопакет 2-камерный
)
[days] => [3,3,3,3,3]
[material_price] => [1339,2124,2867,3023,29596]
[work_price] => [635,647,659,668,2579]
[image] => https://akademik-stroy.ru/wp-content/uploads/materials/okna.jpg
[area_modifier] => 146.78
[parent_name] => Окна
[parent_id] => 26
[material_sum] => 259431
[work_sum] => 102526
[total_sum] => 361957
[total_days] => 3
[display_material_sum] => 259 431
[display_work_sum] => 102 526
[display_total_sum] => 361 957
)
1
361 957₽
Работа:102 526 ₽
Материалы:259 431 ₽
Дни:3
stdClass Object
(
[id] => 52
[attribute_id] => 26
[name] => Нет
[material_modifier] => 2
[work_modifier] => 1
[options] =>
[days] => null
[material_price] => null
[work_price] => null
[image] => https://akademik-stroy.ru/wp-content/uploads/materials/okna.jpg
[area_modifier] => 146.78
[parent_name] => Окна
[parent_id] => 26
[material_sum] => 0
[work_sum] => 0
[total_sum] => 0
[total_days] => 0
[display_material_sum] => 0
[display_work_sum] => 0
[display_total_sum] => 0
)
1
0₽
Работа:0 ₽
Материалы:0 ₽
Дни:0
stdClass Object
(
[id] => 53
[attribute_id] => 27
[name] => Есть
[material_modifier] => 1
[work_modifier] => 1
[options] => Array
(
)
[days] => [1]
[material_price] => [10000]
[work_price] => [5500]
[image] => https://akademik-stroy.ru/wp-content/uploads/materials/dveri.jpg
[area_modifier] => 1
[parent_name] => Двери входные
[parent_id] => 27
[material_sum] => 13200
[work_sum] => 6050
[total_sum] => 19250
[total_days] => 1
[display_material_sum] => 13 200
[display_work_sum] => 6 050
[display_total_sum] => 19 250
)
1
19 250₽
Работа:6 050 ₽
Материалы:13 200 ₽
Дни:1
stdClass Object
(
[id] => 54
[attribute_id] => 27
[name] => Нет
[material_modifier] => 1
[work_modifier] => 1
[options] => Array
(
)
[days] => [0]
[material_price] => [0]
[work_price] => [0]
[image] => https://akademik-stroy.ru/wp-content/uploads/materials/dveri.jpg
[area_modifier] => 1
[parent_name] => Двери входные
[parent_id] => 27
[material_sum] => 0
[work_sum] => 0
[total_sum] => 0
[total_days] => 0
[display_material_sum] => 0
[display_work_sum] => 0
[display_total_sum] => 0
)
1
0₽
Работа:0 ₽
Материалы:0 ₽
Дни:0
stdClass Object
(
[id] => 25
[attribute_id] => 13
[name] => Нет
[material_modifier] => 1
[work_modifier] => 1
[options] => Array
(
)
[days] => [0]
[material_price] => [0]
[work_price] => [0]
[image] => https://akademik-stroy.ru/wp-content/uploads/materials/mineralovata-krov.jpg
[area_modifier] => 180.88
[parent_name] => Утепление кровли (Мансарда)
[parent_id] => 13
[material_sum] => 0
[work_sum] => 0
[total_sum] => 0
[total_days] => 0
[display_material_sum] => 0
[display_work_sum] => 0
[display_total_sum] => 0
)
1
0₽
Работа:0 ₽
Материалы:0 ₽
Дни:0
stdClass Object
(
[id] => 26
[attribute_id] => 13
[name] => Минераловатный
[material_modifier] => 1
[work_modifier] => 1
[options] => Array
(
[0] => 50 мм
[1] => 100 мм
[2] => 150 мм
[3] => 200 мм
[4] => 250 мм
[5] => 300 мм
[6] => 350 мм
[7] => 400 мм
[8] => 450 мм
[9] => 500 мм
)
[days] => [5,5,6,6,6,7,7,7,8,8]
[material_price] => [1158,1414,1772,2230,3602,4060,4974,5890,6408,7718]
[work_price] => [650,846,846,1098,1318,1450,1596,1754,1930,2122]
[image] => https://akademik-stroy.ru/wp-content/uploads/materials/mineralovata-krov.jpg
[area_modifier] => 180.88
[parent_name] => Утепление кровли (Мансарда)
[parent_id] => 13
[material_sum] => 276486
[work_sum] => 129329
[total_sum] => 405815
[total_days] => 5
[display_material_sum] => 276 486
[display_work_sum] => 129 329
[display_total_sum] => 405 815
)
1
405 815₽
Работа:129 329 ₽
Материалы:276 486 ₽
Дни:5
stdClass Object
(
[id] => 123
[attribute_id] => 13
[name] => Эковата (целлюлозная вата)
[material_modifier] => 1
[work_modifier] => 1
[options] => Array
(
[0] => 50 мм
[1] => 100 мм
[2] => 150 мм
[3] => 200 мм
[4] => 250 мм
[5] => 300 мм
[6] => 350 мм
[7] => 400 мм
[8] => 450 мм
[9] => 500 мм
)
[days] => [3,3,4,4,4,5,5,5,5,5]
[material_price] => [820,1638,2458,3276,5734,6552,8190,9828,11466,13104]
[work_price] => [234,304,304,396,474,522,574,632,694,764]
[image] => https://akademik-stroy.ru/wp-content/uploads/materials/ehkovata-krov.jpg
[area_modifier] => 180.88
[parent_name] => Утепление кровли (Мансарда)
[parent_id] => 13
[material_sum] => 195785
[work_sum] => 46559
[total_sum] => 242344
[total_days] => 3
[display_material_sum] => 195 785
[display_work_sum] => 46 559
[display_total_sum] => 242 344
)
1
242 344₽
Работа:46 559 ₽
Материалы:195 785 ₽
Дни:3
stdClass Object
(
[id] => 124
[attribute_id] => 13
[name] => Экструдированный пенополистирол
[material_modifier] => 1
[work_modifier] => 1
[options] => Array
(
[0] => 50 мм
[1] => 100 мм
[2] => 150 мм
[3] => 200 мм
[4] => 250 мм
[5] => 300 мм
[6] => 350 мм
[7] => 400 мм
[8] => 450 мм
[9] => 500 мм
)
[days] => [3,3,4,4,4,5,5,5,5,6]
[material_price] => [1146,2292,3438,4584,8020,9166,11458,13750,16040,18332]
[work_price] => [390,508,508,660,790,870,958,1052,1158,1274]
[image] => https://akademik-stroy.ru/wp-content/uploads/materials/epps-krov.jpg
[area_modifier] => 180.88
[parent_name] => Утепление кровли (Мансарда)
[parent_id] => 13
[material_sum] => 273621
[work_sum] => 77598
[total_sum] => 351219
[total_days] => 3
[display_material_sum] => 273 621
[display_work_sum] => 77 598
[display_total_sum] => 351 219
)
1
351 219₽
Работа:77 598 ₽
Материалы:273 621 ₽
Дни:3
stdClass Object
(
[id] => 125
[attribute_id] => 13
[name] => ПСБ (ППС-пенополистирол)
[material_modifier] => 1
[work_modifier] => 1
[options] => Array
(
[0] => 50 мм
[1] => 100 мм
[2] => 150 мм
[3] => 200 мм
[4] => 250 мм
[5] => 300 мм
[6] => 350 мм
[7] => 400 мм
[8] => 450 мм
[9] => 500 мм
)
[days] => [3,3,4,4,4,5,5,5,5,6]
[material_price] => [476,954,1430,1906,3336,3814,4766,5720,6674,7626]
[work_price] => [390,508,508,660,790,870,958,1052,1158,1274]
[image] => https://akademik-stroy.ru/wp-content/uploads/materials/psb-krov.jpg
[area_modifier] => 180.88
[parent_name] => Утепление кровли (Мансарда)
[parent_id] => 13
[material_sum] => 113651
[work_sum] => 77598
[total_sum] => 191249
[total_days] => 3
[display_material_sum] => 113 651
[display_work_sum] => 77 598
[display_total_sum] => 191 249
)
1
191 249₽
Работа:77 598 ₽
Материалы:113 651 ₽
Дни:3
stdClass Object
(
[id] => 126
[attribute_id] => 13
[name] => ППУ (Пенополиуретан)
[material_modifier] => 1
[work_modifier] => 1
[options] => Array
(
[0] => 50 мм
[1] => 100 мм
[2] => 150 мм
[3] => 200 мм
[4] => 250 мм
[5] => 300 мм
[6] => 350 мм
[7] => 400 мм
[8] => 450 мм
[9] => 500 мм
)
[days] => [2,2,3,3,3,3,4,4,4,4]
[material_price] => [2080,4160,6240,8320,14560,16640,20800,24960,29120,33280]
[work_price] => [234,304,304,396,474,522,574,632,694,764]
[image] => https://akademik-stroy.ru/wp-content/uploads/materials/ppu-krov.jpg
[area_modifier] => 180.88
[parent_name] => Утепление кровли (Мансарда)
[parent_id] => 13
[material_sum] => 496624
[work_sum] => 46559
[total_sum] => 543183
[total_days] => 2
[display_material_sum] => 496 624
[display_work_sum] => 46 559
[display_total_sum] => 543 183
)
1
543 183₽
Работа:46 559 ₽
Материалы:496 624 ₽
Дни:2
stdClass Object
(
[id] => 127
[attribute_id] => 13
[name] => PIR-плиты (пенополиизоцианурат)
[material_modifier] => 1
[work_modifier] => 1
[options] => Array
(
[0] => 50 мм
[1] => 100 мм
[2] => 150 мм
[3] => 200 мм
[4] => 250 мм
[5] => 300 мм
[6] => 350 мм
[7] => 400 мм
[8] => 450 мм
[9] => 500 мм
)
[days] => [3,3,4,4,4,5,5,5,5,6]
[material_price] => [2646,5290,7936,10580,18516,21162,26452,31742,37032,42324]
[work_price] => [390,508,508,660,790,870,958,1052,1158,1274]
[image] => https://akademik-stroy.ru/wp-content/uploads/materials/pir-krov.jpg
[area_modifier] => 180.88
[parent_name] => Утепление кровли (Мансарда)
[parent_id] => 13
[material_sum] => 631763
[work_sum] => 77598
[total_sum] => 709361
[total_days] => 3
[display_material_sum] => 631 763
[display_work_sum] => 77 598
[display_total_sum] => 709 361
)
1
709 361₽
Работа:77 598 ₽
Материалы:631 763 ₽
Дни:3
stdClass Object
(
[id] => 27
[attribute_id] => 14
[name] => Нет
[material_modifier] => 1
[work_modifier] => 1
[options] => Array
(
)
[days] => [0]
[material_price] => [0]
[work_price] => [0]
[image] => https://akademik-stroy.ru/wp-content/uploads/materials/mansardnye-okna-2.jpg
[area_modifier] => 1
[parent_name] => Мансардные окна
[parent_id] => 14
[material_sum] => 0
[work_sum] => 0
[total_sum] => 0
[total_days] => 0
[display_material_sum] => 0
[display_work_sum] => 0
[display_total_sum] => 0
)
1
0₽
Работа:0 ₽
Материалы:0 ₽
Дни:0
stdClass Object
(
[id] => 28
[attribute_id] => 14
[name] => Есть
[material_modifier] => 1
[work_modifier] => 1
[options] => Array
(
[0] => 55x78
[1] => 55x98
)
[days] => [6,7]
[material_price] => [47480,68700]
[work_price] => [17900,19500]
[image] => https://akademik-stroy.ru/wp-content/uploads/materials/mansardnye-okna-2.jpg
[area_modifier] => 1
[parent_name] => Мансардные окна
[parent_id] => 14
[material_sum] => 62674
[work_sum] => 19690
[total_sum] => 82364
[total_days] => 6
[display_material_sum] => 62 674
[display_work_sum] => 19 690
[display_total_sum] => 82 364
)
1
82 364₽
Работа:19 690 ₽
Материалы:62 674 ₽
Дни:6
stdClass Object
(
[id] => 29
[attribute_id] => 15
[name] => Нет
[material_modifier] => 1
[work_modifier] => 1
[options] => Array
(
)
[days] => [0]
[material_price] => [0]
[work_price] => [0]
[image] => https://akademik-stroy.ru/wp-content/uploads/materials/sofit.jpg
[area_modifier] => 180.88
[parent_name] => Подшивка кровли
[parent_id] => 15
[material_sum] => 0
[work_sum] => 0
[total_sum] => 0
[total_days] => 0
[display_material_sum] => 0
[display_work_sum] => 0
[display_total_sum] => 0
)
1
0₽
Работа:0 ₽
Материалы:0 ₽
Дни:0
stdClass Object
(
[id] => 30
[attribute_id] => 15
[name] => Есть
[material_modifier] => 1
[work_modifier] => 1
[options] => Array
(
[0] => Софиты (ПВХ)
[1] => Cedral
[2] => ДПК
[3] => Планкен
)
[days] => [7,10,9,8]
[material_price] => [1803,3213,3025,3150]
[work_price] => [1529,2188,2075,1923]
[image] => https://akademik-stroy.ru/wp-content/uploads/materials/sofit.jpg
[area_modifier] => 180.88
[parent_name] => Подшивка кровли
[parent_id] => 15
[material_sum] => 430487
[work_sum] => 304222
[total_sum] => 734709
[total_days] => 7
[display_material_sum] => 430 487
[display_work_sum] => 304 222
[display_total_sum] => 734 709
)
1
734 709₽
Работа:304 222 ₽
Материалы:430 487 ₽
Дни:7
stdClass Object
(
[id] => 31
[attribute_id] => 16
[name] => Нет
[material_modifier] => 1
[work_modifier] => 1
[options] => Array
(
)
[days] => [0]
[material_price] => [0]
[work_price] => [0]
[image] => https://akademik-stroy.ru/wp-content/uploads/materials/docke-standard-pvh.jpg
[area_modifier] => 180.88
[parent_name] => Водосточная система
[parent_id] => 16
[material_sum] => 0
[work_sum] => 0
[total_sum] => 0
[total_days] => 0
[display_material_sum] => 0
[display_work_sum] => 0
[display_total_sum] => 0
)
1
0₽
Работа:0 ₽
Материалы:0 ₽
Дни:0
stdClass Object
(
[id] => 32
[attribute_id] => 16
[name] => Есть
[material_modifier] => 1
[work_modifier] => 1
[options] => Array
(
[0] => Döcke Standard (ПВХ)
[1] => Металлические Grand Line
)
[days] => [7,7]
[material_price] => [1842,2703]
[work_price] => [1491,1529]
[image] => https://akademik-stroy.ru/wp-content/uploads/materials/docke-standard-pvh.jpg
[area_modifier] => 180.88
[parent_name] => Водосточная система
[parent_id] => 16
[material_sum] => 439799
[work_sum] => 296661
[total_sum] => 736460
[total_days] => 7
[display_material_sum] => 439 799
[display_work_sum] => 296 661
[display_total_sum] => 736 460
)
1
736 460₽
Работа:296 661 ₽
Материалы:439 799 ₽
Дни:7
stdClass Object
(
[id] => 33
[attribute_id] => 17
[name] => Нет
[material_modifier] => 1
[work_modifier] => 1
[options] => Array
(
)
[days] => [0]
[material_price] => [0]
[work_price] => [0]
[image] => https://akademik-stroy.ru/wp-content/uploads/materials/mineralovata.jpg
[area_modifier] => 180.88
[parent_name] => Дополнительное утепление наружных стен
[parent_id] => 17
[material_sum] => 0
[work_sum] => 0
[total_sum] => 0
[total_days] => 0
[display_material_sum] => 0
[display_work_sum] => 0
[display_total_sum] => 0
)
1
0₽
Работа:0 ₽
Материалы:0 ₽
Дни:0
stdClass Object
(
[id] => 34
[attribute_id] => 17
[name] => Минераловатный
[material_modifier] => 1
[work_modifier] => 1
[options] => Array
(
[0] => 50 мм
[1] => 100 мм
[2] => 150 мм
[3] => 200 мм
[4] => 250 мм
[5] => 300 мм
)
[days] => [7,8,10,12,14,15]
[material_price] => [3437,3613,3803,3915,4601,4830]
[work_price] => [2325,2423,2523,2749,2859,3025]
[image] => https://akademik-stroy.ru/wp-content/uploads/materials/mineralovata.jpg
[area_modifier] => 180.88
[parent_name] => Дополнительное утепление наружных стен
[parent_id] => 17
[material_sum] => 820624
[work_sum] => 462601
[total_sum] => 1283225
[total_days] => 7
[display_material_sum] => 820 624
[display_work_sum] => 462 601
[display_total_sum] => 1 283 225
)
1
1 283 225₽
Работа:462 601 ₽
Материалы:820 624 ₽
Дни:7
stdClass Object
(
[id] => 128
[attribute_id] => 17
[name] => Эковата (целлюлозная вата)
[material_modifier] => 1
[work_modifier] => 1
[options] => Array
(
[0] => 50 мм
[1] => 100 мм
[2] => 150 мм
[3] => 200 мм
[4] => 250 мм
[5] => 300 мм
)
[days] => [3,4,5,6,7,8]
[material_price] => [810,1319,1629,1838,2267,2676]
[work_price] => [1225,1323,1423,1549,1659,1725]
[image] => https://akademik-stroy.ru/wp-content/uploads/materials/ehkovata.jpg
[area_modifier] => 180.88
[parent_name] => Дополнительное утепление наружных стен
[parent_id] => 17
[material_sum] => 193397
[work_sum] => 243736
[total_sum] => 437133
[total_days] => 3
[display_material_sum] => 193 397
[display_work_sum] => 243 736
[display_total_sum] => 437 133
)
1
437 133₽
Работа:243 736 ₽
Материалы:193 397 ₽
Дни:3
stdClass Object
(
[id] => 129
[attribute_id] => 17
[name] => Экструдированный пенополистирол
[material_modifier] => 1
[work_modifier] => 1
[options] => Array
(
[0] => 50 мм
[1] => 100 мм
[2] => 150 мм
[3] => 200 мм
[4] => 250 мм
[5] => 300 мм
)
[days] => [5,6,7,8,9,10]
[material_price] => [4560,4300,5119,6292,7010,8583]
[work_price] => [1795,1954,2254,2330,2595,2735]
[image] => https://akademik-stroy.ru/wp-content/uploads/materials/epps.jpg
[area_modifier] => 180.88
[parent_name] => Дополнительное утепление наружных стен
[parent_id] => 17
[material_sum] => 1088753
[work_sum] => 357148
[total_sum] => 1445901
[total_days] => 5
[display_material_sum] => 1 088 753
[display_work_sum] => 357 148
[display_total_sum] => 1 445 901
)
1
1 445 901₽
Работа:357 148 ₽
Материалы:1 088 753 ₽
Дни:5
stdClass Object
(
[id] => 130
[attribute_id] => 17
[name] => ПСБ (ППС-пенополистирол)
[material_modifier] => 1
[work_modifier] => 1
[options] => Array
(
[0] => 50 мм
[1] => 100 мм
[2] => 150 мм
[3] => 200 мм
[4] => 250 мм
[5] => 300 мм
)
[days] => [5,6,7,8,9,10]
[material_price] => [4822,5200,5819,6292,7010,7583]
[work_price] => [1795,1954,2254,2330,2595,2735]
[image] => https://akademik-stroy.ru/wp-content/uploads/materials/psb.jpg
[area_modifier] => 180.88
[parent_name] => Дополнительное утепление наружных стен
[parent_id] => 17
[material_sum] => 1151308
[work_sum] => 357148
[total_sum] => 1508456
[total_days] => 5
[display_material_sum] => 1 151 308
[display_work_sum] => 357 148
[display_total_sum] => 1 508 456
)
1
1 508 456₽
Работа:357 148 ₽
Материалы:1 151 308 ₽
Дни:5
stdClass Object
(
[id] => 131
[attribute_id] => 17
[name] => ППУ (Пенополиуретан)
[material_modifier] => 1
[work_modifier] => 1
[options] => Array
(
[0] => 50 мм
[1] => 100 мм
[2] => 150 мм
[3] => 200 мм
[4] => 250 мм
[5] => 300 мм
)
[days] => [3,4,5,6,7,8]
[material_price] => [2860,3400,4219,4592,5010,5583]
[work_price] => [729,900,980,1120,1280,1530]
[image] => https://akademik-stroy.ru/wp-content/uploads/materials/ppu.jpg
[area_modifier] => 180.88
[parent_name] => Дополнительное утепление наружных стен
[parent_id] => 17
[material_sum] => 682858
[work_sum] => 145048
[total_sum] => 827906
[total_days] => 3
[display_material_sum] => 682 858
[display_work_sum] => 145 048
[display_total_sum] => 827 906
)
1
827 906₽
Работа:145 048 ₽
Материалы:682 858 ₽
Дни:3
stdClass Object
(
[id] => 132
[attribute_id] => 17
[name] => PIR-плиты (пенополиизоцианурат)
[material_modifier] => 1
[work_modifier] => 1
[options] => Array
(
[0] => 50 мм
[1] => 100 мм
[2] => 150 мм
[3] => 200 мм
[4] => 250 мм
[5] => 300 мм
)
[days] => [5,6,7,8,9,10]
[material_price] => [8323,15645,20968,25900,29258,30581]
[work_price] => [800,900,970,1150,1280,1330]
[image] => https://akademik-stroy.ru/wp-content/uploads/materials/pir.jpg
[area_modifier] => 180.88
[parent_name] => Дополнительное утепление наружных стен
[parent_id] => 17
[material_sum] => 1987213
[work_sum] => 159174
[total_sum] => 2146387
[total_days] => 5
[display_material_sum] => 1 987 213
[display_work_sum] => 159 174
[display_total_sum] => 2 146 387
)
1
2 146 387₽
Работа:159 174 ₽
Материалы:1 987 213 ₽
Дни:5
stdClass Object
(
[id] => 37
[attribute_id] => 19
[name] => Нет
[material_modifier] => 1
[work_modifier] => 1
[options] => Array
(
)
[days] => [0]
[material_price] => [0]
[work_price] => [0]
[image] => https://akademik-stroy.ru/wp-content/uploads/materials/imitaciya-brusa.jpg
[area_modifier] => 180.88
[parent_name] => Наружная отделка фасада
[parent_id] => 19
[material_sum] => 0
[work_sum] => 0
[total_sum] => 0
[total_days] => 0
[display_material_sum] => 0
[display_work_sum] => 0
[display_total_sum] => 0
)
1
0₽
Работа:0 ₽
Материалы:0 ₽
Дни:0
stdClass Object
(
[id] => 38
[attribute_id] => 19
[name] => Имитация бруса
[material_modifier] => 1
[work_modifier] => 1
[options] => Array
(
[0] => Сосна
[1] => Ель
[2] => Лиственница
)
[days] => [20,20,20]
[material_price] => [2994,2762,4954]
[work_price] => [1397,1231,1577]
[image] => https://akademik-stroy.ru/wp-content/uploads/materials/imitaciya-brusa.jpg
[area_modifier] => 180.88
[parent_name] => Наружная отделка фасада
[parent_id] => 19
[material_sum] => 714852
[work_sum] => 277958
[total_sum] => 992810
[total_days] => 20
[display_material_sum] => 714 852
[display_work_sum] => 277 958
[display_total_sum] => 992 810
)
1
992 810₽
Работа:277 958 ₽
Материалы:714 852 ₽
Дни:20
stdClass Object
(
[id] => 136
[attribute_id] => 19
[name] => Планкен
[material_modifier] => 1
[work_modifier] => 1
[options] => Array
(
[0] => Сосна
[1] => Ель
[2] => Лиственница
)
[days] => [20,20,20]
[material_price] => [3194,2862,5154]
[work_price] => [1537,1354,1735]
[image] => https://akademik-stroy.ru/wp-content/uploads/materials/planken.jpg
[area_modifier] => 180.88
[parent_name] => Наружная отделка фасада
[parent_id] => 19
[material_sum] => 762605
[work_sum] => 305814
[total_sum] => 1068419
[total_days] => 20
[display_material_sum] => 762 605
[display_work_sum] => 305 814
[display_total_sum] => 1 068 419
)
1
1 068 419₽
Работа:305 814 ₽
Материалы:762 605 ₽
Дни:20
stdClass Object
(
[id] => 137
[attribute_id] => 19
[name] => Штукатурка
[material_modifier] => 1
[work_modifier] => 1
[options] => Array
(
[0] => Цементно-песчаная (минеральная)
[1] => Мокрый фасад
)
[days] => [35,35]
[material_price] => [2231,3938]
[work_price] => [1202,2422]
[image] => https://akademik-stroy.ru/wp-content/uploads/materials/shtukaturka.jpg
[area_modifier] => 180.88
[parent_name] => Наружная отделка фасада
[parent_id] => 19
[material_sum] => 532677
[work_sum] => 239160
[total_sum] => 771837
[total_days] => 35
[display_material_sum] => 532 677
[display_work_sum] => 239 160
[display_total_sum] => 771 837
)
1
771 837₽
Работа:239 160 ₽
Материалы:532 677 ₽
Дни:35
stdClass Object
(
[id] => 138
[attribute_id] => 19
[name] => Облицовочный кирпич
[material_modifier] => 1
[work_modifier] => 1
[options] => Array
(
[0] => Керамический
[1] => Клинкерный
[2] => Ручной формовки
[3] => Гиперпрессованный
[4] => Силикатный кирпич
)
[days] => [45,45,45,45,45]
[material_price] => [8174,9148,1040,1257,5876]
[work_price] => [3240,3758,4536,4017,3369]
[image] => https://akademik-stroy.ru/wp-content/uploads/materials/oblicovochnyj-kirpich.jpg
[area_modifier] => 180.88
[parent_name] => Наружная отделка фасада
[parent_id] => 19
[material_sum] => 1951637
[work_sum] => 644656
[total_sum] => 2596293
[total_days] => 45
[display_material_sum] => 1 951 637
[display_work_sum] => 644 656
[display_total_sum] => 2 596 293
)
1
2 596 293₽
Работа:644 656 ₽
Материалы:1 951 637 ₽
Дни:45
stdClass Object
(
[id] => 139
[attribute_id] => 19
[name] => Фасадная плитка
[material_modifier] => 1
[work_modifier] => 1
[options] => Array
(
[0] => Клинкерная
[1] => Керамическая
[2] => Плитка ручной формовки
)
[days] => [40,40,40]
[material_price] => [2974,1487,3470]
[work_price] => [3007,2592,3629]
[image] => https://akademik-stroy.ru/wp-content/uploads/materials/fasadnaya-plitka.jpg
[area_modifier] => 180.88
[parent_name] => Наружная отделка фасада
[parent_id] => 19
[material_sum] => 710077
[work_sum] => 598297
[total_sum] => 1308374
[total_days] => 40
[display_material_sum] => 710 077
[display_work_sum] => 598 297
[display_total_sum] => 1 308 374
)
1
1 308 374₽
Работа:598 297 ₽
Материалы:710 077 ₽
Дни:40
stdClass Object
(
[id] => 140
[attribute_id] => 19
[name] => Сайдинг
[material_modifier] => 1
[work_modifier] => 1
[options] => Array
(
[0] => Виниловый
[1] => Металлический
[2] => Фиброцементный
)
[days] => [20,20,20]
[material_price] => [1263,1944,4147]
[work_price] => [1263,1944,2074]
[image] => https://akademik-stroy.ru/wp-content/uploads/materials/sajding.jpg
[area_modifier] => 180.88
[parent_name] => Наружная отделка фасада
[parent_id] => 19
[material_sum] => 301556
[work_sum] => 251297
[total_sum] => 552853
[total_days] => 20
[display_material_sum] => 301 556
[display_work_sum] => 251 297
[display_total_sum] => 552 853
)
1
552 853₽
Работа:251 297 ₽
Материалы:301 556 ₽
Дни:20
stdClass Object
(
[id] => 141
[attribute_id] => 19
[name] => Камень
[material_modifier] => 1
[work_modifier] => 1
[options] => Array
(
[0] => Травертин
[1] => Дагестанский
[2] => Искусственный
[3] => Натуральный
[4] => Керамогранит
)
[days] => [45,45,45,45,45]
[material_price] => [4536,3888,2592,3240,2462]
[work_price] => [3240,3240,2462,3110,1944]
[image] => https://akademik-stroy.ru/wp-content/uploads/materials/kamen-1.jpg
[area_modifier] => 180.88
[parent_name] => Наружная отделка фасада
[parent_id] => 19
[material_sum] => 1083023
[work_sum] => 644656
[total_sum] => 1727679
[total_days] => 45
[display_material_sum] => 1 083 023
[display_work_sum] => 644 656
[display_total_sum] => 1 727 679
)
1
1 727 679₽
Работа:644 656 ₽
Материалы:1 083 023 ₽
Дни:45
stdClass Object
(
[id] => 142
[attribute_id] => 19
[name] => Термопанели
[material_modifier] => 1
[work_modifier] => 1
[options] => Array
(
)
[days] => [20]
[material_price] => [6221]
[work_price] => [2333]
[image] => https://akademik-stroy.ru/wp-content/uploads/materials/termo.png
[area_modifier] => 180.88
[parent_name] => Наружная отделка фасада
[parent_id] => 19
[material_sum] => 1485336
[work_sum] => 464192
[total_sum] => 1949528
[total_days] => 20
[display_material_sum] => 1 485 336
[display_work_sum] => 464 192
[display_total_sum] => 1 949 528
)
1
1 949 528₽
Работа:464 192 ₽
Материалы:1 485 336 ₽
Дни:20
stdClass Object
(
[id] => 143
[attribute_id] => 19
[name] => Плитка HAUBERK
[material_modifier] => 1
[work_modifier] => 1
[options] => Array
(
)
[days] => [20]
[material_price] => [2786]
[work_price] => [1944]
[image] => https://akademik-stroy.ru/wp-content/uploads/materials/hauberk.jpg
[area_modifier] => 180.88
[parent_name] => Наружная отделка фасада
[parent_id] => 19
[material_sum] => 665190
[work_sum] => 386794
[total_sum] => 1051984
[total_days] => 20
[display_material_sum] => 665 190
[display_work_sum] => 386 794
[display_total_sum] => 1 051 984
)
1
1 051 984₽
Работа:386 794 ₽
Материалы:665 190 ₽
Дни:20
stdClass Object
(
[id] => 144
[attribute_id] => 19
[name] => Фальцевый фасад
[material_modifier] => 1
[work_modifier] => 1
[options] => Array
(
)
[days] => [20]
[material_price] => [3240]
[work_price] => [2592]
[image] => https://akademik-stroy.ru/wp-content/uploads/materials/falcevyj-fasad.jpg
[area_modifier] => 180.88
[parent_name] => Наружная отделка фасада
[parent_id] => 19
[material_sum] => 773588
[work_sum] => 515725
[total_sum] => 1289313
[total_days] => 20
[display_material_sum] => 773 588
[display_work_sum] => 515 725
[display_total_sum] => 1 289 313
)
1
1 289 313₽
Работа:515 725 ₽
Материалы:773 588 ₽
Дни:20
stdClass Object
(
[id] => 145
[attribute_id] => 19
[name] => Комбинированный
[material_modifier] => 1
[work_modifier] => 1
[options] => Array
(
)
[days] => [20]
[material_price] => [4629]
[work_price] => [3499]
[image] => https://akademik-stroy.ru/wp-content/uploads/materials/Kombinirovannyj.jpg
[area_modifier] => 180.88
[parent_name] => Наружная отделка фасада
[parent_id] => 19
[material_sum] => 1105227
[work_sum] => 696189
[total_sum] => 1801416
[total_days] => 20
[display_material_sum] => 1 105 227
[display_work_sum] => 696 189
[display_total_sum] => 1 801 416
)
1
1 801 416₽
Работа:696 189 ₽
Материалы:1 105 227 ₽
Дни:20
stdClass Object
(
[id] => 257
[attribute_id] => 19
[name] => Японские фиброцементные
[material_modifier] => 1
[work_modifier] => 1
[options] => Array
(
)
[days] => [20]
[material_price] => [7043]
[work_price] => [2993]
[image] => https://akademik-stroy.ru/wp-content/uploads/materials/paneli.jpg
[area_modifier] => 180.88
[parent_name] => Наружная отделка фасада
[parent_id] => 19
[material_sum] => 1681598
[work_sum] => 595511
[total_sum] => 2277109
[total_days] => 20
[display_material_sum] => 1 681 598
[display_work_sum] => 595 511
[display_total_sum] => 2 277 109
)
1
2 277 109₽
Работа:595 511 ₽
Материалы:1 681 598 ₽
Дни:20
stdClass Object
(
[id] => 258
[attribute_id] => 19
[name] => Панели Каньон
[material_modifier] => 1
[work_modifier] => 1
[options] => Array
(
)
[days] => [20]
[material_price] => [4543]
[work_price] => [2592]
[image] => https://akademik-stroy.ru/wp-content/uploads/materials/kanon.png
[area_modifier] => 180.88
[parent_name] => Наружная отделка фасада
[parent_id] => 19
[material_sum] => 1084694
[work_sum] => 515725
[total_sum] => 1600419
[total_days] => 20
[display_material_sum] => 1 084 694
[display_work_sum] => 515 725
[display_total_sum] => 1 600 419
)
1
1 600 419₽
Работа:515 725 ₽
Материалы:1 084 694 ₽
Дни:20
stdClass Object
(
[id] => 39
[attribute_id] => 20
[name] => Нет
[material_modifier] => 1
[work_modifier] => 1
[options] => Array
(
)
[days] => [0]
[material_price] => [0]
[work_price] => [0]
[image] => https://akademik-stroy.ru/wp-content/uploads/materials/terrasy.jpg
[area_modifier] => 30
[parent_name] => Террасы, крыльца, навесы
[parent_id] => 20
[material_sum] => 0
[work_sum] => 0
[total_sum] => 0
[total_days] => 0
[display_material_sum] => 0
[display_work_sum] => 0
[display_total_sum] => 0
)
1
0₽
Работа:0 ₽
Материалы:0 ₽
Дни:0
stdClass Object
(
[id] => 40
[attribute_id] => 20
[name] => Есть
[material_modifier] => 1
[work_modifier] => 1
[options] => Array
(
)
[days] => [5]
[material_price] => [10450]
[work_price] => [1950]
[image] => https://akademik-stroy.ru/wp-content/uploads/materials/terrasy.jpg
[area_modifier] => 30
[parent_name] => Террасы, крыльца, навесы
[parent_id] => 20
[material_sum] => 413820
[work_sum] => 64350
[total_sum] => 478170
[total_days] => 5
[display_material_sum] => 413 820
[display_work_sum] => 64 350
[display_total_sum] => 478 170
)
1
478 170₽
Работа:64 350 ₽
Материалы:413 820 ₽
Дни:5
stdClass Object
(
[id] => 41
[attribute_id] => 21
[name] => Нет
[material_modifier] => 1
[work_modifier] => 1
[options] => Array
(
)
[days] => [0]
[material_price] => [0]
[work_price] => [0]
[image] => https://akademik-stroy.ru/wp-content/uploads/materials/balkony.jpg
[area_modifier] => 30
[parent_name] => Балконы
[parent_id] => 21
[material_sum] => 0
[work_sum] => 0
[total_sum] => 0
[total_days] => 0
[display_material_sum] => 0
[display_work_sum] => 0
[display_total_sum] => 0
)
1
0₽
Работа:0 ₽
Материалы:0 ₽
Дни:0
stdClass Object
(
[id] => 42
[attribute_id] => 21
[name] => Есть
[material_modifier] => 1
[work_modifier] => 1
[options] => Array
(
)
[days] => [12]
[material_price] => [3600]
[work_price] => [1950]
[image] => https://akademik-stroy.ru/wp-content/uploads/materials/balkony.jpg
[area_modifier] => 30
[parent_name] => Балконы
[parent_id] => 21
[material_sum] => 142560
[work_sum] => 64350
[total_sum] => 206910
[total_days] => 12
[display_material_sum] => 142 560
[display_work_sum] => 64 350
[display_total_sum] => 206 910
)
1
206 910₽
Работа:64 350 ₽
Материалы:142 560 ₽
Дни:12
stdClass Object
(
[id] => 43
[attribute_id] => 22
[name] => Нет
[material_modifier] => 1
[work_modifier] => 1
[options] => Array
(
)
[days] => [0]
[material_price] => [0]
[work_price] => [0]
[image] => https://akademik-stroy.ru/wp-content/uploads/materials/uteplennaya.jpg
[area_modifier] => 180.88
[parent_name] => Отмостка
[parent_id] => 22
[material_sum] => 0
[work_sum] => 0
[total_sum] => 0
[total_days] => 0
[display_material_sum] => 0
[display_work_sum] => 0
[display_total_sum] => 0
)
1
0₽
Работа:0 ₽
Материалы:0 ₽
Дни:0
stdClass Object
(
[id] => 44
[attribute_id] => 22
[name] => Утепленная отмостка
[material_modifier] => 1
[work_modifier] => 1
[options] => Array
(
)
[days] => [15]
[material_price] => [2550]
[work_price] => [1750]
[image] => https://akademik-stroy.ru/wp-content/uploads/materials/uteplennaya.jpg
[area_modifier] => 180.88
[parent_name] => Отмостка
[parent_id] => 22
[material_sum] => 608842
[work_sum] => 348194
[total_sum] => 957036
[total_days] => 15
[display_material_sum] => 608 842
[display_work_sum] => 348 194
[display_total_sum] => 957 036
)
1
957 036₽
Работа:348 194 ₽
Материалы:608 842 ₽
Дни:15
stdClass Object
(
[id] => 146
[attribute_id] => 22
[name] => Не утепленная отмостка
[material_modifier] => 1
[work_modifier] => 1
[options] => Array
(
)
[days] => [10]
[material_price] => [1650]
[work_price] => [1450]
[image] => https://akademik-stroy.ru/wp-content/uploads/materials/ne-uteplennaya.jpg
[area_modifier] => 180.88
[parent_name] => Отмостка
[parent_id] => 22
[material_sum] => 393957
[work_sum] => 288504
[total_sum] => 682461
[total_days] => 10
[display_material_sum] => 393 957
[display_work_sum] => 288 504
[display_total_sum] => 682 461
)
1
682 461₽
Работа:288 504 ₽
Материалы:393 957 ₽
Дни:10
stdClass Object
(
[id] => 45
[attribute_id] => 23
[name] => Нет
[material_modifier] => 1
[work_modifier] => 1
[options] => Array
(
)
[days] => [0]
[material_price] => [0]
[work_price] => [0]
[image] => https://akademik-stroy.ru/wp-content/uploads/materials/drenazh-2.jpg
[area_modifier] => 180.88
[parent_name] => Дренаж вокруг дома
[parent_id] => 23
[material_sum] => 0
[work_sum] => 0
[total_sum] => 0
[total_days] => 0
[display_material_sum] => 0
[display_work_sum] => 0
[display_total_sum] => 0
)
1
0₽
Работа:0 ₽
Материалы:0 ₽
Дни:0
stdClass Object
(
[id] => 46
[attribute_id] => 23
[name] => Есть
[material_modifier] => 1
[work_modifier] => 1
[options] => Array
(
)
[days] => [5]
[material_price] => [2366]
[work_price] => [1911]
[image] => https://akademik-stroy.ru/wp-content/uploads/materials/drenazh-2.jpg
[area_modifier] => 180.88
[parent_name] => Дренаж вокруг дома
[parent_id] => 23
[material_sum] => 564910
[work_sum] => 380228
[total_sum] => 945138
[total_days] => 5
[display_material_sum] => 564 910
[display_work_sum] => 380 228
[display_total_sum] => 945 138
)
1
945 138₽
Работа:380 228 ₽
Материалы:564 910 ₽
Дни:5
stdClass Object
(
[id] => 47
[attribute_id] => 24
[name] => Нет
[material_modifier] => 1
[work_modifier] => 1
[options] => Array
(
)
[days] => [0]
[material_price] => [0]
[work_price] => [0]
[image] => https://akademik-stroy.ru/wp-content/uploads/materials/septik.jpg
[area_modifier] => 1
[parent_name] => Автономная канализация (септики)
[parent_id] => 24
[material_sum] => 0
[work_sum] => 0
[total_sum] => 0
[total_days] => 0
[display_material_sum] => 0
[display_work_sum] => 0
[display_total_sum] => 0
)
1
0₽
Работа:0 ₽
Материалы:0 ₽
Дни:0
stdClass Object
(
[id] => 48
[attribute_id] => 24
[name] => Есть
[material_modifier] => 1
[work_modifier] => 1
[options] => Array
(
[0] => Для дачи на 4 человека
[1] => Для дома на 5 человек
[2] => Для дома на 6 человек
[3] => Для дома на 7 человек
[4] => Для дома на 10 человек
)
[days] => [7,7,7,8,8]
[material_price] => [196340,220500,240940,264200,293340]
[work_price] => [50000,55000,60500,66550,73206]
[image] => https://akademik-stroy.ru/wp-content/uploads/materials/septik.jpg
[area_modifier] => 1
[parent_name] => Автономная канализация (септики)
[parent_id] => 24
[material_sum] => 259169
[work_sum] => 55000
[total_sum] => 314169
[total_days] => 7
[display_material_sum] => 259 169
[display_work_sum] => 55 000
[display_total_sum] => 314 169
)
1
314 169₽
Работа:55 000 ₽
Материалы:259 169 ₽
Дни:7
stdClass Object
(
[id] => 49
[attribute_id] => 25
[name] => Нет
[material_modifier] => 1
[work_modifier] => 1
[options] => Array
(
)
[days] => [0]
[material_price] => [0]
[work_price] => [0]
[image] => https://akademik-stroy.ru/wp-content/uploads/materials/gkl.jpg
[area_modifier] => 180.88
[parent_name] => Внутренние (не несущие) перегородки
[parent_id] => 25
[material_sum] => 0
[work_sum] => 0
[total_sum] => 0
[total_days] => 0
[display_material_sum] => 0
[display_work_sum] => 0
[display_total_sum] => 0
)
1
0₽
Работа:0 ₽
Материалы:0 ₽
Дни:0
stdClass Object
(
[id] => 147
[attribute_id] => 25
[name] => Каркасно-обшивные
[material_modifier] => 1
[work_modifier] => 1
[options] => Array
(
[0] => 75 мм (без шумоизоляции)
[1] => 75 мм (с шумоизоляцией)
)
[days] => [11,11]
[material_price] => [580,970]
[work_price] => [380,570]
[image] => https://akademik-stroy.ru/wp-content/uploads/materials/gkl.jpg
[area_modifier] => 180.88
[parent_name] => Внутренние (не несущие) перегородки
[parent_id] => 25
[material_sum] => 138482
[work_sum] => 75608
[total_sum] => 214090
[total_days] => 11
[display_material_sum] => 138 482
[display_work_sum] => 75 608
[display_total_sum] => 214 090
)
1
214 090₽
Работа:75 608 ₽
Материалы:138 482 ₽
Дни:11
stdClass Object
(
[id] => 148
[attribute_id] => 25
[name] => Пазогребневые
[material_modifier] => 1
[work_modifier] => 1
[options] => Array
(
[0] => 80 мм
[1] => 100 мм
)
[days] => [5,5]
[material_price] => [1022,1313]
[work_price] => [600,700]
[image] => https://akademik-stroy.ru/wp-content/uploads/materials/pazogrebnevye-bloki.jpg
[area_modifier] => 180.88
[parent_name] => Внутренние (не несущие) перегородки
[parent_id] => 25
[material_sum] => 244014
[work_sum] => 119381
[total_sum] => 363395
[total_days] => 5
[display_material_sum] => 244 014
[display_work_sum] => 119 381
[display_total_sum] => 363 395
)
1
363 395₽
Работа:119 381 ₽
Материалы:244 014 ₽
Дни:5
stdClass Object
(
[id] => 149
[attribute_id] => 25
[name] => Газобетонные
[material_modifier] => 1
[work_modifier] => 1
[options] => Array
(
[0] => 100 мм
[1] => 200 мм
)
[days] => [11,11]
[material_price] => [1160,1920]
[work_price] => [700,900]
[image] => https://akademik-stroy.ru/wp-content/uploads/materials/gazobeton-2.jpg
[area_modifier] => 180.88
[parent_name] => Внутренние (не несущие) перегородки
[parent_id] => 25
[material_sum] => 276963
[work_sum] => 139278
[total_sum] => 416241
[total_days] => 11
[display_material_sum] => 276 963
[display_work_sum] => 139 278
[display_total_sum] => 416 241
)
1
416 241₽
Работа:139 278 ₽
Материалы:276 963 ₽
Дни:11
stdClass Object
(
[id] => 150
[attribute_id] => 25
[name] => Кирпичные
[material_modifier] => 1
[work_modifier] => 1
[options] => Array
(
[0] => 120 мм
[1] => 250 мм
[2] => 360 мм
)
[days] => [7,7,7]
[material_price] => [1785,3570,5355]
[work_price] => [900,1600,1800]
[image] => https://akademik-stroy.ru/wp-content/uploads/materials/kirpich-1.jpg
[area_modifier] => 180.88
[parent_name] => Внутренние (не несущие) перегородки
[parent_id] => 25
[material_sum] => 426189
[work_sum] => 179071
[total_sum] => 605260
[total_days] => 7
[display_material_sum] => 426 189
[display_work_sum] => 179 071
[display_total_sum] => 605 260
)
1
605 260₽
Работа:179 071 ₽
Материалы:426 189 ₽
Дни:7
stdClass Object
(
[id] => 55
[attribute_id] => 28
[name] => Нет
[material_modifier] => 1
[work_modifier] => 1
[options] => Array
(
)
[days] => [0]
[material_price] => [0]
[work_price] => [0]
[image] => https://akademik-stroy.ru/wp-content/uploads/materials/ehlektrika.jpg
[area_modifier] => 146.78
[parent_name] => Электрика
[parent_id] => 28
[material_sum] => 0
[work_sum] => 0
[total_sum] => 0
[total_days] => 0
[display_material_sum] => 0
[display_work_sum] => 0
[display_total_sum] => 0
)
1
0₽
Работа:0 ₽
Материалы:0 ₽
Дни:0
stdClass Object
(
[id] => 56
[attribute_id] => 28
[name] => Есть
[material_modifier] => 1
[work_modifier] => 1
[options] => Array
(
)
[days] => [10]
[material_price] => [650]
[work_price] => [950]
[image] => https://akademik-stroy.ru/wp-content/uploads/materials/ehlektrika.jpg
[area_modifier] => 146.78
[parent_name] => Электрика
[parent_id] => 28
[material_sum] => 125937
[work_sum] => 153385
[total_sum] => 279322
[total_days] => 10
[display_material_sum] => 125 937
[display_work_sum] => 153 385
[display_total_sum] => 279 322
)
1
279 322₽
Работа:153 385 ₽
Материалы:125 937 ₽
Дни:10
stdClass Object
(
[id] => 57
[attribute_id] => 29
[name] => Нет
[material_modifier] => 1
[work_modifier] => 1
[options] => Array
(
)
[days] => [0]
[material_price] => [0]
[work_price] => [0]
[image] => https://akademik-stroy.ru/wp-content/uploads/materials/santekhnika-kanalizaciya-1.jpg
[area_modifier] => 146.78
[parent_name] => Сантехника, канализация в доме
[parent_id] => 29
[material_sum] => 0
[work_sum] => 0
[total_sum] => 0
[total_days] => 0
[display_material_sum] => 0
[display_work_sum] => 0
[display_total_sum] => 0
)
1
0₽
Работа:0 ₽
Материалы:0 ₽
Дни:0
stdClass Object
(
[id] => 58
[attribute_id] => 29
[name] => Есть
[material_modifier] => 1
[work_modifier] => 1
[options] => Array
(
)
[days] => [10]
[material_price] => [600]
[work_price] => [730]
[image] => https://akademik-stroy.ru/wp-content/uploads/materials/santekhnika-kanalizaciya-1.jpg
[area_modifier] => 146.78
[parent_name] => Сантехника, канализация в доме
[parent_id] => 29
[material_sum] => 116250
[work_sum] => 117864
[total_sum] => 234114
[total_days] => 10
[display_material_sum] => 116 250
[display_work_sum] => 117 864
[display_total_sum] => 234 114
)
1
234 114₽
Работа:117 864 ₽
Материалы:116 250 ₽
Дни:10
stdClass Object
(
[id] => 59
[attribute_id] => 30
[name] => Нет
[material_modifier] => 1
[work_modifier] => 1
[options] => Array
(
)
[days] => [0]
[material_price] => [0]
[work_price] => [0]
[image] => https://akademik-stroy.ru/wp-content/uploads/materials/otoplenie-1.jpg
[area_modifier] => 146.78
[parent_name] => Отопление
[parent_id] => 30
[material_sum] => 0
[work_sum] => 0
[total_sum] => 0
[total_days] => 0
[display_material_sum] => 0
[display_work_sum] => 0
[display_total_sum] => 0
)
1
0₽
Работа:0 ₽
Материалы:0 ₽
Дни:0
stdClass Object
(
[id] => 60
[attribute_id] => 30
[name] => Есть
[material_modifier] => 1
[work_modifier] => 1
[options] => Array
(
)
[days] => [5]
[material_price] => [610]
[work_price] => [560]
[image] => https://akademik-stroy.ru/wp-content/uploads/materials/otoplenie-1.jpg
[area_modifier] => 146.78
[parent_name] => Отопление
[parent_id] => 30
[material_sum] => 118187
[work_sum] => 90416
[total_sum] => 208603
[total_days] => 5
[display_material_sum] => 118 187
[display_work_sum] => 90 416
[display_total_sum] => 208 603
)
1
208 603₽
Работа:90 416 ₽
Материалы:118 187 ₽
Дни:5
stdClass Object
(
[id] => 61
[attribute_id] => 31
[name] => Нет
[material_modifier] => 1
[work_modifier] => 1
[options] => Array
(
)
[days] => [0]
[material_price] => [0]
[work_price] => [0]
[image] => https://akademik-stroy.ru/wp-content/uploads/materials/vodyanye.jpg
[area_modifier] => 30
[parent_name] => Теплые полы
[parent_id] => 31
[material_sum] => 0
[work_sum] => 0
[total_sum] => 0
[total_days] => 0
[display_material_sum] => 0
[display_work_sum] => 0
[display_total_sum] => 0
)
1
0₽
Работа:0 ₽
Материалы:0 ₽
Дни:0
stdClass Object
(
[id] => 151
[attribute_id] => 31
[name] => Водяные
[material_modifier] => 1
[work_modifier] => 1
[options] => Array
(
)
[days] => [9]
[material_price] => [10200]
[work_price] => [2500]
[image] => https://akademik-stroy.ru/wp-content/uploads/materials/vodyanye.jpg
[area_modifier] => 30
[parent_name] => Теплые полы
[parent_id] => 31
[material_sum] => 403920
[work_sum] => 82500
[total_sum] => 486420
[total_days] => 9
[display_material_sum] => 403 920
[display_work_sum] => 82 500
[display_total_sum] => 486 420
)
1
486 420₽
Работа:82 500 ₽
Материалы:403 920 ₽
Дни:9
stdClass Object
(
[id] => 152
[attribute_id] => 31
[name] => Электро
[material_modifier] => 1
[work_modifier] => 1
[options] => Array
(
)
[days] => [5]
[material_price] => [6300]
[work_price] => [1500]
[image] => https://akademik-stroy.ru/wp-content/uploads/materials/ehlektricheskij.jpg
[area_modifier] => 30
[parent_name] => Теплые полы
[parent_id] => 31
[material_sum] => 249480
[work_sum] => 49500
[total_sum] => 298980
[total_days] => 5
[display_material_sum] => 249 480
[display_work_sum] => 49 500
[display_total_sum] => 298 980
)
1
298 980₽
Работа:49 500 ₽
Материалы:249 480 ₽
Дни:5
stdClass Object
(
[id] => 63
[attribute_id] => 32
[name] => Нет
[material_modifier] => 1
[work_modifier] => 1
[options] => Array
(
)
[days] => [0]
[material_price] => [0]
[work_price] => [0]
[image] => https://akademik-stroy.ru/wp-content/uploads/materials/shtukaturka-shpatlevka-1.jpg
[area_modifier] => 146.78
[parent_name] => Черновая отделка стен
[parent_id] => 32
[material_sum] => 0
[work_sum] => 0
[total_sum] => 0
[total_days] => 0
[display_material_sum] => 0
[display_work_sum] => 0
[display_total_sum] => 0
)
1
0₽
Работа:0 ₽
Материалы:0 ₽
Дни:0
stdClass Object
(
[id] => 153
[attribute_id] => 32
[name] => Штукатурка и шпатлевка
[material_modifier] => 1
[work_modifier] => 1
[options] => Array
(
)
[days] => [20]
[material_price] => [1850]
[work_price] => [2600]
[image] => https://akademik-stroy.ru/wp-content/uploads/materials/shtukaturka-shpatlevka-1.jpg
[area_modifier] => 146.78
[parent_name] => Черновая отделка стен
[parent_id] => 32
[material_sum] => 358437
[work_sum] => 419791
[total_sum] => 778228
[total_days] => 20
[display_material_sum] => 358 437
[display_work_sum] => 419 791
[display_total_sum] => 778 228
)
1
778 228₽
Работа:419 791 ₽
Материалы:358 437 ₽
Дни:20
stdClass Object
(
[id] => 154
[attribute_id] => 32
[name] => Гипсокортон на стены
[material_modifier] => 1
[work_modifier] => 1
[options] => Array
(
)
[days] => [15]
[material_price] => [950]
[work_price] => [2100]
[image] => https://akademik-stroy.ru/wp-content/uploads/materials/gkl-1.jpg
[area_modifier] => 146.78
[parent_name] => Черновая отделка стен
[parent_id] => 32
[material_sum] => 184062
[work_sum] => 339062
[total_sum] => 523124
[total_days] => 15
[display_material_sum] => 184 062
[display_work_sum] => 339 062
[display_total_sum] => 523 124
)
1
523 124₽
Работа:339 062 ₽
Материалы:184 062 ₽
Дни:15
stdClass Object
(
[id] => 155
[attribute_id] => 32
[name] => Вагонка
[material_modifier] => 1
[work_modifier] => 1
[options] => Array
(
)
[days] => [15]
[material_price] => [1250]
[work_price] => [950]
[image] => https://akademik-stroy.ru/wp-content/uploads/materials/vagonka.jpg
[area_modifier] => 146.78
[parent_name] => Черновая отделка стен
[parent_id] => 32
[material_sum] => 242187
[work_sum] => 153385
[total_sum] => 395572
[total_days] => 15
[display_material_sum] => 242 187
[display_work_sum] => 153 385
[display_total_sum] => 395 572
)
1
395 572₽
Работа:153 385 ₽
Материалы:242 187 ₽
Дни:15
stdClass Object
(
[id] => 65
[attribute_id] => 33
[name] => Нет
[material_modifier] => 1
[work_modifier] => 1
[options] => Array
(
)
[days] => [0]
[material_price] => [0]
[work_price] => [0]
[image] => https://akademik-stroy.ru/wp-content/uploads/materials/styazhka.jpg
[area_modifier] => 146.78
[parent_name] => Черновая отделка полов
[parent_id] => 33
[material_sum] => 0
[work_sum] => 0
[total_sum] => 0
[total_days] => 0
[display_material_sum] => 0
[display_work_sum] => 0
[display_total_sum] => 0
)
1
0₽
Работа:0 ₽
Материалы:0 ₽
Дни:0
stdClass Object
(
[id] => 156
[attribute_id] => 33
[name] => Стяжка + наливные полы
[material_modifier] => 1
[work_modifier] => 1
[options] => Array
(
)
[days] => [10]
[material_price] => [1000]
[work_price] => [900]
[image] => https://akademik-stroy.ru/wp-content/uploads/materials/styazhka.jpg
[area_modifier] => 146.78
[parent_name] => Черновая отделка полов
[parent_id] => 33
[material_sum] => 193750
[work_sum] => 145312
[total_sum] => 339062
[total_days] => 10
[display_material_sum] => 193 750
[display_work_sum] => 145 312
[display_total_sum] => 339 062
)
1
339 062₽
Работа:145 312 ₽
Материалы:193 750 ₽
Дни:10
stdClass Object
(
[id] => 157
[attribute_id] => 33
[name] => ОСБ на пол
[material_modifier] => 1
[work_modifier] => 1
[options] => Array
(
)
[days] => [7]
[material_price] => [580]
[work_price] => [350]
[image] => https://akademik-stroy.ru/wp-content/uploads/materials/osb-1.jpg
[area_modifier] => 146.78
[parent_name] => Черновая отделка полов
[parent_id] => 33
[material_sum] => 112375
[work_sum] => 56510
[total_sum] => 168885
[total_days] => 7
[display_material_sum] => 112 375
[display_work_sum] => 56 510
[display_total_sum] => 168 885
)
1
168 885₽
Работа:56 510 ₽
Материалы:112 375 ₽
Дни:7
stdClass Object
(
[id] => 67
[attribute_id] => 34
[name] => Нет
[material_modifier] => 1
[work_modifier] => 1
[options] => Array
(
)
[days] => [0]
[material_price] => [0]
[work_price] => [0]
[image] => https://akademik-stroy.ru/wp-content/uploads/materials/chistovaya-otdelka.jpg
[area_modifier] => 146.78
[parent_name] => Чистовая отделка стен и полов
[parent_id] => 34
[material_sum] => 0
[work_sum] => 0
[total_sum] => 0
[total_days] => 0
[display_material_sum] => 0
[display_work_sum] => 0
[display_total_sum] => 0
)
1
0₽
Работа:0 ₽
Материалы:0 ₽
Дни:0
stdClass Object
(
[id] => 68
[attribute_id] => 34
[name] => Есть
[material_modifier] => 1
[work_modifier] => 1
[options] => Array
(
)
[days] => [50]
[material_price] => [6000]
[work_price] => [3500]
[image] => https://akademik-stroy.ru/wp-content/uploads/materials/chistovaya-otdelka.jpg
[area_modifier] => 146.78
[parent_name] => Чистовая отделка стен и полов
[parent_id] => 34
[material_sum] => 1162498
[work_sum] => 565103
[total_sum] => 1727601
[total_days] => 50
[display_material_sum] => 1 162 498
[display_work_sum] => 565 103
[display_total_sum] => 1 727 601
)
1
1 727 601₽
Работа:565 103 ₽
Материалы:1 162 498 ₽
Дни:50
stdClass Object
(
[id] => 69
[attribute_id] => 35
[name] => Нет
[material_modifier] => 1
[work_modifier] => 1
[options] => Array
(
)
[days] => [0]
[material_price] => [0]
[work_price] => [0]
[image] => https://akademik-stroy.ru/wp-content/uploads/materials/mnogourovnevyj-gkl.jpg
[area_modifier] => 146.78
[parent_name] => Отделка потолка
[parent_id] => 35
[material_sum] => 0
[work_sum] => 0
[total_sum] => 0
[total_days] => 0
[display_material_sum] => 0
[display_work_sum] => 0
[display_total_sum] => 0
)
1
0₽
Работа:0 ₽
Материалы:0 ₽
Дни:0
stdClass Object
(
[id] => 70
[attribute_id] => 35
[name] => Есть
[material_modifier] => 1
[work_modifier] => 1
[options] => Array
(
[0] => Многоуровневый потолок из гипсокартона
[1] => Многоуровневый потолок из гипсокартона и натяжного потолка
[2] => Одноуровневый потолок из гипсокартона
[3] => Одноуровневый натяжной потолок
)
[days] => [10,10,1,1]
[material_price] => [900,700,700,600]
[work_price] => [1000,800,500,300]
[image] => https://akademik-stroy.ru/wp-content/uploads/materials/mnogourovnevyj-gkl.jpg
[area_modifier] => 146.78
[parent_name] => Отделка потолка
[parent_id] => 35
[material_sum] => 174375
[work_sum] => 161458
[total_sum] => 335833
[total_days] => 10
[display_material_sum] => 174 375
[display_work_sum] => 161 458
[display_total_sum] => 335 833
)
1
335 833₽
Работа:161 458 ₽
Материалы:174 375 ₽
Дни:10
Преимущества работы с нами
7 этапов оплаты
Независимый строительный надзор
Экологически чистые материалы
16 лет гарантии
Онлайн-кабинет с веб-камерой
Строители с опытом более 15 лет
Собственное производство





