Одноэтажный дом 258 м2 за руб.

ID-163242

Стоимость дома 9833592 руб.

Планировки

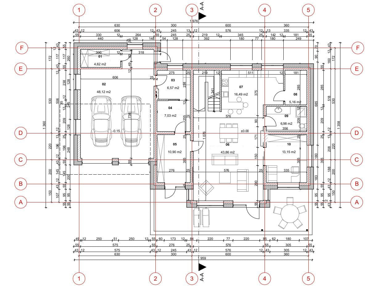
План первого этажа

floor image
  • 1. Мастерская 4,62 м²
  • 2. Гараж 48,12 м²
  • 3. 48,12 м² 6,57 м²
  • 4. Помещение 7,03 м²
  • 5. Тамбур+гардероб 10,90 м²
  • 6. Гостиная-Столовая 43,86 м²
  • 7. Кухня 16,49 м²
  • 8. Кладовая 5,16 м²
  • 9. Ванная комната 6,98 м²
  • 10. Гостевая комната 13,15 м²
  • Общая площадь первый этаж 162,88 м²

План второго этажа

floor image
  • 1. Коридор 15,64 м²
  • 2. Спальня 41,18 м²
  • 3. Гардероб 9,50 м²
  • 4. Ванная комната 10,86 м²
  • 5. Комната 12,12 м²
  • 6. Комната 13,48 м²
  • 7. Прачечная 9,70 м²
  • 8. Комната 14,95 м²
  • 9. Ванная комната 7,83 м²
  • Общая площадь второй этаж 95,12 м²

Площади дома

№ п/п Наименование Ед. из. Строительная площадь Полезная площадь
1 1 этаж м2 200.72 162.88
2 2 этаж м2 117.22 95.12
3 Итого м2 317.94 258
154 м2 Полезная
площадь
1 этаж Этажей
26 м2 Террасы
и балконы
1Без
гаража
4 Количество
спален
2 Количество
санузлов

Калькулятор опций

0

В ипотеку от 31 153 ₽/мес.

Фундамент
998 984
Работа:432 351
Материалы:566 633
Дни:20
600 554
Работа:201 121
Материалы:399 433
Дни:2
1 012 030
Работа:406 257
Материалы:605 773
Дни:20
1 939 357
Работа:865 906
Материалы:1 073 451
Дни:30
3 253 470
Работа:1 196 291
Материалы:2 057 179
Дни:32
1 229 611
Работа:491 965
Материалы:737 646
Дни:20
7 715 677
Работа:3 517 417
Материалы:4 198 260
Дни:30
9 205 421
Работа:4 102 918
Материалы:5 102 503
Дни:40
321 152
Работа:80 288
Материалы:240 864
Дни:1
Перекрытие цоколя
574 862
Работа:246 886
Материалы:327 976
Дни:8
920 702
Работа:305 094
Материалы:615 608
Дни:13
1 642 894
Работа:672 011
Материалы:970 883
Дни:18
Стены 1 этаж (несущие)
1 612 384
Работа:1 010 224
Материалы:602 160
Дни:29
1 856 058
Работа:950 811
Материалы:905 247
Дни:23
2 857 450
Работа:1 753 490
Материалы:1 103 960
Дни:30
2 338 588
Работа:1 024 876
Материалы:1 313 712
Дни:45
4 371 882
Работа:964 660
Материалы:3 407 222
Дни:24
962 854
Работа:485 341
Материалы:477 513
Дни:15
525 886
Работа:283 015
Материалы:242 871
Дни:7
1 849 434
Работа:643 107
Материалы:1 206 327
Дни:7
2 415 665
Работа:771 768
Материалы:1 643 897
Дни:7
15 863 905
Работа:771 768
Материалы:15 092 137
Дни:7
8 587 002
Работа:964 660
Материалы:7 622 342
Дни:7
1 350 644
Работа:321 553
Материалы:1 029 091
Дни:7
1 773 562
Работа:910 867
Материалы:862 695
Дни:29
1 552 770
Работа:1 011 227
Материалы:541 543
Дни:29
1 773 562
Работа:910 867
Материалы:862 695
Дни:29
1 882 353
Работа:1 151 531
Материалы:730 822
Дни:23
2 406 031
Работа:810 307
Материалы:1 595 724
Дни:7
2 728 387
Работа:1 672 198
Материалы:1 056 189
Дни:25
986 940
Работа:509 427
Материалы:477 513
Дни:15
9 145 205
Работа:1 929 321
Материалы:7 215 884
Дни:15
1 094 325
Работа:514 646
Материалы:579 679
Дни:15
1 490 145
Работа:845 834
Материалы:644 311
Дни:19
1 572 842
Работа:1 011 227
Материалы:561 615
Дни:29
1 010 224
Работа:530 302
Материалы:479 922
Дни:15
1 856 058
Работа:950 811
Материалы:905 247
Дни:23
1 084 289
Работа:421 512
Материалы:662 777
Дни:15
1 388 982
Работа:1 012 833
Материалы:376 149
Дни:7
Перекрытие первого этажа
574 862
Работа:246 886
Материалы:327 976
Дни:8
920 702
Работа:305 094
Материалы:615 608
Дни:13
1 642 894
Работа:672 011
Материалы:970 883
Дни:18
Стены 2 этаж (несущие)
941 628
Работа:589 968
Материалы:351 660
Дни:29
1 083 933
Работа:555 271
Материалы:528 662
Дни:23
1 668 744
Работа:1 024 034
Материалы:644 710
Дни:30
1 365 730
Работа:598 525
Материалы:767 205
Дни:45
2 553 169
Работа:563 359
Материалы:1 989 810
Дни:24
562 304
Работа:283 438
Материалы:278 866
Дни:15
307 116
Работа:165 280
Материалы:141 836
Дни:7
1 080 065
Работа:375 573
Материалы:704 492
Дни:7
1 410 743
Работа:450 711
Материалы:960 032
Дни:7
9 264 483
Работа:450 711
Материалы:8 813 772
Дни:7
2 459 393
Работа:563 359
Материалы:1 896 034
Дни:7
788 773
Работа:187 786
Материалы:600 987
Дни:10
1 035 756
Работа:531 944
Материалы:503 812
Дни:29
906 814
Работа:590 554
Материалы:316 260
Дни:29
1 035 756
Работа:531 944
Материалы:503 812
Дни:29
1 099 289
Работа:672 491
Материалы:426 798
Дни:23
1 405 116
Работа:473 217
Материалы:931 899
Дни:7
1 593 372
Работа:976 560
Материалы:616 812
Дни:25
576 370
Работа:297 504
Материалы:278 866
Дни:15
5 340 778
Работа:1 126 719
Материалы:4 214 059
Дни:15
639 083
Работа:300 552
Материалы:338 531
Дни:15
870 241
Работа:493 965
Материалы:376 276
Дни:19
918 536
Работа:590 554
Материалы:327 982
Дни:29
589 968
Работа:309 695
Материалы:280 273
Дни:15
1 083 933
Работа:555 271
Материалы:528 662
Дни:10
633 222
Работа:246 162
Материалы:387 060
Дни:10
811 162
Работа:591 492
Материалы:219 670
Дни:7
Перекрытие второго этажа
335 718
Работа:144 181
Материалы:191 537
Дни:8
537 688
Работа:178 174
Материалы:359 514
Дни:13
959 446
Работа:392 453
Материалы:566 993
Дни:18
Крыша (Скатная)
2 376 124
Работа:1 149 323
Материалы:1 226 801
Дни:20
2 595 310
Работа:1 194 284
Материалы:1 401 026
Дни:20
4 017 611
Работа:1 898 008
Материалы:2 119 603
Дни:20
3 695 456
Работа:1 787 412
Материалы:1 908 044
Дни:20
4 457 188
Работа:1 898 008
Материалы:2 559 180
Дни:20
3 360 053
Работа:1 643 897
Материалы:1 716 156
Дни:20
7 466 784
Работа:3 362 060
Материалы:4 104 724
Дни:20
7 352 374
Работа:3 368 082
Материалы:3 984 292
Дни:20
1 445 184
Работа:752 700
Материалы:692 484
Дни:20
Окна
509 292
Работа:163 830
Материалы:345 462
Дни:3
0
Работа:0
Материалы:0
Дни:0
Двери входные
15 500
Работа:5 500
Материалы:10 000
Дни:1
0
Работа:0
Материалы:0
Дни:0
Утепление кровли (Мансарда)
0
Работа:0
Материалы:0
Дни:0
362 902
Работа:130 468
Материалы:232 434
Дни:5
211 558
Работа:46 968
Материалы:164 590
Дни:3
308 306
Работа:78 281
Материалы:230 025
Дни:3
173 824
Работа:78 281
Материалы:95 543
Дни:3
464 466
Работа:46 968
Материалы:417 498
Дни:2
609 386
Работа:78 281
Материалы:531 105
Дни:3
Мансардные окна
0
Работа:0
Материалы:0
Дни:0
65 380
Работа:17 900
Материалы:47 480
Дни:6
Подшивка кровли
0
Работа:0
Материалы:0
Дни:0
668 799
Работа:306 901
Материалы:361 898
Дни:7
Водосточная система
0
Работа:0
Материалы:0
Дни:0
669 000
Работа:299 274
Материалы:369 726
Дни:7
Дополнительное утепление наружных стен
0
Работа:0
Материалы:0
Дни:0
1 831 912
Работа:739 187
Материалы:1 092 725
Дни:7
646 987
Работа:389 464
Материалы:257 523
Дни:3
2 020 445
Работа:570 684
Материалы:1 449 761
Дни:5
2 103 742
Работа:570 684
Материалы:1 533 058
Дни:5
1 141 051
Работа:231 771
Материалы:909 280
Дни:3
2 900 475
Работа:254 344
Материалы:2 646 131
Дни:5
Наружная отделка фасада
0
Работа:0
Материалы:0
Дни:0
1 396 030
Работа:444 148
Материалы:951 882
Дни:20
1 504 126
Работа:488 658
Материалы:1 015 468
Дни:20
1 091 454
Работа:382 152
Материалы:709 302
Дни:35
3 628 853
Работа:1 030 093
Материалы:2 598 760
Дни:45
1 901 540
Работа:956 016
Материалы:945 524
Дни:40
803 092
Работа:401 546
Материалы:401 546
Дни:20
2 472 223
Работа:1 030 093
Материалы:1 442 130
Дни:45
2 719 574
Работа:741 731
Материалы:1 977 843
Дни:20
1 503 809
Работа:618 056
Материалы:885 753
Дни:20
1 854 168
Работа:824 075
Материалы:1 030 093
Дни:20
2 584 135
Работа:1 112 437
Материалы:1 471 698
Дни:20
3 190 745
Работа:951 564
Материалы:2 239 181
Дни:20
2 268 431
Работа:824 075
Материалы:1 444 356
Дни:20
Террасы, крыльца, навесы
0
Работа:0
Материалы:0
Дни:0
372 000
Работа:58 500
Материалы:313 500
Дни:5
Балконы
0
Работа:0
Материалы:0
Дни:0
166 500
Работа:58 500
Материалы:108 000
Дни:12
Отмостка
0
Работа:0
Материалы:0
Дни:0
863 096
Работа:351 260
Материалы:511 836
Дни:15
622 232
Работа:291 044
Материалы:331 188
Дни:10
Дренаж вокруг дома
0
Работа:0
Материалы:0
Дни:0
858 480
Работа:383 576
Материалы:474 904
Дни:5
Автономная канализация (септики)
0
Работа:0
Материалы:0
Дни:0
246 340
Работа:50 000
Материалы:196 340
Дни:7
Внутренние (не несущие) перегородки
0
Работа:0
Материалы:0
Дни:0
305 212
Работа:120 813
Материалы:184 399
Дни:11
515 682
Работа:190 758
Материалы:324 924
Дни:5
591 350
Работа:222 551
Материалы:368 799
Дни:11
853 642
Работа:286 137
Материалы:567 505
Дни:7
Электрика
0
Работа:0
Материалы:0
Дни:0
412 800
Работа:245 100
Материалы:167 700
Дни:10
Сантехника, канализация в доме
0
Работа:0
Материалы:0
Дни:0
343 140
Работа:188 340
Материалы:154 800
Дни:10
Отопление
0
Работа:0
Материалы:0
Дни:0
301 860
Работа:144 480
Материалы:157 380
Дни:5
Теплые полы
0
Работа:0
Материалы:0
Дни:0
381 000
Работа:75 000
Материалы:306 000
Дни:9
234 000
Работа:45 000
Материалы:189 000
Дни:5
Черновая отделка стен
0
Работа:0
Материалы:0
Дни:0
1 148 100
Работа:670 800
Материалы:477 300
Дни:20
786 900
Работа:541 800
Материалы:245 100
Дни:15
567 600
Работа:245 100
Материалы:322 500
Дни:15
Черновая отделка полов
0
Работа:0
Материалы:0
Дни:0
490 200
Работа:232 200
Материалы:258 000
Дни:10
239 940
Работа:90 300
Материалы:149 640
Дни:7
Чистовая отделка стен и полов
0
Работа:0
Материалы:0
Дни:0
2 451 000
Работа:903 000
Материалы:1 548 000
Дни:50
Отделка потолка
0
Работа:0
Материалы:0
Дни:0
490 200
Работа:258 000
Материалы:232 200
Дни:10

Преимущества работы с нами

icon

7 этапов оплаты

icon

Независимый строительный надзор

icon

Экологически чистые материалы

icon

16 лет гарантии

icon

Онлайн-кабинет с веб-камерой

icon

Строители с опытом более 15 лет

icon

Собственное производство