Одноэтажный дом 157.38 м2 за руб.
Планировки
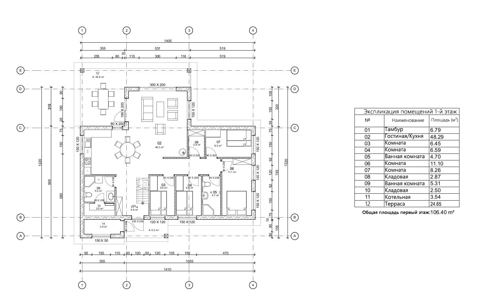
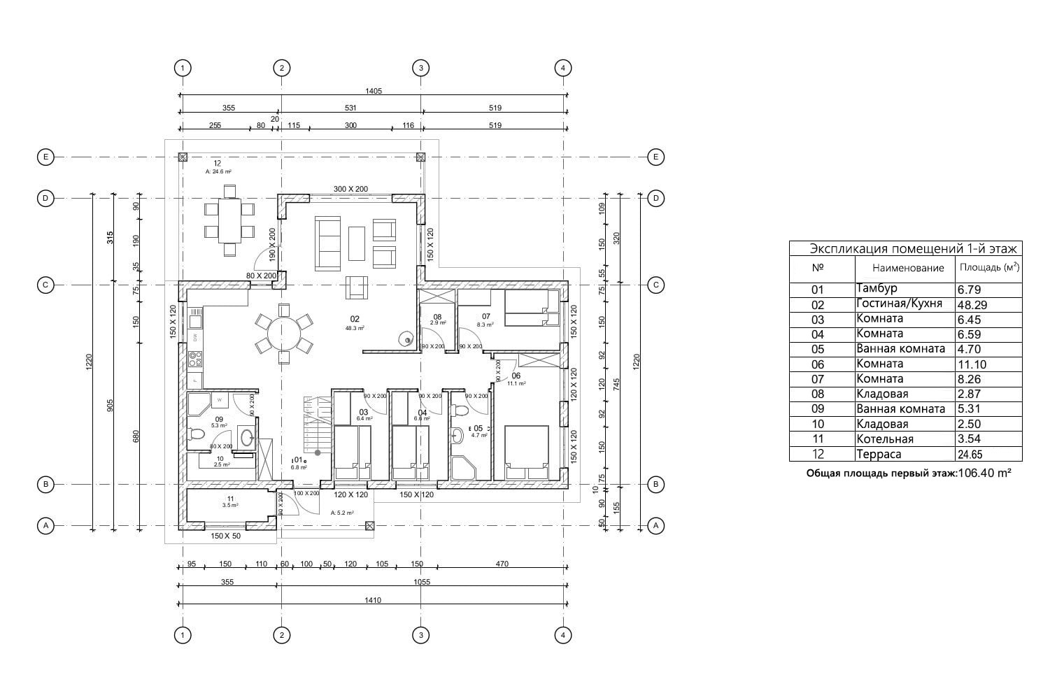
План первого этажа
- 1. Тамбур 6,79 м²
- 2. Гостиная-Кухня 48,29 м²
- 3. Комната 6,45 м²
- 4. Комната 6,59 м²
- 5. Ванная комната 4,70 м²
- 6. Комната 11,10 м²
- 7. Комната 8,26 м²
- 8. Кладовая 2,87 м²
- 9. Ванная комната 5,31 м²
- 10. Кладовая 2,50 м²
- 11. Котельная 3,54 м²
- 12. Терраса 24,65 м²
- Общая площадь первый этаж 106,40 м²
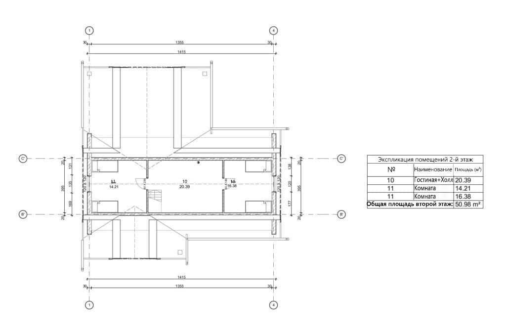
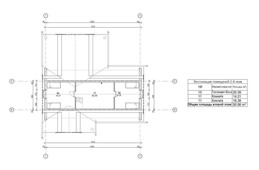
План мансарды
- 1. Холл+Гостиная 20,39 м²
- 2. Комната 14,21 м²
- 3. Комната 16,38 м²
- Общая площадь второй этаж 50,98 м²
Площади дома
| № п/п | Наименование | Ед. из. | Строительная площадь | Полезная площадь |
| 1 | 1 этаж | м2 | 131.12 | 106.4 |
| 2 | 2 этаж | м2 | 62.82 | 50.98 |
| 3 | Итого | м2 | 193.94 | 157.38 |
154 м2
Полезная
площадь
площадь
1 этаж
Этажей
26 м2
Террасы
и балконы
и балконы
0Без
гаража
гаража
5+
Количество
спален
спален
3
Количество
санузлов
санузлов
Калькулятор опций
0₽
В ипотеку от 21 586 ₽/мес.
0₽
0 дней
717 843₽
Работа:310 676 ₽
Материалы:407 167 ₽
Дни:20
431 542₽
Работа:144 520 ₽
Материалы:287 022 ₽
Дни:2
727 218₽
Работа:291 926 ₽
Материалы:435 292 ₽
Дни:20
1 393 570₽
Работа:622 217 ₽
Материалы:771 353 ₽
Дни:30
2 337 857₽
Работа:859 623 ₽
Материалы:1 478 234 ₽
Дни:32
883 566₽
Работа:353 513 ₽
Материалы:530 053 ₽
Дни:20
5 544 279₽
Работа:2 527 522 ₽
Материалы:3 016 757 ₽
Дни:30
6 614 768₽
Работа:2 948 246 ₽
Материалы:3 666 522 ₽
Дни:40
230 771₽
Работа:57 693 ₽
Материалы:173 078 ₽
Дни:1
413 080₽
Работа:177 405 ₽
Материалы:235 675 ₽
Дни:8
661 593₽
Работа:219 233 ₽
Материалы:442 360 ₽
Дни:13
1 180 539₽
Работа:482 889 ₽
Материалы:697 650 ₽
Дни:18
1 158 616₽
Работа:725 920 ₽
Материалы:432 696 ₽
Дни:29
1 333 713₽
Работа:683 227 ₽
Материалы:650 486 ₽
Дни:23
2 053 287₽
Работа:1 260 011 ₽
Материалы:793 276 ₽
Дни:30
1 680 447₽
Работа:736 449 ₽
Материалы:943 998 ₽
Дни:45
3 141 517₽
Работа:693 179 ₽
Материалы:2 448 338 ₽
Дни:24
691 881₽
Работа:348 753 ₽
Материалы:343 128 ₽
Дни:15
377 888₽
Работа:203 367 ₽
Материалы:174 521 ₽
Дни:7
1 328 953₽
Работа:462 119 ₽
Материалы:866 834 ₽
Дни:7
1 735 832₽
Работа:554 572 ₽
Материалы:1 181 260 ₽
Дни:7
11 399 376₽
Работа:554 572 ₽
Материалы:10 844 804 ₽
Дни:7
6 170 389₽
Работа:693 179 ₽
Материалы:5 477 210 ₽
Дни:7
970 537₽
Работа:231 060 ₽
Материалы:739 477 ₽
Дни:7
1 274 434₽
Работа:654 525 ₽
Материалы:619 909 ₽
Дни:29
1 115 779₽
Работа:726 641 ₽
Материалы:389 138 ₽
Дни:29
1 274 434₽
Работа:654 525 ₽
Материалы:619 909 ₽
Дни:29
1 352 608₽
Работа:827 459 ₽
Материалы:525 149 ₽
Дни:23
1 728 909₽
Работа:582 265 ₽
Материалы:1 146 644 ₽
Дни:7
1 960 546₽
Работа:1 201 597 ₽
Материалы:758 949 ₽
Дни:25
709 189₽
Работа:366 061 ₽
Материалы:343 128 ₽
Дни:15
6 571 498₽
Работа:1 386 358 ₽
Материалы:5 185 140 ₽
Дни:15
786 353₽
Работа:369 811 ₽
Материалы:416 542 ₽
Дни:15
1 070 779₽
Работа:607 794 ₽
Материалы:462 985 ₽
Дни:19
1 130 202₽
Работа:726 641 ₽
Материалы:403 561 ₽
Дни:29
725 920₽
Работа:381 061 ₽
Материалы:344 859 ₽
Дни:15
1 333 713₽
Работа:683 227 ₽
Материалы:650 486 ₽
Дни:23
779 141₽
Работа:302 887 ₽
Материалы:476 254 ₽
Дни:15
998 086₽
Работа:727 795 ₽
Материалы:270 291 ₽
Дни:7
413 080₽
Работа:177 405 ₽
Материалы:235 675 ₽
Дни:8
661 593₽
Работа:219 233 ₽
Материалы:442 360 ₽
Дни:13
1 180 539₽
Работа:482 889 ₽
Материалы:697 650 ₽
Дни:18
555 096₽
Работа:347 790 ₽
Материалы:207 306 ₽
Дни:29
638 986₽
Работа:327 336 ₽
Материалы:311 650 ₽
Дни:23
983 736₽
Работа:603 675 ₽
Материалы:380 061 ₽
Дни:30
805 108₽
Работа:352 835 ₽
Материалы:452 273 ₽
Дни:45
1 505 110₽
Работа:332 104 ₽
Материалы:1 173 006 ₽
Дни:24
331 483₽
Работа:167 089 ₽
Материалы:164 394 ₽
Дни:15
181 047₽
Работа:97 434 ₽
Материалы:83 613 ₽
Дни:7
636 706₽
Работа:221 403 ₽
Материалы:415 303 ₽
Дни:7
831 642₽
Работа:265 697 ₽
Материалы:565 945 ₽
Дни:7
5 461 476₽
Работа:265 697 ₽
Материалы:5 195 779 ₽
Дни:7
1 449 829₽
Работа:332 104 ₽
Материалы:1 117 725 ₽
Дни:7
464 987₽
Работа:110 701 ₽
Материалы:354 286 ₽
Дни:10
610 585₽
Работа:313 585 ₽
Материалы:297 000 ₽
Дни:29
534 573₽
Работа:348 136 ₽
Материалы:186 437 ₽
Дни:29
610 585₽
Работа:313 585 ₽
Материалы:297 000 ₽
Дни:29
648 038₽
Работа:396 438 ₽
Материалы:251 600 ₽
Дни:23
828 326₽
Работа:278 965 ₽
Материалы:549 361 ₽
Дни:7
939 304₽
Работа:575 689 ₽
Материалы:363 615 ₽
Дни:25
339 775₽
Работа:175 381 ₽
Материалы:164 394 ₽
Дни:15
3 148 425₽
Работа:664 208 ₽
Материалы:2 484 217 ₽
Дни:15
376 745₽
Работа:177 178 ₽
Материалы:199 567 ₽
Дни:15
513 013₽
Работа:291 196 ₽
Материалы:221 817 ₽
Дни:19
541 483₽
Работа:348 136 ₽
Материалы:193 347 ₽
Дни:29
347 790₽
Работа:182 567 ₽
Материалы:165 223 ₽
Дни:15
638 986₽
Работа:327 336 ₽
Материалы:311 650 ₽
Дни:10
373 289₽
Работа:145 114 ₽
Материалы:228 175 ₽
Дни:10
478 186₽
Работа:348 689 ₽
Материалы:129 497 ₽
Дни:7
1 707 418₽
Работа:825 872 ₽
Материалы:881 546 ₽
Дни:20
1 864 919₽
Работа:858 180 ₽
Материалы:1 006 739 ₽
Дни:20
2 886 948₽
Работа:1 363 858 ₽
Материалы:1 523 090 ₽
Дни:20
2 655 455₽
Работа:1 284 386 ₽
Материалы:1 371 069 ₽
Дни:20
3 202 816₽
Работа:1 363 858 ₽
Материалы:1 838 958 ₽
Дни:20
2 414 444₽
Работа:1 181 260 ₽
Материалы:1 233 184 ₽
Дни:20
5 365 430₽
Работа:2 415 886 ₽
Материалы:2 949 544 ₽
Дни:20
5 283 218₽
Работа:2 420 213 ₽
Материалы:2 863 005 ₽
Дни:20
1 038 470₽
Работа:540 870 ₽
Материалы:497 600 ₽
Дни:20
341 735₽
Работа:109 930 ₽
Материалы:231 805 ₽
Дни:3
0₽
Работа:0 ₽
Материалы:0 ₽
Дни:0
17 050₽
Работа:6 050 ₽
Материалы:11 000 ₽
Дни:1
0₽
Работа:0 ₽
Материалы:0 ₽
Дни:0
0₽
Работа:0 ₽
Материалы:0 ₽
Дни:0
260 772₽
Работа:93 751 ₽
Материалы:167 021 ₽
Дни:5
152 020₽
Работа:33 750 ₽
Материалы:118 270 ₽
Дни:3
221 540₽
Работа:56 250 ₽
Материалы:165 290 ₽
Дни:3
124 904₽
Работа:56 250 ₽
Материалы:68 654 ₽
Дни:3
333 753₽
Работа:33 750 ₽
Материалы:300 003 ₽
Дни:2
437 888₽
Работа:56 250 ₽
Материалы:381 638 ₽
Дни:3
0₽
Работа:0 ₽
Материалы:0 ₽
Дни:0
71 918₽
Работа:19 690 ₽
Материалы:52 228 ₽
Дни:6
0₽
Работа:0 ₽
Материалы:0 ₽
Дни:0
480 581₽
Работа:220 531 ₽
Материалы:260 050 ₽
Дни:7
0₽
Работа:0 ₽
Материалы:0 ₽
Дни:0
480 725₽
Работа:215 050 ₽
Материалы:265 675 ₽
Дни:7
0₽
Работа:0 ₽
Материалы:0 ₽
Дни:0
1 229 231₽
Работа:496 002 ₽
Материалы:733 229 ₽
Дни:7
434 135₽
Работа:261 334 ₽
Материалы:172 801 ₽
Дни:3
1 355 738₽
Работа:382 935 ₽
Материалы:972 803 ₽
Дни:5
1 411 632₽
Работа:382 935 ₽
Материалы:1 028 697 ₽
Дни:5
765 655₽
Работа:155 520 ₽
Материалы:610 135 ₽
Дни:3
1 946 246₽
Работа:170 667 ₽
Материалы:1 775 579 ₽
Дни:5
0₽
Работа:0 ₽
Материалы:0 ₽
Дни:0
936 750₽
Работа:298 028 ₽
Материалы:638 722 ₽
Дни:20
1 009 283₽
Работа:327 894 ₽
Материалы:681 389 ₽
Дни:20
732 375₽
Работа:256 427 ₽
Материалы:475 948 ₽
Дни:35
2 434 994₽
Работа:691 202 ₽
Материалы:1 743 792 ₽
Дни:45
1 275 950₽
Работа:641 495 ₽
Материалы:634 455 ₽
Дни:40
538 882₽
Работа:269 441 ₽
Материалы:269 441 ₽
Дни:20
1 658 885₽
Работа:691 202 ₽
Материалы:967 683 ₽
Дни:45
1 824 859₽
Работа:497 708 ₽
Материалы:1 327 151 ₽
Дни:20
1 009 070₽
Работа:414 721 ₽
Материалы:594 349 ₽
Дни:20
1 244 164₽
Работа:552 962 ₽
Материалы:691 202 ₽
Дни:20
1 733 979₽
Работа:746 456 ₽
Материалы:987 523 ₽
Дни:20
2 141 020₽
Работа:638 509 ₽
Материалы:1 502 511 ₽
Дни:20
1 522 138₽
Работа:552 962 ₽
Материалы:969 176 ₽
Дни:20
0₽
Работа:0 ₽
Материалы:0 ₽
Дни:0
409 200₽
Работа:64 350 ₽
Материалы:344 850 ₽
Дни:5
0₽
Работа:0 ₽
Материалы:0 ₽
Дни:0
183 150₽
Работа:64 350 ₽
Материалы:118 800 ₽
Дни:12
0₽
Работа:0 ₽
Материалы:0 ₽
Дни:0
620 198₽
Работа:252 406 ₽
Материалы:367 792 ₽
Дни:15
447 119₽
Работа:209 136 ₽
Материалы:237 983 ₽
Дни:10
0₽
Работа:0 ₽
Материалы:0 ₽
Дни:0
616 880₽
Работа:275 627 ₽
Материалы:341 253 ₽
Дни:5
0₽
Работа:0 ₽
Материалы:0 ₽
Дни:0
270 974₽
Работа:55 000 ₽
Материалы:215 974 ₽
Дни:7
0₽
Работа:0 ₽
Материалы:0 ₽
Дни:0
204 801₽
Работа:81 067 ₽
Материалы:123 734 ₽
Дни:11
346 027₽
Работа:128 000 ₽
Материалы:218 027 ₽
Дни:5
396 801₽
Работа:149 334 ₽
Материалы:247 467 ₽
Дни:11
572 802₽
Работа:192 001 ₽
Материалы:380 801 ₽
Дни:7
0₽
Работа:0 ₽
Материалы:0 ₽
Дни:0
276 989₽
Работа:164 462 ₽
Материалы:112 527 ₽
Дни:10
0₽
Работа:0 ₽
Материалы:0 ₽
Дни:0
230 247₽
Работа:126 376 ₽
Материалы:103 871 ₽
Дни:10
0₽
Работа:0 ₽
Материалы:0 ₽
Дни:0
202 548₽
Работа:96 946 ₽
Материалы:105 602 ₽
Дни:5
0₽
Работа:0 ₽
Материалы:0 ₽
Дни:0
419 100₽
Работа:82 500 ₽
Материалы:336 600 ₽
Дни:9
257 400₽
Работа:49 500 ₽
Материалы:207 900 ₽
Дни:5
0₽
Работа:0 ₽
Материалы:0 ₽
Дни:0
770 375₽
Работа:450 107 ₽
Материалы:320 268 ₽
Дни:20
528 010₽
Работа:363 548 ₽
Материалы:164 462 ₽
Дни:15
380 860₽
Работа:164 462 ₽
Материалы:216 398 ₽
Дни:15
0₽
Работа:0 ₽
Материалы:0 ₽
Дни:0
328 924₽
Работа:155 806 ₽
Материалы:173 118 ₽
Дни:10
160 999₽
Работа:60 591 ₽
Материалы:100 408 ₽
Дни:7
0₽
Работа:0 ₽
Материалы:0 ₽
Дни:0
1 644 621₽
Работа:605 913 ₽
Материалы:1 038 708 ₽
Дни:50
0₽
Работа:0 ₽
Материалы:0 ₽
Дни:0
328 924₽
Работа:173 118 ₽
Материалы:155 806 ₽
Дни:10
Преимущества работы с нами
7 этапов оплаты
Независимый строительный надзор
Экологически чистые материалы
16 лет гарантии
Онлайн-кабинет с веб-камерой
Строители с опытом более 15 лет
Собственное производство






