Одноэтажный дом 136.3 м2 за руб.

ID-163292

Стоимость дома 5357126 руб.

Планировки

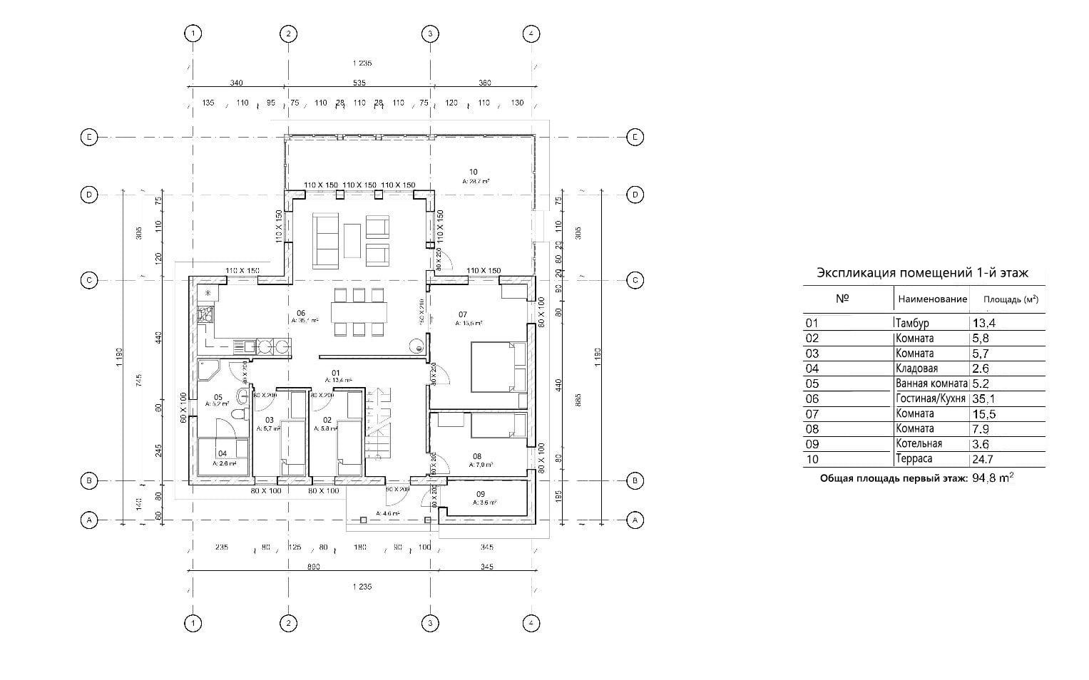
План первого этажа

floor image
  • 1. Тамбур 13,4 м²
  • 2. Комната 5,8 м²
  • 3. Комната 5,7 м²
  • 4. Кладовая 2,6 м²
  • 5. Ванная комната 5,2 м²
  • 6. Гостиная-Кухня 35,1 м²
  • 7. Комната 15,5 м²
  • 8. Комната 7,9 м²
  • 9. Котельная 3,6 м²
  • 10. Терраса 24,7 м²
  • Общая площадь первый этаж 94,8 м²

План мансарды

floor image
  • 1. Холл 17,1 м²
  • 2. Комната 12,2 м²
  • 3. Комната 12,2 м²
  • Общая площадь второй этаж 41,5 м²

Площади дома

№ п/п Наименование Ед. из. Строительная площадь Полезная площадь
1 1 этаж м2 116.82 94.8
2 2 этаж м2 51.14 41.5
3 Итого м2 167.96 136.3
154 м2 Полезная
площадь
1 этаж Этажей
26 м2 Террасы
и балконы
0Без
гаража
5+ Количество
спален
3 Количество
санузлов

Калькулятор опций

0

В ипотеку от 17 932 ₽/мес.

Фундамент
stdClass Object ( [id] => 1 [attribute_id] => 1 [name] => Ленточный монолитный ж/б [material_modifier] => 1 [work_modifier] => 1 [options] => Array ( [0] => размер 200 х 700 мм [1] => размер 300 х 900 мм [2] => размер 400 х 1 000 мм [3] => размер 500 х 1 100 мм [4] => размер 600 х 1 200 мм ) [days] => [20,21,22,25,30] [material_price] => [2823,3630,4475,5210,12047] [work_price] => [2154,2826,3731,4577,5293] [image] => https://akademik-stroy.ru/wp-content/uploads/materials/lentochnyj-monolitnyj-zh-b.jpg [area_modifier] => 116.82 [parent_name] => Фундамент [parent_id] => 1 [material_sum] => 435313 [work_sum] => 276793 [total_sum] => 712106 [total_days] => 20 [display_material_sum] => 435 313 [display_work_sum] => 276 793 [display_total_sum] => 712 106 ) 1
712 106
Работа:276 793
Материалы:435 313
Дни:20
stdClass Object ( [id] => 2 [attribute_id] => 1 [name] => Забивные Ж/Б сваи [material_modifier] => 1 [work_modifier] => 1 [options] => Array ( [0] => 150х150х3000мм [1] => 150х150х4000мм [2] => 200х200х3000мм [3] => 200х200х4000мм [4] => 200х200х5000мм [5] => 200х200х6000мм ) [days] => [2,2,2,2,2,2] [material_price] => [1990,2850,3255,4360,5120,6837] [work_price] => [1002,1185,1336,1438,1574,1839] [image] => https://akademik-stroy.ru/wp-content/uploads/materials/zabivnye-zh-b-svai.png [area_modifier] => 116.82 [parent_name] => Фундамент [parent_id] => 1 [material_sum] => 306863 [work_sum] => 128759 [total_sum] => 435622 [total_days] => 2 [display_material_sum] => 306 863 [display_work_sum] => 128 759 [display_total_sum] => 435 622 ) 1
435 622
Работа:128 759
Материалы:306 863
Дни:2
stdClass Object ( [id] => 71 [attribute_id] => 1 [name] => Свайно-ростверковый ж/б [material_modifier] => 1 [work_modifier] => 1 [options] => Array ( [0] => ростверк 200х300 мм [1] => ростверк 300х600 мм [2] => ростверк 400х900 мм [3] => ростверк 500х1200 мм ) [days] => [20,23,25,27] [material_price] => [3018,3474,7109,9792] [work_price] => [2024,3012,5635,7022] [image] => https://akademik-stroy.ru/wp-content/uploads/materials/svajno-rostverkovyj-monolitnyj-zh-b-3.png [area_modifier] => 116.82 [parent_name] => Фундамент [parent_id] => 1 [material_sum] => 465383 [work_sum] => 260088 [total_sum] => 725471 [total_days] => 20 [display_material_sum] => 465 383 [display_work_sum] => 260 088 [display_total_sum] => 725 471 ) 1
725 471
Работа:260 088
Материалы:465 383
Дни:20
stdClass Object ( [id] => 72 [attribute_id] => 1 [name] => Монолитная ж/б плита [material_modifier] => 1 [work_modifier] => 1 [options] => Array ( [0] => 200 мм [1] => 300 мм [2] => 400 мм [3] => 500 мм [4] => 600 мм ) [days] => [30,33,35,37,40] [material_price] => [5348,8555,12788,14388,15189] [work_price] => [4314,4881,7037,8061,10230] [image] => https://akademik-stroy.ru/wp-content/uploads/materials/monolitnaya-zhb-plita.png [area_modifier] => 116.82 [parent_name] => Фундамент [parent_id] => 1 [material_sum] => 824674 [work_sum] => 554358 [total_sum] => 1379032 [total_days] => 30 [display_material_sum] => 824 674 [display_work_sum] => 554 358 [display_total_sum] => 1 379 032 ) 1
1 379 032
Работа:554 358
Материалы:824 674
Дни:30
stdClass Object ( [id] => 73 [attribute_id] => 1 [name] => Утепленная шведская плита [material_modifier] => 1 [work_modifier] => 1 [options] => Array ( [0] => 200 мм [1] => 300 мм [2] => 400 мм [3] => 500 мм [4] => 600 мм ) [days] => [32,37,39,42,45] [material_price] => [10249,12692,13760,14936,16230] [work_price] => [5960,7337,8072,8878,9765] [image] => https://akademik-stroy.ru/wp-content/uploads/materials/uteplennaya-shvedskaya-plita.jpg [area_modifier] => 116.82 [parent_name] => Фундамент [parent_id] => 1 [material_sum] => 1580420 [work_sum] => 765872 [total_sum] => 2346292 [total_days] => 32 [display_material_sum] => 1 580 420 [display_work_sum] => 765 872 [display_total_sum] => 2 346 292 ) 1
2 346 292
Работа:765 872
Материалы:1 580 420
Дни:32
stdClass Object ( [id] => 75 [attribute_id] => 1 [name] => Ленточный из ФБС [material_modifier] => 1 [work_modifier] => 1 [options] => Array ( [0] => толщ. 300 мм [1] => толщ. 400 мм [2] => толщ. 500 мм [3] => толщ. 600 мм ) [days] => [20,20,20,20] [material_price] => [3675,4902,6126,7350] [work_price] => [2451,3264,4083,4902] [image] => https://akademik-stroy.ru/wp-content/uploads/materials/lentochnyj-iz-fbs.png [area_modifier] => 116.82 [parent_name] => Фундамент [parent_id] => 1 [material_sum] => 566694 [work_sum] => 314958 [total_sum] => 881652 [total_days] => 20 [display_material_sum] => 566 694 [display_work_sum] => 314 958 [display_total_sum] => 881 652 ) 1
881 652
Работа:314 958
Материалы:566 694
Дни:20
stdClass Object ( [id] => 76 [attribute_id] => 1 [name] => Цокольный этаж из ФБС [material_modifier] => 1 [work_modifier] => 1 [options] => Array ( [0] => толщ. 300 мм [1] => толщ. 400 мм [2] => толщ. 500 мм [3] => толщ. 600 мм ) [days] => [30,32,34,36] [material_price] => [20916,23299,26680,29060] [work_price] => [17524,18700,19873,21046] [image] => https://akademik-stroy.ru/wp-content/uploads/materials/cokolnyj-ehtazh-iz-fbs.jpg [area_modifier] => 116.82 [parent_name] => Фундамент [parent_id] => 1 [material_sum] => 3225297 [work_sum] => 2251869 [total_sum] => 5477166 [total_days] => 30 [display_material_sum] => 3 225 297 [display_work_sum] => 2 251 869 [display_total_sum] => 5 477 166 ) 1
5 477 166
Работа:2 251 869
Материалы:3 225 297
Дни:30
stdClass Object ( [id] => 77 [attribute_id] => 1 [name] => Цокольный этаж монолитный ж/б [material_modifier] => 1 [work_modifier] => 1 [options] => Array ( [0] => толщ. 200 мм [1] => толщ. 300 мм [2] => толщ. 400 мм [3] => толщ. 500 мм [4] => толщ. 600 мм ) [days] => [40,42,44,46,48] [material_price] => [25421,29148,32275,35602,37326] [work_price] => [20441,21907,23375,24841,26306] [image] => https://akademik-stroy.ru/wp-content/uploads/materials/cokolnyj-etazh-zh-b.jpg [area_modifier] => 116.82 [parent_name] => Фундамент [parent_id] => 1 [material_sum] => 3919979 [work_sum] => 2626709 [total_sum] => 6546688 [total_days] => 40 [display_material_sum] => 3 919 979 [display_work_sum] => 2 626 709 [display_total_sum] => 6 546 688 ) 1
6 546 688
Работа:2 626 709
Материалы:3 919 979
Дни:40
stdClass Object ( [id] => 191 [attribute_id] => 1 [name] => Винтовые сваи [material_modifier] => 1 [work_modifier] => 1 [options] => Array ( [0] => 57х200мм [1] => 76х250мм [2] => 108х300мм [3] => 133х350мм ) [days] => [1,1,2,2] [material_price] => [1200,1300,1450,1600] [work_price] => [400,600,900,1100] [image] => https://akademik-stroy.ru/wp-content/uploads/materials/vintovye-svai.png [area_modifier] => 116.82 [parent_name] => Фундамент [parent_id] => 1 [material_sum] => 185043 [work_sum] => 51401 [total_sum] => 236444 [total_days] => 1 [display_material_sum] => 185 043 [display_work_sum] => 51 401 [display_total_sum] => 236 444 ) 1
236 444
Работа:51 401
Материалы:185 043
Дни:1
Перекрытие цоколя
stdClass Object ( [id] => 3 [attribute_id] => 2 [name] => Деревянные балки [material_modifier] => 1 [work_modifier] => 1 [options] => Array ( [0] => без утепления [1] => утепление 200 мм [2] => утепление 250 мм [3] => утепление 300 мм [4] => утепление 350 мм [5] => утепление 400 мм [6] => утепление 450 мм [7] => утепление 500 мм ) [days] => [8,9,9,9,11,12,13,14] [material_price] => [1634,2042,2344,2947,3149,3652,3354,3557] [work_price] => [1230,1339,1393,1426,1460,1513,1587,1620] [image] => https://akademik-stroy.ru/wp-content/uploads/materials/derevyannye-balki.png [area_modifier] => 116.82 [parent_name] => Перекрытие цоколя [parent_id] => 2 [material_sum] => 251967 [work_sum] => 158057 [total_sum] => 410024 [total_days] => 8 [display_material_sum] => 251 967 [display_work_sum] => 158 057 [display_total_sum] => 410 024 ) 1
410 024
Работа:158 057
Материалы:251 967
Дни:8
stdClass Object ( [id] => 4 [attribute_id] => 2 [name] => Сборные ж/б плиты [material_modifier] => 1 [work_modifier] => 1 [options] => Array ( [0] => без утепления [1] => утепление 150мм [2] => утепление 200мм [3] => утепление 250мм [4] => утепление 300мм [5] => утепление 350мм [6] => утепление 400мм [7] => утепление 450мм [8] => утепление 500мм ) [days] => [13,15,15,15,15,15,15,15,15] [material_price] => [3067,5577,5928,6679,7730,8782,9833,10884,11935] [work_price] => [1520,1956,2102,2247,2392,2537,2684,2829,2974] [image] => https://akademik-stroy.ru/wp-content/uploads/materials/sbornye-zh-b-plity-2.jpg [area_modifier] => 116.82 [parent_name] => Перекрытие цоколя [parent_id] => 2 [material_sum] => 472939 [work_sum] => 195323 [total_sum] => 668262 [total_days] => 13 [display_material_sum] => 472 939 [display_work_sum] => 195 323 [display_total_sum] => 668 262 ) 1
668 262
Работа:195 323
Материалы:472 939
Дни:13
stdClass Object ( [id] => 78 [attribute_id] => 2 [name] => Монолитная ж/б плита [material_modifier] => 1 [work_modifier] => 1 [options] => Array ( [0] => без утепления [1] => утепление 150 мм [2] => утепление 200 мм [3] => утепление 250 мм [4] => утепление 300 мм [5] => утепление 350 мм [6] => утепление 400 мм [7] => утепление 450 мм [8] => утепление 500 мм ) [days] => [18,20,20,20,20,20,20,20,20] [material_price] => [4837,6572,7224,7375,79426,8177,8728,9180,10031] [work_price] => [3348,3921,4112,4302,4493,4684,4875,5066,5256] [image] => https://akademik-stroy.ru/wp-content/uploads/materials/monolitnaya-zh-b-plita-2.jpg [area_modifier] => 116.82 [parent_name] => Перекрытие цоколя [parent_id] => 2 [material_sum] => 745877 [work_sum] => 430225 [total_sum] => 1176102 [total_days] => 18 [display_material_sum] => 745 877 [display_work_sum] => 430 225 [display_total_sum] => 1 176 102 ) 1
1 176 102
Работа:430 225
Материалы:745 877
Дни:18
Стены 1 этаж (несущие)
stdClass Object ( [id] => 6 [attribute_id] => 3 [name] => Пеноблок [material_modifier] => 1 [work_modifier] => 1 [options] => Array ( [0] => 300 мм [1] => 400 мм [2] => 500 мм [3] => 600 мм ) [days] => [29,31,34,39] [material_price] => [3000,4000,4500,4937] [work_price] => [5033,5805,6400,8710] [image] => https://akademik-stroy.ru/wp-content/uploads/materials/penoblok.jpg [area_modifier] => 116.82 [parent_name] => Стены 1 этаж (несущие) [parent_id] => 3 [material_sum] => 462607 [work_sum] => 646751 [total_sum] => 1109358 [total_days] => 29 [display_material_sum] => 462 607 [display_work_sum] => 646 751 [display_total_sum] => 1 109 358 ) 1
1 109 358
Работа:646 751
Материалы:462 607
Дни:29
stdClass Object ( [id] => 79 [attribute_id] => 3 [name] => Керамический блок [material_modifier] => 1 [work_modifier] => 1 [options] => Array ( [0] => 380 мм [1] => 380 мм Thermo [2] => 440 мм [3] => 510 мм ) [days] => [23,23,24,25] [material_price] => [4510,5098,6093,8013] [work_price] => [4737,4937,5903,6958] [image] => https://akademik-stroy.ru/wp-content/uploads/materials/keramicheskij-blok.jpg [area_modifier] => 116.82 [parent_name] => Стены 1 этаж (несущие) [parent_id] => 3 [material_sum] => 695453 [work_sum] => 608714 [total_sum] => 1304167 [total_days] => 23 [display_material_sum] => 695 453 [display_work_sum] => 608 714 [display_total_sum] => 1 304 167 ) 1
1 304 167
Работа:608 714
Материалы:695 453
Дни:23
stdClass Object ( [id] => 80 [attribute_id] => 3 [name] => Кирпич [material_modifier] => 1 [work_modifier] => 1 [options] => Array ( [0] => Кирпич 250 мм [1] => Кирпич 380 мм [2] => Кирпич 510 мм [3] => Кирпич 640 мм [4] => Кирпич 770 мм ) [days] => [30,30,31,33,36] [material_price] => [5500,7142,9206,10171,12235] [work_price] => [8736,10041,12018,15240,18462] [image] => https://akademik-stroy.ru/wp-content/uploads/materials/kirpich.jpg [area_modifier] => 116.82 [parent_name] => Стены 1 этаж (несущие) [parent_id] => 3 [material_sum] => 848113 [work_sum] => 1122593 [total_sum] => 1970706 [total_days] => 30 [display_material_sum] => 848 113 [display_work_sum] => 1 122 593 [display_total_sum] => 1 970 706 ) 1
1 970 706
Работа:1 122 593
Материалы:848 113
Дни:30
stdClass Object ( [id] => 81 [attribute_id] => 3 [name] => Монолитные [material_modifier] => 1 [work_modifier] => 1 [options] => Array ( [0] => 150 мм [1] => 200 мм [2] => 250 мм [3] => 300 мм [4] => 350 мм [5] => 400 мм ) [days] => [45,46,47,49,50,53] [material_price] => [6545,7876,10175,12011,13908,15204] [work_price] => [5106,6444,7698,8552,9807,11461] [image] => https://akademik-stroy.ru/wp-content/uploads/materials/monolitnye.jpg [area_modifier] => 116.82 [parent_name] => Стены 1 этаж (несущие) [parent_id] => 3 [material_sum] => 1009255 [work_sum] => 656131 [total_sum] => 1665386 [total_days] => 45 [display_material_sum] => 1 009 255 [display_work_sum] => 656 131 [display_total_sum] => 1 665 386 ) 1
1 665 386
Работа:656 131
Материалы:1 009 255
Дни:45
stdClass Object ( [id] => 82 [attribute_id] => 3 [name] => Клееный брус [material_modifier] => 1 [work_modifier] => 1 [options] => Array ( [0] => 160 мм [1] => 175 мм [2] => 200 мм [3] => 215 мм [4] => 240 мм [5] => 270 мм [6] => 282 мм ) [days] => [24,28,32,37,40,42,48] [material_price] => [16975,18773,19950,20545,21599,22159,23275] [work_price] => [4806,5287,5815,6397,7036,7740,8514] [image] => https://akademik-stroy.ru/wp-content/uploads/materials/kleenyj-brus.jpg [area_modifier] => 116.82 [parent_name] => Стены 1 этаж (несущие) [parent_id] => 3 [material_sum] => 2617586 [work_sum] => 617581 [total_sum] => 3235167 [total_days] => 24 [display_material_sum] => 2 617 586 [display_work_sum] => 617 581 [display_total_sum] => 3 235 167 ) 1
3 235 167
Работа:617 581
Материалы:2 617 586
Дни:24
stdClass Object ( [id] => 83 [attribute_id] => 3 [name] => Каркасные [material_modifier] => 1 [work_modifier] => 1 [options] => Array ( [0] => 150 мм [1] => 200 мм [2] => 250 мм [3] => 300 мм ) [days] => [15,16,17,18] [material_price] => [2379,2639,2898,3258] [work_price] => [2418,2686,2985,3716] [image] => https://akademik-stroy.ru/wp-content/uploads/materials/karkasnye.jpg [area_modifier] => 116.82 [parent_name] => Стены 1 этаж (несущие) [parent_id] => 3 [material_sum] => 366848 [work_sum] => 310718 [total_sum] => 677566 [total_days] => 15 [display_material_sum] => 366 848 [display_work_sum] => 310 718 [display_total_sum] => 677 566 ) 1
677 566
Работа:310 718
Материалы:366 848
Дни:15
stdClass Object ( [id] => 84 [attribute_id] => 3 [name] => СИП-панели [material_modifier] => 1 [work_modifier] => 1 [options] => Array ( [0] => 120 мм [1] => 170 мм [2] => 220 мм ) [days] => [7,7,7] [material_price] => [1210,1856,2292] [work_price] => [1410,1551,1706] [image] => https://akademik-stroy.ru/wp-content/uploads/materials/sip-paneli.jpg [area_modifier] => 116.82 [parent_name] => Стены 1 этаж (несущие) [parent_id] => 3 [material_sum] => 186585 [work_sum] => 181188 [total_sum] => 367773 [total_days] => 7 [display_material_sum] => 186 585 [display_work_sum] => 181 188 [display_total_sum] => 367 773 ) 1
367 773
Работа:181 188
Материалы:186 585
Дни:7
stdClass Object ( [id] => 85 [attribute_id] => 3 [name] => Сухой брус [material_modifier] => 1 [work_modifier] => 1 [options] => Array ( [0] => 150 мм [1] => 180 мм [2] => 200 мм ) [days] => [7,8,9] [material_price] => [6010,7190,8709] [work_price] => [3204,3845,4229] [image] => https://akademik-stroy.ru/wp-content/uploads/materials/suhoj-brus.jpg [area_modifier] => 116.82 [parent_name] => Стены 1 этаж (несущие) [parent_id] => 3 [material_sum] => 926756 [work_sum] => 411720 [total_sum] => 1338476 [total_days] => 7 [display_material_sum] => 926 756 [display_work_sum] => 411 720 [display_total_sum] => 1 338 476 ) 1
1 338 476
Работа:411 720
Материалы:926 756
Дни:7
stdClass Object ( [id] => 86 [attribute_id] => 3 [name] => Профилированный брус [material_modifier] => 1 [work_modifier] => 1 [options] => Array ( [0] => 150 мм [1] => 180 мм [2] => 200 мм ) [days] => [7,8,9] [material_price] => [8190,9228,10051] [work_price] => [3845,4614,5075] [image] => https://akademik-stroy.ru/wp-content/uploads/materials/profilirovannyj-brus.jpg [area_modifier] => 116.82 [parent_name] => Стены 1 этаж (несущие) [parent_id] => 3 [material_sum] => 1262918 [work_sum] => 494090 [total_sum] => 1757008 [total_days] => 7 [display_material_sum] => 1 262 918 [display_work_sum] => 494 090 [display_total_sum] => 1 757 008 ) 1
1 757 008
Работа:494 090
Материалы:1 262 918
Дни:7
stdClass Object ( [id] => 87 [attribute_id] => 3 [name] => Оцилиндрованное бревно [material_modifier] => 1 [work_modifier] => 1 [options] => Array ( [0] => 180 мм [1] => 220 мм [2] => 260 мм [3] => 320 мм ) [days] => [7,8,9,10] [material_price] => [75190,9532,10868,13116] [work_price] => [3845,4691,5535,6863] [image] => https://akademik-stroy.ru/wp-content/uploads/materials/ocilindrovannoe-brevno-1.jpg [area_modifier] => 116.82 [parent_name] => Стены 1 этаж (несущие) [parent_id] => 3 [material_sum] => 11594478 [work_sum] => 494090 [total_sum] => 12088568 [total_days] => 7 [display_material_sum] => 11 594 478 [display_work_sum] => 494 090 [display_total_sum] => 12 088 568 ) 1
12 088 568
Работа:494 090
Материалы:11 594 478
Дни:7
stdClass Object ( [id] => 88 [attribute_id] => 3 [name] => Срубы [material_modifier] => 1 [work_modifier] => 1 [options] => Array ( [0] => 260 мм [1] => 320 мм [2] => 360 мм [3] => 400 мм [4] => 500 мм ) [days] => [7,8,9,10,11] [material_price] => [37975,46709,52314,58069,73167] [work_price] => [4806,5911,6621,7349,9260] [image] => https://akademik-stroy.ru/wp-content/uploads/materials/sruby.jpg [area_modifier] => 116.82 [parent_name] => Стены 1 этаж (несущие) [parent_id] => 3 [material_sum] => 5855836 [work_sum] => 617581 [total_sum] => 6473417 [total_days] => 7 [display_material_sum] => 5 855 836 [display_work_sum] => 617 581 [display_total_sum] => 6 473 417 ) 1
6 473 417
Работа:617 581
Материалы:5 855 836
Дни:7
stdClass Object ( [id] => 174 [attribute_id] => 3 [name] => Брус [material_modifier] => 1 [work_modifier] => 1 [options] => Array ( [0] => 150 мм [1] => 180 мм [2] => 200 мм ) [days] => [7,8,9] [material_price] => [5127,6152,7367] [work_price] => [1602,1922,2115] [image] => https://akademik-stroy.ru/wp-content/uploads/materials/brus.jpg [area_modifier] => 116.82 [parent_name] => Стены 1 этаж (несущие) [parent_id] => 3 [material_sum] => 790596 [work_sum] => 205860 [total_sum] => 996456 [total_days] => 7 [display_material_sum] => 790 596 [display_work_sum] => 205 860 [display_total_sum] => 996 456 ) 1
996 456
Работа:205 860
Материалы:790 596
Дни:7
stdClass Object ( [id] => 175 [attribute_id] => 3 [name] => Газобетон [material_modifier] => 1 [work_modifier] => 1 [options] => Array ( [0] => 300 мм [1] => 375 мм [2] => 400 мм [3] => 500 мм [4] => 600 мм ) [days] => [29,31,35,37,44] [material_price] => [4298,5573,6356,7288,9119] [work_price] => [4538,5251,5926,6733,7195] [image] => https://akademik-stroy.ru/wp-content/uploads/materials/gazobeton.jpg [area_modifier] => 116.82 [parent_name] => Стены 1 этаж (несущие) [parent_id] => 3 [material_sum] => 662762 [work_sum] => 583142 [total_sum] => 1245904 [total_days] => 29 [display_material_sum] => 662 762 [display_work_sum] => 583 142 [display_total_sum] => 1 245 904 ) 1
1 245 904
Работа:583 142
Материалы:662 762
Дни:29
stdClass Object ( [id] => 176 [attribute_id] => 3 [name] => Блок [material_modifier] => 1 [work_modifier] => 1 [options] => Array ( [0] => 300 мм [1] => 375 мм [2] => 400 мм [3] => 500 мм [4] => 600 мм ) [days] => [29,31,35,37,44] [material_price] => [2698,3973,4356,6588,7119] [work_price] => [5038,5851,6426,8733,9195] [image] => https://akademik-stroy.ru/wp-content/uploads/materials/blok.jpg [area_modifier] => 116.82 [parent_name] => Стены 1 этаж (несущие) [parent_id] => 3 [material_sum] => 416038 [work_sum] => 647393 [total_sum] => 1063431 [total_days] => 29 [display_material_sum] => 416 038 [display_work_sum] => 647 393 [display_total_sum] => 1 063 431 ) 1
1 063 431
Работа:647 393
Материалы:416 038
Дни:29
stdClass Object ( [id] => 177 [attribute_id] => 3 [name] => Газосиликатный блок [material_modifier] => 1 [work_modifier] => 1 [options] => Array ( [0] => 300 мм [1] => 375 мм [2] => 400 мм [3] => 500 мм [4] => 600 мм ) [days] => [29,31,35,37,44] [material_price] => [4298,5573,6356,7288,9119] [work_price] => [4538,5251,5926,6733,7195] [image] => https://akademik-stroy.ru/wp-content/uploads/materials/gazosilikatnyj-blok.jpg [area_modifier] => 116.82 [parent_name] => Стены 1 этаж (несущие) [parent_id] => 3 [material_sum] => 662762 [work_sum] => 583142 [total_sum] => 1245904 [total_days] => 29 [display_material_sum] => 662 762 [display_work_sum] => 583 142 [display_total_sum] => 1 245 904 ) 1
1 245 904
Работа:583 142
Материалы:662 762
Дни:29
stdClass Object ( [id] => 178 [attribute_id] => 3 [name] => Керамзитобетонный блок [material_modifier] => 1 [work_modifier] => 1 [options] => Array ( [0] => 300 мм [1] => 375 мм [2] => 400 мм [3] => 500 мм [4] => 600 мм ) [days] => [23,23,24,25,28] [material_price] => [3641,4298,5693,7613,9612] [work_price] => [5737,5737,6903,7958,8901] [image] => https://akademik-stroy.ru/wp-content/uploads/materials/keramzitobetonnyj-blok.jpg [area_modifier] => 116.82 [parent_name] => Стены 1 этаж (несущие) [parent_id] => 3 [material_sum] => 561451 [work_sum] => 737216 [total_sum] => 1298667 [total_days] => 23 [display_material_sum] => 561 451 [display_work_sum] => 737 216 [display_total_sum] => 1 298 667 ) 1
1 298 667
Работа:737 216
Материалы:561 451
Дни:23
stdClass Object ( [id] => 179 [attribute_id] => 3 [name] => Деревянные [material_modifier] => 1 [work_modifier] => 1 [options] => Array ( [0] => 180 мм [1] => 220 мм [2] => 260 мм [3] => 320 мм ) [days] => [7,8,9,10] [material_price] => [7950,9458,11961,14472] [work_price] => [4037,4925,5812,7207] [image] => https://akademik-stroy.ru/wp-content/uploads/materials/derevyannye.jpg [area_modifier] => 116.82 [parent_name] => Стены 1 этаж (несущие) [parent_id] => 3 [material_sum] => 1225909 [work_sum] => 518763 [total_sum] => 1744672 [total_days] => 7 [display_material_sum] => 1 225 909 [display_work_sum] => 518 763 [display_total_sum] => 1 744 672 ) 1
1 744 672
Работа:518 763
Материалы:1 225 909
Дни:7
stdClass Object ( [id] => 181 [attribute_id] => 3 [name] => Камень [material_modifier] => 1 [work_modifier] => 1 [options] => Array ( [0] => 300 мм [1] => 400 мм [2] => 500 мм [3] => 600 мм ) [days] => [25,27,31,34] [material_price] => [5262,6844,8330,9815] [work_price] => [8331,9135,10427,11069] [image] => https://akademik-stroy.ru/wp-content/uploads/materials/kamen.jpg [area_modifier] => 116.82 [parent_name] => Стены 1 этаж (несущие) [parent_id] => 3 [material_sum] => 811413 [work_sum] => 1070550 [total_sum] => 1881963 [total_days] => 25 [display_material_sum] => 811 413 [display_work_sum] => 1 070 550 [display_total_sum] => 1 881 963 ) 1
1 881 963
Работа:1 070 550
Материалы:811 413
Дни:25
stdClass Object ( [id] => 182 [attribute_id] => 3 [name] => Каркасно-щитовые [material_modifier] => 1 [work_modifier] => 1 [options] => Array ( [0] => 150 мм [1] => 200 мм [2] => 250 мм [3] => 300 мм [4] => 350 мм [5] => 400 мм ) [days] => [15,16,17,18,19,20] [material_price] => [2379,2639,2898,3458,3601,4175] [work_price] => [2538,2820,3134,3483,4062,5642] [image] => https://akademik-stroy.ru/wp-content/uploads/materials/karkasno-shchitovye.jpg [area_modifier] => 116.82 [parent_name] => Стены 1 этаж (несущие) [parent_id] => 3 [material_sum] => 366848 [work_sum] => 326138 [total_sum] => 692986 [total_days] => 15 [display_material_sum] => 366 848 [display_work_sum] => 326 138 [display_total_sum] => 692 986 ) 1
692 986
Работа:326 138
Материалы:366 848
Дни:15
stdClass Object ( [id] => 183 [attribute_id] => 3 [name] => Рубленные [material_modifier] => 1 [work_modifier] => 1 [options] => Array ( [0] => 150 мм [1] => 200 мм [2] => 250 мм [3] => 300 мм [4] => 350 мм [5] => 400 мм ) [days] => [15,16,17,18,17,18] [material_price] => [35950,50267,60583,75900,80217,100533] [work_price] => [9612,12816,16020,19224,22428,25632] [image] => https://akademik-stroy.ru/wp-content/uploads/materials/rublennye.jpg [area_modifier] => 116.82 [parent_name] => Стены 1 этаж (несущие) [parent_id] => 3 [material_sum] => 5543576 [work_sum] => 1235161 [total_sum] => 6778737 [total_days] => 15 [display_material_sum] => 5 543 576 [display_work_sum] => 1 235 161 [display_total_sum] => 6 778 737 ) 1
6 778 737
Работа:1 235 161
Материалы:5 543 576
Дни:15
stdClass Object ( [id] => 185 [attribute_id] => 3 [name] => Теплоблок [material_modifier] => 1 [work_modifier] => 1 [options] => Array ( [0] => 300 мм (с облицовкой, не покрашенный) [1] => 400 мм (с облицовкой, не покрашенный) [2] => 300 мм (с облицовкой, покрашенный) [3] => 400 мм (с облицовкой, покрашенный) ) [days] => [15,16,15,16] [material_price] => [2888,3729,3957,4258] [work_price] => [2564,3229,2949,3713] [image] => https://akademik-stroy.ru/wp-content/uploads/materials/teploblok.jpg [area_modifier] => 116.82 [parent_name] => Стены 1 этаж (несущие) [parent_id] => 3 [material_sum] => 445337 [work_sum] => 329479 [total_sum] => 774816 [total_days] => 15 [display_material_sum] => 445 337 [display_work_sum] => 329 479 [display_total_sum] => 774 816 ) 1
774 816
Работа:329 479
Материалы:445 337
Дни:15
stdClass Object ( [id] => 186 [attribute_id] => 3 [name] => Арболитовые блоки [material_modifier] => 1 [work_modifier] => 1 [options] => Array ( [0] => 300 мм [1] => 400 мм [2] => 600 мм ) [days] => [19,22,27] [material_price] => [3210,4475,5852] [work_price] => [4214,4788,5866] [image] => https://akademik-stroy.ru/wp-content/uploads/materials/arbolitovye-bloki.png [area_modifier] => 116.82 [parent_name] => Стены 1 этаж (несущие) [parent_id] => 3 [material_sum] => 494990 [work_sum] => 541507 [total_sum] => 1036497 [total_days] => 19 [display_material_sum] => 494 990 [display_work_sum] => 541 507 [display_total_sum] => 1 036 497 ) 1
1 036 497
Работа:541 507
Материалы:494 990
Дни:19
stdClass Object ( [id] => 187 [attribute_id] => 3 [name] => Полистиролбетон [material_modifier] => 1 [work_modifier] => 1 [options] => Array ( [0] => 300 мм [1] => 400 мм [2] => 600 мм ) [days] => [29,31,35] [material_price] => [2798,4573,5256] [work_price] => [5038,5851,6426] [image] => https://akademik-stroy.ru/wp-content/uploads/materials/polistirolbeton.jpg [area_modifier] => 116.82 [parent_name] => Стены 1 этаж (несущие) [parent_id] => 3 [material_sum] => 431458 [work_sum] => 647393 [total_sum] => 1078851 [total_days] => 29 [display_material_sum] => 431 458 [display_work_sum] => 647 393 [display_total_sum] => 1 078 851 ) 1
1 078 851
Работа:647 393
Материалы:431 458
Дни:29
stdClass Object ( [id] => 188 [attribute_id] => 3 [name] => Шлакоблок [material_modifier] => 1 [work_modifier] => 1 [options] => Array ( [0] => 400 мм [1] => 600 мм ) [days] => [15,16] [material_price] => [2391,3471] [work_price] => [2642,3662] [image] => https://akademik-stroy.ru/wp-content/uploads/materials/shlakoblok.jpg [area_modifier] => 116.82 [parent_name] => Стены 1 этаж (несущие) [parent_id] => 3 [material_sum] => 368698 [work_sum] => 339502 [total_sum] => 708200 [total_days] => 15 [display_material_sum] => 368 698 [display_work_sum] => 339 502 [display_total_sum] => 708 200 ) 1
708 200
Работа:339 502
Материалы:368 698
Дни:15
stdClass Object ( [id] => 189 [attribute_id] => 3 [name] => Теплая керамика [material_modifier] => 1 [work_modifier] => 1 [options] => Array ( [0] => 380 мм [1] => 380 мм Thermo [2] => 440 мм [3] => 510 мм ) [days] => [23,23,24,25] [material_price] => [4510,5098,6093,8013] [work_price] => [4737,4937,5903,6958] [image] => https://akademik-stroy.ru/wp-content/uploads/materials/teplaya-keramika.jpg [area_modifier] => 116.82 [parent_name] => Стены 1 этаж (несущие) [parent_id] => 3 [material_sum] => 695453 [work_sum] => 608714 [total_sum] => 1304167 [total_days] => 23 [display_material_sum] => 695 453 [display_work_sum] => 608 714 [display_total_sum] => 1 304 167 ) 1
1 304 167
Работа:608 714
Материалы:695 453
Дни:23
stdClass Object ( [id] => 190 [attribute_id] => 3 [name] => Несъемная опалубка [material_modifier] => 1 [work_modifier] => 1 [options] => Array ( [0] => 200 мм [1] => 250 мм [2] => 300 мм [3] => 350 мм ) [days] => [15,17,19,21] [material_price] => [3302,3902,4108,5008] [work_price] => [2100,2100,2300,2534] [image] => https://akademik-stroy.ru/wp-content/uploads/materials/nesemnaya-opalubka.jpg [area_modifier] => 116.82 [parent_name] => Стены 1 этаж (несущие) [parent_id] => 3 [material_sum] => 509176 [work_sum] => 269854 [total_sum] => 779030 [total_days] => 15 [display_material_sum] => 509 176 [display_work_sum] => 269 854 [display_total_sum] => 779 030 ) 1
779 030
Работа:269 854
Материалы:509 176
Дни:15
stdClass Object ( [id] => 251 [attribute_id] => 3 [name] => Бревно [material_modifier] => 1 [work_modifier] => 1 [options] => Array ( [0] => 260 мм [1] => 320 мм [2] => 360 мм [3] => 400 мм [4] => 500 мм ) [days] => [7,8,9,10,11] [material_price] => [1874,24045,26930,30972,38825] [work_price] => [5046,6207,6952,7716,9723] [image] => https://akademik-stroy.ru/wp-content/uploads/materials/sruby.jpg [area_modifier] => 116.82 [parent_name] => Стены 1 этаж (несущие) [parent_id] => 3 [material_sum] => 288975 [work_sum] => 648421 [total_sum] => 937396 [total_days] => 7 [display_material_sum] => 288 975 [display_work_sum] => 648 421 [display_total_sum] => 937 396 ) 1
937 396
Работа:648 421
Материалы:288 975
Дни:7
Перекрытие первого этажа
stdClass Object ( [id] => 7 [attribute_id] => 4 [name] => Деревянные балки [material_modifier] => 1 [work_modifier] => 1 [options] => Array ( [0] => без утепления [1] => утепление 200 мм [2] => утепление 250 мм [3] => утепление 300 мм [4] => утепление 350 мм [5] => утепление 400 мм [6] => утепление 450 мм [7] => утепление 500 мм ) [days] => [8,9,9,9,11,12,13,14] [material_price] => [1634,2042,2344,2947,3149,3652,3354,3557] [work_price] => [1230,1339,1393,1426,1460,1513,1587,1620] [image] => https://akademik-stroy.ru/wp-content/uploads/materials/derevyannye-balki.png [area_modifier] => 116.82 [parent_name] => Перекрытие первого этажа [parent_id] => 4 [material_sum] => 251967 [work_sum] => 158057 [total_sum] => 410024 [total_days] => 8 [display_material_sum] => 251 967 [display_work_sum] => 158 057 [display_total_sum] => 410 024 ) 1
410 024
Работа:158 057
Материалы:251 967
Дни:8
stdClass Object ( [id] => 8 [attribute_id] => 4 [name] => Сборные ж/б плиты [material_modifier] => 1 [work_modifier] => 1 [options] => Array ( [0] => без утепления [1] => утепление 150 мм [2] => утепление 200 мм [3] => утепление 250 мм [4] => утепление 300 мм [5] => утепление 350 мм [6] => утепление 400 мм [7] => утепление 450 мм [8] => утепление 500 мм ) [days] => [13,15,15,15,15,15,15,15,15] [material_price] => [3067,5577,5928,6679,7730,8782,9833,10884,11935] [work_price] => [1520,1956,2102,2247,2392,2537,2684,2829,2974] [image] => https://akademik-stroy.ru/wp-content/uploads/materials/sbornye-zh-b-plity-2.jpg [area_modifier] => 116.82 [parent_name] => Перекрытие первого этажа [parent_id] => 4 [material_sum] => 472939 [work_sum] => 195323 [total_sum] => 668262 [total_days] => 13 [display_material_sum] => 472 939 [display_work_sum] => 195 323 [display_total_sum] => 668 262 ) 1
668 262
Работа:195 323
Материалы:472 939
Дни:13
stdClass Object ( [id] => 89 [attribute_id] => 4 [name] => Монолитная ж/б плита [material_modifier] => 1 [work_modifier] => 1 [options] => Array ( [0] => без утепления [1] => утепление 150 мм [2] => утепление 200 мм [3] => утепление 250 мм [4] => утепление 300 мм [5] => утепление 350 мм [6] => утепление 400 мм [7] => утепление 450 мм [8] => утепление 500 мм ) [days] => [18,20,20,20,20,20,20,20,20] [material_price] => [4837,6572,7224,7375,79426,8177,8728,9180,10031] [work_price] => [3348,3921,4112,4302,4493,4684,4875,5066,5256] [image] => https://akademik-stroy.ru/wp-content/uploads/materials/monolitnaya-zh-b-plita-2.jpg [area_modifier] => 116.82 [parent_name] => Перекрытие первого этажа [parent_id] => 4 [material_sum] => 745877 [work_sum] => 430225 [total_sum] => 1176102 [total_days] => 18 [display_material_sum] => 745 877 [display_work_sum] => 430 225 [display_total_sum] => 1 176 102 ) 1
1 176 102
Работа:430 225
Материалы:745 877
Дни:18
Стены 2 этаж (несущие)
stdClass Object ( [id] => 10 [attribute_id] => 5 [name] => Пеноблок [material_modifier] => 1 [work_modifier] => 1 [options] => Array ( [0] => 300 мм [1] => 400 мм [2] => 500 мм [3] => 600 мм ) [days] => [29,31,34,39] [material_price] => [3000,4000,4500,4937] [work_price] => [5033,5805,6400,8710] [image] => https://akademik-stroy.ru/wp-content/uploads/materials/penoblok.jpg [area_modifier] => 51.14 [parent_name] => Стены 2 этаж (несущие) [parent_id] => 5 [material_sum] => 202514 [work_sum] => 283126 [total_sum] => 485640 [total_days] => 29 [display_material_sum] => 202 514 [display_work_sum] => 283 126 [display_total_sum] => 485 640 ) 1
485 640
Работа:283 126
Материалы:202 514
Дни:29
stdClass Object ( [id] => 90 [attribute_id] => 5 [name] => Керамический блок [material_modifier] => 1 [work_modifier] => 1 [options] => Array ( [0] => 380 мм [1] => 380 мм Thermo [2] => 440 мм [3] => 510 мм ) [days] => [23,23,24,25] [material_price] => [4510,5098,6093,8013] [work_price] => [4737,4937,5903,6958] [image] => https://akademik-stroy.ru/wp-content/uploads/materials/keramicheskij-blok.jpg [area_modifier] => 51.14 [parent_name] => Стены 2 этаж (несущие) [parent_id] => 5 [material_sum] => 304447 [work_sum] => 266475 [total_sum] => 570922 [total_days] => 23 [display_material_sum] => 304 447 [display_work_sum] => 266 475 [display_total_sum] => 570 922 ) 1
570 922
Работа:266 475
Материалы:304 447
Дни:23
stdClass Object ( [id] => 91 [attribute_id] => 5 [name] => Кирпич [material_modifier] => 1 [work_modifier] => 1 [options] => Array ( [0] => Кирпич 250 мм [1] => Кирпич 380 мм [2] => Кирпич 510 мм [3] => Кирпич 640 мм [4] => Кирпич 770 мм ) [days] => [30,30,31,33,36] [material_price] => [5500,7142,9206,10171,12235] [work_price] => [8736,10041,12018,15240,18462] [image] => https://akademik-stroy.ru/wp-content/uploads/materials/kirpich.jpg [area_modifier] => 51.14 [parent_name] => Стены 2 этаж (несущие) [parent_id] => 5 [material_sum] => 371276 [work_sum] => 491435 [total_sum] => 862711 [total_days] => 30 [display_material_sum] => 371 276 [display_work_sum] => 491 435 [display_total_sum] => 862 711 ) 1
862 711
Работа:491 435
Материалы:371 276
Дни:30
stdClass Object ( [id] => 92 [attribute_id] => 5 [name] => Монолитные [material_modifier] => 1 [work_modifier] => 1 [options] => Array ( [0] => 150 мм [1] => 200 мм [2] => 250 мм [3] => 300 мм [4] => 350 мм [5] => 400 мм ) [days] => [45,46,47,49,50,53] [material_price] => [6545,7876,10175,12011,13908,15204] [work_price] => [5106,6444,7698,8552,9807,11461] [image] => https://akademik-stroy.ru/wp-content/uploads/materials/monolitnye.jpg [area_modifier] => 51.14 [parent_name] => Стены 2 этаж (несущие) [parent_id] => 5 [material_sum] => 441819 [work_sum] => 287233 [total_sum] => 729052 [total_days] => 45 [display_material_sum] => 441 819 [display_work_sum] => 287 233 [display_total_sum] => 729 052 ) 1
729 052
Работа:287 233
Материалы:441 819
Дни:45
stdClass Object ( [id] => 93 [attribute_id] => 5 [name] => Клееный брус [material_modifier] => 1 [work_modifier] => 1 [options] => Array ( [0] => 160 мм [1] => 175 мм [2] => 200 мм [3] => 215 мм [4] => 240 мм [5] => 270 мм [6] => 282 мм ) [days] => [24,28,32,37,40,42,48] [material_price] => [16975,18773,19950,20545,21599,22159,23275] [work_price] => [4806,5287,5815,6397,7036,7740,8514] [image] => https://akademik-stroy.ru/wp-content/uploads/materials/kleenyj-brus.jpg [area_modifier] => 51.14 [parent_name] => Стены 2 этаж (несущие) [parent_id] => 5 [material_sum] => 1145894 [work_sum] => 270357 [total_sum] => 1416251 [total_days] => 24 [display_material_sum] => 1 145 894 [display_work_sum] => 270 357 [display_total_sum] => 1 416 251 ) 1
1 416 251
Работа:270 357
Материалы:1 145 894
Дни:24
stdClass Object ( [id] => 94 [attribute_id] => 5 [name] => Каркасные [material_modifier] => 1 [work_modifier] => 1 [options] => Array ( [0] => 150 мм [1] => 200 мм [2] => 250 мм [3] => 300 мм ) [days] => [15,16,17,18] [material_price] => [2379,2639,2898,3258] [work_price] => [2418,2686,2985,3716] [image] => https://akademik-stroy.ru/wp-content/uploads/materials/karkasnye.jpg [area_modifier] => 51.14 [parent_name] => Стены 2 этаж (несущие) [parent_id] => 5 [material_sum] => 160594 [work_sum] => 136022 [total_sum] => 296616 [total_days] => 15 [display_material_sum] => 160 594 [display_work_sum] => 136 022 [display_total_sum] => 296 616 ) 1
296 616
Работа:136 022
Материалы:160 594
Дни:15
stdClass Object ( [id] => 95 [attribute_id] => 5 [name] => СИП-панели [material_modifier] => 1 [work_modifier] => 1 [options] => Array ( [0] => 120 мм [1] => 170 мм [2] => 220 мм ) [days] => [7,7,7] [material_price] => [1210,1856,2292] [work_price] => [1410,1551,1706] [image] => https://akademik-stroy.ru/wp-content/uploads/materials/sip-paneli.jpg [area_modifier] => 51.14 [parent_name] => Стены 2 этаж (несущие) [parent_id] => 5 [material_sum] => 81681 [work_sum] => 79318 [total_sum] => 160999 [total_days] => 7 [display_material_sum] => 81 681 [display_work_sum] => 79 318 [display_total_sum] => 160 999 ) 1
160 999
Работа:79 318
Материалы:81 681
Дни:7
stdClass Object ( [id] => 96 [attribute_id] => 5 [name] => Сухой брус [material_modifier] => 1 [work_modifier] => 1 [options] => Array ( [0] => 150 мм [1] => 180 мм [2] => 200 мм ) [days] => [7,8,9] [material_price] => [6010,7190,8709] [work_price] => [3204,3845,4229] [image] => https://akademik-stroy.ru/wp-content/uploads/materials/suhoj-brus.jpg [area_modifier] => 51.14 [parent_name] => Стены 2 этаж (несущие) [parent_id] => 5 [material_sum] => 405704 [work_sum] => 180238 [total_sum] => 585942 [total_days] => 7 [display_material_sum] => 405 704 [display_work_sum] => 180 238 [display_total_sum] => 585 942 ) 1
585 942
Работа:180 238
Материалы:405 704
Дни:7
stdClass Object ( [id] => 97 [attribute_id] => 5 [name] => Профилированный брус [material_modifier] => 1 [work_modifier] => 1 [options] => Array ( [0] => 150 мм [1] => 180 мм [2] => 200 мм ) [days] => [7,8,9] [material_price] => [8190,9228,10051] [work_price] => [3845,4614,5075] [image] => https://akademik-stroy.ru/wp-content/uploads/materials/profilirovannyj-brus.jpg [area_modifier] => 51.14 [parent_name] => Стены 2 этаж (несущие) [parent_id] => 5 [material_sum] => 552864 [work_sum] => 216297 [total_sum] => 769161 [total_days] => 7 [display_material_sum] => 552 864 [display_work_sum] => 216 297 [display_total_sum] => 769 161 ) 1
769 161
Работа:216 297
Материалы:552 864
Дни:7
stdClass Object ( [id] => 98 [attribute_id] => 5 [name] => Оцилиндрованное бревно [material_modifier] => 1 [work_modifier] => 1 [options] => Array ( [0] => 180 мм [1] => 220 мм [2] => 260 мм [3] => 320 мм ) [days] => [7,8,9,10] [material_price] => [75190,9532,10868,13116] [work_price] => [3845,4691,5535,6863] [image] => https://akademik-stroy.ru/wp-content/uploads/materials/ocilindrovannoe-brevno-1.jpg [area_modifier] => 51.14 [parent_name] => Стены 2 этаж (несущие) [parent_id] => 5 [material_sum] => 5075686 [work_sum] => 216297 [total_sum] => 5291983 [total_days] => 7 [display_material_sum] => 5 075 686 [display_work_sum] => 216 297 [display_total_sum] => 5 291 983 ) 1
5 291 983
Работа:216 297
Материалы:5 075 686
Дни:7
stdClass Object ( [id] => 99 [attribute_id] => 5 [name] => Срубы [material_modifier] => 1 [work_modifier] => 1 [options] => Array ( [0] => 260 мм [1] => 320 мм [2] => 360 мм [3] => 400 мм [4] => 500 мм ) [days] => [7,8,9,10,11] [material_price] => [16175,23709,26314,29069,32167] [work_price] => [4806,5911,6621,7349,9260] [image] => https://akademik-stroy.ru/wp-content/uploads/materials/suhoj-brus.jpg [area_modifier] => 51.14 [parent_name] => Стены 2 этаж (несущие) [parent_id] => 5 [material_sum] => 1091890 [work_sum] => 270357 [total_sum] => 1362247 [total_days] => 7 [display_material_sum] => 1 091 890 [display_work_sum] => 270 357 [display_total_sum] => 1 362 247 ) 1
1 362 247
Работа:270 357
Материалы:1 091 890
Дни:7
stdClass Object ( [id] => 194 [attribute_id] => 5 [name] => Брус [material_modifier] => 1 [work_modifier] => 1 [options] => Array ( [0] => 150 мм [1] => 180 мм [2] => 200 мм ) [days] => [10,13,15] [material_price] => [5127,6152,7367] [work_price] => [1602,1922,2115] [image] => https://akademik-stroy.ru/wp-content/uploads/materials/brus.jpg [area_modifier] => 51.14 [parent_name] => Стены 2 этаж (несущие) [parent_id] => 5 [material_sum] => 346097 [work_sum] => 90119 [total_sum] => 436216 [total_days] => 10 [display_material_sum] => 346 097 [display_work_sum] => 90 119 [display_total_sum] => 436 216 ) 1
436 216
Работа:90 119
Материалы:346 097
Дни:10
stdClass Object ( [id] => 195 [attribute_id] => 5 [name] => Газобетон [material_modifier] => 1 [work_modifier] => 1 [options] => Array ( [0] => 300 мм [1] => 375 мм [2] => 400 мм [3] => 500 мм [4] => 600 мм ) [days] => [29,31,35,37,44] [material_price] => [4298,5573,6356,7288,9119] [work_price] => [4538,5251,5926,6733,7195] [image] => https://akademik-stroy.ru/wp-content/uploads/materials/gazobeton.jpg [area_modifier] => 51.14 [parent_name] => Стены 2 этаж (несущие) [parent_id] => 5 [material_sum] => 290136 [work_sum] => 255281 [total_sum] => 545417 [total_days] => 29 [display_material_sum] => 290 136 [display_work_sum] => 255 281 [display_total_sum] => 545 417 ) 1
545 417
Работа:255 281
Материалы:290 136
Дни:29
stdClass Object ( [id] => 196 [attribute_id] => 5 [name] => Блок [material_modifier] => 1 [work_modifier] => 1 [options] => Array ( [0] => 300 мм [1] => 375 мм [2] => 400 мм [3] => 500 мм [4] => 600 мм ) [days] => [29,31,35,37,44] [material_price] => [2698,3973,4356,6588,7119] [work_price] => [5038,5851,6426,8733,9195] [image] => https://akademik-stroy.ru/wp-content/uploads/materials/blok.jpg [area_modifier] => 51.14 [parent_name] => Стены 2 этаж (несущие) [parent_id] => 5 [material_sum] => 182128 [work_sum] => 283408 [total_sum] => 465536 [total_days] => 29 [display_material_sum] => 182 128 [display_work_sum] => 283 408 [display_total_sum] => 465 536 ) 1
465 536
Работа:283 408
Материалы:182 128
Дни:29
stdClass Object ( [id] => 197 [attribute_id] => 5 [name] => Газосиликатный блок [material_modifier] => 1 [work_modifier] => 1 [options] => Array ( [0] => 300 мм [1] => 375 мм [2] => 400 мм [3] => 500 мм [4] => 600 мм ) [days] => [29,31,35,37,44] [material_price] => [4298,5573,6356,7288,9119] [work_price] => [4538,5251,5926,6733,7195] [image] => https://akademik-stroy.ru/wp-content/uploads/materials/gazosilikatnyj-blok.jpg [area_modifier] => 51.14 [parent_name] => Стены 2 этаж (несущие) [parent_id] => 5 [material_sum] => 290136 [work_sum] => 255281 [total_sum] => 545417 [total_days] => 29 [display_material_sum] => 290 136 [display_work_sum] => 255 281 [display_total_sum] => 545 417 ) 1
545 417
Работа:255 281
Материалы:290 136
Дни:29
stdClass Object ( [id] => 198 [attribute_id] => 5 [name] => Керамзитобетонный блок [material_modifier] => 1 [work_modifier] => 1 [options] => Array ( [0] => 300 мм [1] => 375 мм [2] => 400 мм [3] => 500 мм [4] => 600 мм ) [days] => [23,23,24,25,28] [material_price] => [3641,4298,5693,7613,9612] [work_price] => [5737,5737,6903,7958,8901] [image] => https://akademik-stroy.ru/wp-content/uploads/materials/keramzitobetonnyj-blok.jpg [area_modifier] => 51.14 [parent_name] => Стены 2 этаж (несущие) [parent_id] => 5 [material_sum] => 245785 [work_sum] => 322729 [total_sum] => 568514 [total_days] => 23 [display_material_sum] => 245 785 [display_work_sum] => 322 729 [display_total_sum] => 568 514 ) 1
568 514
Работа:322 729
Материалы:245 785
Дни:23
stdClass Object ( [id] => 199 [attribute_id] => 5 [name] => Деревянные [material_modifier] => 1 [work_modifier] => 1 [options] => Array ( [0] => 180 мм [1] => 220 мм [2] => 260 мм [3] => 320 мм ) [days] => [7,8,9,10] [material_price] => [7950,9458,11961,14472] [work_price] => [4037,4925,5812,7207] [image] => https://akademik-stroy.ru/wp-content/uploads/materials/derevyannye.jpg [area_modifier] => 51.14 [parent_name] => Стены 2 этаж (несущие) [parent_id] => 5 [material_sum] => 536663 [work_sum] => 227097 [total_sum] => 763760 [total_days] => 7 [display_material_sum] => 536 663 [display_work_sum] => 227 097 [display_total_sum] => 763 760 ) 1
763 760
Работа:227 097
Материалы:536 663
Дни:7
stdClass Object ( [id] => 200 [attribute_id] => 5 [name] => Камень [material_modifier] => 1 [work_modifier] => 1 [options] => Array ( [0] => 300 мм [1] => 400 мм [2] => 500 мм [3] => 600 мм ) [days] => [25,27,31,34] [material_price] => [5262,6844,8330,9815] [work_price] => [8331,9135,10427,11069] [image] => https://akademik-stroy.ru/wp-content/uploads/materials/kamen.jpg [area_modifier] => 51.14 [parent_name] => Стены 2 этаж (несущие) [parent_id] => 5 [material_sum] => 355210 [work_sum] => 468652 [total_sum] => 823862 [total_days] => 25 [display_material_sum] => 355 210 [display_work_sum] => 468 652 [display_total_sum] => 823 862 ) 1
823 862
Работа:468 652
Материалы:355 210
Дни:25
stdClass Object ( [id] => 201 [attribute_id] => 5 [name] => Каркасно-щитовые [material_modifier] => 1 [work_modifier] => 1 [options] => Array ( [0] => 150 мм [1] => 200 мм [2] => 250 мм [3] => 300 мм [4] => 350 мм [5] => 400 мм ) [days] => [15,16,17,18,19,20] [material_price] => [2379,2639,2898,3458,3601,4175] [work_price] => [2538,2820,3134,3483,4062,5642] [image] => https://akademik-stroy.ru/wp-content/uploads/materials/karkasno-shchitovye.jpg [area_modifier] => 51.14 [parent_name] => Стены 2 этаж (несущие) [parent_id] => 5 [material_sum] => 160594 [work_sum] => 142773 [total_sum] => 303367 [total_days] => 15 [display_material_sum] => 160 594 [display_work_sum] => 142 773 [display_total_sum] => 303 367 ) 1
303 367
Работа:142 773
Материалы:160 594
Дни:15
stdClass Object ( [id] => 202 [attribute_id] => 5 [name] => Рубленные [material_modifier] => 1 [work_modifier] => 1 [options] => Array ( [0] => 150 мм [1] => 200 мм [2] => 250 мм [3] => 300 мм [4] => 350 мм [5] => 400 мм ) [days] => [15,16,17,18,17,18] [material_price] => [35950,50267,60583,75900,80217,100533] [work_price] => [9612,12816,16020,19224,22428,25632] [image] => https://akademik-stroy.ru/wp-content/uploads/materials/rublennye.jpg [area_modifier] => 51.14 [parent_name] => Стены 2 этаж (несущие) [parent_id] => 5 [material_sum] => 2426798 [work_sum] => 540713 [total_sum] => 2967511 [total_days] => 15 [display_material_sum] => 2 426 798 [display_work_sum] => 540 713 [display_total_sum] => 2 967 511 ) 1
2 967 511
Работа:540 713
Материалы:2 426 798
Дни:15
stdClass Object ( [id] => 203 [attribute_id] => 5 [name] => Теплоблок [material_modifier] => 1 [work_modifier] => 1 [options] => Array ( [0] => 300 мм (с облицовкой, не покрашенный) [1] => 400 мм (с облицовкой, не покрашенный) [2] => 300 мм (с облицовкой, покрашенный) [3] => 400 мм (с облицовкой, покрашенный) ) [days] => [15,16,15,16] [material_price] => [2888,3729,3957,4258] [work_price] => [2564,3229,2949,3713] [image] => https://akademik-stroy.ru/wp-content/uploads/materials/teploblok.jpg [area_modifier] => 51.14 [parent_name] => Стены 2 этаж (несущие) [parent_id] => 5 [material_sum] => 194954 [work_sum] => 144235 [total_sum] => 339189 [total_days] => 15 [display_material_sum] => 194 954 [display_work_sum] => 144 235 [display_total_sum] => 339 189 ) 1
339 189
Работа:144 235
Материалы:194 954
Дни:15
stdClass Object ( [id] => 204 [attribute_id] => 5 [name] => Арболитовые блоки [material_modifier] => 1 [work_modifier] => 1 [options] => Array ( [0] => 300 мм [1] => 400 мм [2] => 600 мм ) [days] => [19,22,27] [material_price] => [3210,4475,5852] [work_price] => [4214,4788,5866] [image] => https://akademik-stroy.ru/wp-content/uploads/materials/arbolitovye-bloki.png [area_modifier] => 51.14 [parent_name] => Стены 2 этаж (несущие) [parent_id] => 5 [material_sum] => 216690 [work_sum] => 237054 [total_sum] => 453744 [total_days] => 19 [display_material_sum] => 216 690 [display_work_sum] => 237 054 [display_total_sum] => 453 744 ) 1
453 744
Работа:237 054
Материалы:216 690
Дни:19
stdClass Object ( [id] => 205 [attribute_id] => 5 [name] => Полистиролбетон [material_modifier] => 1 [work_modifier] => 1 [options] => Array ( [0] => 300 мм [1] => 400 мм [2] => 600 мм ) [days] => [29,31,35] [material_price] => [2798,4573,5256] [work_price] => [5038,5851,6426] [image] => https://akademik-stroy.ru/wp-content/uploads/materials/polistirolbeton.jpg [area_modifier] => 51.14 [parent_name] => Стены 2 этаж (несущие) [parent_id] => 5 [material_sum] => 188878 [work_sum] => 283408 [total_sum] => 472286 [total_days] => 29 [display_material_sum] => 188 878 [display_work_sum] => 283 408 [display_total_sum] => 472 286 ) 1
472 286
Работа:283 408
Материалы:188 878
Дни:29
stdClass Object ( [id] => 206 [attribute_id] => 5 [name] => Шлакоблок [material_modifier] => 1 [work_modifier] => 1 [options] => Array ( [0] => 400 мм [1] => 600 мм ) [days] => [15,16] [material_price] => [2391,3471] [work_price] => [2642,3662] [image] => https://akademik-stroy.ru/wp-content/uploads/materials/shlakoblok.jpg [area_modifier] => 51.14 [parent_name] => Стены 2 этаж (несущие) [parent_id] => 5 [material_sum] => 161404 [work_sum] => 148623 [total_sum] => 310027 [total_days] => 15 [display_material_sum] => 161 404 [display_work_sum] => 148 623 [display_total_sum] => 310 027 ) 1
310 027
Работа:148 623
Материалы:161 404
Дни:15
stdClass Object ( [id] => 245 [attribute_id] => 5 [name] => Теплая керамика [material_modifier] => 1 [work_modifier] => 1 [options] => Array ( [0] => 380 мм [1] => 380 мм Thermo [2] => 440 мм [3] => 510 мм ) [days] => [10,10,11,12] [material_price] => [4510,5098,6093,8013] [work_price] => [4737,4937,5903,6958] [image] => https://akademik-stroy.ru/wp-content/uploads/materials/teplaya-keramika.jpg [area_modifier] => 51.14 [parent_name] => Стены 2 этаж (несущие) [parent_id] => 5 [material_sum] => 304447 [work_sum] => 266475 [total_sum] => 570922 [total_days] => 10 [display_material_sum] => 304 447 [display_work_sum] => 266 475 [display_total_sum] => 570 922 ) 1
570 922
Работа:266 475
Материалы:304 447
Дни:10
stdClass Object ( [id] => 246 [attribute_id] => 5 [name] => Несъемная опалубка [material_modifier] => 1 [work_modifier] => 1 [options] => Array ( [0] => 380 мм [1] => 380 мм Thermo [2] => 440 мм [3] => 510 мм ) [days] => [10,10,11,12] [material_price] => [3302,3902,4108,5008] [work_price] => [2100,2100,2300,2534] [image] => https://akademik-stroy.ru/wp-content/uploads/materials/nesemnaya-opalubka.jpg [area_modifier] => 51.14 [parent_name] => Стены 2 этаж (несущие) [parent_id] => 5 [material_sum] => 222901 [work_sum] => 118133 [total_sum] => 341034 [total_days] => 10 [display_material_sum] => 222 901 [display_work_sum] => 118 133 [display_total_sum] => 341 034 ) 1
341 034
Работа:118 133
Материалы:222 901
Дни:10
stdClass Object ( [id] => 254 [attribute_id] => 5 [name] => Бревно [material_modifier] => 1 [work_modifier] => 1 [options] => Array ( [0] => 260 мм [1] => 320 мм [2] => 360 мм [3] => 400 мм [4] => 500 мм ) [days] => [7,8,9,10,11] [material_price] => [1874,24045,26930,30972,38825] [work_price] => [5046,6207,6952,7716,9723] [image] => https://akademik-stroy.ru/wp-content/uploads/materials/sruby.jpg [area_modifier] => 51.14 [parent_name] => Стены 2 этаж (несущие) [parent_id] => 5 [material_sum] => 126504 [work_sum] => 283858 [total_sum] => 410362 [total_days] => 7 [display_material_sum] => 126 504 [display_work_sum] => 283 858 [display_total_sum] => 410 362 ) 1
410 362
Работа:283 858
Материалы:126 504
Дни:7
Крыша (Скатная)
stdClass Object ( [id] => 164 [attribute_id] => 37 [name] => Металлочерепица [material_modifier] => 1 [work_modifier] => 1 [options] => Array ( ) [days] => [20] [material_price] => [6112] [work_price] => [5726] [image] => https://akademik-stroy.ru/wp-content/uploads/materials/metallocherepica.jpg [area_modifier] => 116.82 [parent_name] => Крыша (Скатная) [parent_id] => 37 [material_sum] => 942485 [work_sum] => 735802 [total_sum] => 1678287 [total_days] => 20 [display_material_sum] => 942 485 [display_work_sum] => 735 802 [display_total_sum] => 1 678 287 ) 1
1 678 287
Работа:735 802
Материалы:942 485
Дни:20
stdClass Object ( [id] => 165 [attribute_id] => 37 [name] => Гибкая черепица [material_modifier] => 1 [work_modifier] => 1 [options] => Array ( ) [days] => [20] [material_price] => [6980] [work_price] => [5950] [image] => https://akademik-stroy.ru/wp-content/uploads/materials/gibkaya-cherepica.jpg [area_modifier] => 116.82 [parent_name] => Крыша (Скатная) [parent_id] => 37 [material_sum] => 1076333 [work_sum] => 764587 [total_sum] => 1840920 [total_days] => 20 [display_material_sum] => 1 076 333 [display_work_sum] => 764 587 [display_total_sum] => 1 840 920 ) 1
1 840 920
Работа:764 587
Материалы:1 076 333
Дни:20
stdClass Object ( [id] => 166 [attribute_id] => 37 [name] => Цементно-песчаная черепица [material_modifier] => 1 [work_modifier] => 1 [options] => Array ( ) [days] => [20] [material_price] => [10560] [work_price] => [9456] [image] => https://akademik-stroy.ru/wp-content/uploads/materials/cementno-peschanaya-cherepica.jpg [area_modifier] => 116.82 [parent_name] => Крыша (Скатная) [parent_id] => 37 [material_sum] => 1628377 [work_sum] => 1215115 [total_sum] => 2843492 [total_days] => 20 [display_material_sum] => 1 628 377 [display_work_sum] => 1 215 115 [display_total_sum] => 2 843 492 ) 1
2 843 492
Работа:1 215 115
Материалы:1 628 377
Дни:20
stdClass Object ( [id] => 167 [attribute_id] => 37 [name] => Композитная черепица [material_modifier] => 1 [work_modifier] => 1 [options] => Array ( ) [days] => [20] [material_price] => [9506] [work_price] => [8905] [image] => https://akademik-stroy.ru/wp-content/uploads/materials/kompozitnaya-cherepica.jpg [area_modifier] => 116.82 [parent_name] => Крыша (Скатная) [parent_id] => 37 [material_sum] => 1465848 [work_sum] => 1144310 [total_sum] => 2610158 [total_days] => 20 [display_material_sum] => 1 465 848 [display_work_sum] => 1 144 310 [display_total_sum] => 2 610 158 ) 1
2 610 158
Работа:1 144 310
Материалы:1 465 848
Дни:20
stdClass Object ( [id] => 168 [attribute_id] => 37 [name] => Керамическая черепица [material_modifier] => 1 [work_modifier] => 1 [options] => Array ( ) [days] => [20] [material_price] => [12750] [work_price] => [9456] [image] => https://akademik-stroy.ru/wp-content/uploads/materials/keramicheskaya-cherepica.jpg [area_modifier] => 116.82 [parent_name] => Крыша (Скатная) [parent_id] => 37 [material_sum] => 1966081 [work_sum] => 1215115 [total_sum] => 3181196 [total_days] => 20 [display_material_sum] => 1 966 081 [display_work_sum] => 1 215 115 [display_total_sum] => 3 181 196 ) 1
3 181 196
Работа:1 215 115
Материалы:1 966 081
Дни:20
stdClass Object ( [id] => 169 [attribute_id] => 37 [name] => Металлическая фальцевая [material_modifier] => 1 [work_modifier] => 1 [options] => Array ( ) [days] => [20] [material_price] => [8550] [work_price] => [8190] [image] => https://akademik-stroy.ru/wp-content/uploads/materials/metallicheskaya-falcevaya.jpg [area_modifier] => 116.82 [parent_name] => Крыша (Скатная) [parent_id] => 37 [material_sum] => 1318431 [work_sum] => 1052431 [total_sum] => 2370862 [total_days] => 20 [display_material_sum] => 1 318 431 [display_work_sum] => 1 052 431 [display_total_sum] => 2 370 862 ) 1
2 370 862
Работа:1 052 431
Материалы:1 318 431
Дни:20
stdClass Object ( [id] => 170 [attribute_id] => 37 [name] => Медная фальцевая [material_modifier] => 1 [work_modifier] => 1 [options] => Array ( ) [days] => [20] [material_price] => [20450] [work_price] => [16750] [image] => https://akademik-stroy.ru/wp-content/uploads/materials/mednaya-falcevaya.jpg [area_modifier] => 116.82 [parent_name] => Крыша (Скатная) [parent_id] => 37 [material_sum] => 3153439 [work_sum] => 2152409 [total_sum] => 5305848 [total_days] => 20 [display_material_sum] => 3 153 439 [display_work_sum] => 2 152 409 [display_total_sum] => 5 305 848 ) 1
5 305 848
Работа:2 152 409
Материалы:3 153 439
Дни:20
stdClass Object ( [id] => 171 [attribute_id] => 37 [name] => Зеленая кровля [material_modifier] => 1 [work_modifier] => 1 [options] => Array ( ) [days] => [20] [material_price] => [19850] [work_price] => [16780] [image] => https://akademik-stroy.ru/wp-content/uploads/materials/zelenaya-krovlya.jpg [area_modifier] => 116.82 [parent_name] => Крыша (Скатная) [parent_id] => 37 [material_sum] => 3060918 [work_sum] => 2156264 [total_sum] => 5217182 [total_days] => 20 [display_material_sum] => 3 060 918 [display_work_sum] => 2 156 264 [display_total_sum] => 5 217 182 ) 1
5 217 182
Работа:2 156 264
Материалы:3 060 918
Дни:20
stdClass Object ( [id] => 172 [attribute_id] => 37 [name] => Профлист [material_modifier] => 1 [work_modifier] => 1 [options] => Array ( ) [days] => [20] [material_price] => [3450] [work_price] => [3750] [image] => https://akademik-stroy.ru/wp-content/uploads/materials/proflist.jpg [area_modifier] => 116.82 [parent_name] => Крыша (Скатная) [parent_id] => 37 [material_sum] => 531998 [work_sum] => 481883 [total_sum] => 1013881 [total_days] => 20 [display_material_sum] => 531 998 [display_work_sum] => 481 883 [display_total_sum] => 1 013 881 ) 1
1 013 881
Работа:481 883
Материалы:531 998
Дни:20
Окна
stdClass Object ( [id] => 51 [attribute_id] => 26 [name] => Есть [material_modifier] => 1 [work_modifier] => 1 [options] => Array ( [0] => Профиль 58 мм, 3-камерный, стеклопакет 2-камерный до 32 мм [1] => Профиль 60 мм, 4-камерный, стеклопакет 2-камерный до 32 мм [2] => Профиль 70 мм, 5-камерный, стеклопакет 2-камерный до 40 мм [3] => Профиль 72 мм, 5-камерный, стеклопакет 2-камерный до 40 мм [4] => Алюминиевые окна Alutech профиль 72 мм, стеклопакет 2-камерный ) [days] => [3,3,3,3,3] [material_price] => [1339,2124,2867,3023,29596] [work_price] => [635,647,659,668,2579] [image] => https://akademik-stroy.ru/wp-content/uploads/materials/okna.jpg [area_modifier] => 136.3 [parent_name] => Окна [parent_id] => 26 [material_sum] => 240908 [work_sum] => 95206 [total_sum] => 336114 [total_days] => 3 [display_material_sum] => 240 908 [display_work_sum] => 95 206 [display_total_sum] => 336 114 ) 1
336 114
Работа:95 206
Материалы:240 908
Дни:3
stdClass Object ( [id] => 52 [attribute_id] => 26 [name] => Нет [material_modifier] => 2 [work_modifier] => 1 [options] => [days] => null [material_price] => null [work_price] => null [image] => https://akademik-stroy.ru/wp-content/uploads/materials/okna.jpg [area_modifier] => 136.3 [parent_name] => Окна [parent_id] => 26 [material_sum] => 0 [work_sum] => 0 [total_sum] => 0 [total_days] => 0 [display_material_sum] => 0 [display_work_sum] => 0 [display_total_sum] => 0 ) 1
0
Работа:0
Материалы:0
Дни:0
Двери входные
stdClass Object ( [id] => 53 [attribute_id] => 27 [name] => Есть [material_modifier] => 1 [work_modifier] => 1 [options] => Array ( ) [days] => [1] [material_price] => [10000] [work_price] => [5500] [image] => https://akademik-stroy.ru/wp-content/uploads/materials/dveri.jpg [area_modifier] => 1 [parent_name] => Двери входные [parent_id] => 27 [material_sum] => 13200 [work_sum] => 6050 [total_sum] => 19250 [total_days] => 1 [display_material_sum] => 13 200 [display_work_sum] => 6 050 [display_total_sum] => 19 250 ) 1
19 250
Работа:6 050
Материалы:13 200
Дни:1
stdClass Object ( [id] => 54 [attribute_id] => 27 [name] => Нет [material_modifier] => 1 [work_modifier] => 1 [options] => Array ( ) [days] => [0] [material_price] => [0] [work_price] => [0] [image] => https://akademik-stroy.ru/wp-content/uploads/materials/dveri.jpg [area_modifier] => 1 [parent_name] => Двери входные [parent_id] => 27 [material_sum] => 0 [work_sum] => 0 [total_sum] => 0 [total_days] => 0 [display_material_sum] => 0 [display_work_sum] => 0 [display_total_sum] => 0 ) 1
0
Работа:0
Материалы:0
Дни:0
Утепление кровли (Мансарда)
stdClass Object ( [id] => 25 [attribute_id] => 13 [name] => Нет [material_modifier] => 1 [work_modifier] => 1 [options] => Array ( ) [days] => [0] [material_price] => [0] [work_price] => [0] [image] => https://akademik-stroy.ru/wp-content/uploads/materials/mineralovata-krov.jpg [area_modifier] => 116.82 [parent_name] => Утепление кровли (Мансарда) [parent_id] => 13 [material_sum] => 0 [work_sum] => 0 [total_sum] => 0 [total_days] => 0 [display_material_sum] => 0 [display_work_sum] => 0 [display_total_sum] => 0 ) 1
0
Работа:0
Материалы:0
Дни:0
stdClass Object ( [id] => 26 [attribute_id] => 13 [name] => Минераловатный [material_modifier] => 1 [work_modifier] => 1 [options] => Array ( [0] => 50 мм [1] => 100 мм [2] => 150 мм [3] => 200 мм [4] => 250 мм [5] => 300 мм [6] => 350 мм [7] => 400 мм [8] => 450 мм [9] => 500 мм ) [days] => [5,5,6,6,6,7,7,7,8,8] [material_price] => [1158,1414,1772,2230,3602,4060,4974,5890,6408,7718] [work_price] => [650,846,846,1098,1318,1450,1596,1754,1930,2122] [image] => https://akademik-stroy.ru/wp-content/uploads/materials/mineralovata-krov.jpg [area_modifier] => 116.82 [parent_name] => Утепление кровли (Мансарда) [parent_id] => 13 [material_sum] => 178566 [work_sum] => 83526 [total_sum] => 262092 [total_days] => 5 [display_material_sum] => 178 566 [display_work_sum] => 83 526 [display_total_sum] => 262 092 ) 1
262 092
Работа:83 526
Материалы:178 566
Дни:5
stdClass Object ( [id] => 123 [attribute_id] => 13 [name] => Эковата (целлюлозная вата) [material_modifier] => 1 [work_modifier] => 1 [options] => Array ( [0] => 50 мм [1] => 100 мм [2] => 150 мм [3] => 200 мм [4] => 250 мм [5] => 300 мм [6] => 350 мм [7] => 400 мм [8] => 450 мм [9] => 500 мм ) [days] => [3,3,4,4,4,5,5,5,5,5] [material_price] => [820,1638,2458,3276,5734,6552,8190,9828,11466,13104] [work_price] => [234,304,304,396,474,522,574,632,694,764] [image] => https://akademik-stroy.ru/wp-content/uploads/materials/ehkovata-krov.jpg [area_modifier] => 116.82 [parent_name] => Утепление кровли (Мансарда) [parent_id] => 13 [material_sum] => 126446 [work_sum] => 30069 [total_sum] => 156515 [total_days] => 3 [display_material_sum] => 126 446 [display_work_sum] => 30 069 [display_total_sum] => 156 515 ) 1
156 515
Работа:30 069
Материалы:126 446
Дни:3
stdClass Object ( [id] => 124 [attribute_id] => 13 [name] => Экструдированный пенополистирол [material_modifier] => 1 [work_modifier] => 1 [options] => Array ( [0] => 50 мм [1] => 100 мм [2] => 150 мм [3] => 200 мм [4] => 250 мм [5] => 300 мм [6] => 350 мм [7] => 400 мм [8] => 450 мм [9] => 500 мм ) [days] => [3,3,4,4,4,5,5,5,5,6] [material_price] => [1146,2292,3438,4584,8020,9166,11458,13750,16040,18332] [work_price] => [390,508,508,660,790,870,958,1052,1158,1274] [image] => https://akademik-stroy.ru/wp-content/uploads/materials/epps-krov.jpg [area_modifier] => 116.82 [parent_name] => Утепление кровли (Мансарда) [parent_id] => 13 [material_sum] => 176716 [work_sum] => 50116 [total_sum] => 226832 [total_days] => 3 [display_material_sum] => 176 716 [display_work_sum] => 50 116 [display_total_sum] => 226 832 ) 1
226 832
Работа:50 116
Материалы:176 716
Дни:3
stdClass Object ( [id] => 125 [attribute_id] => 13 [name] => ПСБ (ППС-пенополистирол) [material_modifier] => 1 [work_modifier] => 1 [options] => Array ( [0] => 50 мм [1] => 100 мм [2] => 150 мм [3] => 200 мм [4] => 250 мм [5] => 300 мм [6] => 350 мм [7] => 400 мм [8] => 450 мм [9] => 500 мм ) [days] => [3,3,4,4,4,5,5,5,5,6] [material_price] => [476,954,1430,1906,3336,3814,4766,5720,6674,7626] [work_price] => [390,508,508,660,790,870,958,1052,1158,1274] [image] => https://akademik-stroy.ru/wp-content/uploads/materials/psb-krov.jpg [area_modifier] => 116.82 [parent_name] => Утепление кровли (Мансарда) [parent_id] => 13 [material_sum] => 73400 [work_sum] => 50116 [total_sum] => 123516 [total_days] => 3 [display_material_sum] => 73 400 [display_work_sum] => 50 116 [display_total_sum] => 123 516 ) 1
123 516
Работа:50 116
Материалы:73 400
Дни:3
stdClass Object ( [id] => 126 [attribute_id] => 13 [name] => ППУ (Пенополиуретан) [material_modifier] => 1 [work_modifier] => 1 [options] => Array ( [0] => 50 мм [1] => 100 мм [2] => 150 мм [3] => 200 мм [4] => 250 мм [5] => 300 мм [6] => 350 мм [7] => 400 мм [8] => 450 мм [9] => 500 мм ) [days] => [2,2,3,3,3,3,4,4,4,4] [material_price] => [2080,4160,6240,8320,14560,16640,20800,24960,29120,33280] [work_price] => [234,304,304,396,474,522,574,632,694,764] [image] => https://akademik-stroy.ru/wp-content/uploads/materials/ppu-krov.jpg [area_modifier] => 116.82 [parent_name] => Утепление кровли (Мансарда) [parent_id] => 13 [material_sum] => 320741 [work_sum] => 30069 [total_sum] => 350810 [total_days] => 2 [display_material_sum] => 320 741 [display_work_sum] => 30 069 [display_total_sum] => 350 810 ) 1
350 810
Работа:30 069
Материалы:320 741
Дни:2
stdClass Object ( [id] => 127 [attribute_id] => 13 [name] => PIR-плиты (пенополиизоцианурат) [material_modifier] => 1 [work_modifier] => 1 [options] => Array ( [0] => 50 мм [1] => 100 мм [2] => 150 мм [3] => 200 мм [4] => 250 мм [5] => 300 мм [6] => 350 мм [7] => 400 мм [8] => 450 мм [9] => 500 мм ) [days] => [3,3,4,4,4,5,5,5,5,6] [material_price] => [2646,5290,7936,10580,18516,21162,26452,31742,37032,42324] [work_price] => [390,508,508,660,790,870,958,1052,1158,1274] [image] => https://akademik-stroy.ru/wp-content/uploads/materials/pir-krov.jpg [area_modifier] => 116.82 [parent_name] => Утепление кровли (Мансарда) [parent_id] => 13 [material_sum] => 408020 [work_sum] => 50116 [total_sum] => 458136 [total_days] => 3 [display_material_sum] => 408 020 [display_work_sum] => 50 116 [display_total_sum] => 458 136 ) 1
458 136
Работа:50 116
Материалы:408 020
Дни:3
Мансардные окна
stdClass Object ( [id] => 27 [attribute_id] => 14 [name] => Нет [material_modifier] => 1 [work_modifier] => 1 [options] => Array ( ) [days] => [0] [material_price] => [0] [work_price] => [0] [image] => https://akademik-stroy.ru/wp-content/uploads/materials/mansardnye-okna-2.jpg [area_modifier] => 1 [parent_name] => Мансардные окна [parent_id] => 14 [material_sum] => 0 [work_sum] => 0 [total_sum] => 0 [total_days] => 0 [display_material_sum] => 0 [display_work_sum] => 0 [display_total_sum] => 0 ) 1
0
Работа:0
Материалы:0
Дни:0
stdClass Object ( [id] => 28 [attribute_id] => 14 [name] => Есть [material_modifier] => 1 [work_modifier] => 1 [options] => Array ( [0] => 55x78 [1] => 55x98 ) [days] => [6,7] [material_price] => [47480,68700] [work_price] => [17900,19500] [image] => https://akademik-stroy.ru/wp-content/uploads/materials/mansardnye-okna-2.jpg [area_modifier] => 1 [parent_name] => Мансардные окна [parent_id] => 14 [material_sum] => 62674 [work_sum] => 19690 [total_sum] => 82364 [total_days] => 6 [display_material_sum] => 62 674 [display_work_sum] => 19 690 [display_total_sum] => 82 364 ) 1
82 364
Работа:19 690
Материалы:62 674
Дни:6
Подшивка кровли
stdClass Object ( [id] => 29 [attribute_id] => 15 [name] => Нет [material_modifier] => 1 [work_modifier] => 1 [options] => Array ( ) [days] => [0] [material_price] => [0] [work_price] => [0] [image] => https://akademik-stroy.ru/wp-content/uploads/materials/sofit.jpg [area_modifier] => 116.82 [parent_name] => Подшивка кровли [parent_id] => 15 [material_sum] => 0 [work_sum] => 0 [total_sum] => 0 [total_days] => 0 [display_material_sum] => 0 [display_work_sum] => 0 [display_total_sum] => 0 ) 1
0
Работа:0
Материалы:0
Дни:0
stdClass Object ( [id] => 30 [attribute_id] => 15 [name] => Есть [material_modifier] => 1 [work_modifier] => 1 [options] => Array ( [0] => Софиты (ПВХ) [1] => Cedral [2] => ДПК [3] => Планкен ) [days] => [7,10,9,8] [material_price] => [1803,3213,3025,3150] [work_price] => [1529,2188,2075,1923] [image] => https://akademik-stroy.ru/wp-content/uploads/materials/sofit.jpg [area_modifier] => 116.82 [parent_name] => Подшивка кровли [parent_id] => 15 [material_sum] => 278027 [work_sum] => 196480 [total_sum] => 474507 [total_days] => 7 [display_material_sum] => 278 027 [display_work_sum] => 196 480 [display_total_sum] => 474 507 ) 1
474 507
Работа:196 480
Материалы:278 027
Дни:7
Водосточная система
stdClass Object ( [id] => 31 [attribute_id] => 16 [name] => Нет [material_modifier] => 1 [work_modifier] => 1 [options] => Array ( ) [days] => [0] [material_price] => [0] [work_price] => [0] [image] => https://akademik-stroy.ru/wp-content/uploads/materials/docke-standard-pvh.jpg [area_modifier] => 116.82 [parent_name] => Водосточная система [parent_id] => 16 [material_sum] => 0 [work_sum] => 0 [total_sum] => 0 [total_days] => 0 [display_material_sum] => 0 [display_work_sum] => 0 [display_total_sum] => 0 ) 1
0
Работа:0
Материалы:0
Дни:0
stdClass Object ( [id] => 32 [attribute_id] => 16 [name] => Есть [material_modifier] => 1 [work_modifier] => 1 [options] => Array ( [0] => Döcke Standard (ПВХ) [1] => Металлические Grand Line ) [days] => [7,7] [material_price] => [1842,2703] [work_price] => [1491,1529] [image] => https://akademik-stroy.ru/wp-content/uploads/materials/docke-standard-pvh.jpg [area_modifier] => 116.82 [parent_name] => Водосточная система [parent_id] => 16 [material_sum] => 284041 [work_sum] => 191596 [total_sum] => 475637 [total_days] => 7 [display_material_sum] => 284 041 [display_work_sum] => 191 596 [display_total_sum] => 475 637 ) 1
475 637
Работа:191 596
Материалы:284 041
Дни:7
Дополнительное утепление наружных стен
stdClass Object ( [id] => 33 [attribute_id] => 17 [name] => Нет [material_modifier] => 1 [work_modifier] => 1 [options] => Array ( ) [days] => [0] [material_price] => [0] [work_price] => [0] [image] => https://akademik-stroy.ru/wp-content/uploads/materials/mineralovata.jpg [area_modifier] => 167.96 [parent_name] => Дополнительное утепление наружных стен [parent_id] => 17 [material_sum] => 0 [work_sum] => 0 [total_sum] => 0 [total_days] => 0 [display_material_sum] => 0 [display_work_sum] => 0 [display_total_sum] => 0 ) 1
0
Работа:0
Материалы:0
Дни:0
stdClass Object ( [id] => 34 [attribute_id] => 17 [name] => Минераловатный [material_modifier] => 1 [work_modifier] => 1 [options] => Array ( [0] => 50 мм [1] => 100 мм [2] => 150 мм [3] => 200 мм [4] => 250 мм [5] => 300 мм ) [days] => [7,8,10,12,14,15] [material_price] => [3437,3613,3803,3915,4601,4830] [work_price] => [2325,2423,2523,2749,2859,3025] [image] => https://akademik-stroy.ru/wp-content/uploads/materials/mineralovata.jpg [area_modifier] => 167.96 [parent_name] => Дополнительное утепление наружных стен [parent_id] => 17 [material_sum] => 762008 [work_sum] => 429558 [total_sum] => 1191566 [total_days] => 7 [display_material_sum] => 762 008 [display_work_sum] => 429 558 [display_total_sum] => 1 191 566 ) 1
1 191 566
Работа:429 558
Материалы:762 008
Дни:7
stdClass Object ( [id] => 128 [attribute_id] => 17 [name] => Эковата (целлюлозная вата) [material_modifier] => 1 [work_modifier] => 1 [options] => Array ( [0] => 50 мм [1] => 100 мм [2] => 150 мм [3] => 200 мм [4] => 250 мм [5] => 300 мм ) [days] => [3,4,5,6,7,8] [material_price] => [810,1319,1629,1838,2267,2676] [work_price] => [1225,1323,1423,1549,1659,1725] [image] => https://akademik-stroy.ru/wp-content/uploads/materials/ehkovata.jpg [area_modifier] => 167.96 [parent_name] => Дополнительное утепление наружных стен [parent_id] => 17 [material_sum] => 179583 [work_sum] => 226326 [total_sum] => 405909 [total_days] => 3 [display_material_sum] => 179 583 [display_work_sum] => 226 326 [display_total_sum] => 405 909 ) 1
405 909
Работа:226 326
Материалы:179 583
Дни:3
stdClass Object ( [id] => 129 [attribute_id] => 17 [name] => Экструдированный пенополистирол [material_modifier] => 1 [work_modifier] => 1 [options] => Array ( [0] => 50 мм [1] => 100 мм [2] => 150 мм [3] => 200 мм [4] => 250 мм [5] => 300 мм ) [days] => [5,6,7,8,9,10] [material_price] => [4560,4300,5119,6292,7010,8583] [work_price] => [1795,1954,2254,2330,2595,2735] [image] => https://akademik-stroy.ru/wp-content/uploads/materials/epps.jpg [area_modifier] => 167.96 [parent_name] => Дополнительное утепление наружных стен [parent_id] => 17 [material_sum] => 1010985 [work_sum] => 331637 [total_sum] => 1342622 [total_days] => 5 [display_material_sum] => 1 010 985 [display_work_sum] => 331 637 [display_total_sum] => 1 342 622 ) 1
1 342 622
Работа:331 637
Материалы:1 010 985
Дни:5
stdClass Object ( [id] => 130 [attribute_id] => 17 [name] => ПСБ (ППС-пенополистирол) [material_modifier] => 1 [work_modifier] => 1 [options] => Array ( [0] => 50 мм [1] => 100 мм [2] => 150 мм [3] => 200 мм [4] => 250 мм [5] => 300 мм ) [days] => [5,6,7,8,9,10] [material_price] => [4822,5200,5819,6292,7010,7583] [work_price] => [1795,1954,2254,2330,2595,2735] [image] => https://akademik-stroy.ru/wp-content/uploads/materials/psb.jpg [area_modifier] => 167.96 [parent_name] => Дополнительное утепление наружных стен [parent_id] => 17 [material_sum] => 1069072 [work_sum] => 331637 [total_sum] => 1400709 [total_days] => 5 [display_material_sum] => 1 069 072 [display_work_sum] => 331 637 [display_total_sum] => 1 400 709 ) 1
1 400 709
Работа:331 637
Материалы:1 069 072
Дни:5
stdClass Object ( [id] => 131 [attribute_id] => 17 [name] => ППУ (Пенополиуретан) [material_modifier] => 1 [work_modifier] => 1 [options] => Array ( [0] => 50 мм [1] => 100 мм [2] => 150 мм [3] => 200 мм [4] => 250 мм [5] => 300 мм ) [days] => [3,4,5,6,7,8] [material_price] => [2860,3400,4219,4592,5010,5583] [work_price] => [729,900,980,1120,1280,1530] [image] => https://akademik-stroy.ru/wp-content/uploads/materials/ppu.jpg [area_modifier] => 167.96 [parent_name] => Дополнительное утепление наружных стен [parent_id] => 17 [material_sum] => 634083 [work_sum] => 134687 [total_sum] => 768770 [total_days] => 3 [display_material_sum] => 634 083 [display_work_sum] => 134 687 [display_total_sum] => 768 770 ) 1
768 770
Работа:134 687
Материалы:634 083
Дни:3
stdClass Object ( [id] => 132 [attribute_id] => 17 [name] => PIR-плиты (пенополиизоцианурат) [material_modifier] => 1 [work_modifier] => 1 [options] => Array ( [0] => 50 мм [1] => 100 мм [2] => 150 мм [3] => 200 мм [4] => 250 мм [5] => 300 мм ) [days] => [5,6,7,8,9,10] [material_price] => [8323,15645,20968,25900,29258,30581] [work_price] => [800,900,970,1150,1280,1330] [image] => https://akademik-stroy.ru/wp-content/uploads/materials/pir.jpg [area_modifier] => 167.96 [parent_name] => Дополнительное утепление наружных стен [parent_id] => 17 [material_sum] => 1845269 [work_sum] => 147805 [total_sum] => 1993074 [total_days] => 5 [display_material_sum] => 1 845 269 [display_work_sum] => 147 805 [display_total_sum] => 1 993 074 ) 1
1 993 074
Работа:147 805
Материалы:1 845 269
Дни:5
Наружная отделка фасада
stdClass Object ( [id] => 37 [attribute_id] => 19 [name] => Нет [material_modifier] => 1 [work_modifier] => 1 [options] => Array ( ) [days] => [0] [material_price] => [0] [work_price] => [0] [image] => https://akademik-stroy.ru/wp-content/uploads/materials/imitaciya-brusa.jpg [area_modifier] => 167.96 [parent_name] => Наружная отделка фасада [parent_id] => 19 [material_sum] => 0 [work_sum] => 0 [total_sum] => 0 [total_days] => 0 [display_material_sum] => 0 [display_work_sum] => 0 [display_total_sum] => 0 ) 1
0
Работа:0
Материалы:0
Дни:0
stdClass Object ( [id] => 38 [attribute_id] => 19 [name] => Имитация бруса [material_modifier] => 1 [work_modifier] => 1 [options] => Array ( [0] => Сосна [1] => Ель [2] => Лиственница ) [days] => [20,20,20] [material_price] => [2994,2762,4954] [work_price] => [1397,1231,1577] [image] => https://akademik-stroy.ru/wp-content/uploads/materials/imitaciya-brusa.jpg [area_modifier] => 167.96 [parent_name] => Наружная отделка фасада [parent_id] => 19 [material_sum] => 663791 [work_sum] => 258104 [total_sum] => 921895 [total_days] => 20 [display_material_sum] => 663 791 [display_work_sum] => 258 104 [display_total_sum] => 921 895 ) 1
921 895
Работа:258 104
Материалы:663 791
Дни:20
stdClass Object ( [id] => 136 [attribute_id] => 19 [name] => Планкен [material_modifier] => 1 [work_modifier] => 1 [options] => Array ( [0] => Сосна [1] => Ель [2] => Лиственница ) [days] => [20,20,20] [material_price] => [3194,2862,5154] [work_price] => [1537,1354,1735] [image] => https://akademik-stroy.ru/wp-content/uploads/materials/planken.jpg [area_modifier] => 167.96 [parent_name] => Наружная отделка фасада [parent_id] => 19 [material_sum] => 708133 [work_sum] => 283970 [total_sum] => 992103 [total_days] => 20 [display_material_sum] => 708 133 [display_work_sum] => 283 970 [display_total_sum] => 992 103 ) 1
992 103
Работа:283 970
Материалы:708 133
Дни:20
stdClass Object ( [id] => 137 [attribute_id] => 19 [name] => Штукатурка [material_modifier] => 1 [work_modifier] => 1 [options] => Array ( [0] => Цементно-песчаная (минеральная) [1] => Мокрый фасад ) [days] => [35,35] [material_price] => [2231,3938] [work_price] => [1202,2422] [image] => https://akademik-stroy.ru/wp-content/uploads/materials/shtukaturka.jpg [area_modifier] => 167.96 [parent_name] => Наружная отделка фасада [parent_id] => 19 [material_sum] => 494629 [work_sum] => 222077 [total_sum] => 716706 [total_days] => 35 [display_material_sum] => 494 629 [display_work_sum] => 222 077 [display_total_sum] => 716 706 ) 1
716 706
Работа:222 077
Материалы:494 629
Дни:35
stdClass Object ( [id] => 138 [attribute_id] => 19 [name] => Облицовочный кирпич [material_modifier] => 1 [work_modifier] => 1 [options] => Array ( [0] => Керамический [1] => Клинкерный [2] => Ручной формовки [3] => Гиперпрессованный [4] => Силикатный кирпич ) [days] => [45,45,45,45,45] [material_price] => [8174,9148,1040,1257,5876] [work_price] => [3240,3758,4536,4017,3369] [image] => https://akademik-stroy.ru/wp-content/uploads/materials/oblicovochnyj-kirpich.jpg [area_modifier] => 167.96 [parent_name] => Наружная отделка фасада [parent_id] => 19 [material_sum] => 1812235 [work_sum] => 598609 [total_sum] => 2410844 [total_days] => 45 [display_material_sum] => 1 812 235 [display_work_sum] => 598 609 [display_total_sum] => 2 410 844 ) 1
2 410 844
Работа:598 609
Материалы:1 812 235
Дни:45
stdClass Object ( [id] => 139 [attribute_id] => 19 [name] => Фасадная плитка [material_modifier] => 1 [work_modifier] => 1 [options] => Array ( [0] => Клинкерная [1] => Керамическая [2] => Плитка ручной формовки ) [days] => [40,40,40] [material_price] => [2974,1487,3470] [work_price] => [3007,2592,3629] [image] => https://akademik-stroy.ru/wp-content/uploads/materials/fasadnaya-plitka.jpg [area_modifier] => 167.96 [parent_name] => Наружная отделка фасада [parent_id] => 19 [material_sum] => 659357 [work_sum] => 555561 [total_sum] => 1214918 [total_days] => 40 [display_material_sum] => 659 357 [display_work_sum] => 555 561 [display_total_sum] => 1 214 918 ) 1
1 214 918
Работа:555 561
Материалы:659 357
Дни:40
stdClass Object ( [id] => 140 [attribute_id] => 19 [name] => Сайдинг [material_modifier] => 1 [work_modifier] => 1 [options] => Array ( [0] => Виниловый [1] => Металлический [2] => Фиброцементный ) [days] => [20,20,20] [material_price] => [1263,1944,4147] [work_price] => [1263,1944,2074] [image] => https://akademik-stroy.ru/wp-content/uploads/materials/sajding.jpg [area_modifier] => 167.96 [parent_name] => Наружная отделка фасада [parent_id] => 19 [material_sum] => 280016 [work_sum] => 233347 [total_sum] => 513363 [total_days] => 20 [display_material_sum] => 280 016 [display_work_sum] => 233 347 [display_total_sum] => 513 363 ) 1
513 363
Работа:233 347
Материалы:280 016
Дни:20
stdClass Object ( [id] => 141 [attribute_id] => 19 [name] => Камень [material_modifier] => 1 [work_modifier] => 1 [options] => Array ( [0] => Травертин [1] => Дагестанский [2] => Искусственный [3] => Натуральный [4] => Керамогранит ) [days] => [45,45,45,45,45] [material_price] => [4536,3888,2592,3240,2462] [work_price] => [3240,3240,2462,3110,1944] [image] => https://akademik-stroy.ru/wp-content/uploads/materials/kamen-1.jpg [area_modifier] => 167.96 [parent_name] => Наружная отделка фасада [parent_id] => 19 [material_sum] => 1005664 [work_sum] => 598609 [total_sum] => 1604273 [total_days] => 45 [display_material_sum] => 1 005 664 [display_work_sum] => 598 609 [display_total_sum] => 1 604 273 ) 1
1 604 273
Работа:598 609
Материалы:1 005 664
Дни:45
stdClass Object ( [id] => 142 [attribute_id] => 19 [name] => Термопанели [material_modifier] => 1 [work_modifier] => 1 [options] => Array ( ) [days] => [20] [material_price] => [6221] [work_price] => [2333] [image] => https://akademik-stroy.ru/wp-content/uploads/materials/termo.png [area_modifier] => 167.96 [parent_name] => Наружная отделка фасада [parent_id] => 19 [material_sum] => 1379240 [work_sum] => 431036 [total_sum] => 1810276 [total_days] => 20 [display_material_sum] => 1 379 240 [display_work_sum] => 431 036 [display_total_sum] => 1 810 276 ) 1
1 810 276
Работа:431 036
Материалы:1 379 240
Дни:20
stdClass Object ( [id] => 143 [attribute_id] => 19 [name] => Плитка HAUBERK [material_modifier] => 1 [work_modifier] => 1 [options] => Array ( ) [days] => [20] [material_price] => [2786] [work_price] => [1944] [image] => https://akademik-stroy.ru/wp-content/uploads/materials/hauberk.jpg [area_modifier] => 167.96 [parent_name] => Наружная отделка фасада [parent_id] => 19 [material_sum] => 617676 [work_sum] => 359166 [total_sum] => 976842 [total_days] => 20 [display_material_sum] => 617 676 [display_work_sum] => 359 166 [display_total_sum] => 976 842 ) 1
976 842
Работа:359 166
Материалы:617 676
Дни:20
stdClass Object ( [id] => 144 [attribute_id] => 19 [name] => Фальцевый фасад [material_modifier] => 1 [work_modifier] => 1 [options] => Array ( ) [days] => [20] [material_price] => [3240] [work_price] => [2592] [image] => https://akademik-stroy.ru/wp-content/uploads/materials/falcevyj-fasad.jpg [area_modifier] => 167.96 [parent_name] => Наружная отделка фасада [parent_id] => 19 [material_sum] => 718331 [work_sum] => 478888 [total_sum] => 1197219 [total_days] => 20 [display_material_sum] => 718 331 [display_work_sum] => 478 888 [display_total_sum] => 1 197 219 ) 1
1 197 219
Работа:478 888
Материалы:718 331
Дни:20
stdClass Object ( [id] => 145 [attribute_id] => 19 [name] => Комбинированный [material_modifier] => 1 [work_modifier] => 1 [options] => Array ( ) [days] => [20] [material_price] => [4629] [work_price] => [3499] [image] => https://akademik-stroy.ru/wp-content/uploads/materials/Kombinirovannyj.jpg [area_modifier] => 167.96 [parent_name] => Наружная отделка фасада [parent_id] => 19 [material_sum] => 1026283 [work_sum] => 646461 [total_sum] => 1672744 [total_days] => 20 [display_material_sum] => 1 026 283 [display_work_sum] => 646 461 [display_total_sum] => 1 672 744 ) 1
1 672 744
Работа:646 461
Материалы:1 026 283
Дни:20
stdClass Object ( [id] => 257 [attribute_id] => 19 [name] => Японские фиброцементные [material_modifier] => 1 [work_modifier] => 1 [options] => Array ( ) [days] => [20] [material_price] => [7043] [work_price] => [2993] [image] => https://akademik-stroy.ru/wp-content/uploads/materials/paneli.jpg [area_modifier] => 167.96 [parent_name] => Наружная отделка фасада [parent_id] => 19 [material_sum] => 1561484 [work_sum] => 552975 [total_sum] => 2114459 [total_days] => 20 [display_material_sum] => 1 561 484 [display_work_sum] => 552 975 [display_total_sum] => 2 114 459 ) 1
2 114 459
Работа:552 975
Материалы:1 561 484
Дни:20
stdClass Object ( [id] => 258 [attribute_id] => 19 [name] => Панели Каньон [material_modifier] => 1 [work_modifier] => 1 [options] => Array ( ) [days] => [20] [material_price] => [4543] [work_price] => [2592] [image] => https://akademik-stroy.ru/wp-content/uploads/materials/kanon.png [area_modifier] => 167.96 [parent_name] => Наружная отделка фасада [parent_id] => 19 [material_sum] => 1007216 [work_sum] => 478888 [total_sum] => 1486104 [total_days] => 20 [display_material_sum] => 1 007 216 [display_work_sum] => 478 888 [display_total_sum] => 1 486 104 ) 1
1 486 104
Работа:478 888
Материалы:1 007 216
Дни:20
Террасы, крыльца, навесы
stdClass Object ( [id] => 39 [attribute_id] => 20 [name] => Нет [material_modifier] => 1 [work_modifier] => 1 [options] => Array ( ) [days] => [0] [material_price] => [0] [work_price] => [0] [image] => https://akademik-stroy.ru/wp-content/uploads/materials/terrasy.jpg [area_modifier] => 30 [parent_name] => Террасы, крыльца, навесы [parent_id] => 20 [material_sum] => 0 [work_sum] => 0 [total_sum] => 0 [total_days] => 0 [display_material_sum] => 0 [display_work_sum] => 0 [display_total_sum] => 0 ) 1
0
Работа:0
Материалы:0
Дни:0
stdClass Object ( [id] => 40 [attribute_id] => 20 [name] => Есть [material_modifier] => 1 [work_modifier] => 1 [options] => Array ( ) [days] => [5] [material_price] => [10450] [work_price] => [1950] [image] => https://akademik-stroy.ru/wp-content/uploads/materials/terrasy.jpg [area_modifier] => 30 [parent_name] => Террасы, крыльца, навесы [parent_id] => 20 [material_sum] => 413820 [work_sum] => 64350 [total_sum] => 478170 [total_days] => 5 [display_material_sum] => 413 820 [display_work_sum] => 64 350 [display_total_sum] => 478 170 ) 1
478 170
Работа:64 350
Материалы:413 820
Дни:5
Балконы
stdClass Object ( [id] => 41 [attribute_id] => 21 [name] => Нет [material_modifier] => 1 [work_modifier] => 1 [options] => Array ( ) [days] => [0] [material_price] => [0] [work_price] => [0] [image] => https://akademik-stroy.ru/wp-content/uploads/materials/balkony.jpg [area_modifier] => 30 [parent_name] => Балконы [parent_id] => 21 [material_sum] => 0 [work_sum] => 0 [total_sum] => 0 [total_days] => 0 [display_material_sum] => 0 [display_work_sum] => 0 [display_total_sum] => 0 ) 1
0
Работа:0
Материалы:0
Дни:0
stdClass Object ( [id] => 42 [attribute_id] => 21 [name] => Есть [material_modifier] => 1 [work_modifier] => 1 [options] => Array ( ) [days] => [12] [material_price] => [3600] [work_price] => [1950] [image] => https://akademik-stroy.ru/wp-content/uploads/materials/balkony.jpg [area_modifier] => 30 [parent_name] => Балконы [parent_id] => 21 [material_sum] => 142560 [work_sum] => 64350 [total_sum] => 206910 [total_days] => 12 [display_material_sum] => 142 560 [display_work_sum] => 64 350 [display_total_sum] => 206 910 ) 1
206 910
Работа:64 350
Материалы:142 560
Дни:12
Отмостка
stdClass Object ( [id] => 43 [attribute_id] => 22 [name] => Нет [material_modifier] => 1 [work_modifier] => 1 [options] => Array ( ) [days] => [0] [material_price] => [0] [work_price] => [0] [image] => https://akademik-stroy.ru/wp-content/uploads/materials/uteplennaya.jpg [area_modifier] => 116.82 [parent_name] => Отмостка [parent_id] => 22 [material_sum] => 0 [work_sum] => 0 [total_sum] => 0 [total_days] => 0 [display_material_sum] => 0 [display_work_sum] => 0 [display_total_sum] => 0 ) 1
0
Работа:0
Материалы:0
Дни:0
stdClass Object ( [id] => 44 [attribute_id] => 22 [name] => Утепленная отмостка [material_modifier] => 1 [work_modifier] => 1 [options] => Array ( ) [days] => [15] [material_price] => [2550] [work_price] => [1750] [image] => https://akademik-stroy.ru/wp-content/uploads/materials/uteplennaya.jpg [area_modifier] => 116.82 [parent_name] => Отмостка [parent_id] => 22 [material_sum] => 393216 [work_sum] => 224879 [total_sum] => 618095 [total_days] => 15 [display_material_sum] => 393 216 [display_work_sum] => 224 879 [display_total_sum] => 618 095 ) 1
618 095
Работа:224 879
Материалы:393 216
Дни:15
stdClass Object ( [id] => 146 [attribute_id] => 22 [name] => Не утепленная отмостка [material_modifier] => 1 [work_modifier] => 1 [options] => Array ( ) [days] => [10] [material_price] => [1650] [work_price] => [1450] [image] => https://akademik-stroy.ru/wp-content/uploads/materials/ne-uteplennaya.jpg [area_modifier] => 116.82 [parent_name] => Отмостка [parent_id] => 22 [material_sum] => 254434 [work_sum] => 186328 [total_sum] => 440762 [total_days] => 10 [display_material_sum] => 254 434 [display_work_sum] => 186 328 [display_total_sum] => 440 762 ) 1
440 762
Работа:186 328
Материалы:254 434
Дни:10
Дренаж вокруг дома
stdClass Object ( [id] => 45 [attribute_id] => 23 [name] => Нет [material_modifier] => 1 [work_modifier] => 1 [options] => Array ( ) [days] => [0] [material_price] => [0] [work_price] => [0] [image] => https://akademik-stroy.ru/wp-content/uploads/materials/drenazh-2.jpg [area_modifier] => 116.82 [parent_name] => Дренаж вокруг дома [parent_id] => 23 [material_sum] => 0 [work_sum] => 0 [total_sum] => 0 [total_days] => 0 [display_material_sum] => 0 [display_work_sum] => 0 [display_total_sum] => 0 ) 1
0
Работа:0
Материалы:0
Дни:0
stdClass Object ( [id] => 46 [attribute_id] => 23 [name] => Есть [material_modifier] => 1 [work_modifier] => 1 [options] => Array ( ) [days] => [5] [material_price] => [2366] [work_price] => [1911] [image] => https://akademik-stroy.ru/wp-content/uploads/materials/drenazh-2.jpg [area_modifier] => 116.82 [parent_name] => Дренаж вокруг дома [parent_id] => 23 [material_sum] => 364843 [work_sum] => 245567 [total_sum] => 610410 [total_days] => 5 [display_material_sum] => 364 843 [display_work_sum] => 245 567 [display_total_sum] => 610 410 ) 1
610 410
Работа:245 567
Материалы:364 843
Дни:5
Автономная канализация (септики)
stdClass Object ( [id] => 47 [attribute_id] => 24 [name] => Нет [material_modifier] => 1 [work_modifier] => 1 [options] => Array ( ) [days] => [0] [material_price] => [0] [work_price] => [0] [image] => https://akademik-stroy.ru/wp-content/uploads/materials/septik.jpg [area_modifier] => 1 [parent_name] => Автономная канализация (септики) [parent_id] => 24 [material_sum] => 0 [work_sum] => 0 [total_sum] => 0 [total_days] => 0 [display_material_sum] => 0 [display_work_sum] => 0 [display_total_sum] => 0 ) 1
0
Работа:0
Материалы:0
Дни:0
stdClass Object ( [id] => 48 [attribute_id] => 24 [name] => Есть [material_modifier] => 1 [work_modifier] => 1 [options] => Array ( [0] => Для дачи на 4 человека [1] => Для дома на 5 человек [2] => Для дома на 6 человек [3] => Для дома на 7 человек [4] => Для дома на 10 человек ) [days] => [7,7,7,8,8] [material_price] => [196340,220500,240940,264200,293340] [work_price] => [50000,55000,60500,66550,73206] [image] => https://akademik-stroy.ru/wp-content/uploads/materials/septik.jpg [area_modifier] => 1 [parent_name] => Автономная канализация (септики) [parent_id] => 24 [material_sum] => 259169 [work_sum] => 55000 [total_sum] => 314169 [total_days] => 7 [display_material_sum] => 259 169 [display_work_sum] => 55 000 [display_total_sum] => 314 169 ) 1
314 169
Работа:55 000
Материалы:259 169
Дни:7
Внутренние (не несущие) перегородки
stdClass Object ( [id] => 49 [attribute_id] => 25 [name] => Нет [material_modifier] => 1 [work_modifier] => 1 [options] => Array ( ) [days] => [0] [material_price] => [0] [work_price] => [0] [image] => https://akademik-stroy.ru/wp-content/uploads/materials/gkl.jpg [area_modifier] => 167.96 [parent_name] => Внутренние (не несущие) перегородки [parent_id] => 25 [material_sum] => 0 [work_sum] => 0 [total_sum] => 0 [total_days] => 0 [display_material_sum] => 0 [display_work_sum] => 0 [display_total_sum] => 0 ) 1
0
Работа:0
Материалы:0
Дни:0
stdClass Object ( [id] => 147 [attribute_id] => 25 [name] => Каркасно-обшивные [material_modifier] => 1 [work_modifier] => 1 [options] => Array ( [0] => 75 мм (без шумоизоляции) [1] => 75 мм (с шумоизоляцией) ) [days] => [11,11] [material_price] => [580,970] [work_price] => [380,570] [image] => https://akademik-stroy.ru/wp-content/uploads/materials/gkl.jpg [area_modifier] => 167.96 [parent_name] => Внутренние (не несущие) перегородки [parent_id] => 25 [material_sum] => 128590 [work_sum] => 70207 [total_sum] => 198797 [total_days] => 11 [display_material_sum] => 128 590 [display_work_sum] => 70 207 [display_total_sum] => 198 797 ) 1
198 797
Работа:70 207
Материалы:128 590
Дни:11
stdClass Object ( [id] => 148 [attribute_id] => 25 [name] => Пазогребневые [material_modifier] => 1 [work_modifier] => 1 [options] => Array ( [0] => 80 мм [1] => 100 мм ) [days] => [5,5] [material_price] => [1022,1313] [work_price] => [600,700] [image] => https://akademik-stroy.ru/wp-content/uploads/materials/pazogrebnevye-bloki.jpg [area_modifier] => 167.96 [parent_name] => Внутренние (не несущие) перегородки [parent_id] => 25 [material_sum] => 226585 [work_sum] => 110854 [total_sum] => 337439 [total_days] => 5 [display_material_sum] => 226 585 [display_work_sum] => 110 854 [display_total_sum] => 337 439 ) 1
337 439
Работа:110 854
Материалы:226 585
Дни:5
stdClass Object ( [id] => 149 [attribute_id] => 25 [name] => Газобетонные [material_modifier] => 1 [work_modifier] => 1 [options] => Array ( [0] => 100 мм [1] => 200 мм ) [days] => [11,11] [material_price] => [1160,1920] [work_price] => [700,900] [image] => https://akademik-stroy.ru/wp-content/uploads/materials/gazobeton-2.jpg [area_modifier] => 167.96 [parent_name] => Внутренние (не несущие) перегородки [parent_id] => 25 [material_sum] => 257180 [work_sum] => 129329 [total_sum] => 386509 [total_days] => 11 [display_material_sum] => 257 180 [display_work_sum] => 129 329 [display_total_sum] => 386 509 ) 1
386 509
Работа:129 329
Материалы:257 180
Дни:11
stdClass Object ( [id] => 150 [attribute_id] => 25 [name] => Кирпичные [material_modifier] => 1 [work_modifier] => 1 [options] => Array ( [0] => 120 мм [1] => 250 мм [2] => 360 мм ) [days] => [7,7,7] [material_price] => [1785,3570,5355] [work_price] => [900,1600,1800] [image] => https://akademik-stroy.ru/wp-content/uploads/materials/kirpich-1.jpg [area_modifier] => 167.96 [parent_name] => Внутренние (не несущие) перегородки [parent_id] => 25 [material_sum] => 395747 [work_sum] => 166280 [total_sum] => 562027 [total_days] => 7 [display_material_sum] => 395 747 [display_work_sum] => 166 280 [display_total_sum] => 562 027 ) 1
562 027
Работа:166 280
Материалы:395 747
Дни:7
Электрика
stdClass Object ( [id] => 55 [attribute_id] => 28 [name] => Нет [material_modifier] => 1 [work_modifier] => 1 [options] => Array ( ) [days] => [0] [material_price] => [0] [work_price] => [0] [image] => https://akademik-stroy.ru/wp-content/uploads/materials/ehlektrika.jpg [area_modifier] => 136.3 [parent_name] => Электрика [parent_id] => 28 [material_sum] => 0 [work_sum] => 0 [total_sum] => 0 [total_days] => 0 [display_material_sum] => 0 [display_work_sum] => 0 [display_total_sum] => 0 ) 1
0
Работа:0
Материалы:0
Дни:0
stdClass Object ( [id] => 56 [attribute_id] => 28 [name] => Есть [material_modifier] => 1 [work_modifier] => 1 [options] => Array ( ) [days] => [10] [material_price] => [650] [work_price] => [950] [image] => https://akademik-stroy.ru/wp-content/uploads/materials/ehlektrika.jpg [area_modifier] => 136.3 [parent_name] => Электрика [parent_id] => 28 [material_sum] => 116945 [work_sum] => 142434 [total_sum] => 259379 [total_days] => 10 [display_material_sum] => 116 945 [display_work_sum] => 142 434 [display_total_sum] => 259 379 ) 1
259 379
Работа:142 434
Материалы:116 945
Дни:10
Сантехника, канализация в доме
stdClass Object ( [id] => 57 [attribute_id] => 29 [name] => Нет [material_modifier] => 1 [work_modifier] => 1 [options] => Array ( ) [days] => [0] [material_price] => [0] [work_price] => [0] [image] => https://akademik-stroy.ru/wp-content/uploads/materials/santekhnika-kanalizaciya-1.jpg [area_modifier] => 136.3 [parent_name] => Сантехника, канализация в доме [parent_id] => 29 [material_sum] => 0 [work_sum] => 0 [total_sum] => 0 [total_days] => 0 [display_material_sum] => 0 [display_work_sum] => 0 [display_total_sum] => 0 ) 1
0
Работа:0
Материалы:0
Дни:0
stdClass Object ( [id] => 58 [attribute_id] => 29 [name] => Есть [material_modifier] => 1 [work_modifier] => 1 [options] => Array ( ) [days] => [10] [material_price] => [600] [work_price] => [730] [image] => https://akademik-stroy.ru/wp-content/uploads/materials/santekhnika-kanalizaciya-1.jpg [area_modifier] => 136.3 [parent_name] => Сантехника, канализация в доме [parent_id] => 29 [material_sum] => 107950 [work_sum] => 109449 [total_sum] => 217399 [total_days] => 10 [display_material_sum] => 107 950 [display_work_sum] => 109 449 [display_total_sum] => 217 399 ) 1
217 399
Работа:109 449
Материалы:107 950
Дни:10
Отопление
stdClass Object ( [id] => 59 [attribute_id] => 30 [name] => Нет [material_modifier] => 1 [work_modifier] => 1 [options] => Array ( ) [days] => [0] [material_price] => [0] [work_price] => [0] [image] => https://akademik-stroy.ru/wp-content/uploads/materials/otoplenie-1.jpg [area_modifier] => 136.3 [parent_name] => Отопление [parent_id] => 30 [material_sum] => 0 [work_sum] => 0 [total_sum] => 0 [total_days] => 0 [display_material_sum] => 0 [display_work_sum] => 0 [display_total_sum] => 0 ) 1
0
Работа:0
Материалы:0
Дни:0
stdClass Object ( [id] => 60 [attribute_id] => 30 [name] => Есть [material_modifier] => 1 [work_modifier] => 1 [options] => Array ( ) [days] => [5] [material_price] => [610] [work_price] => [560] [image] => https://akademik-stroy.ru/wp-content/uploads/materials/otoplenie-1.jpg [area_modifier] => 136.3 [parent_name] => Отопление [parent_id] => 30 [material_sum] => 109749 [work_sum] => 83961 [total_sum] => 193710 [total_days] => 5 [display_material_sum] => 109 749 [display_work_sum] => 83 961 [display_total_sum] => 193 710 ) 1
193 710
Работа:83 961
Материалы:109 749
Дни:5
Теплые полы
stdClass Object ( [id] => 61 [attribute_id] => 31 [name] => Нет [material_modifier] => 1 [work_modifier] => 1 [options] => Array ( ) [days] => [0] [material_price] => [0] [work_price] => [0] [image] => https://akademik-stroy.ru/wp-content/uploads/materials/vodyanye.jpg [area_modifier] => 30 [parent_name] => Теплые полы [parent_id] => 31 [material_sum] => 0 [work_sum] => 0 [total_sum] => 0 [total_days] => 0 [display_material_sum] => 0 [display_work_sum] => 0 [display_total_sum] => 0 ) 1
0
Работа:0
Материалы:0
Дни:0
stdClass Object ( [id] => 151 [attribute_id] => 31 [name] => Водяные [material_modifier] => 1 [work_modifier] => 1 [options] => Array ( ) [days] => [9] [material_price] => [10200] [work_price] => [2500] [image] => https://akademik-stroy.ru/wp-content/uploads/materials/vodyanye.jpg [area_modifier] => 30 [parent_name] => Теплые полы [parent_id] => 31 [material_sum] => 403920 [work_sum] => 82500 [total_sum] => 486420 [total_days] => 9 [display_material_sum] => 403 920 [display_work_sum] => 82 500 [display_total_sum] => 486 420 ) 1
486 420
Работа:82 500
Материалы:403 920
Дни:9
stdClass Object ( [id] => 152 [attribute_id] => 31 [name] => Электро [material_modifier] => 1 [work_modifier] => 1 [options] => Array ( ) [days] => [5] [material_price] => [6300] [work_price] => [1500] [image] => https://akademik-stroy.ru/wp-content/uploads/materials/ehlektricheskij.jpg [area_modifier] => 30 [parent_name] => Теплые полы [parent_id] => 31 [material_sum] => 249480 [work_sum] => 49500 [total_sum] => 298980 [total_days] => 5 [display_material_sum] => 249 480 [display_work_sum] => 49 500 [display_total_sum] => 298 980 ) 1
298 980
Работа:49 500
Материалы:249 480
Дни:5
Черновая отделка стен
stdClass Object ( [id] => 63 [attribute_id] => 32 [name] => Нет [material_modifier] => 1 [work_modifier] => 1 [options] => Array ( ) [days] => [0] [material_price] => [0] [work_price] => [0] [image] => https://akademik-stroy.ru/wp-content/uploads/materials/shtukaturka-shpatlevka-1.jpg [area_modifier] => 136.3 [parent_name] => Черновая отделка стен [parent_id] => 32 [material_sum] => 0 [work_sum] => 0 [total_sum] => 0 [total_days] => 0 [display_material_sum] => 0 [display_work_sum] => 0 [display_total_sum] => 0 ) 1
0
Работа:0
Материалы:0
Дни:0
stdClass Object ( [id] => 153 [attribute_id] => 32 [name] => Штукатурка и шпатлевка [material_modifier] => 1 [work_modifier] => 1 [options] => Array ( ) [days] => [20] [material_price] => [1850] [work_price] => [2600] [image] => https://akademik-stroy.ru/wp-content/uploads/materials/shtukaturka-shpatlevka-1.jpg [area_modifier] => 136.3 [parent_name] => Черновая отделка стен [parent_id] => 32 [material_sum] => 332845 [work_sum] => 389818 [total_sum] => 722663 [total_days] => 20 [display_material_sum] => 332 845 [display_work_sum] => 389 818 [display_total_sum] => 722 663 ) 1
722 663
Работа:389 818
Материалы:332 845
Дни:20
stdClass Object ( [id] => 154 [attribute_id] => 32 [name] => Гипсокортон на стены [material_modifier] => 1 [work_modifier] => 1 [options] => Array ( ) [days] => [15] [material_price] => [950] [work_price] => [2100] [image] => https://akademik-stroy.ru/wp-content/uploads/materials/gkl-1.jpg [area_modifier] => 136.3 [parent_name] => Черновая отделка стен [parent_id] => 32 [material_sum] => 170920 [work_sum] => 314853 [total_sum] => 485773 [total_days] => 15 [display_material_sum] => 170 920 [display_work_sum] => 314 853 [display_total_sum] => 485 773 ) 1
485 773
Работа:314 853
Материалы:170 920
Дни:15
stdClass Object ( [id] => 155 [attribute_id] => 32 [name] => Вагонка [material_modifier] => 1 [work_modifier] => 1 [options] => Array ( ) [days] => [15] [material_price] => [1250] [work_price] => [950] [image] => https://akademik-stroy.ru/wp-content/uploads/materials/vagonka.jpg [area_modifier] => 136.3 [parent_name] => Черновая отделка стен [parent_id] => 32 [material_sum] => 224895 [work_sum] => 142434 [total_sum] => 367329 [total_days] => 15 [display_material_sum] => 224 895 [display_work_sum] => 142 434 [display_total_sum] => 367 329 ) 1
367 329
Работа:142 434
Материалы:224 895
Дни:15
Черновая отделка полов
stdClass Object ( [id] => 65 [attribute_id] => 33 [name] => Нет [material_modifier] => 1 [work_modifier] => 1 [options] => Array ( ) [days] => [0] [material_price] => [0] [work_price] => [0] [image] => https://akademik-stroy.ru/wp-content/uploads/materials/styazhka.jpg [area_modifier] => 136.3 [parent_name] => Черновая отделка полов [parent_id] => 33 [material_sum] => 0 [work_sum] => 0 [total_sum] => 0 [total_days] => 0 [display_material_sum] => 0 [display_work_sum] => 0 [display_total_sum] => 0 ) 1
0
Работа:0
Материалы:0
Дни:0
stdClass Object ( [id] => 156 [attribute_id] => 33 [name] => Стяжка + наливные полы [material_modifier] => 1 [work_modifier] => 1 [options] => Array ( ) [days] => [10] [material_price] => [1000] [work_price] => [900] [image] => https://akademik-stroy.ru/wp-content/uploads/materials/styazhka.jpg [area_modifier] => 136.3 [parent_name] => Черновая отделка полов [parent_id] => 33 [material_sum] => 179916 [work_sum] => 134937 [total_sum] => 314853 [total_days] => 10 [display_material_sum] => 179 916 [display_work_sum] => 134 937 [display_total_sum] => 314 853 ) 1
314 853
Работа:134 937
Материалы:179 916
Дни:10
stdClass Object ( [id] => 157 [attribute_id] => 33 [name] => ОСБ на пол [material_modifier] => 1 [work_modifier] => 1 [options] => Array ( ) [days] => [7] [material_price] => [580] [work_price] => [350] [image] => https://akademik-stroy.ru/wp-content/uploads/materials/osb-1.jpg [area_modifier] => 136.3 [parent_name] => Черновая отделка полов [parent_id] => 33 [material_sum] => 104351 [work_sum] => 52476 [total_sum] => 156827 [total_days] => 7 [display_material_sum] => 104 351 [display_work_sum] => 52 476 [display_total_sum] => 156 827 ) 1
156 827
Работа:52 476
Материалы:104 351
Дни:7
Чистовая отделка стен и полов
stdClass Object ( [id] => 67 [attribute_id] => 34 [name] => Нет [material_modifier] => 1 [work_modifier] => 1 [options] => Array ( ) [days] => [0] [material_price] => [0] [work_price] => [0] [image] => https://akademik-stroy.ru/wp-content/uploads/materials/chistovaya-otdelka.jpg [area_modifier] => 136.3 [parent_name] => Чистовая отделка стен и полов [parent_id] => 34 [material_sum] => 0 [work_sum] => 0 [total_sum] => 0 [total_days] => 0 [display_material_sum] => 0 [display_work_sum] => 0 [display_total_sum] => 0 ) 1
0
Работа:0
Материалы:0
Дни:0
stdClass Object ( [id] => 68 [attribute_id] => 34 [name] => Есть [material_modifier] => 1 [work_modifier] => 1 [options] => Array ( ) [days] => [50] [material_price] => [6000] [work_price] => [3500] [image] => https://akademik-stroy.ru/wp-content/uploads/materials/chistovaya-otdelka.jpg [area_modifier] => 136.3 [parent_name] => Чистовая отделка стен и полов [parent_id] => 34 [material_sum] => 1079496 [work_sum] => 524755 [total_sum] => 1604251 [total_days] => 50 [display_material_sum] => 1 079 496 [display_work_sum] => 524 755 [display_total_sum] => 1 604 251 ) 1
1 604 251
Работа:524 755
Материалы:1 079 496
Дни:50
Отделка потолка
stdClass Object ( [id] => 69 [attribute_id] => 35 [name] => Нет [material_modifier] => 1 [work_modifier] => 1 [options] => Array ( ) [days] => [0] [material_price] => [0] [work_price] => [0] [image] => https://akademik-stroy.ru/wp-content/uploads/materials/mnogourovnevyj-gkl.jpg [area_modifier] => 136.3 [parent_name] => Отделка потолка [parent_id] => 35 [material_sum] => 0 [work_sum] => 0 [total_sum] => 0 [total_days] => 0 [display_material_sum] => 0 [display_work_sum] => 0 [display_total_sum] => 0 ) 1
0
Работа:0
Материалы:0
Дни:0
stdClass Object ( [id] => 70 [attribute_id] => 35 [name] => Есть [material_modifier] => 1 [work_modifier] => 1 [options] => Array ( [0] => Многоуровневый потолок из гипсокартона [1] => Многоуровневый потолок из гипсокартона и натяжного потолка [2] => Одноуровневый потолок из гипсокартона [3] => Одноуровневый натяжной потолок ) [days] => [10,10,1,1] [material_price] => [900,700,700,600] [work_price] => [1000,800,500,300] [image] => https://akademik-stroy.ru/wp-content/uploads/materials/mnogourovnevyj-gkl.jpg [area_modifier] => 136.3 [parent_name] => Отделка потолка [parent_id] => 35 [material_sum] => 161924 [work_sum] => 149930 [total_sum] => 311854 [total_days] => 10 [display_material_sum] => 161 924 [display_work_sum] => 149 930 [display_total_sum] => 311 854 ) 1
311 854
Работа:149 930
Материалы:161 924
Дни:10

Преимущества работы с нами

icon

7 этапов оплаты

icon

Независимый строительный надзор

icon

Экологически чистые материалы

icon

16 лет гарантии

icon

Онлайн-кабинет с веб-камерой

icon

Строители с опытом более 15 лет

icon

Собственное производство