Одноэтажный дом 383.31 м2 за руб.
Планировки
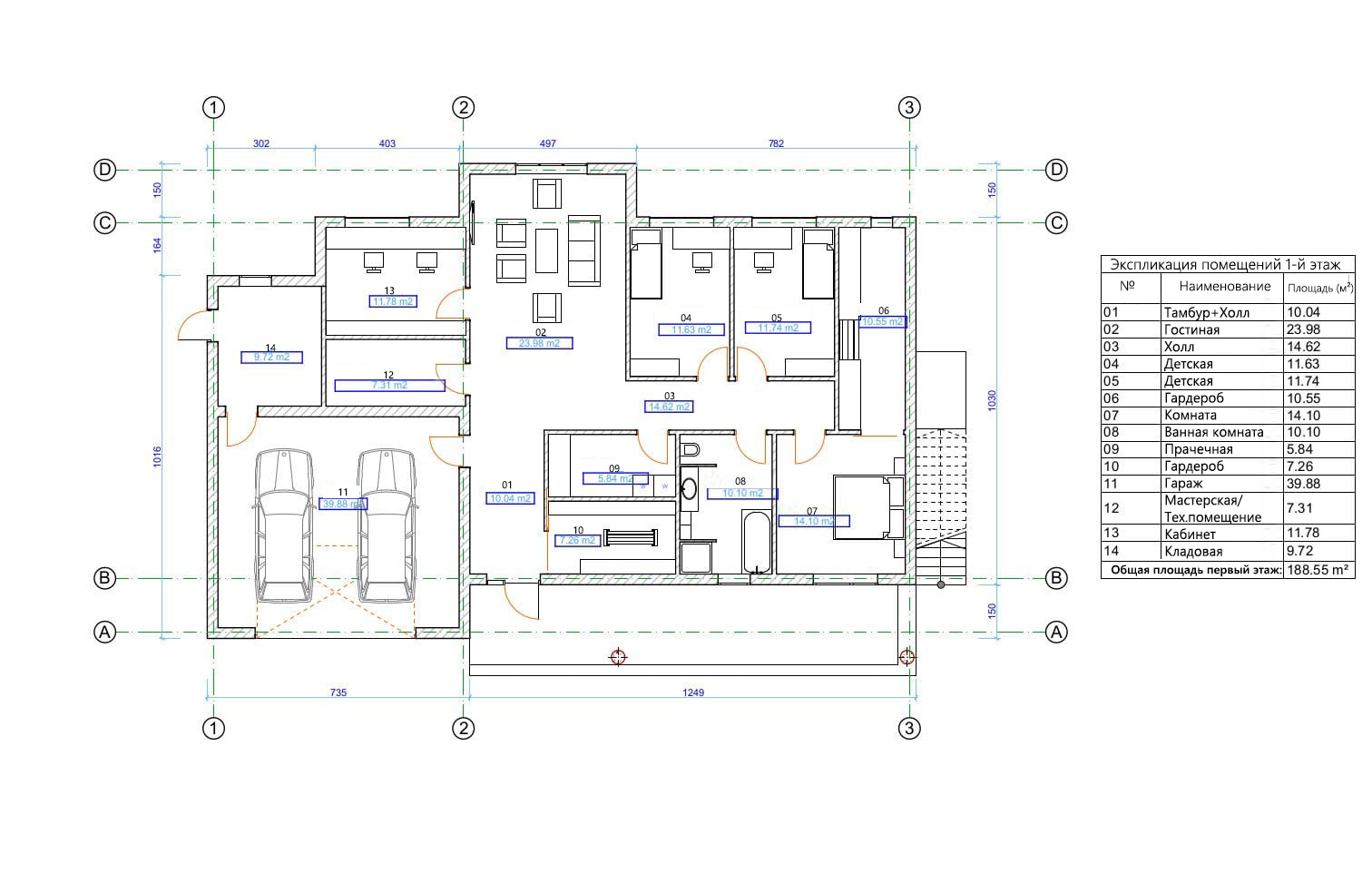
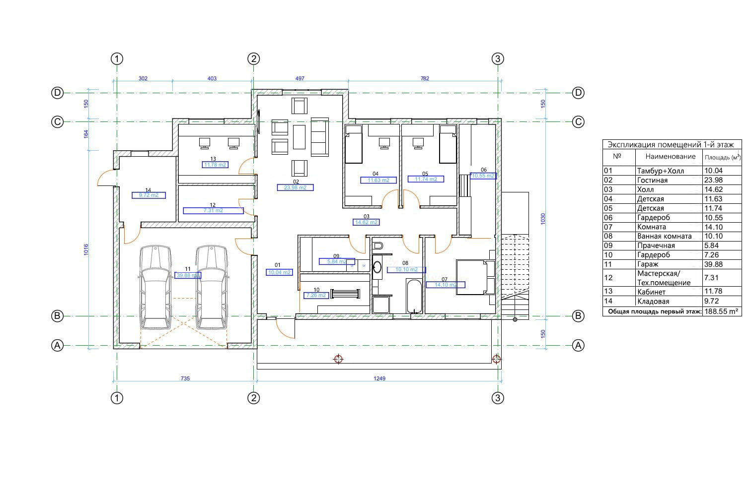
План первого этажа
- 1. Тамбур+Холл 10,04 м²
- 2. Гостиная 23,98 м²
- 3. Холл 14,62 м²
- 4. Детская 11,63 м²
- 5. Детская 11,74 м²
- 6. Гардероб 10,55 м²
- 7. Комната 14,10 м²
- 8. Ванная комната 10,10 м²
- 9. Прачечная 5,84 м²
- 10. Гардероб 7,26 м²
- 11. Гараж 39,88 м²
- 12. Мастерская 7,31 м²
- 13. Кабинет 11,78 м²
- 14. Кладовая 9,72 м²
- Общая площадь первый этаж 188,55 м²
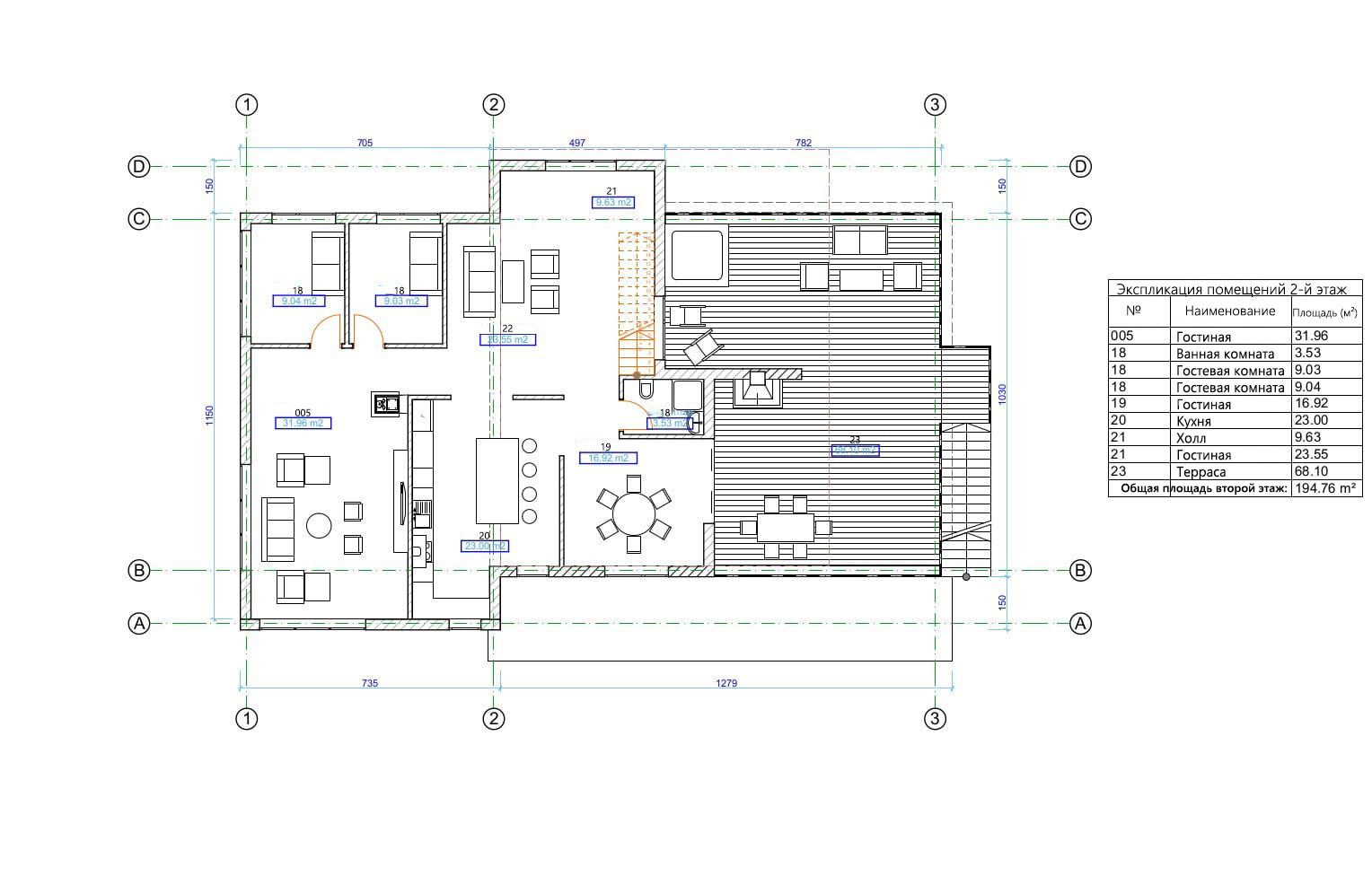
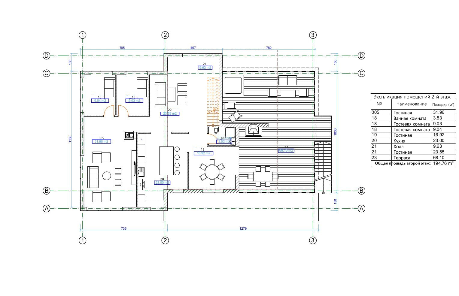
План второго этажа
- 1. Гостиная 31,96 м²
- 2. Ванная комната 3,53 м²
- 3. Гостевая комната 9,03 м²
- 4. Гостевая комната 9,04 м²
- 5. Гостиная 16,92 м²
- 6. Кухня 23,00 м²
- 7. Холл 9,63 м²
- 8. Гостевая 23,55 м²
- 9. Терраса 68,10 м²
- Общая площадь второй этаж 194,76 м²
Площади дома
| № п/п | Наименование | Ед. из. | Строительная площадь | Полезная площадь |
| 1 | 1 этаж | м2 | 232.35 | 188.55 |
| 2 | 2 этаж | м2 | 240 | 194.76 |
| 3 | Итого | м2 | 472.35 | 383.31 |
154 м2
Полезная
площадь
площадь
1 этаж
Этажей
26 м2
Террасы
и балконы
и балконы
1Без
гаража
гаража
5+
Количество
спален
спален
3
Количество
санузлов
санузлов
Калькулятор опций
0₽
В ипотеку от 31 645 ₽/мес.
0₽
0 дней
stdClass Object
(
[id] => 1
[attribute_id] => 1
[name] => Ленточный монолитный ж/б
[material_modifier] => 1
[work_modifier] => 1
[options] => Array
(
[0] => размер 200 х 700 мм
[1] => размер 300 х 900 мм
[2] => размер 400 х 1 000 мм
[3] => размер 500 х 1 100 мм
[4] => размер 600 х 1 200 мм
)
[days] => [20,21,22,25,30]
[material_price] => [2823,3630,4475,5210,12047]
[work_price] => [2154,2826,3731,4577,5293]
[image] => https://akademik-stroy.ru/wp-content/uploads/materials/lentochnyj-monolitnyj-zh-b.jpg
[area_modifier] => 232.35
[parent_name] => Фундамент
[parent_id] => 1
[material_sum] => 787109
[work_sum] => 500482
[total_sum] => 1287591
[total_days] => 20
[display_material_sum] => 787 109
[display_work_sum] => 500 482
[display_total_sum] => 1 287 591
)
1
1 287 591₽
Работа:500 482 ₽
Материалы:787 109 ₽
Дни:20
stdClass Object
(
[id] => 2
[attribute_id] => 1
[name] => Забивные Ж/Б сваи
[material_modifier] => 1
[work_modifier] => 1
[options] => Array
(
[0] => 150х150х3000мм
[1] => 150х150х4000мм
[2] => 200х200х3000мм
[3] => 200х200х4000мм
[4] => 200х200х5000мм
[5] => 200х200х6000мм
)
[days] => [2,2,2,2,2,2]
[material_price] => [1990,2850,3255,4360,5120,6837]
[work_price] => [1002,1185,1336,1438,1574,1839]
[image] => https://akademik-stroy.ru/wp-content/uploads/materials/zabivnye-zh-b-svai.png
[area_modifier] => 232.35
[parent_name] => Фундамент
[parent_id] => 1
[material_sum] => 554852
[work_sum] => 232815
[total_sum] => 787667
[total_days] => 2
[display_material_sum] => 554 852
[display_work_sum] => 232 815
[display_total_sum] => 787 667
)
1
787 667₽
Работа:232 815 ₽
Материалы:554 852 ₽
Дни:2
stdClass Object
(
[id] => 71
[attribute_id] => 1
[name] => Свайно-ростверковый ж/б
[material_modifier] => 1
[work_modifier] => 1
[options] => Array
(
[0] => ростверк 200х300 мм
[1] => ростверк 300х600 мм
[2] => ростверк 400х900 мм
[3] => ростверк 500х1200 мм
)
[days] => [20,23,25,27]
[material_price] => [3018,3474,7109,9792]
[work_price] => [2024,3012,5635,7022]
[image] => https://akademik-stroy.ru/wp-content/uploads/materials/svajno-rostverkovyj-monolitnyj-zh-b-3.png
[area_modifier] => 232.35
[parent_name] => Фундамент
[parent_id] => 1
[material_sum] => 841479
[work_sum] => 470276
[total_sum] => 1311755
[total_days] => 20
[display_material_sum] => 841 479
[display_work_sum] => 470 276
[display_total_sum] => 1 311 755
)
1
1 311 755₽
Работа:470 276 ₽
Материалы:841 479 ₽
Дни:20
stdClass Object
(
[id] => 72
[attribute_id] => 1
[name] => Монолитная ж/б плита
[material_modifier] => 1
[work_modifier] => 1
[options] => Array
(
[0] => 200 мм
[1] => 300 мм
[2] => 400 мм
[3] => 500 мм
[4] => 600 мм
)
[days] => [30,33,35,37,40]
[material_price] => [5348,8555,12788,14388,15189]
[work_price] => [4314,4881,7037,8061,10230]
[image] => https://akademik-stroy.ru/wp-content/uploads/materials/monolitnaya-zhb-plita.png
[area_modifier] => 232.35
[parent_name] => Фундамент
[parent_id] => 1
[material_sum] => 1491129
[work_sum] => 1002358
[total_sum] => 2493487
[total_days] => 30
[display_material_sum] => 1 491 129
[display_work_sum] => 1 002 358
[display_total_sum] => 2 493 487
)
1
2 493 487₽
Работа:1 002 358 ₽
Материалы:1 491 129 ₽
Дни:30
stdClass Object
(
[id] => 73
[attribute_id] => 1
[name] => Утепленная шведская плита
[material_modifier] => 1
[work_modifier] => 1
[options] => Array
(
[0] => 200 мм
[1] => 300 мм
[2] => 400 мм
[3] => 500 мм
[4] => 600 мм
)
[days] => [32,37,39,42,45]
[material_price] => [10249,12692,13760,14936,16230]
[work_price] => [5960,7337,8072,8878,9765]
[image] => https://akademik-stroy.ru/wp-content/uploads/materials/uteplennaya-shvedskaya-plita.jpg
[area_modifier] => 232.35
[parent_name] => Фундамент
[parent_id] => 1
[material_sum] => 2857626
[work_sum] => 1384806
[total_sum] => 4242432
[total_days] => 32
[display_material_sum] => 2 857 626
[display_work_sum] => 1 384 806
[display_total_sum] => 4 242 432
)
1
4 242 432₽
Работа:1 384 806 ₽
Материалы:2 857 626 ₽
Дни:32
stdClass Object
(
[id] => 75
[attribute_id] => 1
[name] => Ленточный из ФБС
[material_modifier] => 1
[work_modifier] => 1
[options] => Array
(
[0] => толщ. 300 мм
[1] => толщ. 400 мм
[2] => толщ. 500 мм
[3] => толщ. 600 мм
)
[days] => [20,20,20,20]
[material_price] => [3675,4902,6126,7350]
[work_price] => [2451,3264,4083,4902]
[image] => https://akademik-stroy.ru/wp-content/uploads/materials/lentochnyj-iz-fbs.png
[area_modifier] => 232.35
[parent_name] => Фундамент
[parent_id] => 1
[material_sum] => 1024664
[work_sum] => 569490
[total_sum] => 1594154
[total_days] => 20
[display_material_sum] => 1 024 664
[display_work_sum] => 569 490
[display_total_sum] => 1 594 154
)
1
1 594 154₽
Работа:569 490 ₽
Материалы:1 024 664 ₽
Дни:20
stdClass Object
(
[id] => 76
[attribute_id] => 1
[name] => Цокольный этаж из ФБС
[material_modifier] => 1
[work_modifier] => 1
[options] => Array
(
[0] => толщ. 300 мм
[1] => толщ. 400 мм
[2] => толщ. 500 мм
[3] => толщ. 600 мм
)
[days] => [30,32,34,36]
[material_price] => [20916,23299,26680,29060]
[work_price] => [17524,18700,19873,21046]
[image] => https://akademik-stroy.ru/wp-content/uploads/materials/cokolnyj-ehtazh-iz-fbs.jpg
[area_modifier] => 232.35
[parent_name] => Фундамент
[parent_id] => 1
[material_sum] => 5831799
[work_sum] => 4071701
[total_sum] => 9903500
[total_days] => 30
[display_material_sum] => 5 831 799
[display_work_sum] => 4 071 701
[display_total_sum] => 9 903 500
)
1
9 903 500₽
Работа:4 071 701 ₽
Материалы:5 831 799 ₽
Дни:30
stdClass Object
(
[id] => 77
[attribute_id] => 1
[name] => Цокольный этаж монолитный ж/б
[material_modifier] => 1
[work_modifier] => 1
[options] => Array
(
[0] => толщ. 200 мм
[1] => толщ. 300 мм
[2] => толщ. 400 мм
[3] => толщ. 500 мм
[4] => толщ. 600 мм
)
[days] => [40,42,44,46,48]
[material_price] => [25421,29148,32275,35602,37326]
[work_price] => [20441,21907,23375,24841,26306]
[image] => https://akademik-stroy.ru/wp-content/uploads/materials/cokolnyj-etazh-zh-b.jpg
[area_modifier] => 232.35
[parent_name] => Фундамент
[parent_id] => 1
[material_sum] => 7087883
[work_sum] => 4749466
[total_sum] => 11837349
[total_days] => 40
[display_material_sum] => 7 087 883
[display_work_sum] => 4 749 466
[display_total_sum] => 11 837 349
)
1
11 837 349₽
Работа:4 749 466 ₽
Материалы:7 087 883 ₽
Дни:40
stdClass Object
(
[id] => 191
[attribute_id] => 1
[name] => Винтовые сваи
[material_modifier] => 1
[work_modifier] => 1
[options] => Array
(
[0] => 57х200мм
[1] => 76х250мм
[2] => 108х300мм
[3] => 133х350мм
)
[days] => [1,1,2,2]
[material_price] => [1200,1300,1450,1600]
[work_price] => [400,600,900,1100]
[image] => https://akademik-stroy.ru/wp-content/uploads/materials/vintovye-svai.png
[area_modifier] => 232.35
[parent_name] => Фундамент
[parent_id] => 1
[material_sum] => 334584
[work_sum] => 92940
[total_sum] => 427524
[total_days] => 1
[display_material_sum] => 334 584
[display_work_sum] => 92 940
[display_total_sum] => 427 524
)
1
427 524₽
Работа:92 940 ₽
Материалы:334 584 ₽
Дни:1
stdClass Object
(
[id] => 3
[attribute_id] => 2
[name] => Деревянные балки
[material_modifier] => 1
[work_modifier] => 1
[options] => Array
(
[0] => без утепления
[1] => утепление 200 мм
[2] => утепление 250 мм
[3] => утепление 300 мм
[4] => утепление 350 мм
[5] => утепление 400 мм
[6] => утепление 450 мм
[7] => утепление 500 мм
)
[days] => [8,9,9,9,11,12,13,14]
[material_price] => [1634,2042,2344,2947,3149,3652,3354,3557]
[work_price] => [1230,1339,1393,1426,1460,1513,1587,1620]
[image] => https://akademik-stroy.ru/wp-content/uploads/materials/derevyannye-balki.png
[area_modifier] => 232.35
[parent_name] => Перекрытие цоколя
[parent_id] => 2
[material_sum] => 455592
[work_sum] => 285791
[total_sum] => 741383
[total_days] => 8
[display_material_sum] => 455 592
[display_work_sum] => 285 791
[display_total_sum] => 741 383
)
1
741 383₽
Работа:285 791 ₽
Материалы:455 592 ₽
Дни:8
stdClass Object
(
[id] => 4
[attribute_id] => 2
[name] => Сборные ж/б плиты
[material_modifier] => 1
[work_modifier] => 1
[options] => Array
(
[0] => без утепления
[1] => утепление 150мм
[2] => утепление 200мм
[3] => утепление 250мм
[4] => утепление 300мм
[5] => утепление 350мм
[6] => утепление 400мм
[7] => утепление 450мм
[8] => утепление 500мм
)
[days] => [13,15,15,15,15,15,15,15,15]
[material_price] => [3067,5577,5928,6679,7730,8782,9833,10884,11935]
[work_price] => [1520,1956,2102,2247,2392,2537,2684,2829,2974]
[image] => https://akademik-stroy.ru/wp-content/uploads/materials/sbornye-zh-b-plity-2.jpg
[area_modifier] => 232.35
[parent_name] => Перекрытие цоколя
[parent_id] => 2
[material_sum] => 855141
[work_sum] => 353172
[total_sum] => 1208313
[total_days] => 13
[display_material_sum] => 855 141
[display_work_sum] => 353 172
[display_total_sum] => 1 208 313
)
1
1 208 313₽
Работа:353 172 ₽
Материалы:855 141 ₽
Дни:13
stdClass Object
(
[id] => 78
[attribute_id] => 2
[name] => Монолитная ж/б плита
[material_modifier] => 1
[work_modifier] => 1
[options] => Array
(
[0] => без утепления
[1] => утепление 150 мм
[2] => утепление 200 мм
[3] => утепление 250 мм
[4] => утепление 300 мм
[5] => утепление 350 мм
[6] => утепление 400 мм
[7] => утепление 450 мм
[8] => утепление 500 мм
)
[days] => [18,20,20,20,20,20,20,20,20]
[material_price] => [4837,6572,7224,7375,79426,8177,8728,9180,10031]
[work_price] => [3348,3921,4112,4302,4493,4684,4875,5066,5256]
[image] => https://akademik-stroy.ru/wp-content/uploads/materials/monolitnaya-zh-b-plita-2.jpg
[area_modifier] => 232.35
[parent_name] => Перекрытие цоколя
[parent_id] => 2
[material_sum] => 1348652
[work_sum] => 777908
[total_sum] => 2126560
[total_days] => 18
[display_material_sum] => 1 348 652
[display_work_sum] => 777 908
[display_total_sum] => 2 126 560
)
1
2 126 560₽
Работа:777 908 ₽
Материалы:1 348 652 ₽
Дни:18
stdClass Object
(
[id] => 6
[attribute_id] => 3
[name] => Пеноблок
[material_modifier] => 1
[work_modifier] => 1
[options] => Array
(
[0] => 300 мм
[1] => 400 мм
[2] => 500 мм
[3] => 600 мм
)
[days] => [29,31,34,39]
[material_price] => [3000,4000,4500,4937]
[work_price] => [5033,5805,6400,8710]
[image] => https://akademik-stroy.ru/wp-content/uploads/materials/penoblok.jpg
[area_modifier] => 232.35
[parent_name] => Стены 1 этаж (несущие)
[parent_id] => 3
[material_sum] => 836460
[work_sum] => 1169418
[total_sum] => 2005878
[total_days] => 29
[display_material_sum] => 836 460
[display_work_sum] => 1 169 418
[display_total_sum] => 2 005 878
)
1
2 005 878₽
Работа:1 169 418 ₽
Материалы:836 460 ₽
Дни:29
stdClass Object
(
[id] => 79
[attribute_id] => 3
[name] => Керамический блок
[material_modifier] => 1
[work_modifier] => 1
[options] => Array
(
[0] => 380 мм
[1] => 380 мм Thermo
[2] => 440 мм
[3] => 510 мм
)
[days] => [23,23,24,25]
[material_price] => [4510,5098,6093,8013]
[work_price] => [4737,4937,5903,6958]
[image] => https://akademik-stroy.ru/wp-content/uploads/materials/keramicheskij-blok.jpg
[area_modifier] => 232.35
[parent_name] => Стены 1 этаж (несущие)
[parent_id] => 3
[material_sum] => 1257478
[work_sum] => 1100642
[total_sum] => 2358120
[total_days] => 23
[display_material_sum] => 1 257 478
[display_work_sum] => 1 100 642
[display_total_sum] => 2 358 120
)
1
2 358 120₽
Работа:1 100 642 ₽
Материалы:1 257 478 ₽
Дни:23
stdClass Object
(
[id] => 80
[attribute_id] => 3
[name] => Кирпич
[material_modifier] => 1
[work_modifier] => 1
[options] => Array
(
[0] => Кирпич 250 мм
[1] => Кирпич 380 мм
[2] => Кирпич 510 мм
[3] => Кирпич 640 мм
[4] => Кирпич 770 мм
)
[days] => [30,30,31,33,36]
[material_price] => [5500,7142,9206,10171,12235]
[work_price] => [8736,10041,12018,15240,18462]
[image] => https://akademik-stroy.ru/wp-content/uploads/materials/kirpich.jpg
[area_modifier] => 232.35
[parent_name] => Стены 1 этаж (несущие)
[parent_id] => 3
[material_sum] => 1533510
[work_sum] => 2029810
[total_sum] => 3563320
[total_days] => 30
[display_material_sum] => 1 533 510
[display_work_sum] => 2 029 810
[display_total_sum] => 3 563 320
)
1
3 563 320₽
Работа:2 029 810 ₽
Материалы:1 533 510 ₽
Дни:30
stdClass Object
(
[id] => 81
[attribute_id] => 3
[name] => Монолитные
[material_modifier] => 1
[work_modifier] => 1
[options] => Array
(
[0] => 150 мм
[1] => 200 мм
[2] => 250 мм
[3] => 300 мм
[4] => 350 мм
[5] => 400 мм
)
[days] => [45,46,47,49,50,53]
[material_price] => [6545,7876,10175,12011,13908,15204]
[work_price] => [5106,6444,7698,8552,9807,11461]
[image] => https://akademik-stroy.ru/wp-content/uploads/materials/monolitnye.jpg
[area_modifier] => 232.35
[parent_name] => Стены 1 этаж (несущие)
[parent_id] => 3
[material_sum] => 1824877
[work_sum] => 1186379
[total_sum] => 3011256
[total_days] => 45
[display_material_sum] => 1 824 877
[display_work_sum] => 1 186 379
[display_total_sum] => 3 011 256
)
1
3 011 256₽
Работа:1 186 379 ₽
Материалы:1 824 877 ₽
Дни:45
stdClass Object
(
[id] => 82
[attribute_id] => 3
[name] => Клееный брус
[material_modifier] => 1
[work_modifier] => 1
[options] => Array
(
[0] => 160 мм
[1] => 175 мм
[2] => 200 мм
[3] => 215 мм
[4] => 240 мм
[5] => 270 мм
[6] => 282 мм
)
[days] => [24,28,32,37,40,42,48]
[material_price] => [16975,18773,19950,20545,21599,22159,23275]
[work_price] => [4806,5287,5815,6397,7036,7740,8514]
[image] => https://akademik-stroy.ru/wp-content/uploads/materials/kleenyj-brus.jpg
[area_modifier] => 232.35
[parent_name] => Стены 1 этаж (несущие)
[parent_id] => 3
[material_sum] => 4732970
[work_sum] => 1116674
[total_sum] => 5849644
[total_days] => 24
[display_material_sum] => 4 732 970
[display_work_sum] => 1 116 674
[display_total_sum] => 5 849 644
)
1
5 849 644₽
Работа:1 116 674 ₽
Материалы:4 732 970 ₽
Дни:24
stdClass Object
(
[id] => 83
[attribute_id] => 3
[name] => Каркасные
[material_modifier] => 1
[work_modifier] => 1
[options] => Array
(
[0] => 150 мм
[1] => 200 мм
[2] => 250 мм
[3] => 300 мм
)
[days] => [15,16,17,18]
[material_price] => [2379,2639,2898,3258]
[work_price] => [2418,2686,2985,3716]
[image] => https://akademik-stroy.ru/wp-content/uploads/materials/karkasnye.jpg
[area_modifier] => 232.35
[parent_name] => Стены 1 этаж (несущие)
[parent_id] => 3
[material_sum] => 663313
[work_sum] => 561822
[total_sum] => 1225135
[total_days] => 15
[display_material_sum] => 663 313
[display_work_sum] => 561 822
[display_total_sum] => 1 225 135
)
1
1 225 135₽
Работа:561 822 ₽
Материалы:663 313 ₽
Дни:15
stdClass Object
(
[id] => 84
[attribute_id] => 3
[name] => СИП-панели
[material_modifier] => 1
[work_modifier] => 1
[options] => Array
(
[0] => 120 мм
[1] => 170 мм
[2] => 220 мм
)
[days] => [7,7,7]
[material_price] => [1210,1856,2292]
[work_price] => [1410,1551,1706]
[image] => https://akademik-stroy.ru/wp-content/uploads/materials/sip-paneli.jpg
[area_modifier] => 232.35
[parent_name] => Стены 1 этаж (несущие)
[parent_id] => 3
[material_sum] => 337372
[work_sum] => 327614
[total_sum] => 664986
[total_days] => 7
[display_material_sum] => 337 372
[display_work_sum] => 327 614
[display_total_sum] => 664 986
)
1
664 986₽
Работа:327 614 ₽
Материалы:337 372 ₽
Дни:7
stdClass Object
(
[id] => 85
[attribute_id] => 3
[name] => Сухой брус
[material_modifier] => 1
[work_modifier] => 1
[options] => Array
(
[0] => 150 мм
[1] => 180 мм
[2] => 200 мм
)
[days] => [7,8,9]
[material_price] => [6010,7190,8709]
[work_price] => [3204,3845,4229]
[image] => https://akademik-stroy.ru/wp-content/uploads/materials/suhoj-brus.jpg
[area_modifier] => 232.35
[parent_name] => Стены 1 этаж (несущие)
[parent_id] => 3
[material_sum] => 1675708
[work_sum] => 744449
[total_sum] => 2420157
[total_days] => 7
[display_material_sum] => 1 675 708
[display_work_sum] => 744 449
[display_total_sum] => 2 420 157
)
1
2 420 157₽
Работа:744 449 ₽
Материалы:1 675 708 ₽
Дни:7
stdClass Object
(
[id] => 86
[attribute_id] => 3
[name] => Профилированный брус
[material_modifier] => 1
[work_modifier] => 1
[options] => Array
(
[0] => 150 мм
[1] => 180 мм
[2] => 200 мм
)
[days] => [7,8,9]
[material_price] => [8190,9228,10051]
[work_price] => [3845,4614,5075]
[image] => https://akademik-stroy.ru/wp-content/uploads/materials/profilirovannyj-brus.jpg
[area_modifier] => 232.35
[parent_name] => Стены 1 этаж (несущие)
[parent_id] => 3
[material_sum] => 2283536
[work_sum] => 893386
[total_sum] => 3176922
[total_days] => 7
[display_material_sum] => 2 283 536
[display_work_sum] => 893 386
[display_total_sum] => 3 176 922
)
1
3 176 922₽
Работа:893 386 ₽
Материалы:2 283 536 ₽
Дни:7
stdClass Object
(
[id] => 87
[attribute_id] => 3
[name] => Оцилиндрованное бревно
[material_modifier] => 1
[work_modifier] => 1
[options] => Array
(
[0] => 180 мм
[1] => 220 мм
[2] => 260 мм
[3] => 320 мм
)
[days] => [7,8,9,10]
[material_price] => [75190,9532,10868,13116]
[work_price] => [3845,4691,5535,6863]
[image] => https://akademik-stroy.ru/wp-content/uploads/materials/ocilindrovannoe-brevno-1.jpg
[area_modifier] => 232.35
[parent_name] => Стены 1 этаж (несущие)
[parent_id] => 3
[material_sum] => 20964476
[work_sum] => 893386
[total_sum] => 21857862
[total_days] => 7
[display_material_sum] => 20 964 476
[display_work_sum] => 893 386
[display_total_sum] => 21 857 862
)
1
21 857 862₽
Работа:893 386 ₽
Материалы:20 964 476 ₽
Дни:7
stdClass Object
(
[id] => 88
[attribute_id] => 3
[name] => Срубы
[material_modifier] => 1
[work_modifier] => 1
[options] => Array
(
[0] => 260 мм
[1] => 320 мм
[2] => 360 мм
[3] => 400 мм
[4] => 500 мм
)
[days] => [7,8,9,10,11]
[material_price] => [37975,46709,52314,58069,73167]
[work_price] => [4806,5911,6621,7349,9260]
[image] => https://akademik-stroy.ru/wp-content/uploads/materials/sruby.jpg
[area_modifier] => 232.35
[parent_name] => Стены 1 этаж (несущие)
[parent_id] => 3
[material_sum] => 10588190
[work_sum] => 1116674
[total_sum] => 11704864
[total_days] => 7
[display_material_sum] => 10 588 190
[display_work_sum] => 1 116 674
[display_total_sum] => 11 704 864
)
1
11 704 864₽
Работа:1 116 674 ₽
Материалы:10 588 190 ₽
Дни:7
stdClass Object
(
[id] => 174
[attribute_id] => 3
[name] => Брус
[material_modifier] => 1
[work_modifier] => 1
[options] => Array
(
[0] => 150 мм
[1] => 180 мм
[2] => 200 мм
)
[days] => [7,8,9]
[material_price] => [5127,6152,7367]
[work_price] => [1602,1922,2115]
[image] => https://akademik-stroy.ru/wp-content/uploads/materials/brus.jpg
[area_modifier] => 232.35
[parent_name] => Стены 1 этаж (несущие)
[parent_id] => 3
[material_sum] => 1429510
[work_sum] => 372225
[total_sum] => 1801735
[total_days] => 7
[display_material_sum] => 1 429 510
[display_work_sum] => 372 225
[display_total_sum] => 1 801 735
)
1
1 801 735₽
Работа:372 225 ₽
Материалы:1 429 510 ₽
Дни:7
stdClass Object
(
[id] => 175
[attribute_id] => 3
[name] => Газобетон
[material_modifier] => 1
[work_modifier] => 1
[options] => Array
(
[0] => 300 мм
[1] => 375 мм
[2] => 400 мм
[3] => 500 мм
[4] => 600 мм
)
[days] => [29,31,35,37,44]
[material_price] => [4298,5573,6356,7288,9119]
[work_price] => [4538,5251,5926,6733,7195]
[image] => https://akademik-stroy.ru/wp-content/uploads/materials/gazobeton.jpg
[area_modifier] => 232.35
[parent_name] => Стены 1 этаж (несущие)
[parent_id] => 3
[material_sum] => 1198368
[work_sum] => 1054404
[total_sum] => 2252772
[total_days] => 29
[display_material_sum] => 1 198 368
[display_work_sum] => 1 054 404
[display_total_sum] => 2 252 772
)
1
2 252 772₽
Работа:1 054 404 ₽
Материалы:1 198 368 ₽
Дни:29
stdClass Object
(
[id] => 176
[attribute_id] => 3
[name] => Блок
[material_modifier] => 1
[work_modifier] => 1
[options] => Array
(
[0] => 300 мм
[1] => 375 мм
[2] => 400 мм
[3] => 500 мм
[4] => 600 мм
)
[days] => [29,31,35,37,44]
[material_price] => [2698,3973,4356,6588,7119]
[work_price] => [5038,5851,6426,8733,9195]
[image] => https://akademik-stroy.ru/wp-content/uploads/materials/blok.jpg
[area_modifier] => 232.35
[parent_name] => Стены 1 этаж (несущие)
[parent_id] => 3
[material_sum] => 752256
[work_sum] => 1170579
[total_sum] => 1922835
[total_days] => 29
[display_material_sum] => 752 256
[display_work_sum] => 1 170 579
[display_total_sum] => 1 922 835
)
1
1 922 835₽
Работа:1 170 579 ₽
Материалы:752 256 ₽
Дни:29
stdClass Object
(
[id] => 177
[attribute_id] => 3
[name] => Газосиликатный блок
[material_modifier] => 1
[work_modifier] => 1
[options] => Array
(
[0] => 300 мм
[1] => 375 мм
[2] => 400 мм
[3] => 500 мм
[4] => 600 мм
)
[days] => [29,31,35,37,44]
[material_price] => [4298,5573,6356,7288,9119]
[work_price] => [4538,5251,5926,6733,7195]
[image] => https://akademik-stroy.ru/wp-content/uploads/materials/gazosilikatnyj-blok.jpg
[area_modifier] => 232.35
[parent_name] => Стены 1 этаж (несущие)
[parent_id] => 3
[material_sum] => 1198368
[work_sum] => 1054404
[total_sum] => 2252772
[total_days] => 29
[display_material_sum] => 1 198 368
[display_work_sum] => 1 054 404
[display_total_sum] => 2 252 772
)
1
2 252 772₽
Работа:1 054 404 ₽
Материалы:1 198 368 ₽
Дни:29
stdClass Object
(
[id] => 178
[attribute_id] => 3
[name] => Керамзитобетонный блок
[material_modifier] => 1
[work_modifier] => 1
[options] => Array
(
[0] => 300 мм
[1] => 375 мм
[2] => 400 мм
[3] => 500 мм
[4] => 600 мм
)
[days] => [23,23,24,25,28]
[material_price] => [3641,4298,5693,7613,9612]
[work_price] => [5737,5737,6903,7958,8901]
[image] => https://akademik-stroy.ru/wp-content/uploads/materials/keramzitobetonnyj-blok.jpg
[area_modifier] => 232.35
[parent_name] => Стены 1 этаж (несущие)
[parent_id] => 3
[material_sum] => 1015184
[work_sum] => 1332992
[total_sum] => 2348176
[total_days] => 23
[display_material_sum] => 1 015 184
[display_work_sum] => 1 332 992
[display_total_sum] => 2 348 176
)
1
2 348 176₽
Работа:1 332 992 ₽
Материалы:1 015 184 ₽
Дни:23
stdClass Object
(
[id] => 179
[attribute_id] => 3
[name] => Деревянные
[material_modifier] => 1
[work_modifier] => 1
[options] => Array
(
[0] => 180 мм
[1] => 220 мм
[2] => 260 мм
[3] => 320 мм
)
[days] => [7,8,9,10]
[material_price] => [7950,9458,11961,14472]
[work_price] => [4037,4925,5812,7207]
[image] => https://akademik-stroy.ru/wp-content/uploads/materials/derevyannye.jpg
[area_modifier] => 232.35
[parent_name] => Стены 1 этаж (несущие)
[parent_id] => 3
[material_sum] => 2216619
[work_sum] => 937997
[total_sum] => 3154616
[total_days] => 7
[display_material_sum] => 2 216 619
[display_work_sum] => 937 997
[display_total_sum] => 3 154 616
)
1
3 154 616₽
Работа:937 997 ₽
Материалы:2 216 619 ₽
Дни:7
stdClass Object
(
[id] => 181
[attribute_id] => 3
[name] => Камень
[material_modifier] => 1
[work_modifier] => 1
[options] => Array
(
[0] => 300 мм
[1] => 400 мм
[2] => 500 мм
[3] => 600 мм
)
[days] => [25,27,31,34]
[material_price] => [5262,6844,8330,9815]
[work_price] => [8331,9135,10427,11069]
[image] => https://akademik-stroy.ru/wp-content/uploads/materials/kamen.jpg
[area_modifier] => 232.35
[parent_name] => Стены 1 этаж (несущие)
[parent_id] => 3
[material_sum] => 1467151
[work_sum] => 1935708
[total_sum] => 3402859
[total_days] => 25
[display_material_sum] => 1 467 151
[display_work_sum] => 1 935 708
[display_total_sum] => 3 402 859
)
1
3 402 859₽
Работа:1 935 708 ₽
Материалы:1 467 151 ₽
Дни:25
stdClass Object
(
[id] => 182
[attribute_id] => 3
[name] => Каркасно-щитовые
[material_modifier] => 1
[work_modifier] => 1
[options] => Array
(
[0] => 150 мм
[1] => 200 мм
[2] => 250 мм
[3] => 300 мм
[4] => 350 мм
[5] => 400 мм
)
[days] => [15,16,17,18,19,20]
[material_price] => [2379,2639,2898,3458,3601,4175]
[work_price] => [2538,2820,3134,3483,4062,5642]
[image] => https://akademik-stroy.ru/wp-content/uploads/materials/karkasno-shchitovye.jpg
[area_modifier] => 232.35
[parent_name] => Стены 1 этаж (несущие)
[parent_id] => 3
[material_sum] => 663313
[work_sum] => 589704
[total_sum] => 1253017
[total_days] => 15
[display_material_sum] => 663 313
[display_work_sum] => 589 704
[display_total_sum] => 1 253 017
)
1
1 253 017₽
Работа:589 704 ₽
Материалы:663 313 ₽
Дни:15
stdClass Object
(
[id] => 183
[attribute_id] => 3
[name] => Рубленные
[material_modifier] => 1
[work_modifier] => 1
[options] => Array
(
[0] => 150 мм
[1] => 200 мм
[2] => 250 мм
[3] => 300 мм
[4] => 350 мм
[5] => 400 мм
)
[days] => [15,16,17,18,17,18]
[material_price] => [35950,50267,60583,75900,80217,100533]
[work_price] => [9612,12816,16020,19224,22428,25632]
[image] => https://akademik-stroy.ru/wp-content/uploads/materials/rublennye.jpg
[area_modifier] => 232.35
[parent_name] => Стены 1 этаж (несущие)
[parent_id] => 3
[material_sum] => 10023579
[work_sum] => 2233348
[total_sum] => 12256927
[total_days] => 15
[display_material_sum] => 10 023 579
[display_work_sum] => 2 233 348
[display_total_sum] => 12 256 927
)
1
12 256 927₽
Работа:2 233 348 ₽
Материалы:10 023 579 ₽
Дни:15
stdClass Object
(
[id] => 185
[attribute_id] => 3
[name] => Теплоблок
[material_modifier] => 1
[work_modifier] => 1
[options] => Array
(
[0] => 300 мм (с облицовкой, не покрашенный)
[1] => 400 мм (с облицовкой, не покрашенный)
[2] => 300 мм (с облицовкой, покрашенный)
[3] => 400 мм (с облицовкой, покрашенный)
)
[days] => [15,16,15,16]
[material_price] => [2888,3729,3957,4258]
[work_price] => [2564,3229,2949,3713]
[image] => https://akademik-stroy.ru/wp-content/uploads/materials/teploblok.jpg
[area_modifier] => 232.35
[parent_name] => Стены 1 этаж (несущие)
[parent_id] => 3
[material_sum] => 805232
[work_sum] => 595745
[total_sum] => 1400977
[total_days] => 15
[display_material_sum] => 805 232
[display_work_sum] => 595 745
[display_total_sum] => 1 400 977
)
1
1 400 977₽
Работа:595 745 ₽
Материалы:805 232 ₽
Дни:15
stdClass Object
(
[id] => 186
[attribute_id] => 3
[name] => Арболитовые блоки
[material_modifier] => 1
[work_modifier] => 1
[options] => Array
(
[0] => 300 мм
[1] => 400 мм
[2] => 600 мм
)
[days] => [19,22,27]
[material_price] => [3210,4475,5852]
[work_price] => [4214,4788,5866]
[image] => https://akademik-stroy.ru/wp-content/uploads/materials/arbolitovye-bloki.png
[area_modifier] => 232.35
[parent_name] => Стены 1 этаж (несущие)
[parent_id] => 3
[material_sum] => 895012
[work_sum] => 979123
[total_sum] => 1874135
[total_days] => 19
[display_material_sum] => 895 012
[display_work_sum] => 979 123
[display_total_sum] => 1 874 135
)
1
1 874 135₽
Работа:979 123 ₽
Материалы:895 012 ₽
Дни:19
stdClass Object
(
[id] => 187
[attribute_id] => 3
[name] => Полистиролбетон
[material_modifier] => 1
[work_modifier] => 1
[options] => Array
(
[0] => 300 мм
[1] => 400 мм
[2] => 600 мм
)
[days] => [29,31,35]
[material_price] => [2798,4573,5256]
[work_price] => [5038,5851,6426]
[image] => https://akademik-stroy.ru/wp-content/uploads/materials/polistirolbeton.jpg
[area_modifier] => 232.35
[parent_name] => Стены 1 этаж (несущие)
[parent_id] => 3
[material_sum] => 780138
[work_sum] => 1170579
[total_sum] => 1950717
[total_days] => 29
[display_material_sum] => 780 138
[display_work_sum] => 1 170 579
[display_total_sum] => 1 950 717
)
1
1 950 717₽
Работа:1 170 579 ₽
Материалы:780 138 ₽
Дни:29
stdClass Object
(
[id] => 188
[attribute_id] => 3
[name] => Шлакоблок
[material_modifier] => 1
[work_modifier] => 1
[options] => Array
(
[0] => 400 мм
[1] => 600 мм
)
[days] => [15,16]
[material_price] => [2391,3471]
[work_price] => [2642,3662]
[image] => https://akademik-stroy.ru/wp-content/uploads/materials/shlakoblok.jpg
[area_modifier] => 232.35
[parent_name] => Стены 1 этаж (несущие)
[parent_id] => 3
[material_sum] => 666659
[work_sum] => 613869
[total_sum] => 1280528
[total_days] => 15
[display_material_sum] => 666 659
[display_work_sum] => 613 869
[display_total_sum] => 1 280 528
)
1
1 280 528₽
Работа:613 869 ₽
Материалы:666 659 ₽
Дни:15
stdClass Object
(
[id] => 189
[attribute_id] => 3
[name] => Теплая керамика
[material_modifier] => 1
[work_modifier] => 1
[options] => Array
(
[0] => 380 мм
[1] => 380 мм Thermo
[2] => 440 мм
[3] => 510 мм
)
[days] => [23,23,24,25]
[material_price] => [4510,5098,6093,8013]
[work_price] => [4737,4937,5903,6958]
[image] => https://akademik-stroy.ru/wp-content/uploads/materials/teplaya-keramika.jpg
[area_modifier] => 232.35
[parent_name] => Стены 1 этаж (несущие)
[parent_id] => 3
[material_sum] => 1257478
[work_sum] => 1100642
[total_sum] => 2358120
[total_days] => 23
[display_material_sum] => 1 257 478
[display_work_sum] => 1 100 642
[display_total_sum] => 2 358 120
)
1
2 358 120₽
Работа:1 100 642 ₽
Материалы:1 257 478 ₽
Дни:23
stdClass Object
(
[id] => 190
[attribute_id] => 3
[name] => Несъемная опалубка
[material_modifier] => 1
[work_modifier] => 1
[options] => Array
(
[0] => 200 мм
[1] => 250 мм
[2] => 300 мм
[3] => 350 мм
)
[days] => [15,17,19,21]
[material_price] => [3302,3902,4108,5008]
[work_price] => [2100,2100,2300,2534]
[image] => https://akademik-stroy.ru/wp-content/uploads/materials/nesemnaya-opalubka.jpg
[area_modifier] => 232.35
[parent_name] => Стены 1 этаж (несущие)
[parent_id] => 3
[material_sum] => 920664
[work_sum] => 487935
[total_sum] => 1408599
[total_days] => 15
[display_material_sum] => 920 664
[display_work_sum] => 487 935
[display_total_sum] => 1 408 599
)
1
1 408 599₽
Работа:487 935 ₽
Материалы:920 664 ₽
Дни:15
stdClass Object
(
[id] => 251
[attribute_id] => 3
[name] => Бревно
[material_modifier] => 1
[work_modifier] => 1
[options] => Array
(
[0] => 260 мм
[1] => 320 мм
[2] => 360 мм
[3] => 400 мм
[4] => 500 мм
)
[days] => [7,8,9,10,11]
[material_price] => [1874,24045,26930,30972,38825]
[work_price] => [5046,6207,6952,7716,9723]
[image] => https://akademik-stroy.ru/wp-content/uploads/materials/sruby.jpg
[area_modifier] => 232.35
[parent_name] => Стены 1 этаж (несущие)
[parent_id] => 3
[material_sum] => 522509
[work_sum] => 1172438
[total_sum] => 1694947
[total_days] => 7
[display_material_sum] => 522 509
[display_work_sum] => 1 172 438
[display_total_sum] => 1 694 947
)
1
1 694 947₽
Работа:1 172 438 ₽
Материалы:522 509 ₽
Дни:7
stdClass Object
(
[id] => 7
[attribute_id] => 4
[name] => Деревянные балки
[material_modifier] => 1
[work_modifier] => 1
[options] => Array
(
[0] => без утепления
[1] => утепление 200 мм
[2] => утепление 250 мм
[3] => утепление 300 мм
[4] => утепление 350 мм
[5] => утепление 400 мм
[6] => утепление 450 мм
[7] => утепление 500 мм
)
[days] => [8,9,9,9,11,12,13,14]
[material_price] => [1634,2042,2344,2947,3149,3652,3354,3557]
[work_price] => [1230,1339,1393,1426,1460,1513,1587,1620]
[image] => https://akademik-stroy.ru/wp-content/uploads/materials/derevyannye-balki.png
[area_modifier] => 232.35
[parent_name] => Перекрытие первого этажа
[parent_id] => 4
[material_sum] => 455592
[work_sum] => 285791
[total_sum] => 741383
[total_days] => 8
[display_material_sum] => 455 592
[display_work_sum] => 285 791
[display_total_sum] => 741 383
)
1
741 383₽
Работа:285 791 ₽
Материалы:455 592 ₽
Дни:8
stdClass Object
(
[id] => 8
[attribute_id] => 4
[name] => Сборные ж/б плиты
[material_modifier] => 1
[work_modifier] => 1
[options] => Array
(
[0] => без утепления
[1] => утепление 150 мм
[2] => утепление 200 мм
[3] => утепление 250 мм
[4] => утепление 300 мм
[5] => утепление 350 мм
[6] => утепление 400 мм
[7] => утепление 450 мм
[8] => утепление 500 мм
)
[days] => [13,15,15,15,15,15,15,15,15]
[material_price] => [3067,5577,5928,6679,7730,8782,9833,10884,11935]
[work_price] => [1520,1956,2102,2247,2392,2537,2684,2829,2974]
[image] => https://akademik-stroy.ru/wp-content/uploads/materials/sbornye-zh-b-plity-2.jpg
[area_modifier] => 232.35
[parent_name] => Перекрытие первого этажа
[parent_id] => 4
[material_sum] => 855141
[work_sum] => 353172
[total_sum] => 1208313
[total_days] => 13
[display_material_sum] => 855 141
[display_work_sum] => 353 172
[display_total_sum] => 1 208 313
)
1
1 208 313₽
Работа:353 172 ₽
Материалы:855 141 ₽
Дни:13
stdClass Object
(
[id] => 89
[attribute_id] => 4
[name] => Монолитная ж/б плита
[material_modifier] => 1
[work_modifier] => 1
[options] => Array
(
[0] => без утепления
[1] => утепление 150 мм
[2] => утепление 200 мм
[3] => утепление 250 мм
[4] => утепление 300 мм
[5] => утепление 350 мм
[6] => утепление 400 мм
[7] => утепление 450 мм
[8] => утепление 500 мм
)
[days] => [18,20,20,20,20,20,20,20,20]
[material_price] => [4837,6572,7224,7375,79426,8177,8728,9180,10031]
[work_price] => [3348,3921,4112,4302,4493,4684,4875,5066,5256]
[image] => https://akademik-stroy.ru/wp-content/uploads/materials/monolitnaya-zh-b-plita-2.jpg
[area_modifier] => 232.35
[parent_name] => Перекрытие первого этажа
[parent_id] => 4
[material_sum] => 1348652
[work_sum] => 777908
[total_sum] => 2126560
[total_days] => 18
[display_material_sum] => 1 348 652
[display_work_sum] => 777 908
[display_total_sum] => 2 126 560
)
1
2 126 560₽
Работа:777 908 ₽
Материалы:1 348 652 ₽
Дни:18
stdClass Object
(
[id] => 10
[attribute_id] => 5
[name] => Пеноблок
[material_modifier] => 1
[work_modifier] => 1
[options] => Array
(
[0] => 300 мм
[1] => 400 мм
[2] => 500 мм
[3] => 600 мм
)
[days] => [29,31,34,39]
[material_price] => [3000,4000,4500,4937]
[work_price] => [5033,5805,6400,8710]
[image] => https://akademik-stroy.ru/wp-content/uploads/materials/penoblok.jpg
[area_modifier] => 240
[parent_name] => Стены 2 этаж (несущие)
[parent_id] => 5
[material_sum] => 864000
[work_sum] => 1207920
[total_sum] => 2071920
[total_days] => 29
[display_material_sum] => 864 000
[display_work_sum] => 1 207 920
[display_total_sum] => 2 071 920
)
1
2 071 920₽
Работа:1 207 920 ₽
Материалы:864 000 ₽
Дни:29
stdClass Object
(
[id] => 90
[attribute_id] => 5
[name] => Керамический блок
[material_modifier] => 1
[work_modifier] => 1
[options] => Array
(
[0] => 380 мм
[1] => 380 мм Thermo
[2] => 440 мм
[3] => 510 мм
)
[days] => [23,23,24,25]
[material_price] => [4510,5098,6093,8013]
[work_price] => [4737,4937,5903,6958]
[image] => https://akademik-stroy.ru/wp-content/uploads/materials/keramicheskij-blok.jpg
[area_modifier] => 240
[parent_name] => Стены 2 этаж (несущие)
[parent_id] => 5
[material_sum] => 1298880
[work_sum] => 1136880
[total_sum] => 2435760
[total_days] => 23
[display_material_sum] => 1 298 880
[display_work_sum] => 1 136 880
[display_total_sum] => 2 435 760
)
1
2 435 760₽
Работа:1 136 880 ₽
Материалы:1 298 880 ₽
Дни:23
stdClass Object
(
[id] => 91
[attribute_id] => 5
[name] => Кирпич
[material_modifier] => 1
[work_modifier] => 1
[options] => Array
(
[0] => Кирпич 250 мм
[1] => Кирпич 380 мм
[2] => Кирпич 510 мм
[3] => Кирпич 640 мм
[4] => Кирпич 770 мм
)
[days] => [30,30,31,33,36]
[material_price] => [5500,7142,9206,10171,12235]
[work_price] => [8736,10041,12018,15240,18462]
[image] => https://akademik-stroy.ru/wp-content/uploads/materials/kirpich.jpg
[area_modifier] => 240
[parent_name] => Стены 2 этаж (несущие)
[parent_id] => 5
[material_sum] => 1584000
[work_sum] => 2096640
[total_sum] => 3680640
[total_days] => 30
[display_material_sum] => 1 584 000
[display_work_sum] => 2 096 640
[display_total_sum] => 3 680 640
)
1
3 680 640₽
Работа:2 096 640 ₽
Материалы:1 584 000 ₽
Дни:30
stdClass Object
(
[id] => 92
[attribute_id] => 5
[name] => Монолитные
[material_modifier] => 1
[work_modifier] => 1
[options] => Array
(
[0] => 150 мм
[1] => 200 мм
[2] => 250 мм
[3] => 300 мм
[4] => 350 мм
[5] => 400 мм
)
[days] => [45,46,47,49,50,53]
[material_price] => [6545,7876,10175,12011,13908,15204]
[work_price] => [5106,6444,7698,8552,9807,11461]
[image] => https://akademik-stroy.ru/wp-content/uploads/materials/monolitnye.jpg
[area_modifier] => 240
[parent_name] => Стены 2 этаж (несущие)
[parent_id] => 5
[material_sum] => 1884960
[work_sum] => 1225440
[total_sum] => 3110400
[total_days] => 45
[display_material_sum] => 1 884 960
[display_work_sum] => 1 225 440
[display_total_sum] => 3 110 400
)
1
3 110 400₽
Работа:1 225 440 ₽
Материалы:1 884 960 ₽
Дни:45
stdClass Object
(
[id] => 93
[attribute_id] => 5
[name] => Клееный брус
[material_modifier] => 1
[work_modifier] => 1
[options] => Array
(
[0] => 160 мм
[1] => 175 мм
[2] => 200 мм
[3] => 215 мм
[4] => 240 мм
[5] => 270 мм
[6] => 282 мм
)
[days] => [24,28,32,37,40,42,48]
[material_price] => [16975,18773,19950,20545,21599,22159,23275]
[work_price] => [4806,5287,5815,6397,7036,7740,8514]
[image] => https://akademik-stroy.ru/wp-content/uploads/materials/kleenyj-brus.jpg
[area_modifier] => 240
[parent_name] => Стены 2 этаж (несущие)
[parent_id] => 5
[material_sum] => 4888800
[work_sum] => 1153440
[total_sum] => 6042240
[total_days] => 24
[display_material_sum] => 4 888 800
[display_work_sum] => 1 153 440
[display_total_sum] => 6 042 240
)
1
6 042 240₽
Работа:1 153 440 ₽
Материалы:4 888 800 ₽
Дни:24
stdClass Object
(
[id] => 94
[attribute_id] => 5
[name] => Каркасные
[material_modifier] => 1
[work_modifier] => 1
[options] => Array
(
[0] => 150 мм
[1] => 200 мм
[2] => 250 мм
[3] => 300 мм
)
[days] => [15,16,17,18]
[material_price] => [2379,2639,2898,3258]
[work_price] => [2418,2686,2985,3716]
[image] => https://akademik-stroy.ru/wp-content/uploads/materials/karkasnye.jpg
[area_modifier] => 240
[parent_name] => Стены 2 этаж (несущие)
[parent_id] => 5
[material_sum] => 685152
[work_sum] => 580320
[total_sum] => 1265472
[total_days] => 15
[display_material_sum] => 685 152
[display_work_sum] => 580 320
[display_total_sum] => 1 265 472
)
1
1 265 472₽
Работа:580 320 ₽
Материалы:685 152 ₽
Дни:15
stdClass Object
(
[id] => 95
[attribute_id] => 5
[name] => СИП-панели
[material_modifier] => 1
[work_modifier] => 1
[options] => Array
(
[0] => 120 мм
[1] => 170 мм
[2] => 220 мм
)
[days] => [7,7,7]
[material_price] => [1210,1856,2292]
[work_price] => [1410,1551,1706]
[image] => https://akademik-stroy.ru/wp-content/uploads/materials/sip-paneli.jpg
[area_modifier] => 240
[parent_name] => Стены 2 этаж (несущие)
[parent_id] => 5
[material_sum] => 348480
[work_sum] => 338400
[total_sum] => 686880
[total_days] => 7
[display_material_sum] => 348 480
[display_work_sum] => 338 400
[display_total_sum] => 686 880
)
1
686 880₽
Работа:338 400 ₽
Материалы:348 480 ₽
Дни:7
stdClass Object
(
[id] => 96
[attribute_id] => 5
[name] => Сухой брус
[material_modifier] => 1
[work_modifier] => 1
[options] => Array
(
[0] => 150 мм
[1] => 180 мм
[2] => 200 мм
)
[days] => [7,8,9]
[material_price] => [6010,7190,8709]
[work_price] => [3204,3845,4229]
[image] => https://akademik-stroy.ru/wp-content/uploads/materials/suhoj-brus.jpg
[area_modifier] => 240
[parent_name] => Стены 2 этаж (несущие)
[parent_id] => 5
[material_sum] => 1730880
[work_sum] => 768960
[total_sum] => 2499840
[total_days] => 7
[display_material_sum] => 1 730 880
[display_work_sum] => 768 960
[display_total_sum] => 2 499 840
)
1
2 499 840₽
Работа:768 960 ₽
Материалы:1 730 880 ₽
Дни:7
stdClass Object
(
[id] => 97
[attribute_id] => 5
[name] => Профилированный брус
[material_modifier] => 1
[work_modifier] => 1
[options] => Array
(
[0] => 150 мм
[1] => 180 мм
[2] => 200 мм
)
[days] => [7,8,9]
[material_price] => [8190,9228,10051]
[work_price] => [3845,4614,5075]
[image] => https://akademik-stroy.ru/wp-content/uploads/materials/profilirovannyj-brus.jpg
[area_modifier] => 240
[parent_name] => Стены 2 этаж (несущие)
[parent_id] => 5
[material_sum] => 2358720
[work_sum] => 922800
[total_sum] => 3281520
[total_days] => 7
[display_material_sum] => 2 358 720
[display_work_sum] => 922 800
[display_total_sum] => 3 281 520
)
1
3 281 520₽
Работа:922 800 ₽
Материалы:2 358 720 ₽
Дни:7
stdClass Object
(
[id] => 98
[attribute_id] => 5
[name] => Оцилиндрованное бревно
[material_modifier] => 1
[work_modifier] => 1
[options] => Array
(
[0] => 180 мм
[1] => 220 мм
[2] => 260 мм
[3] => 320 мм
)
[days] => [7,8,9,10]
[material_price] => [75190,9532,10868,13116]
[work_price] => [3845,4691,5535,6863]
[image] => https://akademik-stroy.ru/wp-content/uploads/materials/ocilindrovannoe-brevno-1.jpg
[area_modifier] => 240
[parent_name] => Стены 2 этаж (несущие)
[parent_id] => 5
[material_sum] => 21654720
[work_sum] => 922800
[total_sum] => 22577520
[total_days] => 7
[display_material_sum] => 21 654 720
[display_work_sum] => 922 800
[display_total_sum] => 22 577 520
)
1
22 577 520₽
Работа:922 800 ₽
Материалы:21 654 720 ₽
Дни:7
stdClass Object
(
[id] => 99
[attribute_id] => 5
[name] => Срубы
[material_modifier] => 1
[work_modifier] => 1
[options] => Array
(
[0] => 260 мм
[1] => 320 мм
[2] => 360 мм
[3] => 400 мм
[4] => 500 мм
)
[days] => [7,8,9,10,11]
[material_price] => [16175,23709,26314,29069,32167]
[work_price] => [4806,5911,6621,7349,9260]
[image] => https://akademik-stroy.ru/wp-content/uploads/materials/suhoj-brus.jpg
[area_modifier] => 240
[parent_name] => Стены 2 этаж (несущие)
[parent_id] => 5
[material_sum] => 4658400
[work_sum] => 1153440
[total_sum] => 5811840
[total_days] => 7
[display_material_sum] => 4 658 400
[display_work_sum] => 1 153 440
[display_total_sum] => 5 811 840
)
1
5 811 840₽
Работа:1 153 440 ₽
Материалы:4 658 400 ₽
Дни:7
stdClass Object
(
[id] => 194
[attribute_id] => 5
[name] => Брус
[material_modifier] => 1
[work_modifier] => 1
[options] => Array
(
[0] => 150 мм
[1] => 180 мм
[2] => 200 мм
)
[days] => [10,13,15]
[material_price] => [5127,6152,7367]
[work_price] => [1602,1922,2115]
[image] => https://akademik-stroy.ru/wp-content/uploads/materials/brus.jpg
[area_modifier] => 240
[parent_name] => Стены 2 этаж (несущие)
[parent_id] => 5
[material_sum] => 1476576
[work_sum] => 384480
[total_sum] => 1861056
[total_days] => 10
[display_material_sum] => 1 476 576
[display_work_sum] => 384 480
[display_total_sum] => 1 861 056
)
1
1 861 056₽
Работа:384 480 ₽
Материалы:1 476 576 ₽
Дни:10
stdClass Object
(
[id] => 195
[attribute_id] => 5
[name] => Газобетон
[material_modifier] => 1
[work_modifier] => 1
[options] => Array
(
[0] => 300 мм
[1] => 375 мм
[2] => 400 мм
[3] => 500 мм
[4] => 600 мм
)
[days] => [29,31,35,37,44]
[material_price] => [4298,5573,6356,7288,9119]
[work_price] => [4538,5251,5926,6733,7195]
[image] => https://akademik-stroy.ru/wp-content/uploads/materials/gazobeton.jpg
[area_modifier] => 240
[parent_name] => Стены 2 этаж (несущие)
[parent_id] => 5
[material_sum] => 1237824
[work_sum] => 1089120
[total_sum] => 2326944
[total_days] => 29
[display_material_sum] => 1 237 824
[display_work_sum] => 1 089 120
[display_total_sum] => 2 326 944
)
1
2 326 944₽
Работа:1 089 120 ₽
Материалы:1 237 824 ₽
Дни:29
stdClass Object
(
[id] => 196
[attribute_id] => 5
[name] => Блок
[material_modifier] => 1
[work_modifier] => 1
[options] => Array
(
[0] => 300 мм
[1] => 375 мм
[2] => 400 мм
[3] => 500 мм
[4] => 600 мм
)
[days] => [29,31,35,37,44]
[material_price] => [2698,3973,4356,6588,7119]
[work_price] => [5038,5851,6426,8733,9195]
[image] => https://akademik-stroy.ru/wp-content/uploads/materials/blok.jpg
[area_modifier] => 240
[parent_name] => Стены 2 этаж (несущие)
[parent_id] => 5
[material_sum] => 777024
[work_sum] => 1209120
[total_sum] => 1986144
[total_days] => 29
[display_material_sum] => 777 024
[display_work_sum] => 1 209 120
[display_total_sum] => 1 986 144
)
1
1 986 144₽
Работа:1 209 120 ₽
Материалы:777 024 ₽
Дни:29
stdClass Object
(
[id] => 197
[attribute_id] => 5
[name] => Газосиликатный блок
[material_modifier] => 1
[work_modifier] => 1
[options] => Array
(
[0] => 300 мм
[1] => 375 мм
[2] => 400 мм
[3] => 500 мм
[4] => 600 мм
)
[days] => [29,31,35,37,44]
[material_price] => [4298,5573,6356,7288,9119]
[work_price] => [4538,5251,5926,6733,7195]
[image] => https://akademik-stroy.ru/wp-content/uploads/materials/gazosilikatnyj-blok.jpg
[area_modifier] => 240
[parent_name] => Стены 2 этаж (несущие)
[parent_id] => 5
[material_sum] => 1237824
[work_sum] => 1089120
[total_sum] => 2326944
[total_days] => 29
[display_material_sum] => 1 237 824
[display_work_sum] => 1 089 120
[display_total_sum] => 2 326 944
)
1
2 326 944₽
Работа:1 089 120 ₽
Материалы:1 237 824 ₽
Дни:29
stdClass Object
(
[id] => 198
[attribute_id] => 5
[name] => Керамзитобетонный блок
[material_modifier] => 1
[work_modifier] => 1
[options] => Array
(
[0] => 300 мм
[1] => 375 мм
[2] => 400 мм
[3] => 500 мм
[4] => 600 мм
)
[days] => [23,23,24,25,28]
[material_price] => [3641,4298,5693,7613,9612]
[work_price] => [5737,5737,6903,7958,8901]
[image] => https://akademik-stroy.ru/wp-content/uploads/materials/keramzitobetonnyj-blok.jpg
[area_modifier] => 240
[parent_name] => Стены 2 этаж (несущие)
[parent_id] => 5
[material_sum] => 1048608
[work_sum] => 1376880
[total_sum] => 2425488
[total_days] => 23
[display_material_sum] => 1 048 608
[display_work_sum] => 1 376 880
[display_total_sum] => 2 425 488
)
1
2 425 488₽
Работа:1 376 880 ₽
Материалы:1 048 608 ₽
Дни:23
stdClass Object
(
[id] => 199
[attribute_id] => 5
[name] => Деревянные
[material_modifier] => 1
[work_modifier] => 1
[options] => Array
(
[0] => 180 мм
[1] => 220 мм
[2] => 260 мм
[3] => 320 мм
)
[days] => [7,8,9,10]
[material_price] => [7950,9458,11961,14472]
[work_price] => [4037,4925,5812,7207]
[image] => https://akademik-stroy.ru/wp-content/uploads/materials/derevyannye.jpg
[area_modifier] => 240
[parent_name] => Стены 2 этаж (несущие)
[parent_id] => 5
[material_sum] => 2289600
[work_sum] => 968880
[total_sum] => 3258480
[total_days] => 7
[display_material_sum] => 2 289 600
[display_work_sum] => 968 880
[display_total_sum] => 3 258 480
)
1
3 258 480₽
Работа:968 880 ₽
Материалы:2 289 600 ₽
Дни:7
stdClass Object
(
[id] => 200
[attribute_id] => 5
[name] => Камень
[material_modifier] => 1
[work_modifier] => 1
[options] => Array
(
[0] => 300 мм
[1] => 400 мм
[2] => 500 мм
[3] => 600 мм
)
[days] => [25,27,31,34]
[material_price] => [5262,6844,8330,9815]
[work_price] => [8331,9135,10427,11069]
[image] => https://akademik-stroy.ru/wp-content/uploads/materials/kamen.jpg
[area_modifier] => 240
[parent_name] => Стены 2 этаж (несущие)
[parent_id] => 5
[material_sum] => 1515456
[work_sum] => 1999440
[total_sum] => 3514896
[total_days] => 25
[display_material_sum] => 1 515 456
[display_work_sum] => 1 999 440
[display_total_sum] => 3 514 896
)
1
3 514 896₽
Работа:1 999 440 ₽
Материалы:1 515 456 ₽
Дни:25
stdClass Object
(
[id] => 201
[attribute_id] => 5
[name] => Каркасно-щитовые
[material_modifier] => 1
[work_modifier] => 1
[options] => Array
(
[0] => 150 мм
[1] => 200 мм
[2] => 250 мм
[3] => 300 мм
[4] => 350 мм
[5] => 400 мм
)
[days] => [15,16,17,18,19,20]
[material_price] => [2379,2639,2898,3458,3601,4175]
[work_price] => [2538,2820,3134,3483,4062,5642]
[image] => https://akademik-stroy.ru/wp-content/uploads/materials/karkasno-shchitovye.jpg
[area_modifier] => 240
[parent_name] => Стены 2 этаж (несущие)
[parent_id] => 5
[material_sum] => 685152
[work_sum] => 609120
[total_sum] => 1294272
[total_days] => 15
[display_material_sum] => 685 152
[display_work_sum] => 609 120
[display_total_sum] => 1 294 272
)
1
1 294 272₽
Работа:609 120 ₽
Материалы:685 152 ₽
Дни:15
stdClass Object
(
[id] => 202
[attribute_id] => 5
[name] => Рубленные
[material_modifier] => 1
[work_modifier] => 1
[options] => Array
(
[0] => 150 мм
[1] => 200 мм
[2] => 250 мм
[3] => 300 мм
[4] => 350 мм
[5] => 400 мм
)
[days] => [15,16,17,18,17,18]
[material_price] => [35950,50267,60583,75900,80217,100533]
[work_price] => [9612,12816,16020,19224,22428,25632]
[image] => https://akademik-stroy.ru/wp-content/uploads/materials/rublennye.jpg
[area_modifier] => 240
[parent_name] => Стены 2 этаж (несущие)
[parent_id] => 5
[material_sum] => 10353600
[work_sum] => 2306880
[total_sum] => 12660480
[total_days] => 15
[display_material_sum] => 10 353 600
[display_work_sum] => 2 306 880
[display_total_sum] => 12 660 480
)
1
12 660 480₽
Работа:2 306 880 ₽
Материалы:10 353 600 ₽
Дни:15
stdClass Object
(
[id] => 203
[attribute_id] => 5
[name] => Теплоблок
[material_modifier] => 1
[work_modifier] => 1
[options] => Array
(
[0] => 300 мм (с облицовкой, не покрашенный)
[1] => 400 мм (с облицовкой, не покрашенный)
[2] => 300 мм (с облицовкой, покрашенный)
[3] => 400 мм (с облицовкой, покрашенный)
)
[days] => [15,16,15,16]
[material_price] => [2888,3729,3957,4258]
[work_price] => [2564,3229,2949,3713]
[image] => https://akademik-stroy.ru/wp-content/uploads/materials/teploblok.jpg
[area_modifier] => 240
[parent_name] => Стены 2 этаж (несущие)
[parent_id] => 5
[material_sum] => 831744
[work_sum] => 615360
[total_sum] => 1447104
[total_days] => 15
[display_material_sum] => 831 744
[display_work_sum] => 615 360
[display_total_sum] => 1 447 104
)
1
1 447 104₽
Работа:615 360 ₽
Материалы:831 744 ₽
Дни:15
stdClass Object
(
[id] => 204
[attribute_id] => 5
[name] => Арболитовые блоки
[material_modifier] => 1
[work_modifier] => 1
[options] => Array
(
[0] => 300 мм
[1] => 400 мм
[2] => 600 мм
)
[days] => [19,22,27]
[material_price] => [3210,4475,5852]
[work_price] => [4214,4788,5866]
[image] => https://akademik-stroy.ru/wp-content/uploads/materials/arbolitovye-bloki.png
[area_modifier] => 240
[parent_name] => Стены 2 этаж (несущие)
[parent_id] => 5
[material_sum] => 924480
[work_sum] => 1011360
[total_sum] => 1935840
[total_days] => 19
[display_material_sum] => 924 480
[display_work_sum] => 1 011 360
[display_total_sum] => 1 935 840
)
1
1 935 840₽
Работа:1 011 360 ₽
Материалы:924 480 ₽
Дни:19
stdClass Object
(
[id] => 205
[attribute_id] => 5
[name] => Полистиролбетон
[material_modifier] => 1
[work_modifier] => 1
[options] => Array
(
[0] => 300 мм
[1] => 400 мм
[2] => 600 мм
)
[days] => [29,31,35]
[material_price] => [2798,4573,5256]
[work_price] => [5038,5851,6426]
[image] => https://akademik-stroy.ru/wp-content/uploads/materials/polistirolbeton.jpg
[area_modifier] => 240
[parent_name] => Стены 2 этаж (несущие)
[parent_id] => 5
[material_sum] => 805824
[work_sum] => 1209120
[total_sum] => 2014944
[total_days] => 29
[display_material_sum] => 805 824
[display_work_sum] => 1 209 120
[display_total_sum] => 2 014 944
)
1
2 014 944₽
Работа:1 209 120 ₽
Материалы:805 824 ₽
Дни:29
stdClass Object
(
[id] => 206
[attribute_id] => 5
[name] => Шлакоблок
[material_modifier] => 1
[work_modifier] => 1
[options] => Array
(
[0] => 400 мм
[1] => 600 мм
)
[days] => [15,16]
[material_price] => [2391,3471]
[work_price] => [2642,3662]
[image] => https://akademik-stroy.ru/wp-content/uploads/materials/shlakoblok.jpg
[area_modifier] => 240
[parent_name] => Стены 2 этаж (несущие)
[parent_id] => 5
[material_sum] => 688608
[work_sum] => 634080
[total_sum] => 1322688
[total_days] => 15
[display_material_sum] => 688 608
[display_work_sum] => 634 080
[display_total_sum] => 1 322 688
)
1
1 322 688₽
Работа:634 080 ₽
Материалы:688 608 ₽
Дни:15
stdClass Object
(
[id] => 245
[attribute_id] => 5
[name] => Теплая керамика
[material_modifier] => 1
[work_modifier] => 1
[options] => Array
(
[0] => 380 мм
[1] => 380 мм Thermo
[2] => 440 мм
[3] => 510 мм
)
[days] => [10,10,11,12]
[material_price] => [4510,5098,6093,8013]
[work_price] => [4737,4937,5903,6958]
[image] => https://akademik-stroy.ru/wp-content/uploads/materials/teplaya-keramika.jpg
[area_modifier] => 240
[parent_name] => Стены 2 этаж (несущие)
[parent_id] => 5
[material_sum] => 1298880
[work_sum] => 1136880
[total_sum] => 2435760
[total_days] => 10
[display_material_sum] => 1 298 880
[display_work_sum] => 1 136 880
[display_total_sum] => 2 435 760
)
1
2 435 760₽
Работа:1 136 880 ₽
Материалы:1 298 880 ₽
Дни:10
stdClass Object
(
[id] => 246
[attribute_id] => 5
[name] => Несъемная опалубка
[material_modifier] => 1
[work_modifier] => 1
[options] => Array
(
[0] => 380 мм
[1] => 380 мм Thermo
[2] => 440 мм
[3] => 510 мм
)
[days] => [10,10,11,12]
[material_price] => [3302,3902,4108,5008]
[work_price] => [2100,2100,2300,2534]
[image] => https://akademik-stroy.ru/wp-content/uploads/materials/nesemnaya-opalubka.jpg
[area_modifier] => 240
[parent_name] => Стены 2 этаж (несущие)
[parent_id] => 5
[material_sum] => 950976
[work_sum] => 504000
[total_sum] => 1454976
[total_days] => 10
[display_material_sum] => 950 976
[display_work_sum] => 504 000
[display_total_sum] => 1 454 976
)
1
1 454 976₽
Работа:504 000 ₽
Материалы:950 976 ₽
Дни:10
stdClass Object
(
[id] => 254
[attribute_id] => 5
[name] => Бревно
[material_modifier] => 1
[work_modifier] => 1
[options] => Array
(
[0] => 260 мм
[1] => 320 мм
[2] => 360 мм
[3] => 400 мм
[4] => 500 мм
)
[days] => [7,8,9,10,11]
[material_price] => [1874,24045,26930,30972,38825]
[work_price] => [5046,6207,6952,7716,9723]
[image] => https://akademik-stroy.ru/wp-content/uploads/materials/sruby.jpg
[area_modifier] => 240
[parent_name] => Стены 2 этаж (несущие)
[parent_id] => 5
[material_sum] => 539712
[work_sum] => 1211040
[total_sum] => 1750752
[total_days] => 7
[display_material_sum] => 539 712
[display_work_sum] => 1 211 040
[display_total_sum] => 1 750 752
)
1
1 750 752₽
Работа:1 211 040 ₽
Материалы:539 712 ₽
Дни:7
stdClass Object
(
[id] => 11
[attribute_id] => 6
[name] => Деревянные балки
[material_modifier] => 1
[work_modifier] => 1
[options] => Array
(
[0] => без утепления
[1] => утепление 200 мм
[2] => утепление 250 мм
[3] => утепление 300 мм
[4] => утепление 350 мм
[5] => утепление 400 мм
[6] => утепление 450 мм
[7] => утепление 500 мм
)
[days] => [8,9,9,9,11,12,13,14]
[material_price] => [1634,2042,2344,2947,3149,3652,3354,3557]
[work_price] => [1230,1339,1393,1426,1460,1513,1587,1620]
[image] => https://akademik-stroy.ru/wp-content/uploads/materials/derevyannye-balki.png
[area_modifier] => 240
[parent_name] => Перекрытие второго этажа
[parent_id] => 6
[material_sum] => 470592
[work_sum] => 295200
[total_sum] => 765792
[total_days] => 8
[display_material_sum] => 470 592
[display_work_sum] => 295 200
[display_total_sum] => 765 792
)
1
765 792₽
Работа:295 200 ₽
Материалы:470 592 ₽
Дни:8
stdClass Object
(
[id] => 12
[attribute_id] => 6
[name] => Сборные ж/б плиты
[material_modifier] => 1
[work_modifier] => 1
[options] => Array
(
[0] => без утепления
[1] => утепление 150 мм
[2] => утепление 200 мм
[3] => утепление 250 мм
[4] => утепление 300 мм
[5] => утепление 350 мм
[6] => утепление 400 мм
[7] => утепление 450 мм
[8] => утепление 500 мм
)
[days] => [13,15,15,15,15,15,15,15,15]
[material_price] => [3067,5577,5928,6679,7730,8782,9833,10884,11935]
[work_price] => [1520,1956,2102,2247,2392,2537,2684,2829,2974]
[image] => https://akademik-stroy.ru/wp-content/uploads/materials/sbornye-zh-b-plity-2.jpg
[area_modifier] => 240
[parent_name] => Перекрытие второго этажа
[parent_id] => 6
[material_sum] => 883296
[work_sum] => 364800
[total_sum] => 1248096
[total_days] => 13
[display_material_sum] => 883 296
[display_work_sum] => 364 800
[display_total_sum] => 1 248 096
)
1
1 248 096₽
Работа:364 800 ₽
Материалы:883 296 ₽
Дни:13
stdClass Object
(
[id] => 100
[attribute_id] => 6
[name] => Монолитная ж/б плита
[material_modifier] => 1
[work_modifier] => 1
[options] => Array
(
[0] => без утепления
[1] => утепление 150 мм
[2] => утепление 200 мм
[3] => утепление 250 мм
[4] => утепление 300 мм
[5] => утепление 350 мм
[6] => утепление 400 мм
[7] => утепление 450 мм
[8] => утепление 500 мм
)
[days] => [18,20,20,20,20,20,20,20,20]
[material_price] => [4837,6572,7224,7375,79426,8177,8728,9180,10031]
[work_price] => [3348,3921,4112,4302,4493,4684,4875,5066,5256]
[image] => https://akademik-stroy.ru/wp-content/uploads/materials/monolitnaya-zh-b-plita-2.jpg
[area_modifier] => 240
[parent_name] => Перекрытие второго этажа
[parent_id] => 6
[material_sum] => 1393056
[work_sum] => 803520
[total_sum] => 2196576
[total_days] => 18
[display_material_sum] => 1 393 056
[display_work_sum] => 803 520
[display_total_sum] => 2 196 576
)
1
2 196 576₽
Работа:803 520 ₽
Материалы:1 393 056 ₽
Дни:18
stdClass Object
(
[id] => 160
[attribute_id] => 36
[name] => Не эксплуатируемая
[material_modifier] => 1
[work_modifier] => 1
[options] => Array
(
)
[days] => [10]
[material_price] => [8068]
[work_price] => [4163]
[image] => https://akademik-stroy.ru/wp-content/uploads/materials/ne-ehkspluatiruemaya-3.jpg
[area_modifier] => 232.35
[parent_name] => Плоская крыша
[parent_id] => 36
[material_sum] => 2249520
[work_sum] => 967273
[total_sum] => 3216793
[total_days] => 10
[display_material_sum] => 2 249 520
[display_work_sum] => 967 273
[display_total_sum] => 3 216 793
)
1
3 216 793₽
Работа:967 273 ₽
Материалы:2 249 520 ₽
Дни:10
stdClass Object
(
[id] => 161
[attribute_id] => 36
[name] => Зеленая кровля (Эксплуатируемая)
[material_modifier] => 1
[work_modifier] => 1
[options] => Array
(
)
[days] => [10]
[material_price] => [10056]
[work_price] => [8446]
[image] => https://akademik-stroy.ru/wp-content/uploads/materials/zelenaya-krovlya-2.jpg
[area_modifier] => 232.35
[parent_name] => Плоская крыша
[parent_id] => 36
[material_sum] => 2803814
[work_sum] => 1962428
[total_sum] => 4766242
[total_days] => 10
[display_material_sum] => 2 803 814
[display_work_sum] => 1 962 428
[display_total_sum] => 4 766 242
)
1
4 766 242₽
Работа:1 962 428 ₽
Материалы:2 803 814 ₽
Дни:10
stdClass Object
(
[id] => 162
[attribute_id] => 36
[name] => Эксплуатируемая
[material_modifier] => 1
[work_modifier] => 1
[options] => Array
(
)
[days] => [10]
[material_price] => [9593]
[work_price] => [7459]
[image] => https://akademik-stroy.ru/wp-content/uploads/materials/ehkspluatiruemaya-2.jpg
[area_modifier] => 232.35
[parent_name] => Плоская крыша
[parent_id] => 36
[material_sum] => 2674720
[work_sum] => 1733099
[total_sum] => 4407819
[total_days] => 10
[display_material_sum] => 2 674 720
[display_work_sum] => 1 733 099
[display_total_sum] => 4 407 819
)
1
4 407 819₽
Работа:1 733 099 ₽
Материалы:2 674 720 ₽
Дни:10
stdClass Object
(
[id] => 163
[attribute_id] => 36
[name] => Нет
[material_modifier] => 1
[work_modifier] => 1
[options] => Array
(
)
[days] => [0]
[material_price] => [0]
[work_price] => [0]
[image] => https://akademik-stroy.ru/wp-content/uploads/materials/ne-ehkspluatiruemaya-3.jpg
[area_modifier] => 232.35
[parent_name] => Плоская крыша
[parent_id] => 36
[material_sum] => 0
[work_sum] => 0
[total_sum] => 0
[total_days] => 0
[display_material_sum] => 0
[display_work_sum] => 0
[display_total_sum] => 0
)
1
0₽
Работа:0 ₽
Материалы:0 ₽
Дни:0
stdClass Object
(
[id] => 51
[attribute_id] => 26
[name] => Есть
[material_modifier] => 1
[work_modifier] => 1
[options] => Array
(
[0] => Профиль 58 мм, 3-камерный, стеклопакет 2-камерный до 32 мм
[1] => Профиль 60 мм, 4-камерный, стеклопакет 2-камерный до 32 мм
[2] => Профиль 70 мм, 5-камерный, стеклопакет 2-камерный до 40 мм
[3] => Профиль 72 мм, 5-камерный, стеклопакет 2-камерный до 40 мм
[4] => Алюминиевые окна Alutech профиль 72 мм, стеклопакет 2-камерный
)
[days] => [3,3,3,3,3]
[material_price] => [1339,2124,2867,3023,29596]
[work_price] => [635,647,659,668,2579]
[image] => https://akademik-stroy.ru/wp-content/uploads/materials/okna.jpg
[area_modifier] => 383.31
[parent_name] => Окна
[parent_id] => 26
[material_sum] => 615903
[work_sum] => 243402
[total_sum] => 859305
[total_days] => 3
[display_material_sum] => 615 903
[display_work_sum] => 243 402
[display_total_sum] => 859 305
)
1
859 305₽
Работа:243 402 ₽
Материалы:615 903 ₽
Дни:3
stdClass Object
(
[id] => 52
[attribute_id] => 26
[name] => Нет
[material_modifier] => 2
[work_modifier] => 1
[options] =>
[days] => null
[material_price] => null
[work_price] => null
[image] => https://akademik-stroy.ru/wp-content/uploads/materials/okna.jpg
[area_modifier] => 383.31
[parent_name] => Окна
[parent_id] => 26
[material_sum] => 0
[work_sum] => 0
[total_sum] => 0
[total_days] => 0
[display_material_sum] => 0
[display_work_sum] => 0
[display_total_sum] => 0
)
1
0₽
Работа:0 ₽
Материалы:0 ₽
Дни:0
stdClass Object
(
[id] => 53
[attribute_id] => 27
[name] => Есть
[material_modifier] => 1
[work_modifier] => 1
[options] => Array
(
)
[days] => [1]
[material_price] => [10000]
[work_price] => [5500]
[image] => https://akademik-stroy.ru/wp-content/uploads/materials/dveri.jpg
[area_modifier] => 1
[parent_name] => Двери входные
[parent_id] => 27
[material_sum] => 12000
[work_sum] => 5500
[total_sum] => 17500
[total_days] => 1
[display_material_sum] => 12 000
[display_work_sum] => 5 500
[display_total_sum] => 17 500
)
1
17 500₽
Работа:5 500 ₽
Материалы:12 000 ₽
Дни:1
stdClass Object
(
[id] => 54
[attribute_id] => 27
[name] => Нет
[material_modifier] => 1
[work_modifier] => 1
[options] => Array
(
)
[days] => [0]
[material_price] => [0]
[work_price] => [0]
[image] => https://akademik-stroy.ru/wp-content/uploads/materials/dveri.jpg
[area_modifier] => 1
[parent_name] => Двери входные
[parent_id] => 27
[material_sum] => 0
[work_sum] => 0
[total_sum] => 0
[total_days] => 0
[display_material_sum] => 0
[display_work_sum] => 0
[display_total_sum] => 0
)
1
0₽
Работа:0 ₽
Материалы:0 ₽
Дни:0
stdClass Object
(
[id] => 31
[attribute_id] => 16
[name] => Нет
[material_modifier] => 1
[work_modifier] => 1
[options] => Array
(
)
[days] => [0]
[material_price] => [0]
[work_price] => [0]
[image] => https://akademik-stroy.ru/wp-content/uploads/materials/docke-standard-pvh.jpg
[area_modifier] => 232.35
[parent_name] => Водосточная система
[parent_id] => 16
[material_sum] => 0
[work_sum] => 0
[total_sum] => 0
[total_days] => 0
[display_material_sum] => 0
[display_work_sum] => 0
[display_total_sum] => 0
)
1
0₽
Работа:0 ₽
Материалы:0 ₽
Дни:0
stdClass Object
(
[id] => 32
[attribute_id] => 16
[name] => Есть
[material_modifier] => 1
[work_modifier] => 1
[options] => Array
(
[0] => Döcke Standard (ПВХ)
[1] => Металлические Grand Line
)
[days] => [7,7]
[material_price] => [1842,2703]
[work_price] => [1491,1529]
[image] => https://akademik-stroy.ru/wp-content/uploads/materials/docke-standard-pvh.jpg
[area_modifier] => 232.35
[parent_name] => Водосточная система
[parent_id] => 16
[material_sum] => 513586
[work_sum] => 346434
[total_sum] => 860020
[total_days] => 7
[display_material_sum] => 513 586
[display_work_sum] => 346 434
[display_total_sum] => 860 020
)
1
860 020₽
Работа:346 434 ₽
Материалы:513 586 ₽
Дни:7
stdClass Object
(
[id] => 33
[attribute_id] => 17
[name] => Нет
[material_modifier] => 1
[work_modifier] => 1
[options] => Array
(
)
[days] => [0]
[material_price] => [0]
[work_price] => [0]
[image] => https://akademik-stroy.ru/wp-content/uploads/materials/mineralovata.jpg
[area_modifier] => 472.35
[parent_name] => Дополнительное утепление наружных стен
[parent_id] => 17
[material_sum] => 0
[work_sum] => 0
[total_sum] => 0
[total_days] => 0
[display_material_sum] => 0
[display_work_sum] => 0
[display_total_sum] => 0
)
1
0₽
Работа:0 ₽
Материалы:0 ₽
Дни:0
stdClass Object
(
[id] => 34
[attribute_id] => 17
[name] => Минераловатный
[material_modifier] => 1
[work_modifier] => 1
[options] => Array
(
[0] => 50 мм
[1] => 100 мм
[2] => 150 мм
[3] => 200 мм
[4] => 250 мм
[5] => 300 мм
)
[days] => [7,8,10,12,14,15]
[material_price] => [3437,3613,3803,3915,4601,4830]
[work_price] => [2325,2423,2523,2749,2859,3025]
[image] => https://akademik-stroy.ru/wp-content/uploads/materials/mineralovata.jpg
[area_modifier] => 472.35
[parent_name] => Дополнительное утепление наружных стен
[parent_id] => 17
[material_sum] => 1948160
[work_sum] => 1098214
[total_sum] => 3046374
[total_days] => 7
[display_material_sum] => 1 948 160
[display_work_sum] => 1 098 214
[display_total_sum] => 3 046 374
)
1
3 046 374₽
Работа:1 098 214 ₽
Материалы:1 948 160 ₽
Дни:7
stdClass Object
(
[id] => 128
[attribute_id] => 17
[name] => Эковата (целлюлозная вата)
[material_modifier] => 1
[work_modifier] => 1
[options] => Array
(
[0] => 50 мм
[1] => 100 мм
[2] => 150 мм
[3] => 200 мм
[4] => 250 мм
[5] => 300 мм
)
[days] => [3,4,5,6,7,8]
[material_price] => [810,1319,1629,1838,2267,2676]
[work_price] => [1225,1323,1423,1549,1659,1725]
[image] => https://akademik-stroy.ru/wp-content/uploads/materials/ehkovata.jpg
[area_modifier] => 472.35
[parent_name] => Дополнительное утепление наружных стен
[parent_id] => 17
[material_sum] => 459124
[work_sum] => 578629
[total_sum] => 1037753
[total_days] => 3
[display_material_sum] => 459 124
[display_work_sum] => 578 629
[display_total_sum] => 1 037 753
)
1
1 037 753₽
Работа:578 629 ₽
Материалы:459 124 ₽
Дни:3
stdClass Object
(
[id] => 129
[attribute_id] => 17
[name] => Экструдированный пенополистирол
[material_modifier] => 1
[work_modifier] => 1
[options] => Array
(
[0] => 50 мм
[1] => 100 мм
[2] => 150 мм
[3] => 200 мм
[4] => 250 мм
[5] => 300 мм
)
[days] => [5,6,7,8,9,10]
[material_price] => [4560,4300,5119,6292,7010,8583]
[work_price] => [1795,1954,2254,2330,2595,2735]
[image] => https://akademik-stroy.ru/wp-content/uploads/materials/epps.jpg
[area_modifier] => 472.35
[parent_name] => Дополнительное утепление наружных стен
[parent_id] => 17
[material_sum] => 2584699
[work_sum] => 847868
[total_sum] => 3432567
[total_days] => 5
[display_material_sum] => 2 584 699
[display_work_sum] => 847 868
[display_total_sum] => 3 432 567
)
1
3 432 567₽
Работа:847 868 ₽
Материалы:2 584 699 ₽
Дни:5
stdClass Object
(
[id] => 130
[attribute_id] => 17
[name] => ПСБ (ППС-пенополистирол)
[material_modifier] => 1
[work_modifier] => 1
[options] => Array
(
[0] => 50 мм
[1] => 100 мм
[2] => 150 мм
[3] => 200 мм
[4] => 250 мм
[5] => 300 мм
)
[days] => [5,6,7,8,9,10]
[material_price] => [4822,5200,5819,6292,7010,7583]
[work_price] => [1795,1954,2254,2330,2595,2735]
[image] => https://akademik-stroy.ru/wp-content/uploads/materials/psb.jpg
[area_modifier] => 472.35
[parent_name] => Дополнительное утепление наружных стен
[parent_id] => 17
[material_sum] => 2733206
[work_sum] => 847868
[total_sum] => 3581074
[total_days] => 5
[display_material_sum] => 2 733 206
[display_work_sum] => 847 868
[display_total_sum] => 3 581 074
)
1
3 581 074₽
Работа:847 868 ₽
Материалы:2 733 206 ₽
Дни:5
stdClass Object
(
[id] => 131
[attribute_id] => 17
[name] => ППУ (Пенополиуретан)
[material_modifier] => 1
[work_modifier] => 1
[options] => Array
(
[0] => 50 мм
[1] => 100 мм
[2] => 150 мм
[3] => 200 мм
[4] => 250 мм
[5] => 300 мм
)
[days] => [3,4,5,6,7,8]
[material_price] => [2860,3400,4219,4592,5010,5583]
[work_price] => [729,900,980,1120,1280,1530]
[image] => https://akademik-stroy.ru/wp-content/uploads/materials/ppu.jpg
[area_modifier] => 472.35
[parent_name] => Дополнительное утепление наружных стен
[parent_id] => 17
[material_sum] => 1621105
[work_sum] => 344343
[total_sum] => 1965448
[total_days] => 3
[display_material_sum] => 1 621 105
[display_work_sum] => 344 343
[display_total_sum] => 1 965 448
)
1
1 965 448₽
Работа:344 343 ₽
Материалы:1 621 105 ₽
Дни:3
stdClass Object
(
[id] => 132
[attribute_id] => 17
[name] => PIR-плиты (пенополиизоцианурат)
[material_modifier] => 1
[work_modifier] => 1
[options] => Array
(
[0] => 50 мм
[1] => 100 мм
[2] => 150 мм
[3] => 200 мм
[4] => 250 мм
[5] => 300 мм
)
[days] => [5,6,7,8,9,10]
[material_price] => [8323,15645,20968,25900,29258,30581]
[work_price] => [800,900,970,1150,1280,1330]
[image] => https://akademik-stroy.ru/wp-content/uploads/materials/pir.jpg
[area_modifier] => 472.35
[parent_name] => Дополнительное утепление наружных стен
[parent_id] => 17
[material_sum] => 4717643
[work_sum] => 377880
[total_sum] => 5095523
[total_days] => 5
[display_material_sum] => 4 717 643
[display_work_sum] => 377 880
[display_total_sum] => 5 095 523
)
1
5 095 523₽
Работа:377 880 ₽
Материалы:4 717 643 ₽
Дни:5
stdClass Object
(
[id] => 37
[attribute_id] => 19
[name] => Нет
[material_modifier] => 1
[work_modifier] => 1
[options] => Array
(
)
[days] => [0]
[material_price] => [0]
[work_price] => [0]
[image] => https://akademik-stroy.ru/wp-content/uploads/materials/imitaciya-brusa.jpg
[area_modifier] => 472.35
[parent_name] => Наружная отделка фасада
[parent_id] => 19
[material_sum] => 0
[work_sum] => 0
[total_sum] => 0
[total_days] => 0
[display_material_sum] => 0
[display_work_sum] => 0
[display_total_sum] => 0
)
1
0₽
Работа:0 ₽
Материалы:0 ₽
Дни:0
stdClass Object
(
[id] => 38
[attribute_id] => 19
[name] => Имитация бруса
[material_modifier] => 1
[work_modifier] => 1
[options] => Array
(
[0] => Сосна
[1] => Ель
[2] => Лиственница
)
[days] => [20,20,20]
[material_price] => [2994,2762,4954]
[work_price] => [1397,1231,1577]
[image] => https://akademik-stroy.ru/wp-content/uploads/materials/imitaciya-brusa.jpg
[area_modifier] => 472.35
[parent_name] => Наружная отделка фасада
[parent_id] => 19
[material_sum] => 1697059
[work_sum] => 659873
[total_sum] => 2356932
[total_days] => 20
[display_material_sum] => 1 697 059
[display_work_sum] => 659 873
[display_total_sum] => 2 356 932
)
1
2 356 932₽
Работа:659 873 ₽
Материалы:1 697 059 ₽
Дни:20
stdClass Object
(
[id] => 136
[attribute_id] => 19
[name] => Планкен
[material_modifier] => 1
[work_modifier] => 1
[options] => Array
(
[0] => Сосна
[1] => Ель
[2] => Лиственница
)
[days] => [20,20,20]
[material_price] => [3194,2862,5154]
[work_price] => [1537,1354,1735]
[image] => https://akademik-stroy.ru/wp-content/uploads/materials/planken.jpg
[area_modifier] => 472.35
[parent_name] => Наружная отделка фасада
[parent_id] => 19
[material_sum] => 1810423
[work_sum] => 726002
[total_sum] => 2536425
[total_days] => 20
[display_material_sum] => 1 810 423
[display_work_sum] => 726 002
[display_total_sum] => 2 536 425
)
1
2 536 425₽
Работа:726 002 ₽
Материалы:1 810 423 ₽
Дни:20
stdClass Object
(
[id] => 137
[attribute_id] => 19
[name] => Штукатурка
[material_modifier] => 1
[work_modifier] => 1
[options] => Array
(
[0] => Цементно-песчаная (минеральная)
[1] => Мокрый фасад
)
[days] => [35,35]
[material_price] => [2231,3938]
[work_price] => [1202,2422]
[image] => https://akademik-stroy.ru/wp-content/uploads/materials/shtukaturka.jpg
[area_modifier] => 472.35
[parent_name] => Наружная отделка фасада
[parent_id] => 19
[material_sum] => 1264575
[work_sum] => 567765
[total_sum] => 1832340
[total_days] => 35
[display_material_sum] => 1 264 575
[display_work_sum] => 567 765
[display_total_sum] => 1 832 340
)
1
1 832 340₽
Работа:567 765 ₽
Материалы:1 264 575 ₽
Дни:35
stdClass Object
(
[id] => 138
[attribute_id] => 19
[name] => Облицовочный кирпич
[material_modifier] => 1
[work_modifier] => 1
[options] => Array
(
[0] => Керамический
[1] => Клинкерный
[2] => Ручной формовки
[3] => Гиперпрессованный
[4] => Силикатный кирпич
)
[days] => [45,45,45,45,45]
[material_price] => [8174,9148,1040,1257,5876]
[work_price] => [3240,3758,4536,4017,3369]
[image] => https://akademik-stroy.ru/wp-content/uploads/materials/oblicovochnyj-kirpich.jpg
[area_modifier] => 472.35
[parent_name] => Наружная отделка фасада
[parent_id] => 19
[material_sum] => 4633187
[work_sum] => 1530414
[total_sum] => 6163601
[total_days] => 45
[display_material_sum] => 4 633 187
[display_work_sum] => 1 530 414
[display_total_sum] => 6 163 601
)
1
6 163 601₽
Работа:1 530 414 ₽
Материалы:4 633 187 ₽
Дни:45
stdClass Object
(
[id] => 139
[attribute_id] => 19
[name] => Фасадная плитка
[material_modifier] => 1
[work_modifier] => 1
[options] => Array
(
[0] => Клинкерная
[1] => Керамическая
[2] => Плитка ручной формовки
)
[days] => [40,40,40]
[material_price] => [2974,1487,3470]
[work_price] => [3007,2592,3629]
[image] => https://akademik-stroy.ru/wp-content/uploads/materials/fasadnaya-plitka.jpg
[area_modifier] => 472.35
[parent_name] => Наружная отделка фасада
[parent_id] => 19
[material_sum] => 1685723
[work_sum] => 1420356
[total_sum] => 3106079
[total_days] => 40
[display_material_sum] => 1 685 723
[display_work_sum] => 1 420 356
[display_total_sum] => 3 106 079
)
1
3 106 079₽
Работа:1 420 356 ₽
Материалы:1 685 723 ₽
Дни:40
stdClass Object
(
[id] => 140
[attribute_id] => 19
[name] => Сайдинг
[material_modifier] => 1
[work_modifier] => 1
[options] => Array
(
[0] => Виниловый
[1] => Металлический
[2] => Фиброцементный
)
[days] => [20,20,20]
[material_price] => [1263,1944,4147]
[work_price] => [1263,1944,2074]
[image] => https://akademik-stroy.ru/wp-content/uploads/materials/sajding.jpg
[area_modifier] => 472.35
[parent_name] => Наружная отделка фасада
[parent_id] => 19
[material_sum] => 715894
[work_sum] => 596578
[total_sum] => 1312472
[total_days] => 20
[display_material_sum] => 715 894
[display_work_sum] => 596 578
[display_total_sum] => 1 312 472
)
1
1 312 472₽
Работа:596 578 ₽
Материалы:715 894 ₽
Дни:20
stdClass Object
(
[id] => 141
[attribute_id] => 19
[name] => Камень
[material_modifier] => 1
[work_modifier] => 1
[options] => Array
(
[0] => Травертин
[1] => Дагестанский
[2] => Искусственный
[3] => Натуральный
[4] => Керамогранит
)
[days] => [45,45,45,45,45]
[material_price] => [4536,3888,2592,3240,2462]
[work_price] => [3240,3240,2462,3110,1944]
[image] => https://akademik-stroy.ru/wp-content/uploads/materials/kamen-1.jpg
[area_modifier] => 472.35
[parent_name] => Наружная отделка фасада
[parent_id] => 19
[material_sum] => 2571096
[work_sum] => 1530414
[total_sum] => 4101510
[total_days] => 45
[display_material_sum] => 2 571 096
[display_work_sum] => 1 530 414
[display_total_sum] => 4 101 510
)
1
4 101 510₽
Работа:1 530 414 ₽
Материалы:2 571 096 ₽
Дни:45
stdClass Object
(
[id] => 142
[attribute_id] => 19
[name] => Термопанели
[material_modifier] => 1
[work_modifier] => 1
[options] => Array
(
)
[days] => [20]
[material_price] => [6221]
[work_price] => [2333]
[image] => https://akademik-stroy.ru/wp-content/uploads/materials/termo.png
[area_modifier] => 472.35
[parent_name] => Наружная отделка фасада
[parent_id] => 19
[material_sum] => 3526187
[work_sum] => 1101993
[total_sum] => 4628180
[total_days] => 20
[display_material_sum] => 3 526 187
[display_work_sum] => 1 101 993
[display_total_sum] => 4 628 180
)
1
4 628 180₽
Работа:1 101 993 ₽
Материалы:3 526 187 ₽
Дни:20
stdClass Object
(
[id] => 143
[attribute_id] => 19
[name] => Плитка HAUBERK
[material_modifier] => 1
[work_modifier] => 1
[options] => Array
(
)
[days] => [20]
[material_price] => [2786]
[work_price] => [1944]
[image] => https://akademik-stroy.ru/wp-content/uploads/materials/hauberk.jpg
[area_modifier] => 472.35
[parent_name] => Наружная отделка фасада
[parent_id] => 19
[material_sum] => 1579161
[work_sum] => 918248
[total_sum] => 2497409
[total_days] => 20
[display_material_sum] => 1 579 161
[display_work_sum] => 918 248
[display_total_sum] => 2 497 409
)
1
2 497 409₽
Работа:918 248 ₽
Материалы:1 579 161 ₽
Дни:20
stdClass Object
(
[id] => 144
[attribute_id] => 19
[name] => Фальцевый фасад
[material_modifier] => 1
[work_modifier] => 1
[options] => Array
(
)
[days] => [20]
[material_price] => [3240]
[work_price] => [2592]
[image] => https://akademik-stroy.ru/wp-content/uploads/materials/falcevyj-fasad.jpg
[area_modifier] => 472.35
[parent_name] => Наружная отделка фасада
[parent_id] => 19
[material_sum] => 1836497
[work_sum] => 1224331
[total_sum] => 3060828
[total_days] => 20
[display_material_sum] => 1 836 497
[display_work_sum] => 1 224 331
[display_total_sum] => 3 060 828
)
1
3 060 828₽
Работа:1 224 331 ₽
Материалы:1 836 497 ₽
Дни:20
stdClass Object
(
[id] => 145
[attribute_id] => 19
[name] => Комбинированный
[material_modifier] => 1
[work_modifier] => 1
[options] => Array
(
)
[days] => [20]
[material_price] => [4629]
[work_price] => [3499]
[image] => https://akademik-stroy.ru/wp-content/uploads/materials/Kombinirovannyj.jpg
[area_modifier] => 472.35
[parent_name] => Наружная отделка фасада
[parent_id] => 19
[material_sum] => 2623810
[work_sum] => 1652753
[total_sum] => 4276563
[total_days] => 20
[display_material_sum] => 2 623 810
[display_work_sum] => 1 652 753
[display_total_sum] => 4 276 563
)
1
4 276 563₽
Работа:1 652 753 ₽
Материалы:2 623 810 ₽
Дни:20
stdClass Object
(
[id] => 257
[attribute_id] => 19
[name] => Японские фиброцементные
[material_modifier] => 1
[work_modifier] => 1
[options] => Array
(
)
[days] => [20]
[material_price] => [7043]
[work_price] => [2993]
[image] => https://akademik-stroy.ru/wp-content/uploads/materials/paneli.jpg
[area_modifier] => 472.35
[parent_name] => Наружная отделка фасада
[parent_id] => 19
[material_sum] => 3992113
[work_sum] => 1413744
[total_sum] => 5405857
[total_days] => 20
[display_material_sum] => 3 992 113
[display_work_sum] => 1 413 744
[display_total_sum] => 5 405 857
)
1
5 405 857₽
Работа:1 413 744 ₽
Материалы:3 992 113 ₽
Дни:20
stdClass Object
(
[id] => 258
[attribute_id] => 19
[name] => Панели Каньон
[material_modifier] => 1
[work_modifier] => 1
[options] => Array
(
)
[days] => [20]
[material_price] => [4543]
[work_price] => [2592]
[image] => https://akademik-stroy.ru/wp-content/uploads/materials/kanon.png
[area_modifier] => 472.35
[parent_name] => Наружная отделка фасада
[parent_id] => 19
[material_sum] => 2575063
[work_sum] => 1224331
[total_sum] => 3799394
[total_days] => 20
[display_material_sum] => 2 575 063
[display_work_sum] => 1 224 331
[display_total_sum] => 3 799 394
)
1
3 799 394₽
Работа:1 224 331 ₽
Материалы:2 575 063 ₽
Дни:20
stdClass Object
(
[id] => 39
[attribute_id] => 20
[name] => Нет
[material_modifier] => 1
[work_modifier] => 1
[options] => Array
(
)
[days] => [0]
[material_price] => [0]
[work_price] => [0]
[image] => https://akademik-stroy.ru/wp-content/uploads/materials/terrasy.jpg
[area_modifier] => 30
[parent_name] => Террасы, крыльца, навесы
[parent_id] => 20
[material_sum] => 0
[work_sum] => 0
[total_sum] => 0
[total_days] => 0
[display_material_sum] => 0
[display_work_sum] => 0
[display_total_sum] => 0
)
1
0₽
Работа:0 ₽
Материалы:0 ₽
Дни:0
stdClass Object
(
[id] => 40
[attribute_id] => 20
[name] => Есть
[material_modifier] => 1
[work_modifier] => 1
[options] => Array
(
)
[days] => [5]
[material_price] => [10450]
[work_price] => [1950]
[image] => https://akademik-stroy.ru/wp-content/uploads/materials/terrasy.jpg
[area_modifier] => 30
[parent_name] => Террасы, крыльца, навесы
[parent_id] => 20
[material_sum] => 376200
[work_sum] => 58500
[total_sum] => 434700
[total_days] => 5
[display_material_sum] => 376 200
[display_work_sum] => 58 500
[display_total_sum] => 434 700
)
1
434 700₽
Работа:58 500 ₽
Материалы:376 200 ₽
Дни:5
stdClass Object
(
[id] => 41
[attribute_id] => 21
[name] => Нет
[material_modifier] => 1
[work_modifier] => 1
[options] => Array
(
)
[days] => [0]
[material_price] => [0]
[work_price] => [0]
[image] => https://akademik-stroy.ru/wp-content/uploads/materials/balkony.jpg
[area_modifier] => 30
[parent_name] => Балконы
[parent_id] => 21
[material_sum] => 0
[work_sum] => 0
[total_sum] => 0
[total_days] => 0
[display_material_sum] => 0
[display_work_sum] => 0
[display_total_sum] => 0
)
1
0₽
Работа:0 ₽
Материалы:0 ₽
Дни:0
stdClass Object
(
[id] => 42
[attribute_id] => 21
[name] => Есть
[material_modifier] => 1
[work_modifier] => 1
[options] => Array
(
)
[days] => [12]
[material_price] => [3600]
[work_price] => [1950]
[image] => https://akademik-stroy.ru/wp-content/uploads/materials/balkony.jpg
[area_modifier] => 30
[parent_name] => Балконы
[parent_id] => 21
[material_sum] => 129600
[work_sum] => 58500
[total_sum] => 188100
[total_days] => 12
[display_material_sum] => 129 600
[display_work_sum] => 58 500
[display_total_sum] => 188 100
)
1
188 100₽
Работа:58 500 ₽
Материалы:129 600 ₽
Дни:12
stdClass Object
(
[id] => 43
[attribute_id] => 22
[name] => Нет
[material_modifier] => 1
[work_modifier] => 1
[options] => Array
(
)
[days] => [0]
[material_price] => [0]
[work_price] => [0]
[image] => https://akademik-stroy.ru/wp-content/uploads/materials/uteplennaya.jpg
[area_modifier] => 232.35
[parent_name] => Отмостка
[parent_id] => 22
[material_sum] => 0
[work_sum] => 0
[total_sum] => 0
[total_days] => 0
[display_material_sum] => 0
[display_work_sum] => 0
[display_total_sum] => 0
)
1
0₽
Работа:0 ₽
Материалы:0 ₽
Дни:0
stdClass Object
(
[id] => 44
[attribute_id] => 22
[name] => Утепленная отмостка
[material_modifier] => 1
[work_modifier] => 1
[options] => Array
(
)
[days] => [15]
[material_price] => [2550]
[work_price] => [1750]
[image] => https://akademik-stroy.ru/wp-content/uploads/materials/uteplennaya.jpg
[area_modifier] => 232.35
[parent_name] => Отмостка
[parent_id] => 22
[material_sum] => 710991
[work_sum] => 406613
[total_sum] => 1117604
[total_days] => 15
[display_material_sum] => 710 991
[display_work_sum] => 406 613
[display_total_sum] => 1 117 604
)
1
1 117 604₽
Работа:406 613 ₽
Материалы:710 991 ₽
Дни:15
stdClass Object
(
[id] => 146
[attribute_id] => 22
[name] => Не утепленная отмостка
[material_modifier] => 1
[work_modifier] => 1
[options] => Array
(
)
[days] => [10]
[material_price] => [1650]
[work_price] => [1450]
[image] => https://akademik-stroy.ru/wp-content/uploads/materials/ne-uteplennaya.jpg
[area_modifier] => 232.35
[parent_name] => Отмостка
[parent_id] => 22
[material_sum] => 460053
[work_sum] => 336908
[total_sum] => 796961
[total_days] => 10
[display_material_sum] => 460 053
[display_work_sum] => 336 908
[display_total_sum] => 796 961
)
1
796 961₽
Работа:336 908 ₽
Материалы:460 053 ₽
Дни:10
stdClass Object
(
[id] => 45
[attribute_id] => 23
[name] => Нет
[material_modifier] => 1
[work_modifier] => 1
[options] => Array
(
)
[days] => [0]
[material_price] => [0]
[work_price] => [0]
[image] => https://akademik-stroy.ru/wp-content/uploads/materials/drenazh-2.jpg
[area_modifier] => 232.35
[parent_name] => Дренаж вокруг дома
[parent_id] => 23
[material_sum] => 0
[work_sum] => 0
[total_sum] => 0
[total_days] => 0
[display_material_sum] => 0
[display_work_sum] => 0
[display_total_sum] => 0
)
1
0₽
Работа:0 ₽
Материалы:0 ₽
Дни:0
stdClass Object
(
[id] => 46
[attribute_id] => 23
[name] => Есть
[material_modifier] => 1
[work_modifier] => 1
[options] => Array
(
)
[days] => [5]
[material_price] => [2366]
[work_price] => [1911]
[image] => https://akademik-stroy.ru/wp-content/uploads/materials/drenazh-2.jpg
[area_modifier] => 232.35
[parent_name] => Дренаж вокруг дома
[parent_id] => 23
[material_sum] => 659688
[work_sum] => 444021
[total_sum] => 1103709
[total_days] => 5
[display_material_sum] => 659 688
[display_work_sum] => 444 021
[display_total_sum] => 1 103 709
)
1
1 103 709₽
Работа:444 021 ₽
Материалы:659 688 ₽
Дни:5
stdClass Object
(
[id] => 47
[attribute_id] => 24
[name] => Нет
[material_modifier] => 1
[work_modifier] => 1
[options] => Array
(
)
[days] => [0]
[material_price] => [0]
[work_price] => [0]
[image] => https://akademik-stroy.ru/wp-content/uploads/materials/septik.jpg
[area_modifier] => 1
[parent_name] => Автономная канализация (септики)
[parent_id] => 24
[material_sum] => 0
[work_sum] => 0
[total_sum] => 0
[total_days] => 0
[display_material_sum] => 0
[display_work_sum] => 0
[display_total_sum] => 0
)
1
0₽
Работа:0 ₽
Материалы:0 ₽
Дни:0
stdClass Object
(
[id] => 48
[attribute_id] => 24
[name] => Есть
[material_modifier] => 1
[work_modifier] => 1
[options] => Array
(
[0] => Для дачи на 4 человека
[1] => Для дома на 5 человек
[2] => Для дома на 6 человек
[3] => Для дома на 7 человек
[4] => Для дома на 10 человек
)
[days] => [7,7,7,8,8]
[material_price] => [196340,220500,240940,264200,293340]
[work_price] => [50000,55000,60500,66550,73206]
[image] => https://akademik-stroy.ru/wp-content/uploads/materials/septik.jpg
[area_modifier] => 1
[parent_name] => Автономная канализация (септики)
[parent_id] => 24
[material_sum] => 235608
[work_sum] => 50000
[total_sum] => 285608
[total_days] => 7
[display_material_sum] => 235 608
[display_work_sum] => 50 000
[display_total_sum] => 285 608
)
1
285 608₽
Работа:50 000 ₽
Материалы:235 608 ₽
Дни:7
stdClass Object
(
[id] => 49
[attribute_id] => 25
[name] => Нет
[material_modifier] => 1
[work_modifier] => 1
[options] => Array
(
)
[days] => [0]
[material_price] => [0]
[work_price] => [0]
[image] => https://akademik-stroy.ru/wp-content/uploads/materials/gkl.jpg
[area_modifier] => 472.35
[parent_name] => Внутренние (не несущие) перегородки
[parent_id] => 25
[material_sum] => 0
[work_sum] => 0
[total_sum] => 0
[total_days] => 0
[display_material_sum] => 0
[display_work_sum] => 0
[display_total_sum] => 0
)
1
0₽
Работа:0 ₽
Материалы:0 ₽
Дни:0
stdClass Object
(
[id] => 147
[attribute_id] => 25
[name] => Каркасно-обшивные
[material_modifier] => 1
[work_modifier] => 1
[options] => Array
(
[0] => 75 мм (без шумоизоляции)
[1] => 75 мм (с шумоизоляцией)
)
[days] => [11,11]
[material_price] => [580,970]
[work_price] => [380,570]
[image] => https://akademik-stroy.ru/wp-content/uploads/materials/gkl.jpg
[area_modifier] => 472.35
[parent_name] => Внутренние (не несущие) перегородки
[parent_id] => 25
[material_sum] => 328756
[work_sum] => 179493
[total_sum] => 508249
[total_days] => 11
[display_material_sum] => 328 756
[display_work_sum] => 179 493
[display_total_sum] => 508 249
)
1
508 249₽
Работа:179 493 ₽
Материалы:328 756 ₽
Дни:11
stdClass Object
(
[id] => 148
[attribute_id] => 25
[name] => Пазогребневые
[material_modifier] => 1
[work_modifier] => 1
[options] => Array
(
[0] => 80 мм
[1] => 100 мм
)
[days] => [5,5]
[material_price] => [1022,1313]
[work_price] => [600,700]
[image] => https://akademik-stroy.ru/wp-content/uploads/materials/pazogrebnevye-bloki.jpg
[area_modifier] => 472.35
[parent_name] => Внутренние (не несущие) перегородки
[parent_id] => 25
[material_sum] => 579290
[work_sum] => 283410
[total_sum] => 862700
[total_days] => 5
[display_material_sum] => 579 290
[display_work_sum] => 283 410
[display_total_sum] => 862 700
)
1
862 700₽
Работа:283 410 ₽
Материалы:579 290 ₽
Дни:5
stdClass Object
(
[id] => 149
[attribute_id] => 25
[name] => Газобетонные
[material_modifier] => 1
[work_modifier] => 1
[options] => Array
(
[0] => 100 мм
[1] => 200 мм
)
[days] => [11,11]
[material_price] => [1160,1920]
[work_price] => [700,900]
[image] => https://akademik-stroy.ru/wp-content/uploads/materials/gazobeton-2.jpg
[area_modifier] => 472.35
[parent_name] => Внутренние (не несущие) перегородки
[parent_id] => 25
[material_sum] => 657511
[work_sum] => 330645
[total_sum] => 988156
[total_days] => 11
[display_material_sum] => 657 511
[display_work_sum] => 330 645
[display_total_sum] => 988 156
)
1
988 156₽
Работа:330 645 ₽
Материалы:657 511 ₽
Дни:11
stdClass Object
(
[id] => 150
[attribute_id] => 25
[name] => Кирпичные
[material_modifier] => 1
[work_modifier] => 1
[options] => Array
(
[0] => 120 мм
[1] => 250 мм
[2] => 360 мм
)
[days] => [7,7,7]
[material_price] => [1785,3570,5355]
[work_price] => [900,1600,1800]
[image] => https://akademik-stroy.ru/wp-content/uploads/materials/kirpich-1.jpg
[area_modifier] => 472.35
[parent_name] => Внутренние (не несущие) перегородки
[parent_id] => 25
[material_sum] => 1011774
[work_sum] => 425115
[total_sum] => 1436889
[total_days] => 7
[display_material_sum] => 1 011 774
[display_work_sum] => 425 115
[display_total_sum] => 1 436 889
)
1
1 436 889₽
Работа:425 115 ₽
Материалы:1 011 774 ₽
Дни:7
stdClass Object
(
[id] => 55
[attribute_id] => 28
[name] => Нет
[material_modifier] => 1
[work_modifier] => 1
[options] => Array
(
)
[days] => [0]
[material_price] => [0]
[work_price] => [0]
[image] => https://akademik-stroy.ru/wp-content/uploads/materials/ehlektrika.jpg
[area_modifier] => 383.31
[parent_name] => Электрика
[parent_id] => 28
[material_sum] => 0
[work_sum] => 0
[total_sum] => 0
[total_days] => 0
[display_material_sum] => 0
[display_work_sum] => 0
[display_total_sum] => 0
)
1
0₽
Работа:0 ₽
Материалы:0 ₽
Дни:0
stdClass Object
(
[id] => 56
[attribute_id] => 28
[name] => Есть
[material_modifier] => 1
[work_modifier] => 1
[options] => Array
(
)
[days] => [10]
[material_price] => [650]
[work_price] => [950]
[image] => https://akademik-stroy.ru/wp-content/uploads/materials/ehlektrika.jpg
[area_modifier] => 383.31
[parent_name] => Электрика
[parent_id] => 28
[material_sum] => 298982
[work_sum] => 364145
[total_sum] => 663127
[total_days] => 10
[display_material_sum] => 298 982
[display_work_sum] => 364 145
[display_total_sum] => 663 127
)
1
663 127₽
Работа:364 145 ₽
Материалы:298 982 ₽
Дни:10
stdClass Object
(
[id] => 57
[attribute_id] => 29
[name] => Нет
[material_modifier] => 1
[work_modifier] => 1
[options] => Array
(
)
[days] => [0]
[material_price] => [0]
[work_price] => [0]
[image] => https://akademik-stroy.ru/wp-content/uploads/materials/santekhnika-kanalizaciya-1.jpg
[area_modifier] => 383.31
[parent_name] => Сантехника, канализация в доме
[parent_id] => 29
[material_sum] => 0
[work_sum] => 0
[total_sum] => 0
[total_days] => 0
[display_material_sum] => 0
[display_work_sum] => 0
[display_total_sum] => 0
)
1
0₽
Работа:0 ₽
Материалы:0 ₽
Дни:0
stdClass Object
(
[id] => 58
[attribute_id] => 29
[name] => Есть
[material_modifier] => 1
[work_modifier] => 1
[options] => Array
(
)
[days] => [10]
[material_price] => [600]
[work_price] => [730]
[image] => https://akademik-stroy.ru/wp-content/uploads/materials/santekhnika-kanalizaciya-1.jpg
[area_modifier] => 383.31
[parent_name] => Сантехника, канализация в доме
[parent_id] => 29
[material_sum] => 275983
[work_sum] => 279816
[total_sum] => 555799
[total_days] => 10
[display_material_sum] => 275 983
[display_work_sum] => 279 816
[display_total_sum] => 555 799
)
1
555 799₽
Работа:279 816 ₽
Материалы:275 983 ₽
Дни:10
stdClass Object
(
[id] => 59
[attribute_id] => 30
[name] => Нет
[material_modifier] => 1
[work_modifier] => 1
[options] => Array
(
)
[days] => [0]
[material_price] => [0]
[work_price] => [0]
[image] => https://akademik-stroy.ru/wp-content/uploads/materials/otoplenie-1.jpg
[area_modifier] => 383.31
[parent_name] => Отопление
[parent_id] => 30
[material_sum] => 0
[work_sum] => 0
[total_sum] => 0
[total_days] => 0
[display_material_sum] => 0
[display_work_sum] => 0
[display_total_sum] => 0
)
1
0₽
Работа:0 ₽
Материалы:0 ₽
Дни:0
stdClass Object
(
[id] => 60
[attribute_id] => 30
[name] => Есть
[material_modifier] => 1
[work_modifier] => 1
[options] => Array
(
)
[days] => [5]
[material_price] => [610]
[work_price] => [560]
[image] => https://akademik-stroy.ru/wp-content/uploads/materials/otoplenie-1.jpg
[area_modifier] => 383.31
[parent_name] => Отопление
[parent_id] => 30
[material_sum] => 280583
[work_sum] => 214654
[total_sum] => 495237
[total_days] => 5
[display_material_sum] => 280 583
[display_work_sum] => 214 654
[display_total_sum] => 495 237
)
1
495 237₽
Работа:214 654 ₽
Материалы:280 583 ₽
Дни:5
stdClass Object
(
[id] => 61
[attribute_id] => 31
[name] => Нет
[material_modifier] => 1
[work_modifier] => 1
[options] => Array
(
)
[days] => [0]
[material_price] => [0]
[work_price] => [0]
[image] => https://akademik-stroy.ru/wp-content/uploads/materials/vodyanye.jpg
[area_modifier] => 30
[parent_name] => Теплые полы
[parent_id] => 31
[material_sum] => 0
[work_sum] => 0
[total_sum] => 0
[total_days] => 0
[display_material_sum] => 0
[display_work_sum] => 0
[display_total_sum] => 0
)
1
0₽
Работа:0 ₽
Материалы:0 ₽
Дни:0
stdClass Object
(
[id] => 151
[attribute_id] => 31
[name] => Водяные
[material_modifier] => 1
[work_modifier] => 1
[options] => Array
(
)
[days] => [9]
[material_price] => [10200]
[work_price] => [2500]
[image] => https://akademik-stroy.ru/wp-content/uploads/materials/vodyanye.jpg
[area_modifier] => 30
[parent_name] => Теплые полы
[parent_id] => 31
[material_sum] => 367200
[work_sum] => 75000
[total_sum] => 442200
[total_days] => 9
[display_material_sum] => 367 200
[display_work_sum] => 75 000
[display_total_sum] => 442 200
)
1
442 200₽
Работа:75 000 ₽
Материалы:367 200 ₽
Дни:9
stdClass Object
(
[id] => 152
[attribute_id] => 31
[name] => Электро
[material_modifier] => 1
[work_modifier] => 1
[options] => Array
(
)
[days] => [5]
[material_price] => [6300]
[work_price] => [1500]
[image] => https://akademik-stroy.ru/wp-content/uploads/materials/ehlektricheskij.jpg
[area_modifier] => 30
[parent_name] => Теплые полы
[parent_id] => 31
[material_sum] => 226800
[work_sum] => 45000
[total_sum] => 271800
[total_days] => 5
[display_material_sum] => 226 800
[display_work_sum] => 45 000
[display_total_sum] => 271 800
)
1
271 800₽
Работа:45 000 ₽
Материалы:226 800 ₽
Дни:5
stdClass Object
(
[id] => 63
[attribute_id] => 32
[name] => Нет
[material_modifier] => 1
[work_modifier] => 1
[options] => Array
(
)
[days] => [0]
[material_price] => [0]
[work_price] => [0]
[image] => https://akademik-stroy.ru/wp-content/uploads/materials/shtukaturka-shpatlevka-1.jpg
[area_modifier] => 383.31
[parent_name] => Черновая отделка стен
[parent_id] => 32
[material_sum] => 0
[work_sum] => 0
[total_sum] => 0
[total_days] => 0
[display_material_sum] => 0
[display_work_sum] => 0
[display_total_sum] => 0
)
1
0₽
Работа:0 ₽
Материалы:0 ₽
Дни:0
stdClass Object
(
[id] => 153
[attribute_id] => 32
[name] => Штукатурка и шпатлевка
[material_modifier] => 1
[work_modifier] => 1
[options] => Array
(
)
[days] => [20]
[material_price] => [1850]
[work_price] => [2600]
[image] => https://akademik-stroy.ru/wp-content/uploads/materials/shtukaturka-shpatlevka-1.jpg
[area_modifier] => 383.31
[parent_name] => Черновая отделка стен
[parent_id] => 32
[material_sum] => 850948
[work_sum] => 996606
[total_sum] => 1847554
[total_days] => 20
[display_material_sum] => 850 948
[display_work_sum] => 996 606
[display_total_sum] => 1 847 554
)
1
1 847 554₽
Работа:996 606 ₽
Материалы:850 948 ₽
Дни:20
stdClass Object
(
[id] => 154
[attribute_id] => 32
[name] => Гипсокортон на стены
[material_modifier] => 1
[work_modifier] => 1
[options] => Array
(
)
[days] => [15]
[material_price] => [950]
[work_price] => [2100]
[image] => https://akademik-stroy.ru/wp-content/uploads/materials/gkl-1.jpg
[area_modifier] => 383.31
[parent_name] => Черновая отделка стен
[parent_id] => 32
[material_sum] => 436973
[work_sum] => 804951
[total_sum] => 1241924
[total_days] => 15
[display_material_sum] => 436 973
[display_work_sum] => 804 951
[display_total_sum] => 1 241 924
)
1
1 241 924₽
Работа:804 951 ₽
Материалы:436 973 ₽
Дни:15
stdClass Object
(
[id] => 155
[attribute_id] => 32
[name] => Вагонка
[material_modifier] => 1
[work_modifier] => 1
[options] => Array
(
)
[days] => [15]
[material_price] => [1250]
[work_price] => [950]
[image] => https://akademik-stroy.ru/wp-content/uploads/materials/vagonka.jpg
[area_modifier] => 383.31
[parent_name] => Черновая отделка стен
[parent_id] => 32
[material_sum] => 574965
[work_sum] => 364145
[total_sum] => 939110
[total_days] => 15
[display_material_sum] => 574 965
[display_work_sum] => 364 145
[display_total_sum] => 939 110
)
1
939 110₽
Работа:364 145 ₽
Материалы:574 965 ₽
Дни:15
stdClass Object
(
[id] => 65
[attribute_id] => 33
[name] => Нет
[material_modifier] => 1
[work_modifier] => 1
[options] => Array
(
)
[days] => [0]
[material_price] => [0]
[work_price] => [0]
[image] => https://akademik-stroy.ru/wp-content/uploads/materials/styazhka.jpg
[area_modifier] => 383.31
[parent_name] => Черновая отделка полов
[parent_id] => 33
[material_sum] => 0
[work_sum] => 0
[total_sum] => 0
[total_days] => 0
[display_material_sum] => 0
[display_work_sum] => 0
[display_total_sum] => 0
)
1
0₽
Работа:0 ₽
Материалы:0 ₽
Дни:0
stdClass Object
(
[id] => 156
[attribute_id] => 33
[name] => Стяжка + наливные полы
[material_modifier] => 1
[work_modifier] => 1
[options] => Array
(
)
[days] => [10]
[material_price] => [1000]
[work_price] => [900]
[image] => https://akademik-stroy.ru/wp-content/uploads/materials/styazhka.jpg
[area_modifier] => 383.31
[parent_name] => Черновая отделка полов
[parent_id] => 33
[material_sum] => 459972
[work_sum] => 344979
[total_sum] => 804951
[total_days] => 10
[display_material_sum] => 459 972
[display_work_sum] => 344 979
[display_total_sum] => 804 951
)
1
804 951₽
Работа:344 979 ₽
Материалы:459 972 ₽
Дни:10
stdClass Object
(
[id] => 157
[attribute_id] => 33
[name] => ОСБ на пол
[material_modifier] => 1
[work_modifier] => 1
[options] => Array
(
)
[days] => [7]
[material_price] => [580]
[work_price] => [350]
[image] => https://akademik-stroy.ru/wp-content/uploads/materials/osb-1.jpg
[area_modifier] => 383.31
[parent_name] => Черновая отделка полов
[parent_id] => 33
[material_sum] => 266784
[work_sum] => 134159
[total_sum] => 400943
[total_days] => 7
[display_material_sum] => 266 784
[display_work_sum] => 134 159
[display_total_sum] => 400 943
)
1
400 943₽
Работа:134 159 ₽
Материалы:266 784 ₽
Дни:7
stdClass Object
(
[id] => 67
[attribute_id] => 34
[name] => Нет
[material_modifier] => 1
[work_modifier] => 1
[options] => Array
(
)
[days] => [0]
[material_price] => [0]
[work_price] => [0]
[image] => https://akademik-stroy.ru/wp-content/uploads/materials/chistovaya-otdelka.jpg
[area_modifier] => 383.31
[parent_name] => Чистовая отделка стен и полов
[parent_id] => 34
[material_sum] => 0
[work_sum] => 0
[total_sum] => 0
[total_days] => 0
[display_material_sum] => 0
[display_work_sum] => 0
[display_total_sum] => 0
)
1
0₽
Работа:0 ₽
Материалы:0 ₽
Дни:0
stdClass Object
(
[id] => 68
[attribute_id] => 34
[name] => Есть
[material_modifier] => 1
[work_modifier] => 1
[options] => Array
(
)
[days] => [50]
[material_price] => [6000]
[work_price] => [3500]
[image] => https://akademik-stroy.ru/wp-content/uploads/materials/chistovaya-otdelka.jpg
[area_modifier] => 383.31
[parent_name] => Чистовая отделка стен и полов
[parent_id] => 34
[material_sum] => 2759832
[work_sum] => 1341585
[total_sum] => 4101417
[total_days] => 50
[display_material_sum] => 2 759 832
[display_work_sum] => 1 341 585
[display_total_sum] => 4 101 417
)
1
4 101 417₽
Работа:1 341 585 ₽
Материалы:2 759 832 ₽
Дни:50
stdClass Object
(
[id] => 69
[attribute_id] => 35
[name] => Нет
[material_modifier] => 1
[work_modifier] => 1
[options] => Array
(
)
[days] => [0]
[material_price] => [0]
[work_price] => [0]
[image] => https://akademik-stroy.ru/wp-content/uploads/materials/mnogourovnevyj-gkl.jpg
[area_modifier] => 383.31
[parent_name] => Отделка потолка
[parent_id] => 35
[material_sum] => 0
[work_sum] => 0
[total_sum] => 0
[total_days] => 0
[display_material_sum] => 0
[display_work_sum] => 0
[display_total_sum] => 0
)
1
0₽
Работа:0 ₽
Материалы:0 ₽
Дни:0
stdClass Object
(
[id] => 70
[attribute_id] => 35
[name] => Есть
[material_modifier] => 1
[work_modifier] => 1
[options] => Array
(
[0] => Многоуровневый потолок из гипсокартона
[1] => Многоуровневый потолок из гипсокартона и натяжного потолка
[2] => Одноуровневый потолок из гипсокартона
[3] => Одноуровневый натяжной потолок
)
[days] => [10,10,1,1]
[material_price] => [900,700,700,600]
[work_price] => [1000,800,500,300]
[image] => https://akademik-stroy.ru/wp-content/uploads/materials/mnogourovnevyj-gkl.jpg
[area_modifier] => 383.31
[parent_name] => Отделка потолка
[parent_id] => 35
[material_sum] => 413975
[work_sum] => 383310
[total_sum] => 797285
[total_days] => 10
[display_material_sum] => 413 975
[display_work_sum] => 383 310
[display_total_sum] => 797 285
)
1
797 285₽
Работа:383 310 ₽
Материалы:413 975 ₽
Дни:10
Преимущества работы с нами
7 этапов оплаты
Независимый строительный надзор
Экологически чистые материалы
16 лет гарантии
Онлайн-кабинет с веб-камерой
Строители с опытом более 15 лет
Собственное производство







