Одноэтажный дом 114.76 м2 за руб.
Планировки
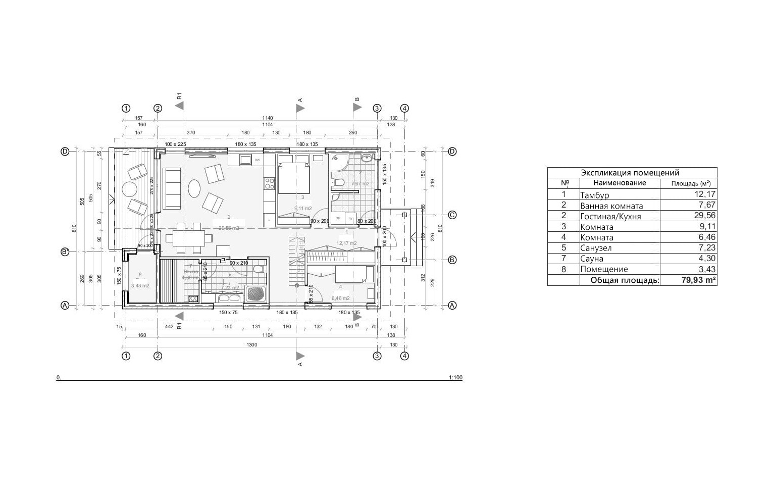
План первого этажа
- 1. Тамбур 12,17 м²
- 2. Ванная комната 7,67 м²
- 3. Гостиная-Кухня 29,56 м²
- 4. Комната 9,11 м²
- 5. Комната 6,46 м²
- 6. Санузел 7,23 м²
- 7. Сауна 4,30 м²
- 8. Помещение 3,43 м²
- Общая площадь первый этаж 79,93 м²
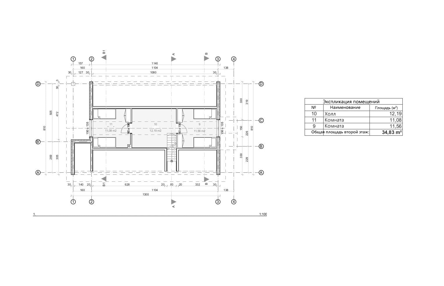
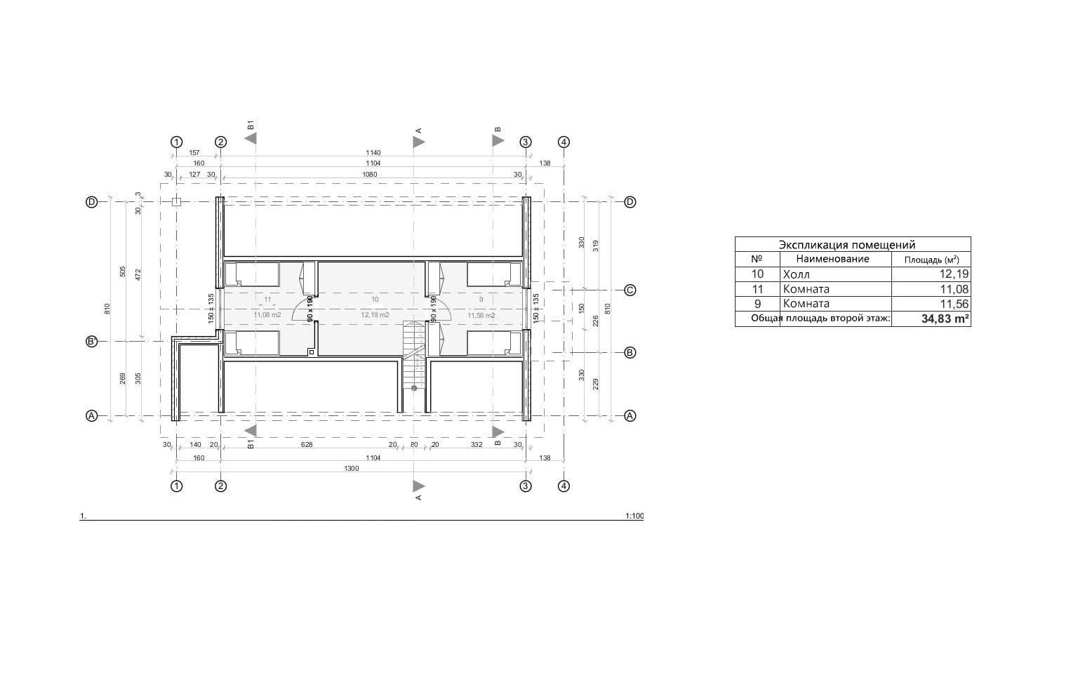
План мансарды
- 1. Холл 12,19 м²
- 2. Комната 11,08 м²
- 3. Комната 11,56 м²
- Общая площадь второй этаж 34,83 м²
Площади дома
| № п/п | Наименование | Ед. из. | Строительная площадь | Полезная площадь |
| 1 | 1 этаж | м2 | 98.5 | 79.93 |
| 2 | 2 этаж | м2 | 42.92 | 34.83 |
| 3 | Итого | м2 | 141.42 | 114.76 |
154 м2
Полезная
площадь
площадь
1 этаж
Этажей
26 м2
Террасы
и балконы
и балконы
0Без
гаража
гаража
4
Количество
спален
спален
2
Количество
санузлов
санузлов
Калькулятор опций
0₽
В ипотеку от 16 059 ₽/мес.
0₽
0 дней
stdClass Object
(
[id] => 1
[attribute_id] => 1
[name] => Ленточный монолитный ж/б
[material_modifier] => 1
[work_modifier] => 1
[options] => Array
(
[0] => размер 200 х 700 мм
[1] => размер 300 х 900 мм
[2] => размер 400 х 1 000 мм
[3] => размер 500 х 1 100 мм
[4] => размер 600 х 1 200 мм
)
[days] => [20,21,22,25,30]
[material_price] => [2823,3630,4475,5210,12047]
[work_price] => [2154,2826,3731,4577,5293]
[image] => https://akademik-stroy.ru/wp-content/uploads/materials/lentochnyj-monolitnyj-zh-b.jpg
[area_modifier] => 98.5
[parent_name] => Фундамент
[parent_id] => 1
[material_sum] => 383730
[work_sum] => 243994
[total_sum] => 627724
[total_days] => 20
[display_material_sum] => 383 730
[display_work_sum] => 243 994
[display_total_sum] => 627 724
)
1
627 724₽
Работа:243 994 ₽
Материалы:383 730 ₽
Дни:20
stdClass Object
(
[id] => 2
[attribute_id] => 1
[name] => Забивные Ж/Б сваи
[material_modifier] => 1
[work_modifier] => 1
[options] => Array
(
[0] => 150х150х3000мм
[1] => 150х150х4000мм
[2] => 200х200х3000мм
[3] => 200х200х4000мм
[4] => 200х200х5000мм
[5] => 200х200х6000мм
)
[days] => [2,2,2,2,2,2]
[material_price] => [1990,2850,3255,4360,5120,6837]
[work_price] => [1002,1185,1336,1438,1574,1839]
[image] => https://akademik-stroy.ru/wp-content/uploads/materials/zabivnye-zh-b-svai.png
[area_modifier] => 98.5
[parent_name] => Фундамент
[parent_id] => 1
[material_sum] => 270501
[work_sum] => 113502
[total_sum] => 384003
[total_days] => 2
[display_material_sum] => 270 501
[display_work_sum] => 113 502
[display_total_sum] => 384 003
)
1
384 003₽
Работа:113 502 ₽
Материалы:270 501 ₽
Дни:2
stdClass Object
(
[id] => 71
[attribute_id] => 1
[name] => Свайно-ростверковый ж/б
[material_modifier] => 1
[work_modifier] => 1
[options] => Array
(
[0] => ростверк 200х300 мм
[1] => ростверк 300х600 мм
[2] => ростверк 400х900 мм
[3] => ростверк 500х1200 мм
)
[days] => [20,23,25,27]
[material_price] => [3018,3474,7109,9792]
[work_price] => [2024,3012,5635,7022]
[image] => https://akademik-stroy.ru/wp-content/uploads/materials/svajno-rostverkovyj-monolitnyj-zh-b-3.png
[area_modifier] => 98.5
[parent_name] => Фундамент
[parent_id] => 1
[material_sum] => 410237
[work_sum] => 229269
[total_sum] => 639506
[total_days] => 20
[display_material_sum] => 410 237
[display_work_sum] => 229 269
[display_total_sum] => 639 506
)
1
639 506₽
Работа:229 269 ₽
Материалы:410 237 ₽
Дни:20
stdClass Object
(
[id] => 72
[attribute_id] => 1
[name] => Монолитная ж/б плита
[material_modifier] => 1
[work_modifier] => 1
[options] => Array
(
[0] => 200 мм
[1] => 300 мм
[2] => 400 мм
[3] => 500 мм
[4] => 600 мм
)
[days] => [30,33,35,37,40]
[material_price] => [5348,8555,12788,14388,15189]
[work_price] => [4314,4881,7037,8061,10230]
[image] => https://akademik-stroy.ru/wp-content/uploads/materials/monolitnaya-zhb-plita.png
[area_modifier] => 98.5
[parent_name] => Фундамент
[parent_id] => 1
[material_sum] => 726954
[work_sum] => 488668
[total_sum] => 1215622
[total_days] => 30
[display_material_sum] => 726 954
[display_work_sum] => 488 668
[display_total_sum] => 1 215 622
)
1
1 215 622₽
Работа:488 668 ₽
Материалы:726 954 ₽
Дни:30
stdClass Object
(
[id] => 73
[attribute_id] => 1
[name] => Утепленная шведская плита
[material_modifier] => 1
[work_modifier] => 1
[options] => Array
(
[0] => 200 мм
[1] => 300 мм
[2] => 400 мм
[3] => 500 мм
[4] => 600 мм
)
[days] => [32,37,39,42,45]
[material_price] => [10249,12692,13760,14936,16230]
[work_price] => [5960,7337,8072,8878,9765]
[image] => https://akademik-stroy.ru/wp-content/uploads/materials/uteplennaya-shvedskaya-plita.jpg
[area_modifier] => 98.5
[parent_name] => Фундамент
[parent_id] => 1
[material_sum] => 1393147
[work_sum] => 675119
[total_sum] => 2068266
[total_days] => 32
[display_material_sum] => 1 393 147
[display_work_sum] => 675 119
[display_total_sum] => 2 068 266
)
1
2 068 266₽
Работа:675 119 ₽
Материалы:1 393 147 ₽
Дни:32
stdClass Object
(
[id] => 75
[attribute_id] => 1
[name] => Ленточный из ФБС
[material_modifier] => 1
[work_modifier] => 1
[options] => Array
(
[0] => толщ. 300 мм
[1] => толщ. 400 мм
[2] => толщ. 500 мм
[3] => толщ. 600 мм
)
[days] => [20,20,20,20]
[material_price] => [3675,4902,6126,7350]
[work_price] => [2451,3264,4083,4902]
[image] => https://akademik-stroy.ru/wp-content/uploads/materials/lentochnyj-iz-fbs.png
[area_modifier] => 98.5
[parent_name] => Фундамент
[parent_id] => 1
[material_sum] => 499543
[work_sum] => 277637
[total_sum] => 777180
[total_days] => 20
[display_material_sum] => 499 543
[display_work_sum] => 277 637
[display_total_sum] => 777 180
)
1
777 180₽
Работа:277 637 ₽
Материалы:499 543 ₽
Дни:20
stdClass Object
(
[id] => 76
[attribute_id] => 1
[name] => Цокольный этаж из ФБС
[material_modifier] => 1
[work_modifier] => 1
[options] => Array
(
[0] => толщ. 300 мм
[1] => толщ. 400 мм
[2] => толщ. 500 мм
[3] => толщ. 600 мм
)
[days] => [30,32,34,36]
[material_price] => [20916,23299,26680,29060]
[work_price] => [17524,18700,19873,21046]
[image] => https://akademik-stroy.ru/wp-content/uploads/materials/cokolnyj-ehtazh-iz-fbs.jpg
[area_modifier] => 98.5
[parent_name] => Фундамент
[parent_id] => 1
[material_sum] => 2843112
[work_sum] => 1985031
[total_sum] => 4828143
[total_days] => 30
[display_material_sum] => 2 843 112
[display_work_sum] => 1 985 031
[display_total_sum] => 4 828 143
)
1
4 828 143₽
Работа:1 985 031 ₽
Материалы:2 843 112 ₽
Дни:30
stdClass Object
(
[id] => 77
[attribute_id] => 1
[name] => Цокольный этаж монолитный ж/б
[material_modifier] => 1
[work_modifier] => 1
[options] => Array
(
[0] => толщ. 200 мм
[1] => толщ. 300 мм
[2] => толщ. 400 мм
[3] => толщ. 500 мм
[4] => толщ. 600 мм
)
[days] => [40,42,44,46,48]
[material_price] => [25421,29148,32275,35602,37326]
[work_price] => [20441,21907,23375,24841,26306]
[image] => https://akademik-stroy.ru/wp-content/uploads/materials/cokolnyj-etazh-zh-b.jpg
[area_modifier] => 98.5
[parent_name] => Фундамент
[parent_id] => 1
[material_sum] => 3455477
[work_sum] => 2315454
[total_sum] => 5770931
[total_days] => 40
[display_material_sum] => 3 455 477
[display_work_sum] => 2 315 454
[display_total_sum] => 5 770 931
)
1
5 770 931₽
Работа:2 315 454 ₽
Материалы:3 455 477 ₽
Дни:40
stdClass Object
(
[id] => 191
[attribute_id] => 1
[name] => Винтовые сваи
[material_modifier] => 1
[work_modifier] => 1
[options] => Array
(
[0] => 57х200мм
[1] => 76х250мм
[2] => 108х300мм
[3] => 133х350мм
)
[days] => [1,1,2,2]
[material_price] => [1200,1300,1450,1600]
[work_price] => [400,600,900,1100]
[image] => https://akademik-stroy.ru/wp-content/uploads/materials/vintovye-svai.png
[area_modifier] => 98.5
[parent_name] => Фундамент
[parent_id] => 1
[material_sum] => 163116
[work_sum] => 45310
[total_sum] => 208426
[total_days] => 1
[display_material_sum] => 163 116
[display_work_sum] => 45 310
[display_total_sum] => 208 426
)
1
208 426₽
Работа:45 310 ₽
Материалы:163 116 ₽
Дни:1
stdClass Object
(
[id] => 3
[attribute_id] => 2
[name] => Деревянные балки
[material_modifier] => 1
[work_modifier] => 1
[options] => Array
(
[0] => без утепления
[1] => утепление 200 мм
[2] => утепление 250 мм
[3] => утепление 300 мм
[4] => утепление 350 мм
[5] => утепление 400 мм
[6] => утепление 450 мм
[7] => утепление 500 мм
)
[days] => [8,9,9,9,11,12,13,14]
[material_price] => [1634,2042,2344,2947,3149,3652,3354,3557]
[work_price] => [1230,1339,1393,1426,1460,1513,1587,1620]
[image] => https://akademik-stroy.ru/wp-content/uploads/materials/derevyannye-balki.png
[area_modifier] => 98.5
[parent_name] => Перекрытие цоколя
[parent_id] => 2
[material_sum] => 222110
[work_sum] => 139328
[total_sum] => 361438
[total_days] => 8
[display_material_sum] => 222 110
[display_work_sum] => 139 328
[display_total_sum] => 361 438
)
1
361 438₽
Работа:139 328 ₽
Материалы:222 110 ₽
Дни:8
stdClass Object
(
[id] => 4
[attribute_id] => 2
[name] => Сборные ж/б плиты
[material_modifier] => 1
[work_modifier] => 1
[options] => Array
(
[0] => без утепления
[1] => утепление 150мм
[2] => утепление 200мм
[3] => утепление 250мм
[4] => утепление 300мм
[5] => утепление 350мм
[6] => утепление 400мм
[7] => утепление 450мм
[8] => утепление 500мм
)
[days] => [13,15,15,15,15,15,15,15,15]
[material_price] => [3067,5577,5928,6679,7730,8782,9833,10884,11935]
[work_price] => [1520,1956,2102,2247,2392,2537,2684,2829,2974]
[image] => https://akademik-stroy.ru/wp-content/uploads/materials/sbornye-zh-b-plity-2.jpg
[area_modifier] => 98.5
[parent_name] => Перекрытие цоколя
[parent_id] => 2
[material_sum] => 416897
[work_sum] => 172178
[total_sum] => 589075
[total_days] => 13
[display_material_sum] => 416 897
[display_work_sum] => 172 178
[display_total_sum] => 589 075
)
1
589 075₽
Работа:172 178 ₽
Материалы:416 897 ₽
Дни:13
stdClass Object
(
[id] => 78
[attribute_id] => 2
[name] => Монолитная ж/б плита
[material_modifier] => 1
[work_modifier] => 1
[options] => Array
(
[0] => без утепления
[1] => утепление 150 мм
[2] => утепление 200 мм
[3] => утепление 250 мм
[4] => утепление 300 мм
[5] => утепление 350 мм
[6] => утепление 400 мм
[7] => утепление 450 мм
[8] => утепление 500 мм
)
[days] => [18,20,20,20,20,20,20,20,20]
[material_price] => [4837,6572,7224,7375,79426,8177,8728,9180,10031]
[work_price] => [3348,3921,4112,4302,4493,4684,4875,5066,5256]
[image] => https://akademik-stroy.ru/wp-content/uploads/materials/monolitnaya-zh-b-plita-2.jpg
[area_modifier] => 98.5
[parent_name] => Перекрытие цоколя
[parent_id] => 2
[material_sum] => 657493
[work_sum] => 379245
[total_sum] => 1036738
[total_days] => 18
[display_material_sum] => 657 493
[display_work_sum] => 379 245
[display_total_sum] => 1 036 738
)
1
1 036 738₽
Работа:379 245 ₽
Материалы:657 493 ₽
Дни:18
stdClass Object
(
[id] => 6
[attribute_id] => 3
[name] => Пеноблок
[material_modifier] => 1
[work_modifier] => 1
[options] => Array
(
[0] => 300 мм
[1] => 400 мм
[2] => 500 мм
[3] => 600 мм
)
[days] => [29,31,34,39]
[material_price] => [3000,4000,4500,4937]
[work_price] => [5033,5805,6400,8710]
[image] => https://akademik-stroy.ru/wp-content/uploads/materials/penoblok.jpg
[area_modifier] => 98.5
[parent_name] => Стены 1 этаж (несущие)
[parent_id] => 3
[material_sum] => 407790
[work_sum] => 570113
[total_sum] => 977903
[total_days] => 29
[display_material_sum] => 407 790
[display_work_sum] => 570 113
[display_total_sum] => 977 903
)
1
977 903₽
Работа:570 113 ₽
Материалы:407 790 ₽
Дни:29
stdClass Object
(
[id] => 79
[attribute_id] => 3
[name] => Керамический блок
[material_modifier] => 1
[work_modifier] => 1
[options] => Array
(
[0] => 380 мм
[1] => 380 мм Thermo
[2] => 440 мм
[3] => 510 мм
)
[days] => [23,23,24,25]
[material_price] => [4510,5098,6093,8013]
[work_price] => [4737,4937,5903,6958]
[image] => https://akademik-stroy.ru/wp-content/uploads/materials/keramicheskij-blok.jpg
[area_modifier] => 98.5
[parent_name] => Стены 1 этаж (несущие)
[parent_id] => 3
[material_sum] => 613044
[work_sum] => 536584
[total_sum] => 1149628
[total_days] => 23
[display_material_sum] => 613 044
[display_work_sum] => 536 584
[display_total_sum] => 1 149 628
)
1
1 149 628₽
Работа:536 584 ₽
Материалы:613 044 ₽
Дни:23
stdClass Object
(
[id] => 80
[attribute_id] => 3
[name] => Кирпич
[material_modifier] => 1
[work_modifier] => 1
[options] => Array
(
[0] => Кирпич 250 мм
[1] => Кирпич 380 мм
[2] => Кирпич 510 мм
[3] => Кирпич 640 мм
[4] => Кирпич 770 мм
)
[days] => [30,30,31,33,36]
[material_price] => [5500,7142,9206,10171,12235]
[work_price] => [8736,10041,12018,15240,18462]
[image] => https://akademik-stroy.ru/wp-content/uploads/materials/kirpich.jpg
[area_modifier] => 98.5
[parent_name] => Стены 1 этаж (несущие)
[parent_id] => 3
[material_sum] => 747615
[work_sum] => 989570
[total_sum] => 1737185
[total_days] => 30
[display_material_sum] => 747 615
[display_work_sum] => 989 570
[display_total_sum] => 1 737 185
)
1
1 737 185₽
Работа:989 570 ₽
Материалы:747 615 ₽
Дни:30
stdClass Object
(
[id] => 81
[attribute_id] => 3
[name] => Монолитные
[material_modifier] => 1
[work_modifier] => 1
[options] => Array
(
[0] => 150 мм
[1] => 200 мм
[2] => 250 мм
[3] => 300 мм
[4] => 350 мм
[5] => 400 мм
)
[days] => [45,46,47,49,50,53]
[material_price] => [6545,7876,10175,12011,13908,15204]
[work_price] => [5106,6444,7698,8552,9807,11461]
[image] => https://akademik-stroy.ru/wp-content/uploads/materials/monolitnye.jpg
[area_modifier] => 98.5
[parent_name] => Стены 1 этаж (несущие)
[parent_id] => 3
[material_sum] => 889662
[work_sum] => 578382
[total_sum] => 1468044
[total_days] => 45
[display_material_sum] => 889 662
[display_work_sum] => 578 382
[display_total_sum] => 1 468 044
)
1
1 468 044₽
Работа:578 382 ₽
Материалы:889 662 ₽
Дни:45
stdClass Object
(
[id] => 82
[attribute_id] => 3
[name] => Клееный брус
[material_modifier] => 1
[work_modifier] => 1
[options] => Array
(
[0] => 160 мм
[1] => 175 мм
[2] => 200 мм
[3] => 215 мм
[4] => 240 мм
[5] => 270 мм
[6] => 282 мм
)
[days] => [24,28,32,37,40,42,48]
[material_price] => [16975,18773,19950,20545,21599,22159,23275]
[work_price] => [4806,5287,5815,6397,7036,7740,8514]
[image] => https://akademik-stroy.ru/wp-content/uploads/materials/kleenyj-brus.jpg
[area_modifier] => 98.5
[parent_name] => Стены 1 этаж (несущие)
[parent_id] => 3
[material_sum] => 2307412
[work_sum] => 544400
[total_sum] => 2851812
[total_days] => 24
[display_material_sum] => 2 307 412
[display_work_sum] => 544 400
[display_total_sum] => 2 851 812
)
1
2 851 812₽
Работа:544 400 ₽
Материалы:2 307 412 ₽
Дни:24
stdClass Object
(
[id] => 83
[attribute_id] => 3
[name] => Каркасные
[material_modifier] => 1
[work_modifier] => 1
[options] => Array
(
[0] => 150 мм
[1] => 200 мм
[2] => 250 мм
[3] => 300 мм
)
[days] => [15,16,17,18]
[material_price] => [2379,2639,2898,3258]
[work_price] => [2418,2686,2985,3716]
[image] => https://akademik-stroy.ru/wp-content/uploads/materials/karkasnye.jpg
[area_modifier] => 98.5
[parent_name] => Стены 1 этаж (несущие)
[parent_id] => 3
[material_sum] => 323377
[work_sum] => 273899
[total_sum] => 597276
[total_days] => 15
[display_material_sum] => 323 377
[display_work_sum] => 273 899
[display_total_sum] => 597 276
)
1
597 276₽
Работа:273 899 ₽
Материалы:323 377 ₽
Дни:15
stdClass Object
(
[id] => 84
[attribute_id] => 3
[name] => СИП-панели
[material_modifier] => 1
[work_modifier] => 1
[options] => Array
(
[0] => 120 мм
[1] => 170 мм
[2] => 220 мм
)
[days] => [7,7,7]
[material_price] => [1210,1856,2292]
[work_price] => [1410,1551,1706]
[image] => https://akademik-stroy.ru/wp-content/uploads/materials/sip-paneli.jpg
[area_modifier] => 98.5
[parent_name] => Стены 1 этаж (несущие)
[parent_id] => 3
[material_sum] => 164475
[work_sum] => 159718
[total_sum] => 324193
[total_days] => 7
[display_material_sum] => 164 475
[display_work_sum] => 159 718
[display_total_sum] => 324 193
)
1
324 193₽
Работа:159 718 ₽
Материалы:164 475 ₽
Дни:7
stdClass Object
(
[id] => 85
[attribute_id] => 3
[name] => Сухой брус
[material_modifier] => 1
[work_modifier] => 1
[options] => Array
(
[0] => 150 мм
[1] => 180 мм
[2] => 200 мм
)
[days] => [7,8,9]
[material_price] => [6010,7190,8709]
[work_price] => [3204,3845,4229]
[image] => https://akademik-stroy.ru/wp-content/uploads/materials/suhoj-brus.jpg
[area_modifier] => 98.5
[parent_name] => Стены 1 этаж (несущие)
[parent_id] => 3
[material_sum] => 816939
[work_sum] => 362933
[total_sum] => 1179872
[total_days] => 7
[display_material_sum] => 816 939
[display_work_sum] => 362 933
[display_total_sum] => 1 179 872
)
1
1 179 872₽
Работа:362 933 ₽
Материалы:816 939 ₽
Дни:7
stdClass Object
(
[id] => 86
[attribute_id] => 3
[name] => Профилированный брус
[material_modifier] => 1
[work_modifier] => 1
[options] => Array
(
[0] => 150 мм
[1] => 180 мм
[2] => 200 мм
)
[days] => [7,8,9]
[material_price] => [8190,9228,10051]
[work_price] => [3845,4614,5075]
[image] => https://akademik-stroy.ru/wp-content/uploads/materials/profilirovannyj-brus.jpg
[area_modifier] => 98.5
[parent_name] => Стены 1 этаж (несущие)
[parent_id] => 3
[material_sum] => 1113267
[work_sum] => 435542
[total_sum] => 1548809
[total_days] => 7
[display_material_sum] => 1 113 267
[display_work_sum] => 435 542
[display_total_sum] => 1 548 809
)
1
1 548 809₽
Работа:435 542 ₽
Материалы:1 113 267 ₽
Дни:7
stdClass Object
(
[id] => 87
[attribute_id] => 3
[name] => Оцилиндрованное бревно
[material_modifier] => 1
[work_modifier] => 1
[options] => Array
(
[0] => 180 мм
[1] => 220 мм
[2] => 260 мм
[3] => 320 мм
)
[days] => [7,8,9,10]
[material_price] => [75190,9532,10868,13116]
[work_price] => [3845,4691,5535,6863]
[image] => https://akademik-stroy.ru/wp-content/uploads/materials/ocilindrovannoe-brevno-1.jpg
[area_modifier] => 98.5
[parent_name] => Стены 1 этаж (несущие)
[parent_id] => 3
[material_sum] => 10220577
[work_sum] => 435542
[total_sum] => 10656119
[total_days] => 7
[display_material_sum] => 10 220 577
[display_work_sum] => 435 542
[display_total_sum] => 10 656 119
)
1
10 656 119₽
Работа:435 542 ₽
Материалы:10 220 577 ₽
Дни:7
stdClass Object
(
[id] => 88
[attribute_id] => 3
[name] => Срубы
[material_modifier] => 1
[work_modifier] => 1
[options] => Array
(
[0] => 260 мм
[1] => 320 мм
[2] => 360 мм
[3] => 400 мм
[4] => 500 мм
)
[days] => [7,8,9,10,11]
[material_price] => [37975,46709,52314,58069,73167]
[work_price] => [4806,5911,6621,7349,9260]
[image] => https://akademik-stroy.ru/wp-content/uploads/materials/sruby.jpg
[area_modifier] => 98.5
[parent_name] => Стены 1 этаж (несущие)
[parent_id] => 3
[material_sum] => 5161942
[work_sum] => 544400
[total_sum] => 5706342
[total_days] => 7
[display_material_sum] => 5 161 942
[display_work_sum] => 544 400
[display_total_sum] => 5 706 342
)
1
5 706 342₽
Работа:544 400 ₽
Материалы:5 161 942 ₽
Дни:7
stdClass Object
(
[id] => 174
[attribute_id] => 3
[name] => Брус
[material_modifier] => 1
[work_modifier] => 1
[options] => Array
(
[0] => 150 мм
[1] => 180 мм
[2] => 200 мм
)
[days] => [7,8,9]
[material_price] => [5127,6152,7367]
[work_price] => [1602,1922,2115]
[image] => https://akademik-stroy.ru/wp-content/uploads/materials/brus.jpg
[area_modifier] => 98.5
[parent_name] => Стены 1 этаж (несущие)
[parent_id] => 3
[material_sum] => 696913
[work_sum] => 181467
[total_sum] => 878380
[total_days] => 7
[display_material_sum] => 696 913
[display_work_sum] => 181 467
[display_total_sum] => 878 380
)
1
878 380₽
Работа:181 467 ₽
Материалы:696 913 ₽
Дни:7
stdClass Object
(
[id] => 175
[attribute_id] => 3
[name] => Газобетон
[material_modifier] => 1
[work_modifier] => 1
[options] => Array
(
[0] => 300 мм
[1] => 375 мм
[2] => 400 мм
[3] => 500 мм
[4] => 600 мм
)
[days] => [29,31,35,37,44]
[material_price] => [4298,5573,6356,7288,9119]
[work_price] => [4538,5251,5926,6733,7195]
[image] => https://akademik-stroy.ru/wp-content/uploads/materials/gazobeton.jpg
[area_modifier] => 98.5
[parent_name] => Стены 1 этаж (несущие)
[parent_id] => 3
[material_sum] => 584227
[work_sum] => 514042
[total_sum] => 1098269
[total_days] => 29
[display_material_sum] => 584 227
[display_work_sum] => 514 042
[display_total_sum] => 1 098 269
)
1
1 098 269₽
Работа:514 042 ₽
Материалы:584 227 ₽
Дни:29
stdClass Object
(
[id] => 176
[attribute_id] => 3
[name] => Блок
[material_modifier] => 1
[work_modifier] => 1
[options] => Array
(
[0] => 300 мм
[1] => 375 мм
[2] => 400 мм
[3] => 500 мм
[4] => 600 мм
)
[days] => [29,31,35,37,44]
[material_price] => [2698,3973,4356,6588,7119]
[work_price] => [5038,5851,6426,8733,9195]
[image] => https://akademik-stroy.ru/wp-content/uploads/materials/blok.jpg
[area_modifier] => 98.5
[parent_name] => Стены 1 этаж (несущие)
[parent_id] => 3
[material_sum] => 366739
[work_sum] => 570679
[total_sum] => 937418
[total_days] => 29
[display_material_sum] => 366 739
[display_work_sum] => 570 679
[display_total_sum] => 937 418
)
1
937 418₽
Работа:570 679 ₽
Материалы:366 739 ₽
Дни:29
stdClass Object
(
[id] => 177
[attribute_id] => 3
[name] => Газосиликатный блок
[material_modifier] => 1
[work_modifier] => 1
[options] => Array
(
[0] => 300 мм
[1] => 375 мм
[2] => 400 мм
[3] => 500 мм
[4] => 600 мм
)
[days] => [29,31,35,37,44]
[material_price] => [4298,5573,6356,7288,9119]
[work_price] => [4538,5251,5926,6733,7195]
[image] => https://akademik-stroy.ru/wp-content/uploads/materials/gazosilikatnyj-blok.jpg
[area_modifier] => 98.5
[parent_name] => Стены 1 этаж (несущие)
[parent_id] => 3
[material_sum] => 584227
[work_sum] => 514042
[total_sum] => 1098269
[total_days] => 29
[display_material_sum] => 584 227
[display_work_sum] => 514 042
[display_total_sum] => 1 098 269
)
1
1 098 269₽
Работа:514 042 ₽
Материалы:584 227 ₽
Дни:29
stdClass Object
(
[id] => 178
[attribute_id] => 3
[name] => Керамзитобетонный блок
[material_modifier] => 1
[work_modifier] => 1
[options] => Array
(
[0] => 300 мм
[1] => 375 мм
[2] => 400 мм
[3] => 500 мм
[4] => 600 мм
)
[days] => [23,23,24,25,28]
[material_price] => [3641,4298,5693,7613,9612]
[work_price] => [5737,5737,6903,7958,8901]
[image] => https://akademik-stroy.ru/wp-content/uploads/materials/keramzitobetonnyj-blok.jpg
[area_modifier] => 98.5
[parent_name] => Стены 1 этаж (несущие)
[parent_id] => 3
[material_sum] => 494921
[work_sum] => 649859
[total_sum] => 1144780
[total_days] => 23
[display_material_sum] => 494 921
[display_work_sum] => 649 859
[display_total_sum] => 1 144 780
)
1
1 144 780₽
Работа:649 859 ₽
Материалы:494 921 ₽
Дни:23
stdClass Object
(
[id] => 179
[attribute_id] => 3
[name] => Деревянные
[material_modifier] => 1
[work_modifier] => 1
[options] => Array
(
[0] => 180 мм
[1] => 220 мм
[2] => 260 мм
[3] => 320 мм
)
[days] => [7,8,9,10]
[material_price] => [7950,9458,11961,14472]
[work_price] => [4037,4925,5812,7207]
[image] => https://akademik-stroy.ru/wp-content/uploads/materials/derevyannye.jpg
[area_modifier] => 98.5
[parent_name] => Стены 1 этаж (несущие)
[parent_id] => 3
[material_sum] => 1080644
[work_sum] => 457291
[total_sum] => 1537935
[total_days] => 7
[display_material_sum] => 1 080 644
[display_work_sum] => 457 291
[display_total_sum] => 1 537 935
)
1
1 537 935₽
Работа:457 291 ₽
Материалы:1 080 644 ₽
Дни:7
stdClass Object
(
[id] => 181
[attribute_id] => 3
[name] => Камень
[material_modifier] => 1
[work_modifier] => 1
[options] => Array
(
[0] => 300 мм
[1] => 400 мм
[2] => 500 мм
[3] => 600 мм
)
[days] => [25,27,31,34]
[material_price] => [5262,6844,8330,9815]
[work_price] => [8331,9135,10427,11069]
[image] => https://akademik-stroy.ru/wp-content/uploads/materials/kamen.jpg
[area_modifier] => 98.5
[parent_name] => Стены 1 этаж (несущие)
[parent_id] => 3
[material_sum] => 715264
[work_sum] => 943694
[total_sum] => 1658958
[total_days] => 25
[display_material_sum] => 715 264
[display_work_sum] => 943 694
[display_total_sum] => 1 658 958
)
1
1 658 958₽
Работа:943 694 ₽
Материалы:715 264 ₽
Дни:25
stdClass Object
(
[id] => 182
[attribute_id] => 3
[name] => Каркасно-щитовые
[material_modifier] => 1
[work_modifier] => 1
[options] => Array
(
[0] => 150 мм
[1] => 200 мм
[2] => 250 мм
[3] => 300 мм
[4] => 350 мм
[5] => 400 мм
)
[days] => [15,16,17,18,19,20]
[material_price] => [2379,2639,2898,3458,3601,4175]
[work_price] => [2538,2820,3134,3483,4062,5642]
[image] => https://akademik-stroy.ru/wp-content/uploads/materials/karkasno-shchitovye.jpg
[area_modifier] => 98.5
[parent_name] => Стены 1 этаж (несущие)
[parent_id] => 3
[material_sum] => 323377
[work_sum] => 287492
[total_sum] => 610869
[total_days] => 15
[display_material_sum] => 323 377
[display_work_sum] => 287 492
[display_total_sum] => 610 869
)
1
610 869₽
Работа:287 492 ₽
Материалы:323 377 ₽
Дни:15
stdClass Object
(
[id] => 183
[attribute_id] => 3
[name] => Рубленные
[material_modifier] => 1
[work_modifier] => 1
[options] => Array
(
[0] => 150 мм
[1] => 200 мм
[2] => 250 мм
[3] => 300 мм
[4] => 350 мм
[5] => 400 мм
)
[days] => [15,16,17,18,17,18]
[material_price] => [35950,50267,60583,75900,80217,100533]
[work_price] => [9612,12816,16020,19224,22428,25632]
[image] => https://akademik-stroy.ru/wp-content/uploads/materials/rublennye.jpg
[area_modifier] => 98.5
[parent_name] => Стены 1 этаж (несущие)
[parent_id] => 3
[material_sum] => 4886684
[work_sum] => 1088799
[total_sum] => 5975483
[total_days] => 15
[display_material_sum] => 4 886 684
[display_work_sum] => 1 088 799
[display_total_sum] => 5 975 483
)
1
5 975 483₽
Работа:1 088 799 ₽
Материалы:4 886 684 ₽
Дни:15
stdClass Object
(
[id] => 185
[attribute_id] => 3
[name] => Теплоблок
[material_modifier] => 1
[work_modifier] => 1
[options] => Array
(
[0] => 300 мм (с облицовкой, не покрашенный)
[1] => 400 мм (с облицовкой, не покрашенный)
[2] => 300 мм (с облицовкой, покрашенный)
[3] => 400 мм (с облицовкой, покрашенный)
)
[days] => [15,16,15,16]
[material_price] => [2888,3729,3957,4258]
[work_price] => [2564,3229,2949,3713]
[image] => https://akademik-stroy.ru/wp-content/uploads/materials/teploblok.jpg
[area_modifier] => 98.5
[parent_name] => Стены 1 этаж (несущие)
[parent_id] => 3
[material_sum] => 392566
[work_sum] => 290437
[total_sum] => 683003
[total_days] => 15
[display_material_sum] => 392 566
[display_work_sum] => 290 437
[display_total_sum] => 683 003
)
1
683 003₽
Работа:290 437 ₽
Материалы:392 566 ₽
Дни:15
stdClass Object
(
[id] => 186
[attribute_id] => 3
[name] => Арболитовые блоки
[material_modifier] => 1
[work_modifier] => 1
[options] => Array
(
[0] => 300 мм
[1] => 400 мм
[2] => 600 мм
)
[days] => [19,22,27]
[material_price] => [3210,4475,5852]
[work_price] => [4214,4788,5866]
[image] => https://akademik-stroy.ru/wp-content/uploads/materials/arbolitovye-bloki.png
[area_modifier] => 98.5
[parent_name] => Стены 1 этаж (несущие)
[parent_id] => 3
[material_sum] => 436335
[work_sum] => 477341
[total_sum] => 913676
[total_days] => 19
[display_material_sum] => 436 335
[display_work_sum] => 477 341
[display_total_sum] => 913 676
)
1
913 676₽
Работа:477 341 ₽
Материалы:436 335 ₽
Дни:19
stdClass Object
(
[id] => 187
[attribute_id] => 3
[name] => Полистиролбетон
[material_modifier] => 1
[work_modifier] => 1
[options] => Array
(
[0] => 300 мм
[1] => 400 мм
[2] => 600 мм
)
[days] => [29,31,35]
[material_price] => [2798,4573,5256]
[work_price] => [5038,5851,6426]
[image] => https://akademik-stroy.ru/wp-content/uploads/materials/polistirolbeton.jpg
[area_modifier] => 98.5
[parent_name] => Стены 1 этаж (несущие)
[parent_id] => 3
[material_sum] => 380332
[work_sum] => 570679
[total_sum] => 951011
[total_days] => 29
[display_material_sum] => 380 332
[display_work_sum] => 570 679
[display_total_sum] => 951 011
)
1
951 011₽
Работа:570 679 ₽
Материалы:380 332 ₽
Дни:29
stdClass Object
(
[id] => 188
[attribute_id] => 3
[name] => Шлакоблок
[material_modifier] => 1
[work_modifier] => 1
[options] => Array
(
[0] => 400 мм
[1] => 600 мм
)
[days] => [15,16]
[material_price] => [2391,3471]
[work_price] => [2642,3662]
[image] => https://akademik-stroy.ru/wp-content/uploads/materials/shlakoblok.jpg
[area_modifier] => 98.5
[parent_name] => Стены 1 этаж (несущие)
[parent_id] => 3
[material_sum] => 325009
[work_sum] => 299273
[total_sum] => 624282
[total_days] => 15
[display_material_sum] => 325 009
[display_work_sum] => 299 273
[display_total_sum] => 624 282
)
1
624 282₽
Работа:299 273 ₽
Материалы:325 009 ₽
Дни:15
stdClass Object
(
[id] => 189
[attribute_id] => 3
[name] => Теплая керамика
[material_modifier] => 1
[work_modifier] => 1
[options] => Array
(
[0] => 380 мм
[1] => 380 мм Thermo
[2] => 440 мм
[3] => 510 мм
)
[days] => [23,23,24,25]
[material_price] => [4510,5098,6093,8013]
[work_price] => [4737,4937,5903,6958]
[image] => https://akademik-stroy.ru/wp-content/uploads/materials/teplaya-keramika.jpg
[area_modifier] => 98.5
[parent_name] => Стены 1 этаж (несущие)
[parent_id] => 3
[material_sum] => 613044
[work_sum] => 536584
[total_sum] => 1149628
[total_days] => 23
[display_material_sum] => 613 044
[display_work_sum] => 536 584
[display_total_sum] => 1 149 628
)
1
1 149 628₽
Работа:536 584 ₽
Материалы:613 044 ₽
Дни:23
stdClass Object
(
[id] => 190
[attribute_id] => 3
[name] => Несъемная опалубка
[material_modifier] => 1
[work_modifier] => 1
[options] => Array
(
[0] => 200 мм
[1] => 250 мм
[2] => 300 мм
[3] => 350 мм
)
[days] => [15,17,19,21]
[material_price] => [3302,3902,4108,5008]
[work_price] => [2100,2100,2300,2534]
[image] => https://akademik-stroy.ru/wp-content/uploads/materials/nesemnaya-opalubka.jpg
[area_modifier] => 98.5
[parent_name] => Стены 1 этаж (несущие)
[parent_id] => 3
[material_sum] => 448841
[work_sum] => 237878
[total_sum] => 686719
[total_days] => 15
[display_material_sum] => 448 841
[display_work_sum] => 237 878
[display_total_sum] => 686 719
)
1
686 719₽
Работа:237 878 ₽
Материалы:448 841 ₽
Дни:15
stdClass Object
(
[id] => 251
[attribute_id] => 3
[name] => Бревно
[material_modifier] => 1
[work_modifier] => 1
[options] => Array
(
[0] => 260 мм
[1] => 320 мм
[2] => 360 мм
[3] => 400 мм
[4] => 500 мм
)
[days] => [7,8,9,10,11]
[material_price] => [1874,24045,26930,30972,38825]
[work_price] => [5046,6207,6952,7716,9723]
[image] => https://akademik-stroy.ru/wp-content/uploads/materials/sruby.jpg
[area_modifier] => 98.5
[parent_name] => Стены 1 этаж (несущие)
[parent_id] => 3
[material_sum] => 254733
[work_sum] => 571586
[total_sum] => 826319
[total_days] => 7
[display_material_sum] => 254 733
[display_work_sum] => 571 586
[display_total_sum] => 826 319
)
1
826 319₽
Работа:571 586 ₽
Материалы:254 733 ₽
Дни:7
stdClass Object
(
[id] => 7
[attribute_id] => 4
[name] => Деревянные балки
[material_modifier] => 1
[work_modifier] => 1
[options] => Array
(
[0] => без утепления
[1] => утепление 200 мм
[2] => утепление 250 мм
[3] => утепление 300 мм
[4] => утепление 350 мм
[5] => утепление 400 мм
[6] => утепление 450 мм
[7] => утепление 500 мм
)
[days] => [8,9,9,9,11,12,13,14]
[material_price] => [1634,2042,2344,2947,3149,3652,3354,3557]
[work_price] => [1230,1339,1393,1426,1460,1513,1587,1620]
[image] => https://akademik-stroy.ru/wp-content/uploads/materials/derevyannye-balki.png
[area_modifier] => 98.5
[parent_name] => Перекрытие первого этажа
[parent_id] => 4
[material_sum] => 222110
[work_sum] => 139328
[total_sum] => 361438
[total_days] => 8
[display_material_sum] => 222 110
[display_work_sum] => 139 328
[display_total_sum] => 361 438
)
1
361 438₽
Работа:139 328 ₽
Материалы:222 110 ₽
Дни:8
stdClass Object
(
[id] => 8
[attribute_id] => 4
[name] => Сборные ж/б плиты
[material_modifier] => 1
[work_modifier] => 1
[options] => Array
(
[0] => без утепления
[1] => утепление 150 мм
[2] => утепление 200 мм
[3] => утепление 250 мм
[4] => утепление 300 мм
[5] => утепление 350 мм
[6] => утепление 400 мм
[7] => утепление 450 мм
[8] => утепление 500 мм
)
[days] => [13,15,15,15,15,15,15,15,15]
[material_price] => [3067,5577,5928,6679,7730,8782,9833,10884,11935]
[work_price] => [1520,1956,2102,2247,2392,2537,2684,2829,2974]
[image] => https://akademik-stroy.ru/wp-content/uploads/materials/sbornye-zh-b-plity-2.jpg
[area_modifier] => 98.5
[parent_name] => Перекрытие первого этажа
[parent_id] => 4
[material_sum] => 416897
[work_sum] => 172178
[total_sum] => 589075
[total_days] => 13
[display_material_sum] => 416 897
[display_work_sum] => 172 178
[display_total_sum] => 589 075
)
1
589 075₽
Работа:172 178 ₽
Материалы:416 897 ₽
Дни:13
stdClass Object
(
[id] => 89
[attribute_id] => 4
[name] => Монолитная ж/б плита
[material_modifier] => 1
[work_modifier] => 1
[options] => Array
(
[0] => без утепления
[1] => утепление 150 мм
[2] => утепление 200 мм
[3] => утепление 250 мм
[4] => утепление 300 мм
[5] => утепление 350 мм
[6] => утепление 400 мм
[7] => утепление 450 мм
[8] => утепление 500 мм
)
[days] => [18,20,20,20,20,20,20,20,20]
[material_price] => [4837,6572,7224,7375,79426,8177,8728,9180,10031]
[work_price] => [3348,3921,4112,4302,4493,4684,4875,5066,5256]
[image] => https://akademik-stroy.ru/wp-content/uploads/materials/monolitnaya-zh-b-plita-2.jpg
[area_modifier] => 98.5
[parent_name] => Перекрытие первого этажа
[parent_id] => 4
[material_sum] => 657493
[work_sum] => 379245
[total_sum] => 1036738
[total_days] => 18
[display_material_sum] => 657 493
[display_work_sum] => 379 245
[display_total_sum] => 1 036 738
)
1
1 036 738₽
Работа:379 245 ₽
Материалы:657 493 ₽
Дни:18
stdClass Object
(
[id] => 10
[attribute_id] => 5
[name] => Пеноблок
[material_modifier] => 1
[work_modifier] => 1
[options] => Array
(
[0] => 300 мм
[1] => 400 мм
[2] => 500 мм
[3] => 600 мм
)
[days] => [29,31,34,39]
[material_price] => [3000,4000,4500,4937]
[work_price] => [5033,5805,6400,8710]
[image] => https://akademik-stroy.ru/wp-content/uploads/materials/penoblok.jpg
[area_modifier] => 42.92
[parent_name] => Стены 2 этаж (несущие)
[parent_id] => 5
[material_sum] => 177689
[work_sum] => 248419
[total_sum] => 426108
[total_days] => 29
[display_material_sum] => 177 689
[display_work_sum] => 248 419
[display_total_sum] => 426 108
)
1
426 108₽
Работа:248 419 ₽
Материалы:177 689 ₽
Дни:29
stdClass Object
(
[id] => 90
[attribute_id] => 5
[name] => Керамический блок
[material_modifier] => 1
[work_modifier] => 1
[options] => Array
(
[0] => 380 мм
[1] => 380 мм Thermo
[2] => 440 мм
[3] => 510 мм
)
[days] => [23,23,24,25]
[material_price] => [4510,5098,6093,8013]
[work_price] => [4737,4937,5903,6958]
[image] => https://akademik-stroy.ru/wp-content/uploads/materials/keramicheskij-blok.jpg
[area_modifier] => 42.92
[parent_name] => Стены 2 этаж (несущие)
[parent_id] => 5
[material_sum] => 267125
[work_sum] => 233809
[total_sum] => 500934
[total_days] => 23
[display_material_sum] => 267 125
[display_work_sum] => 233 809
[display_total_sum] => 500 934
)
1
500 934₽
Работа:233 809 ₽
Материалы:267 125 ₽
Дни:23
stdClass Object
(
[id] => 91
[attribute_id] => 5
[name] => Кирпич
[material_modifier] => 1
[work_modifier] => 1
[options] => Array
(
[0] => Кирпич 250 мм
[1] => Кирпич 380 мм
[2] => Кирпич 510 мм
[3] => Кирпич 640 мм
[4] => Кирпич 770 мм
)
[days] => [30,30,31,33,36]
[material_price] => [5500,7142,9206,10171,12235]
[work_price] => [8736,10041,12018,15240,18462]
[image] => https://akademik-stroy.ru/wp-content/uploads/materials/kirpich.jpg
[area_modifier] => 42.92
[parent_name] => Стены 2 этаж (несущие)
[parent_id] => 5
[material_sum] => 325763
[work_sum] => 431191
[total_sum] => 756954
[total_days] => 30
[display_material_sum] => 325 763
[display_work_sum] => 431 191
[display_total_sum] => 756 954
)
1
756 954₽
Работа:431 191 ₽
Материалы:325 763 ₽
Дни:30
stdClass Object
(
[id] => 92
[attribute_id] => 5
[name] => Монолитные
[material_modifier] => 1
[work_modifier] => 1
[options] => Array
(
[0] => 150 мм
[1] => 200 мм
[2] => 250 мм
[3] => 300 мм
[4] => 350 мм
[5] => 400 мм
)
[days] => [45,46,47,49,50,53]
[material_price] => [6545,7876,10175,12011,13908,15204]
[work_price] => [5106,6444,7698,8552,9807,11461]
[image] => https://akademik-stroy.ru/wp-content/uploads/materials/monolitnye.jpg
[area_modifier] => 42.92
[parent_name] => Стены 2 этаж (несущие)
[parent_id] => 5
[material_sum] => 387658
[work_sum] => 252022
[total_sum] => 639680
[total_days] => 45
[display_material_sum] => 387 658
[display_work_sum] => 252 022
[display_total_sum] => 639 680
)
1
639 680₽
Работа:252 022 ₽
Материалы:387 658 ₽
Дни:45
stdClass Object
(
[id] => 93
[attribute_id] => 5
[name] => Клееный брус
[material_modifier] => 1
[work_modifier] => 1
[options] => Array
(
[0] => 160 мм
[1] => 175 мм
[2] => 200 мм
[3] => 215 мм
[4] => 240 мм
[5] => 270 мм
[6] => 282 мм
)
[days] => [24,28,32,37,40,42,48]
[material_price] => [16975,18773,19950,20545,21599,22159,23275]
[work_price] => [4806,5287,5815,6397,7036,7740,8514]
[image] => https://akademik-stroy.ru/wp-content/uploads/materials/kleenyj-brus.jpg
[area_modifier] => 42.92
[parent_name] => Стены 2 этаж (несущие)
[parent_id] => 5
[material_sum] => 1005422
[work_sum] => 237215
[total_sum] => 1242637
[total_days] => 24
[display_material_sum] => 1 005 422
[display_work_sum] => 237 215
[display_total_sum] => 1 242 637
)
1
1 242 637₽
Работа:237 215 ₽
Материалы:1 005 422 ₽
Дни:24
stdClass Object
(
[id] => 94
[attribute_id] => 5
[name] => Каркасные
[material_modifier] => 1
[work_modifier] => 1
[options] => Array
(
[0] => 150 мм
[1] => 200 мм
[2] => 250 мм
[3] => 300 мм
)
[days] => [15,16,17,18]
[material_price] => [2379,2639,2898,3258]
[work_price] => [2418,2686,2985,3716]
[image] => https://akademik-stroy.ru/wp-content/uploads/materials/karkasnye.jpg
[area_modifier] => 42.92
[parent_name] => Стены 2 этаж (несущие)
[parent_id] => 5
[material_sum] => 140907
[work_sum] => 119348
[total_sum] => 260255
[total_days] => 15
[display_material_sum] => 140 907
[display_work_sum] => 119 348
[display_total_sum] => 260 255
)
1
260 255₽
Работа:119 348 ₽
Материалы:140 907 ₽
Дни:15
stdClass Object
(
[id] => 95
[attribute_id] => 5
[name] => СИП-панели
[material_modifier] => 1
[work_modifier] => 1
[options] => Array
(
[0] => 120 мм
[1] => 170 мм
[2] => 220 мм
)
[days] => [7,7,7]
[material_price] => [1210,1856,2292]
[work_price] => [1410,1551,1706]
[image] => https://akademik-stroy.ru/wp-content/uploads/materials/sip-paneli.jpg
[area_modifier] => 42.92
[parent_name] => Стены 2 этаж (несущие)
[parent_id] => 5
[material_sum] => 71668
[work_sum] => 69595
[total_sum] => 141263
[total_days] => 7
[display_material_sum] => 71 668
[display_work_sum] => 69 595
[display_total_sum] => 141 263
)
1
141 263₽
Работа:69 595 ₽
Материалы:71 668 ₽
Дни:7
stdClass Object
(
[id] => 96
[attribute_id] => 5
[name] => Сухой брус
[material_modifier] => 1
[work_modifier] => 1
[options] => Array
(
[0] => 150 мм
[1] => 180 мм
[2] => 200 мм
)
[days] => [7,8,9]
[material_price] => [6010,7190,8709]
[work_price] => [3204,3845,4229]
[image] => https://akademik-stroy.ru/wp-content/uploads/materials/suhoj-brus.jpg
[area_modifier] => 42.92
[parent_name] => Стены 2 этаж (несущие)
[parent_id] => 5
[material_sum] => 355970
[work_sum] => 158143
[total_sum] => 514113
[total_days] => 7
[display_material_sum] => 355 970
[display_work_sum] => 158 143
[display_total_sum] => 514 113
)
1
514 113₽
Работа:158 143 ₽
Материалы:355 970 ₽
Дни:7
stdClass Object
(
[id] => 97
[attribute_id] => 5
[name] => Профилированный брус
[material_modifier] => 1
[work_modifier] => 1
[options] => Array
(
[0] => 150 мм
[1] => 180 мм
[2] => 200 мм
)
[days] => [7,8,9]
[material_price] => [8190,9228,10051]
[work_price] => [3845,4614,5075]
[image] => https://akademik-stroy.ru/wp-content/uploads/materials/profilirovannyj-brus.jpg
[area_modifier] => 42.92
[parent_name] => Стены 2 этаж (несущие)
[parent_id] => 5
[material_sum] => 485090
[work_sum] => 189782
[total_sum] => 674872
[total_days] => 7
[display_material_sum] => 485 090
[display_work_sum] => 189 782
[display_total_sum] => 674 872
)
1
674 872₽
Работа:189 782 ₽
Материалы:485 090 ₽
Дни:7
stdClass Object
(
[id] => 98
[attribute_id] => 5
[name] => Оцилиндрованное бревно
[material_modifier] => 1
[work_modifier] => 1
[options] => Array
(
[0] => 180 мм
[1] => 220 мм
[2] => 260 мм
[3] => 320 мм
)
[days] => [7,8,9,10]
[material_price] => [75190,9532,10868,13116]
[work_price] => [3845,4691,5535,6863]
[image] => https://akademik-stroy.ru/wp-content/uploads/materials/ocilindrovannoe-brevno-1.jpg
[area_modifier] => 42.92
[parent_name] => Стены 2 этаж (несущие)
[parent_id] => 5
[material_sum] => 4453474
[work_sum] => 189782
[total_sum] => 4643256
[total_days] => 7
[display_material_sum] => 4 453 474
[display_work_sum] => 189 782
[display_total_sum] => 4 643 256
)
1
4 643 256₽
Работа:189 782 ₽
Материалы:4 453 474 ₽
Дни:7
stdClass Object
(
[id] => 99
[attribute_id] => 5
[name] => Срубы
[material_modifier] => 1
[work_modifier] => 1
[options] => Array
(
[0] => 260 мм
[1] => 320 мм
[2] => 360 мм
[3] => 400 мм
[4] => 500 мм
)
[days] => [7,8,9,10,11]
[material_price] => [16175,23709,26314,29069,32167]
[work_price] => [4806,5911,6621,7349,9260]
[image] => https://akademik-stroy.ru/wp-content/uploads/materials/suhoj-brus.jpg
[area_modifier] => 42.92
[parent_name] => Стены 2 этаж (несущие)
[parent_id] => 5
[material_sum] => 958039
[work_sum] => 237215
[total_sum] => 1195254
[total_days] => 7
[display_material_sum] => 958 039
[display_work_sum] => 237 215
[display_total_sum] => 1 195 254
)
1
1 195 254₽
Работа:237 215 ₽
Материалы:958 039 ₽
Дни:7
stdClass Object
(
[id] => 194
[attribute_id] => 5
[name] => Брус
[material_modifier] => 1
[work_modifier] => 1
[options] => Array
(
[0] => 150 мм
[1] => 180 мм
[2] => 200 мм
)
[days] => [10,13,15]
[material_price] => [5127,6152,7367]
[work_price] => [1602,1922,2115]
[image] => https://akademik-stroy.ru/wp-content/uploads/materials/brus.jpg
[area_modifier] => 42.92
[parent_name] => Стены 2 этаж (несущие)
[parent_id] => 5
[material_sum] => 303670
[work_sum] => 79072
[total_sum] => 382742
[total_days] => 10
[display_material_sum] => 303 670
[display_work_sum] => 79 072
[display_total_sum] => 382 742
)
1
382 742₽
Работа:79 072 ₽
Материалы:303 670 ₽
Дни:10
stdClass Object
(
[id] => 195
[attribute_id] => 5
[name] => Газобетон
[material_modifier] => 1
[work_modifier] => 1
[options] => Array
(
[0] => 300 мм
[1] => 375 мм
[2] => 400 мм
[3] => 500 мм
[4] => 600 мм
)
[days] => [29,31,35,37,44]
[material_price] => [4298,5573,6356,7288,9119]
[work_price] => [4538,5251,5926,6733,7195]
[image] => https://akademik-stroy.ru/wp-content/uploads/materials/gazobeton.jpg
[area_modifier] => 42.92
[parent_name] => Стены 2 этаж (несущие)
[parent_id] => 5
[material_sum] => 254569
[work_sum] => 223987
[total_sum] => 478556
[total_days] => 29
[display_material_sum] => 254 569
[display_work_sum] => 223 987
[display_total_sum] => 478 556
)
1
478 556₽
Работа:223 987 ₽
Материалы:254 569 ₽
Дни:29
stdClass Object
(
[id] => 196
[attribute_id] => 5
[name] => Блок
[material_modifier] => 1
[work_modifier] => 1
[options] => Array
(
[0] => 300 мм
[1] => 375 мм
[2] => 400 мм
[3] => 500 мм
[4] => 600 мм
)
[days] => [29,31,35,37,44]
[material_price] => [2698,3973,4356,6588,7119]
[work_price] => [5038,5851,6426,8733,9195]
[image] => https://akademik-stroy.ru/wp-content/uploads/materials/blok.jpg
[area_modifier] => 42.92
[parent_name] => Стены 2 этаж (несущие)
[parent_id] => 5
[material_sum] => 159801
[work_sum] => 248666
[total_sum] => 408467
[total_days] => 29
[display_material_sum] => 159 801
[display_work_sum] => 248 666
[display_total_sum] => 408 467
)
1
408 467₽
Работа:248 666 ₽
Материалы:159 801 ₽
Дни:29
stdClass Object
(
[id] => 197
[attribute_id] => 5
[name] => Газосиликатный блок
[material_modifier] => 1
[work_modifier] => 1
[options] => Array
(
[0] => 300 мм
[1] => 375 мм
[2] => 400 мм
[3] => 500 мм
[4] => 600 мм
)
[days] => [29,31,35,37,44]
[material_price] => [4298,5573,6356,7288,9119]
[work_price] => [4538,5251,5926,6733,7195]
[image] => https://akademik-stroy.ru/wp-content/uploads/materials/gazosilikatnyj-blok.jpg
[area_modifier] => 42.92
[parent_name] => Стены 2 этаж (несущие)
[parent_id] => 5
[material_sum] => 254569
[work_sum] => 223987
[total_sum] => 478556
[total_days] => 29
[display_material_sum] => 254 569
[display_work_sum] => 223 987
[display_total_sum] => 478 556
)
1
478 556₽
Работа:223 987 ₽
Материалы:254 569 ₽
Дни:29
stdClass Object
(
[id] => 198
[attribute_id] => 5
[name] => Керамзитобетонный блок
[material_modifier] => 1
[work_modifier] => 1
[options] => Array
(
[0] => 300 мм
[1] => 375 мм
[2] => 400 мм
[3] => 500 мм
[4] => 600 мм
)
[days] => [23,23,24,25,28]
[material_price] => [3641,4298,5693,7613,9612]
[work_price] => [5737,5737,6903,7958,8901]
[image] => https://akademik-stroy.ru/wp-content/uploads/materials/keramzitobetonnyj-blok.jpg
[area_modifier] => 42.92
[parent_name] => Стены 2 этаж (несущие)
[parent_id] => 5
[material_sum] => 215655
[work_sum] => 283167
[total_sum] => 498822
[total_days] => 23
[display_material_sum] => 215 655
[display_work_sum] => 283 167
[display_total_sum] => 498 822
)
1
498 822₽
Работа:283 167 ₽
Материалы:215 655 ₽
Дни:23
stdClass Object
(
[id] => 199
[attribute_id] => 5
[name] => Деревянные
[material_modifier] => 1
[work_modifier] => 1
[options] => Array
(
[0] => 180 мм
[1] => 220 мм
[2] => 260 мм
[3] => 320 мм
)
[days] => [7,8,9,10]
[material_price] => [7950,9458,11961,14472]
[work_price] => [4037,4925,5812,7207]
[image] => https://akademik-stroy.ru/wp-content/uploads/materials/derevyannye.jpg
[area_modifier] => 42.92
[parent_name] => Стены 2 этаж (несущие)
[parent_id] => 5
[material_sum] => 470875
[work_sum] => 199258
[total_sum] => 670133
[total_days] => 7
[display_material_sum] => 470 875
[display_work_sum] => 199 258
[display_total_sum] => 670 133
)
1
670 133₽
Работа:199 258 ₽
Материалы:470 875 ₽
Дни:7
stdClass Object
(
[id] => 200
[attribute_id] => 5
[name] => Камень
[material_modifier] => 1
[work_modifier] => 1
[options] => Array
(
[0] => 300 мм
[1] => 400 мм
[2] => 500 мм
[3] => 600 мм
)
[days] => [25,27,31,34]
[material_price] => [5262,6844,8330,9815]
[work_price] => [8331,9135,10427,11069]
[image] => https://akademik-stroy.ru/wp-content/uploads/materials/kamen.jpg
[area_modifier] => 42.92
[parent_name] => Стены 2 этаж (несущие)
[parent_id] => 5
[material_sum] => 311666
[work_sum] => 411201
[total_sum] => 722867
[total_days] => 25
[display_material_sum] => 311 666
[display_work_sum] => 411 201
[display_total_sum] => 722 867
)
1
722 867₽
Работа:411 201 ₽
Материалы:311 666 ₽
Дни:25
stdClass Object
(
[id] => 201
[attribute_id] => 5
[name] => Каркасно-щитовые
[material_modifier] => 1
[work_modifier] => 1
[options] => Array
(
[0] => 150 мм
[1] => 200 мм
[2] => 250 мм
[3] => 300 мм
[4] => 350 мм
[5] => 400 мм
)
[days] => [15,16,17,18,19,20]
[material_price] => [2379,2639,2898,3458,3601,4175]
[work_price] => [2538,2820,3134,3483,4062,5642]
[image] => https://akademik-stroy.ru/wp-content/uploads/materials/karkasno-shchitovye.jpg
[area_modifier] => 42.92
[parent_name] => Стены 2 этаж (несущие)
[parent_id] => 5
[material_sum] => 140907
[work_sum] => 125271
[total_sum] => 266178
[total_days] => 15
[display_material_sum] => 140 907
[display_work_sum] => 125 271
[display_total_sum] => 266 178
)
1
266 178₽
Работа:125 271 ₽
Материалы:140 907 ₽
Дни:15
stdClass Object
(
[id] => 202
[attribute_id] => 5
[name] => Рубленные
[material_modifier] => 1
[work_modifier] => 1
[options] => Array
(
[0] => 150 мм
[1] => 200 мм
[2] => 250 мм
[3] => 300 мм
[4] => 350 мм
[5] => 400 мм
)
[days] => [15,16,17,18,17,18]
[material_price] => [35950,50267,60583,75900,80217,100533]
[work_price] => [9612,12816,16020,19224,22428,25632]
[image] => https://akademik-stroy.ru/wp-content/uploads/materials/rublennye.jpg
[area_modifier] => 42.92
[parent_name] => Стены 2 этаж (несущие)
[parent_id] => 5
[material_sum] => 2129304
[work_sum] => 474429
[total_sum] => 2603733
[total_days] => 15
[display_material_sum] => 2 129 304
[display_work_sum] => 474 429
[display_total_sum] => 2 603 733
)
1
2 603 733₽
Работа:474 429 ₽
Материалы:2 129 304 ₽
Дни:15
stdClass Object
(
[id] => 203
[attribute_id] => 5
[name] => Теплоблок
[material_modifier] => 1
[work_modifier] => 1
[options] => Array
(
[0] => 300 мм (с облицовкой, не покрашенный)
[1] => 400 мм (с облицовкой, не покрашенный)
[2] => 300 мм (с облицовкой, покрашенный)
[3] => 400 мм (с облицовкой, покрашенный)
)
[days] => [15,16,15,16]
[material_price] => [2888,3729,3957,4258]
[work_price] => [2564,3229,2949,3713]
[image] => https://akademik-stroy.ru/wp-content/uploads/materials/teploblok.jpg
[area_modifier] => 42.92
[parent_name] => Стены 2 этаж (несущие)
[parent_id] => 5
[material_sum] => 171055
[work_sum] => 126554
[total_sum] => 297609
[total_days] => 15
[display_material_sum] => 171 055
[display_work_sum] => 126 554
[display_total_sum] => 297 609
)
1
297 609₽
Работа:126 554 ₽
Материалы:171 055 ₽
Дни:15
stdClass Object
(
[id] => 204
[attribute_id] => 5
[name] => Арболитовые блоки
[material_modifier] => 1
[work_modifier] => 1
[options] => Array
(
[0] => 300 мм
[1] => 400 мм
[2] => 600 мм
)
[days] => [19,22,27]
[material_price] => [3210,4475,5852]
[work_price] => [4214,4788,5866]
[image] => https://akademik-stroy.ru/wp-content/uploads/materials/arbolitovye-bloki.png
[area_modifier] => 42.92
[parent_name] => Стены 2 этаж (несущие)
[parent_id] => 5
[material_sum] => 190127
[work_sum] => 207995
[total_sum] => 398122
[total_days] => 19
[display_material_sum] => 190 127
[display_work_sum] => 207 995
[display_total_sum] => 398 122
)
1
398 122₽
Работа:207 995 ₽
Материалы:190 127 ₽
Дни:19
stdClass Object
(
[id] => 205
[attribute_id] => 5
[name] => Полистиролбетон
[material_modifier] => 1
[work_modifier] => 1
[options] => Array
(
[0] => 300 мм
[1] => 400 мм
[2] => 600 мм
)
[days] => [29,31,35]
[material_price] => [2798,4573,5256]
[work_price] => [5038,5851,6426]
[image] => https://akademik-stroy.ru/wp-content/uploads/materials/polistirolbeton.jpg
[area_modifier] => 42.92
[parent_name] => Стены 2 этаж (несущие)
[parent_id] => 5
[material_sum] => 165724
[work_sum] => 248666
[total_sum] => 414390
[total_days] => 29
[display_material_sum] => 165 724
[display_work_sum] => 248 666
[display_total_sum] => 414 390
)
1
414 390₽
Работа:248 666 ₽
Материалы:165 724 ₽
Дни:29
stdClass Object
(
[id] => 206
[attribute_id] => 5
[name] => Шлакоблок
[material_modifier] => 1
[work_modifier] => 1
[options] => Array
(
[0] => 400 мм
[1] => 600 мм
)
[days] => [15,16]
[material_price] => [2391,3471]
[work_price] => [2642,3662]
[image] => https://akademik-stroy.ru/wp-content/uploads/materials/shlakoblok.jpg
[area_modifier] => 42.92
[parent_name] => Стены 2 этаж (несущие)
[parent_id] => 5
[material_sum] => 141618
[work_sum] => 130404
[total_sum] => 272022
[total_days] => 15
[display_material_sum] => 141 618
[display_work_sum] => 130 404
[display_total_sum] => 272 022
)
1
272 022₽
Работа:130 404 ₽
Материалы:141 618 ₽
Дни:15
stdClass Object
(
[id] => 245
[attribute_id] => 5
[name] => Теплая керамика
[material_modifier] => 1
[work_modifier] => 1
[options] => Array
(
[0] => 380 мм
[1] => 380 мм Thermo
[2] => 440 мм
[3] => 510 мм
)
[days] => [10,10,11,12]
[material_price] => [4510,5098,6093,8013]
[work_price] => [4737,4937,5903,6958]
[image] => https://akademik-stroy.ru/wp-content/uploads/materials/teplaya-keramika.jpg
[area_modifier] => 42.92
[parent_name] => Стены 2 этаж (несущие)
[parent_id] => 5
[material_sum] => 267125
[work_sum] => 233809
[total_sum] => 500934
[total_days] => 10
[display_material_sum] => 267 125
[display_work_sum] => 233 809
[display_total_sum] => 500 934
)
1
500 934₽
Работа:233 809 ₽
Материалы:267 125 ₽
Дни:10
stdClass Object
(
[id] => 246
[attribute_id] => 5
[name] => Несъемная опалубка
[material_modifier] => 1
[work_modifier] => 1
[options] => Array
(
[0] => 380 мм
[1] => 380 мм Thermo
[2] => 440 мм
[3] => 510 мм
)
[days] => [10,10,11,12]
[material_price] => [3302,3902,4108,5008]
[work_price] => [2100,2100,2300,2534]
[image] => https://akademik-stroy.ru/wp-content/uploads/materials/nesemnaya-opalubka.jpg
[area_modifier] => 42.92
[parent_name] => Стены 2 этаж (несущие)
[parent_id] => 5
[material_sum] => 195576
[work_sum] => 103652
[total_sum] => 299228
[total_days] => 10
[display_material_sum] => 195 576
[display_work_sum] => 103 652
[display_total_sum] => 299 228
)
1
299 228₽
Работа:103 652 ₽
Материалы:195 576 ₽
Дни:10
stdClass Object
(
[id] => 254
[attribute_id] => 5
[name] => Бревно
[material_modifier] => 1
[work_modifier] => 1
[options] => Array
(
[0] => 260 мм
[1] => 320 мм
[2] => 360 мм
[3] => 400 мм
[4] => 500 мм
)
[days] => [7,8,9,10,11]
[material_price] => [1874,24045,26930,30972,38825]
[work_price] => [5046,6207,6952,7716,9723]
[image] => https://akademik-stroy.ru/wp-content/uploads/materials/sruby.jpg
[area_modifier] => 42.92
[parent_name] => Стены 2 этаж (несущие)
[parent_id] => 5
[material_sum] => 110996
[work_sum] => 249060
[total_sum] => 360056
[total_days] => 7
[display_material_sum] => 110 996
[display_work_sum] => 249 060
[display_total_sum] => 360 056
)
1
360 056₽
Работа:249 060 ₽
Материалы:110 996 ₽
Дни:7
stdClass Object
(
[id] => 164
[attribute_id] => 37
[name] => Металлочерепица
[material_modifier] => 1
[work_modifier] => 1
[options] => Array
(
)
[days] => [20]
[material_price] => [6112]
[work_price] => [5726]
[image] => https://akademik-stroy.ru/wp-content/uploads/materials/metallocherepica.jpg
[area_modifier] => 98.5
[parent_name] => Крыша (Скатная)
[parent_id] => 37
[material_sum] => 830804
[work_sum] => 648613
[total_sum] => 1479417
[total_days] => 20
[display_material_sum] => 830 804
[display_work_sum] => 648 613
[display_total_sum] => 1 479 417
)
1
1 479 417₽
Работа:648 613 ₽
Материалы:830 804 ₽
Дни:20
stdClass Object
(
[id] => 165
[attribute_id] => 37
[name] => Гибкая черепица
[material_modifier] => 1
[work_modifier] => 1
[options] => Array
(
)
[days] => [20]
[material_price] => [6980]
[work_price] => [5950]
[image] => https://akademik-stroy.ru/wp-content/uploads/materials/gibkaya-cherepica.jpg
[area_modifier] => 98.5
[parent_name] => Крыша (Скатная)
[parent_id] => 37
[material_sum] => 948791
[work_sum] => 673986
[total_sum] => 1622777
[total_days] => 20
[display_material_sum] => 948 791
[display_work_sum] => 673 986
[display_total_sum] => 1 622 777
)
1
1 622 777₽
Работа:673 986 ₽
Материалы:948 791 ₽
Дни:20
stdClass Object
(
[id] => 166
[attribute_id] => 37
[name] => Цементно-песчаная черепица
[material_modifier] => 1
[work_modifier] => 1
[options] => Array
(
)
[days] => [20]
[material_price] => [10560]
[work_price] => [9456]
[image] => https://akademik-stroy.ru/wp-content/uploads/materials/cementno-peschanaya-cherepica.jpg
[area_modifier] => 98.5
[parent_name] => Крыша (Скатная)
[parent_id] => 37
[material_sum] => 1435421
[work_sum] => 1071128
[total_sum] => 2506549
[total_days] => 20
[display_material_sum] => 1 435 421
[display_work_sum] => 1 071 128
[display_total_sum] => 2 506 549
)
1
2 506 549₽
Работа:1 071 128 ₽
Материалы:1 435 421 ₽
Дни:20
stdClass Object
(
[id] => 167
[attribute_id] => 37
[name] => Композитная черепица
[material_modifier] => 1
[work_modifier] => 1
[options] => Array
(
)
[days] => [20]
[material_price] => [9506]
[work_price] => [8905]
[image] => https://akademik-stroy.ru/wp-content/uploads/materials/kompozitnaya-cherepica.jpg
[area_modifier] => 98.5
[parent_name] => Крыша (Скатная)
[parent_id] => 37
[material_sum] => 1292151
[work_sum] => 1008714
[total_sum] => 2300865
[total_days] => 20
[display_material_sum] => 1 292 151
[display_work_sum] => 1 008 714
[display_total_sum] => 2 300 865
)
1
2 300 865₽
Работа:1 008 714 ₽
Материалы:1 292 151 ₽
Дни:20
stdClass Object
(
[id] => 168
[attribute_id] => 37
[name] => Керамическая черепица
[material_modifier] => 1
[work_modifier] => 1
[options] => Array
(
)
[days] => [20]
[material_price] => [12750]
[work_price] => [9456]
[image] => https://akademik-stroy.ru/wp-content/uploads/materials/keramicheskaya-cherepica.jpg
[area_modifier] => 98.5
[parent_name] => Крыша (Скатная)
[parent_id] => 37
[material_sum] => 1733108
[work_sum] => 1071128
[total_sum] => 2804236
[total_days] => 20
[display_material_sum] => 1 733 108
[display_work_sum] => 1 071 128
[display_total_sum] => 2 804 236
)
1
2 804 236₽
Работа:1 071 128 ₽
Материалы:1 733 108 ₽
Дни:20
stdClass Object
(
[id] => 169
[attribute_id] => 37
[name] => Металлическая фальцевая
[material_modifier] => 1
[work_modifier] => 1
[options] => Array
(
)
[days] => [20]
[material_price] => [8550]
[work_price] => [8190]
[image] => https://akademik-stroy.ru/wp-content/uploads/materials/metallicheskaya-falcevaya.jpg
[area_modifier] => 98.5
[parent_name] => Крыша (Скатная)
[parent_id] => 37
[material_sum] => 1162202
[work_sum] => 927722
[total_sum] => 2089924
[total_days] => 20
[display_material_sum] => 1 162 202
[display_work_sum] => 927 722
[display_total_sum] => 2 089 924
)
1
2 089 924₽
Работа:927 722 ₽
Материалы:1 162 202 ₽
Дни:20
stdClass Object
(
[id] => 170
[attribute_id] => 37
[name] => Медная фальцевая
[material_modifier] => 1
[work_modifier] => 1
[options] => Array
(
)
[days] => [20]
[material_price] => [20450]
[work_price] => [16750]
[image] => https://akademik-stroy.ru/wp-content/uploads/materials/mednaya-falcevaya.jpg
[area_modifier] => 98.5
[parent_name] => Крыша (Скатная)
[parent_id] => 37
[material_sum] => 2779769
[work_sum] => 1897356
[total_sum] => 4677125
[total_days] => 20
[display_material_sum] => 2 779 769
[display_work_sum] => 1 897 356
[display_total_sum] => 4 677 125
)
1
4 677 125₽
Работа:1 897 356 ₽
Материалы:2 779 769 ₽
Дни:20
stdClass Object
(
[id] => 171
[attribute_id] => 37
[name] => Зеленая кровля
[material_modifier] => 1
[work_modifier] => 1
[options] => Array
(
)
[days] => [20]
[material_price] => [19850]
[work_price] => [16780]
[image] => https://akademik-stroy.ru/wp-content/uploads/materials/zelenaya-krovlya.jpg
[area_modifier] => 98.5
[parent_name] => Крыша (Скатная)
[parent_id] => 37
[material_sum] => 2698211
[work_sum] => 1900755
[total_sum] => 4598966
[total_days] => 20
[display_material_sum] => 2 698 211
[display_work_sum] => 1 900 755
[display_total_sum] => 4 598 966
)
1
4 598 966₽
Работа:1 900 755 ₽
Материалы:2 698 211 ₽
Дни:20
stdClass Object
(
[id] => 172
[attribute_id] => 37
[name] => Профлист
[material_modifier] => 1
[work_modifier] => 1
[options] => Array
(
)
[days] => [20]
[material_price] => [3450]
[work_price] => [3750]
[image] => https://akademik-stroy.ru/wp-content/uploads/materials/proflist.jpg
[area_modifier] => 98.5
[parent_name] => Крыша (Скатная)
[parent_id] => 37
[material_sum] => 468959
[work_sum] => 424781
[total_sum] => 893740
[total_days] => 20
[display_material_sum] => 468 959
[display_work_sum] => 424 781
[display_total_sum] => 893 740
)
1
893 740₽
Работа:424 781 ₽
Материалы:468 959 ₽
Дни:20
stdClass Object
(
[id] => 51
[attribute_id] => 26
[name] => Есть
[material_modifier] => 1
[work_modifier] => 1
[options] => Array
(
[0] => Профиль 58 мм, 3-камерный, стеклопакет 2-камерный до 32 мм
[1] => Профиль 60 мм, 4-камерный, стеклопакет 2-камерный до 32 мм
[2] => Профиль 70 мм, 5-камерный, стеклопакет 2-камерный до 40 мм
[3] => Профиль 72 мм, 5-камерный, стеклопакет 2-камерный до 40 мм
[4] => Алюминиевые окна Alutech профиль 72 мм, стеклопакет 2-камерный
)
[days] => [3,3,3,3,3]
[material_price] => [1339,2124,2867,3023,29596]
[work_price] => [635,647,659,668,2579]
[image] => https://akademik-stroy.ru/wp-content/uploads/materials/okna.jpg
[area_modifier] => 114.76
[parent_name] => Окна
[parent_id] => 26
[material_sum] => 212056
[work_sum] => 83803
[total_sum] => 295859
[total_days] => 3
[display_material_sum] => 212 056
[display_work_sum] => 83 803
[display_total_sum] => 295 859
)
1
295 859₽
Работа:83 803 ₽
Материалы:212 056 ₽
Дни:3
stdClass Object
(
[id] => 52
[attribute_id] => 26
[name] => Нет
[material_modifier] => 2
[work_modifier] => 1
[options] =>
[days] => null
[material_price] => null
[work_price] => null
[image] => https://akademik-stroy.ru/wp-content/uploads/materials/okna.jpg
[area_modifier] => 114.76
[parent_name] => Окна
[parent_id] => 26
[material_sum] => 0
[work_sum] => 0
[total_sum] => 0
[total_days] => 0
[display_material_sum] => 0
[display_work_sum] => 0
[display_total_sum] => 0
)
1
0₽
Работа:0 ₽
Материалы:0 ₽
Дни:0
stdClass Object
(
[id] => 53
[attribute_id] => 27
[name] => Есть
[material_modifier] => 1
[work_modifier] => 1
[options] => Array
(
)
[days] => [1]
[material_price] => [10000]
[work_price] => [5500]
[image] => https://akademik-stroy.ru/wp-content/uploads/materials/dveri.jpg
[area_modifier] => 1
[parent_name] => Двери входные
[parent_id] => 27
[material_sum] => 13800
[work_sum] => 6325
[total_sum] => 20125
[total_days] => 1
[display_material_sum] => 13 800
[display_work_sum] => 6 325
[display_total_sum] => 20 125
)
1
20 125₽
Работа:6 325 ₽
Материалы:13 800 ₽
Дни:1
stdClass Object
(
[id] => 54
[attribute_id] => 27
[name] => Нет
[material_modifier] => 1
[work_modifier] => 1
[options] => Array
(
)
[days] => [0]
[material_price] => [0]
[work_price] => [0]
[image] => https://akademik-stroy.ru/wp-content/uploads/materials/dveri.jpg
[area_modifier] => 1
[parent_name] => Двери входные
[parent_id] => 27
[material_sum] => 0
[work_sum] => 0
[total_sum] => 0
[total_days] => 0
[display_material_sum] => 0
[display_work_sum] => 0
[display_total_sum] => 0
)
1
0₽
Работа:0 ₽
Материалы:0 ₽
Дни:0
stdClass Object
(
[id] => 25
[attribute_id] => 13
[name] => Нет
[material_modifier] => 1
[work_modifier] => 1
[options] => Array
(
)
[days] => [0]
[material_price] => [0]
[work_price] => [0]
[image] => https://akademik-stroy.ru/wp-content/uploads/materials/mineralovata-krov.jpg
[area_modifier] => 98.5
[parent_name] => Утепление кровли (Мансарда)
[parent_id] => 13
[material_sum] => 0
[work_sum] => 0
[total_sum] => 0
[total_days] => 0
[display_material_sum] => 0
[display_work_sum] => 0
[display_total_sum] => 0
)
1
0₽
Работа:0 ₽
Материалы:0 ₽
Дни:0
stdClass Object
(
[id] => 26
[attribute_id] => 13
[name] => Минераловатный
[material_modifier] => 1
[work_modifier] => 1
[options] => Array
(
[0] => 50 мм
[1] => 100 мм
[2] => 150 мм
[3] => 200 мм
[4] => 250 мм
[5] => 300 мм
[6] => 350 мм
[7] => 400 мм
[8] => 450 мм
[9] => 500 мм
)
[days] => [5,5,6,6,6,7,7,7,8,8]
[material_price] => [1158,1414,1772,2230,3602,4060,4974,5890,6408,7718]
[work_price] => [650,846,846,1098,1318,1450,1596,1754,1930,2122]
[image] => https://akademik-stroy.ru/wp-content/uploads/materials/mineralovata-krov.jpg
[area_modifier] => 98.5
[parent_name] => Утепление кровли (Мансарда)
[parent_id] => 13
[material_sum] => 157407
[work_sum] => 73629
[total_sum] => 231036
[total_days] => 5
[display_material_sum] => 157 407
[display_work_sum] => 73 629
[display_total_sum] => 231 036
)
1
231 036₽
Работа:73 629 ₽
Материалы:157 407 ₽
Дни:5
stdClass Object
(
[id] => 123
[attribute_id] => 13
[name] => Эковата (целлюлозная вата)
[material_modifier] => 1
[work_modifier] => 1
[options] => Array
(
[0] => 50 мм
[1] => 100 мм
[2] => 150 мм
[3] => 200 мм
[4] => 250 мм
[5] => 300 мм
[6] => 350 мм
[7] => 400 мм
[8] => 450 мм
[9] => 500 мм
)
[days] => [3,3,4,4,4,5,5,5,5,5]
[material_price] => [820,1638,2458,3276,5734,6552,8190,9828,11466,13104]
[work_price] => [234,304,304,396,474,522,574,632,694,764]
[image] => https://akademik-stroy.ru/wp-content/uploads/materials/ehkovata-krov.jpg
[area_modifier] => 98.5
[parent_name] => Утепление кровли (Мансарда)
[parent_id] => 13
[material_sum] => 111463
[work_sum] => 26506
[total_sum] => 137969
[total_days] => 3
[display_material_sum] => 111 463
[display_work_sum] => 26 506
[display_total_sum] => 137 969
)
1
137 969₽
Работа:26 506 ₽
Материалы:111 463 ₽
Дни:3
stdClass Object
(
[id] => 124
[attribute_id] => 13
[name] => Экструдированный пенополистирол
[material_modifier] => 1
[work_modifier] => 1
[options] => Array
(
[0] => 50 мм
[1] => 100 мм
[2] => 150 мм
[3] => 200 мм
[4] => 250 мм
[5] => 300 мм
[6] => 350 мм
[7] => 400 мм
[8] => 450 мм
[9] => 500 мм
)
[days] => [3,3,4,4,4,5,5,5,5,6]
[material_price] => [1146,2292,3438,4584,8020,9166,11458,13750,16040,18332]
[work_price] => [390,508,508,660,790,870,958,1052,1158,1274]
[image] => https://akademik-stroy.ru/wp-content/uploads/materials/epps-krov.jpg
[area_modifier] => 98.5
[parent_name] => Утепление кровли (Мансарда)
[parent_id] => 13
[material_sum] => 155776
[work_sum] => 44177
[total_sum] => 199953
[total_days] => 3
[display_material_sum] => 155 776
[display_work_sum] => 44 177
[display_total_sum] => 199 953
)
1
199 953₽
Работа:44 177 ₽
Материалы:155 776 ₽
Дни:3
stdClass Object
(
[id] => 125
[attribute_id] => 13
[name] => ПСБ (ППС-пенополистирол)
[material_modifier] => 1
[work_modifier] => 1
[options] => Array
(
[0] => 50 мм
[1] => 100 мм
[2] => 150 мм
[3] => 200 мм
[4] => 250 мм
[5] => 300 мм
[6] => 350 мм
[7] => 400 мм
[8] => 450 мм
[9] => 500 мм
)
[days] => [3,3,4,4,4,5,5,5,5,6]
[material_price] => [476,954,1430,1906,3336,3814,4766,5720,6674,7626]
[work_price] => [390,508,508,660,790,870,958,1052,1158,1274]
[image] => https://akademik-stroy.ru/wp-content/uploads/materials/psb-krov.jpg
[area_modifier] => 98.5
[parent_name] => Утепление кровли (Мансарда)
[parent_id] => 13
[material_sum] => 64703
[work_sum] => 44177
[total_sum] => 108880
[total_days] => 3
[display_material_sum] => 64 703
[display_work_sum] => 44 177
[display_total_sum] => 108 880
)
1
108 880₽
Работа:44 177 ₽
Материалы:64 703 ₽
Дни:3
stdClass Object
(
[id] => 126
[attribute_id] => 13
[name] => ППУ (Пенополиуретан)
[material_modifier] => 1
[work_modifier] => 1
[options] => Array
(
[0] => 50 мм
[1] => 100 мм
[2] => 150 мм
[3] => 200 мм
[4] => 250 мм
[5] => 300 мм
[6] => 350 мм
[7] => 400 мм
[8] => 450 мм
[9] => 500 мм
)
[days] => [2,2,3,3,3,3,4,4,4,4]
[material_price] => [2080,4160,6240,8320,14560,16640,20800,24960,29120,33280]
[work_price] => [234,304,304,396,474,522,574,632,694,764]
[image] => https://akademik-stroy.ru/wp-content/uploads/materials/ppu-krov.jpg
[area_modifier] => 98.5
[parent_name] => Утепление кровли (Мансарда)
[parent_id] => 13
[material_sum] => 282734
[work_sum] => 26506
[total_sum] => 309240
[total_days] => 2
[display_material_sum] => 282 734
[display_work_sum] => 26 506
[display_total_sum] => 309 240
)
1
309 240₽
Работа:26 506 ₽
Материалы:282 734 ₽
Дни:2
stdClass Object
(
[id] => 127
[attribute_id] => 13
[name] => PIR-плиты (пенополиизоцианурат)
[material_modifier] => 1
[work_modifier] => 1
[options] => Array
(
[0] => 50 мм
[1] => 100 мм
[2] => 150 мм
[3] => 200 мм
[4] => 250 мм
[5] => 300 мм
[6] => 350 мм
[7] => 400 мм
[8] => 450 мм
[9] => 500 мм
)
[days] => [3,3,4,4,4,5,5,5,5,6]
[material_price] => [2646,5290,7936,10580,18516,21162,26452,31742,37032,42324]
[work_price] => [390,508,508,660,790,870,958,1052,1158,1274]
[image] => https://akademik-stroy.ru/wp-content/uploads/materials/pir-krov.jpg
[area_modifier] => 98.5
[parent_name] => Утепление кровли (Мансарда)
[parent_id] => 13
[material_sum] => 359671
[work_sum] => 44177
[total_sum] => 403848
[total_days] => 3
[display_material_sum] => 359 671
[display_work_sum] => 44 177
[display_total_sum] => 403 848
)
1
403 848₽
Работа:44 177 ₽
Материалы:359 671 ₽
Дни:3
stdClass Object
(
[id] => 27
[attribute_id] => 14
[name] => Нет
[material_modifier] => 1
[work_modifier] => 1
[options] => Array
(
)
[days] => [0]
[material_price] => [0]
[work_price] => [0]
[image] => https://akademik-stroy.ru/wp-content/uploads/materials/mansardnye-okna-2.jpg
[area_modifier] => 1
[parent_name] => Мансардные окна
[parent_id] => 14
[material_sum] => 0
[work_sum] => 0
[total_sum] => 0
[total_days] => 0
[display_material_sum] => 0
[display_work_sum] => 0
[display_total_sum] => 0
)
1
0₽
Работа:0 ₽
Материалы:0 ₽
Дни:0
stdClass Object
(
[id] => 28
[attribute_id] => 14
[name] => Есть
[material_modifier] => 1
[work_modifier] => 1
[options] => Array
(
[0] => 55x78
[1] => 55x98
)
[days] => [6,7]
[material_price] => [47480,68700]
[work_price] => [17900,19500]
[image] => https://akademik-stroy.ru/wp-content/uploads/materials/mansardnye-okna-2.jpg
[area_modifier] => 1
[parent_name] => Мансардные окна
[parent_id] => 14
[material_sum] => 65522
[work_sum] => 20585
[total_sum] => 86107
[total_days] => 6
[display_material_sum] => 65 522
[display_work_sum] => 20 585
[display_total_sum] => 86 107
)
1
86 107₽
Работа:20 585 ₽
Материалы:65 522 ₽
Дни:6
stdClass Object
(
[id] => 29
[attribute_id] => 15
[name] => Нет
[material_modifier] => 1
[work_modifier] => 1
[options] => Array
(
)
[days] => [0]
[material_price] => [0]
[work_price] => [0]
[image] => https://akademik-stroy.ru/wp-content/uploads/materials/sofit.jpg
[area_modifier] => 98.5
[parent_name] => Подшивка кровли
[parent_id] => 15
[material_sum] => 0
[work_sum] => 0
[total_sum] => 0
[total_days] => 0
[display_material_sum] => 0
[display_work_sum] => 0
[display_total_sum] => 0
)
1
0₽
Работа:0 ₽
Материалы:0 ₽
Дни:0
stdClass Object
(
[id] => 30
[attribute_id] => 15
[name] => Есть
[material_modifier] => 1
[work_modifier] => 1
[options] => Array
(
[0] => Софиты (ПВХ)
[1] => Cedral
[2] => ДПК
[3] => Планкен
)
[days] => [7,10,9,8]
[material_price] => [1803,3213,3025,3150]
[work_price] => [1529,2188,2075,1923]
[image] => https://akademik-stroy.ru/wp-content/uploads/materials/sofit.jpg
[area_modifier] => 98.5
[parent_name] => Подшивка кровли
[parent_id] => 15
[material_sum] => 245082
[work_sum] => 173197
[total_sum] => 418279
[total_days] => 7
[display_material_sum] => 245 082
[display_work_sum] => 173 197
[display_total_sum] => 418 279
)
1
418 279₽
Работа:173 197 ₽
Материалы:245 082 ₽
Дни:7
stdClass Object
(
[id] => 31
[attribute_id] => 16
[name] => Нет
[material_modifier] => 1
[work_modifier] => 1
[options] => Array
(
)
[days] => [0]
[material_price] => [0]
[work_price] => [0]
[image] => https://akademik-stroy.ru/wp-content/uploads/materials/docke-standard-pvh.jpg
[area_modifier] => 98.5
[parent_name] => Водосточная система
[parent_id] => 16
[material_sum] => 0
[work_sum] => 0
[total_sum] => 0
[total_days] => 0
[display_material_sum] => 0
[display_work_sum] => 0
[display_total_sum] => 0
)
1
0₽
Работа:0 ₽
Материалы:0 ₽
Дни:0
stdClass Object
(
[id] => 32
[attribute_id] => 16
[name] => Есть
[material_modifier] => 1
[work_modifier] => 1
[options] => Array
(
[0] => Döcke Standard (ПВХ)
[1] => Металлические Grand Line
)
[days] => [7,7]
[material_price] => [1842,2703]
[work_price] => [1491,1529]
[image] => https://akademik-stroy.ru/wp-content/uploads/materials/docke-standard-pvh.jpg
[area_modifier] => 98.5
[parent_name] => Водосточная система
[parent_id] => 16
[material_sum] => 250383
[work_sum] => 168893
[total_sum] => 419276
[total_days] => 7
[display_material_sum] => 250 383
[display_work_sum] => 168 893
[display_total_sum] => 419 276
)
1
419 276₽
Работа:168 893 ₽
Материалы:250 383 ₽
Дни:7
stdClass Object
(
[id] => 33
[attribute_id] => 17
[name] => Нет
[material_modifier] => 1
[work_modifier] => 1
[options] => Array
(
)
[days] => [0]
[material_price] => [0]
[work_price] => [0]
[image] => https://akademik-stroy.ru/wp-content/uploads/materials/mineralovata.jpg
[area_modifier] => 141.42
[parent_name] => Дополнительное утепление наружных стен
[parent_id] => 17
[material_sum] => 0
[work_sum] => 0
[total_sum] => 0
[total_days] => 0
[display_material_sum] => 0
[display_work_sum] => 0
[display_total_sum] => 0
)
1
0₽
Работа:0 ₽
Материалы:0 ₽
Дни:0
stdClass Object
(
[id] => 34
[attribute_id] => 17
[name] => Минераловатный
[material_modifier] => 1
[work_modifier] => 1
[options] => Array
(
[0] => 50 мм
[1] => 100 мм
[2] => 150 мм
[3] => 200 мм
[4] => 250 мм
[5] => 300 мм
)
[days] => [7,8,10,12,14,15]
[material_price] => [3437,3613,3803,3915,4601,4830]
[work_price] => [2325,2423,2523,2749,2859,3025]
[image] => https://akademik-stroy.ru/wp-content/uploads/materials/mineralovata.jpg
[area_modifier] => 141.42
[parent_name] => Дополнительное утепление наружных стен
[parent_id] => 17
[material_sum] => 670764
[work_sum] => 378122
[total_sum] => 1048886
[total_days] => 7
[display_material_sum] => 670 764
[display_work_sum] => 378 122
[display_total_sum] => 1 048 886
)
1
1 048 886₽
Работа:378 122 ₽
Материалы:670 764 ₽
Дни:7
stdClass Object
(
[id] => 128
[attribute_id] => 17
[name] => Эковата (целлюлозная вата)
[material_modifier] => 1
[work_modifier] => 1
[options] => Array
(
[0] => 50 мм
[1] => 100 мм
[2] => 150 мм
[3] => 200 мм
[4] => 250 мм
[5] => 300 мм
)
[days] => [3,4,5,6,7,8]
[material_price] => [810,1319,1629,1838,2267,2676]
[work_price] => [1225,1323,1423,1549,1659,1725]
[image] => https://akademik-stroy.ru/wp-content/uploads/materials/ehkovata.jpg
[area_modifier] => 141.42
[parent_name] => Дополнительное утепление наружных стен
[parent_id] => 17
[material_sum] => 158079
[work_sum] => 199225
[total_sum] => 357304
[total_days] => 3
[display_material_sum] => 158 079
[display_work_sum] => 199 225
[display_total_sum] => 357 304
)
1
357 304₽
Работа:199 225 ₽
Материалы:158 079 ₽
Дни:3
stdClass Object
(
[id] => 129
[attribute_id] => 17
[name] => Экструдированный пенополистирол
[material_modifier] => 1
[work_modifier] => 1
[options] => Array
(
[0] => 50 мм
[1] => 100 мм
[2] => 150 мм
[3] => 200 мм
[4] => 250 мм
[5] => 300 мм
)
[days] => [5,6,7,8,9,10]
[material_price] => [4560,4300,5119,6292,7010,8583]
[work_price] => [1795,1954,2254,2330,2595,2735]
[image] => https://akademik-stroy.ru/wp-content/uploads/materials/epps.jpg
[area_modifier] => 141.42
[parent_name] => Дополнительное утепление наружных стен
[parent_id] => 17
[material_sum] => 889928
[work_sum] => 291926
[total_sum] => 1181854
[total_days] => 5
[display_material_sum] => 889 928
[display_work_sum] => 291 926
[display_total_sum] => 1 181 854
)
1
1 181 854₽
Работа:291 926 ₽
Материалы:889 928 ₽
Дни:5
stdClass Object
(
[id] => 130
[attribute_id] => 17
[name] => ПСБ (ППС-пенополистирол)
[material_modifier] => 1
[work_modifier] => 1
[options] => Array
(
[0] => 50 мм
[1] => 100 мм
[2] => 150 мм
[3] => 200 мм
[4] => 250 мм
[5] => 300 мм
)
[days] => [5,6,7,8,9,10]
[material_price] => [4822,5200,5819,6292,7010,7583]
[work_price] => [1795,1954,2254,2330,2595,2735]
[image] => https://akademik-stroy.ru/wp-content/uploads/materials/psb.jpg
[area_modifier] => 141.42
[parent_name] => Дополнительное утепление наружных стен
[parent_id] => 17
[material_sum] => 941060
[work_sum] => 291926
[total_sum] => 1232986
[total_days] => 5
[display_material_sum] => 941 060
[display_work_sum] => 291 926
[display_total_sum] => 1 232 986
)
1
1 232 986₽
Работа:291 926 ₽
Материалы:941 060 ₽
Дни:5
stdClass Object
(
[id] => 131
[attribute_id] => 17
[name] => ППУ (Пенополиуретан)
[material_modifier] => 1
[work_modifier] => 1
[options] => Array
(
[0] => 50 мм
[1] => 100 мм
[2] => 150 мм
[3] => 200 мм
[4] => 250 мм
[5] => 300 мм
)
[days] => [3,4,5,6,7,8]
[material_price] => [2860,3400,4219,4592,5010,5583]
[work_price] => [729,900,980,1120,1280,1530]
[image] => https://akademik-stroy.ru/wp-content/uploads/materials/ppu.jpg
[area_modifier] => 141.42
[parent_name] => Дополнительное утепление наружных стен
[parent_id] => 17
[material_sum] => 558156
[work_sum] => 118559
[total_sum] => 676715
[total_days] => 3
[display_material_sum] => 558 156
[display_work_sum] => 118 559
[display_total_sum] => 676 715
)
1
676 715₽
Работа:118 559 ₽
Материалы:558 156 ₽
Дни:3
stdClass Object
(
[id] => 132
[attribute_id] => 17
[name] => PIR-плиты (пенополиизоцианурат)
[material_modifier] => 1
[work_modifier] => 1
[options] => Array
(
[0] => 50 мм
[1] => 100 мм
[2] => 150 мм
[3] => 200 мм
[4] => 250 мм
[5] => 300 мм
)
[days] => [5,6,7,8,9,10]
[material_price] => [8323,15645,20968,25900,29258,30581]
[work_price] => [800,900,970,1150,1280,1330]
[image] => https://akademik-stroy.ru/wp-content/uploads/materials/pir.jpg
[area_modifier] => 141.42
[parent_name] => Дополнительное утепление наружных стен
[parent_id] => 17
[material_sum] => 1624313
[work_sum] => 130106
[total_sum] => 1754419
[total_days] => 5
[display_material_sum] => 1 624 313
[display_work_sum] => 130 106
[display_total_sum] => 1 754 419
)
1
1 754 419₽
Работа:130 106 ₽
Материалы:1 624 313 ₽
Дни:5
stdClass Object
(
[id] => 37
[attribute_id] => 19
[name] => Нет
[material_modifier] => 1
[work_modifier] => 1
[options] => Array
(
)
[days] => [0]
[material_price] => [0]
[work_price] => [0]
[image] => https://akademik-stroy.ru/wp-content/uploads/materials/imitaciya-brusa.jpg
[area_modifier] => 141.42
[parent_name] => Наружная отделка фасада
[parent_id] => 19
[material_sum] => 0
[work_sum] => 0
[total_sum] => 0
[total_days] => 0
[display_material_sum] => 0
[display_work_sum] => 0
[display_total_sum] => 0
)
1
0₽
Работа:0 ₽
Материалы:0 ₽
Дни:0
stdClass Object
(
[id] => 38
[attribute_id] => 19
[name] => Имитация бруса
[material_modifier] => 1
[work_modifier] => 1
[options] => Array
(
[0] => Сосна
[1] => Ель
[2] => Лиственница
)
[days] => [20,20,20]
[material_price] => [2994,2762,4954]
[work_price] => [1397,1231,1577]
[image] => https://akademik-stroy.ru/wp-content/uploads/materials/imitaciya-brusa.jpg
[area_modifier] => 141.42
[parent_name] => Наружная отделка фасада
[parent_id] => 19
[material_sum] => 584308
[work_sum] => 227198
[total_sum] => 811506
[total_days] => 20
[display_material_sum] => 584 308
[display_work_sum] => 227 198
[display_total_sum] => 811 506
)
1
811 506₽
Работа:227 198 ₽
Материалы:584 308 ₽
Дни:20
stdClass Object
(
[id] => 136
[attribute_id] => 19
[name] => Планкен
[material_modifier] => 1
[work_modifier] => 1
[options] => Array
(
[0] => Сосна
[1] => Ель
[2] => Лиственница
)
[days] => [20,20,20]
[material_price] => [3194,2862,5154]
[work_price] => [1537,1354,1735]
[image] => https://akademik-stroy.ru/wp-content/uploads/materials/planken.jpg
[area_modifier] => 141.42
[parent_name] => Наружная отделка фасада
[parent_id] => 19
[material_sum] => 623340
[work_sum] => 249967
[total_sum] => 873307
[total_days] => 20
[display_material_sum] => 623 340
[display_work_sum] => 249 967
[display_total_sum] => 873 307
)
1
873 307₽
Работа:249 967 ₽
Материалы:623 340 ₽
Дни:20
stdClass Object
(
[id] => 137
[attribute_id] => 19
[name] => Штукатурка
[material_modifier] => 1
[work_modifier] => 1
[options] => Array
(
[0] => Цементно-песчаная (минеральная)
[1] => Мокрый фасад
)
[days] => [35,35]
[material_price] => [2231,3938]
[work_price] => [1202,2422]
[image] => https://akademik-stroy.ru/wp-content/uploads/materials/shtukaturka.jpg
[area_modifier] => 141.42
[parent_name] => Наружная отделка фасада
[parent_id] => 19
[material_sum] => 435401
[work_sum] => 195485
[total_sum] => 630886
[total_days] => 35
[display_material_sum] => 435 401
[display_work_sum] => 195 485
[display_total_sum] => 630 886
)
1
630 886₽
Работа:195 485 ₽
Материалы:435 401 ₽
Дни:35
stdClass Object
(
[id] => 138
[attribute_id] => 19
[name] => Облицовочный кирпич
[material_modifier] => 1
[work_modifier] => 1
[options] => Array
(
[0] => Керамический
[1] => Клинкерный
[2] => Ручной формовки
[3] => Гиперпрессованный
[4] => Силикатный кирпич
)
[days] => [45,45,45,45,45]
[material_price] => [8174,9148,1040,1257,5876]
[work_price] => [3240,3758,4536,4017,3369]
[image] => https://akademik-stroy.ru/wp-content/uploads/materials/oblicovochnyj-kirpich.jpg
[area_modifier] => 141.42
[parent_name] => Наружная отделка фасада
[parent_id] => 19
[material_sum] => 1595235
[work_sum] => 526931
[total_sum] => 2122166
[total_days] => 45
[display_material_sum] => 1 595 235
[display_work_sum] => 526 931
[display_total_sum] => 2 122 166
)
1
2 122 166₽
Работа:526 931 ₽
Материалы:1 595 235 ₽
Дни:45
stdClass Object
(
[id] => 139
[attribute_id] => 19
[name] => Фасадная плитка
[material_modifier] => 1
[work_modifier] => 1
[options] => Array
(
[0] => Клинкерная
[1] => Керамическая
[2] => Плитка ручной формовки
)
[days] => [40,40,40]
[material_price] => [2974,1487,3470]
[work_price] => [3007,2592,3629]
[image] => https://akademik-stroy.ru/wp-content/uploads/materials/fasadnaya-plitka.jpg
[area_modifier] => 141.42
[parent_name] => Наружная отделка фасада
[parent_id] => 19
[material_sum] => 580405
[work_sum] => 489037
[total_sum] => 1069442
[total_days] => 40
[display_material_sum] => 580 405
[display_work_sum] => 489 037
[display_total_sum] => 1 069 442
)
1
1 069 442₽
Работа:489 037 ₽
Материалы:580 405 ₽
Дни:40
stdClass Object
(
[id] => 140
[attribute_id] => 19
[name] => Сайдинг
[material_modifier] => 1
[work_modifier] => 1
[options] => Array
(
[0] => Виниловый
[1] => Металлический
[2] => Фиброцементный
)
[days] => [20,20,20]
[material_price] => [1263,1944,4147]
[work_price] => [1263,1944,2074]
[image] => https://akademik-stroy.ru/wp-content/uploads/materials/sajding.jpg
[area_modifier] => 141.42
[parent_name] => Наружная отделка фасада
[parent_id] => 19
[material_sum] => 246487
[work_sum] => 205405
[total_sum] => 451892
[total_days] => 20
[display_material_sum] => 246 487
[display_work_sum] => 205 405
[display_total_sum] => 451 892
)
1
451 892₽
Работа:205 405 ₽
Материалы:246 487 ₽
Дни:20
stdClass Object
(
[id] => 141
[attribute_id] => 19
[name] => Камень
[material_modifier] => 1
[work_modifier] => 1
[options] => Array
(
[0] => Травертин
[1] => Дагестанский
[2] => Искусственный
[3] => Натуральный
[4] => Керамогранит
)
[days] => [45,45,45,45,45]
[material_price] => [4536,3888,2592,3240,2462]
[work_price] => [3240,3240,2462,3110,1944]
[image] => https://akademik-stroy.ru/wp-content/uploads/materials/kamen-1.jpg
[area_modifier] => 141.42
[parent_name] => Наружная отделка фасада
[parent_id] => 19
[material_sum] => 885244
[work_sum] => 526931
[total_sum] => 1412175
[total_days] => 45
[display_material_sum] => 885 244
[display_work_sum] => 526 931
[display_total_sum] => 1 412 175
)
1
1 412 175₽
Работа:526 931 ₽
Материалы:885 244 ₽
Дни:45
stdClass Object
(
[id] => 142
[attribute_id] => 19
[name] => Термопанели
[material_modifier] => 1
[work_modifier] => 1
[options] => Array
(
)
[days] => [20]
[material_price] => [6221]
[work_price] => [2333]
[image] => https://akademik-stroy.ru/wp-content/uploads/materials/termo.png
[area_modifier] => 141.42
[parent_name] => Наружная отделка фасада
[parent_id] => 19
[material_sum] => 1214088
[work_sum] => 379423
[total_sum] => 1593511
[total_days] => 20
[display_material_sum] => 1 214 088
[display_work_sum] => 379 423
[display_total_sum] => 1 593 511
)
1
1 593 511₽
Работа:379 423 ₽
Материалы:1 214 088 ₽
Дни:20
stdClass Object
(
[id] => 143
[attribute_id] => 19
[name] => Плитка HAUBERK
[material_modifier] => 1
[work_modifier] => 1
[options] => Array
(
)
[days] => [20]
[material_price] => [2786]
[work_price] => [1944]
[image] => https://akademik-stroy.ru/wp-content/uploads/materials/hauberk.jpg
[area_modifier] => 141.42
[parent_name] => Наружная отделка фасада
[parent_id] => 19
[material_sum] => 543715
[work_sum] => 316159
[total_sum] => 859874
[total_days] => 20
[display_material_sum] => 543 715
[display_work_sum] => 316 159
[display_total_sum] => 859 874
)
1
859 874₽
Работа:316 159 ₽
Материалы:543 715 ₽
Дни:20
stdClass Object
(
[id] => 144
[attribute_id] => 19
[name] => Фальцевый фасад
[material_modifier] => 1
[work_modifier] => 1
[options] => Array
(
)
[days] => [20]
[material_price] => [3240]
[work_price] => [2592]
[image] => https://akademik-stroy.ru/wp-content/uploads/materials/falcevyj-fasad.jpg
[area_modifier] => 141.42
[parent_name] => Наружная отделка фасада
[parent_id] => 19
[material_sum] => 632317
[work_sum] => 421545
[total_sum] => 1053862
[total_days] => 20
[display_material_sum] => 632 317
[display_work_sum] => 421 545
[display_total_sum] => 1 053 862
)
1
1 053 862₽
Работа:421 545 ₽
Материалы:632 317 ₽
Дни:20
stdClass Object
(
[id] => 145
[attribute_id] => 19
[name] => Комбинированный
[material_modifier] => 1
[work_modifier] => 1
[options] => Array
(
)
[days] => [20]
[material_price] => [4629]
[work_price] => [3499]
[image] => https://akademik-stroy.ru/wp-content/uploads/materials/Kombinirovannyj.jpg
[area_modifier] => 141.42
[parent_name] => Наружная отделка фасада
[parent_id] => 19
[material_sum] => 903394
[work_sum] => 569053
[total_sum] => 1472447
[total_days] => 20
[display_material_sum] => 903 394
[display_work_sum] => 569 053
[display_total_sum] => 1 472 447
)
1
1 472 447₽
Работа:569 053 ₽
Материалы:903 394 ₽
Дни:20
stdClass Object
(
[id] => 257
[attribute_id] => 19
[name] => Японские фиброцементные
[material_modifier] => 1
[work_modifier] => 1
[options] => Array
(
)
[days] => [20]
[material_price] => [7043]
[work_price] => [2993]
[image] => https://akademik-stroy.ru/wp-content/uploads/materials/paneli.jpg
[area_modifier] => 141.42
[parent_name] => Наружная отделка фасада
[parent_id] => 19
[material_sum] => 1374509
[work_sum] => 486761
[total_sum] => 1861270
[total_days] => 20
[display_material_sum] => 1 374 509
[display_work_sum] => 486 761
[display_total_sum] => 1 861 270
)
1
1 861 270₽
Работа:486 761 ₽
Материалы:1 374 509 ₽
Дни:20
stdClass Object
(
[id] => 258
[attribute_id] => 19
[name] => Панели Каньон
[material_modifier] => 1
[work_modifier] => 1
[options] => Array
(
)
[days] => [20]
[material_price] => [4543]
[work_price] => [2592]
[image] => https://akademik-stroy.ru/wp-content/uploads/materials/kanon.png
[area_modifier] => 141.42
[parent_name] => Наружная отделка фасада
[parent_id] => 19
[material_sum] => 886610
[work_sum] => 421545
[total_sum] => 1308155
[total_days] => 20
[display_material_sum] => 886 610
[display_work_sum] => 421 545
[display_total_sum] => 1 308 155
)
1
1 308 155₽
Работа:421 545 ₽
Материалы:886 610 ₽
Дни:20
stdClass Object
(
[id] => 39
[attribute_id] => 20
[name] => Нет
[material_modifier] => 1
[work_modifier] => 1
[options] => Array
(
)
[days] => [0]
[material_price] => [0]
[work_price] => [0]
[image] => https://akademik-stroy.ru/wp-content/uploads/materials/terrasy.jpg
[area_modifier] => 30
[parent_name] => Террасы, крыльца, навесы
[parent_id] => 20
[material_sum] => 0
[work_sum] => 0
[total_sum] => 0
[total_days] => 0
[display_material_sum] => 0
[display_work_sum] => 0
[display_total_sum] => 0
)
1
0₽
Работа:0 ₽
Материалы:0 ₽
Дни:0
stdClass Object
(
[id] => 40
[attribute_id] => 20
[name] => Есть
[material_modifier] => 1
[work_modifier] => 1
[options] => Array
(
)
[days] => [5]
[material_price] => [10450]
[work_price] => [1950]
[image] => https://akademik-stroy.ru/wp-content/uploads/materials/terrasy.jpg
[area_modifier] => 30
[parent_name] => Террасы, крыльца, навесы
[parent_id] => 20
[material_sum] => 432630
[work_sum] => 67275
[total_sum] => 499905
[total_days] => 5
[display_material_sum] => 432 630
[display_work_sum] => 67 275
[display_total_sum] => 499 905
)
1
499 905₽
Работа:67 275 ₽
Материалы:432 630 ₽
Дни:5
stdClass Object
(
[id] => 41
[attribute_id] => 21
[name] => Нет
[material_modifier] => 1
[work_modifier] => 1
[options] => Array
(
)
[days] => [0]
[material_price] => [0]
[work_price] => [0]
[image] => https://akademik-stroy.ru/wp-content/uploads/materials/balkony.jpg
[area_modifier] => 30
[parent_name] => Балконы
[parent_id] => 21
[material_sum] => 0
[work_sum] => 0
[total_sum] => 0
[total_days] => 0
[display_material_sum] => 0
[display_work_sum] => 0
[display_total_sum] => 0
)
1
0₽
Работа:0 ₽
Материалы:0 ₽
Дни:0
stdClass Object
(
[id] => 42
[attribute_id] => 21
[name] => Есть
[material_modifier] => 1
[work_modifier] => 1
[options] => Array
(
)
[days] => [12]
[material_price] => [3600]
[work_price] => [1950]
[image] => https://akademik-stroy.ru/wp-content/uploads/materials/balkony.jpg
[area_modifier] => 30
[parent_name] => Балконы
[parent_id] => 21
[material_sum] => 149040
[work_sum] => 67275
[total_sum] => 216315
[total_days] => 12
[display_material_sum] => 149 040
[display_work_sum] => 67 275
[display_total_sum] => 216 315
)
1
216 315₽
Работа:67 275 ₽
Материалы:149 040 ₽
Дни:12
stdClass Object
(
[id] => 43
[attribute_id] => 22
[name] => Нет
[material_modifier] => 1
[work_modifier] => 1
[options] => Array
(
)
[days] => [0]
[material_price] => [0]
[work_price] => [0]
[image] => https://akademik-stroy.ru/wp-content/uploads/materials/uteplennaya.jpg
[area_modifier] => 98.5
[parent_name] => Отмостка
[parent_id] => 22
[material_sum] => 0
[work_sum] => 0
[total_sum] => 0
[total_days] => 0
[display_material_sum] => 0
[display_work_sum] => 0
[display_total_sum] => 0
)
1
0₽
Работа:0 ₽
Материалы:0 ₽
Дни:0
stdClass Object
(
[id] => 44
[attribute_id] => 22
[name] => Утепленная отмостка
[material_modifier] => 1
[work_modifier] => 1
[options] => Array
(
)
[days] => [15]
[material_price] => [2550]
[work_price] => [1750]
[image] => https://akademik-stroy.ru/wp-content/uploads/materials/uteplennaya.jpg
[area_modifier] => 98.5
[parent_name] => Отмостка
[parent_id] => 22
[material_sum] => 346622
[work_sum] => 198231
[total_sum] => 544853
[total_days] => 15
[display_material_sum] => 346 622
[display_work_sum] => 198 231
[display_total_sum] => 544 853
)
1
544 853₽
Работа:198 231 ₽
Материалы:346 622 ₽
Дни:15
stdClass Object
(
[id] => 146
[attribute_id] => 22
[name] => Не утепленная отмостка
[material_modifier] => 1
[work_modifier] => 1
[options] => Array
(
)
[days] => [10]
[material_price] => [1650]
[work_price] => [1450]
[image] => https://akademik-stroy.ru/wp-content/uploads/materials/ne-uteplennaya.jpg
[area_modifier] => 98.5
[parent_name] => Отмостка
[parent_id] => 22
[material_sum] => 224285
[work_sum] => 164249
[total_sum] => 388534
[total_days] => 10
[display_material_sum] => 224 285
[display_work_sum] => 164 249
[display_total_sum] => 388 534
)
1
388 534₽
Работа:164 249 ₽
Материалы:224 285 ₽
Дни:10
stdClass Object
(
[id] => 45
[attribute_id] => 23
[name] => Нет
[material_modifier] => 1
[work_modifier] => 1
[options] => Array
(
)
[days] => [0]
[material_price] => [0]
[work_price] => [0]
[image] => https://akademik-stroy.ru/wp-content/uploads/materials/drenazh-2.jpg
[area_modifier] => 98.5
[parent_name] => Дренаж вокруг дома
[parent_id] => 23
[material_sum] => 0
[work_sum] => 0
[total_sum] => 0
[total_days] => 0
[display_material_sum] => 0
[display_work_sum] => 0
[display_total_sum] => 0
)
1
0₽
Работа:0 ₽
Материалы:0 ₽
Дни:0
stdClass Object
(
[id] => 46
[attribute_id] => 23
[name] => Есть
[material_modifier] => 1
[work_modifier] => 1
[options] => Array
(
)
[days] => [5]
[material_price] => [2366]
[work_price] => [1911]
[image] => https://akademik-stroy.ru/wp-content/uploads/materials/drenazh-2.jpg
[area_modifier] => 98.5
[parent_name] => Дренаж вокруг дома
[parent_id] => 23
[material_sum] => 321610
[work_sum] => 216469
[total_sum] => 538079
[total_days] => 5
[display_material_sum] => 321 610
[display_work_sum] => 216 469
[display_total_sum] => 538 079
)
1
538 079₽
Работа:216 469 ₽
Материалы:321 610 ₽
Дни:5
stdClass Object
(
[id] => 47
[attribute_id] => 24
[name] => Нет
[material_modifier] => 1
[work_modifier] => 1
[options] => Array
(
)
[days] => [0]
[material_price] => [0]
[work_price] => [0]
[image] => https://akademik-stroy.ru/wp-content/uploads/materials/septik.jpg
[area_modifier] => 1
[parent_name] => Автономная канализация (септики)
[parent_id] => 24
[material_sum] => 0
[work_sum] => 0
[total_sum] => 0
[total_days] => 0
[display_material_sum] => 0
[display_work_sum] => 0
[display_total_sum] => 0
)
1
0₽
Работа:0 ₽
Материалы:0 ₽
Дни:0
stdClass Object
(
[id] => 48
[attribute_id] => 24
[name] => Есть
[material_modifier] => 1
[work_modifier] => 1
[options] => Array
(
[0] => Для дачи на 4 человека
[1] => Для дома на 5 человек
[2] => Для дома на 6 человек
[3] => Для дома на 7 человек
[4] => Для дома на 10 человек
)
[days] => [7,7,7,8,8]
[material_price] => [196340,220500,240940,264200,293340]
[work_price] => [50000,55000,60500,66550,73206]
[image] => https://akademik-stroy.ru/wp-content/uploads/materials/septik.jpg
[area_modifier] => 1
[parent_name] => Автономная канализация (септики)
[parent_id] => 24
[material_sum] => 270949
[work_sum] => 57500
[total_sum] => 328449
[total_days] => 7
[display_material_sum] => 270 949
[display_work_sum] => 57 500
[display_total_sum] => 328 449
)
1
328 449₽
Работа:57 500 ₽
Материалы:270 949 ₽
Дни:7
stdClass Object
(
[id] => 49
[attribute_id] => 25
[name] => Нет
[material_modifier] => 1
[work_modifier] => 1
[options] => Array
(
)
[days] => [0]
[material_price] => [0]
[work_price] => [0]
[image] => https://akademik-stroy.ru/wp-content/uploads/materials/gkl.jpg
[area_modifier] => 141.42
[parent_name] => Внутренние (не несущие) перегородки
[parent_id] => 25
[material_sum] => 0
[work_sum] => 0
[total_sum] => 0
[total_days] => 0
[display_material_sum] => 0
[display_work_sum] => 0
[display_total_sum] => 0
)
1
0₽
Работа:0 ₽
Материалы:0 ₽
Дни:0
stdClass Object
(
[id] => 147
[attribute_id] => 25
[name] => Каркасно-обшивные
[material_modifier] => 1
[work_modifier] => 1
[options] => Array
(
[0] => 75 мм (без шумоизоляции)
[1] => 75 мм (с шумоизоляцией)
)
[days] => [11,11]
[material_price] => [580,970]
[work_price] => [380,570]
[image] => https://akademik-stroy.ru/wp-content/uploads/materials/gkl.jpg
[area_modifier] => 141.42
[parent_name] => Внутренние (не несущие) перегородки
[parent_id] => 25
[material_sum] => 113193
[work_sum] => 61801
[total_sum] => 174994
[total_days] => 11
[display_material_sum] => 113 193
[display_work_sum] => 61 801
[display_total_sum] => 174 994
)
1
174 994₽
Работа:61 801 ₽
Материалы:113 193 ₽
Дни:11
stdClass Object
(
[id] => 148
[attribute_id] => 25
[name] => Пазогребневые
[material_modifier] => 1
[work_modifier] => 1
[options] => Array
(
[0] => 80 мм
[1] => 100 мм
)
[days] => [5,5]
[material_price] => [1022,1313]
[work_price] => [600,700]
[image] => https://akademik-stroy.ru/wp-content/uploads/materials/pazogrebnevye-bloki.jpg
[area_modifier] => 141.42
[parent_name] => Внутренние (не несущие) перегородки
[parent_id] => 25
[material_sum] => 199453
[work_sum] => 97580
[total_sum] => 297033
[total_days] => 5
[display_material_sum] => 199 453
[display_work_sum] => 97 580
[display_total_sum] => 297 033
)
1
297 033₽
Работа:97 580 ₽
Материалы:199 453 ₽
Дни:5
stdClass Object
(
[id] => 149
[attribute_id] => 25
[name] => Газобетонные
[material_modifier] => 1
[work_modifier] => 1
[options] => Array
(
[0] => 100 мм
[1] => 200 мм
)
[days] => [11,11]
[material_price] => [1160,1920]
[work_price] => [700,900]
[image] => https://akademik-stroy.ru/wp-content/uploads/materials/gazobeton-2.jpg
[area_modifier] => 141.42
[parent_name] => Внутренние (не несущие) перегородки
[parent_id] => 25
[material_sum] => 226385
[work_sum] => 113843
[total_sum] => 340228
[total_days] => 11
[display_material_sum] => 226 385
[display_work_sum] => 113 843
[display_total_sum] => 340 228
)
1
340 228₽
Работа:113 843 ₽
Материалы:226 385 ₽
Дни:11
stdClass Object
(
[id] => 150
[attribute_id] => 25
[name] => Кирпичные
[material_modifier] => 1
[work_modifier] => 1
[options] => Array
(
[0] => 120 мм
[1] => 250 мм
[2] => 360 мм
)
[days] => [7,7,7]
[material_price] => [1785,3570,5355]
[work_price] => [900,1600,1800]
[image] => https://akademik-stroy.ru/wp-content/uploads/materials/kirpich-1.jpg
[area_modifier] => 141.42
[parent_name] => Внутренние (не несущие) перегородки
[parent_id] => 25
[material_sum] => 348360
[work_sum] => 146370
[total_sum] => 494730
[total_days] => 7
[display_material_sum] => 348 360
[display_work_sum] => 146 370
[display_total_sum] => 494 730
)
1
494 730₽
Работа:146 370 ₽
Материалы:348 360 ₽
Дни:7
stdClass Object
(
[id] => 55
[attribute_id] => 28
[name] => Нет
[material_modifier] => 1
[work_modifier] => 1
[options] => Array
(
)
[days] => [0]
[material_price] => [0]
[work_price] => [0]
[image] => https://akademik-stroy.ru/wp-content/uploads/materials/ehlektrika.jpg
[area_modifier] => 114.76
[parent_name] => Электрика
[parent_id] => 28
[material_sum] => 0
[work_sum] => 0
[total_sum] => 0
[total_days] => 0
[display_material_sum] => 0
[display_work_sum] => 0
[display_total_sum] => 0
)
1
0₽
Работа:0 ₽
Материалы:0 ₽
Дни:0
stdClass Object
(
[id] => 56
[attribute_id] => 28
[name] => Есть
[material_modifier] => 1
[work_modifier] => 1
[options] => Array
(
)
[days] => [10]
[material_price] => [650]
[work_price] => [950]
[image] => https://akademik-stroy.ru/wp-content/uploads/materials/ehlektrika.jpg
[area_modifier] => 114.76
[parent_name] => Электрика
[parent_id] => 28
[material_sum] => 102940
[work_sum] => 125375
[total_sum] => 228315
[total_days] => 10
[display_material_sum] => 102 940
[display_work_sum] => 125 375
[display_total_sum] => 228 315
)
1
228 315₽
Работа:125 375 ₽
Материалы:102 940 ₽
Дни:10
stdClass Object
(
[id] => 57
[attribute_id] => 29
[name] => Нет
[material_modifier] => 1
[work_modifier] => 1
[options] => Array
(
)
[days] => [0]
[material_price] => [0]
[work_price] => [0]
[image] => https://akademik-stroy.ru/wp-content/uploads/materials/santekhnika-kanalizaciya-1.jpg
[area_modifier] => 114.76
[parent_name] => Сантехника, канализация в доме
[parent_id] => 29
[material_sum] => 0
[work_sum] => 0
[total_sum] => 0
[total_days] => 0
[display_material_sum] => 0
[display_work_sum] => 0
[display_total_sum] => 0
)
1
0₽
Работа:0 ₽
Материалы:0 ₽
Дни:0
stdClass Object
(
[id] => 58
[attribute_id] => 29
[name] => Есть
[material_modifier] => 1
[work_modifier] => 1
[options] => Array
(
)
[days] => [10]
[material_price] => [600]
[work_price] => [730]
[image] => https://akademik-stroy.ru/wp-content/uploads/materials/santekhnika-kanalizaciya-1.jpg
[area_modifier] => 114.76
[parent_name] => Сантехника, канализация в доме
[parent_id] => 29
[material_sum] => 95021
[work_sum] => 96341
[total_sum] => 191362
[total_days] => 10
[display_material_sum] => 95 021
[display_work_sum] => 96 341
[display_total_sum] => 191 362
)
1
191 362₽
Работа:96 341 ₽
Материалы:95 021 ₽
Дни:10
stdClass Object
(
[id] => 59
[attribute_id] => 30
[name] => Нет
[material_modifier] => 1
[work_modifier] => 1
[options] => Array
(
)
[days] => [0]
[material_price] => [0]
[work_price] => [0]
[image] => https://akademik-stroy.ru/wp-content/uploads/materials/otoplenie-1.jpg
[area_modifier] => 114.76
[parent_name] => Отопление
[parent_id] => 30
[material_sum] => 0
[work_sum] => 0
[total_sum] => 0
[total_days] => 0
[display_material_sum] => 0
[display_work_sum] => 0
[display_total_sum] => 0
)
1
0₽
Работа:0 ₽
Материалы:0 ₽
Дни:0
stdClass Object
(
[id] => 60
[attribute_id] => 30
[name] => Есть
[material_modifier] => 1
[work_modifier] => 1
[options] => Array
(
)
[days] => [5]
[material_price] => [610]
[work_price] => [560]
[image] => https://akademik-stroy.ru/wp-content/uploads/materials/otoplenie-1.jpg
[area_modifier] => 114.76
[parent_name] => Отопление
[parent_id] => 30
[material_sum] => 96605
[work_sum] => 73905
[total_sum] => 170510
[total_days] => 5
[display_material_sum] => 96 605
[display_work_sum] => 73 905
[display_total_sum] => 170 510
)
1
170 510₽
Работа:73 905 ₽
Материалы:96 605 ₽
Дни:5
stdClass Object
(
[id] => 61
[attribute_id] => 31
[name] => Нет
[material_modifier] => 1
[work_modifier] => 1
[options] => Array
(
)
[days] => [0]
[material_price] => [0]
[work_price] => [0]
[image] => https://akademik-stroy.ru/wp-content/uploads/materials/vodyanye.jpg
[area_modifier] => 30
[parent_name] => Теплые полы
[parent_id] => 31
[material_sum] => 0
[work_sum] => 0
[total_sum] => 0
[total_days] => 0
[display_material_sum] => 0
[display_work_sum] => 0
[display_total_sum] => 0
)
1
0₽
Работа:0 ₽
Материалы:0 ₽
Дни:0
stdClass Object
(
[id] => 151
[attribute_id] => 31
[name] => Водяные
[material_modifier] => 1
[work_modifier] => 1
[options] => Array
(
)
[days] => [9]
[material_price] => [10200]
[work_price] => [2500]
[image] => https://akademik-stroy.ru/wp-content/uploads/materials/vodyanye.jpg
[area_modifier] => 30
[parent_name] => Теплые полы
[parent_id] => 31
[material_sum] => 422280
[work_sum] => 86250
[total_sum] => 508530
[total_days] => 9
[display_material_sum] => 422 280
[display_work_sum] => 86 250
[display_total_sum] => 508 530
)
1
508 530₽
Работа:86 250 ₽
Материалы:422 280 ₽
Дни:9
stdClass Object
(
[id] => 152
[attribute_id] => 31
[name] => Электро
[material_modifier] => 1
[work_modifier] => 1
[options] => Array
(
)
[days] => [5]
[material_price] => [6300]
[work_price] => [1500]
[image] => https://akademik-stroy.ru/wp-content/uploads/materials/ehlektricheskij.jpg
[area_modifier] => 30
[parent_name] => Теплые полы
[parent_id] => 31
[material_sum] => 260820
[work_sum] => 51750
[total_sum] => 312570
[total_days] => 5
[display_material_sum] => 260 820
[display_work_sum] => 51 750
[display_total_sum] => 312 570
)
1
312 570₽
Работа:51 750 ₽
Материалы:260 820 ₽
Дни:5
stdClass Object
(
[id] => 63
[attribute_id] => 32
[name] => Нет
[material_modifier] => 1
[work_modifier] => 1
[options] => Array
(
)
[days] => [0]
[material_price] => [0]
[work_price] => [0]
[image] => https://akademik-stroy.ru/wp-content/uploads/materials/shtukaturka-shpatlevka-1.jpg
[area_modifier] => 114.76
[parent_name] => Черновая отделка стен
[parent_id] => 32
[material_sum] => 0
[work_sum] => 0
[total_sum] => 0
[total_days] => 0
[display_material_sum] => 0
[display_work_sum] => 0
[display_total_sum] => 0
)
1
0₽
Работа:0 ₽
Материалы:0 ₽
Дни:0
stdClass Object
(
[id] => 153
[attribute_id] => 32
[name] => Штукатурка и шпатлевка
[material_modifier] => 1
[work_modifier] => 1
[options] => Array
(
)
[days] => [20]
[material_price] => [1850]
[work_price] => [2600]
[image] => https://akademik-stroy.ru/wp-content/uploads/materials/shtukaturka-shpatlevka-1.jpg
[area_modifier] => 114.76
[parent_name] => Черновая отделка стен
[parent_id] => 32
[material_sum] => 292982
[work_sum] => 343132
[total_sum] => 636114
[total_days] => 20
[display_material_sum] => 292 982
[display_work_sum] => 343 132
[display_total_sum] => 636 114
)
1
636 114₽
Работа:343 132 ₽
Материалы:292 982 ₽
Дни:20
stdClass Object
(
[id] => 154
[attribute_id] => 32
[name] => Гипсокортон на стены
[material_modifier] => 1
[work_modifier] => 1
[options] => Array
(
)
[days] => [15]
[material_price] => [950]
[work_price] => [2100]
[image] => https://akademik-stroy.ru/wp-content/uploads/materials/gkl-1.jpg
[area_modifier] => 114.76
[parent_name] => Черновая отделка стен
[parent_id] => 32
[material_sum] => 150450
[work_sum] => 277145
[total_sum] => 427595
[total_days] => 15
[display_material_sum] => 150 450
[display_work_sum] => 277 145
[display_total_sum] => 427 595
)
1
427 595₽
Работа:277 145 ₽
Материалы:150 450 ₽
Дни:15
stdClass Object
(
[id] => 155
[attribute_id] => 32
[name] => Вагонка
[material_modifier] => 1
[work_modifier] => 1
[options] => Array
(
)
[days] => [15]
[material_price] => [1250]
[work_price] => [950]
[image] => https://akademik-stroy.ru/wp-content/uploads/materials/vagonka.jpg
[area_modifier] => 114.76
[parent_name] => Черновая отделка стен
[parent_id] => 32
[material_sum] => 197961
[work_sum] => 125375
[total_sum] => 323336
[total_days] => 15
[display_material_sum] => 197 961
[display_work_sum] => 125 375
[display_total_sum] => 323 336
)
1
323 336₽
Работа:125 375 ₽
Материалы:197 961 ₽
Дни:15
stdClass Object
(
[id] => 65
[attribute_id] => 33
[name] => Нет
[material_modifier] => 1
[work_modifier] => 1
[options] => Array
(
)
[days] => [0]
[material_price] => [0]
[work_price] => [0]
[image] => https://akademik-stroy.ru/wp-content/uploads/materials/styazhka.jpg
[area_modifier] => 114.76
[parent_name] => Черновая отделка полов
[parent_id] => 33
[material_sum] => 0
[work_sum] => 0
[total_sum] => 0
[total_days] => 0
[display_material_sum] => 0
[display_work_sum] => 0
[display_total_sum] => 0
)
1
0₽
Работа:0 ₽
Материалы:0 ₽
Дни:0
stdClass Object
(
[id] => 156
[attribute_id] => 33
[name] => Стяжка + наливные полы
[material_modifier] => 1
[work_modifier] => 1
[options] => Array
(
)
[days] => [10]
[material_price] => [1000]
[work_price] => [900]
[image] => https://akademik-stroy.ru/wp-content/uploads/materials/styazhka.jpg
[area_modifier] => 114.76
[parent_name] => Черновая отделка полов
[parent_id] => 33
[material_sum] => 158369
[work_sum] => 118777
[total_sum] => 277146
[total_days] => 10
[display_material_sum] => 158 369
[display_work_sum] => 118 777
[display_total_sum] => 277 146
)
1
277 146₽
Работа:118 777 ₽
Материалы:158 369 ₽
Дни:10
stdClass Object
(
[id] => 157
[attribute_id] => 33
[name] => ОСБ на пол
[material_modifier] => 1
[work_modifier] => 1
[options] => Array
(
)
[days] => [7]
[material_price] => [580]
[work_price] => [350]
[image] => https://akademik-stroy.ru/wp-content/uploads/materials/osb-1.jpg
[area_modifier] => 114.76
[parent_name] => Черновая отделка полов
[parent_id] => 33
[material_sum] => 91854
[work_sum] => 46191
[total_sum] => 138045
[total_days] => 7
[display_material_sum] => 91 854
[display_work_sum] => 46 191
[display_total_sum] => 138 045
)
1
138 045₽
Работа:46 191 ₽
Материалы:91 854 ₽
Дни:7
stdClass Object
(
[id] => 67
[attribute_id] => 34
[name] => Нет
[material_modifier] => 1
[work_modifier] => 1
[options] => Array
(
)
[days] => [0]
[material_price] => [0]
[work_price] => [0]
[image] => https://akademik-stroy.ru/wp-content/uploads/materials/chistovaya-otdelka.jpg
[area_modifier] => 114.76
[parent_name] => Чистовая отделка стен и полов
[parent_id] => 34
[material_sum] => 0
[work_sum] => 0
[total_sum] => 0
[total_days] => 0
[display_material_sum] => 0
[display_work_sum] => 0
[display_total_sum] => 0
)
1
0₽
Работа:0 ₽
Материалы:0 ₽
Дни:0
stdClass Object
(
[id] => 68
[attribute_id] => 34
[name] => Есть
[material_modifier] => 1
[work_modifier] => 1
[options] => Array
(
)
[days] => [50]
[material_price] => [6000]
[work_price] => [3500]
[image] => https://akademik-stroy.ru/wp-content/uploads/materials/chistovaya-otdelka.jpg
[area_modifier] => 114.76
[parent_name] => Чистовая отделка стен и полов
[parent_id] => 34
[material_sum] => 950213
[work_sum] => 461909
[total_sum] => 1412122
[total_days] => 50
[display_material_sum] => 950 213
[display_work_sum] => 461 909
[display_total_sum] => 1 412 122
)
1
1 412 122₽
Работа:461 909 ₽
Материалы:950 213 ₽
Дни:50
stdClass Object
(
[id] => 69
[attribute_id] => 35
[name] => Нет
[material_modifier] => 1
[work_modifier] => 1
[options] => Array
(
)
[days] => [0]
[material_price] => [0]
[work_price] => [0]
[image] => https://akademik-stroy.ru/wp-content/uploads/materials/mnogourovnevyj-gkl.jpg
[area_modifier] => 114.76
[parent_name] => Отделка потолка
[parent_id] => 35
[material_sum] => 0
[work_sum] => 0
[total_sum] => 0
[total_days] => 0
[display_material_sum] => 0
[display_work_sum] => 0
[display_total_sum] => 0
)
1
0₽
Работа:0 ₽
Материалы:0 ₽
Дни:0
stdClass Object
(
[id] => 70
[attribute_id] => 35
[name] => Есть
[material_modifier] => 1
[work_modifier] => 1
[options] => Array
(
[0] => Многоуровневый потолок из гипсокартона
[1] => Многоуровневый потолок из гипсокартона и натяжного потолка
[2] => Одноуровневый потолок из гипсокартона
[3] => Одноуровневый натяжной потолок
)
[days] => [10,10,1,1]
[material_price] => [900,700,700,600]
[work_price] => [1000,800,500,300]
[image] => https://akademik-stroy.ru/wp-content/uploads/materials/mnogourovnevyj-gkl.jpg
[area_modifier] => 114.76
[parent_name] => Отделка потолка
[parent_id] => 35
[material_sum] => 142532
[work_sum] => 131974
[total_sum] => 274506
[total_days] => 10
[display_material_sum] => 142 532
[display_work_sum] => 131 974
[display_total_sum] => 274 506
)
1
274 506₽
Работа:131 974 ₽
Материалы:142 532 ₽
Дни:10
Преимущества работы с нами
7 этапов оплаты
Независимый строительный надзор
Экологически чистые материалы
16 лет гарантии
Онлайн-кабинет с веб-камерой
Строители с опытом более 15 лет
Собственное производство






