Одноэтажный дом 232.32 м2 за руб.
Планировки
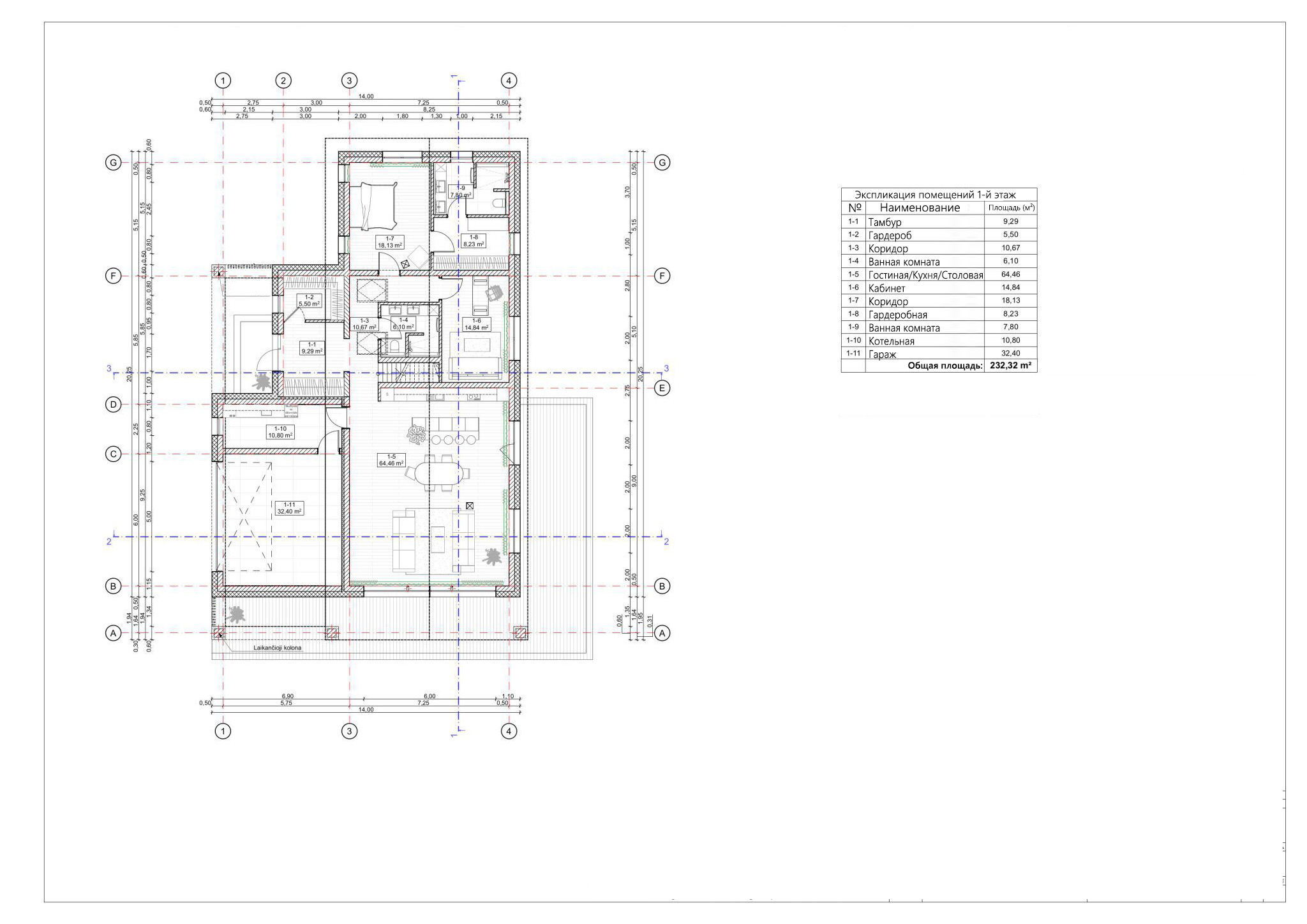
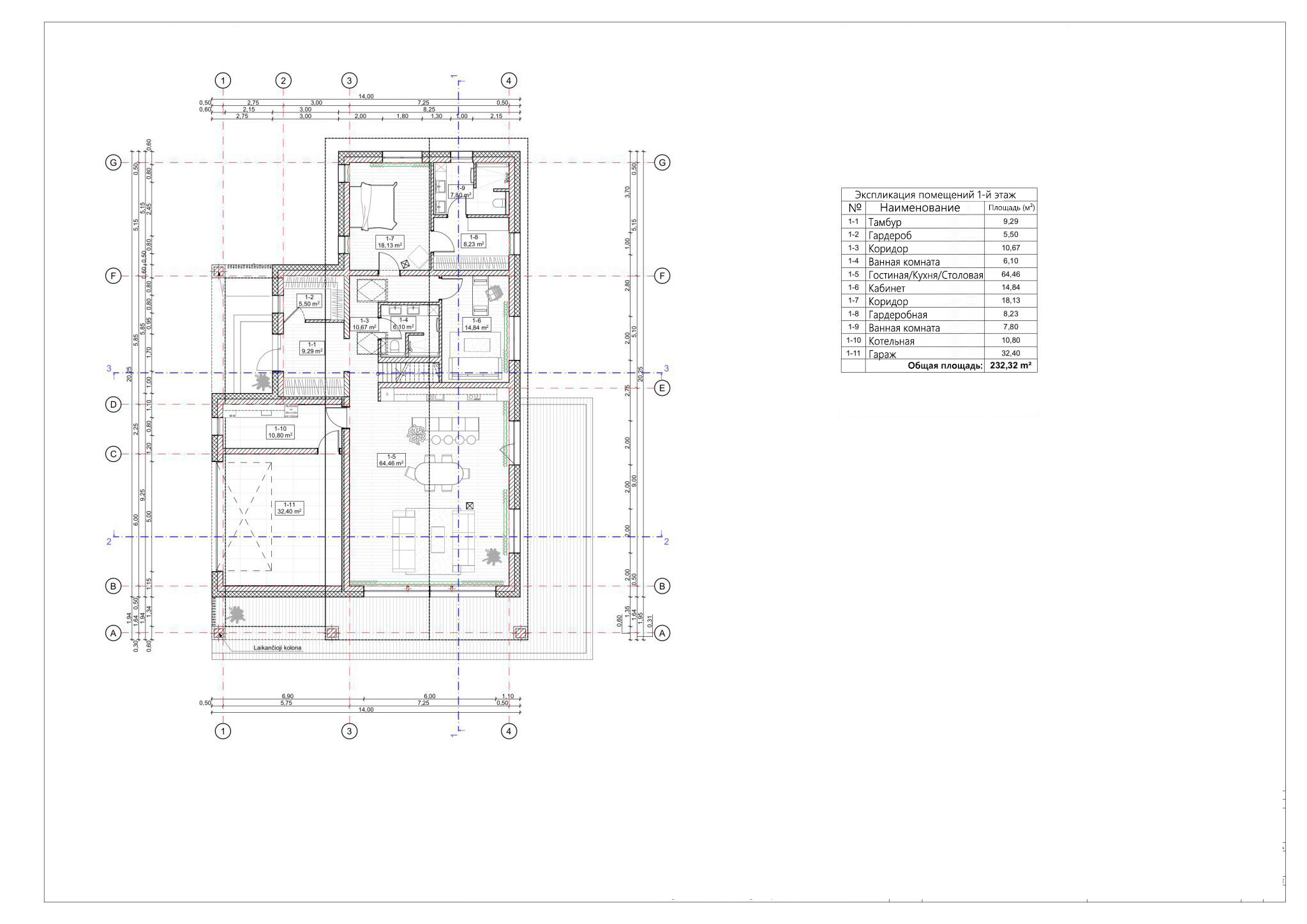
План первого этажа
- 1. Тамбур 9,29 м²
- 2. Гардероб 5,50 м²
- 3. Коридор 10,67 м²
- 4. Ванная комната 6,10 м²
- 5. Гостиная-Кухня-Столовая 64,46 м²
- 6. Кабинет 14,84 м²
- 7. Коридор 18,13 м²
- 8. Гардеробная 8,23 м²
- 9. Ванная комната 7,80 м²
- 10. Котельная 10,80 м²
- 11. Гараж 32,40 м²
- Общая площадь первый этаж 188,22 м²
План мансарды
- 1. Холл 22,27 м²
- 2. Кабинет 21,83 м²
- Общая площадь второй этаж 44,10 м²
Площади дома
| № п/п | Наименование | Ед. из. | Строительная площадь | Полезная площадь |
| 1 | 1 этаж | м2 | 231.94 | 188.22 |
| 2 | 2 этаж | м2 | 54.34 | 44.1 |
| 3 | Итого | м2 | 286.28 | 232.32 |
154 м2
Полезная
площадь
площадь
1 этаж
Этажей
26 м2
Террасы
и балконы
и балконы
1Без
гаража
гаража
3
Количество
спален
спален
2
Количество
санузлов
санузлов
Калькулятор опций
0₽
В ипотеку от 31 645 ₽/мес.
0₽
0 дней
1 212 084₽
Работа:524 579 ₽
Материалы:687 505 ₽
Дни:20
728 663₽
Работа:244 024 ₽
Материалы:484 639 ₽
Дни:2
1 227 914₽
Работа:492 919 ₽
Материалы:734 995 ₽
Дни:20
2 353 055₽
Работа:1 050 619 ₽
Материалы:1 302 436 ₽
Дни:30
3 947 492₽
Работа:1 451 481 ₽
Материалы:2 496 011 ₽
Дни:32
1 491 907₽
Работа:596 909 ₽
Материалы:894 998 ₽
Дни:20
9 361 562₽
Работа:4 267 742 ₽
Материалы:5 093 820 ₽
Дни:30
11 169 094₽
Работа:4 978 140 ₽
Материалы:6 190 954 ₽
Дни:40
389 659₽
Работа:97 415 ₽
Материалы:292 244 ₽
Дни:1
697 490₽
Работа:299 551 ₽
Материалы:397 939 ₽
Дни:8
1 117 104₽
Работа:370 176 ₽
Материалы:746 928 ₽
Дни:13
1 993 350₽
Работа:815 362 ₽
Материалы:1 177 988 ₽
Дни:18
1 956 333₽
Работа:1 225 722 ₽
Материалы:730 611 ₽
Дни:29
2 251 987₽
Работа:1 153 635 ₽
Материалы:1 098 352 ₽
Дни:23
3 466 993₽
Работа:2 127 539 ₽
Материалы:1 339 454 ₽
Дни:30
2 837 450₽
Работа:1 243 500 ₽
Материалы:1 593 950 ₽
Дни:45
5 304 480₽
Работа:1 170 439 ₽
Материалы:4 134 041 ₽
Дни:24
1 168 247₽
Работа:588 872 ₽
Материалы:579 375 ₽
Дни:15
638 067₽
Работа:343 387 ₽
Материалы:294 680 ₽
Дни:7
2 243 950₽
Работа:780 293 ₽
Материалы:1 463 657 ₽
Дни:7
2 930 968₽
Работа:936 400 ₽
Материалы:1 994 568 ₽
Дни:7
19 247 947₽
Работа:936 400 ₽
Материалы:18 311 547 ₽
Дни:7
10 418 757₽
Работа:1 170 439 ₽
Материалы:9 248 318 ₽
Дни:7
1 638 760₽
Работа:390 146 ₽
Материалы:1 248 614 ₽
Дни:7
2 151 893₽
Работа:1 105 171 ₽
Материалы:1 046 722 ₽
Дни:29
1 884 002₽
Работа:1 226 939 ₽
Материалы:657 063 ₽
Дни:29
2 151 893₽
Работа:1 105 171 ₽
Материалы:1 046 722 ₽
Дни:29
2 283 890₽
Работа:1 397 172 ₽
Материалы:886 718 ₽
Дни:23
2 919 278₽
Работа:983 159 ₽
Материалы:1 936 119 ₽
Дни:7
3 310 399₽
Работа:2 028 907 ₽
Материалы:1 281 492 ₽
Дни:25
1 197 472₽
Работа:618 097 ₽
Материалы:579 375 ₽
Дни:15
11 096 033₽
Работа:2 340 878 ₽
Материалы:8 755 155 ₽
Дни:15
1 327 764₽
Работа:624 429 ₽
Материалы:703 335 ₽
Дни:15
1 808 019₽
Работа:1 026 265 ₽
Материалы:781 754 ₽
Дни:19
1 908 356₽
Работа:1 226 939 ₽
Материалы:681 417 ₽
Дни:29
1 225 722₽
Работа:643 425 ₽
Материалы:582 297 ₽
Дни:15
2 251 987₽
Работа:1 153 635 ₽
Материалы:1 098 352 ₽
Дни:23
1 315 587₽
Работа:511 428 ₽
Материалы:804 159 ₽
Дни:15
1 685 276₽
Работа:1 228 888 ₽
Материалы:456 388 ₽
Дни:7
697 490₽
Работа:299 551 ₽
Материалы:397 939 ₽
Дни:8
1 117 104₽
Работа:370 176 ₽
Материалы:746 928 ₽
Дни:13
1 993 350₽
Работа:815 362 ₽
Материалы:1 177 988 ₽
Дни:18
458 339₽
Работа:287 168 ₽
Материалы:171 171 ₽
Дни:29
527 606₽
Работа:270 279 ₽
Материалы:257 327 ₽
Дни:23
812 264₽
Работа:498 450 ₽
Материалы:313 814 ₽
Дни:30
664 771₽
Работа:291 333 ₽
Материалы:373 438 ₽
Дни:45
1 242 759₽
Работа:274 216 ₽
Материалы:968 543 ₽
Дни:24
273 703₽
Работа:137 964 ₽
Материалы:135 739 ₽
Дни:15
149 489₽
Работа:80 450 ₽
Материалы:69 039 ₽
Дни:7
525 724₽
Работа:182 811 ₽
Материалы:342 913 ₽
Дни:7
686 681₽
Работа:219 384 ₽
Материалы:467 297 ₽
Дни:7
4 509 500₽
Работа:219 384 ₽
Материалы:4 290 116 ₽
Дни:7
1 197 113₽
Работа:274 216 ₽
Материалы:922 897 ₽
Дни:7
383 936₽
Работа:91 405 ₽
Материалы:292 531 ₽
Дни:10
504 156₽
Работа:258 925 ₽
Материалы:245 231 ₽
Дни:29
441 393₽
Работа:287 453 ₽
Материалы:153 940 ₽
Дни:29
504 156₽
Работа:258 925 ₽
Материалы:245 231 ₽
Дни:29
535 081₽
Работа:327 336 ₽
Материалы:207 745 ₽
Дни:23
683 942₽
Работа:230 339 ₽
Материалы:453 603 ₽
Дни:7
775 576₽
Работа:475 342 ₽
Материалы:300 234 ₽
Дни:25
280 550₽
Работа:144 811 ₽
Материалы:135 739 ₽
Дни:15
2 599 631₽
Работа:548 432 ₽
Материалы:2 051 199 ₽
Дни:15
311 075₽
Работа:146 294 ₽
Материалы:164 781 ₽
Дни:15
423 591₽
Работа:240 438 ₽
Материалы:183 153 ₽
Дни:19
447 098₽
Работа:287 453 ₽
Материалы:159 645 ₽
Дни:29
287 168₽
Работа:150 745 ₽
Материалы:136 423 ₽
Дни:15
527 606₽
Работа:270 279 ₽
Материалы:257 327 ₽
Дни:10
308 222₽
Работа:119 820 ₽
Материалы:188 402 ₽
Дни:10
394 835₽
Работа:287 910 ₽
Материалы:106 925 ₽
Дни:7
2 882 991₽
Работа:1 394 493 ₽
Материалы:1 488 498 ₽
Дни:20
3 148 933₽
Работа:1 449 045 ₽
Материалы:1 699 888 ₽
Дни:20
4 874 637₽
Работа:2 302 886 ₽
Материалы:2 571 751 ₽
Дни:20
4 483 760₽
Работа:2 168 697 ₽
Материалы:2 315 063 ₽
Дни:20
5 407 983₽
Работа:2 302 886 ₽
Материалы:3 105 097 ₽
Дни:20
4 076 809₽
Работа:1 994 568 ₽
Материалы:2 082 241 ₽
Дни:20
9 059 577₽
Работа:4 079 245 ₽
Материалы:4 980 332 ₽
Дни:20
8 920 760₽
Работа:4 086 551 ₽
Материалы:4 834 209 ₽
Дни:20
1 753 467₽
Работа:913 264 ₽
Материалы:840 203 ₽
Дни:20
481 529₽
Работа:154 899 ₽
Материалы:326 630 ₽
Дни:3
0₽
Работа:0 ₽
Материалы:0 ₽
Дни:0
16 275₽
Работа:5 775 ₽
Материалы:10 500 ₽
Дни:1
0₽
Работа:0 ₽
Материалы:0 ₽
Дни:0
0₽
Работа:0 ₽
Материалы:0 ₽
Дни:0
440 315₽
Работа:158 299 ₽
Материалы:282 016 ₽
Дни:5
256 688₽
Работа:56 988 ₽
Материалы:199 700 ₽
Дни:3
374 072₽
Работа:94 979 ₽
Материалы:279 093 ₽
Дни:3
210 903₽
Работа:94 979 ₽
Материалы:115 924 ₽
Дни:3
563 545₽
Работа:56 988 ₽
Материалы:506 557 ₽
Дни:2
739 378₽
Работа:94 979 ₽
Материалы:644 399 ₽
Дни:3
0₽
Работа:0 ₽
Материалы:0 ₽
Дни:0
68 649₽
Работа:18 795 ₽
Материалы:49 854 ₽
Дни:6
0₽
Работа:0 ₽
Материалы:0 ₽
Дни:0
811 465₽
Работа:372 368 ₽
Материалы:439 097 ₽
Дни:7
0₽
Работа:0 ₽
Материалы:0 ₽
Дни:0
811 709₽
Работа:363 114 ₽
Материалы:448 595 ₽
Дни:7
0₽
Работа:0 ₽
Материалы:0 ₽
Дни:0
1 732 083₽
Работа:698 905 ₽
Материалы:1 033 178 ₽
Дни:7
611 731₽
Работа:368 241 ₽
Материалы:243 490 ₽
Дни:3
1 910 342₽
Работа:539 585 ₽
Материалы:1 370 757 ₽
Дни:5
1 989 100₽
Работа:539 585 ₽
Материалы:1 449 515 ₽
Дни:5
1 078 870₽
Работа:219 141 ₽
Материалы:859 729 ₽
Дни:3
2 742 415₽
Работа:240 484 ₽
Материалы:2 501 931 ₽
Дни:5
0₽
Работа:0 ₽
Материалы:0 ₽
Дни:0
1 319 954₽
Работа:419 944 ₽
Материалы:900 010 ₽
Дни:20
1 422 160₽
Работа:462 029 ₽
Материалы:960 131 ₽
Дни:20
1 031 976₽
Работа:361 327 ₽
Материалы:670 649 ₽
Дни:35
3 431 100₽
Работа:973 959 ₽
Материалы:2 457 141 ₽
Дни:45
1 797 916₽
Работа:903 918 ₽
Материалы:893 998 ₽
Дни:40
759 326₽
Работа:379 663 ₽
Материалы:379 663 ₽
Дни:20
2 337 501₽
Работа:973 959 ₽
Материалы:1 363 542 ₽
Дни:45
2 571 371₽
Работа:701 310 ₽
Материалы:1 870 061 ₽
Дни:20
1 421 859₽
Работа:584 375 ₽
Материалы:837 484 ₽
Дни:20
1 753 126₽
Работа:779 167 ₽
Материалы:973 959 ₽
Дни:20
2 443 313₽
Работа:1 051 815 ₽
Материалы:1 391 498 ₽
Дни:20
3 016 866₽
Работа:899 709 ₽
Материалы:2 117 157 ₽
Дни:20
2 144 813₽
Работа:779 167 ₽
Материалы:1 365 646 ₽
Дни:20
0₽
Работа:0 ₽
Материалы:0 ₽
Дни:0
390 600₽
Работа:61 425 ₽
Материалы:329 175 ₽
Дни:5
0₽
Работа:0 ₽
Материалы:0 ₽
Дни:0
174 825₽
Работа:61 425 ₽
Материалы:113 400 ₽
Дни:12
0₽
Работа:0 ₽
Материалы:0 ₽
Дни:0
1 047 209₽
Работа:426 190 ₽
Материалы:621 019 ₽
Дни:15
754 965₽
Работа:353 129 ₽
Материалы:401 836 ₽
Дни:10
0₽
Работа:0 ₽
Материалы:0 ₽
Дни:0
1 041 608₽
Работа:465 399 ₽
Материалы:576 209 ₽
Дни:5
0₽
Работа:0 ₽
Материалы:0 ₽
Дни:0
258 657₽
Работа:52 500 ₽
Материалы:206 157 ₽
Дни:7
0₽
Работа:0 ₽
Материалы:0 ₽
Дни:0
288 581₽
Работа:114 230 ₽
Материалы:174 351 ₽
Дни:11
487 581₽
Работа:180 363 ₽
Материалы:307 218 ₽
Дни:5
559 124₽
Работа:210 423 ₽
Материалы:348 701 ₽
Дни:11
807 123₽
Работа:270 544 ₽
Материалы:536 579 ₽
Дни:7
0₽
Работа:0 ₽
Материалы:0 ₽
Дни:0
390 297₽
Работа:231 739 ₽
Материалы:158 558 ₽
Дни:10
0₽
Работа:0 ₽
Материалы:0 ₽
Дни:0
324 435₽
Работа:178 073 ₽
Материалы:146 362 ₽
Дни:10
0₽
Работа:0 ₽
Материалы:0 ₽
Дни:0
285 405₽
Работа:136 604 ₽
Материалы:148 801 ₽
Дни:5
0₽
Работа:0 ₽
Материалы:0 ₽
Дни:0
400 050₽
Работа:78 750 ₽
Материалы:321 300 ₽
Дни:9
245 700₽
Работа:47 250 ₽
Материалы:198 450 ₽
Дни:5
0₽
Работа:0 ₽
Материалы:0 ₽
Дни:0
1 085 516₽
Работа:634 234 ₽
Материалы:451 282 ₽
Дни:20
744 005₽
Работа:512 266 ₽
Материалы:231 739 ₽
Дни:15
536 659₽
Работа:231 739 ₽
Материалы:304 920 ₽
Дни:15
0₽
Работа:0 ₽
Материалы:0 ₽
Дни:0
463 478₽
Работа:219 542 ₽
Материалы:243 936 ₽
Дни:10
226 861₽
Работа:85 378 ₽
Материалы:141 483 ₽
Дни:7
0₽
Работа:0 ₽
Материалы:0 ₽
Дни:0
2 317 392₽
Работа:853 776 ₽
Материалы:1 463 616 ₽
Дни:50
0₽
Работа:0 ₽
Материалы:0 ₽
Дни:0
463 478₽
Работа:243 936 ₽
Материалы:219 542 ₽
Дни:10
Преимущества работы с нами
7 этапов оплаты
Независимый строительный надзор
Экологически чистые материалы
16 лет гарантии
Онлайн-кабинет с веб-камерой
Строители с опытом более 15 лет
Собственное производство








