Одноэтажный дом 287.18 м2 за руб.
Планировки
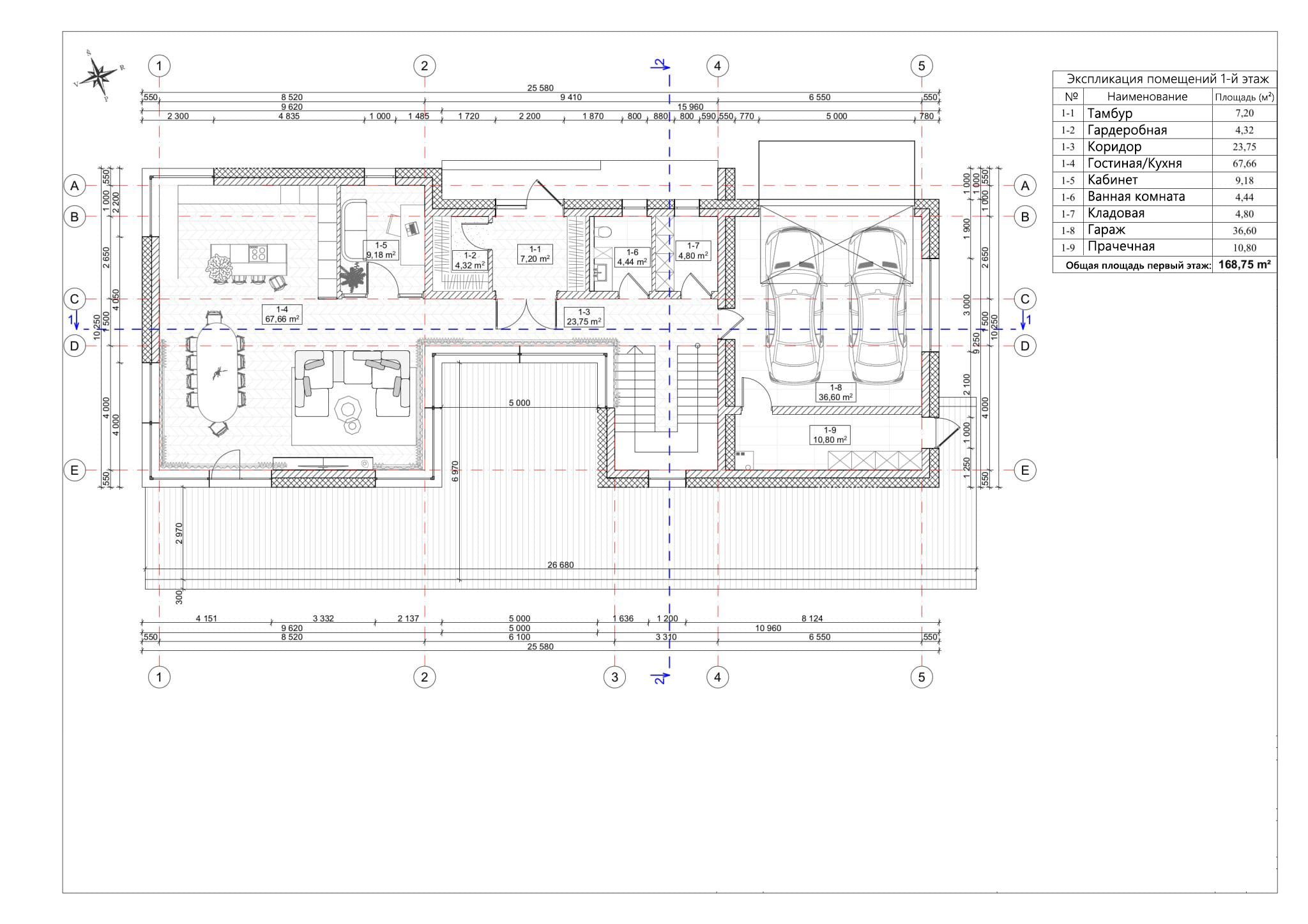
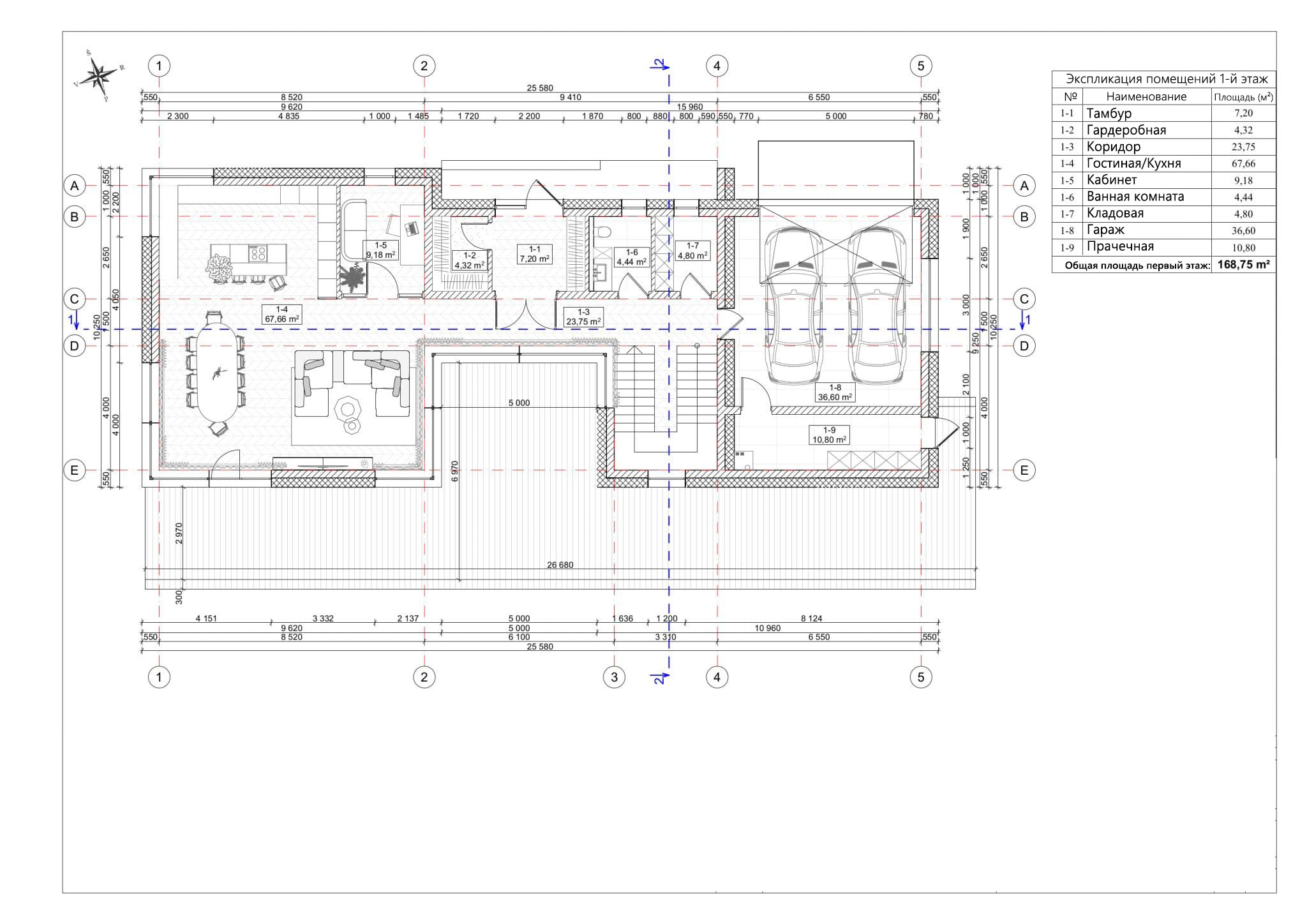
План первого этажа
- 1. Тамбур 7,20 м²
- 2. Гардеробная 4,32 м²
- 3. Коридор 23,75 м²
- 4. Гостиная-Кухня 67,66 м²
- 5. Кабинет 9,18 м²
- 6. Ванная комната 4,44 м²
- 7. Кладовая 4,80 м²
- 8. Гараж 36,60 м²
- 9. Прачечная 10,80 м²
- Общая площадь первый этаж 168,75 м²
План второго этажа
- 1. Коридор 13,74 м²
- 2. Комната 27,01 м²
- 3. Гардеробная 6,12 м²
- 4. Ванная комната 8,14 м²
- 5. Ванная комната 9,18 м²
- 6. Кабинет 20,25 м²
- 7. Комната 27,19 м²
- 8. Гардеробная 6,80 м²
- Общая площадь второй этаж 118,43 м²
Площади дома
| № п/п | Наименование | Ед. из. | Строительная площадь | Полезная площадь |
| 1 | 1 этаж | м2 | 207.95 | 168.75 |
| 2 | 2 этаж | м2 | 145.94 | 118.43 |
| 3 | Итого | м2 | 353.89 | 287.18 |
154 м2
Полезная
площадь
площадь
1 этаж
Этажей
26 м2
Террасы
и балконы
и балконы
0Без
гаража
гаража
3
Количество
спален
спален
3
Количество
санузлов
санузлов
Калькулятор опций
0₽
В ипотеку от 31 645 ₽/мес.
0₽
0 дней
1 034 967₽
Работа:447 924 ₽
Материалы:587 043 ₽
Дни:20
622 187₽
Работа:208 366 ₽
Материалы:413 821 ₽
Дни:2
1 048 484₽
Работа:420 891 ₽
Материалы:627 593 ₽
Дни:20
2 009 213₽
Работа:897 096 ₽
Материалы:1 112 117 ₽
Дни:30
3 370 662₽
Работа:1 239 382 ₽
Материалы:2 131 280 ₽
Дни:32
1 273 901₽
Работа:509 685 ₽
Материалы:764 216 ₽
Дни:20
7 993 598₽
Работа:3 644 116 ₽
Материалы:4 349 482 ₽
Дни:30
9 537 003₽
Работа:4 250 706 ₽
Материалы:5 286 297 ₽
Дни:40
332 720₽
Работа:83 180 ₽
Материалы:249 540 ₽
Дни:1
595 569₽
Работа:255 779 ₽
Материалы:339 790 ₽
Дни:8
953 867₽
Работа:316 084 ₽
Материалы:637 783 ₽
Дни:13
1 702 071₽
Работа:696 217 ₽
Материалы:1 005 854 ₽
Дни:18
1 670 462₽
Работа:1 046 612 ₽
Материалы:623 850 ₽
Дни:29
1 922 914₽
Работа:985 059 ₽
Материалы:937 855 ₽
Дни:23
2 960 376₽
Работа:1 816 651 ₽
Материалы:1 143 725 ₽
Дни:30
2 422 826₽
Работа:1 061 793 ₽
Материалы:1 361 033 ₽
Дни:45
4 529 359₽
Работа:999 408 ₽
Материалы:3 529 951 ₽
Дни:24
997 536₽
Работа:502 823 ₽
Материалы:494 713 ₽
Дни:15
544 830₽
Работа:293 210 ₽
Материалы:251 620 ₽
Дни:7
1 916 052₽
Работа:666 272 ₽
Материалы:1 249 780 ₽
Дни:7
2 502 679₽
Работа:799 568 ₽
Материалы:1 703 111 ₽
Дни:7
16 435 329₽
Работа:799 568 ₽
Материалы:15 635 761 ₽
Дни:7
8 896 309₽
Работа:999 408 ₽
Материалы:7 896 901 ₽
Дни:7
1 399 296₽
Работа:333 136 ₽
Материалы:1 066 160 ₽
Дни:7
1 837 446₽
Работа:943 677 ₽
Материалы:893 769 ₽
Дни:29
1 608 701₽
Работа:1 047 652 ₽
Материалы:561 049 ₽
Дни:29
1 837 446₽
Работа:943 677 ₽
Материалы:893 769 ₽
Дни:29
1 950 155₽
Работа:1 193 009 ₽
Материалы:757 146 ₽
Дни:23
2 492 697₽
Работа:839 494 ₽
Материалы:1 653 203 ₽
Дни:7
2 826 664₽
Работа:1 732 431 ₽
Материалы:1 094 233 ₽
Дни:25
1 022 490₽
Работа:527 777 ₽
Материалы:494 713 ₽
Дни:15
9 474 618₽
Работа:1 998 815 ₽
Материалы:7 475 803 ₽
Дни:15
1 133 744₽
Работа:533 184 ₽
Материалы:600 560 ₽
Дни:15
1 543 821₽
Работа:876 301 ₽
Материалы:667 520 ₽
Дни:19
1 629 496₽
Работа:1 047 652 ₽
Материалы:581 844 ₽
Дни:29
1 046 612₽
Работа:549 404 ₽
Материалы:497 208 ₽
Дни:15
1 922 914₽
Работа:985 059 ₽
Материалы:937 855 ₽
Дни:23
1 123 346₽
Работа:436 695 ₽
Материалы:686 651 ₽
Дни:15
1 439 014₽
Работа:1 049 316 ₽
Материалы:389 698 ₽
Дни:7
595 569₽
Работа:255 779 ₽
Материалы:339 790 ₽
Дни:8
953 867₽
Работа:316 084 ₽
Материалы:637 783 ₽
Дни:13
1 702 071₽
Работа:696 217 ₽
Материалы:1 005 854 ₽
Дни:18
1 172 336₽
Работа:734 516 ₽
Материалы:437 820 ₽
Дни:29
1 349 507₽
Работа:691 318 ₽
Материалы:658 189 ₽
Дни:23
2 077 602₽
Работа:1 274 932 ₽
Материалы:802 670 ₽
Дни:30
1 700 347₽
Работа:745 170 ₽
Материалы:955 177 ₽
Дни:45
3 178 720₽
Работа:701 388 ₽
Материалы:2 477 332 ₽
Дни:24
700 074₽
Работа:352 883 ₽
Материалы:347 191 ₽
Дни:15
382 362₽
Работа:205 775 ₽
Материалы:176 587 ₽
Дни:7
1 344 691₽
Работа:467 592 ₽
Материалы:877 099 ₽
Дни:7
1 756 388₽
Работа:561 139 ₽
Материалы:1 195 249 ₽
Дни:7
11 534 368₽
Работа:561 139 ₽
Материалы:10 973 229 ₽
Дни:7
3 061 968₽
Работа:701 388 ₽
Материалы:2 360 580 ₽
Дни:7
982 030₽
Работа:233 796 ₽
Материалы:748 234 ₽
Дни:10
1 289 526₽
Работа:662 276 ₽
Материалы:627 250 ₽
Дни:29
1 128 992₽
Работа:735 246 ₽
Материалы:393 746 ₽
Дни:29
1 289 526₽
Работа:662 276 ₽
Материалы:627 250 ₽
Дни:29
1 368 626₽
Работа:837 258 ₽
Материалы:531 368 ₽
Дни:23
1 749 383₽
Работа:589 160 ₽
Материалы:1 160 223 ₽
Дни:7
1 983 762₽
Работа:1 215 826 ₽
Материалы:767 936 ₽
Дни:25
717 587₽
Работа:370 396 ₽
Материалы:347 191 ₽
Дни:15
6 649 318₽
Работа:1 402 775 ₽
Материалы:5 246 543 ₽
Дни:15
795 665₽
Работа:374 190 ₽
Материалы:421 475 ₽
Дни:15
1 083 458₽
Работа:614 991 ₽
Материалы:468 467 ₽
Дни:19
1 143 586₽
Работа:735 246 ₽
Материалы:408 340 ₽
Дни:29
734 516₽
Работа:385 573 ₽
Материалы:348 943 ₽
Дни:15
1 349 507₽
Работа:691 318 ₽
Материалы:658 189 ₽
Дни:10
788 368₽
Работа:306 474 ₽
Материалы:481 894 ₽
Дни:10
1 009 905₽
Работа:736 413 ₽
Материалы:273 492 ₽
Дни:7
417 972₽
Работа:179 506 ₽
Материалы:238 466 ₽
Дни:8
669 427₽
Работа:221 829 ₽
Материалы:447 598 ₽
Дни:13
1 194 519₽
Работа:488 607 ₽
Материалы:705 912 ₽
Дни:18
2 543 437₽
Работа:865 696 ₽
Материалы:1 677 741 ₽
Дни:10
3 847 491₽
Работа:1 756 346 ₽
Материалы:2 091 145 ₽
Дни:10
3 545 963₽
Работа:1 551 099 ₽
Материалы:1 994 864 ₽
Дни:10
0₽
Работа:0 ₽
Материалы:0 ₽
Дни:0
566 893₽
Работа:182 359 ₽
Материалы:384 534 ₽
Дни:3
0₽
Работа:0 ₽
Материалы:0 ₽
Дни:0
15 500₽
Работа:5 500 ₽
Материалы:10 000 ₽
Дни:1
0₽
Работа:0 ₽
Материалы:0 ₽
Дни:0
0₽
Работа:0 ₽
Материалы:0 ₽
Дни:0
693 097₽
Работа:310 053 ₽
Материалы:383 044 ₽
Дни:7
0₽
Работа:0 ₽
Материалы:0 ₽
Дни:0
2 039 114₽
Работа:822 794 ₽
Материалы:1 216 320 ₽
Дни:7
720 166₽
Работа:433 515 ₽
Материалы:286 651 ₽
Дни:3
2 248 971₽
Работа:635 233 ₽
Материалы:1 613 738 ₽
Дни:5
2 341 691₽
Работа:635 233 ₽
Материалы:1 706 458 ₽
Дни:5
1 270 111₽
Работа:257 986 ₽
Материалы:1 012 125 ₽
Дни:3
3 228 538₽
Работа:283 112 ₽
Материалы:2 945 426 ₽
Дни:5
0₽
Работа:0 ₽
Материалы:0 ₽
Дни:0
1 553 931₽
Работа:494 384 ₽
Материалы:1 059 547 ₽
Дни:20
1 674 254₽
Работа:543 929 ₽
Материалы:1 130 325 ₽
Дни:20
1 214 905₽
Работа:425 376 ₽
Материалы:789 529 ₽
Дни:35
4 039 301₽
Работа:1 146 604 ₽
Материалы:2 892 697 ₽
Дни:45
2 116 616₽
Работа:1 064 147 ₽
Материалы:1 052 469 ₽
Дни:40
893 926₽
Работа:446 963 ₽
Материалы:446 963 ₽
Дни:20
2 751 849₽
Работа:1 146 604 ₽
Материалы:1 605 245 ₽
Дни:45
3 027 175₽
Работа:825 625 ₽
Материалы:2 201 550 ₽
Дни:20
1 673 900₽
Работа:687 962 ₽
Материалы:985 938 ₽
Дни:20
2 063 887₽
Работа:917 283 ₽
Материалы:1 146 604 ₽
Дни:20
2 876 418₽
Работа:1 238 261 ₽
Материалы:1 638 157 ₽
Дни:20
3 551 640₽
Работа:1 059 193 ₽
Материалы:2 492 447 ₽
Дни:20
2 525 005₽
Работа:917 283 ₽
Материалы:1 607 722 ₽
Дни:20
0₽
Работа:0 ₽
Материалы:0 ₽
Дни:0
372 000₽
Работа:58 500 ₽
Материалы:313 500 ₽
Дни:5
0₽
Работа:0 ₽
Материалы:0 ₽
Дни:0
166 500₽
Работа:58 500 ₽
Материалы:108 000 ₽
Дни:12
0₽
Работа:0 ₽
Материалы:0 ₽
Дни:0
894 186₽
Работа:363 913 ₽
Материалы:530 273 ₽
Дни:15
644 646₽
Работа:301 528 ₽
Материалы:343 118 ₽
Дни:10
0₽
Работа:0 ₽
Материалы:0 ₽
Дни:0
889 402₽
Работа:397 392 ₽
Материалы:492 010 ₽
Дни:5
0₽
Работа:0 ₽
Материалы:0 ₽
Дни:0
246 340₽
Работа:50 000 ₽
Материалы:196 340 ₽
Дни:7
0₽
Работа:0 ₽
Материалы:0 ₽
Дни:0
339 734₽
Работа:134 478 ₽
Материалы:205 256 ₽
Дни:11
574 010₽
Работа:212 334 ₽
Материалы:361 676 ₽
Дни:5
658 235₽
Работа:247 723 ₽
Материалы:410 512 ₽
Дни:11
950 195₽
Работа:318 501 ₽
Материалы:631 694 ₽
Дни:7
0₽
Работа:0 ₽
Материалы:0 ₽
Дни:0
459 488₽
Работа:272 821 ₽
Материалы:186 667 ₽
Дни:10
0₽
Работа:0 ₽
Материалы:0 ₽
Дни:0
381 949₽
Работа:209 641 ₽
Материалы:172 308 ₽
Дни:10
0₽
Работа:0 ₽
Материалы:0 ₽
Дни:0
336 001₽
Работа:160 821 ₽
Материалы:175 180 ₽
Дни:5
0₽
Работа:0 ₽
Материалы:0 ₽
Дни:0
381 000₽
Работа:75 000 ₽
Материалы:306 000 ₽
Дни:9
234 000₽
Работа:45 000 ₽
Материалы:189 000 ₽
Дни:5
0₽
Работа:0 ₽
Материалы:0 ₽
Дни:0
1 277 951₽
Работа:746 668 ₽
Материалы:531 283 ₽
Дни:20
875 899₽
Работа:603 078 ₽
Материалы:272 821 ₽
Дни:15
631 796₽
Работа:272 821 ₽
Материалы:358 975 ₽
Дни:15
0₽
Работа:0 ₽
Материалы:0 ₽
Дни:0
545 642₽
Работа:258 462 ₽
Материалы:287 180 ₽
Дни:10
267 077₽
Работа:100 513 ₽
Материалы:166 564 ₽
Дни:7
0₽
Работа:0 ₽
Материалы:0 ₽
Дни:0
2 728 210₽
Работа:1 005 130 ₽
Материалы:1 723 080 ₽
Дни:50
0₽
Работа:0 ₽
Материалы:0 ₽
Дни:0
545 642₽
Работа:287 180 ₽
Материалы:258 462 ₽
Дни:10
Преимущества работы с нами
7 этапов оплаты
Независимый строительный надзор
Экологически чистые материалы
16 лет гарантии
Онлайн-кабинет с веб-камерой
Строители с опытом более 15 лет
Собственное производство









