Одноэтажный дом 274.97 м2 за руб.
Планировки
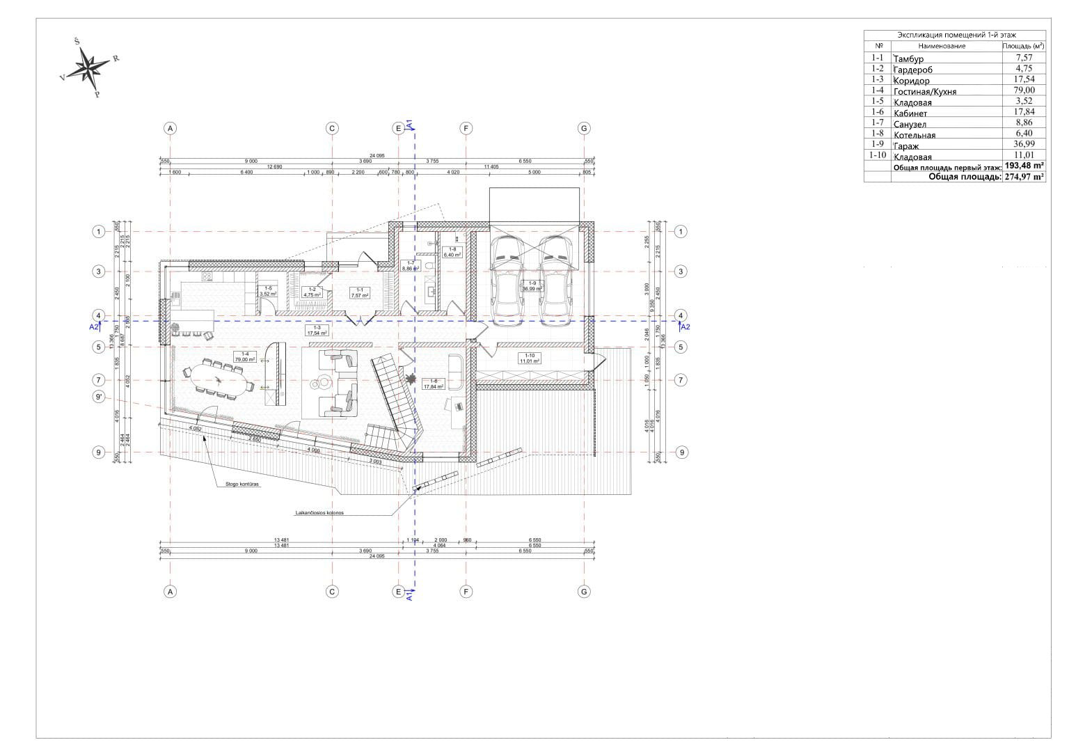
План первого этажа
- 1. Тамбур 7,57 м²
- 2. Гардероб 4,75 м²
- 3. Кухня-Гостиная-Столовая 79,00 м²
- 4. Кладовая 3,52 м²
- 5. Кабинет 17,84 м²
- 6. Санузел 8,86 м²
- 7. Котельная 6,40 м²
- 8. Гараж 36,99 м²
- 9. Кладовая 11,01 м²
- Общая площадь первый этаж 193,48 м²
План второго этажа
- 1. Коридор 9,42 м²
- 2. Комната 15,64 м²
- 3. Ванная комната 7,54 м²
- 4. Спальня 17,45 м²
- 5. Гардероб 9,34 м²
- 6. Ванная комната 11,41 м²
- Общая площадь второй этаж 81,49 м²
Площади дома
| № п/п | Наименование | Ед. из. | Строительная площадь | Полезная площадь |
| 1 | 1 этаж | м2 | 238.43 | 193.48 |
| 2 | 2 этаж | м2 | 100.42 | 81.49 |
| 3 | Итого | м2 | 338.85 | 274.97 |
154 м2
Полезная
площадь
площадь
1 этаж
Этажей
26 м2
Террасы
и балконы
и балконы
0Без
гаража
гаража
4
Количество
спален
спален
2
Количество
санузлов
санузлов
Калькулятор опций
0₽
В ипотеку от 31 645 ₽/мес.
0₽
0 дней
stdClass Object
(
[id] => 1
[attribute_id] => 1
[name] => Ленточный монолитный ж/б
[material_modifier] => 1
[work_modifier] => 1
[options] => Array
(
[0] => размер 200 х 700 мм
[1] => размер 300 х 900 мм
[2] => размер 400 х 1 000 мм
[3] => размер 500 х 1 100 мм
[4] => размер 600 х 1 200 мм
)
[days] => [20,21,22,25,30]
[material_price] => [2823,3630,4475,5210,12047]
[work_price] => [2154,2826,3731,4577,5293]
[image] => https://akademik-stroy.ru/wp-content/uploads/materials/lentochnyj-monolitnyj-zh-b.jpg
[area_modifier] => 238.43
[parent_name] => Фундамент
[parent_id] => 1
[material_sum] => 807705
[work_sum] => 513578
[total_sum] => 1321283
[total_days] => 20
[display_material_sum] => 807 705
[display_work_sum] => 513 578
[display_total_sum] => 1 321 283
)
1
1 321 283₽
Работа:513 578 ₽
Материалы:807 705 ₽
Дни:20
stdClass Object
(
[id] => 2
[attribute_id] => 1
[name] => Забивные Ж/Б сваи
[material_modifier] => 1
[work_modifier] => 1
[options] => Array
(
[0] => 150х150х3000мм
[1] => 150х150х4000мм
[2] => 200х200х3000мм
[3] => 200х200х4000мм
[4] => 200х200х5000мм
[5] => 200х200х6000мм
)
[days] => [2,2,2,2,2,2]
[material_price] => [1990,2850,3255,4360,5120,6837]
[work_price] => [1002,1185,1336,1438,1574,1839]
[image] => https://akademik-stroy.ru/wp-content/uploads/materials/zabivnye-zh-b-svai.png
[area_modifier] => 238.43
[parent_name] => Фундамент
[parent_id] => 1
[material_sum] => 569371
[work_sum] => 238907
[total_sum] => 808278
[total_days] => 2
[display_material_sum] => 569 371
[display_work_sum] => 238 907
[display_total_sum] => 808 278
)
1
808 278₽
Работа:238 907 ₽
Материалы:569 371 ₽
Дни:2
stdClass Object
(
[id] => 71
[attribute_id] => 1
[name] => Свайно-ростверковый ж/б
[material_modifier] => 1
[work_modifier] => 1
[options] => Array
(
[0] => ростверк 200х300 мм
[1] => ростверк 300х600 мм
[2] => ростверк 400х900 мм
[3] => ростверк 500х1200 мм
)
[days] => [20,23,25,27]
[material_price] => [3018,3474,7109,9792]
[work_price] => [2024,3012,5635,7022]
[image] => https://akademik-stroy.ru/wp-content/uploads/materials/svajno-rostverkovyj-monolitnyj-zh-b-3.png
[area_modifier] => 238.43
[parent_name] => Фундамент
[parent_id] => 1
[material_sum] => 863498
[work_sum] => 482582
[total_sum] => 1346080
[total_days] => 20
[display_material_sum] => 863 498
[display_work_sum] => 482 582
[display_total_sum] => 1 346 080
)
1
1 346 080₽
Работа:482 582 ₽
Материалы:863 498 ₽
Дни:20
stdClass Object
(
[id] => 72
[attribute_id] => 1
[name] => Монолитная ж/б плита
[material_modifier] => 1
[work_modifier] => 1
[options] => Array
(
[0] => 200 мм
[1] => 300 мм
[2] => 400 мм
[3] => 500 мм
[4] => 600 мм
)
[days] => [30,33,35,37,40]
[material_price] => [5348,8555,12788,14388,15189]
[work_price] => [4314,4881,7037,8061,10230]
[image] => https://akademik-stroy.ru/wp-content/uploads/materials/monolitnaya-zhb-plita.png
[area_modifier] => 238.43
[parent_name] => Фундамент
[parent_id] => 1
[material_sum] => 1530148
[work_sum] => 1028587
[total_sum] => 2558735
[total_days] => 30
[display_material_sum] => 1 530 148
[display_work_sum] => 1 028 587
[display_total_sum] => 2 558 735
)
1
2 558 735₽
Работа:1 028 587 ₽
Материалы:1 530 148 ₽
Дни:30
stdClass Object
(
[id] => 73
[attribute_id] => 1
[name] => Утепленная шведская плита
[material_modifier] => 1
[work_modifier] => 1
[options] => Array
(
[0] => 200 мм
[1] => 300 мм
[2] => 400 мм
[3] => 500 мм
[4] => 600 мм
)
[days] => [32,37,39,42,45]
[material_price] => [10249,12692,13760,14936,16230]
[work_price] => [5960,7337,8072,8878,9765]
[image] => https://akademik-stroy.ru/wp-content/uploads/materials/uteplennaya-shvedskaya-plita.jpg
[area_modifier] => 238.43
[parent_name] => Фундамент
[parent_id] => 1
[material_sum] => 2932403
[work_sum] => 1421043
[total_sum] => 4353446
[total_days] => 32
[display_material_sum] => 2 932 403
[display_work_sum] => 1 421 043
[display_total_sum] => 4 353 446
)
1
4 353 446₽
Работа:1 421 043 ₽
Материалы:2 932 403 ₽
Дни:32
stdClass Object
(
[id] => 75
[attribute_id] => 1
[name] => Ленточный из ФБС
[material_modifier] => 1
[work_modifier] => 1
[options] => Array
(
[0] => толщ. 300 мм
[1] => толщ. 400 мм
[2] => толщ. 500 мм
[3] => толщ. 600 мм
)
[days] => [20,20,20,20]
[material_price] => [3675,4902,6126,7350]
[work_price] => [2451,3264,4083,4902]
[image] => https://akademik-stroy.ru/wp-content/uploads/materials/lentochnyj-iz-fbs.png
[area_modifier] => 238.43
[parent_name] => Фундамент
[parent_id] => 1
[material_sum] => 1051476
[work_sum] => 584392
[total_sum] => 1635868
[total_days] => 20
[display_material_sum] => 1 051 476
[display_work_sum] => 584 392
[display_total_sum] => 1 635 868
)
1
1 635 868₽
Работа:584 392 ₽
Материалы:1 051 476 ₽
Дни:20
stdClass Object
(
[id] => 76
[attribute_id] => 1
[name] => Цокольный этаж из ФБС
[material_modifier] => 1
[work_modifier] => 1
[options] => Array
(
[0] => толщ. 300 мм
[1] => толщ. 400 мм
[2] => толщ. 500 мм
[3] => толщ. 600 мм
)
[days] => [30,32,34,36]
[material_price] => [20916,23299,26680,29060]
[work_price] => [17524,18700,19873,21046]
[image] => https://akademik-stroy.ru/wp-content/uploads/materials/cokolnyj-ehtazh-iz-fbs.jpg
[area_modifier] => 238.43
[parent_name] => Фундамент
[parent_id] => 1
[material_sum] => 5984402
[work_sum] => 4178247
[total_sum] => 10162649
[total_days] => 30
[display_material_sum] => 5 984 402
[display_work_sum] => 4 178 247
[display_total_sum] => 10 162 649
)
1
10 162 649₽
Работа:4 178 247 ₽
Материалы:5 984 402 ₽
Дни:30
stdClass Object
(
[id] => 77
[attribute_id] => 1
[name] => Цокольный этаж монолитный ж/б
[material_modifier] => 1
[work_modifier] => 1
[options] => Array
(
[0] => толщ. 200 мм
[1] => толщ. 300 мм
[2] => толщ. 400 мм
[3] => толщ. 500 мм
[4] => толщ. 600 мм
)
[days] => [40,42,44,46,48]
[material_price] => [25421,29148,32275,35602,37326]
[work_price] => [20441,21907,23375,24841,26306]
[image] => https://akademik-stroy.ru/wp-content/uploads/materials/cokolnyj-etazh-zh-b.jpg
[area_modifier] => 238.43
[parent_name] => Фундамент
[parent_id] => 1
[material_sum] => 7273355
[work_sum] => 4873748
[total_sum] => 12147103
[total_days] => 40
[display_material_sum] => 7 273 355
[display_work_sum] => 4 873 748
[display_total_sum] => 12 147 103
)
1
12 147 103₽
Работа:4 873 748 ₽
Материалы:7 273 355 ₽
Дни:40
stdClass Object
(
[id] => 191
[attribute_id] => 1
[name] => Винтовые сваи
[material_modifier] => 1
[work_modifier] => 1
[options] => Array
(
[0] => 57х200мм
[1] => 76х250мм
[2] => 108х300мм
[3] => 133х350мм
)
[days] => [1,1,2,2]
[material_price] => [1200,1300,1450,1600]
[work_price] => [400,600,900,1100]
[image] => https://akademik-stroy.ru/wp-content/uploads/materials/vintovye-svai.png
[area_modifier] => 238.43
[parent_name] => Фундамент
[parent_id] => 1
[material_sum] => 343339
[work_sum] => 95372
[total_sum] => 438711
[total_days] => 1
[display_material_sum] => 343 339
[display_work_sum] => 95 372
[display_total_sum] => 438 711
)
1
438 711₽
Работа:95 372 ₽
Материалы:343 339 ₽
Дни:1
stdClass Object
(
[id] => 3
[attribute_id] => 2
[name] => Деревянные балки
[material_modifier] => 1
[work_modifier] => 1
[options] => Array
(
[0] => без утепления
[1] => утепление 200 мм
[2] => утепление 250 мм
[3] => утепление 300 мм
[4] => утепление 350 мм
[5] => утепление 400 мм
[6] => утепление 450 мм
[7] => утепление 500 мм
)
[days] => [8,9,9,9,11,12,13,14]
[material_price] => [1634,2042,2344,2947,3149,3652,3354,3557]
[work_price] => [1230,1339,1393,1426,1460,1513,1587,1620]
[image] => https://akademik-stroy.ru/wp-content/uploads/materials/derevyannye-balki.png
[area_modifier] => 238.43
[parent_name] => Перекрытие цоколя
[parent_id] => 2
[material_sum] => 467514
[work_sum] => 293269
[total_sum] => 760783
[total_days] => 8
[display_material_sum] => 467 514
[display_work_sum] => 293 269
[display_total_sum] => 760 783
)
1
760 783₽
Работа:293 269 ₽
Материалы:467 514 ₽
Дни:8
stdClass Object
(
[id] => 4
[attribute_id] => 2
[name] => Сборные ж/б плиты
[material_modifier] => 1
[work_modifier] => 1
[options] => Array
(
[0] => без утепления
[1] => утепление 150мм
[2] => утепление 200мм
[3] => утепление 250мм
[4] => утепление 300мм
[5] => утепление 350мм
[6] => утепление 400мм
[7] => утепление 450мм
[8] => утепление 500мм
)
[days] => [13,15,15,15,15,15,15,15,15]
[material_price] => [3067,5577,5928,6679,7730,8782,9833,10884,11935]
[work_price] => [1520,1956,2102,2247,2392,2537,2684,2829,2974]
[image] => https://akademik-stroy.ru/wp-content/uploads/materials/sbornye-zh-b-plity-2.jpg
[area_modifier] => 238.43
[parent_name] => Перекрытие цоколя
[parent_id] => 2
[material_sum] => 877518
[work_sum] => 362414
[total_sum] => 1239932
[total_days] => 13
[display_material_sum] => 877 518
[display_work_sum] => 362 414
[display_total_sum] => 1 239 932
)
1
1 239 932₽
Работа:362 414 ₽
Материалы:877 518 ₽
Дни:13
stdClass Object
(
[id] => 78
[attribute_id] => 2
[name] => Монолитная ж/б плита
[material_modifier] => 1
[work_modifier] => 1
[options] => Array
(
[0] => без утепления
[1] => утепление 150 мм
[2] => утепление 200 мм
[3] => утепление 250 мм
[4] => утепление 300 мм
[5] => утепление 350 мм
[6] => утепление 400 мм
[7] => утепление 450 мм
[8] => утепление 500 мм
)
[days] => [18,20,20,20,20,20,20,20,20]
[material_price] => [4837,6572,7224,7375,79426,8177,8728,9180,10031]
[work_price] => [3348,3921,4112,4302,4493,4684,4875,5066,5256]
[image] => https://akademik-stroy.ru/wp-content/uploads/materials/monolitnaya-zh-b-plita-2.jpg
[area_modifier] => 238.43
[parent_name] => Перекрытие цоколя
[parent_id] => 2
[material_sum] => 1383943
[work_sum] => 798264
[total_sum] => 2182207
[total_days] => 18
[display_material_sum] => 1 383 943
[display_work_sum] => 798 264
[display_total_sum] => 2 182 207
)
1
2 182 207₽
Работа:798 264 ₽
Материалы:1 383 943 ₽
Дни:18
stdClass Object
(
[id] => 6
[attribute_id] => 3
[name] => Пеноблок
[material_modifier] => 1
[work_modifier] => 1
[options] => Array
(
[0] => 300 мм
[1] => 400 мм
[2] => 500 мм
[3] => 600 мм
)
[days] => [29,31,34,39]
[material_price] => [3000,4000,4500,4937]
[work_price] => [5033,5805,6400,8710]
[image] => https://akademik-stroy.ru/wp-content/uploads/materials/penoblok.jpg
[area_modifier] => 238.43
[parent_name] => Стены 1 этаж (несущие)
[parent_id] => 3
[material_sum] => 858348
[work_sum] => 1200018
[total_sum] => 2058366
[total_days] => 29
[display_material_sum] => 858 348
[display_work_sum] => 1 200 018
[display_total_sum] => 2 058 366
)
1
2 058 366₽
Работа:1 200 018 ₽
Материалы:858 348 ₽
Дни:29
stdClass Object
(
[id] => 79
[attribute_id] => 3
[name] => Керамический блок
[material_modifier] => 1
[work_modifier] => 1
[options] => Array
(
[0] => 380 мм
[1] => 380 мм Thermo
[2] => 440 мм
[3] => 510 мм
)
[days] => [23,23,24,25]
[material_price] => [4510,5098,6093,8013]
[work_price] => [4737,4937,5903,6958]
[image] => https://akademik-stroy.ru/wp-content/uploads/materials/keramicheskij-blok.jpg
[area_modifier] => 238.43
[parent_name] => Стены 1 этаж (несущие)
[parent_id] => 3
[material_sum] => 1290383
[work_sum] => 1129443
[total_sum] => 2419826
[total_days] => 23
[display_material_sum] => 1 290 383
[display_work_sum] => 1 129 443
[display_total_sum] => 2 419 826
)
1
2 419 826₽
Работа:1 129 443 ₽
Материалы:1 290 383 ₽
Дни:23
stdClass Object
(
[id] => 80
[attribute_id] => 3
[name] => Кирпич
[material_modifier] => 1
[work_modifier] => 1
[options] => Array
(
[0] => Кирпич 250 мм
[1] => Кирпич 380 мм
[2] => Кирпич 510 мм
[3] => Кирпич 640 мм
[4] => Кирпич 770 мм
)
[days] => [30,30,31,33,36]
[material_price] => [5500,7142,9206,10171,12235]
[work_price] => [8736,10041,12018,15240,18462]
[image] => https://akademik-stroy.ru/wp-content/uploads/materials/kirpich.jpg
[area_modifier] => 238.43
[parent_name] => Стены 1 этаж (несущие)
[parent_id] => 3
[material_sum] => 1573638
[work_sum] => 2082924
[total_sum] => 3656562
[total_days] => 30
[display_material_sum] => 1 573 638
[display_work_sum] => 2 082 924
[display_total_sum] => 3 656 562
)
1
3 656 562₽
Работа:2 082 924 ₽
Материалы:1 573 638 ₽
Дни:30
stdClass Object
(
[id] => 81
[attribute_id] => 3
[name] => Монолитные
[material_modifier] => 1
[work_modifier] => 1
[options] => Array
(
[0] => 150 мм
[1] => 200 мм
[2] => 250 мм
[3] => 300 мм
[4] => 350 мм
[5] => 400 мм
)
[days] => [45,46,47,49,50,53]
[material_price] => [6545,7876,10175,12011,13908,15204]
[work_price] => [5106,6444,7698,8552,9807,11461]
[image] => https://akademik-stroy.ru/wp-content/uploads/materials/monolitnye.jpg
[area_modifier] => 238.43
[parent_name] => Стены 1 этаж (несущие)
[parent_id] => 3
[material_sum] => 1872629
[work_sum] => 1217424
[total_sum] => 3090053
[total_days] => 45
[display_material_sum] => 1 872 629
[display_work_sum] => 1 217 424
[display_total_sum] => 3 090 053
)
1
3 090 053₽
Работа:1 217 424 ₽
Материалы:1 872 629 ₽
Дни:45
stdClass Object
(
[id] => 82
[attribute_id] => 3
[name] => Клееный брус
[material_modifier] => 1
[work_modifier] => 1
[options] => Array
(
[0] => 160 мм
[1] => 175 мм
[2] => 200 мм
[3] => 215 мм
[4] => 240 мм
[5] => 270 мм
[6] => 282 мм
)
[days] => [24,28,32,37,40,42,48]
[material_price] => [16975,18773,19950,20545,21599,22159,23275]
[work_price] => [4806,5287,5815,6397,7036,7740,8514]
[image] => https://akademik-stroy.ru/wp-content/uploads/materials/kleenyj-brus.jpg
[area_modifier] => 238.43
[parent_name] => Стены 1 этаж (несущие)
[parent_id] => 3
[material_sum] => 4856819
[work_sum] => 1145895
[total_sum] => 6002714
[total_days] => 24
[display_material_sum] => 4 856 819
[display_work_sum] => 1 145 895
[display_total_sum] => 6 002 714
)
1
6 002 714₽
Работа:1 145 895 ₽
Материалы:4 856 819 ₽
Дни:24
stdClass Object
(
[id] => 83
[attribute_id] => 3
[name] => Каркасные
[material_modifier] => 1
[work_modifier] => 1
[options] => Array
(
[0] => 150 мм
[1] => 200 мм
[2] => 250 мм
[3] => 300 мм
)
[days] => [15,16,17,18]
[material_price] => [2379,2639,2898,3258]
[work_price] => [2418,2686,2985,3716]
[image] => https://akademik-stroy.ru/wp-content/uploads/materials/karkasnye.jpg
[area_modifier] => 238.43
[parent_name] => Стены 1 этаж (несущие)
[parent_id] => 3
[material_sum] => 680670
[work_sum] => 576524
[total_sum] => 1257194
[total_days] => 15
[display_material_sum] => 680 670
[display_work_sum] => 576 524
[display_total_sum] => 1 257 194
)
1
1 257 194₽
Работа:576 524 ₽
Материалы:680 670 ₽
Дни:15
stdClass Object
(
[id] => 84
[attribute_id] => 3
[name] => СИП-панели
[material_modifier] => 1
[work_modifier] => 1
[options] => Array
(
[0] => 120 мм
[1] => 170 мм
[2] => 220 мм
)
[days] => [7,7,7]
[material_price] => [1210,1856,2292]
[work_price] => [1410,1551,1706]
[image] => https://akademik-stroy.ru/wp-content/uploads/materials/sip-paneli.jpg
[area_modifier] => 238.43
[parent_name] => Стены 1 этаж (несущие)
[parent_id] => 3
[material_sum] => 346200
[work_sum] => 336186
[total_sum] => 682386
[total_days] => 7
[display_material_sum] => 346 200
[display_work_sum] => 336 186
[display_total_sum] => 682 386
)
1
682 386₽
Работа:336 186 ₽
Материалы:346 200 ₽
Дни:7
stdClass Object
(
[id] => 85
[attribute_id] => 3
[name] => Сухой брус
[material_modifier] => 1
[work_modifier] => 1
[options] => Array
(
[0] => 150 мм
[1] => 180 мм
[2] => 200 мм
)
[days] => [7,8,9]
[material_price] => [6010,7190,8709]
[work_price] => [3204,3845,4229]
[image] => https://akademik-stroy.ru/wp-content/uploads/materials/suhoj-brus.jpg
[area_modifier] => 238.43
[parent_name] => Стены 1 этаж (несущие)
[parent_id] => 3
[material_sum] => 1719557
[work_sum] => 763930
[total_sum] => 2483487
[total_days] => 7
[display_material_sum] => 1 719 557
[display_work_sum] => 763 930
[display_total_sum] => 2 483 487
)
1
2 483 487₽
Работа:763 930 ₽
Материалы:1 719 557 ₽
Дни:7
stdClass Object
(
[id] => 86
[attribute_id] => 3
[name] => Профилированный брус
[material_modifier] => 1
[work_modifier] => 1
[options] => Array
(
[0] => 150 мм
[1] => 180 мм
[2] => 200 мм
)
[days] => [7,8,9]
[material_price] => [8190,9228,10051]
[work_price] => [3845,4614,5075]
[image] => https://akademik-stroy.ru/wp-content/uploads/materials/profilirovannyj-brus.jpg
[area_modifier] => 238.43
[parent_name] => Стены 1 этаж (несущие)
[parent_id] => 3
[material_sum] => 2343290
[work_sum] => 916763
[total_sum] => 3260053
[total_days] => 7
[display_material_sum] => 2 343 290
[display_work_sum] => 916 763
[display_total_sum] => 3 260 053
)
1
3 260 053₽
Работа:916 763 ₽
Материалы:2 343 290 ₽
Дни:7
stdClass Object
(
[id] => 87
[attribute_id] => 3
[name] => Оцилиндрованное бревно
[material_modifier] => 1
[work_modifier] => 1
[options] => Array
(
[0] => 180 мм
[1] => 220 мм
[2] => 260 мм
[3] => 320 мм
)
[days] => [7,8,9,10]
[material_price] => [75190,9532,10868,13116]
[work_price] => [3845,4691,5535,6863]
[image] => https://akademik-stroy.ru/wp-content/uploads/materials/ocilindrovannoe-brevno-1.jpg
[area_modifier] => 238.43
[parent_name] => Стены 1 этаж (несущие)
[parent_id] => 3
[material_sum] => 21513062
[work_sum] => 916763
[total_sum] => 22429825
[total_days] => 7
[display_material_sum] => 21 513 062
[display_work_sum] => 916 763
[display_total_sum] => 22 429 825
)
1
22 429 825₽
Работа:916 763 ₽
Материалы:21 513 062 ₽
Дни:7
stdClass Object
(
[id] => 88
[attribute_id] => 3
[name] => Срубы
[material_modifier] => 1
[work_modifier] => 1
[options] => Array
(
[0] => 260 мм
[1] => 320 мм
[2] => 360 мм
[3] => 400 мм
[4] => 500 мм
)
[days] => [7,8,9,10,11]
[material_price] => [37975,46709,52314,58069,73167]
[work_price] => [4806,5911,6621,7349,9260]
[image] => https://akademik-stroy.ru/wp-content/uploads/materials/sruby.jpg
[area_modifier] => 238.43
[parent_name] => Стены 1 этаж (несущие)
[parent_id] => 3
[material_sum] => 10865255
[work_sum] => 1145895
[total_sum] => 12011150
[total_days] => 7
[display_material_sum] => 10 865 255
[display_work_sum] => 1 145 895
[display_total_sum] => 12 011 150
)
1
12 011 150₽
Работа:1 145 895 ₽
Материалы:10 865 255 ₽
Дни:7
stdClass Object
(
[id] => 174
[attribute_id] => 3
[name] => Брус
[material_modifier] => 1
[work_modifier] => 1
[options] => Array
(
[0] => 150 мм
[1] => 180 мм
[2] => 200 мм
)
[days] => [7,8,9]
[material_price] => [5127,6152,7367]
[work_price] => [1602,1922,2115]
[image] => https://akademik-stroy.ru/wp-content/uploads/materials/brus.jpg
[area_modifier] => 238.43
[parent_name] => Стены 1 этаж (несущие)
[parent_id] => 3
[material_sum] => 1466917
[work_sum] => 381965
[total_sum] => 1848882
[total_days] => 7
[display_material_sum] => 1 466 917
[display_work_sum] => 381 965
[display_total_sum] => 1 848 882
)
1
1 848 882₽
Работа:381 965 ₽
Материалы:1 466 917 ₽
Дни:7
stdClass Object
(
[id] => 175
[attribute_id] => 3
[name] => Газобетон
[material_modifier] => 1
[work_modifier] => 1
[options] => Array
(
[0] => 300 мм
[1] => 375 мм
[2] => 400 мм
[3] => 500 мм
[4] => 600 мм
)
[days] => [29,31,35,37,44]
[material_price] => [4298,5573,6356,7288,9119]
[work_price] => [4538,5251,5926,6733,7195]
[image] => https://akademik-stroy.ru/wp-content/uploads/materials/gazobeton.jpg
[area_modifier] => 238.43
[parent_name] => Стены 1 этаж (несущие)
[parent_id] => 3
[material_sum] => 1229727
[work_sum] => 1081995
[total_sum] => 2311722
[total_days] => 29
[display_material_sum] => 1 229 727
[display_work_sum] => 1 081 995
[display_total_sum] => 2 311 722
)
1
2 311 722₽
Работа:1 081 995 ₽
Материалы:1 229 727 ₽
Дни:29
stdClass Object
(
[id] => 176
[attribute_id] => 3
[name] => Блок
[material_modifier] => 1
[work_modifier] => 1
[options] => Array
(
[0] => 300 мм
[1] => 375 мм
[2] => 400 мм
[3] => 500 мм
[4] => 600 мм
)
[days] => [29,31,35,37,44]
[material_price] => [2698,3973,4356,6588,7119]
[work_price] => [5038,5851,6426,8733,9195]
[image] => https://akademik-stroy.ru/wp-content/uploads/materials/blok.jpg
[area_modifier] => 238.43
[parent_name] => Стены 1 этаж (несущие)
[parent_id] => 3
[material_sum] => 771941
[work_sum] => 1201210
[total_sum] => 1973151
[total_days] => 29
[display_material_sum] => 771 941
[display_work_sum] => 1 201 210
[display_total_sum] => 1 973 151
)
1
1 973 151₽
Работа:1 201 210 ₽
Материалы:771 941 ₽
Дни:29
stdClass Object
(
[id] => 177
[attribute_id] => 3
[name] => Газосиликатный блок
[material_modifier] => 1
[work_modifier] => 1
[options] => Array
(
[0] => 300 мм
[1] => 375 мм
[2] => 400 мм
[3] => 500 мм
[4] => 600 мм
)
[days] => [29,31,35,37,44]
[material_price] => [4298,5573,6356,7288,9119]
[work_price] => [4538,5251,5926,6733,7195]
[image] => https://akademik-stroy.ru/wp-content/uploads/materials/gazosilikatnyj-blok.jpg
[area_modifier] => 238.43
[parent_name] => Стены 1 этаж (несущие)
[parent_id] => 3
[material_sum] => 1229727
[work_sum] => 1081995
[total_sum] => 2311722
[total_days] => 29
[display_material_sum] => 1 229 727
[display_work_sum] => 1 081 995
[display_total_sum] => 2 311 722
)
1
2 311 722₽
Работа:1 081 995 ₽
Материалы:1 229 727 ₽
Дни:29
stdClass Object
(
[id] => 178
[attribute_id] => 3
[name] => Керамзитобетонный блок
[material_modifier] => 1
[work_modifier] => 1
[options] => Array
(
[0] => 300 мм
[1] => 375 мм
[2] => 400 мм
[3] => 500 мм
[4] => 600 мм
)
[days] => [23,23,24,25,28]
[material_price] => [3641,4298,5693,7613,9612]
[work_price] => [5737,5737,6903,7958,8901]
[image] => https://akademik-stroy.ru/wp-content/uploads/materials/keramzitobetonnyj-blok.jpg
[area_modifier] => 238.43
[parent_name] => Стены 1 этаж (несущие)
[parent_id] => 3
[material_sum] => 1041748
[work_sum] => 1367873
[total_sum] => 2409621
[total_days] => 23
[display_material_sum] => 1 041 748
[display_work_sum] => 1 367 873
[display_total_sum] => 2 409 621
)
1
2 409 621₽
Работа:1 367 873 ₽
Материалы:1 041 748 ₽
Дни:23
stdClass Object
(
[id] => 179
[attribute_id] => 3
[name] => Деревянные
[material_modifier] => 1
[work_modifier] => 1
[options] => Array
(
[0] => 180 мм
[1] => 220 мм
[2] => 260 мм
[3] => 320 мм
)
[days] => [7,8,9,10]
[material_price] => [7950,9458,11961,14472]
[work_price] => [4037,4925,5812,7207]
[image] => https://akademik-stroy.ru/wp-content/uploads/materials/derevyannye.jpg
[area_modifier] => 238.43
[parent_name] => Стены 1 этаж (несущие)
[parent_id] => 3
[material_sum] => 2274622
[work_sum] => 962542
[total_sum] => 3237164
[total_days] => 7
[display_material_sum] => 2 274 622
[display_work_sum] => 962 542
[display_total_sum] => 3 237 164
)
1
3 237 164₽
Работа:962 542 ₽
Материалы:2 274 622 ₽
Дни:7
stdClass Object
(
[id] => 181
[attribute_id] => 3
[name] => Камень
[material_modifier] => 1
[work_modifier] => 1
[options] => Array
(
[0] => 300 мм
[1] => 400 мм
[2] => 500 мм
[3] => 600 мм
)
[days] => [25,27,31,34]
[material_price] => [5262,6844,8330,9815]
[work_price] => [8331,9135,10427,11069]
[image] => https://akademik-stroy.ru/wp-content/uploads/materials/kamen.jpg
[area_modifier] => 238.43
[parent_name] => Стены 1 этаж (несущие)
[parent_id] => 3
[material_sum] => 1505542
[work_sum] => 1986360
[total_sum] => 3491902
[total_days] => 25
[display_material_sum] => 1 505 542
[display_work_sum] => 1 986 360
[display_total_sum] => 3 491 902
)
1
3 491 902₽
Работа:1 986 360 ₽
Материалы:1 505 542 ₽
Дни:25
stdClass Object
(
[id] => 182
[attribute_id] => 3
[name] => Каркасно-щитовые
[material_modifier] => 1
[work_modifier] => 1
[options] => Array
(
[0] => 150 мм
[1] => 200 мм
[2] => 250 мм
[3] => 300 мм
[4] => 350 мм
[5] => 400 мм
)
[days] => [15,16,17,18,19,20]
[material_price] => [2379,2639,2898,3458,3601,4175]
[work_price] => [2538,2820,3134,3483,4062,5642]
[image] => https://akademik-stroy.ru/wp-content/uploads/materials/karkasno-shchitovye.jpg
[area_modifier] => 238.43
[parent_name] => Стены 1 этаж (несущие)
[parent_id] => 3
[material_sum] => 680670
[work_sum] => 605135
[total_sum] => 1285805
[total_days] => 15
[display_material_sum] => 680 670
[display_work_sum] => 605 135
[display_total_sum] => 1 285 805
)
1
1 285 805₽
Работа:605 135 ₽
Материалы:680 670 ₽
Дни:15
stdClass Object
(
[id] => 183
[attribute_id] => 3
[name] => Рубленные
[material_modifier] => 1
[work_modifier] => 1
[options] => Array
(
[0] => 150 мм
[1] => 200 мм
[2] => 250 мм
[3] => 300 мм
[4] => 350 мм
[5] => 400 мм
)
[days] => [15,16,17,18,17,18]
[material_price] => [35950,50267,60583,75900,80217,100533]
[work_price] => [9612,12816,16020,19224,22428,25632]
[image] => https://akademik-stroy.ru/wp-content/uploads/materials/rublennye.jpg
[area_modifier] => 238.43
[parent_name] => Стены 1 этаж (несущие)
[parent_id] => 3
[material_sum] => 10285870
[work_sum] => 2291789
[total_sum] => 12577659
[total_days] => 15
[display_material_sum] => 10 285 870
[display_work_sum] => 2 291 789
[display_total_sum] => 12 577 659
)
1
12 577 659₽
Работа:2 291 789 ₽
Материалы:10 285 870 ₽
Дни:15
stdClass Object
(
[id] => 185
[attribute_id] => 3
[name] => Теплоблок
[material_modifier] => 1
[work_modifier] => 1
[options] => Array
(
[0] => 300 мм (с облицовкой, не покрашенный)
[1] => 400 мм (с облицовкой, не покрашенный)
[2] => 300 мм (с облицовкой, покрашенный)
[3] => 400 мм (с облицовкой, покрашенный)
)
[days] => [15,16,15,16]
[material_price] => [2888,3729,3957,4258]
[work_price] => [2564,3229,2949,3713]
[image] => https://akademik-stroy.ru/wp-content/uploads/materials/teploblok.jpg
[area_modifier] => 238.43
[parent_name] => Стены 1 этаж (несущие)
[parent_id] => 3
[material_sum] => 826303
[work_sum] => 611335
[total_sum] => 1437638
[total_days] => 15
[display_material_sum] => 826 303
[display_work_sum] => 611 335
[display_total_sum] => 1 437 638
)
1
1 437 638₽
Работа:611 335 ₽
Материалы:826 303 ₽
Дни:15
stdClass Object
(
[id] => 186
[attribute_id] => 3
[name] => Арболитовые блоки
[material_modifier] => 1
[work_modifier] => 1
[options] => Array
(
[0] => 300 мм
[1] => 400 мм
[2] => 600 мм
)
[days] => [19,22,27]
[material_price] => [3210,4475,5852]
[work_price] => [4214,4788,5866]
[image] => https://akademik-stroy.ru/wp-content/uploads/materials/arbolitovye-bloki.png
[area_modifier] => 238.43
[parent_name] => Стены 1 этаж (несущие)
[parent_id] => 3
[material_sum] => 918432
[work_sum] => 1004744
[total_sum] => 1923176
[total_days] => 19
[display_material_sum] => 918 432
[display_work_sum] => 1 004 744
[display_total_sum] => 1 923 176
)
1
1 923 176₽
Работа:1 004 744 ₽
Материалы:918 432 ₽
Дни:19
stdClass Object
(
[id] => 187
[attribute_id] => 3
[name] => Полистиролбетон
[material_modifier] => 1
[work_modifier] => 1
[options] => Array
(
[0] => 300 мм
[1] => 400 мм
[2] => 600 мм
)
[days] => [29,31,35]
[material_price] => [2798,4573,5256]
[work_price] => [5038,5851,6426]
[image] => https://akademik-stroy.ru/wp-content/uploads/materials/polistirolbeton.jpg
[area_modifier] => 238.43
[parent_name] => Стены 1 этаж (несущие)
[parent_id] => 3
[material_sum] => 800553
[work_sum] => 1201210
[total_sum] => 2001763
[total_days] => 29
[display_material_sum] => 800 553
[display_work_sum] => 1 201 210
[display_total_sum] => 2 001 763
)
1
2 001 763₽
Работа:1 201 210 ₽
Материалы:800 553 ₽
Дни:29
stdClass Object
(
[id] => 188
[attribute_id] => 3
[name] => Шлакоблок
[material_modifier] => 1
[work_modifier] => 1
[options] => Array
(
[0] => 400 мм
[1] => 600 мм
)
[days] => [15,16]
[material_price] => [2391,3471]
[work_price] => [2642,3662]
[image] => https://akademik-stroy.ru/wp-content/uploads/materials/shlakoblok.jpg
[area_modifier] => 238.43
[parent_name] => Стены 1 этаж (несущие)
[parent_id] => 3
[material_sum] => 684103
[work_sum] => 629932
[total_sum] => 1314035
[total_days] => 15
[display_material_sum] => 684 103
[display_work_sum] => 629 932
[display_total_sum] => 1 314 035
)
1
1 314 035₽
Работа:629 932 ₽
Материалы:684 103 ₽
Дни:15
stdClass Object
(
[id] => 189
[attribute_id] => 3
[name] => Теплая керамика
[material_modifier] => 1
[work_modifier] => 1
[options] => Array
(
[0] => 380 мм
[1] => 380 мм Thermo
[2] => 440 мм
[3] => 510 мм
)
[days] => [23,23,24,25]
[material_price] => [4510,5098,6093,8013]
[work_price] => [4737,4937,5903,6958]
[image] => https://akademik-stroy.ru/wp-content/uploads/materials/teplaya-keramika.jpg
[area_modifier] => 238.43
[parent_name] => Стены 1 этаж (несущие)
[parent_id] => 3
[material_sum] => 1290383
[work_sum] => 1129443
[total_sum] => 2419826
[total_days] => 23
[display_material_sum] => 1 290 383
[display_work_sum] => 1 129 443
[display_total_sum] => 2 419 826
)
1
2 419 826₽
Работа:1 129 443 ₽
Материалы:1 290 383 ₽
Дни:23
stdClass Object
(
[id] => 190
[attribute_id] => 3
[name] => Несъемная опалубка
[material_modifier] => 1
[work_modifier] => 1
[options] => Array
(
[0] => 200 мм
[1] => 250 мм
[2] => 300 мм
[3] => 350 мм
)
[days] => [15,17,19,21]
[material_price] => [3302,3902,4108,5008]
[work_price] => [2100,2100,2300,2534]
[image] => https://akademik-stroy.ru/wp-content/uploads/materials/nesemnaya-opalubka.jpg
[area_modifier] => 238.43
[parent_name] => Стены 1 этаж (несущие)
[parent_id] => 3
[material_sum] => 944755
[work_sum] => 500703
[total_sum] => 1445458
[total_days] => 15
[display_material_sum] => 944 755
[display_work_sum] => 500 703
[display_total_sum] => 1 445 458
)
1
1 445 458₽
Работа:500 703 ₽
Материалы:944 755 ₽
Дни:15
stdClass Object
(
[id] => 251
[attribute_id] => 3
[name] => Бревно
[material_modifier] => 1
[work_modifier] => 1
[options] => Array
(
[0] => 260 мм
[1] => 320 мм
[2] => 360 мм
[3] => 400 мм
[4] => 500 мм
)
[days] => [7,8,9,10,11]
[material_price] => [1874,24045,26930,30972,38825]
[work_price] => [5046,6207,6952,7716,9723]
[image] => https://akademik-stroy.ru/wp-content/uploads/materials/sruby.jpg
[area_modifier] => 238.43
[parent_name] => Стены 1 этаж (несущие)
[parent_id] => 3
[material_sum] => 536181
[work_sum] => 1203118
[total_sum] => 1739299
[total_days] => 7
[display_material_sum] => 536 181
[display_work_sum] => 1 203 118
[display_total_sum] => 1 739 299
)
1
1 739 299₽
Работа:1 203 118 ₽
Материалы:536 181 ₽
Дни:7
stdClass Object
(
[id] => 7
[attribute_id] => 4
[name] => Деревянные балки
[material_modifier] => 1
[work_modifier] => 1
[options] => Array
(
[0] => без утепления
[1] => утепление 200 мм
[2] => утепление 250 мм
[3] => утепление 300 мм
[4] => утепление 350 мм
[5] => утепление 400 мм
[6] => утепление 450 мм
[7] => утепление 500 мм
)
[days] => [8,9,9,9,11,12,13,14]
[material_price] => [1634,2042,2344,2947,3149,3652,3354,3557]
[work_price] => [1230,1339,1393,1426,1460,1513,1587,1620]
[image] => https://akademik-stroy.ru/wp-content/uploads/materials/derevyannye-balki.png
[area_modifier] => 238.43
[parent_name] => Перекрытие первого этажа
[parent_id] => 4
[material_sum] => 467514
[work_sum] => 293269
[total_sum] => 760783
[total_days] => 8
[display_material_sum] => 467 514
[display_work_sum] => 293 269
[display_total_sum] => 760 783
)
1
760 783₽
Работа:293 269 ₽
Материалы:467 514 ₽
Дни:8
stdClass Object
(
[id] => 8
[attribute_id] => 4
[name] => Сборные ж/б плиты
[material_modifier] => 1
[work_modifier] => 1
[options] => Array
(
[0] => без утепления
[1] => утепление 150 мм
[2] => утепление 200 мм
[3] => утепление 250 мм
[4] => утепление 300 мм
[5] => утепление 350 мм
[6] => утепление 400 мм
[7] => утепление 450 мм
[8] => утепление 500 мм
)
[days] => [13,15,15,15,15,15,15,15,15]
[material_price] => [3067,5577,5928,6679,7730,8782,9833,10884,11935]
[work_price] => [1520,1956,2102,2247,2392,2537,2684,2829,2974]
[image] => https://akademik-stroy.ru/wp-content/uploads/materials/sbornye-zh-b-plity-2.jpg
[area_modifier] => 238.43
[parent_name] => Перекрытие первого этажа
[parent_id] => 4
[material_sum] => 877518
[work_sum] => 362414
[total_sum] => 1239932
[total_days] => 13
[display_material_sum] => 877 518
[display_work_sum] => 362 414
[display_total_sum] => 1 239 932
)
1
1 239 932₽
Работа:362 414 ₽
Материалы:877 518 ₽
Дни:13
stdClass Object
(
[id] => 89
[attribute_id] => 4
[name] => Монолитная ж/б плита
[material_modifier] => 1
[work_modifier] => 1
[options] => Array
(
[0] => без утепления
[1] => утепление 150 мм
[2] => утепление 200 мм
[3] => утепление 250 мм
[4] => утепление 300 мм
[5] => утепление 350 мм
[6] => утепление 400 мм
[7] => утепление 450 мм
[8] => утепление 500 мм
)
[days] => [18,20,20,20,20,20,20,20,20]
[material_price] => [4837,6572,7224,7375,79426,8177,8728,9180,10031]
[work_price] => [3348,3921,4112,4302,4493,4684,4875,5066,5256]
[image] => https://akademik-stroy.ru/wp-content/uploads/materials/monolitnaya-zh-b-plita-2.jpg
[area_modifier] => 238.43
[parent_name] => Перекрытие первого этажа
[parent_id] => 4
[material_sum] => 1383943
[work_sum] => 798264
[total_sum] => 2182207
[total_days] => 18
[display_material_sum] => 1 383 943
[display_work_sum] => 798 264
[display_total_sum] => 2 182 207
)
1
2 182 207₽
Работа:798 264 ₽
Материалы:1 383 943 ₽
Дни:18
stdClass Object
(
[id] => 10
[attribute_id] => 5
[name] => Пеноблок
[material_modifier] => 1
[work_modifier] => 1
[options] => Array
(
[0] => 300 мм
[1] => 400 мм
[2] => 500 мм
[3] => 600 мм
)
[days] => [29,31,34,39]
[material_price] => [3000,4000,4500,4937]
[work_price] => [5033,5805,6400,8710]
[image] => https://akademik-stroy.ru/wp-content/uploads/materials/penoblok.jpg
[area_modifier] => 100.42
[parent_name] => Стены 2 этаж (несущие)
[parent_id] => 5
[material_sum] => 361512
[work_sum] => 505414
[total_sum] => 866926
[total_days] => 29
[display_material_sum] => 361 512
[display_work_sum] => 505 414
[display_total_sum] => 866 926
)
1
866 926₽
Работа:505 414 ₽
Материалы:361 512 ₽
Дни:29
stdClass Object
(
[id] => 90
[attribute_id] => 5
[name] => Керамический блок
[material_modifier] => 1
[work_modifier] => 1
[options] => Array
(
[0] => 380 мм
[1] => 380 мм Thermo
[2] => 440 мм
[3] => 510 мм
)
[days] => [23,23,24,25]
[material_price] => [4510,5098,6093,8013]
[work_price] => [4737,4937,5903,6958]
[image] => https://akademik-stroy.ru/wp-content/uploads/materials/keramicheskij-blok.jpg
[area_modifier] => 100.42
[parent_name] => Стены 2 этаж (несущие)
[parent_id] => 5
[material_sum] => 543473
[work_sum] => 475690
[total_sum] => 1019163
[total_days] => 23
[display_material_sum] => 543 473
[display_work_sum] => 475 690
[display_total_sum] => 1 019 163
)
1
1 019 163₽
Работа:475 690 ₽
Материалы:543 473 ₽
Дни:23
stdClass Object
(
[id] => 91
[attribute_id] => 5
[name] => Кирпич
[material_modifier] => 1
[work_modifier] => 1
[options] => Array
(
[0] => Кирпич 250 мм
[1] => Кирпич 380 мм
[2] => Кирпич 510 мм
[3] => Кирпич 640 мм
[4] => Кирпич 770 мм
)
[days] => [30,30,31,33,36]
[material_price] => [5500,7142,9206,10171,12235]
[work_price] => [8736,10041,12018,15240,18462]
[image] => https://akademik-stroy.ru/wp-content/uploads/materials/kirpich.jpg
[area_modifier] => 100.42
[parent_name] => Стены 2 этаж (несущие)
[parent_id] => 5
[material_sum] => 662772
[work_sum] => 877269
[total_sum] => 1540041
[total_days] => 30
[display_material_sum] => 662 772
[display_work_sum] => 877 269
[display_total_sum] => 1 540 041
)
1
1 540 041₽
Работа:877 269 ₽
Материалы:662 772 ₽
Дни:30
stdClass Object
(
[id] => 92
[attribute_id] => 5
[name] => Монолитные
[material_modifier] => 1
[work_modifier] => 1
[options] => Array
(
[0] => 150 мм
[1] => 200 мм
[2] => 250 мм
[3] => 300 мм
[4] => 350 мм
[5] => 400 мм
)
[days] => [45,46,47,49,50,53]
[material_price] => [6545,7876,10175,12011,13908,15204]
[work_price] => [5106,6444,7698,8552,9807,11461]
[image] => https://akademik-stroy.ru/wp-content/uploads/materials/monolitnye.jpg
[area_modifier] => 100.42
[parent_name] => Стены 2 этаж (несущие)
[parent_id] => 5
[material_sum] => 788699
[work_sum] => 512745
[total_sum] => 1301444
[total_days] => 45
[display_material_sum] => 788 699
[display_work_sum] => 512 745
[display_total_sum] => 1 301 444
)
1
1 301 444₽
Работа:512 745 ₽
Материалы:788 699 ₽
Дни:45
stdClass Object
(
[id] => 93
[attribute_id] => 5
[name] => Клееный брус
[material_modifier] => 1
[work_modifier] => 1
[options] => Array
(
[0] => 160 мм
[1] => 175 мм
[2] => 200 мм
[3] => 215 мм
[4] => 240 мм
[5] => 270 мм
[6] => 282 мм
)
[days] => [24,28,32,37,40,42,48]
[material_price] => [16975,18773,19950,20545,21599,22159,23275]
[work_price] => [4806,5287,5815,6397,7036,7740,8514]
[image] => https://akademik-stroy.ru/wp-content/uploads/materials/kleenyj-brus.jpg
[area_modifier] => 100.42
[parent_name] => Стены 2 этаж (несущие)
[parent_id] => 5
[material_sum] => 2045555
[work_sum] => 482619
[total_sum] => 2528174
[total_days] => 24
[display_material_sum] => 2 045 555
[display_work_sum] => 482 619
[display_total_sum] => 2 528 174
)
1
2 528 174₽
Работа:482 619 ₽
Материалы:2 045 555 ₽
Дни:24
stdClass Object
(
[id] => 94
[attribute_id] => 5
[name] => Каркасные
[material_modifier] => 1
[work_modifier] => 1
[options] => Array
(
[0] => 150 мм
[1] => 200 мм
[2] => 250 мм
[3] => 300 мм
)
[days] => [15,16,17,18]
[material_price] => [2379,2639,2898,3258]
[work_price] => [2418,2686,2985,3716]
[image] => https://akademik-stroy.ru/wp-content/uploads/materials/karkasnye.jpg
[area_modifier] => 100.42
[parent_name] => Стены 2 этаж (несущие)
[parent_id] => 5
[material_sum] => 286679
[work_sum] => 242816
[total_sum] => 529495
[total_days] => 15
[display_material_sum] => 286 679
[display_work_sum] => 242 816
[display_total_sum] => 529 495
)
1
529 495₽
Работа:242 816 ₽
Материалы:286 679 ₽
Дни:15
stdClass Object
(
[id] => 95
[attribute_id] => 5
[name] => СИП-панели
[material_modifier] => 1
[work_modifier] => 1
[options] => Array
(
[0] => 120 мм
[1] => 170 мм
[2] => 220 мм
)
[days] => [7,7,7]
[material_price] => [1210,1856,2292]
[work_price] => [1410,1551,1706]
[image] => https://akademik-stroy.ru/wp-content/uploads/materials/sip-paneli.jpg
[area_modifier] => 100.42
[parent_name] => Стены 2 этаж (несущие)
[parent_id] => 5
[material_sum] => 145810
[work_sum] => 141592
[total_sum] => 287402
[total_days] => 7
[display_material_sum] => 145 810
[display_work_sum] => 141 592
[display_total_sum] => 287 402
)
1
287 402₽
Работа:141 592 ₽
Материалы:145 810 ₽
Дни:7
stdClass Object
(
[id] => 96
[attribute_id] => 5
[name] => Сухой брус
[material_modifier] => 1
[work_modifier] => 1
[options] => Array
(
[0] => 150 мм
[1] => 180 мм
[2] => 200 мм
)
[days] => [7,8,9]
[material_price] => [6010,7190,8709]
[work_price] => [3204,3845,4229]
[image] => https://akademik-stroy.ru/wp-content/uploads/materials/suhoj-brus.jpg
[area_modifier] => 100.42
[parent_name] => Стены 2 этаж (несущие)
[parent_id] => 5
[material_sum] => 724229
[work_sum] => 321746
[total_sum] => 1045975
[total_days] => 7
[display_material_sum] => 724 229
[display_work_sum] => 321 746
[display_total_sum] => 1 045 975
)
1
1 045 975₽
Работа:321 746 ₽
Материалы:724 229 ₽
Дни:7
stdClass Object
(
[id] => 97
[attribute_id] => 5
[name] => Профилированный брус
[material_modifier] => 1
[work_modifier] => 1
[options] => Array
(
[0] => 150 мм
[1] => 180 мм
[2] => 200 мм
)
[days] => [7,8,9]
[material_price] => [8190,9228,10051]
[work_price] => [3845,4614,5075]
[image] => https://akademik-stroy.ru/wp-content/uploads/materials/profilirovannyj-brus.jpg
[area_modifier] => 100.42
[parent_name] => Стены 2 этаж (несущие)
[parent_id] => 5
[material_sum] => 986928
[work_sum] => 386115
[total_sum] => 1373043
[total_days] => 7
[display_material_sum] => 986 928
[display_work_sum] => 386 115
[display_total_sum] => 1 373 043
)
1
1 373 043₽
Работа:386 115 ₽
Материалы:986 928 ₽
Дни:7
stdClass Object
(
[id] => 98
[attribute_id] => 5
[name] => Оцилиндрованное бревно
[material_modifier] => 1
[work_modifier] => 1
[options] => Array
(
[0] => 180 мм
[1] => 220 мм
[2] => 260 мм
[3] => 320 мм
)
[days] => [7,8,9,10]
[material_price] => [75190,9532,10868,13116]
[work_price] => [3845,4691,5535,6863]
[image] => https://akademik-stroy.ru/wp-content/uploads/materials/ocilindrovannoe-brevno-1.jpg
[area_modifier] => 100.42
[parent_name] => Стены 2 этаж (несущие)
[parent_id] => 5
[material_sum] => 9060696
[work_sum] => 386115
[total_sum] => 9446811
[total_days] => 7
[display_material_sum] => 9 060 696
[display_work_sum] => 386 115
[display_total_sum] => 9 446 811
)
1
9 446 811₽
Работа:386 115 ₽
Материалы:9 060 696 ₽
Дни:7
stdClass Object
(
[id] => 99
[attribute_id] => 5
[name] => Срубы
[material_modifier] => 1
[work_modifier] => 1
[options] => Array
(
[0] => 260 мм
[1] => 320 мм
[2] => 360 мм
[3] => 400 мм
[4] => 500 мм
)
[days] => [7,8,9,10,11]
[material_price] => [16175,23709,26314,29069,32167]
[work_price] => [4806,5911,6621,7349,9260]
[image] => https://akademik-stroy.ru/wp-content/uploads/materials/suhoj-brus.jpg
[area_modifier] => 100.42
[parent_name] => Стены 2 этаж (несущие)
[parent_id] => 5
[material_sum] => 1949152
[work_sum] => 482619
[total_sum] => 2431771
[total_days] => 7
[display_material_sum] => 1 949 152
[display_work_sum] => 482 619
[display_total_sum] => 2 431 771
)
1
2 431 771₽
Работа:482 619 ₽
Материалы:1 949 152 ₽
Дни:7
stdClass Object
(
[id] => 194
[attribute_id] => 5
[name] => Брус
[material_modifier] => 1
[work_modifier] => 1
[options] => Array
(
[0] => 150 мм
[1] => 180 мм
[2] => 200 мм
)
[days] => [10,13,15]
[material_price] => [5127,6152,7367]
[work_price] => [1602,1922,2115]
[image] => https://akademik-stroy.ru/wp-content/uploads/materials/brus.jpg
[area_modifier] => 100.42
[parent_name] => Стены 2 этаж (несущие)
[parent_id] => 5
[material_sum] => 617824
[work_sum] => 160873
[total_sum] => 778697
[total_days] => 10
[display_material_sum] => 617 824
[display_work_sum] => 160 873
[display_total_sum] => 778 697
)
1
778 697₽
Работа:160 873 ₽
Материалы:617 824 ₽
Дни:10
stdClass Object
(
[id] => 195
[attribute_id] => 5
[name] => Газобетон
[material_modifier] => 1
[work_modifier] => 1
[options] => Array
(
[0] => 300 мм
[1] => 375 мм
[2] => 400 мм
[3] => 500 мм
[4] => 600 мм
)
[days] => [29,31,35,37,44]
[material_price] => [4298,5573,6356,7288,9119]
[work_price] => [4538,5251,5926,6733,7195]
[image] => https://akademik-stroy.ru/wp-content/uploads/materials/gazobeton.jpg
[area_modifier] => 100.42
[parent_name] => Стены 2 этаж (несущие)
[parent_id] => 5
[material_sum] => 517926
[work_sum] => 455706
[total_sum] => 973632
[total_days] => 29
[display_material_sum] => 517 926
[display_work_sum] => 455 706
[display_total_sum] => 973 632
)
1
973 632₽
Работа:455 706 ₽
Материалы:517 926 ₽
Дни:29
stdClass Object
(
[id] => 196
[attribute_id] => 5
[name] => Блок
[material_modifier] => 1
[work_modifier] => 1
[options] => Array
(
[0] => 300 мм
[1] => 375 мм
[2] => 400 мм
[3] => 500 мм
[4] => 600 мм
)
[days] => [29,31,35,37,44]
[material_price] => [2698,3973,4356,6588,7119]
[work_price] => [5038,5851,6426,8733,9195]
[image] => https://akademik-stroy.ru/wp-content/uploads/materials/blok.jpg
[area_modifier] => 100.42
[parent_name] => Стены 2 этаж (несущие)
[parent_id] => 5
[material_sum] => 325120
[work_sum] => 505916
[total_sum] => 831036
[total_days] => 29
[display_material_sum] => 325 120
[display_work_sum] => 505 916
[display_total_sum] => 831 036
)
1
831 036₽
Работа:505 916 ₽
Материалы:325 120 ₽
Дни:29
stdClass Object
(
[id] => 197
[attribute_id] => 5
[name] => Газосиликатный блок
[material_modifier] => 1
[work_modifier] => 1
[options] => Array
(
[0] => 300 мм
[1] => 375 мм
[2] => 400 мм
[3] => 500 мм
[4] => 600 мм
)
[days] => [29,31,35,37,44]
[material_price] => [4298,5573,6356,7288,9119]
[work_price] => [4538,5251,5926,6733,7195]
[image] => https://akademik-stroy.ru/wp-content/uploads/materials/gazosilikatnyj-blok.jpg
[area_modifier] => 100.42
[parent_name] => Стены 2 этаж (несущие)
[parent_id] => 5
[material_sum] => 517926
[work_sum] => 455706
[total_sum] => 973632
[total_days] => 29
[display_material_sum] => 517 926
[display_work_sum] => 455 706
[display_total_sum] => 973 632
)
1
973 632₽
Работа:455 706 ₽
Материалы:517 926 ₽
Дни:29
stdClass Object
(
[id] => 198
[attribute_id] => 5
[name] => Керамзитобетонный блок
[material_modifier] => 1
[work_modifier] => 1
[options] => Array
(
[0] => 300 мм
[1] => 375 мм
[2] => 400 мм
[3] => 500 мм
[4] => 600 мм
)
[days] => [23,23,24,25,28]
[material_price] => [3641,4298,5693,7613,9612]
[work_price] => [5737,5737,6903,7958,8901]
[image] => https://akademik-stroy.ru/wp-content/uploads/materials/keramzitobetonnyj-blok.jpg
[area_modifier] => 100.42
[parent_name] => Стены 2 этаж (несущие)
[parent_id] => 5
[material_sum] => 438755
[work_sum] => 576110
[total_sum] => 1014865
[total_days] => 23
[display_material_sum] => 438 755
[display_work_sum] => 576 110
[display_total_sum] => 1 014 865
)
1
1 014 865₽
Работа:576 110 ₽
Материалы:438 755 ₽
Дни:23
stdClass Object
(
[id] => 199
[attribute_id] => 5
[name] => Деревянные
[material_modifier] => 1
[work_modifier] => 1
[options] => Array
(
[0] => 180 мм
[1] => 220 мм
[2] => 260 мм
[3] => 320 мм
)
[days] => [7,8,9,10]
[material_price] => [7950,9458,11961,14472]
[work_price] => [4037,4925,5812,7207]
[image] => https://akademik-stroy.ru/wp-content/uploads/materials/derevyannye.jpg
[area_modifier] => 100.42
[parent_name] => Стены 2 этаж (несущие)
[parent_id] => 5
[material_sum] => 958007
[work_sum] => 405396
[total_sum] => 1363403
[total_days] => 7
[display_material_sum] => 958 007
[display_work_sum] => 405 396
[display_total_sum] => 1 363 403
)
1
1 363 403₽
Работа:405 396 ₽
Материалы:958 007 ₽
Дни:7
stdClass Object
(
[id] => 200
[attribute_id] => 5
[name] => Камень
[material_modifier] => 1
[work_modifier] => 1
[options] => Array
(
[0] => 300 мм
[1] => 400 мм
[2] => 500 мм
[3] => 600 мм
)
[days] => [25,27,31,34]
[material_price] => [5262,6844,8330,9815]
[work_price] => [8331,9135,10427,11069]
[image] => https://akademik-stroy.ru/wp-content/uploads/materials/kamen.jpg
[area_modifier] => 100.42
[parent_name] => Стены 2 этаж (несущие)
[parent_id] => 5
[material_sum] => 634092
[work_sum] => 836599
[total_sum] => 1470691
[total_days] => 25
[display_material_sum] => 634 092
[display_work_sum] => 836 599
[display_total_sum] => 1 470 691
)
1
1 470 691₽
Работа:836 599 ₽
Материалы:634 092 ₽
Дни:25
stdClass Object
(
[id] => 201
[attribute_id] => 5
[name] => Каркасно-щитовые
[material_modifier] => 1
[work_modifier] => 1
[options] => Array
(
[0] => 150 мм
[1] => 200 мм
[2] => 250 мм
[3] => 300 мм
[4] => 350 мм
[5] => 400 мм
)
[days] => [15,16,17,18,19,20]
[material_price] => [2379,2639,2898,3458,3601,4175]
[work_price] => [2538,2820,3134,3483,4062,5642]
[image] => https://akademik-stroy.ru/wp-content/uploads/materials/karkasno-shchitovye.jpg
[area_modifier] => 100.42
[parent_name] => Стены 2 этаж (несущие)
[parent_id] => 5
[material_sum] => 286679
[work_sum] => 254866
[total_sum] => 541545
[total_days] => 15
[display_material_sum] => 286 679
[display_work_sum] => 254 866
[display_total_sum] => 541 545
)
1
541 545₽
Работа:254 866 ₽
Материалы:286 679 ₽
Дни:15
stdClass Object
(
[id] => 202
[attribute_id] => 5
[name] => Рубленные
[material_modifier] => 1
[work_modifier] => 1
[options] => Array
(
[0] => 150 мм
[1] => 200 мм
[2] => 250 мм
[3] => 300 мм
[4] => 350 мм
[5] => 400 мм
)
[days] => [15,16,17,18,17,18]
[material_price] => [35950,50267,60583,75900,80217,100533]
[work_price] => [9612,12816,16020,19224,22428,25632]
[image] => https://akademik-stroy.ru/wp-content/uploads/materials/rublennye.jpg
[area_modifier] => 100.42
[parent_name] => Стены 2 этаж (несущие)
[parent_id] => 5
[material_sum] => 4332119
[work_sum] => 965237
[total_sum] => 5297356
[total_days] => 15
[display_material_sum] => 4 332 119
[display_work_sum] => 965 237
[display_total_sum] => 5 297 356
)
1
5 297 356₽
Работа:965 237 ₽
Материалы:4 332 119 ₽
Дни:15
stdClass Object
(
[id] => 203
[attribute_id] => 5
[name] => Теплоблок
[material_modifier] => 1
[work_modifier] => 1
[options] => Array
(
[0] => 300 мм (с облицовкой, не покрашенный)
[1] => 400 мм (с облицовкой, не покрашенный)
[2] => 300 мм (с облицовкой, покрашенный)
[3] => 400 мм (с облицовкой, покрашенный)
)
[days] => [15,16,15,16]
[material_price] => [2888,3729,3957,4258]
[work_price] => [2564,3229,2949,3713]
[image] => https://akademik-stroy.ru/wp-content/uploads/materials/teploblok.jpg
[area_modifier] => 100.42
[parent_name] => Стены 2 этаж (несущие)
[parent_id] => 5
[material_sum] => 348016
[work_sum] => 257477
[total_sum] => 605493
[total_days] => 15
[display_material_sum] => 348 016
[display_work_sum] => 257 477
[display_total_sum] => 605 493
)
1
605 493₽
Работа:257 477 ₽
Материалы:348 016 ₽
Дни:15
stdClass Object
(
[id] => 204
[attribute_id] => 5
[name] => Арболитовые блоки
[material_modifier] => 1
[work_modifier] => 1
[options] => Array
(
[0] => 300 мм
[1] => 400 мм
[2] => 600 мм
)
[days] => [19,22,27]
[material_price] => [3210,4475,5852]
[work_price] => [4214,4788,5866]
[image] => https://akademik-stroy.ru/wp-content/uploads/materials/arbolitovye-bloki.png
[area_modifier] => 100.42
[parent_name] => Стены 2 этаж (несущие)
[parent_id] => 5
[material_sum] => 386818
[work_sum] => 423170
[total_sum] => 809988
[total_days] => 19
[display_material_sum] => 386 818
[display_work_sum] => 423 170
[display_total_sum] => 809 988
)
1
809 988₽
Работа:423 170 ₽
Материалы:386 818 ₽
Дни:19
stdClass Object
(
[id] => 205
[attribute_id] => 5
[name] => Полистиролбетон
[material_modifier] => 1
[work_modifier] => 1
[options] => Array
(
[0] => 300 мм
[1] => 400 мм
[2] => 600 мм
)
[days] => [29,31,35]
[material_price] => [2798,4573,5256]
[work_price] => [5038,5851,6426]
[image] => https://akademik-stroy.ru/wp-content/uploads/materials/polistirolbeton.jpg
[area_modifier] => 100.42
[parent_name] => Стены 2 этаж (несущие)
[parent_id] => 5
[material_sum] => 337170
[work_sum] => 505916
[total_sum] => 843086
[total_days] => 29
[display_material_sum] => 337 170
[display_work_sum] => 505 916
[display_total_sum] => 843 086
)
1
843 086₽
Работа:505 916 ₽
Материалы:337 170 ₽
Дни:29
stdClass Object
(
[id] => 206
[attribute_id] => 5
[name] => Шлакоблок
[material_modifier] => 1
[work_modifier] => 1
[options] => Array
(
[0] => 400 мм
[1] => 600 мм
)
[days] => [15,16]
[material_price] => [2391,3471]
[work_price] => [2642,3662]
[image] => https://akademik-stroy.ru/wp-content/uploads/materials/shlakoblok.jpg
[area_modifier] => 100.42
[parent_name] => Стены 2 этаж (несущие)
[parent_id] => 5
[material_sum] => 288125
[work_sum] => 265310
[total_sum] => 553435
[total_days] => 15
[display_material_sum] => 288 125
[display_work_sum] => 265 310
[display_total_sum] => 553 435
)
1
553 435₽
Работа:265 310 ₽
Материалы:288 125 ₽
Дни:15
stdClass Object
(
[id] => 245
[attribute_id] => 5
[name] => Теплая керамика
[material_modifier] => 1
[work_modifier] => 1
[options] => Array
(
[0] => 380 мм
[1] => 380 мм Thermo
[2] => 440 мм
[3] => 510 мм
)
[days] => [10,10,11,12]
[material_price] => [4510,5098,6093,8013]
[work_price] => [4737,4937,5903,6958]
[image] => https://akademik-stroy.ru/wp-content/uploads/materials/teplaya-keramika.jpg
[area_modifier] => 100.42
[parent_name] => Стены 2 этаж (несущие)
[parent_id] => 5
[material_sum] => 543473
[work_sum] => 475690
[total_sum] => 1019163
[total_days] => 10
[display_material_sum] => 543 473
[display_work_sum] => 475 690
[display_total_sum] => 1 019 163
)
1
1 019 163₽
Работа:475 690 ₽
Материалы:543 473 ₽
Дни:10
stdClass Object
(
[id] => 246
[attribute_id] => 5
[name] => Несъемная опалубка
[material_modifier] => 1
[work_modifier] => 1
[options] => Array
(
[0] => 380 мм
[1] => 380 мм Thermo
[2] => 440 мм
[3] => 510 мм
)
[days] => [10,10,11,12]
[material_price] => [3302,3902,4108,5008]
[work_price] => [2100,2100,2300,2534]
[image] => https://akademik-stroy.ru/wp-content/uploads/materials/nesemnaya-opalubka.jpg
[area_modifier] => 100.42
[parent_name] => Стены 2 этаж (несущие)
[parent_id] => 5
[material_sum] => 397904
[work_sum] => 210882
[total_sum] => 608786
[total_days] => 10
[display_material_sum] => 397 904
[display_work_sum] => 210 882
[display_total_sum] => 608 786
)
1
608 786₽
Работа:210 882 ₽
Материалы:397 904 ₽
Дни:10
stdClass Object
(
[id] => 254
[attribute_id] => 5
[name] => Бревно
[material_modifier] => 1
[work_modifier] => 1
[options] => Array
(
[0] => 260 мм
[1] => 320 мм
[2] => 360 мм
[3] => 400 мм
[4] => 500 мм
)
[days] => [7,8,9,10,11]
[material_price] => [1874,24045,26930,30972,38825]
[work_price] => [5046,6207,6952,7716,9723]
[image] => https://akademik-stroy.ru/wp-content/uploads/materials/sruby.jpg
[area_modifier] => 100.42
[parent_name] => Стены 2 этаж (несущие)
[parent_id] => 5
[material_sum] => 225824
[work_sum] => 506719
[total_sum] => 732543
[total_days] => 7
[display_material_sum] => 225 824
[display_work_sum] => 506 719
[display_total_sum] => 732 543
)
1
732 543₽
Работа:506 719 ₽
Материалы:225 824 ₽
Дни:7
stdClass Object
(
[id] => 11
[attribute_id] => 6
[name] => Деревянные балки
[material_modifier] => 1
[work_modifier] => 1
[options] => Array
(
[0] => без утепления
[1] => утепление 200 мм
[2] => утепление 250 мм
[3] => утепление 300 мм
[4] => утепление 350 мм
[5] => утепление 400 мм
[6] => утепление 450 мм
[7] => утепление 500 мм
)
[days] => [8,9,9,9,11,12,13,14]
[material_price] => [1634,2042,2344,2947,3149,3652,3354,3557]
[work_price] => [1230,1339,1393,1426,1460,1513,1587,1620]
[image] => https://akademik-stroy.ru/wp-content/uploads/materials/derevyannye-balki.png
[area_modifier] => 100.42
[parent_name] => Перекрытие второго этажа
[parent_id] => 6
[material_sum] => 196904
[work_sum] => 123517
[total_sum] => 320421
[total_days] => 8
[display_material_sum] => 196 904
[display_work_sum] => 123 517
[display_total_sum] => 320 421
)
1
320 421₽
Работа:123 517 ₽
Материалы:196 904 ₽
Дни:8
stdClass Object
(
[id] => 12
[attribute_id] => 6
[name] => Сборные ж/б плиты
[material_modifier] => 1
[work_modifier] => 1
[options] => Array
(
[0] => без утепления
[1] => утепление 150 мм
[2] => утепление 200 мм
[3] => утепление 250 мм
[4] => утепление 300 мм
[5] => утепление 350 мм
[6] => утепление 400 мм
[7] => утепление 450 мм
[8] => утепление 500 мм
)
[days] => [13,15,15,15,15,15,15,15,15]
[material_price] => [3067,5577,5928,6679,7730,8782,9833,10884,11935]
[work_price] => [1520,1956,2102,2247,2392,2537,2684,2829,2974]
[image] => https://akademik-stroy.ru/wp-content/uploads/materials/sbornye-zh-b-plity-2.jpg
[area_modifier] => 100.42
[parent_name] => Перекрытие второго этажа
[parent_id] => 6
[material_sum] => 369586
[work_sum] => 152638
[total_sum] => 522224
[total_days] => 13
[display_material_sum] => 369 586
[display_work_sum] => 152 638
[display_total_sum] => 522 224
)
1
522 224₽
Работа:152 638 ₽
Материалы:369 586 ₽
Дни:13
stdClass Object
(
[id] => 100
[attribute_id] => 6
[name] => Монолитная ж/б плита
[material_modifier] => 1
[work_modifier] => 1
[options] => Array
(
[0] => без утепления
[1] => утепление 150 мм
[2] => утепление 200 мм
[3] => утепление 250 мм
[4] => утепление 300 мм
[5] => утепление 350 мм
[6] => утепление 400 мм
[7] => утепление 450 мм
[8] => утепление 500 мм
)
[days] => [18,20,20,20,20,20,20,20,20]
[material_price] => [4837,6572,7224,7375,79426,8177,8728,9180,10031]
[work_price] => [3348,3921,4112,4302,4493,4684,4875,5066,5256]
[image] => https://akademik-stroy.ru/wp-content/uploads/materials/monolitnaya-zh-b-plita-2.jpg
[area_modifier] => 100.42
[parent_name] => Перекрытие второго этажа
[parent_id] => 6
[material_sum] => 582878
[work_sum] => 336206
[total_sum] => 919084
[total_days] => 18
[display_material_sum] => 582 878
[display_work_sum] => 336 206
[display_total_sum] => 919 084
)
1
919 084₽
Работа:336 206 ₽
Материалы:582 878 ₽
Дни:18
stdClass Object
(
[id] => 160
[attribute_id] => 36
[name] => Не эксплуатируемая
[material_modifier] => 1
[work_modifier] => 1
[options] => Array
(
)
[days] => [10]
[material_price] => [8068]
[work_price] => [4163]
[image] => https://akademik-stroy.ru/wp-content/uploads/materials/ne-ehkspluatiruemaya-3.jpg
[area_modifier] => 238.43
[parent_name] => Плоская крыша
[parent_id] => 36
[material_sum] => 2308384
[work_sum] => 992584
[total_sum] => 3300968
[total_days] => 10
[display_material_sum] => 2 308 384
[display_work_sum] => 992 584
[display_total_sum] => 3 300 968
)
1
3 300 968₽
Работа:992 584 ₽
Материалы:2 308 384 ₽
Дни:10
stdClass Object
(
[id] => 161
[attribute_id] => 36
[name] => Зеленая кровля (Эксплуатируемая)
[material_modifier] => 1
[work_modifier] => 1
[options] => Array
(
)
[days] => [10]
[material_price] => [10056]
[work_price] => [8446]
[image] => https://akademik-stroy.ru/wp-content/uploads/materials/zelenaya-krovlya-2.jpg
[area_modifier] => 238.43
[parent_name] => Плоская крыша
[parent_id] => 36
[material_sum] => 2877182
[work_sum] => 2013780
[total_sum] => 4890962
[total_days] => 10
[display_material_sum] => 2 877 182
[display_work_sum] => 2 013 780
[display_total_sum] => 4 890 962
)
1
4 890 962₽
Работа:2 013 780 ₽
Материалы:2 877 182 ₽
Дни:10
stdClass Object
(
[id] => 162
[attribute_id] => 36
[name] => Эксплуатируемая
[material_modifier] => 1
[work_modifier] => 1
[options] => Array
(
)
[days] => [10]
[material_price] => [9593]
[work_price] => [7459]
[image] => https://akademik-stroy.ru/wp-content/uploads/materials/ehkspluatiruemaya-2.jpg
[area_modifier] => 238.43
[parent_name] => Плоская крыша
[parent_id] => 36
[material_sum] => 2744711
[work_sum] => 1778449
[total_sum] => 4523160
[total_days] => 10
[display_material_sum] => 2 744 711
[display_work_sum] => 1 778 449
[display_total_sum] => 4 523 160
)
1
4 523 160₽
Работа:1 778 449 ₽
Материалы:2 744 711 ₽
Дни:10
stdClass Object
(
[id] => 163
[attribute_id] => 36
[name] => Нет
[material_modifier] => 1
[work_modifier] => 1
[options] => Array
(
)
[days] => [0]
[material_price] => [0]
[work_price] => [0]
[image] => https://akademik-stroy.ru/wp-content/uploads/materials/ne-ehkspluatiruemaya-3.jpg
[area_modifier] => 238.43
[parent_name] => Плоская крыша
[parent_id] => 36
[material_sum] => 0
[work_sum] => 0
[total_sum] => 0
[total_days] => 0
[display_material_sum] => 0
[display_work_sum] => 0
[display_total_sum] => 0
)
1
0₽
Работа:0 ₽
Материалы:0 ₽
Дни:0
stdClass Object
(
[id] => 51
[attribute_id] => 26
[name] => Есть
[material_modifier] => 1
[work_modifier] => 1
[options] => Array
(
[0] => Профиль 58 мм, 3-камерный, стеклопакет 2-камерный до 32 мм
[1] => Профиль 60 мм, 4-камерный, стеклопакет 2-камерный до 32 мм
[2] => Профиль 70 мм, 5-камерный, стеклопакет 2-камерный до 40 мм
[3] => Профиль 72 мм, 5-камерный, стеклопакет 2-камерный до 40 мм
[4] => Алюминиевые окна Alutech профиль 72 мм, стеклопакет 2-камерный
)
[days] => [3,3,3,3,3]
[material_price] => [1339,2124,2867,3023,29596]
[work_price] => [635,647,659,668,2579]
[image] => https://akademik-stroy.ru/wp-content/uploads/materials/okna.jpg
[area_modifier] => 274.97
[parent_name] => Окна
[parent_id] => 26
[material_sum] => 441822
[work_sum] => 174606
[total_sum] => 616428
[total_days] => 3
[display_material_sum] => 441 822
[display_work_sum] => 174 606
[display_total_sum] => 616 428
)
1
616 428₽
Работа:174 606 ₽
Материалы:441 822 ₽
Дни:3
stdClass Object
(
[id] => 52
[attribute_id] => 26
[name] => Нет
[material_modifier] => 2
[work_modifier] => 1
[options] =>
[days] => null
[material_price] => null
[work_price] => null
[image] => https://akademik-stroy.ru/wp-content/uploads/materials/okna.jpg
[area_modifier] => 274.97
[parent_name] => Окна
[parent_id] => 26
[material_sum] => 0
[work_sum] => 0
[total_sum] => 0
[total_days] => 0
[display_material_sum] => 0
[display_work_sum] => 0
[display_total_sum] => 0
)
1
0₽
Работа:0 ₽
Материалы:0 ₽
Дни:0
stdClass Object
(
[id] => 53
[attribute_id] => 27
[name] => Есть
[material_modifier] => 1
[work_modifier] => 1
[options] => Array
(
)
[days] => [1]
[material_price] => [10000]
[work_price] => [5500]
[image] => https://akademik-stroy.ru/wp-content/uploads/materials/dveri.jpg
[area_modifier] => 1
[parent_name] => Двери входные
[parent_id] => 27
[material_sum] => 12000
[work_sum] => 5500
[total_sum] => 17500
[total_days] => 1
[display_material_sum] => 12 000
[display_work_sum] => 5 500
[display_total_sum] => 17 500
)
1
17 500₽
Работа:5 500 ₽
Материалы:12 000 ₽
Дни:1
stdClass Object
(
[id] => 54
[attribute_id] => 27
[name] => Нет
[material_modifier] => 1
[work_modifier] => 1
[options] => Array
(
)
[days] => [0]
[material_price] => [0]
[work_price] => [0]
[image] => https://akademik-stroy.ru/wp-content/uploads/materials/dveri.jpg
[area_modifier] => 1
[parent_name] => Двери входные
[parent_id] => 27
[material_sum] => 0
[work_sum] => 0
[total_sum] => 0
[total_days] => 0
[display_material_sum] => 0
[display_work_sum] => 0
[display_total_sum] => 0
)
1
0₽
Работа:0 ₽
Материалы:0 ₽
Дни:0
stdClass Object
(
[id] => 31
[attribute_id] => 16
[name] => Нет
[material_modifier] => 1
[work_modifier] => 1
[options] => Array
(
)
[days] => [0]
[material_price] => [0]
[work_price] => [0]
[image] => https://akademik-stroy.ru/wp-content/uploads/materials/docke-standard-pvh.jpg
[area_modifier] => 238.43
[parent_name] => Водосточная система
[parent_id] => 16
[material_sum] => 0
[work_sum] => 0
[total_sum] => 0
[total_days] => 0
[display_material_sum] => 0
[display_work_sum] => 0
[display_total_sum] => 0
)
1
0₽
Работа:0 ₽
Материалы:0 ₽
Дни:0
stdClass Object
(
[id] => 32
[attribute_id] => 16
[name] => Есть
[material_modifier] => 1
[work_modifier] => 1
[options] => Array
(
[0] => Döcke Standard (ПВХ)
[1] => Металлические Grand Line
)
[days] => [7,7]
[material_price] => [1842,2703]
[work_price] => [1491,1529]
[image] => https://akademik-stroy.ru/wp-content/uploads/materials/docke-standard-pvh.jpg
[area_modifier] => 238.43
[parent_name] => Водосточная система
[parent_id] => 16
[material_sum] => 527026
[work_sum] => 355499
[total_sum] => 882525
[total_days] => 7
[display_material_sum] => 527 026
[display_work_sum] => 355 499
[display_total_sum] => 882 525
)
1
882 525₽
Работа:355 499 ₽
Материалы:527 026 ₽
Дни:7
stdClass Object
(
[id] => 33
[attribute_id] => 17
[name] => Нет
[material_modifier] => 1
[work_modifier] => 1
[options] => Array
(
)
[days] => [0]
[material_price] => [0]
[work_price] => [0]
[image] => https://akademik-stroy.ru/wp-content/uploads/materials/mineralovata.jpg
[area_modifier] => 338.85
[parent_name] => Дополнительное утепление наружных стен
[parent_id] => 17
[material_sum] => 0
[work_sum] => 0
[total_sum] => 0
[total_days] => 0
[display_material_sum] => 0
[display_work_sum] => 0
[display_total_sum] => 0
)
1
0₽
Работа:0 ₽
Материалы:0 ₽
Дни:0
stdClass Object
(
[id] => 34
[attribute_id] => 17
[name] => Минераловатный
[material_modifier] => 1
[work_modifier] => 1
[options] => Array
(
[0] => 50 мм
[1] => 100 мм
[2] => 150 мм
[3] => 200 мм
[4] => 250 мм
[5] => 300 мм
)
[days] => [7,8,10,12,14,15]
[material_price] => [3437,3613,3803,3915,4601,4830]
[work_price] => [2325,2423,2523,2749,2859,3025]
[image] => https://akademik-stroy.ru/wp-content/uploads/materials/mineralovata.jpg
[area_modifier] => 338.85
[parent_name] => Дополнительное утепление наружных стен
[parent_id] => 17
[material_sum] => 1397553
[work_sum] => 787826
[total_sum] => 2185379
[total_days] => 7
[display_material_sum] => 1 397 553
[display_work_sum] => 787 826
[display_total_sum] => 2 185 379
)
1
2 185 379₽
Работа:787 826 ₽
Материалы:1 397 553 ₽
Дни:7
stdClass Object
(
[id] => 128
[attribute_id] => 17
[name] => Эковата (целлюлозная вата)
[material_modifier] => 1
[work_modifier] => 1
[options] => Array
(
[0] => 50 мм
[1] => 100 мм
[2] => 150 мм
[3] => 200 мм
[4] => 250 мм
[5] => 300 мм
)
[days] => [3,4,5,6,7,8]
[material_price] => [810,1319,1629,1838,2267,2676]
[work_price] => [1225,1323,1423,1549,1659,1725]
[image] => https://akademik-stroy.ru/wp-content/uploads/materials/ehkovata.jpg
[area_modifier] => 338.85
[parent_name] => Дополнительное утепление наружных стен
[parent_id] => 17
[material_sum] => 329362
[work_sum] => 415091
[total_sum] => 744453
[total_days] => 3
[display_material_sum] => 329 362
[display_work_sum] => 415 091
[display_total_sum] => 744 453
)
1
744 453₽
Работа:415 091 ₽
Материалы:329 362 ₽
Дни:3
stdClass Object
(
[id] => 129
[attribute_id] => 17
[name] => Экструдированный пенополистирол
[material_modifier] => 1
[work_modifier] => 1
[options] => Array
(
[0] => 50 мм
[1] => 100 мм
[2] => 150 мм
[3] => 200 мм
[4] => 250 мм
[5] => 300 мм
)
[days] => [5,6,7,8,9,10]
[material_price] => [4560,4300,5119,6292,7010,8583]
[work_price] => [1795,1954,2254,2330,2595,2735]
[image] => https://akademik-stroy.ru/wp-content/uploads/materials/epps.jpg
[area_modifier] => 338.85
[parent_name] => Дополнительное утепление наружных стен
[parent_id] => 17
[material_sum] => 1854187
[work_sum] => 608236
[total_sum] => 2462423
[total_days] => 5
[display_material_sum] => 1 854 187
[display_work_sum] => 608 236
[display_total_sum] => 2 462 423
)
1
2 462 423₽
Работа:608 236 ₽
Материалы:1 854 187 ₽
Дни:5
stdClass Object
(
[id] => 130
[attribute_id] => 17
[name] => ПСБ (ППС-пенополистирол)
[material_modifier] => 1
[work_modifier] => 1
[options] => Array
(
[0] => 50 мм
[1] => 100 мм
[2] => 150 мм
[3] => 200 мм
[4] => 250 мм
[5] => 300 мм
)
[days] => [5,6,7,8,9,10]
[material_price] => [4822,5200,5819,6292,7010,7583]
[work_price] => [1795,1954,2254,2330,2595,2735]
[image] => https://akademik-stroy.ru/wp-content/uploads/materials/psb.jpg
[area_modifier] => 338.85
[parent_name] => Дополнительное утепление наружных стен
[parent_id] => 17
[material_sum] => 1960722
[work_sum] => 608236
[total_sum] => 2568958
[total_days] => 5
[display_material_sum] => 1 960 722
[display_work_sum] => 608 236
[display_total_sum] => 2 568 958
)
1
2 568 958₽
Работа:608 236 ₽
Материалы:1 960 722 ₽
Дни:5
stdClass Object
(
[id] => 131
[attribute_id] => 17
[name] => ППУ (Пенополиуретан)
[material_modifier] => 1
[work_modifier] => 1
[options] => Array
(
[0] => 50 мм
[1] => 100 мм
[2] => 150 мм
[3] => 200 мм
[4] => 250 мм
[5] => 300 мм
)
[days] => [3,4,5,6,7,8]
[material_price] => [2860,3400,4219,4592,5010,5583]
[work_price] => [729,900,980,1120,1280,1530]
[image] => https://akademik-stroy.ru/wp-content/uploads/materials/ppu.jpg
[area_modifier] => 338.85
[parent_name] => Дополнительное утепление наружных стен
[parent_id] => 17
[material_sum] => 1162933
[work_sum] => 247022
[total_sum] => 1409955
[total_days] => 3
[display_material_sum] => 1 162 933
[display_work_sum] => 247 022
[display_total_sum] => 1 409 955
)
1
1 409 955₽
Работа:247 022 ₽
Материалы:1 162 933 ₽
Дни:3
stdClass Object
(
[id] => 132
[attribute_id] => 17
[name] => PIR-плиты (пенополиизоцианурат)
[material_modifier] => 1
[work_modifier] => 1
[options] => Array
(
[0] => 50 мм
[1] => 100 мм
[2] => 150 мм
[3] => 200 мм
[4] => 250 мм
[5] => 300 мм
)
[days] => [5,6,7,8,9,10]
[material_price] => [8323,15645,20968,25900,29258,30581]
[work_price] => [800,900,970,1150,1280,1330]
[image] => https://akademik-stroy.ru/wp-content/uploads/materials/pir.jpg
[area_modifier] => 338.85
[parent_name] => Дополнительное утепление наружных стен
[parent_id] => 17
[material_sum] => 3384298
[work_sum] => 271080
[total_sum] => 3655378
[total_days] => 5
[display_material_sum] => 3 384 298
[display_work_sum] => 271 080
[display_total_sum] => 3 655 378
)
1
3 655 378₽
Работа:271 080 ₽
Материалы:3 384 298 ₽
Дни:5
stdClass Object
(
[id] => 37
[attribute_id] => 19
[name] => Нет
[material_modifier] => 1
[work_modifier] => 1
[options] => Array
(
)
[days] => [0]
[material_price] => [0]
[work_price] => [0]
[image] => https://akademik-stroy.ru/wp-content/uploads/materials/imitaciya-brusa.jpg
[area_modifier] => 338.85
[parent_name] => Наружная отделка фасада
[parent_id] => 19
[material_sum] => 0
[work_sum] => 0
[total_sum] => 0
[total_days] => 0
[display_material_sum] => 0
[display_work_sum] => 0
[display_total_sum] => 0
)
1
0₽
Работа:0 ₽
Материалы:0 ₽
Дни:0
stdClass Object
(
[id] => 38
[attribute_id] => 19
[name] => Имитация бруса
[material_modifier] => 1
[work_modifier] => 1
[options] => Array
(
[0] => Сосна
[1] => Ель
[2] => Лиственница
)
[days] => [20,20,20]
[material_price] => [2994,2762,4954]
[work_price] => [1397,1231,1577]
[image] => https://akademik-stroy.ru/wp-content/uploads/materials/imitaciya-brusa.jpg
[area_modifier] => 338.85
[parent_name] => Наружная отделка фасада
[parent_id] => 19
[material_sum] => 1217420
[work_sum] => 473373
[total_sum] => 1690793
[total_days] => 20
[display_material_sum] => 1 217 420
[display_work_sum] => 473 373
[display_total_sum] => 1 690 793
)
1
1 690 793₽
Работа:473 373 ₽
Материалы:1 217 420 ₽
Дни:20
stdClass Object
(
[id] => 136
[attribute_id] => 19
[name] => Планкен
[material_modifier] => 1
[work_modifier] => 1
[options] => Array
(
[0] => Сосна
[1] => Ель
[2] => Лиственница
)
[days] => [20,20,20]
[material_price] => [3194,2862,5154]
[work_price] => [1537,1354,1735]
[image] => https://akademik-stroy.ru/wp-content/uploads/materials/planken.jpg
[area_modifier] => 338.85
[parent_name] => Наружная отделка фасада
[parent_id] => 19
[material_sum] => 1298744
[work_sum] => 520812
[total_sum] => 1819556
[total_days] => 20
[display_material_sum] => 1 298 744
[display_work_sum] => 520 812
[display_total_sum] => 1 819 556
)
1
1 819 556₽
Работа:520 812 ₽
Материалы:1 298 744 ₽
Дни:20
stdClass Object
(
[id] => 137
[attribute_id] => 19
[name] => Штукатурка
[material_modifier] => 1
[work_modifier] => 1
[options] => Array
(
[0] => Цементно-песчаная (минеральная)
[1] => Мокрый фасад
)
[days] => [35,35]
[material_price] => [2231,3938]
[work_price] => [1202,2422]
[image] => https://akademik-stroy.ru/wp-content/uploads/materials/shtukaturka.jpg
[area_modifier] => 338.85
[parent_name] => Наружная отделка фасада
[parent_id] => 19
[material_sum] => 907169
[work_sum] => 407298
[total_sum] => 1314467
[total_days] => 35
[display_material_sum] => 907 169
[display_work_sum] => 407 298
[display_total_sum] => 1 314 467
)
1
1 314 467₽
Работа:407 298 ₽
Материалы:907 169 ₽
Дни:35
stdClass Object
(
[id] => 138
[attribute_id] => 19
[name] => Облицовочный кирпич
[material_modifier] => 1
[work_modifier] => 1
[options] => Array
(
[0] => Керамический
[1] => Клинкерный
[2] => Ручной формовки
[3] => Гиперпрессованный
[4] => Силикатный кирпич
)
[days] => [45,45,45,45,45]
[material_price] => [8174,9148,1040,1257,5876]
[work_price] => [3240,3758,4536,4017,3369]
[image] => https://akademik-stroy.ru/wp-content/uploads/materials/oblicovochnyj-kirpich.jpg
[area_modifier] => 338.85
[parent_name] => Наружная отделка фасада
[parent_id] => 19
[material_sum] => 3323712
[work_sum] => 1097874
[total_sum] => 4421586
[total_days] => 45
[display_material_sum] => 3 323 712
[display_work_sum] => 1 097 874
[display_total_sum] => 4 421 586
)
1
4 421 586₽
Работа:1 097 874 ₽
Материалы:3 323 712 ₽
Дни:45
stdClass Object
(
[id] => 139
[attribute_id] => 19
[name] => Фасадная плитка
[material_modifier] => 1
[work_modifier] => 1
[options] => Array
(
[0] => Клинкерная
[1] => Керамическая
[2] => Плитка ручной формовки
)
[days] => [40,40,40]
[material_price] => [2974,1487,3470]
[work_price] => [3007,2592,3629]
[image] => https://akademik-stroy.ru/wp-content/uploads/materials/fasadnaya-plitka.jpg
[area_modifier] => 338.85
[parent_name] => Наружная отделка фасада
[parent_id] => 19
[material_sum] => 1209288
[work_sum] => 1018922
[total_sum] => 2228210
[total_days] => 40
[display_material_sum] => 1 209 288
[display_work_sum] => 1 018 922
[display_total_sum] => 2 228 210
)
1
2 228 210₽
Работа:1 018 922 ₽
Материалы:1 209 288 ₽
Дни:40
stdClass Object
(
[id] => 140
[attribute_id] => 19
[name] => Сайдинг
[material_modifier] => 1
[work_modifier] => 1
[options] => Array
(
[0] => Виниловый
[1] => Металлический
[2] => Фиброцементный
)
[days] => [20,20,20]
[material_price] => [1263,1944,4147]
[work_price] => [1263,1944,2074]
[image] => https://akademik-stroy.ru/wp-content/uploads/materials/sajding.jpg
[area_modifier] => 338.85
[parent_name] => Наружная отделка фасада
[parent_id] => 19
[material_sum] => 513561
[work_sum] => 427968
[total_sum] => 941529
[total_days] => 20
[display_material_sum] => 513 561
[display_work_sum] => 427 968
[display_total_sum] => 941 529
)
1
941 529₽
Работа:427 968 ₽
Материалы:513 561 ₽
Дни:20
stdClass Object
(
[id] => 141
[attribute_id] => 19
[name] => Камень
[material_modifier] => 1
[work_modifier] => 1
[options] => Array
(
[0] => Травертин
[1] => Дагестанский
[2] => Искусственный
[3] => Натуральный
[4] => Керамогранит
)
[days] => [45,45,45,45,45]
[material_price] => [4536,3888,2592,3240,2462]
[work_price] => [3240,3240,2462,3110,1944]
[image] => https://akademik-stroy.ru/wp-content/uploads/materials/kamen-1.jpg
[area_modifier] => 338.85
[parent_name] => Наружная отделка фасада
[parent_id] => 19
[material_sum] => 1844428
[work_sum] => 1097874
[total_sum] => 2942302
[total_days] => 45
[display_material_sum] => 1 844 428
[display_work_sum] => 1 097 874
[display_total_sum] => 2 942 302
)
1
2 942 302₽
Работа:1 097 874 ₽
Материалы:1 844 428 ₽
Дни:45
stdClass Object
(
[id] => 142
[attribute_id] => 19
[name] => Термопанели
[material_modifier] => 1
[work_modifier] => 1
[options] => Array
(
)
[days] => [20]
[material_price] => [6221]
[work_price] => [2333]
[image] => https://akademik-stroy.ru/wp-content/uploads/materials/termo.png
[area_modifier] => 338.85
[parent_name] => Наружная отделка фасада
[parent_id] => 19
[material_sum] => 2529583
[work_sum] => 790537
[total_sum] => 3320120
[total_days] => 20
[display_material_sum] => 2 529 583
[display_work_sum] => 790 537
[display_total_sum] => 3 320 120
)
1
3 320 120₽
Работа:790 537 ₽
Материалы:2 529 583 ₽
Дни:20
stdClass Object
(
[id] => 143
[attribute_id] => 19
[name] => Плитка HAUBERK
[material_modifier] => 1
[work_modifier] => 1
[options] => Array
(
)
[days] => [20]
[material_price] => [2786]
[work_price] => [1944]
[image] => https://akademik-stroy.ru/wp-content/uploads/materials/hauberk.jpg
[area_modifier] => 338.85
[parent_name] => Наружная отделка фасада
[parent_id] => 19
[material_sum] => 1132843
[work_sum] => 658724
[total_sum] => 1791567
[total_days] => 20
[display_material_sum] => 1 132 843
[display_work_sum] => 658 724
[display_total_sum] => 1 791 567
)
1
1 791 567₽
Работа:658 724 ₽
Материалы:1 132 843 ₽
Дни:20
stdClass Object
(
[id] => 144
[attribute_id] => 19
[name] => Фальцевый фасад
[material_modifier] => 1
[work_modifier] => 1
[options] => Array
(
)
[days] => [20]
[material_price] => [3240]
[work_price] => [2592]
[image] => https://akademik-stroy.ru/wp-content/uploads/materials/falcevyj-fasad.jpg
[area_modifier] => 338.85
[parent_name] => Наружная отделка фасада
[parent_id] => 19
[material_sum] => 1317449
[work_sum] => 878299
[total_sum] => 2195748
[total_days] => 20
[display_material_sum] => 1 317 449
[display_work_sum] => 878 299
[display_total_sum] => 2 195 748
)
1
2 195 748₽
Работа:878 299 ₽
Материалы:1 317 449 ₽
Дни:20
stdClass Object
(
[id] => 145
[attribute_id] => 19
[name] => Комбинированный
[material_modifier] => 1
[work_modifier] => 1
[options] => Array
(
)
[days] => [20]
[material_price] => [4629]
[work_price] => [3499]
[image] => https://akademik-stroy.ru/wp-content/uploads/materials/Kombinirovannyj.jpg
[area_modifier] => 338.85
[parent_name] => Наружная отделка фасада
[parent_id] => 19
[material_sum] => 1882244
[work_sum] => 1185636
[total_sum] => 3067880
[total_days] => 20
[display_material_sum] => 1 882 244
[display_work_sum] => 1 185 636
[display_total_sum] => 3 067 880
)
1
3 067 880₽
Работа:1 185 636 ₽
Материалы:1 882 244 ₽
Дни:20
stdClass Object
(
[id] => 257
[attribute_id] => 19
[name] => Японские фиброцементные
[material_modifier] => 1
[work_modifier] => 1
[options] => Array
(
)
[days] => [20]
[material_price] => [7043]
[work_price] => [2993]
[image] => https://akademik-stroy.ru/wp-content/uploads/materials/paneli.jpg
[area_modifier] => 338.85
[parent_name] => Наружная отделка фасада
[parent_id] => 19
[material_sum] => 2863825
[work_sum] => 1014178
[total_sum] => 3878003
[total_days] => 20
[display_material_sum] => 2 863 825
[display_work_sum] => 1 014 178
[display_total_sum] => 3 878 003
)
1
3 878 003₽
Работа:1 014 178 ₽
Материалы:2 863 825 ₽
Дни:20
stdClass Object
(
[id] => 258
[attribute_id] => 19
[name] => Панели Каньон
[material_modifier] => 1
[work_modifier] => 1
[options] => Array
(
)
[days] => [20]
[material_price] => [4543]
[work_price] => [2592]
[image] => https://akademik-stroy.ru/wp-content/uploads/materials/kanon.png
[area_modifier] => 338.85
[parent_name] => Наружная отделка фасада
[parent_id] => 19
[material_sum] => 1847275
[work_sum] => 878299
[total_sum] => 2725574
[total_days] => 20
[display_material_sum] => 1 847 275
[display_work_sum] => 878 299
[display_total_sum] => 2 725 574
)
1
2 725 574₽
Работа:878 299 ₽
Материалы:1 847 275 ₽
Дни:20
stdClass Object
(
[id] => 39
[attribute_id] => 20
[name] => Нет
[material_modifier] => 1
[work_modifier] => 1
[options] => Array
(
)
[days] => [0]
[material_price] => [0]
[work_price] => [0]
[image] => https://akademik-stroy.ru/wp-content/uploads/materials/terrasy.jpg
[area_modifier] => 30
[parent_name] => Террасы, крыльца, навесы
[parent_id] => 20
[material_sum] => 0
[work_sum] => 0
[total_sum] => 0
[total_days] => 0
[display_material_sum] => 0
[display_work_sum] => 0
[display_total_sum] => 0
)
1
0₽
Работа:0 ₽
Материалы:0 ₽
Дни:0
stdClass Object
(
[id] => 40
[attribute_id] => 20
[name] => Есть
[material_modifier] => 1
[work_modifier] => 1
[options] => Array
(
)
[days] => [5]
[material_price] => [10450]
[work_price] => [1950]
[image] => https://akademik-stroy.ru/wp-content/uploads/materials/terrasy.jpg
[area_modifier] => 30
[parent_name] => Террасы, крыльца, навесы
[parent_id] => 20
[material_sum] => 376200
[work_sum] => 58500
[total_sum] => 434700
[total_days] => 5
[display_material_sum] => 376 200
[display_work_sum] => 58 500
[display_total_sum] => 434 700
)
1
434 700₽
Работа:58 500 ₽
Материалы:376 200 ₽
Дни:5
stdClass Object
(
[id] => 41
[attribute_id] => 21
[name] => Нет
[material_modifier] => 1
[work_modifier] => 1
[options] => Array
(
)
[days] => [0]
[material_price] => [0]
[work_price] => [0]
[image] => https://akademik-stroy.ru/wp-content/uploads/materials/balkony.jpg
[area_modifier] => 30
[parent_name] => Балконы
[parent_id] => 21
[material_sum] => 0
[work_sum] => 0
[total_sum] => 0
[total_days] => 0
[display_material_sum] => 0
[display_work_sum] => 0
[display_total_sum] => 0
)
1
0₽
Работа:0 ₽
Материалы:0 ₽
Дни:0
stdClass Object
(
[id] => 42
[attribute_id] => 21
[name] => Есть
[material_modifier] => 1
[work_modifier] => 1
[options] => Array
(
)
[days] => [12]
[material_price] => [3600]
[work_price] => [1950]
[image] => https://akademik-stroy.ru/wp-content/uploads/materials/balkony.jpg
[area_modifier] => 30
[parent_name] => Балконы
[parent_id] => 21
[material_sum] => 129600
[work_sum] => 58500
[total_sum] => 188100
[total_days] => 12
[display_material_sum] => 129 600
[display_work_sum] => 58 500
[display_total_sum] => 188 100
)
1
188 100₽
Работа:58 500 ₽
Материалы:129 600 ₽
Дни:12
stdClass Object
(
[id] => 43
[attribute_id] => 22
[name] => Нет
[material_modifier] => 1
[work_modifier] => 1
[options] => Array
(
)
[days] => [0]
[material_price] => [0]
[work_price] => [0]
[image] => https://akademik-stroy.ru/wp-content/uploads/materials/uteplennaya.jpg
[area_modifier] => 238.43
[parent_name] => Отмостка
[parent_id] => 22
[material_sum] => 0
[work_sum] => 0
[total_sum] => 0
[total_days] => 0
[display_material_sum] => 0
[display_work_sum] => 0
[display_total_sum] => 0
)
1
0₽
Работа:0 ₽
Материалы:0 ₽
Дни:0
stdClass Object
(
[id] => 44
[attribute_id] => 22
[name] => Утепленная отмостка
[material_modifier] => 1
[work_modifier] => 1
[options] => Array
(
)
[days] => [15]
[material_price] => [2550]
[work_price] => [1750]
[image] => https://akademik-stroy.ru/wp-content/uploads/materials/uteplennaya.jpg
[area_modifier] => 238.43
[parent_name] => Отмостка
[parent_id] => 22
[material_sum] => 729596
[work_sum] => 417253
[total_sum] => 1146849
[total_days] => 15
[display_material_sum] => 729 596
[display_work_sum] => 417 253
[display_total_sum] => 1 146 849
)
1
1 146 849₽
Работа:417 253 ₽
Материалы:729 596 ₽
Дни:15
stdClass Object
(
[id] => 146
[attribute_id] => 22
[name] => Не утепленная отмостка
[material_modifier] => 1
[work_modifier] => 1
[options] => Array
(
)
[days] => [10]
[material_price] => [1650]
[work_price] => [1450]
[image] => https://akademik-stroy.ru/wp-content/uploads/materials/ne-uteplennaya.jpg
[area_modifier] => 238.43
[parent_name] => Отмостка
[parent_id] => 22
[material_sum] => 472091
[work_sum] => 345724
[total_sum] => 817815
[total_days] => 10
[display_material_sum] => 472 091
[display_work_sum] => 345 724
[display_total_sum] => 817 815
)
1
817 815₽
Работа:345 724 ₽
Материалы:472 091 ₽
Дни:10
stdClass Object
(
[id] => 45
[attribute_id] => 23
[name] => Нет
[material_modifier] => 1
[work_modifier] => 1
[options] => Array
(
)
[days] => [0]
[material_price] => [0]
[work_price] => [0]
[image] => https://akademik-stroy.ru/wp-content/uploads/materials/drenazh-2.jpg
[area_modifier] => 238.43
[parent_name] => Дренаж вокруг дома
[parent_id] => 23
[material_sum] => 0
[work_sum] => 0
[total_sum] => 0
[total_days] => 0
[display_material_sum] => 0
[display_work_sum] => 0
[display_total_sum] => 0
)
1
0₽
Работа:0 ₽
Материалы:0 ₽
Дни:0
stdClass Object
(
[id] => 46
[attribute_id] => 23
[name] => Есть
[material_modifier] => 1
[work_modifier] => 1
[options] => Array
(
)
[days] => [5]
[material_price] => [2366]
[work_price] => [1911]
[image] => https://akademik-stroy.ru/wp-content/uploads/materials/drenazh-2.jpg
[area_modifier] => 238.43
[parent_name] => Дренаж вокруг дома
[parent_id] => 23
[material_sum] => 676950
[work_sum] => 455640
[total_sum] => 1132590
[total_days] => 5
[display_material_sum] => 676 950
[display_work_sum] => 455 640
[display_total_sum] => 1 132 590
)
1
1 132 590₽
Работа:455 640 ₽
Материалы:676 950 ₽
Дни:5
stdClass Object
(
[id] => 47
[attribute_id] => 24
[name] => Нет
[material_modifier] => 1
[work_modifier] => 1
[options] => Array
(
)
[days] => [0]
[material_price] => [0]
[work_price] => [0]
[image] => https://akademik-stroy.ru/wp-content/uploads/materials/septik.jpg
[area_modifier] => 1
[parent_name] => Автономная канализация (септики)
[parent_id] => 24
[material_sum] => 0
[work_sum] => 0
[total_sum] => 0
[total_days] => 0
[display_material_sum] => 0
[display_work_sum] => 0
[display_total_sum] => 0
)
1
0₽
Работа:0 ₽
Материалы:0 ₽
Дни:0
stdClass Object
(
[id] => 48
[attribute_id] => 24
[name] => Есть
[material_modifier] => 1
[work_modifier] => 1
[options] => Array
(
[0] => Для дачи на 4 человека
[1] => Для дома на 5 человек
[2] => Для дома на 6 человек
[3] => Для дома на 7 человек
[4] => Для дома на 10 человек
)
[days] => [7,7,7,8,8]
[material_price] => [196340,220500,240940,264200,293340]
[work_price] => [50000,55000,60500,66550,73206]
[image] => https://akademik-stroy.ru/wp-content/uploads/materials/septik.jpg
[area_modifier] => 1
[parent_name] => Автономная канализация (септики)
[parent_id] => 24
[material_sum] => 235608
[work_sum] => 50000
[total_sum] => 285608
[total_days] => 7
[display_material_sum] => 235 608
[display_work_sum] => 50 000
[display_total_sum] => 285 608
)
1
285 608₽
Работа:50 000 ₽
Материалы:235 608 ₽
Дни:7
stdClass Object
(
[id] => 49
[attribute_id] => 25
[name] => Нет
[material_modifier] => 1
[work_modifier] => 1
[options] => Array
(
)
[days] => [0]
[material_price] => [0]
[work_price] => [0]
[image] => https://akademik-stroy.ru/wp-content/uploads/materials/gkl.jpg
[area_modifier] => 338.85
[parent_name] => Внутренние (не несущие) перегородки
[parent_id] => 25
[material_sum] => 0
[work_sum] => 0
[total_sum] => 0
[total_days] => 0
[display_material_sum] => 0
[display_work_sum] => 0
[display_total_sum] => 0
)
1
0₽
Работа:0 ₽
Материалы:0 ₽
Дни:0
stdClass Object
(
[id] => 147
[attribute_id] => 25
[name] => Каркасно-обшивные
[material_modifier] => 1
[work_modifier] => 1
[options] => Array
(
[0] => 75 мм (без шумоизоляции)
[1] => 75 мм (с шумоизоляцией)
)
[days] => [11,11]
[material_price] => [580,970]
[work_price] => [380,570]
[image] => https://akademik-stroy.ru/wp-content/uploads/materials/gkl.jpg
[area_modifier] => 338.85
[parent_name] => Внутренние (не несущие) перегородки
[parent_id] => 25
[material_sum] => 235840
[work_sum] => 128763
[total_sum] => 364603
[total_days] => 11
[display_material_sum] => 235 840
[display_work_sum] => 128 763
[display_total_sum] => 364 603
)
1
364 603₽
Работа:128 763 ₽
Материалы:235 840 ₽
Дни:11
stdClass Object
(
[id] => 148
[attribute_id] => 25
[name] => Пазогребневые
[material_modifier] => 1
[work_modifier] => 1
[options] => Array
(
[0] => 80 мм
[1] => 100 мм
)
[days] => [5,5]
[material_price] => [1022,1313]
[work_price] => [600,700]
[image] => https://akademik-stroy.ru/wp-content/uploads/materials/pazogrebnevye-bloki.jpg
[area_modifier] => 338.85
[parent_name] => Внутренние (не несущие) перегородки
[parent_id] => 25
[material_sum] => 415566
[work_sum] => 203310
[total_sum] => 618876
[total_days] => 5
[display_material_sum] => 415 566
[display_work_sum] => 203 310
[display_total_sum] => 618 876
)
1
618 876₽
Работа:203 310 ₽
Материалы:415 566 ₽
Дни:5
stdClass Object
(
[id] => 149
[attribute_id] => 25
[name] => Газобетонные
[material_modifier] => 1
[work_modifier] => 1
[options] => Array
(
[0] => 100 мм
[1] => 200 мм
)
[days] => [11,11]
[material_price] => [1160,1920]
[work_price] => [700,900]
[image] => https://akademik-stroy.ru/wp-content/uploads/materials/gazobeton-2.jpg
[area_modifier] => 338.85
[parent_name] => Внутренние (не несущие) перегородки
[parent_id] => 25
[material_sum] => 471679
[work_sum] => 237195
[total_sum] => 708874
[total_days] => 11
[display_material_sum] => 471 679
[display_work_sum] => 237 195
[display_total_sum] => 708 874
)
1
708 874₽
Работа:237 195 ₽
Материалы:471 679 ₽
Дни:11
stdClass Object
(
[id] => 150
[attribute_id] => 25
[name] => Кирпичные
[material_modifier] => 1
[work_modifier] => 1
[options] => Array
(
[0] => 120 мм
[1] => 250 мм
[2] => 360 мм
)
[days] => [7,7,7]
[material_price] => [1785,3570,5355]
[work_price] => [900,1600,1800]
[image] => https://akademik-stroy.ru/wp-content/uploads/materials/kirpich-1.jpg
[area_modifier] => 338.85
[parent_name] => Внутренние (не несущие) перегородки
[parent_id] => 25
[material_sum] => 725817
[work_sum] => 304965
[total_sum] => 1030782
[total_days] => 7
[display_material_sum] => 725 817
[display_work_sum] => 304 965
[display_total_sum] => 1 030 782
)
1
1 030 782₽
Работа:304 965 ₽
Материалы:725 817 ₽
Дни:7
stdClass Object
(
[id] => 55
[attribute_id] => 28
[name] => Нет
[material_modifier] => 1
[work_modifier] => 1
[options] => Array
(
)
[days] => [0]
[material_price] => [0]
[work_price] => [0]
[image] => https://akademik-stroy.ru/wp-content/uploads/materials/ehlektrika.jpg
[area_modifier] => 274.97
[parent_name] => Электрика
[parent_id] => 28
[material_sum] => 0
[work_sum] => 0
[total_sum] => 0
[total_days] => 0
[display_material_sum] => 0
[display_work_sum] => 0
[display_total_sum] => 0
)
1
0₽
Работа:0 ₽
Материалы:0 ₽
Дни:0
stdClass Object
(
[id] => 56
[attribute_id] => 28
[name] => Есть
[material_modifier] => 1
[work_modifier] => 1
[options] => Array
(
)
[days] => [10]
[material_price] => [650]
[work_price] => [950]
[image] => https://akademik-stroy.ru/wp-content/uploads/materials/ehlektrika.jpg
[area_modifier] => 274.97
[parent_name] => Электрика
[parent_id] => 28
[material_sum] => 214477
[work_sum] => 261222
[total_sum] => 475699
[total_days] => 10
[display_material_sum] => 214 477
[display_work_sum] => 261 222
[display_total_sum] => 475 699
)
1
475 699₽
Работа:261 222 ₽
Материалы:214 477 ₽
Дни:10
stdClass Object
(
[id] => 57
[attribute_id] => 29
[name] => Нет
[material_modifier] => 1
[work_modifier] => 1
[options] => Array
(
)
[days] => [0]
[material_price] => [0]
[work_price] => [0]
[image] => https://akademik-stroy.ru/wp-content/uploads/materials/santekhnika-kanalizaciya-1.jpg
[area_modifier] => 274.97
[parent_name] => Сантехника, канализация в доме
[parent_id] => 29
[material_sum] => 0
[work_sum] => 0
[total_sum] => 0
[total_days] => 0
[display_material_sum] => 0
[display_work_sum] => 0
[display_total_sum] => 0
)
1
0₽
Работа:0 ₽
Материалы:0 ₽
Дни:0
stdClass Object
(
[id] => 58
[attribute_id] => 29
[name] => Есть
[material_modifier] => 1
[work_modifier] => 1
[options] => Array
(
)
[days] => [10]
[material_price] => [600]
[work_price] => [730]
[image] => https://akademik-stroy.ru/wp-content/uploads/materials/santekhnika-kanalizaciya-1.jpg
[area_modifier] => 274.97
[parent_name] => Сантехника, канализация в доме
[parent_id] => 29
[material_sum] => 197978
[work_sum] => 200728
[total_sum] => 398706
[total_days] => 10
[display_material_sum] => 197 978
[display_work_sum] => 200 728
[display_total_sum] => 398 706
)
1
398 706₽
Работа:200 728 ₽
Материалы:197 978 ₽
Дни:10
stdClass Object
(
[id] => 59
[attribute_id] => 30
[name] => Нет
[material_modifier] => 1
[work_modifier] => 1
[options] => Array
(
)
[days] => [0]
[material_price] => [0]
[work_price] => [0]
[image] => https://akademik-stroy.ru/wp-content/uploads/materials/otoplenie-1.jpg
[area_modifier] => 274.97
[parent_name] => Отопление
[parent_id] => 30
[material_sum] => 0
[work_sum] => 0
[total_sum] => 0
[total_days] => 0
[display_material_sum] => 0
[display_work_sum] => 0
[display_total_sum] => 0
)
1
0₽
Работа:0 ₽
Материалы:0 ₽
Дни:0
stdClass Object
(
[id] => 60
[attribute_id] => 30
[name] => Есть
[material_modifier] => 1
[work_modifier] => 1
[options] => Array
(
)
[days] => [5]
[material_price] => [610]
[work_price] => [560]
[image] => https://akademik-stroy.ru/wp-content/uploads/materials/otoplenie-1.jpg
[area_modifier] => 274.97
[parent_name] => Отопление
[parent_id] => 30
[material_sum] => 201278
[work_sum] => 153983
[total_sum] => 355261
[total_days] => 5
[display_material_sum] => 201 278
[display_work_sum] => 153 983
[display_total_sum] => 355 261
)
1
355 261₽
Работа:153 983 ₽
Материалы:201 278 ₽
Дни:5
stdClass Object
(
[id] => 61
[attribute_id] => 31
[name] => Нет
[material_modifier] => 1
[work_modifier] => 1
[options] => Array
(
)
[days] => [0]
[material_price] => [0]
[work_price] => [0]
[image] => https://akademik-stroy.ru/wp-content/uploads/materials/vodyanye.jpg
[area_modifier] => 30
[parent_name] => Теплые полы
[parent_id] => 31
[material_sum] => 0
[work_sum] => 0
[total_sum] => 0
[total_days] => 0
[display_material_sum] => 0
[display_work_sum] => 0
[display_total_sum] => 0
)
1
0₽
Работа:0 ₽
Материалы:0 ₽
Дни:0
stdClass Object
(
[id] => 151
[attribute_id] => 31
[name] => Водяные
[material_modifier] => 1
[work_modifier] => 1
[options] => Array
(
)
[days] => [9]
[material_price] => [10200]
[work_price] => [2500]
[image] => https://akademik-stroy.ru/wp-content/uploads/materials/vodyanye.jpg
[area_modifier] => 30
[parent_name] => Теплые полы
[parent_id] => 31
[material_sum] => 367200
[work_sum] => 75000
[total_sum] => 442200
[total_days] => 9
[display_material_sum] => 367 200
[display_work_sum] => 75 000
[display_total_sum] => 442 200
)
1
442 200₽
Работа:75 000 ₽
Материалы:367 200 ₽
Дни:9
stdClass Object
(
[id] => 152
[attribute_id] => 31
[name] => Электро
[material_modifier] => 1
[work_modifier] => 1
[options] => Array
(
)
[days] => [5]
[material_price] => [6300]
[work_price] => [1500]
[image] => https://akademik-stroy.ru/wp-content/uploads/materials/ehlektricheskij.jpg
[area_modifier] => 30
[parent_name] => Теплые полы
[parent_id] => 31
[material_sum] => 226800
[work_sum] => 45000
[total_sum] => 271800
[total_days] => 5
[display_material_sum] => 226 800
[display_work_sum] => 45 000
[display_total_sum] => 271 800
)
1
271 800₽
Работа:45 000 ₽
Материалы:226 800 ₽
Дни:5
stdClass Object
(
[id] => 63
[attribute_id] => 32
[name] => Нет
[material_modifier] => 1
[work_modifier] => 1
[options] => Array
(
)
[days] => [0]
[material_price] => [0]
[work_price] => [0]
[image] => https://akademik-stroy.ru/wp-content/uploads/materials/shtukaturka-shpatlevka-1.jpg
[area_modifier] => 274.97
[parent_name] => Черновая отделка стен
[parent_id] => 32
[material_sum] => 0
[work_sum] => 0
[total_sum] => 0
[total_days] => 0
[display_material_sum] => 0
[display_work_sum] => 0
[display_total_sum] => 0
)
1
0₽
Работа:0 ₽
Материалы:0 ₽
Дни:0
stdClass Object
(
[id] => 153
[attribute_id] => 32
[name] => Штукатурка и шпатлевка
[material_modifier] => 1
[work_modifier] => 1
[options] => Array
(
)
[days] => [20]
[material_price] => [1850]
[work_price] => [2600]
[image] => https://akademik-stroy.ru/wp-content/uploads/materials/shtukaturka-shpatlevka-1.jpg
[area_modifier] => 274.97
[parent_name] => Черновая отделка стен
[parent_id] => 32
[material_sum] => 610433
[work_sum] => 714922
[total_sum] => 1325355
[total_days] => 20
[display_material_sum] => 610 433
[display_work_sum] => 714 922
[display_total_sum] => 1 325 355
)
1
1 325 355₽
Работа:714 922 ₽
Материалы:610 433 ₽
Дни:20
stdClass Object
(
[id] => 154
[attribute_id] => 32
[name] => Гипсокортон на стены
[material_modifier] => 1
[work_modifier] => 1
[options] => Array
(
)
[days] => [15]
[material_price] => [950]
[work_price] => [2100]
[image] => https://akademik-stroy.ru/wp-content/uploads/materials/gkl-1.jpg
[area_modifier] => 274.97
[parent_name] => Черновая отделка стен
[parent_id] => 32
[material_sum] => 313466
[work_sum] => 577437
[total_sum] => 890903
[total_days] => 15
[display_material_sum] => 313 466
[display_work_sum] => 577 437
[display_total_sum] => 890 903
)
1
890 903₽
Работа:577 437 ₽
Материалы:313 466 ₽
Дни:15
stdClass Object
(
[id] => 155
[attribute_id] => 32
[name] => Вагонка
[material_modifier] => 1
[work_modifier] => 1
[options] => Array
(
)
[days] => [15]
[material_price] => [1250]
[work_price] => [950]
[image] => https://akademik-stroy.ru/wp-content/uploads/materials/vagonka.jpg
[area_modifier] => 274.97
[parent_name] => Черновая отделка стен
[parent_id] => 32
[material_sum] => 412455
[work_sum] => 261222
[total_sum] => 673677
[total_days] => 15
[display_material_sum] => 412 455
[display_work_sum] => 261 222
[display_total_sum] => 673 677
)
1
673 677₽
Работа:261 222 ₽
Материалы:412 455 ₽
Дни:15
stdClass Object
(
[id] => 65
[attribute_id] => 33
[name] => Нет
[material_modifier] => 1
[work_modifier] => 1
[options] => Array
(
)
[days] => [0]
[material_price] => [0]
[work_price] => [0]
[image] => https://akademik-stroy.ru/wp-content/uploads/materials/styazhka.jpg
[area_modifier] => 274.97
[parent_name] => Черновая отделка полов
[parent_id] => 33
[material_sum] => 0
[work_sum] => 0
[total_sum] => 0
[total_days] => 0
[display_material_sum] => 0
[display_work_sum] => 0
[display_total_sum] => 0
)
1
0₽
Работа:0 ₽
Материалы:0 ₽
Дни:0
stdClass Object
(
[id] => 156
[attribute_id] => 33
[name] => Стяжка + наливные полы
[material_modifier] => 1
[work_modifier] => 1
[options] => Array
(
)
[days] => [10]
[material_price] => [1000]
[work_price] => [900]
[image] => https://akademik-stroy.ru/wp-content/uploads/materials/styazhka.jpg
[area_modifier] => 274.97
[parent_name] => Черновая отделка полов
[parent_id] => 33
[material_sum] => 329964
[work_sum] => 247473
[total_sum] => 577437
[total_days] => 10
[display_material_sum] => 329 964
[display_work_sum] => 247 473
[display_total_sum] => 577 437
)
1
577 437₽
Работа:247 473 ₽
Материалы:329 964 ₽
Дни:10
stdClass Object
(
[id] => 157
[attribute_id] => 33
[name] => ОСБ на пол
[material_modifier] => 1
[work_modifier] => 1
[options] => Array
(
)
[days] => [7]
[material_price] => [580]
[work_price] => [350]
[image] => https://akademik-stroy.ru/wp-content/uploads/materials/osb-1.jpg
[area_modifier] => 274.97
[parent_name] => Черновая отделка полов
[parent_id] => 33
[material_sum] => 191379
[work_sum] => 96240
[total_sum] => 287619
[total_days] => 7
[display_material_sum] => 191 379
[display_work_sum] => 96 240
[display_total_sum] => 287 619
)
1
287 619₽
Работа:96 240 ₽
Материалы:191 379 ₽
Дни:7
stdClass Object
(
[id] => 67
[attribute_id] => 34
[name] => Нет
[material_modifier] => 1
[work_modifier] => 1
[options] => Array
(
)
[days] => [0]
[material_price] => [0]
[work_price] => [0]
[image] => https://akademik-stroy.ru/wp-content/uploads/materials/chistovaya-otdelka.jpg
[area_modifier] => 274.97
[parent_name] => Чистовая отделка стен и полов
[parent_id] => 34
[material_sum] => 0
[work_sum] => 0
[total_sum] => 0
[total_days] => 0
[display_material_sum] => 0
[display_work_sum] => 0
[display_total_sum] => 0
)
1
0₽
Работа:0 ₽
Материалы:0 ₽
Дни:0
stdClass Object
(
[id] => 68
[attribute_id] => 34
[name] => Есть
[material_modifier] => 1
[work_modifier] => 1
[options] => Array
(
)
[days] => [50]
[material_price] => [6000]
[work_price] => [3500]
[image] => https://akademik-stroy.ru/wp-content/uploads/materials/chistovaya-otdelka.jpg
[area_modifier] => 274.97
[parent_name] => Чистовая отделка стен и полов
[parent_id] => 34
[material_sum] => 1979784
[work_sum] => 962395
[total_sum] => 2942179
[total_days] => 50
[display_material_sum] => 1 979 784
[display_work_sum] => 962 395
[display_total_sum] => 2 942 179
)
1
2 942 179₽
Работа:962 395 ₽
Материалы:1 979 784 ₽
Дни:50
stdClass Object
(
[id] => 69
[attribute_id] => 35
[name] => Нет
[material_modifier] => 1
[work_modifier] => 1
[options] => Array
(
)
[days] => [0]
[material_price] => [0]
[work_price] => [0]
[image] => https://akademik-stroy.ru/wp-content/uploads/materials/mnogourovnevyj-gkl.jpg
[area_modifier] => 274.97
[parent_name] => Отделка потолка
[parent_id] => 35
[material_sum] => 0
[work_sum] => 0
[total_sum] => 0
[total_days] => 0
[display_material_sum] => 0
[display_work_sum] => 0
[display_total_sum] => 0
)
1
0₽
Работа:0 ₽
Материалы:0 ₽
Дни:0
stdClass Object
(
[id] => 70
[attribute_id] => 35
[name] => Есть
[material_modifier] => 1
[work_modifier] => 1
[options] => Array
(
[0] => Многоуровневый потолок из гипсокартона
[1] => Многоуровневый потолок из гипсокартона и натяжного потолка
[2] => Одноуровневый потолок из гипсокартона
[3] => Одноуровневый натяжной потолок
)
[days] => [10,10,1,1]
[material_price] => [900,700,700,600]
[work_price] => [1000,800,500,300]
[image] => https://akademik-stroy.ru/wp-content/uploads/materials/mnogourovnevyj-gkl.jpg
[area_modifier] => 274.97
[parent_name] => Отделка потолка
[parent_id] => 35
[material_sum] => 296968
[work_sum] => 274970
[total_sum] => 571938
[total_days] => 10
[display_material_sum] => 296 968
[display_work_sum] => 274 970
[display_total_sum] => 571 938
)
1
571 938₽
Работа:274 970 ₽
Материалы:296 968 ₽
Дни:10
Преимущества работы с нами
7 этапов оплаты
Независимый строительный надзор
Экологически чистые материалы
16 лет гарантии
Онлайн-кабинет с веб-камерой
Строители с опытом более 15 лет
Собственное производство









