Одноэтажный дом 200.94 м2 за руб.
Планировки
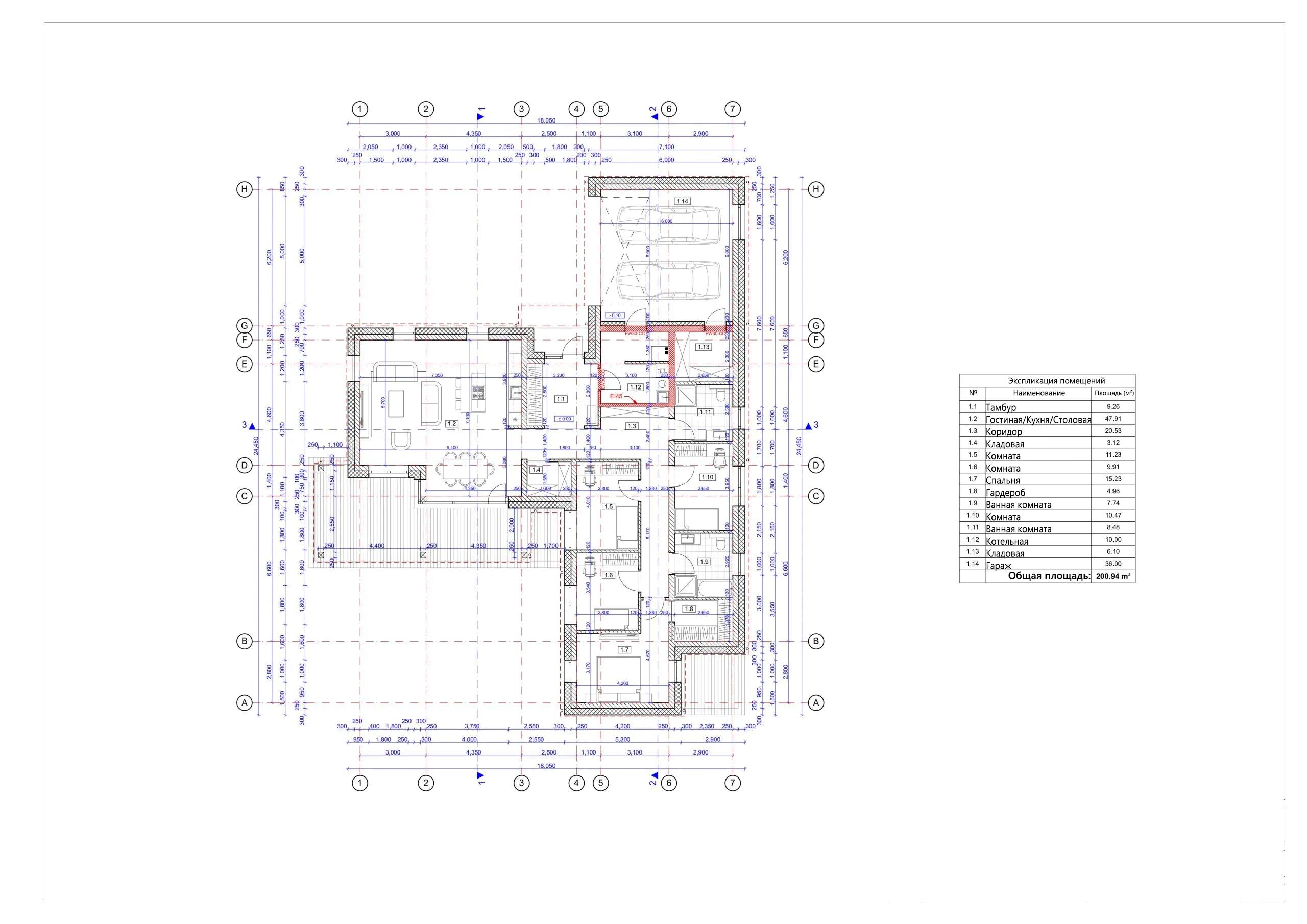
План первого этажа
- 1. Тамбур 9,26 м²
- 2. Кухня-Гостиная-Столовая 47,91 м²
- 3. Коридор 20,53 м²
- 4. Кладовая 3,12 м²
- 5. Комната 11,23 м²
- 6. Комната 9,91 м²
- 7. Спальня 15,23 м²
- 8. Гардероб 4,96 м²
- 9. Ванная комната 7,74 м²
- 10. Комната 10,74 м²
- 11. Ванная комната 8,48 м²
- 12. Котельная 10,00 м²
- 13. Кладовая 6,10 м²
- 14. Гараж 36,00 м²
- Общая площадь первый этаж 200,94 м²
Площади дома
| № п/п | Наименование | Ед. из. | Строительная площадь | Полезная площадь |
| 1 | 1 этаж | м2 | 247.62 | 200.94 |
| 2 | Итого | м2 | 247.62 | 200.94 |
154 м2
Полезная
площадь
площадь
1 этаж
Этажей
26 м2
Террасы
и балконы
и балконы
0Без
гаража
гаража
5+
Количество
спален
спален
2
Количество
санузлов
санузлов
Калькулятор опций
0₽
В ипотеку от 31 645 ₽/мес.
0₽
0 дней
1 294 025₽
Работа:560 042 ₽
Материалы:733 983 ₽
Дни:20
777 923₽
Работа:260 521 ₽
Материалы:517 402 ₽
Дни:2
1 310 925₽
Работа:526 242 ₽
Материалы:784 683 ₽
Дни:20
2 512 129₽
Работа:1 121 644 ₽
Материалы:1 390 485 ₽
Дни:30
4 214 356₽
Работа:1 549 606 ₽
Материалы:2 664 750 ₽
Дни:32
1 592 766₽
Работа:637 262 ₽
Материалы:955 504 ₽
Дни:20
9 994 439₽
Работа:4 556 258 ₽
Материалы:5 438 181 ₽
Дни:30
11 924 165₽
Работа:5 314 680 ₽
Материалы:6 609 485 ₽
Дни:40
416 001₽
Работа:104 000 ₽
Материалы:312 001 ₽
Дни:1
744 643₽
Работа:319 801 ₽
Материалы:424 842 ₽
Дни:8
1 192 625₽
Работа:395 202 ₽
Материалы:797 423 ₽
Дни:13
2 128 108₽
Работа:870 483 ₽
Материалы:1 257 625 ₽
Дни:18
2 088 588₽
Работа:1 308 585 ₽
Материалы:780 003 ₽
Дни:29
2 404 230₽
Работа:1 231 625 ₽
Материалы:1 172 605 ₽
Дни:23
3 701 375₽
Работа:2 271 369 ₽
Материалы:1 430 006 ₽
Дни:30
3 029 272₽
Работа:1 327 565 ₽
Материалы:1 701 707 ₽
Дни:45
5 663 082₽
Работа:1 249 565 ₽
Материалы:4 413 517 ₽
Дни:24
1 247 224₽
Работа:628 682 ₽
Материалы:618 542 ₽
Дни:15
681 202₽
Работа:366 601 ₽
Материалы:314 601 ₽
Дни:7
2 395 649₽
Работа:833 043 ₽
Материалы:1 562 606 ₽
Дни:7
3 129 112₽
Работа:999 704 ₽
Материалы:2 129 408 ₽
Дни:7
20 549 179₽
Работа:999 704 ₽
Материалы:19 549 475 ₽
Дни:7
11 123 103₽
Работа:1 249 565 ₽
Материалы:9 873 538 ₽
Дни:7
1 749 547₽
Работа:416 522 ₽
Материалы:1 333 025 ₽
Дни:7
2 297 369₽
Работа:1 179 885 ₽
Материалы:1 117 484 ₽
Дни:29
2 011 368₽
Работа:1 309 885 ₽
Материалы:701 483 ₽
Дни:29
2 297 369₽
Работа:1 179 885 ₽
Материалы:1 117 484 ₽
Дни:29
2 438 290₽
Работа:1 491 626 ₽
Материалы:946 664 ₽
Дни:23
3 116 632₽
Работа:1 049 624 ₽
Материалы:2 067 008 ₽
Дни:7
3 534 193₽
Работа:2 166 068 ₽
Материалы:1 368 125 ₽
Дни:25
1 278 425₽
Работа:659 883 ₽
Материалы:618 542 ₽
Дни:15
11 846 166₽
Работа:2 499 130 ₽
Материалы:9 347 036 ₽
Дни:15
1 417 526₽
Работа:666 643 ₽
Материалы:750 883 ₽
Дни:15
1 930 247₽
Работа:1 095 644 ₽
Материалы:834 603 ₽
Дни:19
2 037 368₽
Работа:1 309 885 ₽
Материалы:727 483 ₽
Дни:29
1 308 585₽
Работа:686 923 ₽
Материалы:621 662 ₽
Дни:15
2 404 230₽
Работа:1 231 625 ₽
Материалы:1 172 605 ₽
Дни:23
1 404 525₽
Работа:546 002 ₽
Материалы:858 523 ₽
Дни:15
1 799 207₽
Работа:1 311 965 ₽
Материалы:487 242 ₽
Дни:7
744 643₽
Работа:319 801 ₽
Материалы:424 842 ₽
Дни:8
1 192 625₽
Работа:395 202 ₽
Материалы:797 423 ₽
Дни:13
2 128 108₽
Работа:870 483 ₽
Материалы:1 257 625 ₽
Дни:18
3 077 892₽
Работа:1 488 766 ₽
Материалы:1 589 126 ₽
Дни:20
3 361 813₽
Работа:1 547 006 ₽
Материалы:1 814 807 ₽
Дни:20
5 204 180₽
Работа:2 458 569 ₽
Материалы:2 745 611 ₽
Дни:20
4 786 879₽
Работа:2 315 309 ₽
Материалы:2 471 570 ₽
Дни:20
5 773 582₽
Работа:2 458 569 ₽
Материалы:3 315 013 ₽
Дни:20
4 352 417₽
Работа:2 129 408 ₽
Материалы:2 223 009 ₽
Дни:20
9 672 037₽
Работа:4 355 017 ₽
Материалы:5 317 020 ₽
Дни:20
9 523 837₽
Работа:4 362 817 ₽
Материалы:5 161 020 ₽
Дни:20
1 872 007₽
Работа:975 004 ₽
Материалы:897 003 ₽
Дни:20
416 489₽
Работа:133 977 ₽
Материалы:282 512 ₽
Дни:3
0₽
Работа:0 ₽
Материалы:0 ₽
Дни:0
16 275₽
Работа:5 775 ₽
Материалы:10 500 ₽
Дни:1
0₽
Работа:0 ₽
Материалы:0 ₽
Дни:0
0₽
Работа:0 ₽
Материалы:0 ₽
Дни:0
470 082₽
Работа:169 001 ₽
Материалы:301 081 ₽
Дни:5
274 041₽
Работа:60 840 ₽
Материалы:213 201 ₽
Дни:3
399 361₽
Работа:101 400 ₽
Материалы:297 961 ₽
Дни:3
225 160₽
Работа:101 400 ₽
Материалы:123 760 ₽
Дни:3
601 642₽
Работа:60 840 ₽
Материалы:540 802 ₽
Дни:2
789 363₽
Работа:101 400 ₽
Материалы:687 963 ₽
Дни:3
0₽
Работа:0 ₽
Материалы:0 ₽
Дни:0
68 649₽
Работа:18 795 ₽
Материалы:49 854 ₽
Дни:6
0₽
Работа:0 ₽
Материалы:0 ₽
Дни:0
866 324₽
Работа:397 542 ₽
Материалы:468 782 ₽
Дни:7
0₽
Работа:0 ₽
Материалы:0 ₽
Дни:0
866 583₽
Работа:387 661 ₽
Материалы:478 922 ₽
Дни:7
0₽
Работа:0 ₽
Материалы:0 ₽
Дни:0
1 498 125₽
Работа:604 502 ₽
Материалы:893 623 ₽
Дни:7
529 102₽
Работа:318 501 ₽
Материалы:210 601 ₽
Дни:3
1 652 307₽
Работа:466 702 ₽
Материалы:1 185 605 ₽
Дни:5
1 720 427₽
Работа:466 702 ₽
Материалы:1 253 725 ₽
Дни:5
933 144₽
Работа:189 541 ₽
Материалы:743 603 ₽
Дни:3
2 371 989₽
Работа:208 001 ₽
Материалы:2 163 988 ₽
Дни:5
0₽
Работа:0 ₽
Материалы:0 ₽
Дни:0
1 141 664₽
Работа:363 221 ₽
Материалы:778 443 ₽
Дни:20
1 230 065₽
Работа:399 622 ₽
Материалы:830 443 ₽
Дни:20
892 583₽
Работа:312 521 ₽
Материалы:580 062 ₽
Дни:35
2 967 651₽
Работа:842 403 ₽
Материалы:2 125 248 ₽
Дни:45
1 555 066₽
Работа:781 823 ₽
Материалы:773 243 ₽
Дни:40
656 762₽
Работа:328 381 ₽
Материалы:328 381 ₽
Дни:20
2 021 768₽
Работа:842 403 ₽
Материалы:1 179 365 ₽
Дни:45
2 224 048₽
Работа:606 582 ₽
Материалы:1 617 466 ₽
Дни:20
1 229 805₽
Работа:505 442 ₽
Материалы:724 363 ₽
Дни:20
1 516 326₽
Работа:673 923 ₽
Материалы:842 403 ₽
Дни:20
2 113 288₽
Работа:909 743 ₽
Материалы:1 203 545 ₽
Дни:20
2 609 370₽
Работа:778 183 ₽
Материалы:1 831 187 ₽
Дни:20
1 855 108₽
Работа:673 923 ₽
Материалы:1 181 185 ₽
Дни:20
0₽
Работа:0 ₽
Материалы:0 ₽
Дни:0
390 600₽
Работа:61 425 ₽
Материалы:329 175 ₽
Дни:5
0₽
Работа:0 ₽
Материалы:0 ₽
Дни:0
174 825₽
Работа:61 425 ₽
Материалы:113 400 ₽
Дни:12
0₽
Работа:0 ₽
Материалы:0 ₽
Дни:0
1 118 005₽
Работа:455 002 ₽
Материалы:663 003 ₽
Дни:15
806 003₽
Работа:377 001 ₽
Материалы:429 002 ₽
Дни:10
0₽
Работа:0 ₽
Материалы:0 ₽
Дни:0
1 112 024₽
Работа:496 862 ₽
Материалы:615 162 ₽
Дни:5
0₽
Работа:0 ₽
Материалы:0 ₽
Дни:0
258 657₽
Работа:52 500 ₽
Материалы:206 157 ₽
Дни:7
0₽
Работа:0 ₽
Материалы:0 ₽
Дни:0
249 601₽
Работа:98 800 ₽
Материалы:150 801 ₽
Дни:11
421 722₽
Работа:156 001 ₽
Материалы:265 721 ₽
Дни:5
483 602₽
Работа:182 001 ₽
Материалы:301 601 ₽
Дни:11
698 103₽
Работа:234 001 ₽
Материалы:464 102 ₽
Дни:7
0₽
Работа:0 ₽
Материалы:0 ₽
Дни:0
337 580₽
Работа:200 438 ₽
Материалы:137 142 ₽
Дни:10
0₽
Работа:0 ₽
Материалы:0 ₽
Дни:0
280 613₽
Работа:154 021 ₽
Материалы:126 592 ₽
Дни:10
0₽
Работа:0 ₽
Материалы:0 ₽
Дни:0
246 855₽
Работа:118 153 ₽
Материалы:128 702 ₽
Дни:5
0₽
Работа:0 ₽
Материалы:0 ₽
Дни:0
400 050₽
Работа:78 750 ₽
Материалы:321 300 ₽
Дни:9
245 700₽
Работа:47 250 ₽
Материалы:198 450 ₽
Дни:5
0₽
Работа:0 ₽
Материалы:0 ₽
Дни:0
938 892₽
Работа:548 566 ₽
Материалы:390 326 ₽
Дни:20
643 511₽
Работа:443 073 ₽
Материалы:200 438 ₽
Дни:15
464 172₽
Работа:200 438 ₽
Материалы:263 734 ₽
Дни:15
0₽
Работа:0 ₽
Материалы:0 ₽
Дни:0
400 875₽
Работа:189 888 ₽
Материалы:210 987 ₽
Дни:10
196 217₽
Работа:73 845 ₽
Материалы:122 372 ₽
Дни:7
0₽
Работа:0 ₽
Материалы:0 ₽
Дни:0
2 004 377₽
Работа:738 455 ₽
Материалы:1 265 922 ₽
Дни:50
0₽
Работа:0 ₽
Материалы:0 ₽
Дни:0
400 875₽
Работа:210 987 ₽
Материалы:189 888 ₽
Дни:10
Преимущества работы с нами
7 этапов оплаты
Независимый строительный надзор
Экологически чистые материалы
16 лет гарантии
Онлайн-кабинет с веб-камерой
Строители с опытом более 15 лет
Собственное производство






