Одноэтажный дом 208.54 м2 за руб.
Планировки
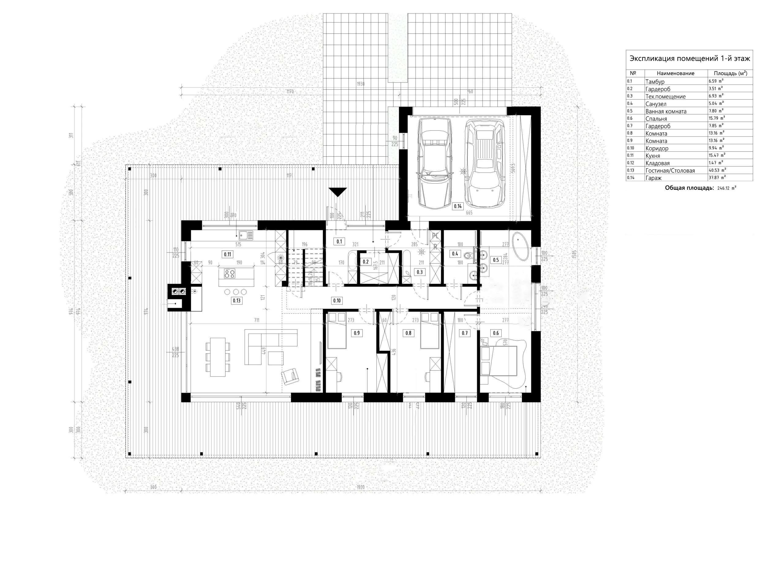
План первого этажа
- 1. Тамбур 6,59 м²
- 2. Гардероб 3,51 м²
- 3. Котельная 6,93 м²
- 4. Санузел 5,04 м²
- 5. Ванная комната 7,80 м²
- 6. Спальня 15,79 м²
- 7. Гардероб 7,85 м²
- 8. Комната 13,16 м²
- 9. Комната 13,16 м²
- 10. Коридор 9,94 м²
- 11. Кухня 15,47 м²
- 12. Кладовая 1,47 м²
- 13. Гостиная-Столовая 40,53 м²
- 14. Гараж 37,87 м²
- Общая площадь первый этаж 147,54 м²
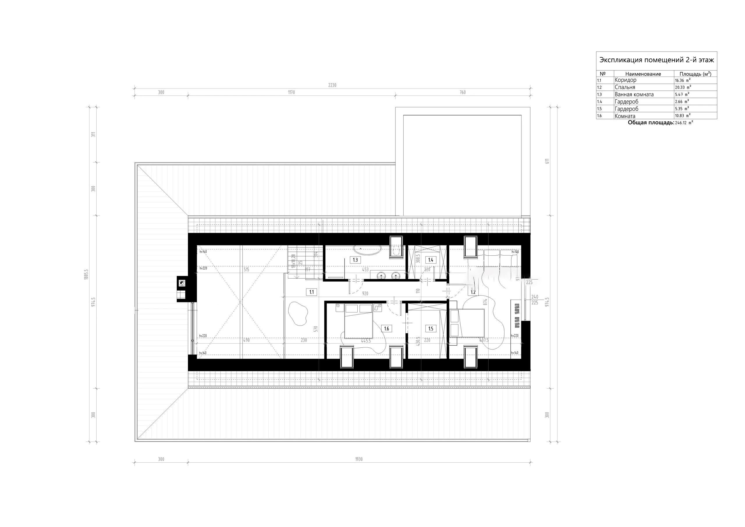
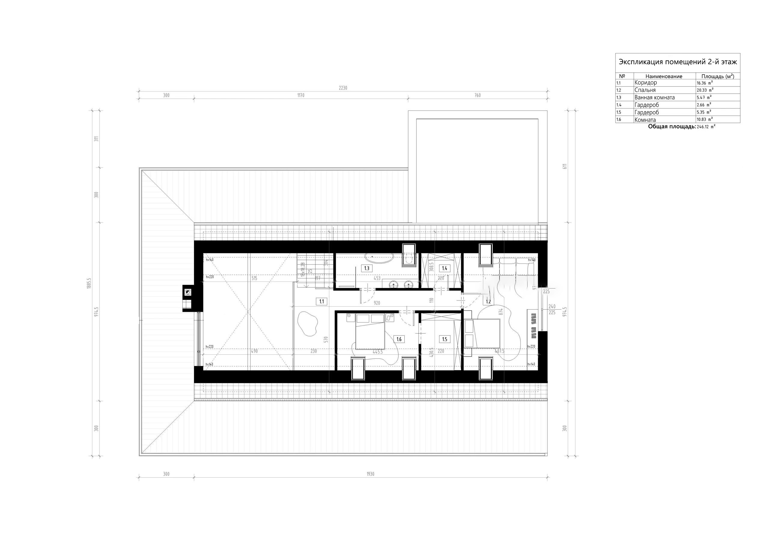
План мансарды
- 1. Коридор 16,36 м²
- 2. Спальня 20,33 м²
- 3. Ванная комната 5,47 м²
- 4. Гардероб 2,66 м²
- 5. Гардероб 5,35 м²
- 6. Комната 10,83 м²
- Общая площадь второй этаж 61,00 м²
Площади дома
| № п/п | Наименование | Ед. из. | Строительная площадь | Полезная площадь |
| 1 | 1 этаж | м2 | 181.81 | 147.54 |
| 2 | 2 этаж | м2 | 75.17 | 61 |
| 3 | Итого | м2 | 256.98 | 208.54 |
154 м2
Полезная
площадь
площадь
1 этаж
Этажей
26 м2
Террасы
и балконы
и балконы
1Без
гаража
гаража
3
Количество
спален
спален
3
Количество
санузлов
санузлов
Калькулятор опций
0₽
В ипотеку от 27 402 ₽/мес.
0₽
0 дней
950 112₽
Работа:411 200 ₽
Материалы:538 912 ₽
Дни:20
571 174₽
Работа:191 282 ₽
Материалы:379 892 ₽
Дни:2
962 521₽
Работа:386 383 ₽
Материалы:576 138 ₽
Дни:20
1 844 481₽
Работа:823 545 ₽
Материалы:1 020 936 ₽
Дни:30
3 094 306₽
Работа:1 137 767 ₽
Материалы:1 956 539 ₽
Дни:32
1 169 456₽
Работа:467 897 ₽
Материалы:701 559 ₽
Дни:20
7 338 215₽
Работа:3 345 340 ₽
Материалы:3 992 875 ₽
Дни:30
8 755 079₽
Работа:3 902 197 ₽
Материалы:4 852 882 ₽
Дни:40
305 441₽
Работа:76 360 ₽
Материалы:229 081 ₽
Дни:1
546 739₽
Работа:234 808 ₽
Материалы:311 931 ₽
Дни:8
875 661₽
Работа:290 169 ₽
Материалы:585 492 ₽
Дни:13
1 562 521₽
Работа:639 135 ₽
Материалы:923 386 ₽
Дни:18
1 533 504₽
Работа:960 802 ₽
Материалы:572 702 ₽
Дни:29
1 765 257₽
Работа:904 296 ₽
Материалы:860 961 ₽
Дни:23
2 717 660₽
Работа:1 667 707 ₽
Материалы:1 049 953 ₽
Дни:30
2 224 182₽
Работа:974 738 ₽
Материалы:1 249 444 ₽
Дни:45
4 158 004₽
Работа:917 468 ₽
Материалы:3 240 536 ₽
Дни:24
915 749₽
Работа:461 597 ₽
Материалы:454 152 ₽
Дни:15
500 160₽
Работа:269 170 ₽
Материалы:230 990 ₽
Дни:7
1 758 957₽
Работа:611 645 ₽
Материалы:1 147 312 ₽
Дни:7
2 297 487₽
Работа:734 012 ₽
Материалы:1 563 475 ₽
Дни:7
15 087 821₽
Работа:734 012 ₽
Материалы:14 353 809 ₽
Дни:7
8 166 914₽
Работа:917 468 ₽
Материалы:7 249 446 ₽
Дни:7
1 284 570₽
Работа:305 823 ₽
Материалы:978 747 ₽
Дни:7
1 686 796₽
Работа:866 306 ₽
Материалы:820 490 ₽
Дни:29
1 476 807₽
Работа:961 757 ₽
Материалы:515 050 ₽
Дни:29
1 686 796₽
Работа:866 306 ₽
Материалы:820 490 ₽
Дни:29
1 790 265₽
Работа:1 095 196 ₽
Материалы:695 069 ₽
Дни:23
2 288 324₽
Работа:770 665 ₽
Материалы:1 517 659 ₽
Дни:7
2 594 910₽
Работа:1 590 392 ₽
Материалы:1 004 518 ₽
Дни:25
938 657₽
Работа:484 505 ₽
Материалы:454 152 ₽
Дни:15
8 697 809₽
Работа:1 834 936 ₽
Материалы:6 862 873 ₽
Дни:15
1 040 790₽
Работа:489 469 ₽
Материалы:551 321 ₽
Дни:15
1 417 246₽
Работа:804 455 ₽
Материалы:612 791 ₽
Дни:19
1 495 897₽
Работа:961 757 ₽
Материалы:534 140 ₽
Дни:29
960 802₽
Работа:504 359 ₽
Материалы:456 443 ₽
Дни:15
1 765 257₽
Работа:904 296 ₽
Материалы:860 961 ₽
Дни:23
1 031 244₽
Работа:400 891 ₽
Материалы:630 353 ₽
Дни:15
1 321 032₽
Работа:963 284 ₽
Материалы:357 748 ₽
Дни:7
546 739₽
Работа:234 808 ₽
Материалы:311 931 ₽
Дни:8
875 661₽
Работа:290 169 ₽
Материалы:585 492 ₽
Дни:13
1 562 521₽
Работа:639 135 ₽
Материалы:923 386 ₽
Дни:18
634 033₽
Работа:397 247 ₽
Материалы:236 786 ₽
Дни:29
729 852₽
Работа:373 884 ₽
Материалы:355 968 ₽
Дни:23
1 123 626₽
Работа:689 519 ₽
Материалы:434 107 ₽
Дни:30
919 596₽
Работа:403 009 ₽
Материалы:516 587 ₽
Дни:45
1 719 141₽
Работа:379 330 ₽
Материалы:1 339 811 ₽
Дни:24
378 620₽
Работа:190 849 ₽
Материалы:187 771 ₽
Дни:15
206 792₽
Работа:111 289 ₽
Материалы:95 503 ₽
Дни:7
727 247₽
Работа:252 887 ₽
Материалы:474 360 ₽
Дни:7
949 904₽
Работа:303 480 ₽
Материалы:646 424 ₽
Дни:7
6 238 114₽
Работа:303 480 ₽
Материалы:5 934 634 ₽
Дни:7
1 655 998₽
Работа:379 330 ₽
Материалы:1 276 668 ₽
Дни:7
531 109₽
Работа:126 443 ₽
Материалы:404 666 ₽
Дни:10
697 413₽
Работа:358 178 ₽
Материалы:339 235 ₽
Дни:29
610 591₽
Работа:397 642 ₽
Материалы:212 949 ₽
Дни:29
697 413₽
Работа:358 178 ₽
Материалы:339 235 ₽
Дни:29
740 192₽
Работа:452 813 ₽
Материалы:287 379 ₽
Дни:23
946 116₽
Работа:318 634 ₽
Материалы:627 482 ₽
Дни:7
1 072 875₽
Работа:657 553 ₽
Материалы:415 322 ₽
Дни:25
388 092₽
Работа:200 321 ₽
Материалы:187 771 ₽
Дни:15
3 596 141₽
Работа:758 661 ₽
Материалы:2 837 480 ₽
Дни:15
430 319₽
Работа:202 373 ₽
Материалы:227 946 ₽
Дни:15
585 965₽
Работа:332 605 ₽
Материалы:253 360 ₽
Дни:19
618 484₽
Работа:397 642 ₽
Материалы:220 842 ₽
Дни:29
397 247₽
Работа:208 529 ₽
Материалы:188 718 ₽
Дни:15
729 852₽
Работа:373 884 ₽
Материалы:355 968 ₽
Дни:10
426 372₽
Работа:165 750 ₽
Материалы:260 622 ₽
Дни:10
546 185₽
Работа:398 273 ₽
Материалы:147 912 ₽
Дни:7
2 259 880₽
Работа:1 093 096 ₽
Материалы:1 166 784 ₽
Дни:20
2 468 343₽
Работа:1 135 858 ₽
Материалы:1 332 485 ₽
Дни:20
3 821 064₽
Работа:1 805 155 ₽
Материалы:2 015 909 ₽
Дни:20
3 514 669₽
Работа:1 699 969 ₽
Материалы:1 814 700 ₽
Дни:20
4 239 136₽
Работа:1 805 155 ₽
Материалы:2 433 981 ₽
Дни:20
3 195 674₽
Работа:1 563 475 ₽
Материалы:1 632 199 ₽
Дни:20
7 101 498₽
Работа:3 197 583 ₽
Материалы:3 903 915 ₽
Дни:20
6 992 685₽
Работа:3 203 310 ₽
Материалы:3 789 375 ₽
Дни:20
1 374 484₽
Работа:715 877 ₽
Материалы:658 607 ₽
Дни:20
432 241₽
Работа:139 044 ₽
Материалы:293 197 ₽
Дни:3
0₽
Работа:0 ₽
Материалы:0 ₽
Дни:0
16 275₽
Работа:5 775 ₽
Материалы:10 500 ₽
Дни:1
0₽
Работа:0 ₽
Материалы:0 ₽
Дни:0
0₽
Работа:0 ₽
Материалы:0 ₽
Дни:0
345 148₽
Работа:124 085 ₽
Материалы:221 063 ₽
Дни:5
201 209₽
Работа:44 671 ₽
Материалы:156 538 ₽
Дни:3
293 223₽
Работа:74 451 ₽
Материалы:218 772 ₽
Дни:3
165 320₽
Работа:74 451 ₽
Материалы:90 869 ₽
Дни:3
441 744₽
Работа:44 671 ₽
Материалы:397 073 ₽
Дни:2
579 574₽
Работа:74 451 ₽
Материалы:505 123 ₽
Дни:3
0₽
Работа:0 ₽
Материалы:0 ₽
Дни:0
68 649₽
Работа:18 795 ₽
Материалы:49 854 ₽
Дни:6
0₽
Работа:0 ₽
Материалы:0 ₽
Дни:0
636 081₽
Работа:291 887 ₽
Материалы:344 194 ₽
Дни:7
0₽
Работа:0 ₽
Материалы:0 ₽
Дни:0
636 272₽
Работа:284 633 ₽
Материалы:351 639 ₽
Дни:7
0₽
Работа:0 ₽
Материалы:0 ₽
Дни:0
1 554 754₽
Работа:627 352 ₽
Материалы:927 402 ₽
Дни:7
549 102₽
Работа:330 541 ₽
Материалы:218 561 ₽
Дни:3
1 714 763₽
Работа:484 343 ₽
Материалы:1 230 420 ₽
Дни:5
1 785 458₽
Работа:484 343 ₽
Материалы:1 301 115 ₽
Дни:5
968 416₽
Работа:196 705 ₽
Материалы:771 711 ₽
Дни:3
2 461 650₽
Работа:215 863 ₽
Материалы:2 245 787 ₽
Дни:5
0₽
Работа:0 ₽
Материалы:0 ₽
Дни:0
1 184 819₽
Работа:376 951 ₽
Материалы:807 868 ₽
Дни:20
1 276 561₽
Работа:414 727 ₽
Материалы:861 834 ₽
Дни:20
926 322₽
Работа:324 334 ₽
Материалы:601 988 ₽
Дни:35
3 079 828₽
Работа:874 246 ₽
Материалы:2 205 582 ₽
Дни:45
1 613 847₽
Работа:811 376 ₽
Материалы:802 471 ₽
Дни:40
681 588₽
Работа:340 794 ₽
Материалы:340 794 ₽
Дни:20
2 098 190₽
Работа:874 246 ₽
Материалы:1 223 944 ₽
Дни:45
2 308 117₽
Работа:629 511 ₽
Материалы:1 678 606 ₽
Дни:20
1 276 292₽
Работа:524 548 ₽
Материалы:751 744 ₽
Дни:20
1 573 643₽
Работа:699 397 ₽
Материалы:874 246 ₽
Дни:20
2 193 170₽
Работа:944 132 ₽
Материалы:1 249 038 ₽
Дни:20
2 708 004₽
Работа:807 598 ₽
Материалы:1 900 406 ₽
Дни:20
1 925 230₽
Работа:699 397 ₽
Материалы:1 225 833 ₽
Дни:20
0₽
Работа:0 ₽
Материалы:0 ₽
Дни:0
390 600₽
Работа:61 425 ₽
Материалы:329 175 ₽
Дни:5
0₽
Работа:0 ₽
Материалы:0 ₽
Дни:0
174 825₽
Работа:61 425 ₽
Материалы:113 400 ₽
Дни:12
0₽
Работа:0 ₽
Материалы:0 ₽
Дни:0
820 872₽
Работа:334 076 ₽
Материалы:486 796 ₽
Дни:15
591 792₽
Работа:276 806 ₽
Материалы:314 986 ₽
Дни:10
0₽
Работа:0 ₽
Материалы:0 ₽
Дни:0
816 482₽
Работа:364 811 ₽
Материалы:451 671 ₽
Дни:5
0₽
Работа:0 ₽
Материалы:0 ₽
Дни:0
258 657₽
Работа:52 500 ₽
Материалы:206 157 ₽
Дни:7
0₽
Работа:0 ₽
Материалы:0 ₽
Дни:0
259 036₽
Работа:102 535 ₽
Материалы:156 501 ₽
Дни:11
437 662₽
Работа:161 897 ₽
Материалы:275 765 ₽
Дни:5
501 882₽
Работа:188 880 ₽
Материалы:313 002 ₽
Дни:11
724 491₽
Работа:242 846 ₽
Материалы:481 645 ₽
Дни:7
0₽
Работа:0 ₽
Материалы:0 ₽
Дни:0
350 348₽
Работа:208 019 ₽
Материалы:142 329 ₽
Дни:10
0₽
Работа:0 ₽
Материалы:0 ₽
Дни:0
291 226₽
Работа:159 846 ₽
Материалы:131 380 ₽
Дни:10
0₽
Работа:0 ₽
Материалы:0 ₽
Дни:0
256 192₽
Работа:122 622 ₽
Материалы:133 570 ₽
Дни:5
0₽
Работа:0 ₽
Материалы:0 ₽
Дни:0
400 050₽
Работа:78 750 ₽
Материалы:321 300 ₽
Дни:9
245 700₽
Работа:47 250 ₽
Материалы:198 450 ₽
Дни:5
0₽
Работа:0 ₽
Материалы:0 ₽
Дни:0
974 403₽
Работа:569 314 ₽
Материалы:405 089 ₽
Дни:20
667 850₽
Работа:459 831 ₽
Материалы:208 019 ₽
Дни:15
481 728₽
Работа:208 019 ₽
Материалы:273 709 ₽
Дни:15
0₽
Работа:0 ₽
Материалы:0 ₽
Дни:0
416 037₽
Работа:197 070 ₽
Материалы:218 967 ₽
Дни:10
203 639₽
Работа:76 638 ₽
Материалы:127 001 ₽
Дни:7
0₽
Работа:0 ₽
Материалы:0 ₽
Дни:0
2 080 187₽
Работа:766 385 ₽
Материалы:1 313 802 ₽
Дни:50
0₽
Работа:0 ₽
Материалы:0 ₽
Дни:0
416 037₽
Работа:218 967 ₽
Материалы:197 070 ₽
Дни:10
Преимущества работы с нами
7 этапов оплаты
Независимый строительный надзор
Экологически чистые материалы
16 лет гарантии
Онлайн-кабинет с веб-камерой
Строители с опытом более 15 лет
Собственное производство













