Одноэтажный дом 20x19 - 194.21 м2 за руб.
Планировки
План первого этажа
- 1. Тамбур 8,82 м²
- 2. Гараж 36,20 м²
- 3. Кухня-Гостиная 53,77 м²
- 4. Кладовая 2,08 м²
- 5. Санузел 1,73 м²
- 6. Коридор 22,35 м²
- 7. Комната 12,80 м²
- 8. Комната 12,80 м²
- 9. Гардероб 3,78 м²
- 10. Санузел 3,58 м²
- 11. Спальня 10,64 м²
- 12. Гардероб 3,22 м²
- Ванная комната 5,49 м²
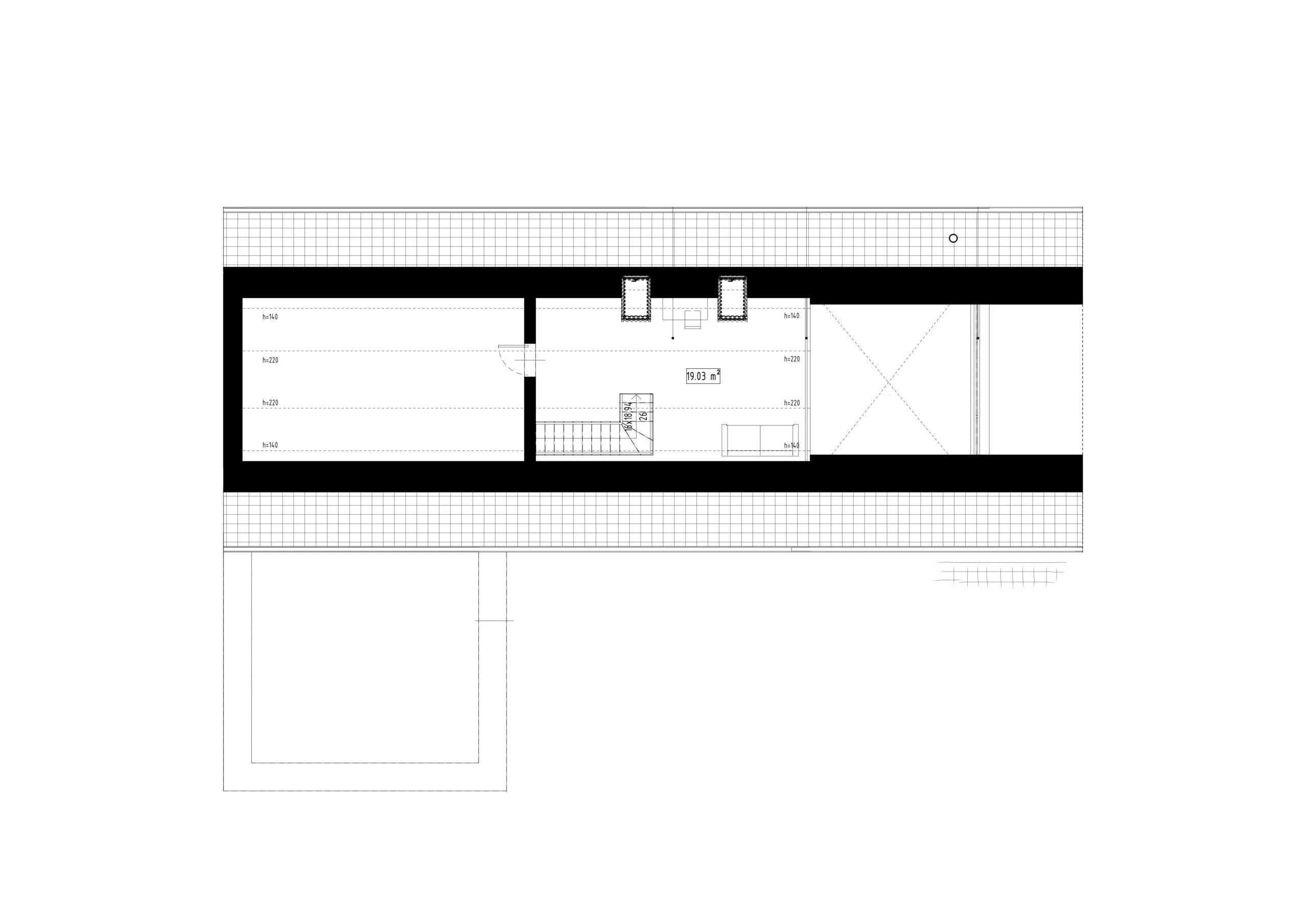
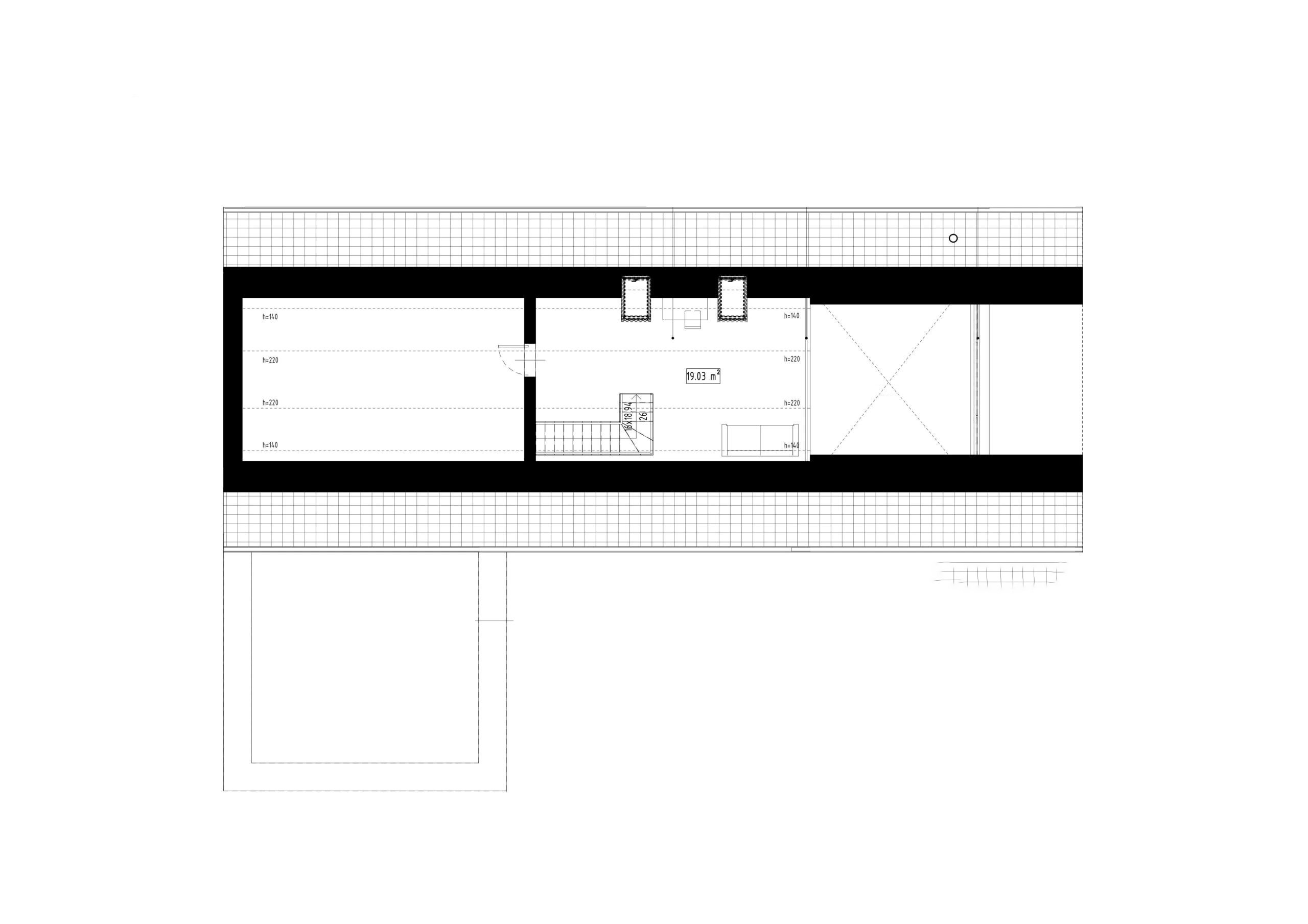
План мансарды
- Мансарда 19,03 м²
Площади дома
| № п/п | Наименование | Ед. из. | Строительная площадь | Полезная площадь |
| 1 | 1 этаж | м2 | 215.87 | 175.18 |
| 2 | 2 этаж | м2 | 23.45 | 19.03 |
| 3 | Итого | м2 | 239.32 | 194.21 |
154 м2
Полезная
площадь
площадь
20 x 19 м
Размеры
1 этаж
Этажей
26 м2
Террасы
и балконы
и балконы
1Без
гаража
гаража
4
Количество
спален
спален
3
Количество
санузлов
санузлов
Калькулятор опций
0₽
В ипотеку от 27 435 ₽/мес.
0₽
0 дней
stdClass Object
(
[id] => 1
[attribute_id] => 1
[name] => Ленточный монолитный ж/б
[material_modifier] => 1
[work_modifier] => 1
[options] => Array
(
[0] => размер 200 х 700 мм
[1] => размер 300 х 900 мм
[2] => размер 400 х 1 000 мм
[3] => размер 500 х 1 100 мм
[4] => размер 600 х 1 200 мм
)
[days] => [20,21,22,25,30]
[material_price] => [2823,3630,4475,5210,12047]
[work_price] => [2154,2826,3731,4577,5293]
[image] => https://akademik-stroy.ru/wp-content/uploads/materials/lentochnyj-monolitnyj-zh-b.jpg
[area_modifier] => 215.87
[parent_name] => Фундамент
[parent_id] => 1
[material_sum] => 767845
[work_sum] => 488233
[total_sum] => 1256078
[total_days] => 20
[display_material_sum] => 767 845
[display_work_sum] => 488 233
[display_total_sum] => 1 256 078
)
1
1 256 078₽
Работа:488 233 ₽
Материалы:767 845 ₽
Дни:20
stdClass Object
(
[id] => 2
[attribute_id] => 1
[name] => Забивные Ж/Б сваи
[material_modifier] => 1
[work_modifier] => 1
[options] => Array
(
[0] => 150х150х3000мм
[1] => 150х150х4000мм
[2] => 200х200х3000мм
[3] => 200х200х4000мм
[4] => 200х200х5000мм
[5] => 200х200х6000мм
)
[days] => [2,2,2,2,2,2]
[material_price] => [1990,2850,3255,4360,5120,6837]
[work_price] => [1002,1185,1336,1438,1574,1839]
[image] => https://akademik-stroy.ru/wp-content/uploads/materials/zabivnye-zh-b-svai.png
[area_modifier] => 215.87
[parent_name] => Фундамент
[parent_id] => 1
[material_sum] => 541272
[work_sum] => 227117
[total_sum] => 768389
[total_days] => 2
[display_material_sum] => 541 272
[display_work_sum] => 227 117
[display_total_sum] => 768 389
)
1
768 389₽
Работа:227 117 ₽
Материалы:541 272 ₽
Дни:2
stdClass Object
(
[id] => 71
[attribute_id] => 1
[name] => Свайно-ростверковый ж/б
[material_modifier] => 1
[work_modifier] => 1
[options] => Array
(
[0] => ростверк 200х300 мм
[1] => ростверк 300х600 мм
[2] => ростверк 400х900 мм
[3] => ростверк 500х1200 мм
)
[days] => [20,23,25,27]
[material_price] => [3018,3474,7109,9792]
[work_price] => [2024,3012,5635,7022]
[image] => https://akademik-stroy.ru/wp-content/uploads/materials/svajno-rostverkovyj-monolitnyj-zh-b-3.png
[area_modifier] => 215.87
[parent_name] => Фундамент
[parent_id] => 1
[material_sum] => 820885
[work_sum] => 458767
[total_sum] => 1279652
[total_days] => 20
[display_material_sum] => 820 885
[display_work_sum] => 458 767
[display_total_sum] => 1 279 652
)
1
1 279 652₽
Работа:458 767 ₽
Материалы:820 885 ₽
Дни:20
stdClass Object
(
[id] => 72
[attribute_id] => 1
[name] => Монолитная ж/б плита
[material_modifier] => 1
[work_modifier] => 1
[options] => Array
(
[0] => 200 мм
[1] => 300 мм
[2] => 400 мм
[3] => 500 мм
[4] => 600 мм
)
[days] => [30,33,35,37,40]
[material_price] => [5348,8555,12788,14388,15189]
[work_price] => [4314,4881,7037,8061,10230]
[image] => https://akademik-stroy.ru/wp-content/uploads/materials/monolitnaya-zhb-plita.png
[area_modifier] => 215.87
[parent_name] => Фундамент
[parent_id] => 1
[material_sum] => 1454636
[work_sum] => 977826
[total_sum] => 2432462
[total_days] => 30
[display_material_sum] => 1 454 636
[display_work_sum] => 977 826
[display_total_sum] => 2 432 462
)
1
2 432 462₽
Работа:977 826 ₽
Материалы:1 454 636 ₽
Дни:30
stdClass Object
(
[id] => 73
[attribute_id] => 1
[name] => Утепленная шведская плита
[material_modifier] => 1
[work_modifier] => 1
[options] => Array
(
[0] => 200 мм
[1] => 300 мм
[2] => 400 мм
[3] => 500 мм
[4] => 600 мм
)
[days] => [32,37,39,42,45]
[material_price] => [10249,12692,13760,14936,16230]
[work_price] => [5960,7337,8072,8878,9765]
[image] => https://akademik-stroy.ru/wp-content/uploads/materials/uteplennaya-shvedskaya-plita.jpg
[area_modifier] => 215.87
[parent_name] => Фундамент
[parent_id] => 1
[material_sum] => 2787689
[work_sum] => 1350914
[total_sum] => 4138603
[total_days] => 32
[display_material_sum] => 2 787 689
[display_work_sum] => 1 350 914
[display_total_sum] => 4 138 603
)
1
4 138 603₽
Работа:1 350 914 ₽
Материалы:2 787 689 ₽
Дни:32
stdClass Object
(
[id] => 75
[attribute_id] => 1
[name] => Ленточный из ФБС
[material_modifier] => 1
[work_modifier] => 1
[options] => Array
(
[0] => толщ. 300 мм
[1] => толщ. 400 мм
[2] => толщ. 500 мм
[3] => толщ. 600 мм
)
[days] => [20,20,20,20]
[material_price] => [3675,4902,6126,7350]
[work_price] => [2451,3264,4083,4902]
[image] => https://akademik-stroy.ru/wp-content/uploads/materials/lentochnyj-iz-fbs.png
[area_modifier] => 215.87
[parent_name] => Фундамент
[parent_id] => 1
[material_sum] => 999586
[work_sum] => 555552
[total_sum] => 1555138
[total_days] => 20
[display_material_sum] => 999 586
[display_work_sum] => 555 552
[display_total_sum] => 1 555 138
)
1
1 555 138₽
Работа:555 552 ₽
Материалы:999 586 ₽
Дни:20
stdClass Object
(
[id] => 76
[attribute_id] => 1
[name] => Цокольный этаж из ФБС
[material_modifier] => 1
[work_modifier] => 1
[options] => Array
(
[0] => толщ. 300 мм
[1] => толщ. 400 мм
[2] => толщ. 500 мм
[3] => толщ. 600 мм
)
[days] => [30,32,34,36]
[material_price] => [20916,23299,26680,29060]
[work_price] => [17524,18700,19873,21046]
[image] => https://akademik-stroy.ru/wp-content/uploads/materials/cokolnyj-ehtazh-iz-fbs.jpg
[area_modifier] => 215.87
[parent_name] => Фундамент
[parent_id] => 1
[material_sum] => 5689073
[work_sum] => 3972051
[total_sum] => 9661124
[total_days] => 30
[display_material_sum] => 5 689 073
[display_work_sum] => 3 972 051
[display_total_sum] => 9 661 124
)
1
9 661 124₽
Работа:3 972 051 ₽
Материалы:5 689 073 ₽
Дни:30
stdClass Object
(
[id] => 77
[attribute_id] => 1
[name] => Цокольный этаж монолитный ж/б
[material_modifier] => 1
[work_modifier] => 1
[options] => Array
(
[0] => толщ. 200 мм
[1] => толщ. 300 мм
[2] => толщ. 400 мм
[3] => толщ. 500 мм
[4] => толщ. 600 мм
)
[days] => [40,42,44,46,48]
[material_price] => [25421,29148,32275,35602,37326]
[work_price] => [20441,21907,23375,24841,26306]
[image] => https://akademik-stroy.ru/wp-content/uploads/materials/cokolnyj-etazh-zh-b.jpg
[area_modifier] => 215.87
[parent_name] => Фундамент
[parent_id] => 1
[material_sum] => 6914415
[work_sum] => 4633229
[total_sum] => 11547644
[total_days] => 40
[display_material_sum] => 6 914 415
[display_work_sum] => 4 633 229
[display_total_sum] => 11 547 644
)
1
11 547 644₽
Работа:4 633 229 ₽
Материалы:6 914 415 ₽
Дни:40
stdClass Object
(
[id] => 191
[attribute_id] => 1
[name] => Винтовые сваи
[material_modifier] => 1
[work_modifier] => 1
[options] => Array
(
[0] => 57х200мм
[1] => 76х250мм
[2] => 108х300мм
[3] => 133х350мм
)
[days] => [1,1,2,2]
[material_price] => [1200,1300,1450,1600]
[work_price] => [400,600,900,1100]
[image] => https://akademik-stroy.ru/wp-content/uploads/materials/vintovye-svai.png
[area_modifier] => 215.87
[parent_name] => Фундамент
[parent_id] => 1
[material_sum] => 326395
[work_sum] => 90665
[total_sum] => 417060
[total_days] => 1
[display_material_sum] => 326 395
[display_work_sum] => 90 665
[display_total_sum] => 417 060
)
1
417 060₽
Работа:90 665 ₽
Материалы:326 395 ₽
Дни:1
stdClass Object
(
[id] => 3
[attribute_id] => 2
[name] => Деревянные балки
[material_modifier] => 1
[work_modifier] => 1
[options] => Array
(
[0] => без утепления
[1] => утепление 200 мм
[2] => утепление 250 мм
[3] => утепление 300 мм
[4] => утепление 350 мм
[5] => утепление 400 мм
[6] => утепление 450 мм
[7] => утепление 500 мм
)
[days] => [8,9,9,9,11,12,13,14]
[material_price] => [1634,2042,2344,2947,3149,3652,3354,3557]
[work_price] => [1230,1339,1393,1426,1460,1513,1587,1620]
[image] => https://akademik-stroy.ru/wp-content/uploads/materials/derevyannye-balki.png
[area_modifier] => 215.87
[parent_name] => Перекрытие цоколя
[parent_id] => 2
[material_sum] => 444442
[work_sum] => 278796
[total_sum] => 723238
[total_days] => 8
[display_material_sum] => 444 442
[display_work_sum] => 278 796
[display_total_sum] => 723 238
)
1
723 238₽
Работа:278 796 ₽
Материалы:444 442 ₽
Дни:8
stdClass Object
(
[id] => 4
[attribute_id] => 2
[name] => Сборные ж/б плиты
[material_modifier] => 1
[work_modifier] => 1
[options] => Array
(
[0] => без утепления
[1] => утепление 150мм
[2] => утепление 200мм
[3] => утепление 250мм
[4] => утепление 300мм
[5] => утепление 350мм
[6] => утепление 400мм
[7] => утепление 450мм
[8] => утепление 500мм
)
[days] => [13,15,15,15,15,15,15,15,15]
[material_price] => [3067,5577,5928,6679,7730,8782,9833,10884,11935]
[work_price] => [1520,1956,2102,2247,2392,2537,2684,2829,2974]
[image] => https://akademik-stroy.ru/wp-content/uploads/materials/sbornye-zh-b-plity-2.jpg
[area_modifier] => 215.87
[parent_name] => Перекрытие цоколя
[parent_id] => 2
[material_sum] => 834212
[work_sum] => 344529
[total_sum] => 1178741
[total_days] => 13
[display_material_sum] => 834 212
[display_work_sum] => 344 529
[display_total_sum] => 1 178 741
)
1
1 178 741₽
Работа:344 529 ₽
Материалы:834 212 ₽
Дни:13
stdClass Object
(
[id] => 78
[attribute_id] => 2
[name] => Монолитная ж/б плита
[material_modifier] => 1
[work_modifier] => 1
[options] => Array
(
[0] => без утепления
[1] => утепление 150 мм
[2] => утепление 200 мм
[3] => утепление 250 мм
[4] => утепление 300 мм
[5] => утепление 350 мм
[6] => утепление 400 мм
[7] => утепление 450 мм
[8] => утепление 500 мм
)
[days] => [18,20,20,20,20,20,20,20,20]
[material_price] => [4837,6572,7224,7375,79426,8177,8728,9180,10031]
[work_price] => [3348,3921,4112,4302,4493,4684,4875,5066,5256]
[image] => https://akademik-stroy.ru/wp-content/uploads/materials/monolitnaya-zh-b-plita-2.jpg
[area_modifier] => 215.87
[parent_name] => Перекрытие цоколя
[parent_id] => 2
[material_sum] => 1315646
[work_sum] => 758869
[total_sum] => 2074515
[total_days] => 18
[display_material_sum] => 1 315 646
[display_work_sum] => 758 869
[display_total_sum] => 2 074 515
)
1
2 074 515₽
Работа:758 869 ₽
Материалы:1 315 646 ₽
Дни:18
stdClass Object
(
[id] => 6
[attribute_id] => 3
[name] => Пеноблок
[material_modifier] => 1
[work_modifier] => 1
[options] => Array
(
[0] => 300 мм
[1] => 400 мм
[2] => 500 мм
[3] => 600 мм
)
[days] => [29,31,34,39]
[material_price] => [3000,4000,4500,4937]
[work_price] => [5033,5805,6400,8710]
[image] => https://akademik-stroy.ru/wp-content/uploads/materials/penoblok.jpg
[area_modifier] => 215.87
[parent_name] => Стены 1 этаж (несущие)
[parent_id] => 3
[material_sum] => 815989
[work_sum] => 1140797
[total_sum] => 1956786
[total_days] => 29
[display_material_sum] => 815 989
[display_work_sum] => 1 140 797
[display_total_sum] => 1 956 786
)
1
1 956 786₽
Работа:1 140 797 ₽
Материалы:815 989 ₽
Дни:29
stdClass Object
(
[id] => 79
[attribute_id] => 3
[name] => Керамический блок
[material_modifier] => 1
[work_modifier] => 1
[options] => Array
(
[0] => 380 мм
[1] => 380 мм Thermo
[2] => 440 мм
[3] => 510 мм
)
[days] => [23,23,24,25]
[material_price] => [4510,5098,6093,8013]
[work_price] => [4737,4937,5903,6958]
[image] => https://akademik-stroy.ru/wp-content/uploads/materials/keramicheskij-blok.jpg
[area_modifier] => 215.87
[parent_name] => Стены 1 этаж (несущие)
[parent_id] => 3
[material_sum] => 1226703
[work_sum] => 1073705
[total_sum] => 2300408
[total_days] => 23
[display_material_sum] => 1 226 703
[display_work_sum] => 1 073 705
[display_total_sum] => 2 300 408
)
1
2 300 408₽
Работа:1 073 705 ₽
Материалы:1 226 703 ₽
Дни:23
stdClass Object
(
[id] => 80
[attribute_id] => 3
[name] => Кирпич
[material_modifier] => 1
[work_modifier] => 1
[options] => Array
(
[0] => Кирпич 250 мм
[1] => Кирпич 380 мм
[2] => Кирпич 510 мм
[3] => Кирпич 640 мм
[4] => Кирпич 770 мм
)
[days] => [30,30,31,33,36]
[material_price] => [5500,7142,9206,10171,12235]
[work_price] => [8736,10041,12018,15240,18462]
[image] => https://akademik-stroy.ru/wp-content/uploads/materials/kirpich.jpg
[area_modifier] => 215.87
[parent_name] => Стены 1 этаж (несущие)
[parent_id] => 3
[material_sum] => 1495979
[work_sum] => 1980132
[total_sum] => 3476111
[total_days] => 30
[display_material_sum] => 1 495 979
[display_work_sum] => 1 980 132
[display_total_sum] => 3 476 111
)
1
3 476 111₽
Работа:1 980 132 ₽
Материалы:1 495 979 ₽
Дни:30
stdClass Object
(
[id] => 81
[attribute_id] => 3
[name] => Монолитные
[material_modifier] => 1
[work_modifier] => 1
[options] => Array
(
[0] => 150 мм
[1] => 200 мм
[2] => 250 мм
[3] => 300 мм
[4] => 350 мм
[5] => 400 мм
)
[days] => [45,46,47,49,50,53]
[material_price] => [6545,7876,10175,12011,13908,15204]
[work_price] => [5106,6444,7698,8552,9807,11461]
[image] => https://akademik-stroy.ru/wp-content/uploads/materials/monolitnye.jpg
[area_modifier] => 215.87
[parent_name] => Стены 1 этаж (несущие)
[parent_id] => 3
[material_sum] => 1780215
[work_sum] => 1157344
[total_sum] => 2937559
[total_days] => 45
[display_material_sum] => 1 780 215
[display_work_sum] => 1 157 344
[display_total_sum] => 2 937 559
)
1
2 937 559₽
Работа:1 157 344 ₽
Материалы:1 780 215 ₽
Дни:45
stdClass Object
(
[id] => 82
[attribute_id] => 3
[name] => Клееный брус
[material_modifier] => 1
[work_modifier] => 1
[options] => Array
(
[0] => 160 мм
[1] => 175 мм
[2] => 200 мм
[3] => 215 мм
[4] => 240 мм
[5] => 270 мм
[6] => 282 мм
)
[days] => [24,28,32,37,40,42,48]
[material_price] => [16975,18773,19950,20545,21599,22159,23275]
[work_price] => [4806,5287,5815,6397,7036,7740,8514]
[image] => https://akademik-stroy.ru/wp-content/uploads/materials/kleenyj-brus.jpg
[area_modifier] => 215.87
[parent_name] => Стены 1 этаж (несущие)
[parent_id] => 3
[material_sum] => 4617135
[work_sum] => 1089345
[total_sum] => 5706480
[total_days] => 24
[display_material_sum] => 4 617 135
[display_work_sum] => 1 089 345
[display_total_sum] => 5 706 480
)
1
5 706 480₽
Работа:1 089 345 ₽
Материалы:4 617 135 ₽
Дни:24
stdClass Object
(
[id] => 83
[attribute_id] => 3
[name] => Каркасные
[material_modifier] => 1
[work_modifier] => 1
[options] => Array
(
[0] => 150 мм
[1] => 200 мм
[2] => 250 мм
[3] => 300 мм
)
[days] => [15,16,17,18]
[material_price] => [2379,2639,2898,3258]
[work_price] => [2418,2686,2985,3716]
[image] => https://akademik-stroy.ru/wp-content/uploads/materials/karkasnye.jpg
[area_modifier] => 215.87
[parent_name] => Стены 1 этаж (несущие)
[parent_id] => 3
[material_sum] => 647079
[work_sum] => 548072
[total_sum] => 1195151
[total_days] => 15
[display_material_sum] => 647 079
[display_work_sum] => 548 072
[display_total_sum] => 1 195 151
)
1
1 195 151₽
Работа:548 072 ₽
Материалы:647 079 ₽
Дни:15
stdClass Object
(
[id] => 84
[attribute_id] => 3
[name] => СИП-панели
[material_modifier] => 1
[work_modifier] => 1
[options] => Array
(
[0] => 120 мм
[1] => 170 мм
[2] => 220 мм
)
[days] => [7,7,7]
[material_price] => [1210,1856,2292]
[work_price] => [1410,1551,1706]
[image] => https://akademik-stroy.ru/wp-content/uploads/materials/sip-paneli.jpg
[area_modifier] => 215.87
[parent_name] => Стены 1 этаж (несущие)
[parent_id] => 3
[material_sum] => 329115
[work_sum] => 319596
[total_sum] => 648711
[total_days] => 7
[display_material_sum] => 329 115
[display_work_sum] => 319 596
[display_total_sum] => 648 711
)
1
648 711₽
Работа:319 596 ₽
Материалы:329 115 ₽
Дни:7
stdClass Object
(
[id] => 85
[attribute_id] => 3
[name] => Сухой брус
[material_modifier] => 1
[work_modifier] => 1
[options] => Array
(
[0] => 150 мм
[1] => 180 мм
[2] => 200 мм
)
[days] => [7,8,9]
[material_price] => [6010,7190,8709]
[work_price] => [3204,3845,4229]
[image] => https://akademik-stroy.ru/wp-content/uploads/materials/suhoj-brus.jpg
[area_modifier] => 215.87
[parent_name] => Стены 1 этаж (несущие)
[parent_id] => 3
[material_sum] => 1634697
[work_sum] => 726230
[total_sum] => 2360927
[total_days] => 7
[display_material_sum] => 1 634 697
[display_work_sum] => 726 230
[display_total_sum] => 2 360 927
)
1
2 360 927₽
Работа:726 230 ₽
Материалы:1 634 697 ₽
Дни:7
stdClass Object
(
[id] => 86
[attribute_id] => 3
[name] => Профилированный брус
[material_modifier] => 1
[work_modifier] => 1
[options] => Array
(
[0] => 150 мм
[1] => 180 мм
[2] => 200 мм
)
[days] => [7,8,9]
[material_price] => [8190,9228,10051]
[work_price] => [3845,4614,5075]
[image] => https://akademik-stroy.ru/wp-content/uploads/materials/profilirovannyj-brus.jpg
[area_modifier] => 215.87
[parent_name] => Стены 1 этаж (несущие)
[parent_id] => 3
[material_sum] => 2227649
[work_sum] => 871521
[total_sum] => 3099170
[total_days] => 7
[display_material_sum] => 2 227 649
[display_work_sum] => 871 521
[display_total_sum] => 3 099 170
)
1
3 099 170₽
Работа:871 521 ₽
Материалы:2 227 649 ₽
Дни:7
stdClass Object
(
[id] => 87
[attribute_id] => 3
[name] => Оцилиндрованное бревно
[material_modifier] => 1
[work_modifier] => 1
[options] => Array
(
[0] => 180 мм
[1] => 220 мм
[2] => 260 мм
[3] => 320 мм
)
[days] => [7,8,9,10]
[material_price] => [75190,9532,10868,13116]
[work_price] => [3845,4691,5535,6863]
[image] => https://akademik-stroy.ru/wp-content/uploads/materials/ocilindrovannoe-brevno-1.jpg
[area_modifier] => 215.87
[parent_name] => Стены 1 этаж (несущие)
[parent_id] => 3
[material_sum] => 20451394
[work_sum] => 871521
[total_sum] => 21322915
[total_days] => 7
[display_material_sum] => 20 451 394
[display_work_sum] => 871 521
[display_total_sum] => 21 322 915
)
1
21 322 915₽
Работа:871 521 ₽
Материалы:20 451 394 ₽
Дни:7
stdClass Object
(
[id] => 88
[attribute_id] => 3
[name] => Срубы
[material_modifier] => 1
[work_modifier] => 1
[options] => Array
(
[0] => 260 мм
[1] => 320 мм
[2] => 360 мм
[3] => 400 мм
[4] => 500 мм
)
[days] => [7,8,9,10,11]
[material_price] => [37975,46709,52314,58069,73167]
[work_price] => [4806,5911,6621,7349,9260]
[image] => https://akademik-stroy.ru/wp-content/uploads/materials/sruby.jpg
[area_modifier] => 215.87
[parent_name] => Стены 1 этаж (несущие)
[parent_id] => 3
[material_sum] => 10329056
[work_sum] => 1089345
[total_sum] => 11418401
[total_days] => 7
[display_material_sum] => 10 329 056
[display_work_sum] => 1 089 345
[display_total_sum] => 11 418 401
)
1
11 418 401₽
Работа:1 089 345 ₽
Материалы:10 329 056 ₽
Дни:7
stdClass Object
(
[id] => 174
[attribute_id] => 3
[name] => Брус
[material_modifier] => 1
[work_modifier] => 1
[options] => Array
(
[0] => 150 мм
[1] => 180 мм
[2] => 200 мм
)
[days] => [7,8,9]
[material_price] => [5127,6152,7367]
[work_price] => [1602,1922,2115]
[image] => https://akademik-stroy.ru/wp-content/uploads/materials/brus.jpg
[area_modifier] => 215.87
[parent_name] => Стены 1 этаж (несущие)
[parent_id] => 3
[material_sum] => 1394525
[work_sum] => 363115
[total_sum] => 1757640
[total_days] => 7
[display_material_sum] => 1 394 525
[display_work_sum] => 363 115
[display_total_sum] => 1 757 640
)
1
1 757 640₽
Работа:363 115 ₽
Материалы:1 394 525 ₽
Дни:7
stdClass Object
(
[id] => 175
[attribute_id] => 3
[name] => Газобетон
[material_modifier] => 1
[work_modifier] => 1
[options] => Array
(
[0] => 300 мм
[1] => 375 мм
[2] => 400 мм
[3] => 500 мм
[4] => 600 мм
)
[days] => [29,31,35,37,44]
[material_price] => [4298,5573,6356,7288,9119]
[work_price] => [4538,5251,5926,6733,7195]
[image] => https://akademik-stroy.ru/wp-content/uploads/materials/gazobeton.jpg
[area_modifier] => 215.87
[parent_name] => Стены 1 этаж (несущие)
[parent_id] => 3
[material_sum] => 1169040
[work_sum] => 1028599
[total_sum] => 2197639
[total_days] => 29
[display_material_sum] => 1 169 040
[display_work_sum] => 1 028 599
[display_total_sum] => 2 197 639
)
1
2 197 639₽
Работа:1 028 599 ₽
Материалы:1 169 040 ₽
Дни:29
stdClass Object
(
[id] => 176
[attribute_id] => 3
[name] => Блок
[material_modifier] => 1
[work_modifier] => 1
[options] => Array
(
[0] => 300 мм
[1] => 375 мм
[2] => 400 мм
[3] => 500 мм
[4] => 600 мм
)
[days] => [29,31,35,37,44]
[material_price] => [2698,3973,4356,6588,7119]
[work_price] => [5038,5851,6426,8733,9195]
[image] => https://akademik-stroy.ru/wp-content/uploads/materials/blok.jpg
[area_modifier] => 215.87
[parent_name] => Стены 1 этаж (несущие)
[parent_id] => 3
[material_sum] => 733846
[work_sum] => 1141931
[total_sum] => 1875777
[total_days] => 29
[display_material_sum] => 733 846
[display_work_sum] => 1 141 931
[display_total_sum] => 1 875 777
)
1
1 875 777₽
Работа:1 141 931 ₽
Материалы:733 846 ₽
Дни:29
stdClass Object
(
[id] => 177
[attribute_id] => 3
[name] => Газосиликатный блок
[material_modifier] => 1
[work_modifier] => 1
[options] => Array
(
[0] => 300 мм
[1] => 375 мм
[2] => 400 мм
[3] => 500 мм
[4] => 600 мм
)
[days] => [29,31,35,37,44]
[material_price] => [4298,5573,6356,7288,9119]
[work_price] => [4538,5251,5926,6733,7195]
[image] => https://akademik-stroy.ru/wp-content/uploads/materials/gazosilikatnyj-blok.jpg
[area_modifier] => 215.87
[parent_name] => Стены 1 этаж (несущие)
[parent_id] => 3
[material_sum] => 1169040
[work_sum] => 1028599
[total_sum] => 2197639
[total_days] => 29
[display_material_sum] => 1 169 040
[display_work_sum] => 1 028 599
[display_total_sum] => 2 197 639
)
1
2 197 639₽
Работа:1 028 599 ₽
Материалы:1 169 040 ₽
Дни:29
stdClass Object
(
[id] => 178
[attribute_id] => 3
[name] => Керамзитобетонный блок
[material_modifier] => 1
[work_modifier] => 1
[options] => Array
(
[0] => 300 мм
[1] => 375 мм
[2] => 400 мм
[3] => 500 мм
[4] => 600 мм
)
[days] => [23,23,24,25,28]
[material_price] => [3641,4298,5693,7613,9612]
[work_price] => [5737,5737,6903,7958,8901]
[image] => https://akademik-stroy.ru/wp-content/uploads/materials/keramzitobetonnyj-blok.jpg
[area_modifier] => 215.87
[parent_name] => Стены 1 этаж (несущие)
[parent_id] => 3
[material_sum] => 990338
[work_sum] => 1300368
[total_sum] => 2290706
[total_days] => 23
[display_material_sum] => 990 338
[display_work_sum] => 1 300 368
[display_total_sum] => 2 290 706
)
1
2 290 706₽
Работа:1 300 368 ₽
Материалы:990 338 ₽
Дни:23
stdClass Object
(
[id] => 179
[attribute_id] => 3
[name] => Деревянные
[material_modifier] => 1
[work_modifier] => 1
[options] => Array
(
[0] => 180 мм
[1] => 220 мм
[2] => 260 мм
[3] => 320 мм
)
[days] => [7,8,9,10]
[material_price] => [7950,9458,11961,14472]
[work_price] => [4037,4925,5812,7207]
[image] => https://akademik-stroy.ru/wp-content/uploads/materials/derevyannye.jpg
[area_modifier] => 215.87
[parent_name] => Стены 1 этаж (несущие)
[parent_id] => 3
[material_sum] => 2162370
[work_sum] => 915041
[total_sum] => 3077411
[total_days] => 7
[display_material_sum] => 2 162 370
[display_work_sum] => 915 041
[display_total_sum] => 3 077 411
)
1
3 077 411₽
Работа:915 041 ₽
Материалы:2 162 370 ₽
Дни:7
stdClass Object
(
[id] => 181
[attribute_id] => 3
[name] => Камень
[material_modifier] => 1
[work_modifier] => 1
[options] => Array
(
[0] => 300 мм
[1] => 400 мм
[2] => 500 мм
[3] => 600 мм
)
[days] => [25,27,31,34]
[material_price] => [5262,6844,8330,9815]
[work_price] => [8331,9135,10427,11069]
[image] => https://akademik-stroy.ru/wp-content/uploads/materials/kamen.jpg
[area_modifier] => 215.87
[parent_name] => Стены 1 этаж (несущие)
[parent_id] => 3
[material_sum] => 1431244
[work_sum] => 1888334
[total_sum] => 3319578
[total_days] => 25
[display_material_sum] => 1 431 244
[display_work_sum] => 1 888 334
[display_total_sum] => 3 319 578
)
1
3 319 578₽
Работа:1 888 334 ₽
Материалы:1 431 244 ₽
Дни:25
stdClass Object
(
[id] => 182
[attribute_id] => 3
[name] => Каркасно-щитовые
[material_modifier] => 1
[work_modifier] => 1
[options] => Array
(
[0] => 150 мм
[1] => 200 мм
[2] => 250 мм
[3] => 300 мм
[4] => 350 мм
[5] => 400 мм
)
[days] => [15,16,17,18,19,20]
[material_price] => [2379,2639,2898,3458,3601,4175]
[work_price] => [2538,2820,3134,3483,4062,5642]
[image] => https://akademik-stroy.ru/wp-content/uploads/materials/karkasno-shchitovye.jpg
[area_modifier] => 215.87
[parent_name] => Стены 1 этаж (несущие)
[parent_id] => 3
[material_sum] => 647079
[work_sum] => 575272
[total_sum] => 1222351
[total_days] => 15
[display_material_sum] => 647 079
[display_work_sum] => 575 272
[display_total_sum] => 1 222 351
)
1
1 222 351₽
Работа:575 272 ₽
Материалы:647 079 ₽
Дни:15
stdClass Object
(
[id] => 183
[attribute_id] => 3
[name] => Рубленные
[material_modifier] => 1
[work_modifier] => 1
[options] => Array
(
[0] => 150 мм
[1] => 200 мм
[2] => 250 мм
[3] => 300 мм
[4] => 350 мм
[5] => 400 мм
)
[days] => [15,16,17,18,17,18]
[material_price] => [35950,50267,60583,75900,80217,100533]
[work_price] => [9612,12816,16020,19224,22428,25632]
[image] => https://akademik-stroy.ru/wp-content/uploads/materials/rublennye.jpg
[area_modifier] => 215.87
[parent_name] => Стены 1 этаж (несущие)
[parent_id] => 3
[material_sum] => 9778263
[work_sum] => 2178690
[total_sum] => 11956953
[total_days] => 15
[display_material_sum] => 9 778 263
[display_work_sum] => 2 178 690
[display_total_sum] => 11 956 953
)
1
11 956 953₽
Работа:2 178 690 ₽
Материалы:9 778 263 ₽
Дни:15
stdClass Object
(
[id] => 185
[attribute_id] => 3
[name] => Теплоблок
[material_modifier] => 1
[work_modifier] => 1
[options] => Array
(
[0] => 300 мм (с облицовкой, не покрашенный)
[1] => 400 мм (с облицовкой, не покрашенный)
[2] => 300 мм (с облицовкой, покрашенный)
[3] => 400 мм (с облицовкой, покрашенный)
)
[days] => [15,16,15,16]
[material_price] => [2888,3729,3957,4258]
[work_price] => [2564,3229,2949,3713]
[image] => https://akademik-stroy.ru/wp-content/uploads/materials/teploblok.jpg
[area_modifier] => 215.87
[parent_name] => Стены 1 этаж (несущие)
[parent_id] => 3
[material_sum] => 785525
[work_sum] => 581165
[total_sum] => 1366690
[total_days] => 15
[display_material_sum] => 785 525
[display_work_sum] => 581 165
[display_total_sum] => 1 366 690
)
1
1 366 690₽
Работа:581 165 ₽
Материалы:785 525 ₽
Дни:15
stdClass Object
(
[id] => 186
[attribute_id] => 3
[name] => Арболитовые блоки
[material_modifier] => 1
[work_modifier] => 1
[options] => Array
(
[0] => 300 мм
[1] => 400 мм
[2] => 600 мм
)
[days] => [19,22,27]
[material_price] => [3210,4475,5852]
[work_price] => [4214,4788,5866]
[image] => https://akademik-stroy.ru/wp-content/uploads/materials/arbolitovye-bloki.png
[area_modifier] => 215.87
[parent_name] => Стены 1 этаж (несущие)
[parent_id] => 3
[material_sum] => 873108
[work_sum] => 955160
[total_sum] => 1828268
[total_days] => 19
[display_material_sum] => 873 108
[display_work_sum] => 955 160
[display_total_sum] => 1 828 268
)
1
1 828 268₽
Работа:955 160 ₽
Материалы:873 108 ₽
Дни:19
stdClass Object
(
[id] => 187
[attribute_id] => 3
[name] => Полистиролбетон
[material_modifier] => 1
[work_modifier] => 1
[options] => Array
(
[0] => 300 мм
[1] => 400 мм
[2] => 600 мм
)
[days] => [29,31,35]
[material_price] => [2798,4573,5256]
[work_price] => [5038,5851,6426]
[image] => https://akademik-stroy.ru/wp-content/uploads/materials/polistirolbeton.jpg
[area_modifier] => 215.87
[parent_name] => Стены 1 этаж (несущие)
[parent_id] => 3
[material_sum] => 761045
[work_sum] => 1141931
[total_sum] => 1902976
[total_days] => 29
[display_material_sum] => 761 045
[display_work_sum] => 1 141 931
[display_total_sum] => 1 902 976
)
1
1 902 976₽
Работа:1 141 931 ₽
Материалы:761 045 ₽
Дни:29
stdClass Object
(
[id] => 188
[attribute_id] => 3
[name] => Шлакоблок
[material_modifier] => 1
[work_modifier] => 1
[options] => Array
(
[0] => 400 мм
[1] => 600 мм
)
[days] => [15,16]
[material_price] => [2391,3471]
[work_price] => [2642,3662]
[image] => https://akademik-stroy.ru/wp-content/uploads/materials/shlakoblok.jpg
[area_modifier] => 215.87
[parent_name] => Стены 1 этаж (несущие)
[parent_id] => 3
[material_sum] => 650343
[work_sum] => 598845
[total_sum] => 1249188
[total_days] => 15
[display_material_sum] => 650 343
[display_work_sum] => 598 845
[display_total_sum] => 1 249 188
)
1
1 249 188₽
Работа:598 845 ₽
Материалы:650 343 ₽
Дни:15
stdClass Object
(
[id] => 189
[attribute_id] => 3
[name] => Теплая керамика
[material_modifier] => 1
[work_modifier] => 1
[options] => Array
(
[0] => 380 мм
[1] => 380 мм Thermo
[2] => 440 мм
[3] => 510 мм
)
[days] => [23,23,24,25]
[material_price] => [4510,5098,6093,8013]
[work_price] => [4737,4937,5903,6958]
[image] => https://akademik-stroy.ru/wp-content/uploads/materials/teplaya-keramika.jpg
[area_modifier] => 215.87
[parent_name] => Стены 1 этаж (несущие)
[parent_id] => 3
[material_sum] => 1226703
[work_sum] => 1073705
[total_sum] => 2300408
[total_days] => 23
[display_material_sum] => 1 226 703
[display_work_sum] => 1 073 705
[display_total_sum] => 2 300 408
)
1
2 300 408₽
Работа:1 073 705 ₽
Материалы:1 226 703 ₽
Дни:23
stdClass Object
(
[id] => 190
[attribute_id] => 3
[name] => Несъемная опалубка
[material_modifier] => 1
[work_modifier] => 1
[options] => Array
(
[0] => 200 мм
[1] => 250 мм
[2] => 300 мм
[3] => 350 мм
)
[days] => [15,17,19,21]
[material_price] => [3302,3902,4108,5008]
[work_price] => [2100,2100,2300,2534]
[image] => https://akademik-stroy.ru/wp-content/uploads/materials/nesemnaya-opalubka.jpg
[area_modifier] => 215.87
[parent_name] => Стены 1 этаж (несущие)
[parent_id] => 3
[material_sum] => 898131
[work_sum] => 475993
[total_sum] => 1374124
[total_days] => 15
[display_material_sum] => 898 131
[display_work_sum] => 475 993
[display_total_sum] => 1 374 124
)
1
1 374 124₽
Работа:475 993 ₽
Материалы:898 131 ₽
Дни:15
stdClass Object
(
[id] => 251
[attribute_id] => 3
[name] => Бревно
[material_modifier] => 1
[work_modifier] => 1
[options] => Array
(
[0] => 260 мм
[1] => 320 мм
[2] => 360 мм
[3] => 400 мм
[4] => 500 мм
)
[days] => [7,8,9,10,11]
[material_price] => [1874,24045,26930,30972,38825]
[work_price] => [5046,6207,6952,7716,9723]
[image] => https://akademik-stroy.ru/wp-content/uploads/materials/sruby.jpg
[area_modifier] => 215.87
[parent_name] => Стены 1 этаж (несущие)
[parent_id] => 3
[material_sum] => 509721
[work_sum] => 1143744
[total_sum] => 1653465
[total_days] => 7
[display_material_sum] => 509 721
[display_work_sum] => 1 143 744
[display_total_sum] => 1 653 465
)
1
1 653 465₽
Работа:1 143 744 ₽
Материалы:509 721 ₽
Дни:7
stdClass Object
(
[id] => 7
[attribute_id] => 4
[name] => Деревянные балки
[material_modifier] => 1
[work_modifier] => 1
[options] => Array
(
[0] => без утепления
[1] => утепление 200 мм
[2] => утепление 250 мм
[3] => утепление 300 мм
[4] => утепление 350 мм
[5] => утепление 400 мм
[6] => утепление 450 мм
[7] => утепление 500 мм
)
[days] => [8,9,9,9,11,12,13,14]
[material_price] => [1634,2042,2344,2947,3149,3652,3354,3557]
[work_price] => [1230,1339,1393,1426,1460,1513,1587,1620]
[image] => https://akademik-stroy.ru/wp-content/uploads/materials/derevyannye-balki.png
[area_modifier] => 215.87
[parent_name] => Перекрытие первого этажа
[parent_id] => 4
[material_sum] => 444442
[work_sum] => 278796
[total_sum] => 723238
[total_days] => 8
[display_material_sum] => 444 442
[display_work_sum] => 278 796
[display_total_sum] => 723 238
)
1
723 238₽
Работа:278 796 ₽
Материалы:444 442 ₽
Дни:8
stdClass Object
(
[id] => 8
[attribute_id] => 4
[name] => Сборные ж/б плиты
[material_modifier] => 1
[work_modifier] => 1
[options] => Array
(
[0] => без утепления
[1] => утепление 150 мм
[2] => утепление 200 мм
[3] => утепление 250 мм
[4] => утепление 300 мм
[5] => утепление 350 мм
[6] => утепление 400 мм
[7] => утепление 450 мм
[8] => утепление 500 мм
)
[days] => [13,15,15,15,15,15,15,15,15]
[material_price] => [3067,5577,5928,6679,7730,8782,9833,10884,11935]
[work_price] => [1520,1956,2102,2247,2392,2537,2684,2829,2974]
[image] => https://akademik-stroy.ru/wp-content/uploads/materials/sbornye-zh-b-plity-2.jpg
[area_modifier] => 215.87
[parent_name] => Перекрытие первого этажа
[parent_id] => 4
[material_sum] => 834212
[work_sum] => 344529
[total_sum] => 1178741
[total_days] => 13
[display_material_sum] => 834 212
[display_work_sum] => 344 529
[display_total_sum] => 1 178 741
)
1
1 178 741₽
Работа:344 529 ₽
Материалы:834 212 ₽
Дни:13
stdClass Object
(
[id] => 89
[attribute_id] => 4
[name] => Монолитная ж/б плита
[material_modifier] => 1
[work_modifier] => 1
[options] => Array
(
[0] => без утепления
[1] => утепление 150 мм
[2] => утепление 200 мм
[3] => утепление 250 мм
[4] => утепление 300 мм
[5] => утепление 350 мм
[6] => утепление 400 мм
[7] => утепление 450 мм
[8] => утепление 500 мм
)
[days] => [18,20,20,20,20,20,20,20,20]
[material_price] => [4837,6572,7224,7375,79426,8177,8728,9180,10031]
[work_price] => [3348,3921,4112,4302,4493,4684,4875,5066,5256]
[image] => https://akademik-stroy.ru/wp-content/uploads/materials/monolitnaya-zh-b-plita-2.jpg
[area_modifier] => 215.87
[parent_name] => Перекрытие первого этажа
[parent_id] => 4
[material_sum] => 1315646
[work_sum] => 758869
[total_sum] => 2074515
[total_days] => 18
[display_material_sum] => 1 315 646
[display_work_sum] => 758 869
[display_total_sum] => 2 074 515
)
1
2 074 515₽
Работа:758 869 ₽
Материалы:1 315 646 ₽
Дни:18
stdClass Object
(
[id] => 10
[attribute_id] => 5
[name] => Пеноблок
[material_modifier] => 1
[work_modifier] => 1
[options] => Array
(
[0] => 300 мм
[1] => 400 мм
[2] => 500 мм
[3] => 600 мм
)
[days] => [29,31,34,39]
[material_price] => [3000,4000,4500,4937]
[work_price] => [5033,5805,6400,8710]
[image] => https://akademik-stroy.ru/wp-content/uploads/materials/penoblok.jpg
[area_modifier] => 23.45
[parent_name] => Стены 2 этаж (несущие)
[parent_id] => 5
[material_sum] => 88641
[work_sum] => 123925
[total_sum] => 212566
[total_days] => 29
[display_material_sum] => 88 641
[display_work_sum] => 123 925
[display_total_sum] => 212 566
)
1
212 566₽
Работа:123 925 ₽
Материалы:88 641 ₽
Дни:29
stdClass Object
(
[id] => 90
[attribute_id] => 5
[name] => Керамический блок
[material_modifier] => 1
[work_modifier] => 1
[options] => Array
(
[0] => 380 мм
[1] => 380 мм Thermo
[2] => 440 мм
[3] => 510 мм
)
[days] => [23,23,24,25]
[material_price] => [4510,5098,6093,8013]
[work_price] => [4737,4937,5903,6958]
[image] => https://akademik-stroy.ru/wp-content/uploads/materials/keramicheskij-blok.jpg
[area_modifier] => 23.45
[parent_name] => Стены 2 этаж (несущие)
[parent_id] => 5
[material_sum] => 133257
[work_sum] => 116637
[total_sum] => 249894
[total_days] => 23
[display_material_sum] => 133 257
[display_work_sum] => 116 637
[display_total_sum] => 249 894
)
1
249 894₽
Работа:116 637 ₽
Материалы:133 257 ₽
Дни:23
stdClass Object
(
[id] => 91
[attribute_id] => 5
[name] => Кирпич
[material_modifier] => 1
[work_modifier] => 1
[options] => Array
(
[0] => Кирпич 250 мм
[1] => Кирпич 380 мм
[2] => Кирпич 510 мм
[3] => Кирпич 640 мм
[4] => Кирпич 770 мм
)
[days] => [30,30,31,33,36]
[material_price] => [5500,7142,9206,10171,12235]
[work_price] => [8736,10041,12018,15240,18462]
[image] => https://akademik-stroy.ru/wp-content/uploads/materials/kirpich.jpg
[area_modifier] => 23.45
[parent_name] => Стены 2 этаж (несущие)
[parent_id] => 5
[material_sum] => 162509
[work_sum] => 215102
[total_sum] => 377611
[total_days] => 30
[display_material_sum] => 162 509
[display_work_sum] => 215 102
[display_total_sum] => 377 611
)
1
377 611₽
Работа:215 102 ₽
Материалы:162 509 ₽
Дни:30
stdClass Object
(
[id] => 92
[attribute_id] => 5
[name] => Монолитные
[material_modifier] => 1
[work_modifier] => 1
[options] => Array
(
[0] => 150 мм
[1] => 200 мм
[2] => 250 мм
[3] => 300 мм
[4] => 350 мм
[5] => 400 мм
)
[days] => [45,46,47,49,50,53]
[material_price] => [6545,7876,10175,12011,13908,15204]
[work_price] => [5106,6444,7698,8552,9807,11461]
[image] => https://akademik-stroy.ru/wp-content/uploads/materials/monolitnye.jpg
[area_modifier] => 23.45
[parent_name] => Стены 2 этаж (несущие)
[parent_id] => 5
[material_sum] => 193385
[work_sum] => 125722
[total_sum] => 319107
[total_days] => 45
[display_material_sum] => 193 385
[display_work_sum] => 125 722
[display_total_sum] => 319 107
)
1
319 107₽
Работа:125 722 ₽
Материалы:193 385 ₽
Дни:45
stdClass Object
(
[id] => 93
[attribute_id] => 5
[name] => Клееный брус
[material_modifier] => 1
[work_modifier] => 1
[options] => Array
(
[0] => 160 мм
[1] => 175 мм
[2] => 200 мм
[3] => 215 мм
[4] => 240 мм
[5] => 270 мм
[6] => 282 мм
)
[days] => [24,28,32,37,40,42,48]
[material_price] => [16975,18773,19950,20545,21599,22159,23275]
[work_price] => [4806,5287,5815,6397,7036,7740,8514]
[image] => https://akademik-stroy.ru/wp-content/uploads/materials/kleenyj-brus.jpg
[area_modifier] => 23.45
[parent_name] => Стены 2 этаж (несущие)
[parent_id] => 5
[material_sum] => 501560
[work_sum] => 118336
[total_sum] => 619896
[total_days] => 24
[display_material_sum] => 501 560
[display_work_sum] => 118 336
[display_total_sum] => 619 896
)
1
619 896₽
Работа:118 336 ₽
Материалы:501 560 ₽
Дни:24
stdClass Object
(
[id] => 94
[attribute_id] => 5
[name] => Каркасные
[material_modifier] => 1
[work_modifier] => 1
[options] => Array
(
[0] => 150 мм
[1] => 200 мм
[2] => 250 мм
[3] => 300 мм
)
[days] => [15,16,17,18]
[material_price] => [2379,2639,2898,3258]
[work_price] => [2418,2686,2985,3716]
[image] => https://akademik-stroy.ru/wp-content/uploads/materials/karkasnye.jpg
[area_modifier] => 23.45
[parent_name] => Стены 2 этаж (несущие)
[parent_id] => 5
[material_sum] => 70292
[work_sum] => 59537
[total_sum] => 129829
[total_days] => 15
[display_material_sum] => 70 292
[display_work_sum] => 59 537
[display_total_sum] => 129 829
)
1
129 829₽
Работа:59 537 ₽
Материалы:70 292 ₽
Дни:15
stdClass Object
(
[id] => 95
[attribute_id] => 5
[name] => СИП-панели
[material_modifier] => 1
[work_modifier] => 1
[options] => Array
(
[0] => 120 мм
[1] => 170 мм
[2] => 220 мм
)
[days] => [7,7,7]
[material_price] => [1210,1856,2292]
[work_price] => [1410,1551,1706]
[image] => https://akademik-stroy.ru/wp-content/uploads/materials/sip-paneli.jpg
[area_modifier] => 23.45
[parent_name] => Стены 2 этаж (несущие)
[parent_id] => 5
[material_sum] => 35752
[work_sum] => 34718
[total_sum] => 70470
[total_days] => 7
[display_material_sum] => 35 752
[display_work_sum] => 34 718
[display_total_sum] => 70 470
)
1
70 470₽
Работа:34 718 ₽
Материалы:35 752 ₽
Дни:7
stdClass Object
(
[id] => 96
[attribute_id] => 5
[name] => Сухой брус
[material_modifier] => 1
[work_modifier] => 1
[options] => Array
(
[0] => 150 мм
[1] => 180 мм
[2] => 200 мм
)
[days] => [7,8,9]
[material_price] => [6010,7190,8709]
[work_price] => [3204,3845,4229]
[image] => https://akademik-stroy.ru/wp-content/uploads/materials/suhoj-brus.jpg
[area_modifier] => 23.45
[parent_name] => Стены 2 этаж (несущие)
[parent_id] => 5
[material_sum] => 177577
[work_sum] => 78890
[total_sum] => 256467
[total_days] => 7
[display_material_sum] => 177 577
[display_work_sum] => 78 890
[display_total_sum] => 256 467
)
1
256 467₽
Работа:78 890 ₽
Материалы:177 577 ₽
Дни:7
stdClass Object
(
[id] => 97
[attribute_id] => 5
[name] => Профилированный брус
[material_modifier] => 1
[work_modifier] => 1
[options] => Array
(
[0] => 150 мм
[1] => 180 мм
[2] => 200 мм
)
[days] => [7,8,9]
[material_price] => [8190,9228,10051]
[work_price] => [3845,4614,5075]
[image] => https://akademik-stroy.ru/wp-content/uploads/materials/profilirovannyj-brus.jpg
[area_modifier] => 23.45
[parent_name] => Стены 2 этаж (несущие)
[parent_id] => 5
[material_sum] => 241990
[work_sum] => 94674
[total_sum] => 336664
[total_days] => 7
[display_material_sum] => 241 990
[display_work_sum] => 94 674
[display_total_sum] => 336 664
)
1
336 664₽
Работа:94 674 ₽
Материалы:241 990 ₽
Дни:7
stdClass Object
(
[id] => 98
[attribute_id] => 5
[name] => Оцилиндрованное бревно
[material_modifier] => 1
[work_modifier] => 1
[options] => Array
(
[0] => 180 мм
[1] => 220 мм
[2] => 260 мм
[3] => 320 мм
)
[days] => [7,8,9,10]
[material_price] => [75190,9532,10868,13116]
[work_price] => [3845,4691,5535,6863]
[image] => https://akademik-stroy.ru/wp-content/uploads/materials/ocilindrovannoe-brevno-1.jpg
[area_modifier] => 23.45
[parent_name] => Стены 2 этаж (несущие)
[parent_id] => 5
[material_sum] => 2221639
[work_sum] => 94674
[total_sum] => 2316313
[total_days] => 7
[display_material_sum] => 2 221 639
[display_work_sum] => 94 674
[display_total_sum] => 2 316 313
)
1
2 316 313₽
Работа:94 674 ₽
Материалы:2 221 639 ₽
Дни:7
stdClass Object
(
[id] => 99
[attribute_id] => 5
[name] => Срубы
[material_modifier] => 1
[work_modifier] => 1
[options] => Array
(
[0] => 260 мм
[1] => 320 мм
[2] => 360 мм
[3] => 400 мм
[4] => 500 мм
)
[days] => [7,8,9,10,11]
[material_price] => [16175,23709,26314,29069,32167]
[work_price] => [4806,5911,6621,7349,9260]
[image] => https://akademik-stroy.ru/wp-content/uploads/materials/suhoj-brus.jpg
[area_modifier] => 23.45
[parent_name] => Стены 2 этаж (несущие)
[parent_id] => 5
[material_sum] => 477923
[work_sum] => 118336
[total_sum] => 596259
[total_days] => 7
[display_material_sum] => 477 923
[display_work_sum] => 118 336
[display_total_sum] => 596 259
)
1
596 259₽
Работа:118 336 ₽
Материалы:477 923 ₽
Дни:7
stdClass Object
(
[id] => 194
[attribute_id] => 5
[name] => Брус
[material_modifier] => 1
[work_modifier] => 1
[options] => Array
(
[0] => 150 мм
[1] => 180 мм
[2] => 200 мм
)
[days] => [10,13,15]
[material_price] => [5127,6152,7367]
[work_price] => [1602,1922,2115]
[image] => https://akademik-stroy.ru/wp-content/uploads/materials/brus.jpg
[area_modifier] => 23.45
[parent_name] => Стены 2 этаж (несущие)
[parent_id] => 5
[material_sum] => 151487
[work_sum] => 39445
[total_sum] => 190932
[total_days] => 10
[display_material_sum] => 151 487
[display_work_sum] => 39 445
[display_total_sum] => 190 932
)
1
190 932₽
Работа:39 445 ₽
Материалы:151 487 ₽
Дни:10
stdClass Object
(
[id] => 195
[attribute_id] => 5
[name] => Газобетон
[material_modifier] => 1
[work_modifier] => 1
[options] => Array
(
[0] => 300 мм
[1] => 375 мм
[2] => 400 мм
[3] => 500 мм
[4] => 600 мм
)
[days] => [29,31,35,37,44]
[material_price] => [4298,5573,6356,7288,9119]
[work_price] => [4538,5251,5926,6733,7195]
[image] => https://akademik-stroy.ru/wp-content/uploads/materials/gazobeton.jpg
[area_modifier] => 23.45
[parent_name] => Стены 2 этаж (несущие)
[parent_id] => 5
[material_sum] => 126993
[work_sum] => 111737
[total_sum] => 238730
[total_days] => 29
[display_material_sum] => 126 993
[display_work_sum] => 111 737
[display_total_sum] => 238 730
)
1
238 730₽
Работа:111 737 ₽
Материалы:126 993 ₽
Дни:29
stdClass Object
(
[id] => 196
[attribute_id] => 5
[name] => Блок
[material_modifier] => 1
[work_modifier] => 1
[options] => Array
(
[0] => 300 мм
[1] => 375 мм
[2] => 400 мм
[3] => 500 мм
[4] => 600 мм
)
[days] => [29,31,35,37,44]
[material_price] => [2698,3973,4356,6588,7119]
[work_price] => [5038,5851,6426,8733,9195]
[image] => https://akademik-stroy.ru/wp-content/uploads/materials/blok.jpg
[area_modifier] => 23.45
[parent_name] => Стены 2 этаж (несущие)
[parent_id] => 5
[material_sum] => 79718
[work_sum] => 124048
[total_sum] => 203766
[total_days] => 29
[display_material_sum] => 79 718
[display_work_sum] => 124 048
[display_total_sum] => 203 766
)
1
203 766₽
Работа:124 048 ₽
Материалы:79 718 ₽
Дни:29
stdClass Object
(
[id] => 197
[attribute_id] => 5
[name] => Газосиликатный блок
[material_modifier] => 1
[work_modifier] => 1
[options] => Array
(
[0] => 300 мм
[1] => 375 мм
[2] => 400 мм
[3] => 500 мм
[4] => 600 мм
)
[days] => [29,31,35,37,44]
[material_price] => [4298,5573,6356,7288,9119]
[work_price] => [4538,5251,5926,6733,7195]
[image] => https://akademik-stroy.ru/wp-content/uploads/materials/gazosilikatnyj-blok.jpg
[area_modifier] => 23.45
[parent_name] => Стены 2 этаж (несущие)
[parent_id] => 5
[material_sum] => 126993
[work_sum] => 111737
[total_sum] => 238730
[total_days] => 29
[display_material_sum] => 126 993
[display_work_sum] => 111 737
[display_total_sum] => 238 730
)
1
238 730₽
Работа:111 737 ₽
Материалы:126 993 ₽
Дни:29
stdClass Object
(
[id] => 198
[attribute_id] => 5
[name] => Керамзитобетонный блок
[material_modifier] => 1
[work_modifier] => 1
[options] => Array
(
[0] => 300 мм
[1] => 375 мм
[2] => 400 мм
[3] => 500 мм
[4] => 600 мм
)
[days] => [23,23,24,25,28]
[material_price] => [3641,4298,5693,7613,9612]
[work_price] => [5737,5737,6903,7958,8901]
[image] => https://akademik-stroy.ru/wp-content/uploads/materials/keramzitobetonnyj-blok.jpg
[area_modifier] => 23.45
[parent_name] => Стены 2 этаж (несущие)
[parent_id] => 5
[material_sum] => 107581
[work_sum] => 141259
[total_sum] => 248840
[total_days] => 23
[display_material_sum] => 107 581
[display_work_sum] => 141 259
[display_total_sum] => 248 840
)
1
248 840₽
Работа:141 259 ₽
Материалы:107 581 ₽
Дни:23
stdClass Object
(
[id] => 199
[attribute_id] => 5
[name] => Деревянные
[material_modifier] => 1
[work_modifier] => 1
[options] => Array
(
[0] => 180 мм
[1] => 220 мм
[2] => 260 мм
[3] => 320 мм
)
[days] => [7,8,9,10]
[material_price] => [7950,9458,11961,14472]
[work_price] => [4037,4925,5812,7207]
[image] => https://akademik-stroy.ru/wp-content/uploads/materials/derevyannye.jpg
[area_modifier] => 23.45
[parent_name] => Стены 2 этаж (несущие)
[parent_id] => 5
[material_sum] => 234899
[work_sum] => 99401
[total_sum] => 334300
[total_days] => 7
[display_material_sum] => 234 899
[display_work_sum] => 99 401
[display_total_sum] => 334 300
)
1
334 300₽
Работа:99 401 ₽
Материалы:234 899 ₽
Дни:7
stdClass Object
(
[id] => 200
[attribute_id] => 5
[name] => Камень
[material_modifier] => 1
[work_modifier] => 1
[options] => Array
(
[0] => 300 мм
[1] => 400 мм
[2] => 500 мм
[3] => 600 мм
)
[days] => [25,27,31,34]
[material_price] => [5262,6844,8330,9815]
[work_price] => [8331,9135,10427,11069]
[image] => https://akademik-stroy.ru/wp-content/uploads/materials/kamen.jpg
[area_modifier] => 23.45
[parent_name] => Стены 2 этаж (несущие)
[parent_id] => 5
[material_sum] => 155476
[work_sum] => 205130
[total_sum] => 360606
[total_days] => 25
[display_material_sum] => 155 476
[display_work_sum] => 205 130
[display_total_sum] => 360 606
)
1
360 606₽
Работа:205 130 ₽
Материалы:155 476 ₽
Дни:25
stdClass Object
(
[id] => 201
[attribute_id] => 5
[name] => Каркасно-щитовые
[material_modifier] => 1
[work_modifier] => 1
[options] => Array
(
[0] => 150 мм
[1] => 200 мм
[2] => 250 мм
[3] => 300 мм
[4] => 350 мм
[5] => 400 мм
)
[days] => [15,16,17,18,19,20]
[material_price] => [2379,2639,2898,3458,3601,4175]
[work_price] => [2538,2820,3134,3483,4062,5642]
[image] => https://akademik-stroy.ru/wp-content/uploads/materials/karkasno-shchitovye.jpg
[area_modifier] => 23.45
[parent_name] => Стены 2 этаж (несущие)
[parent_id] => 5
[material_sum] => 70292
[work_sum] => 62492
[total_sum] => 132784
[total_days] => 15
[display_material_sum] => 70 292
[display_work_sum] => 62 492
[display_total_sum] => 132 784
)
1
132 784₽
Работа:62 492 ₽
Материалы:70 292 ₽
Дни:15
stdClass Object
(
[id] => 202
[attribute_id] => 5
[name] => Рубленные
[material_modifier] => 1
[work_modifier] => 1
[options] => Array
(
[0] => 150 мм
[1] => 200 мм
[2] => 250 мм
[3] => 300 мм
[4] => 350 мм
[5] => 400 мм
)
[days] => [15,16,17,18,17,18]
[material_price] => [35950,50267,60583,75900,80217,100533]
[work_price] => [9612,12816,16020,19224,22428,25632]
[image] => https://akademik-stroy.ru/wp-content/uploads/materials/rublennye.jpg
[area_modifier] => 23.45
[parent_name] => Стены 2 этаж (несущие)
[parent_id] => 5
[material_sum] => 1062215
[work_sum] => 236671
[total_sum] => 1298886
[total_days] => 15
[display_material_sum] => 1 062 215
[display_work_sum] => 236 671
[display_total_sum] => 1 298 886
)
1
1 298 886₽
Работа:236 671 ₽
Материалы:1 062 215 ₽
Дни:15
stdClass Object
(
[id] => 203
[attribute_id] => 5
[name] => Теплоблок
[material_modifier] => 1
[work_modifier] => 1
[options] => Array
(
[0] => 300 мм (с облицовкой, не покрашенный)
[1] => 400 мм (с облицовкой, не покрашенный)
[2] => 300 мм (с облицовкой, покрашенный)
[3] => 400 мм (с облицовкой, покрашенный)
)
[days] => [15,16,15,16]
[material_price] => [2888,3729,3957,4258]
[work_price] => [2564,3229,2949,3713]
[image] => https://akademik-stroy.ru/wp-content/uploads/materials/teploblok.jpg
[area_modifier] => 23.45
[parent_name] => Стены 2 этаж (несущие)
[parent_id] => 5
[material_sum] => 85332
[work_sum] => 63132
[total_sum] => 148464
[total_days] => 15
[display_material_sum] => 85 332
[display_work_sum] => 63 132
[display_total_sum] => 148 464
)
1
148 464₽
Работа:63 132 ₽
Материалы:85 332 ₽
Дни:15
stdClass Object
(
[id] => 204
[attribute_id] => 5
[name] => Арболитовые блоки
[material_modifier] => 1
[work_modifier] => 1
[options] => Array
(
[0] => 300 мм
[1] => 400 мм
[2] => 600 мм
)
[days] => [19,22,27]
[material_price] => [3210,4475,5852]
[work_price] => [4214,4788,5866]
[image] => https://akademik-stroy.ru/wp-content/uploads/materials/arbolitovye-bloki.png
[area_modifier] => 23.45
[parent_name] => Стены 2 этаж (несущие)
[parent_id] => 5
[material_sum] => 94846
[work_sum] => 103759
[total_sum] => 198605
[total_days] => 19
[display_material_sum] => 94 846
[display_work_sum] => 103 759
[display_total_sum] => 198 605
)
1
198 605₽
Работа:103 759 ₽
Материалы:94 846 ₽
Дни:19
stdClass Object
(
[id] => 205
[attribute_id] => 5
[name] => Полистиролбетон
[material_modifier] => 1
[work_modifier] => 1
[options] => Array
(
[0] => 300 мм
[1] => 400 мм
[2] => 600 мм
)
[days] => [29,31,35]
[material_price] => [2798,4573,5256]
[work_price] => [5038,5851,6426]
[image] => https://akademik-stroy.ru/wp-content/uploads/materials/polistirolbeton.jpg
[area_modifier] => 23.45
[parent_name] => Стены 2 этаж (несущие)
[parent_id] => 5
[material_sum] => 82673
[work_sum] => 124048
[total_sum] => 206721
[total_days] => 29
[display_material_sum] => 82 673
[display_work_sum] => 124 048
[display_total_sum] => 206 721
)
1
206 721₽
Работа:124 048 ₽
Материалы:82 673 ₽
Дни:29
stdClass Object
(
[id] => 206
[attribute_id] => 5
[name] => Шлакоблок
[material_modifier] => 1
[work_modifier] => 1
[options] => Array
(
[0] => 400 мм
[1] => 600 мм
)
[days] => [15,16]
[material_price] => [2391,3471]
[work_price] => [2642,3662]
[image] => https://akademik-stroy.ru/wp-content/uploads/materials/shlakoblok.jpg
[area_modifier] => 23.45
[parent_name] => Стены 2 этаж (несущие)
[parent_id] => 5
[material_sum] => 70647
[work_sum] => 65053
[total_sum] => 135700
[total_days] => 15
[display_material_sum] => 70 647
[display_work_sum] => 65 053
[display_total_sum] => 135 700
)
1
135 700₽
Работа:65 053 ₽
Материалы:70 647 ₽
Дни:15
stdClass Object
(
[id] => 245
[attribute_id] => 5
[name] => Теплая керамика
[material_modifier] => 1
[work_modifier] => 1
[options] => Array
(
[0] => 380 мм
[1] => 380 мм Thermo
[2] => 440 мм
[3] => 510 мм
)
[days] => [10,10,11,12]
[material_price] => [4510,5098,6093,8013]
[work_price] => [4737,4937,5903,6958]
[image] => https://akademik-stroy.ru/wp-content/uploads/materials/teplaya-keramika.jpg
[area_modifier] => 23.45
[parent_name] => Стены 2 этаж (несущие)
[parent_id] => 5
[material_sum] => 133257
[work_sum] => 116637
[total_sum] => 249894
[total_days] => 10
[display_material_sum] => 133 257
[display_work_sum] => 116 637
[display_total_sum] => 249 894
)
1
249 894₽
Работа:116 637 ₽
Материалы:133 257 ₽
Дни:10
stdClass Object
(
[id] => 246
[attribute_id] => 5
[name] => Несъемная опалубка
[material_modifier] => 1
[work_modifier] => 1
[options] => Array
(
[0] => 380 мм
[1] => 380 мм Thermo
[2] => 440 мм
[3] => 510 мм
)
[days] => [10,10,11,12]
[material_price] => [3302,3902,4108,5008]
[work_price] => [2100,2100,2300,2534]
[image] => https://akademik-stroy.ru/wp-content/uploads/materials/nesemnaya-opalubka.jpg
[area_modifier] => 23.45
[parent_name] => Стены 2 этаж (несущие)
[parent_id] => 5
[material_sum] => 97564
[work_sum] => 51707
[total_sum] => 149271
[total_days] => 10
[display_material_sum] => 97 564
[display_work_sum] => 51 707
[display_total_sum] => 149 271
)
1
149 271₽
Работа:51 707 ₽
Материалы:97 564 ₽
Дни:10
stdClass Object
(
[id] => 254
[attribute_id] => 5
[name] => Бревно
[material_modifier] => 1
[work_modifier] => 1
[options] => Array
(
[0] => 260 мм
[1] => 320 мм
[2] => 360 мм
[3] => 400 мм
[4] => 500 мм
)
[days] => [7,8,9,10,11]
[material_price] => [1874,24045,26930,30972,38825]
[work_price] => [5046,6207,6952,7716,9723]
[image] => https://akademik-stroy.ru/wp-content/uploads/materials/sruby.jpg
[area_modifier] => 23.45
[parent_name] => Стены 2 этаж (несущие)
[parent_id] => 5
[material_sum] => 55371
[work_sum] => 124245
[total_sum] => 179616
[total_days] => 7
[display_material_sum] => 55 371
[display_work_sum] => 124 245
[display_total_sum] => 179 616
)
1
179 616₽
Работа:124 245 ₽
Материалы:55 371 ₽
Дни:7
stdClass Object
(
[id] => 164
[attribute_id] => 37
[name] => Металлочерепица
[material_modifier] => 1
[work_modifier] => 1
[options] => Array
(
)
[days] => [20]
[material_price] => [6112]
[work_price] => [5726]
[image] => https://akademik-stroy.ru/wp-content/uploads/materials/metallocherepica.jpg
[area_modifier] => 215.87
[parent_name] => Крыша (Скатная)
[parent_id] => 37
[material_sum] => 1662441
[work_sum] => 1297875
[total_sum] => 2960316
[total_days] => 20
[display_material_sum] => 1 662 441
[display_work_sum] => 1 297 875
[display_total_sum] => 2 960 316
)
1
2 960 316₽
Работа:1 297 875 ₽
Материалы:1 662 441 ₽
Дни:20
stdClass Object
(
[id] => 165
[attribute_id] => 37
[name] => Гибкая черепица
[material_modifier] => 1
[work_modifier] => 1
[options] => Array
(
)
[days] => [20]
[material_price] => [6980]
[work_price] => [5950]
[image] => https://akademik-stroy.ru/wp-content/uploads/materials/gibkaya-cherepica.jpg
[area_modifier] => 215.87
[parent_name] => Крыша (Скатная)
[parent_id] => 37
[material_sum] => 1898533
[work_sum] => 1348648
[total_sum] => 3247181
[total_days] => 20
[display_material_sum] => 1 898 533
[display_work_sum] => 1 348 648
[display_total_sum] => 3 247 181
)
1
3 247 181₽
Работа:1 348 648 ₽
Материалы:1 898 533 ₽
Дни:20
stdClass Object
(
[id] => 166
[attribute_id] => 37
[name] => Цементно-песчаная черепица
[material_modifier] => 1
[work_modifier] => 1
[options] => Array
(
)
[days] => [20]
[material_price] => [10560]
[work_price] => [9456]
[image] => https://akademik-stroy.ru/wp-content/uploads/materials/cementno-peschanaya-cherepica.jpg
[area_modifier] => 215.87
[parent_name] => Крыша (Скатная)
[parent_id] => 37
[material_sum] => 2872280
[work_sum] => 2143330
[total_sum] => 5015610
[total_days] => 20
[display_material_sum] => 2 872 280
[display_work_sum] => 2 143 330
[display_total_sum] => 5 015 610
)
1
5 015 610₽
Работа:2 143 330 ₽
Материалы:2 872 280 ₽
Дни:20
stdClass Object
(
[id] => 167
[attribute_id] => 37
[name] => Композитная черепица
[material_modifier] => 1
[work_modifier] => 1
[options] => Array
(
)
[days] => [20]
[material_price] => [9506]
[work_price] => [8905]
[image] => https://akademik-stroy.ru/wp-content/uploads/materials/kompozitnaya-cherepica.jpg
[area_modifier] => 215.87
[parent_name] => Крыша (Скатная)
[parent_id] => 37
[material_sum] => 2585596
[work_sum] => 2018438
[total_sum] => 4604034
[total_days] => 20
[display_material_sum] => 2 585 596
[display_work_sum] => 2 018 438
[display_total_sum] => 4 604 034
)
1
4 604 034₽
Работа:2 018 438 ₽
Материалы:2 585 596 ₽
Дни:20
stdClass Object
(
[id] => 168
[attribute_id] => 37
[name] => Керамическая черепица
[material_modifier] => 1
[work_modifier] => 1
[options] => Array
(
)
[days] => [20]
[material_price] => [12750]
[work_price] => [9456]
[image] => https://akademik-stroy.ru/wp-content/uploads/materials/keramicheskaya-cherepica.jpg
[area_modifier] => 215.87
[parent_name] => Крыша (Скатная)
[parent_id] => 37
[material_sum] => 3467952
[work_sum] => 2143330
[total_sum] => 5611282
[total_days] => 20
[display_material_sum] => 3 467 952
[display_work_sum] => 2 143 330
[display_total_sum] => 5 611 282
)
1
5 611 282₽
Работа:2 143 330 ₽
Материалы:3 467 952 ₽
Дни:20
stdClass Object
(
[id] => 169
[attribute_id] => 37
[name] => Металлическая фальцевая
[material_modifier] => 1
[work_modifier] => 1
[options] => Array
(
)
[days] => [20]
[material_price] => [8550]
[work_price] => [8190]
[image] => https://akademik-stroy.ru/wp-content/uploads/materials/metallicheskaya-falcevaya.jpg
[area_modifier] => 215.87
[parent_name] => Крыша (Скатная)
[parent_id] => 37
[material_sum] => 2325568
[work_sum] => 1856374
[total_sum] => 4181942
[total_days] => 20
[display_material_sum] => 2 325 568
[display_work_sum] => 1 856 374
[display_total_sum] => 4 181 942
)
1
4 181 942₽
Работа:1 856 374 ₽
Материалы:2 325 568 ₽
Дни:20
stdClass Object
(
[id] => 170
[attribute_id] => 37
[name] => Медная фальцевая
[material_modifier] => 1
[work_modifier] => 1
[options] => Array
(
)
[days] => [20]
[material_price] => [20450]
[work_price] => [16750]
[image] => https://akademik-stroy.ru/wp-content/uploads/materials/mednaya-falcevaya.jpg
[area_modifier] => 215.87
[parent_name] => Крыша (Скатная)
[parent_id] => 37
[material_sum] => 5562322
[work_sum] => 3796614
[total_sum] => 9358936
[total_days] => 20
[display_material_sum] => 5 562 322
[display_work_sum] => 3 796 614
[display_total_sum] => 9 358 936
)
1
9 358 936₽
Работа:3 796 614 ₽
Материалы:5 562 322 ₽
Дни:20
stdClass Object
(
[id] => 171
[attribute_id] => 37
[name] => Зеленая кровля
[material_modifier] => 1
[work_modifier] => 1
[options] => Array
(
)
[days] => [20]
[material_price] => [19850]
[work_price] => [16780]
[image] => https://akademik-stroy.ru/wp-content/uploads/materials/zelenaya-krovlya.jpg
[area_modifier] => 215.87
[parent_name] => Крыша (Скатная)
[parent_id] => 37
[material_sum] => 5399125
[work_sum] => 3803414
[total_sum] => 9202539
[total_days] => 20
[display_material_sum] => 5 399 125
[display_work_sum] => 3 803 414
[display_total_sum] => 9 202 539
)
1
9 202 539₽
Работа:3 803 414 ₽
Материалы:5 399 125 ₽
Дни:20
stdClass Object
(
[id] => 172
[attribute_id] => 37
[name] => Профлист
[material_modifier] => 1
[work_modifier] => 1
[options] => Array
(
)
[days] => [20]
[material_price] => [3450]
[work_price] => [3750]
[image] => https://akademik-stroy.ru/wp-content/uploads/materials/proflist.jpg
[area_modifier] => 215.87
[parent_name] => Крыша (Скатная)
[parent_id] => 37
[material_sum] => 938387
[work_sum] => 849988
[total_sum] => 1788375
[total_days] => 20
[display_material_sum] => 938 387
[display_work_sum] => 849 988
[display_total_sum] => 1 788 375
)
1
1 788 375₽
Работа:849 988 ₽
Материалы:938 387 ₽
Дни:20
stdClass Object
(
[id] => 51
[attribute_id] => 26
[name] => Есть
[material_modifier] => 1
[work_modifier] => 1
[options] => Array
(
[0] => Профиль 58 мм, 3-камерный, стеклопакет 2-камерный до 32 мм
[1] => Профиль 60 мм, 4-камерный, стеклопакет 2-камерный до 32 мм
[2] => Профиль 70 мм, 5-камерный, стеклопакет 2-камерный до 40 мм
[3] => Профиль 72 мм, 5-камерный, стеклопакет 2-камерный до 40 мм
[4] => Алюминиевые окна Alutech профиль 72 мм, стеклопакет 2-камерный
)
[days] => [3,3,3,3,3]
[material_price] => [1339,2124,2867,3023,29596]
[work_price] => [635,647,659,668,2579]
[image] => https://akademik-stroy.ru/wp-content/uploads/materials/okna.jpg
[area_modifier] => 194.21
[parent_name] => Окна
[parent_id] => 26
[material_sum] => 327659
[work_sum] => 129490
[total_sum] => 457149
[total_days] => 3
[display_material_sum] => 327 659
[display_work_sum] => 129 490
[display_total_sum] => 457 149
)
1
457 149₽
Работа:129 490 ₽
Материалы:327 659 ₽
Дни:3
stdClass Object
(
[id] => 52
[attribute_id] => 26
[name] => Нет
[material_modifier] => 2
[work_modifier] => 1
[options] =>
[days] => null
[material_price] => null
[work_price] => null
[image] => https://akademik-stroy.ru/wp-content/uploads/materials/okna.jpg
[area_modifier] => 194.21
[parent_name] => Окна
[parent_id] => 26
[material_sum] => 0
[work_sum] => 0
[total_sum] => 0
[total_days] => 0
[display_material_sum] => 0
[display_work_sum] => 0
[display_total_sum] => 0
)
1
0₽
Работа:0 ₽
Материалы:0 ₽
Дни:0
stdClass Object
(
[id] => 53
[attribute_id] => 27
[name] => Есть
[material_modifier] => 1
[work_modifier] => 1
[options] => Array
(
)
[days] => [1]
[material_price] => [10000]
[work_price] => [5500]
[image] => https://akademik-stroy.ru/wp-content/uploads/materials/dveri.jpg
[area_modifier] => 1
[parent_name] => Двери входные
[parent_id] => 27
[material_sum] => 12600
[work_sum] => 5775
[total_sum] => 18375
[total_days] => 1
[display_material_sum] => 12 600
[display_work_sum] => 5 775
[display_total_sum] => 18 375
)
1
18 375₽
Работа:5 775 ₽
Материалы:12 600 ₽
Дни:1
stdClass Object
(
[id] => 54
[attribute_id] => 27
[name] => Нет
[material_modifier] => 1
[work_modifier] => 1
[options] => Array
(
)
[days] => [0]
[material_price] => [0]
[work_price] => [0]
[image] => https://akademik-stroy.ru/wp-content/uploads/materials/dveri.jpg
[area_modifier] => 1
[parent_name] => Двери входные
[parent_id] => 27
[material_sum] => 0
[work_sum] => 0
[total_sum] => 0
[total_days] => 0
[display_material_sum] => 0
[display_work_sum] => 0
[display_total_sum] => 0
)
1
0₽
Работа:0 ₽
Материалы:0 ₽
Дни:0
stdClass Object
(
[id] => 25
[attribute_id] => 13
[name] => Нет
[material_modifier] => 1
[work_modifier] => 1
[options] => Array
(
)
[days] => [0]
[material_price] => [0]
[work_price] => [0]
[image] => https://akademik-stroy.ru/wp-content/uploads/materials/mineralovata-krov.jpg
[area_modifier] => 215.87
[parent_name] => Утепление кровли (Мансарда)
[parent_id] => 13
[material_sum] => 0
[work_sum] => 0
[total_sum] => 0
[total_days] => 0
[display_material_sum] => 0
[display_work_sum] => 0
[display_total_sum] => 0
)
1
0₽
Работа:0 ₽
Материалы:0 ₽
Дни:0
stdClass Object
(
[id] => 26
[attribute_id] => 13
[name] => Минераловатный
[material_modifier] => 1
[work_modifier] => 1
[options] => Array
(
[0] => 50 мм
[1] => 100 мм
[2] => 150 мм
[3] => 200 мм
[4] => 250 мм
[5] => 300 мм
[6] => 350 мм
[7] => 400 мм
[8] => 450 мм
[9] => 500 мм
)
[days] => [5,5,6,6,6,7,7,7,8,8]
[material_price] => [1158,1414,1772,2230,3602,4060,4974,5890,6408,7718]
[work_price] => [650,846,846,1098,1318,1450,1596,1754,1930,2122]
[image] => https://akademik-stroy.ru/wp-content/uploads/materials/mineralovata-krov.jpg
[area_modifier] => 215.87
[parent_name] => Утепление кровли (Мансарда)
[parent_id] => 13
[material_sum] => 314972
[work_sum] => 147331
[total_sum] => 462303
[total_days] => 5
[display_material_sum] => 314 972
[display_work_sum] => 147 331
[display_total_sum] => 462 303
)
1
462 303₽
Работа:147 331 ₽
Материалы:314 972 ₽
Дни:5
stdClass Object
(
[id] => 123
[attribute_id] => 13
[name] => Эковата (целлюлозная вата)
[material_modifier] => 1
[work_modifier] => 1
[options] => Array
(
[0] => 50 мм
[1] => 100 мм
[2] => 150 мм
[3] => 200 мм
[4] => 250 мм
[5] => 300 мм
[6] => 350 мм
[7] => 400 мм
[8] => 450 мм
[9] => 500 мм
)
[days] => [3,3,4,4,4,5,5,5,5,5]
[material_price] => [820,1638,2458,3276,5734,6552,8190,9828,11466,13104]
[work_price] => [234,304,304,396,474,522,574,632,694,764]
[image] => https://akademik-stroy.ru/wp-content/uploads/materials/ehkovata-krov.jpg
[area_modifier] => 215.87
[parent_name] => Утепление кровли (Мансарда)
[parent_id] => 13
[material_sum] => 223037
[work_sum] => 53039
[total_sum] => 276076
[total_days] => 3
[display_material_sum] => 223 037
[display_work_sum] => 53 039
[display_total_sum] => 276 076
)
1
276 076₽
Работа:53 039 ₽
Материалы:223 037 ₽
Дни:3
stdClass Object
(
[id] => 124
[attribute_id] => 13
[name] => Экструдированный пенополистирол
[material_modifier] => 1
[work_modifier] => 1
[options] => Array
(
[0] => 50 мм
[1] => 100 мм
[2] => 150 мм
[3] => 200 мм
[4] => 250 мм
[5] => 300 мм
[6] => 350 мм
[7] => 400 мм
[8] => 450 мм
[9] => 500 мм
)
[days] => [3,3,4,4,4,5,5,5,5,6]
[material_price] => [1146,2292,3438,4584,8020,9166,11458,13750,16040,18332]
[work_price] => [390,508,508,660,790,870,958,1052,1158,1274]
[image] => https://akademik-stroy.ru/wp-content/uploads/materials/epps-krov.jpg
[area_modifier] => 215.87
[parent_name] => Утепление кровли (Мансарда)
[parent_id] => 13
[material_sum] => 311708
[work_sum] => 88399
[total_sum] => 400107
[total_days] => 3
[display_material_sum] => 311 708
[display_work_sum] => 88 399
[display_total_sum] => 400 107
)
1
400 107₽
Работа:88 399 ₽
Материалы:311 708 ₽
Дни:3
stdClass Object
(
[id] => 125
[attribute_id] => 13
[name] => ПСБ (ППС-пенополистирол)
[material_modifier] => 1
[work_modifier] => 1
[options] => Array
(
[0] => 50 мм
[1] => 100 мм
[2] => 150 мм
[3] => 200 мм
[4] => 250 мм
[5] => 300 мм
[6] => 350 мм
[7] => 400 мм
[8] => 450 мм
[9] => 500 мм
)
[days] => [3,3,4,4,4,5,5,5,5,6]
[material_price] => [476,954,1430,1906,3336,3814,4766,5720,6674,7626]
[work_price] => [390,508,508,660,790,870,958,1052,1158,1274]
[image] => https://akademik-stroy.ru/wp-content/uploads/materials/psb-krov.jpg
[area_modifier] => 215.87
[parent_name] => Утепление кровли (Мансарда)
[parent_id] => 13
[material_sum] => 129470
[work_sum] => 88399
[total_sum] => 217869
[total_days] => 3
[display_material_sum] => 129 470
[display_work_sum] => 88 399
[display_total_sum] => 217 869
)
1
217 869₽
Работа:88 399 ₽
Материалы:129 470 ₽
Дни:3
stdClass Object
(
[id] => 126
[attribute_id] => 13
[name] => ППУ (Пенополиуретан)
[material_modifier] => 1
[work_modifier] => 1
[options] => Array
(
[0] => 50 мм
[1] => 100 мм
[2] => 150 мм
[3] => 200 мм
[4] => 250 мм
[5] => 300 мм
[6] => 350 мм
[7] => 400 мм
[8] => 450 мм
[9] => 500 мм
)
[days] => [2,2,3,3,3,3,4,4,4,4]
[material_price] => [2080,4160,6240,8320,14560,16640,20800,24960,29120,33280]
[work_price] => [234,304,304,396,474,522,574,632,694,764]
[image] => https://akademik-stroy.ru/wp-content/uploads/materials/ppu-krov.jpg
[area_modifier] => 215.87
[parent_name] => Утепление кровли (Мансарда)
[parent_id] => 13
[material_sum] => 565752
[work_sum] => 53039
[total_sum] => 618791
[total_days] => 2
[display_material_sum] => 565 752
[display_work_sum] => 53 039
[display_total_sum] => 618 791
)
1
618 791₽
Работа:53 039 ₽
Материалы:565 752 ₽
Дни:2
stdClass Object
(
[id] => 127
[attribute_id] => 13
[name] => PIR-плиты (пенополиизоцианурат)
[material_modifier] => 1
[work_modifier] => 1
[options] => Array
(
[0] => 50 мм
[1] => 100 мм
[2] => 150 мм
[3] => 200 мм
[4] => 250 мм
[5] => 300 мм
[6] => 350 мм
[7] => 400 мм
[8] => 450 мм
[9] => 500 мм
)
[days] => [3,3,4,4,4,5,5,5,5,6]
[material_price] => [2646,5290,7936,10580,18516,21162,26452,31742,37032,42324]
[work_price] => [390,508,508,660,790,870,958,1052,1158,1274]
[image] => https://akademik-stroy.ru/wp-content/uploads/materials/pir-krov.jpg
[area_modifier] => 215.87
[parent_name] => Утепление кровли (Мансарда)
[parent_id] => 13
[material_sum] => 719702
[work_sum] => 88399
[total_sum] => 808101
[total_days] => 3
[display_material_sum] => 719 702
[display_work_sum] => 88 399
[display_total_sum] => 808 101
)
1
808 101₽
Работа:88 399 ₽
Материалы:719 702 ₽
Дни:3
stdClass Object
(
[id] => 27
[attribute_id] => 14
[name] => Нет
[material_modifier] => 1
[work_modifier] => 1
[options] => Array
(
)
[days] => [0]
[material_price] => [0]
[work_price] => [0]
[image] => https://akademik-stroy.ru/wp-content/uploads/materials/mansardnye-okna-2.jpg
[area_modifier] => 1
[parent_name] => Мансардные окна
[parent_id] => 14
[material_sum] => 0
[work_sum] => 0
[total_sum] => 0
[total_days] => 0
[display_material_sum] => 0
[display_work_sum] => 0
[display_total_sum] => 0
)
1
0₽
Работа:0 ₽
Материалы:0 ₽
Дни:0
stdClass Object
(
[id] => 28
[attribute_id] => 14
[name] => Есть
[material_modifier] => 1
[work_modifier] => 1
[options] => Array
(
[0] => 55x78
[1] => 55x98
)
[days] => [6,7]
[material_price] => [47480,68700]
[work_price] => [17900,19500]
[image] => https://akademik-stroy.ru/wp-content/uploads/materials/mansardnye-okna-2.jpg
[area_modifier] => 1
[parent_name] => Мансардные окна
[parent_id] => 14
[material_sum] => 59825
[work_sum] => 18795
[total_sum] => 78620
[total_days] => 6
[display_material_sum] => 59 825
[display_work_sum] => 18 795
[display_total_sum] => 78 620
)
1
78 620₽
Работа:18 795 ₽
Материалы:59 825 ₽
Дни:6
stdClass Object
(
[id] => 29
[attribute_id] => 15
[name] => Нет
[material_modifier] => 1
[work_modifier] => 1
[options] => Array
(
)
[days] => [0]
[material_price] => [0]
[work_price] => [0]
[image] => https://akademik-stroy.ru/wp-content/uploads/materials/sofit.jpg
[area_modifier] => 215.87
[parent_name] => Подшивка кровли
[parent_id] => 15
[material_sum] => 0
[work_sum] => 0
[total_sum] => 0
[total_days] => 0
[display_material_sum] => 0
[display_work_sum] => 0
[display_total_sum] => 0
)
1
0₽
Работа:0 ₽
Материалы:0 ₽
Дни:0
stdClass Object
(
[id] => 30
[attribute_id] => 15
[name] => Есть
[material_modifier] => 1
[work_modifier] => 1
[options] => Array
(
[0] => Софиты (ПВХ)
[1] => Cedral
[2] => ДПК
[3] => Планкен
)
[days] => [7,10,9,8]
[material_price] => [1803,3213,3025,3150]
[work_price] => [1529,2188,2075,1923]
[image] => https://akademik-stroy.ru/wp-content/uploads/materials/sofit.jpg
[area_modifier] => 215.87
[parent_name] => Подшивка кровли
[parent_id] => 15
[material_sum] => 490409
[work_sum] => 346568
[total_sum] => 836977
[total_days] => 7
[display_material_sum] => 490 409
[display_work_sum] => 346 568
[display_total_sum] => 836 977
)
1
836 977₽
Работа:346 568 ₽
Материалы:490 409 ₽
Дни:7
stdClass Object
(
[id] => 31
[attribute_id] => 16
[name] => Нет
[material_modifier] => 1
[work_modifier] => 1
[options] => Array
(
)
[days] => [0]
[material_price] => [0]
[work_price] => [0]
[image] => https://akademik-stroy.ru/wp-content/uploads/materials/docke-standard-pvh.jpg
[area_modifier] => 215.87
[parent_name] => Водосточная система
[parent_id] => 16
[material_sum] => 0
[work_sum] => 0
[total_sum] => 0
[total_days] => 0
[display_material_sum] => 0
[display_work_sum] => 0
[display_total_sum] => 0
)
1
0₽
Работа:0 ₽
Материалы:0 ₽
Дни:0
stdClass Object
(
[id] => 32
[attribute_id] => 16
[name] => Есть
[material_modifier] => 1
[work_modifier] => 1
[options] => Array
(
[0] => Döcke Standard (ПВХ)
[1] => Металлические Grand Line
)
[days] => [7,7]
[material_price] => [1842,2703]
[work_price] => [1491,1529]
[image] => https://akademik-stroy.ru/wp-content/uploads/materials/docke-standard-pvh.jpg
[area_modifier] => 215.87
[parent_name] => Водосточная система
[parent_id] => 16
[material_sum] => 501017
[work_sum] => 337955
[total_sum] => 838972
[total_days] => 7
[display_material_sum] => 501 017
[display_work_sum] => 337 955
[display_total_sum] => 838 972
)
1
838 972₽
Работа:337 955 ₽
Материалы:501 017 ₽
Дни:7
stdClass Object
(
[id] => 33
[attribute_id] => 17
[name] => Нет
[material_modifier] => 1
[work_modifier] => 1
[options] => Array
(
)
[days] => [0]
[material_price] => [0]
[work_price] => [0]
[image] => https://akademik-stroy.ru/wp-content/uploads/materials/mineralovata.jpg
[area_modifier] => 239.32
[parent_name] => Дополнительное утепление наружных стен
[parent_id] => 17
[material_sum] => 0
[work_sum] => 0
[total_sum] => 0
[total_days] => 0
[display_material_sum] => 0
[display_work_sum] => 0
[display_total_sum] => 0
)
1
0₽
Работа:0 ₽
Материалы:0 ₽
Дни:0
stdClass Object
(
[id] => 34
[attribute_id] => 17
[name] => Минераловатный
[material_modifier] => 1
[work_modifier] => 1
[options] => Array
(
[0] => 50 мм
[1] => 100 мм
[2] => 150 мм
[3] => 200 мм
[4] => 250 мм
[5] => 300 мм
)
[days] => [7,8,10,12,14,15]
[material_price] => [3437,3613,3803,3915,4601,4830]
[work_price] => [2325,2423,2523,2749,2859,3025]
[image] => https://akademik-stroy.ru/wp-content/uploads/materials/mineralovata.jpg
[area_modifier] => 239.32
[parent_name] => Дополнительное утепление наружных стен
[parent_id] => 17
[material_sum] => 1036404
[work_sum] => 584240
[total_sum] => 1620644
[total_days] => 7
[display_material_sum] => 1 036 404
[display_work_sum] => 584 240
[display_total_sum] => 1 620 644
)
1
1 620 644₽
Работа:584 240 ₽
Материалы:1 036 404 ₽
Дни:7
stdClass Object
(
[id] => 128
[attribute_id] => 17
[name] => Эковата (целлюлозная вата)
[material_modifier] => 1
[work_modifier] => 1
[options] => Array
(
[0] => 50 мм
[1] => 100 мм
[2] => 150 мм
[3] => 200 мм
[4] => 250 мм
[5] => 300 мм
)
[days] => [3,4,5,6,7,8]
[material_price] => [810,1319,1629,1838,2267,2676]
[work_price] => [1225,1323,1423,1549,1659,1725]
[image] => https://akademik-stroy.ru/wp-content/uploads/materials/ehkovata.jpg
[area_modifier] => 239.32
[parent_name] => Дополнительное утепление наружных стен
[parent_id] => 17
[material_sum] => 244250
[work_sum] => 307825
[total_sum] => 552075
[total_days] => 3
[display_material_sum] => 244 250
[display_work_sum] => 307 825
[display_total_sum] => 552 075
)
1
552 075₽
Работа:307 825 ₽
Материалы:244 250 ₽
Дни:3
stdClass Object
(
[id] => 129
[attribute_id] => 17
[name] => Экструдированный пенополистирол
[material_modifier] => 1
[work_modifier] => 1
[options] => Array
(
[0] => 50 мм
[1] => 100 мм
[2] => 150 мм
[3] => 200 мм
[4] => 250 мм
[5] => 300 мм
)
[days] => [5,6,7,8,9,10]
[material_price] => [4560,4300,5119,6292,7010,8583]
[work_price] => [1795,1954,2254,2330,2595,2735]
[image] => https://akademik-stroy.ru/wp-content/uploads/materials/epps.jpg
[area_modifier] => 239.32
[parent_name] => Дополнительное утепление наружных стен
[parent_id] => 17
[material_sum] => 1375037
[work_sum] => 451058
[total_sum] => 1826095
[total_days] => 5
[display_material_sum] => 1 375 037
[display_work_sum] => 451 058
[display_total_sum] => 1 826 095
)
1
1 826 095₽
Работа:451 058 ₽
Материалы:1 375 037 ₽
Дни:5
stdClass Object
(
[id] => 130
[attribute_id] => 17
[name] => ПСБ (ППС-пенополистирол)
[material_modifier] => 1
[work_modifier] => 1
[options] => Array
(
[0] => 50 мм
[1] => 100 мм
[2] => 150 мм
[3] => 200 мм
[4] => 250 мм
[5] => 300 мм
)
[days] => [5,6,7,8,9,10]
[material_price] => [4822,5200,5819,6292,7010,7583]
[work_price] => [1795,1954,2254,2330,2595,2735]
[image] => https://akademik-stroy.ru/wp-content/uploads/materials/psb.jpg
[area_modifier] => 239.32
[parent_name] => Дополнительное утепление наружных стен
[parent_id] => 17
[material_sum] => 1454041
[work_sum] => 451058
[total_sum] => 1905099
[total_days] => 5
[display_material_sum] => 1 454 041
[display_work_sum] => 451 058
[display_total_sum] => 1 905 099
)
1
1 905 099₽
Работа:451 058 ₽
Материалы:1 454 041 ₽
Дни:5
stdClass Object
(
[id] => 131
[attribute_id] => 17
[name] => ППУ (Пенополиуретан)
[material_modifier] => 1
[work_modifier] => 1
[options] => Array
(
[0] => 50 мм
[1] => 100 мм
[2] => 150 мм
[3] => 200 мм
[4] => 250 мм
[5] => 300 мм
)
[days] => [3,4,5,6,7,8]
[material_price] => [2860,3400,4219,4592,5010,5583]
[work_price] => [729,900,980,1120,1280,1530]
[image] => https://akademik-stroy.ru/wp-content/uploads/materials/ppu.jpg
[area_modifier] => 239.32
[parent_name] => Дополнительное утепление наружных стен
[parent_id] => 17
[material_sum] => 862414
[work_sum] => 183187
[total_sum] => 1045601
[total_days] => 3
[display_material_sum] => 862 414
[display_work_sum] => 183 187
[display_total_sum] => 1 045 601
)
1
1 045 601₽
Работа:183 187 ₽
Материалы:862 414 ₽
Дни:3
stdClass Object
(
[id] => 132
[attribute_id] => 17
[name] => PIR-плиты (пенополиизоцианурат)
[material_modifier] => 1
[work_modifier] => 1
[options] => Array
(
[0] => 50 мм
[1] => 100 мм
[2] => 150 мм
[3] => 200 мм
[4] => 250 мм
[5] => 300 мм
)
[days] => [5,6,7,8,9,10]
[material_price] => [8323,15645,20968,25900,29258,30581]
[work_price] => [800,900,970,1150,1280,1330]
[image] => https://akademik-stroy.ru/wp-content/uploads/materials/pir.jpg
[area_modifier] => 239.32
[parent_name] => Дополнительное утепление наружных стен
[parent_id] => 17
[material_sum] => 2509744
[work_sum] => 201029
[total_sum] => 2710773
[total_days] => 5
[display_material_sum] => 2 509 744
[display_work_sum] => 201 029
[display_total_sum] => 2 710 773
)
1
2 710 773₽
Работа:201 029 ₽
Материалы:2 509 744 ₽
Дни:5
stdClass Object
(
[id] => 37
[attribute_id] => 19
[name] => Нет
[material_modifier] => 1
[work_modifier] => 1
[options] => Array
(
)
[days] => [0]
[material_price] => [0]
[work_price] => [0]
[image] => https://akademik-stroy.ru/wp-content/uploads/materials/imitaciya-brusa.jpg
[area_modifier] => 239.32
[parent_name] => Наружная отделка фасада
[parent_id] => 19
[material_sum] => 0
[work_sum] => 0
[total_sum] => 0
[total_days] => 0
[display_material_sum] => 0
[display_work_sum] => 0
[display_total_sum] => 0
)
1
0₽
Работа:0 ₽
Материалы:0 ₽
Дни:0
stdClass Object
(
[id] => 38
[attribute_id] => 19
[name] => Имитация бруса
[material_modifier] => 1
[work_modifier] => 1
[options] => Array
(
[0] => Сосна
[1] => Ель
[2] => Лиственница
)
[days] => [20,20,20]
[material_price] => [2994,2762,4954]
[work_price] => [1397,1231,1577]
[image] => https://akademik-stroy.ru/wp-content/uploads/materials/imitaciya-brusa.jpg
[area_modifier] => 239.32
[parent_name] => Наружная отделка фасада
[parent_id] => 19
[material_sum] => 902820
[work_sum] => 351047
[total_sum] => 1253867
[total_days] => 20
[display_material_sum] => 902 820
[display_work_sum] => 351 047
[display_total_sum] => 1 253 867
)
1
1 253 867₽
Работа:351 047 ₽
Материалы:902 820 ₽
Дни:20
stdClass Object
(
[id] => 136
[attribute_id] => 19
[name] => Планкен
[material_modifier] => 1
[work_modifier] => 1
[options] => Array
(
[0] => Сосна
[1] => Ель
[2] => Лиственница
)
[days] => [20,20,20]
[material_price] => [3194,2862,5154]
[work_price] => [1537,1354,1735]
[image] => https://akademik-stroy.ru/wp-content/uploads/materials/planken.jpg
[area_modifier] => 239.32
[parent_name] => Наружная отделка фасада
[parent_id] => 19
[material_sum] => 963129
[work_sum] => 386227
[total_sum] => 1349356
[total_days] => 20
[display_material_sum] => 963 129
[display_work_sum] => 386 227
[display_total_sum] => 1 349 356
)
1
1 349 356₽
Работа:386 227 ₽
Материалы:963 129 ₽
Дни:20
stdClass Object
(
[id] => 137
[attribute_id] => 19
[name] => Штукатурка
[material_modifier] => 1
[work_modifier] => 1
[options] => Array
(
[0] => Цементно-песчаная (минеральная)
[1] => Мокрый фасад
)
[days] => [35,35]
[material_price] => [2231,3938]
[work_price] => [1202,2422]
[image] => https://akademik-stroy.ru/wp-content/uploads/materials/shtukaturka.jpg
[area_modifier] => 239.32
[parent_name] => Наружная отделка фасада
[parent_id] => 19
[material_sum] => 672743
[work_sum] => 302046
[total_sum] => 974789
[total_days] => 35
[display_material_sum] => 672 743
[display_work_sum] => 302 046
[display_total_sum] => 974 789
)
1
974 789₽
Работа:302 046 ₽
Материалы:672 743 ₽
Дни:35
stdClass Object
(
[id] => 138
[attribute_id] => 19
[name] => Облицовочный кирпич
[material_modifier] => 1
[work_modifier] => 1
[options] => Array
(
[0] => Керамический
[1] => Клинкерный
[2] => Ручной формовки
[3] => Гиперпрессованный
[4] => Силикатный кирпич
)
[days] => [45,45,45,45,45]
[material_price] => [8174,9148,1040,1257,5876]
[work_price] => [3240,3758,4536,4017,3369]
[image] => https://akademik-stroy.ru/wp-content/uploads/materials/oblicovochnyj-kirpich.jpg
[area_modifier] => 239.32
[parent_name] => Наружная отделка фасада
[parent_id] => 19
[material_sum] => 2464814
[work_sum] => 814167
[total_sum] => 3278981
[total_days] => 45
[display_material_sum] => 2 464 814
[display_work_sum] => 814 167
[display_total_sum] => 3 278 981
)
1
3 278 981₽
Работа:814 167 ₽
Материалы:2 464 814 ₽
Дни:45
stdClass Object
(
[id] => 139
[attribute_id] => 19
[name] => Фасадная плитка
[material_modifier] => 1
[work_modifier] => 1
[options] => Array
(
[0] => Клинкерная
[1] => Керамическая
[2] => Плитка ручной формовки
)
[days] => [40,40,40]
[material_price] => [2974,1487,3470]
[work_price] => [3007,2592,3629]
[image] => https://akademik-stroy.ru/wp-content/uploads/materials/fasadnaya-plitka.jpg
[area_modifier] => 239.32
[parent_name] => Наружная отделка фасада
[parent_id] => 19
[material_sum] => 896789
[work_sum] => 755617
[total_sum] => 1652406
[total_days] => 40
[display_material_sum] => 896 789
[display_work_sum] => 755 617
[display_total_sum] => 1 652 406
)
1
1 652 406₽
Работа:755 617 ₽
Материалы:896 789 ₽
Дни:40
stdClass Object
(
[id] => 140
[attribute_id] => 19
[name] => Сайдинг
[material_modifier] => 1
[work_modifier] => 1
[options] => Array
(
[0] => Виниловый
[1] => Металлический
[2] => Фиброцементный
)
[days] => [20,20,20]
[material_price] => [1263,1944,4147]
[work_price] => [1263,1944,2074]
[image] => https://akademik-stroy.ru/wp-content/uploads/materials/sajding.jpg
[area_modifier] => 239.32
[parent_name] => Наружная отделка фасада
[parent_id] => 19
[material_sum] => 380849
[work_sum] => 317374
[total_sum] => 698223
[total_days] => 20
[display_material_sum] => 380 849
[display_work_sum] => 317 374
[display_total_sum] => 698 223
)
1
698 223₽
Работа:317 374 ₽
Материалы:380 849 ₽
Дни:20
stdClass Object
(
[id] => 141
[attribute_id] => 19
[name] => Камень
[material_modifier] => 1
[work_modifier] => 1
[options] => Array
(
[0] => Травертин
[1] => Дагестанский
[2] => Искусственный
[3] => Натуральный
[4] => Керамогранит
)
[days] => [45,45,45,45,45]
[material_price] => [4536,3888,2592,3240,2462]
[work_price] => [3240,3240,2462,3110,1944]
[image] => https://akademik-stroy.ru/wp-content/uploads/materials/kamen-1.jpg
[area_modifier] => 239.32
[parent_name] => Наружная отделка фасада
[parent_id] => 19
[material_sum] => 1367800
[work_sum] => 814167
[total_sum] => 2181967
[total_days] => 45
[display_material_sum] => 1 367 800
[display_work_sum] => 814 167
[display_total_sum] => 2 181 967
)
1
2 181 967₽
Работа:814 167 ₽
Материалы:1 367 800 ₽
Дни:45
stdClass Object
(
[id] => 142
[attribute_id] => 19
[name] => Термопанели
[material_modifier] => 1
[work_modifier] => 1
[options] => Array
(
)
[days] => [20]
[material_price] => [6221]
[work_price] => [2333]
[image] => https://akademik-stroy.ru/wp-content/uploads/materials/termo.png
[area_modifier] => 239.32
[parent_name] => Наружная отделка фасада
[parent_id] => 19
[material_sum] => 1875900
[work_sum] => 586250
[total_sum] => 2462150
[total_days] => 20
[display_material_sum] => 1 875 900
[display_work_sum] => 586 250
[display_total_sum] => 2 462 150
)
1
2 462 150₽
Работа:586 250 ₽
Материалы:1 875 900 ₽
Дни:20
stdClass Object
(
[id] => 143
[attribute_id] => 19
[name] => Плитка HAUBERK
[material_modifier] => 1
[work_modifier] => 1
[options] => Array
(
)
[days] => [20]
[material_price] => [2786]
[work_price] => [1944]
[image] => https://akademik-stroy.ru/wp-content/uploads/materials/hauberk.jpg
[area_modifier] => 239.32
[parent_name] => Наружная отделка фасада
[parent_id] => 19
[material_sum] => 840099
[work_sum] => 488500
[total_sum] => 1328599
[total_days] => 20
[display_material_sum] => 840 099
[display_work_sum] => 488 500
[display_total_sum] => 1 328 599
)
1
1 328 599₽
Работа:488 500 ₽
Материалы:840 099 ₽
Дни:20
stdClass Object
(
[id] => 144
[attribute_id] => 19
[name] => Фальцевый фасад
[material_modifier] => 1
[work_modifier] => 1
[options] => Array
(
)
[days] => [20]
[material_price] => [3240]
[work_price] => [2592]
[image] => https://akademik-stroy.ru/wp-content/uploads/materials/falcevyj-fasad.jpg
[area_modifier] => 239.32
[parent_name] => Наружная отделка фасада
[parent_id] => 19
[material_sum] => 977000
[work_sum] => 651333
[total_sum] => 1628333
[total_days] => 20
[display_material_sum] => 977 000
[display_work_sum] => 651 333
[display_total_sum] => 1 628 333
)
1
1 628 333₽
Работа:651 333 ₽
Материалы:977 000 ₽
Дни:20
stdClass Object
(
[id] => 145
[attribute_id] => 19
[name] => Комбинированный
[material_modifier] => 1
[work_modifier] => 1
[options] => Array
(
)
[days] => [20]
[material_price] => [4629]
[work_price] => [3499]
[image] => https://akademik-stroy.ru/wp-content/uploads/materials/Kombinirovannyj.jpg
[area_modifier] => 239.32
[parent_name] => Наружная отделка фасада
[parent_id] => 19
[material_sum] => 1395843
[work_sum] => 879250
[total_sum] => 2275093
[total_days] => 20
[display_material_sum] => 1 395 843
[display_work_sum] => 879 250
[display_total_sum] => 2 275 093
)
1
2 275 093₽
Работа:879 250 ₽
Материалы:1 395 843 ₽
Дни:20
stdClass Object
(
[id] => 257
[attribute_id] => 19
[name] => Японские фиброцементные
[material_modifier] => 1
[work_modifier] => 1
[options] => Array
(
)
[days] => [20]
[material_price] => [7043]
[work_price] => [2993]
[image] => https://akademik-stroy.ru/wp-content/uploads/materials/paneli.jpg
[area_modifier] => 239.32
[parent_name] => Наружная отделка фасада
[parent_id] => 19
[material_sum] => 2123769
[work_sum] => 752099
[total_sum] => 2875868
[total_days] => 20
[display_material_sum] => 2 123 769
[display_work_sum] => 752 099
[display_total_sum] => 2 875 868
)
1
2 875 868₽
Работа:752 099 ₽
Материалы:2 123 769 ₽
Дни:20
stdClass Object
(
[id] => 258
[attribute_id] => 19
[name] => Панели Каньон
[material_modifier] => 1
[work_modifier] => 1
[options] => Array
(
)
[days] => [20]
[material_price] => [4543]
[work_price] => [2592]
[image] => https://akademik-stroy.ru/wp-content/uploads/materials/kanon.png
[area_modifier] => 239.32
[parent_name] => Наружная отделка фасада
[parent_id] => 19
[material_sum] => 1369911
[work_sum] => 651333
[total_sum] => 2021244
[total_days] => 20
[display_material_sum] => 1 369 911
[display_work_sum] => 651 333
[display_total_sum] => 2 021 244
)
1
2 021 244₽
Работа:651 333 ₽
Материалы:1 369 911 ₽
Дни:20
stdClass Object
(
[id] => 39
[attribute_id] => 20
[name] => Нет
[material_modifier] => 1
[work_modifier] => 1
[options] => Array
(
)
[days] => [0]
[material_price] => [0]
[work_price] => [0]
[image] => https://akademik-stroy.ru/wp-content/uploads/materials/terrasy.jpg
[area_modifier] => 30
[parent_name] => Террасы, крыльца, навесы
[parent_id] => 20
[material_sum] => 0
[work_sum] => 0
[total_sum] => 0
[total_days] => 0
[display_material_sum] => 0
[display_work_sum] => 0
[display_total_sum] => 0
)
1
0₽
Работа:0 ₽
Материалы:0 ₽
Дни:0
stdClass Object
(
[id] => 40
[attribute_id] => 20
[name] => Есть
[material_modifier] => 1
[work_modifier] => 1
[options] => Array
(
)
[days] => [5]
[material_price] => [10450]
[work_price] => [1950]
[image] => https://akademik-stroy.ru/wp-content/uploads/materials/terrasy.jpg
[area_modifier] => 30
[parent_name] => Террасы, крыльца, навесы
[parent_id] => 20
[material_sum] => 395010
[work_sum] => 61425
[total_sum] => 456435
[total_days] => 5
[display_material_sum] => 395 010
[display_work_sum] => 61 425
[display_total_sum] => 456 435
)
1
456 435₽
Работа:61 425 ₽
Материалы:395 010 ₽
Дни:5
stdClass Object
(
[id] => 41
[attribute_id] => 21
[name] => Нет
[material_modifier] => 1
[work_modifier] => 1
[options] => Array
(
)
[days] => [0]
[material_price] => [0]
[work_price] => [0]
[image] => https://akademik-stroy.ru/wp-content/uploads/materials/balkony.jpg
[area_modifier] => 30
[parent_name] => Балконы
[parent_id] => 21
[material_sum] => 0
[work_sum] => 0
[total_sum] => 0
[total_days] => 0
[display_material_sum] => 0
[display_work_sum] => 0
[display_total_sum] => 0
)
1
0₽
Работа:0 ₽
Материалы:0 ₽
Дни:0
stdClass Object
(
[id] => 42
[attribute_id] => 21
[name] => Есть
[material_modifier] => 1
[work_modifier] => 1
[options] => Array
(
)
[days] => [12]
[material_price] => [3600]
[work_price] => [1950]
[image] => https://akademik-stroy.ru/wp-content/uploads/materials/balkony.jpg
[area_modifier] => 30
[parent_name] => Балконы
[parent_id] => 21
[material_sum] => 136080
[work_sum] => 61425
[total_sum] => 197505
[total_days] => 12
[display_material_sum] => 136 080
[display_work_sum] => 61 425
[display_total_sum] => 197 505
)
1
197 505₽
Работа:61 425 ₽
Материалы:136 080 ₽
Дни:12
stdClass Object
(
[id] => 43
[attribute_id] => 22
[name] => Нет
[material_modifier] => 1
[work_modifier] => 1
[options] => Array
(
)
[days] => [0]
[material_price] => [0]
[work_price] => [0]
[image] => https://akademik-stroy.ru/wp-content/uploads/materials/uteplennaya.jpg
[area_modifier] => 215.87
[parent_name] => Отмостка
[parent_id] => 22
[material_sum] => 0
[work_sum] => 0
[total_sum] => 0
[total_days] => 0
[display_material_sum] => 0
[display_work_sum] => 0
[display_total_sum] => 0
)
1
0₽
Работа:0 ₽
Материалы:0 ₽
Дни:0
stdClass Object
(
[id] => 44
[attribute_id] => 22
[name] => Утепленная отмостка
[material_modifier] => 1
[work_modifier] => 1
[options] => Array
(
)
[days] => [15]
[material_price] => [2550]
[work_price] => [1750]
[image] => https://akademik-stroy.ru/wp-content/uploads/materials/uteplennaya.jpg
[area_modifier] => 215.87
[parent_name] => Отмостка
[parent_id] => 22
[material_sum] => 693590
[work_sum] => 396661
[total_sum] => 1090251
[total_days] => 15
[display_material_sum] => 693 590
[display_work_sum] => 396 661
[display_total_sum] => 1 090 251
)
1
1 090 251₽
Работа:396 661 ₽
Материалы:693 590 ₽
Дни:15
stdClass Object
(
[id] => 146
[attribute_id] => 22
[name] => Не утепленная отмостка
[material_modifier] => 1
[work_modifier] => 1
[options] => Array
(
)
[days] => [10]
[material_price] => [1650]
[work_price] => [1450]
[image] => https://akademik-stroy.ru/wp-content/uploads/materials/ne-uteplennaya.jpg
[area_modifier] => 215.87
[parent_name] => Отмостка
[parent_id] => 22
[material_sum] => 448794
[work_sum] => 328662
[total_sum] => 777456
[total_days] => 10
[display_material_sum] => 448 794
[display_work_sum] => 328 662
[display_total_sum] => 777 456
)
1
777 456₽
Работа:328 662 ₽
Материалы:448 794 ₽
Дни:10
stdClass Object
(
[id] => 45
[attribute_id] => 23
[name] => Нет
[material_modifier] => 1
[work_modifier] => 1
[options] => Array
(
)
[days] => [0]
[material_price] => [0]
[work_price] => [0]
[image] => https://akademik-stroy.ru/wp-content/uploads/materials/drenazh-2.jpg
[area_modifier] => 215.87
[parent_name] => Дренаж вокруг дома
[parent_id] => 23
[material_sum] => 0
[work_sum] => 0
[total_sum] => 0
[total_days] => 0
[display_material_sum] => 0
[display_work_sum] => 0
[display_total_sum] => 0
)
1
0₽
Работа:0 ₽
Материалы:0 ₽
Дни:0
stdClass Object
(
[id] => 46
[attribute_id] => 23
[name] => Есть
[material_modifier] => 1
[work_modifier] => 1
[options] => Array
(
)
[days] => [5]
[material_price] => [2366]
[work_price] => [1911]
[image] => https://akademik-stroy.ru/wp-content/uploads/materials/drenazh-2.jpg
[area_modifier] => 215.87
[parent_name] => Дренаж вокруг дома
[parent_id] => 23
[material_sum] => 643543
[work_sum] => 433154
[total_sum] => 1076697
[total_days] => 5
[display_material_sum] => 643 543
[display_work_sum] => 433 154
[display_total_sum] => 1 076 697
)
1
1 076 697₽
Работа:433 154 ₽
Материалы:643 543 ₽
Дни:5
stdClass Object
(
[id] => 47
[attribute_id] => 24
[name] => Нет
[material_modifier] => 1
[work_modifier] => 1
[options] => Array
(
)
[days] => [0]
[material_price] => [0]
[work_price] => [0]
[image] => https://akademik-stroy.ru/wp-content/uploads/materials/septik.jpg
[area_modifier] => 1
[parent_name] => Автономная канализация (септики)
[parent_id] => 24
[material_sum] => 0
[work_sum] => 0
[total_sum] => 0
[total_days] => 0
[display_material_sum] => 0
[display_work_sum] => 0
[display_total_sum] => 0
)
1
0₽
Работа:0 ₽
Материалы:0 ₽
Дни:0
stdClass Object
(
[id] => 48
[attribute_id] => 24
[name] => Есть
[material_modifier] => 1
[work_modifier] => 1
[options] => Array
(
[0] => Для дачи на 4 человека
[1] => Для дома на 5 человек
[2] => Для дома на 6 человек
[3] => Для дома на 7 человек
[4] => Для дома на 10 человек
)
[days] => [7,7,7,8,8]
[material_price] => [196340,220500,240940,264200,293340]
[work_price] => [50000,55000,60500,66550,73206]
[image] => https://akademik-stroy.ru/wp-content/uploads/materials/septik.jpg
[area_modifier] => 1
[parent_name] => Автономная канализация (септики)
[parent_id] => 24
[material_sum] => 247388
[work_sum] => 52500
[total_sum] => 299888
[total_days] => 7
[display_material_sum] => 247 388
[display_work_sum] => 52 500
[display_total_sum] => 299 888
)
1
299 888₽
Работа:52 500 ₽
Материалы:247 388 ₽
Дни:7
stdClass Object
(
[id] => 49
[attribute_id] => 25
[name] => Нет
[material_modifier] => 1
[work_modifier] => 1
[options] => Array
(
)
[days] => [0]
[material_price] => [0]
[work_price] => [0]
[image] => https://akademik-stroy.ru/wp-content/uploads/materials/gkl.jpg
[area_modifier] => 239.32
[parent_name] => Внутренние (не несущие) перегородки
[parent_id] => 25
[material_sum] => 0
[work_sum] => 0
[total_sum] => 0
[total_days] => 0
[display_material_sum] => 0
[display_work_sum] => 0
[display_total_sum] => 0
)
1
0₽
Работа:0 ₽
Материалы:0 ₽
Дни:0
stdClass Object
(
[id] => 147
[attribute_id] => 25
[name] => Каркасно-обшивные
[material_modifier] => 1
[work_modifier] => 1
[options] => Array
(
[0] => 75 мм (без шумоизоляции)
[1] => 75 мм (с шумоизоляцией)
)
[days] => [11,11]
[material_price] => [580,970]
[work_price] => [380,570]
[image] => https://akademik-stroy.ru/wp-content/uploads/materials/gkl.jpg
[area_modifier] => 239.32
[parent_name] => Внутренние (не несущие) перегородки
[parent_id] => 25
[material_sum] => 174895
[work_sum] => 95489
[total_sum] => 270384
[total_days] => 11
[display_material_sum] => 174 895
[display_work_sum] => 95 489
[display_total_sum] => 270 384
)
1
270 384₽
Работа:95 489 ₽
Материалы:174 895 ₽
Дни:11
stdClass Object
(
[id] => 148
[attribute_id] => 25
[name] => Пазогребневые
[material_modifier] => 1
[work_modifier] => 1
[options] => Array
(
[0] => 80 мм
[1] => 100 мм
)
[days] => [5,5]
[material_price] => [1022,1313]
[work_price] => [600,700]
[image] => https://akademik-stroy.ru/wp-content/uploads/materials/pazogrebnevye-bloki.jpg
[area_modifier] => 239.32
[parent_name] => Внутренние (не несущие) перегородки
[parent_id] => 25
[material_sum] => 308177
[work_sum] => 150772
[total_sum] => 458949
[total_days] => 5
[display_material_sum] => 308 177
[display_work_sum] => 150 772
[display_total_sum] => 458 949
)
1
458 949₽
Работа:150 772 ₽
Материалы:308 177 ₽
Дни:5
stdClass Object
(
[id] => 149
[attribute_id] => 25
[name] => Газобетонные
[material_modifier] => 1
[work_modifier] => 1
[options] => Array
(
[0] => 100 мм
[1] => 200 мм
)
[days] => [11,11]
[material_price] => [1160,1920]
[work_price] => [700,900]
[image] => https://akademik-stroy.ru/wp-content/uploads/materials/gazobeton-2.jpg
[area_modifier] => 239.32
[parent_name] => Внутренние (не несущие) перегородки
[parent_id] => 25
[material_sum] => 349790
[work_sum] => 175900
[total_sum] => 525690
[total_days] => 11
[display_material_sum] => 349 790
[display_work_sum] => 175 900
[display_total_sum] => 525 690
)
1
525 690₽
Работа:175 900 ₽
Материалы:349 790 ₽
Дни:11
stdClass Object
(
[id] => 150
[attribute_id] => 25
[name] => Кирпичные
[material_modifier] => 1
[work_modifier] => 1
[options] => Array
(
[0] => 120 мм
[1] => 250 мм
[2] => 360 мм
)
[days] => [7,7,7]
[material_price] => [1785,3570,5355]
[work_price] => [900,1600,1800]
[image] => https://akademik-stroy.ru/wp-content/uploads/materials/kirpich-1.jpg
[area_modifier] => 239.32
[parent_name] => Внутренние (не несущие) перегородки
[parent_id] => 25
[material_sum] => 538255
[work_sum] => 226157
[total_sum] => 764412
[total_days] => 7
[display_material_sum] => 538 255
[display_work_sum] => 226 157
[display_total_sum] => 764 412
)
1
764 412₽
Работа:226 157 ₽
Материалы:538 255 ₽
Дни:7
stdClass Object
(
[id] => 55
[attribute_id] => 28
[name] => Нет
[material_modifier] => 1
[work_modifier] => 1
[options] => Array
(
)
[days] => [0]
[material_price] => [0]
[work_price] => [0]
[image] => https://akademik-stroy.ru/wp-content/uploads/materials/ehlektrika.jpg
[area_modifier] => 194.21
[parent_name] => Электрика
[parent_id] => 28
[material_sum] => 0
[work_sum] => 0
[total_sum] => 0
[total_days] => 0
[display_material_sum] => 0
[display_work_sum] => 0
[display_total_sum] => 0
)
1
0₽
Работа:0 ₽
Материалы:0 ₽
Дни:0
stdClass Object
(
[id] => 56
[attribute_id] => 28
[name] => Есть
[material_modifier] => 1
[work_modifier] => 1
[options] => Array
(
)
[days] => [10]
[material_price] => [650]
[work_price] => [950]
[image] => https://akademik-stroy.ru/wp-content/uploads/materials/ehlektrika.jpg
[area_modifier] => 194.21
[parent_name] => Электрика
[parent_id] => 28
[material_sum] => 159058
[work_sum] => 193724
[total_sum] => 352782
[total_days] => 10
[display_material_sum] => 159 058
[display_work_sum] => 193 724
[display_total_sum] => 352 782
)
1
352 782₽
Работа:193 724 ₽
Материалы:159 058 ₽
Дни:10
stdClass Object
(
[id] => 57
[attribute_id] => 29
[name] => Нет
[material_modifier] => 1
[work_modifier] => 1
[options] => Array
(
)
[days] => [0]
[material_price] => [0]
[work_price] => [0]
[image] => https://akademik-stroy.ru/wp-content/uploads/materials/santekhnika-kanalizaciya-1.jpg
[area_modifier] => 194.21
[parent_name] => Сантехника, канализация в доме
[parent_id] => 29
[material_sum] => 0
[work_sum] => 0
[total_sum] => 0
[total_days] => 0
[display_material_sum] => 0
[display_work_sum] => 0
[display_total_sum] => 0
)
1
0₽
Работа:0 ₽
Материалы:0 ₽
Дни:0
stdClass Object
(
[id] => 58
[attribute_id] => 29
[name] => Есть
[material_modifier] => 1
[work_modifier] => 1
[options] => Array
(
)
[days] => [10]
[material_price] => [600]
[work_price] => [730]
[image] => https://akademik-stroy.ru/wp-content/uploads/materials/santekhnika-kanalizaciya-1.jpg
[area_modifier] => 194.21
[parent_name] => Сантехника, канализация в доме
[parent_id] => 29
[material_sum] => 146823
[work_sum] => 148862
[total_sum] => 295685
[total_days] => 10
[display_material_sum] => 146 823
[display_work_sum] => 148 862
[display_total_sum] => 295 685
)
1
295 685₽
Работа:148 862 ₽
Материалы:146 823 ₽
Дни:10
stdClass Object
(
[id] => 59
[attribute_id] => 30
[name] => Нет
[material_modifier] => 1
[work_modifier] => 1
[options] => Array
(
)
[days] => [0]
[material_price] => [0]
[work_price] => [0]
[image] => https://akademik-stroy.ru/wp-content/uploads/materials/otoplenie-1.jpg
[area_modifier] => 194.21
[parent_name] => Отопление
[parent_id] => 30
[material_sum] => 0
[work_sum] => 0
[total_sum] => 0
[total_days] => 0
[display_material_sum] => 0
[display_work_sum] => 0
[display_total_sum] => 0
)
1
0₽
Работа:0 ₽
Материалы:0 ₽
Дни:0
stdClass Object
(
[id] => 60
[attribute_id] => 30
[name] => Есть
[material_modifier] => 1
[work_modifier] => 1
[options] => Array
(
)
[days] => [5]
[material_price] => [610]
[work_price] => [560]
[image] => https://akademik-stroy.ru/wp-content/uploads/materials/otoplenie-1.jpg
[area_modifier] => 194.21
[parent_name] => Отопление
[parent_id] => 30
[material_sum] => 149270
[work_sum] => 114195
[total_sum] => 263465
[total_days] => 5
[display_material_sum] => 149 270
[display_work_sum] => 114 195
[display_total_sum] => 263 465
)
1
263 465₽
Работа:114 195 ₽
Материалы:149 270 ₽
Дни:5
stdClass Object
(
[id] => 61
[attribute_id] => 31
[name] => Нет
[material_modifier] => 1
[work_modifier] => 1
[options] => Array
(
)
[days] => [0]
[material_price] => [0]
[work_price] => [0]
[image] => https://akademik-stroy.ru/wp-content/uploads/materials/vodyanye.jpg
[area_modifier] => 30
[parent_name] => Теплые полы
[parent_id] => 31
[material_sum] => 0
[work_sum] => 0
[total_sum] => 0
[total_days] => 0
[display_material_sum] => 0
[display_work_sum] => 0
[display_total_sum] => 0
)
1
0₽
Работа:0 ₽
Материалы:0 ₽
Дни:0
stdClass Object
(
[id] => 151
[attribute_id] => 31
[name] => Водяные
[material_modifier] => 1
[work_modifier] => 1
[options] => Array
(
)
[days] => [9]
[material_price] => [10200]
[work_price] => [2500]
[image] => https://akademik-stroy.ru/wp-content/uploads/materials/vodyanye.jpg
[area_modifier] => 30
[parent_name] => Теплые полы
[parent_id] => 31
[material_sum] => 385560
[work_sum] => 78750
[total_sum] => 464310
[total_days] => 9
[display_material_sum] => 385 560
[display_work_sum] => 78 750
[display_total_sum] => 464 310
)
1
464 310₽
Работа:78 750 ₽
Материалы:385 560 ₽
Дни:9
stdClass Object
(
[id] => 152
[attribute_id] => 31
[name] => Электро
[material_modifier] => 1
[work_modifier] => 1
[options] => Array
(
)
[days] => [5]
[material_price] => [6300]
[work_price] => [1500]
[image] => https://akademik-stroy.ru/wp-content/uploads/materials/ehlektricheskij.jpg
[area_modifier] => 30
[parent_name] => Теплые полы
[parent_id] => 31
[material_sum] => 238140
[work_sum] => 47250
[total_sum] => 285390
[total_days] => 5
[display_material_sum] => 238 140
[display_work_sum] => 47 250
[display_total_sum] => 285 390
)
1
285 390₽
Работа:47 250 ₽
Материалы:238 140 ₽
Дни:5
stdClass Object
(
[id] => 63
[attribute_id] => 32
[name] => Нет
[material_modifier] => 1
[work_modifier] => 1
[options] => Array
(
)
[days] => [0]
[material_price] => [0]
[work_price] => [0]
[image] => https://akademik-stroy.ru/wp-content/uploads/materials/shtukaturka-shpatlevka-1.jpg
[area_modifier] => 194.21
[parent_name] => Черновая отделка стен
[parent_id] => 32
[material_sum] => 0
[work_sum] => 0
[total_sum] => 0
[total_days] => 0
[display_material_sum] => 0
[display_work_sum] => 0
[display_total_sum] => 0
)
1
0₽
Работа:0 ₽
Материалы:0 ₽
Дни:0
stdClass Object
(
[id] => 153
[attribute_id] => 32
[name] => Штукатурка и шпатлевка
[material_modifier] => 1
[work_modifier] => 1
[options] => Array
(
)
[days] => [20]
[material_price] => [1850]
[work_price] => [2600]
[image] => https://akademik-stroy.ru/wp-content/uploads/materials/shtukaturka-shpatlevka-1.jpg
[area_modifier] => 194.21
[parent_name] => Черновая отделка стен
[parent_id] => 32
[material_sum] => 452704
[work_sum] => 530193
[total_sum] => 982897
[total_days] => 20
[display_material_sum] => 452 704
[display_work_sum] => 530 193
[display_total_sum] => 982 897
)
1
982 897₽
Работа:530 193 ₽
Материалы:452 704 ₽
Дни:20
stdClass Object
(
[id] => 154
[attribute_id] => 32
[name] => Гипсокортон на стены
[material_modifier] => 1
[work_modifier] => 1
[options] => Array
(
)
[days] => [15]
[material_price] => [950]
[work_price] => [2100]
[image] => https://akademik-stroy.ru/wp-content/uploads/materials/gkl-1.jpg
[area_modifier] => 194.21
[parent_name] => Черновая отделка стен
[parent_id] => 32
[material_sum] => 232469
[work_sum] => 428233
[total_sum] => 660702
[total_days] => 15
[display_material_sum] => 232 469
[display_work_sum] => 428 233
[display_total_sum] => 660 702
)
1
660 702₽
Работа:428 233 ₽
Материалы:232 469 ₽
Дни:15
stdClass Object
(
[id] => 155
[attribute_id] => 32
[name] => Вагонка
[material_modifier] => 1
[work_modifier] => 1
[options] => Array
(
)
[days] => [15]
[material_price] => [1250]
[work_price] => [950]
[image] => https://akademik-stroy.ru/wp-content/uploads/materials/vagonka.jpg
[area_modifier] => 194.21
[parent_name] => Черновая отделка стен
[parent_id] => 32
[material_sum] => 305881
[work_sum] => 193724
[total_sum] => 499605
[total_days] => 15
[display_material_sum] => 305 881
[display_work_sum] => 193 724
[display_total_sum] => 499 605
)
1
499 605₽
Работа:193 724 ₽
Материалы:305 881 ₽
Дни:15
stdClass Object
(
[id] => 65
[attribute_id] => 33
[name] => Нет
[material_modifier] => 1
[work_modifier] => 1
[options] => Array
(
)
[days] => [0]
[material_price] => [0]
[work_price] => [0]
[image] => https://akademik-stroy.ru/wp-content/uploads/materials/styazhka.jpg
[area_modifier] => 194.21
[parent_name] => Черновая отделка полов
[parent_id] => 33
[material_sum] => 0
[work_sum] => 0
[total_sum] => 0
[total_days] => 0
[display_material_sum] => 0
[display_work_sum] => 0
[display_total_sum] => 0
)
1
0₽
Работа:0 ₽
Материалы:0 ₽
Дни:0
stdClass Object
(
[id] => 156
[attribute_id] => 33
[name] => Стяжка + наливные полы
[material_modifier] => 1
[work_modifier] => 1
[options] => Array
(
)
[days] => [10]
[material_price] => [1000]
[work_price] => [900]
[image] => https://akademik-stroy.ru/wp-content/uploads/materials/styazhka.jpg
[area_modifier] => 194.21
[parent_name] => Черновая отделка полов
[parent_id] => 33
[material_sum] => 244705
[work_sum] => 183528
[total_sum] => 428233
[total_days] => 10
[display_material_sum] => 244 705
[display_work_sum] => 183 528
[display_total_sum] => 428 233
)
1
428 233₽
Работа:183 528 ₽
Материалы:244 705 ₽
Дни:10
stdClass Object
(
[id] => 157
[attribute_id] => 33
[name] => ОСБ на пол
[material_modifier] => 1
[work_modifier] => 1
[options] => Array
(
)
[days] => [7]
[material_price] => [580]
[work_price] => [350]
[image] => https://akademik-stroy.ru/wp-content/uploads/materials/osb-1.jpg
[area_modifier] => 194.21
[parent_name] => Черновая отделка полов
[parent_id] => 33
[material_sum] => 141929
[work_sum] => 71372
[total_sum] => 213301
[total_days] => 7
[display_material_sum] => 141 929
[display_work_sum] => 71 372
[display_total_sum] => 213 301
)
1
213 301₽
Работа:71 372 ₽
Материалы:141 929 ₽
Дни:7
stdClass Object
(
[id] => 67
[attribute_id] => 34
[name] => Нет
[material_modifier] => 1
[work_modifier] => 1
[options] => Array
(
)
[days] => [0]
[material_price] => [0]
[work_price] => [0]
[image] => https://akademik-stroy.ru/wp-content/uploads/materials/chistovaya-otdelka.jpg
[area_modifier] => 194.21
[parent_name] => Чистовая отделка стен и полов
[parent_id] => 34
[material_sum] => 0
[work_sum] => 0
[total_sum] => 0
[total_days] => 0
[display_material_sum] => 0
[display_work_sum] => 0
[display_total_sum] => 0
)
1
0₽
Работа:0 ₽
Материалы:0 ₽
Дни:0
stdClass Object
(
[id] => 68
[attribute_id] => 34
[name] => Есть
[material_modifier] => 1
[work_modifier] => 1
[options] => Array
(
)
[days] => [50]
[material_price] => [6000]
[work_price] => [3500]
[image] => https://akademik-stroy.ru/wp-content/uploads/materials/chistovaya-otdelka.jpg
[area_modifier] => 194.21
[parent_name] => Чистовая отделка стен и полов
[parent_id] => 34
[material_sum] => 1468228
[work_sum] => 713722
[total_sum] => 2181950
[total_days] => 50
[display_material_sum] => 1 468 228
[display_work_sum] => 713 722
[display_total_sum] => 2 181 950
)
1
2 181 950₽
Работа:713 722 ₽
Материалы:1 468 228 ₽
Дни:50
stdClass Object
(
[id] => 69
[attribute_id] => 35
[name] => Нет
[material_modifier] => 1
[work_modifier] => 1
[options] => Array
(
)
[days] => [0]
[material_price] => [0]
[work_price] => [0]
[image] => https://akademik-stroy.ru/wp-content/uploads/materials/mnogourovnevyj-gkl.jpg
[area_modifier] => 194.21
[parent_name] => Отделка потолка
[parent_id] => 35
[material_sum] => 0
[work_sum] => 0
[total_sum] => 0
[total_days] => 0
[display_material_sum] => 0
[display_work_sum] => 0
[display_total_sum] => 0
)
1
0₽
Работа:0 ₽
Материалы:0 ₽
Дни:0
stdClass Object
(
[id] => 70
[attribute_id] => 35
[name] => Есть
[material_modifier] => 1
[work_modifier] => 1
[options] => Array
(
[0] => Многоуровневый потолок из гипсокартона
[1] => Многоуровневый потолок из гипсокартона и натяжного потолка
[2] => Одноуровневый потолок из гипсокартона
[3] => Одноуровневый натяжной потолок
)
[days] => [10,10,1,1]
[material_price] => [900,700,700,600]
[work_price] => [1000,800,500,300]
[image] => https://akademik-stroy.ru/wp-content/uploads/materials/mnogourovnevyj-gkl.jpg
[area_modifier] => 194.21
[parent_name] => Отделка потолка
[parent_id] => 35
[material_sum] => 220234
[work_sum] => 203921
[total_sum] => 424155
[total_days] => 10
[display_material_sum] => 220 234
[display_work_sum] => 203 921
[display_total_sum] => 424 155
)
1
424 155₽
Работа:203 921 ₽
Материалы:220 234 ₽
Дни:10
Преимущества работы с нами
7 этапов оплаты
Независимый строительный надзор
Экологически чистые материалы
16 лет гарантии
Онлайн-кабинет с веб-камерой
Строители с опытом более 15 лет
Собственное производство









