Одноэтажный дом 20x25 - 166.92 м2 за руб.
Планировки
План первого этажа
- 1. Тамбур 4,99 м²
- 2. Коридор 3,95 м²
- 3. Гостиная-Кухня 45,98 м²
- 4. Гостевая комната 12,52 м²
- 5. Гардероб 3,24 м²
- 6. Кладовая 2,47 м²
- 7. Лестн.кладовая 1,20 м²
- 8. Санузел 4,60 м²
- 9. Котельная 5,93 м²
- 10. Гараж 39,06 м²
- Общая площадь первый этаж 123,94 м²
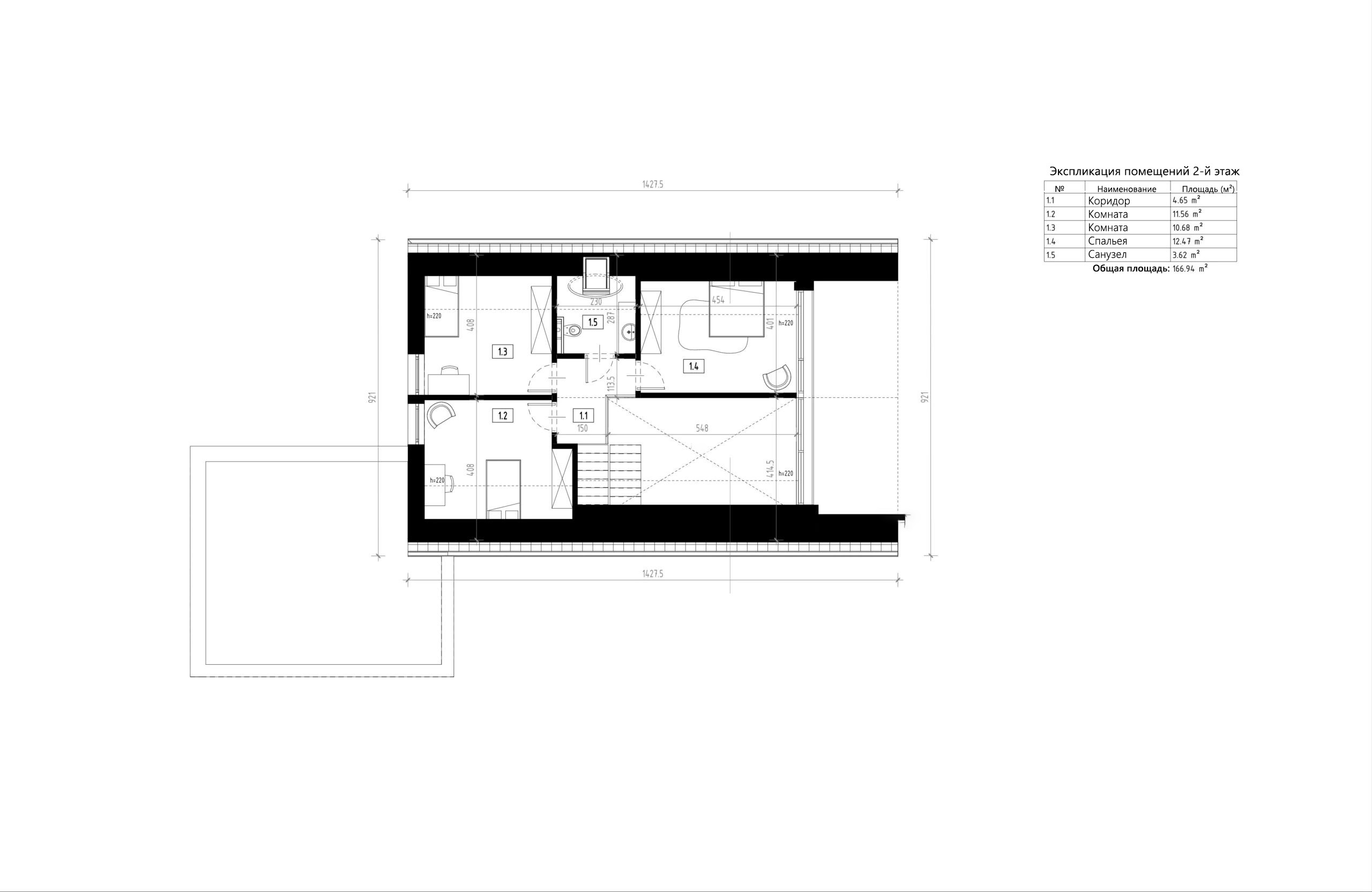
План мансарды
- 1. Коридор 4,65 м²
- 2. Комната 11,56 м²
- 3. Комната 10,68 м²
- 4. Спальня 12,46 м²
- 5. Санузел 3,62 м²
- Общая площадь второй этаж 42,98 м²
Площади дома
| № п/п | Наименование | Ед. из. | Строительная площадь | Полезная площадь |
| 1 | 1 этаж | м2 | 152.73 | 123.94 |
| 2 | 2 этаж | м2 | 52.96 | 42.98 |
| 3 | Итого | м2 | 205.69 | 166.92 |
154 м2
Полезная
площадь
площадь
20 x 25 м
Размеры
1 этаж
Этажей
26 м2
Террасы
и балконы
и балконы
1Без
гаража
гаража
4
Количество
спален
спален
2
Количество
санузлов
санузлов
Калькулятор опций
0₽
В ипотеку от 21 342 ₽/мес.
0₽
0 дней
stdClass Object
(
[id] => 1
[attribute_id] => 1
[name] => Ленточный монолитный ж/б
[material_modifier] => 1
[work_modifier] => 1
[options] => Array
(
[0] => размер 200 х 700 мм
[1] => размер 300 х 900 мм
[2] => размер 400 х 1 000 мм
[3] => размер 500 х 1 100 мм
[4] => размер 600 х 1 200 мм
)
[days] => [20,21,22,25,30]
[material_price] => [2823,3630,4475,5210,12047]
[work_price] => [2154,2826,3731,4577,5293]
[image] => https://akademik-stroy.ru/wp-content/uploads/materials/lentochnyj-monolitnyj-zh-b.jpg
[area_modifier] => 152.73
[parent_name] => Фундамент
[parent_id] => 1
[material_sum] => 543258
[work_sum] => 345429
[total_sum] => 888687
[total_days] => 20
[display_material_sum] => 543 258
[display_work_sum] => 345 429
[display_total_sum] => 888 687
)
1
888 687₽
Работа:345 429 ₽
Материалы:543 258 ₽
Дни:20
stdClass Object
(
[id] => 2
[attribute_id] => 1
[name] => Забивные Ж/Б сваи
[material_modifier] => 1
[work_modifier] => 1
[options] => Array
(
[0] => 150х150х3000мм
[1] => 150х150х4000мм
[2] => 200х200х3000мм
[3] => 200х200х4000мм
[4] => 200х200х5000мм
[5] => 200х200х6000мм
)
[days] => [2,2,2,2,2,2]
[material_price] => [1990,2850,3255,4360,5120,6837]
[work_price] => [1002,1185,1336,1438,1574,1839]
[image] => https://akademik-stroy.ru/wp-content/uploads/materials/zabivnye-zh-b-svai.png
[area_modifier] => 152.73
[parent_name] => Фундамент
[parent_id] => 1
[material_sum] => 382955
[work_sum] => 160687
[total_sum] => 543642
[total_days] => 2
[display_material_sum] => 382 955
[display_work_sum] => 160 687
[display_total_sum] => 543 642
)
1
543 642₽
Работа:160 687 ₽
Материалы:382 955 ₽
Дни:2
stdClass Object
(
[id] => 71
[attribute_id] => 1
[name] => Свайно-ростверковый ж/б
[material_modifier] => 1
[work_modifier] => 1
[options] => Array
(
[0] => ростверк 200х300 мм
[1] => ростверк 300х600 мм
[2] => ростверк 400х900 мм
[3] => ростверк 500х1200 мм
)
[days] => [20,23,25,27]
[material_price] => [3018,3474,7109,9792]
[work_price] => [2024,3012,5635,7022]
[image] => https://akademik-stroy.ru/wp-content/uploads/materials/svajno-rostverkovyj-monolitnyj-zh-b-3.png
[area_modifier] => 152.73
[parent_name] => Фундамент
[parent_id] => 1
[material_sum] => 580783
[work_sum] => 324582
[total_sum] => 905365
[total_days] => 20
[display_material_sum] => 580 783
[display_work_sum] => 324 582
[display_total_sum] => 905 365
)
1
905 365₽
Работа:324 582 ₽
Материалы:580 783 ₽
Дни:20
stdClass Object
(
[id] => 72
[attribute_id] => 1
[name] => Монолитная ж/б плита
[material_modifier] => 1
[work_modifier] => 1
[options] => Array
(
[0] => 200 мм
[1] => 300 мм
[2] => 400 мм
[3] => 500 мм
[4] => 600 мм
)
[days] => [30,33,35,37,40]
[material_price] => [5348,8555,12788,14388,15189]
[work_price] => [4314,4881,7037,8061,10230]
[image] => https://akademik-stroy.ru/wp-content/uploads/materials/monolitnaya-zhb-plita.png
[area_modifier] => 152.73
[parent_name] => Фундамент
[parent_id] => 1
[material_sum] => 1029168
[work_sum] => 691821
[total_sum] => 1720989
[total_days] => 30
[display_material_sum] => 1 029 168
[display_work_sum] => 691 821
[display_total_sum] => 1 720 989
)
1
1 720 989₽
Работа:691 821 ₽
Материалы:1 029 168 ₽
Дни:30
stdClass Object
(
[id] => 73
[attribute_id] => 1
[name] => Утепленная шведская плита
[material_modifier] => 1
[work_modifier] => 1
[options] => Array
(
[0] => 200 мм
[1] => 300 мм
[2] => 400 мм
[3] => 500 мм
[4] => 600 мм
)
[days] => [32,37,39,42,45]
[material_price] => [10249,12692,13760,14936,16230]
[work_price] => [5960,7337,8072,8878,9765]
[image] => https://akademik-stroy.ru/wp-content/uploads/materials/uteplennaya-shvedskaya-plita.jpg
[area_modifier] => 152.73
[parent_name] => Фундамент
[parent_id] => 1
[material_sum] => 1972316
[work_sum] => 955784
[total_sum] => 2928100
[total_days] => 32
[display_material_sum] => 1 972 316
[display_work_sum] => 955 784
[display_total_sum] => 2 928 100
)
1
2 928 100₽
Работа:955 784 ₽
Материалы:1 972 316 ₽
Дни:32
stdClass Object
(
[id] => 75
[attribute_id] => 1
[name] => Ленточный из ФБС
[material_modifier] => 1
[work_modifier] => 1
[options] => Array
(
[0] => толщ. 300 мм
[1] => толщ. 400 мм
[2] => толщ. 500 мм
[3] => толщ. 600 мм
)
[days] => [20,20,20,20]
[material_price] => [3675,4902,6126,7350]
[work_price] => [2451,3264,4083,4902]
[image] => https://akademik-stroy.ru/wp-content/uploads/materials/lentochnyj-iz-fbs.png
[area_modifier] => 152.73
[parent_name] => Фундамент
[parent_id] => 1
[material_sum] => 707216
[work_sum] => 393058
[total_sum] => 1100274
[total_days] => 20
[display_material_sum] => 707 216
[display_work_sum] => 393 058
[display_total_sum] => 1 100 274
)
1
1 100 274₽
Работа:393 058 ₽
Материалы:707 216 ₽
Дни:20
stdClass Object
(
[id] => 76
[attribute_id] => 1
[name] => Цокольный этаж из ФБС
[material_modifier] => 1
[work_modifier] => 1
[options] => Array
(
[0] => толщ. 300 мм
[1] => толщ. 400 мм
[2] => толщ. 500 мм
[3] => толщ. 600 мм
)
[days] => [30,32,34,36]
[material_price] => [20916,23299,26680,29060]
[work_price] => [17524,18700,19873,21046]
[image] => https://akademik-stroy.ru/wp-content/uploads/materials/cokolnyj-ehtazh-iz-fbs.jpg
[area_modifier] => 152.73
[parent_name] => Фундамент
[parent_id] => 1
[material_sum] => 4025071
[work_sum] => 2810263
[total_sum] => 6835334
[total_days] => 30
[display_material_sum] => 4 025 071
[display_work_sum] => 2 810 263
[display_total_sum] => 6 835 334
)
1
6 835 334₽
Работа:2 810 263 ₽
Материалы:4 025 071 ₽
Дни:30
stdClass Object
(
[id] => 77
[attribute_id] => 1
[name] => Цокольный этаж монолитный ж/б
[material_modifier] => 1
[work_modifier] => 1
[options] => Array
(
[0] => толщ. 200 мм
[1] => толщ. 300 мм
[2] => толщ. 400 мм
[3] => толщ. 500 мм
[4] => толщ. 600 мм
)
[days] => [40,42,44,46,48]
[material_price] => [25421,29148,32275,35602,37326]
[work_price] => [20441,21907,23375,24841,26306]
[image] => https://akademik-stroy.ru/wp-content/uploads/materials/cokolnyj-etazh-zh-b.jpg
[area_modifier] => 152.73
[parent_name] => Фундамент
[parent_id] => 1
[material_sum] => 4892012
[work_sum] => 3278052
[total_sum] => 8170064
[total_days] => 40
[display_material_sum] => 4 892 012
[display_work_sum] => 3 278 052
[display_total_sum] => 8 170 064
)
1
8 170 064₽
Работа:3 278 052 ₽
Материалы:4 892 012 ₽
Дни:40
stdClass Object
(
[id] => 191
[attribute_id] => 1
[name] => Винтовые сваи
[material_modifier] => 1
[work_modifier] => 1
[options] => Array
(
[0] => 57х200мм
[1] => 76х250мм
[2] => 108х300мм
[3] => 133х350мм
)
[days] => [1,1,2,2]
[material_price] => [1200,1300,1450,1600]
[work_price] => [400,600,900,1100]
[image] => https://akademik-stroy.ru/wp-content/uploads/materials/vintovye-svai.png
[area_modifier] => 152.73
[parent_name] => Фундамент
[parent_id] => 1
[material_sum] => 230928
[work_sum] => 64147
[total_sum] => 295075
[total_days] => 1
[display_material_sum] => 230 928
[display_work_sum] => 64 147
[display_total_sum] => 295 075
)
1
295 075₽
Работа:64 147 ₽
Материалы:230 928 ₽
Дни:1
stdClass Object
(
[id] => 3
[attribute_id] => 2
[name] => Деревянные балки
[material_modifier] => 1
[work_modifier] => 1
[options] => Array
(
[0] => без утепления
[1] => утепление 200 мм
[2] => утепление 250 мм
[3] => утепление 300 мм
[4] => утепление 350 мм
[5] => утепление 400 мм
[6] => утепление 450 мм
[7] => утепление 500 мм
)
[days] => [8,9,9,9,11,12,13,14]
[material_price] => [1634,2042,2344,2947,3149,3652,3354,3557]
[work_price] => [1230,1339,1393,1426,1460,1513,1587,1620]
[image] => https://akademik-stroy.ru/wp-content/uploads/materials/derevyannye-balki.png
[area_modifier] => 152.73
[parent_name] => Перекрытие цоколя
[parent_id] => 2
[material_sum] => 314447
[work_sum] => 197251
[total_sum] => 511698
[total_days] => 8
[display_material_sum] => 314 447
[display_work_sum] => 197 251
[display_total_sum] => 511 698
)
1
511 698₽
Работа:197 251 ₽
Материалы:314 447 ₽
Дни:8
stdClass Object
(
[id] => 4
[attribute_id] => 2
[name] => Сборные ж/б плиты
[material_modifier] => 1
[work_modifier] => 1
[options] => Array
(
[0] => без утепления
[1] => утепление 150мм
[2] => утепление 200мм
[3] => утепление 250мм
[4] => утепление 300мм
[5] => утепление 350мм
[6] => утепление 400мм
[7] => утепление 450мм
[8] => утепление 500мм
)
[days] => [13,15,15,15,15,15,15,15,15]
[material_price] => [3067,5577,5928,6679,7730,8782,9833,10884,11935]
[work_price] => [1520,1956,2102,2247,2392,2537,2684,2829,2974]
[image] => https://akademik-stroy.ru/wp-content/uploads/materials/sbornye-zh-b-plity-2.jpg
[area_modifier] => 152.73
[parent_name] => Перекрытие цоколя
[parent_id] => 2
[material_sum] => 590213
[work_sum] => 243757
[total_sum] => 833970
[total_days] => 13
[display_material_sum] => 590 213
[display_work_sum] => 243 757
[display_total_sum] => 833 970
)
1
833 970₽
Работа:243 757 ₽
Материалы:590 213 ₽
Дни:13
stdClass Object
(
[id] => 78
[attribute_id] => 2
[name] => Монолитная ж/б плита
[material_modifier] => 1
[work_modifier] => 1
[options] => Array
(
[0] => без утепления
[1] => утепление 150 мм
[2] => утепление 200 мм
[3] => утепление 250 мм
[4] => утепление 300 мм
[5] => утепление 350 мм
[6] => утепление 400 мм
[7] => утепление 450 мм
[8] => утепление 500 мм
)
[days] => [18,20,20,20,20,20,20,20,20]
[material_price] => [4837,6572,7224,7375,79426,8177,8728,9180,10031]
[work_price] => [3348,3921,4112,4302,4493,4684,4875,5066,5256]
[image] => https://akademik-stroy.ru/wp-content/uploads/materials/monolitnaya-zh-b-plita-2.jpg
[area_modifier] => 152.73
[parent_name] => Перекрытие цоколя
[parent_id] => 2
[material_sum] => 930831
[work_sum] => 536907
[total_sum] => 1467738
[total_days] => 18
[display_material_sum] => 930 831
[display_work_sum] => 536 907
[display_total_sum] => 1 467 738
)
1
1 467 738₽
Работа:536 907 ₽
Материалы:930 831 ₽
Дни:18
stdClass Object
(
[id] => 6
[attribute_id] => 3
[name] => Пеноблок
[material_modifier] => 1
[work_modifier] => 1
[options] => Array
(
[0] => 300 мм
[1] => 400 мм
[2] => 500 мм
[3] => 600 мм
)
[days] => [29,31,34,39]
[material_price] => [3000,4000,4500,4937]
[work_price] => [5033,5805,6400,8710]
[image] => https://akademik-stroy.ru/wp-content/uploads/materials/penoblok.jpg
[area_modifier] => 152.73
[parent_name] => Стены 1 этаж (несущие)
[parent_id] => 3
[material_sum] => 577319
[work_sum] => 807125
[total_sum] => 1384444
[total_days] => 29
[display_material_sum] => 577 319
[display_work_sum] => 807 125
[display_total_sum] => 1 384 444
)
1
1 384 444₽
Работа:807 125 ₽
Материалы:577 319 ₽
Дни:29
stdClass Object
(
[id] => 79
[attribute_id] => 3
[name] => Керамический блок
[material_modifier] => 1
[work_modifier] => 1
[options] => Array
(
[0] => 380 мм
[1] => 380 мм Thermo
[2] => 440 мм
[3] => 510 мм
)
[days] => [23,23,24,25]
[material_price] => [4510,5098,6093,8013]
[work_price] => [4737,4937,5903,6958]
[image] => https://akademik-stroy.ru/wp-content/uploads/materials/keramicheskij-blok.jpg
[area_modifier] => 152.73
[parent_name] => Стены 1 этаж (несущие)
[parent_id] => 3
[material_sum] => 867903
[work_sum] => 759656
[total_sum] => 1627559
[total_days] => 23
[display_material_sum] => 867 903
[display_work_sum] => 759 656
[display_total_sum] => 1 627 559
)
1
1 627 559₽
Работа:759 656 ₽
Материалы:867 903 ₽
Дни:23
stdClass Object
(
[id] => 80
[attribute_id] => 3
[name] => Кирпич
[material_modifier] => 1
[work_modifier] => 1
[options] => Array
(
[0] => Кирпич 250 мм
[1] => Кирпич 380 мм
[2] => Кирпич 510 мм
[3] => Кирпич 640 мм
[4] => Кирпич 770 мм
)
[days] => [30,30,31,33,36]
[material_price] => [5500,7142,9206,10171,12235]
[work_price] => [8736,10041,12018,15240,18462]
[image] => https://akademik-stroy.ru/wp-content/uploads/materials/kirpich.jpg
[area_modifier] => 152.73
[parent_name] => Стены 1 этаж (несущие)
[parent_id] => 3
[material_sum] => 1058419
[work_sum] => 1400962
[total_sum] => 2459381
[total_days] => 30
[display_material_sum] => 1 058 419
[display_work_sum] => 1 400 962
[display_total_sum] => 2 459 381
)
1
2 459 381₽
Работа:1 400 962 ₽
Материалы:1 058 419 ₽
Дни:30
stdClass Object
(
[id] => 81
[attribute_id] => 3
[name] => Монолитные
[material_modifier] => 1
[work_modifier] => 1
[options] => Array
(
[0] => 150 мм
[1] => 200 мм
[2] => 250 мм
[3] => 300 мм
[4] => 350 мм
[5] => 400 мм
)
[days] => [45,46,47,49,50,53]
[material_price] => [6545,7876,10175,12011,13908,15204]
[work_price] => [5106,6444,7698,8552,9807,11461]
[image] => https://akademik-stroy.ru/wp-content/uploads/materials/monolitnye.jpg
[area_modifier] => 152.73
[parent_name] => Стены 1 этаж (несущие)
[parent_id] => 3
[material_sum] => 1259518
[work_sum] => 818831
[total_sum] => 2078349
[total_days] => 45
[display_material_sum] => 1 259 518
[display_work_sum] => 818 831
[display_total_sum] => 2 078 349
)
1
2 078 349₽
Работа:818 831 ₽
Материалы:1 259 518 ₽
Дни:45
stdClass Object
(
[id] => 82
[attribute_id] => 3
[name] => Клееный брус
[material_modifier] => 1
[work_modifier] => 1
[options] => Array
(
[0] => 160 мм
[1] => 175 мм
[2] => 200 мм
[3] => 215 мм
[4] => 240 мм
[5] => 270 мм
[6] => 282 мм
)
[days] => [24,28,32,37,40,42,48]
[material_price] => [16975,18773,19950,20545,21599,22159,23275]
[work_price] => [4806,5287,5815,6397,7036,7740,8514]
[image] => https://akademik-stroy.ru/wp-content/uploads/materials/kleenyj-brus.jpg
[area_modifier] => 152.73
[parent_name] => Стены 1 этаж (несущие)
[parent_id] => 3
[material_sum] => 3266666
[work_sum] => 770721
[total_sum] => 4037387
[total_days] => 24
[display_material_sum] => 3 266 666
[display_work_sum] => 770 721
[display_total_sum] => 4 037 387
)
1
4 037 387₽
Работа:770 721 ₽
Материалы:3 266 666 ₽
Дни:24
stdClass Object
(
[id] => 83
[attribute_id] => 3
[name] => Каркасные
[material_modifier] => 1
[work_modifier] => 1
[options] => Array
(
[0] => 150 мм
[1] => 200 мм
[2] => 250 мм
[3] => 300 мм
)
[days] => [15,16,17,18]
[material_price] => [2379,2639,2898,3258]
[work_price] => [2418,2686,2985,3716]
[image] => https://akademik-stroy.ru/wp-content/uploads/materials/karkasnye.jpg
[area_modifier] => 152.73
[parent_name] => Стены 1 этаж (несущие)
[parent_id] => 3
[material_sum] => 457814
[work_sum] => 387766
[total_sum] => 845580
[total_days] => 15
[display_material_sum] => 457 814
[display_work_sum] => 387 766
[display_total_sum] => 845 580
)
1
845 580₽
Работа:387 766 ₽
Материалы:457 814 ₽
Дни:15
stdClass Object
(
[id] => 84
[attribute_id] => 3
[name] => СИП-панели
[material_modifier] => 1
[work_modifier] => 1
[options] => Array
(
[0] => 120 мм
[1] => 170 мм
[2] => 220 мм
)
[days] => [7,7,7]
[material_price] => [1210,1856,2292]
[work_price] => [1410,1551,1706]
[image] => https://akademik-stroy.ru/wp-content/uploads/materials/sip-paneli.jpg
[area_modifier] => 152.73
[parent_name] => Стены 1 этаж (несущие)
[parent_id] => 3
[material_sum] => 232852
[work_sum] => 226117
[total_sum] => 458969
[total_days] => 7
[display_material_sum] => 232 852
[display_work_sum] => 226 117
[display_total_sum] => 458 969
)
1
458 969₽
Работа:226 117 ₽
Материалы:232 852 ₽
Дни:7
stdClass Object
(
[id] => 85
[attribute_id] => 3
[name] => Сухой брус
[material_modifier] => 1
[work_modifier] => 1
[options] => Array
(
[0] => 150 мм
[1] => 180 мм
[2] => 200 мм
)
[days] => [7,8,9]
[material_price] => [6010,7190,8709]
[work_price] => [3204,3845,4229]
[image] => https://akademik-stroy.ru/wp-content/uploads/materials/suhoj-brus.jpg
[area_modifier] => 152.73
[parent_name] => Стены 1 этаж (несущие)
[parent_id] => 3
[material_sum] => 1156563
[work_sum] => 513814
[total_sum] => 1670377
[total_days] => 7
[display_material_sum] => 1 156 563
[display_work_sum] => 513 814
[display_total_sum] => 1 670 377
)
1
1 670 377₽
Работа:513 814 ₽
Материалы:1 156 563 ₽
Дни:7
stdClass Object
(
[id] => 86
[attribute_id] => 3
[name] => Профилированный брус
[material_modifier] => 1
[work_modifier] => 1
[options] => Array
(
[0] => 150 мм
[1] => 180 мм
[2] => 200 мм
)
[days] => [7,8,9]
[material_price] => [8190,9228,10051]
[work_price] => [3845,4614,5075]
[image] => https://akademik-stroy.ru/wp-content/uploads/materials/profilirovannyj-brus.jpg
[area_modifier] => 152.73
[parent_name] => Стены 1 этаж (несущие)
[parent_id] => 3
[material_sum] => 1576082
[work_sum] => 616609
[total_sum] => 2192691
[total_days] => 7
[display_material_sum] => 1 576 082
[display_work_sum] => 616 609
[display_total_sum] => 2 192 691
)
1
2 192 691₽
Работа:616 609 ₽
Материалы:1 576 082 ₽
Дни:7
stdClass Object
(
[id] => 87
[attribute_id] => 3
[name] => Оцилиндрованное бревно
[material_modifier] => 1
[work_modifier] => 1
[options] => Array
(
[0] => 180 мм
[1] => 220 мм
[2] => 260 мм
[3] => 320 мм
)
[days] => [7,8,9,10]
[material_price] => [75190,9532,10868,13116]
[work_price] => [3845,4691,5535,6863]
[image] => https://akademik-stroy.ru/wp-content/uploads/materials/ocilindrovannoe-brevno-1.jpg
[area_modifier] => 152.73
[parent_name] => Стены 1 этаж (несущие)
[parent_id] => 3
[material_sum] => 14469549
[work_sum] => 616609
[total_sum] => 15086158
[total_days] => 7
[display_material_sum] => 14 469 549
[display_work_sum] => 616 609
[display_total_sum] => 15 086 158
)
1
15 086 158₽
Работа:616 609 ₽
Материалы:14 469 549 ₽
Дни:7
stdClass Object
(
[id] => 88
[attribute_id] => 3
[name] => Срубы
[material_modifier] => 1
[work_modifier] => 1
[options] => Array
(
[0] => 260 мм
[1] => 320 мм
[2] => 360 мм
[3] => 400 мм
[4] => 500 мм
)
[days] => [7,8,9,10,11]
[material_price] => [37975,46709,52314,58069,73167]
[work_price] => [4806,5911,6621,7349,9260]
[image] => https://akademik-stroy.ru/wp-content/uploads/materials/sruby.jpg
[area_modifier] => 152.73
[parent_name] => Стены 1 этаж (несущие)
[parent_id] => 3
[material_sum] => 7307901
[work_sum] => 770721
[total_sum] => 8078622
[total_days] => 7
[display_material_sum] => 7 307 901
[display_work_sum] => 770 721
[display_total_sum] => 8 078 622
)
1
8 078 622₽
Работа:770 721 ₽
Материалы:7 307 901 ₽
Дни:7
stdClass Object
(
[id] => 174
[attribute_id] => 3
[name] => Брус
[material_modifier] => 1
[work_modifier] => 1
[options] => Array
(
[0] => 150 мм
[1] => 180 мм
[2] => 200 мм
)
[days] => [7,8,9]
[material_price] => [5127,6152,7367]
[work_price] => [1602,1922,2115]
[image] => https://akademik-stroy.ru/wp-content/uploads/materials/brus.jpg
[area_modifier] => 152.73
[parent_name] => Стены 1 этаж (несущие)
[parent_id] => 3
[material_sum] => 986639
[work_sum] => 256907
[total_sum] => 1243546
[total_days] => 7
[display_material_sum] => 986 639
[display_work_sum] => 256 907
[display_total_sum] => 1 243 546
)
1
1 243 546₽
Работа:256 907 ₽
Материалы:986 639 ₽
Дни:7
stdClass Object
(
[id] => 175
[attribute_id] => 3
[name] => Газобетон
[material_modifier] => 1
[work_modifier] => 1
[options] => Array
(
[0] => 300 мм
[1] => 375 мм
[2] => 400 мм
[3] => 500 мм
[4] => 600 мм
)
[days] => [29,31,35,37,44]
[material_price] => [4298,5573,6356,7288,9119]
[work_price] => [4538,5251,5926,6733,7195]
[image] => https://akademik-stroy.ru/wp-content/uploads/materials/gazobeton.jpg
[area_modifier] => 152.73
[parent_name] => Стены 1 этаж (несущие)
[parent_id] => 3
[material_sum] => 827106
[work_sum] => 727743
[total_sum] => 1554849
[total_days] => 29
[display_material_sum] => 827 106
[display_work_sum] => 727 743
[display_total_sum] => 1 554 849
)
1
1 554 849₽
Работа:727 743 ₽
Материалы:827 106 ₽
Дни:29
stdClass Object
(
[id] => 176
[attribute_id] => 3
[name] => Блок
[material_modifier] => 1
[work_modifier] => 1
[options] => Array
(
[0] => 300 мм
[1] => 375 мм
[2] => 400 мм
[3] => 500 мм
[4] => 600 мм
)
[days] => [29,31,35,37,44]
[material_price] => [2698,3973,4356,6588,7119]
[work_price] => [5038,5851,6426,8733,9195]
[image] => https://akademik-stroy.ru/wp-content/uploads/materials/blok.jpg
[area_modifier] => 152.73
[parent_name] => Стены 1 этаж (несущие)
[parent_id] => 3
[material_sum] => 519203
[work_sum] => 807926
[total_sum] => 1327129
[total_days] => 29
[display_material_sum] => 519 203
[display_work_sum] => 807 926
[display_total_sum] => 1 327 129
)
1
1 327 129₽
Работа:807 926 ₽
Материалы:519 203 ₽
Дни:29
stdClass Object
(
[id] => 177
[attribute_id] => 3
[name] => Газосиликатный блок
[material_modifier] => 1
[work_modifier] => 1
[options] => Array
(
[0] => 300 мм
[1] => 375 мм
[2] => 400 мм
[3] => 500 мм
[4] => 600 мм
)
[days] => [29,31,35,37,44]
[material_price] => [4298,5573,6356,7288,9119]
[work_price] => [4538,5251,5926,6733,7195]
[image] => https://akademik-stroy.ru/wp-content/uploads/materials/gazosilikatnyj-blok.jpg
[area_modifier] => 152.73
[parent_name] => Стены 1 этаж (несущие)
[parent_id] => 3
[material_sum] => 827106
[work_sum] => 727743
[total_sum] => 1554849
[total_days] => 29
[display_material_sum] => 827 106
[display_work_sum] => 727 743
[display_total_sum] => 1 554 849
)
1
1 554 849₽
Работа:727 743 ₽
Материалы:827 106 ₽
Дни:29
stdClass Object
(
[id] => 178
[attribute_id] => 3
[name] => Керамзитобетонный блок
[material_modifier] => 1
[work_modifier] => 1
[options] => Array
(
[0] => 300 мм
[1] => 375 мм
[2] => 400 мм
[3] => 500 мм
[4] => 600 мм
)
[days] => [23,23,24,25,28]
[material_price] => [3641,4298,5693,7613,9612]
[work_price] => [5737,5737,6903,7958,8901]
[image] => https://akademik-stroy.ru/wp-content/uploads/materials/keramzitobetonnyj-blok.jpg
[area_modifier] => 152.73
[parent_name] => Стены 1 этаж (несущие)
[parent_id] => 3
[material_sum] => 700673
[work_sum] => 920023
[total_sum] => 1620696
[total_days] => 23
[display_material_sum] => 700 673
[display_work_sum] => 920 023
[display_total_sum] => 1 620 696
)
1
1 620 696₽
Работа:920 023 ₽
Материалы:700 673 ₽
Дни:23
stdClass Object
(
[id] => 179
[attribute_id] => 3
[name] => Деревянные
[material_modifier] => 1
[work_modifier] => 1
[options] => Array
(
[0] => 180 мм
[1] => 220 мм
[2] => 260 мм
[3] => 320 мм
)
[days] => [7,8,9,10]
[material_price] => [7950,9458,11961,14472]
[work_price] => [4037,4925,5812,7207]
[image] => https://akademik-stroy.ru/wp-content/uploads/materials/derevyannye.jpg
[area_modifier] => 152.73
[parent_name] => Стены 1 этаж (несущие)
[parent_id] => 3
[material_sum] => 1529896
[work_sum] => 647400
[total_sum] => 2177296
[total_days] => 7
[display_material_sum] => 1 529 896
[display_work_sum] => 647 400
[display_total_sum] => 2 177 296
)
1
2 177 296₽
Работа:647 400 ₽
Материалы:1 529 896 ₽
Дни:7
stdClass Object
(
[id] => 181
[attribute_id] => 3
[name] => Камень
[material_modifier] => 1
[work_modifier] => 1
[options] => Array
(
[0] => 300 мм
[1] => 400 мм
[2] => 500 мм
[3] => 600 мм
)
[days] => [25,27,31,34]
[material_price] => [5262,6844,8330,9815]
[work_price] => [8331,9135,10427,11069]
[image] => https://akademik-stroy.ru/wp-content/uploads/materials/kamen.jpg
[area_modifier] => 152.73
[parent_name] => Стены 1 этаж (несущие)
[parent_id] => 3
[material_sum] => 1012618
[work_sum] => 1336013
[total_sum] => 2348631
[total_days] => 25
[display_material_sum] => 1 012 618
[display_work_sum] => 1 336 013
[display_total_sum] => 2 348 631
)
1
2 348 631₽
Работа:1 336 013 ₽
Материалы:1 012 618 ₽
Дни:25
stdClass Object
(
[id] => 182
[attribute_id] => 3
[name] => Каркасно-щитовые
[material_modifier] => 1
[work_modifier] => 1
[options] => Array
(
[0] => 150 мм
[1] => 200 мм
[2] => 250 мм
[3] => 300 мм
[4] => 350 мм
[5] => 400 мм
)
[days] => [15,16,17,18,19,20]
[material_price] => [2379,2639,2898,3458,3601,4175]
[work_price] => [2538,2820,3134,3483,4062,5642]
[image] => https://akademik-stroy.ru/wp-content/uploads/materials/karkasno-shchitovye.jpg
[area_modifier] => 152.73
[parent_name] => Стены 1 этаж (несущие)
[parent_id] => 3
[material_sum] => 457814
[work_sum] => 407010
[total_sum] => 864824
[total_days] => 15
[display_material_sum] => 457 814
[display_work_sum] => 407 010
[display_total_sum] => 864 824
)
1
864 824₽
Работа:407 010 ₽
Материалы:457 814 ₽
Дни:15
stdClass Object
(
[id] => 183
[attribute_id] => 3
[name] => Рубленные
[material_modifier] => 1
[work_modifier] => 1
[options] => Array
(
[0] => 150 мм
[1] => 200 мм
[2] => 250 мм
[3] => 300 мм
[4] => 350 мм
[5] => 400 мм
)
[days] => [15,16,17,18,17,18]
[material_price] => [35950,50267,60583,75900,80217,100533]
[work_price] => [9612,12816,16020,19224,22428,25632]
[image] => https://akademik-stroy.ru/wp-content/uploads/materials/rublennye.jpg
[area_modifier] => 152.73
[parent_name] => Стены 1 этаж (несущие)
[parent_id] => 3
[material_sum] => 6918211
[work_sum] => 1541443
[total_sum] => 8459654
[total_days] => 15
[display_material_sum] => 6 918 211
[display_work_sum] => 1 541 443
[display_total_sum] => 8 459 654
)
1
8 459 654₽
Работа:1 541 443 ₽
Материалы:6 918 211 ₽
Дни:15
stdClass Object
(
[id] => 185
[attribute_id] => 3
[name] => Теплоблок
[material_modifier] => 1
[work_modifier] => 1
[options] => Array
(
[0] => 300 мм (с облицовкой, не покрашенный)
[1] => 400 мм (с облицовкой, не покрашенный)
[2] => 300 мм (с облицовкой, покрашенный)
[3] => 400 мм (с облицовкой, покрашенный)
)
[days] => [15,16,15,16]
[material_price] => [2888,3729,3957,4258]
[work_price] => [2564,3229,2949,3713]
[image] => https://akademik-stroy.ru/wp-content/uploads/materials/teploblok.jpg
[area_modifier] => 152.73
[parent_name] => Стены 1 этаж (несущие)
[parent_id] => 3
[material_sum] => 555766
[work_sum] => 411180
[total_sum] => 966946
[total_days] => 15
[display_material_sum] => 555 766
[display_work_sum] => 411 180
[display_total_sum] => 966 946
)
1
966 946₽
Работа:411 180 ₽
Материалы:555 766 ₽
Дни:15
stdClass Object
(
[id] => 186
[attribute_id] => 3
[name] => Арболитовые блоки
[material_modifier] => 1
[work_modifier] => 1
[options] => Array
(
[0] => 300 мм
[1] => 400 мм
[2] => 600 мм
)
[days] => [19,22,27]
[material_price] => [3210,4475,5852]
[work_price] => [4214,4788,5866]
[image] => https://akademik-stroy.ru/wp-content/uploads/materials/arbolitovye-bloki.png
[area_modifier] => 152.73
[parent_name] => Стены 1 этаж (несущие)
[parent_id] => 3
[material_sum] => 617732
[work_sum] => 675784
[total_sum] => 1293516
[total_days] => 19
[display_material_sum] => 617 732
[display_work_sum] => 675 784
[display_total_sum] => 1 293 516
)
1
1 293 516₽
Работа:675 784 ₽
Материалы:617 732 ₽
Дни:19
stdClass Object
(
[id] => 187
[attribute_id] => 3
[name] => Полистиролбетон
[material_modifier] => 1
[work_modifier] => 1
[options] => Array
(
[0] => 300 мм
[1] => 400 мм
[2] => 600 мм
)
[days] => [29,31,35]
[material_price] => [2798,4573,5256]
[work_price] => [5038,5851,6426]
[image] => https://akademik-stroy.ru/wp-content/uploads/materials/polistirolbeton.jpg
[area_modifier] => 152.73
[parent_name] => Стены 1 этаж (несущие)
[parent_id] => 3
[material_sum] => 538447
[work_sum] => 807926
[total_sum] => 1346373
[total_days] => 29
[display_material_sum] => 538 447
[display_work_sum] => 807 926
[display_total_sum] => 1 346 373
)
1
1 346 373₽
Работа:807 926 ₽
Материалы:538 447 ₽
Дни:29
stdClass Object
(
[id] => 188
[attribute_id] => 3
[name] => Шлакоблок
[material_modifier] => 1
[work_modifier] => 1
[options] => Array
(
[0] => 400 мм
[1] => 600 мм
)
[days] => [15,16]
[material_price] => [2391,3471]
[work_price] => [2642,3662]
[image] => https://akademik-stroy.ru/wp-content/uploads/materials/shlakoblok.jpg
[area_modifier] => 152.73
[parent_name] => Стены 1 этаж (несущие)
[parent_id] => 3
[material_sum] => 460124
[work_sum] => 423688
[total_sum] => 883812
[total_days] => 15
[display_material_sum] => 460 124
[display_work_sum] => 423 688
[display_total_sum] => 883 812
)
1
883 812₽
Работа:423 688 ₽
Материалы:460 124 ₽
Дни:15
stdClass Object
(
[id] => 189
[attribute_id] => 3
[name] => Теплая керамика
[material_modifier] => 1
[work_modifier] => 1
[options] => Array
(
[0] => 380 мм
[1] => 380 мм Thermo
[2] => 440 мм
[3] => 510 мм
)
[days] => [23,23,24,25]
[material_price] => [4510,5098,6093,8013]
[work_price] => [4737,4937,5903,6958]
[image] => https://akademik-stroy.ru/wp-content/uploads/materials/teplaya-keramika.jpg
[area_modifier] => 152.73
[parent_name] => Стены 1 этаж (несущие)
[parent_id] => 3
[material_sum] => 867903
[work_sum] => 759656
[total_sum] => 1627559
[total_days] => 23
[display_material_sum] => 867 903
[display_work_sum] => 759 656
[display_total_sum] => 1 627 559
)
1
1 627 559₽
Работа:759 656 ₽
Материалы:867 903 ₽
Дни:23
stdClass Object
(
[id] => 190
[attribute_id] => 3
[name] => Несъемная опалубка
[material_modifier] => 1
[work_modifier] => 1
[options] => Array
(
[0] => 200 мм
[1] => 250 мм
[2] => 300 мм
[3] => 350 мм
)
[days] => [15,17,19,21]
[material_price] => [3302,3902,4108,5008]
[work_price] => [2100,2100,2300,2534]
[image] => https://akademik-stroy.ru/wp-content/uploads/materials/nesemnaya-opalubka.jpg
[area_modifier] => 152.73
[parent_name] => Стены 1 этаж (несущие)
[parent_id] => 3
[material_sum] => 635436
[work_sum] => 336770
[total_sum] => 972206
[total_days] => 15
[display_material_sum] => 635 436
[display_work_sum] => 336 770
[display_total_sum] => 972 206
)
1
972 206₽
Работа:336 770 ₽
Материалы:635 436 ₽
Дни:15
stdClass Object
(
[id] => 251
[attribute_id] => 3
[name] => Бревно
[material_modifier] => 1
[work_modifier] => 1
[options] => Array
(
[0] => 260 мм
[1] => 320 мм
[2] => 360 мм
[3] => 400 мм
[4] => 500 мм
)
[days] => [7,8,9,10,11]
[material_price] => [1874,24045,26930,30972,38825]
[work_price] => [5046,6207,6952,7716,9723]
[image] => https://akademik-stroy.ru/wp-content/uploads/materials/sruby.jpg
[area_modifier] => 152.73
[parent_name] => Стены 1 этаж (несущие)
[parent_id] => 3
[material_sum] => 360632
[work_sum] => 809209
[total_sum] => 1169841
[total_days] => 7
[display_material_sum] => 360 632
[display_work_sum] => 809 209
[display_total_sum] => 1 169 841
)
1
1 169 841₽
Работа:809 209 ₽
Материалы:360 632 ₽
Дни:7
stdClass Object
(
[id] => 7
[attribute_id] => 4
[name] => Деревянные балки
[material_modifier] => 1
[work_modifier] => 1
[options] => Array
(
[0] => без утепления
[1] => утепление 200 мм
[2] => утепление 250 мм
[3] => утепление 300 мм
[4] => утепление 350 мм
[5] => утепление 400 мм
[6] => утепление 450 мм
[7] => утепление 500 мм
)
[days] => [8,9,9,9,11,12,13,14]
[material_price] => [1634,2042,2344,2947,3149,3652,3354,3557]
[work_price] => [1230,1339,1393,1426,1460,1513,1587,1620]
[image] => https://akademik-stroy.ru/wp-content/uploads/materials/derevyannye-balki.png
[area_modifier] => 152.73
[parent_name] => Перекрытие первого этажа
[parent_id] => 4
[material_sum] => 314447
[work_sum] => 197251
[total_sum] => 511698
[total_days] => 8
[display_material_sum] => 314 447
[display_work_sum] => 197 251
[display_total_sum] => 511 698
)
1
511 698₽
Работа:197 251 ₽
Материалы:314 447 ₽
Дни:8
stdClass Object
(
[id] => 8
[attribute_id] => 4
[name] => Сборные ж/б плиты
[material_modifier] => 1
[work_modifier] => 1
[options] => Array
(
[0] => без утепления
[1] => утепление 150 мм
[2] => утепление 200 мм
[3] => утепление 250 мм
[4] => утепление 300 мм
[5] => утепление 350 мм
[6] => утепление 400 мм
[7] => утепление 450 мм
[8] => утепление 500 мм
)
[days] => [13,15,15,15,15,15,15,15,15]
[material_price] => [3067,5577,5928,6679,7730,8782,9833,10884,11935]
[work_price] => [1520,1956,2102,2247,2392,2537,2684,2829,2974]
[image] => https://akademik-stroy.ru/wp-content/uploads/materials/sbornye-zh-b-plity-2.jpg
[area_modifier] => 152.73
[parent_name] => Перекрытие первого этажа
[parent_id] => 4
[material_sum] => 590213
[work_sum] => 243757
[total_sum] => 833970
[total_days] => 13
[display_material_sum] => 590 213
[display_work_sum] => 243 757
[display_total_sum] => 833 970
)
1
833 970₽
Работа:243 757 ₽
Материалы:590 213 ₽
Дни:13
stdClass Object
(
[id] => 89
[attribute_id] => 4
[name] => Монолитная ж/б плита
[material_modifier] => 1
[work_modifier] => 1
[options] => Array
(
[0] => без утепления
[1] => утепление 150 мм
[2] => утепление 200 мм
[3] => утепление 250 мм
[4] => утепление 300 мм
[5] => утепление 350 мм
[6] => утепление 400 мм
[7] => утепление 450 мм
[8] => утепление 500 мм
)
[days] => [18,20,20,20,20,20,20,20,20]
[material_price] => [4837,6572,7224,7375,79426,8177,8728,9180,10031]
[work_price] => [3348,3921,4112,4302,4493,4684,4875,5066,5256]
[image] => https://akademik-stroy.ru/wp-content/uploads/materials/monolitnaya-zh-b-plita-2.jpg
[area_modifier] => 152.73
[parent_name] => Перекрытие первого этажа
[parent_id] => 4
[material_sum] => 930831
[work_sum] => 536907
[total_sum] => 1467738
[total_days] => 18
[display_material_sum] => 930 831
[display_work_sum] => 536 907
[display_total_sum] => 1 467 738
)
1
1 467 738₽
Работа:536 907 ₽
Материалы:930 831 ₽
Дни:18
stdClass Object
(
[id] => 10
[attribute_id] => 5
[name] => Пеноблок
[material_modifier] => 1
[work_modifier] => 1
[options] => Array
(
[0] => 300 мм
[1] => 400 мм
[2] => 500 мм
[3] => 600 мм
)
[days] => [29,31,34,39]
[material_price] => [3000,4000,4500,4937]
[work_price] => [5033,5805,6400,8710]
[image] => https://akademik-stroy.ru/wp-content/uploads/materials/penoblok.jpg
[area_modifier] => 52.96
[parent_name] => Стены 2 этаж (несущие)
[parent_id] => 5
[material_sum] => 200189
[work_sum] => 279875
[total_sum] => 480064
[total_days] => 29
[display_material_sum] => 200 189
[display_work_sum] => 279 875
[display_total_sum] => 480 064
)
1
480 064₽
Работа:279 875 ₽
Материалы:200 189 ₽
Дни:29
stdClass Object
(
[id] => 90
[attribute_id] => 5
[name] => Керамический блок
[material_modifier] => 1
[work_modifier] => 1
[options] => Array
(
[0] => 380 мм
[1] => 380 мм Thermo
[2] => 440 мм
[3] => 510 мм
)
[days] => [23,23,24,25]
[material_price] => [4510,5098,6093,8013]
[work_price] => [4737,4937,5903,6958]
[image] => https://akademik-stroy.ru/wp-content/uploads/materials/keramicheskij-blok.jpg
[area_modifier] => 52.96
[parent_name] => Стены 2 этаж (несущие)
[parent_id] => 5
[material_sum] => 300950
[work_sum] => 263415
[total_sum] => 564365
[total_days] => 23
[display_material_sum] => 300 950
[display_work_sum] => 263 415
[display_total_sum] => 564 365
)
1
564 365₽
Работа:263 415 ₽
Материалы:300 950 ₽
Дни:23
stdClass Object
(
[id] => 91
[attribute_id] => 5
[name] => Кирпич
[material_modifier] => 1
[work_modifier] => 1
[options] => Array
(
[0] => Кирпич 250 мм
[1] => Кирпич 380 мм
[2] => Кирпич 510 мм
[3] => Кирпич 640 мм
[4] => Кирпич 770 мм
)
[days] => [30,30,31,33,36]
[material_price] => [5500,7142,9206,10171,12235]
[work_price] => [8736,10041,12018,15240,18462]
[image] => https://akademik-stroy.ru/wp-content/uploads/materials/kirpich.jpg
[area_modifier] => 52.96
[parent_name] => Стены 2 этаж (несущие)
[parent_id] => 5
[material_sum] => 367013
[work_sum] => 485791
[total_sum] => 852804
[total_days] => 30
[display_material_sum] => 367 013
[display_work_sum] => 485 791
[display_total_sum] => 852 804
)
1
852 804₽
Работа:485 791 ₽
Материалы:367 013 ₽
Дни:30
stdClass Object
(
[id] => 92
[attribute_id] => 5
[name] => Монолитные
[material_modifier] => 1
[work_modifier] => 1
[options] => Array
(
[0] => 150 мм
[1] => 200 мм
[2] => 250 мм
[3] => 300 мм
[4] => 350 мм
[5] => 400 мм
)
[days] => [45,46,47,49,50,53]
[material_price] => [6545,7876,10175,12011,13908,15204]
[work_price] => [5106,6444,7698,8552,9807,11461]
[image] => https://akademik-stroy.ru/wp-content/uploads/materials/monolitnye.jpg
[area_modifier] => 52.96
[parent_name] => Стены 2 этаж (несущие)
[parent_id] => 5
[material_sum] => 436745
[work_sum] => 283934
[total_sum] => 720679
[total_days] => 45
[display_material_sum] => 436 745
[display_work_sum] => 283 934
[display_total_sum] => 720 679
)
1
720 679₽
Работа:283 934 ₽
Материалы:436 745 ₽
Дни:45
stdClass Object
(
[id] => 93
[attribute_id] => 5
[name] => Клееный брус
[material_modifier] => 1
[work_modifier] => 1
[options] => Array
(
[0] => 160 мм
[1] => 175 мм
[2] => 200 мм
[3] => 215 мм
[4] => 240 мм
[5] => 270 мм
[6] => 282 мм
)
[days] => [24,28,32,37,40,42,48]
[material_price] => [16975,18773,19950,20545,21599,22159,23275]
[work_price] => [4806,5287,5815,6397,7036,7740,8514]
[image] => https://akademik-stroy.ru/wp-content/uploads/materials/kleenyj-brus.jpg
[area_modifier] => 52.96
[parent_name] => Стены 2 этаж (несущие)
[parent_id] => 5
[material_sum] => 1132735
[work_sum] => 267252
[total_sum] => 1399987
[total_days] => 24
[display_material_sum] => 1 132 735
[display_work_sum] => 267 252
[display_total_sum] => 1 399 987
)
1
1 399 987₽
Работа:267 252 ₽
Материалы:1 132 735 ₽
Дни:24
stdClass Object
(
[id] => 94
[attribute_id] => 5
[name] => Каркасные
[material_modifier] => 1
[work_modifier] => 1
[options] => Array
(
[0] => 150 мм
[1] => 200 мм
[2] => 250 мм
[3] => 300 мм
)
[days] => [15,16,17,18]
[material_price] => [2379,2639,2898,3258]
[work_price] => [2418,2686,2985,3716]
[image] => https://akademik-stroy.ru/wp-content/uploads/materials/karkasnye.jpg
[area_modifier] => 52.96
[parent_name] => Стены 2 этаж (несущие)
[parent_id] => 5
[material_sum] => 158750
[work_sum] => 134460
[total_sum] => 293210
[total_days] => 15
[display_material_sum] => 158 750
[display_work_sum] => 134 460
[display_total_sum] => 293 210
)
1
293 210₽
Работа:134 460 ₽
Материалы:158 750 ₽
Дни:15
stdClass Object
(
[id] => 95
[attribute_id] => 5
[name] => СИП-панели
[material_modifier] => 1
[work_modifier] => 1
[options] => Array
(
[0] => 120 мм
[1] => 170 мм
[2] => 220 мм
)
[days] => [7,7,7]
[material_price] => [1210,1856,2292]
[work_price] => [1410,1551,1706]
[image] => https://akademik-stroy.ru/wp-content/uploads/materials/sip-paneli.jpg
[area_modifier] => 52.96
[parent_name] => Стены 2 этаж (несущие)
[parent_id] => 5
[material_sum] => 80743
[work_sum] => 78407
[total_sum] => 159150
[total_days] => 7
[display_material_sum] => 80 743
[display_work_sum] => 78 407
[display_total_sum] => 159 150
)
1
159 150₽
Работа:78 407 ₽
Материалы:80 743 ₽
Дни:7
stdClass Object
(
[id] => 96
[attribute_id] => 5
[name] => Сухой брус
[material_modifier] => 1
[work_modifier] => 1
[options] => Array
(
[0] => 150 мм
[1] => 180 мм
[2] => 200 мм
)
[days] => [7,8,9]
[material_price] => [6010,7190,8709]
[work_price] => [3204,3845,4229]
[image] => https://akademik-stroy.ru/wp-content/uploads/materials/suhoj-brus.jpg
[area_modifier] => 52.96
[parent_name] => Стены 2 этаж (несущие)
[parent_id] => 5
[material_sum] => 401045
[work_sum] => 178168
[total_sum] => 579213
[total_days] => 7
[display_material_sum] => 401 045
[display_work_sum] => 178 168
[display_total_sum] => 579 213
)
1
579 213₽
Работа:178 168 ₽
Материалы:401 045 ₽
Дни:7
stdClass Object
(
[id] => 97
[attribute_id] => 5
[name] => Профилированный брус
[material_modifier] => 1
[work_modifier] => 1
[options] => Array
(
[0] => 150 мм
[1] => 180 мм
[2] => 200 мм
)
[days] => [7,8,9]
[material_price] => [8190,9228,10051]
[work_price] => [3845,4614,5075]
[image] => https://akademik-stroy.ru/wp-content/uploads/materials/profilirovannyj-brus.jpg
[area_modifier] => 52.96
[parent_name] => Стены 2 этаж (несущие)
[parent_id] => 5
[material_sum] => 546515
[work_sum] => 213813
[total_sum] => 760328
[total_days] => 7
[display_material_sum] => 546 515
[display_work_sum] => 213 813
[display_total_sum] => 760 328
)
1
760 328₽
Работа:213 813 ₽
Материалы:546 515 ₽
Дни:7
stdClass Object
(
[id] => 98
[attribute_id] => 5
[name] => Оцилиндрованное бревно
[material_modifier] => 1
[work_modifier] => 1
[options] => Array
(
[0] => 180 мм
[1] => 220 мм
[2] => 260 мм
[3] => 320 мм
)
[days] => [7,8,9,10]
[material_price] => [75190,9532,10868,13116]
[work_price] => [3845,4691,5535,6863]
[image] => https://akademik-stroy.ru/wp-content/uploads/materials/ocilindrovannoe-brevno-1.jpg
[area_modifier] => 52.96
[parent_name] => Стены 2 этаж (несущие)
[parent_id] => 5
[material_sum] => 5017399
[work_sum] => 213813
[total_sum] => 5231212
[total_days] => 7
[display_material_sum] => 5 017 399
[display_work_sum] => 213 813
[display_total_sum] => 5 231 212
)
1
5 231 212₽
Работа:213 813 ₽
Материалы:5 017 399 ₽
Дни:7
stdClass Object
(
[id] => 99
[attribute_id] => 5
[name] => Срубы
[material_modifier] => 1
[work_modifier] => 1
[options] => Array
(
[0] => 260 мм
[1] => 320 мм
[2] => 360 мм
[3] => 400 мм
[4] => 500 мм
)
[days] => [7,8,9,10,11]
[material_price] => [16175,23709,26314,29069,32167]
[work_price] => [4806,5911,6621,7349,9260]
[image] => https://akademik-stroy.ru/wp-content/uploads/materials/suhoj-brus.jpg
[area_modifier] => 52.96
[parent_name] => Стены 2 этаж (несущие)
[parent_id] => 5
[material_sum] => 1079351
[work_sum] => 267252
[total_sum] => 1346603
[total_days] => 7
[display_material_sum] => 1 079 351
[display_work_sum] => 267 252
[display_total_sum] => 1 346 603
)
1
1 346 603₽
Работа:267 252 ₽
Материалы:1 079 351 ₽
Дни:7
stdClass Object
(
[id] => 194
[attribute_id] => 5
[name] => Брус
[material_modifier] => 1
[work_modifier] => 1
[options] => Array
(
[0] => 150 мм
[1] => 180 мм
[2] => 200 мм
)
[days] => [10,13,15]
[material_price] => [5127,6152,7367]
[work_price] => [1602,1922,2115]
[image] => https://akademik-stroy.ru/wp-content/uploads/materials/brus.jpg
[area_modifier] => 52.96
[parent_name] => Стены 2 этаж (несущие)
[parent_id] => 5
[material_sum] => 342123
[work_sum] => 89084
[total_sum] => 431207
[total_days] => 10
[display_material_sum] => 342 123
[display_work_sum] => 89 084
[display_total_sum] => 431 207
)
1
431 207₽
Работа:89 084 ₽
Материалы:342 123 ₽
Дни:10
stdClass Object
(
[id] => 195
[attribute_id] => 5
[name] => Газобетон
[material_modifier] => 1
[work_modifier] => 1
[options] => Array
(
[0] => 300 мм
[1] => 375 мм
[2] => 400 мм
[3] => 500 мм
[4] => 600 мм
)
[days] => [29,31,35,37,44]
[material_price] => [4298,5573,6356,7288,9119]
[work_price] => [4538,5251,5926,6733,7195]
[image] => https://akademik-stroy.ru/wp-content/uploads/materials/gazobeton.jpg
[area_modifier] => 52.96
[parent_name] => Стены 2 этаж (несущие)
[parent_id] => 5
[material_sum] => 286804
[work_sum] => 252349
[total_sum] => 539153
[total_days] => 29
[display_material_sum] => 286 804
[display_work_sum] => 252 349
[display_total_sum] => 539 153
)
1
539 153₽
Работа:252 349 ₽
Материалы:286 804 ₽
Дни:29
stdClass Object
(
[id] => 196
[attribute_id] => 5
[name] => Блок
[material_modifier] => 1
[work_modifier] => 1
[options] => Array
(
[0] => 300 мм
[1] => 375 мм
[2] => 400 мм
[3] => 500 мм
[4] => 600 мм
)
[days] => [29,31,35,37,44]
[material_price] => [2698,3973,4356,6588,7119]
[work_price] => [5038,5851,6426,8733,9195]
[image] => https://akademik-stroy.ru/wp-content/uploads/materials/blok.jpg
[area_modifier] => 52.96
[parent_name] => Стены 2 этаж (несущие)
[parent_id] => 5
[material_sum] => 180036
[work_sum] => 280153
[total_sum] => 460189
[total_days] => 29
[display_material_sum] => 180 036
[display_work_sum] => 280 153
[display_total_sum] => 460 189
)
1
460 189₽
Работа:280 153 ₽
Материалы:180 036 ₽
Дни:29
stdClass Object
(
[id] => 197
[attribute_id] => 5
[name] => Газосиликатный блок
[material_modifier] => 1
[work_modifier] => 1
[options] => Array
(
[0] => 300 мм
[1] => 375 мм
[2] => 400 мм
[3] => 500 мм
[4] => 600 мм
)
[days] => [29,31,35,37,44]
[material_price] => [4298,5573,6356,7288,9119]
[work_price] => [4538,5251,5926,6733,7195]
[image] => https://akademik-stroy.ru/wp-content/uploads/materials/gazosilikatnyj-blok.jpg
[area_modifier] => 52.96
[parent_name] => Стены 2 этаж (несущие)
[parent_id] => 5
[material_sum] => 286804
[work_sum] => 252349
[total_sum] => 539153
[total_days] => 29
[display_material_sum] => 286 804
[display_work_sum] => 252 349
[display_total_sum] => 539 153
)
1
539 153₽
Работа:252 349 ₽
Материалы:286 804 ₽
Дни:29
stdClass Object
(
[id] => 198
[attribute_id] => 5
[name] => Керамзитобетонный блок
[material_modifier] => 1
[work_modifier] => 1
[options] => Array
(
[0] => 300 мм
[1] => 375 мм
[2] => 400 мм
[3] => 500 мм
[4] => 600 мм
)
[days] => [23,23,24,25,28]
[material_price] => [3641,4298,5693,7613,9612]
[work_price] => [5737,5737,6903,7958,8901]
[image] => https://akademik-stroy.ru/wp-content/uploads/materials/keramzitobetonnyj-blok.jpg
[area_modifier] => 52.96
[parent_name] => Стены 2 этаж (несущие)
[parent_id] => 5
[material_sum] => 242962
[work_sum] => 319023
[total_sum] => 561985
[total_days] => 23
[display_material_sum] => 242 962
[display_work_sum] => 319 023
[display_total_sum] => 561 985
)
1
561 985₽
Работа:319 023 ₽
Материалы:242 962 ₽
Дни:23
stdClass Object
(
[id] => 199
[attribute_id] => 5
[name] => Деревянные
[material_modifier] => 1
[work_modifier] => 1
[options] => Array
(
[0] => 180 мм
[1] => 220 мм
[2] => 260 мм
[3] => 320 мм
)
[days] => [7,8,9,10]
[material_price] => [7950,9458,11961,14472]
[work_price] => [4037,4925,5812,7207]
[image] => https://akademik-stroy.ru/wp-content/uploads/materials/derevyannye.jpg
[area_modifier] => 52.96
[parent_name] => Стены 2 этаж (несущие)
[parent_id] => 5
[material_sum] => 530500
[work_sum] => 224489
[total_sum] => 754989
[total_days] => 7
[display_material_sum] => 530 500
[display_work_sum] => 224 489
[display_total_sum] => 754 989
)
1
754 989₽
Работа:224 489 ₽
Материалы:530 500 ₽
Дни:7
stdClass Object
(
[id] => 200
[attribute_id] => 5
[name] => Камень
[material_modifier] => 1
[work_modifier] => 1
[options] => Array
(
[0] => 300 мм
[1] => 400 мм
[2] => 500 мм
[3] => 600 мм
)
[days] => [25,27,31,34]
[material_price] => [5262,6844,8330,9815]
[work_price] => [8331,9135,10427,11069]
[image] => https://akademik-stroy.ru/wp-content/uploads/materials/kamen.jpg
[area_modifier] => 52.96
[parent_name] => Стены 2 этаж (несущие)
[parent_id] => 5
[material_sum] => 351131
[work_sum] => 463270
[total_sum] => 814401
[total_days] => 25
[display_material_sum] => 351 131
[display_work_sum] => 463 270
[display_total_sum] => 814 401
)
1
814 401₽
Работа:463 270 ₽
Материалы:351 131 ₽
Дни:25
stdClass Object
(
[id] => 201
[attribute_id] => 5
[name] => Каркасно-щитовые
[material_modifier] => 1
[work_modifier] => 1
[options] => Array
(
[0] => 150 мм
[1] => 200 мм
[2] => 250 мм
[3] => 300 мм
[4] => 350 мм
[5] => 400 мм
)
[days] => [15,16,17,18,19,20]
[material_price] => [2379,2639,2898,3458,3601,4175]
[work_price] => [2538,2820,3134,3483,4062,5642]
[image] => https://akademik-stroy.ru/wp-content/uploads/materials/karkasno-shchitovye.jpg
[area_modifier] => 52.96
[parent_name] => Стены 2 этаж (несущие)
[parent_id] => 5
[material_sum] => 158750
[work_sum] => 141133
[total_sum] => 299883
[total_days] => 15
[display_material_sum] => 158 750
[display_work_sum] => 141 133
[display_total_sum] => 299 883
)
1
299 883₽
Работа:141 133 ₽
Материалы:158 750 ₽
Дни:15
stdClass Object
(
[id] => 202
[attribute_id] => 5
[name] => Рубленные
[material_modifier] => 1
[work_modifier] => 1
[options] => Array
(
[0] => 150 мм
[1] => 200 мм
[2] => 250 мм
[3] => 300 мм
[4] => 350 мм
[5] => 400 мм
)
[days] => [15,16,17,18,17,18]
[material_price] => [35950,50267,60583,75900,80217,100533]
[work_price] => [9612,12816,16020,19224,22428,25632]
[image] => https://akademik-stroy.ru/wp-content/uploads/materials/rublennye.jpg
[area_modifier] => 52.96
[parent_name] => Стены 2 этаж (несущие)
[parent_id] => 5
[material_sum] => 2398929
[work_sum] => 534504
[total_sum] => 2933433
[total_days] => 15
[display_material_sum] => 2 398 929
[display_work_sum] => 534 504
[display_total_sum] => 2 933 433
)
1
2 933 433₽
Работа:534 504 ₽
Материалы:2 398 929 ₽
Дни:15
stdClass Object
(
[id] => 203
[attribute_id] => 5
[name] => Теплоблок
[material_modifier] => 1
[work_modifier] => 1
[options] => Array
(
[0] => 300 мм (с облицовкой, не покрашенный)
[1] => 400 мм (с облицовкой, не покрашенный)
[2] => 300 мм (с облицовкой, покрашенный)
[3] => 400 мм (с облицовкой, покрашенный)
)
[days] => [15,16,15,16]
[material_price] => [2888,3729,3957,4258]
[work_price] => [2564,3229,2949,3713]
[image] => https://akademik-stroy.ru/wp-content/uploads/materials/teploblok.jpg
[area_modifier] => 52.96
[parent_name] => Стены 2 этаж (несущие)
[parent_id] => 5
[material_sum] => 192715
[work_sum] => 142579
[total_sum] => 335294
[total_days] => 15
[display_material_sum] => 192 715
[display_work_sum] => 142 579
[display_total_sum] => 335 294
)
1
335 294₽
Работа:142 579 ₽
Материалы:192 715 ₽
Дни:15
stdClass Object
(
[id] => 204
[attribute_id] => 5
[name] => Арболитовые блоки
[material_modifier] => 1
[work_modifier] => 1
[options] => Array
(
[0] => 300 мм
[1] => 400 мм
[2] => 600 мм
)
[days] => [19,22,27]
[material_price] => [3210,4475,5852]
[work_price] => [4214,4788,5866]
[image] => https://akademik-stroy.ru/wp-content/uploads/materials/arbolitovye-bloki.png
[area_modifier] => 52.96
[parent_name] => Стены 2 этаж (несущие)
[parent_id] => 5
[material_sum] => 214202
[work_sum] => 234332
[total_sum] => 448534
[total_days] => 19
[display_material_sum] => 214 202
[display_work_sum] => 234 332
[display_total_sum] => 448 534
)
1
448 534₽
Работа:234 332 ₽
Материалы:214 202 ₽
Дни:19
stdClass Object
(
[id] => 205
[attribute_id] => 5
[name] => Полистиролбетон
[material_modifier] => 1
[work_modifier] => 1
[options] => Array
(
[0] => 300 мм
[1] => 400 мм
[2] => 600 мм
)
[days] => [29,31,35]
[material_price] => [2798,4573,5256]
[work_price] => [5038,5851,6426]
[image] => https://akademik-stroy.ru/wp-content/uploads/materials/polistirolbeton.jpg
[area_modifier] => 52.96
[parent_name] => Стены 2 этаж (несущие)
[parent_id] => 5
[material_sum] => 186709
[work_sum] => 280153
[total_sum] => 466862
[total_days] => 29
[display_material_sum] => 186 709
[display_work_sum] => 280 153
[display_total_sum] => 466 862
)
1
466 862₽
Работа:280 153 ₽
Материалы:186 709 ₽
Дни:29
stdClass Object
(
[id] => 206
[attribute_id] => 5
[name] => Шлакоблок
[material_modifier] => 1
[work_modifier] => 1
[options] => Array
(
[0] => 400 мм
[1] => 600 мм
)
[days] => [15,16]
[material_price] => [2391,3471]
[work_price] => [2642,3662]
[image] => https://akademik-stroy.ru/wp-content/uploads/materials/shlakoblok.jpg
[area_modifier] => 52.96
[parent_name] => Стены 2 этаж (несущие)
[parent_id] => 5
[material_sum] => 159550
[work_sum] => 146916
[total_sum] => 306466
[total_days] => 15
[display_material_sum] => 159 550
[display_work_sum] => 146 916
[display_total_sum] => 306 466
)
1
306 466₽
Работа:146 916 ₽
Материалы:159 550 ₽
Дни:15
stdClass Object
(
[id] => 245
[attribute_id] => 5
[name] => Теплая керамика
[material_modifier] => 1
[work_modifier] => 1
[options] => Array
(
[0] => 380 мм
[1] => 380 мм Thermo
[2] => 440 мм
[3] => 510 мм
)
[days] => [10,10,11,12]
[material_price] => [4510,5098,6093,8013]
[work_price] => [4737,4937,5903,6958]
[image] => https://akademik-stroy.ru/wp-content/uploads/materials/teplaya-keramika.jpg
[area_modifier] => 52.96
[parent_name] => Стены 2 этаж (несущие)
[parent_id] => 5
[material_sum] => 300950
[work_sum] => 263415
[total_sum] => 564365
[total_days] => 10
[display_material_sum] => 300 950
[display_work_sum] => 263 415
[display_total_sum] => 564 365
)
1
564 365₽
Работа:263 415 ₽
Материалы:300 950 ₽
Дни:10
stdClass Object
(
[id] => 246
[attribute_id] => 5
[name] => Несъемная опалубка
[material_modifier] => 1
[work_modifier] => 1
[options] => Array
(
[0] => 380 мм
[1] => 380 мм Thermo
[2] => 440 мм
[3] => 510 мм
)
[days] => [10,10,11,12]
[material_price] => [3302,3902,4108,5008]
[work_price] => [2100,2100,2300,2534]
[image] => https://akademik-stroy.ru/wp-content/uploads/materials/nesemnaya-opalubka.jpg
[area_modifier] => 52.96
[parent_name] => Стены 2 этаж (несущие)
[parent_id] => 5
[material_sum] => 220341
[work_sum] => 116777
[total_sum] => 337118
[total_days] => 10
[display_material_sum] => 220 341
[display_work_sum] => 116 777
[display_total_sum] => 337 118
)
1
337 118₽
Работа:116 777 ₽
Материалы:220 341 ₽
Дни:10
stdClass Object
(
[id] => 254
[attribute_id] => 5
[name] => Бревно
[material_modifier] => 1
[work_modifier] => 1
[options] => Array
(
[0] => 260 мм
[1] => 320 мм
[2] => 360 мм
[3] => 400 мм
[4] => 500 мм
)
[days] => [7,8,9,10,11]
[material_price] => [1874,24045,26930,30972,38825]
[work_price] => [5046,6207,6952,7716,9723]
[image] => https://akademik-stroy.ru/wp-content/uploads/materials/sruby.jpg
[area_modifier] => 52.96
[parent_name] => Стены 2 этаж (несущие)
[parent_id] => 5
[material_sum] => 125051
[work_sum] => 280598
[total_sum] => 405649
[total_days] => 7
[display_material_sum] => 125 051
[display_work_sum] => 280 598
[display_total_sum] => 405 649
)
1
405 649₽
Работа:280 598 ₽
Материалы:125 051 ₽
Дни:7
stdClass Object
(
[id] => 164
[attribute_id] => 37
[name] => Металлочерепица
[material_modifier] => 1
[work_modifier] => 1
[options] => Array
(
)
[days] => [20]
[material_price] => [6112]
[work_price] => [5726]
[image] => https://akademik-stroy.ru/wp-content/uploads/materials/metallocherepica.jpg
[area_modifier] => 152.73
[parent_name] => Крыша (Скатная)
[parent_id] => 37
[material_sum] => 1176192
[work_sum] => 918259
[total_sum] => 2094451
[total_days] => 20
[display_material_sum] => 1 176 192
[display_work_sum] => 918 259
[display_total_sum] => 2 094 451
)
1
2 094 451₽
Работа:918 259 ₽
Материалы:1 176 192 ₽
Дни:20
stdClass Object
(
[id] => 165
[attribute_id] => 37
[name] => Гибкая черепица
[material_modifier] => 1
[work_modifier] => 1
[options] => Array
(
)
[days] => [20]
[material_price] => [6980]
[work_price] => [5950]
[image] => https://akademik-stroy.ru/wp-content/uploads/materials/gibkaya-cherepica.jpg
[area_modifier] => 152.73
[parent_name] => Крыша (Скатная)
[parent_id] => 37
[material_sum] => 1343230
[work_sum] => 954181
[total_sum] => 2297411
[total_days] => 20
[display_material_sum] => 1 343 230
[display_work_sum] => 954 181
[display_total_sum] => 2 297 411
)
1
2 297 411₽
Работа:954 181 ₽
Материалы:1 343 230 ₽
Дни:20
stdClass Object
(
[id] => 166
[attribute_id] => 37
[name] => Цементно-песчаная черепица
[material_modifier] => 1
[work_modifier] => 1
[options] => Array
(
)
[days] => [20]
[material_price] => [10560]
[work_price] => [9456]
[image] => https://akademik-stroy.ru/wp-content/uploads/materials/cementno-peschanaya-cherepica.jpg
[area_modifier] => 152.73
[parent_name] => Крыша (Скатная)
[parent_id] => 37
[material_sum] => 2032164
[work_sum] => 1516426
[total_sum] => 3548590
[total_days] => 20
[display_material_sum] => 2 032 164
[display_work_sum] => 1 516 426
[display_total_sum] => 3 548 590
)
1
3 548 590₽
Работа:1 516 426 ₽
Материалы:2 032 164 ₽
Дни:20
stdClass Object
(
[id] => 167
[attribute_id] => 37
[name] => Композитная черепица
[material_modifier] => 1
[work_modifier] => 1
[options] => Array
(
)
[days] => [20]
[material_price] => [9506]
[work_price] => [8905]
[image] => https://akademik-stroy.ru/wp-content/uploads/materials/kompozitnaya-cherepica.jpg
[area_modifier] => 152.73
[parent_name] => Крыша (Скатная)
[parent_id] => 37
[material_sum] => 1829333
[work_sum] => 1428064
[total_sum] => 3257397
[total_days] => 20
[display_material_sum] => 1 829 333
[display_work_sum] => 1 428 064
[display_total_sum] => 3 257 397
)
1
3 257 397₽
Работа:1 428 064 ₽
Материалы:1 829 333 ₽
Дни:20
stdClass Object
(
[id] => 168
[attribute_id] => 37
[name] => Керамическая черепица
[material_modifier] => 1
[work_modifier] => 1
[options] => Array
(
)
[days] => [20]
[material_price] => [12750]
[work_price] => [9456]
[image] => https://akademik-stroy.ru/wp-content/uploads/materials/keramicheskaya-cherepica.jpg
[area_modifier] => 152.73
[parent_name] => Крыша (Скатная)
[parent_id] => 37
[material_sum] => 2453607
[work_sum] => 1516426
[total_sum] => 3970033
[total_days] => 20
[display_material_sum] => 2 453 607
[display_work_sum] => 1 516 426
[display_total_sum] => 3 970 033
)
1
3 970 033₽
Работа:1 516 426 ₽
Материалы:2 453 607 ₽
Дни:20
stdClass Object
(
[id] => 169
[attribute_id] => 37
[name] => Металлическая фальцевая
[material_modifier] => 1
[work_modifier] => 1
[options] => Array
(
)
[days] => [20]
[material_price] => [8550]
[work_price] => [8190]
[image] => https://akademik-stroy.ru/wp-content/uploads/materials/metallicheskaya-falcevaya.jpg
[area_modifier] => 152.73
[parent_name] => Крыша (Скатная)
[parent_id] => 37
[material_sum] => 1645360
[work_sum] => 1313402
[total_sum] => 2958762
[total_days] => 20
[display_material_sum] => 1 645 360
[display_work_sum] => 1 313 402
[display_total_sum] => 2 958 762
)
1
2 958 762₽
Работа:1 313 402 ₽
Материалы:1 645 360 ₽
Дни:20
stdClass Object
(
[id] => 170
[attribute_id] => 37
[name] => Медная фальцевая
[material_modifier] => 1
[work_modifier] => 1
[options] => Array
(
)
[days] => [20]
[material_price] => [20450]
[work_price] => [16750]
[image] => https://akademik-stroy.ru/wp-content/uploads/materials/mednaya-falcevaya.jpg
[area_modifier] => 152.73
[parent_name] => Крыша (Скатная)
[parent_id] => 37
[material_sum] => 3935394
[work_sum] => 2686139
[total_sum] => 6621533
[total_days] => 20
[display_material_sum] => 3 935 394
[display_work_sum] => 2 686 139
[display_total_sum] => 6 621 533
)
1
6 621 533₽
Работа:2 686 139 ₽
Материалы:3 935 394 ₽
Дни:20
stdClass Object
(
[id] => 171
[attribute_id] => 37
[name] => Зеленая кровля
[material_modifier] => 1
[work_modifier] => 1
[options] => Array
(
)
[days] => [20]
[material_price] => [19850]
[work_price] => [16780]
[image] => https://akademik-stroy.ru/wp-content/uploads/materials/zelenaya-krovlya.jpg
[area_modifier] => 152.73
[parent_name] => Крыша (Скатная)
[parent_id] => 37
[material_sum] => 3819930
[work_sum] => 2690950
[total_sum] => 6510880
[total_days] => 20
[display_material_sum] => 3 819 930
[display_work_sum] => 2 690 950
[display_total_sum] => 6 510 880
)
1
6 510 880₽
Работа:2 690 950 ₽
Материалы:3 819 930 ₽
Дни:20
stdClass Object
(
[id] => 172
[attribute_id] => 37
[name] => Профлист
[material_modifier] => 1
[work_modifier] => 1
[options] => Array
(
)
[days] => [20]
[material_price] => [3450]
[work_price] => [3750]
[image] => https://akademik-stroy.ru/wp-content/uploads/materials/proflist.jpg
[area_modifier] => 152.73
[parent_name] => Крыша (Скатная)
[parent_id] => 37
[material_sum] => 663917
[work_sum] => 601374
[total_sum] => 1265291
[total_days] => 20
[display_material_sum] => 663 917
[display_work_sum] => 601 374
[display_total_sum] => 1 265 291
)
1
1 265 291₽
Работа:601 374 ₽
Материалы:663 917 ₽
Дни:20
stdClass Object
(
[id] => 51
[attribute_id] => 26
[name] => Есть
[material_modifier] => 1
[work_modifier] => 1
[options] => Array
(
[0] => Профиль 58 мм, 3-камерный, стеклопакет 2-камерный до 32 мм
[1] => Профиль 60 мм, 4-камерный, стеклопакет 2-камерный до 32 мм
[2] => Профиль 70 мм, 5-камерный, стеклопакет 2-камерный до 40 мм
[3] => Профиль 72 мм, 5-камерный, стеклопакет 2-камерный до 40 мм
[4] => Алюминиевые окна Alutech профиль 72 мм, стеклопакет 2-камерный
)
[days] => [3,3,3,3,3]
[material_price] => [1339,2124,2867,3023,29596]
[work_price] => [635,647,659,668,2579]
[image] => https://akademik-stroy.ru/wp-content/uploads/materials/okna.jpg
[area_modifier] => 166.92
[parent_name] => Окна
[parent_id] => 26
[material_sum] => 281617
[work_sum] => 111294
[total_sum] => 392911
[total_days] => 3
[display_material_sum] => 281 617
[display_work_sum] => 111 294
[display_total_sum] => 392 911
)
1
392 911₽
Работа:111 294 ₽
Материалы:281 617 ₽
Дни:3
stdClass Object
(
[id] => 52
[attribute_id] => 26
[name] => Нет
[material_modifier] => 2
[work_modifier] => 1
[options] =>
[days] => null
[material_price] => null
[work_price] => null
[image] => https://akademik-stroy.ru/wp-content/uploads/materials/okna.jpg
[area_modifier] => 166.92
[parent_name] => Окна
[parent_id] => 26
[material_sum] => 0
[work_sum] => 0
[total_sum] => 0
[total_days] => 0
[display_material_sum] => 0
[display_work_sum] => 0
[display_total_sum] => 0
)
1
0₽
Работа:0 ₽
Материалы:0 ₽
Дни:0
stdClass Object
(
[id] => 53
[attribute_id] => 27
[name] => Есть
[material_modifier] => 1
[work_modifier] => 1
[options] => Array
(
)
[days] => [1]
[material_price] => [10000]
[work_price] => [5500]
[image] => https://akademik-stroy.ru/wp-content/uploads/materials/dveri.jpg
[area_modifier] => 1
[parent_name] => Двери входные
[parent_id] => 27
[material_sum] => 12600
[work_sum] => 5775
[total_sum] => 18375
[total_days] => 1
[display_material_sum] => 12 600
[display_work_sum] => 5 775
[display_total_sum] => 18 375
)
1
18 375₽
Работа:5 775 ₽
Материалы:12 600 ₽
Дни:1
stdClass Object
(
[id] => 54
[attribute_id] => 27
[name] => Нет
[material_modifier] => 1
[work_modifier] => 1
[options] => Array
(
)
[days] => [0]
[material_price] => [0]
[work_price] => [0]
[image] => https://akademik-stroy.ru/wp-content/uploads/materials/dveri.jpg
[area_modifier] => 1
[parent_name] => Двери входные
[parent_id] => 27
[material_sum] => 0
[work_sum] => 0
[total_sum] => 0
[total_days] => 0
[display_material_sum] => 0
[display_work_sum] => 0
[display_total_sum] => 0
)
1
0₽
Работа:0 ₽
Материалы:0 ₽
Дни:0
stdClass Object
(
[id] => 25
[attribute_id] => 13
[name] => Нет
[material_modifier] => 1
[work_modifier] => 1
[options] => Array
(
)
[days] => [0]
[material_price] => [0]
[work_price] => [0]
[image] => https://akademik-stroy.ru/wp-content/uploads/materials/mineralovata-krov.jpg
[area_modifier] => 152.73
[parent_name] => Утепление кровли (Мансарда)
[parent_id] => 13
[material_sum] => 0
[work_sum] => 0
[total_sum] => 0
[total_days] => 0
[display_material_sum] => 0
[display_work_sum] => 0
[display_total_sum] => 0
)
1
0₽
Работа:0 ₽
Материалы:0 ₽
Дни:0
stdClass Object
(
[id] => 26
[attribute_id] => 13
[name] => Минераловатный
[material_modifier] => 1
[work_modifier] => 1
[options] => Array
(
[0] => 50 мм
[1] => 100 мм
[2] => 150 мм
[3] => 200 мм
[4] => 250 мм
[5] => 300 мм
[6] => 350 мм
[7] => 400 мм
[8] => 450 мм
[9] => 500 мм
)
[days] => [5,5,6,6,6,7,7,7,8,8]
[material_price] => [1158,1414,1772,2230,3602,4060,4974,5890,6408,7718]
[work_price] => [650,846,846,1098,1318,1450,1596,1754,1930,2122]
[image] => https://akademik-stroy.ru/wp-content/uploads/materials/mineralovata-krov.jpg
[area_modifier] => 152.73
[parent_name] => Утепление кровли (Мансарда)
[parent_id] => 13
[material_sum] => 222845
[work_sum] => 104238
[total_sum] => 327083
[total_days] => 5
[display_material_sum] => 222 845
[display_work_sum] => 104 238
[display_total_sum] => 327 083
)
1
327 083₽
Работа:104 238 ₽
Материалы:222 845 ₽
Дни:5
stdClass Object
(
[id] => 123
[attribute_id] => 13
[name] => Эковата (целлюлозная вата)
[material_modifier] => 1
[work_modifier] => 1
[options] => Array
(
[0] => 50 мм
[1] => 100 мм
[2] => 150 мм
[3] => 200 мм
[4] => 250 мм
[5] => 300 мм
[6] => 350 мм
[7] => 400 мм
[8] => 450 мм
[9] => 500 мм
)
[days] => [3,3,4,4,4,5,5,5,5,5]
[material_price] => [820,1638,2458,3276,5734,6552,8190,9828,11466,13104]
[work_price] => [234,304,304,396,474,522,574,632,694,764]
[image] => https://akademik-stroy.ru/wp-content/uploads/materials/ehkovata-krov.jpg
[area_modifier] => 152.73
[parent_name] => Утепление кровли (Мансарда)
[parent_id] => 13
[material_sum] => 157801
[work_sum] => 37526
[total_sum] => 195327
[total_days] => 3
[display_material_sum] => 157 801
[display_work_sum] => 37 526
[display_total_sum] => 195 327
)
1
195 327₽
Работа:37 526 ₽
Материалы:157 801 ₽
Дни:3
stdClass Object
(
[id] => 124
[attribute_id] => 13
[name] => Экструдированный пенополистирол
[material_modifier] => 1
[work_modifier] => 1
[options] => Array
(
[0] => 50 мм
[1] => 100 мм
[2] => 150 мм
[3] => 200 мм
[4] => 250 мм
[5] => 300 мм
[6] => 350 мм
[7] => 400 мм
[8] => 450 мм
[9] => 500 мм
)
[days] => [3,3,4,4,4,5,5,5,5,6]
[material_price] => [1146,2292,3438,4584,8020,9166,11458,13750,16040,18332]
[work_price] => [390,508,508,660,790,870,958,1052,1158,1274]
[image] => https://akademik-stroy.ru/wp-content/uploads/materials/epps-krov.jpg
[area_modifier] => 152.73
[parent_name] => Утепление кровли (Мансарда)
[parent_id] => 13
[material_sum] => 220536
[work_sum] => 62543
[total_sum] => 283079
[total_days] => 3
[display_material_sum] => 220 536
[display_work_sum] => 62 543
[display_total_sum] => 283 079
)
1
283 079₽
Работа:62 543 ₽
Материалы:220 536 ₽
Дни:3
stdClass Object
(
[id] => 125
[attribute_id] => 13
[name] => ПСБ (ППС-пенополистирол)
[material_modifier] => 1
[work_modifier] => 1
[options] => Array
(
[0] => 50 мм
[1] => 100 мм
[2] => 150 мм
[3] => 200 мм
[4] => 250 мм
[5] => 300 мм
[6] => 350 мм
[7] => 400 мм
[8] => 450 мм
[9] => 500 мм
)
[days] => [3,3,4,4,4,5,5,5,5,6]
[material_price] => [476,954,1430,1906,3336,3814,4766,5720,6674,7626]
[work_price] => [390,508,508,660,790,870,958,1052,1158,1274]
[image] => https://akademik-stroy.ru/wp-content/uploads/materials/psb-krov.jpg
[area_modifier] => 152.73
[parent_name] => Утепление кровли (Мансарда)
[parent_id] => 13
[material_sum] => 91601
[work_sum] => 62543
[total_sum] => 154144
[total_days] => 3
[display_material_sum] => 91 601
[display_work_sum] => 62 543
[display_total_sum] => 154 144
)
1
154 144₽
Работа:62 543 ₽
Материалы:91 601 ₽
Дни:3
stdClass Object
(
[id] => 126
[attribute_id] => 13
[name] => ППУ (Пенополиуретан)
[material_modifier] => 1
[work_modifier] => 1
[options] => Array
(
[0] => 50 мм
[1] => 100 мм
[2] => 150 мм
[3] => 200 мм
[4] => 250 мм
[5] => 300 мм
[6] => 350 мм
[7] => 400 мм
[8] => 450 мм
[9] => 500 мм
)
[days] => [2,2,3,3,3,3,4,4,4,4]
[material_price] => [2080,4160,6240,8320,14560,16640,20800,24960,29120,33280]
[work_price] => [234,304,304,396,474,522,574,632,694,764]
[image] => https://akademik-stroy.ru/wp-content/uploads/materials/ppu-krov.jpg
[area_modifier] => 152.73
[parent_name] => Утепление кровли (Мансарда)
[parent_id] => 13
[material_sum] => 400275
[work_sum] => 37526
[total_sum] => 437801
[total_days] => 2
[display_material_sum] => 400 275
[display_work_sum] => 37 526
[display_total_sum] => 437 801
)
1
437 801₽
Работа:37 526 ₽
Материалы:400 275 ₽
Дни:2
stdClass Object
(
[id] => 127
[attribute_id] => 13
[name] => PIR-плиты (пенополиизоцианурат)
[material_modifier] => 1
[work_modifier] => 1
[options] => Array
(
[0] => 50 мм
[1] => 100 мм
[2] => 150 мм
[3] => 200 мм
[4] => 250 мм
[5] => 300 мм
[6] => 350 мм
[7] => 400 мм
[8] => 450 мм
[9] => 500 мм
)
[days] => [3,3,4,4,4,5,5,5,5,6]
[material_price] => [2646,5290,7936,10580,18516,21162,26452,31742,37032,42324]
[work_price] => [390,508,508,660,790,870,958,1052,1158,1274]
[image] => https://akademik-stroy.ru/wp-content/uploads/materials/pir-krov.jpg
[area_modifier] => 152.73
[parent_name] => Утепление кровли (Мансарда)
[parent_id] => 13
[material_sum] => 509196
[work_sum] => 62543
[total_sum] => 571739
[total_days] => 3
[display_material_sum] => 509 196
[display_work_sum] => 62 543
[display_total_sum] => 571 739
)
1
571 739₽
Работа:62 543 ₽
Материалы:509 196 ₽
Дни:3
stdClass Object
(
[id] => 27
[attribute_id] => 14
[name] => Нет
[material_modifier] => 1
[work_modifier] => 1
[options] => Array
(
)
[days] => [0]
[material_price] => [0]
[work_price] => [0]
[image] => https://akademik-stroy.ru/wp-content/uploads/materials/mansardnye-okna-2.jpg
[area_modifier] => 1
[parent_name] => Мансардные окна
[parent_id] => 14
[material_sum] => 0
[work_sum] => 0
[total_sum] => 0
[total_days] => 0
[display_material_sum] => 0
[display_work_sum] => 0
[display_total_sum] => 0
)
1
0₽
Работа:0 ₽
Материалы:0 ₽
Дни:0
stdClass Object
(
[id] => 28
[attribute_id] => 14
[name] => Есть
[material_modifier] => 1
[work_modifier] => 1
[options] => Array
(
[0] => 55x78
[1] => 55x98
)
[days] => [6,7]
[material_price] => [47480,68700]
[work_price] => [17900,19500]
[image] => https://akademik-stroy.ru/wp-content/uploads/materials/mansardnye-okna-2.jpg
[area_modifier] => 1
[parent_name] => Мансардные окна
[parent_id] => 14
[material_sum] => 59825
[work_sum] => 18795
[total_sum] => 78620
[total_days] => 6
[display_material_sum] => 59 825
[display_work_sum] => 18 795
[display_total_sum] => 78 620
)
1
78 620₽
Работа:18 795 ₽
Материалы:59 825 ₽
Дни:6
stdClass Object
(
[id] => 29
[attribute_id] => 15
[name] => Нет
[material_modifier] => 1
[work_modifier] => 1
[options] => Array
(
)
[days] => [0]
[material_price] => [0]
[work_price] => [0]
[image] => https://akademik-stroy.ru/wp-content/uploads/materials/sofit.jpg
[area_modifier] => 152.73
[parent_name] => Подшивка кровли
[parent_id] => 15
[material_sum] => 0
[work_sum] => 0
[total_sum] => 0
[total_days] => 0
[display_material_sum] => 0
[display_work_sum] => 0
[display_total_sum] => 0
)
1
0₽
Работа:0 ₽
Материалы:0 ₽
Дни:0
stdClass Object
(
[id] => 30
[attribute_id] => 15
[name] => Есть
[material_modifier] => 1
[work_modifier] => 1
[options] => Array
(
[0] => Софиты (ПВХ)
[1] => Cedral
[2] => ДПК
[3] => Планкен
)
[days] => [7,10,9,8]
[material_price] => [1803,3213,3025,3150]
[work_price] => [1529,2188,2075,1923]
[image] => https://akademik-stroy.ru/wp-content/uploads/materials/sofit.jpg
[area_modifier] => 152.73
[parent_name] => Подшивка кровли
[parent_id] => 15
[material_sum] => 346969
[work_sum] => 245200
[total_sum] => 592169
[total_days] => 7
[display_material_sum] => 346 969
[display_work_sum] => 245 200
[display_total_sum] => 592 169
)
1
592 169₽
Работа:245 200 ₽
Материалы:346 969 ₽
Дни:7
stdClass Object
(
[id] => 31
[attribute_id] => 16
[name] => Нет
[material_modifier] => 1
[work_modifier] => 1
[options] => Array
(
)
[days] => [0]
[material_price] => [0]
[work_price] => [0]
[image] => https://akademik-stroy.ru/wp-content/uploads/materials/docke-standard-pvh.jpg
[area_modifier] => 152.73
[parent_name] => Водосточная система
[parent_id] => 16
[material_sum] => 0
[work_sum] => 0
[total_sum] => 0
[total_days] => 0
[display_material_sum] => 0
[display_work_sum] => 0
[display_total_sum] => 0
)
1
0₽
Работа:0 ₽
Материалы:0 ₽
Дни:0
stdClass Object
(
[id] => 32
[attribute_id] => 16
[name] => Есть
[material_modifier] => 1
[work_modifier] => 1
[options] => Array
(
[0] => Döcke Standard (ПВХ)
[1] => Металлические Grand Line
)
[days] => [7,7]
[material_price] => [1842,2703]
[work_price] => [1491,1529]
[image] => https://akademik-stroy.ru/wp-content/uploads/materials/docke-standard-pvh.jpg
[area_modifier] => 152.73
[parent_name] => Водосточная система
[parent_id] => 16
[material_sum] => 354474
[work_sum] => 239106
[total_sum] => 593580
[total_days] => 7
[display_material_sum] => 354 474
[display_work_sum] => 239 106
[display_total_sum] => 593 580
)
1
593 580₽
Работа:239 106 ₽
Материалы:354 474 ₽
Дни:7
stdClass Object
(
[id] => 33
[attribute_id] => 17
[name] => Нет
[material_modifier] => 1
[work_modifier] => 1
[options] => Array
(
)
[days] => [0]
[material_price] => [0]
[work_price] => [0]
[image] => https://akademik-stroy.ru/wp-content/uploads/materials/mineralovata.jpg
[area_modifier] => 205.7
[parent_name] => Дополнительное утепление наружных стен
[parent_id] => 17
[material_sum] => 0
[work_sum] => 0
[total_sum] => 0
[total_days] => 0
[display_material_sum] => 0
[display_work_sum] => 0
[display_total_sum] => 0
)
1
0₽
Работа:0 ₽
Материалы:0 ₽
Дни:0
stdClass Object
(
[id] => 34
[attribute_id] => 17
[name] => Минераловатный
[material_modifier] => 1
[work_modifier] => 1
[options] => Array
(
[0] => 50 мм
[1] => 100 мм
[2] => 150 мм
[3] => 200 мм
[4] => 250 мм
[5] => 300 мм
)
[days] => [7,8,10,12,14,15]
[material_price] => [3437,3613,3803,3915,4601,4830]
[work_price] => [2325,2423,2523,2749,2859,3025]
[image] => https://akademik-stroy.ru/wp-content/uploads/materials/mineralovata.jpg
[area_modifier] => 205.7
[parent_name] => Дополнительное утепление наружных стен
[parent_id] => 17
[material_sum] => 890809
[work_sum] => 502165
[total_sum] => 1392974
[total_days] => 7
[display_material_sum] => 890 809
[display_work_sum] => 502 165
[display_total_sum] => 1 392 974
)
1
1 392 974₽
Работа:502 165 ₽
Материалы:890 809 ₽
Дни:7
stdClass Object
(
[id] => 128
[attribute_id] => 17
[name] => Эковата (целлюлозная вата)
[material_modifier] => 1
[work_modifier] => 1
[options] => Array
(
[0] => 50 мм
[1] => 100 мм
[2] => 150 мм
[3] => 200 мм
[4] => 250 мм
[5] => 300 мм
)
[days] => [3,4,5,6,7,8]
[material_price] => [810,1319,1629,1838,2267,2676]
[work_price] => [1225,1323,1423,1549,1659,1725]
[image] => https://akademik-stroy.ru/wp-content/uploads/materials/ehkovata.jpg
[area_modifier] => 205.7
[parent_name] => Дополнительное утепление наружных стен
[parent_id] => 17
[material_sum] => 209937
[work_sum] => 264582
[total_sum] => 474519
[total_days] => 3
[display_material_sum] => 209 937
[display_work_sum] => 264 582
[display_total_sum] => 474 519
)
1
474 519₽
Работа:264 582 ₽
Материалы:209 937 ₽
Дни:3
stdClass Object
(
[id] => 129
[attribute_id] => 17
[name] => Экструдированный пенополистирол
[material_modifier] => 1
[work_modifier] => 1
[options] => Array
(
[0] => 50 мм
[1] => 100 мм
[2] => 150 мм
[3] => 200 мм
[4] => 250 мм
[5] => 300 мм
)
[days] => [5,6,7,8,9,10]
[material_price] => [4560,4300,5119,6292,7010,8583]
[work_price] => [1795,1954,2254,2330,2595,2735]
[image] => https://akademik-stroy.ru/wp-content/uploads/materials/epps.jpg
[area_modifier] => 205.7
[parent_name] => Дополнительное утепление наружных стен
[parent_id] => 17
[material_sum] => 1181870
[work_sum] => 387693
[total_sum] => 1569563
[total_days] => 5
[display_material_sum] => 1 181 870
[display_work_sum] => 387 693
[display_total_sum] => 1 569 563
)
1
1 569 563₽
Работа:387 693 ₽
Материалы:1 181 870 ₽
Дни:5
stdClass Object
(
[id] => 130
[attribute_id] => 17
[name] => ПСБ (ППС-пенополистирол)
[material_modifier] => 1
[work_modifier] => 1
[options] => Array
(
[0] => 50 мм
[1] => 100 мм
[2] => 150 мм
[3] => 200 мм
[4] => 250 мм
[5] => 300 мм
)
[days] => [5,6,7,8,9,10]
[material_price] => [4822,5200,5819,6292,7010,7583]
[work_price] => [1795,1954,2254,2330,2595,2735]
[image] => https://akademik-stroy.ru/wp-content/uploads/materials/psb.jpg
[area_modifier] => 205.7
[parent_name] => Дополнительное утепление наружных стен
[parent_id] => 17
[material_sum] => 1249776
[work_sum] => 387693
[total_sum] => 1637469
[total_days] => 5
[display_material_sum] => 1 249 776
[display_work_sum] => 387 693
[display_total_sum] => 1 637 469
)
1
1 637 469₽
Работа:387 693 ₽
Материалы:1 249 776 ₽
Дни:5
stdClass Object
(
[id] => 131
[attribute_id] => 17
[name] => ППУ (Пенополиуретан)
[material_modifier] => 1
[work_modifier] => 1
[options] => Array
(
[0] => 50 мм
[1] => 100 мм
[2] => 150 мм
[3] => 200 мм
[4] => 250 мм
[5] => 300 мм
)
[days] => [3,4,5,6,7,8]
[material_price] => [2860,3400,4219,4592,5010,5583]
[work_price] => [729,900,980,1120,1280,1530]
[image] => https://akademik-stroy.ru/wp-content/uploads/materials/ppu.jpg
[area_modifier] => 205.7
[parent_name] => Дополнительное утепление наружных стен
[parent_id] => 17
[material_sum] => 741261
[work_sum] => 157453
[total_sum] => 898714
[total_days] => 3
[display_material_sum] => 741 261
[display_work_sum] => 157 453
[display_total_sum] => 898 714
)
1
898 714₽
Работа:157 453 ₽
Материалы:741 261 ₽
Дни:3
stdClass Object
(
[id] => 132
[attribute_id] => 17
[name] => PIR-плиты (пенополиизоцианурат)
[material_modifier] => 1
[work_modifier] => 1
[options] => Array
(
[0] => 50 мм
[1] => 100 мм
[2] => 150 мм
[3] => 200 мм
[4] => 250 мм
[5] => 300 мм
)
[days] => [5,6,7,8,9,10]
[material_price] => [8323,15645,20968,25900,29258,30581]
[work_price] => [800,900,970,1150,1280,1330]
[image] => https://akademik-stroy.ru/wp-content/uploads/materials/pir.jpg
[area_modifier] => 205.7
[parent_name] => Дополнительное утепление наружных стен
[parent_id] => 17
[material_sum] => 2157172
[work_sum] => 172788
[total_sum] => 2329960
[total_days] => 5
[display_material_sum] => 2 157 172
[display_work_sum] => 172 788
[display_total_sum] => 2 329 960
)
1
2 329 960₽
Работа:172 788 ₽
Материалы:2 157 172 ₽
Дни:5
stdClass Object
(
[id] => 37
[attribute_id] => 19
[name] => Нет
[material_modifier] => 1
[work_modifier] => 1
[options] => Array
(
)
[days] => [0]
[material_price] => [0]
[work_price] => [0]
[image] => https://akademik-stroy.ru/wp-content/uploads/materials/imitaciya-brusa.jpg
[area_modifier] => 205.7
[parent_name] => Наружная отделка фасада
[parent_id] => 19
[material_sum] => 0
[work_sum] => 0
[total_sum] => 0
[total_days] => 0
[display_material_sum] => 0
[display_work_sum] => 0
[display_total_sum] => 0
)
1
0₽
Работа:0 ₽
Материалы:0 ₽
Дни:0
stdClass Object
(
[id] => 38
[attribute_id] => 19
[name] => Имитация бруса
[material_modifier] => 1
[work_modifier] => 1
[options] => Array
(
[0] => Сосна
[1] => Ель
[2] => Лиственница
)
[days] => [20,20,20]
[material_price] => [2994,2762,4954]
[work_price] => [1397,1231,1577]
[image] => https://akademik-stroy.ru/wp-content/uploads/materials/imitaciya-brusa.jpg
[area_modifier] => 205.7
[parent_name] => Наружная отделка фасада
[parent_id] => 19
[material_sum] => 775991
[work_sum] => 301731
[total_sum] => 1077722
[total_days] => 20
[display_material_sum] => 775 991
[display_work_sum] => 301 731
[display_total_sum] => 1 077 722
)
1
1 077 722₽
Работа:301 731 ₽
Материалы:775 991 ₽
Дни:20
stdClass Object
(
[id] => 136
[attribute_id] => 19
[name] => Планкен
[material_modifier] => 1
[work_modifier] => 1
[options] => Array
(
[0] => Сосна
[1] => Ель
[2] => Лиственница
)
[days] => [20,20,20]
[material_price] => [3194,2862,5154]
[work_price] => [1537,1354,1735]
[image] => https://akademik-stroy.ru/wp-content/uploads/materials/planken.jpg
[area_modifier] => 205.7
[parent_name] => Наружная отделка фасада
[parent_id] => 19
[material_sum] => 827827
[work_sum] => 331969
[total_sum] => 1159796
[total_days] => 20
[display_material_sum] => 827 827
[display_work_sum] => 331 969
[display_total_sum] => 1 159 796
)
1
1 159 796₽
Работа:331 969 ₽
Материалы:827 827 ₽
Дни:20
stdClass Object
(
[id] => 137
[attribute_id] => 19
[name] => Штукатурка
[material_modifier] => 1
[work_modifier] => 1
[options] => Array
(
[0] => Цементно-песчаная (минеральная)
[1] => Мокрый фасад
)
[days] => [35,35]
[material_price] => [2231,3938]
[work_price] => [1202,2422]
[image] => https://akademik-stroy.ru/wp-content/uploads/materials/shtukaturka.jpg
[area_modifier] => 205.7
[parent_name] => Наружная отделка фасада
[parent_id] => 19
[material_sum] => 578235
[work_sum] => 259614
[total_sum] => 837849
[total_days] => 35
[display_material_sum] => 578 235
[display_work_sum] => 259 614
[display_total_sum] => 837 849
)
1
837 849₽
Работа:259 614 ₽
Материалы:578 235 ₽
Дни:35
stdClass Object
(
[id] => 138
[attribute_id] => 19
[name] => Облицовочный кирпич
[material_modifier] => 1
[work_modifier] => 1
[options] => Array
(
[0] => Керамический
[1] => Клинкерный
[2] => Ручной формовки
[3] => Гиперпрессованный
[4] => Силикатный кирпич
)
[days] => [45,45,45,45,45]
[material_price] => [8174,9148,1040,1257,5876]
[work_price] => [3240,3758,4536,4017,3369]
[image] => https://akademik-stroy.ru/wp-content/uploads/materials/oblicovochnyj-kirpich.jpg
[area_modifier] => 205.7
[parent_name] => Наружная отделка фасада
[parent_id] => 19
[material_sum] => 2118554
[work_sum] => 699791
[total_sum] => 2818345
[total_days] => 45
[display_material_sum] => 2 118 554
[display_work_sum] => 699 791
[display_total_sum] => 2 818 345
)
1
2 818 345₽
Работа:699 791 ₽
Материалы:2 118 554 ₽
Дни:45
stdClass Object
(
[id] => 139
[attribute_id] => 19
[name] => Фасадная плитка
[material_modifier] => 1
[work_modifier] => 1
[options] => Array
(
[0] => Клинкерная
[1] => Керамическая
[2] => Плитка ручной формовки
)
[days] => [40,40,40]
[material_price] => [2974,1487,3470]
[work_price] => [3007,2592,3629]
[image] => https://akademik-stroy.ru/wp-content/uploads/materials/fasadnaya-plitka.jpg
[area_modifier] => 205.7
[parent_name] => Наружная отделка фасада
[parent_id] => 19
[material_sum] => 770807
[work_sum] => 649467
[total_sum] => 1420274
[total_days] => 40
[display_material_sum] => 770 807
[display_work_sum] => 649 467
[display_total_sum] => 1 420 274
)
1
1 420 274₽
Работа:649 467 ₽
Материалы:770 807 ₽
Дни:40
stdClass Object
(
[id] => 140
[attribute_id] => 19
[name] => Сайдинг
[material_modifier] => 1
[work_modifier] => 1
[options] => Array
(
[0] => Виниловый
[1] => Металлический
[2] => Фиброцементный
)
[days] => [20,20,20]
[material_price] => [1263,1944,4147]
[work_price] => [1263,1944,2074]
[image] => https://akademik-stroy.ru/wp-content/uploads/materials/sajding.jpg
[area_modifier] => 205.7
[parent_name] => Наружная отделка фасада
[parent_id] => 19
[material_sum] => 327347
[work_sum] => 272789
[total_sum] => 600136
[total_days] => 20
[display_material_sum] => 327 347
[display_work_sum] => 272 789
[display_total_sum] => 600 136
)
1
600 136₽
Работа:272 789 ₽
Материалы:327 347 ₽
Дни:20
stdClass Object
(
[id] => 141
[attribute_id] => 19
[name] => Камень
[material_modifier] => 1
[work_modifier] => 1
[options] => Array
(
[0] => Травертин
[1] => Дагестанский
[2] => Искусственный
[3] => Натуральный
[4] => Керамогранит
)
[days] => [45,45,45,45,45]
[material_price] => [4536,3888,2592,3240,2462]
[work_price] => [3240,3240,2462,3110,1944]
[image] => https://akademik-stroy.ru/wp-content/uploads/materials/kamen-1.jpg
[area_modifier] => 205.7
[parent_name] => Наружная отделка фасада
[parent_id] => 19
[material_sum] => 1175650
[work_sum] => 699791
[total_sum] => 1875441
[total_days] => 45
[display_material_sum] => 1 175 650
[display_work_sum] => 699 791
[display_total_sum] => 1 875 441
)
1
1 875 441₽
Работа:699 791 ₽
Материалы:1 175 650 ₽
Дни:45
stdClass Object
(
[id] => 142
[attribute_id] => 19
[name] => Термопанели
[material_modifier] => 1
[work_modifier] => 1
[options] => Array
(
)
[days] => [20]
[material_price] => [6221]
[work_price] => [2333]
[image] => https://akademik-stroy.ru/wp-content/uploads/materials/termo.png
[area_modifier] => 205.7
[parent_name] => Наружная отделка фасада
[parent_id] => 19
[material_sum] => 1612371
[work_sum] => 503893
[total_sum] => 2116264
[total_days] => 20
[display_material_sum] => 1 612 371
[display_work_sum] => 503 893
[display_total_sum] => 2 116 264
)
1
2 116 264₽
Работа:503 893 ₽
Материалы:1 612 371 ₽
Дни:20
stdClass Object
(
[id] => 143
[attribute_id] => 19
[name] => Плитка HAUBERK
[material_modifier] => 1
[work_modifier] => 1
[options] => Array
(
)
[days] => [20]
[material_price] => [2786]
[work_price] => [1944]
[image] => https://akademik-stroy.ru/wp-content/uploads/materials/hauberk.jpg
[area_modifier] => 205.7
[parent_name] => Наружная отделка фасада
[parent_id] => 19
[material_sum] => 722081
[work_sum] => 419875
[total_sum] => 1141956
[total_days] => 20
[display_material_sum] => 722 081
[display_work_sum] => 419 875
[display_total_sum] => 1 141 956
)
1
1 141 956₽
Работа:419 875 ₽
Материалы:722 081 ₽
Дни:20
stdClass Object
(
[id] => 144
[attribute_id] => 19
[name] => Фальцевый фасад
[material_modifier] => 1
[work_modifier] => 1
[options] => Array
(
)
[days] => [20]
[material_price] => [3240]
[work_price] => [2592]
[image] => https://akademik-stroy.ru/wp-content/uploads/materials/falcevyj-fasad.jpg
[area_modifier] => 205.7
[parent_name] => Наружная отделка фасада
[parent_id] => 19
[material_sum] => 839750
[work_sum] => 559833
[total_sum] => 1399583
[total_days] => 20
[display_material_sum] => 839 750
[display_work_sum] => 559 833
[display_total_sum] => 1 399 583
)
1
1 399 583₽
Работа:559 833 ₽
Материалы:839 750 ₽
Дни:20
stdClass Object
(
[id] => 145
[attribute_id] => 19
[name] => Комбинированный
[material_modifier] => 1
[work_modifier] => 1
[options] => Array
(
)
[days] => [20]
[material_price] => [4629]
[work_price] => [3499]
[image] => https://akademik-stroy.ru/wp-content/uploads/materials/Kombinirovannyj.jpg
[area_modifier] => 205.7
[parent_name] => Наружная отделка фасада
[parent_id] => 19
[material_sum] => 1199753
[work_sum] => 755732
[total_sum] => 1955485
[total_days] => 20
[display_material_sum] => 1 199 753
[display_work_sum] => 755 732
[display_total_sum] => 1 955 485
)
1
1 955 485₽
Работа:755 732 ₽
Материалы:1 199 753 ₽
Дни:20
stdClass Object
(
[id] => 257
[attribute_id] => 19
[name] => Японские фиброцементные
[material_modifier] => 1
[work_modifier] => 1
[options] => Array
(
)
[days] => [20]
[material_price] => [7043]
[work_price] => [2993]
[image] => https://akademik-stroy.ru/wp-content/uploads/materials/paneli.jpg
[area_modifier] => 205.7
[parent_name] => Наружная отделка фасада
[parent_id] => 19
[material_sum] => 1825419
[work_sum] => 646443
[total_sum] => 2471862
[total_days] => 20
[display_material_sum] => 1 825 419
[display_work_sum] => 646 443
[display_total_sum] => 2 471 862
)
1
2 471 862₽
Работа:646 443 ₽
Материалы:1 825 419 ₽
Дни:20
stdClass Object
(
[id] => 258
[attribute_id] => 19
[name] => Панели Каньон
[material_modifier] => 1
[work_modifier] => 1
[options] => Array
(
)
[days] => [20]
[material_price] => [4543]
[work_price] => [2592]
[image] => https://akademik-stroy.ru/wp-content/uploads/materials/kanon.png
[area_modifier] => 205.7
[parent_name] => Наружная отделка фасада
[parent_id] => 19
[material_sum] => 1177464
[work_sum] => 559833
[total_sum] => 1737297
[total_days] => 20
[display_material_sum] => 1 177 464
[display_work_sum] => 559 833
[display_total_sum] => 1 737 297
)
1
1 737 297₽
Работа:559 833 ₽
Материалы:1 177 464 ₽
Дни:20
stdClass Object
(
[id] => 39
[attribute_id] => 20
[name] => Нет
[material_modifier] => 1
[work_modifier] => 1
[options] => Array
(
)
[days] => [0]
[material_price] => [0]
[work_price] => [0]
[image] => https://akademik-stroy.ru/wp-content/uploads/materials/terrasy.jpg
[area_modifier] => 30
[parent_name] => Террасы, крыльца, навесы
[parent_id] => 20
[material_sum] => 0
[work_sum] => 0
[total_sum] => 0
[total_days] => 0
[display_material_sum] => 0
[display_work_sum] => 0
[display_total_sum] => 0
)
1
0₽
Работа:0 ₽
Материалы:0 ₽
Дни:0
stdClass Object
(
[id] => 40
[attribute_id] => 20
[name] => Есть
[material_modifier] => 1
[work_modifier] => 1
[options] => Array
(
)
[days] => [5]
[material_price] => [10450]
[work_price] => [1950]
[image] => https://akademik-stroy.ru/wp-content/uploads/materials/terrasy.jpg
[area_modifier] => 30
[parent_name] => Террасы, крыльца, навесы
[parent_id] => 20
[material_sum] => 395010
[work_sum] => 61425
[total_sum] => 456435
[total_days] => 5
[display_material_sum] => 395 010
[display_work_sum] => 61 425
[display_total_sum] => 456 435
)
1
456 435₽
Работа:61 425 ₽
Материалы:395 010 ₽
Дни:5
stdClass Object
(
[id] => 41
[attribute_id] => 21
[name] => Нет
[material_modifier] => 1
[work_modifier] => 1
[options] => Array
(
)
[days] => [0]
[material_price] => [0]
[work_price] => [0]
[image] => https://akademik-stroy.ru/wp-content/uploads/materials/balkony.jpg
[area_modifier] => 30
[parent_name] => Балконы
[parent_id] => 21
[material_sum] => 0
[work_sum] => 0
[total_sum] => 0
[total_days] => 0
[display_material_sum] => 0
[display_work_sum] => 0
[display_total_sum] => 0
)
1
0₽
Работа:0 ₽
Материалы:0 ₽
Дни:0
stdClass Object
(
[id] => 42
[attribute_id] => 21
[name] => Есть
[material_modifier] => 1
[work_modifier] => 1
[options] => Array
(
)
[days] => [12]
[material_price] => [3600]
[work_price] => [1950]
[image] => https://akademik-stroy.ru/wp-content/uploads/materials/balkony.jpg
[area_modifier] => 30
[parent_name] => Балконы
[parent_id] => 21
[material_sum] => 136080
[work_sum] => 61425
[total_sum] => 197505
[total_days] => 12
[display_material_sum] => 136 080
[display_work_sum] => 61 425
[display_total_sum] => 197 505
)
1
197 505₽
Работа:61 425 ₽
Материалы:136 080 ₽
Дни:12
stdClass Object
(
[id] => 43
[attribute_id] => 22
[name] => Нет
[material_modifier] => 1
[work_modifier] => 1
[options] => Array
(
)
[days] => [0]
[material_price] => [0]
[work_price] => [0]
[image] => https://akademik-stroy.ru/wp-content/uploads/materials/uteplennaya.jpg
[area_modifier] => 152.73
[parent_name] => Отмостка
[parent_id] => 22
[material_sum] => 0
[work_sum] => 0
[total_sum] => 0
[total_days] => 0
[display_material_sum] => 0
[display_work_sum] => 0
[display_total_sum] => 0
)
1
0₽
Работа:0 ₽
Материалы:0 ₽
Дни:0
stdClass Object
(
[id] => 44
[attribute_id] => 22
[name] => Утепленная отмостка
[material_modifier] => 1
[work_modifier] => 1
[options] => Array
(
)
[days] => [15]
[material_price] => [2550]
[work_price] => [1750]
[image] => https://akademik-stroy.ru/wp-content/uploads/materials/uteplennaya.jpg
[area_modifier] => 152.73
[parent_name] => Отмостка
[parent_id] => 22
[material_sum] => 490721
[work_sum] => 280641
[total_sum] => 771362
[total_days] => 15
[display_material_sum] => 490 721
[display_work_sum] => 280 641
[display_total_sum] => 771 362
)
1
771 362₽
Работа:280 641 ₽
Материалы:490 721 ₽
Дни:15
stdClass Object
(
[id] => 146
[attribute_id] => 22
[name] => Не утепленная отмостка
[material_modifier] => 1
[work_modifier] => 1
[options] => Array
(
)
[days] => [10]
[material_price] => [1650]
[work_price] => [1450]
[image] => https://akademik-stroy.ru/wp-content/uploads/materials/ne-uteplennaya.jpg
[area_modifier] => 152.73
[parent_name] => Отмостка
[parent_id] => 22
[material_sum] => 317526
[work_sum] => 232531
[total_sum] => 550057
[total_days] => 10
[display_material_sum] => 317 526
[display_work_sum] => 232 531
[display_total_sum] => 550 057
)
1
550 057₽
Работа:232 531 ₽
Материалы:317 526 ₽
Дни:10
stdClass Object
(
[id] => 45
[attribute_id] => 23
[name] => Нет
[material_modifier] => 1
[work_modifier] => 1
[options] => Array
(
)
[days] => [0]
[material_price] => [0]
[work_price] => [0]
[image] => https://akademik-stroy.ru/wp-content/uploads/materials/drenazh-2.jpg
[area_modifier] => 152.73
[parent_name] => Дренаж вокруг дома
[parent_id] => 23
[material_sum] => 0
[work_sum] => 0
[total_sum] => 0
[total_days] => 0
[display_material_sum] => 0
[display_work_sum] => 0
[display_total_sum] => 0
)
1
0₽
Работа:0 ₽
Материалы:0 ₽
Дни:0
stdClass Object
(
[id] => 46
[attribute_id] => 23
[name] => Есть
[material_modifier] => 1
[work_modifier] => 1
[options] => Array
(
)
[days] => [5]
[material_price] => [2366]
[work_price] => [1911]
[image] => https://akademik-stroy.ru/wp-content/uploads/materials/drenazh-2.jpg
[area_modifier] => 152.73
[parent_name] => Дренаж вокруг дома
[parent_id] => 23
[material_sum] => 455313
[work_sum] => 306460
[total_sum] => 761773
[total_days] => 5
[display_material_sum] => 455 313
[display_work_sum] => 306 460
[display_total_sum] => 761 773
)
1
761 773₽
Работа:306 460 ₽
Материалы:455 313 ₽
Дни:5
stdClass Object
(
[id] => 47
[attribute_id] => 24
[name] => Нет
[material_modifier] => 1
[work_modifier] => 1
[options] => Array
(
)
[days] => [0]
[material_price] => [0]
[work_price] => [0]
[image] => https://akademik-stroy.ru/wp-content/uploads/materials/septik.jpg
[area_modifier] => 1
[parent_name] => Автономная канализация (септики)
[parent_id] => 24
[material_sum] => 0
[work_sum] => 0
[total_sum] => 0
[total_days] => 0
[display_material_sum] => 0
[display_work_sum] => 0
[display_total_sum] => 0
)
1
0₽
Работа:0 ₽
Материалы:0 ₽
Дни:0
stdClass Object
(
[id] => 48
[attribute_id] => 24
[name] => Есть
[material_modifier] => 1
[work_modifier] => 1
[options] => Array
(
[0] => Для дачи на 4 человека
[1] => Для дома на 5 человек
[2] => Для дома на 6 человек
[3] => Для дома на 7 человек
[4] => Для дома на 10 человек
)
[days] => [7,7,7,8,8]
[material_price] => [196340,220500,240940,264200,293340]
[work_price] => [50000,55000,60500,66550,73206]
[image] => https://akademik-stroy.ru/wp-content/uploads/materials/septik.jpg
[area_modifier] => 1
[parent_name] => Автономная канализация (септики)
[parent_id] => 24
[material_sum] => 247388
[work_sum] => 52500
[total_sum] => 299888
[total_days] => 7
[display_material_sum] => 247 388
[display_work_sum] => 52 500
[display_total_sum] => 299 888
)
1
299 888₽
Работа:52 500 ₽
Материалы:247 388 ₽
Дни:7
stdClass Object
(
[id] => 49
[attribute_id] => 25
[name] => Нет
[material_modifier] => 1
[work_modifier] => 1
[options] => Array
(
)
[days] => [0]
[material_price] => [0]
[work_price] => [0]
[image] => https://akademik-stroy.ru/wp-content/uploads/materials/gkl.jpg
[area_modifier] => 205.7
[parent_name] => Внутренние (не несущие) перегородки
[parent_id] => 25
[material_sum] => 0
[work_sum] => 0
[total_sum] => 0
[total_days] => 0
[display_material_sum] => 0
[display_work_sum] => 0
[display_total_sum] => 0
)
1
0₽
Работа:0 ₽
Материалы:0 ₽
Дни:0
stdClass Object
(
[id] => 147
[attribute_id] => 25
[name] => Каркасно-обшивные
[material_modifier] => 1
[work_modifier] => 1
[options] => Array
(
[0] => 75 мм (без шумоизоляции)
[1] => 75 мм (с шумоизоляцией)
)
[days] => [11,11]
[material_price] => [580,970]
[work_price] => [380,570]
[image] => https://akademik-stroy.ru/wp-content/uploads/materials/gkl.jpg
[area_modifier] => 205.7
[parent_name] => Внутренние (не несущие) перегородки
[parent_id] => 25
[material_sum] => 150326
[work_sum] => 82074
[total_sum] => 232400
[total_days] => 11
[display_material_sum] => 150 326
[display_work_sum] => 82 074
[display_total_sum] => 232 400
)
1
232 400₽
Работа:82 074 ₽
Материалы:150 326 ₽
Дни:11
stdClass Object
(
[id] => 148
[attribute_id] => 25
[name] => Пазогребневые
[material_modifier] => 1
[work_modifier] => 1
[options] => Array
(
[0] => 80 мм
[1] => 100 мм
)
[days] => [5,5]
[material_price] => [1022,1313]
[work_price] => [600,700]
[image] => https://akademik-stroy.ru/wp-content/uploads/materials/pazogrebnevye-bloki.jpg
[area_modifier] => 205.7
[parent_name] => Внутренние (не несущие) перегородки
[parent_id] => 25
[material_sum] => 264884
[work_sum] => 129591
[total_sum] => 394475
[total_days] => 5
[display_material_sum] => 264 884
[display_work_sum] => 129 591
[display_total_sum] => 394 475
)
1
394 475₽
Работа:129 591 ₽
Материалы:264 884 ₽
Дни:5
stdClass Object
(
[id] => 149
[attribute_id] => 25
[name] => Газобетонные
[material_modifier] => 1
[work_modifier] => 1
[options] => Array
(
[0] => 100 мм
[1] => 200 мм
)
[days] => [11,11]
[material_price] => [1160,1920]
[work_price] => [700,900]
[image] => https://akademik-stroy.ru/wp-content/uploads/materials/gazobeton-2.jpg
[area_modifier] => 205.7
[parent_name] => Внутренние (не несущие) перегородки
[parent_id] => 25
[material_sum] => 300651
[work_sum] => 151190
[total_sum] => 451841
[total_days] => 11
[display_material_sum] => 300 651
[display_work_sum] => 151 190
[display_total_sum] => 451 841
)
1
451 841₽
Работа:151 190 ₽
Материалы:300 651 ₽
Дни:11
stdClass Object
(
[id] => 150
[attribute_id] => 25
[name] => Кирпичные
[material_modifier] => 1
[work_modifier] => 1
[options] => Array
(
[0] => 120 мм
[1] => 250 мм
[2] => 360 мм
)
[days] => [7,7,7]
[material_price] => [1785,3570,5355]
[work_price] => [900,1600,1800]
[image] => https://akademik-stroy.ru/wp-content/uploads/materials/kirpich-1.jpg
[area_modifier] => 205.7
[parent_name] => Внутренние (не несущие) перегородки
[parent_id] => 25
[material_sum] => 462640
[work_sum] => 194387
[total_sum] => 657027
[total_days] => 7
[display_material_sum] => 462 640
[display_work_sum] => 194 387
[display_total_sum] => 657 027
)
1
657 027₽
Работа:194 387 ₽
Материалы:462 640 ₽
Дни:7
stdClass Object
(
[id] => 55
[attribute_id] => 28
[name] => Нет
[material_modifier] => 1
[work_modifier] => 1
[options] => Array
(
)
[days] => [0]
[material_price] => [0]
[work_price] => [0]
[image] => https://akademik-stroy.ru/wp-content/uploads/materials/ehlektrika.jpg
[area_modifier] => 166.92
[parent_name] => Электрика
[parent_id] => 28
[material_sum] => 0
[work_sum] => 0
[total_sum] => 0
[total_days] => 0
[display_material_sum] => 0
[display_work_sum] => 0
[display_total_sum] => 0
)
1
0₽
Работа:0 ₽
Материалы:0 ₽
Дни:0
stdClass Object
(
[id] => 56
[attribute_id] => 28
[name] => Есть
[material_modifier] => 1
[work_modifier] => 1
[options] => Array
(
)
[days] => [10]
[material_price] => [650]
[work_price] => [950]
[image] => https://akademik-stroy.ru/wp-content/uploads/materials/ehlektrika.jpg
[area_modifier] => 166.92
[parent_name] => Электрика
[parent_id] => 28
[material_sum] => 136707
[work_sum] => 166503
[total_sum] => 303210
[total_days] => 10
[display_material_sum] => 136 707
[display_work_sum] => 166 503
[display_total_sum] => 303 210
)
1
303 210₽
Работа:166 503 ₽
Материалы:136 707 ₽
Дни:10
stdClass Object
(
[id] => 57
[attribute_id] => 29
[name] => Нет
[material_modifier] => 1
[work_modifier] => 1
[options] => Array
(
)
[days] => [0]
[material_price] => [0]
[work_price] => [0]
[image] => https://akademik-stroy.ru/wp-content/uploads/materials/santekhnika-kanalizaciya-1.jpg
[area_modifier] => 166.92
[parent_name] => Сантехника, канализация в доме
[parent_id] => 29
[material_sum] => 0
[work_sum] => 0
[total_sum] => 0
[total_days] => 0
[display_material_sum] => 0
[display_work_sum] => 0
[display_total_sum] => 0
)
1
0₽
Работа:0 ₽
Материалы:0 ₽
Дни:0
stdClass Object
(
[id] => 58
[attribute_id] => 29
[name] => Есть
[material_modifier] => 1
[work_modifier] => 1
[options] => Array
(
)
[days] => [10]
[material_price] => [600]
[work_price] => [730]
[image] => https://akademik-stroy.ru/wp-content/uploads/materials/santekhnika-kanalizaciya-1.jpg
[area_modifier] => 166.92
[parent_name] => Сантехника, канализация в доме
[parent_id] => 29
[material_sum] => 126192
[work_sum] => 127944
[total_sum] => 254136
[total_days] => 10
[display_material_sum] => 126 192
[display_work_sum] => 127 944
[display_total_sum] => 254 136
)
1
254 136₽
Работа:127 944 ₽
Материалы:126 192 ₽
Дни:10
stdClass Object
(
[id] => 59
[attribute_id] => 30
[name] => Нет
[material_modifier] => 1
[work_modifier] => 1
[options] => Array
(
)
[days] => [0]
[material_price] => [0]
[work_price] => [0]
[image] => https://akademik-stroy.ru/wp-content/uploads/materials/otoplenie-1.jpg
[area_modifier] => 166.92
[parent_name] => Отопление
[parent_id] => 30
[material_sum] => 0
[work_sum] => 0
[total_sum] => 0
[total_days] => 0
[display_material_sum] => 0
[display_work_sum] => 0
[display_total_sum] => 0
)
1
0₽
Работа:0 ₽
Материалы:0 ₽
Дни:0
stdClass Object
(
[id] => 60
[attribute_id] => 30
[name] => Есть
[material_modifier] => 1
[work_modifier] => 1
[options] => Array
(
)
[days] => [5]
[material_price] => [610]
[work_price] => [560]
[image] => https://akademik-stroy.ru/wp-content/uploads/materials/otoplenie-1.jpg
[area_modifier] => 166.92
[parent_name] => Отопление
[parent_id] => 30
[material_sum] => 128295
[work_sum] => 98149
[total_sum] => 226444
[total_days] => 5
[display_material_sum] => 128 295
[display_work_sum] => 98 149
[display_total_sum] => 226 444
)
1
226 444₽
Работа:98 149 ₽
Материалы:128 295 ₽
Дни:5
stdClass Object
(
[id] => 61
[attribute_id] => 31
[name] => Нет
[material_modifier] => 1
[work_modifier] => 1
[options] => Array
(
)
[days] => [0]
[material_price] => [0]
[work_price] => [0]
[image] => https://akademik-stroy.ru/wp-content/uploads/materials/vodyanye.jpg
[area_modifier] => 30
[parent_name] => Теплые полы
[parent_id] => 31
[material_sum] => 0
[work_sum] => 0
[total_sum] => 0
[total_days] => 0
[display_material_sum] => 0
[display_work_sum] => 0
[display_total_sum] => 0
)
1
0₽
Работа:0 ₽
Материалы:0 ₽
Дни:0
stdClass Object
(
[id] => 151
[attribute_id] => 31
[name] => Водяные
[material_modifier] => 1
[work_modifier] => 1
[options] => Array
(
)
[days] => [9]
[material_price] => [10200]
[work_price] => [2500]
[image] => https://akademik-stroy.ru/wp-content/uploads/materials/vodyanye.jpg
[area_modifier] => 30
[parent_name] => Теплые полы
[parent_id] => 31
[material_sum] => 385560
[work_sum] => 78750
[total_sum] => 464310
[total_days] => 9
[display_material_sum] => 385 560
[display_work_sum] => 78 750
[display_total_sum] => 464 310
)
1
464 310₽
Работа:78 750 ₽
Материалы:385 560 ₽
Дни:9
stdClass Object
(
[id] => 152
[attribute_id] => 31
[name] => Электро
[material_modifier] => 1
[work_modifier] => 1
[options] => Array
(
)
[days] => [5]
[material_price] => [6300]
[work_price] => [1500]
[image] => https://akademik-stroy.ru/wp-content/uploads/materials/ehlektricheskij.jpg
[area_modifier] => 30
[parent_name] => Теплые полы
[parent_id] => 31
[material_sum] => 238140
[work_sum] => 47250
[total_sum] => 285390
[total_days] => 5
[display_material_sum] => 238 140
[display_work_sum] => 47 250
[display_total_sum] => 285 390
)
1
285 390₽
Работа:47 250 ₽
Материалы:238 140 ₽
Дни:5
stdClass Object
(
[id] => 63
[attribute_id] => 32
[name] => Нет
[material_modifier] => 1
[work_modifier] => 1
[options] => Array
(
)
[days] => [0]
[material_price] => [0]
[work_price] => [0]
[image] => https://akademik-stroy.ru/wp-content/uploads/materials/shtukaturka-shpatlevka-1.jpg
[area_modifier] => 166.92
[parent_name] => Черновая отделка стен
[parent_id] => 32
[material_sum] => 0
[work_sum] => 0
[total_sum] => 0
[total_days] => 0
[display_material_sum] => 0
[display_work_sum] => 0
[display_total_sum] => 0
)
1
0₽
Работа:0 ₽
Материалы:0 ₽
Дни:0
stdClass Object
(
[id] => 153
[attribute_id] => 32
[name] => Штукатурка и шпатлевка
[material_modifier] => 1
[work_modifier] => 1
[options] => Array
(
)
[days] => [20]
[material_price] => [1850]
[work_price] => [2600]
[image] => https://akademik-stroy.ru/wp-content/uploads/materials/shtukaturka-shpatlevka-1.jpg
[area_modifier] => 166.92
[parent_name] => Черновая отделка стен
[parent_id] => 32
[material_sum] => 389091
[work_sum] => 455692
[total_sum] => 844783
[total_days] => 20
[display_material_sum] => 389 091
[display_work_sum] => 455 692
[display_total_sum] => 844 783
)
1
844 783₽
Работа:455 692 ₽
Материалы:389 091 ₽
Дни:20
stdClass Object
(
[id] => 154
[attribute_id] => 32
[name] => Гипсокортон на стены
[material_modifier] => 1
[work_modifier] => 1
[options] => Array
(
)
[days] => [15]
[material_price] => [950]
[work_price] => [2100]
[image] => https://akademik-stroy.ru/wp-content/uploads/materials/gkl-1.jpg
[area_modifier] => 166.92
[parent_name] => Черновая отделка стен
[parent_id] => 32
[material_sum] => 199803
[work_sum] => 368059
[total_sum] => 567862
[total_days] => 15
[display_material_sum] => 199 803
[display_work_sum] => 368 059
[display_total_sum] => 567 862
)
1
567 862₽
Работа:368 059 ₽
Материалы:199 803 ₽
Дни:15
stdClass Object
(
[id] => 155
[attribute_id] => 32
[name] => Вагонка
[material_modifier] => 1
[work_modifier] => 1
[options] => Array
(
)
[days] => [15]
[material_price] => [1250]
[work_price] => [950]
[image] => https://akademik-stroy.ru/wp-content/uploads/materials/vagonka.jpg
[area_modifier] => 166.92
[parent_name] => Черновая отделка стен
[parent_id] => 32
[material_sum] => 262899
[work_sum] => 166503
[total_sum] => 429402
[total_days] => 15
[display_material_sum] => 262 899
[display_work_sum] => 166 503
[display_total_sum] => 429 402
)
1
429 402₽
Работа:166 503 ₽
Материалы:262 899 ₽
Дни:15
stdClass Object
(
[id] => 65
[attribute_id] => 33
[name] => Нет
[material_modifier] => 1
[work_modifier] => 1
[options] => Array
(
)
[days] => [0]
[material_price] => [0]
[work_price] => [0]
[image] => https://akademik-stroy.ru/wp-content/uploads/materials/styazhka.jpg
[area_modifier] => 166.92
[parent_name] => Черновая отделка полов
[parent_id] => 33
[material_sum] => 0
[work_sum] => 0
[total_sum] => 0
[total_days] => 0
[display_material_sum] => 0
[display_work_sum] => 0
[display_total_sum] => 0
)
1
0₽
Работа:0 ₽
Материалы:0 ₽
Дни:0
stdClass Object
(
[id] => 156
[attribute_id] => 33
[name] => Стяжка + наливные полы
[material_modifier] => 1
[work_modifier] => 1
[options] => Array
(
)
[days] => [10]
[material_price] => [1000]
[work_price] => [900]
[image] => https://akademik-stroy.ru/wp-content/uploads/materials/styazhka.jpg
[area_modifier] => 166.92
[parent_name] => Черновая отделка полов
[parent_id] => 33
[material_sum] => 210319
[work_sum] => 157739
[total_sum] => 368058
[total_days] => 10
[display_material_sum] => 210 319
[display_work_sum] => 157 739
[display_total_sum] => 368 058
)
1
368 058₽
Работа:157 739 ₽
Материалы:210 319 ₽
Дни:10
stdClass Object
(
[id] => 157
[attribute_id] => 33
[name] => ОСБ на пол
[material_modifier] => 1
[work_modifier] => 1
[options] => Array
(
)
[days] => [7]
[material_price] => [580]
[work_price] => [350]
[image] => https://akademik-stroy.ru/wp-content/uploads/materials/osb-1.jpg
[area_modifier] => 166.92
[parent_name] => Черновая отделка полов
[parent_id] => 33
[material_sum] => 121985
[work_sum] => 61343
[total_sum] => 183328
[total_days] => 7
[display_material_sum] => 121 985
[display_work_sum] => 61 343
[display_total_sum] => 183 328
)
1
183 328₽
Работа:61 343 ₽
Материалы:121 985 ₽
Дни:7
stdClass Object
(
[id] => 67
[attribute_id] => 34
[name] => Нет
[material_modifier] => 1
[work_modifier] => 1
[options] => Array
(
)
[days] => [0]
[material_price] => [0]
[work_price] => [0]
[image] => https://akademik-stroy.ru/wp-content/uploads/materials/chistovaya-otdelka.jpg
[area_modifier] => 166.92
[parent_name] => Чистовая отделка стен и полов
[parent_id] => 34
[material_sum] => 0
[work_sum] => 0
[total_sum] => 0
[total_days] => 0
[display_material_sum] => 0
[display_work_sum] => 0
[display_total_sum] => 0
)
1
0₽
Работа:0 ₽
Материалы:0 ₽
Дни:0
stdClass Object
(
[id] => 68
[attribute_id] => 34
[name] => Есть
[material_modifier] => 1
[work_modifier] => 1
[options] => Array
(
)
[days] => [50]
[material_price] => [6000]
[work_price] => [3500]
[image] => https://akademik-stroy.ru/wp-content/uploads/materials/chistovaya-otdelka.jpg
[area_modifier] => 166.92
[parent_name] => Чистовая отделка стен и полов
[parent_id] => 34
[material_sum] => 1261915
[work_sum] => 613431
[total_sum] => 1875346
[total_days] => 50
[display_material_sum] => 1 261 915
[display_work_sum] => 613 431
[display_total_sum] => 1 875 346
)
1
1 875 346₽
Работа:613 431 ₽
Материалы:1 261 915 ₽
Дни:50
stdClass Object
(
[id] => 69
[attribute_id] => 35
[name] => Нет
[material_modifier] => 1
[work_modifier] => 1
[options] => Array
(
)
[days] => [0]
[material_price] => [0]
[work_price] => [0]
[image] => https://akademik-stroy.ru/wp-content/uploads/materials/mnogourovnevyj-gkl.jpg
[area_modifier] => 166.92
[parent_name] => Отделка потолка
[parent_id] => 35
[material_sum] => 0
[work_sum] => 0
[total_sum] => 0
[total_days] => 0
[display_material_sum] => 0
[display_work_sum] => 0
[display_total_sum] => 0
)
1
0₽
Работа:0 ₽
Материалы:0 ₽
Дни:0
stdClass Object
(
[id] => 70
[attribute_id] => 35
[name] => Есть
[material_modifier] => 1
[work_modifier] => 1
[options] => Array
(
[0] => Многоуровневый потолок из гипсокартона
[1] => Многоуровневый потолок из гипсокартона и натяжного потолка
[2] => Одноуровневый потолок из гипсокартона
[3] => Одноуровневый натяжной потолок
)
[days] => [10,10,1,1]
[material_price] => [900,700,700,600]
[work_price] => [1000,800,500,300]
[image] => https://akademik-stroy.ru/wp-content/uploads/materials/mnogourovnevyj-gkl.jpg
[area_modifier] => 166.92
[parent_name] => Отделка потолка
[parent_id] => 35
[material_sum] => 189287
[work_sum] => 175266
[total_sum] => 364553
[total_days] => 10
[display_material_sum] => 189 287
[display_work_sum] => 175 266
[display_total_sum] => 364 553
)
1
364 553₽
Работа:175 266 ₽
Материалы:189 287 ₽
Дни:10
Преимущества работы с нами
7 этапов оплаты
Независимый строительный надзор
Экологически чистые материалы
16 лет гарантии
Онлайн-кабинет с веб-камерой
Строители с опытом более 15 лет
Собственное производство
















