Одноэтажный дом 12x19 - 156.77 м2 за руб.
Планировки
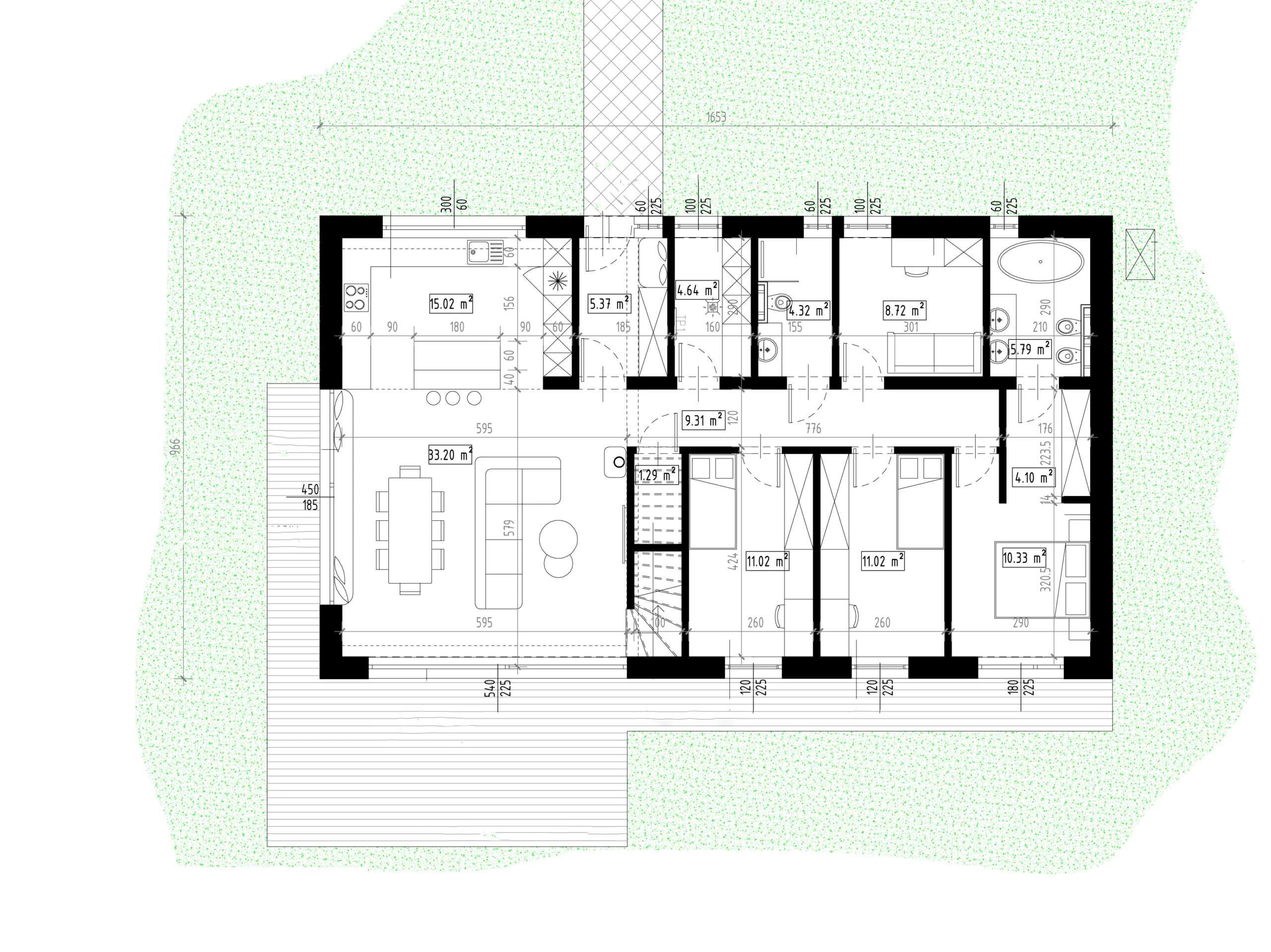
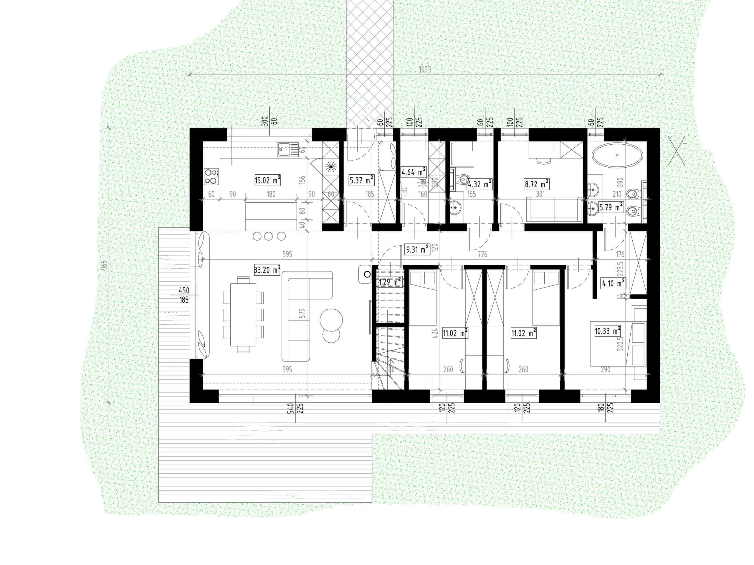
План первого этажа
- 1. Тамбур 5,37 м²
- 2. Гардероб 4,64 м²
- 3. Кухня 15,02 м²
- 4. Гостиная-столовя 33,20 м²
- 5. Лестн.кладовая 1,29 м²
- 6. Коридор 9,31 м²
- 7. Комната 11,02 м²
- 8. Санузел 4,32 м²
- 9. Кабинет 8,72 м²
- 10. Комната 11,02 м²
- 11. Спальня 10,33 м²
- 12. Гардероб 4,10 м²
- 13. Ванная комната 5,79 м²
- Общая площадь первый этаж 124,14 м²
План мансарды
- 1. Мансарда 30,39 м²
- Общая площадь второй этаж 30,39 м²
Площади дома
| № п/п | Наименование | Ед. из. | Строительная площадь | Полезная площадь |
| 1 | 1 этаж | м2 | 152.98 | 124.14 |
| 2 | 2 этаж | м2 | 40.21 | 32.63 |
| 3 | Итого | м2 | 193.19 | 156.77 |
154 м2
Полезная
площадь
площадь
12 x 19 м
Размеры
1 этаж
Этажей
26 м2
Террасы
и балконы
и балконы
0Без
гаража
гаража
4
Количество
спален
спален
1
Количество
санузлов
санузлов
Калькулятор опций
0₽
В ипотеку от 21 811 ₽/мес.
0₽
0 дней
stdClass Object
(
[id] => 1
[attribute_id] => 1
[name] => Ленточный монолитный ж/б
[material_modifier] => 1
[work_modifier] => 1
[options] => Array
(
[0] => размер 200 х 700 мм
[1] => размер 300 х 900 мм
[2] => размер 400 х 1 000 мм
[3] => размер 500 х 1 100 мм
[4] => размер 600 х 1 200 мм
)
[days] => [20,21,22,25,30]
[material_price] => [2823,3630,4475,5210,12047]
[work_price] => [2154,2826,3731,4577,5293]
[image] => https://akademik-stroy.ru/wp-content/uploads/materials/lentochnyj-monolitnyj-zh-b.jpg
[area_modifier] => 152.98
[parent_name] => Фундамент
[parent_id] => 1
[material_sum] => 570059
[work_sum] => 362471
[total_sum] => 932530
[total_days] => 20
[display_material_sum] => 570 059
[display_work_sum] => 362 471
[display_total_sum] => 932 530
)
1
932 530₽
Работа:362 471 ₽
Материалы:570 059 ₽
Дни:20
stdClass Object
(
[id] => 2
[attribute_id] => 1
[name] => Забивные Ж/Б сваи
[material_modifier] => 1
[work_modifier] => 1
[options] => Array
(
[0] => 150х150х3000мм
[1] => 150х150х4000мм
[2] => 200х200х3000мм
[3] => 200х200х4000мм
[4] => 200х200х5000мм
[5] => 200х200х6000мм
)
[days] => [2,2,2,2,2,2]
[material_price] => [1990,2850,3255,4360,5120,6837]
[work_price] => [1002,1185,1336,1438,1574,1839]
[image] => https://akademik-stroy.ru/wp-content/uploads/materials/zabivnye-zh-b-svai.png
[area_modifier] => 152.98
[parent_name] => Фундамент
[parent_id] => 1
[material_sum] => 401848
[work_sum] => 168615
[total_sum] => 570463
[total_days] => 2
[display_material_sum] => 401 848
[display_work_sum] => 168 615
[display_total_sum] => 570 463
)
1
570 463₽
Работа:168 615 ₽
Материалы:401 848 ₽
Дни:2
stdClass Object
(
[id] => 71
[attribute_id] => 1
[name] => Свайно-ростверковый ж/б
[material_modifier] => 1
[work_modifier] => 1
[options] => Array
(
[0] => ростверк 200х300 мм
[1] => ростверк 300х600 мм
[2] => ростверк 400х900 мм
[3] => ростверк 500х1200 мм
)
[days] => [20,23,25,27]
[material_price] => [3018,3474,7109,9792]
[work_price] => [2024,3012,5635,7022]
[image] => https://akademik-stroy.ru/wp-content/uploads/materials/svajno-rostverkovyj-monolitnyj-zh-b-3.png
[area_modifier] => 152.98
[parent_name] => Фундамент
[parent_id] => 1
[material_sum] => 609436
[work_sum] => 340595
[total_sum] => 950031
[total_days] => 20
[display_material_sum] => 609 436
[display_work_sum] => 340 595
[display_total_sum] => 950 031
)
1
950 031₽
Работа:340 595 ₽
Материалы:609 436 ₽
Дни:20
stdClass Object
(
[id] => 72
[attribute_id] => 1
[name] => Монолитная ж/б плита
[material_modifier] => 1
[work_modifier] => 1
[options] => Array
(
[0] => 200 мм
[1] => 300 мм
[2] => 400 мм
[3] => 500 мм
[4] => 600 мм
)
[days] => [30,33,35,37,40]
[material_price] => [5348,8555,12788,14388,15189]
[work_price] => [4314,4881,7037,8061,10230]
[image] => https://akademik-stroy.ru/wp-content/uploads/materials/monolitnaya-zhb-plita.png
[area_modifier] => 152.98
[parent_name] => Фундамент
[parent_id] => 1
[material_sum] => 1079941
[work_sum] => 725951
[total_sum] => 1805892
[total_days] => 30
[display_material_sum] => 1 079 941
[display_work_sum] => 725 951
[display_total_sum] => 1 805 892
)
1
1 805 892₽
Работа:725 951 ₽
Материалы:1 079 941 ₽
Дни:30
stdClass Object
(
[id] => 73
[attribute_id] => 1
[name] => Утепленная шведская плита
[material_modifier] => 1
[work_modifier] => 1
[options] => Array
(
[0] => 200 мм
[1] => 300 мм
[2] => 400 мм
[3] => 500 мм
[4] => 600 мм
)
[days] => [32,37,39,42,45]
[material_price] => [10249,12692,13760,14936,16230]
[work_price] => [5960,7337,8072,8878,9765]
[image] => https://akademik-stroy.ru/wp-content/uploads/materials/uteplennaya-shvedskaya-plita.jpg
[area_modifier] => 152.98
[parent_name] => Фундамент
[parent_id] => 1
[material_sum] => 2069617
[work_sum] => 1002937
[total_sum] => 3072554
[total_days] => 32
[display_material_sum] => 2 069 617
[display_work_sum] => 1 002 937
[display_total_sum] => 3 072 554
)
1
3 072 554₽
Работа:1 002 937 ₽
Материалы:2 069 617 ₽
Дни:32
stdClass Object
(
[id] => 75
[attribute_id] => 1
[name] => Ленточный из ФБС
[material_modifier] => 1
[work_modifier] => 1
[options] => Array
(
[0] => толщ. 300 мм
[1] => толщ. 400 мм
[2] => толщ. 500 мм
[3] => толщ. 600 мм
)
[days] => [20,20,20,20]
[material_price] => [3675,4902,6126,7350]
[work_price] => [2451,3264,4083,4902]
[image] => https://akademik-stroy.ru/wp-content/uploads/materials/lentochnyj-iz-fbs.png
[area_modifier] => 152.98
[parent_name] => Фундамент
[parent_id] => 1
[material_sum] => 742106
[work_sum] => 412449
[total_sum] => 1154555
[total_days] => 20
[display_material_sum] => 742 106
[display_work_sum] => 412 449
[display_total_sum] => 1 154 555
)
1
1 154 555₽
Работа:412 449 ₽
Материалы:742 106 ₽
Дни:20
stdClass Object
(
[id] => 76
[attribute_id] => 1
[name] => Цокольный этаж из ФБС
[material_modifier] => 1
[work_modifier] => 1
[options] => Array
(
[0] => толщ. 300 мм
[1] => толщ. 400 мм
[2] => толщ. 500 мм
[3] => толщ. 600 мм
)
[days] => [30,32,34,36]
[material_price] => [20916,23299,26680,29060]
[work_price] => [17524,18700,19873,21046]
[image] => https://akademik-stroy.ru/wp-content/uploads/materials/cokolnyj-ehtazh-iz-fbs.jpg
[area_modifier] => 152.98
[parent_name] => Фундамент
[parent_id] => 1
[material_sum] => 4223643
[work_sum] => 2948904
[total_sum] => 7172547
[total_days] => 30
[display_material_sum] => 4 223 643
[display_work_sum] => 2 948 904
[display_total_sum] => 7 172 547
)
1
7 172 547₽
Работа:2 948 904 ₽
Материалы:4 223 643 ₽
Дни:30
stdClass Object
(
[id] => 77
[attribute_id] => 1
[name] => Цокольный этаж монолитный ж/б
[material_modifier] => 1
[work_modifier] => 1
[options] => Array
(
[0] => толщ. 200 мм
[1] => толщ. 300 мм
[2] => толщ. 400 мм
[3] => толщ. 500 мм
[4] => толщ. 600 мм
)
[days] => [40,42,44,46,48]
[material_price] => [25421,29148,32275,35602,37326]
[work_price] => [20441,21907,23375,24841,26306]
[image] => https://akademik-stroy.ru/wp-content/uploads/materials/cokolnyj-etazh-zh-b.jpg
[area_modifier] => 152.98
[parent_name] => Фундамент
[parent_id] => 1
[material_sum] => 5133354
[work_sum] => 3439771
[total_sum] => 8573125
[total_days] => 40
[display_material_sum] => 5 133 354
[display_work_sum] => 3 439 771
[display_total_sum] => 8 573 125
)
1
8 573 125₽
Работа:3 439 771 ₽
Материалы:5 133 354 ₽
Дни:40
stdClass Object
(
[id] => 191
[attribute_id] => 1
[name] => Винтовые сваи
[material_modifier] => 1
[work_modifier] => 1
[options] => Array
(
[0] => 57х200мм
[1] => 76х250мм
[2] => 108х300мм
[3] => 133х350мм
)
[days] => [1,1,2,2]
[material_price] => [1200,1300,1450,1600]
[work_price] => [400,600,900,1100]
[image] => https://akademik-stroy.ru/wp-content/uploads/materials/vintovye-svai.png
[area_modifier] => 152.98
[parent_name] => Фундамент
[parent_id] => 1
[material_sum] => 242320
[work_sum] => 67311
[total_sum] => 309631
[total_days] => 1
[display_material_sum] => 242 320
[display_work_sum] => 67 311
[display_total_sum] => 309 631
)
1
309 631₽
Работа:67 311 ₽
Материалы:242 320 ₽
Дни:1
stdClass Object
(
[id] => 3
[attribute_id] => 2
[name] => Деревянные балки
[material_modifier] => 1
[work_modifier] => 1
[options] => Array
(
[0] => без утепления
[1] => утепление 200 мм
[2] => утепление 250 мм
[3] => утепление 300 мм
[4] => утепление 350 мм
[5] => утепление 400 мм
[6] => утепление 450 мм
[7] => утепление 500 мм
)
[days] => [8,9,9,9,11,12,13,14]
[material_price] => [1634,2042,2344,2947,3149,3652,3354,3557]
[work_price] => [1230,1339,1393,1426,1460,1513,1587,1620]
[image] => https://akademik-stroy.ru/wp-content/uploads/materials/derevyannye-balki.png
[area_modifier] => 152.98
[parent_name] => Перекрытие цоколя
[parent_id] => 2
[material_sum] => 329960
[work_sum] => 206982
[total_sum] => 536942
[total_days] => 8
[display_material_sum] => 329 960
[display_work_sum] => 206 982
[display_total_sum] => 536 942
)
1
536 942₽
Работа:206 982 ₽
Материалы:329 960 ₽
Дни:8
stdClass Object
(
[id] => 4
[attribute_id] => 2
[name] => Сборные ж/б плиты
[material_modifier] => 1
[work_modifier] => 1
[options] => Array
(
[0] => без утепления
[1] => утепление 150мм
[2] => утепление 200мм
[3] => утепление 250мм
[4] => утепление 300мм
[5] => утепление 350мм
[6] => утепление 400мм
[7] => утепление 450мм
[8] => утепление 500мм
)
[days] => [13,15,15,15,15,15,15,15,15]
[material_price] => [3067,5577,5928,6679,7730,8782,9833,10884,11935]
[work_price] => [1520,1956,2102,2247,2392,2537,2684,2829,2974]
[image] => https://akademik-stroy.ru/wp-content/uploads/materials/sbornye-zh-b-plity-2.jpg
[area_modifier] => 152.98
[parent_name] => Перекрытие цоколя
[parent_id] => 2
[material_sum] => 619330
[work_sum] => 255783
[total_sum] => 875113
[total_days] => 13
[display_material_sum] => 619 330
[display_work_sum] => 255 783
[display_total_sum] => 875 113
)
1
875 113₽
Работа:255 783 ₽
Материалы:619 330 ₽
Дни:13
stdClass Object
(
[id] => 78
[attribute_id] => 2
[name] => Монолитная ж/б плита
[material_modifier] => 1
[work_modifier] => 1
[options] => Array
(
[0] => без утепления
[1] => утепление 150 мм
[2] => утепление 200 мм
[3] => утепление 250 мм
[4] => утепление 300 мм
[5] => утепление 350 мм
[6] => утепление 400 мм
[7] => утепление 450 мм
[8] => утепление 500 мм
)
[days] => [18,20,20,20,20,20,20,20,20]
[material_price] => [4837,6572,7224,7375,79426,8177,8728,9180,10031]
[work_price] => [3348,3921,4112,4302,4493,4684,4875,5066,5256]
[image] => https://akademik-stroy.ru/wp-content/uploads/materials/monolitnaya-zh-b-plita-2.jpg
[area_modifier] => 152.98
[parent_name] => Перекрытие цоколя
[parent_id] => 2
[material_sum] => 976753
[work_sum] => 563395
[total_sum] => 1540148
[total_days] => 18
[display_material_sum] => 976 753
[display_work_sum] => 563 395
[display_total_sum] => 1 540 148
)
1
1 540 148₽
Работа:563 395 ₽
Материалы:976 753 ₽
Дни:18
stdClass Object
(
[id] => 6
[attribute_id] => 3
[name] => Пеноблок
[material_modifier] => 1
[work_modifier] => 1
[options] => Array
(
[0] => 300 мм
[1] => 400 мм
[2] => 500 мм
[3] => 600 мм
)
[days] => [29,31,34,39]
[material_price] => [3000,4000,4500,4937]
[work_price] => [5033,5805,6400,8710]
[image] => https://akademik-stroy.ru/wp-content/uploads/materials/penoblok.jpg
[area_modifier] => 152.98
[parent_name] => Стены 1 этаж (несущие)
[parent_id] => 3
[material_sum] => 605801
[work_sum] => 846943
[total_sum] => 1452744
[total_days] => 29
[display_material_sum] => 605 801
[display_work_sum] => 846 943
[display_total_sum] => 1 452 744
)
1
1 452 744₽
Работа:846 943 ₽
Материалы:605 801 ₽
Дни:29
stdClass Object
(
[id] => 79
[attribute_id] => 3
[name] => Керамический блок
[material_modifier] => 1
[work_modifier] => 1
[options] => Array
(
[0] => 380 мм
[1] => 380 мм Thermo
[2] => 440 мм
[3] => 510 мм
)
[days] => [23,23,24,25]
[material_price] => [4510,5098,6093,8013]
[work_price] => [4737,4937,5903,6958]
[image] => https://akademik-stroy.ru/wp-content/uploads/materials/keramicheskij-blok.jpg
[area_modifier] => 152.98
[parent_name] => Стены 1 этаж (несущие)
[parent_id] => 3
[material_sum] => 910721
[work_sum] => 797133
[total_sum] => 1707854
[total_days] => 23
[display_material_sum] => 910 721
[display_work_sum] => 797 133
[display_total_sum] => 1 707 854
)
1
1 707 854₽
Работа:797 133 ₽
Материалы:910 721 ₽
Дни:23
stdClass Object
(
[id] => 80
[attribute_id] => 3
[name] => Кирпич
[material_modifier] => 1
[work_modifier] => 1
[options] => Array
(
[0] => Кирпич 250 мм
[1] => Кирпич 380 мм
[2] => Кирпич 510 мм
[3] => Кирпич 640 мм
[4] => Кирпич 770 мм
)
[days] => [30,30,31,33,36]
[material_price] => [5500,7142,9206,10171,12235]
[work_price] => [8736,10041,12018,15240,18462]
[image] => https://akademik-stroy.ru/wp-content/uploads/materials/kirpich.jpg
[area_modifier] => 152.98
[parent_name] => Стены 1 этаж (несущие)
[parent_id] => 3
[material_sum] => 1110635
[work_sum] => 1470077
[total_sum] => 2580712
[total_days] => 30
[display_material_sum] => 1 110 635
[display_work_sum] => 1 470 077
[display_total_sum] => 2 580 712
)
1
2 580 712₽
Работа:1 470 077 ₽
Материалы:1 110 635 ₽
Дни:30
stdClass Object
(
[id] => 81
[attribute_id] => 3
[name] => Монолитные
[material_modifier] => 1
[work_modifier] => 1
[options] => Array
(
[0] => 150 мм
[1] => 200 мм
[2] => 250 мм
[3] => 300 мм
[4] => 350 мм
[5] => 400 мм
)
[days] => [45,46,47,49,50,53]
[material_price] => [6545,7876,10175,12011,13908,15204]
[work_price] => [5106,6444,7698,8552,9807,11461]
[image] => https://akademik-stroy.ru/wp-content/uploads/materials/monolitnye.jpg
[area_modifier] => 152.98
[parent_name] => Стены 1 этаж (несущие)
[parent_id] => 3
[material_sum] => 1321655
[work_sum] => 859227
[total_sum] => 2180882
[total_days] => 45
[display_material_sum] => 1 321 655
[display_work_sum] => 859 227
[display_total_sum] => 2 180 882
)
1
2 180 882₽
Работа:859 227 ₽
Материалы:1 321 655 ₽
Дни:45
stdClass Object
(
[id] => 82
[attribute_id] => 3
[name] => Клееный брус
[material_modifier] => 1
[work_modifier] => 1
[options] => Array
(
[0] => 160 мм
[1] => 175 мм
[2] => 200 мм
[3] => 215 мм
[4] => 240 мм
[5] => 270 мм
[6] => 282 мм
)
[days] => [24,28,32,37,40,42,48]
[material_price] => [16975,18773,19950,20545,21599,22159,23275]
[work_price] => [4806,5287,5815,6397,7036,7740,8514]
[image] => https://akademik-stroy.ru/wp-content/uploads/materials/kleenyj-brus.jpg
[area_modifier] => 152.98
[parent_name] => Стены 1 этаж (несущие)
[parent_id] => 3
[material_sum] => 3427823
[work_sum] => 808744
[total_sum] => 4236567
[total_days] => 24
[display_material_sum] => 3 427 823
[display_work_sum] => 808 744
[display_total_sum] => 4 236 567
)
1
4 236 567₽
Работа:808 744 ₽
Материалы:3 427 823 ₽
Дни:24
stdClass Object
(
[id] => 83
[attribute_id] => 3
[name] => Каркасные
[material_modifier] => 1
[work_modifier] => 1
[options] => Array
(
[0] => 150 мм
[1] => 200 мм
[2] => 250 мм
[3] => 300 мм
)
[days] => [15,16,17,18]
[material_price] => [2379,2639,2898,3258]
[work_price] => [2418,2686,2985,3716]
[image] => https://akademik-stroy.ru/wp-content/uploads/materials/karkasnye.jpg
[area_modifier] => 152.98
[parent_name] => Стены 1 этаж (несущие)
[parent_id] => 3
[material_sum] => 480400
[work_sum] => 406896
[total_sum] => 887296
[total_days] => 15
[display_material_sum] => 480 400
[display_work_sum] => 406 896
[display_total_sum] => 887 296
)
1
887 296₽
Работа:406 896 ₽
Материалы:480 400 ₽
Дни:15
stdClass Object
(
[id] => 84
[attribute_id] => 3
[name] => СИП-панели
[material_modifier] => 1
[work_modifier] => 1
[options] => Array
(
[0] => 120 мм
[1] => 170 мм
[2] => 220 мм
)
[days] => [7,7,7]
[material_price] => [1210,1856,2292]
[work_price] => [1410,1551,1706]
[image] => https://akademik-stroy.ru/wp-content/uploads/materials/sip-paneli.jpg
[area_modifier] => 152.98
[parent_name] => Стены 1 этаж (несущие)
[parent_id] => 3
[material_sum] => 244340
[work_sum] => 237272
[total_sum] => 481612
[total_days] => 7
[display_material_sum] => 244 340
[display_work_sum] => 237 272
[display_total_sum] => 481 612
)
1
481 612₽
Работа:237 272 ₽
Материалы:244 340 ₽
Дни:7
stdClass Object
(
[id] => 85
[attribute_id] => 3
[name] => Сухой брус
[material_modifier] => 1
[work_modifier] => 1
[options] => Array
(
[0] => 150 мм
[1] => 180 мм
[2] => 200 мм
)
[days] => [7,8,9]
[material_price] => [6010,7190,8709]
[work_price] => [3204,3845,4229]
[image] => https://akademik-stroy.ru/wp-content/uploads/materials/suhoj-brus.jpg
[area_modifier] => 152.98
[parent_name] => Стены 1 этаж (несущие)
[parent_id] => 3
[material_sum] => 1213621
[work_sum] => 539163
[total_sum] => 1752784
[total_days] => 7
[display_material_sum] => 1 213 621
[display_work_sum] => 539 163
[display_total_sum] => 1 752 784
)
1
1 752 784₽
Работа:539 163 ₽
Материалы:1 213 621 ₽
Дни:7
stdClass Object
(
[id] => 86
[attribute_id] => 3
[name] => Профилированный брус
[material_modifier] => 1
[work_modifier] => 1
[options] => Array
(
[0] => 150 мм
[1] => 180 мм
[2] => 200 мм
)
[days] => [7,8,9]
[material_price] => [8190,9228,10051]
[work_price] => [3845,4614,5075]
[image] => https://akademik-stroy.ru/wp-content/uploads/materials/profilirovannyj-brus.jpg
[area_modifier] => 152.98
[parent_name] => Стены 1 этаж (несущие)
[parent_id] => 3
[material_sum] => 1653836
[work_sum] => 647029
[total_sum] => 2300865
[total_days] => 7
[display_material_sum] => 1 653 836
[display_work_sum] => 647 029
[display_total_sum] => 2 300 865
)
1
2 300 865₽
Работа:647 029 ₽
Материалы:1 653 836 ₽
Дни:7
stdClass Object
(
[id] => 87
[attribute_id] => 3
[name] => Оцилиндрованное бревно
[material_modifier] => 1
[work_modifier] => 1
[options] => Array
(
[0] => 180 мм
[1] => 220 мм
[2] => 260 мм
[3] => 320 мм
)
[days] => [7,8,9,10]
[material_price] => [75190,9532,10868,13116]
[work_price] => [3845,4691,5535,6863]
[image] => https://akademik-stroy.ru/wp-content/uploads/materials/ocilindrovannoe-brevno-1.jpg
[area_modifier] => 152.98
[parent_name] => Стены 1 этаж (несущие)
[parent_id] => 3
[material_sum] => 15183387
[work_sum] => 647029
[total_sum] => 15830416
[total_days] => 7
[display_material_sum] => 15 183 387
[display_work_sum] => 647 029
[display_total_sum] => 15 830 416
)
1
15 830 416₽
Работа:647 029 ₽
Материалы:15 183 387 ₽
Дни:7
stdClass Object
(
[id] => 88
[attribute_id] => 3
[name] => Срубы
[material_modifier] => 1
[work_modifier] => 1
[options] => Array
(
[0] => 260 мм
[1] => 320 мм
[2] => 360 мм
[3] => 400 мм
[4] => 500 мм
)
[days] => [7,8,9,10,11]
[material_price] => [37975,46709,52314,58069,73167]
[work_price] => [4806,5911,6621,7349,9260]
[image] => https://akademik-stroy.ru/wp-content/uploads/materials/sruby.jpg
[area_modifier] => 152.98
[parent_name] => Стены 1 этаж (несущие)
[parent_id] => 3
[material_sum] => 7668428
[work_sum] => 808744
[total_sum] => 8477172
[total_days] => 7
[display_material_sum] => 7 668 428
[display_work_sum] => 808 744
[display_total_sum] => 8 477 172
)
1
8 477 172₽
Работа:808 744 ₽
Материалы:7 668 428 ₽
Дни:7
stdClass Object
(
[id] => 174
[attribute_id] => 3
[name] => Брус
[material_modifier] => 1
[work_modifier] => 1
[options] => Array
(
[0] => 150 мм
[1] => 180 мм
[2] => 200 мм
)
[days] => [7,8,9]
[material_price] => [5127,6152,7367]
[work_price] => [1602,1922,2115]
[image] => https://akademik-stroy.ru/wp-content/uploads/materials/brus.jpg
[area_modifier] => 152.98
[parent_name] => Стены 1 этаж (несущие)
[parent_id] => 3
[material_sum] => 1035314
[work_sum] => 269581
[total_sum] => 1304895
[total_days] => 7
[display_material_sum] => 1 035 314
[display_work_sum] => 269 581
[display_total_sum] => 1 304 895
)
1
1 304 895₽
Работа:269 581 ₽
Материалы:1 035 314 ₽
Дни:7
stdClass Object
(
[id] => 175
[attribute_id] => 3
[name] => Газобетон
[material_modifier] => 1
[work_modifier] => 1
[options] => Array
(
[0] => 300 мм
[1] => 375 мм
[2] => 400 мм
[3] => 500 мм
[4] => 600 мм
)
[days] => [29,31,35,37,44]
[material_price] => [4298,5573,6356,7288,9119]
[work_price] => [4538,5251,5926,6733,7195]
[image] => https://akademik-stroy.ru/wp-content/uploads/materials/gazobeton.jpg
[area_modifier] => 152.98
[parent_name] => Стены 1 этаж (несущие)
[parent_id] => 3
[material_sum] => 867911
[work_sum] => 763646
[total_sum] => 1631557
[total_days] => 29
[display_material_sum] => 867 911
[display_work_sum] => 763 646
[display_total_sum] => 1 631 557
)
1
1 631 557₽
Работа:763 646 ₽
Материалы:867 911 ₽
Дни:29
stdClass Object
(
[id] => 176
[attribute_id] => 3
[name] => Блок
[material_modifier] => 1
[work_modifier] => 1
[options] => Array
(
[0] => 300 мм
[1] => 375 мм
[2] => 400 мм
[3] => 500 мм
[4] => 600 мм
)
[days] => [29,31,35,37,44]
[material_price] => [2698,3973,4356,6588,7119]
[work_price] => [5038,5851,6426,8733,9195]
[image] => https://akademik-stroy.ru/wp-content/uploads/materials/blok.jpg
[area_modifier] => 152.98
[parent_name] => Стены 1 этаж (несущие)
[parent_id] => 3
[material_sum] => 544817
[work_sum] => 847785
[total_sum] => 1392602
[total_days] => 29
[display_material_sum] => 544 817
[display_work_sum] => 847 785
[display_total_sum] => 1 392 602
)
1
1 392 602₽
Работа:847 785 ₽
Материалы:544 817 ₽
Дни:29
stdClass Object
(
[id] => 177
[attribute_id] => 3
[name] => Газосиликатный блок
[material_modifier] => 1
[work_modifier] => 1
[options] => Array
(
[0] => 300 мм
[1] => 375 мм
[2] => 400 мм
[3] => 500 мм
[4] => 600 мм
)
[days] => [29,31,35,37,44]
[material_price] => [4298,5573,6356,7288,9119]
[work_price] => [4538,5251,5926,6733,7195]
[image] => https://akademik-stroy.ru/wp-content/uploads/materials/gazosilikatnyj-blok.jpg
[area_modifier] => 152.98
[parent_name] => Стены 1 этаж (несущие)
[parent_id] => 3
[material_sum] => 867911
[work_sum] => 763646
[total_sum] => 1631557
[total_days] => 29
[display_material_sum] => 867 911
[display_work_sum] => 763 646
[display_total_sum] => 1 631 557
)
1
1 631 557₽
Работа:763 646 ₽
Материалы:867 911 ₽
Дни:29
stdClass Object
(
[id] => 178
[attribute_id] => 3
[name] => Керамзитобетонный блок
[material_modifier] => 1
[work_modifier] => 1
[options] => Array
(
[0] => 300 мм
[1] => 375 мм
[2] => 400 мм
[3] => 500 мм
[4] => 600 мм
)
[days] => [23,23,24,25,28]
[material_price] => [3641,4298,5693,7613,9612]
[work_price] => [5737,5737,6903,7958,8901]
[image] => https://akademik-stroy.ru/wp-content/uploads/materials/keramzitobetonnyj-blok.jpg
[area_modifier] => 152.98
[parent_name] => Стены 1 этаж (несущие)
[parent_id] => 3
[material_sum] => 735240
[work_sum] => 965411
[total_sum] => 1700651
[total_days] => 23
[display_material_sum] => 735 240
[display_work_sum] => 965 411
[display_total_sum] => 1 700 651
)
1
1 700 651₽
Работа:965 411 ₽
Материалы:735 240 ₽
Дни:23
stdClass Object
(
[id] => 179
[attribute_id] => 3
[name] => Деревянные
[material_modifier] => 1
[work_modifier] => 1
[options] => Array
(
[0] => 180 мм
[1] => 220 мм
[2] => 260 мм
[3] => 320 мм
)
[days] => [7,8,9,10]
[material_price] => [7950,9458,11961,14472]
[work_price] => [4037,4925,5812,7207]
[image] => https://akademik-stroy.ru/wp-content/uploads/materials/derevyannye.jpg
[area_modifier] => 152.98
[parent_name] => Стены 1 этаж (несущие)
[parent_id] => 3
[material_sum] => 1605372
[work_sum] => 679338
[total_sum] => 2284710
[total_days] => 7
[display_material_sum] => 1 605 372
[display_work_sum] => 679 338
[display_total_sum] => 2 284 710
)
1
2 284 710₽
Работа:679 338 ₽
Материалы:1 605 372 ₽
Дни:7
stdClass Object
(
[id] => 181
[attribute_id] => 3
[name] => Камень
[material_modifier] => 1
[work_modifier] => 1
[options] => Array
(
[0] => 300 мм
[1] => 400 мм
[2] => 500 мм
[3] => 600 мм
)
[days] => [25,27,31,34]
[material_price] => [5262,6844,8330,9815]
[work_price] => [8331,9135,10427,11069]
[image] => https://akademik-stroy.ru/wp-content/uploads/materials/kamen.jpg
[area_modifier] => 152.98
[parent_name] => Стены 1 этаж (несущие)
[parent_id] => 3
[material_sum] => 1062575
[work_sum] => 1401924
[total_sum] => 2464499
[total_days] => 25
[display_material_sum] => 1 062 575
[display_work_sum] => 1 401 924
[display_total_sum] => 2 464 499
)
1
2 464 499₽
Работа:1 401 924 ₽
Материалы:1 062 575 ₽
Дни:25
stdClass Object
(
[id] => 182
[attribute_id] => 3
[name] => Каркасно-щитовые
[material_modifier] => 1
[work_modifier] => 1
[options] => Array
(
[0] => 150 мм
[1] => 200 мм
[2] => 250 мм
[3] => 300 мм
[4] => 350 мм
[5] => 400 мм
)
[days] => [15,16,17,18,19,20]
[material_price] => [2379,2639,2898,3458,3601,4175]
[work_price] => [2538,2820,3134,3483,4062,5642]
[image] => https://akademik-stroy.ru/wp-content/uploads/materials/karkasno-shchitovye.jpg
[area_modifier] => 152.98
[parent_name] => Стены 1 этаж (несущие)
[parent_id] => 3
[material_sum] => 480400
[work_sum] => 427090
[total_sum] => 907490
[total_days] => 15
[display_material_sum] => 480 400
[display_work_sum] => 427 090
[display_total_sum] => 907 490
)
1
907 490₽
Работа:427 090 ₽
Материалы:480 400 ₽
Дни:15
stdClass Object
(
[id] => 183
[attribute_id] => 3
[name] => Рубленные
[material_modifier] => 1
[work_modifier] => 1
[options] => Array
(
[0] => 150 мм
[1] => 200 мм
[2] => 250 мм
[3] => 300 мм
[4] => 350 мм
[5] => 400 мм
)
[days] => [15,16,17,18,17,18]
[material_price] => [35950,50267,60583,75900,80217,100533]
[work_price] => [9612,12816,16020,19224,22428,25632]
[image] => https://akademik-stroy.ru/wp-content/uploads/materials/rublennye.jpg
[area_modifier] => 152.98
[parent_name] => Стены 1 этаж (несущие)
[parent_id] => 3
[material_sum] => 7259513
[work_sum] => 1617488
[total_sum] => 8877001
[total_days] => 15
[display_material_sum] => 7 259 513
[display_work_sum] => 1 617 488
[display_total_sum] => 8 877 001
)
1
8 877 001₽
Работа:1 617 488 ₽
Материалы:7 259 513 ₽
Дни:15
stdClass Object
(
[id] => 185
[attribute_id] => 3
[name] => Теплоблок
[material_modifier] => 1
[work_modifier] => 1
[options] => Array
(
[0] => 300 мм (с облицовкой, не покрашенный)
[1] => 400 мм (с облицовкой, не покрашенный)
[2] => 300 мм (с облицовкой, покрашенный)
[3] => 400 мм (с облицовкой, покрашенный)
)
[days] => [15,16,15,16]
[material_price] => [2888,3729,3957,4258]
[work_price] => [2564,3229,2949,3713]
[image] => https://akademik-stroy.ru/wp-content/uploads/materials/teploblok.jpg
[area_modifier] => 152.98
[parent_name] => Стены 1 этаж (несущие)
[parent_id] => 3
[material_sum] => 583184
[work_sum] => 431465
[total_sum] => 1014649
[total_days] => 15
[display_material_sum] => 583 184
[display_work_sum] => 431 465
[display_total_sum] => 1 014 649
)
1
1 014 649₽
Работа:431 465 ₽
Материалы:583 184 ₽
Дни:15
stdClass Object
(
[id] => 186
[attribute_id] => 3
[name] => Арболитовые блоки
[material_modifier] => 1
[work_modifier] => 1
[options] => Array
(
[0] => 300 мм
[1] => 400 мм
[2] => 600 мм
)
[days] => [19,22,27]
[material_price] => [3210,4475,5852]
[work_price] => [4214,4788,5866]
[image] => https://akademik-stroy.ru/wp-content/uploads/materials/arbolitovye-bloki.png
[area_modifier] => 152.98
[parent_name] => Стены 1 этаж (несущие)
[parent_id] => 3
[material_sum] => 648207
[work_sum] => 709123
[total_sum] => 1357330
[total_days] => 19
[display_material_sum] => 648 207
[display_work_sum] => 709 123
[display_total_sum] => 1 357 330
)
1
1 357 330₽
Работа:709 123 ₽
Материалы:648 207 ₽
Дни:19
stdClass Object
(
[id] => 187
[attribute_id] => 3
[name] => Полистиролбетон
[material_modifier] => 1
[work_modifier] => 1
[options] => Array
(
[0] => 300 мм
[1] => 400 мм
[2] => 600 мм
)
[days] => [29,31,35]
[material_price] => [2798,4573,5256]
[work_price] => [5038,5851,6426]
[image] => https://akademik-stroy.ru/wp-content/uploads/materials/polistirolbeton.jpg
[area_modifier] => 152.98
[parent_name] => Стены 1 этаж (несущие)
[parent_id] => 3
[material_sum] => 565010
[work_sum] => 847785
[total_sum] => 1412795
[total_days] => 29
[display_material_sum] => 565 010
[display_work_sum] => 847 785
[display_total_sum] => 1 412 795
)
1
1 412 795₽
Работа:847 785 ₽
Материалы:565 010 ₽
Дни:29
stdClass Object
(
[id] => 188
[attribute_id] => 3
[name] => Шлакоблок
[material_modifier] => 1
[work_modifier] => 1
[options] => Array
(
[0] => 400 мм
[1] => 600 мм
)
[days] => [15,16]
[material_price] => [2391,3471]
[work_price] => [2642,3662]
[image] => https://akademik-stroy.ru/wp-content/uploads/materials/shlakoblok.jpg
[area_modifier] => 152.98
[parent_name] => Стены 1 этаж (несущие)
[parent_id] => 3
[material_sum] => 482823
[work_sum] => 444590
[total_sum] => 927413
[total_days] => 15
[display_material_sum] => 482 823
[display_work_sum] => 444 590
[display_total_sum] => 927 413
)
1
927 413₽
Работа:444 590 ₽
Материалы:482 823 ₽
Дни:15
stdClass Object
(
[id] => 189
[attribute_id] => 3
[name] => Теплая керамика
[material_modifier] => 1
[work_modifier] => 1
[options] => Array
(
[0] => 380 мм
[1] => 380 мм Thermo
[2] => 440 мм
[3] => 510 мм
)
[days] => [23,23,24,25]
[material_price] => [4510,5098,6093,8013]
[work_price] => [4737,4937,5903,6958]
[image] => https://akademik-stroy.ru/wp-content/uploads/materials/teplaya-keramika.jpg
[area_modifier] => 152.98
[parent_name] => Стены 1 этаж (несущие)
[parent_id] => 3
[material_sum] => 910721
[work_sum] => 797133
[total_sum] => 1707854
[total_days] => 23
[display_material_sum] => 910 721
[display_work_sum] => 797 133
[display_total_sum] => 1 707 854
)
1
1 707 854₽
Работа:797 133 ₽
Материалы:910 721 ₽
Дни:23
stdClass Object
(
[id] => 190
[attribute_id] => 3
[name] => Несъемная опалубка
[material_modifier] => 1
[work_modifier] => 1
[options] => Array
(
[0] => 200 мм
[1] => 250 мм
[2] => 300 мм
[3] => 350 мм
)
[days] => [15,17,19,21]
[material_price] => [3302,3902,4108,5008]
[work_price] => [2100,2100,2300,2534]
[image] => https://akademik-stroy.ru/wp-content/uploads/materials/nesemnaya-opalubka.jpg
[area_modifier] => 152.98
[parent_name] => Стены 1 этаж (несущие)
[parent_id] => 3
[material_sum] => 666785
[work_sum] => 353384
[total_sum] => 1020169
[total_days] => 15
[display_material_sum] => 666 785
[display_work_sum] => 353 384
[display_total_sum] => 1 020 169
)
1
1 020 169₽
Работа:353 384 ₽
Материалы:666 785 ₽
Дни:15
stdClass Object
(
[id] => 251
[attribute_id] => 3
[name] => Бревно
[material_modifier] => 1
[work_modifier] => 1
[options] => Array
(
[0] => 260 мм
[1] => 320 мм
[2] => 360 мм
[3] => 400 мм
[4] => 500 мм
)
[days] => [7,8,9,10,11]
[material_price] => [1874,24045,26930,30972,38825]
[work_price] => [5046,6207,6952,7716,9723]
[image] => https://akademik-stroy.ru/wp-content/uploads/materials/sruby.jpg
[area_modifier] => 152.98
[parent_name] => Стены 1 этаж (несущие)
[parent_id] => 3
[material_sum] => 378424
[work_sum] => 849131
[total_sum] => 1227555
[total_days] => 7
[display_material_sum] => 378 424
[display_work_sum] => 849 131
[display_total_sum] => 1 227 555
)
1
1 227 555₽
Работа:849 131 ₽
Материалы:378 424 ₽
Дни:7
stdClass Object
(
[id] => 7
[attribute_id] => 4
[name] => Деревянные балки
[material_modifier] => 1
[work_modifier] => 1
[options] => Array
(
[0] => без утепления
[1] => утепление 200 мм
[2] => утепление 250 мм
[3] => утепление 300 мм
[4] => утепление 350 мм
[5] => утепление 400 мм
[6] => утепление 450 мм
[7] => утепление 500 мм
)
[days] => [8,9,9,9,11,12,13,14]
[material_price] => [1634,2042,2344,2947,3149,3652,3354,3557]
[work_price] => [1230,1339,1393,1426,1460,1513,1587,1620]
[image] => https://akademik-stroy.ru/wp-content/uploads/materials/derevyannye-balki.png
[area_modifier] => 152.98
[parent_name] => Перекрытие первого этажа
[parent_id] => 4
[material_sum] => 329960
[work_sum] => 206982
[total_sum] => 536942
[total_days] => 8
[display_material_sum] => 329 960
[display_work_sum] => 206 982
[display_total_sum] => 536 942
)
1
536 942₽
Работа:206 982 ₽
Материалы:329 960 ₽
Дни:8
stdClass Object
(
[id] => 8
[attribute_id] => 4
[name] => Сборные ж/б плиты
[material_modifier] => 1
[work_modifier] => 1
[options] => Array
(
[0] => без утепления
[1] => утепление 150 мм
[2] => утепление 200 мм
[3] => утепление 250 мм
[4] => утепление 300 мм
[5] => утепление 350 мм
[6] => утепление 400 мм
[7] => утепление 450 мм
[8] => утепление 500 мм
)
[days] => [13,15,15,15,15,15,15,15,15]
[material_price] => [3067,5577,5928,6679,7730,8782,9833,10884,11935]
[work_price] => [1520,1956,2102,2247,2392,2537,2684,2829,2974]
[image] => https://akademik-stroy.ru/wp-content/uploads/materials/sbornye-zh-b-plity-2.jpg
[area_modifier] => 152.98
[parent_name] => Перекрытие первого этажа
[parent_id] => 4
[material_sum] => 619330
[work_sum] => 255783
[total_sum] => 875113
[total_days] => 13
[display_material_sum] => 619 330
[display_work_sum] => 255 783
[display_total_sum] => 875 113
)
1
875 113₽
Работа:255 783 ₽
Материалы:619 330 ₽
Дни:13
stdClass Object
(
[id] => 89
[attribute_id] => 4
[name] => Монолитная ж/б плита
[material_modifier] => 1
[work_modifier] => 1
[options] => Array
(
[0] => без утепления
[1] => утепление 150 мм
[2] => утепление 200 мм
[3] => утепление 250 мм
[4] => утепление 300 мм
[5] => утепление 350 мм
[6] => утепление 400 мм
[7] => утепление 450 мм
[8] => утепление 500 мм
)
[days] => [18,20,20,20,20,20,20,20,20]
[material_price] => [4837,6572,7224,7375,79426,8177,8728,9180,10031]
[work_price] => [3348,3921,4112,4302,4493,4684,4875,5066,5256]
[image] => https://akademik-stroy.ru/wp-content/uploads/materials/monolitnaya-zh-b-plita-2.jpg
[area_modifier] => 152.98
[parent_name] => Перекрытие первого этажа
[parent_id] => 4
[material_sum] => 976753
[work_sum] => 563395
[total_sum] => 1540148
[total_days] => 18
[display_material_sum] => 976 753
[display_work_sum] => 563 395
[display_total_sum] => 1 540 148
)
1
1 540 148₽
Работа:563 395 ₽
Материалы:976 753 ₽
Дни:18
stdClass Object
(
[id] => 10
[attribute_id] => 5
[name] => Пеноблок
[material_modifier] => 1
[work_modifier] => 1
[options] => Array
(
[0] => 300 мм
[1] => 400 мм
[2] => 500 мм
[3] => 600 мм
)
[days] => [29,31,34,39]
[material_price] => [3000,4000,4500,4937]
[work_price] => [5033,5805,6400,8710]
[image] => https://akademik-stroy.ru/wp-content/uploads/materials/penoblok.jpg
[area_modifier] => 40.21
[parent_name] => Стены 2 этаж (несущие)
[parent_id] => 5
[material_sum] => 159232
[work_sum] => 222615
[total_sum] => 381847
[total_days] => 29
[display_material_sum] => 159 232
[display_work_sum] => 222 615
[display_total_sum] => 381 847
)
1
381 847₽
Работа:222 615 ₽
Материалы:159 232 ₽
Дни:29
stdClass Object
(
[id] => 90
[attribute_id] => 5
[name] => Керамический блок
[material_modifier] => 1
[work_modifier] => 1
[options] => Array
(
[0] => 380 мм
[1] => 380 мм Thermo
[2] => 440 мм
[3] => 510 мм
)
[days] => [23,23,24,25]
[material_price] => [4510,5098,6093,8013]
[work_price] => [4737,4937,5903,6958]
[image] => https://akademik-stroy.ru/wp-content/uploads/materials/keramicheskij-blok.jpg
[area_modifier] => 40.21
[parent_name] => Стены 2 этаж (несущие)
[parent_id] => 5
[material_sum] => 239378
[work_sum] => 209522
[total_sum] => 448900
[total_days] => 23
[display_material_sum] => 239 378
[display_work_sum] => 209 522
[display_total_sum] => 448 900
)
1
448 900₽
Работа:209 522 ₽
Материалы:239 378 ₽
Дни:23
stdClass Object
(
[id] => 91
[attribute_id] => 5
[name] => Кирпич
[material_modifier] => 1
[work_modifier] => 1
[options] => Array
(
[0] => Кирпич 250 мм
[1] => Кирпич 380 мм
[2] => Кирпич 510 мм
[3] => Кирпич 640 мм
[4] => Кирпич 770 мм
)
[days] => [30,30,31,33,36]
[material_price] => [5500,7142,9206,10171,12235]
[work_price] => [8736,10041,12018,15240,18462]
[image] => https://akademik-stroy.ru/wp-content/uploads/materials/kirpich.jpg
[area_modifier] => 40.21
[parent_name] => Стены 2 этаж (несущие)
[parent_id] => 5
[material_sum] => 291925
[work_sum] => 386402
[total_sum] => 678327
[total_days] => 30
[display_material_sum] => 291 925
[display_work_sum] => 386 402
[display_total_sum] => 678 327
)
1
678 327₽
Работа:386 402 ₽
Материалы:291 925 ₽
Дни:30
stdClass Object
(
[id] => 92
[attribute_id] => 5
[name] => Монолитные
[material_modifier] => 1
[work_modifier] => 1
[options] => Array
(
[0] => 150 мм
[1] => 200 мм
[2] => 250 мм
[3] => 300 мм
[4] => 350 мм
[5] => 400 мм
)
[days] => [45,46,47,49,50,53]
[material_price] => [6545,7876,10175,12011,13908,15204]
[work_price] => [5106,6444,7698,8552,9807,11461]
[image] => https://akademik-stroy.ru/wp-content/uploads/materials/monolitnye.jpg
[area_modifier] => 40.21
[parent_name] => Стены 2 этаж (несущие)
[parent_id] => 5
[material_sum] => 347390
[work_sum] => 225843
[total_sum] => 573233
[total_days] => 45
[display_material_sum] => 347 390
[display_work_sum] => 225 843
[display_total_sum] => 573 233
)
1
573 233₽
Работа:225 843 ₽
Материалы:347 390 ₽
Дни:45
stdClass Object
(
[id] => 93
[attribute_id] => 5
[name] => Клееный брус
[material_modifier] => 1
[work_modifier] => 1
[options] => Array
(
[0] => 160 мм
[1] => 175 мм
[2] => 200 мм
[3] => 215 мм
[4] => 240 мм
[5] => 270 мм
[6] => 282 мм
)
[days] => [24,28,32,37,40,42,48]
[material_price] => [16975,18773,19950,20545,21599,22159,23275]
[work_price] => [4806,5287,5815,6397,7036,7740,8514]
[image] => https://akademik-stroy.ru/wp-content/uploads/materials/kleenyj-brus.jpg
[area_modifier] => 40.21
[parent_name] => Стены 2 этаж (несущие)
[parent_id] => 5
[material_sum] => 900985
[work_sum] => 212574
[total_sum] => 1113559
[total_days] => 24
[display_material_sum] => 900 985
[display_work_sum] => 212 574
[display_total_sum] => 1 113 559
)
1
1 113 559₽
Работа:212 574 ₽
Материалы:900 985 ₽
Дни:24
stdClass Object
(
[id] => 94
[attribute_id] => 5
[name] => Каркасные
[material_modifier] => 1
[work_modifier] => 1
[options] => Array
(
[0] => 150 мм
[1] => 200 мм
[2] => 250 мм
[3] => 300 мм
)
[days] => [15,16,17,18]
[material_price] => [2379,2639,2898,3258]
[work_price] => [2418,2686,2985,3716]
[image] => https://akademik-stroy.ru/wp-content/uploads/materials/karkasnye.jpg
[area_modifier] => 40.21
[parent_name] => Стены 2 этаж (несущие)
[parent_id] => 5
[material_sum] => 126271
[work_sum] => 106951
[total_sum] => 233222
[total_days] => 15
[display_material_sum] => 126 271
[display_work_sum] => 106 951
[display_total_sum] => 233 222
)
1
233 222₽
Работа:106 951 ₽
Материалы:126 271 ₽
Дни:15
stdClass Object
(
[id] => 95
[attribute_id] => 5
[name] => СИП-панели
[material_modifier] => 1
[work_modifier] => 1
[options] => Array
(
[0] => 120 мм
[1] => 170 мм
[2] => 220 мм
)
[days] => [7,7,7]
[material_price] => [1210,1856,2292]
[work_price] => [1410,1551,1706]
[image] => https://akademik-stroy.ru/wp-content/uploads/materials/sip-paneli.jpg
[area_modifier] => 40.21
[parent_name] => Стены 2 этаж (несущие)
[parent_id] => 5
[material_sum] => 64223
[work_sum] => 62366
[total_sum] => 126589
[total_days] => 7
[display_material_sum] => 64 223
[display_work_sum] => 62 366
[display_total_sum] => 126 589
)
1
126 589₽
Работа:62 366 ₽
Материалы:64 223 ₽
Дни:7
stdClass Object
(
[id] => 96
[attribute_id] => 5
[name] => Сухой брус
[material_modifier] => 1
[work_modifier] => 1
[options] => Array
(
[0] => 150 мм
[1] => 180 мм
[2] => 200 мм
)
[days] => [7,8,9]
[material_price] => [6010,7190,8709]
[work_price] => [3204,3845,4229]
[image] => https://akademik-stroy.ru/wp-content/uploads/materials/suhoj-brus.jpg
[area_modifier] => 40.21
[parent_name] => Стены 2 этаж (несущие)
[parent_id] => 5
[material_sum] => 318994
[work_sum] => 141716
[total_sum] => 460710
[total_days] => 7
[display_material_sum] => 318 994
[display_work_sum] => 141 716
[display_total_sum] => 460 710
)
1
460 710₽
Работа:141 716 ₽
Материалы:318 994 ₽
Дни:7
stdClass Object
(
[id] => 97
[attribute_id] => 5
[name] => Профилированный брус
[material_modifier] => 1
[work_modifier] => 1
[options] => Array
(
[0] => 150 мм
[1] => 180 мм
[2] => 200 мм
)
[days] => [7,8,9]
[material_price] => [8190,9228,10051]
[work_price] => [3845,4614,5075]
[image] => https://akademik-stroy.ru/wp-content/uploads/materials/profilirovannyj-brus.jpg
[area_modifier] => 40.21
[parent_name] => Стены 2 этаж (несущие)
[parent_id] => 5
[material_sum] => 434702
[work_sum] => 170068
[total_sum] => 604770
[total_days] => 7
[display_material_sum] => 434 702
[display_work_sum] => 170 068
[display_total_sum] => 604 770
)
1
604 770₽
Работа:170 068 ₽
Материалы:434 702 ₽
Дни:7
stdClass Object
(
[id] => 98
[attribute_id] => 5
[name] => Оцилиндрованное бревно
[material_modifier] => 1
[work_modifier] => 1
[options] => Array
(
[0] => 180 мм
[1] => 220 мм
[2] => 260 мм
[3] => 320 мм
)
[days] => [7,8,9,10]
[material_price] => [75190,9532,10868,13116]
[work_price] => [3845,4691,5535,6863]
[image] => https://akademik-stroy.ru/wp-content/uploads/materials/ocilindrovannoe-brevno-1.jpg
[area_modifier] => 40.21
[parent_name] => Стены 2 этаж (несущие)
[parent_id] => 5
[material_sum] => 3990875
[work_sum] => 170068
[total_sum] => 4160943
[total_days] => 7
[display_material_sum] => 3 990 875
[display_work_sum] => 170 068
[display_total_sum] => 4 160 943
)
1
4 160 943₽
Работа:170 068 ₽
Материалы:3 990 875 ₽
Дни:7
stdClass Object
(
[id] => 99
[attribute_id] => 5
[name] => Срубы
[material_modifier] => 1
[work_modifier] => 1
[options] => Array
(
[0] => 260 мм
[1] => 320 мм
[2] => 360 мм
[3] => 400 мм
[4] => 500 мм
)
[days] => [7,8,9,10,11]
[material_price] => [16175,23709,26314,29069,32167]
[work_price] => [4806,5911,6621,7349,9260]
[image] => https://akademik-stroy.ru/wp-content/uploads/materials/suhoj-brus.jpg
[area_modifier] => 40.21
[parent_name] => Стены 2 этаж (несущие)
[parent_id] => 5
[material_sum] => 858524
[work_sum] => 212574
[total_sum] => 1071098
[total_days] => 7
[display_material_sum] => 858 524
[display_work_sum] => 212 574
[display_total_sum] => 1 071 098
)
1
1 071 098₽
Работа:212 574 ₽
Материалы:858 524 ₽
Дни:7
stdClass Object
(
[id] => 194
[attribute_id] => 5
[name] => Брус
[material_modifier] => 1
[work_modifier] => 1
[options] => Array
(
[0] => 150 мм
[1] => 180 мм
[2] => 200 мм
)
[days] => [10,13,15]
[material_price] => [5127,6152,7367]
[work_price] => [1602,1922,2115]
[image] => https://akademik-stroy.ru/wp-content/uploads/materials/brus.jpg
[area_modifier] => 40.21
[parent_name] => Стены 2 этаж (несущие)
[parent_id] => 5
[material_sum] => 272127
[work_sum] => 70858
[total_sum] => 342985
[total_days] => 10
[display_material_sum] => 272 127
[display_work_sum] => 70 858
[display_total_sum] => 342 985
)
1
342 985₽
Работа:70 858 ₽
Материалы:272 127 ₽
Дни:10
stdClass Object
(
[id] => 195
[attribute_id] => 5
[name] => Газобетон
[material_modifier] => 1
[work_modifier] => 1
[options] => Array
(
[0] => 300 мм
[1] => 375 мм
[2] => 400 мм
[3] => 500 мм
[4] => 600 мм
)
[days] => [29,31,35,37,44]
[material_price] => [4298,5573,6356,7288,9119]
[work_price] => [4538,5251,5926,6733,7195]
[image] => https://akademik-stroy.ru/wp-content/uploads/materials/gazobeton.jpg
[area_modifier] => 40.21
[parent_name] => Стены 2 этаж (несущие)
[parent_id] => 5
[material_sum] => 228126
[work_sum] => 200720
[total_sum] => 428846
[total_days] => 29
[display_material_sum] => 228 126
[display_work_sum] => 200 720
[display_total_sum] => 428 846
)
1
428 846₽
Работа:200 720 ₽
Материалы:228 126 ₽
Дни:29
stdClass Object
(
[id] => 196
[attribute_id] => 5
[name] => Блок
[material_modifier] => 1
[work_modifier] => 1
[options] => Array
(
[0] => 300 мм
[1] => 375 мм
[2] => 400 мм
[3] => 500 мм
[4] => 600 мм
)
[days] => [29,31,35,37,44]
[material_price] => [2698,3973,4356,6588,7119]
[work_price] => [5038,5851,6426,8733,9195]
[image] => https://akademik-stroy.ru/wp-content/uploads/materials/blok.jpg
[area_modifier] => 40.21
[parent_name] => Стены 2 этаж (несущие)
[parent_id] => 5
[material_sum] => 143202
[work_sum] => 222836
[total_sum] => 366038
[total_days] => 29
[display_material_sum] => 143 202
[display_work_sum] => 222 836
[display_total_sum] => 366 038
)
1
366 038₽
Работа:222 836 ₽
Материалы:143 202 ₽
Дни:29
stdClass Object
(
[id] => 197
[attribute_id] => 5
[name] => Газосиликатный блок
[material_modifier] => 1
[work_modifier] => 1
[options] => Array
(
[0] => 300 мм
[1] => 375 мм
[2] => 400 мм
[3] => 500 мм
[4] => 600 мм
)
[days] => [29,31,35,37,44]
[material_price] => [4298,5573,6356,7288,9119]
[work_price] => [4538,5251,5926,6733,7195]
[image] => https://akademik-stroy.ru/wp-content/uploads/materials/gazosilikatnyj-blok.jpg
[area_modifier] => 40.21
[parent_name] => Стены 2 этаж (несущие)
[parent_id] => 5
[material_sum] => 228126
[work_sum] => 200720
[total_sum] => 428846
[total_days] => 29
[display_material_sum] => 228 126
[display_work_sum] => 200 720
[display_total_sum] => 428 846
)
1
428 846₽
Работа:200 720 ₽
Материалы:228 126 ₽
Дни:29
stdClass Object
(
[id] => 198
[attribute_id] => 5
[name] => Керамзитобетонный блок
[material_modifier] => 1
[work_modifier] => 1
[options] => Array
(
[0] => 300 мм
[1] => 375 мм
[2] => 400 мм
[3] => 500 мм
[4] => 600 мм
)
[days] => [23,23,24,25,28]
[material_price] => [3641,4298,5693,7613,9612]
[work_price] => [5737,5737,6903,7958,8901]
[image] => https://akademik-stroy.ru/wp-content/uploads/materials/keramzitobetonnyj-blok.jpg
[area_modifier] => 40.21
[parent_name] => Стены 2 этаж (несущие)
[parent_id] => 5
[material_sum] => 193254
[work_sum] => 253753
[total_sum] => 447007
[total_days] => 23
[display_material_sum] => 193 254
[display_work_sum] => 253 753
[display_total_sum] => 447 007
)
1
447 007₽
Работа:253 753 ₽
Материалы:193 254 ₽
Дни:23
stdClass Object
(
[id] => 199
[attribute_id] => 5
[name] => Деревянные
[material_modifier] => 1
[work_modifier] => 1
[options] => Array
(
[0] => 180 мм
[1] => 220 мм
[2] => 260 мм
[3] => 320 мм
)
[days] => [7,8,9,10]
[material_price] => [7950,9458,11961,14472]
[work_price] => [4037,4925,5812,7207]
[image] => https://akademik-stroy.ru/wp-content/uploads/materials/derevyannye.jpg
[area_modifier] => 40.21
[parent_name] => Стены 2 этаж (несущие)
[parent_id] => 5
[material_sum] => 421964
[work_sum] => 178561
[total_sum] => 600525
[total_days] => 7
[display_material_sum] => 421 964
[display_work_sum] => 178 561
[display_total_sum] => 600 525
)
1
600 525₽
Работа:178 561 ₽
Материалы:421 964 ₽
Дни:7
stdClass Object
(
[id] => 200
[attribute_id] => 5
[name] => Камень
[material_modifier] => 1
[work_modifier] => 1
[options] => Array
(
[0] => 300 мм
[1] => 400 мм
[2] => 500 мм
[3] => 600 мм
)
[days] => [25,27,31,34]
[material_price] => [5262,6844,8330,9815]
[work_price] => [8331,9135,10427,11069]
[image] => https://akademik-stroy.ru/wp-content/uploads/materials/kamen.jpg
[area_modifier] => 40.21
[parent_name] => Стены 2 этаж (несущие)
[parent_id] => 5
[material_sum] => 279292
[work_sum] => 368488
[total_sum] => 647780
[total_days] => 25
[display_material_sum] => 279 292
[display_work_sum] => 368 488
[display_total_sum] => 647 780
)
1
647 780₽
Работа:368 488 ₽
Материалы:279 292 ₽
Дни:25
stdClass Object
(
[id] => 201
[attribute_id] => 5
[name] => Каркасно-щитовые
[material_modifier] => 1
[work_modifier] => 1
[options] => Array
(
[0] => 150 мм
[1] => 200 мм
[2] => 250 мм
[3] => 300 мм
[4] => 350 мм
[5] => 400 мм
)
[days] => [15,16,17,18,19,20]
[material_price] => [2379,2639,2898,3458,3601,4175]
[work_price] => [2538,2820,3134,3483,4062,5642]
[image] => https://akademik-stroy.ru/wp-content/uploads/materials/karkasno-shchitovye.jpg
[area_modifier] => 40.21
[parent_name] => Стены 2 этаж (несущие)
[parent_id] => 5
[material_sum] => 126271
[work_sum] => 112258
[total_sum] => 238529
[total_days] => 15
[display_material_sum] => 126 271
[display_work_sum] => 112 258
[display_total_sum] => 238 529
)
1
238 529₽
Работа:112 258 ₽
Материалы:126 271 ₽
Дни:15
stdClass Object
(
[id] => 202
[attribute_id] => 5
[name] => Рубленные
[material_modifier] => 1
[work_modifier] => 1
[options] => Array
(
[0] => 150 мм
[1] => 200 мм
[2] => 250 мм
[3] => 300 мм
[4] => 350 мм
[5] => 400 мм
)
[days] => [15,16,17,18,17,18]
[material_price] => [35950,50267,60583,75900,80217,100533]
[work_price] => [9612,12816,16020,19224,22428,25632]
[image] => https://akademik-stroy.ru/wp-content/uploads/materials/rublennye.jpg
[area_modifier] => 40.21
[parent_name] => Стены 2 этаж (несущие)
[parent_id] => 5
[material_sum] => 1908125
[work_sum] => 425148
[total_sum] => 2333273
[total_days] => 15
[display_material_sum] => 1 908 125
[display_work_sum] => 425 148
[display_total_sum] => 2 333 273
)
1
2 333 273₽
Работа:425 148 ₽
Материалы:1 908 125 ₽
Дни:15
stdClass Object
(
[id] => 203
[attribute_id] => 5
[name] => Теплоблок
[material_modifier] => 1
[work_modifier] => 1
[options] => Array
(
[0] => 300 мм (с облицовкой, не покрашенный)
[1] => 400 мм (с облицовкой, не покрашенный)
[2] => 300 мм (с облицовкой, покрашенный)
[3] => 400 мм (с облицовкой, покрашенный)
)
[days] => [15,16,15,16]
[material_price] => [2888,3729,3957,4258]
[work_price] => [2564,3229,2949,3713]
[image] => https://akademik-stroy.ru/wp-content/uploads/materials/teploblok.jpg
[area_modifier] => 40.21
[parent_name] => Стены 2 этаж (несущие)
[parent_id] => 5
[material_sum] => 153287
[work_sum] => 113408
[total_sum] => 266695
[total_days] => 15
[display_material_sum] => 153 287
[display_work_sum] => 113 408
[display_total_sum] => 266 695
)
1
266 695₽
Работа:113 408 ₽
Материалы:153 287 ₽
Дни:15
stdClass Object
(
[id] => 204
[attribute_id] => 5
[name] => Арболитовые блоки
[material_modifier] => 1
[work_modifier] => 1
[options] => Array
(
[0] => 300 мм
[1] => 400 мм
[2] => 600 мм
)
[days] => [19,22,27]
[material_price] => [3210,4475,5852]
[work_price] => [4214,4788,5866]
[image] => https://akademik-stroy.ru/wp-content/uploads/materials/arbolitovye-bloki.png
[area_modifier] => 40.21
[parent_name] => Стены 2 этаж (несущие)
[parent_id] => 5
[material_sum] => 170378
[work_sum] => 186389
[total_sum] => 356767
[total_days] => 19
[display_material_sum] => 170 378
[display_work_sum] => 186 389
[display_total_sum] => 356 767
)
1
356 767₽
Работа:186 389 ₽
Материалы:170 378 ₽
Дни:19
stdClass Object
(
[id] => 205
[attribute_id] => 5
[name] => Полистиролбетон
[material_modifier] => 1
[work_modifier] => 1
[options] => Array
(
[0] => 300 мм
[1] => 400 мм
[2] => 600 мм
)
[days] => [29,31,35]
[material_price] => [2798,4573,5256]
[work_price] => [5038,5851,6426]
[image] => https://akademik-stroy.ru/wp-content/uploads/materials/polistirolbeton.jpg
[area_modifier] => 40.21
[parent_name] => Стены 2 этаж (несущие)
[parent_id] => 5
[material_sum] => 148510
[work_sum] => 222836
[total_sum] => 371346
[total_days] => 29
[display_material_sum] => 148 510
[display_work_sum] => 222 836
[display_total_sum] => 371 346
)
1
371 346₽
Работа:222 836 ₽
Материалы:148 510 ₽
Дни:29
stdClass Object
(
[id] => 206
[attribute_id] => 5
[name] => Шлакоблок
[material_modifier] => 1
[work_modifier] => 1
[options] => Array
(
[0] => 400 мм
[1] => 600 мм
)
[days] => [15,16]
[material_price] => [2391,3471]
[work_price] => [2642,3662]
[image] => https://akademik-stroy.ru/wp-content/uploads/materials/shlakoblok.jpg
[area_modifier] => 40.21
[parent_name] => Стены 2 этаж (несущие)
[parent_id] => 5
[material_sum] => 126908
[work_sum] => 116858
[total_sum] => 243766
[total_days] => 15
[display_material_sum] => 126 908
[display_work_sum] => 116 858
[display_total_sum] => 243 766
)
1
243 766₽
Работа:116 858 ₽
Материалы:126 908 ₽
Дни:15
stdClass Object
(
[id] => 245
[attribute_id] => 5
[name] => Теплая керамика
[material_modifier] => 1
[work_modifier] => 1
[options] => Array
(
[0] => 380 мм
[1] => 380 мм Thermo
[2] => 440 мм
[3] => 510 мм
)
[days] => [10,10,11,12]
[material_price] => [4510,5098,6093,8013]
[work_price] => [4737,4937,5903,6958]
[image] => https://akademik-stroy.ru/wp-content/uploads/materials/teplaya-keramika.jpg
[area_modifier] => 40.21
[parent_name] => Стены 2 этаж (несущие)
[parent_id] => 5
[material_sum] => 239378
[work_sum] => 209522
[total_sum] => 448900
[total_days] => 10
[display_material_sum] => 239 378
[display_work_sum] => 209 522
[display_total_sum] => 448 900
)
1
448 900₽
Работа:209 522 ₽
Материалы:239 378 ₽
Дни:10
stdClass Object
(
[id] => 246
[attribute_id] => 5
[name] => Несъемная опалубка
[material_modifier] => 1
[work_modifier] => 1
[options] => Array
(
[0] => 380 мм
[1] => 380 мм Thermo
[2] => 440 мм
[3] => 510 мм
)
[days] => [10,10,11,12]
[material_price] => [3302,3902,4108,5008]
[work_price] => [2100,2100,2300,2534]
[image] => https://akademik-stroy.ru/wp-content/uploads/materials/nesemnaya-opalubka.jpg
[area_modifier] => 40.21
[parent_name] => Стены 2 этаж (несущие)
[parent_id] => 5
[material_sum] => 175261
[work_sum] => 92885
[total_sum] => 268146
[total_days] => 10
[display_material_sum] => 175 261
[display_work_sum] => 92 885
[display_total_sum] => 268 146
)
1
268 146₽
Работа:92 885 ₽
Материалы:175 261 ₽
Дни:10
stdClass Object
(
[id] => 254
[attribute_id] => 5
[name] => Бревно
[material_modifier] => 1
[work_modifier] => 1
[options] => Array
(
[0] => 260 мм
[1] => 320 мм
[2] => 360 мм
[3] => 400 мм
[4] => 500 мм
)
[days] => [7,8,9,10,11]
[material_price] => [1874,24045,26930,30972,38825]
[work_price] => [5046,6207,6952,7716,9723]
[image] => https://akademik-stroy.ru/wp-content/uploads/materials/sruby.jpg
[area_modifier] => 40.21
[parent_name] => Стены 2 этаж (несущие)
[parent_id] => 5
[material_sum] => 99467
[work_sum] => 223190
[total_sum] => 322657
[total_days] => 7
[display_material_sum] => 99 467
[display_work_sum] => 223 190
[display_total_sum] => 322 657
)
1
322 657₽
Работа:223 190 ₽
Материалы:99 467 ₽
Дни:7
stdClass Object
(
[id] => 164
[attribute_id] => 37
[name] => Металлочерепица
[material_modifier] => 1
[work_modifier] => 1
[options] => Array
(
)
[days] => [20]
[material_price] => [6112]
[work_price] => [5726]
[image] => https://akademik-stroy.ru/wp-content/uploads/materials/metallocherepica.jpg
[area_modifier] => 152.98
[parent_name] => Крыша (Скатная)
[parent_id] => 37
[material_sum] => 1234218
[work_sum] => 963560
[total_sum] => 2197778
[total_days] => 20
[display_material_sum] => 1 234 218
[display_work_sum] => 963 560
[display_total_sum] => 2 197 778
)
1
2 197 778₽
Работа:963 560 ₽
Материалы:1 234 218 ₽
Дни:20
stdClass Object
(
[id] => 165
[attribute_id] => 37
[name] => Гибкая черепица
[material_modifier] => 1
[work_modifier] => 1
[options] => Array
(
)
[days] => [20]
[material_price] => [6980]
[work_price] => [5950]
[image] => https://akademik-stroy.ru/wp-content/uploads/materials/gibkaya-cherepica.jpg
[area_modifier] => 152.98
[parent_name] => Крыша (Скатная)
[parent_id] => 37
[material_sum] => 1409497
[work_sum] => 1001254
[total_sum] => 2410751
[total_days] => 20
[display_material_sum] => 1 409 497
[display_work_sum] => 1 001 254
[display_total_sum] => 2 410 751
)
1
2 410 751₽
Работа:1 001 254 ₽
Материалы:1 409 497 ₽
Дни:20
stdClass Object
(
[id] => 166
[attribute_id] => 37
[name] => Цементно-песчаная черепица
[material_modifier] => 1
[work_modifier] => 1
[options] => Array
(
)
[days] => [20]
[material_price] => [10560]
[work_price] => [9456]
[image] => https://akademik-stroy.ru/wp-content/uploads/materials/cementno-peschanaya-cherepica.jpg
[area_modifier] => 152.98
[parent_name] => Крыша (Скатная)
[parent_id] => 37
[material_sum] => 2132419
[work_sum] => 1591237
[total_sum] => 3723656
[total_days] => 20
[display_material_sum] => 2 132 419
[display_work_sum] => 1 591 237
[display_total_sum] => 3 723 656
)
1
3 723 656₽
Работа:1 591 237 ₽
Материалы:2 132 419 ₽
Дни:20
stdClass Object
(
[id] => 167
[attribute_id] => 37
[name] => Композитная черепица
[material_modifier] => 1
[work_modifier] => 1
[options] => Array
(
)
[days] => [20]
[material_price] => [9506]
[work_price] => [8905]
[image] => https://akademik-stroy.ru/wp-content/uploads/materials/kompozitnaya-cherepica.jpg
[area_modifier] => 152.98
[parent_name] => Крыша (Скатная)
[parent_id] => 37
[material_sum] => 1919581
[work_sum] => 1498516
[total_sum] => 3418097
[total_days] => 20
[display_material_sum] => 1 919 581
[display_work_sum] => 1 498 516
[display_total_sum] => 3 418 097
)
1
3 418 097₽
Работа:1 498 516 ₽
Материалы:1 919 581 ₽
Дни:20
stdClass Object
(
[id] => 168
[attribute_id] => 37
[name] => Керамическая черепица
[material_modifier] => 1
[work_modifier] => 1
[options] => Array
(
)
[days] => [20]
[material_price] => [12750]
[work_price] => [9456]
[image] => https://akademik-stroy.ru/wp-content/uploads/materials/keramicheskaya-cherepica.jpg
[area_modifier] => 152.98
[parent_name] => Крыша (Скатная)
[parent_id] => 37
[material_sum] => 2574653
[work_sum] => 1591237
[total_sum] => 4165890
[total_days] => 20
[display_material_sum] => 2 574 653
[display_work_sum] => 1 591 237
[display_total_sum] => 4 165 890
)
1
4 165 890₽
Работа:1 591 237 ₽
Материалы:2 574 653 ₽
Дни:20
stdClass Object
(
[id] => 169
[attribute_id] => 37
[name] => Металлическая фальцевая
[material_modifier] => 1
[work_modifier] => 1
[options] => Array
(
)
[days] => [20]
[material_price] => [8550]
[work_price] => [8190]
[image] => https://akademik-stroy.ru/wp-content/uploads/materials/metallicheskaya-falcevaya.jpg
[area_modifier] => 152.98
[parent_name] => Крыша (Скатная)
[parent_id] => 37
[material_sum] => 1726532
[work_sum] => 1378197
[total_sum] => 3104729
[total_days] => 20
[display_material_sum] => 1 726 532
[display_work_sum] => 1 378 197
[display_total_sum] => 3 104 729
)
1
3 104 729₽
Работа:1 378 197 ₽
Материалы:1 726 532 ₽
Дни:20
stdClass Object
(
[id] => 170
[attribute_id] => 37
[name] => Медная фальцевая
[material_modifier] => 1
[work_modifier] => 1
[options] => Array
(
)
[days] => [20]
[material_price] => [20450]
[work_price] => [16750]
[image] => https://akademik-stroy.ru/wp-content/uploads/materials/mednaya-falcevaya.jpg
[area_modifier] => 152.98
[parent_name] => Крыша (Скатная)
[parent_id] => 37
[material_sum] => 4129542
[work_sum] => 2818657
[total_sum] => 6948199
[total_days] => 20
[display_material_sum] => 4 129 542
[display_work_sum] => 2 818 657
[display_total_sum] => 6 948 199
)
1
6 948 199₽
Работа:2 818 657 ₽
Материалы:4 129 542 ₽
Дни:20
stdClass Object
(
[id] => 171
[attribute_id] => 37
[name] => Зеленая кровля
[material_modifier] => 1
[work_modifier] => 1
[options] => Array
(
)
[days] => [20]
[material_price] => [19850]
[work_price] => [16780]
[image] => https://akademik-stroy.ru/wp-content/uploads/materials/zelenaya-krovlya.jpg
[area_modifier] => 152.98
[parent_name] => Крыша (Скатная)
[parent_id] => 37
[material_sum] => 4008382
[work_sum] => 2823705
[total_sum] => 6832087
[total_days] => 20
[display_material_sum] => 4 008 382
[display_work_sum] => 2 823 705
[display_total_sum] => 6 832 087
)
1
6 832 087₽
Работа:2 823 705 ₽
Материалы:4 008 382 ₽
Дни:20
stdClass Object
(
[id] => 172
[attribute_id] => 37
[name] => Профлист
[material_modifier] => 1
[work_modifier] => 1
[options] => Array
(
)
[days] => [20]
[material_price] => [3450]
[work_price] => [3750]
[image] => https://akademik-stroy.ru/wp-content/uploads/materials/proflist.jpg
[area_modifier] => 152.98
[parent_name] => Крыша (Скатная)
[parent_id] => 37
[material_sum] => 696671
[work_sum] => 631043
[total_sum] => 1327714
[total_days] => 20
[display_material_sum] => 696 671
[display_work_sum] => 631 043
[display_total_sum] => 1 327 714
)
1
1 327 714₽
Работа:631 043 ₽
Материалы:696 671 ₽
Дни:20
stdClass Object
(
[id] => 51
[attribute_id] => 26
[name] => Есть
[material_modifier] => 1
[work_modifier] => 1
[options] => Array
(
[0] => Профиль 58 мм, 3-камерный, стеклопакет 2-камерный до 32 мм
[1] => Профиль 60 мм, 4-камерный, стеклопакет 2-камерный до 32 мм
[2] => Профиль 70 мм, 5-камерный, стеклопакет 2-камерный до 40 мм
[3] => Профиль 72 мм, 5-камерный, стеклопакет 2-камерный до 40 мм
[4] => Алюминиевые окна Alutech профиль 72 мм, стеклопакет 2-камерный
)
[days] => [3,3,3,3,3]
[material_price] => [1339,2124,2867,3023,29596]
[work_price] => [635,647,659,668,2579]
[image] => https://akademik-stroy.ru/wp-content/uploads/materials/okna.jpg
[area_modifier] => 156.77
[parent_name] => Окна
[parent_id] => 26
[material_sum] => 277088
[work_sum] => 109504
[total_sum] => 386592
[total_days] => 3
[display_material_sum] => 277 088
[display_work_sum] => 109 504
[display_total_sum] => 386 592
)
1
386 592₽
Работа:109 504 ₽
Материалы:277 088 ₽
Дни:3
stdClass Object
(
[id] => 52
[attribute_id] => 26
[name] => Нет
[material_modifier] => 2
[work_modifier] => 1
[options] =>
[days] => null
[material_price] => null
[work_price] => null
[image] => https://akademik-stroy.ru/wp-content/uploads/materials/okna.jpg
[area_modifier] => 156.77
[parent_name] => Окна
[parent_id] => 26
[material_sum] => 0
[work_sum] => 0
[total_sum] => 0
[total_days] => 0
[display_material_sum] => 0
[display_work_sum] => 0
[display_total_sum] => 0
)
1
0₽
Работа:0 ₽
Материалы:0 ₽
Дни:0
stdClass Object
(
[id] => 53
[attribute_id] => 27
[name] => Есть
[material_modifier] => 1
[work_modifier] => 1
[options] => Array
(
)
[days] => [1]
[material_price] => [10000]
[work_price] => [5500]
[image] => https://akademik-stroy.ru/wp-content/uploads/materials/dveri.jpg
[area_modifier] => 1
[parent_name] => Двери входные
[parent_id] => 27
[material_sum] => 13200
[work_sum] => 6050
[total_sum] => 19250
[total_days] => 1
[display_material_sum] => 13 200
[display_work_sum] => 6 050
[display_total_sum] => 19 250
)
1
19 250₽
Работа:6 050 ₽
Материалы:13 200 ₽
Дни:1
stdClass Object
(
[id] => 54
[attribute_id] => 27
[name] => Нет
[material_modifier] => 1
[work_modifier] => 1
[options] => Array
(
)
[days] => [0]
[material_price] => [0]
[work_price] => [0]
[image] => https://akademik-stroy.ru/wp-content/uploads/materials/dveri.jpg
[area_modifier] => 1
[parent_name] => Двери входные
[parent_id] => 27
[material_sum] => 0
[work_sum] => 0
[total_sum] => 0
[total_days] => 0
[display_material_sum] => 0
[display_work_sum] => 0
[display_total_sum] => 0
)
1
0₽
Работа:0 ₽
Материалы:0 ₽
Дни:0
stdClass Object
(
[id] => 25
[attribute_id] => 13
[name] => Нет
[material_modifier] => 1
[work_modifier] => 1
[options] => Array
(
)
[days] => [0]
[material_price] => [0]
[work_price] => [0]
[image] => https://akademik-stroy.ru/wp-content/uploads/materials/mineralovata-krov.jpg
[area_modifier] => 152.98
[parent_name] => Утепление кровли (Мансарда)
[parent_id] => 13
[material_sum] => 0
[work_sum] => 0
[total_sum] => 0
[total_days] => 0
[display_material_sum] => 0
[display_work_sum] => 0
[display_total_sum] => 0
)
1
0₽
Работа:0 ₽
Материалы:0 ₽
Дни:0
stdClass Object
(
[id] => 26
[attribute_id] => 13
[name] => Минераловатный
[material_modifier] => 1
[work_modifier] => 1
[options] => Array
(
[0] => 50 мм
[1] => 100 мм
[2] => 150 мм
[3] => 200 мм
[4] => 250 мм
[5] => 300 мм
[6] => 350 мм
[7] => 400 мм
[8] => 450 мм
[9] => 500 мм
)
[days] => [5,5,6,6,6,7,7,7,8,8]
[material_price] => [1158,1414,1772,2230,3602,4060,4974,5890,6408,7718]
[work_price] => [650,846,846,1098,1318,1450,1596,1754,1930,2122]
[image] => https://akademik-stroy.ru/wp-content/uploads/materials/mineralovata-krov.jpg
[area_modifier] => 152.98
[parent_name] => Утепление кровли (Мансарда)
[parent_id] => 13
[material_sum] => 233839
[work_sum] => 109381
[total_sum] => 343220
[total_days] => 5
[display_material_sum] => 233 839
[display_work_sum] => 109 381
[display_total_sum] => 343 220
)
1
343 220₽
Работа:109 381 ₽
Материалы:233 839 ₽
Дни:5
stdClass Object
(
[id] => 123
[attribute_id] => 13
[name] => Эковата (целлюлозная вата)
[material_modifier] => 1
[work_modifier] => 1
[options] => Array
(
[0] => 50 мм
[1] => 100 мм
[2] => 150 мм
[3] => 200 мм
[4] => 250 мм
[5] => 300 мм
[6] => 350 мм
[7] => 400 мм
[8] => 450 мм
[9] => 500 мм
)
[days] => [3,3,4,4,4,5,5,5,5,5]
[material_price] => [820,1638,2458,3276,5734,6552,8190,9828,11466,13104]
[work_price] => [234,304,304,396,474,522,574,632,694,764]
[image] => https://akademik-stroy.ru/wp-content/uploads/materials/ehkovata-krov.jpg
[area_modifier] => 152.98
[parent_name] => Утепление кровли (Мансарда)
[parent_id] => 13
[material_sum] => 165586
[work_sum] => 39377
[total_sum] => 204963
[total_days] => 3
[display_material_sum] => 165 586
[display_work_sum] => 39 377
[display_total_sum] => 204 963
)
1
204 963₽
Работа:39 377 ₽
Материалы:165 586 ₽
Дни:3
stdClass Object
(
[id] => 124
[attribute_id] => 13
[name] => Экструдированный пенополистирол
[material_modifier] => 1
[work_modifier] => 1
[options] => Array
(
[0] => 50 мм
[1] => 100 мм
[2] => 150 мм
[3] => 200 мм
[4] => 250 мм
[5] => 300 мм
[6] => 350 мм
[7] => 400 мм
[8] => 450 мм
[9] => 500 мм
)
[days] => [3,3,4,4,4,5,5,5,5,6]
[material_price] => [1146,2292,3438,4584,8020,9166,11458,13750,16040,18332]
[work_price] => [390,508,508,660,790,870,958,1052,1158,1274]
[image] => https://akademik-stroy.ru/wp-content/uploads/materials/epps-krov.jpg
[area_modifier] => 152.98
[parent_name] => Утепление кровли (Мансарда)
[parent_id] => 13
[material_sum] => 231416
[work_sum] => 65628
[total_sum] => 297044
[total_days] => 3
[display_material_sum] => 231 416
[display_work_sum] => 65 628
[display_total_sum] => 297 044
)
1
297 044₽
Работа:65 628 ₽
Материалы:231 416 ₽
Дни:3
stdClass Object
(
[id] => 125
[attribute_id] => 13
[name] => ПСБ (ППС-пенополистирол)
[material_modifier] => 1
[work_modifier] => 1
[options] => Array
(
[0] => 50 мм
[1] => 100 мм
[2] => 150 мм
[3] => 200 мм
[4] => 250 мм
[5] => 300 мм
[6] => 350 мм
[7] => 400 мм
[8] => 450 мм
[9] => 500 мм
)
[days] => [3,3,4,4,4,5,5,5,5,6]
[material_price] => [476,954,1430,1906,3336,3814,4766,5720,6674,7626]
[work_price] => [390,508,508,660,790,870,958,1052,1158,1274]
[image] => https://akademik-stroy.ru/wp-content/uploads/materials/psb-krov.jpg
[area_modifier] => 152.98
[parent_name] => Утепление кровли (Мансарда)
[parent_id] => 13
[material_sum] => 96120
[work_sum] => 65628
[total_sum] => 161748
[total_days] => 3
[display_material_sum] => 96 120
[display_work_sum] => 65 628
[display_total_sum] => 161 748
)
1
161 748₽
Работа:65 628 ₽
Материалы:96 120 ₽
Дни:3
stdClass Object
(
[id] => 126
[attribute_id] => 13
[name] => ППУ (Пенополиуретан)
[material_modifier] => 1
[work_modifier] => 1
[options] => Array
(
[0] => 50 мм
[1] => 100 мм
[2] => 150 мм
[3] => 200 мм
[4] => 250 мм
[5] => 300 мм
[6] => 350 мм
[7] => 400 мм
[8] => 450 мм
[9] => 500 мм
)
[days] => [2,2,3,3,3,3,4,4,4,4]
[material_price] => [2080,4160,6240,8320,14560,16640,20800,24960,29120,33280]
[work_price] => [234,304,304,396,474,522,574,632,694,764]
[image] => https://akademik-stroy.ru/wp-content/uploads/materials/ppu-krov.jpg
[area_modifier] => 152.98
[parent_name] => Утепление кровли (Мансарда)
[parent_id] => 13
[material_sum] => 420022
[work_sum] => 39377
[total_sum] => 459399
[total_days] => 2
[display_material_sum] => 420 022
[display_work_sum] => 39 377
[display_total_sum] => 459 399
)
1
459 399₽
Работа:39 377 ₽
Материалы:420 022 ₽
Дни:2
stdClass Object
(
[id] => 127
[attribute_id] => 13
[name] => PIR-плиты (пенополиизоцианурат)
[material_modifier] => 1
[work_modifier] => 1
[options] => Array
(
[0] => 50 мм
[1] => 100 мм
[2] => 150 мм
[3] => 200 мм
[4] => 250 мм
[5] => 300 мм
[6] => 350 мм
[7] => 400 мм
[8] => 450 мм
[9] => 500 мм
)
[days] => [3,3,4,4,4,5,5,5,5,6]
[material_price] => [2646,5290,7936,10580,18516,21162,26452,31742,37032,42324]
[work_price] => [390,508,508,660,790,870,958,1052,1158,1274]
[image] => https://akademik-stroy.ru/wp-content/uploads/materials/pir-krov.jpg
[area_modifier] => 152.98
[parent_name] => Утепление кровли (Мансарда)
[parent_id] => 13
[material_sum] => 534316
[work_sum] => 65628
[total_sum] => 599944
[total_days] => 3
[display_material_sum] => 534 316
[display_work_sum] => 65 628
[display_total_sum] => 599 944
)
1
599 944₽
Работа:65 628 ₽
Материалы:534 316 ₽
Дни:3
stdClass Object
(
[id] => 27
[attribute_id] => 14
[name] => Нет
[material_modifier] => 1
[work_modifier] => 1
[options] => Array
(
)
[days] => [0]
[material_price] => [0]
[work_price] => [0]
[image] => https://akademik-stroy.ru/wp-content/uploads/materials/mansardnye-okna-2.jpg
[area_modifier] => 1
[parent_name] => Мансардные окна
[parent_id] => 14
[material_sum] => 0
[work_sum] => 0
[total_sum] => 0
[total_days] => 0
[display_material_sum] => 0
[display_work_sum] => 0
[display_total_sum] => 0
)
1
0₽
Работа:0 ₽
Материалы:0 ₽
Дни:0
stdClass Object
(
[id] => 28
[attribute_id] => 14
[name] => Есть
[material_modifier] => 1
[work_modifier] => 1
[options] => Array
(
[0] => 55x78
[1] => 55x98
)
[days] => [6,7]
[material_price] => [47480,68700]
[work_price] => [17900,19500]
[image] => https://akademik-stroy.ru/wp-content/uploads/materials/mansardnye-okna-2.jpg
[area_modifier] => 1
[parent_name] => Мансардные окна
[parent_id] => 14
[material_sum] => 62674
[work_sum] => 19690
[total_sum] => 82364
[total_days] => 6
[display_material_sum] => 62 674
[display_work_sum] => 19 690
[display_total_sum] => 82 364
)
1
82 364₽
Работа:19 690 ₽
Материалы:62 674 ₽
Дни:6
stdClass Object
(
[id] => 29
[attribute_id] => 15
[name] => Нет
[material_modifier] => 1
[work_modifier] => 1
[options] => Array
(
)
[days] => [0]
[material_price] => [0]
[work_price] => [0]
[image] => https://akademik-stroy.ru/wp-content/uploads/materials/sofit.jpg
[area_modifier] => 152.98
[parent_name] => Подшивка кровли
[parent_id] => 15
[material_sum] => 0
[work_sum] => 0
[total_sum] => 0
[total_days] => 0
[display_material_sum] => 0
[display_work_sum] => 0
[display_total_sum] => 0
)
1
0₽
Работа:0 ₽
Материалы:0 ₽
Дни:0
stdClass Object
(
[id] => 30
[attribute_id] => 15
[name] => Есть
[material_modifier] => 1
[work_modifier] => 1
[options] => Array
(
[0] => Софиты (ПВХ)
[1] => Cedral
[2] => ДПК
[3] => Планкен
)
[days] => [7,10,9,8]
[material_price] => [1803,3213,3025,3150]
[work_price] => [1529,2188,2075,1923]
[image] => https://akademik-stroy.ru/wp-content/uploads/materials/sofit.jpg
[area_modifier] => 152.98
[parent_name] => Подшивка кровли
[parent_id] => 15
[material_sum] => 364086
[work_sum] => 257297
[total_sum] => 621383
[total_days] => 7
[display_material_sum] => 364 086
[display_work_sum] => 257 297
[display_total_sum] => 621 383
)
1
621 383₽
Работа:257 297 ₽
Материалы:364 086 ₽
Дни:7
stdClass Object
(
[id] => 31
[attribute_id] => 16
[name] => Нет
[material_modifier] => 1
[work_modifier] => 1
[options] => Array
(
)
[days] => [0]
[material_price] => [0]
[work_price] => [0]
[image] => https://akademik-stroy.ru/wp-content/uploads/materials/docke-standard-pvh.jpg
[area_modifier] => 152.98
[parent_name] => Водосточная система
[parent_id] => 16
[material_sum] => 0
[work_sum] => 0
[total_sum] => 0
[total_days] => 0
[display_material_sum] => 0
[display_work_sum] => 0
[display_total_sum] => 0
)
1
0₽
Работа:0 ₽
Материалы:0 ₽
Дни:0
stdClass Object
(
[id] => 32
[attribute_id] => 16
[name] => Есть
[material_modifier] => 1
[work_modifier] => 1
[options] => Array
(
[0] => Döcke Standard (ПВХ)
[1] => Металлические Grand Line
)
[days] => [7,7]
[material_price] => [1842,2703]
[work_price] => [1491,1529]
[image] => https://akademik-stroy.ru/wp-content/uploads/materials/docke-standard-pvh.jpg
[area_modifier] => 152.98
[parent_name] => Водосточная система
[parent_id] => 16
[material_sum] => 371962
[work_sum] => 250902
[total_sum] => 622864
[total_days] => 7
[display_material_sum] => 371 962
[display_work_sum] => 250 902
[display_total_sum] => 622 864
)
1
622 864₽
Работа:250 902 ₽
Материалы:371 962 ₽
Дни:7
stdClass Object
(
[id] => 33
[attribute_id] => 17
[name] => Нет
[material_modifier] => 1
[work_modifier] => 1
[options] => Array
(
)
[days] => [0]
[material_price] => [0]
[work_price] => [0]
[image] => https://akademik-stroy.ru/wp-content/uploads/materials/mineralovata.jpg
[area_modifier] => 193.19
[parent_name] => Дополнительное утепление наружных стен
[parent_id] => 17
[material_sum] => 0
[work_sum] => 0
[total_sum] => 0
[total_days] => 0
[display_material_sum] => 0
[display_work_sum] => 0
[display_total_sum] => 0
)
1
0₽
Работа:0 ₽
Материалы:0 ₽
Дни:0
stdClass Object
(
[id] => 34
[attribute_id] => 17
[name] => Минераловатный
[material_modifier] => 1
[work_modifier] => 1
[options] => Array
(
[0] => 50 мм
[1] => 100 мм
[2] => 150 мм
[3] => 200 мм
[4] => 250 мм
[5] => 300 мм
)
[days] => [7,8,10,12,14,15]
[material_price] => [3437,3613,3803,3915,4601,4830]
[work_price] => [2325,2423,2523,2749,2859,3025]
[image] => https://akademik-stroy.ru/wp-content/uploads/materials/mineralovata.jpg
[area_modifier] => 193.19
[parent_name] => Дополнительное утепление наружных стен
[parent_id] => 17
[material_sum] => 876472
[work_sum] => 494083
[total_sum] => 1370555
[total_days] => 7
[display_material_sum] => 876 472
[display_work_sum] => 494 083
[display_total_sum] => 1 370 555
)
1
1 370 555₽
Работа:494 083 ₽
Материалы:876 472 ₽
Дни:7
stdClass Object
(
[id] => 128
[attribute_id] => 17
[name] => Эковата (целлюлозная вата)
[material_modifier] => 1
[work_modifier] => 1
[options] => Array
(
[0] => 50 мм
[1] => 100 мм
[2] => 150 мм
[3] => 200 мм
[4] => 250 мм
[5] => 300 мм
)
[days] => [3,4,5,6,7,8]
[material_price] => [810,1319,1629,1838,2267,2676]
[work_price] => [1225,1323,1423,1549,1659,1725]
[image] => https://akademik-stroy.ru/wp-content/uploads/materials/ehkovata.jpg
[area_modifier] => 193.19
[parent_name] => Дополнительное утепление наружных стен
[parent_id] => 17
[material_sum] => 206559
[work_sum] => 260324
[total_sum] => 466883
[total_days] => 3
[display_material_sum] => 206 559
[display_work_sum] => 260 324
[display_total_sum] => 466 883
)
1
466 883₽
Работа:260 324 ₽
Материалы:206 559 ₽
Дни:3
stdClass Object
(
[id] => 129
[attribute_id] => 17
[name] => Экструдированный пенополистирол
[material_modifier] => 1
[work_modifier] => 1
[options] => Array
(
[0] => 50 мм
[1] => 100 мм
[2] => 150 мм
[3] => 200 мм
[4] => 250 мм
[5] => 300 мм
)
[days] => [5,6,7,8,9,10]
[material_price] => [4560,4300,5119,6292,7010,8583]
[work_price] => [1795,1954,2254,2330,2595,2735]
[image] => https://akademik-stroy.ru/wp-content/uploads/materials/epps.jpg
[area_modifier] => 193.19
[parent_name] => Дополнительное утепление наружных стен
[parent_id] => 17
[material_sum] => 1162849
[work_sum] => 381454
[total_sum] => 1544303
[total_days] => 5
[display_material_sum] => 1 162 849
[display_work_sum] => 381 454
[display_total_sum] => 1 544 303
)
1
1 544 303₽
Работа:381 454 ₽
Материалы:1 162 849 ₽
Дни:5
stdClass Object
(
[id] => 130
[attribute_id] => 17
[name] => ПСБ (ППС-пенополистирол)
[material_modifier] => 1
[work_modifier] => 1
[options] => Array
(
[0] => 50 мм
[1] => 100 мм
[2] => 150 мм
[3] => 200 мм
[4] => 250 мм
[5] => 300 мм
)
[days] => [5,6,7,8,9,10]
[material_price] => [4822,5200,5819,6292,7010,7583]
[work_price] => [1795,1954,2254,2330,2595,2735]
[image] => https://akademik-stroy.ru/wp-content/uploads/materials/psb.jpg
[area_modifier] => 193.19
[parent_name] => Дополнительное утепление наружных стен
[parent_id] => 17
[material_sum] => 1229662
[work_sum] => 381454
[total_sum] => 1611116
[total_days] => 5
[display_material_sum] => 1 229 662
[display_work_sum] => 381 454
[display_total_sum] => 1 611 116
)
1
1 611 116₽
Работа:381 454 ₽
Материалы:1 229 662 ₽
Дни:5
stdClass Object
(
[id] => 131
[attribute_id] => 17
[name] => ППУ (Пенополиуретан)
[material_modifier] => 1
[work_modifier] => 1
[options] => Array
(
[0] => 50 мм
[1] => 100 мм
[2] => 150 мм
[3] => 200 мм
[4] => 250 мм
[5] => 300 мм
)
[days] => [3,4,5,6,7,8]
[material_price] => [2860,3400,4219,4592,5010,5583]
[work_price] => [729,900,980,1120,1280,1530]
[image] => https://akademik-stroy.ru/wp-content/uploads/materials/ppu.jpg
[area_modifier] => 193.19
[parent_name] => Дополнительное утепление наружных стен
[parent_id] => 17
[material_sum] => 729331
[work_sum] => 154919
[total_sum] => 884250
[total_days] => 3
[display_material_sum] => 729 331
[display_work_sum] => 154 919
[display_total_sum] => 884 250
)
1
884 250₽
Работа:154 919 ₽
Материалы:729 331 ₽
Дни:3
stdClass Object
(
[id] => 132
[attribute_id] => 17
[name] => PIR-плиты (пенополиизоцианурат)
[material_modifier] => 1
[work_modifier] => 1
[options] => Array
(
[0] => 50 мм
[1] => 100 мм
[2] => 150 мм
[3] => 200 мм
[4] => 250 мм
[5] => 300 мм
)
[days] => [5,6,7,8,9,10]
[material_price] => [8323,15645,20968,25900,29258,30581]
[work_price] => [800,900,970,1150,1280,1330]
[image] => https://akademik-stroy.ru/wp-content/uploads/materials/pir.jpg
[area_modifier] => 193.19
[parent_name] => Дополнительное утепление наружных стен
[parent_id] => 17
[material_sum] => 2122455
[work_sum] => 170007
[total_sum] => 2292462
[total_days] => 5
[display_material_sum] => 2 122 455
[display_work_sum] => 170 007
[display_total_sum] => 2 292 462
)
1
2 292 462₽
Работа:170 007 ₽
Материалы:2 122 455 ₽
Дни:5
stdClass Object
(
[id] => 37
[attribute_id] => 19
[name] => Нет
[material_modifier] => 1
[work_modifier] => 1
[options] => Array
(
)
[days] => [0]
[material_price] => [0]
[work_price] => [0]
[image] => https://akademik-stroy.ru/wp-content/uploads/materials/imitaciya-brusa.jpg
[area_modifier] => 193.19
[parent_name] => Наружная отделка фасада
[parent_id] => 19
[material_sum] => 0
[work_sum] => 0
[total_sum] => 0
[total_days] => 0
[display_material_sum] => 0
[display_work_sum] => 0
[display_total_sum] => 0
)
1
0₽
Работа:0 ₽
Материалы:0 ₽
Дни:0
stdClass Object
(
[id] => 38
[attribute_id] => 19
[name] => Имитация бруса
[material_modifier] => 1
[work_modifier] => 1
[options] => Array
(
[0] => Сосна
[1] => Ель
[2] => Лиственница
)
[days] => [20,20,20]
[material_price] => [2994,2762,4954]
[work_price] => [1397,1231,1577]
[image] => https://akademik-stroy.ru/wp-content/uploads/materials/imitaciya-brusa.jpg
[area_modifier] => 193.19
[parent_name] => Наружная отделка фасада
[parent_id] => 19
[material_sum] => 763502
[work_sum] => 296875
[total_sum] => 1060377
[total_days] => 20
[display_material_sum] => 763 502
[display_work_sum] => 296 875
[display_total_sum] => 1 060 377
)
1
1 060 377₽
Работа:296 875 ₽
Материалы:763 502 ₽
Дни:20
stdClass Object
(
[id] => 136
[attribute_id] => 19
[name] => Планкен
[material_modifier] => 1
[work_modifier] => 1
[options] => Array
(
[0] => Сосна
[1] => Ель
[2] => Лиственница
)
[days] => [20,20,20]
[material_price] => [3194,2862,5154]
[work_price] => [1537,1354,1735]
[image] => https://akademik-stroy.ru/wp-content/uploads/materials/planken.jpg
[area_modifier] => 193.19
[parent_name] => Наружная отделка фасада
[parent_id] => 19
[material_sum] => 814504
[work_sum] => 326626
[total_sum] => 1141130
[total_days] => 20
[display_material_sum] => 814 504
[display_work_sum] => 326 626
[display_total_sum] => 1 141 130
)
1
1 141 130₽
Работа:326 626 ₽
Материалы:814 504 ₽
Дни:20
stdClass Object
(
[id] => 137
[attribute_id] => 19
[name] => Штукатурка
[material_modifier] => 1
[work_modifier] => 1
[options] => Array
(
[0] => Цементно-песчаная (минеральная)
[1] => Мокрый фасад
)
[days] => [35,35]
[material_price] => [2231,3938]
[work_price] => [1202,2422]
[image] => https://akademik-stroy.ru/wp-content/uploads/materials/shtukaturka.jpg
[area_modifier] => 193.19
[parent_name] => Наружная отделка фасада
[parent_id] => 19
[material_sum] => 568929
[work_sum] => 255436
[total_sum] => 824365
[total_days] => 35
[display_material_sum] => 568 929
[display_work_sum] => 255 436
[display_total_sum] => 824 365
)
1
824 365₽
Работа:255 436 ₽
Материалы:568 929 ₽
Дни:35
stdClass Object
(
[id] => 138
[attribute_id] => 19
[name] => Облицовочный кирпич
[material_modifier] => 1
[work_modifier] => 1
[options] => Array
(
[0] => Керамический
[1] => Клинкерный
[2] => Ручной формовки
[3] => Гиперпрессованный
[4] => Силикатный кирпич
)
[days] => [45,45,45,45,45]
[material_price] => [8174,9148,1040,1257,5876]
[work_price] => [3240,3758,4536,4017,3369]
[image] => https://akademik-stroy.ru/wp-content/uploads/materials/oblicovochnyj-kirpich.jpg
[area_modifier] => 193.19
[parent_name] => Наружная отделка фасада
[parent_id] => 19
[material_sum] => 2084458
[work_sum] => 688529
[total_sum] => 2772987
[total_days] => 45
[display_material_sum] => 2 084 458
[display_work_sum] => 688 529
[display_total_sum] => 2 772 987
)
1
2 772 987₽
Работа:688 529 ₽
Материалы:2 084 458 ₽
Дни:45
stdClass Object
(
[id] => 139
[attribute_id] => 19
[name] => Фасадная плитка
[material_modifier] => 1
[work_modifier] => 1
[options] => Array
(
[0] => Клинкерная
[1] => Керамическая
[2] => Плитка ручной формовки
)
[days] => [40,40,40]
[material_price] => [2974,1487,3470]
[work_price] => [3007,2592,3629]
[image] => https://akademik-stroy.ru/wp-content/uploads/materials/fasadnaya-plitka.jpg
[area_modifier] => 193.19
[parent_name] => Наружная отделка фасада
[parent_id] => 19
[material_sum] => 758402
[work_sum] => 639015
[total_sum] => 1397417
[total_days] => 40
[display_material_sum] => 758 402
[display_work_sum] => 639 015
[display_total_sum] => 1 397 417
)
1
1 397 417₽
Работа:639 015 ₽
Материалы:758 402 ₽
Дни:40
stdClass Object
(
[id] => 140
[attribute_id] => 19
[name] => Сайдинг
[material_modifier] => 1
[work_modifier] => 1
[options] => Array
(
[0] => Виниловый
[1] => Металлический
[2] => Фиброцементный
)
[days] => [20,20,20]
[material_price] => [1263,1944,4147]
[work_price] => [1263,1944,2074]
[image] => https://akademik-stroy.ru/wp-content/uploads/materials/sajding.jpg
[area_modifier] => 193.19
[parent_name] => Наружная отделка фасада
[parent_id] => 19
[material_sum] => 322079
[work_sum] => 268399
[total_sum] => 590478
[total_days] => 20
[display_material_sum] => 322 079
[display_work_sum] => 268 399
[display_total_sum] => 590 478
)
1
590 478₽
Работа:268 399 ₽
Материалы:322 079 ₽
Дни:20
stdClass Object
(
[id] => 141
[attribute_id] => 19
[name] => Камень
[material_modifier] => 1
[work_modifier] => 1
[options] => Array
(
[0] => Травертин
[1] => Дагестанский
[2] => Искусственный
[3] => Натуральный
[4] => Керамогранит
)
[days] => [45,45,45,45,45]
[material_price] => [4536,3888,2592,3240,2462]
[work_price] => [3240,3240,2462,3110,1944]
[image] => https://akademik-stroy.ru/wp-content/uploads/materials/kamen-1.jpg
[area_modifier] => 193.19
[parent_name] => Наружная отделка фасада
[parent_id] => 19
[material_sum] => 1156729
[work_sum] => 688529
[total_sum] => 1845258
[total_days] => 45
[display_material_sum] => 1 156 729
[display_work_sum] => 688 529
[display_total_sum] => 1 845 258
)
1
1 845 258₽
Работа:688 529 ₽
Материалы:1 156 729 ₽
Дни:45
stdClass Object
(
[id] => 142
[attribute_id] => 19
[name] => Термопанели
[material_modifier] => 1
[work_modifier] => 1
[options] => Array
(
)
[days] => [20]
[material_price] => [6221]
[work_price] => [2333]
[image] => https://akademik-stroy.ru/wp-content/uploads/materials/termo.png
[area_modifier] => 193.19
[parent_name] => Наружная отделка фасада
[parent_id] => 19
[material_sum] => 1586422
[work_sum] => 495783
[total_sum] => 2082205
[total_days] => 20
[display_material_sum] => 1 586 422
[display_work_sum] => 495 783
[display_total_sum] => 2 082 205
)
1
2 082 205₽
Работа:495 783 ₽
Материалы:1 586 422 ₽
Дни:20
stdClass Object
(
[id] => 143
[attribute_id] => 19
[name] => Плитка HAUBERK
[material_modifier] => 1
[work_modifier] => 1
[options] => Array
(
)
[days] => [20]
[material_price] => [2786]
[work_price] => [1944]
[image] => https://akademik-stroy.ru/wp-content/uploads/materials/hauberk.jpg
[area_modifier] => 193.19
[parent_name] => Наружная отделка фасада
[parent_id] => 19
[material_sum] => 710460
[work_sum] => 413117
[total_sum] => 1123577
[total_days] => 20
[display_material_sum] => 710 460
[display_work_sum] => 413 117
[display_total_sum] => 1 123 577
)
1
1 123 577₽
Работа:413 117 ₽
Материалы:710 460 ₽
Дни:20
stdClass Object
(
[id] => 144
[attribute_id] => 19
[name] => Фальцевый фасад
[material_modifier] => 1
[work_modifier] => 1
[options] => Array
(
)
[days] => [20]
[material_price] => [3240]
[work_price] => [2592]
[image] => https://akademik-stroy.ru/wp-content/uploads/materials/falcevyj-fasad.jpg
[area_modifier] => 193.19
[parent_name] => Наружная отделка фасада
[parent_id] => 19
[material_sum] => 826235
[work_sum] => 550823
[total_sum] => 1377058
[total_days] => 20
[display_material_sum] => 826 235
[display_work_sum] => 550 823
[display_total_sum] => 1 377 058
)
1
1 377 058₽
Работа:550 823 ₽
Материалы:826 235 ₽
Дни:20
stdClass Object
(
[id] => 145
[attribute_id] => 19
[name] => Комбинированный
[material_modifier] => 1
[work_modifier] => 1
[options] => Array
(
)
[days] => [20]
[material_price] => [4629]
[work_price] => [3499]
[image] => https://akademik-stroy.ru/wp-content/uploads/materials/Kombinirovannyj.jpg
[area_modifier] => 193.19
[parent_name] => Наружная отделка фасада
[parent_id] => 19
[material_sum] => 1180445
[work_sum] => 743569
[total_sum] => 1924014
[total_days] => 20
[display_material_sum] => 1 180 445
[display_work_sum] => 743 569
[display_total_sum] => 1 924 014
)
1
1 924 014₽
Работа:743 569 ₽
Материалы:1 180 445 ₽
Дни:20
stdClass Object
(
[id] => 257
[attribute_id] => 19
[name] => Японские фиброцементные
[material_modifier] => 1
[work_modifier] => 1
[options] => Array
(
)
[days] => [20]
[material_price] => [7043]
[work_price] => [2993]
[image] => https://akademik-stroy.ru/wp-content/uploads/materials/paneli.jpg
[area_modifier] => 193.19
[parent_name] => Наружная отделка фасада
[parent_id] => 19
[material_sum] => 1796041
[work_sum] => 636039
[total_sum] => 2432080
[total_days] => 20
[display_material_sum] => 1 796 041
[display_work_sum] => 636 039
[display_total_sum] => 2 432 080
)
1
2 432 080₽
Работа:636 039 ₽
Материалы:1 796 041 ₽
Дни:20
stdClass Object
(
[id] => 258
[attribute_id] => 19
[name] => Панели Каньон
[material_modifier] => 1
[work_modifier] => 1
[options] => Array
(
)
[days] => [20]
[material_price] => [4543]
[work_price] => [2592]
[image] => https://akademik-stroy.ru/wp-content/uploads/materials/kanon.png
[area_modifier] => 193.19
[parent_name] => Наружная отделка фасада
[parent_id] => 19
[material_sum] => 1158514
[work_sum] => 550823
[total_sum] => 1709337
[total_days] => 20
[display_material_sum] => 1 158 514
[display_work_sum] => 550 823
[display_total_sum] => 1 709 337
)
1
1 709 337₽
Работа:550 823 ₽
Материалы:1 158 514 ₽
Дни:20
stdClass Object
(
[id] => 39
[attribute_id] => 20
[name] => Нет
[material_modifier] => 1
[work_modifier] => 1
[options] => Array
(
)
[days] => [0]
[material_price] => [0]
[work_price] => [0]
[image] => https://akademik-stroy.ru/wp-content/uploads/materials/terrasy.jpg
[area_modifier] => 30
[parent_name] => Террасы, крыльца, навесы
[parent_id] => 20
[material_sum] => 0
[work_sum] => 0
[total_sum] => 0
[total_days] => 0
[display_material_sum] => 0
[display_work_sum] => 0
[display_total_sum] => 0
)
1
0₽
Работа:0 ₽
Материалы:0 ₽
Дни:0
stdClass Object
(
[id] => 40
[attribute_id] => 20
[name] => Есть
[material_modifier] => 1
[work_modifier] => 1
[options] => Array
(
)
[days] => [5]
[material_price] => [10450]
[work_price] => [1950]
[image] => https://akademik-stroy.ru/wp-content/uploads/materials/terrasy.jpg
[area_modifier] => 30
[parent_name] => Террасы, крыльца, навесы
[parent_id] => 20
[material_sum] => 413820
[work_sum] => 64350
[total_sum] => 478170
[total_days] => 5
[display_material_sum] => 413 820
[display_work_sum] => 64 350
[display_total_sum] => 478 170
)
1
478 170₽
Работа:64 350 ₽
Материалы:413 820 ₽
Дни:5
stdClass Object
(
[id] => 41
[attribute_id] => 21
[name] => Нет
[material_modifier] => 1
[work_modifier] => 1
[options] => Array
(
)
[days] => [0]
[material_price] => [0]
[work_price] => [0]
[image] => https://akademik-stroy.ru/wp-content/uploads/materials/balkony.jpg
[area_modifier] => 30
[parent_name] => Балконы
[parent_id] => 21
[material_sum] => 0
[work_sum] => 0
[total_sum] => 0
[total_days] => 0
[display_material_sum] => 0
[display_work_sum] => 0
[display_total_sum] => 0
)
1
0₽
Работа:0 ₽
Материалы:0 ₽
Дни:0
stdClass Object
(
[id] => 42
[attribute_id] => 21
[name] => Есть
[material_modifier] => 1
[work_modifier] => 1
[options] => Array
(
)
[days] => [12]
[material_price] => [3600]
[work_price] => [1950]
[image] => https://akademik-stroy.ru/wp-content/uploads/materials/balkony.jpg
[area_modifier] => 30
[parent_name] => Балконы
[parent_id] => 21
[material_sum] => 142560
[work_sum] => 64350
[total_sum] => 206910
[total_days] => 12
[display_material_sum] => 142 560
[display_work_sum] => 64 350
[display_total_sum] => 206 910
)
1
206 910₽
Работа:64 350 ₽
Материалы:142 560 ₽
Дни:12
stdClass Object
(
[id] => 43
[attribute_id] => 22
[name] => Нет
[material_modifier] => 1
[work_modifier] => 1
[options] => Array
(
)
[days] => [0]
[material_price] => [0]
[work_price] => [0]
[image] => https://akademik-stroy.ru/wp-content/uploads/materials/uteplennaya.jpg
[area_modifier] => 152.98
[parent_name] => Отмостка
[parent_id] => 22
[material_sum] => 0
[work_sum] => 0
[total_sum] => 0
[total_days] => 0
[display_material_sum] => 0
[display_work_sum] => 0
[display_total_sum] => 0
)
1
0₽
Работа:0 ₽
Материалы:0 ₽
Дни:0
stdClass Object
(
[id] => 44
[attribute_id] => 22
[name] => Утепленная отмостка
[material_modifier] => 1
[work_modifier] => 1
[options] => Array
(
)
[days] => [15]
[material_price] => [2550]
[work_price] => [1750]
[image] => https://akademik-stroy.ru/wp-content/uploads/materials/uteplennaya.jpg
[area_modifier] => 152.98
[parent_name] => Отмостка
[parent_id] => 22
[material_sum] => 514931
[work_sum] => 294487
[total_sum] => 809418
[total_days] => 15
[display_material_sum] => 514 931
[display_work_sum] => 294 487
[display_total_sum] => 809 418
)
1
809 418₽
Работа:294 487 ₽
Материалы:514 931 ₽
Дни:15
stdClass Object
(
[id] => 146
[attribute_id] => 22
[name] => Не утепленная отмостка
[material_modifier] => 1
[work_modifier] => 1
[options] => Array
(
)
[days] => [10]
[material_price] => [1650]
[work_price] => [1450]
[image] => https://akademik-stroy.ru/wp-content/uploads/materials/ne-uteplennaya.jpg
[area_modifier] => 152.98
[parent_name] => Отмостка
[parent_id] => 22
[material_sum] => 333190
[work_sum] => 244003
[total_sum] => 577193
[total_days] => 10
[display_material_sum] => 333 190
[display_work_sum] => 244 003
[display_total_sum] => 577 193
)
1
577 193₽
Работа:244 003 ₽
Материалы:333 190 ₽
Дни:10
stdClass Object
(
[id] => 45
[attribute_id] => 23
[name] => Нет
[material_modifier] => 1
[work_modifier] => 1
[options] => Array
(
)
[days] => [0]
[material_price] => [0]
[work_price] => [0]
[image] => https://akademik-stroy.ru/wp-content/uploads/materials/drenazh-2.jpg
[area_modifier] => 152.98
[parent_name] => Дренаж вокруг дома
[parent_id] => 23
[material_sum] => 0
[work_sum] => 0
[total_sum] => 0
[total_days] => 0
[display_material_sum] => 0
[display_work_sum] => 0
[display_total_sum] => 0
)
1
0₽
Работа:0 ₽
Материалы:0 ₽
Дни:0
stdClass Object
(
[id] => 46
[attribute_id] => 23
[name] => Есть
[material_modifier] => 1
[work_modifier] => 1
[options] => Array
(
)
[days] => [5]
[material_price] => [2366]
[work_price] => [1911]
[image] => https://akademik-stroy.ru/wp-content/uploads/materials/drenazh-2.jpg
[area_modifier] => 152.98
[parent_name] => Дренаж вокруг дома
[parent_id] => 23
[material_sum] => 477775
[work_sum] => 321579
[total_sum] => 799354
[total_days] => 5
[display_material_sum] => 477 775
[display_work_sum] => 321 579
[display_total_sum] => 799 354
)
1
799 354₽
Работа:321 579 ₽
Материалы:477 775 ₽
Дни:5
stdClass Object
(
[id] => 47
[attribute_id] => 24
[name] => Нет
[material_modifier] => 1
[work_modifier] => 1
[options] => Array
(
)
[days] => [0]
[material_price] => [0]
[work_price] => [0]
[image] => https://akademik-stroy.ru/wp-content/uploads/materials/septik.jpg
[area_modifier] => 1
[parent_name] => Автономная канализация (септики)
[parent_id] => 24
[material_sum] => 0
[work_sum] => 0
[total_sum] => 0
[total_days] => 0
[display_material_sum] => 0
[display_work_sum] => 0
[display_total_sum] => 0
)
1
0₽
Работа:0 ₽
Материалы:0 ₽
Дни:0
stdClass Object
(
[id] => 48
[attribute_id] => 24
[name] => Есть
[material_modifier] => 1
[work_modifier] => 1
[options] => Array
(
[0] => Для дачи на 4 человека
[1] => Для дома на 5 человек
[2] => Для дома на 6 человек
[3] => Для дома на 7 человек
[4] => Для дома на 10 человек
)
[days] => [7,7,7,8,8]
[material_price] => [196340,220500,240940,264200,293340]
[work_price] => [50000,55000,60500,66550,73206]
[image] => https://akademik-stroy.ru/wp-content/uploads/materials/septik.jpg
[area_modifier] => 1
[parent_name] => Автономная канализация (септики)
[parent_id] => 24
[material_sum] => 259169
[work_sum] => 55000
[total_sum] => 314169
[total_days] => 7
[display_material_sum] => 259 169
[display_work_sum] => 55 000
[display_total_sum] => 314 169
)
1
314 169₽
Работа:55 000 ₽
Материалы:259 169 ₽
Дни:7
stdClass Object
(
[id] => 49
[attribute_id] => 25
[name] => Нет
[material_modifier] => 1
[work_modifier] => 1
[options] => Array
(
)
[days] => [0]
[material_price] => [0]
[work_price] => [0]
[image] => https://akademik-stroy.ru/wp-content/uploads/materials/gkl.jpg
[area_modifier] => 193.19
[parent_name] => Внутренние (не несущие) перегородки
[parent_id] => 25
[material_sum] => 0
[work_sum] => 0
[total_sum] => 0
[total_days] => 0
[display_material_sum] => 0
[display_work_sum] => 0
[display_total_sum] => 0
)
1
0₽
Работа:0 ₽
Материалы:0 ₽
Дни:0
stdClass Object
(
[id] => 147
[attribute_id] => 25
[name] => Каркасно-обшивные
[material_modifier] => 1
[work_modifier] => 1
[options] => Array
(
[0] => 75 мм (без шумоизоляции)
[1] => 75 мм (с шумоизоляцией)
)
[days] => [11,11]
[material_price] => [580,970]
[work_price] => [380,570]
[image] => https://akademik-stroy.ru/wp-content/uploads/materials/gkl.jpg
[area_modifier] => 193.19
[parent_name] => Внутренние (не несущие) перегородки
[parent_id] => 25
[material_sum] => 147906
[work_sum] => 80753
[total_sum] => 228659
[total_days] => 11
[display_material_sum] => 147 906
[display_work_sum] => 80 753
[display_total_sum] => 228 659
)
1
228 659₽
Работа:80 753 ₽
Материалы:147 906 ₽
Дни:11
stdClass Object
(
[id] => 148
[attribute_id] => 25
[name] => Пазогребневые
[material_modifier] => 1
[work_modifier] => 1
[options] => Array
(
[0] => 80 мм
[1] => 100 мм
)
[days] => [5,5]
[material_price] => [1022,1313]
[work_price] => [600,700]
[image] => https://akademik-stroy.ru/wp-content/uploads/materials/pazogrebnevye-bloki.jpg
[area_modifier] => 193.19
[parent_name] => Внутренние (не несущие) перегородки
[parent_id] => 25
[material_sum] => 260621
[work_sum] => 127505
[total_sum] => 388126
[total_days] => 5
[display_material_sum] => 260 621
[display_work_sum] => 127 505
[display_total_sum] => 388 126
)
1
388 126₽
Работа:127 505 ₽
Материалы:260 621 ₽
Дни:5
stdClass Object
(
[id] => 149
[attribute_id] => 25
[name] => Газобетонные
[material_modifier] => 1
[work_modifier] => 1
[options] => Array
(
[0] => 100 мм
[1] => 200 мм
)
[days] => [11,11]
[material_price] => [1160,1920]
[work_price] => [700,900]
[image] => https://akademik-stroy.ru/wp-content/uploads/materials/gazobeton-2.jpg
[area_modifier] => 193.19
[parent_name] => Внутренние (не несущие) перегородки
[parent_id] => 25
[material_sum] => 295813
[work_sum] => 148756
[total_sum] => 444569
[total_days] => 11
[display_material_sum] => 295 813
[display_work_sum] => 148 756
[display_total_sum] => 444 569
)
1
444 569₽
Работа:148 756 ₽
Материалы:295 813 ₽
Дни:11
stdClass Object
(
[id] => 150
[attribute_id] => 25
[name] => Кирпичные
[material_modifier] => 1
[work_modifier] => 1
[options] => Array
(
[0] => 120 мм
[1] => 250 мм
[2] => 360 мм
)
[days] => [7,7,7]
[material_price] => [1785,3570,5355]
[work_price] => [900,1600,1800]
[image] => https://akademik-stroy.ru/wp-content/uploads/materials/kirpich-1.jpg
[area_modifier] => 193.19
[parent_name] => Внутренние (не несущие) перегородки
[parent_id] => 25
[material_sum] => 455194
[work_sum] => 191258
[total_sum] => 646452
[total_days] => 7
[display_material_sum] => 455 194
[display_work_sum] => 191 258
[display_total_sum] => 646 452
)
1
646 452₽
Работа:191 258 ₽
Материалы:455 194 ₽
Дни:7
stdClass Object
(
[id] => 55
[attribute_id] => 28
[name] => Нет
[material_modifier] => 1
[work_modifier] => 1
[options] => Array
(
)
[days] => [0]
[material_price] => [0]
[work_price] => [0]
[image] => https://akademik-stroy.ru/wp-content/uploads/materials/ehlektrika.jpg
[area_modifier] => 156.77
[parent_name] => Электрика
[parent_id] => 28
[material_sum] => 0
[work_sum] => 0
[total_sum] => 0
[total_days] => 0
[display_material_sum] => 0
[display_work_sum] => 0
[display_total_sum] => 0
)
1
0₽
Работа:0 ₽
Материалы:0 ₽
Дни:0
stdClass Object
(
[id] => 56
[attribute_id] => 28
[name] => Есть
[material_modifier] => 1
[work_modifier] => 1
[options] => Array
(
)
[days] => [10]
[material_price] => [650]
[work_price] => [950]
[image] => https://akademik-stroy.ru/wp-content/uploads/materials/ehlektrika.jpg
[area_modifier] => 156.77
[parent_name] => Электрика
[parent_id] => 28
[material_sum] => 134509
[work_sum] => 163825
[total_sum] => 298334
[total_days] => 10
[display_material_sum] => 134 509
[display_work_sum] => 163 825
[display_total_sum] => 298 334
)
1
298 334₽
Работа:163 825 ₽
Материалы:134 509 ₽
Дни:10
stdClass Object
(
[id] => 57
[attribute_id] => 29
[name] => Нет
[material_modifier] => 1
[work_modifier] => 1
[options] => Array
(
)
[days] => [0]
[material_price] => [0]
[work_price] => [0]
[image] => https://akademik-stroy.ru/wp-content/uploads/materials/santekhnika-kanalizaciya-1.jpg
[area_modifier] => 156.77
[parent_name] => Сантехника, канализация в доме
[parent_id] => 29
[material_sum] => 0
[work_sum] => 0
[total_sum] => 0
[total_days] => 0
[display_material_sum] => 0
[display_work_sum] => 0
[display_total_sum] => 0
)
1
0₽
Работа:0 ₽
Материалы:0 ₽
Дни:0
stdClass Object
(
[id] => 58
[attribute_id] => 29
[name] => Есть
[material_modifier] => 1
[work_modifier] => 1
[options] => Array
(
)
[days] => [10]
[material_price] => [600]
[work_price] => [730]
[image] => https://akademik-stroy.ru/wp-content/uploads/materials/santekhnika-kanalizaciya-1.jpg
[area_modifier] => 156.77
[parent_name] => Сантехника, канализация в доме
[parent_id] => 29
[material_sum] => 124162
[work_sum] => 125886
[total_sum] => 250048
[total_days] => 10
[display_material_sum] => 124 162
[display_work_sum] => 125 886
[display_total_sum] => 250 048
)
1
250 048₽
Работа:125 886 ₽
Материалы:124 162 ₽
Дни:10
stdClass Object
(
[id] => 59
[attribute_id] => 30
[name] => Нет
[material_modifier] => 1
[work_modifier] => 1
[options] => Array
(
)
[days] => [0]
[material_price] => [0]
[work_price] => [0]
[image] => https://akademik-stroy.ru/wp-content/uploads/materials/otoplenie-1.jpg
[area_modifier] => 156.77
[parent_name] => Отопление
[parent_id] => 30
[material_sum] => 0
[work_sum] => 0
[total_sum] => 0
[total_days] => 0
[display_material_sum] => 0
[display_work_sum] => 0
[display_total_sum] => 0
)
1
0₽
Работа:0 ₽
Материалы:0 ₽
Дни:0
stdClass Object
(
[id] => 60
[attribute_id] => 30
[name] => Есть
[material_modifier] => 1
[work_modifier] => 1
[options] => Array
(
)
[days] => [5]
[material_price] => [610]
[work_price] => [560]
[image] => https://akademik-stroy.ru/wp-content/uploads/materials/otoplenie-1.jpg
[area_modifier] => 156.77
[parent_name] => Отопление
[parent_id] => 30
[material_sum] => 126231
[work_sum] => 96570
[total_sum] => 222801
[total_days] => 5
[display_material_sum] => 126 231
[display_work_sum] => 96 570
[display_total_sum] => 222 801
)
1
222 801₽
Работа:96 570 ₽
Материалы:126 231 ₽
Дни:5
stdClass Object
(
[id] => 61
[attribute_id] => 31
[name] => Нет
[material_modifier] => 1
[work_modifier] => 1
[options] => Array
(
)
[days] => [0]
[material_price] => [0]
[work_price] => [0]
[image] => https://akademik-stroy.ru/wp-content/uploads/materials/vodyanye.jpg
[area_modifier] => 30
[parent_name] => Теплые полы
[parent_id] => 31
[material_sum] => 0
[work_sum] => 0
[total_sum] => 0
[total_days] => 0
[display_material_sum] => 0
[display_work_sum] => 0
[display_total_sum] => 0
)
1
0₽
Работа:0 ₽
Материалы:0 ₽
Дни:0
stdClass Object
(
[id] => 151
[attribute_id] => 31
[name] => Водяные
[material_modifier] => 1
[work_modifier] => 1
[options] => Array
(
)
[days] => [9]
[material_price] => [10200]
[work_price] => [2500]
[image] => https://akademik-stroy.ru/wp-content/uploads/materials/vodyanye.jpg
[area_modifier] => 30
[parent_name] => Теплые полы
[parent_id] => 31
[material_sum] => 403920
[work_sum] => 82500
[total_sum] => 486420
[total_days] => 9
[display_material_sum] => 403 920
[display_work_sum] => 82 500
[display_total_sum] => 486 420
)
1
486 420₽
Работа:82 500 ₽
Материалы:403 920 ₽
Дни:9
stdClass Object
(
[id] => 152
[attribute_id] => 31
[name] => Электро
[material_modifier] => 1
[work_modifier] => 1
[options] => Array
(
)
[days] => [5]
[material_price] => [6300]
[work_price] => [1500]
[image] => https://akademik-stroy.ru/wp-content/uploads/materials/ehlektricheskij.jpg
[area_modifier] => 30
[parent_name] => Теплые полы
[parent_id] => 31
[material_sum] => 249480
[work_sum] => 49500
[total_sum] => 298980
[total_days] => 5
[display_material_sum] => 249 480
[display_work_sum] => 49 500
[display_total_sum] => 298 980
)
1
298 980₽
Работа:49 500 ₽
Материалы:249 480 ₽
Дни:5
stdClass Object
(
[id] => 63
[attribute_id] => 32
[name] => Нет
[material_modifier] => 1
[work_modifier] => 1
[options] => Array
(
)
[days] => [0]
[material_price] => [0]
[work_price] => [0]
[image] => https://akademik-stroy.ru/wp-content/uploads/materials/shtukaturka-shpatlevka-1.jpg
[area_modifier] => 156.77
[parent_name] => Черновая отделка стен
[parent_id] => 32
[material_sum] => 0
[work_sum] => 0
[total_sum] => 0
[total_days] => 0
[display_material_sum] => 0
[display_work_sum] => 0
[display_total_sum] => 0
)
1
0₽
Работа:0 ₽
Материалы:0 ₽
Дни:0
stdClass Object
(
[id] => 153
[attribute_id] => 32
[name] => Штукатурка и шпатлевка
[material_modifier] => 1
[work_modifier] => 1
[options] => Array
(
)
[days] => [20]
[material_price] => [1850]
[work_price] => [2600]
[image] => https://akademik-stroy.ru/wp-content/uploads/materials/shtukaturka-shpatlevka-1.jpg
[area_modifier] => 156.77
[parent_name] => Черновая отделка стен
[parent_id] => 32
[material_sum] => 382832
[work_sum] => 448362
[total_sum] => 831194
[total_days] => 20
[display_material_sum] => 382 832
[display_work_sum] => 448 362
[display_total_sum] => 831 194
)
1
831 194₽
Работа:448 362 ₽
Материалы:382 832 ₽
Дни:20
stdClass Object
(
[id] => 154
[attribute_id] => 32
[name] => Гипсокортон на стены
[material_modifier] => 1
[work_modifier] => 1
[options] => Array
(
)
[days] => [15]
[material_price] => [950]
[work_price] => [2100]
[image] => https://akademik-stroy.ru/wp-content/uploads/materials/gkl-1.jpg
[area_modifier] => 156.77
[parent_name] => Черновая отделка стен
[parent_id] => 32
[material_sum] => 196590
[work_sum] => 362139
[total_sum] => 558729
[total_days] => 15
[display_material_sum] => 196 590
[display_work_sum] => 362 139
[display_total_sum] => 558 729
)
1
558 729₽
Работа:362 139 ₽
Материалы:196 590 ₽
Дни:15
stdClass Object
(
[id] => 155
[attribute_id] => 32
[name] => Вагонка
[material_modifier] => 1
[work_modifier] => 1
[options] => Array
(
)
[days] => [15]
[material_price] => [1250]
[work_price] => [950]
[image] => https://akademik-stroy.ru/wp-content/uploads/materials/vagonka.jpg
[area_modifier] => 156.77
[parent_name] => Черновая отделка стен
[parent_id] => 32
[material_sum] => 258671
[work_sum] => 163825
[total_sum] => 422496
[total_days] => 15
[display_material_sum] => 258 671
[display_work_sum] => 163 825
[display_total_sum] => 422 496
)
1
422 496₽
Работа:163 825 ₽
Материалы:258 671 ₽
Дни:15
stdClass Object
(
[id] => 65
[attribute_id] => 33
[name] => Нет
[material_modifier] => 1
[work_modifier] => 1
[options] => Array
(
)
[days] => [0]
[material_price] => [0]
[work_price] => [0]
[image] => https://akademik-stroy.ru/wp-content/uploads/materials/styazhka.jpg
[area_modifier] => 156.77
[parent_name] => Черновая отделка полов
[parent_id] => 33
[material_sum] => 0
[work_sum] => 0
[total_sum] => 0
[total_days] => 0
[display_material_sum] => 0
[display_work_sum] => 0
[display_total_sum] => 0
)
1
0₽
Работа:0 ₽
Материалы:0 ₽
Дни:0
stdClass Object
(
[id] => 156
[attribute_id] => 33
[name] => Стяжка + наливные полы
[material_modifier] => 1
[work_modifier] => 1
[options] => Array
(
)
[days] => [10]
[material_price] => [1000]
[work_price] => [900]
[image] => https://akademik-stroy.ru/wp-content/uploads/materials/styazhka.jpg
[area_modifier] => 156.77
[parent_name] => Черновая отделка полов
[parent_id] => 33
[material_sum] => 206936
[work_sum] => 155202
[total_sum] => 362138
[total_days] => 10
[display_material_sum] => 206 936
[display_work_sum] => 155 202
[display_total_sum] => 362 138
)
1
362 138₽
Работа:155 202 ₽
Материалы:206 936 ₽
Дни:10
stdClass Object
(
[id] => 157
[attribute_id] => 33
[name] => ОСБ на пол
[material_modifier] => 1
[work_modifier] => 1
[options] => Array
(
)
[days] => [7]
[material_price] => [580]
[work_price] => [350]
[image] => https://akademik-stroy.ru/wp-content/uploads/materials/osb-1.jpg
[area_modifier] => 156.77
[parent_name] => Черновая отделка полов
[parent_id] => 33
[material_sum] => 120023
[work_sum] => 60356
[total_sum] => 180379
[total_days] => 7
[display_material_sum] => 120 023
[display_work_sum] => 60 356
[display_total_sum] => 180 379
)
1
180 379₽
Работа:60 356 ₽
Материалы:120 023 ₽
Дни:7
stdClass Object
(
[id] => 67
[attribute_id] => 34
[name] => Нет
[material_modifier] => 1
[work_modifier] => 1
[options] => Array
(
)
[days] => [0]
[material_price] => [0]
[work_price] => [0]
[image] => https://akademik-stroy.ru/wp-content/uploads/materials/chistovaya-otdelka.jpg
[area_modifier] => 156.77
[parent_name] => Чистовая отделка стен и полов
[parent_id] => 34
[material_sum] => 0
[work_sum] => 0
[total_sum] => 0
[total_days] => 0
[display_material_sum] => 0
[display_work_sum] => 0
[display_total_sum] => 0
)
1
0₽
Работа:0 ₽
Материалы:0 ₽
Дни:0
stdClass Object
(
[id] => 68
[attribute_id] => 34
[name] => Есть
[material_modifier] => 1
[work_modifier] => 1
[options] => Array
(
)
[days] => [50]
[material_price] => [6000]
[work_price] => [3500]
[image] => https://akademik-stroy.ru/wp-content/uploads/materials/chistovaya-otdelka.jpg
[area_modifier] => 156.77
[parent_name] => Чистовая отделка стен и полов
[parent_id] => 34
[material_sum] => 1241618
[work_sum] => 603565
[total_sum] => 1845183
[total_days] => 50
[display_material_sum] => 1 241 618
[display_work_sum] => 603 565
[display_total_sum] => 1 845 183
)
1
1 845 183₽
Работа:603 565 ₽
Материалы:1 241 618 ₽
Дни:50
stdClass Object
(
[id] => 69
[attribute_id] => 35
[name] => Нет
[material_modifier] => 1
[work_modifier] => 1
[options] => Array
(
)
[days] => [0]
[material_price] => [0]
[work_price] => [0]
[image] => https://akademik-stroy.ru/wp-content/uploads/materials/mnogourovnevyj-gkl.jpg
[area_modifier] => 156.77
[parent_name] => Отделка потолка
[parent_id] => 35
[material_sum] => 0
[work_sum] => 0
[total_sum] => 0
[total_days] => 0
[display_material_sum] => 0
[display_work_sum] => 0
[display_total_sum] => 0
)
1
0₽
Работа:0 ₽
Материалы:0 ₽
Дни:0
stdClass Object
(
[id] => 70
[attribute_id] => 35
[name] => Есть
[material_modifier] => 1
[work_modifier] => 1
[options] => Array
(
[0] => Многоуровневый потолок из гипсокартона
[1] => Многоуровневый потолок из гипсокартона и натяжного потолка
[2] => Одноуровневый потолок из гипсокартона
[3] => Одноуровневый натяжной потолок
)
[days] => [10,10,1,1]
[material_price] => [900,700,700,600]
[work_price] => [1000,800,500,300]
[image] => https://akademik-stroy.ru/wp-content/uploads/materials/mnogourovnevyj-gkl.jpg
[area_modifier] => 156.77
[parent_name] => Отделка потолка
[parent_id] => 35
[material_sum] => 186243
[work_sum] => 172447
[total_sum] => 358690
[total_days] => 10
[display_material_sum] => 186 243
[display_work_sum] => 172 447
[display_total_sum] => 358 690
)
1
358 690₽
Работа:172 447 ₽
Материалы:186 243 ₽
Дни:10
Преимущества работы с нами
7 этапов оплаты
Независимый строительный надзор
Экологически чистые материалы
16 лет гарантии
Онлайн-кабинет с веб-камерой
Строители с опытом более 15 лет
Собственное производство
















