Одноэтажный дом 87.76 м2 за руб.
Планировки
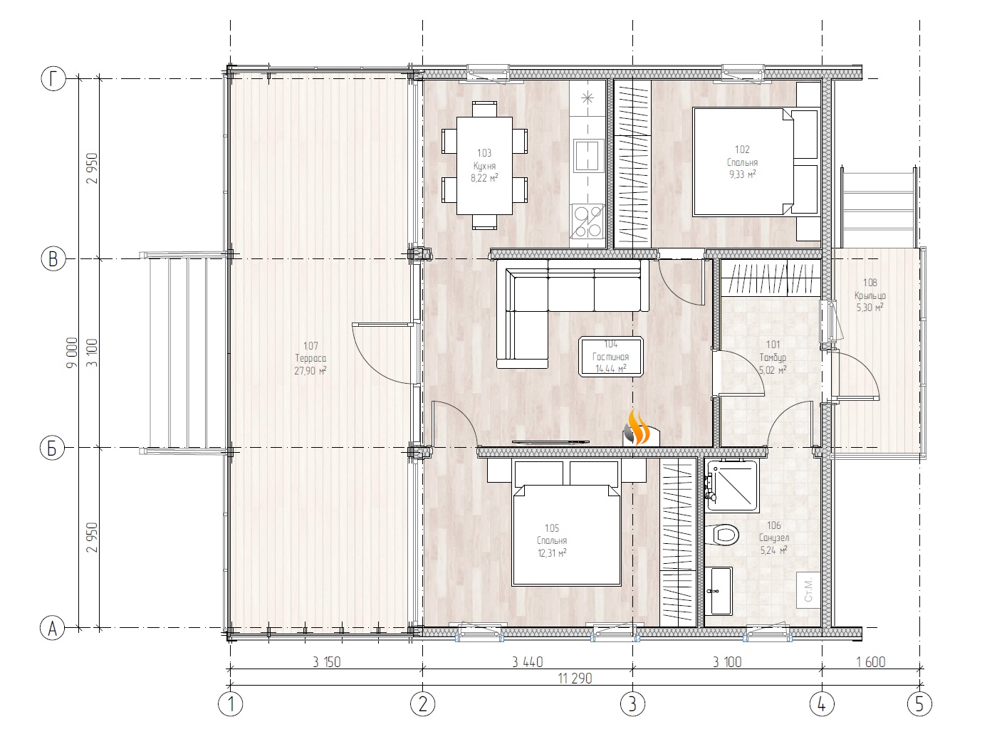
План первого этажа
- 1. Тамбур 5,02 м²
- 2. Спальня 9,33 м²
- 3. Кухня 8,22 м²
- 4. Гостиная 14,44 м²
- 5. Спальня 12,31 м²
- 6. Санузел 5,24 м²
- 7. Терраса 27,90 м²
- Крыльцо 5,30 м²
Площади дома
| № п/п | Наименование | Ед. из. | Строительная площадь | Полезная площадь |
| 1 | 1 этаж | м2 | 108.15 | 87.76 |
| 2 | Итого | м2 | 108.15 | 87.76 |
154 м2
Полезная
площадь
площадь
1 этаж
Этажей
26 м2
Террасы
и балконы
и балконы
0Без
гаража
гаража
2
Количество
спален
спален
1
Количество
санузлов
санузлов
Калькулятор опций
0₽
В ипотеку от 16 711 ₽/мес.
0₽
0 дней
619 002₽
Работа:267 898 ₽
Материалы:351 104 ₽
Дни:20
372 122₽
Работа:124 621 ₽
Материалы:247 501 ₽
Дни:2
627 086₽
Работа:251 730 ₽
Материалы:375 356 ₽
Дни:20
1 201 687₽
Работа:536 543 ₽
Материалы:665 144 ₽
Дни:30
2 015 954₽
Работа:741 260 ₽
Материалы:1 274 694 ₽
Дни:32
761 906₽
Работа:304 837 ₽
Материалы:457 069 ₽
Дни:20
4 780 879₽
Работа:2 179 504 ₽
Материалы:2 601 375 ₽
Дни:30
5 703 971₽
Работа:2 542 298 ₽
Материалы:3 161 673 ₽
Дни:40
198 996₽
Работа:49 749 ₽
Материалы:149 247 ₽
Дни:1
356 203₽
Работа:152 978 ₽
Материалы:203 225 ₽
Дни:8
570 496₽
Работа:189 046 ₽
Материалы:381 450 ₽
Дни:13
1 017 989₽
Работа:416 399 ₽
Материалы:601 590 ₽
Дни:18
999 085₽
Работа:625 967 ₽
Материалы:373 118 ₽
Дни:29
1 150 073₽
Работа:589 153 ₽
Материалы:560 920 ₽
Дни:23
1 770 567₽
Работа:1 086 518 ₽
Материалы:684 049 ₽
Дни:30
1 449 064₽
Работа:635 046 ₽
Материалы:814 018 ₽
Дни:45
2 708 957₽
Работа:597 734 ₽
Материалы:2 111 223 ₽
Дни:24
596 615₽
Работа:300 733 ₽
Материалы:295 882 ₽
Дни:15
325 856₽
Работа:175 365 ₽
Материалы:150 491 ₽
Дни:7
1 145 968₽
Работа:398 489 ₽
Материалы:747 479 ₽
Дни:7
1 496 823₽
Работа:478 212 ₽
Материалы:1 018 611 ₽
Дни:7
9 829 780₽
Работа:478 212 ₽
Материалы:9 351 568 ₽
Дни:7
5 320 780₽
Работа:597 734 ₽
Материалы:4 723 046 ₽
Дни:7
836 903₽
Работа:199 245 ₽
Материалы:637 658 ₽
Дни:7
1 098 955₽
Работа:564 402 ₽
Материалы:534 553 ₽
Дни:29
962 146₽
Работа:626 589 ₽
Материалы:335 557 ₽
Дни:29
1 098 955₽
Работа:564 402 ₽
Материалы:534 553 ₽
Дни:29
1 166 365₽
Работа:713 525 ₽
Материалы:452 840 ₽
Дни:23
1 490 853₽
Работа:502 092 ₽
Материалы:988 761 ₽
Дни:7
1 690 595₽
Работа:1 036 147 ₽
Материалы:654 448 ₽
Дни:25
611 539₽
Работа:315 657 ₽
Материалы:295 882 ₽
Дни:15
5 666 659₽
Работа:1 195 468 ₽
Материалы:4 471 191 ₽
Дни:15
678 079₽
Работа:318 891 ₽
Материалы:359 188 ₽
Дни:15
923 342₽
Работа:524 106 ₽
Материалы:399 236 ₽
Дни:19
974 583₽
Работа:626 589 ₽
Материалы:347 994 ₽
Дни:29
625 967₽
Работа:328 592 ₽
Материалы:297 375 ₽
Дни:15
1 150 073₽
Работа:589 153 ₽
Материалы:560 920 ₽
Дни:23
671 860₽
Работа:261 182 ₽
Материалы:410 678 ₽
Дни:15
860 658₽
Работа:627 584 ₽
Материалы:233 074 ₽
Дни:7
356 203₽
Работа:152 978 ₽
Материалы:203 225 ₽
Дни:8
570 496₽
Работа:189 046 ₽
Материалы:381 450 ₽
Дни:13
1 017 989₽
Работа:416 399 ₽
Материалы:601 590 ₽
Дни:18
1 472 322₽
Работа:712 157 ₽
Материалы:760 165 ₽
Дни:20
1 608 136₽
Работа:740 016 ₽
Материалы:868 120 ₽
Дни:20
2 489 440₽
Работа:1 176 066 ₽
Материалы:1 313 374 ₽
Дни:20
2 289 822₽
Работа:1 107 537 ₽
Материалы:1 182 285 ₽
Дни:20
2 761 815₽
Работа:1 176 066 ₽
Материалы:1 585 749 ₽
Дни:20
2 081 996₽
Работа:1 018 611 ₽
Материалы:1 063 385 ₽
Дни:20
4 626 657₽
Работа:2 083 239 ₽
Материалы:2 543 418 ₽
Дни:20
4 555 765₽
Работа:2 086 971 ₽
Материалы:2 468 794 ₽
Дни:20
895 482₽
Работа:466 397 ₽
Материалы:429 085 ₽
Дни:20
199 224₽
Работа:64 087 ₽
Материалы:135 137 ₽
Дни:3
0₽
Работа:0 ₽
Материалы:0 ₽
Дни:0
17 825₽
Работа:6 325 ₽
Материалы:11 500 ₽
Дни:1
0₽
Работа:0 ₽
Материалы:0 ₽
Дни:0
0₽
Работа:0 ₽
Материалы:0 ₽
Дни:0
224 865₽
Работа:80 842 ₽
Материалы:144 023 ₽
Дни:5
131 088₽
Работа:29 103 ₽
Материалы:101 985 ₽
Дни:3
191 036₽
Работа:48 505 ₽
Материалы:142 531 ₽
Дни:3
107 706₽
Работа:48 505 ₽
Материалы:59 201 ₽
Дни:3
287 798₽
Работа:29 103 ₽
Материалы:258 695 ₽
Дни:2
377 595₽
Работа:48 505 ₽
Материалы:329 090 ₽
Дни:3
0₽
Работа:0 ₽
Материалы:0 ₽
Дни:0
75 187₽
Работа:20 585 ₽
Материалы:54 602 ₽
Дни:6
0₽
Работа:0 ₽
Материалы:0 ₽
Дни:0
414 410₽
Работа:190 166 ₽
Материалы:224 244 ₽
Дни:7
0₽
Работа:0 ₽
Материалы:0 ₽
Дни:0
414 533₽
Работа:185 439 ₽
Материалы:229 094 ₽
Дни:7
0₽
Работа:0 ₽
Материалы:0 ₽
Дни:0
716 634₽
Работа:289 166 ₽
Материалы:427 468 ₽
Дни:7
253 098₽
Работа:152 356 ₽
Материалы:100 742 ₽
Дни:3
790 388₽
Работа:223 249 ₽
Материалы:567 139 ₽
Дни:5
822 973₽
Работа:223 249 ₽
Материалы:599 724 ₽
Дни:5
446 373₽
Работа:90 668 ₽
Материалы:355 705 ₽
Дни:3
1 134 650₽
Работа:99 498 ₽
Материалы:1 035 152 ₽
Дни:5
0₽
Работа:0 ₽
Материалы:0 ₽
Дни:0
546 119₽
Работа:173 748 ₽
Материалы:372 371 ₽
Дни:20
588 407₽
Работа:191 161 ₽
Материалы:397 246 ₽
Дни:20
426 971₽
Работа:149 496 ₽
Материалы:277 475 ₽
Дни:35
1 419 588₽
Работа:402 967 ₽
Материалы:1 016 621 ₽
Дни:45
743 872₽
Работа:373 988 ₽
Материалы:369 884 ₽
Дни:40
314 164₽
Работа:157 082 ₽
Материалы:157 082 ₽
Дни:20
967 121₽
Работа:402 967 ₽
Материалы:564 154 ₽
Дни:45
1 063 882₽
Работа:290 161 ₽
Материалы:773 721 ₽
Дни:20
588 282₽
Работа:241 780 ₽
Материалы:346 502 ₽
Дни:20
725 341₽
Работа:322 374 ₽
Материалы:402 967 ₽
Дни:20
1 010 899₽
Работа:435 179 ₽
Материалы:575 720 ₽
Дни:20
1 248 203₽
Работа:372 247 ₽
Материалы:875 956 ₽
Дни:20
887 398₽
Работа:322 374 ₽
Материалы:565 024 ₽
Дни:20
0₽
Работа:0 ₽
Материалы:0 ₽
Дни:0
427 800₽
Работа:67 275 ₽
Материалы:360 525 ₽
Дни:5
0₽
Работа:0 ₽
Материалы:0 ₽
Дни:0
191 475₽
Работа:67 275 ₽
Материалы:124 200 ₽
Дни:12
0₽
Работа:0 ₽
Материалы:0 ₽
Дни:0
534 802₽
Работа:217 652 ₽
Материалы:317 150 ₽
Дни:15
385 555₽
Работа:180 340 ₽
Материалы:205 215 ₽
Дни:10
0₽
Работа:0 ₽
Материалы:0 ₽
Дни:0
531 941₽
Работа:237 676 ₽
Материалы:294 265 ₽
Дни:5
0₽
Работа:0 ₽
Материалы:0 ₽
Дни:0
283 291₽
Работа:57 500 ₽
Материалы:225 791 ₽
Дни:7
0₽
Работа:0 ₽
Материалы:0 ₽
Дни:0
119 398₽
Работа:47 262 ₽
Материалы:72 136 ₽
Дни:11
201 733₽
Работа:74 624 ₽
Материалы:127 109 ₽
Дни:5
231 333₽
Работа:87 061 ₽
Материалы:144 272 ₽
Дни:11
333 940₽
Работа:111 935 ₽
Материалы:222 005 ₽
Дни:7
0₽
Работа:0 ₽
Материалы:0 ₽
Дни:0
161 479₽
Работа:95 878 ₽
Материалы:65 601 ₽
Дни:10
0₽
Работа:0 ₽
Материалы:0 ₽
Дни:0
134 229₽
Работа:73 675 ₽
Материалы:60 554 ₽
Дни:10
0₽
Работа:0 ₽
Материалы:0 ₽
Дни:0
118 081₽
Работа:56 517 ₽
Материалы:61 564 ₽
Дни:5
0₽
Работа:0 ₽
Материалы:0 ₽
Дни:0
438 150₽
Работа:86 250 ₽
Материалы:351 900 ₽
Дни:9
269 100₽
Работа:51 750 ₽
Материалы:217 350 ₽
Дни:5
0₽
Работа:0 ₽
Материалы:0 ₽
Дни:0
449 111₽
Работа:262 402 ₽
Материалы:186 709 ₽
Дни:20
307 818₽
Работа:211 940 ₽
Материалы:95 878 ₽
Дни:15
222 033₽
Работа:95 878 ₽
Материалы:126 155 ₽
Дни:15
0₽
Работа:0 ₽
Материалы:0 ₽
Дни:0
191 756₽
Работа:90 832 ₽
Материалы:100 924 ₽
Дни:10
93 859₽
Работа:35 323 ₽
Материалы:58 536 ₽
Дни:7
0₽
Работа:0 ₽
Материалы:0 ₽
Дни:0
958 778₽
Работа:353 234 ₽
Материалы:605 544 ₽
Дни:50
0₽
Работа:0 ₽
Материалы:0 ₽
Дни:0
191 756₽
Работа:100 924 ₽
Материалы:90 832 ₽
Дни:10
Преимущества работы с нами
7 этапов оплаты
Независимый строительный надзор
Экологически чистые материалы
16 лет гарантии
Онлайн-кабинет с веб-камерой
Строители с опытом более 15 лет
Собственное производство











/4018872149.jpg)
/2347397788.jpg)
/2626774751.jpg)