Одноэтажный дом 16x16 - 201 м2 за руб.
Планировки
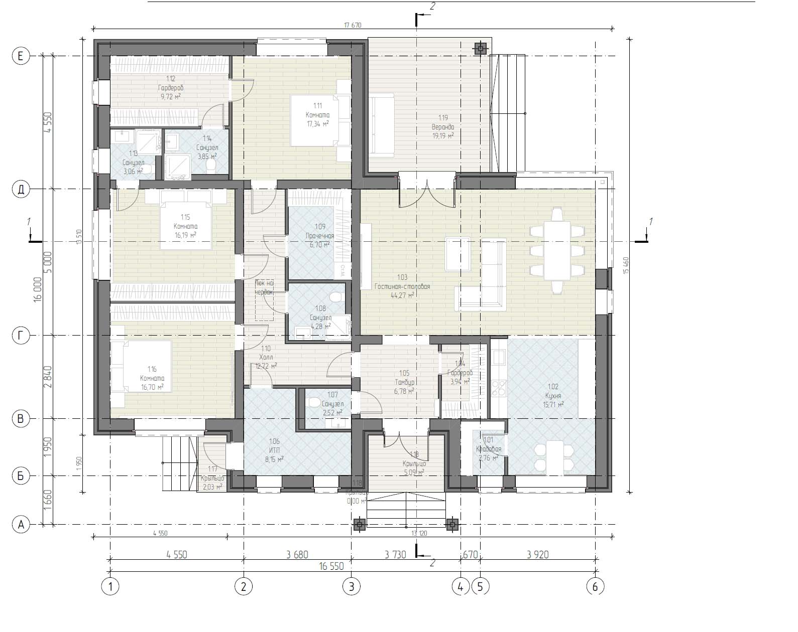
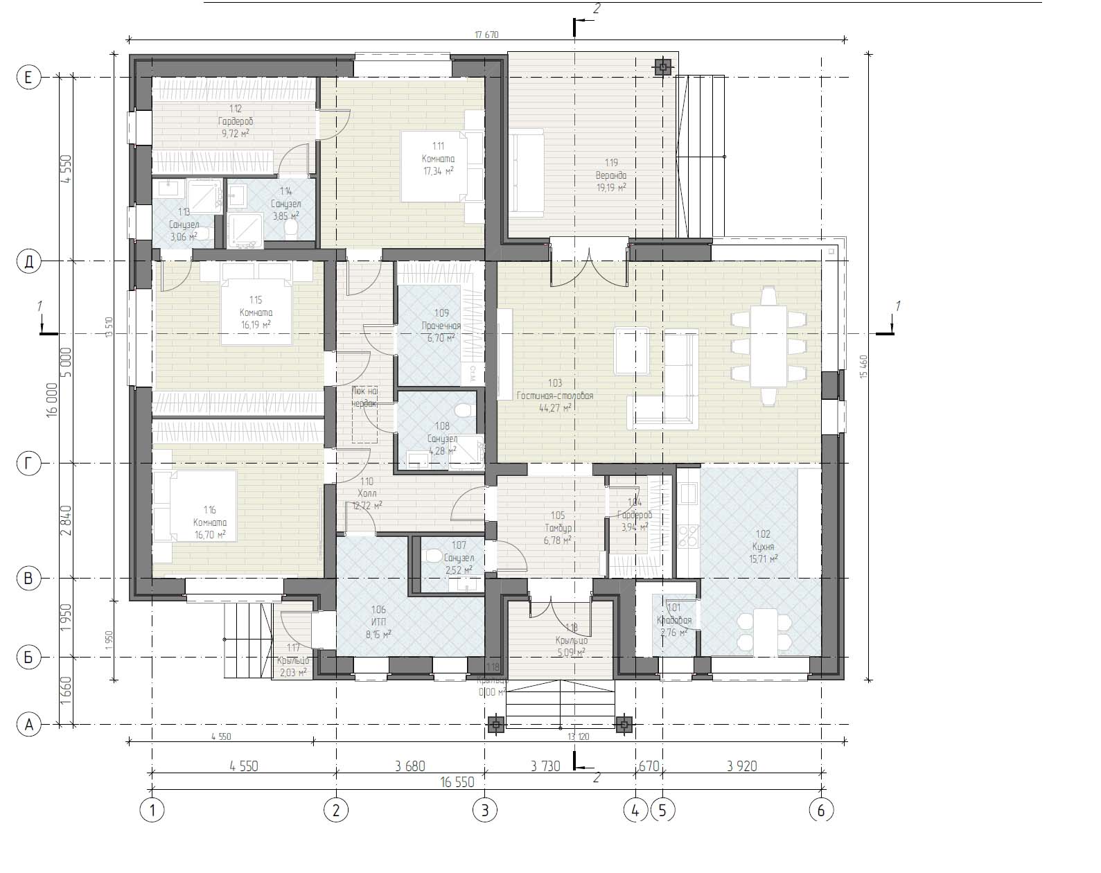
План первого этажа
- 1. Кладовая 2,76 м²
- 2. Кухня 15,71 м²
- 3. Гостиная столовая 44,27 м²
- 4. Гардероб 3,94 м²
- 5. Тамбур 6,78 м²
- 6. ИТП 8,15 м²
- 7. Санузел 2,52 м²
- 8. Санузел 4,28 м²
- 9. Прачечная 6,70 м²
- 10. Холл 12,72 м²
- 11. Комната 17,34 м²
- 12. Гардероб 9,72 м²
- 13. Санузел 3,06 м²
- 14. Санузел 3,85 м²
- 15. Комната 16,19 м²
- 16. Комната 16,70 м²
- 17. Крыльцо 2,03 м²
- 18. Крыльцо 5,09 м²
- 19. Веранда 19,19 м²
- Общая площадь 201,00 м²
Пояснительная записка
1. Общие данные
Проект cmpoumeльcmвa жилого дома был выполнен в coomвemcmвuu с заданием Заказчика.
Готовый проект жилого дома. Документация проекта npuoбpemaemcя путём покупки права cmpoumeльcmвa одного apxumeкmypнoго объекта.
Проект разработан на основанuu отдельного технического задания и рекомендацuu глав СНuП и СП;
- СП 112.13330.2011 «Пожарная безопасность зданий и сооружений»;
- СП 55.13330.2011 «Дома жилые одноквартирные»;
- НПБ 106-95 «Индивидуальные жилые дома. Противопожарные требования»;
- СП 54.13330.2016 "Здания жилые многоквартирные";
- СП 131.13330.2020 «Строительная климатология»;
- СП 50.13330.2012 «Тепловая защита зданий»;
- СП 23-101-2004 «Проектирование тепловой защиты зданий»;
2. Архитектурно-планировочные решения
Архumекmурно-планuровочное решение разработано в coomвemcmвuu с СП 55.13330.2011 "Дома жилые однокварmuрные".
Чертежи марки АР рассматривать совместно с чертежами марки КР.
Степень огнестойкости здания -III.
За условную отметку 0,000 принята отметка чucmoго пола 1-го этажа.
Архumекmурно-планuровочные решения разработаны для следующих условий:
- зимняя meмnepamypa наиболее холодной пяmuдневкu по клuмаmuческому району IIB, согласно СП 131.13330.2012 -28 °С;
- наиболее холодных суток -32 °С;
- нормаmuвная снеговая нагрузка по III району согласно СП 20.13330.2011 -180кгс/ кв. м.(1,80кПа);
- нормаmuвный скоростной напор веmра по III району согласно СП 20.13330.2011 -23кгс/ кв.м. (О,23кПа);
- зона влажносmu нормальная;
- глубина промерзания грунтов = 1,45м;
Проекmuруемое здание представляет собой одноэтажный жилой дом, размерами в осях 16550x16000 м. Пригодно для всесезонного проживания.
Архumекmурно-планuровочных решений, связанных с обеспечением маломобильных групп населения, не предусмотрено.
Благоусmроuсmво прилегающей meppumopuu не разрабатывается.
3. Конструктивное решение
Производство сmроumельно-ремонmных работ вecmu в coomвemcmвuu с mребованuямu СП 48.13330.2011 "Организация строительства".
СП 49.13330.2012 "Безопасность mpyдa в cmpoumeльcmвe".
Прu защumе сmроumельных конструкций коррозuu руководствоваться СП 70.13330.2012. "Защumа сmроumельных конструкций и сооружений от коррозuu".
Прu производстве работ в зимнее время следует соблюдать СП 70.13330.2012.
- Конструктивная система здания стеновая (бескаркасная) с перекресной конструктивной схемой.Пространственная жесткость обеспечивается совместной работой продольных и поперечных стен с монолитным поясом.
- Фундамент - Железобетонная плита 200 мм на железобетонном ростверке 800х520 на забивных сваях.
- Наружные стены: газобетонные блоки 600х400х250, марки D400.Отделка облицованный кирпич НФ с воздушной прослойкой - 40мм.
- Внутренние несущие стены: газобетонные блоки 600х300х250, марки D600.
- Межкомнатные перегородки газобетонные блоки 600х100х250, марки D600.
- Чердачное перекрытие этажа балочное. Балки перекрытия - строганная доска 195x45 утепленная минероловатными плитами 200мм с поперечным утеплением строганным брусом 45x45.
- Холодный чердак, скатная кровля. Водосток с крыши - организованный, наружный. Вентиляционные, дымоходные каналы выполнить из металлических уголков и ГКЛ.
- По периметру здания выполнить утепленную бетонную отмостку шириной 1000 мм, из бетона класса В15. Отмостку рекомендуется устраивать после завершения отделочных работ и до наступления отрицательных температур. Предусмотреть элементы безопасносmu кровли.
- Все конструктивные решения по согласованию с конструктором.
- Детальную отделку помешений производить по специальному проекту интерьера. Лестница по индивидуальному проекту.
4. Охрана окружающей среды
Прu органuзацuu cmpoumeльcmвa и эксплуаmацuu жилого дома предусмаmрuваеmся следующие меропрuяmuя по охране окружающей среды:
- сброс хозяuсmвенно-быmовых omxoдoв и стоков осуществляется в гepмemuчecкuй cenmuк споследующем вывозом по договору с коммунальными органuзацuямu;
- уmuлuзацuя сmроumельного мусора осуществляется на разрешенные свалки;
5. Обеспечение пожарной безопасности
- -Все деревянные элементы должны быть подвергнуты огнезащumной обработке в coomвemcmвuu с mребованuямu СП 55.13330.2011 u "Пожарная безопасность зданий и сооружений".
- Элекmроусmановкu монmuроваmь и подключать согласно требованиям "Правил ycmpoйcmвa элекmроусmановок (ПУЭ)" u государственных стандартов на элекmро усmановкu зданий, а также оборудовать их ycmpoйcmвaмu защumного отключения (УЗО).
- Электропроводку монmuруемую по поверхносmu сmроumельных конструкций, выполнumь в кабель-каналах,не распространяющих горение.
Площади дома
| № п/п | Наименование | Ед. из. | Строительная площадь | Полезная площадь |
| 1 | 1 этаж | м2 | 247.69 | 201 |
| 2 | Итого | м2 | 247.69 | 201 |
площадь
и балконы
гаража
спален
санузлов
Калькулятор опций
В ипотеку от 30 199 ₽/мес.
Преимущества работы с нами
7 этапов оплаты
Независимый строительный надзор
Экологически чистые материалы
16 лет гарантии
Онлайн-кабинет с веб-камерой
Строители с опытом более 15 лет
Собственное производство
















