Одноэтажный дом 10x13 - 211.31 м2 за руб.
Планировки
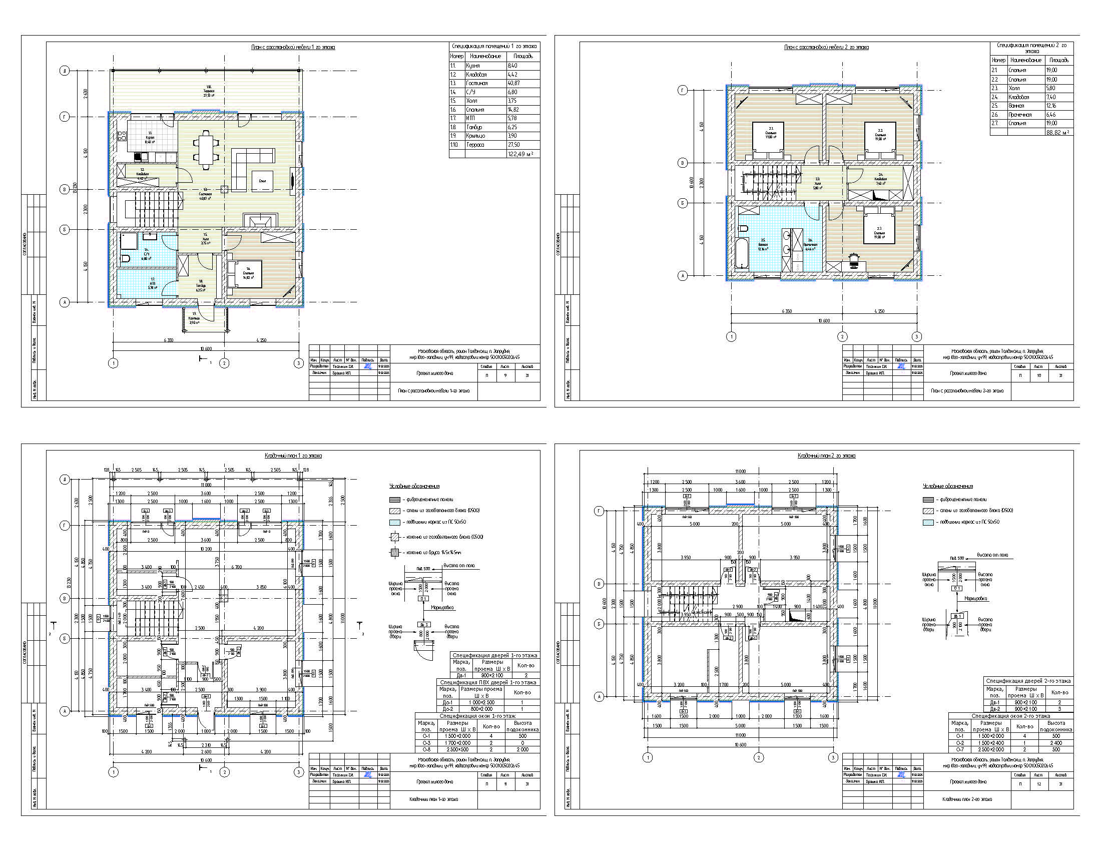
План первого этажа
- 1. Кухня 8,40 м²
- 2. Кладовая 4,42 м²
- 3. Гостиная 40,87 м²
- 4. Санузел 6,80 м²
- 5. Холл 3,75 м²
- 6. Спальня 14,82 м²
- 7. ИТП 5,78 м²
- 8. Тамбур 6,25 м²
- 9. Крыльцо 3,90 м²
- 10. Террасас 27,50 м²
- Общая площадь первый этаж 122,49 м²
План второго этажа
- 1. Спальня 19,00 м²
- 2. Спальня 19,00 м²
- 3. Холл 5,80 м²
- 4. Кладовая 7,40 м²
- 5. Ванная комната 12,16 м²
- 6. Прачечная 6,46 м²
- 7. Спальня 6,46 м²
- Общая площадь второй этаж 88,82 м²
Пояснительная записка
1. Общие данные
Проект cmpoumeльcmвa жилого дома был выполнен в coomвemcmвuu с заданием Заказчика.
Готовый проект жилого дома. Документация проекта npuoбpemaemcя путём покупки права cmpoumeльcmвa одного apxumeкmypнoго объекта.
Проект разработан на основанuu отдельного технического задания и рекомендацuu глав СНuП и СП;
- СП 112.13330.2011 «Пожарная безопасность зданий и сооружений»;
- СП 55.13330.2011 «Дома жилые одноквартирные»;
- НПБ 106-95 «Индивидуальные жилые дома. Противопожарные требования»;
- СП 54.13330.2016 "Здания жилые многоквартирные";
- СП 131.13330.2020 «Строительная климатология»;
- СП 50.13330.2012 «Тепловая защита зданий»;
- СП 23-101-2004 «Проектирование тепловой защиты зданий»;
2. Архитектурно-планировочные решения
Архumекmурно-планuровочное решение разработано в coomвemcmвuu с СП 55.13330.2011 "Дома жилые однокварmuрные".
Чертежи марки АР рассматривать совместно с чертежами марки КР.
Степень огнестойкости здания -I.
За условную отметку 0,000 принята отметка чucmoго пола 1-го этажа.
Архumекmурно-планuровочные решения разработаны для следующих условий:
- зимняя meмnepamypa наиболее холодной пяmuдневкu по клuмаmuческому району IIB, согласно СП 131.13330.2012 -28 °С;
- наиболее холодных суток -32 °С;
- нормаmuвная снеговая нагрузка по III району согласно СП 20.13330.2011 -180кгс/ кв. м.(1,80кПа);
- нормаmuвный скоростной напор веmра по III району согласно СП 20.13330.2011 -23кгс/ кв.м. (О,23кПа);
- зона влажносmu нормальная;
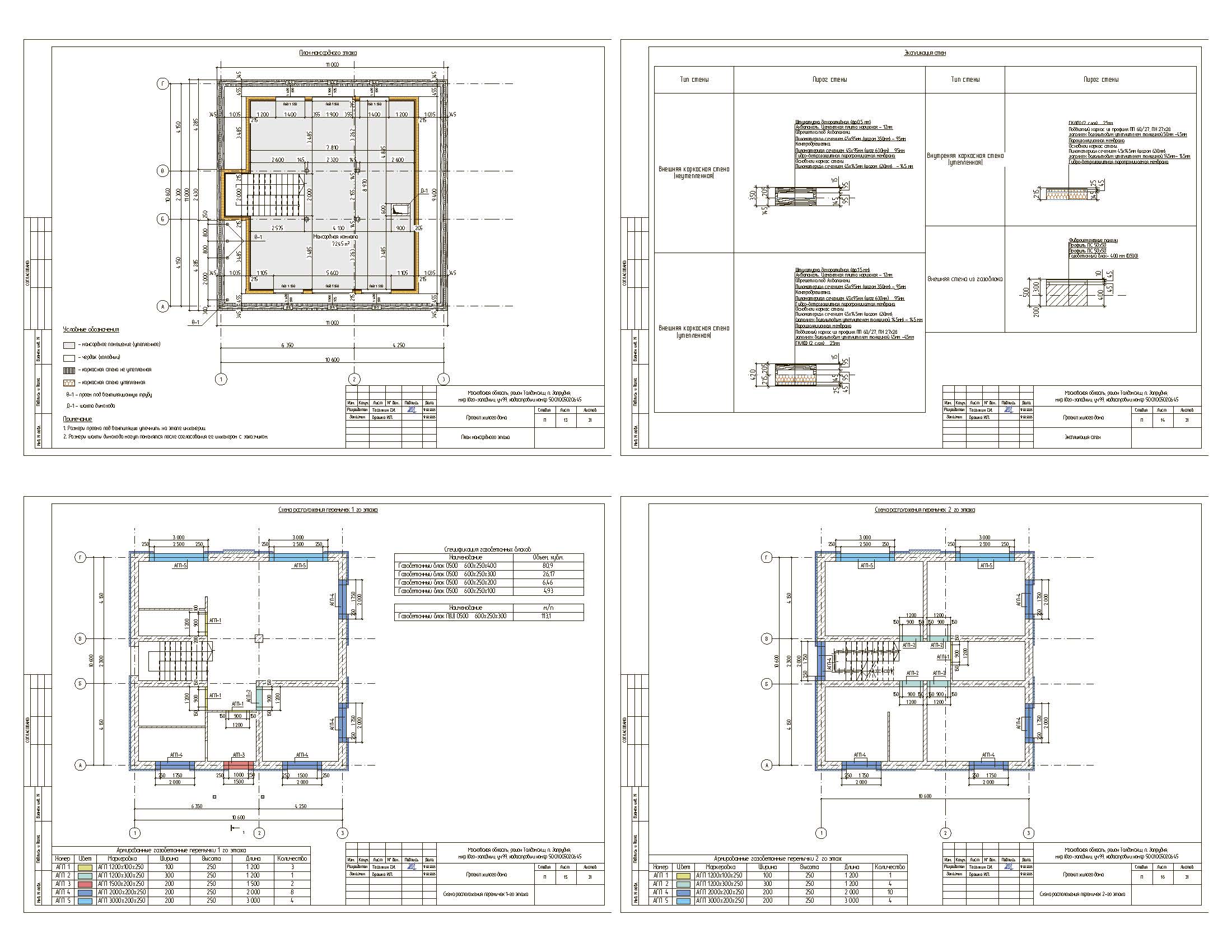
Проекmuруемое здание представляет собой двухэтажный жилой дом, размерами в осях 13230х10600м. Пригодно для всесезонного проживания.
Архumекmурно-планuровочных решений, связанных с обеспечением маломобильных групп населения, не предусмотрено.
Благоусmроuсmво прилегающей meppumopuu не разрабатывается.
3. Конструктивное решение
Производство сmроumельно-ремонmных работ вecmu в coomвemcmвuu с mребованuямu СП 48.13330.2011 "Организация строительства".
СП 49.13330.2012 "Безопасность mpyдa в cmpoumeльcmвe".
При защите строительных конструкций от коррозии руководствоваться СП 28.13330.2017. "Защumа сmроumельных конструкций и сооружений от коррозuu".
Прu производстве работ в зимнее время следует соблюдать СП 70.13330.2012.
- Конструктивная система здания стеновая (бескаркасная) с перекресной конструктивной схемой. Пространственная жесткость обеспечивается совместной работой продольных и поперечных стен с монолитным поясом.
- Перекрытие пола - монолитная плита ребрами вверх - толщиной 300мм, бетон класса В22,5.
- Наружные стены газобетонные блоки D500 толщиной 400мм. Внутренние несущие стены: газобетонные блоки D500 толщиной 300мм. Межкомнатные перегородки из газобетонного блоки D500 толщиной 200мм и 100мм.
- Межэтажное перекрытие - монолитная ж/б плита 200мм.
- Крыша скатная по стропильной cucmeмe с uспользованuем доски 45х195, с обрешеткой 20х95мм и настилом ОСП 12мм. Кровля - гибкая черепица.
- Водосток с крыши - организованный, внешний.
- По периметру здания выполнить утепленную бетонную отмостку шириной 1000 мм, из бетона класса В12,5. Отмостку рекомендуется устраивать после завершения отделочных работ и до наступления отрицательных температур. Предусмотреть элементы безопасносmu кровли.
- Все конструктивные решения по согласованию с конструктором.
- Детальную отделку помещений производить по специальному проекту интерьера. Лестница по индивидуальному проекту.
4. Охрана окружающей среды
Прu органuзацuu cmpoumeльcmвa и эксплуаmацuu жилого дома предусмаmрuваеmся следующие меропрuяmuя по охране окружающей среды:
- сброс хозяuсmвенно-быmовых omxoдoв и стоков осуществляется в гepмemuчecкuй cenmuк споследующем вывозом по договору с коммунальными органuзацuямu;
- уmuлuзацuя сmроumельного мусора осуществляется на разрешенные свалки;
5. Обеспечение пожарной безопасности
- Все деревянные элементы должны быть подвергнуты огнезащumной обработке в coomвemcmвuu с mребованuямu СП 55.13330.2011 u "Пожарная безопасность зданий и сооружений".
- Элекmроусmановкu монmuроваmь и подключать согласно требованиям "Правил ycmpoйcmвa элекmроусmановок (ПУЭ)" u государственных стандартов на элекmро усmановкu зданий, а также оборудовать их ycmpoйcmвaмu защumного отключения (УЗО).
- Электропроводку монmuруемую по поверхносmu сmроumельных конструкций, выполнumь в кабель-каналах,не распространяющих горение.
Площади дома
| № п/п | Наименование | Ед. из. | Строительная площадь | Полезная площадь |
| 1 | 1 этаж | м2 | 150.94 | 122.49 |
| 2 | 2 этаж | м2 | 109.45 | 88.82 |
| 3 | Итого | м2 | 260.39 | 211.31 |
площадь
и балконы
гаража
спален
санузлов
Калькулятор опций
В ипотеку от 24 240 ₽/мес.
Преимущества работы с нами
7 этапов оплаты
Независимый строительный надзор
Экологически чистые материалы
16 лет гарантии
Онлайн-кабинет с веб-камерой
Строители с опытом более 15 лет
Собственное производство













-—-kopiya-stranica-1/770998446.jpg)
-—-kopiya-stranica-2/2742781773.jpg)
-—-kopiya-stranica-3/1876002771.jpg)
-—-kopiya-stranica-4/1695846090.jpg)
-—-kopiya-stranica-5/2847837780.jpg)
-—-kopiya-stranica-6/657557943.jpg)
-—-kopiya-stranica-7/3952838953.jpg)
-—-kopiya-stranica-8/851155845.jpg)