Одноэтажный дом 11x14 - 253 м2 за руб.
Планировки
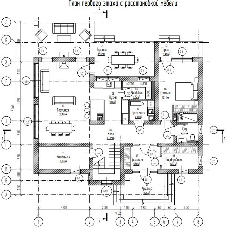
План первого этажа
- 1. Крыльцо 9,26 м²
- 2. Прихожая 6,50 м²
- 3. Гардеробная 6,37 м²
- 4. Холл 19,32 м²
- 5. Санузел 4,87 м²
- 6. Спальня 16,11 м²
- 7. Прачечная 4,11 м²
- 8. Кладовая 4,37 м²
- 9. Кухня 9,88 м²
- 10. Гостиная 32,18 м²
- 11. Котельная 8,99 м²
- 12. Терраса 33,42 м²
- 13. Терраса 5,41 м²
- Общая площадь первый этаж 160,79 м²
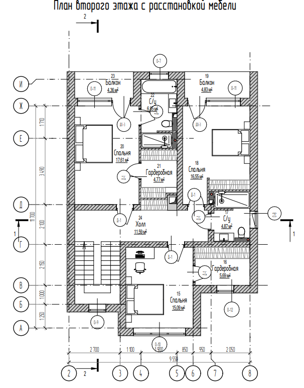
План второго этажа
- 1. Спальня 15,09 м²
- 2. Гардеробная 5,69 м²
- 3. Санузел 4,87 м²
- 4. Спальня 16,55 м²
- 5. Балкон 4,83 м²
- 6. Спальня 17,61 м²
- 7. Гардеробная 4,77 м²
- 8. Санузел 6,85 м²
- 9. Балкон 4,36 м²
- 10. Холл 11,59 м²
- Общая площадь второй этаж 92,21 м²
Площади дома
| № п/п | Наименование | Ед. из. | Строительная площадь | Полезная площадь |
| 1 | 1 этаж | м2 | 198.14 | 160.79 |
| 2 | 2 этаж | м2 | 113.63 | 92.21 |
| 3 | Итого | м2 | 311.77 | 253 |
154 м2
Полезная
площадь
площадь
11 x 14 м
Размеры
1 этаж
Этажей
26 м2
Террасы
и балконы
и балконы
0Без
гаража
гаража
4
Количество
спален
спален
3
Количество
санузлов
санузлов
Калькулятор опций
0₽
В ипотеку от 30 682 ₽/мес.
0₽
0 дней
986 143₽
Работа:426 794 ₽
Материалы:559 349 ₽
Дни:20
592 835₽
Работа:198 536 ₽
Материалы:394 299 ₽
Дни:2
999 022₽
Работа:401 035 ₽
Материалы:597 987 ₽
Дни:20
1 914 429₽
Работа:854 776 ₽
Материалы:1 059 653 ₽
Дни:30
3 211 651₽
Работа:1 180 914 ₽
Материалы:2 030 737 ₽
Дни:32
1 213 806₽
Работа:485 641 ₽
Материалы:728 165 ₽
Дни:20
7 616 501₽
Работа:3 472 205 ₽
Материалы:4 144 296 ₽
Дни:30
9 087 097₽
Работа:4 050 180 ₽
Материалы:5 036 917 ₽
Дни:40
317 024₽
Работа:79 256 ₽
Материалы:237 768 ₽
Дни:1
567 473₽
Работа:243 712 ₽
Материалы:323 761 ₽
Дни:8
908 868₽
Работа:301 173 ₽
Материалы:607 695 ₽
Дни:13
1 621 776₽
Работа:663 373 ₽
Материалы:958 403 ₽
Дни:18
1 591 659₽
Работа:997 239 ₽
Материалы:594 420 ₽
Дни:29
1 832 200₽
Работа:938 589 ₽
Материалы:893 611 ₽
Дни:23
2 820 721₽
Работа:1 730 951 ₽
Материалы:1 089 770 ₽
Дни:30
2 308 529₽
Работа:1 011 703 ₽
Материалы:1 296 826 ₽
Дни:45
4 315 688₽
Работа:952 261 ₽
Материалы:3 363 427 ₽
Дни:24
950 478₽
Работа:479 103 ₽
Материалы:471 375 ₽
Дни:15
519 126₽
Работа:279 377 ₽
Материалы:239 749 ₽
Дни:7
1 825 662₽
Работа:634 841 ₽
Материалы:1 190 821 ₽
Дни:7
2 384 615₽
Работа:761 848 ₽
Материалы:1 622 767 ₽
Дни:7
15 659 995₽
Работа:761 848 ₽
Материалы:14 898 147 ₽
Дни:7
8 476 628₽
Работа:952 261 ₽
Материалы:7 524 367 ₽
Дни:7
1 333 284₽
Работа:317 420 ₽
Материалы:1 015 864 ₽
Дни:7
1 750 765₽
Работа:899 159 ₽
Материалы:851 606 ₽
Дни:29
1 532 811₽
Работа:998 229 ₽
Материалы:534 582 ₽
Дни:29
1 750 765₽
Работа:899 159 ₽
Материалы:851 606 ₽
Дни:29
1 858 157₽
Работа:1 136 729 ₽
Материалы:721 428 ₽
Дни:23
2 375 104₽
Работа:799 891 ₽
Материалы:1 575 213 ₽
Дни:7
2 693 317₽
Работа:1 650 704 ₽
Материалы:1 042 613 ₽
Дни:25
974 254₽
Работа:502 879 ₽
Материалы:471 375 ₽
Дни:15
9 027 655₽
Работа:1 904 522 ₽
Материалы:7 123 133 ₽
Дни:15
1 080 259₽
Работа:508 031 ₽
Материалы:572 228 ₽
Дни:15
1 470 991₽
Работа:834 962 ₽
Материалы:636 029 ₽
Дни:19
1 552 625₽
Работа:998 229 ₽
Материалы:554 396 ₽
Дни:29
997 239₽
Работа:523 486 ₽
Материалы:473 753 ₽
Дни:15
1 832 200₽
Работа:938 589 ₽
Материалы:893 611 ₽
Дни:23
1 070 352₽
Работа:416 094 ₽
Материалы:654 258 ₽
Дни:15
1 371 128₽
Работа:999 814 ₽
Материалы:371 314 ₽
Дни:7
567 473₽
Работа:243 712 ₽
Материалы:323 761 ₽
Дни:8
908 868₽
Работа:301 173 ₽
Материалы:607 695 ₽
Дни:13
1 621 776₽
Работа:663 373 ₽
Материалы:958 403 ₽
Дни:18
912 790₽
Работа:571 900 ₽
Материалы:340 890 ₽
Дни:29
1 050 736₽
Работа:538 265 ₽
Материалы:512 471 ₽
Дни:23
1 617 637₽
Работа:992 672 ₽
Материалы:624 965 ₽
Дни:30
1 323 903₽
Работа:580 195 ₽
Материалы:743 708 ₽
Дни:45
2 474 975₽
Работа:546 106 ₽
Материалы:1 928 869 ₽
Дни:24
545 083₽
Работа:274 757 ₽
Материалы:270 326 ₽
Дни:15
297 710₽
Работа:160 218 ₽
Материалы:137 492 ₽
Дни:7
1 046 987₽
Работа:364 071 ₽
Материалы:682 916 ₽
Дни:7
1 367 537₽
Работа:436 907 ₽
Материалы:930 630 ₽
Дни:7
8 980 747₽
Работа:436 907 ₽
Материалы:8 543 840 ₽
Дни:7
2 384 071₽
Работа:546 106 ₽
Материалы:1 837 965 ₽
Дни:7
764 616₽
Работа:182 035 ₽
Материалы:582 581 ₽
Дни:10
1 004 035₽
Работа:515 653 ₽
Материалы:488 382 ₽
Дни:29
879 042₽
Работа:572 468 ₽
Материалы:306 574 ₽
Дни:29
1 004 035₽
Работа:515 653 ₽
Материалы:488 382 ₽
Дни:29
1 065 622₽
Работа:651 895 ₽
Материалы:413 727 ₽
Дни:23
1 362 083₽
Работа:458 724 ₽
Материалы:903 359 ₽
Дни:7
1 544 573₽
Работа:946 652 ₽
Материалы:597 921 ₽
Дни:25
558 719₽
Работа:288 393 ₽
Материалы:270 326 ₽
Дни:15
5 177 211₽
Работа:1 092 212 ₽
Материалы:4 084 999 ₽
Дни:15
619 510₽
Работа:291 347 ₽
Материалы:328 163 ₽
Дни:15
843 589₽
Работа:478 837 ₽
Материалы:364 752 ₽
Дни:19
890 405₽
Работа:572 468 ₽
Материалы:317 937 ₽
Дни:29
571 899₽
Работа:300 210 ₽
Материалы:271 689 ₽
Дни:15
1 050 736₽
Работа:538 265 ₽
Материалы:512 471 ₽
Дни:10
613 829₽
Работа:238 623 ₽
Материалы:375 206 ₽
Дни:10
786 320₽
Работа:573 377 ₽
Материалы:212 943 ₽
Дни:7
325 436₽
Работа:139 765 ₽
Материалы:185 671 ₽
Дни:8
521 221₽
Работа:172 718 ₽
Материалы:348 503 ₽
Дни:13
930 061₽
Работа:380 433 ₽
Материалы:549 628 ₽
Дни:18
2 345 582₽
Работа:1 134 550 ₽
Материалы:1 211 032 ₽
Дни:20
2 561 950₽
Работа:1 178 933 ₽
Материалы:1 383 017 ₽
Дни:20
3 965 970₽
Работа:1 873 612 ₽
Материалы:2 092 358 ₽
Дни:20
3 647 956₽
Работа:1 764 437 ₽
Материалы:1 883 519 ₽
Дни:20
4 399 897₽
Работа:1 873 612 ₽
Материалы:2 526 285 ₽
Дни:20
3 316 864₽
Работа:1 622 767 ₽
Материалы:1 694 097 ₽
Дни:20
7 370 808₽
Работа:3 318 845 ₽
Материалы:4 051 963 ₽
Дни:20
7 257 868₽
Работа:3 324 789 ₽
Материалы:3 933 079 ₽
Дни:20
1 426 608₽
Работа:743 025 ₽
Материалы:683 583 ₽
Дни:20
499 422₽
Работа:160 655 ₽
Материалы:338 767 ₽
Дни:3
0₽
Работа:0 ₽
Материалы:0 ₽
Дни:0
15 500₽
Работа:5 500 ₽
Материалы:10 000 ₽
Дни:1
0₽
Работа:0 ₽
Материалы:0 ₽
Дни:0
0₽
Работа:0 ₽
Материалы:0 ₽
Дни:0
358 237₽
Работа:128 791 ₽
Материалы:229 446 ₽
Дни:5
208 840₽
Работа:46 365 ₽
Материалы:162 475 ₽
Дни:3
304 343₽
Работа:77 275 ₽
Материалы:227 068 ₽
Дни:3
171 590₽
Работа:77 275 ₽
Материалы:94 315 ₽
Дни:3
458 496₽
Работа:46 365 ₽
Материалы:412 131 ₽
Дни:2
601 553₽
Работа:77 275 ₽
Материалы:524 278 ₽
Дни:3
0₽
Работа:0 ₽
Материалы:0 ₽
Дни:0
65 380₽
Работа:17 900 ₽
Материалы:47 480 ₽
Дни:6
0₽
Работа:0 ₽
Материалы:0 ₽
Дни:0
660 202₽
Работа:302 956 ₽
Материалы:357 246 ₽
Дни:7
0₽
Работа:0 ₽
Материалы:0 ₽
Дни:0
660 401₽
Работа:295 427 ₽
Материалы:364 974 ₽
Дни:7
0₽
Работа:0 ₽
Материалы:0 ₽
Дни:0
1 796 418₽
Работа:724 865 ₽
Материалы:1 071 553 ₽
Дни:7
634 452₽
Работа:381 918 ₽
Материалы:252 534 ₽
Дни:3
1 981 298₽
Работа:559 627 ₽
Материалы:1 421 671 ₽
Дни:5
2 062 982₽
Работа:559 627 ₽
Материалы:1 503 355 ₽
Дни:5
1 118 942₽
Работа:227 280 ₽
Материалы:891 662 ₽
Дни:3
2 844 278₽
Работа:249 416 ₽
Материалы:2 594 862 ₽
Дни:5
0₽
Работа:0 ₽
Материалы:0 ₽
Дни:0
1 368 982₽
Работа:435 543 ₽
Материалы:933 439 ₽
Дни:20
1 474 983₽
Работа:479 190 ₽
Материалы:995 793 ₽
Дни:20
1 070 307₽
Работа:374 748 ₽
Материалы:695 559 ₽
Дни:35
3 558 543₽
Работа:1 010 135 ₽
Материалы:2 548 408 ₽
Дни:45
1 864 696₽
Работа:937 492 ₽
Материалы:927 204 ₽
Дни:40
787 532₽
Работа:393 766 ₽
Материалы:393 766 ₽
Дни:20
2 424 324₽
Работа:1 010 135 ₽
Материалы:1 414 189 ₽
Дни:45
2 666 880₽
Работа:727 359 ₽
Материалы:1 939 521 ₽
Дни:20
1 474 672₽
Работа:606 081 ₽
Материалы:868 591 ₽
Дни:20
1 818 243₽
Работа:808 108 ₽
Материалы:1 010 135 ₽
Дни:20
2 534 066₽
Работа:1 090 883 ₽
Материалы:1 443 183 ₽
Дни:20
3 128 924₽
Работа:933 128 ₽
Материалы:2 195 796 ₽
Дни:20
2 224 479₽
Работа:808 108 ₽
Материалы:1 416 371 ₽
Дни:20
0₽
Работа:0 ₽
Материалы:0 ₽
Дни:0
372 000₽
Работа:58 500 ₽
Материалы:313 500 ₽
Дни:5
0₽
Работа:0 ₽
Материалы:0 ₽
Дни:0
166 500₽
Работа:58 500 ₽
Материалы:108 000 ₽
Дни:12
0₽
Работа:0 ₽
Материалы:0 ₽
Дни:0
852 002₽
Работа:346 745 ₽
Материалы:505 257 ₽
Дни:15
614 234₽
Работа:287 303 ₽
Материалы:326 931 ₽
Дни:10
0₽
Работа:0 ₽
Материалы:0 ₽
Дни:0
847 445₽
Работа:378 646 ₽
Материалы:468 799 ₽
Дни:5
0₽
Работа:0 ₽
Материалы:0 ₽
Дни:0
246 340₽
Работа:50 000 ₽
Материалы:196 340 ₽
Дни:7
0₽
Работа:0 ₽
Материалы:0 ₽
Дни:0
299 300₽
Работа:118 473 ₽
Материалы:180 827 ₽
Дни:11
505 691₽
Работа:187 062 ₽
Материалы:318 629 ₽
Дни:5
579 892₽
Работа:218 239 ₽
Материалы:361 653 ₽
Дни:11
837 102₽
Работа:280 593 ₽
Материалы:556 509 ₽
Дни:7
0₽
Работа:0 ₽
Материалы:0 ₽
Дни:0
404 800₽
Работа:240 350 ₽
Материалы:164 450 ₽
Дни:10
0₽
Работа:0 ₽
Материалы:0 ₽
Дни:0
336 490₽
Работа:184 690 ₽
Материалы:151 800 ₽
Дни:10
0₽
Работа:0 ₽
Материалы:0 ₽
Дни:0
296 010₽
Работа:141 680 ₽
Материалы:154 330 ₽
Дни:5
0₽
Работа:0 ₽
Материалы:0 ₽
Дни:0
381 000₽
Работа:75 000 ₽
Материалы:306 000 ₽
Дни:9
234 000₽
Работа:45 000 ₽
Материалы:189 000 ₽
Дни:5
0₽
Работа:0 ₽
Материалы:0 ₽
Дни:0
1 125 850₽
Работа:657 800 ₽
Материалы:468 050 ₽
Дни:20
771 650₽
Работа:531 300 ₽
Материалы:240 350 ₽
Дни:15
556 600₽
Работа:240 350 ₽
Материалы:316 250 ₽
Дни:15
0₽
Работа:0 ₽
Материалы:0 ₽
Дни:0
480 700₽
Работа:227 700 ₽
Материалы:253 000 ₽
Дни:10
235 290₽
Работа:88 550 ₽
Материалы:146 740 ₽
Дни:7
0₽
Работа:0 ₽
Материалы:0 ₽
Дни:0
2 403 500₽
Работа:885 500 ₽
Материалы:1 518 000 ₽
Дни:50
0₽
Работа:0 ₽
Материалы:0 ₽
Дни:0
480 700₽
Работа:253 000 ₽
Материалы:227 700 ₽
Дни:10
Преимущества работы с нами
7 этапов оплаты
Независимый строительный надзор
Экологически чистые материалы
16 лет гарантии
Онлайн-кабинет с веб-камерой
Строители с опытом более 15 лет
Собственное производство

















