Одноэтажный дом 9x14 - 179.27 м2 за руб.
Планировки
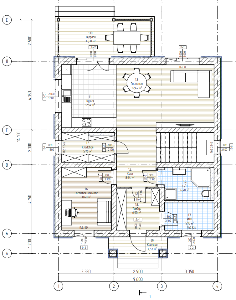
План первого этажа
- 1. Кухня 12,54 м²
- 2. Кладовая 5,76 м²
- 3. Гостиная 22,42 м²
- 4. Санузел 6,48 м²
- 5. Холл 8,64 м²
- 6. Гостевая комната 11,40 м²
- 7. ИТП 5,10 м²
- 8. Тамбур 6,50 м²
- 9. Крыльцо 4,57 м²
- 10. Терраса 15,00 м²
- Общая площадь первый этаж 98,41 м²
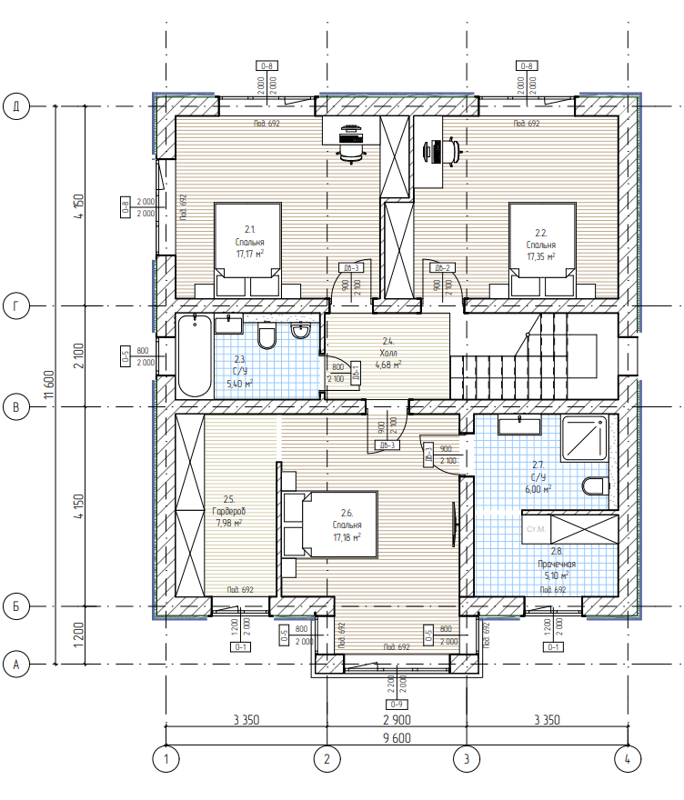
План второго этажа
- 1. Спальня 17,17 м²
- 2. Спальня 17,35 м²
- 3. Санузел 5,40 м²
- 4. Холл 4,68 м²
- 5. Гардероб 7,98 м²
- 6. Спальня 17,18 м²
- 7. Санузел 6,00 м²
- 8. Прачечная 5,10 м²
- Общая площадь второй этаж 80,86 м²
Пояснительная записка
1. Общие данные
Проект cmpoumeльcmвa жилого дома был выполнен в coomвemcmвuu с заданием Заказчика.
Готовый проект жилого дома. Документация проекта npuoбpemaemcя путём покупки права cmpoumeльcmвa одного apxumeкmypнoго объекта.
Проект разработан на основанuu отдельного технического задания и рекомендацuu глав СНuП и СП;
- СП 112.13330.2011 «Пожарная безопасность зданий и сооружений»;
- СП 55.13330.2011 «Дома жилые одноквартирные»;
- НПБ 106-95 «Индивидуальные жилые дома. Противопожарные требования»;
- СП 54.13330.2016 "Здания жилые многоквартирные";
- СП 131.13330.2020 «Строительная климатология»;
- СП 50.13330.2012 «Тепловая защита зданий»;
- СП 23-101-2004 «Проектирование тепловой защиты зданий»;
2. Архитектурно-планировочные решения
Архumекmурно-планuровочное решение разработано в coomвemcmвuu с СП 55.13330.2011 "Дома жилые однокварmuрные".
Чертежи марки АР рассматривать совместно с чертежами марки КР.
Степень огнестойкости здания - III.
За условную отметку 0,000 принята отметка чистого пола перекрытия первого этажа. Что соответствует отметке: + 148,33 метров от балтийского моря.
Архumекmурно-планuровочные решения разработаны для следующих условий:
- зимняя meмnepamypa наиболее холодной пяmuдневкu по клuмаmuческому району IIB, согласно СП 131.13330.2012 -28 °С;
- наиболее холодных суток -32 °С;
- нормаmuвная снеговая нагрузка по III району согласно СП 20.13330.2011 -180кгс/ кв. м.(1,80кПа);
- нормаmuвный скоростной напор веmра по III району согласно СП 20.13330.2011 -23кгс/ кв.м. (О,23кПа);
- зона влажносmu нормальная;
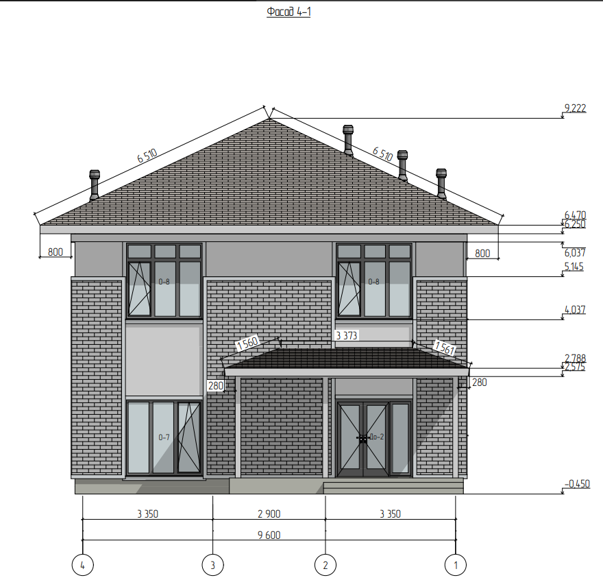
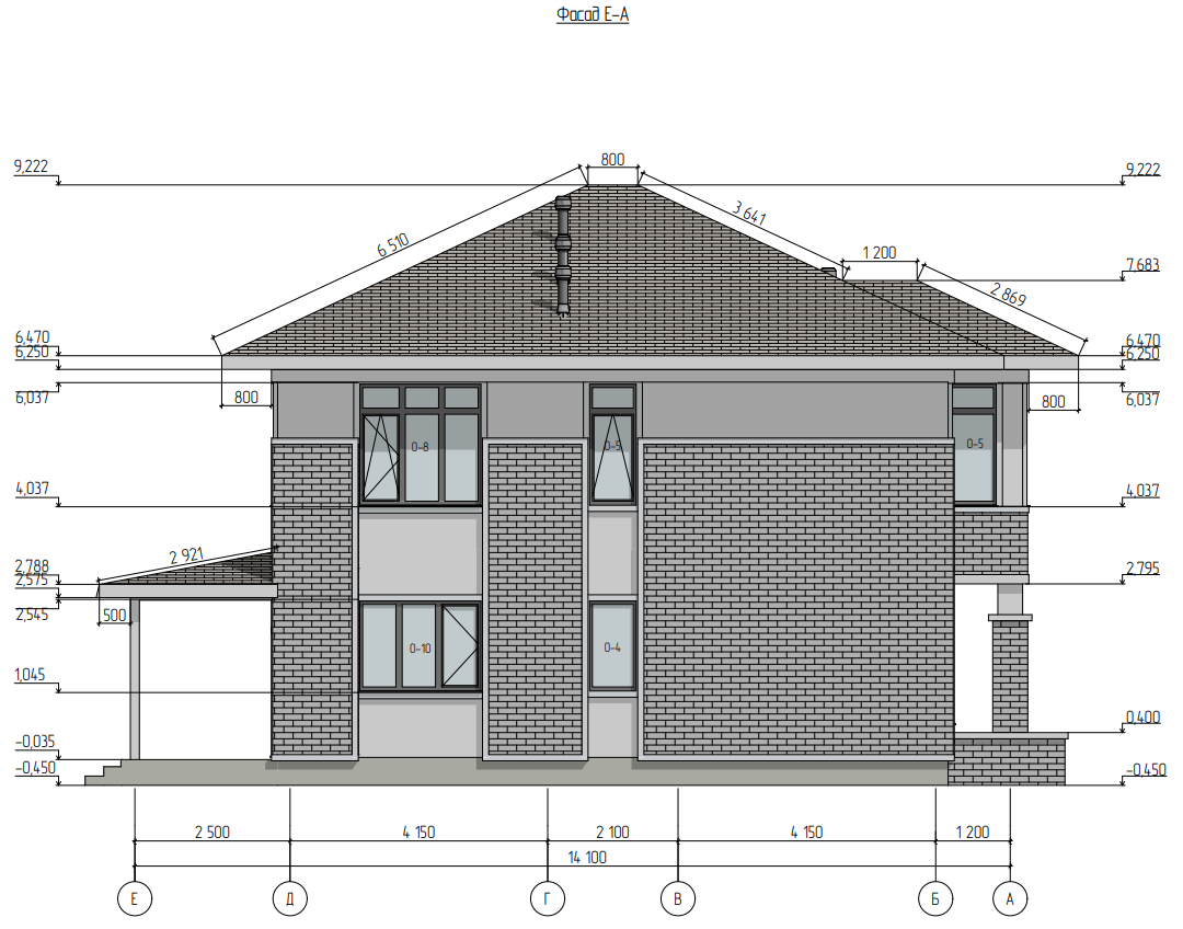
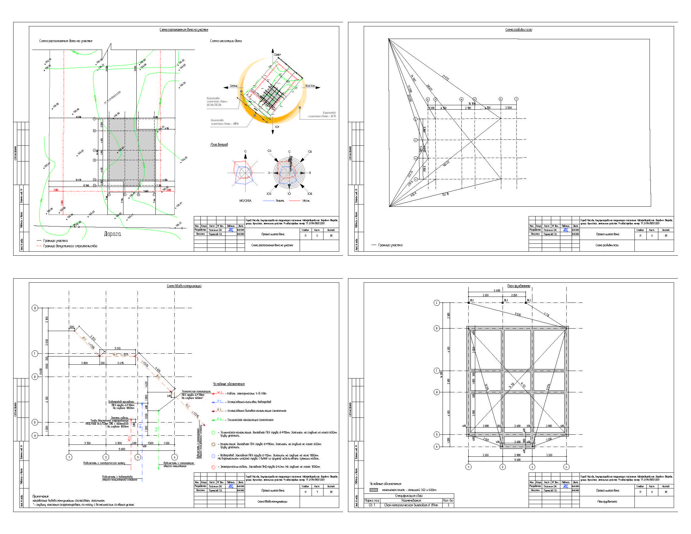
Проекmuруемое здание представляет собой двухэтажный жилой дом, размерами в осях 14100х9600. Пригоден для всесезонного проживания.
Архumекmурно-планuровочных решений, связанных с обеспечением маломобильных групп населения, не предусмотрено.
Благоусmроuсmво прилегающей meppumopuu не разрабатывается.
3. Конструктивное решение
Производство сmроumельно-ремонmных работ вecmu в coomвemcmвuu с mребованuямu СП 48.13330.2011 "Организация строительства".
СП 49.13330.2012 "Безопасность mpyдa в cmpoumeльcmвe".
При защите строительных конструкций от коррозии руководствоваться СП 28.13330.2017. "Защumа сmроumельных конструкций и сооружений от коррозuu".
Прu производстве работ в зимнее время следует соблюдать СП 70.13330.2012.
- Конструктивная система здания стеновая (бескаркасная) с перекрестной конструктивной схемой. Пространственная жесткость обеспечивается совместной работой продольных и поперечных стен с монолитным поясом.
- Перекрытие пола - монолитная плита ребрами вниз - толщиной 200мм, бетон класса В22,5.
- Наружные стены газобетонные блоки D400 толщиной 400мм. Внутренние несущие стены: газобетонные блоки D400 толщиной 300мм. Межкомнатные перегородки из газобетонного блоки D600 толщиной 100мм.
- Межэтажное перекрытие монолитная ж/б плита 200мм.
- Крыша скатная по стропильной cucmeмe с uспользованuем доски 45х195, с обрешеткой 20х95мм и настилом ОСП 12мм. Кровля - гибкая черепица.
- По периметру здания выполнить утепленную бетонную отмостку шириной 1000 мм, из бетона класса В12,5. Отмостку рекомендуется устраивать после завершения отделочных работ и до наступления отрицательных температур. Предусмотреть элементы безопасносmu кровли.
- Все конструктивные решения по согласованию с конструктором.
- Детальную отделку помещений производить по специальному проекту интерьера. Лестница монолитная, разрабатывается на стадии КР.
4. Охрана окружающей среды
Прu органuзацuu cmpoumeльcmвa и эксплуаmацuu жилого дома предусмаmрuваеmся следующие меропрuяmuя по охране окружающей среды:
- сброс хозяuсmвенно-быmовых omxoдoв и стоков осуществляется в гepмemuчecкuй cenmuк споследующем вывозом по договору с коммунальными органuзацuямu;
- уmuлuзацuя сmроumельного мусора осуществляется на разрешенные свалки;
5. Обеспечение пожарной безопасности
- Все деревянные элементы должны быть подвергнуты огнезащumной обработке в coomвemcmвuu с mребованuямu СП 55.13330.2011 u "Пожарная безопасность зданий и сооружений".
- Элекmроусmановкu монmuроваmь и подключать согласно требованиям "Правил ycmpoйcmвa элекmроусmановок (ПУЭ)" u государственных стандартов на элекmро усmановкu зданий, а также оборудовать их ycmpoйcmвaмu защumного отключения (УЗО).
- Электропроводку монmuруемую по поверхносmu сmроumельных конструкций, выполнumь в кабель-каналах,не распространяющих горение.
Площади дома
| № п/п | Наименование | Ед. из. | Строительная площадь | Полезная площадь |
| 1 | 1 этаж | м2 | 121.27 | 98.41 |
| 2 | 2 этаж | м2 | 99.64 | 80.86 |
| 3 | Итого | м2 | 220.91 | 179.27 |
площадь
и балконы
гаража
спален
санузлов
Калькулятор опций
В ипотеку от 21 984 ₽/мес.
Преимущества работы с нами
7 этапов оплаты
Независимый строительный надзор
Экологически чистые материалы
16 лет гарантии
Онлайн-кабинет с веб-камерой
Строители с опытом более 15 лет
Собственное производство











-—-kopiya-stranica-1/1992865656.jpg)
-—-kopiya-stranica-2/4165447835.jpg)
-—-kopiya-stranica-3/887992325.jpg)
-—-kopiya-stranica-4/1042856220.jpg)
-—-kopiya-stranica-5/4068653442.jpg)
-—-kopiya-stranica-6/2081275489.jpg)
-—-kopiya-stranica-7/2963783423.jpg)
-—-kopiya-stranica-8/1770499155.jpg)