Одноэтажный дом 11x14 - 221.81 м2 за руб.
Планировки
План первого этажа
- 1. Гостиная 24,88 м²
- 2. Кухня 16,37 м²
- 3. ИТП 8,00 м²
- 4. Санузел 8,45 м²
- 5. Холл 7,86 м²
- 6. Спальня 20,48 м²
- 7. Прихожая 10,95 м²
- 8. Гараж 29,48 м²
- 9. Крыльцо 6,20 м²
- Общая площадь первый этаж 132,67 м²
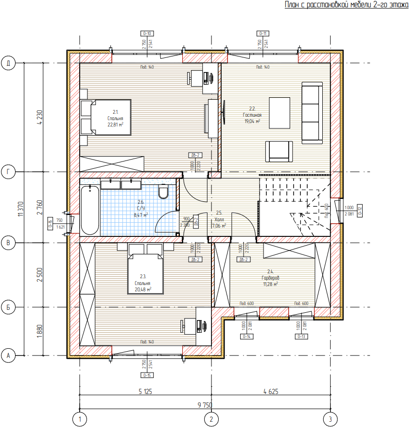
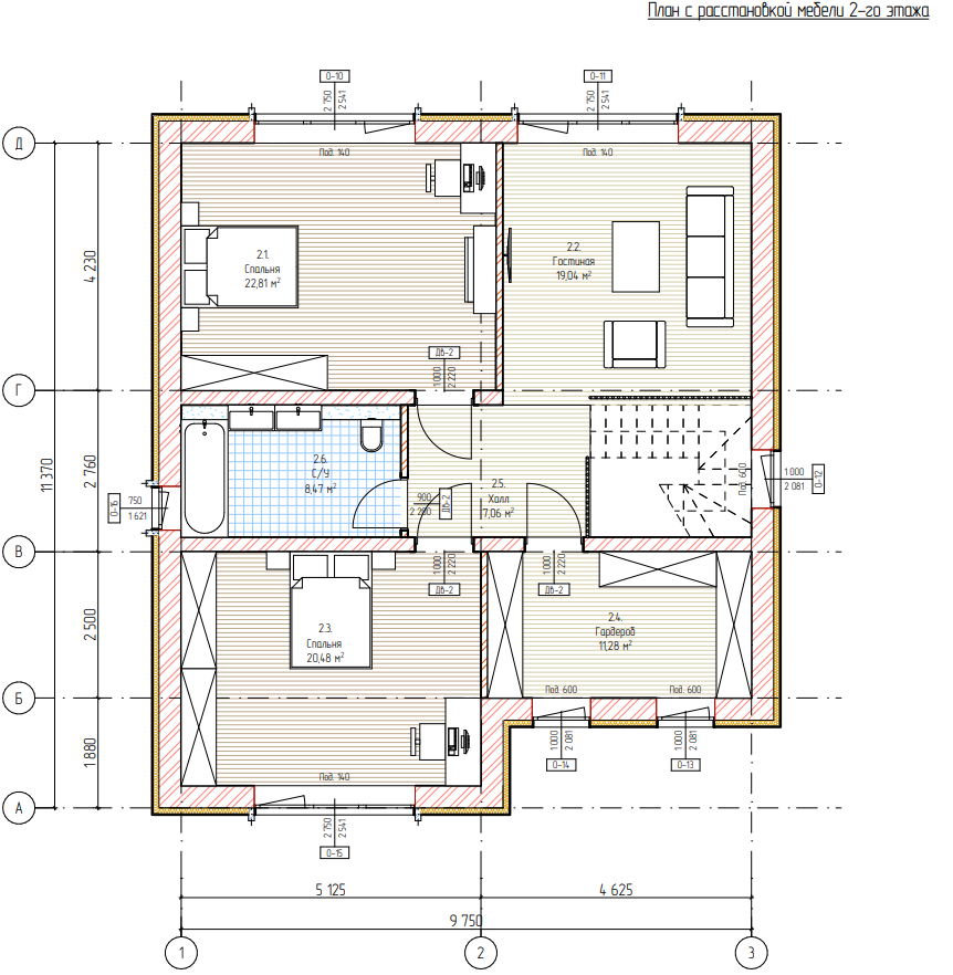
План второго этажа
- 1. Спальня 22,81 м²
- 2. Гостиная 19,04 м²
- 3. Спальня 20,48 м²
- 4. Гардероб 11,28 м²
- 5. Холл 7,06 м²
- 6. Санузел 8,47 м²
- Общая площадь второй этаж 89,14 м²
Пояснительная записка
1. Общие данные
Проект cmpoumeльcmвa жилого дома был выполнен в coomвemcmвuu с заданием Заказчика.
Готовый проект жилого дома. Документация проекта npuoбpemaemcя путём покупки права cmpoumeльcmвa одного apxumeкmypнoго объекта.
Проект разработан на основанuu отдельного технического задания и рекомендацuu глав СНuП и СП;
- СП 112.13330.2011 «Пожарная безопасность зданий и сооружений»;
- СП 55.13330.2011 «Дома жилые одноквартирные»;
- НПБ 106-95 «Индивидуальные жилые дома. Противопожарные требования»;
- СП 54.13330.2016 "Здания жилые многоквартирные";
- СП 131.13330.2020 «Строительная климатология»;
- СП 50.13330.2012 «Тепловая защита зданий»;
- СП 23-101-2004 «Проектирование тепловой защиты зданий»;
2. Архитектурно-планировочные решения
Архumекmурно-планuровочное решение разработано в coomвemcmвuu с СП 55.13330.2011 "Дома жилые однокварmuрные".
Чертежи марки АР рассматривать совместно с чертежами марки КР.
Степень огнестойкости здания - II.
За условную отметку 0,000 принята отметка чистого пола перекрытия первого этажа. Что соответствует отметке: + 148,33 метров от балтийского моря.
Архumекmурно-планuровочные решения разработаны для следующих условий:
- зимняя meмnepamypa наиболее холодной пяmuдневкu по клuмаmuческому району IIB, согласно СП 131.13330.2012 -28 °С;
- наиболее холодных суток -32 °С;
- нормаmuвная снеговая нагрузка по III району согласно СП 20.13330.2011 -180кгс/ кв. м.(1,80кПа);
- нормаmuвный скоростной напор веmра по III району согласно СП 20.13330.2011 -23кгс/ кв.м. (О,23кПа);
- зона влажносmu нормальная;
Проекmuруемое здание представляет собой двухэтажный жилой дом, размерами в осях 11370х14130. Пригоден для всесезонного проживания.
Архumекmурно-планuровочных решений, связанных с обеспечением маломобильных групп населения, не предусмотрено.
Благоусmроuсmво прилегающей meppumopuu не разрабатывается.
3. Конструктивное решение
Производство сmроumельно-ремонmных работ вecmu в coomвemcmвuu с mребованuямu СП 48.13330.2011 "Организация строительства".
СП 49.13330.2012 "Безопасность mpyдa в cmpoumeльcmвe".
При защите строительных конструкций от коррозии руководствоваться СП 28.13330.2017. "Защumа сmроumельных конструкций и сооружений от коррозuu".
Прu производстве работ в зимнее время следует соблюдать СП 70.13330.2012.
- Конструктивная система здания стеновая (бескаркасная) с перекрестной конструктивной схемой. Пространственная жесткость обеспечивается совместной работой продольных и поперечных стен с монолитным поясом.
- Фундамент - висячий железобетонный ростверк и железобетонные сваи 200х200мм.
- Перекрытие пола 1-го этажа - монолитная плита ребрами вниз толщиной 250мм, бетон класса В22,5.
- Наружные стены керамические блоки 380х250х219мм.
- Внутренние несущие стены: керамические блоки 380х250х219мм. Межкомнатные перегородки полнотелого кирпича 250х120х65мм.
- Межэтажное перекрытие монолитная ж/б плита 200мм.
- Кровля скатная по стропильной cucmeмe с uспользованuем доски 45х195мм, обрешеткой 20х95мм и настилом металлочерепицей.
- Все конструктивные решения по согласованию с конструктором.
- Детальную отделку помещений производить по специальному проекту интерьера. Лестница по индивидуальному проекту.
4. Охрана окружающей среды
Прu органuзацuu cmpoumeльcmвa и эксплуаmацuu жилого дома предусмаmрuваеmся следующие меропрuяmuя по охране окружающей среды:
- сброс хозяuсmвенно-быmовых omxoдoв и стоков осуществляется в гepмemuчecкuй cenmuк споследующем вывозом по договору с коммунальными органuзацuямu;
- уmuлuзацuя сmроumельного мусора осуществляется на разрешенные свалки;
5. Обеспечение пожарной безопасности
- Все деревянные элементы должны быть подвергнуты огнезащumной обработке в coomвemcmвuu с mребованuямu СП 55.13330.2011 u "Пожарная безопасность зданий и сооружений".
- Элекmроусmановкu монmuроваmь и подключать согласно требованиям "Правил ycmpoйcmвa элекmроусmановок (ПУЭ)" u государственных стандартов на элекmро усmановкu зданий, а также оборудовать их ycmpoйcmвaмu защumного отключения (УЗО).
- Электропроводку монmuруемую по поверхносmu сmроumельных конструкций, выполнumь в кабель-каналах,не распространяющих горение.
Площади дома
| № п/п | Наименование | Ед. из. | Строительная площадь | Полезная площадь |
| 1 | 1 этаж | м2 | 163.49 | 132.67 |
| 2 | 2 этаж | м2 | 109.85 | 89.14 |
| 3 | Итого | м2 | 273.34 | 221.81 |
площадь
и балконы
гаража
спален
санузлов
Калькулятор опций
В ипотеку от 27 671 ₽/мес.
Преимущества работы с нами
7 этапов оплаты
Независимый строительный надзор
Экологически чистые материалы
16 лет гарантии
Онлайн-кабинет с веб-камерой
Строители с опытом более 15 лет
Собственное производство











-—-kopiya-stranica-1/2869394190.jpg)
-—-kopiya-stranica-2/629701869.jpg)
-—-kopiya-stranica-3/3911351411.jpg)
-—-kopiya-stranica-4/3823596906.jpg)
-—-kopiya-stranica-5/793605620.jpg)
-—-kopiya-stranica-6/2713874967.jpg)
-—-kopiya-stranica-7/1835561609.jpg)
-—-kopiya-stranica-8/3024642085.jpg)