Одноэтажный дом 11x24 - 315.18 м2 за руб.
Планировки
План первого этажа
- 1. Навес 33,24 м²
- 2. Гараж 40,20 м²
- 3. Гардероб 15,48 м²
- 4. Санузел 3,36 м²
- 5. Постирочная 6,93 м²
- 6. Санузел 4,01 м²
- 7. Спальня 15,84 м²
- 8. Холл 22,00 м²
- 9. ИТП 5,31 м²
- 10. Кладовая 3,75 м²
- 11. Столовая-гостиная 41,42 м²
- 12. Терраса 30,29 м²
- 13. Крыльцо 20,98 м²
- Общая площадь первый этаж 242,81 м²
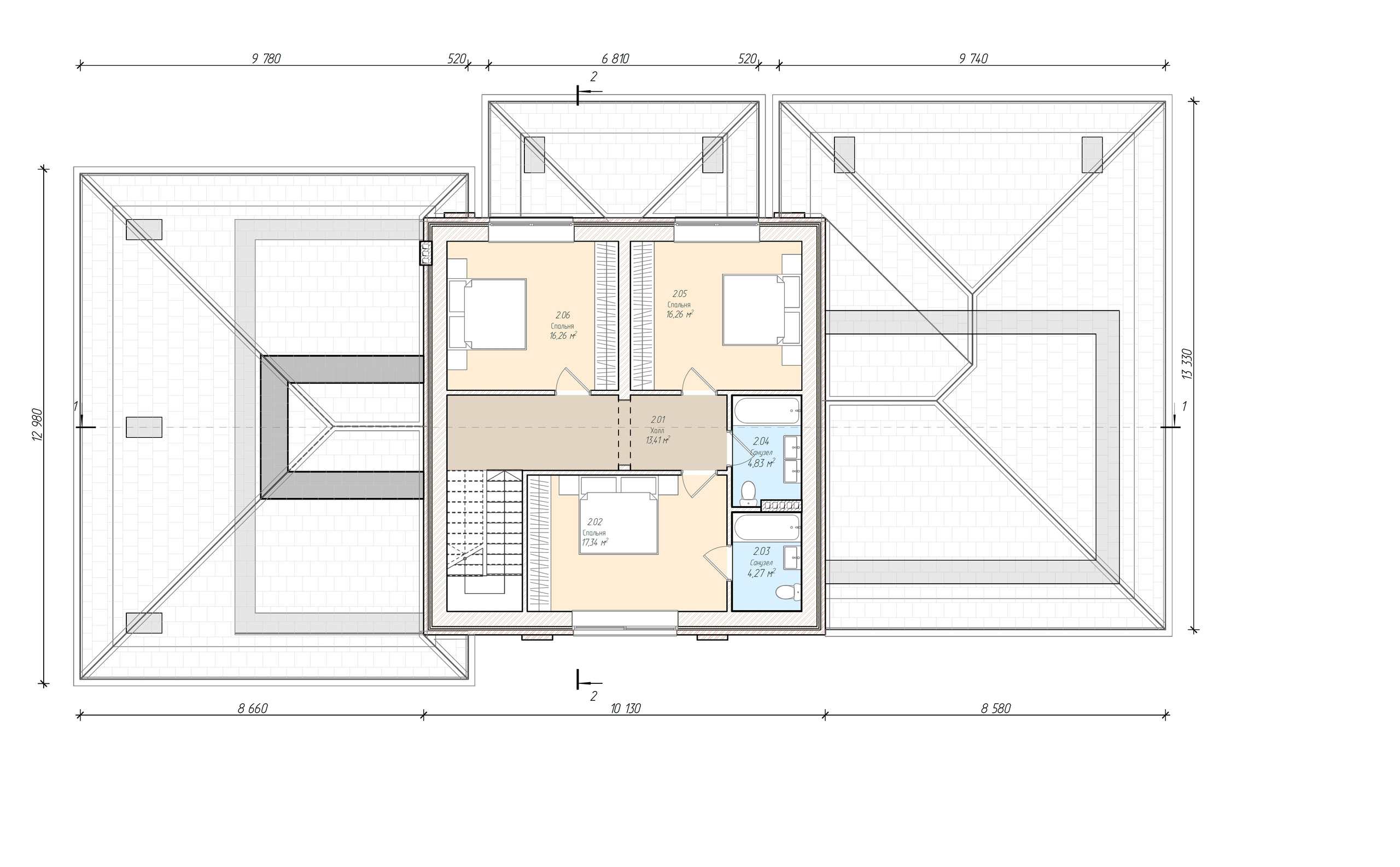
План второго этажа
- 1. Холл 13,41 м²
- 2. Спальня 17,34 м²
- 3. Санузел 4,27 м²
- 4. Санузел 4,83 м²
- 5. Спальня 16,26 м²
- 6. Спальня 16,26 м²
- Общая площадь второй этаж 72,37 м²
Площади дома
| № п/п | Наименование | Ед. из. | Строительная площадь | Полезная площадь |
| 1 | 1 этаж | м2 | 299.21 | 242.81 |
| 2 | 2 этаж | м2 | 89.18 | 72.37 |
| 3 | Итого | м2 | 388.39 | 315.18 |
154 м2
Полезная
площадь
площадь
11 x 24 м
Размеры
1 этаж
Этажей
26 м2
Террасы
и балконы
и балконы
2Без
гаража
гаража
4
Количество
спален
спален
4
Количество
санузлов
санузлов
Калькулятор опций
0₽
В ипотеку от 31 645 ₽/мес.
0₽
0 дней
stdClass Object
(
[id] => 1
[attribute_id] => 1
[name] => Ленточный монолитный ж/б
[material_modifier] => 1
[work_modifier] => 1
[options] => Array
(
[0] => размер 200 х 700 мм
[1] => размер 300 х 900 мм
[2] => размер 400 х 1 000 мм
[3] => размер 500 х 1 100 мм
[4] => размер 600 х 1 200 мм
)
[days] => [20,21,22,25,30]
[material_price] => [2823,3630,4475,5210,12047]
[work_price] => [2154,2826,3731,4577,5293]
[image] => https://akademik-stroy.ru/wp-content/uploads/materials/lentochnyj-monolitnyj-zh-b.jpg
[area_modifier] => 299.21
[parent_name] => Фундамент
[parent_id] => 1
[material_sum] => 1013604
[work_sum] => 644498
[total_sum] => 1658102
[total_days] => 20
[display_material_sum] => 1 013 604
[display_work_sum] => 644 498
[display_total_sum] => 1 658 102
)
1
1 658 102₽
Работа:644 498 ₽
Материалы:1 013 604 ₽
Дни:20
stdClass Object
(
[id] => 2
[attribute_id] => 1
[name] => Забивные Ж/Б сваи
[material_modifier] => 1
[work_modifier] => 1
[options] => Array
(
[0] => 150х150х3000мм
[1] => 150х150х4000мм
[2] => 200х200х3000мм
[3] => 200х200х4000мм
[4] => 200х200х5000мм
[5] => 200х200х6000мм
)
[days] => [2,2,2,2,2,2]
[material_price] => [1990,2850,3255,4360,5120,6837]
[work_price] => [1002,1185,1336,1438,1574,1839]
[image] => https://akademik-stroy.ru/wp-content/uploads/materials/zabivnye-zh-b-svai.png
[area_modifier] => 299.21
[parent_name] => Фундамент
[parent_id] => 1
[material_sum] => 714513
[work_sum] => 299808
[total_sum] => 1014321
[total_days] => 2
[display_material_sum] => 714 513
[display_work_sum] => 299 808
[display_total_sum] => 1 014 321
)
1
1 014 321₽
Работа:299 808 ₽
Материалы:714 513 ₽
Дни:2
stdClass Object
(
[id] => 71
[attribute_id] => 1
[name] => Свайно-ростверковый ж/б
[material_modifier] => 1
[work_modifier] => 1
[options] => Array
(
[0] => ростверк 200х300 мм
[1] => ростверк 300х600 мм
[2] => ростверк 400х900 мм
[3] => ростверк 500х1200 мм
)
[days] => [20,23,25,27]
[material_price] => [3018,3474,7109,9792]
[work_price] => [2024,3012,5635,7022]
[image] => https://akademik-stroy.ru/wp-content/uploads/materials/svajno-rostverkovyj-monolitnyj-zh-b-3.png
[area_modifier] => 299.21
[parent_name] => Фундамент
[parent_id] => 1
[material_sum] => 1083619
[work_sum] => 605601
[total_sum] => 1689220
[total_days] => 20
[display_material_sum] => 1 083 619
[display_work_sum] => 605 601
[display_total_sum] => 1 689 220
)
1
1 689 220₽
Работа:605 601 ₽
Материалы:1 083 619 ₽
Дни:20
stdClass Object
(
[id] => 72
[attribute_id] => 1
[name] => Монолитная ж/б плита
[material_modifier] => 1
[work_modifier] => 1
[options] => Array
(
[0] => 200 мм
[1] => 300 мм
[2] => 400 мм
[3] => 500 мм
[4] => 600 мм
)
[days] => [30,33,35,37,40]
[material_price] => [5348,8555,12788,14388,15189]
[work_price] => [4314,4881,7037,8061,10230]
[image] => https://akademik-stroy.ru/wp-content/uploads/materials/monolitnaya-zhb-plita.png
[area_modifier] => 299.21
[parent_name] => Фундамент
[parent_id] => 1
[material_sum] => 1920210
[work_sum] => 1290792
[total_sum] => 3211002
[total_days] => 30
[display_material_sum] => 1 920 210
[display_work_sum] => 1 290 792
[display_total_sum] => 3 211 002
)
1
3 211 002₽
Работа:1 290 792 ₽
Материалы:1 920 210 ₽
Дни:30
stdClass Object
(
[id] => 73
[attribute_id] => 1
[name] => Утепленная шведская плита
[material_modifier] => 1
[work_modifier] => 1
[options] => Array
(
[0] => 200 мм
[1] => 300 мм
[2] => 400 мм
[3] => 500 мм
[4] => 600 мм
)
[days] => [32,37,39,42,45]
[material_price] => [10249,12692,13760,14936,16230]
[work_price] => [5960,7337,8072,8878,9765]
[image] => https://akademik-stroy.ru/wp-content/uploads/materials/uteplennaya-shvedskaya-plita.jpg
[area_modifier] => 299.21
[parent_name] => Фундамент
[parent_id] => 1
[material_sum] => 3679924
[work_sum] => 1783292
[total_sum] => 5463216
[total_days] => 32
[display_material_sum] => 3 679 924
[display_work_sum] => 1 783 292
[display_total_sum] => 5 463 216
)
1
5 463 216₽
Работа:1 783 292 ₽
Материалы:3 679 924 ₽
Дни:32
stdClass Object
(
[id] => 75
[attribute_id] => 1
[name] => Ленточный из ФБС
[material_modifier] => 1
[work_modifier] => 1
[options] => Array
(
[0] => толщ. 300 мм
[1] => толщ. 400 мм
[2] => толщ. 500 мм
[3] => толщ. 600 мм
)
[days] => [20,20,20,20]
[material_price] => [3675,4902,6126,7350]
[work_price] => [2451,3264,4083,4902]
[image] => https://akademik-stroy.ru/wp-content/uploads/materials/lentochnyj-iz-fbs.png
[area_modifier] => 299.21
[parent_name] => Фундамент
[parent_id] => 1
[material_sum] => 1319516
[work_sum] => 733364
[total_sum] => 2052880
[total_days] => 20
[display_material_sum] => 1 319 516
[display_work_sum] => 733 364
[display_total_sum] => 2 052 880
)
1
2 052 880₽
Работа:733 364 ₽
Материалы:1 319 516 ₽
Дни:20
stdClass Object
(
[id] => 76
[attribute_id] => 1
[name] => Цокольный этаж из ФБС
[material_modifier] => 1
[work_modifier] => 1
[options] => Array
(
[0] => толщ. 300 мм
[1] => толщ. 400 мм
[2] => толщ. 500 мм
[3] => толщ. 600 мм
)
[days] => [30,32,34,36]
[material_price] => [20916,23299,26680,29060]
[work_price] => [17524,18700,19873,21046]
[image] => https://akademik-stroy.ru/wp-content/uploads/materials/cokolnyj-ehtazh-iz-fbs.jpg
[area_modifier] => 299.21
[parent_name] => Фундамент
[parent_id] => 1
[material_sum] => 7509932
[work_sum] => 5243356
[total_sum] => 12753288
[total_days] => 30
[display_material_sum] => 7 509 932
[display_work_sum] => 5 243 356
[display_total_sum] => 12 753 288
)
1
12 753 288₽
Работа:5 243 356 ₽
Материалы:7 509 932 ₽
Дни:30
stdClass Object
(
[id] => 77
[attribute_id] => 1
[name] => Цокольный этаж монолитный ж/б
[material_modifier] => 1
[work_modifier] => 1
[options] => Array
(
[0] => толщ. 200 мм
[1] => толщ. 300 мм
[2] => толщ. 400 мм
[3] => толщ. 500 мм
[4] => толщ. 600 мм
)
[days] => [40,42,44,46,48]
[material_price] => [25421,29148,32275,35602,37326]
[work_price] => [20441,21907,23375,24841,26306]
[image] => https://akademik-stroy.ru/wp-content/uploads/materials/cokolnyj-etazh-zh-b.jpg
[area_modifier] => 299.21
[parent_name] => Фундамент
[parent_id] => 1
[material_sum] => 9127461
[work_sum] => 6116152
[total_sum] => 15243613
[total_days] => 40
[display_material_sum] => 9 127 461
[display_work_sum] => 6 116 152
[display_total_sum] => 15 243 613
)
1
15 243 613₽
Работа:6 116 152 ₽
Материалы:9 127 461 ₽
Дни:40
stdClass Object
(
[id] => 191
[attribute_id] => 1
[name] => Винтовые сваи
[material_modifier] => 1
[work_modifier] => 1
[options] => Array
(
[0] => 57х200мм
[1] => 76х250мм
[2] => 108х300мм
[3] => 133х350мм
)
[days] => [1,1,2,2]
[material_price] => [1200,1300,1450,1600]
[work_price] => [400,600,900,1100]
[image] => https://akademik-stroy.ru/wp-content/uploads/materials/vintovye-svai.png
[area_modifier] => 299.21
[parent_name] => Фундамент
[parent_id] => 1
[material_sum] => 430862
[work_sum] => 119684
[total_sum] => 550546
[total_days] => 1
[display_material_sum] => 430 862
[display_work_sum] => 119 684
[display_total_sum] => 550 546
)
1
550 546₽
Работа:119 684 ₽
Материалы:430 862 ₽
Дни:1
stdClass Object
(
[id] => 3
[attribute_id] => 2
[name] => Деревянные балки
[material_modifier] => 1
[work_modifier] => 1
[options] => Array
(
[0] => без утепления
[1] => утепление 200 мм
[2] => утепление 250 мм
[3] => утепление 300 мм
[4] => утепление 350 мм
[5] => утепление 400 мм
[6] => утепление 450 мм
[7] => утепление 500 мм
)
[days] => [8,9,9,9,11,12,13,14]
[material_price] => [1634,2042,2344,2947,3149,3652,3354,3557]
[work_price] => [1230,1339,1393,1426,1460,1513,1587,1620]
[image] => https://akademik-stroy.ru/wp-content/uploads/materials/derevyannye-balki.png
[area_modifier] => 299.21
[parent_name] => Перекрытие цоколя
[parent_id] => 2
[material_sum] => 586691
[work_sum] => 368028
[total_sum] => 954719
[total_days] => 8
[display_material_sum] => 586 691
[display_work_sum] => 368 028
[display_total_sum] => 954 719
)
1
954 719₽
Работа:368 028 ₽
Материалы:586 691 ₽
Дни:8
stdClass Object
(
[id] => 4
[attribute_id] => 2
[name] => Сборные ж/б плиты
[material_modifier] => 1
[work_modifier] => 1
[options] => Array
(
[0] => без утепления
[1] => утепление 150мм
[2] => утепление 200мм
[3] => утепление 250мм
[4] => утепление 300мм
[5] => утепление 350мм
[6] => утепление 400мм
[7] => утепление 450мм
[8] => утепление 500мм
)
[days] => [13,15,15,15,15,15,15,15,15]
[material_price] => [3067,5577,5928,6679,7730,8782,9833,10884,11935]
[work_price] => [1520,1956,2102,2247,2392,2537,2684,2829,2974]
[image] => https://akademik-stroy.ru/wp-content/uploads/materials/sbornye-zh-b-plity-2.jpg
[area_modifier] => 299.21
[parent_name] => Перекрытие цоколя
[parent_id] => 2
[material_sum] => 1101212
[work_sum] => 454799
[total_sum] => 1556011
[total_days] => 13
[display_material_sum] => 1 101 212
[display_work_sum] => 454 799
[display_total_sum] => 1 556 011
)
1
1 556 011₽
Работа:454 799 ₽
Материалы:1 101 212 ₽
Дни:13
stdClass Object
(
[id] => 78
[attribute_id] => 2
[name] => Монолитная ж/б плита
[material_modifier] => 1
[work_modifier] => 1
[options] => Array
(
[0] => без утепления
[1] => утепление 150 мм
[2] => утепление 200 мм
[3] => утепление 250 мм
[4] => утепление 300 мм
[5] => утепление 350 мм
[6] => утепление 400 мм
[7] => утепление 450 мм
[8] => утепление 500 мм
)
[days] => [18,20,20,20,20,20,20,20,20]
[material_price] => [4837,6572,7224,7375,79426,8177,8728,9180,10031]
[work_price] => [3348,3921,4112,4302,4493,4684,4875,5066,5256]
[image] => https://akademik-stroy.ru/wp-content/uploads/materials/monolitnaya-zh-b-plita-2.jpg
[area_modifier] => 299.21
[parent_name] => Перекрытие цоколя
[parent_id] => 2
[material_sum] => 1736735
[work_sum] => 1001755
[total_sum] => 2738490
[total_days] => 18
[display_material_sum] => 1 736 735
[display_work_sum] => 1 001 755
[display_total_sum] => 2 738 490
)
1
2 738 490₽
Работа:1 001 755 ₽
Материалы:1 736 735 ₽
Дни:18
stdClass Object
(
[id] => 6
[attribute_id] => 3
[name] => Пеноблок
[material_modifier] => 1
[work_modifier] => 1
[options] => Array
(
[0] => 300 мм
[1] => 400 мм
[2] => 500 мм
[3] => 600 мм
)
[days] => [29,31,34,39]
[material_price] => [3000,4000,4500,4937]
[work_price] => [5033,5805,6400,8710]
[image] => https://akademik-stroy.ru/wp-content/uploads/materials/penoblok.jpg
[area_modifier] => 299.21
[parent_name] => Стены 1 этаж (несущие)
[parent_id] => 3
[material_sum] => 1077156
[work_sum] => 1505924
[total_sum] => 2583080
[total_days] => 29
[display_material_sum] => 1 077 156
[display_work_sum] => 1 505 924
[display_total_sum] => 2 583 080
)
1
2 583 080₽
Работа:1 505 924 ₽
Материалы:1 077 156 ₽
Дни:29
stdClass Object
(
[id] => 79
[attribute_id] => 3
[name] => Керамический блок
[material_modifier] => 1
[work_modifier] => 1
[options] => Array
(
[0] => 380 мм
[1] => 380 мм Thermo
[2] => 440 мм
[3] => 510 мм
)
[days] => [23,23,24,25]
[material_price] => [4510,5098,6093,8013]
[work_price] => [4737,4937,5903,6958]
[image] => https://akademik-stroy.ru/wp-content/uploads/materials/keramicheskij-blok.jpg
[area_modifier] => 299.21
[parent_name] => Стены 1 этаж (несущие)
[parent_id] => 3
[material_sum] => 1619325
[work_sum] => 1417358
[total_sum] => 3036683
[total_days] => 23
[display_material_sum] => 1 619 325
[display_work_sum] => 1 417 358
[display_total_sum] => 3 036 683
)
1
3 036 683₽
Работа:1 417 358 ₽
Материалы:1 619 325 ₽
Дни:23
stdClass Object
(
[id] => 80
[attribute_id] => 3
[name] => Кирпич
[material_modifier] => 1
[work_modifier] => 1
[options] => Array
(
[0] => Кирпич 250 мм
[1] => Кирпич 380 мм
[2] => Кирпич 510 мм
[3] => Кирпич 640 мм
[4] => Кирпич 770 мм
)
[days] => [30,30,31,33,36]
[material_price] => [5500,7142,9206,10171,12235]
[work_price] => [8736,10041,12018,15240,18462]
[image] => https://akademik-stroy.ru/wp-content/uploads/materials/kirpich.jpg
[area_modifier] => 299.21
[parent_name] => Стены 1 этаж (несущие)
[parent_id] => 3
[material_sum] => 1974786
[work_sum] => 2613899
[total_sum] => 4588685
[total_days] => 30
[display_material_sum] => 1 974 786
[display_work_sum] => 2 613 899
[display_total_sum] => 4 588 685
)
1
4 588 685₽
Работа:2 613 899 ₽
Материалы:1 974 786 ₽
Дни:30
stdClass Object
(
[id] => 81
[attribute_id] => 3
[name] => Монолитные
[material_modifier] => 1
[work_modifier] => 1
[options] => Array
(
[0] => 150 мм
[1] => 200 мм
[2] => 250 мм
[3] => 300 мм
[4] => 350 мм
[5] => 400 мм
)
[days] => [45,46,47,49,50,53]
[material_price] => [6545,7876,10175,12011,13908,15204]
[work_price] => [5106,6444,7698,8552,9807,11461]
[image] => https://akademik-stroy.ru/wp-content/uploads/materials/monolitnye.jpg
[area_modifier] => 299.21
[parent_name] => Стены 1 этаж (несущие)
[parent_id] => 3
[material_sum] => 2349995
[work_sum] => 1527766
[total_sum] => 3877761
[total_days] => 45
[display_material_sum] => 2 349 995
[display_work_sum] => 1 527 766
[display_total_sum] => 3 877 761
)
1
3 877 761₽
Работа:1 527 766 ₽
Материалы:2 349 995 ₽
Дни:45
stdClass Object
(
[id] => 82
[attribute_id] => 3
[name] => Клееный брус
[material_modifier] => 1
[work_modifier] => 1
[options] => Array
(
[0] => 160 мм
[1] => 175 мм
[2] => 200 мм
[3] => 215 мм
[4] => 240 мм
[5] => 270 мм
[6] => 282 мм
)
[days] => [24,28,32,37,40,42,48]
[material_price] => [16975,18773,19950,20545,21599,22159,23275]
[work_price] => [4806,5287,5815,6397,7036,7740,8514]
[image] => https://akademik-stroy.ru/wp-content/uploads/materials/kleenyj-brus.jpg
[area_modifier] => 299.21
[parent_name] => Стены 1 этаж (несущие)
[parent_id] => 3
[material_sum] => 6094908
[work_sum] => 1438003
[total_sum] => 7532911
[total_days] => 24
[display_material_sum] => 6 094 908
[display_work_sum] => 1 438 003
[display_total_sum] => 7 532 911
)
1
7 532 911₽
Работа:1 438 003 ₽
Материалы:6 094 908 ₽
Дни:24
stdClass Object
(
[id] => 83
[attribute_id] => 3
[name] => Каркасные
[material_modifier] => 1
[work_modifier] => 1
[options] => Array
(
[0] => 150 мм
[1] => 200 мм
[2] => 250 мм
[3] => 300 мм
)
[days] => [15,16,17,18]
[material_price] => [2379,2639,2898,3258]
[work_price] => [2418,2686,2985,3716]
[image] => https://akademik-stroy.ru/wp-content/uploads/materials/karkasnye.jpg
[area_modifier] => 299.21
[parent_name] => Стены 1 этаж (несущие)
[parent_id] => 3
[material_sum] => 854185
[work_sum] => 723490
[total_sum] => 1577675
[total_days] => 15
[display_material_sum] => 854 185
[display_work_sum] => 723 490
[display_total_sum] => 1 577 675
)
1
1 577 675₽
Работа:723 490 ₽
Материалы:854 185 ₽
Дни:15
stdClass Object
(
[id] => 84
[attribute_id] => 3
[name] => СИП-панели
[material_modifier] => 1
[work_modifier] => 1
[options] => Array
(
[0] => 120 мм
[1] => 170 мм
[2] => 220 мм
)
[days] => [7,7,7]
[material_price] => [1210,1856,2292]
[work_price] => [1410,1551,1706]
[image] => https://akademik-stroy.ru/wp-content/uploads/materials/sip-paneli.jpg
[area_modifier] => 299.21
[parent_name] => Стены 1 этаж (несущие)
[parent_id] => 3
[material_sum] => 434453
[work_sum] => 421886
[total_sum] => 856339
[total_days] => 7
[display_material_sum] => 434 453
[display_work_sum] => 421 886
[display_total_sum] => 856 339
)
1
856 339₽
Работа:421 886 ₽
Материалы:434 453 ₽
Дни:7
stdClass Object
(
[id] => 85
[attribute_id] => 3
[name] => Сухой брус
[material_modifier] => 1
[work_modifier] => 1
[options] => Array
(
[0] => 150 мм
[1] => 180 мм
[2] => 200 мм
)
[days] => [7,8,9]
[material_price] => [6010,7190,8709]
[work_price] => [3204,3845,4229]
[image] => https://akademik-stroy.ru/wp-content/uploads/materials/suhoj-brus.jpg
[area_modifier] => 299.21
[parent_name] => Стены 1 этаж (несущие)
[parent_id] => 3
[material_sum] => 2157903
[work_sum] => 958669
[total_sum] => 3116572
[total_days] => 7
[display_material_sum] => 2 157 903
[display_work_sum] => 958 669
[display_total_sum] => 3 116 572
)
1
3 116 572₽
Работа:958 669 ₽
Материалы:2 157 903 ₽
Дни:7
stdClass Object
(
[id] => 86
[attribute_id] => 3
[name] => Профилированный брус
[material_modifier] => 1
[work_modifier] => 1
[options] => Array
(
[0] => 150 мм
[1] => 180 мм
[2] => 200 мм
)
[days] => [7,8,9]
[material_price] => [8190,9228,10051]
[work_price] => [3845,4614,5075]
[image] => https://akademik-stroy.ru/wp-content/uploads/materials/profilirovannyj-brus.jpg
[area_modifier] => 299.21
[parent_name] => Стены 1 этаж (несущие)
[parent_id] => 3
[material_sum] => 2940636
[work_sum] => 1150462
[total_sum] => 4091098
[total_days] => 7
[display_material_sum] => 2 940 636
[display_work_sum] => 1 150 462
[display_total_sum] => 4 091 098
)
1
4 091 098₽
Работа:1 150 462 ₽
Материалы:2 940 636 ₽
Дни:7
stdClass Object
(
[id] => 87
[attribute_id] => 3
[name] => Оцилиндрованное бревно
[material_modifier] => 1
[work_modifier] => 1
[options] => Array
(
[0] => 180 мм
[1] => 220 мм
[2] => 260 мм
[3] => 320 мм
)
[days] => [7,8,9,10]
[material_price] => [75190,9532,10868,13116]
[work_price] => [3845,4691,5535,6863]
[image] => https://akademik-stroy.ru/wp-content/uploads/materials/ocilindrovannoe-brevno-1.jpg
[area_modifier] => 299.21
[parent_name] => Стены 1 этаж (несущие)
[parent_id] => 3
[material_sum] => 26997120
[work_sum] => 1150462
[total_sum] => 28147582
[total_days] => 7
[display_material_sum] => 26 997 120
[display_work_sum] => 1 150 462
[display_total_sum] => 28 147 582
)
1
28 147 582₽
Работа:1 150 462 ₽
Материалы:26 997 120 ₽
Дни:7
stdClass Object
(
[id] => 88
[attribute_id] => 3
[name] => Срубы
[material_modifier] => 1
[work_modifier] => 1
[options] => Array
(
[0] => 260 мм
[1] => 320 мм
[2] => 360 мм
[3] => 400 мм
[4] => 500 мм
)
[days] => [7,8,9,10,11]
[material_price] => [37975,46709,52314,58069,73167]
[work_price] => [4806,5911,6621,7349,9260]
[image] => https://akademik-stroy.ru/wp-content/uploads/materials/sruby.jpg
[area_modifier] => 299.21
[parent_name] => Стены 1 этаж (несущие)
[parent_id] => 3
[material_sum] => 13635000
[work_sum] => 1438003
[total_sum] => 15073003
[total_days] => 7
[display_material_sum] => 13 635 000
[display_work_sum] => 1 438 003
[display_total_sum] => 15 073 003
)
1
15 073 003₽
Работа:1 438 003 ₽
Материалы:13 635 000 ₽
Дни:7
stdClass Object
(
[id] => 174
[attribute_id] => 3
[name] => Брус
[material_modifier] => 1
[work_modifier] => 1
[options] => Array
(
[0] => 150 мм
[1] => 180 мм
[2] => 200 мм
)
[days] => [7,8,9]
[material_price] => [5127,6152,7367]
[work_price] => [1602,1922,2115]
[image] => https://akademik-stroy.ru/wp-content/uploads/materials/brus.jpg
[area_modifier] => 299.21
[parent_name] => Стены 1 этаж (несущие)
[parent_id] => 3
[material_sum] => 1840860
[work_sum] => 479334
[total_sum] => 2320194
[total_days] => 7
[display_material_sum] => 1 840 860
[display_work_sum] => 479 334
[display_total_sum] => 2 320 194
)
1
2 320 194₽
Работа:479 334 ₽
Материалы:1 840 860 ₽
Дни:7
stdClass Object
(
[id] => 175
[attribute_id] => 3
[name] => Газобетон
[material_modifier] => 1
[work_modifier] => 1
[options] => Array
(
[0] => 300 мм
[1] => 375 мм
[2] => 400 мм
[3] => 500 мм
[4] => 600 мм
)
[days] => [29,31,35,37,44]
[material_price] => [4298,5573,6356,7288,9119]
[work_price] => [4538,5251,5926,6733,7195]
[image] => https://akademik-stroy.ru/wp-content/uploads/materials/gazobeton.jpg
[area_modifier] => 299.21
[parent_name] => Стены 1 этаж (несущие)
[parent_id] => 3
[material_sum] => 1543205
[work_sum] => 1357815
[total_sum] => 2901020
[total_days] => 29
[display_material_sum] => 1 543 205
[display_work_sum] => 1 357 815
[display_total_sum] => 2 901 020
)
1
2 901 020₽
Работа:1 357 815 ₽
Материалы:1 543 205 ₽
Дни:29
stdClass Object
(
[id] => 176
[attribute_id] => 3
[name] => Блок
[material_modifier] => 1
[work_modifier] => 1
[options] => Array
(
[0] => 300 мм
[1] => 375 мм
[2] => 400 мм
[3] => 500 мм
[4] => 600 мм
)
[days] => [29,31,35,37,44]
[material_price] => [2698,3973,4356,6588,7119]
[work_price] => [5038,5851,6426,8733,9195]
[image] => https://akademik-stroy.ru/wp-content/uploads/materials/blok.jpg
[area_modifier] => 299.21
[parent_name] => Стены 1 этаж (несущие)
[parent_id] => 3
[material_sum] => 968722
[work_sum] => 1507420
[total_sum] => 2476142
[total_days] => 29
[display_material_sum] => 968 722
[display_work_sum] => 1 507 420
[display_total_sum] => 2 476 142
)
1
2 476 142₽
Работа:1 507 420 ₽
Материалы:968 722 ₽
Дни:29
stdClass Object
(
[id] => 177
[attribute_id] => 3
[name] => Газосиликатный блок
[material_modifier] => 1
[work_modifier] => 1
[options] => Array
(
[0] => 300 мм
[1] => 375 мм
[2] => 400 мм
[3] => 500 мм
[4] => 600 мм
)
[days] => [29,31,35,37,44]
[material_price] => [4298,5573,6356,7288,9119]
[work_price] => [4538,5251,5926,6733,7195]
[image] => https://akademik-stroy.ru/wp-content/uploads/materials/gazosilikatnyj-blok.jpg
[area_modifier] => 299.21
[parent_name] => Стены 1 этаж (несущие)
[parent_id] => 3
[material_sum] => 1543205
[work_sum] => 1357815
[total_sum] => 2901020
[total_days] => 29
[display_material_sum] => 1 543 205
[display_work_sum] => 1 357 815
[display_total_sum] => 2 901 020
)
1
2 901 020₽
Работа:1 357 815 ₽
Материалы:1 543 205 ₽
Дни:29
stdClass Object
(
[id] => 178
[attribute_id] => 3
[name] => Керамзитобетонный блок
[material_modifier] => 1
[work_modifier] => 1
[options] => Array
(
[0] => 300 мм
[1] => 375 мм
[2] => 400 мм
[3] => 500 мм
[4] => 600 мм
)
[days] => [23,23,24,25,28]
[material_price] => [3641,4298,5693,7613,9612]
[work_price] => [5737,5737,6903,7958,8901]
[image] => https://akademik-stroy.ru/wp-content/uploads/materials/keramzitobetonnyj-blok.jpg
[area_modifier] => 299.21
[parent_name] => Стены 1 этаж (несущие)
[parent_id] => 3
[material_sum] => 1307308
[work_sum] => 1716568
[total_sum] => 3023876
[total_days] => 23
[display_material_sum] => 1 307 308
[display_work_sum] => 1 716 568
[display_total_sum] => 3 023 876
)
1
3 023 876₽
Работа:1 716 568 ₽
Материалы:1 307 308 ₽
Дни:23
stdClass Object
(
[id] => 179
[attribute_id] => 3
[name] => Деревянные
[material_modifier] => 1
[work_modifier] => 1
[options] => Array
(
[0] => 180 мм
[1] => 220 мм
[2] => 260 мм
[3] => 320 мм
)
[days] => [7,8,9,10]
[material_price] => [7950,9458,11961,14472]
[work_price] => [4037,4925,5812,7207]
[image] => https://akademik-stroy.ru/wp-content/uploads/materials/derevyannye.jpg
[area_modifier] => 299.21
[parent_name] => Стены 1 этаж (несущие)
[parent_id] => 3
[material_sum] => 2854463
[work_sum] => 1207911
[total_sum] => 4062374
[total_days] => 7
[display_material_sum] => 2 854 463
[display_work_sum] => 1 207 911
[display_total_sum] => 4 062 374
)
1
4 062 374₽
Работа:1 207 911 ₽
Материалы:2 854 463 ₽
Дни:7
stdClass Object
(
[id] => 181
[attribute_id] => 3
[name] => Камень
[material_modifier] => 1
[work_modifier] => 1
[options] => Array
(
[0] => 300 мм
[1] => 400 мм
[2] => 500 мм
[3] => 600 мм
)
[days] => [25,27,31,34]
[material_price] => [5262,6844,8330,9815]
[work_price] => [8331,9135,10427,11069]
[image] => https://akademik-stroy.ru/wp-content/uploads/materials/kamen.jpg
[area_modifier] => 299.21
[parent_name] => Стены 1 этаж (несущие)
[parent_id] => 3
[material_sum] => 1889332
[work_sum] => 2492719
[total_sum] => 4382051
[total_days] => 25
[display_material_sum] => 1 889 332
[display_work_sum] => 2 492 719
[display_total_sum] => 4 382 051
)
1
4 382 051₽
Работа:2 492 719 ₽
Материалы:1 889 332 ₽
Дни:25
stdClass Object
(
[id] => 182
[attribute_id] => 3
[name] => Каркасно-щитовые
[material_modifier] => 1
[work_modifier] => 1
[options] => Array
(
[0] => 150 мм
[1] => 200 мм
[2] => 250 мм
[3] => 300 мм
[4] => 350 мм
[5] => 400 мм
)
[days] => [15,16,17,18,19,20]
[material_price] => [2379,2639,2898,3458,3601,4175]
[work_price] => [2538,2820,3134,3483,4062,5642]
[image] => https://akademik-stroy.ru/wp-content/uploads/materials/karkasno-shchitovye.jpg
[area_modifier] => 299.21
[parent_name] => Стены 1 этаж (несущие)
[parent_id] => 3
[material_sum] => 854185
[work_sum] => 759395
[total_sum] => 1613580
[total_days] => 15
[display_material_sum] => 854 185
[display_work_sum] => 759 395
[display_total_sum] => 1 613 580
)
1
1 613 580₽
Работа:759 395 ₽
Материалы:854 185 ₽
Дни:15
stdClass Object
(
[id] => 183
[attribute_id] => 3
[name] => Рубленные
[material_modifier] => 1
[work_modifier] => 1
[options] => Array
(
[0] => 150 мм
[1] => 200 мм
[2] => 250 мм
[3] => 300 мм
[4] => 350 мм
[5] => 400 мм
)
[days] => [15,16,17,18,17,18]
[material_price] => [35950,50267,60583,75900,80217,100533]
[work_price] => [9612,12816,16020,19224,22428,25632]
[image] => https://akademik-stroy.ru/wp-content/uploads/materials/rublennye.jpg
[area_modifier] => 299.21
[parent_name] => Стены 1 этаж (несущие)
[parent_id] => 3
[material_sum] => 12907919
[work_sum] => 2876007
[total_sum] => 15783926
[total_days] => 15
[display_material_sum] => 12 907 919
[display_work_sum] => 2 876 007
[display_total_sum] => 15 783 926
)
1
15 783 926₽
Работа:2 876 007 ₽
Материалы:12 907 919 ₽
Дни:15
stdClass Object
(
[id] => 185
[attribute_id] => 3
[name] => Теплоблок
[material_modifier] => 1
[work_modifier] => 1
[options] => Array
(
[0] => 300 мм (с облицовкой, не покрашенный)
[1] => 400 мм (с облицовкой, не покрашенный)
[2] => 300 мм (с облицовкой, покрашенный)
[3] => 400 мм (с облицовкой, покрашенный)
)
[days] => [15,16,15,16]
[material_price] => [2888,3729,3957,4258]
[work_price] => [2564,3229,2949,3713]
[image] => https://akademik-stroy.ru/wp-content/uploads/materials/teploblok.jpg
[area_modifier] => 299.21
[parent_name] => Стены 1 этаж (несущие)
[parent_id] => 3
[material_sum] => 1036942
[work_sum] => 767174
[total_sum] => 1804116
[total_days] => 15
[display_material_sum] => 1 036 942
[display_work_sum] => 767 174
[display_total_sum] => 1 804 116
)
1
1 804 116₽
Работа:767 174 ₽
Материалы:1 036 942 ₽
Дни:15
stdClass Object
(
[id] => 186
[attribute_id] => 3
[name] => Арболитовые блоки
[material_modifier] => 1
[work_modifier] => 1
[options] => Array
(
[0] => 300 мм
[1] => 400 мм
[2] => 600 мм
)
[days] => [19,22,27]
[material_price] => [3210,4475,5852]
[work_price] => [4214,4788,5866]
[image] => https://akademik-stroy.ru/wp-content/uploads/materials/arbolitovye-bloki.png
[area_modifier] => 299.21
[parent_name] => Стены 1 этаж (несущие)
[parent_id] => 3
[material_sum] => 1152557
[work_sum] => 1260871
[total_sum] => 2413428
[total_days] => 19
[display_material_sum] => 1 152 557
[display_work_sum] => 1 260 871
[display_total_sum] => 2 413 428
)
1
2 413 428₽
Работа:1 260 871 ₽
Материалы:1 152 557 ₽
Дни:19
stdClass Object
(
[id] => 187
[attribute_id] => 3
[name] => Полистиролбетон
[material_modifier] => 1
[work_modifier] => 1
[options] => Array
(
[0] => 300 мм
[1] => 400 мм
[2] => 600 мм
)
[days] => [29,31,35]
[material_price] => [2798,4573,5256]
[work_price] => [5038,5851,6426]
[image] => https://akademik-stroy.ru/wp-content/uploads/materials/polistirolbeton.jpg
[area_modifier] => 299.21
[parent_name] => Стены 1 этаж (несущие)
[parent_id] => 3
[material_sum] => 1004627
[work_sum] => 1507420
[total_sum] => 2512047
[total_days] => 29
[display_material_sum] => 1 004 627
[display_work_sum] => 1 507 420
[display_total_sum] => 2 512 047
)
1
2 512 047₽
Работа:1 507 420 ₽
Материалы:1 004 627 ₽
Дни:29
stdClass Object
(
[id] => 188
[attribute_id] => 3
[name] => Шлакоблок
[material_modifier] => 1
[work_modifier] => 1
[options] => Array
(
[0] => 400 мм
[1] => 600 мм
)
[days] => [15,16]
[material_price] => [2391,3471]
[work_price] => [2642,3662]
[image] => https://akademik-stroy.ru/wp-content/uploads/materials/shlakoblok.jpg
[area_modifier] => 299.21
[parent_name] => Стены 1 этаж (несущие)
[parent_id] => 3
[material_sum] => 858493
[work_sum] => 790513
[total_sum] => 1649006
[total_days] => 15
[display_material_sum] => 858 493
[display_work_sum] => 790 513
[display_total_sum] => 1 649 006
)
1
1 649 006₽
Работа:790 513 ₽
Материалы:858 493 ₽
Дни:15
stdClass Object
(
[id] => 189
[attribute_id] => 3
[name] => Теплая керамика
[material_modifier] => 1
[work_modifier] => 1
[options] => Array
(
[0] => 380 мм
[1] => 380 мм Thermo
[2] => 440 мм
[3] => 510 мм
)
[days] => [23,23,24,25]
[material_price] => [4510,5098,6093,8013]
[work_price] => [4737,4937,5903,6958]
[image] => https://akademik-stroy.ru/wp-content/uploads/materials/teplaya-keramika.jpg
[area_modifier] => 299.21
[parent_name] => Стены 1 этаж (несущие)
[parent_id] => 3
[material_sum] => 1619325
[work_sum] => 1417358
[total_sum] => 3036683
[total_days] => 23
[display_material_sum] => 1 619 325
[display_work_sum] => 1 417 358
[display_total_sum] => 3 036 683
)
1
3 036 683₽
Работа:1 417 358 ₽
Материалы:1 619 325 ₽
Дни:23
stdClass Object
(
[id] => 190
[attribute_id] => 3
[name] => Несъемная опалубка
[material_modifier] => 1
[work_modifier] => 1
[options] => Array
(
[0] => 200 мм
[1] => 250 мм
[2] => 300 мм
[3] => 350 мм
)
[days] => [15,17,19,21]
[material_price] => [3302,3902,4108,5008]
[work_price] => [2100,2100,2300,2534]
[image] => https://akademik-stroy.ru/wp-content/uploads/materials/nesemnaya-opalubka.jpg
[area_modifier] => 299.21
[parent_name] => Стены 1 этаж (несущие)
[parent_id] => 3
[material_sum] => 1185590
[work_sum] => 628341
[total_sum] => 1813931
[total_days] => 15
[display_material_sum] => 1 185 590
[display_work_sum] => 628 341
[display_total_sum] => 1 813 931
)
1
1 813 931₽
Работа:628 341 ₽
Материалы:1 185 590 ₽
Дни:15
stdClass Object
(
[id] => 251
[attribute_id] => 3
[name] => Бревно
[material_modifier] => 1
[work_modifier] => 1
[options] => Array
(
[0] => 260 мм
[1] => 320 мм
[2] => 360 мм
[3] => 400 мм
[4] => 500 мм
)
[days] => [7,8,9,10,11]
[material_price] => [1874,24045,26930,30972,38825]
[work_price] => [5046,6207,6952,7716,9723]
[image] => https://akademik-stroy.ru/wp-content/uploads/materials/sruby.jpg
[area_modifier] => 299.21
[parent_name] => Стены 1 этаж (несущие)
[parent_id] => 3
[material_sum] => 672863
[work_sum] => 1509814
[total_sum] => 2182677
[total_days] => 7
[display_material_sum] => 672 863
[display_work_sum] => 1 509 814
[display_total_sum] => 2 182 677
)
1
2 182 677₽
Работа:1 509 814 ₽
Материалы:672 863 ₽
Дни:7
stdClass Object
(
[id] => 7
[attribute_id] => 4
[name] => Деревянные балки
[material_modifier] => 1
[work_modifier] => 1
[options] => Array
(
[0] => без утепления
[1] => утепление 200 мм
[2] => утепление 250 мм
[3] => утепление 300 мм
[4] => утепление 350 мм
[5] => утепление 400 мм
[6] => утепление 450 мм
[7] => утепление 500 мм
)
[days] => [8,9,9,9,11,12,13,14]
[material_price] => [1634,2042,2344,2947,3149,3652,3354,3557]
[work_price] => [1230,1339,1393,1426,1460,1513,1587,1620]
[image] => https://akademik-stroy.ru/wp-content/uploads/materials/derevyannye-balki.png
[area_modifier] => 299.21
[parent_name] => Перекрытие первого этажа
[parent_id] => 4
[material_sum] => 586691
[work_sum] => 368028
[total_sum] => 954719
[total_days] => 8
[display_material_sum] => 586 691
[display_work_sum] => 368 028
[display_total_sum] => 954 719
)
1
954 719₽
Работа:368 028 ₽
Материалы:586 691 ₽
Дни:8
stdClass Object
(
[id] => 8
[attribute_id] => 4
[name] => Сборные ж/б плиты
[material_modifier] => 1
[work_modifier] => 1
[options] => Array
(
[0] => без утепления
[1] => утепление 150 мм
[2] => утепление 200 мм
[3] => утепление 250 мм
[4] => утепление 300 мм
[5] => утепление 350 мм
[6] => утепление 400 мм
[7] => утепление 450 мм
[8] => утепление 500 мм
)
[days] => [13,15,15,15,15,15,15,15,15]
[material_price] => [3067,5577,5928,6679,7730,8782,9833,10884,11935]
[work_price] => [1520,1956,2102,2247,2392,2537,2684,2829,2974]
[image] => https://akademik-stroy.ru/wp-content/uploads/materials/sbornye-zh-b-plity-2.jpg
[area_modifier] => 299.21
[parent_name] => Перекрытие первого этажа
[parent_id] => 4
[material_sum] => 1101212
[work_sum] => 454799
[total_sum] => 1556011
[total_days] => 13
[display_material_sum] => 1 101 212
[display_work_sum] => 454 799
[display_total_sum] => 1 556 011
)
1
1 556 011₽
Работа:454 799 ₽
Материалы:1 101 212 ₽
Дни:13
stdClass Object
(
[id] => 89
[attribute_id] => 4
[name] => Монолитная ж/б плита
[material_modifier] => 1
[work_modifier] => 1
[options] => Array
(
[0] => без утепления
[1] => утепление 150 мм
[2] => утепление 200 мм
[3] => утепление 250 мм
[4] => утепление 300 мм
[5] => утепление 350 мм
[6] => утепление 400 мм
[7] => утепление 450 мм
[8] => утепление 500 мм
)
[days] => [18,20,20,20,20,20,20,20,20]
[material_price] => [4837,6572,7224,7375,79426,8177,8728,9180,10031]
[work_price] => [3348,3921,4112,4302,4493,4684,4875,5066,5256]
[image] => https://akademik-stroy.ru/wp-content/uploads/materials/monolitnaya-zh-b-plita-2.jpg
[area_modifier] => 299.21
[parent_name] => Перекрытие первого этажа
[parent_id] => 4
[material_sum] => 1736735
[work_sum] => 1001755
[total_sum] => 2738490
[total_days] => 18
[display_material_sum] => 1 736 735
[display_work_sum] => 1 001 755
[display_total_sum] => 2 738 490
)
1
2 738 490₽
Работа:1 001 755 ₽
Материалы:1 736 735 ₽
Дни:18
stdClass Object
(
[id] => 10
[attribute_id] => 5
[name] => Пеноблок
[material_modifier] => 1
[work_modifier] => 1
[options] => Array
(
[0] => 300 мм
[1] => 400 мм
[2] => 500 мм
[3] => 600 мм
)
[days] => [29,31,34,39]
[material_price] => [3000,4000,4500,4937]
[work_price] => [5033,5805,6400,8710]
[image] => https://akademik-stroy.ru/wp-content/uploads/materials/penoblok.jpg
[area_modifier] => 89.18
[parent_name] => Стены 2 этаж (несущие)
[parent_id] => 5
[material_sum] => 321048
[work_sum] => 448843
[total_sum] => 769891
[total_days] => 29
[display_material_sum] => 321 048
[display_work_sum] => 448 843
[display_total_sum] => 769 891
)
1
769 891₽
Работа:448 843 ₽
Материалы:321 048 ₽
Дни:29
stdClass Object
(
[id] => 90
[attribute_id] => 5
[name] => Керамический блок
[material_modifier] => 1
[work_modifier] => 1
[options] => Array
(
[0] => 380 мм
[1] => 380 мм Thermo
[2] => 440 мм
[3] => 510 мм
)
[days] => [23,23,24,25]
[material_price] => [4510,5098,6093,8013]
[work_price] => [4737,4937,5903,6958]
[image] => https://akademik-stroy.ru/wp-content/uploads/materials/keramicheskij-blok.jpg
[area_modifier] => 89.18
[parent_name] => Стены 2 этаж (несущие)
[parent_id] => 5
[material_sum] => 482642
[work_sum] => 422446
[total_sum] => 905088
[total_days] => 23
[display_material_sum] => 482 642
[display_work_sum] => 422 446
[display_total_sum] => 905 088
)
1
905 088₽
Работа:422 446 ₽
Материалы:482 642 ₽
Дни:23
stdClass Object
(
[id] => 91
[attribute_id] => 5
[name] => Кирпич
[material_modifier] => 1
[work_modifier] => 1
[options] => Array
(
[0] => Кирпич 250 мм
[1] => Кирпич 380 мм
[2] => Кирпич 510 мм
[3] => Кирпич 640 мм
[4] => Кирпич 770 мм
)
[days] => [30,30,31,33,36]
[material_price] => [5500,7142,9206,10171,12235]
[work_price] => [8736,10041,12018,15240,18462]
[image] => https://akademik-stroy.ru/wp-content/uploads/materials/kirpich.jpg
[area_modifier] => 89.18
[parent_name] => Стены 2 этаж (несущие)
[parent_id] => 5
[material_sum] => 588588
[work_sum] => 779076
[total_sum] => 1367664
[total_days] => 30
[display_material_sum] => 588 588
[display_work_sum] => 779 076
[display_total_sum] => 1 367 664
)
1
1 367 664₽
Работа:779 076 ₽
Материалы:588 588 ₽
Дни:30
stdClass Object
(
[id] => 92
[attribute_id] => 5
[name] => Монолитные
[material_modifier] => 1
[work_modifier] => 1
[options] => Array
(
[0] => 150 мм
[1] => 200 мм
[2] => 250 мм
[3] => 300 мм
[4] => 350 мм
[5] => 400 мм
)
[days] => [45,46,47,49,50,53]
[material_price] => [6545,7876,10175,12011,13908,15204]
[work_price] => [5106,6444,7698,8552,9807,11461]
[image] => https://akademik-stroy.ru/wp-content/uploads/materials/monolitnye.jpg
[area_modifier] => 89.18
[parent_name] => Стены 2 этаж (несущие)
[parent_id] => 5
[material_sum] => 700420
[work_sum] => 455353
[total_sum] => 1155773
[total_days] => 45
[display_material_sum] => 700 420
[display_work_sum] => 455 353
[display_total_sum] => 1 155 773
)
1
1 155 773₽
Работа:455 353 ₽
Материалы:700 420 ₽
Дни:45
stdClass Object
(
[id] => 93
[attribute_id] => 5
[name] => Клееный брус
[material_modifier] => 1
[work_modifier] => 1
[options] => Array
(
[0] => 160 мм
[1] => 175 мм
[2] => 200 мм
[3] => 215 мм
[4] => 240 мм
[5] => 270 мм
[6] => 282 мм
)
[days] => [24,28,32,37,40,42,48]
[material_price] => [16975,18773,19950,20545,21599,22159,23275]
[work_price] => [4806,5287,5815,6397,7036,7740,8514]
[image] => https://akademik-stroy.ru/wp-content/uploads/materials/kleenyj-brus.jpg
[area_modifier] => 89.18
[parent_name] => Стены 2 этаж (несущие)
[parent_id] => 5
[material_sum] => 1816597
[work_sum] => 428599
[total_sum] => 2245196
[total_days] => 24
[display_material_sum] => 1 816 597
[display_work_sum] => 428 599
[display_total_sum] => 2 245 196
)
1
2 245 196₽
Работа:428 599 ₽
Материалы:1 816 597 ₽
Дни:24
stdClass Object
(
[id] => 94
[attribute_id] => 5
[name] => Каркасные
[material_modifier] => 1
[work_modifier] => 1
[options] => Array
(
[0] => 150 мм
[1] => 200 мм
[2] => 250 мм
[3] => 300 мм
)
[days] => [15,16,17,18]
[material_price] => [2379,2639,2898,3258]
[work_price] => [2418,2686,2985,3716]
[image] => https://akademik-stroy.ru/wp-content/uploads/materials/karkasnye.jpg
[area_modifier] => 89.18
[parent_name] => Стены 2 этаж (несущие)
[parent_id] => 5
[material_sum] => 254591
[work_sum] => 215637
[total_sum] => 470228
[total_days] => 15
[display_material_sum] => 254 591
[display_work_sum] => 215 637
[display_total_sum] => 470 228
)
1
470 228₽
Работа:215 637 ₽
Материалы:254 591 ₽
Дни:15
stdClass Object
(
[id] => 95
[attribute_id] => 5
[name] => СИП-панели
[material_modifier] => 1
[work_modifier] => 1
[options] => Array
(
[0] => 120 мм
[1] => 170 мм
[2] => 220 мм
)
[days] => [7,7,7]
[material_price] => [1210,1856,2292]
[work_price] => [1410,1551,1706]
[image] => https://akademik-stroy.ru/wp-content/uploads/materials/sip-paneli.jpg
[area_modifier] => 89.18
[parent_name] => Стены 2 этаж (несущие)
[parent_id] => 5
[material_sum] => 129489
[work_sum] => 125744
[total_sum] => 255233
[total_days] => 7
[display_material_sum] => 129 489
[display_work_sum] => 125 744
[display_total_sum] => 255 233
)
1
255 233₽
Работа:125 744 ₽
Материалы:129 489 ₽
Дни:7
stdClass Object
(
[id] => 96
[attribute_id] => 5
[name] => Сухой брус
[material_modifier] => 1
[work_modifier] => 1
[options] => Array
(
[0] => 150 мм
[1] => 180 мм
[2] => 200 мм
)
[days] => [7,8,9]
[material_price] => [6010,7190,8709]
[work_price] => [3204,3845,4229]
[image] => https://akademik-stroy.ru/wp-content/uploads/materials/suhoj-brus.jpg
[area_modifier] => 89.18
[parent_name] => Стены 2 этаж (несущие)
[parent_id] => 5
[material_sum] => 643166
[work_sum] => 285733
[total_sum] => 928899
[total_days] => 7
[display_material_sum] => 643 166
[display_work_sum] => 285 733
[display_total_sum] => 928 899
)
1
928 899₽
Работа:285 733 ₽
Материалы:643 166 ₽
Дни:7
stdClass Object
(
[id] => 97
[attribute_id] => 5
[name] => Профилированный брус
[material_modifier] => 1
[work_modifier] => 1
[options] => Array
(
[0] => 150 мм
[1] => 180 мм
[2] => 200 мм
)
[days] => [7,8,9]
[material_price] => [8190,9228,10051]
[work_price] => [3845,4614,5075]
[image] => https://akademik-stroy.ru/wp-content/uploads/materials/profilirovannyj-brus.jpg
[area_modifier] => 89.18
[parent_name] => Стены 2 этаж (несущие)
[parent_id] => 5
[material_sum] => 876461
[work_sum] => 342897
[total_sum] => 1219358
[total_days] => 7
[display_material_sum] => 876 461
[display_work_sum] => 342 897
[display_total_sum] => 1 219 358
)
1
1 219 358₽
Работа:342 897 ₽
Материалы:876 461 ₽
Дни:7
stdClass Object
(
[id] => 98
[attribute_id] => 5
[name] => Оцилиндрованное бревно
[material_modifier] => 1
[work_modifier] => 1
[options] => Array
(
[0] => 180 мм
[1] => 220 мм
[2] => 260 мм
[3] => 320 мм
)
[days] => [7,8,9,10]
[material_price] => [75190,9532,10868,13116]
[work_price] => [3845,4691,5535,6863]
[image] => https://akademik-stroy.ru/wp-content/uploads/materials/ocilindrovannoe-brevno-1.jpg
[area_modifier] => 89.18
[parent_name] => Стены 2 этаж (несущие)
[parent_id] => 5
[material_sum] => 8046533
[work_sum] => 342897
[total_sum] => 8389430
[total_days] => 7
[display_material_sum] => 8 046 533
[display_work_sum] => 342 897
[display_total_sum] => 8 389 430
)
1
8 389 430₽
Работа:342 897 ₽
Материалы:8 046 533 ₽
Дни:7
stdClass Object
(
[id] => 99
[attribute_id] => 5
[name] => Срубы
[material_modifier] => 1
[work_modifier] => 1
[options] => Array
(
[0] => 260 мм
[1] => 320 мм
[2] => 360 мм
[3] => 400 мм
[4] => 500 мм
)
[days] => [7,8,9,10,11]
[material_price] => [16175,23709,26314,29069,32167]
[work_price] => [4806,5911,6621,7349,9260]
[image] => https://akademik-stroy.ru/wp-content/uploads/materials/suhoj-brus.jpg
[area_modifier] => 89.18
[parent_name] => Стены 2 этаж (несущие)
[parent_id] => 5
[material_sum] => 1730984
[work_sum] => 428599
[total_sum] => 2159583
[total_days] => 7
[display_material_sum] => 1 730 984
[display_work_sum] => 428 599
[display_total_sum] => 2 159 583
)
1
2 159 583₽
Работа:428 599 ₽
Материалы:1 730 984 ₽
Дни:7
stdClass Object
(
[id] => 194
[attribute_id] => 5
[name] => Брус
[material_modifier] => 1
[work_modifier] => 1
[options] => Array
(
[0] => 150 мм
[1] => 180 мм
[2] => 200 мм
)
[days] => [10,13,15]
[material_price] => [5127,6152,7367]
[work_price] => [1602,1922,2115]
[image] => https://akademik-stroy.ru/wp-content/uploads/materials/brus.jpg
[area_modifier] => 89.18
[parent_name] => Стены 2 этаж (несущие)
[parent_id] => 5
[material_sum] => 548671
[work_sum] => 142866
[total_sum] => 691537
[total_days] => 10
[display_material_sum] => 548 671
[display_work_sum] => 142 866
[display_total_sum] => 691 537
)
1
691 537₽
Работа:142 866 ₽
Материалы:548 671 ₽
Дни:10
stdClass Object
(
[id] => 195
[attribute_id] => 5
[name] => Газобетон
[material_modifier] => 1
[work_modifier] => 1
[options] => Array
(
[0] => 300 мм
[1] => 375 мм
[2] => 400 мм
[3] => 500 мм
[4] => 600 мм
)
[days] => [29,31,35,37,44]
[material_price] => [4298,5573,6356,7288,9119]
[work_price] => [4538,5251,5926,6733,7195]
[image] => https://akademik-stroy.ru/wp-content/uploads/materials/gazobeton.jpg
[area_modifier] => 89.18
[parent_name] => Стены 2 этаж (несущие)
[parent_id] => 5
[material_sum] => 459955
[work_sum] => 404699
[total_sum] => 864654
[total_days] => 29
[display_material_sum] => 459 955
[display_work_sum] => 404 699
[display_total_sum] => 864 654
)
1
864 654₽
Работа:404 699 ₽
Материалы:459 955 ₽
Дни:29
stdClass Object
(
[id] => 196
[attribute_id] => 5
[name] => Блок
[material_modifier] => 1
[work_modifier] => 1
[options] => Array
(
[0] => 300 мм
[1] => 375 мм
[2] => 400 мм
[3] => 500 мм
[4] => 600 мм
)
[days] => [29,31,35,37,44]
[material_price] => [2698,3973,4356,6588,7119]
[work_price] => [5038,5851,6426,8733,9195]
[image] => https://akademik-stroy.ru/wp-content/uploads/materials/blok.jpg
[area_modifier] => 89.18
[parent_name] => Стены 2 этаж (несущие)
[parent_id] => 5
[material_sum] => 288729
[work_sum] => 449289
[total_sum] => 738018
[total_days] => 29
[display_material_sum] => 288 729
[display_work_sum] => 449 289
[display_total_sum] => 738 018
)
1
738 018₽
Работа:449 289 ₽
Материалы:288 729 ₽
Дни:29
stdClass Object
(
[id] => 197
[attribute_id] => 5
[name] => Газосиликатный блок
[material_modifier] => 1
[work_modifier] => 1
[options] => Array
(
[0] => 300 мм
[1] => 375 мм
[2] => 400 мм
[3] => 500 мм
[4] => 600 мм
)
[days] => [29,31,35,37,44]
[material_price] => [4298,5573,6356,7288,9119]
[work_price] => [4538,5251,5926,6733,7195]
[image] => https://akademik-stroy.ru/wp-content/uploads/materials/gazosilikatnyj-blok.jpg
[area_modifier] => 89.18
[parent_name] => Стены 2 этаж (несущие)
[parent_id] => 5
[material_sum] => 459955
[work_sum] => 404699
[total_sum] => 864654
[total_days] => 29
[display_material_sum] => 459 955
[display_work_sum] => 404 699
[display_total_sum] => 864 654
)
1
864 654₽
Работа:404 699 ₽
Материалы:459 955 ₽
Дни:29
stdClass Object
(
[id] => 198
[attribute_id] => 5
[name] => Керамзитобетонный блок
[material_modifier] => 1
[work_modifier] => 1
[options] => Array
(
[0] => 300 мм
[1] => 375 мм
[2] => 400 мм
[3] => 500 мм
[4] => 600 мм
)
[days] => [23,23,24,25,28]
[material_price] => [3641,4298,5693,7613,9612]
[work_price] => [5737,5737,6903,7958,8901]
[image] => https://akademik-stroy.ru/wp-content/uploads/materials/keramzitobetonnyj-blok.jpg
[area_modifier] => 89.18
[parent_name] => Стены 2 этаж (несущие)
[parent_id] => 5
[material_sum] => 389645
[work_sum] => 511626
[total_sum] => 901271
[total_days] => 23
[display_material_sum] => 389 645
[display_work_sum] => 511 626
[display_total_sum] => 901 271
)
1
901 271₽
Работа:511 626 ₽
Материалы:389 645 ₽
Дни:23
stdClass Object
(
[id] => 199
[attribute_id] => 5
[name] => Деревянные
[material_modifier] => 1
[work_modifier] => 1
[options] => Array
(
[0] => 180 мм
[1] => 220 мм
[2] => 260 мм
[3] => 320 мм
)
[days] => [7,8,9,10]
[material_price] => [7950,9458,11961,14472]
[work_price] => [4037,4925,5812,7207]
[image] => https://akademik-stroy.ru/wp-content/uploads/materials/derevyannye.jpg
[area_modifier] => 89.18
[parent_name] => Стены 2 этаж (несущие)
[parent_id] => 5
[material_sum] => 850777
[work_sum] => 360020
[total_sum] => 1210797
[total_days] => 7
[display_material_sum] => 850 777
[display_work_sum] => 360 020
[display_total_sum] => 1 210 797
)
1
1 210 797₽
Работа:360 020 ₽
Материалы:850 777 ₽
Дни:7
stdClass Object
(
[id] => 200
[attribute_id] => 5
[name] => Камень
[material_modifier] => 1
[work_modifier] => 1
[options] => Array
(
[0] => 300 мм
[1] => 400 мм
[2] => 500 мм
[3] => 600 мм
)
[days] => [25,27,31,34]
[material_price] => [5262,6844,8330,9815]
[work_price] => [8331,9135,10427,11069]
[image] => https://akademik-stroy.ru/wp-content/uploads/materials/kamen.jpg
[area_modifier] => 89.18
[parent_name] => Стены 2 этаж (несущие)
[parent_id] => 5
[material_sum] => 563118
[work_sum] => 742959
[total_sum] => 1306077
[total_days] => 25
[display_material_sum] => 563 118
[display_work_sum] => 742 959
[display_total_sum] => 1 306 077
)
1
1 306 077₽
Работа:742 959 ₽
Материалы:563 118 ₽
Дни:25
stdClass Object
(
[id] => 201
[attribute_id] => 5
[name] => Каркасно-щитовые
[material_modifier] => 1
[work_modifier] => 1
[options] => Array
(
[0] => 150 мм
[1] => 200 мм
[2] => 250 мм
[3] => 300 мм
[4] => 350 мм
[5] => 400 мм
)
[days] => [15,16,17,18,19,20]
[material_price] => [2379,2639,2898,3458,3601,4175]
[work_price] => [2538,2820,3134,3483,4062,5642]
[image] => https://akademik-stroy.ru/wp-content/uploads/materials/karkasno-shchitovye.jpg
[area_modifier] => 89.18
[parent_name] => Стены 2 этаж (несущие)
[parent_id] => 5
[material_sum] => 254591
[work_sum] => 226339
[total_sum] => 480930
[total_days] => 15
[display_material_sum] => 254 591
[display_work_sum] => 226 339
[display_total_sum] => 480 930
)
1
480 930₽
Работа:226 339 ₽
Материалы:254 591 ₽
Дни:15
stdClass Object
(
[id] => 202
[attribute_id] => 5
[name] => Рубленные
[material_modifier] => 1
[work_modifier] => 1
[options] => Array
(
[0] => 150 мм
[1] => 200 мм
[2] => 250 мм
[3] => 300 мм
[4] => 350 мм
[5] => 400 мм
)
[days] => [15,16,17,18,17,18]
[material_price] => [35950,50267,60583,75900,80217,100533]
[work_price] => [9612,12816,16020,19224,22428,25632]
[image] => https://akademik-stroy.ru/wp-content/uploads/materials/rublennye.jpg
[area_modifier] => 89.18
[parent_name] => Стены 2 этаж (несущие)
[parent_id] => 5
[material_sum] => 3847225
[work_sum] => 857198
[total_sum] => 4704423
[total_days] => 15
[display_material_sum] => 3 847 225
[display_work_sum] => 857 198
[display_total_sum] => 4 704 423
)
1
4 704 423₽
Работа:857 198 ₽
Материалы:3 847 225 ₽
Дни:15
stdClass Object
(
[id] => 203
[attribute_id] => 5
[name] => Теплоблок
[material_modifier] => 1
[work_modifier] => 1
[options] => Array
(
[0] => 300 мм (с облицовкой, не покрашенный)
[1] => 400 мм (с облицовкой, не покрашенный)
[2] => 300 мм (с облицовкой, покрашенный)
[3] => 400 мм (с облицовкой, покрашенный)
)
[days] => [15,16,15,16]
[material_price] => [2888,3729,3957,4258]
[work_price] => [2564,3229,2949,3713]
[image] => https://akademik-stroy.ru/wp-content/uploads/materials/teploblok.jpg
[area_modifier] => 89.18
[parent_name] => Стены 2 этаж (несущие)
[parent_id] => 5
[material_sum] => 309062
[work_sum] => 228658
[total_sum] => 537720
[total_days] => 15
[display_material_sum] => 309 062
[display_work_sum] => 228 658
[display_total_sum] => 537 720
)
1
537 720₽
Работа:228 658 ₽
Материалы:309 062 ₽
Дни:15
stdClass Object
(
[id] => 204
[attribute_id] => 5
[name] => Арболитовые блоки
[material_modifier] => 1
[work_modifier] => 1
[options] => Array
(
[0] => 300 мм
[1] => 400 мм
[2] => 600 мм
)
[days] => [19,22,27]
[material_price] => [3210,4475,5852]
[work_price] => [4214,4788,5866]
[image] => https://akademik-stroy.ru/wp-content/uploads/materials/arbolitovye-bloki.png
[area_modifier] => 89.18
[parent_name] => Стены 2 этаж (несущие)
[parent_id] => 5
[material_sum] => 343521
[work_sum] => 375805
[total_sum] => 719326
[total_days] => 19
[display_material_sum] => 343 521
[display_work_sum] => 375 805
[display_total_sum] => 719 326
)
1
719 326₽
Работа:375 805 ₽
Материалы:343 521 ₽
Дни:19
stdClass Object
(
[id] => 205
[attribute_id] => 5
[name] => Полистиролбетон
[material_modifier] => 1
[work_modifier] => 1
[options] => Array
(
[0] => 300 мм
[1] => 400 мм
[2] => 600 мм
)
[days] => [29,31,35]
[material_price] => [2798,4573,5256]
[work_price] => [5038,5851,6426]
[image] => https://akademik-stroy.ru/wp-content/uploads/materials/polistirolbeton.jpg
[area_modifier] => 89.18
[parent_name] => Стены 2 этаж (несущие)
[parent_id] => 5
[material_sum] => 299431
[work_sum] => 449289
[total_sum] => 748720
[total_days] => 29
[display_material_sum] => 299 431
[display_work_sum] => 449 289
[display_total_sum] => 748 720
)
1
748 720₽
Работа:449 289 ₽
Материалы:299 431 ₽
Дни:29
stdClass Object
(
[id] => 206
[attribute_id] => 5
[name] => Шлакоблок
[material_modifier] => 1
[work_modifier] => 1
[options] => Array
(
[0] => 400 мм
[1] => 600 мм
)
[days] => [15,16]
[material_price] => [2391,3471]
[work_price] => [2642,3662]
[image] => https://akademik-stroy.ru/wp-content/uploads/materials/shlakoblok.jpg
[area_modifier] => 89.18
[parent_name] => Стены 2 этаж (несущие)
[parent_id] => 5
[material_sum] => 255875
[work_sum] => 235614
[total_sum] => 491489
[total_days] => 15
[display_material_sum] => 255 875
[display_work_sum] => 235 614
[display_total_sum] => 491 489
)
1
491 489₽
Работа:235 614 ₽
Материалы:255 875 ₽
Дни:15
stdClass Object
(
[id] => 245
[attribute_id] => 5
[name] => Теплая керамика
[material_modifier] => 1
[work_modifier] => 1
[options] => Array
(
[0] => 380 мм
[1] => 380 мм Thermo
[2] => 440 мм
[3] => 510 мм
)
[days] => [10,10,11,12]
[material_price] => [4510,5098,6093,8013]
[work_price] => [4737,4937,5903,6958]
[image] => https://akademik-stroy.ru/wp-content/uploads/materials/teplaya-keramika.jpg
[area_modifier] => 89.18
[parent_name] => Стены 2 этаж (несущие)
[parent_id] => 5
[material_sum] => 482642
[work_sum] => 422446
[total_sum] => 905088
[total_days] => 10
[display_material_sum] => 482 642
[display_work_sum] => 422 446
[display_total_sum] => 905 088
)
1
905 088₽
Работа:422 446 ₽
Материалы:482 642 ₽
Дни:10
stdClass Object
(
[id] => 246
[attribute_id] => 5
[name] => Несъемная опалубка
[material_modifier] => 1
[work_modifier] => 1
[options] => Array
(
[0] => 380 мм
[1] => 380 мм Thermo
[2] => 440 мм
[3] => 510 мм
)
[days] => [10,10,11,12]
[material_price] => [3302,3902,4108,5008]
[work_price] => [2100,2100,2300,2534]
[image] => https://akademik-stroy.ru/wp-content/uploads/materials/nesemnaya-opalubka.jpg
[area_modifier] => 89.18
[parent_name] => Стены 2 этаж (несущие)
[parent_id] => 5
[material_sum] => 353367
[work_sum] => 187278
[total_sum] => 540645
[total_days] => 10
[display_material_sum] => 353 367
[display_work_sum] => 187 278
[display_total_sum] => 540 645
)
1
540 645₽
Работа:187 278 ₽
Материалы:353 367 ₽
Дни:10
stdClass Object
(
[id] => 254
[attribute_id] => 5
[name] => Бревно
[material_modifier] => 1
[work_modifier] => 1
[options] => Array
(
[0] => 260 мм
[1] => 320 мм
[2] => 360 мм
[3] => 400 мм
[4] => 500 мм
)
[days] => [7,8,9,10,11]
[material_price] => [1874,24045,26930,30972,38825]
[work_price] => [5046,6207,6952,7716,9723]
[image] => https://akademik-stroy.ru/wp-content/uploads/materials/sruby.jpg
[area_modifier] => 89.18
[parent_name] => Стены 2 этаж (несущие)
[parent_id] => 5
[material_sum] => 200548
[work_sum] => 450002
[total_sum] => 650550
[total_days] => 7
[display_material_sum] => 200 548
[display_work_sum] => 450 002
[display_total_sum] => 650 550
)
1
650 550₽
Работа:450 002 ₽
Материалы:200 548 ₽
Дни:7
stdClass Object
(
[id] => 11
[attribute_id] => 6
[name] => Деревянные балки
[material_modifier] => 1
[work_modifier] => 1
[options] => Array
(
[0] => без утепления
[1] => утепление 200 мм
[2] => утепление 250 мм
[3] => утепление 300 мм
[4] => утепление 350 мм
[5] => утепление 400 мм
[6] => утепление 450 мм
[7] => утепление 500 мм
)
[days] => [8,9,9,9,11,12,13,14]
[material_price] => [1634,2042,2344,2947,3149,3652,3354,3557]
[work_price] => [1230,1339,1393,1426,1460,1513,1587,1620]
[image] => https://akademik-stroy.ru/wp-content/uploads/materials/derevyannye-balki.png
[area_modifier] => 89.18
[parent_name] => Перекрытие второго этажа
[parent_id] => 6
[material_sum] => 174864
[work_sum] => 109691
[total_sum] => 284555
[total_days] => 8
[display_material_sum] => 174 864
[display_work_sum] => 109 691
[display_total_sum] => 284 555
)
1
284 555₽
Работа:109 691 ₽
Материалы:174 864 ₽
Дни:8
stdClass Object
(
[id] => 12
[attribute_id] => 6
[name] => Сборные ж/б плиты
[material_modifier] => 1
[work_modifier] => 1
[options] => Array
(
[0] => без утепления
[1] => утепление 150 мм
[2] => утепление 200 мм
[3] => утепление 250 мм
[4] => утепление 300 мм
[5] => утепление 350 мм
[6] => утепление 400 мм
[7] => утепление 450 мм
[8] => утепление 500 мм
)
[days] => [13,15,15,15,15,15,15,15,15]
[material_price] => [3067,5577,5928,6679,7730,8782,9833,10884,11935]
[work_price] => [1520,1956,2102,2247,2392,2537,2684,2829,2974]
[image] => https://akademik-stroy.ru/wp-content/uploads/materials/sbornye-zh-b-plity-2.jpg
[area_modifier] => 89.18
[parent_name] => Перекрытие второго этажа
[parent_id] => 6
[material_sum] => 328218
[work_sum] => 135554
[total_sum] => 463772
[total_days] => 13
[display_material_sum] => 328 218
[display_work_sum] => 135 554
[display_total_sum] => 463 772
)
1
463 772₽
Работа:135 554 ₽
Материалы:328 218 ₽
Дни:13
stdClass Object
(
[id] => 100
[attribute_id] => 6
[name] => Монолитная ж/б плита
[material_modifier] => 1
[work_modifier] => 1
[options] => Array
(
[0] => без утепления
[1] => утепление 150 мм
[2] => утепление 200 мм
[3] => утепление 250 мм
[4] => утепление 300 мм
[5] => утепление 350 мм
[6] => утепление 400 мм
[7] => утепление 450 мм
[8] => утепление 500 мм
)
[days] => [18,20,20,20,20,20,20,20,20]
[material_price] => [4837,6572,7224,7375,79426,8177,8728,9180,10031]
[work_price] => [3348,3921,4112,4302,4493,4684,4875,5066,5256]
[image] => https://akademik-stroy.ru/wp-content/uploads/materials/monolitnaya-zh-b-plita-2.jpg
[area_modifier] => 89.18
[parent_name] => Перекрытие второго этажа
[parent_id] => 6
[material_sum] => 517636
[work_sum] => 298575
[total_sum] => 816211
[total_days] => 18
[display_material_sum] => 517 636
[display_work_sum] => 298 575
[display_total_sum] => 816 211
)
1
816 211₽
Работа:298 575 ₽
Материалы:517 636 ₽
Дни:18
stdClass Object
(
[id] => 164
[attribute_id] => 37
[name] => Металлочерепица
[material_modifier] => 1
[work_modifier] => 1
[options] => Array
(
)
[days] => [20]
[material_price] => [6112]
[work_price] => [5726]
[image] => https://akademik-stroy.ru/wp-content/uploads/materials/metallocherepica.jpg
[area_modifier] => 299.21
[parent_name] => Крыша (Скатная)
[parent_id] => 37
[material_sum] => 2194526
[work_sum] => 1713276
[total_sum] => 3907802
[total_days] => 20
[display_material_sum] => 2 194 526
[display_work_sum] => 1 713 276
[display_total_sum] => 3 907 802
)
1
3 907 802₽
Работа:1 713 276 ₽
Материалы:2 194 526 ₽
Дни:20
stdClass Object
(
[id] => 165
[attribute_id] => 37
[name] => Гибкая черепица
[material_modifier] => 1
[work_modifier] => 1
[options] => Array
(
)
[days] => [20]
[material_price] => [6980]
[work_price] => [5950]
[image] => https://akademik-stroy.ru/wp-content/uploads/materials/gibkaya-cherepica.jpg
[area_modifier] => 299.21
[parent_name] => Крыша (Скатная)
[parent_id] => 37
[material_sum] => 2506183
[work_sum] => 1780300
[total_sum] => 4286483
[total_days] => 20
[display_material_sum] => 2 506 183
[display_work_sum] => 1 780 300
[display_total_sum] => 4 286 483
)
1
4 286 483₽
Работа:1 780 300 ₽
Материалы:2 506 183 ₽
Дни:20
stdClass Object
(
[id] => 166
[attribute_id] => 37
[name] => Цементно-песчаная черепица
[material_modifier] => 1
[work_modifier] => 1
[options] => Array
(
)
[days] => [20]
[material_price] => [10560]
[work_price] => [9456]
[image] => https://akademik-stroy.ru/wp-content/uploads/materials/cementno-peschanaya-cherepica.jpg
[area_modifier] => 299.21
[parent_name] => Крыша (Скатная)
[parent_id] => 37
[material_sum] => 3791589
[work_sum] => 2829330
[total_sum] => 6620919
[total_days] => 20
[display_material_sum] => 3 791 589
[display_work_sum] => 2 829 330
[display_total_sum] => 6 620 919
)
1
6 620 919₽
Работа:2 829 330 ₽
Материалы:3 791 589 ₽
Дни:20
stdClass Object
(
[id] => 167
[attribute_id] => 37
[name] => Композитная черепица
[material_modifier] => 1
[work_modifier] => 1
[options] => Array
(
)
[days] => [20]
[material_price] => [9506]
[work_price] => [8905]
[image] => https://akademik-stroy.ru/wp-content/uploads/materials/kompozitnaya-cherepica.jpg
[area_modifier] => 299.21
[parent_name] => Крыша (Скатная)
[parent_id] => 37
[material_sum] => 3413148
[work_sum] => 2664465
[total_sum] => 6077613
[total_days] => 20
[display_material_sum] => 3 413 148
[display_work_sum] => 2 664 465
[display_total_sum] => 6 077 613
)
1
6 077 613₽
Работа:2 664 465 ₽
Материалы:3 413 148 ₽
Дни:20
stdClass Object
(
[id] => 168
[attribute_id] => 37
[name] => Керамическая черепица
[material_modifier] => 1
[work_modifier] => 1
[options] => Array
(
)
[days] => [20]
[material_price] => [12750]
[work_price] => [9456]
[image] => https://akademik-stroy.ru/wp-content/uploads/materials/keramicheskaya-cherepica.jpg
[area_modifier] => 299.21
[parent_name] => Крыша (Скатная)
[parent_id] => 37
[material_sum] => 4577913
[work_sum] => 2829330
[total_sum] => 7407243
[total_days] => 20
[display_material_sum] => 4 577 913
[display_work_sum] => 2 829 330
[display_total_sum] => 7 407 243
)
1
7 407 243₽
Работа:2 829 330 ₽
Материалы:4 577 913 ₽
Дни:20
stdClass Object
(
[id] => 169
[attribute_id] => 37
[name] => Металлическая фальцевая
[material_modifier] => 1
[work_modifier] => 1
[options] => Array
(
)
[days] => [20]
[material_price] => [8550]
[work_price] => [8190]
[image] => https://akademik-stroy.ru/wp-content/uploads/materials/metallicheskaya-falcevaya.jpg
[area_modifier] => 299.21
[parent_name] => Крыша (Скатная)
[parent_id] => 37
[material_sum] => 3069895
[work_sum] => 2450530
[total_sum] => 5520425
[total_days] => 20
[display_material_sum] => 3 069 895
[display_work_sum] => 2 450 530
[display_total_sum] => 5 520 425
)
1
5 520 425₽
Работа:2 450 530 ₽
Материалы:3 069 895 ₽
Дни:20
stdClass Object
(
[id] => 170
[attribute_id] => 37
[name] => Медная фальцевая
[material_modifier] => 1
[work_modifier] => 1
[options] => Array
(
)
[days] => [20]
[material_price] => [20450]
[work_price] => [16750]
[image] => https://akademik-stroy.ru/wp-content/uploads/materials/mednaya-falcevaya.jpg
[area_modifier] => 299.21
[parent_name] => Крыша (Скатная)
[parent_id] => 37
[material_sum] => 7342613
[work_sum] => 5011768
[total_sum] => 12354381
[total_days] => 20
[display_material_sum] => 7 342 613
[display_work_sum] => 5 011 768
[display_total_sum] => 12 354 381
)
1
12 354 381₽
Работа:5 011 768 ₽
Материалы:7 342 613 ₽
Дни:20
stdClass Object
(
[id] => 171
[attribute_id] => 37
[name] => Зеленая кровля
[material_modifier] => 1
[work_modifier] => 1
[options] => Array
(
)
[days] => [20]
[material_price] => [19850]
[work_price] => [16780]
[image] => https://akademik-stroy.ru/wp-content/uploads/materials/zelenaya-krovlya.jpg
[area_modifier] => 299.21
[parent_name] => Крыша (Скатная)
[parent_id] => 37
[material_sum] => 7127182
[work_sum] => 5020744
[total_sum] => 12147926
[total_days] => 20
[display_material_sum] => 7 127 182
[display_work_sum] => 5 020 744
[display_total_sum] => 12 147 926
)
1
12 147 926₽
Работа:5 020 744 ₽
Материалы:7 127 182 ₽
Дни:20
stdClass Object
(
[id] => 172
[attribute_id] => 37
[name] => Профлист
[material_modifier] => 1
[work_modifier] => 1
[options] => Array
(
)
[days] => [20]
[material_price] => [3450]
[work_price] => [3750]
[image] => https://akademik-stroy.ru/wp-content/uploads/materials/proflist.jpg
[area_modifier] => 299.21
[parent_name] => Крыша (Скатная)
[parent_id] => 37
[material_sum] => 1238729
[work_sum] => 1122038
[total_sum] => 2360767
[total_days] => 20
[display_material_sum] => 1 238 729
[display_work_sum] => 1 122 038
[display_total_sum] => 2 360 767
)
1
2 360 767₽
Работа:1 122 038 ₽
Материалы:1 238 729 ₽
Дни:20
stdClass Object
(
[id] => 51
[attribute_id] => 26
[name] => Есть
[material_modifier] => 1
[work_modifier] => 1
[options] => Array
(
[0] => Профиль 58 мм, 3-камерный, стеклопакет 2-камерный до 32 мм
[1] => Профиль 60 мм, 4-камерный, стеклопакет 2-камерный до 32 мм
[2] => Профиль 70 мм, 5-камерный, стеклопакет 2-камерный до 40 мм
[3] => Профиль 72 мм, 5-камерный, стеклопакет 2-камерный до 40 мм
[4] => Алюминиевые окна Alutech профиль 72 мм, стеклопакет 2-камерный
)
[days] => [3,3,3,3,3]
[material_price] => [1339,2124,2867,3023,29596]
[work_price] => [635,647,659,668,2579]
[image] => https://akademik-stroy.ru/wp-content/uploads/materials/okna.jpg
[area_modifier] => 315.18
[parent_name] => Окна
[parent_id] => 26
[material_sum] => 506431
[work_sum] => 200139
[total_sum] => 706570
[total_days] => 3
[display_material_sum] => 506 431
[display_work_sum] => 200 139
[display_total_sum] => 706 570
)
1
706 570₽
Работа:200 139 ₽
Материалы:506 431 ₽
Дни:3
stdClass Object
(
[id] => 52
[attribute_id] => 26
[name] => Нет
[material_modifier] => 2
[work_modifier] => 1
[options] =>
[days] => null
[material_price] => null
[work_price] => null
[image] => https://akademik-stroy.ru/wp-content/uploads/materials/okna.jpg
[area_modifier] => 315.18
[parent_name] => Окна
[parent_id] => 26
[material_sum] => 0
[work_sum] => 0
[total_sum] => 0
[total_days] => 0
[display_material_sum] => 0
[display_work_sum] => 0
[display_total_sum] => 0
)
1
0₽
Работа:0 ₽
Материалы:0 ₽
Дни:0
stdClass Object
(
[id] => 53
[attribute_id] => 27
[name] => Есть
[material_modifier] => 1
[work_modifier] => 1
[options] => Array
(
)
[days] => [1]
[material_price] => [10000]
[work_price] => [5500]
[image] => https://akademik-stroy.ru/wp-content/uploads/materials/dveri.jpg
[area_modifier] => 1
[parent_name] => Двери входные
[parent_id] => 27
[material_sum] => 12000
[work_sum] => 5500
[total_sum] => 17500
[total_days] => 1
[display_material_sum] => 12 000
[display_work_sum] => 5 500
[display_total_sum] => 17 500
)
1
17 500₽
Работа:5 500 ₽
Материалы:12 000 ₽
Дни:1
stdClass Object
(
[id] => 54
[attribute_id] => 27
[name] => Нет
[material_modifier] => 1
[work_modifier] => 1
[options] => Array
(
)
[days] => [0]
[material_price] => [0]
[work_price] => [0]
[image] => https://akademik-stroy.ru/wp-content/uploads/materials/dveri.jpg
[area_modifier] => 1
[parent_name] => Двери входные
[parent_id] => 27
[material_sum] => 0
[work_sum] => 0
[total_sum] => 0
[total_days] => 0
[display_material_sum] => 0
[display_work_sum] => 0
[display_total_sum] => 0
)
1
0₽
Работа:0 ₽
Материалы:0 ₽
Дни:0
stdClass Object
(
[id] => 25
[attribute_id] => 13
[name] => Нет
[material_modifier] => 1
[work_modifier] => 1
[options] => Array
(
)
[days] => [0]
[material_price] => [0]
[work_price] => [0]
[image] => https://akademik-stroy.ru/wp-content/uploads/materials/mineralovata-krov.jpg
[area_modifier] => 299.21
[parent_name] => Утепление кровли (Мансарда)
[parent_id] => 13
[material_sum] => 0
[work_sum] => 0
[total_sum] => 0
[total_days] => 0
[display_material_sum] => 0
[display_work_sum] => 0
[display_total_sum] => 0
)
1
0₽
Работа:0 ₽
Материалы:0 ₽
Дни:0
stdClass Object
(
[id] => 26
[attribute_id] => 13
[name] => Минераловатный
[material_modifier] => 1
[work_modifier] => 1
[options] => Array
(
[0] => 50 мм
[1] => 100 мм
[2] => 150 мм
[3] => 200 мм
[4] => 250 мм
[5] => 300 мм
[6] => 350 мм
[7] => 400 мм
[8] => 450 мм
[9] => 500 мм
)
[days] => [5,5,6,6,6,7,7,7,8,8]
[material_price] => [1158,1414,1772,2230,3602,4060,4974,5890,6408,7718]
[work_price] => [650,846,846,1098,1318,1450,1596,1754,1930,2122]
[image] => https://akademik-stroy.ru/wp-content/uploads/materials/mineralovata-krov.jpg
[area_modifier] => 299.21
[parent_name] => Утепление кровли (Мансарда)
[parent_id] => 13
[material_sum] => 415782
[work_sum] => 194487
[total_sum] => 610269
[total_days] => 5
[display_material_sum] => 415 782
[display_work_sum] => 194 487
[display_total_sum] => 610 269
)
1
610 269₽
Работа:194 487 ₽
Материалы:415 782 ₽
Дни:5
stdClass Object
(
[id] => 123
[attribute_id] => 13
[name] => Эковата (целлюлозная вата)
[material_modifier] => 1
[work_modifier] => 1
[options] => Array
(
[0] => 50 мм
[1] => 100 мм
[2] => 150 мм
[3] => 200 мм
[4] => 250 мм
[5] => 300 мм
[6] => 350 мм
[7] => 400 мм
[8] => 450 мм
[9] => 500 мм
)
[days] => [3,3,4,4,4,5,5,5,5,5]
[material_price] => [820,1638,2458,3276,5734,6552,8190,9828,11466,13104]
[work_price] => [234,304,304,396,474,522,574,632,694,764]
[image] => https://akademik-stroy.ru/wp-content/uploads/materials/ehkovata-krov.jpg
[area_modifier] => 299.21
[parent_name] => Утепление кровли (Мансарда)
[parent_id] => 13
[material_sum] => 294423
[work_sum] => 70015
[total_sum] => 364438
[total_days] => 3
[display_material_sum] => 294 423
[display_work_sum] => 70 015
[display_total_sum] => 364 438
)
1
364 438₽
Работа:70 015 ₽
Материалы:294 423 ₽
Дни:3
stdClass Object
(
[id] => 124
[attribute_id] => 13
[name] => Экструдированный пенополистирол
[material_modifier] => 1
[work_modifier] => 1
[options] => Array
(
[0] => 50 мм
[1] => 100 мм
[2] => 150 мм
[3] => 200 мм
[4] => 250 мм
[5] => 300 мм
[6] => 350 мм
[7] => 400 мм
[8] => 450 мм
[9] => 500 мм
)
[days] => [3,3,4,4,4,5,5,5,5,6]
[material_price] => [1146,2292,3438,4584,8020,9166,11458,13750,16040,18332]
[work_price] => [390,508,508,660,790,870,958,1052,1158,1274]
[image] => https://akademik-stroy.ru/wp-content/uploads/materials/epps-krov.jpg
[area_modifier] => 299.21
[parent_name] => Утепление кровли (Мансарда)
[parent_id] => 13
[material_sum] => 411474
[work_sum] => 116692
[total_sum] => 528166
[total_days] => 3
[display_material_sum] => 411 474
[display_work_sum] => 116 692
[display_total_sum] => 528 166
)
1
528 166₽
Работа:116 692 ₽
Материалы:411 474 ₽
Дни:3
stdClass Object
(
[id] => 125
[attribute_id] => 13
[name] => ПСБ (ППС-пенополистирол)
[material_modifier] => 1
[work_modifier] => 1
[options] => Array
(
[0] => 50 мм
[1] => 100 мм
[2] => 150 мм
[3] => 200 мм
[4] => 250 мм
[5] => 300 мм
[6] => 350 мм
[7] => 400 мм
[8] => 450 мм
[9] => 500 мм
)
[days] => [3,3,4,4,4,5,5,5,5,6]
[material_price] => [476,954,1430,1906,3336,3814,4766,5720,6674,7626]
[work_price] => [390,508,508,660,790,870,958,1052,1158,1274]
[image] => https://akademik-stroy.ru/wp-content/uploads/materials/psb-krov.jpg
[area_modifier] => 299.21
[parent_name] => Утепление кровли (Мансарда)
[parent_id] => 13
[material_sum] => 170909
[work_sum] => 116692
[total_sum] => 287601
[total_days] => 3
[display_material_sum] => 170 909
[display_work_sum] => 116 692
[display_total_sum] => 287 601
)
1
287 601₽
Работа:116 692 ₽
Материалы:170 909 ₽
Дни:3
stdClass Object
(
[id] => 126
[attribute_id] => 13
[name] => ППУ (Пенополиуретан)
[material_modifier] => 1
[work_modifier] => 1
[options] => Array
(
[0] => 50 мм
[1] => 100 мм
[2] => 150 мм
[3] => 200 мм
[4] => 250 мм
[5] => 300 мм
[6] => 350 мм
[7] => 400 мм
[8] => 450 мм
[9] => 500 мм
)
[days] => [2,2,3,3,3,3,4,4,4,4]
[material_price] => [2080,4160,6240,8320,14560,16640,20800,24960,29120,33280]
[work_price] => [234,304,304,396,474,522,574,632,694,764]
[image] => https://akademik-stroy.ru/wp-content/uploads/materials/ppu-krov.jpg
[area_modifier] => 299.21
[parent_name] => Утепление кровли (Мансарда)
[parent_id] => 13
[material_sum] => 746828
[work_sum] => 70015
[total_sum] => 816843
[total_days] => 2
[display_material_sum] => 746 828
[display_work_sum] => 70 015
[display_total_sum] => 816 843
)
1
816 843₽
Работа:70 015 ₽
Материалы:746 828 ₽
Дни:2
stdClass Object
(
[id] => 127
[attribute_id] => 13
[name] => PIR-плиты (пенополиизоцианурат)
[material_modifier] => 1
[work_modifier] => 1
[options] => Array
(
[0] => 50 мм
[1] => 100 мм
[2] => 150 мм
[3] => 200 мм
[4] => 250 мм
[5] => 300 мм
[6] => 350 мм
[7] => 400 мм
[8] => 450 мм
[9] => 500 мм
)
[days] => [3,3,4,4,4,5,5,5,5,6]
[material_price] => [2646,5290,7936,10580,18516,21162,26452,31742,37032,42324]
[work_price] => [390,508,508,660,790,870,958,1052,1158,1274]
[image] => https://akademik-stroy.ru/wp-content/uploads/materials/pir-krov.jpg
[area_modifier] => 299.21
[parent_name] => Утепление кровли (Мансарда)
[parent_id] => 13
[material_sum] => 950052
[work_sum] => 116692
[total_sum] => 1066744
[total_days] => 3
[display_material_sum] => 950 052
[display_work_sum] => 116 692
[display_total_sum] => 1 066 744
)
1
1 066 744₽
Работа:116 692 ₽
Материалы:950 052 ₽
Дни:3
stdClass Object
(
[id] => 27
[attribute_id] => 14
[name] => Нет
[material_modifier] => 1
[work_modifier] => 1
[options] => Array
(
)
[days] => [0]
[material_price] => [0]
[work_price] => [0]
[image] => https://akademik-stroy.ru/wp-content/uploads/materials/mansardnye-okna-2.jpg
[area_modifier] => 1
[parent_name] => Мансардные окна
[parent_id] => 14
[material_sum] => 0
[work_sum] => 0
[total_sum] => 0
[total_days] => 0
[display_material_sum] => 0
[display_work_sum] => 0
[display_total_sum] => 0
)
1
0₽
Работа:0 ₽
Материалы:0 ₽
Дни:0
stdClass Object
(
[id] => 28
[attribute_id] => 14
[name] => Есть
[material_modifier] => 1
[work_modifier] => 1
[options] => Array
(
[0] => 55x78
[1] => 55x98
)
[days] => [6,7]
[material_price] => [47480,68700]
[work_price] => [17900,19500]
[image] => https://akademik-stroy.ru/wp-content/uploads/materials/mansardnye-okna-2.jpg
[area_modifier] => 1
[parent_name] => Мансардные окна
[parent_id] => 14
[material_sum] => 56976
[work_sum] => 17900
[total_sum] => 74876
[total_days] => 6
[display_material_sum] => 56 976
[display_work_sum] => 17 900
[display_total_sum] => 74 876
)
1
74 876₽
Работа:17 900 ₽
Материалы:56 976 ₽
Дни:6
stdClass Object
(
[id] => 29
[attribute_id] => 15
[name] => Нет
[material_modifier] => 1
[work_modifier] => 1
[options] => Array
(
)
[days] => [0]
[material_price] => [0]
[work_price] => [0]
[image] => https://akademik-stroy.ru/wp-content/uploads/materials/sofit.jpg
[area_modifier] => 299.21
[parent_name] => Подшивка кровли
[parent_id] => 15
[material_sum] => 0
[work_sum] => 0
[total_sum] => 0
[total_days] => 0
[display_material_sum] => 0
[display_work_sum] => 0
[display_total_sum] => 0
)
1
0₽
Работа:0 ₽
Материалы:0 ₽
Дни:0
stdClass Object
(
[id] => 30
[attribute_id] => 15
[name] => Есть
[material_modifier] => 1
[work_modifier] => 1
[options] => Array
(
[0] => Софиты (ПВХ)
[1] => Cedral
[2] => ДПК
[3] => Планкен
)
[days] => [7,10,9,8]
[material_price] => [1803,3213,3025,3150]
[work_price] => [1529,2188,2075,1923]
[image] => https://akademik-stroy.ru/wp-content/uploads/materials/sofit.jpg
[area_modifier] => 299.21
[parent_name] => Подшивка кровли
[parent_id] => 15
[material_sum] => 647371
[work_sum] => 457492
[total_sum] => 1104863
[total_days] => 7
[display_material_sum] => 647 371
[display_work_sum] => 457 492
[display_total_sum] => 1 104 863
)
1
1 104 863₽
Работа:457 492 ₽
Материалы:647 371 ₽
Дни:7
stdClass Object
(
[id] => 31
[attribute_id] => 16
[name] => Нет
[material_modifier] => 1
[work_modifier] => 1
[options] => Array
(
)
[days] => [0]
[material_price] => [0]
[work_price] => [0]
[image] => https://akademik-stroy.ru/wp-content/uploads/materials/docke-standard-pvh.jpg
[area_modifier] => 299.21
[parent_name] => Водосточная система
[parent_id] => 16
[material_sum] => 0
[work_sum] => 0
[total_sum] => 0
[total_days] => 0
[display_material_sum] => 0
[display_work_sum] => 0
[display_total_sum] => 0
)
1
0₽
Работа:0 ₽
Материалы:0 ₽
Дни:0
stdClass Object
(
[id] => 32
[attribute_id] => 16
[name] => Есть
[material_modifier] => 1
[work_modifier] => 1
[options] => Array
(
[0] => Döcke Standard (ПВХ)
[1] => Металлические Grand Line
)
[days] => [7,7]
[material_price] => [1842,2703]
[work_price] => [1491,1529]
[image] => https://akademik-stroy.ru/wp-content/uploads/materials/docke-standard-pvh.jpg
[area_modifier] => 299.21
[parent_name] => Водосточная система
[parent_id] => 16
[material_sum] => 661374
[work_sum] => 446122
[total_sum] => 1107496
[total_days] => 7
[display_material_sum] => 661 374
[display_work_sum] => 446 122
[display_total_sum] => 1 107 496
)
1
1 107 496₽
Работа:446 122 ₽
Материалы:661 374 ₽
Дни:7
stdClass Object
(
[id] => 33
[attribute_id] => 17
[name] => Нет
[material_modifier] => 1
[work_modifier] => 1
[options] => Array
(
)
[days] => [0]
[material_price] => [0]
[work_price] => [0]
[image] => https://akademik-stroy.ru/wp-content/uploads/materials/mineralovata.jpg
[area_modifier] => 388.4
[parent_name] => Дополнительное утепление наружных стен
[parent_id] => 17
[material_sum] => 0
[work_sum] => 0
[total_sum] => 0
[total_days] => 0
[display_material_sum] => 0
[display_work_sum] => 0
[display_total_sum] => 0
)
1
0₽
Работа:0 ₽
Материалы:0 ₽
Дни:0
stdClass Object
(
[id] => 34
[attribute_id] => 17
[name] => Минераловатный
[material_modifier] => 1
[work_modifier] => 1
[options] => Array
(
[0] => 50 мм
[1] => 100 мм
[2] => 150 мм
[3] => 200 мм
[4] => 250 мм
[5] => 300 мм
)
[days] => [7,8,10,12,14,15]
[material_price] => [3437,3613,3803,3915,4601,4830]
[work_price] => [2325,2423,2523,2749,2859,3025]
[image] => https://akademik-stroy.ru/wp-content/uploads/materials/mineralovata.jpg
[area_modifier] => 388.4
[parent_name] => Дополнительное утепление наружных стен
[parent_id] => 17
[material_sum] => 1601917
[work_sum] => 903030
[total_sum] => 2504947
[total_days] => 7
[display_material_sum] => 1 601 917
[display_work_sum] => 903 030
[display_total_sum] => 2 504 947
)
1
2 504 947₽
Работа:903 030 ₽
Материалы:1 601 917 ₽
Дни:7
stdClass Object
(
[id] => 128
[attribute_id] => 17
[name] => Эковата (целлюлозная вата)
[material_modifier] => 1
[work_modifier] => 1
[options] => Array
(
[0] => 50 мм
[1] => 100 мм
[2] => 150 мм
[3] => 200 мм
[4] => 250 мм
[5] => 300 мм
)
[days] => [3,4,5,6,7,8]
[material_price] => [810,1319,1629,1838,2267,2676]
[work_price] => [1225,1323,1423,1549,1659,1725]
[image] => https://akademik-stroy.ru/wp-content/uploads/materials/ehkovata.jpg
[area_modifier] => 388.4
[parent_name] => Дополнительное утепление наружных стен
[parent_id] => 17
[material_sum] => 377525
[work_sum] => 475790
[total_sum] => 853315
[total_days] => 3
[display_material_sum] => 377 525
[display_work_sum] => 475 790
[display_total_sum] => 853 315
)
1
853 315₽
Работа:475 790 ₽
Материалы:377 525 ₽
Дни:3
stdClass Object
(
[id] => 129
[attribute_id] => 17
[name] => Экструдированный пенополистирол
[material_modifier] => 1
[work_modifier] => 1
[options] => Array
(
[0] => 50 мм
[1] => 100 мм
[2] => 150 мм
[3] => 200 мм
[4] => 250 мм
[5] => 300 мм
)
[days] => [5,6,7,8,9,10]
[material_price] => [4560,4300,5119,6292,7010,8583]
[work_price] => [1795,1954,2254,2330,2595,2735]
[image] => https://akademik-stroy.ru/wp-content/uploads/materials/epps.jpg
[area_modifier] => 388.4
[parent_name] => Дополнительное утепление наружных стен
[parent_id] => 17
[material_sum] => 2125325
[work_sum] => 697178
[total_sum] => 2822503
[total_days] => 5
[display_material_sum] => 2 125 325
[display_work_sum] => 697 178
[display_total_sum] => 2 822 503
)
1
2 822 503₽
Работа:697 178 ₽
Материалы:2 125 325 ₽
Дни:5
stdClass Object
(
[id] => 130
[attribute_id] => 17
[name] => ПСБ (ППС-пенополистирол)
[material_modifier] => 1
[work_modifier] => 1
[options] => Array
(
[0] => 50 мм
[1] => 100 мм
[2] => 150 мм
[3] => 200 мм
[4] => 250 мм
[5] => 300 мм
)
[days] => [5,6,7,8,9,10]
[material_price] => [4822,5200,5819,6292,7010,7583]
[work_price] => [1795,1954,2254,2330,2595,2735]
[image] => https://akademik-stroy.ru/wp-content/uploads/materials/psb.jpg
[area_modifier] => 388.4
[parent_name] => Дополнительное утепление наружных стен
[parent_id] => 17
[material_sum] => 2247438
[work_sum] => 697178
[total_sum] => 2944616
[total_days] => 5
[display_material_sum] => 2 247 438
[display_work_sum] => 697 178
[display_total_sum] => 2 944 616
)
1
2 944 616₽
Работа:697 178 ₽
Материалы:2 247 438 ₽
Дни:5
stdClass Object
(
[id] => 131
[attribute_id] => 17
[name] => ППУ (Пенополиуретан)
[material_modifier] => 1
[work_modifier] => 1
[options] => Array
(
[0] => 50 мм
[1] => 100 мм
[2] => 150 мм
[3] => 200 мм
[4] => 250 мм
[5] => 300 мм
)
[days] => [3,4,5,6,7,8]
[material_price] => [2860,3400,4219,4592,5010,5583]
[work_price] => [729,900,980,1120,1280,1530]
[image] => https://akademik-stroy.ru/wp-content/uploads/materials/ppu.jpg
[area_modifier] => 388.4
[parent_name] => Дополнительное утепление наружных стен
[parent_id] => 17
[material_sum] => 1332989
[work_sum] => 283144
[total_sum] => 1616133
[total_days] => 3
[display_material_sum] => 1 332 989
[display_work_sum] => 283 144
[display_total_sum] => 1 616 133
)
1
1 616 133₽
Работа:283 144 ₽
Материалы:1 332 989 ₽
Дни:3
stdClass Object
(
[id] => 132
[attribute_id] => 17
[name] => PIR-плиты (пенополиизоцианурат)
[material_modifier] => 1
[work_modifier] => 1
[options] => Array
(
[0] => 50 мм
[1] => 100 мм
[2] => 150 мм
[3] => 200 мм
[4] => 250 мм
[5] => 300 мм
)
[days] => [5,6,7,8,9,10]
[material_price] => [8323,15645,20968,25900,29258,30581]
[work_price] => [800,900,970,1150,1280,1330]
[image] => https://akademik-stroy.ru/wp-content/uploads/materials/pir.jpg
[area_modifier] => 388.4
[parent_name] => Дополнительное утепление наружных стен
[parent_id] => 17
[material_sum] => 3879184
[work_sum] => 310720
[total_sum] => 4189904
[total_days] => 5
[display_material_sum] => 3 879 184
[display_work_sum] => 310 720
[display_total_sum] => 4 189 904
)
1
4 189 904₽
Работа:310 720 ₽
Материалы:3 879 184 ₽
Дни:5
stdClass Object
(
[id] => 37
[attribute_id] => 19
[name] => Нет
[material_modifier] => 1
[work_modifier] => 1
[options] => Array
(
)
[days] => [0]
[material_price] => [0]
[work_price] => [0]
[image] => https://akademik-stroy.ru/wp-content/uploads/materials/imitaciya-brusa.jpg
[area_modifier] => 388.4
[parent_name] => Наружная отделка фасада
[parent_id] => 19
[material_sum] => 0
[work_sum] => 0
[total_sum] => 0
[total_days] => 0
[display_material_sum] => 0
[display_work_sum] => 0
[display_total_sum] => 0
)
1
0₽
Работа:0 ₽
Материалы:0 ₽
Дни:0
stdClass Object
(
[id] => 38
[attribute_id] => 19
[name] => Имитация бруса
[material_modifier] => 1
[work_modifier] => 1
[options] => Array
(
[0] => Сосна
[1] => Ель
[2] => Лиственница
)
[days] => [20,20,20]
[material_price] => [2994,2762,4954]
[work_price] => [1397,1231,1577]
[image] => https://akademik-stroy.ru/wp-content/uploads/materials/imitaciya-brusa.jpg
[area_modifier] => 388.4
[parent_name] => Наружная отделка фасада
[parent_id] => 19
[material_sum] => 1395444
[work_sum] => 542595
[total_sum] => 1938039
[total_days] => 20
[display_material_sum] => 1 395 444
[display_work_sum] => 542 595
[display_total_sum] => 1 938 039
)
1
1 938 039₽
Работа:542 595 ₽
Материалы:1 395 444 ₽
Дни:20
stdClass Object
(
[id] => 136
[attribute_id] => 19
[name] => Планкен
[material_modifier] => 1
[work_modifier] => 1
[options] => Array
(
[0] => Сосна
[1] => Ель
[2] => Лиственница
)
[days] => [20,20,20]
[material_price] => [3194,2862,5154]
[work_price] => [1537,1354,1735]
[image] => https://akademik-stroy.ru/wp-content/uploads/materials/planken.jpg
[area_modifier] => 388.4
[parent_name] => Наружная отделка фасада
[parent_id] => 19
[material_sum] => 1488660
[work_sum] => 596971
[total_sum] => 2085631
[total_days] => 20
[display_material_sum] => 1 488 660
[display_work_sum] => 596 971
[display_total_sum] => 2 085 631
)
1
2 085 631₽
Работа:596 971 ₽
Материалы:1 488 660 ₽
Дни:20
stdClass Object
(
[id] => 137
[attribute_id] => 19
[name] => Штукатурка
[material_modifier] => 1
[work_modifier] => 1
[options] => Array
(
[0] => Цементно-песчаная (минеральная)
[1] => Мокрый фасад
)
[days] => [35,35]
[material_price] => [2231,3938]
[work_price] => [1202,2422]
[image] => https://akademik-stroy.ru/wp-content/uploads/materials/shtukaturka.jpg
[area_modifier] => 388.4
[parent_name] => Наружная отделка фасада
[parent_id] => 19
[material_sum] => 1039824
[work_sum] => 466857
[total_sum] => 1506681
[total_days] => 35
[display_material_sum] => 1 039 824
[display_work_sum] => 466 857
[display_total_sum] => 1 506 681
)
1
1 506 681₽
Работа:466 857 ₽
Материалы:1 039 824 ₽
Дни:35
stdClass Object
(
[id] => 138
[attribute_id] => 19
[name] => Облицовочный кирпич
[material_modifier] => 1
[work_modifier] => 1
[options] => Array
(
[0] => Керамический
[1] => Клинкерный
[2] => Ручной формовки
[3] => Гиперпрессованный
[4] => Силикатный кирпич
)
[days] => [45,45,45,45,45]
[material_price] => [8174,9148,1040,1257,5876]
[work_price] => [3240,3758,4536,4017,3369]
[image] => https://akademik-stroy.ru/wp-content/uploads/materials/oblicovochnyj-kirpich.jpg
[area_modifier] => 388.4
[parent_name] => Наружная отделка фасада
[parent_id] => 19
[material_sum] => 3809738
[work_sum] => 1258416
[total_sum] => 5068154
[total_days] => 45
[display_material_sum] => 3 809 738
[display_work_sum] => 1 258 416
[display_total_sum] => 5 068 154
)
1
5 068 154₽
Работа:1 258 416 ₽
Материалы:3 809 738 ₽
Дни:45
stdClass Object
(
[id] => 139
[attribute_id] => 19
[name] => Фасадная плитка
[material_modifier] => 1
[work_modifier] => 1
[options] => Array
(
[0] => Клинкерная
[1] => Керамическая
[2] => Плитка ручной формовки
)
[days] => [40,40,40]
[material_price] => [2974,1487,3470]
[work_price] => [3007,2592,3629]
[image] => https://akademik-stroy.ru/wp-content/uploads/materials/fasadnaya-plitka.jpg
[area_modifier] => 388.4
[parent_name] => Наружная отделка фасада
[parent_id] => 19
[material_sum] => 1386122
[work_sum] => 1167919
[total_sum] => 2554041
[total_days] => 40
[display_material_sum] => 1 386 122
[display_work_sum] => 1 167 919
[display_total_sum] => 2 554 041
)
1
2 554 041₽
Работа:1 167 919 ₽
Материалы:1 386 122 ₽
Дни:40
stdClass Object
(
[id] => 140
[attribute_id] => 19
[name] => Сайдинг
[material_modifier] => 1
[work_modifier] => 1
[options] => Array
(
[0] => Виниловый
[1] => Металлический
[2] => Фиброцементный
)
[days] => [20,20,20]
[material_price] => [1263,1944,4147]
[work_price] => [1263,1944,2074]
[image] => https://akademik-stroy.ru/wp-content/uploads/materials/sajding.jpg
[area_modifier] => 388.4
[parent_name] => Наружная отделка фасада
[parent_id] => 19
[material_sum] => 588659
[work_sum] => 490549
[total_sum] => 1079208
[total_days] => 20
[display_material_sum] => 588 659
[display_work_sum] => 490 549
[display_total_sum] => 1 079 208
)
1
1 079 208₽
Работа:490 549 ₽
Материалы:588 659 ₽
Дни:20
stdClass Object
(
[id] => 141
[attribute_id] => 19
[name] => Камень
[material_modifier] => 1
[work_modifier] => 1
[options] => Array
(
[0] => Травертин
[1] => Дагестанский
[2] => Искусственный
[3] => Натуральный
[4] => Керамогранит
)
[days] => [45,45,45,45,45]
[material_price] => [4536,3888,2592,3240,2462]
[work_price] => [3240,3240,2462,3110,1944]
[image] => https://akademik-stroy.ru/wp-content/uploads/materials/kamen-1.jpg
[area_modifier] => 388.4
[parent_name] => Наружная отделка фасада
[parent_id] => 19
[material_sum] => 2114139
[work_sum] => 1258416
[total_sum] => 3372555
[total_days] => 45
[display_material_sum] => 2 114 139
[display_work_sum] => 1 258 416
[display_total_sum] => 3 372 555
)
1
3 372 555₽
Работа:1 258 416 ₽
Материалы:2 114 139 ₽
Дни:45
stdClass Object
(
[id] => 142
[attribute_id] => 19
[name] => Термопанели
[material_modifier] => 1
[work_modifier] => 1
[options] => Array
(
)
[days] => [20]
[material_price] => [6221]
[work_price] => [2333]
[image] => https://akademik-stroy.ru/wp-content/uploads/materials/termo.png
[area_modifier] => 388.4
[parent_name] => Наружная отделка фасада
[parent_id] => 19
[material_sum] => 2899484
[work_sum] => 906137
[total_sum] => 3805621
[total_days] => 20
[display_material_sum] => 2 899 484
[display_work_sum] => 906 137
[display_total_sum] => 3 805 621
)
1
3 805 621₽
Работа:906 137 ₽
Материалы:2 899 484 ₽
Дни:20
stdClass Object
(
[id] => 143
[attribute_id] => 19
[name] => Плитка HAUBERK
[material_modifier] => 1
[work_modifier] => 1
[options] => Array
(
)
[days] => [20]
[material_price] => [2786]
[work_price] => [1944]
[image] => https://akademik-stroy.ru/wp-content/uploads/materials/hauberk.jpg
[area_modifier] => 388.4
[parent_name] => Наружная отделка фасада
[parent_id] => 19
[material_sum] => 1298499
[work_sum] => 755050
[total_sum] => 2053549
[total_days] => 20
[display_material_sum] => 1 298 499
[display_work_sum] => 755 050
[display_total_sum] => 2 053 549
)
1
2 053 549₽
Работа:755 050 ₽
Материалы:1 298 499 ₽
Дни:20
stdClass Object
(
[id] => 144
[attribute_id] => 19
[name] => Фальцевый фасад
[material_modifier] => 1
[work_modifier] => 1
[options] => Array
(
)
[days] => [20]
[material_price] => [3240]
[work_price] => [2592]
[image] => https://akademik-stroy.ru/wp-content/uploads/materials/falcevyj-fasad.jpg
[area_modifier] => 388.4
[parent_name] => Наружная отделка фасада
[parent_id] => 19
[material_sum] => 1510099
[work_sum] => 1006733
[total_sum] => 2516832
[total_days] => 20
[display_material_sum] => 1 510 099
[display_work_sum] => 1 006 733
[display_total_sum] => 2 516 832
)
1
2 516 832₽
Работа:1 006 733 ₽
Материалы:1 510 099 ₽
Дни:20
stdClass Object
(
[id] => 145
[attribute_id] => 19
[name] => Комбинированный
[material_modifier] => 1
[work_modifier] => 1
[options] => Array
(
)
[days] => [20]
[material_price] => [4629]
[work_price] => [3499]
[image] => https://akademik-stroy.ru/wp-content/uploads/materials/Kombinirovannyj.jpg
[area_modifier] => 388.4
[parent_name] => Наружная отделка фасада
[parent_id] => 19
[material_sum] => 2157484
[work_sum] => 1359012
[total_sum] => 3516496
[total_days] => 20
[display_material_sum] => 2 157 484
[display_work_sum] => 1 359 012
[display_total_sum] => 3 516 496
)
1
3 516 496₽
Работа:1 359 012 ₽
Материалы:2 157 484 ₽
Дни:20
stdClass Object
(
[id] => 257
[attribute_id] => 19
[name] => Японские фиброцементные
[material_modifier] => 1
[work_modifier] => 1
[options] => Array
(
)
[days] => [20]
[material_price] => [7043]
[work_price] => [2993]
[image] => https://akademik-stroy.ru/wp-content/uploads/materials/paneli.jpg
[area_modifier] => 388.4
[parent_name] => Наружная отделка фасада
[parent_id] => 19
[material_sum] => 3282601
[work_sum] => 1162481
[total_sum] => 4445082
[total_days] => 20
[display_material_sum] => 3 282 601
[display_work_sum] => 1 162 481
[display_total_sum] => 4 445 082
)
1
4 445 082₽
Работа:1 162 481 ₽
Материалы:3 282 601 ₽
Дни:20
stdClass Object
(
[id] => 258
[attribute_id] => 19
[name] => Панели Каньон
[material_modifier] => 1
[work_modifier] => 1
[options] => Array
(
)
[days] => [20]
[material_price] => [4543]
[work_price] => [2592]
[image] => https://akademik-stroy.ru/wp-content/uploads/materials/kanon.png
[area_modifier] => 388.4
[parent_name] => Наружная отделка фасада
[parent_id] => 19
[material_sum] => 2117401
[work_sum] => 1006733
[total_sum] => 3124134
[total_days] => 20
[display_material_sum] => 2 117 401
[display_work_sum] => 1 006 733
[display_total_sum] => 3 124 134
)
1
3 124 134₽
Работа:1 006 733 ₽
Материалы:2 117 401 ₽
Дни:20
stdClass Object
(
[id] => 39
[attribute_id] => 20
[name] => Нет
[material_modifier] => 1
[work_modifier] => 1
[options] => Array
(
)
[days] => [0]
[material_price] => [0]
[work_price] => [0]
[image] => https://akademik-stroy.ru/wp-content/uploads/materials/terrasy.jpg
[area_modifier] => 30
[parent_name] => Террасы, крыльца, навесы
[parent_id] => 20
[material_sum] => 0
[work_sum] => 0
[total_sum] => 0
[total_days] => 0
[display_material_sum] => 0
[display_work_sum] => 0
[display_total_sum] => 0
)
1
0₽
Работа:0 ₽
Материалы:0 ₽
Дни:0
stdClass Object
(
[id] => 40
[attribute_id] => 20
[name] => Есть
[material_modifier] => 1
[work_modifier] => 1
[options] => Array
(
)
[days] => [5]
[material_price] => [10450]
[work_price] => [1950]
[image] => https://akademik-stroy.ru/wp-content/uploads/materials/terrasy.jpg
[area_modifier] => 30
[parent_name] => Террасы, крыльца, навесы
[parent_id] => 20
[material_sum] => 376200
[work_sum] => 58500
[total_sum] => 434700
[total_days] => 5
[display_material_sum] => 376 200
[display_work_sum] => 58 500
[display_total_sum] => 434 700
)
1
434 700₽
Работа:58 500 ₽
Материалы:376 200 ₽
Дни:5
stdClass Object
(
[id] => 41
[attribute_id] => 21
[name] => Нет
[material_modifier] => 1
[work_modifier] => 1
[options] => Array
(
)
[days] => [0]
[material_price] => [0]
[work_price] => [0]
[image] => https://akademik-stroy.ru/wp-content/uploads/materials/balkony.jpg
[area_modifier] => 30
[parent_name] => Балконы
[parent_id] => 21
[material_sum] => 0
[work_sum] => 0
[total_sum] => 0
[total_days] => 0
[display_material_sum] => 0
[display_work_sum] => 0
[display_total_sum] => 0
)
1
0₽
Работа:0 ₽
Материалы:0 ₽
Дни:0
stdClass Object
(
[id] => 42
[attribute_id] => 21
[name] => Есть
[material_modifier] => 1
[work_modifier] => 1
[options] => Array
(
)
[days] => [12]
[material_price] => [3600]
[work_price] => [1950]
[image] => https://akademik-stroy.ru/wp-content/uploads/materials/balkony.jpg
[area_modifier] => 30
[parent_name] => Балконы
[parent_id] => 21
[material_sum] => 129600
[work_sum] => 58500
[total_sum] => 188100
[total_days] => 12
[display_material_sum] => 129 600
[display_work_sum] => 58 500
[display_total_sum] => 188 100
)
1
188 100₽
Работа:58 500 ₽
Материалы:129 600 ₽
Дни:12
stdClass Object
(
[id] => 43
[attribute_id] => 22
[name] => Нет
[material_modifier] => 1
[work_modifier] => 1
[options] => Array
(
)
[days] => [0]
[material_price] => [0]
[work_price] => [0]
[image] => https://akademik-stroy.ru/wp-content/uploads/materials/uteplennaya.jpg
[area_modifier] => 299.21
[parent_name] => Отмостка
[parent_id] => 22
[material_sum] => 0
[work_sum] => 0
[total_sum] => 0
[total_days] => 0
[display_material_sum] => 0
[display_work_sum] => 0
[display_total_sum] => 0
)
1
0₽
Работа:0 ₽
Материалы:0 ₽
Дни:0
stdClass Object
(
[id] => 44
[attribute_id] => 22
[name] => Утепленная отмостка
[material_modifier] => 1
[work_modifier] => 1
[options] => Array
(
)
[days] => [15]
[material_price] => [2550]
[work_price] => [1750]
[image] => https://akademik-stroy.ru/wp-content/uploads/materials/uteplennaya.jpg
[area_modifier] => 299.21
[parent_name] => Отмостка
[parent_id] => 22
[material_sum] => 915583
[work_sum] => 523618
[total_sum] => 1439201
[total_days] => 15
[display_material_sum] => 915 583
[display_work_sum] => 523 618
[display_total_sum] => 1 439 201
)
1
1 439 201₽
Работа:523 618 ₽
Материалы:915 583 ₽
Дни:15
stdClass Object
(
[id] => 146
[attribute_id] => 22
[name] => Не утепленная отмостка
[material_modifier] => 1
[work_modifier] => 1
[options] => Array
(
)
[days] => [10]
[material_price] => [1650]
[work_price] => [1450]
[image] => https://akademik-stroy.ru/wp-content/uploads/materials/ne-uteplennaya.jpg
[area_modifier] => 299.21
[parent_name] => Отмостка
[parent_id] => 22
[material_sum] => 592436
[work_sum] => 433855
[total_sum] => 1026291
[total_days] => 10
[display_material_sum] => 592 436
[display_work_sum] => 433 855
[display_total_sum] => 1 026 291
)
1
1 026 291₽
Работа:433 855 ₽
Материалы:592 436 ₽
Дни:10
stdClass Object
(
[id] => 45
[attribute_id] => 23
[name] => Нет
[material_modifier] => 1
[work_modifier] => 1
[options] => Array
(
)
[days] => [0]
[material_price] => [0]
[work_price] => [0]
[image] => https://akademik-stroy.ru/wp-content/uploads/materials/drenazh-2.jpg
[area_modifier] => 299.21
[parent_name] => Дренаж вокруг дома
[parent_id] => 23
[material_sum] => 0
[work_sum] => 0
[total_sum] => 0
[total_days] => 0
[display_material_sum] => 0
[display_work_sum] => 0
[display_total_sum] => 0
)
1
0₽
Работа:0 ₽
Материалы:0 ₽
Дни:0
stdClass Object
(
[id] => 46
[attribute_id] => 23
[name] => Есть
[material_modifier] => 1
[work_modifier] => 1
[options] => Array
(
)
[days] => [5]
[material_price] => [2366]
[work_price] => [1911]
[image] => https://akademik-stroy.ru/wp-content/uploads/materials/drenazh-2.jpg
[area_modifier] => 299.21
[parent_name] => Дренаж вокруг дома
[parent_id] => 23
[material_sum] => 849517
[work_sum] => 571790
[total_sum] => 1421307
[total_days] => 5
[display_material_sum] => 849 517
[display_work_sum] => 571 790
[display_total_sum] => 1 421 307
)
1
1 421 307₽
Работа:571 790 ₽
Материалы:849 517 ₽
Дни:5
stdClass Object
(
[id] => 47
[attribute_id] => 24
[name] => Нет
[material_modifier] => 1
[work_modifier] => 1
[options] => Array
(
)
[days] => [0]
[material_price] => [0]
[work_price] => [0]
[image] => https://akademik-stroy.ru/wp-content/uploads/materials/septik.jpg
[area_modifier] => 1
[parent_name] => Автономная канализация (септики)
[parent_id] => 24
[material_sum] => 0
[work_sum] => 0
[total_sum] => 0
[total_days] => 0
[display_material_sum] => 0
[display_work_sum] => 0
[display_total_sum] => 0
)
1
0₽
Работа:0 ₽
Материалы:0 ₽
Дни:0
stdClass Object
(
[id] => 48
[attribute_id] => 24
[name] => Есть
[material_modifier] => 1
[work_modifier] => 1
[options] => Array
(
[0] => Для дачи на 4 человека
[1] => Для дома на 5 человек
[2] => Для дома на 6 человек
[3] => Для дома на 7 человек
[4] => Для дома на 10 человек
)
[days] => [7,7,7,8,8]
[material_price] => [196340,220500,240940,264200,293340]
[work_price] => [50000,55000,60500,66550,73206]
[image] => https://akademik-stroy.ru/wp-content/uploads/materials/septik.jpg
[area_modifier] => 1
[parent_name] => Автономная канализация (септики)
[parent_id] => 24
[material_sum] => 235608
[work_sum] => 50000
[total_sum] => 285608
[total_days] => 7
[display_material_sum] => 235 608
[display_work_sum] => 50 000
[display_total_sum] => 285 608
)
1
285 608₽
Работа:50 000 ₽
Материалы:235 608 ₽
Дни:7
stdClass Object
(
[id] => 49
[attribute_id] => 25
[name] => Нет
[material_modifier] => 1
[work_modifier] => 1
[options] => Array
(
)
[days] => [0]
[material_price] => [0]
[work_price] => [0]
[image] => https://akademik-stroy.ru/wp-content/uploads/materials/gkl.jpg
[area_modifier] => 388.4
[parent_name] => Внутренние (не несущие) перегородки
[parent_id] => 25
[material_sum] => 0
[work_sum] => 0
[total_sum] => 0
[total_days] => 0
[display_material_sum] => 0
[display_work_sum] => 0
[display_total_sum] => 0
)
1
0₽
Работа:0 ₽
Материалы:0 ₽
Дни:0
stdClass Object
(
[id] => 147
[attribute_id] => 25
[name] => Каркасно-обшивные
[material_modifier] => 1
[work_modifier] => 1
[options] => Array
(
[0] => 75 мм (без шумоизоляции)
[1] => 75 мм (с шумоизоляцией)
)
[days] => [11,11]
[material_price] => [580,970]
[work_price] => [380,570]
[image] => https://akademik-stroy.ru/wp-content/uploads/materials/gkl.jpg
[area_modifier] => 388.4
[parent_name] => Внутренние (не несущие) перегородки
[parent_id] => 25
[material_sum] => 270326
[work_sum] => 147592
[total_sum] => 417918
[total_days] => 11
[display_material_sum] => 270 326
[display_work_sum] => 147 592
[display_total_sum] => 417 918
)
1
417 918₽
Работа:147 592 ₽
Материалы:270 326 ₽
Дни:11
stdClass Object
(
[id] => 148
[attribute_id] => 25
[name] => Пазогребневые
[material_modifier] => 1
[work_modifier] => 1
[options] => Array
(
[0] => 80 мм
[1] => 100 мм
)
[days] => [5,5]
[material_price] => [1022,1313]
[work_price] => [600,700]
[image] => https://akademik-stroy.ru/wp-content/uploads/materials/pazogrebnevye-bloki.jpg
[area_modifier] => 388.4
[parent_name] => Внутренние (не несущие) перегородки
[parent_id] => 25
[material_sum] => 476334
[work_sum] => 233040
[total_sum] => 709374
[total_days] => 5
[display_material_sum] => 476 334
[display_work_sum] => 233 040
[display_total_sum] => 709 374
)
1
709 374₽
Работа:233 040 ₽
Материалы:476 334 ₽
Дни:5
stdClass Object
(
[id] => 149
[attribute_id] => 25
[name] => Газобетонные
[material_modifier] => 1
[work_modifier] => 1
[options] => Array
(
[0] => 100 мм
[1] => 200 мм
)
[days] => [11,11]
[material_price] => [1160,1920]
[work_price] => [700,900]
[image] => https://akademik-stroy.ru/wp-content/uploads/materials/gazobeton-2.jpg
[area_modifier] => 388.4
[parent_name] => Внутренние (не несущие) перегородки
[parent_id] => 25
[material_sum] => 540653
[work_sum] => 271880
[total_sum] => 812533
[total_days] => 11
[display_material_sum] => 540 653
[display_work_sum] => 271 880
[display_total_sum] => 812 533
)
1
812 533₽
Работа:271 880 ₽
Материалы:540 653 ₽
Дни:11
stdClass Object
(
[id] => 150
[attribute_id] => 25
[name] => Кирпичные
[material_modifier] => 1
[work_modifier] => 1
[options] => Array
(
[0] => 120 мм
[1] => 250 мм
[2] => 360 мм
)
[days] => [7,7,7]
[material_price] => [1785,3570,5355]
[work_price] => [900,1600,1800]
[image] => https://akademik-stroy.ru/wp-content/uploads/materials/kirpich-1.jpg
[area_modifier] => 388.4
[parent_name] => Внутренние (не несущие) перегородки
[parent_id] => 25
[material_sum] => 831953
[work_sum] => 349560
[total_sum] => 1181513
[total_days] => 7
[display_material_sum] => 831 953
[display_work_sum] => 349 560
[display_total_sum] => 1 181 513
)
1
1 181 513₽
Работа:349 560 ₽
Материалы:831 953 ₽
Дни:7
stdClass Object
(
[id] => 55
[attribute_id] => 28
[name] => Нет
[material_modifier] => 1
[work_modifier] => 1
[options] => Array
(
)
[days] => [0]
[material_price] => [0]
[work_price] => [0]
[image] => https://akademik-stroy.ru/wp-content/uploads/materials/ehlektrika.jpg
[area_modifier] => 315.18
[parent_name] => Электрика
[parent_id] => 28
[material_sum] => 0
[work_sum] => 0
[total_sum] => 0
[total_days] => 0
[display_material_sum] => 0
[display_work_sum] => 0
[display_total_sum] => 0
)
1
0₽
Работа:0 ₽
Материалы:0 ₽
Дни:0
stdClass Object
(
[id] => 56
[attribute_id] => 28
[name] => Есть
[material_modifier] => 1
[work_modifier] => 1
[options] => Array
(
)
[days] => [10]
[material_price] => [650]
[work_price] => [950]
[image] => https://akademik-stroy.ru/wp-content/uploads/materials/ehlektrika.jpg
[area_modifier] => 315.18
[parent_name] => Электрика
[parent_id] => 28
[material_sum] => 245840
[work_sum] => 299421
[total_sum] => 545261
[total_days] => 10
[display_material_sum] => 245 840
[display_work_sum] => 299 421
[display_total_sum] => 545 261
)
1
545 261₽
Работа:299 421 ₽
Материалы:245 840 ₽
Дни:10
stdClass Object
(
[id] => 57
[attribute_id] => 29
[name] => Нет
[material_modifier] => 1
[work_modifier] => 1
[options] => Array
(
)
[days] => [0]
[material_price] => [0]
[work_price] => [0]
[image] => https://akademik-stroy.ru/wp-content/uploads/materials/santekhnika-kanalizaciya-1.jpg
[area_modifier] => 315.18
[parent_name] => Сантехника, канализация в доме
[parent_id] => 29
[material_sum] => 0
[work_sum] => 0
[total_sum] => 0
[total_days] => 0
[display_material_sum] => 0
[display_work_sum] => 0
[display_total_sum] => 0
)
1
0₽
Работа:0 ₽
Материалы:0 ₽
Дни:0
stdClass Object
(
[id] => 58
[attribute_id] => 29
[name] => Есть
[material_modifier] => 1
[work_modifier] => 1
[options] => Array
(
)
[days] => [10]
[material_price] => [600]
[work_price] => [730]
[image] => https://akademik-stroy.ru/wp-content/uploads/materials/santekhnika-kanalizaciya-1.jpg
[area_modifier] => 315.18
[parent_name] => Сантехника, канализация в доме
[parent_id] => 29
[material_sum] => 226930
[work_sum] => 230081
[total_sum] => 457011
[total_days] => 10
[display_material_sum] => 226 930
[display_work_sum] => 230 081
[display_total_sum] => 457 011
)
1
457 011₽
Работа:230 081 ₽
Материалы:226 930 ₽
Дни:10
stdClass Object
(
[id] => 59
[attribute_id] => 30
[name] => Нет
[material_modifier] => 1
[work_modifier] => 1
[options] => Array
(
)
[days] => [0]
[material_price] => [0]
[work_price] => [0]
[image] => https://akademik-stroy.ru/wp-content/uploads/materials/otoplenie-1.jpg
[area_modifier] => 315.18
[parent_name] => Отопление
[parent_id] => 30
[material_sum] => 0
[work_sum] => 0
[total_sum] => 0
[total_days] => 0
[display_material_sum] => 0
[display_work_sum] => 0
[display_total_sum] => 0
)
1
0₽
Работа:0 ₽
Материалы:0 ₽
Дни:0
stdClass Object
(
[id] => 60
[attribute_id] => 30
[name] => Есть
[material_modifier] => 1
[work_modifier] => 1
[options] => Array
(
)
[days] => [5]
[material_price] => [610]
[work_price] => [560]
[image] => https://akademik-stroy.ru/wp-content/uploads/materials/otoplenie-1.jpg
[area_modifier] => 315.18
[parent_name] => Отопление
[parent_id] => 30
[material_sum] => 230712
[work_sum] => 176501
[total_sum] => 407213
[total_days] => 5
[display_material_sum] => 230 712
[display_work_sum] => 176 501
[display_total_sum] => 407 213
)
1
407 213₽
Работа:176 501 ₽
Материалы:230 712 ₽
Дни:5
stdClass Object
(
[id] => 61
[attribute_id] => 31
[name] => Нет
[material_modifier] => 1
[work_modifier] => 1
[options] => Array
(
)
[days] => [0]
[material_price] => [0]
[work_price] => [0]
[image] => https://akademik-stroy.ru/wp-content/uploads/materials/vodyanye.jpg
[area_modifier] => 30
[parent_name] => Теплые полы
[parent_id] => 31
[material_sum] => 0
[work_sum] => 0
[total_sum] => 0
[total_days] => 0
[display_material_sum] => 0
[display_work_sum] => 0
[display_total_sum] => 0
)
1
0₽
Работа:0 ₽
Материалы:0 ₽
Дни:0
stdClass Object
(
[id] => 151
[attribute_id] => 31
[name] => Водяные
[material_modifier] => 1
[work_modifier] => 1
[options] => Array
(
)
[days] => [9]
[material_price] => [10200]
[work_price] => [2500]
[image] => https://akademik-stroy.ru/wp-content/uploads/materials/vodyanye.jpg
[area_modifier] => 30
[parent_name] => Теплые полы
[parent_id] => 31
[material_sum] => 367200
[work_sum] => 75000
[total_sum] => 442200
[total_days] => 9
[display_material_sum] => 367 200
[display_work_sum] => 75 000
[display_total_sum] => 442 200
)
1
442 200₽
Работа:75 000 ₽
Материалы:367 200 ₽
Дни:9
stdClass Object
(
[id] => 152
[attribute_id] => 31
[name] => Электро
[material_modifier] => 1
[work_modifier] => 1
[options] => Array
(
)
[days] => [5]
[material_price] => [6300]
[work_price] => [1500]
[image] => https://akademik-stroy.ru/wp-content/uploads/materials/ehlektricheskij.jpg
[area_modifier] => 30
[parent_name] => Теплые полы
[parent_id] => 31
[material_sum] => 226800
[work_sum] => 45000
[total_sum] => 271800
[total_days] => 5
[display_material_sum] => 226 800
[display_work_sum] => 45 000
[display_total_sum] => 271 800
)
1
271 800₽
Работа:45 000 ₽
Материалы:226 800 ₽
Дни:5
stdClass Object
(
[id] => 63
[attribute_id] => 32
[name] => Нет
[material_modifier] => 1
[work_modifier] => 1
[options] => Array
(
)
[days] => [0]
[material_price] => [0]
[work_price] => [0]
[image] => https://akademik-stroy.ru/wp-content/uploads/materials/shtukaturka-shpatlevka-1.jpg
[area_modifier] => 315.18
[parent_name] => Черновая отделка стен
[parent_id] => 32
[material_sum] => 0
[work_sum] => 0
[total_sum] => 0
[total_days] => 0
[display_material_sum] => 0
[display_work_sum] => 0
[display_total_sum] => 0
)
1
0₽
Работа:0 ₽
Материалы:0 ₽
Дни:0
stdClass Object
(
[id] => 153
[attribute_id] => 32
[name] => Штукатурка и шпатлевка
[material_modifier] => 1
[work_modifier] => 1
[options] => Array
(
)
[days] => [20]
[material_price] => [1850]
[work_price] => [2600]
[image] => https://akademik-stroy.ru/wp-content/uploads/materials/shtukaturka-shpatlevka-1.jpg
[area_modifier] => 315.18
[parent_name] => Черновая отделка стен
[parent_id] => 32
[material_sum] => 699700
[work_sum] => 819468
[total_sum] => 1519168
[total_days] => 20
[display_material_sum] => 699 700
[display_work_sum] => 819 468
[display_total_sum] => 1 519 168
)
1
1 519 168₽
Работа:819 468 ₽
Материалы:699 700 ₽
Дни:20
stdClass Object
(
[id] => 154
[attribute_id] => 32
[name] => Гипсокортон на стены
[material_modifier] => 1
[work_modifier] => 1
[options] => Array
(
)
[days] => [15]
[material_price] => [950]
[work_price] => [2100]
[image] => https://akademik-stroy.ru/wp-content/uploads/materials/gkl-1.jpg
[area_modifier] => 315.18
[parent_name] => Черновая отделка стен
[parent_id] => 32
[material_sum] => 359305
[work_sum] => 661878
[total_sum] => 1021183
[total_days] => 15
[display_material_sum] => 359 305
[display_work_sum] => 661 878
[display_total_sum] => 1 021 183
)
1
1 021 183₽
Работа:661 878 ₽
Материалы:359 305 ₽
Дни:15
stdClass Object
(
[id] => 155
[attribute_id] => 32
[name] => Вагонка
[material_modifier] => 1
[work_modifier] => 1
[options] => Array
(
)
[days] => [15]
[material_price] => [1250]
[work_price] => [950]
[image] => https://akademik-stroy.ru/wp-content/uploads/materials/vagonka.jpg
[area_modifier] => 315.18
[parent_name] => Черновая отделка стен
[parent_id] => 32
[material_sum] => 472770
[work_sum] => 299421
[total_sum] => 772191
[total_days] => 15
[display_material_sum] => 472 770
[display_work_sum] => 299 421
[display_total_sum] => 772 191
)
1
772 191₽
Работа:299 421 ₽
Материалы:472 770 ₽
Дни:15
stdClass Object
(
[id] => 65
[attribute_id] => 33
[name] => Нет
[material_modifier] => 1
[work_modifier] => 1
[options] => Array
(
)
[days] => [0]
[material_price] => [0]
[work_price] => [0]
[image] => https://akademik-stroy.ru/wp-content/uploads/materials/styazhka.jpg
[area_modifier] => 315.18
[parent_name] => Черновая отделка полов
[parent_id] => 33
[material_sum] => 0
[work_sum] => 0
[total_sum] => 0
[total_days] => 0
[display_material_sum] => 0
[display_work_sum] => 0
[display_total_sum] => 0
)
1
0₽
Работа:0 ₽
Материалы:0 ₽
Дни:0
stdClass Object
(
[id] => 156
[attribute_id] => 33
[name] => Стяжка + наливные полы
[material_modifier] => 1
[work_modifier] => 1
[options] => Array
(
)
[days] => [10]
[material_price] => [1000]
[work_price] => [900]
[image] => https://akademik-stroy.ru/wp-content/uploads/materials/styazhka.jpg
[area_modifier] => 315.18
[parent_name] => Черновая отделка полов
[parent_id] => 33
[material_sum] => 378216
[work_sum] => 283662
[total_sum] => 661878
[total_days] => 10
[display_material_sum] => 378 216
[display_work_sum] => 283 662
[display_total_sum] => 661 878
)
1
661 878₽
Работа:283 662 ₽
Материалы:378 216 ₽
Дни:10
stdClass Object
(
[id] => 157
[attribute_id] => 33
[name] => ОСБ на пол
[material_modifier] => 1
[work_modifier] => 1
[options] => Array
(
)
[days] => [7]
[material_price] => [580]
[work_price] => [350]
[image] => https://akademik-stroy.ru/wp-content/uploads/materials/osb-1.jpg
[area_modifier] => 315.18
[parent_name] => Черновая отделка полов
[parent_id] => 33
[material_sum] => 219365
[work_sum] => 110313
[total_sum] => 329678
[total_days] => 7
[display_material_sum] => 219 365
[display_work_sum] => 110 313
[display_total_sum] => 329 678
)
1
329 678₽
Работа:110 313 ₽
Материалы:219 365 ₽
Дни:7
stdClass Object
(
[id] => 67
[attribute_id] => 34
[name] => Нет
[material_modifier] => 1
[work_modifier] => 1
[options] => Array
(
)
[days] => [0]
[material_price] => [0]
[work_price] => [0]
[image] => https://akademik-stroy.ru/wp-content/uploads/materials/chistovaya-otdelka.jpg
[area_modifier] => 315.18
[parent_name] => Чистовая отделка стен и полов
[parent_id] => 34
[material_sum] => 0
[work_sum] => 0
[total_sum] => 0
[total_days] => 0
[display_material_sum] => 0
[display_work_sum] => 0
[display_total_sum] => 0
)
1
0₽
Работа:0 ₽
Материалы:0 ₽
Дни:0
stdClass Object
(
[id] => 68
[attribute_id] => 34
[name] => Есть
[material_modifier] => 1
[work_modifier] => 1
[options] => Array
(
)
[days] => [50]
[material_price] => [6000]
[work_price] => [3500]
[image] => https://akademik-stroy.ru/wp-content/uploads/materials/chistovaya-otdelka.jpg
[area_modifier] => 315.18
[parent_name] => Чистовая отделка стен и полов
[parent_id] => 34
[material_sum] => 2269296
[work_sum] => 1103130
[total_sum] => 3372426
[total_days] => 50
[display_material_sum] => 2 269 296
[display_work_sum] => 1 103 130
[display_total_sum] => 3 372 426
)
1
3 372 426₽
Работа:1 103 130 ₽
Материалы:2 269 296 ₽
Дни:50
stdClass Object
(
[id] => 69
[attribute_id] => 35
[name] => Нет
[material_modifier] => 1
[work_modifier] => 1
[options] => Array
(
)
[days] => [0]
[material_price] => [0]
[work_price] => [0]
[image] => https://akademik-stroy.ru/wp-content/uploads/materials/mnogourovnevyj-gkl.jpg
[area_modifier] => 315.18
[parent_name] => Отделка потолка
[parent_id] => 35
[material_sum] => 0
[work_sum] => 0
[total_sum] => 0
[total_days] => 0
[display_material_sum] => 0
[display_work_sum] => 0
[display_total_sum] => 0
)
1
0₽
Работа:0 ₽
Материалы:0 ₽
Дни:0
stdClass Object
(
[id] => 70
[attribute_id] => 35
[name] => Есть
[material_modifier] => 1
[work_modifier] => 1
[options] => Array
(
[0] => Многоуровневый потолок из гипсокартона
[1] => Многоуровневый потолок из гипсокартона и натяжного потолка
[2] => Одноуровневый потолок из гипсокартона
[3] => Одноуровневый натяжной потолок
)
[days] => [10,10,1,1]
[material_price] => [900,700,700,600]
[work_price] => [1000,800,500,300]
[image] => https://akademik-stroy.ru/wp-content/uploads/materials/mnogourovnevyj-gkl.jpg
[area_modifier] => 315.18
[parent_name] => Отделка потолка
[parent_id] => 35
[material_sum] => 340394
[work_sum] => 315180
[total_sum] => 655574
[total_days] => 10
[display_material_sum] => 340 394
[display_work_sum] => 315 180
[display_total_sum] => 655 574
)
1
655 574₽
Работа:315 180 ₽
Материалы:340 394 ₽
Дни:10
Преимущества работы с нами
7 этапов оплаты
Независимый строительный надзор
Экологически чистые материалы
16 лет гарантии
Онлайн-кабинет с веб-камерой
Строители с опытом более 15 лет
Собственное производство









