Одноэтажный дом 9x18 - 189.15 м2 за руб.
Планировки
План первого этажа
- 1. Тамбур 5,50 м²
- 2. ИТП 7,90 м²
- 3. Холл 13,94 м²
- 4. Санузел 3,18 м²
- 5. Гостевая 11,42 м²
- 6. Гостиная 23,00 м²
- 7. Кухня 7,05 м²
- 8. Гараж 34,20 м²
- Общая площадь первый этаж 106,19 м²
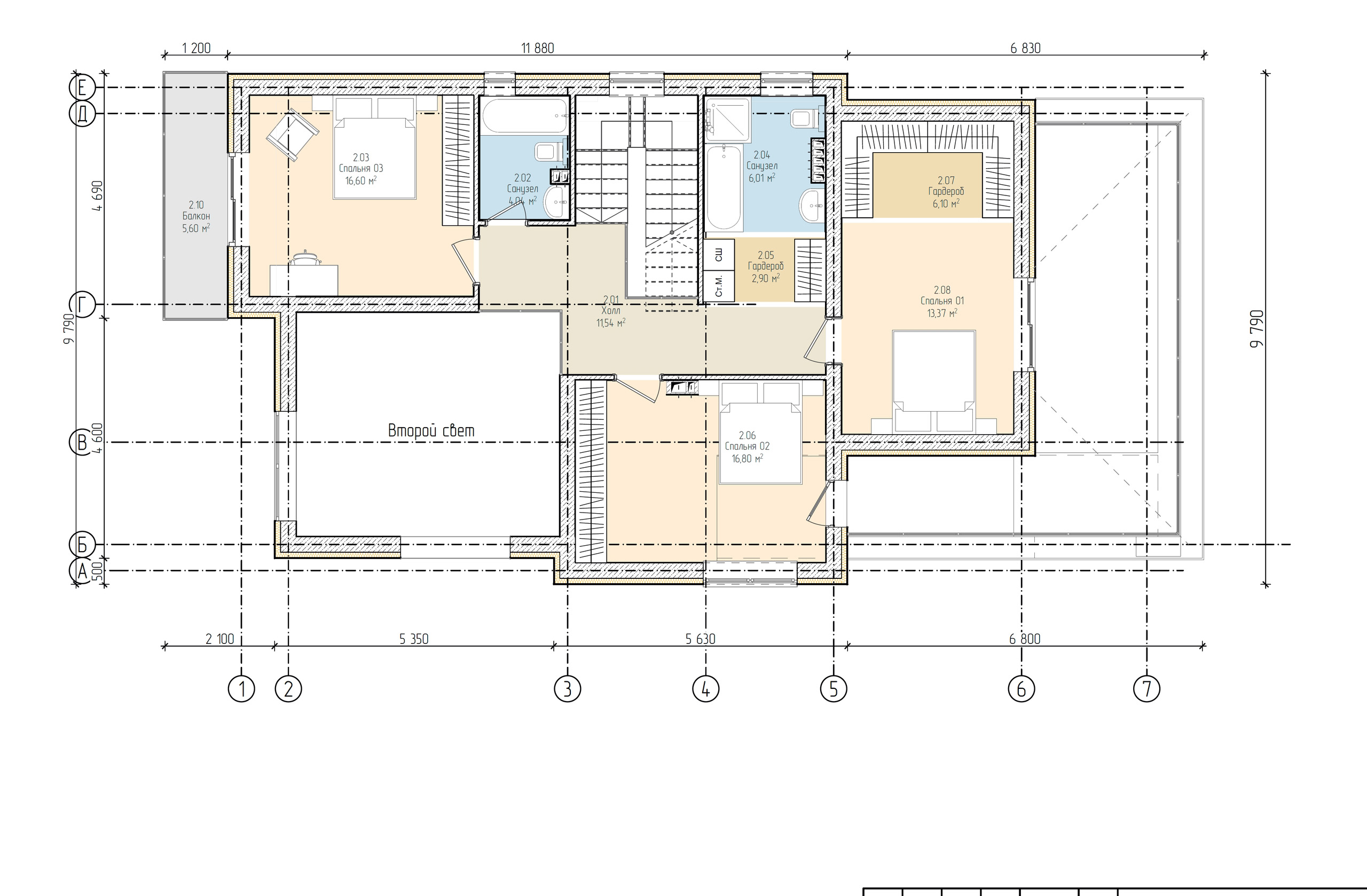
План второго этажа
- 1. Холл 11,54 м²
- 2. Санузел 4,04 м²
- 3. Спальня 16,60 м²
- 4. Санузел 6,01 м²
- 5. Гардероб 2,90 м²
- 6. Спальня 16,80 м²
- 7. Гардероб 6,10 м²
- 8. Спальня 13,37 м²
- 9. Балкон 5,60 м²
- Общая площадь второй этаж 82,96 м²
Площади дома
| № п/п | Наименование | Ед. из. | Строительная площадь | Полезная площадь |
| 1 | 1 этаж | м2 | 130.86 | 106.19 |
| 2 | 2 этаж | м2 | 102.23 | 82.96 |
| 3 | Итого | м2 | 233.09 | 189.15 |
154 м2
Полезная
площадь
площадь
9 x 18 м
Размеры
1 этаж
Этажей
26 м2
Террасы
и балконы
и балконы
1Без
гаража
гаража
4
Количество
спален
спален
3
Количество
санузлов
санузлов
Калькулятор опций
0₽
В ипотеку от 21 956 ₽/мес.
0₽
0 дней
stdClass Object
(
[id] => 1
[attribute_id] => 1
[name] => Ленточный монолитный ж/б
[material_modifier] => 1
[work_modifier] => 1
[options] => Array
(
[0] => размер 200 х 700 мм
[1] => размер 300 х 900 мм
[2] => размер 400 х 1 000 мм
[3] => размер 500 х 1 100 мм
[4] => размер 600 х 1 200 мм
)
[days] => [20,21,22,25,30]
[material_price] => [2823,3630,4475,5210,12047]
[work_price] => [2154,2826,3731,4577,5293]
[image] => https://akademik-stroy.ru/wp-content/uploads/materials/lentochnyj-monolitnyj-zh-b.jpg
[area_modifier] => 130.86
[parent_name] => Фундамент
[parent_id] => 1
[material_sum] => 465466
[work_sum] => 295966
[total_sum] => 761432
[total_days] => 20
[display_material_sum] => 465 466
[display_work_sum] => 295 966
[display_total_sum] => 761 432
)
1
761 432₽
Работа:295 966 ₽
Материалы:465 466 ₽
Дни:20
stdClass Object
(
[id] => 2
[attribute_id] => 1
[name] => Забивные Ж/Б сваи
[material_modifier] => 1
[work_modifier] => 1
[options] => Array
(
[0] => 150х150х3000мм
[1] => 150х150х4000мм
[2] => 200х200х3000мм
[3] => 200х200х4000мм
[4] => 200х200х5000мм
[5] => 200х200х6000мм
)
[days] => [2,2,2,2,2,2]
[material_price] => [1990,2850,3255,4360,5120,6837]
[work_price] => [1002,1185,1336,1438,1574,1839]
[image] => https://akademik-stroy.ru/wp-content/uploads/materials/zabivnye-zh-b-svai.png
[area_modifier] => 130.86
[parent_name] => Фундамент
[parent_id] => 1
[material_sum] => 328118
[work_sum] => 137678
[total_sum] => 465796
[total_days] => 2
[display_material_sum] => 328 118
[display_work_sum] => 137 678
[display_total_sum] => 465 796
)
1
465 796₽
Работа:137 678 ₽
Материалы:328 118 ₽
Дни:2
stdClass Object
(
[id] => 71
[attribute_id] => 1
[name] => Свайно-ростверковый ж/б
[material_modifier] => 1
[work_modifier] => 1
[options] => Array
(
[0] => ростверк 200х300 мм
[1] => ростверк 300х600 мм
[2] => ростверк 400х900 мм
[3] => ростверк 500х1200 мм
)
[days] => [20,23,25,27]
[material_price] => [3018,3474,7109,9792]
[work_price] => [2024,3012,5635,7022]
[image] => https://akademik-stroy.ru/wp-content/uploads/materials/svajno-rostverkovyj-monolitnyj-zh-b-3.png
[area_modifier] => 130.86
[parent_name] => Фундамент
[parent_id] => 1
[material_sum] => 497619
[work_sum] => 278104
[total_sum] => 775723
[total_days] => 20
[display_material_sum] => 497 619
[display_work_sum] => 278 104
[display_total_sum] => 775 723
)
1
775 723₽
Работа:278 104 ₽
Материалы:497 619 ₽
Дни:20
stdClass Object
(
[id] => 72
[attribute_id] => 1
[name] => Монолитная ж/б плита
[material_modifier] => 1
[work_modifier] => 1
[options] => Array
(
[0] => 200 мм
[1] => 300 мм
[2] => 400 мм
[3] => 500 мм
[4] => 600 мм
)
[days] => [30,33,35,37,40]
[material_price] => [5348,8555,12788,14388,15189]
[work_price] => [4314,4881,7037,8061,10230]
[image] => https://akademik-stroy.ru/wp-content/uploads/materials/monolitnaya-zhb-plita.png
[area_modifier] => 130.86
[parent_name] => Фундамент
[parent_id] => 1
[material_sum] => 881797
[work_sum] => 592757
[total_sum] => 1474554
[total_days] => 30
[display_material_sum] => 881 797
[display_work_sum] => 592 757
[display_total_sum] => 1 474 554
)
1
1 474 554₽
Работа:592 757 ₽
Материалы:881 797 ₽
Дни:30
stdClass Object
(
[id] => 73
[attribute_id] => 1
[name] => Утепленная шведская плита
[material_modifier] => 1
[work_modifier] => 1
[options] => Array
(
[0] => 200 мм
[1] => 300 мм
[2] => 400 мм
[3] => 500 мм
[4] => 600 мм
)
[days] => [32,37,39,42,45]
[material_price] => [10249,12692,13760,14936,16230]
[work_price] => [5960,7337,8072,8878,9765]
[image] => https://akademik-stroy.ru/wp-content/uploads/materials/uteplennaya-shvedskaya-plita.jpg
[area_modifier] => 130.86
[parent_name] => Фундамент
[parent_id] => 1
[material_sum] => 1689892
[work_sum] => 818922
[total_sum] => 2508814
[total_days] => 32
[display_material_sum] => 1 689 892
[display_work_sum] => 818 922
[display_total_sum] => 2 508 814
)
1
2 508 814₽
Работа:818 922 ₽
Материалы:1 689 892 ₽
Дни:32
stdClass Object
(
[id] => 75
[attribute_id] => 1
[name] => Ленточный из ФБС
[material_modifier] => 1
[work_modifier] => 1
[options] => Array
(
[0] => толщ. 300 мм
[1] => толщ. 400 мм
[2] => толщ. 500 мм
[3] => толщ. 600 мм
)
[days] => [20,20,20,20]
[material_price] => [3675,4902,6126,7350]
[work_price] => [2451,3264,4083,4902]
[image] => https://akademik-stroy.ru/wp-content/uploads/materials/lentochnyj-iz-fbs.png
[area_modifier] => 130.86
[parent_name] => Фундамент
[parent_id] => 1
[material_sum] => 605947
[work_sum] => 336775
[total_sum] => 942722
[total_days] => 20
[display_material_sum] => 605 947
[display_work_sum] => 336 775
[display_total_sum] => 942 722
)
1
942 722₽
Работа:336 775 ₽
Материалы:605 947 ₽
Дни:20
stdClass Object
(
[id] => 76
[attribute_id] => 1
[name] => Цокольный этаж из ФБС
[material_modifier] => 1
[work_modifier] => 1
[options] => Array
(
[0] => толщ. 300 мм
[1] => толщ. 400 мм
[2] => толщ. 500 мм
[3] => толщ. 600 мм
)
[days] => [30,32,34,36]
[material_price] => [20916,23299,26680,29060]
[work_price] => [17524,18700,19873,21046]
[image] => https://akademik-stroy.ru/wp-content/uploads/materials/cokolnyj-ehtazh-iz-fbs.jpg
[area_modifier] => 130.86
[parent_name] => Фундамент
[parent_id] => 1
[material_sum] => 3448705
[work_sum] => 2407850
[total_sum] => 5856555
[total_days] => 30
[display_material_sum] => 3 448 705
[display_work_sum] => 2 407 850
[display_total_sum] => 5 856 555
)
1
5 856 555₽
Работа:2 407 850 ₽
Материалы:3 448 705 ₽
Дни:30
stdClass Object
(
[id] => 77
[attribute_id] => 1
[name] => Цокольный этаж монолитный ж/б
[material_modifier] => 1
[work_modifier] => 1
[options] => Array
(
[0] => толщ. 200 мм
[1] => толщ. 300 мм
[2] => толщ. 400 мм
[3] => толщ. 500 мм
[4] => толщ. 600 мм
)
[days] => [40,42,44,46,48]
[material_price] => [25421,29148,32275,35602,37326]
[work_price] => [20441,21907,23375,24841,26306]
[image] => https://akademik-stroy.ru/wp-content/uploads/materials/cokolnyj-etazh-zh-b.jpg
[area_modifier] => 130.86
[parent_name] => Фундамент
[parent_id] => 1
[material_sum] => 4191506
[work_sum] => 2808655
[total_sum] => 7000161
[total_days] => 40
[display_material_sum] => 4 191 506
[display_work_sum] => 2 808 655
[display_total_sum] => 7 000 161
)
1
7 000 161₽
Работа:2 808 655 ₽
Материалы:4 191 506 ₽
Дни:40
stdClass Object
(
[id] => 191
[attribute_id] => 1
[name] => Винтовые сваи
[material_modifier] => 1
[work_modifier] => 1
[options] => Array
(
[0] => 57х200мм
[1] => 76х250мм
[2] => 108х300мм
[3] => 133х350мм
)
[days] => [1,1,2,2]
[material_price] => [1200,1300,1450,1600]
[work_price] => [400,600,900,1100]
[image] => https://akademik-stroy.ru/wp-content/uploads/materials/vintovye-svai.png
[area_modifier] => 130.86
[parent_name] => Фундамент
[parent_id] => 1
[material_sum] => 197860
[work_sum] => 54961
[total_sum] => 252821
[total_days] => 1
[display_material_sum] => 197 860
[display_work_sum] => 54 961
[display_total_sum] => 252 821
)
1
252 821₽
Работа:54 961 ₽
Материалы:197 860 ₽
Дни:1
stdClass Object
(
[id] => 3
[attribute_id] => 2
[name] => Деревянные балки
[material_modifier] => 1
[work_modifier] => 1
[options] => Array
(
[0] => без утепления
[1] => утепление 200 мм
[2] => утепление 250 мм
[3] => утепление 300 мм
[4] => утепление 350 мм
[5] => утепление 400 мм
[6] => утепление 450 мм
[7] => утепление 500 мм
)
[days] => [8,9,9,9,11,12,13,14]
[material_price] => [1634,2042,2344,2947,3149,3652,3354,3557]
[work_price] => [1230,1339,1393,1426,1460,1513,1587,1620]
[image] => https://akademik-stroy.ru/wp-content/uploads/materials/derevyannye-balki.png
[area_modifier] => 130.86
[parent_name] => Перекрытие цоколя
[parent_id] => 2
[material_sum] => 269420
[work_sum] => 169006
[total_sum] => 438426
[total_days] => 8
[display_material_sum] => 269 420
[display_work_sum] => 169 006
[display_total_sum] => 438 426
)
1
438 426₽
Работа:169 006 ₽
Материалы:269 420 ₽
Дни:8
stdClass Object
(
[id] => 4
[attribute_id] => 2
[name] => Сборные ж/б плиты
[material_modifier] => 1
[work_modifier] => 1
[options] => Array
(
[0] => без утепления
[1] => утепление 150мм
[2] => утепление 200мм
[3] => утепление 250мм
[4] => утепление 300мм
[5] => утепление 350мм
[6] => утепление 400мм
[7] => утепление 450мм
[8] => утепление 500мм
)
[days] => [13,15,15,15,15,15,15,15,15]
[material_price] => [3067,5577,5928,6679,7730,8782,9833,10884,11935]
[work_price] => [1520,1956,2102,2247,2392,2537,2684,2829,2974]
[image] => https://akademik-stroy.ru/wp-content/uploads/materials/sbornye-zh-b-plity-2.jpg
[area_modifier] => 130.86
[parent_name] => Перекрытие цоколя
[parent_id] => 2
[material_sum] => 505698
[work_sum] => 208853
[total_sum] => 714551
[total_days] => 13
[display_material_sum] => 505 698
[display_work_sum] => 208 853
[display_total_sum] => 714 551
)
1
714 551₽
Работа:208 853 ₽
Материалы:505 698 ₽
Дни:13
stdClass Object
(
[id] => 78
[attribute_id] => 2
[name] => Монолитная ж/б плита
[material_modifier] => 1
[work_modifier] => 1
[options] => Array
(
[0] => без утепления
[1] => утепление 150 мм
[2] => утепление 200 мм
[3] => утепление 250 мм
[4] => утепление 300 мм
[5] => утепление 350 мм
[6] => утепление 400 мм
[7] => утепление 450 мм
[8] => утепление 500 мм
)
[days] => [18,20,20,20,20,20,20,20,20]
[material_price] => [4837,6572,7224,7375,79426,8177,8728,9180,10031]
[work_price] => [3348,3921,4112,4302,4493,4684,4875,5066,5256]
[image] => https://akademik-stroy.ru/wp-content/uploads/materials/monolitnaya-zh-b-plita-2.jpg
[area_modifier] => 130.86
[parent_name] => Перекрытие цоколя
[parent_id] => 2
[material_sum] => 797542
[work_sum] => 460025
[total_sum] => 1257567
[total_days] => 18
[display_material_sum] => 797 542
[display_work_sum] => 460 025
[display_total_sum] => 1 257 567
)
1
1 257 567₽
Работа:460 025 ₽
Материалы:797 542 ₽
Дни:18
stdClass Object
(
[id] => 6
[attribute_id] => 3
[name] => Пеноблок
[material_modifier] => 1
[work_modifier] => 1
[options] => Array
(
[0] => 300 мм
[1] => 400 мм
[2] => 500 мм
[3] => 600 мм
)
[days] => [29,31,34,39]
[material_price] => [3000,4000,4500,4937]
[work_price] => [5033,5805,6400,8710]
[image] => https://akademik-stroy.ru/wp-content/uploads/materials/penoblok.jpg
[area_modifier] => 130.86
[parent_name] => Стены 1 этаж (несущие)
[parent_id] => 3
[material_sum] => 494651
[work_sum] => 691549
[total_sum] => 1186200
[total_days] => 29
[display_material_sum] => 494 651
[display_work_sum] => 691 549
[display_total_sum] => 1 186 200
)
1
1 186 200₽
Работа:691 549 ₽
Материалы:494 651 ₽
Дни:29
stdClass Object
(
[id] => 79
[attribute_id] => 3
[name] => Керамический блок
[material_modifier] => 1
[work_modifier] => 1
[options] => Array
(
[0] => 380 мм
[1] => 380 мм Thermo
[2] => 440 мм
[3] => 510 мм
)
[days] => [23,23,24,25]
[material_price] => [4510,5098,6093,8013]
[work_price] => [4737,4937,5903,6958]
[image] => https://akademik-stroy.ru/wp-content/uploads/materials/keramicheskij-blok.jpg
[area_modifier] => 130.86
[parent_name] => Стены 1 этаж (несущие)
[parent_id] => 3
[material_sum] => 743625
[work_sum] => 650878
[total_sum] => 1394503
[total_days] => 23
[display_material_sum] => 743 625
[display_work_sum] => 650 878
[display_total_sum] => 1 394 503
)
1
1 394 503₽
Работа:650 878 ₽
Материалы:743 625 ₽
Дни:23
stdClass Object
(
[id] => 80
[attribute_id] => 3
[name] => Кирпич
[material_modifier] => 1
[work_modifier] => 1
[options] => Array
(
[0] => Кирпич 250 мм
[1] => Кирпич 380 мм
[2] => Кирпич 510 мм
[3] => Кирпич 640 мм
[4] => Кирпич 770 мм
)
[days] => [30,30,31,33,36]
[material_price] => [5500,7142,9206,10171,12235]
[work_price] => [8736,10041,12018,15240,18462]
[image] => https://akademik-stroy.ru/wp-content/uploads/materials/kirpich.jpg
[area_modifier] => 130.86
[parent_name] => Стены 1 этаж (несущие)
[parent_id] => 3
[material_sum] => 906860
[work_sum] => 1200353
[total_sum] => 2107213
[total_days] => 30
[display_material_sum] => 906 860
[display_work_sum] => 1 200 353
[display_total_sum] => 2 107 213
)
1
2 107 213₽
Работа:1 200 353 ₽
Материалы:906 860 ₽
Дни:30
stdClass Object
(
[id] => 81
[attribute_id] => 3
[name] => Монолитные
[material_modifier] => 1
[work_modifier] => 1
[options] => Array
(
[0] => 150 мм
[1] => 200 мм
[2] => 250 мм
[3] => 300 мм
[4] => 350 мм
[5] => 400 мм
)
[days] => [45,46,47,49,50,53]
[material_price] => [6545,7876,10175,12011,13908,15204]
[work_price] => [5106,6444,7698,8552,9807,11461]
[image] => https://akademik-stroy.ru/wp-content/uploads/materials/monolitnye.jpg
[area_modifier] => 130.86
[parent_name] => Стены 1 этаж (несущие)
[parent_id] => 3
[material_sum] => 1079163
[work_sum] => 701580
[total_sum] => 1780743
[total_days] => 45
[display_material_sum] => 1 079 163
[display_work_sum] => 701 580
[display_total_sum] => 1 780 743
)
1
1 780 743₽
Работа:701 580 ₽
Материалы:1 079 163 ₽
Дни:45
stdClass Object
(
[id] => 82
[attribute_id] => 3
[name] => Клееный брус
[material_modifier] => 1
[work_modifier] => 1
[options] => Array
(
[0] => 160 мм
[1] => 175 мм
[2] => 200 мм
[3] => 215 мм
[4] => 240 мм
[5] => 270 мм
[6] => 282 мм
)
[days] => [24,28,32,37,40,42,48]
[material_price] => [16975,18773,19950,20545,21599,22159,23275]
[work_price] => [4806,5287,5815,6397,7036,7740,8514]
[image] => https://akademik-stroy.ru/wp-content/uploads/materials/kleenyj-brus.jpg
[area_modifier] => 130.86
[parent_name] => Стены 1 этаж (несущие)
[parent_id] => 3
[material_sum] => 2798899
[work_sum] => 660359
[total_sum] => 3459258
[total_days] => 24
[display_material_sum] => 2 798 899
[display_work_sum] => 660 359
[display_total_sum] => 3 459 258
)
1
3 459 258₽
Работа:660 359 ₽
Материалы:2 798 899 ₽
Дни:24
stdClass Object
(
[id] => 83
[attribute_id] => 3
[name] => Каркасные
[material_modifier] => 1
[work_modifier] => 1
[options] => Array
(
[0] => 150 мм
[1] => 200 мм
[2] => 250 мм
[3] => 300 мм
)
[days] => [15,16,17,18]
[material_price] => [2379,2639,2898,3258]
[work_price] => [2418,2686,2985,3716]
[image] => https://akademik-stroy.ru/wp-content/uploads/materials/karkasnye.jpg
[area_modifier] => 130.86
[parent_name] => Стены 1 этаж (несущие)
[parent_id] => 3
[material_sum] => 392258
[work_sum] => 332240
[total_sum] => 724498
[total_days] => 15
[display_material_sum] => 392 258
[display_work_sum] => 332 240
[display_total_sum] => 724 498
)
1
724 498₽
Работа:332 240 ₽
Материалы:392 258 ₽
Дни:15
stdClass Object
(
[id] => 84
[attribute_id] => 3
[name] => СИП-панели
[material_modifier] => 1
[work_modifier] => 1
[options] => Array
(
[0] => 120 мм
[1] => 170 мм
[2] => 220 мм
)
[days] => [7,7,7]
[material_price] => [1210,1856,2292]
[work_price] => [1410,1551,1706]
[image] => https://akademik-stroy.ru/wp-content/uploads/materials/sip-paneli.jpg
[area_modifier] => 130.86
[parent_name] => Стены 1 этаж (несущие)
[parent_id] => 3
[material_sum] => 199509
[work_sum] => 193738
[total_sum] => 393247
[total_days] => 7
[display_material_sum] => 199 509
[display_work_sum] => 193 738
[display_total_sum] => 393 247
)
1
393 247₽
Работа:193 738 ₽
Материалы:199 509 ₽
Дни:7
stdClass Object
(
[id] => 85
[attribute_id] => 3
[name] => Сухой брус
[material_modifier] => 1
[work_modifier] => 1
[options] => Array
(
[0] => 150 мм
[1] => 180 мм
[2] => 200 мм
)
[days] => [7,8,9]
[material_price] => [6010,7190,8709]
[work_price] => [3204,3845,4229]
[image] => https://akademik-stroy.ru/wp-content/uploads/materials/suhoj-brus.jpg
[area_modifier] => 130.86
[parent_name] => Стены 1 этаж (несущие)
[parent_id] => 3
[material_sum] => 990950
[work_sum] => 440239
[total_sum] => 1431189
[total_days] => 7
[display_material_sum] => 990 950
[display_work_sum] => 440 239
[display_total_sum] => 1 431 189
)
1
1 431 189₽
Работа:440 239 ₽
Материалы:990 950 ₽
Дни:7
stdClass Object
(
[id] => 86
[attribute_id] => 3
[name] => Профилированный брус
[material_modifier] => 1
[work_modifier] => 1
[options] => Array
(
[0] => 150 мм
[1] => 180 мм
[2] => 200 мм
)
[days] => [7,8,9]
[material_price] => [8190,9228,10051]
[work_price] => [3845,4614,5075]
[image] => https://akademik-stroy.ru/wp-content/uploads/materials/profilirovannyj-brus.jpg
[area_modifier] => 130.86
[parent_name] => Стены 1 этаж (несущие)
[parent_id] => 3
[material_sum] => 1350397
[work_sum] => 528315
[total_sum] => 1878712
[total_days] => 7
[display_material_sum] => 1 350 397
[display_work_sum] => 528 315
[display_total_sum] => 1 878 712
)
1
1 878 712₽
Работа:528 315 ₽
Материалы:1 350 397 ₽
Дни:7
stdClass Object
(
[id] => 87
[attribute_id] => 3
[name] => Оцилиндрованное бревно
[material_modifier] => 1
[work_modifier] => 1
[options] => Array
(
[0] => 180 мм
[1] => 220 мм
[2] => 260 мм
[3] => 320 мм
)
[days] => [7,8,9,10]
[material_price] => [75190,9532,10868,13116]
[work_price] => [3845,4691,5535,6863]
[image] => https://akademik-stroy.ru/wp-content/uploads/materials/ocilindrovannoe-brevno-1.jpg
[area_modifier] => 130.86
[parent_name] => Стены 1 этаж (несущие)
[parent_id] => 3
[material_sum] => 12397598
[work_sum] => 528315
[total_sum] => 12925913
[total_days] => 7
[display_material_sum] => 12 397 598
[display_work_sum] => 528 315
[display_total_sum] => 12 925 913
)
1
12 925 913₽
Работа:528 315 ₽
Материалы:12 397 598 ₽
Дни:7
stdClass Object
(
[id] => 88
[attribute_id] => 3
[name] => Срубы
[material_modifier] => 1
[work_modifier] => 1
[options] => Array
(
[0] => 260 мм
[1] => 320 мм
[2] => 360 мм
[3] => 400 мм
[4] => 500 мм
)
[days] => [7,8,9,10,11]
[material_price] => [37975,46709,52314,58069,73167]
[work_price] => [4806,5911,6621,7349,9260]
[image] => https://akademik-stroy.ru/wp-content/uploads/materials/sruby.jpg
[area_modifier] => 130.86
[parent_name] => Стены 1 этаж (несущие)
[parent_id] => 3
[material_sum] => 6261455
[work_sum] => 660359
[total_sum] => 6921814
[total_days] => 7
[display_material_sum] => 6 261 455
[display_work_sum] => 660 359
[display_total_sum] => 6 921 814
)
1
6 921 814₽
Работа:660 359 ₽
Материалы:6 261 455 ₽
Дни:7
stdClass Object
(
[id] => 174
[attribute_id] => 3
[name] => Брус
[material_modifier] => 1
[work_modifier] => 1
[options] => Array
(
[0] => 150 мм
[1] => 180 мм
[2] => 200 мм
)
[days] => [7,8,9]
[material_price] => [5127,6152,7367]
[work_price] => [1602,1922,2115]
[image] => https://akademik-stroy.ru/wp-content/uploads/materials/brus.jpg
[area_modifier] => 130.86
[parent_name] => Стены 1 этаж (несущие)
[parent_id] => 3
[material_sum] => 845358
[work_sum] => 220120
[total_sum] => 1065478
[total_days] => 7
[display_material_sum] => 845 358
[display_work_sum] => 220 120
[display_total_sum] => 1 065 478
)
1
1 065 478₽
Работа:220 120 ₽
Материалы:845 358 ₽
Дни:7
stdClass Object
(
[id] => 175
[attribute_id] => 3
[name] => Газобетон
[material_modifier] => 1
[work_modifier] => 1
[options] => Array
(
[0] => 300 мм
[1] => 375 мм
[2] => 400 мм
[3] => 500 мм
[4] => 600 мм
)
[days] => [29,31,35,37,44]
[material_price] => [4298,5573,6356,7288,9119]
[work_price] => [4538,5251,5926,6733,7195]
[image] => https://akademik-stroy.ru/wp-content/uploads/materials/gazobeton.jpg
[area_modifier] => 130.86
[parent_name] => Стены 1 этаж (несущие)
[parent_id] => 3
[material_sum] => 708670
[work_sum] => 623535
[total_sum] => 1332205
[total_days] => 29
[display_material_sum] => 708 670
[display_work_sum] => 623 535
[display_total_sum] => 1 332 205
)
1
1 332 205₽
Работа:623 535 ₽
Материалы:708 670 ₽
Дни:29
stdClass Object
(
[id] => 176
[attribute_id] => 3
[name] => Блок
[material_modifier] => 1
[work_modifier] => 1
[options] => Array
(
[0] => 300 мм
[1] => 375 мм
[2] => 400 мм
[3] => 500 мм
[4] => 600 мм
)
[days] => [29,31,35,37,44]
[material_price] => [2698,3973,4356,6588,7119]
[work_price] => [5038,5851,6426,8733,9195]
[image] => https://akademik-stroy.ru/wp-content/uploads/materials/blok.jpg
[area_modifier] => 130.86
[parent_name] => Стены 1 этаж (несущие)
[parent_id] => 3
[material_sum] => 444856
[work_sum] => 692236
[total_sum] => 1137092
[total_days] => 29
[display_material_sum] => 444 856
[display_work_sum] => 692 236
[display_total_sum] => 1 137 092
)
1
1 137 092₽
Работа:692 236 ₽
Материалы:444 856 ₽
Дни:29
stdClass Object
(
[id] => 177
[attribute_id] => 3
[name] => Газосиликатный блок
[material_modifier] => 1
[work_modifier] => 1
[options] => Array
(
[0] => 300 мм
[1] => 375 мм
[2] => 400 мм
[3] => 500 мм
[4] => 600 мм
)
[days] => [29,31,35,37,44]
[material_price] => [4298,5573,6356,7288,9119]
[work_price] => [4538,5251,5926,6733,7195]
[image] => https://akademik-stroy.ru/wp-content/uploads/materials/gazosilikatnyj-blok.jpg
[area_modifier] => 130.86
[parent_name] => Стены 1 этаж (несущие)
[parent_id] => 3
[material_sum] => 708670
[work_sum] => 623535
[total_sum] => 1332205
[total_days] => 29
[display_material_sum] => 708 670
[display_work_sum] => 623 535
[display_total_sum] => 1 332 205
)
1
1 332 205₽
Работа:623 535 ₽
Материалы:708 670 ₽
Дни:29
stdClass Object
(
[id] => 178
[attribute_id] => 3
[name] => Керамзитобетонный блок
[material_modifier] => 1
[work_modifier] => 1
[options] => Array
(
[0] => 300 мм
[1] => 375 мм
[2] => 400 мм
[3] => 500 мм
[4] => 600 мм
)
[days] => [23,23,24,25,28]
[material_price] => [3641,4298,5693,7613,9612]
[work_price] => [5737,5737,6903,7958,8901]
[image] => https://akademik-stroy.ru/wp-content/uploads/materials/keramzitobetonnyj-blok.jpg
[area_modifier] => 130.86
[parent_name] => Стены 1 этаж (несущие)
[parent_id] => 3
[material_sum] => 600341
[work_sum] => 788281
[total_sum] => 1388622
[total_days] => 23
[display_material_sum] => 600 341
[display_work_sum] => 788 281
[display_total_sum] => 1 388 622
)
1
1 388 622₽
Работа:788 281 ₽
Материалы:600 341 ₽
Дни:23
stdClass Object
(
[id] => 179
[attribute_id] => 3
[name] => Деревянные
[material_modifier] => 1
[work_modifier] => 1
[options] => Array
(
[0] => 180 мм
[1] => 220 мм
[2] => 260 мм
[3] => 320 мм
)
[days] => [7,8,9,10]
[material_price] => [7950,9458,11961,14472]
[work_price] => [4037,4925,5812,7207]
[image] => https://akademik-stroy.ru/wp-content/uploads/materials/derevyannye.jpg
[area_modifier] => 130.86
[parent_name] => Стены 1 этаж (несущие)
[parent_id] => 3
[material_sum] => 1310825
[work_sum] => 554696
[total_sum] => 1865521
[total_days] => 7
[display_material_sum] => 1 310 825
[display_work_sum] => 554 696
[display_total_sum] => 1 865 521
)
1
1 865 521₽
Работа:554 696 ₽
Материалы:1 310 825 ₽
Дни:7
stdClass Object
(
[id] => 181
[attribute_id] => 3
[name] => Камень
[material_modifier] => 1
[work_modifier] => 1
[options] => Array
(
[0] => 300 мм
[1] => 400 мм
[2] => 500 мм
[3] => 600 мм
)
[days] => [25,27,31,34]
[material_price] => [5262,6844,8330,9815]
[work_price] => [8331,9135,10427,11069]
[image] => https://akademik-stroy.ru/wp-content/uploads/materials/kamen.jpg
[area_modifier] => 130.86
[parent_name] => Стены 1 этаж (несущие)
[parent_id] => 3
[material_sum] => 867618
[work_sum] => 1144704
[total_sum] => 2012322
[total_days] => 25
[display_material_sum] => 867 618
[display_work_sum] => 1 144 704
[display_total_sum] => 2 012 322
)
1
2 012 322₽
Работа:1 144 704 ₽
Материалы:867 618 ₽
Дни:25
stdClass Object
(
[id] => 182
[attribute_id] => 3
[name] => Каркасно-щитовые
[material_modifier] => 1
[work_modifier] => 1
[options] => Array
(
[0] => 150 мм
[1] => 200 мм
[2] => 250 мм
[3] => 300 мм
[4] => 350 мм
[5] => 400 мм
)
[days] => [15,16,17,18,19,20]
[material_price] => [2379,2639,2898,3458,3601,4175]
[work_price] => [2538,2820,3134,3483,4062,5642]
[image] => https://akademik-stroy.ru/wp-content/uploads/materials/karkasno-shchitovye.jpg
[area_modifier] => 130.86
[parent_name] => Стены 1 этаж (несущие)
[parent_id] => 3
[material_sum] => 392258
[work_sum] => 348729
[total_sum] => 740987
[total_days] => 15
[display_material_sum] => 392 258
[display_work_sum] => 348 729
[display_total_sum] => 740 987
)
1
740 987₽
Работа:348 729 ₽
Материалы:392 258 ₽
Дни:15
stdClass Object
(
[id] => 183
[attribute_id] => 3
[name] => Рубленные
[material_modifier] => 1
[work_modifier] => 1
[options] => Array
(
[0] => 150 мм
[1] => 200 мм
[2] => 250 мм
[3] => 300 мм
[4] => 350 мм
[5] => 400 мм
)
[days] => [15,16,17,18,17,18]
[material_price] => [35950,50267,60583,75900,80217,100533]
[work_price] => [9612,12816,16020,19224,22428,25632]
[image] => https://akademik-stroy.ru/wp-content/uploads/materials/rublennye.jpg
[area_modifier] => 130.86
[parent_name] => Стены 1 этаж (несущие)
[parent_id] => 3
[material_sum] => 5927565
[work_sum] => 1320718
[total_sum] => 7248283
[total_days] => 15
[display_material_sum] => 5 927 565
[display_work_sum] => 1 320 718
[display_total_sum] => 7 248 283
)
1
7 248 283₽
Работа:1 320 718 ₽
Материалы:5 927 565 ₽
Дни:15
stdClass Object
(
[id] => 185
[attribute_id] => 3
[name] => Теплоблок
[material_modifier] => 1
[work_modifier] => 1
[options] => Array
(
[0] => 300 мм (с облицовкой, не покрашенный)
[1] => 400 мм (с облицовкой, не покрашенный)
[2] => 300 мм (с облицовкой, покрашенный)
[3] => 400 мм (с облицовкой, покрашенный)
)
[days] => [15,16,15,16]
[material_price] => [2888,3729,3957,4258]
[work_price] => [2564,3229,2949,3713]
[image] => https://akademik-stroy.ru/wp-content/uploads/materials/teploblok.jpg
[area_modifier] => 130.86
[parent_name] => Стены 1 этаж (несущие)
[parent_id] => 3
[material_sum] => 476184
[work_sum] => 352301
[total_sum] => 828485
[total_days] => 15
[display_material_sum] => 476 184
[display_work_sum] => 352 301
[display_total_sum] => 828 485
)
1
828 485₽
Работа:352 301 ₽
Материалы:476 184 ₽
Дни:15
stdClass Object
(
[id] => 186
[attribute_id] => 3
[name] => Арболитовые блоки
[material_modifier] => 1
[work_modifier] => 1
[options] => Array
(
[0] => 300 мм
[1] => 400 мм
[2] => 600 мм
)
[days] => [19,22,27]
[material_price] => [3210,4475,5852]
[work_price] => [4214,4788,5866]
[image] => https://akademik-stroy.ru/wp-content/uploads/materials/arbolitovye-bloki.png
[area_modifier] => 130.86
[parent_name] => Стены 1 этаж (несущие)
[parent_id] => 3
[material_sum] => 529276
[work_sum] => 579016
[total_sum] => 1108292
[total_days] => 19
[display_material_sum] => 529 276
[display_work_sum] => 579 016
[display_total_sum] => 1 108 292
)
1
1 108 292₽
Работа:579 016 ₽
Материалы:529 276 ₽
Дни:19
stdClass Object
(
[id] => 187
[attribute_id] => 3
[name] => Полистиролбетон
[material_modifier] => 1
[work_modifier] => 1
[options] => Array
(
[0] => 300 мм
[1] => 400 мм
[2] => 600 мм
)
[days] => [29,31,35]
[material_price] => [2798,4573,5256]
[work_price] => [5038,5851,6426]
[image] => https://akademik-stroy.ru/wp-content/uploads/materials/polistirolbeton.jpg
[area_modifier] => 130.86
[parent_name] => Стены 1 этаж (несущие)
[parent_id] => 3
[material_sum] => 461344
[work_sum] => 692236
[total_sum] => 1153580
[total_days] => 29
[display_material_sum] => 461 344
[display_work_sum] => 692 236
[display_total_sum] => 1 153 580
)
1
1 153 580₽
Работа:692 236 ₽
Материалы:461 344 ₽
Дни:29
stdClass Object
(
[id] => 188
[attribute_id] => 3
[name] => Шлакоблок
[material_modifier] => 1
[work_modifier] => 1
[options] => Array
(
[0] => 400 мм
[1] => 600 мм
)
[days] => [15,16]
[material_price] => [2391,3471]
[work_price] => [2642,3662]
[image] => https://akademik-stroy.ru/wp-content/uploads/materials/shlakoblok.jpg
[area_modifier] => 130.86
[parent_name] => Стены 1 этаж (несущие)
[parent_id] => 3
[material_sum] => 394237
[work_sum] => 363019
[total_sum] => 757256
[total_days] => 15
[display_material_sum] => 394 237
[display_work_sum] => 363 019
[display_total_sum] => 757 256
)
1
757 256₽
Работа:363 019 ₽
Материалы:394 237 ₽
Дни:15
stdClass Object
(
[id] => 189
[attribute_id] => 3
[name] => Теплая керамика
[material_modifier] => 1
[work_modifier] => 1
[options] => Array
(
[0] => 380 мм
[1] => 380 мм Thermo
[2] => 440 мм
[3] => 510 мм
)
[days] => [23,23,24,25]
[material_price] => [4510,5098,6093,8013]
[work_price] => [4737,4937,5903,6958]
[image] => https://akademik-stroy.ru/wp-content/uploads/materials/teplaya-keramika.jpg
[area_modifier] => 130.86
[parent_name] => Стены 1 этаж (несущие)
[parent_id] => 3
[material_sum] => 743625
[work_sum] => 650878
[total_sum] => 1394503
[total_days] => 23
[display_material_sum] => 743 625
[display_work_sum] => 650 878
[display_total_sum] => 1 394 503
)
1
1 394 503₽
Работа:650 878 ₽
Материалы:743 625 ₽
Дни:23
stdClass Object
(
[id] => 190
[attribute_id] => 3
[name] => Несъемная опалубка
[material_modifier] => 1
[work_modifier] => 1
[options] => Array
(
[0] => 200 мм
[1] => 250 мм
[2] => 300 мм
[3] => 350 мм
)
[days] => [15,17,19,21]
[material_price] => [3302,3902,4108,5008]
[work_price] => [2100,2100,2300,2534]
[image] => https://akademik-stroy.ru/wp-content/uploads/materials/nesemnaya-opalubka.jpg
[area_modifier] => 130.86
[parent_name] => Стены 1 этаж (несущие)
[parent_id] => 3
[material_sum] => 544446
[work_sum] => 288546
[total_sum] => 832992
[total_days] => 15
[display_material_sum] => 544 446
[display_work_sum] => 288 546
[display_total_sum] => 832 992
)
1
832 992₽
Работа:288 546 ₽
Материалы:544 446 ₽
Дни:15
stdClass Object
(
[id] => 251
[attribute_id] => 3
[name] => Бревно
[material_modifier] => 1
[work_modifier] => 1
[options] => Array
(
[0] => 260 мм
[1] => 320 мм
[2] => 360 мм
[3] => 400 мм
[4] => 500 мм
)
[days] => [7,8,9,10,11]
[material_price] => [1874,24045,26930,30972,38825]
[work_price] => [5046,6207,6952,7716,9723]
[image] => https://akademik-stroy.ru/wp-content/uploads/materials/sruby.jpg
[area_modifier] => 130.86
[parent_name] => Стены 1 этаж (несущие)
[parent_id] => 3
[material_sum] => 308992
[work_sum] => 693336
[total_sum] => 1002328
[total_days] => 7
[display_material_sum] => 308 992
[display_work_sum] => 693 336
[display_total_sum] => 1 002 328
)
1
1 002 328₽
Работа:693 336 ₽
Материалы:308 992 ₽
Дни:7
stdClass Object
(
[id] => 7
[attribute_id] => 4
[name] => Деревянные балки
[material_modifier] => 1
[work_modifier] => 1
[options] => Array
(
[0] => без утепления
[1] => утепление 200 мм
[2] => утепление 250 мм
[3] => утепление 300 мм
[4] => утепление 350 мм
[5] => утепление 400 мм
[6] => утепление 450 мм
[7] => утепление 500 мм
)
[days] => [8,9,9,9,11,12,13,14]
[material_price] => [1634,2042,2344,2947,3149,3652,3354,3557]
[work_price] => [1230,1339,1393,1426,1460,1513,1587,1620]
[image] => https://akademik-stroy.ru/wp-content/uploads/materials/derevyannye-balki.png
[area_modifier] => 130.86
[parent_name] => Перекрытие первого этажа
[parent_id] => 4
[material_sum] => 269420
[work_sum] => 169006
[total_sum] => 438426
[total_days] => 8
[display_material_sum] => 269 420
[display_work_sum] => 169 006
[display_total_sum] => 438 426
)
1
438 426₽
Работа:169 006 ₽
Материалы:269 420 ₽
Дни:8
stdClass Object
(
[id] => 8
[attribute_id] => 4
[name] => Сборные ж/б плиты
[material_modifier] => 1
[work_modifier] => 1
[options] => Array
(
[0] => без утепления
[1] => утепление 150 мм
[2] => утепление 200 мм
[3] => утепление 250 мм
[4] => утепление 300 мм
[5] => утепление 350 мм
[6] => утепление 400 мм
[7] => утепление 450 мм
[8] => утепление 500 мм
)
[days] => [13,15,15,15,15,15,15,15,15]
[material_price] => [3067,5577,5928,6679,7730,8782,9833,10884,11935]
[work_price] => [1520,1956,2102,2247,2392,2537,2684,2829,2974]
[image] => https://akademik-stroy.ru/wp-content/uploads/materials/sbornye-zh-b-plity-2.jpg
[area_modifier] => 130.86
[parent_name] => Перекрытие первого этажа
[parent_id] => 4
[material_sum] => 505698
[work_sum] => 208853
[total_sum] => 714551
[total_days] => 13
[display_material_sum] => 505 698
[display_work_sum] => 208 853
[display_total_sum] => 714 551
)
1
714 551₽
Работа:208 853 ₽
Материалы:505 698 ₽
Дни:13
stdClass Object
(
[id] => 89
[attribute_id] => 4
[name] => Монолитная ж/б плита
[material_modifier] => 1
[work_modifier] => 1
[options] => Array
(
[0] => без утепления
[1] => утепление 150 мм
[2] => утепление 200 мм
[3] => утепление 250 мм
[4] => утепление 300 мм
[5] => утепление 350 мм
[6] => утепление 400 мм
[7] => утепление 450 мм
[8] => утепление 500 мм
)
[days] => [18,20,20,20,20,20,20,20,20]
[material_price] => [4837,6572,7224,7375,79426,8177,8728,9180,10031]
[work_price] => [3348,3921,4112,4302,4493,4684,4875,5066,5256]
[image] => https://akademik-stroy.ru/wp-content/uploads/materials/monolitnaya-zh-b-plita-2.jpg
[area_modifier] => 130.86
[parent_name] => Перекрытие первого этажа
[parent_id] => 4
[material_sum] => 797542
[work_sum] => 460025
[total_sum] => 1257567
[total_days] => 18
[display_material_sum] => 797 542
[display_work_sum] => 460 025
[display_total_sum] => 1 257 567
)
1
1 257 567₽
Работа:460 025 ₽
Материалы:797 542 ₽
Дни:18
stdClass Object
(
[id] => 10
[attribute_id] => 5
[name] => Пеноблок
[material_modifier] => 1
[work_modifier] => 1
[options] => Array
(
[0] => 300 мм
[1] => 400 мм
[2] => 500 мм
[3] => 600 мм
)
[days] => [29,31,34,39]
[material_price] => [3000,4000,4500,4937]
[work_price] => [5033,5805,6400,8710]
[image] => https://akademik-stroy.ru/wp-content/uploads/materials/penoblok.jpg
[area_modifier] => 102.23
[parent_name] => Стены 2 этаж (несущие)
[parent_id] => 5
[material_sum] => 386429
[work_sum] => 540250
[total_sum] => 926679
[total_days] => 29
[display_material_sum] => 386 429
[display_work_sum] => 540 250
[display_total_sum] => 926 679
)
1
926 679₽
Работа:540 250 ₽
Материалы:386 429 ₽
Дни:29
stdClass Object
(
[id] => 90
[attribute_id] => 5
[name] => Керамический блок
[material_modifier] => 1
[work_modifier] => 1
[options] => Array
(
[0] => 380 мм
[1] => 380 мм Thermo
[2] => 440 мм
[3] => 510 мм
)
[days] => [23,23,24,25]
[material_price] => [4510,5098,6093,8013]
[work_price] => [4737,4937,5903,6958]
[image] => https://akademik-stroy.ru/wp-content/uploads/materials/keramicheskij-blok.jpg
[area_modifier] => 102.23
[parent_name] => Стены 2 этаж (несущие)
[parent_id] => 5
[material_sum] => 580932
[work_sum] => 508477
[total_sum] => 1089409
[total_days] => 23
[display_material_sum] => 580 932
[display_work_sum] => 508 477
[display_total_sum] => 1 089 409
)
1
1 089 409₽
Работа:508 477 ₽
Материалы:580 932 ₽
Дни:23
stdClass Object
(
[id] => 91
[attribute_id] => 5
[name] => Кирпич
[material_modifier] => 1
[work_modifier] => 1
[options] => Array
(
[0] => Кирпич 250 мм
[1] => Кирпич 380 мм
[2] => Кирпич 510 мм
[3] => Кирпич 640 мм
[4] => Кирпич 770 мм
)
[days] => [30,30,31,33,36]
[material_price] => [5500,7142,9206,10171,12235]
[work_price] => [8736,10041,12018,15240,18462]
[image] => https://akademik-stroy.ru/wp-content/uploads/materials/kirpich.jpg
[area_modifier] => 102.23
[parent_name] => Стены 2 этаж (несущие)
[parent_id] => 5
[material_sum] => 708454
[work_sum] => 937735
[total_sum] => 1646189
[total_days] => 30
[display_material_sum] => 708 454
[display_work_sum] => 937 735
[display_total_sum] => 1 646 189
)
1
1 646 189₽
Работа:937 735 ₽
Материалы:708 454 ₽
Дни:30
stdClass Object
(
[id] => 92
[attribute_id] => 5
[name] => Монолитные
[material_modifier] => 1
[work_modifier] => 1
[options] => Array
(
[0] => 150 мм
[1] => 200 мм
[2] => 250 мм
[3] => 300 мм
[4] => 350 мм
[5] => 400 мм
)
[days] => [45,46,47,49,50,53]
[material_price] => [6545,7876,10175,12011,13908,15204]
[work_price] => [5106,6444,7698,8552,9807,11461]
[image] => https://akademik-stroy.ru/wp-content/uploads/materials/monolitnye.jpg
[area_modifier] => 102.23
[parent_name] => Стены 2 этаж (несущие)
[parent_id] => 5
[material_sum] => 843060
[work_sum] => 548086
[total_sum] => 1391146
[total_days] => 45
[display_material_sum] => 843 060
[display_work_sum] => 548 086
[display_total_sum] => 1 391 146
)
1
1 391 146₽
Работа:548 086 ₽
Материалы:843 060 ₽
Дни:45
stdClass Object
(
[id] => 93
[attribute_id] => 5
[name] => Клееный брус
[material_modifier] => 1
[work_modifier] => 1
[options] => Array
(
[0] => 160 мм
[1] => 175 мм
[2] => 200 мм
[3] => 215 мм
[4] => 240 мм
[5] => 270 мм
[6] => 282 мм
)
[days] => [24,28,32,37,40,42,48]
[material_price] => [16975,18773,19950,20545,21599,22159,23275]
[work_price] => [4806,5287,5815,6397,7036,7740,8514]
[image] => https://akademik-stroy.ru/wp-content/uploads/materials/kleenyj-brus.jpg
[area_modifier] => 102.23
[parent_name] => Стены 2 этаж (несущие)
[parent_id] => 5
[material_sum] => 2186546
[work_sum] => 515883
[total_sum] => 2702429
[total_days] => 24
[display_material_sum] => 2 186 546
[display_work_sum] => 515 883
[display_total_sum] => 2 702 429
)
1
2 702 429₽
Работа:515 883 ₽
Материалы:2 186 546 ₽
Дни:24
stdClass Object
(
[id] => 94
[attribute_id] => 5
[name] => Каркасные
[material_modifier] => 1
[work_modifier] => 1
[options] => Array
(
[0] => 150 мм
[1] => 200 мм
[2] => 250 мм
[3] => 300 мм
)
[days] => [15,16,17,18]
[material_price] => [2379,2639,2898,3258]
[work_price] => [2418,2686,2985,3716]
[image] => https://akademik-stroy.ru/wp-content/uploads/materials/karkasnye.jpg
[area_modifier] => 102.23
[parent_name] => Стены 2 этаж (несущие)
[parent_id] => 5
[material_sum] => 306439
[work_sum] => 259552
[total_sum] => 565991
[total_days] => 15
[display_material_sum] => 306 439
[display_work_sum] => 259 552
[display_total_sum] => 565 991
)
1
565 991₽
Работа:259 552 ₽
Материалы:306 439 ₽
Дни:15
stdClass Object
(
[id] => 95
[attribute_id] => 5
[name] => СИП-панели
[material_modifier] => 1
[work_modifier] => 1
[options] => Array
(
[0] => 120 мм
[1] => 170 мм
[2] => 220 мм
)
[days] => [7,7,7]
[material_price] => [1210,1856,2292]
[work_price] => [1410,1551,1706]
[image] => https://akademik-stroy.ru/wp-content/uploads/materials/sip-paneli.jpg
[area_modifier] => 102.23
[parent_name] => Стены 2 этаж (несущие)
[parent_id] => 5
[material_sum] => 155860
[work_sum] => 151352
[total_sum] => 307212
[total_days] => 7
[display_material_sum] => 155 860
[display_work_sum] => 151 352
[display_total_sum] => 307 212
)
1
307 212₽
Работа:151 352 ₽
Материалы:155 860 ₽
Дни:7
stdClass Object
(
[id] => 96
[attribute_id] => 5
[name] => Сухой брус
[material_modifier] => 1
[work_modifier] => 1
[options] => Array
(
[0] => 150 мм
[1] => 180 мм
[2] => 200 мм
)
[days] => [7,8,9]
[material_price] => [6010,7190,8709]
[work_price] => [3204,3845,4229]
[image] => https://akademik-stroy.ru/wp-content/uploads/materials/suhoj-brus.jpg
[area_modifier] => 102.23
[parent_name] => Стены 2 этаж (несущие)
[parent_id] => 5
[material_sum] => 774147
[work_sum] => 343922
[total_sum] => 1118069
[total_days] => 7
[display_material_sum] => 774 147
[display_work_sum] => 343 922
[display_total_sum] => 1 118 069
)
1
1 118 069₽
Работа:343 922 ₽
Материалы:774 147 ₽
Дни:7
stdClass Object
(
[id] => 97
[attribute_id] => 5
[name] => Профилированный брус
[material_modifier] => 1
[work_modifier] => 1
[options] => Array
(
[0] => 150 мм
[1] => 180 мм
[2] => 200 мм
)
[days] => [7,8,9]
[material_price] => [8190,9228,10051]
[work_price] => [3845,4614,5075]
[image] => https://akademik-stroy.ru/wp-content/uploads/materials/profilirovannyj-brus.jpg
[area_modifier] => 102.23
[parent_name] => Стены 2 этаж (несущие)
[parent_id] => 5
[material_sum] => 1054952
[work_sum] => 412728
[total_sum] => 1467680
[total_days] => 7
[display_material_sum] => 1 054 952
[display_work_sum] => 412 728
[display_total_sum] => 1 467 680
)
1
1 467 680₽
Работа:412 728 ₽
Материалы:1 054 952 ₽
Дни:7
stdClass Object
(
[id] => 98
[attribute_id] => 5
[name] => Оцилиндрованное бревно
[material_modifier] => 1
[work_modifier] => 1
[options] => Array
(
[0] => 180 мм
[1] => 220 мм
[2] => 260 мм
[3] => 320 мм
)
[days] => [7,8,9,10]
[material_price] => [75190,9532,10868,13116]
[work_price] => [3845,4691,5535,6863]
[image] => https://akademik-stroy.ru/wp-content/uploads/materials/ocilindrovannoe-brevno-1.jpg
[area_modifier] => 102.23
[parent_name] => Стены 2 этаж (несущие)
[parent_id] => 5
[material_sum] => 9685209
[work_sum] => 412728
[total_sum] => 10097937
[total_days] => 7
[display_material_sum] => 9 685 209
[display_work_sum] => 412 728
[display_total_sum] => 10 097 937
)
1
10 097 937₽
Работа:412 728 ₽
Материалы:9 685 209 ₽
Дни:7
stdClass Object
(
[id] => 99
[attribute_id] => 5
[name] => Срубы
[material_modifier] => 1
[work_modifier] => 1
[options] => Array
(
[0] => 260 мм
[1] => 320 мм
[2] => 360 мм
[3] => 400 мм
[4] => 500 мм
)
[days] => [7,8,9,10,11]
[material_price] => [16175,23709,26314,29069,32167]
[work_price] => [4806,5911,6621,7349,9260]
[image] => https://akademik-stroy.ru/wp-content/uploads/materials/suhoj-brus.jpg
[area_modifier] => 102.23
[parent_name] => Стены 2 этаж (несущие)
[parent_id] => 5
[material_sum] => 2083499
[work_sum] => 515883
[total_sum] => 2599382
[total_days] => 7
[display_material_sum] => 2 083 499
[display_work_sum] => 515 883
[display_total_sum] => 2 599 382
)
1
2 599 382₽
Работа:515 883 ₽
Материалы:2 083 499 ₽
Дни:7
stdClass Object
(
[id] => 194
[attribute_id] => 5
[name] => Брус
[material_modifier] => 1
[work_modifier] => 1
[options] => Array
(
[0] => 150 мм
[1] => 180 мм
[2] => 200 мм
)
[days] => [10,13,15]
[material_price] => [5127,6152,7367]
[work_price] => [1602,1922,2115]
[image] => https://akademik-stroy.ru/wp-content/uploads/materials/brus.jpg
[area_modifier] => 102.23
[parent_name] => Стены 2 этаж (несущие)
[parent_id] => 5
[material_sum] => 660408
[work_sum] => 171961
[total_sum] => 832369
[total_days] => 10
[display_material_sum] => 660 408
[display_work_sum] => 171 961
[display_total_sum] => 832 369
)
1
832 369₽
Работа:171 961 ₽
Материалы:660 408 ₽
Дни:10
stdClass Object
(
[id] => 195
[attribute_id] => 5
[name] => Газобетон
[material_modifier] => 1
[work_modifier] => 1
[options] => Array
(
[0] => 300 мм
[1] => 375 мм
[2] => 400 мм
[3] => 500 мм
[4] => 600 мм
)
[days] => [29,31,35,37,44]
[material_price] => [4298,5573,6356,7288,9119]
[work_price] => [4538,5251,5926,6733,7195]
[image] => https://akademik-stroy.ru/wp-content/uploads/materials/gazobeton.jpg
[area_modifier] => 102.23
[parent_name] => Стены 2 этаж (несущие)
[parent_id] => 5
[material_sum] => 553625
[work_sum] => 487116
[total_sum] => 1040741
[total_days] => 29
[display_material_sum] => 553 625
[display_work_sum] => 487 116
[display_total_sum] => 1 040 741
)
1
1 040 741₽
Работа:487 116 ₽
Материалы:553 625 ₽
Дни:29
stdClass Object
(
[id] => 196
[attribute_id] => 5
[name] => Блок
[material_modifier] => 1
[work_modifier] => 1
[options] => Array
(
[0] => 300 мм
[1] => 375 мм
[2] => 400 мм
[3] => 500 мм
[4] => 600 мм
)
[days] => [29,31,35,37,44]
[material_price] => [2698,3973,4356,6588,7119]
[work_price] => [5038,5851,6426,8733,9195]
[image] => https://akademik-stroy.ru/wp-content/uploads/materials/blok.jpg
[area_modifier] => 102.23
[parent_name] => Стены 2 этаж (несущие)
[parent_id] => 5
[material_sum] => 347529
[work_sum] => 540786
[total_sum] => 888315
[total_days] => 29
[display_material_sum] => 347 529
[display_work_sum] => 540 786
[display_total_sum] => 888 315
)
1
888 315₽
Работа:540 786 ₽
Материалы:347 529 ₽
Дни:29
stdClass Object
(
[id] => 197
[attribute_id] => 5
[name] => Газосиликатный блок
[material_modifier] => 1
[work_modifier] => 1
[options] => Array
(
[0] => 300 мм
[1] => 375 мм
[2] => 400 мм
[3] => 500 мм
[4] => 600 мм
)
[days] => [29,31,35,37,44]
[material_price] => [4298,5573,6356,7288,9119]
[work_price] => [4538,5251,5926,6733,7195]
[image] => https://akademik-stroy.ru/wp-content/uploads/materials/gazosilikatnyj-blok.jpg
[area_modifier] => 102.23
[parent_name] => Стены 2 этаж (несущие)
[parent_id] => 5
[material_sum] => 553625
[work_sum] => 487116
[total_sum] => 1040741
[total_days] => 29
[display_material_sum] => 553 625
[display_work_sum] => 487 116
[display_total_sum] => 1 040 741
)
1
1 040 741₽
Работа:487 116 ₽
Материалы:553 625 ₽
Дни:29
stdClass Object
(
[id] => 198
[attribute_id] => 5
[name] => Керамзитобетонный блок
[material_modifier] => 1
[work_modifier] => 1
[options] => Array
(
[0] => 300 мм
[1] => 375 мм
[2] => 400 мм
[3] => 500 мм
[4] => 600 мм
)
[days] => [23,23,24,25,28]
[material_price] => [3641,4298,5693,7613,9612]
[work_price] => [5737,5737,6903,7958,8901]
[image] => https://akademik-stroy.ru/wp-content/uploads/materials/keramzitobetonnyj-blok.jpg
[area_modifier] => 102.23
[parent_name] => Стены 2 этаж (несущие)
[parent_id] => 5
[material_sum] => 468996
[work_sum] => 615818
[total_sum] => 1084814
[total_days] => 23
[display_material_sum] => 468 996
[display_work_sum] => 615 818
[display_total_sum] => 1 084 814
)
1
1 084 814₽
Работа:615 818 ₽
Материалы:468 996 ₽
Дни:23
stdClass Object
(
[id] => 199
[attribute_id] => 5
[name] => Деревянные
[material_modifier] => 1
[work_modifier] => 1
[options] => Array
(
[0] => 180 мм
[1] => 220 мм
[2] => 260 мм
[3] => 320 мм
)
[days] => [7,8,9,10]
[material_price] => [7950,9458,11961,14472]
[work_price] => [4037,4925,5812,7207]
[image] => https://akademik-stroy.ru/wp-content/uploads/materials/derevyannye.jpg
[area_modifier] => 102.23
[parent_name] => Стены 2 этаж (несущие)
[parent_id] => 5
[material_sum] => 1024038
[work_sum] => 433338
[total_sum] => 1457376
[total_days] => 7
[display_material_sum] => 1 024 038
[display_work_sum] => 433 338
[display_total_sum] => 1 457 376
)
1
1 457 376₽
Работа:433 338 ₽
Материалы:1 024 038 ₽
Дни:7
stdClass Object
(
[id] => 200
[attribute_id] => 5
[name] => Камень
[material_modifier] => 1
[work_modifier] => 1
[options] => Array
(
[0] => 300 мм
[1] => 400 мм
[2] => 500 мм
[3] => 600 мм
)
[days] => [25,27,31,34]
[material_price] => [5262,6844,8330,9815]
[work_price] => [8331,9135,10427,11069]
[image] => https://akademik-stroy.ru/wp-content/uploads/materials/kamen.jpg
[area_modifier] => 102.23
[parent_name] => Стены 2 этаж (несущие)
[parent_id] => 5
[material_sum] => 677797
[work_sum] => 894262
[total_sum] => 1572059
[total_days] => 25
[display_material_sum] => 677 797
[display_work_sum] => 894 262
[display_total_sum] => 1 572 059
)
1
1 572 059₽
Работа:894 262 ₽
Материалы:677 797 ₽
Дни:25
stdClass Object
(
[id] => 201
[attribute_id] => 5
[name] => Каркасно-щитовые
[material_modifier] => 1
[work_modifier] => 1
[options] => Array
(
[0] => 150 мм
[1] => 200 мм
[2] => 250 мм
[3] => 300 мм
[4] => 350 мм
[5] => 400 мм
)
[days] => [15,16,17,18,19,20]
[material_price] => [2379,2639,2898,3458,3601,4175]
[work_price] => [2538,2820,3134,3483,4062,5642]
[image] => https://akademik-stroy.ru/wp-content/uploads/materials/karkasno-shchitovye.jpg
[area_modifier] => 102.23
[parent_name] => Стены 2 этаж (несущие)
[parent_id] => 5
[material_sum] => 306439
[work_sum] => 272433
[total_sum] => 578872
[total_days] => 15
[display_material_sum] => 306 439
[display_work_sum] => 272 433
[display_total_sum] => 578 872
)
1
578 872₽
Работа:272 433 ₽
Материалы:306 439 ₽
Дни:15
stdClass Object
(
[id] => 202
[attribute_id] => 5
[name] => Рубленные
[material_modifier] => 1
[work_modifier] => 1
[options] => Array
(
[0] => 150 мм
[1] => 200 мм
[2] => 250 мм
[3] => 300 мм
[4] => 350 мм
[5] => 400 мм
)
[days] => [15,16,17,18,17,18]
[material_price] => [35950,50267,60583,75900,80217,100533]
[work_price] => [9612,12816,16020,19224,22428,25632]
[image] => https://akademik-stroy.ru/wp-content/uploads/materials/rublennye.jpg
[area_modifier] => 102.23
[parent_name] => Стены 2 этаж (несущие)
[parent_id] => 5
[material_sum] => 4630712
[work_sum] => 1031766
[total_sum] => 5662478
[total_days] => 15
[display_material_sum] => 4 630 712
[display_work_sum] => 1 031 766
[display_total_sum] => 5 662 478
)
1
5 662 478₽
Работа:1 031 766 ₽
Материалы:4 630 712 ₽
Дни:15
stdClass Object
(
[id] => 203
[attribute_id] => 5
[name] => Теплоблок
[material_modifier] => 1
[work_modifier] => 1
[options] => Array
(
[0] => 300 мм (с облицовкой, не покрашенный)
[1] => 400 мм (с облицовкой, не покрашенный)
[2] => 300 мм (с облицовкой, покрашенный)
[3] => 400 мм (с облицовкой, покрашенный)
)
[days] => [15,16,15,16]
[material_price] => [2888,3729,3957,4258]
[work_price] => [2564,3229,2949,3713]
[image] => https://akademik-stroy.ru/wp-content/uploads/materials/teploblok.jpg
[area_modifier] => 102.23
[parent_name] => Стены 2 этаж (несущие)
[parent_id] => 5
[material_sum] => 372003
[work_sum] => 275224
[total_sum] => 647227
[total_days] => 15
[display_material_sum] => 372 003
[display_work_sum] => 275 224
[display_total_sum] => 647 227
)
1
647 227₽
Работа:275 224 ₽
Материалы:372 003 ₽
Дни:15
stdClass Object
(
[id] => 204
[attribute_id] => 5
[name] => Арболитовые блоки
[material_modifier] => 1
[work_modifier] => 1
[options] => Array
(
[0] => 300 мм
[1] => 400 мм
[2] => 600 мм
)
[days] => [19,22,27]
[material_price] => [3210,4475,5852]
[work_price] => [4214,4788,5866]
[image] => https://akademik-stroy.ru/wp-content/uploads/materials/arbolitovye-bloki.png
[area_modifier] => 102.23
[parent_name] => Стены 2 этаж (несущие)
[parent_id] => 5
[material_sum] => 413479
[work_sum] => 452337
[total_sum] => 865816
[total_days] => 19
[display_material_sum] => 413 479
[display_work_sum] => 452 337
[display_total_sum] => 865 816
)
1
865 816₽
Работа:452 337 ₽
Материалы:413 479 ₽
Дни:19
stdClass Object
(
[id] => 205
[attribute_id] => 5
[name] => Полистиролбетон
[material_modifier] => 1
[work_modifier] => 1
[options] => Array
(
[0] => 300 мм
[1] => 400 мм
[2] => 600 мм
)
[days] => [29,31,35]
[material_price] => [2798,4573,5256]
[work_price] => [5038,5851,6426]
[image] => https://akademik-stroy.ru/wp-content/uploads/materials/polistirolbeton.jpg
[area_modifier] => 102.23
[parent_name] => Стены 2 этаж (несущие)
[parent_id] => 5
[material_sum] => 360410
[work_sum] => 540786
[total_sum] => 901196
[total_days] => 29
[display_material_sum] => 360 410
[display_work_sum] => 540 786
[display_total_sum] => 901 196
)
1
901 196₽
Работа:540 786 ₽
Материалы:360 410 ₽
Дни:29
stdClass Object
(
[id] => 206
[attribute_id] => 5
[name] => Шлакоблок
[material_modifier] => 1
[work_modifier] => 1
[options] => Array
(
[0] => 400 мм
[1] => 600 мм
)
[days] => [15,16]
[material_price] => [2391,3471]
[work_price] => [2642,3662]
[image] => https://akademik-stroy.ru/wp-content/uploads/materials/shlakoblok.jpg
[area_modifier] => 102.23
[parent_name] => Стены 2 этаж (несущие)
[parent_id] => 5
[material_sum] => 307984
[work_sum] => 283596
[total_sum] => 591580
[total_days] => 15
[display_material_sum] => 307 984
[display_work_sum] => 283 596
[display_total_sum] => 591 580
)
1
591 580₽
Работа:283 596 ₽
Материалы:307 984 ₽
Дни:15
stdClass Object
(
[id] => 245
[attribute_id] => 5
[name] => Теплая керамика
[material_modifier] => 1
[work_modifier] => 1
[options] => Array
(
[0] => 380 мм
[1] => 380 мм Thermo
[2] => 440 мм
[3] => 510 мм
)
[days] => [10,10,11,12]
[material_price] => [4510,5098,6093,8013]
[work_price] => [4737,4937,5903,6958]
[image] => https://akademik-stroy.ru/wp-content/uploads/materials/teplaya-keramika.jpg
[area_modifier] => 102.23
[parent_name] => Стены 2 этаж (несущие)
[parent_id] => 5
[material_sum] => 580932
[work_sum] => 508477
[total_sum] => 1089409
[total_days] => 10
[display_material_sum] => 580 932
[display_work_sum] => 508 477
[display_total_sum] => 1 089 409
)
1
1 089 409₽
Работа:508 477 ₽
Материалы:580 932 ₽
Дни:10
stdClass Object
(
[id] => 246
[attribute_id] => 5
[name] => Несъемная опалубка
[material_modifier] => 1
[work_modifier] => 1
[options] => Array
(
[0] => 380 мм
[1] => 380 мм Thermo
[2] => 440 мм
[3] => 510 мм
)
[days] => [10,10,11,12]
[material_price] => [3302,3902,4108,5008]
[work_price] => [2100,2100,2300,2534]
[image] => https://akademik-stroy.ru/wp-content/uploads/materials/nesemnaya-opalubka.jpg
[area_modifier] => 102.23
[parent_name] => Стены 2 этаж (несущие)
[parent_id] => 5
[material_sum] => 425330
[work_sum] => 225417
[total_sum] => 650747
[total_days] => 10
[display_material_sum] => 425 330
[display_work_sum] => 225 417
[display_total_sum] => 650 747
)
1
650 747₽
Работа:225 417 ₽
Материалы:425 330 ₽
Дни:10
stdClass Object
(
[id] => 254
[attribute_id] => 5
[name] => Бревно
[material_modifier] => 1
[work_modifier] => 1
[options] => Array
(
[0] => 260 мм
[1] => 320 мм
[2] => 360 мм
[3] => 400 мм
[4] => 500 мм
)
[days] => [7,8,9,10,11]
[material_price] => [1874,24045,26930,30972,38825]
[work_price] => [5046,6207,6952,7716,9723]
[image] => https://akademik-stroy.ru/wp-content/uploads/materials/sruby.jpg
[area_modifier] => 102.23
[parent_name] => Стены 2 этаж (несущие)
[parent_id] => 5
[material_sum] => 241390
[work_sum] => 541645
[total_sum] => 783035
[total_days] => 7
[display_material_sum] => 241 390
[display_work_sum] => 541 645
[display_total_sum] => 783 035
)
1
783 035₽
Работа:541 645 ₽
Материалы:241 390 ₽
Дни:7
stdClass Object
(
[id] => 11
[attribute_id] => 6
[name] => Деревянные балки
[material_modifier] => 1
[work_modifier] => 1
[options] => Array
(
[0] => без утепления
[1] => утепление 200 мм
[2] => утепление 250 мм
[3] => утепление 300 мм
[4] => утепление 350 мм
[5] => утепление 400 мм
[6] => утепление 450 мм
[7] => утепление 500 мм
)
[days] => [8,9,9,9,11,12,13,14]
[material_price] => [1634,2042,2344,2947,3149,3652,3354,3557]
[work_price] => [1230,1339,1393,1426,1460,1513,1587,1620]
[image] => https://akademik-stroy.ru/wp-content/uploads/materials/derevyannye-balki.png
[area_modifier] => 102.23
[parent_name] => Перекрытие второго этажа
[parent_id] => 6
[material_sum] => 210475
[work_sum] => 132030
[total_sum] => 342505
[total_days] => 8
[display_material_sum] => 210 475
[display_work_sum] => 132 030
[display_total_sum] => 342 505
)
1
342 505₽
Работа:132 030 ₽
Материалы:210 475 ₽
Дни:8
stdClass Object
(
[id] => 12
[attribute_id] => 6
[name] => Сборные ж/б плиты
[material_modifier] => 1
[work_modifier] => 1
[options] => Array
(
[0] => без утепления
[1] => утепление 150 мм
[2] => утепление 200 мм
[3] => утепление 250 мм
[4] => утепление 300 мм
[5] => утепление 350 мм
[6] => утепление 400 мм
[7] => утепление 450 мм
[8] => утепление 500 мм
)
[days] => [13,15,15,15,15,15,15,15,15]
[material_price] => [3067,5577,5928,6679,7730,8782,9833,10884,11935]
[work_price] => [1520,1956,2102,2247,2392,2537,2684,2829,2974]
[image] => https://akademik-stroy.ru/wp-content/uploads/materials/sbornye-zh-b-plity-2.jpg
[area_modifier] => 102.23
[parent_name] => Перекрытие второго этажа
[parent_id] => 6
[material_sum] => 395060
[work_sum] => 163159
[total_sum] => 558219
[total_days] => 13
[display_material_sum] => 395 060
[display_work_sum] => 163 159
[display_total_sum] => 558 219
)
1
558 219₽
Работа:163 159 ₽
Материалы:395 060 ₽
Дни:13
stdClass Object
(
[id] => 100
[attribute_id] => 6
[name] => Монолитная ж/б плита
[material_modifier] => 1
[work_modifier] => 1
[options] => Array
(
[0] => без утепления
[1] => утепление 150 мм
[2] => утепление 200 мм
[3] => утепление 250 мм
[4] => утепление 300 мм
[5] => утепление 350 мм
[6] => утепление 400 мм
[7] => утепление 450 мм
[8] => утепление 500 мм
)
[days] => [18,20,20,20,20,20,20,20,20]
[material_price] => [4837,6572,7224,7375,79426,8177,8728,9180,10031]
[work_price] => [3348,3921,4112,4302,4493,4684,4875,5066,5256]
[image] => https://akademik-stroy.ru/wp-content/uploads/materials/monolitnaya-zh-b-plita-2.jpg
[area_modifier] => 102.23
[parent_name] => Перекрытие второго этажа
[parent_id] => 6
[material_sum] => 623053
[work_sum] => 359379
[total_sum] => 982432
[total_days] => 18
[display_material_sum] => 623 053
[display_work_sum] => 359 379
[display_total_sum] => 982 432
)
1
982 432₽
Работа:359 379 ₽
Материалы:623 053 ₽
Дни:18
stdClass Object
(
[id] => 160
[attribute_id] => 36
[name] => Не эксплуатируемая
[material_modifier] => 1
[work_modifier] => 1
[options] => Array
(
)
[days] => [10]
[material_price] => [8068]
[work_price] => [4163]
[image] => https://akademik-stroy.ru/wp-content/uploads/materials/ne-ehkspluatiruemaya-3.jpg
[area_modifier] => 130.86
[parent_name] => Плоская крыша
[parent_id] => 36
[material_sum] => 1330281
[work_sum] => 572009
[total_sum] => 1902290
[total_days] => 10
[display_material_sum] => 1 330 281
[display_work_sum] => 572 009
[display_total_sum] => 1 902 290
)
1
1 902 290₽
Работа:572 009 ₽
Материалы:1 330 281 ₽
Дни:10
stdClass Object
(
[id] => 161
[attribute_id] => 36
[name] => Зеленая кровля (Эксплуатируемая)
[material_modifier] => 1
[work_modifier] => 1
[options] => Array
(
)
[days] => [10]
[material_price] => [10056]
[work_price] => [8446]
[image] => https://akademik-stroy.ru/wp-content/uploads/materials/zelenaya-krovlya-2.jpg
[area_modifier] => 130.86
[parent_name] => Плоская крыша
[parent_id] => 36
[material_sum] => 1658069
[work_sum] => 1160506
[total_sum] => 2818575
[total_days] => 10
[display_material_sum] => 1 658 069
[display_work_sum] => 1 160 506
[display_total_sum] => 2 818 575
)
1
2 818 575₽
Работа:1 160 506 ₽
Материалы:1 658 069 ₽
Дни:10
stdClass Object
(
[id] => 162
[attribute_id] => 36
[name] => Эксплуатируемая
[material_modifier] => 1
[work_modifier] => 1
[options] => Array
(
)
[days] => [10]
[material_price] => [9593]
[work_price] => [7459]
[image] => https://akademik-stroy.ru/wp-content/uploads/materials/ehkspluatiruemaya-2.jpg
[area_modifier] => 130.86
[parent_name] => Плоская крыша
[parent_id] => 36
[material_sum] => 1581728
[work_sum] => 1024889
[total_sum] => 2606617
[total_days] => 10
[display_material_sum] => 1 581 728
[display_work_sum] => 1 024 889
[display_total_sum] => 2 606 617
)
1
2 606 617₽
Работа:1 024 889 ₽
Материалы:1 581 728 ₽
Дни:10
stdClass Object
(
[id] => 163
[attribute_id] => 36
[name] => Нет
[material_modifier] => 1
[work_modifier] => 1
[options] => Array
(
)
[days] => [0]
[material_price] => [0]
[work_price] => [0]
[image] => https://akademik-stroy.ru/wp-content/uploads/materials/ne-ehkspluatiruemaya-3.jpg
[area_modifier] => 130.86
[parent_name] => Плоская крыша
[parent_id] => 36
[material_sum] => 0
[work_sum] => 0
[total_sum] => 0
[total_days] => 0
[display_material_sum] => 0
[display_work_sum] => 0
[display_total_sum] => 0
)
1
0₽
Работа:0 ₽
Материалы:0 ₽
Дни:0
stdClass Object
(
[id] => 51
[attribute_id] => 26
[name] => Есть
[material_modifier] => 1
[work_modifier] => 1
[options] => Array
(
[0] => Профиль 58 мм, 3-камерный, стеклопакет 2-камерный до 32 мм
[1] => Профиль 60 мм, 4-камерный, стеклопакет 2-камерный до 32 мм
[2] => Профиль 70 мм, 5-камерный, стеклопакет 2-камерный до 40 мм
[3] => Профиль 72 мм, 5-камерный, стеклопакет 2-камерный до 40 мм
[4] => Алюминиевые окна Alutech профиль 72 мм, стеклопакет 2-камерный
)
[days] => [3,3,3,3,3]
[material_price] => [1339,2124,2867,3023,29596]
[work_price] => [635,647,659,668,2579]
[image] => https://akademik-stroy.ru/wp-content/uploads/materials/okna.jpg
[area_modifier] => 189.15
[parent_name] => Окна
[parent_id] => 26
[material_sum] => 319123
[work_sum] => 126116
[total_sum] => 445239
[total_days] => 3
[display_material_sum] => 319 123
[display_work_sum] => 126 116
[display_total_sum] => 445 239
)
1
445 239₽
Работа:126 116 ₽
Материалы:319 123 ₽
Дни:3
stdClass Object
(
[id] => 52
[attribute_id] => 26
[name] => Нет
[material_modifier] => 2
[work_modifier] => 1
[options] =>
[days] => null
[material_price] => null
[work_price] => null
[image] => https://akademik-stroy.ru/wp-content/uploads/materials/okna.jpg
[area_modifier] => 189.15
[parent_name] => Окна
[parent_id] => 26
[material_sum] => 0
[work_sum] => 0
[total_sum] => 0
[total_days] => 0
[display_material_sum] => 0
[display_work_sum] => 0
[display_total_sum] => 0
)
1
0₽
Работа:0 ₽
Материалы:0 ₽
Дни:0
stdClass Object
(
[id] => 53
[attribute_id] => 27
[name] => Есть
[material_modifier] => 1
[work_modifier] => 1
[options] => Array
(
)
[days] => [1]
[material_price] => [10000]
[work_price] => [5500]
[image] => https://akademik-stroy.ru/wp-content/uploads/materials/dveri.jpg
[area_modifier] => 1
[parent_name] => Двери входные
[parent_id] => 27
[material_sum] => 12600
[work_sum] => 5775
[total_sum] => 18375
[total_days] => 1
[display_material_sum] => 12 600
[display_work_sum] => 5 775
[display_total_sum] => 18 375
)
1
18 375₽
Работа:5 775 ₽
Материалы:12 600 ₽
Дни:1
stdClass Object
(
[id] => 54
[attribute_id] => 27
[name] => Нет
[material_modifier] => 1
[work_modifier] => 1
[options] => Array
(
)
[days] => [0]
[material_price] => [0]
[work_price] => [0]
[image] => https://akademik-stroy.ru/wp-content/uploads/materials/dveri.jpg
[area_modifier] => 1
[parent_name] => Двери входные
[parent_id] => 27
[material_sum] => 0
[work_sum] => 0
[total_sum] => 0
[total_days] => 0
[display_material_sum] => 0
[display_work_sum] => 0
[display_total_sum] => 0
)
1
0₽
Работа:0 ₽
Материалы:0 ₽
Дни:0
stdClass Object
(
[id] => 31
[attribute_id] => 16
[name] => Нет
[material_modifier] => 1
[work_modifier] => 1
[options] => Array
(
)
[days] => [0]
[material_price] => [0]
[work_price] => [0]
[image] => https://akademik-stroy.ru/wp-content/uploads/materials/docke-standard-pvh.jpg
[area_modifier] => 130.86
[parent_name] => Водосточная система
[parent_id] => 16
[material_sum] => 0
[work_sum] => 0
[total_sum] => 0
[total_days] => 0
[display_material_sum] => 0
[display_work_sum] => 0
[display_total_sum] => 0
)
1
0₽
Работа:0 ₽
Материалы:0 ₽
Дни:0
stdClass Object
(
[id] => 32
[attribute_id] => 16
[name] => Есть
[material_modifier] => 1
[work_modifier] => 1
[options] => Array
(
[0] => Döcke Standard (ПВХ)
[1] => Металлические Grand Line
)
[days] => [7,7]
[material_price] => [1842,2703]
[work_price] => [1491,1529]
[image] => https://akademik-stroy.ru/wp-content/uploads/materials/docke-standard-pvh.jpg
[area_modifier] => 130.86
[parent_name] => Водосточная система
[parent_id] => 16
[material_sum] => 303716
[work_sum] => 204868
[total_sum] => 508584
[total_days] => 7
[display_material_sum] => 303 716
[display_work_sum] => 204 868
[display_total_sum] => 508 584
)
1
508 584₽
Работа:204 868 ₽
Материалы:303 716 ₽
Дни:7
stdClass Object
(
[id] => 33
[attribute_id] => 17
[name] => Нет
[material_modifier] => 1
[work_modifier] => 1
[options] => Array
(
)
[days] => [0]
[material_price] => [0]
[work_price] => [0]
[image] => https://akademik-stroy.ru/wp-content/uploads/materials/mineralovata.jpg
[area_modifier] => 233.09
[parent_name] => Дополнительное утепление наружных стен
[parent_id] => 17
[material_sum] => 0
[work_sum] => 0
[total_sum] => 0
[total_days] => 0
[display_material_sum] => 0
[display_work_sum] => 0
[display_total_sum] => 0
)
1
0₽
Работа:0 ₽
Материалы:0 ₽
Дни:0
stdClass Object
(
[id] => 34
[attribute_id] => 17
[name] => Минераловатный
[material_modifier] => 1
[work_modifier] => 1
[options] => Array
(
[0] => 50 мм
[1] => 100 мм
[2] => 150 мм
[3] => 200 мм
[4] => 250 мм
[5] => 300 мм
)
[days] => [7,8,10,12,14,15]
[material_price] => [3437,3613,3803,3915,4601,4830]
[work_price] => [2325,2423,2523,2749,2859,3025]
[image] => https://akademik-stroy.ru/wp-content/uploads/materials/mineralovata.jpg
[area_modifier] => 233.09
[parent_name] => Дополнительное утепление наружных стен
[parent_id] => 17
[material_sum] => 1009424
[work_sum] => 569031
[total_sum] => 1578455
[total_days] => 7
[display_material_sum] => 1 009 424
[display_work_sum] => 569 031
[display_total_sum] => 1 578 455
)
1
1 578 455₽
Работа:569 031 ₽
Материалы:1 009 424 ₽
Дни:7
stdClass Object
(
[id] => 128
[attribute_id] => 17
[name] => Эковата (целлюлозная вата)
[material_modifier] => 1
[work_modifier] => 1
[options] => Array
(
[0] => 50 мм
[1] => 100 мм
[2] => 150 мм
[3] => 200 мм
[4] => 250 мм
[5] => 300 мм
)
[days] => [3,4,5,6,7,8]
[material_price] => [810,1319,1629,1838,2267,2676]
[work_price] => [1225,1323,1423,1549,1659,1725]
[image] => https://akademik-stroy.ru/wp-content/uploads/materials/ehkovata.jpg
[area_modifier] => 233.09
[parent_name] => Дополнительное утепление наружных стен
[parent_id] => 17
[material_sum] => 237892
[work_sum] => 299812
[total_sum] => 537704
[total_days] => 3
[display_material_sum] => 237 892
[display_work_sum] => 299 812
[display_total_sum] => 537 704
)
1
537 704₽
Работа:299 812 ₽
Материалы:237 892 ₽
Дни:3
stdClass Object
(
[id] => 129
[attribute_id] => 17
[name] => Экструдированный пенополистирол
[material_modifier] => 1
[work_modifier] => 1
[options] => Array
(
[0] => 50 мм
[1] => 100 мм
[2] => 150 мм
[3] => 200 мм
[4] => 250 мм
[5] => 300 мм
)
[days] => [5,6,7,8,9,10]
[material_price] => [4560,4300,5119,6292,7010,8583]
[work_price] => [1795,1954,2254,2330,2595,2735]
[image] => https://akademik-stroy.ru/wp-content/uploads/materials/epps.jpg
[area_modifier] => 233.09
[parent_name] => Дополнительное утепление наружных стен
[parent_id] => 17
[material_sum] => 1339242
[work_sum] => 439316
[total_sum] => 1778558
[total_days] => 5
[display_material_sum] => 1 339 242
[display_work_sum] => 439 316
[display_total_sum] => 1 778 558
)
1
1 778 558₽
Работа:439 316 ₽
Материалы:1 339 242 ₽
Дни:5
stdClass Object
(
[id] => 130
[attribute_id] => 17
[name] => ПСБ (ППС-пенополистирол)
[material_modifier] => 1
[work_modifier] => 1
[options] => Array
(
[0] => 50 мм
[1] => 100 мм
[2] => 150 мм
[3] => 200 мм
[4] => 250 мм
[5] => 300 мм
)
[days] => [5,6,7,8,9,10]
[material_price] => [4822,5200,5819,6292,7010,7583]
[work_price] => [1795,1954,2254,2330,2595,2735]
[image] => https://akademik-stroy.ru/wp-content/uploads/materials/psb.jpg
[area_modifier] => 233.09
[parent_name] => Дополнительное утепление наружных стен
[parent_id] => 17
[material_sum] => 1416190
[work_sum] => 439316
[total_sum] => 1855506
[total_days] => 5
[display_material_sum] => 1 416 190
[display_work_sum] => 439 316
[display_total_sum] => 1 855 506
)
1
1 855 506₽
Работа:439 316 ₽
Материалы:1 416 190 ₽
Дни:5
stdClass Object
(
[id] => 131
[attribute_id] => 17
[name] => ППУ (Пенополиуретан)
[material_modifier] => 1
[work_modifier] => 1
[options] => Array
(
[0] => 50 мм
[1] => 100 мм
[2] => 150 мм
[3] => 200 мм
[4] => 250 мм
[5] => 300 мм
)
[days] => [3,4,5,6,7,8]
[material_price] => [2860,3400,4219,4592,5010,5583]
[work_price] => [729,900,980,1120,1280,1530]
[image] => https://akademik-stroy.ru/wp-content/uploads/materials/ppu.jpg
[area_modifier] => 233.09
[parent_name] => Дополнительное утепление наружных стен
[parent_id] => 17
[material_sum] => 839963
[work_sum] => 178419
[total_sum] => 1018382
[total_days] => 3
[display_material_sum] => 839 963
[display_work_sum] => 178 419
[display_total_sum] => 1 018 382
)
1
1 018 382₽
Работа:178 419 ₽
Материалы:839 963 ₽
Дни:3
stdClass Object
(
[id] => 132
[attribute_id] => 17
[name] => PIR-плиты (пенополиизоцианурат)
[material_modifier] => 1
[work_modifier] => 1
[options] => Array
(
[0] => 50 мм
[1] => 100 мм
[2] => 150 мм
[3] => 200 мм
[4] => 250 мм
[5] => 300 мм
)
[days] => [5,6,7,8,9,10]
[material_price] => [8323,15645,20968,25900,29258,30581]
[work_price] => [800,900,970,1150,1280,1330]
[image] => https://akademik-stroy.ru/wp-content/uploads/materials/pir.jpg
[area_modifier] => 233.09
[parent_name] => Дополнительное утепление наружных стен
[parent_id] => 17
[material_sum] => 2444410
[work_sum] => 195796
[total_sum] => 2640206
[total_days] => 5
[display_material_sum] => 2 444 410
[display_work_sum] => 195 796
[display_total_sum] => 2 640 206
)
1
2 640 206₽
Работа:195 796 ₽
Материалы:2 444 410 ₽
Дни:5
stdClass Object
(
[id] => 37
[attribute_id] => 19
[name] => Нет
[material_modifier] => 1
[work_modifier] => 1
[options] => Array
(
)
[days] => [0]
[material_price] => [0]
[work_price] => [0]
[image] => https://akademik-stroy.ru/wp-content/uploads/materials/imitaciya-brusa.jpg
[area_modifier] => 233.09
[parent_name] => Наружная отделка фасада
[parent_id] => 19
[material_sum] => 0
[work_sum] => 0
[total_sum] => 0
[total_days] => 0
[display_material_sum] => 0
[display_work_sum] => 0
[display_total_sum] => 0
)
1
0₽
Работа:0 ₽
Материалы:0 ₽
Дни:0
stdClass Object
(
[id] => 38
[attribute_id] => 19
[name] => Имитация бруса
[material_modifier] => 1
[work_modifier] => 1
[options] => Array
(
[0] => Сосна
[1] => Ель
[2] => Лиственница
)
[days] => [20,20,20]
[material_price] => [2994,2762,4954]
[work_price] => [1397,1231,1577]
[image] => https://akademik-stroy.ru/wp-content/uploads/materials/imitaciya-brusa.jpg
[area_modifier] => 233.09
[parent_name] => Наружная отделка фасада
[parent_id] => 19
[material_sum] => 879318
[work_sum] => 341908
[total_sum] => 1221226
[total_days] => 20
[display_material_sum] => 879 318
[display_work_sum] => 341 908
[display_total_sum] => 1 221 226
)
1
1 221 226₽
Работа:341 908 ₽
Материалы:879 318 ₽
Дни:20
stdClass Object
(
[id] => 136
[attribute_id] => 19
[name] => Планкен
[material_modifier] => 1
[work_modifier] => 1
[options] => Array
(
[0] => Сосна
[1] => Ель
[2] => Лиственница
)
[days] => [20,20,20]
[material_price] => [3194,2862,5154]
[work_price] => [1537,1354,1735]
[image] => https://akademik-stroy.ru/wp-content/uploads/materials/planken.jpg
[area_modifier] => 233.09
[parent_name] => Наружная отделка фасада
[parent_id] => 19
[material_sum] => 938057
[work_sum] => 376172
[total_sum] => 1314229
[total_days] => 20
[display_material_sum] => 938 057
[display_work_sum] => 376 172
[display_total_sum] => 1 314 229
)
1
1 314 229₽
Работа:376 172 ₽
Материалы:938 057 ₽
Дни:20
stdClass Object
(
[id] => 137
[attribute_id] => 19
[name] => Штукатурка
[material_modifier] => 1
[work_modifier] => 1
[options] => Array
(
[0] => Цементно-песчаная (минеральная)
[1] => Мокрый фасад
)
[days] => [35,35]
[material_price] => [2231,3938]
[work_price] => [1202,2422]
[image] => https://akademik-stroy.ru/wp-content/uploads/materials/shtukaturka.jpg
[area_modifier] => 233.09
[parent_name] => Наружная отделка фасада
[parent_id] => 19
[material_sum] => 655230
[work_sum] => 294183
[total_sum] => 949413
[total_days] => 35
[display_material_sum] => 655 230
[display_work_sum] => 294 183
[display_total_sum] => 949 413
)
1
949 413₽
Работа:294 183 ₽
Материалы:655 230 ₽
Дни:35
stdClass Object
(
[id] => 138
[attribute_id] => 19
[name] => Облицовочный кирпич
[material_modifier] => 1
[work_modifier] => 1
[options] => Array
(
[0] => Керамический
[1] => Клинкерный
[2] => Ручной формовки
[3] => Гиперпрессованный
[4] => Силикатный кирпич
)
[days] => [45,45,45,45,45]
[material_price] => [8174,9148,1040,1257,5876]
[work_price] => [3240,3758,4536,4017,3369]
[image] => https://akademik-stroy.ru/wp-content/uploads/materials/oblicovochnyj-kirpich.jpg
[area_modifier] => 233.09
[parent_name] => Наружная отделка фасада
[parent_id] => 19
[material_sum] => 2400650
[work_sum] => 792972
[total_sum] => 3193622
[total_days] => 45
[display_material_sum] => 2 400 650
[display_work_sum] => 792 972
[display_total_sum] => 3 193 622
)
1
3 193 622₽
Работа:792 972 ₽
Материалы:2 400 650 ₽
Дни:45
stdClass Object
(
[id] => 139
[attribute_id] => 19
[name] => Фасадная плитка
[material_modifier] => 1
[work_modifier] => 1
[options] => Array
(
[0] => Клинкерная
[1] => Керамическая
[2] => Плитка ручной формовки
)
[days] => [40,40,40]
[material_price] => [2974,1487,3470]
[work_price] => [3007,2592,3629]
[image] => https://akademik-stroy.ru/wp-content/uploads/materials/fasadnaya-plitka.jpg
[area_modifier] => 233.09
[parent_name] => Наружная отделка фасада
[parent_id] => 19
[material_sum] => 873444
[work_sum] => 735947
[total_sum] => 1609391
[total_days] => 40
[display_material_sum] => 873 444
[display_work_sum] => 735 947
[display_total_sum] => 1 609 391
)
1
1 609 391₽
Работа:735 947 ₽
Материалы:873 444 ₽
Дни:40
stdClass Object
(
[id] => 140
[attribute_id] => 19
[name] => Сайдинг
[material_modifier] => 1
[work_modifier] => 1
[options] => Array
(
[0] => Виниловый
[1] => Металлический
[2] => Фиброцементный
)
[days] => [20,20,20]
[material_price] => [1263,1944,4147]
[work_price] => [1263,1944,2074]
[image] => https://akademik-stroy.ru/wp-content/uploads/materials/sajding.jpg
[area_modifier] => 233.09
[parent_name] => Наружная отделка фасада
[parent_id] => 19
[material_sum] => 370935
[work_sum] => 309112
[total_sum] => 680047
[total_days] => 20
[display_material_sum] => 370 935
[display_work_sum] => 309 112
[display_total_sum] => 680 047
)
1
680 047₽
Работа:309 112 ₽
Материалы:370 935 ₽
Дни:20
stdClass Object
(
[id] => 141
[attribute_id] => 19
[name] => Камень
[material_modifier] => 1
[work_modifier] => 1
[options] => Array
(
[0] => Травертин
[1] => Дагестанский
[2] => Искусственный
[3] => Натуральный
[4] => Керамогранит
)
[days] => [45,45,45,45,45]
[material_price] => [4536,3888,2592,3240,2462]
[work_price] => [3240,3240,2462,3110,1944]
[image] => https://akademik-stroy.ru/wp-content/uploads/materials/kamen-1.jpg
[area_modifier] => 233.09
[parent_name] => Наружная отделка фасада
[parent_id] => 19
[material_sum] => 1332193
[work_sum] => 792972
[total_sum] => 2125165
[total_days] => 45
[display_material_sum] => 1 332 193
[display_work_sum] => 792 972
[display_total_sum] => 2 125 165
)
1
2 125 165₽
Работа:792 972 ₽
Материалы:1 332 193 ₽
Дни:45
stdClass Object
(
[id] => 142
[attribute_id] => 19
[name] => Термопанели
[material_modifier] => 1
[work_modifier] => 1
[options] => Array
(
)
[days] => [20]
[material_price] => [6221]
[work_price] => [2333]
[image] => https://akademik-stroy.ru/wp-content/uploads/materials/termo.png
[area_modifier] => 233.09
[parent_name] => Наружная отделка фасада
[parent_id] => 19
[material_sum] => 1827067
[work_sum] => 570989
[total_sum] => 2398056
[total_days] => 20
[display_material_sum] => 1 827 067
[display_work_sum] => 570 989
[display_total_sum] => 2 398 056
)
1
2 398 056₽
Работа:570 989 ₽
Материалы:1 827 067 ₽
Дни:20
stdClass Object
(
[id] => 143
[attribute_id] => 19
[name] => Плитка HAUBERK
[material_modifier] => 1
[work_modifier] => 1
[options] => Array
(
)
[days] => [20]
[material_price] => [2786]
[work_price] => [1944]
[image] => https://akademik-stroy.ru/wp-content/uploads/materials/hauberk.jpg
[area_modifier] => 233.09
[parent_name] => Наружная отделка фасада
[parent_id] => 19
[material_sum] => 818230
[work_sum] => 475783
[total_sum] => 1294013
[total_days] => 20
[display_material_sum] => 818 230
[display_work_sum] => 475 783
[display_total_sum] => 1 294 013
)
1
1 294 013₽
Работа:475 783 ₽
Материалы:818 230 ₽
Дни:20
stdClass Object
(
[id] => 144
[attribute_id] => 19
[name] => Фальцевый фасад
[material_modifier] => 1
[work_modifier] => 1
[options] => Array
(
)
[days] => [20]
[material_price] => [3240]
[work_price] => [2592]
[image] => https://akademik-stroy.ru/wp-content/uploads/materials/falcevyj-fasad.jpg
[area_modifier] => 233.09
[parent_name] => Наружная отделка фасада
[parent_id] => 19
[material_sum] => 951567
[work_sum] => 634378
[total_sum] => 1585945
[total_days] => 20
[display_material_sum] => 951 567
[display_work_sum] => 634 378
[display_total_sum] => 1 585 945
)
1
1 585 945₽
Работа:634 378 ₽
Материалы:951 567 ₽
Дни:20
stdClass Object
(
[id] => 145
[attribute_id] => 19
[name] => Комбинированный
[material_modifier] => 1
[work_modifier] => 1
[options] => Array
(
)
[days] => [20]
[material_price] => [4629]
[work_price] => [3499]
[image] => https://akademik-stroy.ru/wp-content/uploads/materials/Kombinirovannyj.jpg
[area_modifier] => 233.09
[parent_name] => Наружная отделка фасада
[parent_id] => 19
[material_sum] => 1359507
[work_sum] => 856361
[total_sum] => 2215868
[total_days] => 20
[display_material_sum] => 1 359 507
[display_work_sum] => 856 361
[display_total_sum] => 2 215 868
)
1
2 215 868₽
Работа:856 361 ₽
Материалы:1 359 507 ₽
Дни:20
stdClass Object
(
[id] => 257
[attribute_id] => 19
[name] => Японские фиброцементные
[material_modifier] => 1
[work_modifier] => 1
[options] => Array
(
)
[days] => [20]
[material_price] => [7043]
[work_price] => [2993]
[image] => https://akademik-stroy.ru/wp-content/uploads/materials/paneli.jpg
[area_modifier] => 233.09
[parent_name] => Наружная отделка фасада
[parent_id] => 19
[material_sum] => 2068483
[work_sum] => 732520
[total_sum] => 2801003
[total_days] => 20
[display_material_sum] => 2 068 483
[display_work_sum] => 732 520
[display_total_sum] => 2 801 003
)
1
2 801 003₽
Работа:732 520 ₽
Материалы:2 068 483 ₽
Дни:20
stdClass Object
(
[id] => 258
[attribute_id] => 19
[name] => Панели Каньон
[material_modifier] => 1
[work_modifier] => 1
[options] => Array
(
)
[days] => [20]
[material_price] => [4543]
[work_price] => [2592]
[image] => https://akademik-stroy.ru/wp-content/uploads/materials/kanon.png
[area_modifier] => 233.09
[parent_name] => Наружная отделка фасада
[parent_id] => 19
[material_sum] => 1334249
[work_sum] => 634378
[total_sum] => 1968627
[total_days] => 20
[display_material_sum] => 1 334 249
[display_work_sum] => 634 378
[display_total_sum] => 1 968 627
)
1
1 968 627₽
Работа:634 378 ₽
Материалы:1 334 249 ₽
Дни:20
stdClass Object
(
[id] => 39
[attribute_id] => 20
[name] => Нет
[material_modifier] => 1
[work_modifier] => 1
[options] => Array
(
)
[days] => [0]
[material_price] => [0]
[work_price] => [0]
[image] => https://akademik-stroy.ru/wp-content/uploads/materials/terrasy.jpg
[area_modifier] => 30
[parent_name] => Террасы, крыльца, навесы
[parent_id] => 20
[material_sum] => 0
[work_sum] => 0
[total_sum] => 0
[total_days] => 0
[display_material_sum] => 0
[display_work_sum] => 0
[display_total_sum] => 0
)
1
0₽
Работа:0 ₽
Материалы:0 ₽
Дни:0
stdClass Object
(
[id] => 40
[attribute_id] => 20
[name] => Есть
[material_modifier] => 1
[work_modifier] => 1
[options] => Array
(
)
[days] => [5]
[material_price] => [10450]
[work_price] => [1950]
[image] => https://akademik-stroy.ru/wp-content/uploads/materials/terrasy.jpg
[area_modifier] => 30
[parent_name] => Террасы, крыльца, навесы
[parent_id] => 20
[material_sum] => 395010
[work_sum] => 61425
[total_sum] => 456435
[total_days] => 5
[display_material_sum] => 395 010
[display_work_sum] => 61 425
[display_total_sum] => 456 435
)
1
456 435₽
Работа:61 425 ₽
Материалы:395 010 ₽
Дни:5
stdClass Object
(
[id] => 41
[attribute_id] => 21
[name] => Нет
[material_modifier] => 1
[work_modifier] => 1
[options] => Array
(
)
[days] => [0]
[material_price] => [0]
[work_price] => [0]
[image] => https://akademik-stroy.ru/wp-content/uploads/materials/balkony.jpg
[area_modifier] => 30
[parent_name] => Балконы
[parent_id] => 21
[material_sum] => 0
[work_sum] => 0
[total_sum] => 0
[total_days] => 0
[display_material_sum] => 0
[display_work_sum] => 0
[display_total_sum] => 0
)
1
0₽
Работа:0 ₽
Материалы:0 ₽
Дни:0
stdClass Object
(
[id] => 42
[attribute_id] => 21
[name] => Есть
[material_modifier] => 1
[work_modifier] => 1
[options] => Array
(
)
[days] => [12]
[material_price] => [3600]
[work_price] => [1950]
[image] => https://akademik-stroy.ru/wp-content/uploads/materials/balkony.jpg
[area_modifier] => 30
[parent_name] => Балконы
[parent_id] => 21
[material_sum] => 136080
[work_sum] => 61425
[total_sum] => 197505
[total_days] => 12
[display_material_sum] => 136 080
[display_work_sum] => 61 425
[display_total_sum] => 197 505
)
1
197 505₽
Работа:61 425 ₽
Материалы:136 080 ₽
Дни:12
stdClass Object
(
[id] => 43
[attribute_id] => 22
[name] => Нет
[material_modifier] => 1
[work_modifier] => 1
[options] => Array
(
)
[days] => [0]
[material_price] => [0]
[work_price] => [0]
[image] => https://akademik-stroy.ru/wp-content/uploads/materials/uteplennaya.jpg
[area_modifier] => 130.86
[parent_name] => Отмостка
[parent_id] => 22
[material_sum] => 0
[work_sum] => 0
[total_sum] => 0
[total_days] => 0
[display_material_sum] => 0
[display_work_sum] => 0
[display_total_sum] => 0
)
1
0₽
Работа:0 ₽
Материалы:0 ₽
Дни:0
stdClass Object
(
[id] => 44
[attribute_id] => 22
[name] => Утепленная отмостка
[material_modifier] => 1
[work_modifier] => 1
[options] => Array
(
)
[days] => [15]
[material_price] => [2550]
[work_price] => [1750]
[image] => https://akademik-stroy.ru/wp-content/uploads/materials/uteplennaya.jpg
[area_modifier] => 130.86
[parent_name] => Отмостка
[parent_id] => 22
[material_sum] => 420453
[work_sum] => 240455
[total_sum] => 660908
[total_days] => 15
[display_material_sum] => 420 453
[display_work_sum] => 240 455
[display_total_sum] => 660 908
)
1
660 908₽
Работа:240 455 ₽
Материалы:420 453 ₽
Дни:15
stdClass Object
(
[id] => 146
[attribute_id] => 22
[name] => Не утепленная отмостка
[material_modifier] => 1
[work_modifier] => 1
[options] => Array
(
)
[days] => [10]
[material_price] => [1650]
[work_price] => [1450]
[image] => https://akademik-stroy.ru/wp-content/uploads/materials/ne-uteplennaya.jpg
[area_modifier] => 130.86
[parent_name] => Отмостка
[parent_id] => 22
[material_sum] => 272058
[work_sum] => 199234
[total_sum] => 471292
[total_days] => 10
[display_material_sum] => 272 058
[display_work_sum] => 199 234
[display_total_sum] => 471 292
)
1
471 292₽
Работа:199 234 ₽
Материалы:272 058 ₽
Дни:10
stdClass Object
(
[id] => 45
[attribute_id] => 23
[name] => Нет
[material_modifier] => 1
[work_modifier] => 1
[options] => Array
(
)
[days] => [0]
[material_price] => [0]
[work_price] => [0]
[image] => https://akademik-stroy.ru/wp-content/uploads/materials/drenazh-2.jpg
[area_modifier] => 130.86
[parent_name] => Дренаж вокруг дома
[parent_id] => 23
[material_sum] => 0
[work_sum] => 0
[total_sum] => 0
[total_days] => 0
[display_material_sum] => 0
[display_work_sum] => 0
[display_total_sum] => 0
)
1
0₽
Работа:0 ₽
Материалы:0 ₽
Дни:0
stdClass Object
(
[id] => 46
[attribute_id] => 23
[name] => Есть
[material_modifier] => 1
[work_modifier] => 1
[options] => Array
(
)
[days] => [5]
[material_price] => [2366]
[work_price] => [1911]
[image] => https://akademik-stroy.ru/wp-content/uploads/materials/drenazh-2.jpg
[area_modifier] => 130.86
[parent_name] => Дренаж вокруг дома
[parent_id] => 23
[material_sum] => 390115
[work_sum] => 262577
[total_sum] => 652692
[total_days] => 5
[display_material_sum] => 390 115
[display_work_sum] => 262 577
[display_total_sum] => 652 692
)
1
652 692₽
Работа:262 577 ₽
Материалы:390 115 ₽
Дни:5
stdClass Object
(
[id] => 47
[attribute_id] => 24
[name] => Нет
[material_modifier] => 1
[work_modifier] => 1
[options] => Array
(
)
[days] => [0]
[material_price] => [0]
[work_price] => [0]
[image] => https://akademik-stroy.ru/wp-content/uploads/materials/septik.jpg
[area_modifier] => 1
[parent_name] => Автономная канализация (септики)
[parent_id] => 24
[material_sum] => 0
[work_sum] => 0
[total_sum] => 0
[total_days] => 0
[display_material_sum] => 0
[display_work_sum] => 0
[display_total_sum] => 0
)
1
0₽
Работа:0 ₽
Материалы:0 ₽
Дни:0
stdClass Object
(
[id] => 48
[attribute_id] => 24
[name] => Есть
[material_modifier] => 1
[work_modifier] => 1
[options] => Array
(
[0] => Для дачи на 4 человека
[1] => Для дома на 5 человек
[2] => Для дома на 6 человек
[3] => Для дома на 7 человек
[4] => Для дома на 10 человек
)
[days] => [7,7,7,8,8]
[material_price] => [196340,220500,240940,264200,293340]
[work_price] => [50000,55000,60500,66550,73206]
[image] => https://akademik-stroy.ru/wp-content/uploads/materials/septik.jpg
[area_modifier] => 1
[parent_name] => Автономная канализация (септики)
[parent_id] => 24
[material_sum] => 247388
[work_sum] => 52500
[total_sum] => 299888
[total_days] => 7
[display_material_sum] => 247 388
[display_work_sum] => 52 500
[display_total_sum] => 299 888
)
1
299 888₽
Работа:52 500 ₽
Материалы:247 388 ₽
Дни:7
stdClass Object
(
[id] => 49
[attribute_id] => 25
[name] => Нет
[material_modifier] => 1
[work_modifier] => 1
[options] => Array
(
)
[days] => [0]
[material_price] => [0]
[work_price] => [0]
[image] => https://akademik-stroy.ru/wp-content/uploads/materials/gkl.jpg
[area_modifier] => 233.09
[parent_name] => Внутренние (не несущие) перегородки
[parent_id] => 25
[material_sum] => 0
[work_sum] => 0
[total_sum] => 0
[total_days] => 0
[display_material_sum] => 0
[display_work_sum] => 0
[display_total_sum] => 0
)
1
0₽
Работа:0 ₽
Материалы:0 ₽
Дни:0
stdClass Object
(
[id] => 147
[attribute_id] => 25
[name] => Каркасно-обшивные
[material_modifier] => 1
[work_modifier] => 1
[options] => Array
(
[0] => 75 мм (без шумоизоляции)
[1] => 75 мм (с шумоизоляцией)
)
[days] => [11,11]
[material_price] => [580,970]
[work_price] => [380,570]
[image] => https://akademik-stroy.ru/wp-content/uploads/materials/gkl.jpg
[area_modifier] => 233.09
[parent_name] => Внутренние (не несущие) перегородки
[parent_id] => 25
[material_sum] => 170342
[work_sum] => 93003
[total_sum] => 263345
[total_days] => 11
[display_material_sum] => 170 342
[display_work_sum] => 93 003
[display_total_sum] => 263 345
)
1
263 345₽
Работа:93 003 ₽
Материалы:170 342 ₽
Дни:11
stdClass Object
(
[id] => 148
[attribute_id] => 25
[name] => Пазогребневые
[material_modifier] => 1
[work_modifier] => 1
[options] => Array
(
[0] => 80 мм
[1] => 100 мм
)
[days] => [5,5]
[material_price] => [1022,1313]
[work_price] => [600,700]
[image] => https://akademik-stroy.ru/wp-content/uploads/materials/pazogrebnevye-bloki.jpg
[area_modifier] => 233.09
[parent_name] => Внутренние (не несущие) перегородки
[parent_id] => 25
[material_sum] => 300155
[work_sum] => 146847
[total_sum] => 447002
[total_days] => 5
[display_material_sum] => 300 155
[display_work_sum] => 146 847
[display_total_sum] => 447 002
)
1
447 002₽
Работа:146 847 ₽
Материалы:300 155 ₽
Дни:5
stdClass Object
(
[id] => 149
[attribute_id] => 25
[name] => Газобетонные
[material_modifier] => 1
[work_modifier] => 1
[options] => Array
(
[0] => 100 мм
[1] => 200 мм
)
[days] => [11,11]
[material_price] => [1160,1920]
[work_price] => [700,900]
[image] => https://akademik-stroy.ru/wp-content/uploads/materials/gazobeton-2.jpg
[area_modifier] => 233.09
[parent_name] => Внутренние (не несущие) перегородки
[parent_id] => 25
[material_sum] => 340684
[work_sum] => 171321
[total_sum] => 512005
[total_days] => 11
[display_material_sum] => 340 684
[display_work_sum] => 171 321
[display_total_sum] => 512 005
)
1
512 005₽
Работа:171 321 ₽
Материалы:340 684 ₽
Дни:11
stdClass Object
(
[id] => 150
[attribute_id] => 25
[name] => Кирпичные
[material_modifier] => 1
[work_modifier] => 1
[options] => Array
(
[0] => 120 мм
[1] => 250 мм
[2] => 360 мм
)
[days] => [7,7,7]
[material_price] => [1785,3570,5355]
[work_price] => [900,1600,1800]
[image] => https://akademik-stroy.ru/wp-content/uploads/materials/kirpich-1.jpg
[area_modifier] => 233.09
[parent_name] => Внутренние (не несущие) перегородки
[parent_id] => 25
[material_sum] => 524243
[work_sum] => 220270
[total_sum] => 744513
[total_days] => 7
[display_material_sum] => 524 243
[display_work_sum] => 220 270
[display_total_sum] => 744 513
)
1
744 513₽
Работа:220 270 ₽
Материалы:524 243 ₽
Дни:7
stdClass Object
(
[id] => 55
[attribute_id] => 28
[name] => Нет
[material_modifier] => 1
[work_modifier] => 1
[options] => Array
(
)
[days] => [0]
[material_price] => [0]
[work_price] => [0]
[image] => https://akademik-stroy.ru/wp-content/uploads/materials/ehlektrika.jpg
[area_modifier] => 189.15
[parent_name] => Электрика
[parent_id] => 28
[material_sum] => 0
[work_sum] => 0
[total_sum] => 0
[total_days] => 0
[display_material_sum] => 0
[display_work_sum] => 0
[display_total_sum] => 0
)
1
0₽
Работа:0 ₽
Материалы:0 ₽
Дни:0
stdClass Object
(
[id] => 56
[attribute_id] => 28
[name] => Есть
[material_modifier] => 1
[work_modifier] => 1
[options] => Array
(
)
[days] => [10]
[material_price] => [650]
[work_price] => [950]
[image] => https://akademik-stroy.ru/wp-content/uploads/materials/ehlektrika.jpg
[area_modifier] => 189.15
[parent_name] => Электрика
[parent_id] => 28
[material_sum] => 154914
[work_sum] => 188677
[total_sum] => 343591
[total_days] => 10
[display_material_sum] => 154 914
[display_work_sum] => 188 677
[display_total_sum] => 343 591
)
1
343 591₽
Работа:188 677 ₽
Материалы:154 914 ₽
Дни:10
stdClass Object
(
[id] => 57
[attribute_id] => 29
[name] => Нет
[material_modifier] => 1
[work_modifier] => 1
[options] => Array
(
)
[days] => [0]
[material_price] => [0]
[work_price] => [0]
[image] => https://akademik-stroy.ru/wp-content/uploads/materials/santekhnika-kanalizaciya-1.jpg
[area_modifier] => 189.15
[parent_name] => Сантехника, канализация в доме
[parent_id] => 29
[material_sum] => 0
[work_sum] => 0
[total_sum] => 0
[total_days] => 0
[display_material_sum] => 0
[display_work_sum] => 0
[display_total_sum] => 0
)
1
0₽
Работа:0 ₽
Материалы:0 ₽
Дни:0
stdClass Object
(
[id] => 58
[attribute_id] => 29
[name] => Есть
[material_modifier] => 1
[work_modifier] => 1
[options] => Array
(
)
[days] => [10]
[material_price] => [600]
[work_price] => [730]
[image] => https://akademik-stroy.ru/wp-content/uploads/materials/santekhnika-kanalizaciya-1.jpg
[area_modifier] => 189.15
[parent_name] => Сантехника, канализация в доме
[parent_id] => 29
[material_sum] => 142997
[work_sum] => 144983
[total_sum] => 287980
[total_days] => 10
[display_material_sum] => 142 997
[display_work_sum] => 144 983
[display_total_sum] => 287 980
)
1
287 980₽
Работа:144 983 ₽
Материалы:142 997 ₽
Дни:10
stdClass Object
(
[id] => 59
[attribute_id] => 30
[name] => Нет
[material_modifier] => 1
[work_modifier] => 1
[options] => Array
(
)
[days] => [0]
[material_price] => [0]
[work_price] => [0]
[image] => https://akademik-stroy.ru/wp-content/uploads/materials/otoplenie-1.jpg
[area_modifier] => 189.15
[parent_name] => Отопление
[parent_id] => 30
[material_sum] => 0
[work_sum] => 0
[total_sum] => 0
[total_days] => 0
[display_material_sum] => 0
[display_work_sum] => 0
[display_total_sum] => 0
)
1
0₽
Работа:0 ₽
Материалы:0 ₽
Дни:0
stdClass Object
(
[id] => 60
[attribute_id] => 30
[name] => Есть
[material_modifier] => 1
[work_modifier] => 1
[options] => Array
(
)
[days] => [5]
[material_price] => [610]
[work_price] => [560]
[image] => https://akademik-stroy.ru/wp-content/uploads/materials/otoplenie-1.jpg
[area_modifier] => 189.15
[parent_name] => Отопление
[parent_id] => 30
[material_sum] => 145381
[work_sum] => 111220
[total_sum] => 256601
[total_days] => 5
[display_material_sum] => 145 381
[display_work_sum] => 111 220
[display_total_sum] => 256 601
)
1
256 601₽
Работа:111 220 ₽
Материалы:145 381 ₽
Дни:5
stdClass Object
(
[id] => 61
[attribute_id] => 31
[name] => Нет
[material_modifier] => 1
[work_modifier] => 1
[options] => Array
(
)
[days] => [0]
[material_price] => [0]
[work_price] => [0]
[image] => https://akademik-stroy.ru/wp-content/uploads/materials/vodyanye.jpg
[area_modifier] => 30
[parent_name] => Теплые полы
[parent_id] => 31
[material_sum] => 0
[work_sum] => 0
[total_sum] => 0
[total_days] => 0
[display_material_sum] => 0
[display_work_sum] => 0
[display_total_sum] => 0
)
1
0₽
Работа:0 ₽
Материалы:0 ₽
Дни:0
stdClass Object
(
[id] => 151
[attribute_id] => 31
[name] => Водяные
[material_modifier] => 1
[work_modifier] => 1
[options] => Array
(
)
[days] => [9]
[material_price] => [10200]
[work_price] => [2500]
[image] => https://akademik-stroy.ru/wp-content/uploads/materials/vodyanye.jpg
[area_modifier] => 30
[parent_name] => Теплые полы
[parent_id] => 31
[material_sum] => 385560
[work_sum] => 78750
[total_sum] => 464310
[total_days] => 9
[display_material_sum] => 385 560
[display_work_sum] => 78 750
[display_total_sum] => 464 310
)
1
464 310₽
Работа:78 750 ₽
Материалы:385 560 ₽
Дни:9
stdClass Object
(
[id] => 152
[attribute_id] => 31
[name] => Электро
[material_modifier] => 1
[work_modifier] => 1
[options] => Array
(
)
[days] => [5]
[material_price] => [6300]
[work_price] => [1500]
[image] => https://akademik-stroy.ru/wp-content/uploads/materials/ehlektricheskij.jpg
[area_modifier] => 30
[parent_name] => Теплые полы
[parent_id] => 31
[material_sum] => 238140
[work_sum] => 47250
[total_sum] => 285390
[total_days] => 5
[display_material_sum] => 238 140
[display_work_sum] => 47 250
[display_total_sum] => 285 390
)
1
285 390₽
Работа:47 250 ₽
Материалы:238 140 ₽
Дни:5
stdClass Object
(
[id] => 63
[attribute_id] => 32
[name] => Нет
[material_modifier] => 1
[work_modifier] => 1
[options] => Array
(
)
[days] => [0]
[material_price] => [0]
[work_price] => [0]
[image] => https://akademik-stroy.ru/wp-content/uploads/materials/shtukaturka-shpatlevka-1.jpg
[area_modifier] => 189.15
[parent_name] => Черновая отделка стен
[parent_id] => 32
[material_sum] => 0
[work_sum] => 0
[total_sum] => 0
[total_days] => 0
[display_material_sum] => 0
[display_work_sum] => 0
[display_total_sum] => 0
)
1
0₽
Работа:0 ₽
Материалы:0 ₽
Дни:0
stdClass Object
(
[id] => 153
[attribute_id] => 32
[name] => Штукатурка и шпатлевка
[material_modifier] => 1
[work_modifier] => 1
[options] => Array
(
)
[days] => [20]
[material_price] => [1850]
[work_price] => [2600]
[image] => https://akademik-stroy.ru/wp-content/uploads/materials/shtukaturka-shpatlevka-1.jpg
[area_modifier] => 189.15
[parent_name] => Черновая отделка стен
[parent_id] => 32
[material_sum] => 440909
[work_sum] => 516380
[total_sum] => 957289
[total_days] => 20
[display_material_sum] => 440 909
[display_work_sum] => 516 380
[display_total_sum] => 957 289
)
1
957 289₽
Работа:516 380 ₽
Материалы:440 909 ₽
Дни:20
stdClass Object
(
[id] => 154
[attribute_id] => 32
[name] => Гипсокортон на стены
[material_modifier] => 1
[work_modifier] => 1
[options] => Array
(
)
[days] => [15]
[material_price] => [950]
[work_price] => [2100]
[image] => https://akademik-stroy.ru/wp-content/uploads/materials/gkl-1.jpg
[area_modifier] => 189.15
[parent_name] => Черновая отделка стен
[parent_id] => 32
[material_sum] => 226413
[work_sum] => 417076
[total_sum] => 643489
[total_days] => 15
[display_material_sum] => 226 413
[display_work_sum] => 417 076
[display_total_sum] => 643 489
)
1
643 489₽
Работа:417 076 ₽
Материалы:226 413 ₽
Дни:15
stdClass Object
(
[id] => 155
[attribute_id] => 32
[name] => Вагонка
[material_modifier] => 1
[work_modifier] => 1
[options] => Array
(
)
[days] => [15]
[material_price] => [1250]
[work_price] => [950]
[image] => https://akademik-stroy.ru/wp-content/uploads/materials/vagonka.jpg
[area_modifier] => 189.15
[parent_name] => Черновая отделка стен
[parent_id] => 32
[material_sum] => 297911
[work_sum] => 188677
[total_sum] => 486588
[total_days] => 15
[display_material_sum] => 297 911
[display_work_sum] => 188 677
[display_total_sum] => 486 588
)
1
486 588₽
Работа:188 677 ₽
Материалы:297 911 ₽
Дни:15
stdClass Object
(
[id] => 65
[attribute_id] => 33
[name] => Нет
[material_modifier] => 1
[work_modifier] => 1
[options] => Array
(
)
[days] => [0]
[material_price] => [0]
[work_price] => [0]
[image] => https://akademik-stroy.ru/wp-content/uploads/materials/styazhka.jpg
[area_modifier] => 189.15
[parent_name] => Черновая отделка полов
[parent_id] => 33
[material_sum] => 0
[work_sum] => 0
[total_sum] => 0
[total_days] => 0
[display_material_sum] => 0
[display_work_sum] => 0
[display_total_sum] => 0
)
1
0₽
Работа:0 ₽
Материалы:0 ₽
Дни:0
stdClass Object
(
[id] => 156
[attribute_id] => 33
[name] => Стяжка + наливные полы
[material_modifier] => 1
[work_modifier] => 1
[options] => Array
(
)
[days] => [10]
[material_price] => [1000]
[work_price] => [900]
[image] => https://akademik-stroy.ru/wp-content/uploads/materials/styazhka.jpg
[area_modifier] => 189.15
[parent_name] => Черновая отделка полов
[parent_id] => 33
[material_sum] => 238329
[work_sum] => 178747
[total_sum] => 417076
[total_days] => 10
[display_material_sum] => 238 329
[display_work_sum] => 178 747
[display_total_sum] => 417 076
)
1
417 076₽
Работа:178 747 ₽
Материалы:238 329 ₽
Дни:10
stdClass Object
(
[id] => 157
[attribute_id] => 33
[name] => ОСБ на пол
[material_modifier] => 1
[work_modifier] => 1
[options] => Array
(
)
[days] => [7]
[material_price] => [580]
[work_price] => [350]
[image] => https://akademik-stroy.ru/wp-content/uploads/materials/osb-1.jpg
[area_modifier] => 189.15
[parent_name] => Черновая отделка полов
[parent_id] => 33
[material_sum] => 138231
[work_sum] => 69513
[total_sum] => 207744
[total_days] => 7
[display_material_sum] => 138 231
[display_work_sum] => 69 513
[display_total_sum] => 207 744
)
1
207 744₽
Работа:69 513 ₽
Материалы:138 231 ₽
Дни:7
stdClass Object
(
[id] => 67
[attribute_id] => 34
[name] => Нет
[material_modifier] => 1
[work_modifier] => 1
[options] => Array
(
)
[days] => [0]
[material_price] => [0]
[work_price] => [0]
[image] => https://akademik-stroy.ru/wp-content/uploads/materials/chistovaya-otdelka.jpg
[area_modifier] => 189.15
[parent_name] => Чистовая отделка стен и полов
[parent_id] => 34
[material_sum] => 0
[work_sum] => 0
[total_sum] => 0
[total_days] => 0
[display_material_sum] => 0
[display_work_sum] => 0
[display_total_sum] => 0
)
1
0₽
Работа:0 ₽
Материалы:0 ₽
Дни:0
stdClass Object
(
[id] => 68
[attribute_id] => 34
[name] => Есть
[material_modifier] => 1
[work_modifier] => 1
[options] => Array
(
)
[days] => [50]
[material_price] => [6000]
[work_price] => [3500]
[image] => https://akademik-stroy.ru/wp-content/uploads/materials/chistovaya-otdelka.jpg
[area_modifier] => 189.15
[parent_name] => Чистовая отделка стен и полов
[parent_id] => 34
[material_sum] => 1429974
[work_sum] => 695126
[total_sum] => 2125100
[total_days] => 50
[display_material_sum] => 1 429 974
[display_work_sum] => 695 126
[display_total_sum] => 2 125 100
)
1
2 125 100₽
Работа:695 126 ₽
Материалы:1 429 974 ₽
Дни:50
stdClass Object
(
[id] => 69
[attribute_id] => 35
[name] => Нет
[material_modifier] => 1
[work_modifier] => 1
[options] => Array
(
)
[days] => [0]
[material_price] => [0]
[work_price] => [0]
[image] => https://akademik-stroy.ru/wp-content/uploads/materials/mnogourovnevyj-gkl.jpg
[area_modifier] => 189.15
[parent_name] => Отделка потолка
[parent_id] => 35
[material_sum] => 0
[work_sum] => 0
[total_sum] => 0
[total_days] => 0
[display_material_sum] => 0
[display_work_sum] => 0
[display_total_sum] => 0
)
1
0₽
Работа:0 ₽
Материалы:0 ₽
Дни:0
stdClass Object
(
[id] => 70
[attribute_id] => 35
[name] => Есть
[material_modifier] => 1
[work_modifier] => 1
[options] => Array
(
[0] => Многоуровневый потолок из гипсокартона
[1] => Многоуровневый потолок из гипсокартона и натяжного потолка
[2] => Одноуровневый потолок из гипсокартона
[3] => Одноуровневый натяжной потолок
)
[days] => [10,10,1,1]
[material_price] => [900,700,700,600]
[work_price] => [1000,800,500,300]
[image] => https://akademik-stroy.ru/wp-content/uploads/materials/mnogourovnevyj-gkl.jpg
[area_modifier] => 189.15
[parent_name] => Отделка потолка
[parent_id] => 35
[material_sum] => 214496
[work_sum] => 198608
[total_sum] => 413104
[total_days] => 10
[display_material_sum] => 214 496
[display_work_sum] => 198 608
[display_total_sum] => 413 104
)
1
413 104₽
Работа:198 608 ₽
Материалы:214 496 ₽
Дни:10
Преимущества работы с нами
7 этапов оплаты
Независимый строительный надзор
Экологически чистые материалы
16 лет гарантии
Онлайн-кабинет с веб-камерой
Строители с опытом более 15 лет
Собственное производство









