Одноэтажный дом 9x11 - 183.68 м2 за руб.
Планировки
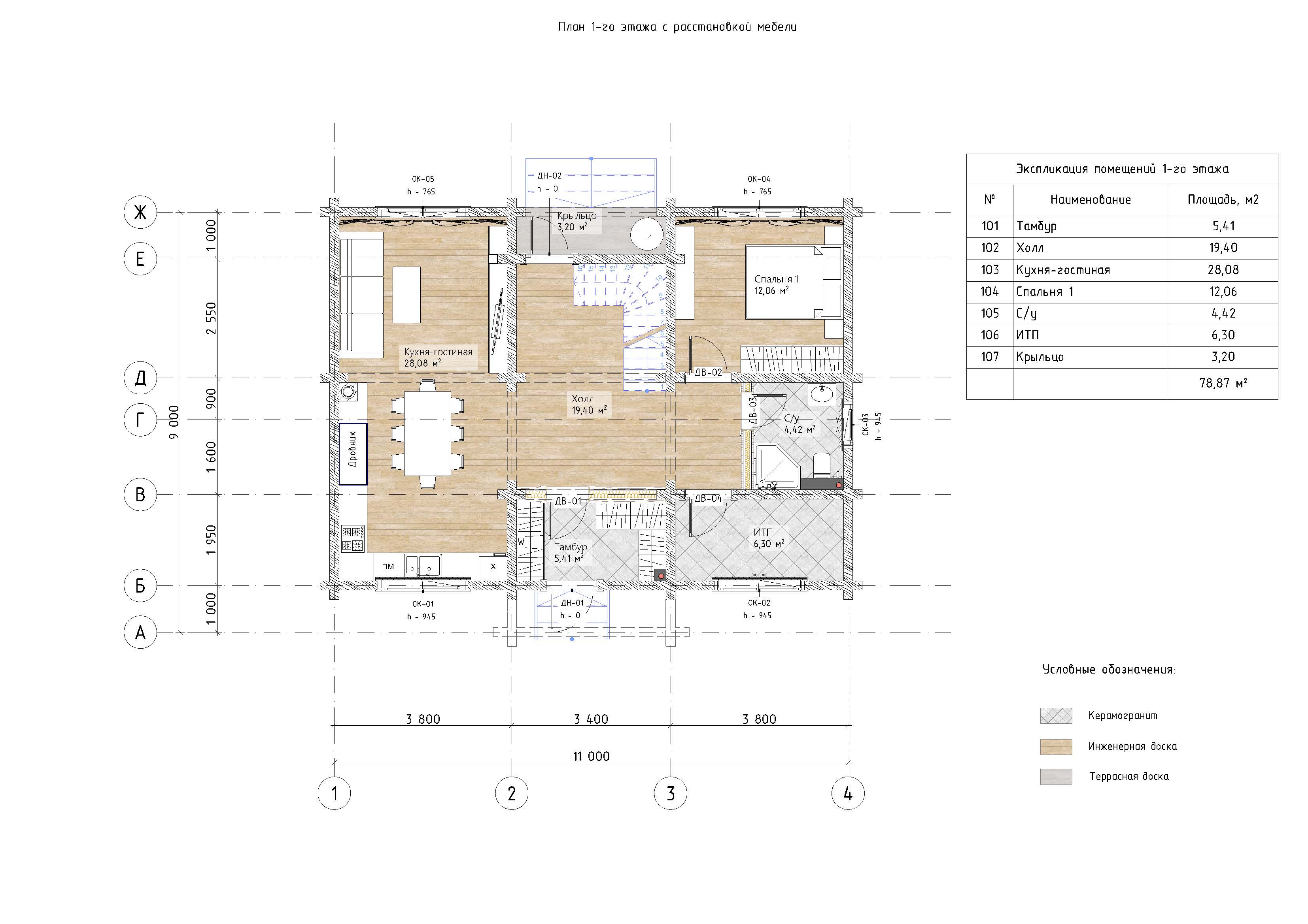
План первого этажа
- 1. Тамбур 5,41 м²
- 2. Холл 19,40 м²
- 3. Кухня-Гостиная 28,08 м²
- 4. Спальня 12,06 м²
- 5. Санузел 4,42 м²
- 6. ИТП 6,30 м²
- 7. Крыльцо 3,20 м²
- Общая площадь первый этаж 91,84 м²
План второго этажа
- 1. Холл 12,63 м²
- 2. Санузел 5,41 м²
- 3. Спальня 12,90 м²
- 4. Спальня 14,22 м²
- 5. Спальня 15,18 м²
- 6. Спальня 11,94 м²
- 7. Балкон 2,56 м²
- Общая площадь второй этаж 91,84 м²
Площади дома
| № п/п | Наименование | Ед. из. | Строительная площадь | Полезная площадь |
| 1 | 1 этаж | м2 | 113.17 | 91.84 |
| 2 | 2 этаж | м2 | 113.17 | 91.84 |
| 3 | Итого | м2 | 226.34 | 183.68 |
154 м2
Полезная
площадь
площадь
9 x 11 м
Размеры
1 этаж
Этажей
26 м2
Террасы
и балконы
и балконы
0Без
гаража
гаража
5+
Количество
спален
спален
2
Количество
санузлов
санузлов
Калькулятор опций
0₽
В ипотеку от 20 135 ₽/мес.
0₽
0 дней
stdClass Object
(
[id] => 1
[attribute_id] => 1
[name] => Ленточный монолитный ж/б
[material_modifier] => 1
[work_modifier] => 1
[options] => Array
(
[0] => размер 200 х 700 мм
[1] => размер 300 х 900 мм
[2] => размер 400 х 1 000 мм
[3] => размер 500 х 1 100 мм
[4] => размер 600 х 1 200 мм
)
[days] => [20,21,22,25,30]
[material_price] => [2823,3630,4475,5210,12047]
[work_price] => [2154,2826,3731,4577,5293]
[image] => https://akademik-stroy.ru/wp-content/uploads/materials/lentochnyj-monolitnyj-zh-b.jpg
[area_modifier] => 113.17
[parent_name] => Фундамент
[parent_id] => 1
[material_sum] => 402543
[work_sum] => 255957
[total_sum] => 658500
[total_days] => 20
[display_material_sum] => 402 543
[display_work_sum] => 255 957
[display_total_sum] => 658 500
)
1
658 500₽
Работа:255 957 ₽
Материалы:402 543 ₽
Дни:20
stdClass Object
(
[id] => 2
[attribute_id] => 1
[name] => Забивные Ж/Б сваи
[material_modifier] => 1
[work_modifier] => 1
[options] => Array
(
[0] => 150х150х3000мм
[1] => 150х150х4000мм
[2] => 200х200х3000мм
[3] => 200х200х4000мм
[4] => 200х200х5000мм
[5] => 200х200х6000мм
)
[days] => [2,2,2,2,2,2]
[material_price] => [1990,2850,3255,4360,5120,6837]
[work_price] => [1002,1185,1336,1438,1574,1839]
[image] => https://akademik-stroy.ru/wp-content/uploads/materials/zabivnye-zh-b-svai.png
[area_modifier] => 113.17
[parent_name] => Фундамент
[parent_id] => 1
[material_sum] => 283762
[work_sum] => 119066
[total_sum] => 402828
[total_days] => 2
[display_material_sum] => 283 762
[display_work_sum] => 119 066
[display_total_sum] => 402 828
)
1
402 828₽
Работа:119 066 ₽
Материалы:283 762 ₽
Дни:2
stdClass Object
(
[id] => 71
[attribute_id] => 1
[name] => Свайно-ростверковый ж/б
[material_modifier] => 1
[work_modifier] => 1
[options] => Array
(
[0] => ростверк 200х300 мм
[1] => ростверк 300х600 мм
[2] => ростверк 400х900 мм
[3] => ростверк 500х1200 мм
)
[days] => [20,23,25,27]
[material_price] => [3018,3474,7109,9792]
[work_price] => [2024,3012,5635,7022]
[image] => https://akademik-stroy.ru/wp-content/uploads/materials/svajno-rostverkovyj-monolitnyj-zh-b-3.png
[area_modifier] => 113.17
[parent_name] => Фундамент
[parent_id] => 1
[material_sum] => 430349
[work_sum] => 240509
[total_sum] => 670858
[total_days] => 20
[display_material_sum] => 430 349
[display_work_sum] => 240 509
[display_total_sum] => 670 858
)
1
670 858₽
Работа:240 509 ₽
Материалы:430 349 ₽
Дни:20
stdClass Object
(
[id] => 72
[attribute_id] => 1
[name] => Монолитная ж/б плита
[material_modifier] => 1
[work_modifier] => 1
[options] => Array
(
[0] => 200 мм
[1] => 300 мм
[2] => 400 мм
[3] => 500 мм
[4] => 600 мм
)
[days] => [30,33,35,37,40]
[material_price] => [5348,8555,12788,14388,15189]
[work_price] => [4314,4881,7037,8061,10230]
[image] => https://akademik-stroy.ru/wp-content/uploads/materials/monolitnaya-zhb-plita.png
[area_modifier] => 113.17
[parent_name] => Фундамент
[parent_id] => 1
[material_sum] => 762594
[work_sum] => 512626
[total_sum] => 1275220
[total_days] => 30
[display_material_sum] => 762 594
[display_work_sum] => 512 626
[display_total_sum] => 1 275 220
)
1
1 275 220₽
Работа:512 626 ₽
Материалы:762 594 ₽
Дни:30
stdClass Object
(
[id] => 73
[attribute_id] => 1
[name] => Утепленная шведская плита
[material_modifier] => 1
[work_modifier] => 1
[options] => Array
(
[0] => 200 мм
[1] => 300 мм
[2] => 400 мм
[3] => 500 мм
[4] => 600 мм
)
[days] => [32,37,39,42,45]
[material_price] => [10249,12692,13760,14936,16230]
[work_price] => [5960,7337,8072,8878,9765]
[image] => https://akademik-stroy.ru/wp-content/uploads/materials/uteplennaya-shvedskaya-plita.jpg
[area_modifier] => 113.17
[parent_name] => Фундамент
[parent_id] => 1
[material_sum] => 1461448
[work_sum] => 708218
[total_sum] => 2169666
[total_days] => 32
[display_material_sum] => 1 461 448
[display_work_sum] => 708 218
[display_total_sum] => 2 169 666
)
1
2 169 666₽
Работа:708 218 ₽
Материалы:1 461 448 ₽
Дни:32
stdClass Object
(
[id] => 75
[attribute_id] => 1
[name] => Ленточный из ФБС
[material_modifier] => 1
[work_modifier] => 1
[options] => Array
(
[0] => толщ. 300 мм
[1] => толщ. 400 мм
[2] => толщ. 500 мм
[3] => толщ. 600 мм
)
[days] => [20,20,20,20]
[material_price] => [3675,4902,6126,7350]
[work_price] => [2451,3264,4083,4902]
[image] => https://akademik-stroy.ru/wp-content/uploads/materials/lentochnyj-iz-fbs.png
[area_modifier] => 113.17
[parent_name] => Фундамент
[parent_id] => 1
[material_sum] => 524034
[work_sum] => 291249
[total_sum] => 815283
[total_days] => 20
[display_material_sum] => 524 034
[display_work_sum] => 291 249
[display_total_sum] => 815 283
)
1
815 283₽
Работа:291 249 ₽
Материалы:524 034 ₽
Дни:20
stdClass Object
(
[id] => 76
[attribute_id] => 1
[name] => Цокольный этаж из ФБС
[material_modifier] => 1
[work_modifier] => 1
[options] => Array
(
[0] => толщ. 300 мм
[1] => толщ. 400 мм
[2] => толщ. 500 мм
[3] => толщ. 600 мм
)
[days] => [30,32,34,36]
[material_price] => [20916,23299,26680,29060]
[work_price] => [17524,18700,19873,21046]
[image] => https://akademik-stroy.ru/wp-content/uploads/materials/cokolnyj-ehtazh-iz-fbs.jpg
[area_modifier] => 113.17
[parent_name] => Фундамент
[parent_id] => 1
[material_sum] => 2982500
[work_sum] => 2082351
[total_sum] => 5064851
[total_days] => 30
[display_material_sum] => 2 982 500
[display_work_sum] => 2 082 351
[display_total_sum] => 5 064 851
)
1
5 064 851₽
Работа:2 082 351 ₽
Материалы:2 982 500 ₽
Дни:30
stdClass Object
(
[id] => 77
[attribute_id] => 1
[name] => Цокольный этаж монолитный ж/б
[material_modifier] => 1
[work_modifier] => 1
[options] => Array
(
[0] => толщ. 200 мм
[1] => толщ. 300 мм
[2] => толщ. 400 мм
[3] => толщ. 500 мм
[4] => толщ. 600 мм
)
[days] => [40,42,44,46,48]
[material_price] => [25421,29148,32275,35602,37326]
[work_price] => [20441,21907,23375,24841,26306]
[image] => https://akademik-stroy.ru/wp-content/uploads/materials/cokolnyj-etazh-zh-b.jpg
[area_modifier] => 113.17
[parent_name] => Фундамент
[parent_id] => 1
[material_sum] => 3624887
[work_sum] => 2428973
[total_sum] => 6053860
[total_days] => 40
[display_material_sum] => 3 624 887
[display_work_sum] => 2 428 973
[display_total_sum] => 6 053 860
)
1
6 053 860₽
Работа:2 428 973 ₽
Материалы:3 624 887 ₽
Дни:40
stdClass Object
(
[id] => 191
[attribute_id] => 1
[name] => Винтовые сваи
[material_modifier] => 1
[work_modifier] => 1
[options] => Array
(
[0] => 57х200мм
[1] => 76х250мм
[2] => 108х300мм
[3] => 133х350мм
)
[days] => [1,1,2,2]
[material_price] => [1200,1300,1450,1600]
[work_price] => [400,600,900,1100]
[image] => https://akademik-stroy.ru/wp-content/uploads/materials/vintovye-svai.png
[area_modifier] => 113.17
[parent_name] => Фундамент
[parent_id] => 1
[material_sum] => 171113
[work_sum] => 47531
[total_sum] => 218644
[total_days] => 1
[display_material_sum] => 171 113
[display_work_sum] => 47 531
[display_total_sum] => 218 644
)
1
218 644₽
Работа:47 531 ₽
Материалы:171 113 ₽
Дни:1
stdClass Object
(
[id] => 3
[attribute_id] => 2
[name] => Деревянные балки
[material_modifier] => 1
[work_modifier] => 1
[options] => Array
(
[0] => без утепления
[1] => утепление 200 мм
[2] => утепление 250 мм
[3] => утепление 300 мм
[4] => утепление 350 мм
[5] => утепление 400 мм
[6] => утепление 450 мм
[7] => утепление 500 мм
)
[days] => [8,9,9,9,11,12,13,14]
[material_price] => [1634,2042,2344,2947,3149,3652,3354,3557]
[work_price] => [1230,1339,1393,1426,1460,1513,1587,1620]
[image] => https://akademik-stroy.ru/wp-content/uploads/materials/derevyannye-balki.png
[area_modifier] => 113.17
[parent_name] => Перекрытие цоколя
[parent_id] => 2
[material_sum] => 232999
[work_sum] => 146159
[total_sum] => 379158
[total_days] => 8
[display_material_sum] => 232 999
[display_work_sum] => 146 159
[display_total_sum] => 379 158
)
1
379 158₽
Работа:146 159 ₽
Материалы:232 999 ₽
Дни:8
stdClass Object
(
[id] => 4
[attribute_id] => 2
[name] => Сборные ж/б плиты
[material_modifier] => 1
[work_modifier] => 1
[options] => Array
(
[0] => без утепления
[1] => утепление 150мм
[2] => утепление 200мм
[3] => утепление 250мм
[4] => утепление 300мм
[5] => утепление 350мм
[6] => утепление 400мм
[7] => утепление 450мм
[8] => утепление 500мм
)
[days] => [13,15,15,15,15,15,15,15,15]
[material_price] => [3067,5577,5928,6679,7730,8782,9833,10884,11935]
[work_price] => [1520,1956,2102,2247,2392,2537,2684,2829,2974]
[image] => https://akademik-stroy.ru/wp-content/uploads/materials/sbornye-zh-b-plity-2.jpg
[area_modifier] => 113.17
[parent_name] => Перекрытие цоколя
[parent_id] => 2
[material_sum] => 437336
[work_sum] => 180619
[total_sum] => 617955
[total_days] => 13
[display_material_sum] => 437 336
[display_work_sum] => 180 619
[display_total_sum] => 617 955
)
1
617 955₽
Работа:180 619 ₽
Материалы:437 336 ₽
Дни:13
stdClass Object
(
[id] => 78
[attribute_id] => 2
[name] => Монолитная ж/б плита
[material_modifier] => 1
[work_modifier] => 1
[options] => Array
(
[0] => без утепления
[1] => утепление 150 мм
[2] => утепление 200 мм
[3] => утепление 250 мм
[4] => утепление 300 мм
[5] => утепление 350 мм
[6] => утепление 400 мм
[7] => утепление 450 мм
[8] => утепление 500 мм
)
[days] => [18,20,20,20,20,20,20,20,20]
[material_price] => [4837,6572,7224,7375,79426,8177,8728,9180,10031]
[work_price] => [3348,3921,4112,4302,4493,4684,4875,5066,5256]
[image] => https://akademik-stroy.ru/wp-content/uploads/materials/monolitnaya-zh-b-plita-2.jpg
[area_modifier] => 113.17
[parent_name] => Перекрытие цоколя
[parent_id] => 2
[material_sum] => 689728
[work_sum] => 397838
[total_sum] => 1087566
[total_days] => 18
[display_material_sum] => 689 728
[display_work_sum] => 397 838
[display_total_sum] => 1 087 566
)
1
1 087 566₽
Работа:397 838 ₽
Материалы:689 728 ₽
Дни:18
stdClass Object
(
[id] => 6
[attribute_id] => 3
[name] => Пеноблок
[material_modifier] => 1
[work_modifier] => 1
[options] => Array
(
[0] => 300 мм
[1] => 400 мм
[2] => 500 мм
[3] => 600 мм
)
[days] => [29,31,34,39]
[material_price] => [3000,4000,4500,4937]
[work_price] => [5033,5805,6400,8710]
[image] => https://akademik-stroy.ru/wp-content/uploads/materials/penoblok.jpg
[area_modifier] => 113.17
[parent_name] => Стены 1 этаж (несущие)
[parent_id] => 3
[material_sum] => 427783
[work_sum] => 598064
[total_sum] => 1025847
[total_days] => 29
[display_material_sum] => 427 783
[display_work_sum] => 598 064
[display_total_sum] => 1 025 847
)
1
1 025 847₽
Работа:598 064 ₽
Материалы:427 783 ₽
Дни:29
stdClass Object
(
[id] => 79
[attribute_id] => 3
[name] => Керамический блок
[material_modifier] => 1
[work_modifier] => 1
[options] => Array
(
[0] => 380 мм
[1] => 380 мм Thermo
[2] => 440 мм
[3] => 510 мм
)
[days] => [23,23,24,25]
[material_price] => [4510,5098,6093,8013]
[work_price] => [4737,4937,5903,6958]
[image] => https://akademik-stroy.ru/wp-content/uploads/materials/keramicheskij-blok.jpg
[area_modifier] => 113.17
[parent_name] => Стены 1 этаж (несущие)
[parent_id] => 3
[material_sum] => 643100
[work_sum] => 562891
[total_sum] => 1205991
[total_days] => 23
[display_material_sum] => 643 100
[display_work_sum] => 562 891
[display_total_sum] => 1 205 991
)
1
1 205 991₽
Работа:562 891 ₽
Материалы:643 100 ₽
Дни:23
stdClass Object
(
[id] => 80
[attribute_id] => 3
[name] => Кирпич
[material_modifier] => 1
[work_modifier] => 1
[options] => Array
(
[0] => Кирпич 250 мм
[1] => Кирпич 380 мм
[2] => Кирпич 510 мм
[3] => Кирпич 640 мм
[4] => Кирпич 770 мм
)
[days] => [30,30,31,33,36]
[material_price] => [5500,7142,9206,10171,12235]
[work_price] => [8736,10041,12018,15240,18462]
[image] => https://akademik-stroy.ru/wp-content/uploads/materials/kirpich.jpg
[area_modifier] => 113.17
[parent_name] => Стены 1 этаж (несущие)
[parent_id] => 3
[material_sum] => 784268
[work_sum] => 1038086
[total_sum] => 1822354
[total_days] => 30
[display_material_sum] => 784 268
[display_work_sum] => 1 038 086
[display_total_sum] => 1 822 354
)
1
1 822 354₽
Работа:1 038 086 ₽
Материалы:784 268 ₽
Дни:30
stdClass Object
(
[id] => 81
[attribute_id] => 3
[name] => Монолитные
[material_modifier] => 1
[work_modifier] => 1
[options] => Array
(
[0] => 150 мм
[1] => 200 мм
[2] => 250 мм
[3] => 300 мм
[4] => 350 мм
[5] => 400 мм
)
[days] => [45,46,47,49,50,53]
[material_price] => [6545,7876,10175,12011,13908,15204]
[work_price] => [5106,6444,7698,8552,9807,11461]
[image] => https://akademik-stroy.ru/wp-content/uploads/materials/monolitnye.jpg
[area_modifier] => 113.17
[parent_name] => Стены 1 этаж (несущие)
[parent_id] => 3
[material_sum] => 933279
[work_sum] => 606738
[total_sum] => 1540017
[total_days] => 45
[display_material_sum] => 933 279
[display_work_sum] => 606 738
[display_total_sum] => 1 540 017
)
1
1 540 017₽
Работа:606 738 ₽
Материалы:933 279 ₽
Дни:45
stdClass Object
(
[id] => 82
[attribute_id] => 3
[name] => Клееный брус
[material_modifier] => 1
[work_modifier] => 1
[options] => Array
(
[0] => 160 мм
[1] => 175 мм
[2] => 200 мм
[3] => 215 мм
[4] => 240 мм
[5] => 270 мм
[6] => 282 мм
)
[days] => [24,28,32,37,40,42,48]
[material_price] => [16975,18773,19950,20545,21599,22159,23275]
[work_price] => [4806,5287,5815,6397,7036,7740,8514]
[image] => https://akademik-stroy.ru/wp-content/uploads/materials/kleenyj-brus.jpg
[area_modifier] => 113.17
[parent_name] => Стены 1 этаж (несущие)
[parent_id] => 3
[material_sum] => 2420537
[work_sum] => 571090
[total_sum] => 2991627
[total_days] => 24
[display_material_sum] => 2 420 537
[display_work_sum] => 571 090
[display_total_sum] => 2 991 627
)
1
2 991 627₽
Работа:571 090 ₽
Материалы:2 420 537 ₽
Дни:24
stdClass Object
(
[id] => 83
[attribute_id] => 3
[name] => Каркасные
[material_modifier] => 1
[work_modifier] => 1
[options] => Array
(
[0] => 150 мм
[1] => 200 мм
[2] => 250 мм
[3] => 300 мм
)
[days] => [15,16,17,18]
[material_price] => [2379,2639,2898,3258]
[work_price] => [2418,2686,2985,3716]
[image] => https://akademik-stroy.ru/wp-content/uploads/materials/karkasnye.jpg
[area_modifier] => 113.17
[parent_name] => Стены 1 этаж (несущие)
[parent_id] => 3
[material_sum] => 339232
[work_sum] => 287327
[total_sum] => 626559
[total_days] => 15
[display_material_sum] => 339 232
[display_work_sum] => 287 327
[display_total_sum] => 626 559
)
1
626 559₽
Работа:287 327 ₽
Материалы:339 232 ₽
Дни:15
stdClass Object
(
[id] => 84
[attribute_id] => 3
[name] => СИП-панели
[material_modifier] => 1
[work_modifier] => 1
[options] => Array
(
[0] => 120 мм
[1] => 170 мм
[2] => 220 мм
)
[days] => [7,7,7]
[material_price] => [1210,1856,2292]
[work_price] => [1410,1551,1706]
[image] => https://akademik-stroy.ru/wp-content/uploads/materials/sip-paneli.jpg
[area_modifier] => 113.17
[parent_name] => Стены 1 этаж (несущие)
[parent_id] => 3
[material_sum] => 172539
[work_sum] => 167548
[total_sum] => 340087
[total_days] => 7
[display_material_sum] => 172 539
[display_work_sum] => 167 548
[display_total_sum] => 340 087
)
1
340 087₽
Работа:167 548 ₽
Материалы:172 539 ₽
Дни:7
stdClass Object
(
[id] => 85
[attribute_id] => 3
[name] => Сухой брус
[material_modifier] => 1
[work_modifier] => 1
[options] => Array
(
[0] => 150 мм
[1] => 180 мм
[2] => 200 мм
)
[days] => [7,8,9]
[material_price] => [6010,7190,8709]
[work_price] => [3204,3845,4229]
[image] => https://akademik-stroy.ru/wp-content/uploads/materials/suhoj-brus.jpg
[area_modifier] => 113.17
[parent_name] => Стены 1 этаж (несущие)
[parent_id] => 3
[material_sum] => 856991
[work_sum] => 380727
[total_sum] => 1237718
[total_days] => 7
[display_material_sum] => 856 991
[display_work_sum] => 380 727
[display_total_sum] => 1 237 718
)
1
1 237 718₽
Работа:380 727 ₽
Материалы:856 991 ₽
Дни:7
stdClass Object
(
[id] => 86
[attribute_id] => 3
[name] => Профилированный брус
[material_modifier] => 1
[work_modifier] => 1
[options] => Array
(
[0] => 150 мм
[1] => 180 мм
[2] => 200 мм
)
[days] => [7,8,9]
[material_price] => [8190,9228,10051]
[work_price] => [3845,4614,5075]
[image] => https://akademik-stroy.ru/wp-content/uploads/materials/profilirovannyj-brus.jpg
[area_modifier] => 113.17
[parent_name] => Стены 1 этаж (несущие)
[parent_id] => 3
[material_sum] => 1167846
[work_sum] => 456896
[total_sum] => 1624742
[total_days] => 7
[display_material_sum] => 1 167 846
[display_work_sum] => 456 896
[display_total_sum] => 1 624 742
)
1
1 624 742₽
Работа:456 896 ₽
Материалы:1 167 846 ₽
Дни:7
stdClass Object
(
[id] => 87
[attribute_id] => 3
[name] => Оцилиндрованное бревно
[material_modifier] => 1
[work_modifier] => 1
[options] => Array
(
[0] => 180 мм
[1] => 220 мм
[2] => 260 мм
[3] => 320 мм
)
[days] => [7,8,9,10]
[material_price] => [75190,9532,10868,13116]
[work_price] => [3845,4691,5535,6863]
[image] => https://akademik-stroy.ru/wp-content/uploads/materials/ocilindrovannoe-brevno-1.jpg
[area_modifier] => 113.17
[parent_name] => Стены 1 этаж (несущие)
[parent_id] => 3
[material_sum] => 10721658
[work_sum] => 456896
[total_sum] => 11178554
[total_days] => 7
[display_material_sum] => 10 721 658
[display_work_sum] => 456 896
[display_total_sum] => 11 178 554
)
1
11 178 554₽
Работа:456 896 ₽
Материалы:10 721 658 ₽
Дни:7
stdClass Object
(
[id] => 88
[attribute_id] => 3
[name] => Срубы
[material_modifier] => 1
[work_modifier] => 1
[options] => Array
(
[0] => 260 мм
[1] => 320 мм
[2] => 360 мм
[3] => 400 мм
[4] => 500 мм
)
[days] => [7,8,9,10,11]
[material_price] => [37975,46709,52314,58069,73167]
[work_price] => [4806,5911,6621,7349,9260]
[image] => https://akademik-stroy.ru/wp-content/uploads/materials/sruby.jpg
[area_modifier] => 113.17
[parent_name] => Стены 1 этаж (несущие)
[parent_id] => 3
[material_sum] => 5415015
[work_sum] => 571090
[total_sum] => 5986105
[total_days] => 7
[display_material_sum] => 5 415 015
[display_work_sum] => 571 090
[display_total_sum] => 5 986 105
)
1
5 986 105₽
Работа:571 090 ₽
Материалы:5 415 015 ₽
Дни:7
stdClass Object
(
[id] => 174
[attribute_id] => 3
[name] => Брус
[material_modifier] => 1
[work_modifier] => 1
[options] => Array
(
[0] => 150 мм
[1] => 180 мм
[2] => 200 мм
)
[days] => [7,8,9]
[material_price] => [5127,6152,7367]
[work_price] => [1602,1922,2115]
[image] => https://akademik-stroy.ru/wp-content/uploads/materials/brus.jpg
[area_modifier] => 113.17
[parent_name] => Стены 1 этаж (несущие)
[parent_id] => 3
[material_sum] => 731080
[work_sum] => 190363
[total_sum] => 921443
[total_days] => 7
[display_material_sum] => 731 080
[display_work_sum] => 190 363
[display_total_sum] => 921 443
)
1
921 443₽
Работа:190 363 ₽
Материалы:731 080 ₽
Дни:7
stdClass Object
(
[id] => 175
[attribute_id] => 3
[name] => Газобетон
[material_modifier] => 1
[work_modifier] => 1
[options] => Array
(
[0] => 300 мм
[1] => 375 мм
[2] => 400 мм
[3] => 500 мм
[4] => 600 мм
)
[days] => [29,31,35,37,44]
[material_price] => [4298,5573,6356,7288,9119]
[work_price] => [4538,5251,5926,6733,7195]
[image] => https://akademik-stroy.ru/wp-content/uploads/materials/gazobeton.jpg
[area_modifier] => 113.17
[parent_name] => Стены 1 этаж (несущие)
[parent_id] => 3
[material_sum] => 612870
[work_sum] => 539244
[total_sum] => 1152114
[total_days] => 29
[display_material_sum] => 612 870
[display_work_sum] => 539 244
[display_total_sum] => 1 152 114
)
1
1 152 114₽
Работа:539 244 ₽
Материалы:612 870 ₽
Дни:29
stdClass Object
(
[id] => 176
[attribute_id] => 3
[name] => Блок
[material_modifier] => 1
[work_modifier] => 1
[options] => Array
(
[0] => 300 мм
[1] => 375 мм
[2] => 400 мм
[3] => 500 мм
[4] => 600 мм
)
[days] => [29,31,35,37,44]
[material_price] => [2698,3973,4356,6588,7119]
[work_price] => [5038,5851,6426,8733,9195]
[image] => https://akademik-stroy.ru/wp-content/uploads/materials/blok.jpg
[area_modifier] => 113.17
[parent_name] => Стены 1 этаж (несущие)
[parent_id] => 3
[material_sum] => 384719
[work_sum] => 598658
[total_sum] => 983377
[total_days] => 29
[display_material_sum] => 384 719
[display_work_sum] => 598 658
[display_total_sum] => 983 377
)
1
983 377₽
Работа:598 658 ₽
Материалы:384 719 ₽
Дни:29
stdClass Object
(
[id] => 177
[attribute_id] => 3
[name] => Газосиликатный блок
[material_modifier] => 1
[work_modifier] => 1
[options] => Array
(
[0] => 300 мм
[1] => 375 мм
[2] => 400 мм
[3] => 500 мм
[4] => 600 мм
)
[days] => [29,31,35,37,44]
[material_price] => [4298,5573,6356,7288,9119]
[work_price] => [4538,5251,5926,6733,7195]
[image] => https://akademik-stroy.ru/wp-content/uploads/materials/gazosilikatnyj-blok.jpg
[area_modifier] => 113.17
[parent_name] => Стены 1 этаж (несущие)
[parent_id] => 3
[material_sum] => 612870
[work_sum] => 539244
[total_sum] => 1152114
[total_days] => 29
[display_material_sum] => 612 870
[display_work_sum] => 539 244
[display_total_sum] => 1 152 114
)
1
1 152 114₽
Работа:539 244 ₽
Материалы:612 870 ₽
Дни:29
stdClass Object
(
[id] => 178
[attribute_id] => 3
[name] => Керамзитобетонный блок
[material_modifier] => 1
[work_modifier] => 1
[options] => Array
(
[0] => 300 мм
[1] => 375 мм
[2] => 400 мм
[3] => 500 мм
[4] => 600 мм
)
[days] => [23,23,24,25,28]
[material_price] => [3641,4298,5693,7613,9612]
[work_price] => [5737,5737,6903,7958,8901]
[image] => https://akademik-stroy.ru/wp-content/uploads/materials/keramzitobetonnyj-blok.jpg
[area_modifier] => 113.17
[parent_name] => Стены 1 этаж (несущие)
[parent_id] => 3
[material_sum] => 519185
[work_sum] => 681719
[total_sum] => 1200904
[total_days] => 23
[display_material_sum] => 519 185
[display_work_sum] => 681 719
[display_total_sum] => 1 200 904
)
1
1 200 904₽
Работа:681 719 ₽
Материалы:519 185 ₽
Дни:23
stdClass Object
(
[id] => 179
[attribute_id] => 3
[name] => Деревянные
[material_modifier] => 1
[work_modifier] => 1
[options] => Array
(
[0] => 180 мм
[1] => 220 мм
[2] => 260 мм
[3] => 320 мм
)
[days] => [7,8,9,10]
[material_price] => [7950,9458,11961,14472]
[work_price] => [4037,4925,5812,7207]
[image] => https://akademik-stroy.ru/wp-content/uploads/materials/derevyannye.jpg
[area_modifier] => 113.17
[parent_name] => Стены 1 этаж (несущие)
[parent_id] => 3
[material_sum] => 1133624
[work_sum] => 479711
[total_sum] => 1613335
[total_days] => 7
[display_material_sum] => 1 133 624
[display_work_sum] => 479 711
[display_total_sum] => 1 613 335
)
1
1 613 335₽
Работа:479 711 ₽
Материалы:1 133 624 ₽
Дни:7
stdClass Object
(
[id] => 181
[attribute_id] => 3
[name] => Камень
[material_modifier] => 1
[work_modifier] => 1
[options] => Array
(
[0] => 300 мм
[1] => 400 мм
[2] => 500 мм
[3] => 600 мм
)
[days] => [25,27,31,34]
[material_price] => [5262,6844,8330,9815]
[work_price] => [8331,9135,10427,11069]
[image] => https://akademik-stroy.ru/wp-content/uploads/materials/kamen.jpg
[area_modifier] => 113.17
[parent_name] => Стены 1 этаж (несущие)
[parent_id] => 3
[material_sum] => 750331
[work_sum] => 989960
[total_sum] => 1740291
[total_days] => 25
[display_material_sum] => 750 331
[display_work_sum] => 989 960
[display_total_sum] => 1 740 291
)
1
1 740 291₽
Работа:989 960 ₽
Материалы:750 331 ₽
Дни:25
stdClass Object
(
[id] => 182
[attribute_id] => 3
[name] => Каркасно-щитовые
[material_modifier] => 1
[work_modifier] => 1
[options] => Array
(
[0] => 150 мм
[1] => 200 мм
[2] => 250 мм
[3] => 300 мм
[4] => 350 мм
[5] => 400 мм
)
[days] => [15,16,17,18,19,20]
[material_price] => [2379,2639,2898,3458,3601,4175]
[work_price] => [2538,2820,3134,3483,4062,5642]
[image] => https://akademik-stroy.ru/wp-content/uploads/materials/karkasno-shchitovye.jpg
[area_modifier] => 113.17
[parent_name] => Стены 1 этаж (несущие)
[parent_id] => 3
[material_sum] => 339232
[work_sum] => 301587
[total_sum] => 640819
[total_days] => 15
[display_material_sum] => 339 232
[display_work_sum] => 301 587
[display_total_sum] => 640 819
)
1
640 819₽
Работа:301 587 ₽
Материалы:339 232 ₽
Дни:15
stdClass Object
(
[id] => 183
[attribute_id] => 3
[name] => Рубленные
[material_modifier] => 1
[work_modifier] => 1
[options] => Array
(
[0] => 150 мм
[1] => 200 мм
[2] => 250 мм
[3] => 300 мм
[4] => 350 мм
[5] => 400 мм
)
[days] => [15,16,17,18,17,18]
[material_price] => [35950,50267,60583,75900,80217,100533]
[work_price] => [9612,12816,16020,19224,22428,25632]
[image] => https://akademik-stroy.ru/wp-content/uploads/materials/rublennye.jpg
[area_modifier] => 113.17
[parent_name] => Стены 1 этаж (несущие)
[parent_id] => 3
[material_sum] => 5126261
[work_sum] => 1142180
[total_sum] => 6268441
[total_days] => 15
[display_material_sum] => 5 126 261
[display_work_sum] => 1 142 180
[display_total_sum] => 6 268 441
)
1
6 268 441₽
Работа:1 142 180 ₽
Материалы:5 126 261 ₽
Дни:15
stdClass Object
(
[id] => 185
[attribute_id] => 3
[name] => Теплоблок
[material_modifier] => 1
[work_modifier] => 1
[options] => Array
(
[0] => 300 мм (с облицовкой, не покрашенный)
[1] => 400 мм (с облицовкой, не покрашенный)
[2] => 300 мм (с облицовкой, покрашенный)
[3] => 400 мм (с облицовкой, покрашенный)
)
[days] => [15,16,15,16]
[material_price] => [2888,3729,3957,4258]
[work_price] => [2564,3229,2949,3713]
[image] => https://akademik-stroy.ru/wp-content/uploads/materials/teploblok.jpg
[area_modifier] => 113.17
[parent_name] => Стены 1 этаж (несущие)
[parent_id] => 3
[material_sum] => 411812
[work_sum] => 304676
[total_sum] => 716488
[total_days] => 15
[display_material_sum] => 411 812
[display_work_sum] => 304 676
[display_total_sum] => 716 488
)
1
716 488₽
Работа:304 676 ₽
Материалы:411 812 ₽
Дни:15
stdClass Object
(
[id] => 186
[attribute_id] => 3
[name] => Арболитовые блоки
[material_modifier] => 1
[work_modifier] => 1
[options] => Array
(
[0] => 300 мм
[1] => 400 мм
[2] => 600 мм
)
[days] => [19,22,27]
[material_price] => [3210,4475,5852]
[work_price] => [4214,4788,5866]
[image] => https://akademik-stroy.ru/wp-content/uploads/materials/arbolitovye-bloki.png
[area_modifier] => 113.17
[parent_name] => Стены 1 этаж (несущие)
[parent_id] => 3
[material_sum] => 457727
[work_sum] => 500743
[total_sum] => 958470
[total_days] => 19
[display_material_sum] => 457 727
[display_work_sum] => 500 743
[display_total_sum] => 958 470
)
1
958 470₽
Работа:500 743 ₽
Материалы:457 727 ₽
Дни:19
stdClass Object
(
[id] => 187
[attribute_id] => 3
[name] => Полистиролбетон
[material_modifier] => 1
[work_modifier] => 1
[options] => Array
(
[0] => 300 мм
[1] => 400 мм
[2] => 600 мм
)
[days] => [29,31,35]
[material_price] => [2798,4573,5256]
[work_price] => [5038,5851,6426]
[image] => https://akademik-stroy.ru/wp-content/uploads/materials/polistirolbeton.jpg
[area_modifier] => 113.17
[parent_name] => Стены 1 этаж (несущие)
[parent_id] => 3
[material_sum] => 398979
[work_sum] => 598658
[total_sum] => 997637
[total_days] => 29
[display_material_sum] => 398 979
[display_work_sum] => 598 658
[display_total_sum] => 997 637
)
1
997 637₽
Работа:598 658 ₽
Материалы:398 979 ₽
Дни:29
stdClass Object
(
[id] => 188
[attribute_id] => 3
[name] => Шлакоблок
[material_modifier] => 1
[work_modifier] => 1
[options] => Array
(
[0] => 400 мм
[1] => 600 мм
)
[days] => [15,16]
[material_price] => [2391,3471]
[work_price] => [2642,3662]
[image] => https://akademik-stroy.ru/wp-content/uploads/materials/shlakoblok.jpg
[area_modifier] => 113.17
[parent_name] => Стены 1 этаж (несущие)
[parent_id] => 3
[material_sum] => 340943
[work_sum] => 313945
[total_sum] => 654888
[total_days] => 15
[display_material_sum] => 340 943
[display_work_sum] => 313 945
[display_total_sum] => 654 888
)
1
654 888₽
Работа:313 945 ₽
Материалы:340 943 ₽
Дни:15
stdClass Object
(
[id] => 189
[attribute_id] => 3
[name] => Теплая керамика
[material_modifier] => 1
[work_modifier] => 1
[options] => Array
(
[0] => 380 мм
[1] => 380 мм Thermo
[2] => 440 мм
[3] => 510 мм
)
[days] => [23,23,24,25]
[material_price] => [4510,5098,6093,8013]
[work_price] => [4737,4937,5903,6958]
[image] => https://akademik-stroy.ru/wp-content/uploads/materials/teplaya-keramika.jpg
[area_modifier] => 113.17
[parent_name] => Стены 1 этаж (несущие)
[parent_id] => 3
[material_sum] => 643100
[work_sum] => 562891
[total_sum] => 1205991
[total_days] => 23
[display_material_sum] => 643 100
[display_work_sum] => 562 891
[display_total_sum] => 1 205 991
)
1
1 205 991₽
Работа:562 891 ₽
Материалы:643 100 ₽
Дни:23
stdClass Object
(
[id] => 190
[attribute_id] => 3
[name] => Несъемная опалубка
[material_modifier] => 1
[work_modifier] => 1
[options] => Array
(
[0] => 200 мм
[1] => 250 мм
[2] => 300 мм
[3] => 350 мм
)
[days] => [15,17,19,21]
[material_price] => [3302,3902,4108,5008]
[work_price] => [2100,2100,2300,2534]
[image] => https://akademik-stroy.ru/wp-content/uploads/materials/nesemnaya-opalubka.jpg
[area_modifier] => 113.17
[parent_name] => Стены 1 этаж (несущие)
[parent_id] => 3
[material_sum] => 470846
[work_sum] => 249540
[total_sum] => 720386
[total_days] => 15
[display_material_sum] => 470 846
[display_work_sum] => 249 540
[display_total_sum] => 720 386
)
1
720 386₽
Работа:249 540 ₽
Материалы:470 846 ₽
Дни:15
stdClass Object
(
[id] => 251
[attribute_id] => 3
[name] => Бревно
[material_modifier] => 1
[work_modifier] => 1
[options] => Array
(
[0] => 260 мм
[1] => 320 мм
[2] => 360 мм
[3] => 400 мм
[4] => 500 мм
)
[days] => [7,8,9,10,11]
[material_price] => [1874,24045,26930,30972,38825]
[work_price] => [5046,6207,6952,7716,9723]
[image] => https://akademik-stroy.ru/wp-content/uploads/materials/sruby.jpg
[area_modifier] => 113.17
[parent_name] => Стены 1 этаж (несущие)
[parent_id] => 3
[material_sum] => 267222
[work_sum] => 599609
[total_sum] => 866831
[total_days] => 7
[display_material_sum] => 267 222
[display_work_sum] => 599 609
[display_total_sum] => 866 831
)
1
866 831₽
Работа:599 609 ₽
Материалы:267 222 ₽
Дни:7
stdClass Object
(
[id] => 7
[attribute_id] => 4
[name] => Деревянные балки
[material_modifier] => 1
[work_modifier] => 1
[options] => Array
(
[0] => без утепления
[1] => утепление 200 мм
[2] => утепление 250 мм
[3] => утепление 300 мм
[4] => утепление 350 мм
[5] => утепление 400 мм
[6] => утепление 450 мм
[7] => утепление 500 мм
)
[days] => [8,9,9,9,11,12,13,14]
[material_price] => [1634,2042,2344,2947,3149,3652,3354,3557]
[work_price] => [1230,1339,1393,1426,1460,1513,1587,1620]
[image] => https://akademik-stroy.ru/wp-content/uploads/materials/derevyannye-balki.png
[area_modifier] => 113.17
[parent_name] => Перекрытие первого этажа
[parent_id] => 4
[material_sum] => 232999
[work_sum] => 146159
[total_sum] => 379158
[total_days] => 8
[display_material_sum] => 232 999
[display_work_sum] => 146 159
[display_total_sum] => 379 158
)
1
379 158₽
Работа:146 159 ₽
Материалы:232 999 ₽
Дни:8
stdClass Object
(
[id] => 8
[attribute_id] => 4
[name] => Сборные ж/б плиты
[material_modifier] => 1
[work_modifier] => 1
[options] => Array
(
[0] => без утепления
[1] => утепление 150 мм
[2] => утепление 200 мм
[3] => утепление 250 мм
[4] => утепление 300 мм
[5] => утепление 350 мм
[6] => утепление 400 мм
[7] => утепление 450 мм
[8] => утепление 500 мм
)
[days] => [13,15,15,15,15,15,15,15,15]
[material_price] => [3067,5577,5928,6679,7730,8782,9833,10884,11935]
[work_price] => [1520,1956,2102,2247,2392,2537,2684,2829,2974]
[image] => https://akademik-stroy.ru/wp-content/uploads/materials/sbornye-zh-b-plity-2.jpg
[area_modifier] => 113.17
[parent_name] => Перекрытие первого этажа
[parent_id] => 4
[material_sum] => 437336
[work_sum] => 180619
[total_sum] => 617955
[total_days] => 13
[display_material_sum] => 437 336
[display_work_sum] => 180 619
[display_total_sum] => 617 955
)
1
617 955₽
Работа:180 619 ₽
Материалы:437 336 ₽
Дни:13
stdClass Object
(
[id] => 89
[attribute_id] => 4
[name] => Монолитная ж/б плита
[material_modifier] => 1
[work_modifier] => 1
[options] => Array
(
[0] => без утепления
[1] => утепление 150 мм
[2] => утепление 200 мм
[3] => утепление 250 мм
[4] => утепление 300 мм
[5] => утепление 350 мм
[6] => утепление 400 мм
[7] => утепление 450 мм
[8] => утепление 500 мм
)
[days] => [18,20,20,20,20,20,20,20,20]
[material_price] => [4837,6572,7224,7375,79426,8177,8728,9180,10031]
[work_price] => [3348,3921,4112,4302,4493,4684,4875,5066,5256]
[image] => https://akademik-stroy.ru/wp-content/uploads/materials/monolitnaya-zh-b-plita-2.jpg
[area_modifier] => 113.17
[parent_name] => Перекрытие первого этажа
[parent_id] => 4
[material_sum] => 689728
[work_sum] => 397838
[total_sum] => 1087566
[total_days] => 18
[display_material_sum] => 689 728
[display_work_sum] => 397 838
[display_total_sum] => 1 087 566
)
1
1 087 566₽
Работа:397 838 ₽
Материалы:689 728 ₽
Дни:18
stdClass Object
(
[id] => 10
[attribute_id] => 5
[name] => Пеноблок
[material_modifier] => 1
[work_modifier] => 1
[options] => Array
(
[0] => 300 мм
[1] => 400 мм
[2] => 500 мм
[3] => 600 мм
)
[days] => [29,31,34,39]
[material_price] => [3000,4000,4500,4937]
[work_price] => [5033,5805,6400,8710]
[image] => https://akademik-stroy.ru/wp-content/uploads/materials/penoblok.jpg
[area_modifier] => 113.17
[parent_name] => Стены 2 этаж (несущие)
[parent_id] => 5
[material_sum] => 427783
[work_sum] => 598064
[total_sum] => 1025847
[total_days] => 29
[display_material_sum] => 427 783
[display_work_sum] => 598 064
[display_total_sum] => 1 025 847
)
1
1 025 847₽
Работа:598 064 ₽
Материалы:427 783 ₽
Дни:29
stdClass Object
(
[id] => 90
[attribute_id] => 5
[name] => Керамический блок
[material_modifier] => 1
[work_modifier] => 1
[options] => Array
(
[0] => 380 мм
[1] => 380 мм Thermo
[2] => 440 мм
[3] => 510 мм
)
[days] => [23,23,24,25]
[material_price] => [4510,5098,6093,8013]
[work_price] => [4737,4937,5903,6958]
[image] => https://akademik-stroy.ru/wp-content/uploads/materials/keramicheskij-blok.jpg
[area_modifier] => 113.17
[parent_name] => Стены 2 этаж (несущие)
[parent_id] => 5
[material_sum] => 643100
[work_sum] => 562891
[total_sum] => 1205991
[total_days] => 23
[display_material_sum] => 643 100
[display_work_sum] => 562 891
[display_total_sum] => 1 205 991
)
1
1 205 991₽
Работа:562 891 ₽
Материалы:643 100 ₽
Дни:23
stdClass Object
(
[id] => 91
[attribute_id] => 5
[name] => Кирпич
[material_modifier] => 1
[work_modifier] => 1
[options] => Array
(
[0] => Кирпич 250 мм
[1] => Кирпич 380 мм
[2] => Кирпич 510 мм
[3] => Кирпич 640 мм
[4] => Кирпич 770 мм
)
[days] => [30,30,31,33,36]
[material_price] => [5500,7142,9206,10171,12235]
[work_price] => [8736,10041,12018,15240,18462]
[image] => https://akademik-stroy.ru/wp-content/uploads/materials/kirpich.jpg
[area_modifier] => 113.17
[parent_name] => Стены 2 этаж (несущие)
[parent_id] => 5
[material_sum] => 784268
[work_sum] => 1038086
[total_sum] => 1822354
[total_days] => 30
[display_material_sum] => 784 268
[display_work_sum] => 1 038 086
[display_total_sum] => 1 822 354
)
1
1 822 354₽
Работа:1 038 086 ₽
Материалы:784 268 ₽
Дни:30
stdClass Object
(
[id] => 92
[attribute_id] => 5
[name] => Монолитные
[material_modifier] => 1
[work_modifier] => 1
[options] => Array
(
[0] => 150 мм
[1] => 200 мм
[2] => 250 мм
[3] => 300 мм
[4] => 350 мм
[5] => 400 мм
)
[days] => [45,46,47,49,50,53]
[material_price] => [6545,7876,10175,12011,13908,15204]
[work_price] => [5106,6444,7698,8552,9807,11461]
[image] => https://akademik-stroy.ru/wp-content/uploads/materials/monolitnye.jpg
[area_modifier] => 113.17
[parent_name] => Стены 2 этаж (несущие)
[parent_id] => 5
[material_sum] => 933279
[work_sum] => 606738
[total_sum] => 1540017
[total_days] => 45
[display_material_sum] => 933 279
[display_work_sum] => 606 738
[display_total_sum] => 1 540 017
)
1
1 540 017₽
Работа:606 738 ₽
Материалы:933 279 ₽
Дни:45
stdClass Object
(
[id] => 93
[attribute_id] => 5
[name] => Клееный брус
[material_modifier] => 1
[work_modifier] => 1
[options] => Array
(
[0] => 160 мм
[1] => 175 мм
[2] => 200 мм
[3] => 215 мм
[4] => 240 мм
[5] => 270 мм
[6] => 282 мм
)
[days] => [24,28,32,37,40,42,48]
[material_price] => [16975,18773,19950,20545,21599,22159,23275]
[work_price] => [4806,5287,5815,6397,7036,7740,8514]
[image] => https://akademik-stroy.ru/wp-content/uploads/materials/kleenyj-brus.jpg
[area_modifier] => 113.17
[parent_name] => Стены 2 этаж (несущие)
[parent_id] => 5
[material_sum] => 2420537
[work_sum] => 571090
[total_sum] => 2991627
[total_days] => 24
[display_material_sum] => 2 420 537
[display_work_sum] => 571 090
[display_total_sum] => 2 991 627
)
1
2 991 627₽
Работа:571 090 ₽
Материалы:2 420 537 ₽
Дни:24
stdClass Object
(
[id] => 94
[attribute_id] => 5
[name] => Каркасные
[material_modifier] => 1
[work_modifier] => 1
[options] => Array
(
[0] => 150 мм
[1] => 200 мм
[2] => 250 мм
[3] => 300 мм
)
[days] => [15,16,17,18]
[material_price] => [2379,2639,2898,3258]
[work_price] => [2418,2686,2985,3716]
[image] => https://akademik-stroy.ru/wp-content/uploads/materials/karkasnye.jpg
[area_modifier] => 113.17
[parent_name] => Стены 2 этаж (несущие)
[parent_id] => 5
[material_sum] => 339232
[work_sum] => 287327
[total_sum] => 626559
[total_days] => 15
[display_material_sum] => 339 232
[display_work_sum] => 287 327
[display_total_sum] => 626 559
)
1
626 559₽
Работа:287 327 ₽
Материалы:339 232 ₽
Дни:15
stdClass Object
(
[id] => 95
[attribute_id] => 5
[name] => СИП-панели
[material_modifier] => 1
[work_modifier] => 1
[options] => Array
(
[0] => 120 мм
[1] => 170 мм
[2] => 220 мм
)
[days] => [7,7,7]
[material_price] => [1210,1856,2292]
[work_price] => [1410,1551,1706]
[image] => https://akademik-stroy.ru/wp-content/uploads/materials/sip-paneli.jpg
[area_modifier] => 113.17
[parent_name] => Стены 2 этаж (несущие)
[parent_id] => 5
[material_sum] => 172539
[work_sum] => 167548
[total_sum] => 340087
[total_days] => 7
[display_material_sum] => 172 539
[display_work_sum] => 167 548
[display_total_sum] => 340 087
)
1
340 087₽
Работа:167 548 ₽
Материалы:172 539 ₽
Дни:7
stdClass Object
(
[id] => 96
[attribute_id] => 5
[name] => Сухой брус
[material_modifier] => 1
[work_modifier] => 1
[options] => Array
(
[0] => 150 мм
[1] => 180 мм
[2] => 200 мм
)
[days] => [7,8,9]
[material_price] => [6010,7190,8709]
[work_price] => [3204,3845,4229]
[image] => https://akademik-stroy.ru/wp-content/uploads/materials/suhoj-brus.jpg
[area_modifier] => 113.17
[parent_name] => Стены 2 этаж (несущие)
[parent_id] => 5
[material_sum] => 856991
[work_sum] => 380727
[total_sum] => 1237718
[total_days] => 7
[display_material_sum] => 856 991
[display_work_sum] => 380 727
[display_total_sum] => 1 237 718
)
1
1 237 718₽
Работа:380 727 ₽
Материалы:856 991 ₽
Дни:7
stdClass Object
(
[id] => 97
[attribute_id] => 5
[name] => Профилированный брус
[material_modifier] => 1
[work_modifier] => 1
[options] => Array
(
[0] => 150 мм
[1] => 180 мм
[2] => 200 мм
)
[days] => [7,8,9]
[material_price] => [8190,9228,10051]
[work_price] => [3845,4614,5075]
[image] => https://akademik-stroy.ru/wp-content/uploads/materials/profilirovannyj-brus.jpg
[area_modifier] => 113.17
[parent_name] => Стены 2 этаж (несущие)
[parent_id] => 5
[material_sum] => 1167846
[work_sum] => 456896
[total_sum] => 1624742
[total_days] => 7
[display_material_sum] => 1 167 846
[display_work_sum] => 456 896
[display_total_sum] => 1 624 742
)
1
1 624 742₽
Работа:456 896 ₽
Материалы:1 167 846 ₽
Дни:7
stdClass Object
(
[id] => 98
[attribute_id] => 5
[name] => Оцилиндрованное бревно
[material_modifier] => 1
[work_modifier] => 1
[options] => Array
(
[0] => 180 мм
[1] => 220 мм
[2] => 260 мм
[3] => 320 мм
)
[days] => [7,8,9,10]
[material_price] => [75190,9532,10868,13116]
[work_price] => [3845,4691,5535,6863]
[image] => https://akademik-stroy.ru/wp-content/uploads/materials/ocilindrovannoe-brevno-1.jpg
[area_modifier] => 113.17
[parent_name] => Стены 2 этаж (несущие)
[parent_id] => 5
[material_sum] => 10721658
[work_sum] => 456896
[total_sum] => 11178554
[total_days] => 7
[display_material_sum] => 10 721 658
[display_work_sum] => 456 896
[display_total_sum] => 11 178 554
)
1
11 178 554₽
Работа:456 896 ₽
Материалы:10 721 658 ₽
Дни:7
stdClass Object
(
[id] => 99
[attribute_id] => 5
[name] => Срубы
[material_modifier] => 1
[work_modifier] => 1
[options] => Array
(
[0] => 260 мм
[1] => 320 мм
[2] => 360 мм
[3] => 400 мм
[4] => 500 мм
)
[days] => [7,8,9,10,11]
[material_price] => [16175,23709,26314,29069,32167]
[work_price] => [4806,5911,6621,7349,9260]
[image] => https://akademik-stroy.ru/wp-content/uploads/materials/suhoj-brus.jpg
[area_modifier] => 113.17
[parent_name] => Стены 2 этаж (несущие)
[parent_id] => 5
[material_sum] => 2306461
[work_sum] => 571090
[total_sum] => 2877551
[total_days] => 7
[display_material_sum] => 2 306 461
[display_work_sum] => 571 090
[display_total_sum] => 2 877 551
)
1
2 877 551₽
Работа:571 090 ₽
Материалы:2 306 461 ₽
Дни:7
stdClass Object
(
[id] => 194
[attribute_id] => 5
[name] => Брус
[material_modifier] => 1
[work_modifier] => 1
[options] => Array
(
[0] => 150 мм
[1] => 180 мм
[2] => 200 мм
)
[days] => [10,13,15]
[material_price] => [5127,6152,7367]
[work_price] => [1602,1922,2115]
[image] => https://akademik-stroy.ru/wp-content/uploads/materials/brus.jpg
[area_modifier] => 113.17
[parent_name] => Стены 2 этаж (несущие)
[parent_id] => 5
[material_sum] => 731080
[work_sum] => 190363
[total_sum] => 921443
[total_days] => 10
[display_material_sum] => 731 080
[display_work_sum] => 190 363
[display_total_sum] => 921 443
)
1
921 443₽
Работа:190 363 ₽
Материалы:731 080 ₽
Дни:10
stdClass Object
(
[id] => 195
[attribute_id] => 5
[name] => Газобетон
[material_modifier] => 1
[work_modifier] => 1
[options] => Array
(
[0] => 300 мм
[1] => 375 мм
[2] => 400 мм
[3] => 500 мм
[4] => 600 мм
)
[days] => [29,31,35,37,44]
[material_price] => [4298,5573,6356,7288,9119]
[work_price] => [4538,5251,5926,6733,7195]
[image] => https://akademik-stroy.ru/wp-content/uploads/materials/gazobeton.jpg
[area_modifier] => 113.17
[parent_name] => Стены 2 этаж (несущие)
[parent_id] => 5
[material_sum] => 612870
[work_sum] => 539244
[total_sum] => 1152114
[total_days] => 29
[display_material_sum] => 612 870
[display_work_sum] => 539 244
[display_total_sum] => 1 152 114
)
1
1 152 114₽
Работа:539 244 ₽
Материалы:612 870 ₽
Дни:29
stdClass Object
(
[id] => 196
[attribute_id] => 5
[name] => Блок
[material_modifier] => 1
[work_modifier] => 1
[options] => Array
(
[0] => 300 мм
[1] => 375 мм
[2] => 400 мм
[3] => 500 мм
[4] => 600 мм
)
[days] => [29,31,35,37,44]
[material_price] => [2698,3973,4356,6588,7119]
[work_price] => [5038,5851,6426,8733,9195]
[image] => https://akademik-stroy.ru/wp-content/uploads/materials/blok.jpg
[area_modifier] => 113.17
[parent_name] => Стены 2 этаж (несущие)
[parent_id] => 5
[material_sum] => 384719
[work_sum] => 598658
[total_sum] => 983377
[total_days] => 29
[display_material_sum] => 384 719
[display_work_sum] => 598 658
[display_total_sum] => 983 377
)
1
983 377₽
Работа:598 658 ₽
Материалы:384 719 ₽
Дни:29
stdClass Object
(
[id] => 197
[attribute_id] => 5
[name] => Газосиликатный блок
[material_modifier] => 1
[work_modifier] => 1
[options] => Array
(
[0] => 300 мм
[1] => 375 мм
[2] => 400 мм
[3] => 500 мм
[4] => 600 мм
)
[days] => [29,31,35,37,44]
[material_price] => [4298,5573,6356,7288,9119]
[work_price] => [4538,5251,5926,6733,7195]
[image] => https://akademik-stroy.ru/wp-content/uploads/materials/gazosilikatnyj-blok.jpg
[area_modifier] => 113.17
[parent_name] => Стены 2 этаж (несущие)
[parent_id] => 5
[material_sum] => 612870
[work_sum] => 539244
[total_sum] => 1152114
[total_days] => 29
[display_material_sum] => 612 870
[display_work_sum] => 539 244
[display_total_sum] => 1 152 114
)
1
1 152 114₽
Работа:539 244 ₽
Материалы:612 870 ₽
Дни:29
stdClass Object
(
[id] => 198
[attribute_id] => 5
[name] => Керамзитобетонный блок
[material_modifier] => 1
[work_modifier] => 1
[options] => Array
(
[0] => 300 мм
[1] => 375 мм
[2] => 400 мм
[3] => 500 мм
[4] => 600 мм
)
[days] => [23,23,24,25,28]
[material_price] => [3641,4298,5693,7613,9612]
[work_price] => [5737,5737,6903,7958,8901]
[image] => https://akademik-stroy.ru/wp-content/uploads/materials/keramzitobetonnyj-blok.jpg
[area_modifier] => 113.17
[parent_name] => Стены 2 этаж (несущие)
[parent_id] => 5
[material_sum] => 519185
[work_sum] => 681719
[total_sum] => 1200904
[total_days] => 23
[display_material_sum] => 519 185
[display_work_sum] => 681 719
[display_total_sum] => 1 200 904
)
1
1 200 904₽
Работа:681 719 ₽
Материалы:519 185 ₽
Дни:23
stdClass Object
(
[id] => 199
[attribute_id] => 5
[name] => Деревянные
[material_modifier] => 1
[work_modifier] => 1
[options] => Array
(
[0] => 180 мм
[1] => 220 мм
[2] => 260 мм
[3] => 320 мм
)
[days] => [7,8,9,10]
[material_price] => [7950,9458,11961,14472]
[work_price] => [4037,4925,5812,7207]
[image] => https://akademik-stroy.ru/wp-content/uploads/materials/derevyannye.jpg
[area_modifier] => 113.17
[parent_name] => Стены 2 этаж (несущие)
[parent_id] => 5
[material_sum] => 1133624
[work_sum] => 479711
[total_sum] => 1613335
[total_days] => 7
[display_material_sum] => 1 133 624
[display_work_sum] => 479 711
[display_total_sum] => 1 613 335
)
1
1 613 335₽
Работа:479 711 ₽
Материалы:1 133 624 ₽
Дни:7
stdClass Object
(
[id] => 200
[attribute_id] => 5
[name] => Камень
[material_modifier] => 1
[work_modifier] => 1
[options] => Array
(
[0] => 300 мм
[1] => 400 мм
[2] => 500 мм
[3] => 600 мм
)
[days] => [25,27,31,34]
[material_price] => [5262,6844,8330,9815]
[work_price] => [8331,9135,10427,11069]
[image] => https://akademik-stroy.ru/wp-content/uploads/materials/kamen.jpg
[area_modifier] => 113.17
[parent_name] => Стены 2 этаж (несущие)
[parent_id] => 5
[material_sum] => 750331
[work_sum] => 989960
[total_sum] => 1740291
[total_days] => 25
[display_material_sum] => 750 331
[display_work_sum] => 989 960
[display_total_sum] => 1 740 291
)
1
1 740 291₽
Работа:989 960 ₽
Материалы:750 331 ₽
Дни:25
stdClass Object
(
[id] => 201
[attribute_id] => 5
[name] => Каркасно-щитовые
[material_modifier] => 1
[work_modifier] => 1
[options] => Array
(
[0] => 150 мм
[1] => 200 мм
[2] => 250 мм
[3] => 300 мм
[4] => 350 мм
[5] => 400 мм
)
[days] => [15,16,17,18,19,20]
[material_price] => [2379,2639,2898,3458,3601,4175]
[work_price] => [2538,2820,3134,3483,4062,5642]
[image] => https://akademik-stroy.ru/wp-content/uploads/materials/karkasno-shchitovye.jpg
[area_modifier] => 113.17
[parent_name] => Стены 2 этаж (несущие)
[parent_id] => 5
[material_sum] => 339232
[work_sum] => 301587
[total_sum] => 640819
[total_days] => 15
[display_material_sum] => 339 232
[display_work_sum] => 301 587
[display_total_sum] => 640 819
)
1
640 819₽
Работа:301 587 ₽
Материалы:339 232 ₽
Дни:15
stdClass Object
(
[id] => 202
[attribute_id] => 5
[name] => Рубленные
[material_modifier] => 1
[work_modifier] => 1
[options] => Array
(
[0] => 150 мм
[1] => 200 мм
[2] => 250 мм
[3] => 300 мм
[4] => 350 мм
[5] => 400 мм
)
[days] => [15,16,17,18,17,18]
[material_price] => [35950,50267,60583,75900,80217,100533]
[work_price] => [9612,12816,16020,19224,22428,25632]
[image] => https://akademik-stroy.ru/wp-content/uploads/materials/rublennye.jpg
[area_modifier] => 113.17
[parent_name] => Стены 2 этаж (несущие)
[parent_id] => 5
[material_sum] => 5126261
[work_sum] => 1142180
[total_sum] => 6268441
[total_days] => 15
[display_material_sum] => 5 126 261
[display_work_sum] => 1 142 180
[display_total_sum] => 6 268 441
)
1
6 268 441₽
Работа:1 142 180 ₽
Материалы:5 126 261 ₽
Дни:15
stdClass Object
(
[id] => 203
[attribute_id] => 5
[name] => Теплоблок
[material_modifier] => 1
[work_modifier] => 1
[options] => Array
(
[0] => 300 мм (с облицовкой, не покрашенный)
[1] => 400 мм (с облицовкой, не покрашенный)
[2] => 300 мм (с облицовкой, покрашенный)
[3] => 400 мм (с облицовкой, покрашенный)
)
[days] => [15,16,15,16]
[material_price] => [2888,3729,3957,4258]
[work_price] => [2564,3229,2949,3713]
[image] => https://akademik-stroy.ru/wp-content/uploads/materials/teploblok.jpg
[area_modifier] => 113.17
[parent_name] => Стены 2 этаж (несущие)
[parent_id] => 5
[material_sum] => 411812
[work_sum] => 304676
[total_sum] => 716488
[total_days] => 15
[display_material_sum] => 411 812
[display_work_sum] => 304 676
[display_total_sum] => 716 488
)
1
716 488₽
Работа:304 676 ₽
Материалы:411 812 ₽
Дни:15
stdClass Object
(
[id] => 204
[attribute_id] => 5
[name] => Арболитовые блоки
[material_modifier] => 1
[work_modifier] => 1
[options] => Array
(
[0] => 300 мм
[1] => 400 мм
[2] => 600 мм
)
[days] => [19,22,27]
[material_price] => [3210,4475,5852]
[work_price] => [4214,4788,5866]
[image] => https://akademik-stroy.ru/wp-content/uploads/materials/arbolitovye-bloki.png
[area_modifier] => 113.17
[parent_name] => Стены 2 этаж (несущие)
[parent_id] => 5
[material_sum] => 457727
[work_sum] => 500743
[total_sum] => 958470
[total_days] => 19
[display_material_sum] => 457 727
[display_work_sum] => 500 743
[display_total_sum] => 958 470
)
1
958 470₽
Работа:500 743 ₽
Материалы:457 727 ₽
Дни:19
stdClass Object
(
[id] => 205
[attribute_id] => 5
[name] => Полистиролбетон
[material_modifier] => 1
[work_modifier] => 1
[options] => Array
(
[0] => 300 мм
[1] => 400 мм
[2] => 600 мм
)
[days] => [29,31,35]
[material_price] => [2798,4573,5256]
[work_price] => [5038,5851,6426]
[image] => https://akademik-stroy.ru/wp-content/uploads/materials/polistirolbeton.jpg
[area_modifier] => 113.17
[parent_name] => Стены 2 этаж (несущие)
[parent_id] => 5
[material_sum] => 398979
[work_sum] => 598658
[total_sum] => 997637
[total_days] => 29
[display_material_sum] => 398 979
[display_work_sum] => 598 658
[display_total_sum] => 997 637
)
1
997 637₽
Работа:598 658 ₽
Материалы:398 979 ₽
Дни:29
stdClass Object
(
[id] => 206
[attribute_id] => 5
[name] => Шлакоблок
[material_modifier] => 1
[work_modifier] => 1
[options] => Array
(
[0] => 400 мм
[1] => 600 мм
)
[days] => [15,16]
[material_price] => [2391,3471]
[work_price] => [2642,3662]
[image] => https://akademik-stroy.ru/wp-content/uploads/materials/shlakoblok.jpg
[area_modifier] => 113.17
[parent_name] => Стены 2 этаж (несущие)
[parent_id] => 5
[material_sum] => 340943
[work_sum] => 313945
[total_sum] => 654888
[total_days] => 15
[display_material_sum] => 340 943
[display_work_sum] => 313 945
[display_total_sum] => 654 888
)
1
654 888₽
Работа:313 945 ₽
Материалы:340 943 ₽
Дни:15
stdClass Object
(
[id] => 245
[attribute_id] => 5
[name] => Теплая керамика
[material_modifier] => 1
[work_modifier] => 1
[options] => Array
(
[0] => 380 мм
[1] => 380 мм Thermo
[2] => 440 мм
[3] => 510 мм
)
[days] => [10,10,11,12]
[material_price] => [4510,5098,6093,8013]
[work_price] => [4737,4937,5903,6958]
[image] => https://akademik-stroy.ru/wp-content/uploads/materials/teplaya-keramika.jpg
[area_modifier] => 113.17
[parent_name] => Стены 2 этаж (несущие)
[parent_id] => 5
[material_sum] => 643100
[work_sum] => 562891
[total_sum] => 1205991
[total_days] => 10
[display_material_sum] => 643 100
[display_work_sum] => 562 891
[display_total_sum] => 1 205 991
)
1
1 205 991₽
Работа:562 891 ₽
Материалы:643 100 ₽
Дни:10
stdClass Object
(
[id] => 246
[attribute_id] => 5
[name] => Несъемная опалубка
[material_modifier] => 1
[work_modifier] => 1
[options] => Array
(
[0] => 380 мм
[1] => 380 мм Thermo
[2] => 440 мм
[3] => 510 мм
)
[days] => [10,10,11,12]
[material_price] => [3302,3902,4108,5008]
[work_price] => [2100,2100,2300,2534]
[image] => https://akademik-stroy.ru/wp-content/uploads/materials/nesemnaya-opalubka.jpg
[area_modifier] => 113.17
[parent_name] => Стены 2 этаж (несущие)
[parent_id] => 5
[material_sum] => 470846
[work_sum] => 249540
[total_sum] => 720386
[total_days] => 10
[display_material_sum] => 470 846
[display_work_sum] => 249 540
[display_total_sum] => 720 386
)
1
720 386₽
Работа:249 540 ₽
Материалы:470 846 ₽
Дни:10
stdClass Object
(
[id] => 254
[attribute_id] => 5
[name] => Бревно
[material_modifier] => 1
[work_modifier] => 1
[options] => Array
(
[0] => 260 мм
[1] => 320 мм
[2] => 360 мм
[3] => 400 мм
[4] => 500 мм
)
[days] => [7,8,9,10,11]
[material_price] => [1874,24045,26930,30972,38825]
[work_price] => [5046,6207,6952,7716,9723]
[image] => https://akademik-stroy.ru/wp-content/uploads/materials/sruby.jpg
[area_modifier] => 113.17
[parent_name] => Стены 2 этаж (несущие)
[parent_id] => 5
[material_sum] => 267222
[work_sum] => 599609
[total_sum] => 866831
[total_days] => 7
[display_material_sum] => 267 222
[display_work_sum] => 599 609
[display_total_sum] => 866 831
)
1
866 831₽
Работа:599 609 ₽
Материалы:267 222 ₽
Дни:7
stdClass Object
(
[id] => 11
[attribute_id] => 6
[name] => Деревянные балки
[material_modifier] => 1
[work_modifier] => 1
[options] => Array
(
[0] => без утепления
[1] => утепление 200 мм
[2] => утепление 250 мм
[3] => утепление 300 мм
[4] => утепление 350 мм
[5] => утепление 400 мм
[6] => утепление 450 мм
[7] => утепление 500 мм
)
[days] => [8,9,9,9,11,12,13,14]
[material_price] => [1634,2042,2344,2947,3149,3652,3354,3557]
[work_price] => [1230,1339,1393,1426,1460,1513,1587,1620]
[image] => https://akademik-stroy.ru/wp-content/uploads/materials/derevyannye-balki.png
[area_modifier] => 113.17
[parent_name] => Перекрытие второго этажа
[parent_id] => 6
[material_sum] => 232999
[work_sum] => 146159
[total_sum] => 379158
[total_days] => 8
[display_material_sum] => 232 999
[display_work_sum] => 146 159
[display_total_sum] => 379 158
)
1
379 158₽
Работа:146 159 ₽
Материалы:232 999 ₽
Дни:8
stdClass Object
(
[id] => 12
[attribute_id] => 6
[name] => Сборные ж/б плиты
[material_modifier] => 1
[work_modifier] => 1
[options] => Array
(
[0] => без утепления
[1] => утепление 150 мм
[2] => утепление 200 мм
[3] => утепление 250 мм
[4] => утепление 300 мм
[5] => утепление 350 мм
[6] => утепление 400 мм
[7] => утепление 450 мм
[8] => утепление 500 мм
)
[days] => [13,15,15,15,15,15,15,15,15]
[material_price] => [3067,5577,5928,6679,7730,8782,9833,10884,11935]
[work_price] => [1520,1956,2102,2247,2392,2537,2684,2829,2974]
[image] => https://akademik-stroy.ru/wp-content/uploads/materials/sbornye-zh-b-plity-2.jpg
[area_modifier] => 113.17
[parent_name] => Перекрытие второго этажа
[parent_id] => 6
[material_sum] => 437336
[work_sum] => 180619
[total_sum] => 617955
[total_days] => 13
[display_material_sum] => 437 336
[display_work_sum] => 180 619
[display_total_sum] => 617 955
)
1
617 955₽
Работа:180 619 ₽
Материалы:437 336 ₽
Дни:13
stdClass Object
(
[id] => 100
[attribute_id] => 6
[name] => Монолитная ж/б плита
[material_modifier] => 1
[work_modifier] => 1
[options] => Array
(
[0] => без утепления
[1] => утепление 150 мм
[2] => утепление 200 мм
[3] => утепление 250 мм
[4] => утепление 300 мм
[5] => утепление 350 мм
[6] => утепление 400 мм
[7] => утепление 450 мм
[8] => утепление 500 мм
)
[days] => [18,20,20,20,20,20,20,20,20]
[material_price] => [4837,6572,7224,7375,79426,8177,8728,9180,10031]
[work_price] => [3348,3921,4112,4302,4493,4684,4875,5066,5256]
[image] => https://akademik-stroy.ru/wp-content/uploads/materials/monolitnaya-zh-b-plita-2.jpg
[area_modifier] => 113.17
[parent_name] => Перекрытие второго этажа
[parent_id] => 6
[material_sum] => 689728
[work_sum] => 397838
[total_sum] => 1087566
[total_days] => 18
[display_material_sum] => 689 728
[display_work_sum] => 397 838
[display_total_sum] => 1 087 566
)
1
1 087 566₽
Работа:397 838 ₽
Материалы:689 728 ₽
Дни:18
stdClass Object
(
[id] => 164
[attribute_id] => 37
[name] => Металлочерепица
[material_modifier] => 1
[work_modifier] => 1
[options] => Array
(
)
[days] => [20]
[material_price] => [6112]
[work_price] => [5726]
[image] => https://akademik-stroy.ru/wp-content/uploads/materials/metallocherepica.jpg
[area_modifier] => 113.17
[parent_name] => Крыша (Скатная)
[parent_id] => 37
[material_sum] => 871536
[work_sum] => 680412
[total_sum] => 1551948
[total_days] => 20
[display_material_sum] => 871 536
[display_work_sum] => 680 412
[display_total_sum] => 1 551 948
)
1
1 551 948₽
Работа:680 412 ₽
Материалы:871 536 ₽
Дни:20
stdClass Object
(
[id] => 165
[attribute_id] => 37
[name] => Гибкая черепица
[material_modifier] => 1
[work_modifier] => 1
[options] => Array
(
)
[days] => [20]
[material_price] => [6980]
[work_price] => [5950]
[image] => https://akademik-stroy.ru/wp-content/uploads/materials/gibkaya-cherepica.jpg
[area_modifier] => 113.17
[parent_name] => Крыша (Скатная)
[parent_id] => 37
[material_sum] => 995308
[work_sum] => 707030
[total_sum] => 1702338
[total_days] => 20
[display_material_sum] => 995 308
[display_work_sum] => 707 030
[display_total_sum] => 1 702 338
)
1
1 702 338₽
Работа:707 030 ₽
Материалы:995 308 ₽
Дни:20
stdClass Object
(
[id] => 166
[attribute_id] => 37
[name] => Цементно-песчаная черепица
[material_modifier] => 1
[work_modifier] => 1
[options] => Array
(
)
[days] => [20]
[material_price] => [10560]
[work_price] => [9456]
[image] => https://akademik-stroy.ru/wp-content/uploads/materials/cementno-peschanaya-cherepica.jpg
[area_modifier] => 113.17
[parent_name] => Крыша (Скатная)
[parent_id] => 37
[material_sum] => 1505795
[work_sum] => 1123642
[total_sum] => 2629437
[total_days] => 20
[display_material_sum] => 1 505 795
[display_work_sum] => 1 123 642
[display_total_sum] => 2 629 437
)
1
2 629 437₽
Работа:1 123 642 ₽
Материалы:1 505 795 ₽
Дни:20
stdClass Object
(
[id] => 167
[attribute_id] => 37
[name] => Композитная черепица
[material_modifier] => 1
[work_modifier] => 1
[options] => Array
(
)
[days] => [20]
[material_price] => [9506]
[work_price] => [8905]
[image] => https://akademik-stroy.ru/wp-content/uploads/materials/kompozitnaya-cherepica.jpg
[area_modifier] => 113.17
[parent_name] => Крыша (Скатная)
[parent_id] => 37
[material_sum] => 1355500
[work_sum] => 1058168
[total_sum] => 2413668
[total_days] => 20
[display_material_sum] => 1 355 500
[display_work_sum] => 1 058 168
[display_total_sum] => 2 413 668
)
1
2 413 668₽
Работа:1 058 168 ₽
Материалы:1 355 500 ₽
Дни:20
stdClass Object
(
[id] => 168
[attribute_id] => 37
[name] => Керамическая черепица
[material_modifier] => 1
[work_modifier] => 1
[options] => Array
(
)
[days] => [20]
[material_price] => [12750]
[work_price] => [9456]
[image] => https://akademik-stroy.ru/wp-content/uploads/materials/keramicheskaya-cherepica.jpg
[area_modifier] => 113.17
[parent_name] => Крыша (Скатная)
[parent_id] => 37
[material_sum] => 1818076
[work_sum] => 1123642
[total_sum] => 2941718
[total_days] => 20
[display_material_sum] => 1 818 076
[display_work_sum] => 1 123 642
[display_total_sum] => 2 941 718
)
1
2 941 718₽
Работа:1 123 642 ₽
Материалы:1 818 076 ₽
Дни:20
stdClass Object
(
[id] => 169
[attribute_id] => 37
[name] => Металлическая фальцевая
[material_modifier] => 1
[work_modifier] => 1
[options] => Array
(
)
[days] => [20]
[material_price] => [8550]
[work_price] => [8190]
[image] => https://akademik-stroy.ru/wp-content/uploads/materials/metallicheskaya-falcevaya.jpg
[area_modifier] => 113.17
[parent_name] => Крыша (Скатная)
[parent_id] => 37
[material_sum] => 1219180
[work_sum] => 973205
[total_sum] => 2192385
[total_days] => 20
[display_material_sum] => 1 219 180
[display_work_sum] => 973 205
[display_total_sum] => 2 192 385
)
1
2 192 385₽
Работа:973 205 ₽
Материалы:1 219 180 ₽
Дни:20
stdClass Object
(
[id] => 170
[attribute_id] => 37
[name] => Медная фальцевая
[material_modifier] => 1
[work_modifier] => 1
[options] => Array
(
)
[days] => [20]
[material_price] => [20450]
[work_price] => [16750]
[image] => https://akademik-stroy.ru/wp-content/uploads/materials/mednaya-falcevaya.jpg
[area_modifier] => 113.17
[parent_name] => Крыша (Скатная)
[parent_id] => 37
[material_sum] => 2916051
[work_sum] => 1990377
[total_sum] => 4906428
[total_days] => 20
[display_material_sum] => 2 916 051
[display_work_sum] => 1 990 377
[display_total_sum] => 4 906 428
)
1
4 906 428₽
Работа:1 990 377 ₽
Материалы:2 916 051 ₽
Дни:20
stdClass Object
(
[id] => 171
[attribute_id] => 37
[name] => Зеленая кровля
[material_modifier] => 1
[work_modifier] => 1
[options] => Array
(
)
[days] => [20]
[material_price] => [19850]
[work_price] => [16780]
[image] => https://akademik-stroy.ru/wp-content/uploads/materials/zelenaya-krovlya.jpg
[area_modifier] => 113.17
[parent_name] => Крыша (Скатная)
[parent_id] => 37
[material_sum] => 2830495
[work_sum] => 1993942
[total_sum] => 4824437
[total_days] => 20
[display_material_sum] => 2 830 495
[display_work_sum] => 1 993 942
[display_total_sum] => 4 824 437
)
1
4 824 437₽
Работа:1 993 942 ₽
Материалы:2 830 495 ₽
Дни:20
stdClass Object
(
[id] => 172
[attribute_id] => 37
[name] => Профлист
[material_modifier] => 1
[work_modifier] => 1
[options] => Array
(
)
[days] => [20]
[material_price] => [3450]
[work_price] => [3750]
[image] => https://akademik-stroy.ru/wp-content/uploads/materials/proflist.jpg
[area_modifier] => 113.17
[parent_name] => Крыша (Скатная)
[parent_id] => 37
[material_sum] => 491950
[work_sum] => 445607
[total_sum] => 937557
[total_days] => 20
[display_material_sum] => 491 950
[display_work_sum] => 445 607
[display_total_sum] => 937 557
)
1
937 557₽
Работа:445 607 ₽
Материалы:491 950 ₽
Дни:20
stdClass Object
(
[id] => 51
[attribute_id] => 26
[name] => Есть
[material_modifier] => 1
[work_modifier] => 1
[options] => Array
(
[0] => Профиль 58 мм, 3-камерный, стеклопакет 2-камерный до 32 мм
[1] => Профиль 60 мм, 4-камерный, стеклопакет 2-камерный до 32 мм
[2] => Профиль 70 мм, 5-камерный, стеклопакет 2-камерный до 40 мм
[3] => Профиль 72 мм, 5-камерный, стеклопакет 2-камерный до 40 мм
[4] => Алюминиевые окна Alutech профиль 72 мм, стеклопакет 2-камерный
)
[days] => [3,3,3,3,3]
[material_price] => [1339,2124,2867,3023,29596]
[work_price] => [635,647,659,668,2579]
[image] => https://akademik-stroy.ru/wp-content/uploads/materials/okna.jpg
[area_modifier] => 183.68
[parent_name] => Окна
[parent_id] => 26
[material_sum] => 309894
[work_sum] => 122469
[total_sum] => 432363
[total_days] => 3
[display_material_sum] => 309 894
[display_work_sum] => 122 469
[display_total_sum] => 432 363
)
1
432 363₽
Работа:122 469 ₽
Материалы:309 894 ₽
Дни:3
stdClass Object
(
[id] => 52
[attribute_id] => 26
[name] => Нет
[material_modifier] => 2
[work_modifier] => 1
[options] =>
[days] => null
[material_price] => null
[work_price] => null
[image] => https://akademik-stroy.ru/wp-content/uploads/materials/okna.jpg
[area_modifier] => 183.68
[parent_name] => Окна
[parent_id] => 26
[material_sum] => 0
[work_sum] => 0
[total_sum] => 0
[total_days] => 0
[display_material_sum] => 0
[display_work_sum] => 0
[display_total_sum] => 0
)
1
0₽
Работа:0 ₽
Материалы:0 ₽
Дни:0
stdClass Object
(
[id] => 53
[attribute_id] => 27
[name] => Есть
[material_modifier] => 1
[work_modifier] => 1
[options] => Array
(
)
[days] => [1]
[material_price] => [10000]
[work_price] => [5500]
[image] => https://akademik-stroy.ru/wp-content/uploads/materials/dveri.jpg
[area_modifier] => 1
[parent_name] => Двери входные
[parent_id] => 27
[material_sum] => 12600
[work_sum] => 5775
[total_sum] => 18375
[total_days] => 1
[display_material_sum] => 12 600
[display_work_sum] => 5 775
[display_total_sum] => 18 375
)
1
18 375₽
Работа:5 775 ₽
Материалы:12 600 ₽
Дни:1
stdClass Object
(
[id] => 54
[attribute_id] => 27
[name] => Нет
[material_modifier] => 1
[work_modifier] => 1
[options] => Array
(
)
[days] => [0]
[material_price] => [0]
[work_price] => [0]
[image] => https://akademik-stroy.ru/wp-content/uploads/materials/dveri.jpg
[area_modifier] => 1
[parent_name] => Двери входные
[parent_id] => 27
[material_sum] => 0
[work_sum] => 0
[total_sum] => 0
[total_days] => 0
[display_material_sum] => 0
[display_work_sum] => 0
[display_total_sum] => 0
)
1
0₽
Работа:0 ₽
Материалы:0 ₽
Дни:0
stdClass Object
(
[id] => 25
[attribute_id] => 13
[name] => Нет
[material_modifier] => 1
[work_modifier] => 1
[options] => Array
(
)
[days] => [0]
[material_price] => [0]
[work_price] => [0]
[image] => https://akademik-stroy.ru/wp-content/uploads/materials/mineralovata-krov.jpg
[area_modifier] => 113.17
[parent_name] => Утепление кровли (Мансарда)
[parent_id] => 13
[material_sum] => 0
[work_sum] => 0
[total_sum] => 0
[total_days] => 0
[display_material_sum] => 0
[display_work_sum] => 0
[display_total_sum] => 0
)
1
0₽
Работа:0 ₽
Материалы:0 ₽
Дни:0
stdClass Object
(
[id] => 26
[attribute_id] => 13
[name] => Минераловатный
[material_modifier] => 1
[work_modifier] => 1
[options] => Array
(
[0] => 50 мм
[1] => 100 мм
[2] => 150 мм
[3] => 200 мм
[4] => 250 мм
[5] => 300 мм
[6] => 350 мм
[7] => 400 мм
[8] => 450 мм
[9] => 500 мм
)
[days] => [5,5,6,6,6,7,7,7,8,8]
[material_price] => [1158,1414,1772,2230,3602,4060,4974,5890,6408,7718]
[work_price] => [650,846,846,1098,1318,1450,1596,1754,1930,2122]
[image] => https://akademik-stroy.ru/wp-content/uploads/materials/mineralovata-krov.jpg
[area_modifier] => 113.17
[parent_name] => Утепление кровли (Мансарда)
[parent_id] => 13
[material_sum] => 165124
[work_sum] => 77239
[total_sum] => 242363
[total_days] => 5
[display_material_sum] => 165 124
[display_work_sum] => 77 239
[display_total_sum] => 242 363
)
1
242 363₽
Работа:77 239 ₽
Материалы:165 124 ₽
Дни:5
stdClass Object
(
[id] => 123
[attribute_id] => 13
[name] => Эковата (целлюлозная вата)
[material_modifier] => 1
[work_modifier] => 1
[options] => Array
(
[0] => 50 мм
[1] => 100 мм
[2] => 150 мм
[3] => 200 мм
[4] => 250 мм
[5] => 300 мм
[6] => 350 мм
[7] => 400 мм
[8] => 450 мм
[9] => 500 мм
)
[days] => [3,3,4,4,4,5,5,5,5,5]
[material_price] => [820,1638,2458,3276,5734,6552,8190,9828,11466,13104]
[work_price] => [234,304,304,396,474,522,574,632,694,764]
[image] => https://akademik-stroy.ru/wp-content/uploads/materials/ehkovata-krov.jpg
[area_modifier] => 113.17
[parent_name] => Утепление кровли (Мансарда)
[parent_id] => 13
[material_sum] => 116927
[work_sum] => 27806
[total_sum] => 144733
[total_days] => 3
[display_material_sum] => 116 927
[display_work_sum] => 27 806
[display_total_sum] => 144 733
)
1
144 733₽
Работа:27 806 ₽
Материалы:116 927 ₽
Дни:3
stdClass Object
(
[id] => 124
[attribute_id] => 13
[name] => Экструдированный пенополистирол
[material_modifier] => 1
[work_modifier] => 1
[options] => Array
(
[0] => 50 мм
[1] => 100 мм
[2] => 150 мм
[3] => 200 мм
[4] => 250 мм
[5] => 300 мм
[6] => 350 мм
[7] => 400 мм
[8] => 450 мм
[9] => 500 мм
)
[days] => [3,3,4,4,4,5,5,5,5,6]
[material_price] => [1146,2292,3438,4584,8020,9166,11458,13750,16040,18332]
[work_price] => [390,508,508,660,790,870,958,1052,1158,1274]
[image] => https://akademik-stroy.ru/wp-content/uploads/materials/epps-krov.jpg
[area_modifier] => 113.17
[parent_name] => Утепление кровли (Мансарда)
[parent_id] => 13
[material_sum] => 163413
[work_sum] => 46343
[total_sum] => 209756
[total_days] => 3
[display_material_sum] => 163 413
[display_work_sum] => 46 343
[display_total_sum] => 209 756
)
1
209 756₽
Работа:46 343 ₽
Материалы:163 413 ₽
Дни:3
stdClass Object
(
[id] => 125
[attribute_id] => 13
[name] => ПСБ (ППС-пенополистирол)
[material_modifier] => 1
[work_modifier] => 1
[options] => Array
(
[0] => 50 мм
[1] => 100 мм
[2] => 150 мм
[3] => 200 мм
[4] => 250 мм
[5] => 300 мм
[6] => 350 мм
[7] => 400 мм
[8] => 450 мм
[9] => 500 мм
)
[days] => [3,3,4,4,4,5,5,5,5,6]
[material_price] => [476,954,1430,1906,3336,3814,4766,5720,6674,7626]
[work_price] => [390,508,508,660,790,870,958,1052,1158,1274]
[image] => https://akademik-stroy.ru/wp-content/uploads/materials/psb-krov.jpg
[area_modifier] => 113.17
[parent_name] => Утепление кровли (Мансарда)
[parent_id] => 13
[material_sum] => 67875
[work_sum] => 46343
[total_sum] => 114218
[total_days] => 3
[display_material_sum] => 67 875
[display_work_sum] => 46 343
[display_total_sum] => 114 218
)
1
114 218₽
Работа:46 343 ₽
Материалы:67 875 ₽
Дни:3
stdClass Object
(
[id] => 126
[attribute_id] => 13
[name] => ППУ (Пенополиуретан)
[material_modifier] => 1
[work_modifier] => 1
[options] => Array
(
[0] => 50 мм
[1] => 100 мм
[2] => 150 мм
[3] => 200 мм
[4] => 250 мм
[5] => 300 мм
[6] => 350 мм
[7] => 400 мм
[8] => 450 мм
[9] => 500 мм
)
[days] => [2,2,3,3,3,3,4,4,4,4]
[material_price] => [2080,4160,6240,8320,14560,16640,20800,24960,29120,33280]
[work_price] => [234,304,304,396,474,522,574,632,694,764]
[image] => https://akademik-stroy.ru/wp-content/uploads/materials/ppu-krov.jpg
[area_modifier] => 113.17
[parent_name] => Утепление кровли (Мансарда)
[parent_id] => 13
[material_sum] => 296596
[work_sum] => 27806
[total_sum] => 324402
[total_days] => 2
[display_material_sum] => 296 596
[display_work_sum] => 27 806
[display_total_sum] => 324 402
)
1
324 402₽
Работа:27 806 ₽
Материалы:296 596 ₽
Дни:2
stdClass Object
(
[id] => 127
[attribute_id] => 13
[name] => PIR-плиты (пенополиизоцианурат)
[material_modifier] => 1
[work_modifier] => 1
[options] => Array
(
[0] => 50 мм
[1] => 100 мм
[2] => 150 мм
[3] => 200 мм
[4] => 250 мм
[5] => 300 мм
[6] => 350 мм
[7] => 400 мм
[8] => 450 мм
[9] => 500 мм
)
[days] => [3,3,4,4,4,5,5,5,5,6]
[material_price] => [2646,5290,7936,10580,18516,21162,26452,31742,37032,42324]
[work_price] => [390,508,508,660,790,870,958,1052,1158,1274]
[image] => https://akademik-stroy.ru/wp-content/uploads/materials/pir-krov.jpg
[area_modifier] => 113.17
[parent_name] => Утепление кровли (Мансарда)
[parent_id] => 13
[material_sum] => 377304
[work_sum] => 46343
[total_sum] => 423647
[total_days] => 3
[display_material_sum] => 377 304
[display_work_sum] => 46 343
[display_total_sum] => 423 647
)
1
423 647₽
Работа:46 343 ₽
Материалы:377 304 ₽
Дни:3
stdClass Object
(
[id] => 27
[attribute_id] => 14
[name] => Нет
[material_modifier] => 1
[work_modifier] => 1
[options] => Array
(
)
[days] => [0]
[material_price] => [0]
[work_price] => [0]
[image] => https://akademik-stroy.ru/wp-content/uploads/materials/mansardnye-okna-2.jpg
[area_modifier] => 1
[parent_name] => Мансардные окна
[parent_id] => 14
[material_sum] => 0
[work_sum] => 0
[total_sum] => 0
[total_days] => 0
[display_material_sum] => 0
[display_work_sum] => 0
[display_total_sum] => 0
)
1
0₽
Работа:0 ₽
Материалы:0 ₽
Дни:0
stdClass Object
(
[id] => 28
[attribute_id] => 14
[name] => Есть
[material_modifier] => 1
[work_modifier] => 1
[options] => Array
(
[0] => 55x78
[1] => 55x98
)
[days] => [6,7]
[material_price] => [47480,68700]
[work_price] => [17900,19500]
[image] => https://akademik-stroy.ru/wp-content/uploads/materials/mansardnye-okna-2.jpg
[area_modifier] => 1
[parent_name] => Мансардные окна
[parent_id] => 14
[material_sum] => 59825
[work_sum] => 18795
[total_sum] => 78620
[total_days] => 6
[display_material_sum] => 59 825
[display_work_sum] => 18 795
[display_total_sum] => 78 620
)
1
78 620₽
Работа:18 795 ₽
Материалы:59 825 ₽
Дни:6
stdClass Object
(
[id] => 29
[attribute_id] => 15
[name] => Нет
[material_modifier] => 1
[work_modifier] => 1
[options] => Array
(
)
[days] => [0]
[material_price] => [0]
[work_price] => [0]
[image] => https://akademik-stroy.ru/wp-content/uploads/materials/sofit.jpg
[area_modifier] => 113.17
[parent_name] => Подшивка кровли
[parent_id] => 15
[material_sum] => 0
[work_sum] => 0
[total_sum] => 0
[total_days] => 0
[display_material_sum] => 0
[display_work_sum] => 0
[display_total_sum] => 0
)
1
0₽
Работа:0 ₽
Материалы:0 ₽
Дни:0
stdClass Object
(
[id] => 30
[attribute_id] => 15
[name] => Есть
[material_modifier] => 1
[work_modifier] => 1
[options] => Array
(
[0] => Софиты (ПВХ)
[1] => Cedral
[2] => ДПК
[3] => Планкен
)
[days] => [7,10,9,8]
[material_price] => [1803,3213,3025,3150]
[work_price] => [1529,2188,2075,1923]
[image] => https://akademik-stroy.ru/wp-content/uploads/materials/sofit.jpg
[area_modifier] => 113.17
[parent_name] => Подшивка кровли
[parent_id] => 15
[material_sum] => 257097
[work_sum] => 181689
[total_sum] => 438786
[total_days] => 7
[display_material_sum] => 257 097
[display_work_sum] => 181 689
[display_total_sum] => 438 786
)
1
438 786₽
Работа:181 689 ₽
Материалы:257 097 ₽
Дни:7
stdClass Object
(
[id] => 31
[attribute_id] => 16
[name] => Нет
[material_modifier] => 1
[work_modifier] => 1
[options] => Array
(
)
[days] => [0]
[material_price] => [0]
[work_price] => [0]
[image] => https://akademik-stroy.ru/wp-content/uploads/materials/docke-standard-pvh.jpg
[area_modifier] => 113.17
[parent_name] => Водосточная система
[parent_id] => 16
[material_sum] => 0
[work_sum] => 0
[total_sum] => 0
[total_days] => 0
[display_material_sum] => 0
[display_work_sum] => 0
[display_total_sum] => 0
)
1
0₽
Работа:0 ₽
Материалы:0 ₽
Дни:0
stdClass Object
(
[id] => 32
[attribute_id] => 16
[name] => Есть
[material_modifier] => 1
[work_modifier] => 1
[options] => Array
(
[0] => Döcke Standard (ПВХ)
[1] => Металлические Grand Line
)
[days] => [7,7]
[material_price] => [1842,2703]
[work_price] => [1491,1529]
[image] => https://akademik-stroy.ru/wp-content/uploads/materials/docke-standard-pvh.jpg
[area_modifier] => 113.17
[parent_name] => Водосточная система
[parent_id] => 16
[material_sum] => 262659
[work_sum] => 177173
[total_sum] => 439832
[total_days] => 7
[display_material_sum] => 262 659
[display_work_sum] => 177 173
[display_total_sum] => 439 832
)
1
439 832₽
Работа:177 173 ₽
Материалы:262 659 ₽
Дни:7
stdClass Object
(
[id] => 33
[attribute_id] => 17
[name] => Нет
[material_modifier] => 1
[work_modifier] => 1
[options] => Array
(
)
[days] => [0]
[material_price] => [0]
[work_price] => [0]
[image] => https://akademik-stroy.ru/wp-content/uploads/materials/mineralovata.jpg
[area_modifier] => 226.35
[parent_name] => Дополнительное утепление наружных стен
[parent_id] => 17
[material_sum] => 0
[work_sum] => 0
[total_sum] => 0
[total_days] => 0
[display_material_sum] => 0
[display_work_sum] => 0
[display_total_sum] => 0
)
1
0₽
Работа:0 ₽
Материалы:0 ₽
Дни:0
stdClass Object
(
[id] => 34
[attribute_id] => 17
[name] => Минераловатный
[material_modifier] => 1
[work_modifier] => 1
[options] => Array
(
[0] => 50 мм
[1] => 100 мм
[2] => 150 мм
[3] => 200 мм
[4] => 250 мм
[5] => 300 мм
)
[days] => [7,8,10,12,14,15]
[material_price] => [3437,3613,3803,3915,4601,4830]
[work_price] => [2325,2423,2523,2749,2859,3025]
[image] => https://akademik-stroy.ru/wp-content/uploads/materials/mineralovata.jpg
[area_modifier] => 226.35
[parent_name] => Дополнительное утепление наружных стен
[parent_id] => 17
[material_sum] => 980236
[work_sum] => 552577
[total_sum] => 1532813
[total_days] => 7
[display_material_sum] => 980 236
[display_work_sum] => 552 577
[display_total_sum] => 1 532 813
)
1
1 532 813₽
Работа:552 577 ₽
Материалы:980 236 ₽
Дни:7
stdClass Object
(
[id] => 128
[attribute_id] => 17
[name] => Эковата (целлюлозная вата)
[material_modifier] => 1
[work_modifier] => 1
[options] => Array
(
[0] => 50 мм
[1] => 100 мм
[2] => 150 мм
[3] => 200 мм
[4] => 250 мм
[5] => 300 мм
)
[days] => [3,4,5,6,7,8]
[material_price] => [810,1319,1629,1838,2267,2676]
[work_price] => [1225,1323,1423,1549,1659,1725]
[image] => https://akademik-stroy.ru/wp-content/uploads/materials/ehkovata.jpg
[area_modifier] => 226.35
[parent_name] => Дополнительное утепление наружных стен
[parent_id] => 17
[material_sum] => 231013
[work_sum] => 291143
[total_sum] => 522156
[total_days] => 3
[display_material_sum] => 231 013
[display_work_sum] => 291 143
[display_total_sum] => 522 156
)
1
522 156₽
Работа:291 143 ₽
Материалы:231 013 ₽
Дни:3
stdClass Object
(
[id] => 129
[attribute_id] => 17
[name] => Экструдированный пенополистирол
[material_modifier] => 1
[work_modifier] => 1
[options] => Array
(
[0] => 50 мм
[1] => 100 мм
[2] => 150 мм
[3] => 200 мм
[4] => 250 мм
[5] => 300 мм
)
[days] => [5,6,7,8,9,10]
[material_price] => [4560,4300,5119,6292,7010,8583]
[work_price] => [1795,1954,2254,2330,2595,2735]
[image] => https://akademik-stroy.ru/wp-content/uploads/materials/epps.jpg
[area_modifier] => 226.35
[parent_name] => Дополнительное утепление наружных стен
[parent_id] => 17
[material_sum] => 1300517
[work_sum] => 426613
[total_sum] => 1727130
[total_days] => 5
[display_material_sum] => 1 300 517
[display_work_sum] => 426 613
[display_total_sum] => 1 727 130
)
1
1 727 130₽
Работа:426 613 ₽
Материалы:1 300 517 ₽
Дни:5
stdClass Object
(
[id] => 130
[attribute_id] => 17
[name] => ПСБ (ППС-пенополистирол)
[material_modifier] => 1
[work_modifier] => 1
[options] => Array
(
[0] => 50 мм
[1] => 100 мм
[2] => 150 мм
[3] => 200 мм
[4] => 250 мм
[5] => 300 мм
)
[days] => [5,6,7,8,9,10]
[material_price] => [4822,5200,5819,6292,7010,7583]
[work_price] => [1795,1954,2254,2330,2595,2735]
[image] => https://akademik-stroy.ru/wp-content/uploads/materials/psb.jpg
[area_modifier] => 226.35
[parent_name] => Дополнительное утепление наружных стен
[parent_id] => 17
[material_sum] => 1375239
[work_sum] => 426613
[total_sum] => 1801852
[total_days] => 5
[display_material_sum] => 1 375 239
[display_work_sum] => 426 613
[display_total_sum] => 1 801 852
)
1
1 801 852₽
Работа:426 613 ₽
Материалы:1 375 239 ₽
Дни:5
stdClass Object
(
[id] => 131
[attribute_id] => 17
[name] => ППУ (Пенополиуретан)
[material_modifier] => 1
[work_modifier] => 1
[options] => Array
(
[0] => 50 мм
[1] => 100 мм
[2] => 150 мм
[3] => 200 мм
[4] => 250 мм
[5] => 300 мм
)
[days] => [3,4,5,6,7,8]
[material_price] => [2860,3400,4219,4592,5010,5583]
[work_price] => [729,900,980,1120,1280,1530]
[image] => https://akademik-stroy.ru/wp-content/uploads/materials/ppu.jpg
[area_modifier] => 226.35
[parent_name] => Дополнительное утепление наружных стен
[parent_id] => 17
[material_sum] => 815675
[work_sum] => 173260
[total_sum] => 988935
[total_days] => 3
[display_material_sum] => 815 675
[display_work_sum] => 173 260
[display_total_sum] => 988 935
)
1
988 935₽
Работа:173 260 ₽
Материалы:815 675 ₽
Дни:3
stdClass Object
(
[id] => 132
[attribute_id] => 17
[name] => PIR-плиты (пенополиизоцианурат)
[material_modifier] => 1
[work_modifier] => 1
[options] => Array
(
[0] => 50 мм
[1] => 100 мм
[2] => 150 мм
[3] => 200 мм
[4] => 250 мм
[5] => 300 мм
)
[days] => [5,6,7,8,9,10]
[material_price] => [8323,15645,20968,25900,29258,30581]
[work_price] => [800,900,970,1150,1280,1330]
[image] => https://akademik-stroy.ru/wp-content/uploads/materials/pir.jpg
[area_modifier] => 226.35
[parent_name] => Дополнительное утепление наружных стен
[parent_id] => 17
[material_sum] => 2373728
[work_sum] => 190134
[total_sum] => 2563862
[total_days] => 5
[display_material_sum] => 2 373 728
[display_work_sum] => 190 134
[display_total_sum] => 2 563 862
)
1
2 563 862₽
Работа:190 134 ₽
Материалы:2 373 728 ₽
Дни:5
stdClass Object
(
[id] => 37
[attribute_id] => 19
[name] => Нет
[material_modifier] => 1
[work_modifier] => 1
[options] => Array
(
)
[days] => [0]
[material_price] => [0]
[work_price] => [0]
[image] => https://akademik-stroy.ru/wp-content/uploads/materials/imitaciya-brusa.jpg
[area_modifier] => 226.35
[parent_name] => Наружная отделка фасада
[parent_id] => 19
[material_sum] => 0
[work_sum] => 0
[total_sum] => 0
[total_days] => 0
[display_material_sum] => 0
[display_work_sum] => 0
[display_total_sum] => 0
)
1
0₽
Работа:0 ₽
Материалы:0 ₽
Дни:0
stdClass Object
(
[id] => 38
[attribute_id] => 19
[name] => Имитация бруса
[material_modifier] => 1
[work_modifier] => 1
[options] => Array
(
[0] => Сосна
[1] => Ель
[2] => Лиственница
)
[days] => [20,20,20]
[material_price] => [2994,2762,4954]
[work_price] => [1397,1231,1577]
[image] => https://akademik-stroy.ru/wp-content/uploads/materials/imitaciya-brusa.jpg
[area_modifier] => 226.35
[parent_name] => Наружная отделка фасада
[parent_id] => 19
[material_sum] => 853892
[work_sum] => 332021
[total_sum] => 1185913
[total_days] => 20
[display_material_sum] => 853 892
[display_work_sum] => 332 021
[display_total_sum] => 1 185 913
)
1
1 185 913₽
Работа:332 021 ₽
Материалы:853 892 ₽
Дни:20
stdClass Object
(
[id] => 136
[attribute_id] => 19
[name] => Планкен
[material_modifier] => 1
[work_modifier] => 1
[options] => Array
(
[0] => Сосна
[1] => Ель
[2] => Лиственница
)
[days] => [20,20,20]
[material_price] => [3194,2862,5154]
[work_price] => [1537,1354,1735]
[image] => https://akademik-stroy.ru/wp-content/uploads/materials/planken.jpg
[area_modifier] => 226.35
[parent_name] => Наружная отделка фасада
[parent_id] => 19
[material_sum] => 910932
[work_sum] => 365295
[total_sum] => 1276227
[total_days] => 20
[display_material_sum] => 910 932
[display_work_sum] => 365 295
[display_total_sum] => 1 276 227
)
1
1 276 227₽
Работа:365 295 ₽
Материалы:910 932 ₽
Дни:20
stdClass Object
(
[id] => 137
[attribute_id] => 19
[name] => Штукатурка
[material_modifier] => 1
[work_modifier] => 1
[options] => Array
(
[0] => Цементно-песчаная (минеральная)
[1] => Мокрый фасад
)
[days] => [35,35]
[material_price] => [2231,3938]
[work_price] => [1202,2422]
[image] => https://akademik-stroy.ru/wp-content/uploads/materials/shtukaturka.jpg
[area_modifier] => 226.35
[parent_name] => Наружная отделка фасада
[parent_id] => 19
[material_sum] => 636283
[work_sum] => 285676
[total_sum] => 921959
[total_days] => 35
[display_material_sum] => 636 283
[display_work_sum] => 285 676
[display_total_sum] => 921 959
)
1
921 959₽
Работа:285 676 ₽
Материалы:636 283 ₽
Дни:35
stdClass Object
(
[id] => 138
[attribute_id] => 19
[name] => Облицовочный кирпич
[material_modifier] => 1
[work_modifier] => 1
[options] => Array
(
[0] => Керамический
[1] => Клинкерный
[2] => Ручной формовки
[3] => Гиперпрессованный
[4] => Силикатный кирпич
)
[days] => [45,45,45,45,45]
[material_price] => [8174,9148,1040,1257,5876]
[work_price] => [3240,3758,4536,4017,3369]
[image] => https://akademik-stroy.ru/wp-content/uploads/materials/oblicovochnyj-kirpich.jpg
[area_modifier] => 226.35
[parent_name] => Наружная отделка фасада
[parent_id] => 19
[material_sum] => 2331233
[work_sum] => 770043
[total_sum] => 3101276
[total_days] => 45
[display_material_sum] => 2 331 233
[display_work_sum] => 770 043
[display_total_sum] => 3 101 276
)
1
3 101 276₽
Работа:770 043 ₽
Материалы:2 331 233 ₽
Дни:45
stdClass Object
(
[id] => 139
[attribute_id] => 19
[name] => Фасадная плитка
[material_modifier] => 1
[work_modifier] => 1
[options] => Array
(
[0] => Клинкерная
[1] => Керамическая
[2] => Плитка ручной формовки
)
[days] => [40,40,40]
[material_price] => [2974,1487,3470]
[work_price] => [3007,2592,3629]
[image] => https://akademik-stroy.ru/wp-content/uploads/materials/fasadnaya-plitka.jpg
[area_modifier] => 226.35
[parent_name] => Наружная отделка фасада
[parent_id] => 19
[material_sum] => 848188
[work_sum] => 714666
[total_sum] => 1562854
[total_days] => 40
[display_material_sum] => 848 188
[display_work_sum] => 714 666
[display_total_sum] => 1 562 854
)
1
1 562 854₽
Работа:714 666 ₽
Материалы:848 188 ₽
Дни:40
stdClass Object
(
[id] => 140
[attribute_id] => 19
[name] => Сайдинг
[material_modifier] => 1
[work_modifier] => 1
[options] => Array
(
[0] => Виниловый
[1] => Металлический
[2] => Фиброцементный
)
[days] => [20,20,20]
[material_price] => [1263,1944,4147]
[work_price] => [1263,1944,2074]
[image] => https://akademik-stroy.ru/wp-content/uploads/materials/sajding.jpg
[area_modifier] => 226.35
[parent_name] => Наружная отделка фасада
[parent_id] => 19
[material_sum] => 360209
[work_sum] => 300174
[total_sum] => 660383
[total_days] => 20
[display_material_sum] => 360 209
[display_work_sum] => 300 174
[display_total_sum] => 660 383
)
1
660 383₽
Работа:300 174 ₽
Материалы:360 209 ₽
Дни:20
stdClass Object
(
[id] => 141
[attribute_id] => 19
[name] => Камень
[material_modifier] => 1
[work_modifier] => 1
[options] => Array
(
[0] => Травертин
[1] => Дагестанский
[2] => Искусственный
[3] => Натуральный
[4] => Керамогранит
)
[days] => [45,45,45,45,45]
[material_price] => [4536,3888,2592,3240,2462]
[work_price] => [3240,3240,2462,3110,1944]
[image] => https://akademik-stroy.ru/wp-content/uploads/materials/kamen-1.jpg
[area_modifier] => 226.35
[parent_name] => Наружная отделка фасада
[parent_id] => 19
[material_sum] => 1293672
[work_sum] => 770043
[total_sum] => 2063715
[total_days] => 45
[display_material_sum] => 1 293 672
[display_work_sum] => 770 043
[display_total_sum] => 2 063 715
)
1
2 063 715₽
Работа:770 043 ₽
Материалы:1 293 672 ₽
Дни:45
stdClass Object
(
[id] => 142
[attribute_id] => 19
[name] => Термопанели
[material_modifier] => 1
[work_modifier] => 1
[options] => Array
(
)
[days] => [20]
[material_price] => [6221]
[work_price] => [2333]
[image] => https://akademik-stroy.ru/wp-content/uploads/materials/termo.png
[area_modifier] => 226.35
[parent_name] => Наружная отделка фасада
[parent_id] => 19
[material_sum] => 1774235
[work_sum] => 554478
[total_sum] => 2328713
[total_days] => 20
[display_material_sum] => 1 774 235
[display_work_sum] => 554 478
[display_total_sum] => 2 328 713
)
1
2 328 713₽
Работа:554 478 ₽
Материалы:1 774 235 ₽
Дни:20
stdClass Object
(
[id] => 143
[attribute_id] => 19
[name] => Плитка HAUBERK
[material_modifier] => 1
[work_modifier] => 1
[options] => Array
(
)
[days] => [20]
[material_price] => [2786]
[work_price] => [1944]
[image] => https://akademik-stroy.ru/wp-content/uploads/materials/hauberk.jpg
[area_modifier] => 226.35
[parent_name] => Наружная отделка фасада
[parent_id] => 19
[material_sum] => 794570
[work_sum] => 462026
[total_sum] => 1256596
[total_days] => 20
[display_material_sum] => 794 570
[display_work_sum] => 462 026
[display_total_sum] => 1 256 596
)
1
1 256 596₽
Работа:462 026 ₽
Материалы:794 570 ₽
Дни:20
stdClass Object
(
[id] => 144
[attribute_id] => 19
[name] => Фальцевый фасад
[material_modifier] => 1
[work_modifier] => 1
[options] => Array
(
)
[days] => [20]
[material_price] => [3240]
[work_price] => [2592]
[image] => https://akademik-stroy.ru/wp-content/uploads/materials/falcevyj-fasad.jpg
[area_modifier] => 226.35
[parent_name] => Наружная отделка фасада
[parent_id] => 19
[material_sum] => 924051
[work_sum] => 616034
[total_sum] => 1540085
[total_days] => 20
[display_material_sum] => 924 051
[display_work_sum] => 616 034
[display_total_sum] => 1 540 085
)
1
1 540 085₽
Работа:616 034 ₽
Материалы:924 051 ₽
Дни:20
stdClass Object
(
[id] => 145
[attribute_id] => 19
[name] => Комбинированный
[material_modifier] => 1
[work_modifier] => 1
[options] => Array
(
)
[days] => [20]
[material_price] => [4629]
[work_price] => [3499]
[image] => https://akademik-stroy.ru/wp-content/uploads/materials/Kombinirovannyj.jpg
[area_modifier] => 226.35
[parent_name] => Наружная отделка фасада
[parent_id] => 19
[material_sum] => 1320195
[work_sum] => 831599
[total_sum] => 2151794
[total_days] => 20
[display_material_sum] => 1 320 195
[display_work_sum] => 831 599
[display_total_sum] => 2 151 794
)
1
2 151 794₽
Работа:831 599 ₽
Материалы:1 320 195 ₽
Дни:20
stdClass Object
(
[id] => 257
[attribute_id] => 19
[name] => Японские фиброцементные
[material_modifier] => 1
[work_modifier] => 1
[options] => Array
(
)
[days] => [20]
[material_price] => [7043]
[work_price] => [2993]
[image] => https://akademik-stroy.ru/wp-content/uploads/materials/paneli.jpg
[area_modifier] => 226.35
[parent_name] => Наружная отделка фасада
[parent_id] => 19
[material_sum] => 2008671
[work_sum] => 711339
[total_sum] => 2720010
[total_days] => 20
[display_material_sum] => 2 008 671
[display_work_sum] => 711 339
[display_total_sum] => 2 720 010
)
1
2 720 010₽
Работа:711 339 ₽
Материалы:2 008 671 ₽
Дни:20
stdClass Object
(
[id] => 258
[attribute_id] => 19
[name] => Панели Каньон
[material_modifier] => 1
[work_modifier] => 1
[options] => Array
(
)
[days] => [20]
[material_price] => [4543]
[work_price] => [2592]
[image] => https://akademik-stroy.ru/wp-content/uploads/materials/kanon.png
[area_modifier] => 226.35
[parent_name] => Наружная отделка фасада
[parent_id] => 19
[material_sum] => 1295668
[work_sum] => 616034
[total_sum] => 1911702
[total_days] => 20
[display_material_sum] => 1 295 668
[display_work_sum] => 616 034
[display_total_sum] => 1 911 702
)
1
1 911 702₽
Работа:616 034 ₽
Материалы:1 295 668 ₽
Дни:20
stdClass Object
(
[id] => 39
[attribute_id] => 20
[name] => Нет
[material_modifier] => 1
[work_modifier] => 1
[options] => Array
(
)
[days] => [0]
[material_price] => [0]
[work_price] => [0]
[image] => https://akademik-stroy.ru/wp-content/uploads/materials/terrasy.jpg
[area_modifier] => 30
[parent_name] => Террасы, крыльца, навесы
[parent_id] => 20
[material_sum] => 0
[work_sum] => 0
[total_sum] => 0
[total_days] => 0
[display_material_sum] => 0
[display_work_sum] => 0
[display_total_sum] => 0
)
1
0₽
Работа:0 ₽
Материалы:0 ₽
Дни:0
stdClass Object
(
[id] => 40
[attribute_id] => 20
[name] => Есть
[material_modifier] => 1
[work_modifier] => 1
[options] => Array
(
)
[days] => [5]
[material_price] => [10450]
[work_price] => [1950]
[image] => https://akademik-stroy.ru/wp-content/uploads/materials/terrasy.jpg
[area_modifier] => 30
[parent_name] => Террасы, крыльца, навесы
[parent_id] => 20
[material_sum] => 395010
[work_sum] => 61425
[total_sum] => 456435
[total_days] => 5
[display_material_sum] => 395 010
[display_work_sum] => 61 425
[display_total_sum] => 456 435
)
1
456 435₽
Работа:61 425 ₽
Материалы:395 010 ₽
Дни:5
stdClass Object
(
[id] => 41
[attribute_id] => 21
[name] => Нет
[material_modifier] => 1
[work_modifier] => 1
[options] => Array
(
)
[days] => [0]
[material_price] => [0]
[work_price] => [0]
[image] => https://akademik-stroy.ru/wp-content/uploads/materials/balkony.jpg
[area_modifier] => 30
[parent_name] => Балконы
[parent_id] => 21
[material_sum] => 0
[work_sum] => 0
[total_sum] => 0
[total_days] => 0
[display_material_sum] => 0
[display_work_sum] => 0
[display_total_sum] => 0
)
1
0₽
Работа:0 ₽
Материалы:0 ₽
Дни:0
stdClass Object
(
[id] => 42
[attribute_id] => 21
[name] => Есть
[material_modifier] => 1
[work_modifier] => 1
[options] => Array
(
)
[days] => [12]
[material_price] => [3600]
[work_price] => [1950]
[image] => https://akademik-stroy.ru/wp-content/uploads/materials/balkony.jpg
[area_modifier] => 30
[parent_name] => Балконы
[parent_id] => 21
[material_sum] => 136080
[work_sum] => 61425
[total_sum] => 197505
[total_days] => 12
[display_material_sum] => 136 080
[display_work_sum] => 61 425
[display_total_sum] => 197 505
)
1
197 505₽
Работа:61 425 ₽
Материалы:136 080 ₽
Дни:12
stdClass Object
(
[id] => 43
[attribute_id] => 22
[name] => Нет
[material_modifier] => 1
[work_modifier] => 1
[options] => Array
(
)
[days] => [0]
[material_price] => [0]
[work_price] => [0]
[image] => https://akademik-stroy.ru/wp-content/uploads/materials/uteplennaya.jpg
[area_modifier] => 113.17
[parent_name] => Отмостка
[parent_id] => 22
[material_sum] => 0
[work_sum] => 0
[total_sum] => 0
[total_days] => 0
[display_material_sum] => 0
[display_work_sum] => 0
[display_total_sum] => 0
)
1
0₽
Работа:0 ₽
Материалы:0 ₽
Дни:0
stdClass Object
(
[id] => 44
[attribute_id] => 22
[name] => Утепленная отмостка
[material_modifier] => 1
[work_modifier] => 1
[options] => Array
(
)
[days] => [15]
[material_price] => [2550]
[work_price] => [1750]
[image] => https://akademik-stroy.ru/wp-content/uploads/materials/uteplennaya.jpg
[area_modifier] => 113.17
[parent_name] => Отмостка
[parent_id] => 22
[material_sum] => 363615
[work_sum] => 207950
[total_sum] => 571565
[total_days] => 15
[display_material_sum] => 363 615
[display_work_sum] => 207 950
[display_total_sum] => 571 565
)
1
571 565₽
Работа:207 950 ₽
Материалы:363 615 ₽
Дни:15
stdClass Object
(
[id] => 146
[attribute_id] => 22
[name] => Не утепленная отмостка
[material_modifier] => 1
[work_modifier] => 1
[options] => Array
(
)
[days] => [10]
[material_price] => [1650]
[work_price] => [1450]
[image] => https://akademik-stroy.ru/wp-content/uploads/materials/ne-uteplennaya.jpg
[area_modifier] => 113.17
[parent_name] => Отмостка
[parent_id] => 22
[material_sum] => 235280
[work_sum] => 172301
[total_sum] => 407581
[total_days] => 10
[display_material_sum] => 235 280
[display_work_sum] => 172 301
[display_total_sum] => 407 581
)
1
407 581₽
Работа:172 301 ₽
Материалы:235 280 ₽
Дни:10
stdClass Object
(
[id] => 45
[attribute_id] => 23
[name] => Нет
[material_modifier] => 1
[work_modifier] => 1
[options] => Array
(
)
[days] => [0]
[material_price] => [0]
[work_price] => [0]
[image] => https://akademik-stroy.ru/wp-content/uploads/materials/drenazh-2.jpg
[area_modifier] => 113.17
[parent_name] => Дренаж вокруг дома
[parent_id] => 23
[material_sum] => 0
[work_sum] => 0
[total_sum] => 0
[total_days] => 0
[display_material_sum] => 0
[display_work_sum] => 0
[display_total_sum] => 0
)
1
0₽
Работа:0 ₽
Материалы:0 ₽
Дни:0
stdClass Object
(
[id] => 46
[attribute_id] => 23
[name] => Есть
[material_modifier] => 1
[work_modifier] => 1
[options] => Array
(
)
[days] => [5]
[material_price] => [2366]
[work_price] => [1911]
[image] => https://akademik-stroy.ru/wp-content/uploads/materials/drenazh-2.jpg
[area_modifier] => 113.17
[parent_name] => Дренаж вокруг дома
[parent_id] => 23
[material_sum] => 337378
[work_sum] => 227081
[total_sum] => 564459
[total_days] => 5
[display_material_sum] => 337 378
[display_work_sum] => 227 081
[display_total_sum] => 564 459
)
1
564 459₽
Работа:227 081 ₽
Материалы:337 378 ₽
Дни:5
stdClass Object
(
[id] => 47
[attribute_id] => 24
[name] => Нет
[material_modifier] => 1
[work_modifier] => 1
[options] => Array
(
)
[days] => [0]
[material_price] => [0]
[work_price] => [0]
[image] => https://akademik-stroy.ru/wp-content/uploads/materials/septik.jpg
[area_modifier] => 1
[parent_name] => Автономная канализация (септики)
[parent_id] => 24
[material_sum] => 0
[work_sum] => 0
[total_sum] => 0
[total_days] => 0
[display_material_sum] => 0
[display_work_sum] => 0
[display_total_sum] => 0
)
1
0₽
Работа:0 ₽
Материалы:0 ₽
Дни:0
stdClass Object
(
[id] => 48
[attribute_id] => 24
[name] => Есть
[material_modifier] => 1
[work_modifier] => 1
[options] => Array
(
[0] => Для дачи на 4 человека
[1] => Для дома на 5 человек
[2] => Для дома на 6 человек
[3] => Для дома на 7 человек
[4] => Для дома на 10 человек
)
[days] => [7,7,7,8,8]
[material_price] => [196340,220500,240940,264200,293340]
[work_price] => [50000,55000,60500,66550,73206]
[image] => https://akademik-stroy.ru/wp-content/uploads/materials/septik.jpg
[area_modifier] => 1
[parent_name] => Автономная канализация (септики)
[parent_id] => 24
[material_sum] => 247388
[work_sum] => 52500
[total_sum] => 299888
[total_days] => 7
[display_material_sum] => 247 388
[display_work_sum] => 52 500
[display_total_sum] => 299 888
)
1
299 888₽
Работа:52 500 ₽
Материалы:247 388 ₽
Дни:7
stdClass Object
(
[id] => 49
[attribute_id] => 25
[name] => Нет
[material_modifier] => 1
[work_modifier] => 1
[options] => Array
(
)
[days] => [0]
[material_price] => [0]
[work_price] => [0]
[image] => https://akademik-stroy.ru/wp-content/uploads/materials/gkl.jpg
[area_modifier] => 226.35
[parent_name] => Внутренние (не несущие) перегородки
[parent_id] => 25
[material_sum] => 0
[work_sum] => 0
[total_sum] => 0
[total_days] => 0
[display_material_sum] => 0
[display_work_sum] => 0
[display_total_sum] => 0
)
1
0₽
Работа:0 ₽
Материалы:0 ₽
Дни:0
stdClass Object
(
[id] => 147
[attribute_id] => 25
[name] => Каркасно-обшивные
[material_modifier] => 1
[work_modifier] => 1
[options] => Array
(
[0] => 75 мм (без шумоизоляции)
[1] => 75 мм (с шумоизоляцией)
)
[days] => [11,11]
[material_price] => [580,970]
[work_price] => [380,570]
[image] => https://akademik-stroy.ru/wp-content/uploads/materials/gkl.jpg
[area_modifier] => 226.35
[parent_name] => Внутренние (не несущие) перегородки
[parent_id] => 25
[material_sum] => 165417
[work_sum] => 90314
[total_sum] => 255731
[total_days] => 11
[display_material_sum] => 165 417
[display_work_sum] => 90 314
[display_total_sum] => 255 731
)
1
255 731₽
Работа:90 314 ₽
Материалы:165 417 ₽
Дни:11
stdClass Object
(
[id] => 148
[attribute_id] => 25
[name] => Пазогребневые
[material_modifier] => 1
[work_modifier] => 1
[options] => Array
(
[0] => 80 мм
[1] => 100 мм
)
[days] => [5,5]
[material_price] => [1022,1313]
[work_price] => [600,700]
[image] => https://akademik-stroy.ru/wp-content/uploads/materials/pazogrebnevye-bloki.jpg
[area_modifier] => 226.35
[parent_name] => Внутренние (не несущие) перегородки
[parent_id] => 25
[material_sum] => 291475
[work_sum] => 142601
[total_sum] => 434076
[total_days] => 5
[display_material_sum] => 291 475
[display_work_sum] => 142 601
[display_total_sum] => 434 076
)
1
434 076₽
Работа:142 601 ₽
Материалы:291 475 ₽
Дни:5
stdClass Object
(
[id] => 149
[attribute_id] => 25
[name] => Газобетонные
[material_modifier] => 1
[work_modifier] => 1
[options] => Array
(
[0] => 100 мм
[1] => 200 мм
)
[days] => [11,11]
[material_price] => [1160,1920]
[work_price] => [700,900]
[image] => https://akademik-stroy.ru/wp-content/uploads/materials/gazobeton-2.jpg
[area_modifier] => 226.35
[parent_name] => Внутренние (не несущие) перегородки
[parent_id] => 25
[material_sum] => 330833
[work_sum] => 166367
[total_sum] => 497200
[total_days] => 11
[display_material_sum] => 330 833
[display_work_sum] => 166 367
[display_total_sum] => 497 200
)
1
497 200₽
Работа:166 367 ₽
Материалы:330 833 ₽
Дни:11
stdClass Object
(
[id] => 150
[attribute_id] => 25
[name] => Кирпичные
[material_modifier] => 1
[work_modifier] => 1
[options] => Array
(
[0] => 120 мм
[1] => 250 мм
[2] => 360 мм
)
[days] => [7,7,7]
[material_price] => [1785,3570,5355]
[work_price] => [900,1600,1800]
[image] => https://akademik-stroy.ru/wp-content/uploads/materials/kirpich-1.jpg
[area_modifier] => 226.35
[parent_name] => Внутренние (не несущие) перегородки
[parent_id] => 25
[material_sum] => 509084
[work_sum] => 213901
[total_sum] => 722985
[total_days] => 7
[display_material_sum] => 509 084
[display_work_sum] => 213 901
[display_total_sum] => 722 985
)
1
722 985₽
Работа:213 901 ₽
Материалы:509 084 ₽
Дни:7
stdClass Object
(
[id] => 55
[attribute_id] => 28
[name] => Нет
[material_modifier] => 1
[work_modifier] => 1
[options] => Array
(
)
[days] => [0]
[material_price] => [0]
[work_price] => [0]
[image] => https://akademik-stroy.ru/wp-content/uploads/materials/ehlektrika.jpg
[area_modifier] => 183.68
[parent_name] => Электрика
[parent_id] => 28
[material_sum] => 0
[work_sum] => 0
[total_sum] => 0
[total_days] => 0
[display_material_sum] => 0
[display_work_sum] => 0
[display_total_sum] => 0
)
1
0₽
Работа:0 ₽
Материалы:0 ₽
Дни:0
stdClass Object
(
[id] => 56
[attribute_id] => 28
[name] => Есть
[material_modifier] => 1
[work_modifier] => 1
[options] => Array
(
)
[days] => [10]
[material_price] => [650]
[work_price] => [950]
[image] => https://akademik-stroy.ru/wp-content/uploads/materials/ehlektrika.jpg
[area_modifier] => 183.68
[parent_name] => Электрика
[parent_id] => 28
[material_sum] => 150434
[work_sum] => 183221
[total_sum] => 333655
[total_days] => 10
[display_material_sum] => 150 434
[display_work_sum] => 183 221
[display_total_sum] => 333 655
)
1
333 655₽
Работа:183 221 ₽
Материалы:150 434 ₽
Дни:10
stdClass Object
(
[id] => 57
[attribute_id] => 29
[name] => Нет
[material_modifier] => 1
[work_modifier] => 1
[options] => Array
(
)
[days] => [0]
[material_price] => [0]
[work_price] => [0]
[image] => https://akademik-stroy.ru/wp-content/uploads/materials/santekhnika-kanalizaciya-1.jpg
[area_modifier] => 183.68
[parent_name] => Сантехника, канализация в доме
[parent_id] => 29
[material_sum] => 0
[work_sum] => 0
[total_sum] => 0
[total_days] => 0
[display_material_sum] => 0
[display_work_sum] => 0
[display_total_sum] => 0
)
1
0₽
Работа:0 ₽
Материалы:0 ₽
Дни:0
stdClass Object
(
[id] => 58
[attribute_id] => 29
[name] => Есть
[material_modifier] => 1
[work_modifier] => 1
[options] => Array
(
)
[days] => [10]
[material_price] => [600]
[work_price] => [730]
[image] => https://akademik-stroy.ru/wp-content/uploads/materials/santekhnika-kanalizaciya-1.jpg
[area_modifier] => 183.68
[parent_name] => Сантехника, канализация в доме
[parent_id] => 29
[material_sum] => 138862
[work_sum] => 140791
[total_sum] => 279653
[total_days] => 10
[display_material_sum] => 138 862
[display_work_sum] => 140 791
[display_total_sum] => 279 653
)
1
279 653₽
Работа:140 791 ₽
Материалы:138 862 ₽
Дни:10
stdClass Object
(
[id] => 59
[attribute_id] => 30
[name] => Нет
[material_modifier] => 1
[work_modifier] => 1
[options] => Array
(
)
[days] => [0]
[material_price] => [0]
[work_price] => [0]
[image] => https://akademik-stroy.ru/wp-content/uploads/materials/otoplenie-1.jpg
[area_modifier] => 183.68
[parent_name] => Отопление
[parent_id] => 30
[material_sum] => 0
[work_sum] => 0
[total_sum] => 0
[total_days] => 0
[display_material_sum] => 0
[display_work_sum] => 0
[display_total_sum] => 0
)
1
0₽
Работа:0 ₽
Материалы:0 ₽
Дни:0
stdClass Object
(
[id] => 60
[attribute_id] => 30
[name] => Есть
[material_modifier] => 1
[work_modifier] => 1
[options] => Array
(
)
[days] => [5]
[material_price] => [610]
[work_price] => [560]
[image] => https://akademik-stroy.ru/wp-content/uploads/materials/otoplenie-1.jpg
[area_modifier] => 183.68
[parent_name] => Отопление
[parent_id] => 30
[material_sum] => 141176
[work_sum] => 108004
[total_sum] => 249180
[total_days] => 5
[display_material_sum] => 141 176
[display_work_sum] => 108 004
[display_total_sum] => 249 180
)
1
249 180₽
Работа:108 004 ₽
Материалы:141 176 ₽
Дни:5
stdClass Object
(
[id] => 61
[attribute_id] => 31
[name] => Нет
[material_modifier] => 1
[work_modifier] => 1
[options] => Array
(
)
[days] => [0]
[material_price] => [0]
[work_price] => [0]
[image] => https://akademik-stroy.ru/wp-content/uploads/materials/vodyanye.jpg
[area_modifier] => 30
[parent_name] => Теплые полы
[parent_id] => 31
[material_sum] => 0
[work_sum] => 0
[total_sum] => 0
[total_days] => 0
[display_material_sum] => 0
[display_work_sum] => 0
[display_total_sum] => 0
)
1
0₽
Работа:0 ₽
Материалы:0 ₽
Дни:0
stdClass Object
(
[id] => 151
[attribute_id] => 31
[name] => Водяные
[material_modifier] => 1
[work_modifier] => 1
[options] => Array
(
)
[days] => [9]
[material_price] => [10200]
[work_price] => [2500]
[image] => https://akademik-stroy.ru/wp-content/uploads/materials/vodyanye.jpg
[area_modifier] => 30
[parent_name] => Теплые полы
[parent_id] => 31
[material_sum] => 385560
[work_sum] => 78750
[total_sum] => 464310
[total_days] => 9
[display_material_sum] => 385 560
[display_work_sum] => 78 750
[display_total_sum] => 464 310
)
1
464 310₽
Работа:78 750 ₽
Материалы:385 560 ₽
Дни:9
stdClass Object
(
[id] => 152
[attribute_id] => 31
[name] => Электро
[material_modifier] => 1
[work_modifier] => 1
[options] => Array
(
)
[days] => [5]
[material_price] => [6300]
[work_price] => [1500]
[image] => https://akademik-stroy.ru/wp-content/uploads/materials/ehlektricheskij.jpg
[area_modifier] => 30
[parent_name] => Теплые полы
[parent_id] => 31
[material_sum] => 238140
[work_sum] => 47250
[total_sum] => 285390
[total_days] => 5
[display_material_sum] => 238 140
[display_work_sum] => 47 250
[display_total_sum] => 285 390
)
1
285 390₽
Работа:47 250 ₽
Материалы:238 140 ₽
Дни:5
stdClass Object
(
[id] => 63
[attribute_id] => 32
[name] => Нет
[material_modifier] => 1
[work_modifier] => 1
[options] => Array
(
)
[days] => [0]
[material_price] => [0]
[work_price] => [0]
[image] => https://akademik-stroy.ru/wp-content/uploads/materials/shtukaturka-shpatlevka-1.jpg
[area_modifier] => 183.68
[parent_name] => Черновая отделка стен
[parent_id] => 32
[material_sum] => 0
[work_sum] => 0
[total_sum] => 0
[total_days] => 0
[display_material_sum] => 0
[display_work_sum] => 0
[display_total_sum] => 0
)
1
0₽
Работа:0 ₽
Материалы:0 ₽
Дни:0
stdClass Object
(
[id] => 153
[attribute_id] => 32
[name] => Штукатурка и шпатлевка
[material_modifier] => 1
[work_modifier] => 1
[options] => Array
(
)
[days] => [20]
[material_price] => [1850]
[work_price] => [2600]
[image] => https://akademik-stroy.ru/wp-content/uploads/materials/shtukaturka-shpatlevka-1.jpg
[area_modifier] => 183.68
[parent_name] => Черновая отделка стен
[parent_id] => 32
[material_sum] => 428158
[work_sum] => 501446
[total_sum] => 929604
[total_days] => 20
[display_material_sum] => 428 158
[display_work_sum] => 501 446
[display_total_sum] => 929 604
)
1
929 604₽
Работа:501 446 ₽
Материалы:428 158 ₽
Дни:20
stdClass Object
(
[id] => 154
[attribute_id] => 32
[name] => Гипсокортон на стены
[material_modifier] => 1
[work_modifier] => 1
[options] => Array
(
)
[days] => [15]
[material_price] => [950]
[work_price] => [2100]
[image] => https://akademik-stroy.ru/wp-content/uploads/materials/gkl-1.jpg
[area_modifier] => 183.68
[parent_name] => Черновая отделка стен
[parent_id] => 32
[material_sum] => 219865
[work_sum] => 405014
[total_sum] => 624879
[total_days] => 15
[display_material_sum] => 219 865
[display_work_sum] => 405 014
[display_total_sum] => 624 879
)
1
624 879₽
Работа:405 014 ₽
Материалы:219 865 ₽
Дни:15
stdClass Object
(
[id] => 155
[attribute_id] => 32
[name] => Вагонка
[material_modifier] => 1
[work_modifier] => 1
[options] => Array
(
)
[days] => [15]
[material_price] => [1250]
[work_price] => [950]
[image] => https://akademik-stroy.ru/wp-content/uploads/materials/vagonka.jpg
[area_modifier] => 183.68
[parent_name] => Черновая отделка стен
[parent_id] => 32
[material_sum] => 289296
[work_sum] => 183221
[total_sum] => 472517
[total_days] => 15
[display_material_sum] => 289 296
[display_work_sum] => 183 221
[display_total_sum] => 472 517
)
1
472 517₽
Работа:183 221 ₽
Материалы:289 296 ₽
Дни:15
stdClass Object
(
[id] => 65
[attribute_id] => 33
[name] => Нет
[material_modifier] => 1
[work_modifier] => 1
[options] => Array
(
)
[days] => [0]
[material_price] => [0]
[work_price] => [0]
[image] => https://akademik-stroy.ru/wp-content/uploads/materials/styazhka.jpg
[area_modifier] => 183.68
[parent_name] => Черновая отделка полов
[parent_id] => 33
[material_sum] => 0
[work_sum] => 0
[total_sum] => 0
[total_days] => 0
[display_material_sum] => 0
[display_work_sum] => 0
[display_total_sum] => 0
)
1
0₽
Работа:0 ₽
Материалы:0 ₽
Дни:0
stdClass Object
(
[id] => 156
[attribute_id] => 33
[name] => Стяжка + наливные полы
[material_modifier] => 1
[work_modifier] => 1
[options] => Array
(
)
[days] => [10]
[material_price] => [1000]
[work_price] => [900]
[image] => https://akademik-stroy.ru/wp-content/uploads/materials/styazhka.jpg
[area_modifier] => 183.68
[parent_name] => Черновая отделка полов
[parent_id] => 33
[material_sum] => 231437
[work_sum] => 173578
[total_sum] => 405015
[total_days] => 10
[display_material_sum] => 231 437
[display_work_sum] => 173 578
[display_total_sum] => 405 015
)
1
405 015₽
Работа:173 578 ₽
Материалы:231 437 ₽
Дни:10
stdClass Object
(
[id] => 157
[attribute_id] => 33
[name] => ОСБ на пол
[material_modifier] => 1
[work_modifier] => 1
[options] => Array
(
)
[days] => [7]
[material_price] => [580]
[work_price] => [350]
[image] => https://akademik-stroy.ru/wp-content/uploads/materials/osb-1.jpg
[area_modifier] => 183.68
[parent_name] => Черновая отделка полов
[parent_id] => 33
[material_sum] => 134233
[work_sum] => 67502
[total_sum] => 201735
[total_days] => 7
[display_material_sum] => 134 233
[display_work_sum] => 67 502
[display_total_sum] => 201 735
)
1
201 735₽
Работа:67 502 ₽
Материалы:134 233 ₽
Дни:7
stdClass Object
(
[id] => 67
[attribute_id] => 34
[name] => Нет
[material_modifier] => 1
[work_modifier] => 1
[options] => Array
(
)
[days] => [0]
[material_price] => [0]
[work_price] => [0]
[image] => https://akademik-stroy.ru/wp-content/uploads/materials/chistovaya-otdelka.jpg
[area_modifier] => 183.68
[parent_name] => Чистовая отделка стен и полов
[parent_id] => 34
[material_sum] => 0
[work_sum] => 0
[total_sum] => 0
[total_days] => 0
[display_material_sum] => 0
[display_work_sum] => 0
[display_total_sum] => 0
)
1
0₽
Работа:0 ₽
Материалы:0 ₽
Дни:0
stdClass Object
(
[id] => 68
[attribute_id] => 34
[name] => Есть
[material_modifier] => 1
[work_modifier] => 1
[options] => Array
(
)
[days] => [50]
[material_price] => [6000]
[work_price] => [3500]
[image] => https://akademik-stroy.ru/wp-content/uploads/materials/chistovaya-otdelka.jpg
[area_modifier] => 183.68
[parent_name] => Чистовая отделка стен и полов
[parent_id] => 34
[material_sum] => 1388621
[work_sum] => 675024
[total_sum] => 2063645
[total_days] => 50
[display_material_sum] => 1 388 621
[display_work_sum] => 675 024
[display_total_sum] => 2 063 645
)
1
2 063 645₽
Работа:675 024 ₽
Материалы:1 388 621 ₽
Дни:50
stdClass Object
(
[id] => 69
[attribute_id] => 35
[name] => Нет
[material_modifier] => 1
[work_modifier] => 1
[options] => Array
(
)
[days] => [0]
[material_price] => [0]
[work_price] => [0]
[image] => https://akademik-stroy.ru/wp-content/uploads/materials/mnogourovnevyj-gkl.jpg
[area_modifier] => 183.68
[parent_name] => Отделка потолка
[parent_id] => 35
[material_sum] => 0
[work_sum] => 0
[total_sum] => 0
[total_days] => 0
[display_material_sum] => 0
[display_work_sum] => 0
[display_total_sum] => 0
)
1
0₽
Работа:0 ₽
Материалы:0 ₽
Дни:0
stdClass Object
(
[id] => 70
[attribute_id] => 35
[name] => Есть
[material_modifier] => 1
[work_modifier] => 1
[options] => Array
(
[0] => Многоуровневый потолок из гипсокартона
[1] => Многоуровневый потолок из гипсокартона и натяжного потолка
[2] => Одноуровневый потолок из гипсокартона
[3] => Одноуровневый натяжной потолок
)
[days] => [10,10,1,1]
[material_price] => [900,700,700,600]
[work_price] => [1000,800,500,300]
[image] => https://akademik-stroy.ru/wp-content/uploads/materials/mnogourovnevyj-gkl.jpg
[area_modifier] => 183.68
[parent_name] => Отделка потолка
[parent_id] => 35
[material_sum] => 208293
[work_sum] => 192864
[total_sum] => 401157
[total_days] => 10
[display_material_sum] => 208 293
[display_work_sum] => 192 864
[display_total_sum] => 401 157
)
1
401 157₽
Работа:192 864 ₽
Материалы:208 293 ₽
Дни:10
Преимущества работы с нами
7 этапов оплаты
Независимый строительный надзор
Экологически чистые материалы
16 лет гарантии
Онлайн-кабинет с веб-камерой
Строители с опытом более 15 лет
Собственное производство









