Одноэтажный дом 9x9 - 147.84 м2 за руб.
Планировки
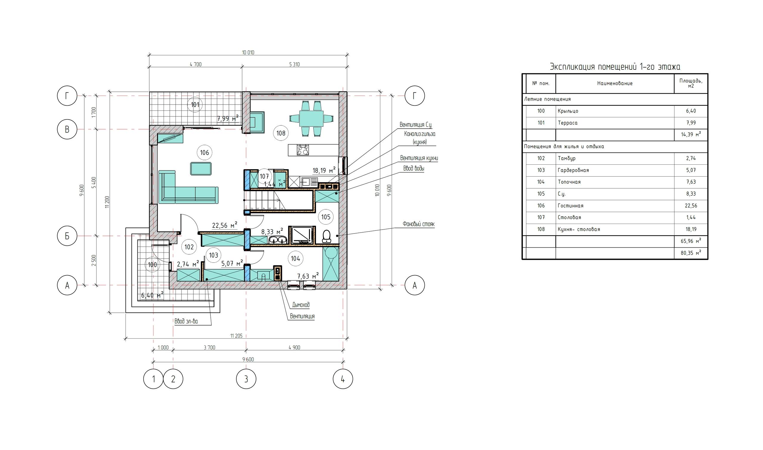
План первого этажа
- 1. Крыльцо 6,40 м²
- 2. Терраса 7,99 м²
- 3. Тамбур 2,74 м²
- 4. Гардеробная 5,07 м²
- 5. Топочная 7,63 м²
- 6. Санузел 8,33 м²
- 7. Гостиная 22,56 м²
- 8. Столовая 1,44 м²
- 9. Кухня-Столовая 18,19 м²
- Общая площадь первый этаж 80,35 м²
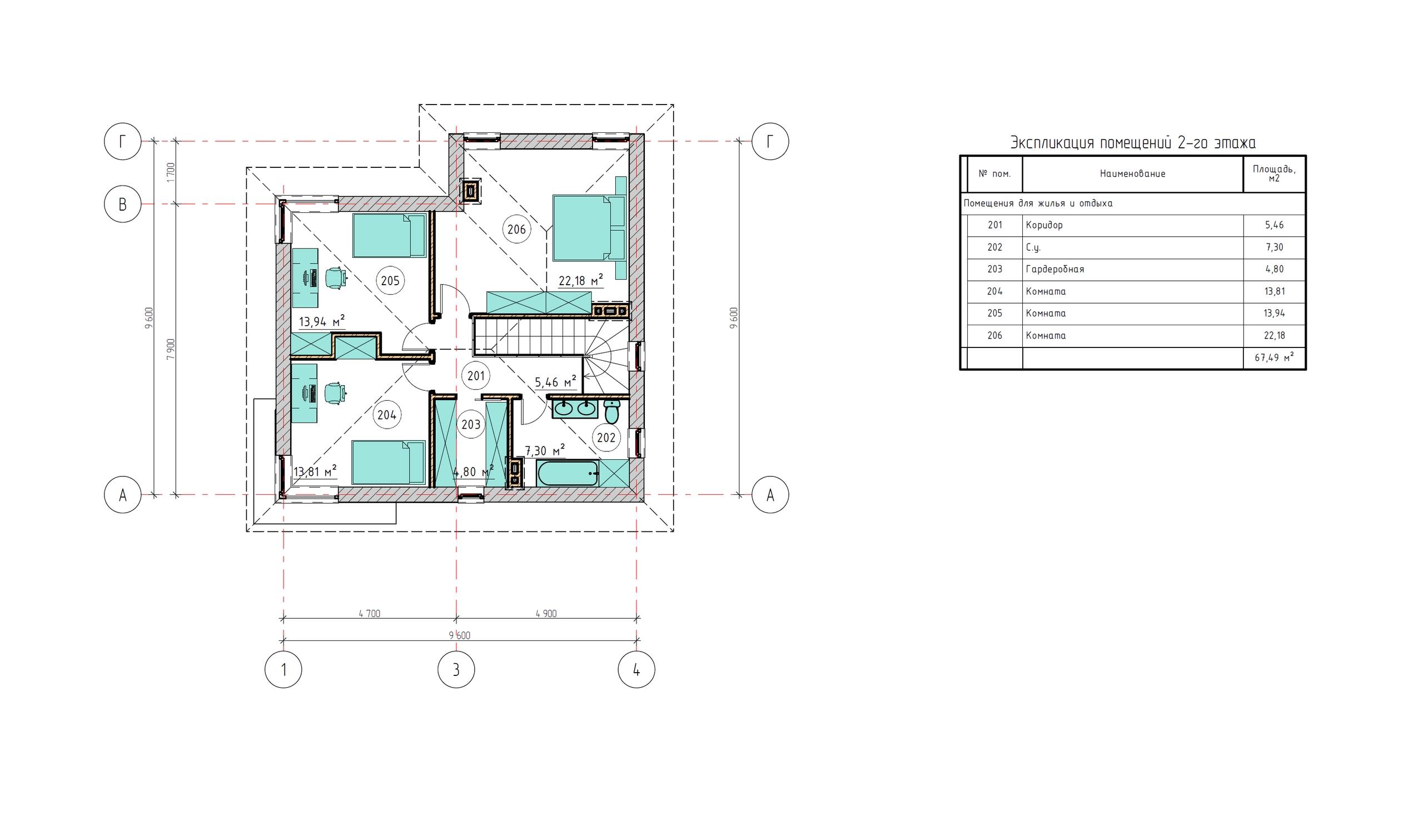
План второго этажа
- 1. Коридор 5,46 м²
- 2. Санузел 7,30 м²
- 3. Гардеробная 4,80 м²
- 4. Комната 13,81 м²
- 5. Комната 13,94 м²
- 6. Спальня 22,18 м²
- Общая площадь второй этаж 67,49 м²
Площади дома
| № п/п | Наименование | Ед. из. | Строительная площадь | Полезная площадь |
| 1 | 1 этаж | м2 | 99.02 | 80.35 |
| 2 | 2 этаж | м2 | 83.17 | 67.49 |
| 3 | Итого | м2 | 182.19 | 147.84 |
154 м2
Полезная
площадь
площадь
9 x 9 м
Размеры
1 этаж
Этажей
26 м2
Террасы
и балконы
и балконы
0Без
гаража
гаража
3
Количество
спален
спален
2
Количество
санузлов
санузлов
Калькулятор опций
0₽
В ипотеку от 17 882 ₽/мес.
0₽
0 дней
stdClass Object
(
[id] => 1
[attribute_id] => 1
[name] => Ленточный монолитный ж/б
[material_modifier] => 1
[work_modifier] => 1
[options] => Array
(
[0] => размер 200 х 700 мм
[1] => размер 300 х 900 мм
[2] => размер 400 х 1 000 мм
[3] => размер 500 х 1 100 мм
[4] => размер 600 х 1 200 мм
)
[days] => [20,21,22,25,30]
[material_price] => [2823,3630,4475,5210,12047]
[work_price] => [2154,2826,3731,4577,5293]
[image] => https://akademik-stroy.ru/wp-content/uploads/materials/lentochnyj-monolitnyj-zh-b.jpg
[area_modifier] => 99.02
[parent_name] => Фундамент
[parent_id] => 1
[material_sum] => 368984
[work_sum] => 234618
[total_sum] => 603602
[total_days] => 20
[display_material_sum] => 368 984
[display_work_sum] => 234 618
[display_total_sum] => 603 602
)
1
603 602₽
Работа:234 618 ₽
Материалы:368 984 ₽
Дни:20
stdClass Object
(
[id] => 2
[attribute_id] => 1
[name] => Забивные Ж/Б сваи
[material_modifier] => 1
[work_modifier] => 1
[options] => Array
(
[0] => 150х150х3000мм
[1] => 150х150х4000мм
[2] => 200х200х3000мм
[3] => 200х200х4000мм
[4] => 200х200х5000мм
[5] => 200х200х6000мм
)
[days] => [2,2,2,2,2,2]
[material_price] => [1990,2850,3255,4360,5120,6837]
[work_price] => [1002,1185,1336,1438,1574,1839]
[image] => https://akademik-stroy.ru/wp-content/uploads/materials/zabivnye-zh-b-svai.png
[area_modifier] => 99.02
[parent_name] => Фундамент
[parent_id] => 1
[material_sum] => 260106
[work_sum] => 109140
[total_sum] => 369246
[total_days] => 2
[display_material_sum] => 260 106
[display_work_sum] => 109 140
[display_total_sum] => 369 246
)
1
369 246₽
Работа:109 140 ₽
Материалы:260 106 ₽
Дни:2
stdClass Object
(
[id] => 71
[attribute_id] => 1
[name] => Свайно-ростверковый ж/б
[material_modifier] => 1
[work_modifier] => 1
[options] => Array
(
[0] => ростверк 200х300 мм
[1] => ростверк 300х600 мм
[2] => ростверк 400х900 мм
[3] => ростверк 500х1200 мм
)
[days] => [20,23,25,27]
[material_price] => [3018,3474,7109,9792]
[work_price] => [2024,3012,5635,7022]
[image] => https://akademik-stroy.ru/wp-content/uploads/materials/svajno-rostverkovyj-monolitnyj-zh-b-3.png
[area_modifier] => 99.02
[parent_name] => Фундамент
[parent_id] => 1
[material_sum] => 394472
[work_sum] => 220458
[total_sum] => 614930
[total_days] => 20
[display_material_sum] => 394 472
[display_work_sum] => 220 458
[display_total_sum] => 614 930
)
1
614 930₽
Работа:220 458 ₽
Материалы:394 472 ₽
Дни:20
stdClass Object
(
[id] => 72
[attribute_id] => 1
[name] => Монолитная ж/б плита
[material_modifier] => 1
[work_modifier] => 1
[options] => Array
(
[0] => 200 мм
[1] => 300 мм
[2] => 400 мм
[3] => 500 мм
[4] => 600 мм
)
[days] => [30,33,35,37,40]
[material_price] => [5348,8555,12788,14388,15189]
[work_price] => [4314,4881,7037,8061,10230]
[image] => https://akademik-stroy.ru/wp-content/uploads/materials/monolitnaya-zhb-plita.png
[area_modifier] => 99.02
[parent_name] => Фундамент
[parent_id] => 1
[material_sum] => 699018
[work_sum] => 469890
[total_sum] => 1168908
[total_days] => 30
[display_material_sum] => 699 018
[display_work_sum] => 469 890
[display_total_sum] => 1 168 908
)
1
1 168 908₽
Работа:469 890 ₽
Материалы:699 018 ₽
Дни:30
stdClass Object
(
[id] => 73
[attribute_id] => 1
[name] => Утепленная шведская плита
[material_modifier] => 1
[work_modifier] => 1
[options] => Array
(
[0] => 200 мм
[1] => 300 мм
[2] => 400 мм
[3] => 500 мм
[4] => 600 мм
)
[days] => [32,37,39,42,45]
[material_price] => [10249,12692,13760,14936,16230]
[work_price] => [5960,7337,8072,8878,9765]
[image] => https://akademik-stroy.ru/wp-content/uploads/materials/uteplennaya-shvedskaya-plita.jpg
[area_modifier] => 99.02
[parent_name] => Фундамент
[parent_id] => 1
[material_sum] => 1339610
[work_sum] => 649175
[total_sum] => 1988785
[total_days] => 32
[display_material_sum] => 1 339 610
[display_work_sum] => 649 175
[display_total_sum] => 1 988 785
)
1
1 988 785₽
Работа:649 175 ₽
Материалы:1 339 610 ₽
Дни:32
stdClass Object
(
[id] => 75
[attribute_id] => 1
[name] => Ленточный из ФБС
[material_modifier] => 1
[work_modifier] => 1
[options] => Array
(
[0] => толщ. 300 мм
[1] => толщ. 400 мм
[2] => толщ. 500 мм
[3] => толщ. 600 мм
)
[days] => [20,20,20,20]
[material_price] => [3675,4902,6126,7350]
[work_price] => [2451,3264,4083,4902]
[image] => https://akademik-stroy.ru/wp-content/uploads/materials/lentochnyj-iz-fbs.png
[area_modifier] => 99.02
[parent_name] => Фундамент
[parent_id] => 1
[material_sum] => 480346
[work_sum] => 266968
[total_sum] => 747314
[total_days] => 20
[display_material_sum] => 480 346
[display_work_sum] => 266 968
[display_total_sum] => 747 314
)
1
747 314₽
Работа:266 968 ₽
Материалы:480 346 ₽
Дни:20
stdClass Object
(
[id] => 76
[attribute_id] => 1
[name] => Цокольный этаж из ФБС
[material_modifier] => 1
[work_modifier] => 1
[options] => Array
(
[0] => толщ. 300 мм
[1] => толщ. 400 мм
[2] => толщ. 500 мм
[3] => толщ. 600 мм
)
[days] => [30,32,34,36]
[material_price] => [20916,23299,26680,29060]
[work_price] => [17524,18700,19873,21046]
[image] => https://akademik-stroy.ru/wp-content/uploads/materials/cokolnyj-ehtazh-iz-fbs.jpg
[area_modifier] => 99.02
[parent_name] => Фундамент
[parent_id] => 1
[material_sum] => 2733855
[work_sum] => 1908749
[total_sum] => 4642604
[total_days] => 30
[display_material_sum] => 2 733 855
[display_work_sum] => 1 908 749
[display_total_sum] => 4 642 604
)
1
4 642 604₽
Работа:1 908 749 ₽
Материалы:2 733 855 ₽
Дни:30
stdClass Object
(
[id] => 77
[attribute_id] => 1
[name] => Цокольный этаж монолитный ж/б
[material_modifier] => 1
[work_modifier] => 1
[options] => Array
(
[0] => толщ. 200 мм
[1] => толщ. 300 мм
[2] => толщ. 400 мм
[3] => толщ. 500 мм
[4] => толщ. 600 мм
)
[days] => [40,42,44,46,48]
[material_price] => [25421,29148,32275,35602,37326]
[work_price] => [20441,21907,23375,24841,26306]
[image] => https://akademik-stroy.ru/wp-content/uploads/materials/cokolnyj-etazh-zh-b.jpg
[area_modifier] => 99.02
[parent_name] => Фундамент
[parent_id] => 1
[material_sum] => 3322687
[work_sum] => 2226475
[total_sum] => 5549162
[total_days] => 40
[display_material_sum] => 3 322 687
[display_work_sum] => 2 226 475
[display_total_sum] => 5 549 162
)
1
5 549 162₽
Работа:2 226 475 ₽
Материалы:3 322 687 ₽
Дни:40
stdClass Object
(
[id] => 191
[attribute_id] => 1
[name] => Винтовые сваи
[material_modifier] => 1
[work_modifier] => 1
[options] => Array
(
[0] => 57х200мм
[1] => 76х250мм
[2] => 108х300мм
[3] => 133х350мм
)
[days] => [1,1,2,2]
[material_price] => [1200,1300,1450,1600]
[work_price] => [400,600,900,1100]
[image] => https://akademik-stroy.ru/wp-content/uploads/materials/vintovye-svai.png
[area_modifier] => 99.02
[parent_name] => Фундамент
[parent_id] => 1
[material_sum] => 156848
[work_sum] => 43569
[total_sum] => 200417
[total_days] => 1
[display_material_sum] => 156 848
[display_work_sum] => 43 569
[display_total_sum] => 200 417
)
1
200 417₽
Работа:43 569 ₽
Материалы:156 848 ₽
Дни:1
stdClass Object
(
[id] => 3
[attribute_id] => 2
[name] => Деревянные балки
[material_modifier] => 1
[work_modifier] => 1
[options] => Array
(
[0] => без утепления
[1] => утепление 200 мм
[2] => утепление 250 мм
[3] => утепление 300 мм
[4] => утепление 350 мм
[5] => утепление 400 мм
[6] => утепление 450 мм
[7] => утепление 500 мм
)
[days] => [8,9,9,9,11,12,13,14]
[material_price] => [1634,2042,2344,2947,3149,3652,3354,3557]
[work_price] => [1230,1339,1393,1426,1460,1513,1587,1620]
[image] => https://akademik-stroy.ru/wp-content/uploads/materials/derevyannye-balki.png
[area_modifier] => 99.02
[parent_name] => Перекрытие цоколя
[parent_id] => 2
[material_sum] => 213574
[work_sum] => 133974
[total_sum] => 347548
[total_days] => 8
[display_material_sum] => 213 574
[display_work_sum] => 133 974
[display_total_sum] => 347 548
)
1
347 548₽
Работа:133 974 ₽
Материалы:213 574 ₽
Дни:8
stdClass Object
(
[id] => 4
[attribute_id] => 2
[name] => Сборные ж/б плиты
[material_modifier] => 1
[work_modifier] => 1
[options] => Array
(
[0] => без утепления
[1] => утепление 150мм
[2] => утепление 200мм
[3] => утепление 250мм
[4] => утепление 300мм
[5] => утепление 350мм
[6] => утепление 400мм
[7] => утепление 450мм
[8] => утепление 500мм
)
[days] => [13,15,15,15,15,15,15,15,15]
[material_price] => [3067,5577,5928,6679,7730,8782,9833,10884,11935]
[work_price] => [1520,1956,2102,2247,2392,2537,2684,2829,2974]
[image] => https://akademik-stroy.ru/wp-content/uploads/materials/sbornye-zh-b-plity-2.jpg
[area_modifier] => 99.02
[parent_name] => Перекрытие цоколя
[parent_id] => 2
[material_sum] => 400877
[work_sum] => 165561
[total_sum] => 566438
[total_days] => 13
[display_material_sum] => 400 877
[display_work_sum] => 165 561
[display_total_sum] => 566 438
)
1
566 438₽
Работа:165 561 ₽
Материалы:400 877 ₽
Дни:13
stdClass Object
(
[id] => 78
[attribute_id] => 2
[name] => Монолитная ж/б плита
[material_modifier] => 1
[work_modifier] => 1
[options] => Array
(
[0] => без утепления
[1] => утепление 150 мм
[2] => утепление 200 мм
[3] => утепление 250 мм
[4] => утепление 300 мм
[5] => утепление 350 мм
[6] => утепление 400 мм
[7] => утепление 450 мм
[8] => утепление 500 мм
)
[days] => [18,20,20,20,20,20,20,20,20]
[material_price] => [4837,6572,7224,7375,79426,8177,8728,9180,10031]
[work_price] => [3348,3921,4112,4302,4493,4684,4875,5066,5256]
[image] => https://akademik-stroy.ru/wp-content/uploads/materials/monolitnaya-zh-b-plita-2.jpg
[area_modifier] => 99.02
[parent_name] => Перекрытие цоколя
[parent_id] => 2
[material_sum] => 632227
[work_sum] => 364671
[total_sum] => 996898
[total_days] => 18
[display_material_sum] => 632 227
[display_work_sum] => 364 671
[display_total_sum] => 996 898
)
1
996 898₽
Работа:364 671 ₽
Материалы:632 227 ₽
Дни:18
stdClass Object
(
[id] => 6
[attribute_id] => 3
[name] => Пеноблок
[material_modifier] => 1
[work_modifier] => 1
[options] => Array
(
[0] => 300 мм
[1] => 400 мм
[2] => 500 мм
[3] => 600 мм
)
[days] => [29,31,34,39]
[material_price] => [3000,4000,4500,4937]
[work_price] => [5033,5805,6400,8710]
[image] => https://akademik-stroy.ru/wp-content/uploads/materials/penoblok.jpg
[area_modifier] => 99.02
[parent_name] => Стены 1 этаж (несущие)
[parent_id] => 3
[material_sum] => 392119
[work_sum] => 548204
[total_sum] => 940323
[total_days] => 29
[display_material_sum] => 392 119
[display_work_sum] => 548 204
[display_total_sum] => 940 323
)
1
940 323₽
Работа:548 204 ₽
Материалы:392 119 ₽
Дни:29
stdClass Object
(
[id] => 79
[attribute_id] => 3
[name] => Керамический блок
[material_modifier] => 1
[work_modifier] => 1
[options] => Array
(
[0] => 380 мм
[1] => 380 мм Thermo
[2] => 440 мм
[3] => 510 мм
)
[days] => [23,23,24,25]
[material_price] => [4510,5098,6093,8013]
[work_price] => [4737,4937,5903,6958]
[image] => https://akademik-stroy.ru/wp-content/uploads/materials/keramicheskij-blok.jpg
[area_modifier] => 99.02
[parent_name] => Стены 1 этаж (несущие)
[parent_id] => 3
[material_sum] => 589486
[work_sum] => 515964
[total_sum] => 1105450
[total_days] => 23
[display_material_sum] => 589 486
[display_work_sum] => 515 964
[display_total_sum] => 1 105 450
)
1
1 105 450₽
Работа:515 964 ₽
Материалы:589 486 ₽
Дни:23
stdClass Object
(
[id] => 80
[attribute_id] => 3
[name] => Кирпич
[material_modifier] => 1
[work_modifier] => 1
[options] => Array
(
[0] => Кирпич 250 мм
[1] => Кирпич 380 мм
[2] => Кирпич 510 мм
[3] => Кирпич 640 мм
[4] => Кирпич 770 мм
)
[days] => [30,30,31,33,36]
[material_price] => [5500,7142,9206,10171,12235]
[work_price] => [8736,10041,12018,15240,18462]
[image] => https://akademik-stroy.ru/wp-content/uploads/materials/kirpich.jpg
[area_modifier] => 99.02
[parent_name] => Стены 1 этаж (несущие)
[parent_id] => 3
[material_sum] => 718885
[work_sum] => 951543
[total_sum] => 1670428
[total_days] => 30
[display_material_sum] => 718 885
[display_work_sum] => 951 543
[display_total_sum] => 1 670 428
)
1
1 670 428₽
Работа:951 543 ₽
Материалы:718 885 ₽
Дни:30
stdClass Object
(
[id] => 81
[attribute_id] => 3
[name] => Монолитные
[material_modifier] => 1
[work_modifier] => 1
[options] => Array
(
[0] => 150 мм
[1] => 200 мм
[2] => 250 мм
[3] => 300 мм
[4] => 350 мм
[5] => 400 мм
)
[days] => [45,46,47,49,50,53]
[material_price] => [6545,7876,10175,12011,13908,15204]
[work_price] => [5106,6444,7698,8552,9807,11461]
[image] => https://akademik-stroy.ru/wp-content/uploads/materials/monolitnye.jpg
[area_modifier] => 99.02
[parent_name] => Стены 1 этаж (несущие)
[parent_id] => 3
[material_sum] => 855473
[work_sum] => 556156
[total_sum] => 1411629
[total_days] => 45
[display_material_sum] => 855 473
[display_work_sum] => 556 156
[display_total_sum] => 1 411 629
)
1
1 411 629₽
Работа:556 156 ₽
Материалы:855 473 ₽
Дни:45
stdClass Object
(
[id] => 82
[attribute_id] => 3
[name] => Клееный брус
[material_modifier] => 1
[work_modifier] => 1
[options] => Array
(
[0] => 160 мм
[1] => 175 мм
[2] => 200 мм
[3] => 215 мм
[4] => 240 мм
[5] => 270 мм
[6] => 282 мм
)
[days] => [24,28,32,37,40,42,48]
[material_price] => [16975,18773,19950,20545,21599,22159,23275]
[work_price] => [4806,5287,5815,6397,7036,7740,8514]
[image] => https://akademik-stroy.ru/wp-content/uploads/materials/kleenyj-brus.jpg
[area_modifier] => 99.02
[parent_name] => Стены 1 этаж (несущие)
[parent_id] => 3
[material_sum] => 2218741
[work_sum] => 523479
[total_sum] => 2742220
[total_days] => 24
[display_material_sum] => 2 218 741
[display_work_sum] => 523 479
[display_total_sum] => 2 742 220
)
1
2 742 220₽
Работа:523 479 ₽
Материалы:2 218 741 ₽
Дни:24
stdClass Object
(
[id] => 83
[attribute_id] => 3
[name] => Каркасные
[material_modifier] => 1
[work_modifier] => 1
[options] => Array
(
[0] => 150 мм
[1] => 200 мм
[2] => 250 мм
[3] => 300 мм
)
[days] => [15,16,17,18]
[material_price] => [2379,2639,2898,3258]
[work_price] => [2418,2686,2985,3716]
[image] => https://akademik-stroy.ru/wp-content/uploads/materials/karkasnye.jpg
[area_modifier] => 99.02
[parent_name] => Стены 1 этаж (несущие)
[parent_id] => 3
[material_sum] => 310951
[work_sum] => 263373
[total_sum] => 574324
[total_days] => 15
[display_material_sum] => 310 951
[display_work_sum] => 263 373
[display_total_sum] => 574 324
)
1
574 324₽
Работа:263 373 ₽
Материалы:310 951 ₽
Дни:15
stdClass Object
(
[id] => 84
[attribute_id] => 3
[name] => СИП-панели
[material_modifier] => 1
[work_modifier] => 1
[options] => Array
(
[0] => 120 мм
[1] => 170 мм
[2] => 220 мм
)
[days] => [7,7,7]
[material_price] => [1210,1856,2292]
[work_price] => [1410,1551,1706]
[image] => https://akademik-stroy.ru/wp-content/uploads/materials/sip-paneli.jpg
[area_modifier] => 99.02
[parent_name] => Стены 1 этаж (несущие)
[parent_id] => 3
[material_sum] => 158155
[work_sum] => 153580
[total_sum] => 311735
[total_days] => 7
[display_material_sum] => 158 155
[display_work_sum] => 153 580
[display_total_sum] => 311 735
)
1
311 735₽
Работа:153 580 ₽
Материалы:158 155 ₽
Дни:7
stdClass Object
(
[id] => 85
[attribute_id] => 3
[name] => Сухой брус
[material_modifier] => 1
[work_modifier] => 1
[options] => Array
(
[0] => 150 мм
[1] => 180 мм
[2] => 200 мм
)
[days] => [7,8,9]
[material_price] => [6010,7190,8709]
[work_price] => [3204,3845,4229]
[image] => https://akademik-stroy.ru/wp-content/uploads/materials/suhoj-brus.jpg
[area_modifier] => 99.02
[parent_name] => Стены 1 этаж (несущие)
[parent_id] => 3
[material_sum] => 785545
[work_sum] => 348986
[total_sum] => 1134531
[total_days] => 7
[display_material_sum] => 785 545
[display_work_sum] => 348 986
[display_total_sum] => 1 134 531
)
1
1 134 531₽
Работа:348 986 ₽
Материалы:785 545 ₽
Дни:7
stdClass Object
(
[id] => 86
[attribute_id] => 3
[name] => Профилированный брус
[material_modifier] => 1
[work_modifier] => 1
[options] => Array
(
[0] => 150 мм
[1] => 180 мм
[2] => 200 мм
)
[days] => [7,8,9]
[material_price] => [8190,9228,10051]
[work_price] => [3845,4614,5075]
[image] => https://akademik-stroy.ru/wp-content/uploads/materials/profilirovannyj-brus.jpg
[area_modifier] => 99.02
[parent_name] => Стены 1 этаж (несущие)
[parent_id] => 3
[material_sum] => 1070485
[work_sum] => 418805
[total_sum] => 1489290
[total_days] => 7
[display_material_sum] => 1 070 485
[display_work_sum] => 418 805
[display_total_sum] => 1 489 290
)
1
1 489 290₽
Работа:418 805 ₽
Материалы:1 070 485 ₽
Дни:7
stdClass Object
(
[id] => 87
[attribute_id] => 3
[name] => Оцилиндрованное бревно
[material_modifier] => 1
[work_modifier] => 1
[options] => Array
(
[0] => 180 мм
[1] => 220 мм
[2] => 260 мм
[3] => 320 мм
)
[days] => [7,8,9,10]
[material_price] => [75190,9532,10868,13116]
[work_price] => [3845,4691,5535,6863]
[image] => https://akademik-stroy.ru/wp-content/uploads/materials/ocilindrovannoe-brevno-1.jpg
[area_modifier] => 99.02
[parent_name] => Стены 1 этаж (несущие)
[parent_id] => 3
[material_sum] => 9827814
[work_sum] => 418805
[total_sum] => 10246619
[total_days] => 7
[display_material_sum] => 9 827 814
[display_work_sum] => 418 805
[display_total_sum] => 10 246 619
)
1
10 246 619₽
Работа:418 805 ₽
Материалы:9 827 814 ₽
Дни:7
stdClass Object
(
[id] => 88
[attribute_id] => 3
[name] => Срубы
[material_modifier] => 1
[work_modifier] => 1
[options] => Array
(
[0] => 260 мм
[1] => 320 мм
[2] => 360 мм
[3] => 400 мм
[4] => 500 мм
)
[days] => [7,8,9,10,11]
[material_price] => [37975,46709,52314,58069,73167]
[work_price] => [4806,5911,6621,7349,9260]
[image] => https://akademik-stroy.ru/wp-content/uploads/materials/sruby.jpg
[area_modifier] => 99.02
[parent_name] => Стены 1 этаж (несущие)
[parent_id] => 3
[material_sum] => 4963576
[work_sum] => 523479
[total_sum] => 5487055
[total_days] => 7
[display_material_sum] => 4 963 576
[display_work_sum] => 523 479
[display_total_sum] => 5 487 055
)
1
5 487 055₽
Работа:523 479 ₽
Материалы:4 963 576 ₽
Дни:7
stdClass Object
(
[id] => 174
[attribute_id] => 3
[name] => Брус
[material_modifier] => 1
[work_modifier] => 1
[options] => Array
(
[0] => 150 мм
[1] => 180 мм
[2] => 200 мм
)
[days] => [7,8,9]
[material_price] => [5127,6152,7367]
[work_price] => [1602,1922,2115]
[image] => https://akademik-stroy.ru/wp-content/uploads/materials/brus.jpg
[area_modifier] => 99.02
[parent_name] => Стены 1 этаж (несущие)
[parent_id] => 3
[material_sum] => 670132
[work_sum] => 174493
[total_sum] => 844625
[total_days] => 7
[display_material_sum] => 670 132
[display_work_sum] => 174 493
[display_total_sum] => 844 625
)
1
844 625₽
Работа:174 493 ₽
Материалы:670 132 ₽
Дни:7
stdClass Object
(
[id] => 175
[attribute_id] => 3
[name] => Газобетон
[material_modifier] => 1
[work_modifier] => 1
[options] => Array
(
[0] => 300 мм
[1] => 375 мм
[2] => 400 мм
[3] => 500 мм
[4] => 600 мм
)
[days] => [29,31,35,37,44]
[material_price] => [4298,5573,6356,7288,9119]
[work_price] => [4538,5251,5926,6733,7195]
[image] => https://akademik-stroy.ru/wp-content/uploads/materials/gazobeton.jpg
[area_modifier] => 99.02
[parent_name] => Стены 1 этаж (несущие)
[parent_id] => 3
[material_sum] => 561776
[work_sum] => 494288
[total_sum] => 1056064
[total_days] => 29
[display_material_sum] => 561 776
[display_work_sum] => 494 288
[display_total_sum] => 1 056 064
)
1
1 056 064₽
Работа:494 288 ₽
Материалы:561 776 ₽
Дни:29
stdClass Object
(
[id] => 176
[attribute_id] => 3
[name] => Блок
[material_modifier] => 1
[work_modifier] => 1
[options] => Array
(
[0] => 300 мм
[1] => 375 мм
[2] => 400 мм
[3] => 500 мм
[4] => 600 мм
)
[days] => [29,31,35,37,44]
[material_price] => [2698,3973,4356,6588,7119]
[work_price] => [5038,5851,6426,8733,9195]
[image] => https://akademik-stroy.ru/wp-content/uploads/materials/blok.jpg
[area_modifier] => 99.02
[parent_name] => Стены 1 этаж (несущие)
[parent_id] => 3
[material_sum] => 352646
[work_sum] => 548749
[total_sum] => 901395
[total_days] => 29
[display_material_sum] => 352 646
[display_work_sum] => 548 749
[display_total_sum] => 901 395
)
1
901 395₽
Работа:548 749 ₽
Материалы:352 646 ₽
Дни:29
stdClass Object
(
[id] => 177
[attribute_id] => 3
[name] => Газосиликатный блок
[material_modifier] => 1
[work_modifier] => 1
[options] => Array
(
[0] => 300 мм
[1] => 375 мм
[2] => 400 мм
[3] => 500 мм
[4] => 600 мм
)
[days] => [29,31,35,37,44]
[material_price] => [4298,5573,6356,7288,9119]
[work_price] => [4538,5251,5926,6733,7195]
[image] => https://akademik-stroy.ru/wp-content/uploads/materials/gazosilikatnyj-blok.jpg
[area_modifier] => 99.02
[parent_name] => Стены 1 этаж (несущие)
[parent_id] => 3
[material_sum] => 561776
[work_sum] => 494288
[total_sum] => 1056064
[total_days] => 29
[display_material_sum] => 561 776
[display_work_sum] => 494 288
[display_total_sum] => 1 056 064
)
1
1 056 064₽
Работа:494 288 ₽
Материалы:561 776 ₽
Дни:29
stdClass Object
(
[id] => 178
[attribute_id] => 3
[name] => Керамзитобетонный блок
[material_modifier] => 1
[work_modifier] => 1
[options] => Array
(
[0] => 300 мм
[1] => 375 мм
[2] => 400 мм
[3] => 500 мм
[4] => 600 мм
)
[days] => [23,23,24,25,28]
[material_price] => [3641,4298,5693,7613,9612]
[work_price] => [5737,5737,6903,7958,8901]
[image] => https://akademik-stroy.ru/wp-content/uploads/materials/keramzitobetonnyj-blok.jpg
[area_modifier] => 99.02
[parent_name] => Стены 1 этаж (несущие)
[parent_id] => 3
[material_sum] => 475902
[work_sum] => 624886
[total_sum] => 1100788
[total_days] => 23
[display_material_sum] => 475 902
[display_work_sum] => 624 886
[display_total_sum] => 1 100 788
)
1
1 100 788₽
Работа:624 886 ₽
Материалы:475 902 ₽
Дни:23
stdClass Object
(
[id] => 179
[attribute_id] => 3
[name] => Деревянные
[material_modifier] => 1
[work_modifier] => 1
[options] => Array
(
[0] => 180 мм
[1] => 220 мм
[2] => 260 мм
[3] => 320 мм
)
[days] => [7,8,9,10]
[material_price] => [7950,9458,11961,14472]
[work_price] => [4037,4925,5812,7207]
[image] => https://akademik-stroy.ru/wp-content/uploads/materials/derevyannye.jpg
[area_modifier] => 99.02
[parent_name] => Стены 1 этаж (несущие)
[parent_id] => 3
[material_sum] => 1039116
[work_sum] => 439718
[total_sum] => 1478834
[total_days] => 7
[display_material_sum] => 1 039 116
[display_work_sum] => 439 718
[display_total_sum] => 1 478 834
)
1
1 478 834₽
Работа:439 718 ₽
Материалы:1 039 116 ₽
Дни:7
stdClass Object
(
[id] => 181
[attribute_id] => 3
[name] => Камень
[material_modifier] => 1
[work_modifier] => 1
[options] => Array
(
[0] => 300 мм
[1] => 400 мм
[2] => 500 мм
[3] => 600 мм
)
[days] => [25,27,31,34]
[material_price] => [5262,6844,8330,9815]
[work_price] => [8331,9135,10427,11069]
[image] => https://akademik-stroy.ru/wp-content/uploads/materials/kamen.jpg
[area_modifier] => 99.02
[parent_name] => Стены 1 этаж (несущие)
[parent_id] => 3
[material_sum] => 687777
[work_sum] => 907429
[total_sum] => 1595206
[total_days] => 25
[display_material_sum] => 687 777
[display_work_sum] => 907 429
[display_total_sum] => 1 595 206
)
1
1 595 206₽
Работа:907 429 ₽
Материалы:687 777 ₽
Дни:25
stdClass Object
(
[id] => 182
[attribute_id] => 3
[name] => Каркасно-щитовые
[material_modifier] => 1
[work_modifier] => 1
[options] => Array
(
[0] => 150 мм
[1] => 200 мм
[2] => 250 мм
[3] => 300 мм
[4] => 350 мм
[5] => 400 мм
)
[days] => [15,16,17,18,19,20]
[material_price] => [2379,2639,2898,3458,3601,4175]
[work_price] => [2538,2820,3134,3483,4062,5642]
[image] => https://akademik-stroy.ru/wp-content/uploads/materials/karkasno-shchitovye.jpg
[area_modifier] => 99.02
[parent_name] => Стены 1 этаж (несущие)
[parent_id] => 3
[material_sum] => 310951
[work_sum] => 276444
[total_sum] => 587395
[total_days] => 15
[display_material_sum] => 310 951
[display_work_sum] => 276 444
[display_total_sum] => 587 395
)
1
587 395₽
Работа:276 444 ₽
Материалы:310 951 ₽
Дни:15
stdClass Object
(
[id] => 183
[attribute_id] => 3
[name] => Рубленные
[material_modifier] => 1
[work_modifier] => 1
[options] => Array
(
[0] => 150 мм
[1] => 200 мм
[2] => 250 мм
[3] => 300 мм
[4] => 350 мм
[5] => 400 мм
)
[days] => [15,16,17,18,17,18]
[material_price] => [35950,50267,60583,75900,80217,100533]
[work_price] => [9612,12816,16020,19224,22428,25632]
[image] => https://akademik-stroy.ru/wp-content/uploads/materials/rublennye.jpg
[area_modifier] => 99.02
[parent_name] => Стены 1 этаж (несущие)
[parent_id] => 3
[material_sum] => 4698895
[work_sum] => 1046958
[total_sum] => 5745853
[total_days] => 15
[display_material_sum] => 4 698 895
[display_work_sum] => 1 046 958
[display_total_sum] => 5 745 853
)
1
5 745 853₽
Работа:1 046 958 ₽
Материалы:4 698 895 ₽
Дни:15
stdClass Object
(
[id] => 185
[attribute_id] => 3
[name] => Теплоблок
[material_modifier] => 1
[work_modifier] => 1
[options] => Array
(
[0] => 300 мм (с облицовкой, не покрашенный)
[1] => 400 мм (с облицовкой, не покрашенный)
[2] => 300 мм (с облицовкой, покрашенный)
[3] => 400 мм (с облицовкой, покрашенный)
)
[days] => [15,16,15,16]
[material_price] => [2888,3729,3957,4258]
[work_price] => [2564,3229,2949,3713]
[image] => https://akademik-stroy.ru/wp-content/uploads/materials/teploblok.jpg
[area_modifier] => 99.02
[parent_name] => Стены 1 этаж (несущие)
[parent_id] => 3
[material_sum] => 377480
[work_sum] => 279276
[total_sum] => 656756
[total_days] => 15
[display_material_sum] => 377 480
[display_work_sum] => 279 276
[display_total_sum] => 656 756
)
1
656 756₽
Работа:279 276 ₽
Материалы:377 480 ₽
Дни:15
stdClass Object
(
[id] => 186
[attribute_id] => 3
[name] => Арболитовые блоки
[material_modifier] => 1
[work_modifier] => 1
[options] => Array
(
[0] => 300 мм
[1] => 400 мм
[2] => 600 мм
)
[days] => [19,22,27]
[material_price] => [3210,4475,5852]
[work_price] => [4214,4788,5866]
[image] => https://akademik-stroy.ru/wp-content/uploads/materials/arbolitovye-bloki.png
[area_modifier] => 99.02
[parent_name] => Стены 1 этаж (несущие)
[parent_id] => 3
[material_sum] => 419568
[work_sum] => 458997
[total_sum] => 878565
[total_days] => 19
[display_material_sum] => 419 568
[display_work_sum] => 458 997
[display_total_sum] => 878 565
)
1
878 565₽
Работа:458 997 ₽
Материалы:419 568 ₽
Дни:19
stdClass Object
(
[id] => 187
[attribute_id] => 3
[name] => Полистиролбетон
[material_modifier] => 1
[work_modifier] => 1
[options] => Array
(
[0] => 300 мм
[1] => 400 мм
[2] => 600 мм
)
[days] => [29,31,35]
[material_price] => [2798,4573,5256]
[work_price] => [5038,5851,6426]
[image] => https://akademik-stroy.ru/wp-content/uploads/materials/polistirolbeton.jpg
[area_modifier] => 99.02
[parent_name] => Стены 1 этаж (несущие)
[parent_id] => 3
[material_sum] => 365717
[work_sum] => 548749
[total_sum] => 914466
[total_days] => 29
[display_material_sum] => 365 717
[display_work_sum] => 548 749
[display_total_sum] => 914 466
)
1
914 466₽
Работа:548 749 ₽
Материалы:365 717 ₽
Дни:29
stdClass Object
(
[id] => 188
[attribute_id] => 3
[name] => Шлакоблок
[material_modifier] => 1
[work_modifier] => 1
[options] => Array
(
[0] => 400 мм
[1] => 600 мм
)
[days] => [15,16]
[material_price] => [2391,3471]
[work_price] => [2642,3662]
[image] => https://akademik-stroy.ru/wp-content/uploads/materials/shlakoblok.jpg
[area_modifier] => 99.02
[parent_name] => Стены 1 этаж (несущие)
[parent_id] => 3
[material_sum] => 312519
[work_sum] => 287772
[total_sum] => 600291
[total_days] => 15
[display_material_sum] => 312 519
[display_work_sum] => 287 772
[display_total_sum] => 600 291
)
1
600 291₽
Работа:287 772 ₽
Материалы:312 519 ₽
Дни:15
stdClass Object
(
[id] => 189
[attribute_id] => 3
[name] => Теплая керамика
[material_modifier] => 1
[work_modifier] => 1
[options] => Array
(
[0] => 380 мм
[1] => 380 мм Thermo
[2] => 440 мм
[3] => 510 мм
)
[days] => [23,23,24,25]
[material_price] => [4510,5098,6093,8013]
[work_price] => [4737,4937,5903,6958]
[image] => https://akademik-stroy.ru/wp-content/uploads/materials/teplaya-keramika.jpg
[area_modifier] => 99.02
[parent_name] => Стены 1 этаж (несущие)
[parent_id] => 3
[material_sum] => 589486
[work_sum] => 515964
[total_sum] => 1105450
[total_days] => 23
[display_material_sum] => 589 486
[display_work_sum] => 515 964
[display_total_sum] => 1 105 450
)
1
1 105 450₽
Работа:515 964 ₽
Материалы:589 486 ₽
Дни:23
stdClass Object
(
[id] => 190
[attribute_id] => 3
[name] => Несъемная опалубка
[material_modifier] => 1
[work_modifier] => 1
[options] => Array
(
[0] => 200 мм
[1] => 250 мм
[2] => 300 мм
[3] => 350 мм
)
[days] => [15,17,19,21]
[material_price] => [3302,3902,4108,5008]
[work_price] => [2100,2100,2300,2534]
[image] => https://akademik-stroy.ru/wp-content/uploads/materials/nesemnaya-opalubka.jpg
[area_modifier] => 99.02
[parent_name] => Стены 1 этаж (несущие)
[parent_id] => 3
[material_sum] => 431593
[work_sum] => 228736
[total_sum] => 660329
[total_days] => 15
[display_material_sum] => 431 593
[display_work_sum] => 228 736
[display_total_sum] => 660 329
)
1
660 329₽
Работа:228 736 ₽
Материалы:431 593 ₽
Дни:15
stdClass Object
(
[id] => 251
[attribute_id] => 3
[name] => Бревно
[material_modifier] => 1
[work_modifier] => 1
[options] => Array
(
[0] => 260 мм
[1] => 320 мм
[2] => 360 мм
[3] => 400 мм
[4] => 500 мм
)
[days] => [7,8,9,10,11]
[material_price] => [1874,24045,26930,30972,38825]
[work_price] => [5046,6207,6952,7716,9723]
[image] => https://akademik-stroy.ru/wp-content/uploads/materials/sruby.jpg
[area_modifier] => 99.02
[parent_name] => Стены 1 этаж (несущие)
[parent_id] => 3
[material_sum] => 244944
[work_sum] => 549620
[total_sum] => 794564
[total_days] => 7
[display_material_sum] => 244 944
[display_work_sum] => 549 620
[display_total_sum] => 794 564
)
1
794 564₽
Работа:549 620 ₽
Материалы:244 944 ₽
Дни:7
stdClass Object
(
[id] => 7
[attribute_id] => 4
[name] => Деревянные балки
[material_modifier] => 1
[work_modifier] => 1
[options] => Array
(
[0] => без утепления
[1] => утепление 200 мм
[2] => утепление 250 мм
[3] => утепление 300 мм
[4] => утепление 350 мм
[5] => утепление 400 мм
[6] => утепление 450 мм
[7] => утепление 500 мм
)
[days] => [8,9,9,9,11,12,13,14]
[material_price] => [1634,2042,2344,2947,3149,3652,3354,3557]
[work_price] => [1230,1339,1393,1426,1460,1513,1587,1620]
[image] => https://akademik-stroy.ru/wp-content/uploads/materials/derevyannye-balki.png
[area_modifier] => 99.02
[parent_name] => Перекрытие первого этажа
[parent_id] => 4
[material_sum] => 213574
[work_sum] => 133974
[total_sum] => 347548
[total_days] => 8
[display_material_sum] => 213 574
[display_work_sum] => 133 974
[display_total_sum] => 347 548
)
1
347 548₽
Работа:133 974 ₽
Материалы:213 574 ₽
Дни:8
stdClass Object
(
[id] => 8
[attribute_id] => 4
[name] => Сборные ж/б плиты
[material_modifier] => 1
[work_modifier] => 1
[options] => Array
(
[0] => без утепления
[1] => утепление 150 мм
[2] => утепление 200 мм
[3] => утепление 250 мм
[4] => утепление 300 мм
[5] => утепление 350 мм
[6] => утепление 400 мм
[7] => утепление 450 мм
[8] => утепление 500 мм
)
[days] => [13,15,15,15,15,15,15,15,15]
[material_price] => [3067,5577,5928,6679,7730,8782,9833,10884,11935]
[work_price] => [1520,1956,2102,2247,2392,2537,2684,2829,2974]
[image] => https://akademik-stroy.ru/wp-content/uploads/materials/sbornye-zh-b-plity-2.jpg
[area_modifier] => 99.02
[parent_name] => Перекрытие первого этажа
[parent_id] => 4
[material_sum] => 400877
[work_sum] => 165561
[total_sum] => 566438
[total_days] => 13
[display_material_sum] => 400 877
[display_work_sum] => 165 561
[display_total_sum] => 566 438
)
1
566 438₽
Работа:165 561 ₽
Материалы:400 877 ₽
Дни:13
stdClass Object
(
[id] => 89
[attribute_id] => 4
[name] => Монолитная ж/б плита
[material_modifier] => 1
[work_modifier] => 1
[options] => Array
(
[0] => без утепления
[1] => утепление 150 мм
[2] => утепление 200 мм
[3] => утепление 250 мм
[4] => утепление 300 мм
[5] => утепление 350 мм
[6] => утепление 400 мм
[7] => утепление 450 мм
[8] => утепление 500 мм
)
[days] => [18,20,20,20,20,20,20,20,20]
[material_price] => [4837,6572,7224,7375,79426,8177,8728,9180,10031]
[work_price] => [3348,3921,4112,4302,4493,4684,4875,5066,5256]
[image] => https://akademik-stroy.ru/wp-content/uploads/materials/monolitnaya-zh-b-plita-2.jpg
[area_modifier] => 99.02
[parent_name] => Перекрытие первого этажа
[parent_id] => 4
[material_sum] => 632227
[work_sum] => 364671
[total_sum] => 996898
[total_days] => 18
[display_material_sum] => 632 227
[display_work_sum] => 364 671
[display_total_sum] => 996 898
)
1
996 898₽
Работа:364 671 ₽
Материалы:632 227 ₽
Дни:18
stdClass Object
(
[id] => 10
[attribute_id] => 5
[name] => Пеноблок
[material_modifier] => 1
[work_modifier] => 1
[options] => Array
(
[0] => 300 мм
[1] => 400 мм
[2] => 500 мм
[3] => 600 мм
)
[days] => [29,31,34,39]
[material_price] => [3000,4000,4500,4937]
[work_price] => [5033,5805,6400,8710]
[image] => https://akademik-stroy.ru/wp-content/uploads/materials/penoblok.jpg
[area_modifier] => 83.17
[parent_name] => Стены 2 этаж (несущие)
[parent_id] => 5
[material_sum] => 329353
[work_sum] => 460454
[total_sum] => 789807
[total_days] => 29
[display_material_sum] => 329 353
[display_work_sum] => 460 454
[display_total_sum] => 789 807
)
1
789 807₽
Работа:460 454 ₽
Материалы:329 353 ₽
Дни:29
stdClass Object
(
[id] => 90
[attribute_id] => 5
[name] => Керамический блок
[material_modifier] => 1
[work_modifier] => 1
[options] => Array
(
[0] => 380 мм
[1] => 380 мм Thermo
[2] => 440 мм
[3] => 510 мм
)
[days] => [23,23,24,25]
[material_price] => [4510,5098,6093,8013]
[work_price] => [4737,4937,5903,6958]
[image] => https://akademik-stroy.ru/wp-content/uploads/materials/keramicheskij-blok.jpg
[area_modifier] => 83.17
[parent_name] => Стены 2 этаж (несущие)
[parent_id] => 5
[material_sum] => 495128
[work_sum] => 433374
[total_sum] => 928502
[total_days] => 23
[display_material_sum] => 495 128
[display_work_sum] => 433 374
[display_total_sum] => 928 502
)
1
928 502₽
Работа:433 374 ₽
Материалы:495 128 ₽
Дни:23
stdClass Object
(
[id] => 91
[attribute_id] => 5
[name] => Кирпич
[material_modifier] => 1
[work_modifier] => 1
[options] => Array
(
[0] => Кирпич 250 мм
[1] => Кирпич 380 мм
[2] => Кирпич 510 мм
[3] => Кирпич 640 мм
[4] => Кирпич 770 мм
)
[days] => [30,30,31,33,36]
[material_price] => [5500,7142,9206,10171,12235]
[work_price] => [8736,10041,12018,15240,18462]
[image] => https://akademik-stroy.ru/wp-content/uploads/materials/kirpich.jpg
[area_modifier] => 83.17
[parent_name] => Стены 2 этаж (несущие)
[parent_id] => 5
[material_sum] => 603814
[work_sum] => 799230
[total_sum] => 1403044
[total_days] => 30
[display_material_sum] => 603 814
[display_work_sum] => 799 230
[display_total_sum] => 1 403 044
)
1
1 403 044₽
Работа:799 230 ₽
Материалы:603 814 ₽
Дни:30
stdClass Object
(
[id] => 92
[attribute_id] => 5
[name] => Монолитные
[material_modifier] => 1
[work_modifier] => 1
[options] => Array
(
[0] => 150 мм
[1] => 200 мм
[2] => 250 мм
[3] => 300 мм
[4] => 350 мм
[5] => 400 мм
)
[days] => [45,46,47,49,50,53]
[material_price] => [6545,7876,10175,12011,13908,15204]
[work_price] => [5106,6444,7698,8552,9807,11461]
[image] => https://akademik-stroy.ru/wp-content/uploads/materials/monolitnye.jpg
[area_modifier] => 83.17
[parent_name] => Стены 2 этаж (несущие)
[parent_id] => 5
[material_sum] => 718539
[work_sum] => 467133
[total_sum] => 1185672
[total_days] => 45
[display_material_sum] => 718 539
[display_work_sum] => 467 133
[display_total_sum] => 1 185 672
)
1
1 185 672₽
Работа:467 133 ₽
Материалы:718 539 ₽
Дни:45
stdClass Object
(
[id] => 93
[attribute_id] => 5
[name] => Клееный брус
[material_modifier] => 1
[work_modifier] => 1
[options] => Array
(
[0] => 160 мм
[1] => 175 мм
[2] => 200 мм
[3] => 215 мм
[4] => 240 мм
[5] => 270 мм
[6] => 282 мм
)
[days] => [24,28,32,37,40,42,48]
[material_price] => [16975,18773,19950,20545,21599,22159,23275]
[work_price] => [4806,5287,5815,6397,7036,7740,8514]
[image] => https://akademik-stroy.ru/wp-content/uploads/materials/kleenyj-brus.jpg
[area_modifier] => 83.17
[parent_name] => Стены 2 этаж (несущие)
[parent_id] => 5
[material_sum] => 1863590
[work_sum] => 439687
[total_sum] => 2303277
[total_days] => 24
[display_material_sum] => 1 863 590
[display_work_sum] => 439 687
[display_total_sum] => 2 303 277
)
1
2 303 277₽
Работа:439 687 ₽
Материалы:1 863 590 ₽
Дни:24
stdClass Object
(
[id] => 94
[attribute_id] => 5
[name] => Каркасные
[material_modifier] => 1
[work_modifier] => 1
[options] => Array
(
[0] => 150 мм
[1] => 200 мм
[2] => 250 мм
[3] => 300 мм
)
[days] => [15,16,17,18]
[material_price] => [2379,2639,2898,3258]
[work_price] => [2418,2686,2985,3716]
[image] => https://akademik-stroy.ru/wp-content/uploads/materials/karkasnye.jpg
[area_modifier] => 83.17
[parent_name] => Стены 2 этаж (несущие)
[parent_id] => 5
[material_sum] => 261177
[work_sum] => 221216
[total_sum] => 482393
[total_days] => 15
[display_material_sum] => 261 177
[display_work_sum] => 221 216
[display_total_sum] => 482 393
)
1
482 393₽
Работа:221 216 ₽
Материалы:261 177 ₽
Дни:15
stdClass Object
(
[id] => 95
[attribute_id] => 5
[name] => СИП-панели
[material_modifier] => 1
[work_modifier] => 1
[options] => Array
(
[0] => 120 мм
[1] => 170 мм
[2] => 220 мм
)
[days] => [7,7,7]
[material_price] => [1210,1856,2292]
[work_price] => [1410,1551,1706]
[image] => https://akademik-stroy.ru/wp-content/uploads/materials/sip-paneli.jpg
[area_modifier] => 83.17
[parent_name] => Стены 2 этаж (несущие)
[parent_id] => 5
[material_sum] => 132839
[work_sum] => 128997
[total_sum] => 261836
[total_days] => 7
[display_material_sum] => 132 839
[display_work_sum] => 128 997
[display_total_sum] => 261 836
)
1
261 836₽
Работа:128 997 ₽
Материалы:132 839 ₽
Дни:7
stdClass Object
(
[id] => 96
[attribute_id] => 5
[name] => Сухой брус
[material_modifier] => 1
[work_modifier] => 1
[options] => Array
(
[0] => 150 мм
[1] => 180 мм
[2] => 200 мм
)
[days] => [7,8,9]
[material_price] => [6010,7190,8709]
[work_price] => [3204,3845,4229]
[image] => https://akademik-stroy.ru/wp-content/uploads/materials/suhoj-brus.jpg
[area_modifier] => 83.17
[parent_name] => Стены 2 этаж (несущие)
[parent_id] => 5
[material_sum] => 659804
[work_sum] => 293124
[total_sum] => 952928
[total_days] => 7
[display_material_sum] => 659 804
[display_work_sum] => 293 124
[display_total_sum] => 952 928
)
1
952 928₽
Работа:293 124 ₽
Материалы:659 804 ₽
Дни:7
stdClass Object
(
[id] => 97
[attribute_id] => 5
[name] => Профилированный брус
[material_modifier] => 1
[work_modifier] => 1
[options] => Array
(
[0] => 150 мм
[1] => 180 мм
[2] => 200 мм
)
[days] => [7,8,9]
[material_price] => [8190,9228,10051]
[work_price] => [3845,4614,5075]
[image] => https://akademik-stroy.ru/wp-content/uploads/materials/profilirovannyj-brus.jpg
[area_modifier] => 83.17
[parent_name] => Стены 2 этаж (несущие)
[parent_id] => 5
[material_sum] => 899134
[work_sum] => 351768
[total_sum] => 1250902
[total_days] => 7
[display_material_sum] => 899 134
[display_work_sum] => 351 768
[display_total_sum] => 1 250 902
)
1
1 250 902₽
Работа:351 768 ₽
Материалы:899 134 ₽
Дни:7
stdClass Object
(
[id] => 98
[attribute_id] => 5
[name] => Оцилиндрованное бревно
[material_modifier] => 1
[work_modifier] => 1
[options] => Array
(
[0] => 180 мм
[1] => 220 мм
[2] => 260 мм
[3] => 320 мм
)
[days] => [7,8,9,10]
[material_price] => [75190,9532,10868,13116]
[work_price] => [3845,4691,5535,6863]
[image] => https://akademik-stroy.ru/wp-content/uploads/materials/ocilindrovannoe-brevno-1.jpg
[area_modifier] => 83.17
[parent_name] => Стены 2 этаж (несущие)
[parent_id] => 5
[material_sum] => 8254689
[work_sum] => 351768
[total_sum] => 8606457
[total_days] => 7
[display_material_sum] => 8 254 689
[display_work_sum] => 351 768
[display_total_sum] => 8 606 457
)
1
8 606 457₽
Работа:351 768 ₽
Материалы:8 254 689 ₽
Дни:7
stdClass Object
(
[id] => 99
[attribute_id] => 5
[name] => Срубы
[material_modifier] => 1
[work_modifier] => 1
[options] => Array
(
[0] => 260 мм
[1] => 320 мм
[2] => 360 мм
[3] => 400 мм
[4] => 500 мм
)
[days] => [7,8,9,10,11]
[material_price] => [16175,23709,26314,29069,32167]
[work_price] => [4806,5911,6621,7349,9260]
[image] => https://akademik-stroy.ru/wp-content/uploads/materials/suhoj-brus.jpg
[area_modifier] => 83.17
[parent_name] => Стены 2 этаж (несущие)
[parent_id] => 5
[material_sum] => 1775763
[work_sum] => 439687
[total_sum] => 2215450
[total_days] => 7
[display_material_sum] => 1 775 763
[display_work_sum] => 439 687
[display_total_sum] => 2 215 450
)
1
2 215 450₽
Работа:439 687 ₽
Материалы:1 775 763 ₽
Дни:7
stdClass Object
(
[id] => 194
[attribute_id] => 5
[name] => Брус
[material_modifier] => 1
[work_modifier] => 1
[options] => Array
(
[0] => 150 мм
[1] => 180 мм
[2] => 200 мм
)
[days] => [10,13,15]
[material_price] => [5127,6152,7367]
[work_price] => [1602,1922,2115]
[image] => https://akademik-stroy.ru/wp-content/uploads/materials/brus.jpg
[area_modifier] => 83.17
[parent_name] => Стены 2 этаж (несущие)
[parent_id] => 5
[material_sum] => 562865
[work_sum] => 146562
[total_sum] => 709427
[total_days] => 10
[display_material_sum] => 562 865
[display_work_sum] => 146 562
[display_total_sum] => 709 427
)
1
709 427₽
Работа:146 562 ₽
Материалы:562 865 ₽
Дни:10
stdClass Object
(
[id] => 195
[attribute_id] => 5
[name] => Газобетон
[material_modifier] => 1
[work_modifier] => 1
[options] => Array
(
[0] => 300 мм
[1] => 375 мм
[2] => 400 мм
[3] => 500 мм
[4] => 600 мм
)
[days] => [29,31,35,37,44]
[material_price] => [4298,5573,6356,7288,9119]
[work_price] => [4538,5251,5926,6733,7195]
[image] => https://akademik-stroy.ru/wp-content/uploads/materials/gazobeton.jpg
[area_modifier] => 83.17
[parent_name] => Стены 2 этаж (несущие)
[parent_id] => 5
[material_sum] => 471853
[work_sum] => 415168
[total_sum] => 887021
[total_days] => 29
[display_material_sum] => 471 853
[display_work_sum] => 415 168
[display_total_sum] => 887 021
)
1
887 021₽
Работа:415 168 ₽
Материалы:471 853 ₽
Дни:29
stdClass Object
(
[id] => 196
[attribute_id] => 5
[name] => Блок
[material_modifier] => 1
[work_modifier] => 1
[options] => Array
(
[0] => 300 мм
[1] => 375 мм
[2] => 400 мм
[3] => 500 мм
[4] => 600 мм
)
[days] => [29,31,35,37,44]
[material_price] => [2698,3973,4356,6588,7119]
[work_price] => [5038,5851,6426,8733,9195]
[image] => https://akademik-stroy.ru/wp-content/uploads/materials/blok.jpg
[area_modifier] => 83.17
[parent_name] => Стены 2 этаж (несущие)
[parent_id] => 5
[material_sum] => 296198
[work_sum] => 460912
[total_sum] => 757110
[total_days] => 29
[display_material_sum] => 296 198
[display_work_sum] => 460 912
[display_total_sum] => 757 110
)
1
757 110₽
Работа:460 912 ₽
Материалы:296 198 ₽
Дни:29
stdClass Object
(
[id] => 197
[attribute_id] => 5
[name] => Газосиликатный блок
[material_modifier] => 1
[work_modifier] => 1
[options] => Array
(
[0] => 300 мм
[1] => 375 мм
[2] => 400 мм
[3] => 500 мм
[4] => 600 мм
)
[days] => [29,31,35,37,44]
[material_price] => [4298,5573,6356,7288,9119]
[work_price] => [4538,5251,5926,6733,7195]
[image] => https://akademik-stroy.ru/wp-content/uploads/materials/gazosilikatnyj-blok.jpg
[area_modifier] => 83.17
[parent_name] => Стены 2 этаж (несущие)
[parent_id] => 5
[material_sum] => 471853
[work_sum] => 415168
[total_sum] => 887021
[total_days] => 29
[display_material_sum] => 471 853
[display_work_sum] => 415 168
[display_total_sum] => 887 021
)
1
887 021₽
Работа:415 168 ₽
Материалы:471 853 ₽
Дни:29
stdClass Object
(
[id] => 198
[attribute_id] => 5
[name] => Керамзитобетонный блок
[material_modifier] => 1
[work_modifier] => 1
[options] => Array
(
[0] => 300 мм
[1] => 375 мм
[2] => 400 мм
[3] => 500 мм
[4] => 600 мм
)
[days] => [23,23,24,25,28]
[material_price] => [3641,4298,5693,7613,9612]
[work_price] => [5737,5737,6903,7958,8901]
[image] => https://akademik-stroy.ru/wp-content/uploads/materials/keramzitobetonnyj-blok.jpg
[area_modifier] => 83.17
[parent_name] => Стены 2 этаж (несущие)
[parent_id] => 5
[material_sum] => 399725
[work_sum] => 524861
[total_sum] => 924586
[total_days] => 23
[display_material_sum] => 399 725
[display_work_sum] => 524 861
[display_total_sum] => 924 586
)
1
924 586₽
Работа:524 861 ₽
Материалы:399 725 ₽
Дни:23
stdClass Object
(
[id] => 199
[attribute_id] => 5
[name] => Деревянные
[material_modifier] => 1
[work_modifier] => 1
[options] => Array
(
[0] => 180 мм
[1] => 220 мм
[2] => 260 мм
[3] => 320 мм
)
[days] => [7,8,9,10]
[material_price] => [7950,9458,11961,14472]
[work_price] => [4037,4925,5812,7207]
[image] => https://akademik-stroy.ru/wp-content/uploads/materials/derevyannye.jpg
[area_modifier] => 83.17
[parent_name] => Стены 2 этаж (несущие)
[parent_id] => 5
[material_sum] => 872786
[work_sum] => 369333
[total_sum] => 1242119
[total_days] => 7
[display_material_sum] => 872 786
[display_work_sum] => 369 333
[display_total_sum] => 1 242 119
)
1
1 242 119₽
Работа:369 333 ₽
Материалы:872 786 ₽
Дни:7
stdClass Object
(
[id] => 200
[attribute_id] => 5
[name] => Камень
[material_modifier] => 1
[work_modifier] => 1
[options] => Array
(
[0] => 300 мм
[1] => 400 мм
[2] => 500 мм
[3] => 600 мм
)
[days] => [25,27,31,34]
[material_price] => [5262,6844,8330,9815]
[work_price] => [8331,9135,10427,11069]
[image] => https://akademik-stroy.ru/wp-content/uploads/materials/kamen.jpg
[area_modifier] => 83.17
[parent_name] => Стены 2 этаж (несущие)
[parent_id] => 5
[material_sum] => 577686
[work_sum] => 762178
[total_sum] => 1339864
[total_days] => 25
[display_material_sum] => 577 686
[display_work_sum] => 762 178
[display_total_sum] => 1 339 864
)
1
1 339 864₽
Работа:762 178 ₽
Материалы:577 686 ₽
Дни:25
stdClass Object
(
[id] => 201
[attribute_id] => 5
[name] => Каркасно-щитовые
[material_modifier] => 1
[work_modifier] => 1
[options] => Array
(
[0] => 150 мм
[1] => 200 мм
[2] => 250 мм
[3] => 300 мм
[4] => 350 мм
[5] => 400 мм
)
[days] => [15,16,17,18,19,20]
[material_price] => [2379,2639,2898,3458,3601,4175]
[work_price] => [2538,2820,3134,3483,4062,5642]
[image] => https://akademik-stroy.ru/wp-content/uploads/materials/karkasno-shchitovye.jpg
[area_modifier] => 83.17
[parent_name] => Стены 2 этаж (несущие)
[parent_id] => 5
[material_sum] => 261177
[work_sum] => 232194
[total_sum] => 493371
[total_days] => 15
[display_material_sum] => 261 177
[display_work_sum] => 232 194
[display_total_sum] => 493 371
)
1
493 371₽
Работа:232 194 ₽
Материалы:261 177 ₽
Дни:15
stdClass Object
(
[id] => 202
[attribute_id] => 5
[name] => Рубленные
[material_modifier] => 1
[work_modifier] => 1
[options] => Array
(
[0] => 150 мм
[1] => 200 мм
[2] => 250 мм
[3] => 300 мм
[4] => 350 мм
[5] => 400 мм
)
[days] => [15,16,17,18,17,18]
[material_price] => [35950,50267,60583,75900,80217,100533]
[work_price] => [9612,12816,16020,19224,22428,25632]
[image] => https://akademik-stroy.ru/wp-content/uploads/materials/rublennye.jpg
[area_modifier] => 83.17
[parent_name] => Стены 2 этаж (несущие)
[parent_id] => 5
[material_sum] => 3946749
[work_sum] => 879373
[total_sum] => 4826122
[total_days] => 15
[display_material_sum] => 3 946 749
[display_work_sum] => 879 373
[display_total_sum] => 4 826 122
)
1
4 826 122₽
Работа:879 373 ₽
Материалы:3 946 749 ₽
Дни:15
stdClass Object
(
[id] => 203
[attribute_id] => 5
[name] => Теплоблок
[material_modifier] => 1
[work_modifier] => 1
[options] => Array
(
[0] => 300 мм (с облицовкой, не покрашенный)
[1] => 400 мм (с облицовкой, не покрашенный)
[2] => 300 мм (с облицовкой, покрашенный)
[3] => 400 мм (с облицовкой, покрашенный)
)
[days] => [15,16,15,16]
[material_price] => [2888,3729,3957,4258]
[work_price] => [2564,3229,2949,3713]
[image] => https://akademik-stroy.ru/wp-content/uploads/materials/teploblok.jpg
[area_modifier] => 83.17
[parent_name] => Стены 2 этаж (несущие)
[parent_id] => 5
[material_sum] => 317057
[work_sum] => 234573
[total_sum] => 551630
[total_days] => 15
[display_material_sum] => 317 057
[display_work_sum] => 234 573
[display_total_sum] => 551 630
)
1
551 630₽
Работа:234 573 ₽
Материалы:317 057 ₽
Дни:15
stdClass Object
(
[id] => 204
[attribute_id] => 5
[name] => Арболитовые блоки
[material_modifier] => 1
[work_modifier] => 1
[options] => Array
(
[0] => 300 мм
[1] => 400 мм
[2] => 600 мм
)
[days] => [19,22,27]
[material_price] => [3210,4475,5852]
[work_price] => [4214,4788,5866]
[image] => https://akademik-stroy.ru/wp-content/uploads/materials/arbolitovye-bloki.png
[area_modifier] => 83.17
[parent_name] => Стены 2 этаж (несущие)
[parent_id] => 5
[material_sum] => 352408
[work_sum] => 385526
[total_sum] => 737934
[total_days] => 19
[display_material_sum] => 352 408
[display_work_sum] => 385 526
[display_total_sum] => 737 934
)
1
737 934₽
Работа:385 526 ₽
Материалы:352 408 ₽
Дни:19
stdClass Object
(
[id] => 205
[attribute_id] => 5
[name] => Полистиролбетон
[material_modifier] => 1
[work_modifier] => 1
[options] => Array
(
[0] => 300 мм
[1] => 400 мм
[2] => 600 мм
)
[days] => [29,31,35]
[material_price] => [2798,4573,5256]
[work_price] => [5038,5851,6426]
[image] => https://akademik-stroy.ru/wp-content/uploads/materials/polistirolbeton.jpg
[area_modifier] => 83.17
[parent_name] => Стены 2 этаж (несущие)
[parent_id] => 5
[material_sum] => 307177
[work_sum] => 460912
[total_sum] => 768089
[total_days] => 29
[display_material_sum] => 307 177
[display_work_sum] => 460 912
[display_total_sum] => 768 089
)
1
768 089₽
Работа:460 912 ₽
Материалы:307 177 ₽
Дни:29
stdClass Object
(
[id] => 206
[attribute_id] => 5
[name] => Шлакоблок
[material_modifier] => 1
[work_modifier] => 1
[options] => Array
(
[0] => 400 мм
[1] => 600 мм
)
[days] => [15,16]
[material_price] => [2391,3471]
[work_price] => [2642,3662]
[image] => https://akademik-stroy.ru/wp-content/uploads/materials/shlakoblok.jpg
[area_modifier] => 83.17
[parent_name] => Стены 2 этаж (несущие)
[parent_id] => 5
[material_sum] => 262495
[work_sum] => 241709
[total_sum] => 504204
[total_days] => 15
[display_material_sum] => 262 495
[display_work_sum] => 241 709
[display_total_sum] => 504 204
)
1
504 204₽
Работа:241 709 ₽
Материалы:262 495 ₽
Дни:15
stdClass Object
(
[id] => 245
[attribute_id] => 5
[name] => Теплая керамика
[material_modifier] => 1
[work_modifier] => 1
[options] => Array
(
[0] => 380 мм
[1] => 380 мм Thermo
[2] => 440 мм
[3] => 510 мм
)
[days] => [10,10,11,12]
[material_price] => [4510,5098,6093,8013]
[work_price] => [4737,4937,5903,6958]
[image] => https://akademik-stroy.ru/wp-content/uploads/materials/teplaya-keramika.jpg
[area_modifier] => 83.17
[parent_name] => Стены 2 этаж (несущие)
[parent_id] => 5
[material_sum] => 495128
[work_sum] => 433374
[total_sum] => 928502
[total_days] => 10
[display_material_sum] => 495 128
[display_work_sum] => 433 374
[display_total_sum] => 928 502
)
1
928 502₽
Работа:433 374 ₽
Материалы:495 128 ₽
Дни:10
stdClass Object
(
[id] => 246
[attribute_id] => 5
[name] => Несъемная опалубка
[material_modifier] => 1
[work_modifier] => 1
[options] => Array
(
[0] => 380 мм
[1] => 380 мм Thermo
[2] => 440 мм
[3] => 510 мм
)
[days] => [10,10,11,12]
[material_price] => [3302,3902,4108,5008]
[work_price] => [2100,2100,2300,2534]
[image] => https://akademik-stroy.ru/wp-content/uploads/materials/nesemnaya-opalubka.jpg
[area_modifier] => 83.17
[parent_name] => Стены 2 этаж (несущие)
[parent_id] => 5
[material_sum] => 362508
[work_sum] => 192123
[total_sum] => 554631
[total_days] => 10
[display_material_sum] => 362 508
[display_work_sum] => 192 123
[display_total_sum] => 554 631
)
1
554 631₽
Работа:192 123 ₽
Материалы:362 508 ₽
Дни:10
stdClass Object
(
[id] => 254
[attribute_id] => 5
[name] => Бревно
[material_modifier] => 1
[work_modifier] => 1
[options] => Array
(
[0] => 260 мм
[1] => 320 мм
[2] => 360 мм
[3] => 400 мм
[4] => 500 мм
)
[days] => [7,8,9,10,11]
[material_price] => [1874,24045,26930,30972,38825]
[work_price] => [5046,6207,6952,7716,9723]
[image] => https://akademik-stroy.ru/wp-content/uploads/materials/sruby.jpg
[area_modifier] => 83.17
[parent_name] => Стены 2 этаж (несущие)
[parent_id] => 5
[material_sum] => 205736
[work_sum] => 461643
[total_sum] => 667379
[total_days] => 7
[display_material_sum] => 205 736
[display_work_sum] => 461 643
[display_total_sum] => 667 379
)
1
667 379₽
Работа:461 643 ₽
Материалы:205 736 ₽
Дни:7
stdClass Object
(
[id] => 11
[attribute_id] => 6
[name] => Деревянные балки
[material_modifier] => 1
[work_modifier] => 1
[options] => Array
(
[0] => без утепления
[1] => утепление 200 мм
[2] => утепление 250 мм
[3] => утепление 300 мм
[4] => утепление 350 мм
[5] => утепление 400 мм
[6] => утепление 450 мм
[7] => утепление 500 мм
)
[days] => [8,9,9,9,11,12,13,14]
[material_price] => [1634,2042,2344,2947,3149,3652,3354,3557]
[work_price] => [1230,1339,1393,1426,1460,1513,1587,1620]
[image] => https://akademik-stroy.ru/wp-content/uploads/materials/derevyannye-balki.png
[area_modifier] => 83.17
[parent_name] => Перекрытие второго этажа
[parent_id] => 6
[material_sum] => 179388
[work_sum] => 112529
[total_sum] => 291917
[total_days] => 8
[display_material_sum] => 179 388
[display_work_sum] => 112 529
[display_total_sum] => 291 917
)
1
291 917₽
Работа:112 529 ₽
Материалы:179 388 ₽
Дни:8
stdClass Object
(
[id] => 12
[attribute_id] => 6
[name] => Сборные ж/б плиты
[material_modifier] => 1
[work_modifier] => 1
[options] => Array
(
[0] => без утепления
[1] => утепление 150 мм
[2] => утепление 200 мм
[3] => утепление 250 мм
[4] => утепление 300 мм
[5] => утепление 350 мм
[6] => утепление 400 мм
[7] => утепление 450 мм
[8] => утепление 500 мм
)
[days] => [13,15,15,15,15,15,15,15,15]
[material_price] => [3067,5577,5928,6679,7730,8782,9833,10884,11935]
[work_price] => [1520,1956,2102,2247,2392,2537,2684,2829,2974]
[image] => https://akademik-stroy.ru/wp-content/uploads/materials/sbornye-zh-b-plity-2.jpg
[area_modifier] => 83.17
[parent_name] => Перекрытие второго этажа
[parent_id] => 6
[material_sum] => 336709
[work_sum] => 139060
[total_sum] => 475769
[total_days] => 13
[display_material_sum] => 336 709
[display_work_sum] => 139 060
[display_total_sum] => 475 769
)
1
475 769₽
Работа:139 060 ₽
Материалы:336 709 ₽
Дни:13
stdClass Object
(
[id] => 100
[attribute_id] => 6
[name] => Монолитная ж/б плита
[material_modifier] => 1
[work_modifier] => 1
[options] => Array
(
[0] => без утепления
[1] => утепление 150 мм
[2] => утепление 200 мм
[3] => утепление 250 мм
[4] => утепление 300 мм
[5] => утепление 350 мм
[6] => утепление 400 мм
[7] => утепление 450 мм
[8] => утепление 500 мм
)
[days] => [18,20,20,20,20,20,20,20,20]
[material_price] => [4837,6572,7224,7375,79426,8177,8728,9180,10031]
[work_price] => [3348,3921,4112,4302,4493,4684,4875,5066,5256]
[image] => https://akademik-stroy.ru/wp-content/uploads/materials/monolitnaya-zh-b-plita-2.jpg
[area_modifier] => 83.17
[parent_name] => Перекрытие второго этажа
[parent_id] => 6
[material_sum] => 531027
[work_sum] => 306298
[total_sum] => 837325
[total_days] => 18
[display_material_sum] => 531 027
[display_work_sum] => 306 298
[display_total_sum] => 837 325
)
1
837 325₽
Работа:306 298 ₽
Материалы:531 027 ₽
Дни:18
stdClass Object
(
[id] => 164
[attribute_id] => 37
[name] => Металлочерепица
[material_modifier] => 1
[work_modifier] => 1
[options] => Array
(
)
[days] => [20]
[material_price] => [6112]
[work_price] => [5726]
[image] => https://akademik-stroy.ru/wp-content/uploads/materials/metallocherepica.jpg
[area_modifier] => 99.02
[parent_name] => Крыша (Скатная)
[parent_id] => 37
[material_sum] => 798878
[work_sum] => 623687
[total_sum] => 1422565
[total_days] => 20
[display_material_sum] => 798 878
[display_work_sum] => 623 687
[display_total_sum] => 1 422 565
)
1
1 422 565₽
Работа:623 687 ₽
Материалы:798 878 ₽
Дни:20
stdClass Object
(
[id] => 165
[attribute_id] => 37
[name] => Гибкая черепица
[material_modifier] => 1
[work_modifier] => 1
[options] => Array
(
)
[days] => [20]
[material_price] => [6980]
[work_price] => [5950]
[image] => https://akademik-stroy.ru/wp-content/uploads/materials/gibkaya-cherepica.jpg
[area_modifier] => 99.02
[parent_name] => Крыша (Скатная)
[parent_id] => 37
[material_sum] => 912331
[work_sum] => 648086
[total_sum] => 1560417
[total_days] => 20
[display_material_sum] => 912 331
[display_work_sum] => 648 086
[display_total_sum] => 1 560 417
)
1
1 560 417₽
Работа:648 086 ₽
Материалы:912 331 ₽
Дни:20
stdClass Object
(
[id] => 166
[attribute_id] => 37
[name] => Цементно-песчаная черепица
[material_modifier] => 1
[work_modifier] => 1
[options] => Array
(
)
[days] => [20]
[material_price] => [10560]
[work_price] => [9456]
[image] => https://akademik-stroy.ru/wp-content/uploads/materials/cementno-peschanaya-cherepica.jpg
[area_modifier] => 99.02
[parent_name] => Крыша (Скатная)
[parent_id] => 37
[material_sum] => 1380260
[work_sum] => 1029966
[total_sum] => 2410226
[total_days] => 20
[display_material_sum] => 1 380 260
[display_work_sum] => 1 029 966
[display_total_sum] => 2 410 226
)
1
2 410 226₽
Работа:1 029 966 ₽
Материалы:1 380 260 ₽
Дни:20
stdClass Object
(
[id] => 167
[attribute_id] => 37
[name] => Композитная черепица
[material_modifier] => 1
[work_modifier] => 1
[options] => Array
(
)
[days] => [20]
[material_price] => [9506]
[work_price] => [8905]
[image] => https://akademik-stroy.ru/wp-content/uploads/materials/kompozitnaya-cherepica.jpg
[area_modifier] => 99.02
[parent_name] => Крыша (Скатная)
[parent_id] => 37
[material_sum] => 1242495
[work_sum] => 969950
[total_sum] => 2212445
[total_days] => 20
[display_material_sum] => 1 242 495
[display_work_sum] => 969 950
[display_total_sum] => 2 212 445
)
1
2 212 445₽
Работа:969 950 ₽
Материалы:1 242 495 ₽
Дни:20
stdClass Object
(
[id] => 168
[attribute_id] => 37
[name] => Керамическая черепица
[material_modifier] => 1
[work_modifier] => 1
[options] => Array
(
)
[days] => [20]
[material_price] => [12750]
[work_price] => [9456]
[image] => https://akademik-stroy.ru/wp-content/uploads/materials/keramicheskaya-cherepica.jpg
[area_modifier] => 99.02
[parent_name] => Крыша (Скатная)
[parent_id] => 37
[material_sum] => 1666507
[work_sum] => 1029966
[total_sum] => 2696473
[total_days] => 20
[display_material_sum] => 1 666 507
[display_work_sum] => 1 029 966
[display_total_sum] => 2 696 473
)
1
2 696 473₽
Работа:1 029 966 ₽
Материалы:1 666 507 ₽
Дни:20
stdClass Object
(
[id] => 169
[attribute_id] => 37
[name] => Металлическая фальцевая
[material_modifier] => 1
[work_modifier] => 1
[options] => Array
(
)
[days] => [20]
[material_price] => [8550]
[work_price] => [8190]
[image] => https://akademik-stroy.ru/wp-content/uploads/materials/metallicheskaya-falcevaya.jpg
[area_modifier] => 99.02
[parent_name] => Крыша (Скатная)
[parent_id] => 37
[material_sum] => 1117540
[work_sum] => 892071
[total_sum] => 2009611
[total_days] => 20
[display_material_sum] => 1 117 540
[display_work_sum] => 892 071
[display_total_sum] => 2 009 611
)
1
2 009 611₽
Работа:892 071 ₽
Материалы:1 117 540 ₽
Дни:20
stdClass Object
(
[id] => 170
[attribute_id] => 37
[name] => Медная фальцевая
[material_modifier] => 1
[work_modifier] => 1
[options] => Array
(
)
[days] => [20]
[material_price] => [20450]
[work_price] => [16750]
[image] => https://akademik-stroy.ru/wp-content/uploads/materials/mednaya-falcevaya.jpg
[area_modifier] => 99.02
[parent_name] => Крыша (Скатная)
[parent_id] => 37
[material_sum] => 2672946
[work_sum] => 1824444
[total_sum] => 4497390
[total_days] => 20
[display_material_sum] => 2 672 946
[display_work_sum] => 1 824 444
[display_total_sum] => 4 497 390
)
1
4 497 390₽
Работа:1 824 444 ₽
Материалы:2 672 946 ₽
Дни:20
stdClass Object
(
[id] => 171
[attribute_id] => 37
[name] => Зеленая кровля
[material_modifier] => 1
[work_modifier] => 1
[options] => Array
(
)
[days] => [20]
[material_price] => [19850]
[work_price] => [16780]
[image] => https://akademik-stroy.ru/wp-content/uploads/materials/zelenaya-krovlya.jpg
[area_modifier] => 99.02
[parent_name] => Крыша (Скатная)
[parent_id] => 37
[material_sum] => 2594522
[work_sum] => 1827711
[total_sum] => 4422233
[total_days] => 20
[display_material_sum] => 2 594 522
[display_work_sum] => 1 827 711
[display_total_sum] => 4 422 233
)
1
4 422 233₽
Работа:1 827 711 ₽
Материалы:2 594 522 ₽
Дни:20
stdClass Object
(
[id] => 172
[attribute_id] => 37
[name] => Профлист
[material_modifier] => 1
[work_modifier] => 1
[options] => Array
(
)
[days] => [20]
[material_price] => [3450]
[work_price] => [3750]
[image] => https://akademik-stroy.ru/wp-content/uploads/materials/proflist.jpg
[area_modifier] => 99.02
[parent_name] => Крыша (Скатная)
[parent_id] => 37
[material_sum] => 450937
[work_sum] => 408458
[total_sum] => 859395
[total_days] => 20
[display_material_sum] => 450 937
[display_work_sum] => 408 458
[display_total_sum] => 859 395
)
1
859 395₽
Работа:408 458 ₽
Материалы:450 937 ₽
Дни:20
stdClass Object
(
[id] => 51
[attribute_id] => 26
[name] => Есть
[material_modifier] => 1
[work_modifier] => 1
[options] => Array
(
[0] => Профиль 58 мм, 3-камерный, стеклопакет 2-камерный до 32 мм
[1] => Профиль 60 мм, 4-камерный, стеклопакет 2-камерный до 32 мм
[2] => Профиль 70 мм, 5-камерный, стеклопакет 2-камерный до 40 мм
[3] => Профиль 72 мм, 5-камерный, стеклопакет 2-камерный до 40 мм
[4] => Алюминиевые окна Alutech профиль 72 мм, стеклопакет 2-камерный
)
[days] => [3,3,3,3,3]
[material_price] => [1339,2124,2867,3023,29596]
[work_price] => [635,647,659,668,2579]
[image] => https://akademik-stroy.ru/wp-content/uploads/materials/okna.jpg
[area_modifier] => 147.84
[parent_name] => Окна
[parent_id] => 26
[material_sum] => 261304
[work_sum] => 103266
[total_sum] => 364570
[total_days] => 3
[display_material_sum] => 261 304
[display_work_sum] => 103 266
[display_total_sum] => 364 570
)
1
364 570₽
Работа:103 266 ₽
Материалы:261 304 ₽
Дни:3
stdClass Object
(
[id] => 52
[attribute_id] => 26
[name] => Нет
[material_modifier] => 2
[work_modifier] => 1
[options] =>
[days] => null
[material_price] => null
[work_price] => null
[image] => https://akademik-stroy.ru/wp-content/uploads/materials/okna.jpg
[area_modifier] => 147.84
[parent_name] => Окна
[parent_id] => 26
[material_sum] => 0
[work_sum] => 0
[total_sum] => 0
[total_days] => 0
[display_material_sum] => 0
[display_work_sum] => 0
[display_total_sum] => 0
)
1
0₽
Работа:0 ₽
Материалы:0 ₽
Дни:0
stdClass Object
(
[id] => 53
[attribute_id] => 27
[name] => Есть
[material_modifier] => 1
[work_modifier] => 1
[options] => Array
(
)
[days] => [1]
[material_price] => [10000]
[work_price] => [5500]
[image] => https://akademik-stroy.ru/wp-content/uploads/materials/dveri.jpg
[area_modifier] => 1
[parent_name] => Двери входные
[parent_id] => 27
[material_sum] => 13200
[work_sum] => 6050
[total_sum] => 19250
[total_days] => 1
[display_material_sum] => 13 200
[display_work_sum] => 6 050
[display_total_sum] => 19 250
)
1
19 250₽
Работа:6 050 ₽
Материалы:13 200 ₽
Дни:1
stdClass Object
(
[id] => 54
[attribute_id] => 27
[name] => Нет
[material_modifier] => 1
[work_modifier] => 1
[options] => Array
(
)
[days] => [0]
[material_price] => [0]
[work_price] => [0]
[image] => https://akademik-stroy.ru/wp-content/uploads/materials/dveri.jpg
[area_modifier] => 1
[parent_name] => Двери входные
[parent_id] => 27
[material_sum] => 0
[work_sum] => 0
[total_sum] => 0
[total_days] => 0
[display_material_sum] => 0
[display_work_sum] => 0
[display_total_sum] => 0
)
1
0₽
Работа:0 ₽
Материалы:0 ₽
Дни:0
stdClass Object
(
[id] => 25
[attribute_id] => 13
[name] => Нет
[material_modifier] => 1
[work_modifier] => 1
[options] => Array
(
)
[days] => [0]
[material_price] => [0]
[work_price] => [0]
[image] => https://akademik-stroy.ru/wp-content/uploads/materials/mineralovata-krov.jpg
[area_modifier] => 99.02
[parent_name] => Утепление кровли (Мансарда)
[parent_id] => 13
[material_sum] => 0
[work_sum] => 0
[total_sum] => 0
[total_days] => 0
[display_material_sum] => 0
[display_work_sum] => 0
[display_total_sum] => 0
)
1
0₽
Работа:0 ₽
Материалы:0 ₽
Дни:0
stdClass Object
(
[id] => 26
[attribute_id] => 13
[name] => Минераловатный
[material_modifier] => 1
[work_modifier] => 1
[options] => Array
(
[0] => 50 мм
[1] => 100 мм
[2] => 150 мм
[3] => 200 мм
[4] => 250 мм
[5] => 300 мм
[6] => 350 мм
[7] => 400 мм
[8] => 450 мм
[9] => 500 мм
)
[days] => [5,5,6,6,6,7,7,7,8,8]
[material_price] => [1158,1414,1772,2230,3602,4060,4974,5890,6408,7718]
[work_price] => [650,846,846,1098,1318,1450,1596,1754,1930,2122]
[image] => https://akademik-stroy.ru/wp-content/uploads/materials/mineralovata-krov.jpg
[area_modifier] => 99.02
[parent_name] => Утепление кровли (Мансарда)
[parent_id] => 13
[material_sum] => 151358
[work_sum] => 70799
[total_sum] => 222157
[total_days] => 5
[display_material_sum] => 151 358
[display_work_sum] => 70 799
[display_total_sum] => 222 157
)
1
222 157₽
Работа:70 799 ₽
Материалы:151 358 ₽
Дни:5
stdClass Object
(
[id] => 123
[attribute_id] => 13
[name] => Эковата (целлюлозная вата)
[material_modifier] => 1
[work_modifier] => 1
[options] => Array
(
[0] => 50 мм
[1] => 100 мм
[2] => 150 мм
[3] => 200 мм
[4] => 250 мм
[5] => 300 мм
[6] => 350 мм
[7] => 400 мм
[8] => 450 мм
[9] => 500 мм
)
[days] => [3,3,4,4,4,5,5,5,5,5]
[material_price] => [820,1638,2458,3276,5734,6552,8190,9828,11466,13104]
[work_price] => [234,304,304,396,474,522,574,632,694,764]
[image] => https://akademik-stroy.ru/wp-content/uploads/materials/ehkovata-krov.jpg
[area_modifier] => 99.02
[parent_name] => Утепление кровли (Мансарда)
[parent_id] => 13
[material_sum] => 107179
[work_sum] => 25488
[total_sum] => 132667
[total_days] => 3
[display_material_sum] => 107 179
[display_work_sum] => 25 488
[display_total_sum] => 132 667
)
1
132 667₽
Работа:25 488 ₽
Материалы:107 179 ₽
Дни:3
stdClass Object
(
[id] => 124
[attribute_id] => 13
[name] => Экструдированный пенополистирол
[material_modifier] => 1
[work_modifier] => 1
[options] => Array
(
[0] => 50 мм
[1] => 100 мм
[2] => 150 мм
[3] => 200 мм
[4] => 250 мм
[5] => 300 мм
[6] => 350 мм
[7] => 400 мм
[8] => 450 мм
[9] => 500 мм
)
[days] => [3,3,4,4,4,5,5,5,5,6]
[material_price] => [1146,2292,3438,4584,8020,9166,11458,13750,16040,18332]
[work_price] => [390,508,508,660,790,870,958,1052,1158,1274]
[image] => https://akademik-stroy.ru/wp-content/uploads/materials/epps-krov.jpg
[area_modifier] => 99.02
[parent_name] => Утепление кровли (Мансарда)
[parent_id] => 13
[material_sum] => 149790
[work_sum] => 42480
[total_sum] => 192270
[total_days] => 3
[display_material_sum] => 149 790
[display_work_sum] => 42 480
[display_total_sum] => 192 270
)
1
192 270₽
Работа:42 480 ₽
Материалы:149 790 ₽
Дни:3
stdClass Object
(
[id] => 125
[attribute_id] => 13
[name] => ПСБ (ППС-пенополистирол)
[material_modifier] => 1
[work_modifier] => 1
[options] => Array
(
[0] => 50 мм
[1] => 100 мм
[2] => 150 мм
[3] => 200 мм
[4] => 250 мм
[5] => 300 мм
[6] => 350 мм
[7] => 400 мм
[8] => 450 мм
[9] => 500 мм
)
[days] => [3,3,4,4,4,5,5,5,5,6]
[material_price] => [476,954,1430,1906,3336,3814,4766,5720,6674,7626]
[work_price] => [390,508,508,660,790,870,958,1052,1158,1274]
[image] => https://akademik-stroy.ru/wp-content/uploads/materials/psb-krov.jpg
[area_modifier] => 99.02
[parent_name] => Утепление кровли (Мансарда)
[parent_id] => 13
[material_sum] => 62216
[work_sum] => 42480
[total_sum] => 104696
[total_days] => 3
[display_material_sum] => 62 216
[display_work_sum] => 42 480
[display_total_sum] => 104 696
)
1
104 696₽
Работа:42 480 ₽
Материалы:62 216 ₽
Дни:3
stdClass Object
(
[id] => 126
[attribute_id] => 13
[name] => ППУ (Пенополиуретан)
[material_modifier] => 1
[work_modifier] => 1
[options] => Array
(
[0] => 50 мм
[1] => 100 мм
[2] => 150 мм
[3] => 200 мм
[4] => 250 мм
[5] => 300 мм
[6] => 350 мм
[7] => 400 мм
[8] => 450 мм
[9] => 500 мм
)
[days] => [2,2,3,3,3,3,4,4,4,4]
[material_price] => [2080,4160,6240,8320,14560,16640,20800,24960,29120,33280]
[work_price] => [234,304,304,396,474,522,574,632,694,764]
[image] => https://akademik-stroy.ru/wp-content/uploads/materials/ppu-krov.jpg
[area_modifier] => 99.02
[parent_name] => Утепление кровли (Мансарда)
[parent_id] => 13
[material_sum] => 271869
[work_sum] => 25488
[total_sum] => 297357
[total_days] => 2
[display_material_sum] => 271 869
[display_work_sum] => 25 488
[display_total_sum] => 297 357
)
1
297 357₽
Работа:25 488 ₽
Материалы:271 869 ₽
Дни:2
stdClass Object
(
[id] => 127
[attribute_id] => 13
[name] => PIR-плиты (пенополиизоцианурат)
[material_modifier] => 1
[work_modifier] => 1
[options] => Array
(
[0] => 50 мм
[1] => 100 мм
[2] => 150 мм
[3] => 200 мм
[4] => 250 мм
[5] => 300 мм
[6] => 350 мм
[7] => 400 мм
[8] => 450 мм
[9] => 500 мм
)
[days] => [3,3,4,4,4,5,5,5,5,6]
[material_price] => [2646,5290,7936,10580,18516,21162,26452,31742,37032,42324]
[work_price] => [390,508,508,660,790,870,958,1052,1158,1274]
[image] => https://akademik-stroy.ru/wp-content/uploads/materials/pir-krov.jpg
[area_modifier] => 99.02
[parent_name] => Утепление кровли (Мансарда)
[parent_id] => 13
[material_sum] => 345849
[work_sum] => 42480
[total_sum] => 388329
[total_days] => 3
[display_material_sum] => 345 849
[display_work_sum] => 42 480
[display_total_sum] => 388 329
)
1
388 329₽
Работа:42 480 ₽
Материалы:345 849 ₽
Дни:3
stdClass Object
(
[id] => 27
[attribute_id] => 14
[name] => Нет
[material_modifier] => 1
[work_modifier] => 1
[options] => Array
(
)
[days] => [0]
[material_price] => [0]
[work_price] => [0]
[image] => https://akademik-stroy.ru/wp-content/uploads/materials/mansardnye-okna-2.jpg
[area_modifier] => 1
[parent_name] => Мансардные окна
[parent_id] => 14
[material_sum] => 0
[work_sum] => 0
[total_sum] => 0
[total_days] => 0
[display_material_sum] => 0
[display_work_sum] => 0
[display_total_sum] => 0
)
1
0₽
Работа:0 ₽
Материалы:0 ₽
Дни:0
stdClass Object
(
[id] => 28
[attribute_id] => 14
[name] => Есть
[material_modifier] => 1
[work_modifier] => 1
[options] => Array
(
[0] => 55x78
[1] => 55x98
)
[days] => [6,7]
[material_price] => [47480,68700]
[work_price] => [17900,19500]
[image] => https://akademik-stroy.ru/wp-content/uploads/materials/mansardnye-okna-2.jpg
[area_modifier] => 1
[parent_name] => Мансардные окна
[parent_id] => 14
[material_sum] => 62674
[work_sum] => 19690
[total_sum] => 82364
[total_days] => 6
[display_material_sum] => 62 674
[display_work_sum] => 19 690
[display_total_sum] => 82 364
)
1
82 364₽
Работа:19 690 ₽
Материалы:62 674 ₽
Дни:6
stdClass Object
(
[id] => 29
[attribute_id] => 15
[name] => Нет
[material_modifier] => 1
[work_modifier] => 1
[options] => Array
(
)
[days] => [0]
[material_price] => [0]
[work_price] => [0]
[image] => https://akademik-stroy.ru/wp-content/uploads/materials/sofit.jpg
[area_modifier] => 99.02
[parent_name] => Подшивка кровли
[parent_id] => 15
[material_sum] => 0
[work_sum] => 0
[total_sum] => 0
[total_days] => 0
[display_material_sum] => 0
[display_work_sum] => 0
[display_total_sum] => 0
)
1
0₽
Работа:0 ₽
Материалы:0 ₽
Дни:0
stdClass Object
(
[id] => 30
[attribute_id] => 15
[name] => Есть
[material_modifier] => 1
[work_modifier] => 1
[options] => Array
(
[0] => Софиты (ПВХ)
[1] => Cedral
[2] => ДПК
[3] => Планкен
)
[days] => [7,10,9,8]
[material_price] => [1803,3213,3025,3150]
[work_price] => [1529,2188,2075,1923]
[image] => https://akademik-stroy.ru/wp-content/uploads/materials/sofit.jpg
[area_modifier] => 99.02
[parent_name] => Подшивка кровли
[parent_id] => 15
[material_sum] => 235664
[work_sum] => 166542
[total_sum] => 402206
[total_days] => 7
[display_material_sum] => 235 664
[display_work_sum] => 166 542
[display_total_sum] => 402 206
)
1
402 206₽
Работа:166 542 ₽
Материалы:235 664 ₽
Дни:7
stdClass Object
(
[id] => 31
[attribute_id] => 16
[name] => Нет
[material_modifier] => 1
[work_modifier] => 1
[options] => Array
(
)
[days] => [0]
[material_price] => [0]
[work_price] => [0]
[image] => https://akademik-stroy.ru/wp-content/uploads/materials/docke-standard-pvh.jpg
[area_modifier] => 99.02
[parent_name] => Водосточная система
[parent_id] => 16
[material_sum] => 0
[work_sum] => 0
[total_sum] => 0
[total_days] => 0
[display_material_sum] => 0
[display_work_sum] => 0
[display_total_sum] => 0
)
1
0₽
Работа:0 ₽
Материалы:0 ₽
Дни:0
stdClass Object
(
[id] => 32
[attribute_id] => 16
[name] => Есть
[material_modifier] => 1
[work_modifier] => 1
[options] => Array
(
[0] => Döcke Standard (ПВХ)
[1] => Металлические Grand Line
)
[days] => [7,7]
[material_price] => [1842,2703]
[work_price] => [1491,1529]
[image] => https://akademik-stroy.ru/wp-content/uploads/materials/docke-standard-pvh.jpg
[area_modifier] => 99.02
[parent_name] => Водосточная система
[parent_id] => 16
[material_sum] => 240761
[work_sum] => 162403
[total_sum] => 403164
[total_days] => 7
[display_material_sum] => 240 761
[display_work_sum] => 162 403
[display_total_sum] => 403 164
)
1
403 164₽
Работа:162 403 ₽
Материалы:240 761 ₽
Дни:7
stdClass Object
(
[id] => 33
[attribute_id] => 17
[name] => Нет
[material_modifier] => 1
[work_modifier] => 1
[options] => Array
(
)
[days] => [0]
[material_price] => [0]
[work_price] => [0]
[image] => https://akademik-stroy.ru/wp-content/uploads/materials/mineralovata.jpg
[area_modifier] => 182.18
[parent_name] => Дополнительное утепление наружных стен
[parent_id] => 17
[material_sum] => 0
[work_sum] => 0
[total_sum] => 0
[total_days] => 0
[display_material_sum] => 0
[display_work_sum] => 0
[display_total_sum] => 0
)
1
0₽
Работа:0 ₽
Материалы:0 ₽
Дни:0
stdClass Object
(
[id] => 34
[attribute_id] => 17
[name] => Минераловатный
[material_modifier] => 1
[work_modifier] => 1
[options] => Array
(
[0] => 50 мм
[1] => 100 мм
[2] => 150 мм
[3] => 200 мм
[4] => 250 мм
[5] => 300 мм
)
[days] => [7,8,10,12,14,15]
[material_price] => [3437,3613,3803,3915,4601,4830]
[work_price] => [2325,2423,2523,2749,2859,3025]
[image] => https://akademik-stroy.ru/wp-content/uploads/materials/mineralovata.jpg
[area_modifier] => 182.18
[parent_name] => Дополнительное утепление наружных стен
[parent_id] => 17
[material_sum] => 826522
[work_sum] => 465925
[total_sum] => 1292447
[total_days] => 7
[display_material_sum] => 826 522
[display_work_sum] => 465 925
[display_total_sum] => 1 292 447
)
1
1 292 447₽
Работа:465 925 ₽
Материалы:826 522 ₽
Дни:7
stdClass Object
(
[id] => 128
[attribute_id] => 17
[name] => Эковата (целлюлозная вата)
[material_modifier] => 1
[work_modifier] => 1
[options] => Array
(
[0] => 50 мм
[1] => 100 мм
[2] => 150 мм
[3] => 200 мм
[4] => 250 мм
[5] => 300 мм
)
[days] => [3,4,5,6,7,8]
[material_price] => [810,1319,1629,1838,2267,2676]
[work_price] => [1225,1323,1423,1549,1659,1725]
[image] => https://akademik-stroy.ru/wp-content/uploads/materials/ehkovata.jpg
[area_modifier] => 182.18
[parent_name] => Дополнительное утепление наружных стен
[parent_id] => 17
[material_sum] => 194787
[work_sum] => 245488
[total_sum] => 440275
[total_days] => 3
[display_material_sum] => 194 787
[display_work_sum] => 245 488
[display_total_sum] => 440 275
)
1
440 275₽
Работа:245 488 ₽
Материалы:194 787 ₽
Дни:3
stdClass Object
(
[id] => 129
[attribute_id] => 17
[name] => Экструдированный пенополистирол
[material_modifier] => 1
[work_modifier] => 1
[options] => Array
(
[0] => 50 мм
[1] => 100 мм
[2] => 150 мм
[3] => 200 мм
[4] => 250 мм
[5] => 300 мм
)
[days] => [5,6,7,8,9,10]
[material_price] => [4560,4300,5119,6292,7010,8583]
[work_price] => [1795,1954,2254,2330,2595,2735]
[image] => https://akademik-stroy.ru/wp-content/uploads/materials/epps.jpg
[area_modifier] => 182.18
[parent_name] => Дополнительное утепление наружных стен
[parent_id] => 17
[material_sum] => 1096578
[work_sum] => 359714
[total_sum] => 1456292
[total_days] => 5
[display_material_sum] => 1 096 578
[display_work_sum] => 359 714
[display_total_sum] => 1 456 292
)
1
1 456 292₽
Работа:359 714 ₽
Материалы:1 096 578 ₽
Дни:5
stdClass Object
(
[id] => 130
[attribute_id] => 17
[name] => ПСБ (ППС-пенополистирол)
[material_modifier] => 1
[work_modifier] => 1
[options] => Array
(
[0] => 50 мм
[1] => 100 мм
[2] => 150 мм
[3] => 200 мм
[4] => 250 мм
[5] => 300 мм
)
[days] => [5,6,7,8,9,10]
[material_price] => [4822,5200,5819,6292,7010,7583]
[work_price] => [1795,1954,2254,2330,2595,2735]
[image] => https://akademik-stroy.ru/wp-content/uploads/materials/psb.jpg
[area_modifier] => 182.18
[parent_name] => Дополнительное утепление наружных стен
[parent_id] => 17
[material_sum] => 1159583
[work_sum] => 359714
[total_sum] => 1519297
[total_days] => 5
[display_material_sum] => 1 159 583
[display_work_sum] => 359 714
[display_total_sum] => 1 519 297
)
1
1 519 297₽
Работа:359 714 ₽
Материалы:1 159 583 ₽
Дни:5
stdClass Object
(
[id] => 131
[attribute_id] => 17
[name] => ППУ (Пенополиуретан)
[material_modifier] => 1
[work_modifier] => 1
[options] => Array
(
[0] => 50 мм
[1] => 100 мм
[2] => 150 мм
[3] => 200 мм
[4] => 250 мм
[5] => 300 мм
)
[days] => [3,4,5,6,7,8]
[material_price] => [2860,3400,4219,4592,5010,5583]
[work_price] => [729,900,980,1120,1280,1530]
[image] => https://akademik-stroy.ru/wp-content/uploads/materials/ppu.jpg
[area_modifier] => 182.18
[parent_name] => Дополнительное утепление наружных стен
[parent_id] => 17
[material_sum] => 687766
[work_sum] => 146090
[total_sum] => 833856
[total_days] => 3
[display_material_sum] => 687 766
[display_work_sum] => 146 090
[display_total_sum] => 833 856
)
1
833 856₽
Работа:146 090 ₽
Материалы:687 766 ₽
Дни:3
stdClass Object
(
[id] => 132
[attribute_id] => 17
[name] => PIR-плиты (пенополиизоцианурат)
[material_modifier] => 1
[work_modifier] => 1
[options] => Array
(
[0] => 50 мм
[1] => 100 мм
[2] => 150 мм
[3] => 200 мм
[4] => 250 мм
[5] => 300 мм
)
[days] => [5,6,7,8,9,10]
[material_price] => [8323,15645,20968,25900,29258,30581]
[work_price] => [800,900,970,1150,1280,1330]
[image] => https://akademik-stroy.ru/wp-content/uploads/materials/pir.jpg
[area_modifier] => 182.18
[parent_name] => Дополнительное утепление наружных стен
[parent_id] => 17
[material_sum] => 2001495
[work_sum] => 160318
[total_sum] => 2161813
[total_days] => 5
[display_material_sum] => 2 001 495
[display_work_sum] => 160 318
[display_total_sum] => 2 161 813
)
1
2 161 813₽
Работа:160 318 ₽
Материалы:2 001 495 ₽
Дни:5
stdClass Object
(
[id] => 37
[attribute_id] => 19
[name] => Нет
[material_modifier] => 1
[work_modifier] => 1
[options] => Array
(
)
[days] => [0]
[material_price] => [0]
[work_price] => [0]
[image] => https://akademik-stroy.ru/wp-content/uploads/materials/imitaciya-brusa.jpg
[area_modifier] => 182.18
[parent_name] => Наружная отделка фасада
[parent_id] => 19
[material_sum] => 0
[work_sum] => 0
[total_sum] => 0
[total_days] => 0
[display_material_sum] => 0
[display_work_sum] => 0
[display_total_sum] => 0
)
1
0₽
Работа:0 ₽
Материалы:0 ₽
Дни:0
stdClass Object
(
[id] => 38
[attribute_id] => 19
[name] => Имитация бруса
[material_modifier] => 1
[work_modifier] => 1
[options] => Array
(
[0] => Сосна
[1] => Ель
[2] => Лиственница
)
[days] => [20,20,20]
[material_price] => [2994,2762,4954]
[work_price] => [1397,1231,1577]
[image] => https://akademik-stroy.ru/wp-content/uploads/materials/imitaciya-brusa.jpg
[area_modifier] => 182.18
[parent_name] => Наружная отделка фасада
[parent_id] => 19
[material_sum] => 719990
[work_sum] => 279956
[total_sum] => 999946
[total_days] => 20
[display_material_sum] => 719 990
[display_work_sum] => 279 956
[display_total_sum] => 999 946
)
1
999 946₽
Работа:279 956 ₽
Материалы:719 990 ₽
Дни:20
stdClass Object
(
[id] => 136
[attribute_id] => 19
[name] => Планкен
[material_modifier] => 1
[work_modifier] => 1
[options] => Array
(
[0] => Сосна
[1] => Ель
[2] => Лиственница
)
[days] => [20,20,20]
[material_price] => [3194,2862,5154]
[work_price] => [1537,1354,1735]
[image] => https://akademik-stroy.ru/wp-content/uploads/materials/planken.jpg
[area_modifier] => 182.18
[parent_name] => Наружная отделка фасада
[parent_id] => 19
[material_sum] => 768085
[work_sum] => 308012
[total_sum] => 1076097
[total_days] => 20
[display_material_sum] => 768 085
[display_work_sum] => 308 012
[display_total_sum] => 1 076 097
)
1
1 076 097₽
Работа:308 012 ₽
Материалы:768 085 ₽
Дни:20
stdClass Object
(
[id] => 137
[attribute_id] => 19
[name] => Штукатурка
[material_modifier] => 1
[work_modifier] => 1
[options] => Array
(
[0] => Цементно-песчаная (минеральная)
[1] => Мокрый фасад
)
[days] => [35,35]
[material_price] => [2231,3938]
[work_price] => [1202,2422]
[image] => https://akademik-stroy.ru/wp-content/uploads/materials/shtukaturka.jpg
[area_modifier] => 182.18
[parent_name] => Наружная отделка фасада
[parent_id] => 19
[material_sum] => 536506
[work_sum] => 240878
[total_sum] => 777384
[total_days] => 35
[display_material_sum] => 536 506
[display_work_sum] => 240 878
[display_total_sum] => 777 384
)
1
777 384₽
Работа:240 878 ₽
Материалы:536 506 ₽
Дни:35
stdClass Object
(
[id] => 138
[attribute_id] => 19
[name] => Облицовочный кирпич
[material_modifier] => 1
[work_modifier] => 1
[options] => Array
(
[0] => Керамический
[1] => Клинкерный
[2] => Ручной формовки
[3] => Гиперпрессованный
[4] => Силикатный кирпич
)
[days] => [45,45,45,45,45]
[material_price] => [8174,9148,1040,1257,5876]
[work_price] => [3240,3758,4536,4017,3369]
[image] => https://akademik-stroy.ru/wp-content/uploads/materials/oblicovochnyj-kirpich.jpg
[area_modifier] => 182.18
[parent_name] => Наружная отделка фасада
[parent_id] => 19
[material_sum] => 1965664
[work_sum] => 649290
[total_sum] => 2614954
[total_days] => 45
[display_material_sum] => 1 965 664
[display_work_sum] => 649 290
[display_total_sum] => 2 614 954
)
1
2 614 954₽
Работа:649 290 ₽
Материалы:1 965 664 ₽
Дни:45
stdClass Object
(
[id] => 139
[attribute_id] => 19
[name] => Фасадная плитка
[material_modifier] => 1
[work_modifier] => 1
[options] => Array
(
[0] => Клинкерная
[1] => Керамическая
[2] => Плитка ручной формовки
)
[days] => [40,40,40]
[material_price] => [2974,1487,3470]
[work_price] => [3007,2592,3629]
[image] => https://akademik-stroy.ru/wp-content/uploads/materials/fasadnaya-plitka.jpg
[area_modifier] => 182.18
[parent_name] => Наружная отделка фасада
[parent_id] => 19
[material_sum] => 715180
[work_sum] => 602597
[total_sum] => 1317777
[total_days] => 40
[display_material_sum] => 715 180
[display_work_sum] => 602 597
[display_total_sum] => 1 317 777
)
1
1 317 777₽
Работа:602 597 ₽
Материалы:715 180 ₽
Дни:40
stdClass Object
(
[id] => 140
[attribute_id] => 19
[name] => Сайдинг
[material_modifier] => 1
[work_modifier] => 1
[options] => Array
(
[0] => Виниловый
[1] => Металлический
[2] => Фиброцементный
)
[days] => [20,20,20]
[material_price] => [1263,1944,4147]
[work_price] => [1263,1944,2074]
[image] => https://akademik-stroy.ru/wp-content/uploads/materials/sajding.jpg
[area_modifier] => 182.18
[parent_name] => Наружная отделка фасада
[parent_id] => 19
[material_sum] => 303723
[work_sum] => 253103
[total_sum] => 556826
[total_days] => 20
[display_material_sum] => 303 723
[display_work_sum] => 253 103
[display_total_sum] => 556 826
)
1
556 826₽
Работа:253 103 ₽
Материалы:303 723 ₽
Дни:20
stdClass Object
(
[id] => 141
[attribute_id] => 19
[name] => Камень
[material_modifier] => 1
[work_modifier] => 1
[options] => Array
(
[0] => Травертин
[1] => Дагестанский
[2] => Искусственный
[3] => Натуральный
[4] => Керамогранит
)
[days] => [45,45,45,45,45]
[material_price] => [4536,3888,2592,3240,2462]
[work_price] => [3240,3240,2462,3110,1944]
[image] => https://akademik-stroy.ru/wp-content/uploads/materials/kamen-1.jpg
[area_modifier] => 182.18
[parent_name] => Наружная отделка фасада
[parent_id] => 19
[material_sum] => 1090806
[work_sum] => 649290
[total_sum] => 1740096
[total_days] => 45
[display_material_sum] => 1 090 806
[display_work_sum] => 649 290
[display_total_sum] => 1 740 096
)
1
1 740 096₽
Работа:649 290 ₽
Материалы:1 090 806 ₽
Дни:45
stdClass Object
(
[id] => 142
[attribute_id] => 19
[name] => Термопанели
[material_modifier] => 1
[work_modifier] => 1
[options] => Array
(
)
[days] => [20]
[material_price] => [6221]
[work_price] => [2333]
[image] => https://akademik-stroy.ru/wp-content/uploads/materials/termo.png
[area_modifier] => 182.18
[parent_name] => Наружная отделка фасада
[parent_id] => 19
[material_sum] => 1496011
[work_sum] => 467529
[total_sum] => 1963540
[total_days] => 20
[display_material_sum] => 1 496 011
[display_work_sum] => 467 529
[display_total_sum] => 1 963 540
)
1
1 963 540₽
Работа:467 529 ₽
Материалы:1 496 011 ₽
Дни:20
stdClass Object
(
[id] => 143
[attribute_id] => 19
[name] => Плитка HAUBERK
[material_modifier] => 1
[work_modifier] => 1
[options] => Array
(
)
[days] => [20]
[material_price] => [2786]
[work_price] => [1944]
[image] => https://akademik-stroy.ru/wp-content/uploads/materials/hauberk.jpg
[area_modifier] => 182.18
[parent_name] => Наружная отделка фасада
[parent_id] => 19
[material_sum] => 669971
[work_sum] => 389574
[total_sum] => 1059545
[total_days] => 20
[display_material_sum] => 669 971
[display_work_sum] => 389 574
[display_total_sum] => 1 059 545
)
1
1 059 545₽
Работа:389 574 ₽
Материалы:669 971 ₽
Дни:20
stdClass Object
(
[id] => 144
[attribute_id] => 19
[name] => Фальцевый фасад
[material_modifier] => 1
[work_modifier] => 1
[options] => Array
(
)
[days] => [20]
[material_price] => [3240]
[work_price] => [2592]
[image] => https://akademik-stroy.ru/wp-content/uploads/materials/falcevyj-fasad.jpg
[area_modifier] => 182.18
[parent_name] => Наружная отделка фасада
[parent_id] => 19
[material_sum] => 779147
[work_sum] => 519432
[total_sum] => 1298579
[total_days] => 20
[display_material_sum] => 779 147
[display_work_sum] => 519 432
[display_total_sum] => 1 298 579
)
1
1 298 579₽
Работа:519 432 ₽
Материалы:779 147 ₽
Дни:20
stdClass Object
(
[id] => 145
[attribute_id] => 19
[name] => Комбинированный
[material_modifier] => 1
[work_modifier] => 1
[options] => Array
(
)
[days] => [20]
[material_price] => [4629]
[work_price] => [3499]
[image] => https://akademik-stroy.ru/wp-content/uploads/materials/Kombinirovannyj.jpg
[area_modifier] => 182.18
[parent_name] => Наружная отделка фасада
[parent_id] => 19
[material_sum] => 1113171
[work_sum] => 701193
[total_sum] => 1814364
[total_days] => 20
[display_material_sum] => 1 113 171
[display_work_sum] => 701 193
[display_total_sum] => 1 814 364
)
1
1 814 364₽
Работа:701 193 ₽
Материалы:1 113 171 ₽
Дни:20
stdClass Object
(
[id] => 257
[attribute_id] => 19
[name] => Японские фиброцементные
[material_modifier] => 1
[work_modifier] => 1
[options] => Array
(
)
[days] => [20]
[material_price] => [7043]
[work_price] => [2993]
[image] => https://akademik-stroy.ru/wp-content/uploads/materials/paneli.jpg
[area_modifier] => 182.18
[parent_name] => Наружная отделка фасада
[parent_id] => 19
[material_sum] => 1693684
[work_sum] => 599791
[total_sum] => 2293475
[total_days] => 20
[display_material_sum] => 1 693 684
[display_work_sum] => 599 791
[display_total_sum] => 2 293 475
)
1
2 293 475₽
Работа:599 791 ₽
Материалы:1 693 684 ₽
Дни:20
stdClass Object
(
[id] => 258
[attribute_id] => 19
[name] => Панели Каньон
[material_modifier] => 1
[work_modifier] => 1
[options] => Array
(
)
[days] => [20]
[material_price] => [4543]
[work_price] => [2592]
[image] => https://akademik-stroy.ru/wp-content/uploads/materials/kanon.png
[area_modifier] => 182.18
[parent_name] => Наружная отделка фасада
[parent_id] => 19
[material_sum] => 1092490
[work_sum] => 519432
[total_sum] => 1611922
[total_days] => 20
[display_material_sum] => 1 092 490
[display_work_sum] => 519 432
[display_total_sum] => 1 611 922
)
1
1 611 922₽
Работа:519 432 ₽
Материалы:1 092 490 ₽
Дни:20
stdClass Object
(
[id] => 39
[attribute_id] => 20
[name] => Нет
[material_modifier] => 1
[work_modifier] => 1
[options] => Array
(
)
[days] => [0]
[material_price] => [0]
[work_price] => [0]
[image] => https://akademik-stroy.ru/wp-content/uploads/materials/terrasy.jpg
[area_modifier] => 30
[parent_name] => Террасы, крыльца, навесы
[parent_id] => 20
[material_sum] => 0
[work_sum] => 0
[total_sum] => 0
[total_days] => 0
[display_material_sum] => 0
[display_work_sum] => 0
[display_total_sum] => 0
)
1
0₽
Работа:0 ₽
Материалы:0 ₽
Дни:0
stdClass Object
(
[id] => 40
[attribute_id] => 20
[name] => Есть
[material_modifier] => 1
[work_modifier] => 1
[options] => Array
(
)
[days] => [5]
[material_price] => [10450]
[work_price] => [1950]
[image] => https://akademik-stroy.ru/wp-content/uploads/materials/terrasy.jpg
[area_modifier] => 30
[parent_name] => Террасы, крыльца, навесы
[parent_id] => 20
[material_sum] => 413820
[work_sum] => 64350
[total_sum] => 478170
[total_days] => 5
[display_material_sum] => 413 820
[display_work_sum] => 64 350
[display_total_sum] => 478 170
)
1
478 170₽
Работа:64 350 ₽
Материалы:413 820 ₽
Дни:5
stdClass Object
(
[id] => 41
[attribute_id] => 21
[name] => Нет
[material_modifier] => 1
[work_modifier] => 1
[options] => Array
(
)
[days] => [0]
[material_price] => [0]
[work_price] => [0]
[image] => https://akademik-stroy.ru/wp-content/uploads/materials/balkony.jpg
[area_modifier] => 30
[parent_name] => Балконы
[parent_id] => 21
[material_sum] => 0
[work_sum] => 0
[total_sum] => 0
[total_days] => 0
[display_material_sum] => 0
[display_work_sum] => 0
[display_total_sum] => 0
)
1
0₽
Работа:0 ₽
Материалы:0 ₽
Дни:0
stdClass Object
(
[id] => 42
[attribute_id] => 21
[name] => Есть
[material_modifier] => 1
[work_modifier] => 1
[options] => Array
(
)
[days] => [12]
[material_price] => [3600]
[work_price] => [1950]
[image] => https://akademik-stroy.ru/wp-content/uploads/materials/balkony.jpg
[area_modifier] => 30
[parent_name] => Балконы
[parent_id] => 21
[material_sum] => 142560
[work_sum] => 64350
[total_sum] => 206910
[total_days] => 12
[display_material_sum] => 142 560
[display_work_sum] => 64 350
[display_total_sum] => 206 910
)
1
206 910₽
Работа:64 350 ₽
Материалы:142 560 ₽
Дни:12
stdClass Object
(
[id] => 43
[attribute_id] => 22
[name] => Нет
[material_modifier] => 1
[work_modifier] => 1
[options] => Array
(
)
[days] => [0]
[material_price] => [0]
[work_price] => [0]
[image] => https://akademik-stroy.ru/wp-content/uploads/materials/uteplennaya.jpg
[area_modifier] => 99.02
[parent_name] => Отмостка
[parent_id] => 22
[material_sum] => 0
[work_sum] => 0
[total_sum] => 0
[total_days] => 0
[display_material_sum] => 0
[display_work_sum] => 0
[display_total_sum] => 0
)
1
0₽
Работа:0 ₽
Материалы:0 ₽
Дни:0
stdClass Object
(
[id] => 44
[attribute_id] => 22
[name] => Утепленная отмостка
[material_modifier] => 1
[work_modifier] => 1
[options] => Array
(
)
[days] => [15]
[material_price] => [2550]
[work_price] => [1750]
[image] => https://akademik-stroy.ru/wp-content/uploads/materials/uteplennaya.jpg
[area_modifier] => 99.02
[parent_name] => Отмостка
[parent_id] => 22
[material_sum] => 333301
[work_sum] => 190614
[total_sum] => 523915
[total_days] => 15
[display_material_sum] => 333 301
[display_work_sum] => 190 614
[display_total_sum] => 523 915
)
1
523 915₽
Работа:190 614 ₽
Материалы:333 301 ₽
Дни:15
stdClass Object
(
[id] => 146
[attribute_id] => 22
[name] => Не утепленная отмостка
[material_modifier] => 1
[work_modifier] => 1
[options] => Array
(
)
[days] => [10]
[material_price] => [1650]
[work_price] => [1450]
[image] => https://akademik-stroy.ru/wp-content/uploads/materials/ne-uteplennaya.jpg
[area_modifier] => 99.02
[parent_name] => Отмостка
[parent_id] => 22
[material_sum] => 215666
[work_sum] => 157937
[total_sum] => 373603
[total_days] => 10
[display_material_sum] => 215 666
[display_work_sum] => 157 937
[display_total_sum] => 373 603
)
1
373 603₽
Работа:157 937 ₽
Материалы:215 666 ₽
Дни:10
stdClass Object
(
[id] => 45
[attribute_id] => 23
[name] => Нет
[material_modifier] => 1
[work_modifier] => 1
[options] => Array
(
)
[days] => [0]
[material_price] => [0]
[work_price] => [0]
[image] => https://akademik-stroy.ru/wp-content/uploads/materials/drenazh-2.jpg
[area_modifier] => 99.02
[parent_name] => Дренаж вокруг дома
[parent_id] => 23
[material_sum] => 0
[work_sum] => 0
[total_sum] => 0
[total_days] => 0
[display_material_sum] => 0
[display_work_sum] => 0
[display_total_sum] => 0
)
1
0₽
Работа:0 ₽
Материалы:0 ₽
Дни:0
stdClass Object
(
[id] => 46
[attribute_id] => 23
[name] => Есть
[material_modifier] => 1
[work_modifier] => 1
[options] => Array
(
)
[days] => [5]
[material_price] => [2366]
[work_price] => [1911]
[image] => https://akademik-stroy.ru/wp-content/uploads/materials/drenazh-2.jpg
[area_modifier] => 99.02
[parent_name] => Дренаж вокруг дома
[parent_id] => 23
[material_sum] => 309251
[work_sum] => 208150
[total_sum] => 517401
[total_days] => 5
[display_material_sum] => 309 251
[display_work_sum] => 208 150
[display_total_sum] => 517 401
)
1
517 401₽
Работа:208 150 ₽
Материалы:309 251 ₽
Дни:5
stdClass Object
(
[id] => 47
[attribute_id] => 24
[name] => Нет
[material_modifier] => 1
[work_modifier] => 1
[options] => Array
(
)
[days] => [0]
[material_price] => [0]
[work_price] => [0]
[image] => https://akademik-stroy.ru/wp-content/uploads/materials/septik.jpg
[area_modifier] => 1
[parent_name] => Автономная канализация (септики)
[parent_id] => 24
[material_sum] => 0
[work_sum] => 0
[total_sum] => 0
[total_days] => 0
[display_material_sum] => 0
[display_work_sum] => 0
[display_total_sum] => 0
)
1
0₽
Работа:0 ₽
Материалы:0 ₽
Дни:0
stdClass Object
(
[id] => 48
[attribute_id] => 24
[name] => Есть
[material_modifier] => 1
[work_modifier] => 1
[options] => Array
(
[0] => Для дачи на 4 человека
[1] => Для дома на 5 человек
[2] => Для дома на 6 человек
[3] => Для дома на 7 человек
[4] => Для дома на 10 человек
)
[days] => [7,7,7,8,8]
[material_price] => [196340,220500,240940,264200,293340]
[work_price] => [50000,55000,60500,66550,73206]
[image] => https://akademik-stroy.ru/wp-content/uploads/materials/septik.jpg
[area_modifier] => 1
[parent_name] => Автономная канализация (септики)
[parent_id] => 24
[material_sum] => 259169
[work_sum] => 55000
[total_sum] => 314169
[total_days] => 7
[display_material_sum] => 259 169
[display_work_sum] => 55 000
[display_total_sum] => 314 169
)
1
314 169₽
Работа:55 000 ₽
Материалы:259 169 ₽
Дни:7
stdClass Object
(
[id] => 49
[attribute_id] => 25
[name] => Нет
[material_modifier] => 1
[work_modifier] => 1
[options] => Array
(
)
[days] => [0]
[material_price] => [0]
[work_price] => [0]
[image] => https://akademik-stroy.ru/wp-content/uploads/materials/gkl.jpg
[area_modifier] => 182.18
[parent_name] => Внутренние (не несущие) перегородки
[parent_id] => 25
[material_sum] => 0
[work_sum] => 0
[total_sum] => 0
[total_days] => 0
[display_material_sum] => 0
[display_work_sum] => 0
[display_total_sum] => 0
)
1
0₽
Работа:0 ₽
Материалы:0 ₽
Дни:0
stdClass Object
(
[id] => 147
[attribute_id] => 25
[name] => Каркасно-обшивные
[material_modifier] => 1
[work_modifier] => 1
[options] => Array
(
[0] => 75 мм (без шумоизоляции)
[1] => 75 мм (с шумоизоляцией)
)
[days] => [11,11]
[material_price] => [580,970]
[work_price] => [380,570]
[image] => https://akademik-stroy.ru/wp-content/uploads/materials/gkl.jpg
[area_modifier] => 182.18
[parent_name] => Внутренние (не несущие) перегородки
[parent_id] => 25
[material_sum] => 139477
[work_sum] => 76151
[total_sum] => 215628
[total_days] => 11
[display_material_sum] => 139 477
[display_work_sum] => 76 151
[display_total_sum] => 215 628
)
1
215 628₽
Работа:76 151 ₽
Материалы:139 477 ₽
Дни:11
stdClass Object
(
[id] => 148
[attribute_id] => 25
[name] => Пазогребневые
[material_modifier] => 1
[work_modifier] => 1
[options] => Array
(
[0] => 80 мм
[1] => 100 мм
)
[days] => [5,5]
[material_price] => [1022,1313]
[work_price] => [600,700]
[image] => https://akademik-stroy.ru/wp-content/uploads/materials/pazogrebnevye-bloki.jpg
[area_modifier] => 182.18
[parent_name] => Внутренние (не несущие) перегородки
[parent_id] => 25
[material_sum] => 245768
[work_sum] => 120239
[total_sum] => 366007
[total_days] => 5
[display_material_sum] => 245 768
[display_work_sum] => 120 239
[display_total_sum] => 366 007
)
1
366 007₽
Работа:120 239 ₽
Материалы:245 768 ₽
Дни:5
stdClass Object
(
[id] => 149
[attribute_id] => 25
[name] => Газобетонные
[material_modifier] => 1
[work_modifier] => 1
[options] => Array
(
[0] => 100 мм
[1] => 200 мм
)
[days] => [11,11]
[material_price] => [1160,1920]
[work_price] => [700,900]
[image] => https://akademik-stroy.ru/wp-content/uploads/materials/gazobeton-2.jpg
[area_modifier] => 182.18
[parent_name] => Внутренние (не несущие) перегородки
[parent_id] => 25
[material_sum] => 278954
[work_sum] => 140279
[total_sum] => 419233
[total_days] => 11
[display_material_sum] => 278 954
[display_work_sum] => 140 279
[display_total_sum] => 419 233
)
1
419 233₽
Работа:140 279 ₽
Материалы:278 954 ₽
Дни:11
stdClass Object
(
[id] => 150
[attribute_id] => 25
[name] => Кирпичные
[material_modifier] => 1
[work_modifier] => 1
[options] => Array
(
[0] => 120 мм
[1] => 250 мм
[2] => 360 мм
)
[days] => [7,7,7]
[material_price] => [1785,3570,5355]
[work_price] => [900,1600,1800]
[image] => https://akademik-stroy.ru/wp-content/uploads/materials/kirpich-1.jpg
[area_modifier] => 182.18
[parent_name] => Внутренние (не несущие) перегородки
[parent_id] => 25
[material_sum] => 429253
[work_sum] => 180358
[total_sum] => 609611
[total_days] => 7
[display_material_sum] => 429 253
[display_work_sum] => 180 358
[display_total_sum] => 609 611
)
1
609 611₽
Работа:180 358 ₽
Материалы:429 253 ₽
Дни:7
stdClass Object
(
[id] => 55
[attribute_id] => 28
[name] => Нет
[material_modifier] => 1
[work_modifier] => 1
[options] => Array
(
)
[days] => [0]
[material_price] => [0]
[work_price] => [0]
[image] => https://akademik-stroy.ru/wp-content/uploads/materials/ehlektrika.jpg
[area_modifier] => 147.84
[parent_name] => Электрика
[parent_id] => 28
[material_sum] => 0
[work_sum] => 0
[total_sum] => 0
[total_days] => 0
[display_material_sum] => 0
[display_work_sum] => 0
[display_total_sum] => 0
)
1
0₽
Работа:0 ₽
Материалы:0 ₽
Дни:0
stdClass Object
(
[id] => 56
[attribute_id] => 28
[name] => Есть
[material_modifier] => 1
[work_modifier] => 1
[options] => Array
(
)
[days] => [10]
[material_price] => [650]
[work_price] => [950]
[image] => https://akademik-stroy.ru/wp-content/uploads/materials/ehlektrika.jpg
[area_modifier] => 147.84
[parent_name] => Электрика
[parent_id] => 28
[material_sum] => 126847
[work_sum] => 154493
[total_sum] => 281340
[total_days] => 10
[display_material_sum] => 126 847
[display_work_sum] => 154 493
[display_total_sum] => 281 340
)
1
281 340₽
Работа:154 493 ₽
Материалы:126 847 ₽
Дни:10
stdClass Object
(
[id] => 57
[attribute_id] => 29
[name] => Нет
[material_modifier] => 1
[work_modifier] => 1
[options] => Array
(
)
[days] => [0]
[material_price] => [0]
[work_price] => [0]
[image] => https://akademik-stroy.ru/wp-content/uploads/materials/santekhnika-kanalizaciya-1.jpg
[area_modifier] => 147.84
[parent_name] => Сантехника, канализация в доме
[parent_id] => 29
[material_sum] => 0
[work_sum] => 0
[total_sum] => 0
[total_days] => 0
[display_material_sum] => 0
[display_work_sum] => 0
[display_total_sum] => 0
)
1
0₽
Работа:0 ₽
Материалы:0 ₽
Дни:0
stdClass Object
(
[id] => 58
[attribute_id] => 29
[name] => Есть
[material_modifier] => 1
[work_modifier] => 1
[options] => Array
(
)
[days] => [10]
[material_price] => [600]
[work_price] => [730]
[image] => https://akademik-stroy.ru/wp-content/uploads/materials/santekhnika-kanalizaciya-1.jpg
[area_modifier] => 147.84
[parent_name] => Сантехника, канализация в доме
[parent_id] => 29
[material_sum] => 117089
[work_sum] => 118716
[total_sum] => 235805
[total_days] => 10
[display_material_sum] => 117 089
[display_work_sum] => 118 716
[display_total_sum] => 235 805
)
1
235 805₽
Работа:118 716 ₽
Материалы:117 089 ₽
Дни:10
stdClass Object
(
[id] => 59
[attribute_id] => 30
[name] => Нет
[material_modifier] => 1
[work_modifier] => 1
[options] => Array
(
)
[days] => [0]
[material_price] => [0]
[work_price] => [0]
[image] => https://akademik-stroy.ru/wp-content/uploads/materials/otoplenie-1.jpg
[area_modifier] => 147.84
[parent_name] => Отопление
[parent_id] => 30
[material_sum] => 0
[work_sum] => 0
[total_sum] => 0
[total_days] => 0
[display_material_sum] => 0
[display_work_sum] => 0
[display_total_sum] => 0
)
1
0₽
Работа:0 ₽
Материалы:0 ₽
Дни:0
stdClass Object
(
[id] => 60
[attribute_id] => 30
[name] => Есть
[material_modifier] => 1
[work_modifier] => 1
[options] => Array
(
)
[days] => [5]
[material_price] => [610]
[work_price] => [560]
[image] => https://akademik-stroy.ru/wp-content/uploads/materials/otoplenie-1.jpg
[area_modifier] => 147.84
[parent_name] => Отопление
[parent_id] => 30
[material_sum] => 119041
[work_sum] => 91069
[total_sum] => 210110
[total_days] => 5
[display_material_sum] => 119 041
[display_work_sum] => 91 069
[display_total_sum] => 210 110
)
1
210 110₽
Работа:91 069 ₽
Материалы:119 041 ₽
Дни:5
stdClass Object
(
[id] => 61
[attribute_id] => 31
[name] => Нет
[material_modifier] => 1
[work_modifier] => 1
[options] => Array
(
)
[days] => [0]
[material_price] => [0]
[work_price] => [0]
[image] => https://akademik-stroy.ru/wp-content/uploads/materials/vodyanye.jpg
[area_modifier] => 30
[parent_name] => Теплые полы
[parent_id] => 31
[material_sum] => 0
[work_sum] => 0
[total_sum] => 0
[total_days] => 0
[display_material_sum] => 0
[display_work_sum] => 0
[display_total_sum] => 0
)
1
0₽
Работа:0 ₽
Материалы:0 ₽
Дни:0
stdClass Object
(
[id] => 151
[attribute_id] => 31
[name] => Водяные
[material_modifier] => 1
[work_modifier] => 1
[options] => Array
(
)
[days] => [9]
[material_price] => [10200]
[work_price] => [2500]
[image] => https://akademik-stroy.ru/wp-content/uploads/materials/vodyanye.jpg
[area_modifier] => 30
[parent_name] => Теплые полы
[parent_id] => 31
[material_sum] => 403920
[work_sum] => 82500
[total_sum] => 486420
[total_days] => 9
[display_material_sum] => 403 920
[display_work_sum] => 82 500
[display_total_sum] => 486 420
)
1
486 420₽
Работа:82 500 ₽
Материалы:403 920 ₽
Дни:9
stdClass Object
(
[id] => 152
[attribute_id] => 31
[name] => Электро
[material_modifier] => 1
[work_modifier] => 1
[options] => Array
(
)
[days] => [5]
[material_price] => [6300]
[work_price] => [1500]
[image] => https://akademik-stroy.ru/wp-content/uploads/materials/ehlektricheskij.jpg
[area_modifier] => 30
[parent_name] => Теплые полы
[parent_id] => 31
[material_sum] => 249480
[work_sum] => 49500
[total_sum] => 298980
[total_days] => 5
[display_material_sum] => 249 480
[display_work_sum] => 49 500
[display_total_sum] => 298 980
)
1
298 980₽
Работа:49 500 ₽
Материалы:249 480 ₽
Дни:5
stdClass Object
(
[id] => 63
[attribute_id] => 32
[name] => Нет
[material_modifier] => 1
[work_modifier] => 1
[options] => Array
(
)
[days] => [0]
[material_price] => [0]
[work_price] => [0]
[image] => https://akademik-stroy.ru/wp-content/uploads/materials/shtukaturka-shpatlevka-1.jpg
[area_modifier] => 147.84
[parent_name] => Черновая отделка стен
[parent_id] => 32
[material_sum] => 0
[work_sum] => 0
[total_sum] => 0
[total_days] => 0
[display_material_sum] => 0
[display_work_sum] => 0
[display_total_sum] => 0
)
1
0₽
Работа:0 ₽
Материалы:0 ₽
Дни:0
stdClass Object
(
[id] => 153
[attribute_id] => 32
[name] => Штукатурка и шпатлевка
[material_modifier] => 1
[work_modifier] => 1
[options] => Array
(
)
[days] => [20]
[material_price] => [1850]
[work_price] => [2600]
[image] => https://akademik-stroy.ru/wp-content/uploads/materials/shtukaturka-shpatlevka-1.jpg
[area_modifier] => 147.84
[parent_name] => Черновая отделка стен
[parent_id] => 32
[material_sum] => 361025
[work_sum] => 422822
[total_sum] => 783847
[total_days] => 20
[display_material_sum] => 361 025
[display_work_sum] => 422 822
[display_total_sum] => 783 847
)
1
783 847₽
Работа:422 822 ₽
Материалы:361 025 ₽
Дни:20
stdClass Object
(
[id] => 154
[attribute_id] => 32
[name] => Гипсокортон на стены
[material_modifier] => 1
[work_modifier] => 1
[options] => Array
(
)
[days] => [15]
[material_price] => [950]
[work_price] => [2100]
[image] => https://akademik-stroy.ru/wp-content/uploads/materials/gkl-1.jpg
[area_modifier] => 147.84
[parent_name] => Черновая отделка стен
[parent_id] => 32
[material_sum] => 185391
[work_sum] => 341510
[total_sum] => 526901
[total_days] => 15
[display_material_sum] => 185 391
[display_work_sum] => 341 510
[display_total_sum] => 526 901
)
1
526 901₽
Работа:341 510 ₽
Материалы:185 391 ₽
Дни:15
stdClass Object
(
[id] => 155
[attribute_id] => 32
[name] => Вагонка
[material_modifier] => 1
[work_modifier] => 1
[options] => Array
(
)
[days] => [15]
[material_price] => [1250]
[work_price] => [950]
[image] => https://akademik-stroy.ru/wp-content/uploads/materials/vagonka.jpg
[area_modifier] => 147.84
[parent_name] => Черновая отделка стен
[parent_id] => 32
[material_sum] => 243936
[work_sum] => 154493
[total_sum] => 398429
[total_days] => 15
[display_material_sum] => 243 936
[display_work_sum] => 154 493
[display_total_sum] => 398 429
)
1
398 429₽
Работа:154 493 ₽
Материалы:243 936 ₽
Дни:15
stdClass Object
(
[id] => 65
[attribute_id] => 33
[name] => Нет
[material_modifier] => 1
[work_modifier] => 1
[options] => Array
(
)
[days] => [0]
[material_price] => [0]
[work_price] => [0]
[image] => https://akademik-stroy.ru/wp-content/uploads/materials/styazhka.jpg
[area_modifier] => 147.84
[parent_name] => Черновая отделка полов
[parent_id] => 33
[material_sum] => 0
[work_sum] => 0
[total_sum] => 0
[total_days] => 0
[display_material_sum] => 0
[display_work_sum] => 0
[display_total_sum] => 0
)
1
0₽
Работа:0 ₽
Материалы:0 ₽
Дни:0
stdClass Object
(
[id] => 156
[attribute_id] => 33
[name] => Стяжка + наливные полы
[material_modifier] => 1
[work_modifier] => 1
[options] => Array
(
)
[days] => [10]
[material_price] => [1000]
[work_price] => [900]
[image] => https://akademik-stroy.ru/wp-content/uploads/materials/styazhka.jpg
[area_modifier] => 147.84
[parent_name] => Черновая отделка полов
[parent_id] => 33
[material_sum] => 195149
[work_sum] => 146362
[total_sum] => 341511
[total_days] => 10
[display_material_sum] => 195 149
[display_work_sum] => 146 362
[display_total_sum] => 341 511
)
1
341 511₽
Работа:146 362 ₽
Материалы:195 149 ₽
Дни:10
stdClass Object
(
[id] => 157
[attribute_id] => 33
[name] => ОСБ на пол
[material_modifier] => 1
[work_modifier] => 1
[options] => Array
(
)
[days] => [7]
[material_price] => [580]
[work_price] => [350]
[image] => https://akademik-stroy.ru/wp-content/uploads/materials/osb-1.jpg
[area_modifier] => 147.84
[parent_name] => Черновая отделка полов
[parent_id] => 33
[material_sum] => 113186
[work_sum] => 56918
[total_sum] => 170104
[total_days] => 7
[display_material_sum] => 113 186
[display_work_sum] => 56 918
[display_total_sum] => 170 104
)
1
170 104₽
Работа:56 918 ₽
Материалы:113 186 ₽
Дни:7
stdClass Object
(
[id] => 67
[attribute_id] => 34
[name] => Нет
[material_modifier] => 1
[work_modifier] => 1
[options] => Array
(
)
[days] => [0]
[material_price] => [0]
[work_price] => [0]
[image] => https://akademik-stroy.ru/wp-content/uploads/materials/chistovaya-otdelka.jpg
[area_modifier] => 147.84
[parent_name] => Чистовая отделка стен и полов
[parent_id] => 34
[material_sum] => 0
[work_sum] => 0
[total_sum] => 0
[total_days] => 0
[display_material_sum] => 0
[display_work_sum] => 0
[display_total_sum] => 0
)
1
0₽
Работа:0 ₽
Материалы:0 ₽
Дни:0
stdClass Object
(
[id] => 68
[attribute_id] => 34
[name] => Есть
[material_modifier] => 1
[work_modifier] => 1
[options] => Array
(
)
[days] => [50]
[material_price] => [6000]
[work_price] => [3500]
[image] => https://akademik-stroy.ru/wp-content/uploads/materials/chistovaya-otdelka.jpg
[area_modifier] => 147.84
[parent_name] => Чистовая отделка стен и полов
[parent_id] => 34
[material_sum] => 1170893
[work_sum] => 569184
[total_sum] => 1740077
[total_days] => 50
[display_material_sum] => 1 170 893
[display_work_sum] => 569 184
[display_total_sum] => 1 740 077
)
1
1 740 077₽
Работа:569 184 ₽
Материалы:1 170 893 ₽
Дни:50
stdClass Object
(
[id] => 69
[attribute_id] => 35
[name] => Нет
[material_modifier] => 1
[work_modifier] => 1
[options] => Array
(
)
[days] => [0]
[material_price] => [0]
[work_price] => [0]
[image] => https://akademik-stroy.ru/wp-content/uploads/materials/mnogourovnevyj-gkl.jpg
[area_modifier] => 147.84
[parent_name] => Отделка потолка
[parent_id] => 35
[material_sum] => 0
[work_sum] => 0
[total_sum] => 0
[total_days] => 0
[display_material_sum] => 0
[display_work_sum] => 0
[display_total_sum] => 0
)
1
0₽
Работа:0 ₽
Материалы:0 ₽
Дни:0
stdClass Object
(
[id] => 70
[attribute_id] => 35
[name] => Есть
[material_modifier] => 1
[work_modifier] => 1
[options] => Array
(
[0] => Многоуровневый потолок из гипсокартона
[1] => Многоуровневый потолок из гипсокартона и натяжного потолка
[2] => Одноуровневый потолок из гипсокартона
[3] => Одноуровневый натяжной потолок
)
[days] => [10,10,1,1]
[material_price] => [900,700,700,600]
[work_price] => [1000,800,500,300]
[image] => https://akademik-stroy.ru/wp-content/uploads/materials/mnogourovnevyj-gkl.jpg
[area_modifier] => 147.84
[parent_name] => Отделка потолка
[parent_id] => 35
[material_sum] => 175634
[work_sum] => 162624
[total_sum] => 338258
[total_days] => 10
[display_material_sum] => 175 634
[display_work_sum] => 162 624
[display_total_sum] => 338 258
)
1
338 258₽
Работа:162 624 ₽
Материалы:175 634 ₽
Дни:10
Преимущества работы с нами
7 этапов оплаты
Независимый строительный надзор
Экологически чистые материалы
16 лет гарантии
Онлайн-кабинет с веб-камерой
Строители с опытом более 15 лет
Собственное производство











