Одноэтажный дом 14x14 - 784.34 м2 за руб.
Планировки
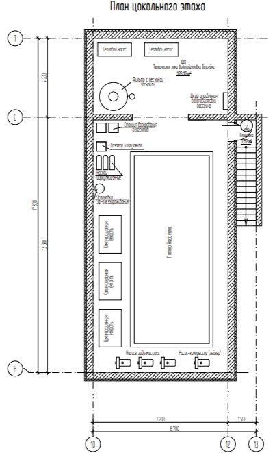
План цоколя
- 1. Техническая зона водоподготовки бассейна 128,16 м²
- Площадка 1,52 м²
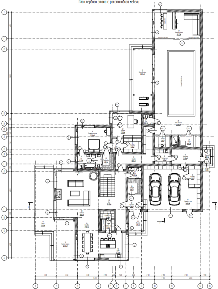
План первого этажа
- 1. Крыльцо 7,46 м²
- 2. Прихожая 5,06 м²
- 3. Гардероб 4,85 м²
- 4. Гараж 54,88 м²
- 5. Кладовка 6,02 м²
- 6. Холл 30,18 м²
- 7. Санузел 4,25 м²
- 8. Гостиная 48,55 м²
- 9. Столовая 21,02 м²
- 10. Кухня 17,27 м²
- 11. Кладовка 3,92 м²
- 12. Патио 29,63 м²
- 13. Терраса 21,46 м²
- 14. Коридор 18,51 м²
- 15. Холл 3,88 м²
- 16. Кладовая 6,13 м²
- 17. Спальня 20,16 м²
- 18. Спальня 9,30 м²
- 19. Гардеробная 4,24 м²
- 20. Кабинет 17,56 м²
- 21. Постирочная 5,33 м²
- 22. Котельная 11,02 м²
- 23. Сауна 6,45 м²
- 24. Хамам 4,29 м²
- 25. Зона бассейна 111,14 м²
- 26. Санузел 2,82 м²
- 27. Патио бассейна 29,51 м²
- 28. Комната отдыха 30,17 м²
- 29. Крыльцо 2,81 м²
- Общая площадь первого этажа 540,44 м²
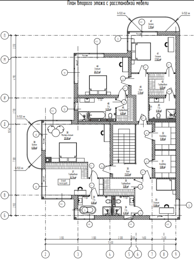
План второго этажа
- 1. Холл 13,03 м²
- 2. Кладовка (2шт) 5,98 м²
- 3. Спальня 15,88 м²
- 4. Санузел 4,34 м²
- 5. Гардеробная 5,56 м²
- 6. Спальня 25,90 м²
- 7. Гардеробная 16,74 м²
- 8. Балкон 6,58 м²
- 9. Санузел 6,85 м²
- 10. Холл 7,19 м²
- 11. Спальня 17,62 м²
- 12. Гардеробная 6,00 м²
- 13. Санузел 6,56 м²
- 14. Спальня 20,21 м²
- 15. Гардеробная 4,09 м²
- 16. Санузел 9,29 м²
- 17. Балкон 7,18 м²
- Общая площадь второго этажа 243,90 м²
Площади дома
| № п/п | Наименование | Ед. из. | Строительная площадь | Полезная площадь |
| 1 | 1 этаж | м2 | 665.98 | 540.44 |
| 2 | 2 этаж | м2 | 300.56 | 243.9 |
| 3 | Итого | м2 | 966.54 | 784.34 |
154 м2
Полезная
площадь
площадь
14 x 14 м
Размеры
1 этаж
Этажей
26 м2
Террасы
и балконы
и балконы
2Без
гаража
гаража
5+
Количество
спален
спален
5+
Количество
санузлов
санузлов
Калькулятор опций
0₽
В ипотеку от 31 645 ₽/мес.
0₽
0 дней
stdClass Object
(
[id] => 1
[attribute_id] => 1
[name] => Ленточный монолитный ж/б
[material_modifier] => 1
[work_modifier] => 1
[options] => Array
(
[0] => размер 200 х 700 мм
[1] => размер 300 х 900 мм
[2] => размер 400 х 1 000 мм
[3] => размер 500 х 1 100 мм
[4] => размер 600 х 1 200 мм
)
[days] => [20,21,22,25,30]
[material_price] => [2823,3630,4475,5210,12047]
[work_price] => [2154,2826,3731,4577,5293]
[image] => https://akademik-stroy.ru/wp-content/uploads/materials/lentochnyj-monolitnyj-zh-b.jpg
[area_modifier] => 665.98
[parent_name] => Фундамент
[parent_id] => 1
[material_sum] => 2256074
[work_sum] => 1434521
[total_sum] => 3690595
[total_days] => 20
[display_material_sum] => 2 256 074
[display_work_sum] => 1 434 521
[display_total_sum] => 3 690 595
)
1
3 690 595₽
Работа:1 434 521 ₽
Материалы:2 256 074 ₽
Дни:20
stdClass Object
(
[id] => 2
[attribute_id] => 1
[name] => Забивные Ж/Б сваи
[material_modifier] => 1
[work_modifier] => 1
[options] => Array
(
[0] => 150х150х3000мм
[1] => 150х150х4000мм
[2] => 200х200х3000мм
[3] => 200х200х4000мм
[4] => 200х200х5000мм
[5] => 200х200х6000мм
)
[days] => [2,2,2,2,2,2]
[material_price] => [1990,2850,3255,4360,5120,6837]
[work_price] => [1002,1185,1336,1438,1574,1839]
[image] => https://akademik-stroy.ru/wp-content/uploads/materials/zabivnye-zh-b-svai.png
[area_modifier] => 665.98
[parent_name] => Фундамент
[parent_id] => 1
[material_sum] => 1590360
[work_sum] => 667312
[total_sum] => 2257672
[total_days] => 2
[display_material_sum] => 1 590 360
[display_work_sum] => 667 312
[display_total_sum] => 2 257 672
)
1
2 257 672₽
Работа:667 312 ₽
Материалы:1 590 360 ₽
Дни:2
stdClass Object
(
[id] => 71
[attribute_id] => 1
[name] => Свайно-ростверковый ж/б
[material_modifier] => 1
[work_modifier] => 1
[options] => Array
(
[0] => ростверк 200х300 мм
[1] => ростверк 300х600 мм
[2] => ростверк 400х900 мм
[3] => ростверк 500х1200 мм
)
[days] => [20,23,25,27]
[material_price] => [3018,3474,7109,9792]
[work_price] => [2024,3012,5635,7022]
[image] => https://akademik-stroy.ru/wp-content/uploads/materials/svajno-rostverkovyj-monolitnyj-zh-b-3.png
[area_modifier] => 665.98
[parent_name] => Фундамент
[parent_id] => 1
[material_sum] => 2411913
[work_sum] => 1347944
[total_sum] => 3759857
[total_days] => 20
[display_material_sum] => 2 411 913
[display_work_sum] => 1 347 944
[display_total_sum] => 3 759 857
)
1
3 759 857₽
Работа:1 347 944 ₽
Материалы:2 411 913 ₽
Дни:20
stdClass Object
(
[id] => 72
[attribute_id] => 1
[name] => Монолитная ж/б плита
[material_modifier] => 1
[work_modifier] => 1
[options] => Array
(
[0] => 200 мм
[1] => 300 мм
[2] => 400 мм
[3] => 500 мм
[4] => 600 мм
)
[days] => [30,33,35,37,40]
[material_price] => [5348,8555,12788,14388,15189]
[work_price] => [4314,4881,7037,8061,10230]
[image] => https://akademik-stroy.ru/wp-content/uploads/materials/monolitnaya-zhb-plita.png
[area_modifier] => 665.98
[parent_name] => Фундамент
[parent_id] => 1
[material_sum] => 4273993
[work_sum] => 2873038
[total_sum] => 7147031
[total_days] => 30
[display_material_sum] => 4 273 993
[display_work_sum] => 2 873 038
[display_total_sum] => 7 147 031
)
1
7 147 031₽
Работа:2 873 038 ₽
Материалы:4 273 993 ₽
Дни:30
stdClass Object
(
[id] => 73
[attribute_id] => 1
[name] => Утепленная шведская плита
[material_modifier] => 1
[work_modifier] => 1
[options] => Array
(
[0] => 200 мм
[1] => 300 мм
[2] => 400 мм
[3] => 500 мм
[4] => 600 мм
)
[days] => [32,37,39,42,45]
[material_price] => [10249,12692,13760,14936,16230]
[work_price] => [5960,7337,8072,8878,9765]
[image] => https://akademik-stroy.ru/wp-content/uploads/materials/uteplennaya-shvedskaya-plita.jpg
[area_modifier] => 665.98
[parent_name] => Фундамент
[parent_id] => 1
[material_sum] => 8190755
[work_sum] => 3969241
[total_sum] => 12159996
[total_days] => 32
[display_material_sum] => 8 190 755
[display_work_sum] => 3 969 241
[display_total_sum] => 12 159 996
)
1
12 159 996₽
Работа:3 969 241 ₽
Материалы:8 190 755 ₽
Дни:32
stdClass Object
(
[id] => 75
[attribute_id] => 1
[name] => Ленточный из ФБС
[material_modifier] => 1
[work_modifier] => 1
[options] => Array
(
[0] => толщ. 300 мм
[1] => толщ. 400 мм
[2] => толщ. 500 мм
[3] => толщ. 600 мм
)
[days] => [20,20,20,20]
[material_price] => [3675,4902,6126,7350]
[work_price] => [2451,3264,4083,4902]
[image] => https://akademik-stroy.ru/wp-content/uploads/materials/lentochnyj-iz-fbs.png
[area_modifier] => 665.98
[parent_name] => Фундамент
[parent_id] => 1
[material_sum] => 2936972
[work_sum] => 1632317
[total_sum] => 4569289
[total_days] => 20
[display_material_sum] => 2 936 972
[display_work_sum] => 1 632 317
[display_total_sum] => 4 569 289
)
1
4 569 289₽
Работа:1 632 317 ₽
Материалы:2 936 972 ₽
Дни:20
stdClass Object
(
[id] => 76
[attribute_id] => 1
[name] => Цокольный этаж из ФБС
[material_modifier] => 1
[work_modifier] => 1
[options] => Array
(
[0] => толщ. 300 мм
[1] => толщ. 400 мм
[2] => толщ. 500 мм
[3] => толщ. 600 мм
)
[days] => [30,32,34,36]
[material_price] => [20916,23299,26680,29060]
[work_price] => [17524,18700,19873,21046]
[image] => https://akademik-stroy.ru/wp-content/uploads/materials/cokolnyj-ehtazh-iz-fbs.jpg
[area_modifier] => 665.98
[parent_name] => Фундамент
[parent_id] => 1
[material_sum] => 16715565
[work_sum] => 11670634
[total_sum] => 28386199
[total_days] => 30
[display_material_sum] => 16 715 565
[display_work_sum] => 11 670 634
[display_total_sum] => 28 386 199
)
1
28 386 199₽
Работа:11 670 634 ₽
Материалы:16 715 565 ₽
Дни:30
stdClass Object
(
[id] => 77
[attribute_id] => 1
[name] => Цокольный этаж монолитный ж/б
[material_modifier] => 1
[work_modifier] => 1
[options] => Array
(
[0] => толщ. 200 мм
[1] => толщ. 300 мм
[2] => толщ. 400 мм
[3] => толщ. 500 мм
[4] => толщ. 600 мм
)
[days] => [40,42,44,46,48]
[material_price] => [25421,29148,32275,35602,37326]
[work_price] => [20441,21907,23375,24841,26306]
[image] => https://akademik-stroy.ru/wp-content/uploads/materials/cokolnyj-etazh-zh-b.jpg
[area_modifier] => 665.98
[parent_name] => Фундамент
[parent_id] => 1
[material_sum] => 20315853
[work_sum] => 13613297
[total_sum] => 33929150
[total_days] => 40
[display_material_sum] => 20 315 853
[display_work_sum] => 13 613 297
[display_total_sum] => 33 929 150
)
1
33 929 150₽
Работа:13 613 297 ₽
Материалы:20 315 853 ₽
Дни:40
stdClass Object
(
[id] => 191
[attribute_id] => 1
[name] => Винтовые сваи
[material_modifier] => 1
[work_modifier] => 1
[options] => Array
(
[0] => 57х200мм
[1] => 76х250мм
[2] => 108х300мм
[3] => 133х350мм
)
[days] => [1,1,2,2]
[material_price] => [1200,1300,1450,1600]
[work_price] => [400,600,900,1100]
[image] => https://akademik-stroy.ru/wp-content/uploads/materials/vintovye-svai.png
[area_modifier] => 665.98
[parent_name] => Фундамент
[parent_id] => 1
[material_sum] => 959011
[work_sum] => 266392
[total_sum] => 1225403
[total_days] => 1
[display_material_sum] => 959 011
[display_work_sum] => 266 392
[display_total_sum] => 1 225 403
)
1
1 225 403₽
Работа:266 392 ₽
Материалы:959 011 ₽
Дни:1
stdClass Object
(
[id] => 3
[attribute_id] => 2
[name] => Деревянные балки
[material_modifier] => 1
[work_modifier] => 1
[options] => Array
(
[0] => без утепления
[1] => утепление 200 мм
[2] => утепление 250 мм
[3] => утепление 300 мм
[4] => утепление 350 мм
[5] => утепление 400 мм
[6] => утепление 450 мм
[7] => утепление 500 мм
)
[days] => [8,9,9,9,11,12,13,14]
[material_price] => [1634,2042,2344,2947,3149,3652,3354,3557]
[work_price] => [1230,1339,1393,1426,1460,1513,1587,1620]
[image] => https://akademik-stroy.ru/wp-content/uploads/materials/derevyannye-balki.png
[area_modifier] => 665.98
[parent_name] => Перекрытие цоколя
[parent_id] => 2
[material_sum] => 1305854
[work_sum] => 819155
[total_sum] => 2125009
[total_days] => 8
[display_material_sum] => 1 305 854
[display_work_sum] => 819 155
[display_total_sum] => 2 125 009
)
1
2 125 009₽
Работа:819 155 ₽
Материалы:1 305 854 ₽
Дни:8
stdClass Object
(
[id] => 4
[attribute_id] => 2
[name] => Сборные ж/б плиты
[material_modifier] => 1
[work_modifier] => 1
[options] => Array
(
[0] => без утепления
[1] => утепление 150мм
[2] => утепление 200мм
[3] => утепление 250мм
[4] => утепление 300мм
[5] => утепление 350мм
[6] => утепление 400мм
[7] => утепление 450мм
[8] => утепление 500мм
)
[days] => [13,15,15,15,15,15,15,15,15]
[material_price] => [3067,5577,5928,6679,7730,8782,9833,10884,11935]
[work_price] => [1520,1956,2102,2247,2392,2537,2684,2829,2974]
[image] => https://akademik-stroy.ru/wp-content/uploads/materials/sbornye-zh-b-plity-2.jpg
[area_modifier] => 665.98
[parent_name] => Перекрытие цоколя
[parent_id] => 2
[material_sum] => 2451073
[work_sum] => 1012290
[total_sum] => 3463363
[total_days] => 13
[display_material_sum] => 2 451 073
[display_work_sum] => 1 012 290
[display_total_sum] => 3 463 363
)
1
3 463 363₽
Работа:1 012 290 ₽
Материалы:2 451 073 ₽
Дни:13
stdClass Object
(
[id] => 78
[attribute_id] => 2
[name] => Монолитная ж/б плита
[material_modifier] => 1
[work_modifier] => 1
[options] => Array
(
[0] => без утепления
[1] => утепление 150 мм
[2] => утепление 200 мм
[3] => утепление 250 мм
[4] => утепление 300 мм
[5] => утепление 350 мм
[6] => утепление 400 мм
[7] => утепление 450 мм
[8] => утепление 500 мм
)
[days] => [18,20,20,20,20,20,20,20,20]
[material_price] => [4837,6572,7224,7375,79426,8177,8728,9180,10031]
[work_price] => [3348,3921,4112,4302,4493,4684,4875,5066,5256]
[image] => https://akademik-stroy.ru/wp-content/uploads/materials/monolitnaya-zh-b-plita-2.jpg
[area_modifier] => 665.98
[parent_name] => Перекрытие цоколя
[parent_id] => 2
[material_sum] => 3865614
[work_sum] => 2229701
[total_sum] => 6095315
[total_days] => 18
[display_material_sum] => 3 865 614
[display_work_sum] => 2 229 701
[display_total_sum] => 6 095 315
)
1
6 095 315₽
Работа:2 229 701 ₽
Материалы:3 865 614 ₽
Дни:18
stdClass Object
(
[id] => 6
[attribute_id] => 3
[name] => Пеноблок
[material_modifier] => 1
[work_modifier] => 1
[options] => Array
(
[0] => 300 мм
[1] => 400 мм
[2] => 500 мм
[3] => 600 мм
)
[days] => [29,31,34,39]
[material_price] => [3000,4000,4500,4937]
[work_price] => [5033,5805,6400,8710]
[image] => https://akademik-stroy.ru/wp-content/uploads/materials/penoblok.jpg
[area_modifier] => 665.98
[parent_name] => Стены 1 этаж (несущие)
[parent_id] => 3
[material_sum] => 2397528
[work_sum] => 3351877
[total_sum] => 5749405
[total_days] => 29
[display_material_sum] => 2 397 528
[display_work_sum] => 3 351 877
[display_total_sum] => 5 749 405
)
1
5 749 405₽
Работа:3 351 877 ₽
Материалы:2 397 528 ₽
Дни:29
stdClass Object
(
[id] => 79
[attribute_id] => 3
[name] => Керамический блок
[material_modifier] => 1
[work_modifier] => 1
[options] => Array
(
[0] => 380 мм
[1] => 380 мм Thermo
[2] => 440 мм
[3] => 510 мм
)
[days] => [23,23,24,25]
[material_price] => [4510,5098,6093,8013]
[work_price] => [4737,4937,5903,6958]
[image] => https://akademik-stroy.ru/wp-content/uploads/materials/keramicheskij-blok.jpg
[area_modifier] => 665.98
[parent_name] => Стены 1 этаж (несущие)
[parent_id] => 3
[material_sum] => 3604284
[work_sum] => 3154747
[total_sum] => 6759031
[total_days] => 23
[display_material_sum] => 3 604 284
[display_work_sum] => 3 154 747
[display_total_sum] => 6 759 031
)
1
6 759 031₽
Работа:3 154 747 ₽
Материалы:3 604 284 ₽
Дни:23
stdClass Object
(
[id] => 80
[attribute_id] => 3
[name] => Кирпич
[material_modifier] => 1
[work_modifier] => 1
[options] => Array
(
[0] => Кирпич 250 мм
[1] => Кирпич 380 мм
[2] => Кирпич 510 мм
[3] => Кирпич 640 мм
[4] => Кирпич 770 мм
)
[days] => [30,30,31,33,36]
[material_price] => [5500,7142,9206,10171,12235]
[work_price] => [8736,10041,12018,15240,18462]
[image] => https://akademik-stroy.ru/wp-content/uploads/materials/kirpich.jpg
[area_modifier] => 665.98
[parent_name] => Стены 1 этаж (несущие)
[parent_id] => 3
[material_sum] => 4395468
[work_sum] => 5818001
[total_sum] => 10213469
[total_days] => 30
[display_material_sum] => 4 395 468
[display_work_sum] => 5 818 001
[display_total_sum] => 10 213 469
)
1
10 213 469₽
Работа:5 818 001 ₽
Материалы:4 395 468 ₽
Дни:30
stdClass Object
(
[id] => 81
[attribute_id] => 3
[name] => Монолитные
[material_modifier] => 1
[work_modifier] => 1
[options] => Array
(
[0] => 150 мм
[1] => 200 мм
[2] => 250 мм
[3] => 300 мм
[4] => 350 мм
[5] => 400 мм
)
[days] => [45,46,47,49,50,53]
[material_price] => [6545,7876,10175,12011,13908,15204]
[work_price] => [5106,6444,7698,8552,9807,11461]
[image] => https://akademik-stroy.ru/wp-content/uploads/materials/monolitnye.jpg
[area_modifier] => 665.98
[parent_name] => Стены 1 этаж (несущие)
[parent_id] => 3
[material_sum] => 5230607
[work_sum] => 3400494
[total_sum] => 8631101
[total_days] => 45
[display_material_sum] => 5 230 607
[display_work_sum] => 3 400 494
[display_total_sum] => 8 631 101
)
1
8 631 101₽
Работа:3 400 494 ₽
Материалы:5 230 607 ₽
Дни:45
stdClass Object
(
[id] => 82
[attribute_id] => 3
[name] => Клееный брус
[material_modifier] => 1
[work_modifier] => 1
[options] => Array
(
[0] => 160 мм
[1] => 175 мм
[2] => 200 мм
[3] => 215 мм
[4] => 240 мм
[5] => 270 мм
[6] => 282 мм
)
[days] => [24,28,32,37,40,42,48]
[material_price] => [16975,18773,19950,20545,21599,22159,23275]
[work_price] => [4806,5287,5815,6397,7036,7740,8514]
[image] => https://akademik-stroy.ru/wp-content/uploads/materials/kleenyj-brus.jpg
[area_modifier] => 665.98
[parent_name] => Стены 1 этаж (несущие)
[parent_id] => 3
[material_sum] => 13566013
[work_sum] => 3200700
[total_sum] => 16766713
[total_days] => 24
[display_material_sum] => 13 566 013
[display_work_sum] => 3 200 700
[display_total_sum] => 16 766 713
)
1
16 766 713₽
Работа:3 200 700 ₽
Материалы:13 566 013 ₽
Дни:24
stdClass Object
(
[id] => 83
[attribute_id] => 3
[name] => Каркасные
[material_modifier] => 1
[work_modifier] => 1
[options] => Array
(
[0] => 150 мм
[1] => 200 мм
[2] => 250 мм
[3] => 300 мм
)
[days] => [15,16,17,18]
[material_price] => [2379,2639,2898,3258]
[work_price] => [2418,2686,2985,3716]
[image] => https://akademik-stroy.ru/wp-content/uploads/materials/karkasnye.jpg
[area_modifier] => 665.98
[parent_name] => Стены 1 этаж (несущие)
[parent_id] => 3
[material_sum] => 1901240
[work_sum] => 1610340
[total_sum] => 3511580
[total_days] => 15
[display_material_sum] => 1 901 240
[display_work_sum] => 1 610 340
[display_total_sum] => 3 511 580
)
1
3 511 580₽
Работа:1 610 340 ₽
Материалы:1 901 240 ₽
Дни:15
stdClass Object
(
[id] => 84
[attribute_id] => 3
[name] => СИП-панели
[material_modifier] => 1
[work_modifier] => 1
[options] => Array
(
[0] => 120 мм
[1] => 170 мм
[2] => 220 мм
)
[days] => [7,7,7]
[material_price] => [1210,1856,2292]
[work_price] => [1410,1551,1706]
[image] => https://akademik-stroy.ru/wp-content/uploads/materials/sip-paneli.jpg
[area_modifier] => 665.98
[parent_name] => Стены 1 этаж (несущие)
[parent_id] => 3
[material_sum] => 967003
[work_sum] => 939032
[total_sum] => 1906035
[total_days] => 7
[display_material_sum] => 967 003
[display_work_sum] => 939 032
[display_total_sum] => 1 906 035
)
1
1 906 035₽
Работа:939 032 ₽
Материалы:967 003 ₽
Дни:7
stdClass Object
(
[id] => 85
[attribute_id] => 3
[name] => Сухой брус
[material_modifier] => 1
[work_modifier] => 1
[options] => Array
(
[0] => 150 мм
[1] => 180 мм
[2] => 200 мм
)
[days] => [7,8,9]
[material_price] => [6010,7190,8709]
[work_price] => [3204,3845,4229]
[image] => https://akademik-stroy.ru/wp-content/uploads/materials/suhoj-brus.jpg
[area_modifier] => 665.98
[parent_name] => Стены 1 этаж (несущие)
[parent_id] => 3
[material_sum] => 4803048
[work_sum] => 2133800
[total_sum] => 6936848
[total_days] => 7
[display_material_sum] => 4 803 048
[display_work_sum] => 2 133 800
[display_total_sum] => 6 936 848
)
1
6 936 848₽
Работа:2 133 800 ₽
Материалы:4 803 048 ₽
Дни:7
stdClass Object
(
[id] => 86
[attribute_id] => 3
[name] => Профилированный брус
[material_modifier] => 1
[work_modifier] => 1
[options] => Array
(
[0] => 150 мм
[1] => 180 мм
[2] => 200 мм
)
[days] => [7,8,9]
[material_price] => [8190,9228,10051]
[work_price] => [3845,4614,5075]
[image] => https://akademik-stroy.ru/wp-content/uploads/materials/profilirovannyj-brus.jpg
[area_modifier] => 665.98
[parent_name] => Стены 1 этаж (несущие)
[parent_id] => 3
[material_sum] => 6545251
[work_sum] => 2560693
[total_sum] => 9105944
[total_days] => 7
[display_material_sum] => 6 545 251
[display_work_sum] => 2 560 693
[display_total_sum] => 9 105 944
)
1
9 105 944₽
Работа:2 560 693 ₽
Материалы:6 545 251 ₽
Дни:7
stdClass Object
(
[id] => 87
[attribute_id] => 3
[name] => Оцилиндрованное бревно
[material_modifier] => 1
[work_modifier] => 1
[options] => Array
(
[0] => 180 мм
[1] => 220 мм
[2] => 260 мм
[3] => 320 мм
)
[days] => [7,8,9,10]
[material_price] => [75190,9532,10868,13116]
[work_price] => [3845,4691,5535,6863]
[image] => https://akademik-stroy.ru/wp-content/uploads/materials/ocilindrovannoe-brevno-1.jpg
[area_modifier] => 665.98
[parent_name] => Стены 1 этаж (несущие)
[parent_id] => 3
[material_sum] => 60090043
[work_sum] => 2560693
[total_sum] => 62650736
[total_days] => 7
[display_material_sum] => 60 090 043
[display_work_sum] => 2 560 693
[display_total_sum] => 62 650 736
)
1
62 650 736₽
Работа:2 560 693 ₽
Материалы:60 090 043 ₽
Дни:7
stdClass Object
(
[id] => 88
[attribute_id] => 3
[name] => Срубы
[material_modifier] => 1
[work_modifier] => 1
[options] => Array
(
[0] => 260 мм
[1] => 320 мм
[2] => 360 мм
[3] => 400 мм
[4] => 500 мм
)
[days] => [7,8,9,10,11]
[material_price] => [37975,46709,52314,58069,73167]
[work_price] => [4806,5911,6621,7349,9260]
[image] => https://akademik-stroy.ru/wp-content/uploads/materials/sruby.jpg
[area_modifier] => 665.98
[parent_name] => Стены 1 этаж (несущие)
[parent_id] => 3
[material_sum] => 30348709
[work_sum] => 3200700
[total_sum] => 33549409
[total_days] => 7
[display_material_sum] => 30 348 709
[display_work_sum] => 3 200 700
[display_total_sum] => 33 549 409
)
1
33 549 409₽
Работа:3 200 700 ₽
Материалы:30 348 709 ₽
Дни:7
stdClass Object
(
[id] => 174
[attribute_id] => 3
[name] => Брус
[material_modifier] => 1
[work_modifier] => 1
[options] => Array
(
[0] => 150 мм
[1] => 180 мм
[2] => 200 мм
)
[days] => [7,8,9]
[material_price] => [5127,6152,7367]
[work_price] => [1602,1922,2115]
[image] => https://akademik-stroy.ru/wp-content/uploads/materials/brus.jpg
[area_modifier] => 665.98
[parent_name] => Стены 1 этаж (несущие)
[parent_id] => 3
[material_sum] => 4097375
[work_sum] => 1066900
[total_sum] => 5164275
[total_days] => 7
[display_material_sum] => 4 097 375
[display_work_sum] => 1 066 900
[display_total_sum] => 5 164 275
)
1
5 164 275₽
Работа:1 066 900 ₽
Материалы:4 097 375 ₽
Дни:7
stdClass Object
(
[id] => 175
[attribute_id] => 3
[name] => Газобетон
[material_modifier] => 1
[work_modifier] => 1
[options] => Array
(
[0] => 300 мм
[1] => 375 мм
[2] => 400 мм
[3] => 500 мм
[4] => 600 мм
)
[days] => [29,31,35,37,44]
[material_price] => [4298,5573,6356,7288,9119]
[work_price] => [4538,5251,5926,6733,7195]
[image] => https://akademik-stroy.ru/wp-content/uploads/materials/gazobeton.jpg
[area_modifier] => 665.98
[parent_name] => Стены 1 этаж (несущие)
[parent_id] => 3
[material_sum] => 3434858
[work_sum] => 3022217
[total_sum] => 6457075
[total_days] => 29
[display_material_sum] => 3 434 858
[display_work_sum] => 3 022 217
[display_total_sum] => 6 457 075
)
1
6 457 075₽
Работа:3 022 217 ₽
Материалы:3 434 858 ₽
Дни:29
stdClass Object
(
[id] => 176
[attribute_id] => 3
[name] => Блок
[material_modifier] => 1
[work_modifier] => 1
[options] => Array
(
[0] => 300 мм
[1] => 375 мм
[2] => 400 мм
[3] => 500 мм
[4] => 600 мм
)
[days] => [29,31,35,37,44]
[material_price] => [2698,3973,4356,6588,7119]
[work_price] => [5038,5851,6426,8733,9195]
[image] => https://akademik-stroy.ru/wp-content/uploads/materials/blok.jpg
[area_modifier] => 665.98
[parent_name] => Стены 1 этаж (несущие)
[parent_id] => 3
[material_sum] => 2156177
[work_sum] => 3355207
[total_sum] => 5511384
[total_days] => 29
[display_material_sum] => 2 156 177
[display_work_sum] => 3 355 207
[display_total_sum] => 5 511 384
)
1
5 511 384₽
Работа:3 355 207 ₽
Материалы:2 156 177 ₽
Дни:29
stdClass Object
(
[id] => 177
[attribute_id] => 3
[name] => Газосиликатный блок
[material_modifier] => 1
[work_modifier] => 1
[options] => Array
(
[0] => 300 мм
[1] => 375 мм
[2] => 400 мм
[3] => 500 мм
[4] => 600 мм
)
[days] => [29,31,35,37,44]
[material_price] => [4298,5573,6356,7288,9119]
[work_price] => [4538,5251,5926,6733,7195]
[image] => https://akademik-stroy.ru/wp-content/uploads/materials/gazosilikatnyj-blok.jpg
[area_modifier] => 665.98
[parent_name] => Стены 1 этаж (несущие)
[parent_id] => 3
[material_sum] => 3434858
[work_sum] => 3022217
[total_sum] => 6457075
[total_days] => 29
[display_material_sum] => 3 434 858
[display_work_sum] => 3 022 217
[display_total_sum] => 6 457 075
)
1
6 457 075₽
Работа:3 022 217 ₽
Материалы:3 434 858 ₽
Дни:29
stdClass Object
(
[id] => 178
[attribute_id] => 3
[name] => Керамзитобетонный блок
[material_modifier] => 1
[work_modifier] => 1
[options] => Array
(
[0] => 300 мм
[1] => 375 мм
[2] => 400 мм
[3] => 500 мм
[4] => 600 мм
)
[days] => [23,23,24,25,28]
[material_price] => [3641,4298,5693,7613,9612]
[work_price] => [5737,5737,6903,7958,8901]
[image] => https://akademik-stroy.ru/wp-content/uploads/materials/keramzitobetonnyj-blok.jpg
[area_modifier] => 665.98
[parent_name] => Стены 1 этаж (несущие)
[parent_id] => 3
[material_sum] => 2909800
[work_sum] => 3820727
[total_sum] => 6730527
[total_days] => 23
[display_material_sum] => 2 909 800
[display_work_sum] => 3 820 727
[display_total_sum] => 6 730 527
)
1
6 730 527₽
Работа:3 820 727 ₽
Материалы:2 909 800 ₽
Дни:23
stdClass Object
(
[id] => 179
[attribute_id] => 3
[name] => Деревянные
[material_modifier] => 1
[work_modifier] => 1
[options] => Array
(
[0] => 180 мм
[1] => 220 мм
[2] => 260 мм
[3] => 320 мм
)
[days] => [7,8,9,10]
[material_price] => [7950,9458,11961,14472]
[work_price] => [4037,4925,5812,7207]
[image] => https://akademik-stroy.ru/wp-content/uploads/materials/derevyannye.jpg
[area_modifier] => 665.98
[parent_name] => Стены 1 этаж (несущие)
[parent_id] => 3
[material_sum] => 6353449
[work_sum] => 2688561
[total_sum] => 9042010
[total_days] => 7
[display_material_sum] => 6 353 449
[display_work_sum] => 2 688 561
[display_total_sum] => 9 042 010
)
1
9 042 010₽
Работа:2 688 561 ₽
Материалы:6 353 449 ₽
Дни:7
stdClass Object
(
[id] => 181
[attribute_id] => 3
[name] => Камень
[material_modifier] => 1
[work_modifier] => 1
[options] => Array
(
[0] => 300 мм
[1] => 400 мм
[2] => 500 мм
[3] => 600 мм
)
[days] => [25,27,31,34]
[material_price] => [5262,6844,8330,9815]
[work_price] => [8331,9135,10427,11069]
[image] => https://akademik-stroy.ru/wp-content/uploads/materials/kamen.jpg
[area_modifier] => 665.98
[parent_name] => Стены 1 этаж (несущие)
[parent_id] => 3
[material_sum] => 4205264
[work_sum] => 5548279
[total_sum] => 9753543
[total_days] => 25
[display_material_sum] => 4 205 264
[display_work_sum] => 5 548 279
[display_total_sum] => 9 753 543
)
1
9 753 543₽
Работа:5 548 279 ₽
Материалы:4 205 264 ₽
Дни:25
stdClass Object
(
[id] => 182
[attribute_id] => 3
[name] => Каркасно-щитовые
[material_modifier] => 1
[work_modifier] => 1
[options] => Array
(
[0] => 150 мм
[1] => 200 мм
[2] => 250 мм
[3] => 300 мм
[4] => 350 мм
[5] => 400 мм
)
[days] => [15,16,17,18,19,20]
[material_price] => [2379,2639,2898,3458,3601,4175]
[work_price] => [2538,2820,3134,3483,4062,5642]
[image] => https://akademik-stroy.ru/wp-content/uploads/materials/karkasno-shchitovye.jpg
[area_modifier] => 665.98
[parent_name] => Стены 1 этаж (несущие)
[parent_id] => 3
[material_sum] => 1901240
[work_sum] => 1690257
[total_sum] => 3591497
[total_days] => 15
[display_material_sum] => 1 901 240
[display_work_sum] => 1 690 257
[display_total_sum] => 3 591 497
)
1
3 591 497₽
Работа:1 690 257 ₽
Материалы:1 901 240 ₽
Дни:15
stdClass Object
(
[id] => 183
[attribute_id] => 3
[name] => Рубленные
[material_modifier] => 1
[work_modifier] => 1
[options] => Array
(
[0] => 150 мм
[1] => 200 мм
[2] => 250 мм
[3] => 300 мм
[4] => 350 мм
[5] => 400 мм
)
[days] => [15,16,17,18,17,18]
[material_price] => [35950,50267,60583,75900,80217,100533]
[work_price] => [9612,12816,16020,19224,22428,25632]
[image] => https://akademik-stroy.ru/wp-content/uploads/materials/rublennye.jpg
[area_modifier] => 665.98
[parent_name] => Стены 1 этаж (несущие)
[parent_id] => 3
[material_sum] => 28730377
[work_sum] => 6401400
[total_sum] => 35131777
[total_days] => 15
[display_material_sum] => 28 730 377
[display_work_sum] => 6 401 400
[display_total_sum] => 35 131 777
)
1
35 131 777₽
Работа:6 401 400 ₽
Материалы:28 730 377 ₽
Дни:15
stdClass Object
(
[id] => 185
[attribute_id] => 3
[name] => Теплоблок
[material_modifier] => 1
[work_modifier] => 1
[options] => Array
(
[0] => 300 мм (с облицовкой, не покрашенный)
[1] => 400 мм (с облицовкой, не покрашенный)
[2] => 300 мм (с облицовкой, покрашенный)
[3] => 400 мм (с облицовкой, покрашенный)
)
[days] => [15,16,15,16]
[material_price] => [2888,3729,3957,4258]
[work_price] => [2564,3229,2949,3713]
[image] => https://akademik-stroy.ru/wp-content/uploads/materials/teploblok.jpg
[area_modifier] => 665.98
[parent_name] => Стены 1 этаж (несущие)
[parent_id] => 3
[material_sum] => 2308020
[work_sum] => 1707573
[total_sum] => 4015593
[total_days] => 15
[display_material_sum] => 2 308 020
[display_work_sum] => 1 707 573
[display_total_sum] => 4 015 593
)
1
4 015 593₽
Работа:1 707 573 ₽
Материалы:2 308 020 ₽
Дни:15
stdClass Object
(
[id] => 186
[attribute_id] => 3
[name] => Арболитовые блоки
[material_modifier] => 1
[work_modifier] => 1
[options] => Array
(
[0] => 300 мм
[1] => 400 мм
[2] => 600 мм
)
[days] => [19,22,27]
[material_price] => [3210,4475,5852]
[work_price] => [4214,4788,5866]
[image] => https://akademik-stroy.ru/wp-content/uploads/materials/arbolitovye-bloki.png
[area_modifier] => 665.98
[parent_name] => Стены 1 этаж (несущие)
[parent_id] => 3
[material_sum] => 2565355
[work_sum] => 2806440
[total_sum] => 5371795
[total_days] => 19
[display_material_sum] => 2 565 355
[display_work_sum] => 2 806 440
[display_total_sum] => 5 371 795
)
1
5 371 795₽
Работа:2 806 440 ₽
Материалы:2 565 355 ₽
Дни:19
stdClass Object
(
[id] => 187
[attribute_id] => 3
[name] => Полистиролбетон
[material_modifier] => 1
[work_modifier] => 1
[options] => Array
(
[0] => 300 мм
[1] => 400 мм
[2] => 600 мм
)
[days] => [29,31,35]
[material_price] => [2798,4573,5256]
[work_price] => [5038,5851,6426]
[image] => https://akademik-stroy.ru/wp-content/uploads/materials/polistirolbeton.jpg
[area_modifier] => 665.98
[parent_name] => Стены 1 этаж (несущие)
[parent_id] => 3
[material_sum] => 2236094
[work_sum] => 3355207
[total_sum] => 5591301
[total_days] => 29
[display_material_sum] => 2 236 094
[display_work_sum] => 3 355 207
[display_total_sum] => 5 591 301
)
1
5 591 301₽
Работа:3 355 207 ₽
Материалы:2 236 094 ₽
Дни:29
stdClass Object
(
[id] => 188
[attribute_id] => 3
[name] => Шлакоблок
[material_modifier] => 1
[work_modifier] => 1
[options] => Array
(
[0] => 400 мм
[1] => 600 мм
)
[days] => [15,16]
[material_price] => [2391,3471]
[work_price] => [2642,3662]
[image] => https://akademik-stroy.ru/wp-content/uploads/materials/shlakoblok.jpg
[area_modifier] => 665.98
[parent_name] => Стены 1 этаж (несущие)
[parent_id] => 3
[material_sum] => 1910830
[work_sum] => 1759519
[total_sum] => 3670349
[total_days] => 15
[display_material_sum] => 1 910 830
[display_work_sum] => 1 759 519
[display_total_sum] => 3 670 349
)
1
3 670 349₽
Работа:1 759 519 ₽
Материалы:1 910 830 ₽
Дни:15
stdClass Object
(
[id] => 189
[attribute_id] => 3
[name] => Теплая керамика
[material_modifier] => 1
[work_modifier] => 1
[options] => Array
(
[0] => 380 мм
[1] => 380 мм Thermo
[2] => 440 мм
[3] => 510 мм
)
[days] => [23,23,24,25]
[material_price] => [4510,5098,6093,8013]
[work_price] => [4737,4937,5903,6958]
[image] => https://akademik-stroy.ru/wp-content/uploads/materials/teplaya-keramika.jpg
[area_modifier] => 665.98
[parent_name] => Стены 1 этаж (несущие)
[parent_id] => 3
[material_sum] => 3604284
[work_sum] => 3154747
[total_sum] => 6759031
[total_days] => 23
[display_material_sum] => 3 604 284
[display_work_sum] => 3 154 747
[display_total_sum] => 6 759 031
)
1
6 759 031₽
Работа:3 154 747 ₽
Материалы:3 604 284 ₽
Дни:23
stdClass Object
(
[id] => 190
[attribute_id] => 3
[name] => Несъемная опалубка
[material_modifier] => 1
[work_modifier] => 1
[options] => Array
(
[0] => 200 мм
[1] => 250 мм
[2] => 300 мм
[3] => 350 мм
)
[days] => [15,17,19,21]
[material_price] => [3302,3902,4108,5008]
[work_price] => [2100,2100,2300,2534]
[image] => https://akademik-stroy.ru/wp-content/uploads/materials/nesemnaya-opalubka.jpg
[area_modifier] => 665.98
[parent_name] => Стены 1 этаж (несущие)
[parent_id] => 3
[material_sum] => 2638879
[work_sum] => 1398558
[total_sum] => 4037437
[total_days] => 15
[display_material_sum] => 2 638 879
[display_work_sum] => 1 398 558
[display_total_sum] => 4 037 437
)
1
4 037 437₽
Работа:1 398 558 ₽
Материалы:2 638 879 ₽
Дни:15
stdClass Object
(
[id] => 251
[attribute_id] => 3
[name] => Бревно
[material_modifier] => 1
[work_modifier] => 1
[options] => Array
(
[0] => 260 мм
[1] => 320 мм
[2] => 360 мм
[3] => 400 мм
[4] => 500 мм
)
[days] => [7,8,9,10,11]
[material_price] => [1874,24045,26930,30972,38825]
[work_price] => [5046,6207,6952,7716,9723]
[image] => https://akademik-stroy.ru/wp-content/uploads/materials/sruby.jpg
[area_modifier] => 665.98
[parent_name] => Стены 1 этаж (несущие)
[parent_id] => 3
[material_sum] => 1497656
[work_sum] => 3360535
[total_sum] => 4858191
[total_days] => 7
[display_material_sum] => 1 497 656
[display_work_sum] => 3 360 535
[display_total_sum] => 4 858 191
)
1
4 858 191₽
Работа:3 360 535 ₽
Материалы:1 497 656 ₽
Дни:7
stdClass Object
(
[id] => 7
[attribute_id] => 4
[name] => Деревянные балки
[material_modifier] => 1
[work_modifier] => 1
[options] => Array
(
[0] => без утепления
[1] => утепление 200 мм
[2] => утепление 250 мм
[3] => утепление 300 мм
[4] => утепление 350 мм
[5] => утепление 400 мм
[6] => утепление 450 мм
[7] => утепление 500 мм
)
[days] => [8,9,9,9,11,12,13,14]
[material_price] => [1634,2042,2344,2947,3149,3652,3354,3557]
[work_price] => [1230,1339,1393,1426,1460,1513,1587,1620]
[image] => https://akademik-stroy.ru/wp-content/uploads/materials/derevyannye-balki.png
[area_modifier] => 665.98
[parent_name] => Перекрытие первого этажа
[parent_id] => 4
[material_sum] => 1305854
[work_sum] => 819155
[total_sum] => 2125009
[total_days] => 8
[display_material_sum] => 1 305 854
[display_work_sum] => 819 155
[display_total_sum] => 2 125 009
)
1
2 125 009₽
Работа:819 155 ₽
Материалы:1 305 854 ₽
Дни:8
stdClass Object
(
[id] => 8
[attribute_id] => 4
[name] => Сборные ж/б плиты
[material_modifier] => 1
[work_modifier] => 1
[options] => Array
(
[0] => без утепления
[1] => утепление 150 мм
[2] => утепление 200 мм
[3] => утепление 250 мм
[4] => утепление 300 мм
[5] => утепление 350 мм
[6] => утепление 400 мм
[7] => утепление 450 мм
[8] => утепление 500 мм
)
[days] => [13,15,15,15,15,15,15,15,15]
[material_price] => [3067,5577,5928,6679,7730,8782,9833,10884,11935]
[work_price] => [1520,1956,2102,2247,2392,2537,2684,2829,2974]
[image] => https://akademik-stroy.ru/wp-content/uploads/materials/sbornye-zh-b-plity-2.jpg
[area_modifier] => 665.98
[parent_name] => Перекрытие первого этажа
[parent_id] => 4
[material_sum] => 2451073
[work_sum] => 1012290
[total_sum] => 3463363
[total_days] => 13
[display_material_sum] => 2 451 073
[display_work_sum] => 1 012 290
[display_total_sum] => 3 463 363
)
1
3 463 363₽
Работа:1 012 290 ₽
Материалы:2 451 073 ₽
Дни:13
stdClass Object
(
[id] => 89
[attribute_id] => 4
[name] => Монолитная ж/б плита
[material_modifier] => 1
[work_modifier] => 1
[options] => Array
(
[0] => без утепления
[1] => утепление 150 мм
[2] => утепление 200 мм
[3] => утепление 250 мм
[4] => утепление 300 мм
[5] => утепление 350 мм
[6] => утепление 400 мм
[7] => утепление 450 мм
[8] => утепление 500 мм
)
[days] => [18,20,20,20,20,20,20,20,20]
[material_price] => [4837,6572,7224,7375,79426,8177,8728,9180,10031]
[work_price] => [3348,3921,4112,4302,4493,4684,4875,5066,5256]
[image] => https://akademik-stroy.ru/wp-content/uploads/materials/monolitnaya-zh-b-plita-2.jpg
[area_modifier] => 665.98
[parent_name] => Перекрытие первого этажа
[parent_id] => 4
[material_sum] => 3865614
[work_sum] => 2229701
[total_sum] => 6095315
[total_days] => 18
[display_material_sum] => 3 865 614
[display_work_sum] => 2 229 701
[display_total_sum] => 6 095 315
)
1
6 095 315₽
Работа:2 229 701 ₽
Материалы:3 865 614 ₽
Дни:18
stdClass Object
(
[id] => 10
[attribute_id] => 5
[name] => Пеноблок
[material_modifier] => 1
[work_modifier] => 1
[options] => Array
(
[0] => 300 мм
[1] => 400 мм
[2] => 500 мм
[3] => 600 мм
)
[days] => [29,31,34,39]
[material_price] => [3000,4000,4500,4937]
[work_price] => [5033,5805,6400,8710]
[image] => https://akademik-stroy.ru/wp-content/uploads/materials/penoblok.jpg
[area_modifier] => 300.56
[parent_name] => Стены 2 этаж (несущие)
[parent_id] => 5
[material_sum] => 1082016
[work_sum] => 1512718
[total_sum] => 2594734
[total_days] => 29
[display_material_sum] => 1 082 016
[display_work_sum] => 1 512 718
[display_total_sum] => 2 594 734
)
1
2 594 734₽
Работа:1 512 718 ₽
Материалы:1 082 016 ₽
Дни:29
stdClass Object
(
[id] => 90
[attribute_id] => 5
[name] => Керамический блок
[material_modifier] => 1
[work_modifier] => 1
[options] => Array
(
[0] => 380 мм
[1] => 380 мм Thermo
[2] => 440 мм
[3] => 510 мм
)
[days] => [23,23,24,25]
[material_price] => [4510,5098,6093,8013]
[work_price] => [4737,4937,5903,6958]
[image] => https://akademik-stroy.ru/wp-content/uploads/materials/keramicheskij-blok.jpg
[area_modifier] => 300.56
[parent_name] => Стены 2 этаж (несущие)
[parent_id] => 5
[material_sum] => 1626631
[work_sum] => 1423753
[total_sum] => 3050384
[total_days] => 23
[display_material_sum] => 1 626 631
[display_work_sum] => 1 423 753
[display_total_sum] => 3 050 384
)
1
3 050 384₽
Работа:1 423 753 ₽
Материалы:1 626 631 ₽
Дни:23
stdClass Object
(
[id] => 91
[attribute_id] => 5
[name] => Кирпич
[material_modifier] => 1
[work_modifier] => 1
[options] => Array
(
[0] => Кирпич 250 мм
[1] => Кирпич 380 мм
[2] => Кирпич 510 мм
[3] => Кирпич 640 мм
[4] => Кирпич 770 мм
)
[days] => [30,30,31,33,36]
[material_price] => [5500,7142,9206,10171,12235]
[work_price] => [8736,10041,12018,15240,18462]
[image] => https://akademik-stroy.ru/wp-content/uploads/materials/kirpich.jpg
[area_modifier] => 300.56
[parent_name] => Стены 2 этаж (несущие)
[parent_id] => 5
[material_sum] => 1983696
[work_sum] => 2625692
[total_sum] => 4609388
[total_days] => 30
[display_material_sum] => 1 983 696
[display_work_sum] => 2 625 692
[display_total_sum] => 4 609 388
)
1
4 609 388₽
Работа:2 625 692 ₽
Материалы:1 983 696 ₽
Дни:30
stdClass Object
(
[id] => 92
[attribute_id] => 5
[name] => Монолитные
[material_modifier] => 1
[work_modifier] => 1
[options] => Array
(
[0] => 150 мм
[1] => 200 мм
[2] => 250 мм
[3] => 300 мм
[4] => 350 мм
[5] => 400 мм
)
[days] => [45,46,47,49,50,53]
[material_price] => [6545,7876,10175,12011,13908,15204]
[work_price] => [5106,6444,7698,8552,9807,11461]
[image] => https://akademik-stroy.ru/wp-content/uploads/materials/monolitnye.jpg
[area_modifier] => 300.56
[parent_name] => Стены 2 этаж (несущие)
[parent_id] => 5
[material_sum] => 2360598
[work_sum] => 1534659
[total_sum] => 3895257
[total_days] => 45
[display_material_sum] => 2 360 598
[display_work_sum] => 1 534 659
[display_total_sum] => 3 895 257
)
1
3 895 257₽
Работа:1 534 659 ₽
Материалы:2 360 598 ₽
Дни:45
stdClass Object
(
[id] => 93
[attribute_id] => 5
[name] => Клееный брус
[material_modifier] => 1
[work_modifier] => 1
[options] => Array
(
[0] => 160 мм
[1] => 175 мм
[2] => 200 мм
[3] => 215 мм
[4] => 240 мм
[5] => 270 мм
[6] => 282 мм
)
[days] => [24,28,32,37,40,42,48]
[material_price] => [16975,18773,19950,20545,21599,22159,23275]
[work_price] => [4806,5287,5815,6397,7036,7740,8514]
[image] => https://akademik-stroy.ru/wp-content/uploads/materials/kleenyj-brus.jpg
[area_modifier] => 300.56
[parent_name] => Стены 2 этаж (несущие)
[parent_id] => 5
[material_sum] => 6122407
[work_sum] => 1444491
[total_sum] => 7566898
[total_days] => 24
[display_material_sum] => 6 122 407
[display_work_sum] => 1 444 491
[display_total_sum] => 7 566 898
)
1
7 566 898₽
Работа:1 444 491 ₽
Материалы:6 122 407 ₽
Дни:24
stdClass Object
(
[id] => 94
[attribute_id] => 5
[name] => Каркасные
[material_modifier] => 1
[work_modifier] => 1
[options] => Array
(
[0] => 150 мм
[1] => 200 мм
[2] => 250 мм
[3] => 300 мм
)
[days] => [15,16,17,18]
[material_price] => [2379,2639,2898,3258]
[work_price] => [2418,2686,2985,3716]
[image] => https://akademik-stroy.ru/wp-content/uploads/materials/karkasnye.jpg
[area_modifier] => 300.56
[parent_name] => Стены 2 этаж (несущие)
[parent_id] => 5
[material_sum] => 858039
[work_sum] => 726754
[total_sum] => 1584793
[total_days] => 15
[display_material_sum] => 858 039
[display_work_sum] => 726 754
[display_total_sum] => 1 584 793
)
1
1 584 793₽
Работа:726 754 ₽
Материалы:858 039 ₽
Дни:15
stdClass Object
(
[id] => 95
[attribute_id] => 5
[name] => СИП-панели
[material_modifier] => 1
[work_modifier] => 1
[options] => Array
(
[0] => 120 мм
[1] => 170 мм
[2] => 220 мм
)
[days] => [7,7,7]
[material_price] => [1210,1856,2292]
[work_price] => [1410,1551,1706]
[image] => https://akademik-stroy.ru/wp-content/uploads/materials/sip-paneli.jpg
[area_modifier] => 300.56
[parent_name] => Стены 2 этаж (несущие)
[parent_id] => 5
[material_sum] => 436413
[work_sum] => 423790
[total_sum] => 860203
[total_days] => 7
[display_material_sum] => 436 413
[display_work_sum] => 423 790
[display_total_sum] => 860 203
)
1
860 203₽
Работа:423 790 ₽
Материалы:436 413 ₽
Дни:7
stdClass Object
(
[id] => 96
[attribute_id] => 5
[name] => Сухой брус
[material_modifier] => 1
[work_modifier] => 1
[options] => Array
(
[0] => 150 мм
[1] => 180 мм
[2] => 200 мм
)
[days] => [7,8,9]
[material_price] => [6010,7190,8709]
[work_price] => [3204,3845,4229]
[image] => https://akademik-stroy.ru/wp-content/uploads/materials/suhoj-brus.jpg
[area_modifier] => 300.56
[parent_name] => Стены 2 этаж (несущие)
[parent_id] => 5
[material_sum] => 2167639
[work_sum] => 962994
[total_sum] => 3130633
[total_days] => 7
[display_material_sum] => 2 167 639
[display_work_sum] => 962 994
[display_total_sum] => 3 130 633
)
1
3 130 633₽
Работа:962 994 ₽
Материалы:2 167 639 ₽
Дни:7
stdClass Object
(
[id] => 97
[attribute_id] => 5
[name] => Профилированный брус
[material_modifier] => 1
[work_modifier] => 1
[options] => Array
(
[0] => 150 мм
[1] => 180 мм
[2] => 200 мм
)
[days] => [7,8,9]
[material_price] => [8190,9228,10051]
[work_price] => [3845,4614,5075]
[image] => https://akademik-stroy.ru/wp-content/uploads/materials/profilirovannyj-brus.jpg
[area_modifier] => 300.56
[parent_name] => Стены 2 этаж (несущие)
[parent_id] => 5
[material_sum] => 2953904
[work_sum] => 1155653
[total_sum] => 4109557
[total_days] => 7
[display_material_sum] => 2 953 904
[display_work_sum] => 1 155 653
[display_total_sum] => 4 109 557
)
1
4 109 557₽
Работа:1 155 653 ₽
Материалы:2 953 904 ₽
Дни:7
stdClass Object
(
[id] => 98
[attribute_id] => 5
[name] => Оцилиндрованное бревно
[material_modifier] => 1
[work_modifier] => 1
[options] => Array
(
[0] => 180 мм
[1] => 220 мм
[2] => 260 мм
[3] => 320 мм
)
[days] => [7,8,9,10]
[material_price] => [75190,9532,10868,13116]
[work_price] => [3845,4691,5535,6863]
[image] => https://akademik-stroy.ru/wp-content/uploads/materials/ocilindrovannoe-brevno-1.jpg
[area_modifier] => 300.56
[parent_name] => Стены 2 этаж (несущие)
[parent_id] => 5
[material_sum] => 27118928
[work_sum] => 1155653
[total_sum] => 28274581
[total_days] => 7
[display_material_sum] => 27 118 928
[display_work_sum] => 1 155 653
[display_total_sum] => 28 274 581
)
1
28 274 581₽
Работа:1 155 653 ₽
Материалы:27 118 928 ₽
Дни:7
stdClass Object
(
[id] => 99
[attribute_id] => 5
[name] => Срубы
[material_modifier] => 1
[work_modifier] => 1
[options] => Array
(
[0] => 260 мм
[1] => 320 мм
[2] => 360 мм
[3] => 400 мм
[4] => 500 мм
)
[days] => [7,8,9,10,11]
[material_price] => [16175,23709,26314,29069,32167]
[work_price] => [4806,5911,6621,7349,9260]
[image] => https://akademik-stroy.ru/wp-content/uploads/materials/suhoj-brus.jpg
[area_modifier] => 300.56
[parent_name] => Стены 2 этаж (несущие)
[parent_id] => 5
[material_sum] => 5833870
[work_sum] => 1444491
[total_sum] => 7278361
[total_days] => 7
[display_material_sum] => 5 833 870
[display_work_sum] => 1 444 491
[display_total_sum] => 7 278 361
)
1
7 278 361₽
Работа:1 444 491 ₽
Материалы:5 833 870 ₽
Дни:7
stdClass Object
(
[id] => 194
[attribute_id] => 5
[name] => Брус
[material_modifier] => 1
[work_modifier] => 1
[options] => Array
(
[0] => 150 мм
[1] => 180 мм
[2] => 200 мм
)
[days] => [10,13,15]
[material_price] => [5127,6152,7367]
[work_price] => [1602,1922,2115]
[image] => https://akademik-stroy.ru/wp-content/uploads/materials/brus.jpg
[area_modifier] => 300.56
[parent_name] => Стены 2 этаж (несущие)
[parent_id] => 5
[material_sum] => 1849165
[work_sum] => 481497
[total_sum] => 2330662
[total_days] => 10
[display_material_sum] => 1 849 165
[display_work_sum] => 481 497
[display_total_sum] => 2 330 662
)
1
2 330 662₽
Работа:481 497 ₽
Материалы:1 849 165 ₽
Дни:10
stdClass Object
(
[id] => 195
[attribute_id] => 5
[name] => Газобетон
[material_modifier] => 1
[work_modifier] => 1
[options] => Array
(
[0] => 300 мм
[1] => 375 мм
[2] => 400 мм
[3] => 500 мм
[4] => 600 мм
)
[days] => [29,31,35,37,44]
[material_price] => [4298,5573,6356,7288,9119]
[work_price] => [4538,5251,5926,6733,7195]
[image] => https://akademik-stroy.ru/wp-content/uploads/materials/gazobeton.jpg
[area_modifier] => 300.56
[parent_name] => Стены 2 этаж (несущие)
[parent_id] => 5
[material_sum] => 1550168
[work_sum] => 1363941
[total_sum] => 2914109
[total_days] => 29
[display_material_sum] => 1 550 168
[display_work_sum] => 1 363 941
[display_total_sum] => 2 914 109
)
1
2 914 109₽
Работа:1 363 941 ₽
Материалы:1 550 168 ₽
Дни:29
stdClass Object
(
[id] => 196
[attribute_id] => 5
[name] => Блок
[material_modifier] => 1
[work_modifier] => 1
[options] => Array
(
[0] => 300 мм
[1] => 375 мм
[2] => 400 мм
[3] => 500 мм
[4] => 600 мм
)
[days] => [29,31,35,37,44]
[material_price] => [2698,3973,4356,6588,7119]
[work_price] => [5038,5851,6426,8733,9195]
[image] => https://akademik-stroy.ru/wp-content/uploads/materials/blok.jpg
[area_modifier] => 300.56
[parent_name] => Стены 2 этаж (несущие)
[parent_id] => 5
[material_sum] => 973093
[work_sum] => 1514221
[total_sum] => 2487314
[total_days] => 29
[display_material_sum] => 973 093
[display_work_sum] => 1 514 221
[display_total_sum] => 2 487 314
)
1
2 487 314₽
Работа:1 514 221 ₽
Материалы:973 093 ₽
Дни:29
stdClass Object
(
[id] => 197
[attribute_id] => 5
[name] => Газосиликатный блок
[material_modifier] => 1
[work_modifier] => 1
[options] => Array
(
[0] => 300 мм
[1] => 375 мм
[2] => 400 мм
[3] => 500 мм
[4] => 600 мм
)
[days] => [29,31,35,37,44]
[material_price] => [4298,5573,6356,7288,9119]
[work_price] => [4538,5251,5926,6733,7195]
[image] => https://akademik-stroy.ru/wp-content/uploads/materials/gazosilikatnyj-blok.jpg
[area_modifier] => 300.56
[parent_name] => Стены 2 этаж (несущие)
[parent_id] => 5
[material_sum] => 1550168
[work_sum] => 1363941
[total_sum] => 2914109
[total_days] => 29
[display_material_sum] => 1 550 168
[display_work_sum] => 1 363 941
[display_total_sum] => 2 914 109
)
1
2 914 109₽
Работа:1 363 941 ₽
Материалы:1 550 168 ₽
Дни:29
stdClass Object
(
[id] => 198
[attribute_id] => 5
[name] => Керамзитобетонный блок
[material_modifier] => 1
[work_modifier] => 1
[options] => Array
(
[0] => 300 мм
[1] => 375 мм
[2] => 400 мм
[3] => 500 мм
[4] => 600 мм
)
[days] => [23,23,24,25,28]
[material_price] => [3641,4298,5693,7613,9612]
[work_price] => [5737,5737,6903,7958,8901]
[image] => https://akademik-stroy.ru/wp-content/uploads/materials/keramzitobetonnyj-blok.jpg
[area_modifier] => 300.56
[parent_name] => Стены 2 этаж (несущие)
[parent_id] => 5
[material_sum] => 1313207
[work_sum] => 1724313
[total_sum] => 3037520
[total_days] => 23
[display_material_sum] => 1 313 207
[display_work_sum] => 1 724 313
[display_total_sum] => 3 037 520
)
1
3 037 520₽
Работа:1 724 313 ₽
Материалы:1 313 207 ₽
Дни:23
stdClass Object
(
[id] => 199
[attribute_id] => 5
[name] => Деревянные
[material_modifier] => 1
[work_modifier] => 1
[options] => Array
(
[0] => 180 мм
[1] => 220 мм
[2] => 260 мм
[3] => 320 мм
)
[days] => [7,8,9,10]
[material_price] => [7950,9458,11961,14472]
[work_price] => [4037,4925,5812,7207]
[image] => https://akademik-stroy.ru/wp-content/uploads/materials/derevyannye.jpg
[area_modifier] => 300.56
[parent_name] => Стены 2 этаж (несущие)
[parent_id] => 5
[material_sum] => 2867342
[work_sum] => 1213361
[total_sum] => 4080703
[total_days] => 7
[display_material_sum] => 2 867 342
[display_work_sum] => 1 213 361
[display_total_sum] => 4 080 703
)
1
4 080 703₽
Работа:1 213 361 ₽
Материалы:2 867 342 ₽
Дни:7
stdClass Object
(
[id] => 200
[attribute_id] => 5
[name] => Камень
[material_modifier] => 1
[work_modifier] => 1
[options] => Array
(
[0] => 300 мм
[1] => 400 мм
[2] => 500 мм
[3] => 600 мм
)
[days] => [25,27,31,34]
[material_price] => [5262,6844,8330,9815]
[work_price] => [8331,9135,10427,11069]
[image] => https://akademik-stroy.ru/wp-content/uploads/materials/kamen.jpg
[area_modifier] => 300.56
[parent_name] => Стены 2 этаж (несущие)
[parent_id] => 5
[material_sum] => 1897856
[work_sum] => 2503965
[total_sum] => 4401821
[total_days] => 25
[display_material_sum] => 1 897 856
[display_work_sum] => 2 503 965
[display_total_sum] => 4 401 821
)
1
4 401 821₽
Работа:2 503 965 ₽
Материалы:1 897 856 ₽
Дни:25
stdClass Object
(
[id] => 201
[attribute_id] => 5
[name] => Каркасно-щитовые
[material_modifier] => 1
[work_modifier] => 1
[options] => Array
(
[0] => 150 мм
[1] => 200 мм
[2] => 250 мм
[3] => 300 мм
[4] => 350 мм
[5] => 400 мм
)
[days] => [15,16,17,18,19,20]
[material_price] => [2379,2639,2898,3458,3601,4175]
[work_price] => [2538,2820,3134,3483,4062,5642]
[image] => https://akademik-stroy.ru/wp-content/uploads/materials/karkasno-shchitovye.jpg
[area_modifier] => 300.56
[parent_name] => Стены 2 этаж (несущие)
[parent_id] => 5
[material_sum] => 858039
[work_sum] => 762821
[total_sum] => 1620860
[total_days] => 15
[display_material_sum] => 858 039
[display_work_sum] => 762 821
[display_total_sum] => 1 620 860
)
1
1 620 860₽
Работа:762 821 ₽
Материалы:858 039 ₽
Дни:15
stdClass Object
(
[id] => 202
[attribute_id] => 5
[name] => Рубленные
[material_modifier] => 1
[work_modifier] => 1
[options] => Array
(
[0] => 150 мм
[1] => 200 мм
[2] => 250 мм
[3] => 300 мм
[4] => 350 мм
[5] => 400 мм
)
[days] => [15,16,17,18,17,18]
[material_price] => [35950,50267,60583,75900,80217,100533]
[work_price] => [9612,12816,16020,19224,22428,25632]
[image] => https://akademik-stroy.ru/wp-content/uploads/materials/rublennye.jpg
[area_modifier] => 300.56
[parent_name] => Стены 2 этаж (несущие)
[parent_id] => 5
[material_sum] => 12966158
[work_sum] => 2888983
[total_sum] => 15855141
[total_days] => 15
[display_material_sum] => 12 966 158
[display_work_sum] => 2 888 983
[display_total_sum] => 15 855 141
)
1
15 855 141₽
Работа:2 888 983 ₽
Материалы:12 966 158 ₽
Дни:15
stdClass Object
(
[id] => 203
[attribute_id] => 5
[name] => Теплоблок
[material_modifier] => 1
[work_modifier] => 1
[options] => Array
(
[0] => 300 мм (с облицовкой, не покрашенный)
[1] => 400 мм (с облицовкой, не покрашенный)
[2] => 300 мм (с облицовкой, покрашенный)
[3] => 400 мм (с облицовкой, покрашенный)
)
[days] => [15,16,15,16]
[material_price] => [2888,3729,3957,4258]
[work_price] => [2564,3229,2949,3713]
[image] => https://akademik-stroy.ru/wp-content/uploads/materials/teploblok.jpg
[area_modifier] => 300.56
[parent_name] => Стены 2 этаж (несущие)
[parent_id] => 5
[material_sum] => 1041621
[work_sum] => 770636
[total_sum] => 1812257
[total_days] => 15
[display_material_sum] => 1 041 621
[display_work_sum] => 770 636
[display_total_sum] => 1 812 257
)
1
1 812 257₽
Работа:770 636 ₽
Материалы:1 041 621 ₽
Дни:15
stdClass Object
(
[id] => 204
[attribute_id] => 5
[name] => Арболитовые блоки
[material_modifier] => 1
[work_modifier] => 1
[options] => Array
(
[0] => 300 мм
[1] => 400 мм
[2] => 600 мм
)
[days] => [19,22,27]
[material_price] => [3210,4475,5852]
[work_price] => [4214,4788,5866]
[image] => https://akademik-stroy.ru/wp-content/uploads/materials/arbolitovye-bloki.png
[area_modifier] => 300.56
[parent_name] => Стены 2 этаж (несущие)
[parent_id] => 5
[material_sum] => 1157757
[work_sum] => 1266560
[total_sum] => 2424317
[total_days] => 19
[display_material_sum] => 1 157 757
[display_work_sum] => 1 266 560
[display_total_sum] => 2 424 317
)
1
2 424 317₽
Работа:1 266 560 ₽
Материалы:1 157 757 ₽
Дни:19
stdClass Object
(
[id] => 205
[attribute_id] => 5
[name] => Полистиролбетон
[material_modifier] => 1
[work_modifier] => 1
[options] => Array
(
[0] => 300 мм
[1] => 400 мм
[2] => 600 мм
)
[days] => [29,31,35]
[material_price] => [2798,4573,5256]
[work_price] => [5038,5851,6426]
[image] => https://akademik-stroy.ru/wp-content/uploads/materials/polistirolbeton.jpg
[area_modifier] => 300.56
[parent_name] => Стены 2 этаж (несущие)
[parent_id] => 5
[material_sum] => 1009160
[work_sum] => 1514221
[total_sum] => 2523381
[total_days] => 29
[display_material_sum] => 1 009 160
[display_work_sum] => 1 514 221
[display_total_sum] => 2 523 381
)
1
2 523 381₽
Работа:1 514 221 ₽
Материалы:1 009 160 ₽
Дни:29
stdClass Object
(
[id] => 206
[attribute_id] => 5
[name] => Шлакоблок
[material_modifier] => 1
[work_modifier] => 1
[options] => Array
(
[0] => 400 мм
[1] => 600 мм
)
[days] => [15,16]
[material_price] => [2391,3471]
[work_price] => [2642,3662]
[image] => https://akademik-stroy.ru/wp-content/uploads/materials/shlakoblok.jpg
[area_modifier] => 300.56
[parent_name] => Стены 2 этаж (несущие)
[parent_id] => 5
[material_sum] => 862367
[work_sum] => 794080
[total_sum] => 1656447
[total_days] => 15
[display_material_sum] => 862 367
[display_work_sum] => 794 080
[display_total_sum] => 1 656 447
)
1
1 656 447₽
Работа:794 080 ₽
Материалы:862 367 ₽
Дни:15
stdClass Object
(
[id] => 245
[attribute_id] => 5
[name] => Теплая керамика
[material_modifier] => 1
[work_modifier] => 1
[options] => Array
(
[0] => 380 мм
[1] => 380 мм Thermo
[2] => 440 мм
[3] => 510 мм
)
[days] => [10,10,11,12]
[material_price] => [4510,5098,6093,8013]
[work_price] => [4737,4937,5903,6958]
[image] => https://akademik-stroy.ru/wp-content/uploads/materials/teplaya-keramika.jpg
[area_modifier] => 300.56
[parent_name] => Стены 2 этаж (несущие)
[parent_id] => 5
[material_sum] => 1626631
[work_sum] => 1423753
[total_sum] => 3050384
[total_days] => 10
[display_material_sum] => 1 626 631
[display_work_sum] => 1 423 753
[display_total_sum] => 3 050 384
)
1
3 050 384₽
Работа:1 423 753 ₽
Материалы:1 626 631 ₽
Дни:10
stdClass Object
(
[id] => 246
[attribute_id] => 5
[name] => Несъемная опалубка
[material_modifier] => 1
[work_modifier] => 1
[options] => Array
(
[0] => 380 мм
[1] => 380 мм Thermo
[2] => 440 мм
[3] => 510 мм
)
[days] => [10,10,11,12]
[material_price] => [3302,3902,4108,5008]
[work_price] => [2100,2100,2300,2534]
[image] => https://akademik-stroy.ru/wp-content/uploads/materials/nesemnaya-opalubka.jpg
[area_modifier] => 300.56
[parent_name] => Стены 2 этаж (несущие)
[parent_id] => 5
[material_sum] => 1190939
[work_sum] => 631176
[total_sum] => 1822115
[total_days] => 10
[display_material_sum] => 1 190 939
[display_work_sum] => 631 176
[display_total_sum] => 1 822 115
)
1
1 822 115₽
Работа:631 176 ₽
Материалы:1 190 939 ₽
Дни:10
stdClass Object
(
[id] => 254
[attribute_id] => 5
[name] => Бревно
[material_modifier] => 1
[work_modifier] => 1
[options] => Array
(
[0] => 260 мм
[1] => 320 мм
[2] => 360 мм
[3] => 400 мм
[4] => 500 мм
)
[days] => [7,8,9,10,11]
[material_price] => [1874,24045,26930,30972,38825]
[work_price] => [5046,6207,6952,7716,9723]
[image] => https://akademik-stroy.ru/wp-content/uploads/materials/sruby.jpg
[area_modifier] => 300.56
[parent_name] => Стены 2 этаж (несущие)
[parent_id] => 5
[material_sum] => 675899
[work_sum] => 1516626
[total_sum] => 2192525
[total_days] => 7
[display_material_sum] => 675 899
[display_work_sum] => 1 516 626
[display_total_sum] => 2 192 525
)
1
2 192 525₽
Работа:1 516 626 ₽
Материалы:675 899 ₽
Дни:7
stdClass Object
(
[id] => 11
[attribute_id] => 6
[name] => Деревянные балки
[material_modifier] => 1
[work_modifier] => 1
[options] => Array
(
[0] => без утепления
[1] => утепление 200 мм
[2] => утепление 250 мм
[3] => утепление 300 мм
[4] => утепление 350 мм
[5] => утепление 400 мм
[6] => утепление 450 мм
[7] => утепление 500 мм
)
[days] => [8,9,9,9,11,12,13,14]
[material_price] => [1634,2042,2344,2947,3149,3652,3354,3557]
[work_price] => [1230,1339,1393,1426,1460,1513,1587,1620]
[image] => https://akademik-stroy.ru/wp-content/uploads/materials/derevyannye-balki.png
[area_modifier] => 300.56
[parent_name] => Перекрытие второго этажа
[parent_id] => 6
[material_sum] => 589338
[work_sum] => 369689
[total_sum] => 959027
[total_days] => 8
[display_material_sum] => 589 338
[display_work_sum] => 369 689
[display_total_sum] => 959 027
)
1
959 027₽
Работа:369 689 ₽
Материалы:589 338 ₽
Дни:8
stdClass Object
(
[id] => 12
[attribute_id] => 6
[name] => Сборные ж/б плиты
[material_modifier] => 1
[work_modifier] => 1
[options] => Array
(
[0] => без утепления
[1] => утепление 150 мм
[2] => утепление 200 мм
[3] => утепление 250 мм
[4] => утепление 300 мм
[5] => утепление 350 мм
[6] => утепление 400 мм
[7] => утепление 450 мм
[8] => утепление 500 мм
)
[days] => [13,15,15,15,15,15,15,15,15]
[material_price] => [3067,5577,5928,6679,7730,8782,9833,10884,11935]
[work_price] => [1520,1956,2102,2247,2392,2537,2684,2829,2974]
[image] => https://akademik-stroy.ru/wp-content/uploads/materials/sbornye-zh-b-plity-2.jpg
[area_modifier] => 300.56
[parent_name] => Перекрытие второго этажа
[parent_id] => 6
[material_sum] => 1106181
[work_sum] => 456851
[total_sum] => 1563032
[total_days] => 13
[display_material_sum] => 1 106 181
[display_work_sum] => 456 851
[display_total_sum] => 1 563 032
)
1
1 563 032₽
Работа:456 851 ₽
Материалы:1 106 181 ₽
Дни:13
stdClass Object
(
[id] => 100
[attribute_id] => 6
[name] => Монолитная ж/б плита
[material_modifier] => 1
[work_modifier] => 1
[options] => Array
(
[0] => без утепления
[1] => утепление 150 мм
[2] => утепление 200 мм
[3] => утепление 250 мм
[4] => утепление 300 мм
[5] => утепление 350 мм
[6] => утепление 400 мм
[7] => утепление 450 мм
[8] => утепление 500 мм
)
[days] => [18,20,20,20,20,20,20,20,20]
[material_price] => [4837,6572,7224,7375,79426,8177,8728,9180,10031]
[work_price] => [3348,3921,4112,4302,4493,4684,4875,5066,5256]
[image] => https://akademik-stroy.ru/wp-content/uploads/materials/monolitnaya-zh-b-plita-2.jpg
[area_modifier] => 300.56
[parent_name] => Перекрытие второго этажа
[parent_id] => 6
[material_sum] => 1744570
[work_sum] => 1006275
[total_sum] => 2750845
[total_days] => 18
[display_material_sum] => 1 744 570
[display_work_sum] => 1 006 275
[display_total_sum] => 2 750 845
)
1
2 750 845₽
Работа:1 006 275 ₽
Материалы:1 744 570 ₽
Дни:18
stdClass Object
(
[id] => 164
[attribute_id] => 37
[name] => Металлочерепица
[material_modifier] => 1
[work_modifier] => 1
[options] => Array
(
)
[days] => [20]
[material_price] => [6112]
[work_price] => [5726]
[image] => https://akademik-stroy.ru/wp-content/uploads/materials/metallocherepica.jpg
[area_modifier] => 665.98
[parent_name] => Крыша (Скатная)
[parent_id] => 37
[material_sum] => 4884564
[work_sum] => 3813401
[total_sum] => 8697965
[total_days] => 20
[display_material_sum] => 4 884 564
[display_work_sum] => 3 813 401
[display_total_sum] => 8 697 965
)
1
8 697 965₽
Работа:3 813 401 ₽
Материалы:4 884 564 ₽
Дни:20
stdClass Object
(
[id] => 165
[attribute_id] => 37
[name] => Гибкая черепица
[material_modifier] => 1
[work_modifier] => 1
[options] => Array
(
)
[days] => [20]
[material_price] => [6980]
[work_price] => [5950]
[image] => https://akademik-stroy.ru/wp-content/uploads/materials/gibkaya-cherepica.jpg
[area_modifier] => 665.98
[parent_name] => Крыша (Скатная)
[parent_id] => 37
[material_sum] => 5578248
[work_sum] => 3962581
[total_sum] => 9540829
[total_days] => 20
[display_material_sum] => 5 578 248
[display_work_sum] => 3 962 581
[display_total_sum] => 9 540 829
)
1
9 540 829₽
Работа:3 962 581 ₽
Материалы:5 578 248 ₽
Дни:20
stdClass Object
(
[id] => 166
[attribute_id] => 37
[name] => Цементно-песчаная черепица
[material_modifier] => 1
[work_modifier] => 1
[options] => Array
(
)
[days] => [20]
[material_price] => [10560]
[work_price] => [9456]
[image] => https://akademik-stroy.ru/wp-content/uploads/materials/cementno-peschanaya-cherepica.jpg
[area_modifier] => 665.98
[parent_name] => Крыша (Скатная)
[parent_id] => 37
[material_sum] => 8439299
[work_sum] => 6297507
[total_sum] => 14736806
[total_days] => 20
[display_material_sum] => 8 439 299
[display_work_sum] => 6 297 507
[display_total_sum] => 14 736 806
)
1
14 736 806₽
Работа:6 297 507 ₽
Материалы:8 439 299 ₽
Дни:20
stdClass Object
(
[id] => 167
[attribute_id] => 37
[name] => Композитная черепица
[material_modifier] => 1
[work_modifier] => 1
[options] => Array
(
)
[days] => [20]
[material_price] => [9506]
[work_price] => [8905]
[image] => https://akademik-stroy.ru/wp-content/uploads/materials/kompozitnaya-cherepica.jpg
[area_modifier] => 665.98
[parent_name] => Крыша (Скатная)
[parent_id] => 37
[material_sum] => 7596967
[work_sum] => 5930552
[total_sum] => 13527519
[total_days] => 20
[display_material_sum] => 7 596 967
[display_work_sum] => 5 930 552
[display_total_sum] => 13 527 519
)
1
13 527 519₽
Работа:5 930 552 ₽
Материалы:7 596 967 ₽
Дни:20
stdClass Object
(
[id] => 168
[attribute_id] => 37
[name] => Керамическая черепица
[material_modifier] => 1
[work_modifier] => 1
[options] => Array
(
)
[days] => [20]
[material_price] => [12750]
[work_price] => [9456]
[image] => https://akademik-stroy.ru/wp-content/uploads/materials/keramicheskaya-cherepica.jpg
[area_modifier] => 665.98
[parent_name] => Крыша (Скатная)
[parent_id] => 37
[material_sum] => 10189494
[work_sum] => 6297507
[total_sum] => 16487001
[total_days] => 20
[display_material_sum] => 10 189 494
[display_work_sum] => 6 297 507
[display_total_sum] => 16 487 001
)
1
16 487 001₽
Работа:6 297 507 ₽
Материалы:10 189 494 ₽
Дни:20
stdClass Object
(
[id] => 169
[attribute_id] => 37
[name] => Металлическая фальцевая
[material_modifier] => 1
[work_modifier] => 1
[options] => Array
(
)
[days] => [20]
[material_price] => [8550]
[work_price] => [8190]
[image] => https://akademik-stroy.ru/wp-content/uploads/materials/metallicheskaya-falcevaya.jpg
[area_modifier] => 665.98
[parent_name] => Крыша (Скатная)
[parent_id] => 37
[material_sum] => 6832955
[work_sum] => 5454376
[total_sum] => 12287331
[total_days] => 20
[display_material_sum] => 6 832 955
[display_work_sum] => 5 454 376
[display_total_sum] => 12 287 331
)
1
12 287 331₽
Работа:5 454 376 ₽
Материалы:6 832 955 ₽
Дни:20
stdClass Object
(
[id] => 170
[attribute_id] => 37
[name] => Медная фальцевая
[material_modifier] => 1
[work_modifier] => 1
[options] => Array
(
)
[days] => [20]
[material_price] => [20450]
[work_price] => [16750]
[image] => https://akademik-stroy.ru/wp-content/uploads/materials/mednaya-falcevaya.jpg
[area_modifier] => 665.98
[parent_name] => Крыша (Скатная)
[parent_id] => 37
[material_sum] => 16343149
[work_sum] => 11155165
[total_sum] => 27498314
[total_days] => 20
[display_material_sum] => 16 343 149
[display_work_sum] => 11 155 165
[display_total_sum] => 27 498 314
)
1
27 498 314₽
Работа:11 155 165 ₽
Материалы:16 343 149 ₽
Дни:20
stdClass Object
(
[id] => 171
[attribute_id] => 37
[name] => Зеленая кровля
[material_modifier] => 1
[work_modifier] => 1
[options] => Array
(
)
[days] => [20]
[material_price] => [19850]
[work_price] => [16780]
[image] => https://akademik-stroy.ru/wp-content/uploads/materials/zelenaya-krovlya.jpg
[area_modifier] => 665.98
[parent_name] => Крыша (Скатная)
[parent_id] => 37
[material_sum] => 15863644
[work_sum] => 11175144
[total_sum] => 27038788
[total_days] => 20
[display_material_sum] => 15 863 644
[display_work_sum] => 11 175 144
[display_total_sum] => 27 038 788
)
1
27 038 788₽
Работа:11 175 144 ₽
Материалы:15 863 644 ₽
Дни:20
stdClass Object
(
[id] => 172
[attribute_id] => 37
[name] => Профлист
[material_modifier] => 1
[work_modifier] => 1
[options] => Array
(
)
[days] => [20]
[material_price] => [3450]
[work_price] => [3750]
[image] => https://akademik-stroy.ru/wp-content/uploads/materials/proflist.jpg
[area_modifier] => 665.98
[parent_name] => Крыша (Скатная)
[parent_id] => 37
[material_sum] => 2757157
[work_sum] => 2497425
[total_sum] => 5254582
[total_days] => 20
[display_material_sum] => 2 757 157
[display_work_sum] => 2 497 425
[display_total_sum] => 5 254 582
)
1
5 254 582₽
Работа:2 497 425 ₽
Материалы:2 757 157 ₽
Дни:20
stdClass Object
(
[id] => 51
[attribute_id] => 26
[name] => Есть
[material_modifier] => 1
[work_modifier] => 1
[options] => Array
(
[0] => Профиль 58 мм, 3-камерный, стеклопакет 2-камерный до 32 мм
[1] => Профиль 60 мм, 4-камерный, стеклопакет 2-камерный до 32 мм
[2] => Профиль 70 мм, 5-камерный, стеклопакет 2-камерный до 40 мм
[3] => Профиль 72 мм, 5-камерный, стеклопакет 2-камерный до 40 мм
[4] => Алюминиевые окна Alutech профиль 72 мм, стеклопакет 2-камерный
)
[days] => [3,3,3,3,3]
[material_price] => [1339,2124,2867,3023,29596]
[work_price] => [635,647,659,668,2579]
[image] => https://akademik-stroy.ru/wp-content/uploads/materials/okna.jpg
[area_modifier] => 784.34
[parent_name] => Окна
[parent_id] => 26
[material_sum] => 1260278
[work_sum] => 498056
[total_sum] => 1758334
[total_days] => 3
[display_material_sum] => 1 260 278
[display_work_sum] => 498 056
[display_total_sum] => 1 758 334
)
1
1 758 334₽
Работа:498 056 ₽
Материалы:1 260 278 ₽
Дни:3
stdClass Object
(
[id] => 52
[attribute_id] => 26
[name] => Нет
[material_modifier] => 2
[work_modifier] => 1
[options] =>
[days] => null
[material_price] => null
[work_price] => null
[image] => https://akademik-stroy.ru/wp-content/uploads/materials/okna.jpg
[area_modifier] => 784.34
[parent_name] => Окна
[parent_id] => 26
[material_sum] => 0
[work_sum] => 0
[total_sum] => 0
[total_days] => 0
[display_material_sum] => 0
[display_work_sum] => 0
[display_total_sum] => 0
)
1
0₽
Работа:0 ₽
Материалы:0 ₽
Дни:0
stdClass Object
(
[id] => 53
[attribute_id] => 27
[name] => Есть
[material_modifier] => 1
[work_modifier] => 1
[options] => Array
(
)
[days] => [1]
[material_price] => [10000]
[work_price] => [5500]
[image] => https://akademik-stroy.ru/wp-content/uploads/materials/dveri.jpg
[area_modifier] => 1
[parent_name] => Двери входные
[parent_id] => 27
[material_sum] => 12000
[work_sum] => 5500
[total_sum] => 17500
[total_days] => 1
[display_material_sum] => 12 000
[display_work_sum] => 5 500
[display_total_sum] => 17 500
)
1
17 500₽
Работа:5 500 ₽
Материалы:12 000 ₽
Дни:1
stdClass Object
(
[id] => 54
[attribute_id] => 27
[name] => Нет
[material_modifier] => 1
[work_modifier] => 1
[options] => Array
(
)
[days] => [0]
[material_price] => [0]
[work_price] => [0]
[image] => https://akademik-stroy.ru/wp-content/uploads/materials/dveri.jpg
[area_modifier] => 1
[parent_name] => Двери входные
[parent_id] => 27
[material_sum] => 0
[work_sum] => 0
[total_sum] => 0
[total_days] => 0
[display_material_sum] => 0
[display_work_sum] => 0
[display_total_sum] => 0
)
1
0₽
Работа:0 ₽
Материалы:0 ₽
Дни:0
stdClass Object
(
[id] => 25
[attribute_id] => 13
[name] => Нет
[material_modifier] => 1
[work_modifier] => 1
[options] => Array
(
)
[days] => [0]
[material_price] => [0]
[work_price] => [0]
[image] => https://akademik-stroy.ru/wp-content/uploads/materials/mineralovata-krov.jpg
[area_modifier] => 665.98
[parent_name] => Утепление кровли (Мансарда)
[parent_id] => 13
[material_sum] => 0
[work_sum] => 0
[total_sum] => 0
[total_days] => 0
[display_material_sum] => 0
[display_work_sum] => 0
[display_total_sum] => 0
)
1
0₽
Работа:0 ₽
Материалы:0 ₽
Дни:0
stdClass Object
(
[id] => 26
[attribute_id] => 13
[name] => Минераловатный
[material_modifier] => 1
[work_modifier] => 1
[options] => Array
(
[0] => 50 мм
[1] => 100 мм
[2] => 150 мм
[3] => 200 мм
[4] => 250 мм
[5] => 300 мм
[6] => 350 мм
[7] => 400 мм
[8] => 450 мм
[9] => 500 мм
)
[days] => [5,5,6,6,6,7,7,7,8,8]
[material_price] => [1158,1414,1772,2230,3602,4060,4974,5890,6408,7718]
[work_price] => [650,846,846,1098,1318,1450,1596,1754,1930,2122]
[image] => https://akademik-stroy.ru/wp-content/uploads/materials/mineralovata-krov.jpg
[area_modifier] => 665.98
[parent_name] => Утепление кровли (Мансарда)
[parent_id] => 13
[material_sum] => 925446
[work_sum] => 432887
[total_sum] => 1358333
[total_days] => 5
[display_material_sum] => 925 446
[display_work_sum] => 432 887
[display_total_sum] => 1 358 333
)
1
1 358 333₽
Работа:432 887 ₽
Материалы:925 446 ₽
Дни:5
stdClass Object
(
[id] => 123
[attribute_id] => 13
[name] => Эковата (целлюлозная вата)
[material_modifier] => 1
[work_modifier] => 1
[options] => Array
(
[0] => 50 мм
[1] => 100 мм
[2] => 150 мм
[3] => 200 мм
[4] => 250 мм
[5] => 300 мм
[6] => 350 мм
[7] => 400 мм
[8] => 450 мм
[9] => 500 мм
)
[days] => [3,3,4,4,4,5,5,5,5,5]
[material_price] => [820,1638,2458,3276,5734,6552,8190,9828,11466,13104]
[work_price] => [234,304,304,396,474,522,574,632,694,764]
[image] => https://akademik-stroy.ru/wp-content/uploads/materials/ehkovata-krov.jpg
[area_modifier] => 665.98
[parent_name] => Утепление кровли (Мансарда)
[parent_id] => 13
[material_sum] => 655324
[work_sum] => 155839
[total_sum] => 811163
[total_days] => 3
[display_material_sum] => 655 324
[display_work_sum] => 155 839
[display_total_sum] => 811 163
)
1
811 163₽
Работа:155 839 ₽
Материалы:655 324 ₽
Дни:3
stdClass Object
(
[id] => 124
[attribute_id] => 13
[name] => Экструдированный пенополистирол
[material_modifier] => 1
[work_modifier] => 1
[options] => Array
(
[0] => 50 мм
[1] => 100 мм
[2] => 150 мм
[3] => 200 мм
[4] => 250 мм
[5] => 300 мм
[6] => 350 мм
[7] => 400 мм
[8] => 450 мм
[9] => 500 мм
)
[days] => [3,3,4,4,4,5,5,5,5,6]
[material_price] => [1146,2292,3438,4584,8020,9166,11458,13750,16040,18332]
[work_price] => [390,508,508,660,790,870,958,1052,1158,1274]
[image] => https://akademik-stroy.ru/wp-content/uploads/materials/epps-krov.jpg
[area_modifier] => 665.98
[parent_name] => Утепление кровли (Мансарда)
[parent_id] => 13
[material_sum] => 915856
[work_sum] => 259732
[total_sum] => 1175588
[total_days] => 3
[display_material_sum] => 915 856
[display_work_sum] => 259 732
[display_total_sum] => 1 175 588
)
1
1 175 588₽
Работа:259 732 ₽
Материалы:915 856 ₽
Дни:3
stdClass Object
(
[id] => 125
[attribute_id] => 13
[name] => ПСБ (ППС-пенополистирол)
[material_modifier] => 1
[work_modifier] => 1
[options] => Array
(
[0] => 50 мм
[1] => 100 мм
[2] => 150 мм
[3] => 200 мм
[4] => 250 мм
[5] => 300 мм
[6] => 350 мм
[7] => 400 мм
[8] => 450 мм
[9] => 500 мм
)
[days] => [3,3,4,4,4,5,5,5,5,6]
[material_price] => [476,954,1430,1906,3336,3814,4766,5720,6674,7626]
[work_price] => [390,508,508,660,790,870,958,1052,1158,1274]
[image] => https://akademik-stroy.ru/wp-content/uploads/materials/psb-krov.jpg
[area_modifier] => 665.98
[parent_name] => Утепление кровли (Мансарда)
[parent_id] => 13
[material_sum] => 380408
[work_sum] => 259732
[total_sum] => 640140
[total_days] => 3
[display_material_sum] => 380 408
[display_work_sum] => 259 732
[display_total_sum] => 640 140
)
1
640 140₽
Работа:259 732 ₽
Материалы:380 408 ₽
Дни:3
stdClass Object
(
[id] => 126
[attribute_id] => 13
[name] => ППУ (Пенополиуретан)
[material_modifier] => 1
[work_modifier] => 1
[options] => Array
(
[0] => 50 мм
[1] => 100 мм
[2] => 150 мм
[3] => 200 мм
[4] => 250 мм
[5] => 300 мм
[6] => 350 мм
[7] => 400 мм
[8] => 450 мм
[9] => 500 мм
)
[days] => [2,2,3,3,3,3,4,4,4,4]
[material_price] => [2080,4160,6240,8320,14560,16640,20800,24960,29120,33280]
[work_price] => [234,304,304,396,474,522,574,632,694,764]
[image] => https://akademik-stroy.ru/wp-content/uploads/materials/ppu-krov.jpg
[area_modifier] => 665.98
[parent_name] => Утепление кровли (Мансарда)
[parent_id] => 13
[material_sum] => 1662286
[work_sum] => 155839
[total_sum] => 1818125
[total_days] => 2
[display_material_sum] => 1 662 286
[display_work_sum] => 155 839
[display_total_sum] => 1 818 125
)
1
1 818 125₽
Работа:155 839 ₽
Материалы:1 662 286 ₽
Дни:2
stdClass Object
(
[id] => 127
[attribute_id] => 13
[name] => PIR-плиты (пенополиизоцианурат)
[material_modifier] => 1
[work_modifier] => 1
[options] => Array
(
[0] => 50 мм
[1] => 100 мм
[2] => 150 мм
[3] => 200 мм
[4] => 250 мм
[5] => 300 мм
[6] => 350 мм
[7] => 400 мм
[8] => 450 мм
[9] => 500 мм
)
[days] => [3,3,4,4,4,5,5,5,5,6]
[material_price] => [2646,5290,7936,10580,18516,21162,26452,31742,37032,42324]
[work_price] => [390,508,508,660,790,870,958,1052,1158,1274]
[image] => https://akademik-stroy.ru/wp-content/uploads/materials/pir-krov.jpg
[area_modifier] => 665.98
[parent_name] => Утепление кровли (Мансарда)
[parent_id] => 13
[material_sum] => 2114620
[work_sum] => 259732
[total_sum] => 2374352
[total_days] => 3
[display_material_sum] => 2 114 620
[display_work_sum] => 259 732
[display_total_sum] => 2 374 352
)
1
2 374 352₽
Работа:259 732 ₽
Материалы:2 114 620 ₽
Дни:3
stdClass Object
(
[id] => 27
[attribute_id] => 14
[name] => Нет
[material_modifier] => 1
[work_modifier] => 1
[options] => Array
(
)
[days] => [0]
[material_price] => [0]
[work_price] => [0]
[image] => https://akademik-stroy.ru/wp-content/uploads/materials/mansardnye-okna-2.jpg
[area_modifier] => 1
[parent_name] => Мансардные окна
[parent_id] => 14
[material_sum] => 0
[work_sum] => 0
[total_sum] => 0
[total_days] => 0
[display_material_sum] => 0
[display_work_sum] => 0
[display_total_sum] => 0
)
1
0₽
Работа:0 ₽
Материалы:0 ₽
Дни:0
stdClass Object
(
[id] => 28
[attribute_id] => 14
[name] => Есть
[material_modifier] => 1
[work_modifier] => 1
[options] => Array
(
[0] => 55x78
[1] => 55x98
)
[days] => [6,7]
[material_price] => [47480,68700]
[work_price] => [17900,19500]
[image] => https://akademik-stroy.ru/wp-content/uploads/materials/mansardnye-okna-2.jpg
[area_modifier] => 1
[parent_name] => Мансардные окна
[parent_id] => 14
[material_sum] => 56976
[work_sum] => 17900
[total_sum] => 74876
[total_days] => 6
[display_material_sum] => 56 976
[display_work_sum] => 17 900
[display_total_sum] => 74 876
)
1
74 876₽
Работа:17 900 ₽
Материалы:56 976 ₽
Дни:6
stdClass Object
(
[id] => 29
[attribute_id] => 15
[name] => Нет
[material_modifier] => 1
[work_modifier] => 1
[options] => Array
(
)
[days] => [0]
[material_price] => [0]
[work_price] => [0]
[image] => https://akademik-stroy.ru/wp-content/uploads/materials/sofit.jpg
[area_modifier] => 665.98
[parent_name] => Подшивка кровли
[parent_id] => 15
[material_sum] => 0
[work_sum] => 0
[total_sum] => 0
[total_days] => 0
[display_material_sum] => 0
[display_work_sum] => 0
[display_total_sum] => 0
)
1
0₽
Работа:0 ₽
Материалы:0 ₽
Дни:0
stdClass Object
(
[id] => 30
[attribute_id] => 15
[name] => Есть
[material_modifier] => 1
[work_modifier] => 1
[options] => Array
(
[0] => Софиты (ПВХ)
[1] => Cedral
[2] => ДПК
[3] => Планкен
)
[days] => [7,10,9,8]
[material_price] => [1803,3213,3025,3150]
[work_price] => [1529,2188,2075,1923]
[image] => https://akademik-stroy.ru/wp-content/uploads/materials/sofit.jpg
[area_modifier] => 665.98
[parent_name] => Подшивка кровли
[parent_id] => 15
[material_sum] => 1440914
[work_sum] => 1018283
[total_sum] => 2459197
[total_days] => 7
[display_material_sum] => 1 440 914
[display_work_sum] => 1 018 283
[display_total_sum] => 2 459 197
)
1
2 459 197₽
Работа:1 018 283 ₽
Материалы:1 440 914 ₽
Дни:7
stdClass Object
(
[id] => 31
[attribute_id] => 16
[name] => Нет
[material_modifier] => 1
[work_modifier] => 1
[options] => Array
(
)
[days] => [0]
[material_price] => [0]
[work_price] => [0]
[image] => https://akademik-stroy.ru/wp-content/uploads/materials/docke-standard-pvh.jpg
[area_modifier] => 665.98
[parent_name] => Водосточная система
[parent_id] => 16
[material_sum] => 0
[work_sum] => 0
[total_sum] => 0
[total_days] => 0
[display_material_sum] => 0
[display_work_sum] => 0
[display_total_sum] => 0
)
1
0₽
Работа:0 ₽
Материалы:0 ₽
Дни:0
stdClass Object
(
[id] => 32
[attribute_id] => 16
[name] => Есть
[material_modifier] => 1
[work_modifier] => 1
[options] => Array
(
[0] => Döcke Standard (ПВХ)
[1] => Металлические Grand Line
)
[days] => [7,7]
[material_price] => [1842,2703]
[work_price] => [1491,1529]
[image] => https://akademik-stroy.ru/wp-content/uploads/materials/docke-standard-pvh.jpg
[area_modifier] => 665.98
[parent_name] => Водосточная система
[parent_id] => 16
[material_sum] => 1472082
[work_sum] => 992976
[total_sum] => 2465058
[total_days] => 7
[display_material_sum] => 1 472 082
[display_work_sum] => 992 976
[display_total_sum] => 2 465 058
)
1
2 465 058₽
Работа:992 976 ₽
Материалы:1 472 082 ₽
Дни:7
stdClass Object
(
[id] => 33
[attribute_id] => 17
[name] => Нет
[material_modifier] => 1
[work_modifier] => 1
[options] => Array
(
)
[days] => [0]
[material_price] => [0]
[work_price] => [0]
[image] => https://akademik-stroy.ru/wp-content/uploads/materials/mineralovata.jpg
[area_modifier] => 966.54
[parent_name] => Дополнительное утепление наружных стен
[parent_id] => 17
[material_sum] => 0
[work_sum] => 0
[total_sum] => 0
[total_days] => 0
[display_material_sum] => 0
[display_work_sum] => 0
[display_total_sum] => 0
)
1
0₽
Работа:0 ₽
Материалы:0 ₽
Дни:0
stdClass Object
(
[id] => 34
[attribute_id] => 17
[name] => Минераловатный
[material_modifier] => 1
[work_modifier] => 1
[options] => Array
(
[0] => 50 мм
[1] => 100 мм
[2] => 150 мм
[3] => 200 мм
[4] => 250 мм
[5] => 300 мм
)
[days] => [7,8,10,12,14,15]
[material_price] => [3437,3613,3803,3915,4601,4830]
[work_price] => [2325,2423,2523,2749,2859,3025]
[image] => https://akademik-stroy.ru/wp-content/uploads/materials/mineralovata.jpg
[area_modifier] => 966.54
[parent_name] => Дополнительное утепление наружных стен
[parent_id] => 17
[material_sum] => 3986398
[work_sum] => 2247206
[total_sum] => 6233604
[total_days] => 7
[display_material_sum] => 3 986 398
[display_work_sum] => 2 247 206
[display_total_sum] => 6 233 604
)
1
6 233 604₽
Работа:2 247 206 ₽
Материалы:3 986 398 ₽
Дни:7
stdClass Object
(
[id] => 128
[attribute_id] => 17
[name] => Эковата (целлюлозная вата)
[material_modifier] => 1
[work_modifier] => 1
[options] => Array
(
[0] => 50 мм
[1] => 100 мм
[2] => 150 мм
[3] => 200 мм
[4] => 250 мм
[5] => 300 мм
)
[days] => [3,4,5,6,7,8]
[material_price] => [810,1319,1629,1838,2267,2676]
[work_price] => [1225,1323,1423,1549,1659,1725]
[image] => https://akademik-stroy.ru/wp-content/uploads/materials/ehkovata.jpg
[area_modifier] => 966.54
[parent_name] => Дополнительное утепление наружных стен
[parent_id] => 17
[material_sum] => 939477
[work_sum] => 1184012
[total_sum] => 2123489
[total_days] => 3
[display_material_sum] => 939 477
[display_work_sum] => 1 184 012
[display_total_sum] => 2 123 489
)
1
2 123 489₽
Работа:1 184 012 ₽
Материалы:939 477 ₽
Дни:3
stdClass Object
(
[id] => 129
[attribute_id] => 17
[name] => Экструдированный пенополистирол
[material_modifier] => 1
[work_modifier] => 1
[options] => Array
(
[0] => 50 мм
[1] => 100 мм
[2] => 150 мм
[3] => 200 мм
[4] => 250 мм
[5] => 300 мм
)
[days] => [5,6,7,8,9,10]
[material_price] => [4560,4300,5119,6292,7010,8583]
[work_price] => [1795,1954,2254,2330,2595,2735]
[image] => https://akademik-stroy.ru/wp-content/uploads/materials/epps.jpg
[area_modifier] => 966.54
[parent_name] => Дополнительное утепление наружных стен
[parent_id] => 17
[material_sum] => 5288907
[work_sum] => 1734939
[total_sum] => 7023846
[total_days] => 5
[display_material_sum] => 5 288 907
[display_work_sum] => 1 734 939
[display_total_sum] => 7 023 846
)
1
7 023 846₽
Работа:1 734 939 ₽
Материалы:5 288 907 ₽
Дни:5
stdClass Object
(
[id] => 130
[attribute_id] => 17
[name] => ПСБ (ППС-пенополистирол)
[material_modifier] => 1
[work_modifier] => 1
[options] => Array
(
[0] => 50 мм
[1] => 100 мм
[2] => 150 мм
[3] => 200 мм
[4] => 250 мм
[5] => 300 мм
)
[days] => [5,6,7,8,9,10]
[material_price] => [4822,5200,5819,6292,7010,7583]
[work_price] => [1795,1954,2254,2330,2595,2735]
[image] => https://akademik-stroy.ru/wp-content/uploads/materials/psb.jpg
[area_modifier] => 966.54
[parent_name] => Дополнительное утепление наружных стен
[parent_id] => 17
[material_sum] => 5592787
[work_sum] => 1734939
[total_sum] => 7327726
[total_days] => 5
[display_material_sum] => 5 592 787
[display_work_sum] => 1 734 939
[display_total_sum] => 7 327 726
)
1
7 327 726₽
Работа:1 734 939 ₽
Материалы:5 592 787 ₽
Дни:5
stdClass Object
(
[id] => 131
[attribute_id] => 17
[name] => ППУ (Пенополиуретан)
[material_modifier] => 1
[work_modifier] => 1
[options] => Array
(
[0] => 50 мм
[1] => 100 мм
[2] => 150 мм
[3] => 200 мм
[4] => 250 мм
[5] => 300 мм
)
[days] => [3,4,5,6,7,8]
[material_price] => [2860,3400,4219,4592,5010,5583]
[work_price] => [729,900,980,1120,1280,1530]
[image] => https://akademik-stroy.ru/wp-content/uploads/materials/ppu.jpg
[area_modifier] => 966.54
[parent_name] => Дополнительное утепление наружных стен
[parent_id] => 17
[material_sum] => 3317165
[work_sum] => 704608
[total_sum] => 4021773
[total_days] => 3
[display_material_sum] => 3 317 165
[display_work_sum] => 704 608
[display_total_sum] => 4 021 773
)
1
4 021 773₽
Работа:704 608 ₽
Материалы:3 317 165 ₽
Дни:3
stdClass Object
(
[id] => 132
[attribute_id] => 17
[name] => PIR-плиты (пенополиизоцианурат)
[material_modifier] => 1
[work_modifier] => 1
[options] => Array
(
[0] => 50 мм
[1] => 100 мм
[2] => 150 мм
[3] => 200 мм
[4] => 250 мм
[5] => 300 мм
)
[days] => [5,6,7,8,9,10]
[material_price] => [8323,15645,20968,25900,29258,30581]
[work_price] => [800,900,970,1150,1280,1330]
[image] => https://akademik-stroy.ru/wp-content/uploads/materials/pir.jpg
[area_modifier] => 966.54
[parent_name] => Дополнительное утепление наружных стен
[parent_id] => 17
[material_sum] => 9653415
[work_sum] => 773232
[total_sum] => 10426647
[total_days] => 5
[display_material_sum] => 9 653 415
[display_work_sum] => 773 232
[display_total_sum] => 10 426 647
)
1
10 426 647₽
Работа:773 232 ₽
Материалы:9 653 415 ₽
Дни:5
stdClass Object
(
[id] => 37
[attribute_id] => 19
[name] => Нет
[material_modifier] => 1
[work_modifier] => 1
[options] => Array
(
)
[days] => [0]
[material_price] => [0]
[work_price] => [0]
[image] => https://akademik-stroy.ru/wp-content/uploads/materials/imitaciya-brusa.jpg
[area_modifier] => 966.54
[parent_name] => Наружная отделка фасада
[parent_id] => 19
[material_sum] => 0
[work_sum] => 0
[total_sum] => 0
[total_days] => 0
[display_material_sum] => 0
[display_work_sum] => 0
[display_total_sum] => 0
)
1
0₽
Работа:0 ₽
Материалы:0 ₽
Дни:0
stdClass Object
(
[id] => 38
[attribute_id] => 19
[name] => Имитация бруса
[material_modifier] => 1
[work_modifier] => 1
[options] => Array
(
[0] => Сосна
[1] => Ель
[2] => Лиственница
)
[days] => [20,20,20]
[material_price] => [2994,2762,4954]
[work_price] => [1397,1231,1577]
[image] => https://akademik-stroy.ru/wp-content/uploads/materials/imitaciya-brusa.jpg
[area_modifier] => 966.54
[parent_name] => Наружная отделка фасада
[parent_id] => 19
[material_sum] => 3472585
[work_sum] => 1350256
[total_sum] => 4822841
[total_days] => 20
[display_material_sum] => 3 472 585
[display_work_sum] => 1 350 256
[display_total_sum] => 4 822 841
)
1
4 822 841₽
Работа:1 350 256 ₽
Материалы:3 472 585 ₽
Дни:20
stdClass Object
(
[id] => 136
[attribute_id] => 19
[name] => Планкен
[material_modifier] => 1
[work_modifier] => 1
[options] => Array
(
[0] => Сосна
[1] => Ель
[2] => Лиственница
)
[days] => [20,20,20]
[material_price] => [3194,2862,5154]
[work_price] => [1537,1354,1735]
[image] => https://akademik-stroy.ru/wp-content/uploads/materials/planken.jpg
[area_modifier] => 966.54
[parent_name] => Наружная отделка фасада
[parent_id] => 19
[material_sum] => 3704555
[work_sum] => 1485572
[total_sum] => 5190127
[total_days] => 20
[display_material_sum] => 3 704 555
[display_work_sum] => 1 485 572
[display_total_sum] => 5 190 127
)
1
5 190 127₽
Работа:1 485 572 ₽
Материалы:3 704 555 ₽
Дни:20
stdClass Object
(
[id] => 137
[attribute_id] => 19
[name] => Штукатурка
[material_modifier] => 1
[work_modifier] => 1
[options] => Array
(
[0] => Цементно-песчаная (минеральная)
[1] => Мокрый фасад
)
[days] => [35,35]
[material_price] => [2231,3938]
[work_price] => [1202,2422]
[image] => https://akademik-stroy.ru/wp-content/uploads/materials/shtukaturka.jpg
[area_modifier] => 966.54
[parent_name] => Наружная отделка фасада
[parent_id] => 19
[material_sum] => 2587621
[work_sum] => 1161781
[total_sum] => 3749402
[total_days] => 35
[display_material_sum] => 2 587 621
[display_work_sum] => 1 161 781
[display_total_sum] => 3 749 402
)
1
3 749 402₽
Работа:1 161 781 ₽
Материалы:2 587 621 ₽
Дни:35
stdClass Object
(
[id] => 138
[attribute_id] => 19
[name] => Облицовочный кирпич
[material_modifier] => 1
[work_modifier] => 1
[options] => Array
(
[0] => Керамический
[1] => Клинкерный
[2] => Ручной формовки
[3] => Гиперпрессованный
[4] => Силикатный кирпич
)
[days] => [45,45,45,45,45]
[material_price] => [8174,9148,1040,1257,5876]
[work_price] => [3240,3758,4536,4017,3369]
[image] => https://akademik-stroy.ru/wp-content/uploads/materials/oblicovochnyj-kirpich.jpg
[area_modifier] => 966.54
[parent_name] => Наружная отделка фасада
[parent_id] => 19
[material_sum] => 9480598
[work_sum] => 3131590
[total_sum] => 12612188
[total_days] => 45
[display_material_sum] => 9 480 598
[display_work_sum] => 3 131 590
[display_total_sum] => 12 612 188
)
1
12 612 188₽
Работа:3 131 590 ₽
Материалы:9 480 598 ₽
Дни:45
stdClass Object
(
[id] => 139
[attribute_id] => 19
[name] => Фасадная плитка
[material_modifier] => 1
[work_modifier] => 1
[options] => Array
(
[0] => Клинкерная
[1] => Керамическая
[2] => Плитка ручной формовки
)
[days] => [40,40,40]
[material_price] => [2974,1487,3470]
[work_price] => [3007,2592,3629]
[image] => https://akademik-stroy.ru/wp-content/uploads/materials/fasadnaya-plitka.jpg
[area_modifier] => 966.54
[parent_name] => Наружная отделка фасада
[parent_id] => 19
[material_sum] => 3449388
[work_sum] => 2906386
[total_sum] => 6355774
[total_days] => 40
[display_material_sum] => 3 449 388
[display_work_sum] => 2 906 386
[display_total_sum] => 6 355 774
)
1
6 355 774₽
Работа:2 906 386 ₽
Материалы:3 449 388 ₽
Дни:40
stdClass Object
(
[id] => 140
[attribute_id] => 19
[name] => Сайдинг
[material_modifier] => 1
[work_modifier] => 1
[options] => Array
(
[0] => Виниловый
[1] => Металлический
[2] => Фиброцементный
)
[days] => [20,20,20]
[material_price] => [1263,1944,4147]
[work_price] => [1263,1944,2074]
[image] => https://akademik-stroy.ru/wp-content/uploads/materials/sajding.jpg
[area_modifier] => 966.54
[parent_name] => Наружная отделка фасада
[parent_id] => 19
[material_sum] => 1464888
[work_sum] => 1220740
[total_sum] => 2685628
[total_days] => 20
[display_material_sum] => 1 464 888
[display_work_sum] => 1 220 740
[display_total_sum] => 2 685 628
)
1
2 685 628₽
Работа:1 220 740 ₽
Материалы:1 464 888 ₽
Дни:20
stdClass Object
(
[id] => 141
[attribute_id] => 19
[name] => Камень
[material_modifier] => 1
[work_modifier] => 1
[options] => Array
(
[0] => Травертин
[1] => Дагестанский
[2] => Искусственный
[3] => Натуральный
[4] => Керамогранит
)
[days] => [45,45,45,45,45]
[material_price] => [4536,3888,2592,3240,2462]
[work_price] => [3240,3240,2462,3110,1944]
[image] => https://akademik-stroy.ru/wp-content/uploads/materials/kamen-1.jpg
[area_modifier] => 966.54
[parent_name] => Наружная отделка фасада
[parent_id] => 19
[material_sum] => 5261071
[work_sum] => 3131590
[total_sum] => 8392661
[total_days] => 45
[display_material_sum] => 5 261 071
[display_work_sum] => 3 131 590
[display_total_sum] => 8 392 661
)
1
8 392 661₽
Работа:3 131 590 ₽
Материалы:5 261 071 ₽
Дни:45
stdClass Object
(
[id] => 142
[attribute_id] => 19
[name] => Термопанели
[material_modifier] => 1
[work_modifier] => 1
[options] => Array
(
)
[days] => [20]
[material_price] => [6221]
[work_price] => [2333]
[image] => https://akademik-stroy.ru/wp-content/uploads/materials/termo.png
[area_modifier] => 966.54
[parent_name] => Наружная отделка фасада
[parent_id] => 19
[material_sum] => 7215414
[work_sum] => 2254938
[total_sum] => 9470352
[total_days] => 20
[display_material_sum] => 7 215 414
[display_work_sum] => 2 254 938
[display_total_sum] => 9 470 352
)
1
9 470 352₽
Работа:2 254 938 ₽
Материалы:7 215 414 ₽
Дни:20
stdClass Object
(
[id] => 143
[attribute_id] => 19
[name] => Плитка HAUBERK
[material_modifier] => 1
[work_modifier] => 1
[options] => Array
(
)
[days] => [20]
[material_price] => [2786]
[work_price] => [1944]
[image] => https://akademik-stroy.ru/wp-content/uploads/materials/hauberk.jpg
[area_modifier] => 966.54
[parent_name] => Наружная отделка фасада
[parent_id] => 19
[material_sum] => 3231337
[work_sum] => 1878954
[total_sum] => 5110291
[total_days] => 20
[display_material_sum] => 3 231 337
[display_work_sum] => 1 878 954
[display_total_sum] => 5 110 291
)
1
5 110 291₽
Работа:1 878 954 ₽
Материалы:3 231 337 ₽
Дни:20
stdClass Object
(
[id] => 144
[attribute_id] => 19
[name] => Фальцевый фасад
[material_modifier] => 1
[work_modifier] => 1
[options] => Array
(
)
[days] => [20]
[material_price] => [3240]
[work_price] => [2592]
[image] => https://akademik-stroy.ru/wp-content/uploads/materials/falcevyj-fasad.jpg
[area_modifier] => 966.54
[parent_name] => Наружная отделка фасада
[parent_id] => 19
[material_sum] => 3757908
[work_sum] => 2505272
[total_sum] => 6263180
[total_days] => 20
[display_material_sum] => 3 757 908
[display_work_sum] => 2 505 272
[display_total_sum] => 6 263 180
)
1
6 263 180₽
Работа:2 505 272 ₽
Материалы:3 757 908 ₽
Дни:20
stdClass Object
(
[id] => 145
[attribute_id] => 19
[name] => Комбинированный
[material_modifier] => 1
[work_modifier] => 1
[options] => Array
(
)
[days] => [20]
[material_price] => [4629]
[work_price] => [3499]
[image] => https://akademik-stroy.ru/wp-content/uploads/materials/Kombinirovannyj.jpg
[area_modifier] => 966.54
[parent_name] => Наружная отделка фасада
[parent_id] => 19
[material_sum] => 5368936
[work_sum] => 3381923
[total_sum] => 8750859
[total_days] => 20
[display_material_sum] => 5 368 936
[display_work_sum] => 3 381 923
[display_total_sum] => 8 750 859
)
1
8 750 859₽
Работа:3 381 923 ₽
Материалы:5 368 936 ₽
Дни:20
stdClass Object
(
[id] => 257
[attribute_id] => 19
[name] => Японские фиброцементные
[material_modifier] => 1
[work_modifier] => 1
[options] => Array
(
)
[days] => [20]
[material_price] => [7043]
[work_price] => [2993]
[image] => https://akademik-stroy.ru/wp-content/uploads/materials/paneli.jpg
[area_modifier] => 966.54
[parent_name] => Наружная отделка фасада
[parent_id] => 19
[material_sum] => 8168809
[work_sum] => 2892854
[total_sum] => 11061663
[total_days] => 20
[display_material_sum] => 8 168 809
[display_work_sum] => 2 892 854
[display_total_sum] => 11 061 663
)
1
11 061 663₽
Работа:2 892 854 ₽
Материалы:8 168 809 ₽
Дни:20
stdClass Object
(
[id] => 258
[attribute_id] => 19
[name] => Панели Каньон
[material_modifier] => 1
[work_modifier] => 1
[options] => Array
(
)
[days] => [20]
[material_price] => [4543]
[work_price] => [2592]
[image] => https://akademik-stroy.ru/wp-content/uploads/materials/kanon.png
[area_modifier] => 966.54
[parent_name] => Наружная отделка фасада
[parent_id] => 19
[material_sum] => 5269189
[work_sum] => 2505272
[total_sum] => 7774461
[total_days] => 20
[display_material_sum] => 5 269 189
[display_work_sum] => 2 505 272
[display_total_sum] => 7 774 461
)
1
7 774 461₽
Работа:2 505 272 ₽
Материалы:5 269 189 ₽
Дни:20
stdClass Object
(
[id] => 39
[attribute_id] => 20
[name] => Нет
[material_modifier] => 1
[work_modifier] => 1
[options] => Array
(
)
[days] => [0]
[material_price] => [0]
[work_price] => [0]
[image] => https://akademik-stroy.ru/wp-content/uploads/materials/terrasy.jpg
[area_modifier] => 30
[parent_name] => Террасы, крыльца, навесы
[parent_id] => 20
[material_sum] => 0
[work_sum] => 0
[total_sum] => 0
[total_days] => 0
[display_material_sum] => 0
[display_work_sum] => 0
[display_total_sum] => 0
)
1
0₽
Работа:0 ₽
Материалы:0 ₽
Дни:0
stdClass Object
(
[id] => 40
[attribute_id] => 20
[name] => Есть
[material_modifier] => 1
[work_modifier] => 1
[options] => Array
(
)
[days] => [5]
[material_price] => [10450]
[work_price] => [1950]
[image] => https://akademik-stroy.ru/wp-content/uploads/materials/terrasy.jpg
[area_modifier] => 30
[parent_name] => Террасы, крыльца, навесы
[parent_id] => 20
[material_sum] => 376200
[work_sum] => 58500
[total_sum] => 434700
[total_days] => 5
[display_material_sum] => 376 200
[display_work_sum] => 58 500
[display_total_sum] => 434 700
)
1
434 700₽
Работа:58 500 ₽
Материалы:376 200 ₽
Дни:5
stdClass Object
(
[id] => 41
[attribute_id] => 21
[name] => Нет
[material_modifier] => 1
[work_modifier] => 1
[options] => Array
(
)
[days] => [0]
[material_price] => [0]
[work_price] => [0]
[image] => https://akademik-stroy.ru/wp-content/uploads/materials/balkony.jpg
[area_modifier] => 30
[parent_name] => Балконы
[parent_id] => 21
[material_sum] => 0
[work_sum] => 0
[total_sum] => 0
[total_days] => 0
[display_material_sum] => 0
[display_work_sum] => 0
[display_total_sum] => 0
)
1
0₽
Работа:0 ₽
Материалы:0 ₽
Дни:0
stdClass Object
(
[id] => 42
[attribute_id] => 21
[name] => Есть
[material_modifier] => 1
[work_modifier] => 1
[options] => Array
(
)
[days] => [12]
[material_price] => [3600]
[work_price] => [1950]
[image] => https://akademik-stroy.ru/wp-content/uploads/materials/balkony.jpg
[area_modifier] => 30
[parent_name] => Балконы
[parent_id] => 21
[material_sum] => 129600
[work_sum] => 58500
[total_sum] => 188100
[total_days] => 12
[display_material_sum] => 129 600
[display_work_sum] => 58 500
[display_total_sum] => 188 100
)
1
188 100₽
Работа:58 500 ₽
Материалы:129 600 ₽
Дни:12
stdClass Object
(
[id] => 43
[attribute_id] => 22
[name] => Нет
[material_modifier] => 1
[work_modifier] => 1
[options] => Array
(
)
[days] => [0]
[material_price] => [0]
[work_price] => [0]
[image] => https://akademik-stroy.ru/wp-content/uploads/materials/uteplennaya.jpg
[area_modifier] => 665.98
[parent_name] => Отмостка
[parent_id] => 22
[material_sum] => 0
[work_sum] => 0
[total_sum] => 0
[total_days] => 0
[display_material_sum] => 0
[display_work_sum] => 0
[display_total_sum] => 0
)
1
0₽
Работа:0 ₽
Материалы:0 ₽
Дни:0
stdClass Object
(
[id] => 44
[attribute_id] => 22
[name] => Утепленная отмостка
[material_modifier] => 1
[work_modifier] => 1
[options] => Array
(
)
[days] => [15]
[material_price] => [2550]
[work_price] => [1750]
[image] => https://akademik-stroy.ru/wp-content/uploads/materials/uteplennaya.jpg
[area_modifier] => 665.98
[parent_name] => Отмостка
[parent_id] => 22
[material_sum] => 2037899
[work_sum] => 1165465
[total_sum] => 3203364
[total_days] => 15
[display_material_sum] => 2 037 899
[display_work_sum] => 1 165 465
[display_total_sum] => 3 203 364
)
1
3 203 364₽
Работа:1 165 465 ₽
Материалы:2 037 899 ₽
Дни:15
stdClass Object
(
[id] => 146
[attribute_id] => 22
[name] => Не утепленная отмостка
[material_modifier] => 1
[work_modifier] => 1
[options] => Array
(
)
[days] => [10]
[material_price] => [1650]
[work_price] => [1450]
[image] => https://akademik-stroy.ru/wp-content/uploads/materials/ne-uteplennaya.jpg
[area_modifier] => 665.98
[parent_name] => Отмостка
[parent_id] => 22
[material_sum] => 1318640
[work_sum] => 965671
[total_sum] => 2284311
[total_days] => 10
[display_material_sum] => 1 318 640
[display_work_sum] => 965 671
[display_total_sum] => 2 284 311
)
1
2 284 311₽
Работа:965 671 ₽
Материалы:1 318 640 ₽
Дни:10
stdClass Object
(
[id] => 45
[attribute_id] => 23
[name] => Нет
[material_modifier] => 1
[work_modifier] => 1
[options] => Array
(
)
[days] => [0]
[material_price] => [0]
[work_price] => [0]
[image] => https://akademik-stroy.ru/wp-content/uploads/materials/drenazh-2.jpg
[area_modifier] => 665.98
[parent_name] => Дренаж вокруг дома
[parent_id] => 23
[material_sum] => 0
[work_sum] => 0
[total_sum] => 0
[total_days] => 0
[display_material_sum] => 0
[display_work_sum] => 0
[display_total_sum] => 0
)
1
0₽
Работа:0 ₽
Материалы:0 ₽
Дни:0
stdClass Object
(
[id] => 46
[attribute_id] => 23
[name] => Есть
[material_modifier] => 1
[work_modifier] => 1
[options] => Array
(
)
[days] => [5]
[material_price] => [2366]
[work_price] => [1911]
[image] => https://akademik-stroy.ru/wp-content/uploads/materials/drenazh-2.jpg
[area_modifier] => 665.98
[parent_name] => Дренаж вокруг дома
[parent_id] => 23
[material_sum] => 1890850
[work_sum] => 1272688
[total_sum] => 3163538
[total_days] => 5
[display_material_sum] => 1 890 850
[display_work_sum] => 1 272 688
[display_total_sum] => 3 163 538
)
1
3 163 538₽
Работа:1 272 688 ₽
Материалы:1 890 850 ₽
Дни:5
stdClass Object
(
[id] => 47
[attribute_id] => 24
[name] => Нет
[material_modifier] => 1
[work_modifier] => 1
[options] => Array
(
)
[days] => [0]
[material_price] => [0]
[work_price] => [0]
[image] => https://akademik-stroy.ru/wp-content/uploads/materials/septik.jpg
[area_modifier] => 1
[parent_name] => Автономная канализация (септики)
[parent_id] => 24
[material_sum] => 0
[work_sum] => 0
[total_sum] => 0
[total_days] => 0
[display_material_sum] => 0
[display_work_sum] => 0
[display_total_sum] => 0
)
1
0₽
Работа:0 ₽
Материалы:0 ₽
Дни:0
stdClass Object
(
[id] => 48
[attribute_id] => 24
[name] => Есть
[material_modifier] => 1
[work_modifier] => 1
[options] => Array
(
[0] => Для дачи на 4 человека
[1] => Для дома на 5 человек
[2] => Для дома на 6 человек
[3] => Для дома на 7 человек
[4] => Для дома на 10 человек
)
[days] => [7,7,7,8,8]
[material_price] => [196340,220500,240940,264200,293340]
[work_price] => [50000,55000,60500,66550,73206]
[image] => https://akademik-stroy.ru/wp-content/uploads/materials/septik.jpg
[area_modifier] => 1
[parent_name] => Автономная канализация (септики)
[parent_id] => 24
[material_sum] => 235608
[work_sum] => 50000
[total_sum] => 285608
[total_days] => 7
[display_material_sum] => 235 608
[display_work_sum] => 50 000
[display_total_sum] => 285 608
)
1
285 608₽
Работа:50 000 ₽
Материалы:235 608 ₽
Дни:7
stdClass Object
(
[id] => 49
[attribute_id] => 25
[name] => Нет
[material_modifier] => 1
[work_modifier] => 1
[options] => Array
(
)
[days] => [0]
[material_price] => [0]
[work_price] => [0]
[image] => https://akademik-stroy.ru/wp-content/uploads/materials/gkl.jpg
[area_modifier] => 966.54
[parent_name] => Внутренние (не несущие) перегородки
[parent_id] => 25
[material_sum] => 0
[work_sum] => 0
[total_sum] => 0
[total_days] => 0
[display_material_sum] => 0
[display_work_sum] => 0
[display_total_sum] => 0
)
1
0₽
Работа:0 ₽
Материалы:0 ₽
Дни:0
stdClass Object
(
[id] => 147
[attribute_id] => 25
[name] => Каркасно-обшивные
[material_modifier] => 1
[work_modifier] => 1
[options] => Array
(
[0] => 75 мм (без шумоизоляции)
[1] => 75 мм (с шумоизоляцией)
)
[days] => [11,11]
[material_price] => [580,970]
[work_price] => [380,570]
[image] => https://akademik-stroy.ru/wp-content/uploads/materials/gkl.jpg
[area_modifier] => 966.54
[parent_name] => Внутренние (не несущие) перегородки
[parent_id] => 25
[material_sum] => 672712
[work_sum] => 367285
[total_sum] => 1039997
[total_days] => 11
[display_material_sum] => 672 712
[display_work_sum] => 367 285
[display_total_sum] => 1 039 997
)
1
1 039 997₽
Работа:367 285 ₽
Материалы:672 712 ₽
Дни:11
stdClass Object
(
[id] => 148
[attribute_id] => 25
[name] => Пазогребневые
[material_modifier] => 1
[work_modifier] => 1
[options] => Array
(
[0] => 80 мм
[1] => 100 мм
)
[days] => [5,5]
[material_price] => [1022,1313]
[work_price] => [600,700]
[image] => https://akademik-stroy.ru/wp-content/uploads/materials/pazogrebnevye-bloki.jpg
[area_modifier] => 966.54
[parent_name] => Внутренние (не несущие) перегородки
[parent_id] => 25
[material_sum] => 1185365
[work_sum] => 579924
[total_sum] => 1765289
[total_days] => 5
[display_material_sum] => 1 185 365
[display_work_sum] => 579 924
[display_total_sum] => 1 765 289
)
1
1 765 289₽
Работа:579 924 ₽
Материалы:1 185 365 ₽
Дни:5
stdClass Object
(
[id] => 149
[attribute_id] => 25
[name] => Газобетонные
[material_modifier] => 1
[work_modifier] => 1
[options] => Array
(
[0] => 100 мм
[1] => 200 мм
)
[days] => [11,11]
[material_price] => [1160,1920]
[work_price] => [700,900]
[image] => https://akademik-stroy.ru/wp-content/uploads/materials/gazobeton-2.jpg
[area_modifier] => 966.54
[parent_name] => Внутренние (не несущие) перегородки
[parent_id] => 25
[material_sum] => 1345424
[work_sum] => 676578
[total_sum] => 2022002
[total_days] => 11
[display_material_sum] => 1 345 424
[display_work_sum] => 676 578
[display_total_sum] => 2 022 002
)
1
2 022 002₽
Работа:676 578 ₽
Материалы:1 345 424 ₽
Дни:11
stdClass Object
(
[id] => 150
[attribute_id] => 25
[name] => Кирпичные
[material_modifier] => 1
[work_modifier] => 1
[options] => Array
(
[0] => 120 мм
[1] => 250 мм
[2] => 360 мм
)
[days] => [7,7,7]
[material_price] => [1785,3570,5355]
[work_price] => [900,1600,1800]
[image] => https://akademik-stroy.ru/wp-content/uploads/materials/kirpich-1.jpg
[area_modifier] => 966.54
[parent_name] => Внутренние (не несущие) перегородки
[parent_id] => 25
[material_sum] => 2070329
[work_sum] => 869886
[total_sum] => 2940215
[total_days] => 7
[display_material_sum] => 2 070 329
[display_work_sum] => 869 886
[display_total_sum] => 2 940 215
)
1
2 940 215₽
Работа:869 886 ₽
Материалы:2 070 329 ₽
Дни:7
stdClass Object
(
[id] => 55
[attribute_id] => 28
[name] => Нет
[material_modifier] => 1
[work_modifier] => 1
[options] => Array
(
)
[days] => [0]
[material_price] => [0]
[work_price] => [0]
[image] => https://akademik-stroy.ru/wp-content/uploads/materials/ehlektrika.jpg
[area_modifier] => 784.34
[parent_name] => Электрика
[parent_id] => 28
[material_sum] => 0
[work_sum] => 0
[total_sum] => 0
[total_days] => 0
[display_material_sum] => 0
[display_work_sum] => 0
[display_total_sum] => 0
)
1
0₽
Работа:0 ₽
Материалы:0 ₽
Дни:0
stdClass Object
(
[id] => 56
[attribute_id] => 28
[name] => Есть
[material_modifier] => 1
[work_modifier] => 1
[options] => Array
(
)
[days] => [10]
[material_price] => [650]
[work_price] => [950]
[image] => https://akademik-stroy.ru/wp-content/uploads/materials/ehlektrika.jpg
[area_modifier] => 784.34
[parent_name] => Электрика
[parent_id] => 28
[material_sum] => 611785
[work_sum] => 745123
[total_sum] => 1356908
[total_days] => 10
[display_material_sum] => 611 785
[display_work_sum] => 745 123
[display_total_sum] => 1 356 908
)
1
1 356 908₽
Работа:745 123 ₽
Материалы:611 785 ₽
Дни:10
stdClass Object
(
[id] => 57
[attribute_id] => 29
[name] => Нет
[material_modifier] => 1
[work_modifier] => 1
[options] => Array
(
)
[days] => [0]
[material_price] => [0]
[work_price] => [0]
[image] => https://akademik-stroy.ru/wp-content/uploads/materials/santekhnika-kanalizaciya-1.jpg
[area_modifier] => 784.34
[parent_name] => Сантехника, канализация в доме
[parent_id] => 29
[material_sum] => 0
[work_sum] => 0
[total_sum] => 0
[total_days] => 0
[display_material_sum] => 0
[display_work_sum] => 0
[display_total_sum] => 0
)
1
0₽
Работа:0 ₽
Материалы:0 ₽
Дни:0
stdClass Object
(
[id] => 58
[attribute_id] => 29
[name] => Есть
[material_modifier] => 1
[work_modifier] => 1
[options] => Array
(
)
[days] => [10]
[material_price] => [600]
[work_price] => [730]
[image] => https://akademik-stroy.ru/wp-content/uploads/materials/santekhnika-kanalizaciya-1.jpg
[area_modifier] => 784.34
[parent_name] => Сантехника, канализация в доме
[parent_id] => 29
[material_sum] => 564725
[work_sum] => 572568
[total_sum] => 1137293
[total_days] => 10
[display_material_sum] => 564 725
[display_work_sum] => 572 568
[display_total_sum] => 1 137 293
)
1
1 137 293₽
Работа:572 568 ₽
Материалы:564 725 ₽
Дни:10
stdClass Object
(
[id] => 59
[attribute_id] => 30
[name] => Нет
[material_modifier] => 1
[work_modifier] => 1
[options] => Array
(
)
[days] => [0]
[material_price] => [0]
[work_price] => [0]
[image] => https://akademik-stroy.ru/wp-content/uploads/materials/otoplenie-1.jpg
[area_modifier] => 784.34
[parent_name] => Отопление
[parent_id] => 30
[material_sum] => 0
[work_sum] => 0
[total_sum] => 0
[total_days] => 0
[display_material_sum] => 0
[display_work_sum] => 0
[display_total_sum] => 0
)
1
0₽
Работа:0 ₽
Материалы:0 ₽
Дни:0
stdClass Object
(
[id] => 60
[attribute_id] => 30
[name] => Есть
[material_modifier] => 1
[work_modifier] => 1
[options] => Array
(
)
[days] => [5]
[material_price] => [610]
[work_price] => [560]
[image] => https://akademik-stroy.ru/wp-content/uploads/materials/otoplenie-1.jpg
[area_modifier] => 784.34
[parent_name] => Отопление
[parent_id] => 30
[material_sum] => 574137
[work_sum] => 439230
[total_sum] => 1013367
[total_days] => 5
[display_material_sum] => 574 137
[display_work_sum] => 439 230
[display_total_sum] => 1 013 367
)
1
1 013 367₽
Работа:439 230 ₽
Материалы:574 137 ₽
Дни:5
stdClass Object
(
[id] => 61
[attribute_id] => 31
[name] => Нет
[material_modifier] => 1
[work_modifier] => 1
[options] => Array
(
)
[days] => [0]
[material_price] => [0]
[work_price] => [0]
[image] => https://akademik-stroy.ru/wp-content/uploads/materials/vodyanye.jpg
[area_modifier] => 30
[parent_name] => Теплые полы
[parent_id] => 31
[material_sum] => 0
[work_sum] => 0
[total_sum] => 0
[total_days] => 0
[display_material_sum] => 0
[display_work_sum] => 0
[display_total_sum] => 0
)
1
0₽
Работа:0 ₽
Материалы:0 ₽
Дни:0
stdClass Object
(
[id] => 151
[attribute_id] => 31
[name] => Водяные
[material_modifier] => 1
[work_modifier] => 1
[options] => Array
(
)
[days] => [9]
[material_price] => [10200]
[work_price] => [2500]
[image] => https://akademik-stroy.ru/wp-content/uploads/materials/vodyanye.jpg
[area_modifier] => 30
[parent_name] => Теплые полы
[parent_id] => 31
[material_sum] => 367200
[work_sum] => 75000
[total_sum] => 442200
[total_days] => 9
[display_material_sum] => 367 200
[display_work_sum] => 75 000
[display_total_sum] => 442 200
)
1
442 200₽
Работа:75 000 ₽
Материалы:367 200 ₽
Дни:9
stdClass Object
(
[id] => 152
[attribute_id] => 31
[name] => Электро
[material_modifier] => 1
[work_modifier] => 1
[options] => Array
(
)
[days] => [5]
[material_price] => [6300]
[work_price] => [1500]
[image] => https://akademik-stroy.ru/wp-content/uploads/materials/ehlektricheskij.jpg
[area_modifier] => 30
[parent_name] => Теплые полы
[parent_id] => 31
[material_sum] => 226800
[work_sum] => 45000
[total_sum] => 271800
[total_days] => 5
[display_material_sum] => 226 800
[display_work_sum] => 45 000
[display_total_sum] => 271 800
)
1
271 800₽
Работа:45 000 ₽
Материалы:226 800 ₽
Дни:5
stdClass Object
(
[id] => 63
[attribute_id] => 32
[name] => Нет
[material_modifier] => 1
[work_modifier] => 1
[options] => Array
(
)
[days] => [0]
[material_price] => [0]
[work_price] => [0]
[image] => https://akademik-stroy.ru/wp-content/uploads/materials/shtukaturka-shpatlevka-1.jpg
[area_modifier] => 784.34
[parent_name] => Черновая отделка стен
[parent_id] => 32
[material_sum] => 0
[work_sum] => 0
[total_sum] => 0
[total_days] => 0
[display_material_sum] => 0
[display_work_sum] => 0
[display_total_sum] => 0
)
1
0₽
Работа:0 ₽
Материалы:0 ₽
Дни:0
stdClass Object
(
[id] => 153
[attribute_id] => 32
[name] => Штукатурка и шпатлевка
[material_modifier] => 1
[work_modifier] => 1
[options] => Array
(
)
[days] => [20]
[material_price] => [1850]
[work_price] => [2600]
[image] => https://akademik-stroy.ru/wp-content/uploads/materials/shtukaturka-shpatlevka-1.jpg
[area_modifier] => 784.34
[parent_name] => Черновая отделка стен
[parent_id] => 32
[material_sum] => 1741235
[work_sum] => 2039284
[total_sum] => 3780519
[total_days] => 20
[display_material_sum] => 1 741 235
[display_work_sum] => 2 039 284
[display_total_sum] => 3 780 519
)
1
3 780 519₽
Работа:2 039 284 ₽
Материалы:1 741 235 ₽
Дни:20
stdClass Object
(
[id] => 154
[attribute_id] => 32
[name] => Гипсокортон на стены
[material_modifier] => 1
[work_modifier] => 1
[options] => Array
(
)
[days] => [15]
[material_price] => [950]
[work_price] => [2100]
[image] => https://akademik-stroy.ru/wp-content/uploads/materials/gkl-1.jpg
[area_modifier] => 784.34
[parent_name] => Черновая отделка стен
[parent_id] => 32
[material_sum] => 894148
[work_sum] => 1647114
[total_sum] => 2541262
[total_days] => 15
[display_material_sum] => 894 148
[display_work_sum] => 1 647 114
[display_total_sum] => 2 541 262
)
1
2 541 262₽
Работа:1 647 114 ₽
Материалы:894 148 ₽
Дни:15
stdClass Object
(
[id] => 155
[attribute_id] => 32
[name] => Вагонка
[material_modifier] => 1
[work_modifier] => 1
[options] => Array
(
)
[days] => [15]
[material_price] => [1250]
[work_price] => [950]
[image] => https://akademik-stroy.ru/wp-content/uploads/materials/vagonka.jpg
[area_modifier] => 784.34
[parent_name] => Черновая отделка стен
[parent_id] => 32
[material_sum] => 1176510
[work_sum] => 745123
[total_sum] => 1921633
[total_days] => 15
[display_material_sum] => 1 176 510
[display_work_sum] => 745 123
[display_total_sum] => 1 921 633
)
1
1 921 633₽
Работа:745 123 ₽
Материалы:1 176 510 ₽
Дни:15
stdClass Object
(
[id] => 65
[attribute_id] => 33
[name] => Нет
[material_modifier] => 1
[work_modifier] => 1
[options] => Array
(
)
[days] => [0]
[material_price] => [0]
[work_price] => [0]
[image] => https://akademik-stroy.ru/wp-content/uploads/materials/styazhka.jpg
[area_modifier] => 784.34
[parent_name] => Черновая отделка полов
[parent_id] => 33
[material_sum] => 0
[work_sum] => 0
[total_sum] => 0
[total_days] => 0
[display_material_sum] => 0
[display_work_sum] => 0
[display_total_sum] => 0
)
1
0₽
Работа:0 ₽
Материалы:0 ₽
Дни:0
stdClass Object
(
[id] => 156
[attribute_id] => 33
[name] => Стяжка + наливные полы
[material_modifier] => 1
[work_modifier] => 1
[options] => Array
(
)
[days] => [10]
[material_price] => [1000]
[work_price] => [900]
[image] => https://akademik-stroy.ru/wp-content/uploads/materials/styazhka.jpg
[area_modifier] => 784.34
[parent_name] => Черновая отделка полов
[parent_id] => 33
[material_sum] => 941208
[work_sum] => 705906
[total_sum] => 1647114
[total_days] => 10
[display_material_sum] => 941 208
[display_work_sum] => 705 906
[display_total_sum] => 1 647 114
)
1
1 647 114₽
Работа:705 906 ₽
Материалы:941 208 ₽
Дни:10
stdClass Object
(
[id] => 157
[attribute_id] => 33
[name] => ОСБ на пол
[material_modifier] => 1
[work_modifier] => 1
[options] => Array
(
)
[days] => [7]
[material_price] => [580]
[work_price] => [350]
[image] => https://akademik-stroy.ru/wp-content/uploads/materials/osb-1.jpg
[area_modifier] => 784.34
[parent_name] => Черновая отделка полов
[parent_id] => 33
[material_sum] => 545901
[work_sum] => 274519
[total_sum] => 820420
[total_days] => 7
[display_material_sum] => 545 901
[display_work_sum] => 274 519
[display_total_sum] => 820 420
)
1
820 420₽
Работа:274 519 ₽
Материалы:545 901 ₽
Дни:7
stdClass Object
(
[id] => 67
[attribute_id] => 34
[name] => Нет
[material_modifier] => 1
[work_modifier] => 1
[options] => Array
(
)
[days] => [0]
[material_price] => [0]
[work_price] => [0]
[image] => https://akademik-stroy.ru/wp-content/uploads/materials/chistovaya-otdelka.jpg
[area_modifier] => 784.34
[parent_name] => Чистовая отделка стен и полов
[parent_id] => 34
[material_sum] => 0
[work_sum] => 0
[total_sum] => 0
[total_days] => 0
[display_material_sum] => 0
[display_work_sum] => 0
[display_total_sum] => 0
)
1
0₽
Работа:0 ₽
Материалы:0 ₽
Дни:0
stdClass Object
(
[id] => 68
[attribute_id] => 34
[name] => Есть
[material_modifier] => 1
[work_modifier] => 1
[options] => Array
(
)
[days] => [50]
[material_price] => [6000]
[work_price] => [3500]
[image] => https://akademik-stroy.ru/wp-content/uploads/materials/chistovaya-otdelka.jpg
[area_modifier] => 784.34
[parent_name] => Чистовая отделка стен и полов
[parent_id] => 34
[material_sum] => 5647248
[work_sum] => 2745190
[total_sum] => 8392438
[total_days] => 50
[display_material_sum] => 5 647 248
[display_work_sum] => 2 745 190
[display_total_sum] => 8 392 438
)
1
8 392 438₽
Работа:2 745 190 ₽
Материалы:5 647 248 ₽
Дни:50
stdClass Object
(
[id] => 69
[attribute_id] => 35
[name] => Нет
[material_modifier] => 1
[work_modifier] => 1
[options] => Array
(
)
[days] => [0]
[material_price] => [0]
[work_price] => [0]
[image] => https://akademik-stroy.ru/wp-content/uploads/materials/mnogourovnevyj-gkl.jpg
[area_modifier] => 784.34
[parent_name] => Отделка потолка
[parent_id] => 35
[material_sum] => 0
[work_sum] => 0
[total_sum] => 0
[total_days] => 0
[display_material_sum] => 0
[display_work_sum] => 0
[display_total_sum] => 0
)
1
0₽
Работа:0 ₽
Материалы:0 ₽
Дни:0
stdClass Object
(
[id] => 70
[attribute_id] => 35
[name] => Есть
[material_modifier] => 1
[work_modifier] => 1
[options] => Array
(
[0] => Многоуровневый потолок из гипсокартона
[1] => Многоуровневый потолок из гипсокартона и натяжного потолка
[2] => Одноуровневый потолок из гипсокартона
[3] => Одноуровневый натяжной потолок
)
[days] => [10,10,1,1]
[material_price] => [900,700,700,600]
[work_price] => [1000,800,500,300]
[image] => https://akademik-stroy.ru/wp-content/uploads/materials/mnogourovnevyj-gkl.jpg
[area_modifier] => 784.34
[parent_name] => Отделка потолка
[parent_id] => 35
[material_sum] => 847087
[work_sum] => 784340
[total_sum] => 1631427
[total_days] => 10
[display_material_sum] => 847 087
[display_work_sum] => 784 340
[display_total_sum] => 1 631 427
)
1
1 631 427₽
Работа:784 340 ₽
Материалы:847 087 ₽
Дни:10
Преимущества работы с нами
7 этапов оплаты
Независимый строительный надзор
Экологически чистые материалы
16 лет гарантии
Онлайн-кабинет с веб-камерой
Строители с опытом более 15 лет
Собственное производство











