Одноэтажный дом 8x11 - 124.37 м2 за руб.
Планировки
План первого этажа
- 1. Тамбур 4,78 м²
- 2. Холл 9,23 м²
- 3. Санузел 3,21 м²
- 4. Кухня 9,96 м²
- 5. Гостиная 18,93 м²
- 6. Комната 10,05 м²
- 7. Крыльцо 4,91 м²
- 8. Терраса 12,26 м²
- Общая площадь первый этаж 73,33 м²
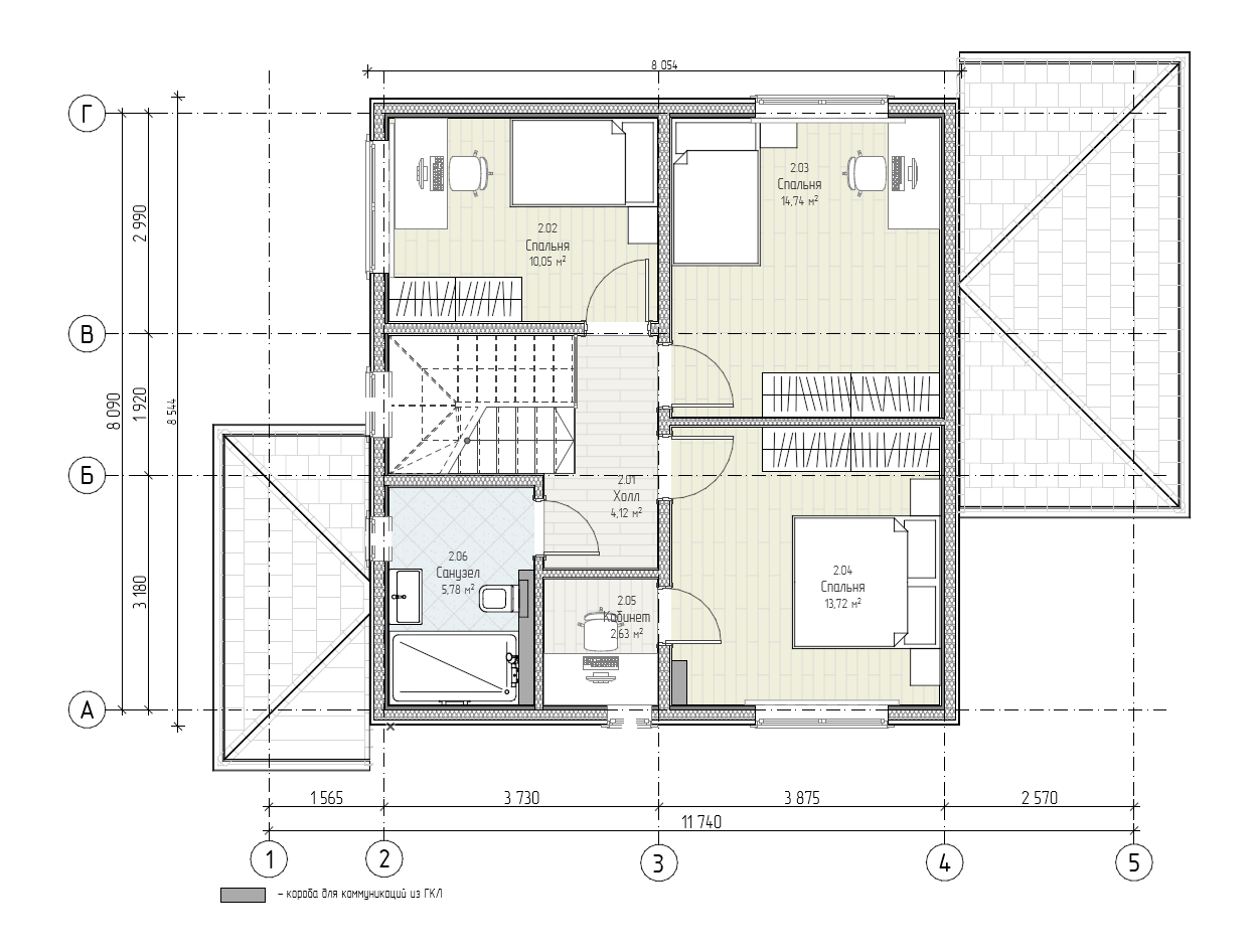
План второго этажа
- 1. Холл 4,12 м²
- 2. Спальня 10,05 м²
- 3. Комната 14,74 м²
- 4. Комната 13,72 м²
- 5. Кабинет 2,63 м²
- 6. Санузел 5,78 м²
- Общая площадь второй этаж 51,04 м²
Площади дома
| № п/п | Наименование | Ед. из. | Строительная площадь | Полезная площадь |
| 1 | 1 этаж | м2 | 90.36 | 73.33 |
| 2 | 2 этаж | м2 | 62.9 | 51.04 |
| 3 | Итого | м2 | 153.26 | 124.37 |
154 м2
Полезная
площадь
площадь
8 x 11 м
Размеры
1 этаж
Этажей
26 м2
Террасы
и балконы
и балконы
0Без
гаража
гаража
4
Количество
спален
спален
2
Количество
санузлов
санузлов
Калькулятор опций
0₽
В ипотеку от 15 886 ₽/мес.
0₽
0 дней
stdClass Object
(
[id] => 1
[attribute_id] => 1
[name] => Ленточный монолитный ж/б
[material_modifier] => 1
[work_modifier] => 1
[options] => Array
(
[0] => размер 200 х 700 мм
[1] => размер 300 х 900 мм
[2] => размер 400 х 1 000 мм
[3] => размер 500 х 1 100 мм
[4] => размер 600 х 1 200 мм
)
[days] => [20,21,22,25,30]
[material_price] => [2823,3630,4475,5210,12047]
[work_price] => [2154,2826,3731,4577,5293]
[image] => https://akademik-stroy.ru/wp-content/uploads/materials/lentochnyj-monolitnyj-zh-b.jpg
[area_modifier] => 90.36
[parent_name] => Фундамент
[parent_id] => 1
[material_sum] => 336714
[work_sum] => 214099
[total_sum] => 550813
[total_days] => 20
[display_material_sum] => 336 714
[display_work_sum] => 214 099
[display_total_sum] => 550 813
)
1
550 813₽
Работа:214 099 ₽
Материалы:336 714 ₽
Дни:20
stdClass Object
(
[id] => 2
[attribute_id] => 1
[name] => Забивные Ж/Б сваи
[material_modifier] => 1
[work_modifier] => 1
[options] => Array
(
[0] => 150х150х3000мм
[1] => 150х150х4000мм
[2] => 200х200х3000мм
[3] => 200х200х4000мм
[4] => 200х200х5000мм
[5] => 200х200х6000мм
)
[days] => [2,2,2,2,2,2]
[material_price] => [1990,2850,3255,4360,5120,6837]
[work_price] => [1002,1185,1336,1438,1574,1839]
[image] => https://akademik-stroy.ru/wp-content/uploads/materials/zabivnye-zh-b-svai.png
[area_modifier] => 90.36
[parent_name] => Фундамент
[parent_id] => 1
[material_sum] => 237358
[work_sum] => 99595
[total_sum] => 336953
[total_days] => 2
[display_material_sum] => 237 358
[display_work_sum] => 99 595
[display_total_sum] => 336 953
)
1
336 953₽
Работа:99 595 ₽
Материалы:237 358 ₽
Дни:2
stdClass Object
(
[id] => 71
[attribute_id] => 1
[name] => Свайно-ростверковый ж/б
[material_modifier] => 1
[work_modifier] => 1
[options] => Array
(
[0] => ростверк 200х300 мм
[1] => ростверк 300х600 мм
[2] => ростверк 400х900 мм
[3] => ростверк 500х1200 мм
)
[days] => [20,23,25,27]
[material_price] => [3018,3474,7109,9792]
[work_price] => [2024,3012,5635,7022]
[image] => https://akademik-stroy.ru/wp-content/uploads/materials/svajno-rostverkovyj-monolitnyj-zh-b-3.png
[area_modifier] => 90.36
[parent_name] => Фундамент
[parent_id] => 1
[material_sum] => 359973
[work_sum] => 201178
[total_sum] => 561151
[total_days] => 20
[display_material_sum] => 359 973
[display_work_sum] => 201 178
[display_total_sum] => 561 151
)
1
561 151₽
Работа:201 178 ₽
Материалы:359 973 ₽
Дни:20
stdClass Object
(
[id] => 72
[attribute_id] => 1
[name] => Монолитная ж/б плита
[material_modifier] => 1
[work_modifier] => 1
[options] => Array
(
[0] => 200 мм
[1] => 300 мм
[2] => 400 мм
[3] => 500 мм
[4] => 600 мм
)
[days] => [30,33,35,37,40]
[material_price] => [5348,8555,12788,14388,15189]
[work_price] => [4314,4881,7037,8061,10230]
[image] => https://akademik-stroy.ru/wp-content/uploads/materials/monolitnaya-zhb-plita.png
[area_modifier] => 90.36
[parent_name] => Фундамент
[parent_id] => 1
[material_sum] => 637884
[work_sum] => 428794
[total_sum] => 1066678
[total_days] => 30
[display_material_sum] => 637 884
[display_work_sum] => 428 794
[display_total_sum] => 1 066 678
)
1
1 066 678₽
Работа:428 794 ₽
Материалы:637 884 ₽
Дни:30
stdClass Object
(
[id] => 73
[attribute_id] => 1
[name] => Утепленная шведская плита
[material_modifier] => 1
[work_modifier] => 1
[options] => Array
(
[0] => 200 мм
[1] => 300 мм
[2] => 400 мм
[3] => 500 мм
[4] => 600 мм
)
[days] => [32,37,39,42,45]
[material_price] => [10249,12692,13760,14936,16230]
[work_price] => [5960,7337,8072,8878,9765]
[image] => https://akademik-stroy.ru/wp-content/uploads/materials/uteplennaya-shvedskaya-plita.jpg
[area_modifier] => 90.36
[parent_name] => Фундамент
[parent_id] => 1
[material_sum] => 1222452
[work_sum] => 592400
[total_sum] => 1814852
[total_days] => 32
[display_material_sum] => 1 222 452
[display_work_sum] => 592 400
[display_total_sum] => 1 814 852
)
1
1 814 852₽
Работа:592 400 ₽
Материалы:1 222 452 ₽
Дни:32
stdClass Object
(
[id] => 75
[attribute_id] => 1
[name] => Ленточный из ФБС
[material_modifier] => 1
[work_modifier] => 1
[options] => Array
(
[0] => толщ. 300 мм
[1] => толщ. 400 мм
[2] => толщ. 500 мм
[3] => толщ. 600 мм
)
[days] => [20,20,20,20]
[material_price] => [3675,4902,6126,7350]
[work_price] => [2451,3264,4083,4902]
[image] => https://akademik-stroy.ru/wp-content/uploads/materials/lentochnyj-iz-fbs.png
[area_modifier] => 90.36
[parent_name] => Фундамент
[parent_id] => 1
[material_sum] => 438336
[work_sum] => 243620
[total_sum] => 681956
[total_days] => 20
[display_material_sum] => 438 336
[display_work_sum] => 243 620
[display_total_sum] => 681 956
)
1
681 956₽
Работа:243 620 ₽
Материалы:438 336 ₽
Дни:20
stdClass Object
(
[id] => 76
[attribute_id] => 1
[name] => Цокольный этаж из ФБС
[material_modifier] => 1
[work_modifier] => 1
[options] => Array
(
[0] => толщ. 300 мм
[1] => толщ. 400 мм
[2] => толщ. 500 мм
[3] => толщ. 600 мм
)
[days] => [30,32,34,36]
[material_price] => [20916,23299,26680,29060]
[work_price] => [17524,18700,19873,21046]
[image] => https://akademik-stroy.ru/wp-content/uploads/materials/cokolnyj-ehtazh-iz-fbs.jpg
[area_modifier] => 90.36
[parent_name] => Фундамент
[parent_id] => 1
[material_sum] => 2494760
[work_sum] => 1741816
[total_sum] => 4236576
[total_days] => 30
[display_material_sum] => 2 494 760
[display_work_sum] => 1 741 816
[display_total_sum] => 4 236 576
)
1
4 236 576₽
Работа:1 741 816 ₽
Материалы:2 494 760 ₽
Дни:30
stdClass Object
(
[id] => 77
[attribute_id] => 1
[name] => Цокольный этаж монолитный ж/б
[material_modifier] => 1
[work_modifier] => 1
[options] => Array
(
[0] => толщ. 200 мм
[1] => толщ. 300 мм
[2] => толщ. 400 мм
[3] => толщ. 500 мм
[4] => толщ. 600 мм
)
[days] => [40,42,44,46,48]
[material_price] => [25421,29148,32275,35602,37326]
[work_price] => [20441,21907,23375,24841,26306]
[image] => https://akademik-stroy.ru/wp-content/uploads/materials/cokolnyj-etazh-zh-b.jpg
[area_modifier] => 90.36
[parent_name] => Фундамент
[parent_id] => 1
[material_sum] => 3032095
[work_sum] => 2031754
[total_sum] => 5063849
[total_days] => 40
[display_material_sum] => 3 032 095
[display_work_sum] => 2 031 754
[display_total_sum] => 5 063 849
)
1
5 063 849₽
Работа:2 031 754 ₽
Материалы:3 032 095 ₽
Дни:40
stdClass Object
(
[id] => 191
[attribute_id] => 1
[name] => Винтовые сваи
[material_modifier] => 1
[work_modifier] => 1
[options] => Array
(
[0] => 57х200мм
[1] => 76х250мм
[2] => 108х300мм
[3] => 133х350мм
)
[days] => [1,1,2,2]
[material_price] => [1200,1300,1450,1600]
[work_price] => [400,600,900,1100]
[image] => https://akademik-stroy.ru/wp-content/uploads/materials/vintovye-svai.png
[area_modifier] => 90.36
[parent_name] => Фундамент
[parent_id] => 1
[material_sum] => 143130
[work_sum] => 39758
[total_sum] => 182888
[total_days] => 1
[display_material_sum] => 143 130
[display_work_sum] => 39 758
[display_total_sum] => 182 888
)
1
182 888₽
Работа:39 758 ₽
Материалы:143 130 ₽
Дни:1
stdClass Object
(
[id] => 3
[attribute_id] => 2
[name] => Деревянные балки
[material_modifier] => 1
[work_modifier] => 1
[options] => Array
(
[0] => без утепления
[1] => утепление 200 мм
[2] => утепление 250 мм
[3] => утепление 300 мм
[4] => утепление 350 мм
[5] => утепление 400 мм
[6] => утепление 450 мм
[7] => утепление 500 мм
)
[days] => [8,9,9,9,11,12,13,14]
[material_price] => [1634,2042,2344,2947,3149,3652,3354,3557]
[work_price] => [1230,1339,1393,1426,1460,1513,1587,1620]
[image] => https://akademik-stroy.ru/wp-content/uploads/materials/derevyannye-balki.png
[area_modifier] => 90.36
[parent_name] => Перекрытие цоколя
[parent_id] => 2
[material_sum] => 194896
[work_sum] => 122257
[total_sum] => 317153
[total_days] => 8
[display_material_sum] => 194 896
[display_work_sum] => 122 257
[display_total_sum] => 317 153
)
1
317 153₽
Работа:122 257 ₽
Материалы:194 896 ₽
Дни:8
stdClass Object
(
[id] => 4
[attribute_id] => 2
[name] => Сборные ж/б плиты
[material_modifier] => 1
[work_modifier] => 1
[options] => Array
(
[0] => без утепления
[1] => утепление 150мм
[2] => утепление 200мм
[3] => утепление 250мм
[4] => утепление 300мм
[5] => утепление 350мм
[6] => утепление 400мм
[7] => утепление 450мм
[8] => утепление 500мм
)
[days] => [13,15,15,15,15,15,15,15,15]
[material_price] => [3067,5577,5928,6679,7730,8782,9833,10884,11935]
[work_price] => [1520,1956,2102,2247,2392,2537,2684,2829,2974]
[image] => https://akademik-stroy.ru/wp-content/uploads/materials/sbornye-zh-b-plity-2.jpg
[area_modifier] => 90.36
[parent_name] => Перекрытие цоколя
[parent_id] => 2
[material_sum] => 365817
[work_sum] => 151082
[total_sum] => 516899
[total_days] => 13
[display_material_sum] => 365 817
[display_work_sum] => 151 082
[display_total_sum] => 516 899
)
1
516 899₽
Работа:151 082 ₽
Материалы:365 817 ₽
Дни:13
stdClass Object
(
[id] => 78
[attribute_id] => 2
[name] => Монолитная ж/б плита
[material_modifier] => 1
[work_modifier] => 1
[options] => Array
(
[0] => без утепления
[1] => утепление 150 мм
[2] => утепление 200 мм
[3] => утепление 250 мм
[4] => утепление 300 мм
[5] => утепление 350 мм
[6] => утепление 400 мм
[7] => утепление 450 мм
[8] => утепление 500 мм
)
[days] => [18,20,20,20,20,20,20,20,20]
[material_price] => [4837,6572,7224,7375,79426,8177,8728,9180,10031]
[work_price] => [3348,3921,4112,4302,4493,4684,4875,5066,5256]
[image] => https://akademik-stroy.ru/wp-content/uploads/materials/monolitnaya-zh-b-plita-2.jpg
[area_modifier] => 90.36
[parent_name] => Перекрытие цоколя
[parent_id] => 2
[material_sum] => 576934
[work_sum] => 332778
[total_sum] => 909712
[total_days] => 18
[display_material_sum] => 576 934
[display_work_sum] => 332 778
[display_total_sum] => 909 712
)
1
909 712₽
Работа:332 778 ₽
Материалы:576 934 ₽
Дни:18
stdClass Object
(
[id] => 6
[attribute_id] => 3
[name] => Пеноблок
[material_modifier] => 1
[work_modifier] => 1
[options] => Array
(
[0] => 300 мм
[1] => 400 мм
[2] => 500 мм
[3] => 600 мм
)
[days] => [29,31,34,39]
[material_price] => [3000,4000,4500,4937]
[work_price] => [5033,5805,6400,8710]
[image] => https://akademik-stroy.ru/wp-content/uploads/materials/penoblok.jpg
[area_modifier] => 90.36
[parent_name] => Стены 1 этаж (несущие)
[parent_id] => 3
[material_sum] => 357826
[work_sum] => 500260
[total_sum] => 858086
[total_days] => 29
[display_material_sum] => 357 826
[display_work_sum] => 500 260
[display_total_sum] => 858 086
)
1
858 086₽
Работа:500 260 ₽
Материалы:357 826 ₽
Дни:29
stdClass Object
(
[id] => 79
[attribute_id] => 3
[name] => Керамический блок
[material_modifier] => 1
[work_modifier] => 1
[options] => Array
(
[0] => 380 мм
[1] => 380 мм Thermo
[2] => 440 мм
[3] => 510 мм
)
[days] => [23,23,24,25]
[material_price] => [4510,5098,6093,8013]
[work_price] => [4737,4937,5903,6958]
[image] => https://akademik-stroy.ru/wp-content/uploads/materials/keramicheskij-blok.jpg
[area_modifier] => 90.36
[parent_name] => Стены 1 этаж (несущие)
[parent_id] => 3
[material_sum] => 537931
[work_sum] => 470839
[total_sum] => 1008770
[total_days] => 23
[display_material_sum] => 537 931
[display_work_sum] => 470 839
[display_total_sum] => 1 008 770
)
1
1 008 770₽
Работа:470 839 ₽
Материалы:537 931 ₽
Дни:23
stdClass Object
(
[id] => 80
[attribute_id] => 3
[name] => Кирпич
[material_modifier] => 1
[work_modifier] => 1
[options] => Array
(
[0] => Кирпич 250 мм
[1] => Кирпич 380 мм
[2] => Кирпич 510 мм
[3] => Кирпич 640 мм
[4] => Кирпич 770 мм
)
[days] => [30,30,31,33,36]
[material_price] => [5500,7142,9206,10171,12235]
[work_price] => [8736,10041,12018,15240,18462]
[image] => https://akademik-stroy.ru/wp-content/uploads/materials/kirpich.jpg
[area_modifier] => 90.36
[parent_name] => Стены 1 этаж (несущие)
[parent_id] => 3
[material_sum] => 656014
[work_sum] => 868323
[total_sum] => 1524337
[total_days] => 30
[display_material_sum] => 656 014
[display_work_sum] => 868 323
[display_total_sum] => 1 524 337
)
1
1 524 337₽
Работа:868 323 ₽
Материалы:656 014 ₽
Дни:30
stdClass Object
(
[id] => 81
[attribute_id] => 3
[name] => Монолитные
[material_modifier] => 1
[work_modifier] => 1
[options] => Array
(
[0] => 150 мм
[1] => 200 мм
[2] => 250 мм
[3] => 300 мм
[4] => 350 мм
[5] => 400 мм
)
[days] => [45,46,47,49,50,53]
[material_price] => [6545,7876,10175,12011,13908,15204]
[work_price] => [5106,6444,7698,8552,9807,11461]
[image] => https://akademik-stroy.ru/wp-content/uploads/materials/monolitnye.jpg
[area_modifier] => 90.36
[parent_name] => Стены 1 этаж (несущие)
[parent_id] => 3
[material_sum] => 780656
[work_sum] => 507516
[total_sum] => 1288172
[total_days] => 45
[display_material_sum] => 780 656
[display_work_sum] => 507 516
[display_total_sum] => 1 288 172
)
1
1 288 172₽
Работа:507 516 ₽
Материалы:780 656 ₽
Дни:45
stdClass Object
(
[id] => 82
[attribute_id] => 3
[name] => Клееный брус
[material_modifier] => 1
[work_modifier] => 1
[options] => Array
(
[0] => 160 мм
[1] => 175 мм
[2] => 200 мм
[3] => 215 мм
[4] => 240 мм
[5] => 270 мм
[6] => 282 мм
)
[days] => [24,28,32,37,40,42,48]
[material_price] => [16975,18773,19950,20545,21599,22159,23275]
[work_price] => [4806,5287,5815,6397,7036,7740,8514]
[image] => https://akademik-stroy.ru/wp-content/uploads/materials/kleenyj-brus.jpg
[area_modifier] => 90.36
[parent_name] => Стены 1 этаж (несущие)
[parent_id] => 3
[material_sum] => 2024697
[work_sum] => 477697
[total_sum] => 2502394
[total_days] => 24
[display_material_sum] => 2 024 697
[display_work_sum] => 477 697
[display_total_sum] => 2 502 394
)
1
2 502 394₽
Работа:477 697 ₽
Материалы:2 024 697 ₽
Дни:24
stdClass Object
(
[id] => 83
[attribute_id] => 3
[name] => Каркасные
[material_modifier] => 1
[work_modifier] => 1
[options] => Array
(
[0] => 150 мм
[1] => 200 мм
[2] => 250 мм
[3] => 300 мм
)
[days] => [15,16,17,18]
[material_price] => [2379,2639,2898,3258]
[work_price] => [2418,2686,2985,3716]
[image] => https://akademik-stroy.ru/wp-content/uploads/materials/karkasnye.jpg
[area_modifier] => 90.36
[parent_name] => Стены 1 этаж (несущие)
[parent_id] => 3
[material_sum] => 283756
[work_sum] => 240340
[total_sum] => 524096
[total_days] => 15
[display_material_sum] => 283 756
[display_work_sum] => 240 340
[display_total_sum] => 524 096
)
1
524 096₽
Работа:240 340 ₽
Материалы:283 756 ₽
Дни:15
stdClass Object
(
[id] => 84
[attribute_id] => 3
[name] => СИП-панели
[material_modifier] => 1
[work_modifier] => 1
[options] => Array
(
[0] => 120 мм
[1] => 170 мм
[2] => 220 мм
)
[days] => [7,7,7]
[material_price] => [1210,1856,2292]
[work_price] => [1410,1551,1706]
[image] => https://akademik-stroy.ru/wp-content/uploads/materials/sip-paneli.jpg
[area_modifier] => 90.36
[parent_name] => Стены 1 этаж (несущие)
[parent_id] => 3
[material_sum] => 144323
[work_sum] => 140148
[total_sum] => 284471
[total_days] => 7
[display_material_sum] => 144 323
[display_work_sum] => 140 148
[display_total_sum] => 284 471
)
1
284 471₽
Работа:140 148 ₽
Материалы:144 323 ₽
Дни:7
stdClass Object
(
[id] => 85
[attribute_id] => 3
[name] => Сухой брус
[material_modifier] => 1
[work_modifier] => 1
[options] => Array
(
[0] => 150 мм
[1] => 180 мм
[2] => 200 мм
)
[days] => [7,8,9]
[material_price] => [6010,7190,8709]
[work_price] => [3204,3845,4229]
[image] => https://akademik-stroy.ru/wp-content/uploads/materials/suhoj-brus.jpg
[area_modifier] => 90.36
[parent_name] => Стены 1 этаж (несущие)
[parent_id] => 3
[material_sum] => 716844
[work_sum] => 318465
[total_sum] => 1035309
[total_days] => 7
[display_material_sum] => 716 844
[display_work_sum] => 318 465
[display_total_sum] => 1 035 309
)
1
1 035 309₽
Работа:318 465 ₽
Материалы:716 844 ₽
Дни:7
stdClass Object
(
[id] => 86
[attribute_id] => 3
[name] => Профилированный брус
[material_modifier] => 1
[work_modifier] => 1
[options] => Array
(
[0] => 150 мм
[1] => 180 мм
[2] => 200 мм
)
[days] => [7,8,9]
[material_price] => [8190,9228,10051]
[work_price] => [3845,4614,5075]
[image] => https://akademik-stroy.ru/wp-content/uploads/materials/profilirovannyj-brus.jpg
[area_modifier] => 90.36
[parent_name] => Стены 1 этаж (несущие)
[parent_id] => 3
[material_sum] => 976864
[work_sum] => 382178
[total_sum] => 1359042
[total_days] => 7
[display_material_sum] => 976 864
[display_work_sum] => 382 178
[display_total_sum] => 1 359 042
)
1
1 359 042₽
Работа:382 178 ₽
Материалы:976 864 ₽
Дни:7
stdClass Object
(
[id] => 87
[attribute_id] => 3
[name] => Оцилиндрованное бревно
[material_modifier] => 1
[work_modifier] => 1
[options] => Array
(
[0] => 180 мм
[1] => 220 мм
[2] => 260 мм
[3] => 320 мм
)
[days] => [7,8,9,10]
[material_price] => [75190,9532,10868,13116]
[work_price] => [3845,4691,5535,6863]
[image] => https://akademik-stroy.ru/wp-content/uploads/materials/ocilindrovannoe-brevno-1.jpg
[area_modifier] => 90.36
[parent_name] => Стены 1 этаж (несущие)
[parent_id] => 3
[material_sum] => 8968302
[work_sum] => 382178
[total_sum] => 9350480
[total_days] => 7
[display_material_sum] => 8 968 302
[display_work_sum] => 382 178
[display_total_sum] => 9 350 480
)
1
9 350 480₽
Работа:382 178 ₽
Материалы:8 968 302 ₽
Дни:7
stdClass Object
(
[id] => 88
[attribute_id] => 3
[name] => Срубы
[material_modifier] => 1
[work_modifier] => 1
[options] => Array
(
[0] => 260 мм
[1] => 320 мм
[2] => 360 мм
[3] => 400 мм
[4] => 500 мм
)
[days] => [7,8,9,10,11]
[material_price] => [37975,46709,52314,58069,73167]
[work_price] => [4806,5911,6621,7349,9260]
[image] => https://akademik-stroy.ru/wp-content/uploads/materials/sruby.jpg
[area_modifier] => 90.36
[parent_name] => Стены 1 этаж (несущие)
[parent_id] => 3
[material_sum] => 4529476
[work_sum] => 477697
[total_sum] => 5007173
[total_days] => 7
[display_material_sum] => 4 529 476
[display_work_sum] => 477 697
[display_total_sum] => 5 007 173
)
1
5 007 173₽
Работа:477 697 ₽
Материалы:4 529 476 ₽
Дни:7
stdClass Object
(
[id] => 174
[attribute_id] => 3
[name] => Брус
[material_modifier] => 1
[work_modifier] => 1
[options] => Array
(
[0] => 150 мм
[1] => 180 мм
[2] => 200 мм
)
[days] => [7,8,9]
[material_price] => [5127,6152,7367]
[work_price] => [1602,1922,2115]
[image] => https://akademik-stroy.ru/wp-content/uploads/materials/brus.jpg
[area_modifier] => 90.36
[parent_name] => Стены 1 этаж (несущие)
[parent_id] => 3
[material_sum] => 611524
[work_sum] => 159232
[total_sum] => 770756
[total_days] => 7
[display_material_sum] => 611 524
[display_work_sum] => 159 232
[display_total_sum] => 770 756
)
1
770 756₽
Работа:159 232 ₽
Материалы:611 524 ₽
Дни:7
stdClass Object
(
[id] => 175
[attribute_id] => 3
[name] => Газобетон
[material_modifier] => 1
[work_modifier] => 1
[options] => Array
(
[0] => 300 мм
[1] => 375 мм
[2] => 400 мм
[3] => 500 мм
[4] => 600 мм
)
[days] => [29,31,35,37,44]
[material_price] => [4298,5573,6356,7288,9119]
[work_price] => [4538,5251,5926,6733,7195]
[image] => https://akademik-stroy.ru/wp-content/uploads/materials/gazobeton.jpg
[area_modifier] => 90.36
[parent_name] => Стены 1 этаж (несущие)
[parent_id] => 3
[material_sum] => 512645
[work_sum] => 451059
[total_sum] => 963704
[total_days] => 29
[display_material_sum] => 512 645
[display_work_sum] => 451 059
[display_total_sum] => 963 704
)
1
963 704₽
Работа:451 059 ₽
Материалы:512 645 ₽
Дни:29
stdClass Object
(
[id] => 176
[attribute_id] => 3
[name] => Блок
[material_modifier] => 1
[work_modifier] => 1
[options] => Array
(
[0] => 300 мм
[1] => 375 мм
[2] => 400 мм
[3] => 500 мм
[4] => 600 мм
)
[days] => [29,31,35,37,44]
[material_price] => [2698,3973,4356,6588,7119]
[work_price] => [5038,5851,6426,8733,9195]
[image] => https://akademik-stroy.ru/wp-content/uploads/materials/blok.jpg
[area_modifier] => 90.36
[parent_name] => Стены 1 этаж (несущие)
[parent_id] => 3
[material_sum] => 321804
[work_sum] => 500757
[total_sum] => 822561
[total_days] => 29
[display_material_sum] => 321 804
[display_work_sum] => 500 757
[display_total_sum] => 822 561
)
1
822 561₽
Работа:500 757 ₽
Материалы:321 804 ₽
Дни:29
stdClass Object
(
[id] => 177
[attribute_id] => 3
[name] => Газосиликатный блок
[material_modifier] => 1
[work_modifier] => 1
[options] => Array
(
[0] => 300 мм
[1] => 375 мм
[2] => 400 мм
[3] => 500 мм
[4] => 600 мм
)
[days] => [29,31,35,37,44]
[material_price] => [4298,5573,6356,7288,9119]
[work_price] => [4538,5251,5926,6733,7195]
[image] => https://akademik-stroy.ru/wp-content/uploads/materials/gazosilikatnyj-blok.jpg
[area_modifier] => 90.36
[parent_name] => Стены 1 этаж (несущие)
[parent_id] => 3
[material_sum] => 512645
[work_sum] => 451059
[total_sum] => 963704
[total_days] => 29
[display_material_sum] => 512 645
[display_work_sum] => 451 059
[display_total_sum] => 963 704
)
1
963 704₽
Работа:451 059 ₽
Материалы:512 645 ₽
Дни:29
stdClass Object
(
[id] => 178
[attribute_id] => 3
[name] => Керамзитобетонный блок
[material_modifier] => 1
[work_modifier] => 1
[options] => Array
(
[0] => 300 мм
[1] => 375 мм
[2] => 400 мм
[3] => 500 мм
[4] => 600 мм
)
[days] => [23,23,24,25,28]
[material_price] => [3641,4298,5693,7613,9612]
[work_price] => [5737,5737,6903,7958,8901]
[image] => https://akademik-stroy.ru/wp-content/uploads/materials/keramzitobetonnyj-blok.jpg
[area_modifier] => 90.36
[parent_name] => Стены 1 этаж (несущие)
[parent_id] => 3
[material_sum] => 434281
[work_sum] => 570235
[total_sum] => 1004516
[total_days] => 23
[display_material_sum] => 434 281
[display_work_sum] => 570 235
[display_total_sum] => 1 004 516
)
1
1 004 516₽
Работа:570 235 ₽
Материалы:434 281 ₽
Дни:23
stdClass Object
(
[id] => 179
[attribute_id] => 3
[name] => Деревянные
[material_modifier] => 1
[work_modifier] => 1
[options] => Array
(
[0] => 180 мм
[1] => 220 мм
[2] => 260 мм
[3] => 320 мм
)
[days] => [7,8,9,10]
[material_price] => [7950,9458,11961,14472]
[work_price] => [4037,4925,5812,7207]
[image] => https://akademik-stroy.ru/wp-content/uploads/materials/derevyannye.jpg
[area_modifier] => 90.36
[parent_name] => Стены 1 этаж (несущие)
[parent_id] => 3
[material_sum] => 948238
[work_sum] => 401262
[total_sum] => 1349500
[total_days] => 7
[display_material_sum] => 948 238
[display_work_sum] => 401 262
[display_total_sum] => 1 349 500
)
1
1 349 500₽
Работа:401 262 ₽
Материалы:948 238 ₽
Дни:7
stdClass Object
(
[id] => 181
[attribute_id] => 3
[name] => Камень
[material_modifier] => 1
[work_modifier] => 1
[options] => Array
(
[0] => 300 мм
[1] => 400 мм
[2] => 500 мм
[3] => 600 мм
)
[days] => [25,27,31,34]
[material_price] => [5262,6844,8330,9815]
[work_price] => [8331,9135,10427,11069]
[image] => https://akademik-stroy.ru/wp-content/uploads/materials/kamen.jpg
[area_modifier] => 90.36
[parent_name] => Стены 1 этаж (несущие)
[parent_id] => 3
[material_sum] => 627626
[work_sum] => 828068
[total_sum] => 1455694
[total_days] => 25
[display_material_sum] => 627 626
[display_work_sum] => 828 068
[display_total_sum] => 1 455 694
)
1
1 455 694₽
Работа:828 068 ₽
Материалы:627 626 ₽
Дни:25
stdClass Object
(
[id] => 182
[attribute_id] => 3
[name] => Каркасно-щитовые
[material_modifier] => 1
[work_modifier] => 1
[options] => Array
(
[0] => 150 мм
[1] => 200 мм
[2] => 250 мм
[3] => 300 мм
[4] => 350 мм
[5] => 400 мм
)
[days] => [15,16,17,18,19,20]
[material_price] => [2379,2639,2898,3458,3601,4175]
[work_price] => [2538,2820,3134,3483,4062,5642]
[image] => https://akademik-stroy.ru/wp-content/uploads/materials/karkasno-shchitovye.jpg
[area_modifier] => 90.36
[parent_name] => Стены 1 этаж (несущие)
[parent_id] => 3
[material_sum] => 283756
[work_sum] => 252267
[total_sum] => 536023
[total_days] => 15
[display_material_sum] => 283 756
[display_work_sum] => 252 267
[display_total_sum] => 536 023
)
1
536 023₽
Работа:252 267 ₽
Материалы:283 756 ₽
Дни:15
stdClass Object
(
[id] => 183
[attribute_id] => 3
[name] => Рубленные
[material_modifier] => 1
[work_modifier] => 1
[options] => Array
(
[0] => 150 мм
[1] => 200 мм
[2] => 250 мм
[3] => 300 мм
[4] => 350 мм
[5] => 400 мм
)
[days] => [15,16,17,18,17,18]
[material_price] => [35950,50267,60583,75900,80217,100533]
[work_price] => [9612,12816,16020,19224,22428,25632]
[image] => https://akademik-stroy.ru/wp-content/uploads/materials/rublennye.jpg
[area_modifier] => 90.36
[parent_name] => Стены 1 этаж (несущие)
[parent_id] => 3
[material_sum] => 4287943
[work_sum] => 955394
[total_sum] => 5243337
[total_days] => 15
[display_material_sum] => 4 287 943
[display_work_sum] => 955 394
[display_total_sum] => 5 243 337
)
1
5 243 337₽
Работа:955 394 ₽
Материалы:4 287 943 ₽
Дни:15
stdClass Object
(
[id] => 185
[attribute_id] => 3
[name] => Теплоблок
[material_modifier] => 1
[work_modifier] => 1
[options] => Array
(
[0] => 300 мм (с облицовкой, не покрашенный)
[1] => 400 мм (с облицовкой, не покрашенный)
[2] => 300 мм (с облицовкой, покрашенный)
[3] => 400 мм (с облицовкой, покрашенный)
)
[days] => [15,16,15,16]
[material_price] => [2888,3729,3957,4258]
[work_price] => [2564,3229,2949,3713]
[image] => https://akademik-stroy.ru/wp-content/uploads/materials/teploblok.jpg
[area_modifier] => 90.36
[parent_name] => Стены 1 этаж (несущие)
[parent_id] => 3
[material_sum] => 344467
[work_sum] => 254851
[total_sum] => 599318
[total_days] => 15
[display_material_sum] => 344 467
[display_work_sum] => 254 851
[display_total_sum] => 599 318
)
1
599 318₽
Работа:254 851 ₽
Материалы:344 467 ₽
Дни:15
stdClass Object
(
[id] => 186
[attribute_id] => 3
[name] => Арболитовые блоки
[material_modifier] => 1
[work_modifier] => 1
[options] => Array
(
[0] => 300 мм
[1] => 400 мм
[2] => 600 мм
)
[days] => [19,22,27]
[material_price] => [3210,4475,5852]
[work_price] => [4214,4788,5866]
[image] => https://akademik-stroy.ru/wp-content/uploads/materials/arbolitovye-bloki.png
[area_modifier] => 90.36
[parent_name] => Стены 1 этаж (несущие)
[parent_id] => 3
[material_sum] => 382873
[work_sum] => 418855
[total_sum] => 801728
[total_days] => 19
[display_material_sum] => 382 873
[display_work_sum] => 418 855
[display_total_sum] => 801 728
)
1
801 728₽
Работа:418 855 ₽
Материалы:382 873 ₽
Дни:19
stdClass Object
(
[id] => 187
[attribute_id] => 3
[name] => Полистиролбетон
[material_modifier] => 1
[work_modifier] => 1
[options] => Array
(
[0] => 300 мм
[1] => 400 мм
[2] => 600 мм
)
[days] => [29,31,35]
[material_price] => [2798,4573,5256]
[work_price] => [5038,5851,6426]
[image] => https://akademik-stroy.ru/wp-content/uploads/materials/polistirolbeton.jpg
[area_modifier] => 90.36
[parent_name] => Стены 1 этаж (несущие)
[parent_id] => 3
[material_sum] => 333732
[work_sum] => 500757
[total_sum] => 834489
[total_days] => 29
[display_material_sum] => 333 732
[display_work_sum] => 500 757
[display_total_sum] => 834 489
)
1
834 489₽
Работа:500 757 ₽
Материалы:333 732 ₽
Дни:29
stdClass Object
(
[id] => 188
[attribute_id] => 3
[name] => Шлакоблок
[material_modifier] => 1
[work_modifier] => 1
[options] => Array
(
[0] => 400 мм
[1] => 600 мм
)
[days] => [15,16]
[material_price] => [2391,3471]
[work_price] => [2642,3662]
[image] => https://akademik-stroy.ru/wp-content/uploads/materials/shlakoblok.jpg
[area_modifier] => 90.36
[parent_name] => Стены 1 этаж (несущие)
[parent_id] => 3
[material_sum] => 285187
[work_sum] => 262604
[total_sum] => 547791
[total_days] => 15
[display_material_sum] => 285 187
[display_work_sum] => 262 604
[display_total_sum] => 547 791
)
1
547 791₽
Работа:262 604 ₽
Материалы:285 187 ₽
Дни:15
stdClass Object
(
[id] => 189
[attribute_id] => 3
[name] => Теплая керамика
[material_modifier] => 1
[work_modifier] => 1
[options] => Array
(
[0] => 380 мм
[1] => 380 мм Thermo
[2] => 440 мм
[3] => 510 мм
)
[days] => [23,23,24,25]
[material_price] => [4510,5098,6093,8013]
[work_price] => [4737,4937,5903,6958]
[image] => https://akademik-stroy.ru/wp-content/uploads/materials/teplaya-keramika.jpg
[area_modifier] => 90.36
[parent_name] => Стены 1 этаж (несущие)
[parent_id] => 3
[material_sum] => 537931
[work_sum] => 470839
[total_sum] => 1008770
[total_days] => 23
[display_material_sum] => 537 931
[display_work_sum] => 470 839
[display_total_sum] => 1 008 770
)
1
1 008 770₽
Работа:470 839 ₽
Материалы:537 931 ₽
Дни:23
stdClass Object
(
[id] => 190
[attribute_id] => 3
[name] => Несъемная опалубка
[material_modifier] => 1
[work_modifier] => 1
[options] => Array
(
[0] => 200 мм
[1] => 250 мм
[2] => 300 мм
[3] => 350 мм
)
[days] => [15,17,19,21]
[material_price] => [3302,3902,4108,5008]
[work_price] => [2100,2100,2300,2534]
[image] => https://akademik-stroy.ru/wp-content/uploads/materials/nesemnaya-opalubka.jpg
[area_modifier] => 90.36
[parent_name] => Стены 1 этаж (несущие)
[parent_id] => 3
[material_sum] => 393847
[work_sum] => 208732
[total_sum] => 602579
[total_days] => 15
[display_material_sum] => 393 847
[display_work_sum] => 208 732
[display_total_sum] => 602 579
)
1
602 579₽
Работа:208 732 ₽
Материалы:393 847 ₽
Дни:15
stdClass Object
(
[id] => 251
[attribute_id] => 3
[name] => Бревно
[material_modifier] => 1
[work_modifier] => 1
[options] => Array
(
[0] => 260 мм
[1] => 320 мм
[2] => 360 мм
[3] => 400 мм
[4] => 500 мм
)
[days] => [7,8,9,10,11]
[material_price] => [1874,24045,26930,30972,38825]
[work_price] => [5046,6207,6952,7716,9723]
[image] => https://akademik-stroy.ru/wp-content/uploads/materials/sruby.jpg
[area_modifier] => 90.36
[parent_name] => Стены 1 этаж (несущие)
[parent_id] => 3
[material_sum] => 223522
[work_sum] => 501552
[total_sum] => 725074
[total_days] => 7
[display_material_sum] => 223 522
[display_work_sum] => 501 552
[display_total_sum] => 725 074
)
1
725 074₽
Работа:501 552 ₽
Материалы:223 522 ₽
Дни:7
stdClass Object
(
[id] => 7
[attribute_id] => 4
[name] => Деревянные балки
[material_modifier] => 1
[work_modifier] => 1
[options] => Array
(
[0] => без утепления
[1] => утепление 200 мм
[2] => утепление 250 мм
[3] => утепление 300 мм
[4] => утепление 350 мм
[5] => утепление 400 мм
[6] => утепление 450 мм
[7] => утепление 500 мм
)
[days] => [8,9,9,9,11,12,13,14]
[material_price] => [1634,2042,2344,2947,3149,3652,3354,3557]
[work_price] => [1230,1339,1393,1426,1460,1513,1587,1620]
[image] => https://akademik-stroy.ru/wp-content/uploads/materials/derevyannye-balki.png
[area_modifier] => 90.36
[parent_name] => Перекрытие первого этажа
[parent_id] => 4
[material_sum] => 194896
[work_sum] => 122257
[total_sum] => 317153
[total_days] => 8
[display_material_sum] => 194 896
[display_work_sum] => 122 257
[display_total_sum] => 317 153
)
1
317 153₽
Работа:122 257 ₽
Материалы:194 896 ₽
Дни:8
stdClass Object
(
[id] => 8
[attribute_id] => 4
[name] => Сборные ж/б плиты
[material_modifier] => 1
[work_modifier] => 1
[options] => Array
(
[0] => без утепления
[1] => утепление 150 мм
[2] => утепление 200 мм
[3] => утепление 250 мм
[4] => утепление 300 мм
[5] => утепление 350 мм
[6] => утепление 400 мм
[7] => утепление 450 мм
[8] => утепление 500 мм
)
[days] => [13,15,15,15,15,15,15,15,15]
[material_price] => [3067,5577,5928,6679,7730,8782,9833,10884,11935]
[work_price] => [1520,1956,2102,2247,2392,2537,2684,2829,2974]
[image] => https://akademik-stroy.ru/wp-content/uploads/materials/sbornye-zh-b-plity-2.jpg
[area_modifier] => 90.36
[parent_name] => Перекрытие первого этажа
[parent_id] => 4
[material_sum] => 365817
[work_sum] => 151082
[total_sum] => 516899
[total_days] => 13
[display_material_sum] => 365 817
[display_work_sum] => 151 082
[display_total_sum] => 516 899
)
1
516 899₽
Работа:151 082 ₽
Материалы:365 817 ₽
Дни:13
stdClass Object
(
[id] => 89
[attribute_id] => 4
[name] => Монолитная ж/б плита
[material_modifier] => 1
[work_modifier] => 1
[options] => Array
(
[0] => без утепления
[1] => утепление 150 мм
[2] => утепление 200 мм
[3] => утепление 250 мм
[4] => утепление 300 мм
[5] => утепление 350 мм
[6] => утепление 400 мм
[7] => утепление 450 мм
[8] => утепление 500 мм
)
[days] => [18,20,20,20,20,20,20,20,20]
[material_price] => [4837,6572,7224,7375,79426,8177,8728,9180,10031]
[work_price] => [3348,3921,4112,4302,4493,4684,4875,5066,5256]
[image] => https://akademik-stroy.ru/wp-content/uploads/materials/monolitnaya-zh-b-plita-2.jpg
[area_modifier] => 90.36
[parent_name] => Перекрытие первого этажа
[parent_id] => 4
[material_sum] => 576934
[work_sum] => 332778
[total_sum] => 909712
[total_days] => 18
[display_material_sum] => 576 934
[display_work_sum] => 332 778
[display_total_sum] => 909 712
)
1
909 712₽
Работа:332 778 ₽
Материалы:576 934 ₽
Дни:18
stdClass Object
(
[id] => 10
[attribute_id] => 5
[name] => Пеноблок
[material_modifier] => 1
[work_modifier] => 1
[options] => Array
(
[0] => 300 мм
[1] => 400 мм
[2] => 500 мм
[3] => 600 мм
)
[days] => [29,31,34,39]
[material_price] => [3000,4000,4500,4937]
[work_price] => [5033,5805,6400,8710]
[image] => https://akademik-stroy.ru/wp-content/uploads/materials/penoblok.jpg
[area_modifier] => 62.9
[parent_name] => Стены 2 этаж (несущие)
[parent_id] => 5
[material_sum] => 249084
[work_sum] => 348233
[total_sum] => 597317
[total_days] => 29
[display_material_sum] => 249 084
[display_work_sum] => 348 233
[display_total_sum] => 597 317
)
1
597 317₽
Работа:348 233 ₽
Материалы:249 084 ₽
Дни:29
stdClass Object
(
[id] => 90
[attribute_id] => 5
[name] => Керамический блок
[material_modifier] => 1
[work_modifier] => 1
[options] => Array
(
[0] => 380 мм
[1] => 380 мм Thermo
[2] => 440 мм
[3] => 510 мм
)
[days] => [23,23,24,25]
[material_price] => [4510,5098,6093,8013]
[work_price] => [4737,4937,5903,6958]
[image] => https://akademik-stroy.ru/wp-content/uploads/materials/keramicheskij-blok.jpg
[area_modifier] => 62.9
[parent_name] => Стены 2 этаж (несущие)
[parent_id] => 5
[material_sum] => 374456
[work_sum] => 327753
[total_sum] => 702209
[total_days] => 23
[display_material_sum] => 374 456
[display_work_sum] => 327 753
[display_total_sum] => 702 209
)
1
702 209₽
Работа:327 753 ₽
Материалы:374 456 ₽
Дни:23
stdClass Object
(
[id] => 91
[attribute_id] => 5
[name] => Кирпич
[material_modifier] => 1
[work_modifier] => 1
[options] => Array
(
[0] => Кирпич 250 мм
[1] => Кирпич 380 мм
[2] => Кирпич 510 мм
[3] => Кирпич 640 мм
[4] => Кирпич 770 мм
)
[days] => [30,30,31,33,36]
[material_price] => [5500,7142,9206,10171,12235]
[work_price] => [8736,10041,12018,15240,18462]
[image] => https://akademik-stroy.ru/wp-content/uploads/materials/kirpich.jpg
[area_modifier] => 62.9
[parent_name] => Стены 2 этаж (несущие)
[parent_id] => 5
[material_sum] => 456654
[work_sum] => 604444
[total_sum] => 1061098
[total_days] => 30
[display_material_sum] => 456 654
[display_work_sum] => 604 444
[display_total_sum] => 1 061 098
)
1
1 061 098₽
Работа:604 444 ₽
Материалы:456 654 ₽
Дни:30
stdClass Object
(
[id] => 92
[attribute_id] => 5
[name] => Монолитные
[material_modifier] => 1
[work_modifier] => 1
[options] => Array
(
[0] => 150 мм
[1] => 200 мм
[2] => 250 мм
[3] => 300 мм
[4] => 350 мм
[5] => 400 мм
)
[days] => [45,46,47,49,50,53]
[material_price] => [6545,7876,10175,12011,13908,15204]
[work_price] => [5106,6444,7698,8552,9807,11461]
[image] => https://akademik-stroy.ru/wp-content/uploads/materials/monolitnye.jpg
[area_modifier] => 62.9
[parent_name] => Стены 2 этаж (несущие)
[parent_id] => 5
[material_sum] => 543418
[work_sum] => 353284
[total_sum] => 896702
[total_days] => 45
[display_material_sum] => 543 418
[display_work_sum] => 353 284
[display_total_sum] => 896 702
)
1
896 702₽
Работа:353 284 ₽
Материалы:543 418 ₽
Дни:45
stdClass Object
(
[id] => 93
[attribute_id] => 5
[name] => Клееный брус
[material_modifier] => 1
[work_modifier] => 1
[options] => Array
(
[0] => 160 мм
[1] => 175 мм
[2] => 200 мм
[3] => 215 мм
[4] => 240 мм
[5] => 270 мм
[6] => 282 мм
)
[days] => [24,28,32,37,40,42,48]
[material_price] => [16975,18773,19950,20545,21599,22159,23275]
[work_price] => [4806,5287,5815,6397,7036,7740,8514]
[image] => https://akademik-stroy.ru/wp-content/uploads/materials/kleenyj-brus.jpg
[area_modifier] => 62.9
[parent_name] => Стены 2 этаж (несущие)
[parent_id] => 5
[material_sum] => 1409400
[work_sum] => 332527
[total_sum] => 1741927
[total_days] => 24
[display_material_sum] => 1 409 400
[display_work_sum] => 332 527
[display_total_sum] => 1 741 927
)
1
1 741 927₽
Работа:332 527 ₽
Материалы:1 409 400 ₽
Дни:24
stdClass Object
(
[id] => 94
[attribute_id] => 5
[name] => Каркасные
[material_modifier] => 1
[work_modifier] => 1
[options] => Array
(
[0] => 150 мм
[1] => 200 мм
[2] => 250 мм
[3] => 300 мм
)
[days] => [15,16,17,18]
[material_price] => [2379,2639,2898,3258]
[work_price] => [2418,2686,2985,3716]
[image] => https://akademik-stroy.ru/wp-content/uploads/materials/karkasnye.jpg
[area_modifier] => 62.9
[parent_name] => Стены 2 этаж (несущие)
[parent_id] => 5
[material_sum] => 197524
[work_sum] => 167301
[total_sum] => 364825
[total_days] => 15
[display_material_sum] => 197 524
[display_work_sum] => 167 301
[display_total_sum] => 364 825
)
1
364 825₽
Работа:167 301 ₽
Материалы:197 524 ₽
Дни:15
stdClass Object
(
[id] => 95
[attribute_id] => 5
[name] => СИП-панели
[material_modifier] => 1
[work_modifier] => 1
[options] => Array
(
[0] => 120 мм
[1] => 170 мм
[2] => 220 мм
)
[days] => [7,7,7]
[material_price] => [1210,1856,2292]
[work_price] => [1410,1551,1706]
[image] => https://akademik-stroy.ru/wp-content/uploads/materials/sip-paneli.jpg
[area_modifier] => 62.9
[parent_name] => Стены 2 этаж (несущие)
[parent_id] => 5
[material_sum] => 100464
[work_sum] => 97558
[total_sum] => 198022
[total_days] => 7
[display_material_sum] => 100 464
[display_work_sum] => 97 558
[display_total_sum] => 198 022
)
1
198 022₽
Работа:97 558 ₽
Материалы:100 464 ₽
Дни:7
stdClass Object
(
[id] => 96
[attribute_id] => 5
[name] => Сухой брус
[material_modifier] => 1
[work_modifier] => 1
[options] => Array
(
[0] => 150 мм
[1] => 180 мм
[2] => 200 мм
)
[days] => [7,8,9]
[material_price] => [6010,7190,8709]
[work_price] => [3204,3845,4229]
[image] => https://akademik-stroy.ru/wp-content/uploads/materials/suhoj-brus.jpg
[area_modifier] => 62.9
[parent_name] => Стены 2 этаж (несущие)
[parent_id] => 5
[material_sum] => 498998
[work_sum] => 221685
[total_sum] => 720683
[total_days] => 7
[display_material_sum] => 498 998
[display_work_sum] => 221 685
[display_total_sum] => 720 683
)
1
720 683₽
Работа:221 685 ₽
Материалы:498 998 ₽
Дни:7
stdClass Object
(
[id] => 97
[attribute_id] => 5
[name] => Профилированный брус
[material_modifier] => 1
[work_modifier] => 1
[options] => Array
(
[0] => 150 мм
[1] => 180 мм
[2] => 200 мм
)
[days] => [7,8,9]
[material_price] => [8190,9228,10051]
[work_price] => [3845,4614,5075]
[image] => https://akademik-stroy.ru/wp-content/uploads/materials/profilirovannyj-brus.jpg
[area_modifier] => 62.9
[parent_name] => Стены 2 этаж (несущие)
[parent_id] => 5
[material_sum] => 679999
[work_sum] => 266036
[total_sum] => 946035
[total_days] => 7
[display_material_sum] => 679 999
[display_work_sum] => 266 036
[display_total_sum] => 946 035
)
1
946 035₽
Работа:266 036 ₽
Материалы:679 999 ₽
Дни:7
stdClass Object
(
[id] => 98
[attribute_id] => 5
[name] => Оцилиндрованное бревно
[material_modifier] => 1
[work_modifier] => 1
[options] => Array
(
[0] => 180 мм
[1] => 220 мм
[2] => 260 мм
[3] => 320 мм
)
[days] => [7,8,9,10]
[material_price] => [75190,9532,10868,13116]
[work_price] => [3845,4691,5535,6863]
[image] => https://akademik-stroy.ru/wp-content/uploads/materials/ocilindrovannoe-brevno-1.jpg
[area_modifier] => 62.9
[parent_name] => Стены 2 этаж (несущие)
[parent_id] => 5
[material_sum] => 6242875
[work_sum] => 266036
[total_sum] => 6508911
[total_days] => 7
[display_material_sum] => 6 242 875
[display_work_sum] => 266 036
[display_total_sum] => 6 508 911
)
1
6 508 911₽
Работа:266 036 ₽
Материалы:6 242 875 ₽
Дни:7
stdClass Object
(
[id] => 99
[attribute_id] => 5
[name] => Срубы
[material_modifier] => 1
[work_modifier] => 1
[options] => Array
(
[0] => 260 мм
[1] => 320 мм
[2] => 360 мм
[3] => 400 мм
[4] => 500 мм
)
[days] => [7,8,9,10,11]
[material_price] => [16175,23709,26314,29069,32167]
[work_price] => [4806,5911,6621,7349,9260]
[image] => https://akademik-stroy.ru/wp-content/uploads/materials/suhoj-brus.jpg
[area_modifier] => 62.9
[parent_name] => Стены 2 этаж (несущие)
[parent_id] => 5
[material_sum] => 1342978
[work_sum] => 332527
[total_sum] => 1675505
[total_days] => 7
[display_material_sum] => 1 342 978
[display_work_sum] => 332 527
[display_total_sum] => 1 675 505
)
1
1 675 505₽
Работа:332 527 ₽
Материалы:1 342 978 ₽
Дни:7
stdClass Object
(
[id] => 194
[attribute_id] => 5
[name] => Брус
[material_modifier] => 1
[work_modifier] => 1
[options] => Array
(
[0] => 150 мм
[1] => 180 мм
[2] => 200 мм
)
[days] => [10,13,15]
[material_price] => [5127,6152,7367]
[work_price] => [1602,1922,2115]
[image] => https://akademik-stroy.ru/wp-content/uploads/materials/brus.jpg
[area_modifier] => 62.9
[parent_name] => Стены 2 этаж (несущие)
[parent_id] => 5
[material_sum] => 425685
[work_sum] => 110842
[total_sum] => 536527
[total_days] => 10
[display_material_sum] => 425 685
[display_work_sum] => 110 842
[display_total_sum] => 536 527
)
1
536 527₽
Работа:110 842 ₽
Материалы:425 685 ₽
Дни:10
stdClass Object
(
[id] => 195
[attribute_id] => 5
[name] => Газобетон
[material_modifier] => 1
[work_modifier] => 1
[options] => Array
(
[0] => 300 мм
[1] => 375 мм
[2] => 400 мм
[3] => 500 мм
[4] => 600 мм
)
[days] => [29,31,35,37,44]
[material_price] => [4298,5573,6356,7288,9119]
[work_price] => [4538,5251,5926,6733,7195]
[image] => https://akademik-stroy.ru/wp-content/uploads/materials/gazobeton.jpg
[area_modifier] => 62.9
[parent_name] => Стены 2 этаж (несущие)
[parent_id] => 5
[material_sum] => 356854
[work_sum] => 313984
[total_sum] => 670838
[total_days] => 29
[display_material_sum] => 356 854
[display_work_sum] => 313 984
[display_total_sum] => 670 838
)
1
670 838₽
Работа:313 984 ₽
Материалы:356 854 ₽
Дни:29
stdClass Object
(
[id] => 196
[attribute_id] => 5
[name] => Блок
[material_modifier] => 1
[work_modifier] => 1
[options] => Array
(
[0] => 300 мм
[1] => 375 мм
[2] => 400 мм
[3] => 500 мм
[4] => 600 мм
)
[days] => [29,31,35,37,44]
[material_price] => [2698,3973,4356,6588,7119]
[work_price] => [5038,5851,6426,8733,9195]
[image] => https://akademik-stroy.ru/wp-content/uploads/materials/blok.jpg
[area_modifier] => 62.9
[parent_name] => Стены 2 этаж (несущие)
[parent_id] => 5
[material_sum] => 224010
[work_sum] => 348579
[total_sum] => 572589
[total_days] => 29
[display_material_sum] => 224 010
[display_work_sum] => 348 579
[display_total_sum] => 572 589
)
1
572 589₽
Работа:348 579 ₽
Материалы:224 010 ₽
Дни:29
stdClass Object
(
[id] => 197
[attribute_id] => 5
[name] => Газосиликатный блок
[material_modifier] => 1
[work_modifier] => 1
[options] => Array
(
[0] => 300 мм
[1] => 375 мм
[2] => 400 мм
[3] => 500 мм
[4] => 600 мм
)
[days] => [29,31,35,37,44]
[material_price] => [4298,5573,6356,7288,9119]
[work_price] => [4538,5251,5926,6733,7195]
[image] => https://akademik-stroy.ru/wp-content/uploads/materials/gazosilikatnyj-blok.jpg
[area_modifier] => 62.9
[parent_name] => Стены 2 этаж (несущие)
[parent_id] => 5
[material_sum] => 356854
[work_sum] => 313984
[total_sum] => 670838
[total_days] => 29
[display_material_sum] => 356 854
[display_work_sum] => 313 984
[display_total_sum] => 670 838
)
1
670 838₽
Работа:313 984 ₽
Материалы:356 854 ₽
Дни:29
stdClass Object
(
[id] => 198
[attribute_id] => 5
[name] => Керамзитобетонный блок
[material_modifier] => 1
[work_modifier] => 1
[options] => Array
(
[0] => 300 мм
[1] => 375 мм
[2] => 400 мм
[3] => 500 мм
[4] => 600 мм
)
[days] => [23,23,24,25,28]
[material_price] => [3641,4298,5693,7613,9612]
[work_price] => [5737,5737,6903,7958,8901]
[image] => https://akademik-stroy.ru/wp-content/uploads/materials/keramzitobetonnyj-blok.jpg
[area_modifier] => 62.9
[parent_name] => Стены 2 этаж (несущие)
[parent_id] => 5
[material_sum] => 302305
[work_sum] => 396943
[total_sum] => 699248
[total_days] => 23
[display_material_sum] => 302 305
[display_work_sum] => 396 943
[display_total_sum] => 699 248
)
1
699 248₽
Работа:396 943 ₽
Материалы:302 305 ₽
Дни:23
stdClass Object
(
[id] => 199
[attribute_id] => 5
[name] => Деревянные
[material_modifier] => 1
[work_modifier] => 1
[options] => Array
(
[0] => 180 мм
[1] => 220 мм
[2] => 260 мм
[3] => 320 мм
)
[days] => [7,8,9,10]
[material_price] => [7950,9458,11961,14472]
[work_price] => [4037,4925,5812,7207]
[image] => https://akademik-stroy.ru/wp-content/uploads/materials/derevyannye.jpg
[area_modifier] => 62.9
[parent_name] => Стены 2 этаж (несущие)
[parent_id] => 5
[material_sum] => 660073
[work_sum] => 279320
[total_sum] => 939393
[total_days] => 7
[display_material_sum] => 660 073
[display_work_sum] => 279 320
[display_total_sum] => 939 393
)
1
939 393₽
Работа:279 320 ₽
Материалы:660 073 ₽
Дни:7
stdClass Object
(
[id] => 200
[attribute_id] => 5
[name] => Камень
[material_modifier] => 1
[work_modifier] => 1
[options] => Array
(
[0] => 300 мм
[1] => 400 мм
[2] => 500 мм
[3] => 600 мм
)
[days] => [25,27,31,34]
[material_price] => [5262,6844,8330,9815]
[work_price] => [8331,9135,10427,11069]
[image] => https://akademik-stroy.ru/wp-content/uploads/materials/kamen.jpg
[area_modifier] => 62.9
[parent_name] => Стены 2 этаж (несущие)
[parent_id] => 5
[material_sum] => 436893
[work_sum] => 576422
[total_sum] => 1013315
[total_days] => 25
[display_material_sum] => 436 893
[display_work_sum] => 576 422
[display_total_sum] => 1 013 315
)
1
1 013 315₽
Работа:576 422 ₽
Материалы:436 893 ₽
Дни:25
stdClass Object
(
[id] => 201
[attribute_id] => 5
[name] => Каркасно-щитовые
[material_modifier] => 1
[work_modifier] => 1
[options] => Array
(
[0] => 150 мм
[1] => 200 мм
[2] => 250 мм
[3] => 300 мм
[4] => 350 мм
[5] => 400 мм
)
[days] => [15,16,17,18,19,20]
[material_price] => [2379,2639,2898,3458,3601,4175]
[work_price] => [2538,2820,3134,3483,4062,5642]
[image] => https://akademik-stroy.ru/wp-content/uploads/materials/karkasno-shchitovye.jpg
[area_modifier] => 62.9
[parent_name] => Стены 2 этаж (несущие)
[parent_id] => 5
[material_sum] => 197524
[work_sum] => 175604
[total_sum] => 373128
[total_days] => 15
[display_material_sum] => 197 524
[display_work_sum] => 175 604
[display_total_sum] => 373 128
)
1
373 128₽
Работа:175 604 ₽
Материалы:197 524 ₽
Дни:15
stdClass Object
(
[id] => 202
[attribute_id] => 5
[name] => Рубленные
[material_modifier] => 1
[work_modifier] => 1
[options] => Array
(
[0] => 150 мм
[1] => 200 мм
[2] => 250 мм
[3] => 300 мм
[4] => 350 мм
[5] => 400 мм
)
[days] => [15,16,17,18,17,18]
[material_price] => [35950,50267,60583,75900,80217,100533]
[work_price] => [9612,12816,16020,19224,22428,25632]
[image] => https://akademik-stroy.ru/wp-content/uploads/materials/rublennye.jpg
[area_modifier] => 62.9
[parent_name] => Стены 2 этаж (несущие)
[parent_id] => 5
[material_sum] => 2984857
[work_sum] => 665054
[total_sum] => 3649911
[total_days] => 15
[display_material_sum] => 2 984 857
[display_work_sum] => 665 054
[display_total_sum] => 3 649 911
)
1
3 649 911₽
Работа:665 054 ₽
Материалы:2 984 857 ₽
Дни:15
stdClass Object
(
[id] => 203
[attribute_id] => 5
[name] => Теплоблок
[material_modifier] => 1
[work_modifier] => 1
[options] => Array
(
[0] => 300 мм (с облицовкой, не покрашенный)
[1] => 400 мм (с облицовкой, не покрашенный)
[2] => 300 мм (с облицовкой, покрашенный)
[3] => 400 мм (с облицовкой, покрашенный)
)
[days] => [15,16,15,16]
[material_price] => [2888,3729,3957,4258]
[work_price] => [2564,3229,2949,3713]
[image] => https://akademik-stroy.ru/wp-content/uploads/materials/teploblok.jpg
[area_modifier] => 62.9
[parent_name] => Стены 2 этаж (несущие)
[parent_id] => 5
[material_sum] => 239785
[work_sum] => 177403
[total_sum] => 417188
[total_days] => 15
[display_material_sum] => 239 785
[display_work_sum] => 177 403
[display_total_sum] => 417 188
)
1
417 188₽
Работа:177 403 ₽
Материалы:239 785 ₽
Дни:15
stdClass Object
(
[id] => 204
[attribute_id] => 5
[name] => Арболитовые блоки
[material_modifier] => 1
[work_modifier] => 1
[options] => Array
(
[0] => 300 мм
[1] => 400 мм
[2] => 600 мм
)
[days] => [19,22,27]
[material_price] => [3210,4475,5852]
[work_price] => [4214,4788,5866]
[image] => https://akademik-stroy.ru/wp-content/uploads/materials/arbolitovye-bloki.png
[area_modifier] => 62.9
[parent_name] => Стены 2 этаж (несущие)
[parent_id] => 5
[material_sum] => 266520
[work_sum] => 291567
[total_sum] => 558087
[total_days] => 19
[display_material_sum] => 266 520
[display_work_sum] => 291 567
[display_total_sum] => 558 087
)
1
558 087₽
Работа:291 567 ₽
Материалы:266 520 ₽
Дни:19
stdClass Object
(
[id] => 205
[attribute_id] => 5
[name] => Полистиролбетон
[material_modifier] => 1
[work_modifier] => 1
[options] => Array
(
[0] => 300 мм
[1] => 400 мм
[2] => 600 мм
)
[days] => [29,31,35]
[material_price] => [2798,4573,5256]
[work_price] => [5038,5851,6426]
[image] => https://akademik-stroy.ru/wp-content/uploads/materials/polistirolbeton.jpg
[area_modifier] => 62.9
[parent_name] => Стены 2 этаж (несущие)
[parent_id] => 5
[material_sum] => 232312
[work_sum] => 348579
[total_sum] => 580891
[total_days] => 29
[display_material_sum] => 232 312
[display_work_sum] => 348 579
[display_total_sum] => 580 891
)
1
580 891₽
Работа:348 579 ₽
Материалы:232 312 ₽
Дни:29
stdClass Object
(
[id] => 206
[attribute_id] => 5
[name] => Шлакоблок
[material_modifier] => 1
[work_modifier] => 1
[options] => Array
(
[0] => 400 мм
[1] => 600 мм
)
[days] => [15,16]
[material_price] => [2391,3471]
[work_price] => [2642,3662]
[image] => https://akademik-stroy.ru/wp-content/uploads/materials/shlakoblok.jpg
[area_modifier] => 62.9
[parent_name] => Стены 2 этаж (несущие)
[parent_id] => 5
[material_sum] => 198520
[work_sum] => 182800
[total_sum] => 381320
[total_days] => 15
[display_material_sum] => 198 520
[display_work_sum] => 182 800
[display_total_sum] => 381 320
)
1
381 320₽
Работа:182 800 ₽
Материалы:198 520 ₽
Дни:15
stdClass Object
(
[id] => 245
[attribute_id] => 5
[name] => Теплая керамика
[material_modifier] => 1
[work_modifier] => 1
[options] => Array
(
[0] => 380 мм
[1] => 380 мм Thermo
[2] => 440 мм
[3] => 510 мм
)
[days] => [10,10,11,12]
[material_price] => [4510,5098,6093,8013]
[work_price] => [4737,4937,5903,6958]
[image] => https://akademik-stroy.ru/wp-content/uploads/materials/teplaya-keramika.jpg
[area_modifier] => 62.9
[parent_name] => Стены 2 этаж (несущие)
[parent_id] => 5
[material_sum] => 374456
[work_sum] => 327753
[total_sum] => 702209
[total_days] => 10
[display_material_sum] => 374 456
[display_work_sum] => 327 753
[display_total_sum] => 702 209
)
1
702 209₽
Работа:327 753 ₽
Материалы:374 456 ₽
Дни:10
stdClass Object
(
[id] => 246
[attribute_id] => 5
[name] => Несъемная опалубка
[material_modifier] => 1
[work_modifier] => 1
[options] => Array
(
[0] => 380 мм
[1] => 380 мм Thermo
[2] => 440 мм
[3] => 510 мм
)
[days] => [10,10,11,12]
[material_price] => [3302,3902,4108,5008]
[work_price] => [2100,2100,2300,2534]
[image] => https://akademik-stroy.ru/wp-content/uploads/materials/nesemnaya-opalubka.jpg
[area_modifier] => 62.9
[parent_name] => Стены 2 этаж (несущие)
[parent_id] => 5
[material_sum] => 274158
[work_sum] => 145299
[total_sum] => 419457
[total_days] => 10
[display_material_sum] => 274 158
[display_work_sum] => 145 299
[display_total_sum] => 419 457
)
1
419 457₽
Работа:145 299 ₽
Материалы:274 158 ₽
Дни:10
stdClass Object
(
[id] => 254
[attribute_id] => 5
[name] => Бревно
[material_modifier] => 1
[work_modifier] => 1
[options] => Array
(
[0] => 260 мм
[1] => 320 мм
[2] => 360 мм
[3] => 400 мм
[4] => 500 мм
)
[days] => [7,8,9,10,11]
[material_price] => [1874,24045,26930,30972,38825]
[work_price] => [5046,6207,6952,7716,9723]
[image] => https://akademik-stroy.ru/wp-content/uploads/materials/sruby.jpg
[area_modifier] => 62.9
[parent_name] => Стены 2 этаж (несущие)
[parent_id] => 5
[material_sum] => 155594
[work_sum] => 349133
[total_sum] => 504727
[total_days] => 7
[display_material_sum] => 155 594
[display_work_sum] => 349 133
[display_total_sum] => 504 727
)
1
504 727₽
Работа:349 133 ₽
Материалы:155 594 ₽
Дни:7
stdClass Object
(
[id] => 11
[attribute_id] => 6
[name] => Деревянные балки
[material_modifier] => 1
[work_modifier] => 1
[options] => Array
(
[0] => без утепления
[1] => утепление 200 мм
[2] => утепление 250 мм
[3] => утепление 300 мм
[4] => утепление 350 мм
[5] => утепление 400 мм
[6] => утепление 450 мм
[7] => утепление 500 мм
)
[days] => [8,9,9,9,11,12,13,14]
[material_price] => [1634,2042,2344,2947,3149,3652,3354,3557]
[work_price] => [1230,1339,1393,1426,1460,1513,1587,1620]
[image] => https://akademik-stroy.ru/wp-content/uploads/materials/derevyannye-balki.png
[area_modifier] => 62.9
[parent_name] => Перекрытие второго этажа
[parent_id] => 6
[material_sum] => 135668
[work_sum] => 85104
[total_sum] => 220772
[total_days] => 8
[display_material_sum] => 135 668
[display_work_sum] => 85 104
[display_total_sum] => 220 772
)
1
220 772₽
Работа:85 104 ₽
Материалы:135 668 ₽
Дни:8
stdClass Object
(
[id] => 12
[attribute_id] => 6
[name] => Сборные ж/б плиты
[material_modifier] => 1
[work_modifier] => 1
[options] => Array
(
[0] => без утепления
[1] => утепление 150 мм
[2] => утепление 200 мм
[3] => утепление 250 мм
[4] => утепление 300 мм
[5] => утепление 350 мм
[6] => утепление 400 мм
[7] => утепление 450 мм
[8] => утепление 500 мм
)
[days] => [13,15,15,15,15,15,15,15,15]
[material_price] => [3067,5577,5928,6679,7730,8782,9833,10884,11935]
[work_price] => [1520,1956,2102,2247,2392,2537,2684,2829,2974]
[image] => https://akademik-stroy.ru/wp-content/uploads/materials/sbornye-zh-b-plity-2.jpg
[area_modifier] => 62.9
[parent_name] => Перекрытие второго этажа
[parent_id] => 6
[material_sum] => 254647
[work_sum] => 105169
[total_sum] => 359816
[total_days] => 13
[display_material_sum] => 254 647
[display_work_sum] => 105 169
[display_total_sum] => 359 816
)
1
359 816₽
Работа:105 169 ₽
Материалы:254 647 ₽
Дни:13
stdClass Object
(
[id] => 100
[attribute_id] => 6
[name] => Монолитная ж/б плита
[material_modifier] => 1
[work_modifier] => 1
[options] => Array
(
[0] => без утепления
[1] => утепление 150 мм
[2] => утепление 200 мм
[3] => утепление 250 мм
[4] => утепление 300 мм
[5] => утепление 350 мм
[6] => утепление 400 мм
[7] => утепление 450 мм
[8] => утепление 500 мм
)
[days] => [18,20,20,20,20,20,20,20,20]
[material_price] => [4837,6572,7224,7375,79426,8177,8728,9180,10031]
[work_price] => [3348,3921,4112,4302,4493,4684,4875,5066,5256]
[image] => https://akademik-stroy.ru/wp-content/uploads/materials/monolitnaya-zh-b-plita-2.jpg
[area_modifier] => 62.9
[parent_name] => Перекрытие второго этажа
[parent_id] => 6
[material_sum] => 401606
[work_sum] => 231648
[total_sum] => 633254
[total_days] => 18
[display_material_sum] => 401 606
[display_work_sum] => 231 648
[display_total_sum] => 633 254
)
1
633 254₽
Работа:231 648 ₽
Материалы:401 606 ₽
Дни:18
stdClass Object
(
[id] => 164
[attribute_id] => 37
[name] => Металлочерепица
[material_modifier] => 1
[work_modifier] => 1
[options] => Array
(
)
[days] => [20]
[material_price] => [6112]
[work_price] => [5726]
[image] => https://akademik-stroy.ru/wp-content/uploads/materials/metallocherepica.jpg
[area_modifier] => 90.36
[parent_name] => Крыша (Скатная)
[parent_id] => 37
[material_sum] => 729010
[work_sum] => 569141
[total_sum] => 1298151
[total_days] => 20
[display_material_sum] => 729 010
[display_work_sum] => 569 141
[display_total_sum] => 1 298 151
)
1
1 298 151₽
Работа:569 141 ₽
Материалы:729 010 ₽
Дни:20
stdClass Object
(
[id] => 165
[attribute_id] => 37
[name] => Гибкая черепица
[material_modifier] => 1
[work_modifier] => 1
[options] => Array
(
)
[days] => [20]
[material_price] => [6980]
[work_price] => [5950]
[image] => https://akademik-stroy.ru/wp-content/uploads/materials/gibkaya-cherepica.jpg
[area_modifier] => 90.36
[parent_name] => Крыша (Скатная)
[parent_id] => 37
[material_sum] => 832541
[work_sum] => 591406
[total_sum] => 1423947
[total_days] => 20
[display_material_sum] => 832 541
[display_work_sum] => 591 406
[display_total_sum] => 1 423 947
)
1
1 423 947₽
Работа:591 406 ₽
Материалы:832 541 ₽
Дни:20
stdClass Object
(
[id] => 166
[attribute_id] => 37
[name] => Цементно-песчаная черепица
[material_modifier] => 1
[work_modifier] => 1
[options] => Array
(
)
[days] => [20]
[material_price] => [10560]
[work_price] => [9456]
[image] => https://akademik-stroy.ru/wp-content/uploads/materials/cementno-peschanaya-cherepica.jpg
[area_modifier] => 90.36
[parent_name] => Крыша (Скатная)
[parent_id] => 37
[material_sum] => 1259546
[work_sum] => 939889
[total_sum] => 2199435
[total_days] => 20
[display_material_sum] => 1 259 546
[display_work_sum] => 939 889
[display_total_sum] => 2 199 435
)
1
2 199 435₽
Работа:939 889 ₽
Материалы:1 259 546 ₽
Дни:20
stdClass Object
(
[id] => 167
[attribute_id] => 37
[name] => Композитная черепица
[material_modifier] => 1
[work_modifier] => 1
[options] => Array
(
)
[days] => [20]
[material_price] => [9506]
[work_price] => [8905]
[image] => https://akademik-stroy.ru/wp-content/uploads/materials/kompozitnaya-cherepica.jpg
[area_modifier] => 90.36
[parent_name] => Крыша (Скатная)
[parent_id] => 37
[material_sum] => 1133830
[work_sum] => 885121
[total_sum] => 2018951
[total_days] => 20
[display_material_sum] => 1 133 830
[display_work_sum] => 885 121
[display_total_sum] => 2 018 951
)
1
2 018 951₽
Работа:885 121 ₽
Материалы:1 133 830 ₽
Дни:20
stdClass Object
(
[id] => 168
[attribute_id] => 37
[name] => Керамическая черепица
[material_modifier] => 1
[work_modifier] => 1
[options] => Array
(
)
[days] => [20]
[material_price] => [12750]
[work_price] => [9456]
[image] => https://akademik-stroy.ru/wp-content/uploads/materials/keramicheskaya-cherepica.jpg
[area_modifier] => 90.36
[parent_name] => Крыша (Скатная)
[parent_id] => 37
[material_sum] => 1520759
[work_sum] => 939889
[total_sum] => 2460648
[total_days] => 20
[display_material_sum] => 1 520 759
[display_work_sum] => 939 889
[display_total_sum] => 2 460 648
)
1
2 460 648₽
Работа:939 889 ₽
Материалы:1 520 759 ₽
Дни:20
stdClass Object
(
[id] => 169
[attribute_id] => 37
[name] => Металлическая фальцевая
[material_modifier] => 1
[work_modifier] => 1
[options] => Array
(
)
[days] => [20]
[material_price] => [8550]
[work_price] => [8190]
[image] => https://akademik-stroy.ru/wp-content/uploads/materials/metallicheskaya-falcevaya.jpg
[area_modifier] => 90.36
[parent_name] => Крыша (Скатная)
[parent_id] => 37
[material_sum] => 1019803
[work_sum] => 814053
[total_sum] => 1833856
[total_days] => 20
[display_material_sum] => 1 019 803
[display_work_sum] => 814 053
[display_total_sum] => 1 833 856
)
1
1 833 856₽
Работа:814 053 ₽
Материалы:1 019 803 ₽
Дни:20
stdClass Object
(
[id] => 170
[attribute_id] => 37
[name] => Медная фальцевая
[material_modifier] => 1
[work_modifier] => 1
[options] => Array
(
)
[days] => [20]
[material_price] => [20450]
[work_price] => [16750]
[image] => https://akademik-stroy.ru/wp-content/uploads/materials/mednaya-falcevaya.jpg
[area_modifier] => 90.36
[parent_name] => Крыша (Скатная)
[parent_id] => 37
[material_sum] => 2439178
[work_sum] => 1664883
[total_sum] => 4104061
[total_days] => 20
[display_material_sum] => 2 439 178
[display_work_sum] => 1 664 883
[display_total_sum] => 4 104 061
)
1
4 104 061₽
Работа:1 664 883 ₽
Материалы:2 439 178 ₽
Дни:20
stdClass Object
(
[id] => 171
[attribute_id] => 37
[name] => Зеленая кровля
[material_modifier] => 1
[work_modifier] => 1
[options] => Array
(
)
[days] => [20]
[material_price] => [19850]
[work_price] => [16780]
[image] => https://akademik-stroy.ru/wp-content/uploads/materials/zelenaya-krovlya.jpg
[area_modifier] => 90.36
[parent_name] => Крыша (Скатная)
[parent_id] => 37
[material_sum] => 2367613
[work_sum] => 1667865
[total_sum] => 4035478
[total_days] => 20
[display_material_sum] => 2 367 613
[display_work_sum] => 1 667 865
[display_total_sum] => 4 035 478
)
1
4 035 478₽
Работа:1 667 865 ₽
Материалы:2 367 613 ₽
Дни:20
stdClass Object
(
[id] => 172
[attribute_id] => 37
[name] => Профлист
[material_modifier] => 1
[work_modifier] => 1
[options] => Array
(
)
[days] => [20]
[material_price] => [3450]
[work_price] => [3750]
[image] => https://akademik-stroy.ru/wp-content/uploads/materials/proflist.jpg
[area_modifier] => 90.36
[parent_name] => Крыша (Скатная)
[parent_id] => 37
[material_sum] => 411499
[work_sum] => 372735
[total_sum] => 784234
[total_days] => 20
[display_material_sum] => 411 499
[display_work_sum] => 372 735
[display_total_sum] => 784 234
)
1
784 234₽
Работа:372 735 ₽
Материалы:411 499 ₽
Дни:20
stdClass Object
(
[id] => 51
[attribute_id] => 26
[name] => Есть
[material_modifier] => 1
[work_modifier] => 1
[options] => Array
(
[0] => Профиль 58 мм, 3-камерный, стеклопакет 2-камерный до 32 мм
[1] => Профиль 60 мм, 4-камерный, стеклопакет 2-камерный до 32 мм
[2] => Профиль 70 мм, 5-камерный, стеклопакет 2-камерный до 40 мм
[3] => Профиль 72 мм, 5-камерный, стеклопакет 2-камерный до 40 мм
[4] => Алюминиевые окна Alutech профиль 72 мм, стеклопакет 2-камерный
)
[days] => [3,3,3,3,3]
[material_price] => [1339,2124,2867,3023,29596]
[work_price] => [635,647,659,668,2579]
[image] => https://akademik-stroy.ru/wp-content/uploads/materials/okna.jpg
[area_modifier] => 124.37
[parent_name] => Окна
[parent_id] => 26
[material_sum] => 219821
[work_sum] => 86872
[total_sum] => 306693
[total_days] => 3
[display_material_sum] => 219 821
[display_work_sum] => 86 872
[display_total_sum] => 306 693
)
1
306 693₽
Работа:86 872 ₽
Материалы:219 821 ₽
Дни:3
stdClass Object
(
[id] => 52
[attribute_id] => 26
[name] => Нет
[material_modifier] => 2
[work_modifier] => 1
[options] =>
[days] => null
[material_price] => null
[work_price] => null
[image] => https://akademik-stroy.ru/wp-content/uploads/materials/okna.jpg
[area_modifier] => 124.37
[parent_name] => Окна
[parent_id] => 26
[material_sum] => 0
[work_sum] => 0
[total_sum] => 0
[total_days] => 0
[display_material_sum] => 0
[display_work_sum] => 0
[display_total_sum] => 0
)
1
0₽
Работа:0 ₽
Материалы:0 ₽
Дни:0
stdClass Object
(
[id] => 53
[attribute_id] => 27
[name] => Есть
[material_modifier] => 1
[work_modifier] => 1
[options] => Array
(
)
[days] => [1]
[material_price] => [10000]
[work_price] => [5500]
[image] => https://akademik-stroy.ru/wp-content/uploads/materials/dveri.jpg
[area_modifier] => 1
[parent_name] => Двери входные
[parent_id] => 27
[material_sum] => 13200
[work_sum] => 6050
[total_sum] => 19250
[total_days] => 1
[display_material_sum] => 13 200
[display_work_sum] => 6 050
[display_total_sum] => 19 250
)
1
19 250₽
Работа:6 050 ₽
Материалы:13 200 ₽
Дни:1
stdClass Object
(
[id] => 54
[attribute_id] => 27
[name] => Нет
[material_modifier] => 1
[work_modifier] => 1
[options] => Array
(
)
[days] => [0]
[material_price] => [0]
[work_price] => [0]
[image] => https://akademik-stroy.ru/wp-content/uploads/materials/dveri.jpg
[area_modifier] => 1
[parent_name] => Двери входные
[parent_id] => 27
[material_sum] => 0
[work_sum] => 0
[total_sum] => 0
[total_days] => 0
[display_material_sum] => 0
[display_work_sum] => 0
[display_total_sum] => 0
)
1
0₽
Работа:0 ₽
Материалы:0 ₽
Дни:0
stdClass Object
(
[id] => 25
[attribute_id] => 13
[name] => Нет
[material_modifier] => 1
[work_modifier] => 1
[options] => Array
(
)
[days] => [0]
[material_price] => [0]
[work_price] => [0]
[image] => https://akademik-stroy.ru/wp-content/uploads/materials/mineralovata-krov.jpg
[area_modifier] => 90.36
[parent_name] => Утепление кровли (Мансарда)
[parent_id] => 13
[material_sum] => 0
[work_sum] => 0
[total_sum] => 0
[total_days] => 0
[display_material_sum] => 0
[display_work_sum] => 0
[display_total_sum] => 0
)
1
0₽
Работа:0 ₽
Материалы:0 ₽
Дни:0
stdClass Object
(
[id] => 26
[attribute_id] => 13
[name] => Минераловатный
[material_modifier] => 1
[work_modifier] => 1
[options] => Array
(
[0] => 50 мм
[1] => 100 мм
[2] => 150 мм
[3] => 200 мм
[4] => 250 мм
[5] => 300 мм
[6] => 350 мм
[7] => 400 мм
[8] => 450 мм
[9] => 500 мм
)
[days] => [5,5,6,6,6,7,7,7,8,8]
[material_price] => [1158,1414,1772,2230,3602,4060,4974,5890,6408,7718]
[work_price] => [650,846,846,1098,1318,1450,1596,1754,1930,2122]
[image] => https://akademik-stroy.ru/wp-content/uploads/materials/mineralovata-krov.jpg
[area_modifier] => 90.36
[parent_name] => Утепление кровли (Мансарда)
[parent_id] => 13
[material_sum] => 138121
[work_sum] => 64607
[total_sum] => 202728
[total_days] => 5
[display_material_sum] => 138 121
[display_work_sum] => 64 607
[display_total_sum] => 202 728
)
1
202 728₽
Работа:64 607 ₽
Материалы:138 121 ₽
Дни:5
stdClass Object
(
[id] => 123
[attribute_id] => 13
[name] => Эковата (целлюлозная вата)
[material_modifier] => 1
[work_modifier] => 1
[options] => Array
(
[0] => 50 мм
[1] => 100 мм
[2] => 150 мм
[3] => 200 мм
[4] => 250 мм
[5] => 300 мм
[6] => 350 мм
[7] => 400 мм
[8] => 450 мм
[9] => 500 мм
)
[days] => [3,3,4,4,4,5,5,5,5,5]
[material_price] => [820,1638,2458,3276,5734,6552,8190,9828,11466,13104]
[work_price] => [234,304,304,396,474,522,574,632,694,764]
[image] => https://akademik-stroy.ru/wp-content/uploads/materials/ehkovata-krov.jpg
[area_modifier] => 90.36
[parent_name] => Утепление кровли (Мансарда)
[parent_id] => 13
[material_sum] => 97806
[work_sum] => 23259
[total_sum] => 121065
[total_days] => 3
[display_material_sum] => 97 806
[display_work_sum] => 23 259
[display_total_sum] => 121 065
)
1
121 065₽
Работа:23 259 ₽
Материалы:97 806 ₽
Дни:3
stdClass Object
(
[id] => 124
[attribute_id] => 13
[name] => Экструдированный пенополистирол
[material_modifier] => 1
[work_modifier] => 1
[options] => Array
(
[0] => 50 мм
[1] => 100 мм
[2] => 150 мм
[3] => 200 мм
[4] => 250 мм
[5] => 300 мм
[6] => 350 мм
[7] => 400 мм
[8] => 450 мм
[9] => 500 мм
)
[days] => [3,3,4,4,4,5,5,5,5,6]
[material_price] => [1146,2292,3438,4584,8020,9166,11458,13750,16040,18332]
[work_price] => [390,508,508,660,790,870,958,1052,1158,1274]
[image] => https://akademik-stroy.ru/wp-content/uploads/materials/epps-krov.jpg
[area_modifier] => 90.36
[parent_name] => Утепление кровли (Мансарда)
[parent_id] => 13
[material_sum] => 136689
[work_sum] => 38764
[total_sum] => 175453
[total_days] => 3
[display_material_sum] => 136 689
[display_work_sum] => 38 764
[display_total_sum] => 175 453
)
1
175 453₽
Работа:38 764 ₽
Материалы:136 689 ₽
Дни:3
stdClass Object
(
[id] => 125
[attribute_id] => 13
[name] => ПСБ (ППС-пенополистирол)
[material_modifier] => 1
[work_modifier] => 1
[options] => Array
(
[0] => 50 мм
[1] => 100 мм
[2] => 150 мм
[3] => 200 мм
[4] => 250 мм
[5] => 300 мм
[6] => 350 мм
[7] => 400 мм
[8] => 450 мм
[9] => 500 мм
)
[days] => [3,3,4,4,4,5,5,5,5,6]
[material_price] => [476,954,1430,1906,3336,3814,4766,5720,6674,7626]
[work_price] => [390,508,508,660,790,870,958,1052,1158,1274]
[image] => https://akademik-stroy.ru/wp-content/uploads/materials/psb-krov.jpg
[area_modifier] => 90.36
[parent_name] => Утепление кровли (Мансарда)
[parent_id] => 13
[material_sum] => 56775
[work_sum] => 38764
[total_sum] => 95539
[total_days] => 3
[display_material_sum] => 56 775
[display_work_sum] => 38 764
[display_total_sum] => 95 539
)
1
95 539₽
Работа:38 764 ₽
Материалы:56 775 ₽
Дни:3
stdClass Object
(
[id] => 126
[attribute_id] => 13
[name] => ППУ (Пенополиуретан)
[material_modifier] => 1
[work_modifier] => 1
[options] => Array
(
[0] => 50 мм
[1] => 100 мм
[2] => 150 мм
[3] => 200 мм
[4] => 250 мм
[5] => 300 мм
[6] => 350 мм
[7] => 400 мм
[8] => 450 мм
[9] => 500 мм
)
[days] => [2,2,3,3,3,3,4,4,4,4]
[material_price] => [2080,4160,6240,8320,14560,16640,20800,24960,29120,33280]
[work_price] => [234,304,304,396,474,522,574,632,694,764]
[image] => https://akademik-stroy.ru/wp-content/uploads/materials/ppu-krov.jpg
[area_modifier] => 90.36
[parent_name] => Утепление кровли (Мансарда)
[parent_id] => 13
[material_sum] => 248092
[work_sum] => 23259
[total_sum] => 271351
[total_days] => 2
[display_material_sum] => 248 092
[display_work_sum] => 23 259
[display_total_sum] => 271 351
)
1
271 351₽
Работа:23 259 ₽
Материалы:248 092 ₽
Дни:2
stdClass Object
(
[id] => 127
[attribute_id] => 13
[name] => PIR-плиты (пенополиизоцианурат)
[material_modifier] => 1
[work_modifier] => 1
[options] => Array
(
[0] => 50 мм
[1] => 100 мм
[2] => 150 мм
[3] => 200 мм
[4] => 250 мм
[5] => 300 мм
[6] => 350 мм
[7] => 400 мм
[8] => 450 мм
[9] => 500 мм
)
[days] => [3,3,4,4,4,5,5,5,5,6]
[material_price] => [2646,5290,7936,10580,18516,21162,26452,31742,37032,42324]
[work_price] => [390,508,508,660,790,870,958,1052,1158,1274]
[image] => https://akademik-stroy.ru/wp-content/uploads/materials/pir-krov.jpg
[area_modifier] => 90.36
[parent_name] => Утепление кровли (Мансарда)
[parent_id] => 13
[material_sum] => 315602
[work_sum] => 38764
[total_sum] => 354366
[total_days] => 3
[display_material_sum] => 315 602
[display_work_sum] => 38 764
[display_total_sum] => 354 366
)
1
354 366₽
Работа:38 764 ₽
Материалы:315 602 ₽
Дни:3
stdClass Object
(
[id] => 27
[attribute_id] => 14
[name] => Нет
[material_modifier] => 1
[work_modifier] => 1
[options] => Array
(
)
[days] => [0]
[material_price] => [0]
[work_price] => [0]
[image] => https://akademik-stroy.ru/wp-content/uploads/materials/mansardnye-okna-2.jpg
[area_modifier] => 1
[parent_name] => Мансардные окна
[parent_id] => 14
[material_sum] => 0
[work_sum] => 0
[total_sum] => 0
[total_days] => 0
[display_material_sum] => 0
[display_work_sum] => 0
[display_total_sum] => 0
)
1
0₽
Работа:0 ₽
Материалы:0 ₽
Дни:0
stdClass Object
(
[id] => 28
[attribute_id] => 14
[name] => Есть
[material_modifier] => 1
[work_modifier] => 1
[options] => Array
(
[0] => 55x78
[1] => 55x98
)
[days] => [6,7]
[material_price] => [47480,68700]
[work_price] => [17900,19500]
[image] => https://akademik-stroy.ru/wp-content/uploads/materials/mansardnye-okna-2.jpg
[area_modifier] => 1
[parent_name] => Мансардные окна
[parent_id] => 14
[material_sum] => 62674
[work_sum] => 19690
[total_sum] => 82364
[total_days] => 6
[display_material_sum] => 62 674
[display_work_sum] => 19 690
[display_total_sum] => 82 364
)
1
82 364₽
Работа:19 690 ₽
Материалы:62 674 ₽
Дни:6
stdClass Object
(
[id] => 29
[attribute_id] => 15
[name] => Нет
[material_modifier] => 1
[work_modifier] => 1
[options] => Array
(
)
[days] => [0]
[material_price] => [0]
[work_price] => [0]
[image] => https://akademik-stroy.ru/wp-content/uploads/materials/sofit.jpg
[area_modifier] => 90.36
[parent_name] => Подшивка кровли
[parent_id] => 15
[material_sum] => 0
[work_sum] => 0
[total_sum] => 0
[total_days] => 0
[display_material_sum] => 0
[display_work_sum] => 0
[display_total_sum] => 0
)
1
0₽
Работа:0 ₽
Материалы:0 ₽
Дни:0
stdClass Object
(
[id] => 30
[attribute_id] => 15
[name] => Есть
[material_modifier] => 1
[work_modifier] => 1
[options] => Array
(
[0] => Софиты (ПВХ)
[1] => Cedral
[2] => ДПК
[3] => Планкен
)
[days] => [7,10,9,8]
[material_price] => [1803,3213,3025,3150]
[work_price] => [1529,2188,2075,1923]
[image] => https://akademik-stroy.ru/wp-content/uploads/materials/sofit.jpg
[area_modifier] => 90.36
[parent_name] => Подшивка кровли
[parent_id] => 15
[material_sum] => 215053
[work_sum] => 151976
[total_sum] => 367029
[total_days] => 7
[display_material_sum] => 215 053
[display_work_sum] => 151 976
[display_total_sum] => 367 029
)
1
367 029₽
Работа:151 976 ₽
Материалы:215 053 ₽
Дни:7
stdClass Object
(
[id] => 31
[attribute_id] => 16
[name] => Нет
[material_modifier] => 1
[work_modifier] => 1
[options] => Array
(
)
[days] => [0]
[material_price] => [0]
[work_price] => [0]
[image] => https://akademik-stroy.ru/wp-content/uploads/materials/docke-standard-pvh.jpg
[area_modifier] => 90.36
[parent_name] => Водосточная система
[parent_id] => 16
[material_sum] => 0
[work_sum] => 0
[total_sum] => 0
[total_days] => 0
[display_material_sum] => 0
[display_work_sum] => 0
[display_total_sum] => 0
)
1
0₽
Работа:0 ₽
Материалы:0 ₽
Дни:0
stdClass Object
(
[id] => 32
[attribute_id] => 16
[name] => Есть
[material_modifier] => 1
[work_modifier] => 1
[options] => Array
(
[0] => Döcke Standard (ПВХ)
[1] => Металлические Grand Line
)
[days] => [7,7]
[material_price] => [1842,2703]
[work_price] => [1491,1529]
[image] => https://akademik-stroy.ru/wp-content/uploads/materials/docke-standard-pvh.jpg
[area_modifier] => 90.36
[parent_name] => Водосточная система
[parent_id] => 16
[material_sum] => 219705
[work_sum] => 148199
[total_sum] => 367904
[total_days] => 7
[display_material_sum] => 219 705
[display_work_sum] => 148 199
[display_total_sum] => 367 904
)
1
367 904₽
Работа:148 199 ₽
Материалы:219 705 ₽
Дни:7
stdClass Object
(
[id] => 33
[attribute_id] => 17
[name] => Нет
[material_modifier] => 1
[work_modifier] => 1
[options] => Array
(
)
[days] => [0]
[material_price] => [0]
[work_price] => [0]
[image] => https://akademik-stroy.ru/wp-content/uploads/materials/mineralovata.jpg
[area_modifier] => 153.26
[parent_name] => Дополнительное утепление наружных стен
[parent_id] => 17
[material_sum] => 0
[work_sum] => 0
[total_sum] => 0
[total_days] => 0
[display_material_sum] => 0
[display_work_sum] => 0
[display_total_sum] => 0
)
1
0₽
Работа:0 ₽
Материалы:0 ₽
Дни:0
stdClass Object
(
[id] => 34
[attribute_id] => 17
[name] => Минераловатный
[material_modifier] => 1
[work_modifier] => 1
[options] => Array
(
[0] => 50 мм
[1] => 100 мм
[2] => 150 мм
[3] => 200 мм
[4] => 250 мм
[5] => 300 мм
)
[days] => [7,8,10,12,14,15]
[material_price] => [3437,3613,3803,3915,4601,4830]
[work_price] => [2325,2423,2523,2749,2859,3025]
[image] => https://akademik-stroy.ru/wp-content/uploads/materials/mineralovata.jpg
[area_modifier] => 153.26
[parent_name] => Дополнительное утепление наружных стен
[parent_id] => 17
[material_sum] => 695316
[work_sum] => 391962
[total_sum] => 1087278
[total_days] => 7
[display_material_sum] => 695 316
[display_work_sum] => 391 962
[display_total_sum] => 1 087 278
)
1
1 087 278₽
Работа:391 962 ₽
Материалы:695 316 ₽
Дни:7
stdClass Object
(
[id] => 128
[attribute_id] => 17
[name] => Эковата (целлюлозная вата)
[material_modifier] => 1
[work_modifier] => 1
[options] => Array
(
[0] => 50 мм
[1] => 100 мм
[2] => 150 мм
[3] => 200 мм
[4] => 250 мм
[5] => 300 мм
)
[days] => [3,4,5,6,7,8]
[material_price] => [810,1319,1629,1838,2267,2676]
[work_price] => [1225,1323,1423,1549,1659,1725]
[image] => https://akademik-stroy.ru/wp-content/uploads/materials/ehkovata.jpg
[area_modifier] => 153.26
[parent_name] => Дополнительное утепление наружных стен
[parent_id] => 17
[material_sum] => 163866
[work_sum] => 206518
[total_sum] => 370384
[total_days] => 3
[display_material_sum] => 163 866
[display_work_sum] => 206 518
[display_total_sum] => 370 384
)
1
370 384₽
Работа:206 518 ₽
Материалы:163 866 ₽
Дни:3
stdClass Object
(
[id] => 129
[attribute_id] => 17
[name] => Экструдированный пенополистирол
[material_modifier] => 1
[work_modifier] => 1
[options] => Array
(
[0] => 50 мм
[1] => 100 мм
[2] => 150 мм
[3] => 200 мм
[4] => 250 мм
[5] => 300 мм
)
[days] => [5,6,7,8,9,10]
[material_price] => [4560,4300,5119,6292,7010,8583]
[work_price] => [1795,1954,2254,2330,2595,2735]
[image] => https://akademik-stroy.ru/wp-content/uploads/materials/epps.jpg
[area_modifier] => 153.26
[parent_name] => Дополнительное утепление наружных стен
[parent_id] => 17
[material_sum] => 922503
[work_sum] => 302612
[total_sum] => 1225115
[total_days] => 5
[display_material_sum] => 922 503
[display_work_sum] => 302 612
[display_total_sum] => 1 225 115
)
1
1 225 115₽
Работа:302 612 ₽
Материалы:922 503 ₽
Дни:5
stdClass Object
(
[id] => 130
[attribute_id] => 17
[name] => ПСБ (ППС-пенополистирол)
[material_modifier] => 1
[work_modifier] => 1
[options] => Array
(
[0] => 50 мм
[1] => 100 мм
[2] => 150 мм
[3] => 200 мм
[4] => 250 мм
[5] => 300 мм
)
[days] => [5,6,7,8,9,10]
[material_price] => [4822,5200,5819,6292,7010,7583]
[work_price] => [1795,1954,2254,2330,2595,2735]
[image] => https://akademik-stroy.ru/wp-content/uploads/materials/psb.jpg
[area_modifier] => 153.26
[parent_name] => Дополнительное утепление наружных стен
[parent_id] => 17
[material_sum] => 975506
[work_sum] => 302612
[total_sum] => 1278118
[total_days] => 5
[display_material_sum] => 975 506
[display_work_sum] => 302 612
[display_total_sum] => 1 278 118
)
1
1 278 118₽
Работа:302 612 ₽
Материалы:975 506 ₽
Дни:5
stdClass Object
(
[id] => 131
[attribute_id] => 17
[name] => ППУ (Пенополиуретан)
[material_modifier] => 1
[work_modifier] => 1
[options] => Array
(
[0] => 50 мм
[1] => 100 мм
[2] => 150 мм
[3] => 200 мм
[4] => 250 мм
[5] => 300 мм
)
[days] => [3,4,5,6,7,8]
[material_price] => [2860,3400,4219,4592,5010,5583]
[work_price] => [729,900,980,1120,1280,1530]
[image] => https://akademik-stroy.ru/wp-content/uploads/materials/ppu.jpg
[area_modifier] => 153.26
[parent_name] => Дополнительное утепление наружных стен
[parent_id] => 17
[material_sum] => 578587
[work_sum] => 122899
[total_sum] => 701486
[total_days] => 3
[display_material_sum] => 578 587
[display_work_sum] => 122 899
[display_total_sum] => 701 486
)
1
701 486₽
Работа:122 899 ₽
Материалы:578 587 ₽
Дни:3
stdClass Object
(
[id] => 132
[attribute_id] => 17
[name] => PIR-плиты (пенополиизоцианурат)
[material_modifier] => 1
[work_modifier] => 1
[options] => Array
(
[0] => 50 мм
[1] => 100 мм
[2] => 150 мм
[3] => 200 мм
[4] => 250 мм
[5] => 300 мм
)
[days] => [5,6,7,8,9,10]
[material_price] => [8323,15645,20968,25900,29258,30581]
[work_price] => [800,900,970,1150,1280,1330]
[image] => https://akademik-stroy.ru/wp-content/uploads/materials/pir.jpg
[area_modifier] => 153.26
[parent_name] => Дополнительное утепление наружных стен
[parent_id] => 17
[material_sum] => 1683770
[work_sum] => 134869
[total_sum] => 1818639
[total_days] => 5
[display_material_sum] => 1 683 770
[display_work_sum] => 134 869
[display_total_sum] => 1 818 639
)
1
1 818 639₽
Работа:134 869 ₽
Материалы:1 683 770 ₽
Дни:5
stdClass Object
(
[id] => 37
[attribute_id] => 19
[name] => Нет
[material_modifier] => 1
[work_modifier] => 1
[options] => Array
(
)
[days] => [0]
[material_price] => [0]
[work_price] => [0]
[image] => https://akademik-stroy.ru/wp-content/uploads/materials/imitaciya-brusa.jpg
[area_modifier] => 153.26
[parent_name] => Наружная отделка фасада
[parent_id] => 19
[material_sum] => 0
[work_sum] => 0
[total_sum] => 0
[total_days] => 0
[display_material_sum] => 0
[display_work_sum] => 0
[display_total_sum] => 0
)
1
0₽
Работа:0 ₽
Материалы:0 ₽
Дни:0
stdClass Object
(
[id] => 38
[attribute_id] => 19
[name] => Имитация бруса
[material_modifier] => 1
[work_modifier] => 1
[options] => Array
(
[0] => Сосна
[1] => Ель
[2] => Лиственница
)
[days] => [20,20,20]
[material_price] => [2994,2762,4954]
[work_price] => [1397,1231,1577]
[image] => https://akademik-stroy.ru/wp-content/uploads/materials/imitaciya-brusa.jpg
[area_modifier] => 153.26
[parent_name] => Наружная отделка фасада
[parent_id] => 19
[material_sum] => 605696
[work_sum] => 235515
[total_sum] => 841211
[total_days] => 20
[display_material_sum] => 605 696
[display_work_sum] => 235 515
[display_total_sum] => 841 211
)
1
841 211₽
Работа:235 515 ₽
Материалы:605 696 ₽
Дни:20
stdClass Object
(
[id] => 136
[attribute_id] => 19
[name] => Планкен
[material_modifier] => 1
[work_modifier] => 1
[options] => Array
(
[0] => Сосна
[1] => Ель
[2] => Лиственница
)
[days] => [20,20,20]
[material_price] => [3194,2862,5154]
[work_price] => [1537,1354,1735]
[image] => https://akademik-stroy.ru/wp-content/uploads/materials/planken.jpg
[area_modifier] => 153.26
[parent_name] => Наружная отделка фасада
[parent_id] => 19
[material_sum] => 646156
[work_sum] => 259117
[total_sum] => 905273
[total_days] => 20
[display_material_sum] => 646 156
[display_work_sum] => 259 117
[display_total_sum] => 905 273
)
1
905 273₽
Работа:259 117 ₽
Материалы:646 156 ₽
Дни:20
stdClass Object
(
[id] => 137
[attribute_id] => 19
[name] => Штукатурка
[material_modifier] => 1
[work_modifier] => 1
[options] => Array
(
[0] => Цементно-песчаная (минеральная)
[1] => Мокрый фасад
)
[days] => [35,35]
[material_price] => [2231,3938]
[work_price] => [1202,2422]
[image] => https://akademik-stroy.ru/wp-content/uploads/materials/shtukaturka.jpg
[area_modifier] => 153.26
[parent_name] => Наружная отделка фасада
[parent_id] => 19
[material_sum] => 451338
[work_sum] => 202640
[total_sum] => 653978
[total_days] => 35
[display_material_sum] => 451 338
[display_work_sum] => 202 640
[display_total_sum] => 653 978
)
1
653 978₽
Работа:202 640 ₽
Материалы:451 338 ₽
Дни:35
stdClass Object
(
[id] => 138
[attribute_id] => 19
[name] => Облицовочный кирпич
[material_modifier] => 1
[work_modifier] => 1
[options] => Array
(
[0] => Керамический
[1] => Клинкерный
[2] => Ручной формовки
[3] => Гиперпрессованный
[4] => Силикатный кирпич
)
[days] => [45,45,45,45,45]
[material_price] => [8174,9148,1040,1257,5876]
[work_price] => [3240,3758,4536,4017,3369]
[image] => https://akademik-stroy.ru/wp-content/uploads/materials/oblicovochnyj-kirpich.jpg
[area_modifier] => 153.26
[parent_name] => Наружная отделка фасада
[parent_id] => 19
[material_sum] => 1653626
[work_sum] => 546219
[total_sum] => 2199845
[total_days] => 45
[display_material_sum] => 1 653 626
[display_work_sum] => 546 219
[display_total_sum] => 2 199 845
)
1
2 199 845₽
Работа:546 219 ₽
Материалы:1 653 626 ₽
Дни:45
stdClass Object
(
[id] => 139
[attribute_id] => 19
[name] => Фасадная плитка
[material_modifier] => 1
[work_modifier] => 1
[options] => Array
(
[0] => Клинкерная
[1] => Керамическая
[2] => Плитка ручной формовки
)
[days] => [40,40,40]
[material_price] => [2974,1487,3470]
[work_price] => [3007,2592,3629]
[image] => https://akademik-stroy.ru/wp-content/uploads/materials/fasadnaya-plitka.jpg
[area_modifier] => 153.26
[parent_name] => Наружная отделка фасада
[parent_id] => 19
[material_sum] => 601650
[work_sum] => 506938
[total_sum] => 1108588
[total_days] => 40
[display_material_sum] => 601 650
[display_work_sum] => 506 938
[display_total_sum] => 1 108 588
)
1
1 108 588₽
Работа:506 938 ₽
Материалы:601 650 ₽
Дни:40
stdClass Object
(
[id] => 140
[attribute_id] => 19
[name] => Сайдинг
[material_modifier] => 1
[work_modifier] => 1
[options] => Array
(
[0] => Виниловый
[1] => Металлический
[2] => Фиброцементный
)
[days] => [20,20,20]
[material_price] => [1263,1944,4147]
[work_price] => [1263,1944,2074]
[image] => https://akademik-stroy.ru/wp-content/uploads/materials/sajding.jpg
[area_modifier] => 153.26
[parent_name] => Наружная отделка фасада
[parent_id] => 19
[material_sum] => 255509
[work_sum] => 212924
[total_sum] => 468433
[total_days] => 20
[display_material_sum] => 255 509
[display_work_sum] => 212 924
[display_total_sum] => 468 433
)
1
468 433₽
Работа:212 924 ₽
Материалы:255 509 ₽
Дни:20
stdClass Object
(
[id] => 141
[attribute_id] => 19
[name] => Камень
[material_modifier] => 1
[work_modifier] => 1
[options] => Array
(
[0] => Травертин
[1] => Дагестанский
[2] => Искусственный
[3] => Натуральный
[4] => Керамогранит
)
[days] => [45,45,45,45,45]
[material_price] => [4536,3888,2592,3240,2462]
[work_price] => [3240,3240,2462,3110,1944]
[image] => https://akademik-stroy.ru/wp-content/uploads/materials/kamen-1.jpg
[area_modifier] => 153.26
[parent_name] => Наружная отделка фасада
[parent_id] => 19
[material_sum] => 917647
[work_sum] => 546219
[total_sum] => 1463866
[total_days] => 45
[display_material_sum] => 917 647
[display_work_sum] => 546 219
[display_total_sum] => 1 463 866
)
1
1 463 866₽
Работа:546 219 ₽
Материалы:917 647 ₽
Дни:45
stdClass Object
(
[id] => 142
[attribute_id] => 19
[name] => Термопанели
[material_modifier] => 1
[work_modifier] => 1
[options] => Array
(
)
[days] => [20]
[material_price] => [6221]
[work_price] => [2333]
[image] => https://akademik-stroy.ru/wp-content/uploads/materials/termo.png
[area_modifier] => 153.26
[parent_name] => Наружная отделка фасада
[parent_id] => 19
[material_sum] => 1258528
[work_sum] => 393311
[total_sum] => 1651839
[total_days] => 20
[display_material_sum] => 1 258 528
[display_work_sum] => 393 311
[display_total_sum] => 1 651 839
)
1
1 651 839₽
Работа:393 311 ₽
Материалы:1 258 528 ₽
Дни:20
stdClass Object
(
[id] => 143
[attribute_id] => 19
[name] => Плитка HAUBERK
[material_modifier] => 1
[work_modifier] => 1
[options] => Array
(
)
[days] => [20]
[material_price] => [2786]
[work_price] => [1944]
[image] => https://akademik-stroy.ru/wp-content/uploads/materials/hauberk.jpg
[area_modifier] => 153.26
[parent_name] => Наружная отделка фасада
[parent_id] => 19
[material_sum] => 563617
[work_sum] => 327731
[total_sum] => 891348
[total_days] => 20
[display_material_sum] => 563 617
[display_work_sum] => 327 731
[display_total_sum] => 891 348
)
1
891 348₽
Работа:327 731 ₽
Материалы:563 617 ₽
Дни:20
stdClass Object
(
[id] => 144
[attribute_id] => 19
[name] => Фальцевый фасад
[material_modifier] => 1
[work_modifier] => 1
[options] => Array
(
)
[days] => [20]
[material_price] => [3240]
[work_price] => [2592]
[image] => https://akademik-stroy.ru/wp-content/uploads/materials/falcevyj-fasad.jpg
[area_modifier] => 153.26
[parent_name] => Наружная отделка фасада
[parent_id] => 19
[material_sum] => 655462
[work_sum] => 436975
[total_sum] => 1092437
[total_days] => 20
[display_material_sum] => 655 462
[display_work_sum] => 436 975
[display_total_sum] => 1 092 437
)
1
1 092 437₽
Работа:436 975 ₽
Материалы:655 462 ₽
Дни:20
stdClass Object
(
[id] => 145
[attribute_id] => 19
[name] => Комбинированный
[material_modifier] => 1
[work_modifier] => 1
[options] => Array
(
)
[days] => [20]
[material_price] => [4629]
[work_price] => [3499]
[image] => https://akademik-stroy.ru/wp-content/uploads/materials/Kombinirovannyj.jpg
[area_modifier] => 153.26
[parent_name] => Наружная отделка фасада
[parent_id] => 19
[material_sum] => 936462
[work_sum] => 589882
[total_sum] => 1526344
[total_days] => 20
[display_material_sum] => 936 462
[display_work_sum] => 589 882
[display_total_sum] => 1 526 344
)
1
1 526 344₽
Работа:589 882 ₽
Материалы:936 462 ₽
Дни:20
stdClass Object
(
[id] => 257
[attribute_id] => 19
[name] => Японские фиброцементные
[material_modifier] => 1
[work_modifier] => 1
[options] => Array
(
)
[days] => [20]
[material_price] => [7043]
[work_price] => [2993]
[image] => https://akademik-stroy.ru/wp-content/uploads/materials/paneli.jpg
[area_modifier] => 153.26
[parent_name] => Наружная отделка фасада
[parent_id] => 19
[material_sum] => 1424821
[work_sum] => 504578
[total_sum] => 1929399
[total_days] => 20
[display_material_sum] => 1 424 821
[display_work_sum] => 504 578
[display_total_sum] => 1 929 399
)
1
1 929 399₽
Работа:504 578 ₽
Материалы:1 424 821 ₽
Дни:20
stdClass Object
(
[id] => 258
[attribute_id] => 19
[name] => Панели Каньон
[material_modifier] => 1
[work_modifier] => 1
[options] => Array
(
)
[days] => [20]
[material_price] => [4543]
[work_price] => [2592]
[image] => https://akademik-stroy.ru/wp-content/uploads/materials/kanon.png
[area_modifier] => 153.26
[parent_name] => Наружная отделка фасада
[parent_id] => 19
[material_sum] => 919063
[work_sum] => 436975
[total_sum] => 1356038
[total_days] => 20
[display_material_sum] => 919 063
[display_work_sum] => 436 975
[display_total_sum] => 1 356 038
)
1
1 356 038₽
Работа:436 975 ₽
Материалы:919 063 ₽
Дни:20
stdClass Object
(
[id] => 39
[attribute_id] => 20
[name] => Нет
[material_modifier] => 1
[work_modifier] => 1
[options] => Array
(
)
[days] => [0]
[material_price] => [0]
[work_price] => [0]
[image] => https://akademik-stroy.ru/wp-content/uploads/materials/terrasy.jpg
[area_modifier] => 30
[parent_name] => Террасы, крыльца, навесы
[parent_id] => 20
[material_sum] => 0
[work_sum] => 0
[total_sum] => 0
[total_days] => 0
[display_material_sum] => 0
[display_work_sum] => 0
[display_total_sum] => 0
)
1
0₽
Работа:0 ₽
Материалы:0 ₽
Дни:0
stdClass Object
(
[id] => 40
[attribute_id] => 20
[name] => Есть
[material_modifier] => 1
[work_modifier] => 1
[options] => Array
(
)
[days] => [5]
[material_price] => [10450]
[work_price] => [1950]
[image] => https://akademik-stroy.ru/wp-content/uploads/materials/terrasy.jpg
[area_modifier] => 30
[parent_name] => Террасы, крыльца, навесы
[parent_id] => 20
[material_sum] => 413820
[work_sum] => 64350
[total_sum] => 478170
[total_days] => 5
[display_material_sum] => 413 820
[display_work_sum] => 64 350
[display_total_sum] => 478 170
)
1
478 170₽
Работа:64 350 ₽
Материалы:413 820 ₽
Дни:5
stdClass Object
(
[id] => 41
[attribute_id] => 21
[name] => Нет
[material_modifier] => 1
[work_modifier] => 1
[options] => Array
(
)
[days] => [0]
[material_price] => [0]
[work_price] => [0]
[image] => https://akademik-stroy.ru/wp-content/uploads/materials/balkony.jpg
[area_modifier] => 30
[parent_name] => Балконы
[parent_id] => 21
[material_sum] => 0
[work_sum] => 0
[total_sum] => 0
[total_days] => 0
[display_material_sum] => 0
[display_work_sum] => 0
[display_total_sum] => 0
)
1
0₽
Работа:0 ₽
Материалы:0 ₽
Дни:0
stdClass Object
(
[id] => 42
[attribute_id] => 21
[name] => Есть
[material_modifier] => 1
[work_modifier] => 1
[options] => Array
(
)
[days] => [12]
[material_price] => [3600]
[work_price] => [1950]
[image] => https://akademik-stroy.ru/wp-content/uploads/materials/balkony.jpg
[area_modifier] => 30
[parent_name] => Балконы
[parent_id] => 21
[material_sum] => 142560
[work_sum] => 64350
[total_sum] => 206910
[total_days] => 12
[display_material_sum] => 142 560
[display_work_sum] => 64 350
[display_total_sum] => 206 910
)
1
206 910₽
Работа:64 350 ₽
Материалы:142 560 ₽
Дни:12
stdClass Object
(
[id] => 43
[attribute_id] => 22
[name] => Нет
[material_modifier] => 1
[work_modifier] => 1
[options] => Array
(
)
[days] => [0]
[material_price] => [0]
[work_price] => [0]
[image] => https://akademik-stroy.ru/wp-content/uploads/materials/uteplennaya.jpg
[area_modifier] => 90.36
[parent_name] => Отмостка
[parent_id] => 22
[material_sum] => 0
[work_sum] => 0
[total_sum] => 0
[total_days] => 0
[display_material_sum] => 0
[display_work_sum] => 0
[display_total_sum] => 0
)
1
0₽
Работа:0 ₽
Материалы:0 ₽
Дни:0
stdClass Object
(
[id] => 44
[attribute_id] => 22
[name] => Утепленная отмостка
[material_modifier] => 1
[work_modifier] => 1
[options] => Array
(
)
[days] => [15]
[material_price] => [2550]
[work_price] => [1750]
[image] => https://akademik-stroy.ru/wp-content/uploads/materials/uteplennaya.jpg
[area_modifier] => 90.36
[parent_name] => Отмостка
[parent_id] => 22
[material_sum] => 304152
[work_sum] => 173943
[total_sum] => 478095
[total_days] => 15
[display_material_sum] => 304 152
[display_work_sum] => 173 943
[display_total_sum] => 478 095
)
1
478 095₽
Работа:173 943 ₽
Материалы:304 152 ₽
Дни:15
stdClass Object
(
[id] => 146
[attribute_id] => 22
[name] => Не утепленная отмостка
[material_modifier] => 1
[work_modifier] => 1
[options] => Array
(
)
[days] => [10]
[material_price] => [1650]
[work_price] => [1450]
[image] => https://akademik-stroy.ru/wp-content/uploads/materials/ne-uteplennaya.jpg
[area_modifier] => 90.36
[parent_name] => Отмостка
[parent_id] => 22
[material_sum] => 196804
[work_sum] => 144124
[total_sum] => 340928
[total_days] => 10
[display_material_sum] => 196 804
[display_work_sum] => 144 124
[display_total_sum] => 340 928
)
1
340 928₽
Работа:144 124 ₽
Материалы:196 804 ₽
Дни:10
stdClass Object
(
[id] => 45
[attribute_id] => 23
[name] => Нет
[material_modifier] => 1
[work_modifier] => 1
[options] => Array
(
)
[days] => [0]
[material_price] => [0]
[work_price] => [0]
[image] => https://akademik-stroy.ru/wp-content/uploads/materials/drenazh-2.jpg
[area_modifier] => 90.36
[parent_name] => Дренаж вокруг дома
[parent_id] => 23
[material_sum] => 0
[work_sum] => 0
[total_sum] => 0
[total_days] => 0
[display_material_sum] => 0
[display_work_sum] => 0
[display_total_sum] => 0
)
1
0₽
Работа:0 ₽
Материалы:0 ₽
Дни:0
stdClass Object
(
[id] => 46
[attribute_id] => 23
[name] => Есть
[material_modifier] => 1
[work_modifier] => 1
[options] => Array
(
)
[days] => [5]
[material_price] => [2366]
[work_price] => [1911]
[image] => https://akademik-stroy.ru/wp-content/uploads/materials/drenazh-2.jpg
[area_modifier] => 90.36
[parent_name] => Дренаж вокруг дома
[parent_id] => 23
[material_sum] => 282205
[work_sum] => 189946
[total_sum] => 472151
[total_days] => 5
[display_material_sum] => 282 205
[display_work_sum] => 189 946
[display_total_sum] => 472 151
)
1
472 151₽
Работа:189 946 ₽
Материалы:282 205 ₽
Дни:5
stdClass Object
(
[id] => 47
[attribute_id] => 24
[name] => Нет
[material_modifier] => 1
[work_modifier] => 1
[options] => Array
(
)
[days] => [0]
[material_price] => [0]
[work_price] => [0]
[image] => https://akademik-stroy.ru/wp-content/uploads/materials/septik.jpg
[area_modifier] => 1
[parent_name] => Автономная канализация (септики)
[parent_id] => 24
[material_sum] => 0
[work_sum] => 0
[total_sum] => 0
[total_days] => 0
[display_material_sum] => 0
[display_work_sum] => 0
[display_total_sum] => 0
)
1
0₽
Работа:0 ₽
Материалы:0 ₽
Дни:0
stdClass Object
(
[id] => 48
[attribute_id] => 24
[name] => Есть
[material_modifier] => 1
[work_modifier] => 1
[options] => Array
(
[0] => Для дачи на 4 человека
[1] => Для дома на 5 человек
[2] => Для дома на 6 человек
[3] => Для дома на 7 человек
[4] => Для дома на 10 человек
)
[days] => [7,7,7,8,8]
[material_price] => [196340,220500,240940,264200,293340]
[work_price] => [50000,55000,60500,66550,73206]
[image] => https://akademik-stroy.ru/wp-content/uploads/materials/septik.jpg
[area_modifier] => 1
[parent_name] => Автономная канализация (септики)
[parent_id] => 24
[material_sum] => 259169
[work_sum] => 55000
[total_sum] => 314169
[total_days] => 7
[display_material_sum] => 259 169
[display_work_sum] => 55 000
[display_total_sum] => 314 169
)
1
314 169₽
Работа:55 000 ₽
Материалы:259 169 ₽
Дни:7
stdClass Object
(
[id] => 49
[attribute_id] => 25
[name] => Нет
[material_modifier] => 1
[work_modifier] => 1
[options] => Array
(
)
[days] => [0]
[material_price] => [0]
[work_price] => [0]
[image] => https://akademik-stroy.ru/wp-content/uploads/materials/gkl.jpg
[area_modifier] => 153.26
[parent_name] => Внутренние (не несущие) перегородки
[parent_id] => 25
[material_sum] => 0
[work_sum] => 0
[total_sum] => 0
[total_days] => 0
[display_material_sum] => 0
[display_work_sum] => 0
[display_total_sum] => 0
)
1
0₽
Работа:0 ₽
Материалы:0 ₽
Дни:0
stdClass Object
(
[id] => 147
[attribute_id] => 25
[name] => Каркасно-обшивные
[material_modifier] => 1
[work_modifier] => 1
[options] => Array
(
[0] => 75 мм (без шумоизоляции)
[1] => 75 мм (с шумоизоляцией)
)
[days] => [11,11]
[material_price] => [580,970]
[work_price] => [380,570]
[image] => https://akademik-stroy.ru/wp-content/uploads/materials/gkl.jpg
[area_modifier] => 153.26
[parent_name] => Внутренние (не несущие) перегородки
[parent_id] => 25
[material_sum] => 117336
[work_sum] => 64063
[total_sum] => 181399
[total_days] => 11
[display_material_sum] => 117 336
[display_work_sum] => 64 063
[display_total_sum] => 181 399
)
1
181 399₽
Работа:64 063 ₽
Материалы:117 336 ₽
Дни:11
stdClass Object
(
[id] => 148
[attribute_id] => 25
[name] => Пазогребневые
[material_modifier] => 1
[work_modifier] => 1
[options] => Array
(
[0] => 80 мм
[1] => 100 мм
)
[days] => [5,5]
[material_price] => [1022,1313]
[work_price] => [600,700]
[image] => https://akademik-stroy.ru/wp-content/uploads/materials/pazogrebnevye-bloki.jpg
[area_modifier] => 153.26
[parent_name] => Внутренние (не несущие) перегородки
[parent_id] => 25
[material_sum] => 206754
[work_sum] => 101152
[total_sum] => 307906
[total_days] => 5
[display_material_sum] => 206 754
[display_work_sum] => 101 152
[display_total_sum] => 307 906
)
1
307 906₽
Работа:101 152 ₽
Материалы:206 754 ₽
Дни:5
stdClass Object
(
[id] => 149
[attribute_id] => 25
[name] => Газобетонные
[material_modifier] => 1
[work_modifier] => 1
[options] => Array
(
[0] => 100 мм
[1] => 200 мм
)
[days] => [11,11]
[material_price] => [1160,1920]
[work_price] => [700,900]
[image] => https://akademik-stroy.ru/wp-content/uploads/materials/gazobeton-2.jpg
[area_modifier] => 153.26
[parent_name] => Внутренние (не несущие) перегородки
[parent_id] => 25
[material_sum] => 234672
[work_sum] => 118010
[total_sum] => 352682
[total_days] => 11
[display_material_sum] => 234 672
[display_work_sum] => 118 010
[display_total_sum] => 352 682
)
1
352 682₽
Работа:118 010 ₽
Материалы:234 672 ₽
Дни:11
stdClass Object
(
[id] => 150
[attribute_id] => 25
[name] => Кирпичные
[material_modifier] => 1
[work_modifier] => 1
[options] => Array
(
[0] => 120 мм
[1] => 250 мм
[2] => 360 мм
)
[days] => [7,7,7]
[material_price] => [1785,3570,5355]
[work_price] => [900,1600,1800]
[image] => https://akademik-stroy.ru/wp-content/uploads/materials/kirpich-1.jpg
[area_modifier] => 153.26
[parent_name] => Внутренние (не несущие) перегородки
[parent_id] => 25
[material_sum] => 361111
[work_sum] => 151727
[total_sum] => 512838
[total_days] => 7
[display_material_sum] => 361 111
[display_work_sum] => 151 727
[display_total_sum] => 512 838
)
1
512 838₽
Работа:151 727 ₽
Материалы:361 111 ₽
Дни:7
stdClass Object
(
[id] => 55
[attribute_id] => 28
[name] => Нет
[material_modifier] => 1
[work_modifier] => 1
[options] => Array
(
)
[days] => [0]
[material_price] => [0]
[work_price] => [0]
[image] => https://akademik-stroy.ru/wp-content/uploads/materials/ehlektrika.jpg
[area_modifier] => 124.37
[parent_name] => Электрика
[parent_id] => 28
[material_sum] => 0
[work_sum] => 0
[total_sum] => 0
[total_days] => 0
[display_material_sum] => 0
[display_work_sum] => 0
[display_total_sum] => 0
)
1
0₽
Работа:0 ₽
Материалы:0 ₽
Дни:0
stdClass Object
(
[id] => 56
[attribute_id] => 28
[name] => Есть
[material_modifier] => 1
[work_modifier] => 1
[options] => Array
(
)
[days] => [10]
[material_price] => [650]
[work_price] => [950]
[image] => https://akademik-stroy.ru/wp-content/uploads/materials/ehlektrika.jpg
[area_modifier] => 124.37
[parent_name] => Электрика
[parent_id] => 28
[material_sum] => 106709
[work_sum] => 129967
[total_sum] => 236676
[total_days] => 10
[display_material_sum] => 106 709
[display_work_sum] => 129 967
[display_total_sum] => 236 676
)
1
236 676₽
Работа:129 967 ₽
Материалы:106 709 ₽
Дни:10
stdClass Object
(
[id] => 57
[attribute_id] => 29
[name] => Нет
[material_modifier] => 1
[work_modifier] => 1
[options] => Array
(
)
[days] => [0]
[material_price] => [0]
[work_price] => [0]
[image] => https://akademik-stroy.ru/wp-content/uploads/materials/santekhnika-kanalizaciya-1.jpg
[area_modifier] => 124.37
[parent_name] => Сантехника, канализация в доме
[parent_id] => 29
[material_sum] => 0
[work_sum] => 0
[total_sum] => 0
[total_days] => 0
[display_material_sum] => 0
[display_work_sum] => 0
[display_total_sum] => 0
)
1
0₽
Работа:0 ₽
Материалы:0 ₽
Дни:0
stdClass Object
(
[id] => 58
[attribute_id] => 29
[name] => Есть
[material_modifier] => 1
[work_modifier] => 1
[options] => Array
(
)
[days] => [10]
[material_price] => [600]
[work_price] => [730]
[image] => https://akademik-stroy.ru/wp-content/uploads/materials/santekhnika-kanalizaciya-1.jpg
[area_modifier] => 124.37
[parent_name] => Сантехника, канализация в доме
[parent_id] => 29
[material_sum] => 98501
[work_sum] => 99869
[total_sum] => 198370
[total_days] => 10
[display_material_sum] => 98 501
[display_work_sum] => 99 869
[display_total_sum] => 198 370
)
1
198 370₽
Работа:99 869 ₽
Материалы:98 501 ₽
Дни:10
stdClass Object
(
[id] => 59
[attribute_id] => 30
[name] => Нет
[material_modifier] => 1
[work_modifier] => 1
[options] => Array
(
)
[days] => [0]
[material_price] => [0]
[work_price] => [0]
[image] => https://akademik-stroy.ru/wp-content/uploads/materials/otoplenie-1.jpg
[area_modifier] => 124.37
[parent_name] => Отопление
[parent_id] => 30
[material_sum] => 0
[work_sum] => 0
[total_sum] => 0
[total_days] => 0
[display_material_sum] => 0
[display_work_sum] => 0
[display_total_sum] => 0
)
1
0₽
Работа:0 ₽
Материалы:0 ₽
Дни:0
stdClass Object
(
[id] => 60
[attribute_id] => 30
[name] => Есть
[material_modifier] => 1
[work_modifier] => 1
[options] => Array
(
)
[days] => [5]
[material_price] => [610]
[work_price] => [560]
[image] => https://akademik-stroy.ru/wp-content/uploads/materials/otoplenie-1.jpg
[area_modifier] => 124.37
[parent_name] => Отопление
[parent_id] => 30
[material_sum] => 100143
[work_sum] => 76612
[total_sum] => 176755
[total_days] => 5
[display_material_sum] => 100 143
[display_work_sum] => 76 612
[display_total_sum] => 176 755
)
1
176 755₽
Работа:76 612 ₽
Материалы:100 143 ₽
Дни:5
stdClass Object
(
[id] => 61
[attribute_id] => 31
[name] => Нет
[material_modifier] => 1
[work_modifier] => 1
[options] => Array
(
)
[days] => [0]
[material_price] => [0]
[work_price] => [0]
[image] => https://akademik-stroy.ru/wp-content/uploads/materials/vodyanye.jpg
[area_modifier] => 30
[parent_name] => Теплые полы
[parent_id] => 31
[material_sum] => 0
[work_sum] => 0
[total_sum] => 0
[total_days] => 0
[display_material_sum] => 0
[display_work_sum] => 0
[display_total_sum] => 0
)
1
0₽
Работа:0 ₽
Материалы:0 ₽
Дни:0
stdClass Object
(
[id] => 151
[attribute_id] => 31
[name] => Водяные
[material_modifier] => 1
[work_modifier] => 1
[options] => Array
(
)
[days] => [9]
[material_price] => [10200]
[work_price] => [2500]
[image] => https://akademik-stroy.ru/wp-content/uploads/materials/vodyanye.jpg
[area_modifier] => 30
[parent_name] => Теплые полы
[parent_id] => 31
[material_sum] => 403920
[work_sum] => 82500
[total_sum] => 486420
[total_days] => 9
[display_material_sum] => 403 920
[display_work_sum] => 82 500
[display_total_sum] => 486 420
)
1
486 420₽
Работа:82 500 ₽
Материалы:403 920 ₽
Дни:9
stdClass Object
(
[id] => 152
[attribute_id] => 31
[name] => Электро
[material_modifier] => 1
[work_modifier] => 1
[options] => Array
(
)
[days] => [5]
[material_price] => [6300]
[work_price] => [1500]
[image] => https://akademik-stroy.ru/wp-content/uploads/materials/ehlektricheskij.jpg
[area_modifier] => 30
[parent_name] => Теплые полы
[parent_id] => 31
[material_sum] => 249480
[work_sum] => 49500
[total_sum] => 298980
[total_days] => 5
[display_material_sum] => 249 480
[display_work_sum] => 49 500
[display_total_sum] => 298 980
)
1
298 980₽
Работа:49 500 ₽
Материалы:249 480 ₽
Дни:5
stdClass Object
(
[id] => 63
[attribute_id] => 32
[name] => Нет
[material_modifier] => 1
[work_modifier] => 1
[options] => Array
(
)
[days] => [0]
[material_price] => [0]
[work_price] => [0]
[image] => https://akademik-stroy.ru/wp-content/uploads/materials/shtukaturka-shpatlevka-1.jpg
[area_modifier] => 124.37
[parent_name] => Черновая отделка стен
[parent_id] => 32
[material_sum] => 0
[work_sum] => 0
[total_sum] => 0
[total_days] => 0
[display_material_sum] => 0
[display_work_sum] => 0
[display_total_sum] => 0
)
1
0₽
Работа:0 ₽
Материалы:0 ₽
Дни:0
stdClass Object
(
[id] => 153
[attribute_id] => 32
[name] => Штукатурка и шпатлевка
[material_modifier] => 1
[work_modifier] => 1
[options] => Array
(
)
[days] => [20]
[material_price] => [1850]
[work_price] => [2600]
[image] => https://akademik-stroy.ru/wp-content/uploads/materials/shtukaturka-shpatlevka-1.jpg
[area_modifier] => 124.37
[parent_name] => Черновая отделка стен
[parent_id] => 32
[material_sum] => 303712
[work_sum] => 355698
[total_sum] => 659410
[total_days] => 20
[display_material_sum] => 303 712
[display_work_sum] => 355 698
[display_total_sum] => 659 410
)
1
659 410₽
Работа:355 698 ₽
Материалы:303 712 ₽
Дни:20
stdClass Object
(
[id] => 154
[attribute_id] => 32
[name] => Гипсокортон на стены
[material_modifier] => 1
[work_modifier] => 1
[options] => Array
(
)
[days] => [15]
[material_price] => [950]
[work_price] => [2100]
[image] => https://akademik-stroy.ru/wp-content/uploads/materials/gkl-1.jpg
[area_modifier] => 124.37
[parent_name] => Черновая отделка стен
[parent_id] => 32
[material_sum] => 155960
[work_sum] => 287295
[total_sum] => 443255
[total_days] => 15
[display_material_sum] => 155 960
[display_work_sum] => 287 295
[display_total_sum] => 443 255
)
1
443 255₽
Работа:287 295 ₽
Материалы:155 960 ₽
Дни:15
stdClass Object
(
[id] => 155
[attribute_id] => 32
[name] => Вагонка
[material_modifier] => 1
[work_modifier] => 1
[options] => Array
(
)
[days] => [15]
[material_price] => [1250]
[work_price] => [950]
[image] => https://akademik-stroy.ru/wp-content/uploads/materials/vagonka.jpg
[area_modifier] => 124.37
[parent_name] => Черновая отделка стен
[parent_id] => 32
[material_sum] => 205211
[work_sum] => 129967
[total_sum] => 335178
[total_days] => 15
[display_material_sum] => 205 211
[display_work_sum] => 129 967
[display_total_sum] => 335 178
)
1
335 178₽
Работа:129 967 ₽
Материалы:205 211 ₽
Дни:15
stdClass Object
(
[id] => 65
[attribute_id] => 33
[name] => Нет
[material_modifier] => 1
[work_modifier] => 1
[options] => Array
(
)
[days] => [0]
[material_price] => [0]
[work_price] => [0]
[image] => https://akademik-stroy.ru/wp-content/uploads/materials/styazhka.jpg
[area_modifier] => 124.37
[parent_name] => Черновая отделка полов
[parent_id] => 33
[material_sum] => 0
[work_sum] => 0
[total_sum] => 0
[total_days] => 0
[display_material_sum] => 0
[display_work_sum] => 0
[display_total_sum] => 0
)
1
0₽
Работа:0 ₽
Материалы:0 ₽
Дни:0
stdClass Object
(
[id] => 156
[attribute_id] => 33
[name] => Стяжка + наливные полы
[material_modifier] => 1
[work_modifier] => 1
[options] => Array
(
)
[days] => [10]
[material_price] => [1000]
[work_price] => [900]
[image] => https://akademik-stroy.ru/wp-content/uploads/materials/styazhka.jpg
[area_modifier] => 124.37
[parent_name] => Черновая отделка полов
[parent_id] => 33
[material_sum] => 164168
[work_sum] => 123126
[total_sum] => 287294
[total_days] => 10
[display_material_sum] => 164 168
[display_work_sum] => 123 126
[display_total_sum] => 287 294
)
1
287 294₽
Работа:123 126 ₽
Материалы:164 168 ₽
Дни:10
stdClass Object
(
[id] => 157
[attribute_id] => 33
[name] => ОСБ на пол
[material_modifier] => 1
[work_modifier] => 1
[options] => Array
(
)
[days] => [7]
[material_price] => [580]
[work_price] => [350]
[image] => https://akademik-stroy.ru/wp-content/uploads/materials/osb-1.jpg
[area_modifier] => 124.37
[parent_name] => Черновая отделка полов
[parent_id] => 33
[material_sum] => 95218
[work_sum] => 47882
[total_sum] => 143100
[total_days] => 7
[display_material_sum] => 95 218
[display_work_sum] => 47 882
[display_total_sum] => 143 100
)
1
143 100₽
Работа:47 882 ₽
Материалы:95 218 ₽
Дни:7
stdClass Object
(
[id] => 67
[attribute_id] => 34
[name] => Нет
[material_modifier] => 1
[work_modifier] => 1
[options] => Array
(
)
[days] => [0]
[material_price] => [0]
[work_price] => [0]
[image] => https://akademik-stroy.ru/wp-content/uploads/materials/chistovaya-otdelka.jpg
[area_modifier] => 124.37
[parent_name] => Чистовая отделка стен и полов
[parent_id] => 34
[material_sum] => 0
[work_sum] => 0
[total_sum] => 0
[total_days] => 0
[display_material_sum] => 0
[display_work_sum] => 0
[display_total_sum] => 0
)
1
0₽
Работа:0 ₽
Материалы:0 ₽
Дни:0
stdClass Object
(
[id] => 68
[attribute_id] => 34
[name] => Есть
[material_modifier] => 1
[work_modifier] => 1
[options] => Array
(
)
[days] => [50]
[material_price] => [6000]
[work_price] => [3500]
[image] => https://akademik-stroy.ru/wp-content/uploads/materials/chistovaya-otdelka.jpg
[area_modifier] => 124.37
[parent_name] => Чистовая отделка стен и полов
[parent_id] => 34
[material_sum] => 985010
[work_sum] => 478825
[total_sum] => 1463835
[total_days] => 50
[display_material_sum] => 985 010
[display_work_sum] => 478 825
[display_total_sum] => 1 463 835
)
1
1 463 835₽
Работа:478 825 ₽
Материалы:985 010 ₽
Дни:50
stdClass Object
(
[id] => 69
[attribute_id] => 35
[name] => Нет
[material_modifier] => 1
[work_modifier] => 1
[options] => Array
(
)
[days] => [0]
[material_price] => [0]
[work_price] => [0]
[image] => https://akademik-stroy.ru/wp-content/uploads/materials/mnogourovnevyj-gkl.jpg
[area_modifier] => 124.37
[parent_name] => Отделка потолка
[parent_id] => 35
[material_sum] => 0
[work_sum] => 0
[total_sum] => 0
[total_days] => 0
[display_material_sum] => 0
[display_work_sum] => 0
[display_total_sum] => 0
)
1
0₽
Работа:0 ₽
Материалы:0 ₽
Дни:0
stdClass Object
(
[id] => 70
[attribute_id] => 35
[name] => Есть
[material_modifier] => 1
[work_modifier] => 1
[options] => Array
(
[0] => Многоуровневый потолок из гипсокартона
[1] => Многоуровневый потолок из гипсокартона и натяжного потолка
[2] => Одноуровневый потолок из гипсокартона
[3] => Одноуровневый натяжной потолок
)
[days] => [10,10,1,1]
[material_price] => [900,700,700,600]
[work_price] => [1000,800,500,300]
[image] => https://akademik-stroy.ru/wp-content/uploads/materials/mnogourovnevyj-gkl.jpg
[area_modifier] => 124.37
[parent_name] => Отделка потолка
[parent_id] => 35
[material_sum] => 147752
[work_sum] => 136807
[total_sum] => 284559
[total_days] => 10
[display_material_sum] => 147 752
[display_work_sum] => 136 807
[display_total_sum] => 284 559
)
1
284 559₽
Работа:136 807 ₽
Материалы:147 752 ₽
Дни:10
Преимущества работы с нами
7 этапов оплаты
Независимый строительный надзор
Экологически чистые материалы
16 лет гарантии
Онлайн-кабинет с веб-камерой
Строители с опытом более 15 лет
Собственное производство










