Одноэтажный дом 12x12 - 157.46 м2 за руб.
Планировки
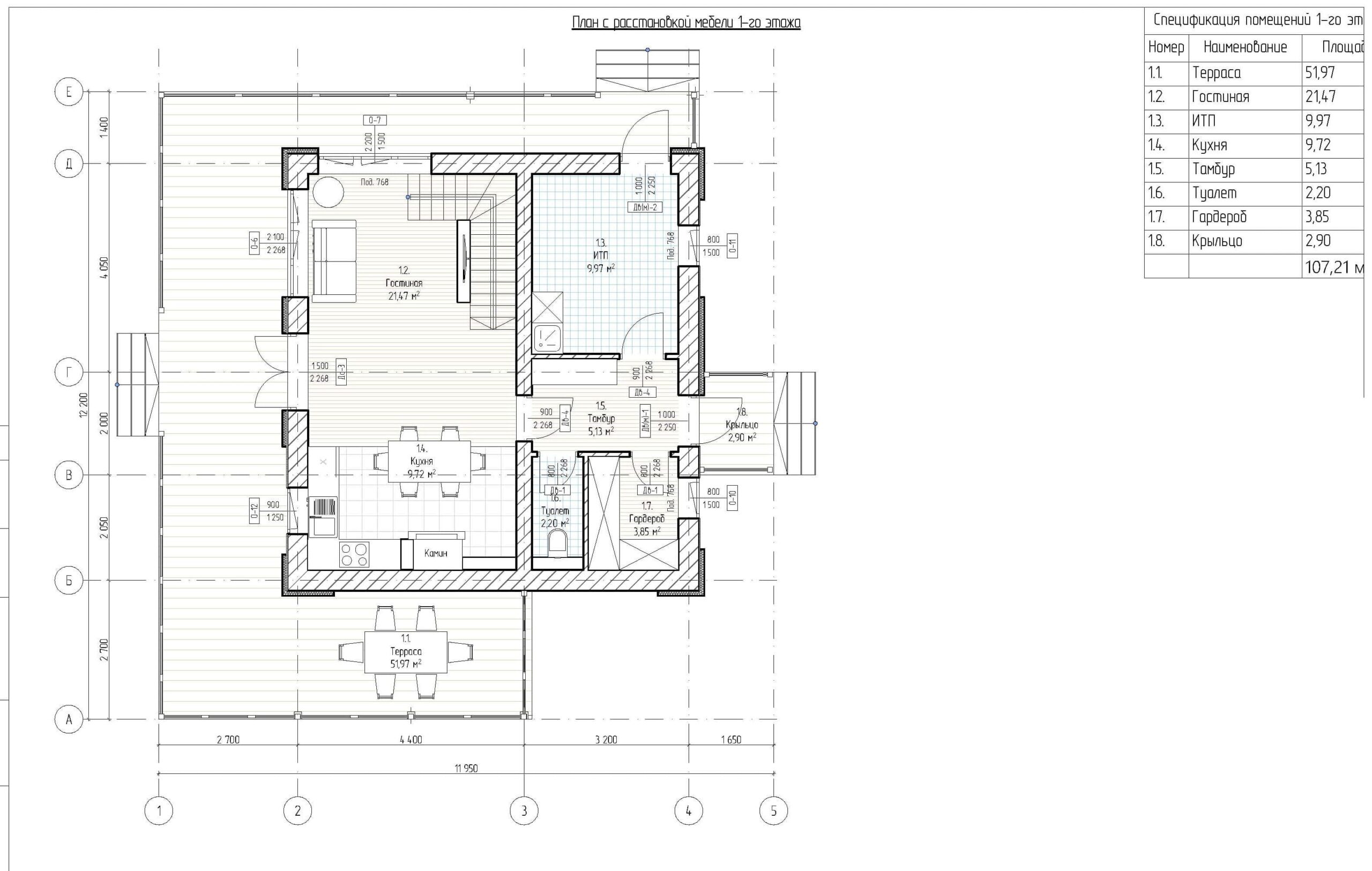
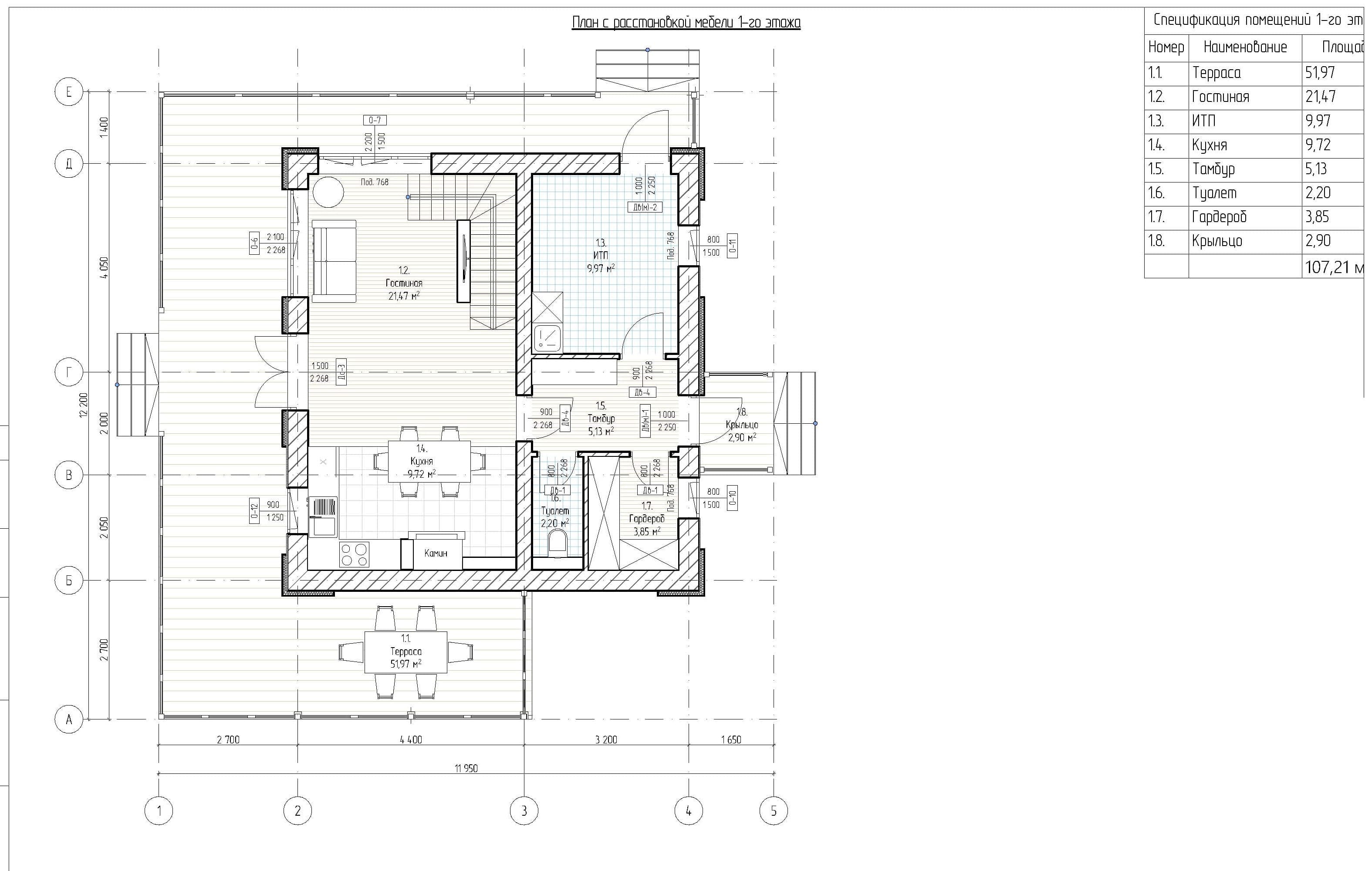
План первого этажа
- 1. Террасса 51,97 м²
- 2. Гостиная 21,47 м²
- 3. ИТП 9,97 м²
- 4. Кухня 9,72 м²
- 5. Тамбур 5,13 м²
- 6. Туалет 2,20 м²
- 7. Гардеров 3,85 м²
- 8. Крыльцо 2,90 м²
- Общая площадь 1 этаж 107,21 м²
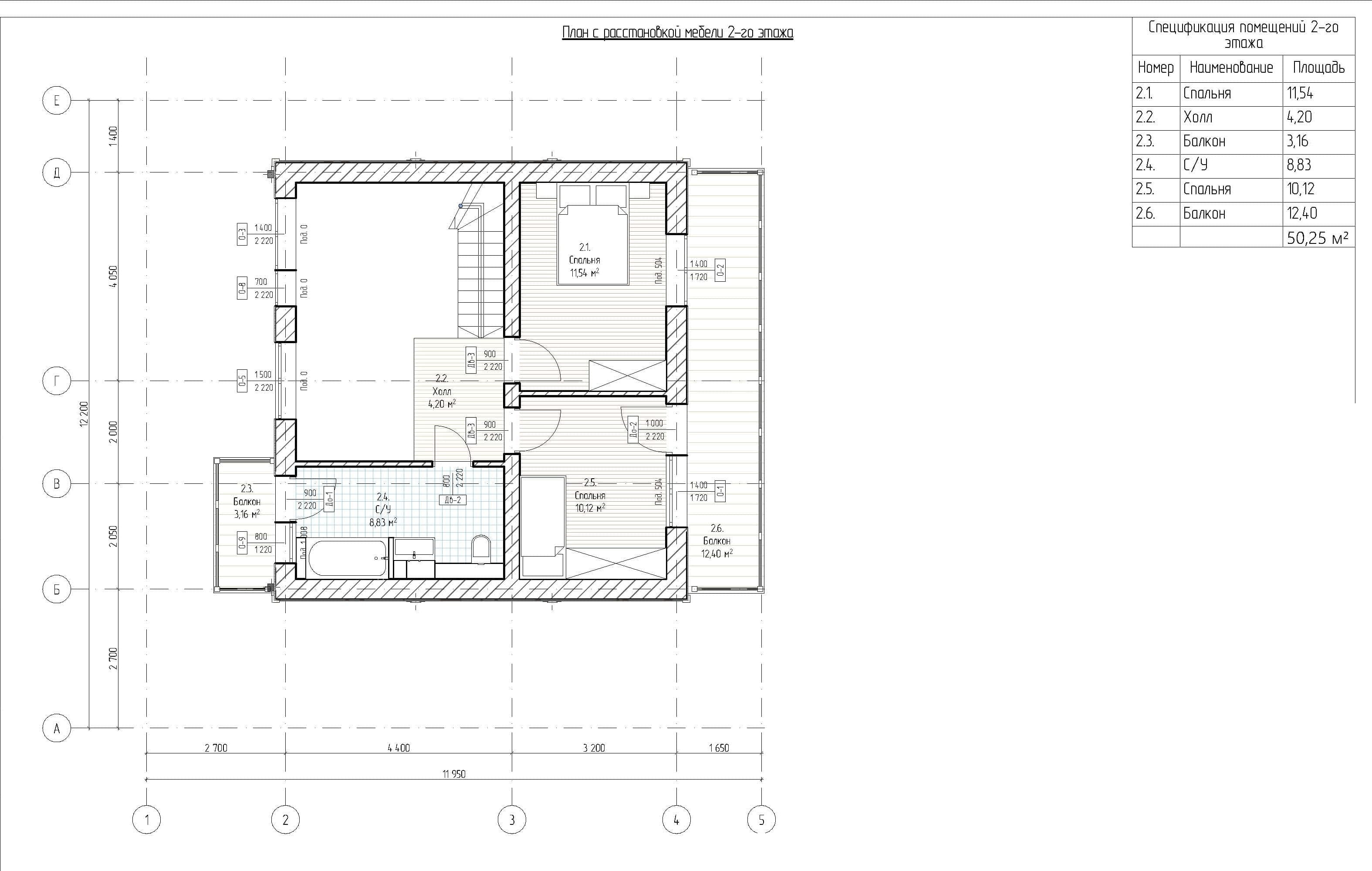
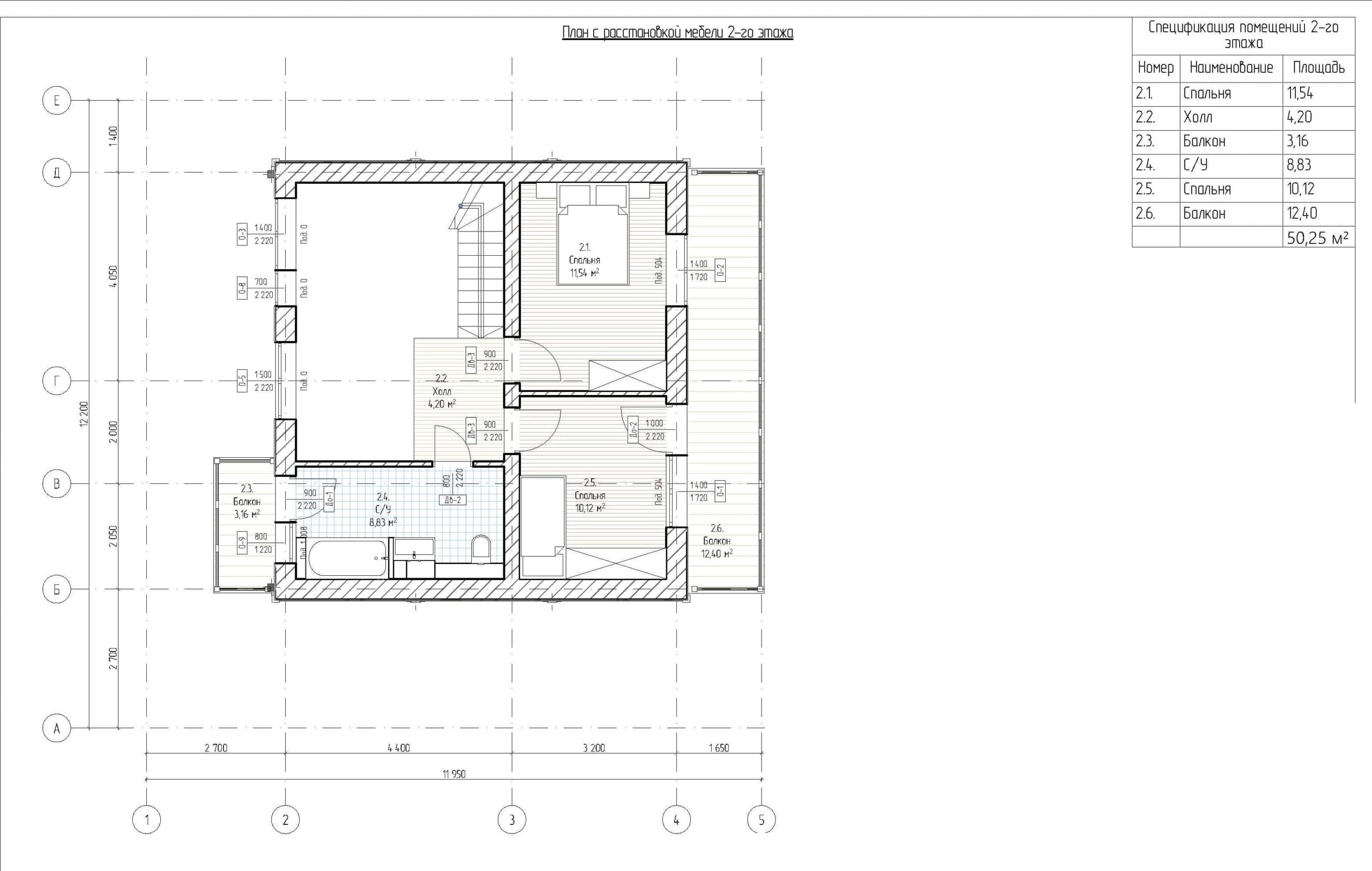
План второго этажа
- 1. Спальня 11,54 м²
- 2. Холл 4,,20 м²
- 3. С/У 8,83 м²
- 4. Спальня 10,12 м²
- 5. Балкон 12,40 м²
- Общая площадь 2 этаж 50,25 м²
Площади дома
| № п/п | Наименование | Ед. из. | Строительная площадь | Полезная площадь |
| 1 | 1 этаж | м2 | 132.11 | 107.21 |
| 2 | 2 этаж | м2 | 61.92 | 50.25 |
| 3 | Итого | м2 | 194.03 | 157.46 |
154 м2
Полезная
площадь
площадь
12 x 12 м
Размеры
1 этаж
Этажей
26 м2
Террасы
и балконы
и балконы
0Без
гаража
гаража
2
Количество
спален
спален
2
Количество
санузлов
санузлов
Калькулятор опций
0₽
В ипотеку от 20 790 ₽/мес.
0₽
0 дней
stdClass Object
(
[id] => 1
[attribute_id] => 1
[name] => Ленточный монолитный ж/б
[material_modifier] => 1
[work_modifier] => 1
[options] => Array
(
[0] => размер 200 х 700 мм
[1] => размер 300 х 900 мм
[2] => размер 400 х 1 000 мм
[3] => размер 500 х 1 100 мм
[4] => размер 600 х 1 200 мм
)
[days] => [20,21,22,25,30]
[material_price] => [2823,3630,4475,5210,12047]
[work_price] => [2154,2826,3731,4577,5293]
[image] => https://akademik-stroy.ru/wp-content/uploads/materials/lentochnyj-monolitnyj-zh-b.jpg
[area_modifier] => 132.11
[parent_name] => Фундамент
[parent_id] => 1
[material_sum] => 492289
[work_sum] => 313021
[total_sum] => 805310
[total_days] => 20
[display_material_sum] => 492 289
[display_work_sum] => 313 021
[display_total_sum] => 805 310
)
1
805 310₽
Работа:313 021 ₽
Материалы:492 289 ₽
Дни:20
stdClass Object
(
[id] => 2
[attribute_id] => 1
[name] => Забивные Ж/Б сваи
[material_modifier] => 1
[work_modifier] => 1
[options] => Array
(
[0] => 150х150х3000мм
[1] => 150х150х4000мм
[2] => 200х200х3000мм
[3] => 200х200х4000мм
[4] => 200х200х5000мм
[5] => 200х200х6000мм
)
[days] => [2,2,2,2,2,2]
[material_price] => [1990,2850,3255,4360,5120,6837]
[work_price] => [1002,1185,1336,1438,1574,1839]
[image] => https://akademik-stroy.ru/wp-content/uploads/materials/zabivnye-zh-b-svai.png
[area_modifier] => 132.11
[parent_name] => Фундамент
[parent_id] => 1
[material_sum] => 347027
[work_sum] => 145612
[total_sum] => 492639
[total_days] => 2
[display_material_sum] => 347 027
[display_work_sum] => 145 612
[display_total_sum] => 492 639
)
1
492 639₽
Работа:145 612 ₽
Материалы:347 027 ₽
Дни:2
stdClass Object
(
[id] => 71
[attribute_id] => 1
[name] => Свайно-ростверковый ж/б
[material_modifier] => 1
[work_modifier] => 1
[options] => Array
(
[0] => ростверк 200х300 мм
[1] => ростверк 300х600 мм
[2] => ростверк 400х900 мм
[3] => ростверк 500х1200 мм
)
[days] => [20,23,25,27]
[material_price] => [3018,3474,7109,9792]
[work_price] => [2024,3012,5635,7022]
[image] => https://akademik-stroy.ru/wp-content/uploads/materials/svajno-rostverkovyj-monolitnyj-zh-b-3.png
[area_modifier] => 132.11
[parent_name] => Фундамент
[parent_id] => 1
[material_sum] => 526295
[work_sum] => 294130
[total_sum] => 820425
[total_days] => 20
[display_material_sum] => 526 295
[display_work_sum] => 294 130
[display_total_sum] => 820 425
)
1
820 425₽
Работа:294 130 ₽
Материалы:526 295 ₽
Дни:20
stdClass Object
(
[id] => 72
[attribute_id] => 1
[name] => Монолитная ж/б плита
[material_modifier] => 1
[work_modifier] => 1
[options] => Array
(
[0] => 200 мм
[1] => 300 мм
[2] => 400 мм
[3] => 500 мм
[4] => 600 мм
)
[days] => [30,33,35,37,40]
[material_price] => [5348,8555,12788,14388,15189]
[work_price] => [4314,4881,7037,8061,10230]
[image] => https://akademik-stroy.ru/wp-content/uploads/materials/monolitnaya-zhb-plita.png
[area_modifier] => 132.11
[parent_name] => Фундамент
[parent_id] => 1
[material_sum] => 932612
[work_sum] => 626915
[total_sum] => 1559527
[total_days] => 30
[display_material_sum] => 932 612
[display_work_sum] => 626 915
[display_total_sum] => 1 559 527
)
1
1 559 527₽
Работа:626 915 ₽
Материалы:932 612 ₽
Дни:30
stdClass Object
(
[id] => 73
[attribute_id] => 1
[name] => Утепленная шведская плита
[material_modifier] => 1
[work_modifier] => 1
[options] => Array
(
[0] => 200 мм
[1] => 300 мм
[2] => 400 мм
[3] => 500 мм
[4] => 600 мм
)
[days] => [32,37,39,42,45]
[material_price] => [10249,12692,13760,14936,16230]
[work_price] => [5960,7337,8072,8878,9765]
[image] => https://akademik-stroy.ru/wp-content/uploads/materials/uteplennaya-shvedskaya-plita.jpg
[area_modifier] => 132.11
[parent_name] => Фундамент
[parent_id] => 1
[material_sum] => 1787274
[work_sum] => 866113
[total_sum] => 2653387
[total_days] => 32
[display_material_sum] => 1 787 274
[display_work_sum] => 866 113
[display_total_sum] => 2 653 387
)
1
2 653 387₽
Работа:866 113 ₽
Материалы:1 787 274 ₽
Дни:32
stdClass Object
(
[id] => 75
[attribute_id] => 1
[name] => Ленточный из ФБС
[material_modifier] => 1
[work_modifier] => 1
[options] => Array
(
[0] => толщ. 300 мм
[1] => толщ. 400 мм
[2] => толщ. 500 мм
[3] => толщ. 600 мм
)
[days] => [20,20,20,20]
[material_price] => [3675,4902,6126,7350]
[work_price] => [2451,3264,4083,4902]
[image] => https://akademik-stroy.ru/wp-content/uploads/materials/lentochnyj-iz-fbs.png
[area_modifier] => 132.11
[parent_name] => Фундамент
[parent_id] => 1
[material_sum] => 640866
[work_sum] => 356182
[total_sum] => 997048
[total_days] => 20
[display_material_sum] => 640 866
[display_work_sum] => 356 182
[display_total_sum] => 997 048
)
1
997 048₽
Работа:356 182 ₽
Материалы:640 866 ₽
Дни:20
stdClass Object
(
[id] => 76
[attribute_id] => 1
[name] => Цокольный этаж из ФБС
[material_modifier] => 1
[work_modifier] => 1
[options] => Array
(
[0] => толщ. 300 мм
[1] => толщ. 400 мм
[2] => толщ. 500 мм
[3] => толщ. 600 мм
)
[days] => [30,32,34,36]
[material_price] => [20916,23299,26680,29060]
[work_price] => [17524,18700,19873,21046]
[image] => https://akademik-stroy.ru/wp-content/uploads/materials/cokolnyj-ehtazh-iz-fbs.jpg
[area_modifier] => 132.11
[parent_name] => Фундамент
[parent_id] => 1
[material_sum] => 3647441
[work_sum] => 2546605
[total_sum] => 6194046
[total_days] => 30
[display_material_sum] => 3 647 441
[display_work_sum] => 2 546 605
[display_total_sum] => 6 194 046
)
1
6 194 046₽
Работа:2 546 605 ₽
Материалы:3 647 441 ₽
Дни:30
stdClass Object
(
[id] => 77
[attribute_id] => 1
[name] => Цокольный этаж монолитный ж/б
[material_modifier] => 1
[work_modifier] => 1
[options] => Array
(
[0] => толщ. 200 мм
[1] => толщ. 300 мм
[2] => толщ. 400 мм
[3] => толщ. 500 мм
[4] => толщ. 600 мм
)
[days] => [40,42,44,46,48]
[material_price] => [25421,29148,32275,35602,37326]
[work_price] => [20441,21907,23375,24841,26306]
[image] => https://akademik-stroy.ru/wp-content/uploads/materials/cokolnyj-etazh-zh-b.jpg
[area_modifier] => 132.11
[parent_name] => Фундамент
[parent_id] => 1
[material_sum] => 4433046
[work_sum] => 2970507
[total_sum] => 7403553
[total_days] => 40
[display_material_sum] => 4 433 046
[display_work_sum] => 2 970 507
[display_total_sum] => 7 403 553
)
1
7 403 553₽
Работа:2 970 507 ₽
Материалы:4 433 046 ₽
Дни:40
stdClass Object
(
[id] => 191
[attribute_id] => 1
[name] => Винтовые сваи
[material_modifier] => 1
[work_modifier] => 1
[options] => Array
(
[0] => 57х200мм
[1] => 76х250мм
[2] => 108х300мм
[3] => 133х350мм
)
[days] => [1,1,2,2]
[material_price] => [1200,1300,1450,1600]
[work_price] => [400,600,900,1100]
[image] => https://akademik-stroy.ru/wp-content/uploads/materials/vintovye-svai.png
[area_modifier] => 132.11
[parent_name] => Фундамент
[parent_id] => 1
[material_sum] => 209262
[work_sum] => 58128
[total_sum] => 267390
[total_days] => 1
[display_material_sum] => 209 262
[display_work_sum] => 58 128
[display_total_sum] => 267 390
)
1
267 390₽
Работа:58 128 ₽
Материалы:209 262 ₽
Дни:1
stdClass Object
(
[id] => 3
[attribute_id] => 2
[name] => Деревянные балки
[material_modifier] => 1
[work_modifier] => 1
[options] => Array
(
[0] => без утепления
[1] => утепление 200 мм
[2] => утепление 250 мм
[3] => утепление 300 мм
[4] => утепление 350 мм
[5] => утепление 400 мм
[6] => утепление 450 мм
[7] => утепление 500 мм
)
[days] => [8,9,9,9,11,12,13,14]
[material_price] => [1634,2042,2344,2947,3149,3652,3354,3557]
[work_price] => [1230,1339,1393,1426,1460,1513,1587,1620]
[image] => https://akademik-stroy.ru/wp-content/uploads/materials/derevyannye-balki.png
[area_modifier] => 132.11
[parent_name] => Перекрытие цоколя
[parent_id] => 2
[material_sum] => 284945
[work_sum] => 178745
[total_sum] => 463690
[total_days] => 8
[display_material_sum] => 284 945
[display_work_sum] => 178 745
[display_total_sum] => 463 690
)
1
463 690₽
Работа:178 745 ₽
Материалы:284 945 ₽
Дни:8
stdClass Object
(
[id] => 4
[attribute_id] => 2
[name] => Сборные ж/б плиты
[material_modifier] => 1
[work_modifier] => 1
[options] => Array
(
[0] => без утепления
[1] => утепление 150мм
[2] => утепление 200мм
[3] => утепление 250мм
[4] => утепление 300мм
[5] => утепление 350мм
[6] => утепление 400мм
[7] => утепление 450мм
[8] => утепление 500мм
)
[days] => [13,15,15,15,15,15,15,15,15]
[material_price] => [3067,5577,5928,6679,7730,8782,9833,10884,11935]
[work_price] => [1520,1956,2102,2247,2392,2537,2684,2829,2974]
[image] => https://akademik-stroy.ru/wp-content/uploads/materials/sbornye-zh-b-plity-2.jpg
[area_modifier] => 132.11
[parent_name] => Перекрытие цоколя
[parent_id] => 2
[material_sum] => 534839
[work_sum] => 220888
[total_sum] => 755727
[total_days] => 13
[display_material_sum] => 534 839
[display_work_sum] => 220 888
[display_total_sum] => 755 727
)
1
755 727₽
Работа:220 888 ₽
Материалы:534 839 ₽
Дни:13
stdClass Object
(
[id] => 78
[attribute_id] => 2
[name] => Монолитная ж/б плита
[material_modifier] => 1
[work_modifier] => 1
[options] => Array
(
[0] => без утепления
[1] => утепление 150 мм
[2] => утепление 200 мм
[3] => утепление 250 мм
[4] => утепление 300 мм
[5] => утепление 350 мм
[6] => утепление 400 мм
[7] => утепление 450 мм
[8] => утепление 500 мм
)
[days] => [18,20,20,20,20,20,20,20,20]
[material_price] => [4837,6572,7224,7375,79426,8177,8728,9180,10031]
[work_price] => [3348,3921,4112,4302,4493,4684,4875,5066,5256]
[image] => https://akademik-stroy.ru/wp-content/uploads/materials/monolitnaya-zh-b-plita-2.jpg
[area_modifier] => 132.11
[parent_name] => Перекрытие цоколя
[parent_id] => 2
[material_sum] => 843501
[work_sum] => 486535
[total_sum] => 1330036
[total_days] => 18
[display_material_sum] => 843 501
[display_work_sum] => 486 535
[display_total_sum] => 1 330 036
)
1
1 330 036₽
Работа:486 535 ₽
Материалы:843 501 ₽
Дни:18
stdClass Object
(
[id] => 6
[attribute_id] => 3
[name] => Пеноблок
[material_modifier] => 1
[work_modifier] => 1
[options] => Array
(
[0] => 300 мм
[1] => 400 мм
[2] => 500 мм
[3] => 600 мм
)
[days] => [29,31,34,39]
[material_price] => [3000,4000,4500,4937]
[work_price] => [5033,5805,6400,8710]
[image] => https://akademik-stroy.ru/wp-content/uploads/materials/penoblok.jpg
[area_modifier] => 132.11
[parent_name] => Стены 1 этаж (несущие)
[parent_id] => 3
[material_sum] => 523156
[work_sum] => 731401
[total_sum] => 1254557
[total_days] => 29
[display_material_sum] => 523 156
[display_work_sum] => 731 401
[display_total_sum] => 1 254 557
)
1
1 254 557₽
Работа:731 401 ₽
Материалы:523 156 ₽
Дни:29
stdClass Object
(
[id] => 79
[attribute_id] => 3
[name] => Керамический блок
[material_modifier] => 1
[work_modifier] => 1
[options] => Array
(
[0] => 380 мм
[1] => 380 мм Thermo
[2] => 440 мм
[3] => 510 мм
)
[days] => [23,23,24,25]
[material_price] => [4510,5098,6093,8013]
[work_price] => [4737,4937,5903,6958]
[image] => https://akademik-stroy.ru/wp-content/uploads/materials/keramicheskij-blok.jpg
[area_modifier] => 132.11
[parent_name] => Стены 1 этаж (несущие)
[parent_id] => 3
[material_sum] => 786477
[work_sum] => 688386
[total_sum] => 1474863
[total_days] => 23
[display_material_sum] => 786 477
[display_work_sum] => 688 386
[display_total_sum] => 1 474 863
)
1
1 474 863₽
Работа:688 386 ₽
Материалы:786 477 ₽
Дни:23
stdClass Object
(
[id] => 80
[attribute_id] => 3
[name] => Кирпич
[material_modifier] => 1
[work_modifier] => 1
[options] => Array
(
[0] => Кирпич 250 мм
[1] => Кирпич 380 мм
[2] => Кирпич 510 мм
[3] => Кирпич 640 мм
[4] => Кирпич 770 мм
)
[days] => [30,30,31,33,36]
[material_price] => [5500,7142,9206,10171,12235]
[work_price] => [8736,10041,12018,15240,18462]
[image] => https://akademik-stroy.ru/wp-content/uploads/materials/kirpich.jpg
[area_modifier] => 132.11
[parent_name] => Стены 1 этаж (несущие)
[parent_id] => 3
[material_sum] => 959119
[work_sum] => 1269524
[total_sum] => 2228643
[total_days] => 30
[display_material_sum] => 959 119
[display_work_sum] => 1 269 524
[display_total_sum] => 2 228 643
)
1
2 228 643₽
Работа:1 269 524 ₽
Материалы:959 119 ₽
Дни:30
stdClass Object
(
[id] => 81
[attribute_id] => 3
[name] => Монолитные
[material_modifier] => 1
[work_modifier] => 1
[options] => Array
(
[0] => 150 мм
[1] => 200 мм
[2] => 250 мм
[3] => 300 мм
[4] => 350 мм
[5] => 400 мм
)
[days] => [45,46,47,49,50,53]
[material_price] => [6545,7876,10175,12011,13908,15204]
[work_price] => [5106,6444,7698,8552,9807,11461]
[image] => https://akademik-stroy.ru/wp-content/uploads/materials/monolitnye.jpg
[area_modifier] => 132.11
[parent_name] => Стены 1 этаж (несущие)
[parent_id] => 3
[material_sum] => 1141351
[work_sum] => 742009
[total_sum] => 1883360
[total_days] => 45
[display_material_sum] => 1 141 351
[display_work_sum] => 742 009
[display_total_sum] => 1 883 360
)
1
1 883 360₽
Работа:742 009 ₽
Материалы:1 141 351 ₽
Дни:45
stdClass Object
(
[id] => 82
[attribute_id] => 3
[name] => Клееный брус
[material_modifier] => 1
[work_modifier] => 1
[options] => Array
(
[0] => 160 мм
[1] => 175 мм
[2] => 200 мм
[3] => 215 мм
[4] => 240 мм
[5] => 270 мм
[6] => 282 мм
)
[days] => [24,28,32,37,40,42,48]
[material_price] => [16975,18773,19950,20545,21599,22159,23275]
[work_price] => [4806,5287,5815,6397,7036,7740,8514]
[image] => https://akademik-stroy.ru/wp-content/uploads/materials/kleenyj-brus.jpg
[area_modifier] => 132.11
[parent_name] => Стены 1 этаж (несущие)
[parent_id] => 3
[material_sum] => 2960189
[work_sum] => 698413
[total_sum] => 3658602
[total_days] => 24
[display_material_sum] => 2 960 189
[display_work_sum] => 698 413
[display_total_sum] => 3 658 602
)
1
3 658 602₽
Работа:698 413 ₽
Материалы:2 960 189 ₽
Дни:24
stdClass Object
(
[id] => 83
[attribute_id] => 3
[name] => Каркасные
[material_modifier] => 1
[work_modifier] => 1
[options] => Array
(
[0] => 150 мм
[1] => 200 мм
[2] => 250 мм
[3] => 300 мм
)
[days] => [15,16,17,18]
[material_price] => [2379,2639,2898,3258]
[work_price] => [2418,2686,2985,3716]
[image] => https://akademik-stroy.ru/wp-content/uploads/materials/karkasnye.jpg
[area_modifier] => 132.11
[parent_name] => Стены 1 этаж (несущие)
[parent_id] => 3
[material_sum] => 414862
[work_sum] => 351386
[total_sum] => 766248
[total_days] => 15
[display_material_sum] => 414 862
[display_work_sum] => 351 386
[display_total_sum] => 766 248
)
1
766 248₽
Работа:351 386 ₽
Материалы:414 862 ₽
Дни:15
stdClass Object
(
[id] => 84
[attribute_id] => 3
[name] => СИП-панели
[material_modifier] => 1
[work_modifier] => 1
[options] => Array
(
[0] => 120 мм
[1] => 170 мм
[2] => 220 мм
)
[days] => [7,7,7]
[material_price] => [1210,1856,2292]
[work_price] => [1410,1551,1706]
[image] => https://akademik-stroy.ru/wp-content/uploads/materials/sip-paneli.jpg
[area_modifier] => 132.11
[parent_name] => Стены 1 этаж (несущие)
[parent_id] => 3
[material_sum] => 211006
[work_sum] => 204903
[total_sum] => 415909
[total_days] => 7
[display_material_sum] => 211 006
[display_work_sum] => 204 903
[display_total_sum] => 415 909
)
1
415 909₽
Работа:204 903 ₽
Материалы:211 006 ₽
Дни:7
stdClass Object
(
[id] => 85
[attribute_id] => 3
[name] => Сухой брус
[material_modifier] => 1
[work_modifier] => 1
[options] => Array
(
[0] => 150 мм
[1] => 180 мм
[2] => 200 мм
)
[days] => [7,8,9]
[material_price] => [6010,7190,8709]
[work_price] => [3204,3845,4229]
[image] => https://akademik-stroy.ru/wp-content/uploads/materials/suhoj-brus.jpg
[area_modifier] => 132.11
[parent_name] => Стены 1 этаж (несущие)
[parent_id] => 3
[material_sum] => 1048055
[work_sum] => 465608
[total_sum] => 1513663
[total_days] => 7
[display_material_sum] => 1 048 055
[display_work_sum] => 465 608
[display_total_sum] => 1 513 663
)
1
1 513 663₽
Работа:465 608 ₽
Материалы:1 048 055 ₽
Дни:7
stdClass Object
(
[id] => 86
[attribute_id] => 3
[name] => Профилированный брус
[material_modifier] => 1
[work_modifier] => 1
[options] => Array
(
[0] => 150 мм
[1] => 180 мм
[2] => 200 мм
)
[days] => [7,8,9]
[material_price] => [8190,9228,10051]
[work_price] => [3845,4614,5075]
[image] => https://akademik-stroy.ru/wp-content/uploads/materials/profilirovannyj-brus.jpg
[area_modifier] => 132.11
[parent_name] => Стены 1 этаж (несущие)
[parent_id] => 3
[material_sum] => 1428215
[work_sum] => 558759
[total_sum] => 1986974
[total_days] => 7
[display_material_sum] => 1 428 215
[display_work_sum] => 558 759
[display_total_sum] => 1 986 974
)
1
1 986 974₽
Работа:558 759 ₽
Материалы:1 428 215 ₽
Дни:7
stdClass Object
(
[id] => 87
[attribute_id] => 3
[name] => Оцилиндрованное бревно
[material_modifier] => 1
[work_modifier] => 1
[options] => Array
(
[0] => 180 мм
[1] => 220 мм
[2] => 260 мм
[3] => 320 мм
)
[days] => [7,8,9,10]
[material_price] => [75190,9532,10868,13116]
[work_price] => [3845,4691,5535,6863]
[image] => https://akademik-stroy.ru/wp-content/uploads/materials/ocilindrovannoe-brevno-1.jpg
[area_modifier] => 132.11
[parent_name] => Стены 1 этаж (несущие)
[parent_id] => 3
[material_sum] => 13112023
[work_sum] => 558759
[total_sum] => 13670782
[total_days] => 7
[display_material_sum] => 13 112 023
[display_work_sum] => 558 759
[display_total_sum] => 13 670 782
)
1
13 670 782₽
Работа:558 759 ₽
Материалы:13 112 023 ₽
Дни:7
stdClass Object
(
[id] => 88
[attribute_id] => 3
[name] => Срубы
[material_modifier] => 1
[work_modifier] => 1
[options] => Array
(
[0] => 260 мм
[1] => 320 мм
[2] => 360 мм
[3] => 400 мм
[4] => 500 мм
)
[days] => [7,8,9,10,11]
[material_price] => [37975,46709,52314,58069,73167]
[work_price] => [4806,5911,6621,7349,9260]
[image] => https://akademik-stroy.ru/wp-content/uploads/materials/sruby.jpg
[area_modifier] => 132.11
[parent_name] => Стены 1 этаж (несущие)
[parent_id] => 3
[material_sum] => 6622278
[work_sum] => 698413
[total_sum] => 7320691
[total_days] => 7
[display_material_sum] => 6 622 278
[display_work_sum] => 698 413
[display_total_sum] => 7 320 691
)
1
7 320 691₽
Работа:698 413 ₽
Материалы:6 622 278 ₽
Дни:7
stdClass Object
(
[id] => 174
[attribute_id] => 3
[name] => Брус
[material_modifier] => 1
[work_modifier] => 1
[options] => Array
(
[0] => 150 мм
[1] => 180 мм
[2] => 200 мм
)
[days] => [7,8,9]
[material_price] => [5127,6152,7367]
[work_price] => [1602,1922,2115]
[image] => https://akademik-stroy.ru/wp-content/uploads/materials/brus.jpg
[area_modifier] => 132.11
[parent_name] => Стены 1 этаж (несущие)
[parent_id] => 3
[material_sum] => 894073
[work_sum] => 232804
[total_sum] => 1126877
[total_days] => 7
[display_material_sum] => 894 073
[display_work_sum] => 232 804
[display_total_sum] => 1 126 877
)
1
1 126 877₽
Работа:232 804 ₽
Материалы:894 073 ₽
Дни:7
stdClass Object
(
[id] => 175
[attribute_id] => 3
[name] => Газобетон
[material_modifier] => 1
[work_modifier] => 1
[options] => Array
(
[0] => 300 мм
[1] => 375 мм
[2] => 400 мм
[3] => 500 мм
[4] => 600 мм
)
[days] => [29,31,35,37,44]
[material_price] => [4298,5573,6356,7288,9119]
[work_price] => [4538,5251,5926,6733,7195]
[image] => https://akademik-stroy.ru/wp-content/uploads/materials/gazobeton.jpg
[area_modifier] => 132.11
[parent_name] => Стены 1 этаж (несущие)
[parent_id] => 3
[material_sum] => 749508
[work_sum] => 659467
[total_sum] => 1408975
[total_days] => 29
[display_material_sum] => 749 508
[display_work_sum] => 659 467
[display_total_sum] => 1 408 975
)
1
1 408 975₽
Работа:659 467 ₽
Материалы:749 508 ₽
Дни:29
stdClass Object
(
[id] => 176
[attribute_id] => 3
[name] => Блок
[material_modifier] => 1
[work_modifier] => 1
[options] => Array
(
[0] => 300 мм
[1] => 375 мм
[2] => 400 мм
[3] => 500 мм
[4] => 600 мм
)
[days] => [29,31,35,37,44]
[material_price] => [2698,3973,4356,6588,7119]
[work_price] => [5038,5851,6426,8733,9195]
[image] => https://akademik-stroy.ru/wp-content/uploads/materials/blok.jpg
[area_modifier] => 132.11
[parent_name] => Стены 1 этаж (несущие)
[parent_id] => 3
[material_sum] => 470491
[work_sum] => 732127
[total_sum] => 1202618
[total_days] => 29
[display_material_sum] => 470 491
[display_work_sum] => 732 127
[display_total_sum] => 1 202 618
)
1
1 202 618₽
Работа:732 127 ₽
Материалы:470 491 ₽
Дни:29
stdClass Object
(
[id] => 177
[attribute_id] => 3
[name] => Газосиликатный блок
[material_modifier] => 1
[work_modifier] => 1
[options] => Array
(
[0] => 300 мм
[1] => 375 мм
[2] => 400 мм
[3] => 500 мм
[4] => 600 мм
)
[days] => [29,31,35,37,44]
[material_price] => [4298,5573,6356,7288,9119]
[work_price] => [4538,5251,5926,6733,7195]
[image] => https://akademik-stroy.ru/wp-content/uploads/materials/gazosilikatnyj-blok.jpg
[area_modifier] => 132.11
[parent_name] => Стены 1 этаж (несущие)
[parent_id] => 3
[material_sum] => 749508
[work_sum] => 659467
[total_sum] => 1408975
[total_days] => 29
[display_material_sum] => 749 508
[display_work_sum] => 659 467
[display_total_sum] => 1 408 975
)
1
1 408 975₽
Работа:659 467 ₽
Материалы:749 508 ₽
Дни:29
stdClass Object
(
[id] => 178
[attribute_id] => 3
[name] => Керамзитобетонный блок
[material_modifier] => 1
[work_modifier] => 1
[options] => Array
(
[0] => 300 мм
[1] => 375 мм
[2] => 400 мм
[3] => 500 мм
[4] => 600 мм
)
[days] => [23,23,24,25,28]
[material_price] => [3641,4298,5693,7613,9612]
[work_price] => [5737,5737,6903,7958,8901]
[image] => https://akademik-stroy.ru/wp-content/uploads/materials/keramzitobetonnyj-blok.jpg
[area_modifier] => 132.11
[parent_name] => Стены 1 этаж (несущие)
[parent_id] => 3
[material_sum] => 634937
[work_sum] => 833707
[total_sum] => 1468644
[total_days] => 23
[display_material_sum] => 634 937
[display_work_sum] => 833 707
[display_total_sum] => 1 468 644
)
1
1 468 644₽
Работа:833 707 ₽
Материалы:634 937 ₽
Дни:23
stdClass Object
(
[id] => 179
[attribute_id] => 3
[name] => Деревянные
[material_modifier] => 1
[work_modifier] => 1
[options] => Array
(
[0] => 180 мм
[1] => 220 мм
[2] => 260 мм
[3] => 320 мм
)
[days] => [7,8,9,10]
[material_price] => [7950,9458,11961,14472]
[work_price] => [4037,4925,5812,7207]
[image] => https://akademik-stroy.ru/wp-content/uploads/materials/derevyannye.jpg
[area_modifier] => 132.11
[parent_name] => Стены 1 этаж (несущие)
[parent_id] => 3
[material_sum] => 1386362
[work_sum] => 586661
[total_sum] => 1973023
[total_days] => 7
[display_material_sum] => 1 386 362
[display_work_sum] => 586 661
[display_total_sum] => 1 973 023
)
1
1 973 023₽
Работа:586 661 ₽
Материалы:1 386 362 ₽
Дни:7
stdClass Object
(
[id] => 181
[attribute_id] => 3
[name] => Камень
[material_modifier] => 1
[work_modifier] => 1
[options] => Array
(
[0] => 300 мм
[1] => 400 мм
[2] => 500 мм
[3] => 600 мм
)
[days] => [25,27,31,34]
[material_price] => [5262,6844,8330,9815]
[work_price] => [8331,9135,10427,11069]
[image] => https://akademik-stroy.ru/wp-content/uploads/materials/kamen.jpg
[area_modifier] => 132.11
[parent_name] => Стены 1 этаж (несущие)
[parent_id] => 3
[material_sum] => 917615
[work_sum] => 1210669
[total_sum] => 2128284
[total_days] => 25
[display_material_sum] => 917 615
[display_work_sum] => 1 210 669
[display_total_sum] => 2 128 284
)
1
2 128 284₽
Работа:1 210 669 ₽
Материалы:917 615 ₽
Дни:25
stdClass Object
(
[id] => 182
[attribute_id] => 3
[name] => Каркасно-щитовые
[material_modifier] => 1
[work_modifier] => 1
[options] => Array
(
[0] => 150 мм
[1] => 200 мм
[2] => 250 мм
[3] => 300 мм
[4] => 350 мм
[5] => 400 мм
)
[days] => [15,16,17,18,19,20]
[material_price] => [2379,2639,2898,3458,3601,4175]
[work_price] => [2538,2820,3134,3483,4062,5642]
[image] => https://akademik-stroy.ru/wp-content/uploads/materials/karkasno-shchitovye.jpg
[area_modifier] => 132.11
[parent_name] => Стены 1 этаж (несущие)
[parent_id] => 3
[material_sum] => 414862
[work_sum] => 368825
[total_sum] => 783687
[total_days] => 15
[display_material_sum] => 414 862
[display_work_sum] => 368 825
[display_total_sum] => 783 687
)
1
783 687₽
Работа:368 825 ₽
Материалы:414 862 ₽
Дни:15
stdClass Object
(
[id] => 183
[attribute_id] => 3
[name] => Рубленные
[material_modifier] => 1
[work_modifier] => 1
[options] => Array
(
[0] => 150 мм
[1] => 200 мм
[2] => 250 мм
[3] => 300 мм
[4] => 350 мм
[5] => 400 мм
)
[days] => [15,16,17,18,17,18]
[material_price] => [35950,50267,60583,75900,80217,100533]
[work_price] => [9612,12816,16020,19224,22428,25632]
[image] => https://akademik-stroy.ru/wp-content/uploads/materials/rublennye.jpg
[area_modifier] => 132.11
[parent_name] => Стены 1 этаж (несущие)
[parent_id] => 3
[material_sum] => 6269148
[work_sum] => 1396825
[total_sum] => 7665973
[total_days] => 15
[display_material_sum] => 6 269 148
[display_work_sum] => 1 396 825
[display_total_sum] => 7 665 973
)
1
7 665 973₽
Работа:1 396 825 ₽
Материалы:6 269 148 ₽
Дни:15
stdClass Object
(
[id] => 185
[attribute_id] => 3
[name] => Теплоблок
[material_modifier] => 1
[work_modifier] => 1
[options] => Array
(
[0] => 300 мм (с облицовкой, не покрашенный)
[1] => 400 мм (с облицовкой, не покрашенный)
[2] => 300 мм (с облицовкой, покрашенный)
[3] => 400 мм (с облицовкой, покрашенный)
)
[days] => [15,16,15,16]
[material_price] => [2888,3729,3957,4258]
[work_price] => [2564,3229,2949,3713]
[image] => https://akademik-stroy.ru/wp-content/uploads/materials/teploblok.jpg
[area_modifier] => 132.11
[parent_name] => Стены 1 этаж (несущие)
[parent_id] => 3
[material_sum] => 503624
[work_sum] => 372603
[total_sum] => 876227
[total_days] => 15
[display_material_sum] => 503 624
[display_work_sum] => 372 603
[display_total_sum] => 876 227
)
1
876 227₽
Работа:372 603 ₽
Материалы:503 624 ₽
Дни:15
stdClass Object
(
[id] => 186
[attribute_id] => 3
[name] => Арболитовые блоки
[material_modifier] => 1
[work_modifier] => 1
[options] => Array
(
[0] => 300 мм
[1] => 400 мм
[2] => 600 мм
)
[days] => [19,22,27]
[material_price] => [3210,4475,5852]
[work_price] => [4214,4788,5866]
[image] => https://akademik-stroy.ru/wp-content/uploads/materials/arbolitovye-bloki.png
[area_modifier] => 132.11
[parent_name] => Стены 1 этаж (несущие)
[parent_id] => 3
[material_sum] => 559776
[work_sum] => 612383
[total_sum] => 1172159
[total_days] => 19
[display_material_sum] => 559 776
[display_work_sum] => 612 383
[display_total_sum] => 1 172 159
)
1
1 172 159₽
Работа:612 383 ₽
Материалы:559 776 ₽
Дни:19
stdClass Object
(
[id] => 187
[attribute_id] => 3
[name] => Полистиролбетон
[material_modifier] => 1
[work_modifier] => 1
[options] => Array
(
[0] => 300 мм
[1] => 400 мм
[2] => 600 мм
)
[days] => [29,31,35]
[material_price] => [2798,4573,5256]
[work_price] => [5038,5851,6426]
[image] => https://akademik-stroy.ru/wp-content/uploads/materials/polistirolbeton.jpg
[area_modifier] => 132.11
[parent_name] => Стены 1 этаж (несущие)
[parent_id] => 3
[material_sum] => 487930
[work_sum] => 732127
[total_sum] => 1220057
[total_days] => 29
[display_material_sum] => 487 930
[display_work_sum] => 732 127
[display_total_sum] => 1 220 057
)
1
1 220 057₽
Работа:732 127 ₽
Материалы:487 930 ₽
Дни:29
stdClass Object
(
[id] => 188
[attribute_id] => 3
[name] => Шлакоблок
[material_modifier] => 1
[work_modifier] => 1
[options] => Array
(
[0] => 400 мм
[1] => 600 мм
)
[days] => [15,16]
[material_price] => [2391,3471]
[work_price] => [2642,3662]
[image] => https://akademik-stroy.ru/wp-content/uploads/materials/shlakoblok.jpg
[area_modifier] => 132.11
[parent_name] => Стены 1 этаж (несущие)
[parent_id] => 3
[material_sum] => 416955
[work_sum] => 383938
[total_sum] => 800893
[total_days] => 15
[display_material_sum] => 416 955
[display_work_sum] => 383 938
[display_total_sum] => 800 893
)
1
800 893₽
Работа:383 938 ₽
Материалы:416 955 ₽
Дни:15
stdClass Object
(
[id] => 189
[attribute_id] => 3
[name] => Теплая керамика
[material_modifier] => 1
[work_modifier] => 1
[options] => Array
(
[0] => 380 мм
[1] => 380 мм Thermo
[2] => 440 мм
[3] => 510 мм
)
[days] => [23,23,24,25]
[material_price] => [4510,5098,6093,8013]
[work_price] => [4737,4937,5903,6958]
[image] => https://akademik-stroy.ru/wp-content/uploads/materials/teplaya-keramika.jpg
[area_modifier] => 132.11
[parent_name] => Стены 1 этаж (несущие)
[parent_id] => 3
[material_sum] => 786477
[work_sum] => 688386
[total_sum] => 1474863
[total_days] => 23
[display_material_sum] => 786 477
[display_work_sum] => 688 386
[display_total_sum] => 1 474 863
)
1
1 474 863₽
Работа:688 386 ₽
Материалы:786 477 ₽
Дни:23
stdClass Object
(
[id] => 190
[attribute_id] => 3
[name] => Несъемная опалубка
[material_modifier] => 1
[work_modifier] => 1
[options] => Array
(
[0] => 200 мм
[1] => 250 мм
[2] => 300 мм
[3] => 350 мм
)
[days] => [15,17,19,21]
[material_price] => [3302,3902,4108,5008]
[work_price] => [2100,2100,2300,2534]
[image] => https://akademik-stroy.ru/wp-content/uploads/materials/nesemnaya-opalubka.jpg
[area_modifier] => 132.11
[parent_name] => Стены 1 этаж (несущие)
[parent_id] => 3
[material_sum] => 575820
[work_sum] => 305174
[total_sum] => 880994
[total_days] => 15
[display_material_sum] => 575 820
[display_work_sum] => 305 174
[display_total_sum] => 880 994
)
1
880 994₽
Работа:305 174 ₽
Материалы:575 820 ₽
Дни:15
stdClass Object
(
[id] => 251
[attribute_id] => 3
[name] => Бревно
[material_modifier] => 1
[work_modifier] => 1
[options] => Array
(
[0] => 260 мм
[1] => 320 мм
[2] => 360 мм
[3] => 400 мм
[4] => 500 мм
)
[days] => [7,8,9,10,11]
[material_price] => [1874,24045,26930,30972,38825]
[work_price] => [5046,6207,6952,7716,9723]
[image] => https://akademik-stroy.ru/wp-content/uploads/materials/sruby.jpg
[area_modifier] => 132.11
[parent_name] => Стены 1 этаж (несущие)
[parent_id] => 3
[material_sum] => 326798
[work_sum] => 733290
[total_sum] => 1060088
[total_days] => 7
[display_material_sum] => 326 798
[display_work_sum] => 733 290
[display_total_sum] => 1 060 088
)
1
1 060 088₽
Работа:733 290 ₽
Материалы:326 798 ₽
Дни:7
stdClass Object
(
[id] => 7
[attribute_id] => 4
[name] => Деревянные балки
[material_modifier] => 1
[work_modifier] => 1
[options] => Array
(
[0] => без утепления
[1] => утепление 200 мм
[2] => утепление 250 мм
[3] => утепление 300 мм
[4] => утепление 350 мм
[5] => утепление 400 мм
[6] => утепление 450 мм
[7] => утепление 500 мм
)
[days] => [8,9,9,9,11,12,13,14]
[material_price] => [1634,2042,2344,2947,3149,3652,3354,3557]
[work_price] => [1230,1339,1393,1426,1460,1513,1587,1620]
[image] => https://akademik-stroy.ru/wp-content/uploads/materials/derevyannye-balki.png
[area_modifier] => 132.11
[parent_name] => Перекрытие первого этажа
[parent_id] => 4
[material_sum] => 284945
[work_sum] => 178745
[total_sum] => 463690
[total_days] => 8
[display_material_sum] => 284 945
[display_work_sum] => 178 745
[display_total_sum] => 463 690
)
1
463 690₽
Работа:178 745 ₽
Материалы:284 945 ₽
Дни:8
stdClass Object
(
[id] => 8
[attribute_id] => 4
[name] => Сборные ж/б плиты
[material_modifier] => 1
[work_modifier] => 1
[options] => Array
(
[0] => без утепления
[1] => утепление 150 мм
[2] => утепление 200 мм
[3] => утепление 250 мм
[4] => утепление 300 мм
[5] => утепление 350 мм
[6] => утепление 400 мм
[7] => утепление 450 мм
[8] => утепление 500 мм
)
[days] => [13,15,15,15,15,15,15,15,15]
[material_price] => [3067,5577,5928,6679,7730,8782,9833,10884,11935]
[work_price] => [1520,1956,2102,2247,2392,2537,2684,2829,2974]
[image] => https://akademik-stroy.ru/wp-content/uploads/materials/sbornye-zh-b-plity-2.jpg
[area_modifier] => 132.11
[parent_name] => Перекрытие первого этажа
[parent_id] => 4
[material_sum] => 534839
[work_sum] => 220888
[total_sum] => 755727
[total_days] => 13
[display_material_sum] => 534 839
[display_work_sum] => 220 888
[display_total_sum] => 755 727
)
1
755 727₽
Работа:220 888 ₽
Материалы:534 839 ₽
Дни:13
stdClass Object
(
[id] => 89
[attribute_id] => 4
[name] => Монолитная ж/б плита
[material_modifier] => 1
[work_modifier] => 1
[options] => Array
(
[0] => без утепления
[1] => утепление 150 мм
[2] => утепление 200 мм
[3] => утепление 250 мм
[4] => утепление 300 мм
[5] => утепление 350 мм
[6] => утепление 400 мм
[7] => утепление 450 мм
[8] => утепление 500 мм
)
[days] => [18,20,20,20,20,20,20,20,20]
[material_price] => [4837,6572,7224,7375,79426,8177,8728,9180,10031]
[work_price] => [3348,3921,4112,4302,4493,4684,4875,5066,5256]
[image] => https://akademik-stroy.ru/wp-content/uploads/materials/monolitnaya-zh-b-plita-2.jpg
[area_modifier] => 132.11
[parent_name] => Перекрытие первого этажа
[parent_id] => 4
[material_sum] => 843501
[work_sum] => 486535
[total_sum] => 1330036
[total_days] => 18
[display_material_sum] => 843 501
[display_work_sum] => 486 535
[display_total_sum] => 1 330 036
)
1
1 330 036₽
Работа:486 535 ₽
Материалы:843 501 ₽
Дни:18
stdClass Object
(
[id] => 10
[attribute_id] => 5
[name] => Пеноблок
[material_modifier] => 1
[work_modifier] => 1
[options] => Array
(
[0] => 300 мм
[1] => 400 мм
[2] => 500 мм
[3] => 600 мм
)
[days] => [29,31,34,39]
[material_price] => [3000,4000,4500,4937]
[work_price] => [5033,5805,6400,8710]
[image] => https://akademik-stroy.ru/wp-content/uploads/materials/penoblok.jpg
[area_modifier] => 61.92
[parent_name] => Стены 2 этаж (несущие)
[parent_id] => 5
[material_sum] => 245203
[work_sum] => 342808
[total_sum] => 588011
[total_days] => 29
[display_material_sum] => 245 203
[display_work_sum] => 342 808
[display_total_sum] => 588 011
)
1
588 011₽
Работа:342 808 ₽
Материалы:245 203 ₽
Дни:29
stdClass Object
(
[id] => 90
[attribute_id] => 5
[name] => Керамический блок
[material_modifier] => 1
[work_modifier] => 1
[options] => Array
(
[0] => 380 мм
[1] => 380 мм Thermo
[2] => 440 мм
[3] => 510 мм
)
[days] => [23,23,24,25]
[material_price] => [4510,5098,6093,8013]
[work_price] => [4737,4937,5903,6958]
[image] => https://akademik-stroy.ru/wp-content/uploads/materials/keramicheskij-blok.jpg
[area_modifier] => 61.92
[parent_name] => Стены 2 этаж (несущие)
[parent_id] => 5
[material_sum] => 368622
[work_sum] => 322647
[total_sum] => 691269
[total_days] => 23
[display_material_sum] => 368 622
[display_work_sum] => 322 647
[display_total_sum] => 691 269
)
1
691 269₽
Работа:322 647 ₽
Материалы:368 622 ₽
Дни:23
stdClass Object
(
[id] => 91
[attribute_id] => 5
[name] => Кирпич
[material_modifier] => 1
[work_modifier] => 1
[options] => Array
(
[0] => Кирпич 250 мм
[1] => Кирпич 380 мм
[2] => Кирпич 510 мм
[3] => Кирпич 640 мм
[4] => Кирпич 770 мм
)
[days] => [30,30,31,33,36]
[material_price] => [5500,7142,9206,10171,12235]
[work_price] => [8736,10041,12018,15240,18462]
[image] => https://akademik-stroy.ru/wp-content/uploads/materials/kirpich.jpg
[area_modifier] => 61.92
[parent_name] => Стены 2 этаж (несущие)
[parent_id] => 5
[material_sum] => 449539
[work_sum] => 595026
[total_sum] => 1044565
[total_days] => 30
[display_material_sum] => 449 539
[display_work_sum] => 595 026
[display_total_sum] => 1 044 565
)
1
1 044 565₽
Работа:595 026 ₽
Материалы:449 539 ₽
Дни:30
stdClass Object
(
[id] => 92
[attribute_id] => 5
[name] => Монолитные
[material_modifier] => 1
[work_modifier] => 1
[options] => Array
(
[0] => 150 мм
[1] => 200 мм
[2] => 250 мм
[3] => 300 мм
[4] => 350 мм
[5] => 400 мм
)
[days] => [45,46,47,49,50,53]
[material_price] => [6545,7876,10175,12011,13908,15204]
[work_price] => [5106,6444,7698,8552,9807,11461]
[image] => https://akademik-stroy.ru/wp-content/uploads/materials/monolitnye.jpg
[area_modifier] => 61.92
[parent_name] => Стены 2 этаж (несущие)
[parent_id] => 5
[material_sum] => 534952
[work_sum] => 347780
[total_sum] => 882732
[total_days] => 45
[display_material_sum] => 534 952
[display_work_sum] => 347 780
[display_total_sum] => 882 732
)
1
882 732₽
Работа:347 780 ₽
Материалы:534 952 ₽
Дни:45
stdClass Object
(
[id] => 93
[attribute_id] => 5
[name] => Клееный брус
[material_modifier] => 1
[work_modifier] => 1
[options] => Array
(
[0] => 160 мм
[1] => 175 мм
[2] => 200 мм
[3] => 215 мм
[4] => 240 мм
[5] => 270 мм
[6] => 282 мм
)
[days] => [24,28,32,37,40,42,48]
[material_price] => [16975,18773,19950,20545,21599,22159,23275]
[work_price] => [4806,5287,5815,6397,7036,7740,8514]
[image] => https://akademik-stroy.ru/wp-content/uploads/materials/kleenyj-brus.jpg
[area_modifier] => 61.92
[parent_name] => Стены 2 этаж (несущие)
[parent_id] => 5
[material_sum] => 1387441
[work_sum] => 327346
[total_sum] => 1714787
[total_days] => 24
[display_material_sum] => 1 387 441
[display_work_sum] => 327 346
[display_total_sum] => 1 714 787
)
1
1 714 787₽
Работа:327 346 ₽
Материалы:1 387 441 ₽
Дни:24
stdClass Object
(
[id] => 94
[attribute_id] => 5
[name] => Каркасные
[material_modifier] => 1
[work_modifier] => 1
[options] => Array
(
[0] => 150 мм
[1] => 200 мм
[2] => 250 мм
[3] => 300 мм
)
[days] => [15,16,17,18]
[material_price] => [2379,2639,2898,3258]
[work_price] => [2418,2686,2985,3716]
[image] => https://akademik-stroy.ru/wp-content/uploads/materials/karkasnye.jpg
[area_modifier] => 61.92
[parent_name] => Стены 2 этаж (несущие)
[parent_id] => 5
[material_sum] => 194446
[work_sum] => 164695
[total_sum] => 359141
[total_days] => 15
[display_material_sum] => 194 446
[display_work_sum] => 164 695
[display_total_sum] => 359 141
)
1
359 141₽
Работа:164 695 ₽
Материалы:194 446 ₽
Дни:15
stdClass Object
(
[id] => 95
[attribute_id] => 5
[name] => СИП-панели
[material_modifier] => 1
[work_modifier] => 1
[options] => Array
(
[0] => 120 мм
[1] => 170 мм
[2] => 220 мм
)
[days] => [7,7,7]
[material_price] => [1210,1856,2292]
[work_price] => [1410,1551,1706]
[image] => https://akademik-stroy.ru/wp-content/uploads/materials/sip-paneli.jpg
[area_modifier] => 61.92
[parent_name] => Стены 2 этаж (несущие)
[parent_id] => 5
[material_sum] => 98899
[work_sum] => 96038
[total_sum] => 194937
[total_days] => 7
[display_material_sum] => 98 899
[display_work_sum] => 96 038
[display_total_sum] => 194 937
)
1
194 937₽
Работа:96 038 ₽
Материалы:98 899 ₽
Дни:7
stdClass Object
(
[id] => 96
[attribute_id] => 5
[name] => Сухой брус
[material_modifier] => 1
[work_modifier] => 1
[options] => Array
(
[0] => 150 мм
[1] => 180 мм
[2] => 200 мм
)
[days] => [7,8,9]
[material_price] => [6010,7190,8709]
[work_price] => [3204,3845,4229]
[image] => https://akademik-stroy.ru/wp-content/uploads/materials/suhoj-brus.jpg
[area_modifier] => 61.92
[parent_name] => Стены 2 этаж (несущие)
[parent_id] => 5
[material_sum] => 491224
[work_sum] => 218231
[total_sum] => 709455
[total_days] => 7
[display_material_sum] => 491 224
[display_work_sum] => 218 231
[display_total_sum] => 709 455
)
1
709 455₽
Работа:218 231 ₽
Материалы:491 224 ₽
Дни:7
stdClass Object
(
[id] => 97
[attribute_id] => 5
[name] => Профилированный брус
[material_modifier] => 1
[work_modifier] => 1
[options] => Array
(
[0] => 150 мм
[1] => 180 мм
[2] => 200 мм
)
[days] => [7,8,9]
[material_price] => [8190,9228,10051]
[work_price] => [3845,4614,5075]
[image] => https://akademik-stroy.ru/wp-content/uploads/materials/profilirovannyj-brus.jpg
[area_modifier] => 61.92
[parent_name] => Стены 2 этаж (несущие)
[parent_id] => 5
[material_sum] => 669405
[work_sum] => 261891
[total_sum] => 931296
[total_days] => 7
[display_material_sum] => 669 405
[display_work_sum] => 261 891
[display_total_sum] => 931 296
)
1
931 296₽
Работа:261 891 ₽
Материалы:669 405 ₽
Дни:7
stdClass Object
(
[id] => 98
[attribute_id] => 5
[name] => Оцилиндрованное бревно
[material_modifier] => 1
[work_modifier] => 1
[options] => Array
(
[0] => 180 мм
[1] => 220 мм
[2] => 260 мм
[3] => 320 мм
)
[days] => [7,8,9,10]
[material_price] => [75190,9532,10868,13116]
[work_price] => [3845,4691,5535,6863]
[image] => https://akademik-stroy.ru/wp-content/uploads/materials/ocilindrovannoe-brevno-1.jpg
[area_modifier] => 61.92
[parent_name] => Стены 2 этаж (несущие)
[parent_id] => 5
[material_sum] => 6145610
[work_sum] => 261891
[total_sum] => 6407501
[total_days] => 7
[display_material_sum] => 6 145 610
[display_work_sum] => 261 891
[display_total_sum] => 6 407 501
)
1
6 407 501₽
Работа:261 891 ₽
Материалы:6 145 610 ₽
Дни:7
stdClass Object
(
[id] => 99
[attribute_id] => 5
[name] => Срубы
[material_modifier] => 1
[work_modifier] => 1
[options] => Array
(
[0] => 260 мм
[1] => 320 мм
[2] => 360 мм
[3] => 400 мм
[4] => 500 мм
)
[days] => [7,8,9,10,11]
[material_price] => [16175,23709,26314,29069,32167]
[work_price] => [4806,5911,6621,7349,9260]
[image] => https://akademik-stroy.ru/wp-content/uploads/materials/suhoj-brus.jpg
[area_modifier] => 61.92
[parent_name] => Стены 2 этаж (несущие)
[parent_id] => 5
[material_sum] => 1322054
[work_sum] => 327346
[total_sum] => 1649400
[total_days] => 7
[display_material_sum] => 1 322 054
[display_work_sum] => 327 346
[display_total_sum] => 1 649 400
)
1
1 649 400₽
Работа:327 346 ₽
Материалы:1 322 054 ₽
Дни:7
stdClass Object
(
[id] => 194
[attribute_id] => 5
[name] => Брус
[material_modifier] => 1
[work_modifier] => 1
[options] => Array
(
[0] => 150 мм
[1] => 180 мм
[2] => 200 мм
)
[days] => [10,13,15]
[material_price] => [5127,6152,7367]
[work_price] => [1602,1922,2115]
[image] => https://akademik-stroy.ru/wp-content/uploads/materials/brus.jpg
[area_modifier] => 61.92
[parent_name] => Стены 2 этаж (несущие)
[parent_id] => 5
[material_sum] => 419052
[work_sum] => 109115
[total_sum] => 528167
[total_days] => 10
[display_material_sum] => 419 052
[display_work_sum] => 109 115
[display_total_sum] => 528 167
)
1
528 167₽
Работа:109 115 ₽
Материалы:419 052 ₽
Дни:10
stdClass Object
(
[id] => 195
[attribute_id] => 5
[name] => Газобетон
[material_modifier] => 1
[work_modifier] => 1
[options] => Array
(
[0] => 300 мм
[1] => 375 мм
[2] => 400 мм
[3] => 500 мм
[4] => 600 мм
)
[days] => [29,31,35,37,44]
[material_price] => [4298,5573,6356,7288,9119]
[work_price] => [4538,5251,5926,6733,7195]
[image] => https://akademik-stroy.ru/wp-content/uploads/materials/gazobeton.jpg
[area_modifier] => 61.92
[parent_name] => Стены 2 этаж (несущие)
[parent_id] => 5
[material_sum] => 351294
[work_sum] => 309092
[total_sum] => 660386
[total_days] => 29
[display_material_sum] => 351 294
[display_work_sum] => 309 092
[display_total_sum] => 660 386
)
1
660 386₽
Работа:309 092 ₽
Материалы:351 294 ₽
Дни:29
stdClass Object
(
[id] => 196
[attribute_id] => 5
[name] => Блок
[material_modifier] => 1
[work_modifier] => 1
[options] => Array
(
[0] => 300 мм
[1] => 375 мм
[2] => 400 мм
[3] => 500 мм
[4] => 600 мм
)
[days] => [29,31,35,37,44]
[material_price] => [2698,3973,4356,6588,7119]
[work_price] => [5038,5851,6426,8733,9195]
[image] => https://akademik-stroy.ru/wp-content/uploads/materials/blok.jpg
[area_modifier] => 61.92
[parent_name] => Стены 2 этаж (несущие)
[parent_id] => 5
[material_sum] => 220519
[work_sum] => 343148
[total_sum] => 563667
[total_days] => 29
[display_material_sum] => 220 519
[display_work_sum] => 343 148
[display_total_sum] => 563 667
)
1
563 667₽
Работа:343 148 ₽
Материалы:220 519 ₽
Дни:29
stdClass Object
(
[id] => 197
[attribute_id] => 5
[name] => Газосиликатный блок
[material_modifier] => 1
[work_modifier] => 1
[options] => Array
(
[0] => 300 мм
[1] => 375 мм
[2] => 400 мм
[3] => 500 мм
[4] => 600 мм
)
[days] => [29,31,35,37,44]
[material_price] => [4298,5573,6356,7288,9119]
[work_price] => [4538,5251,5926,6733,7195]
[image] => https://akademik-stroy.ru/wp-content/uploads/materials/gazosilikatnyj-blok.jpg
[area_modifier] => 61.92
[parent_name] => Стены 2 этаж (несущие)
[parent_id] => 5
[material_sum] => 351294
[work_sum] => 309092
[total_sum] => 660386
[total_days] => 29
[display_material_sum] => 351 294
[display_work_sum] => 309 092
[display_total_sum] => 660 386
)
1
660 386₽
Работа:309 092 ₽
Материалы:351 294 ₽
Дни:29
stdClass Object
(
[id] => 198
[attribute_id] => 5
[name] => Керамзитобетонный блок
[material_modifier] => 1
[work_modifier] => 1
[options] => Array
(
[0] => 300 мм
[1] => 375 мм
[2] => 400 мм
[3] => 500 мм
[4] => 600 мм
)
[days] => [23,23,24,25,28]
[material_price] => [3641,4298,5693,7613,9612]
[work_price] => [5737,5737,6903,7958,8901]
[image] => https://akademik-stroy.ru/wp-content/uploads/materials/keramzitobetonnyj-blok.jpg
[area_modifier] => 61.92
[parent_name] => Стены 2 этаж (несущие)
[parent_id] => 5
[material_sum] => 297595
[work_sum] => 390759
[total_sum] => 688354
[total_days] => 23
[display_material_sum] => 297 595
[display_work_sum] => 390 759
[display_total_sum] => 688 354
)
1
688 354₽
Работа:390 759 ₽
Материалы:297 595 ₽
Дни:23
stdClass Object
(
[id] => 199
[attribute_id] => 5
[name] => Деревянные
[material_modifier] => 1
[work_modifier] => 1
[options] => Array
(
[0] => 180 мм
[1] => 220 мм
[2] => 260 мм
[3] => 320 мм
)
[days] => [7,8,9,10]
[material_price] => [7950,9458,11961,14472]
[work_price] => [4037,4925,5812,7207]
[image] => https://akademik-stroy.ru/wp-content/uploads/materials/derevyannye.jpg
[area_modifier] => 61.92
[parent_name] => Стены 2 этаж (несущие)
[parent_id] => 5
[material_sum] => 649788
[work_sum] => 274968
[total_sum] => 924756
[total_days] => 7
[display_material_sum] => 649 788
[display_work_sum] => 274 968
[display_total_sum] => 924 756
)
1
924 756₽
Работа:274 968 ₽
Материалы:649 788 ₽
Дни:7
stdClass Object
(
[id] => 200
[attribute_id] => 5
[name] => Камень
[material_modifier] => 1
[work_modifier] => 1
[options] => Array
(
[0] => 300 мм
[1] => 400 мм
[2] => 500 мм
[3] => 600 мм
)
[days] => [25,27,31,34]
[material_price] => [5262,6844,8330,9815]
[work_price] => [8331,9135,10427,11069]
[image] => https://akademik-stroy.ru/wp-content/uploads/materials/kamen.jpg
[area_modifier] => 61.92
[parent_name] => Стены 2 этаж (несущие)
[parent_id] => 5
[material_sum] => 430086
[work_sum] => 567441
[total_sum] => 997527
[total_days] => 25
[display_material_sum] => 430 086
[display_work_sum] => 567 441
[display_total_sum] => 997 527
)
1
997 527₽
Работа:567 441 ₽
Материалы:430 086 ₽
Дни:25
stdClass Object
(
[id] => 201
[attribute_id] => 5
[name] => Каркасно-щитовые
[material_modifier] => 1
[work_modifier] => 1
[options] => Array
(
[0] => 150 мм
[1] => 200 мм
[2] => 250 мм
[3] => 300 мм
[4] => 350 мм
[5] => 400 мм
)
[days] => [15,16,17,18,19,20]
[material_price] => [2379,2639,2898,3458,3601,4175]
[work_price] => [2538,2820,3134,3483,4062,5642]
[image] => https://akademik-stroy.ru/wp-content/uploads/materials/karkasno-shchitovye.jpg
[area_modifier] => 61.92
[parent_name] => Стены 2 этаж (несущие)
[parent_id] => 5
[material_sum] => 194446
[work_sum] => 172868
[total_sum] => 367314
[total_days] => 15
[display_material_sum] => 194 446
[display_work_sum] => 172 868
[display_total_sum] => 367 314
)
1
367 314₽
Работа:172 868 ₽
Материалы:194 446 ₽
Дни:15
stdClass Object
(
[id] => 202
[attribute_id] => 5
[name] => Рубленные
[material_modifier] => 1
[work_modifier] => 1
[options] => Array
(
[0] => 150 мм
[1] => 200 мм
[2] => 250 мм
[3] => 300 мм
[4] => 350 мм
[5] => 400 мм
)
[days] => [15,16,17,18,17,18]
[material_price] => [35950,50267,60583,75900,80217,100533]
[work_price] => [9612,12816,16020,19224,22428,25632]
[image] => https://akademik-stroy.ru/wp-content/uploads/materials/rublennye.jpg
[area_modifier] => 61.92
[parent_name] => Стены 2 этаж (несущие)
[parent_id] => 5
[material_sum] => 2938352
[work_sum] => 654693
[total_sum] => 3593045
[total_days] => 15
[display_material_sum] => 2 938 352
[display_work_sum] => 654 693
[display_total_sum] => 3 593 045
)
1
3 593 045₽
Работа:654 693 ₽
Материалы:2 938 352 ₽
Дни:15
stdClass Object
(
[id] => 203
[attribute_id] => 5
[name] => Теплоблок
[material_modifier] => 1
[work_modifier] => 1
[options] => Array
(
[0] => 300 мм (с облицовкой, не покрашенный)
[1] => 400 мм (с облицовкой, не покрашенный)
[2] => 300 мм (с облицовкой, покрашенный)
[3] => 400 мм (с облицовкой, покрашенный)
)
[days] => [15,16,15,16]
[material_price] => [2888,3729,3957,4258]
[work_price] => [2564,3229,2949,3713]
[image] => https://akademik-stroy.ru/wp-content/uploads/materials/teploblok.jpg
[area_modifier] => 61.92
[parent_name] => Стены 2 этаж (несущие)
[parent_id] => 5
[material_sum] => 236049
[work_sum] => 174639
[total_sum] => 410688
[total_days] => 15
[display_material_sum] => 236 049
[display_work_sum] => 174 639
[display_total_sum] => 410 688
)
1
410 688₽
Работа:174 639 ₽
Материалы:236 049 ₽
Дни:15
stdClass Object
(
[id] => 204
[attribute_id] => 5
[name] => Арболитовые блоки
[material_modifier] => 1
[work_modifier] => 1
[options] => Array
(
[0] => 300 мм
[1] => 400 мм
[2] => 600 мм
)
[days] => [19,22,27]
[material_price] => [3210,4475,5852]
[work_price] => [4214,4788,5866]
[image] => https://akademik-stroy.ru/wp-content/uploads/materials/arbolitovye-bloki.png
[area_modifier] => 61.92
[parent_name] => Стены 2 этаж (несущие)
[parent_id] => 5
[material_sum] => 262367
[work_sum] => 287024
[total_sum] => 549391
[total_days] => 19
[display_material_sum] => 262 367
[display_work_sum] => 287 024
[display_total_sum] => 549 391
)
1
549 391₽
Работа:287 024 ₽
Материалы:262 367 ₽
Дни:19
stdClass Object
(
[id] => 205
[attribute_id] => 5
[name] => Полистиролбетон
[material_modifier] => 1
[work_modifier] => 1
[options] => Array
(
[0] => 300 мм
[1] => 400 мм
[2] => 600 мм
)
[days] => [29,31,35]
[material_price] => [2798,4573,5256]
[work_price] => [5038,5851,6426]
[image] => https://akademik-stroy.ru/wp-content/uploads/materials/polistirolbeton.jpg
[area_modifier] => 61.92
[parent_name] => Стены 2 этаж (несущие)
[parent_id] => 5
[material_sum] => 228693
[work_sum] => 343148
[total_sum] => 571841
[total_days] => 29
[display_material_sum] => 228 693
[display_work_sum] => 343 148
[display_total_sum] => 571 841
)
1
571 841₽
Работа:343 148 ₽
Материалы:228 693 ₽
Дни:29
stdClass Object
(
[id] => 206
[attribute_id] => 5
[name] => Шлакоблок
[material_modifier] => 1
[work_modifier] => 1
[options] => Array
(
[0] => 400 мм
[1] => 600 мм
)
[days] => [15,16]
[material_price] => [2391,3471]
[work_price] => [2642,3662]
[image] => https://akademik-stroy.ru/wp-content/uploads/materials/shlakoblok.jpg
[area_modifier] => 61.92
[parent_name] => Стены 2 этаж (несущие)
[parent_id] => 5
[material_sum] => 195427
[work_sum] => 179952
[total_sum] => 375379
[total_days] => 15
[display_material_sum] => 195 427
[display_work_sum] => 179 952
[display_total_sum] => 375 379
)
1
375 379₽
Работа:179 952 ₽
Материалы:195 427 ₽
Дни:15
stdClass Object
(
[id] => 245
[attribute_id] => 5
[name] => Теплая керамика
[material_modifier] => 1
[work_modifier] => 1
[options] => Array
(
[0] => 380 мм
[1] => 380 мм Thermo
[2] => 440 мм
[3] => 510 мм
)
[days] => [10,10,11,12]
[material_price] => [4510,5098,6093,8013]
[work_price] => [4737,4937,5903,6958]
[image] => https://akademik-stroy.ru/wp-content/uploads/materials/teplaya-keramika.jpg
[area_modifier] => 61.92
[parent_name] => Стены 2 этаж (несущие)
[parent_id] => 5
[material_sum] => 368622
[work_sum] => 322647
[total_sum] => 691269
[total_days] => 10
[display_material_sum] => 368 622
[display_work_sum] => 322 647
[display_total_sum] => 691 269
)
1
691 269₽
Работа:322 647 ₽
Материалы:368 622 ₽
Дни:10
stdClass Object
(
[id] => 246
[attribute_id] => 5
[name] => Несъемная опалубка
[material_modifier] => 1
[work_modifier] => 1
[options] => Array
(
[0] => 380 мм
[1] => 380 мм Thermo
[2] => 440 мм
[3] => 510 мм
)
[days] => [10,10,11,12]
[material_price] => [3302,3902,4108,5008]
[work_price] => [2100,2100,2300,2534]
[image] => https://akademik-stroy.ru/wp-content/uploads/materials/nesemnaya-opalubka.jpg
[area_modifier] => 61.92
[parent_name] => Стены 2 этаж (несущие)
[parent_id] => 5
[material_sum] => 269887
[work_sum] => 143035
[total_sum] => 412922
[total_days] => 10
[display_material_sum] => 269 887
[display_work_sum] => 143 035
[display_total_sum] => 412 922
)
1
412 922₽
Работа:143 035 ₽
Материалы:269 887 ₽
Дни:10
stdClass Object
(
[id] => 254
[attribute_id] => 5
[name] => Бревно
[material_modifier] => 1
[work_modifier] => 1
[options] => Array
(
[0] => 260 мм
[1] => 320 мм
[2] => 360 мм
[3] => 400 мм
[4] => 500 мм
)
[days] => [7,8,9,10,11]
[material_price] => [1874,24045,26930,30972,38825]
[work_price] => [5046,6207,6952,7716,9723]
[image] => https://akademik-stroy.ru/wp-content/uploads/materials/sruby.jpg
[area_modifier] => 61.92
[parent_name] => Стены 2 этаж (несущие)
[parent_id] => 5
[material_sum] => 153170
[work_sum] => 343693
[total_sum] => 496863
[total_days] => 7
[display_material_sum] => 153 170
[display_work_sum] => 343 693
[display_total_sum] => 496 863
)
1
496 863₽
Работа:343 693 ₽
Материалы:153 170 ₽
Дни:7
stdClass Object
(
[id] => 11
[attribute_id] => 6
[name] => Деревянные балки
[material_modifier] => 1
[work_modifier] => 1
[options] => Array
(
[0] => без утепления
[1] => утепление 200 мм
[2] => утепление 250 мм
[3] => утепление 300 мм
[4] => утепление 350 мм
[5] => утепление 400 мм
[6] => утепление 450 мм
[7] => утепление 500 мм
)
[days] => [8,9,9,9,11,12,13,14]
[material_price] => [1634,2042,2344,2947,3149,3652,3354,3557]
[work_price] => [1230,1339,1393,1426,1460,1513,1587,1620]
[image] => https://akademik-stroy.ru/wp-content/uploads/materials/derevyannye-balki.png
[area_modifier] => 61.92
[parent_name] => Перекрытие второго этажа
[parent_id] => 6
[material_sum] => 133554
[work_sum] => 83778
[total_sum] => 217332
[total_days] => 8
[display_material_sum] => 133 554
[display_work_sum] => 83 778
[display_total_sum] => 217 332
)
1
217 332₽
Работа:83 778 ₽
Материалы:133 554 ₽
Дни:8
stdClass Object
(
[id] => 12
[attribute_id] => 6
[name] => Сборные ж/б плиты
[material_modifier] => 1
[work_modifier] => 1
[options] => Array
(
[0] => без утепления
[1] => утепление 150 мм
[2] => утепление 200 мм
[3] => утепление 250 мм
[4] => утепление 300 мм
[5] => утепление 350 мм
[6] => утепление 400 мм
[7] => утепление 450 мм
[8] => утепление 500 мм
)
[days] => [13,15,15,15,15,15,15,15,15]
[material_price] => [3067,5577,5928,6679,7730,8782,9833,10884,11935]
[work_price] => [1520,1956,2102,2247,2392,2537,2684,2829,2974]
[image] => https://akademik-stroy.ru/wp-content/uploads/materials/sbornye-zh-b-plity-2.jpg
[area_modifier] => 61.92
[parent_name] => Перекрытие второго этажа
[parent_id] => 6
[material_sum] => 250679
[work_sum] => 103530
[total_sum] => 354209
[total_days] => 13
[display_material_sum] => 250 679
[display_work_sum] => 103 530
[display_total_sum] => 354 209
)
1
354 209₽
Работа:103 530 ₽
Материалы:250 679 ₽
Дни:13
stdClass Object
(
[id] => 100
[attribute_id] => 6
[name] => Монолитная ж/б плита
[material_modifier] => 1
[work_modifier] => 1
[options] => Array
(
[0] => без утепления
[1] => утепление 150 мм
[2] => утепление 200 мм
[3] => утепление 250 мм
[4] => утепление 300 мм
[5] => утепление 350 мм
[6] => утепление 400 мм
[7] => утепление 450 мм
[8] => утепление 500 мм
)
[days] => [18,20,20,20,20,20,20,20,20]
[material_price] => [4837,6572,7224,7375,79426,8177,8728,9180,10031]
[work_price] => [3348,3921,4112,4302,4493,4684,4875,5066,5256]
[image] => https://akademik-stroy.ru/wp-content/uploads/materials/monolitnaya-zh-b-plita-2.jpg
[area_modifier] => 61.92
[parent_name] => Перекрытие второго этажа
[parent_id] => 6
[material_sum] => 395349
[work_sum] => 228039
[total_sum] => 623388
[total_days] => 18
[display_material_sum] => 395 349
[display_work_sum] => 228 039
[display_total_sum] => 623 388
)
1
623 388₽
Работа:228 039 ₽
Материалы:395 349 ₽
Дни:18
stdClass Object
(
[id] => 164
[attribute_id] => 37
[name] => Металлочерепица
[material_modifier] => 1
[work_modifier] => 1
[options] => Array
(
)
[days] => [20]
[material_price] => [6112]
[work_price] => [5726]
[image] => https://akademik-stroy.ru/wp-content/uploads/materials/metallocherepica.jpg
[area_modifier] => 132.11
[parent_name] => Крыша (Скатная)
[parent_id] => 37
[material_sum] => 1065842
[work_sum] => 832108
[total_sum] => 1897950
[total_days] => 20
[display_material_sum] => 1 065 842
[display_work_sum] => 832 108
[display_total_sum] => 1 897 950
)
1
1 897 950₽
Работа:832 108 ₽
Материалы:1 065 842 ₽
Дни:20
stdClass Object
(
[id] => 165
[attribute_id] => 37
[name] => Гибкая черепица
[material_modifier] => 1
[work_modifier] => 1
[options] => Array
(
)
[days] => [20]
[material_price] => [6980]
[work_price] => [5950]
[image] => https://akademik-stroy.ru/wp-content/uploads/materials/gibkaya-cherepica.jpg
[area_modifier] => 132.11
[parent_name] => Крыша (Скатная)
[parent_id] => 37
[material_sum] => 1217209
[work_sum] => 864660
[total_sum] => 2081869
[total_days] => 20
[display_material_sum] => 1 217 209
[display_work_sum] => 864 660
[display_total_sum] => 2 081 869
)
1
2 081 869₽
Работа:864 660 ₽
Материалы:1 217 209 ₽
Дни:20
stdClass Object
(
[id] => 166
[attribute_id] => 37
[name] => Цементно-песчаная черепица
[material_modifier] => 1
[work_modifier] => 1
[options] => Array
(
)
[days] => [20]
[material_price] => [10560]
[work_price] => [9456]
[image] => https://akademik-stroy.ru/wp-content/uploads/materials/cementno-peschanaya-cherepica.jpg
[area_modifier] => 132.11
[parent_name] => Крыша (Скатная)
[parent_id] => 37
[material_sum] => 1841508
[work_sum] => 1374155
[total_sum] => 3215663
[total_days] => 20
[display_material_sum] => 1 841 508
[display_work_sum] => 1 374 155
[display_total_sum] => 3 215 663
)
1
3 215 663₽
Работа:1 374 155 ₽
Материалы:1 841 508 ₽
Дни:20
stdClass Object
(
[id] => 167
[attribute_id] => 37
[name] => Композитная черепица
[material_modifier] => 1
[work_modifier] => 1
[options] => Array
(
)
[days] => [20]
[material_price] => [9506]
[work_price] => [8905]
[image] => https://akademik-stroy.ru/wp-content/uploads/materials/kompozitnaya-cherepica.jpg
[area_modifier] => 132.11
[parent_name] => Крыша (Скатная)
[parent_id] => 37
[material_sum] => 1657706
[work_sum] => 1294084
[total_sum] => 2951790
[total_days] => 20
[display_material_sum] => 1 657 706
[display_work_sum] => 1 294 084
[display_total_sum] => 2 951 790
)
1
2 951 790₽
Работа:1 294 084 ₽
Материалы:1 657 706 ₽
Дни:20
stdClass Object
(
[id] => 168
[attribute_id] => 37
[name] => Керамическая черепица
[material_modifier] => 1
[work_modifier] => 1
[options] => Array
(
)
[days] => [20]
[material_price] => [12750]
[work_price] => [9456]
[image] => https://akademik-stroy.ru/wp-content/uploads/materials/keramicheskaya-cherepica.jpg
[area_modifier] => 132.11
[parent_name] => Крыша (Скатная)
[parent_id] => 37
[material_sum] => 2223411
[work_sum] => 1374155
[total_sum] => 3597566
[total_days] => 20
[display_material_sum] => 2 223 411
[display_work_sum] => 1 374 155
[display_total_sum] => 3 597 566
)
1
3 597 566₽
Работа:1 374 155 ₽
Материалы:2 223 411 ₽
Дни:20
stdClass Object
(
[id] => 169
[attribute_id] => 37
[name] => Металлическая фальцевая
[material_modifier] => 1
[work_modifier] => 1
[options] => Array
(
)
[days] => [20]
[material_price] => [8550]
[work_price] => [8190]
[image] => https://akademik-stroy.ru/wp-content/uploads/materials/metallicheskaya-falcevaya.jpg
[area_modifier] => 132.11
[parent_name] => Крыша (Скатная)
[parent_id] => 37
[material_sum] => 1490993
[work_sum] => 1190179
[total_sum] => 2681172
[total_days] => 20
[display_material_sum] => 1 490 993
[display_work_sum] => 1 190 179
[display_total_sum] => 2 681 172
)
1
2 681 172₽
Работа:1 190 179 ₽
Материалы:1 490 993 ₽
Дни:20
stdClass Object
(
[id] => 170
[attribute_id] => 37
[name] => Медная фальцевая
[material_modifier] => 1
[work_modifier] => 1
[options] => Array
(
)
[days] => [20]
[material_price] => [20450]
[work_price] => [16750]
[image] => https://akademik-stroy.ru/wp-content/uploads/materials/mednaya-falcevaya.jpg
[area_modifier] => 132.11
[parent_name] => Крыша (Скатная)
[parent_id] => 37
[material_sum] => 3566177
[work_sum] => 2434127
[total_sum] => 6000304
[total_days] => 20
[display_material_sum] => 3 566 177
[display_work_sum] => 2 434 127
[display_total_sum] => 6 000 304
)
1
6 000 304₽
Работа:2 434 127 ₽
Материалы:3 566 177 ₽
Дни:20
stdClass Object
(
[id] => 171
[attribute_id] => 37
[name] => Зеленая кровля
[material_modifier] => 1
[work_modifier] => 1
[options] => Array
(
)
[days] => [20]
[material_price] => [19850]
[work_price] => [16780]
[image] => https://akademik-stroy.ru/wp-content/uploads/materials/zelenaya-krovlya.jpg
[area_modifier] => 132.11
[parent_name] => Крыша (Скатная)
[parent_id] => 37
[material_sum] => 3461546
[work_sum] => 2438486
[total_sum] => 5900032
[total_days] => 20
[display_material_sum] => 3 461 546
[display_work_sum] => 2 438 486
[display_total_sum] => 5 900 032
)
1
5 900 032₽
Работа:2 438 486 ₽
Материалы:3 461 546 ₽
Дни:20
stdClass Object
(
[id] => 172
[attribute_id] => 37
[name] => Профлист
[material_modifier] => 1
[work_modifier] => 1
[options] => Array
(
)
[days] => [20]
[material_price] => [3450]
[work_price] => [3750]
[image] => https://akademik-stroy.ru/wp-content/uploads/materials/proflist.jpg
[area_modifier] => 132.11
[parent_name] => Крыша (Скатная)
[parent_id] => 37
[material_sum] => 601629
[work_sum] => 544954
[total_sum] => 1146583
[total_days] => 20
[display_material_sum] => 601 629
[display_work_sum] => 544 954
[display_total_sum] => 1 146 583
)
1
1 146 583₽
Работа:544 954 ₽
Материалы:601 629 ₽
Дни:20
stdClass Object
(
[id] => 51
[attribute_id] => 26
[name] => Есть
[material_modifier] => 1
[work_modifier] => 1
[options] => Array
(
[0] => Профиль 58 мм, 3-камерный, стеклопакет 2-камерный до 32 мм
[1] => Профиль 60 мм, 4-камерный, стеклопакет 2-камерный до 32 мм
[2] => Профиль 70 мм, 5-камерный, стеклопакет 2-камерный до 40 мм
[3] => Профиль 72 мм, 5-камерный, стеклопакет 2-камерный до 40 мм
[4] => Алюминиевые окна Alutech профиль 72 мм, стеклопакет 2-камерный
)
[days] => [3,3,3,3,3]
[material_price] => [1339,2124,2867,3023,29596]
[work_price] => [635,647,659,668,2579]
[image] => https://akademik-stroy.ru/wp-content/uploads/materials/okna.jpg
[area_modifier] => 157.46
[parent_name] => Окна
[parent_id] => 26
[material_sum] => 278307
[work_sum] => 109986
[total_sum] => 388293
[total_days] => 3
[display_material_sum] => 278 307
[display_work_sum] => 109 986
[display_total_sum] => 388 293
)
1
388 293₽
Работа:109 986 ₽
Материалы:278 307 ₽
Дни:3
stdClass Object
(
[id] => 52
[attribute_id] => 26
[name] => Нет
[material_modifier] => 2
[work_modifier] => 1
[options] =>
[days] => null
[material_price] => null
[work_price] => null
[image] => https://akademik-stroy.ru/wp-content/uploads/materials/okna.jpg
[area_modifier] => 157.46
[parent_name] => Окна
[parent_id] => 26
[material_sum] => 0
[work_sum] => 0
[total_sum] => 0
[total_days] => 0
[display_material_sum] => 0
[display_work_sum] => 0
[display_total_sum] => 0
)
1
0₽
Работа:0 ₽
Материалы:0 ₽
Дни:0
stdClass Object
(
[id] => 53
[attribute_id] => 27
[name] => Есть
[material_modifier] => 1
[work_modifier] => 1
[options] => Array
(
)
[days] => [1]
[material_price] => [10000]
[work_price] => [5500]
[image] => https://akademik-stroy.ru/wp-content/uploads/materials/dveri.jpg
[area_modifier] => 1
[parent_name] => Двери входные
[parent_id] => 27
[material_sum] => 13200
[work_sum] => 6050
[total_sum] => 19250
[total_days] => 1
[display_material_sum] => 13 200
[display_work_sum] => 6 050
[display_total_sum] => 19 250
)
1
19 250₽
Работа:6 050 ₽
Материалы:13 200 ₽
Дни:1
stdClass Object
(
[id] => 54
[attribute_id] => 27
[name] => Нет
[material_modifier] => 1
[work_modifier] => 1
[options] => Array
(
)
[days] => [0]
[material_price] => [0]
[work_price] => [0]
[image] => https://akademik-stroy.ru/wp-content/uploads/materials/dveri.jpg
[area_modifier] => 1
[parent_name] => Двери входные
[parent_id] => 27
[material_sum] => 0
[work_sum] => 0
[total_sum] => 0
[total_days] => 0
[display_material_sum] => 0
[display_work_sum] => 0
[display_total_sum] => 0
)
1
0₽
Работа:0 ₽
Материалы:0 ₽
Дни:0
stdClass Object
(
[id] => 25
[attribute_id] => 13
[name] => Нет
[material_modifier] => 1
[work_modifier] => 1
[options] => Array
(
)
[days] => [0]
[material_price] => [0]
[work_price] => [0]
[image] => https://akademik-stroy.ru/wp-content/uploads/materials/mineralovata-krov.jpg
[area_modifier] => 132.11
[parent_name] => Утепление кровли (Мансарда)
[parent_id] => 13
[material_sum] => 0
[work_sum] => 0
[total_sum] => 0
[total_days] => 0
[display_material_sum] => 0
[display_work_sum] => 0
[display_total_sum] => 0
)
1
0₽
Работа:0 ₽
Материалы:0 ₽
Дни:0
stdClass Object
(
[id] => 26
[attribute_id] => 13
[name] => Минераловатный
[material_modifier] => 1
[work_modifier] => 1
[options] => Array
(
[0] => 50 мм
[1] => 100 мм
[2] => 150 мм
[3] => 200 мм
[4] => 250 мм
[5] => 300 мм
[6] => 350 мм
[7] => 400 мм
[8] => 450 мм
[9] => 500 мм
)
[days] => [5,5,6,6,6,7,7,7,8,8]
[material_price] => [1158,1414,1772,2230,3602,4060,4974,5890,6408,7718]
[work_price] => [650,846,846,1098,1318,1450,1596,1754,1930,2122]
[image] => https://akademik-stroy.ru/wp-content/uploads/materials/mineralovata-krov.jpg
[area_modifier] => 132.11
[parent_name] => Утепление кровли (Мансарда)
[parent_id] => 13
[material_sum] => 201938
[work_sum] => 94459
[total_sum] => 296397
[total_days] => 5
[display_material_sum] => 201 938
[display_work_sum] => 94 459
[display_total_sum] => 296 397
)
1
296 397₽
Работа:94 459 ₽
Материалы:201 938 ₽
Дни:5
stdClass Object
(
[id] => 123
[attribute_id] => 13
[name] => Эковата (целлюлозная вата)
[material_modifier] => 1
[work_modifier] => 1
[options] => Array
(
[0] => 50 мм
[1] => 100 мм
[2] => 150 мм
[3] => 200 мм
[4] => 250 мм
[5] => 300 мм
[6] => 350 мм
[7] => 400 мм
[8] => 450 мм
[9] => 500 мм
)
[days] => [3,3,4,4,4,5,5,5,5,5]
[material_price] => [820,1638,2458,3276,5734,6552,8190,9828,11466,13104]
[work_price] => [234,304,304,396,474,522,574,632,694,764]
[image] => https://akademik-stroy.ru/wp-content/uploads/materials/ehkovata-krov.jpg
[area_modifier] => 132.11
[parent_name] => Утепление кровли (Мансарда)
[parent_id] => 13
[material_sum] => 142996
[work_sum] => 34005
[total_sum] => 177001
[total_days] => 3
[display_material_sum] => 142 996
[display_work_sum] => 34 005
[display_total_sum] => 177 001
)
1
177 001₽
Работа:34 005 ₽
Материалы:142 996 ₽
Дни:3
stdClass Object
(
[id] => 124
[attribute_id] => 13
[name] => Экструдированный пенополистирол
[material_modifier] => 1
[work_modifier] => 1
[options] => Array
(
[0] => 50 мм
[1] => 100 мм
[2] => 150 мм
[3] => 200 мм
[4] => 250 мм
[5] => 300 мм
[6] => 350 мм
[7] => 400 мм
[8] => 450 мм
[9] => 500 мм
)
[days] => [3,3,4,4,4,5,5,5,5,6]
[material_price] => [1146,2292,3438,4584,8020,9166,11458,13750,16040,18332]
[work_price] => [390,508,508,660,790,870,958,1052,1158,1274]
[image] => https://akademik-stroy.ru/wp-content/uploads/materials/epps-krov.jpg
[area_modifier] => 132.11
[parent_name] => Утепление кровли (Мансарда)
[parent_id] => 13
[material_sum] => 199845
[work_sum] => 56675
[total_sum] => 256520
[total_days] => 3
[display_material_sum] => 199 845
[display_work_sum] => 56 675
[display_total_sum] => 256 520
)
1
256 520₽
Работа:56 675 ₽
Материалы:199 845 ₽
Дни:3
stdClass Object
(
[id] => 125
[attribute_id] => 13
[name] => ПСБ (ППС-пенополистирол)
[material_modifier] => 1
[work_modifier] => 1
[options] => Array
(
[0] => 50 мм
[1] => 100 мм
[2] => 150 мм
[3] => 200 мм
[4] => 250 мм
[5] => 300 мм
[6] => 350 мм
[7] => 400 мм
[8] => 450 мм
[9] => 500 мм
)
[days] => [3,3,4,4,4,5,5,5,5,6]
[material_price] => [476,954,1430,1906,3336,3814,4766,5720,6674,7626]
[work_price] => [390,508,508,660,790,870,958,1052,1158,1274]
[image] => https://akademik-stroy.ru/wp-content/uploads/materials/psb-krov.jpg
[area_modifier] => 132.11
[parent_name] => Утепление кровли (Мансарда)
[parent_id] => 13
[material_sum] => 83007
[work_sum] => 56675
[total_sum] => 139682
[total_days] => 3
[display_material_sum] => 83 007
[display_work_sum] => 56 675
[display_total_sum] => 139 682
)
1
139 682₽
Работа:56 675 ₽
Материалы:83 007 ₽
Дни:3
stdClass Object
(
[id] => 126
[attribute_id] => 13
[name] => ППУ (Пенополиуретан)
[material_modifier] => 1
[work_modifier] => 1
[options] => Array
(
[0] => 50 мм
[1] => 100 мм
[2] => 150 мм
[3] => 200 мм
[4] => 250 мм
[5] => 300 мм
[6] => 350 мм
[7] => 400 мм
[8] => 450 мм
[9] => 500 мм
)
[days] => [2,2,3,3,3,3,4,4,4,4]
[material_price] => [2080,4160,6240,8320,14560,16640,20800,24960,29120,33280]
[work_price] => [234,304,304,396,474,522,574,632,694,764]
[image] => https://akademik-stroy.ru/wp-content/uploads/materials/ppu-krov.jpg
[area_modifier] => 132.11
[parent_name] => Утепление кровли (Мансарда)
[parent_id] => 13
[material_sum] => 362721
[work_sum] => 34005
[total_sum] => 396726
[total_days] => 2
[display_material_sum] => 362 721
[display_work_sum] => 34 005
[display_total_sum] => 396 726
)
1
396 726₽
Работа:34 005 ₽
Материалы:362 721 ₽
Дни:2
stdClass Object
(
[id] => 127
[attribute_id] => 13
[name] => PIR-плиты (пенополиизоцианурат)
[material_modifier] => 1
[work_modifier] => 1
[options] => Array
(
[0] => 50 мм
[1] => 100 мм
[2] => 150 мм
[3] => 200 мм
[4] => 250 мм
[5] => 300 мм
[6] => 350 мм
[7] => 400 мм
[8] => 450 мм
[9] => 500 мм
)
[days] => [3,3,4,4,4,5,5,5,5,6]
[material_price] => [2646,5290,7936,10580,18516,21162,26452,31742,37032,42324]
[work_price] => [390,508,508,660,790,870,958,1052,1158,1274]
[image] => https://akademik-stroy.ru/wp-content/uploads/materials/pir-krov.jpg
[area_modifier] => 132.11
[parent_name] => Утепление кровли (Мансарда)
[parent_id] => 13
[material_sum] => 461423
[work_sum] => 56675
[total_sum] => 518098
[total_days] => 3
[display_material_sum] => 461 423
[display_work_sum] => 56 675
[display_total_sum] => 518 098
)
1
518 098₽
Работа:56 675 ₽
Материалы:461 423 ₽
Дни:3
stdClass Object
(
[id] => 27
[attribute_id] => 14
[name] => Нет
[material_modifier] => 1
[work_modifier] => 1
[options] => Array
(
)
[days] => [0]
[material_price] => [0]
[work_price] => [0]
[image] => https://akademik-stroy.ru/wp-content/uploads/materials/mansardnye-okna-2.jpg
[area_modifier] => 1
[parent_name] => Мансардные окна
[parent_id] => 14
[material_sum] => 0
[work_sum] => 0
[total_sum] => 0
[total_days] => 0
[display_material_sum] => 0
[display_work_sum] => 0
[display_total_sum] => 0
)
1
0₽
Работа:0 ₽
Материалы:0 ₽
Дни:0
stdClass Object
(
[id] => 28
[attribute_id] => 14
[name] => Есть
[material_modifier] => 1
[work_modifier] => 1
[options] => Array
(
[0] => 55x78
[1] => 55x98
)
[days] => [6,7]
[material_price] => [47480,68700]
[work_price] => [17900,19500]
[image] => https://akademik-stroy.ru/wp-content/uploads/materials/mansardnye-okna-2.jpg
[area_modifier] => 1
[parent_name] => Мансардные окна
[parent_id] => 14
[material_sum] => 62674
[work_sum] => 19690
[total_sum] => 82364
[total_days] => 6
[display_material_sum] => 62 674
[display_work_sum] => 19 690
[display_total_sum] => 82 364
)
1
82 364₽
Работа:19 690 ₽
Материалы:62 674 ₽
Дни:6
stdClass Object
(
[id] => 29
[attribute_id] => 15
[name] => Нет
[material_modifier] => 1
[work_modifier] => 1
[options] => Array
(
)
[days] => [0]
[material_price] => [0]
[work_price] => [0]
[image] => https://akademik-stroy.ru/wp-content/uploads/materials/sofit.jpg
[area_modifier] => 132.11
[parent_name] => Подшивка кровли
[parent_id] => 15
[material_sum] => 0
[work_sum] => 0
[total_sum] => 0
[total_days] => 0
[display_material_sum] => 0
[display_work_sum] => 0
[display_total_sum] => 0
)
1
0₽
Работа:0 ₽
Материалы:0 ₽
Дни:0
stdClass Object
(
[id] => 30
[attribute_id] => 15
[name] => Есть
[material_modifier] => 1
[work_modifier] => 1
[options] => Array
(
[0] => Софиты (ПВХ)
[1] => Cedral
[2] => ДПК
[3] => Планкен
)
[days] => [7,10,9,8]
[material_price] => [1803,3213,3025,3150]
[work_price] => [1529,2188,2075,1923]
[image] => https://akademik-stroy.ru/wp-content/uploads/materials/sofit.jpg
[area_modifier] => 132.11
[parent_name] => Подшивка кровли
[parent_id] => 15
[material_sum] => 314417
[work_sum] => 222196
[total_sum] => 536613
[total_days] => 7
[display_material_sum] => 314 417
[display_work_sum] => 222 196
[display_total_sum] => 536 613
)
1
536 613₽
Работа:222 196 ₽
Материалы:314 417 ₽
Дни:7
stdClass Object
(
[id] => 31
[attribute_id] => 16
[name] => Нет
[material_modifier] => 1
[work_modifier] => 1
[options] => Array
(
)
[days] => [0]
[material_price] => [0]
[work_price] => [0]
[image] => https://akademik-stroy.ru/wp-content/uploads/materials/docke-standard-pvh.jpg
[area_modifier] => 132.11
[parent_name] => Водосточная система
[parent_id] => 16
[material_sum] => 0
[work_sum] => 0
[total_sum] => 0
[total_days] => 0
[display_material_sum] => 0
[display_work_sum] => 0
[display_total_sum] => 0
)
1
0₽
Работа:0 ₽
Материалы:0 ₽
Дни:0
stdClass Object
(
[id] => 32
[attribute_id] => 16
[name] => Есть
[material_modifier] => 1
[work_modifier] => 1
[options] => Array
(
[0] => Döcke Standard (ПВХ)
[1] => Металлические Grand Line
)
[days] => [7,7]
[material_price] => [1842,2703]
[work_price] => [1491,1529]
[image] => https://akademik-stroy.ru/wp-content/uploads/materials/docke-standard-pvh.jpg
[area_modifier] => 132.11
[parent_name] => Водосточная система
[parent_id] => 16
[material_sum] => 321218
[work_sum] => 216674
[total_sum] => 537892
[total_days] => 7
[display_material_sum] => 321 218
[display_work_sum] => 216 674
[display_total_sum] => 537 892
)
1
537 892₽
Работа:216 674 ₽
Материалы:321 218 ₽
Дни:7
stdClass Object
(
[id] => 33
[attribute_id] => 17
[name] => Нет
[material_modifier] => 1
[work_modifier] => 1
[options] => Array
(
)
[days] => [0]
[material_price] => [0]
[work_price] => [0]
[image] => https://akademik-stroy.ru/wp-content/uploads/materials/mineralovata.jpg
[area_modifier] => 194.04
[parent_name] => Дополнительное утепление наружных стен
[parent_id] => 17
[material_sum] => 0
[work_sum] => 0
[total_sum] => 0
[total_days] => 0
[display_material_sum] => 0
[display_work_sum] => 0
[display_total_sum] => 0
)
1
0₽
Работа:0 ₽
Материалы:0 ₽
Дни:0
stdClass Object
(
[id] => 34
[attribute_id] => 17
[name] => Минераловатный
[material_modifier] => 1
[work_modifier] => 1
[options] => Array
(
[0] => 50 мм
[1] => 100 мм
[2] => 150 мм
[3] => 200 мм
[4] => 250 мм
[5] => 300 мм
)
[days] => [7,8,10,12,14,15]
[material_price] => [3437,3613,3803,3915,4601,4830]
[work_price] => [2325,2423,2523,2749,2859,3025]
[image] => https://akademik-stroy.ru/wp-content/uploads/materials/mineralovata.jpg
[area_modifier] => 194.04
[parent_name] => Дополнительное утепление наружных стен
[parent_id] => 17
[material_sum] => 880328
[work_sum] => 496257
[total_sum] => 1376585
[total_days] => 7
[display_material_sum] => 880 328
[display_work_sum] => 496 257
[display_total_sum] => 1 376 585
)
1
1 376 585₽
Работа:496 257 ₽
Материалы:880 328 ₽
Дни:7
stdClass Object
(
[id] => 128
[attribute_id] => 17
[name] => Эковата (целлюлозная вата)
[material_modifier] => 1
[work_modifier] => 1
[options] => Array
(
[0] => 50 мм
[1] => 100 мм
[2] => 150 мм
[3] => 200 мм
[4] => 250 мм
[5] => 300 мм
)
[days] => [3,4,5,6,7,8]
[material_price] => [810,1319,1629,1838,2267,2676]
[work_price] => [1225,1323,1423,1549,1659,1725]
[image] => https://akademik-stroy.ru/wp-content/uploads/materials/ehkovata.jpg
[area_modifier] => 194.04
[parent_name] => Дополнительное утепление наружных стен
[parent_id] => 17
[material_sum] => 207468
[work_sum] => 261469
[total_sum] => 468937
[total_days] => 3
[display_material_sum] => 207 468
[display_work_sum] => 261 469
[display_total_sum] => 468 937
)
1
468 937₽
Работа:261 469 ₽
Материалы:207 468 ₽
Дни:3
stdClass Object
(
[id] => 129
[attribute_id] => 17
[name] => Экструдированный пенополистирол
[material_modifier] => 1
[work_modifier] => 1
[options] => Array
(
[0] => 50 мм
[1] => 100 мм
[2] => 150 мм
[3] => 200 мм
[4] => 250 мм
[5] => 300 мм
)
[days] => [5,6,7,8,9,10]
[material_price] => [4560,4300,5119,6292,7010,8583]
[work_price] => [1795,1954,2254,2330,2595,2735]
[image] => https://akademik-stroy.ru/wp-content/uploads/materials/epps.jpg
[area_modifier] => 194.04
[parent_name] => Дополнительное утепление наружных стен
[parent_id] => 17
[material_sum] => 1167966
[work_sum] => 383132
[total_sum] => 1551098
[total_days] => 5
[display_material_sum] => 1 167 966
[display_work_sum] => 383 132
[display_total_sum] => 1 551 098
)
1
1 551 098₽
Работа:383 132 ₽
Материалы:1 167 966 ₽
Дни:5
stdClass Object
(
[id] => 130
[attribute_id] => 17
[name] => ПСБ (ППС-пенополистирол)
[material_modifier] => 1
[work_modifier] => 1
[options] => Array
(
[0] => 50 мм
[1] => 100 мм
[2] => 150 мм
[3] => 200 мм
[4] => 250 мм
[5] => 300 мм
)
[days] => [5,6,7,8,9,10]
[material_price] => [4822,5200,5819,6292,7010,7583]
[work_price] => [1795,1954,2254,2330,2595,2735]
[image] => https://akademik-stroy.ru/wp-content/uploads/materials/psb.jpg
[area_modifier] => 194.04
[parent_name] => Дополнительное утепление наружных стен
[parent_id] => 17
[material_sum] => 1235072
[work_sum] => 383132
[total_sum] => 1618204
[total_days] => 5
[display_material_sum] => 1 235 072
[display_work_sum] => 383 132
[display_total_sum] => 1 618 204
)
1
1 618 204₽
Работа:383 132 ₽
Материалы:1 235 072 ₽
Дни:5
stdClass Object
(
[id] => 131
[attribute_id] => 17
[name] => ППУ (Пенополиуретан)
[material_modifier] => 1
[work_modifier] => 1
[options] => Array
(
[0] => 50 мм
[1] => 100 мм
[2] => 150 мм
[3] => 200 мм
[4] => 250 мм
[5] => 300 мм
)
[days] => [3,4,5,6,7,8]
[material_price] => [2860,3400,4219,4592,5010,5583]
[work_price] => [729,900,980,1120,1280,1530]
[image] => https://akademik-stroy.ru/wp-content/uploads/materials/ppu.jpg
[area_modifier] => 194.04
[parent_name] => Дополнительное утепление наружных стен
[parent_id] => 17
[material_sum] => 732540
[work_sum] => 155601
[total_sum] => 888141
[total_days] => 3
[display_material_sum] => 732 540
[display_work_sum] => 155 601
[display_total_sum] => 888 141
)
1
888 141₽
Работа:155 601 ₽
Материалы:732 540 ₽
Дни:3
stdClass Object
(
[id] => 132
[attribute_id] => 17
[name] => PIR-плиты (пенополиизоцианурат)
[material_modifier] => 1
[work_modifier] => 1
[options] => Array
(
[0] => 50 мм
[1] => 100 мм
[2] => 150 мм
[3] => 200 мм
[4] => 250 мм
[5] => 300 мм
)
[days] => [5,6,7,8,9,10]
[material_price] => [8323,15645,20968,25900,29258,30581]
[work_price] => [800,900,970,1150,1280,1330]
[image] => https://akademik-stroy.ru/wp-content/uploads/materials/pir.jpg
[area_modifier] => 194.04
[parent_name] => Дополнительное утепление наружных стен
[parent_id] => 17
[material_sum] => 2131793
[work_sum] => 170755
[total_sum] => 2302548
[total_days] => 5
[display_material_sum] => 2 131 793
[display_work_sum] => 170 755
[display_total_sum] => 2 302 548
)
1
2 302 548₽
Работа:170 755 ₽
Материалы:2 131 793 ₽
Дни:5
stdClass Object
(
[id] => 37
[attribute_id] => 19
[name] => Нет
[material_modifier] => 1
[work_modifier] => 1
[options] => Array
(
)
[days] => [0]
[material_price] => [0]
[work_price] => [0]
[image] => https://akademik-stroy.ru/wp-content/uploads/materials/imitaciya-brusa.jpg
[area_modifier] => 194.04
[parent_name] => Наружная отделка фасада
[parent_id] => 19
[material_sum] => 0
[work_sum] => 0
[total_sum] => 0
[total_days] => 0
[display_material_sum] => 0
[display_work_sum] => 0
[display_total_sum] => 0
)
1
0₽
Работа:0 ₽
Материалы:0 ₽
Дни:0
stdClass Object
(
[id] => 38
[attribute_id] => 19
[name] => Имитация бруса
[material_modifier] => 1
[work_modifier] => 1
[options] => Array
(
[0] => Сосна
[1] => Ель
[2] => Лиственница
)
[days] => [20,20,20]
[material_price] => [2994,2762,4954]
[work_price] => [1397,1231,1577]
[image] => https://akademik-stroy.ru/wp-content/uploads/materials/imitaciya-brusa.jpg
[area_modifier] => 194.04
[parent_name] => Наружная отделка фасада
[parent_id] => 19
[material_sum] => 766862
[work_sum] => 298181
[total_sum] => 1065043
[total_days] => 20
[display_material_sum] => 766 862
[display_work_sum] => 298 181
[display_total_sum] => 1 065 043
)
1
1 065 043₽
Работа:298 181 ₽
Материалы:766 862 ₽
Дни:20
stdClass Object
(
[id] => 136
[attribute_id] => 19
[name] => Планкен
[material_modifier] => 1
[work_modifier] => 1
[options] => Array
(
[0] => Сосна
[1] => Ель
[2] => Лиственница
)
[days] => [20,20,20]
[material_price] => [3194,2862,5154]
[work_price] => [1537,1354,1735]
[image] => https://akademik-stroy.ru/wp-content/uploads/materials/planken.jpg
[area_modifier] => 194.04
[parent_name] => Наружная отделка фасада
[parent_id] => 19
[material_sum] => 818088
[work_sum] => 328063
[total_sum] => 1146151
[total_days] => 20
[display_material_sum] => 818 088
[display_work_sum] => 328 063
[display_total_sum] => 1 146 151
)
1
1 146 151₽
Работа:328 063 ₽
Материалы:818 088 ₽
Дни:20
stdClass Object
(
[id] => 137
[attribute_id] => 19
[name] => Штукатурка
[material_modifier] => 1
[work_modifier] => 1
[options] => Array
(
[0] => Цементно-песчаная (минеральная)
[1] => Мокрый фасад
)
[days] => [35,35]
[material_price] => [2231,3938]
[work_price] => [1202,2422]
[image] => https://akademik-stroy.ru/wp-content/uploads/materials/shtukaturka.jpg
[area_modifier] => 194.04
[parent_name] => Наружная отделка фасада
[parent_id] => 19
[material_sum] => 571432
[work_sum] => 256560
[total_sum] => 827992
[total_days] => 35
[display_material_sum] => 571 432
[display_work_sum] => 256 560
[display_total_sum] => 827 992
)
1
827 992₽
Работа:256 560 ₽
Материалы:571 432 ₽
Дни:35
stdClass Object
(
[id] => 138
[attribute_id] => 19
[name] => Облицовочный кирпич
[material_modifier] => 1
[work_modifier] => 1
[options] => Array
(
[0] => Керамический
[1] => Клинкерный
[2] => Ручной формовки
[3] => Гиперпрессованный
[4] => Силикатный кирпич
)
[days] => [45,45,45,45,45]
[material_price] => [8174,9148,1040,1257,5876]
[work_price] => [3240,3758,4536,4017,3369]
[image] => https://akademik-stroy.ru/wp-content/uploads/materials/oblicovochnyj-kirpich.jpg
[area_modifier] => 194.04
[parent_name] => Наружная отделка фасада
[parent_id] => 19
[material_sum] => 2093630
[work_sum] => 691559
[total_sum] => 2785189
[total_days] => 45
[display_material_sum] => 2 093 630
[display_work_sum] => 691 559
[display_total_sum] => 2 785 189
)
1
2 785 189₽
Работа:691 559 ₽
Материалы:2 093 630 ₽
Дни:45
stdClass Object
(
[id] => 139
[attribute_id] => 19
[name] => Фасадная плитка
[material_modifier] => 1
[work_modifier] => 1
[options] => Array
(
[0] => Клинкерная
[1] => Керамическая
[2] => Плитка ручной формовки
)
[days] => [40,40,40]
[material_price] => [2974,1487,3470]
[work_price] => [3007,2592,3629]
[image] => https://akademik-stroy.ru/wp-content/uploads/materials/fasadnaya-plitka.jpg
[area_modifier] => 194.04
[parent_name] => Наружная отделка фасада
[parent_id] => 19
[material_sum] => 761739
[work_sum] => 641826
[total_sum] => 1403565
[total_days] => 40
[display_material_sum] => 761 739
[display_work_sum] => 641 826
[display_total_sum] => 1 403 565
)
1
1 403 565₽
Работа:641 826 ₽
Материалы:761 739 ₽
Дни:40
stdClass Object
(
[id] => 140
[attribute_id] => 19
[name] => Сайдинг
[material_modifier] => 1
[work_modifier] => 1
[options] => Array
(
[0] => Виниловый
[1] => Металлический
[2] => Фиброцементный
)
[days] => [20,20,20]
[material_price] => [1263,1944,4147]
[work_price] => [1263,1944,2074]
[image] => https://akademik-stroy.ru/wp-content/uploads/materials/sajding.jpg
[area_modifier] => 194.04
[parent_name] => Наружная отделка фасада
[parent_id] => 19
[material_sum] => 323496
[work_sum] => 269580
[total_sum] => 593076
[total_days] => 20
[display_material_sum] => 323 496
[display_work_sum] => 269 580
[display_total_sum] => 593 076
)
1
593 076₽
Работа:269 580 ₽
Материалы:323 496 ₽
Дни:20
stdClass Object
(
[id] => 141
[attribute_id] => 19
[name] => Камень
[material_modifier] => 1
[work_modifier] => 1
[options] => Array
(
[0] => Травертин
[1] => Дагестанский
[2] => Искусственный
[3] => Натуральный
[4] => Керамогранит
)
[days] => [45,45,45,45,45]
[material_price] => [4536,3888,2592,3240,2462]
[work_price] => [3240,3240,2462,3110,1944]
[image] => https://akademik-stroy.ru/wp-content/uploads/materials/kamen-1.jpg
[area_modifier] => 194.04
[parent_name] => Наружная отделка фасада
[parent_id] => 19
[material_sum] => 1161818
[work_sum] => 691559
[total_sum] => 1853377
[total_days] => 45
[display_material_sum] => 1 161 818
[display_work_sum] => 691 559
[display_total_sum] => 1 853 377
)
1
1 853 377₽
Работа:691 559 ₽
Материалы:1 161 818 ₽
Дни:45
stdClass Object
(
[id] => 142
[attribute_id] => 19
[name] => Термопанели
[material_modifier] => 1
[work_modifier] => 1
[options] => Array
(
)
[days] => [20]
[material_price] => [6221]
[work_price] => [2333]
[image] => https://akademik-stroy.ru/wp-content/uploads/materials/termo.png
[area_modifier] => 194.04
[parent_name] => Наружная отделка фасада
[parent_id] => 19
[material_sum] => 1593402
[work_sum] => 497965
[total_sum] => 2091367
[total_days] => 20
[display_material_sum] => 1 593 402
[display_work_sum] => 497 965
[display_total_sum] => 2 091 367
)
1
2 091 367₽
Работа:497 965 ₽
Материалы:1 593 402 ₽
Дни:20
stdClass Object
(
[id] => 143
[attribute_id] => 19
[name] => Плитка HAUBERK
[material_modifier] => 1
[work_modifier] => 1
[options] => Array
(
)
[days] => [20]
[material_price] => [2786]
[work_price] => [1944]
[image] => https://akademik-stroy.ru/wp-content/uploads/materials/hauberk.jpg
[area_modifier] => 194.04
[parent_name] => Наружная отделка фасада
[parent_id] => 19
[material_sum] => 713586
[work_sum] => 414935
[total_sum] => 1128521
[total_days] => 20
[display_material_sum] => 713 586
[display_work_sum] => 414 935
[display_total_sum] => 1 128 521
)
1
1 128 521₽
Работа:414 935 ₽
Материалы:713 586 ₽
Дни:20
stdClass Object
(
[id] => 144
[attribute_id] => 19
[name] => Фальцевый фасад
[material_modifier] => 1
[work_modifier] => 1
[options] => Array
(
)
[days] => [20]
[material_price] => [3240]
[work_price] => [2592]
[image] => https://akademik-stroy.ru/wp-content/uploads/materials/falcevyj-fasad.jpg
[area_modifier] => 194.04
[parent_name] => Наружная отделка фасада
[parent_id] => 19
[material_sum] => 829870
[work_sum] => 553247
[total_sum] => 1383117
[total_days] => 20
[display_material_sum] => 829 870
[display_work_sum] => 553 247
[display_total_sum] => 1 383 117
)
1
1 383 117₽
Работа:553 247 ₽
Материалы:829 870 ₽
Дни:20
stdClass Object
(
[id] => 145
[attribute_id] => 19
[name] => Комбинированный
[material_modifier] => 1
[work_modifier] => 1
[options] => Array
(
)
[days] => [20]
[material_price] => [4629]
[work_price] => [3499]
[image] => https://akademik-stroy.ru/wp-content/uploads/materials/Kombinirovannyj.jpg
[area_modifier] => 194.04
[parent_name] => Наружная отделка фасада
[parent_id] => 19
[material_sum] => 1185639
[work_sum] => 746841
[total_sum] => 1932480
[total_days] => 20
[display_material_sum] => 1 185 639
[display_work_sum] => 746 841
[display_total_sum] => 1 932 480
)
1
1 932 480₽
Работа:746 841 ₽
Материалы:1 185 639 ₽
Дни:20
stdClass Object
(
[id] => 257
[attribute_id] => 19
[name] => Японские фиброцементные
[material_modifier] => 1
[work_modifier] => 1
[options] => Array
(
)
[days] => [20]
[material_price] => [7043]
[work_price] => [2993]
[image] => https://akademik-stroy.ru/wp-content/uploads/materials/paneli.jpg
[area_modifier] => 194.04
[parent_name] => Наружная отделка фасада
[parent_id] => 19
[material_sum] => 1803943
[work_sum] => 638838
[total_sum] => 2442781
[total_days] => 20
[display_material_sum] => 1 803 943
[display_work_sum] => 638 838
[display_total_sum] => 2 442 781
)
1
2 442 781₽
Работа:638 838 ₽
Материалы:1 803 943 ₽
Дни:20
stdClass Object
(
[id] => 258
[attribute_id] => 19
[name] => Панели Каньон
[material_modifier] => 1
[work_modifier] => 1
[options] => Array
(
)
[days] => [20]
[material_price] => [4543]
[work_price] => [2592]
[image] => https://akademik-stroy.ru/wp-content/uploads/materials/kanon.png
[area_modifier] => 194.04
[parent_name] => Наружная отделка фасада
[parent_id] => 19
[material_sum] => 1163611
[work_sum] => 553247
[total_sum] => 1716858
[total_days] => 20
[display_material_sum] => 1 163 611
[display_work_sum] => 553 247
[display_total_sum] => 1 716 858
)
1
1 716 858₽
Работа:553 247 ₽
Материалы:1 163 611 ₽
Дни:20
stdClass Object
(
[id] => 39
[attribute_id] => 20
[name] => Нет
[material_modifier] => 1
[work_modifier] => 1
[options] => Array
(
)
[days] => [0]
[material_price] => [0]
[work_price] => [0]
[image] => https://akademik-stroy.ru/wp-content/uploads/materials/terrasy.jpg
[area_modifier] => 30
[parent_name] => Террасы, крыльца, навесы
[parent_id] => 20
[material_sum] => 0
[work_sum] => 0
[total_sum] => 0
[total_days] => 0
[display_material_sum] => 0
[display_work_sum] => 0
[display_total_sum] => 0
)
1
0₽
Работа:0 ₽
Материалы:0 ₽
Дни:0
stdClass Object
(
[id] => 40
[attribute_id] => 20
[name] => Есть
[material_modifier] => 1
[work_modifier] => 1
[options] => Array
(
)
[days] => [5]
[material_price] => [10450]
[work_price] => [1950]
[image] => https://akademik-stroy.ru/wp-content/uploads/materials/terrasy.jpg
[area_modifier] => 30
[parent_name] => Террасы, крыльца, навесы
[parent_id] => 20
[material_sum] => 413820
[work_sum] => 64350
[total_sum] => 478170
[total_days] => 5
[display_material_sum] => 413 820
[display_work_sum] => 64 350
[display_total_sum] => 478 170
)
1
478 170₽
Работа:64 350 ₽
Материалы:413 820 ₽
Дни:5
stdClass Object
(
[id] => 41
[attribute_id] => 21
[name] => Нет
[material_modifier] => 1
[work_modifier] => 1
[options] => Array
(
)
[days] => [0]
[material_price] => [0]
[work_price] => [0]
[image] => https://akademik-stroy.ru/wp-content/uploads/materials/balkony.jpg
[area_modifier] => 30
[parent_name] => Балконы
[parent_id] => 21
[material_sum] => 0
[work_sum] => 0
[total_sum] => 0
[total_days] => 0
[display_material_sum] => 0
[display_work_sum] => 0
[display_total_sum] => 0
)
1
0₽
Работа:0 ₽
Материалы:0 ₽
Дни:0
stdClass Object
(
[id] => 42
[attribute_id] => 21
[name] => Есть
[material_modifier] => 1
[work_modifier] => 1
[options] => Array
(
)
[days] => [12]
[material_price] => [3600]
[work_price] => [1950]
[image] => https://akademik-stroy.ru/wp-content/uploads/materials/balkony.jpg
[area_modifier] => 30
[parent_name] => Балконы
[parent_id] => 21
[material_sum] => 142560
[work_sum] => 64350
[total_sum] => 206910
[total_days] => 12
[display_material_sum] => 142 560
[display_work_sum] => 64 350
[display_total_sum] => 206 910
)
1
206 910₽
Работа:64 350 ₽
Материалы:142 560 ₽
Дни:12
stdClass Object
(
[id] => 43
[attribute_id] => 22
[name] => Нет
[material_modifier] => 1
[work_modifier] => 1
[options] => Array
(
)
[days] => [0]
[material_price] => [0]
[work_price] => [0]
[image] => https://akademik-stroy.ru/wp-content/uploads/materials/uteplennaya.jpg
[area_modifier] => 132.11
[parent_name] => Отмостка
[parent_id] => 22
[material_sum] => 0
[work_sum] => 0
[total_sum] => 0
[total_days] => 0
[display_material_sum] => 0
[display_work_sum] => 0
[display_total_sum] => 0
)
1
0₽
Работа:0 ₽
Материалы:0 ₽
Дни:0
stdClass Object
(
[id] => 44
[attribute_id] => 22
[name] => Утепленная отмостка
[material_modifier] => 1
[work_modifier] => 1
[options] => Array
(
)
[days] => [15]
[material_price] => [2550]
[work_price] => [1750]
[image] => https://akademik-stroy.ru/wp-content/uploads/materials/uteplennaya.jpg
[area_modifier] => 132.11
[parent_name] => Отмостка
[parent_id] => 22
[material_sum] => 444682
[work_sum] => 254312
[total_sum] => 698994
[total_days] => 15
[display_material_sum] => 444 682
[display_work_sum] => 254 312
[display_total_sum] => 698 994
)
1
698 994₽
Работа:254 312 ₽
Материалы:444 682 ₽
Дни:15
stdClass Object
(
[id] => 146
[attribute_id] => 22
[name] => Не утепленная отмостка
[material_modifier] => 1
[work_modifier] => 1
[options] => Array
(
)
[days] => [10]
[material_price] => [1650]
[work_price] => [1450]
[image] => https://akademik-stroy.ru/wp-content/uploads/materials/ne-uteplennaya.jpg
[area_modifier] => 132.11
[parent_name] => Отмостка
[parent_id] => 22
[material_sum] => 287736
[work_sum] => 210715
[total_sum] => 498451
[total_days] => 10
[display_material_sum] => 287 736
[display_work_sum] => 210 715
[display_total_sum] => 498 451
)
1
498 451₽
Работа:210 715 ₽
Материалы:287 736 ₽
Дни:10
stdClass Object
(
[id] => 45
[attribute_id] => 23
[name] => Нет
[material_modifier] => 1
[work_modifier] => 1
[options] => Array
(
)
[days] => [0]
[material_price] => [0]
[work_price] => [0]
[image] => https://akademik-stroy.ru/wp-content/uploads/materials/drenazh-2.jpg
[area_modifier] => 132.11
[parent_name] => Дренаж вокруг дома
[parent_id] => 23
[material_sum] => 0
[work_sum] => 0
[total_sum] => 0
[total_days] => 0
[display_material_sum] => 0
[display_work_sum] => 0
[display_total_sum] => 0
)
1
0₽
Работа:0 ₽
Материалы:0 ₽
Дни:0
stdClass Object
(
[id] => 46
[attribute_id] => 23
[name] => Есть
[material_modifier] => 1
[work_modifier] => 1
[options] => Array
(
)
[days] => [5]
[material_price] => [2366]
[work_price] => [1911]
[image] => https://akademik-stroy.ru/wp-content/uploads/materials/drenazh-2.jpg
[area_modifier] => 132.11
[parent_name] => Дренаж вокруг дома
[parent_id] => 23
[material_sum] => 412595
[work_sum] => 277708
[total_sum] => 690303
[total_days] => 5
[display_material_sum] => 412 595
[display_work_sum] => 277 708
[display_total_sum] => 690 303
)
1
690 303₽
Работа:277 708 ₽
Материалы:412 595 ₽
Дни:5
stdClass Object
(
[id] => 47
[attribute_id] => 24
[name] => Нет
[material_modifier] => 1
[work_modifier] => 1
[options] => Array
(
)
[days] => [0]
[material_price] => [0]
[work_price] => [0]
[image] => https://akademik-stroy.ru/wp-content/uploads/materials/septik.jpg
[area_modifier] => 1
[parent_name] => Автономная канализация (септики)
[parent_id] => 24
[material_sum] => 0
[work_sum] => 0
[total_sum] => 0
[total_days] => 0
[display_material_sum] => 0
[display_work_sum] => 0
[display_total_sum] => 0
)
1
0₽
Работа:0 ₽
Материалы:0 ₽
Дни:0
stdClass Object
(
[id] => 48
[attribute_id] => 24
[name] => Есть
[material_modifier] => 1
[work_modifier] => 1
[options] => Array
(
[0] => Для дачи на 4 человека
[1] => Для дома на 5 человек
[2] => Для дома на 6 человек
[3] => Для дома на 7 человек
[4] => Для дома на 10 человек
)
[days] => [7,7,7,8,8]
[material_price] => [196340,220500,240940,264200,293340]
[work_price] => [50000,55000,60500,66550,73206]
[image] => https://akademik-stroy.ru/wp-content/uploads/materials/septik.jpg
[area_modifier] => 1
[parent_name] => Автономная канализация (септики)
[parent_id] => 24
[material_sum] => 259169
[work_sum] => 55000
[total_sum] => 314169
[total_days] => 7
[display_material_sum] => 259 169
[display_work_sum] => 55 000
[display_total_sum] => 314 169
)
1
314 169₽
Работа:55 000 ₽
Материалы:259 169 ₽
Дни:7
stdClass Object
(
[id] => 49
[attribute_id] => 25
[name] => Нет
[material_modifier] => 1
[work_modifier] => 1
[options] => Array
(
)
[days] => [0]
[material_price] => [0]
[work_price] => [0]
[image] => https://akademik-stroy.ru/wp-content/uploads/materials/gkl.jpg
[area_modifier] => 194.04
[parent_name] => Внутренние (не несущие) перегородки
[parent_id] => 25
[material_sum] => 0
[work_sum] => 0
[total_sum] => 0
[total_days] => 0
[display_material_sum] => 0
[display_work_sum] => 0
[display_total_sum] => 0
)
1
0₽
Работа:0 ₽
Материалы:0 ₽
Дни:0
stdClass Object
(
[id] => 147
[attribute_id] => 25
[name] => Каркасно-обшивные
[material_modifier] => 1
[work_modifier] => 1
[options] => Array
(
[0] => 75 мм (без шумоизоляции)
[1] => 75 мм (с шумоизоляцией)
)
[days] => [11,11]
[material_price] => [580,970]
[work_price] => [380,570]
[image] => https://akademik-stroy.ru/wp-content/uploads/materials/gkl.jpg
[area_modifier] => 194.04
[parent_name] => Внутренние (не несущие) перегородки
[parent_id] => 25
[material_sum] => 148557
[work_sum] => 81109
[total_sum] => 229666
[total_days] => 11
[display_material_sum] => 148 557
[display_work_sum] => 81 109
[display_total_sum] => 229 666
)
1
229 666₽
Работа:81 109 ₽
Материалы:148 557 ₽
Дни:11
stdClass Object
(
[id] => 148
[attribute_id] => 25
[name] => Пазогребневые
[material_modifier] => 1
[work_modifier] => 1
[options] => Array
(
[0] => 80 мм
[1] => 100 мм
)
[days] => [5,5]
[material_price] => [1022,1313]
[work_price] => [600,700]
[image] => https://akademik-stroy.ru/wp-content/uploads/materials/pazogrebnevye-bloki.jpg
[area_modifier] => 194.04
[parent_name] => Внутренние (не несущие) перегородки
[parent_id] => 25
[material_sum] => 261768
[work_sum] => 128066
[total_sum] => 389834
[total_days] => 5
[display_material_sum] => 261 768
[display_work_sum] => 128 066
[display_total_sum] => 389 834
)
1
389 834₽
Работа:128 066 ₽
Материалы:261 768 ₽
Дни:5
stdClass Object
(
[id] => 149
[attribute_id] => 25
[name] => Газобетонные
[material_modifier] => 1
[work_modifier] => 1
[options] => Array
(
[0] => 100 мм
[1] => 200 мм
)
[days] => [11,11]
[material_price] => [1160,1920]
[work_price] => [700,900]
[image] => https://akademik-stroy.ru/wp-content/uploads/materials/gazobeton-2.jpg
[area_modifier] => 194.04
[parent_name] => Внутренние (не несущие) перегородки
[parent_id] => 25
[material_sum] => 297114
[work_sum] => 149411
[total_sum] => 446525
[total_days] => 11
[display_material_sum] => 297 114
[display_work_sum] => 149 411
[display_total_sum] => 446 525
)
1
446 525₽
Работа:149 411 ₽
Материалы:297 114 ₽
Дни:11
stdClass Object
(
[id] => 150
[attribute_id] => 25
[name] => Кирпичные
[material_modifier] => 1
[work_modifier] => 1
[options] => Array
(
[0] => 120 мм
[1] => 250 мм
[2] => 360 мм
)
[days] => [7,7,7]
[material_price] => [1785,3570,5355]
[work_price] => [900,1600,1800]
[image] => https://akademik-stroy.ru/wp-content/uploads/materials/kirpich-1.jpg
[area_modifier] => 194.04
[parent_name] => Внутренние (не несущие) перегородки
[parent_id] => 25
[material_sum] => 457197
[work_sum] => 192100
[total_sum] => 649297
[total_days] => 7
[display_material_sum] => 457 197
[display_work_sum] => 192 100
[display_total_sum] => 649 297
)
1
649 297₽
Работа:192 100 ₽
Материалы:457 197 ₽
Дни:7
stdClass Object
(
[id] => 55
[attribute_id] => 28
[name] => Нет
[material_modifier] => 1
[work_modifier] => 1
[options] => Array
(
)
[days] => [0]
[material_price] => [0]
[work_price] => [0]
[image] => https://akademik-stroy.ru/wp-content/uploads/materials/ehlektrika.jpg
[area_modifier] => 157.46
[parent_name] => Электрика
[parent_id] => 28
[material_sum] => 0
[work_sum] => 0
[total_sum] => 0
[total_days] => 0
[display_material_sum] => 0
[display_work_sum] => 0
[display_total_sum] => 0
)
1
0₽
Работа:0 ₽
Материалы:0 ₽
Дни:0
stdClass Object
(
[id] => 56
[attribute_id] => 28
[name] => Есть
[material_modifier] => 1
[work_modifier] => 1
[options] => Array
(
)
[days] => [10]
[material_price] => [650]
[work_price] => [950]
[image] => https://akademik-stroy.ru/wp-content/uploads/materials/ehlektrika.jpg
[area_modifier] => 157.46
[parent_name] => Электрика
[parent_id] => 28
[material_sum] => 135101
[work_sum] => 164546
[total_sum] => 299647
[total_days] => 10
[display_material_sum] => 135 101
[display_work_sum] => 164 546
[display_total_sum] => 299 647
)
1
299 647₽
Работа:164 546 ₽
Материалы:135 101 ₽
Дни:10
stdClass Object
(
[id] => 57
[attribute_id] => 29
[name] => Нет
[material_modifier] => 1
[work_modifier] => 1
[options] => Array
(
)
[days] => [0]
[material_price] => [0]
[work_price] => [0]
[image] => https://akademik-stroy.ru/wp-content/uploads/materials/santekhnika-kanalizaciya-1.jpg
[area_modifier] => 157.46
[parent_name] => Сантехника, канализация в доме
[parent_id] => 29
[material_sum] => 0
[work_sum] => 0
[total_sum] => 0
[total_days] => 0
[display_material_sum] => 0
[display_work_sum] => 0
[display_total_sum] => 0
)
1
0₽
Работа:0 ₽
Материалы:0 ₽
Дни:0
stdClass Object
(
[id] => 58
[attribute_id] => 29
[name] => Есть
[material_modifier] => 1
[work_modifier] => 1
[options] => Array
(
)
[days] => [10]
[material_price] => [600]
[work_price] => [730]
[image] => https://akademik-stroy.ru/wp-content/uploads/materials/santekhnika-kanalizaciya-1.jpg
[area_modifier] => 157.46
[parent_name] => Сантехника, канализация в доме
[parent_id] => 29
[material_sum] => 124708
[work_sum] => 126440
[total_sum] => 251148
[total_days] => 10
[display_material_sum] => 124 708
[display_work_sum] => 126 440
[display_total_sum] => 251 148
)
1
251 148₽
Работа:126 440 ₽
Материалы:124 708 ₽
Дни:10
stdClass Object
(
[id] => 59
[attribute_id] => 30
[name] => Нет
[material_modifier] => 1
[work_modifier] => 1
[options] => Array
(
)
[days] => [0]
[material_price] => [0]
[work_price] => [0]
[image] => https://akademik-stroy.ru/wp-content/uploads/materials/otoplenie-1.jpg
[area_modifier] => 157.46
[parent_name] => Отопление
[parent_id] => 30
[material_sum] => 0
[work_sum] => 0
[total_sum] => 0
[total_days] => 0
[display_material_sum] => 0
[display_work_sum] => 0
[display_total_sum] => 0
)
1
0₽
Работа:0 ₽
Материалы:0 ₽
Дни:0
stdClass Object
(
[id] => 60
[attribute_id] => 30
[name] => Есть
[material_modifier] => 1
[work_modifier] => 1
[options] => Array
(
)
[days] => [5]
[material_price] => [610]
[work_price] => [560]
[image] => https://akademik-stroy.ru/wp-content/uploads/materials/otoplenie-1.jpg
[area_modifier] => 157.46
[parent_name] => Отопление
[parent_id] => 30
[material_sum] => 126787
[work_sum] => 96995
[total_sum] => 223782
[total_days] => 5
[display_material_sum] => 126 787
[display_work_sum] => 96 995
[display_total_sum] => 223 782
)
1
223 782₽
Работа:96 995 ₽
Материалы:126 787 ₽
Дни:5
stdClass Object
(
[id] => 61
[attribute_id] => 31
[name] => Нет
[material_modifier] => 1
[work_modifier] => 1
[options] => Array
(
)
[days] => [0]
[material_price] => [0]
[work_price] => [0]
[image] => https://akademik-stroy.ru/wp-content/uploads/materials/vodyanye.jpg
[area_modifier] => 30
[parent_name] => Теплые полы
[parent_id] => 31
[material_sum] => 0
[work_sum] => 0
[total_sum] => 0
[total_days] => 0
[display_material_sum] => 0
[display_work_sum] => 0
[display_total_sum] => 0
)
1
0₽
Работа:0 ₽
Материалы:0 ₽
Дни:0
stdClass Object
(
[id] => 151
[attribute_id] => 31
[name] => Водяные
[material_modifier] => 1
[work_modifier] => 1
[options] => Array
(
)
[days] => [9]
[material_price] => [10200]
[work_price] => [2500]
[image] => https://akademik-stroy.ru/wp-content/uploads/materials/vodyanye.jpg
[area_modifier] => 30
[parent_name] => Теплые полы
[parent_id] => 31
[material_sum] => 403920
[work_sum] => 82500
[total_sum] => 486420
[total_days] => 9
[display_material_sum] => 403 920
[display_work_sum] => 82 500
[display_total_sum] => 486 420
)
1
486 420₽
Работа:82 500 ₽
Материалы:403 920 ₽
Дни:9
stdClass Object
(
[id] => 152
[attribute_id] => 31
[name] => Электро
[material_modifier] => 1
[work_modifier] => 1
[options] => Array
(
)
[days] => [5]
[material_price] => [6300]
[work_price] => [1500]
[image] => https://akademik-stroy.ru/wp-content/uploads/materials/ehlektricheskij.jpg
[area_modifier] => 30
[parent_name] => Теплые полы
[parent_id] => 31
[material_sum] => 249480
[work_sum] => 49500
[total_sum] => 298980
[total_days] => 5
[display_material_sum] => 249 480
[display_work_sum] => 49 500
[display_total_sum] => 298 980
)
1
298 980₽
Работа:49 500 ₽
Материалы:249 480 ₽
Дни:5
stdClass Object
(
[id] => 63
[attribute_id] => 32
[name] => Нет
[material_modifier] => 1
[work_modifier] => 1
[options] => Array
(
)
[days] => [0]
[material_price] => [0]
[work_price] => [0]
[image] => https://akademik-stroy.ru/wp-content/uploads/materials/shtukaturka-shpatlevka-1.jpg
[area_modifier] => 157.46
[parent_name] => Черновая отделка стен
[parent_id] => 32
[material_sum] => 0
[work_sum] => 0
[total_sum] => 0
[total_days] => 0
[display_material_sum] => 0
[display_work_sum] => 0
[display_total_sum] => 0
)
1
0₽
Работа:0 ₽
Материалы:0 ₽
Дни:0
stdClass Object
(
[id] => 153
[attribute_id] => 32
[name] => Штукатурка и шпатлевка
[material_modifier] => 1
[work_modifier] => 1
[options] => Array
(
)
[days] => [20]
[material_price] => [1850]
[work_price] => [2600]
[image] => https://akademik-stroy.ru/wp-content/uploads/materials/shtukaturka-shpatlevka-1.jpg
[area_modifier] => 157.46
[parent_name] => Черновая отделка стен
[parent_id] => 32
[material_sum] => 384517
[work_sum] => 450336
[total_sum] => 834853
[total_days] => 20
[display_material_sum] => 384 517
[display_work_sum] => 450 336
[display_total_sum] => 834 853
)
1
834 853₽
Работа:450 336 ₽
Материалы:384 517 ₽
Дни:20
stdClass Object
(
[id] => 154
[attribute_id] => 32
[name] => Гипсокортон на стены
[material_modifier] => 1
[work_modifier] => 1
[options] => Array
(
)
[days] => [15]
[material_price] => [950]
[work_price] => [2100]
[image] => https://akademik-stroy.ru/wp-content/uploads/materials/gkl-1.jpg
[area_modifier] => 157.46
[parent_name] => Черновая отделка стен
[parent_id] => 32
[material_sum] => 197455
[work_sum] => 363733
[total_sum] => 561188
[total_days] => 15
[display_material_sum] => 197 455
[display_work_sum] => 363 733
[display_total_sum] => 561 188
)
1
561 188₽
Работа:363 733 ₽
Материалы:197 455 ₽
Дни:15
stdClass Object
(
[id] => 155
[attribute_id] => 32
[name] => Вагонка
[material_modifier] => 1
[work_modifier] => 1
[options] => Array
(
)
[days] => [15]
[material_price] => [1250]
[work_price] => [950]
[image] => https://akademik-stroy.ru/wp-content/uploads/materials/vagonka.jpg
[area_modifier] => 157.46
[parent_name] => Черновая отделка стен
[parent_id] => 32
[material_sum] => 259809
[work_sum] => 164546
[total_sum] => 424355
[total_days] => 15
[display_material_sum] => 259 809
[display_work_sum] => 164 546
[display_total_sum] => 424 355
)
1
424 355₽
Работа:164 546 ₽
Материалы:259 809 ₽
Дни:15
stdClass Object
(
[id] => 65
[attribute_id] => 33
[name] => Нет
[material_modifier] => 1
[work_modifier] => 1
[options] => Array
(
)
[days] => [0]
[material_price] => [0]
[work_price] => [0]
[image] => https://akademik-stroy.ru/wp-content/uploads/materials/styazhka.jpg
[area_modifier] => 157.46
[parent_name] => Черновая отделка полов
[parent_id] => 33
[material_sum] => 0
[work_sum] => 0
[total_sum] => 0
[total_days] => 0
[display_material_sum] => 0
[display_work_sum] => 0
[display_total_sum] => 0
)
1
0₽
Работа:0 ₽
Материалы:0 ₽
Дни:0
stdClass Object
(
[id] => 156
[attribute_id] => 33
[name] => Стяжка + наливные полы
[material_modifier] => 1
[work_modifier] => 1
[options] => Array
(
)
[days] => [10]
[material_price] => [1000]
[work_price] => [900]
[image] => https://akademik-stroy.ru/wp-content/uploads/materials/styazhka.jpg
[area_modifier] => 157.46
[parent_name] => Черновая отделка полов
[parent_id] => 33
[material_sum] => 207847
[work_sum] => 155885
[total_sum] => 363732
[total_days] => 10
[display_material_sum] => 207 847
[display_work_sum] => 155 885
[display_total_sum] => 363 732
)
1
363 732₽
Работа:155 885 ₽
Материалы:207 847 ₽
Дни:10
stdClass Object
(
[id] => 157
[attribute_id] => 33
[name] => ОСБ на пол
[material_modifier] => 1
[work_modifier] => 1
[options] => Array
(
)
[days] => [7]
[material_price] => [580]
[work_price] => [350]
[image] => https://akademik-stroy.ru/wp-content/uploads/materials/osb-1.jpg
[area_modifier] => 157.46
[parent_name] => Черновая отделка полов
[parent_id] => 33
[material_sum] => 120551
[work_sum] => 60622
[total_sum] => 181173
[total_days] => 7
[display_material_sum] => 120 551
[display_work_sum] => 60 622
[display_total_sum] => 181 173
)
1
181 173₽
Работа:60 622 ₽
Материалы:120 551 ₽
Дни:7
stdClass Object
(
[id] => 67
[attribute_id] => 34
[name] => Нет
[material_modifier] => 1
[work_modifier] => 1
[options] => Array
(
)
[days] => [0]
[material_price] => [0]
[work_price] => [0]
[image] => https://akademik-stroy.ru/wp-content/uploads/materials/chistovaya-otdelka.jpg
[area_modifier] => 157.46
[parent_name] => Чистовая отделка стен и полов
[parent_id] => 34
[material_sum] => 0
[work_sum] => 0
[total_sum] => 0
[total_days] => 0
[display_material_sum] => 0
[display_work_sum] => 0
[display_total_sum] => 0
)
1
0₽
Работа:0 ₽
Материалы:0 ₽
Дни:0
stdClass Object
(
[id] => 68
[attribute_id] => 34
[name] => Есть
[material_modifier] => 1
[work_modifier] => 1
[options] => Array
(
)
[days] => [50]
[material_price] => [6000]
[work_price] => [3500]
[image] => https://akademik-stroy.ru/wp-content/uploads/materials/chistovaya-otdelka.jpg
[area_modifier] => 157.46
[parent_name] => Чистовая отделка стен и полов
[parent_id] => 34
[material_sum] => 1247083
[work_sum] => 606221
[total_sum] => 1853304
[total_days] => 50
[display_material_sum] => 1 247 083
[display_work_sum] => 606 221
[display_total_sum] => 1 853 304
)
1
1 853 304₽
Работа:606 221 ₽
Материалы:1 247 083 ₽
Дни:50
stdClass Object
(
[id] => 69
[attribute_id] => 35
[name] => Нет
[material_modifier] => 1
[work_modifier] => 1
[options] => Array
(
)
[days] => [0]
[material_price] => [0]
[work_price] => [0]
[image] => https://akademik-stroy.ru/wp-content/uploads/materials/mnogourovnevyj-gkl.jpg
[area_modifier] => 157.46
[parent_name] => Отделка потолка
[parent_id] => 35
[material_sum] => 0
[work_sum] => 0
[total_sum] => 0
[total_days] => 0
[display_material_sum] => 0
[display_work_sum] => 0
[display_total_sum] => 0
)
1
0₽
Работа:0 ₽
Материалы:0 ₽
Дни:0
stdClass Object
(
[id] => 70
[attribute_id] => 35
[name] => Есть
[material_modifier] => 1
[work_modifier] => 1
[options] => Array
(
[0] => Многоуровневый потолок из гипсокартона
[1] => Многоуровневый потолок из гипсокартона и натяжного потолка
[2] => Одноуровневый потолок из гипсокартона
[3] => Одноуровневый натяжной потолок
)
[days] => [10,10,1,1]
[material_price] => [900,700,700,600]
[work_price] => [1000,800,500,300]
[image] => https://akademik-stroy.ru/wp-content/uploads/materials/mnogourovnevyj-gkl.jpg
[area_modifier] => 157.46
[parent_name] => Отделка потолка
[parent_id] => 35
[material_sum] => 187062
[work_sum] => 173206
[total_sum] => 360268
[total_days] => 10
[display_material_sum] => 187 062
[display_work_sum] => 173 206
[display_total_sum] => 360 268
)
1
360 268₽
Работа:173 206 ₽
Материалы:187 062 ₽
Дни:10
Преимущества работы с нами
7 этапов оплаты
Независимый строительный надзор
Экологически чистые материалы
16 лет гарантии
Онлайн-кабинет с веб-камерой
Строители с опытом более 15 лет
Собственное производство









