Одноэтажный дом 13x12 - 211.7 м2 за руб.
Планировки
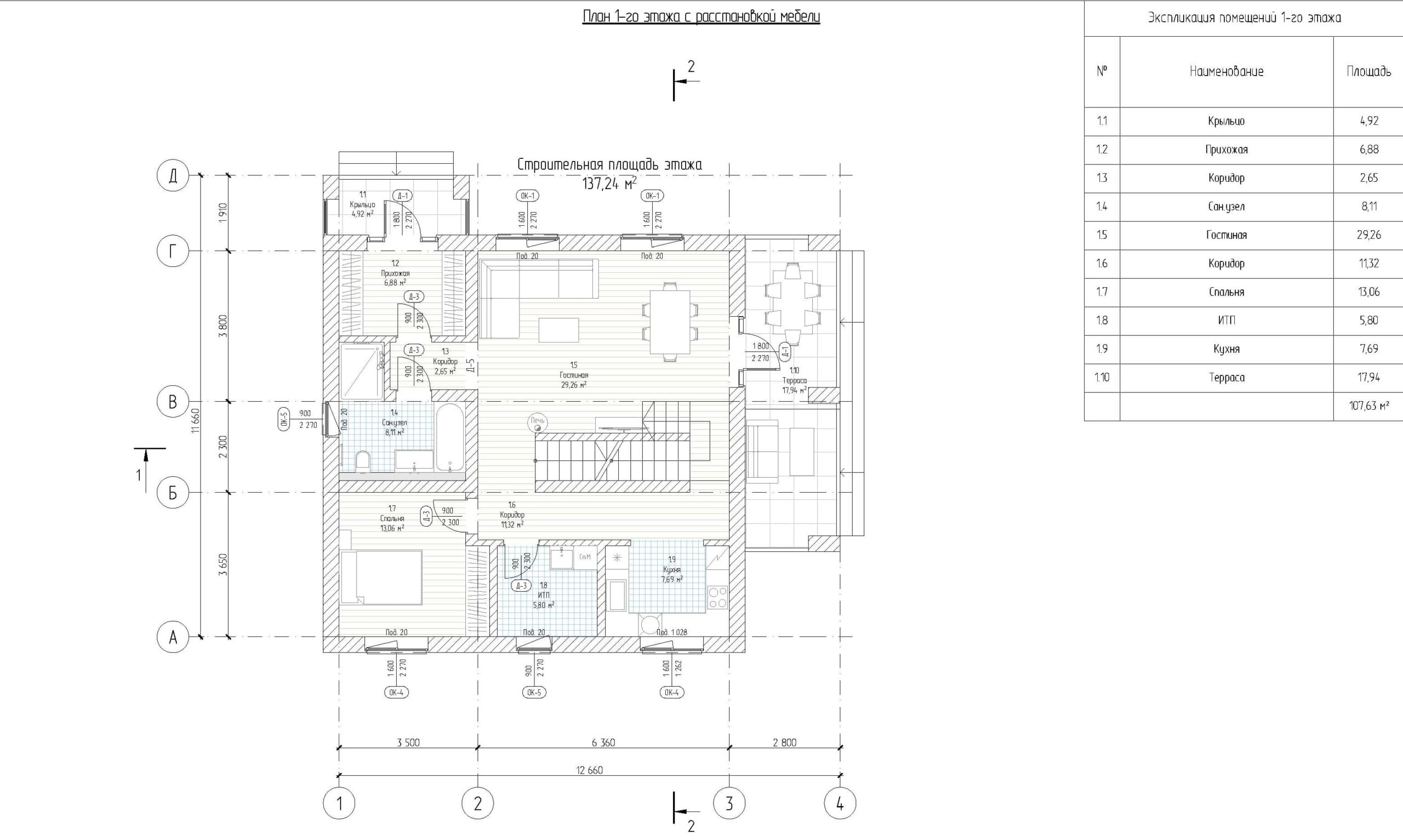
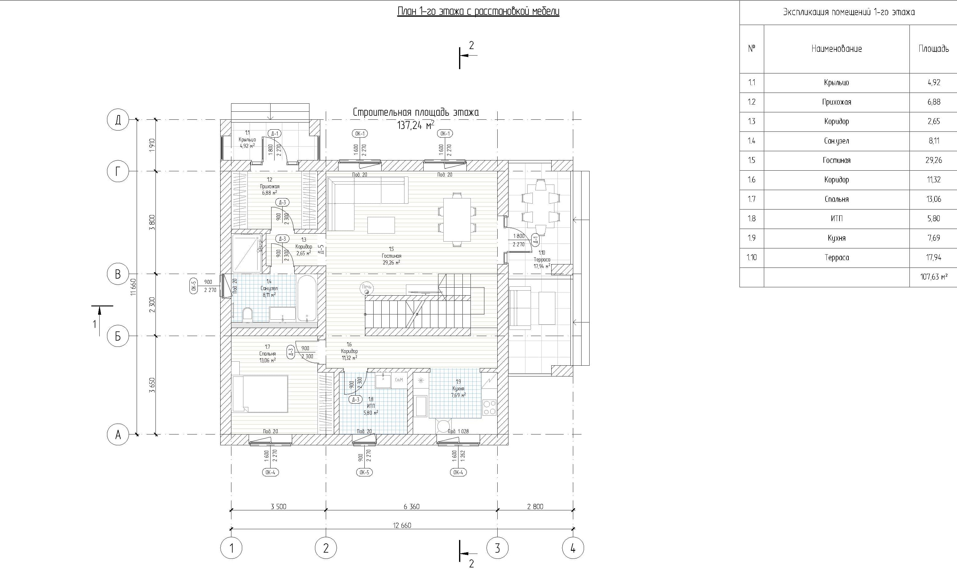
План первого этажа
- 1. Крыльцо 4,92 м²
- 2. Прихожая 6,88 м²
- 3. Коридор 2,65 м²
- 4. С/У 8,11 м²
- 5. Гостиная 29,26 м²
- 6. Коридор 11,32 м²
- 7. Спальня 13,06 м²
- 8. ИТП 5,80 м²
- 9. Кухня 7,69 м²
- 10. Терраса 17,94 м²
- Общая площадь 1 этажа 107,63 м²
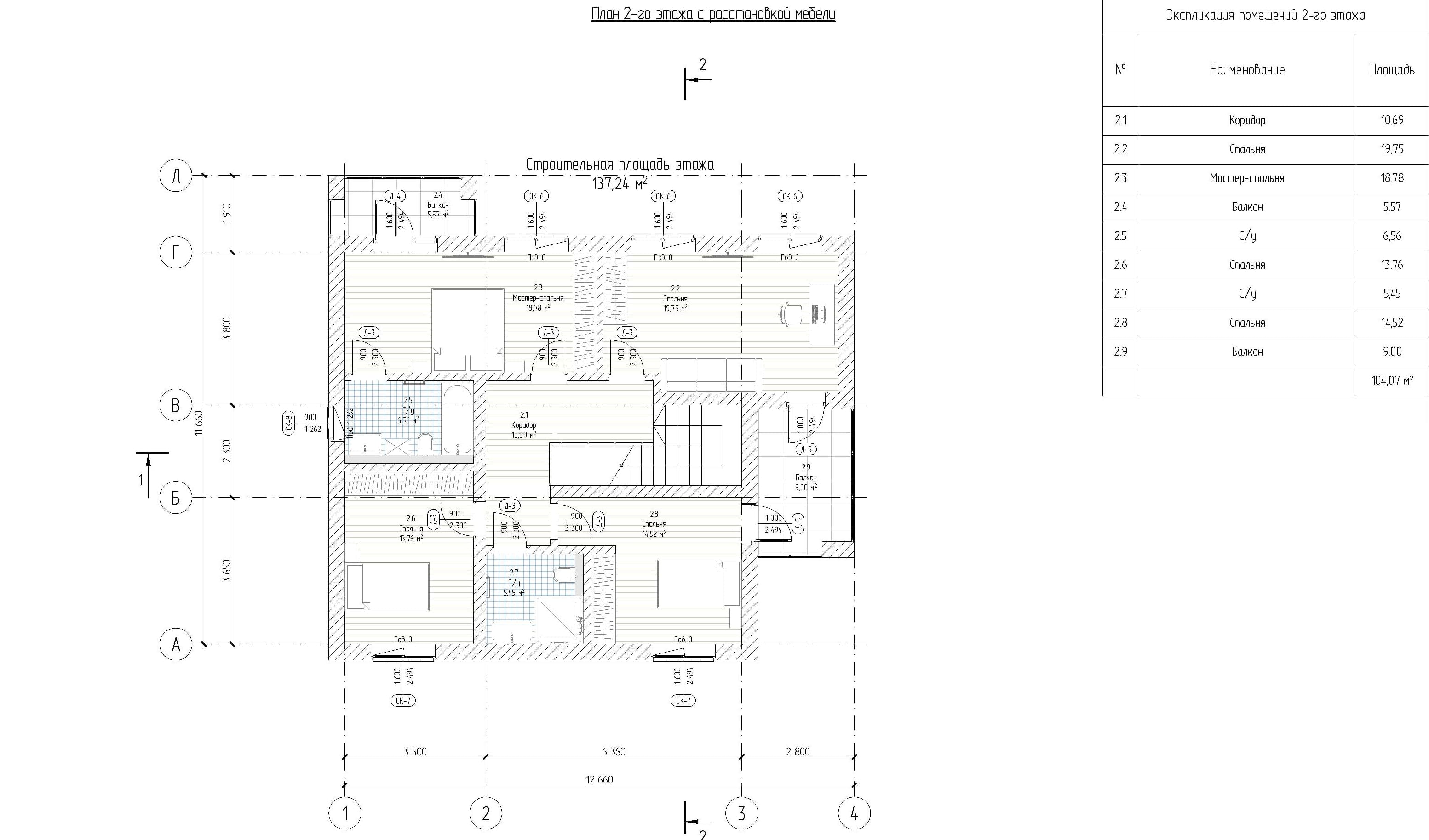
План второго этажа
- 1. Коридор 10,69 м²
- 2. Спальня 19,75 м²
- 3. Мастер-спальня 18,78 м²
- 4. Балкон 5,57 м²
- 5. С/У 6,56 м²
- 6. Спальня 13,76 м²
- 7. С/У 5,45 м²
- 8. Спальня 14,52 м²
- 9. Балкон 9,00 м²
- Общая площадь 2 этажа 104,07 м²
Площади дома
| № п/п | Наименование | Ед. из. | Строительная площадь | Полезная площадь |
| 1 | 1 этаж | м2 | 132.63 | 107.63 |
| 2 | 2 этаж | м2 | 128.25 | 104.07 |
| 3 | Итого | м2 | 260.88 | 211.7 |
154 м2
Полезная
площадь
площадь
13 x 12 м
Размеры
1 этаж
Этажей
26 м2
Террасы
и балконы
и балконы
0Без
гаража
гаража
5+
Количество
спален
спален
3
Количество
санузлов
санузлов
Калькулятор опций
0₽
В ипотеку от 23 025 ₽/мес.
0₽
0 дней
stdClass Object
(
[id] => 1
[attribute_id] => 1
[name] => Ленточный монолитный ж/б
[material_modifier] => 1
[work_modifier] => 1
[options] => Array
(
[0] => размер 200 х 700 мм
[1] => размер 300 х 900 мм
[2] => размер 400 х 1 000 мм
[3] => размер 500 х 1 100 мм
[4] => размер 600 х 1 200 мм
)
[days] => [20,21,22,25,30]
[material_price] => [2823,3630,4475,5210,12047]
[work_price] => [2154,2826,3731,4577,5293]
[image] => https://akademik-stroy.ru/wp-content/uploads/materials/lentochnyj-monolitnyj-zh-b.jpg
[area_modifier] => 132.63
[parent_name] => Фундамент
[parent_id] => 1
[material_sum] => 471762
[work_sum] => 299969
[total_sum] => 771731
[total_days] => 20
[display_material_sum] => 471 762
[display_work_sum] => 299 969
[display_total_sum] => 771 731
)
1
771 731₽
Работа:299 969 ₽
Материалы:471 762 ₽
Дни:20
stdClass Object
(
[id] => 2
[attribute_id] => 1
[name] => Забивные Ж/Б сваи
[material_modifier] => 1
[work_modifier] => 1
[options] => Array
(
[0] => 150х150х3000мм
[1] => 150х150х4000мм
[2] => 200х200х3000мм
[3] => 200х200х4000мм
[4] => 200х200х5000мм
[5] => 200х200х6000мм
)
[days] => [2,2,2,2,2,2]
[material_price] => [1990,2850,3255,4360,5120,6837]
[work_price] => [1002,1185,1336,1438,1574,1839]
[image] => https://akademik-stroy.ru/wp-content/uploads/materials/zabivnye-zh-b-svai.png
[area_modifier] => 132.63
[parent_name] => Фундамент
[parent_id] => 1
[material_sum] => 332556
[work_sum] => 139540
[total_sum] => 472096
[total_days] => 2
[display_material_sum] => 332 556
[display_work_sum] => 139 540
[display_total_sum] => 472 096
)
1
472 096₽
Работа:139 540 ₽
Материалы:332 556 ₽
Дни:2
stdClass Object
(
[id] => 71
[attribute_id] => 1
[name] => Свайно-ростверковый ж/б
[material_modifier] => 1
[work_modifier] => 1
[options] => Array
(
[0] => ростверк 200х300 мм
[1] => ростверк 300х600 мм
[2] => ростверк 400х900 мм
[3] => ростверк 500х1200 мм
)
[days] => [20,23,25,27]
[material_price] => [3018,3474,7109,9792]
[work_price] => [2024,3012,5635,7022]
[image] => https://akademik-stroy.ru/wp-content/uploads/materials/svajno-rostverkovyj-monolitnyj-zh-b-3.png
[area_modifier] => 132.63
[parent_name] => Фундамент
[parent_id] => 1
[material_sum] => 504349
[work_sum] => 281865
[total_sum] => 786214
[total_days] => 20
[display_material_sum] => 504 349
[display_work_sum] => 281 865
[display_total_sum] => 786 214
)
1
786 214₽
Работа:281 865 ₽
Материалы:504 349 ₽
Дни:20
stdClass Object
(
[id] => 72
[attribute_id] => 1
[name] => Монолитная ж/б плита
[material_modifier] => 1
[work_modifier] => 1
[options] => Array
(
[0] => 200 мм
[1] => 300 мм
[2] => 400 мм
[3] => 500 мм
[4] => 600 мм
)
[days] => [30,33,35,37,40]
[material_price] => [5348,8555,12788,14388,15189]
[work_price] => [4314,4881,7037,8061,10230]
[image] => https://akademik-stroy.ru/wp-content/uploads/materials/monolitnaya-zhb-plita.png
[area_modifier] => 132.63
[parent_name] => Фундамент
[parent_id] => 1
[material_sum] => 893725
[work_sum] => 600774
[total_sum] => 1494499
[total_days] => 30
[display_material_sum] => 893 725
[display_work_sum] => 600 774
[display_total_sum] => 1 494 499
)
1
1 494 499₽
Работа:600 774 ₽
Материалы:893 725 ₽
Дни:30
stdClass Object
(
[id] => 73
[attribute_id] => 1
[name] => Утепленная шведская плита
[material_modifier] => 1
[work_modifier] => 1
[options] => Array
(
[0] => 200 мм
[1] => 300 мм
[2] => 400 мм
[3] => 500 мм
[4] => 600 мм
)
[days] => [32,37,39,42,45]
[material_price] => [10249,12692,13760,14936,16230]
[work_price] => [5960,7337,8072,8878,9765]
[image] => https://akademik-stroy.ru/wp-content/uploads/materials/uteplennaya-shvedskaya-plita.jpg
[area_modifier] => 132.63
[parent_name] => Фундамент
[parent_id] => 1
[material_sum] => 1712749
[work_sum] => 829999
[total_sum] => 2542748
[total_days] => 32
[display_material_sum] => 1 712 749
[display_work_sum] => 829 999
[display_total_sum] => 2 542 748
)
1
2 542 748₽
Работа:829 999 ₽
Материалы:1 712 749 ₽
Дни:32
stdClass Object
(
[id] => 75
[attribute_id] => 1
[name] => Ленточный из ФБС
[material_modifier] => 1
[work_modifier] => 1
[options] => Array
(
[0] => толщ. 300 мм
[1] => толщ. 400 мм
[2] => толщ. 500 мм
[3] => толщ. 600 мм
)
[days] => [20,20,20,20]
[material_price] => [3675,4902,6126,7350]
[work_price] => [2451,3264,4083,4902]
[image] => https://akademik-stroy.ru/wp-content/uploads/materials/lentochnyj-iz-fbs.png
[area_modifier] => 132.63
[parent_name] => Фундамент
[parent_id] => 1
[material_sum] => 614143
[work_sum] => 341330
[total_sum] => 955473
[total_days] => 20
[display_material_sum] => 614 143
[display_work_sum] => 341 330
[display_total_sum] => 955 473
)
1
955 473₽
Работа:341 330 ₽
Материалы:614 143 ₽
Дни:20
stdClass Object
(
[id] => 76
[attribute_id] => 1
[name] => Цокольный этаж из ФБС
[material_modifier] => 1
[work_modifier] => 1
[options] => Array
(
[0] => толщ. 300 мм
[1] => толщ. 400 мм
[2] => толщ. 500 мм
[3] => толщ. 600 мм
)
[days] => [30,32,34,36]
[material_price] => [20916,23299,26680,29060]
[work_price] => [17524,18700,19873,21046]
[image] => https://akademik-stroy.ru/wp-content/uploads/materials/cokolnyj-ehtazh-iz-fbs.jpg
[area_modifier] => 132.63
[parent_name] => Фундамент
[parent_id] => 1
[material_sum] => 3495352
[work_sum] => 2440419
[total_sum] => 5935771
[total_days] => 30
[display_material_sum] => 3 495 352
[display_work_sum] => 2 440 419
[display_total_sum] => 5 935 771
)
1
5 935 771₽
Работа:2 440 419 ₽
Материалы:3 495 352 ₽
Дни:30
stdClass Object
(
[id] => 77
[attribute_id] => 1
[name] => Цокольный этаж монолитный ж/б
[material_modifier] => 1
[work_modifier] => 1
[options] => Array
(
[0] => толщ. 200 мм
[1] => толщ. 300 мм
[2] => толщ. 400 мм
[3] => толщ. 500 мм
[4] => толщ. 600 мм
)
[days] => [40,42,44,46,48]
[material_price] => [25421,29148,32275,35602,37326]
[work_price] => [20441,21907,23375,24841,26306]
[image] => https://akademik-stroy.ru/wp-content/uploads/materials/cokolnyj-etazh-zh-b.jpg
[area_modifier] => 132.63
[parent_name] => Фундамент
[parent_id] => 1
[material_sum] => 4248200
[work_sum] => 2846644
[total_sum] => 7094844
[total_days] => 40
[display_material_sum] => 4 248 200
[display_work_sum] => 2 846 644
[display_total_sum] => 7 094 844
)
1
7 094 844₽
Работа:2 846 644 ₽
Материалы:4 248 200 ₽
Дни:40
stdClass Object
(
[id] => 191
[attribute_id] => 1
[name] => Винтовые сваи
[material_modifier] => 1
[work_modifier] => 1
[options] => Array
(
[0] => 57х200мм
[1] => 76х250мм
[2] => 108х300мм
[3] => 133х350мм
)
[days] => [1,1,2,2]
[material_price] => [1200,1300,1450,1600]
[work_price] => [400,600,900,1100]
[image] => https://akademik-stroy.ru/wp-content/uploads/materials/vintovye-svai.png
[area_modifier] => 132.63
[parent_name] => Фундамент
[parent_id] => 1
[material_sum] => 200537
[work_sum] => 55705
[total_sum] => 256242
[total_days] => 1
[display_material_sum] => 200 537
[display_work_sum] => 55 705
[display_total_sum] => 256 242
)
1
256 242₽
Работа:55 705 ₽
Материалы:200 537 ₽
Дни:1
stdClass Object
(
[id] => 3
[attribute_id] => 2
[name] => Деревянные балки
[material_modifier] => 1
[work_modifier] => 1
[options] => Array
(
[0] => без утепления
[1] => утепление 200 мм
[2] => утепление 250 мм
[3] => утепление 300 мм
[4] => утепление 350 мм
[5] => утепление 400 мм
[6] => утепление 450 мм
[7] => утепление 500 мм
)
[days] => [8,9,9,9,11,12,13,14]
[material_price] => [1634,2042,2344,2947,3149,3652,3354,3557]
[work_price] => [1230,1339,1393,1426,1460,1513,1587,1620]
[image] => https://akademik-stroy.ru/wp-content/uploads/materials/derevyannye-balki.png
[area_modifier] => 132.63
[parent_name] => Перекрытие цоколя
[parent_id] => 2
[material_sum] => 273064
[work_sum] => 171292
[total_sum] => 444356
[total_days] => 8
[display_material_sum] => 273 064
[display_work_sum] => 171 292
[display_total_sum] => 444 356
)
1
444 356₽
Работа:171 292 ₽
Материалы:273 064 ₽
Дни:8
stdClass Object
(
[id] => 4
[attribute_id] => 2
[name] => Сборные ж/б плиты
[material_modifier] => 1
[work_modifier] => 1
[options] => Array
(
[0] => без утепления
[1] => утепление 150мм
[2] => утепление 200мм
[3] => утепление 250мм
[4] => утепление 300мм
[5] => утепление 350мм
[6] => утепление 400мм
[7] => утепление 450мм
[8] => утепление 500мм
)
[days] => [13,15,15,15,15,15,15,15,15]
[material_price] => [3067,5577,5928,6679,7730,8782,9833,10884,11935]
[work_price] => [1520,1956,2102,2247,2392,2537,2684,2829,2974]
[image] => https://akademik-stroy.ru/wp-content/uploads/materials/sbornye-zh-b-plity-2.jpg
[area_modifier] => 132.63
[parent_name] => Перекрытие цоколя
[parent_id] => 2
[material_sum] => 512538
[work_sum] => 211677
[total_sum] => 724215
[total_days] => 13
[display_material_sum] => 512 538
[display_work_sum] => 211 677
[display_total_sum] => 724 215
)
1
724 215₽
Работа:211 677 ₽
Материалы:512 538 ₽
Дни:13
stdClass Object
(
[id] => 78
[attribute_id] => 2
[name] => Монолитная ж/б плита
[material_modifier] => 1
[work_modifier] => 1
[options] => Array
(
[0] => без утепления
[1] => утепление 150 мм
[2] => утепление 200 мм
[3] => утепление 250 мм
[4] => утепление 300 мм
[5] => утепление 350 мм
[6] => утепление 400 мм
[7] => утепление 450 мм
[8] => утепление 500 мм
)
[days] => [18,20,20,20,20,20,20,20,20]
[material_price] => [4837,6572,7224,7375,79426,8177,8728,9180,10031]
[work_price] => [3348,3921,4112,4302,4493,4684,4875,5066,5256]
[image] => https://akademik-stroy.ru/wp-content/uploads/materials/monolitnaya-zh-b-plita-2.jpg
[area_modifier] => 132.63
[parent_name] => Перекрытие цоколя
[parent_id] => 2
[material_sum] => 808329
[work_sum] => 466248
[total_sum] => 1274577
[total_days] => 18
[display_material_sum] => 808 329
[display_work_sum] => 466 248
[display_total_sum] => 1 274 577
)
1
1 274 577₽
Работа:466 248 ₽
Материалы:808 329 ₽
Дни:18
stdClass Object
(
[id] => 6
[attribute_id] => 3
[name] => Пеноблок
[material_modifier] => 1
[work_modifier] => 1
[options] => Array
(
[0] => 300 мм
[1] => 400 мм
[2] => 500 мм
[3] => 600 мм
)
[days] => [29,31,34,39]
[material_price] => [3000,4000,4500,4937]
[work_price] => [5033,5805,6400,8710]
[image] => https://akademik-stroy.ru/wp-content/uploads/materials/penoblok.jpg
[area_modifier] => 132.63
[parent_name] => Стены 1 этаж (несущие)
[parent_id] => 3
[material_sum] => 501341
[work_sum] => 700903
[total_sum] => 1202244
[total_days] => 29
[display_material_sum] => 501 341
[display_work_sum] => 700 903
[display_total_sum] => 1 202 244
)
1
1 202 244₽
Работа:700 903 ₽
Материалы:501 341 ₽
Дни:29
stdClass Object
(
[id] => 79
[attribute_id] => 3
[name] => Керамический блок
[material_modifier] => 1
[work_modifier] => 1
[options] => Array
(
[0] => 380 мм
[1] => 380 мм Thermo
[2] => 440 мм
[3] => 510 мм
)
[days] => [23,23,24,25]
[material_price] => [4510,5098,6093,8013]
[work_price] => [4737,4937,5903,6958]
[image] => https://akademik-stroy.ru/wp-content/uploads/materials/keramicheskij-blok.jpg
[area_modifier] => 132.63
[parent_name] => Стены 1 этаж (несущие)
[parent_id] => 3
[material_sum] => 753683
[work_sum] => 659682
[total_sum] => 1413365
[total_days] => 23
[display_material_sum] => 753 683
[display_work_sum] => 659 682
[display_total_sum] => 1 413 365
)
1
1 413 365₽
Работа:659 682 ₽
Материалы:753 683 ₽
Дни:23
stdClass Object
(
[id] => 80
[attribute_id] => 3
[name] => Кирпич
[material_modifier] => 1
[work_modifier] => 1
[options] => Array
(
[0] => Кирпич 250 мм
[1] => Кирпич 380 мм
[2] => Кирпич 510 мм
[3] => Кирпич 640 мм
[4] => Кирпич 770 мм
)
[days] => [30,30,31,33,36]
[material_price] => [5500,7142,9206,10171,12235]
[work_price] => [8736,10041,12018,15240,18462]
[image] => https://akademik-stroy.ru/wp-content/uploads/materials/kirpich.jpg
[area_modifier] => 132.63
[parent_name] => Стены 1 этаж (несущие)
[parent_id] => 3
[material_sum] => 919126
[work_sum] => 1216588
[total_sum] => 2135714
[total_days] => 30
[display_material_sum] => 919 126
[display_work_sum] => 1 216 588
[display_total_sum] => 2 135 714
)
1
2 135 714₽
Работа:1 216 588 ₽
Материалы:919 126 ₽
Дни:30
stdClass Object
(
[id] => 81
[attribute_id] => 3
[name] => Монолитные
[material_modifier] => 1
[work_modifier] => 1
[options] => Array
(
[0] => 150 мм
[1] => 200 мм
[2] => 250 мм
[3] => 300 мм
[4] => 350 мм
[5] => 400 мм
)
[days] => [45,46,47,49,50,53]
[material_price] => [6545,7876,10175,12011,13908,15204]
[work_price] => [5106,6444,7698,8552,9807,11461]
[image] => https://akademik-stroy.ru/wp-content/uploads/materials/monolitnye.jpg
[area_modifier] => 132.63
[parent_name] => Стены 1 этаж (несущие)
[parent_id] => 3
[material_sum] => 1093760
[work_sum] => 711069
[total_sum] => 1804829
[total_days] => 45
[display_material_sum] => 1 093 760
[display_work_sum] => 711 069
[display_total_sum] => 1 804 829
)
1
1 804 829₽
Работа:711 069 ₽
Материалы:1 093 760 ₽
Дни:45
stdClass Object
(
[id] => 82
[attribute_id] => 3
[name] => Клееный брус
[material_modifier] => 1
[work_modifier] => 1
[options] => Array
(
[0] => 160 мм
[1] => 175 мм
[2] => 200 мм
[3] => 215 мм
[4] => 240 мм
[5] => 270 мм
[6] => 282 мм
)
[days] => [24,28,32,37,40,42,48]
[material_price] => [16975,18773,19950,20545,21599,22159,23275]
[work_price] => [4806,5287,5815,6397,7036,7740,8514]
[image] => https://akademik-stroy.ru/wp-content/uploads/materials/kleenyj-brus.jpg
[area_modifier] => 132.63
[parent_name] => Стены 1 этаж (несущие)
[parent_id] => 3
[material_sum] => 2836757
[work_sum] => 669291
[total_sum] => 3506048
[total_days] => 24
[display_material_sum] => 2 836 757
[display_work_sum] => 669 291
[display_total_sum] => 3 506 048
)
1
3 506 048₽
Работа:669 291 ₽
Материалы:2 836 757 ₽
Дни:24
stdClass Object
(
[id] => 83
[attribute_id] => 3
[name] => Каркасные
[material_modifier] => 1
[work_modifier] => 1
[options] => Array
(
[0] => 150 мм
[1] => 200 мм
[2] => 250 мм
[3] => 300 мм
)
[days] => [15,16,17,18]
[material_price] => [2379,2639,2898,3258]
[work_price] => [2418,2686,2985,3716]
[image] => https://akademik-stroy.ru/wp-content/uploads/materials/karkasnye.jpg
[area_modifier] => 132.63
[parent_name] => Стены 1 этаж (несущие)
[parent_id] => 3
[material_sum] => 397564
[work_sum] => 336734
[total_sum] => 734298
[total_days] => 15
[display_material_sum] => 397 564
[display_work_sum] => 336 734
[display_total_sum] => 734 298
)
1
734 298₽
Работа:336 734 ₽
Материалы:397 564 ₽
Дни:15
stdClass Object
(
[id] => 84
[attribute_id] => 3
[name] => СИП-панели
[material_modifier] => 1
[work_modifier] => 1
[options] => Array
(
[0] => 120 мм
[1] => 170 мм
[2] => 220 мм
)
[days] => [7,7,7]
[material_price] => [1210,1856,2292]
[work_price] => [1410,1551,1706]
[image] => https://akademik-stroy.ru/wp-content/uploads/materials/sip-paneli.jpg
[area_modifier] => 132.63
[parent_name] => Стены 1 этаж (несущие)
[parent_id] => 3
[material_sum] => 202208
[work_sum] => 196359
[total_sum] => 398567
[total_days] => 7
[display_material_sum] => 202 208
[display_work_sum] => 196 359
[display_total_sum] => 398 567
)
1
398 567₽
Работа:196 359 ₽
Материалы:202 208 ₽
Дни:7
stdClass Object
(
[id] => 85
[attribute_id] => 3
[name] => Сухой брус
[material_modifier] => 1
[work_modifier] => 1
[options] => Array
(
[0] => 150 мм
[1] => 180 мм
[2] => 200 мм
)
[days] => [7,8,9]
[material_price] => [6010,7190,8709]
[work_price] => [3204,3845,4229]
[image] => https://akademik-stroy.ru/wp-content/uploads/materials/suhoj-brus.jpg
[area_modifier] => 132.63
[parent_name] => Стены 1 этаж (несущие)
[parent_id] => 3
[material_sum] => 1004354
[work_sum] => 446194
[total_sum] => 1450548
[total_days] => 7
[display_material_sum] => 1 004 354
[display_work_sum] => 446 194
[display_total_sum] => 1 450 548
)
1
1 450 548₽
Работа:446 194 ₽
Материалы:1 004 354 ₽
Дни:7
stdClass Object
(
[id] => 86
[attribute_id] => 3
[name] => Профилированный брус
[material_modifier] => 1
[work_modifier] => 1
[options] => Array
(
[0] => 150 мм
[1] => 180 мм
[2] => 200 мм
)
[days] => [7,8,9]
[material_price] => [8190,9228,10051]
[work_price] => [3845,4614,5075]
[image] => https://akademik-stroy.ru/wp-content/uploads/materials/profilirovannyj-brus.jpg
[area_modifier] => 132.63
[parent_name] => Стены 1 этаж (несущие)
[parent_id] => 3
[material_sum] => 1368662
[work_sum] => 535460
[total_sum] => 1904122
[total_days] => 7
[display_material_sum] => 1 368 662
[display_work_sum] => 535 460
[display_total_sum] => 1 904 122
)
1
1 904 122₽
Работа:535 460 ₽
Материалы:1 368 662 ₽
Дни:7
stdClass Object
(
[id] => 87
[attribute_id] => 3
[name] => Оцилиндрованное бревно
[material_modifier] => 1
[work_modifier] => 1
[options] => Array
(
[0] => 180 мм
[1] => 220 мм
[2] => 260 мм
[3] => 320 мм
)
[days] => [7,8,9,10]
[material_price] => [75190,9532,10868,13116]
[work_price] => [3845,4691,5535,6863]
[image] => https://akademik-stroy.ru/wp-content/uploads/materials/ocilindrovannoe-brevno-1.jpg
[area_modifier] => 132.63
[parent_name] => Стены 1 этаж (несущие)
[parent_id] => 3
[material_sum] => 12565287
[work_sum] => 535460
[total_sum] => 13100747
[total_days] => 7
[display_material_sum] => 12 565 287
[display_work_sum] => 535 460
[display_total_sum] => 13 100 747
)
1
13 100 747₽
Работа:535 460 ₽
Материалы:12 565 287 ₽
Дни:7
stdClass Object
(
[id] => 88
[attribute_id] => 3
[name] => Срубы
[material_modifier] => 1
[work_modifier] => 1
[options] => Array
(
[0] => 260 мм
[1] => 320 мм
[2] => 360 мм
[3] => 400 мм
[4] => 500 мм
)
[days] => [7,8,9,10,11]
[material_price] => [37975,46709,52314,58069,73167]
[work_price] => [4806,5911,6621,7349,9260]
[image] => https://akademik-stroy.ru/wp-content/uploads/materials/sruby.jpg
[area_modifier] => 132.63
[parent_name] => Стены 1 этаж (несущие)
[parent_id] => 3
[material_sum] => 6346147
[work_sum] => 669291
[total_sum] => 7015438
[total_days] => 7
[display_material_sum] => 6 346 147
[display_work_sum] => 669 291
[display_total_sum] => 7 015 438
)
1
7 015 438₽
Работа:669 291 ₽
Материалы:6 346 147 ₽
Дни:7
stdClass Object
(
[id] => 174
[attribute_id] => 3
[name] => Брус
[material_modifier] => 1
[work_modifier] => 1
[options] => Array
(
[0] => 150 мм
[1] => 180 мм
[2] => 200 мм
)
[days] => [7,8,9]
[material_price] => [5127,6152,7367]
[work_price] => [1602,1922,2115]
[image] => https://akademik-stroy.ru/wp-content/uploads/materials/brus.jpg
[area_modifier] => 132.63
[parent_name] => Стены 1 этаж (несущие)
[parent_id] => 3
[material_sum] => 856792
[work_sum] => 223097
[total_sum] => 1079889
[total_days] => 7
[display_material_sum] => 856 792
[display_work_sum] => 223 097
[display_total_sum] => 1 079 889
)
1
1 079 889₽
Работа:223 097 ₽
Материалы:856 792 ₽
Дни:7
stdClass Object
(
[id] => 175
[attribute_id] => 3
[name] => Газобетон
[material_modifier] => 1
[work_modifier] => 1
[options] => Array
(
[0] => 300 мм
[1] => 375 мм
[2] => 400 мм
[3] => 500 мм
[4] => 600 мм
)
[days] => [29,31,35,37,44]
[material_price] => [4298,5573,6356,7288,9119]
[work_price] => [4538,5251,5926,6733,7195]
[image] => https://akademik-stroy.ru/wp-content/uploads/materials/gazobeton.jpg
[area_modifier] => 132.63
[parent_name] => Стены 1 этаж (несущие)
[parent_id] => 3
[material_sum] => 718255
[work_sum] => 631969
[total_sum] => 1350224
[total_days] => 29
[display_material_sum] => 718 255
[display_work_sum] => 631 969
[display_total_sum] => 1 350 224
)
1
1 350 224₽
Работа:631 969 ₽
Материалы:718 255 ₽
Дни:29
stdClass Object
(
[id] => 176
[attribute_id] => 3
[name] => Блок
[material_modifier] => 1
[work_modifier] => 1
[options] => Array
(
[0] => 300 мм
[1] => 375 мм
[2] => 400 мм
[3] => 500 мм
[4] => 600 мм
)
[days] => [29,31,35,37,44]
[material_price] => [2698,3973,4356,6588,7119]
[work_price] => [5038,5851,6426,8733,9195]
[image] => https://akademik-stroy.ru/wp-content/uploads/materials/blok.jpg
[area_modifier] => 132.63
[parent_name] => Стены 1 этаж (несущие)
[parent_id] => 3
[material_sum] => 450873
[work_sum] => 701599
[total_sum] => 1152472
[total_days] => 29
[display_material_sum] => 450 873
[display_work_sum] => 701 599
[display_total_sum] => 1 152 472
)
1
1 152 472₽
Работа:701 599 ₽
Материалы:450 873 ₽
Дни:29
stdClass Object
(
[id] => 177
[attribute_id] => 3
[name] => Газосиликатный блок
[material_modifier] => 1
[work_modifier] => 1
[options] => Array
(
[0] => 300 мм
[1] => 375 мм
[2] => 400 мм
[3] => 500 мм
[4] => 600 мм
)
[days] => [29,31,35,37,44]
[material_price] => [4298,5573,6356,7288,9119]
[work_price] => [4538,5251,5926,6733,7195]
[image] => https://akademik-stroy.ru/wp-content/uploads/materials/gazosilikatnyj-blok.jpg
[area_modifier] => 132.63
[parent_name] => Стены 1 этаж (несущие)
[parent_id] => 3
[material_sum] => 718255
[work_sum] => 631969
[total_sum] => 1350224
[total_days] => 29
[display_material_sum] => 718 255
[display_work_sum] => 631 969
[display_total_sum] => 1 350 224
)
1
1 350 224₽
Работа:631 969 ₽
Материалы:718 255 ₽
Дни:29
stdClass Object
(
[id] => 178
[attribute_id] => 3
[name] => Керамзитобетонный блок
[material_modifier] => 1
[work_modifier] => 1
[options] => Array
(
[0] => 300 мм
[1] => 375 мм
[2] => 400 мм
[3] => 500 мм
[4] => 600 мм
)
[days] => [23,23,24,25,28]
[material_price] => [3641,4298,5693,7613,9612]
[work_price] => [5737,5737,6903,7958,8901]
[image] => https://akademik-stroy.ru/wp-content/uploads/materials/keramzitobetonnyj-blok.jpg
[area_modifier] => 132.63
[parent_name] => Стены 1 этаж (несущие)
[parent_id] => 3
[material_sum] => 608461
[work_sum] => 798943
[total_sum] => 1407404
[total_days] => 23
[display_material_sum] => 608 461
[display_work_sum] => 798 943
[display_total_sum] => 1 407 404
)
1
1 407 404₽
Работа:798 943 ₽
Материалы:608 461 ₽
Дни:23
stdClass Object
(
[id] => 179
[attribute_id] => 3
[name] => Деревянные
[material_modifier] => 1
[work_modifier] => 1
[options] => Array
(
[0] => 180 мм
[1] => 220 мм
[2] => 260 мм
[3] => 320 мм
)
[days] => [7,8,9,10]
[material_price] => [7950,9458,11961,14472]
[work_price] => [4037,4925,5812,7207]
[image] => https://akademik-stroy.ru/wp-content/uploads/materials/derevyannye.jpg
[area_modifier] => 132.63
[parent_name] => Стены 1 этаж (несущие)
[parent_id] => 3
[material_sum] => 1328555
[work_sum] => 562199
[total_sum] => 1890754
[total_days] => 7
[display_material_sum] => 1 328 555
[display_work_sum] => 562 199
[display_total_sum] => 1 890 754
)
1
1 890 754₽
Работа:562 199 ₽
Материалы:1 328 555 ₽
Дни:7
stdClass Object
(
[id] => 181
[attribute_id] => 3
[name] => Камень
[material_modifier] => 1
[work_modifier] => 1
[options] => Array
(
[0] => 300 мм
[1] => 400 мм
[2] => 500 мм
[3] => 600 мм
)
[days] => [25,27,31,34]
[material_price] => [5262,6844,8330,9815]
[work_price] => [8331,9135,10427,11069]
[image] => https://akademik-stroy.ru/wp-content/uploads/materials/kamen.jpg
[area_modifier] => 132.63
[parent_name] => Стены 1 этаж (несущие)
[parent_id] => 3
[material_sum] => 879353
[work_sum] => 1160188
[total_sum] => 2039541
[total_days] => 25
[display_material_sum] => 879 353
[display_work_sum] => 1 160 188
[display_total_sum] => 2 039 541
)
1
2 039 541₽
Работа:1 160 188 ₽
Материалы:879 353 ₽
Дни:25
stdClass Object
(
[id] => 182
[attribute_id] => 3
[name] => Каркасно-щитовые
[material_modifier] => 1
[work_modifier] => 1
[options] => Array
(
[0] => 150 мм
[1] => 200 мм
[2] => 250 мм
[3] => 300 мм
[4] => 350 мм
[5] => 400 мм
)
[days] => [15,16,17,18,19,20]
[material_price] => [2379,2639,2898,3458,3601,4175]
[work_price] => [2538,2820,3134,3483,4062,5642]
[image] => https://akademik-stroy.ru/wp-content/uploads/materials/karkasno-shchitovye.jpg
[area_modifier] => 132.63
[parent_name] => Стены 1 этаж (несущие)
[parent_id] => 3
[material_sum] => 397564
[work_sum] => 353446
[total_sum] => 751010
[total_days] => 15
[display_material_sum] => 397 564
[display_work_sum] => 353 446
[display_total_sum] => 751 010
)
1
751 010₽
Работа:353 446 ₽
Материалы:397 564 ₽
Дни:15
stdClass Object
(
[id] => 183
[attribute_id] => 3
[name] => Рубленные
[material_modifier] => 1
[work_modifier] => 1
[options] => Array
(
[0] => 150 мм
[1] => 200 мм
[2] => 250 мм
[3] => 300 мм
[4] => 350 мм
[5] => 400 мм
)
[days] => [15,16,17,18,17,18]
[material_price] => [35950,50267,60583,75900,80217,100533]
[work_price] => [9612,12816,16020,19224,22428,25632]
[image] => https://akademik-stroy.ru/wp-content/uploads/materials/rublennye.jpg
[area_modifier] => 132.63
[parent_name] => Стены 1 этаж (несущие)
[parent_id] => 3
[material_sum] => 6007741
[work_sum] => 1338582
[total_sum] => 7346323
[total_days] => 15
[display_material_sum] => 6 007 741
[display_work_sum] => 1 338 582
[display_total_sum] => 7 346 323
)
1
7 346 323₽
Работа:1 338 582 ₽
Материалы:6 007 741 ₽
Дни:15
stdClass Object
(
[id] => 185
[attribute_id] => 3
[name] => Теплоблок
[material_modifier] => 1
[work_modifier] => 1
[options] => Array
(
[0] => 300 мм (с облицовкой, не покрашенный)
[1] => 400 мм (с облицовкой, не покрашенный)
[2] => 300 мм (с облицовкой, покрашенный)
[3] => 400 мм (с облицовкой, покрашенный)
)
[days] => [15,16,15,16]
[material_price] => [2888,3729,3957,4258]
[work_price] => [2564,3229,2949,3713]
[image] => https://akademik-stroy.ru/wp-content/uploads/materials/teploblok.jpg
[area_modifier] => 132.63
[parent_name] => Стены 1 этаж (несущие)
[parent_id] => 3
[material_sum] => 482625
[work_sum] => 357066
[total_sum] => 839691
[total_days] => 15
[display_material_sum] => 482 625
[display_work_sum] => 357 066
[display_total_sum] => 839 691
)
1
839 691₽
Работа:357 066 ₽
Материалы:482 625 ₽
Дни:15
stdClass Object
(
[id] => 186
[attribute_id] => 3
[name] => Арболитовые блоки
[material_modifier] => 1
[work_modifier] => 1
[options] => Array
(
[0] => 300 мм
[1] => 400 мм
[2] => 600 мм
)
[days] => [19,22,27]
[material_price] => [3210,4475,5852]
[work_price] => [4214,4788,5866]
[image] => https://akademik-stroy.ru/wp-content/uploads/materials/arbolitovye-bloki.png
[area_modifier] => 132.63
[parent_name] => Стены 1 этаж (несущие)
[parent_id] => 3
[material_sum] => 536435
[work_sum] => 586848
[total_sum] => 1123283
[total_days] => 19
[display_material_sum] => 536 435
[display_work_sum] => 586 848
[display_total_sum] => 1 123 283
)
1
1 123 283₽
Работа:586 848 ₽
Материалы:536 435 ₽
Дни:19
stdClass Object
(
[id] => 187
[attribute_id] => 3
[name] => Полистиролбетон
[material_modifier] => 1
[work_modifier] => 1
[options] => Array
(
[0] => 300 мм
[1] => 400 мм
[2] => 600 мм
)
[days] => [29,31,35]
[material_price] => [2798,4573,5256]
[work_price] => [5038,5851,6426]
[image] => https://akademik-stroy.ru/wp-content/uploads/materials/polistirolbeton.jpg
[area_modifier] => 132.63
[parent_name] => Стены 1 этаж (несущие)
[parent_id] => 3
[material_sum] => 467584
[work_sum] => 701599
[total_sum] => 1169183
[total_days] => 29
[display_material_sum] => 467 584
[display_work_sum] => 701 599
[display_total_sum] => 1 169 183
)
1
1 169 183₽
Работа:701 599 ₽
Материалы:467 584 ₽
Дни:29
stdClass Object
(
[id] => 188
[attribute_id] => 3
[name] => Шлакоблок
[material_modifier] => 1
[work_modifier] => 1
[options] => Array
(
[0] => 400 мм
[1] => 600 мм
)
[days] => [15,16]
[material_price] => [2391,3471]
[work_price] => [2642,3662]
[image] => https://akademik-stroy.ru/wp-content/uploads/materials/shlakoblok.jpg
[area_modifier] => 132.63
[parent_name] => Стены 1 этаж (несущие)
[parent_id] => 3
[material_sum] => 399569
[work_sum] => 367929
[total_sum] => 767498
[total_days] => 15
[display_material_sum] => 399 569
[display_work_sum] => 367 929
[display_total_sum] => 767 498
)
1
767 498₽
Работа:367 929 ₽
Материалы:399 569 ₽
Дни:15
stdClass Object
(
[id] => 189
[attribute_id] => 3
[name] => Теплая керамика
[material_modifier] => 1
[work_modifier] => 1
[options] => Array
(
[0] => 380 мм
[1] => 380 мм Thermo
[2] => 440 мм
[3] => 510 мм
)
[days] => [23,23,24,25]
[material_price] => [4510,5098,6093,8013]
[work_price] => [4737,4937,5903,6958]
[image] => https://akademik-stroy.ru/wp-content/uploads/materials/teplaya-keramika.jpg
[area_modifier] => 132.63
[parent_name] => Стены 1 этаж (несущие)
[parent_id] => 3
[material_sum] => 753683
[work_sum] => 659682
[total_sum] => 1413365
[total_days] => 23
[display_material_sum] => 753 683
[display_work_sum] => 659 682
[display_total_sum] => 1 413 365
)
1
1 413 365₽
Работа:659 682 ₽
Материалы:753 683 ₽
Дни:23
stdClass Object
(
[id] => 190
[attribute_id] => 3
[name] => Несъемная опалубка
[material_modifier] => 1
[work_modifier] => 1
[options] => Array
(
[0] => 200 мм
[1] => 250 мм
[2] => 300 мм
[3] => 350 мм
)
[days] => [15,17,19,21]
[material_price] => [3302,3902,4108,5008]
[work_price] => [2100,2100,2300,2534]
[image] => https://akademik-stroy.ru/wp-content/uploads/materials/nesemnaya-opalubka.jpg
[area_modifier] => 132.63
[parent_name] => Стены 1 этаж (несущие)
[parent_id] => 3
[material_sum] => 551810
[work_sum] => 292449
[total_sum] => 844259
[total_days] => 15
[display_material_sum] => 551 810
[display_work_sum] => 292 449
[display_total_sum] => 844 259
)
1
844 259₽
Работа:292 449 ₽
Материалы:551 810 ₽
Дни:15
stdClass Object
(
[id] => 251
[attribute_id] => 3
[name] => Бревно
[material_modifier] => 1
[work_modifier] => 1
[options] => Array
(
[0] => 260 мм
[1] => 320 мм
[2] => 360 мм
[3] => 400 мм
[4] => 500 мм
)
[days] => [7,8,9,10,11]
[material_price] => [1874,24045,26930,30972,38825]
[work_price] => [5046,6207,6952,7716,9723]
[image] => https://akademik-stroy.ru/wp-content/uploads/materials/sruby.jpg
[area_modifier] => 132.63
[parent_name] => Стены 1 этаж (несущие)
[parent_id] => 3
[material_sum] => 313171
[work_sum] => 702714
[total_sum] => 1015885
[total_days] => 7
[display_material_sum] => 313 171
[display_work_sum] => 702 714
[display_total_sum] => 1 015 885
)
1
1 015 885₽
Работа:702 714 ₽
Материалы:313 171 ₽
Дни:7
stdClass Object
(
[id] => 7
[attribute_id] => 4
[name] => Деревянные балки
[material_modifier] => 1
[work_modifier] => 1
[options] => Array
(
[0] => без утепления
[1] => утепление 200 мм
[2] => утепление 250 мм
[3] => утепление 300 мм
[4] => утепление 350 мм
[5] => утепление 400 мм
[6] => утепление 450 мм
[7] => утепление 500 мм
)
[days] => [8,9,9,9,11,12,13,14]
[material_price] => [1634,2042,2344,2947,3149,3652,3354,3557]
[work_price] => [1230,1339,1393,1426,1460,1513,1587,1620]
[image] => https://akademik-stroy.ru/wp-content/uploads/materials/derevyannye-balki.png
[area_modifier] => 132.63
[parent_name] => Перекрытие первого этажа
[parent_id] => 4
[material_sum] => 273064
[work_sum] => 171292
[total_sum] => 444356
[total_days] => 8
[display_material_sum] => 273 064
[display_work_sum] => 171 292
[display_total_sum] => 444 356
)
1
444 356₽
Работа:171 292 ₽
Материалы:273 064 ₽
Дни:8
stdClass Object
(
[id] => 8
[attribute_id] => 4
[name] => Сборные ж/б плиты
[material_modifier] => 1
[work_modifier] => 1
[options] => Array
(
[0] => без утепления
[1] => утепление 150 мм
[2] => утепление 200 мм
[3] => утепление 250 мм
[4] => утепление 300 мм
[5] => утепление 350 мм
[6] => утепление 400 мм
[7] => утепление 450 мм
[8] => утепление 500 мм
)
[days] => [13,15,15,15,15,15,15,15,15]
[material_price] => [3067,5577,5928,6679,7730,8782,9833,10884,11935]
[work_price] => [1520,1956,2102,2247,2392,2537,2684,2829,2974]
[image] => https://akademik-stroy.ru/wp-content/uploads/materials/sbornye-zh-b-plity-2.jpg
[area_modifier] => 132.63
[parent_name] => Перекрытие первого этажа
[parent_id] => 4
[material_sum] => 512538
[work_sum] => 211677
[total_sum] => 724215
[total_days] => 13
[display_material_sum] => 512 538
[display_work_sum] => 211 677
[display_total_sum] => 724 215
)
1
724 215₽
Работа:211 677 ₽
Материалы:512 538 ₽
Дни:13
stdClass Object
(
[id] => 89
[attribute_id] => 4
[name] => Монолитная ж/б плита
[material_modifier] => 1
[work_modifier] => 1
[options] => Array
(
[0] => без утепления
[1] => утепление 150 мм
[2] => утепление 200 мм
[3] => утепление 250 мм
[4] => утепление 300 мм
[5] => утепление 350 мм
[6] => утепление 400 мм
[7] => утепление 450 мм
[8] => утепление 500 мм
)
[days] => [18,20,20,20,20,20,20,20,20]
[material_price] => [4837,6572,7224,7375,79426,8177,8728,9180,10031]
[work_price] => [3348,3921,4112,4302,4493,4684,4875,5066,5256]
[image] => https://akademik-stroy.ru/wp-content/uploads/materials/monolitnaya-zh-b-plita-2.jpg
[area_modifier] => 132.63
[parent_name] => Перекрытие первого этажа
[parent_id] => 4
[material_sum] => 808329
[work_sum] => 466248
[total_sum] => 1274577
[total_days] => 18
[display_material_sum] => 808 329
[display_work_sum] => 466 248
[display_total_sum] => 1 274 577
)
1
1 274 577₽
Работа:466 248 ₽
Материалы:808 329 ₽
Дни:18
stdClass Object
(
[id] => 10
[attribute_id] => 5
[name] => Пеноблок
[material_modifier] => 1
[work_modifier] => 1
[options] => Array
(
[0] => 300 мм
[1] => 400 мм
[2] => 500 мм
[3] => 600 мм
)
[days] => [29,31,34,39]
[material_price] => [3000,4000,4500,4937]
[work_price] => [5033,5805,6400,8710]
[image] => https://akademik-stroy.ru/wp-content/uploads/materials/penoblok.jpg
[area_modifier] => 128.25
[parent_name] => Стены 2 этаж (несущие)
[parent_id] => 5
[material_sum] => 484785
[work_sum] => 677756
[total_sum] => 1162541
[total_days] => 29
[display_material_sum] => 484 785
[display_work_sum] => 677 756
[display_total_sum] => 1 162 541
)
1
1 162 541₽
Работа:677 756 ₽
Материалы:484 785 ₽
Дни:29
stdClass Object
(
[id] => 90
[attribute_id] => 5
[name] => Керамический блок
[material_modifier] => 1
[work_modifier] => 1
[options] => Array
(
[0] => 380 мм
[1] => 380 мм Thermo
[2] => 440 мм
[3] => 510 мм
)
[days] => [23,23,24,25]
[material_price] => [4510,5098,6093,8013]
[work_price] => [4737,4937,5903,6958]
[image] => https://akademik-stroy.ru/wp-content/uploads/materials/keramicheskij-blok.jpg
[area_modifier] => 128.25
[parent_name] => Стены 2 этаж (несущие)
[parent_id] => 5
[material_sum] => 728793
[work_sum] => 637896
[total_sum] => 1366689
[total_days] => 23
[display_material_sum] => 728 793
[display_work_sum] => 637 896
[display_total_sum] => 1 366 689
)
1
1 366 689₽
Работа:637 896 ₽
Материалы:728 793 ₽
Дни:23
stdClass Object
(
[id] => 91
[attribute_id] => 5
[name] => Кирпич
[material_modifier] => 1
[work_modifier] => 1
[options] => Array
(
[0] => Кирпич 250 мм
[1] => Кирпич 380 мм
[2] => Кирпич 510 мм
[3] => Кирпич 640 мм
[4] => Кирпич 770 мм
)
[days] => [30,30,31,33,36]
[material_price] => [5500,7142,9206,10171,12235]
[work_price] => [8736,10041,12018,15240,18462]
[image] => https://akademik-stroy.ru/wp-content/uploads/materials/kirpich.jpg
[area_modifier] => 128.25
[parent_name] => Стены 2 этаж (несущие)
[parent_id] => 5
[material_sum] => 888773
[work_sum] => 1176412
[total_sum] => 2065185
[total_days] => 30
[display_material_sum] => 888 773
[display_work_sum] => 1 176 412
[display_total_sum] => 2 065 185
)
1
2 065 185₽
Работа:1 176 412 ₽
Материалы:888 773 ₽
Дни:30
stdClass Object
(
[id] => 92
[attribute_id] => 5
[name] => Монолитные
[material_modifier] => 1
[work_modifier] => 1
[options] => Array
(
[0] => 150 мм
[1] => 200 мм
[2] => 250 мм
[3] => 300 мм
[4] => 350 мм
[5] => 400 мм
)
[days] => [45,46,47,49,50,53]
[material_price] => [6545,7876,10175,12011,13908,15204]
[work_price] => [5106,6444,7698,8552,9807,11461]
[image] => https://akademik-stroy.ru/wp-content/uploads/materials/monolitnye.jpg
[area_modifier] => 128.25
[parent_name] => Стены 2 этаж (несущие)
[parent_id] => 5
[material_sum] => 1057639
[work_sum] => 687587
[total_sum] => 1745226
[total_days] => 45
[display_material_sum] => 1 057 639
[display_work_sum] => 687 587
[display_total_sum] => 1 745 226
)
1
1 745 226₽
Работа:687 587 ₽
Материалы:1 057 639 ₽
Дни:45
stdClass Object
(
[id] => 93
[attribute_id] => 5
[name] => Клееный брус
[material_modifier] => 1
[work_modifier] => 1
[options] => Array
(
[0] => 160 мм
[1] => 175 мм
[2] => 200 мм
[3] => 215 мм
[4] => 240 мм
[5] => 270 мм
[6] => 282 мм
)
[days] => [24,28,32,37,40,42,48]
[material_price] => [16975,18773,19950,20545,21599,22159,23275]
[work_price] => [4806,5287,5815,6397,7036,7740,8514]
[image] => https://akademik-stroy.ru/wp-content/uploads/materials/kleenyj-brus.jpg
[area_modifier] => 128.25
[parent_name] => Стены 2 этаж (несущие)
[parent_id] => 5
[material_sum] => 2743075
[work_sum] => 647188
[total_sum] => 3390263
[total_days] => 24
[display_material_sum] => 2 743 075
[display_work_sum] => 647 188
[display_total_sum] => 3 390 263
)
1
3 390 263₽
Работа:647 188 ₽
Материалы:2 743 075 ₽
Дни:24
stdClass Object
(
[id] => 94
[attribute_id] => 5
[name] => Каркасные
[material_modifier] => 1
[work_modifier] => 1
[options] => Array
(
[0] => 150 мм
[1] => 200 мм
[2] => 250 мм
[3] => 300 мм
)
[days] => [15,16,17,18]
[material_price] => [2379,2639,2898,3258]
[work_price] => [2418,2686,2985,3716]
[image] => https://akademik-stroy.ru/wp-content/uploads/materials/karkasnye.jpg
[area_modifier] => 128.25
[parent_name] => Стены 2 этаж (несущие)
[parent_id] => 5
[material_sum] => 384435
[work_sum] => 325614
[total_sum] => 710049
[total_days] => 15
[display_material_sum] => 384 435
[display_work_sum] => 325 614
[display_total_sum] => 710 049
)
1
710 049₽
Работа:325 614 ₽
Материалы:384 435 ₽
Дни:15
stdClass Object
(
[id] => 95
[attribute_id] => 5
[name] => СИП-панели
[material_modifier] => 1
[work_modifier] => 1
[options] => Array
(
[0] => 120 мм
[1] => 170 мм
[2] => 220 мм
)
[days] => [7,7,7]
[material_price] => [1210,1856,2292]
[work_price] => [1410,1551,1706]
[image] => https://akademik-stroy.ru/wp-content/uploads/materials/sip-paneli.jpg
[area_modifier] => 128.25
[parent_name] => Стены 2 этаж (несущие)
[parent_id] => 5
[material_sum] => 195530
[work_sum] => 189874
[total_sum] => 385404
[total_days] => 7
[display_material_sum] => 195 530
[display_work_sum] => 189 874
[display_total_sum] => 385 404
)
1
385 404₽
Работа:189 874 ₽
Материалы:195 530 ₽
Дни:7
stdClass Object
(
[id] => 96
[attribute_id] => 5
[name] => Сухой брус
[material_modifier] => 1
[work_modifier] => 1
[options] => Array
(
[0] => 150 мм
[1] => 180 мм
[2] => 200 мм
)
[days] => [7,8,9]
[material_price] => [6010,7190,8709]
[work_price] => [3204,3845,4229]
[image] => https://akademik-stroy.ru/wp-content/uploads/materials/suhoj-brus.jpg
[area_modifier] => 128.25
[parent_name] => Стены 2 этаж (несущие)
[parent_id] => 5
[material_sum] => 971186
[work_sum] => 431459
[total_sum] => 1402645
[total_days] => 7
[display_material_sum] => 971 186
[display_work_sum] => 431 459
[display_total_sum] => 1 402 645
)
1
1 402 645₽
Работа:431 459 ₽
Материалы:971 186 ₽
Дни:7
stdClass Object
(
[id] => 97
[attribute_id] => 5
[name] => Профилированный брус
[material_modifier] => 1
[work_modifier] => 1
[options] => Array
(
[0] => 150 мм
[1] => 180 мм
[2] => 200 мм
)
[days] => [7,8,9]
[material_price] => [8190,9228,10051]
[work_price] => [3845,4614,5075]
[image] => https://akademik-stroy.ru/wp-content/uploads/materials/profilirovannyj-brus.jpg
[area_modifier] => 128.25
[parent_name] => Стены 2 этаж (несущие)
[parent_id] => 5
[material_sum] => 1323463
[work_sum] => 517777
[total_sum] => 1841240
[total_days] => 7
[display_material_sum] => 1 323 463
[display_work_sum] => 517 777
[display_total_sum] => 1 841 240
)
1
1 841 240₽
Работа:517 777 ₽
Материалы:1 323 463 ₽
Дни:7
stdClass Object
(
[id] => 98
[attribute_id] => 5
[name] => Оцилиндрованное бревно
[material_modifier] => 1
[work_modifier] => 1
[options] => Array
(
[0] => 180 мм
[1] => 220 мм
[2] => 260 мм
[3] => 320 мм
)
[days] => [7,8,9,10]
[material_price] => [75190,9532,10868,13116]
[work_price] => [3845,4691,5535,6863]
[image] => https://akademik-stroy.ru/wp-content/uploads/materials/ocilindrovannoe-brevno-1.jpg
[area_modifier] => 128.25
[parent_name] => Стены 2 этаж (несущие)
[parent_id] => 5
[material_sum] => 12150328
[work_sum] => 517777
[total_sum] => 12668105
[total_days] => 7
[display_material_sum] => 12 150 328
[display_work_sum] => 517 777
[display_total_sum] => 12 668 105
)
1
12 668 105₽
Работа:517 777 ₽
Материалы:12 150 328 ₽
Дни:7
stdClass Object
(
[id] => 99
[attribute_id] => 5
[name] => Срубы
[material_modifier] => 1
[work_modifier] => 1
[options] => Array
(
[0] => 260 мм
[1] => 320 мм
[2] => 360 мм
[3] => 400 мм
[4] => 500 мм
)
[days] => [7,8,9,10,11]
[material_price] => [16175,23709,26314,29069,32167]
[work_price] => [4806,5911,6621,7349,9260]
[image] => https://akademik-stroy.ru/wp-content/uploads/materials/suhoj-brus.jpg
[area_modifier] => 128.25
[parent_name] => Стены 2 этаж (несущие)
[parent_id] => 5
[material_sum] => 2613799
[work_sum] => 647188
[total_sum] => 3260987
[total_days] => 7
[display_material_sum] => 2 613 799
[display_work_sum] => 647 188
[display_total_sum] => 3 260 987
)
1
3 260 987₽
Работа:647 188 ₽
Материалы:2 613 799 ₽
Дни:7
stdClass Object
(
[id] => 194
[attribute_id] => 5
[name] => Брус
[material_modifier] => 1
[work_modifier] => 1
[options] => Array
(
[0] => 150 мм
[1] => 180 мм
[2] => 200 мм
)
[days] => [10,13,15]
[material_price] => [5127,6152,7367]
[work_price] => [1602,1922,2115]
[image] => https://akademik-stroy.ru/wp-content/uploads/materials/brus.jpg
[area_modifier] => 128.25
[parent_name] => Стены 2 этаж (несущие)
[parent_id] => 5
[material_sum] => 828498
[work_sum] => 215729
[total_sum] => 1044227
[total_days] => 10
[display_material_sum] => 828 498
[display_work_sum] => 215 729
[display_total_sum] => 1 044 227
)
1
1 044 227₽
Работа:215 729 ₽
Материалы:828 498 ₽
Дни:10
stdClass Object
(
[id] => 195
[attribute_id] => 5
[name] => Газобетон
[material_modifier] => 1
[work_modifier] => 1
[options] => Array
(
[0] => 300 мм
[1] => 375 мм
[2] => 400 мм
[3] => 500 мм
[4] => 600 мм
)
[days] => [29,31,35,37,44]
[material_price] => [4298,5573,6356,7288,9119]
[work_price] => [4538,5251,5926,6733,7195]
[image] => https://akademik-stroy.ru/wp-content/uploads/materials/gazobeton.jpg
[area_modifier] => 128.25
[parent_name] => Стены 2 этаж (несущие)
[parent_id] => 5
[material_sum] => 694535
[work_sum] => 611098
[total_sum] => 1305633
[total_days] => 29
[display_material_sum] => 694 535
[display_work_sum] => 611 098
[display_total_sum] => 1 305 633
)
1
1 305 633₽
Работа:611 098 ₽
Материалы:694 535 ₽
Дни:29
stdClass Object
(
[id] => 196
[attribute_id] => 5
[name] => Блок
[material_modifier] => 1
[work_modifier] => 1
[options] => Array
(
[0] => 300 мм
[1] => 375 мм
[2] => 400 мм
[3] => 500 мм
[4] => 600 мм
)
[days] => [29,31,35,37,44]
[material_price] => [2698,3973,4356,6588,7119]
[work_price] => [5038,5851,6426,8733,9195]
[image] => https://akademik-stroy.ru/wp-content/uploads/materials/blok.jpg
[area_modifier] => 128.25
[parent_name] => Стены 2 этаж (несущие)
[parent_id] => 5
[material_sum] => 435983
[work_sum] => 678430
[total_sum] => 1114413
[total_days] => 29
[display_material_sum] => 435 983
[display_work_sum] => 678 430
[display_total_sum] => 1 114 413
)
1
1 114 413₽
Работа:678 430 ₽
Материалы:435 983 ₽
Дни:29
stdClass Object
(
[id] => 197
[attribute_id] => 5
[name] => Газосиликатный блок
[material_modifier] => 1
[work_modifier] => 1
[options] => Array
(
[0] => 300 мм
[1] => 375 мм
[2] => 400 мм
[3] => 500 мм
[4] => 600 мм
)
[days] => [29,31,35,37,44]
[material_price] => [4298,5573,6356,7288,9119]
[work_price] => [4538,5251,5926,6733,7195]
[image] => https://akademik-stroy.ru/wp-content/uploads/materials/gazosilikatnyj-blok.jpg
[area_modifier] => 128.25
[parent_name] => Стены 2 этаж (несущие)
[parent_id] => 5
[material_sum] => 694535
[work_sum] => 611098
[total_sum] => 1305633
[total_days] => 29
[display_material_sum] => 694 535
[display_work_sum] => 611 098
[display_total_sum] => 1 305 633
)
1
1 305 633₽
Работа:611 098 ₽
Материалы:694 535 ₽
Дни:29
stdClass Object
(
[id] => 198
[attribute_id] => 5
[name] => Керамзитобетонный блок
[material_modifier] => 1
[work_modifier] => 1
[options] => Array
(
[0] => 300 мм
[1] => 375 мм
[2] => 400 мм
[3] => 500 мм
[4] => 600 мм
)
[days] => [23,23,24,25,28]
[material_price] => [3641,4298,5693,7613,9612]
[work_price] => [5737,5737,6903,7958,8901]
[image] => https://akademik-stroy.ru/wp-content/uploads/materials/keramzitobetonnyj-blok.jpg
[area_modifier] => 128.25
[parent_name] => Стены 2 этаж (несущие)
[parent_id] => 5
[material_sum] => 588367
[work_sum] => 772559
[total_sum] => 1360926
[total_days] => 23
[display_material_sum] => 588 367
[display_work_sum] => 772 559
[display_total_sum] => 1 360 926
)
1
1 360 926₽
Работа:772 559 ₽
Материалы:588 367 ₽
Дни:23
stdClass Object
(
[id] => 199
[attribute_id] => 5
[name] => Деревянные
[material_modifier] => 1
[work_modifier] => 1
[options] => Array
(
[0] => 180 мм
[1] => 220 мм
[2] => 260 мм
[3] => 320 мм
)
[days] => [7,8,9,10]
[material_price] => [7950,9458,11961,14472]
[work_price] => [4037,4925,5812,7207]
[image] => https://akademik-stroy.ru/wp-content/uploads/materials/derevyannye.jpg
[area_modifier] => 128.25
[parent_name] => Стены 2 этаж (несущие)
[parent_id] => 5
[material_sum] => 1284680
[work_sum] => 543633
[total_sum] => 1828313
[total_days] => 7
[display_material_sum] => 1 284 680
[display_work_sum] => 543 633
[display_total_sum] => 1 828 313
)
1
1 828 313₽
Работа:543 633 ₽
Материалы:1 284 680 ₽
Дни:7
stdClass Object
(
[id] => 200
[attribute_id] => 5
[name] => Камень
[material_modifier] => 1
[work_modifier] => 1
[options] => Array
(
[0] => 300 мм
[1] => 400 мм
[2] => 500 мм
[3] => 600 мм
)
[days] => [25,27,31,34]
[material_price] => [5262,6844,8330,9815]
[work_price] => [8331,9135,10427,11069]
[image] => https://akademik-stroy.ru/wp-content/uploads/materials/kamen.jpg
[area_modifier] => 128.25
[parent_name] => Стены 2 этаж (несущие)
[parent_id] => 5
[material_sum] => 850313
[work_sum] => 1121873
[total_sum] => 1972186
[total_days] => 25
[display_material_sum] => 850 313
[display_work_sum] => 1 121 873
[display_total_sum] => 1 972 186
)
1
1 972 186₽
Работа:1 121 873 ₽
Материалы:850 313 ₽
Дни:25
stdClass Object
(
[id] => 201
[attribute_id] => 5
[name] => Каркасно-щитовые
[material_modifier] => 1
[work_modifier] => 1
[options] => Array
(
[0] => 150 мм
[1] => 200 мм
[2] => 250 мм
[3] => 300 мм
[4] => 350 мм
[5] => 400 мм
)
[days] => [15,16,17,18,19,20]
[material_price] => [2379,2639,2898,3458,3601,4175]
[work_price] => [2538,2820,3134,3483,4062,5642]
[image] => https://akademik-stroy.ru/wp-content/uploads/materials/karkasno-shchitovye.jpg
[area_modifier] => 128.25
[parent_name] => Стены 2 этаж (несущие)
[parent_id] => 5
[material_sum] => 384435
[work_sum] => 341773
[total_sum] => 726208
[total_days] => 15
[display_material_sum] => 384 435
[display_work_sum] => 341 773
[display_total_sum] => 726 208
)
1
726 208₽
Работа:341 773 ₽
Материалы:384 435 ₽
Дни:15
stdClass Object
(
[id] => 202
[attribute_id] => 5
[name] => Рубленные
[material_modifier] => 1
[work_modifier] => 1
[options] => Array
(
[0] => 150 мм
[1] => 200 мм
[2] => 250 мм
[3] => 300 мм
[4] => 350 мм
[5] => 400 мм
)
[days] => [15,16,17,18,17,18]
[material_price] => [35950,50267,60583,75900,80217,100533]
[work_price] => [9612,12816,16020,19224,22428,25632]
[image] => https://akademik-stroy.ru/wp-content/uploads/materials/rublennye.jpg
[area_modifier] => 128.25
[parent_name] => Стены 2 этаж (несущие)
[parent_id] => 5
[material_sum] => 5809340
[work_sum] => 1294376
[total_sum] => 7103716
[total_days] => 15
[display_material_sum] => 5 809 340
[display_work_sum] => 1 294 376
[display_total_sum] => 7 103 716
)
1
7 103 716₽
Работа:1 294 376 ₽
Материалы:5 809 340 ₽
Дни:15
stdClass Object
(
[id] => 203
[attribute_id] => 5
[name] => Теплоблок
[material_modifier] => 1
[work_modifier] => 1
[options] => Array
(
[0] => 300 мм (с облицовкой, не покрашенный)
[1] => 400 мм (с облицовкой, не покрашенный)
[2] => 300 мм (с облицовкой, покрашенный)
[3] => 400 мм (с облицовкой, покрашенный)
)
[days] => [15,16,15,16]
[material_price] => [2888,3729,3957,4258]
[work_price] => [2564,3229,2949,3713]
[image] => https://akademik-stroy.ru/wp-content/uploads/materials/teploblok.jpg
[area_modifier] => 128.25
[parent_name] => Стены 2 этаж (несущие)
[parent_id] => 5
[material_sum] => 466686
[work_sum] => 345275
[total_sum] => 811961
[total_days] => 15
[display_material_sum] => 466 686
[display_work_sum] => 345 275
[display_total_sum] => 811 961
)
1
811 961₽
Работа:345 275 ₽
Материалы:466 686 ₽
Дни:15
stdClass Object
(
[id] => 204
[attribute_id] => 5
[name] => Арболитовые блоки
[material_modifier] => 1
[work_modifier] => 1
[options] => Array
(
[0] => 300 мм
[1] => 400 мм
[2] => 600 мм
)
[days] => [19,22,27]
[material_price] => [3210,4475,5852]
[work_price] => [4214,4788,5866]
[image] => https://akademik-stroy.ru/wp-content/uploads/materials/arbolitovye-bloki.png
[area_modifier] => 128.25
[parent_name] => Стены 2 этаж (несущие)
[parent_id] => 5
[material_sum] => 518720
[work_sum] => 567468
[total_sum] => 1086188
[total_days] => 19
[display_material_sum] => 518 720
[display_work_sum] => 567 468
[display_total_sum] => 1 086 188
)
1
1 086 188₽
Работа:567 468 ₽
Материалы:518 720 ₽
Дни:19
stdClass Object
(
[id] => 205
[attribute_id] => 5
[name] => Полистиролбетон
[material_modifier] => 1
[work_modifier] => 1
[options] => Array
(
[0] => 300 мм
[1] => 400 мм
[2] => 600 мм
)
[days] => [29,31,35]
[material_price] => [2798,4573,5256]
[work_price] => [5038,5851,6426]
[image] => https://akademik-stroy.ru/wp-content/uploads/materials/polistirolbeton.jpg
[area_modifier] => 128.25
[parent_name] => Стены 2 этаж (несущие)
[parent_id] => 5
[material_sum] => 452143
[work_sum] => 678430
[total_sum] => 1130573
[total_days] => 29
[display_material_sum] => 452 143
[display_work_sum] => 678 430
[display_total_sum] => 1 130 573
)
1
1 130 573₽
Работа:678 430 ₽
Материалы:452 143 ₽
Дни:29
stdClass Object
(
[id] => 206
[attribute_id] => 5
[name] => Шлакоблок
[material_modifier] => 1
[work_modifier] => 1
[options] => Array
(
[0] => 400 мм
[1] => 600 мм
)
[days] => [15,16]
[material_price] => [2391,3471]
[work_price] => [2642,3662]
[image] => https://akademik-stroy.ru/wp-content/uploads/materials/shlakoblok.jpg
[area_modifier] => 128.25
[parent_name] => Стены 2 этаж (несущие)
[parent_id] => 5
[material_sum] => 386374
[work_sum] => 355778
[total_sum] => 742152
[total_days] => 15
[display_material_sum] => 386 374
[display_work_sum] => 355 778
[display_total_sum] => 742 152
)
1
742 152₽
Работа:355 778 ₽
Материалы:386 374 ₽
Дни:15
stdClass Object
(
[id] => 245
[attribute_id] => 5
[name] => Теплая керамика
[material_modifier] => 1
[work_modifier] => 1
[options] => Array
(
[0] => 380 мм
[1] => 380 мм Thermo
[2] => 440 мм
[3] => 510 мм
)
[days] => [10,10,11,12]
[material_price] => [4510,5098,6093,8013]
[work_price] => [4737,4937,5903,6958]
[image] => https://akademik-stroy.ru/wp-content/uploads/materials/teplaya-keramika.jpg
[area_modifier] => 128.25
[parent_name] => Стены 2 этаж (несущие)
[parent_id] => 5
[material_sum] => 728793
[work_sum] => 637896
[total_sum] => 1366689
[total_days] => 10
[display_material_sum] => 728 793
[display_work_sum] => 637 896
[display_total_sum] => 1 366 689
)
1
1 366 689₽
Работа:637 896 ₽
Материалы:728 793 ₽
Дни:10
stdClass Object
(
[id] => 246
[attribute_id] => 5
[name] => Несъемная опалубка
[material_modifier] => 1
[work_modifier] => 1
[options] => Array
(
[0] => 380 мм
[1] => 380 мм Thermo
[2] => 440 мм
[3] => 510 мм
)
[days] => [10,10,11,12]
[material_price] => [3302,3902,4108,5008]
[work_price] => [2100,2100,2300,2534]
[image] => https://akademik-stroy.ru/wp-content/uploads/materials/nesemnaya-opalubka.jpg
[area_modifier] => 128.25
[parent_name] => Стены 2 этаж (несущие)
[parent_id] => 5
[material_sum] => 533587
[work_sum] => 282791
[total_sum] => 816378
[total_days] => 10
[display_material_sum] => 533 587
[display_work_sum] => 282 791
[display_total_sum] => 816 378
)
1
816 378₽
Работа:282 791 ₽
Материалы:533 587 ₽
Дни:10
stdClass Object
(
[id] => 254
[attribute_id] => 5
[name] => Бревно
[material_modifier] => 1
[work_modifier] => 1
[options] => Array
(
[0] => 260 мм
[1] => 320 мм
[2] => 360 мм
[3] => 400 мм
[4] => 500 мм
)
[days] => [7,8,9,10,11]
[material_price] => [1874,24045,26930,30972,38825]
[work_price] => [5046,6207,6952,7716,9723]
[image] => https://akademik-stroy.ru/wp-content/uploads/materials/sruby.jpg
[area_modifier] => 128.25
[parent_name] => Стены 2 этаж (несущие)
[parent_id] => 5
[material_sum] => 302829
[work_sum] => 679507
[total_sum] => 982336
[total_days] => 7
[display_material_sum] => 302 829
[display_work_sum] => 679 507
[display_total_sum] => 982 336
)
1
982 336₽
Работа:679 507 ₽
Материалы:302 829 ₽
Дни:7
stdClass Object
(
[id] => 11
[attribute_id] => 6
[name] => Деревянные балки
[material_modifier] => 1
[work_modifier] => 1
[options] => Array
(
[0] => без утепления
[1] => утепление 200 мм
[2] => утепление 250 мм
[3] => утепление 300 мм
[4] => утепление 350 мм
[5] => утепление 400 мм
[6] => утепление 450 мм
[7] => утепление 500 мм
)
[days] => [8,9,9,9,11,12,13,14]
[material_price] => [1634,2042,2344,2947,3149,3652,3354,3557]
[work_price] => [1230,1339,1393,1426,1460,1513,1587,1620]
[image] => https://akademik-stroy.ru/wp-content/uploads/materials/derevyannye-balki.png
[area_modifier] => 128.25
[parent_name] => Перекрытие второго этажа
[parent_id] => 6
[material_sum] => 264046
[work_sum] => 165635
[total_sum] => 429681
[total_days] => 8
[display_material_sum] => 264 046
[display_work_sum] => 165 635
[display_total_sum] => 429 681
)
1
429 681₽
Работа:165 635 ₽
Материалы:264 046 ₽
Дни:8
stdClass Object
(
[id] => 12
[attribute_id] => 6
[name] => Сборные ж/б плиты
[material_modifier] => 1
[work_modifier] => 1
[options] => Array
(
[0] => без утепления
[1] => утепление 150 мм
[2] => утепление 200 мм
[3] => утепление 250 мм
[4] => утепление 300 мм
[5] => утепление 350 мм
[6] => утепление 400 мм
[7] => утепление 450 мм
[8] => утепление 500 мм
)
[days] => [13,15,15,15,15,15,15,15,15]
[material_price] => [3067,5577,5928,6679,7730,8782,9833,10884,11935]
[work_price] => [1520,1956,2102,2247,2392,2537,2684,2829,2974]
[image] => https://akademik-stroy.ru/wp-content/uploads/materials/sbornye-zh-b-plity-2.jpg
[area_modifier] => 128.25
[parent_name] => Перекрытие второго этажа
[parent_id] => 6
[material_sum] => 495612
[work_sum] => 204687
[total_sum] => 700299
[total_days] => 13
[display_material_sum] => 495 612
[display_work_sum] => 204 687
[display_total_sum] => 700 299
)
1
700 299₽
Работа:204 687 ₽
Материалы:495 612 ₽
Дни:13
stdClass Object
(
[id] => 100
[attribute_id] => 6
[name] => Монолитная ж/б плита
[material_modifier] => 1
[work_modifier] => 1
[options] => Array
(
[0] => без утепления
[1] => утепление 150 мм
[2] => утепление 200 мм
[3] => утепление 250 мм
[4] => утепление 300 мм
[5] => утепление 350 мм
[6] => утепление 400 мм
[7] => утепление 450 мм
[8] => утепление 500 мм
)
[days] => [18,20,20,20,20,20,20,20,20]
[material_price] => [4837,6572,7224,7375,79426,8177,8728,9180,10031]
[work_price] => [3348,3921,4112,4302,4493,4684,4875,5066,5256]
[image] => https://akademik-stroy.ru/wp-content/uploads/materials/monolitnaya-zh-b-plita-2.jpg
[area_modifier] => 128.25
[parent_name] => Перекрытие второго этажа
[parent_id] => 6
[material_sum] => 781635
[work_sum] => 450850
[total_sum] => 1232485
[total_days] => 18
[display_material_sum] => 781 635
[display_work_sum] => 450 850
[display_total_sum] => 1 232 485
)
1
1 232 485₽
Работа:450 850 ₽
Материалы:781 635 ₽
Дни:18
stdClass Object
(
[id] => 164
[attribute_id] => 37
[name] => Металлочерепица
[material_modifier] => 1
[work_modifier] => 1
[options] => Array
(
)
[days] => [20]
[material_price] => [6112]
[work_price] => [5726]
[image] => https://akademik-stroy.ru/wp-content/uploads/materials/metallocherepica.jpg
[area_modifier] => 132.63
[parent_name] => Крыша (Скатная)
[parent_id] => 37
[material_sum] => 1021400
[work_sum] => 797411
[total_sum] => 1818811
[total_days] => 20
[display_material_sum] => 1 021 400
[display_work_sum] => 797 411
[display_total_sum] => 1 818 811
)
1
1 818 811₽
Работа:797 411 ₽
Материалы:1 021 400 ₽
Дни:20
stdClass Object
(
[id] => 165
[attribute_id] => 37
[name] => Гибкая черепица
[material_modifier] => 1
[work_modifier] => 1
[options] => Array
(
)
[days] => [20]
[material_price] => [6980]
[work_price] => [5950]
[image] => https://akademik-stroy.ru/wp-content/uploads/materials/gibkaya-cherepica.jpg
[area_modifier] => 132.63
[parent_name] => Крыша (Скатная)
[parent_id] => 37
[material_sum] => 1166454
[work_sum] => 828606
[total_sum] => 1995060
[total_days] => 20
[display_material_sum] => 1 166 454
[display_work_sum] => 828 606
[display_total_sum] => 1 995 060
)
1
1 995 060₽
Работа:828 606 ₽
Материалы:1 166 454 ₽
Дни:20
stdClass Object
(
[id] => 166
[attribute_id] => 37
[name] => Цементно-песчаная черепица
[material_modifier] => 1
[work_modifier] => 1
[options] => Array
(
)
[days] => [20]
[material_price] => [10560]
[work_price] => [9456]
[image] => https://akademik-stroy.ru/wp-content/uploads/materials/cementno-peschanaya-cherepica.jpg
[area_modifier] => 132.63
[parent_name] => Крыша (Скатная)
[parent_id] => 37
[material_sum] => 1764722
[work_sum] => 1316857
[total_sum] => 3081579
[total_days] => 20
[display_material_sum] => 1 764 722
[display_work_sum] => 1 316 857
[display_total_sum] => 3 081 579
)
1
3 081 579₽
Работа:1 316 857 ₽
Материалы:1 764 722 ₽
Дни:20
stdClass Object
(
[id] => 167
[attribute_id] => 37
[name] => Композитная черепица
[material_modifier] => 1
[work_modifier] => 1
[options] => Array
(
)
[days] => [20]
[material_price] => [9506]
[work_price] => [8905]
[image] => https://akademik-stroy.ru/wp-content/uploads/materials/kompozitnaya-cherepica.jpg
[area_modifier] => 132.63
[parent_name] => Крыша (Скатная)
[parent_id] => 37
[material_sum] => 1588584
[work_sum] => 1240124
[total_sum] => 2828708
[total_days] => 20
[display_material_sum] => 1 588 584
[display_work_sum] => 1 240 124
[display_total_sum] => 2 828 708
)
1
2 828 708₽
Работа:1 240 124 ₽
Материалы:1 588 584 ₽
Дни:20
stdClass Object
(
[id] => 168
[attribute_id] => 37
[name] => Керамическая черепица
[material_modifier] => 1
[work_modifier] => 1
[options] => Array
(
)
[days] => [20]
[material_price] => [12750]
[work_price] => [9456]
[image] => https://akademik-stroy.ru/wp-content/uploads/materials/keramicheskaya-cherepica.jpg
[area_modifier] => 132.63
[parent_name] => Крыша (Скатная)
[parent_id] => 37
[material_sum] => 2130701
[work_sum] => 1316857
[total_sum] => 3447558
[total_days] => 20
[display_material_sum] => 2 130 701
[display_work_sum] => 1 316 857
[display_total_sum] => 3 447 558
)
1
3 447 558₽
Работа:1 316 857 ₽
Материалы:2 130 701 ₽
Дни:20
stdClass Object
(
[id] => 169
[attribute_id] => 37
[name] => Металлическая фальцевая
[material_modifier] => 1
[work_modifier] => 1
[options] => Array
(
)
[days] => [20]
[material_price] => [8550]
[work_price] => [8190]
[image] => https://akademik-stroy.ru/wp-content/uploads/materials/metallicheskaya-falcevaya.jpg
[area_modifier] => 132.63
[parent_name] => Крыша (Скатная)
[parent_id] => 37
[material_sum] => 1428823
[work_sum] => 1140552
[total_sum] => 2569375
[total_days] => 20
[display_material_sum] => 1 428 823
[display_work_sum] => 1 140 552
[display_total_sum] => 2 569 375
)
1
2 569 375₽
Работа:1 140 552 ₽
Материалы:1 428 823 ₽
Дни:20
stdClass Object
(
[id] => 170
[attribute_id] => 37
[name] => Медная фальцевая
[material_modifier] => 1
[work_modifier] => 1
[options] => Array
(
)
[days] => [20]
[material_price] => [20450]
[work_price] => [16750]
[image] => https://akademik-stroy.ru/wp-content/uploads/materials/mednaya-falcevaya.jpg
[area_modifier] => 132.63
[parent_name] => Крыша (Скатная)
[parent_id] => 37
[material_sum] => 3417477
[work_sum] => 2332630
[total_sum] => 5750107
[total_days] => 20
[display_material_sum] => 3 417 477
[display_work_sum] => 2 332 630
[display_total_sum] => 5 750 107
)
1
5 750 107₽
Работа:2 332 630 ₽
Материалы:3 417 477 ₽
Дни:20
stdClass Object
(
[id] => 171
[attribute_id] => 37
[name] => Зеленая кровля
[material_modifier] => 1
[work_modifier] => 1
[options] => Array
(
)
[days] => [20]
[material_price] => [19850]
[work_price] => [16780]
[image] => https://akademik-stroy.ru/wp-content/uploads/materials/zelenaya-krovlya.jpg
[area_modifier] => 132.63
[parent_name] => Крыша (Скатная)
[parent_id] => 37
[material_sum] => 3317209
[work_sum] => 2336808
[total_sum] => 5654017
[total_days] => 20
[display_material_sum] => 3 317 209
[display_work_sum] => 2 336 808
[display_total_sum] => 5 654 017
)
1
5 654 017₽
Работа:2 336 808 ₽
Материалы:3 317 209 ₽
Дни:20
stdClass Object
(
[id] => 172
[attribute_id] => 37
[name] => Профлист
[material_modifier] => 1
[work_modifier] => 1
[options] => Array
(
)
[days] => [20]
[material_price] => [3450]
[work_price] => [3750]
[image] => https://akademik-stroy.ru/wp-content/uploads/materials/proflist.jpg
[area_modifier] => 132.63
[parent_name] => Крыша (Скатная)
[parent_id] => 37
[material_sum] => 576543
[work_sum] => 522231
[total_sum] => 1098774
[total_days] => 20
[display_material_sum] => 576 543
[display_work_sum] => 522 231
[display_total_sum] => 1 098 774
)
1
1 098 774₽
Работа:522 231 ₽
Материалы:576 543 ₽
Дни:20
stdClass Object
(
[id] => 51
[attribute_id] => 26
[name] => Есть
[material_modifier] => 1
[work_modifier] => 1
[options] => Array
(
[0] => Профиль 58 мм, 3-камерный, стеклопакет 2-камерный до 32 мм
[1] => Профиль 60 мм, 4-камерный, стеклопакет 2-камерный до 32 мм
[2] => Профиль 70 мм, 5-камерный, стеклопакет 2-камерный до 40 мм
[3] => Профиль 72 мм, 5-камерный, стеклопакет 2-камерный до 40 мм
[4] => Алюминиевые окна Alutech профиль 72 мм, стеклопакет 2-камерный
)
[days] => [3,3,3,3,3]
[material_price] => [1339,2124,2867,3023,29596]
[work_price] => [635,647,659,668,2579]
[image] => https://akademik-stroy.ru/wp-content/uploads/materials/okna.jpg
[area_modifier] => 211.7
[parent_name] => Окна
[parent_id] => 26
[material_sum] => 357168
[work_sum] => 141151
[total_sum] => 498319
[total_days] => 3
[display_material_sum] => 357 168
[display_work_sum] => 141 151
[display_total_sum] => 498 319
)
1
498 319₽
Работа:141 151 ₽
Материалы:357 168 ₽
Дни:3
stdClass Object
(
[id] => 52
[attribute_id] => 26
[name] => Нет
[material_modifier] => 2
[work_modifier] => 1
[options] =>
[days] => null
[material_price] => null
[work_price] => null
[image] => https://akademik-stroy.ru/wp-content/uploads/materials/okna.jpg
[area_modifier] => 211.7
[parent_name] => Окна
[parent_id] => 26
[material_sum] => 0
[work_sum] => 0
[total_sum] => 0
[total_days] => 0
[display_material_sum] => 0
[display_work_sum] => 0
[display_total_sum] => 0
)
1
0₽
Работа:0 ₽
Материалы:0 ₽
Дни:0
stdClass Object
(
[id] => 53
[attribute_id] => 27
[name] => Есть
[material_modifier] => 1
[work_modifier] => 1
[options] => Array
(
)
[days] => [1]
[material_price] => [10000]
[work_price] => [5500]
[image] => https://akademik-stroy.ru/wp-content/uploads/materials/dveri.jpg
[area_modifier] => 1
[parent_name] => Двери входные
[parent_id] => 27
[material_sum] => 12600
[work_sum] => 5775
[total_sum] => 18375
[total_days] => 1
[display_material_sum] => 12 600
[display_work_sum] => 5 775
[display_total_sum] => 18 375
)
1
18 375₽
Работа:5 775 ₽
Материалы:12 600 ₽
Дни:1
stdClass Object
(
[id] => 54
[attribute_id] => 27
[name] => Нет
[material_modifier] => 1
[work_modifier] => 1
[options] => Array
(
)
[days] => [0]
[material_price] => [0]
[work_price] => [0]
[image] => https://akademik-stroy.ru/wp-content/uploads/materials/dveri.jpg
[area_modifier] => 1
[parent_name] => Двери входные
[parent_id] => 27
[material_sum] => 0
[work_sum] => 0
[total_sum] => 0
[total_days] => 0
[display_material_sum] => 0
[display_work_sum] => 0
[display_total_sum] => 0
)
1
0₽
Работа:0 ₽
Материалы:0 ₽
Дни:0
stdClass Object
(
[id] => 25
[attribute_id] => 13
[name] => Нет
[material_modifier] => 1
[work_modifier] => 1
[options] => Array
(
)
[days] => [0]
[material_price] => [0]
[work_price] => [0]
[image] => https://akademik-stroy.ru/wp-content/uploads/materials/mineralovata-krov.jpg
[area_modifier] => 132.63
[parent_name] => Утепление кровли (Мансарда)
[parent_id] => 13
[material_sum] => 0
[work_sum] => 0
[total_sum] => 0
[total_days] => 0
[display_material_sum] => 0
[display_work_sum] => 0
[display_total_sum] => 0
)
1
0₽
Работа:0 ₽
Материалы:0 ₽
Дни:0
stdClass Object
(
[id] => 26
[attribute_id] => 13
[name] => Минераловатный
[material_modifier] => 1
[work_modifier] => 1
[options] => Array
(
[0] => 50 мм
[1] => 100 мм
[2] => 150 мм
[3] => 200 мм
[4] => 250 мм
[5] => 300 мм
[6] => 350 мм
[7] => 400 мм
[8] => 450 мм
[9] => 500 мм
)
[days] => [5,5,6,6,6,7,7,7,8,8]
[material_price] => [1158,1414,1772,2230,3602,4060,4974,5890,6408,7718]
[work_price] => [650,846,846,1098,1318,1450,1596,1754,1930,2122]
[image] => https://akademik-stroy.ru/wp-content/uploads/materials/mineralovata-krov.jpg
[area_modifier] => 132.63
[parent_name] => Утепление кровли (Мансарда)
[parent_id] => 13
[material_sum] => 193518
[work_sum] => 90520
[total_sum] => 284038
[total_days] => 5
[display_material_sum] => 193 518
[display_work_sum] => 90 520
[display_total_sum] => 284 038
)
1
284 038₽
Работа:90 520 ₽
Материалы:193 518 ₽
Дни:5
stdClass Object
(
[id] => 123
[attribute_id] => 13
[name] => Эковата (целлюлозная вата)
[material_modifier] => 1
[work_modifier] => 1
[options] => Array
(
[0] => 50 мм
[1] => 100 мм
[2] => 150 мм
[3] => 200 мм
[4] => 250 мм
[5] => 300 мм
[6] => 350 мм
[7] => 400 мм
[8] => 450 мм
[9] => 500 мм
)
[days] => [3,3,4,4,4,5,5,5,5,5]
[material_price] => [820,1638,2458,3276,5734,6552,8190,9828,11466,13104]
[work_price] => [234,304,304,396,474,522,574,632,694,764]
[image] => https://akademik-stroy.ru/wp-content/uploads/materials/ehkovata-krov.jpg
[area_modifier] => 132.63
[parent_name] => Утепление кровли (Мансарда)
[parent_id] => 13
[material_sum] => 137033
[work_sum] => 32587
[total_sum] => 169620
[total_days] => 3
[display_material_sum] => 137 033
[display_work_sum] => 32 587
[display_total_sum] => 169 620
)
1
169 620₽
Работа:32 587 ₽
Материалы:137 033 ₽
Дни:3
stdClass Object
(
[id] => 124
[attribute_id] => 13
[name] => Экструдированный пенополистирол
[material_modifier] => 1
[work_modifier] => 1
[options] => Array
(
[0] => 50 мм
[1] => 100 мм
[2] => 150 мм
[3] => 200 мм
[4] => 250 мм
[5] => 300 мм
[6] => 350 мм
[7] => 400 мм
[8] => 450 мм
[9] => 500 мм
)
[days] => [3,3,4,4,4,5,5,5,5,6]
[material_price] => [1146,2292,3438,4584,8020,9166,11458,13750,16040,18332]
[work_price] => [390,508,508,660,790,870,958,1052,1158,1274]
[image] => https://akademik-stroy.ru/wp-content/uploads/materials/epps-krov.jpg
[area_modifier] => 132.63
[parent_name] => Утепление кровли (Мансарда)
[parent_id] => 13
[material_sum] => 191512
[work_sum] => 54312
[total_sum] => 245824
[total_days] => 3
[display_material_sum] => 191 512
[display_work_sum] => 54 312
[display_total_sum] => 245 824
)
1
245 824₽
Работа:54 312 ₽
Материалы:191 512 ₽
Дни:3
stdClass Object
(
[id] => 125
[attribute_id] => 13
[name] => ПСБ (ППС-пенополистирол)
[material_modifier] => 1
[work_modifier] => 1
[options] => Array
(
[0] => 50 мм
[1] => 100 мм
[2] => 150 мм
[3] => 200 мм
[4] => 250 мм
[5] => 300 мм
[6] => 350 мм
[7] => 400 мм
[8] => 450 мм
[9] => 500 мм
)
[days] => [3,3,4,4,4,5,5,5,5,6]
[material_price] => [476,954,1430,1906,3336,3814,4766,5720,6674,7626]
[work_price] => [390,508,508,660,790,870,958,1052,1158,1274]
[image] => https://akademik-stroy.ru/wp-content/uploads/materials/psb-krov.jpg
[area_modifier] => 132.63
[parent_name] => Утепление кровли (Мансарда)
[parent_id] => 13
[material_sum] => 79546
[work_sum] => 54312
[total_sum] => 133858
[total_days] => 3
[display_material_sum] => 79 546
[display_work_sum] => 54 312
[display_total_sum] => 133 858
)
1
133 858₽
Работа:54 312 ₽
Материалы:79 546 ₽
Дни:3
stdClass Object
(
[id] => 126
[attribute_id] => 13
[name] => ППУ (Пенополиуретан)
[material_modifier] => 1
[work_modifier] => 1
[options] => Array
(
[0] => 50 мм
[1] => 100 мм
[2] => 150 мм
[3] => 200 мм
[4] => 250 мм
[5] => 300 мм
[6] => 350 мм
[7] => 400 мм
[8] => 450 мм
[9] => 500 мм
)
[days] => [2,2,3,3,3,3,4,4,4,4]
[material_price] => [2080,4160,6240,8320,14560,16640,20800,24960,29120,33280]
[work_price] => [234,304,304,396,474,522,574,632,694,764]
[image] => https://akademik-stroy.ru/wp-content/uploads/materials/ppu-krov.jpg
[area_modifier] => 132.63
[parent_name] => Утепление кровли (Мансарда)
[parent_id] => 13
[material_sum] => 347597
[work_sum] => 32587
[total_sum] => 380184
[total_days] => 2
[display_material_sum] => 347 597
[display_work_sum] => 32 587
[display_total_sum] => 380 184
)
1
380 184₽
Работа:32 587 ₽
Материалы:347 597 ₽
Дни:2
stdClass Object
(
[id] => 127
[attribute_id] => 13
[name] => PIR-плиты (пенополиизоцианурат)
[material_modifier] => 1
[work_modifier] => 1
[options] => Array
(
[0] => 50 мм
[1] => 100 мм
[2] => 150 мм
[3] => 200 мм
[4] => 250 мм
[5] => 300 мм
[6] => 350 мм
[7] => 400 мм
[8] => 450 мм
[9] => 500 мм
)
[days] => [3,3,4,4,4,5,5,5,5,6]
[material_price] => [2646,5290,7936,10580,18516,21162,26452,31742,37032,42324]
[work_price] => [390,508,508,660,790,870,958,1052,1158,1274]
[image] => https://akademik-stroy.ru/wp-content/uploads/materials/pir-krov.jpg
[area_modifier] => 132.63
[parent_name] => Утепление кровли (Мансарда)
[parent_id] => 13
[material_sum] => 442183
[work_sum] => 54312
[total_sum] => 496495
[total_days] => 3
[display_material_sum] => 442 183
[display_work_sum] => 54 312
[display_total_sum] => 496 495
)
1
496 495₽
Работа:54 312 ₽
Материалы:442 183 ₽
Дни:3
stdClass Object
(
[id] => 27
[attribute_id] => 14
[name] => Нет
[material_modifier] => 1
[work_modifier] => 1
[options] => Array
(
)
[days] => [0]
[material_price] => [0]
[work_price] => [0]
[image] => https://akademik-stroy.ru/wp-content/uploads/materials/mansardnye-okna-2.jpg
[area_modifier] => 1
[parent_name] => Мансардные окна
[parent_id] => 14
[material_sum] => 0
[work_sum] => 0
[total_sum] => 0
[total_days] => 0
[display_material_sum] => 0
[display_work_sum] => 0
[display_total_sum] => 0
)
1
0₽
Работа:0 ₽
Материалы:0 ₽
Дни:0
stdClass Object
(
[id] => 28
[attribute_id] => 14
[name] => Есть
[material_modifier] => 1
[work_modifier] => 1
[options] => Array
(
[0] => 55x78
[1] => 55x98
)
[days] => [6,7]
[material_price] => [47480,68700]
[work_price] => [17900,19500]
[image] => https://akademik-stroy.ru/wp-content/uploads/materials/mansardnye-okna-2.jpg
[area_modifier] => 1
[parent_name] => Мансардные окна
[parent_id] => 14
[material_sum] => 59825
[work_sum] => 18795
[total_sum] => 78620
[total_days] => 6
[display_material_sum] => 59 825
[display_work_sum] => 18 795
[display_total_sum] => 78 620
)
1
78 620₽
Работа:18 795 ₽
Материалы:59 825 ₽
Дни:6
stdClass Object
(
[id] => 29
[attribute_id] => 15
[name] => Нет
[material_modifier] => 1
[work_modifier] => 1
[options] => Array
(
)
[days] => [0]
[material_price] => [0]
[work_price] => [0]
[image] => https://akademik-stroy.ru/wp-content/uploads/materials/sofit.jpg
[area_modifier] => 132.63
[parent_name] => Подшивка кровли
[parent_id] => 15
[material_sum] => 0
[work_sum] => 0
[total_sum] => 0
[total_days] => 0
[display_material_sum] => 0
[display_work_sum] => 0
[display_total_sum] => 0
)
1
0₽
Работа:0 ₽
Материалы:0 ₽
Дни:0
stdClass Object
(
[id] => 30
[attribute_id] => 15
[name] => Есть
[material_modifier] => 1
[work_modifier] => 1
[options] => Array
(
[0] => Софиты (ПВХ)
[1] => Cedral
[2] => ДПК
[3] => Планкен
)
[days] => [7,10,9,8]
[material_price] => [1803,3213,3025,3150]
[work_price] => [1529,2188,2075,1923]
[image] => https://akademik-stroy.ru/wp-content/uploads/materials/sofit.jpg
[area_modifier] => 132.63
[parent_name] => Подшивка кровли
[parent_id] => 15
[material_sum] => 301306
[work_sum] => 212931
[total_sum] => 514237
[total_days] => 7
[display_material_sum] => 301 306
[display_work_sum] => 212 931
[display_total_sum] => 514 237
)
1
514 237₽
Работа:212 931 ₽
Материалы:301 306 ₽
Дни:7
stdClass Object
(
[id] => 31
[attribute_id] => 16
[name] => Нет
[material_modifier] => 1
[work_modifier] => 1
[options] => Array
(
)
[days] => [0]
[material_price] => [0]
[work_price] => [0]
[image] => https://akademik-stroy.ru/wp-content/uploads/materials/docke-standard-pvh.jpg
[area_modifier] => 132.63
[parent_name] => Водосточная система
[parent_id] => 16
[material_sum] => 0
[work_sum] => 0
[total_sum] => 0
[total_days] => 0
[display_material_sum] => 0
[display_work_sum] => 0
[display_total_sum] => 0
)
1
0₽
Работа:0 ₽
Материалы:0 ₽
Дни:0
stdClass Object
(
[id] => 32
[attribute_id] => 16
[name] => Есть
[material_modifier] => 1
[work_modifier] => 1
[options] => Array
(
[0] => Döcke Standard (ПВХ)
[1] => Металлические Grand Line
)
[days] => [7,7]
[material_price] => [1842,2703]
[work_price] => [1491,1529]
[image] => https://akademik-stroy.ru/wp-content/uploads/materials/docke-standard-pvh.jpg
[area_modifier] => 132.63
[parent_name] => Водосточная система
[parent_id] => 16
[material_sum] => 307824
[work_sum] => 207639
[total_sum] => 515463
[total_days] => 7
[display_material_sum] => 307 824
[display_work_sum] => 207 639
[display_total_sum] => 515 463
)
1
515 463₽
Работа:207 639 ₽
Материалы:307 824 ₽
Дни:7
stdClass Object
(
[id] => 33
[attribute_id] => 17
[name] => Нет
[material_modifier] => 1
[work_modifier] => 1
[options] => Array
(
)
[days] => [0]
[material_price] => [0]
[work_price] => [0]
[image] => https://akademik-stroy.ru/wp-content/uploads/materials/mineralovata.jpg
[area_modifier] => 260.88
[parent_name] => Дополнительное утепление наружных стен
[parent_id] => 17
[material_sum] => 0
[work_sum] => 0
[total_sum] => 0
[total_days] => 0
[display_material_sum] => 0
[display_work_sum] => 0
[display_total_sum] => 0
)
1
0₽
Работа:0 ₽
Материалы:0 ₽
Дни:0
stdClass Object
(
[id] => 34
[attribute_id] => 17
[name] => Минераловатный
[material_modifier] => 1
[work_modifier] => 1
[options] => Array
(
[0] => 50 мм
[1] => 100 мм
[2] => 150 мм
[3] => 200 мм
[4] => 250 мм
[5] => 300 мм
)
[days] => [7,8,10,12,14,15]
[material_price] => [3437,3613,3803,3915,4601,4830]
[work_price] => [2325,2423,2523,2749,2859,3025]
[image] => https://akademik-stroy.ru/wp-content/uploads/materials/mineralovata.jpg
[area_modifier] => 260.88
[parent_name] => Дополнительное утепление наружных стен
[parent_id] => 17
[material_sum] => 1129772
[work_sum] => 636873
[total_sum] => 1766645
[total_days] => 7
[display_material_sum] => 1 129 772
[display_work_sum] => 636 873
[display_total_sum] => 1 766 645
)
1
1 766 645₽
Работа:636 873 ₽
Материалы:1 129 772 ₽
Дни:7
stdClass Object
(
[id] => 128
[attribute_id] => 17
[name] => Эковата (целлюлозная вата)
[material_modifier] => 1
[work_modifier] => 1
[options] => Array
(
[0] => 50 мм
[1] => 100 мм
[2] => 150 мм
[3] => 200 мм
[4] => 250 мм
[5] => 300 мм
)
[days] => [3,4,5,6,7,8]
[material_price] => [810,1319,1629,1838,2267,2676]
[work_price] => [1225,1323,1423,1549,1659,1725]
[image] => https://akademik-stroy.ru/wp-content/uploads/materials/ehkovata.jpg
[area_modifier] => 260.88
[parent_name] => Дополнительное утепление наружных стен
[parent_id] => 17
[material_sum] => 266254
[work_sum] => 335557
[total_sum] => 601811
[total_days] => 3
[display_material_sum] => 266 254
[display_work_sum] => 335 557
[display_total_sum] => 601 811
)
1
601 811₽
Работа:335 557 ₽
Материалы:266 254 ₽
Дни:3
stdClass Object
(
[id] => 129
[attribute_id] => 17
[name] => Экструдированный пенополистирол
[material_modifier] => 1
[work_modifier] => 1
[options] => Array
(
[0] => 50 мм
[1] => 100 мм
[2] => 150 мм
[3] => 200 мм
[4] => 250 мм
[5] => 300 мм
)
[days] => [5,6,7,8,9,10]
[material_price] => [4560,4300,5119,6292,7010,8583]
[work_price] => [1795,1954,2254,2330,2595,2735]
[image] => https://akademik-stroy.ru/wp-content/uploads/materials/epps.jpg
[area_modifier] => 260.88
[parent_name] => Дополнительное утепление наружных стен
[parent_id] => 17
[material_sum] => 1498912
[work_sum] => 491694
[total_sum] => 1990606
[total_days] => 5
[display_material_sum] => 1 498 912
[display_work_sum] => 491 694
[display_total_sum] => 1 990 606
)
1
1 990 606₽
Работа:491 694 ₽
Материалы:1 498 912 ₽
Дни:5
stdClass Object
(
[id] => 130
[attribute_id] => 17
[name] => ПСБ (ППС-пенополистирол)
[material_modifier] => 1
[work_modifier] => 1
[options] => Array
(
[0] => 50 мм
[1] => 100 мм
[2] => 150 мм
[3] => 200 мм
[4] => 250 мм
[5] => 300 мм
)
[days] => [5,6,7,8,9,10]
[material_price] => [4822,5200,5819,6292,7010,7583]
[work_price] => [1795,1954,2254,2330,2595,2735]
[image] => https://akademik-stroy.ru/wp-content/uploads/materials/psb.jpg
[area_modifier] => 260.88
[parent_name] => Дополнительное утепление наружных стен
[parent_id] => 17
[material_sum] => 1585034
[work_sum] => 491694
[total_sum] => 2076728
[total_days] => 5
[display_material_sum] => 1 585 034
[display_work_sum] => 491 694
[display_total_sum] => 2 076 728
)
1
2 076 728₽
Работа:491 694 ₽
Материалы:1 585 034 ₽
Дни:5
stdClass Object
(
[id] => 131
[attribute_id] => 17
[name] => ППУ (Пенополиуретан)
[material_modifier] => 1
[work_modifier] => 1
[options] => Array
(
[0] => 50 мм
[1] => 100 мм
[2] => 150 мм
[3] => 200 мм
[4] => 250 мм
[5] => 300 мм
)
[days] => [3,4,5,6,7,8]
[material_price] => [2860,3400,4219,4592,5010,5583]
[work_price] => [729,900,980,1120,1280,1530]
[image] => https://akademik-stroy.ru/wp-content/uploads/materials/ppu.jpg
[area_modifier] => 260.88
[parent_name] => Дополнительное утепление наружных стен
[parent_id] => 17
[material_sum] => 940107
[work_sum] => 199691
[total_sum] => 1139798
[total_days] => 3
[display_material_sum] => 940 107
[display_work_sum] => 199 691
[display_total_sum] => 1 139 798
)
1
1 139 798₽
Работа:199 691 ₽
Материалы:940 107 ₽
Дни:3
stdClass Object
(
[id] => 132
[attribute_id] => 17
[name] => PIR-плиты (пенополиизоцианурат)
[material_modifier] => 1
[work_modifier] => 1
[options] => Array
(
[0] => 50 мм
[1] => 100 мм
[2] => 150 мм
[3] => 200 мм
[4] => 250 мм
[5] => 300 мм
)
[days] => [5,6,7,8,9,10]
[material_price] => [8323,15645,20968,25900,29258,30581]
[work_price] => [800,900,970,1150,1280,1330]
[image] => https://akademik-stroy.ru/wp-content/uploads/materials/pir.jpg
[area_modifier] => 260.88
[parent_name] => Дополнительное утепление наружных стен
[parent_id] => 17
[material_sum] => 2735843
[work_sum] => 219139
[total_sum] => 2954982
[total_days] => 5
[display_material_sum] => 2 735 843
[display_work_sum] => 219 139
[display_total_sum] => 2 954 982
)
1
2 954 982₽
Работа:219 139 ₽
Материалы:2 735 843 ₽
Дни:5
stdClass Object
(
[id] => 37
[attribute_id] => 19
[name] => Нет
[material_modifier] => 1
[work_modifier] => 1
[options] => Array
(
)
[days] => [0]
[material_price] => [0]
[work_price] => [0]
[image] => https://akademik-stroy.ru/wp-content/uploads/materials/imitaciya-brusa.jpg
[area_modifier] => 260.88
[parent_name] => Наружная отделка фасада
[parent_id] => 19
[material_sum] => 0
[work_sum] => 0
[total_sum] => 0
[total_days] => 0
[display_material_sum] => 0
[display_work_sum] => 0
[display_total_sum] => 0
)
1
0₽
Работа:0 ₽
Материалы:0 ₽
Дни:0
stdClass Object
(
[id] => 38
[attribute_id] => 19
[name] => Имитация бруса
[material_modifier] => 1
[work_modifier] => 1
[options] => Array
(
[0] => Сосна
[1] => Ель
[2] => Лиственница
)
[days] => [20,20,20]
[material_price] => [2994,2762,4954]
[work_price] => [1397,1231,1577]
[image] => https://akademik-stroy.ru/wp-content/uploads/materials/imitaciya-brusa.jpg
[area_modifier] => 260.88
[parent_name] => Наружная отделка фасада
[parent_id] => 19
[material_sum] => 984154
[work_sum] => 382672
[total_sum] => 1366826
[total_days] => 20
[display_material_sum] => 984 154
[display_work_sum] => 382 672
[display_total_sum] => 1 366 826
)
1
1 366 826₽
Работа:382 672 ₽
Материалы:984 154 ₽
Дни:20
stdClass Object
(
[id] => 136
[attribute_id] => 19
[name] => Планкен
[material_modifier] => 1
[work_modifier] => 1
[options] => Array
(
[0] => Сосна
[1] => Ель
[2] => Лиственница
)
[days] => [20,20,20]
[material_price] => [3194,2862,5154]
[work_price] => [1537,1354,1735]
[image] => https://akademik-stroy.ru/wp-content/uploads/materials/planken.jpg
[area_modifier] => 260.88
[parent_name] => Наружная отделка фасада
[parent_id] => 19
[material_sum] => 1049896
[work_sum] => 421021
[total_sum] => 1470917
[total_days] => 20
[display_material_sum] => 1 049 896
[display_work_sum] => 421 021
[display_total_sum] => 1 470 917
)
1
1 470 917₽
Работа:421 021 ₽
Материалы:1 049 896 ₽
Дни:20
stdClass Object
(
[id] => 137
[attribute_id] => 19
[name] => Штукатурка
[material_modifier] => 1
[work_modifier] => 1
[options] => Array
(
[0] => Цементно-песчаная (минеральная)
[1] => Мокрый фасад
)
[days] => [35,35]
[material_price] => [2231,3938]
[work_price] => [1202,2422]
[image] => https://akademik-stroy.ru/wp-content/uploads/materials/shtukaturka.jpg
[area_modifier] => 260.88
[parent_name] => Наружная отделка фасада
[parent_id] => 19
[material_sum] => 733349
[work_sum] => 329257
[total_sum] => 1062606
[total_days] => 35
[display_material_sum] => 733 349
[display_work_sum] => 329 257
[display_total_sum] => 1 062 606
)
1
1 062 606₽
Работа:329 257 ₽
Материалы:733 349 ₽
Дни:35
stdClass Object
(
[id] => 138
[attribute_id] => 19
[name] => Облицовочный кирпич
[material_modifier] => 1
[work_modifier] => 1
[options] => Array
(
[0] => Керамический
[1] => Клинкерный
[2] => Ручной формовки
[3] => Гиперпрессованный
[4] => Силикатный кирпич
)
[days] => [45,45,45,45,45]
[material_price] => [8174,9148,1040,1257,5876]
[work_price] => [3240,3758,4536,4017,3369]
[image] => https://akademik-stroy.ru/wp-content/uploads/materials/oblicovochnyj-kirpich.jpg
[area_modifier] => 260.88
[parent_name] => Наружная отделка фасада
[parent_id] => 19
[material_sum] => 2686866
[work_sum] => 887514
[total_sum] => 3574380
[total_days] => 45
[display_material_sum] => 2 686 866
[display_work_sum] => 887 514
[display_total_sum] => 3 574 380
)
1
3 574 380₽
Работа:887 514 ₽
Материалы:2 686 866 ₽
Дни:45
stdClass Object
(
[id] => 139
[attribute_id] => 19
[name] => Фасадная плитка
[material_modifier] => 1
[work_modifier] => 1
[options] => Array
(
[0] => Клинкерная
[1] => Керамическая
[2] => Плитка ручной формовки
)
[days] => [40,40,40]
[material_price] => [2974,1487,3470]
[work_price] => [3007,2592,3629]
[image] => https://akademik-stroy.ru/wp-content/uploads/materials/fasadnaya-plitka.jpg
[area_modifier] => 260.88
[parent_name] => Наружная отделка фасада
[parent_id] => 19
[material_sum] => 977580
[work_sum] => 823689
[total_sum] => 1801269
[total_days] => 40
[display_material_sum] => 977 580
[display_work_sum] => 823 689
[display_total_sum] => 1 801 269
)
1
1 801 269₽
Работа:823 689 ₽
Материалы:977 580 ₽
Дни:40
stdClass Object
(
[id] => 140
[attribute_id] => 19
[name] => Сайдинг
[material_modifier] => 1
[work_modifier] => 1
[options] => Array
(
[0] => Виниловый
[1] => Металлический
[2] => Фиброцементный
)
[days] => [20,20,20]
[material_price] => [1263,1944,4147]
[work_price] => [1263,1944,2074]
[image] => https://akademik-stroy.ru/wp-content/uploads/materials/sajding.jpg
[area_modifier] => 260.88
[parent_name] => Наружная отделка фасада
[parent_id] => 19
[material_sum] => 415159
[work_sum] => 345966
[total_sum] => 761125
[total_days] => 20
[display_material_sum] => 415 159
[display_work_sum] => 345 966
[display_total_sum] => 761 125
)
1
761 125₽
Работа:345 966 ₽
Материалы:415 159 ₽
Дни:20
stdClass Object
(
[id] => 141
[attribute_id] => 19
[name] => Камень
[material_modifier] => 1
[work_modifier] => 1
[options] => Array
(
[0] => Травертин
[1] => Дагестанский
[2] => Искусственный
[3] => Натуральный
[4] => Керамогранит
)
[days] => [45,45,45,45,45]
[material_price] => [4536,3888,2592,3240,2462]
[work_price] => [3240,3240,2462,3110,1944]
[image] => https://akademik-stroy.ru/wp-content/uploads/materials/kamen-1.jpg
[area_modifier] => 260.88
[parent_name] => Наружная отделка фасада
[parent_id] => 19
[material_sum] => 1491023
[work_sum] => 887514
[total_sum] => 2378537
[total_days] => 45
[display_material_sum] => 1 491 023
[display_work_sum] => 887 514
[display_total_sum] => 2 378 537
)
1
2 378 537₽
Работа:887 514 ₽
Материалы:1 491 023 ₽
Дни:45
stdClass Object
(
[id] => 142
[attribute_id] => 19
[name] => Термопанели
[material_modifier] => 1
[work_modifier] => 1
[options] => Array
(
)
[days] => [20]
[material_price] => [6221]
[work_price] => [2333]
[image] => https://akademik-stroy.ru/wp-content/uploads/materials/termo.png
[area_modifier] => 260.88
[parent_name] => Наружная отделка фасада
[parent_id] => 19
[material_sum] => 2044897
[work_sum] => 639065
[total_sum] => 2683962
[total_days] => 20
[display_material_sum] => 2 044 897
[display_work_sum] => 639 065
[display_total_sum] => 2 683 962
)
1
2 683 962₽
Работа:639 065 ₽
Материалы:2 044 897 ₽
Дни:20
stdClass Object
(
[id] => 143
[attribute_id] => 19
[name] => Плитка HAUBERK
[material_modifier] => 1
[work_modifier] => 1
[options] => Array
(
)
[days] => [20]
[material_price] => [2786]
[work_price] => [1944]
[image] => https://akademik-stroy.ru/wp-content/uploads/materials/hauberk.jpg
[area_modifier] => 260.88
[parent_name] => Наружная отделка фасада
[parent_id] => 19
[material_sum] => 915783
[work_sum] => 532508
[total_sum] => 1448291
[total_days] => 20
[display_material_sum] => 915 783
[display_work_sum] => 532 508
[display_total_sum] => 1 448 291
)
1
1 448 291₽
Работа:532 508 ₽
Материалы:915 783 ₽
Дни:20
stdClass Object
(
[id] => 144
[attribute_id] => 19
[name] => Фальцевый фасад
[material_modifier] => 1
[work_modifier] => 1
[options] => Array
(
)
[days] => [20]
[material_price] => [3240]
[work_price] => [2592]
[image] => https://akademik-stroy.ru/wp-content/uploads/materials/falcevyj-fasad.jpg
[area_modifier] => 260.88
[parent_name] => Наружная отделка фасада
[parent_id] => 19
[material_sum] => 1065017
[work_sum] => 710011
[total_sum] => 1775028
[total_days] => 20
[display_material_sum] => 1 065 017
[display_work_sum] => 710 011
[display_total_sum] => 1 775 028
)
1
1 775 028₽
Работа:710 011 ₽
Материалы:1 065 017 ₽
Дни:20
stdClass Object
(
[id] => 145
[attribute_id] => 19
[name] => Комбинированный
[material_modifier] => 1
[work_modifier] => 1
[options] => Array
(
)
[days] => [20]
[material_price] => [4629]
[work_price] => [3499]
[image] => https://akademik-stroy.ru/wp-content/uploads/materials/Kombinirovannyj.jpg
[area_modifier] => 260.88
[parent_name] => Наружная отделка фасада
[parent_id] => 19
[material_sum] => 1521593
[work_sum] => 958460
[total_sum] => 2480053
[total_days] => 20
[display_material_sum] => 1 521 593
[display_work_sum] => 958 460
[display_total_sum] => 2 480 053
)
1
2 480 053₽
Работа:958 460 ₽
Материалы:1 521 593 ₽
Дни:20
stdClass Object
(
[id] => 257
[attribute_id] => 19
[name] => Японские фиброцементные
[material_modifier] => 1
[work_modifier] => 1
[options] => Array
(
)
[days] => [20]
[material_price] => [7043]
[work_price] => [2993]
[image] => https://akademik-stroy.ru/wp-content/uploads/materials/paneli.jpg
[area_modifier] => 260.88
[parent_name] => Наружная отделка фасада
[parent_id] => 19
[material_sum] => 2315096
[work_sum] => 819855
[total_sum] => 3134951
[total_days] => 20
[display_material_sum] => 2 315 096
[display_work_sum] => 819 855
[display_total_sum] => 3 134 951
)
1
3 134 951₽
Работа:819 855 ₽
Материалы:2 315 096 ₽
Дни:20
stdClass Object
(
[id] => 258
[attribute_id] => 19
[name] => Панели Каньон
[material_modifier] => 1
[work_modifier] => 1
[options] => Array
(
)
[days] => [20]
[material_price] => [4543]
[work_price] => [2592]
[image] => https://akademik-stroy.ru/wp-content/uploads/materials/kanon.png
[area_modifier] => 260.88
[parent_name] => Наружная отделка фасада
[parent_id] => 19
[material_sum] => 1493324
[work_sum] => 710011
[total_sum] => 2203335
[total_days] => 20
[display_material_sum] => 1 493 324
[display_work_sum] => 710 011
[display_total_sum] => 2 203 335
)
1
2 203 335₽
Работа:710 011 ₽
Материалы:1 493 324 ₽
Дни:20
stdClass Object
(
[id] => 39
[attribute_id] => 20
[name] => Нет
[material_modifier] => 1
[work_modifier] => 1
[options] => Array
(
)
[days] => [0]
[material_price] => [0]
[work_price] => [0]
[image] => https://akademik-stroy.ru/wp-content/uploads/materials/terrasy.jpg
[area_modifier] => 30
[parent_name] => Террасы, крыльца, навесы
[parent_id] => 20
[material_sum] => 0
[work_sum] => 0
[total_sum] => 0
[total_days] => 0
[display_material_sum] => 0
[display_work_sum] => 0
[display_total_sum] => 0
)
1
0₽
Работа:0 ₽
Материалы:0 ₽
Дни:0
stdClass Object
(
[id] => 40
[attribute_id] => 20
[name] => Есть
[material_modifier] => 1
[work_modifier] => 1
[options] => Array
(
)
[days] => [5]
[material_price] => [10450]
[work_price] => [1950]
[image] => https://akademik-stroy.ru/wp-content/uploads/materials/terrasy.jpg
[area_modifier] => 30
[parent_name] => Террасы, крыльца, навесы
[parent_id] => 20
[material_sum] => 395010
[work_sum] => 61425
[total_sum] => 456435
[total_days] => 5
[display_material_sum] => 395 010
[display_work_sum] => 61 425
[display_total_sum] => 456 435
)
1
456 435₽
Работа:61 425 ₽
Материалы:395 010 ₽
Дни:5
stdClass Object
(
[id] => 41
[attribute_id] => 21
[name] => Нет
[material_modifier] => 1
[work_modifier] => 1
[options] => Array
(
)
[days] => [0]
[material_price] => [0]
[work_price] => [0]
[image] => https://akademik-stroy.ru/wp-content/uploads/materials/balkony.jpg
[area_modifier] => 30
[parent_name] => Балконы
[parent_id] => 21
[material_sum] => 0
[work_sum] => 0
[total_sum] => 0
[total_days] => 0
[display_material_sum] => 0
[display_work_sum] => 0
[display_total_sum] => 0
)
1
0₽
Работа:0 ₽
Материалы:0 ₽
Дни:0
stdClass Object
(
[id] => 42
[attribute_id] => 21
[name] => Есть
[material_modifier] => 1
[work_modifier] => 1
[options] => Array
(
)
[days] => [12]
[material_price] => [3600]
[work_price] => [1950]
[image] => https://akademik-stroy.ru/wp-content/uploads/materials/balkony.jpg
[area_modifier] => 30
[parent_name] => Балконы
[parent_id] => 21
[material_sum] => 136080
[work_sum] => 61425
[total_sum] => 197505
[total_days] => 12
[display_material_sum] => 136 080
[display_work_sum] => 61 425
[display_total_sum] => 197 505
)
1
197 505₽
Работа:61 425 ₽
Материалы:136 080 ₽
Дни:12
stdClass Object
(
[id] => 43
[attribute_id] => 22
[name] => Нет
[material_modifier] => 1
[work_modifier] => 1
[options] => Array
(
)
[days] => [0]
[material_price] => [0]
[work_price] => [0]
[image] => https://akademik-stroy.ru/wp-content/uploads/materials/uteplennaya.jpg
[area_modifier] => 132.63
[parent_name] => Отмостка
[parent_id] => 22
[material_sum] => 0
[work_sum] => 0
[total_sum] => 0
[total_days] => 0
[display_material_sum] => 0
[display_work_sum] => 0
[display_total_sum] => 0
)
1
0₽
Работа:0 ₽
Материалы:0 ₽
Дни:0
stdClass Object
(
[id] => 44
[attribute_id] => 22
[name] => Утепленная отмостка
[material_modifier] => 1
[work_modifier] => 1
[options] => Array
(
)
[days] => [15]
[material_price] => [2550]
[work_price] => [1750]
[image] => https://akademik-stroy.ru/wp-content/uploads/materials/uteplennaya.jpg
[area_modifier] => 132.63
[parent_name] => Отмостка
[parent_id] => 22
[material_sum] => 426140
[work_sum] => 243708
[total_sum] => 669848
[total_days] => 15
[display_material_sum] => 426 140
[display_work_sum] => 243 708
[display_total_sum] => 669 848
)
1
669 848₽
Работа:243 708 ₽
Материалы:426 140 ₽
Дни:15
stdClass Object
(
[id] => 146
[attribute_id] => 22
[name] => Не утепленная отмостка
[material_modifier] => 1
[work_modifier] => 1
[options] => Array
(
)
[days] => [10]
[material_price] => [1650]
[work_price] => [1450]
[image] => https://akademik-stroy.ru/wp-content/uploads/materials/ne-uteplennaya.jpg
[area_modifier] => 132.63
[parent_name] => Отмостка
[parent_id] => 22
[material_sum] => 275738
[work_sum] => 201929
[total_sum] => 477667
[total_days] => 10
[display_material_sum] => 275 738
[display_work_sum] => 201 929
[display_total_sum] => 477 667
)
1
477 667₽
Работа:201 929 ₽
Материалы:275 738 ₽
Дни:10
stdClass Object
(
[id] => 45
[attribute_id] => 23
[name] => Нет
[material_modifier] => 1
[work_modifier] => 1
[options] => Array
(
)
[days] => [0]
[material_price] => [0]
[work_price] => [0]
[image] => https://akademik-stroy.ru/wp-content/uploads/materials/drenazh-2.jpg
[area_modifier] => 132.63
[parent_name] => Дренаж вокруг дома
[parent_id] => 23
[material_sum] => 0
[work_sum] => 0
[total_sum] => 0
[total_days] => 0
[display_material_sum] => 0
[display_work_sum] => 0
[display_total_sum] => 0
)
1
0₽
Работа:0 ₽
Материалы:0 ₽
Дни:0
stdClass Object
(
[id] => 46
[attribute_id] => 23
[name] => Есть
[material_modifier] => 1
[work_modifier] => 1
[options] => Array
(
)
[days] => [5]
[material_price] => [2366]
[work_price] => [1911]
[image] => https://akademik-stroy.ru/wp-content/uploads/materials/drenazh-2.jpg
[area_modifier] => 132.63
[parent_name] => Дренаж вокруг дома
[parent_id] => 23
[material_sum] => 395391
[work_sum] => 266129
[total_sum] => 661520
[total_days] => 5
[display_material_sum] => 395 391
[display_work_sum] => 266 129
[display_total_sum] => 661 520
)
1
661 520₽
Работа:266 129 ₽
Материалы:395 391 ₽
Дни:5
stdClass Object
(
[id] => 47
[attribute_id] => 24
[name] => Нет
[material_modifier] => 1
[work_modifier] => 1
[options] => Array
(
)
[days] => [0]
[material_price] => [0]
[work_price] => [0]
[image] => https://akademik-stroy.ru/wp-content/uploads/materials/septik.jpg
[area_modifier] => 1
[parent_name] => Автономная канализация (септики)
[parent_id] => 24
[material_sum] => 0
[work_sum] => 0
[total_sum] => 0
[total_days] => 0
[display_material_sum] => 0
[display_work_sum] => 0
[display_total_sum] => 0
)
1
0₽
Работа:0 ₽
Материалы:0 ₽
Дни:0
stdClass Object
(
[id] => 48
[attribute_id] => 24
[name] => Есть
[material_modifier] => 1
[work_modifier] => 1
[options] => Array
(
[0] => Для дачи на 4 человека
[1] => Для дома на 5 человек
[2] => Для дома на 6 человек
[3] => Для дома на 7 человек
[4] => Для дома на 10 человек
)
[days] => [7,7,7,8,8]
[material_price] => [196340,220500,240940,264200,293340]
[work_price] => [50000,55000,60500,66550,73206]
[image] => https://akademik-stroy.ru/wp-content/uploads/materials/septik.jpg
[area_modifier] => 1
[parent_name] => Автономная канализация (септики)
[parent_id] => 24
[material_sum] => 247388
[work_sum] => 52500
[total_sum] => 299888
[total_days] => 7
[display_material_sum] => 247 388
[display_work_sum] => 52 500
[display_total_sum] => 299 888
)
1
299 888₽
Работа:52 500 ₽
Материалы:247 388 ₽
Дни:7
stdClass Object
(
[id] => 49
[attribute_id] => 25
[name] => Нет
[material_modifier] => 1
[work_modifier] => 1
[options] => Array
(
)
[days] => [0]
[material_price] => [0]
[work_price] => [0]
[image] => https://akademik-stroy.ru/wp-content/uploads/materials/gkl.jpg
[area_modifier] => 260.88
[parent_name] => Внутренние (не несущие) перегородки
[parent_id] => 25
[material_sum] => 0
[work_sum] => 0
[total_sum] => 0
[total_days] => 0
[display_material_sum] => 0
[display_work_sum] => 0
[display_total_sum] => 0
)
1
0₽
Работа:0 ₽
Материалы:0 ₽
Дни:0
stdClass Object
(
[id] => 147
[attribute_id] => 25
[name] => Каркасно-обшивные
[material_modifier] => 1
[work_modifier] => 1
[options] => Array
(
[0] => 75 мм (без шумоизоляции)
[1] => 75 мм (с шумоизоляцией)
)
[days] => [11,11]
[material_price] => [580,970]
[work_price] => [380,570]
[image] => https://akademik-stroy.ru/wp-content/uploads/materials/gkl.jpg
[area_modifier] => 260.88
[parent_name] => Внутренние (не несущие) перегородки
[parent_id] => 25
[material_sum] => 190651
[work_sum] => 104091
[total_sum] => 294742
[total_days] => 11
[display_material_sum] => 190 651
[display_work_sum] => 104 091
[display_total_sum] => 294 742
)
1
294 742₽
Работа:104 091 ₽
Материалы:190 651 ₽
Дни:11
stdClass Object
(
[id] => 148
[attribute_id] => 25
[name] => Пазогребневые
[material_modifier] => 1
[work_modifier] => 1
[options] => Array
(
[0] => 80 мм
[1] => 100 мм
)
[days] => [5,5]
[material_price] => [1022,1313]
[work_price] => [600,700]
[image] => https://akademik-stroy.ru/wp-content/uploads/materials/pazogrebnevye-bloki.jpg
[area_modifier] => 260.88
[parent_name] => Внутренние (не несущие) перегородки
[parent_id] => 25
[material_sum] => 335940
[work_sum] => 164354
[total_sum] => 500294
[total_days] => 5
[display_material_sum] => 335 940
[display_work_sum] => 164 354
[display_total_sum] => 500 294
)
1
500 294₽
Работа:164 354 ₽
Материалы:335 940 ₽
Дни:5
stdClass Object
(
[id] => 149
[attribute_id] => 25
[name] => Газобетонные
[material_modifier] => 1
[work_modifier] => 1
[options] => Array
(
[0] => 100 мм
[1] => 200 мм
)
[days] => [11,11]
[material_price] => [1160,1920]
[work_price] => [700,900]
[image] => https://akademik-stroy.ru/wp-content/uploads/materials/gazobeton-2.jpg
[area_modifier] => 260.88
[parent_name] => Внутренние (не несущие) перегородки
[parent_id] => 25
[material_sum] => 381302
[work_sum] => 191747
[total_sum] => 573049
[total_days] => 11
[display_material_sum] => 381 302
[display_work_sum] => 191 747
[display_total_sum] => 573 049
)
1
573 049₽
Работа:191 747 ₽
Материалы:381 302 ₽
Дни:11
stdClass Object
(
[id] => 150
[attribute_id] => 25
[name] => Кирпичные
[material_modifier] => 1
[work_modifier] => 1
[options] => Array
(
[0] => 120 мм
[1] => 250 мм
[2] => 360 мм
)
[days] => [7,7,7]
[material_price] => [1785,3570,5355]
[work_price] => [900,1600,1800]
[image] => https://akademik-stroy.ru/wp-content/uploads/materials/kirpich-1.jpg
[area_modifier] => 260.88
[parent_name] => Внутренние (не несущие) перегородки
[parent_id] => 25
[material_sum] => 586745
[work_sum] => 246532
[total_sum] => 833277
[total_days] => 7
[display_material_sum] => 586 745
[display_work_sum] => 246 532
[display_total_sum] => 833 277
)
1
833 277₽
Работа:246 532 ₽
Материалы:586 745 ₽
Дни:7
stdClass Object
(
[id] => 55
[attribute_id] => 28
[name] => Нет
[material_modifier] => 1
[work_modifier] => 1
[options] => Array
(
)
[days] => [0]
[material_price] => [0]
[work_price] => [0]
[image] => https://akademik-stroy.ru/wp-content/uploads/materials/ehlektrika.jpg
[area_modifier] => 211.7
[parent_name] => Электрика
[parent_id] => 28
[material_sum] => 0
[work_sum] => 0
[total_sum] => 0
[total_days] => 0
[display_material_sum] => 0
[display_work_sum] => 0
[display_total_sum] => 0
)
1
0₽
Работа:0 ₽
Материалы:0 ₽
Дни:0
stdClass Object
(
[id] => 56
[attribute_id] => 28
[name] => Есть
[material_modifier] => 1
[work_modifier] => 1
[options] => Array
(
)
[days] => [10]
[material_price] => [650]
[work_price] => [950]
[image] => https://akademik-stroy.ru/wp-content/uploads/materials/ehlektrika.jpg
[area_modifier] => 211.7
[parent_name] => Электрика
[parent_id] => 28
[material_sum] => 173382
[work_sum] => 211171
[total_sum] => 384553
[total_days] => 10
[display_material_sum] => 173 382
[display_work_sum] => 211 171
[display_total_sum] => 384 553
)
1
384 553₽
Работа:211 171 ₽
Материалы:173 382 ₽
Дни:10
stdClass Object
(
[id] => 57
[attribute_id] => 29
[name] => Нет
[material_modifier] => 1
[work_modifier] => 1
[options] => Array
(
)
[days] => [0]
[material_price] => [0]
[work_price] => [0]
[image] => https://akademik-stroy.ru/wp-content/uploads/materials/santekhnika-kanalizaciya-1.jpg
[area_modifier] => 211.7
[parent_name] => Сантехника, канализация в доме
[parent_id] => 29
[material_sum] => 0
[work_sum] => 0
[total_sum] => 0
[total_days] => 0
[display_material_sum] => 0
[display_work_sum] => 0
[display_total_sum] => 0
)
1
0₽
Работа:0 ₽
Материалы:0 ₽
Дни:0
stdClass Object
(
[id] => 58
[attribute_id] => 29
[name] => Есть
[material_modifier] => 1
[work_modifier] => 1
[options] => Array
(
)
[days] => [10]
[material_price] => [600]
[work_price] => [730]
[image] => https://akademik-stroy.ru/wp-content/uploads/materials/santekhnika-kanalizaciya-1.jpg
[area_modifier] => 211.7
[parent_name] => Сантехника, канализация в доме
[parent_id] => 29
[material_sum] => 160045
[work_sum] => 162268
[total_sum] => 322313
[total_days] => 10
[display_material_sum] => 160 045
[display_work_sum] => 162 268
[display_total_sum] => 322 313
)
1
322 313₽
Работа:162 268 ₽
Материалы:160 045 ₽
Дни:10
stdClass Object
(
[id] => 59
[attribute_id] => 30
[name] => Нет
[material_modifier] => 1
[work_modifier] => 1
[options] => Array
(
)
[days] => [0]
[material_price] => [0]
[work_price] => [0]
[image] => https://akademik-stroy.ru/wp-content/uploads/materials/otoplenie-1.jpg
[area_modifier] => 211.7
[parent_name] => Отопление
[parent_id] => 30
[material_sum] => 0
[work_sum] => 0
[total_sum] => 0
[total_days] => 0
[display_material_sum] => 0
[display_work_sum] => 0
[display_total_sum] => 0
)
1
0₽
Работа:0 ₽
Материалы:0 ₽
Дни:0
stdClass Object
(
[id] => 60
[attribute_id] => 30
[name] => Есть
[material_modifier] => 1
[work_modifier] => 1
[options] => Array
(
)
[days] => [5]
[material_price] => [610]
[work_price] => [560]
[image] => https://akademik-stroy.ru/wp-content/uploads/materials/otoplenie-1.jpg
[area_modifier] => 211.7
[parent_name] => Отопление
[parent_id] => 30
[material_sum] => 162713
[work_sum] => 124480
[total_sum] => 287193
[total_days] => 5
[display_material_sum] => 162 713
[display_work_sum] => 124 480
[display_total_sum] => 287 193
)
1
287 193₽
Работа:124 480 ₽
Материалы:162 713 ₽
Дни:5
stdClass Object
(
[id] => 61
[attribute_id] => 31
[name] => Нет
[material_modifier] => 1
[work_modifier] => 1
[options] => Array
(
)
[days] => [0]
[material_price] => [0]
[work_price] => [0]
[image] => https://akademik-stroy.ru/wp-content/uploads/materials/vodyanye.jpg
[area_modifier] => 30
[parent_name] => Теплые полы
[parent_id] => 31
[material_sum] => 0
[work_sum] => 0
[total_sum] => 0
[total_days] => 0
[display_material_sum] => 0
[display_work_sum] => 0
[display_total_sum] => 0
)
1
0₽
Работа:0 ₽
Материалы:0 ₽
Дни:0
stdClass Object
(
[id] => 151
[attribute_id] => 31
[name] => Водяные
[material_modifier] => 1
[work_modifier] => 1
[options] => Array
(
)
[days] => [9]
[material_price] => [10200]
[work_price] => [2500]
[image] => https://akademik-stroy.ru/wp-content/uploads/materials/vodyanye.jpg
[area_modifier] => 30
[parent_name] => Теплые полы
[parent_id] => 31
[material_sum] => 385560
[work_sum] => 78750
[total_sum] => 464310
[total_days] => 9
[display_material_sum] => 385 560
[display_work_sum] => 78 750
[display_total_sum] => 464 310
)
1
464 310₽
Работа:78 750 ₽
Материалы:385 560 ₽
Дни:9
stdClass Object
(
[id] => 152
[attribute_id] => 31
[name] => Электро
[material_modifier] => 1
[work_modifier] => 1
[options] => Array
(
)
[days] => [5]
[material_price] => [6300]
[work_price] => [1500]
[image] => https://akademik-stroy.ru/wp-content/uploads/materials/ehlektricheskij.jpg
[area_modifier] => 30
[parent_name] => Теплые полы
[parent_id] => 31
[material_sum] => 238140
[work_sum] => 47250
[total_sum] => 285390
[total_days] => 5
[display_material_sum] => 238 140
[display_work_sum] => 47 250
[display_total_sum] => 285 390
)
1
285 390₽
Работа:47 250 ₽
Материалы:238 140 ₽
Дни:5
stdClass Object
(
[id] => 63
[attribute_id] => 32
[name] => Нет
[material_modifier] => 1
[work_modifier] => 1
[options] => Array
(
)
[days] => [0]
[material_price] => [0]
[work_price] => [0]
[image] => https://akademik-stroy.ru/wp-content/uploads/materials/shtukaturka-shpatlevka-1.jpg
[area_modifier] => 211.7
[parent_name] => Черновая отделка стен
[parent_id] => 32
[material_sum] => 0
[work_sum] => 0
[total_sum] => 0
[total_days] => 0
[display_material_sum] => 0
[display_work_sum] => 0
[display_total_sum] => 0
)
1
0₽
Работа:0 ₽
Материалы:0 ₽
Дни:0
stdClass Object
(
[id] => 153
[attribute_id] => 32
[name] => Штукатурка и шпатлевка
[material_modifier] => 1
[work_modifier] => 1
[options] => Array
(
)
[days] => [20]
[material_price] => [1850]
[work_price] => [2600]
[image] => https://akademik-stroy.ru/wp-content/uploads/materials/shtukaturka-shpatlevka-1.jpg
[area_modifier] => 211.7
[parent_name] => Черновая отделка стен
[parent_id] => 32
[material_sum] => 493473
[work_sum] => 577941
[total_sum] => 1071414
[total_days] => 20
[display_material_sum] => 493 473
[display_work_sum] => 577 941
[display_total_sum] => 1 071 414
)
1
1 071 414₽
Работа:577 941 ₽
Материалы:493 473 ₽
Дни:20
stdClass Object
(
[id] => 154
[attribute_id] => 32
[name] => Гипсокортон на стены
[material_modifier] => 1
[work_modifier] => 1
[options] => Array
(
)
[days] => [15]
[material_price] => [950]
[work_price] => [2100]
[image] => https://akademik-stroy.ru/wp-content/uploads/materials/gkl-1.jpg
[area_modifier] => 211.7
[parent_name] => Черновая отделка стен
[parent_id] => 32
[material_sum] => 253405
[work_sum] => 466799
[total_sum] => 720204
[total_days] => 15
[display_material_sum] => 253 405
[display_work_sum] => 466 799
[display_total_sum] => 720 204
)
1
720 204₽
Работа:466 799 ₽
Материалы:253 405 ₽
Дни:15
stdClass Object
(
[id] => 155
[attribute_id] => 32
[name] => Вагонка
[material_modifier] => 1
[work_modifier] => 1
[options] => Array
(
)
[days] => [15]
[material_price] => [1250]
[work_price] => [950]
[image] => https://akademik-stroy.ru/wp-content/uploads/materials/vagonka.jpg
[area_modifier] => 211.7
[parent_name] => Черновая отделка стен
[parent_id] => 32
[material_sum] => 333428
[work_sum] => 211171
[total_sum] => 544599
[total_days] => 15
[display_material_sum] => 333 428
[display_work_sum] => 211 171
[display_total_sum] => 544 599
)
1
544 599₽
Работа:211 171 ₽
Материалы:333 428 ₽
Дни:15
stdClass Object
(
[id] => 65
[attribute_id] => 33
[name] => Нет
[material_modifier] => 1
[work_modifier] => 1
[options] => Array
(
)
[days] => [0]
[material_price] => [0]
[work_price] => [0]
[image] => https://akademik-stroy.ru/wp-content/uploads/materials/styazhka.jpg
[area_modifier] => 211.7
[parent_name] => Черновая отделка полов
[parent_id] => 33
[material_sum] => 0
[work_sum] => 0
[total_sum] => 0
[total_days] => 0
[display_material_sum] => 0
[display_work_sum] => 0
[display_total_sum] => 0
)
1
0₽
Работа:0 ₽
Материалы:0 ₽
Дни:0
stdClass Object
(
[id] => 156
[attribute_id] => 33
[name] => Стяжка + наливные полы
[material_modifier] => 1
[work_modifier] => 1
[options] => Array
(
)
[days] => [10]
[material_price] => [1000]
[work_price] => [900]
[image] => https://akademik-stroy.ru/wp-content/uploads/materials/styazhka.jpg
[area_modifier] => 211.7
[parent_name] => Черновая отделка полов
[parent_id] => 33
[material_sum] => 266742
[work_sum] => 200057
[total_sum] => 466799
[total_days] => 10
[display_material_sum] => 266 742
[display_work_sum] => 200 057
[display_total_sum] => 466 799
)
1
466 799₽
Работа:200 057 ₽
Материалы:266 742 ₽
Дни:10
stdClass Object
(
[id] => 157
[attribute_id] => 33
[name] => ОСБ на пол
[material_modifier] => 1
[work_modifier] => 1
[options] => Array
(
)
[days] => [7]
[material_price] => [580]
[work_price] => [350]
[image] => https://akademik-stroy.ru/wp-content/uploads/materials/osb-1.jpg
[area_modifier] => 211.7
[parent_name] => Черновая отделка полов
[parent_id] => 33
[material_sum] => 154710
[work_sum] => 77800
[total_sum] => 232510
[total_days] => 7
[display_material_sum] => 154 710
[display_work_sum] => 77 800
[display_total_sum] => 232 510
)
1
232 510₽
Работа:77 800 ₽
Материалы:154 710 ₽
Дни:7
stdClass Object
(
[id] => 67
[attribute_id] => 34
[name] => Нет
[material_modifier] => 1
[work_modifier] => 1
[options] => Array
(
)
[days] => [0]
[material_price] => [0]
[work_price] => [0]
[image] => https://akademik-stroy.ru/wp-content/uploads/materials/chistovaya-otdelka.jpg
[area_modifier] => 211.7
[parent_name] => Чистовая отделка стен и полов
[parent_id] => 34
[material_sum] => 0
[work_sum] => 0
[total_sum] => 0
[total_days] => 0
[display_material_sum] => 0
[display_work_sum] => 0
[display_total_sum] => 0
)
1
0₽
Работа:0 ₽
Материалы:0 ₽
Дни:0
stdClass Object
(
[id] => 68
[attribute_id] => 34
[name] => Есть
[material_modifier] => 1
[work_modifier] => 1
[options] => Array
(
)
[days] => [50]
[material_price] => [6000]
[work_price] => [3500]
[image] => https://akademik-stroy.ru/wp-content/uploads/materials/chistovaya-otdelka.jpg
[area_modifier] => 211.7
[parent_name] => Чистовая отделка стен и полов
[parent_id] => 34
[material_sum] => 1600452
[work_sum] => 777998
[total_sum] => 2378450
[total_days] => 50
[display_material_sum] => 1 600 452
[display_work_sum] => 777 998
[display_total_sum] => 2 378 450
)
1
2 378 450₽
Работа:777 998 ₽
Материалы:1 600 452 ₽
Дни:50
stdClass Object
(
[id] => 69
[attribute_id] => 35
[name] => Нет
[material_modifier] => 1
[work_modifier] => 1
[options] => Array
(
)
[days] => [0]
[material_price] => [0]
[work_price] => [0]
[image] => https://akademik-stroy.ru/wp-content/uploads/materials/mnogourovnevyj-gkl.jpg
[area_modifier] => 211.7
[parent_name] => Отделка потолка
[parent_id] => 35
[material_sum] => 0
[work_sum] => 0
[total_sum] => 0
[total_days] => 0
[display_material_sum] => 0
[display_work_sum] => 0
[display_total_sum] => 0
)
1
0₽
Работа:0 ₽
Материалы:0 ₽
Дни:0
stdClass Object
(
[id] => 70
[attribute_id] => 35
[name] => Есть
[material_modifier] => 1
[work_modifier] => 1
[options] => Array
(
[0] => Многоуровневый потолок из гипсокартона
[1] => Многоуровневый потолок из гипсокартона и натяжного потолка
[2] => Одноуровневый потолок из гипсокартона
[3] => Одноуровневый натяжной потолок
)
[days] => [10,10,1,1]
[material_price] => [900,700,700,600]
[work_price] => [1000,800,500,300]
[image] => https://akademik-stroy.ru/wp-content/uploads/materials/mnogourovnevyj-gkl.jpg
[area_modifier] => 211.7
[parent_name] => Отделка потолка
[parent_id] => 35
[material_sum] => 240068
[work_sum] => 222285
[total_sum] => 462353
[total_days] => 10
[display_material_sum] => 240 068
[display_work_sum] => 222 285
[display_total_sum] => 462 353
)
1
462 353₽
Работа:222 285 ₽
Материалы:240 068 ₽
Дни:10
Преимущества работы с нами
7 этапов оплаты
Независимый строительный надзор
Экологически чистые материалы
16 лет гарантии
Онлайн-кабинет с веб-камерой
Строители с опытом более 15 лет
Собственное производство










