Одноэтажный дом 15x14 - 332.61 м2 за руб.
Планировки
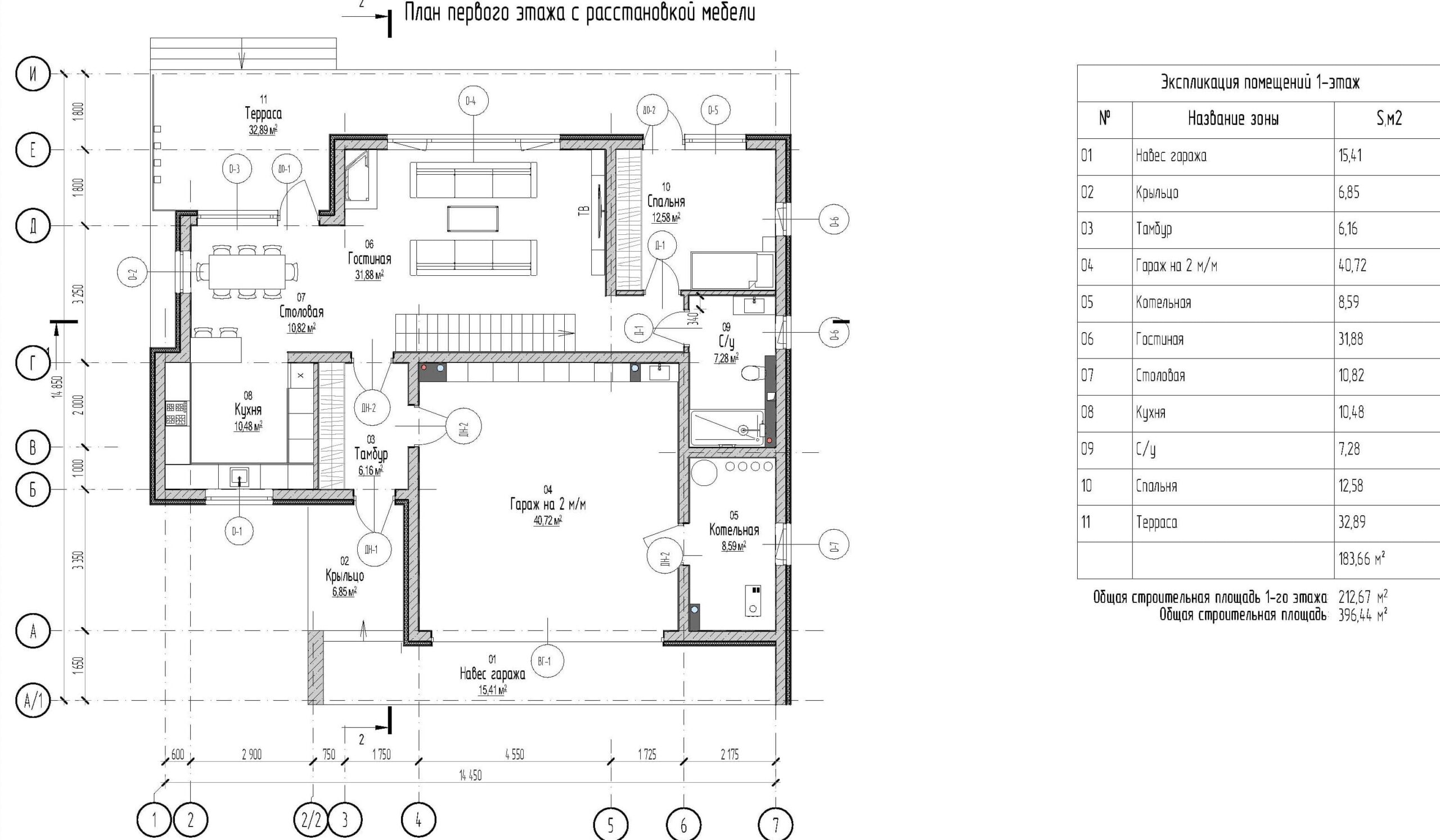
План первого этажа
- 1. Навес гаража 15,41 м²
- 2. Крыльцо 6,85 м²
- 3. Тамбур 6,16 м²
- 4. Гараж 40,72 м²
- 5. Котельная 8,59 м²
- 6. Гостиная 31,88 м²
- 7. Столовая 10,82 м²
- 8. Кухня 10,48 м²
- 9. С/У 7,28 м²
- 10. Спальня 12,58 м²
- 11. Терраса 32,89 м²
- Общая площадь 1 этажа 183,66 м²
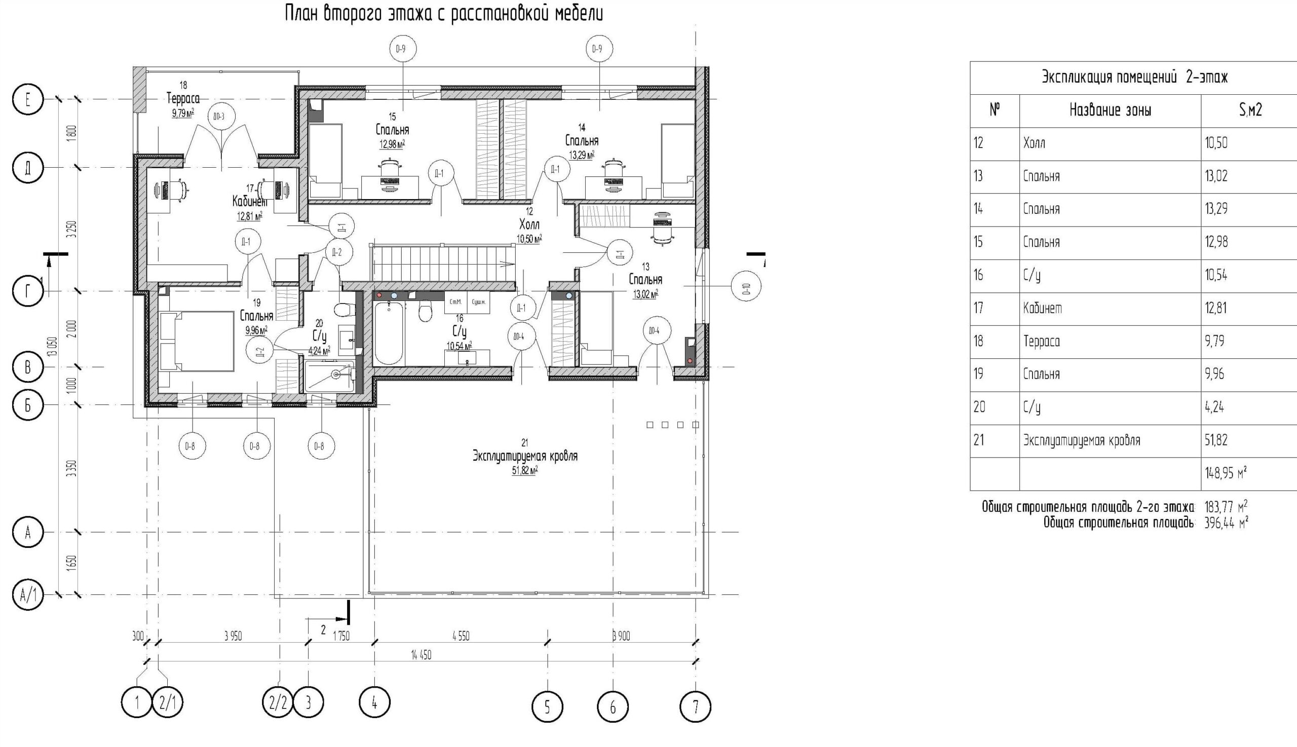
План второго этажа
- 1. Холл 10,50 м²
- 2. Спальня 13,02 м²
- 3. Спальня 13,29 м²
- 4. Спальня 12,98 м²
- 5. С/У 10,54 м²
- 6. Кабинет 12,81 м²
- 7. Терраса 9,79 м²
- 8. Спальня 9,96 м²
- 9. С/У 4,24 м²
- 10. Эксплуатируемая кровля 51,82 м²
- Общая площадь 2 этажа 148,95 м²
Площади дома
| № п/п | Наименование | Ед. из. | Строительная площадь | Полезная площадь |
| 1 | 1 этаж | м2 | 226.32 | 183.66 |
| 2 | 2 этаж | м2 | 183.55 | 148.95 |
| 3 | Итого | м2 | 409.87 | 332.61 |
154 м2
Полезная
площадь
площадь
15 x 14 м
Размеры
1 этаж
Этажей
26 м2
Террасы
и балконы
и балконы
2Без
гаража
гаража
5+
Количество
спален
спален
3
Количество
санузлов
санузлов
Калькулятор опций
0₽
В ипотеку от 31 645 ₽/мес.
0₽
0 дней
stdClass Object
(
[id] => 1
[attribute_id] => 1
[name] => Ленточный монолитный ж/б
[material_modifier] => 1
[work_modifier] => 1
[options] => Array
(
[0] => размер 200 х 700 мм
[1] => размер 300 х 900 мм
[2] => размер 400 х 1 000 мм
[3] => размер 500 х 1 100 мм
[4] => размер 600 х 1 200 мм
)
[days] => [20,21,22,25,30]
[material_price] => [2823,3630,4475,5210,12047]
[work_price] => [2154,2826,3731,4577,5293]
[image] => https://akademik-stroy.ru/wp-content/uploads/materials/lentochnyj-monolitnyj-zh-b.jpg
[area_modifier] => 226.32
[parent_name] => Фундамент
[parent_id] => 1
[material_sum] => 766682
[work_sum] => 487493
[total_sum] => 1254175
[total_days] => 20
[display_material_sum] => 766 682
[display_work_sum] => 487 493
[display_total_sum] => 1 254 175
)
1
1 254 175₽
Работа:487 493 ₽
Материалы:766 682 ₽
Дни:20
stdClass Object
(
[id] => 2
[attribute_id] => 1
[name] => Забивные Ж/Б сваи
[material_modifier] => 1
[work_modifier] => 1
[options] => Array
(
[0] => 150х150х3000мм
[1] => 150х150х4000мм
[2] => 200х200х3000мм
[3] => 200х200х4000мм
[4] => 200х200х5000мм
[5] => 200х200х6000мм
)
[days] => [2,2,2,2,2,2]
[material_price] => [1990,2850,3255,4360,5120,6837]
[work_price] => [1002,1185,1336,1438,1574,1839]
[image] => https://akademik-stroy.ru/wp-content/uploads/materials/zabivnye-zh-b-svai.png
[area_modifier] => 226.32
[parent_name] => Фундамент
[parent_id] => 1
[material_sum] => 540452
[work_sum] => 226773
[total_sum] => 767225
[total_days] => 2
[display_material_sum] => 540 452
[display_work_sum] => 226 773
[display_total_sum] => 767 225
)
1
767 225₽
Работа:226 773 ₽
Материалы:540 452 ₽
Дни:2
stdClass Object
(
[id] => 71
[attribute_id] => 1
[name] => Свайно-ростверковый ж/б
[material_modifier] => 1
[work_modifier] => 1
[options] => Array
(
[0] => ростверк 200х300 мм
[1] => ростверк 300х600 мм
[2] => ростверк 400х900 мм
[3] => ростверк 500х1200 мм
)
[days] => [20,23,25,27]
[material_price] => [3018,3474,7109,9792]
[work_price] => [2024,3012,5635,7022]
[image] => https://akademik-stroy.ru/wp-content/uploads/materials/svajno-rostverkovyj-monolitnyj-zh-b-3.png
[area_modifier] => 226.32
[parent_name] => Фундамент
[parent_id] => 1
[material_sum] => 819641
[work_sum] => 458072
[total_sum] => 1277713
[total_days] => 20
[display_material_sum] => 819 641
[display_work_sum] => 458 072
[display_total_sum] => 1 277 713
)
1
1 277 713₽
Работа:458 072 ₽
Материалы:819 641 ₽
Дни:20
stdClass Object
(
[id] => 72
[attribute_id] => 1
[name] => Монолитная ж/б плита
[material_modifier] => 1
[work_modifier] => 1
[options] => Array
(
[0] => 200 мм
[1] => 300 мм
[2] => 400 мм
[3] => 500 мм
[4] => 600 мм
)
[days] => [30,33,35,37,40]
[material_price] => [5348,8555,12788,14388,15189]
[work_price] => [4314,4881,7037,8061,10230]
[image] => https://akademik-stroy.ru/wp-content/uploads/materials/monolitnaya-zhb-plita.png
[area_modifier] => 226.32
[parent_name] => Фундамент
[parent_id] => 1
[material_sum] => 1452431
[work_sum] => 976344
[total_sum] => 2428775
[total_days] => 30
[display_material_sum] => 1 452 431
[display_work_sum] => 976 344
[display_total_sum] => 2 428 775
)
1
2 428 775₽
Работа:976 344 ₽
Материалы:1 452 431 ₽
Дни:30
stdClass Object
(
[id] => 73
[attribute_id] => 1
[name] => Утепленная шведская плита
[material_modifier] => 1
[work_modifier] => 1
[options] => Array
(
[0] => 200 мм
[1] => 300 мм
[2] => 400 мм
[3] => 500 мм
[4] => 600 мм
)
[days] => [32,37,39,42,45]
[material_price] => [10249,12692,13760,14936,16230]
[work_price] => [5960,7337,8072,8878,9765]
[image] => https://akademik-stroy.ru/wp-content/uploads/materials/uteplennaya-shvedskaya-plita.jpg
[area_modifier] => 226.32
[parent_name] => Фундамент
[parent_id] => 1
[material_sum] => 2783464
[work_sum] => 1348867
[total_sum] => 4132331
[total_days] => 32
[display_material_sum] => 2 783 464
[display_work_sum] => 1 348 867
[display_total_sum] => 4 132 331
)
1
4 132 331₽
Работа:1 348 867 ₽
Материалы:2 783 464 ₽
Дни:32
stdClass Object
(
[id] => 75
[attribute_id] => 1
[name] => Ленточный из ФБС
[material_modifier] => 1
[work_modifier] => 1
[options] => Array
(
[0] => толщ. 300 мм
[1] => толщ. 400 мм
[2] => толщ. 500 мм
[3] => толщ. 600 мм
)
[days] => [20,20,20,20]
[material_price] => [3675,4902,6126,7350]
[work_price] => [2451,3264,4083,4902]
[image] => https://akademik-stroy.ru/wp-content/uploads/materials/lentochnyj-iz-fbs.png
[area_modifier] => 226.32
[parent_name] => Фундамент
[parent_id] => 1
[material_sum] => 998071
[work_sum] => 554710
[total_sum] => 1552781
[total_days] => 20
[display_material_sum] => 998 071
[display_work_sum] => 554 710
[display_total_sum] => 1 552 781
)
1
1 552 781₽
Работа:554 710 ₽
Материалы:998 071 ₽
Дни:20
stdClass Object
(
[id] => 76
[attribute_id] => 1
[name] => Цокольный этаж из ФБС
[material_modifier] => 1
[work_modifier] => 1
[options] => Array
(
[0] => толщ. 300 мм
[1] => толщ. 400 мм
[2] => толщ. 500 мм
[3] => толщ. 600 мм
)
[days] => [30,32,34,36]
[material_price] => [20916,23299,26680,29060]
[work_price] => [17524,18700,19873,21046]
[image] => https://akademik-stroy.ru/wp-content/uploads/materials/cokolnyj-ehtazh-iz-fbs.jpg
[area_modifier] => 226.32
[parent_name] => Фундамент
[parent_id] => 1
[material_sum] => 5680451
[work_sum] => 3966032
[total_sum] => 9646483
[total_days] => 30
[display_material_sum] => 5 680 451
[display_work_sum] => 3 966 032
[display_total_sum] => 9 646 483
)
1
9 646 483₽
Работа:3 966 032 ₽
Материалы:5 680 451 ₽
Дни:30
stdClass Object
(
[id] => 77
[attribute_id] => 1
[name] => Цокольный этаж монолитный ж/б
[material_modifier] => 1
[work_modifier] => 1
[options] => Array
(
[0] => толщ. 200 мм
[1] => толщ. 300 мм
[2] => толщ. 400 мм
[3] => толщ. 500 мм
[4] => толщ. 600 мм
)
[days] => [40,42,44,46,48]
[material_price] => [25421,29148,32275,35602,37326]
[work_price] => [20441,21907,23375,24841,26306]
[image] => https://akademik-stroy.ru/wp-content/uploads/materials/cokolnyj-etazh-zh-b.jpg
[area_modifier] => 226.32
[parent_name] => Фундамент
[parent_id] => 1
[material_sum] => 6903937
[work_sum] => 4626207
[total_sum] => 11530144
[total_days] => 40
[display_material_sum] => 6 903 937
[display_work_sum] => 4 626 207
[display_total_sum] => 11 530 144
)
1
11 530 144₽
Работа:4 626 207 ₽
Материалы:6 903 937 ₽
Дни:40
stdClass Object
(
[id] => 191
[attribute_id] => 1
[name] => Винтовые сваи
[material_modifier] => 1
[work_modifier] => 1
[options] => Array
(
[0] => 57х200мм
[1] => 76х250мм
[2] => 108х300мм
[3] => 133х350мм
)
[days] => [1,1,2,2]
[material_price] => [1200,1300,1450,1600]
[work_price] => [400,600,900,1100]
[image] => https://akademik-stroy.ru/wp-content/uploads/materials/vintovye-svai.png
[area_modifier] => 226.32
[parent_name] => Фундамент
[parent_id] => 1
[material_sum] => 325901
[work_sum] => 90528
[total_sum] => 416429
[total_days] => 1
[display_material_sum] => 325 901
[display_work_sum] => 90 528
[display_total_sum] => 416 429
)
1
416 429₽
Работа:90 528 ₽
Материалы:325 901 ₽
Дни:1
stdClass Object
(
[id] => 3
[attribute_id] => 2
[name] => Деревянные балки
[material_modifier] => 1
[work_modifier] => 1
[options] => Array
(
[0] => без утепления
[1] => утепление 200 мм
[2] => утепление 250 мм
[3] => утепление 300 мм
[4] => утепление 350 мм
[5] => утепление 400 мм
[6] => утепление 450 мм
[7] => утепление 500 мм
)
[days] => [8,9,9,9,11,12,13,14]
[material_price] => [1634,2042,2344,2947,3149,3652,3354,3557]
[work_price] => [1230,1339,1393,1426,1460,1513,1587,1620]
[image] => https://akademik-stroy.ru/wp-content/uploads/materials/derevyannye-balki.png
[area_modifier] => 226.32
[parent_name] => Перекрытие цоколя
[parent_id] => 2
[material_sum] => 443768
[work_sum] => 278374
[total_sum] => 722142
[total_days] => 8
[display_material_sum] => 443 768
[display_work_sum] => 278 374
[display_total_sum] => 722 142
)
1
722 142₽
Работа:278 374 ₽
Материалы:443 768 ₽
Дни:8
stdClass Object
(
[id] => 4
[attribute_id] => 2
[name] => Сборные ж/б плиты
[material_modifier] => 1
[work_modifier] => 1
[options] => Array
(
[0] => без утепления
[1] => утепление 150мм
[2] => утепление 200мм
[3] => утепление 250мм
[4] => утепление 300мм
[5] => утепление 350мм
[6] => утепление 400мм
[7] => утепление 450мм
[8] => утепление 500мм
)
[days] => [13,15,15,15,15,15,15,15,15]
[material_price] => [3067,5577,5928,6679,7730,8782,9833,10884,11935]
[work_price] => [1520,1956,2102,2247,2392,2537,2684,2829,2974]
[image] => https://akademik-stroy.ru/wp-content/uploads/materials/sbornye-zh-b-plity-2.jpg
[area_modifier] => 226.32
[parent_name] => Перекрытие цоколя
[parent_id] => 2
[material_sum] => 832948
[work_sum] => 344006
[total_sum] => 1176954
[total_days] => 13
[display_material_sum] => 832 948
[display_work_sum] => 344 006
[display_total_sum] => 1 176 954
)
1
1 176 954₽
Работа:344 006 ₽
Материалы:832 948 ₽
Дни:13
stdClass Object
(
[id] => 78
[attribute_id] => 2
[name] => Монолитная ж/б плита
[material_modifier] => 1
[work_modifier] => 1
[options] => Array
(
[0] => без утепления
[1] => утепление 150 мм
[2] => утепление 200 мм
[3] => утепление 250 мм
[4] => утепление 300 мм
[5] => утепление 350 мм
[6] => утепление 400 мм
[7] => утепление 450 мм
[8] => утепление 500 мм
)
[days] => [18,20,20,20,20,20,20,20,20]
[material_price] => [4837,6572,7224,7375,79426,8177,8728,9180,10031]
[work_price] => [3348,3921,4112,4302,4493,4684,4875,5066,5256]
[image] => https://akademik-stroy.ru/wp-content/uploads/materials/monolitnaya-zh-b-plita-2.jpg
[area_modifier] => 226.32
[parent_name] => Перекрытие цоколя
[parent_id] => 2
[material_sum] => 1313652
[work_sum] => 757719
[total_sum] => 2071371
[total_days] => 18
[display_material_sum] => 1 313 652
[display_work_sum] => 757 719
[display_total_sum] => 2 071 371
)
1
2 071 371₽
Работа:757 719 ₽
Материалы:1 313 652 ₽
Дни:18
stdClass Object
(
[id] => 6
[attribute_id] => 3
[name] => Пеноблок
[material_modifier] => 1
[work_modifier] => 1
[options] => Array
(
[0] => 300 мм
[1] => 400 мм
[2] => 500 мм
[3] => 600 мм
)
[days] => [29,31,34,39]
[material_price] => [3000,4000,4500,4937]
[work_price] => [5033,5805,6400,8710]
[image] => https://akademik-stroy.ru/wp-content/uploads/materials/penoblok.jpg
[area_modifier] => 226.32
[parent_name] => Стены 1 этаж (несущие)
[parent_id] => 3
[material_sum] => 814752
[work_sum] => 1139069
[total_sum] => 1953821
[total_days] => 29
[display_material_sum] => 814 752
[display_work_sum] => 1 139 069
[display_total_sum] => 1 953 821
)
1
1 953 821₽
Работа:1 139 069 ₽
Материалы:814 752 ₽
Дни:29
stdClass Object
(
[id] => 79
[attribute_id] => 3
[name] => Керамический блок
[material_modifier] => 1
[work_modifier] => 1
[options] => Array
(
[0] => 380 мм
[1] => 380 мм Thermo
[2] => 440 мм
[3] => 510 мм
)
[days] => [23,23,24,25]
[material_price] => [4510,5098,6093,8013]
[work_price] => [4737,4937,5903,6958]
[image] => https://akademik-stroy.ru/wp-content/uploads/materials/keramicheskij-blok.jpg
[area_modifier] => 226.32
[parent_name] => Стены 1 этаж (несущие)
[parent_id] => 3
[material_sum] => 1224844
[work_sum] => 1072078
[total_sum] => 2296922
[total_days] => 23
[display_material_sum] => 1 224 844
[display_work_sum] => 1 072 078
[display_total_sum] => 2 296 922
)
1
2 296 922₽
Работа:1 072 078 ₽
Материалы:1 224 844 ₽
Дни:23
stdClass Object
(
[id] => 80
[attribute_id] => 3
[name] => Кирпич
[material_modifier] => 1
[work_modifier] => 1
[options] => Array
(
[0] => Кирпич 250 мм
[1] => Кирпич 380 мм
[2] => Кирпич 510 мм
[3] => Кирпич 640 мм
[4] => Кирпич 770 мм
)
[days] => [30,30,31,33,36]
[material_price] => [5500,7142,9206,10171,12235]
[work_price] => [8736,10041,12018,15240,18462]
[image] => https://akademik-stroy.ru/wp-content/uploads/materials/kirpich.jpg
[area_modifier] => 226.32
[parent_name] => Стены 1 этаж (несущие)
[parent_id] => 3
[material_sum] => 1493712
[work_sum] => 1977132
[total_sum] => 3470844
[total_days] => 30
[display_material_sum] => 1 493 712
[display_work_sum] => 1 977 132
[display_total_sum] => 3 470 844
)
1
3 470 844₽
Работа:1 977 132 ₽
Материалы:1 493 712 ₽
Дни:30
stdClass Object
(
[id] => 81
[attribute_id] => 3
[name] => Монолитные
[material_modifier] => 1
[work_modifier] => 1
[options] => Array
(
[0] => 150 мм
[1] => 200 мм
[2] => 250 мм
[3] => 300 мм
[4] => 350 мм
[5] => 400 мм
)
[days] => [45,46,47,49,50,53]
[material_price] => [6545,7876,10175,12011,13908,15204]
[work_price] => [5106,6444,7698,8552,9807,11461]
[image] => https://akademik-stroy.ru/wp-content/uploads/materials/monolitnye.jpg
[area_modifier] => 226.32
[parent_name] => Стены 1 этаж (несущие)
[parent_id] => 3
[material_sum] => 1777517
[work_sum] => 1155590
[total_sum] => 2933107
[total_days] => 45
[display_material_sum] => 1 777 517
[display_work_sum] => 1 155 590
[display_total_sum] => 2 933 107
)
1
2 933 107₽
Работа:1 155 590 ₽
Материалы:1 777 517 ₽
Дни:45
stdClass Object
(
[id] => 82
[attribute_id] => 3
[name] => Клееный брус
[material_modifier] => 1
[work_modifier] => 1
[options] => Array
(
[0] => 160 мм
[1] => 175 мм
[2] => 200 мм
[3] => 215 мм
[4] => 240 мм
[5] => 270 мм
[6] => 282 мм
)
[days] => [24,28,32,37,40,42,48]
[material_price] => [16975,18773,19950,20545,21599,22159,23275]
[work_price] => [4806,5287,5815,6397,7036,7740,8514]
[image] => https://akademik-stroy.ru/wp-content/uploads/materials/kleenyj-brus.jpg
[area_modifier] => 226.32
[parent_name] => Стены 1 этаж (несущие)
[parent_id] => 3
[material_sum] => 4610138
[work_sum] => 1087694
[total_sum] => 5697832
[total_days] => 24
[display_material_sum] => 4 610 138
[display_work_sum] => 1 087 694
[display_total_sum] => 5 697 832
)
1
5 697 832₽
Работа:1 087 694 ₽
Материалы:4 610 138 ₽
Дни:24
stdClass Object
(
[id] => 83
[attribute_id] => 3
[name] => Каркасные
[material_modifier] => 1
[work_modifier] => 1
[options] => Array
(
[0] => 150 мм
[1] => 200 мм
[2] => 250 мм
[3] => 300 мм
)
[days] => [15,16,17,18]
[material_price] => [2379,2639,2898,3258]
[work_price] => [2418,2686,2985,3716]
[image] => https://akademik-stroy.ru/wp-content/uploads/materials/karkasnye.jpg
[area_modifier] => 226.32
[parent_name] => Стены 1 этаж (несущие)
[parent_id] => 3
[material_sum] => 646098
[work_sum] => 547242
[total_sum] => 1193340
[total_days] => 15
[display_material_sum] => 646 098
[display_work_sum] => 547 242
[display_total_sum] => 1 193 340
)
1
1 193 340₽
Работа:547 242 ₽
Материалы:646 098 ₽
Дни:15
stdClass Object
(
[id] => 84
[attribute_id] => 3
[name] => СИП-панели
[material_modifier] => 1
[work_modifier] => 1
[options] => Array
(
[0] => 120 мм
[1] => 170 мм
[2] => 220 мм
)
[days] => [7,7,7]
[material_price] => [1210,1856,2292]
[work_price] => [1410,1551,1706]
[image] => https://akademik-stroy.ru/wp-content/uploads/materials/sip-paneli.jpg
[area_modifier] => 226.32
[parent_name] => Стены 1 этаж (несущие)
[parent_id] => 3
[material_sum] => 328617
[work_sum] => 319111
[total_sum] => 647728
[total_days] => 7
[display_material_sum] => 328 617
[display_work_sum] => 319 111
[display_total_sum] => 647 728
)
1
647 728₽
Работа:319 111 ₽
Материалы:328 617 ₽
Дни:7
stdClass Object
(
[id] => 85
[attribute_id] => 3
[name] => Сухой брус
[material_modifier] => 1
[work_modifier] => 1
[options] => Array
(
[0] => 150 мм
[1] => 180 мм
[2] => 200 мм
)
[days] => [7,8,9]
[material_price] => [6010,7190,8709]
[work_price] => [3204,3845,4229]
[image] => https://akademik-stroy.ru/wp-content/uploads/materials/suhoj-brus.jpg
[area_modifier] => 226.32
[parent_name] => Стены 1 этаж (несущие)
[parent_id] => 3
[material_sum] => 1632220
[work_sum] => 725129
[total_sum] => 2357349
[total_days] => 7
[display_material_sum] => 1 632 220
[display_work_sum] => 725 129
[display_total_sum] => 2 357 349
)
1
2 357 349₽
Работа:725 129 ₽
Материалы:1 632 220 ₽
Дни:7
stdClass Object
(
[id] => 86
[attribute_id] => 3
[name] => Профилированный брус
[material_modifier] => 1
[work_modifier] => 1
[options] => Array
(
[0] => 150 мм
[1] => 180 мм
[2] => 200 мм
)
[days] => [7,8,9]
[material_price] => [8190,9228,10051]
[work_price] => [3845,4614,5075]
[image] => https://akademik-stroy.ru/wp-content/uploads/materials/profilirovannyj-brus.jpg
[area_modifier] => 226.32
[parent_name] => Стены 1 этаж (несущие)
[parent_id] => 3
[material_sum] => 2224273
[work_sum] => 870200
[total_sum] => 3094473
[total_days] => 7
[display_material_sum] => 2 224 273
[display_work_sum] => 870 200
[display_total_sum] => 3 094 473
)
1
3 094 473₽
Работа:870 200 ₽
Материалы:2 224 273 ₽
Дни:7
stdClass Object
(
[id] => 87
[attribute_id] => 3
[name] => Оцилиндрованное бревно
[material_modifier] => 1
[work_modifier] => 1
[options] => Array
(
[0] => 180 мм
[1] => 220 мм
[2] => 260 мм
[3] => 320 мм
)
[days] => [7,8,9,10]
[material_price] => [75190,9532,10868,13116]
[work_price] => [3845,4691,5535,6863]
[image] => https://akademik-stroy.ru/wp-content/uploads/materials/ocilindrovannoe-brevno-1.jpg
[area_modifier] => 226.32
[parent_name] => Стены 1 этаж (несущие)
[parent_id] => 3
[material_sum] => 20420401
[work_sum] => 870200
[total_sum] => 21290601
[total_days] => 7
[display_material_sum] => 20 420 401
[display_work_sum] => 870 200
[display_total_sum] => 21 290 601
)
1
21 290 601₽
Работа:870 200 ₽
Материалы:20 420 401 ₽
Дни:7
stdClass Object
(
[id] => 88
[attribute_id] => 3
[name] => Срубы
[material_modifier] => 1
[work_modifier] => 1
[options] => Array
(
[0] => 260 мм
[1] => 320 мм
[2] => 360 мм
[3] => 400 мм
[4] => 500 мм
)
[days] => [7,8,9,10,11]
[material_price] => [37975,46709,52314,58069,73167]
[work_price] => [4806,5911,6621,7349,9260]
[image] => https://akademik-stroy.ru/wp-content/uploads/materials/sruby.jpg
[area_modifier] => 226.32
[parent_name] => Стены 1 этаж (несущие)
[parent_id] => 3
[material_sum] => 10313402
[work_sum] => 1087694
[total_sum] => 11401096
[total_days] => 7
[display_material_sum] => 10 313 402
[display_work_sum] => 1 087 694
[display_total_sum] => 11 401 096
)
1
11 401 096₽
Работа:1 087 694 ₽
Материалы:10 313 402 ₽
Дни:7
stdClass Object
(
[id] => 174
[attribute_id] => 3
[name] => Брус
[material_modifier] => 1
[work_modifier] => 1
[options] => Array
(
[0] => 150 мм
[1] => 180 мм
[2] => 200 мм
)
[days] => [7,8,9]
[material_price] => [5127,6152,7367]
[work_price] => [1602,1922,2115]
[image] => https://akademik-stroy.ru/wp-content/uploads/materials/brus.jpg
[area_modifier] => 226.32
[parent_name] => Стены 1 этаж (несущие)
[parent_id] => 3
[material_sum] => 1392411
[work_sum] => 362565
[total_sum] => 1754976
[total_days] => 7
[display_material_sum] => 1 392 411
[display_work_sum] => 362 565
[display_total_sum] => 1 754 976
)
1
1 754 976₽
Работа:362 565 ₽
Материалы:1 392 411 ₽
Дни:7
stdClass Object
(
[id] => 175
[attribute_id] => 3
[name] => Газобетон
[material_modifier] => 1
[work_modifier] => 1
[options] => Array
(
[0] => 300 мм
[1] => 375 мм
[2] => 400 мм
[3] => 500 мм
[4] => 600 мм
)
[days] => [29,31,35,37,44]
[material_price] => [4298,5573,6356,7288,9119]
[work_price] => [4538,5251,5926,6733,7195]
[image] => https://akademik-stroy.ru/wp-content/uploads/materials/gazobeton.jpg
[area_modifier] => 226.32
[parent_name] => Стены 1 этаж (несущие)
[parent_id] => 3
[material_sum] => 1167268
[work_sum] => 1027040
[total_sum] => 2194308
[total_days] => 29
[display_material_sum] => 1 167 268
[display_work_sum] => 1 027 040
[display_total_sum] => 2 194 308
)
1
2 194 308₽
Работа:1 027 040 ₽
Материалы:1 167 268 ₽
Дни:29
stdClass Object
(
[id] => 176
[attribute_id] => 3
[name] => Блок
[material_modifier] => 1
[work_modifier] => 1
[options] => Array
(
[0] => 300 мм
[1] => 375 мм
[2] => 400 мм
[3] => 500 мм
[4] => 600 мм
)
[days] => [29,31,35,37,44]
[material_price] => [2698,3973,4356,6588,7119]
[work_price] => [5038,5851,6426,8733,9195]
[image] => https://akademik-stroy.ru/wp-content/uploads/materials/blok.jpg
[area_modifier] => 226.32
[parent_name] => Стены 1 этаж (несущие)
[parent_id] => 3
[material_sum] => 732734
[work_sum] => 1140200
[total_sum] => 1872934
[total_days] => 29
[display_material_sum] => 732 734
[display_work_sum] => 1 140 200
[display_total_sum] => 1 872 934
)
1
1 872 934₽
Работа:1 140 200 ₽
Материалы:732 734 ₽
Дни:29
stdClass Object
(
[id] => 177
[attribute_id] => 3
[name] => Газосиликатный блок
[material_modifier] => 1
[work_modifier] => 1
[options] => Array
(
[0] => 300 мм
[1] => 375 мм
[2] => 400 мм
[3] => 500 мм
[4] => 600 мм
)
[days] => [29,31,35,37,44]
[material_price] => [4298,5573,6356,7288,9119]
[work_price] => [4538,5251,5926,6733,7195]
[image] => https://akademik-stroy.ru/wp-content/uploads/materials/gazosilikatnyj-blok.jpg
[area_modifier] => 226.32
[parent_name] => Стены 1 этаж (несущие)
[parent_id] => 3
[material_sum] => 1167268
[work_sum] => 1027040
[total_sum] => 2194308
[total_days] => 29
[display_material_sum] => 1 167 268
[display_work_sum] => 1 027 040
[display_total_sum] => 2 194 308
)
1
2 194 308₽
Работа:1 027 040 ₽
Материалы:1 167 268 ₽
Дни:29
stdClass Object
(
[id] => 178
[attribute_id] => 3
[name] => Керамзитобетонный блок
[material_modifier] => 1
[work_modifier] => 1
[options] => Array
(
[0] => 300 мм
[1] => 375 мм
[2] => 400 мм
[3] => 500 мм
[4] => 600 мм
)
[days] => [23,23,24,25,28]
[material_price] => [3641,4298,5693,7613,9612]
[work_price] => [5737,5737,6903,7958,8901]
[image] => https://akademik-stroy.ru/wp-content/uploads/materials/keramzitobetonnyj-blok.jpg
[area_modifier] => 226.32
[parent_name] => Стены 1 этаж (несущие)
[parent_id] => 3
[material_sum] => 988837
[work_sum] => 1298398
[total_sum] => 2287235
[total_days] => 23
[display_material_sum] => 988 837
[display_work_sum] => 1 298 398
[display_total_sum] => 2 287 235
)
1
2 287 235₽
Работа:1 298 398 ₽
Материалы:988 837 ₽
Дни:23
stdClass Object
(
[id] => 179
[attribute_id] => 3
[name] => Деревянные
[material_modifier] => 1
[work_modifier] => 1
[options] => Array
(
[0] => 180 мм
[1] => 220 мм
[2] => 260 мм
[3] => 320 мм
)
[days] => [7,8,9,10]
[material_price] => [7950,9458,11961,14472]
[work_price] => [4037,4925,5812,7207]
[image] => https://akademik-stroy.ru/wp-content/uploads/materials/derevyannye.jpg
[area_modifier] => 226.32
[parent_name] => Стены 1 этаж (несущие)
[parent_id] => 3
[material_sum] => 2159093
[work_sum] => 913654
[total_sum] => 3072747
[total_days] => 7
[display_material_sum] => 2 159 093
[display_work_sum] => 913 654
[display_total_sum] => 3 072 747
)
1
3 072 747₽
Работа:913 654 ₽
Материалы:2 159 093 ₽
Дни:7
stdClass Object
(
[id] => 181
[attribute_id] => 3
[name] => Камень
[material_modifier] => 1
[work_modifier] => 1
[options] => Array
(
[0] => 300 мм
[1] => 400 мм
[2] => 500 мм
[3] => 600 мм
)
[days] => [25,27,31,34]
[material_price] => [5262,6844,8330,9815]
[work_price] => [8331,9135,10427,11069]
[image] => https://akademik-stroy.ru/wp-content/uploads/materials/kamen.jpg
[area_modifier] => 226.32
[parent_name] => Стены 1 этаж (несущие)
[parent_id] => 3
[material_sum] => 1429075
[work_sum] => 1885472
[total_sum] => 3314547
[total_days] => 25
[display_material_sum] => 1 429 075
[display_work_sum] => 1 885 472
[display_total_sum] => 3 314 547
)
1
3 314 547₽
Работа:1 885 472 ₽
Материалы:1 429 075 ₽
Дни:25
stdClass Object
(
[id] => 182
[attribute_id] => 3
[name] => Каркасно-щитовые
[material_modifier] => 1
[work_modifier] => 1
[options] => Array
(
[0] => 150 мм
[1] => 200 мм
[2] => 250 мм
[3] => 300 мм
[4] => 350 мм
[5] => 400 мм
)
[days] => [15,16,17,18,19,20]
[material_price] => [2379,2639,2898,3458,3601,4175]
[work_price] => [2538,2820,3134,3483,4062,5642]
[image] => https://akademik-stroy.ru/wp-content/uploads/materials/karkasno-shchitovye.jpg
[area_modifier] => 226.32
[parent_name] => Стены 1 этаж (несущие)
[parent_id] => 3
[material_sum] => 646098
[work_sum] => 574400
[total_sum] => 1220498
[total_days] => 15
[display_material_sum] => 646 098
[display_work_sum] => 574 400
[display_total_sum] => 1 220 498
)
1
1 220 498₽
Работа:574 400 ₽
Материалы:646 098 ₽
Дни:15
stdClass Object
(
[id] => 183
[attribute_id] => 3
[name] => Рубленные
[material_modifier] => 1
[work_modifier] => 1
[options] => Array
(
[0] => 150 мм
[1] => 200 мм
[2] => 250 мм
[3] => 300 мм
[4] => 350 мм
[5] => 400 мм
)
[days] => [15,16,17,18,17,18]
[material_price] => [35950,50267,60583,75900,80217,100533]
[work_price] => [9612,12816,16020,19224,22428,25632]
[image] => https://akademik-stroy.ru/wp-content/uploads/materials/rublennye.jpg
[area_modifier] => 226.32
[parent_name] => Стены 1 этаж (несущие)
[parent_id] => 3
[material_sum] => 9763445
[work_sum] => 2175388
[total_sum] => 11938833
[total_days] => 15
[display_material_sum] => 9 763 445
[display_work_sum] => 2 175 388
[display_total_sum] => 11 938 833
)
1
11 938 833₽
Работа:2 175 388 ₽
Материалы:9 763 445 ₽
Дни:15
stdClass Object
(
[id] => 185
[attribute_id] => 3
[name] => Теплоблок
[material_modifier] => 1
[work_modifier] => 1
[options] => Array
(
[0] => 300 мм (с облицовкой, не покрашенный)
[1] => 400 мм (с облицовкой, не покрашенный)
[2] => 300 мм (с облицовкой, покрашенный)
[3] => 400 мм (с облицовкой, покрашенный)
)
[days] => [15,16,15,16]
[material_price] => [2888,3729,3957,4258]
[work_price] => [2564,3229,2949,3713]
[image] => https://akademik-stroy.ru/wp-content/uploads/materials/teploblok.jpg
[area_modifier] => 226.32
[parent_name] => Стены 1 этаж (несущие)
[parent_id] => 3
[material_sum] => 784335
[work_sum] => 580284
[total_sum] => 1364619
[total_days] => 15
[display_material_sum] => 784 335
[display_work_sum] => 580 284
[display_total_sum] => 1 364 619
)
1
1 364 619₽
Работа:580 284 ₽
Материалы:784 335 ₽
Дни:15
stdClass Object
(
[id] => 186
[attribute_id] => 3
[name] => Арболитовые блоки
[material_modifier] => 1
[work_modifier] => 1
[options] => Array
(
[0] => 300 мм
[1] => 400 мм
[2] => 600 мм
)
[days] => [19,22,27]
[material_price] => [3210,4475,5852]
[work_price] => [4214,4788,5866]
[image] => https://akademik-stroy.ru/wp-content/uploads/materials/arbolitovye-bloki.png
[area_modifier] => 226.32
[parent_name] => Стены 1 этаж (несущие)
[parent_id] => 3
[material_sum] => 871785
[work_sum] => 953712
[total_sum] => 1825497
[total_days] => 19
[display_material_sum] => 871 785
[display_work_sum] => 953 712
[display_total_sum] => 1 825 497
)
1
1 825 497₽
Работа:953 712 ₽
Материалы:871 785 ₽
Дни:19
stdClass Object
(
[id] => 187
[attribute_id] => 3
[name] => Полистиролбетон
[material_modifier] => 1
[work_modifier] => 1
[options] => Array
(
[0] => 300 мм
[1] => 400 мм
[2] => 600 мм
)
[days] => [29,31,35]
[material_price] => [2798,4573,5256]
[work_price] => [5038,5851,6426]
[image] => https://akademik-stroy.ru/wp-content/uploads/materials/polistirolbeton.jpg
[area_modifier] => 226.32
[parent_name] => Стены 1 этаж (несущие)
[parent_id] => 3
[material_sum] => 759892
[work_sum] => 1140200
[total_sum] => 1900092
[total_days] => 29
[display_material_sum] => 759 892
[display_work_sum] => 1 140 200
[display_total_sum] => 1 900 092
)
1
1 900 092₽
Работа:1 140 200 ₽
Материалы:759 892 ₽
Дни:29
stdClass Object
(
[id] => 188
[attribute_id] => 3
[name] => Шлакоблок
[material_modifier] => 1
[work_modifier] => 1
[options] => Array
(
[0] => 400 мм
[1] => 600 мм
)
[days] => [15,16]
[material_price] => [2391,3471]
[work_price] => [2642,3662]
[image] => https://akademik-stroy.ru/wp-content/uploads/materials/shlakoblok.jpg
[area_modifier] => 226.32
[parent_name] => Стены 1 этаж (несущие)
[parent_id] => 3
[material_sum] => 649357
[work_sum] => 597937
[total_sum] => 1247294
[total_days] => 15
[display_material_sum] => 649 357
[display_work_sum] => 597 937
[display_total_sum] => 1 247 294
)
1
1 247 294₽
Работа:597 937 ₽
Материалы:649 357 ₽
Дни:15
stdClass Object
(
[id] => 189
[attribute_id] => 3
[name] => Теплая керамика
[material_modifier] => 1
[work_modifier] => 1
[options] => Array
(
[0] => 380 мм
[1] => 380 мм Thermo
[2] => 440 мм
[3] => 510 мм
)
[days] => [23,23,24,25]
[material_price] => [4510,5098,6093,8013]
[work_price] => [4737,4937,5903,6958]
[image] => https://akademik-stroy.ru/wp-content/uploads/materials/teplaya-keramika.jpg
[area_modifier] => 226.32
[parent_name] => Стены 1 этаж (несущие)
[parent_id] => 3
[material_sum] => 1224844
[work_sum] => 1072078
[total_sum] => 2296922
[total_days] => 23
[display_material_sum] => 1 224 844
[display_work_sum] => 1 072 078
[display_total_sum] => 2 296 922
)
1
2 296 922₽
Работа:1 072 078 ₽
Материалы:1 224 844 ₽
Дни:23
stdClass Object
(
[id] => 190
[attribute_id] => 3
[name] => Несъемная опалубка
[material_modifier] => 1
[work_modifier] => 1
[options] => Array
(
[0] => 200 мм
[1] => 250 мм
[2] => 300 мм
[3] => 350 мм
)
[days] => [15,17,19,21]
[material_price] => [3302,3902,4108,5008]
[work_price] => [2100,2100,2300,2534]
[image] => https://akademik-stroy.ru/wp-content/uploads/materials/nesemnaya-opalubka.jpg
[area_modifier] => 226.32
[parent_name] => Стены 1 этаж (несущие)
[parent_id] => 3
[material_sum] => 896770
[work_sum] => 475272
[total_sum] => 1372042
[total_days] => 15
[display_material_sum] => 896 770
[display_work_sum] => 475 272
[display_total_sum] => 1 372 042
)
1
1 372 042₽
Работа:475 272 ₽
Материалы:896 770 ₽
Дни:15
stdClass Object
(
[id] => 251
[attribute_id] => 3
[name] => Бревно
[material_modifier] => 1
[work_modifier] => 1
[options] => Array
(
[0] => 260 мм
[1] => 320 мм
[2] => 360 мм
[3] => 400 мм
[4] => 500 мм
)
[days] => [7,8,9,10,11]
[material_price] => [1874,24045,26930,30972,38825]
[work_price] => [5046,6207,6952,7716,9723]
[image] => https://akademik-stroy.ru/wp-content/uploads/materials/sruby.jpg
[area_modifier] => 226.32
[parent_name] => Стены 1 этаж (несущие)
[parent_id] => 3
[material_sum] => 508948
[work_sum] => 1142011
[total_sum] => 1650959
[total_days] => 7
[display_material_sum] => 508 948
[display_work_sum] => 1 142 011
[display_total_sum] => 1 650 959
)
1
1 650 959₽
Работа:1 142 011 ₽
Материалы:508 948 ₽
Дни:7
stdClass Object
(
[id] => 7
[attribute_id] => 4
[name] => Деревянные балки
[material_modifier] => 1
[work_modifier] => 1
[options] => Array
(
[0] => без утепления
[1] => утепление 200 мм
[2] => утепление 250 мм
[3] => утепление 300 мм
[4] => утепление 350 мм
[5] => утепление 400 мм
[6] => утепление 450 мм
[7] => утепление 500 мм
)
[days] => [8,9,9,9,11,12,13,14]
[material_price] => [1634,2042,2344,2947,3149,3652,3354,3557]
[work_price] => [1230,1339,1393,1426,1460,1513,1587,1620]
[image] => https://akademik-stroy.ru/wp-content/uploads/materials/derevyannye-balki.png
[area_modifier] => 226.32
[parent_name] => Перекрытие первого этажа
[parent_id] => 4
[material_sum] => 443768
[work_sum] => 278374
[total_sum] => 722142
[total_days] => 8
[display_material_sum] => 443 768
[display_work_sum] => 278 374
[display_total_sum] => 722 142
)
1
722 142₽
Работа:278 374 ₽
Материалы:443 768 ₽
Дни:8
stdClass Object
(
[id] => 8
[attribute_id] => 4
[name] => Сборные ж/б плиты
[material_modifier] => 1
[work_modifier] => 1
[options] => Array
(
[0] => без утепления
[1] => утепление 150 мм
[2] => утепление 200 мм
[3] => утепление 250 мм
[4] => утепление 300 мм
[5] => утепление 350 мм
[6] => утепление 400 мм
[7] => утепление 450 мм
[8] => утепление 500 мм
)
[days] => [13,15,15,15,15,15,15,15,15]
[material_price] => [3067,5577,5928,6679,7730,8782,9833,10884,11935]
[work_price] => [1520,1956,2102,2247,2392,2537,2684,2829,2974]
[image] => https://akademik-stroy.ru/wp-content/uploads/materials/sbornye-zh-b-plity-2.jpg
[area_modifier] => 226.32
[parent_name] => Перекрытие первого этажа
[parent_id] => 4
[material_sum] => 832948
[work_sum] => 344006
[total_sum] => 1176954
[total_days] => 13
[display_material_sum] => 832 948
[display_work_sum] => 344 006
[display_total_sum] => 1 176 954
)
1
1 176 954₽
Работа:344 006 ₽
Материалы:832 948 ₽
Дни:13
stdClass Object
(
[id] => 89
[attribute_id] => 4
[name] => Монолитная ж/б плита
[material_modifier] => 1
[work_modifier] => 1
[options] => Array
(
[0] => без утепления
[1] => утепление 150 мм
[2] => утепление 200 мм
[3] => утепление 250 мм
[4] => утепление 300 мм
[5] => утепление 350 мм
[6] => утепление 400 мм
[7] => утепление 450 мм
[8] => утепление 500 мм
)
[days] => [18,20,20,20,20,20,20,20,20]
[material_price] => [4837,6572,7224,7375,79426,8177,8728,9180,10031]
[work_price] => [3348,3921,4112,4302,4493,4684,4875,5066,5256]
[image] => https://akademik-stroy.ru/wp-content/uploads/materials/monolitnaya-zh-b-plita-2.jpg
[area_modifier] => 226.32
[parent_name] => Перекрытие первого этажа
[parent_id] => 4
[material_sum] => 1313652
[work_sum] => 757719
[total_sum] => 2071371
[total_days] => 18
[display_material_sum] => 1 313 652
[display_work_sum] => 757 719
[display_total_sum] => 2 071 371
)
1
2 071 371₽
Работа:757 719 ₽
Материалы:1 313 652 ₽
Дни:18
stdClass Object
(
[id] => 10
[attribute_id] => 5
[name] => Пеноблок
[material_modifier] => 1
[work_modifier] => 1
[options] => Array
(
[0] => 300 мм
[1] => 400 мм
[2] => 500 мм
[3] => 600 мм
)
[days] => [29,31,34,39]
[material_price] => [3000,4000,4500,4937]
[work_price] => [5033,5805,6400,8710]
[image] => https://akademik-stroy.ru/wp-content/uploads/materials/penoblok.jpg
[area_modifier] => 183.55
[parent_name] => Стены 2 этаж (несущие)
[parent_id] => 5
[material_sum] => 660780
[work_sum] => 923807
[total_sum] => 1584587
[total_days] => 29
[display_material_sum] => 660 780
[display_work_sum] => 923 807
[display_total_sum] => 1 584 587
)
1
1 584 587₽
Работа:923 807 ₽
Материалы:660 780 ₽
Дни:29
stdClass Object
(
[id] => 90
[attribute_id] => 5
[name] => Керамический блок
[material_modifier] => 1
[work_modifier] => 1
[options] => Array
(
[0] => 380 мм
[1] => 380 мм Thermo
[2] => 440 мм
[3] => 510 мм
)
[days] => [23,23,24,25]
[material_price] => [4510,5098,6093,8013]
[work_price] => [4737,4937,5903,6958]
[image] => https://akademik-stroy.ru/wp-content/uploads/materials/keramicheskij-blok.jpg
[area_modifier] => 183.55
[parent_name] => Стены 2 этаж (несущие)
[parent_id] => 5
[material_sum] => 993373
[work_sum] => 869476
[total_sum] => 1862849
[total_days] => 23
[display_material_sum] => 993 373
[display_work_sum] => 869 476
[display_total_sum] => 1 862 849
)
1
1 862 849₽
Работа:869 476 ₽
Материалы:993 373 ₽
Дни:23
stdClass Object
(
[id] => 91
[attribute_id] => 5
[name] => Кирпич
[material_modifier] => 1
[work_modifier] => 1
[options] => Array
(
[0] => Кирпич 250 мм
[1] => Кирпич 380 мм
[2] => Кирпич 510 мм
[3] => Кирпич 640 мм
[4] => Кирпич 770 мм
)
[days] => [30,30,31,33,36]
[material_price] => [5500,7142,9206,10171,12235]
[work_price] => [8736,10041,12018,15240,18462]
[image] => https://akademik-stroy.ru/wp-content/uploads/materials/kirpich.jpg
[area_modifier] => 183.55
[parent_name] => Стены 2 этаж (несущие)
[parent_id] => 5
[material_sum] => 1211430
[work_sum] => 1603493
[total_sum] => 2814923
[total_days] => 30
[display_material_sum] => 1 211 430
[display_work_sum] => 1 603 493
[display_total_sum] => 2 814 923
)
1
2 814 923₽
Работа:1 603 493 ₽
Материалы:1 211 430 ₽
Дни:30
stdClass Object
(
[id] => 92
[attribute_id] => 5
[name] => Монолитные
[material_modifier] => 1
[work_modifier] => 1
[options] => Array
(
[0] => 150 мм
[1] => 200 мм
[2] => 250 мм
[3] => 300 мм
[4] => 350 мм
[5] => 400 мм
)
[days] => [45,46,47,49,50,53]
[material_price] => [6545,7876,10175,12011,13908,15204]
[work_price] => [5106,6444,7698,8552,9807,11461]
[image] => https://akademik-stroy.ru/wp-content/uploads/materials/monolitnye.jpg
[area_modifier] => 183.55
[parent_name] => Стены 2 этаж (несущие)
[parent_id] => 5
[material_sum] => 1441602
[work_sum] => 937206
[total_sum] => 2378808
[total_days] => 45
[display_material_sum] => 1 441 602
[display_work_sum] => 937 206
[display_total_sum] => 2 378 808
)
1
2 378 808₽
Работа:937 206 ₽
Материалы:1 441 602 ₽
Дни:45
stdClass Object
(
[id] => 93
[attribute_id] => 5
[name] => Клееный брус
[material_modifier] => 1
[work_modifier] => 1
[options] => Array
(
[0] => 160 мм
[1] => 175 мм
[2] => 200 мм
[3] => 215 мм
[4] => 240 мм
[5] => 270 мм
[6] => 282 мм
)
[days] => [24,28,32,37,40,42,48]
[material_price] => [16975,18773,19950,20545,21599,22159,23275]
[work_price] => [4806,5287,5815,6397,7036,7740,8514]
[image] => https://akademik-stroy.ru/wp-content/uploads/materials/kleenyj-brus.jpg
[area_modifier] => 183.55
[parent_name] => Стены 2 этаж (несущие)
[parent_id] => 5
[material_sum] => 3738914
[work_sum] => 882141
[total_sum] => 4621055
[total_days] => 24
[display_material_sum] => 3 738 914
[display_work_sum] => 882 141
[display_total_sum] => 4 621 055
)
1
4 621 055₽
Работа:882 141 ₽
Материалы:3 738 914 ₽
Дни:24
stdClass Object
(
[id] => 94
[attribute_id] => 5
[name] => Каркасные
[material_modifier] => 1
[work_modifier] => 1
[options] => Array
(
[0] => 150 мм
[1] => 200 мм
[2] => 250 мм
[3] => 300 мм
)
[days] => [15,16,17,18]
[material_price] => [2379,2639,2898,3258]
[work_price] => [2418,2686,2985,3716]
[image] => https://akademik-stroy.ru/wp-content/uploads/materials/karkasnye.jpg
[area_modifier] => 183.55
[parent_name] => Стены 2 этаж (несущие)
[parent_id] => 5
[material_sum] => 523999
[work_sum] => 443824
[total_sum] => 967823
[total_days] => 15
[display_material_sum] => 523 999
[display_work_sum] => 443 824
[display_total_sum] => 967 823
)
1
967 823₽
Работа:443 824 ₽
Материалы:523 999 ₽
Дни:15
stdClass Object
(
[id] => 95
[attribute_id] => 5
[name] => СИП-панели
[material_modifier] => 1
[work_modifier] => 1
[options] => Array
(
[0] => 120 мм
[1] => 170 мм
[2] => 220 мм
)
[days] => [7,7,7]
[material_price] => [1210,1856,2292]
[work_price] => [1410,1551,1706]
[image] => https://akademik-stroy.ru/wp-content/uploads/materials/sip-paneli.jpg
[area_modifier] => 183.55
[parent_name] => Стены 2 этаж (несущие)
[parent_id] => 5
[material_sum] => 266515
[work_sum] => 258806
[total_sum] => 525321
[total_days] => 7
[display_material_sum] => 266 515
[display_work_sum] => 258 806
[display_total_sum] => 525 321
)
1
525 321₽
Работа:258 806 ₽
Материалы:266 515 ₽
Дни:7
stdClass Object
(
[id] => 96
[attribute_id] => 5
[name] => Сухой брус
[material_modifier] => 1
[work_modifier] => 1
[options] => Array
(
[0] => 150 мм
[1] => 180 мм
[2] => 200 мм
)
[days] => [7,8,9]
[material_price] => [6010,7190,8709]
[work_price] => [3204,3845,4229]
[image] => https://akademik-stroy.ru/wp-content/uploads/materials/suhoj-brus.jpg
[area_modifier] => 183.55
[parent_name] => Стены 2 этаж (несущие)
[parent_id] => 5
[material_sum] => 1323763
[work_sum] => 588094
[total_sum] => 1911857
[total_days] => 7
[display_material_sum] => 1 323 763
[display_work_sum] => 588 094
[display_total_sum] => 1 911 857
)
1
1 911 857₽
Работа:588 094 ₽
Материалы:1 323 763 ₽
Дни:7
stdClass Object
(
[id] => 97
[attribute_id] => 5
[name] => Профилированный брус
[material_modifier] => 1
[work_modifier] => 1
[options] => Array
(
[0] => 150 мм
[1] => 180 мм
[2] => 200 мм
)
[days] => [7,8,9]
[material_price] => [8190,9228,10051]
[work_price] => [3845,4614,5075]
[image] => https://akademik-stroy.ru/wp-content/uploads/materials/profilirovannyj-brus.jpg
[area_modifier] => 183.55
[parent_name] => Стены 2 этаж (несущие)
[parent_id] => 5
[material_sum] => 1803929
[work_sum] => 705750
[total_sum] => 2509679
[total_days] => 7
[display_material_sum] => 1 803 929
[display_work_sum] => 705 750
[display_total_sum] => 2 509 679
)
1
2 509 679₽
Работа:705 750 ₽
Материалы:1 803 929 ₽
Дни:7
stdClass Object
(
[id] => 98
[attribute_id] => 5
[name] => Оцилиндрованное бревно
[material_modifier] => 1
[work_modifier] => 1
[options] => Array
(
[0] => 180 мм
[1] => 220 мм
[2] => 260 мм
[3] => 320 мм
)
[days] => [7,8,9,10]
[material_price] => [75190,9532,10868,13116]
[work_price] => [3845,4691,5535,6863]
[image] => https://akademik-stroy.ru/wp-content/uploads/materials/ocilindrovannoe-brevno-1.jpg
[area_modifier] => 183.55
[parent_name] => Стены 2 этаж (несущие)
[parent_id] => 5
[material_sum] => 16561349
[work_sum] => 705750
[total_sum] => 17267099
[total_days] => 7
[display_material_sum] => 16 561 349
[display_work_sum] => 705 750
[display_total_sum] => 17 267 099
)
1
17 267 099₽
Работа:705 750 ₽
Материалы:16 561 349 ₽
Дни:7
stdClass Object
(
[id] => 99
[attribute_id] => 5
[name] => Срубы
[material_modifier] => 1
[work_modifier] => 1
[options] => Array
(
[0] => 260 мм
[1] => 320 мм
[2] => 360 мм
[3] => 400 мм
[4] => 500 мм
)
[days] => [7,8,9,10,11]
[material_price] => [16175,23709,26314,29069,32167]
[work_price] => [4806,5911,6621,7349,9260]
[image] => https://akademik-stroy.ru/wp-content/uploads/materials/suhoj-brus.jpg
[area_modifier] => 183.55
[parent_name] => Стены 2 этаж (несущие)
[parent_id] => 5
[material_sum] => 3562706
[work_sum] => 882141
[total_sum] => 4444847
[total_days] => 7
[display_material_sum] => 3 562 706
[display_work_sum] => 882 141
[display_total_sum] => 4 444 847
)
1
4 444 847₽
Работа:882 141 ₽
Материалы:3 562 706 ₽
Дни:7
stdClass Object
(
[id] => 194
[attribute_id] => 5
[name] => Брус
[material_modifier] => 1
[work_modifier] => 1
[options] => Array
(
[0] => 150 мм
[1] => 180 мм
[2] => 200 мм
)
[days] => [10,13,15]
[material_price] => [5127,6152,7367]
[work_price] => [1602,1922,2115]
[image] => https://akademik-stroy.ru/wp-content/uploads/materials/brus.jpg
[area_modifier] => 183.55
[parent_name] => Стены 2 этаж (несущие)
[parent_id] => 5
[material_sum] => 1129273
[work_sum] => 294047
[total_sum] => 1423320
[total_days] => 10
[display_material_sum] => 1 129 273
[display_work_sum] => 294 047
[display_total_sum] => 1 423 320
)
1
1 423 320₽
Работа:294 047 ₽
Материалы:1 129 273 ₽
Дни:10
stdClass Object
(
[id] => 195
[attribute_id] => 5
[name] => Газобетон
[material_modifier] => 1
[work_modifier] => 1
[options] => Array
(
[0] => 300 мм
[1] => 375 мм
[2] => 400 мм
[3] => 500 мм
[4] => 600 мм
)
[days] => [29,31,35,37,44]
[material_price] => [4298,5573,6356,7288,9119]
[work_price] => [4538,5251,5926,6733,7195]
[image] => https://akademik-stroy.ru/wp-content/uploads/materials/gazobeton.jpg
[area_modifier] => 183.55
[parent_name] => Стены 2 этаж (несущие)
[parent_id] => 5
[material_sum] => 946677
[work_sum] => 832950
[total_sum] => 1779627
[total_days] => 29
[display_material_sum] => 946 677
[display_work_sum] => 832 950
[display_total_sum] => 1 779 627
)
1
1 779 627₽
Работа:832 950 ₽
Материалы:946 677 ₽
Дни:29
stdClass Object
(
[id] => 196
[attribute_id] => 5
[name] => Блок
[material_modifier] => 1
[work_modifier] => 1
[options] => Array
(
[0] => 300 мм
[1] => 375 мм
[2] => 400 мм
[3] => 500 мм
[4] => 600 мм
)
[days] => [29,31,35,37,44]
[material_price] => [2698,3973,4356,6588,7119]
[work_price] => [5038,5851,6426,8733,9195]
[image] => https://akademik-stroy.ru/wp-content/uploads/materials/blok.jpg
[area_modifier] => 183.55
[parent_name] => Стены 2 этаж (несущие)
[parent_id] => 5
[material_sum] => 594261
[work_sum] => 924725
[total_sum] => 1518986
[total_days] => 29
[display_material_sum] => 594 261
[display_work_sum] => 924 725
[display_total_sum] => 1 518 986
)
1
1 518 986₽
Работа:924 725 ₽
Материалы:594 261 ₽
Дни:29
stdClass Object
(
[id] => 197
[attribute_id] => 5
[name] => Газосиликатный блок
[material_modifier] => 1
[work_modifier] => 1
[options] => Array
(
[0] => 300 мм
[1] => 375 мм
[2] => 400 мм
[3] => 500 мм
[4] => 600 мм
)
[days] => [29,31,35,37,44]
[material_price] => [4298,5573,6356,7288,9119]
[work_price] => [4538,5251,5926,6733,7195]
[image] => https://akademik-stroy.ru/wp-content/uploads/materials/gazosilikatnyj-blok.jpg
[area_modifier] => 183.55
[parent_name] => Стены 2 этаж (несущие)
[parent_id] => 5
[material_sum] => 946677
[work_sum] => 832950
[total_sum] => 1779627
[total_days] => 29
[display_material_sum] => 946 677
[display_work_sum] => 832 950
[display_total_sum] => 1 779 627
)
1
1 779 627₽
Работа:832 950 ₽
Материалы:946 677 ₽
Дни:29
stdClass Object
(
[id] => 198
[attribute_id] => 5
[name] => Керамзитобетонный блок
[material_modifier] => 1
[work_modifier] => 1
[options] => Array
(
[0] => 300 мм
[1] => 375 мм
[2] => 400 мм
[3] => 500 мм
[4] => 600 мм
)
[days] => [23,23,24,25,28]
[material_price] => [3641,4298,5693,7613,9612]
[work_price] => [5737,5737,6903,7958,8901]
[image] => https://akademik-stroy.ru/wp-content/uploads/materials/keramzitobetonnyj-blok.jpg
[area_modifier] => 183.55
[parent_name] => Стены 2 этаж (несущие)
[parent_id] => 5
[material_sum] => 801967
[work_sum] => 1053026
[total_sum] => 1854993
[total_days] => 23
[display_material_sum] => 801 967
[display_work_sum] => 1 053 026
[display_total_sum] => 1 854 993
)
1
1 854 993₽
Работа:1 053 026 ₽
Материалы:801 967 ₽
Дни:23
stdClass Object
(
[id] => 199
[attribute_id] => 5
[name] => Деревянные
[material_modifier] => 1
[work_modifier] => 1
[options] => Array
(
[0] => 180 мм
[1] => 220 мм
[2] => 260 мм
[3] => 320 мм
)
[days] => [7,8,9,10]
[material_price] => [7950,9458,11961,14472]
[work_price] => [4037,4925,5812,7207]
[image] => https://akademik-stroy.ru/wp-content/uploads/materials/derevyannye.jpg
[area_modifier] => 183.55
[parent_name] => Стены 2 этаж (несущие)
[parent_id] => 5
[material_sum] => 1751067
[work_sum] => 740991
[total_sum] => 2492058
[total_days] => 7
[display_material_sum] => 1 751 067
[display_work_sum] => 740 991
[display_total_sum] => 2 492 058
)
1
2 492 058₽
Работа:740 991 ₽
Материалы:1 751 067 ₽
Дни:7
stdClass Object
(
[id] => 200
[attribute_id] => 5
[name] => Камень
[material_modifier] => 1
[work_modifier] => 1
[options] => Array
(
[0] => 300 мм
[1] => 400 мм
[2] => 500 мм
[3] => 600 мм
)
[days] => [25,27,31,34]
[material_price] => [5262,6844,8330,9815]
[work_price] => [8331,9135,10427,11069]
[image] => https://akademik-stroy.ru/wp-content/uploads/materials/kamen.jpg
[area_modifier] => 183.55
[parent_name] => Стены 2 этаж (несущие)
[parent_id] => 5
[material_sum] => 1159008
[work_sum] => 1529155
[total_sum] => 2688163
[total_days] => 25
[display_material_sum] => 1 159 008
[display_work_sum] => 1 529 155
[display_total_sum] => 2 688 163
)
1
2 688 163₽
Работа:1 529 155 ₽
Материалы:1 159 008 ₽
Дни:25
stdClass Object
(
[id] => 201
[attribute_id] => 5
[name] => Каркасно-щитовые
[material_modifier] => 1
[work_modifier] => 1
[options] => Array
(
[0] => 150 мм
[1] => 200 мм
[2] => 250 мм
[3] => 300 мм
[4] => 350 мм
[5] => 400 мм
)
[days] => [15,16,17,18,19,20]
[material_price] => [2379,2639,2898,3458,3601,4175]
[work_price] => [2538,2820,3134,3483,4062,5642]
[image] => https://akademik-stroy.ru/wp-content/uploads/materials/karkasno-shchitovye.jpg
[area_modifier] => 183.55
[parent_name] => Стены 2 этаж (несущие)
[parent_id] => 5
[material_sum] => 523999
[work_sum] => 465850
[total_sum] => 989849
[total_days] => 15
[display_material_sum] => 523 999
[display_work_sum] => 465 850
[display_total_sum] => 989 849
)
1
989 849₽
Работа:465 850 ₽
Материалы:523 999 ₽
Дни:15
stdClass Object
(
[id] => 202
[attribute_id] => 5
[name] => Рубленные
[material_modifier] => 1
[work_modifier] => 1
[options] => Array
(
[0] => 150 мм
[1] => 200 мм
[2] => 250 мм
[3] => 300 мм
[4] => 350 мм
[5] => 400 мм
)
[days] => [15,16,17,18,17,18]
[material_price] => [35950,50267,60583,75900,80217,100533]
[work_price] => [9612,12816,16020,19224,22428,25632]
[image] => https://akademik-stroy.ru/wp-content/uploads/materials/rublennye.jpg
[area_modifier] => 183.55
[parent_name] => Стены 2 этаж (несущие)
[parent_id] => 5
[material_sum] => 7918347
[work_sum] => 1764283
[total_sum] => 9682630
[total_days] => 15
[display_material_sum] => 7 918 347
[display_work_sum] => 1 764 283
[display_total_sum] => 9 682 630
)
1
9 682 630₽
Работа:1 764 283 ₽
Материалы:7 918 347 ₽
Дни:15
stdClass Object
(
[id] => 203
[attribute_id] => 5
[name] => Теплоблок
[material_modifier] => 1
[work_modifier] => 1
[options] => Array
(
[0] => 300 мм (с облицовкой, не покрашенный)
[1] => 400 мм (с облицовкой, не покрашенный)
[2] => 300 мм (с облицовкой, покрашенный)
[3] => 400 мм (с облицовкой, покрашенный)
)
[days] => [15,16,15,16]
[material_price] => [2888,3729,3957,4258]
[work_price] => [2564,3229,2949,3713]
[image] => https://akademik-stroy.ru/wp-content/uploads/materials/teploblok.jpg
[area_modifier] => 183.55
[parent_name] => Стены 2 этаж (несущие)
[parent_id] => 5
[material_sum] => 636111
[work_sum] => 470622
[total_sum] => 1106733
[total_days] => 15
[display_material_sum] => 636 111
[display_work_sum] => 470 622
[display_total_sum] => 1 106 733
)
1
1 106 733₽
Работа:470 622 ₽
Материалы:636 111 ₽
Дни:15
stdClass Object
(
[id] => 204
[attribute_id] => 5
[name] => Арболитовые блоки
[material_modifier] => 1
[work_modifier] => 1
[options] => Array
(
[0] => 300 мм
[1] => 400 мм
[2] => 600 мм
)
[days] => [19,22,27]
[material_price] => [3210,4475,5852]
[work_price] => [4214,4788,5866]
[image] => https://akademik-stroy.ru/wp-content/uploads/materials/arbolitovye-bloki.png
[area_modifier] => 183.55
[parent_name] => Стены 2 этаж (несущие)
[parent_id] => 5
[material_sum] => 707035
[work_sum] => 773480
[total_sum] => 1480515
[total_days] => 19
[display_material_sum] => 707 035
[display_work_sum] => 773 480
[display_total_sum] => 1 480 515
)
1
1 480 515₽
Работа:773 480 ₽
Материалы:707 035 ₽
Дни:19
stdClass Object
(
[id] => 205
[attribute_id] => 5
[name] => Полистиролбетон
[material_modifier] => 1
[work_modifier] => 1
[options] => Array
(
[0] => 300 мм
[1] => 400 мм
[2] => 600 мм
)
[days] => [29,31,35]
[material_price] => [2798,4573,5256]
[work_price] => [5038,5851,6426]
[image] => https://akademik-stroy.ru/wp-content/uploads/materials/polistirolbeton.jpg
[area_modifier] => 183.55
[parent_name] => Стены 2 этаж (несущие)
[parent_id] => 5
[material_sum] => 616287
[work_sum] => 924725
[total_sum] => 1541012
[total_days] => 29
[display_material_sum] => 616 287
[display_work_sum] => 924 725
[display_total_sum] => 1 541 012
)
1
1 541 012₽
Работа:924 725 ₽
Материалы:616 287 ₽
Дни:29
stdClass Object
(
[id] => 206
[attribute_id] => 5
[name] => Шлакоблок
[material_modifier] => 1
[work_modifier] => 1
[options] => Array
(
[0] => 400 мм
[1] => 600 мм
)
[days] => [15,16]
[material_price] => [2391,3471]
[work_price] => [2642,3662]
[image] => https://akademik-stroy.ru/wp-content/uploads/materials/shlakoblok.jpg
[area_modifier] => 183.55
[parent_name] => Стены 2 этаж (несущие)
[parent_id] => 5
[material_sum] => 526642
[work_sum] => 484939
[total_sum] => 1011581
[total_days] => 15
[display_material_sum] => 526 642
[display_work_sum] => 484 939
[display_total_sum] => 1 011 581
)
1
1 011 581₽
Работа:484 939 ₽
Материалы:526 642 ₽
Дни:15
stdClass Object
(
[id] => 245
[attribute_id] => 5
[name] => Теплая керамика
[material_modifier] => 1
[work_modifier] => 1
[options] => Array
(
[0] => 380 мм
[1] => 380 мм Thermo
[2] => 440 мм
[3] => 510 мм
)
[days] => [10,10,11,12]
[material_price] => [4510,5098,6093,8013]
[work_price] => [4737,4937,5903,6958]
[image] => https://akademik-stroy.ru/wp-content/uploads/materials/teplaya-keramika.jpg
[area_modifier] => 183.55
[parent_name] => Стены 2 этаж (несущие)
[parent_id] => 5
[material_sum] => 993373
[work_sum] => 869476
[total_sum] => 1862849
[total_days] => 10
[display_material_sum] => 993 373
[display_work_sum] => 869 476
[display_total_sum] => 1 862 849
)
1
1 862 849₽
Работа:869 476 ₽
Материалы:993 373 ₽
Дни:10
stdClass Object
(
[id] => 246
[attribute_id] => 5
[name] => Несъемная опалубка
[material_modifier] => 1
[work_modifier] => 1
[options] => Array
(
[0] => 380 мм
[1] => 380 мм Thermo
[2] => 440 мм
[3] => 510 мм
)
[days] => [10,10,11,12]
[material_price] => [3302,3902,4108,5008]
[work_price] => [2100,2100,2300,2534]
[image] => https://akademik-stroy.ru/wp-content/uploads/materials/nesemnaya-opalubka.jpg
[area_modifier] => 183.55
[parent_name] => Стены 2 этаж (несущие)
[parent_id] => 5
[material_sum] => 727299
[work_sum] => 385455
[total_sum] => 1112754
[total_days] => 10
[display_material_sum] => 727 299
[display_work_sum] => 385 455
[display_total_sum] => 1 112 754
)
1
1 112 754₽
Работа:385 455 ₽
Материалы:727 299 ₽
Дни:10
stdClass Object
(
[id] => 254
[attribute_id] => 5
[name] => Бревно
[material_modifier] => 1
[work_modifier] => 1
[options] => Array
(
[0] => 260 мм
[1] => 320 мм
[2] => 360 мм
[3] => 400 мм
[4] => 500 мм
)
[days] => [7,8,9,10,11]
[material_price] => [1874,24045,26930,30972,38825]
[work_price] => [5046,6207,6952,7716,9723]
[image] => https://akademik-stroy.ru/wp-content/uploads/materials/sruby.jpg
[area_modifier] => 183.55
[parent_name] => Стены 2 этаж (несущие)
[parent_id] => 5
[material_sum] => 412767
[work_sum] => 926193
[total_sum] => 1338960
[total_days] => 7
[display_material_sum] => 412 767
[display_work_sum] => 926 193
[display_total_sum] => 1 338 960
)
1
1 338 960₽
Работа:926 193 ₽
Материалы:412 767 ₽
Дни:7
stdClass Object
(
[id] => 11
[attribute_id] => 6
[name] => Деревянные балки
[material_modifier] => 1
[work_modifier] => 1
[options] => Array
(
[0] => без утепления
[1] => утепление 200 мм
[2] => утепление 250 мм
[3] => утепление 300 мм
[4] => утепление 350 мм
[5] => утепление 400 мм
[6] => утепление 450 мм
[7] => утепление 500 мм
)
[days] => [8,9,9,9,11,12,13,14]
[material_price] => [1634,2042,2344,2947,3149,3652,3354,3557]
[work_price] => [1230,1339,1393,1426,1460,1513,1587,1620]
[image] => https://akademik-stroy.ru/wp-content/uploads/materials/derevyannye-balki.png
[area_modifier] => 183.55
[parent_name] => Перекрытие второго этажа
[parent_id] => 6
[material_sum] => 359905
[work_sum] => 225767
[total_sum] => 585672
[total_days] => 8
[display_material_sum] => 359 905
[display_work_sum] => 225 767
[display_total_sum] => 585 672
)
1
585 672₽
Работа:225 767 ₽
Материалы:359 905 ₽
Дни:8
stdClass Object
(
[id] => 12
[attribute_id] => 6
[name] => Сборные ж/б плиты
[material_modifier] => 1
[work_modifier] => 1
[options] => Array
(
[0] => без утепления
[1] => утепление 150 мм
[2] => утепление 200 мм
[3] => утепление 250 мм
[4] => утепление 300 мм
[5] => утепление 350 мм
[6] => утепление 400 мм
[7] => утепление 450 мм
[8] => утепление 500 мм
)
[days] => [13,15,15,15,15,15,15,15,15]
[material_price] => [3067,5577,5928,6679,7730,8782,9833,10884,11935]
[work_price] => [1520,1956,2102,2247,2392,2537,2684,2829,2974]
[image] => https://akademik-stroy.ru/wp-content/uploads/materials/sbornye-zh-b-plity-2.jpg
[area_modifier] => 183.55
[parent_name] => Перекрытие второго этажа
[parent_id] => 6
[material_sum] => 675537
[work_sum] => 278996
[total_sum] => 954533
[total_days] => 13
[display_material_sum] => 675 537
[display_work_sum] => 278 996
[display_total_sum] => 954 533
)
1
954 533₽
Работа:278 996 ₽
Материалы:675 537 ₽
Дни:13
stdClass Object
(
[id] => 100
[attribute_id] => 6
[name] => Монолитная ж/б плита
[material_modifier] => 1
[work_modifier] => 1
[options] => Array
(
[0] => без утепления
[1] => утепление 150 мм
[2] => утепление 200 мм
[3] => утепление 250 мм
[4] => утепление 300 мм
[5] => утепление 350 мм
[6] => утепление 400 мм
[7] => утепление 450 мм
[8] => утепление 500 мм
)
[days] => [18,20,20,20,20,20,20,20,20]
[material_price] => [4837,6572,7224,7375,79426,8177,8728,9180,10031]
[work_price] => [3348,3921,4112,4302,4493,4684,4875,5066,5256]
[image] => https://akademik-stroy.ru/wp-content/uploads/materials/monolitnaya-zh-b-plita-2.jpg
[area_modifier] => 183.55
[parent_name] => Перекрытие второго этажа
[parent_id] => 6
[material_sum] => 1065398
[work_sum] => 614525
[total_sum] => 1679923
[total_days] => 18
[display_material_sum] => 1 065 398
[display_work_sum] => 614 525
[display_total_sum] => 1 679 923
)
1
1 679 923₽
Работа:614 525 ₽
Материалы:1 065 398 ₽
Дни:18
stdClass Object
(
[id] => 160
[attribute_id] => 36
[name] => Не эксплуатируемая
[material_modifier] => 1
[work_modifier] => 1
[options] => Array
(
)
[days] => [10]
[material_price] => [8068]
[work_price] => [4163]
[image] => https://akademik-stroy.ru/wp-content/uploads/materials/ne-ehkspluatiruemaya-3.jpg
[area_modifier] => 226.32
[parent_name] => Плоская крыша
[parent_id] => 36
[material_sum] => 2191140
[work_sum] => 942170
[total_sum] => 3133310
[total_days] => 10
[display_material_sum] => 2 191 140
[display_work_sum] => 942 170
[display_total_sum] => 3 133 310
)
1
3 133 310₽
Работа:942 170 ₽
Материалы:2 191 140 ₽
Дни:10
stdClass Object
(
[id] => 161
[attribute_id] => 36
[name] => Зеленая кровля (Эксплуатируемая)
[material_modifier] => 1
[work_modifier] => 1
[options] => Array
(
)
[days] => [10]
[material_price] => [10056]
[work_price] => [8446]
[image] => https://akademik-stroy.ru/wp-content/uploads/materials/zelenaya-krovlya-2.jpg
[area_modifier] => 226.32
[parent_name] => Плоская крыша
[parent_id] => 36
[material_sum] => 2731049
[work_sum] => 1911499
[total_sum] => 4642548
[total_days] => 10
[display_material_sum] => 2 731 049
[display_work_sum] => 1 911 499
[display_total_sum] => 4 642 548
)
1
4 642 548₽
Работа:1 911 499 ₽
Материалы:2 731 049 ₽
Дни:10
stdClass Object
(
[id] => 162
[attribute_id] => 36
[name] => Эксплуатируемая
[material_modifier] => 1
[work_modifier] => 1
[options] => Array
(
)
[days] => [10]
[material_price] => [9593]
[work_price] => [7459]
[image] => https://akademik-stroy.ru/wp-content/uploads/materials/ehkspluatiruemaya-2.jpg
[area_modifier] => 226.32
[parent_name] => Плоская крыша
[parent_id] => 36
[material_sum] => 2605305
[work_sum] => 1688121
[total_sum] => 4293426
[total_days] => 10
[display_material_sum] => 2 605 305
[display_work_sum] => 1 688 121
[display_total_sum] => 4 293 426
)
1
4 293 426₽
Работа:1 688 121 ₽
Материалы:2 605 305 ₽
Дни:10
stdClass Object
(
[id] => 163
[attribute_id] => 36
[name] => Нет
[material_modifier] => 1
[work_modifier] => 1
[options] => Array
(
)
[days] => [0]
[material_price] => [0]
[work_price] => [0]
[image] => https://akademik-stroy.ru/wp-content/uploads/materials/ne-ehkspluatiruemaya-3.jpg
[area_modifier] => 226.32
[parent_name] => Плоская крыша
[parent_id] => 36
[material_sum] => 0
[work_sum] => 0
[total_sum] => 0
[total_days] => 0
[display_material_sum] => 0
[display_work_sum] => 0
[display_total_sum] => 0
)
1
0₽
Работа:0 ₽
Материалы:0 ₽
Дни:0
stdClass Object
(
[id] => 51
[attribute_id] => 26
[name] => Есть
[material_modifier] => 1
[work_modifier] => 1
[options] => Array
(
[0] => Профиль 58 мм, 3-камерный, стеклопакет 2-камерный до 32 мм
[1] => Профиль 60 мм, 4-камерный, стеклопакет 2-камерный до 32 мм
[2] => Профиль 70 мм, 5-камерный, стеклопакет 2-камерный до 40 мм
[3] => Профиль 72 мм, 5-камерный, стеклопакет 2-камерный до 40 мм
[4] => Алюминиевые окна Alutech профиль 72 мм, стеклопакет 2-камерный
)
[days] => [3,3,3,3,3]
[material_price] => [1339,2124,2867,3023,29596]
[work_price] => [635,647,659,668,2579]
[image] => https://akademik-stroy.ru/wp-content/uploads/materials/okna.jpg
[area_modifier] => 332.61
[parent_name] => Окна
[parent_id] => 26
[material_sum] => 534438
[work_sum] => 211207
[total_sum] => 745645
[total_days] => 3
[display_material_sum] => 534 438
[display_work_sum] => 211 207
[display_total_sum] => 745 645
)
1
745 645₽
Работа:211 207 ₽
Материалы:534 438 ₽
Дни:3
stdClass Object
(
[id] => 52
[attribute_id] => 26
[name] => Нет
[material_modifier] => 2
[work_modifier] => 1
[options] =>
[days] => null
[material_price] => null
[work_price] => null
[image] => https://akademik-stroy.ru/wp-content/uploads/materials/okna.jpg
[area_modifier] => 332.61
[parent_name] => Окна
[parent_id] => 26
[material_sum] => 0
[work_sum] => 0
[total_sum] => 0
[total_days] => 0
[display_material_sum] => 0
[display_work_sum] => 0
[display_total_sum] => 0
)
1
0₽
Работа:0 ₽
Материалы:0 ₽
Дни:0
stdClass Object
(
[id] => 53
[attribute_id] => 27
[name] => Есть
[material_modifier] => 1
[work_modifier] => 1
[options] => Array
(
)
[days] => [1]
[material_price] => [10000]
[work_price] => [5500]
[image] => https://akademik-stroy.ru/wp-content/uploads/materials/dveri.jpg
[area_modifier] => 1
[parent_name] => Двери входные
[parent_id] => 27
[material_sum] => 12000
[work_sum] => 5500
[total_sum] => 17500
[total_days] => 1
[display_material_sum] => 12 000
[display_work_sum] => 5 500
[display_total_sum] => 17 500
)
1
17 500₽
Работа:5 500 ₽
Материалы:12 000 ₽
Дни:1
stdClass Object
(
[id] => 54
[attribute_id] => 27
[name] => Нет
[material_modifier] => 1
[work_modifier] => 1
[options] => Array
(
)
[days] => [0]
[material_price] => [0]
[work_price] => [0]
[image] => https://akademik-stroy.ru/wp-content/uploads/materials/dveri.jpg
[area_modifier] => 1
[parent_name] => Двери входные
[parent_id] => 27
[material_sum] => 0
[work_sum] => 0
[total_sum] => 0
[total_days] => 0
[display_material_sum] => 0
[display_work_sum] => 0
[display_total_sum] => 0
)
1
0₽
Работа:0 ₽
Материалы:0 ₽
Дни:0
stdClass Object
(
[id] => 31
[attribute_id] => 16
[name] => Нет
[material_modifier] => 1
[work_modifier] => 1
[options] => Array
(
)
[days] => [0]
[material_price] => [0]
[work_price] => [0]
[image] => https://akademik-stroy.ru/wp-content/uploads/materials/docke-standard-pvh.jpg
[area_modifier] => 226.32
[parent_name] => Водосточная система
[parent_id] => 16
[material_sum] => 0
[work_sum] => 0
[total_sum] => 0
[total_days] => 0
[display_material_sum] => 0
[display_work_sum] => 0
[display_total_sum] => 0
)
1
0₽
Работа:0 ₽
Материалы:0 ₽
Дни:0
stdClass Object
(
[id] => 32
[attribute_id] => 16
[name] => Есть
[material_modifier] => 1
[work_modifier] => 1
[options] => Array
(
[0] => Döcke Standard (ПВХ)
[1] => Металлические Grand Line
)
[days] => [7,7]
[material_price] => [1842,2703]
[work_price] => [1491,1529]
[image] => https://akademik-stroy.ru/wp-content/uploads/materials/docke-standard-pvh.jpg
[area_modifier] => 226.32
[parent_name] => Водосточная система
[parent_id] => 16
[material_sum] => 500258
[work_sum] => 337443
[total_sum] => 837701
[total_days] => 7
[display_material_sum] => 500 258
[display_work_sum] => 337 443
[display_total_sum] => 837 701
)
1
837 701₽
Работа:337 443 ₽
Материалы:500 258 ₽
Дни:7
stdClass Object
(
[id] => 33
[attribute_id] => 17
[name] => Нет
[material_modifier] => 1
[work_modifier] => 1
[options] => Array
(
)
[days] => [0]
[material_price] => [0]
[work_price] => [0]
[image] => https://akademik-stroy.ru/wp-content/uploads/materials/mineralovata.jpg
[area_modifier] => 409.88
[parent_name] => Дополнительное утепление наружных стен
[parent_id] => 17
[material_sum] => 0
[work_sum] => 0
[total_sum] => 0
[total_days] => 0
[display_material_sum] => 0
[display_work_sum] => 0
[display_total_sum] => 0
)
1
0₽
Работа:0 ₽
Материалы:0 ₽
Дни:0
stdClass Object
(
[id] => 34
[attribute_id] => 17
[name] => Минераловатный
[material_modifier] => 1
[work_modifier] => 1
[options] => Array
(
[0] => 50 мм
[1] => 100 мм
[2] => 150 мм
[3] => 200 мм
[4] => 250 мм
[5] => 300 мм
)
[days] => [7,8,10,12,14,15]
[material_price] => [3437,3613,3803,3915,4601,4830]
[work_price] => [2325,2423,2523,2749,2859,3025]
[image] => https://akademik-stroy.ru/wp-content/uploads/materials/mineralovata.jpg
[area_modifier] => 409.88
[parent_name] => Дополнительное утепление наружных стен
[parent_id] => 17
[material_sum] => 1690509
[work_sum] => 952971
[total_sum] => 2643480
[total_days] => 7
[display_material_sum] => 1 690 509
[display_work_sum] => 952 971
[display_total_sum] => 2 643 480
)
1
2 643 480₽
Работа:952 971 ₽
Материалы:1 690 509 ₽
Дни:7
stdClass Object
(
[id] => 128
[attribute_id] => 17
[name] => Эковата (целлюлозная вата)
[material_modifier] => 1
[work_modifier] => 1
[options] => Array
(
[0] => 50 мм
[1] => 100 мм
[2] => 150 мм
[3] => 200 мм
[4] => 250 мм
[5] => 300 мм
)
[days] => [3,4,5,6,7,8]
[material_price] => [810,1319,1629,1838,2267,2676]
[work_price] => [1225,1323,1423,1549,1659,1725]
[image] => https://akademik-stroy.ru/wp-content/uploads/materials/ehkovata.jpg
[area_modifier] => 409.88
[parent_name] => Дополнительное утепление наружных стен
[parent_id] => 17
[material_sum] => 398403
[work_sum] => 502103
[total_sum] => 900506
[total_days] => 3
[display_material_sum] => 398 403
[display_work_sum] => 502 103
[display_total_sum] => 900 506
)
1
900 506₽
Работа:502 103 ₽
Материалы:398 403 ₽
Дни:3
stdClass Object
(
[id] => 129
[attribute_id] => 17
[name] => Экструдированный пенополистирол
[material_modifier] => 1
[work_modifier] => 1
[options] => Array
(
[0] => 50 мм
[1] => 100 мм
[2] => 150 мм
[3] => 200 мм
[4] => 250 мм
[5] => 300 мм
)
[days] => [5,6,7,8,9,10]
[material_price] => [4560,4300,5119,6292,7010,8583]
[work_price] => [1795,1954,2254,2330,2595,2735]
[image] => https://akademik-stroy.ru/wp-content/uploads/materials/epps.jpg
[area_modifier] => 409.88
[parent_name] => Дополнительное утепление наружных стен
[parent_id] => 17
[material_sum] => 2242863
[work_sum] => 735735
[total_sum] => 2978598
[total_days] => 5
[display_material_sum] => 2 242 863
[display_work_sum] => 735 735
[display_total_sum] => 2 978 598
)
1
2 978 598₽
Работа:735 735 ₽
Материалы:2 242 863 ₽
Дни:5
stdClass Object
(
[id] => 130
[attribute_id] => 17
[name] => ПСБ (ППС-пенополистирол)
[material_modifier] => 1
[work_modifier] => 1
[options] => Array
(
[0] => 50 мм
[1] => 100 мм
[2] => 150 мм
[3] => 200 мм
[4] => 250 мм
[5] => 300 мм
)
[days] => [5,6,7,8,9,10]
[material_price] => [4822,5200,5819,6292,7010,7583]
[work_price] => [1795,1954,2254,2330,2595,2735]
[image] => https://akademik-stroy.ru/wp-content/uploads/materials/psb.jpg
[area_modifier] => 409.88
[parent_name] => Дополнительное утепление наружных стен
[parent_id] => 17
[material_sum] => 2371730
[work_sum] => 735735
[total_sum] => 3107465
[total_days] => 5
[display_material_sum] => 2 371 730
[display_work_sum] => 735 735
[display_total_sum] => 3 107 465
)
1
3 107 465₽
Работа:735 735 ₽
Материалы:2 371 730 ₽
Дни:5
stdClass Object
(
[id] => 131
[attribute_id] => 17
[name] => ППУ (Пенополиуретан)
[material_modifier] => 1
[work_modifier] => 1
[options] => Array
(
[0] => 50 мм
[1] => 100 мм
[2] => 150 мм
[3] => 200 мм
[4] => 250 мм
[5] => 300 мм
)
[days] => [3,4,5,6,7,8]
[material_price] => [2860,3400,4219,4592,5010,5583]
[work_price] => [729,900,980,1120,1280,1530]
[image] => https://akademik-stroy.ru/wp-content/uploads/materials/ppu.jpg
[area_modifier] => 409.88
[parent_name] => Дополнительное утепление наружных стен
[parent_id] => 17
[material_sum] => 1406708
[work_sum] => 298803
[total_sum] => 1705511
[total_days] => 3
[display_material_sum] => 1 406 708
[display_work_sum] => 298 803
[display_total_sum] => 1 705 511
)
1
1 705 511₽
Работа:298 803 ₽
Материалы:1 406 708 ₽
Дни:3
stdClass Object
(
[id] => 132
[attribute_id] => 17
[name] => PIR-плиты (пенополиизоцианурат)
[material_modifier] => 1
[work_modifier] => 1
[options] => Array
(
[0] => 50 мм
[1] => 100 мм
[2] => 150 мм
[3] => 200 мм
[4] => 250 мм
[5] => 300 мм
)
[days] => [5,6,7,8,9,10]
[material_price] => [8323,15645,20968,25900,29258,30581]
[work_price] => [800,900,970,1150,1280,1330]
[image] => https://akademik-stroy.ru/wp-content/uploads/materials/pir.jpg
[area_modifier] => 409.88
[parent_name] => Дополнительное утепление наружных стен
[parent_id] => 17
[material_sum] => 4093717
[work_sum] => 327904
[total_sum] => 4421621
[total_days] => 5
[display_material_sum] => 4 093 717
[display_work_sum] => 327 904
[display_total_sum] => 4 421 621
)
1
4 421 621₽
Работа:327 904 ₽
Материалы:4 093 717 ₽
Дни:5
stdClass Object
(
[id] => 37
[attribute_id] => 19
[name] => Нет
[material_modifier] => 1
[work_modifier] => 1
[options] => Array
(
)
[days] => [0]
[material_price] => [0]
[work_price] => [0]
[image] => https://akademik-stroy.ru/wp-content/uploads/materials/imitaciya-brusa.jpg
[area_modifier] => 409.88
[parent_name] => Наружная отделка фасада
[parent_id] => 19
[material_sum] => 0
[work_sum] => 0
[total_sum] => 0
[total_days] => 0
[display_material_sum] => 0
[display_work_sum] => 0
[display_total_sum] => 0
)
1
0₽
Работа:0 ₽
Материалы:0 ₽
Дни:0
stdClass Object
(
[id] => 38
[attribute_id] => 19
[name] => Имитация бруса
[material_modifier] => 1
[work_modifier] => 1
[options] => Array
(
[0] => Сосна
[1] => Ель
[2] => Лиственница
)
[days] => [20,20,20]
[material_price] => [2994,2762,4954]
[work_price] => [1397,1231,1577]
[image] => https://akademik-stroy.ru/wp-content/uploads/materials/imitaciya-brusa.jpg
[area_modifier] => 409.88
[parent_name] => Наружная отделка фасада
[parent_id] => 19
[material_sum] => 1472617
[work_sum] => 572602
[total_sum] => 2045219
[total_days] => 20
[display_material_sum] => 1 472 617
[display_work_sum] => 572 602
[display_total_sum] => 2 045 219
)
1
2 045 219₽
Работа:572 602 ₽
Материалы:1 472 617 ₽
Дни:20
stdClass Object
(
[id] => 136
[attribute_id] => 19
[name] => Планкен
[material_modifier] => 1
[work_modifier] => 1
[options] => Array
(
[0] => Сосна
[1] => Ель
[2] => Лиственница
)
[days] => [20,20,20]
[material_price] => [3194,2862,5154]
[work_price] => [1537,1354,1735]
[image] => https://akademik-stroy.ru/wp-content/uploads/materials/planken.jpg
[area_modifier] => 409.88
[parent_name] => Наружная отделка фасада
[parent_id] => 19
[material_sum] => 1570988
[work_sum] => 629986
[total_sum] => 2200974
[total_days] => 20
[display_material_sum] => 1 570 988
[display_work_sum] => 629 986
[display_total_sum] => 2 200 974
)
1
2 200 974₽
Работа:629 986 ₽
Материалы:1 570 988 ₽
Дни:20
stdClass Object
(
[id] => 137
[attribute_id] => 19
[name] => Штукатурка
[material_modifier] => 1
[work_modifier] => 1
[options] => Array
(
[0] => Цементно-песчаная (минеральная)
[1] => Мокрый фасад
)
[days] => [35,35]
[material_price] => [2231,3938]
[work_price] => [1202,2422]
[image] => https://akademik-stroy.ru/wp-content/uploads/materials/shtukaturka.jpg
[area_modifier] => 409.88
[parent_name] => Наружная отделка фасада
[parent_id] => 19
[material_sum] => 1097331
[work_sum] => 492676
[total_sum] => 1590007
[total_days] => 35
[display_material_sum] => 1 097 331
[display_work_sum] => 492 676
[display_total_sum] => 1 590 007
)
1
1 590 007₽
Работа:492 676 ₽
Материалы:1 097 331 ₽
Дни:35
stdClass Object
(
[id] => 138
[attribute_id] => 19
[name] => Облицовочный кирпич
[material_modifier] => 1
[work_modifier] => 1
[options] => Array
(
[0] => Керамический
[1] => Клинкерный
[2] => Ручной формовки
[3] => Гиперпрессованный
[4] => Силикатный кирпич
)
[days] => [45,45,45,45,45]
[material_price] => [8174,9148,1040,1257,5876]
[work_price] => [3240,3758,4536,4017,3369]
[image] => https://akademik-stroy.ru/wp-content/uploads/materials/oblicovochnyj-kirpich.jpg
[area_modifier] => 409.88
[parent_name] => Наружная отделка фасада
[parent_id] => 19
[material_sum] => 4020431
[work_sum] => 1328011
[total_sum] => 5348442
[total_days] => 45
[display_material_sum] => 4 020 431
[display_work_sum] => 1 328 011
[display_total_sum] => 5 348 442
)
1
5 348 442₽
Работа:1 328 011 ₽
Материалы:4 020 431 ₽
Дни:45
stdClass Object
(
[id] => 139
[attribute_id] => 19
[name] => Фасадная плитка
[material_modifier] => 1
[work_modifier] => 1
[options] => Array
(
[0] => Клинкерная
[1] => Керамическая
[2] => Плитка ручной формовки
)
[days] => [40,40,40]
[material_price] => [2974,1487,3470]
[work_price] => [3007,2592,3629]
[image] => https://akademik-stroy.ru/wp-content/uploads/materials/fasadnaya-plitka.jpg
[area_modifier] => 409.88
[parent_name] => Наружная отделка фасада
[parent_id] => 19
[material_sum] => 1462780
[work_sum] => 1232509
[total_sum] => 2695289
[total_days] => 40
[display_material_sum] => 1 462 780
[display_work_sum] => 1 232 509
[display_total_sum] => 2 695 289
)
1
2 695 289₽
Работа:1 232 509 ₽
Материалы:1 462 780 ₽
Дни:40
stdClass Object
(
[id] => 140
[attribute_id] => 19
[name] => Сайдинг
[material_modifier] => 1
[work_modifier] => 1
[options] => Array
(
[0] => Виниловый
[1] => Металлический
[2] => Фиброцементный
)
[days] => [20,20,20]
[material_price] => [1263,1944,4147]
[work_price] => [1263,1944,2074]
[image] => https://akademik-stroy.ru/wp-content/uploads/materials/sajding.jpg
[area_modifier] => 409.88
[parent_name] => Наружная отделка фасада
[parent_id] => 19
[material_sum] => 621214
[work_sum] => 517678
[total_sum] => 1138892
[total_days] => 20
[display_material_sum] => 621 214
[display_work_sum] => 517 678
[display_total_sum] => 1 138 892
)
1
1 138 892₽
Работа:517 678 ₽
Материалы:621 214 ₽
Дни:20
stdClass Object
(
[id] => 141
[attribute_id] => 19
[name] => Камень
[material_modifier] => 1
[work_modifier] => 1
[options] => Array
(
[0] => Травертин
[1] => Дагестанский
[2] => Искусственный
[3] => Натуральный
[4] => Керамогранит
)
[days] => [45,45,45,45,45]
[material_price] => [4536,3888,2592,3240,2462]
[work_price] => [3240,3240,2462,3110,1944]
[image] => https://akademik-stroy.ru/wp-content/uploads/materials/kamen-1.jpg
[area_modifier] => 409.88
[parent_name] => Наружная отделка фасада
[parent_id] => 19
[material_sum] => 2231059
[work_sum] => 1328011
[total_sum] => 3559070
[total_days] => 45
[display_material_sum] => 2 231 059
[display_work_sum] => 1 328 011
[display_total_sum] => 3 559 070
)
1
3 559 070₽
Работа:1 328 011 ₽
Материалы:2 231 059 ₽
Дни:45
stdClass Object
(
[id] => 142
[attribute_id] => 19
[name] => Термопанели
[material_modifier] => 1
[work_modifier] => 1
[options] => Array
(
)
[days] => [20]
[material_price] => [6221]
[work_price] => [2333]
[image] => https://akademik-stroy.ru/wp-content/uploads/materials/termo.png
[area_modifier] => 409.88
[parent_name] => Наружная отделка фасада
[parent_id] => 19
[material_sum] => 3059836
[work_sum] => 956250
[total_sum] => 4016086
[total_days] => 20
[display_material_sum] => 3 059 836
[display_work_sum] => 956 250
[display_total_sum] => 4 016 086
)
1
4 016 086₽
Работа:956 250 ₽
Материалы:3 059 836 ₽
Дни:20
stdClass Object
(
[id] => 143
[attribute_id] => 19
[name] => Плитка HAUBERK
[material_modifier] => 1
[work_modifier] => 1
[options] => Array
(
)
[days] => [20]
[material_price] => [2786]
[work_price] => [1944]
[image] => https://akademik-stroy.ru/wp-content/uploads/materials/hauberk.jpg
[area_modifier] => 409.88
[parent_name] => Наружная отделка фасада
[parent_id] => 19
[material_sum] => 1370311
[work_sum] => 796807
[total_sum] => 2167118
[total_days] => 20
[display_material_sum] => 1 370 311
[display_work_sum] => 796 807
[display_total_sum] => 2 167 118
)
1
2 167 118₽
Работа:796 807 ₽
Материалы:1 370 311 ₽
Дни:20
stdClass Object
(
[id] => 144
[attribute_id] => 19
[name] => Фальцевый фасад
[material_modifier] => 1
[work_modifier] => 1
[options] => Array
(
)
[days] => [20]
[material_price] => [3240]
[work_price] => [2592]
[image] => https://akademik-stroy.ru/wp-content/uploads/materials/falcevyj-fasad.jpg
[area_modifier] => 409.88
[parent_name] => Наружная отделка фасада
[parent_id] => 19
[material_sum] => 1593613
[work_sum] => 1062409
[total_sum] => 2656022
[total_days] => 20
[display_material_sum] => 1 593 613
[display_work_sum] => 1 062 409
[display_total_sum] => 2 656 022
)
1
2 656 022₽
Работа:1 062 409 ₽
Материалы:1 593 613 ₽
Дни:20
stdClass Object
(
[id] => 145
[attribute_id] => 19
[name] => Комбинированный
[material_modifier] => 1
[work_modifier] => 1
[options] => Array
(
)
[days] => [20]
[material_price] => [4629]
[work_price] => [3499]
[image] => https://akademik-stroy.ru/wp-content/uploads/materials/Kombinirovannyj.jpg
[area_modifier] => 409.88
[parent_name] => Наружная отделка фасада
[parent_id] => 19
[material_sum] => 2276801
[work_sum] => 1434170
[total_sum] => 3710971
[total_days] => 20
[display_material_sum] => 2 276 801
[display_work_sum] => 1 434 170
[display_total_sum] => 3 710 971
)
1
3 710 971₽
Работа:1 434 170 ₽
Материалы:2 276 801 ₽
Дни:20
stdClass Object
(
[id] => 257
[attribute_id] => 19
[name] => Японские фиброцементные
[material_modifier] => 1
[work_modifier] => 1
[options] => Array
(
)
[days] => [20]
[material_price] => [7043]
[work_price] => [2993]
[image] => https://akademik-stroy.ru/wp-content/uploads/materials/paneli.jpg
[area_modifier] => 409.88
[parent_name] => Наружная отделка фасада
[parent_id] => 19
[material_sum] => 3464142
[work_sum] => 1226771
[total_sum] => 4690913
[total_days] => 20
[display_material_sum] => 3 464 142
[display_work_sum] => 1 226 771
[display_total_sum] => 4 690 913
)
1
4 690 913₽
Работа:1 226 771 ₽
Материалы:3 464 142 ₽
Дни:20
stdClass Object
(
[id] => 258
[attribute_id] => 19
[name] => Панели Каньон
[material_modifier] => 1
[work_modifier] => 1
[options] => Array
(
)
[days] => [20]
[material_price] => [4543]
[work_price] => [2592]
[image] => https://akademik-stroy.ru/wp-content/uploads/materials/kanon.png
[area_modifier] => 409.88
[parent_name] => Наружная отделка фасада
[parent_id] => 19
[material_sum] => 2234502
[work_sum] => 1062409
[total_sum] => 3296911
[total_days] => 20
[display_material_sum] => 2 234 502
[display_work_sum] => 1 062 409
[display_total_sum] => 3 296 911
)
1
3 296 911₽
Работа:1 062 409 ₽
Материалы:2 234 502 ₽
Дни:20
stdClass Object
(
[id] => 39
[attribute_id] => 20
[name] => Нет
[material_modifier] => 1
[work_modifier] => 1
[options] => Array
(
)
[days] => [0]
[material_price] => [0]
[work_price] => [0]
[image] => https://akademik-stroy.ru/wp-content/uploads/materials/terrasy.jpg
[area_modifier] => 30
[parent_name] => Террасы, крыльца, навесы
[parent_id] => 20
[material_sum] => 0
[work_sum] => 0
[total_sum] => 0
[total_days] => 0
[display_material_sum] => 0
[display_work_sum] => 0
[display_total_sum] => 0
)
1
0₽
Работа:0 ₽
Материалы:0 ₽
Дни:0
stdClass Object
(
[id] => 40
[attribute_id] => 20
[name] => Есть
[material_modifier] => 1
[work_modifier] => 1
[options] => Array
(
)
[days] => [5]
[material_price] => [10450]
[work_price] => [1950]
[image] => https://akademik-stroy.ru/wp-content/uploads/materials/terrasy.jpg
[area_modifier] => 30
[parent_name] => Террасы, крыльца, навесы
[parent_id] => 20
[material_sum] => 376200
[work_sum] => 58500
[total_sum] => 434700
[total_days] => 5
[display_material_sum] => 376 200
[display_work_sum] => 58 500
[display_total_sum] => 434 700
)
1
434 700₽
Работа:58 500 ₽
Материалы:376 200 ₽
Дни:5
stdClass Object
(
[id] => 41
[attribute_id] => 21
[name] => Нет
[material_modifier] => 1
[work_modifier] => 1
[options] => Array
(
)
[days] => [0]
[material_price] => [0]
[work_price] => [0]
[image] => https://akademik-stroy.ru/wp-content/uploads/materials/balkony.jpg
[area_modifier] => 30
[parent_name] => Балконы
[parent_id] => 21
[material_sum] => 0
[work_sum] => 0
[total_sum] => 0
[total_days] => 0
[display_material_sum] => 0
[display_work_sum] => 0
[display_total_sum] => 0
)
1
0₽
Работа:0 ₽
Материалы:0 ₽
Дни:0
stdClass Object
(
[id] => 42
[attribute_id] => 21
[name] => Есть
[material_modifier] => 1
[work_modifier] => 1
[options] => Array
(
)
[days] => [12]
[material_price] => [3600]
[work_price] => [1950]
[image] => https://akademik-stroy.ru/wp-content/uploads/materials/balkony.jpg
[area_modifier] => 30
[parent_name] => Балконы
[parent_id] => 21
[material_sum] => 129600
[work_sum] => 58500
[total_sum] => 188100
[total_days] => 12
[display_material_sum] => 129 600
[display_work_sum] => 58 500
[display_total_sum] => 188 100
)
1
188 100₽
Работа:58 500 ₽
Материалы:129 600 ₽
Дни:12
stdClass Object
(
[id] => 43
[attribute_id] => 22
[name] => Нет
[material_modifier] => 1
[work_modifier] => 1
[options] => Array
(
)
[days] => [0]
[material_price] => [0]
[work_price] => [0]
[image] => https://akademik-stroy.ru/wp-content/uploads/materials/uteplennaya.jpg
[area_modifier] => 226.32
[parent_name] => Отмостка
[parent_id] => 22
[material_sum] => 0
[work_sum] => 0
[total_sum] => 0
[total_days] => 0
[display_material_sum] => 0
[display_work_sum] => 0
[display_total_sum] => 0
)
1
0₽
Работа:0 ₽
Материалы:0 ₽
Дни:0
stdClass Object
(
[id] => 44
[attribute_id] => 22
[name] => Утепленная отмостка
[material_modifier] => 1
[work_modifier] => 1
[options] => Array
(
)
[days] => [15]
[material_price] => [2550]
[work_price] => [1750]
[image] => https://akademik-stroy.ru/wp-content/uploads/materials/uteplennaya.jpg
[area_modifier] => 226.32
[parent_name] => Отмостка
[parent_id] => 22
[material_sum] => 692539
[work_sum] => 396060
[total_sum] => 1088599
[total_days] => 15
[display_material_sum] => 692 539
[display_work_sum] => 396 060
[display_total_sum] => 1 088 599
)
1
1 088 599₽
Работа:396 060 ₽
Материалы:692 539 ₽
Дни:15
stdClass Object
(
[id] => 146
[attribute_id] => 22
[name] => Не утепленная отмостка
[material_modifier] => 1
[work_modifier] => 1
[options] => Array
(
)
[days] => [10]
[material_price] => [1650]
[work_price] => [1450]
[image] => https://akademik-stroy.ru/wp-content/uploads/materials/ne-uteplennaya.jpg
[area_modifier] => 226.32
[parent_name] => Отмостка
[parent_id] => 22
[material_sum] => 448114
[work_sum] => 328164
[total_sum] => 776278
[total_days] => 10
[display_material_sum] => 448 114
[display_work_sum] => 328 164
[display_total_sum] => 776 278
)
1
776 278₽
Работа:328 164 ₽
Материалы:448 114 ₽
Дни:10
stdClass Object
(
[id] => 45
[attribute_id] => 23
[name] => Нет
[material_modifier] => 1
[work_modifier] => 1
[options] => Array
(
)
[days] => [0]
[material_price] => [0]
[work_price] => [0]
[image] => https://akademik-stroy.ru/wp-content/uploads/materials/drenazh-2.jpg
[area_modifier] => 226.32
[parent_name] => Дренаж вокруг дома
[parent_id] => 23
[material_sum] => 0
[work_sum] => 0
[total_sum] => 0
[total_days] => 0
[display_material_sum] => 0
[display_work_sum] => 0
[display_total_sum] => 0
)
1
0₽
Работа:0 ₽
Материалы:0 ₽
Дни:0
stdClass Object
(
[id] => 46
[attribute_id] => 23
[name] => Есть
[material_modifier] => 1
[work_modifier] => 1
[options] => Array
(
)
[days] => [5]
[material_price] => [2366]
[work_price] => [1911]
[image] => https://akademik-stroy.ru/wp-content/uploads/materials/drenazh-2.jpg
[area_modifier] => 226.32
[parent_name] => Дренаж вокруг дома
[parent_id] => 23
[material_sum] => 642568
[work_sum] => 432498
[total_sum] => 1075066
[total_days] => 5
[display_material_sum] => 642 568
[display_work_sum] => 432 498
[display_total_sum] => 1 075 066
)
1
1 075 066₽
Работа:432 498 ₽
Материалы:642 568 ₽
Дни:5
stdClass Object
(
[id] => 47
[attribute_id] => 24
[name] => Нет
[material_modifier] => 1
[work_modifier] => 1
[options] => Array
(
)
[days] => [0]
[material_price] => [0]
[work_price] => [0]
[image] => https://akademik-stroy.ru/wp-content/uploads/materials/septik.jpg
[area_modifier] => 1
[parent_name] => Автономная канализация (септики)
[parent_id] => 24
[material_sum] => 0
[work_sum] => 0
[total_sum] => 0
[total_days] => 0
[display_material_sum] => 0
[display_work_sum] => 0
[display_total_sum] => 0
)
1
0₽
Работа:0 ₽
Материалы:0 ₽
Дни:0
stdClass Object
(
[id] => 48
[attribute_id] => 24
[name] => Есть
[material_modifier] => 1
[work_modifier] => 1
[options] => Array
(
[0] => Для дачи на 4 человека
[1] => Для дома на 5 человек
[2] => Для дома на 6 человек
[3] => Для дома на 7 человек
[4] => Для дома на 10 человек
)
[days] => [7,7,7,8,8]
[material_price] => [196340,220500,240940,264200,293340]
[work_price] => [50000,55000,60500,66550,73206]
[image] => https://akademik-stroy.ru/wp-content/uploads/materials/septik.jpg
[area_modifier] => 1
[parent_name] => Автономная канализация (септики)
[parent_id] => 24
[material_sum] => 235608
[work_sum] => 50000
[total_sum] => 285608
[total_days] => 7
[display_material_sum] => 235 608
[display_work_sum] => 50 000
[display_total_sum] => 285 608
)
1
285 608₽
Работа:50 000 ₽
Материалы:235 608 ₽
Дни:7
stdClass Object
(
[id] => 49
[attribute_id] => 25
[name] => Нет
[material_modifier] => 1
[work_modifier] => 1
[options] => Array
(
)
[days] => [0]
[material_price] => [0]
[work_price] => [0]
[image] => https://akademik-stroy.ru/wp-content/uploads/materials/gkl.jpg
[area_modifier] => 409.88
[parent_name] => Внутренние (не несущие) перегородки
[parent_id] => 25
[material_sum] => 0
[work_sum] => 0
[total_sum] => 0
[total_days] => 0
[display_material_sum] => 0
[display_work_sum] => 0
[display_total_sum] => 0
)
1
0₽
Работа:0 ₽
Материалы:0 ₽
Дни:0
stdClass Object
(
[id] => 147
[attribute_id] => 25
[name] => Каркасно-обшивные
[material_modifier] => 1
[work_modifier] => 1
[options] => Array
(
[0] => 75 мм (без шумоизоляции)
[1] => 75 мм (с шумоизоляцией)
)
[days] => [11,11]
[material_price] => [580,970]
[work_price] => [380,570]
[image] => https://akademik-stroy.ru/wp-content/uploads/materials/gkl.jpg
[area_modifier] => 409.88
[parent_name] => Внутренние (не несущие) перегородки
[parent_id] => 25
[material_sum] => 285276
[work_sum] => 155754
[total_sum] => 441030
[total_days] => 11
[display_material_sum] => 285 276
[display_work_sum] => 155 754
[display_total_sum] => 441 030
)
1
441 030₽
Работа:155 754 ₽
Материалы:285 276 ₽
Дни:11
stdClass Object
(
[id] => 148
[attribute_id] => 25
[name] => Пазогребневые
[material_modifier] => 1
[work_modifier] => 1
[options] => Array
(
[0] => 80 мм
[1] => 100 мм
)
[days] => [5,5]
[material_price] => [1022,1313]
[work_price] => [600,700]
[image] => https://akademik-stroy.ru/wp-content/uploads/materials/pazogrebnevye-bloki.jpg
[area_modifier] => 409.88
[parent_name] => Внутренние (не несущие) перегородки
[parent_id] => 25
[material_sum] => 502677
[work_sum] => 245928
[total_sum] => 748605
[total_days] => 5
[display_material_sum] => 502 677
[display_work_sum] => 245 928
[display_total_sum] => 748 605
)
1
748 605₽
Работа:245 928 ₽
Материалы:502 677 ₽
Дни:5
stdClass Object
(
[id] => 149
[attribute_id] => 25
[name] => Газобетонные
[material_modifier] => 1
[work_modifier] => 1
[options] => Array
(
[0] => 100 мм
[1] => 200 мм
)
[days] => [11,11]
[material_price] => [1160,1920]
[work_price] => [700,900]
[image] => https://akademik-stroy.ru/wp-content/uploads/materials/gazobeton-2.jpg
[area_modifier] => 409.88
[parent_name] => Внутренние (не несущие) перегородки
[parent_id] => 25
[material_sum] => 570553
[work_sum] => 286916
[total_sum] => 857469
[total_days] => 11
[display_material_sum] => 570 553
[display_work_sum] => 286 916
[display_total_sum] => 857 469
)
1
857 469₽
Работа:286 916 ₽
Материалы:570 553 ₽
Дни:11
stdClass Object
(
[id] => 150
[attribute_id] => 25
[name] => Кирпичные
[material_modifier] => 1
[work_modifier] => 1
[options] => Array
(
[0] => 120 мм
[1] => 250 мм
[2] => 360 мм
)
[days] => [7,7,7]
[material_price] => [1785,3570,5355]
[work_price] => [900,1600,1800]
[image] => https://akademik-stroy.ru/wp-content/uploads/materials/kirpich-1.jpg
[area_modifier] => 409.88
[parent_name] => Внутренние (не несущие) перегородки
[parent_id] => 25
[material_sum] => 877963
[work_sum] => 368892
[total_sum] => 1246855
[total_days] => 7
[display_material_sum] => 877 963
[display_work_sum] => 368 892
[display_total_sum] => 1 246 855
)
1
1 246 855₽
Работа:368 892 ₽
Материалы:877 963 ₽
Дни:7
stdClass Object
(
[id] => 55
[attribute_id] => 28
[name] => Нет
[material_modifier] => 1
[work_modifier] => 1
[options] => Array
(
)
[days] => [0]
[material_price] => [0]
[work_price] => [0]
[image] => https://akademik-stroy.ru/wp-content/uploads/materials/ehlektrika.jpg
[area_modifier] => 332.61
[parent_name] => Электрика
[parent_id] => 28
[material_sum] => 0
[work_sum] => 0
[total_sum] => 0
[total_days] => 0
[display_material_sum] => 0
[display_work_sum] => 0
[display_total_sum] => 0
)
1
0₽
Работа:0 ₽
Материалы:0 ₽
Дни:0
stdClass Object
(
[id] => 56
[attribute_id] => 28
[name] => Есть
[material_modifier] => 1
[work_modifier] => 1
[options] => Array
(
)
[days] => [10]
[material_price] => [650]
[work_price] => [950]
[image] => https://akademik-stroy.ru/wp-content/uploads/materials/ehlektrika.jpg
[area_modifier] => 332.61
[parent_name] => Электрика
[parent_id] => 28
[material_sum] => 259436
[work_sum] => 315980
[total_sum] => 575416
[total_days] => 10
[display_material_sum] => 259 436
[display_work_sum] => 315 980
[display_total_sum] => 575 416
)
1
575 416₽
Работа:315 980 ₽
Материалы:259 436 ₽
Дни:10
stdClass Object
(
[id] => 57
[attribute_id] => 29
[name] => Нет
[material_modifier] => 1
[work_modifier] => 1
[options] => Array
(
)
[days] => [0]
[material_price] => [0]
[work_price] => [0]
[image] => https://akademik-stroy.ru/wp-content/uploads/materials/santekhnika-kanalizaciya-1.jpg
[area_modifier] => 332.61
[parent_name] => Сантехника, канализация в доме
[parent_id] => 29
[material_sum] => 0
[work_sum] => 0
[total_sum] => 0
[total_days] => 0
[display_material_sum] => 0
[display_work_sum] => 0
[display_total_sum] => 0
)
1
0₽
Работа:0 ₽
Материалы:0 ₽
Дни:0
stdClass Object
(
[id] => 58
[attribute_id] => 29
[name] => Есть
[material_modifier] => 1
[work_modifier] => 1
[options] => Array
(
)
[days] => [10]
[material_price] => [600]
[work_price] => [730]
[image] => https://akademik-stroy.ru/wp-content/uploads/materials/santekhnika-kanalizaciya-1.jpg
[area_modifier] => 332.61
[parent_name] => Сантехника, канализация в доме
[parent_id] => 29
[material_sum] => 239479
[work_sum] => 242805
[total_sum] => 482284
[total_days] => 10
[display_material_sum] => 239 479
[display_work_sum] => 242 805
[display_total_sum] => 482 284
)
1
482 284₽
Работа:242 805 ₽
Материалы:239 479 ₽
Дни:10
stdClass Object
(
[id] => 59
[attribute_id] => 30
[name] => Нет
[material_modifier] => 1
[work_modifier] => 1
[options] => Array
(
)
[days] => [0]
[material_price] => [0]
[work_price] => [0]
[image] => https://akademik-stroy.ru/wp-content/uploads/materials/otoplenie-1.jpg
[area_modifier] => 332.61
[parent_name] => Отопление
[parent_id] => 30
[material_sum] => 0
[work_sum] => 0
[total_sum] => 0
[total_days] => 0
[display_material_sum] => 0
[display_work_sum] => 0
[display_total_sum] => 0
)
1
0₽
Работа:0 ₽
Материалы:0 ₽
Дни:0
stdClass Object
(
[id] => 60
[attribute_id] => 30
[name] => Есть
[material_modifier] => 1
[work_modifier] => 1
[options] => Array
(
)
[days] => [5]
[material_price] => [610]
[work_price] => [560]
[image] => https://akademik-stroy.ru/wp-content/uploads/materials/otoplenie-1.jpg
[area_modifier] => 332.61
[parent_name] => Отопление
[parent_id] => 30
[material_sum] => 243471
[work_sum] => 186262
[total_sum] => 429733
[total_days] => 5
[display_material_sum] => 243 471
[display_work_sum] => 186 262
[display_total_sum] => 429 733
)
1
429 733₽
Работа:186 262 ₽
Материалы:243 471 ₽
Дни:5
stdClass Object
(
[id] => 61
[attribute_id] => 31
[name] => Нет
[material_modifier] => 1
[work_modifier] => 1
[options] => Array
(
)
[days] => [0]
[material_price] => [0]
[work_price] => [0]
[image] => https://akademik-stroy.ru/wp-content/uploads/materials/vodyanye.jpg
[area_modifier] => 30
[parent_name] => Теплые полы
[parent_id] => 31
[material_sum] => 0
[work_sum] => 0
[total_sum] => 0
[total_days] => 0
[display_material_sum] => 0
[display_work_sum] => 0
[display_total_sum] => 0
)
1
0₽
Работа:0 ₽
Материалы:0 ₽
Дни:0
stdClass Object
(
[id] => 151
[attribute_id] => 31
[name] => Водяные
[material_modifier] => 1
[work_modifier] => 1
[options] => Array
(
)
[days] => [9]
[material_price] => [10200]
[work_price] => [2500]
[image] => https://akademik-stroy.ru/wp-content/uploads/materials/vodyanye.jpg
[area_modifier] => 30
[parent_name] => Теплые полы
[parent_id] => 31
[material_sum] => 367200
[work_sum] => 75000
[total_sum] => 442200
[total_days] => 9
[display_material_sum] => 367 200
[display_work_sum] => 75 000
[display_total_sum] => 442 200
)
1
442 200₽
Работа:75 000 ₽
Материалы:367 200 ₽
Дни:9
stdClass Object
(
[id] => 152
[attribute_id] => 31
[name] => Электро
[material_modifier] => 1
[work_modifier] => 1
[options] => Array
(
)
[days] => [5]
[material_price] => [6300]
[work_price] => [1500]
[image] => https://akademik-stroy.ru/wp-content/uploads/materials/ehlektricheskij.jpg
[area_modifier] => 30
[parent_name] => Теплые полы
[parent_id] => 31
[material_sum] => 226800
[work_sum] => 45000
[total_sum] => 271800
[total_days] => 5
[display_material_sum] => 226 800
[display_work_sum] => 45 000
[display_total_sum] => 271 800
)
1
271 800₽
Работа:45 000 ₽
Материалы:226 800 ₽
Дни:5
stdClass Object
(
[id] => 63
[attribute_id] => 32
[name] => Нет
[material_modifier] => 1
[work_modifier] => 1
[options] => Array
(
)
[days] => [0]
[material_price] => [0]
[work_price] => [0]
[image] => https://akademik-stroy.ru/wp-content/uploads/materials/shtukaturka-shpatlevka-1.jpg
[area_modifier] => 332.61
[parent_name] => Черновая отделка стен
[parent_id] => 32
[material_sum] => 0
[work_sum] => 0
[total_sum] => 0
[total_days] => 0
[display_material_sum] => 0
[display_work_sum] => 0
[display_total_sum] => 0
)
1
0₽
Работа:0 ₽
Материалы:0 ₽
Дни:0
stdClass Object
(
[id] => 153
[attribute_id] => 32
[name] => Штукатурка и шпатлевка
[material_modifier] => 1
[work_modifier] => 1
[options] => Array
(
)
[days] => [20]
[material_price] => [1850]
[work_price] => [2600]
[image] => https://akademik-stroy.ru/wp-content/uploads/materials/shtukaturka-shpatlevka-1.jpg
[area_modifier] => 332.61
[parent_name] => Черновая отделка стен
[parent_id] => 32
[material_sum] => 738394
[work_sum] => 864786
[total_sum] => 1603180
[total_days] => 20
[display_material_sum] => 738 394
[display_work_sum] => 864 786
[display_total_sum] => 1 603 180
)
1
1 603 180₽
Работа:864 786 ₽
Материалы:738 394 ₽
Дни:20
stdClass Object
(
[id] => 154
[attribute_id] => 32
[name] => Гипсокортон на стены
[material_modifier] => 1
[work_modifier] => 1
[options] => Array
(
)
[days] => [15]
[material_price] => [950]
[work_price] => [2100]
[image] => https://akademik-stroy.ru/wp-content/uploads/materials/gkl-1.jpg
[area_modifier] => 332.61
[parent_name] => Черновая отделка стен
[parent_id] => 32
[material_sum] => 379175
[work_sum] => 698481
[total_sum] => 1077656
[total_days] => 15
[display_material_sum] => 379 175
[display_work_sum] => 698 481
[display_total_sum] => 1 077 656
)
1
1 077 656₽
Работа:698 481 ₽
Материалы:379 175 ₽
Дни:15
stdClass Object
(
[id] => 155
[attribute_id] => 32
[name] => Вагонка
[material_modifier] => 1
[work_modifier] => 1
[options] => Array
(
)
[days] => [15]
[material_price] => [1250]
[work_price] => [950]
[image] => https://akademik-stroy.ru/wp-content/uploads/materials/vagonka.jpg
[area_modifier] => 332.61
[parent_name] => Черновая отделка стен
[parent_id] => 32
[material_sum] => 498915
[work_sum] => 315980
[total_sum] => 814895
[total_days] => 15
[display_material_sum] => 498 915
[display_work_sum] => 315 980
[display_total_sum] => 814 895
)
1
814 895₽
Работа:315 980 ₽
Материалы:498 915 ₽
Дни:15
stdClass Object
(
[id] => 65
[attribute_id] => 33
[name] => Нет
[material_modifier] => 1
[work_modifier] => 1
[options] => Array
(
)
[days] => [0]
[material_price] => [0]
[work_price] => [0]
[image] => https://akademik-stroy.ru/wp-content/uploads/materials/styazhka.jpg
[area_modifier] => 332.61
[parent_name] => Черновая отделка полов
[parent_id] => 33
[material_sum] => 0
[work_sum] => 0
[total_sum] => 0
[total_days] => 0
[display_material_sum] => 0
[display_work_sum] => 0
[display_total_sum] => 0
)
1
0₽
Работа:0 ₽
Материалы:0 ₽
Дни:0
stdClass Object
(
[id] => 156
[attribute_id] => 33
[name] => Стяжка + наливные полы
[material_modifier] => 1
[work_modifier] => 1
[options] => Array
(
)
[days] => [10]
[material_price] => [1000]
[work_price] => [900]
[image] => https://akademik-stroy.ru/wp-content/uploads/materials/styazhka.jpg
[area_modifier] => 332.61
[parent_name] => Черновая отделка полов
[parent_id] => 33
[material_sum] => 399132
[work_sum] => 299349
[total_sum] => 698481
[total_days] => 10
[display_material_sum] => 399 132
[display_work_sum] => 299 349
[display_total_sum] => 698 481
)
1
698 481₽
Работа:299 349 ₽
Материалы:399 132 ₽
Дни:10
stdClass Object
(
[id] => 157
[attribute_id] => 33
[name] => ОСБ на пол
[material_modifier] => 1
[work_modifier] => 1
[options] => Array
(
)
[days] => [7]
[material_price] => [580]
[work_price] => [350]
[image] => https://akademik-stroy.ru/wp-content/uploads/materials/osb-1.jpg
[area_modifier] => 332.61
[parent_name] => Черновая отделка полов
[parent_id] => 33
[material_sum] => 231497
[work_sum] => 116414
[total_sum] => 347911
[total_days] => 7
[display_material_sum] => 231 497
[display_work_sum] => 116 414
[display_total_sum] => 347 911
)
1
347 911₽
Работа:116 414 ₽
Материалы:231 497 ₽
Дни:7
stdClass Object
(
[id] => 67
[attribute_id] => 34
[name] => Нет
[material_modifier] => 1
[work_modifier] => 1
[options] => Array
(
)
[days] => [0]
[material_price] => [0]
[work_price] => [0]
[image] => https://akademik-stroy.ru/wp-content/uploads/materials/chistovaya-otdelka.jpg
[area_modifier] => 332.61
[parent_name] => Чистовая отделка стен и полов
[parent_id] => 34
[material_sum] => 0
[work_sum] => 0
[total_sum] => 0
[total_days] => 0
[display_material_sum] => 0
[display_work_sum] => 0
[display_total_sum] => 0
)
1
0₽
Работа:0 ₽
Материалы:0 ₽
Дни:0
stdClass Object
(
[id] => 68
[attribute_id] => 34
[name] => Есть
[material_modifier] => 1
[work_modifier] => 1
[options] => Array
(
)
[days] => [50]
[material_price] => [6000]
[work_price] => [3500]
[image] => https://akademik-stroy.ru/wp-content/uploads/materials/chistovaya-otdelka.jpg
[area_modifier] => 332.61
[parent_name] => Чистовая отделка стен и полов
[parent_id] => 34
[material_sum] => 2394792
[work_sum] => 1164135
[total_sum] => 3558927
[total_days] => 50
[display_material_sum] => 2 394 792
[display_work_sum] => 1 164 135
[display_total_sum] => 3 558 927
)
1
3 558 927₽
Работа:1 164 135 ₽
Материалы:2 394 792 ₽
Дни:50
stdClass Object
(
[id] => 69
[attribute_id] => 35
[name] => Нет
[material_modifier] => 1
[work_modifier] => 1
[options] => Array
(
)
[days] => [0]
[material_price] => [0]
[work_price] => [0]
[image] => https://akademik-stroy.ru/wp-content/uploads/materials/mnogourovnevyj-gkl.jpg
[area_modifier] => 332.61
[parent_name] => Отделка потолка
[parent_id] => 35
[material_sum] => 0
[work_sum] => 0
[total_sum] => 0
[total_days] => 0
[display_material_sum] => 0
[display_work_sum] => 0
[display_total_sum] => 0
)
1
0₽
Работа:0 ₽
Материалы:0 ₽
Дни:0
stdClass Object
(
[id] => 70
[attribute_id] => 35
[name] => Есть
[material_modifier] => 1
[work_modifier] => 1
[options] => Array
(
[0] => Многоуровневый потолок из гипсокартона
[1] => Многоуровневый потолок из гипсокартона и натяжного потолка
[2] => Одноуровневый потолок из гипсокартона
[3] => Одноуровневый натяжной потолок
)
[days] => [10,10,1,1]
[material_price] => [900,700,700,600]
[work_price] => [1000,800,500,300]
[image] => https://akademik-stroy.ru/wp-content/uploads/materials/mnogourovnevyj-gkl.jpg
[area_modifier] => 332.61
[parent_name] => Отделка потолка
[parent_id] => 35
[material_sum] => 359219
[work_sum] => 332610
[total_sum] => 691829
[total_days] => 10
[display_material_sum] => 359 219
[display_work_sum] => 332 610
[display_total_sum] => 691 829
)
1
691 829₽
Работа:332 610 ₽
Материалы:359 219 ₽
Дни:10
Преимущества работы с нами
7 этапов оплаты
Независимый строительный надзор
Экологически чистые материалы
16 лет гарантии
Онлайн-кабинет с веб-камерой
Строители с опытом более 15 лет
Собственное производство









