Одноэтажный дом 39x28 - 855.1 м2 за руб.
Планировки
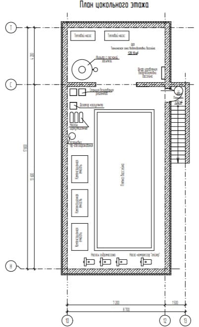
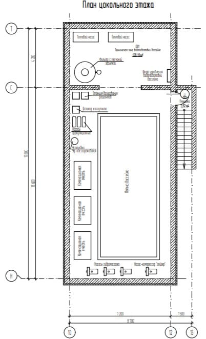
План цоколя
- 1. Техническая зона водоподготовки бассейна 128,16 м²
- 2. Площадка 1,52 м²
- Общая площадь цокольного этажа 129,68 м²
План первого этажа
- 1. Крыльцо 7,46 м²
- 2. Прихожая 5,06 м²
- 3. Гардеробная 4,85 м²
- 4. Гараж на 2 м/м 54,88 м²
- 5. Кладовая 6,02 м²
- 6. Холл 30,18 м²
- 7. С/У 4,25 м²
- 8. Гостиная 48,55 м²
- 9. Столовая 21,02 м²
- 10. Кухня 17,27 м²
- 11. Кладовая 3,92 м²
- 12. Кладовая 2,57 м²
- 13. Патио 29,63 м²
- 14. Крытая терраса 21,46 м²
- 15. Коридор 18,51 м²
- 16. Холл 3,88 м²
- 17. Кладовая 6,13 м²
- 18. Спальня 20,16 м²
- 19. С/У 9,30 м²
- 20. Гардеробная 4,24 м²
- 21. Кабинет 17,56 м²
- 22. Постирочная 5,33 м²
- 23. Котельная 11,02 м²
- 24. Сауна 6,45 м²
- 25. Хамам 4,29 м²
- 26. Зона бассейна 111,14 м²
- 27. С/У 2,82 м²
- 28. Патио бассейна 29,51 м²
- 29. Комната отдыха 30,17 м²
- 30. Крыльцо 2,81 м²
- Общая площадь 1 этажа 540,44 м²
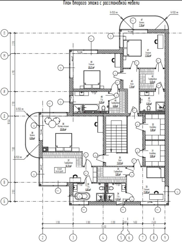
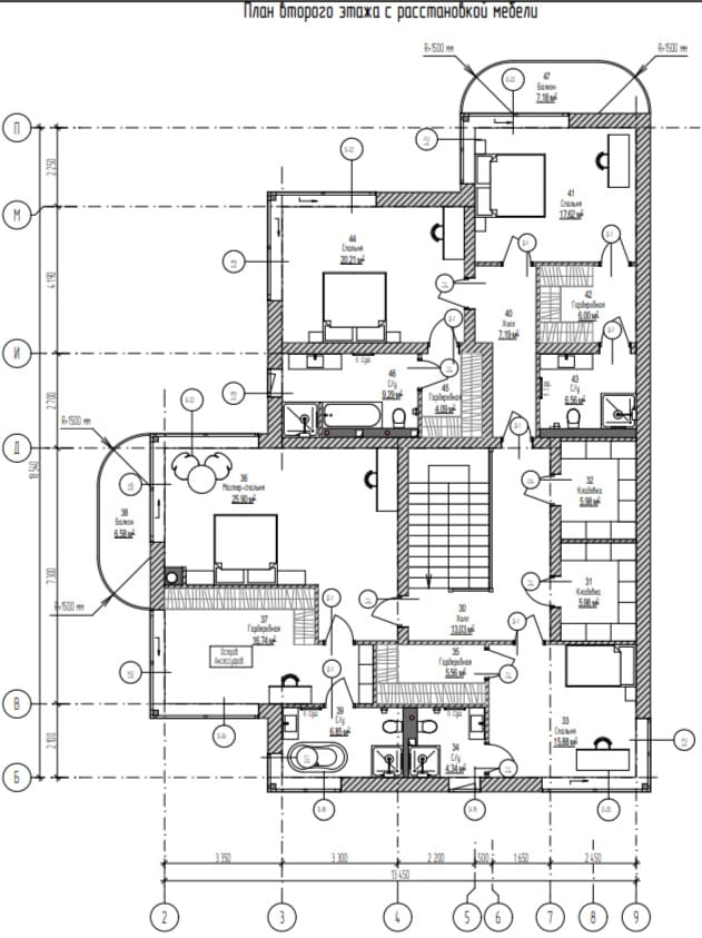
План второго этажа
- 1. Холл 13,03 м²
- 2. Кладовая 5,98 м²
- 3. Кладовая 5,98 м²
- 4. Спальня 15,88 м²
- 5. С/У 4,34 м²
- 6. Гардеробная 16,74 м²
- 7. Балкон 6,58 м²
- 8. С/У 6,85 м²
- 9. Холл 7,19 м²
- 10. Спальня 17,62 м²
- 11. Гардеробная 6,00 м²
- 12. С/У 6,56 м²
- 13. Спальня 20,21 м²
- 14. Гардеробная 4,09 м²
- 15. С/У 9,29 м²
- 16. Балкон 7,18 м²
- Общая площадь 2 этажа 184,98 м²
Площади дома
| № п/п | Наименование | Ед. из. | Строительная площадь | Полезная площадь |
| 1 | Цоколь | м2 | 159.8 | 129.68 |
| 2 | 1 этаж | м2 | 665.98 | 540.44 |
| 3 | 2 этаж | м2 | 227.95 | 184.98 |
| 4 | Итого | м2 | 1053.73 | 855.1 |
154 м2
Полезная
площадь
площадь
39 x 28 м
Размеры
1 этаж
Этажей
26 м2
Террасы
и балконы
и балконы
2Без
гаража
гаража
4
Количество
спален
спален
5+
Количество
санузлов
санузлов
Калькулятор опций
0₽
В ипотеку от 31 645 ₽/мес.
0₽
0 дней
stdClass Object
(
[id] => 1
[attribute_id] => 1
[name] => Ленточный монолитный ж/б
[material_modifier] => 1
[work_modifier] => 1
[options] => Array
(
[0] => размер 200 х 700 мм
[1] => размер 300 х 900 мм
[2] => размер 400 х 1 000 мм
[3] => размер 500 х 1 100 мм
[4] => размер 600 х 1 200 мм
)
[days] => [20,21,22,25,30]
[material_price] => [2823,3630,4475,5210,12047]
[work_price] => [2154,2826,3731,4577,5293]
[image] => https://akademik-stroy.ru/wp-content/uploads/materials/lentochnyj-monolitnyj-zh-b.jpg
[area_modifier] => 665.98
[parent_name] => Фундамент
[parent_id] => 1
[material_sum] => 2256074
[work_sum] => 1434521
[total_sum] => 3690595
[total_days] => 20
[display_material_sum] => 2 256 074
[display_work_sum] => 1 434 521
[display_total_sum] => 3 690 595
)
1
3 690 595₽
Работа:1 434 521 ₽
Материалы:2 256 074 ₽
Дни:20
stdClass Object
(
[id] => 2
[attribute_id] => 1
[name] => Забивные Ж/Б сваи
[material_modifier] => 1
[work_modifier] => 1
[options] => Array
(
[0] => 150х150х3000мм
[1] => 150х150х4000мм
[2] => 200х200х3000мм
[3] => 200х200х4000мм
[4] => 200х200х5000мм
[5] => 200х200х6000мм
)
[days] => [2,2,2,2,2,2]
[material_price] => [1990,2850,3255,4360,5120,6837]
[work_price] => [1002,1185,1336,1438,1574,1839]
[image] => https://akademik-stroy.ru/wp-content/uploads/materials/zabivnye-zh-b-svai.png
[area_modifier] => 665.98
[parent_name] => Фундамент
[parent_id] => 1
[material_sum] => 1590360
[work_sum] => 667312
[total_sum] => 2257672
[total_days] => 2
[display_material_sum] => 1 590 360
[display_work_sum] => 667 312
[display_total_sum] => 2 257 672
)
1
2 257 672₽
Работа:667 312 ₽
Материалы:1 590 360 ₽
Дни:2
stdClass Object
(
[id] => 71
[attribute_id] => 1
[name] => Свайно-ростверковый ж/б
[material_modifier] => 1
[work_modifier] => 1
[options] => Array
(
[0] => ростверк 200х300 мм
[1] => ростверк 300х600 мм
[2] => ростверк 400х900 мм
[3] => ростверк 500х1200 мм
)
[days] => [20,23,25,27]
[material_price] => [3018,3474,7109,9792]
[work_price] => [2024,3012,5635,7022]
[image] => https://akademik-stroy.ru/wp-content/uploads/materials/svajno-rostverkovyj-monolitnyj-zh-b-3.png
[area_modifier] => 665.98
[parent_name] => Фундамент
[parent_id] => 1
[material_sum] => 2411913
[work_sum] => 1347944
[total_sum] => 3759857
[total_days] => 20
[display_material_sum] => 2 411 913
[display_work_sum] => 1 347 944
[display_total_sum] => 3 759 857
)
1
3 759 857₽
Работа:1 347 944 ₽
Материалы:2 411 913 ₽
Дни:20
stdClass Object
(
[id] => 72
[attribute_id] => 1
[name] => Монолитная ж/б плита
[material_modifier] => 1
[work_modifier] => 1
[options] => Array
(
[0] => 200 мм
[1] => 300 мм
[2] => 400 мм
[3] => 500 мм
[4] => 600 мм
)
[days] => [30,33,35,37,40]
[material_price] => [5348,8555,12788,14388,15189]
[work_price] => [4314,4881,7037,8061,10230]
[image] => https://akademik-stroy.ru/wp-content/uploads/materials/monolitnaya-zhb-plita.png
[area_modifier] => 665.98
[parent_name] => Фундамент
[parent_id] => 1
[material_sum] => 4273993
[work_sum] => 2873038
[total_sum] => 7147031
[total_days] => 30
[display_material_sum] => 4 273 993
[display_work_sum] => 2 873 038
[display_total_sum] => 7 147 031
)
1
7 147 031₽
Работа:2 873 038 ₽
Материалы:4 273 993 ₽
Дни:30
stdClass Object
(
[id] => 73
[attribute_id] => 1
[name] => Утепленная шведская плита
[material_modifier] => 1
[work_modifier] => 1
[options] => Array
(
[0] => 200 мм
[1] => 300 мм
[2] => 400 мм
[3] => 500 мм
[4] => 600 мм
)
[days] => [32,37,39,42,45]
[material_price] => [10249,12692,13760,14936,16230]
[work_price] => [5960,7337,8072,8878,9765]
[image] => https://akademik-stroy.ru/wp-content/uploads/materials/uteplennaya-shvedskaya-plita.jpg
[area_modifier] => 665.98
[parent_name] => Фундамент
[parent_id] => 1
[material_sum] => 8190755
[work_sum] => 3969241
[total_sum] => 12159996
[total_days] => 32
[display_material_sum] => 8 190 755
[display_work_sum] => 3 969 241
[display_total_sum] => 12 159 996
)
1
12 159 996₽
Работа:3 969 241 ₽
Материалы:8 190 755 ₽
Дни:32
stdClass Object
(
[id] => 75
[attribute_id] => 1
[name] => Ленточный из ФБС
[material_modifier] => 1
[work_modifier] => 1
[options] => Array
(
[0] => толщ. 300 мм
[1] => толщ. 400 мм
[2] => толщ. 500 мм
[3] => толщ. 600 мм
)
[days] => [20,20,20,20]
[material_price] => [3675,4902,6126,7350]
[work_price] => [2451,3264,4083,4902]
[image] => https://akademik-stroy.ru/wp-content/uploads/materials/lentochnyj-iz-fbs.png
[area_modifier] => 665.98
[parent_name] => Фундамент
[parent_id] => 1
[material_sum] => 2936972
[work_sum] => 1632317
[total_sum] => 4569289
[total_days] => 20
[display_material_sum] => 2 936 972
[display_work_sum] => 1 632 317
[display_total_sum] => 4 569 289
)
1
4 569 289₽
Работа:1 632 317 ₽
Материалы:2 936 972 ₽
Дни:20
stdClass Object
(
[id] => 76
[attribute_id] => 1
[name] => Цокольный этаж из ФБС
[material_modifier] => 1
[work_modifier] => 1
[options] => Array
(
[0] => толщ. 300 мм
[1] => толщ. 400 мм
[2] => толщ. 500 мм
[3] => толщ. 600 мм
)
[days] => [30,32,34,36]
[material_price] => [20916,23299,26680,29060]
[work_price] => [17524,18700,19873,21046]
[image] => https://akademik-stroy.ru/wp-content/uploads/materials/cokolnyj-ehtazh-iz-fbs.jpg
[area_modifier] => 665.98
[parent_name] => Фундамент
[parent_id] => 1
[material_sum] => 16715565
[work_sum] => 11670634
[total_sum] => 28386199
[total_days] => 30
[display_material_sum] => 16 715 565
[display_work_sum] => 11 670 634
[display_total_sum] => 28 386 199
)
1
28 386 199₽
Работа:11 670 634 ₽
Материалы:16 715 565 ₽
Дни:30
stdClass Object
(
[id] => 77
[attribute_id] => 1
[name] => Цокольный этаж монолитный ж/б
[material_modifier] => 1
[work_modifier] => 1
[options] => Array
(
[0] => толщ. 200 мм
[1] => толщ. 300 мм
[2] => толщ. 400 мм
[3] => толщ. 500 мм
[4] => толщ. 600 мм
)
[days] => [40,42,44,46,48]
[material_price] => [25421,29148,32275,35602,37326]
[work_price] => [20441,21907,23375,24841,26306]
[image] => https://akademik-stroy.ru/wp-content/uploads/materials/cokolnyj-etazh-zh-b.jpg
[area_modifier] => 665.98
[parent_name] => Фундамент
[parent_id] => 1
[material_sum] => 20315853
[work_sum] => 13613297
[total_sum] => 33929150
[total_days] => 40
[display_material_sum] => 20 315 853
[display_work_sum] => 13 613 297
[display_total_sum] => 33 929 150
)
1
33 929 150₽
Работа:13 613 297 ₽
Материалы:20 315 853 ₽
Дни:40
stdClass Object
(
[id] => 191
[attribute_id] => 1
[name] => Винтовые сваи
[material_modifier] => 1
[work_modifier] => 1
[options] => Array
(
[0] => 57х200мм
[1] => 76х250мм
[2] => 108х300мм
[3] => 133х350мм
)
[days] => [1,1,2,2]
[material_price] => [1200,1300,1450,1600]
[work_price] => [400,600,900,1100]
[image] => https://akademik-stroy.ru/wp-content/uploads/materials/vintovye-svai.png
[area_modifier] => 665.98
[parent_name] => Фундамент
[parent_id] => 1
[material_sum] => 959011
[work_sum] => 266392
[total_sum] => 1225403
[total_days] => 1
[display_material_sum] => 959 011
[display_work_sum] => 266 392
[display_total_sum] => 1 225 403
)
1
1 225 403₽
Работа:266 392 ₽
Материалы:959 011 ₽
Дни:1
stdClass Object
(
[id] => 3
[attribute_id] => 2
[name] => Деревянные балки
[material_modifier] => 1
[work_modifier] => 1
[options] => Array
(
[0] => без утепления
[1] => утепление 200 мм
[2] => утепление 250 мм
[3] => утепление 300 мм
[4] => утепление 350 мм
[5] => утепление 400 мм
[6] => утепление 450 мм
[7] => утепление 500 мм
)
[days] => [8,9,9,9,11,12,13,14]
[material_price] => [1634,2042,2344,2947,3149,3652,3354,3557]
[work_price] => [1230,1339,1393,1426,1460,1513,1587,1620]
[image] => https://akademik-stroy.ru/wp-content/uploads/materials/derevyannye-balki.png
[area_modifier] => 665.98
[parent_name] => Перекрытие цоколя
[parent_id] => 2
[material_sum] => 1305854
[work_sum] => 819155
[total_sum] => 2125009
[total_days] => 8
[display_material_sum] => 1 305 854
[display_work_sum] => 819 155
[display_total_sum] => 2 125 009
)
1
2 125 009₽
Работа:819 155 ₽
Материалы:1 305 854 ₽
Дни:8
stdClass Object
(
[id] => 4
[attribute_id] => 2
[name] => Сборные ж/б плиты
[material_modifier] => 1
[work_modifier] => 1
[options] => Array
(
[0] => без утепления
[1] => утепление 150мм
[2] => утепление 200мм
[3] => утепление 250мм
[4] => утепление 300мм
[5] => утепление 350мм
[6] => утепление 400мм
[7] => утепление 450мм
[8] => утепление 500мм
)
[days] => [13,15,15,15,15,15,15,15,15]
[material_price] => [3067,5577,5928,6679,7730,8782,9833,10884,11935]
[work_price] => [1520,1956,2102,2247,2392,2537,2684,2829,2974]
[image] => https://akademik-stroy.ru/wp-content/uploads/materials/sbornye-zh-b-plity-2.jpg
[area_modifier] => 665.98
[parent_name] => Перекрытие цоколя
[parent_id] => 2
[material_sum] => 2451073
[work_sum] => 1012290
[total_sum] => 3463363
[total_days] => 13
[display_material_sum] => 2 451 073
[display_work_sum] => 1 012 290
[display_total_sum] => 3 463 363
)
1
3 463 363₽
Работа:1 012 290 ₽
Материалы:2 451 073 ₽
Дни:13
stdClass Object
(
[id] => 78
[attribute_id] => 2
[name] => Монолитная ж/б плита
[material_modifier] => 1
[work_modifier] => 1
[options] => Array
(
[0] => без утепления
[1] => утепление 150 мм
[2] => утепление 200 мм
[3] => утепление 250 мм
[4] => утепление 300 мм
[5] => утепление 350 мм
[6] => утепление 400 мм
[7] => утепление 450 мм
[8] => утепление 500 мм
)
[days] => [18,20,20,20,20,20,20,20,20]
[material_price] => [4837,6572,7224,7375,79426,8177,8728,9180,10031]
[work_price] => [3348,3921,4112,4302,4493,4684,4875,5066,5256]
[image] => https://akademik-stroy.ru/wp-content/uploads/materials/monolitnaya-zh-b-plita-2.jpg
[area_modifier] => 665.98
[parent_name] => Перекрытие цоколя
[parent_id] => 2
[material_sum] => 3865614
[work_sum] => 2229701
[total_sum] => 6095315
[total_days] => 18
[display_material_sum] => 3 865 614
[display_work_sum] => 2 229 701
[display_total_sum] => 6 095 315
)
1
6 095 315₽
Работа:2 229 701 ₽
Материалы:3 865 614 ₽
Дни:18
stdClass Object
(
[id] => 6
[attribute_id] => 3
[name] => Пеноблок
[material_modifier] => 1
[work_modifier] => 1
[options] => Array
(
[0] => 300 мм
[1] => 400 мм
[2] => 500 мм
[3] => 600 мм
)
[days] => [29,31,34,39]
[material_price] => [3000,4000,4500,4937]
[work_price] => [5033,5805,6400,8710]
[image] => https://akademik-stroy.ru/wp-content/uploads/materials/penoblok.jpg
[area_modifier] => 665.98
[parent_name] => Стены 1 этаж (несущие)
[parent_id] => 3
[material_sum] => 2397528
[work_sum] => 3351877
[total_sum] => 5749405
[total_days] => 29
[display_material_sum] => 2 397 528
[display_work_sum] => 3 351 877
[display_total_sum] => 5 749 405
)
1
5 749 405₽
Работа:3 351 877 ₽
Материалы:2 397 528 ₽
Дни:29
stdClass Object
(
[id] => 79
[attribute_id] => 3
[name] => Керамический блок
[material_modifier] => 1
[work_modifier] => 1
[options] => Array
(
[0] => 380 мм
[1] => 380 мм Thermo
[2] => 440 мм
[3] => 510 мм
)
[days] => [23,23,24,25]
[material_price] => [4510,5098,6093,8013]
[work_price] => [4737,4937,5903,6958]
[image] => https://akademik-stroy.ru/wp-content/uploads/materials/keramicheskij-blok.jpg
[area_modifier] => 665.98
[parent_name] => Стены 1 этаж (несущие)
[parent_id] => 3
[material_sum] => 3604284
[work_sum] => 3154747
[total_sum] => 6759031
[total_days] => 23
[display_material_sum] => 3 604 284
[display_work_sum] => 3 154 747
[display_total_sum] => 6 759 031
)
1
6 759 031₽
Работа:3 154 747 ₽
Материалы:3 604 284 ₽
Дни:23
stdClass Object
(
[id] => 80
[attribute_id] => 3
[name] => Кирпич
[material_modifier] => 1
[work_modifier] => 1
[options] => Array
(
[0] => Кирпич 250 мм
[1] => Кирпич 380 мм
[2] => Кирпич 510 мм
[3] => Кирпич 640 мм
[4] => Кирпич 770 мм
)
[days] => [30,30,31,33,36]
[material_price] => [5500,7142,9206,10171,12235]
[work_price] => [8736,10041,12018,15240,18462]
[image] => https://akademik-stroy.ru/wp-content/uploads/materials/kirpich.jpg
[area_modifier] => 665.98
[parent_name] => Стены 1 этаж (несущие)
[parent_id] => 3
[material_sum] => 4395468
[work_sum] => 5818001
[total_sum] => 10213469
[total_days] => 30
[display_material_sum] => 4 395 468
[display_work_sum] => 5 818 001
[display_total_sum] => 10 213 469
)
1
10 213 469₽
Работа:5 818 001 ₽
Материалы:4 395 468 ₽
Дни:30
stdClass Object
(
[id] => 81
[attribute_id] => 3
[name] => Монолитные
[material_modifier] => 1
[work_modifier] => 1
[options] => Array
(
[0] => 150 мм
[1] => 200 мм
[2] => 250 мм
[3] => 300 мм
[4] => 350 мм
[5] => 400 мм
)
[days] => [45,46,47,49,50,53]
[material_price] => [6545,7876,10175,12011,13908,15204]
[work_price] => [5106,6444,7698,8552,9807,11461]
[image] => https://akademik-stroy.ru/wp-content/uploads/materials/monolitnye.jpg
[area_modifier] => 665.98
[parent_name] => Стены 1 этаж (несущие)
[parent_id] => 3
[material_sum] => 5230607
[work_sum] => 3400494
[total_sum] => 8631101
[total_days] => 45
[display_material_sum] => 5 230 607
[display_work_sum] => 3 400 494
[display_total_sum] => 8 631 101
)
1
8 631 101₽
Работа:3 400 494 ₽
Материалы:5 230 607 ₽
Дни:45
stdClass Object
(
[id] => 82
[attribute_id] => 3
[name] => Клееный брус
[material_modifier] => 1
[work_modifier] => 1
[options] => Array
(
[0] => 160 мм
[1] => 175 мм
[2] => 200 мм
[3] => 215 мм
[4] => 240 мм
[5] => 270 мм
[6] => 282 мм
)
[days] => [24,28,32,37,40,42,48]
[material_price] => [16975,18773,19950,20545,21599,22159,23275]
[work_price] => [4806,5287,5815,6397,7036,7740,8514]
[image] => https://akademik-stroy.ru/wp-content/uploads/materials/kleenyj-brus.jpg
[area_modifier] => 665.98
[parent_name] => Стены 1 этаж (несущие)
[parent_id] => 3
[material_sum] => 13566013
[work_sum] => 3200700
[total_sum] => 16766713
[total_days] => 24
[display_material_sum] => 13 566 013
[display_work_sum] => 3 200 700
[display_total_sum] => 16 766 713
)
1
16 766 713₽
Работа:3 200 700 ₽
Материалы:13 566 013 ₽
Дни:24
stdClass Object
(
[id] => 83
[attribute_id] => 3
[name] => Каркасные
[material_modifier] => 1
[work_modifier] => 1
[options] => Array
(
[0] => 150 мм
[1] => 200 мм
[2] => 250 мм
[3] => 300 мм
)
[days] => [15,16,17,18]
[material_price] => [2379,2639,2898,3258]
[work_price] => [2418,2686,2985,3716]
[image] => https://akademik-stroy.ru/wp-content/uploads/materials/karkasnye.jpg
[area_modifier] => 665.98
[parent_name] => Стены 1 этаж (несущие)
[parent_id] => 3
[material_sum] => 1901240
[work_sum] => 1610340
[total_sum] => 3511580
[total_days] => 15
[display_material_sum] => 1 901 240
[display_work_sum] => 1 610 340
[display_total_sum] => 3 511 580
)
1
3 511 580₽
Работа:1 610 340 ₽
Материалы:1 901 240 ₽
Дни:15
stdClass Object
(
[id] => 84
[attribute_id] => 3
[name] => СИП-панели
[material_modifier] => 1
[work_modifier] => 1
[options] => Array
(
[0] => 120 мм
[1] => 170 мм
[2] => 220 мм
)
[days] => [7,7,7]
[material_price] => [1210,1856,2292]
[work_price] => [1410,1551,1706]
[image] => https://akademik-stroy.ru/wp-content/uploads/materials/sip-paneli.jpg
[area_modifier] => 665.98
[parent_name] => Стены 1 этаж (несущие)
[parent_id] => 3
[material_sum] => 967003
[work_sum] => 939032
[total_sum] => 1906035
[total_days] => 7
[display_material_sum] => 967 003
[display_work_sum] => 939 032
[display_total_sum] => 1 906 035
)
1
1 906 035₽
Работа:939 032 ₽
Материалы:967 003 ₽
Дни:7
stdClass Object
(
[id] => 85
[attribute_id] => 3
[name] => Сухой брус
[material_modifier] => 1
[work_modifier] => 1
[options] => Array
(
[0] => 150 мм
[1] => 180 мм
[2] => 200 мм
)
[days] => [7,8,9]
[material_price] => [6010,7190,8709]
[work_price] => [3204,3845,4229]
[image] => https://akademik-stroy.ru/wp-content/uploads/materials/suhoj-brus.jpg
[area_modifier] => 665.98
[parent_name] => Стены 1 этаж (несущие)
[parent_id] => 3
[material_sum] => 4803048
[work_sum] => 2133800
[total_sum] => 6936848
[total_days] => 7
[display_material_sum] => 4 803 048
[display_work_sum] => 2 133 800
[display_total_sum] => 6 936 848
)
1
6 936 848₽
Работа:2 133 800 ₽
Материалы:4 803 048 ₽
Дни:7
stdClass Object
(
[id] => 86
[attribute_id] => 3
[name] => Профилированный брус
[material_modifier] => 1
[work_modifier] => 1
[options] => Array
(
[0] => 150 мм
[1] => 180 мм
[2] => 200 мм
)
[days] => [7,8,9]
[material_price] => [8190,9228,10051]
[work_price] => [3845,4614,5075]
[image] => https://akademik-stroy.ru/wp-content/uploads/materials/profilirovannyj-brus.jpg
[area_modifier] => 665.98
[parent_name] => Стены 1 этаж (несущие)
[parent_id] => 3
[material_sum] => 6545251
[work_sum] => 2560693
[total_sum] => 9105944
[total_days] => 7
[display_material_sum] => 6 545 251
[display_work_sum] => 2 560 693
[display_total_sum] => 9 105 944
)
1
9 105 944₽
Работа:2 560 693 ₽
Материалы:6 545 251 ₽
Дни:7
stdClass Object
(
[id] => 87
[attribute_id] => 3
[name] => Оцилиндрованное бревно
[material_modifier] => 1
[work_modifier] => 1
[options] => Array
(
[0] => 180 мм
[1] => 220 мм
[2] => 260 мм
[3] => 320 мм
)
[days] => [7,8,9,10]
[material_price] => [75190,9532,10868,13116]
[work_price] => [3845,4691,5535,6863]
[image] => https://akademik-stroy.ru/wp-content/uploads/materials/ocilindrovannoe-brevno-1.jpg
[area_modifier] => 665.98
[parent_name] => Стены 1 этаж (несущие)
[parent_id] => 3
[material_sum] => 60090043
[work_sum] => 2560693
[total_sum] => 62650736
[total_days] => 7
[display_material_sum] => 60 090 043
[display_work_sum] => 2 560 693
[display_total_sum] => 62 650 736
)
1
62 650 736₽
Работа:2 560 693 ₽
Материалы:60 090 043 ₽
Дни:7
stdClass Object
(
[id] => 88
[attribute_id] => 3
[name] => Срубы
[material_modifier] => 1
[work_modifier] => 1
[options] => Array
(
[0] => 260 мм
[1] => 320 мм
[2] => 360 мм
[3] => 400 мм
[4] => 500 мм
)
[days] => [7,8,9,10,11]
[material_price] => [37975,46709,52314,58069,73167]
[work_price] => [4806,5911,6621,7349,9260]
[image] => https://akademik-stroy.ru/wp-content/uploads/materials/sruby.jpg
[area_modifier] => 665.98
[parent_name] => Стены 1 этаж (несущие)
[parent_id] => 3
[material_sum] => 30348709
[work_sum] => 3200700
[total_sum] => 33549409
[total_days] => 7
[display_material_sum] => 30 348 709
[display_work_sum] => 3 200 700
[display_total_sum] => 33 549 409
)
1
33 549 409₽
Работа:3 200 700 ₽
Материалы:30 348 709 ₽
Дни:7
stdClass Object
(
[id] => 174
[attribute_id] => 3
[name] => Брус
[material_modifier] => 1
[work_modifier] => 1
[options] => Array
(
[0] => 150 мм
[1] => 180 мм
[2] => 200 мм
)
[days] => [7,8,9]
[material_price] => [5127,6152,7367]
[work_price] => [1602,1922,2115]
[image] => https://akademik-stroy.ru/wp-content/uploads/materials/brus.jpg
[area_modifier] => 665.98
[parent_name] => Стены 1 этаж (несущие)
[parent_id] => 3
[material_sum] => 4097375
[work_sum] => 1066900
[total_sum] => 5164275
[total_days] => 7
[display_material_sum] => 4 097 375
[display_work_sum] => 1 066 900
[display_total_sum] => 5 164 275
)
1
5 164 275₽
Работа:1 066 900 ₽
Материалы:4 097 375 ₽
Дни:7
stdClass Object
(
[id] => 175
[attribute_id] => 3
[name] => Газобетон
[material_modifier] => 1
[work_modifier] => 1
[options] => Array
(
[0] => 300 мм
[1] => 375 мм
[2] => 400 мм
[3] => 500 мм
[4] => 600 мм
)
[days] => [29,31,35,37,44]
[material_price] => [4298,5573,6356,7288,9119]
[work_price] => [4538,5251,5926,6733,7195]
[image] => https://akademik-stroy.ru/wp-content/uploads/materials/gazobeton.jpg
[area_modifier] => 665.98
[parent_name] => Стены 1 этаж (несущие)
[parent_id] => 3
[material_sum] => 3434858
[work_sum] => 3022217
[total_sum] => 6457075
[total_days] => 29
[display_material_sum] => 3 434 858
[display_work_sum] => 3 022 217
[display_total_sum] => 6 457 075
)
1
6 457 075₽
Работа:3 022 217 ₽
Материалы:3 434 858 ₽
Дни:29
stdClass Object
(
[id] => 176
[attribute_id] => 3
[name] => Блок
[material_modifier] => 1
[work_modifier] => 1
[options] => Array
(
[0] => 300 мм
[1] => 375 мм
[2] => 400 мм
[3] => 500 мм
[4] => 600 мм
)
[days] => [29,31,35,37,44]
[material_price] => [2698,3973,4356,6588,7119]
[work_price] => [5038,5851,6426,8733,9195]
[image] => https://akademik-stroy.ru/wp-content/uploads/materials/blok.jpg
[area_modifier] => 665.98
[parent_name] => Стены 1 этаж (несущие)
[parent_id] => 3
[material_sum] => 2156177
[work_sum] => 3355207
[total_sum] => 5511384
[total_days] => 29
[display_material_sum] => 2 156 177
[display_work_sum] => 3 355 207
[display_total_sum] => 5 511 384
)
1
5 511 384₽
Работа:3 355 207 ₽
Материалы:2 156 177 ₽
Дни:29
stdClass Object
(
[id] => 177
[attribute_id] => 3
[name] => Газосиликатный блок
[material_modifier] => 1
[work_modifier] => 1
[options] => Array
(
[0] => 300 мм
[1] => 375 мм
[2] => 400 мм
[3] => 500 мм
[4] => 600 мм
)
[days] => [29,31,35,37,44]
[material_price] => [4298,5573,6356,7288,9119]
[work_price] => [4538,5251,5926,6733,7195]
[image] => https://akademik-stroy.ru/wp-content/uploads/materials/gazosilikatnyj-blok.jpg
[area_modifier] => 665.98
[parent_name] => Стены 1 этаж (несущие)
[parent_id] => 3
[material_sum] => 3434858
[work_sum] => 3022217
[total_sum] => 6457075
[total_days] => 29
[display_material_sum] => 3 434 858
[display_work_sum] => 3 022 217
[display_total_sum] => 6 457 075
)
1
6 457 075₽
Работа:3 022 217 ₽
Материалы:3 434 858 ₽
Дни:29
stdClass Object
(
[id] => 178
[attribute_id] => 3
[name] => Керамзитобетонный блок
[material_modifier] => 1
[work_modifier] => 1
[options] => Array
(
[0] => 300 мм
[1] => 375 мм
[2] => 400 мм
[3] => 500 мм
[4] => 600 мм
)
[days] => [23,23,24,25,28]
[material_price] => [3641,4298,5693,7613,9612]
[work_price] => [5737,5737,6903,7958,8901]
[image] => https://akademik-stroy.ru/wp-content/uploads/materials/keramzitobetonnyj-blok.jpg
[area_modifier] => 665.98
[parent_name] => Стены 1 этаж (несущие)
[parent_id] => 3
[material_sum] => 2909800
[work_sum] => 3820727
[total_sum] => 6730527
[total_days] => 23
[display_material_sum] => 2 909 800
[display_work_sum] => 3 820 727
[display_total_sum] => 6 730 527
)
1
6 730 527₽
Работа:3 820 727 ₽
Материалы:2 909 800 ₽
Дни:23
stdClass Object
(
[id] => 179
[attribute_id] => 3
[name] => Деревянные
[material_modifier] => 1
[work_modifier] => 1
[options] => Array
(
[0] => 180 мм
[1] => 220 мм
[2] => 260 мм
[3] => 320 мм
)
[days] => [7,8,9,10]
[material_price] => [7950,9458,11961,14472]
[work_price] => [4037,4925,5812,7207]
[image] => https://akademik-stroy.ru/wp-content/uploads/materials/derevyannye.jpg
[area_modifier] => 665.98
[parent_name] => Стены 1 этаж (несущие)
[parent_id] => 3
[material_sum] => 6353449
[work_sum] => 2688561
[total_sum] => 9042010
[total_days] => 7
[display_material_sum] => 6 353 449
[display_work_sum] => 2 688 561
[display_total_sum] => 9 042 010
)
1
9 042 010₽
Работа:2 688 561 ₽
Материалы:6 353 449 ₽
Дни:7
stdClass Object
(
[id] => 181
[attribute_id] => 3
[name] => Камень
[material_modifier] => 1
[work_modifier] => 1
[options] => Array
(
[0] => 300 мм
[1] => 400 мм
[2] => 500 мм
[3] => 600 мм
)
[days] => [25,27,31,34]
[material_price] => [5262,6844,8330,9815]
[work_price] => [8331,9135,10427,11069]
[image] => https://akademik-stroy.ru/wp-content/uploads/materials/kamen.jpg
[area_modifier] => 665.98
[parent_name] => Стены 1 этаж (несущие)
[parent_id] => 3
[material_sum] => 4205264
[work_sum] => 5548279
[total_sum] => 9753543
[total_days] => 25
[display_material_sum] => 4 205 264
[display_work_sum] => 5 548 279
[display_total_sum] => 9 753 543
)
1
9 753 543₽
Работа:5 548 279 ₽
Материалы:4 205 264 ₽
Дни:25
stdClass Object
(
[id] => 182
[attribute_id] => 3
[name] => Каркасно-щитовые
[material_modifier] => 1
[work_modifier] => 1
[options] => Array
(
[0] => 150 мм
[1] => 200 мм
[2] => 250 мм
[3] => 300 мм
[4] => 350 мм
[5] => 400 мм
)
[days] => [15,16,17,18,19,20]
[material_price] => [2379,2639,2898,3458,3601,4175]
[work_price] => [2538,2820,3134,3483,4062,5642]
[image] => https://akademik-stroy.ru/wp-content/uploads/materials/karkasno-shchitovye.jpg
[area_modifier] => 665.98
[parent_name] => Стены 1 этаж (несущие)
[parent_id] => 3
[material_sum] => 1901240
[work_sum] => 1690257
[total_sum] => 3591497
[total_days] => 15
[display_material_sum] => 1 901 240
[display_work_sum] => 1 690 257
[display_total_sum] => 3 591 497
)
1
3 591 497₽
Работа:1 690 257 ₽
Материалы:1 901 240 ₽
Дни:15
stdClass Object
(
[id] => 183
[attribute_id] => 3
[name] => Рубленные
[material_modifier] => 1
[work_modifier] => 1
[options] => Array
(
[0] => 150 мм
[1] => 200 мм
[2] => 250 мм
[3] => 300 мм
[4] => 350 мм
[5] => 400 мм
)
[days] => [15,16,17,18,17,18]
[material_price] => [35950,50267,60583,75900,80217,100533]
[work_price] => [9612,12816,16020,19224,22428,25632]
[image] => https://akademik-stroy.ru/wp-content/uploads/materials/rublennye.jpg
[area_modifier] => 665.98
[parent_name] => Стены 1 этаж (несущие)
[parent_id] => 3
[material_sum] => 28730377
[work_sum] => 6401400
[total_sum] => 35131777
[total_days] => 15
[display_material_sum] => 28 730 377
[display_work_sum] => 6 401 400
[display_total_sum] => 35 131 777
)
1
35 131 777₽
Работа:6 401 400 ₽
Материалы:28 730 377 ₽
Дни:15
stdClass Object
(
[id] => 185
[attribute_id] => 3
[name] => Теплоблок
[material_modifier] => 1
[work_modifier] => 1
[options] => Array
(
[0] => 300 мм (с облицовкой, не покрашенный)
[1] => 400 мм (с облицовкой, не покрашенный)
[2] => 300 мм (с облицовкой, покрашенный)
[3] => 400 мм (с облицовкой, покрашенный)
)
[days] => [15,16,15,16]
[material_price] => [2888,3729,3957,4258]
[work_price] => [2564,3229,2949,3713]
[image] => https://akademik-stroy.ru/wp-content/uploads/materials/teploblok.jpg
[area_modifier] => 665.98
[parent_name] => Стены 1 этаж (несущие)
[parent_id] => 3
[material_sum] => 2308020
[work_sum] => 1707573
[total_sum] => 4015593
[total_days] => 15
[display_material_sum] => 2 308 020
[display_work_sum] => 1 707 573
[display_total_sum] => 4 015 593
)
1
4 015 593₽
Работа:1 707 573 ₽
Материалы:2 308 020 ₽
Дни:15
stdClass Object
(
[id] => 186
[attribute_id] => 3
[name] => Арболитовые блоки
[material_modifier] => 1
[work_modifier] => 1
[options] => Array
(
[0] => 300 мм
[1] => 400 мм
[2] => 600 мм
)
[days] => [19,22,27]
[material_price] => [3210,4475,5852]
[work_price] => [4214,4788,5866]
[image] => https://akademik-stroy.ru/wp-content/uploads/materials/arbolitovye-bloki.png
[area_modifier] => 665.98
[parent_name] => Стены 1 этаж (несущие)
[parent_id] => 3
[material_sum] => 2565355
[work_sum] => 2806440
[total_sum] => 5371795
[total_days] => 19
[display_material_sum] => 2 565 355
[display_work_sum] => 2 806 440
[display_total_sum] => 5 371 795
)
1
5 371 795₽
Работа:2 806 440 ₽
Материалы:2 565 355 ₽
Дни:19
stdClass Object
(
[id] => 187
[attribute_id] => 3
[name] => Полистиролбетон
[material_modifier] => 1
[work_modifier] => 1
[options] => Array
(
[0] => 300 мм
[1] => 400 мм
[2] => 600 мм
)
[days] => [29,31,35]
[material_price] => [2798,4573,5256]
[work_price] => [5038,5851,6426]
[image] => https://akademik-stroy.ru/wp-content/uploads/materials/polistirolbeton.jpg
[area_modifier] => 665.98
[parent_name] => Стены 1 этаж (несущие)
[parent_id] => 3
[material_sum] => 2236094
[work_sum] => 3355207
[total_sum] => 5591301
[total_days] => 29
[display_material_sum] => 2 236 094
[display_work_sum] => 3 355 207
[display_total_sum] => 5 591 301
)
1
5 591 301₽
Работа:3 355 207 ₽
Материалы:2 236 094 ₽
Дни:29
stdClass Object
(
[id] => 188
[attribute_id] => 3
[name] => Шлакоблок
[material_modifier] => 1
[work_modifier] => 1
[options] => Array
(
[0] => 400 мм
[1] => 600 мм
)
[days] => [15,16]
[material_price] => [2391,3471]
[work_price] => [2642,3662]
[image] => https://akademik-stroy.ru/wp-content/uploads/materials/shlakoblok.jpg
[area_modifier] => 665.98
[parent_name] => Стены 1 этаж (несущие)
[parent_id] => 3
[material_sum] => 1910830
[work_sum] => 1759519
[total_sum] => 3670349
[total_days] => 15
[display_material_sum] => 1 910 830
[display_work_sum] => 1 759 519
[display_total_sum] => 3 670 349
)
1
3 670 349₽
Работа:1 759 519 ₽
Материалы:1 910 830 ₽
Дни:15
stdClass Object
(
[id] => 189
[attribute_id] => 3
[name] => Теплая керамика
[material_modifier] => 1
[work_modifier] => 1
[options] => Array
(
[0] => 380 мм
[1] => 380 мм Thermo
[2] => 440 мм
[3] => 510 мм
)
[days] => [23,23,24,25]
[material_price] => [4510,5098,6093,8013]
[work_price] => [4737,4937,5903,6958]
[image] => https://akademik-stroy.ru/wp-content/uploads/materials/teplaya-keramika.jpg
[area_modifier] => 665.98
[parent_name] => Стены 1 этаж (несущие)
[parent_id] => 3
[material_sum] => 3604284
[work_sum] => 3154747
[total_sum] => 6759031
[total_days] => 23
[display_material_sum] => 3 604 284
[display_work_sum] => 3 154 747
[display_total_sum] => 6 759 031
)
1
6 759 031₽
Работа:3 154 747 ₽
Материалы:3 604 284 ₽
Дни:23
stdClass Object
(
[id] => 190
[attribute_id] => 3
[name] => Несъемная опалубка
[material_modifier] => 1
[work_modifier] => 1
[options] => Array
(
[0] => 200 мм
[1] => 250 мм
[2] => 300 мм
[3] => 350 мм
)
[days] => [15,17,19,21]
[material_price] => [3302,3902,4108,5008]
[work_price] => [2100,2100,2300,2534]
[image] => https://akademik-stroy.ru/wp-content/uploads/materials/nesemnaya-opalubka.jpg
[area_modifier] => 665.98
[parent_name] => Стены 1 этаж (несущие)
[parent_id] => 3
[material_sum] => 2638879
[work_sum] => 1398558
[total_sum] => 4037437
[total_days] => 15
[display_material_sum] => 2 638 879
[display_work_sum] => 1 398 558
[display_total_sum] => 4 037 437
)
1
4 037 437₽
Работа:1 398 558 ₽
Материалы:2 638 879 ₽
Дни:15
stdClass Object
(
[id] => 251
[attribute_id] => 3
[name] => Бревно
[material_modifier] => 1
[work_modifier] => 1
[options] => Array
(
[0] => 260 мм
[1] => 320 мм
[2] => 360 мм
[3] => 400 мм
[4] => 500 мм
)
[days] => [7,8,9,10,11]
[material_price] => [1874,24045,26930,30972,38825]
[work_price] => [5046,6207,6952,7716,9723]
[image] => https://akademik-stroy.ru/wp-content/uploads/materials/sruby.jpg
[area_modifier] => 665.98
[parent_name] => Стены 1 этаж (несущие)
[parent_id] => 3
[material_sum] => 1497656
[work_sum] => 3360535
[total_sum] => 4858191
[total_days] => 7
[display_material_sum] => 1 497 656
[display_work_sum] => 3 360 535
[display_total_sum] => 4 858 191
)
1
4 858 191₽
Работа:3 360 535 ₽
Материалы:1 497 656 ₽
Дни:7
stdClass Object
(
[id] => 7
[attribute_id] => 4
[name] => Деревянные балки
[material_modifier] => 1
[work_modifier] => 1
[options] => Array
(
[0] => без утепления
[1] => утепление 200 мм
[2] => утепление 250 мм
[3] => утепление 300 мм
[4] => утепление 350 мм
[5] => утепление 400 мм
[6] => утепление 450 мм
[7] => утепление 500 мм
)
[days] => [8,9,9,9,11,12,13,14]
[material_price] => [1634,2042,2344,2947,3149,3652,3354,3557]
[work_price] => [1230,1339,1393,1426,1460,1513,1587,1620]
[image] => https://akademik-stroy.ru/wp-content/uploads/materials/derevyannye-balki.png
[area_modifier] => 665.98
[parent_name] => Перекрытие первого этажа
[parent_id] => 4
[material_sum] => 1305854
[work_sum] => 819155
[total_sum] => 2125009
[total_days] => 8
[display_material_sum] => 1 305 854
[display_work_sum] => 819 155
[display_total_sum] => 2 125 009
)
1
2 125 009₽
Работа:819 155 ₽
Материалы:1 305 854 ₽
Дни:8
stdClass Object
(
[id] => 8
[attribute_id] => 4
[name] => Сборные ж/б плиты
[material_modifier] => 1
[work_modifier] => 1
[options] => Array
(
[0] => без утепления
[1] => утепление 150 мм
[2] => утепление 200 мм
[3] => утепление 250 мм
[4] => утепление 300 мм
[5] => утепление 350 мм
[6] => утепление 400 мм
[7] => утепление 450 мм
[8] => утепление 500 мм
)
[days] => [13,15,15,15,15,15,15,15,15]
[material_price] => [3067,5577,5928,6679,7730,8782,9833,10884,11935]
[work_price] => [1520,1956,2102,2247,2392,2537,2684,2829,2974]
[image] => https://akademik-stroy.ru/wp-content/uploads/materials/sbornye-zh-b-plity-2.jpg
[area_modifier] => 665.98
[parent_name] => Перекрытие первого этажа
[parent_id] => 4
[material_sum] => 2451073
[work_sum] => 1012290
[total_sum] => 3463363
[total_days] => 13
[display_material_sum] => 2 451 073
[display_work_sum] => 1 012 290
[display_total_sum] => 3 463 363
)
1
3 463 363₽
Работа:1 012 290 ₽
Материалы:2 451 073 ₽
Дни:13
stdClass Object
(
[id] => 89
[attribute_id] => 4
[name] => Монолитная ж/б плита
[material_modifier] => 1
[work_modifier] => 1
[options] => Array
(
[0] => без утепления
[1] => утепление 150 мм
[2] => утепление 200 мм
[3] => утепление 250 мм
[4] => утепление 300 мм
[5] => утепление 350 мм
[6] => утепление 400 мм
[7] => утепление 450 мм
[8] => утепление 500 мм
)
[days] => [18,20,20,20,20,20,20,20,20]
[material_price] => [4837,6572,7224,7375,79426,8177,8728,9180,10031]
[work_price] => [3348,3921,4112,4302,4493,4684,4875,5066,5256]
[image] => https://akademik-stroy.ru/wp-content/uploads/materials/monolitnaya-zh-b-plita-2.jpg
[area_modifier] => 665.98
[parent_name] => Перекрытие первого этажа
[parent_id] => 4
[material_sum] => 3865614
[work_sum] => 2229701
[total_sum] => 6095315
[total_days] => 18
[display_material_sum] => 3 865 614
[display_work_sum] => 2 229 701
[display_total_sum] => 6 095 315
)
1
6 095 315₽
Работа:2 229 701 ₽
Материалы:3 865 614 ₽
Дни:18
stdClass Object
(
[id] => 10
[attribute_id] => 5
[name] => Пеноблок
[material_modifier] => 1
[work_modifier] => 1
[options] => Array
(
[0] => 300 мм
[1] => 400 мм
[2] => 500 мм
[3] => 600 мм
)
[days] => [29,31,34,39]
[material_price] => [3000,4000,4500,4937]
[work_price] => [5033,5805,6400,8710]
[image] => https://akademik-stroy.ru/wp-content/uploads/materials/penoblok.jpg
[area_modifier] => 227.95
[parent_name] => Стены 2 этаж (несущие)
[parent_id] => 5
[material_sum] => 820620
[work_sum] => 1147272
[total_sum] => 1967892
[total_days] => 29
[display_material_sum] => 820 620
[display_work_sum] => 1 147 272
[display_total_sum] => 1 967 892
)
1
1 967 892₽
Работа:1 147 272 ₽
Материалы:820 620 ₽
Дни:29
stdClass Object
(
[id] => 90
[attribute_id] => 5
[name] => Керамический блок
[material_modifier] => 1
[work_modifier] => 1
[options] => Array
(
[0] => 380 мм
[1] => 380 мм Thermo
[2] => 440 мм
[3] => 510 мм
)
[days] => [23,23,24,25]
[material_price] => [4510,5098,6093,8013]
[work_price] => [4737,4937,5903,6958]
[image] => https://akademik-stroy.ru/wp-content/uploads/materials/keramicheskij-blok.jpg
[area_modifier] => 227.95
[parent_name] => Стены 2 этаж (несущие)
[parent_id] => 5
[material_sum] => 1233665
[work_sum] => 1079799
[total_sum] => 2313464
[total_days] => 23
[display_material_sum] => 1 233 665
[display_work_sum] => 1 079 799
[display_total_sum] => 2 313 464
)
1
2 313 464₽
Работа:1 079 799 ₽
Материалы:1 233 665 ₽
Дни:23
stdClass Object
(
[id] => 91
[attribute_id] => 5
[name] => Кирпич
[material_modifier] => 1
[work_modifier] => 1
[options] => Array
(
[0] => Кирпич 250 мм
[1] => Кирпич 380 мм
[2] => Кирпич 510 мм
[3] => Кирпич 640 мм
[4] => Кирпич 770 мм
)
[days] => [30,30,31,33,36]
[material_price] => [5500,7142,9206,10171,12235]
[work_price] => [8736,10041,12018,15240,18462]
[image] => https://akademik-stroy.ru/wp-content/uploads/materials/kirpich.jpg
[area_modifier] => 227.95
[parent_name] => Стены 2 этаж (несущие)
[parent_id] => 5
[material_sum] => 1504470
[work_sum] => 1991371
[total_sum] => 3495841
[total_days] => 30
[display_material_sum] => 1 504 470
[display_work_sum] => 1 991 371
[display_total_sum] => 3 495 841
)
1
3 495 841₽
Работа:1 991 371 ₽
Материалы:1 504 470 ₽
Дни:30
stdClass Object
(
[id] => 92
[attribute_id] => 5
[name] => Монолитные
[material_modifier] => 1
[work_modifier] => 1
[options] => Array
(
[0] => 150 мм
[1] => 200 мм
[2] => 250 мм
[3] => 300 мм
[4] => 350 мм
[5] => 400 мм
)
[days] => [45,46,47,49,50,53]
[material_price] => [6545,7876,10175,12011,13908,15204]
[work_price] => [5106,6444,7698,8552,9807,11461]
[image] => https://akademik-stroy.ru/wp-content/uploads/materials/monolitnye.jpg
[area_modifier] => 227.95
[parent_name] => Стены 2 этаж (несущие)
[parent_id] => 5
[material_sum] => 1790319
[work_sum] => 1163913
[total_sum] => 2954232
[total_days] => 45
[display_material_sum] => 1 790 319
[display_work_sum] => 1 163 913
[display_total_sum] => 2 954 232
)
1
2 954 232₽
Работа:1 163 913 ₽
Материалы:1 790 319 ₽
Дни:45
stdClass Object
(
[id] => 93
[attribute_id] => 5
[name] => Клееный брус
[material_modifier] => 1
[work_modifier] => 1
[options] => Array
(
[0] => 160 мм
[1] => 175 мм
[2] => 200 мм
[3] => 215 мм
[4] => 240 мм
[5] => 270 мм
[6] => 282 мм
)
[days] => [24,28,32,37,40,42,48]
[material_price] => [16975,18773,19950,20545,21599,22159,23275]
[work_price] => [4806,5287,5815,6397,7036,7740,8514]
[image] => https://akademik-stroy.ru/wp-content/uploads/materials/kleenyj-brus.jpg
[area_modifier] => 227.95
[parent_name] => Стены 2 этаж (несущие)
[parent_id] => 5
[material_sum] => 4643342
[work_sum] => 1095528
[total_sum] => 5738870
[total_days] => 24
[display_material_sum] => 4 643 342
[display_work_sum] => 1 095 528
[display_total_sum] => 5 738 870
)
1
5 738 870₽
Работа:1 095 528 ₽
Материалы:4 643 342 ₽
Дни:24
stdClass Object
(
[id] => 94
[attribute_id] => 5
[name] => Каркасные
[material_modifier] => 1
[work_modifier] => 1
[options] => Array
(
[0] => 150 мм
[1] => 200 мм
[2] => 250 мм
[3] => 300 мм
)
[days] => [15,16,17,18]
[material_price] => [2379,2639,2898,3258]
[work_price] => [2418,2686,2985,3716]
[image] => https://akademik-stroy.ru/wp-content/uploads/materials/karkasnye.jpg
[area_modifier] => 227.95
[parent_name] => Стены 2 этаж (несущие)
[parent_id] => 5
[material_sum] => 650752
[work_sum] => 551183
[total_sum] => 1201935
[total_days] => 15
[display_material_sum] => 650 752
[display_work_sum] => 551 183
[display_total_sum] => 1 201 935
)
1
1 201 935₽
Работа:551 183 ₽
Материалы:650 752 ₽
Дни:15
stdClass Object
(
[id] => 95
[attribute_id] => 5
[name] => СИП-панели
[material_modifier] => 1
[work_modifier] => 1
[options] => Array
(
[0] => 120 мм
[1] => 170 мм
[2] => 220 мм
)
[days] => [7,7,7]
[material_price] => [1210,1856,2292]
[work_price] => [1410,1551,1706]
[image] => https://akademik-stroy.ru/wp-content/uploads/materials/sip-paneli.jpg
[area_modifier] => 227.95
[parent_name] => Стены 2 этаж (несущие)
[parent_id] => 5
[material_sum] => 330983
[work_sum] => 321410
[total_sum] => 652393
[total_days] => 7
[display_material_sum] => 330 983
[display_work_sum] => 321 410
[display_total_sum] => 652 393
)
1
652 393₽
Работа:321 410 ₽
Материалы:330 983 ₽
Дни:7
stdClass Object
(
[id] => 96
[attribute_id] => 5
[name] => Сухой брус
[material_modifier] => 1
[work_modifier] => 1
[options] => Array
(
[0] => 150 мм
[1] => 180 мм
[2] => 200 мм
)
[days] => [7,8,9]
[material_price] => [6010,7190,8709]
[work_price] => [3204,3845,4229]
[image] => https://akademik-stroy.ru/wp-content/uploads/materials/suhoj-brus.jpg
[area_modifier] => 227.95
[parent_name] => Стены 2 этаж (несущие)
[parent_id] => 5
[material_sum] => 1643975
[work_sum] => 730352
[total_sum] => 2374327
[total_days] => 7
[display_material_sum] => 1 643 975
[display_work_sum] => 730 352
[display_total_sum] => 2 374 327
)
1
2 374 327₽
Работа:730 352 ₽
Материалы:1 643 975 ₽
Дни:7
stdClass Object
(
[id] => 97
[attribute_id] => 5
[name] => Профилированный брус
[material_modifier] => 1
[work_modifier] => 1
[options] => Array
(
[0] => 150 мм
[1] => 180 мм
[2] => 200 мм
)
[days] => [7,8,9]
[material_price] => [8190,9228,10051]
[work_price] => [3845,4614,5075]
[image] => https://akademik-stroy.ru/wp-content/uploads/materials/profilirovannyj-brus.jpg
[area_modifier] => 227.95
[parent_name] => Стены 2 этаж (несущие)
[parent_id] => 5
[material_sum] => 2240293
[work_sum] => 876468
[total_sum] => 3116761
[total_days] => 7
[display_material_sum] => 2 240 293
[display_work_sum] => 876 468
[display_total_sum] => 3 116 761
)
1
3 116 761₽
Работа:876 468 ₽
Материалы:2 240 293 ₽
Дни:7
stdClass Object
(
[id] => 98
[attribute_id] => 5
[name] => Оцилиндрованное бревно
[material_modifier] => 1
[work_modifier] => 1
[options] => Array
(
[0] => 180 мм
[1] => 220 мм
[2] => 260 мм
[3] => 320 мм
)
[days] => [7,8,9,10]
[material_price] => [75190,9532,10868,13116]
[work_price] => [3845,4691,5535,6863]
[image] => https://akademik-stroy.ru/wp-content/uploads/materials/ocilindrovannoe-brevno-1.jpg
[area_modifier] => 227.95
[parent_name] => Стены 2 этаж (несущие)
[parent_id] => 5
[material_sum] => 20567473
[work_sum] => 876468
[total_sum] => 21443941
[total_days] => 7
[display_material_sum] => 20 567 473
[display_work_sum] => 876 468
[display_total_sum] => 21 443 941
)
1
21 443 941₽
Работа:876 468 ₽
Материалы:20 567 473 ₽
Дни:7
stdClass Object
(
[id] => 99
[attribute_id] => 5
[name] => Срубы
[material_modifier] => 1
[work_modifier] => 1
[options] => Array
(
[0] => 260 мм
[1] => 320 мм
[2] => 360 мм
[3] => 400 мм
[4] => 500 мм
)
[days] => [7,8,9,10,11]
[material_price] => [16175,23709,26314,29069,32167]
[work_price] => [4806,5911,6621,7349,9260]
[image] => https://akademik-stroy.ru/wp-content/uploads/materials/suhoj-brus.jpg
[area_modifier] => 227.95
[parent_name] => Стены 2 этаж (несущие)
[parent_id] => 5
[material_sum] => 4424510
[work_sum] => 1095528
[total_sum] => 5520038
[total_days] => 7
[display_material_sum] => 4 424 510
[display_work_sum] => 1 095 528
[display_total_sum] => 5 520 038
)
1
5 520 038₽
Работа:1 095 528 ₽
Материалы:4 424 510 ₽
Дни:7
stdClass Object
(
[id] => 194
[attribute_id] => 5
[name] => Брус
[material_modifier] => 1
[work_modifier] => 1
[options] => Array
(
[0] => 150 мм
[1] => 180 мм
[2] => 200 мм
)
[days] => [10,13,15]
[material_price] => [5127,6152,7367]
[work_price] => [1602,1922,2115]
[image] => https://akademik-stroy.ru/wp-content/uploads/materials/brus.jpg
[area_modifier] => 227.95
[parent_name] => Стены 2 этаж (несущие)
[parent_id] => 5
[material_sum] => 1402440
[work_sum] => 365176
[total_sum] => 1767616
[total_days] => 10
[display_material_sum] => 1 402 440
[display_work_sum] => 365 176
[display_total_sum] => 1 767 616
)
1
1 767 616₽
Работа:365 176 ₽
Материалы:1 402 440 ₽
Дни:10
stdClass Object
(
[id] => 195
[attribute_id] => 5
[name] => Газобетон
[material_modifier] => 1
[work_modifier] => 1
[options] => Array
(
[0] => 300 мм
[1] => 375 мм
[2] => 400 мм
[3] => 500 мм
[4] => 600 мм
)
[days] => [29,31,35,37,44]
[material_price] => [4298,5573,6356,7288,9119]
[work_price] => [4538,5251,5926,6733,7195]
[image] => https://akademik-stroy.ru/wp-content/uploads/materials/gazobeton.jpg
[area_modifier] => 227.95
[parent_name] => Стены 2 этаж (несущие)
[parent_id] => 5
[material_sum] => 1175675
[work_sum] => 1034437
[total_sum] => 2210112
[total_days] => 29
[display_material_sum] => 1 175 675
[display_work_sum] => 1 034 437
[display_total_sum] => 2 210 112
)
1
2 210 112₽
Работа:1 034 437 ₽
Материалы:1 175 675 ₽
Дни:29
stdClass Object
(
[id] => 196
[attribute_id] => 5
[name] => Блок
[material_modifier] => 1
[work_modifier] => 1
[options] => Array
(
[0] => 300 мм
[1] => 375 мм
[2] => 400 мм
[3] => 500 мм
[4] => 600 мм
)
[days] => [29,31,35,37,44]
[material_price] => [2698,3973,4356,6588,7119]
[work_price] => [5038,5851,6426,8733,9195]
[image] => https://akademik-stroy.ru/wp-content/uploads/materials/blok.jpg
[area_modifier] => 227.95
[parent_name] => Стены 2 этаж (несущие)
[parent_id] => 5
[material_sum] => 738011
[work_sum] => 1148412
[total_sum] => 1886423
[total_days] => 29
[display_material_sum] => 738 011
[display_work_sum] => 1 148 412
[display_total_sum] => 1 886 423
)
1
1 886 423₽
Работа:1 148 412 ₽
Материалы:738 011 ₽
Дни:29
stdClass Object
(
[id] => 197
[attribute_id] => 5
[name] => Газосиликатный блок
[material_modifier] => 1
[work_modifier] => 1
[options] => Array
(
[0] => 300 мм
[1] => 375 мм
[2] => 400 мм
[3] => 500 мм
[4] => 600 мм
)
[days] => [29,31,35,37,44]
[material_price] => [4298,5573,6356,7288,9119]
[work_price] => [4538,5251,5926,6733,7195]
[image] => https://akademik-stroy.ru/wp-content/uploads/materials/gazosilikatnyj-blok.jpg
[area_modifier] => 227.95
[parent_name] => Стены 2 этаж (несущие)
[parent_id] => 5
[material_sum] => 1175675
[work_sum] => 1034437
[total_sum] => 2210112
[total_days] => 29
[display_material_sum] => 1 175 675
[display_work_sum] => 1 034 437
[display_total_sum] => 2 210 112
)
1
2 210 112₽
Работа:1 034 437 ₽
Материалы:1 175 675 ₽
Дни:29
stdClass Object
(
[id] => 198
[attribute_id] => 5
[name] => Керамзитобетонный блок
[material_modifier] => 1
[work_modifier] => 1
[options] => Array
(
[0] => 300 мм
[1] => 375 мм
[2] => 400 мм
[3] => 500 мм
[4] => 600 мм
)
[days] => [23,23,24,25,28]
[material_price] => [3641,4298,5693,7613,9612]
[work_price] => [5737,5737,6903,7958,8901]
[image] => https://akademik-stroy.ru/wp-content/uploads/materials/keramzitobetonnyj-blok.jpg
[area_modifier] => 227.95
[parent_name] => Стены 2 этаж (несущие)
[parent_id] => 5
[material_sum] => 995959
[work_sum] => 1307749
[total_sum] => 2303708
[total_days] => 23
[display_material_sum] => 995 959
[display_work_sum] => 1 307 749
[display_total_sum] => 2 303 708
)
1
2 303 708₽
Работа:1 307 749 ₽
Материалы:995 959 ₽
Дни:23
stdClass Object
(
[id] => 199
[attribute_id] => 5
[name] => Деревянные
[material_modifier] => 1
[work_modifier] => 1
[options] => Array
(
[0] => 180 мм
[1] => 220 мм
[2] => 260 мм
[3] => 320 мм
)
[days] => [7,8,9,10]
[material_price] => [7950,9458,11961,14472]
[work_price] => [4037,4925,5812,7207]
[image] => https://akademik-stroy.ru/wp-content/uploads/materials/derevyannye.jpg
[area_modifier] => 227.95
[parent_name] => Стены 2 этаж (несущие)
[parent_id] => 5
[material_sum] => 2174643
[work_sum] => 920234
[total_sum] => 3094877
[total_days] => 7
[display_material_sum] => 2 174 643
[display_work_sum] => 920 234
[display_total_sum] => 3 094 877
)
1
3 094 877₽
Работа:920 234 ₽
Материалы:2 174 643 ₽
Дни:7
stdClass Object
(
[id] => 200
[attribute_id] => 5
[name] => Камень
[material_modifier] => 1
[work_modifier] => 1
[options] => Array
(
[0] => 300 мм
[1] => 400 мм
[2] => 500 мм
[3] => 600 мм
)
[days] => [25,27,31,34]
[material_price] => [5262,6844,8330,9815]
[work_price] => [8331,9135,10427,11069]
[image] => https://akademik-stroy.ru/wp-content/uploads/materials/kamen.jpg
[area_modifier] => 227.95
[parent_name] => Стены 2 этаж (несущие)
[parent_id] => 5
[material_sum] => 1439367
[work_sum] => 1899051
[total_sum] => 3338418
[total_days] => 25
[display_material_sum] => 1 439 367
[display_work_sum] => 1 899 051
[display_total_sum] => 3 338 418
)
1
3 338 418₽
Работа:1 899 051 ₽
Материалы:1 439 367 ₽
Дни:25
stdClass Object
(
[id] => 201
[attribute_id] => 5
[name] => Каркасно-щитовые
[material_modifier] => 1
[work_modifier] => 1
[options] => Array
(
[0] => 150 мм
[1] => 200 мм
[2] => 250 мм
[3] => 300 мм
[4] => 350 мм
[5] => 400 мм
)
[days] => [15,16,17,18,19,20]
[material_price] => [2379,2639,2898,3458,3601,4175]
[work_price] => [2538,2820,3134,3483,4062,5642]
[image] => https://akademik-stroy.ru/wp-content/uploads/materials/karkasno-shchitovye.jpg
[area_modifier] => 227.95
[parent_name] => Стены 2 этаж (несущие)
[parent_id] => 5
[material_sum] => 650752
[work_sum] => 578537
[total_sum] => 1229289
[total_days] => 15
[display_material_sum] => 650 752
[display_work_sum] => 578 537
[display_total_sum] => 1 229 289
)
1
1 229 289₽
Работа:578 537 ₽
Материалы:650 752 ₽
Дни:15
stdClass Object
(
[id] => 202
[attribute_id] => 5
[name] => Рубленные
[material_modifier] => 1
[work_modifier] => 1
[options] => Array
(
[0] => 150 мм
[1] => 200 мм
[2] => 250 мм
[3] => 300 мм
[4] => 350 мм
[5] => 400 мм
)
[days] => [15,16,17,18,17,18]
[material_price] => [35950,50267,60583,75900,80217,100533]
[work_price] => [9612,12816,16020,19224,22428,25632]
[image] => https://akademik-stroy.ru/wp-content/uploads/materials/rublennye.jpg
[area_modifier] => 227.95
[parent_name] => Стены 2 этаж (несущие)
[parent_id] => 5
[material_sum] => 9833763
[work_sum] => 2191055
[total_sum] => 12024818
[total_days] => 15
[display_material_sum] => 9 833 763
[display_work_sum] => 2 191 055
[display_total_sum] => 12 024 818
)
1
12 024 818₽
Работа:2 191 055 ₽
Материалы:9 833 763 ₽
Дни:15
stdClass Object
(
[id] => 203
[attribute_id] => 5
[name] => Теплоблок
[material_modifier] => 1
[work_modifier] => 1
[options] => Array
(
[0] => 300 мм (с облицовкой, не покрашенный)
[1] => 400 мм (с облицовкой, не покрашенный)
[2] => 300 мм (с облицовкой, покрашенный)
[3] => 400 мм (с облицовкой, покрашенный)
)
[days] => [15,16,15,16]
[material_price] => [2888,3729,3957,4258]
[work_price] => [2564,3229,2949,3713]
[image] => https://akademik-stroy.ru/wp-content/uploads/materials/teploblok.jpg
[area_modifier] => 227.95
[parent_name] => Стены 2 этаж (несущие)
[parent_id] => 5
[material_sum] => 789984
[work_sum] => 584464
[total_sum] => 1374448
[total_days] => 15
[display_material_sum] => 789 984
[display_work_sum] => 584 464
[display_total_sum] => 1 374 448
)
1
1 374 448₽
Работа:584 464 ₽
Материалы:789 984 ₽
Дни:15
stdClass Object
(
[id] => 204
[attribute_id] => 5
[name] => Арболитовые блоки
[material_modifier] => 1
[work_modifier] => 1
[options] => Array
(
[0] => 300 мм
[1] => 400 мм
[2] => 600 мм
)
[days] => [19,22,27]
[material_price] => [3210,4475,5852]
[work_price] => [4214,4788,5866]
[image] => https://akademik-stroy.ru/wp-content/uploads/materials/arbolitovye-bloki.png
[area_modifier] => 227.95
[parent_name] => Стены 2 этаж (несущие)
[parent_id] => 5
[material_sum] => 878063
[work_sum] => 960581
[total_sum] => 1838644
[total_days] => 19
[display_material_sum] => 878 063
[display_work_sum] => 960 581
[display_total_sum] => 1 838 644
)
1
1 838 644₽
Работа:960 581 ₽
Материалы:878 063 ₽
Дни:19
stdClass Object
(
[id] => 205
[attribute_id] => 5
[name] => Полистиролбетон
[material_modifier] => 1
[work_modifier] => 1
[options] => Array
(
[0] => 300 мм
[1] => 400 мм
[2] => 600 мм
)
[days] => [29,31,35]
[material_price] => [2798,4573,5256]
[work_price] => [5038,5851,6426]
[image] => https://akademik-stroy.ru/wp-content/uploads/materials/polistirolbeton.jpg
[area_modifier] => 227.95
[parent_name] => Стены 2 этаж (несущие)
[parent_id] => 5
[material_sum] => 765365
[work_sum] => 1148412
[total_sum] => 1913777
[total_days] => 29
[display_material_sum] => 765 365
[display_work_sum] => 1 148 412
[display_total_sum] => 1 913 777
)
1
1 913 777₽
Работа:1 148 412 ₽
Материалы:765 365 ₽
Дни:29
stdClass Object
(
[id] => 206
[attribute_id] => 5
[name] => Шлакоблок
[material_modifier] => 1
[work_modifier] => 1
[options] => Array
(
[0] => 400 мм
[1] => 600 мм
)
[days] => [15,16]
[material_price] => [2391,3471]
[work_price] => [2642,3662]
[image] => https://akademik-stroy.ru/wp-content/uploads/materials/shlakoblok.jpg
[area_modifier] => 227.95
[parent_name] => Стены 2 этаж (несущие)
[parent_id] => 5
[material_sum] => 654034
[work_sum] => 602244
[total_sum] => 1256278
[total_days] => 15
[display_material_sum] => 654 034
[display_work_sum] => 602 244
[display_total_sum] => 1 256 278
)
1
1 256 278₽
Работа:602 244 ₽
Материалы:654 034 ₽
Дни:15
stdClass Object
(
[id] => 245
[attribute_id] => 5
[name] => Теплая керамика
[material_modifier] => 1
[work_modifier] => 1
[options] => Array
(
[0] => 380 мм
[1] => 380 мм Thermo
[2] => 440 мм
[3] => 510 мм
)
[days] => [10,10,11,12]
[material_price] => [4510,5098,6093,8013]
[work_price] => [4737,4937,5903,6958]
[image] => https://akademik-stroy.ru/wp-content/uploads/materials/teplaya-keramika.jpg
[area_modifier] => 227.95
[parent_name] => Стены 2 этаж (несущие)
[parent_id] => 5
[material_sum] => 1233665
[work_sum] => 1079799
[total_sum] => 2313464
[total_days] => 10
[display_material_sum] => 1 233 665
[display_work_sum] => 1 079 799
[display_total_sum] => 2 313 464
)
1
2 313 464₽
Работа:1 079 799 ₽
Материалы:1 233 665 ₽
Дни:10
stdClass Object
(
[id] => 246
[attribute_id] => 5
[name] => Несъемная опалубка
[material_modifier] => 1
[work_modifier] => 1
[options] => Array
(
[0] => 380 мм
[1] => 380 мм Thermo
[2] => 440 мм
[3] => 510 мм
)
[days] => [10,10,11,12]
[material_price] => [3302,3902,4108,5008]
[work_price] => [2100,2100,2300,2534]
[image] => https://akademik-stroy.ru/wp-content/uploads/materials/nesemnaya-opalubka.jpg
[area_modifier] => 227.95
[parent_name] => Стены 2 этаж (несущие)
[parent_id] => 5
[material_sum] => 903229
[work_sum] => 478695
[total_sum] => 1381924
[total_days] => 10
[display_material_sum] => 903 229
[display_work_sum] => 478 695
[display_total_sum] => 1 381 924
)
1
1 381 924₽
Работа:478 695 ₽
Материалы:903 229 ₽
Дни:10
stdClass Object
(
[id] => 254
[attribute_id] => 5
[name] => Бревно
[material_modifier] => 1
[work_modifier] => 1
[options] => Array
(
[0] => 260 мм
[1] => 320 мм
[2] => 360 мм
[3] => 400 мм
[4] => 500 мм
)
[days] => [7,8,9,10,11]
[material_price] => [1874,24045,26930,30972,38825]
[work_price] => [5046,6207,6952,7716,9723]
[image] => https://akademik-stroy.ru/wp-content/uploads/materials/sruby.jpg
[area_modifier] => 227.95
[parent_name] => Стены 2 этаж (несущие)
[parent_id] => 5
[material_sum] => 512614
[work_sum] => 1150236
[total_sum] => 1662850
[total_days] => 7
[display_material_sum] => 512 614
[display_work_sum] => 1 150 236
[display_total_sum] => 1 662 850
)
1
1 662 850₽
Работа:1 150 236 ₽
Материалы:512 614 ₽
Дни:7
stdClass Object
(
[id] => 11
[attribute_id] => 6
[name] => Деревянные балки
[material_modifier] => 1
[work_modifier] => 1
[options] => Array
(
[0] => без утепления
[1] => утепление 200 мм
[2] => утепление 250 мм
[3] => утепление 300 мм
[4] => утепление 350 мм
[5] => утепление 400 мм
[6] => утепление 450 мм
[7] => утепление 500 мм
)
[days] => [8,9,9,9,11,12,13,14]
[material_price] => [1634,2042,2344,2947,3149,3652,3354,3557]
[work_price] => [1230,1339,1393,1426,1460,1513,1587,1620]
[image] => https://akademik-stroy.ru/wp-content/uploads/materials/derevyannye-balki.png
[area_modifier] => 227.95
[parent_name] => Перекрытие второго этажа
[parent_id] => 6
[material_sum] => 446964
[work_sum] => 280379
[total_sum] => 727343
[total_days] => 8
[display_material_sum] => 446 964
[display_work_sum] => 280 379
[display_total_sum] => 727 343
)
1
727 343₽
Работа:280 379 ₽
Материалы:446 964 ₽
Дни:8
stdClass Object
(
[id] => 12
[attribute_id] => 6
[name] => Сборные ж/б плиты
[material_modifier] => 1
[work_modifier] => 1
[options] => Array
(
[0] => без утепления
[1] => утепление 150 мм
[2] => утепление 200 мм
[3] => утепление 250 мм
[4] => утепление 300 мм
[5] => утепление 350 мм
[6] => утепление 400 мм
[7] => утепление 450 мм
[8] => утепление 500 мм
)
[days] => [13,15,15,15,15,15,15,15,15]
[material_price] => [3067,5577,5928,6679,7730,8782,9833,10884,11935]
[work_price] => [1520,1956,2102,2247,2392,2537,2684,2829,2974]
[image] => https://akademik-stroy.ru/wp-content/uploads/materials/sbornye-zh-b-plity-2.jpg
[area_modifier] => 227.95
[parent_name] => Перекрытие второго этажа
[parent_id] => 6
[material_sum] => 838947
[work_sum] => 346484
[total_sum] => 1185431
[total_days] => 13
[display_material_sum] => 838 947
[display_work_sum] => 346 484
[display_total_sum] => 1 185 431
)
1
1 185 431₽
Работа:346 484 ₽
Материалы:838 947 ₽
Дни:13
stdClass Object
(
[id] => 100
[attribute_id] => 6
[name] => Монолитная ж/б плита
[material_modifier] => 1
[work_modifier] => 1
[options] => Array
(
[0] => без утепления
[1] => утепление 150 мм
[2] => утепление 200 мм
[3] => утепление 250 мм
[4] => утепление 300 мм
[5] => утепление 350 мм
[6] => утепление 400 мм
[7] => утепление 450 мм
[8] => утепление 500 мм
)
[days] => [18,20,20,20,20,20,20,20,20]
[material_price] => [4837,6572,7224,7375,79426,8177,8728,9180,10031]
[work_price] => [3348,3921,4112,4302,4493,4684,4875,5066,5256]
[image] => https://akademik-stroy.ru/wp-content/uploads/materials/monolitnaya-zh-b-plita-2.jpg
[area_modifier] => 227.95
[parent_name] => Перекрытие второго этажа
[parent_id] => 6
[material_sum] => 1323113
[work_sum] => 763177
[total_sum] => 2086290
[total_days] => 18
[display_material_sum] => 1 323 113
[display_work_sum] => 763 177
[display_total_sum] => 2 086 290
)
1
2 086 290₽
Работа:763 177 ₽
Материалы:1 323 113 ₽
Дни:18
stdClass Object
(
[id] => 164
[attribute_id] => 37
[name] => Металлочерепица
[material_modifier] => 1
[work_modifier] => 1
[options] => Array
(
)
[days] => [20]
[material_price] => [6112]
[work_price] => [5726]
[image] => https://akademik-stroy.ru/wp-content/uploads/materials/metallocherepica.jpg
[area_modifier] => 665.98
[parent_name] => Крыша (Скатная)
[parent_id] => 37
[material_sum] => 4884564
[work_sum] => 3813401
[total_sum] => 8697965
[total_days] => 20
[display_material_sum] => 4 884 564
[display_work_sum] => 3 813 401
[display_total_sum] => 8 697 965
)
1
8 697 965₽
Работа:3 813 401 ₽
Материалы:4 884 564 ₽
Дни:20
stdClass Object
(
[id] => 165
[attribute_id] => 37
[name] => Гибкая черепица
[material_modifier] => 1
[work_modifier] => 1
[options] => Array
(
)
[days] => [20]
[material_price] => [6980]
[work_price] => [5950]
[image] => https://akademik-stroy.ru/wp-content/uploads/materials/gibkaya-cherepica.jpg
[area_modifier] => 665.98
[parent_name] => Крыша (Скатная)
[parent_id] => 37
[material_sum] => 5578248
[work_sum] => 3962581
[total_sum] => 9540829
[total_days] => 20
[display_material_sum] => 5 578 248
[display_work_sum] => 3 962 581
[display_total_sum] => 9 540 829
)
1
9 540 829₽
Работа:3 962 581 ₽
Материалы:5 578 248 ₽
Дни:20
stdClass Object
(
[id] => 166
[attribute_id] => 37
[name] => Цементно-песчаная черепица
[material_modifier] => 1
[work_modifier] => 1
[options] => Array
(
)
[days] => [20]
[material_price] => [10560]
[work_price] => [9456]
[image] => https://akademik-stroy.ru/wp-content/uploads/materials/cementno-peschanaya-cherepica.jpg
[area_modifier] => 665.98
[parent_name] => Крыша (Скатная)
[parent_id] => 37
[material_sum] => 8439299
[work_sum] => 6297507
[total_sum] => 14736806
[total_days] => 20
[display_material_sum] => 8 439 299
[display_work_sum] => 6 297 507
[display_total_sum] => 14 736 806
)
1
14 736 806₽
Работа:6 297 507 ₽
Материалы:8 439 299 ₽
Дни:20
stdClass Object
(
[id] => 167
[attribute_id] => 37
[name] => Композитная черепица
[material_modifier] => 1
[work_modifier] => 1
[options] => Array
(
)
[days] => [20]
[material_price] => [9506]
[work_price] => [8905]
[image] => https://akademik-stroy.ru/wp-content/uploads/materials/kompozitnaya-cherepica.jpg
[area_modifier] => 665.98
[parent_name] => Крыша (Скатная)
[parent_id] => 37
[material_sum] => 7596967
[work_sum] => 5930552
[total_sum] => 13527519
[total_days] => 20
[display_material_sum] => 7 596 967
[display_work_sum] => 5 930 552
[display_total_sum] => 13 527 519
)
1
13 527 519₽
Работа:5 930 552 ₽
Материалы:7 596 967 ₽
Дни:20
stdClass Object
(
[id] => 168
[attribute_id] => 37
[name] => Керамическая черепица
[material_modifier] => 1
[work_modifier] => 1
[options] => Array
(
)
[days] => [20]
[material_price] => [12750]
[work_price] => [9456]
[image] => https://akademik-stroy.ru/wp-content/uploads/materials/keramicheskaya-cherepica.jpg
[area_modifier] => 665.98
[parent_name] => Крыша (Скатная)
[parent_id] => 37
[material_sum] => 10189494
[work_sum] => 6297507
[total_sum] => 16487001
[total_days] => 20
[display_material_sum] => 10 189 494
[display_work_sum] => 6 297 507
[display_total_sum] => 16 487 001
)
1
16 487 001₽
Работа:6 297 507 ₽
Материалы:10 189 494 ₽
Дни:20
stdClass Object
(
[id] => 169
[attribute_id] => 37
[name] => Металлическая фальцевая
[material_modifier] => 1
[work_modifier] => 1
[options] => Array
(
)
[days] => [20]
[material_price] => [8550]
[work_price] => [8190]
[image] => https://akademik-stroy.ru/wp-content/uploads/materials/metallicheskaya-falcevaya.jpg
[area_modifier] => 665.98
[parent_name] => Крыша (Скатная)
[parent_id] => 37
[material_sum] => 6832955
[work_sum] => 5454376
[total_sum] => 12287331
[total_days] => 20
[display_material_sum] => 6 832 955
[display_work_sum] => 5 454 376
[display_total_sum] => 12 287 331
)
1
12 287 331₽
Работа:5 454 376 ₽
Материалы:6 832 955 ₽
Дни:20
stdClass Object
(
[id] => 170
[attribute_id] => 37
[name] => Медная фальцевая
[material_modifier] => 1
[work_modifier] => 1
[options] => Array
(
)
[days] => [20]
[material_price] => [20450]
[work_price] => [16750]
[image] => https://akademik-stroy.ru/wp-content/uploads/materials/mednaya-falcevaya.jpg
[area_modifier] => 665.98
[parent_name] => Крыша (Скатная)
[parent_id] => 37
[material_sum] => 16343149
[work_sum] => 11155165
[total_sum] => 27498314
[total_days] => 20
[display_material_sum] => 16 343 149
[display_work_sum] => 11 155 165
[display_total_sum] => 27 498 314
)
1
27 498 314₽
Работа:11 155 165 ₽
Материалы:16 343 149 ₽
Дни:20
stdClass Object
(
[id] => 171
[attribute_id] => 37
[name] => Зеленая кровля
[material_modifier] => 1
[work_modifier] => 1
[options] => Array
(
)
[days] => [20]
[material_price] => [19850]
[work_price] => [16780]
[image] => https://akademik-stroy.ru/wp-content/uploads/materials/zelenaya-krovlya.jpg
[area_modifier] => 665.98
[parent_name] => Крыша (Скатная)
[parent_id] => 37
[material_sum] => 15863644
[work_sum] => 11175144
[total_sum] => 27038788
[total_days] => 20
[display_material_sum] => 15 863 644
[display_work_sum] => 11 175 144
[display_total_sum] => 27 038 788
)
1
27 038 788₽
Работа:11 175 144 ₽
Материалы:15 863 644 ₽
Дни:20
stdClass Object
(
[id] => 172
[attribute_id] => 37
[name] => Профлист
[material_modifier] => 1
[work_modifier] => 1
[options] => Array
(
)
[days] => [20]
[material_price] => [3450]
[work_price] => [3750]
[image] => https://akademik-stroy.ru/wp-content/uploads/materials/proflist.jpg
[area_modifier] => 665.98
[parent_name] => Крыша (Скатная)
[parent_id] => 37
[material_sum] => 2757157
[work_sum] => 2497425
[total_sum] => 5254582
[total_days] => 20
[display_material_sum] => 2 757 157
[display_work_sum] => 2 497 425
[display_total_sum] => 5 254 582
)
1
5 254 582₽
Работа:2 497 425 ₽
Материалы:2 757 157 ₽
Дни:20
stdClass Object
(
[id] => 51
[attribute_id] => 26
[name] => Есть
[material_modifier] => 1
[work_modifier] => 1
[options] => Array
(
[0] => Профиль 58 мм, 3-камерный, стеклопакет 2-камерный до 32 мм
[1] => Профиль 60 мм, 4-камерный, стеклопакет 2-камерный до 32 мм
[2] => Профиль 70 мм, 5-камерный, стеклопакет 2-камерный до 40 мм
[3] => Профиль 72 мм, 5-камерный, стеклопакет 2-камерный до 40 мм
[4] => Алюминиевые окна Alutech профиль 72 мм, стеклопакет 2-камерный
)
[days] => [3,3,3,3,3]
[material_price] => [1339,2124,2867,3023,29596]
[work_price] => [635,647,659,668,2579]
[image] => https://akademik-stroy.ru/wp-content/uploads/materials/okna.jpg
[area_modifier] => 855.1
[parent_name] => Окна
[parent_id] => 26
[material_sum] => 1373975
[work_sum] => 542989
[total_sum] => 1916964
[total_days] => 3
[display_material_sum] => 1 373 975
[display_work_sum] => 542 989
[display_total_sum] => 1 916 964
)
1
1 916 964₽
Работа:542 989 ₽
Материалы:1 373 975 ₽
Дни:3
stdClass Object
(
[id] => 52
[attribute_id] => 26
[name] => Нет
[material_modifier] => 2
[work_modifier] => 1
[options] =>
[days] => null
[material_price] => null
[work_price] => null
[image] => https://akademik-stroy.ru/wp-content/uploads/materials/okna.jpg
[area_modifier] => 855.1
[parent_name] => Окна
[parent_id] => 26
[material_sum] => 0
[work_sum] => 0
[total_sum] => 0
[total_days] => 0
[display_material_sum] => 0
[display_work_sum] => 0
[display_total_sum] => 0
)
1
0₽
Работа:0 ₽
Материалы:0 ₽
Дни:0
stdClass Object
(
[id] => 53
[attribute_id] => 27
[name] => Есть
[material_modifier] => 1
[work_modifier] => 1
[options] => Array
(
)
[days] => [1]
[material_price] => [10000]
[work_price] => [5500]
[image] => https://akademik-stroy.ru/wp-content/uploads/materials/dveri.jpg
[area_modifier] => 1
[parent_name] => Двери входные
[parent_id] => 27
[material_sum] => 12000
[work_sum] => 5500
[total_sum] => 17500
[total_days] => 1
[display_material_sum] => 12 000
[display_work_sum] => 5 500
[display_total_sum] => 17 500
)
1
17 500₽
Работа:5 500 ₽
Материалы:12 000 ₽
Дни:1
stdClass Object
(
[id] => 54
[attribute_id] => 27
[name] => Нет
[material_modifier] => 1
[work_modifier] => 1
[options] => Array
(
)
[days] => [0]
[material_price] => [0]
[work_price] => [0]
[image] => https://akademik-stroy.ru/wp-content/uploads/materials/dveri.jpg
[area_modifier] => 1
[parent_name] => Двери входные
[parent_id] => 27
[material_sum] => 0
[work_sum] => 0
[total_sum] => 0
[total_days] => 0
[display_material_sum] => 0
[display_work_sum] => 0
[display_total_sum] => 0
)
1
0₽
Работа:0 ₽
Материалы:0 ₽
Дни:0
stdClass Object
(
[id] => 25
[attribute_id] => 13
[name] => Нет
[material_modifier] => 1
[work_modifier] => 1
[options] => Array
(
)
[days] => [0]
[material_price] => [0]
[work_price] => [0]
[image] => https://akademik-stroy.ru/wp-content/uploads/materials/mineralovata-krov.jpg
[area_modifier] => 665.98
[parent_name] => Утепление кровли (Мансарда)
[parent_id] => 13
[material_sum] => 0
[work_sum] => 0
[total_sum] => 0
[total_days] => 0
[display_material_sum] => 0
[display_work_sum] => 0
[display_total_sum] => 0
)
1
0₽
Работа:0 ₽
Материалы:0 ₽
Дни:0
stdClass Object
(
[id] => 26
[attribute_id] => 13
[name] => Минераловатный
[material_modifier] => 1
[work_modifier] => 1
[options] => Array
(
[0] => 50 мм
[1] => 100 мм
[2] => 150 мм
[3] => 200 мм
[4] => 250 мм
[5] => 300 мм
[6] => 350 мм
[7] => 400 мм
[8] => 450 мм
[9] => 500 мм
)
[days] => [5,5,6,6,6,7,7,7,8,8]
[material_price] => [1158,1414,1772,2230,3602,4060,4974,5890,6408,7718]
[work_price] => [650,846,846,1098,1318,1450,1596,1754,1930,2122]
[image] => https://akademik-stroy.ru/wp-content/uploads/materials/mineralovata-krov.jpg
[area_modifier] => 665.98
[parent_name] => Утепление кровли (Мансарда)
[parent_id] => 13
[material_sum] => 925446
[work_sum] => 432887
[total_sum] => 1358333
[total_days] => 5
[display_material_sum] => 925 446
[display_work_sum] => 432 887
[display_total_sum] => 1 358 333
)
1
1 358 333₽
Работа:432 887 ₽
Материалы:925 446 ₽
Дни:5
stdClass Object
(
[id] => 123
[attribute_id] => 13
[name] => Эковата (целлюлозная вата)
[material_modifier] => 1
[work_modifier] => 1
[options] => Array
(
[0] => 50 мм
[1] => 100 мм
[2] => 150 мм
[3] => 200 мм
[4] => 250 мм
[5] => 300 мм
[6] => 350 мм
[7] => 400 мм
[8] => 450 мм
[9] => 500 мм
)
[days] => [3,3,4,4,4,5,5,5,5,5]
[material_price] => [820,1638,2458,3276,5734,6552,8190,9828,11466,13104]
[work_price] => [234,304,304,396,474,522,574,632,694,764]
[image] => https://akademik-stroy.ru/wp-content/uploads/materials/ehkovata-krov.jpg
[area_modifier] => 665.98
[parent_name] => Утепление кровли (Мансарда)
[parent_id] => 13
[material_sum] => 655324
[work_sum] => 155839
[total_sum] => 811163
[total_days] => 3
[display_material_sum] => 655 324
[display_work_sum] => 155 839
[display_total_sum] => 811 163
)
1
811 163₽
Работа:155 839 ₽
Материалы:655 324 ₽
Дни:3
stdClass Object
(
[id] => 124
[attribute_id] => 13
[name] => Экструдированный пенополистирол
[material_modifier] => 1
[work_modifier] => 1
[options] => Array
(
[0] => 50 мм
[1] => 100 мм
[2] => 150 мм
[3] => 200 мм
[4] => 250 мм
[5] => 300 мм
[6] => 350 мм
[7] => 400 мм
[8] => 450 мм
[9] => 500 мм
)
[days] => [3,3,4,4,4,5,5,5,5,6]
[material_price] => [1146,2292,3438,4584,8020,9166,11458,13750,16040,18332]
[work_price] => [390,508,508,660,790,870,958,1052,1158,1274]
[image] => https://akademik-stroy.ru/wp-content/uploads/materials/epps-krov.jpg
[area_modifier] => 665.98
[parent_name] => Утепление кровли (Мансарда)
[parent_id] => 13
[material_sum] => 915856
[work_sum] => 259732
[total_sum] => 1175588
[total_days] => 3
[display_material_sum] => 915 856
[display_work_sum] => 259 732
[display_total_sum] => 1 175 588
)
1
1 175 588₽
Работа:259 732 ₽
Материалы:915 856 ₽
Дни:3
stdClass Object
(
[id] => 125
[attribute_id] => 13
[name] => ПСБ (ППС-пенополистирол)
[material_modifier] => 1
[work_modifier] => 1
[options] => Array
(
[0] => 50 мм
[1] => 100 мм
[2] => 150 мм
[3] => 200 мм
[4] => 250 мм
[5] => 300 мм
[6] => 350 мм
[7] => 400 мм
[8] => 450 мм
[9] => 500 мм
)
[days] => [3,3,4,4,4,5,5,5,5,6]
[material_price] => [476,954,1430,1906,3336,3814,4766,5720,6674,7626]
[work_price] => [390,508,508,660,790,870,958,1052,1158,1274]
[image] => https://akademik-stroy.ru/wp-content/uploads/materials/psb-krov.jpg
[area_modifier] => 665.98
[parent_name] => Утепление кровли (Мансарда)
[parent_id] => 13
[material_sum] => 380408
[work_sum] => 259732
[total_sum] => 640140
[total_days] => 3
[display_material_sum] => 380 408
[display_work_sum] => 259 732
[display_total_sum] => 640 140
)
1
640 140₽
Работа:259 732 ₽
Материалы:380 408 ₽
Дни:3
stdClass Object
(
[id] => 126
[attribute_id] => 13
[name] => ППУ (Пенополиуретан)
[material_modifier] => 1
[work_modifier] => 1
[options] => Array
(
[0] => 50 мм
[1] => 100 мм
[2] => 150 мм
[3] => 200 мм
[4] => 250 мм
[5] => 300 мм
[6] => 350 мм
[7] => 400 мм
[8] => 450 мм
[9] => 500 мм
)
[days] => [2,2,3,3,3,3,4,4,4,4]
[material_price] => [2080,4160,6240,8320,14560,16640,20800,24960,29120,33280]
[work_price] => [234,304,304,396,474,522,574,632,694,764]
[image] => https://akademik-stroy.ru/wp-content/uploads/materials/ppu-krov.jpg
[area_modifier] => 665.98
[parent_name] => Утепление кровли (Мансарда)
[parent_id] => 13
[material_sum] => 1662286
[work_sum] => 155839
[total_sum] => 1818125
[total_days] => 2
[display_material_sum] => 1 662 286
[display_work_sum] => 155 839
[display_total_sum] => 1 818 125
)
1
1 818 125₽
Работа:155 839 ₽
Материалы:1 662 286 ₽
Дни:2
stdClass Object
(
[id] => 127
[attribute_id] => 13
[name] => PIR-плиты (пенополиизоцианурат)
[material_modifier] => 1
[work_modifier] => 1
[options] => Array
(
[0] => 50 мм
[1] => 100 мм
[2] => 150 мм
[3] => 200 мм
[4] => 250 мм
[5] => 300 мм
[6] => 350 мм
[7] => 400 мм
[8] => 450 мм
[9] => 500 мм
)
[days] => [3,3,4,4,4,5,5,5,5,6]
[material_price] => [2646,5290,7936,10580,18516,21162,26452,31742,37032,42324]
[work_price] => [390,508,508,660,790,870,958,1052,1158,1274]
[image] => https://akademik-stroy.ru/wp-content/uploads/materials/pir-krov.jpg
[area_modifier] => 665.98
[parent_name] => Утепление кровли (Мансарда)
[parent_id] => 13
[material_sum] => 2114620
[work_sum] => 259732
[total_sum] => 2374352
[total_days] => 3
[display_material_sum] => 2 114 620
[display_work_sum] => 259 732
[display_total_sum] => 2 374 352
)
1
2 374 352₽
Работа:259 732 ₽
Материалы:2 114 620 ₽
Дни:3
stdClass Object
(
[id] => 27
[attribute_id] => 14
[name] => Нет
[material_modifier] => 1
[work_modifier] => 1
[options] => Array
(
)
[days] => [0]
[material_price] => [0]
[work_price] => [0]
[image] => https://akademik-stroy.ru/wp-content/uploads/materials/mansardnye-okna-2.jpg
[area_modifier] => 1
[parent_name] => Мансардные окна
[parent_id] => 14
[material_sum] => 0
[work_sum] => 0
[total_sum] => 0
[total_days] => 0
[display_material_sum] => 0
[display_work_sum] => 0
[display_total_sum] => 0
)
1
0₽
Работа:0 ₽
Материалы:0 ₽
Дни:0
stdClass Object
(
[id] => 28
[attribute_id] => 14
[name] => Есть
[material_modifier] => 1
[work_modifier] => 1
[options] => Array
(
[0] => 55x78
[1] => 55x98
)
[days] => [6,7]
[material_price] => [47480,68700]
[work_price] => [17900,19500]
[image] => https://akademik-stroy.ru/wp-content/uploads/materials/mansardnye-okna-2.jpg
[area_modifier] => 1
[parent_name] => Мансардные окна
[parent_id] => 14
[material_sum] => 56976
[work_sum] => 17900
[total_sum] => 74876
[total_days] => 6
[display_material_sum] => 56 976
[display_work_sum] => 17 900
[display_total_sum] => 74 876
)
1
74 876₽
Работа:17 900 ₽
Материалы:56 976 ₽
Дни:6
stdClass Object
(
[id] => 29
[attribute_id] => 15
[name] => Нет
[material_modifier] => 1
[work_modifier] => 1
[options] => Array
(
)
[days] => [0]
[material_price] => [0]
[work_price] => [0]
[image] => https://akademik-stroy.ru/wp-content/uploads/materials/sofit.jpg
[area_modifier] => 665.98
[parent_name] => Подшивка кровли
[parent_id] => 15
[material_sum] => 0
[work_sum] => 0
[total_sum] => 0
[total_days] => 0
[display_material_sum] => 0
[display_work_sum] => 0
[display_total_sum] => 0
)
1
0₽
Работа:0 ₽
Материалы:0 ₽
Дни:0
stdClass Object
(
[id] => 30
[attribute_id] => 15
[name] => Есть
[material_modifier] => 1
[work_modifier] => 1
[options] => Array
(
[0] => Софиты (ПВХ)
[1] => Cedral
[2] => ДПК
[3] => Планкен
)
[days] => [7,10,9,8]
[material_price] => [1803,3213,3025,3150]
[work_price] => [1529,2188,2075,1923]
[image] => https://akademik-stroy.ru/wp-content/uploads/materials/sofit.jpg
[area_modifier] => 665.98
[parent_name] => Подшивка кровли
[parent_id] => 15
[material_sum] => 1440914
[work_sum] => 1018283
[total_sum] => 2459197
[total_days] => 7
[display_material_sum] => 1 440 914
[display_work_sum] => 1 018 283
[display_total_sum] => 2 459 197
)
1
2 459 197₽
Работа:1 018 283 ₽
Материалы:1 440 914 ₽
Дни:7
stdClass Object
(
[id] => 31
[attribute_id] => 16
[name] => Нет
[material_modifier] => 1
[work_modifier] => 1
[options] => Array
(
)
[days] => [0]
[material_price] => [0]
[work_price] => [0]
[image] => https://akademik-stroy.ru/wp-content/uploads/materials/docke-standard-pvh.jpg
[area_modifier] => 665.98
[parent_name] => Водосточная система
[parent_id] => 16
[material_sum] => 0
[work_sum] => 0
[total_sum] => 0
[total_days] => 0
[display_material_sum] => 0
[display_work_sum] => 0
[display_total_sum] => 0
)
1
0₽
Работа:0 ₽
Материалы:0 ₽
Дни:0
stdClass Object
(
[id] => 32
[attribute_id] => 16
[name] => Есть
[material_modifier] => 1
[work_modifier] => 1
[options] => Array
(
[0] => Döcke Standard (ПВХ)
[1] => Металлические Grand Line
)
[days] => [7,7]
[material_price] => [1842,2703]
[work_price] => [1491,1529]
[image] => https://akademik-stroy.ru/wp-content/uploads/materials/docke-standard-pvh.jpg
[area_modifier] => 665.98
[parent_name] => Водосточная система
[parent_id] => 16
[material_sum] => 1472082
[work_sum] => 992976
[total_sum] => 2465058
[total_days] => 7
[display_material_sum] => 1 472 082
[display_work_sum] => 992 976
[display_total_sum] => 2 465 058
)
1
2 465 058₽
Работа:992 976 ₽
Материалы:1 472 082 ₽
Дни:7
stdClass Object
(
[id] => 33
[attribute_id] => 17
[name] => Нет
[material_modifier] => 1
[work_modifier] => 1
[options] => Array
(
)
[days] => [0]
[material_price] => [0]
[work_price] => [0]
[image] => https://akademik-stroy.ru/wp-content/uploads/materials/mineralovata.jpg
[area_modifier] => 1053.74
[parent_name] => Дополнительное утепление наружных стен
[parent_id] => 17
[material_sum] => 0
[work_sum] => 0
[total_sum] => 0
[total_days] => 0
[display_material_sum] => 0
[display_work_sum] => 0
[display_total_sum] => 0
)
1
0₽
Работа:0 ₽
Материалы:0 ₽
Дни:0
stdClass Object
(
[id] => 34
[attribute_id] => 17
[name] => Минераловатный
[material_modifier] => 1
[work_modifier] => 1
[options] => Array
(
[0] => 50 мм
[1] => 100 мм
[2] => 150 мм
[3] => 200 мм
[4] => 250 мм
[5] => 300 мм
)
[days] => [7,8,10,12,14,15]
[material_price] => [3437,3613,3803,3915,4601,4830]
[work_price] => [2325,2423,2523,2749,2859,3025]
[image] => https://akademik-stroy.ru/wp-content/uploads/materials/mineralovata.jpg
[area_modifier] => 1053.74
[parent_name] => Дополнительное утепление наружных стен
[parent_id] => 17
[material_sum] => 4346045
[work_sum] => 2449946
[total_sum] => 6795991
[total_days] => 7
[display_material_sum] => 4 346 045
[display_work_sum] => 2 449 946
[display_total_sum] => 6 795 991
)
1
6 795 991₽
Работа:2 449 946 ₽
Материалы:4 346 045 ₽
Дни:7
stdClass Object
(
[id] => 128
[attribute_id] => 17
[name] => Эковата (целлюлозная вата)
[material_modifier] => 1
[work_modifier] => 1
[options] => Array
(
[0] => 50 мм
[1] => 100 мм
[2] => 150 мм
[3] => 200 мм
[4] => 250 мм
[5] => 300 мм
)
[days] => [3,4,5,6,7,8]
[material_price] => [810,1319,1629,1838,2267,2676]
[work_price] => [1225,1323,1423,1549,1659,1725]
[image] => https://akademik-stroy.ru/wp-content/uploads/materials/ehkovata.jpg
[area_modifier] => 1053.74
[parent_name] => Дополнительное утепление наружных стен
[parent_id] => 17
[material_sum] => 1024235
[work_sum] => 1290832
[total_sum] => 2315067
[total_days] => 3
[display_material_sum] => 1 024 235
[display_work_sum] => 1 290 832
[display_total_sum] => 2 315 067
)
1
2 315 067₽
Работа:1 290 832 ₽
Материалы:1 024 235 ₽
Дни:3
stdClass Object
(
[id] => 129
[attribute_id] => 17
[name] => Экструдированный пенополистирол
[material_modifier] => 1
[work_modifier] => 1
[options] => Array
(
[0] => 50 мм
[1] => 100 мм
[2] => 150 мм
[3] => 200 мм
[4] => 250 мм
[5] => 300 мм
)
[days] => [5,6,7,8,9,10]
[material_price] => [4560,4300,5119,6292,7010,8583]
[work_price] => [1795,1954,2254,2330,2595,2735]
[image] => https://akademik-stroy.ru/wp-content/uploads/materials/epps.jpg
[area_modifier] => 1053.74
[parent_name] => Дополнительное утепление наружных стен
[parent_id] => 17
[material_sum] => 5766065
[work_sum] => 1891463
[total_sum] => 7657528
[total_days] => 5
[display_material_sum] => 5 766 065
[display_work_sum] => 1 891 463
[display_total_sum] => 7 657 528
)
1
7 657 528₽
Работа:1 891 463 ₽
Материалы:5 766 065 ₽
Дни:5
stdClass Object
(
[id] => 130
[attribute_id] => 17
[name] => ПСБ (ППС-пенополистирол)
[material_modifier] => 1
[work_modifier] => 1
[options] => Array
(
[0] => 50 мм
[1] => 100 мм
[2] => 150 мм
[3] => 200 мм
[4] => 250 мм
[5] => 300 мм
)
[days] => [5,6,7,8,9,10]
[material_price] => [4822,5200,5819,6292,7010,7583]
[work_price] => [1795,1954,2254,2330,2595,2735]
[image] => https://akademik-stroy.ru/wp-content/uploads/materials/psb.jpg
[area_modifier] => 1053.74
[parent_name] => Дополнительное утепление наружных стен
[parent_id] => 17
[material_sum] => 6097361
[work_sum] => 1891463
[total_sum] => 7988824
[total_days] => 5
[display_material_sum] => 6 097 361
[display_work_sum] => 1 891 463
[display_total_sum] => 7 988 824
)
1
7 988 824₽
Работа:1 891 463 ₽
Материалы:6 097 361 ₽
Дни:5
stdClass Object
(
[id] => 131
[attribute_id] => 17
[name] => ППУ (Пенополиуретан)
[material_modifier] => 1
[work_modifier] => 1
[options] => Array
(
[0] => 50 мм
[1] => 100 мм
[2] => 150 мм
[3] => 200 мм
[4] => 250 мм
[5] => 300 мм
)
[days] => [3,4,5,6,7,8]
[material_price] => [2860,3400,4219,4592,5010,5583]
[work_price] => [729,900,980,1120,1280,1530]
[image] => https://akademik-stroy.ru/wp-content/uploads/materials/ppu.jpg
[area_modifier] => 1053.74
[parent_name] => Дополнительное утепление наружных стен
[parent_id] => 17
[material_sum] => 3616436
[work_sum] => 768176
[total_sum] => 4384612
[total_days] => 3
[display_material_sum] => 3 616 436
[display_work_sum] => 768 176
[display_total_sum] => 4 384 612
)
1
4 384 612₽
Работа:768 176 ₽
Материалы:3 616 436 ₽
Дни:3
stdClass Object
(
[id] => 132
[attribute_id] => 17
[name] => PIR-плиты (пенополиизоцианурат)
[material_modifier] => 1
[work_modifier] => 1
[options] => Array
(
[0] => 50 мм
[1] => 100 мм
[2] => 150 мм
[3] => 200 мм
[4] => 250 мм
[5] => 300 мм
)
[days] => [5,6,7,8,9,10]
[material_price] => [8323,15645,20968,25900,29258,30581]
[work_price] => [800,900,970,1150,1280,1330]
[image] => https://akademik-stroy.ru/wp-content/uploads/materials/pir.jpg
[area_modifier] => 1053.74
[parent_name] => Дополнительное утепление наружных стен
[parent_id] => 17
[material_sum] => 10524334
[work_sum] => 842992
[total_sum] => 11367326
[total_days] => 5
[display_material_sum] => 10 524 334
[display_work_sum] => 842 992
[display_total_sum] => 11 367 326
)
1
11 367 326₽
Работа:842 992 ₽
Материалы:10 524 334 ₽
Дни:5
stdClass Object
(
[id] => 37
[attribute_id] => 19
[name] => Нет
[material_modifier] => 1
[work_modifier] => 1
[options] => Array
(
)
[days] => [0]
[material_price] => [0]
[work_price] => [0]
[image] => https://akademik-stroy.ru/wp-content/uploads/materials/imitaciya-brusa.jpg
[area_modifier] => 1053.74
[parent_name] => Наружная отделка фасада
[parent_id] => 19
[material_sum] => 0
[work_sum] => 0
[total_sum] => 0
[total_days] => 0
[display_material_sum] => 0
[display_work_sum] => 0
[display_total_sum] => 0
)
1
0₽
Работа:0 ₽
Материалы:0 ₽
Дни:0
stdClass Object
(
[id] => 38
[attribute_id] => 19
[name] => Имитация бруса
[material_modifier] => 1
[work_modifier] => 1
[options] => Array
(
[0] => Сосна
[1] => Ель
[2] => Лиственница
)
[days] => [20,20,20]
[material_price] => [2994,2762,4954]
[work_price] => [1397,1231,1577]
[image] => https://akademik-stroy.ru/wp-content/uploads/materials/imitaciya-brusa.jpg
[area_modifier] => 1053.74
[parent_name] => Наружная отделка фасада
[parent_id] => 19
[material_sum] => 3785877
[work_sum] => 1472075
[total_sum] => 5257952
[total_days] => 20
[display_material_sum] => 3 785 877
[display_work_sum] => 1 472 075
[display_total_sum] => 5 257 952
)
1
5 257 952₽
Работа:1 472 075 ₽
Материалы:3 785 877 ₽
Дни:20
stdClass Object
(
[id] => 136
[attribute_id] => 19
[name] => Планкен
[material_modifier] => 1
[work_modifier] => 1
[options] => Array
(
[0] => Сосна
[1] => Ель
[2] => Лиственница
)
[days] => [20,20,20]
[material_price] => [3194,2862,5154]
[work_price] => [1537,1354,1735]
[image] => https://akademik-stroy.ru/wp-content/uploads/materials/planken.jpg
[area_modifier] => 1053.74
[parent_name] => Наружная отделка фасада
[parent_id] => 19
[material_sum] => 4038775
[work_sum] => 1619598
[total_sum] => 5658373
[total_days] => 20
[display_material_sum] => 4 038 775
[display_work_sum] => 1 619 598
[display_total_sum] => 5 658 373
)
1
5 658 373₽
Работа:1 619 598 ₽
Материалы:4 038 775 ₽
Дни:20
stdClass Object
(
[id] => 137
[attribute_id] => 19
[name] => Штукатурка
[material_modifier] => 1
[work_modifier] => 1
[options] => Array
(
[0] => Цементно-песчаная (минеральная)
[1] => Мокрый фасад
)
[days] => [35,35]
[material_price] => [2231,3938]
[work_price] => [1202,2422]
[image] => https://akademik-stroy.ru/wp-content/uploads/materials/shtukaturka.jpg
[area_modifier] => 1053.74
[parent_name] => Наружная отделка фасада
[parent_id] => 19
[material_sum] => 2821073
[work_sum] => 1266595
[total_sum] => 4087668
[total_days] => 35
[display_material_sum] => 2 821 073
[display_work_sum] => 1 266 595
[display_total_sum] => 4 087 668
)
1
4 087 668₽
Работа:1 266 595 ₽
Материалы:2 821 073 ₽
Дни:35
stdClass Object
(
[id] => 138
[attribute_id] => 19
[name] => Облицовочный кирпич
[material_modifier] => 1
[work_modifier] => 1
[options] => Array
(
[0] => Керамический
[1] => Клинкерный
[2] => Ручной формовки
[3] => Гиперпрессованный
[4] => Силикатный кирпич
)
[days] => [45,45,45,45,45]
[material_price] => [8174,9148,1040,1257,5876]
[work_price] => [3240,3758,4536,4017,3369]
[image] => https://akademik-stroy.ru/wp-content/uploads/materials/oblicovochnyj-kirpich.jpg
[area_modifier] => 1053.74
[parent_name] => Наружная отделка фасада
[parent_id] => 19
[material_sum] => 10335925
[work_sum] => 3414118
[total_sum] => 13750043
[total_days] => 45
[display_material_sum] => 10 335 925
[display_work_sum] => 3 414 118
[display_total_sum] => 13 750 043
)
1
13 750 043₽
Работа:3 414 118 ₽
Материалы:10 335 925 ₽
Дни:45
stdClass Object
(
[id] => 139
[attribute_id] => 19
[name] => Фасадная плитка
[material_modifier] => 1
[work_modifier] => 1
[options] => Array
(
[0] => Клинкерная
[1] => Керамическая
[2] => Плитка ручной формовки
)
[days] => [40,40,40]
[material_price] => [2974,1487,3470]
[work_price] => [3007,2592,3629]
[image] => https://akademik-stroy.ru/wp-content/uploads/materials/fasadnaya-plitka.jpg
[area_modifier] => 1053.74
[parent_name] => Наружная отделка фасада
[parent_id] => 19
[material_sum] => 3760587
[work_sum] => 3168596
[total_sum] => 6929183
[total_days] => 40
[display_material_sum] => 3 760 587
[display_work_sum] => 3 168 596
[display_total_sum] => 6 929 183
)
1
6 929 183₽
Работа:3 168 596 ₽
Материалы:3 760 587 ₽
Дни:40
stdClass Object
(
[id] => 140
[attribute_id] => 19
[name] => Сайдинг
[material_modifier] => 1
[work_modifier] => 1
[options] => Array
(
[0] => Виниловый
[1] => Металлический
[2] => Фиброцементный
)
[days] => [20,20,20]
[material_price] => [1263,1944,4147]
[work_price] => [1263,1944,2074]
[image] => https://akademik-stroy.ru/wp-content/uploads/materials/sajding.jpg
[area_modifier] => 1053.74
[parent_name] => Наружная отделка фасада
[parent_id] => 19
[material_sum] => 1597048
[work_sum] => 1330874
[total_sum] => 2927922
[total_days] => 20
[display_material_sum] => 1 597 048
[display_work_sum] => 1 330 874
[display_total_sum] => 2 927 922
)
1
2 927 922₽
Работа:1 330 874 ₽
Материалы:1 597 048 ₽
Дни:20
stdClass Object
(
[id] => 141
[attribute_id] => 19
[name] => Камень
[material_modifier] => 1
[work_modifier] => 1
[options] => Array
(
[0] => Травертин
[1] => Дагестанский
[2] => Искусственный
[3] => Натуральный
[4] => Керамогранит
)
[days] => [45,45,45,45,45]
[material_price] => [4536,3888,2592,3240,2462]
[work_price] => [3240,3240,2462,3110,1944]
[image] => https://akademik-stroy.ru/wp-content/uploads/materials/kamen-1.jpg
[area_modifier] => 1053.74
[parent_name] => Наружная отделка фасада
[parent_id] => 19
[material_sum] => 5735718
[work_sum] => 3414118
[total_sum] => 9149836
[total_days] => 45
[display_material_sum] => 5 735 718
[display_work_sum] => 3 414 118
[display_total_sum] => 9 149 836
)
1
9 149 836₽
Работа:3 414 118 ₽
Материалы:5 735 718 ₽
Дни:45
stdClass Object
(
[id] => 142
[attribute_id] => 19
[name] => Термопанели
[material_modifier] => 1
[work_modifier] => 1
[options] => Array
(
)
[days] => [20]
[material_price] => [6221]
[work_price] => [2333]
[image] => https://akademik-stroy.ru/wp-content/uploads/materials/termo.png
[area_modifier] => 1053.74
[parent_name] => Наружная отделка фасада
[parent_id] => 19
[material_sum] => 7866380
[work_sum] => 2458375
[total_sum] => 10324755
[total_days] => 20
[display_material_sum] => 7 866 380
[display_work_sum] => 2 458 375
[display_total_sum] => 10 324 755
)
1
10 324 755₽
Работа:2 458 375 ₽
Материалы:7 866 380 ₽
Дни:20
stdClass Object
(
[id] => 143
[attribute_id] => 19
[name] => Плитка HAUBERK
[material_modifier] => 1
[work_modifier] => 1
[options] => Array
(
)
[days] => [20]
[material_price] => [2786]
[work_price] => [1944]
[image] => https://akademik-stroy.ru/wp-content/uploads/materials/hauberk.jpg
[area_modifier] => 1053.74
[parent_name] => Наружная отделка фасада
[parent_id] => 19
[material_sum] => 3522864
[work_sum] => 2048471
[total_sum] => 5571335
[total_days] => 20
[display_material_sum] => 3 522 864
[display_work_sum] => 2 048 471
[display_total_sum] => 5 571 335
)
1
5 571 335₽
Работа:2 048 471 ₽
Материалы:3 522 864 ₽
Дни:20
stdClass Object
(
[id] => 144
[attribute_id] => 19
[name] => Фальцевый фасад
[material_modifier] => 1
[work_modifier] => 1
[options] => Array
(
)
[days] => [20]
[material_price] => [3240]
[work_price] => [2592]
[image] => https://akademik-stroy.ru/wp-content/uploads/materials/falcevyj-fasad.jpg
[area_modifier] => 1053.74
[parent_name] => Наружная отделка фасада
[parent_id] => 19
[material_sum] => 4096941
[work_sum] => 2731294
[total_sum] => 6828235
[total_days] => 20
[display_material_sum] => 4 096 941
[display_work_sum] => 2 731 294
[display_total_sum] => 6 828 235
)
1
6 828 235₽
Работа:2 731 294 ₽
Материалы:4 096 941 ₽
Дни:20
stdClass Object
(
[id] => 145
[attribute_id] => 19
[name] => Комбинированный
[material_modifier] => 1
[work_modifier] => 1
[options] => Array
(
)
[days] => [20]
[material_price] => [4629]
[work_price] => [3499]
[image] => https://akademik-stroy.ru/wp-content/uploads/materials/Kombinirovannyj.jpg
[area_modifier] => 1053.74
[parent_name] => Наружная отделка фасада
[parent_id] => 19
[material_sum] => 5853315
[work_sum] => 3687036
[total_sum] => 9540351
[total_days] => 20
[display_material_sum] => 5 853 315
[display_work_sum] => 3 687 036
[display_total_sum] => 9 540 351
)
1
9 540 351₽
Работа:3 687 036 ₽
Материалы:5 853 315 ₽
Дни:20
stdClass Object
(
[id] => 257
[attribute_id] => 19
[name] => Японские фиброцементные
[material_modifier] => 1
[work_modifier] => 1
[options] => Array
(
)
[days] => [20]
[material_price] => [7043]
[work_price] => [2993]
[image] => https://akademik-stroy.ru/wp-content/uploads/materials/paneli.jpg
[area_modifier] => 1053.74
[parent_name] => Наружная отделка фасада
[parent_id] => 19
[material_sum] => 8905789
[work_sum] => 3153844
[total_sum] => 12059633
[total_days] => 20
[display_material_sum] => 8 905 789
[display_work_sum] => 3 153 844
[display_total_sum] => 12 059 633
)
1
12 059 633₽
Работа:3 153 844 ₽
Материалы:8 905 789 ₽
Дни:20
stdClass Object
(
[id] => 258
[attribute_id] => 19
[name] => Панели Каньон
[material_modifier] => 1
[work_modifier] => 1
[options] => Array
(
)
[days] => [20]
[material_price] => [4543]
[work_price] => [2592]
[image] => https://akademik-stroy.ru/wp-content/uploads/materials/kanon.png
[area_modifier] => 1053.74
[parent_name] => Наружная отделка фасада
[parent_id] => 19
[material_sum] => 5744569
[work_sum] => 2731294
[total_sum] => 8475863
[total_days] => 20
[display_material_sum] => 5 744 569
[display_work_sum] => 2 731 294
[display_total_sum] => 8 475 863
)
1
8 475 863₽
Работа:2 731 294 ₽
Материалы:5 744 569 ₽
Дни:20
stdClass Object
(
[id] => 39
[attribute_id] => 20
[name] => Нет
[material_modifier] => 1
[work_modifier] => 1
[options] => Array
(
)
[days] => [0]
[material_price] => [0]
[work_price] => [0]
[image] => https://akademik-stroy.ru/wp-content/uploads/materials/terrasy.jpg
[area_modifier] => 30
[parent_name] => Террасы, крыльца, навесы
[parent_id] => 20
[material_sum] => 0
[work_sum] => 0
[total_sum] => 0
[total_days] => 0
[display_material_sum] => 0
[display_work_sum] => 0
[display_total_sum] => 0
)
1
0₽
Работа:0 ₽
Материалы:0 ₽
Дни:0
stdClass Object
(
[id] => 40
[attribute_id] => 20
[name] => Есть
[material_modifier] => 1
[work_modifier] => 1
[options] => Array
(
)
[days] => [5]
[material_price] => [10450]
[work_price] => [1950]
[image] => https://akademik-stroy.ru/wp-content/uploads/materials/terrasy.jpg
[area_modifier] => 30
[parent_name] => Террасы, крыльца, навесы
[parent_id] => 20
[material_sum] => 376200
[work_sum] => 58500
[total_sum] => 434700
[total_days] => 5
[display_material_sum] => 376 200
[display_work_sum] => 58 500
[display_total_sum] => 434 700
)
1
434 700₽
Работа:58 500 ₽
Материалы:376 200 ₽
Дни:5
stdClass Object
(
[id] => 41
[attribute_id] => 21
[name] => Нет
[material_modifier] => 1
[work_modifier] => 1
[options] => Array
(
)
[days] => [0]
[material_price] => [0]
[work_price] => [0]
[image] => https://akademik-stroy.ru/wp-content/uploads/materials/balkony.jpg
[area_modifier] => 30
[parent_name] => Балконы
[parent_id] => 21
[material_sum] => 0
[work_sum] => 0
[total_sum] => 0
[total_days] => 0
[display_material_sum] => 0
[display_work_sum] => 0
[display_total_sum] => 0
)
1
0₽
Работа:0 ₽
Материалы:0 ₽
Дни:0
stdClass Object
(
[id] => 42
[attribute_id] => 21
[name] => Есть
[material_modifier] => 1
[work_modifier] => 1
[options] => Array
(
)
[days] => [12]
[material_price] => [3600]
[work_price] => [1950]
[image] => https://akademik-stroy.ru/wp-content/uploads/materials/balkony.jpg
[area_modifier] => 30
[parent_name] => Балконы
[parent_id] => 21
[material_sum] => 129600
[work_sum] => 58500
[total_sum] => 188100
[total_days] => 12
[display_material_sum] => 129 600
[display_work_sum] => 58 500
[display_total_sum] => 188 100
)
1
188 100₽
Работа:58 500 ₽
Материалы:129 600 ₽
Дни:12
stdClass Object
(
[id] => 43
[attribute_id] => 22
[name] => Нет
[material_modifier] => 1
[work_modifier] => 1
[options] => Array
(
)
[days] => [0]
[material_price] => [0]
[work_price] => [0]
[image] => https://akademik-stroy.ru/wp-content/uploads/materials/uteplennaya.jpg
[area_modifier] => 665.98
[parent_name] => Отмостка
[parent_id] => 22
[material_sum] => 0
[work_sum] => 0
[total_sum] => 0
[total_days] => 0
[display_material_sum] => 0
[display_work_sum] => 0
[display_total_sum] => 0
)
1
0₽
Работа:0 ₽
Материалы:0 ₽
Дни:0
stdClass Object
(
[id] => 44
[attribute_id] => 22
[name] => Утепленная отмостка
[material_modifier] => 1
[work_modifier] => 1
[options] => Array
(
)
[days] => [15]
[material_price] => [2550]
[work_price] => [1750]
[image] => https://akademik-stroy.ru/wp-content/uploads/materials/uteplennaya.jpg
[area_modifier] => 665.98
[parent_name] => Отмостка
[parent_id] => 22
[material_sum] => 2037899
[work_sum] => 1165465
[total_sum] => 3203364
[total_days] => 15
[display_material_sum] => 2 037 899
[display_work_sum] => 1 165 465
[display_total_sum] => 3 203 364
)
1
3 203 364₽
Работа:1 165 465 ₽
Материалы:2 037 899 ₽
Дни:15
stdClass Object
(
[id] => 146
[attribute_id] => 22
[name] => Не утепленная отмостка
[material_modifier] => 1
[work_modifier] => 1
[options] => Array
(
)
[days] => [10]
[material_price] => [1650]
[work_price] => [1450]
[image] => https://akademik-stroy.ru/wp-content/uploads/materials/ne-uteplennaya.jpg
[area_modifier] => 665.98
[parent_name] => Отмостка
[parent_id] => 22
[material_sum] => 1318640
[work_sum] => 965671
[total_sum] => 2284311
[total_days] => 10
[display_material_sum] => 1 318 640
[display_work_sum] => 965 671
[display_total_sum] => 2 284 311
)
1
2 284 311₽
Работа:965 671 ₽
Материалы:1 318 640 ₽
Дни:10
stdClass Object
(
[id] => 45
[attribute_id] => 23
[name] => Нет
[material_modifier] => 1
[work_modifier] => 1
[options] => Array
(
)
[days] => [0]
[material_price] => [0]
[work_price] => [0]
[image] => https://akademik-stroy.ru/wp-content/uploads/materials/drenazh-2.jpg
[area_modifier] => 665.98
[parent_name] => Дренаж вокруг дома
[parent_id] => 23
[material_sum] => 0
[work_sum] => 0
[total_sum] => 0
[total_days] => 0
[display_material_sum] => 0
[display_work_sum] => 0
[display_total_sum] => 0
)
1
0₽
Работа:0 ₽
Материалы:0 ₽
Дни:0
stdClass Object
(
[id] => 46
[attribute_id] => 23
[name] => Есть
[material_modifier] => 1
[work_modifier] => 1
[options] => Array
(
)
[days] => [5]
[material_price] => [2366]
[work_price] => [1911]
[image] => https://akademik-stroy.ru/wp-content/uploads/materials/drenazh-2.jpg
[area_modifier] => 665.98
[parent_name] => Дренаж вокруг дома
[parent_id] => 23
[material_sum] => 1890850
[work_sum] => 1272688
[total_sum] => 3163538
[total_days] => 5
[display_material_sum] => 1 890 850
[display_work_sum] => 1 272 688
[display_total_sum] => 3 163 538
)
1
3 163 538₽
Работа:1 272 688 ₽
Материалы:1 890 850 ₽
Дни:5
stdClass Object
(
[id] => 47
[attribute_id] => 24
[name] => Нет
[material_modifier] => 1
[work_modifier] => 1
[options] => Array
(
)
[days] => [0]
[material_price] => [0]
[work_price] => [0]
[image] => https://akademik-stroy.ru/wp-content/uploads/materials/septik.jpg
[area_modifier] => 1
[parent_name] => Автономная канализация (септики)
[parent_id] => 24
[material_sum] => 0
[work_sum] => 0
[total_sum] => 0
[total_days] => 0
[display_material_sum] => 0
[display_work_sum] => 0
[display_total_sum] => 0
)
1
0₽
Работа:0 ₽
Материалы:0 ₽
Дни:0
stdClass Object
(
[id] => 48
[attribute_id] => 24
[name] => Есть
[material_modifier] => 1
[work_modifier] => 1
[options] => Array
(
[0] => Для дачи на 4 человека
[1] => Для дома на 5 человек
[2] => Для дома на 6 человек
[3] => Для дома на 7 человек
[4] => Для дома на 10 человек
)
[days] => [7,7,7,8,8]
[material_price] => [196340,220500,240940,264200,293340]
[work_price] => [50000,55000,60500,66550,73206]
[image] => https://akademik-stroy.ru/wp-content/uploads/materials/septik.jpg
[area_modifier] => 1
[parent_name] => Автономная канализация (септики)
[parent_id] => 24
[material_sum] => 235608
[work_sum] => 50000
[total_sum] => 285608
[total_days] => 7
[display_material_sum] => 235 608
[display_work_sum] => 50 000
[display_total_sum] => 285 608
)
1
285 608₽
Работа:50 000 ₽
Материалы:235 608 ₽
Дни:7
stdClass Object
(
[id] => 49
[attribute_id] => 25
[name] => Нет
[material_modifier] => 1
[work_modifier] => 1
[options] => Array
(
)
[days] => [0]
[material_price] => [0]
[work_price] => [0]
[image] => https://akademik-stroy.ru/wp-content/uploads/materials/gkl.jpg
[area_modifier] => 1053.74
[parent_name] => Внутренние (не несущие) перегородки
[parent_id] => 25
[material_sum] => 0
[work_sum] => 0
[total_sum] => 0
[total_days] => 0
[display_material_sum] => 0
[display_work_sum] => 0
[display_total_sum] => 0
)
1
0₽
Работа:0 ₽
Материалы:0 ₽
Дни:0
stdClass Object
(
[id] => 147
[attribute_id] => 25
[name] => Каркасно-обшивные
[material_modifier] => 1
[work_modifier] => 1
[options] => Array
(
[0] => 75 мм (без шумоизоляции)
[1] => 75 мм (с шумоизоляцией)
)
[days] => [11,11]
[material_price] => [580,970]
[work_price] => [380,570]
[image] => https://akademik-stroy.ru/wp-content/uploads/materials/gkl.jpg
[area_modifier] => 1053.74
[parent_name] => Внутренние (не несущие) перегородки
[parent_id] => 25
[material_sum] => 733403
[work_sum] => 400421
[total_sum] => 1133824
[total_days] => 11
[display_material_sum] => 733 403
[display_work_sum] => 400 421
[display_total_sum] => 1 133 824
)
1
1 133 824₽
Работа:400 421 ₽
Материалы:733 403 ₽
Дни:11
stdClass Object
(
[id] => 148
[attribute_id] => 25
[name] => Пазогребневые
[material_modifier] => 1
[work_modifier] => 1
[options] => Array
(
[0] => 80 мм
[1] => 100 мм
)
[days] => [5,5]
[material_price] => [1022,1313]
[work_price] => [600,700]
[image] => https://akademik-stroy.ru/wp-content/uploads/materials/pazogrebnevye-bloki.jpg
[area_modifier] => 1053.74
[parent_name] => Внутренние (не несущие) перегородки
[parent_id] => 25
[material_sum] => 1292307
[work_sum] => 632244
[total_sum] => 1924551
[total_days] => 5
[display_material_sum] => 1 292 307
[display_work_sum] => 632 244
[display_total_sum] => 1 924 551
)
1
1 924 551₽
Работа:632 244 ₽
Материалы:1 292 307 ₽
Дни:5
stdClass Object
(
[id] => 149
[attribute_id] => 25
[name] => Газобетонные
[material_modifier] => 1
[work_modifier] => 1
[options] => Array
(
[0] => 100 мм
[1] => 200 мм
)
[days] => [11,11]
[material_price] => [1160,1920]
[work_price] => [700,900]
[image] => https://akademik-stroy.ru/wp-content/uploads/materials/gazobeton-2.jpg
[area_modifier] => 1053.74
[parent_name] => Внутренние (не несущие) перегородки
[parent_id] => 25
[material_sum] => 1466806
[work_sum] => 737618
[total_sum] => 2204424
[total_days] => 11
[display_material_sum] => 1 466 806
[display_work_sum] => 737 618
[display_total_sum] => 2 204 424
)
1
2 204 424₽
Работа:737 618 ₽
Материалы:1 466 806 ₽
Дни:11
stdClass Object
(
[id] => 150
[attribute_id] => 25
[name] => Кирпичные
[material_modifier] => 1
[work_modifier] => 1
[options] => Array
(
[0] => 120 мм
[1] => 250 мм
[2] => 360 мм
)
[days] => [7,7,7]
[material_price] => [1785,3570,5355]
[work_price] => [900,1600,1800]
[image] => https://akademik-stroy.ru/wp-content/uploads/materials/kirpich-1.jpg
[area_modifier] => 1053.74
[parent_name] => Внутренние (не несущие) перегородки
[parent_id] => 25
[material_sum] => 2257111
[work_sum] => 948366
[total_sum] => 3205477
[total_days] => 7
[display_material_sum] => 2 257 111
[display_work_sum] => 948 366
[display_total_sum] => 3 205 477
)
1
3 205 477₽
Работа:948 366 ₽
Материалы:2 257 111 ₽
Дни:7
stdClass Object
(
[id] => 55
[attribute_id] => 28
[name] => Нет
[material_modifier] => 1
[work_modifier] => 1
[options] => Array
(
)
[days] => [0]
[material_price] => [0]
[work_price] => [0]
[image] => https://akademik-stroy.ru/wp-content/uploads/materials/ehlektrika.jpg
[area_modifier] => 855.1
[parent_name] => Электрика
[parent_id] => 28
[material_sum] => 0
[work_sum] => 0
[total_sum] => 0
[total_days] => 0
[display_material_sum] => 0
[display_work_sum] => 0
[display_total_sum] => 0
)
1
0₽
Работа:0 ₽
Материалы:0 ₽
Дни:0
stdClass Object
(
[id] => 56
[attribute_id] => 28
[name] => Есть
[material_modifier] => 1
[work_modifier] => 1
[options] => Array
(
)
[days] => [10]
[material_price] => [650]
[work_price] => [950]
[image] => https://akademik-stroy.ru/wp-content/uploads/materials/ehlektrika.jpg
[area_modifier] => 855.1
[parent_name] => Электрика
[parent_id] => 28
[material_sum] => 666978
[work_sum] => 812345
[total_sum] => 1479323
[total_days] => 10
[display_material_sum] => 666 978
[display_work_sum] => 812 345
[display_total_sum] => 1 479 323
)
1
1 479 323₽
Работа:812 345 ₽
Материалы:666 978 ₽
Дни:10
stdClass Object
(
[id] => 57
[attribute_id] => 29
[name] => Нет
[material_modifier] => 1
[work_modifier] => 1
[options] => Array
(
)
[days] => [0]
[material_price] => [0]
[work_price] => [0]
[image] => https://akademik-stroy.ru/wp-content/uploads/materials/santekhnika-kanalizaciya-1.jpg
[area_modifier] => 855.1
[parent_name] => Сантехника, канализация в доме
[parent_id] => 29
[material_sum] => 0
[work_sum] => 0
[total_sum] => 0
[total_days] => 0
[display_material_sum] => 0
[display_work_sum] => 0
[display_total_sum] => 0
)
1
0₽
Работа:0 ₽
Материалы:0 ₽
Дни:0
stdClass Object
(
[id] => 58
[attribute_id] => 29
[name] => Есть
[material_modifier] => 1
[work_modifier] => 1
[options] => Array
(
)
[days] => [10]
[material_price] => [600]
[work_price] => [730]
[image] => https://akademik-stroy.ru/wp-content/uploads/materials/santekhnika-kanalizaciya-1.jpg
[area_modifier] => 855.1
[parent_name] => Сантехника, канализация в доме
[parent_id] => 29
[material_sum] => 615672
[work_sum] => 624223
[total_sum] => 1239895
[total_days] => 10
[display_material_sum] => 615 672
[display_work_sum] => 624 223
[display_total_sum] => 1 239 895
)
1
1 239 895₽
Работа:624 223 ₽
Материалы:615 672 ₽
Дни:10
stdClass Object
(
[id] => 59
[attribute_id] => 30
[name] => Нет
[material_modifier] => 1
[work_modifier] => 1
[options] => Array
(
)
[days] => [0]
[material_price] => [0]
[work_price] => [0]
[image] => https://akademik-stroy.ru/wp-content/uploads/materials/otoplenie-1.jpg
[area_modifier] => 855.1
[parent_name] => Отопление
[parent_id] => 30
[material_sum] => 0
[work_sum] => 0
[total_sum] => 0
[total_days] => 0
[display_material_sum] => 0
[display_work_sum] => 0
[display_total_sum] => 0
)
1
0₽
Работа:0 ₽
Материалы:0 ₽
Дни:0
stdClass Object
(
[id] => 60
[attribute_id] => 30
[name] => Есть
[material_modifier] => 1
[work_modifier] => 1
[options] => Array
(
)
[days] => [5]
[material_price] => [610]
[work_price] => [560]
[image] => https://akademik-stroy.ru/wp-content/uploads/materials/otoplenie-1.jpg
[area_modifier] => 855.1
[parent_name] => Отопление
[parent_id] => 30
[material_sum] => 625933
[work_sum] => 478856
[total_sum] => 1104789
[total_days] => 5
[display_material_sum] => 625 933
[display_work_sum] => 478 856
[display_total_sum] => 1 104 789
)
1
1 104 789₽
Работа:478 856 ₽
Материалы:625 933 ₽
Дни:5
stdClass Object
(
[id] => 61
[attribute_id] => 31
[name] => Нет
[material_modifier] => 1
[work_modifier] => 1
[options] => Array
(
)
[days] => [0]
[material_price] => [0]
[work_price] => [0]
[image] => https://akademik-stroy.ru/wp-content/uploads/materials/vodyanye.jpg
[area_modifier] => 30
[parent_name] => Теплые полы
[parent_id] => 31
[material_sum] => 0
[work_sum] => 0
[total_sum] => 0
[total_days] => 0
[display_material_sum] => 0
[display_work_sum] => 0
[display_total_sum] => 0
)
1
0₽
Работа:0 ₽
Материалы:0 ₽
Дни:0
stdClass Object
(
[id] => 151
[attribute_id] => 31
[name] => Водяные
[material_modifier] => 1
[work_modifier] => 1
[options] => Array
(
)
[days] => [9]
[material_price] => [10200]
[work_price] => [2500]
[image] => https://akademik-stroy.ru/wp-content/uploads/materials/vodyanye.jpg
[area_modifier] => 30
[parent_name] => Теплые полы
[parent_id] => 31
[material_sum] => 367200
[work_sum] => 75000
[total_sum] => 442200
[total_days] => 9
[display_material_sum] => 367 200
[display_work_sum] => 75 000
[display_total_sum] => 442 200
)
1
442 200₽
Работа:75 000 ₽
Материалы:367 200 ₽
Дни:9
stdClass Object
(
[id] => 152
[attribute_id] => 31
[name] => Электро
[material_modifier] => 1
[work_modifier] => 1
[options] => Array
(
)
[days] => [5]
[material_price] => [6300]
[work_price] => [1500]
[image] => https://akademik-stroy.ru/wp-content/uploads/materials/ehlektricheskij.jpg
[area_modifier] => 30
[parent_name] => Теплые полы
[parent_id] => 31
[material_sum] => 226800
[work_sum] => 45000
[total_sum] => 271800
[total_days] => 5
[display_material_sum] => 226 800
[display_work_sum] => 45 000
[display_total_sum] => 271 800
)
1
271 800₽
Работа:45 000 ₽
Материалы:226 800 ₽
Дни:5
stdClass Object
(
[id] => 63
[attribute_id] => 32
[name] => Нет
[material_modifier] => 1
[work_modifier] => 1
[options] => Array
(
)
[days] => [0]
[material_price] => [0]
[work_price] => [0]
[image] => https://akademik-stroy.ru/wp-content/uploads/materials/shtukaturka-shpatlevka-1.jpg
[area_modifier] => 855.1
[parent_name] => Черновая отделка стен
[parent_id] => 32
[material_sum] => 0
[work_sum] => 0
[total_sum] => 0
[total_days] => 0
[display_material_sum] => 0
[display_work_sum] => 0
[display_total_sum] => 0
)
1
0₽
Работа:0 ₽
Материалы:0 ₽
Дни:0
stdClass Object
(
[id] => 153
[attribute_id] => 32
[name] => Штукатурка и шпатлевка
[material_modifier] => 1
[work_modifier] => 1
[options] => Array
(
)
[days] => [20]
[material_price] => [1850]
[work_price] => [2600]
[image] => https://akademik-stroy.ru/wp-content/uploads/materials/shtukaturka-shpatlevka-1.jpg
[area_modifier] => 855.1
[parent_name] => Черновая отделка стен
[parent_id] => 32
[material_sum] => 1898322
[work_sum] => 2223260
[total_sum] => 4121582
[total_days] => 20
[display_material_sum] => 1 898 322
[display_work_sum] => 2 223 260
[display_total_sum] => 4 121 582
)
1
4 121 582₽
Работа:2 223 260 ₽
Материалы:1 898 322 ₽
Дни:20
stdClass Object
(
[id] => 154
[attribute_id] => 32
[name] => Гипсокортон на стены
[material_modifier] => 1
[work_modifier] => 1
[options] => Array
(
)
[days] => [15]
[material_price] => [950]
[work_price] => [2100]
[image] => https://akademik-stroy.ru/wp-content/uploads/materials/gkl-1.jpg
[area_modifier] => 855.1
[parent_name] => Черновая отделка стен
[parent_id] => 32
[material_sum] => 974814
[work_sum] => 1795710
[total_sum] => 2770524
[total_days] => 15
[display_material_sum] => 974 814
[display_work_sum] => 1 795 710
[display_total_sum] => 2 770 524
)
1
2 770 524₽
Работа:1 795 710 ₽
Материалы:974 814 ₽
Дни:15
stdClass Object
(
[id] => 155
[attribute_id] => 32
[name] => Вагонка
[material_modifier] => 1
[work_modifier] => 1
[options] => Array
(
)
[days] => [15]
[material_price] => [1250]
[work_price] => [950]
[image] => https://akademik-stroy.ru/wp-content/uploads/materials/vagonka.jpg
[area_modifier] => 855.1
[parent_name] => Черновая отделка стен
[parent_id] => 32
[material_sum] => 1282650
[work_sum] => 812345
[total_sum] => 2094995
[total_days] => 15
[display_material_sum] => 1 282 650
[display_work_sum] => 812 345
[display_total_sum] => 2 094 995
)
1
2 094 995₽
Работа:812 345 ₽
Материалы:1 282 650 ₽
Дни:15
stdClass Object
(
[id] => 65
[attribute_id] => 33
[name] => Нет
[material_modifier] => 1
[work_modifier] => 1
[options] => Array
(
)
[days] => [0]
[material_price] => [0]
[work_price] => [0]
[image] => https://akademik-stroy.ru/wp-content/uploads/materials/styazhka.jpg
[area_modifier] => 855.1
[parent_name] => Черновая отделка полов
[parent_id] => 33
[material_sum] => 0
[work_sum] => 0
[total_sum] => 0
[total_days] => 0
[display_material_sum] => 0
[display_work_sum] => 0
[display_total_sum] => 0
)
1
0₽
Работа:0 ₽
Материалы:0 ₽
Дни:0
stdClass Object
(
[id] => 156
[attribute_id] => 33
[name] => Стяжка + наливные полы
[material_modifier] => 1
[work_modifier] => 1
[options] => Array
(
)
[days] => [10]
[material_price] => [1000]
[work_price] => [900]
[image] => https://akademik-stroy.ru/wp-content/uploads/materials/styazhka.jpg
[area_modifier] => 855.1
[parent_name] => Черновая отделка полов
[parent_id] => 33
[material_sum] => 1026120
[work_sum] => 769590
[total_sum] => 1795710
[total_days] => 10
[display_material_sum] => 1 026 120
[display_work_sum] => 769 590
[display_total_sum] => 1 795 710
)
1
1 795 710₽
Работа:769 590 ₽
Материалы:1 026 120 ₽
Дни:10
stdClass Object
(
[id] => 157
[attribute_id] => 33
[name] => ОСБ на пол
[material_modifier] => 1
[work_modifier] => 1
[options] => Array
(
)
[days] => [7]
[material_price] => [580]
[work_price] => [350]
[image] => https://akademik-stroy.ru/wp-content/uploads/materials/osb-1.jpg
[area_modifier] => 855.1
[parent_name] => Черновая отделка полов
[parent_id] => 33
[material_sum] => 595150
[work_sum] => 299285
[total_sum] => 894435
[total_days] => 7
[display_material_sum] => 595 150
[display_work_sum] => 299 285
[display_total_sum] => 894 435
)
1
894 435₽
Работа:299 285 ₽
Материалы:595 150 ₽
Дни:7
stdClass Object
(
[id] => 67
[attribute_id] => 34
[name] => Нет
[material_modifier] => 1
[work_modifier] => 1
[options] => Array
(
)
[days] => [0]
[material_price] => [0]
[work_price] => [0]
[image] => https://akademik-stroy.ru/wp-content/uploads/materials/chistovaya-otdelka.jpg
[area_modifier] => 855.1
[parent_name] => Чистовая отделка стен и полов
[parent_id] => 34
[material_sum] => 0
[work_sum] => 0
[total_sum] => 0
[total_days] => 0
[display_material_sum] => 0
[display_work_sum] => 0
[display_total_sum] => 0
)
1
0₽
Работа:0 ₽
Материалы:0 ₽
Дни:0
stdClass Object
(
[id] => 68
[attribute_id] => 34
[name] => Есть
[material_modifier] => 1
[work_modifier] => 1
[options] => Array
(
)
[days] => [50]
[material_price] => [6000]
[work_price] => [3500]
[image] => https://akademik-stroy.ru/wp-content/uploads/materials/chistovaya-otdelka.jpg
[area_modifier] => 855.1
[parent_name] => Чистовая отделка стен и полов
[parent_id] => 34
[material_sum] => 6156720
[work_sum] => 2992850
[total_sum] => 9149570
[total_days] => 50
[display_material_sum] => 6 156 720
[display_work_sum] => 2 992 850
[display_total_sum] => 9 149 570
)
1
9 149 570₽
Работа:2 992 850 ₽
Материалы:6 156 720 ₽
Дни:50
stdClass Object
(
[id] => 69
[attribute_id] => 35
[name] => Нет
[material_modifier] => 1
[work_modifier] => 1
[options] => Array
(
)
[days] => [0]
[material_price] => [0]
[work_price] => [0]
[image] => https://akademik-stroy.ru/wp-content/uploads/materials/mnogourovnevyj-gkl.jpg
[area_modifier] => 855.1
[parent_name] => Отделка потолка
[parent_id] => 35
[material_sum] => 0
[work_sum] => 0
[total_sum] => 0
[total_days] => 0
[display_material_sum] => 0
[display_work_sum] => 0
[display_total_sum] => 0
)
1
0₽
Работа:0 ₽
Материалы:0 ₽
Дни:0
stdClass Object
(
[id] => 70
[attribute_id] => 35
[name] => Есть
[material_modifier] => 1
[work_modifier] => 1
[options] => Array
(
[0] => Многоуровневый потолок из гипсокартона
[1] => Многоуровневый потолок из гипсокартона и натяжного потолка
[2] => Одноуровневый потолок из гипсокартона
[3] => Одноуровневый натяжной потолок
)
[days] => [10,10,1,1]
[material_price] => [900,700,700,600]
[work_price] => [1000,800,500,300]
[image] => https://akademik-stroy.ru/wp-content/uploads/materials/mnogourovnevyj-gkl.jpg
[area_modifier] => 855.1
[parent_name] => Отделка потолка
[parent_id] => 35
[material_sum] => 923508
[work_sum] => 855100
[total_sum] => 1778608
[total_days] => 10
[display_material_sum] => 923 508
[display_work_sum] => 855 100
[display_total_sum] => 1 778 608
)
1
1 778 608₽
Работа:855 100 ₽
Материалы:923 508 ₽
Дни:10
Преимущества работы с нами
7 этапов оплаты
Независимый строительный надзор
Экологически чистые материалы
16 лет гарантии
Онлайн-кабинет с веб-камерой
Строители с опытом более 15 лет
Собственное производство











