Одноэтажный дом 32x18 - 442.77 м2 за руб.
Планировки
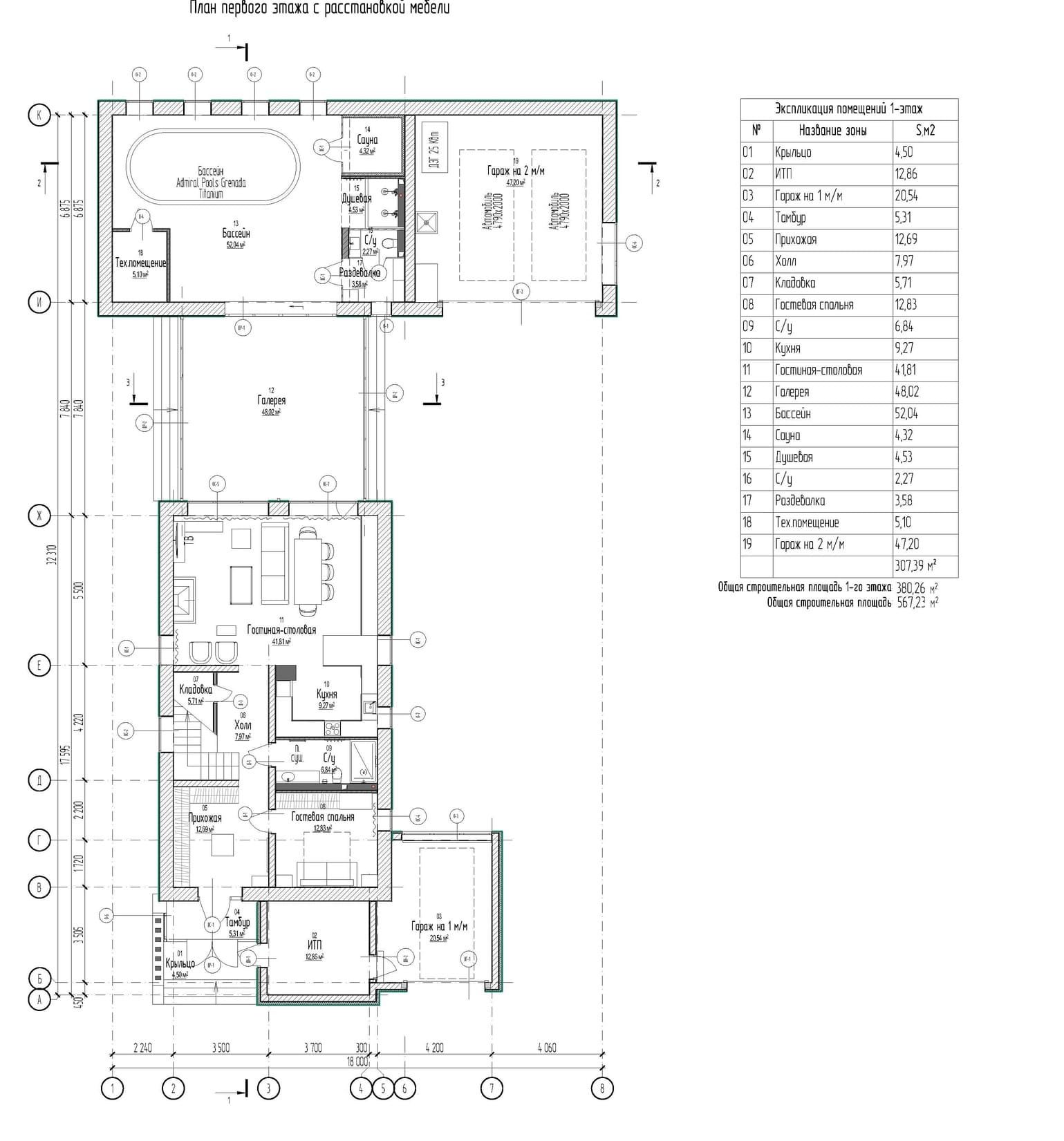
План первого этажа
- 1. Крыльцо 4,50 м²
- 2. ИТП 12,86 м²
- 3. Гараж 20,54 м²
- 4. Тамбур 5,31 м²
- 5. Прихожая 12,69 м²
- 6. Холл 7,97 м²
- 7. Кладовая 5,71 м²
- 8. Спальня 12,83 м²
- 9. С/У 6,84 м²
- 10. Кухня 9,27 м²
- 11. Гостиная-столовая 41,81 м²
- 12. Галерея 48,02 м²
- 13. Бассейн 52,04 м²
- 14. Сауна 4,32 м²
- 15. Душевая 4,53 м²
- 16. С/У 2,27 м²
- 17. Раздевалка 3,58 м²
- 18. Тех. Помещение 5,10 м²
- 19. Гараж 47,20 м²
- Общая площадь 1 этажа 307,93 м²
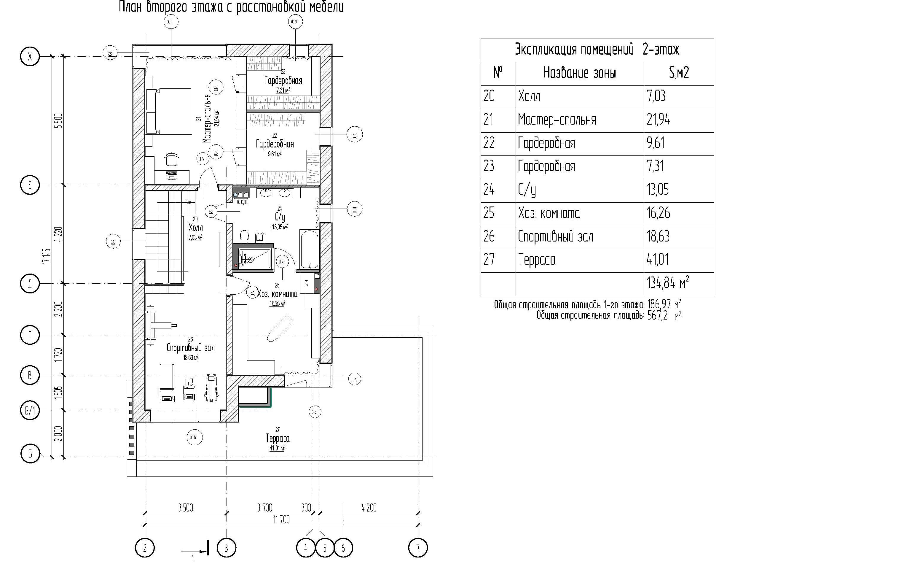
План второго этажа
- 1. Холл 7,03 м²
- 2. Мастер-спальня 21,94 м²
- 3. Гардеробная 9,61 м²
- 4. Гардеробная 7,31 м²
- 5. С/У 13,05 м²
- 6. Хоз. Комната 16,26 м²
- 7. Спортивный зал 18,63 м²
- 8. Терраса 41,01 м²
- Общая площадь 2 этажа 134,84 м²
Площади дома
| № п/п | Наименование | Ед. из. | Строительная площадь | Полезная площадь |
| 1 | 1 этаж | м2 | 379.46 | 307.93 |
| 2 | 2 этаж | м2 | 166.16 | 134.84 |
| 3 | Итого | м2 | 545.62 | 442.77 |
154 м2
Полезная
площадь
площадь
32 x 18 м
Размеры
1 этаж
Этажей
26 м2
Террасы
и балконы
и балконы
3Без
гаража
гаража
2
Количество
спален
спален
3
Количество
санузлов
санузлов
Калькулятор опций
0₽
В ипотеку от 31 645 ₽/мес.
0₽
0 дней
stdClass Object
(
[id] => 1
[attribute_id] => 1
[name] => Ленточный монолитный ж/б
[material_modifier] => 1
[work_modifier] => 1
[options] => Array
(
[0] => размер 200 х 700 мм
[1] => размер 300 х 900 мм
[2] => размер 400 х 1 000 мм
[3] => размер 500 х 1 100 мм
[4] => размер 600 х 1 200 мм
)
[days] => [20,21,22,25,30]
[material_price] => [2823,3630,4475,5210,12047]
[work_price] => [2154,2826,3731,4577,5293]
[image] => https://akademik-stroy.ru/wp-content/uploads/materials/lentochnyj-monolitnyj-zh-b.jpg
[area_modifier] => 379.46
[parent_name] => Фундамент
[parent_id] => 1
[material_sum] => 1285459
[work_sum] => 817357
[total_sum] => 2102816
[total_days] => 20
[display_material_sum] => 1 285 459
[display_work_sum] => 817 357
[display_total_sum] => 2 102 816
)
1
2 102 816₽
Работа:817 357 ₽
Материалы:1 285 459 ₽
Дни:20
stdClass Object
(
[id] => 2
[attribute_id] => 1
[name] => Забивные Ж/Б сваи
[material_modifier] => 1
[work_modifier] => 1
[options] => Array
(
[0] => 150х150х3000мм
[1] => 150х150х4000мм
[2] => 200х200х3000мм
[3] => 200х200х4000мм
[4] => 200х200х5000мм
[5] => 200х200х6000мм
)
[days] => [2,2,2,2,2,2]
[material_price] => [1990,2850,3255,4360,5120,6837]
[work_price] => [1002,1185,1336,1438,1574,1839]
[image] => https://akademik-stroy.ru/wp-content/uploads/materials/zabivnye-zh-b-svai.png
[area_modifier] => 379.46
[parent_name] => Фундамент
[parent_id] => 1
[material_sum] => 906150
[work_sum] => 380219
[total_sum] => 1286369
[total_days] => 2
[display_material_sum] => 906 150
[display_work_sum] => 380 219
[display_total_sum] => 1 286 369
)
1
1 286 369₽
Работа:380 219 ₽
Материалы:906 150 ₽
Дни:2
stdClass Object
(
[id] => 71
[attribute_id] => 1
[name] => Свайно-ростверковый ж/б
[material_modifier] => 1
[work_modifier] => 1
[options] => Array
(
[0] => ростверк 200х300 мм
[1] => ростверк 300х600 мм
[2] => ростверк 400х900 мм
[3] => ростверк 500х1200 мм
)
[days] => [20,23,25,27]
[material_price] => [3018,3474,7109,9792]
[work_price] => [2024,3012,5635,7022]
[image] => https://akademik-stroy.ru/wp-content/uploads/materials/svajno-rostverkovyj-monolitnyj-zh-b-3.png
[area_modifier] => 379.46
[parent_name] => Фундамент
[parent_id] => 1
[material_sum] => 1374252
[work_sum] => 768027
[total_sum] => 2142279
[total_days] => 20
[display_material_sum] => 1 374 252
[display_work_sum] => 768 027
[display_total_sum] => 2 142 279
)
1
2 142 279₽
Работа:768 027 ₽
Материалы:1 374 252 ₽
Дни:20
stdClass Object
(
[id] => 72
[attribute_id] => 1
[name] => Монолитная ж/б плита
[material_modifier] => 1
[work_modifier] => 1
[options] => Array
(
[0] => 200 мм
[1] => 300 мм
[2] => 400 мм
[3] => 500 мм
[4] => 600 мм
)
[days] => [30,33,35,37,40]
[material_price] => [5348,8555,12788,14388,15189]
[work_price] => [4314,4881,7037,8061,10230]
[image] => https://akademik-stroy.ru/wp-content/uploads/materials/monolitnaya-zhb-plita.png
[area_modifier] => 379.46
[parent_name] => Фундамент
[parent_id] => 1
[material_sum] => 2435222
[work_sum] => 1636990
[total_sum] => 4072212
[total_days] => 30
[display_material_sum] => 2 435 222
[display_work_sum] => 1 636 990
[display_total_sum] => 4 072 212
)
1
4 072 212₽
Работа:1 636 990 ₽
Материалы:2 435 222 ₽
Дни:30
stdClass Object
(
[id] => 73
[attribute_id] => 1
[name] => Утепленная шведская плита
[material_modifier] => 1
[work_modifier] => 1
[options] => Array
(
[0] => 200 мм
[1] => 300 мм
[2] => 400 мм
[3] => 500 мм
[4] => 600 мм
)
[days] => [32,37,39,42,45]
[material_price] => [10249,12692,13760,14936,16230]
[work_price] => [5960,7337,8072,8878,9765]
[image] => https://akademik-stroy.ru/wp-content/uploads/materials/uteplennaya-shvedskaya-plita.jpg
[area_modifier] => 379.46
[parent_name] => Фундамент
[parent_id] => 1
[material_sum] => 4666903
[work_sum] => 2261582
[total_sum] => 6928485
[total_days] => 32
[display_material_sum] => 4 666 903
[display_work_sum] => 2 261 582
[display_total_sum] => 6 928 485
)
1
6 928 485₽
Работа:2 261 582 ₽
Материалы:4 666 903 ₽
Дни:32
stdClass Object
(
[id] => 75
[attribute_id] => 1
[name] => Ленточный из ФБС
[material_modifier] => 1
[work_modifier] => 1
[options] => Array
(
[0] => толщ. 300 мм
[1] => толщ. 400 мм
[2] => толщ. 500 мм
[3] => толщ. 600 мм
)
[days] => [20,20,20,20]
[material_price] => [3675,4902,6126,7350]
[work_price] => [2451,3264,4083,4902]
[image] => https://akademik-stroy.ru/wp-content/uploads/materials/lentochnyj-iz-fbs.png
[area_modifier] => 379.46
[parent_name] => Фундамент
[parent_id] => 1
[material_sum] => 1673419
[work_sum] => 930056
[total_sum] => 2603475
[total_days] => 20
[display_material_sum] => 1 673 419
[display_work_sum] => 930 056
[display_total_sum] => 2 603 475
)
1
2 603 475₽
Работа:930 056 ₽
Материалы:1 673 419 ₽
Дни:20
stdClass Object
(
[id] => 76
[attribute_id] => 1
[name] => Цокольный этаж из ФБС
[material_modifier] => 1
[work_modifier] => 1
[options] => Array
(
[0] => толщ. 300 мм
[1] => толщ. 400 мм
[2] => толщ. 500 мм
[3] => толщ. 600 мм
)
[days] => [30,32,34,36]
[material_price] => [20916,23299,26680,29060]
[work_price] => [17524,18700,19873,21046]
[image] => https://akademik-stroy.ru/wp-content/uploads/materials/cokolnyj-ehtazh-iz-fbs.jpg
[area_modifier] => 379.46
[parent_name] => Фундамент
[parent_id] => 1
[material_sum] => 9524142
[work_sum] => 6649657
[total_sum] => 16173799
[total_days] => 30
[display_material_sum] => 9 524 142
[display_work_sum] => 6 649 657
[display_total_sum] => 16 173 799
)
1
16 173 799₽
Работа:6 649 657 ₽
Материалы:9 524 142 ₽
Дни:30
stdClass Object
(
[id] => 77
[attribute_id] => 1
[name] => Цокольный этаж монолитный ж/б
[material_modifier] => 1
[work_modifier] => 1
[options] => Array
(
[0] => толщ. 200 мм
[1] => толщ. 300 мм
[2] => толщ. 400 мм
[3] => толщ. 500 мм
[4] => толщ. 600 мм
)
[days] => [40,42,44,46,48]
[material_price] => [25421,29148,32275,35602,37326]
[work_price] => [20441,21907,23375,24841,26306]
[image] => https://akademik-stroy.ru/wp-content/uploads/materials/cokolnyj-etazh-zh-b.jpg
[area_modifier] => 379.46
[parent_name] => Фундамент
[parent_id] => 1
[material_sum] => 11575503
[work_sum] => 7756542
[total_sum] => 19332045
[total_days] => 40
[display_material_sum] => 11 575 503
[display_work_sum] => 7 756 542
[display_total_sum] => 19 332 045
)
1
19 332 045₽
Работа:7 756 542 ₽
Материалы:11 575 503 ₽
Дни:40
stdClass Object
(
[id] => 191
[attribute_id] => 1
[name] => Винтовые сваи
[material_modifier] => 1
[work_modifier] => 1
[options] => Array
(
[0] => 57х200мм
[1] => 76х250мм
[2] => 108х300мм
[3] => 133х350мм
)
[days] => [1,1,2,2]
[material_price] => [1200,1300,1450,1600]
[work_price] => [400,600,900,1100]
[image] => https://akademik-stroy.ru/wp-content/uploads/materials/vintovye-svai.png
[area_modifier] => 379.46
[parent_name] => Фундамент
[parent_id] => 1
[material_sum] => 546422
[work_sum] => 151784
[total_sum] => 698206
[total_days] => 1
[display_material_sum] => 546 422
[display_work_sum] => 151 784
[display_total_sum] => 698 206
)
1
698 206₽
Работа:151 784 ₽
Материалы:546 422 ₽
Дни:1
stdClass Object
(
[id] => 3
[attribute_id] => 2
[name] => Деревянные балки
[material_modifier] => 1
[work_modifier] => 1
[options] => Array
(
[0] => без утепления
[1] => утепление 200 мм
[2] => утепление 250 мм
[3] => утепление 300 мм
[4] => утепление 350 мм
[5] => утепление 400 мм
[6] => утепление 450 мм
[7] => утепление 500 мм
)
[days] => [8,9,9,9,11,12,13,14]
[material_price] => [1634,2042,2344,2947,3149,3652,3354,3557]
[work_price] => [1230,1339,1393,1426,1460,1513,1587,1620]
[image] => https://akademik-stroy.ru/wp-content/uploads/materials/derevyannye-balki.png
[area_modifier] => 379.46
[parent_name] => Перекрытие цоколя
[parent_id] => 2
[material_sum] => 744045
[work_sum] => 466736
[total_sum] => 1210781
[total_days] => 8
[display_material_sum] => 744 045
[display_work_sum] => 466 736
[display_total_sum] => 1 210 781
)
1
1 210 781₽
Работа:466 736 ₽
Материалы:744 045 ₽
Дни:8
stdClass Object
(
[id] => 4
[attribute_id] => 2
[name] => Сборные ж/б плиты
[material_modifier] => 1
[work_modifier] => 1
[options] => Array
(
[0] => без утепления
[1] => утепление 150мм
[2] => утепление 200мм
[3] => утепление 250мм
[4] => утепление 300мм
[5] => утепление 350мм
[6] => утепление 400мм
[7] => утепление 450мм
[8] => утепление 500мм
)
[days] => [13,15,15,15,15,15,15,15,15]
[material_price] => [3067,5577,5928,6679,7730,8782,9833,10884,11935]
[work_price] => [1520,1956,2102,2247,2392,2537,2684,2829,2974]
[image] => https://akademik-stroy.ru/wp-content/uploads/materials/sbornye-zh-b-plity-2.jpg
[area_modifier] => 379.46
[parent_name] => Перекрытие цоколя
[parent_id] => 2
[material_sum] => 1396565
[work_sum] => 576779
[total_sum] => 1973344
[total_days] => 13
[display_material_sum] => 1 396 565
[display_work_sum] => 576 779
[display_total_sum] => 1 973 344
)
1
1 973 344₽
Работа:576 779 ₽
Материалы:1 396 565 ₽
Дни:13
stdClass Object
(
[id] => 78
[attribute_id] => 2
[name] => Монолитная ж/б плита
[material_modifier] => 1
[work_modifier] => 1
[options] => Array
(
[0] => без утепления
[1] => утепление 150 мм
[2] => утепление 200 мм
[3] => утепление 250 мм
[4] => утепление 300 мм
[5] => утепление 350 мм
[6] => утепление 400 мм
[7] => утепление 450 мм
[8] => утепление 500 мм
)
[days] => [18,20,20,20,20,20,20,20,20]
[material_price] => [4837,6572,7224,7375,79426,8177,8728,9180,10031]
[work_price] => [3348,3921,4112,4302,4493,4684,4875,5066,5256]
[image] => https://akademik-stroy.ru/wp-content/uploads/materials/monolitnaya-zh-b-plita-2.jpg
[area_modifier] => 379.46
[parent_name] => Перекрытие цоколя
[parent_id] => 2
[material_sum] => 2202538
[work_sum] => 1270432
[total_sum] => 3472970
[total_days] => 18
[display_material_sum] => 2 202 538
[display_work_sum] => 1 270 432
[display_total_sum] => 3 472 970
)
1
3 472 970₽
Работа:1 270 432 ₽
Материалы:2 202 538 ₽
Дни:18
stdClass Object
(
[id] => 6
[attribute_id] => 3
[name] => Пеноблок
[material_modifier] => 1
[work_modifier] => 1
[options] => Array
(
[0] => 300 мм
[1] => 400 мм
[2] => 500 мм
[3] => 600 мм
)
[days] => [29,31,34,39]
[material_price] => [3000,4000,4500,4937]
[work_price] => [5033,5805,6400,8710]
[image] => https://akademik-stroy.ru/wp-content/uploads/materials/penoblok.jpg
[area_modifier] => 379.46
[parent_name] => Стены 1 этаж (несущие)
[parent_id] => 3
[material_sum] => 1366056
[work_sum] => 1909822
[total_sum] => 3275878
[total_days] => 29
[display_material_sum] => 1 366 056
[display_work_sum] => 1 909 822
[display_total_sum] => 3 275 878
)
1
3 275 878₽
Работа:1 909 822 ₽
Материалы:1 366 056 ₽
Дни:29
stdClass Object
(
[id] => 79
[attribute_id] => 3
[name] => Керамический блок
[material_modifier] => 1
[work_modifier] => 1
[options] => Array
(
[0] => 380 мм
[1] => 380 мм Thermo
[2] => 440 мм
[3] => 510 мм
)
[days] => [23,23,24,25]
[material_price] => [4510,5098,6093,8013]
[work_price] => [4737,4937,5903,6958]
[image] => https://akademik-stroy.ru/wp-content/uploads/materials/keramicheskij-blok.jpg
[area_modifier] => 379.46
[parent_name] => Стены 1 этаж (несущие)
[parent_id] => 3
[material_sum] => 2053638
[work_sum] => 1797502
[total_sum] => 3851140
[total_days] => 23
[display_material_sum] => 2 053 638
[display_work_sum] => 1 797 502
[display_total_sum] => 3 851 140
)
1
3 851 140₽
Работа:1 797 502 ₽
Материалы:2 053 638 ₽
Дни:23
stdClass Object
(
[id] => 80
[attribute_id] => 3
[name] => Кирпич
[material_modifier] => 1
[work_modifier] => 1
[options] => Array
(
[0] => Кирпич 250 мм
[1] => Кирпич 380 мм
[2] => Кирпич 510 мм
[3] => Кирпич 640 мм
[4] => Кирпич 770 мм
)
[days] => [30,30,31,33,36]
[material_price] => [5500,7142,9206,10171,12235]
[work_price] => [8736,10041,12018,15240,18462]
[image] => https://akademik-stroy.ru/wp-content/uploads/materials/kirpich.jpg
[area_modifier] => 379.46
[parent_name] => Стены 1 этаж (несущие)
[parent_id] => 3
[material_sum] => 2504436
[work_sum] => 3314963
[total_sum] => 5819399
[total_days] => 30
[display_material_sum] => 2 504 436
[display_work_sum] => 3 314 963
[display_total_sum] => 5 819 399
)
1
5 819 399₽
Работа:3 314 963 ₽
Материалы:2 504 436 ₽
Дни:30
stdClass Object
(
[id] => 81
[attribute_id] => 3
[name] => Монолитные
[material_modifier] => 1
[work_modifier] => 1
[options] => Array
(
[0] => 150 мм
[1] => 200 мм
[2] => 250 мм
[3] => 300 мм
[4] => 350 мм
[5] => 400 мм
)
[days] => [45,46,47,49,50,53]
[material_price] => [6545,7876,10175,12011,13908,15204]
[work_price] => [5106,6444,7698,8552,9807,11461]
[image] => https://akademik-stroy.ru/wp-content/uploads/materials/monolitnye.jpg
[area_modifier] => 379.46
[parent_name] => Стены 1 этаж (несущие)
[parent_id] => 3
[material_sum] => 2980279
[work_sum] => 1937523
[total_sum] => 4917802
[total_days] => 45
[display_material_sum] => 2 980 279
[display_work_sum] => 1 937 523
[display_total_sum] => 4 917 802
)
1
4 917 802₽
Работа:1 937 523 ₽
Материалы:2 980 279 ₽
Дни:45
stdClass Object
(
[id] => 82
[attribute_id] => 3
[name] => Клееный брус
[material_modifier] => 1
[work_modifier] => 1
[options] => Array
(
[0] => 160 мм
[1] => 175 мм
[2] => 200 мм
[3] => 215 мм
[4] => 240 мм
[5] => 270 мм
[6] => 282 мм
)
[days] => [24,28,32,37,40,42,48]
[material_price] => [16975,18773,19950,20545,21599,22159,23275]
[work_price] => [4806,5287,5815,6397,7036,7740,8514]
[image] => https://akademik-stroy.ru/wp-content/uploads/materials/kleenyj-brus.jpg
[area_modifier] => 379.46
[parent_name] => Стены 1 этаж (несущие)
[parent_id] => 3
[material_sum] => 7729600
[work_sum] => 1823685
[total_sum] => 9553285
[total_days] => 24
[display_material_sum] => 7 729 600
[display_work_sum] => 1 823 685
[display_total_sum] => 9 553 285
)
1
9 553 285₽
Работа:1 823 685 ₽
Материалы:7 729 600 ₽
Дни:24
stdClass Object
(
[id] => 83
[attribute_id] => 3
[name] => Каркасные
[material_modifier] => 1
[work_modifier] => 1
[options] => Array
(
[0] => 150 мм
[1] => 200 мм
[2] => 250 мм
[3] => 300 мм
)
[days] => [15,16,17,18]
[material_price] => [2379,2639,2898,3258]
[work_price] => [2418,2686,2985,3716]
[image] => https://akademik-stroy.ru/wp-content/uploads/materials/karkasnye.jpg
[area_modifier] => 379.46
[parent_name] => Стены 1 этаж (несущие)
[parent_id] => 3
[material_sum] => 1083282
[work_sum] => 917534
[total_sum] => 2000816
[total_days] => 15
[display_material_sum] => 1 083 282
[display_work_sum] => 917 534
[display_total_sum] => 2 000 816
)
1
2 000 816₽
Работа:917 534 ₽
Материалы:1 083 282 ₽
Дни:15
stdClass Object
(
[id] => 84
[attribute_id] => 3
[name] => СИП-панели
[material_modifier] => 1
[work_modifier] => 1
[options] => Array
(
[0] => 120 мм
[1] => 170 мм
[2] => 220 мм
)
[days] => [7,7,7]
[material_price] => [1210,1856,2292]
[work_price] => [1410,1551,1706]
[image] => https://akademik-stroy.ru/wp-content/uploads/materials/sip-paneli.jpg
[area_modifier] => 379.46
[parent_name] => Стены 1 этаж (несущие)
[parent_id] => 3
[material_sum] => 550976
[work_sum] => 535039
[total_sum] => 1086015
[total_days] => 7
[display_material_sum] => 550 976
[display_work_sum] => 535 039
[display_total_sum] => 1 086 015
)
1
1 086 015₽
Работа:535 039 ₽
Материалы:550 976 ₽
Дни:7
stdClass Object
(
[id] => 85
[attribute_id] => 3
[name] => Сухой брус
[material_modifier] => 1
[work_modifier] => 1
[options] => Array
(
[0] => 150 мм
[1] => 180 мм
[2] => 200 мм
)
[days] => [7,8,9]
[material_price] => [6010,7190,8709]
[work_price] => [3204,3845,4229]
[image] => https://akademik-stroy.ru/wp-content/uploads/materials/suhoj-brus.jpg
[area_modifier] => 379.46
[parent_name] => Стены 1 этаж (несущие)
[parent_id] => 3
[material_sum] => 2736666
[work_sum] => 1215790
[total_sum] => 3952456
[total_days] => 7
[display_material_sum] => 2 736 666
[display_work_sum] => 1 215 790
[display_total_sum] => 3 952 456
)
1
3 952 456₽
Работа:1 215 790 ₽
Материалы:2 736 666 ₽
Дни:7
stdClass Object
(
[id] => 86
[attribute_id] => 3
[name] => Профилированный брус
[material_modifier] => 1
[work_modifier] => 1
[options] => Array
(
[0] => 150 мм
[1] => 180 мм
[2] => 200 мм
)
[days] => [7,8,9]
[material_price] => [8190,9228,10051]
[work_price] => [3845,4614,5075]
[image] => https://akademik-stroy.ru/wp-content/uploads/materials/profilirovannyj-brus.jpg
[area_modifier] => 379.46
[parent_name] => Стены 1 этаж (несущие)
[parent_id] => 3
[material_sum] => 3729333
[work_sum] => 1459024
[total_sum] => 5188357
[total_days] => 7
[display_material_sum] => 3 729 333
[display_work_sum] => 1 459 024
[display_total_sum] => 5 188 357
)
1
5 188 357₽
Работа:1 459 024 ₽
Материалы:3 729 333 ₽
Дни:7
stdClass Object
(
[id] => 87
[attribute_id] => 3
[name] => Оцилиндрованное бревно
[material_modifier] => 1
[work_modifier] => 1
[options] => Array
(
[0] => 180 мм
[1] => 220 мм
[2] => 260 мм
[3] => 320 мм
)
[days] => [7,8,9,10]
[material_price] => [75190,9532,10868,13116]
[work_price] => [3845,4691,5535,6863]
[image] => https://akademik-stroy.ru/wp-content/uploads/materials/ocilindrovannoe-brevno-1.jpg
[area_modifier] => 379.46
[parent_name] => Стены 1 этаж (несущие)
[parent_id] => 3
[material_sum] => 34237917
[work_sum] => 1459024
[total_sum] => 35696941
[total_days] => 7
[display_material_sum] => 34 237 917
[display_work_sum] => 1 459 024
[display_total_sum] => 35 696 941
)
1
35 696 941₽
Работа:1 459 024 ₽
Материалы:34 237 917 ₽
Дни:7
stdClass Object
(
[id] => 88
[attribute_id] => 3
[name] => Срубы
[material_modifier] => 1
[work_modifier] => 1
[options] => Array
(
[0] => 260 мм
[1] => 320 мм
[2] => 360 мм
[3] => 400 мм
[4] => 500 мм
)
[days] => [7,8,9,10,11]
[material_price] => [37975,46709,52314,58069,73167]
[work_price] => [4806,5911,6621,7349,9260]
[image] => https://akademik-stroy.ru/wp-content/uploads/materials/sruby.jpg
[area_modifier] => 379.46
[parent_name] => Стены 1 этаж (несущие)
[parent_id] => 3
[material_sum] => 17291992
[work_sum] => 1823685
[total_sum] => 19115677
[total_days] => 7
[display_material_sum] => 17 291 992
[display_work_sum] => 1 823 685
[display_total_sum] => 19 115 677
)
1
19 115 677₽
Работа:1 823 685 ₽
Материалы:17 291 992 ₽
Дни:7
stdClass Object
(
[id] => 174
[attribute_id] => 3
[name] => Брус
[material_modifier] => 1
[work_modifier] => 1
[options] => Array
(
[0] => 150 мм
[1] => 180 мм
[2] => 200 мм
)
[days] => [7,8,9]
[material_price] => [5127,6152,7367]
[work_price] => [1602,1922,2115]
[image] => https://akademik-stroy.ru/wp-content/uploads/materials/brus.jpg
[area_modifier] => 379.46
[parent_name] => Стены 1 этаж (несущие)
[parent_id] => 3
[material_sum] => 2334590
[work_sum] => 607895
[total_sum] => 2942485
[total_days] => 7
[display_material_sum] => 2 334 590
[display_work_sum] => 607 895
[display_total_sum] => 2 942 485
)
1
2 942 485₽
Работа:607 895 ₽
Материалы:2 334 590 ₽
Дни:7
stdClass Object
(
[id] => 175
[attribute_id] => 3
[name] => Газобетон
[material_modifier] => 1
[work_modifier] => 1
[options] => Array
(
[0] => 300 мм
[1] => 375 мм
[2] => 400 мм
[3] => 500 мм
[4] => 600 мм
)
[days] => [29,31,35,37,44]
[material_price] => [4298,5573,6356,7288,9119]
[work_price] => [4538,5251,5926,6733,7195]
[image] => https://akademik-stroy.ru/wp-content/uploads/materials/gazobeton.jpg
[area_modifier] => 379.46
[parent_name] => Стены 1 этаж (несущие)
[parent_id] => 3
[material_sum] => 1957103
[work_sum] => 1721989
[total_sum] => 3679092
[total_days] => 29
[display_material_sum] => 1 957 103
[display_work_sum] => 1 721 989
[display_total_sum] => 3 679 092
)
1
3 679 092₽
Работа:1 721 989 ₽
Материалы:1 957 103 ₽
Дни:29
stdClass Object
(
[id] => 176
[attribute_id] => 3
[name] => Блок
[material_modifier] => 1
[work_modifier] => 1
[options] => Array
(
[0] => 300 мм
[1] => 375 мм
[2] => 400 мм
[3] => 500 мм
[4] => 600 мм
)
[days] => [29,31,35,37,44]
[material_price] => [2698,3973,4356,6588,7119]
[work_price] => [5038,5851,6426,8733,9195]
[image] => https://akademik-stroy.ru/wp-content/uploads/materials/blok.jpg
[area_modifier] => 379.46
[parent_name] => Стены 1 этаж (несущие)
[parent_id] => 3
[material_sum] => 1228540
[work_sum] => 1911719
[total_sum] => 3140259
[total_days] => 29
[display_material_sum] => 1 228 540
[display_work_sum] => 1 911 719
[display_total_sum] => 3 140 259
)
1
3 140 259₽
Работа:1 911 719 ₽
Материалы:1 228 540 ₽
Дни:29
stdClass Object
(
[id] => 177
[attribute_id] => 3
[name] => Газосиликатный блок
[material_modifier] => 1
[work_modifier] => 1
[options] => Array
(
[0] => 300 мм
[1] => 375 мм
[2] => 400 мм
[3] => 500 мм
[4] => 600 мм
)
[days] => [29,31,35,37,44]
[material_price] => [4298,5573,6356,7288,9119]
[work_price] => [4538,5251,5926,6733,7195]
[image] => https://akademik-stroy.ru/wp-content/uploads/materials/gazosilikatnyj-blok.jpg
[area_modifier] => 379.46
[parent_name] => Стены 1 этаж (несущие)
[parent_id] => 3
[material_sum] => 1957103
[work_sum] => 1721989
[total_sum] => 3679092
[total_days] => 29
[display_material_sum] => 1 957 103
[display_work_sum] => 1 721 989
[display_total_sum] => 3 679 092
)
1
3 679 092₽
Работа:1 721 989 ₽
Материалы:1 957 103 ₽
Дни:29
stdClass Object
(
[id] => 178
[attribute_id] => 3
[name] => Керамзитобетонный блок
[material_modifier] => 1
[work_modifier] => 1
[options] => Array
(
[0] => 300 мм
[1] => 375 мм
[2] => 400 мм
[3] => 500 мм
[4] => 600 мм
)
[days] => [23,23,24,25,28]
[material_price] => [3641,4298,5693,7613,9612]
[work_price] => [5737,5737,6903,7958,8901]
[image] => https://akademik-stroy.ru/wp-content/uploads/materials/keramzitobetonnyj-blok.jpg
[area_modifier] => 379.46
[parent_name] => Стены 1 этаж (несущие)
[parent_id] => 3
[material_sum] => 1657937
[work_sum] => 2176962
[total_sum] => 3834899
[total_days] => 23
[display_material_sum] => 1 657 937
[display_work_sum] => 2 176 962
[display_total_sum] => 3 834 899
)
1
3 834 899₽
Работа:2 176 962 ₽
Материалы:1 657 937 ₽
Дни:23
stdClass Object
(
[id] => 179
[attribute_id] => 3
[name] => Деревянные
[material_modifier] => 1
[work_modifier] => 1
[options] => Array
(
[0] => 180 мм
[1] => 220 мм
[2] => 260 мм
[3] => 320 мм
)
[days] => [7,8,9,10]
[material_price] => [7950,9458,11961,14472]
[work_price] => [4037,4925,5812,7207]
[image] => https://akademik-stroy.ru/wp-content/uploads/materials/derevyannye.jpg
[area_modifier] => 379.46
[parent_name] => Стены 1 этаж (несущие)
[parent_id] => 3
[material_sum] => 3620048
[work_sum] => 1531880
[total_sum] => 5151928
[total_days] => 7
[display_material_sum] => 3 620 048
[display_work_sum] => 1 531 880
[display_total_sum] => 5 151 928
)
1
5 151 928₽
Работа:1 531 880 ₽
Материалы:3 620 048 ₽
Дни:7
stdClass Object
(
[id] => 181
[attribute_id] => 3
[name] => Камень
[material_modifier] => 1
[work_modifier] => 1
[options] => Array
(
[0] => 300 мм
[1] => 400 мм
[2] => 500 мм
[3] => 600 мм
)
[days] => [25,27,31,34]
[material_price] => [5262,6844,8330,9815]
[work_price] => [8331,9135,10427,11069]
[image] => https://akademik-stroy.ru/wp-content/uploads/materials/kamen.jpg
[area_modifier] => 379.46
[parent_name] => Стены 1 этаж (несущие)
[parent_id] => 3
[material_sum] => 2396062
[work_sum] => 3161281
[total_sum] => 5557343
[total_days] => 25
[display_material_sum] => 2 396 062
[display_work_sum] => 3 161 281
[display_total_sum] => 5 557 343
)
1
5 557 343₽
Работа:3 161 281 ₽
Материалы:2 396 062 ₽
Дни:25
stdClass Object
(
[id] => 182
[attribute_id] => 3
[name] => Каркасно-щитовые
[material_modifier] => 1
[work_modifier] => 1
[options] => Array
(
[0] => 150 мм
[1] => 200 мм
[2] => 250 мм
[3] => 300 мм
[4] => 350 мм
[5] => 400 мм
)
[days] => [15,16,17,18,19,20]
[material_price] => [2379,2639,2898,3458,3601,4175]
[work_price] => [2538,2820,3134,3483,4062,5642]
[image] => https://akademik-stroy.ru/wp-content/uploads/materials/karkasno-shchitovye.jpg
[area_modifier] => 379.46
[parent_name] => Стены 1 этаж (несущие)
[parent_id] => 3
[material_sum] => 1083282
[work_sum] => 963069
[total_sum] => 2046351
[total_days] => 15
[display_material_sum] => 1 083 282
[display_work_sum] => 963 069
[display_total_sum] => 2 046 351
)
1
2 046 351₽
Работа:963 069 ₽
Материалы:1 083 282 ₽
Дни:15
stdClass Object
(
[id] => 183
[attribute_id] => 3
[name] => Рубленные
[material_modifier] => 1
[work_modifier] => 1
[options] => Array
(
[0] => 150 мм
[1] => 200 мм
[2] => 250 мм
[3] => 300 мм
[4] => 350 мм
[5] => 400 мм
)
[days] => [15,16,17,18,17,18]
[material_price] => [35950,50267,60583,75900,80217,100533]
[work_price] => [9612,12816,16020,19224,22428,25632]
[image] => https://akademik-stroy.ru/wp-content/uploads/materials/rublennye.jpg
[area_modifier] => 379.46
[parent_name] => Стены 1 этаж (несущие)
[parent_id] => 3
[material_sum] => 16369904
[work_sum] => 3647370
[total_sum] => 20017274
[total_days] => 15
[display_material_sum] => 16 369 904
[display_work_sum] => 3 647 370
[display_total_sum] => 20 017 274
)
1
20 017 274₽
Работа:3 647 370 ₽
Материалы:16 369 904 ₽
Дни:15
stdClass Object
(
[id] => 185
[attribute_id] => 3
[name] => Теплоблок
[material_modifier] => 1
[work_modifier] => 1
[options] => Array
(
[0] => 300 мм (с облицовкой, не покрашенный)
[1] => 400 мм (с облицовкой, не покрашенный)
[2] => 300 мм (с облицовкой, покрашенный)
[3] => 400 мм (с облицовкой, покрашенный)
)
[days] => [15,16,15,16]
[material_price] => [2888,3729,3957,4258]
[work_price] => [2564,3229,2949,3713]
[image] => https://akademik-stroy.ru/wp-content/uploads/materials/teploblok.jpg
[area_modifier] => 379.46
[parent_name] => Стены 1 этаж (несущие)
[parent_id] => 3
[material_sum] => 1315057
[work_sum] => 972935
[total_sum] => 2287992
[total_days] => 15
[display_material_sum] => 1 315 057
[display_work_sum] => 972 935
[display_total_sum] => 2 287 992
)
1
2 287 992₽
Работа:972 935 ₽
Материалы:1 315 057 ₽
Дни:15
stdClass Object
(
[id] => 186
[attribute_id] => 3
[name] => Арболитовые блоки
[material_modifier] => 1
[work_modifier] => 1
[options] => Array
(
[0] => 300 мм
[1] => 400 мм
[2] => 600 мм
)
[days] => [19,22,27]
[material_price] => [3210,4475,5852]
[work_price] => [4214,4788,5866]
[image] => https://akademik-stroy.ru/wp-content/uploads/materials/arbolitovye-bloki.png
[area_modifier] => 379.46
[parent_name] => Стены 1 этаж (несущие)
[parent_id] => 3
[material_sum] => 1461680
[work_sum] => 1599044
[total_sum] => 3060724
[total_days] => 19
[display_material_sum] => 1 461 680
[display_work_sum] => 1 599 044
[display_total_sum] => 3 060 724
)
1
3 060 724₽
Работа:1 599 044 ₽
Материалы:1 461 680 ₽
Дни:19
stdClass Object
(
[id] => 187
[attribute_id] => 3
[name] => Полистиролбетон
[material_modifier] => 1
[work_modifier] => 1
[options] => Array
(
[0] => 300 мм
[1] => 400 мм
[2] => 600 мм
)
[days] => [29,31,35]
[material_price] => [2798,4573,5256]
[work_price] => [5038,5851,6426]
[image] => https://akademik-stroy.ru/wp-content/uploads/materials/polistirolbeton.jpg
[area_modifier] => 379.46
[parent_name] => Стены 1 этаж (несущие)
[parent_id] => 3
[material_sum] => 1274075
[work_sum] => 1911719
[total_sum] => 3185794
[total_days] => 29
[display_material_sum] => 1 274 075
[display_work_sum] => 1 911 719
[display_total_sum] => 3 185 794
)
1
3 185 794₽
Работа:1 911 719 ₽
Материалы:1 274 075 ₽
Дни:29
stdClass Object
(
[id] => 188
[attribute_id] => 3
[name] => Шлакоблок
[material_modifier] => 1
[work_modifier] => 1
[options] => Array
(
[0] => 400 мм
[1] => 600 мм
)
[days] => [15,16]
[material_price] => [2391,3471]
[work_price] => [2642,3662]
[image] => https://akademik-stroy.ru/wp-content/uploads/materials/shlakoblok.jpg
[area_modifier] => 379.46
[parent_name] => Стены 1 этаж (несущие)
[parent_id] => 3
[material_sum] => 1088747
[work_sum] => 1002533
[total_sum] => 2091280
[total_days] => 15
[display_material_sum] => 1 088 747
[display_work_sum] => 1 002 533
[display_total_sum] => 2 091 280
)
1
2 091 280₽
Работа:1 002 533 ₽
Материалы:1 088 747 ₽
Дни:15
stdClass Object
(
[id] => 189
[attribute_id] => 3
[name] => Теплая керамика
[material_modifier] => 1
[work_modifier] => 1
[options] => Array
(
[0] => 380 мм
[1] => 380 мм Thermo
[2] => 440 мм
[3] => 510 мм
)
[days] => [23,23,24,25]
[material_price] => [4510,5098,6093,8013]
[work_price] => [4737,4937,5903,6958]
[image] => https://akademik-stroy.ru/wp-content/uploads/materials/teplaya-keramika.jpg
[area_modifier] => 379.46
[parent_name] => Стены 1 этаж (несущие)
[parent_id] => 3
[material_sum] => 2053638
[work_sum] => 1797502
[total_sum] => 3851140
[total_days] => 23
[display_material_sum] => 2 053 638
[display_work_sum] => 1 797 502
[display_total_sum] => 3 851 140
)
1
3 851 140₽
Работа:1 797 502 ₽
Материалы:2 053 638 ₽
Дни:23
stdClass Object
(
[id] => 190
[attribute_id] => 3
[name] => Несъемная опалубка
[material_modifier] => 1
[work_modifier] => 1
[options] => Array
(
[0] => 200 мм
[1] => 250 мм
[2] => 300 мм
[3] => 350 мм
)
[days] => [15,17,19,21]
[material_price] => [3302,3902,4108,5008]
[work_price] => [2100,2100,2300,2534]
[image] => https://akademik-stroy.ru/wp-content/uploads/materials/nesemnaya-opalubka.jpg
[area_modifier] => 379.46
[parent_name] => Стены 1 этаж (несущие)
[parent_id] => 3
[material_sum] => 1503572
[work_sum] => 796866
[total_sum] => 2300438
[total_days] => 15
[display_material_sum] => 1 503 572
[display_work_sum] => 796 866
[display_total_sum] => 2 300 438
)
1
2 300 438₽
Работа:796 866 ₽
Материалы:1 503 572 ₽
Дни:15
stdClass Object
(
[id] => 251
[attribute_id] => 3
[name] => Бревно
[material_modifier] => 1
[work_modifier] => 1
[options] => Array
(
[0] => 260 мм
[1] => 320 мм
[2] => 360 мм
[3] => 400 мм
[4] => 500 мм
)
[days] => [7,8,9,10,11]
[material_price] => [1874,24045,26930,30972,38825]
[work_price] => [5046,6207,6952,7716,9723]
[image] => https://akademik-stroy.ru/wp-content/uploads/materials/sruby.jpg
[area_modifier] => 379.46
[parent_name] => Стены 1 этаж (несущие)
[parent_id] => 3
[material_sum] => 853330
[work_sum] => 1914755
[total_sum] => 2768085
[total_days] => 7
[display_material_sum] => 853 330
[display_work_sum] => 1 914 755
[display_total_sum] => 2 768 085
)
1
2 768 085₽
Работа:1 914 755 ₽
Материалы:853 330 ₽
Дни:7
stdClass Object
(
[id] => 7
[attribute_id] => 4
[name] => Деревянные балки
[material_modifier] => 1
[work_modifier] => 1
[options] => Array
(
[0] => без утепления
[1] => утепление 200 мм
[2] => утепление 250 мм
[3] => утепление 300 мм
[4] => утепление 350 мм
[5] => утепление 400 мм
[6] => утепление 450 мм
[7] => утепление 500 мм
)
[days] => [8,9,9,9,11,12,13,14]
[material_price] => [1634,2042,2344,2947,3149,3652,3354,3557]
[work_price] => [1230,1339,1393,1426,1460,1513,1587,1620]
[image] => https://akademik-stroy.ru/wp-content/uploads/materials/derevyannye-balki.png
[area_modifier] => 379.46
[parent_name] => Перекрытие первого этажа
[parent_id] => 4
[material_sum] => 744045
[work_sum] => 466736
[total_sum] => 1210781
[total_days] => 8
[display_material_sum] => 744 045
[display_work_sum] => 466 736
[display_total_sum] => 1 210 781
)
1
1 210 781₽
Работа:466 736 ₽
Материалы:744 045 ₽
Дни:8
stdClass Object
(
[id] => 8
[attribute_id] => 4
[name] => Сборные ж/б плиты
[material_modifier] => 1
[work_modifier] => 1
[options] => Array
(
[0] => без утепления
[1] => утепление 150 мм
[2] => утепление 200 мм
[3] => утепление 250 мм
[4] => утепление 300 мм
[5] => утепление 350 мм
[6] => утепление 400 мм
[7] => утепление 450 мм
[8] => утепление 500 мм
)
[days] => [13,15,15,15,15,15,15,15,15]
[material_price] => [3067,5577,5928,6679,7730,8782,9833,10884,11935]
[work_price] => [1520,1956,2102,2247,2392,2537,2684,2829,2974]
[image] => https://akademik-stroy.ru/wp-content/uploads/materials/sbornye-zh-b-plity-2.jpg
[area_modifier] => 379.46
[parent_name] => Перекрытие первого этажа
[parent_id] => 4
[material_sum] => 1396565
[work_sum] => 576779
[total_sum] => 1973344
[total_days] => 13
[display_material_sum] => 1 396 565
[display_work_sum] => 576 779
[display_total_sum] => 1 973 344
)
1
1 973 344₽
Работа:576 779 ₽
Материалы:1 396 565 ₽
Дни:13
stdClass Object
(
[id] => 89
[attribute_id] => 4
[name] => Монолитная ж/б плита
[material_modifier] => 1
[work_modifier] => 1
[options] => Array
(
[0] => без утепления
[1] => утепление 150 мм
[2] => утепление 200 мм
[3] => утепление 250 мм
[4] => утепление 300 мм
[5] => утепление 350 мм
[6] => утепление 400 мм
[7] => утепление 450 мм
[8] => утепление 500 мм
)
[days] => [18,20,20,20,20,20,20,20,20]
[material_price] => [4837,6572,7224,7375,79426,8177,8728,9180,10031]
[work_price] => [3348,3921,4112,4302,4493,4684,4875,5066,5256]
[image] => https://akademik-stroy.ru/wp-content/uploads/materials/monolitnaya-zh-b-plita-2.jpg
[area_modifier] => 379.46
[parent_name] => Перекрытие первого этажа
[parent_id] => 4
[material_sum] => 2202538
[work_sum] => 1270432
[total_sum] => 3472970
[total_days] => 18
[display_material_sum] => 2 202 538
[display_work_sum] => 1 270 432
[display_total_sum] => 3 472 970
)
1
3 472 970₽
Работа:1 270 432 ₽
Материалы:2 202 538 ₽
Дни:18
stdClass Object
(
[id] => 10
[attribute_id] => 5
[name] => Пеноблок
[material_modifier] => 1
[work_modifier] => 1
[options] => Array
(
[0] => 300 мм
[1] => 400 мм
[2] => 500 мм
[3] => 600 мм
)
[days] => [29,31,34,39]
[material_price] => [3000,4000,4500,4937]
[work_price] => [5033,5805,6400,8710]
[image] => https://akademik-stroy.ru/wp-content/uploads/materials/penoblok.jpg
[area_modifier] => 166.16
[parent_name] => Стены 2 этаж (несущие)
[parent_id] => 5
[material_sum] => 598176
[work_sum] => 836283
[total_sum] => 1434459
[total_days] => 29
[display_material_sum] => 598 176
[display_work_sum] => 836 283
[display_total_sum] => 1 434 459
)
1
1 434 459₽
Работа:836 283 ₽
Материалы:598 176 ₽
Дни:29
stdClass Object
(
[id] => 90
[attribute_id] => 5
[name] => Керамический блок
[material_modifier] => 1
[work_modifier] => 1
[options] => Array
(
[0] => 380 мм
[1] => 380 мм Thermo
[2] => 440 мм
[3] => 510 мм
)
[days] => [23,23,24,25]
[material_price] => [4510,5098,6093,8013]
[work_price] => [4737,4937,5903,6958]
[image] => https://akademik-stroy.ru/wp-content/uploads/materials/keramicheskij-blok.jpg
[area_modifier] => 166.16
[parent_name] => Стены 2 этаж (несущие)
[parent_id] => 5
[material_sum] => 899258
[work_sum] => 787100
[total_sum] => 1686358
[total_days] => 23
[display_material_sum] => 899 258
[display_work_sum] => 787 100
[display_total_sum] => 1 686 358
)
1
1 686 358₽
Работа:787 100 ₽
Материалы:899 258 ₽
Дни:23
stdClass Object
(
[id] => 91
[attribute_id] => 5
[name] => Кирпич
[material_modifier] => 1
[work_modifier] => 1
[options] => Array
(
[0] => Кирпич 250 мм
[1] => Кирпич 380 мм
[2] => Кирпич 510 мм
[3] => Кирпич 640 мм
[4] => Кирпич 770 мм
)
[days] => [30,30,31,33,36]
[material_price] => [5500,7142,9206,10171,12235]
[work_price] => [8736,10041,12018,15240,18462]
[image] => https://akademik-stroy.ru/wp-content/uploads/materials/kirpich.jpg
[area_modifier] => 166.16
[parent_name] => Стены 2 этаж (несущие)
[parent_id] => 5
[material_sum] => 1096656
[work_sum] => 1451574
[total_sum] => 2548230
[total_days] => 30
[display_material_sum] => 1 096 656
[display_work_sum] => 1 451 574
[display_total_sum] => 2 548 230
)
1
2 548 230₽
Работа:1 451 574 ₽
Материалы:1 096 656 ₽
Дни:30
stdClass Object
(
[id] => 92
[attribute_id] => 5
[name] => Монолитные
[material_modifier] => 1
[work_modifier] => 1
[options] => Array
(
[0] => 150 мм
[1] => 200 мм
[2] => 250 мм
[3] => 300 мм
[4] => 350 мм
[5] => 400 мм
)
[days] => [45,46,47,49,50,53]
[material_price] => [6545,7876,10175,12011,13908,15204]
[work_price] => [5106,6444,7698,8552,9807,11461]
[image] => https://akademik-stroy.ru/wp-content/uploads/materials/monolitnye.jpg
[area_modifier] => 166.16
[parent_name] => Стены 2 этаж (несущие)
[parent_id] => 5
[material_sum] => 1305021
[work_sum] => 848413
[total_sum] => 2153434
[total_days] => 45
[display_material_sum] => 1 305 021
[display_work_sum] => 848 413
[display_total_sum] => 2 153 434
)
1
2 153 434₽
Работа:848 413 ₽
Материалы:1 305 021 ₽
Дни:45
stdClass Object
(
[id] => 93
[attribute_id] => 5
[name] => Клееный брус
[material_modifier] => 1
[work_modifier] => 1
[options] => Array
(
[0] => 160 мм
[1] => 175 мм
[2] => 200 мм
[3] => 215 мм
[4] => 240 мм
[5] => 270 мм
[6] => 282 мм
)
[days] => [24,28,32,37,40,42,48]
[material_price] => [16975,18773,19950,20545,21599,22159,23275]
[work_price] => [4806,5287,5815,6397,7036,7740,8514]
[image] => https://akademik-stroy.ru/wp-content/uploads/materials/kleenyj-brus.jpg
[area_modifier] => 166.16
[parent_name] => Стены 2 этаж (несущие)
[parent_id] => 5
[material_sum] => 3384679
[work_sum] => 798565
[total_sum] => 4183244
[total_days] => 24
[display_material_sum] => 3 384 679
[display_work_sum] => 798 565
[display_total_sum] => 4 183 244
)
1
4 183 244₽
Работа:798 565 ₽
Материалы:3 384 679 ₽
Дни:24
stdClass Object
(
[id] => 94
[attribute_id] => 5
[name] => Каркасные
[material_modifier] => 1
[work_modifier] => 1
[options] => Array
(
[0] => 150 мм
[1] => 200 мм
[2] => 250 мм
[3] => 300 мм
)
[days] => [15,16,17,18]
[material_price] => [2379,2639,2898,3258]
[work_price] => [2418,2686,2985,3716]
[image] => https://akademik-stroy.ru/wp-content/uploads/materials/karkasnye.jpg
[area_modifier] => 166.16
[parent_name] => Стены 2 этаж (несущие)
[parent_id] => 5
[material_sum] => 474354
[work_sum] => 401775
[total_sum] => 876129
[total_days] => 15
[display_material_sum] => 474 354
[display_work_sum] => 401 775
[display_total_sum] => 876 129
)
1
876 129₽
Работа:401 775 ₽
Материалы:474 354 ₽
Дни:15
stdClass Object
(
[id] => 95
[attribute_id] => 5
[name] => СИП-панели
[material_modifier] => 1
[work_modifier] => 1
[options] => Array
(
[0] => 120 мм
[1] => 170 мм
[2] => 220 мм
)
[days] => [7,7,7]
[material_price] => [1210,1856,2292]
[work_price] => [1410,1551,1706]
[image] => https://akademik-stroy.ru/wp-content/uploads/materials/sip-paneli.jpg
[area_modifier] => 166.16
[parent_name] => Стены 2 этаж (несущие)
[parent_id] => 5
[material_sum] => 241264
[work_sum] => 234286
[total_sum] => 475550
[total_days] => 7
[display_material_sum] => 241 264
[display_work_sum] => 234 286
[display_total_sum] => 475 550
)
1
475 550₽
Работа:234 286 ₽
Материалы:241 264 ₽
Дни:7
stdClass Object
(
[id] => 96
[attribute_id] => 5
[name] => Сухой брус
[material_modifier] => 1
[work_modifier] => 1
[options] => Array
(
[0] => 150 мм
[1] => 180 мм
[2] => 200 мм
)
[days] => [7,8,9]
[material_price] => [6010,7190,8709]
[work_price] => [3204,3845,4229]
[image] => https://akademik-stroy.ru/wp-content/uploads/materials/suhoj-brus.jpg
[area_modifier] => 166.16
[parent_name] => Стены 2 этаж (несущие)
[parent_id] => 5
[material_sum] => 1198346
[work_sum] => 532377
[total_sum] => 1730723
[total_days] => 7
[display_material_sum] => 1 198 346
[display_work_sum] => 532 377
[display_total_sum] => 1 730 723
)
1
1 730 723₽
Работа:532 377 ₽
Материалы:1 198 346 ₽
Дни:7
stdClass Object
(
[id] => 97
[attribute_id] => 5
[name] => Профилированный брус
[material_modifier] => 1
[work_modifier] => 1
[options] => Array
(
[0] => 150 мм
[1] => 180 мм
[2] => 200 мм
)
[days] => [7,8,9]
[material_price] => [8190,9228,10051]
[work_price] => [3845,4614,5075]
[image] => https://akademik-stroy.ru/wp-content/uploads/materials/profilirovannyj-brus.jpg
[area_modifier] => 166.16
[parent_name] => Стены 2 этаж (несущие)
[parent_id] => 5
[material_sum] => 1633020
[work_sum] => 638885
[total_sum] => 2271905
[total_days] => 7
[display_material_sum] => 1 633 020
[display_work_sum] => 638 885
[display_total_sum] => 2 271 905
)
1
2 271 905₽
Работа:638 885 ₽
Материалы:1 633 020 ₽
Дни:7
stdClass Object
(
[id] => 98
[attribute_id] => 5
[name] => Оцилиндрованное бревно
[material_modifier] => 1
[work_modifier] => 1
[options] => Array
(
[0] => 180 мм
[1] => 220 мм
[2] => 260 мм
[3] => 320 мм
)
[days] => [7,8,9,10]
[material_price] => [75190,9532,10868,13116]
[work_price] => [3845,4691,5535,6863]
[image] => https://akademik-stroy.ru/wp-content/uploads/materials/ocilindrovannoe-brevno-1.jpg
[area_modifier] => 166.16
[parent_name] => Стены 2 этаж (несущие)
[parent_id] => 5
[material_sum] => 14992284
[work_sum] => 638885
[total_sum] => 15631169
[total_days] => 7
[display_material_sum] => 14 992 284
[display_work_sum] => 638 885
[display_total_sum] => 15 631 169
)
1
15 631 169₽
Работа:638 885 ₽
Материалы:14 992 284 ₽
Дни:7
stdClass Object
(
[id] => 99
[attribute_id] => 5
[name] => Срубы
[material_modifier] => 1
[work_modifier] => 1
[options] => Array
(
[0] => 260 мм
[1] => 320 мм
[2] => 360 мм
[3] => 400 мм
[4] => 500 мм
)
[days] => [7,8,9,10,11]
[material_price] => [16175,23709,26314,29069,32167]
[work_price] => [4806,5911,6621,7349,9260]
[image] => https://akademik-stroy.ru/wp-content/uploads/materials/suhoj-brus.jpg
[area_modifier] => 166.16
[parent_name] => Стены 2 этаж (несущие)
[parent_id] => 5
[material_sum] => 3225166
[work_sum] => 798565
[total_sum] => 4023731
[total_days] => 7
[display_material_sum] => 3 225 166
[display_work_sum] => 798 565
[display_total_sum] => 4 023 731
)
1
4 023 731₽
Работа:798 565 ₽
Материалы:3 225 166 ₽
Дни:7
stdClass Object
(
[id] => 194
[attribute_id] => 5
[name] => Брус
[material_modifier] => 1
[work_modifier] => 1
[options] => Array
(
[0] => 150 мм
[1] => 180 мм
[2] => 200 мм
)
[days] => [10,13,15]
[material_price] => [5127,6152,7367]
[work_price] => [1602,1922,2115]
[image] => https://akademik-stroy.ru/wp-content/uploads/materials/brus.jpg
[area_modifier] => 166.16
[parent_name] => Стены 2 этаж (несущие)
[parent_id] => 5
[material_sum] => 1022283
[work_sum] => 266188
[total_sum] => 1288471
[total_days] => 10
[display_material_sum] => 1 022 283
[display_work_sum] => 266 188
[display_total_sum] => 1 288 471
)
1
1 288 471₽
Работа:266 188 ₽
Материалы:1 022 283 ₽
Дни:10
stdClass Object
(
[id] => 195
[attribute_id] => 5
[name] => Газобетон
[material_modifier] => 1
[work_modifier] => 1
[options] => Array
(
[0] => 300 мм
[1] => 375 мм
[2] => 400 мм
[3] => 500 мм
[4] => 600 мм
)
[days] => [29,31,35,37,44]
[material_price] => [4298,5573,6356,7288,9119]
[work_price] => [4538,5251,5926,6733,7195]
[image] => https://akademik-stroy.ru/wp-content/uploads/materials/gazobeton.jpg
[area_modifier] => 166.16
[parent_name] => Стены 2 этаж (несущие)
[parent_id] => 5
[material_sum] => 856987
[work_sum] => 754034
[total_sum] => 1611021
[total_days] => 29
[display_material_sum] => 856 987
[display_work_sum] => 754 034
[display_total_sum] => 1 611 021
)
1
1 611 021₽
Работа:754 034 ₽
Материалы:856 987 ₽
Дни:29
stdClass Object
(
[id] => 196
[attribute_id] => 5
[name] => Блок
[material_modifier] => 1
[work_modifier] => 1
[options] => Array
(
[0] => 300 мм
[1] => 375 мм
[2] => 400 мм
[3] => 500 мм
[4] => 600 мм
)
[days] => [29,31,35,37,44]
[material_price] => [2698,3973,4356,6588,7119]
[work_price] => [5038,5851,6426,8733,9195]
[image] => https://akademik-stroy.ru/wp-content/uploads/materials/blok.jpg
[area_modifier] => 166.16
[parent_name] => Стены 2 этаж (несущие)
[parent_id] => 5
[material_sum] => 537960
[work_sum] => 837114
[total_sum] => 1375074
[total_days] => 29
[display_material_sum] => 537 960
[display_work_sum] => 837 114
[display_total_sum] => 1 375 074
)
1
1 375 074₽
Работа:837 114 ₽
Материалы:537 960 ₽
Дни:29
stdClass Object
(
[id] => 197
[attribute_id] => 5
[name] => Газосиликатный блок
[material_modifier] => 1
[work_modifier] => 1
[options] => Array
(
[0] => 300 мм
[1] => 375 мм
[2] => 400 мм
[3] => 500 мм
[4] => 600 мм
)
[days] => [29,31,35,37,44]
[material_price] => [4298,5573,6356,7288,9119]
[work_price] => [4538,5251,5926,6733,7195]
[image] => https://akademik-stroy.ru/wp-content/uploads/materials/gazosilikatnyj-blok.jpg
[area_modifier] => 166.16
[parent_name] => Стены 2 этаж (несущие)
[parent_id] => 5
[material_sum] => 856987
[work_sum] => 754034
[total_sum] => 1611021
[total_days] => 29
[display_material_sum] => 856 987
[display_work_sum] => 754 034
[display_total_sum] => 1 611 021
)
1
1 611 021₽
Работа:754 034 ₽
Материалы:856 987 ₽
Дни:29
stdClass Object
(
[id] => 198
[attribute_id] => 5
[name] => Керамзитобетонный блок
[material_modifier] => 1
[work_modifier] => 1
[options] => Array
(
[0] => 300 мм
[1] => 375 мм
[2] => 400 мм
[3] => 500 мм
[4] => 600 мм
)
[days] => [23,23,24,25,28]
[material_price] => [3641,4298,5693,7613,9612]
[work_price] => [5737,5737,6903,7958,8901]
[image] => https://akademik-stroy.ru/wp-content/uploads/materials/keramzitobetonnyj-blok.jpg
[area_modifier] => 166.16
[parent_name] => Стены 2 этаж (несущие)
[parent_id] => 5
[material_sum] => 725986
[work_sum] => 953260
[total_sum] => 1679246
[total_days] => 23
[display_material_sum] => 725 986
[display_work_sum] => 953 260
[display_total_sum] => 1 679 246
)
1
1 679 246₽
Работа:953 260 ₽
Материалы:725 986 ₽
Дни:23
stdClass Object
(
[id] => 199
[attribute_id] => 5
[name] => Деревянные
[material_modifier] => 1
[work_modifier] => 1
[options] => Array
(
[0] => 180 мм
[1] => 220 мм
[2] => 260 мм
[3] => 320 мм
)
[days] => [7,8,9,10]
[material_price] => [7950,9458,11961,14472]
[work_price] => [4037,4925,5812,7207]
[image] => https://akademik-stroy.ru/wp-content/uploads/materials/derevyannye.jpg
[area_modifier] => 166.16
[parent_name] => Стены 2 этаж (несущие)
[parent_id] => 5
[material_sum] => 1585166
[work_sum] => 670788
[total_sum] => 2255954
[total_days] => 7
[display_material_sum] => 1 585 166
[display_work_sum] => 670 788
[display_total_sum] => 2 255 954
)
1
2 255 954₽
Работа:670 788 ₽
Материалы:1 585 166 ₽
Дни:7
stdClass Object
(
[id] => 200
[attribute_id] => 5
[name] => Камень
[material_modifier] => 1
[work_modifier] => 1
[options] => Array
(
[0] => 300 мм
[1] => 400 мм
[2] => 500 мм
[3] => 600 мм
)
[days] => [25,27,31,34]
[material_price] => [5262,6844,8330,9815]
[work_price] => [8331,9135,10427,11069]
[image] => https://akademik-stroy.ru/wp-content/uploads/materials/kamen.jpg
[area_modifier] => 166.16
[parent_name] => Стены 2 этаж (несущие)
[parent_id] => 5
[material_sum] => 1049201
[work_sum] => 1384279
[total_sum] => 2433480
[total_days] => 25
[display_material_sum] => 1 049 201
[display_work_sum] => 1 384 279
[display_total_sum] => 2 433 480
)
1
2 433 480₽
Работа:1 384 279 ₽
Материалы:1 049 201 ₽
Дни:25
stdClass Object
(
[id] => 201
[attribute_id] => 5
[name] => Каркасно-щитовые
[material_modifier] => 1
[work_modifier] => 1
[options] => Array
(
[0] => 150 мм
[1] => 200 мм
[2] => 250 мм
[3] => 300 мм
[4] => 350 мм
[5] => 400 мм
)
[days] => [15,16,17,18,19,20]
[material_price] => [2379,2639,2898,3458,3601,4175]
[work_price] => [2538,2820,3134,3483,4062,5642]
[image] => https://akademik-stroy.ru/wp-content/uploads/materials/karkasno-shchitovye.jpg
[area_modifier] => 166.16
[parent_name] => Стены 2 этаж (несущие)
[parent_id] => 5
[material_sum] => 474354
[work_sum] => 421714
[total_sum] => 896068
[total_days] => 15
[display_material_sum] => 474 354
[display_work_sum] => 421 714
[display_total_sum] => 896 068
)
1
896 068₽
Работа:421 714 ₽
Материалы:474 354 ₽
Дни:15
stdClass Object
(
[id] => 202
[attribute_id] => 5
[name] => Рубленные
[material_modifier] => 1
[work_modifier] => 1
[options] => Array
(
[0] => 150 мм
[1] => 200 мм
[2] => 250 мм
[3] => 300 мм
[4] => 350 мм
[5] => 400 мм
)
[days] => [15,16,17,18,17,18]
[material_price] => [35950,50267,60583,75900,80217,100533]
[work_price] => [9612,12816,16020,19224,22428,25632]
[image] => https://akademik-stroy.ru/wp-content/uploads/materials/rublennye.jpg
[area_modifier] => 166.16
[parent_name] => Стены 2 этаж (несущие)
[parent_id] => 5
[material_sum] => 7168142
[work_sum] => 1597130
[total_sum] => 8765272
[total_days] => 15
[display_material_sum] => 7 168 142
[display_work_sum] => 1 597 130
[display_total_sum] => 8 765 272
)
1
8 765 272₽
Работа:1 597 130 ₽
Материалы:7 168 142 ₽
Дни:15
stdClass Object
(
[id] => 203
[attribute_id] => 5
[name] => Теплоблок
[material_modifier] => 1
[work_modifier] => 1
[options] => Array
(
[0] => 300 мм (с облицовкой, не покрашенный)
[1] => 400 мм (с облицовкой, не покрашенный)
[2] => 300 мм (с облицовкой, покрашенный)
[3] => 400 мм (с облицовкой, покрашенный)
)
[days] => [15,16,15,16]
[material_price] => [2888,3729,3957,4258]
[work_price] => [2564,3229,2949,3713]
[image] => https://akademik-stroy.ru/wp-content/uploads/materials/teploblok.jpg
[area_modifier] => 166.16
[parent_name] => Стены 2 этаж (несущие)
[parent_id] => 5
[material_sum] => 575844
[work_sum] => 426034
[total_sum] => 1001878
[total_days] => 15
[display_material_sum] => 575 844
[display_work_sum] => 426 034
[display_total_sum] => 1 001 878
)
1
1 001 878₽
Работа:426 034 ₽
Материалы:575 844 ₽
Дни:15
stdClass Object
(
[id] => 204
[attribute_id] => 5
[name] => Арболитовые блоки
[material_modifier] => 1
[work_modifier] => 1
[options] => Array
(
[0] => 300 мм
[1] => 400 мм
[2] => 600 мм
)
[days] => [19,22,27]
[material_price] => [3210,4475,5852]
[work_price] => [4214,4788,5866]
[image] => https://akademik-stroy.ru/wp-content/uploads/materials/arbolitovye-bloki.png
[area_modifier] => 166.16
[parent_name] => Стены 2 этаж (несущие)
[parent_id] => 5
[material_sum] => 640048
[work_sum] => 700198
[total_sum] => 1340246
[total_days] => 19
[display_material_sum] => 640 048
[display_work_sum] => 700 198
[display_total_sum] => 1 340 246
)
1
1 340 246₽
Работа:700 198 ₽
Материалы:640 048 ₽
Дни:19
stdClass Object
(
[id] => 205
[attribute_id] => 5
[name] => Полистиролбетон
[material_modifier] => 1
[work_modifier] => 1
[options] => Array
(
[0] => 300 мм
[1] => 400 мм
[2] => 600 мм
)
[days] => [29,31,35]
[material_price] => [2798,4573,5256]
[work_price] => [5038,5851,6426]
[image] => https://akademik-stroy.ru/wp-content/uploads/materials/polistirolbeton.jpg
[area_modifier] => 166.16
[parent_name] => Стены 2 этаж (несущие)
[parent_id] => 5
[material_sum] => 557899
[work_sum] => 837114
[total_sum] => 1395013
[total_days] => 29
[display_material_sum] => 557 899
[display_work_sum] => 837 114
[display_total_sum] => 1 395 013
)
1
1 395 013₽
Работа:837 114 ₽
Материалы:557 899 ₽
Дни:29
stdClass Object
(
[id] => 206
[attribute_id] => 5
[name] => Шлакоблок
[material_modifier] => 1
[work_modifier] => 1
[options] => Array
(
[0] => 400 мм
[1] => 600 мм
)
[days] => [15,16]
[material_price] => [2391,3471]
[work_price] => [2642,3662]
[image] => https://akademik-stroy.ru/wp-content/uploads/materials/shlakoblok.jpg
[area_modifier] => 166.16
[parent_name] => Стены 2 этаж (несущие)
[parent_id] => 5
[material_sum] => 476746
[work_sum] => 438995
[total_sum] => 915741
[total_days] => 15
[display_material_sum] => 476 746
[display_work_sum] => 438 995
[display_total_sum] => 915 741
)
1
915 741₽
Работа:438 995 ₽
Материалы:476 746 ₽
Дни:15
stdClass Object
(
[id] => 245
[attribute_id] => 5
[name] => Теплая керамика
[material_modifier] => 1
[work_modifier] => 1
[options] => Array
(
[0] => 380 мм
[1] => 380 мм Thermo
[2] => 440 мм
[3] => 510 мм
)
[days] => [10,10,11,12]
[material_price] => [4510,5098,6093,8013]
[work_price] => [4737,4937,5903,6958]
[image] => https://akademik-stroy.ru/wp-content/uploads/materials/teplaya-keramika.jpg
[area_modifier] => 166.16
[parent_name] => Стены 2 этаж (несущие)
[parent_id] => 5
[material_sum] => 899258
[work_sum] => 787100
[total_sum] => 1686358
[total_days] => 10
[display_material_sum] => 899 258
[display_work_sum] => 787 100
[display_total_sum] => 1 686 358
)
1
1 686 358₽
Работа:787 100 ₽
Материалы:899 258 ₽
Дни:10
stdClass Object
(
[id] => 246
[attribute_id] => 5
[name] => Несъемная опалубка
[material_modifier] => 1
[work_modifier] => 1
[options] => Array
(
[0] => 380 мм
[1] => 380 мм Thermo
[2] => 440 мм
[3] => 510 мм
)
[days] => [10,10,11,12]
[material_price] => [3302,3902,4108,5008]
[work_price] => [2100,2100,2300,2534]
[image] => https://akademik-stroy.ru/wp-content/uploads/materials/nesemnaya-opalubka.jpg
[area_modifier] => 166.16
[parent_name] => Стены 2 этаж (несущие)
[parent_id] => 5
[material_sum] => 658392
[work_sum] => 348936
[total_sum] => 1007328
[total_days] => 10
[display_material_sum] => 658 392
[display_work_sum] => 348 936
[display_total_sum] => 1 007 328
)
1
1 007 328₽
Работа:348 936 ₽
Материалы:658 392 ₽
Дни:10
stdClass Object
(
[id] => 254
[attribute_id] => 5
[name] => Бревно
[material_modifier] => 1
[work_modifier] => 1
[options] => Array
(
[0] => 260 мм
[1] => 320 мм
[2] => 360 мм
[3] => 400 мм
[4] => 500 мм
)
[days] => [7,8,9,10,11]
[material_price] => [1874,24045,26930,30972,38825]
[work_price] => [5046,6207,6952,7716,9723]
[image] => https://akademik-stroy.ru/wp-content/uploads/materials/sruby.jpg
[area_modifier] => 166.16
[parent_name] => Стены 2 этаж (несущие)
[parent_id] => 5
[material_sum] => 373661
[work_sum] => 838443
[total_sum] => 1212104
[total_days] => 7
[display_material_sum] => 373 661
[display_work_sum] => 838 443
[display_total_sum] => 1 212 104
)
1
1 212 104₽
Работа:838 443 ₽
Материалы:373 661 ₽
Дни:7
stdClass Object
(
[id] => 11
[attribute_id] => 6
[name] => Деревянные балки
[material_modifier] => 1
[work_modifier] => 1
[options] => Array
(
[0] => без утепления
[1] => утепление 200 мм
[2] => утепление 250 мм
[3] => утепление 300 мм
[4] => утепление 350 мм
[5] => утепление 400 мм
[6] => утепление 450 мм
[7] => утепление 500 мм
)
[days] => [8,9,9,9,11,12,13,14]
[material_price] => [1634,2042,2344,2947,3149,3652,3354,3557]
[work_price] => [1230,1339,1393,1426,1460,1513,1587,1620]
[image] => https://akademik-stroy.ru/wp-content/uploads/materials/derevyannye-balki.png
[area_modifier] => 166.16
[parent_name] => Перекрытие второго этажа
[parent_id] => 6
[material_sum] => 325807
[work_sum] => 204377
[total_sum] => 530184
[total_days] => 8
[display_material_sum] => 325 807
[display_work_sum] => 204 377
[display_total_sum] => 530 184
)
1
530 184₽
Работа:204 377 ₽
Материалы:325 807 ₽
Дни:8
stdClass Object
(
[id] => 12
[attribute_id] => 6
[name] => Сборные ж/б плиты
[material_modifier] => 1
[work_modifier] => 1
[options] => Array
(
[0] => без утепления
[1] => утепление 150 мм
[2] => утепление 200 мм
[3] => утепление 250 мм
[4] => утепление 300 мм
[5] => утепление 350 мм
[6] => утепление 400 мм
[7] => утепление 450 мм
[8] => утепление 500 мм
)
[days] => [13,15,15,15,15,15,15,15,15]
[material_price] => [3067,5577,5928,6679,7730,8782,9833,10884,11935]
[work_price] => [1520,1956,2102,2247,2392,2537,2684,2829,2974]
[image] => https://akademik-stroy.ru/wp-content/uploads/materials/sbornye-zh-b-plity-2.jpg
[area_modifier] => 166.16
[parent_name] => Перекрытие второго этажа
[parent_id] => 6
[material_sum] => 611535
[work_sum] => 252563
[total_sum] => 864098
[total_days] => 13
[display_material_sum] => 611 535
[display_work_sum] => 252 563
[display_total_sum] => 864 098
)
1
864 098₽
Работа:252 563 ₽
Материалы:611 535 ₽
Дни:13
stdClass Object
(
[id] => 100
[attribute_id] => 6
[name] => Монолитная ж/б плита
[material_modifier] => 1
[work_modifier] => 1
[options] => Array
(
[0] => без утепления
[1] => утепление 150 мм
[2] => утепление 200 мм
[3] => утепление 250 мм
[4] => утепление 300 мм
[5] => утепление 350 мм
[6] => утепление 400 мм
[7] => утепление 450 мм
[8] => утепление 500 мм
)
[days] => [18,20,20,20,20,20,20,20,20]
[material_price] => [4837,6572,7224,7375,79426,8177,8728,9180,10031]
[work_price] => [3348,3921,4112,4302,4493,4684,4875,5066,5256]
[image] => https://akademik-stroy.ru/wp-content/uploads/materials/monolitnaya-zh-b-plita-2.jpg
[area_modifier] => 166.16
[parent_name] => Перекрытие второго этажа
[parent_id] => 6
[material_sum] => 964459
[work_sum] => 556304
[total_sum] => 1520763
[total_days] => 18
[display_material_sum] => 964 459
[display_work_sum] => 556 304
[display_total_sum] => 1 520 763
)
1
1 520 763₽
Работа:556 304 ₽
Материалы:964 459 ₽
Дни:18
stdClass Object
(
[id] => 160
[attribute_id] => 36
[name] => Не эксплуатируемая
[material_modifier] => 1
[work_modifier] => 1
[options] => Array
(
)
[days] => [10]
[material_price] => [8068]
[work_price] => [4163]
[image] => https://akademik-stroy.ru/wp-content/uploads/materials/ne-ehkspluatiruemaya-3.jpg
[area_modifier] => 379.46
[parent_name] => Плоская крыша
[parent_id] => 36
[material_sum] => 3673780
[work_sum] => 1579692
[total_sum] => 5253472
[total_days] => 10
[display_material_sum] => 3 673 780
[display_work_sum] => 1 579 692
[display_total_sum] => 5 253 472
)
1
5 253 472₽
Работа:1 579 692 ₽
Материалы:3 673 780 ₽
Дни:10
stdClass Object
(
[id] => 161
[attribute_id] => 36
[name] => Зеленая кровля (Эксплуатируемая)
[material_modifier] => 1
[work_modifier] => 1
[options] => Array
(
)
[days] => [10]
[material_price] => [10056]
[work_price] => [8446]
[image] => https://akademik-stroy.ru/wp-content/uploads/materials/zelenaya-krovlya-2.jpg
[area_modifier] => 379.46
[parent_name] => Плоская крыша
[parent_id] => 36
[material_sum] => 4579020
[work_sum] => 3204919
[total_sum] => 7783939
[total_days] => 10
[display_material_sum] => 4 579 020
[display_work_sum] => 3 204 919
[display_total_sum] => 7 783 939
)
1
7 783 939₽
Работа:3 204 919 ₽
Материалы:4 579 020 ₽
Дни:10
stdClass Object
(
[id] => 162
[attribute_id] => 36
[name] => Эксплуатируемая
[material_modifier] => 1
[work_modifier] => 1
[options] => Array
(
)
[days] => [10]
[material_price] => [9593]
[work_price] => [7459]
[image] => https://akademik-stroy.ru/wp-content/uploads/materials/ehkspluatiruemaya-2.jpg
[area_modifier] => 379.46
[parent_name] => Плоская крыша
[parent_id] => 36
[material_sum] => 4368192
[work_sum] => 2830392
[total_sum] => 7198584
[total_days] => 10
[display_material_sum] => 4 368 192
[display_work_sum] => 2 830 392
[display_total_sum] => 7 198 584
)
1
7 198 584₽
Работа:2 830 392 ₽
Материалы:4 368 192 ₽
Дни:10
stdClass Object
(
[id] => 163
[attribute_id] => 36
[name] => Нет
[material_modifier] => 1
[work_modifier] => 1
[options] => Array
(
)
[days] => [0]
[material_price] => [0]
[work_price] => [0]
[image] => https://akademik-stroy.ru/wp-content/uploads/materials/ne-ehkspluatiruemaya-3.jpg
[area_modifier] => 379.46
[parent_name] => Плоская крыша
[parent_id] => 36
[material_sum] => 0
[work_sum] => 0
[total_sum] => 0
[total_days] => 0
[display_material_sum] => 0
[display_work_sum] => 0
[display_total_sum] => 0
)
1
0₽
Работа:0 ₽
Материалы:0 ₽
Дни:0
stdClass Object
(
[id] => 51
[attribute_id] => 26
[name] => Есть
[material_modifier] => 1
[work_modifier] => 1
[options] => Array
(
[0] => Профиль 58 мм, 3-камерный, стеклопакет 2-камерный до 32 мм
[1] => Профиль 60 мм, 4-камерный, стеклопакет 2-камерный до 32 мм
[2] => Профиль 70 мм, 5-камерный, стеклопакет 2-камерный до 40 мм
[3] => Профиль 72 мм, 5-камерный, стеклопакет 2-камерный до 40 мм
[4] => Алюминиевые окна Alutech профиль 72 мм, стеклопакет 2-камерный
)
[days] => [3,3,3,3,3]
[material_price] => [1339,2124,2867,3023,29596]
[work_price] => [635,647,659,668,2579]
[image] => https://akademik-stroy.ru/wp-content/uploads/materials/okna.jpg
[area_modifier] => 442.77
[parent_name] => Окна
[parent_id] => 26
[material_sum] => 711443
[work_sum] => 281159
[total_sum] => 992602
[total_days] => 3
[display_material_sum] => 711 443
[display_work_sum] => 281 159
[display_total_sum] => 992 602
)
1
992 602₽
Работа:281 159 ₽
Материалы:711 443 ₽
Дни:3
stdClass Object
(
[id] => 52
[attribute_id] => 26
[name] => Нет
[material_modifier] => 2
[work_modifier] => 1
[options] =>
[days] => null
[material_price] => null
[work_price] => null
[image] => https://akademik-stroy.ru/wp-content/uploads/materials/okna.jpg
[area_modifier] => 442.77
[parent_name] => Окна
[parent_id] => 26
[material_sum] => 0
[work_sum] => 0
[total_sum] => 0
[total_days] => 0
[display_material_sum] => 0
[display_work_sum] => 0
[display_total_sum] => 0
)
1
0₽
Работа:0 ₽
Материалы:0 ₽
Дни:0
stdClass Object
(
[id] => 53
[attribute_id] => 27
[name] => Есть
[material_modifier] => 1
[work_modifier] => 1
[options] => Array
(
)
[days] => [1]
[material_price] => [10000]
[work_price] => [5500]
[image] => https://akademik-stroy.ru/wp-content/uploads/materials/dveri.jpg
[area_modifier] => 1
[parent_name] => Двери входные
[parent_id] => 27
[material_sum] => 12000
[work_sum] => 5500
[total_sum] => 17500
[total_days] => 1
[display_material_sum] => 12 000
[display_work_sum] => 5 500
[display_total_sum] => 17 500
)
1
17 500₽
Работа:5 500 ₽
Материалы:12 000 ₽
Дни:1
stdClass Object
(
[id] => 54
[attribute_id] => 27
[name] => Нет
[material_modifier] => 1
[work_modifier] => 1
[options] => Array
(
)
[days] => [0]
[material_price] => [0]
[work_price] => [0]
[image] => https://akademik-stroy.ru/wp-content/uploads/materials/dveri.jpg
[area_modifier] => 1
[parent_name] => Двери входные
[parent_id] => 27
[material_sum] => 0
[work_sum] => 0
[total_sum] => 0
[total_days] => 0
[display_material_sum] => 0
[display_work_sum] => 0
[display_total_sum] => 0
)
1
0₽
Работа:0 ₽
Материалы:0 ₽
Дни:0
stdClass Object
(
[id] => 31
[attribute_id] => 16
[name] => Нет
[material_modifier] => 1
[work_modifier] => 1
[options] => Array
(
)
[days] => [0]
[material_price] => [0]
[work_price] => [0]
[image] => https://akademik-stroy.ru/wp-content/uploads/materials/docke-standard-pvh.jpg
[area_modifier] => 379.46
[parent_name] => Водосточная система
[parent_id] => 16
[material_sum] => 0
[work_sum] => 0
[total_sum] => 0
[total_days] => 0
[display_material_sum] => 0
[display_work_sum] => 0
[display_total_sum] => 0
)
1
0₽
Работа:0 ₽
Материалы:0 ₽
Дни:0
stdClass Object
(
[id] => 32
[attribute_id] => 16
[name] => Есть
[material_modifier] => 1
[work_modifier] => 1
[options] => Array
(
[0] => Döcke Standard (ПВХ)
[1] => Металлические Grand Line
)
[days] => [7,7]
[material_price] => [1842,2703]
[work_price] => [1491,1529]
[image] => https://akademik-stroy.ru/wp-content/uploads/materials/docke-standard-pvh.jpg
[area_modifier] => 379.46
[parent_name] => Водосточная система
[parent_id] => 16
[material_sum] => 838758
[work_sum] => 565775
[total_sum] => 1404533
[total_days] => 7
[display_material_sum] => 838 758
[display_work_sum] => 565 775
[display_total_sum] => 1 404 533
)
1
1 404 533₽
Работа:565 775 ₽
Материалы:838 758 ₽
Дни:7
stdClass Object
(
[id] => 33
[attribute_id] => 17
[name] => Нет
[material_modifier] => 1
[work_modifier] => 1
[options] => Array
(
)
[days] => [0]
[material_price] => [0]
[work_price] => [0]
[image] => https://akademik-stroy.ru/wp-content/uploads/materials/mineralovata.jpg
[area_modifier] => 545.63
[parent_name] => Дополнительное утепление наружных стен
[parent_id] => 17
[material_sum] => 0
[work_sum] => 0
[total_sum] => 0
[total_days] => 0
[display_material_sum] => 0
[display_work_sum] => 0
[display_total_sum] => 0
)
1
0₽
Работа:0 ₽
Материалы:0 ₽
Дни:0
stdClass Object
(
[id] => 34
[attribute_id] => 17
[name] => Минераловатный
[material_modifier] => 1
[work_modifier] => 1
[options] => Array
(
[0] => 50 мм
[1] => 100 мм
[2] => 150 мм
[3] => 200 мм
[4] => 250 мм
[5] => 300 мм
)
[days] => [7,8,10,12,14,15]
[material_price] => [3437,3613,3803,3915,4601,4830]
[work_price] => [2325,2423,2523,2749,2859,3025]
[image] => https://akademik-stroy.ru/wp-content/uploads/materials/mineralovata.jpg
[area_modifier] => 545.63
[parent_name] => Дополнительное утепление наружных стен
[parent_id] => 17
[material_sum] => 2250396
[work_sum] => 1268590
[total_sum] => 3518986
[total_days] => 7
[display_material_sum] => 2 250 396
[display_work_sum] => 1 268 590
[display_total_sum] => 3 518 986
)
1
3 518 986₽
Работа:1 268 590 ₽
Материалы:2 250 396 ₽
Дни:7
stdClass Object
(
[id] => 128
[attribute_id] => 17
[name] => Эковата (целлюлозная вата)
[material_modifier] => 1
[work_modifier] => 1
[options] => Array
(
[0] => 50 мм
[1] => 100 мм
[2] => 150 мм
[3] => 200 мм
[4] => 250 мм
[5] => 300 мм
)
[days] => [3,4,5,6,7,8]
[material_price] => [810,1319,1629,1838,2267,2676]
[work_price] => [1225,1323,1423,1549,1659,1725]
[image] => https://akademik-stroy.ru/wp-content/uploads/materials/ehkovata.jpg
[area_modifier] => 545.63
[parent_name] => Дополнительное утепление наружных стен
[parent_id] => 17
[material_sum] => 530352
[work_sum] => 668397
[total_sum] => 1198749
[total_days] => 3
[display_material_sum] => 530 352
[display_work_sum] => 668 397
[display_total_sum] => 1 198 749
)
1
1 198 749₽
Работа:668 397 ₽
Материалы:530 352 ₽
Дни:3
stdClass Object
(
[id] => 129
[attribute_id] => 17
[name] => Экструдированный пенополистирол
[material_modifier] => 1
[work_modifier] => 1
[options] => Array
(
[0] => 50 мм
[1] => 100 мм
[2] => 150 мм
[3] => 200 мм
[4] => 250 мм
[5] => 300 мм
)
[days] => [5,6,7,8,9,10]
[material_price] => [4560,4300,5119,6292,7010,8583]
[work_price] => [1795,1954,2254,2330,2595,2735]
[image] => https://akademik-stroy.ru/wp-content/uploads/materials/epps.jpg
[area_modifier] => 545.63
[parent_name] => Дополнительное утепление наружных стен
[parent_id] => 17
[material_sum] => 2985687
[work_sum] => 979406
[total_sum] => 3965093
[total_days] => 5
[display_material_sum] => 2 985 687
[display_work_sum] => 979 406
[display_total_sum] => 3 965 093
)
1
3 965 093₽
Работа:979 406 ₽
Материалы:2 985 687 ₽
Дни:5
stdClass Object
(
[id] => 130
[attribute_id] => 17
[name] => ПСБ (ППС-пенополистирол)
[material_modifier] => 1
[work_modifier] => 1
[options] => Array
(
[0] => 50 мм
[1] => 100 мм
[2] => 150 мм
[3] => 200 мм
[4] => 250 мм
[5] => 300 мм
)
[days] => [5,6,7,8,9,10]
[material_price] => [4822,5200,5819,6292,7010,7583]
[work_price] => [1795,1954,2254,2330,2595,2735]
[image] => https://akademik-stroy.ru/wp-content/uploads/materials/psb.jpg
[area_modifier] => 545.63
[parent_name] => Дополнительное утепление наружных стен
[parent_id] => 17
[material_sum] => 3157233
[work_sum] => 979406
[total_sum] => 4136639
[total_days] => 5
[display_material_sum] => 3 157 233
[display_work_sum] => 979 406
[display_total_sum] => 4 136 639
)
1
4 136 639₽
Работа:979 406 ₽
Материалы:3 157 233 ₽
Дни:5
stdClass Object
(
[id] => 131
[attribute_id] => 17
[name] => ППУ (Пенополиуретан)
[material_modifier] => 1
[work_modifier] => 1
[options] => Array
(
[0] => 50 мм
[1] => 100 мм
[2] => 150 мм
[3] => 200 мм
[4] => 250 мм
[5] => 300 мм
)
[days] => [3,4,5,6,7,8]
[material_price] => [2860,3400,4219,4592,5010,5583]
[work_price] => [729,900,980,1120,1280,1530]
[image] => https://akademik-stroy.ru/wp-content/uploads/materials/ppu.jpg
[area_modifier] => 545.63
[parent_name] => Дополнительное утепление наружных стен
[parent_id] => 17
[material_sum] => 1872602
[work_sum] => 397764
[total_sum] => 2270366
[total_days] => 3
[display_material_sum] => 1 872 602
[display_work_sum] => 397 764
[display_total_sum] => 2 270 366
)
1
2 270 366₽
Работа:397 764 ₽
Материалы:1 872 602 ₽
Дни:3
stdClass Object
(
[id] => 132
[attribute_id] => 17
[name] => PIR-плиты (пенополиизоцианурат)
[material_modifier] => 1
[work_modifier] => 1
[options] => Array
(
[0] => 50 мм
[1] => 100 мм
[2] => 150 мм
[3] => 200 мм
[4] => 250 мм
[5] => 300 мм
)
[days] => [5,6,7,8,9,10]
[material_price] => [8323,15645,20968,25900,29258,30581]
[work_price] => [800,900,970,1150,1280,1330]
[image] => https://akademik-stroy.ru/wp-content/uploads/materials/pir.jpg
[area_modifier] => 545.63
[parent_name] => Дополнительное утепление наружных стен
[parent_id] => 17
[material_sum] => 5449534
[work_sum] => 436504
[total_sum] => 5886038
[total_days] => 5
[display_material_sum] => 5 449 534
[display_work_sum] => 436 504
[display_total_sum] => 5 886 038
)
1
5 886 038₽
Работа:436 504 ₽
Материалы:5 449 534 ₽
Дни:5
stdClass Object
(
[id] => 37
[attribute_id] => 19
[name] => Нет
[material_modifier] => 1
[work_modifier] => 1
[options] => Array
(
)
[days] => [0]
[material_price] => [0]
[work_price] => [0]
[image] => https://akademik-stroy.ru/wp-content/uploads/materials/imitaciya-brusa.jpg
[area_modifier] => 545.63
[parent_name] => Наружная отделка фасада
[parent_id] => 19
[material_sum] => 0
[work_sum] => 0
[total_sum] => 0
[total_days] => 0
[display_material_sum] => 0
[display_work_sum] => 0
[display_total_sum] => 0
)
1
0₽
Работа:0 ₽
Материалы:0 ₽
Дни:0
stdClass Object
(
[id] => 38
[attribute_id] => 19
[name] => Имитация бруса
[material_modifier] => 1
[work_modifier] => 1
[options] => Array
(
[0] => Сосна
[1] => Ель
[2] => Лиственница
)
[days] => [20,20,20]
[material_price] => [2994,2762,4954]
[work_price] => [1397,1231,1577]
[image] => https://akademik-stroy.ru/wp-content/uploads/materials/imitaciya-brusa.jpg
[area_modifier] => 545.63
[parent_name] => Наружная отделка фасада
[parent_id] => 19
[material_sum] => 1960339
[work_sum] => 762245
[total_sum] => 2722584
[total_days] => 20
[display_material_sum] => 1 960 339
[display_work_sum] => 762 245
[display_total_sum] => 2 722 584
)
1
2 722 584₽
Работа:762 245 ₽
Материалы:1 960 339 ₽
Дни:20
stdClass Object
(
[id] => 136
[attribute_id] => 19
[name] => Планкен
[material_modifier] => 1
[work_modifier] => 1
[options] => Array
(
[0] => Сосна
[1] => Ель
[2] => Лиственница
)
[days] => [20,20,20]
[material_price] => [3194,2862,5154]
[work_price] => [1537,1354,1735]
[image] => https://akademik-stroy.ru/wp-content/uploads/materials/planken.jpg
[area_modifier] => 545.63
[parent_name] => Наружная отделка фасада
[parent_id] => 19
[material_sum] => 2091291
[work_sum] => 838633
[total_sum] => 2929924
[total_days] => 20
[display_material_sum] => 2 091 291
[display_work_sum] => 838 633
[display_total_sum] => 2 929 924
)
1
2 929 924₽
Работа:838 633 ₽
Материалы:2 091 291 ₽
Дни:20
stdClass Object
(
[id] => 137
[attribute_id] => 19
[name] => Штукатурка
[material_modifier] => 1
[work_modifier] => 1
[options] => Array
(
[0] => Цементно-песчаная (минеральная)
[1] => Мокрый фасад
)
[days] => [35,35]
[material_price] => [2231,3938]
[work_price] => [1202,2422]
[image] => https://akademik-stroy.ru/wp-content/uploads/materials/shtukaturka.jpg
[area_modifier] => 545.63
[parent_name] => Наружная отделка фасада
[parent_id] => 19
[material_sum] => 1460761
[work_sum] => 655847
[total_sum] => 2116608
[total_days] => 35
[display_material_sum] => 1 460 761
[display_work_sum] => 655 847
[display_total_sum] => 2 116 608
)
1
2 116 608₽
Работа:655 847 ₽
Материалы:1 460 761 ₽
Дни:35
stdClass Object
(
[id] => 138
[attribute_id] => 19
[name] => Облицовочный кирпич
[material_modifier] => 1
[work_modifier] => 1
[options] => Array
(
[0] => Керамический
[1] => Клинкерный
[2] => Ручной формовки
[3] => Гиперпрессованный
[4] => Силикатный кирпич
)
[days] => [45,45,45,45,45]
[material_price] => [8174,9148,1040,1257,5876]
[work_price] => [3240,3758,4536,4017,3369]
[image] => https://akademik-stroy.ru/wp-content/uploads/materials/oblicovochnyj-kirpich.jpg
[area_modifier] => 545.63
[parent_name] => Наружная отделка фасада
[parent_id] => 19
[material_sum] => 5351976
[work_sum] => 1767841
[total_sum] => 7119817
[total_days] => 45
[display_material_sum] => 5 351 976
[display_work_sum] => 1 767 841
[display_total_sum] => 7 119 817
)
1
7 119 817₽
Работа:1 767 841 ₽
Материалы:5 351 976 ₽
Дни:45
stdClass Object
(
[id] => 139
[attribute_id] => 19
[name] => Фасадная плитка
[material_modifier] => 1
[work_modifier] => 1
[options] => Array
(
[0] => Клинкерная
[1] => Керамическая
[2] => Плитка ручной формовки
)
[days] => [40,40,40]
[material_price] => [2974,1487,3470]
[work_price] => [3007,2592,3629]
[image] => https://akademik-stroy.ru/wp-content/uploads/materials/fasadnaya-plitka.jpg
[area_modifier] => 545.63
[parent_name] => Наружная отделка фасада
[parent_id] => 19
[material_sum] => 1947244
[work_sum] => 1640709
[total_sum] => 3587953
[total_days] => 40
[display_material_sum] => 1 947 244
[display_work_sum] => 1 640 709
[display_total_sum] => 3 587 953
)
1
3 587 953₽
Работа:1 640 709 ₽
Материалы:1 947 244 ₽
Дни:40
stdClass Object
(
[id] => 140
[attribute_id] => 19
[name] => Сайдинг
[material_modifier] => 1
[work_modifier] => 1
[options] => Array
(
[0] => Виниловый
[1] => Металлический
[2] => Фиброцементный
)
[days] => [20,20,20]
[material_price] => [1263,1944,4147]
[work_price] => [1263,1944,2074]
[image] => https://akademik-stroy.ru/wp-content/uploads/materials/sajding.jpg
[area_modifier] => 545.63
[parent_name] => Наружная отделка фасада
[parent_id] => 19
[material_sum] => 826957
[work_sum] => 689131
[total_sum] => 1516088
[total_days] => 20
[display_material_sum] => 826 957
[display_work_sum] => 689 131
[display_total_sum] => 1 516 088
)
1
1 516 088₽
Работа:689 131 ₽
Материалы:826 957 ₽
Дни:20
stdClass Object
(
[id] => 141
[attribute_id] => 19
[name] => Камень
[material_modifier] => 1
[work_modifier] => 1
[options] => Array
(
[0] => Травертин
[1] => Дагестанский
[2] => Искусственный
[3] => Натуральный
[4] => Керамогранит
)
[days] => [45,45,45,45,45]
[material_price] => [4536,3888,2592,3240,2462]
[work_price] => [3240,3240,2462,3110,1944]
[image] => https://akademik-stroy.ru/wp-content/uploads/materials/kamen-1.jpg
[area_modifier] => 545.63
[parent_name] => Наружная отделка фасада
[parent_id] => 19
[material_sum] => 2969973
[work_sum] => 1767841
[total_sum] => 4737814
[total_days] => 45
[display_material_sum] => 2 969 973
[display_work_sum] => 1 767 841
[display_total_sum] => 4 737 814
)
1
4 737 814₽
Работа:1 767 841 ₽
Материалы:2 969 973 ₽
Дни:45
stdClass Object
(
[id] => 142
[attribute_id] => 19
[name] => Термопанели
[material_modifier] => 1
[work_modifier] => 1
[options] => Array
(
)
[days] => [20]
[material_price] => [6221]
[work_price] => [2333]
[image] => https://akademik-stroy.ru/wp-content/uploads/materials/termo.png
[area_modifier] => 545.63
[parent_name] => Наружная отделка фасада
[parent_id] => 19
[material_sum] => 4073237
[work_sum] => 1272955
[total_sum] => 5346192
[total_days] => 20
[display_material_sum] => 4 073 237
[display_work_sum] => 1 272 955
[display_total_sum] => 5 346 192
)
1
5 346 192₽
Работа:1 272 955 ₽
Материалы:4 073 237 ₽
Дни:20
stdClass Object
(
[id] => 143
[attribute_id] => 19
[name] => Плитка HAUBERK
[material_modifier] => 1
[work_modifier] => 1
[options] => Array
(
)
[days] => [20]
[material_price] => [2786]
[work_price] => [1944]
[image] => https://akademik-stroy.ru/wp-content/uploads/materials/hauberk.jpg
[area_modifier] => 545.63
[parent_name] => Наружная отделка фасада
[parent_id] => 19
[material_sum] => 1824150
[work_sum] => 1060705
[total_sum] => 2884855
[total_days] => 20
[display_material_sum] => 1 824 150
[display_work_sum] => 1 060 705
[display_total_sum] => 2 884 855
)
1
2 884 855₽
Работа:1 060 705 ₽
Материалы:1 824 150 ₽
Дни:20
stdClass Object
(
[id] => 144
[attribute_id] => 19
[name] => Фальцевый фасад
[material_modifier] => 1
[work_modifier] => 1
[options] => Array
(
)
[days] => [20]
[material_price] => [3240]
[work_price] => [2592]
[image] => https://akademik-stroy.ru/wp-content/uploads/materials/falcevyj-fasad.jpg
[area_modifier] => 545.63
[parent_name] => Наружная отделка фасада
[parent_id] => 19
[material_sum] => 2121409
[work_sum] => 1414273
[total_sum] => 3535682
[total_days] => 20
[display_material_sum] => 2 121 409
[display_work_sum] => 1 414 273
[display_total_sum] => 3 535 682
)
1
3 535 682₽
Работа:1 414 273 ₽
Материалы:2 121 409 ₽
Дни:20
stdClass Object
(
[id] => 145
[attribute_id] => 19
[name] => Комбинированный
[material_modifier] => 1
[work_modifier] => 1
[options] => Array
(
)
[days] => [20]
[material_price] => [4629]
[work_price] => [3499]
[image] => https://akademik-stroy.ru/wp-content/uploads/materials/Kombinirovannyj.jpg
[area_modifier] => 545.63
[parent_name] => Наружная отделка фасада
[parent_id] => 19
[material_sum] => 3030866
[work_sum] => 1909159
[total_sum] => 4940025
[total_days] => 20
[display_material_sum] => 3 030 866
[display_work_sum] => 1 909 159
[display_total_sum] => 4 940 025
)
1
4 940 025₽
Работа:1 909 159 ₽
Материалы:3 030 866 ₽
Дни:20
stdClass Object
(
[id] => 257
[attribute_id] => 19
[name] => Японские фиброцементные
[material_modifier] => 1
[work_modifier] => 1
[options] => Array
(
)
[days] => [20]
[material_price] => [7043]
[work_price] => [2993]
[image] => https://akademik-stroy.ru/wp-content/uploads/materials/paneli.jpg
[area_modifier] => 545.63
[parent_name] => Наружная отделка фасада
[parent_id] => 19
[material_sum] => 4611447
[work_sum] => 1633071
[total_sum] => 6244518
[total_days] => 20
[display_material_sum] => 4 611 447
[display_work_sum] => 1 633 071
[display_total_sum] => 6 244 518
)
1
6 244 518₽
Работа:1 633 071 ₽
Материалы:4 611 447 ₽
Дни:20
stdClass Object
(
[id] => 258
[attribute_id] => 19
[name] => Панели Каньон
[material_modifier] => 1
[work_modifier] => 1
[options] => Array
(
)
[days] => [20]
[material_price] => [4543]
[work_price] => [2592]
[image] => https://akademik-stroy.ru/wp-content/uploads/materials/kanon.png
[area_modifier] => 545.63
[parent_name] => Наружная отделка фасада
[parent_id] => 19
[material_sum] => 2974557
[work_sum] => 1414273
[total_sum] => 4388830
[total_days] => 20
[display_material_sum] => 2 974 557
[display_work_sum] => 1 414 273
[display_total_sum] => 4 388 830
)
1
4 388 830₽
Работа:1 414 273 ₽
Материалы:2 974 557 ₽
Дни:20
stdClass Object
(
[id] => 39
[attribute_id] => 20
[name] => Нет
[material_modifier] => 1
[work_modifier] => 1
[options] => Array
(
)
[days] => [0]
[material_price] => [0]
[work_price] => [0]
[image] => https://akademik-stroy.ru/wp-content/uploads/materials/terrasy.jpg
[area_modifier] => 30
[parent_name] => Террасы, крыльца, навесы
[parent_id] => 20
[material_sum] => 0
[work_sum] => 0
[total_sum] => 0
[total_days] => 0
[display_material_sum] => 0
[display_work_sum] => 0
[display_total_sum] => 0
)
1
0₽
Работа:0 ₽
Материалы:0 ₽
Дни:0
stdClass Object
(
[id] => 40
[attribute_id] => 20
[name] => Есть
[material_modifier] => 1
[work_modifier] => 1
[options] => Array
(
)
[days] => [5]
[material_price] => [10450]
[work_price] => [1950]
[image] => https://akademik-stroy.ru/wp-content/uploads/materials/terrasy.jpg
[area_modifier] => 30
[parent_name] => Террасы, крыльца, навесы
[parent_id] => 20
[material_sum] => 376200
[work_sum] => 58500
[total_sum] => 434700
[total_days] => 5
[display_material_sum] => 376 200
[display_work_sum] => 58 500
[display_total_sum] => 434 700
)
1
434 700₽
Работа:58 500 ₽
Материалы:376 200 ₽
Дни:5
stdClass Object
(
[id] => 41
[attribute_id] => 21
[name] => Нет
[material_modifier] => 1
[work_modifier] => 1
[options] => Array
(
)
[days] => [0]
[material_price] => [0]
[work_price] => [0]
[image] => https://akademik-stroy.ru/wp-content/uploads/materials/balkony.jpg
[area_modifier] => 30
[parent_name] => Балконы
[parent_id] => 21
[material_sum] => 0
[work_sum] => 0
[total_sum] => 0
[total_days] => 0
[display_material_sum] => 0
[display_work_sum] => 0
[display_total_sum] => 0
)
1
0₽
Работа:0 ₽
Материалы:0 ₽
Дни:0
stdClass Object
(
[id] => 42
[attribute_id] => 21
[name] => Есть
[material_modifier] => 1
[work_modifier] => 1
[options] => Array
(
)
[days] => [12]
[material_price] => [3600]
[work_price] => [1950]
[image] => https://akademik-stroy.ru/wp-content/uploads/materials/balkony.jpg
[area_modifier] => 30
[parent_name] => Балконы
[parent_id] => 21
[material_sum] => 129600
[work_sum] => 58500
[total_sum] => 188100
[total_days] => 12
[display_material_sum] => 129 600
[display_work_sum] => 58 500
[display_total_sum] => 188 100
)
1
188 100₽
Работа:58 500 ₽
Материалы:129 600 ₽
Дни:12
stdClass Object
(
[id] => 43
[attribute_id] => 22
[name] => Нет
[material_modifier] => 1
[work_modifier] => 1
[options] => Array
(
)
[days] => [0]
[material_price] => [0]
[work_price] => [0]
[image] => https://akademik-stroy.ru/wp-content/uploads/materials/uteplennaya.jpg
[area_modifier] => 379.46
[parent_name] => Отмостка
[parent_id] => 22
[material_sum] => 0
[work_sum] => 0
[total_sum] => 0
[total_days] => 0
[display_material_sum] => 0
[display_work_sum] => 0
[display_total_sum] => 0
)
1
0₽
Работа:0 ₽
Материалы:0 ₽
Дни:0
stdClass Object
(
[id] => 44
[attribute_id] => 22
[name] => Утепленная отмостка
[material_modifier] => 1
[work_modifier] => 1
[options] => Array
(
)
[days] => [15]
[material_price] => [2550]
[work_price] => [1750]
[image] => https://akademik-stroy.ru/wp-content/uploads/materials/uteplennaya.jpg
[area_modifier] => 379.46
[parent_name] => Отмостка
[parent_id] => 22
[material_sum] => 1161148
[work_sum] => 664055
[total_sum] => 1825203
[total_days] => 15
[display_material_sum] => 1 161 148
[display_work_sum] => 664 055
[display_total_sum] => 1 825 203
)
1
1 825 203₽
Работа:664 055 ₽
Материалы:1 161 148 ₽
Дни:15
stdClass Object
(
[id] => 146
[attribute_id] => 22
[name] => Не утепленная отмостка
[material_modifier] => 1
[work_modifier] => 1
[options] => Array
(
)
[days] => [10]
[material_price] => [1650]
[work_price] => [1450]
[image] => https://akademik-stroy.ru/wp-content/uploads/materials/ne-uteplennaya.jpg
[area_modifier] => 379.46
[parent_name] => Отмостка
[parent_id] => 22
[material_sum] => 751331
[work_sum] => 550217
[total_sum] => 1301548
[total_days] => 10
[display_material_sum] => 751 331
[display_work_sum] => 550 217
[display_total_sum] => 1 301 548
)
1
1 301 548₽
Работа:550 217 ₽
Материалы:751 331 ₽
Дни:10
stdClass Object
(
[id] => 45
[attribute_id] => 23
[name] => Нет
[material_modifier] => 1
[work_modifier] => 1
[options] => Array
(
)
[days] => [0]
[material_price] => [0]
[work_price] => [0]
[image] => https://akademik-stroy.ru/wp-content/uploads/materials/drenazh-2.jpg
[area_modifier] => 379.46
[parent_name] => Дренаж вокруг дома
[parent_id] => 23
[material_sum] => 0
[work_sum] => 0
[total_sum] => 0
[total_days] => 0
[display_material_sum] => 0
[display_work_sum] => 0
[display_total_sum] => 0
)
1
0₽
Работа:0 ₽
Материалы:0 ₽
Дни:0
stdClass Object
(
[id] => 46
[attribute_id] => 23
[name] => Есть
[material_modifier] => 1
[work_modifier] => 1
[options] => Array
(
)
[days] => [5]
[material_price] => [2366]
[work_price] => [1911]
[image] => https://akademik-stroy.ru/wp-content/uploads/materials/drenazh-2.jpg
[area_modifier] => 379.46
[parent_name] => Дренаж вокруг дома
[parent_id] => 23
[material_sum] => 1077363
[work_sum] => 725148
[total_sum] => 1802511
[total_days] => 5
[display_material_sum] => 1 077 363
[display_work_sum] => 725 148
[display_total_sum] => 1 802 511
)
1
1 802 511₽
Работа:725 148 ₽
Материалы:1 077 363 ₽
Дни:5
stdClass Object
(
[id] => 47
[attribute_id] => 24
[name] => Нет
[material_modifier] => 1
[work_modifier] => 1
[options] => Array
(
)
[days] => [0]
[material_price] => [0]
[work_price] => [0]
[image] => https://akademik-stroy.ru/wp-content/uploads/materials/septik.jpg
[area_modifier] => 1
[parent_name] => Автономная канализация (септики)
[parent_id] => 24
[material_sum] => 0
[work_sum] => 0
[total_sum] => 0
[total_days] => 0
[display_material_sum] => 0
[display_work_sum] => 0
[display_total_sum] => 0
)
1
0₽
Работа:0 ₽
Материалы:0 ₽
Дни:0
stdClass Object
(
[id] => 48
[attribute_id] => 24
[name] => Есть
[material_modifier] => 1
[work_modifier] => 1
[options] => Array
(
[0] => Для дачи на 4 человека
[1] => Для дома на 5 человек
[2] => Для дома на 6 человек
[3] => Для дома на 7 человек
[4] => Для дома на 10 человек
)
[days] => [7,7,7,8,8]
[material_price] => [196340,220500,240940,264200,293340]
[work_price] => [50000,55000,60500,66550,73206]
[image] => https://akademik-stroy.ru/wp-content/uploads/materials/septik.jpg
[area_modifier] => 1
[parent_name] => Автономная канализация (септики)
[parent_id] => 24
[material_sum] => 235608
[work_sum] => 50000
[total_sum] => 285608
[total_days] => 7
[display_material_sum] => 235 608
[display_work_sum] => 50 000
[display_total_sum] => 285 608
)
1
285 608₽
Работа:50 000 ₽
Материалы:235 608 ₽
Дни:7
stdClass Object
(
[id] => 49
[attribute_id] => 25
[name] => Нет
[material_modifier] => 1
[work_modifier] => 1
[options] => Array
(
)
[days] => [0]
[material_price] => [0]
[work_price] => [0]
[image] => https://akademik-stroy.ru/wp-content/uploads/materials/gkl.jpg
[area_modifier] => 545.63
[parent_name] => Внутренние (не несущие) перегородки
[parent_id] => 25
[material_sum] => 0
[work_sum] => 0
[total_sum] => 0
[total_days] => 0
[display_material_sum] => 0
[display_work_sum] => 0
[display_total_sum] => 0
)
1
0₽
Работа:0 ₽
Материалы:0 ₽
Дни:0
stdClass Object
(
[id] => 147
[attribute_id] => 25
[name] => Каркасно-обшивные
[material_modifier] => 1
[work_modifier] => 1
[options] => Array
(
[0] => 75 мм (без шумоизоляции)
[1] => 75 мм (с шумоизоляцией)
)
[days] => [11,11]
[material_price] => [580,970]
[work_price] => [380,570]
[image] => https://akademik-stroy.ru/wp-content/uploads/materials/gkl.jpg
[area_modifier] => 545.63
[parent_name] => Внутренние (не несущие) перегородки
[parent_id] => 25
[material_sum] => 379758
[work_sum] => 207339
[total_sum] => 587097
[total_days] => 11
[display_material_sum] => 379 758
[display_work_sum] => 207 339
[display_total_sum] => 587 097
)
1
587 097₽
Работа:207 339 ₽
Материалы:379 758 ₽
Дни:11
stdClass Object
(
[id] => 148
[attribute_id] => 25
[name] => Пазогребневые
[material_modifier] => 1
[work_modifier] => 1
[options] => Array
(
[0] => 80 мм
[1] => 100 мм
)
[days] => [5,5]
[material_price] => [1022,1313]
[work_price] => [600,700]
[image] => https://akademik-stroy.ru/wp-content/uploads/materials/pazogrebnevye-bloki.jpg
[area_modifier] => 545.63
[parent_name] => Внутренние (не несущие) перегородки
[parent_id] => 25
[material_sum] => 669161
[work_sum] => 327378
[total_sum] => 996539
[total_days] => 5
[display_material_sum] => 669 161
[display_work_sum] => 327 378
[display_total_sum] => 996 539
)
1
996 539₽
Работа:327 378 ₽
Материалы:669 161 ₽
Дни:5
stdClass Object
(
[id] => 149
[attribute_id] => 25
[name] => Газобетонные
[material_modifier] => 1
[work_modifier] => 1
[options] => Array
(
[0] => 100 мм
[1] => 200 мм
)
[days] => [11,11]
[material_price] => [1160,1920]
[work_price] => [700,900]
[image] => https://akademik-stroy.ru/wp-content/uploads/materials/gazobeton-2.jpg
[area_modifier] => 545.63
[parent_name] => Внутренние (не несущие) перегородки
[parent_id] => 25
[material_sum] => 759517
[work_sum] => 381941
[total_sum] => 1141458
[total_days] => 11
[display_material_sum] => 759 517
[display_work_sum] => 381 941
[display_total_sum] => 1 141 458
)
1
1 141 458₽
Работа:381 941 ₽
Материалы:759 517 ₽
Дни:11
stdClass Object
(
[id] => 150
[attribute_id] => 25
[name] => Кирпичные
[material_modifier] => 1
[work_modifier] => 1
[options] => Array
(
[0] => 120 мм
[1] => 250 мм
[2] => 360 мм
)
[days] => [7,7,7]
[material_price] => [1785,3570,5355]
[work_price] => [900,1600,1800]
[image] => https://akademik-stroy.ru/wp-content/uploads/materials/kirpich-1.jpg
[area_modifier] => 545.63
[parent_name] => Внутренние (не несущие) перегородки
[parent_id] => 25
[material_sum] => 1168739
[work_sum] => 491067
[total_sum] => 1659806
[total_days] => 7
[display_material_sum] => 1 168 739
[display_work_sum] => 491 067
[display_total_sum] => 1 659 806
)
1
1 659 806₽
Работа:491 067 ₽
Материалы:1 168 739 ₽
Дни:7
stdClass Object
(
[id] => 55
[attribute_id] => 28
[name] => Нет
[material_modifier] => 1
[work_modifier] => 1
[options] => Array
(
)
[days] => [0]
[material_price] => [0]
[work_price] => [0]
[image] => https://akademik-stroy.ru/wp-content/uploads/materials/ehlektrika.jpg
[area_modifier] => 442.77
[parent_name] => Электрика
[parent_id] => 28
[material_sum] => 0
[work_sum] => 0
[total_sum] => 0
[total_days] => 0
[display_material_sum] => 0
[display_work_sum] => 0
[display_total_sum] => 0
)
1
0₽
Работа:0 ₽
Материалы:0 ₽
Дни:0
stdClass Object
(
[id] => 56
[attribute_id] => 28
[name] => Есть
[material_modifier] => 1
[work_modifier] => 1
[options] => Array
(
)
[days] => [10]
[material_price] => [650]
[work_price] => [950]
[image] => https://akademik-stroy.ru/wp-content/uploads/materials/ehlektrika.jpg
[area_modifier] => 442.77
[parent_name] => Электрика
[parent_id] => 28
[material_sum] => 345361
[work_sum] => 420632
[total_sum] => 765993
[total_days] => 10
[display_material_sum] => 345 361
[display_work_sum] => 420 632
[display_total_sum] => 765 993
)
1
765 993₽
Работа:420 632 ₽
Материалы:345 361 ₽
Дни:10
stdClass Object
(
[id] => 57
[attribute_id] => 29
[name] => Нет
[material_modifier] => 1
[work_modifier] => 1
[options] => Array
(
)
[days] => [0]
[material_price] => [0]
[work_price] => [0]
[image] => https://akademik-stroy.ru/wp-content/uploads/materials/santekhnika-kanalizaciya-1.jpg
[area_modifier] => 442.77
[parent_name] => Сантехника, канализация в доме
[parent_id] => 29
[material_sum] => 0
[work_sum] => 0
[total_sum] => 0
[total_days] => 0
[display_material_sum] => 0
[display_work_sum] => 0
[display_total_sum] => 0
)
1
0₽
Работа:0 ₽
Материалы:0 ₽
Дни:0
stdClass Object
(
[id] => 58
[attribute_id] => 29
[name] => Есть
[material_modifier] => 1
[work_modifier] => 1
[options] => Array
(
)
[days] => [10]
[material_price] => [600]
[work_price] => [730]
[image] => https://akademik-stroy.ru/wp-content/uploads/materials/santekhnika-kanalizaciya-1.jpg
[area_modifier] => 442.77
[parent_name] => Сантехника, канализация в доме
[parent_id] => 29
[material_sum] => 318794
[work_sum] => 323222
[total_sum] => 642016
[total_days] => 10
[display_material_sum] => 318 794
[display_work_sum] => 323 222
[display_total_sum] => 642 016
)
1
642 016₽
Работа:323 222 ₽
Материалы:318 794 ₽
Дни:10
stdClass Object
(
[id] => 59
[attribute_id] => 30
[name] => Нет
[material_modifier] => 1
[work_modifier] => 1
[options] => Array
(
)
[days] => [0]
[material_price] => [0]
[work_price] => [0]
[image] => https://akademik-stroy.ru/wp-content/uploads/materials/otoplenie-1.jpg
[area_modifier] => 442.77
[parent_name] => Отопление
[parent_id] => 30
[material_sum] => 0
[work_sum] => 0
[total_sum] => 0
[total_days] => 0
[display_material_sum] => 0
[display_work_sum] => 0
[display_total_sum] => 0
)
1
0₽
Работа:0 ₽
Материалы:0 ₽
Дни:0
stdClass Object
(
[id] => 60
[attribute_id] => 30
[name] => Есть
[material_modifier] => 1
[work_modifier] => 1
[options] => Array
(
)
[days] => [5]
[material_price] => [610]
[work_price] => [560]
[image] => https://akademik-stroy.ru/wp-content/uploads/materials/otoplenie-1.jpg
[area_modifier] => 442.77
[parent_name] => Отопление
[parent_id] => 30
[material_sum] => 324108
[work_sum] => 247951
[total_sum] => 572059
[total_days] => 5
[display_material_sum] => 324 108
[display_work_sum] => 247 951
[display_total_sum] => 572 059
)
1
572 059₽
Работа:247 951 ₽
Материалы:324 108 ₽
Дни:5
stdClass Object
(
[id] => 61
[attribute_id] => 31
[name] => Нет
[material_modifier] => 1
[work_modifier] => 1
[options] => Array
(
)
[days] => [0]
[material_price] => [0]
[work_price] => [0]
[image] => https://akademik-stroy.ru/wp-content/uploads/materials/vodyanye.jpg
[area_modifier] => 30
[parent_name] => Теплые полы
[parent_id] => 31
[material_sum] => 0
[work_sum] => 0
[total_sum] => 0
[total_days] => 0
[display_material_sum] => 0
[display_work_sum] => 0
[display_total_sum] => 0
)
1
0₽
Работа:0 ₽
Материалы:0 ₽
Дни:0
stdClass Object
(
[id] => 151
[attribute_id] => 31
[name] => Водяные
[material_modifier] => 1
[work_modifier] => 1
[options] => Array
(
)
[days] => [9]
[material_price] => [10200]
[work_price] => [2500]
[image] => https://akademik-stroy.ru/wp-content/uploads/materials/vodyanye.jpg
[area_modifier] => 30
[parent_name] => Теплые полы
[parent_id] => 31
[material_sum] => 367200
[work_sum] => 75000
[total_sum] => 442200
[total_days] => 9
[display_material_sum] => 367 200
[display_work_sum] => 75 000
[display_total_sum] => 442 200
)
1
442 200₽
Работа:75 000 ₽
Материалы:367 200 ₽
Дни:9
stdClass Object
(
[id] => 152
[attribute_id] => 31
[name] => Электро
[material_modifier] => 1
[work_modifier] => 1
[options] => Array
(
)
[days] => [5]
[material_price] => [6300]
[work_price] => [1500]
[image] => https://akademik-stroy.ru/wp-content/uploads/materials/ehlektricheskij.jpg
[area_modifier] => 30
[parent_name] => Теплые полы
[parent_id] => 31
[material_sum] => 226800
[work_sum] => 45000
[total_sum] => 271800
[total_days] => 5
[display_material_sum] => 226 800
[display_work_sum] => 45 000
[display_total_sum] => 271 800
)
1
271 800₽
Работа:45 000 ₽
Материалы:226 800 ₽
Дни:5
stdClass Object
(
[id] => 63
[attribute_id] => 32
[name] => Нет
[material_modifier] => 1
[work_modifier] => 1
[options] => Array
(
)
[days] => [0]
[material_price] => [0]
[work_price] => [0]
[image] => https://akademik-stroy.ru/wp-content/uploads/materials/shtukaturka-shpatlevka-1.jpg
[area_modifier] => 442.77
[parent_name] => Черновая отделка стен
[parent_id] => 32
[material_sum] => 0
[work_sum] => 0
[total_sum] => 0
[total_days] => 0
[display_material_sum] => 0
[display_work_sum] => 0
[display_total_sum] => 0
)
1
0₽
Работа:0 ₽
Материалы:0 ₽
Дни:0
stdClass Object
(
[id] => 153
[attribute_id] => 32
[name] => Штукатурка и шпатлевка
[material_modifier] => 1
[work_modifier] => 1
[options] => Array
(
)
[days] => [20]
[material_price] => [1850]
[work_price] => [2600]
[image] => https://akademik-stroy.ru/wp-content/uploads/materials/shtukaturka-shpatlevka-1.jpg
[area_modifier] => 442.77
[parent_name] => Черновая отделка стен
[parent_id] => 32
[material_sum] => 982949
[work_sum] => 1151202
[total_sum] => 2134151
[total_days] => 20
[display_material_sum] => 982 949
[display_work_sum] => 1 151 202
[display_total_sum] => 2 134 151
)
1
2 134 151₽
Работа:1 151 202 ₽
Материалы:982 949 ₽
Дни:20
stdClass Object
(
[id] => 154
[attribute_id] => 32
[name] => Гипсокортон на стены
[material_modifier] => 1
[work_modifier] => 1
[options] => Array
(
)
[days] => [15]
[material_price] => [950]
[work_price] => [2100]
[image] => https://akademik-stroy.ru/wp-content/uploads/materials/gkl-1.jpg
[area_modifier] => 442.77
[parent_name] => Черновая отделка стен
[parent_id] => 32
[material_sum] => 504758
[work_sum] => 929817
[total_sum] => 1434575
[total_days] => 15
[display_material_sum] => 504 758
[display_work_sum] => 929 817
[display_total_sum] => 1 434 575
)
1
1 434 575₽
Работа:929 817 ₽
Материалы:504 758 ₽
Дни:15
stdClass Object
(
[id] => 155
[attribute_id] => 32
[name] => Вагонка
[material_modifier] => 1
[work_modifier] => 1
[options] => Array
(
)
[days] => [15]
[material_price] => [1250]
[work_price] => [950]
[image] => https://akademik-stroy.ru/wp-content/uploads/materials/vagonka.jpg
[area_modifier] => 442.77
[parent_name] => Черновая отделка стен
[parent_id] => 32
[material_sum] => 664155
[work_sum] => 420632
[total_sum] => 1084787
[total_days] => 15
[display_material_sum] => 664 155
[display_work_sum] => 420 632
[display_total_sum] => 1 084 787
)
1
1 084 787₽
Работа:420 632 ₽
Материалы:664 155 ₽
Дни:15
stdClass Object
(
[id] => 65
[attribute_id] => 33
[name] => Нет
[material_modifier] => 1
[work_modifier] => 1
[options] => Array
(
)
[days] => [0]
[material_price] => [0]
[work_price] => [0]
[image] => https://akademik-stroy.ru/wp-content/uploads/materials/styazhka.jpg
[area_modifier] => 442.77
[parent_name] => Черновая отделка полов
[parent_id] => 33
[material_sum] => 0
[work_sum] => 0
[total_sum] => 0
[total_days] => 0
[display_material_sum] => 0
[display_work_sum] => 0
[display_total_sum] => 0
)
1
0₽
Работа:0 ₽
Материалы:0 ₽
Дни:0
stdClass Object
(
[id] => 156
[attribute_id] => 33
[name] => Стяжка + наливные полы
[material_modifier] => 1
[work_modifier] => 1
[options] => Array
(
)
[days] => [10]
[material_price] => [1000]
[work_price] => [900]
[image] => https://akademik-stroy.ru/wp-content/uploads/materials/styazhka.jpg
[area_modifier] => 442.77
[parent_name] => Черновая отделка полов
[parent_id] => 33
[material_sum] => 531324
[work_sum] => 398493
[total_sum] => 929817
[total_days] => 10
[display_material_sum] => 531 324
[display_work_sum] => 398 493
[display_total_sum] => 929 817
)
1
929 817₽
Работа:398 493 ₽
Материалы:531 324 ₽
Дни:10
stdClass Object
(
[id] => 157
[attribute_id] => 33
[name] => ОСБ на пол
[material_modifier] => 1
[work_modifier] => 1
[options] => Array
(
)
[days] => [7]
[material_price] => [580]
[work_price] => [350]
[image] => https://akademik-stroy.ru/wp-content/uploads/materials/osb-1.jpg
[area_modifier] => 442.77
[parent_name] => Черновая отделка полов
[parent_id] => 33
[material_sum] => 308168
[work_sum] => 154970
[total_sum] => 463138
[total_days] => 7
[display_material_sum] => 308 168
[display_work_sum] => 154 970
[display_total_sum] => 463 138
)
1
463 138₽
Работа:154 970 ₽
Материалы:308 168 ₽
Дни:7
stdClass Object
(
[id] => 67
[attribute_id] => 34
[name] => Нет
[material_modifier] => 1
[work_modifier] => 1
[options] => Array
(
)
[days] => [0]
[material_price] => [0]
[work_price] => [0]
[image] => https://akademik-stroy.ru/wp-content/uploads/materials/chistovaya-otdelka.jpg
[area_modifier] => 442.77
[parent_name] => Чистовая отделка стен и полов
[parent_id] => 34
[material_sum] => 0
[work_sum] => 0
[total_sum] => 0
[total_days] => 0
[display_material_sum] => 0
[display_work_sum] => 0
[display_total_sum] => 0
)
1
0₽
Работа:0 ₽
Материалы:0 ₽
Дни:0
stdClass Object
(
[id] => 68
[attribute_id] => 34
[name] => Есть
[material_modifier] => 1
[work_modifier] => 1
[options] => Array
(
)
[days] => [50]
[material_price] => [6000]
[work_price] => [3500]
[image] => https://akademik-stroy.ru/wp-content/uploads/materials/chistovaya-otdelka.jpg
[area_modifier] => 442.77
[parent_name] => Чистовая отделка стен и полов
[parent_id] => 34
[material_sum] => 3187944
[work_sum] => 1549695
[total_sum] => 4737639
[total_days] => 50
[display_material_sum] => 3 187 944
[display_work_sum] => 1 549 695
[display_total_sum] => 4 737 639
)
1
4 737 639₽
Работа:1 549 695 ₽
Материалы:3 187 944 ₽
Дни:50
stdClass Object
(
[id] => 69
[attribute_id] => 35
[name] => Нет
[material_modifier] => 1
[work_modifier] => 1
[options] => Array
(
)
[days] => [0]
[material_price] => [0]
[work_price] => [0]
[image] => https://akademik-stroy.ru/wp-content/uploads/materials/mnogourovnevyj-gkl.jpg
[area_modifier] => 442.77
[parent_name] => Отделка потолка
[parent_id] => 35
[material_sum] => 0
[work_sum] => 0
[total_sum] => 0
[total_days] => 0
[display_material_sum] => 0
[display_work_sum] => 0
[display_total_sum] => 0
)
1
0₽
Работа:0 ₽
Материалы:0 ₽
Дни:0
stdClass Object
(
[id] => 70
[attribute_id] => 35
[name] => Есть
[material_modifier] => 1
[work_modifier] => 1
[options] => Array
(
[0] => Многоуровневый потолок из гипсокартона
[1] => Многоуровневый потолок из гипсокартона и натяжного потолка
[2] => Одноуровневый потолок из гипсокартона
[3] => Одноуровневый натяжной потолок
)
[days] => [10,10,1,1]
[material_price] => [900,700,700,600]
[work_price] => [1000,800,500,300]
[image] => https://akademik-stroy.ru/wp-content/uploads/materials/mnogourovnevyj-gkl.jpg
[area_modifier] => 442.77
[parent_name] => Отделка потолка
[parent_id] => 35
[material_sum] => 478192
[work_sum] => 442770
[total_sum] => 920962
[total_days] => 10
[display_material_sum] => 478 192
[display_work_sum] => 442 770
[display_total_sum] => 920 962
)
1
920 962₽
Работа:442 770 ₽
Материалы:478 192 ₽
Дни:10
Преимущества работы с нами
7 этапов оплаты
Независимый строительный надзор
Экологически чистые материалы
16 лет гарантии
Онлайн-кабинет с веб-камерой
Строители с опытом более 15 лет
Собственное производство










