Одноэтажный дом 12x9 - 93.11 м2 за руб.
Планировки
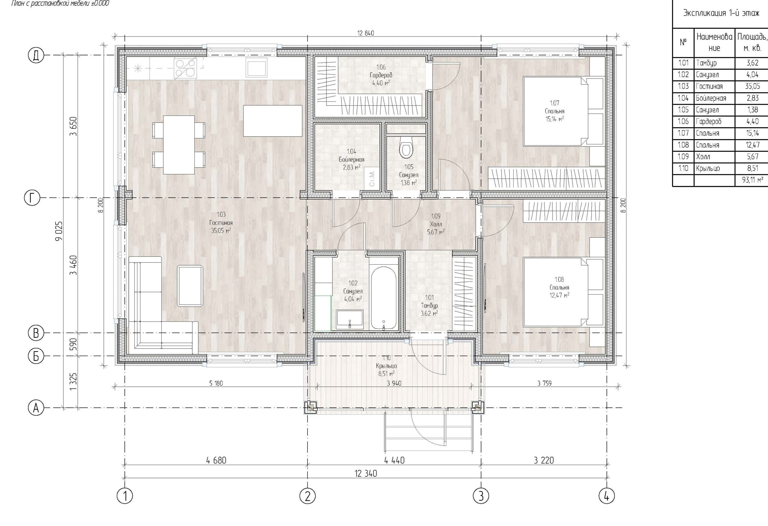
План первого этажа
- 1. Тамбур 3,62 м²
- 2. С/У 4,04 м²
- 3. Гостиная 35,05 м²
- 4. Бойлерная 2,83 м²
- 5. С/У 1,38 м²
- 6. Гардеробная 4,40 м²
- 7. Спальня 15,14 м²
- 8. Спальня 12,47 м²
- 9. Холл 5,67 м²
- 10. Крыльцо 8,51 м²
- Общая площадь 1 этажа 93,11 м²
Площади дома
| № п/п | Наименование | Ед. из. | Строительная площадь | Полезная площадь |
| 1 | 1 этаж | м2 | 114.74 | 93.11 |
| 2 | Итого | м2 | 114.74 | 93.11 |
154 м2
Полезная
площадь
площадь
12 x 9 м
Размеры
1 этаж
Этажей
26 м2
Террасы
и балконы
и балконы
0Без
гаража
гаража
2
Количество
спален
спален
2
Количество
санузлов
санузлов
Калькулятор опций
0₽
В ипотеку от 16 393 ₽/мес.
0₽
0 дней
stdClass Object
(
[id] => 1
[attribute_id] => 1
[name] => Ленточный монолитный ж/б
[material_modifier] => 1
[work_modifier] => 1
[options] => Array
(
[0] => размер 200 х 700 мм
[1] => размер 300 х 900 мм
[2] => размер 400 х 1 000 мм
[3] => размер 500 х 1 100 мм
[4] => размер 600 х 1 200 мм
)
[days] => [20,21,22,25,30]
[material_price] => [2823,3630,4475,5210,12047]
[work_price] => [2154,2826,3731,4577,5293]
[image] => https://akademik-stroy.ru/wp-content/uploads/materials/lentochnyj-monolitnyj-zh-b.jpg
[area_modifier] => 114.74
[parent_name] => Фундамент
[parent_id] => 1
[material_sum] => 446997
[work_sum] => 284222
[total_sum] => 731219
[total_days] => 20
[display_material_sum] => 446 997
[display_work_sum] => 284 222
[display_total_sum] => 731 219
)
1
731 219₽
Работа:284 222 ₽
Материалы:446 997 ₽
Дни:20
stdClass Object
(
[id] => 2
[attribute_id] => 1
[name] => Забивные Ж/Б сваи
[material_modifier] => 1
[work_modifier] => 1
[options] => Array
(
[0] => 150х150х3000мм
[1] => 150х150х4000мм
[2] => 200х200х3000мм
[3] => 200х200х4000мм
[4] => 200х200х5000мм
[5] => 200х200х6000мм
)
[days] => [2,2,2,2,2,2]
[material_price] => [1990,2850,3255,4360,5120,6837]
[work_price] => [1002,1185,1336,1438,1574,1839]
[image] => https://akademik-stroy.ru/wp-content/uploads/materials/zabivnye-zh-b-svai.png
[area_modifier] => 114.74
[parent_name] => Фундамент
[parent_id] => 1
[material_sum] => 315099
[work_sum] => 132215
[total_sum] => 447314
[total_days] => 2
[display_material_sum] => 315 099
[display_work_sum] => 132 215
[display_total_sum] => 447 314
)
1
447 314₽
Работа:132 215 ₽
Материалы:315 099 ₽
Дни:2
stdClass Object
(
[id] => 71
[attribute_id] => 1
[name] => Свайно-ростверковый ж/б
[material_modifier] => 1
[work_modifier] => 1
[options] => Array
(
[0] => ростверк 200х300 мм
[1] => ростверк 300х600 мм
[2] => ростверк 400х900 мм
[3] => ростверк 500х1200 мм
)
[days] => [20,23,25,27]
[material_price] => [3018,3474,7109,9792]
[work_price] => [2024,3012,5635,7022]
[image] => https://akademik-stroy.ru/wp-content/uploads/materials/svajno-rostverkovyj-monolitnyj-zh-b-3.png
[area_modifier] => 114.74
[parent_name] => Фундамент
[parent_id] => 1
[material_sum] => 477874
[work_sum] => 267069
[total_sum] => 744943
[total_days] => 20
[display_material_sum] => 477 874
[display_work_sum] => 267 069
[display_total_sum] => 744 943
)
1
744 943₽
Работа:267 069 ₽
Материалы:477 874 ₽
Дни:20
stdClass Object
(
[id] => 72
[attribute_id] => 1
[name] => Монолитная ж/б плита
[material_modifier] => 1
[work_modifier] => 1
[options] => Array
(
[0] => 200 мм
[1] => 300 мм
[2] => 400 мм
[3] => 500 мм
[4] => 600 мм
)
[days] => [30,33,35,37,40]
[material_price] => [5348,8555,12788,14388,15189]
[work_price] => [4314,4881,7037,8061,10230]
[image] => https://akademik-stroy.ru/wp-content/uploads/materials/monolitnaya-zhb-plita.png
[area_modifier] => 114.74
[parent_name] => Фундамент
[parent_id] => 1
[material_sum] => 846809
[work_sum] => 569237
[total_sum] => 1416046
[total_days] => 30
[display_material_sum] => 846 809
[display_work_sum] => 569 237
[display_total_sum] => 1 416 046
)
1
1 416 046₽
Работа:569 237 ₽
Материалы:846 809 ₽
Дни:30
stdClass Object
(
[id] => 73
[attribute_id] => 1
[name] => Утепленная шведская плита
[material_modifier] => 1
[work_modifier] => 1
[options] => Array
(
[0] => 200 мм
[1] => 300 мм
[2] => 400 мм
[3] => 500 мм
[4] => 600 мм
)
[days] => [32,37,39,42,45]
[material_price] => [10249,12692,13760,14936,16230]
[work_price] => [5960,7337,8072,8878,9765]
[image] => https://akademik-stroy.ru/wp-content/uploads/materials/uteplennaya-shvedskaya-plita.jpg
[area_modifier] => 114.74
[parent_name] => Фундамент
[parent_id] => 1
[material_sum] => 1622839
[work_sum] => 786428
[total_sum] => 2409267
[total_days] => 32
[display_material_sum] => 1 622 839
[display_work_sum] => 786 428
[display_total_sum] => 2 409 267
)
1
2 409 267₽
Работа:786 428 ₽
Материалы:1 622 839 ₽
Дни:32
stdClass Object
(
[id] => 75
[attribute_id] => 1
[name] => Ленточный из ФБС
[material_modifier] => 1
[work_modifier] => 1
[options] => Array
(
[0] => толщ. 300 мм
[1] => толщ. 400 мм
[2] => толщ. 500 мм
[3] => толщ. 600 мм
)
[days] => [20,20,20,20]
[material_price] => [3675,4902,6126,7350]
[work_price] => [2451,3264,4083,4902]
[image] => https://akademik-stroy.ru/wp-content/uploads/materials/lentochnyj-iz-fbs.png
[area_modifier] => 114.74
[parent_name] => Фундамент
[parent_id] => 1
[material_sum] => 581904
[work_sum] => 323412
[total_sum] => 905316
[total_days] => 20
[display_material_sum] => 581 904
[display_work_sum] => 323 412
[display_total_sum] => 905 316
)
1
905 316₽
Работа:323 412 ₽
Материалы:581 904 ₽
Дни:20
stdClass Object
(
[id] => 76
[attribute_id] => 1
[name] => Цокольный этаж из ФБС
[material_modifier] => 1
[work_modifier] => 1
[options] => Array
(
[0] => толщ. 300 мм
[1] => толщ. 400 мм
[2] => толщ. 500 мм
[3] => толщ. 600 мм
)
[days] => [30,32,34,36]
[material_price] => [20916,23299,26680,29060]
[work_price] => [17524,18700,19873,21046]
[image] => https://akademik-stroy.ru/wp-content/uploads/materials/cokolnyj-ehtazh-iz-fbs.jpg
[area_modifier] => 114.74
[parent_name] => Фундамент
[parent_id] => 1
[material_sum] => 3311865
[work_sum] => 2312309
[total_sum] => 5624174
[total_days] => 30
[display_material_sum] => 3 311 865
[display_work_sum] => 2 312 309
[display_total_sum] => 5 624 174
)
1
5 624 174₽
Работа:2 312 309 ₽
Материалы:3 311 865 ₽
Дни:30
stdClass Object
(
[id] => 77
[attribute_id] => 1
[name] => Цокольный этаж монолитный ж/б
[material_modifier] => 1
[work_modifier] => 1
[options] => Array
(
[0] => толщ. 200 мм
[1] => толщ. 300 мм
[2] => толщ. 400 мм
[3] => толщ. 500 мм
[4] => толщ. 600 мм
)
[days] => [40,42,44,46,48]
[material_price] => [25421,29148,32275,35602,37326]
[work_price] => [20441,21907,23375,24841,26306]
[image] => https://akademik-stroy.ru/wp-content/uploads/materials/cokolnyj-etazh-zh-b.jpg
[area_modifier] => 114.74
[parent_name] => Фундамент
[parent_id] => 1
[material_sum] => 4025192
[work_sum] => 2697210
[total_sum] => 6722402
[total_days] => 40
[display_material_sum] => 4 025 192
[display_work_sum] => 2 697 210
[display_total_sum] => 6 722 402
)
1
6 722 402₽
Работа:2 697 210 ₽
Материалы:4 025 192 ₽
Дни:40
stdClass Object
(
[id] => 191
[attribute_id] => 1
[name] => Винтовые сваи
[material_modifier] => 1
[work_modifier] => 1
[options] => Array
(
[0] => 57х200мм
[1] => 76х250мм
[2] => 108х300мм
[3] => 133х350мм
)
[days] => [1,1,2,2]
[material_price] => [1200,1300,1450,1600]
[work_price] => [400,600,900,1100]
[image] => https://akademik-stroy.ru/wp-content/uploads/materials/vintovye-svai.png
[area_modifier] => 114.74
[parent_name] => Фундамент
[parent_id] => 1
[material_sum] => 190009
[work_sum] => 52780
[total_sum] => 242789
[total_days] => 1
[display_material_sum] => 190 009
[display_work_sum] => 52 780
[display_total_sum] => 242 789
)
1
242 789₽
Работа:52 780 ₽
Материалы:190 009 ₽
Дни:1
stdClass Object
(
[id] => 3
[attribute_id] => 2
[name] => Деревянные балки
[material_modifier] => 1
[work_modifier] => 1
[options] => Array
(
[0] => без утепления
[1] => утепление 200 мм
[2] => утепление 250 мм
[3] => утепление 300 мм
[4] => утепление 350 мм
[5] => утепление 400 мм
[6] => утепление 450 мм
[7] => утепление 500 мм
)
[days] => [8,9,9,9,11,12,13,14]
[material_price] => [1634,2042,2344,2947,3149,3652,3354,3557]
[work_price] => [1230,1339,1393,1426,1460,1513,1587,1620]
[image] => https://akademik-stroy.ru/wp-content/uploads/materials/derevyannye-balki.png
[area_modifier] => 114.74
[parent_name] => Перекрытие цоколя
[parent_id] => 2
[material_sum] => 258730
[work_sum] => 162300
[total_sum] => 421030
[total_days] => 8
[display_material_sum] => 258 730
[display_work_sum] => 162 300
[display_total_sum] => 421 030
)
1
421 030₽
Работа:162 300 ₽
Материалы:258 730 ₽
Дни:8
stdClass Object
(
[id] => 4
[attribute_id] => 2
[name] => Сборные ж/б плиты
[material_modifier] => 1
[work_modifier] => 1
[options] => Array
(
[0] => без утепления
[1] => утепление 150мм
[2] => утепление 200мм
[3] => утепление 250мм
[4] => утепление 300мм
[5] => утепление 350мм
[6] => утепление 400мм
[7] => утепление 450мм
[8] => утепление 500мм
)
[days] => [13,15,15,15,15,15,15,15,15]
[material_price] => [3067,5577,5928,6679,7730,8782,9833,10884,11935]
[work_price] => [1520,1956,2102,2247,2392,2537,2684,2829,2974]
[image] => https://akademik-stroy.ru/wp-content/uploads/materials/sbornye-zh-b-plity-2.jpg
[area_modifier] => 114.74
[parent_name] => Перекрытие цоколя
[parent_id] => 2
[material_sum] => 485632
[work_sum] => 200566
[total_sum] => 686198
[total_days] => 13
[display_material_sum] => 485 632
[display_work_sum] => 200 566
[display_total_sum] => 686 198
)
1
686 198₽
Работа:200 566 ₽
Материалы:485 632 ₽
Дни:13
stdClass Object
(
[id] => 78
[attribute_id] => 2
[name] => Монолитная ж/б плита
[material_modifier] => 1
[work_modifier] => 1
[options] => Array
(
[0] => без утепления
[1] => утепление 150 мм
[2] => утепление 200 мм
[3] => утепление 250 мм
[4] => утепление 300 мм
[5] => утепление 350 мм
[6] => утепление 400 мм
[7] => утепление 450 мм
[8] => утепление 500 мм
)
[days] => [18,20,20,20,20,20,20,20,20]
[material_price] => [4837,6572,7224,7375,79426,8177,8728,9180,10031]
[work_price] => [3348,3921,4112,4302,4493,4684,4875,5066,5256]
[image] => https://akademik-stroy.ru/wp-content/uploads/materials/monolitnaya-zh-b-plita-2.jpg
[area_modifier] => 114.74
[parent_name] => Перекрытие цоколя
[parent_id] => 2
[material_sum] => 765896
[work_sum] => 441772
[total_sum] => 1207668
[total_days] => 18
[display_material_sum] => 765 896
[display_work_sum] => 441 772
[display_total_sum] => 1 207 668
)
1
1 207 668₽
Работа:441 772 ₽
Материалы:765 896 ₽
Дни:18
stdClass Object
(
[id] => 6
[attribute_id] => 3
[name] => Пеноблок
[material_modifier] => 1
[work_modifier] => 1
[options] => Array
(
[0] => 300 мм
[1] => 400 мм
[2] => 500 мм
[3] => 600 мм
)
[days] => [29,31,34,39]
[material_price] => [3000,4000,4500,4937]
[work_price] => [5033,5805,6400,8710]
[image] => https://akademik-stroy.ru/wp-content/uploads/materials/penoblok.jpg
[area_modifier] => 114.74
[parent_name] => Стены 1 этаж (несущие)
[parent_id] => 3
[material_sum] => 475024
[work_sum] => 664109
[total_sum] => 1139133
[total_days] => 29
[display_material_sum] => 475 024
[display_work_sum] => 664 109
[display_total_sum] => 1 139 133
)
1
1 139 133₽
Работа:664 109 ₽
Материалы:475 024 ₽
Дни:29
stdClass Object
(
[id] => 79
[attribute_id] => 3
[name] => Керамический блок
[material_modifier] => 1
[work_modifier] => 1
[options] => Array
(
[0] => 380 мм
[1] => 380 мм Thermo
[2] => 440 мм
[3] => 510 мм
)
[days] => [23,23,24,25]
[material_price] => [4510,5098,6093,8013]
[work_price] => [4737,4937,5903,6958]
[image] => https://akademik-stroy.ru/wp-content/uploads/materials/keramicheskij-blok.jpg
[area_modifier] => 114.74
[parent_name] => Стены 1 этаж (несущие)
[parent_id] => 3
[material_sum] => 714119
[work_sum] => 625052
[total_sum] => 1339171
[total_days] => 23
[display_material_sum] => 714 119
[display_work_sum] => 625 052
[display_total_sum] => 1 339 171
)
1
1 339 171₽
Работа:625 052 ₽
Материалы:714 119 ₽
Дни:23
stdClass Object
(
[id] => 80
[attribute_id] => 3
[name] => Кирпич
[material_modifier] => 1
[work_modifier] => 1
[options] => Array
(
[0] => Кирпич 250 мм
[1] => Кирпич 380 мм
[2] => Кирпич 510 мм
[3] => Кирпич 640 мм
[4] => Кирпич 770 мм
)
[days] => [30,30,31,33,36]
[material_price] => [5500,7142,9206,10171,12235]
[work_price] => [8736,10041,12018,15240,18462]
[image] => https://akademik-stroy.ru/wp-content/uploads/materials/kirpich.jpg
[area_modifier] => 114.74
[parent_name] => Стены 1 этаж (несущие)
[parent_id] => 3
[material_sum] => 870877
[work_sum] => 1152724
[total_sum] => 2023601
[total_days] => 30
[display_material_sum] => 870 877
[display_work_sum] => 1 152 724
[display_total_sum] => 2 023 601
)
1
2 023 601₽
Работа:1 152 724 ₽
Материалы:870 877 ₽
Дни:30
stdClass Object
(
[id] => 81
[attribute_id] => 3
[name] => Монолитные
[material_modifier] => 1
[work_modifier] => 1
[options] => Array
(
[0] => 150 мм
[1] => 200 мм
[2] => 250 мм
[3] => 300 мм
[4] => 350 мм
[5] => 400 мм
)
[days] => [45,46,47,49,50,53]
[material_price] => [6545,7876,10175,12011,13908,15204]
[work_price] => [5106,6444,7698,8552,9807,11461]
[image] => https://akademik-stroy.ru/wp-content/uploads/materials/monolitnye.jpg
[area_modifier] => 114.74
[parent_name] => Стены 1 этаж (несущие)
[parent_id] => 3
[material_sum] => 1036343
[work_sum] => 673742
[total_sum] => 1710085
[total_days] => 45
[display_material_sum] => 1 036 343
[display_work_sum] => 673 742
[display_total_sum] => 1 710 085
)
1
1 710 085₽
Работа:673 742 ₽
Материалы:1 036 343 ₽
Дни:45
stdClass Object
(
[id] => 82
[attribute_id] => 3
[name] => Клееный брус
[material_modifier] => 1
[work_modifier] => 1
[options] => Array
(
[0] => 160 мм
[1] => 175 мм
[2] => 200 мм
[3] => 215 мм
[4] => 240 мм
[5] => 270 мм
[6] => 282 мм
)
[days] => [24,28,32,37,40,42,48]
[material_price] => [16975,18773,19950,20545,21599,22159,23275]
[work_price] => [4806,5287,5815,6397,7036,7740,8514]
[image] => https://akademik-stroy.ru/wp-content/uploads/materials/kleenyj-brus.jpg
[area_modifier] => 114.74
[parent_name] => Стены 1 этаж (несущие)
[parent_id] => 3
[material_sum] => 2687842
[work_sum] => 634157
[total_sum] => 3321999
[total_days] => 24
[display_material_sum] => 2 687 842
[display_work_sum] => 634 157
[display_total_sum] => 3 321 999
)
1
3 321 999₽
Работа:634 157 ₽
Материалы:2 687 842 ₽
Дни:24
stdClass Object
(
[id] => 83
[attribute_id] => 3
[name] => Каркасные
[material_modifier] => 1
[work_modifier] => 1
[options] => Array
(
[0] => 150 мм
[1] => 200 мм
[2] => 250 мм
[3] => 300 мм
)
[days] => [15,16,17,18]
[material_price] => [2379,2639,2898,3258]
[work_price] => [2418,2686,2985,3716]
[image] => https://akademik-stroy.ru/wp-content/uploads/materials/karkasnye.jpg
[area_modifier] => 114.74
[parent_name] => Стены 1 этаж (несущие)
[parent_id] => 3
[material_sum] => 376694
[work_sum] => 319058
[total_sum] => 695752
[total_days] => 15
[display_material_sum] => 376 694
[display_work_sum] => 319 058
[display_total_sum] => 695 752
)
1
695 752₽
Работа:319 058 ₽
Материалы:376 694 ₽
Дни:15
stdClass Object
(
[id] => 84
[attribute_id] => 3
[name] => СИП-панели
[material_modifier] => 1
[work_modifier] => 1
[options] => Array
(
[0] => 120 мм
[1] => 170 мм
[2] => 220 мм
)
[days] => [7,7,7]
[material_price] => [1210,1856,2292]
[work_price] => [1410,1551,1706]
[image] => https://akademik-stroy.ru/wp-content/uploads/materials/sip-paneli.jpg
[area_modifier] => 114.74
[parent_name] => Стены 1 этаж (несущие)
[parent_id] => 3
[material_sum] => 191593
[work_sum] => 186051
[total_sum] => 377644
[total_days] => 7
[display_material_sum] => 191 593
[display_work_sum] => 186 051
[display_total_sum] => 377 644
)
1
377 644₽
Работа:186 051 ₽
Материалы:191 593 ₽
Дни:7
stdClass Object
(
[id] => 85
[attribute_id] => 3
[name] => Сухой брус
[material_modifier] => 1
[work_modifier] => 1
[options] => Array
(
[0] => 150 мм
[1] => 180 мм
[2] => 200 мм
)
[days] => [7,8,9]
[material_price] => [6010,7190,8709]
[work_price] => [3204,3845,4229]
[image] => https://akademik-stroy.ru/wp-content/uploads/materials/suhoj-brus.jpg
[area_modifier] => 114.74
[parent_name] => Стены 1 этаж (несущие)
[parent_id] => 3
[material_sum] => 951631
[work_sum] => 422771
[total_sum] => 1374402
[total_days] => 7
[display_material_sum] => 951 631
[display_work_sum] => 422 771
[display_total_sum] => 1 374 402
)
1
1 374 402₽
Работа:422 771 ₽
Материалы:951 631 ₽
Дни:7
stdClass Object
(
[id] => 86
[attribute_id] => 3
[name] => Профилированный брус
[material_modifier] => 1
[work_modifier] => 1
[options] => Array
(
[0] => 150 мм
[1] => 180 мм
[2] => 200 мм
)
[days] => [7,8,9]
[material_price] => [8190,9228,10051]
[work_price] => [3845,4614,5075]
[image] => https://akademik-stroy.ru/wp-content/uploads/materials/profilirovannyj-brus.jpg
[area_modifier] => 114.74
[parent_name] => Стены 1 этаж (несущие)
[parent_id] => 3
[material_sum] => 1296814
[work_sum] => 507352
[total_sum] => 1804166
[total_days] => 7
[display_material_sum] => 1 296 814
[display_work_sum] => 507 352
[display_total_sum] => 1 804 166
)
1
1 804 166₽
Работа:507 352 ₽
Материалы:1 296 814 ₽
Дни:7
stdClass Object
(
[id] => 87
[attribute_id] => 3
[name] => Оцилиндрованное бревно
[material_modifier] => 1
[work_modifier] => 1
[options] => Array
(
[0] => 180 мм
[1] => 220 мм
[2] => 260 мм
[3] => 320 мм
)
[days] => [7,8,9,10]
[material_price] => [75190,9532,10868,13116]
[work_price] => [3845,4691,5535,6863]
[image] => https://akademik-stroy.ru/wp-content/uploads/materials/ocilindrovannoe-brevno-1.jpg
[area_modifier] => 114.74
[parent_name] => Стены 1 этаж (несущие)
[parent_id] => 3
[material_sum] => 11905675
[work_sum] => 507352
[total_sum] => 12413027
[total_days] => 7
[display_material_sum] => 11 905 675
[display_work_sum] => 507 352
[display_total_sum] => 12 413 027
)
1
12 413 027₽
Работа:507 352 ₽
Материалы:11 905 675 ₽
Дни:7
stdClass Object
(
[id] => 88
[attribute_id] => 3
[name] => Срубы
[material_modifier] => 1
[work_modifier] => 1
[options] => Array
(
[0] => 260 мм
[1] => 320 мм
[2] => 360 мм
[3] => 400 мм
[4] => 500 мм
)
[days] => [7,8,9,10,11]
[material_price] => [37975,46709,52314,58069,73167]
[work_price] => [4806,5911,6621,7349,9260]
[image] => https://akademik-stroy.ru/wp-content/uploads/materials/sruby.jpg
[area_modifier] => 114.74
[parent_name] => Стены 1 этаж (несущие)
[parent_id] => 3
[material_sum] => 6013007
[work_sum] => 634157
[total_sum] => 6647164
[total_days] => 7
[display_material_sum] => 6 013 007
[display_work_sum] => 634 157
[display_total_sum] => 6 647 164
)
1
6 647 164₽
Работа:634 157 ₽
Материалы:6 013 007 ₽
Дни:7
stdClass Object
(
[id] => 174
[attribute_id] => 3
[name] => Брус
[material_modifier] => 1
[work_modifier] => 1
[options] => Array
(
[0] => 150 мм
[1] => 180 мм
[2] => 200 мм
)
[days] => [7,8,9]
[material_price] => [5127,6152,7367]
[work_price] => [1602,1922,2115]
[image] => https://akademik-stroy.ru/wp-content/uploads/materials/brus.jpg
[area_modifier] => 114.74
[parent_name] => Стены 1 этаж (несущие)
[parent_id] => 3
[material_sum] => 811815
[work_sum] => 211386
[total_sum] => 1023201
[total_days] => 7
[display_material_sum] => 811 815
[display_work_sum] => 211 386
[display_total_sum] => 1 023 201
)
1
1 023 201₽
Работа:211 386 ₽
Материалы:811 815 ₽
Дни:7
stdClass Object
(
[id] => 175
[attribute_id] => 3
[name] => Газобетон
[material_modifier] => 1
[work_modifier] => 1
[options] => Array
(
[0] => 300 мм
[1] => 375 мм
[2] => 400 мм
[3] => 500 мм
[4] => 600 мм
)
[days] => [29,31,35,37,44]
[material_price] => [4298,5573,6356,7288,9119]
[work_price] => [4538,5251,5926,6733,7195]
[image] => https://akademik-stroy.ru/wp-content/uploads/materials/gazobeton.jpg
[area_modifier] => 114.74
[parent_name] => Стены 1 этаж (несущие)
[parent_id] => 3
[material_sum] => 680550
[work_sum] => 598794
[total_sum] => 1279344
[total_days] => 29
[display_material_sum] => 680 550
[display_work_sum] => 598 794
[display_total_sum] => 1 279 344
)
1
1 279 344₽
Работа:598 794 ₽
Материалы:680 550 ₽
Дни:29
stdClass Object
(
[id] => 176
[attribute_id] => 3
[name] => Блок
[material_modifier] => 1
[work_modifier] => 1
[options] => Array
(
[0] => 300 мм
[1] => 375 мм
[2] => 400 мм
[3] => 500 мм
[4] => 600 мм
)
[days] => [29,31,35,37,44]
[material_price] => [2698,3973,4356,6588,7119]
[work_price] => [5038,5851,6426,8733,9195]
[image] => https://akademik-stroy.ru/wp-content/uploads/materials/blok.jpg
[area_modifier] => 114.74
[parent_name] => Стены 1 этаж (несущие)
[parent_id] => 3
[material_sum] => 427205
[work_sum] => 664769
[total_sum] => 1091974
[total_days] => 29
[display_material_sum] => 427 205
[display_work_sum] => 664 769
[display_total_sum] => 1 091 974
)
1
1 091 974₽
Работа:664 769 ₽
Материалы:427 205 ₽
Дни:29
stdClass Object
(
[id] => 177
[attribute_id] => 3
[name] => Газосиликатный блок
[material_modifier] => 1
[work_modifier] => 1
[options] => Array
(
[0] => 300 мм
[1] => 375 мм
[2] => 400 мм
[3] => 500 мм
[4] => 600 мм
)
[days] => [29,31,35,37,44]
[material_price] => [4298,5573,6356,7288,9119]
[work_price] => [4538,5251,5926,6733,7195]
[image] => https://akademik-stroy.ru/wp-content/uploads/materials/gazosilikatnyj-blok.jpg
[area_modifier] => 114.74
[parent_name] => Стены 1 этаж (несущие)
[parent_id] => 3
[material_sum] => 680550
[work_sum] => 598794
[total_sum] => 1279344
[total_days] => 29
[display_material_sum] => 680 550
[display_work_sum] => 598 794
[display_total_sum] => 1 279 344
)
1
1 279 344₽
Работа:598 794 ₽
Материалы:680 550 ₽
Дни:29
stdClass Object
(
[id] => 178
[attribute_id] => 3
[name] => Керамзитобетонный блок
[material_modifier] => 1
[work_modifier] => 1
[options] => Array
(
[0] => 300 мм
[1] => 375 мм
[2] => 400 мм
[3] => 500 мм
[4] => 600 мм
)
[days] => [23,23,24,25,28]
[material_price] => [3641,4298,5693,7613,9612]
[work_price] => [5737,5737,6903,7958,8901]
[image] => https://akademik-stroy.ru/wp-content/uploads/materials/keramzitobetonnyj-blok.jpg
[area_modifier] => 114.74
[parent_name] => Стены 1 этаж (несущие)
[parent_id] => 3
[material_sum] => 576520
[work_sum] => 757003
[total_sum] => 1333523
[total_days] => 23
[display_material_sum] => 576 520
[display_work_sum] => 757 003
[display_total_sum] => 1 333 523
)
1
1 333 523₽
Работа:757 003 ₽
Материалы:576 520 ₽
Дни:23
stdClass Object
(
[id] => 179
[attribute_id] => 3
[name] => Деревянные
[material_modifier] => 1
[work_modifier] => 1
[options] => Array
(
[0] => 180 мм
[1] => 220 мм
[2] => 260 мм
[3] => 320 мм
)
[days] => [7,8,9,10]
[material_price] => [7950,9458,11961,14472]
[work_price] => [4037,4925,5812,7207]
[image] => https://akademik-stroy.ru/wp-content/uploads/materials/derevyannye.jpg
[area_modifier] => 114.74
[parent_name] => Стены 1 этаж (несущие)
[parent_id] => 3
[material_sum] => 1258813
[work_sum] => 532686
[total_sum] => 1791499
[total_days] => 7
[display_material_sum] => 1 258 813
[display_work_sum] => 532 686
[display_total_sum] => 1 791 499
)
1
1 791 499₽
Работа:532 686 ₽
Материалы:1 258 813 ₽
Дни:7
stdClass Object
(
[id] => 181
[attribute_id] => 3
[name] => Камень
[material_modifier] => 1
[work_modifier] => 1
[options] => Array
(
[0] => 300 мм
[1] => 400 мм
[2] => 500 мм
[3] => 600 мм
)
[days] => [25,27,31,34]
[material_price] => [5262,6844,8330,9815]
[work_price] => [8331,9135,10427,11069]
[image] => https://akademik-stroy.ru/wp-content/uploads/materials/kamen.jpg
[area_modifier] => 114.74
[parent_name] => Стены 1 этаж (несущие)
[parent_id] => 3
[material_sum] => 833191
[work_sum] => 1099284
[total_sum] => 1932475
[total_days] => 25
[display_material_sum] => 833 191
[display_work_sum] => 1 099 284
[display_total_sum] => 1 932 475
)
1
1 932 475₽
Работа:1 099 284 ₽
Материалы:833 191 ₽
Дни:25
stdClass Object
(
[id] => 182
[attribute_id] => 3
[name] => Каркасно-щитовые
[material_modifier] => 1
[work_modifier] => 1
[options] => Array
(
[0] => 150 мм
[1] => 200 мм
[2] => 250 мм
[3] => 300 мм
[4] => 350 мм
[5] => 400 мм
)
[days] => [15,16,17,18,19,20]
[material_price] => [2379,2639,2898,3458,3601,4175]
[work_price] => [2538,2820,3134,3483,4062,5642]
[image] => https://akademik-stroy.ru/wp-content/uploads/materials/karkasno-shchitovye.jpg
[area_modifier] => 114.74
[parent_name] => Стены 1 этаж (несущие)
[parent_id] => 3
[material_sum] => 376694
[work_sum] => 334892
[total_sum] => 711586
[total_days] => 15
[display_material_sum] => 376 694
[display_work_sum] => 334 892
[display_total_sum] => 711 586
)
1
711 586₽
Работа:334 892 ₽
Материалы:376 694 ₽
Дни:15
stdClass Object
(
[id] => 183
[attribute_id] => 3
[name] => Рубленные
[material_modifier] => 1
[work_modifier] => 1
[options] => Array
(
[0] => 150 мм
[1] => 200 мм
[2] => 250 мм
[3] => 300 мм
[4] => 350 мм
[5] => 400 мм
)
[days] => [15,16,17,18,17,18]
[material_price] => [35950,50267,60583,75900,80217,100533]
[work_price] => [9612,12816,16020,19224,22428,25632]
[image] => https://akademik-stroy.ru/wp-content/uploads/materials/rublennye.jpg
[area_modifier] => 114.74
[parent_name] => Стены 1 этаж (несущие)
[parent_id] => 3
[material_sum] => 5692366
[work_sum] => 1268313
[total_sum] => 6960679
[total_days] => 15
[display_material_sum] => 5 692 366
[display_work_sum] => 1 268 313
[display_total_sum] => 6 960 679
)
1
6 960 679₽
Работа:1 268 313 ₽
Материалы:5 692 366 ₽
Дни:15
stdClass Object
(
[id] => 185
[attribute_id] => 3
[name] => Теплоблок
[material_modifier] => 1
[work_modifier] => 1
[options] => Array
(
[0] => 300 мм (с облицовкой, не покрашенный)
[1] => 400 мм (с облицовкой, не покрашенный)
[2] => 300 мм (с облицовкой, покрашенный)
[3] => 400 мм (с облицовкой, покрашенный)
)
[days] => [15,16,15,16]
[material_price] => [2888,3729,3957,4258]
[work_price] => [2564,3229,2949,3713]
[image] => https://akademik-stroy.ru/wp-content/uploads/materials/teploblok.jpg
[area_modifier] => 114.74
[parent_name] => Стены 1 этаж (несущие)
[parent_id] => 3
[material_sum] => 457289
[work_sum] => 338322
[total_sum] => 795611
[total_days] => 15
[display_material_sum] => 457 289
[display_work_sum] => 338 322
[display_total_sum] => 795 611
)
1
795 611₽
Работа:338 322 ₽
Материалы:457 289 ₽
Дни:15
stdClass Object
(
[id] => 186
[attribute_id] => 3
[name] => Арболитовые блоки
[material_modifier] => 1
[work_modifier] => 1
[options] => Array
(
[0] => 300 мм
[1] => 400 мм
[2] => 600 мм
)
[days] => [19,22,27]
[material_price] => [3210,4475,5852]
[work_price] => [4214,4788,5866]
[image] => https://akademik-stroy.ru/wp-content/uploads/materials/arbolitovye-bloki.png
[area_modifier] => 114.74
[parent_name] => Стены 1 этаж (несущие)
[parent_id] => 3
[material_sum] => 508275
[work_sum] => 556042
[total_sum] => 1064317
[total_days] => 19
[display_material_sum] => 508 275
[display_work_sum] => 556 042
[display_total_sum] => 1 064 317
)
1
1 064 317₽
Работа:556 042 ₽
Материалы:508 275 ₽
Дни:19
stdClass Object
(
[id] => 187
[attribute_id] => 3
[name] => Полистиролбетон
[material_modifier] => 1
[work_modifier] => 1
[options] => Array
(
[0] => 300 мм
[1] => 400 мм
[2] => 600 мм
)
[days] => [29,31,35]
[material_price] => [2798,4573,5256]
[work_price] => [5038,5851,6426]
[image] => https://akademik-stroy.ru/wp-content/uploads/materials/polistirolbeton.jpg
[area_modifier] => 114.74
[parent_name] => Стены 1 этаж (несущие)
[parent_id] => 3
[material_sum] => 443039
[work_sum] => 664769
[total_sum] => 1107808
[total_days] => 29
[display_material_sum] => 443 039
[display_work_sum] => 664 769
[display_total_sum] => 1 107 808
)
1
1 107 808₽
Работа:664 769 ₽
Материалы:443 039 ₽
Дни:29
stdClass Object
(
[id] => 188
[attribute_id] => 3
[name] => Шлакоблок
[material_modifier] => 1
[work_modifier] => 1
[options] => Array
(
[0] => 400 мм
[1] => 600 мм
)
[days] => [15,16]
[material_price] => [2391,3471]
[work_price] => [2642,3662]
[image] => https://akademik-stroy.ru/wp-content/uploads/materials/shlakoblok.jpg
[area_modifier] => 114.74
[parent_name] => Стены 1 этаж (несущие)
[parent_id] => 3
[material_sum] => 378594
[work_sum] => 348615
[total_sum] => 727209
[total_days] => 15
[display_material_sum] => 378 594
[display_work_sum] => 348 615
[display_total_sum] => 727 209
)
1
727 209₽
Работа:348 615 ₽
Материалы:378 594 ₽
Дни:15
stdClass Object
(
[id] => 189
[attribute_id] => 3
[name] => Теплая керамика
[material_modifier] => 1
[work_modifier] => 1
[options] => Array
(
[0] => 380 мм
[1] => 380 мм Thermo
[2] => 440 мм
[3] => 510 мм
)
[days] => [23,23,24,25]
[material_price] => [4510,5098,6093,8013]
[work_price] => [4737,4937,5903,6958]
[image] => https://akademik-stroy.ru/wp-content/uploads/materials/teplaya-keramika.jpg
[area_modifier] => 114.74
[parent_name] => Стены 1 этаж (несущие)
[parent_id] => 3
[material_sum] => 714119
[work_sum] => 625052
[total_sum] => 1339171
[total_days] => 23
[display_material_sum] => 714 119
[display_work_sum] => 625 052
[display_total_sum] => 1 339 171
)
1
1 339 171₽
Работа:625 052 ₽
Материалы:714 119 ₽
Дни:23
stdClass Object
(
[id] => 190
[attribute_id] => 3
[name] => Несъемная опалубка
[material_modifier] => 1
[work_modifier] => 1
[options] => Array
(
[0] => 200 мм
[1] => 250 мм
[2] => 300 мм
[3] => 350 мм
)
[days] => [15,17,19,21]
[material_price] => [3302,3902,4108,5008]
[work_price] => [2100,2100,2300,2534]
[image] => https://akademik-stroy.ru/wp-content/uploads/materials/nesemnaya-opalubka.jpg
[area_modifier] => 114.74
[parent_name] => Стены 1 этаж (несущие)
[parent_id] => 3
[material_sum] => 522843
[work_sum] => 277097
[total_sum] => 799940
[total_days] => 15
[display_material_sum] => 522 843
[display_work_sum] => 277 097
[display_total_sum] => 799 940
)
1
799 940₽
Работа:277 097 ₽
Материалы:522 843 ₽
Дни:15
stdClass Object
(
[id] => 251
[attribute_id] => 3
[name] => Бревно
[material_modifier] => 1
[work_modifier] => 1
[options] => Array
(
[0] => 260 мм
[1] => 320 мм
[2] => 360 мм
[3] => 400 мм
[4] => 500 мм
)
[days] => [7,8,9,10,11]
[material_price] => [1874,24045,26930,30972,38825]
[work_price] => [5046,6207,6952,7716,9723]
[image] => https://akademik-stroy.ru/wp-content/uploads/materials/sruby.jpg
[area_modifier] => 114.74
[parent_name] => Стены 1 этаж (несущие)
[parent_id] => 3
[material_sum] => 296731
[work_sum] => 665825
[total_sum] => 962556
[total_days] => 7
[display_material_sum] => 296 731
[display_work_sum] => 665 825
[display_total_sum] => 962 556
)
1
962 556₽
Работа:665 825 ₽
Материалы:296 731 ₽
Дни:7
stdClass Object
(
[id] => 7
[attribute_id] => 4
[name] => Деревянные балки
[material_modifier] => 1
[work_modifier] => 1
[options] => Array
(
[0] => без утепления
[1] => утепление 200 мм
[2] => утепление 250 мм
[3] => утепление 300 мм
[4] => утепление 350 мм
[5] => утепление 400 мм
[6] => утепление 450 мм
[7] => утепление 500 мм
)
[days] => [8,9,9,9,11,12,13,14]
[material_price] => [1634,2042,2344,2947,3149,3652,3354,3557]
[work_price] => [1230,1339,1393,1426,1460,1513,1587,1620]
[image] => https://akademik-stroy.ru/wp-content/uploads/materials/derevyannye-balki.png
[area_modifier] => 114.74
[parent_name] => Перекрытие первого этажа
[parent_id] => 4
[material_sum] => 258730
[work_sum] => 162300
[total_sum] => 421030
[total_days] => 8
[display_material_sum] => 258 730
[display_work_sum] => 162 300
[display_total_sum] => 421 030
)
1
421 030₽
Работа:162 300 ₽
Материалы:258 730 ₽
Дни:8
stdClass Object
(
[id] => 8
[attribute_id] => 4
[name] => Сборные ж/б плиты
[material_modifier] => 1
[work_modifier] => 1
[options] => Array
(
[0] => без утепления
[1] => утепление 150 мм
[2] => утепление 200 мм
[3] => утепление 250 мм
[4] => утепление 300 мм
[5] => утепление 350 мм
[6] => утепление 400 мм
[7] => утепление 450 мм
[8] => утепление 500 мм
)
[days] => [13,15,15,15,15,15,15,15,15]
[material_price] => [3067,5577,5928,6679,7730,8782,9833,10884,11935]
[work_price] => [1520,1956,2102,2247,2392,2537,2684,2829,2974]
[image] => https://akademik-stroy.ru/wp-content/uploads/materials/sbornye-zh-b-plity-2.jpg
[area_modifier] => 114.74
[parent_name] => Перекрытие первого этажа
[parent_id] => 4
[material_sum] => 485632
[work_sum] => 200566
[total_sum] => 686198
[total_days] => 13
[display_material_sum] => 485 632
[display_work_sum] => 200 566
[display_total_sum] => 686 198
)
1
686 198₽
Работа:200 566 ₽
Материалы:485 632 ₽
Дни:13
stdClass Object
(
[id] => 89
[attribute_id] => 4
[name] => Монолитная ж/б плита
[material_modifier] => 1
[work_modifier] => 1
[options] => Array
(
[0] => без утепления
[1] => утепление 150 мм
[2] => утепление 200 мм
[3] => утепление 250 мм
[4] => утепление 300 мм
[5] => утепление 350 мм
[6] => утепление 400 мм
[7] => утепление 450 мм
[8] => утепление 500 мм
)
[days] => [18,20,20,20,20,20,20,20,20]
[material_price] => [4837,6572,7224,7375,79426,8177,8728,9180,10031]
[work_price] => [3348,3921,4112,4302,4493,4684,4875,5066,5256]
[image] => https://akademik-stroy.ru/wp-content/uploads/materials/monolitnaya-zh-b-plita-2.jpg
[area_modifier] => 114.74
[parent_name] => Перекрытие первого этажа
[parent_id] => 4
[material_sum] => 765896
[work_sum] => 441772
[total_sum] => 1207668
[total_days] => 18
[display_material_sum] => 765 896
[display_work_sum] => 441 772
[display_total_sum] => 1 207 668
)
1
1 207 668₽
Работа:441 772 ₽
Материалы:765 896 ₽
Дни:18
stdClass Object
(
[id] => 164
[attribute_id] => 37
[name] => Металлочерепица
[material_modifier] => 1
[work_modifier] => 1
[options] => Array
(
)
[days] => [20]
[material_price] => [6112]
[work_price] => [5726]
[image] => https://akademik-stroy.ru/wp-content/uploads/materials/metallocherepica.jpg
[area_modifier] => 114.74
[parent_name] => Крыша (Скатная)
[parent_id] => 37
[material_sum] => 967781
[work_sum] => 755551
[total_sum] => 1723332
[total_days] => 20
[display_material_sum] => 967 781
[display_work_sum] => 755 551
[display_total_sum] => 1 723 332
)
1
1 723 332₽
Работа:755 551 ₽
Материалы:967 781 ₽
Дни:20
stdClass Object
(
[id] => 165
[attribute_id] => 37
[name] => Гибкая черепица
[material_modifier] => 1
[work_modifier] => 1
[options] => Array
(
)
[days] => [20]
[material_price] => [6980]
[work_price] => [5950]
[image] => https://akademik-stroy.ru/wp-content/uploads/materials/gibkaya-cherepica.jpg
[area_modifier] => 114.74
[parent_name] => Крыша (Скатная)
[parent_id] => 37
[material_sum] => 1105222
[work_sum] => 785108
[total_sum] => 1890330
[total_days] => 20
[display_material_sum] => 1 105 222
[display_work_sum] => 785 108
[display_total_sum] => 1 890 330
)
1
1 890 330₽
Работа:785 108 ₽
Материалы:1 105 222 ₽
Дни:20
stdClass Object
(
[id] => 166
[attribute_id] => 37
[name] => Цементно-песчаная черепица
[material_modifier] => 1
[work_modifier] => 1
[options] => Array
(
)
[days] => [20]
[material_price] => [10560]
[work_price] => [9456]
[image] => https://akademik-stroy.ru/wp-content/uploads/materials/cementno-peschanaya-cherepica.jpg
[area_modifier] => 114.74
[parent_name] => Крыша (Скатная)
[parent_id] => 37
[material_sum] => 1672083
[work_sum] => 1247729
[total_sum] => 2919812
[total_days] => 20
[display_material_sum] => 1 672 083
[display_work_sum] => 1 247 729
[display_total_sum] => 2 919 812
)
1
2 919 812₽
Работа:1 247 729 ₽
Материалы:1 672 083 ₽
Дни:20
stdClass Object
(
[id] => 167
[attribute_id] => 37
[name] => Композитная черепица
[material_modifier] => 1
[work_modifier] => 1
[options] => Array
(
)
[days] => [20]
[material_price] => [9506]
[work_price] => [8905]
[image] => https://akademik-stroy.ru/wp-content/uploads/materials/kompozitnaya-cherepica.jpg
[area_modifier] => 114.74
[parent_name] => Крыша (Скатная)
[parent_id] => 37
[material_sum] => 1505191
[work_sum] => 1175024
[total_sum] => 2680215
[total_days] => 20
[display_material_sum] => 1 505 191
[display_work_sum] => 1 175 024
[display_total_sum] => 2 680 215
)
1
2 680 215₽
Работа:1 175 024 ₽
Материалы:1 505 191 ₽
Дни:20
stdClass Object
(
[id] => 168
[attribute_id] => 37
[name] => Керамическая черепица
[material_modifier] => 1
[work_modifier] => 1
[options] => Array
(
)
[days] => [20]
[material_price] => [12750]
[work_price] => [9456]
[image] => https://akademik-stroy.ru/wp-content/uploads/materials/keramicheskaya-cherepica.jpg
[area_modifier] => 114.74
[parent_name] => Крыша (Скатная)
[parent_id] => 37
[material_sum] => 2018850
[work_sum] => 1247729
[total_sum] => 3266579
[total_days] => 20
[display_material_sum] => 2 018 850
[display_work_sum] => 1 247 729
[display_total_sum] => 3 266 579
)
1
3 266 579₽
Работа:1 247 729 ₽
Материалы:2 018 850 ₽
Дни:20
stdClass Object
(
[id] => 169
[attribute_id] => 37
[name] => Металлическая фальцевая
[material_modifier] => 1
[work_modifier] => 1
[options] => Array
(
)
[days] => [20]
[material_price] => [8550]
[work_price] => [8190]
[image] => https://akademik-stroy.ru/wp-content/uploads/materials/metallicheskaya-falcevaya.jpg
[area_modifier] => 114.74
[parent_name] => Крыша (Скатная)
[parent_id] => 37
[material_sum] => 1353817
[work_sum] => 1080679
[total_sum] => 2434496
[total_days] => 20
[display_material_sum] => 1 353 817
[display_work_sum] => 1 080 679
[display_total_sum] => 2 434 496
)
1
2 434 496₽
Работа:1 080 679 ₽
Материалы:1 353 817 ₽
Дни:20
stdClass Object
(
[id] => 170
[attribute_id] => 37
[name] => Медная фальцевая
[material_modifier] => 1
[work_modifier] => 1
[options] => Array
(
)
[days] => [20]
[material_price] => [20450]
[work_price] => [16750]
[image] => https://akademik-stroy.ru/wp-content/uploads/materials/mednaya-falcevaya.jpg
[area_modifier] => 114.74
[parent_name] => Крыша (Скатная)
[parent_id] => 37
[material_sum] => 3238078
[work_sum] => 2210179
[total_sum] => 5448257
[total_days] => 20
[display_material_sum] => 3 238 078
[display_work_sum] => 2 210 179
[display_total_sum] => 5 448 257
)
1
5 448 257₽
Работа:2 210 179 ₽
Материалы:3 238 078 ₽
Дни:20
stdClass Object
(
[id] => 171
[attribute_id] => 37
[name] => Зеленая кровля
[material_modifier] => 1
[work_modifier] => 1
[options] => Array
(
)
[days] => [20]
[material_price] => [19850]
[work_price] => [16780]
[image] => https://akademik-stroy.ru/wp-content/uploads/materials/zelenaya-krovlya.jpg
[area_modifier] => 114.74
[parent_name] => Крыша (Скатная)
[parent_id] => 37
[material_sum] => 3143073
[work_sum] => 2214138
[total_sum] => 5357211
[total_days] => 20
[display_material_sum] => 3 143 073
[display_work_sum] => 2 214 138
[display_total_sum] => 5 357 211
)
1
5 357 211₽
Работа:2 214 138 ₽
Материалы:3 143 073 ₽
Дни:20
stdClass Object
(
[id] => 172
[attribute_id] => 37
[name] => Профлист
[material_modifier] => 1
[work_modifier] => 1
[options] => Array
(
)
[days] => [20]
[material_price] => [3450]
[work_price] => [3750]
[image] => https://akademik-stroy.ru/wp-content/uploads/materials/proflist.jpg
[area_modifier] => 114.74
[parent_name] => Крыша (Скатная)
[parent_id] => 37
[material_sum] => 546277
[work_sum] => 494816
[total_sum] => 1041093
[total_days] => 20
[display_material_sum] => 546 277
[display_work_sum] => 494 816
[display_total_sum] => 1 041 093
)
1
1 041 093₽
Работа:494 816 ₽
Материалы:546 277 ₽
Дни:20
stdClass Object
(
[id] => 51
[attribute_id] => 26
[name] => Есть
[material_modifier] => 1
[work_modifier] => 1
[options] => Array
(
[0] => Профиль 58 мм, 3-камерный, стеклопакет 2-камерный до 32 мм
[1] => Профиль 60 мм, 4-камерный, стеклопакет 2-камерный до 32 мм
[2] => Профиль 70 мм, 5-камерный, стеклопакет 2-камерный до 40 мм
[3] => Профиль 72 мм, 5-камерный, стеклопакет 2-камерный до 40 мм
[4] => Алюминиевые окна Alutech профиль 72 мм, стеклопакет 2-камерный
)
[days] => [3,3,3,3,3]
[material_price] => [1339,2124,2867,3023,29596]
[work_price] => [635,647,659,668,2579]
[image] => https://akademik-stroy.ru/wp-content/uploads/materials/okna.jpg
[area_modifier] => 93.11
[parent_name] => Окна
[parent_id] => 26
[material_sum] => 172051
[work_sum] => 67994
[total_sum] => 240045
[total_days] => 3
[display_material_sum] => 172 051
[display_work_sum] => 67 994
[display_total_sum] => 240 045
)
1
240 045₽
Работа:67 994 ₽
Материалы:172 051 ₽
Дни:3
stdClass Object
(
[id] => 52
[attribute_id] => 26
[name] => Нет
[material_modifier] => 2
[work_modifier] => 1
[options] =>
[days] => null
[material_price] => null
[work_price] => null
[image] => https://akademik-stroy.ru/wp-content/uploads/materials/okna.jpg
[area_modifier] => 93.11
[parent_name] => Окна
[parent_id] => 26
[material_sum] => 0
[work_sum] => 0
[total_sum] => 0
[total_days] => 0
[display_material_sum] => 0
[display_work_sum] => 0
[display_total_sum] => 0
)
1
0₽
Работа:0 ₽
Материалы:0 ₽
Дни:0
stdClass Object
(
[id] => 53
[attribute_id] => 27
[name] => Есть
[material_modifier] => 1
[work_modifier] => 1
[options] => Array
(
)
[days] => [1]
[material_price] => [10000]
[work_price] => [5500]
[image] => https://akademik-stroy.ru/wp-content/uploads/materials/dveri.jpg
[area_modifier] => 1
[parent_name] => Двери входные
[parent_id] => 27
[material_sum] => 13800
[work_sum] => 6325
[total_sum] => 20125
[total_days] => 1
[display_material_sum] => 13 800
[display_work_sum] => 6 325
[display_total_sum] => 20 125
)
1
20 125₽
Работа:6 325 ₽
Материалы:13 800 ₽
Дни:1
stdClass Object
(
[id] => 54
[attribute_id] => 27
[name] => Нет
[material_modifier] => 1
[work_modifier] => 1
[options] => Array
(
)
[days] => [0]
[material_price] => [0]
[work_price] => [0]
[image] => https://akademik-stroy.ru/wp-content/uploads/materials/dveri.jpg
[area_modifier] => 1
[parent_name] => Двери входные
[parent_id] => 27
[material_sum] => 0
[work_sum] => 0
[total_sum] => 0
[total_days] => 0
[display_material_sum] => 0
[display_work_sum] => 0
[display_total_sum] => 0
)
1
0₽
Работа:0 ₽
Материалы:0 ₽
Дни:0
stdClass Object
(
[id] => 25
[attribute_id] => 13
[name] => Нет
[material_modifier] => 1
[work_modifier] => 1
[options] => Array
(
)
[days] => [0]
[material_price] => [0]
[work_price] => [0]
[image] => https://akademik-stroy.ru/wp-content/uploads/materials/mineralovata-krov.jpg
[area_modifier] => 114.74
[parent_name] => Утепление кровли (Мансарда)
[parent_id] => 13
[material_sum] => 0
[work_sum] => 0
[total_sum] => 0
[total_days] => 0
[display_material_sum] => 0
[display_work_sum] => 0
[display_total_sum] => 0
)
1
0₽
Работа:0 ₽
Материалы:0 ₽
Дни:0
stdClass Object
(
[id] => 26
[attribute_id] => 13
[name] => Минераловатный
[material_modifier] => 1
[work_modifier] => 1
[options] => Array
(
[0] => 50 мм
[1] => 100 мм
[2] => 150 мм
[3] => 200 мм
[4] => 250 мм
[5] => 300 мм
[6] => 350 мм
[7] => 400 мм
[8] => 450 мм
[9] => 500 мм
)
[days] => [5,5,6,6,6,7,7,7,8,8]
[material_price] => [1158,1414,1772,2230,3602,4060,4974,5890,6408,7718]
[work_price] => [650,846,846,1098,1318,1450,1596,1754,1930,2122]
[image] => https://akademik-stroy.ru/wp-content/uploads/materials/mineralovata-krov.jpg
[area_modifier] => 114.74
[parent_name] => Утепление кровли (Мансарда)
[parent_id] => 13
[material_sum] => 183359
[work_sum] => 85768
[total_sum] => 269127
[total_days] => 5
[display_material_sum] => 183 359
[display_work_sum] => 85 768
[display_total_sum] => 269 127
)
1
269 127₽
Работа:85 768 ₽
Материалы:183 359 ₽
Дни:5
stdClass Object
(
[id] => 123
[attribute_id] => 13
[name] => Эковата (целлюлозная вата)
[material_modifier] => 1
[work_modifier] => 1
[options] => Array
(
[0] => 50 мм
[1] => 100 мм
[2] => 150 мм
[3] => 200 мм
[4] => 250 мм
[5] => 300 мм
[6] => 350 мм
[7] => 400 мм
[8] => 450 мм
[9] => 500 мм
)
[days] => [3,3,4,4,4,5,5,5,5,5]
[material_price] => [820,1638,2458,3276,5734,6552,8190,9828,11466,13104]
[work_price] => [234,304,304,396,474,522,574,632,694,764]
[image] => https://akademik-stroy.ru/wp-content/uploads/materials/ehkovata-krov.jpg
[area_modifier] => 114.74
[parent_name] => Утепление кровли (Мансарда)
[parent_id] => 13
[material_sum] => 129840
[work_sum] => 30877
[total_sum] => 160717
[total_days] => 3
[display_material_sum] => 129 840
[display_work_sum] => 30 877
[display_total_sum] => 160 717
)
1
160 717₽
Работа:30 877 ₽
Материалы:129 840 ₽
Дни:3
stdClass Object
(
[id] => 124
[attribute_id] => 13
[name] => Экструдированный пенополистирол
[material_modifier] => 1
[work_modifier] => 1
[options] => Array
(
[0] => 50 мм
[1] => 100 мм
[2] => 150 мм
[3] => 200 мм
[4] => 250 мм
[5] => 300 мм
[6] => 350 мм
[7] => 400 мм
[8] => 450 мм
[9] => 500 мм
)
[days] => [3,3,4,4,4,5,5,5,5,6]
[material_price] => [1146,2292,3438,4584,8020,9166,11458,13750,16040,18332]
[work_price] => [390,508,508,660,790,870,958,1052,1158,1274]
[image] => https://akademik-stroy.ru/wp-content/uploads/materials/epps-krov.jpg
[area_modifier] => 114.74
[parent_name] => Утепление кровли (Мансарда)
[parent_id] => 13
[material_sum] => 181459
[work_sum] => 51461
[total_sum] => 232920
[total_days] => 3
[display_material_sum] => 181 459
[display_work_sum] => 51 461
[display_total_sum] => 232 920
)
1
232 920₽
Работа:51 461 ₽
Материалы:181 459 ₽
Дни:3
stdClass Object
(
[id] => 125
[attribute_id] => 13
[name] => ПСБ (ППС-пенополистирол)
[material_modifier] => 1
[work_modifier] => 1
[options] => Array
(
[0] => 50 мм
[1] => 100 мм
[2] => 150 мм
[3] => 200 мм
[4] => 250 мм
[5] => 300 мм
[6] => 350 мм
[7] => 400 мм
[8] => 450 мм
[9] => 500 мм
)
[days] => [3,3,4,4,4,5,5,5,5,6]
[material_price] => [476,954,1430,1906,3336,3814,4766,5720,6674,7626]
[work_price] => [390,508,508,660,790,870,958,1052,1158,1274]
[image] => https://akademik-stroy.ru/wp-content/uploads/materials/psb-krov.jpg
[area_modifier] => 114.74
[parent_name] => Утепление кровли (Мансарда)
[parent_id] => 13
[material_sum] => 75370
[work_sum] => 51461
[total_sum] => 126831
[total_days] => 3
[display_material_sum] => 75 370
[display_work_sum] => 51 461
[display_total_sum] => 126 831
)
1
126 831₽
Работа:51 461 ₽
Материалы:75 370 ₽
Дни:3
stdClass Object
(
[id] => 126
[attribute_id] => 13
[name] => ППУ (Пенополиуретан)
[material_modifier] => 1
[work_modifier] => 1
[options] => Array
(
[0] => 50 мм
[1] => 100 мм
[2] => 150 мм
[3] => 200 мм
[4] => 250 мм
[5] => 300 мм
[6] => 350 мм
[7] => 400 мм
[8] => 450 мм
[9] => 500 мм
)
[days] => [2,2,3,3,3,3,4,4,4,4]
[material_price] => [2080,4160,6240,8320,14560,16640,20800,24960,29120,33280]
[work_price] => [234,304,304,396,474,522,574,632,694,764]
[image] => https://akademik-stroy.ru/wp-content/uploads/materials/ppu-krov.jpg
[area_modifier] => 114.74
[parent_name] => Утепление кровли (Мансарда)
[parent_id] => 13
[material_sum] => 329350
[work_sum] => 30877
[total_sum] => 360227
[total_days] => 2
[display_material_sum] => 329 350
[display_work_sum] => 30 877
[display_total_sum] => 360 227
)
1
360 227₽
Работа:30 877 ₽
Материалы:329 350 ₽
Дни:2
stdClass Object
(
[id] => 127
[attribute_id] => 13
[name] => PIR-плиты (пенополиизоцианурат)
[material_modifier] => 1
[work_modifier] => 1
[options] => Array
(
[0] => 50 мм
[1] => 100 мм
[2] => 150 мм
[3] => 200 мм
[4] => 250 мм
[5] => 300 мм
[6] => 350 мм
[7] => 400 мм
[8] => 450 мм
[9] => 500 мм
)
[days] => [3,3,4,4,4,5,5,5,5,6]
[material_price] => [2646,5290,7936,10580,18516,21162,26452,31742,37032,42324]
[work_price] => [390,508,508,660,790,870,958,1052,1158,1274]
[image] => https://akademik-stroy.ru/wp-content/uploads/materials/pir-krov.jpg
[area_modifier] => 114.74
[parent_name] => Утепление кровли (Мансарда)
[parent_id] => 13
[material_sum] => 418971
[work_sum] => 51461
[total_sum] => 470432
[total_days] => 3
[display_material_sum] => 418 971
[display_work_sum] => 51 461
[display_total_sum] => 470 432
)
1
470 432₽
Работа:51 461 ₽
Материалы:418 971 ₽
Дни:3
stdClass Object
(
[id] => 27
[attribute_id] => 14
[name] => Нет
[material_modifier] => 1
[work_modifier] => 1
[options] => Array
(
)
[days] => [0]
[material_price] => [0]
[work_price] => [0]
[image] => https://akademik-stroy.ru/wp-content/uploads/materials/mansardnye-okna-2.jpg
[area_modifier] => 1
[parent_name] => Мансардные окна
[parent_id] => 14
[material_sum] => 0
[work_sum] => 0
[total_sum] => 0
[total_days] => 0
[display_material_sum] => 0
[display_work_sum] => 0
[display_total_sum] => 0
)
1
0₽
Работа:0 ₽
Материалы:0 ₽
Дни:0
stdClass Object
(
[id] => 28
[attribute_id] => 14
[name] => Есть
[material_modifier] => 1
[work_modifier] => 1
[options] => Array
(
[0] => 55x78
[1] => 55x98
)
[days] => [6,7]
[material_price] => [47480,68700]
[work_price] => [17900,19500]
[image] => https://akademik-stroy.ru/wp-content/uploads/materials/mansardnye-okna-2.jpg
[area_modifier] => 1
[parent_name] => Мансардные окна
[parent_id] => 14
[material_sum] => 65522
[work_sum] => 20585
[total_sum] => 86107
[total_days] => 6
[display_material_sum] => 65 522
[display_work_sum] => 20 585
[display_total_sum] => 86 107
)
1
86 107₽
Работа:20 585 ₽
Материалы:65 522 ₽
Дни:6
stdClass Object
(
[id] => 29
[attribute_id] => 15
[name] => Нет
[material_modifier] => 1
[work_modifier] => 1
[options] => Array
(
)
[days] => [0]
[material_price] => [0]
[work_price] => [0]
[image] => https://akademik-stroy.ru/wp-content/uploads/materials/sofit.jpg
[area_modifier] => 114.74
[parent_name] => Подшивка кровли
[parent_id] => 15
[material_sum] => 0
[work_sum] => 0
[total_sum] => 0
[total_days] => 0
[display_material_sum] => 0
[display_work_sum] => 0
[display_total_sum] => 0
)
1
0₽
Работа:0 ₽
Материалы:0 ₽
Дни:0
stdClass Object
(
[id] => 30
[attribute_id] => 15
[name] => Есть
[material_modifier] => 1
[work_modifier] => 1
[options] => Array
(
[0] => Софиты (ПВХ)
[1] => Cedral
[2] => ДПК
[3] => Планкен
)
[days] => [7,10,9,8]
[material_price] => [1803,3213,3025,3150]
[work_price] => [1529,2188,2075,1923]
[image] => https://akademik-stroy.ru/wp-content/uploads/materials/sofit.jpg
[area_modifier] => 114.74
[parent_name] => Подшивка кровли
[parent_id] => 15
[material_sum] => 285489
[work_sum] => 201753
[total_sum] => 487242
[total_days] => 7
[display_material_sum] => 285 489
[display_work_sum] => 201 753
[display_total_sum] => 487 242
)
1
487 242₽
Работа:201 753 ₽
Материалы:285 489 ₽
Дни:7
stdClass Object
(
[id] => 31
[attribute_id] => 16
[name] => Нет
[material_modifier] => 1
[work_modifier] => 1
[options] => Array
(
)
[days] => [0]
[material_price] => [0]
[work_price] => [0]
[image] => https://akademik-stroy.ru/wp-content/uploads/materials/docke-standard-pvh.jpg
[area_modifier] => 114.74
[parent_name] => Водосточная система
[parent_id] => 16
[material_sum] => 0
[work_sum] => 0
[total_sum] => 0
[total_days] => 0
[display_material_sum] => 0
[display_work_sum] => 0
[display_total_sum] => 0
)
1
0₽
Работа:0 ₽
Материалы:0 ₽
Дни:0
stdClass Object
(
[id] => 32
[attribute_id] => 16
[name] => Есть
[material_modifier] => 1
[work_modifier] => 1
[options] => Array
(
[0] => Döcke Standard (ПВХ)
[1] => Металлические Grand Line
)
[days] => [7,7]
[material_price] => [1842,2703]
[work_price] => [1491,1529]
[image] => https://akademik-stroy.ru/wp-content/uploads/materials/docke-standard-pvh.jpg
[area_modifier] => 114.74
[parent_name] => Водосточная система
[parent_id] => 16
[material_sum] => 291664
[work_sum] => 196739
[total_sum] => 488403
[total_days] => 7
[display_material_sum] => 291 664
[display_work_sum] => 196 739
[display_total_sum] => 488 403
)
1
488 403₽
Работа:196 739 ₽
Материалы:291 664 ₽
Дни:7
stdClass Object
(
[id] => 33
[attribute_id] => 17
[name] => Нет
[material_modifier] => 1
[work_modifier] => 1
[options] => Array
(
)
[days] => [0]
[material_price] => [0]
[work_price] => [0]
[image] => https://akademik-stroy.ru/wp-content/uploads/materials/mineralovata.jpg
[area_modifier] => 114.74
[parent_name] => Дополнительное утепление наружных стен
[parent_id] => 17
[material_sum] => 0
[work_sum] => 0
[total_sum] => 0
[total_days] => 0
[display_material_sum] => 0
[display_work_sum] => 0
[display_total_sum] => 0
)
1
0₽
Работа:0 ₽
Материалы:0 ₽
Дни:0
stdClass Object
(
[id] => 34
[attribute_id] => 17
[name] => Минераловатный
[material_modifier] => 1
[work_modifier] => 1
[options] => Array
(
[0] => 50 мм
[1] => 100 мм
[2] => 150 мм
[3] => 200 мм
[4] => 250 мм
[5] => 300 мм
)
[days] => [7,8,10,12,14,15]
[material_price] => [3437,3613,3803,3915,4601,4830]
[work_price] => [2325,2423,2523,2749,2859,3025]
[image] => https://akademik-stroy.ru/wp-content/uploads/materials/mineralovata.jpg
[area_modifier] => 114.74
[parent_name] => Дополнительное утепление наружных стен
[parent_id] => 17
[material_sum] => 544219
[work_sum] => 306786
[total_sum] => 851005
[total_days] => 7
[display_material_sum] => 544 219
[display_work_sum] => 306 786
[display_total_sum] => 851 005
)
1
851 005₽
Работа:306 786 ₽
Материалы:544 219 ₽
Дни:7
stdClass Object
(
[id] => 128
[attribute_id] => 17
[name] => Эковата (целлюлозная вата)
[material_modifier] => 1
[work_modifier] => 1
[options] => Array
(
[0] => 50 мм
[1] => 100 мм
[2] => 150 мм
[3] => 200 мм
[4] => 250 мм
[5] => 300 мм
)
[days] => [3,4,5,6,7,8]
[material_price] => [810,1319,1629,1838,2267,2676]
[work_price] => [1225,1323,1423,1549,1659,1725]
[image] => https://akademik-stroy.ru/wp-content/uploads/materials/ehkovata.jpg
[area_modifier] => 114.74
[parent_name] => Дополнительное утепление наружных стен
[parent_id] => 17
[material_sum] => 128256
[work_sum] => 161640
[total_sum] => 289896
[total_days] => 3
[display_material_sum] => 128 256
[display_work_sum] => 161 640
[display_total_sum] => 289 896
)
1
289 896₽
Работа:161 640 ₽
Материалы:128 256 ₽
Дни:3
stdClass Object
(
[id] => 129
[attribute_id] => 17
[name] => Экструдированный пенополистирол
[material_modifier] => 1
[work_modifier] => 1
[options] => Array
(
[0] => 50 мм
[1] => 100 мм
[2] => 150 мм
[3] => 200 мм
[4] => 250 мм
[5] => 300 мм
)
[days] => [5,6,7,8,9,10]
[material_price] => [4560,4300,5119,6292,7010,8583]
[work_price] => [1795,1954,2254,2330,2595,2735]
[image] => https://akademik-stroy.ru/wp-content/uploads/materials/epps.jpg
[area_modifier] => 114.74
[parent_name] => Дополнительное утепление наружных стен
[parent_id] => 17
[material_sum] => 722036
[work_sum] => 236852
[total_sum] => 958888
[total_days] => 5
[display_material_sum] => 722 036
[display_work_sum] => 236 852
[display_total_sum] => 958 888
)
1
958 888₽
Работа:236 852 ₽
Материалы:722 036 ₽
Дни:5
stdClass Object
(
[id] => 130
[attribute_id] => 17
[name] => ПСБ (ППС-пенополистирол)
[material_modifier] => 1
[work_modifier] => 1
[options] => Array
(
[0] => 50 мм
[1] => 100 мм
[2] => 150 мм
[3] => 200 мм
[4] => 250 мм
[5] => 300 мм
)
[days] => [5,6,7,8,9,10]
[material_price] => [4822,5200,5819,6292,7010,7583]
[work_price] => [1795,1954,2254,2330,2595,2735]
[image] => https://akademik-stroy.ru/wp-content/uploads/materials/psb.jpg
[area_modifier] => 114.74
[parent_name] => Дополнительное утепление наружных стен
[parent_id] => 17
[material_sum] => 763521
[work_sum] => 236852
[total_sum] => 1000373
[total_days] => 5
[display_material_sum] => 763 521
[display_work_sum] => 236 852
[display_total_sum] => 1 000 373
)
1
1 000 373₽
Работа:236 852 ₽
Материалы:763 521 ₽
Дни:5
stdClass Object
(
[id] => 131
[attribute_id] => 17
[name] => ППУ (Пенополиуретан)
[material_modifier] => 1
[work_modifier] => 1
[options] => Array
(
[0] => 50 мм
[1] => 100 мм
[2] => 150 мм
[3] => 200 мм
[4] => 250 мм
[5] => 300 мм
)
[days] => [3,4,5,6,7,8]
[material_price] => [2860,3400,4219,4592,5010,5583]
[work_price] => [729,900,980,1120,1280,1530]
[image] => https://akademik-stroy.ru/wp-content/uploads/materials/ppu.jpg
[area_modifier] => 114.74
[parent_name] => Дополнительное утепление наружных стен
[parent_id] => 17
[material_sum] => 452856
[work_sum] => 96192
[total_sum] => 549048
[total_days] => 3
[display_material_sum] => 452 856
[display_work_sum] => 96 192
[display_total_sum] => 549 048
)
1
549 048₽
Работа:96 192 ₽
Материалы:452 856 ₽
Дни:3
stdClass Object
(
[id] => 132
[attribute_id] => 17
[name] => PIR-плиты (пенополиизоцианурат)
[material_modifier] => 1
[work_modifier] => 1
[options] => Array
(
[0] => 50 мм
[1] => 100 мм
[2] => 150 мм
[3] => 200 мм
[4] => 250 мм
[5] => 300 мм
)
[days] => [5,6,7,8,9,10]
[material_price] => [8323,15645,20968,25900,29258,30581]
[work_price] => [800,900,970,1150,1280,1330]
[image] => https://akademik-stroy.ru/wp-content/uploads/materials/pir.jpg
[area_modifier] => 114.74
[parent_name] => Дополнительное утепление наружных стен
[parent_id] => 17
[material_sum] => 1317874
[work_sum] => 105561
[total_sum] => 1423435
[total_days] => 5
[display_material_sum] => 1 317 874
[display_work_sum] => 105 561
[display_total_sum] => 1 423 435
)
1
1 423 435₽
Работа:105 561 ₽
Материалы:1 317 874 ₽
Дни:5
stdClass Object
(
[id] => 37
[attribute_id] => 19
[name] => Нет
[material_modifier] => 1
[work_modifier] => 1
[options] => Array
(
)
[days] => [0]
[material_price] => [0]
[work_price] => [0]
[image] => https://akademik-stroy.ru/wp-content/uploads/materials/imitaciya-brusa.jpg
[area_modifier] => 114.74
[parent_name] => Наружная отделка фасада
[parent_id] => 19
[material_sum] => 0
[work_sum] => 0
[total_sum] => 0
[total_days] => 0
[display_material_sum] => 0
[display_work_sum] => 0
[display_total_sum] => 0
)
1
0₽
Работа:0 ₽
Материалы:0 ₽
Дни:0
stdClass Object
(
[id] => 38
[attribute_id] => 19
[name] => Имитация бруса
[material_modifier] => 1
[work_modifier] => 1
[options] => Array
(
[0] => Сосна
[1] => Ель
[2] => Лиственница
)
[days] => [20,20,20]
[material_price] => [2994,2762,4954]
[work_price] => [1397,1231,1577]
[image] => https://akademik-stroy.ru/wp-content/uploads/materials/imitaciya-brusa.jpg
[area_modifier] => 114.74
[parent_name] => Наружная отделка фасада
[parent_id] => 19
[material_sum] => 474074
[work_sum] => 184336
[total_sum] => 658410
[total_days] => 20
[display_material_sum] => 474 074
[display_work_sum] => 184 336
[display_total_sum] => 658 410
)
1
658 410₽
Работа:184 336 ₽
Материалы:474 074 ₽
Дни:20
stdClass Object
(
[id] => 136
[attribute_id] => 19
[name] => Планкен
[material_modifier] => 1
[work_modifier] => 1
[options] => Array
(
[0] => Сосна
[1] => Ель
[2] => Лиственница
)
[days] => [20,20,20]
[material_price] => [3194,2862,5154]
[work_price] => [1537,1354,1735]
[image] => https://akademik-stroy.ru/wp-content/uploads/materials/planken.jpg
[area_modifier] => 114.74
[parent_name] => Наружная отделка фасада
[parent_id] => 19
[material_sum] => 505742
[work_sum] => 202809
[total_sum] => 708551
[total_days] => 20
[display_material_sum] => 505 742
[display_work_sum] => 202 809
[display_total_sum] => 708 551
)
1
708 551₽
Работа:202 809 ₽
Материалы:505 742 ₽
Дни:20
stdClass Object
(
[id] => 137
[attribute_id] => 19
[name] => Штукатурка
[material_modifier] => 1
[work_modifier] => 1
[options] => Array
(
[0] => Цементно-песчаная (минеральная)
[1] => Мокрый фасад
)
[days] => [35,35]
[material_price] => [2231,3938]
[work_price] => [1202,2422]
[image] => https://akademik-stroy.ru/wp-content/uploads/materials/shtukaturka.jpg
[area_modifier] => 114.74
[parent_name] => Наружная отделка фасада
[parent_id] => 19
[material_sum] => 353259
[work_sum] => 158605
[total_sum] => 511864
[total_days] => 35
[display_material_sum] => 353 259
[display_work_sum] => 158 605
[display_total_sum] => 511 864
)
1
511 864₽
Работа:158 605 ₽
Материалы:353 259 ₽
Дни:35
stdClass Object
(
[id] => 138
[attribute_id] => 19
[name] => Облицовочный кирпич
[material_modifier] => 1
[work_modifier] => 1
[options] => Array
(
[0] => Керамический
[1] => Клинкерный
[2] => Ручной формовки
[3] => Гиперпрессованный
[4] => Силикатный кирпич
)
[days] => [45,45,45,45,45]
[material_price] => [8174,9148,1040,1257,5876]
[work_price] => [3240,3758,4536,4017,3369]
[image] => https://akademik-stroy.ru/wp-content/uploads/materials/oblicovochnyj-kirpich.jpg
[area_modifier] => 114.74
[parent_name] => Наружная отделка фасада
[parent_id] => 19
[material_sum] => 1294281
[work_sum] => 427521
[total_sum] => 1721802
[total_days] => 45
[display_material_sum] => 1 294 281
[display_work_sum] => 427 521
[display_total_sum] => 1 721 802
)
1
1 721 802₽
Работа:427 521 ₽
Материалы:1 294 281 ₽
Дни:45
stdClass Object
(
[id] => 139
[attribute_id] => 19
[name] => Фасадная плитка
[material_modifier] => 1
[work_modifier] => 1
[options] => Array
(
[0] => Клинкерная
[1] => Керамическая
[2] => Плитка ручной формовки
)
[days] => [40,40,40]
[material_price] => [2974,1487,3470]
[work_price] => [3007,2592,3629]
[image] => https://akademik-stroy.ru/wp-content/uploads/materials/fasadnaya-plitka.jpg
[area_modifier] => 114.74
[parent_name] => Наружная отделка фасада
[parent_id] => 19
[material_sum] => 470907
[work_sum] => 396777
[total_sum] => 867684
[total_days] => 40
[display_material_sum] => 470 907
[display_work_sum] => 396 777
[display_total_sum] => 867 684
)
1
867 684₽
Работа:396 777 ₽
Материалы:470 907 ₽
Дни:40
stdClass Object
(
[id] => 140
[attribute_id] => 19
[name] => Сайдинг
[material_modifier] => 1
[work_modifier] => 1
[options] => Array
(
[0] => Виниловый
[1] => Металлический
[2] => Фиброцементный
)
[days] => [20,20,20]
[material_price] => [1263,1944,4147]
[work_price] => [1263,1944,2074]
[image] => https://akademik-stroy.ru/wp-content/uploads/materials/sajding.jpg
[area_modifier] => 114.74
[parent_name] => Наружная отделка фасада
[parent_id] => 19
[material_sum] => 199985
[work_sum] => 166654
[total_sum] => 366639
[total_days] => 20
[display_material_sum] => 199 985
[display_work_sum] => 166 654
[display_total_sum] => 366 639
)
1
366 639₽
Работа:166 654 ₽
Материалы:199 985 ₽
Дни:20
stdClass Object
(
[id] => 141
[attribute_id] => 19
[name] => Камень
[material_modifier] => 1
[work_modifier] => 1
[options] => Array
(
[0] => Травертин
[1] => Дагестанский
[2] => Искусственный
[3] => Натуральный
[4] => Керамогранит
)
[days] => [45,45,45,45,45]
[material_price] => [4536,3888,2592,3240,2462]
[work_price] => [3240,3240,2462,3110,1944]
[image] => https://akademik-stroy.ru/wp-content/uploads/materials/kamen-1.jpg
[area_modifier] => 114.74
[parent_name] => Наружная отделка фасада
[parent_id] => 19
[material_sum] => 718236
[work_sum] => 427521
[total_sum] => 1145757
[total_days] => 45
[display_material_sum] => 718 236
[display_work_sum] => 427 521
[display_total_sum] => 1 145 757
)
1
1 145 757₽
Работа:427 521 ₽
Материалы:718 236 ₽
Дни:45
stdClass Object
(
[id] => 142
[attribute_id] => 19
[name] => Термопанели
[material_modifier] => 1
[work_modifier] => 1
[options] => Array
(
)
[days] => [20]
[material_price] => [6221]
[work_price] => [2333]
[image] => https://akademik-stroy.ru/wp-content/uploads/materials/termo.png
[area_modifier] => 114.74
[parent_name] => Наружная отделка фасада
[parent_id] => 19
[material_sum] => 985041
[work_sum] => 307842
[total_sum] => 1292883
[total_days] => 20
[display_material_sum] => 985 041
[display_work_sum] => 307 842
[display_total_sum] => 1 292 883
)
1
1 292 883₽
Работа:307 842 ₽
Материалы:985 041 ₽
Дни:20
stdClass Object
(
[id] => 143
[attribute_id] => 19
[name] => Плитка HAUBERK
[material_modifier] => 1
[work_modifier] => 1
[options] => Array
(
)
[days] => [20]
[material_price] => [2786]
[work_price] => [1944]
[image] => https://akademik-stroy.ru/wp-content/uploads/materials/hauberk.jpg
[area_modifier] => 114.74
[parent_name] => Наружная отделка фасада
[parent_id] => 19
[material_sum] => 441139
[work_sum] => 256513
[total_sum] => 697652
[total_days] => 20
[display_material_sum] => 441 139
[display_work_sum] => 256 513
[display_total_sum] => 697 652
)
1
697 652₽
Работа:256 513 ₽
Материалы:441 139 ₽
Дни:20
stdClass Object
(
[id] => 144
[attribute_id] => 19
[name] => Фальцевый фасад
[material_modifier] => 1
[work_modifier] => 1
[options] => Array
(
)
[days] => [20]
[material_price] => [3240]
[work_price] => [2592]
[image] => https://akademik-stroy.ru/wp-content/uploads/materials/falcevyj-fasad.jpg
[area_modifier] => 114.74
[parent_name] => Наружная отделка фасада
[parent_id] => 19
[material_sum] => 513025
[work_sum] => 342017
[total_sum] => 855042
[total_days] => 20
[display_material_sum] => 513 025
[display_work_sum] => 342 017
[display_total_sum] => 855 042
)
1
855 042₽
Работа:342 017 ₽
Материалы:513 025 ₽
Дни:20
stdClass Object
(
[id] => 145
[attribute_id] => 19
[name] => Комбинированный
[material_modifier] => 1
[work_modifier] => 1
[options] => Array
(
)
[days] => [20]
[material_price] => [4629]
[work_price] => [3499]
[image] => https://akademik-stroy.ru/wp-content/uploads/materials/Kombinirovannyj.jpg
[area_modifier] => 114.74
[parent_name] => Наружная отделка фасада
[parent_id] => 19
[material_sum] => 732961
[work_sum] => 461697
[total_sum] => 1194658
[total_days] => 20
[display_material_sum] => 732 961
[display_work_sum] => 461 697
[display_total_sum] => 1 194 658
)
1
1 194 658₽
Работа:461 697 ₽
Материалы:732 961 ₽
Дни:20
stdClass Object
(
[id] => 257
[attribute_id] => 19
[name] => Японские фиброцементные
[material_modifier] => 1
[work_modifier] => 1
[options] => Array
(
)
[days] => [20]
[material_price] => [7043]
[work_price] => [2993]
[image] => https://akademik-stroy.ru/wp-content/uploads/materials/paneli.jpg
[area_modifier] => 114.74
[parent_name] => Наружная отделка фасада
[parent_id] => 19
[material_sum] => 1115197
[work_sum] => 394929
[total_sum] => 1510126
[total_days] => 20
[display_material_sum] => 1 115 197
[display_work_sum] => 394 929
[display_total_sum] => 1 510 126
)
1
1 510 126₽
Работа:394 929 ₽
Материалы:1 115 197 ₽
Дни:20
stdClass Object
(
[id] => 258
[attribute_id] => 19
[name] => Панели Каньон
[material_modifier] => 1
[work_modifier] => 1
[options] => Array
(
)
[days] => [20]
[material_price] => [4543]
[work_price] => [2592]
[image] => https://akademik-stroy.ru/wp-content/uploads/materials/kanon.png
[area_modifier] => 114.74
[parent_name] => Наружная отделка фасада
[parent_id] => 19
[material_sum] => 719344
[work_sum] => 342017
[total_sum] => 1061361
[total_days] => 20
[display_material_sum] => 719 344
[display_work_sum] => 342 017
[display_total_sum] => 1 061 361
)
1
1 061 361₽
Работа:342 017 ₽
Материалы:719 344 ₽
Дни:20
stdClass Object
(
[id] => 39
[attribute_id] => 20
[name] => Нет
[material_modifier] => 1
[work_modifier] => 1
[options] => Array
(
)
[days] => [0]
[material_price] => [0]
[work_price] => [0]
[image] => https://akademik-stroy.ru/wp-content/uploads/materials/terrasy.jpg
[area_modifier] => 30
[parent_name] => Террасы, крыльца, навесы
[parent_id] => 20
[material_sum] => 0
[work_sum] => 0
[total_sum] => 0
[total_days] => 0
[display_material_sum] => 0
[display_work_sum] => 0
[display_total_sum] => 0
)
1
0₽
Работа:0 ₽
Материалы:0 ₽
Дни:0
stdClass Object
(
[id] => 40
[attribute_id] => 20
[name] => Есть
[material_modifier] => 1
[work_modifier] => 1
[options] => Array
(
)
[days] => [5]
[material_price] => [10450]
[work_price] => [1950]
[image] => https://akademik-stroy.ru/wp-content/uploads/materials/terrasy.jpg
[area_modifier] => 30
[parent_name] => Террасы, крыльца, навесы
[parent_id] => 20
[material_sum] => 432630
[work_sum] => 67275
[total_sum] => 499905
[total_days] => 5
[display_material_sum] => 432 630
[display_work_sum] => 67 275
[display_total_sum] => 499 905
)
1
499 905₽
Работа:67 275 ₽
Материалы:432 630 ₽
Дни:5
stdClass Object
(
[id] => 41
[attribute_id] => 21
[name] => Нет
[material_modifier] => 1
[work_modifier] => 1
[options] => Array
(
)
[days] => [0]
[material_price] => [0]
[work_price] => [0]
[image] => https://akademik-stroy.ru/wp-content/uploads/materials/balkony.jpg
[area_modifier] => 30
[parent_name] => Балконы
[parent_id] => 21
[material_sum] => 0
[work_sum] => 0
[total_sum] => 0
[total_days] => 0
[display_material_sum] => 0
[display_work_sum] => 0
[display_total_sum] => 0
)
1
0₽
Работа:0 ₽
Материалы:0 ₽
Дни:0
stdClass Object
(
[id] => 42
[attribute_id] => 21
[name] => Есть
[material_modifier] => 1
[work_modifier] => 1
[options] => Array
(
)
[days] => [12]
[material_price] => [3600]
[work_price] => [1950]
[image] => https://akademik-stroy.ru/wp-content/uploads/materials/balkony.jpg
[area_modifier] => 30
[parent_name] => Балконы
[parent_id] => 21
[material_sum] => 149040
[work_sum] => 67275
[total_sum] => 216315
[total_days] => 12
[display_material_sum] => 149 040
[display_work_sum] => 67 275
[display_total_sum] => 216 315
)
1
216 315₽
Работа:67 275 ₽
Материалы:149 040 ₽
Дни:12
stdClass Object
(
[id] => 43
[attribute_id] => 22
[name] => Нет
[material_modifier] => 1
[work_modifier] => 1
[options] => Array
(
)
[days] => [0]
[material_price] => [0]
[work_price] => [0]
[image] => https://akademik-stroy.ru/wp-content/uploads/materials/uteplennaya.jpg
[area_modifier] => 114.74
[parent_name] => Отмостка
[parent_id] => 22
[material_sum] => 0
[work_sum] => 0
[total_sum] => 0
[total_days] => 0
[display_material_sum] => 0
[display_work_sum] => 0
[display_total_sum] => 0
)
1
0₽
Работа:0 ₽
Материалы:0 ₽
Дни:0
stdClass Object
(
[id] => 44
[attribute_id] => 22
[name] => Утепленная отмостка
[material_modifier] => 1
[work_modifier] => 1
[options] => Array
(
)
[days] => [15]
[material_price] => [2550]
[work_price] => [1750]
[image] => https://akademik-stroy.ru/wp-content/uploads/materials/uteplennaya.jpg
[area_modifier] => 114.74
[parent_name] => Отмостка
[parent_id] => 22
[material_sum] => 403770
[work_sum] => 230914
[total_sum] => 634684
[total_days] => 15
[display_material_sum] => 403 770
[display_work_sum] => 230 914
[display_total_sum] => 634 684
)
1
634 684₽
Работа:230 914 ₽
Материалы:403 770 ₽
Дни:15
stdClass Object
(
[id] => 146
[attribute_id] => 22
[name] => Не утепленная отмостка
[material_modifier] => 1
[work_modifier] => 1
[options] => Array
(
)
[days] => [10]
[material_price] => [1650]
[work_price] => [1450]
[image] => https://akademik-stroy.ru/wp-content/uploads/materials/ne-uteplennaya.jpg
[area_modifier] => 114.74
[parent_name] => Отмостка
[parent_id] => 22
[material_sum] => 261263
[work_sum] => 191329
[total_sum] => 452592
[total_days] => 10
[display_material_sum] => 261 263
[display_work_sum] => 191 329
[display_total_sum] => 452 592
)
1
452 592₽
Работа:191 329 ₽
Материалы:261 263 ₽
Дни:10
stdClass Object
(
[id] => 45
[attribute_id] => 23
[name] => Нет
[material_modifier] => 1
[work_modifier] => 1
[options] => Array
(
)
[days] => [0]
[material_price] => [0]
[work_price] => [0]
[image] => https://akademik-stroy.ru/wp-content/uploads/materials/drenazh-2.jpg
[area_modifier] => 114.74
[parent_name] => Дренаж вокруг дома
[parent_id] => 23
[material_sum] => 0
[work_sum] => 0
[total_sum] => 0
[total_days] => 0
[display_material_sum] => 0
[display_work_sum] => 0
[display_total_sum] => 0
)
1
0₽
Работа:0 ₽
Материалы:0 ₽
Дни:0
stdClass Object
(
[id] => 46
[attribute_id] => 23
[name] => Есть
[material_modifier] => 1
[work_modifier] => 1
[options] => Array
(
)
[days] => [5]
[material_price] => [2366]
[work_price] => [1911]
[image] => https://akademik-stroy.ru/wp-content/uploads/materials/drenazh-2.jpg
[area_modifier] => 114.74
[parent_name] => Дренаж вокруг дома
[parent_id] => 23
[material_sum] => 374635
[work_sum] => 252158
[total_sum] => 626793
[total_days] => 5
[display_material_sum] => 374 635
[display_work_sum] => 252 158
[display_total_sum] => 626 793
)
1
626 793₽
Работа:252 158 ₽
Материалы:374 635 ₽
Дни:5
stdClass Object
(
[id] => 47
[attribute_id] => 24
[name] => Нет
[material_modifier] => 1
[work_modifier] => 1
[options] => Array
(
)
[days] => [0]
[material_price] => [0]
[work_price] => [0]
[image] => https://akademik-stroy.ru/wp-content/uploads/materials/septik.jpg
[area_modifier] => 1
[parent_name] => Автономная канализация (септики)
[parent_id] => 24
[material_sum] => 0
[work_sum] => 0
[total_sum] => 0
[total_days] => 0
[display_material_sum] => 0
[display_work_sum] => 0
[display_total_sum] => 0
)
1
0₽
Работа:0 ₽
Материалы:0 ₽
Дни:0
stdClass Object
(
[id] => 48
[attribute_id] => 24
[name] => Есть
[material_modifier] => 1
[work_modifier] => 1
[options] => Array
(
[0] => Для дачи на 4 человека
[1] => Для дома на 5 человек
[2] => Для дома на 6 человек
[3] => Для дома на 7 человек
[4] => Для дома на 10 человек
)
[days] => [7,7,7,8,8]
[material_price] => [196340,220500,240940,264200,293340]
[work_price] => [50000,55000,60500,66550,73206]
[image] => https://akademik-stroy.ru/wp-content/uploads/materials/septik.jpg
[area_modifier] => 1
[parent_name] => Автономная канализация (септики)
[parent_id] => 24
[material_sum] => 270949
[work_sum] => 57500
[total_sum] => 328449
[total_days] => 7
[display_material_sum] => 270 949
[display_work_sum] => 57 500
[display_total_sum] => 328 449
)
1
328 449₽
Работа:57 500 ₽
Материалы:270 949 ₽
Дни:7
stdClass Object
(
[id] => 49
[attribute_id] => 25
[name] => Нет
[material_modifier] => 1
[work_modifier] => 1
[options] => Array
(
)
[days] => [0]
[material_price] => [0]
[work_price] => [0]
[image] => https://akademik-stroy.ru/wp-content/uploads/materials/gkl.jpg
[area_modifier] => 114.74
[parent_name] => Внутренние (не несущие) перегородки
[parent_id] => 25
[material_sum] => 0
[work_sum] => 0
[total_sum] => 0
[total_days] => 0
[display_material_sum] => 0
[display_work_sum] => 0
[display_total_sum] => 0
)
1
0₽
Работа:0 ₽
Материалы:0 ₽
Дни:0
stdClass Object
(
[id] => 147
[attribute_id] => 25
[name] => Каркасно-обшивные
[material_modifier] => 1
[work_modifier] => 1
[options] => Array
(
[0] => 75 мм (без шумоизоляции)
[1] => 75 мм (с шумоизоляцией)
)
[days] => [11,11]
[material_price] => [580,970]
[work_price] => [380,570]
[image] => https://akademik-stroy.ru/wp-content/uploads/materials/gkl.jpg
[area_modifier] => 114.74
[parent_name] => Внутренние (не несущие) перегородки
[parent_id] => 25
[material_sum] => 91838
[work_sum] => 50141
[total_sum] => 141979
[total_days] => 11
[display_material_sum] => 91 838
[display_work_sum] => 50 141
[display_total_sum] => 141 979
)
1
141 979₽
Работа:50 141 ₽
Материалы:91 838 ₽
Дни:11
stdClass Object
(
[id] => 148
[attribute_id] => 25
[name] => Пазогребневые
[material_modifier] => 1
[work_modifier] => 1
[options] => Array
(
[0] => 80 мм
[1] => 100 мм
)
[days] => [5,5]
[material_price] => [1022,1313]
[work_price] => [600,700]
[image] => https://akademik-stroy.ru/wp-content/uploads/materials/pazogrebnevye-bloki.jpg
[area_modifier] => 114.74
[parent_name] => Внутренние (не несущие) перегородки
[parent_id] => 25
[material_sum] => 161825
[work_sum] => 79171
[total_sum] => 240996
[total_days] => 5
[display_material_sum] => 161 825
[display_work_sum] => 79 171
[display_total_sum] => 240 996
)
1
240 996₽
Работа:79 171 ₽
Материалы:161 825 ₽
Дни:5
stdClass Object
(
[id] => 149
[attribute_id] => 25
[name] => Газобетонные
[material_modifier] => 1
[work_modifier] => 1
[options] => Array
(
[0] => 100 мм
[1] => 200 мм
)
[days] => [11,11]
[material_price] => [1160,1920]
[work_price] => [700,900]
[image] => https://akademik-stroy.ru/wp-content/uploads/materials/gazobeton-2.jpg
[area_modifier] => 114.74
[parent_name] => Внутренние (не несущие) перегородки
[parent_id] => 25
[material_sum] => 183676
[work_sum] => 92366
[total_sum] => 276042
[total_days] => 11
[display_material_sum] => 183 676
[display_work_sum] => 92 366
[display_total_sum] => 276 042
)
1
276 042₽
Работа:92 366 ₽
Материалы:183 676 ₽
Дни:11
stdClass Object
(
[id] => 150
[attribute_id] => 25
[name] => Кирпичные
[material_modifier] => 1
[work_modifier] => 1
[options] => Array
(
[0] => 120 мм
[1] => 250 мм
[2] => 360 мм
)
[days] => [7,7,7]
[material_price] => [1785,3570,5355]
[work_price] => [900,1600,1800]
[image] => https://akademik-stroy.ru/wp-content/uploads/materials/kirpich-1.jpg
[area_modifier] => 114.74
[parent_name] => Внутренние (не несущие) перегородки
[parent_id] => 25
[material_sum] => 282639
[work_sum] => 118756
[total_sum] => 401395
[total_days] => 7
[display_material_sum] => 282 639
[display_work_sum] => 118 756
[display_total_sum] => 401 395
)
1
401 395₽
Работа:118 756 ₽
Материалы:282 639 ₽
Дни:7
stdClass Object
(
[id] => 55
[attribute_id] => 28
[name] => Нет
[material_modifier] => 1
[work_modifier] => 1
[options] => Array
(
)
[days] => [0]
[material_price] => [0]
[work_price] => [0]
[image] => https://akademik-stroy.ru/wp-content/uploads/materials/ehlektrika.jpg
[area_modifier] => 93.11
[parent_name] => Электрика
[parent_id] => 28
[material_sum] => 0
[work_sum] => 0
[total_sum] => 0
[total_days] => 0
[display_material_sum] => 0
[display_work_sum] => 0
[display_total_sum] => 0
)
1
0₽
Работа:0 ₽
Материалы:0 ₽
Дни:0
stdClass Object
(
[id] => 56
[attribute_id] => 28
[name] => Есть
[material_modifier] => 1
[work_modifier] => 1
[options] => Array
(
)
[days] => [10]
[material_price] => [650]
[work_price] => [950]
[image] => https://akademik-stroy.ru/wp-content/uploads/materials/ehlektrika.jpg
[area_modifier] => 93.11
[parent_name] => Электрика
[parent_id] => 28
[material_sum] => 83520
[work_sum] => 101723
[total_sum] => 185243
[total_days] => 10
[display_material_sum] => 83 520
[display_work_sum] => 101 723
[display_total_sum] => 185 243
)
1
185 243₽
Работа:101 723 ₽
Материалы:83 520 ₽
Дни:10
stdClass Object
(
[id] => 57
[attribute_id] => 29
[name] => Нет
[material_modifier] => 1
[work_modifier] => 1
[options] => Array
(
)
[days] => [0]
[material_price] => [0]
[work_price] => [0]
[image] => https://akademik-stroy.ru/wp-content/uploads/materials/santekhnika-kanalizaciya-1.jpg
[area_modifier] => 93.11
[parent_name] => Сантехника, канализация в доме
[parent_id] => 29
[material_sum] => 0
[work_sum] => 0
[total_sum] => 0
[total_days] => 0
[display_material_sum] => 0
[display_work_sum] => 0
[display_total_sum] => 0
)
1
0₽
Работа:0 ₽
Материалы:0 ₽
Дни:0
stdClass Object
(
[id] => 58
[attribute_id] => 29
[name] => Есть
[material_modifier] => 1
[work_modifier] => 1
[options] => Array
(
)
[days] => [10]
[material_price] => [600]
[work_price] => [730]
[image] => https://akademik-stroy.ru/wp-content/uploads/materials/santekhnika-kanalizaciya-1.jpg
[area_modifier] => 93.11
[parent_name] => Сантехника, канализация в доме
[parent_id] => 29
[material_sum] => 77095
[work_sum] => 78166
[total_sum] => 155261
[total_days] => 10
[display_material_sum] => 77 095
[display_work_sum] => 78 166
[display_total_sum] => 155 261
)
1
155 261₽
Работа:78 166 ₽
Материалы:77 095 ₽
Дни:10
stdClass Object
(
[id] => 59
[attribute_id] => 30
[name] => Нет
[material_modifier] => 1
[work_modifier] => 1
[options] => Array
(
)
[days] => [0]
[material_price] => [0]
[work_price] => [0]
[image] => https://akademik-stroy.ru/wp-content/uploads/materials/otoplenie-1.jpg
[area_modifier] => 93.11
[parent_name] => Отопление
[parent_id] => 30
[material_sum] => 0
[work_sum] => 0
[total_sum] => 0
[total_days] => 0
[display_material_sum] => 0
[display_work_sum] => 0
[display_total_sum] => 0
)
1
0₽
Работа:0 ₽
Материалы:0 ₽
Дни:0
stdClass Object
(
[id] => 60
[attribute_id] => 30
[name] => Есть
[material_modifier] => 1
[work_modifier] => 1
[options] => Array
(
)
[days] => [5]
[material_price] => [610]
[work_price] => [560]
[image] => https://akademik-stroy.ru/wp-content/uploads/materials/otoplenie-1.jpg
[area_modifier] => 93.11
[parent_name] => Отопление
[parent_id] => 30
[material_sum] => 78380
[work_sum] => 59963
[total_sum] => 138343
[total_days] => 5
[display_material_sum] => 78 380
[display_work_sum] => 59 963
[display_total_sum] => 138 343
)
1
138 343₽
Работа:59 963 ₽
Материалы:78 380 ₽
Дни:5
stdClass Object
(
[id] => 61
[attribute_id] => 31
[name] => Нет
[material_modifier] => 1
[work_modifier] => 1
[options] => Array
(
)
[days] => [0]
[material_price] => [0]
[work_price] => [0]
[image] => https://akademik-stroy.ru/wp-content/uploads/materials/vodyanye.jpg
[area_modifier] => 30
[parent_name] => Теплые полы
[parent_id] => 31
[material_sum] => 0
[work_sum] => 0
[total_sum] => 0
[total_days] => 0
[display_material_sum] => 0
[display_work_sum] => 0
[display_total_sum] => 0
)
1
0₽
Работа:0 ₽
Материалы:0 ₽
Дни:0
stdClass Object
(
[id] => 151
[attribute_id] => 31
[name] => Водяные
[material_modifier] => 1
[work_modifier] => 1
[options] => Array
(
)
[days] => [9]
[material_price] => [10200]
[work_price] => [2500]
[image] => https://akademik-stroy.ru/wp-content/uploads/materials/vodyanye.jpg
[area_modifier] => 30
[parent_name] => Теплые полы
[parent_id] => 31
[material_sum] => 422280
[work_sum] => 86250
[total_sum] => 508530
[total_days] => 9
[display_material_sum] => 422 280
[display_work_sum] => 86 250
[display_total_sum] => 508 530
)
1
508 530₽
Работа:86 250 ₽
Материалы:422 280 ₽
Дни:9
stdClass Object
(
[id] => 152
[attribute_id] => 31
[name] => Электро
[material_modifier] => 1
[work_modifier] => 1
[options] => Array
(
)
[days] => [5]
[material_price] => [6300]
[work_price] => [1500]
[image] => https://akademik-stroy.ru/wp-content/uploads/materials/ehlektricheskij.jpg
[area_modifier] => 30
[parent_name] => Теплые полы
[parent_id] => 31
[material_sum] => 260820
[work_sum] => 51750
[total_sum] => 312570
[total_days] => 5
[display_material_sum] => 260 820
[display_work_sum] => 51 750
[display_total_sum] => 312 570
)
1
312 570₽
Работа:51 750 ₽
Материалы:260 820 ₽
Дни:5
stdClass Object
(
[id] => 63
[attribute_id] => 32
[name] => Нет
[material_modifier] => 1
[work_modifier] => 1
[options] => Array
(
)
[days] => [0]
[material_price] => [0]
[work_price] => [0]
[image] => https://akademik-stroy.ru/wp-content/uploads/materials/shtukaturka-shpatlevka-1.jpg
[area_modifier] => 93.11
[parent_name] => Черновая отделка стен
[parent_id] => 32
[material_sum] => 0
[work_sum] => 0
[total_sum] => 0
[total_days] => 0
[display_material_sum] => 0
[display_work_sum] => 0
[display_total_sum] => 0
)
1
0₽
Работа:0 ₽
Материалы:0 ₽
Дни:0
stdClass Object
(
[id] => 153
[attribute_id] => 32
[name] => Штукатурка и шпатлевка
[material_modifier] => 1
[work_modifier] => 1
[options] => Array
(
)
[days] => [20]
[material_price] => [1850]
[work_price] => [2600]
[image] => https://akademik-stroy.ru/wp-content/uploads/materials/shtukaturka-shpatlevka-1.jpg
[area_modifier] => 93.11
[parent_name] => Черновая отделка стен
[parent_id] => 32
[material_sum] => 237710
[work_sum] => 278399
[total_sum] => 516109
[total_days] => 20
[display_material_sum] => 237 710
[display_work_sum] => 278 399
[display_total_sum] => 516 109
)
1
516 109₽
Работа:278 399 ₽
Материалы:237 710 ₽
Дни:20
stdClass Object
(
[id] => 154
[attribute_id] => 32
[name] => Гипсокортон на стены
[material_modifier] => 1
[work_modifier] => 1
[options] => Array
(
)
[days] => [15]
[material_price] => [950]
[work_price] => [2100]
[image] => https://akademik-stroy.ru/wp-content/uploads/materials/gkl-1.jpg
[area_modifier] => 93.11
[parent_name] => Черновая отделка стен
[parent_id] => 32
[material_sum] => 122067
[work_sum] => 224861
[total_sum] => 346928
[total_days] => 15
[display_material_sum] => 122 067
[display_work_sum] => 224 861
[display_total_sum] => 346 928
)
1
346 928₽
Работа:224 861 ₽
Материалы:122 067 ₽
Дни:15
stdClass Object
(
[id] => 155
[attribute_id] => 32
[name] => Вагонка
[material_modifier] => 1
[work_modifier] => 1
[options] => Array
(
)
[days] => [15]
[material_price] => [1250]
[work_price] => [950]
[image] => https://akademik-stroy.ru/wp-content/uploads/materials/vagonka.jpg
[area_modifier] => 93.11
[parent_name] => Черновая отделка стен
[parent_id] => 32
[material_sum] => 160615
[work_sum] => 101723
[total_sum] => 262338
[total_days] => 15
[display_material_sum] => 160 615
[display_work_sum] => 101 723
[display_total_sum] => 262 338
)
1
262 338₽
Работа:101 723 ₽
Материалы:160 615 ₽
Дни:15
stdClass Object
(
[id] => 65
[attribute_id] => 33
[name] => Нет
[material_modifier] => 1
[work_modifier] => 1
[options] => Array
(
)
[days] => [0]
[material_price] => [0]
[work_price] => [0]
[image] => https://akademik-stroy.ru/wp-content/uploads/materials/styazhka.jpg
[area_modifier] => 93.11
[parent_name] => Черновая отделка полов
[parent_id] => 33
[material_sum] => 0
[work_sum] => 0
[total_sum] => 0
[total_days] => 0
[display_material_sum] => 0
[display_work_sum] => 0
[display_total_sum] => 0
)
1
0₽
Работа:0 ₽
Материалы:0 ₽
Дни:0
stdClass Object
(
[id] => 156
[attribute_id] => 33
[name] => Стяжка + наливные полы
[material_modifier] => 1
[work_modifier] => 1
[options] => Array
(
)
[days] => [10]
[material_price] => [1000]
[work_price] => [900]
[image] => https://akademik-stroy.ru/wp-content/uploads/materials/styazhka.jpg
[area_modifier] => 93.11
[parent_name] => Черновая отделка полов
[parent_id] => 33
[material_sum] => 128492
[work_sum] => 96369
[total_sum] => 224861
[total_days] => 10
[display_material_sum] => 128 492
[display_work_sum] => 96 369
[display_total_sum] => 224 861
)
1
224 861₽
Работа:96 369 ₽
Материалы:128 492 ₽
Дни:10
stdClass Object
(
[id] => 157
[attribute_id] => 33
[name] => ОСБ на пол
[material_modifier] => 1
[work_modifier] => 1
[options] => Array
(
)
[days] => [7]
[material_price] => [580]
[work_price] => [350]
[image] => https://akademik-stroy.ru/wp-content/uploads/materials/osb-1.jpg
[area_modifier] => 93.11
[parent_name] => Черновая отделка полов
[parent_id] => 33
[material_sum] => 74525
[work_sum] => 37477
[total_sum] => 112002
[total_days] => 7
[display_material_sum] => 74 525
[display_work_sum] => 37 477
[display_total_sum] => 112 002
)
1
112 002₽
Работа:37 477 ₽
Материалы:74 525 ₽
Дни:7
stdClass Object
(
[id] => 67
[attribute_id] => 34
[name] => Нет
[material_modifier] => 1
[work_modifier] => 1
[options] => Array
(
)
[days] => [0]
[material_price] => [0]
[work_price] => [0]
[image] => https://akademik-stroy.ru/wp-content/uploads/materials/chistovaya-otdelka.jpg
[area_modifier] => 93.11
[parent_name] => Чистовая отделка стен и полов
[parent_id] => 34
[material_sum] => 0
[work_sum] => 0
[total_sum] => 0
[total_days] => 0
[display_material_sum] => 0
[display_work_sum] => 0
[display_total_sum] => 0
)
1
0₽
Работа:0 ₽
Материалы:0 ₽
Дни:0
stdClass Object
(
[id] => 68
[attribute_id] => 34
[name] => Есть
[material_modifier] => 1
[work_modifier] => 1
[options] => Array
(
)
[days] => [50]
[material_price] => [6000]
[work_price] => [3500]
[image] => https://akademik-stroy.ru/wp-content/uploads/materials/chistovaya-otdelka.jpg
[area_modifier] => 93.11
[parent_name] => Чистовая отделка стен и полов
[parent_id] => 34
[material_sum] => 770951
[work_sum] => 374768
[total_sum] => 1145719
[total_days] => 50
[display_material_sum] => 770 951
[display_work_sum] => 374 768
[display_total_sum] => 1 145 719
)
1
1 145 719₽
Работа:374 768 ₽
Материалы:770 951 ₽
Дни:50
stdClass Object
(
[id] => 69
[attribute_id] => 35
[name] => Нет
[material_modifier] => 1
[work_modifier] => 1
[options] => Array
(
)
[days] => [0]
[material_price] => [0]
[work_price] => [0]
[image] => https://akademik-stroy.ru/wp-content/uploads/materials/mnogourovnevyj-gkl.jpg
[area_modifier] => 93.11
[parent_name] => Отделка потолка
[parent_id] => 35
[material_sum] => 0
[work_sum] => 0
[total_sum] => 0
[total_days] => 0
[display_material_sum] => 0
[display_work_sum] => 0
[display_total_sum] => 0
)
1
0₽
Работа:0 ₽
Материалы:0 ₽
Дни:0
stdClass Object
(
[id] => 70
[attribute_id] => 35
[name] => Есть
[material_modifier] => 1
[work_modifier] => 1
[options] => Array
(
[0] => Многоуровневый потолок из гипсокартона
[1] => Многоуровневый потолок из гипсокартона и натяжного потолка
[2] => Одноуровневый потолок из гипсокартона
[3] => Одноуровневый натяжной потолок
)
[days] => [10,10,1,1]
[material_price] => [900,700,700,600]
[work_price] => [1000,800,500,300]
[image] => https://akademik-stroy.ru/wp-content/uploads/materials/mnogourovnevyj-gkl.jpg
[area_modifier] => 93.11
[parent_name] => Отделка потолка
[parent_id] => 35
[material_sum] => 115643
[work_sum] => 107077
[total_sum] => 222720
[total_days] => 10
[display_material_sum] => 115 643
[display_work_sum] => 107 077
[display_total_sum] => 222 720
)
1
222 720₽
Работа:107 077 ₽
Материалы:115 643 ₽
Дни:10
Преимущества работы с нами
7 этапов оплаты
Независимый строительный надзор
Экологически чистые материалы
16 лет гарантии
Онлайн-кабинет с веб-камерой
Строители с опытом более 15 лет
Собственное производство










