Одноэтажный дом 18x9 - 238.63 м2 за руб.
Планировки
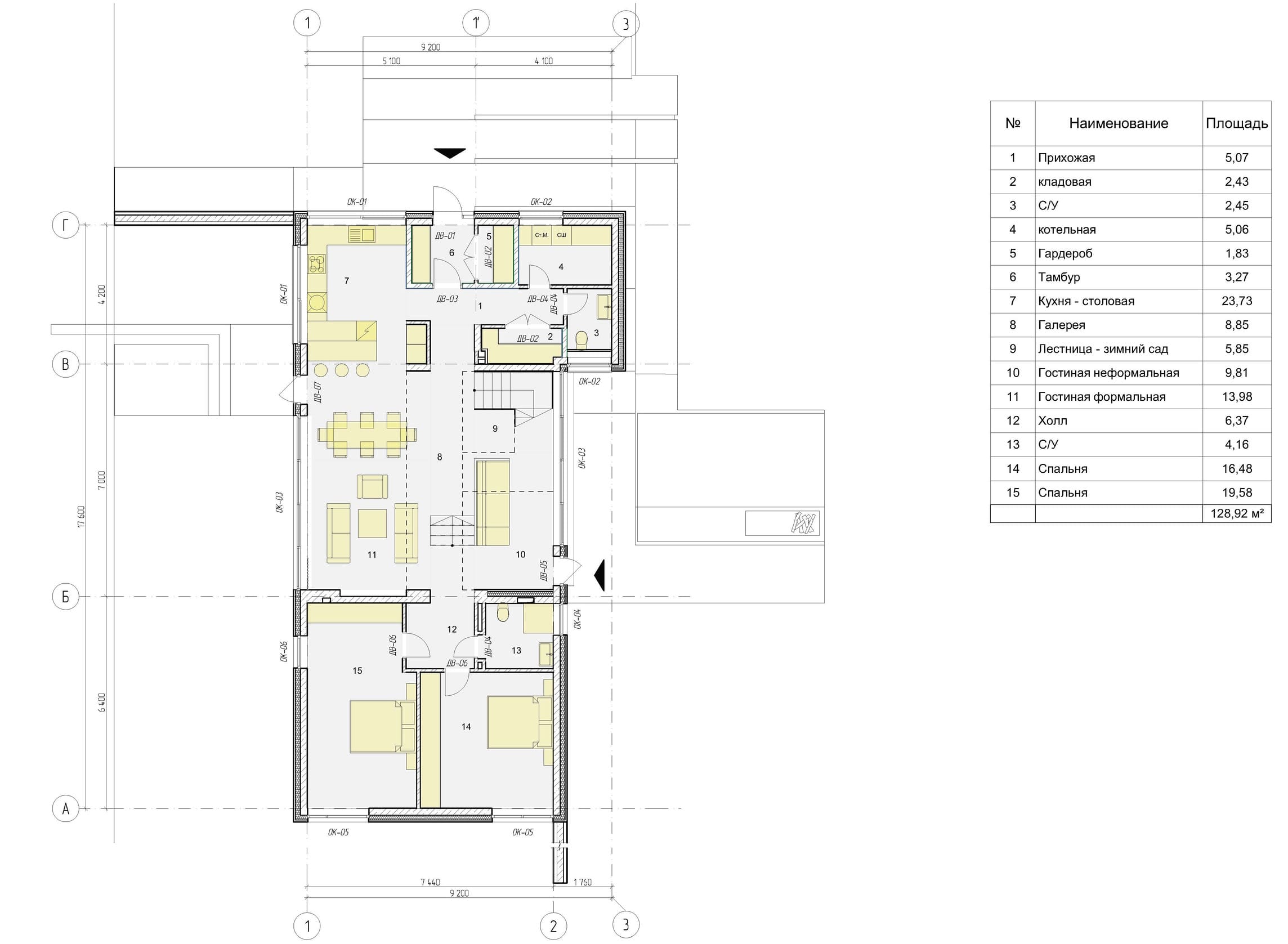
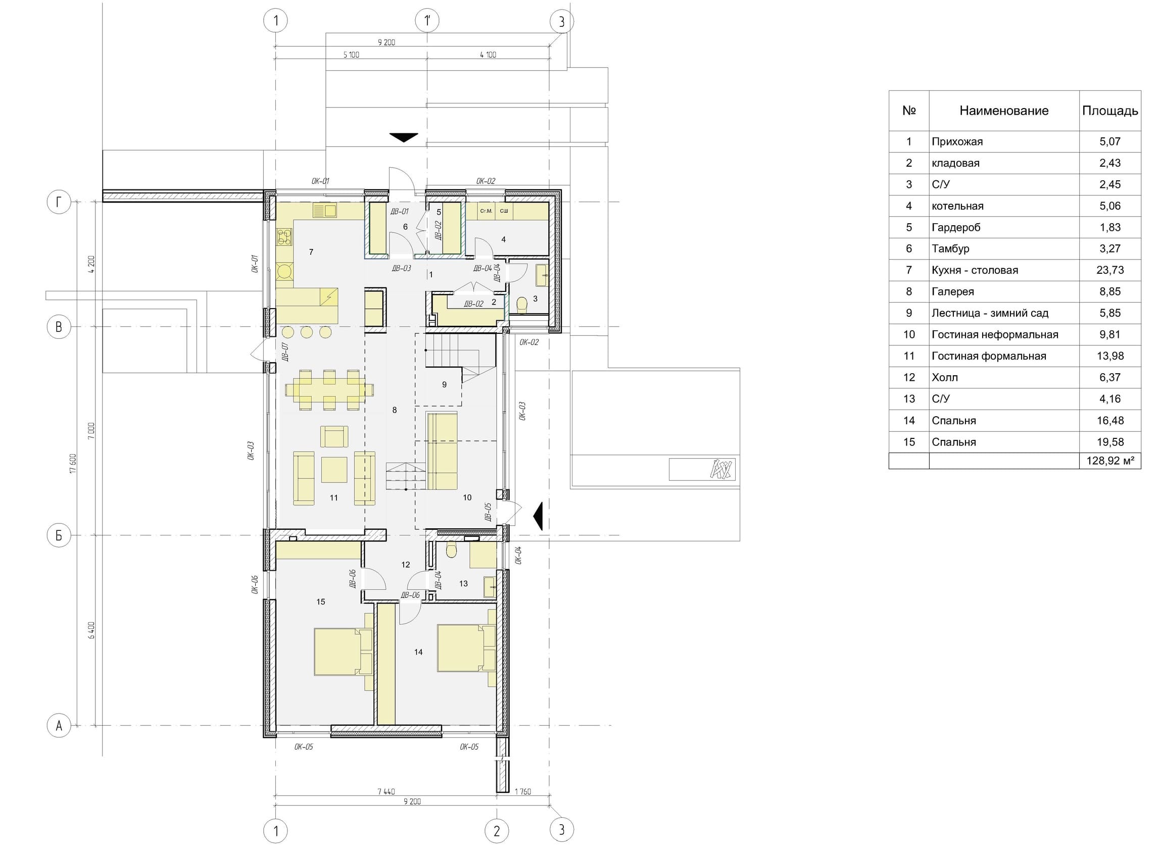
План первого этажа
- 1. Прихожая 5,07 м²
- 2. Кладовая 2,43 м²
- 3. С/У 2,45 м²
- 4. Котельная 5,06 м²
- 5. Гардеробная 1,83 м²
- 6. Тамбур 3,27 м²
- 7. Кухня-столовая 23,73 м²
- 8. Галерея 8,85 м²
- 9. Лестница-зимний сад 5,85 м²
- 10. Гостиная неформальная 9,81 м²
- 11. Гостиная формальная 13,98 м²
- 12. Холл 6,37 м²
- 13. С/У 4,16 м²
- 14. Спальня 16,48 м²
- 15. Спальня 19,58 м²
- Общая площадь 1 этажа 128,92 м²
План второго этажа
- 1. Галерея 16,89 м²
- 2. Кабинет 26,64 м²
- 3. Терраса 16,62 м²
- 4. С/У 9,47 м²
- 5. Спальня 33,01 м²
- 6. Гардеробная 7,08 м²
- Общая площадь 2 этажа 109,71 м²
Площади дома
| № п/п | Наименование | Ед. из. | Строительная площадь | Полезная площадь |
| 1 | 1 этаж | м2 | 158.87 | 128.92 |
| 2 | 2 этаж | м2 | 135.2 | 109.71 |
| 3 | Итого | м2 | 294.07 | 238.63 |
154 м2
Полезная
площадь
площадь
18 x 9 м
Размеры
1 этаж
Этажей
26 м2
Террасы
и балконы
и балконы
0Без
гаража
гаража
3
Количество
спален
спален
3
Количество
санузлов
санузлов
Калькулятор опций
0₽
В ипотеку от 26 698 ₽/мес.
0₽
0 дней
stdClass Object
(
[id] => 1
[attribute_id] => 1
[name] => Ленточный монолитный ж/б
[material_modifier] => 1
[work_modifier] => 1
[options] => Array
(
[0] => размер 200 х 700 мм
[1] => размер 300 х 900 мм
[2] => размер 400 х 1 000 мм
[3] => размер 500 х 1 100 мм
[4] => размер 600 х 1 200 мм
)
[days] => [20,21,22,25,30]
[material_price] => [2823,3630,4475,5210,12047]
[work_price] => [2154,2826,3731,4577,5293]
[image] => https://akademik-stroy.ru/wp-content/uploads/materials/lentochnyj-monolitnyj-zh-b.jpg
[area_modifier] => 158.87
[parent_name] => Фундамент
[parent_id] => 1
[material_sum] => 565097
[work_sum] => 359316
[total_sum] => 924413
[total_days] => 20
[display_material_sum] => 565 097
[display_work_sum] => 359 316
[display_total_sum] => 924 413
)
1
924 413₽
Работа:359 316 ₽
Материалы:565 097 ₽
Дни:20
stdClass Object
(
[id] => 2
[attribute_id] => 1
[name] => Забивные Ж/Б сваи
[material_modifier] => 1
[work_modifier] => 1
[options] => Array
(
[0] => 150х150х3000мм
[1] => 150х150х4000мм
[2] => 200х200х3000мм
[3] => 200х200х4000мм
[4] => 200х200х5000мм
[5] => 200х200х6000мм
)
[days] => [2,2,2,2,2,2]
[material_price] => [1990,2850,3255,4360,5120,6837]
[work_price] => [1002,1185,1336,1438,1574,1839]
[image] => https://akademik-stroy.ru/wp-content/uploads/materials/zabivnye-zh-b-svai.png
[area_modifier] => 158.87
[parent_name] => Фундамент
[parent_id] => 1
[material_sum] => 398351
[work_sum] => 167147
[total_sum] => 565498
[total_days] => 2
[display_material_sum] => 398 351
[display_work_sum] => 167 147
[display_total_sum] => 565 498
)
1
565 498₽
Работа:167 147 ₽
Материалы:398 351 ₽
Дни:2
stdClass Object
(
[id] => 71
[attribute_id] => 1
[name] => Свайно-ростверковый ж/б
[material_modifier] => 1
[work_modifier] => 1
[options] => Array
(
[0] => ростверк 200х300 мм
[1] => ростверк 300х600 мм
[2] => ростверк 400х900 мм
[3] => ростверк 500х1200 мм
)
[days] => [20,23,25,27]
[material_price] => [3018,3474,7109,9792]
[work_price] => [2024,3012,5635,7022]
[image] => https://akademik-stroy.ru/wp-content/uploads/materials/svajno-rostverkovyj-monolitnyj-zh-b-3.png
[area_modifier] => 158.87
[parent_name] => Фундамент
[parent_id] => 1
[material_sum] => 604132
[work_sum] => 337631
[total_sum] => 941763
[total_days] => 20
[display_material_sum] => 604 132
[display_work_sum] => 337 631
[display_total_sum] => 941 763
)
1
941 763₽
Работа:337 631 ₽
Материалы:604 132 ₽
Дни:20
stdClass Object
(
[id] => 72
[attribute_id] => 1
[name] => Монолитная ж/б плита
[material_modifier] => 1
[work_modifier] => 1
[options] => Array
(
[0] => 200 мм
[1] => 300 мм
[2] => 400 мм
[3] => 500 мм
[4] => 600 мм
)
[days] => [30,33,35,37,40]
[material_price] => [5348,8555,12788,14388,15189]
[work_price] => [4314,4881,7037,8061,10230]
[image] => https://akademik-stroy.ru/wp-content/uploads/materials/monolitnaya-zhb-plita.png
[area_modifier] => 158.87
[parent_name] => Фундамент
[parent_id] => 1
[material_sum] => 1070542
[work_sum] => 719633
[total_sum] => 1790175
[total_days] => 30
[display_material_sum] => 1 070 542
[display_work_sum] => 719 633
[display_total_sum] => 1 790 175
)
1
1 790 175₽
Работа:719 633 ₽
Материалы:1 070 542 ₽
Дни:30
stdClass Object
(
[id] => 73
[attribute_id] => 1
[name] => Утепленная шведская плита
[material_modifier] => 1
[work_modifier] => 1
[options] => Array
(
[0] => 200 мм
[1] => 300 мм
[2] => 400 мм
[3] => 500 мм
[4] => 600 мм
)
[days] => [32,37,39,42,45]
[material_price] => [10249,12692,13760,14936,16230]
[work_price] => [5960,7337,8072,8878,9765]
[image] => https://akademik-stroy.ru/wp-content/uploads/materials/uteplennaya-shvedskaya-plita.jpg
[area_modifier] => 158.87
[parent_name] => Фундамент
[parent_id] => 1
[material_sum] => 2051606
[work_sum] => 994208
[total_sum] => 3045814
[total_days] => 32
[display_material_sum] => 2 051 606
[display_work_sum] => 994 208
[display_total_sum] => 3 045 814
)
1
3 045 814₽
Работа:994 208 ₽
Материалы:2 051 606 ₽
Дни:32
stdClass Object
(
[id] => 75
[attribute_id] => 1
[name] => Ленточный из ФБС
[material_modifier] => 1
[work_modifier] => 1
[options] => Array
(
[0] => толщ. 300 мм
[1] => толщ. 400 мм
[2] => толщ. 500 мм
[3] => толщ. 600 мм
)
[days] => [20,20,20,20]
[material_price] => [3675,4902,6126,7350]
[work_price] => [2451,3264,4083,4902]
[image] => https://akademik-stroy.ru/wp-content/uploads/materials/lentochnyj-iz-fbs.png
[area_modifier] => 158.87
[parent_name] => Фундамент
[parent_id] => 1
[material_sum] => 735648
[work_sum] => 408860
[total_sum] => 1144508
[total_days] => 20
[display_material_sum] => 735 648
[display_work_sum] => 408 860
[display_total_sum] => 1 144 508
)
1
1 144 508₽
Работа:408 860 ₽
Материалы:735 648 ₽
Дни:20
stdClass Object
(
[id] => 76
[attribute_id] => 1
[name] => Цокольный этаж из ФБС
[material_modifier] => 1
[work_modifier] => 1
[options] => Array
(
[0] => толщ. 300 мм
[1] => толщ. 400 мм
[2] => толщ. 500 мм
[3] => толщ. 600 мм
)
[days] => [30,32,34,36]
[material_price] => [20916,23299,26680,29060]
[work_price] => [17524,18700,19873,21046]
[image] => https://akademik-stroy.ru/wp-content/uploads/materials/cokolnyj-ehtazh-iz-fbs.jpg
[area_modifier] => 158.87
[parent_name] => Фундамент
[parent_id] => 1
[material_sum] => 4186885
[work_sum] => 2923240
[total_sum] => 7110125
[total_days] => 30
[display_material_sum] => 4 186 885
[display_work_sum] => 2 923 240
[display_total_sum] => 7 110 125
)
1
7 110 125₽
Работа:2 923 240 ₽
Материалы:4 186 885 ₽
Дни:30
stdClass Object
(
[id] => 77
[attribute_id] => 1
[name] => Цокольный этаж монолитный ж/б
[material_modifier] => 1
[work_modifier] => 1
[options] => Array
(
[0] => толщ. 200 мм
[1] => толщ. 300 мм
[2] => толщ. 400 мм
[3] => толщ. 500 мм
[4] => толщ. 600 мм
)
[days] => [40,42,44,46,48]
[material_price] => [25421,29148,32275,35602,37326]
[work_price] => [20441,21907,23375,24841,26306]
[image] => https://akademik-stroy.ru/wp-content/uploads/materials/cokolnyj-etazh-zh-b.jpg
[area_modifier] => 158.87
[parent_name] => Фундамент
[parent_id] => 1
[material_sum] => 5088679
[work_sum] => 3409835
[total_sum] => 8498514
[total_days] => 40
[display_material_sum] => 5 088 679
[display_work_sum] => 3 409 835
[display_total_sum] => 8 498 514
)
1
8 498 514₽
Работа:3 409 835 ₽
Материалы:5 088 679 ₽
Дни:40
stdClass Object
(
[id] => 191
[attribute_id] => 1
[name] => Винтовые сваи
[material_modifier] => 1
[work_modifier] => 1
[options] => Array
(
[0] => 57х200мм
[1] => 76х250мм
[2] => 108х300мм
[3] => 133х350мм
)
[days] => [1,1,2,2]
[material_price] => [1200,1300,1450,1600]
[work_price] => [400,600,900,1100]
[image] => https://akademik-stroy.ru/wp-content/uploads/materials/vintovye-svai.png
[area_modifier] => 158.87
[parent_name] => Фундамент
[parent_id] => 1
[material_sum] => 240211
[work_sum] => 66725
[total_sum] => 306936
[total_days] => 1
[display_material_sum] => 240 211
[display_work_sum] => 66 725
[display_total_sum] => 306 936
)
1
306 936₽
Работа:66 725 ₽
Материалы:240 211 ₽
Дни:1
stdClass Object
(
[id] => 3
[attribute_id] => 2
[name] => Деревянные балки
[material_modifier] => 1
[work_modifier] => 1
[options] => Array
(
[0] => без утепления
[1] => утепление 200 мм
[2] => утепление 250 мм
[3] => утепление 300 мм
[4] => утепление 350 мм
[5] => утепление 400 мм
[6] => утепление 450 мм
[7] => утепление 500 мм
)
[days] => [8,9,9,9,11,12,13,14]
[material_price] => [1634,2042,2344,2947,3149,3652,3354,3557]
[work_price] => [1230,1339,1393,1426,1460,1513,1587,1620]
[image] => https://akademik-stroy.ru/wp-content/uploads/materials/derevyannye-balki.png
[area_modifier] => 158.87
[parent_name] => Перекрытие цоколя
[parent_id] => 2
[material_sum] => 327088
[work_sum] => 205181
[total_sum] => 532269
[total_days] => 8
[display_material_sum] => 327 088
[display_work_sum] => 205 181
[display_total_sum] => 532 269
)
1
532 269₽
Работа:205 181 ₽
Материалы:327 088 ₽
Дни:8
stdClass Object
(
[id] => 4
[attribute_id] => 2
[name] => Сборные ж/б плиты
[material_modifier] => 1
[work_modifier] => 1
[options] => Array
(
[0] => без утепления
[1] => утепление 150мм
[2] => утепление 200мм
[3] => утепление 250мм
[4] => утепление 300мм
[5] => утепление 350мм
[6] => утепление 400мм
[7] => утепление 450мм
[8] => утепление 500мм
)
[days] => [13,15,15,15,15,15,15,15,15]
[material_price] => [3067,5577,5928,6679,7730,8782,9833,10884,11935]
[work_price] => [1520,1956,2102,2247,2392,2537,2684,2829,2974]
[image] => https://akademik-stroy.ru/wp-content/uploads/materials/sbornye-zh-b-plity-2.jpg
[area_modifier] => 158.87
[parent_name] => Перекрытие цоколя
[parent_id] => 2
[material_sum] => 613940
[work_sum] => 253557
[total_sum] => 867497
[total_days] => 13
[display_material_sum] => 613 940
[display_work_sum] => 253 557
[display_total_sum] => 867 497
)
1
867 497₽
Работа:253 557 ₽
Материалы:613 940 ₽
Дни:13
stdClass Object
(
[id] => 78
[attribute_id] => 2
[name] => Монолитная ж/б плита
[material_modifier] => 1
[work_modifier] => 1
[options] => Array
(
[0] => без утепления
[1] => утепление 150 мм
[2] => утепление 200 мм
[3] => утепление 250 мм
[4] => утепление 300 мм
[5] => утепление 350 мм
[6] => утепление 400 мм
[7] => утепление 450 мм
[8] => утепление 500 мм
)
[days] => [18,20,20,20,20,20,20,20,20]
[material_price] => [4837,6572,7224,7375,79426,8177,8728,9180,10031]
[work_price] => [3348,3921,4112,4302,4493,4684,4875,5066,5256]
[image] => https://akademik-stroy.ru/wp-content/uploads/materials/monolitnaya-zh-b-plita-2.jpg
[area_modifier] => 158.87
[parent_name] => Перекрытие цоколя
[parent_id] => 2
[material_sum] => 968252
[work_sum] => 558492
[total_sum] => 1526744
[total_days] => 18
[display_material_sum] => 968 252
[display_work_sum] => 558 492
[display_total_sum] => 1 526 744
)
1
1 526 744₽
Работа:558 492 ₽
Материалы:968 252 ₽
Дни:18
stdClass Object
(
[id] => 6
[attribute_id] => 3
[name] => Пеноблок
[material_modifier] => 1
[work_modifier] => 1
[options] => Array
(
[0] => 300 мм
[1] => 400 мм
[2] => 500 мм
[3] => 600 мм
)
[days] => [29,31,34,39]
[material_price] => [3000,4000,4500,4937]
[work_price] => [5033,5805,6400,8710]
[image] => https://akademik-stroy.ru/wp-content/uploads/materials/penoblok.jpg
[area_modifier] => 158.87
[parent_name] => Стены 1 этаж (несущие)
[parent_id] => 3
[material_sum] => 600529
[work_sum] => 839572
[total_sum] => 1440101
[total_days] => 29
[display_material_sum] => 600 529
[display_work_sum] => 839 572
[display_total_sum] => 1 440 101
)
1
1 440 101₽
Работа:839 572 ₽
Материалы:600 529 ₽
Дни:29
stdClass Object
(
[id] => 79
[attribute_id] => 3
[name] => Керамический блок
[material_modifier] => 1
[work_modifier] => 1
[options] => Array
(
[0] => 380 мм
[1] => 380 мм Thermo
[2] => 440 мм
[3] => 510 мм
)
[days] => [23,23,24,25]
[material_price] => [4510,5098,6093,8013]
[work_price] => [4737,4937,5903,6958]
[image] => https://akademik-stroy.ru/wp-content/uploads/materials/keramicheskij-blok.jpg
[area_modifier] => 158.87
[parent_name] => Стены 1 этаж (несущие)
[parent_id] => 3
[material_sum] => 902795
[work_sum] => 790196
[total_sum] => 1692991
[total_days] => 23
[display_material_sum] => 902 795
[display_work_sum] => 790 196
[display_total_sum] => 1 692 991
)
1
1 692 991₽
Работа:790 196 ₽
Материалы:902 795 ₽
Дни:23
stdClass Object
(
[id] => 80
[attribute_id] => 3
[name] => Кирпич
[material_modifier] => 1
[work_modifier] => 1
[options] => Array
(
[0] => Кирпич 250 мм
[1] => Кирпич 380 мм
[2] => Кирпич 510 мм
[3] => Кирпич 640 мм
[4] => Кирпич 770 мм
)
[days] => [30,30,31,33,36]
[material_price] => [5500,7142,9206,10171,12235]
[work_price] => [8736,10041,12018,15240,18462]
[image] => https://akademik-stroy.ru/wp-content/uploads/materials/kirpich.jpg
[area_modifier] => 158.87
[parent_name] => Стены 1 этаж (несущие)
[parent_id] => 3
[material_sum] => 1100969
[work_sum] => 1457283
[total_sum] => 2558252
[total_days] => 30
[display_material_sum] => 1 100 969
[display_work_sum] => 1 457 283
[display_total_sum] => 2 558 252
)
1
2 558 252₽
Работа:1 457 283 ₽
Материалы:1 100 969 ₽
Дни:30
stdClass Object
(
[id] => 81
[attribute_id] => 3
[name] => Монолитные
[material_modifier] => 1
[work_modifier] => 1
[options] => Array
(
[0] => 150 мм
[1] => 200 мм
[2] => 250 мм
[3] => 300 мм
[4] => 350 мм
[5] => 400 мм
)
[days] => [45,46,47,49,50,53]
[material_price] => [6545,7876,10175,12011,13908,15204]
[work_price] => [5106,6444,7698,8552,9807,11461]
[image] => https://akademik-stroy.ru/wp-content/uploads/materials/monolitnye.jpg
[area_modifier] => 158.87
[parent_name] => Стены 1 этаж (несущие)
[parent_id] => 3
[material_sum] => 1310153
[work_sum] => 851750
[total_sum] => 2161903
[total_days] => 45
[display_material_sum] => 1 310 153
[display_work_sum] => 851 750
[display_total_sum] => 2 161 903
)
1
2 161 903₽
Работа:851 750 ₽
Материалы:1 310 153 ₽
Дни:45
stdClass Object
(
[id] => 82
[attribute_id] => 3
[name] => Клееный брус
[material_modifier] => 1
[work_modifier] => 1
[options] => Array
(
[0] => 160 мм
[1] => 175 мм
[2] => 200 мм
[3] => 215 мм
[4] => 240 мм
[5] => 270 мм
[6] => 282 мм
)
[days] => [24,28,32,37,40,42,48]
[material_price] => [16975,18773,19950,20545,21599,22159,23275]
[work_price] => [4806,5287,5815,6397,7036,7740,8514]
[image] => https://akademik-stroy.ru/wp-content/uploads/materials/kleenyj-brus.jpg
[area_modifier] => 158.87
[parent_name] => Стены 1 этаж (несущие)
[parent_id] => 3
[material_sum] => 3397991
[work_sum] => 801706
[total_sum] => 4199697
[total_days] => 24
[display_material_sum] => 3 397 991
[display_work_sum] => 801 706
[display_total_sum] => 4 199 697
)
1
4 199 697₽
Работа:801 706 ₽
Материалы:3 397 991 ₽
Дни:24
stdClass Object
(
[id] => 83
[attribute_id] => 3
[name] => Каркасные
[material_modifier] => 1
[work_modifier] => 1
[options] => Array
(
[0] => 150 мм
[1] => 200 мм
[2] => 250 мм
[3] => 300 мм
)
[days] => [15,16,17,18]
[material_price] => [2379,2639,2898,3258]
[work_price] => [2418,2686,2985,3716]
[image] => https://akademik-stroy.ru/wp-content/uploads/materials/karkasnye.jpg
[area_modifier] => 158.87
[parent_name] => Стены 1 этаж (несущие)
[parent_id] => 3
[material_sum] => 476219
[work_sum] => 403355
[total_sum] => 879574
[total_days] => 15
[display_material_sum] => 476 219
[display_work_sum] => 403 355
[display_total_sum] => 879 574
)
1
879 574₽
Работа:403 355 ₽
Материалы:476 219 ₽
Дни:15
stdClass Object
(
[id] => 84
[attribute_id] => 3
[name] => СИП-панели
[material_modifier] => 1
[work_modifier] => 1
[options] => Array
(
[0] => 120 мм
[1] => 170 мм
[2] => 220 мм
)
[days] => [7,7,7]
[material_price] => [1210,1856,2292]
[work_price] => [1410,1551,1706]
[image] => https://akademik-stroy.ru/wp-content/uploads/materials/sip-paneli.jpg
[area_modifier] => 158.87
[parent_name] => Стены 1 этаж (несущие)
[parent_id] => 3
[material_sum] => 242213
[work_sum] => 235207
[total_sum] => 477420
[total_days] => 7
[display_material_sum] => 242 213
[display_work_sum] => 235 207
[display_total_sum] => 477 420
)
1
477 420₽
Работа:235 207 ₽
Материалы:242 213 ₽
Дни:7
stdClass Object
(
[id] => 85
[attribute_id] => 3
[name] => Сухой брус
[material_modifier] => 1
[work_modifier] => 1
[options] => Array
(
[0] => 150 мм
[1] => 180 мм
[2] => 200 мм
)
[days] => [7,8,9]
[material_price] => [6010,7190,8709]
[work_price] => [3204,3845,4229]
[image] => https://akademik-stroy.ru/wp-content/uploads/materials/suhoj-brus.jpg
[area_modifier] => 158.87
[parent_name] => Стены 1 этаж (несущие)
[parent_id] => 3
[material_sum] => 1203059
[work_sum] => 534470
[total_sum] => 1737529
[total_days] => 7
[display_material_sum] => 1 203 059
[display_work_sum] => 534 470
[display_total_sum] => 1 737 529
)
1
1 737 529₽
Работа:534 470 ₽
Материалы:1 203 059 ₽
Дни:7
stdClass Object
(
[id] => 86
[attribute_id] => 3
[name] => Профилированный брус
[material_modifier] => 1
[work_modifier] => 1
[options] => Array
(
[0] => 150 мм
[1] => 180 мм
[2] => 200 мм
)
[days] => [7,8,9]
[material_price] => [8190,9228,10051]
[work_price] => [3845,4614,5075]
[image] => https://akademik-stroy.ru/wp-content/uploads/materials/profilirovannyj-brus.jpg
[area_modifier] => 158.87
[parent_name] => Стены 1 этаж (несущие)
[parent_id] => 3
[material_sum] => 1639443
[work_sum] => 641398
[total_sum] => 2280841
[total_days] => 7
[display_material_sum] => 1 639 443
[display_work_sum] => 641 398
[display_total_sum] => 2 280 841
)
1
2 280 841₽
Работа:641 398 ₽
Материалы:1 639 443 ₽
Дни:7
stdClass Object
(
[id] => 87
[attribute_id] => 3
[name] => Оцилиндрованное бревно
[material_modifier] => 1
[work_modifier] => 1
[options] => Array
(
[0] => 180 мм
[1] => 220 мм
[2] => 260 мм
[3] => 320 мм
)
[days] => [7,8,9,10]
[material_price] => [75190,9532,10868,13116]
[work_price] => [3845,4691,5535,6863]
[image] => https://akademik-stroy.ru/wp-content/uploads/materials/ocilindrovannoe-brevno-1.jpg
[area_modifier] => 158.87
[parent_name] => Стены 1 этаж (несущие)
[parent_id] => 3
[material_sum] => 15051248
[work_sum] => 641398
[total_sum] => 15692646
[total_days] => 7
[display_material_sum] => 15 051 248
[display_work_sum] => 641 398
[display_total_sum] => 15 692 646
)
1
15 692 646₽
Работа:641 398 ₽
Материалы:15 051 248 ₽
Дни:7
stdClass Object
(
[id] => 88
[attribute_id] => 3
[name] => Срубы
[material_modifier] => 1
[work_modifier] => 1
[options] => Array
(
[0] => 260 мм
[1] => 320 мм
[2] => 360 мм
[3] => 400 мм
[4] => 500 мм
)
[days] => [7,8,9,10,11]
[material_price] => [37975,46709,52314,58069,73167]
[work_price] => [4806,5911,6621,7349,9260]
[image] => https://akademik-stroy.ru/wp-content/uploads/materials/sruby.jpg
[area_modifier] => 158.87
[parent_name] => Стены 1 этаж (несущие)
[parent_id] => 3
[material_sum] => 7601691
[work_sum] => 801706
[total_sum] => 8403397
[total_days] => 7
[display_material_sum] => 7 601 691
[display_work_sum] => 801 706
[display_total_sum] => 8 403 397
)
1
8 403 397₽
Работа:801 706 ₽
Материалы:7 601 691 ₽
Дни:7
stdClass Object
(
[id] => 174
[attribute_id] => 3
[name] => Брус
[material_modifier] => 1
[work_modifier] => 1
[options] => Array
(
[0] => 150 мм
[1] => 180 мм
[2] => 200 мм
)
[days] => [7,8,9]
[material_price] => [5127,6152,7367]
[work_price] => [1602,1922,2115]
[image] => https://akademik-stroy.ru/wp-content/uploads/materials/brus.jpg
[area_modifier] => 158.87
[parent_name] => Стены 1 этаж (несущие)
[parent_id] => 3
[material_sum] => 1026303
[work_sum] => 267235
[total_sum] => 1293538
[total_days] => 7
[display_material_sum] => 1 026 303
[display_work_sum] => 267 235
[display_total_sum] => 1 293 538
)
1
1 293 538₽
Работа:267 235 ₽
Материалы:1 026 303 ₽
Дни:7
stdClass Object
(
[id] => 175
[attribute_id] => 3
[name] => Газобетон
[material_modifier] => 1
[work_modifier] => 1
[options] => Array
(
[0] => 300 мм
[1] => 375 мм
[2] => 400 мм
[3] => 500 мм
[4] => 600 мм
)
[days] => [29,31,35,37,44]
[material_price] => [4298,5573,6356,7288,9119]
[work_price] => [4538,5251,5926,6733,7195]
[image] => https://akademik-stroy.ru/wp-content/uploads/materials/gazobeton.jpg
[area_modifier] => 158.87
[parent_name] => Стены 1 этаж (несущие)
[parent_id] => 3
[material_sum] => 860357
[work_sum] => 757000
[total_sum] => 1617357
[total_days] => 29
[display_material_sum] => 860 357
[display_work_sum] => 757 000
[display_total_sum] => 1 617 357
)
1
1 617 357₽
Работа:757 000 ₽
Материалы:860 357 ₽
Дни:29
stdClass Object
(
[id] => 176
[attribute_id] => 3
[name] => Блок
[material_modifier] => 1
[work_modifier] => 1
[options] => Array
(
[0] => 300 мм
[1] => 375 мм
[2] => 400 мм
[3] => 500 мм
[4] => 600 мм
)
[days] => [29,31,35,37,44]
[material_price] => [2698,3973,4356,6588,7119]
[work_price] => [5038,5851,6426,8733,9195]
[image] => https://akademik-stroy.ru/wp-content/uploads/materials/blok.jpg
[area_modifier] => 158.87
[parent_name] => Стены 1 этаж (несущие)
[parent_id] => 3
[material_sum] => 540075
[work_sum] => 840406
[total_sum] => 1380481
[total_days] => 29
[display_material_sum] => 540 075
[display_work_sum] => 840 406
[display_total_sum] => 1 380 481
)
1
1 380 481₽
Работа:840 406 ₽
Материалы:540 075 ₽
Дни:29
stdClass Object
(
[id] => 177
[attribute_id] => 3
[name] => Газосиликатный блок
[material_modifier] => 1
[work_modifier] => 1
[options] => Array
(
[0] => 300 мм
[1] => 375 мм
[2] => 400 мм
[3] => 500 мм
[4] => 600 мм
)
[days] => [29,31,35,37,44]
[material_price] => [4298,5573,6356,7288,9119]
[work_price] => [4538,5251,5926,6733,7195]
[image] => https://akademik-stroy.ru/wp-content/uploads/materials/gazosilikatnyj-blok.jpg
[area_modifier] => 158.87
[parent_name] => Стены 1 этаж (несущие)
[parent_id] => 3
[material_sum] => 860357
[work_sum] => 757000
[total_sum] => 1617357
[total_days] => 29
[display_material_sum] => 860 357
[display_work_sum] => 757 000
[display_total_sum] => 1 617 357
)
1
1 617 357₽
Работа:757 000 ₽
Материалы:860 357 ₽
Дни:29
stdClass Object
(
[id] => 178
[attribute_id] => 3
[name] => Керамзитобетонный блок
[material_modifier] => 1
[work_modifier] => 1
[options] => Array
(
[0] => 300 мм
[1] => 375 мм
[2] => 400 мм
[3] => 500 мм
[4] => 600 мм
)
[days] => [23,23,24,25,28]
[material_price] => [3641,4298,5693,7613,9612]
[work_price] => [5737,5737,6903,7958,8901]
[image] => https://akademik-stroy.ru/wp-content/uploads/materials/keramzitobetonnyj-blok.jpg
[area_modifier] => 158.87
[parent_name] => Стены 1 этаж (несущие)
[parent_id] => 3
[material_sum] => 728842
[work_sum] => 957009
[total_sum] => 1685851
[total_days] => 23
[display_material_sum] => 728 842
[display_work_sum] => 957 009
[display_total_sum] => 1 685 851
)
1
1 685 851₽
Работа:957 009 ₽
Материалы:728 842 ₽
Дни:23
stdClass Object
(
[id] => 179
[attribute_id] => 3
[name] => Деревянные
[material_modifier] => 1
[work_modifier] => 1
[options] => Array
(
[0] => 180 мм
[1] => 220 мм
[2] => 260 мм
[3] => 320 мм
)
[days] => [7,8,9,10]
[material_price] => [7950,9458,11961,14472]
[work_price] => [4037,4925,5812,7207]
[image] => https://akademik-stroy.ru/wp-content/uploads/materials/derevyannye.jpg
[area_modifier] => 158.87
[parent_name] => Стены 1 этаж (несущие)
[parent_id] => 3
[material_sum] => 1591401
[work_sum] => 673426
[total_sum] => 2264827
[total_days] => 7
[display_material_sum] => 1 591 401
[display_work_sum] => 673 426
[display_total_sum] => 2 264 827
)
1
2 264 827₽
Работа:673 426 ₽
Материалы:1 591 401 ₽
Дни:7
stdClass Object
(
[id] => 181
[attribute_id] => 3
[name] => Камень
[material_modifier] => 1
[work_modifier] => 1
[options] => Array
(
[0] => 300 мм
[1] => 400 мм
[2] => 500 мм
[3] => 600 мм
)
[days] => [25,27,31,34]
[material_price] => [5262,6844,8330,9815]
[work_price] => [8331,9135,10427,11069]
[image] => https://akademik-stroy.ru/wp-content/uploads/materials/kamen.jpg
[area_modifier] => 158.87
[parent_name] => Стены 1 этаж (несущие)
[parent_id] => 3
[material_sum] => 1053327
[work_sum] => 1389723
[total_sum] => 2443050
[total_days] => 25
[display_material_sum] => 1 053 327
[display_work_sum] => 1 389 723
[display_total_sum] => 2 443 050
)
1
2 443 050₽
Работа:1 389 723 ₽
Материалы:1 053 327 ₽
Дни:25
stdClass Object
(
[id] => 182
[attribute_id] => 3
[name] => Каркасно-щитовые
[material_modifier] => 1
[work_modifier] => 1
[options] => Array
(
[0] => 150 мм
[1] => 200 мм
[2] => 250 мм
[3] => 300 мм
[4] => 350 мм
[5] => 400 мм
)
[days] => [15,16,17,18,19,20]
[material_price] => [2379,2639,2898,3458,3601,4175]
[work_price] => [2538,2820,3134,3483,4062,5642]
[image] => https://akademik-stroy.ru/wp-content/uploads/materials/karkasno-shchitovye.jpg
[area_modifier] => 158.87
[parent_name] => Стены 1 этаж (несущие)
[parent_id] => 3
[material_sum] => 476219
[work_sum] => 423373
[total_sum] => 899592
[total_days] => 15
[display_material_sum] => 476 219
[display_work_sum] => 423 373
[display_total_sum] => 899 592
)
1
899 592₽
Работа:423 373 ₽
Материалы:476 219 ₽
Дни:15
stdClass Object
(
[id] => 183
[attribute_id] => 3
[name] => Рубленные
[material_modifier] => 1
[work_modifier] => 1
[options] => Array
(
[0] => 150 мм
[1] => 200 мм
[2] => 250 мм
[3] => 300 мм
[4] => 350 мм
[5] => 400 мм
)
[days] => [15,16,17,18,17,18]
[material_price] => [35950,50267,60583,75900,80217,100533]
[work_price] => [9612,12816,16020,19224,22428,25632]
[image] => https://akademik-stroy.ru/wp-content/uploads/materials/rublennye.jpg
[area_modifier] => 158.87
[parent_name] => Стены 1 этаж (несущие)
[parent_id] => 3
[material_sum] => 7196334
[work_sum] => 1603411
[total_sum] => 8799745
[total_days] => 15
[display_material_sum] => 7 196 334
[display_work_sum] => 1 603 411
[display_total_sum] => 8 799 745
)
1
8 799 745₽
Работа:1 603 411 ₽
Материалы:7 196 334 ₽
Дни:15
stdClass Object
(
[id] => 185
[attribute_id] => 3
[name] => Теплоблок
[material_modifier] => 1
[work_modifier] => 1
[options] => Array
(
[0] => 300 мм (с облицовкой, не покрашенный)
[1] => 400 мм (с облицовкой, не покрашенный)
[2] => 300 мм (с облицовкой, покрашенный)
[3] => 400 мм (с облицовкой, покрашенный)
)
[days] => [15,16,15,16]
[material_price] => [2888,3729,3957,4258]
[work_price] => [2564,3229,2949,3713]
[image] => https://akademik-stroy.ru/wp-content/uploads/materials/teploblok.jpg
[area_modifier] => 158.87
[parent_name] => Стены 1 этаж (несущие)
[parent_id] => 3
[material_sum] => 578109
[work_sum] => 427710
[total_sum] => 1005819
[total_days] => 15
[display_material_sum] => 578 109
[display_work_sum] => 427 710
[display_total_sum] => 1 005 819
)
1
1 005 819₽
Работа:427 710 ₽
Материалы:578 109 ₽
Дни:15
stdClass Object
(
[id] => 186
[attribute_id] => 3
[name] => Арболитовые блоки
[material_modifier] => 1
[work_modifier] => 1
[options] => Array
(
[0] => 300 мм
[1] => 400 мм
[2] => 600 мм
)
[days] => [19,22,27]
[material_price] => [3210,4475,5852]
[work_price] => [4214,4788,5866]
[image] => https://akademik-stroy.ru/wp-content/uploads/materials/arbolitovye-bloki.png
[area_modifier] => 158.87
[parent_name] => Стены 1 этаж (несущие)
[parent_id] => 3
[material_sum] => 642566
[work_sum] => 702952
[total_sum] => 1345518
[total_days] => 19
[display_material_sum] => 642 566
[display_work_sum] => 702 952
[display_total_sum] => 1 345 518
)
1
1 345 518₽
Работа:702 952 ₽
Материалы:642 566 ₽
Дни:19
stdClass Object
(
[id] => 187
[attribute_id] => 3
[name] => Полистиролбетон
[material_modifier] => 1
[work_modifier] => 1
[options] => Array
(
[0] => 300 мм
[1] => 400 мм
[2] => 600 мм
)
[days] => [29,31,35]
[material_price] => [2798,4573,5256]
[work_price] => [5038,5851,6426]
[image] => https://akademik-stroy.ru/wp-content/uploads/materials/polistirolbeton.jpg
[area_modifier] => 158.87
[parent_name] => Стены 1 этаж (несущие)
[parent_id] => 3
[material_sum] => 560093
[work_sum] => 840406
[total_sum] => 1400499
[total_days] => 29
[display_material_sum] => 560 093
[display_work_sum] => 840 406
[display_total_sum] => 1 400 499
)
1
1 400 499₽
Работа:840 406 ₽
Материалы:560 093 ₽
Дни:29
stdClass Object
(
[id] => 188
[attribute_id] => 3
[name] => Шлакоблок
[material_modifier] => 1
[work_modifier] => 1
[options] => Array
(
[0] => 400 мм
[1] => 600 мм
)
[days] => [15,16]
[material_price] => [2391,3471]
[work_price] => [2642,3662]
[image] => https://akademik-stroy.ru/wp-content/uploads/materials/shlakoblok.jpg
[area_modifier] => 158.87
[parent_name] => Стены 1 этаж (несущие)
[parent_id] => 3
[material_sum] => 478621
[work_sum] => 440721
[total_sum] => 919342
[total_days] => 15
[display_material_sum] => 478 621
[display_work_sum] => 440 721
[display_total_sum] => 919 342
)
1
919 342₽
Работа:440 721 ₽
Материалы:478 621 ₽
Дни:15
stdClass Object
(
[id] => 189
[attribute_id] => 3
[name] => Теплая керамика
[material_modifier] => 1
[work_modifier] => 1
[options] => Array
(
[0] => 380 мм
[1] => 380 мм Thermo
[2] => 440 мм
[3] => 510 мм
)
[days] => [23,23,24,25]
[material_price] => [4510,5098,6093,8013]
[work_price] => [4737,4937,5903,6958]
[image] => https://akademik-stroy.ru/wp-content/uploads/materials/teplaya-keramika.jpg
[area_modifier] => 158.87
[parent_name] => Стены 1 этаж (несущие)
[parent_id] => 3
[material_sum] => 902795
[work_sum] => 790196
[total_sum] => 1692991
[total_days] => 23
[display_material_sum] => 902 795
[display_work_sum] => 790 196
[display_total_sum] => 1 692 991
)
1
1 692 991₽
Работа:790 196 ₽
Материалы:902 795 ₽
Дни:23
stdClass Object
(
[id] => 190
[attribute_id] => 3
[name] => Несъемная опалубка
[material_modifier] => 1
[work_modifier] => 1
[options] => Array
(
[0] => 200 мм
[1] => 250 мм
[2] => 300 мм
[3] => 350 мм
)
[days] => [15,17,19,21]
[material_price] => [3302,3902,4108,5008]
[work_price] => [2100,2100,2300,2534]
[image] => https://akademik-stroy.ru/wp-content/uploads/materials/nesemnaya-opalubka.jpg
[area_modifier] => 158.87
[parent_name] => Стены 1 этаж (несущие)
[parent_id] => 3
[material_sum] => 660982
[work_sum] => 350308
[total_sum] => 1011290
[total_days] => 15
[display_material_sum] => 660 982
[display_work_sum] => 350 308
[display_total_sum] => 1 011 290
)
1
1 011 290₽
Работа:350 308 ₽
Материалы:660 982 ₽
Дни:15
stdClass Object
(
[id] => 251
[attribute_id] => 3
[name] => Бревно
[material_modifier] => 1
[work_modifier] => 1
[options] => Array
(
[0] => 260 мм
[1] => 320 мм
[2] => 360 мм
[3] => 400 мм
[4] => 500 мм
)
[days] => [7,8,9,10,11]
[material_price] => [1874,24045,26930,30972,38825]
[work_price] => [5046,6207,6952,7716,9723]
[image] => https://akademik-stroy.ru/wp-content/uploads/materials/sruby.jpg
[area_modifier] => 158.87
[parent_name] => Стены 1 этаж (несущие)
[parent_id] => 3
[material_sum] => 375130
[work_sum] => 841741
[total_sum] => 1216871
[total_days] => 7
[display_material_sum] => 375 130
[display_work_sum] => 841 741
[display_total_sum] => 1 216 871
)
1
1 216 871₽
Работа:841 741 ₽
Материалы:375 130 ₽
Дни:7
stdClass Object
(
[id] => 7
[attribute_id] => 4
[name] => Деревянные балки
[material_modifier] => 1
[work_modifier] => 1
[options] => Array
(
[0] => без утепления
[1] => утепление 200 мм
[2] => утепление 250 мм
[3] => утепление 300 мм
[4] => утепление 350 мм
[5] => утепление 400 мм
[6] => утепление 450 мм
[7] => утепление 500 мм
)
[days] => [8,9,9,9,11,12,13,14]
[material_price] => [1634,2042,2344,2947,3149,3652,3354,3557]
[work_price] => [1230,1339,1393,1426,1460,1513,1587,1620]
[image] => https://akademik-stroy.ru/wp-content/uploads/materials/derevyannye-balki.png
[area_modifier] => 158.87
[parent_name] => Перекрытие первого этажа
[parent_id] => 4
[material_sum] => 327088
[work_sum] => 205181
[total_sum] => 532269
[total_days] => 8
[display_material_sum] => 327 088
[display_work_sum] => 205 181
[display_total_sum] => 532 269
)
1
532 269₽
Работа:205 181 ₽
Материалы:327 088 ₽
Дни:8
stdClass Object
(
[id] => 8
[attribute_id] => 4
[name] => Сборные ж/б плиты
[material_modifier] => 1
[work_modifier] => 1
[options] => Array
(
[0] => без утепления
[1] => утепление 150 мм
[2] => утепление 200 мм
[3] => утепление 250 мм
[4] => утепление 300 мм
[5] => утепление 350 мм
[6] => утепление 400 мм
[7] => утепление 450 мм
[8] => утепление 500 мм
)
[days] => [13,15,15,15,15,15,15,15,15]
[material_price] => [3067,5577,5928,6679,7730,8782,9833,10884,11935]
[work_price] => [1520,1956,2102,2247,2392,2537,2684,2829,2974]
[image] => https://akademik-stroy.ru/wp-content/uploads/materials/sbornye-zh-b-plity-2.jpg
[area_modifier] => 158.87
[parent_name] => Перекрытие первого этажа
[parent_id] => 4
[material_sum] => 613940
[work_sum] => 253557
[total_sum] => 867497
[total_days] => 13
[display_material_sum] => 613 940
[display_work_sum] => 253 557
[display_total_sum] => 867 497
)
1
867 497₽
Работа:253 557 ₽
Материалы:613 940 ₽
Дни:13
stdClass Object
(
[id] => 89
[attribute_id] => 4
[name] => Монолитная ж/б плита
[material_modifier] => 1
[work_modifier] => 1
[options] => Array
(
[0] => без утепления
[1] => утепление 150 мм
[2] => утепление 200 мм
[3] => утепление 250 мм
[4] => утепление 300 мм
[5] => утепление 350 мм
[6] => утепление 400 мм
[7] => утепление 450 мм
[8] => утепление 500 мм
)
[days] => [18,20,20,20,20,20,20,20,20]
[material_price] => [4837,6572,7224,7375,79426,8177,8728,9180,10031]
[work_price] => [3348,3921,4112,4302,4493,4684,4875,5066,5256]
[image] => https://akademik-stroy.ru/wp-content/uploads/materials/monolitnaya-zh-b-plita-2.jpg
[area_modifier] => 158.87
[parent_name] => Перекрытие первого этажа
[parent_id] => 4
[material_sum] => 968252
[work_sum] => 558492
[total_sum] => 1526744
[total_days] => 18
[display_material_sum] => 968 252
[display_work_sum] => 558 492
[display_total_sum] => 1 526 744
)
1
1 526 744₽
Работа:558 492 ₽
Материалы:968 252 ₽
Дни:18
stdClass Object
(
[id] => 10
[attribute_id] => 5
[name] => Пеноблок
[material_modifier] => 1
[work_modifier] => 1
[options] => Array
(
[0] => 300 мм
[1] => 400 мм
[2] => 500 мм
[3] => 600 мм
)
[days] => [29,31,34,39]
[material_price] => [3000,4000,4500,4937]
[work_price] => [5033,5805,6400,8710]
[image] => https://akademik-stroy.ru/wp-content/uploads/materials/penoblok.jpg
[area_modifier] => 135.2
[parent_name] => Стены 2 этаж (несущие)
[parent_id] => 5
[material_sum] => 511056
[work_sum] => 714485
[total_sum] => 1225541
[total_days] => 29
[display_material_sum] => 511 056
[display_work_sum] => 714 485
[display_total_sum] => 1 225 541
)
1
1 225 541₽
Работа:714 485 ₽
Материалы:511 056 ₽
Дни:29
stdClass Object
(
[id] => 90
[attribute_id] => 5
[name] => Керамический блок
[material_modifier] => 1
[work_modifier] => 1
[options] => Array
(
[0] => 380 мм
[1] => 380 мм Thermo
[2] => 440 мм
[3] => 510 мм
)
[days] => [23,23,24,25]
[material_price] => [4510,5098,6093,8013]
[work_price] => [4737,4937,5903,6958]
[image] => https://akademik-stroy.ru/wp-content/uploads/materials/keramicheskij-blok.jpg
[area_modifier] => 135.2
[parent_name] => Стены 2 этаж (несущие)
[parent_id] => 5
[material_sum] => 768288
[work_sum] => 672465
[total_sum] => 1440753
[total_days] => 23
[display_material_sum] => 768 288
[display_work_sum] => 672 465
[display_total_sum] => 1 440 753
)
1
1 440 753₽
Работа:672 465 ₽
Материалы:768 288 ₽
Дни:23
stdClass Object
(
[id] => 91
[attribute_id] => 5
[name] => Кирпич
[material_modifier] => 1
[work_modifier] => 1
[options] => Array
(
[0] => Кирпич 250 мм
[1] => Кирпич 380 мм
[2] => Кирпич 510 мм
[3] => Кирпич 640 мм
[4] => Кирпич 770 мм
)
[days] => [30,30,31,33,36]
[material_price] => [5500,7142,9206,10171,12235]
[work_price] => [8736,10041,12018,15240,18462]
[image] => https://akademik-stroy.ru/wp-content/uploads/materials/kirpich.jpg
[area_modifier] => 135.2
[parent_name] => Стены 2 этаж (несущие)
[parent_id] => 5
[material_sum] => 936936
[work_sum] => 1240163
[total_sum] => 2177099
[total_days] => 30
[display_material_sum] => 936 936
[display_work_sum] => 1 240 163
[display_total_sum] => 2 177 099
)
1
2 177 099₽
Работа:1 240 163 ₽
Материалы:936 936 ₽
Дни:30
stdClass Object
(
[id] => 92
[attribute_id] => 5
[name] => Монолитные
[material_modifier] => 1
[work_modifier] => 1
[options] => Array
(
[0] => 150 мм
[1] => 200 мм
[2] => 250 мм
[3] => 300 мм
[4] => 350 мм
[5] => 400 мм
)
[days] => [45,46,47,49,50,53]
[material_price] => [6545,7876,10175,12011,13908,15204]
[work_price] => [5106,6444,7698,8552,9807,11461]
[image] => https://akademik-stroy.ru/wp-content/uploads/materials/monolitnye.jpg
[area_modifier] => 135.2
[parent_name] => Стены 2 этаж (несущие)
[parent_id] => 5
[material_sum] => 1114954
[work_sum] => 724848
[total_sum] => 1839802
[total_days] => 45
[display_material_sum] => 1 114 954
[display_work_sum] => 724 848
[display_total_sum] => 1 839 802
)
1
1 839 802₽
Работа:724 848 ₽
Материалы:1 114 954 ₽
Дни:45
stdClass Object
(
[id] => 93
[attribute_id] => 5
[name] => Клееный брус
[material_modifier] => 1
[work_modifier] => 1
[options] => Array
(
[0] => 160 мм
[1] => 175 мм
[2] => 200 мм
[3] => 215 мм
[4] => 240 мм
[5] => 270 мм
[6] => 282 мм
)
[days] => [24,28,32,37,40,42,48]
[material_price] => [16975,18773,19950,20545,21599,22159,23275]
[work_price] => [4806,5287,5815,6397,7036,7740,8514]
[image] => https://akademik-stroy.ru/wp-content/uploads/materials/kleenyj-brus.jpg
[area_modifier] => 135.2
[parent_name] => Стены 2 этаж (несущие)
[parent_id] => 5
[material_sum] => 2891725
[work_sum] => 682260
[total_sum] => 3573985
[total_days] => 24
[display_material_sum] => 2 891 725
[display_work_sum] => 682 260
[display_total_sum] => 3 573 985
)
1
3 573 985₽
Работа:682 260 ₽
Материалы:2 891 725 ₽
Дни:24
stdClass Object
(
[id] => 94
[attribute_id] => 5
[name] => Каркасные
[material_modifier] => 1
[work_modifier] => 1
[options] => Array
(
[0] => 150 мм
[1] => 200 мм
[2] => 250 мм
[3] => 300 мм
)
[days] => [15,16,17,18]
[material_price] => [2379,2639,2898,3258]
[work_price] => [2418,2686,2985,3716]
[image] => https://akademik-stroy.ru/wp-content/uploads/materials/karkasnye.jpg
[area_modifier] => 135.2
[parent_name] => Стены 2 этаж (несущие)
[parent_id] => 5
[material_sum] => 405267
[work_sum] => 343259
[total_sum] => 748526
[total_days] => 15
[display_material_sum] => 405 267
[display_work_sum] => 343 259
[display_total_sum] => 748 526
)
1
748 526₽
Работа:343 259 ₽
Материалы:405 267 ₽
Дни:15
stdClass Object
(
[id] => 95
[attribute_id] => 5
[name] => СИП-панели
[material_modifier] => 1
[work_modifier] => 1
[options] => Array
(
[0] => 120 мм
[1] => 170 мм
[2] => 220 мм
)
[days] => [7,7,7]
[material_price] => [1210,1856,2292]
[work_price] => [1410,1551,1706]
[image] => https://akademik-stroy.ru/wp-content/uploads/materials/sip-paneli.jpg
[area_modifier] => 135.2
[parent_name] => Стены 2 этаж (несущие)
[parent_id] => 5
[material_sum] => 206126
[work_sum] => 200164
[total_sum] => 406290
[total_days] => 7
[display_material_sum] => 206 126
[display_work_sum] => 200 164
[display_total_sum] => 406 290
)
1
406 290₽
Работа:200 164 ₽
Материалы:206 126 ₽
Дни:7
stdClass Object
(
[id] => 96
[attribute_id] => 5
[name] => Сухой брус
[material_modifier] => 1
[work_modifier] => 1
[options] => Array
(
[0] => 150 мм
[1] => 180 мм
[2] => 200 мм
)
[days] => [7,8,9]
[material_price] => [6010,7190,8709]
[work_price] => [3204,3845,4229]
[image] => https://akademik-stroy.ru/wp-content/uploads/materials/suhoj-brus.jpg
[area_modifier] => 135.2
[parent_name] => Стены 2 этаж (несущие)
[parent_id] => 5
[material_sum] => 1023816
[work_sum] => 454840
[total_sum] => 1478656
[total_days] => 7
[display_material_sum] => 1 023 816
[display_work_sum] => 454 840
[display_total_sum] => 1 478 656
)
1
1 478 656₽
Работа:454 840 ₽
Материалы:1 023 816 ₽
Дни:7
stdClass Object
(
[id] => 97
[attribute_id] => 5
[name] => Профилированный брус
[material_modifier] => 1
[work_modifier] => 1
[options] => Array
(
[0] => 150 мм
[1] => 180 мм
[2] => 200 мм
)
[days] => [7,8,9]
[material_price] => [8190,9228,10051]
[work_price] => [3845,4614,5075]
[image] => https://akademik-stroy.ru/wp-content/uploads/materials/profilirovannyj-brus.jpg
[area_modifier] => 135.2
[parent_name] => Стены 2 этаж (несущие)
[parent_id] => 5
[material_sum] => 1395183
[work_sum] => 545836
[total_sum] => 1941019
[total_days] => 7
[display_material_sum] => 1 395 183
[display_work_sum] => 545 836
[display_total_sum] => 1 941 019
)
1
1 941 019₽
Работа:545 836 ₽
Материалы:1 395 183 ₽
Дни:7
stdClass Object
(
[id] => 98
[attribute_id] => 5
[name] => Оцилиндрованное бревно
[material_modifier] => 1
[work_modifier] => 1
[options] => Array
(
[0] => 180 мм
[1] => 220 мм
[2] => 260 мм
[3] => 320 мм
)
[days] => [7,8,9,10]
[material_price] => [75190,9532,10868,13116]
[work_price] => [3845,4691,5535,6863]
[image] => https://akademik-stroy.ru/wp-content/uploads/materials/ocilindrovannoe-brevno-1.jpg
[area_modifier] => 135.2
[parent_name] => Стены 2 этаж (несущие)
[parent_id] => 5
[material_sum] => 12808767
[work_sum] => 545836
[total_sum] => 13354603
[total_days] => 7
[display_material_sum] => 12 808 767
[display_work_sum] => 545 836
[display_total_sum] => 13 354 603
)
1
13 354 603₽
Работа:545 836 ₽
Материалы:12 808 767 ₽
Дни:7
stdClass Object
(
[id] => 99
[attribute_id] => 5
[name] => Срубы
[material_modifier] => 1
[work_modifier] => 1
[options] => Array
(
[0] => 260 мм
[1] => 320 мм
[2] => 360 мм
[3] => 400 мм
[4] => 500 мм
)
[days] => [7,8,9,10,11]
[material_price] => [16175,23709,26314,29069,32167]
[work_price] => [4806,5911,6621,7349,9260]
[image] => https://akademik-stroy.ru/wp-content/uploads/materials/suhoj-brus.jpg
[area_modifier] => 135.2
[parent_name] => Стены 2 этаж (несущие)
[parent_id] => 5
[material_sum] => 2755444
[work_sum] => 682260
[total_sum] => 3437704
[total_days] => 7
[display_material_sum] => 2 755 444
[display_work_sum] => 682 260
[display_total_sum] => 3 437 704
)
1
3 437 704₽
Работа:682 260 ₽
Материалы:2 755 444 ₽
Дни:7
stdClass Object
(
[id] => 194
[attribute_id] => 5
[name] => Брус
[material_modifier] => 1
[work_modifier] => 1
[options] => Array
(
[0] => 150 мм
[1] => 180 мм
[2] => 200 мм
)
[days] => [10,13,15]
[material_price] => [5127,6152,7367]
[work_price] => [1602,1922,2115]
[image] => https://akademik-stroy.ru/wp-content/uploads/materials/brus.jpg
[area_modifier] => 135.2
[parent_name] => Стены 2 этаж (несущие)
[parent_id] => 5
[material_sum] => 873395
[work_sum] => 227420
[total_sum] => 1100815
[total_days] => 10
[display_material_sum] => 873 395
[display_work_sum] => 227 420
[display_total_sum] => 1 100 815
)
1
1 100 815₽
Работа:227 420 ₽
Материалы:873 395 ₽
Дни:10
stdClass Object
(
[id] => 195
[attribute_id] => 5
[name] => Газобетон
[material_modifier] => 1
[work_modifier] => 1
[options] => Array
(
[0] => 300 мм
[1] => 375 мм
[2] => 400 мм
[3] => 500 мм
[4] => 600 мм
)
[days] => [29,31,35,37,44]
[material_price] => [4298,5573,6356,7288,9119]
[work_price] => [4538,5251,5926,6733,7195]
[image] => https://akademik-stroy.ru/wp-content/uploads/materials/gazobeton.jpg
[area_modifier] => 135.2
[parent_name] => Стены 2 этаж (несущие)
[parent_id] => 5
[material_sum] => 732173
[work_sum] => 644214
[total_sum] => 1376387
[total_days] => 29
[display_material_sum] => 732 173
[display_work_sum] => 644 214
[display_total_sum] => 1 376 387
)
1
1 376 387₽
Работа:644 214 ₽
Материалы:732 173 ₽
Дни:29
stdClass Object
(
[id] => 196
[attribute_id] => 5
[name] => Блок
[material_modifier] => 1
[work_modifier] => 1
[options] => Array
(
[0] => 300 мм
[1] => 375 мм
[2] => 400 мм
[3] => 500 мм
[4] => 600 мм
)
[days] => [29,31,35,37,44]
[material_price] => [2698,3973,4356,6588,7119]
[work_price] => [5038,5851,6426,8733,9195]
[image] => https://akademik-stroy.ru/wp-content/uploads/materials/blok.jpg
[area_modifier] => 135.2
[parent_name] => Стены 2 этаж (несущие)
[parent_id] => 5
[material_sum] => 459610
[work_sum] => 715194
[total_sum] => 1174804
[total_days] => 29
[display_material_sum] => 459 610
[display_work_sum] => 715 194
[display_total_sum] => 1 174 804
)
1
1 174 804₽
Работа:715 194 ₽
Материалы:459 610 ₽
Дни:29
stdClass Object
(
[id] => 197
[attribute_id] => 5
[name] => Газосиликатный блок
[material_modifier] => 1
[work_modifier] => 1
[options] => Array
(
[0] => 300 мм
[1] => 375 мм
[2] => 400 мм
[3] => 500 мм
[4] => 600 мм
)
[days] => [29,31,35,37,44]
[material_price] => [4298,5573,6356,7288,9119]
[work_price] => [4538,5251,5926,6733,7195]
[image] => https://akademik-stroy.ru/wp-content/uploads/materials/gazosilikatnyj-blok.jpg
[area_modifier] => 135.2
[parent_name] => Стены 2 этаж (несущие)
[parent_id] => 5
[material_sum] => 732173
[work_sum] => 644214
[total_sum] => 1376387
[total_days] => 29
[display_material_sum] => 732 173
[display_work_sum] => 644 214
[display_total_sum] => 1 376 387
)
1
1 376 387₽
Работа:644 214 ₽
Материалы:732 173 ₽
Дни:29
stdClass Object
(
[id] => 198
[attribute_id] => 5
[name] => Керамзитобетонный блок
[material_modifier] => 1
[work_modifier] => 1
[options] => Array
(
[0] => 300 мм
[1] => 375 мм
[2] => 400 мм
[3] => 500 мм
[4] => 600 мм
)
[days] => [23,23,24,25,28]
[material_price] => [3641,4298,5693,7613,9612]
[work_price] => [5737,5737,6903,7958,8901]
[image] => https://akademik-stroy.ru/wp-content/uploads/materials/keramzitobetonnyj-blok.jpg
[area_modifier] => 135.2
[parent_name] => Стены 2 этаж (несущие)
[parent_id] => 5
[material_sum] => 620252
[work_sum] => 814425
[total_sum] => 1434677
[total_days] => 23
[display_material_sum] => 620 252
[display_work_sum] => 814 425
[display_total_sum] => 1 434 677
)
1
1 434 677₽
Работа:814 425 ₽
Материалы:620 252 ₽
Дни:23
stdClass Object
(
[id] => 199
[attribute_id] => 5
[name] => Деревянные
[material_modifier] => 1
[work_modifier] => 1
[options] => Array
(
[0] => 180 мм
[1] => 220 мм
[2] => 260 мм
[3] => 320 мм
)
[days] => [7,8,9,10]
[material_price] => [7950,9458,11961,14472]
[work_price] => [4037,4925,5812,7207]
[image] => https://akademik-stroy.ru/wp-content/uploads/materials/derevyannye.jpg
[area_modifier] => 135.2
[parent_name] => Стены 2 этаж (несущие)
[parent_id] => 5
[material_sum] => 1354298
[work_sum] => 573093
[total_sum] => 1927391
[total_days] => 7
[display_material_sum] => 1 354 298
[display_work_sum] => 573 093
[display_total_sum] => 1 927 391
)
1
1 927 391₽
Работа:573 093 ₽
Материалы:1 354 298 ₽
Дни:7
stdClass Object
(
[id] => 200
[attribute_id] => 5
[name] => Камень
[material_modifier] => 1
[work_modifier] => 1
[options] => Array
(
[0] => 300 мм
[1] => 400 мм
[2] => 500 мм
[3] => 600 мм
)
[days] => [25,27,31,34]
[material_price] => [5262,6844,8330,9815]
[work_price] => [8331,9135,10427,11069]
[image] => https://akademik-stroy.ru/wp-content/uploads/materials/kamen.jpg
[area_modifier] => 135.2
[parent_name] => Стены 2 этаж (несущие)
[parent_id] => 5
[material_sum] => 896392
[work_sum] => 1182669
[total_sum] => 2079061
[total_days] => 25
[display_material_sum] => 896 392
[display_work_sum] => 1 182 669
[display_total_sum] => 2 079 061
)
1
2 079 061₽
Работа:1 182 669 ₽
Материалы:896 392 ₽
Дни:25
stdClass Object
(
[id] => 201
[attribute_id] => 5
[name] => Каркасно-щитовые
[material_modifier] => 1
[work_modifier] => 1
[options] => Array
(
[0] => 150 мм
[1] => 200 мм
[2] => 250 мм
[3] => 300 мм
[4] => 350 мм
[5] => 400 мм
)
[days] => [15,16,17,18,19,20]
[material_price] => [2379,2639,2898,3458,3601,4175]
[work_price] => [2538,2820,3134,3483,4062,5642]
[image] => https://akademik-stroy.ru/wp-content/uploads/materials/karkasno-shchitovye.jpg
[area_modifier] => 135.2
[parent_name] => Стены 2 этаж (несущие)
[parent_id] => 5
[material_sum] => 405267
[work_sum] => 360294
[total_sum] => 765561
[total_days] => 15
[display_material_sum] => 405 267
[display_work_sum] => 360 294
[display_total_sum] => 765 561
)
1
765 561₽
Работа:360 294 ₽
Материалы:405 267 ₽
Дни:15
stdClass Object
(
[id] => 202
[attribute_id] => 5
[name] => Рубленные
[material_modifier] => 1
[work_modifier] => 1
[options] => Array
(
[0] => 150 мм
[1] => 200 мм
[2] => 250 мм
[3] => 300 мм
[4] => 350 мм
[5] => 400 мм
)
[days] => [15,16,17,18,17,18]
[material_price] => [35950,50267,60583,75900,80217,100533]
[work_price] => [9612,12816,16020,19224,22428,25632]
[image] => https://akademik-stroy.ru/wp-content/uploads/materials/rublennye.jpg
[area_modifier] => 135.2
[parent_name] => Стены 2 этаж (несущие)
[parent_id] => 5
[material_sum] => 6124154
[work_sum] => 1364520
[total_sum] => 7488674
[total_days] => 15
[display_material_sum] => 6 124 154
[display_work_sum] => 1 364 520
[display_total_sum] => 7 488 674
)
1
7 488 674₽
Работа:1 364 520 ₽
Материалы:6 124 154 ₽
Дни:15
stdClass Object
(
[id] => 203
[attribute_id] => 5
[name] => Теплоблок
[material_modifier] => 1
[work_modifier] => 1
[options] => Array
(
[0] => 300 мм (с облицовкой, не покрашенный)
[1] => 400 мм (с облицовкой, не покрашенный)
[2] => 300 мм (с облицовкой, покрашенный)
[3] => 400 мм (с облицовкой, покрашенный)
)
[days] => [15,16,15,16]
[material_price] => [2888,3729,3957,4258]
[work_price] => [2564,3229,2949,3713]
[image] => https://akademik-stroy.ru/wp-content/uploads/materials/teploblok.jpg
[area_modifier] => 135.2
[parent_name] => Стены 2 этаж (несущие)
[parent_id] => 5
[material_sum] => 491977
[work_sum] => 363985
[total_sum] => 855962
[total_days] => 15
[display_material_sum] => 491 977
[display_work_sum] => 363 985
[display_total_sum] => 855 962
)
1
855 962₽
Работа:363 985 ₽
Материалы:491 977 ₽
Дни:15
stdClass Object
(
[id] => 204
[attribute_id] => 5
[name] => Арболитовые блоки
[material_modifier] => 1
[work_modifier] => 1
[options] => Array
(
[0] => 300 мм
[1] => 400 мм
[2] => 600 мм
)
[days] => [19,22,27]
[material_price] => [3210,4475,5852]
[work_price] => [4214,4788,5866]
[image] => https://akademik-stroy.ru/wp-content/uploads/materials/arbolitovye-bloki.png
[area_modifier] => 135.2
[parent_name] => Стены 2 этаж (несущие)
[parent_id] => 5
[material_sum] => 546830
[work_sum] => 598219
[total_sum] => 1145049
[total_days] => 19
[display_material_sum] => 546 830
[display_work_sum] => 598 219
[display_total_sum] => 1 145 049
)
1
1 145 049₽
Работа:598 219 ₽
Материалы:546 830 ₽
Дни:19
stdClass Object
(
[id] => 205
[attribute_id] => 5
[name] => Полистиролбетон
[material_modifier] => 1
[work_modifier] => 1
[options] => Array
(
[0] => 300 мм
[1] => 400 мм
[2] => 600 мм
)
[days] => [29,31,35]
[material_price] => [2798,4573,5256]
[work_price] => [5038,5851,6426]
[image] => https://akademik-stroy.ru/wp-content/uploads/materials/polistirolbeton.jpg
[area_modifier] => 135.2
[parent_name] => Стены 2 этаж (несущие)
[parent_id] => 5
[material_sum] => 476645
[work_sum] => 715194
[total_sum] => 1191839
[total_days] => 29
[display_material_sum] => 476 645
[display_work_sum] => 715 194
[display_total_sum] => 1 191 839
)
1
1 191 839₽
Работа:715 194 ₽
Материалы:476 645 ₽
Дни:29
stdClass Object
(
[id] => 206
[attribute_id] => 5
[name] => Шлакоблок
[material_modifier] => 1
[work_modifier] => 1
[options] => Array
(
[0] => 400 мм
[1] => 600 мм
)
[days] => [15,16]
[material_price] => [2391,3471]
[work_price] => [2642,3662]
[image] => https://akademik-stroy.ru/wp-content/uploads/materials/shlakoblok.jpg
[area_modifier] => 135.2
[parent_name] => Стены 2 этаж (несущие)
[parent_id] => 5
[material_sum] => 407312
[work_sum] => 375058
[total_sum] => 782370
[total_days] => 15
[display_material_sum] => 407 312
[display_work_sum] => 375 058
[display_total_sum] => 782 370
)
1
782 370₽
Работа:375 058 ₽
Материалы:407 312 ₽
Дни:15
stdClass Object
(
[id] => 245
[attribute_id] => 5
[name] => Теплая керамика
[material_modifier] => 1
[work_modifier] => 1
[options] => Array
(
[0] => 380 мм
[1] => 380 мм Thermo
[2] => 440 мм
[3] => 510 мм
)
[days] => [10,10,11,12]
[material_price] => [4510,5098,6093,8013]
[work_price] => [4737,4937,5903,6958]
[image] => https://akademik-stroy.ru/wp-content/uploads/materials/teplaya-keramika.jpg
[area_modifier] => 135.2
[parent_name] => Стены 2 этаж (несущие)
[parent_id] => 5
[material_sum] => 768288
[work_sum] => 672465
[total_sum] => 1440753
[total_days] => 10
[display_material_sum] => 768 288
[display_work_sum] => 672 465
[display_total_sum] => 1 440 753
)
1
1 440 753₽
Работа:672 465 ₽
Материалы:768 288 ₽
Дни:10
stdClass Object
(
[id] => 246
[attribute_id] => 5
[name] => Несъемная опалубка
[material_modifier] => 1
[work_modifier] => 1
[options] => Array
(
[0] => 380 мм
[1] => 380 мм Thermo
[2] => 440 мм
[3] => 510 мм
)
[days] => [10,10,11,12]
[material_price] => [3302,3902,4108,5008]
[work_price] => [2100,2100,2300,2534]
[image] => https://akademik-stroy.ru/wp-content/uploads/materials/nesemnaya-opalubka.jpg
[area_modifier] => 135.2
[parent_name] => Стены 2 этаж (несущие)
[parent_id] => 5
[material_sum] => 562502
[work_sum] => 298116
[total_sum] => 860618
[total_days] => 10
[display_material_sum] => 562 502
[display_work_sum] => 298 116
[display_total_sum] => 860 618
)
1
860 618₽
Работа:298 116 ₽
Материалы:562 502 ₽
Дни:10
stdClass Object
(
[id] => 254
[attribute_id] => 5
[name] => Бревно
[material_modifier] => 1
[work_modifier] => 1
[options] => Array
(
[0] => 260 мм
[1] => 320 мм
[2] => 360 мм
[3] => 400 мм
[4] => 500 мм
)
[days] => [7,8,9,10,11]
[material_price] => [1874,24045,26930,30972,38825]
[work_price] => [5046,6207,6952,7716,9723]
[image] => https://akademik-stroy.ru/wp-content/uploads/materials/sruby.jpg
[area_modifier] => 135.2
[parent_name] => Стены 2 этаж (несущие)
[parent_id] => 5
[material_sum] => 319240
[work_sum] => 716330
[total_sum] => 1035570
[total_days] => 7
[display_material_sum] => 319 240
[display_work_sum] => 716 330
[display_total_sum] => 1 035 570
)
1
1 035 570₽
Работа:716 330 ₽
Материалы:319 240 ₽
Дни:7
stdClass Object
(
[id] => 11
[attribute_id] => 6
[name] => Деревянные балки
[material_modifier] => 1
[work_modifier] => 1
[options] => Array
(
[0] => без утепления
[1] => утепление 200 мм
[2] => утепление 250 мм
[3] => утепление 300 мм
[4] => утепление 350 мм
[5] => утепление 400 мм
[6] => утепление 450 мм
[7] => утепление 500 мм
)
[days] => [8,9,9,9,11,12,13,14]
[material_price] => [1634,2042,2344,2947,3149,3652,3354,3557]
[work_price] => [1230,1339,1393,1426,1460,1513,1587,1620]
[image] => https://akademik-stroy.ru/wp-content/uploads/materials/derevyannye-balki.png
[area_modifier] => 135.2
[parent_name] => Перекрытие второго этажа
[parent_id] => 6
[material_sum] => 278355
[work_sum] => 174611
[total_sum] => 452966
[total_days] => 8
[display_material_sum] => 278 355
[display_work_sum] => 174 611
[display_total_sum] => 452 966
)
1
452 966₽
Работа:174 611 ₽
Материалы:278 355 ₽
Дни:8
stdClass Object
(
[id] => 12
[attribute_id] => 6
[name] => Сборные ж/б плиты
[material_modifier] => 1
[work_modifier] => 1
[options] => Array
(
[0] => без утепления
[1] => утепление 150 мм
[2] => утепление 200 мм
[3] => утепление 250 мм
[4] => утепление 300 мм
[5] => утепление 350 мм
[6] => утепление 400 мм
[7] => утепление 450 мм
[8] => утепление 500 мм
)
[days] => [13,15,15,15,15,15,15,15,15]
[material_price] => [3067,5577,5928,6679,7730,8782,9833,10884,11935]
[work_price] => [1520,1956,2102,2247,2392,2537,2684,2829,2974]
[image] => https://akademik-stroy.ru/wp-content/uploads/materials/sbornye-zh-b-plity-2.jpg
[area_modifier] => 135.2
[parent_name] => Перекрытие второго этажа
[parent_id] => 6
[material_sum] => 522470
[work_sum] => 215779
[total_sum] => 738249
[total_days] => 13
[display_material_sum] => 522 470
[display_work_sum] => 215 779
[display_total_sum] => 738 249
)
1
738 249₽
Работа:215 779 ₽
Материалы:522 470 ₽
Дни:13
stdClass Object
(
[id] => 100
[attribute_id] => 6
[name] => Монолитная ж/б плита
[material_modifier] => 1
[work_modifier] => 1
[options] => Array
(
[0] => без утепления
[1] => утепление 150 мм
[2] => утепление 200 мм
[3] => утепление 250 мм
[4] => утепление 300 мм
[5] => утепление 350 мм
[6] => утепление 400 мм
[7] => утепление 450 мм
[8] => утепление 500 мм
)
[days] => [18,20,20,20,20,20,20,20,20]
[material_price] => [4837,6572,7224,7375,79426,8177,8728,9180,10031]
[work_price] => [3348,3921,4112,4302,4493,4684,4875,5066,5256]
[image] => https://akademik-stroy.ru/wp-content/uploads/materials/monolitnaya-zh-b-plita-2.jpg
[area_modifier] => 135.2
[parent_name] => Перекрытие второго этажа
[parent_id] => 6
[material_sum] => 823993
[work_sum] => 475282
[total_sum] => 1299275
[total_days] => 18
[display_material_sum] => 823 993
[display_work_sum] => 475 282
[display_total_sum] => 1 299 275
)
1
1 299 275₽
Работа:475 282 ₽
Материалы:823 993 ₽
Дни:18
stdClass Object
(
[id] => 160
[attribute_id] => 36
[name] => Не эксплуатируемая
[material_modifier] => 1
[work_modifier] => 1
[options] => Array
(
)
[days] => [10]
[material_price] => [8068]
[work_price] => [4163]
[image] => https://akademik-stroy.ru/wp-content/uploads/materials/ne-ehkspluatiruemaya-3.jpg
[area_modifier] => 158.87
[parent_name] => Плоская крыша
[parent_id] => 36
[material_sum] => 1615022
[work_sum] => 694445
[total_sum] => 2309467
[total_days] => 10
[display_material_sum] => 1 615 022
[display_work_sum] => 694 445
[display_total_sum] => 2 309 467
)
1
2 309 467₽
Работа:694 445 ₽
Материалы:1 615 022 ₽
Дни:10
stdClass Object
(
[id] => 161
[attribute_id] => 36
[name] => Зеленая кровля (Эксплуатируемая)
[material_modifier] => 1
[work_modifier] => 1
[options] => Array
(
)
[days] => [10]
[material_price] => [10056]
[work_price] => [8446]
[image] => https://akademik-stroy.ru/wp-content/uploads/materials/zelenaya-krovlya-2.jpg
[area_modifier] => 158.87
[parent_name] => Плоская крыша
[parent_id] => 36
[material_sum] => 2012972
[work_sum] => 1408907
[total_sum] => 3421879
[total_days] => 10
[display_material_sum] => 2 012 972
[display_work_sum] => 1 408 907
[display_total_sum] => 3 421 879
)
1
3 421 879₽
Работа:1 408 907 ₽
Материалы:2 012 972 ₽
Дни:10
stdClass Object
(
[id] => 162
[attribute_id] => 36
[name] => Эксплуатируемая
[material_modifier] => 1
[work_modifier] => 1
[options] => Array
(
)
[days] => [10]
[material_price] => [9593]
[work_price] => [7459]
[image] => https://akademik-stroy.ru/wp-content/uploads/materials/ehkspluatiruemaya-2.jpg
[area_modifier] => 158.87
[parent_name] => Плоская крыша
[parent_id] => 36
[material_sum] => 1920290
[work_sum] => 1244262
[total_sum] => 3164552
[total_days] => 10
[display_material_sum] => 1 920 290
[display_work_sum] => 1 244 262
[display_total_sum] => 3 164 552
)
1
3 164 552₽
Работа:1 244 262 ₽
Материалы:1 920 290 ₽
Дни:10
stdClass Object
(
[id] => 163
[attribute_id] => 36
[name] => Нет
[material_modifier] => 1
[work_modifier] => 1
[options] => Array
(
)
[days] => [0]
[material_price] => [0]
[work_price] => [0]
[image] => https://akademik-stroy.ru/wp-content/uploads/materials/ne-ehkspluatiruemaya-3.jpg
[area_modifier] => 158.87
[parent_name] => Плоская крыша
[parent_id] => 36
[material_sum] => 0
[work_sum] => 0
[total_sum] => 0
[total_days] => 0
[display_material_sum] => 0
[display_work_sum] => 0
[display_total_sum] => 0
)
1
0₽
Работа:0 ₽
Материалы:0 ₽
Дни:0
stdClass Object
(
[id] => 51
[attribute_id] => 26
[name] => Есть
[material_modifier] => 1
[work_modifier] => 1
[options] => Array
(
[0] => Профиль 58 мм, 3-камерный, стеклопакет 2-камерный до 32 мм
[1] => Профиль 60 мм, 4-камерный, стеклопакет 2-камерный до 32 мм
[2] => Профиль 70 мм, 5-камерный, стеклопакет 2-камерный до 40 мм
[3] => Профиль 72 мм, 5-камерный, стеклопакет 2-камерный до 40 мм
[4] => Алюминиевые окна Alutech профиль 72 мм, стеклопакет 2-камерный
)
[days] => [3,3,3,3,3]
[material_price] => [1339,2124,2867,3023,29596]
[work_price] => [635,647,659,668,2579]
[image] => https://akademik-stroy.ru/wp-content/uploads/materials/okna.jpg
[area_modifier] => 238.63
[parent_name] => Окна
[parent_id] => 26
[material_sum] => 402602
[work_sum] => 159107
[total_sum] => 561709
[total_days] => 3
[display_material_sum] => 402 602
[display_work_sum] => 159 107
[display_total_sum] => 561 709
)
1
561 709₽
Работа:159 107 ₽
Материалы:402 602 ₽
Дни:3
stdClass Object
(
[id] => 52
[attribute_id] => 26
[name] => Нет
[material_modifier] => 2
[work_modifier] => 1
[options] =>
[days] => null
[material_price] => null
[work_price] => null
[image] => https://akademik-stroy.ru/wp-content/uploads/materials/okna.jpg
[area_modifier] => 238.63
[parent_name] => Окна
[parent_id] => 26
[material_sum] => 0
[work_sum] => 0
[total_sum] => 0
[total_days] => 0
[display_material_sum] => 0
[display_work_sum] => 0
[display_total_sum] => 0
)
1
0₽
Работа:0 ₽
Материалы:0 ₽
Дни:0
stdClass Object
(
[id] => 53
[attribute_id] => 27
[name] => Есть
[material_modifier] => 1
[work_modifier] => 1
[options] => Array
(
)
[days] => [1]
[material_price] => [10000]
[work_price] => [5500]
[image] => https://akademik-stroy.ru/wp-content/uploads/materials/dveri.jpg
[area_modifier] => 1
[parent_name] => Двери входные
[parent_id] => 27
[material_sum] => 12600
[work_sum] => 5775
[total_sum] => 18375
[total_days] => 1
[display_material_sum] => 12 600
[display_work_sum] => 5 775
[display_total_sum] => 18 375
)
1
18 375₽
Работа:5 775 ₽
Материалы:12 600 ₽
Дни:1
stdClass Object
(
[id] => 54
[attribute_id] => 27
[name] => Нет
[material_modifier] => 1
[work_modifier] => 1
[options] => Array
(
)
[days] => [0]
[material_price] => [0]
[work_price] => [0]
[image] => https://akademik-stroy.ru/wp-content/uploads/materials/dveri.jpg
[area_modifier] => 1
[parent_name] => Двери входные
[parent_id] => 27
[material_sum] => 0
[work_sum] => 0
[total_sum] => 0
[total_days] => 0
[display_material_sum] => 0
[display_work_sum] => 0
[display_total_sum] => 0
)
1
0₽
Работа:0 ₽
Материалы:0 ₽
Дни:0
stdClass Object
(
[id] => 31
[attribute_id] => 16
[name] => Нет
[material_modifier] => 1
[work_modifier] => 1
[options] => Array
(
)
[days] => [0]
[material_price] => [0]
[work_price] => [0]
[image] => https://akademik-stroy.ru/wp-content/uploads/materials/docke-standard-pvh.jpg
[area_modifier] => 158.87
[parent_name] => Водосточная система
[parent_id] => 16
[material_sum] => 0
[work_sum] => 0
[total_sum] => 0
[total_days] => 0
[display_material_sum] => 0
[display_work_sum] => 0
[display_total_sum] => 0
)
1
0₽
Работа:0 ₽
Материалы:0 ₽
Дни:0
stdClass Object
(
[id] => 32
[attribute_id] => 16
[name] => Есть
[material_modifier] => 1
[work_modifier] => 1
[options] => Array
(
[0] => Döcke Standard (ПВХ)
[1] => Металлические Grand Line
)
[days] => [7,7]
[material_price] => [1842,2703]
[work_price] => [1491,1529]
[image] => https://akademik-stroy.ru/wp-content/uploads/materials/docke-standard-pvh.jpg
[area_modifier] => 158.87
[parent_name] => Водосточная система
[parent_id] => 16
[material_sum] => 368725
[work_sum] => 248719
[total_sum] => 617444
[total_days] => 7
[display_material_sum] => 368 725
[display_work_sum] => 248 719
[display_total_sum] => 617 444
)
1
617 444₽
Работа:248 719 ₽
Материалы:368 725 ₽
Дни:7
stdClass Object
(
[id] => 33
[attribute_id] => 17
[name] => Нет
[material_modifier] => 1
[work_modifier] => 1
[options] => Array
(
)
[days] => [0]
[material_price] => [0]
[work_price] => [0]
[image] => https://akademik-stroy.ru/wp-content/uploads/materials/mineralovata.jpg
[area_modifier] => 294.06
[parent_name] => Дополнительное утепление наружных стен
[parent_id] => 17
[material_sum] => 0
[work_sum] => 0
[total_sum] => 0
[total_days] => 0
[display_material_sum] => 0
[display_work_sum] => 0
[display_total_sum] => 0
)
1
0₽
Работа:0 ₽
Материалы:0 ₽
Дни:0
stdClass Object
(
[id] => 34
[attribute_id] => 17
[name] => Минераловатный
[material_modifier] => 1
[work_modifier] => 1
[options] => Array
(
[0] => 50 мм
[1] => 100 мм
[2] => 150 мм
[3] => 200 мм
[4] => 250 мм
[5] => 300 мм
)
[days] => [7,8,10,12,14,15]
[material_price] => [3437,3613,3803,3915,4601,4830]
[work_price] => [2325,2423,2523,2749,2859,3025]
[image] => https://akademik-stroy.ru/wp-content/uploads/materials/mineralovata.jpg
[area_modifier] => 294.06
[parent_name] => Дополнительное утепление наружных стен
[parent_id] => 17
[material_sum] => 1273462
[work_sum] => 717874
[total_sum] => 1991336
[total_days] => 7
[display_material_sum] => 1 273 462
[display_work_sum] => 717 874
[display_total_sum] => 1 991 336
)
1
1 991 336₽
Работа:717 874 ₽
Материалы:1 273 462 ₽
Дни:7
stdClass Object
(
[id] => 128
[attribute_id] => 17
[name] => Эковата (целлюлозная вата)
[material_modifier] => 1
[work_modifier] => 1
[options] => Array
(
[0] => 50 мм
[1] => 100 мм
[2] => 150 мм
[3] => 200 мм
[4] => 250 мм
[5] => 300 мм
)
[days] => [3,4,5,6,7,8]
[material_price] => [810,1319,1629,1838,2267,2676]
[work_price] => [1225,1323,1423,1549,1659,1725]
[image] => https://akademik-stroy.ru/wp-content/uploads/materials/ehkovata.jpg
[area_modifier] => 294.06
[parent_name] => Дополнительное утепление наружных стен
[parent_id] => 17
[material_sum] => 300118
[work_sum] => 378235
[total_sum] => 678353
[total_days] => 3
[display_material_sum] => 300 118
[display_work_sum] => 378 235
[display_total_sum] => 678 353
)
1
678 353₽
Работа:378 235 ₽
Материалы:300 118 ₽
Дни:3
stdClass Object
(
[id] => 129
[attribute_id] => 17
[name] => Экструдированный пенополистирол
[material_modifier] => 1
[work_modifier] => 1
[options] => Array
(
[0] => 50 мм
[1] => 100 мм
[2] => 150 мм
[3] => 200 мм
[4] => 250 мм
[5] => 300 мм
)
[days] => [5,6,7,8,9,10]
[material_price] => [4560,4300,5119,6292,7010,8583]
[work_price] => [1795,1954,2254,2330,2595,2735]
[image] => https://akademik-stroy.ru/wp-content/uploads/materials/epps.jpg
[area_modifier] => 294.06
[parent_name] => Дополнительное утепление наружных стен
[parent_id] => 17
[material_sum] => 1689551
[work_sum] => 554230
[total_sum] => 2243781
[total_days] => 5
[display_material_sum] => 1 689 551
[display_work_sum] => 554 230
[display_total_sum] => 2 243 781
)
1
2 243 781₽
Работа:554 230 ₽
Материалы:1 689 551 ₽
Дни:5
stdClass Object
(
[id] => 130
[attribute_id] => 17
[name] => ПСБ (ППС-пенополистирол)
[material_modifier] => 1
[work_modifier] => 1
[options] => Array
(
[0] => 50 мм
[1] => 100 мм
[2] => 150 мм
[3] => 200 мм
[4] => 250 мм
[5] => 300 мм
)
[days] => [5,6,7,8,9,10]
[material_price] => [4822,5200,5819,6292,7010,7583]
[work_price] => [1795,1954,2254,2330,2595,2735]
[image] => https://akademik-stroy.ru/wp-content/uploads/materials/psb.jpg
[area_modifier] => 294.06
[parent_name] => Дополнительное утепление наружных стен
[parent_id] => 17
[material_sum] => 1786626
[work_sum] => 554230
[total_sum] => 2340856
[total_days] => 5
[display_material_sum] => 1 786 626
[display_work_sum] => 554 230
[display_total_sum] => 2 340 856
)
1
2 340 856₽
Работа:554 230 ₽
Материалы:1 786 626 ₽
Дни:5
stdClass Object
(
[id] => 131
[attribute_id] => 17
[name] => ППУ (Пенополиуретан)
[material_modifier] => 1
[work_modifier] => 1
[options] => Array
(
[0] => 50 мм
[1] => 100 мм
[2] => 150 мм
[3] => 200 мм
[4] => 250 мм
[5] => 300 мм
)
[days] => [3,4,5,6,7,8]
[material_price] => [2860,3400,4219,4592,5010,5583]
[work_price] => [729,900,980,1120,1280,1530]
[image] => https://akademik-stroy.ru/wp-content/uploads/materials/ppu.jpg
[area_modifier] => 294.06
[parent_name] => Дополнительное утепление наружных стен
[parent_id] => 17
[material_sum] => 1059675
[work_sum] => 225088
[total_sum] => 1284763
[total_days] => 3
[display_material_sum] => 1 059 675
[display_work_sum] => 225 088
[display_total_sum] => 1 284 763
)
1
1 284 763₽
Работа:225 088 ₽
Материалы:1 059 675 ₽
Дни:3
stdClass Object
(
[id] => 132
[attribute_id] => 17
[name] => PIR-плиты (пенополиизоцианурат)
[material_modifier] => 1
[work_modifier] => 1
[options] => Array
(
[0] => 50 мм
[1] => 100 мм
[2] => 150 мм
[3] => 200 мм
[4] => 250 мм
[5] => 300 мм
)
[days] => [5,6,7,8,9,10]
[material_price] => [8323,15645,20968,25900,29258,30581]
[work_price] => [800,900,970,1150,1280,1330]
[image] => https://akademik-stroy.ru/wp-content/uploads/materials/pir.jpg
[area_modifier] => 294.06
[parent_name] => Дополнительное утепление наружных стен
[parent_id] => 17
[material_sum] => 3083801
[work_sum] => 247010
[total_sum] => 3330811
[total_days] => 5
[display_material_sum] => 3 083 801
[display_work_sum] => 247 010
[display_total_sum] => 3 330 811
)
1
3 330 811₽
Работа:247 010 ₽
Материалы:3 083 801 ₽
Дни:5
stdClass Object
(
[id] => 37
[attribute_id] => 19
[name] => Нет
[material_modifier] => 1
[work_modifier] => 1
[options] => Array
(
)
[days] => [0]
[material_price] => [0]
[work_price] => [0]
[image] => https://akademik-stroy.ru/wp-content/uploads/materials/imitaciya-brusa.jpg
[area_modifier] => 294.06
[parent_name] => Наружная отделка фасада
[parent_id] => 19
[material_sum] => 0
[work_sum] => 0
[total_sum] => 0
[total_days] => 0
[display_material_sum] => 0
[display_work_sum] => 0
[display_total_sum] => 0
)
1
0₽
Работа:0 ₽
Материалы:0 ₽
Дни:0
stdClass Object
(
[id] => 38
[attribute_id] => 19
[name] => Имитация бруса
[material_modifier] => 1
[work_modifier] => 1
[options] => Array
(
[0] => Сосна
[1] => Ель
[2] => Лиственница
)
[days] => [20,20,20]
[material_price] => [2994,2762,4954]
[work_price] => [1397,1231,1577]
[image] => https://akademik-stroy.ru/wp-content/uploads/materials/imitaciya-brusa.jpg
[area_modifier] => 294.06
[parent_name] => Наружная отделка фасада
[parent_id] => 19
[material_sum] => 1109324
[work_sum] => 431342
[total_sum] => 1540666
[total_days] => 20
[display_material_sum] => 1 109 324
[display_work_sum] => 431 342
[display_total_sum] => 1 540 666
)
1
1 540 666₽
Работа:431 342 ₽
Материалы:1 109 324 ₽
Дни:20
stdClass Object
(
[id] => 136
[attribute_id] => 19
[name] => Планкен
[material_modifier] => 1
[work_modifier] => 1
[options] => Array
(
[0] => Сосна
[1] => Ель
[2] => Лиственница
)
[days] => [20,20,20]
[material_price] => [3194,2862,5154]
[work_price] => [1537,1354,1735]
[image] => https://akademik-stroy.ru/wp-content/uploads/materials/planken.jpg
[area_modifier] => 294.06
[parent_name] => Наружная отделка фасада
[parent_id] => 19
[material_sum] => 1183427
[work_sum] => 474569
[total_sum] => 1657996
[total_days] => 20
[display_material_sum] => 1 183 427
[display_work_sum] => 474 569
[display_total_sum] => 1 657 996
)
1
1 657 996₽
Работа:474 569 ₽
Материалы:1 183 427 ₽
Дни:20
stdClass Object
(
[id] => 137
[attribute_id] => 19
[name] => Штукатурка
[material_modifier] => 1
[work_modifier] => 1
[options] => Array
(
[0] => Цементно-песчаная (минеральная)
[1] => Мокрый фасад
)
[days] => [35,35]
[material_price] => [2231,3938]
[work_price] => [1202,2422]
[image] => https://akademik-stroy.ru/wp-content/uploads/materials/shtukaturka.jpg
[area_modifier] => 294.06
[parent_name] => Наружная отделка фасада
[parent_id] => 19
[material_sum] => 826620
[work_sum] => 371133
[total_sum] => 1197753
[total_days] => 35
[display_material_sum] => 826 620
[display_work_sum] => 371 133
[display_total_sum] => 1 197 753
)
1
1 197 753₽
Работа:371 133 ₽
Материалы:826 620 ₽
Дни:35
stdClass Object
(
[id] => 138
[attribute_id] => 19
[name] => Облицовочный кирпич
[material_modifier] => 1
[work_modifier] => 1
[options] => Array
(
[0] => Керамический
[1] => Клинкерный
[2] => Ручной формовки
[3] => Гиперпрессованный
[4] => Силикатный кирпич
)
[days] => [45,45,45,45,45]
[material_price] => [8174,9148,1040,1257,5876]
[work_price] => [3240,3758,4536,4017,3369]
[image] => https://akademik-stroy.ru/wp-content/uploads/materials/oblicovochnyj-kirpich.jpg
[area_modifier] => 294.06
[parent_name] => Наружная отделка фасада
[parent_id] => 19
[material_sum] => 3028595
[work_sum] => 1000392
[total_sum] => 4028987
[total_days] => 45
[display_material_sum] => 3 028 595
[display_work_sum] => 1 000 392
[display_total_sum] => 4 028 987
)
1
4 028 987₽
Работа:1 000 392 ₽
Материалы:3 028 595 ₽
Дни:45
stdClass Object
(
[id] => 139
[attribute_id] => 19
[name] => Фасадная плитка
[material_modifier] => 1
[work_modifier] => 1
[options] => Array
(
[0] => Клинкерная
[1] => Керамическая
[2] => Плитка ручной формовки
)
[days] => [40,40,40]
[material_price] => [2974,1487,3470]
[work_price] => [3007,2592,3629]
[image] => https://akademik-stroy.ru/wp-content/uploads/materials/fasadnaya-plitka.jpg
[area_modifier] => 294.06
[parent_name] => Наружная отделка фасада
[parent_id] => 19
[material_sum] => 1101913
[work_sum] => 928450
[total_sum] => 2030363
[total_days] => 40
[display_material_sum] => 1 101 913
[display_work_sum] => 928 450
[display_total_sum] => 2 030 363
)
1
2 030 363₽
Работа:928 450 ₽
Материалы:1 101 913 ₽
Дни:40
stdClass Object
(
[id] => 140
[attribute_id] => 19
[name] => Сайдинг
[material_modifier] => 1
[work_modifier] => 1
[options] => Array
(
[0] => Виниловый
[1] => Металлический
[2] => Фиброцементный
)
[days] => [20,20,20]
[material_price] => [1263,1944,4147]
[work_price] => [1263,1944,2074]
[image] => https://akademik-stroy.ru/wp-content/uploads/materials/sajding.jpg
[area_modifier] => 294.06
[parent_name] => Наружная отделка фасада
[parent_id] => 19
[material_sum] => 467961
[work_sum] => 389968
[total_sum] => 857929
[total_days] => 20
[display_material_sum] => 467 961
[display_work_sum] => 389 968
[display_total_sum] => 857 929
)
1
857 929₽
Работа:389 968 ₽
Материалы:467 961 ₽
Дни:20
stdClass Object
(
[id] => 141
[attribute_id] => 19
[name] => Камень
[material_modifier] => 1
[work_modifier] => 1
[options] => Array
(
[0] => Травертин
[1] => Дагестанский
[2] => Искусственный
[3] => Натуральный
[4] => Керамогранит
)
[days] => [45,45,45,45,45]
[material_price] => [4536,3888,2592,3240,2462]
[work_price] => [3240,3240,2462,3110,1944]
[image] => https://akademik-stroy.ru/wp-content/uploads/materials/kamen-1.jpg
[area_modifier] => 294.06
[parent_name] => Наружная отделка фасада
[parent_id] => 19
[material_sum] => 1680659
[work_sum] => 1000392
[total_sum] => 2681051
[total_days] => 45
[display_material_sum] => 1 680 659
[display_work_sum] => 1 000 392
[display_total_sum] => 2 681 051
)
1
2 681 051₽
Работа:1 000 392 ₽
Материалы:1 680 659 ₽
Дни:45
stdClass Object
(
[id] => 142
[attribute_id] => 19
[name] => Термопанели
[material_modifier] => 1
[work_modifier] => 1
[options] => Array
(
)
[days] => [20]
[material_price] => [6221]
[work_price] => [2333]
[image] => https://akademik-stroy.ru/wp-content/uploads/materials/termo.png
[area_modifier] => 294.06
[parent_name] => Наружная отделка фасада
[parent_id] => 19
[material_sum] => 2304978
[work_sum] => 720344
[total_sum] => 3025322
[total_days] => 20
[display_material_sum] => 2 304 978
[display_work_sum] => 720 344
[display_total_sum] => 3 025 322
)
1
3 025 322₽
Работа:720 344 ₽
Материалы:2 304 978 ₽
Дни:20
stdClass Object
(
[id] => 143
[attribute_id] => 19
[name] => Плитка HAUBERK
[material_modifier] => 1
[work_modifier] => 1
[options] => Array
(
)
[days] => [20]
[material_price] => [2786]
[work_price] => [1944]
[image] => https://akademik-stroy.ru/wp-content/uploads/materials/hauberk.jpg
[area_modifier] => 294.06
[parent_name] => Наружная отделка фасада
[parent_id] => 19
[material_sum] => 1032256
[work_sum] => 600235
[total_sum] => 1632491
[total_days] => 20
[display_material_sum] => 1 032 256
[display_work_sum] => 600 235
[display_total_sum] => 1 632 491
)
1
1 632 491₽
Работа:600 235 ₽
Материалы:1 032 256 ₽
Дни:20
stdClass Object
(
[id] => 144
[attribute_id] => 19
[name] => Фальцевый фасад
[material_modifier] => 1
[work_modifier] => 1
[options] => Array
(
)
[days] => [20]
[material_price] => [3240]
[work_price] => [2592]
[image] => https://akademik-stroy.ru/wp-content/uploads/materials/falcevyj-fasad.jpg
[area_modifier] => 294.06
[parent_name] => Наружная отделка фасада
[parent_id] => 19
[material_sum] => 1200471
[work_sum] => 800314
[total_sum] => 2000785
[total_days] => 20
[display_material_sum] => 1 200 471
[display_work_sum] => 800 314
[display_total_sum] => 2 000 785
)
1
2 000 785₽
Работа:800 314 ₽
Материалы:1 200 471 ₽
Дни:20
stdClass Object
(
[id] => 145
[attribute_id] => 19
[name] => Комбинированный
[material_modifier] => 1
[work_modifier] => 1
[options] => Array
(
)
[days] => [20]
[material_price] => [4629]
[work_price] => [3499]
[image] => https://akademik-stroy.ru/wp-content/uploads/materials/Kombinirovannyj.jpg
[area_modifier] => 294.06
[parent_name] => Наружная отделка фасада
[parent_id] => 19
[material_sum] => 1715117
[work_sum] => 1080362
[total_sum] => 2795479
[total_days] => 20
[display_material_sum] => 1 715 117
[display_work_sum] => 1 080 362
[display_total_sum] => 2 795 479
)
1
2 795 479₽
Работа:1 080 362 ₽
Материалы:1 715 117 ₽
Дни:20
stdClass Object
(
[id] => 257
[attribute_id] => 19
[name] => Японские фиброцементные
[material_modifier] => 1
[work_modifier] => 1
[options] => Array
(
)
[days] => [20]
[material_price] => [7043]
[work_price] => [2993]
[image] => https://akademik-stroy.ru/wp-content/uploads/materials/paneli.jpg
[area_modifier] => 294.06
[parent_name] => Наружная отделка фасада
[parent_id] => 19
[material_sum] => 2609541
[work_sum] => 924128
[total_sum] => 3533669
[total_days] => 20
[display_material_sum] => 2 609 541
[display_work_sum] => 924 128
[display_total_sum] => 3 533 669
)
1
3 533 669₽
Работа:924 128 ₽
Материалы:2 609 541 ₽
Дни:20
stdClass Object
(
[id] => 258
[attribute_id] => 19
[name] => Панели Каньон
[material_modifier] => 1
[work_modifier] => 1
[options] => Array
(
)
[days] => [20]
[material_price] => [4543]
[work_price] => [2592]
[image] => https://akademik-stroy.ru/wp-content/uploads/materials/kanon.png
[area_modifier] => 294.06
[parent_name] => Наружная отделка фасада
[parent_id] => 19
[material_sum] => 1683252
[work_sum] => 800314
[total_sum] => 2483566
[total_days] => 20
[display_material_sum] => 1 683 252
[display_work_sum] => 800 314
[display_total_sum] => 2 483 566
)
1
2 483 566₽
Работа:800 314 ₽
Материалы:1 683 252 ₽
Дни:20
stdClass Object
(
[id] => 39
[attribute_id] => 20
[name] => Нет
[material_modifier] => 1
[work_modifier] => 1
[options] => Array
(
)
[days] => [0]
[material_price] => [0]
[work_price] => [0]
[image] => https://akademik-stroy.ru/wp-content/uploads/materials/terrasy.jpg
[area_modifier] => 30
[parent_name] => Террасы, крыльца, навесы
[parent_id] => 20
[material_sum] => 0
[work_sum] => 0
[total_sum] => 0
[total_days] => 0
[display_material_sum] => 0
[display_work_sum] => 0
[display_total_sum] => 0
)
1
0₽
Работа:0 ₽
Материалы:0 ₽
Дни:0
stdClass Object
(
[id] => 40
[attribute_id] => 20
[name] => Есть
[material_modifier] => 1
[work_modifier] => 1
[options] => Array
(
)
[days] => [5]
[material_price] => [10450]
[work_price] => [1950]
[image] => https://akademik-stroy.ru/wp-content/uploads/materials/terrasy.jpg
[area_modifier] => 30
[parent_name] => Террасы, крыльца, навесы
[parent_id] => 20
[material_sum] => 395010
[work_sum] => 61425
[total_sum] => 456435
[total_days] => 5
[display_material_sum] => 395 010
[display_work_sum] => 61 425
[display_total_sum] => 456 435
)
1
456 435₽
Работа:61 425 ₽
Материалы:395 010 ₽
Дни:5
stdClass Object
(
[id] => 41
[attribute_id] => 21
[name] => Нет
[material_modifier] => 1
[work_modifier] => 1
[options] => Array
(
)
[days] => [0]
[material_price] => [0]
[work_price] => [0]
[image] => https://akademik-stroy.ru/wp-content/uploads/materials/balkony.jpg
[area_modifier] => 30
[parent_name] => Балконы
[parent_id] => 21
[material_sum] => 0
[work_sum] => 0
[total_sum] => 0
[total_days] => 0
[display_material_sum] => 0
[display_work_sum] => 0
[display_total_sum] => 0
)
1
0₽
Работа:0 ₽
Материалы:0 ₽
Дни:0
stdClass Object
(
[id] => 42
[attribute_id] => 21
[name] => Есть
[material_modifier] => 1
[work_modifier] => 1
[options] => Array
(
)
[days] => [12]
[material_price] => [3600]
[work_price] => [1950]
[image] => https://akademik-stroy.ru/wp-content/uploads/materials/balkony.jpg
[area_modifier] => 30
[parent_name] => Балконы
[parent_id] => 21
[material_sum] => 136080
[work_sum] => 61425
[total_sum] => 197505
[total_days] => 12
[display_material_sum] => 136 080
[display_work_sum] => 61 425
[display_total_sum] => 197 505
)
1
197 505₽
Работа:61 425 ₽
Материалы:136 080 ₽
Дни:12
stdClass Object
(
[id] => 43
[attribute_id] => 22
[name] => Нет
[material_modifier] => 1
[work_modifier] => 1
[options] => Array
(
)
[days] => [0]
[material_price] => [0]
[work_price] => [0]
[image] => https://akademik-stroy.ru/wp-content/uploads/materials/uteplennaya.jpg
[area_modifier] => 158.87
[parent_name] => Отмостка
[parent_id] => 22
[material_sum] => 0
[work_sum] => 0
[total_sum] => 0
[total_days] => 0
[display_material_sum] => 0
[display_work_sum] => 0
[display_total_sum] => 0
)
1
0₽
Работа:0 ₽
Материалы:0 ₽
Дни:0
stdClass Object
(
[id] => 44
[attribute_id] => 22
[name] => Утепленная отмостка
[material_modifier] => 1
[work_modifier] => 1
[options] => Array
(
)
[days] => [15]
[material_price] => [2550]
[work_price] => [1750]
[image] => https://akademik-stroy.ru/wp-content/uploads/materials/uteplennaya.jpg
[area_modifier] => 158.87
[parent_name] => Отмостка
[parent_id] => 22
[material_sum] => 510449
[work_sum] => 291924
[total_sum] => 802373
[total_days] => 15
[display_material_sum] => 510 449
[display_work_sum] => 291 924
[display_total_sum] => 802 373
)
1
802 373₽
Работа:291 924 ₽
Материалы:510 449 ₽
Дни:15
stdClass Object
(
[id] => 146
[attribute_id] => 22
[name] => Не утепленная отмостка
[material_modifier] => 1
[work_modifier] => 1
[options] => Array
(
)
[days] => [10]
[material_price] => [1650]
[work_price] => [1450]
[image] => https://akademik-stroy.ru/wp-content/uploads/materials/ne-uteplennaya.jpg
[area_modifier] => 158.87
[parent_name] => Отмостка
[parent_id] => 22
[material_sum] => 330291
[work_sum] => 241880
[total_sum] => 572171
[total_days] => 10
[display_material_sum] => 330 291
[display_work_sum] => 241 880
[display_total_sum] => 572 171
)
1
572 171₽
Работа:241 880 ₽
Материалы:330 291 ₽
Дни:10
stdClass Object
(
[id] => 45
[attribute_id] => 23
[name] => Нет
[material_modifier] => 1
[work_modifier] => 1
[options] => Array
(
)
[days] => [0]
[material_price] => [0]
[work_price] => [0]
[image] => https://akademik-stroy.ru/wp-content/uploads/materials/drenazh-2.jpg
[area_modifier] => 158.87
[parent_name] => Дренаж вокруг дома
[parent_id] => 23
[material_sum] => 0
[work_sum] => 0
[total_sum] => 0
[total_days] => 0
[display_material_sum] => 0
[display_work_sum] => 0
[display_total_sum] => 0
)
1
0₽
Работа:0 ₽
Материалы:0 ₽
Дни:0
stdClass Object
(
[id] => 46
[attribute_id] => 23
[name] => Есть
[material_modifier] => 1
[work_modifier] => 1
[options] => Array
(
)
[days] => [5]
[material_price] => [2366]
[work_price] => [1911]
[image] => https://akademik-stroy.ru/wp-content/uploads/materials/drenazh-2.jpg
[area_modifier] => 158.87
[parent_name] => Дренаж вокруг дома
[parent_id] => 23
[material_sum] => 473617
[work_sum] => 318781
[total_sum] => 792398
[total_days] => 5
[display_material_sum] => 473 617
[display_work_sum] => 318 781
[display_total_sum] => 792 398
)
1
792 398₽
Работа:318 781 ₽
Материалы:473 617 ₽
Дни:5
stdClass Object
(
[id] => 47
[attribute_id] => 24
[name] => Нет
[material_modifier] => 1
[work_modifier] => 1
[options] => Array
(
)
[days] => [0]
[material_price] => [0]
[work_price] => [0]
[image] => https://akademik-stroy.ru/wp-content/uploads/materials/septik.jpg
[area_modifier] => 1
[parent_name] => Автономная канализация (септики)
[parent_id] => 24
[material_sum] => 0
[work_sum] => 0
[total_sum] => 0
[total_days] => 0
[display_material_sum] => 0
[display_work_sum] => 0
[display_total_sum] => 0
)
1
0₽
Работа:0 ₽
Материалы:0 ₽
Дни:0
stdClass Object
(
[id] => 48
[attribute_id] => 24
[name] => Есть
[material_modifier] => 1
[work_modifier] => 1
[options] => Array
(
[0] => Для дачи на 4 человека
[1] => Для дома на 5 человек
[2] => Для дома на 6 человек
[3] => Для дома на 7 человек
[4] => Для дома на 10 человек
)
[days] => [7,7,7,8,8]
[material_price] => [196340,220500,240940,264200,293340]
[work_price] => [50000,55000,60500,66550,73206]
[image] => https://akademik-stroy.ru/wp-content/uploads/materials/septik.jpg
[area_modifier] => 1
[parent_name] => Автономная канализация (септики)
[parent_id] => 24
[material_sum] => 247388
[work_sum] => 52500
[total_sum] => 299888
[total_days] => 7
[display_material_sum] => 247 388
[display_work_sum] => 52 500
[display_total_sum] => 299 888
)
1
299 888₽
Работа:52 500 ₽
Материалы:247 388 ₽
Дни:7
stdClass Object
(
[id] => 49
[attribute_id] => 25
[name] => Нет
[material_modifier] => 1
[work_modifier] => 1
[options] => Array
(
)
[days] => [0]
[material_price] => [0]
[work_price] => [0]
[image] => https://akademik-stroy.ru/wp-content/uploads/materials/gkl.jpg
[area_modifier] => 294.06
[parent_name] => Внутренние (не несущие) перегородки
[parent_id] => 25
[material_sum] => 0
[work_sum] => 0
[total_sum] => 0
[total_days] => 0
[display_material_sum] => 0
[display_work_sum] => 0
[display_total_sum] => 0
)
1
0₽
Работа:0 ₽
Материалы:0 ₽
Дни:0
stdClass Object
(
[id] => 147
[attribute_id] => 25
[name] => Каркасно-обшивные
[material_modifier] => 1
[work_modifier] => 1
[options] => Array
(
[0] => 75 мм (без шумоизоляции)
[1] => 75 мм (с шумоизоляцией)
)
[days] => [11,11]
[material_price] => [580,970]
[work_price] => [380,570]
[image] => https://akademik-stroy.ru/wp-content/uploads/materials/gkl.jpg
[area_modifier] => 294.06
[parent_name] => Внутренние (не несущие) перегородки
[parent_id] => 25
[material_sum] => 214899
[work_sum] => 117330
[total_sum] => 332229
[total_days] => 11
[display_material_sum] => 214 899
[display_work_sum] => 117 330
[display_total_sum] => 332 229
)
1
332 229₽
Работа:117 330 ₽
Материалы:214 899 ₽
Дни:11
stdClass Object
(
[id] => 148
[attribute_id] => 25
[name] => Пазогребневые
[material_modifier] => 1
[work_modifier] => 1
[options] => Array
(
[0] => 80 мм
[1] => 100 мм
)
[days] => [5,5]
[material_price] => [1022,1313]
[work_price] => [600,700]
[image] => https://akademik-stroy.ru/wp-content/uploads/materials/pazogrebnevye-bloki.jpg
[area_modifier] => 294.06
[parent_name] => Внутренние (не несущие) перегородки
[parent_id] => 25
[material_sum] => 378667
[work_sum] => 185258
[total_sum] => 563925
[total_days] => 5
[display_material_sum] => 378 667
[display_work_sum] => 185 258
[display_total_sum] => 563 925
)
1
563 925₽
Работа:185 258 ₽
Материалы:378 667 ₽
Дни:5
stdClass Object
(
[id] => 149
[attribute_id] => 25
[name] => Газобетонные
[material_modifier] => 1
[work_modifier] => 1
[options] => Array
(
[0] => 100 мм
[1] => 200 мм
)
[days] => [11,11]
[material_price] => [1160,1920]
[work_price] => [700,900]
[image] => https://akademik-stroy.ru/wp-content/uploads/materials/gazobeton-2.jpg
[area_modifier] => 294.06
[parent_name] => Внутренние (не несущие) перегородки
[parent_id] => 25
[material_sum] => 429798
[work_sum] => 216134
[total_sum] => 645932
[total_days] => 11
[display_material_sum] => 429 798
[display_work_sum] => 216 134
[display_total_sum] => 645 932
)
1
645 932₽
Работа:216 134 ₽
Материалы:429 798 ₽
Дни:11
stdClass Object
(
[id] => 150
[attribute_id] => 25
[name] => Кирпичные
[material_modifier] => 1
[work_modifier] => 1
[options] => Array
(
[0] => 120 мм
[1] => 250 мм
[2] => 360 мм
)
[days] => [7,7,7]
[material_price] => [1785,3570,5355]
[work_price] => [900,1600,1800]
[image] => https://akademik-stroy.ru/wp-content/uploads/materials/kirpich-1.jpg
[area_modifier] => 294.06
[parent_name] => Внутренние (не несущие) перегородки
[parent_id] => 25
[material_sum] => 661370
[work_sum] => 277887
[total_sum] => 939257
[total_days] => 7
[display_material_sum] => 661 370
[display_work_sum] => 277 887
[display_total_sum] => 939 257
)
1
939 257₽
Работа:277 887 ₽
Материалы:661 370 ₽
Дни:7
stdClass Object
(
[id] => 55
[attribute_id] => 28
[name] => Нет
[material_modifier] => 1
[work_modifier] => 1
[options] => Array
(
)
[days] => [0]
[material_price] => [0]
[work_price] => [0]
[image] => https://akademik-stroy.ru/wp-content/uploads/materials/ehlektrika.jpg
[area_modifier] => 238.63
[parent_name] => Электрика
[parent_id] => 28
[material_sum] => 0
[work_sum] => 0
[total_sum] => 0
[total_days] => 0
[display_material_sum] => 0
[display_work_sum] => 0
[display_total_sum] => 0
)
1
0₽
Работа:0 ₽
Материалы:0 ₽
Дни:0
stdClass Object
(
[id] => 56
[attribute_id] => 28
[name] => Есть
[material_modifier] => 1
[work_modifier] => 1
[options] => Array
(
)
[days] => [10]
[material_price] => [650]
[work_price] => [950]
[image] => https://akademik-stroy.ru/wp-content/uploads/materials/ehlektrika.jpg
[area_modifier] => 238.63
[parent_name] => Электрика
[parent_id] => 28
[material_sum] => 195438
[work_sum] => 238033
[total_sum] => 433471
[total_days] => 10
[display_material_sum] => 195 438
[display_work_sum] => 238 033
[display_total_sum] => 433 471
)
1
433 471₽
Работа:238 033 ₽
Материалы:195 438 ₽
Дни:10
stdClass Object
(
[id] => 57
[attribute_id] => 29
[name] => Нет
[material_modifier] => 1
[work_modifier] => 1
[options] => Array
(
)
[days] => [0]
[material_price] => [0]
[work_price] => [0]
[image] => https://akademik-stroy.ru/wp-content/uploads/materials/santekhnika-kanalizaciya-1.jpg
[area_modifier] => 238.63
[parent_name] => Сантехника, канализация в доме
[parent_id] => 29
[material_sum] => 0
[work_sum] => 0
[total_sum] => 0
[total_days] => 0
[display_material_sum] => 0
[display_work_sum] => 0
[display_total_sum] => 0
)
1
0₽
Работа:0 ₽
Материалы:0 ₽
Дни:0
stdClass Object
(
[id] => 58
[attribute_id] => 29
[name] => Есть
[material_modifier] => 1
[work_modifier] => 1
[options] => Array
(
)
[days] => [10]
[material_price] => [600]
[work_price] => [730]
[image] => https://akademik-stroy.ru/wp-content/uploads/materials/santekhnika-kanalizaciya-1.jpg
[area_modifier] => 238.63
[parent_name] => Сантехника, канализация в доме
[parent_id] => 29
[material_sum] => 180404
[work_sum] => 182910
[total_sum] => 363314
[total_days] => 10
[display_material_sum] => 180 404
[display_work_sum] => 182 910
[display_total_sum] => 363 314
)
1
363 314₽
Работа:182 910 ₽
Материалы:180 404 ₽
Дни:10
stdClass Object
(
[id] => 59
[attribute_id] => 30
[name] => Нет
[material_modifier] => 1
[work_modifier] => 1
[options] => Array
(
)
[days] => [0]
[material_price] => [0]
[work_price] => [0]
[image] => https://akademik-stroy.ru/wp-content/uploads/materials/otoplenie-1.jpg
[area_modifier] => 238.63
[parent_name] => Отопление
[parent_id] => 30
[material_sum] => 0
[work_sum] => 0
[total_sum] => 0
[total_days] => 0
[display_material_sum] => 0
[display_work_sum] => 0
[display_total_sum] => 0
)
1
0₽
Работа:0 ₽
Материалы:0 ₽
Дни:0
stdClass Object
(
[id] => 60
[attribute_id] => 30
[name] => Есть
[material_modifier] => 1
[work_modifier] => 1
[options] => Array
(
)
[days] => [5]
[material_price] => [610]
[work_price] => [560]
[image] => https://akademik-stroy.ru/wp-content/uploads/materials/otoplenie-1.jpg
[area_modifier] => 238.63
[parent_name] => Отопление
[parent_id] => 30
[material_sum] => 183411
[work_sum] => 140314
[total_sum] => 323725
[total_days] => 5
[display_material_sum] => 183 411
[display_work_sum] => 140 314
[display_total_sum] => 323 725
)
1
323 725₽
Работа:140 314 ₽
Материалы:183 411 ₽
Дни:5
stdClass Object
(
[id] => 61
[attribute_id] => 31
[name] => Нет
[material_modifier] => 1
[work_modifier] => 1
[options] => Array
(
)
[days] => [0]
[material_price] => [0]
[work_price] => [0]
[image] => https://akademik-stroy.ru/wp-content/uploads/materials/vodyanye.jpg
[area_modifier] => 30
[parent_name] => Теплые полы
[parent_id] => 31
[material_sum] => 0
[work_sum] => 0
[total_sum] => 0
[total_days] => 0
[display_material_sum] => 0
[display_work_sum] => 0
[display_total_sum] => 0
)
1
0₽
Работа:0 ₽
Материалы:0 ₽
Дни:0
stdClass Object
(
[id] => 151
[attribute_id] => 31
[name] => Водяные
[material_modifier] => 1
[work_modifier] => 1
[options] => Array
(
)
[days] => [9]
[material_price] => [10200]
[work_price] => [2500]
[image] => https://akademik-stroy.ru/wp-content/uploads/materials/vodyanye.jpg
[area_modifier] => 30
[parent_name] => Теплые полы
[parent_id] => 31
[material_sum] => 385560
[work_sum] => 78750
[total_sum] => 464310
[total_days] => 9
[display_material_sum] => 385 560
[display_work_sum] => 78 750
[display_total_sum] => 464 310
)
1
464 310₽
Работа:78 750 ₽
Материалы:385 560 ₽
Дни:9
stdClass Object
(
[id] => 152
[attribute_id] => 31
[name] => Электро
[material_modifier] => 1
[work_modifier] => 1
[options] => Array
(
)
[days] => [5]
[material_price] => [6300]
[work_price] => [1500]
[image] => https://akademik-stroy.ru/wp-content/uploads/materials/ehlektricheskij.jpg
[area_modifier] => 30
[parent_name] => Теплые полы
[parent_id] => 31
[material_sum] => 238140
[work_sum] => 47250
[total_sum] => 285390
[total_days] => 5
[display_material_sum] => 238 140
[display_work_sum] => 47 250
[display_total_sum] => 285 390
)
1
285 390₽
Работа:47 250 ₽
Материалы:238 140 ₽
Дни:5
stdClass Object
(
[id] => 63
[attribute_id] => 32
[name] => Нет
[material_modifier] => 1
[work_modifier] => 1
[options] => Array
(
)
[days] => [0]
[material_price] => [0]
[work_price] => [0]
[image] => https://akademik-stroy.ru/wp-content/uploads/materials/shtukaturka-shpatlevka-1.jpg
[area_modifier] => 238.63
[parent_name] => Черновая отделка стен
[parent_id] => 32
[material_sum] => 0
[work_sum] => 0
[total_sum] => 0
[total_days] => 0
[display_material_sum] => 0
[display_work_sum] => 0
[display_total_sum] => 0
)
1
0₽
Работа:0 ₽
Материалы:0 ₽
Дни:0
stdClass Object
(
[id] => 153
[attribute_id] => 32
[name] => Штукатурка и шпатлевка
[material_modifier] => 1
[work_modifier] => 1
[options] => Array
(
)
[days] => [20]
[material_price] => [1850]
[work_price] => [2600]
[image] => https://akademik-stroy.ru/wp-content/uploads/materials/shtukaturka-shpatlevka-1.jpg
[area_modifier] => 238.63
[parent_name] => Черновая отделка стен
[parent_id] => 32
[material_sum] => 556247
[work_sum] => 651460
[total_sum] => 1207707
[total_days] => 20
[display_material_sum] => 556 247
[display_work_sum] => 651 460
[display_total_sum] => 1 207 707
)
1
1 207 707₽
Работа:651 460 ₽
Материалы:556 247 ₽
Дни:20
stdClass Object
(
[id] => 154
[attribute_id] => 32
[name] => Гипсокортон на стены
[material_modifier] => 1
[work_modifier] => 1
[options] => Array
(
)
[days] => [15]
[material_price] => [950]
[work_price] => [2100]
[image] => https://akademik-stroy.ru/wp-content/uploads/materials/gkl-1.jpg
[area_modifier] => 238.63
[parent_name] => Черновая отделка стен
[parent_id] => 32
[material_sum] => 285640
[work_sum] => 526179
[total_sum] => 811819
[total_days] => 15
[display_material_sum] => 285 640
[display_work_sum] => 526 179
[display_total_sum] => 811 819
)
1
811 819₽
Работа:526 179 ₽
Материалы:285 640 ₽
Дни:15
stdClass Object
(
[id] => 155
[attribute_id] => 32
[name] => Вагонка
[material_modifier] => 1
[work_modifier] => 1
[options] => Array
(
)
[days] => [15]
[material_price] => [1250]
[work_price] => [950]
[image] => https://akademik-stroy.ru/wp-content/uploads/materials/vagonka.jpg
[area_modifier] => 238.63
[parent_name] => Черновая отделка стен
[parent_id] => 32
[material_sum] => 375842
[work_sum] => 238033
[total_sum] => 613875
[total_days] => 15
[display_material_sum] => 375 842
[display_work_sum] => 238 033
[display_total_sum] => 613 875
)
1
613 875₽
Работа:238 033 ₽
Материалы:375 842 ₽
Дни:15
stdClass Object
(
[id] => 65
[attribute_id] => 33
[name] => Нет
[material_modifier] => 1
[work_modifier] => 1
[options] => Array
(
)
[days] => [0]
[material_price] => [0]
[work_price] => [0]
[image] => https://akademik-stroy.ru/wp-content/uploads/materials/styazhka.jpg
[area_modifier] => 238.63
[parent_name] => Черновая отделка полов
[parent_id] => 33
[material_sum] => 0
[work_sum] => 0
[total_sum] => 0
[total_days] => 0
[display_material_sum] => 0
[display_work_sum] => 0
[display_total_sum] => 0
)
1
0₽
Работа:0 ₽
Материалы:0 ₽
Дни:0
stdClass Object
(
[id] => 156
[attribute_id] => 33
[name] => Стяжка + наливные полы
[material_modifier] => 1
[work_modifier] => 1
[options] => Array
(
)
[days] => [10]
[material_price] => [1000]
[work_price] => [900]
[image] => https://akademik-stroy.ru/wp-content/uploads/materials/styazhka.jpg
[area_modifier] => 238.63
[parent_name] => Черновая отделка полов
[parent_id] => 33
[material_sum] => 300674
[work_sum] => 225505
[total_sum] => 526179
[total_days] => 10
[display_material_sum] => 300 674
[display_work_sum] => 225 505
[display_total_sum] => 526 179
)
1
526 179₽
Работа:225 505 ₽
Материалы:300 674 ₽
Дни:10
stdClass Object
(
[id] => 157
[attribute_id] => 33
[name] => ОСБ на пол
[material_modifier] => 1
[work_modifier] => 1
[options] => Array
(
)
[days] => [7]
[material_price] => [580]
[work_price] => [350]
[image] => https://akademik-stroy.ru/wp-content/uploads/materials/osb-1.jpg
[area_modifier] => 238.63
[parent_name] => Черновая отделка полов
[parent_id] => 33
[material_sum] => 174391
[work_sum] => 87697
[total_sum] => 262088
[total_days] => 7
[display_material_sum] => 174 391
[display_work_sum] => 87 697
[display_total_sum] => 262 088
)
1
262 088₽
Работа:87 697 ₽
Материалы:174 391 ₽
Дни:7
stdClass Object
(
[id] => 67
[attribute_id] => 34
[name] => Нет
[material_modifier] => 1
[work_modifier] => 1
[options] => Array
(
)
[days] => [0]
[material_price] => [0]
[work_price] => [0]
[image] => https://akademik-stroy.ru/wp-content/uploads/materials/chistovaya-otdelka.jpg
[area_modifier] => 238.63
[parent_name] => Чистовая отделка стен и полов
[parent_id] => 34
[material_sum] => 0
[work_sum] => 0
[total_sum] => 0
[total_days] => 0
[display_material_sum] => 0
[display_work_sum] => 0
[display_total_sum] => 0
)
1
0₽
Работа:0 ₽
Материалы:0 ₽
Дни:0
stdClass Object
(
[id] => 68
[attribute_id] => 34
[name] => Есть
[material_modifier] => 1
[work_modifier] => 1
[options] => Array
(
)
[days] => [50]
[material_price] => [6000]
[work_price] => [3500]
[image] => https://akademik-stroy.ru/wp-content/uploads/materials/chistovaya-otdelka.jpg
[area_modifier] => 238.63
[parent_name] => Чистовая отделка стен и полов
[parent_id] => 34
[material_sum] => 1804043
[work_sum] => 876965
[total_sum] => 2681008
[total_days] => 50
[display_material_sum] => 1 804 043
[display_work_sum] => 876 965
[display_total_sum] => 2 681 008
)
1
2 681 008₽
Работа:876 965 ₽
Материалы:1 804 043 ₽
Дни:50
stdClass Object
(
[id] => 69
[attribute_id] => 35
[name] => Нет
[material_modifier] => 1
[work_modifier] => 1
[options] => Array
(
)
[days] => [0]
[material_price] => [0]
[work_price] => [0]
[image] => https://akademik-stroy.ru/wp-content/uploads/materials/mnogourovnevyj-gkl.jpg
[area_modifier] => 238.63
[parent_name] => Отделка потолка
[parent_id] => 35
[material_sum] => 0
[work_sum] => 0
[total_sum] => 0
[total_days] => 0
[display_material_sum] => 0
[display_work_sum] => 0
[display_total_sum] => 0
)
1
0₽
Работа:0 ₽
Материалы:0 ₽
Дни:0
stdClass Object
(
[id] => 70
[attribute_id] => 35
[name] => Есть
[material_modifier] => 1
[work_modifier] => 1
[options] => Array
(
[0] => Многоуровневый потолок из гипсокартона
[1] => Многоуровневый потолок из гипсокартона и натяжного потолка
[2] => Одноуровневый потолок из гипсокартона
[3] => Одноуровневый натяжной потолок
)
[days] => [10,10,1,1]
[material_price] => [900,700,700,600]
[work_price] => [1000,800,500,300]
[image] => https://akademik-stroy.ru/wp-content/uploads/materials/mnogourovnevyj-gkl.jpg
[area_modifier] => 238.63
[parent_name] => Отделка потолка
[parent_id] => 35
[material_sum] => 270606
[work_sum] => 250562
[total_sum] => 521168
[total_days] => 10
[display_material_sum] => 270 606
[display_work_sum] => 250 562
[display_total_sum] => 521 168
)
1
521 168₽
Работа:250 562 ₽
Материалы:270 606 ₽
Дни:10
Преимущества работы с нами
7 этапов оплаты
Независимый строительный надзор
Экологически чистые материалы
16 лет гарантии
Онлайн-кабинет с веб-камерой
Строители с опытом более 15 лет
Собственное производство











