Одноэтажный дом 9x8 - 113.72 м2 за руб.
Планировки
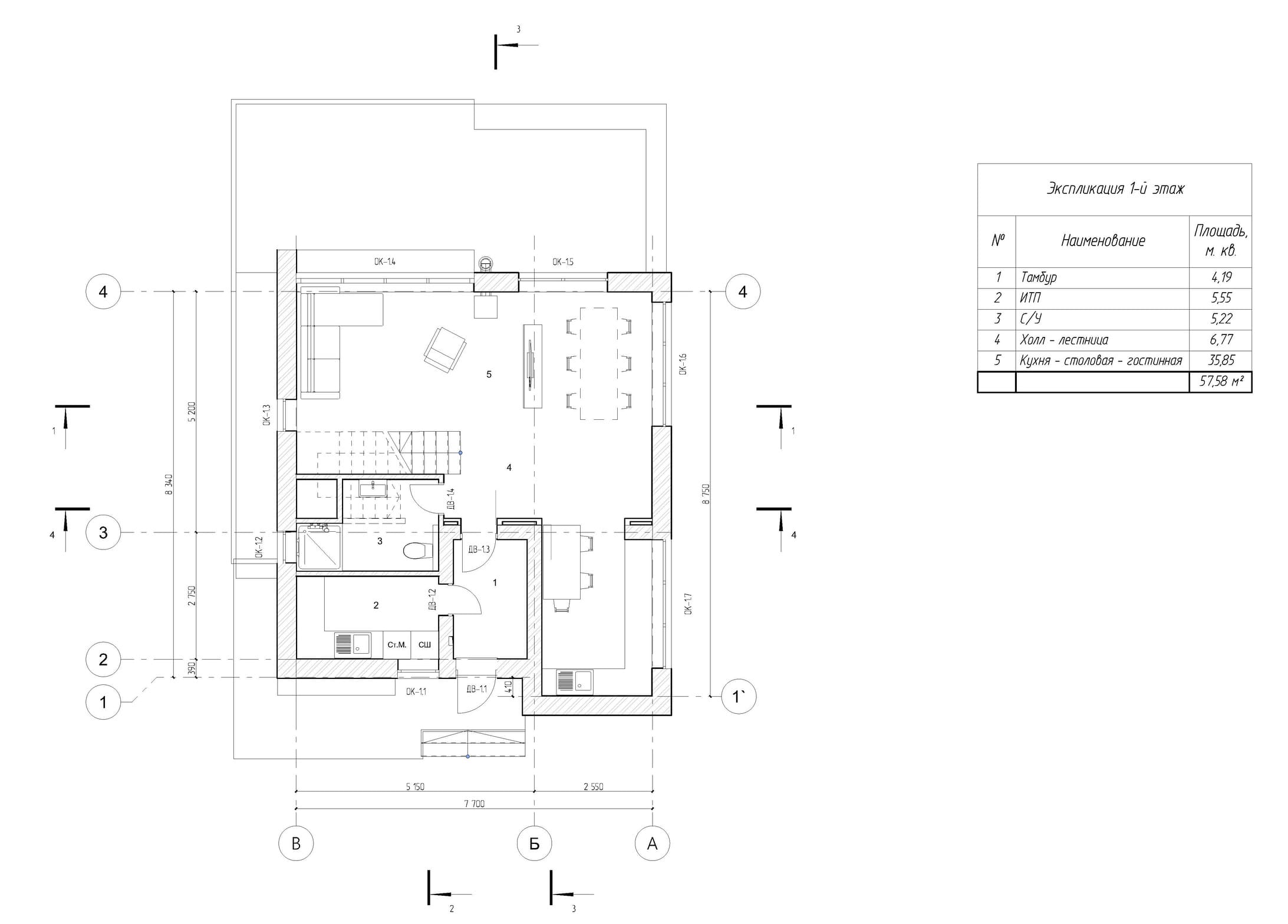
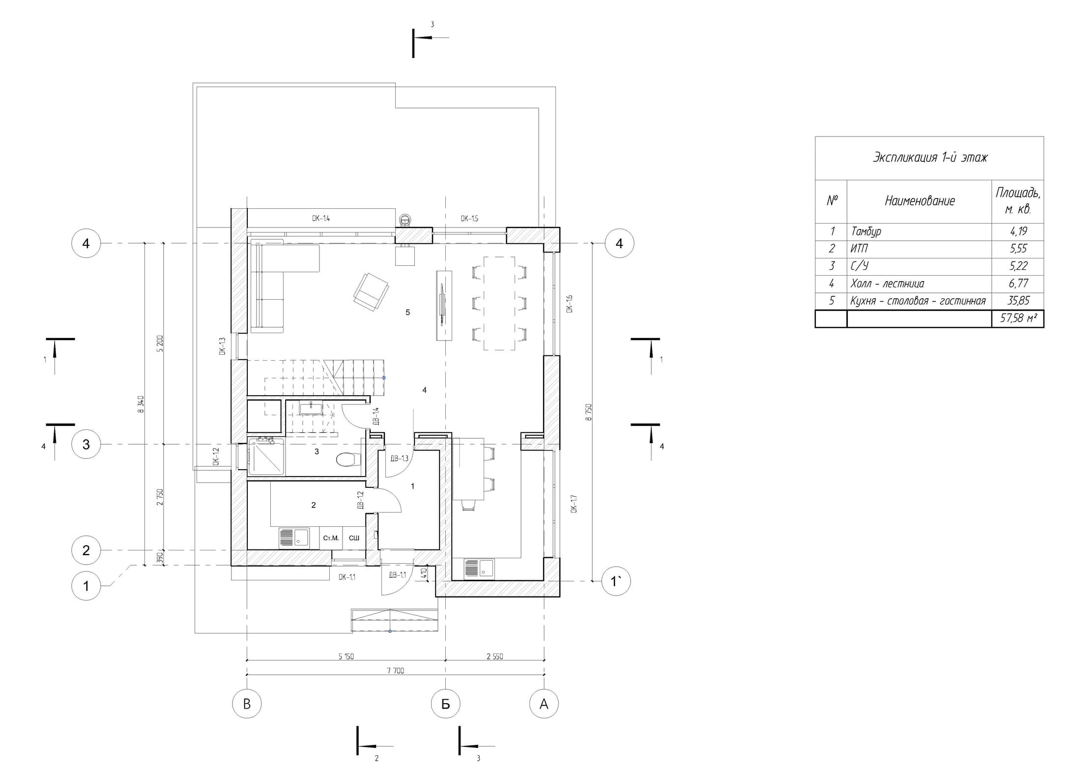
План первого этажа
- 1. Тамбур 4,19 м²
- 2. ИТП 5,55 м²
- 3. С/У 5,22 м²
- 4. Холл-лестница 6,77 м²
- 5. Кухня-столовая-гостиная 35,85 м²
- Общая площадь 1 этажа 57,58 м²
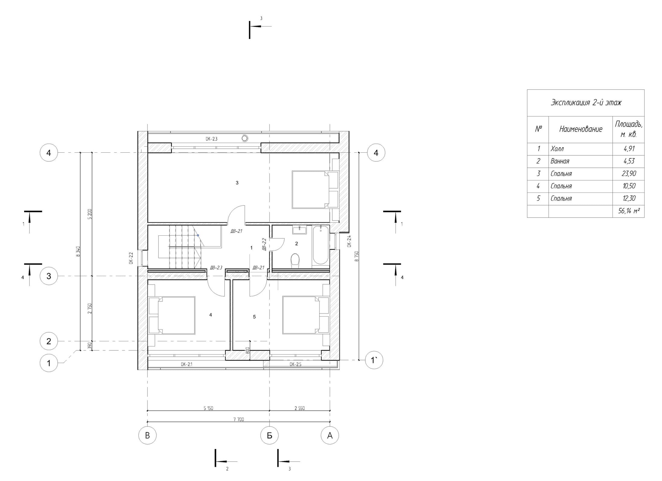
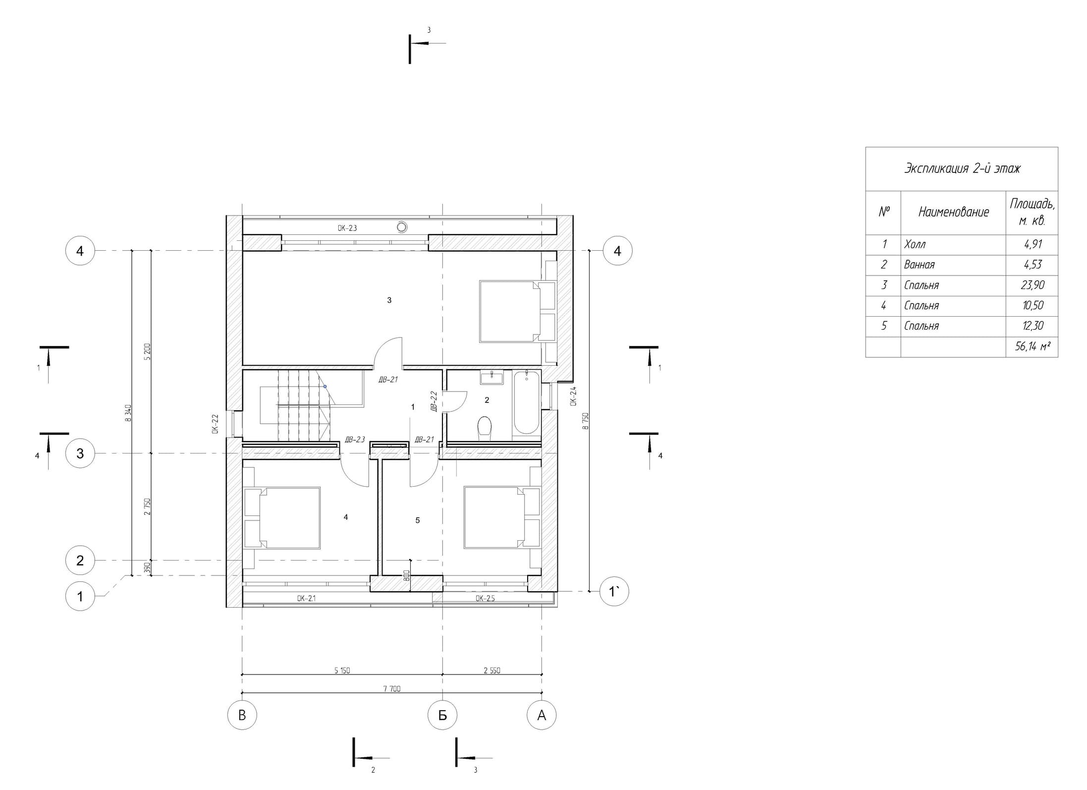
План второго этажа
- 1. Холл 4,91 м²
- 2. С/У 4,53 м²
- 3. Спальня 23,90 м²
- 4. Спальня 10,50 м²
- 5. Спальня 12,30 м²
- Общая площадь 2 этажа 56,14 м²
Площади дома
| № п/п | Наименование | Ед. из. | Строительная площадь | Полезная площадь |
| 1 | 1 этаж | м2 | 70.96 | 57.58 |
| 2 | 2 этаж | м2 | 69.18 | 56.14 |
| 3 | Итого | м2 | 140.14 | 113.72 |
154 м2
Полезная
площадь
площадь
9 x 8 м
Размеры
1 этаж
Этажей
26 м2
Террасы
и балконы
и балконы
0Без
гаража
гаража
3
Количество
спален
спален
2
Количество
санузлов
санузлов
Калькулятор опций
0₽
В ипотеку от 14 610 ₽/мес.
0₽
0 дней
stdClass Object
(
[id] => 1
[attribute_id] => 1
[name] => Ленточный монолитный ж/б
[material_modifier] => 1
[work_modifier] => 1
[options] => Array
(
[0] => размер 200 х 700 мм
[1] => размер 300 х 900 мм
[2] => размер 400 х 1 000 мм
[3] => размер 500 х 1 100 мм
[4] => размер 600 х 1 200 мм
)
[days] => [20,21,22,25,30]
[material_price] => [2823,3630,4475,5210,12047]
[work_price] => [2154,2826,3731,4577,5293]
[image] => https://akademik-stroy.ru/wp-content/uploads/materials/lentochnyj-monolitnyj-zh-b.jpg
[area_modifier] => 70.96
[parent_name] => Фундамент
[parent_id] => 1
[material_sum] => 276442
[work_sum] => 175775
[total_sum] => 452217
[total_days] => 20
[display_material_sum] => 276 442
[display_work_sum] => 175 775
[display_total_sum] => 452 217
)
1
452 217₽
Работа:175 775 ₽
Материалы:276 442 ₽
Дни:20
stdClass Object
(
[id] => 2
[attribute_id] => 1
[name] => Забивные Ж/Б сваи
[material_modifier] => 1
[work_modifier] => 1
[options] => Array
(
[0] => 150х150х3000мм
[1] => 150х150х4000мм
[2] => 200х200х3000мм
[3] => 200х200х4000мм
[4] => 200х200х5000мм
[5] => 200х200х6000мм
)
[days] => [2,2,2,2,2,2]
[material_price] => [1990,2850,3255,4360,5120,6837]
[work_price] => [1002,1185,1336,1438,1574,1839]
[image] => https://akademik-stroy.ru/wp-content/uploads/materials/zabivnye-zh-b-svai.png
[area_modifier] => 70.96
[parent_name] => Фундамент
[parent_id] => 1
[material_sum] => 194870
[work_sum] => 81767
[total_sum] => 276637
[total_days] => 2
[display_material_sum] => 194 870
[display_work_sum] => 81 767
[display_total_sum] => 276 637
)
1
276 637₽
Работа:81 767 ₽
Материалы:194 870 ₽
Дни:2
stdClass Object
(
[id] => 71
[attribute_id] => 1
[name] => Свайно-ростверковый ж/б
[material_modifier] => 1
[work_modifier] => 1
[options] => Array
(
[0] => ростверк 200х300 мм
[1] => ростверк 300х600 мм
[2] => ростверк 400х900 мм
[3] => ростверк 500х1200 мм
)
[days] => [20,23,25,27]
[material_price] => [3018,3474,7109,9792]
[work_price] => [2024,3012,5635,7022]
[image] => https://akademik-stroy.ru/wp-content/uploads/materials/svajno-rostverkovyj-monolitnyj-zh-b-3.png
[area_modifier] => 70.96
[parent_name] => Фундамент
[parent_id] => 1
[material_sum] => 295537
[work_sum] => 165166
[total_sum] => 460703
[total_days] => 20
[display_material_sum] => 295 537
[display_work_sum] => 165 166
[display_total_sum] => 460 703
)
1
460 703₽
Работа:165 166 ₽
Материалы:295 537 ₽
Дни:20
stdClass Object
(
[id] => 72
[attribute_id] => 1
[name] => Монолитная ж/б плита
[material_modifier] => 1
[work_modifier] => 1
[options] => Array
(
[0] => 200 мм
[1] => 300 мм
[2] => 400 мм
[3] => 500 мм
[4] => 600 мм
)
[days] => [30,33,35,37,40]
[material_price] => [5348,8555,12788,14388,15189]
[work_price] => [4314,4881,7037,8061,10230]
[image] => https://akademik-stroy.ru/wp-content/uploads/materials/monolitnaya-zhb-plita.png
[area_modifier] => 70.96
[parent_name] => Фундамент
[parent_id] => 1
[material_sum] => 523702
[work_sum] => 352040
[total_sum] => 875742
[total_days] => 30
[display_material_sum] => 523 702
[display_work_sum] => 352 040
[display_total_sum] => 875 742
)
1
875 742₽
Работа:352 040 ₽
Материалы:523 702 ₽
Дни:30
stdClass Object
(
[id] => 73
[attribute_id] => 1
[name] => Утепленная шведская плита
[material_modifier] => 1
[work_modifier] => 1
[options] => Array
(
[0] => 200 мм
[1] => 300 мм
[2] => 400 мм
[3] => 500 мм
[4] => 600 мм
)
[days] => [32,37,39,42,45]
[material_price] => [10249,12692,13760,14936,16230]
[work_price] => [5960,7337,8072,8878,9765]
[image] => https://akademik-stroy.ru/wp-content/uploads/materials/uteplennaya-shvedskaya-plita.jpg
[area_modifier] => 70.96
[parent_name] => Фундамент
[parent_id] => 1
[material_sum] => 1003631
[work_sum] => 486360
[total_sum] => 1489991
[total_days] => 32
[display_material_sum] => 1 003 631
[display_work_sum] => 486 360
[display_total_sum] => 1 489 991
)
1
1 489 991₽
Работа:486 360 ₽
Материалы:1 003 631 ₽
Дни:32
stdClass Object
(
[id] => 75
[attribute_id] => 1
[name] => Ленточный из ФБС
[material_modifier] => 1
[work_modifier] => 1
[options] => Array
(
[0] => толщ. 300 мм
[1] => толщ. 400 мм
[2] => толщ. 500 мм
[3] => толщ. 600 мм
)
[days] => [20,20,20,20]
[material_price] => [3675,4902,6126,7350]
[work_price] => [2451,3264,4083,4902]
[image] => https://akademik-stroy.ru/wp-content/uploads/materials/lentochnyj-iz-fbs.png
[area_modifier] => 70.96
[parent_name] => Фундамент
[parent_id] => 1
[material_sum] => 359874
[work_sum] => 200011
[total_sum] => 559885
[total_days] => 20
[display_material_sum] => 359 874
[display_work_sum] => 200 011
[display_total_sum] => 559 885
)
1
559 885₽
Работа:200 011 ₽
Материалы:359 874 ₽
Дни:20
stdClass Object
(
[id] => 76
[attribute_id] => 1
[name] => Цокольный этаж из ФБС
[material_modifier] => 1
[work_modifier] => 1
[options] => Array
(
[0] => толщ. 300 мм
[1] => толщ. 400 мм
[2] => толщ. 500 мм
[3] => толщ. 600 мм
)
[days] => [30,32,34,36]
[material_price] => [20916,23299,26680,29060]
[work_price] => [17524,18700,19873,21046]
[image] => https://akademik-stroy.ru/wp-content/uploads/materials/cokolnyj-ehtazh-iz-fbs.jpg
[area_modifier] => 70.96
[parent_name] => Фундамент
[parent_id] => 1
[material_sum] => 2048195
[work_sum] => 1430028
[total_sum] => 3478223
[total_days] => 30
[display_material_sum] => 2 048 195
[display_work_sum] => 1 430 028
[display_total_sum] => 3 478 223
)
1
3 478 223₽
Работа:1 430 028 ₽
Материалы:2 048 195 ₽
Дни:30
stdClass Object
(
[id] => 77
[attribute_id] => 1
[name] => Цокольный этаж монолитный ж/б
[material_modifier] => 1
[work_modifier] => 1
[options] => Array
(
[0] => толщ. 200 мм
[1] => толщ. 300 мм
[2] => толщ. 400 мм
[3] => толщ. 500 мм
[4] => толщ. 600 мм
)
[days] => [40,42,44,46,48]
[material_price] => [25421,29148,32275,35602,37326]
[work_price] => [20441,21907,23375,24841,26306]
[image] => https://akademik-stroy.ru/wp-content/uploads/materials/cokolnyj-etazh-zh-b.jpg
[area_modifier] => 70.96
[parent_name] => Фундамент
[parent_id] => 1
[material_sum] => 2489346
[work_sum] => 1668067
[total_sum] => 4157413
[total_days] => 40
[display_material_sum] => 2 489 346
[display_work_sum] => 1 668 067
[display_total_sum] => 4 157 413
)
1
4 157 413₽
Работа:1 668 067 ₽
Материалы:2 489 346 ₽
Дни:40
stdClass Object
(
[id] => 191
[attribute_id] => 1
[name] => Винтовые сваи
[material_modifier] => 1
[work_modifier] => 1
[options] => Array
(
[0] => 57х200мм
[1] => 76х250мм
[2] => 108х300мм
[3] => 133х350мм
)
[days] => [1,1,2,2]
[material_price] => [1200,1300,1450,1600]
[work_price] => [400,600,900,1100]
[image] => https://akademik-stroy.ru/wp-content/uploads/materials/vintovye-svai.png
[area_modifier] => 70.96
[parent_name] => Фундамент
[parent_id] => 1
[material_sum] => 117510
[work_sum] => 32642
[total_sum] => 150152
[total_days] => 1
[display_material_sum] => 117 510
[display_work_sum] => 32 642
[display_total_sum] => 150 152
)
1
150 152₽
Работа:32 642 ₽
Материалы:117 510 ₽
Дни:1
stdClass Object
(
[id] => 3
[attribute_id] => 2
[name] => Деревянные балки
[material_modifier] => 1
[work_modifier] => 1
[options] => Array
(
[0] => без утепления
[1] => утепление 200 мм
[2] => утепление 250 мм
[3] => утепление 300 мм
[4] => утепление 350 мм
[5] => утепление 400 мм
[6] => утепление 450 мм
[7] => утепление 500 мм
)
[days] => [8,9,9,9,11,12,13,14]
[material_price] => [1634,2042,2344,2947,3149,3652,3354,3557]
[work_price] => [1230,1339,1393,1426,1460,1513,1587,1620]
[image] => https://akademik-stroy.ru/wp-content/uploads/materials/derevyannye-balki.png
[area_modifier] => 70.96
[parent_name] => Перекрытие цоколя
[parent_id] => 2
[material_sum] => 160009
[work_sum] => 100373
[total_sum] => 260382
[total_days] => 8
[display_material_sum] => 160 009
[display_work_sum] => 100 373
[display_total_sum] => 260 382
)
1
260 382₽
Работа:100 373 ₽
Материалы:160 009 ₽
Дни:8
stdClass Object
(
[id] => 4
[attribute_id] => 2
[name] => Сборные ж/б плиты
[material_modifier] => 1
[work_modifier] => 1
[options] => Array
(
[0] => без утепления
[1] => утепление 150мм
[2] => утепление 200мм
[3] => утепление 250мм
[4] => утепление 300мм
[5] => утепление 350мм
[6] => утепление 400мм
[7] => утепление 450мм
[8] => утепление 500мм
)
[days] => [13,15,15,15,15,15,15,15,15]
[material_price] => [3067,5577,5928,6679,7730,8782,9833,10884,11935]
[work_price] => [1520,1956,2102,2247,2392,2537,2684,2829,2974]
[image] => https://akademik-stroy.ru/wp-content/uploads/materials/sbornye-zh-b-plity-2.jpg
[area_modifier] => 70.96
[parent_name] => Перекрытие цоколя
[parent_id] => 2
[material_sum] => 300335
[work_sum] => 124038
[total_sum] => 424373
[total_days] => 13
[display_material_sum] => 300 335
[display_work_sum] => 124 038
[display_total_sum] => 424 373
)
1
424 373₽
Работа:124 038 ₽
Материалы:300 335 ₽
Дни:13
stdClass Object
(
[id] => 78
[attribute_id] => 2
[name] => Монолитная ж/б плита
[material_modifier] => 1
[work_modifier] => 1
[options] => Array
(
[0] => без утепления
[1] => утепление 150 мм
[2] => утепление 200 мм
[3] => утепление 250 мм
[4] => утепление 300 мм
[5] => утепление 350 мм
[6] => утепление 400 мм
[7] => утепление 450 мм
[8] => утепление 500 мм
)
[days] => [18,20,20,20,20,20,20,20,20]
[material_price] => [4837,6572,7224,7375,79426,8177,8728,9180,10031]
[work_price] => [3348,3921,4112,4302,4493,4684,4875,5066,5256]
[image] => https://akademik-stroy.ru/wp-content/uploads/materials/monolitnaya-zh-b-plita-2.jpg
[area_modifier] => 70.96
[parent_name] => Перекрытие цоколя
[parent_id] => 2
[material_sum] => 473662
[work_sum] => 273210
[total_sum] => 746872
[total_days] => 18
[display_material_sum] => 473 662
[display_work_sum] => 273 210
[display_total_sum] => 746 872
)
1
746 872₽
Работа:273 210 ₽
Материалы:473 662 ₽
Дни:18
stdClass Object
(
[id] => 6
[attribute_id] => 3
[name] => Пеноблок
[material_modifier] => 1
[work_modifier] => 1
[options] => Array
(
[0] => 300 мм
[1] => 400 мм
[2] => 500 мм
[3] => 600 мм
)
[days] => [29,31,34,39]
[material_price] => [3000,4000,4500,4937]
[work_price] => [5033,5805,6400,8710]
[image] => https://akademik-stroy.ru/wp-content/uploads/materials/penoblok.jpg
[area_modifier] => 70.96
[parent_name] => Стены 1 этаж (несущие)
[parent_id] => 3
[material_sum] => 293774
[work_sum] => 410713
[total_sum] => 704487
[total_days] => 29
[display_material_sum] => 293 774
[display_work_sum] => 410 713
[display_total_sum] => 704 487
)
1
704 487₽
Работа:410 713 ₽
Материалы:293 774 ₽
Дни:29
stdClass Object
(
[id] => 79
[attribute_id] => 3
[name] => Керамический блок
[material_modifier] => 1
[work_modifier] => 1
[options] => Array
(
[0] => 380 мм
[1] => 380 мм Thermo
[2] => 440 мм
[3] => 510 мм
)
[days] => [23,23,24,25]
[material_price] => [4510,5098,6093,8013]
[work_price] => [4737,4937,5903,6958]
[image] => https://akademik-stroy.ru/wp-content/uploads/materials/keramicheskij-blok.jpg
[area_modifier] => 70.96
[parent_name] => Стены 1 этаж (несущие)
[parent_id] => 3
[material_sum] => 441641
[work_sum] => 386558
[total_sum] => 828199
[total_days] => 23
[display_material_sum] => 441 641
[display_work_sum] => 386 558
[display_total_sum] => 828 199
)
1
828 199₽
Работа:386 558 ₽
Материалы:441 641 ₽
Дни:23
stdClass Object
(
[id] => 80
[attribute_id] => 3
[name] => Кирпич
[material_modifier] => 1
[work_modifier] => 1
[options] => Array
(
[0] => Кирпич 250 мм
[1] => Кирпич 380 мм
[2] => Кирпич 510 мм
[3] => Кирпич 640 мм
[4] => Кирпич 770 мм
)
[days] => [30,30,31,33,36]
[material_price] => [5500,7142,9206,10171,12235]
[work_price] => [8736,10041,12018,15240,18462]
[image] => https://akademik-stroy.ru/wp-content/uploads/materials/kirpich.jpg
[area_modifier] => 70.96
[parent_name] => Стены 1 этаж (несущие)
[parent_id] => 3
[material_sum] => 538586
[work_sum] => 712893
[total_sum] => 1251479
[total_days] => 30
[display_material_sum] => 538 586
[display_work_sum] => 712 893
[display_total_sum] => 1 251 479
)
1
1 251 479₽
Работа:712 893 ₽
Материалы:538 586 ₽
Дни:30
stdClass Object
(
[id] => 81
[attribute_id] => 3
[name] => Монолитные
[material_modifier] => 1
[work_modifier] => 1
[options] => Array
(
[0] => 150 мм
[1] => 200 мм
[2] => 250 мм
[3] => 300 мм
[4] => 350 мм
[5] => 400 мм
)
[days] => [45,46,47,49,50,53]
[material_price] => [6545,7876,10175,12011,13908,15204]
[work_price] => [5106,6444,7698,8552,9807,11461]
[image] => https://akademik-stroy.ru/wp-content/uploads/materials/monolitnye.jpg
[area_modifier] => 70.96
[parent_name] => Стены 1 этаж (несущие)
[parent_id] => 3
[material_sum] => 640918
[work_sum] => 416670
[total_sum] => 1057588
[total_days] => 45
[display_material_sum] => 640 918
[display_work_sum] => 416 670
[display_total_sum] => 1 057 588
)
1
1 057 588₽
Работа:416 670 ₽
Материалы:640 918 ₽
Дни:45
stdClass Object
(
[id] => 82
[attribute_id] => 3
[name] => Клееный брус
[material_modifier] => 1
[work_modifier] => 1
[options] => Array
(
[0] => 160 мм
[1] => 175 мм
[2] => 200 мм
[3] => 215 мм
[4] => 240 мм
[5] => 270 мм
[6] => 282 мм
)
[days] => [24,28,32,37,40,42,48]
[material_price] => [16975,18773,19950,20545,21599,22159,23275]
[work_price] => [4806,5287,5815,6397,7036,7740,8514]
[image] => https://akademik-stroy.ru/wp-content/uploads/materials/kleenyj-brus.jpg
[area_modifier] => 70.96
[parent_name] => Стены 1 этаж (несущие)
[parent_id] => 3
[material_sum] => 1662273
[work_sum] => 392189
[total_sum] => 2054462
[total_days] => 24
[display_material_sum] => 1 662 273
[display_work_sum] => 392 189
[display_total_sum] => 2 054 462
)
1
2 054 462₽
Работа:392 189 ₽
Материалы:1 662 273 ₽
Дни:24
stdClass Object
(
[id] => 83
[attribute_id] => 3
[name] => Каркасные
[material_modifier] => 1
[work_modifier] => 1
[options] => Array
(
[0] => 150 мм
[1] => 200 мм
[2] => 250 мм
[3] => 300 мм
)
[days] => [15,16,17,18]
[material_price] => [2379,2639,2898,3258]
[work_price] => [2418,2686,2985,3716]
[image] => https://akademik-stroy.ru/wp-content/uploads/materials/karkasnye.jpg
[area_modifier] => 70.96
[parent_name] => Стены 1 этаж (несущие)
[parent_id] => 3
[material_sum] => 232963
[work_sum] => 197318
[total_sum] => 430281
[total_days] => 15
[display_material_sum] => 232 963
[display_work_sum] => 197 318
[display_total_sum] => 430 281
)
1
430 281₽
Работа:197 318 ₽
Материалы:232 963 ₽
Дни:15
stdClass Object
(
[id] => 84
[attribute_id] => 3
[name] => СИП-панели
[material_modifier] => 1
[work_modifier] => 1
[options] => Array
(
[0] => 120 мм
[1] => 170 мм
[2] => 220 мм
)
[days] => [7,7,7]
[material_price] => [1210,1856,2292]
[work_price] => [1410,1551,1706]
[image] => https://akademik-stroy.ru/wp-content/uploads/materials/sip-paneli.jpg
[area_modifier] => 70.96
[parent_name] => Стены 1 этаж (несущие)
[parent_id] => 3
[material_sum] => 118489
[work_sum] => 115062
[total_sum] => 233551
[total_days] => 7
[display_material_sum] => 118 489
[display_work_sum] => 115 062
[display_total_sum] => 233 551
)
1
233 551₽
Работа:115 062 ₽
Материалы:118 489 ₽
Дни:7
stdClass Object
(
[id] => 85
[attribute_id] => 3
[name] => Сухой брус
[material_modifier] => 1
[work_modifier] => 1
[options] => Array
(
[0] => 150 мм
[1] => 180 мм
[2] => 200 мм
)
[days] => [7,8,9]
[material_price] => [6010,7190,8709]
[work_price] => [3204,3845,4229]
[image] => https://akademik-stroy.ru/wp-content/uploads/materials/suhoj-brus.jpg
[area_modifier] => 70.96
[parent_name] => Стены 1 этаж (несущие)
[parent_id] => 3
[material_sum] => 588528
[work_sum] => 261459
[total_sum] => 849987
[total_days] => 7
[display_material_sum] => 588 528
[display_work_sum] => 261 459
[display_total_sum] => 849 987
)
1
849 987₽
Работа:261 459 ₽
Материалы:588 528 ₽
Дни:7
stdClass Object
(
[id] => 86
[attribute_id] => 3
[name] => Профилированный брус
[material_modifier] => 1
[work_modifier] => 1
[options] => Array
(
[0] => 150 мм
[1] => 180 мм
[2] => 200 мм
)
[days] => [7,8,9]
[material_price] => [8190,9228,10051]
[work_price] => [3845,4614,5075]
[image] => https://akademik-stroy.ru/wp-content/uploads/materials/profilirovannyj-brus.jpg
[area_modifier] => 70.96
[parent_name] => Стены 1 этаж (несущие)
[parent_id] => 3
[material_sum] => 802004
[work_sum] => 313767
[total_sum] => 1115771
[total_days] => 7
[display_material_sum] => 802 004
[display_work_sum] => 313 767
[display_total_sum] => 1 115 771
)
1
1 115 771₽
Работа:313 767 ₽
Материалы:802 004 ₽
Дни:7
stdClass Object
(
[id] => 87
[attribute_id] => 3
[name] => Оцилиндрованное бревно
[material_modifier] => 1
[work_modifier] => 1
[options] => Array
(
[0] => 180 мм
[1] => 220 мм
[2] => 260 мм
[3] => 320 мм
)
[days] => [7,8,9,10]
[material_price] => [75190,9532,10868,13116]
[work_price] => [3845,4691,5535,6863]
[image] => https://akademik-stroy.ru/wp-content/uploads/materials/ocilindrovannoe-brevno-1.jpg
[area_modifier] => 70.96
[parent_name] => Стены 1 этаж (несущие)
[parent_id] => 3
[material_sum] => 7362966
[work_sum] => 313767
[total_sum] => 7676733
[total_days] => 7
[display_material_sum] => 7 362 966
[display_work_sum] => 313 767
[display_total_sum] => 7 676 733
)
1
7 676 733₽
Работа:313 767 ₽
Материалы:7 362 966 ₽
Дни:7
stdClass Object
(
[id] => 88
[attribute_id] => 3
[name] => Срубы
[material_modifier] => 1
[work_modifier] => 1
[options] => Array
(
[0] => 260 мм
[1] => 320 мм
[2] => 360 мм
[3] => 400 мм
[4] => 500 мм
)
[days] => [7,8,9,10,11]
[material_price] => [37975,46709,52314,58069,73167]
[work_price] => [4806,5911,6621,7349,9260]
[image] => https://akademik-stroy.ru/wp-content/uploads/materials/sruby.jpg
[area_modifier] => 70.96
[parent_name] => Стены 1 этаж (несущие)
[parent_id] => 3
[material_sum] => 3718694
[work_sum] => 392189
[total_sum] => 4110883
[total_days] => 7
[display_material_sum] => 3 718 694
[display_work_sum] => 392 189
[display_total_sum] => 4 110 883
)
1
4 110 883₽
Работа:392 189 ₽
Материалы:3 718 694 ₽
Дни:7
stdClass Object
(
[id] => 174
[attribute_id] => 3
[name] => Брус
[material_modifier] => 1
[work_modifier] => 1
[options] => Array
(
[0] => 150 мм
[1] => 180 мм
[2] => 200 мм
)
[days] => [7,8,9]
[material_price] => [5127,6152,7367]
[work_price] => [1602,1922,2115]
[image] => https://akademik-stroy.ru/wp-content/uploads/materials/brus.jpg
[area_modifier] => 70.96
[parent_name] => Стены 1 этаж (несущие)
[parent_id] => 3
[material_sum] => 502060
[work_sum] => 130730
[total_sum] => 632790
[total_days] => 7
[display_material_sum] => 502 060
[display_work_sum] => 130 730
[display_total_sum] => 632 790
)
1
632 790₽
Работа:130 730 ₽
Материалы:502 060 ₽
Дни:7
stdClass Object
(
[id] => 175
[attribute_id] => 3
[name] => Газобетон
[material_modifier] => 1
[work_modifier] => 1
[options] => Array
(
[0] => 300 мм
[1] => 375 мм
[2] => 400 мм
[3] => 500 мм
[4] => 600 мм
)
[days] => [29,31,35,37,44]
[material_price] => [4298,5573,6356,7288,9119]
[work_price] => [4538,5251,5926,6733,7195]
[image] => https://akademik-stroy.ru/wp-content/uploads/materials/gazobeton.jpg
[area_modifier] => 70.96
[parent_name] => Стены 1 этаж (несущие)
[parent_id] => 3
[material_sum] => 420881
[work_sum] => 370319
[total_sum] => 791200
[total_days] => 29
[display_material_sum] => 420 881
[display_work_sum] => 370 319
[display_total_sum] => 791 200
)
1
791 200₽
Работа:370 319 ₽
Материалы:420 881 ₽
Дни:29
stdClass Object
(
[id] => 176
[attribute_id] => 3
[name] => Блок
[material_modifier] => 1
[work_modifier] => 1
[options] => Array
(
[0] => 300 мм
[1] => 375 мм
[2] => 400 мм
[3] => 500 мм
[4] => 600 мм
)
[days] => [29,31,35,37,44]
[material_price] => [2698,3973,4356,6588,7119]
[work_price] => [5038,5851,6426,8733,9195]
[image] => https://akademik-stroy.ru/wp-content/uploads/materials/blok.jpg
[area_modifier] => 70.96
[parent_name] => Стены 1 этаж (несущие)
[parent_id] => 3
[material_sum] => 264201
[work_sum] => 411121
[total_sum] => 675322
[total_days] => 29
[display_material_sum] => 264 201
[display_work_sum] => 411 121
[display_total_sum] => 675 322
)
1
675 322₽
Работа:411 121 ₽
Материалы:264 201 ₽
Дни:29
stdClass Object
(
[id] => 177
[attribute_id] => 3
[name] => Газосиликатный блок
[material_modifier] => 1
[work_modifier] => 1
[options] => Array
(
[0] => 300 мм
[1] => 375 мм
[2] => 400 мм
[3] => 500 мм
[4] => 600 мм
)
[days] => [29,31,35,37,44]
[material_price] => [4298,5573,6356,7288,9119]
[work_price] => [4538,5251,5926,6733,7195]
[image] => https://akademik-stroy.ru/wp-content/uploads/materials/gazosilikatnyj-blok.jpg
[area_modifier] => 70.96
[parent_name] => Стены 1 этаж (несущие)
[parent_id] => 3
[material_sum] => 420881
[work_sum] => 370319
[total_sum] => 791200
[total_days] => 29
[display_material_sum] => 420 881
[display_work_sum] => 370 319
[display_total_sum] => 791 200
)
1
791 200₽
Работа:370 319 ₽
Материалы:420 881 ₽
Дни:29
stdClass Object
(
[id] => 178
[attribute_id] => 3
[name] => Керамзитобетонный блок
[material_modifier] => 1
[work_modifier] => 1
[options] => Array
(
[0] => 300 мм
[1] => 375 мм
[2] => 400 мм
[3] => 500 мм
[4] => 600 мм
)
[days] => [23,23,24,25,28]
[material_price] => [3641,4298,5693,7613,9612]
[work_price] => [5737,5737,6903,7958,8901]
[image] => https://akademik-stroy.ru/wp-content/uploads/materials/keramzitobetonnyj-blok.jpg
[area_modifier] => 70.96
[parent_name] => Стены 1 этаж (несущие)
[parent_id] => 3
[material_sum] => 356544
[work_sum] => 468162
[total_sum] => 824706
[total_days] => 23
[display_material_sum] => 356 544
[display_work_sum] => 468 162
[display_total_sum] => 824 706
)
1
824 706₽
Работа:468 162 ₽
Материалы:356 544 ₽
Дни:23
stdClass Object
(
[id] => 179
[attribute_id] => 3
[name] => Деревянные
[material_modifier] => 1
[work_modifier] => 1
[options] => Array
(
[0] => 180 мм
[1] => 220 мм
[2] => 260 мм
[3] => 320 мм
)
[days] => [7,8,9,10]
[material_price] => [7950,9458,11961,14472]
[work_price] => [4037,4925,5812,7207]
[image] => https://akademik-stroy.ru/wp-content/uploads/materials/derevyannye.jpg
[area_modifier] => 70.96
[parent_name] => Стены 1 этаж (несущие)
[parent_id] => 3
[material_sum] => 778502
[work_sum] => 329435
[total_sum] => 1107937
[total_days] => 7
[display_material_sum] => 778 502
[display_work_sum] => 329 435
[display_total_sum] => 1 107 937
)
1
1 107 937₽
Работа:329 435 ₽
Материалы:778 502 ₽
Дни:7
stdClass Object
(
[id] => 181
[attribute_id] => 3
[name] => Камень
[material_modifier] => 1
[work_modifier] => 1
[options] => Array
(
[0] => 300 мм
[1] => 400 мм
[2] => 500 мм
[3] => 600 мм
)
[days] => [25,27,31,34]
[material_price] => [5262,6844,8330,9815]
[work_price] => [8331,9135,10427,11069]
[image] => https://akademik-stroy.ru/wp-content/uploads/materials/kamen.jpg
[area_modifier] => 70.96
[parent_name] => Стены 1 этаж (несущие)
[parent_id] => 3
[material_sum] => 515280
[work_sum] => 679843
[total_sum] => 1195123
[total_days] => 25
[display_material_sum] => 515 280
[display_work_sum] => 679 843
[display_total_sum] => 1 195 123
)
1
1 195 123₽
Работа:679 843 ₽
Материалы:515 280 ₽
Дни:25
stdClass Object
(
[id] => 182
[attribute_id] => 3
[name] => Каркасно-щитовые
[material_modifier] => 1
[work_modifier] => 1
[options] => Array
(
[0] => 150 мм
[1] => 200 мм
[2] => 250 мм
[3] => 300 мм
[4] => 350 мм
[5] => 400 мм
)
[days] => [15,16,17,18,19,20]
[material_price] => [2379,2639,2898,3458,3601,4175]
[work_price] => [2538,2820,3134,3483,4062,5642]
[image] => https://akademik-stroy.ru/wp-content/uploads/materials/karkasno-shchitovye.jpg
[area_modifier] => 70.96
[parent_name] => Стены 1 этаж (несущие)
[parent_id] => 3
[material_sum] => 232963
[work_sum] => 207111
[total_sum] => 440074
[total_days] => 15
[display_material_sum] => 232 963
[display_work_sum] => 207 111
[display_total_sum] => 440 074
)
1
440 074₽
Работа:207 111 ₽
Материалы:232 963 ₽
Дни:15
stdClass Object
(
[id] => 183
[attribute_id] => 3
[name] => Рубленные
[material_modifier] => 1
[work_modifier] => 1
[options] => Array
(
[0] => 150 мм
[1] => 200 мм
[2] => 250 мм
[3] => 300 мм
[4] => 350 мм
[5] => 400 мм
)
[days] => [15,16,17,18,17,18]
[material_price] => [35950,50267,60583,75900,80217,100533]
[work_price] => [9612,12816,16020,19224,22428,25632]
[image] => https://akademik-stroy.ru/wp-content/uploads/materials/rublennye.jpg
[area_modifier] => 70.96
[parent_name] => Стены 1 этаж (несущие)
[parent_id] => 3
[material_sum] => 3520397
[work_sum] => 784378
[total_sum] => 4304775
[total_days] => 15
[display_material_sum] => 3 520 397
[display_work_sum] => 784 378
[display_total_sum] => 4 304 775
)
1
4 304 775₽
Работа:784 378 ₽
Материалы:3 520 397 ₽
Дни:15
stdClass Object
(
[id] => 185
[attribute_id] => 3
[name] => Теплоблок
[material_modifier] => 1
[work_modifier] => 1
[options] => Array
(
[0] => 300 мм (с облицовкой, не покрашенный)
[1] => 400 мм (с облицовкой, не покрашенный)
[2] => 300 мм (с облицовкой, покрашенный)
[3] => 400 мм (с облицовкой, покрашенный)
)
[days] => [15,16,15,16]
[material_price] => [2888,3729,3957,4258]
[work_price] => [2564,3229,2949,3713]
[image] => https://akademik-stroy.ru/wp-content/uploads/materials/teploblok.jpg
[area_modifier] => 70.96
[parent_name] => Стены 1 этаж (несущие)
[parent_id] => 3
[material_sum] => 282807
[work_sum] => 209233
[total_sum] => 492040
[total_days] => 15
[display_material_sum] => 282 807
[display_work_sum] => 209 233
[display_total_sum] => 492 040
)
1
492 040₽
Работа:209 233 ₽
Материалы:282 807 ₽
Дни:15
stdClass Object
(
[id] => 186
[attribute_id] => 3
[name] => Арболитовые блоки
[material_modifier] => 1
[work_modifier] => 1
[options] => Array
(
[0] => 300 мм
[1] => 400 мм
[2] => 600 мм
)
[days] => [19,22,27]
[material_price] => [3210,4475,5852]
[work_price] => [4214,4788,5866]
[image] => https://akademik-stroy.ru/wp-content/uploads/materials/arbolitovye-bloki.png
[area_modifier] => 70.96
[parent_name] => Стены 1 этаж (несущие)
[parent_id] => 3
[material_sum] => 314339
[work_sum] => 343879
[total_sum] => 658218
[total_days] => 19
[display_material_sum] => 314 339
[display_work_sum] => 343 879
[display_total_sum] => 658 218
)
1
658 218₽
Работа:343 879 ₽
Материалы:314 339 ₽
Дни:19
stdClass Object
(
[id] => 187
[attribute_id] => 3
[name] => Полистиролбетон
[material_modifier] => 1
[work_modifier] => 1
[options] => Array
(
[0] => 300 мм
[1] => 400 мм
[2] => 600 мм
)
[days] => [29,31,35]
[material_price] => [2798,4573,5256]
[work_price] => [5038,5851,6426]
[image] => https://akademik-stroy.ru/wp-content/uploads/materials/polistirolbeton.jpg
[area_modifier] => 70.96
[parent_name] => Стены 1 этаж (несущие)
[parent_id] => 3
[material_sum] => 273994
[work_sum] => 411121
[total_sum] => 685115
[total_days] => 29
[display_material_sum] => 273 994
[display_work_sum] => 411 121
[display_total_sum] => 685 115
)
1
685 115₽
Работа:411 121 ₽
Материалы:273 994 ₽
Дни:29
stdClass Object
(
[id] => 188
[attribute_id] => 3
[name] => Шлакоблок
[material_modifier] => 1
[work_modifier] => 1
[options] => Array
(
[0] => 400 мм
[1] => 600 мм
)
[days] => [15,16]
[material_price] => [2391,3471]
[work_price] => [2642,3662]
[image] => https://akademik-stroy.ru/wp-content/uploads/materials/shlakoblok.jpg
[area_modifier] => 70.96
[parent_name] => Стены 1 этаж (несущие)
[parent_id] => 3
[material_sum] => 234138
[work_sum] => 215598
[total_sum] => 449736
[total_days] => 15
[display_material_sum] => 234 138
[display_work_sum] => 215 598
[display_total_sum] => 449 736
)
1
449 736₽
Работа:215 598 ₽
Материалы:234 138 ₽
Дни:15
stdClass Object
(
[id] => 189
[attribute_id] => 3
[name] => Теплая керамика
[material_modifier] => 1
[work_modifier] => 1
[options] => Array
(
[0] => 380 мм
[1] => 380 мм Thermo
[2] => 440 мм
[3] => 510 мм
)
[days] => [23,23,24,25]
[material_price] => [4510,5098,6093,8013]
[work_price] => [4737,4937,5903,6958]
[image] => https://akademik-stroy.ru/wp-content/uploads/materials/teplaya-keramika.jpg
[area_modifier] => 70.96
[parent_name] => Стены 1 этаж (несущие)
[parent_id] => 3
[material_sum] => 441641
[work_sum] => 386558
[total_sum] => 828199
[total_days] => 23
[display_material_sum] => 441 641
[display_work_sum] => 386 558
[display_total_sum] => 828 199
)
1
828 199₽
Работа:386 558 ₽
Материалы:441 641 ₽
Дни:23
stdClass Object
(
[id] => 190
[attribute_id] => 3
[name] => Несъемная опалубка
[material_modifier] => 1
[work_modifier] => 1
[options] => Array
(
[0] => 200 мм
[1] => 250 мм
[2] => 300 мм
[3] => 350 мм
)
[days] => [15,17,19,21]
[material_price] => [3302,3902,4108,5008]
[work_price] => [2100,2100,2300,2534]
[image] => https://akademik-stroy.ru/wp-content/uploads/materials/nesemnaya-opalubka.jpg
[area_modifier] => 70.96
[parent_name] => Стены 1 этаж (несущие)
[parent_id] => 3
[material_sum] => 323348
[work_sum] => 171368
[total_sum] => 494716
[total_days] => 15
[display_material_sum] => 323 348
[display_work_sum] => 171 368
[display_total_sum] => 494 716
)
1
494 716₽
Работа:171 368 ₽
Материалы:323 348 ₽
Дни:15
stdClass Object
(
[id] => 251
[attribute_id] => 3
[name] => Бревно
[material_modifier] => 1
[work_modifier] => 1
[options] => Array
(
[0] => 260 мм
[1] => 320 мм
[2] => 360 мм
[3] => 400 мм
[4] => 500 мм
)
[days] => [7,8,9,10,11]
[material_price] => [1874,24045,26930,30972,38825]
[work_price] => [5046,6207,6952,7716,9723]
[image] => https://akademik-stroy.ru/wp-content/uploads/materials/sruby.jpg
[area_modifier] => 70.96
[parent_name] => Стены 1 этаж (несущие)
[parent_id] => 3
[material_sum] => 183511
[work_sum] => 411774
[total_sum] => 595285
[total_days] => 7
[display_material_sum] => 183 511
[display_work_sum] => 411 774
[display_total_sum] => 595 285
)
1
595 285₽
Работа:411 774 ₽
Материалы:183 511 ₽
Дни:7
stdClass Object
(
[id] => 7
[attribute_id] => 4
[name] => Деревянные балки
[material_modifier] => 1
[work_modifier] => 1
[options] => Array
(
[0] => без утепления
[1] => утепление 200 мм
[2] => утепление 250 мм
[3] => утепление 300 мм
[4] => утепление 350 мм
[5] => утепление 400 мм
[6] => утепление 450 мм
[7] => утепление 500 мм
)
[days] => [8,9,9,9,11,12,13,14]
[material_price] => [1634,2042,2344,2947,3149,3652,3354,3557]
[work_price] => [1230,1339,1393,1426,1460,1513,1587,1620]
[image] => https://akademik-stroy.ru/wp-content/uploads/materials/derevyannye-balki.png
[area_modifier] => 70.96
[parent_name] => Перекрытие первого этажа
[parent_id] => 4
[material_sum] => 160009
[work_sum] => 100373
[total_sum] => 260382
[total_days] => 8
[display_material_sum] => 160 009
[display_work_sum] => 100 373
[display_total_sum] => 260 382
)
1
260 382₽
Работа:100 373 ₽
Материалы:160 009 ₽
Дни:8
stdClass Object
(
[id] => 8
[attribute_id] => 4
[name] => Сборные ж/б плиты
[material_modifier] => 1
[work_modifier] => 1
[options] => Array
(
[0] => без утепления
[1] => утепление 150 мм
[2] => утепление 200 мм
[3] => утепление 250 мм
[4] => утепление 300 мм
[5] => утепление 350 мм
[6] => утепление 400 мм
[7] => утепление 450 мм
[8] => утепление 500 мм
)
[days] => [13,15,15,15,15,15,15,15,15]
[material_price] => [3067,5577,5928,6679,7730,8782,9833,10884,11935]
[work_price] => [1520,1956,2102,2247,2392,2537,2684,2829,2974]
[image] => https://akademik-stroy.ru/wp-content/uploads/materials/sbornye-zh-b-plity-2.jpg
[area_modifier] => 70.96
[parent_name] => Перекрытие первого этажа
[parent_id] => 4
[material_sum] => 300335
[work_sum] => 124038
[total_sum] => 424373
[total_days] => 13
[display_material_sum] => 300 335
[display_work_sum] => 124 038
[display_total_sum] => 424 373
)
1
424 373₽
Работа:124 038 ₽
Материалы:300 335 ₽
Дни:13
stdClass Object
(
[id] => 89
[attribute_id] => 4
[name] => Монолитная ж/б плита
[material_modifier] => 1
[work_modifier] => 1
[options] => Array
(
[0] => без утепления
[1] => утепление 150 мм
[2] => утепление 200 мм
[3] => утепление 250 мм
[4] => утепление 300 мм
[5] => утепление 350 мм
[6] => утепление 400 мм
[7] => утепление 450 мм
[8] => утепление 500 мм
)
[days] => [18,20,20,20,20,20,20,20,20]
[material_price] => [4837,6572,7224,7375,79426,8177,8728,9180,10031]
[work_price] => [3348,3921,4112,4302,4493,4684,4875,5066,5256]
[image] => https://akademik-stroy.ru/wp-content/uploads/materials/monolitnaya-zh-b-plita-2.jpg
[area_modifier] => 70.96
[parent_name] => Перекрытие первого этажа
[parent_id] => 4
[material_sum] => 473662
[work_sum] => 273210
[total_sum] => 746872
[total_days] => 18
[display_material_sum] => 473 662
[display_work_sum] => 273 210
[display_total_sum] => 746 872
)
1
746 872₽
Работа:273 210 ₽
Материалы:473 662 ₽
Дни:18
stdClass Object
(
[id] => 10
[attribute_id] => 5
[name] => Пеноблок
[material_modifier] => 1
[work_modifier] => 1
[options] => Array
(
[0] => 300 мм
[1] => 400 мм
[2] => 500 мм
[3] => 600 мм
)
[days] => [29,31,34,39]
[material_price] => [3000,4000,4500,4937]
[work_price] => [5033,5805,6400,8710]
[image] => https://akademik-stroy.ru/wp-content/uploads/materials/penoblok.jpg
[area_modifier] => 69.18
[parent_name] => Стены 2 этаж (несущие)
[parent_id] => 5
[material_sum] => 286405
[work_sum] => 400410
[total_sum] => 686815
[total_days] => 29
[display_material_sum] => 286 405
[display_work_sum] => 400 410
[display_total_sum] => 686 815
)
1
686 815₽
Работа:400 410 ₽
Материалы:286 405 ₽
Дни:29
stdClass Object
(
[id] => 90
[attribute_id] => 5
[name] => Керамический блок
[material_modifier] => 1
[work_modifier] => 1
[options] => Array
(
[0] => 380 мм
[1] => 380 мм Thermo
[2] => 440 мм
[3] => 510 мм
)
[days] => [23,23,24,25]
[material_price] => [4510,5098,6093,8013]
[work_price] => [4737,4937,5903,6958]
[image] => https://akademik-stroy.ru/wp-content/uploads/materials/keramicheskij-blok.jpg
[area_modifier] => 69.18
[parent_name] => Стены 2 этаж (несущие)
[parent_id] => 5
[material_sum] => 430562
[work_sum] => 376862
[total_sum] => 807424
[total_days] => 23
[display_material_sum] => 430 562
[display_work_sum] => 376 862
[display_total_sum] => 807 424
)
1
807 424₽
Работа:376 862 ₽
Материалы:430 562 ₽
Дни:23
stdClass Object
(
[id] => 91
[attribute_id] => 5
[name] => Кирпич
[material_modifier] => 1
[work_modifier] => 1
[options] => Array
(
[0] => Кирпич 250 мм
[1] => Кирпич 380 мм
[2] => Кирпич 510 мм
[3] => Кирпич 640 мм
[4] => Кирпич 770 мм
)
[days] => [30,30,31,33,36]
[material_price] => [5500,7142,9206,10171,12235]
[work_price] => [8736,10041,12018,15240,18462]
[image] => https://akademik-stroy.ru/wp-content/uploads/materials/kirpich.jpg
[area_modifier] => 69.18
[parent_name] => Стены 2 этаж (несущие)
[parent_id] => 5
[material_sum] => 525076
[work_sum] => 695010
[total_sum] => 1220086
[total_days] => 30
[display_material_sum] => 525 076
[display_work_sum] => 695 010
[display_total_sum] => 1 220 086
)
1
1 220 086₽
Работа:695 010 ₽
Материалы:525 076 ₽
Дни:30
stdClass Object
(
[id] => 92
[attribute_id] => 5
[name] => Монолитные
[material_modifier] => 1
[work_modifier] => 1
[options] => Array
(
[0] => 150 мм
[1] => 200 мм
[2] => 250 мм
[3] => 300 мм
[4] => 350 мм
[5] => 400 мм
)
[days] => [45,46,47,49,50,53]
[material_price] => [6545,7876,10175,12011,13908,15204]
[work_price] => [5106,6444,7698,8552,9807,11461]
[image] => https://akademik-stroy.ru/wp-content/uploads/materials/monolitnye.jpg
[area_modifier] => 69.18
[parent_name] => Стены 2 этаж (несущие)
[parent_id] => 5
[material_sum] => 624841
[work_sum] => 406218
[total_sum] => 1031059
[total_days] => 45
[display_material_sum] => 624 841
[display_work_sum] => 406 218
[display_total_sum] => 1 031 059
)
1
1 031 059₽
Работа:406 218 ₽
Материалы:624 841 ₽
Дни:45
stdClass Object
(
[id] => 93
[attribute_id] => 5
[name] => Клееный брус
[material_modifier] => 1
[work_modifier] => 1
[options] => Array
(
[0] => 160 мм
[1] => 175 мм
[2] => 200 мм
[3] => 215 мм
[4] => 240 мм
[5] => 270 мм
[6] => 282 мм
)
[days] => [24,28,32,37,40,42,48]
[material_price] => [16975,18773,19950,20545,21599,22159,23275]
[work_price] => [4806,5287,5815,6397,7036,7740,8514]
[image] => https://akademik-stroy.ru/wp-content/uploads/materials/kleenyj-brus.jpg
[area_modifier] => 69.18
[parent_name] => Стены 2 этаж (несущие)
[parent_id] => 5
[material_sum] => 1620576
[work_sum] => 382351
[total_sum] => 2002927
[total_days] => 24
[display_material_sum] => 1 620 576
[display_work_sum] => 382 351
[display_total_sum] => 2 002 927
)
1
2 002 927₽
Работа:382 351 ₽
Материалы:1 620 576 ₽
Дни:24
stdClass Object
(
[id] => 94
[attribute_id] => 5
[name] => Каркасные
[material_modifier] => 1
[work_modifier] => 1
[options] => Array
(
[0] => 150 мм
[1] => 200 мм
[2] => 250 мм
[3] => 300 мм
)
[days] => [15,16,17,18]
[material_price] => [2379,2639,2898,3258]
[work_price] => [2418,2686,2985,3716]
[image] => https://akademik-stroy.ru/wp-content/uploads/materials/karkasnye.jpg
[area_modifier] => 69.18
[parent_name] => Стены 2 этаж (несущие)
[parent_id] => 5
[material_sum] => 227119
[work_sum] => 192369
[total_sum] => 419488
[total_days] => 15
[display_material_sum] => 227 119
[display_work_sum] => 192 369
[display_total_sum] => 419 488
)
1
419 488₽
Работа:192 369 ₽
Материалы:227 119 ₽
Дни:15
stdClass Object
(
[id] => 95
[attribute_id] => 5
[name] => СИП-панели
[material_modifier] => 1
[work_modifier] => 1
[options] => Array
(
[0] => 120 мм
[1] => 170 мм
[2] => 220 мм
)
[days] => [7,7,7]
[material_price] => [1210,1856,2292]
[work_price] => [1410,1551,1706]
[image] => https://akademik-stroy.ru/wp-content/uploads/materials/sip-paneli.jpg
[area_modifier] => 69.18
[parent_name] => Стены 2 этаж (несущие)
[parent_id] => 5
[material_sum] => 115517
[work_sum] => 112175
[total_sum] => 227692
[total_days] => 7
[display_material_sum] => 115 517
[display_work_sum] => 112 175
[display_total_sum] => 227 692
)
1
227 692₽
Работа:112 175 ₽
Материалы:115 517 ₽
Дни:7
stdClass Object
(
[id] => 96
[attribute_id] => 5
[name] => Сухой брус
[material_modifier] => 1
[work_modifier] => 1
[options] => Array
(
[0] => 150 мм
[1] => 180 мм
[2] => 200 мм
)
[days] => [7,8,9]
[material_price] => [6010,7190,8709]
[work_price] => [3204,3845,4229]
[image] => https://akademik-stroy.ru/wp-content/uploads/materials/suhoj-brus.jpg
[area_modifier] => 69.18
[parent_name] => Стены 2 этаж (несущие)
[parent_id] => 5
[material_sum] => 573765
[work_sum] => 254901
[total_sum] => 828666
[total_days] => 7
[display_material_sum] => 573 765
[display_work_sum] => 254 901
[display_total_sum] => 828 666
)
1
828 666₽
Работа:254 901 ₽
Материалы:573 765 ₽
Дни:7
stdClass Object
(
[id] => 97
[attribute_id] => 5
[name] => Профилированный брус
[material_modifier] => 1
[work_modifier] => 1
[options] => Array
(
[0] => 150 мм
[1] => 180 мм
[2] => 200 мм
)
[days] => [7,8,9]
[material_price] => [8190,9228,10051]
[work_price] => [3845,4614,5075]
[image] => https://akademik-stroy.ru/wp-content/uploads/materials/profilirovannyj-brus.jpg
[area_modifier] => 69.18
[parent_name] => Стены 2 этаж (несущие)
[parent_id] => 5
[material_sum] => 781886
[work_sum] => 305897
[total_sum] => 1087783
[total_days] => 7
[display_material_sum] => 781 886
[display_work_sum] => 305 897
[display_total_sum] => 1 087 783
)
1
1 087 783₽
Работа:305 897 ₽
Материалы:781 886 ₽
Дни:7
stdClass Object
(
[id] => 98
[attribute_id] => 5
[name] => Оцилиндрованное бревно
[material_modifier] => 1
[work_modifier] => 1
[options] => Array
(
[0] => 180 мм
[1] => 220 мм
[2] => 260 мм
[3] => 320 мм
)
[days] => [7,8,9,10]
[material_price] => [75190,9532,10868,13116]
[work_price] => [3845,4691,5535,6863]
[image] => https://akademik-stroy.ru/wp-content/uploads/materials/ocilindrovannoe-brevno-1.jpg
[area_modifier] => 69.18
[parent_name] => Стены 2 этаж (несущие)
[parent_id] => 5
[material_sum] => 7178269
[work_sum] => 305897
[total_sum] => 7484166
[total_days] => 7
[display_material_sum] => 7 178 269
[display_work_sum] => 305 897
[display_total_sum] => 7 484 166
)
1
7 484 166₽
Работа:305 897 ₽
Материалы:7 178 269 ₽
Дни:7
stdClass Object
(
[id] => 99
[attribute_id] => 5
[name] => Срубы
[material_modifier] => 1
[work_modifier] => 1
[options] => Array
(
[0] => 260 мм
[1] => 320 мм
[2] => 360 мм
[3] => 400 мм
[4] => 500 мм
)
[days] => [7,8,9,10,11]
[material_price] => [16175,23709,26314,29069,32167]
[work_price] => [4806,5911,6621,7349,9260]
[image] => https://akademik-stroy.ru/wp-content/uploads/materials/suhoj-brus.jpg
[area_modifier] => 69.18
[parent_name] => Стены 2 этаж (несущие)
[parent_id] => 5
[material_sum] => 1544201
[work_sum] => 382351
[total_sum] => 1926552
[total_days] => 7
[display_material_sum] => 1 544 201
[display_work_sum] => 382 351
[display_total_sum] => 1 926 552
)
1
1 926 552₽
Работа:382 351 ₽
Материалы:1 544 201 ₽
Дни:7
stdClass Object
(
[id] => 194
[attribute_id] => 5
[name] => Брус
[material_modifier] => 1
[work_modifier] => 1
[options] => Array
(
[0] => 150 мм
[1] => 180 мм
[2] => 200 мм
)
[days] => [10,13,15]
[material_price] => [5127,6152,7367]
[work_price] => [1602,1922,2115]
[image] => https://akademik-stroy.ru/wp-content/uploads/materials/brus.jpg
[area_modifier] => 69.18
[parent_name] => Стены 2 этаж (несущие)
[parent_id] => 5
[material_sum] => 489466
[work_sum] => 127450
[total_sum] => 616916
[total_days] => 10
[display_material_sum] => 489 466
[display_work_sum] => 127 450
[display_total_sum] => 616 916
)
1
616 916₽
Работа:127 450 ₽
Материалы:489 466 ₽
Дни:10
stdClass Object
(
[id] => 195
[attribute_id] => 5
[name] => Газобетон
[material_modifier] => 1
[work_modifier] => 1
[options] => Array
(
[0] => 300 мм
[1] => 375 мм
[2] => 400 мм
[3] => 500 мм
[4] => 600 мм
)
[days] => [29,31,35,37,44]
[material_price] => [4298,5573,6356,7288,9119]
[work_price] => [4538,5251,5926,6733,7195]
[image] => https://akademik-stroy.ru/wp-content/uploads/materials/gazobeton.jpg
[area_modifier] => 69.18
[parent_name] => Стены 2 этаж (несущие)
[parent_id] => 5
[material_sum] => 410323
[work_sum] => 361030
[total_sum] => 771353
[total_days] => 29
[display_material_sum] => 410 323
[display_work_sum] => 361 030
[display_total_sum] => 771 353
)
1
771 353₽
Работа:361 030 ₽
Материалы:410 323 ₽
Дни:29
stdClass Object
(
[id] => 196
[attribute_id] => 5
[name] => Блок
[material_modifier] => 1
[work_modifier] => 1
[options] => Array
(
[0] => 300 мм
[1] => 375 мм
[2] => 400 мм
[3] => 500 мм
[4] => 600 мм
)
[days] => [29,31,35,37,44]
[material_price] => [2698,3973,4356,6588,7119]
[work_price] => [5038,5851,6426,8733,9195]
[image] => https://akademik-stroy.ru/wp-content/uploads/materials/blok.jpg
[area_modifier] => 69.18
[parent_name] => Стены 2 этаж (несущие)
[parent_id] => 5
[material_sum] => 257574
[work_sum] => 400808
[total_sum] => 658382
[total_days] => 29
[display_material_sum] => 257 574
[display_work_sum] => 400 808
[display_total_sum] => 658 382
)
1
658 382₽
Работа:400 808 ₽
Материалы:257 574 ₽
Дни:29
stdClass Object
(
[id] => 197
[attribute_id] => 5
[name] => Газосиликатный блок
[material_modifier] => 1
[work_modifier] => 1
[options] => Array
(
[0] => 300 мм
[1] => 375 мм
[2] => 400 мм
[3] => 500 мм
[4] => 600 мм
)
[days] => [29,31,35,37,44]
[material_price] => [4298,5573,6356,7288,9119]
[work_price] => [4538,5251,5926,6733,7195]
[image] => https://akademik-stroy.ru/wp-content/uploads/materials/gazosilikatnyj-blok.jpg
[area_modifier] => 69.18
[parent_name] => Стены 2 этаж (несущие)
[parent_id] => 5
[material_sum] => 410323
[work_sum] => 361030
[total_sum] => 771353
[total_days] => 29
[display_material_sum] => 410 323
[display_work_sum] => 361 030
[display_total_sum] => 771 353
)
1
771 353₽
Работа:361 030 ₽
Материалы:410 323 ₽
Дни:29
stdClass Object
(
[id] => 198
[attribute_id] => 5
[name] => Керамзитобетонный блок
[material_modifier] => 1
[work_modifier] => 1
[options] => Array
(
[0] => 300 мм
[1] => 375 мм
[2] => 400 мм
[3] => 500 мм
[4] => 600 мм
)
[days] => [23,23,24,25,28]
[material_price] => [3641,4298,5693,7613,9612]
[work_price] => [5737,5737,6903,7958,8901]
[image] => https://akademik-stroy.ru/wp-content/uploads/materials/keramzitobetonnyj-blok.jpg
[area_modifier] => 69.18
[parent_name] => Стены 2 этаж (несущие)
[parent_id] => 5
[material_sum] => 347600
[work_sum] => 456419
[total_sum] => 804019
[total_days] => 23
[display_material_sum] => 347 600
[display_work_sum] => 456 419
[display_total_sum] => 804 019
)
1
804 019₽
Работа:456 419 ₽
Материалы:347 600 ₽
Дни:23
stdClass Object
(
[id] => 199
[attribute_id] => 5
[name] => Деревянные
[material_modifier] => 1
[work_modifier] => 1
[options] => Array
(
[0] => 180 мм
[1] => 220 мм
[2] => 260 мм
[3] => 320 мм
)
[days] => [7,8,9,10]
[material_price] => [7950,9458,11961,14472]
[work_price] => [4037,4925,5812,7207]
[image] => https://akademik-stroy.ru/wp-content/uploads/materials/derevyannye.jpg
[area_modifier] => 69.18
[parent_name] => Стены 2 этаж (несущие)
[parent_id] => 5
[material_sum] => 758974
[work_sum] => 321172
[total_sum] => 1080146
[total_days] => 7
[display_material_sum] => 758 974
[display_work_sum] => 321 172
[display_total_sum] => 1 080 146
)
1
1 080 146₽
Работа:321 172 ₽
Материалы:758 974 ₽
Дни:7
stdClass Object
(
[id] => 200
[attribute_id] => 5
[name] => Камень
[material_modifier] => 1
[work_modifier] => 1
[options] => Array
(
[0] => 300 мм
[1] => 400 мм
[2] => 500 мм
[3] => 600 мм
)
[days] => [25,27,31,34]
[material_price] => [5262,6844,8330,9815]
[work_price] => [8331,9135,10427,11069]
[image] => https://akademik-stroy.ru/wp-content/uploads/materials/kamen.jpg
[area_modifier] => 69.18
[parent_name] => Стены 2 этаж (несущие)
[parent_id] => 5
[material_sum] => 502355
[work_sum] => 662789
[total_sum] => 1165144
[total_days] => 25
[display_material_sum] => 502 355
[display_work_sum] => 662 789
[display_total_sum] => 1 165 144
)
1
1 165 144₽
Работа:662 789 ₽
Материалы:502 355 ₽
Дни:25
stdClass Object
(
[id] => 201
[attribute_id] => 5
[name] => Каркасно-щитовые
[material_modifier] => 1
[work_modifier] => 1
[options] => Array
(
[0] => 150 мм
[1] => 200 мм
[2] => 250 мм
[3] => 300 мм
[4] => 350 мм
[5] => 400 мм
)
[days] => [15,16,17,18,19,20]
[material_price] => [2379,2639,2898,3458,3601,4175]
[work_price] => [2538,2820,3134,3483,4062,5642]
[image] => https://akademik-stroy.ru/wp-content/uploads/materials/karkasno-shchitovye.jpg
[area_modifier] => 69.18
[parent_name] => Стены 2 этаж (несущие)
[parent_id] => 5
[material_sum] => 227119
[work_sum] => 201916
[total_sum] => 429035
[total_days] => 15
[display_material_sum] => 227 119
[display_work_sum] => 201 916
[display_total_sum] => 429 035
)
1
429 035₽
Работа:201 916 ₽
Материалы:227 119 ₽
Дни:15
stdClass Object
(
[id] => 202
[attribute_id] => 5
[name] => Рубленные
[material_modifier] => 1
[work_modifier] => 1
[options] => Array
(
[0] => 150 мм
[1] => 200 мм
[2] => 250 мм
[3] => 300 мм
[4] => 350 мм
[5] => 400 мм
)
[days] => [15,16,17,18,17,18]
[material_price] => [35950,50267,60583,75900,80217,100533]
[work_price] => [9612,12816,16020,19224,22428,25632]
[image] => https://akademik-stroy.ru/wp-content/uploads/materials/rublennye.jpg
[area_modifier] => 69.18
[parent_name] => Стены 2 этаж (несущие)
[parent_id] => 5
[material_sum] => 3432089
[work_sum] => 764702
[total_sum] => 4196791
[total_days] => 15
[display_material_sum] => 3 432 089
[display_work_sum] => 764 702
[display_total_sum] => 4 196 791
)
1
4 196 791₽
Работа:764 702 ₽
Материалы:3 432 089 ₽
Дни:15
stdClass Object
(
[id] => 203
[attribute_id] => 5
[name] => Теплоблок
[material_modifier] => 1
[work_modifier] => 1
[options] => Array
(
[0] => 300 мм (с облицовкой, не покрашенный)
[1] => 400 мм (с облицовкой, не покрашенный)
[2] => 300 мм (с облицовкой, покрашенный)
[3] => 400 мм (с облицовкой, покрашенный)
)
[days] => [15,16,15,16]
[material_price] => [2888,3729,3957,4258]
[work_price] => [2564,3229,2949,3713]
[image] => https://akademik-stroy.ru/wp-content/uploads/materials/teploblok.jpg
[area_modifier] => 69.18
[parent_name] => Стены 2 этаж (несущие)
[parent_id] => 5
[material_sum] => 275713
[work_sum] => 203984
[total_sum] => 479697
[total_days] => 15
[display_material_sum] => 275 713
[display_work_sum] => 203 984
[display_total_sum] => 479 697
)
1
479 697₽
Работа:203 984 ₽
Материалы:275 713 ₽
Дни:15
stdClass Object
(
[id] => 204
[attribute_id] => 5
[name] => Арболитовые блоки
[material_modifier] => 1
[work_modifier] => 1
[options] => Array
(
[0] => 300 мм
[1] => 400 мм
[2] => 600 мм
)
[days] => [19,22,27]
[material_price] => [3210,4475,5852]
[work_price] => [4214,4788,5866]
[image] => https://akademik-stroy.ru/wp-content/uploads/materials/arbolitovye-bloki.png
[area_modifier] => 69.18
[parent_name] => Стены 2 этаж (несущие)
[parent_id] => 5
[material_sum] => 306454
[work_sum] => 335253
[total_sum] => 641707
[total_days] => 19
[display_material_sum] => 306 454
[display_work_sum] => 335 253
[display_total_sum] => 641 707
)
1
641 707₽
Работа:335 253 ₽
Материалы:306 454 ₽
Дни:19
stdClass Object
(
[id] => 205
[attribute_id] => 5
[name] => Полистиролбетон
[material_modifier] => 1
[work_modifier] => 1
[options] => Array
(
[0] => 300 мм
[1] => 400 мм
[2] => 600 мм
)
[days] => [29,31,35]
[material_price] => [2798,4573,5256]
[work_price] => [5038,5851,6426]
[image] => https://akademik-stroy.ru/wp-content/uploads/materials/polistirolbeton.jpg
[area_modifier] => 69.18
[parent_name] => Стены 2 этаж (несущие)
[parent_id] => 5
[material_sum] => 267121
[work_sum] => 400808
[total_sum] => 667929
[total_days] => 29
[display_material_sum] => 267 121
[display_work_sum] => 400 808
[display_total_sum] => 667 929
)
1
667 929₽
Работа:400 808 ₽
Материалы:267 121 ₽
Дни:29
stdClass Object
(
[id] => 206
[attribute_id] => 5
[name] => Шлакоблок
[material_modifier] => 1
[work_modifier] => 1
[options] => Array
(
[0] => 400 мм
[1] => 600 мм
)
[days] => [15,16]
[material_price] => [2391,3471]
[work_price] => [2642,3662]
[image] => https://akademik-stroy.ru/wp-content/uploads/materials/shlakoblok.jpg
[area_modifier] => 69.18
[parent_name] => Стены 2 этаж (несущие)
[parent_id] => 5
[material_sum] => 228265
[work_sum] => 210190
[total_sum] => 438455
[total_days] => 15
[display_material_sum] => 228 265
[display_work_sum] => 210 190
[display_total_sum] => 438 455
)
1
438 455₽
Работа:210 190 ₽
Материалы:228 265 ₽
Дни:15
stdClass Object
(
[id] => 245
[attribute_id] => 5
[name] => Теплая керамика
[material_modifier] => 1
[work_modifier] => 1
[options] => Array
(
[0] => 380 мм
[1] => 380 мм Thermo
[2] => 440 мм
[3] => 510 мм
)
[days] => [10,10,11,12]
[material_price] => [4510,5098,6093,8013]
[work_price] => [4737,4937,5903,6958]
[image] => https://akademik-stroy.ru/wp-content/uploads/materials/teplaya-keramika.jpg
[area_modifier] => 69.18
[parent_name] => Стены 2 этаж (несущие)
[parent_id] => 5
[material_sum] => 430562
[work_sum] => 376862
[total_sum] => 807424
[total_days] => 10
[display_material_sum] => 430 562
[display_work_sum] => 376 862
[display_total_sum] => 807 424
)
1
807 424₽
Работа:376 862 ₽
Материалы:430 562 ₽
Дни:10
stdClass Object
(
[id] => 246
[attribute_id] => 5
[name] => Несъемная опалубка
[material_modifier] => 1
[work_modifier] => 1
[options] => Array
(
[0] => 380 мм
[1] => 380 мм Thermo
[2] => 440 мм
[3] => 510 мм
)
[days] => [10,10,11,12]
[material_price] => [3302,3902,4108,5008]
[work_price] => [2100,2100,2300,2534]
[image] => https://akademik-stroy.ru/wp-content/uploads/materials/nesemnaya-opalubka.jpg
[area_modifier] => 69.18
[parent_name] => Стены 2 этаж (несущие)
[parent_id] => 5
[material_sum] => 315237
[work_sum] => 167070
[total_sum] => 482307
[total_days] => 10
[display_material_sum] => 315 237
[display_work_sum] => 167 070
[display_total_sum] => 482 307
)
1
482 307₽
Работа:167 070 ₽
Материалы:315 237 ₽
Дни:10
stdClass Object
(
[id] => 254
[attribute_id] => 5
[name] => Бревно
[material_modifier] => 1
[work_modifier] => 1
[options] => Array
(
[0] => 260 мм
[1] => 320 мм
[2] => 360 мм
[3] => 400 мм
[4] => 500 мм
)
[days] => [7,8,9,10,11]
[material_price] => [1874,24045,26930,30972,38825]
[work_price] => [5046,6207,6952,7716,9723]
[image] => https://akademik-stroy.ru/wp-content/uploads/materials/sruby.jpg
[area_modifier] => 69.18
[parent_name] => Стены 2 этаж (несущие)
[parent_id] => 5
[material_sum] => 178908
[work_sum] => 401445
[total_sum] => 580353
[total_days] => 7
[display_material_sum] => 178 908
[display_work_sum] => 401 445
[display_total_sum] => 580 353
)
1
580 353₽
Работа:401 445 ₽
Материалы:178 908 ₽
Дни:7
stdClass Object
(
[id] => 11
[attribute_id] => 6
[name] => Деревянные балки
[material_modifier] => 1
[work_modifier] => 1
[options] => Array
(
[0] => без утепления
[1] => утепление 200 мм
[2] => утепление 250 мм
[3] => утепление 300 мм
[4] => утепление 350 мм
[5] => утепление 400 мм
[6] => утепление 450 мм
[7] => утепление 500 мм
)
[days] => [8,9,9,9,11,12,13,14]
[material_price] => [1634,2042,2344,2947,3149,3652,3354,3557]
[work_price] => [1230,1339,1393,1426,1460,1513,1587,1620]
[image] => https://akademik-stroy.ru/wp-content/uploads/materials/derevyannye-balki.png
[area_modifier] => 69.18
[parent_name] => Перекрытие второго этажа
[parent_id] => 6
[material_sum] => 155995
[work_sum] => 97855
[total_sum] => 253850
[total_days] => 8
[display_material_sum] => 155 995
[display_work_sum] => 97 855
[display_total_sum] => 253 850
)
1
253 850₽
Работа:97 855 ₽
Материалы:155 995 ₽
Дни:8
stdClass Object
(
[id] => 12
[attribute_id] => 6
[name] => Сборные ж/б плиты
[material_modifier] => 1
[work_modifier] => 1
[options] => Array
(
[0] => без утепления
[1] => утепление 150 мм
[2] => утепление 200 мм
[3] => утепление 250 мм
[4] => утепление 300 мм
[5] => утепление 350 мм
[6] => утепление 400 мм
[7] => утепление 450 мм
[8] => утепление 500 мм
)
[days] => [13,15,15,15,15,15,15,15,15]
[material_price] => [3067,5577,5928,6679,7730,8782,9833,10884,11935]
[work_price] => [1520,1956,2102,2247,2392,2537,2684,2829,2974]
[image] => https://akademik-stroy.ru/wp-content/uploads/materials/sbornye-zh-b-plity-2.jpg
[area_modifier] => 69.18
[parent_name] => Перекрытие второго этажа
[parent_id] => 6
[material_sum] => 292802
[work_sum] => 120927
[total_sum] => 413729
[total_days] => 13
[display_material_sum] => 292 802
[display_work_sum] => 120 927
[display_total_sum] => 413 729
)
1
413 729₽
Работа:120 927 ₽
Материалы:292 802 ₽
Дни:13
stdClass Object
(
[id] => 100
[attribute_id] => 6
[name] => Монолитная ж/б плита
[material_modifier] => 1
[work_modifier] => 1
[options] => Array
(
[0] => без утепления
[1] => утепление 150 мм
[2] => утепление 200 мм
[3] => утепление 250 мм
[4] => утепление 300 мм
[5] => утепление 350 мм
[6] => утепление 400 мм
[7] => утепление 450 мм
[8] => утепление 500 мм
)
[days] => [18,20,20,20,20,20,20,20,20]
[material_price] => [4837,6572,7224,7375,79426,8177,8728,9180,10031]
[work_price] => [3348,3921,4112,4302,4493,4684,4875,5066,5256]
[image] => https://akademik-stroy.ru/wp-content/uploads/materials/monolitnaya-zh-b-plita-2.jpg
[area_modifier] => 69.18
[parent_name] => Перекрытие второго этажа
[parent_id] => 6
[material_sum] => 461781
[work_sum] => 266357
[total_sum] => 728138
[total_days] => 18
[display_material_sum] => 461 781
[display_work_sum] => 266 357
[display_total_sum] => 728 138
)
1
728 138₽
Работа:266 357 ₽
Материалы:461 781 ₽
Дни:18
stdClass Object
(
[id] => 160
[attribute_id] => 36
[name] => Не эксплуатируемая
[material_modifier] => 1
[work_modifier] => 1
[options] => Array
(
)
[days] => [10]
[material_price] => [8068]
[work_price] => [4163]
[image] => https://akademik-stroy.ru/wp-content/uploads/materials/ne-ehkspluatiruemaya-3.jpg
[area_modifier] => 70.96
[parent_name] => Плоская крыша
[parent_id] => 36
[material_sum] => 790057
[work_sum] => 339717
[total_sum] => 1129774
[total_days] => 10
[display_material_sum] => 790 057
[display_work_sum] => 339 717
[display_total_sum] => 1 129 774
)
1
1 129 774₽
Работа:339 717 ₽
Материалы:790 057 ₽
Дни:10
stdClass Object
(
[id] => 161
[attribute_id] => 36
[name] => Зеленая кровля (Эксплуатируемая)
[material_modifier] => 1
[work_modifier] => 1
[options] => Array
(
)
[days] => [10]
[material_price] => [10056]
[work_price] => [8446]
[image] => https://akademik-stroy.ru/wp-content/uploads/materials/zelenaya-krovlya-2.jpg
[area_modifier] => 70.96
[parent_name] => Плоская крыша
[parent_id] => 36
[material_sum] => 984732
[work_sum] => 689227
[total_sum] => 1673959
[total_days] => 10
[display_material_sum] => 984 732
[display_work_sum] => 689 227
[display_total_sum] => 1 673 959
)
1
1 673 959₽
Работа:689 227 ₽
Материалы:984 732 ₽
Дни:10
stdClass Object
(
[id] => 162
[attribute_id] => 36
[name] => Эксплуатируемая
[material_modifier] => 1
[work_modifier] => 1
[options] => Array
(
)
[days] => [10]
[material_price] => [9593]
[work_price] => [7459]
[image] => https://akademik-stroy.ru/wp-content/uploads/materials/ehkspluatiruemaya-2.jpg
[area_modifier] => 70.96
[parent_name] => Плоская крыша
[parent_id] => 36
[material_sum] => 939393
[work_sum] => 608684
[total_sum] => 1548077
[total_days] => 10
[display_material_sum] => 939 393
[display_work_sum] => 608 684
[display_total_sum] => 1 548 077
)
1
1 548 077₽
Работа:608 684 ₽
Материалы:939 393 ₽
Дни:10
stdClass Object
(
[id] => 163
[attribute_id] => 36
[name] => Нет
[material_modifier] => 1
[work_modifier] => 1
[options] => Array
(
)
[days] => [0]
[material_price] => [0]
[work_price] => [0]
[image] => https://akademik-stroy.ru/wp-content/uploads/materials/ne-ehkspluatiruemaya-3.jpg
[area_modifier] => 70.96
[parent_name] => Плоская крыша
[parent_id] => 36
[material_sum] => 0
[work_sum] => 0
[total_sum] => 0
[total_days] => 0
[display_material_sum] => 0
[display_work_sum] => 0
[display_total_sum] => 0
)
1
0₽
Работа:0 ₽
Материалы:0 ₽
Дни:0
stdClass Object
(
[id] => 51
[attribute_id] => 26
[name] => Есть
[material_modifier] => 1
[work_modifier] => 1
[options] => Array
(
[0] => Профиль 58 мм, 3-камерный, стеклопакет 2-камерный до 32 мм
[1] => Профиль 60 мм, 4-камерный, стеклопакет 2-камерный до 32 мм
[2] => Профиль 70 мм, 5-камерный, стеклопакет 2-камерный до 40 мм
[3] => Профиль 72 мм, 5-камерный, стеклопакет 2-камерный до 40 мм
[4] => Алюминиевые окна Alutech профиль 72 мм, стеклопакет 2-камерный
)
[days] => [3,3,3,3,3]
[material_price] => [1339,2124,2867,3023,29596]
[work_price] => [635,647,659,668,2579]
[image] => https://akademik-stroy.ru/wp-content/uploads/materials/okna.jpg
[area_modifier] => 113.72
[parent_name] => Окна
[parent_id] => 26
[material_sum] => 210134
[work_sum] => 83044
[total_sum] => 293178
[total_days] => 3
[display_material_sum] => 210 134
[display_work_sum] => 83 044
[display_total_sum] => 293 178
)
1
293 178₽
Работа:83 044 ₽
Материалы:210 134 ₽
Дни:3
stdClass Object
(
[id] => 52
[attribute_id] => 26
[name] => Нет
[material_modifier] => 2
[work_modifier] => 1
[options] =>
[days] => null
[material_price] => null
[work_price] => null
[image] => https://akademik-stroy.ru/wp-content/uploads/materials/okna.jpg
[area_modifier] => 113.72
[parent_name] => Окна
[parent_id] => 26
[material_sum] => 0
[work_sum] => 0
[total_sum] => 0
[total_days] => 0
[display_material_sum] => 0
[display_work_sum] => 0
[display_total_sum] => 0
)
1
0₽
Работа:0 ₽
Материалы:0 ₽
Дни:0
stdClass Object
(
[id] => 53
[attribute_id] => 27
[name] => Есть
[material_modifier] => 1
[work_modifier] => 1
[options] => Array
(
)
[days] => [1]
[material_price] => [10000]
[work_price] => [5500]
[image] => https://akademik-stroy.ru/wp-content/uploads/materials/dveri.jpg
[area_modifier] => 1
[parent_name] => Двери входные
[parent_id] => 27
[material_sum] => 13800
[work_sum] => 6325
[total_sum] => 20125
[total_days] => 1
[display_material_sum] => 13 800
[display_work_sum] => 6 325
[display_total_sum] => 20 125
)
1
20 125₽
Работа:6 325 ₽
Материалы:13 800 ₽
Дни:1
stdClass Object
(
[id] => 54
[attribute_id] => 27
[name] => Нет
[material_modifier] => 1
[work_modifier] => 1
[options] => Array
(
)
[days] => [0]
[material_price] => [0]
[work_price] => [0]
[image] => https://akademik-stroy.ru/wp-content/uploads/materials/dveri.jpg
[area_modifier] => 1
[parent_name] => Двери входные
[parent_id] => 27
[material_sum] => 0
[work_sum] => 0
[total_sum] => 0
[total_days] => 0
[display_material_sum] => 0
[display_work_sum] => 0
[display_total_sum] => 0
)
1
0₽
Работа:0 ₽
Материалы:0 ₽
Дни:0
stdClass Object
(
[id] => 31
[attribute_id] => 16
[name] => Нет
[material_modifier] => 1
[work_modifier] => 1
[options] => Array
(
)
[days] => [0]
[material_price] => [0]
[work_price] => [0]
[image] => https://akademik-stroy.ru/wp-content/uploads/materials/docke-standard-pvh.jpg
[area_modifier] => 70.96
[parent_name] => Водосточная система
[parent_id] => 16
[material_sum] => 0
[work_sum] => 0
[total_sum] => 0
[total_days] => 0
[display_material_sum] => 0
[display_work_sum] => 0
[display_total_sum] => 0
)
1
0₽
Работа:0 ₽
Материалы:0 ₽
Дни:0
stdClass Object
(
[id] => 32
[attribute_id] => 16
[name] => Есть
[material_modifier] => 1
[work_modifier] => 1
[options] => Array
(
[0] => Döcke Standard (ПВХ)
[1] => Металлические Grand Line
)
[days] => [7,7]
[material_price] => [1842,2703]
[work_price] => [1491,1529]
[image] => https://akademik-stroy.ru/wp-content/uploads/materials/docke-standard-pvh.jpg
[area_modifier] => 70.96
[parent_name] => Водосточная система
[parent_id] => 16
[material_sum] => 180377
[work_sum] => 121672
[total_sum] => 302049
[total_days] => 7
[display_material_sum] => 180 377
[display_work_sum] => 121 672
[display_total_sum] => 302 049
)
1
302 049₽
Работа:121 672 ₽
Материалы:180 377 ₽
Дни:7
stdClass Object
(
[id] => 33
[attribute_id] => 17
[name] => Нет
[material_modifier] => 1
[work_modifier] => 1
[options] => Array
(
)
[days] => [0]
[material_price] => [0]
[work_price] => [0]
[image] => https://akademik-stroy.ru/wp-content/uploads/materials/mineralovata.jpg
[area_modifier] => 140.14
[parent_name] => Дополнительное утепление наружных стен
[parent_id] => 17
[material_sum] => 0
[work_sum] => 0
[total_sum] => 0
[total_days] => 0
[display_material_sum] => 0
[display_work_sum] => 0
[display_total_sum] => 0
)
1
0₽
Работа:0 ₽
Материалы:0 ₽
Дни:0
stdClass Object
(
[id] => 34
[attribute_id] => 17
[name] => Минераловатный
[material_modifier] => 1
[work_modifier] => 1
[options] => Array
(
[0] => 50 мм
[1] => 100 мм
[2] => 150 мм
[3] => 200 мм
[4] => 250 мм
[5] => 300 мм
)
[days] => [7,8,10,12,14,15]
[material_price] => [3437,3613,3803,3915,4601,4830]
[work_price] => [2325,2423,2523,2749,2859,3025]
[image] => https://akademik-stroy.ru/wp-content/uploads/materials/mineralovata.jpg
[area_modifier] => 140.14
[parent_name] => Дополнительное утепление наружных стен
[parent_id] => 17
[material_sum] => 664692
[work_sum] => 374699
[total_sum] => 1039391
[total_days] => 7
[display_material_sum] => 664 692
[display_work_sum] => 374 699
[display_total_sum] => 1 039 391
)
1
1 039 391₽
Работа:374 699 ₽
Материалы:664 692 ₽
Дни:7
stdClass Object
(
[id] => 128
[attribute_id] => 17
[name] => Эковата (целлюлозная вата)
[material_modifier] => 1
[work_modifier] => 1
[options] => Array
(
[0] => 50 мм
[1] => 100 мм
[2] => 150 мм
[3] => 200 мм
[4] => 250 мм
[5] => 300 мм
)
[days] => [3,4,5,6,7,8]
[material_price] => [810,1319,1629,1838,2267,2676]
[work_price] => [1225,1323,1423,1549,1659,1725]
[image] => https://akademik-stroy.ru/wp-content/uploads/materials/ehkovata.jpg
[area_modifier] => 140.14
[parent_name] => Дополнительное утепление наружных стен
[parent_id] => 17
[material_sum] => 156648
[work_sum] => 197422
[total_sum] => 354070
[total_days] => 3
[display_material_sum] => 156 648
[display_work_sum] => 197 422
[display_total_sum] => 354 070
)
1
354 070₽
Работа:197 422 ₽
Материалы:156 648 ₽
Дни:3
stdClass Object
(
[id] => 129
[attribute_id] => 17
[name] => Экструдированный пенополистирол
[material_modifier] => 1
[work_modifier] => 1
[options] => Array
(
[0] => 50 мм
[1] => 100 мм
[2] => 150 мм
[3] => 200 мм
[4] => 250 мм
[5] => 300 мм
)
[days] => [5,6,7,8,9,10]
[material_price] => [4560,4300,5119,6292,7010,8583]
[work_price] => [1795,1954,2254,2330,2595,2735]
[image] => https://akademik-stroy.ru/wp-content/uploads/materials/epps.jpg
[area_modifier] => 140.14
[parent_name] => Дополнительное утепление наружных стен
[parent_id] => 17
[material_sum] => 881873
[work_sum] => 289284
[total_sum] => 1171157
[total_days] => 5
[display_material_sum] => 881 873
[display_work_sum] => 289 284
[display_total_sum] => 1 171 157
)
1
1 171 157₽
Работа:289 284 ₽
Материалы:881 873 ₽
Дни:5
stdClass Object
(
[id] => 130
[attribute_id] => 17
[name] => ПСБ (ППС-пенополистирол)
[material_modifier] => 1
[work_modifier] => 1
[options] => Array
(
[0] => 50 мм
[1] => 100 мм
[2] => 150 мм
[3] => 200 мм
[4] => 250 мм
[5] => 300 мм
)
[days] => [5,6,7,8,9,10]
[material_price] => [4822,5200,5819,6292,7010,7583]
[work_price] => [1795,1954,2254,2330,2595,2735]
[image] => https://akademik-stroy.ru/wp-content/uploads/materials/psb.jpg
[area_modifier] => 140.14
[parent_name] => Дополнительное утепление наружных стен
[parent_id] => 17
[material_sum] => 932542
[work_sum] => 289284
[total_sum] => 1221826
[total_days] => 5
[display_material_sum] => 932 542
[display_work_sum] => 289 284
[display_total_sum] => 1 221 826
)
1
1 221 826₽
Работа:289 284 ₽
Материалы:932 542 ₽
Дни:5
stdClass Object
(
[id] => 131
[attribute_id] => 17
[name] => ППУ (Пенополиуретан)
[material_modifier] => 1
[work_modifier] => 1
[options] => Array
(
[0] => 50 мм
[1] => 100 мм
[2] => 150 мм
[3] => 200 мм
[4] => 250 мм
[5] => 300 мм
)
[days] => [3,4,5,6,7,8]
[material_price] => [2860,3400,4219,4592,5010,5583]
[work_price] => [729,900,980,1120,1280,1530]
[image] => https://akademik-stroy.ru/wp-content/uploads/materials/ppu.jpg
[area_modifier] => 140.14
[parent_name] => Дополнительное утепление наружных стен
[parent_id] => 17
[material_sum] => 553105
[work_sum] => 117486
[total_sum] => 670591
[total_days] => 3
[display_material_sum] => 553 105
[display_work_sum] => 117 486
[display_total_sum] => 670 591
)
1
670 591₽
Работа:117 486 ₽
Материалы:553 105 ₽
Дни:3
stdClass Object
(
[id] => 132
[attribute_id] => 17
[name] => PIR-плиты (пенополиизоцианурат)
[material_modifier] => 1
[work_modifier] => 1
[options] => Array
(
[0] => 50 мм
[1] => 100 мм
[2] => 150 мм
[3] => 200 мм
[4] => 250 мм
[5] => 300 мм
)
[days] => [5,6,7,8,9,10]
[material_price] => [8323,15645,20968,25900,29258,30581]
[work_price] => [800,900,970,1150,1280,1330]
[image] => https://akademik-stroy.ru/wp-content/uploads/materials/pir.jpg
[area_modifier] => 140.14
[parent_name] => Дополнительное утепление наружных стен
[parent_id] => 17
[material_sum] => 1609612
[work_sum] => 128929
[total_sum] => 1738541
[total_days] => 5
[display_material_sum] => 1 609 612
[display_work_sum] => 128 929
[display_total_sum] => 1 738 541
)
1
1 738 541₽
Работа:128 929 ₽
Материалы:1 609 612 ₽
Дни:5
stdClass Object
(
[id] => 37
[attribute_id] => 19
[name] => Нет
[material_modifier] => 1
[work_modifier] => 1
[options] => Array
(
)
[days] => [0]
[material_price] => [0]
[work_price] => [0]
[image] => https://akademik-stroy.ru/wp-content/uploads/materials/imitaciya-brusa.jpg
[area_modifier] => 140.14
[parent_name] => Наружная отделка фасада
[parent_id] => 19
[material_sum] => 0
[work_sum] => 0
[total_sum] => 0
[total_days] => 0
[display_material_sum] => 0
[display_work_sum] => 0
[display_total_sum] => 0
)
1
0₽
Работа:0 ₽
Материалы:0 ₽
Дни:0
stdClass Object
(
[id] => 38
[attribute_id] => 19
[name] => Имитация бруса
[material_modifier] => 1
[work_modifier] => 1
[options] => Array
(
[0] => Сосна
[1] => Ель
[2] => Лиственница
)
[days] => [20,20,20]
[material_price] => [2994,2762,4954]
[work_price] => [1397,1231,1577]
[image] => https://akademik-stroy.ru/wp-content/uploads/materials/imitaciya-brusa.jpg
[area_modifier] => 140.14
[parent_name] => Наружная отделка фасада
[parent_id] => 19
[material_sum] => 579019
[work_sum] => 225142
[total_sum] => 804161
[total_days] => 20
[display_material_sum] => 579 019
[display_work_sum] => 225 142
[display_total_sum] => 804 161
)
1
804 161₽
Работа:225 142 ₽
Материалы:579 019 ₽
Дни:20
stdClass Object
(
[id] => 136
[attribute_id] => 19
[name] => Планкен
[material_modifier] => 1
[work_modifier] => 1
[options] => Array
(
[0] => Сосна
[1] => Ель
[2] => Лиственница
)
[days] => [20,20,20]
[material_price] => [3194,2862,5154]
[work_price] => [1537,1354,1735]
[image] => https://akademik-stroy.ru/wp-content/uploads/materials/planken.jpg
[area_modifier] => 140.14
[parent_name] => Наружная отделка фасада
[parent_id] => 19
[material_sum] => 617698
[work_sum] => 247704
[total_sum] => 865402
[total_days] => 20
[display_material_sum] => 617 698
[display_work_sum] => 247 704
[display_total_sum] => 865 402
)
1
865 402₽
Работа:247 704 ₽
Материалы:617 698 ₽
Дни:20
stdClass Object
(
[id] => 137
[attribute_id] => 19
[name] => Штукатурка
[material_modifier] => 1
[work_modifier] => 1
[options] => Array
(
[0] => Цементно-песчаная (минеральная)
[1] => Мокрый фасад
)
[days] => [35,35]
[material_price] => [2231,3938]
[work_price] => [1202,2422]
[image] => https://akademik-stroy.ru/wp-content/uploads/materials/shtukaturka.jpg
[area_modifier] => 140.14
[parent_name] => Наружная отделка фасада
[parent_id] => 19
[material_sum] => 431460
[work_sum] => 193716
[total_sum] => 625176
[total_days] => 35
[display_material_sum] => 431 460
[display_work_sum] => 193 716
[display_total_sum] => 625 176
)
1
625 176₽
Работа:193 716 ₽
Материалы:431 460 ₽
Дни:35
stdClass Object
(
[id] => 138
[attribute_id] => 19
[name] => Облицовочный кирпич
[material_modifier] => 1
[work_modifier] => 1
[options] => Array
(
[0] => Керамический
[1] => Клинкерный
[2] => Ручной формовки
[3] => Гиперпрессованный
[4] => Силикатный кирпич
)
[days] => [45,45,45,45,45]
[material_price] => [8174,9148,1040,1257,5876]
[work_price] => [3240,3758,4536,4017,3369]
[image] => https://akademik-stroy.ru/wp-content/uploads/materials/oblicovochnyj-kirpich.jpg
[area_modifier] => 140.14
[parent_name] => Наружная отделка фасада
[parent_id] => 19
[material_sum] => 1580796
[work_sum] => 522162
[total_sum] => 2102958
[total_days] => 45
[display_material_sum] => 1 580 796
[display_work_sum] => 522 162
[display_total_sum] => 2 102 958
)
1
2 102 958₽
Работа:522 162 ₽
Материалы:1 580 796 ₽
Дни:45
stdClass Object
(
[id] => 139
[attribute_id] => 19
[name] => Фасадная плитка
[material_modifier] => 1
[work_modifier] => 1
[options] => Array
(
[0] => Клинкерная
[1] => Керамическая
[2] => Плитка ручной формовки
)
[days] => [40,40,40]
[material_price] => [2974,1487,3470]
[work_price] => [3007,2592,3629]
[image] => https://akademik-stroy.ru/wp-content/uploads/materials/fasadnaya-plitka.jpg
[area_modifier] => 140.14
[parent_name] => Наружная отделка фасада
[parent_id] => 19
[material_sum] => 575151
[work_sum] => 484611
[total_sum] => 1059762
[total_days] => 40
[display_material_sum] => 575 151
[display_work_sum] => 484 611
[display_total_sum] => 1 059 762
)
1
1 059 762₽
Работа:484 611 ₽
Материалы:575 151 ₽
Дни:40
stdClass Object
(
[id] => 140
[attribute_id] => 19
[name] => Сайдинг
[material_modifier] => 1
[work_modifier] => 1
[options] => Array
(
[0] => Виниловый
[1] => Металлический
[2] => Фиброцементный
)
[days] => [20,20,20]
[material_price] => [1263,1944,4147]
[work_price] => [1263,1944,2074]
[image] => https://akademik-stroy.ru/wp-content/uploads/materials/sajding.jpg
[area_modifier] => 140.14
[parent_name] => Наружная отделка фасада
[parent_id] => 19
[material_sum] => 244256
[work_sum] => 203546
[total_sum] => 447802
[total_days] => 20
[display_material_sum] => 244 256
[display_work_sum] => 203 546
[display_total_sum] => 447 802
)
1
447 802₽
Работа:203 546 ₽
Материалы:244 256 ₽
Дни:20
stdClass Object
(
[id] => 141
[attribute_id] => 19
[name] => Камень
[material_modifier] => 1
[work_modifier] => 1
[options] => Array
(
[0] => Травертин
[1] => Дагестанский
[2] => Искусственный
[3] => Натуральный
[4] => Керамогранит
)
[days] => [45,45,45,45,45]
[material_price] => [4536,3888,2592,3240,2462]
[work_price] => [3240,3240,2462,3110,1944]
[image] => https://akademik-stroy.ru/wp-content/uploads/materials/kamen-1.jpg
[area_modifier] => 140.14
[parent_name] => Наружная отделка фасада
[parent_id] => 19
[material_sum] => 877232
[work_sum] => 522162
[total_sum] => 1399394
[total_days] => 45
[display_material_sum] => 877 232
[display_work_sum] => 522 162
[display_total_sum] => 1 399 394
)
1
1 399 394₽
Работа:522 162 ₽
Материалы:877 232 ₽
Дни:45
stdClass Object
(
[id] => 142
[attribute_id] => 19
[name] => Термопанели
[material_modifier] => 1
[work_modifier] => 1
[options] => Array
(
)
[days] => [20]
[material_price] => [6221]
[work_price] => [2333]
[image] => https://akademik-stroy.ru/wp-content/uploads/materials/termo.png
[area_modifier] => 140.14
[parent_name] => Наружная отделка фасада
[parent_id] => 19
[material_sum] => 1203099
[work_sum] => 375989
[total_sum] => 1579088
[total_days] => 20
[display_material_sum] => 1 203 099
[display_work_sum] => 375 989
[display_total_sum] => 1 579 088
)
1
1 579 088₽
Работа:375 989 ₽
Материалы:1 203 099 ₽
Дни:20
stdClass Object
(
[id] => 143
[attribute_id] => 19
[name] => Плитка HAUBERK
[material_modifier] => 1
[work_modifier] => 1
[options] => Array
(
)
[days] => [20]
[material_price] => [2786]
[work_price] => [1944]
[image] => https://akademik-stroy.ru/wp-content/uploads/materials/hauberk.jpg
[area_modifier] => 140.14
[parent_name] => Наружная отделка фасада
[parent_id] => 19
[material_sum] => 538793
[work_sum] => 313297
[total_sum] => 852090
[total_days] => 20
[display_material_sum] => 538 793
[display_work_sum] => 313 297
[display_total_sum] => 852 090
)
1
852 090₽
Работа:313 297 ₽
Материалы:538 793 ₽
Дни:20
stdClass Object
(
[id] => 144
[attribute_id] => 19
[name] => Фальцевый фасад
[material_modifier] => 1
[work_modifier] => 1
[options] => Array
(
)
[days] => [20]
[material_price] => [3240]
[work_price] => [2592]
[image] => https://akademik-stroy.ru/wp-content/uploads/materials/falcevyj-fasad.jpg
[area_modifier] => 140.14
[parent_name] => Наружная отделка фасада
[parent_id] => 19
[material_sum] => 626594
[work_sum] => 417729
[total_sum] => 1044323
[total_days] => 20
[display_material_sum] => 626 594
[display_work_sum] => 417 729
[display_total_sum] => 1 044 323
)
1
1 044 323₽
Работа:417 729 ₽
Материалы:626 594 ₽
Дни:20
stdClass Object
(
[id] => 145
[attribute_id] => 19
[name] => Комбинированный
[material_modifier] => 1
[work_modifier] => 1
[options] => Array
(
)
[days] => [20]
[material_price] => [4629]
[work_price] => [3499]
[image] => https://akademik-stroy.ru/wp-content/uploads/materials/Kombinirovannyj.jpg
[area_modifier] => 140.14
[parent_name] => Наружная отделка фасада
[parent_id] => 19
[material_sum] => 895217
[work_sum] => 563902
[total_sum] => 1459119
[total_days] => 20
[display_material_sum] => 895 217
[display_work_sum] => 563 902
[display_total_sum] => 1 459 119
)
1
1 459 119₽
Работа:563 902 ₽
Материалы:895 217 ₽
Дни:20
stdClass Object
(
[id] => 257
[attribute_id] => 19
[name] => Японские фиброцементные
[material_modifier] => 1
[work_modifier] => 1
[options] => Array
(
)
[days] => [20]
[material_price] => [7043]
[work_price] => [2993]
[image] => https://akademik-stroy.ru/wp-content/uploads/materials/paneli.jpg
[area_modifier] => 140.14
[parent_name] => Наружная отделка фасада
[parent_id] => 19
[material_sum] => 1362068
[work_sum] => 482355
[total_sum] => 1844423
[total_days] => 20
[display_material_sum] => 1 362 068
[display_work_sum] => 482 355
[display_total_sum] => 1 844 423
)
1
1 844 423₽
Работа:482 355 ₽
Материалы:1 362 068 ₽
Дни:20
stdClass Object
(
[id] => 258
[attribute_id] => 19
[name] => Панели Каньон
[material_modifier] => 1
[work_modifier] => 1
[options] => Array
(
)
[days] => [20]
[material_price] => [4543]
[work_price] => [2592]
[image] => https://akademik-stroy.ru/wp-content/uploads/materials/kanon.png
[area_modifier] => 140.14
[parent_name] => Наружная отделка фасада
[parent_id] => 19
[material_sum] => 878585
[work_sum] => 417729
[total_sum] => 1296314
[total_days] => 20
[display_material_sum] => 878 585
[display_work_sum] => 417 729
[display_total_sum] => 1 296 314
)
1
1 296 314₽
Работа:417 729 ₽
Материалы:878 585 ₽
Дни:20
stdClass Object
(
[id] => 39
[attribute_id] => 20
[name] => Нет
[material_modifier] => 1
[work_modifier] => 1
[options] => Array
(
)
[days] => [0]
[material_price] => [0]
[work_price] => [0]
[image] => https://akademik-stroy.ru/wp-content/uploads/materials/terrasy.jpg
[area_modifier] => 30
[parent_name] => Террасы, крыльца, навесы
[parent_id] => 20
[material_sum] => 0
[work_sum] => 0
[total_sum] => 0
[total_days] => 0
[display_material_sum] => 0
[display_work_sum] => 0
[display_total_sum] => 0
)
1
0₽
Работа:0 ₽
Материалы:0 ₽
Дни:0
stdClass Object
(
[id] => 40
[attribute_id] => 20
[name] => Есть
[material_modifier] => 1
[work_modifier] => 1
[options] => Array
(
)
[days] => [5]
[material_price] => [10450]
[work_price] => [1950]
[image] => https://akademik-stroy.ru/wp-content/uploads/materials/terrasy.jpg
[area_modifier] => 30
[parent_name] => Террасы, крыльца, навесы
[parent_id] => 20
[material_sum] => 432630
[work_sum] => 67275
[total_sum] => 499905
[total_days] => 5
[display_material_sum] => 432 630
[display_work_sum] => 67 275
[display_total_sum] => 499 905
)
1
499 905₽
Работа:67 275 ₽
Материалы:432 630 ₽
Дни:5
stdClass Object
(
[id] => 41
[attribute_id] => 21
[name] => Нет
[material_modifier] => 1
[work_modifier] => 1
[options] => Array
(
)
[days] => [0]
[material_price] => [0]
[work_price] => [0]
[image] => https://akademik-stroy.ru/wp-content/uploads/materials/balkony.jpg
[area_modifier] => 30
[parent_name] => Балконы
[parent_id] => 21
[material_sum] => 0
[work_sum] => 0
[total_sum] => 0
[total_days] => 0
[display_material_sum] => 0
[display_work_sum] => 0
[display_total_sum] => 0
)
1
0₽
Работа:0 ₽
Материалы:0 ₽
Дни:0
stdClass Object
(
[id] => 42
[attribute_id] => 21
[name] => Есть
[material_modifier] => 1
[work_modifier] => 1
[options] => Array
(
)
[days] => [12]
[material_price] => [3600]
[work_price] => [1950]
[image] => https://akademik-stroy.ru/wp-content/uploads/materials/balkony.jpg
[area_modifier] => 30
[parent_name] => Балконы
[parent_id] => 21
[material_sum] => 149040
[work_sum] => 67275
[total_sum] => 216315
[total_days] => 12
[display_material_sum] => 149 040
[display_work_sum] => 67 275
[display_total_sum] => 216 315
)
1
216 315₽
Работа:67 275 ₽
Материалы:149 040 ₽
Дни:12
stdClass Object
(
[id] => 43
[attribute_id] => 22
[name] => Нет
[material_modifier] => 1
[work_modifier] => 1
[options] => Array
(
)
[days] => [0]
[material_price] => [0]
[work_price] => [0]
[image] => https://akademik-stroy.ru/wp-content/uploads/materials/uteplennaya.jpg
[area_modifier] => 70.96
[parent_name] => Отмостка
[parent_id] => 22
[material_sum] => 0
[work_sum] => 0
[total_sum] => 0
[total_days] => 0
[display_material_sum] => 0
[display_work_sum] => 0
[display_total_sum] => 0
)
1
0₽
Работа:0 ₽
Материалы:0 ₽
Дни:0
stdClass Object
(
[id] => 44
[attribute_id] => 22
[name] => Утепленная отмостка
[material_modifier] => 1
[work_modifier] => 1
[options] => Array
(
)
[days] => [15]
[material_price] => [2550]
[work_price] => [1750]
[image] => https://akademik-stroy.ru/wp-content/uploads/materials/uteplennaya.jpg
[area_modifier] => 70.96
[parent_name] => Отмостка
[parent_id] => 22
[material_sum] => 249708
[work_sum] => 142807
[total_sum] => 392515
[total_days] => 15
[display_material_sum] => 249 708
[display_work_sum] => 142 807
[display_total_sum] => 392 515
)
1
392 515₽
Работа:142 807 ₽
Материалы:249 708 ₽
Дни:15
stdClass Object
(
[id] => 146
[attribute_id] => 22
[name] => Не утепленная отмостка
[material_modifier] => 1
[work_modifier] => 1
[options] => Array
(
)
[days] => [10]
[material_price] => [1650]
[work_price] => [1450]
[image] => https://akademik-stroy.ru/wp-content/uploads/materials/ne-uteplennaya.jpg
[area_modifier] => 70.96
[parent_name] => Отмостка
[parent_id] => 22
[material_sum] => 161576
[work_sum] => 118326
[total_sum] => 279902
[total_days] => 10
[display_material_sum] => 161 576
[display_work_sum] => 118 326
[display_total_sum] => 279 902
)
1
279 902₽
Работа:118 326 ₽
Материалы:161 576 ₽
Дни:10
stdClass Object
(
[id] => 45
[attribute_id] => 23
[name] => Нет
[material_modifier] => 1
[work_modifier] => 1
[options] => Array
(
)
[days] => [0]
[material_price] => [0]
[work_price] => [0]
[image] => https://akademik-stroy.ru/wp-content/uploads/materials/drenazh-2.jpg
[area_modifier] => 70.96
[parent_name] => Дренаж вокруг дома
[parent_id] => 23
[material_sum] => 0
[work_sum] => 0
[total_sum] => 0
[total_days] => 0
[display_material_sum] => 0
[display_work_sum] => 0
[display_total_sum] => 0
)
1
0₽
Работа:0 ₽
Материалы:0 ₽
Дни:0
stdClass Object
(
[id] => 46
[attribute_id] => 23
[name] => Есть
[material_modifier] => 1
[work_modifier] => 1
[options] => Array
(
)
[days] => [5]
[material_price] => [2366]
[work_price] => [1911]
[image] => https://akademik-stroy.ru/wp-content/uploads/materials/drenazh-2.jpg
[area_modifier] => 70.96
[parent_name] => Дренаж вокруг дома
[parent_id] => 23
[material_sum] => 231690
[work_sum] => 155945
[total_sum] => 387635
[total_days] => 5
[display_material_sum] => 231 690
[display_work_sum] => 155 945
[display_total_sum] => 387 635
)
1
387 635₽
Работа:155 945 ₽
Материалы:231 690 ₽
Дни:5
stdClass Object
(
[id] => 47
[attribute_id] => 24
[name] => Нет
[material_modifier] => 1
[work_modifier] => 1
[options] => Array
(
)
[days] => [0]
[material_price] => [0]
[work_price] => [0]
[image] => https://akademik-stroy.ru/wp-content/uploads/materials/septik.jpg
[area_modifier] => 1
[parent_name] => Автономная канализация (септики)
[parent_id] => 24
[material_sum] => 0
[work_sum] => 0
[total_sum] => 0
[total_days] => 0
[display_material_sum] => 0
[display_work_sum] => 0
[display_total_sum] => 0
)
1
0₽
Работа:0 ₽
Материалы:0 ₽
Дни:0
stdClass Object
(
[id] => 48
[attribute_id] => 24
[name] => Есть
[material_modifier] => 1
[work_modifier] => 1
[options] => Array
(
[0] => Для дачи на 4 человека
[1] => Для дома на 5 человек
[2] => Для дома на 6 человек
[3] => Для дома на 7 человек
[4] => Для дома на 10 человек
)
[days] => [7,7,7,8,8]
[material_price] => [196340,220500,240940,264200,293340]
[work_price] => [50000,55000,60500,66550,73206]
[image] => https://akademik-stroy.ru/wp-content/uploads/materials/septik.jpg
[area_modifier] => 1
[parent_name] => Автономная канализация (септики)
[parent_id] => 24
[material_sum] => 270949
[work_sum] => 57500
[total_sum] => 328449
[total_days] => 7
[display_material_sum] => 270 949
[display_work_sum] => 57 500
[display_total_sum] => 328 449
)
1
328 449₽
Работа:57 500 ₽
Материалы:270 949 ₽
Дни:7
stdClass Object
(
[id] => 49
[attribute_id] => 25
[name] => Нет
[material_modifier] => 1
[work_modifier] => 1
[options] => Array
(
)
[days] => [0]
[material_price] => [0]
[work_price] => [0]
[image] => https://akademik-stroy.ru/wp-content/uploads/materials/gkl.jpg
[area_modifier] => 140.14
[parent_name] => Внутренние (не несущие) перегородки
[parent_id] => 25
[material_sum] => 0
[work_sum] => 0
[total_sum] => 0
[total_days] => 0
[display_material_sum] => 0
[display_work_sum] => 0
[display_total_sum] => 0
)
1
0₽
Работа:0 ₽
Материалы:0 ₽
Дни:0
stdClass Object
(
[id] => 147
[attribute_id] => 25
[name] => Каркасно-обшивные
[material_modifier] => 1
[work_modifier] => 1
[options] => Array
(
[0] => 75 мм (без шумоизоляции)
[1] => 75 мм (с шумоизоляцией)
)
[days] => [11,11]
[material_price] => [580,970]
[work_price] => [380,570]
[image] => https://akademik-stroy.ru/wp-content/uploads/materials/gkl.jpg
[area_modifier] => 140.14
[parent_name] => Внутренние (не несущие) перегородки
[parent_id] => 25
[material_sum] => 112168
[work_sum] => 61241
[total_sum] => 173409
[total_days] => 11
[display_material_sum] => 112 168
[display_work_sum] => 61 241
[display_total_sum] => 173 409
)
1
173 409₽
Работа:61 241 ₽
Материалы:112 168 ₽
Дни:11
stdClass Object
(
[id] => 148
[attribute_id] => 25
[name] => Пазогребневые
[material_modifier] => 1
[work_modifier] => 1
[options] => Array
(
[0] => 80 мм
[1] => 100 мм
)
[days] => [5,5]
[material_price] => [1022,1313]
[work_price] => [600,700]
[image] => https://akademik-stroy.ru/wp-content/uploads/materials/pazogrebnevye-bloki.jpg
[area_modifier] => 140.14
[parent_name] => Внутренние (не несущие) перегородки
[parent_id] => 25
[material_sum] => 197648
[work_sum] => 96697
[total_sum] => 294345
[total_days] => 5
[display_material_sum] => 197 648
[display_work_sum] => 96 697
[display_total_sum] => 294 345
)
1
294 345₽
Работа:96 697 ₽
Материалы:197 648 ₽
Дни:5
stdClass Object
(
[id] => 149
[attribute_id] => 25
[name] => Газобетонные
[material_modifier] => 1
[work_modifier] => 1
[options] => Array
(
[0] => 100 мм
[1] => 200 мм
)
[days] => [11,11]
[material_price] => [1160,1920]
[work_price] => [700,900]
[image] => https://akademik-stroy.ru/wp-content/uploads/materials/gazobeton-2.jpg
[area_modifier] => 140.14
[parent_name] => Внутренние (не несущие) перегородки
[parent_id] => 25
[material_sum] => 224336
[work_sum] => 112813
[total_sum] => 337149
[total_days] => 11
[display_material_sum] => 224 336
[display_work_sum] => 112 813
[display_total_sum] => 337 149
)
1
337 149₽
Работа:112 813 ₽
Материалы:224 336 ₽
Дни:11
stdClass Object
(
[id] => 150
[attribute_id] => 25
[name] => Кирпичные
[material_modifier] => 1
[work_modifier] => 1
[options] => Array
(
[0] => 120 мм
[1] => 250 мм
[2] => 360 мм
)
[days] => [7,7,7]
[material_price] => [1785,3570,5355]
[work_price] => [900,1600,1800]
[image] => https://akademik-stroy.ru/wp-content/uploads/materials/kirpich-1.jpg
[area_modifier] => 140.14
[parent_name] => Внутренние (не несущие) перегородки
[parent_id] => 25
[material_sum] => 345207
[work_sum] => 145045
[total_sum] => 490252
[total_days] => 7
[display_material_sum] => 345 207
[display_work_sum] => 145 045
[display_total_sum] => 490 252
)
1
490 252₽
Работа:145 045 ₽
Материалы:345 207 ₽
Дни:7
stdClass Object
(
[id] => 55
[attribute_id] => 28
[name] => Нет
[material_modifier] => 1
[work_modifier] => 1
[options] => Array
(
)
[days] => [0]
[material_price] => [0]
[work_price] => [0]
[image] => https://akademik-stroy.ru/wp-content/uploads/materials/ehlektrika.jpg
[area_modifier] => 113.72
[parent_name] => Электрика
[parent_id] => 28
[material_sum] => 0
[work_sum] => 0
[total_sum] => 0
[total_days] => 0
[display_material_sum] => 0
[display_work_sum] => 0
[display_total_sum] => 0
)
1
0₽
Работа:0 ₽
Материалы:0 ₽
Дни:0
stdClass Object
(
[id] => 56
[attribute_id] => 28
[name] => Есть
[material_modifier] => 1
[work_modifier] => 1
[options] => Array
(
)
[days] => [10]
[material_price] => [650]
[work_price] => [950]
[image] => https://akademik-stroy.ru/wp-content/uploads/materials/ehlektrika.jpg
[area_modifier] => 113.72
[parent_name] => Электрика
[parent_id] => 28
[material_sum] => 102007
[work_sum] => 124239
[total_sum] => 226246
[total_days] => 10
[display_material_sum] => 102 007
[display_work_sum] => 124 239
[display_total_sum] => 226 246
)
1
226 246₽
Работа:124 239 ₽
Материалы:102 007 ₽
Дни:10
stdClass Object
(
[id] => 57
[attribute_id] => 29
[name] => Нет
[material_modifier] => 1
[work_modifier] => 1
[options] => Array
(
)
[days] => [0]
[material_price] => [0]
[work_price] => [0]
[image] => https://akademik-stroy.ru/wp-content/uploads/materials/santekhnika-kanalizaciya-1.jpg
[area_modifier] => 113.72
[parent_name] => Сантехника, канализация в доме
[parent_id] => 29
[material_sum] => 0
[work_sum] => 0
[total_sum] => 0
[total_days] => 0
[display_material_sum] => 0
[display_work_sum] => 0
[display_total_sum] => 0
)
1
0₽
Работа:0 ₽
Материалы:0 ₽
Дни:0
stdClass Object
(
[id] => 58
[attribute_id] => 29
[name] => Есть
[material_modifier] => 1
[work_modifier] => 1
[options] => Array
(
)
[days] => [10]
[material_price] => [600]
[work_price] => [730]
[image] => https://akademik-stroy.ru/wp-content/uploads/materials/santekhnika-kanalizaciya-1.jpg
[area_modifier] => 113.72
[parent_name] => Сантехника, канализация в доме
[parent_id] => 29
[material_sum] => 94160
[work_sum] => 95468
[total_sum] => 189628
[total_days] => 10
[display_material_sum] => 94 160
[display_work_sum] => 95 468
[display_total_sum] => 189 628
)
1
189 628₽
Работа:95 468 ₽
Материалы:94 160 ₽
Дни:10
stdClass Object
(
[id] => 59
[attribute_id] => 30
[name] => Нет
[material_modifier] => 1
[work_modifier] => 1
[options] => Array
(
)
[days] => [0]
[material_price] => [0]
[work_price] => [0]
[image] => https://akademik-stroy.ru/wp-content/uploads/materials/otoplenie-1.jpg
[area_modifier] => 113.72
[parent_name] => Отопление
[parent_id] => 30
[material_sum] => 0
[work_sum] => 0
[total_sum] => 0
[total_days] => 0
[display_material_sum] => 0
[display_work_sum] => 0
[display_total_sum] => 0
)
1
0₽
Работа:0 ₽
Материалы:0 ₽
Дни:0
stdClass Object
(
[id] => 60
[attribute_id] => 30
[name] => Есть
[material_modifier] => 1
[work_modifier] => 1
[options] => Array
(
)
[days] => [5]
[material_price] => [610]
[work_price] => [560]
[image] => https://akademik-stroy.ru/wp-content/uploads/materials/otoplenie-1.jpg
[area_modifier] => 113.72
[parent_name] => Отопление
[parent_id] => 30
[material_sum] => 95729
[work_sum] => 73236
[total_sum] => 168965
[total_days] => 5
[display_material_sum] => 95 729
[display_work_sum] => 73 236
[display_total_sum] => 168 965
)
1
168 965₽
Работа:73 236 ₽
Материалы:95 729 ₽
Дни:5
stdClass Object
(
[id] => 61
[attribute_id] => 31
[name] => Нет
[material_modifier] => 1
[work_modifier] => 1
[options] => Array
(
)
[days] => [0]
[material_price] => [0]
[work_price] => [0]
[image] => https://akademik-stroy.ru/wp-content/uploads/materials/vodyanye.jpg
[area_modifier] => 30
[parent_name] => Теплые полы
[parent_id] => 31
[material_sum] => 0
[work_sum] => 0
[total_sum] => 0
[total_days] => 0
[display_material_sum] => 0
[display_work_sum] => 0
[display_total_sum] => 0
)
1
0₽
Работа:0 ₽
Материалы:0 ₽
Дни:0
stdClass Object
(
[id] => 151
[attribute_id] => 31
[name] => Водяные
[material_modifier] => 1
[work_modifier] => 1
[options] => Array
(
)
[days] => [9]
[material_price] => [10200]
[work_price] => [2500]
[image] => https://akademik-stroy.ru/wp-content/uploads/materials/vodyanye.jpg
[area_modifier] => 30
[parent_name] => Теплые полы
[parent_id] => 31
[material_sum] => 422280
[work_sum] => 86250
[total_sum] => 508530
[total_days] => 9
[display_material_sum] => 422 280
[display_work_sum] => 86 250
[display_total_sum] => 508 530
)
1
508 530₽
Работа:86 250 ₽
Материалы:422 280 ₽
Дни:9
stdClass Object
(
[id] => 152
[attribute_id] => 31
[name] => Электро
[material_modifier] => 1
[work_modifier] => 1
[options] => Array
(
)
[days] => [5]
[material_price] => [6300]
[work_price] => [1500]
[image] => https://akademik-stroy.ru/wp-content/uploads/materials/ehlektricheskij.jpg
[area_modifier] => 30
[parent_name] => Теплые полы
[parent_id] => 31
[material_sum] => 260820
[work_sum] => 51750
[total_sum] => 312570
[total_days] => 5
[display_material_sum] => 260 820
[display_work_sum] => 51 750
[display_total_sum] => 312 570
)
1
312 570₽
Работа:51 750 ₽
Материалы:260 820 ₽
Дни:5
stdClass Object
(
[id] => 63
[attribute_id] => 32
[name] => Нет
[material_modifier] => 1
[work_modifier] => 1
[options] => Array
(
)
[days] => [0]
[material_price] => [0]
[work_price] => [0]
[image] => https://akademik-stroy.ru/wp-content/uploads/materials/shtukaturka-shpatlevka-1.jpg
[area_modifier] => 113.72
[parent_name] => Черновая отделка стен
[parent_id] => 32
[material_sum] => 0
[work_sum] => 0
[total_sum] => 0
[total_days] => 0
[display_material_sum] => 0
[display_work_sum] => 0
[display_total_sum] => 0
)
1
0₽
Работа:0 ₽
Материалы:0 ₽
Дни:0
stdClass Object
(
[id] => 153
[attribute_id] => 32
[name] => Штукатурка и шпатлевка
[material_modifier] => 1
[work_modifier] => 1
[options] => Array
(
)
[days] => [20]
[material_price] => [1850]
[work_price] => [2600]
[image] => https://akademik-stroy.ru/wp-content/uploads/materials/shtukaturka-shpatlevka-1.jpg
[area_modifier] => 113.72
[parent_name] => Черновая отделка стен
[parent_id] => 32
[material_sum] => 290327
[work_sum] => 340023
[total_sum] => 630350
[total_days] => 20
[display_material_sum] => 290 327
[display_work_sum] => 340 023
[display_total_sum] => 630 350
)
1
630 350₽
Работа:340 023 ₽
Материалы:290 327 ₽
Дни:20
stdClass Object
(
[id] => 154
[attribute_id] => 32
[name] => Гипсокортон на стены
[material_modifier] => 1
[work_modifier] => 1
[options] => Array
(
)
[days] => [15]
[material_price] => [950]
[work_price] => [2100]
[image] => https://akademik-stroy.ru/wp-content/uploads/materials/gkl-1.jpg
[area_modifier] => 113.72
[parent_name] => Черновая отделка стен
[parent_id] => 32
[material_sum] => 149087
[work_sum] => 274634
[total_sum] => 423721
[total_days] => 15
[display_material_sum] => 149 087
[display_work_sum] => 274 634
[display_total_sum] => 423 721
)
1
423 721₽
Работа:274 634 ₽
Материалы:149 087 ₽
Дни:15
stdClass Object
(
[id] => 155
[attribute_id] => 32
[name] => Вагонка
[material_modifier] => 1
[work_modifier] => 1
[options] => Array
(
)
[days] => [15]
[material_price] => [1250]
[work_price] => [950]
[image] => https://akademik-stroy.ru/wp-content/uploads/materials/vagonka.jpg
[area_modifier] => 113.72
[parent_name] => Черновая отделка стен
[parent_id] => 32
[material_sum] => 196167
[work_sum] => 124239
[total_sum] => 320406
[total_days] => 15
[display_material_sum] => 196 167
[display_work_sum] => 124 239
[display_total_sum] => 320 406
)
1
320 406₽
Работа:124 239 ₽
Материалы:196 167 ₽
Дни:15
stdClass Object
(
[id] => 65
[attribute_id] => 33
[name] => Нет
[material_modifier] => 1
[work_modifier] => 1
[options] => Array
(
)
[days] => [0]
[material_price] => [0]
[work_price] => [0]
[image] => https://akademik-stroy.ru/wp-content/uploads/materials/styazhka.jpg
[area_modifier] => 113.72
[parent_name] => Черновая отделка полов
[parent_id] => 33
[material_sum] => 0
[work_sum] => 0
[total_sum] => 0
[total_days] => 0
[display_material_sum] => 0
[display_work_sum] => 0
[display_total_sum] => 0
)
1
0₽
Работа:0 ₽
Материалы:0 ₽
Дни:0
stdClass Object
(
[id] => 156
[attribute_id] => 33
[name] => Стяжка + наливные полы
[material_modifier] => 1
[work_modifier] => 1
[options] => Array
(
)
[days] => [10]
[material_price] => [1000]
[work_price] => [900]
[image] => https://akademik-stroy.ru/wp-content/uploads/materials/styazhka.jpg
[area_modifier] => 113.72
[parent_name] => Черновая отделка полов
[parent_id] => 33
[material_sum] => 156934
[work_sum] => 117700
[total_sum] => 274634
[total_days] => 10
[display_material_sum] => 156 934
[display_work_sum] => 117 700
[display_total_sum] => 274 634
)
1
274 634₽
Работа:117 700 ₽
Материалы:156 934 ₽
Дни:10
stdClass Object
(
[id] => 157
[attribute_id] => 33
[name] => ОСБ на пол
[material_modifier] => 1
[work_modifier] => 1
[options] => Array
(
)
[days] => [7]
[material_price] => [580]
[work_price] => [350]
[image] => https://akademik-stroy.ru/wp-content/uploads/materials/osb-1.jpg
[area_modifier] => 113.72
[parent_name] => Черновая отделка полов
[parent_id] => 33
[material_sum] => 91021
[work_sum] => 45772
[total_sum] => 136793
[total_days] => 7
[display_material_sum] => 91 021
[display_work_sum] => 45 772
[display_total_sum] => 136 793
)
1
136 793₽
Работа:45 772 ₽
Материалы:91 021 ₽
Дни:7
stdClass Object
(
[id] => 67
[attribute_id] => 34
[name] => Нет
[material_modifier] => 1
[work_modifier] => 1
[options] => Array
(
)
[days] => [0]
[material_price] => [0]
[work_price] => [0]
[image] => https://akademik-stroy.ru/wp-content/uploads/materials/chistovaya-otdelka.jpg
[area_modifier] => 113.72
[parent_name] => Чистовая отделка стен и полов
[parent_id] => 34
[material_sum] => 0
[work_sum] => 0
[total_sum] => 0
[total_days] => 0
[display_material_sum] => 0
[display_work_sum] => 0
[display_total_sum] => 0
)
1
0₽
Работа:0 ₽
Материалы:0 ₽
Дни:0
stdClass Object
(
[id] => 68
[attribute_id] => 34
[name] => Есть
[material_modifier] => 1
[work_modifier] => 1
[options] => Array
(
)
[days] => [50]
[material_price] => [6000]
[work_price] => [3500]
[image] => https://akademik-stroy.ru/wp-content/uploads/materials/chistovaya-otdelka.jpg
[area_modifier] => 113.72
[parent_name] => Чистовая отделка стен и полов
[parent_id] => 34
[material_sum] => 941602
[work_sum] => 457723
[total_sum] => 1399325
[total_days] => 50
[display_material_sum] => 941 602
[display_work_sum] => 457 723
[display_total_sum] => 1 399 325
)
1
1 399 325₽
Работа:457 723 ₽
Материалы:941 602 ₽
Дни:50
stdClass Object
(
[id] => 69
[attribute_id] => 35
[name] => Нет
[material_modifier] => 1
[work_modifier] => 1
[options] => Array
(
)
[days] => [0]
[material_price] => [0]
[work_price] => [0]
[image] => https://akademik-stroy.ru/wp-content/uploads/materials/mnogourovnevyj-gkl.jpg
[area_modifier] => 113.72
[parent_name] => Отделка потолка
[parent_id] => 35
[material_sum] => 0
[work_sum] => 0
[total_sum] => 0
[total_days] => 0
[display_material_sum] => 0
[display_work_sum] => 0
[display_total_sum] => 0
)
1
0₽
Работа:0 ₽
Материалы:0 ₽
Дни:0
stdClass Object
(
[id] => 70
[attribute_id] => 35
[name] => Есть
[material_modifier] => 1
[work_modifier] => 1
[options] => Array
(
[0] => Многоуровневый потолок из гипсокартона
[1] => Многоуровневый потолок из гипсокартона и натяжного потолка
[2] => Одноуровневый потолок из гипсокартона
[3] => Одноуровневый натяжной потолок
)
[days] => [10,10,1,1]
[material_price] => [900,700,700,600]
[work_price] => [1000,800,500,300]
[image] => https://akademik-stroy.ru/wp-content/uploads/materials/mnogourovnevyj-gkl.jpg
[area_modifier] => 113.72
[parent_name] => Отделка потолка
[parent_id] => 35
[material_sum] => 141240
[work_sum] => 130778
[total_sum] => 272018
[total_days] => 10
[display_material_sum] => 141 240
[display_work_sum] => 130 778
[display_total_sum] => 272 018
)
1
272 018₽
Работа:130 778 ₽
Материалы:141 240 ₽
Дни:10
Преимущества работы с нами
7 этапов оплаты
Независимый строительный надзор
Экологически чистые материалы
16 лет гарантии
Онлайн-кабинет с веб-камерой
Строители с опытом более 15 лет
Собственное производство










