Одноэтажный дом 10x10 - 179 м2 за руб.
Планировки
План первого этажа
- 1. Крыльцо 8,95 м²
- 2. Техпомещение 5,92 м²
- 3. Тамбур 4,18 м²
- 4. Спальня 10,89 м²
- 5. Гардероб 2,38 м²
- 6. С/У 6,89 м²
- 7. Холл 14,82 м²
- 8. Терраса 28,50 м²
- 9. Кухня-гостиная 35,07 м²
- 10. Терраса 18,60 м²
- Общая площадь 1 этажа 137,0 м²
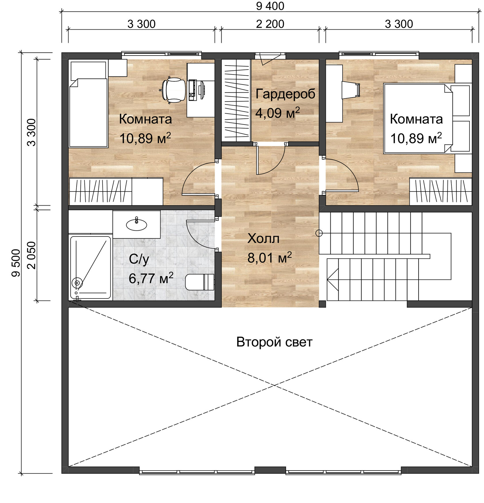
План второго этажа
- 1. Спальня 10,89 м²
- 2. С/У 6,77 м²
- 3. Гардероб 4,09 м²
- 4. Холл 8,01 м²
- 5. Спальня 10,89 м²
- Общая площадь 2 этажа 42,0 м²
Площади дома
| № п/п | Наименование | Ед. из. | Строительная площадь | Полезная площадь |
| 1 | 1 этаж | м2 | 168.83 | 137 |
| 2 | 2 этаж | м2 | 51.76 | 42 |
| 3 | Итого | м2 | 220.59 | 179 |
«Эконом»
5 988 123 р.
«Комфорт»
9 955 962 р.
| Характеристика | ЭКОНОМ | КОМФОРТ |
|---|---|---|
| Фундамент Винтовые сваи ВС-108/300/2500мм |
||
| Забивные ЖБ сваи 150×150×3000мм | ||
| Антисептирование всего пиломатериала Обработка силовых элементов из дерева составом Neomid 430 |
||
| Цокольное перекрытие Балки перекрытия — доска 40×195мм камерной сушки, строганная |
||
| Утепление базальтовым утеплителем Knauf Insulation 200мм | ||
| Утепление базальтовым утеплителем Rockwool «Стандарт»/Технониколь Универсал 200мм | ||
| Паро/ветрозащитные плёнки, прижимная обрешётка | ||
| Черновой пол — фанера ФК 3/4 ЭКО 18мм | ||
| Черновой пол — фанера ФК 3/4 ЭКО 21мм | ||
| Защита от грызунов | ||
| Наружные стены Стойки, раскосы — доска 40×145мм камерной сушки, строганная |
||
| Утепление базальтовым утеплителем Knauf Insulation 150мм | ||
| Утепление базальтовым утеплителем Rockwool «Стандарт»/Технониколь Универсал 200мм с перекрёстным утеплением (брусок 45×45мм) | ||
| Паро/ветрозащитные плёнки, внешняя и внутренняя обрешётка | ||
| Перегородки Стойки, раскосы — доска 40×145мм камерной сушки, строганная |
||
| Шумоизоляция базальтовым утеплителем Knauf Insulation 150мм | ||
| Шумоизоляция базальтовым утеплителем Rockwool «Стандарт»/Технониколь Универсал 150мм | ||
| Диффузионная мембрана поверх утеплителя | ||
| Прижимная обрешётка | ||
| Межэтажные перекрытия (при наличии) Балки перекрытия — доска 40×195мм камерной сушки, строганная |
||
| Утепление базальтовым утеплителем Knauf Insulation 200мм | ||
| Утепление базальтовым утеплителем Rockwool «Стандарт»/Технониколь Универсал 200мм | ||
| Пароизоляционная плёнка | ||
| Прижимная обрешётка | ||
| Черновой пол — фанера ФК 3/4 ЭКО 18мм | ||
| Черновой пол — фанера ФК 3/4 ЭКО 21мм | ||
| Чердачное перекрытие (при наличии) Балки перекрытия — доска 40×195мм камерной сушки, строганная |
||
| Утепление базальтовым утеплителем Knauf Insulation 200мм | ||
| Утепление базальтовым утеплителем Rockwool «Стандарт»/Технониколь Универсал 200мм | ||
| Паро/ветрозащитные плёнки | ||
| Прижимная обрешётка | ||
| Черновой пол — доска 20×90 с шагом 100–150мм | ||
| Чердачная лестница LTK 60×120×280, Fakro (если предусмотрено проектом) | ||
| Стропильная система Стропила — доска 40×145мм/40×195мм камерной сушки, строганная |
||
| Контробрешётка — брусок 45×45мм | ||
| Обрешётка — доска 20×90мм | ||
| Подкровельная гидрозащита | ||
| Утепление кровли (если предусмотрено проектом) Утепление базальтовым утеплителем Knauf Insulation 200мм |
||
| Утепление базальтовым утеплителем Rockwool «Стандарт»/Технониколь Универсал 200мм | ||
| Пароизоляционная плёнка | ||
| Прижимная обрешётка | ||
| Кровля Металлочерепица GRAND LINE профиль CLASSIC 0,5мм |
||
| Вентиляционные выходы на кровле Vilpe (комплект 3 шт) | ||
| Пластиковые софиты DOCKE/GRAND LINE | ||
| Пластиковая водосточная система DOCKE/GRAND LINE | ||
| Снегозадержатели GRAND LINE | ||
| Наружная отделка Сайдинг Docke Premium, Коллекция Корабельный брус/Имитация бруса (хвоя) 141(135)×20мм сорт АВ |
||
| Фиброцементный сайдинг DECOVER | ||
| Внутренняя обшивка стен Гипсокартон КНАУФ-Влагостойкий 12,5мм в 1 слой, без заделки швов |
||
| Гипсокартон КНАУФ-Влагостойкий 12,5мм в 2 слоя, без заделки швов | ||
| Крыльцо/террасы (если предусмотрено проектом) Сваи — согласно комплектации дома |
||
| Балки перекрытия — доска 40×195мм камерной сушки, строганная | ||
| Столбы из сухого строганного пиломатериала | ||
| Кровля — металлочерепица GRAND LINE профиль CLASSIC 0,5мм | ||
| Пластиковые софиты DOCKE/GRAND LINE | ||
| Пластиковая водосточная система DOCKE/GRAND LINE | ||
| Снегозадержатели GRAND LINE | ||
| Ограждение террасы из строганной доски камерной сушки, высота не более 1м | ||
| Покрытие пола террасы — доска (хвоя) палубная 40×140 | ||
| Покрытие пола террасы — террасная доска ДПК MasterDeck Classic | ||
| Высота этажа Высота 1 этажа — 2700мм |
||
| Высота 2 этажа — 2500мм | ||
| Высота аттиковой стены (при наличии) — 1500мм | ||
| Двери и межэтажная лестница Входная металлическая дверь с терморазрывом |
||
| Лестница межэтажная: двухмаршевая из доски 150×50мм | ||
| Окна Двухкамерный стеклопакет, профиль 60мм |
||
| Двухкамерный стеклопакет, профиль 70мм | ||
| Организация работ Доставка, 100км от МКАД бесплатно |
||
| Вывоз строительного мусора контейнер до 16 кубов | ||
| Аренда бытовки | ||
| Аренда биотуалета |
154 м2
Полезная
площадь
площадь
10 x 10 м
Размеры
1 этаж
Этажей
26 м2
Террасы
и балконы
и балконы
0Без
гаража
гаража
3
Количество
спален
спален
2
Количество
санузлов
санузлов
Преимущества работы с нами
7 этапов оплаты
Независимый строительный надзор
Экологически чистые материалы
16 лет гарантии
Онлайн-кабинет с веб-камерой
Строители с опытом более 15 лет
Собственное производство






