Двухэтажный дом 16x13 - 208.69 м2 за руб.

ID-24209

Стоимость дома 7927144 руб.
154 м2 Полезная
площадь
16 x 13 м Размеры
2 этажа Этажей
26 м2 Террасы
и балконы
2Без
гаража
4 Количество
спален
2 Количество
санузлов

Планировки

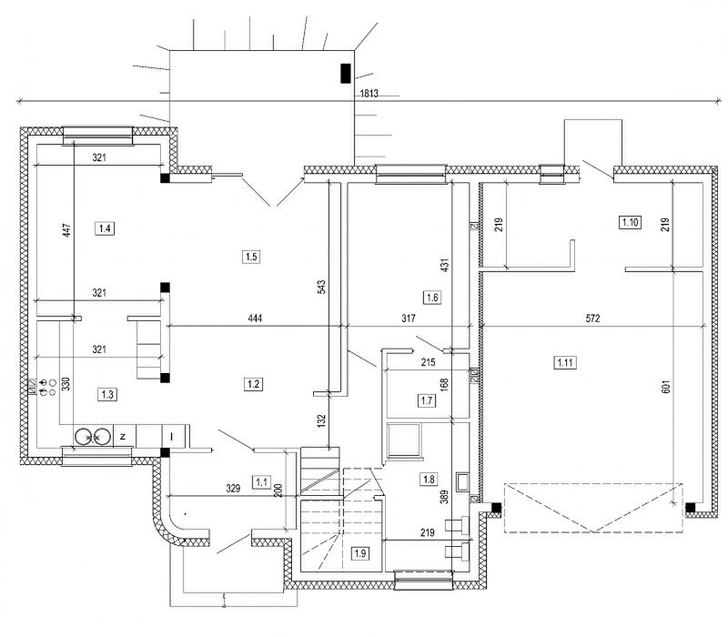
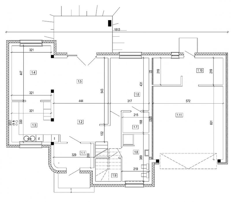
План первого этажа

floor image
  • 1. Прихожая 6,54 m²
  • 2. Холл 9,43 m²
  • 3. Кухня 10,59 m²
  • 4. Столовая 14,35 m²
  • 5. Гостиная 24,56 m²
  • 6. Комната 13,66 m²
  • 7. Гардероб 3,60 m²
  • 8. Ванная комната 8,40 m²
  • 9. Кладовая 1,70 m²
  • 10. Кладовая 12,44 m²
  • 11. Гараж на 2 машины 34,38 m²
  • План первого этажа 139,65 m²

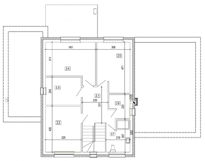
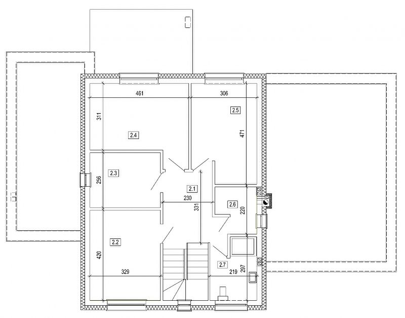
План второго этажа

floor image
  • 1. Коридор 9,28 m²
  • 2. Комната 13,82 m²
  • 3. Гардероб 8,42 m²
  • 4. Комната 14,91 m²
  • 5. Комната 13,59 m²
  • 6. Кладовая 3,63 m²
  • 7. Ванная комната 5,39 m²
  • План первого этажа 69,04 m²

Подробная информация

Жилая площадь
174,31 m²
icon

Сумма площади всех жилых помещений, за вычетом пов. гараж, котельная, чердак, подвал. Учитывается в 100%, для помещений высотой более 2,2 м, в 50% для помещений с высотой 2,2-1,4 м и не включается для более низких помещений (меньше 1,4 м).

Площадь застройки
181 m²
icon

Площадь застройки здания определяется как площадь горизонтального сечения по внешнему обводу здания на уровне цоколя, включая выступающие части.

Угол наклона крыши
22°
icon

Наклон ската крыши в градусах. Внимание! В некоторых проектах возникает более чем один наклон крыши.

Высота здания
8,80 m
icon

Высота измеряется от поверхности земли до самой высокой точки кровли (конька), за исключением дымоходов.

Мин. ширина участка
24,13 m
icon

Наименьшая возможная ширина участка, необходимая для строительства выбранного дома. Состоит из длины фасада дома плюс с обеих сторон три метра отступ.

Мин. длина участка
21 m
icon

Наименьшая возможная длина участка, необходимая для строительства выбранного дома. Состоит из длины фасада дома плюс с обеих сторон три метра отступ.

Материалы и опции
Общие
Цена, руб.
Площадь м²
210
Площадь от и до
Ежемесячный платёж, руб
Количество спален
4
Гараж
2
Количество санузлов
2
Ширина
16
Глубина
13

Площади дома

№ п/п Наименование Ед. из. Строительная площадь Полезная площадь
1 1 этаж м2 172.09 139.65
2 2 этаж м2 85.08 69.04
3 Итого м2 257.17 208.69

ПРИГЛАШАЕМ НА ДЕНЬ ОТКРЫТЫХ ДВЕРЕЙ СТРОЯЩЕГОСЯ ДОМА

ХОЧУ ПОЕХАТЬ
День открытых дверей

Калькулятор опций

0

В ипотеку от 25 522 ₽/мес.

Фундамент
stdClass Object ( [id] => 1 [attribute_id] => 1 [name] => Ленточный монолитный ж/б [material_modifier] => 1 [work_modifier] => 1 [options] => Array ( [0] => размер 200 х 700 мм [1] => размер 300 х 900 мм [2] => размер 400 х 1 000 мм [3] => размер 500 х 1 100 мм [4] => размер 600 х 1 200 мм ) [days] => [20,21,22,25,30] [material_price] => [2823,3630,4475,5210,12047] [work_price] => [2154,2826,3731,4577,5293] [image] => https://akademik-stroy.ru/wp-content/uploads/materials/lentochnyj-monolitnyj-zh-b.jpg [area_modifier] => 172.09 [parent_name] => Фундамент [parent_id] => 1 [material_sum] => 612121 [work_sum] => 389216 [total_sum] => 1001337 [total_days] => 20 [display_material_sum] => 612 121 [display_work_sum] => 389 216 [display_total_sum] => 1 001 337 ) 1
1 001 337
Работа:389 216
Материалы:612 121
Дни:20
stdClass Object ( [id] => 2 [attribute_id] => 1 [name] => Забивные Ж/Б сваи [material_modifier] => 1 [work_modifier] => 1 [options] => Array ( [0] => 150х150х3000мм [1] => 150х150х4000мм [2] => 200х200х3000мм [3] => 200х200х4000мм [4] => 200х200х5000мм [5] => 200х200х6000мм ) [days] => [2,2,2,2,2,2] [material_price] => [1990,2850,3255,4360,5120,6837] [work_price] => [1002,1185,1336,1438,1574,1839] [image] => https://akademik-stroy.ru/wp-content/uploads/materials/zabivnye-zh-b-svai.png [area_modifier] => 172.09 [parent_name] => Фундамент [parent_id] => 1 [material_sum] => 431498 [work_sum] => 181056 [total_sum] => 612554 [total_days] => 2 [display_material_sum] => 431 498 [display_work_sum] => 181 056 [display_total_sum] => 612 554 ) 1
612 554
Работа:181 056
Материалы:431 498
Дни:2
stdClass Object ( [id] => 71 [attribute_id] => 1 [name] => Свайно-ростверковый ж/б [material_modifier] => 1 [work_modifier] => 1 [options] => Array ( [0] => ростверк 200х300 мм [1] => ростверк 300х600 мм [2] => ростверк 400х900 мм [3] => ростверк 500х1200 мм ) [days] => [20,23,25,27] [material_price] => [3018,3474,7109,9792] [work_price] => [2024,3012,5635,7022] [image] => https://akademik-stroy.ru/wp-content/uploads/materials/svajno-rostverkovyj-monolitnyj-zh-b-3.png [area_modifier] => 172.09 [parent_name] => Фундамент [parent_id] => 1 [material_sum] => 654403 [work_sum] => 365726 [total_sum] => 1020129 [total_days] => 20 [display_material_sum] => 654 403 [display_work_sum] => 365 726 [display_total_sum] => 1 020 129 ) 1
1 020 129
Работа:365 726
Материалы:654 403
Дни:20
stdClass Object ( [id] => 72 [attribute_id] => 1 [name] => Монолитная ж/б плита [material_modifier] => 1 [work_modifier] => 1 [options] => Array ( [0] => 200 мм [1] => 300 мм [2] => 400 мм [3] => 500 мм [4] => 600 мм ) [days] => [30,33,35,37,40] [material_price] => [5348,8555,12788,14388,15189] [work_price] => [4314,4881,7037,8061,10230] [image] => https://akademik-stroy.ru/wp-content/uploads/materials/monolitnaya-zhb-plita.png [area_modifier] => 172.09 [parent_name] => Фундамент [parent_id] => 1 [material_sum] => 1159625 [work_sum] => 779516 [total_sum] => 1939141 [total_days] => 30 [display_material_sum] => 1 159 625 [display_work_sum] => 779 516 [display_total_sum] => 1 939 141 ) 1
1 939 141
Работа:779 516
Материалы:1 159 625
Дни:30
stdClass Object ( [id] => 73 [attribute_id] => 1 [name] => Утепленная шведская плита [material_modifier] => 1 [work_modifier] => 1 [options] => Array ( [0] => 200 мм [1] => 300 мм [2] => 400 мм [3] => 500 мм [4] => 600 мм ) [days] => [32,37,39,42,45] [material_price] => [10249,12692,13760,14936,16230] [work_price] => [5960,7337,8072,8878,9765] [image] => https://akademik-stroy.ru/wp-content/uploads/materials/uteplennaya-shvedskaya-plita.jpg [area_modifier] => 172.09 [parent_name] => Фундамент [parent_id] => 1 [material_sum] => 2222326 [work_sum] => 1076939 [total_sum] => 3299265 [total_days] => 32 [display_material_sum] => 2 222 326 [display_work_sum] => 1 076 939 [display_total_sum] => 3 299 265 ) 1
3 299 265
Работа:1 076 939
Материалы:2 222 326
Дни:32
stdClass Object ( [id] => 75 [attribute_id] => 1 [name] => Ленточный из ФБС [material_modifier] => 1 [work_modifier] => 1 [options] => Array ( [0] => толщ. 300 мм [1] => толщ. 400 мм [2] => толщ. 500 мм [3] => толщ. 600 мм ) [days] => [20,20,20,20] [material_price] => [3675,4902,6126,7350] [work_price] => [2451,3264,4083,4902] [image] => https://akademik-stroy.ru/wp-content/uploads/materials/lentochnyj-iz-fbs.png [area_modifier] => 172.09 [parent_name] => Фундамент [parent_id] => 1 [material_sum] => 796863 [work_sum] => 442882 [total_sum] => 1239745 [total_days] => 20 [display_material_sum] => 796 863 [display_work_sum] => 442 882 [display_total_sum] => 1 239 745 ) 1
1 239 745
Работа:442 882
Материалы:796 863
Дни:20
stdClass Object ( [id] => 76 [attribute_id] => 1 [name] => Цокольный этаж из ФБС [material_modifier] => 1 [work_modifier] => 1 [options] => Array ( [0] => толщ. 300 мм [1] => толщ. 400 мм [2] => толщ. 500 мм [3] => толщ. 600 мм ) [days] => [30,32,34,36] [material_price] => [20916,23299,26680,29060] [work_price] => [17524,18700,19873,21046] [image] => https://akademik-stroy.ru/wp-content/uploads/materials/cokolnyj-ehtazh-iz-fbs.jpg [area_modifier] => 172.09 [parent_name] => Фундамент [parent_id] => 1 [material_sum] => 4535287 [work_sum] => 3166490 [total_sum] => 7701777 [total_days] => 30 [display_material_sum] => 4 535 287 [display_work_sum] => 3 166 490 [display_total_sum] => 7 701 777 ) 1
7 701 777
Работа:3 166 490
Материалы:4 535 287
Дни:30
stdClass Object ( [id] => 77 [attribute_id] => 1 [name] => Цокольный этаж монолитный ж/б [material_modifier] => 1 [work_modifier] => 1 [options] => Array ( [0] => толщ. 200 мм [1] => толщ. 300 мм [2] => толщ. 400 мм [3] => толщ. 500 мм [4] => толщ. 600 мм ) [days] => [40,42,44,46,48] [material_price] => [25421,29148,32275,35602,37326] [work_price] => [20441,21907,23375,24841,26306] [image] => https://akademik-stroy.ru/wp-content/uploads/materials/cokolnyj-etazh-zh-b.jpg [area_modifier] => 172.09 [parent_name] => Фундамент [parent_id] => 1 [material_sum] => 5512122 [work_sum] => 3693576 [total_sum] => 9205698 [total_days] => 40 [display_material_sum] => 5 512 122 [display_work_sum] => 3 693 576 [display_total_sum] => 9 205 698 ) 1
9 205 698
Работа:3 693 576
Материалы:5 512 122
Дни:40
stdClass Object ( [id] => 191 [attribute_id] => 1 [name] => Винтовые сваи [material_modifier] => 1 [work_modifier] => 1 [options] => Array ( [0] => 57х200мм [1] => 76х250мм [2] => 108х300мм [3] => 133х350мм ) [days] => [1,1,2,2] [material_price] => [1200,1300,1450,1600] [work_price] => [400,600,900,1100] [image] => https://akademik-stroy.ru/wp-content/uploads/materials/vintovye-svai.png [area_modifier] => 172.09 [parent_name] => Фундамент [parent_id] => 1 [material_sum] => 260200 [work_sum] => 72278 [total_sum] => 332478 [total_days] => 1 [display_material_sum] => 260 200 [display_work_sum] => 72 278 [display_total_sum] => 332 478 ) 1
332 478
Работа:72 278
Материалы:260 200
Дни:1
Перекрытие цоколя
stdClass Object ( [id] => 3 [attribute_id] => 2 [name] => Деревянные балки [material_modifier] => 1 [work_modifier] => 1 [options] => Array ( [0] => без утепления [1] => утепление 200 мм [2] => утепление 250 мм [3] => утепление 300 мм [4] => утепление 350 мм [5] => утепление 400 мм [6] => утепление 450 мм [7] => утепление 500 мм ) [days] => [8,9,9,9,11,12,13,14] [material_price] => [1634,2042,2344,2947,3149,3652,3354,3557] [work_price] => [1230,1339,1393,1426,1460,1513,1587,1620] [image] => https://akademik-stroy.ru/wp-content/uploads/materials/derevyannye-balki.png [area_modifier] => 172.09 [parent_name] => Перекрытие цоколя [parent_id] => 2 [material_sum] => 354306 [work_sum] => 222254 [total_sum] => 576560 [total_days] => 8 [display_material_sum] => 354 306 [display_work_sum] => 222 254 [display_total_sum] => 576 560 ) 1
576 560
Работа:222 254
Материалы:354 306
Дни:8
stdClass Object ( [id] => 4 [attribute_id] => 2 [name] => Сборные ж/б плиты [material_modifier] => 1 [work_modifier] => 1 [options] => Array ( [0] => без утепления [1] => утепление 150мм [2] => утепление 200мм [3] => утепление 250мм [4] => утепление 300мм [5] => утепление 350мм [6] => утепление 400мм [7] => утепление 450мм [8] => утепление 500мм ) [days] => [13,15,15,15,15,15,15,15,15] [material_price] => [3067,5577,5928,6679,7730,8782,9833,10884,11935] [work_price] => [1520,1956,2102,2247,2392,2537,2684,2829,2974] [image] => https://akademik-stroy.ru/wp-content/uploads/materials/sbornye-zh-b-plity-2.jpg [area_modifier] => 172.09 [parent_name] => Перекрытие цоколя [parent_id] => 2 [material_sum] => 665028 [work_sum] => 274656 [total_sum] => 939684 [total_days] => 13 [display_material_sum] => 665 028 [display_work_sum] => 274 656 [display_total_sum] => 939 684 ) 1
939 684
Работа:274 656
Материалы:665 028
Дни:13
stdClass Object ( [id] => 78 [attribute_id] => 2 [name] => Монолитная ж/б плита [material_modifier] => 1 [work_modifier] => 1 [options] => Array ( [0] => без утепления [1] => утепление 150 мм [2] => утепление 200 мм [3] => утепление 250 мм [4] => утепление 300 мм [5] => утепление 350 мм [6] => утепление 400 мм [7] => утепление 450 мм [8] => утепление 500 мм ) [days] => [18,20,20,20,20,20,20,20,20] [material_price] => [4837,6572,7224,7375,79426,8177,8728,9180,10031] [work_price] => [3348,3921,4112,4302,4493,4684,4875,5066,5256] [image] => https://akademik-stroy.ru/wp-content/uploads/materials/monolitnaya-zh-b-plita-2.jpg [area_modifier] => 172.09 [parent_name] => Перекрытие цоколя [parent_id] => 2 [material_sum] => 1048823 [work_sum] => 604965 [total_sum] => 1653788 [total_days] => 18 [display_material_sum] => 1 048 823 [display_work_sum] => 604 965 [display_total_sum] => 1 653 788 ) 1
1 653 788
Работа:604 965
Материалы:1 048 823
Дни:18
Стены 1 этаж (несущие)
stdClass Object ( [id] => 6 [attribute_id] => 3 [name] => Пеноблок [material_modifier] => 1 [work_modifier] => 1 [options] => Array ( [0] => 300 мм [1] => 400 мм [2] => 500 мм [3] => 600 мм ) [days] => [29,31,34,39] [material_price] => [3000,4000,4500,4937] [work_price] => [5033,5805,6400,8710] [image] => https://akademik-stroy.ru/wp-content/uploads/materials/penoblok.jpg [area_modifier] => 172.09 [parent_name] => Стены 1 этаж (несущие) [parent_id] => 3 [material_sum] => 650500 [work_sum] => 909435 [total_sum] => 1559935 [total_days] => 29 [display_material_sum] => 650 500 [display_work_sum] => 909 435 [display_total_sum] => 1 559 935 ) 1
1 559 935
Работа:909 435
Материалы:650 500
Дни:29
stdClass Object ( [id] => 79 [attribute_id] => 3 [name] => Керамический блок [material_modifier] => 1 [work_modifier] => 1 [options] => Array ( [0] => 380 мм [1] => 380 мм Thermo [2] => 440 мм [3] => 510 мм ) [days] => [23,23,24,25] [material_price] => [4510,5098,6093,8013] [work_price] => [4737,4937,5903,6958] [image] => https://akademik-stroy.ru/wp-content/uploads/materials/keramicheskij-blok.jpg [area_modifier] => 172.09 [parent_name] => Стены 1 этаж (несущие) [parent_id] => 3 [material_sum] => 977919 [work_sum] => 855950 [total_sum] => 1833869 [total_days] => 23 [display_material_sum] => 977 919 [display_work_sum] => 855 950 [display_total_sum] => 1 833 869 ) 1
1 833 869
Работа:855 950
Материалы:977 919
Дни:23
stdClass Object ( [id] => 80 [attribute_id] => 3 [name] => Кирпич [material_modifier] => 1 [work_modifier] => 1 [options] => Array ( [0] => Кирпич 250 мм [1] => Кирпич 380 мм [2] => Кирпич 510 мм [3] => Кирпич 640 мм [4] => Кирпич 770 мм ) [days] => [30,30,31,33,36] [material_price] => [5500,7142,9206,10171,12235] [work_price] => [8736,10041,12018,15240,18462] [image] => https://akademik-stroy.ru/wp-content/uploads/materials/kirpich.jpg [area_modifier] => 172.09 [parent_name] => Стены 1 этаж (несущие) [parent_id] => 3 [material_sum] => 1192584 [work_sum] => 1578547 [total_sum] => 2771131 [total_days] => 30 [display_material_sum] => 1 192 584 [display_work_sum] => 1 578 547 [display_total_sum] => 2 771 131 ) 1
2 771 131
Работа:1 578 547
Материалы:1 192 584
Дни:30
stdClass Object ( [id] => 81 [attribute_id] => 3 [name] => Монолитные [material_modifier] => 1 [work_modifier] => 1 [options] => Array ( [0] => 150 мм [1] => 200 мм [2] => 250 мм [3] => 300 мм [4] => 350 мм [5] => 400 мм ) [days] => [45,46,47,49,50,53] [material_price] => [6545,7876,10175,12011,13908,15204] [work_price] => [5106,6444,7698,8552,9807,11461] [image] => https://akademik-stroy.ru/wp-content/uploads/materials/monolitnye.jpg [area_modifier] => 172.09 [parent_name] => Стены 1 этаж (несущие) [parent_id] => 3 [material_sum] => 1419175 [work_sum] => 922626 [total_sum] => 2341801 [total_days] => 45 [display_material_sum] => 1 419 175 [display_work_sum] => 922 626 [display_total_sum] => 2 341 801 ) 1
2 341 801
Работа:922 626
Материалы:1 419 175
Дни:45
stdClass Object ( [id] => 82 [attribute_id] => 3 [name] => Клееный брус [material_modifier] => 1 [work_modifier] => 1 [options] => Array ( [0] => 160 мм [1] => 175 мм [2] => 200 мм [3] => 215 мм [4] => 240 мм [5] => 270 мм [6] => 282 мм ) [days] => [24,28,32,37,40,42,48] [material_price] => [16975,18773,19950,20545,21599,22159,23275] [work_price] => [4806,5287,5815,6397,7036,7740,8514] [image] => https://akademik-stroy.ru/wp-content/uploads/materials/kleenyj-brus.jpg [area_modifier] => 172.09 [parent_name] => Стены 1 этаж (несущие) [parent_id] => 3 [material_sum] => 3680747 [work_sum] => 868418 [total_sum] => 4549165 [total_days] => 24 [display_material_sum] => 3 680 747 [display_work_sum] => 868 418 [display_total_sum] => 4 549 165 ) 1
4 549 165
Работа:868 418
Материалы:3 680 747
Дни:24
stdClass Object ( [id] => 83 [attribute_id] => 3 [name] => Каркасные [material_modifier] => 1 [work_modifier] => 1 [options] => Array ( [0] => 150 мм [1] => 200 мм [2] => 250 мм [3] => 300 мм ) [days] => [15,16,17,18] [material_price] => [2379,2639,2898,3258] [work_price] => [2418,2686,2985,3716] [image] => https://akademik-stroy.ru/wp-content/uploads/materials/karkasnye.jpg [area_modifier] => 172.09 [parent_name] => Стены 1 этаж (несущие) [parent_id] => 3 [material_sum] => 515847 [work_sum] => 436919 [total_sum] => 952766 [total_days] => 15 [display_material_sum] => 515 847 [display_work_sum] => 436 919 [display_total_sum] => 952 766 ) 1
952 766
Работа:436 919
Материалы:515 847
Дни:15
stdClass Object ( [id] => 84 [attribute_id] => 3 [name] => СИП-панели [material_modifier] => 1 [work_modifier] => 1 [options] => Array ( [0] => 120 мм [1] => 170 мм [2] => 220 мм ) [days] => [7,7,7] [material_price] => [1210,1856,2292] [work_price] => [1410,1551,1706] [image] => https://akademik-stroy.ru/wp-content/uploads/materials/sip-paneli.jpg [area_modifier] => 172.09 [parent_name] => Стены 1 этаж (несущие) [parent_id] => 3 [material_sum] => 262368 [work_sum] => 254779 [total_sum] => 517147 [total_days] => 7 [display_material_sum] => 262 368 [display_work_sum] => 254 779 [display_total_sum] => 517 147 ) 1
517 147
Работа:254 779
Материалы:262 368
Дни:7
stdClass Object ( [id] => 85 [attribute_id] => 3 [name] => Сухой брус [material_modifier] => 1 [work_modifier] => 1 [options] => Array ( [0] => 150 мм [1] => 180 мм [2] => 200 мм ) [days] => [7,8,9] [material_price] => [6010,7190,8709] [work_price] => [3204,3845,4229] [image] => https://akademik-stroy.ru/wp-content/uploads/materials/suhoj-brus.jpg [area_modifier] => 172.09 [parent_name] => Стены 1 этаж (несущие) [parent_id] => 3 [material_sum] => 1303169 [work_sum] => 578945 [total_sum] => 1882114 [total_days] => 7 [display_material_sum] => 1 303 169 [display_work_sum] => 578 945 [display_total_sum] => 1 882 114 ) 1
1 882 114
Работа:578 945
Материалы:1 303 169
Дни:7
stdClass Object ( [id] => 86 [attribute_id] => 3 [name] => Профилированный брус [material_modifier] => 1 [work_modifier] => 1 [options] => Array ( [0] => 150 мм [1] => 180 мм [2] => 200 мм ) [days] => [7,8,9] [material_price] => [8190,9228,10051] [work_price] => [3845,4614,5075] [image] => https://akademik-stroy.ru/wp-content/uploads/materials/profilirovannyj-brus.jpg [area_modifier] => 172.09 [parent_name] => Стены 1 этаж (несущие) [parent_id] => 3 [material_sum] => 1775866 [work_sum] => 694770 [total_sum] => 2470636 [total_days] => 7 [display_material_sum] => 1 775 866 [display_work_sum] => 694 770 [display_total_sum] => 2 470 636 ) 1
2 470 636
Работа:694 770
Материалы:1 775 866
Дни:7
stdClass Object ( [id] => 87 [attribute_id] => 3 [name] => Оцилиндрованное бревно [material_modifier] => 1 [work_modifier] => 1 [options] => Array ( [0] => 180 мм [1] => 220 мм [2] => 260 мм [3] => 320 мм ) [days] => [7,8,9,10] [material_price] => [75190,9532,10868,13116] [work_price] => [3845,4691,5535,6863] [image] => https://akademik-stroy.ru/wp-content/uploads/materials/ocilindrovannoe-brevno-1.jpg [area_modifier] => 172.09 [parent_name] => Стены 1 этаж (несущие) [parent_id] => 3 [material_sum] => 16303703 [work_sum] => 694770 [total_sum] => 16998473 [total_days] => 7 [display_material_sum] => 16 303 703 [display_work_sum] => 694 770 [display_total_sum] => 16 998 473 ) 1
16 998 473
Работа:694 770
Материалы:16 303 703
Дни:7
stdClass Object ( [id] => 88 [attribute_id] => 3 [name] => Срубы [material_modifier] => 1 [work_modifier] => 1 [options] => Array ( [0] => 260 мм [1] => 320 мм [2] => 360 мм [3] => 400 мм [4] => 500 мм ) [days] => [7,8,9,10,11] [material_price] => [37975,46709,52314,58069,73167] [work_price] => [4806,5911,6621,7349,9260] [image] => https://akademik-stroy.ru/wp-content/uploads/materials/sruby.jpg [area_modifier] => 172.09 [parent_name] => Стены 1 этаж (несущие) [parent_id] => 3 [material_sum] => 8234248 [work_sum] => 868418 [total_sum] => 9102666 [total_days] => 7 [display_material_sum] => 8 234 248 [display_work_sum] => 868 418 [display_total_sum] => 9 102 666 ) 1
9 102 666
Работа:868 418
Материалы:8 234 248
Дни:7
stdClass Object ( [id] => 174 [attribute_id] => 3 [name] => Брус [material_modifier] => 1 [work_modifier] => 1 [options] => Array ( [0] => 150 мм [1] => 180 мм [2] => 200 мм ) [days] => [7,8,9] [material_price] => [5127,6152,7367] [work_price] => [1602,1922,2115] [image] => https://akademik-stroy.ru/wp-content/uploads/materials/brus.jpg [area_modifier] => 172.09 [parent_name] => Стены 1 этаж (несущие) [parent_id] => 3 [material_sum] => 1111705 [work_sum] => 289473 [total_sum] => 1401178 [total_days] => 7 [display_material_sum] => 1 111 705 [display_work_sum] => 289 473 [display_total_sum] => 1 401 178 ) 1
1 401 178
Работа:289 473
Материалы:1 111 705
Дни:7
stdClass Object ( [id] => 175 [attribute_id] => 3 [name] => Газобетон [material_modifier] => 1 [work_modifier] => 1 [options] => Array ( [0] => 300 мм [1] => 375 мм [2] => 400 мм [3] => 500 мм [4] => 600 мм ) [days] => [29,31,35,37,44] [material_price] => [4298,5573,6356,7288,9119] [work_price] => [4538,5251,5926,6733,7195] [image] => https://akademik-stroy.ru/wp-content/uploads/materials/gazobeton.jpg [area_modifier] => 172.09 [parent_name] => Стены 1 этаж (несущие) [parent_id] => 3 [material_sum] => 931950 [work_sum] => 819992 [total_sum] => 1751942 [total_days] => 29 [display_material_sum] => 931 950 [display_work_sum] => 819 992 [display_total_sum] => 1 751 942 ) 1
1 751 942
Работа:819 992
Материалы:931 950
Дни:29
stdClass Object ( [id] => 176 [attribute_id] => 3 [name] => Блок [material_modifier] => 1 [work_modifier] => 1 [options] => Array ( [0] => 300 мм [1] => 375 мм [2] => 400 мм [3] => 500 мм [4] => 600 мм ) [days] => [29,31,35,37,44] [material_price] => [2698,3973,4356,6588,7119] [work_price] => [5038,5851,6426,8733,9195] [image] => https://akademik-stroy.ru/wp-content/uploads/materials/blok.jpg [area_modifier] => 172.09 [parent_name] => Стены 1 этаж (несущие) [parent_id] => 3 [material_sum] => 585017 [work_sum] => 910339 [total_sum] => 1495356 [total_days] => 29 [display_material_sum] => 585 017 [display_work_sum] => 910 339 [display_total_sum] => 1 495 356 ) 1
1 495 356
Работа:910 339
Материалы:585 017
Дни:29
stdClass Object ( [id] => 177 [attribute_id] => 3 [name] => Газосиликатный блок [material_modifier] => 1 [work_modifier] => 1 [options] => Array ( [0] => 300 мм [1] => 375 мм [2] => 400 мм [3] => 500 мм [4] => 600 мм ) [days] => [29,31,35,37,44] [material_price] => [4298,5573,6356,7288,9119] [work_price] => [4538,5251,5926,6733,7195] [image] => https://akademik-stroy.ru/wp-content/uploads/materials/gazosilikatnyj-blok.jpg [area_modifier] => 172.09 [parent_name] => Стены 1 этаж (несущие) [parent_id] => 3 [material_sum] => 931950 [work_sum] => 819992 [total_sum] => 1751942 [total_days] => 29 [display_material_sum] => 931 950 [display_work_sum] => 819 992 [display_total_sum] => 1 751 942 ) 1
1 751 942
Работа:819 992
Материалы:931 950
Дни:29
stdClass Object ( [id] => 178 [attribute_id] => 3 [name] => Керамзитобетонный блок [material_modifier] => 1 [work_modifier] => 1 [options] => Array ( [0] => 300 мм [1] => 375 мм [2] => 400 мм [3] => 500 мм [4] => 600 мм ) [days] => [23,23,24,25,28] [material_price] => [3641,4298,5693,7613,9612] [work_price] => [5737,5737,6903,7958,8901] [image] => https://akademik-stroy.ru/wp-content/uploads/materials/keramzitobetonnyj-blok.jpg [area_modifier] => 172.09 [parent_name] => Стены 1 этаж (несущие) [parent_id] => 3 [material_sum] => 789490 [work_sum] => 1036644 [total_sum] => 1826134 [total_days] => 23 [display_material_sum] => 789 490 [display_work_sum] => 1 036 644 [display_total_sum] => 1 826 134 ) 1
1 826 134
Работа:1 036 644
Материалы:789 490
Дни:23
stdClass Object ( [id] => 179 [attribute_id] => 3 [name] => Деревянные [material_modifier] => 1 [work_modifier] => 1 [options] => Array ( [0] => 180 мм [1] => 220 мм [2] => 260 мм [3] => 320 мм ) [days] => [7,8,9,10] [material_price] => [7950,9458,11961,14472] [work_price] => [4037,4925,5812,7207] [image] => https://akademik-stroy.ru/wp-content/uploads/materials/derevyannye.jpg [area_modifier] => 172.09 [parent_name] => Стены 1 этаж (несущие) [parent_id] => 3 [material_sum] => 1723826 [work_sum] => 729464 [total_sum] => 2453290 [total_days] => 7 [display_material_sum] => 1 723 826 [display_work_sum] => 729 464 [display_total_sum] => 2 453 290 ) 1
2 453 290
Работа:729 464
Материалы:1 723 826
Дни:7
stdClass Object ( [id] => 181 [attribute_id] => 3 [name] => Камень [material_modifier] => 1 [work_modifier] => 1 [options] => Array ( [0] => 300 мм [1] => 400 мм [2] => 500 мм [3] => 600 мм ) [days] => [25,27,31,34] [material_price] => [5262,6844,8330,9815] [work_price] => [8331,9135,10427,11069] [image] => https://akademik-stroy.ru/wp-content/uploads/materials/kamen.jpg [area_modifier] => 172.09 [parent_name] => Стены 1 этаж (несущие) [parent_id] => 3 [material_sum] => 1140977 [work_sum] => 1505366 [total_sum] => 2646343 [total_days] => 25 [display_material_sum] => 1 140 977 [display_work_sum] => 1 505 366 [display_total_sum] => 2 646 343 ) 1
2 646 343
Работа:1 505 366
Материалы:1 140 977
Дни:25
stdClass Object ( [id] => 182 [attribute_id] => 3 [name] => Каркасно-щитовые [material_modifier] => 1 [work_modifier] => 1 [options] => Array ( [0] => 150 мм [1] => 200 мм [2] => 250 мм [3] => 300 мм [4] => 350 мм [5] => 400 мм ) [days] => [15,16,17,18,19,20] [material_price] => [2379,2639,2898,3458,3601,4175] [work_price] => [2538,2820,3134,3483,4062,5642] [image] => https://akademik-stroy.ru/wp-content/uploads/materials/karkasno-shchitovye.jpg [area_modifier] => 172.09 [parent_name] => Стены 1 этаж (несущие) [parent_id] => 3 [material_sum] => 515847 [work_sum] => 458603 [total_sum] => 974450 [total_days] => 15 [display_material_sum] => 515 847 [display_work_sum] => 458 603 [display_total_sum] => 974 450 ) 1
974 450
Работа:458 603
Материалы:515 847
Дни:15
stdClass Object ( [id] => 183 [attribute_id] => 3 [name] => Рубленные [material_modifier] => 1 [work_modifier] => 1 [options] => Array ( [0] => 150 мм [1] => 200 мм [2] => 250 мм [3] => 300 мм [4] => 350 мм [5] => 400 мм ) [days] => [15,16,17,18,17,18] [material_price] => [35950,50267,60583,75900,80217,100533] [work_price] => [9612,12816,16020,19224,22428,25632] [image] => https://akademik-stroy.ru/wp-content/uploads/materials/rublennye.jpg [area_modifier] => 172.09 [parent_name] => Стены 1 этаж (несущие) [parent_id] => 3 [material_sum] => 7795161 [work_sum] => 1736836 [total_sum] => 9531997 [total_days] => 15 [display_material_sum] => 7 795 161 [display_work_sum] => 1 736 836 [display_total_sum] => 9 531 997 ) 1
9 531 997
Работа:1 736 836
Материалы:7 795 161
Дни:15
stdClass Object ( [id] => 185 [attribute_id] => 3 [name] => Теплоблок [material_modifier] => 1 [work_modifier] => 1 [options] => Array ( [0] => 300 мм (с облицовкой, не покрашенный) [1] => 400 мм (с облицовкой, не покрашенный) [2] => 300 мм (с облицовкой, покрашенный) [3] => 400 мм (с облицовкой, покрашенный) ) [days] => [15,16,15,16] [material_price] => [2888,3729,3957,4258] [work_price] => [2564,3229,2949,3713] [image] => https://akademik-stroy.ru/wp-content/uploads/materials/teploblok.jpg [area_modifier] => 172.09 [parent_name] => Стены 1 этаж (несущие) [parent_id] => 3 [material_sum] => 626215 [work_sum] => 463301 [total_sum] => 1089516 [total_days] => 15 [display_material_sum] => 626 215 [display_work_sum] => 463 301 [display_total_sum] => 1 089 516 ) 1
1 089 516
Работа:463 301
Материалы:626 215
Дни:15
stdClass Object ( [id] => 186 [attribute_id] => 3 [name] => Арболитовые блоки [material_modifier] => 1 [work_modifier] => 1 [options] => Array ( [0] => 300 мм [1] => 400 мм [2] => 600 мм ) [days] => [19,22,27] [material_price] => [3210,4475,5852] [work_price] => [4214,4788,5866] [image] => https://akademik-stroy.ru/wp-content/uploads/materials/arbolitovye-bloki.png [area_modifier] => 172.09 [parent_name] => Стены 1 этаж (несущие) [parent_id] => 3 [material_sum] => 696035 [work_sum] => 761447 [total_sum] => 1457482 [total_days] => 19 [display_material_sum] => 696 035 [display_work_sum] => 761 447 [display_total_sum] => 1 457 482 ) 1
1 457 482
Работа:761 447
Материалы:696 035
Дни:19
stdClass Object ( [id] => 187 [attribute_id] => 3 [name] => Полистиролбетон [material_modifier] => 1 [work_modifier] => 1 [options] => Array ( [0] => 300 мм [1] => 400 мм [2] => 600 мм ) [days] => [29,31,35] [material_price] => [2798,4573,5256] [work_price] => [5038,5851,6426] [image] => https://akademik-stroy.ru/wp-content/uploads/materials/polistirolbeton.jpg [area_modifier] => 172.09 [parent_name] => Стены 1 этаж (несущие) [parent_id] => 3 [material_sum] => 606700 [work_sum] => 910339 [total_sum] => 1517039 [total_days] => 29 [display_material_sum] => 606 700 [display_work_sum] => 910 339 [display_total_sum] => 1 517 039 ) 1
1 517 039
Работа:910 339
Материалы:606 700
Дни:29
stdClass Object ( [id] => 188 [attribute_id] => 3 [name] => Шлакоблок [material_modifier] => 1 [work_modifier] => 1 [options] => Array ( [0] => 400 мм [1] => 600 мм ) [days] => [15,16] [material_price] => [2391,3471] [work_price] => [2642,3662] [image] => https://akademik-stroy.ru/wp-content/uploads/materials/shlakoblok.jpg [area_modifier] => 172.09 [parent_name] => Стены 1 этаж (несущие) [parent_id] => 3 [material_sum] => 518449 [work_sum] => 477395 [total_sum] => 995844 [total_days] => 15 [display_material_sum] => 518 449 [display_work_sum] => 477 395 [display_total_sum] => 995 844 ) 1
995 844
Работа:477 395
Материалы:518 449
Дни:15
stdClass Object ( [id] => 189 [attribute_id] => 3 [name] => Теплая керамика [material_modifier] => 1 [work_modifier] => 1 [options] => Array ( [0] => 380 мм [1] => 380 мм Thermo [2] => 440 мм [3] => 510 мм ) [days] => [23,23,24,25] [material_price] => [4510,5098,6093,8013] [work_price] => [4737,4937,5903,6958] [image] => https://akademik-stroy.ru/wp-content/uploads/materials/teplaya-keramika.jpg [area_modifier] => 172.09 [parent_name] => Стены 1 этаж (несущие) [parent_id] => 3 [material_sum] => 977919 [work_sum] => 855950 [total_sum] => 1833869 [total_days] => 23 [display_material_sum] => 977 919 [display_work_sum] => 855 950 [display_total_sum] => 1 833 869 ) 1
1 833 869
Работа:855 950
Материалы:977 919
Дни:23
stdClass Object ( [id] => 190 [attribute_id] => 3 [name] => Несъемная опалубка [material_modifier] => 1 [work_modifier] => 1 [options] => Array ( [0] => 200 мм [1] => 250 мм [2] => 300 мм [3] => 350 мм ) [days] => [15,17,19,21] [material_price] => [3302,3902,4108,5008] [work_price] => [2100,2100,2300,2534] [image] => https://akademik-stroy.ru/wp-content/uploads/materials/nesemnaya-opalubka.jpg [area_modifier] => 172.09 [parent_name] => Стены 1 этаж (несущие) [parent_id] => 3 [material_sum] => 715984 [work_sum] => 379458 [total_sum] => 1095442 [total_days] => 15 [display_material_sum] => 715 984 [display_work_sum] => 379 458 [display_total_sum] => 1 095 442 ) 1
1 095 442
Работа:379 458
Материалы:715 984
Дни:15
stdClass Object ( [id] => 251 [attribute_id] => 3 [name] => Бревно [material_modifier] => 1 [work_modifier] => 1 [options] => Array ( [0] => 260 мм [1] => 320 мм [2] => 360 мм [3] => 400 мм [4] => 500 мм ) [days] => [7,8,9,10,11] [material_price] => [1874,24045,26930,30972,38825] [work_price] => [5046,6207,6952,7716,9723] [image] => https://akademik-stroy.ru/wp-content/uploads/materials/sruby.jpg [area_modifier] => 172.09 [parent_name] => Стены 1 этаж (несущие) [parent_id] => 3 [material_sum] => 406346 [work_sum] => 911784 [total_sum] => 1318130 [total_days] => 7 [display_material_sum] => 406 346 [display_work_sum] => 911 784 [display_total_sum] => 1 318 130 ) 1
1 318 130
Работа:911 784
Материалы:406 346
Дни:7
Перекрытие первого этажа
stdClass Object ( [id] => 7 [attribute_id] => 4 [name] => Деревянные балки [material_modifier] => 1 [work_modifier] => 1 [options] => Array ( [0] => без утепления [1] => утепление 200 мм [2] => утепление 250 мм [3] => утепление 300 мм [4] => утепление 350 мм [5] => утепление 400 мм [6] => утепление 450 мм [7] => утепление 500 мм ) [days] => [8,9,9,9,11,12,13,14] [material_price] => [1634,2042,2344,2947,3149,3652,3354,3557] [work_price] => [1230,1339,1393,1426,1460,1513,1587,1620] [image] => https://akademik-stroy.ru/wp-content/uploads/materials/derevyannye-balki.png [area_modifier] => 172.09 [parent_name] => Перекрытие первого этажа [parent_id] => 4 [material_sum] => 354306 [work_sum] => 222254 [total_sum] => 576560 [total_days] => 8 [display_material_sum] => 354 306 [display_work_sum] => 222 254 [display_total_sum] => 576 560 ) 1
576 560
Работа:222 254
Материалы:354 306
Дни:8
stdClass Object ( [id] => 8 [attribute_id] => 4 [name] => Сборные ж/б плиты [material_modifier] => 1 [work_modifier] => 1 [options] => Array ( [0] => без утепления [1] => утепление 150 мм [2] => утепление 200 мм [3] => утепление 250 мм [4] => утепление 300 мм [5] => утепление 350 мм [6] => утепление 400 мм [7] => утепление 450 мм [8] => утепление 500 мм ) [days] => [13,15,15,15,15,15,15,15,15] [material_price] => [3067,5577,5928,6679,7730,8782,9833,10884,11935] [work_price] => [1520,1956,2102,2247,2392,2537,2684,2829,2974] [image] => https://akademik-stroy.ru/wp-content/uploads/materials/sbornye-zh-b-plity-2.jpg [area_modifier] => 172.09 [parent_name] => Перекрытие первого этажа [parent_id] => 4 [material_sum] => 665028 [work_sum] => 274656 [total_sum] => 939684 [total_days] => 13 [display_material_sum] => 665 028 [display_work_sum] => 274 656 [display_total_sum] => 939 684 ) 1
939 684
Работа:274 656
Материалы:665 028
Дни:13
stdClass Object ( [id] => 89 [attribute_id] => 4 [name] => Монолитная ж/б плита [material_modifier] => 1 [work_modifier] => 1 [options] => Array ( [0] => без утепления [1] => утепление 150 мм [2] => утепление 200 мм [3] => утепление 250 мм [4] => утепление 300 мм [5] => утепление 350 мм [6] => утепление 400 мм [7] => утепление 450 мм [8] => утепление 500 мм ) [days] => [18,20,20,20,20,20,20,20,20] [material_price] => [4837,6572,7224,7375,79426,8177,8728,9180,10031] [work_price] => [3348,3921,4112,4302,4493,4684,4875,5066,5256] [image] => https://akademik-stroy.ru/wp-content/uploads/materials/monolitnaya-zh-b-plita-2.jpg [area_modifier] => 172.09 [parent_name] => Перекрытие первого этажа [parent_id] => 4 [material_sum] => 1048823 [work_sum] => 604965 [total_sum] => 1653788 [total_days] => 18 [display_material_sum] => 1 048 823 [display_work_sum] => 604 965 [display_total_sum] => 1 653 788 ) 1
1 653 788
Работа:604 965
Материалы:1 048 823
Дни:18
Стены 2 этаж (несущие)
stdClass Object ( [id] => 10 [attribute_id] => 5 [name] => Пеноблок [material_modifier] => 1 [work_modifier] => 1 [options] => Array ( [0] => 300 мм [1] => 400 мм [2] => 500 мм [3] => 600 мм ) [days] => [29,31,34,39] [material_price] => [3000,4000,4500,4937] [work_price] => [5033,5805,6400,8710] [image] => https://akademik-stroy.ru/wp-content/uploads/materials/penoblok.jpg [area_modifier] => 85.08 [parent_name] => Стены 2 этаж (несущие) [parent_id] => 5 [material_sum] => 321602 [work_sum] => 449618 [total_sum] => 771220 [total_days] => 29 [display_material_sum] => 321 602 [display_work_sum] => 449 618 [display_total_sum] => 771 220 ) 1
771 220
Работа:449 618
Материалы:321 602
Дни:29
stdClass Object ( [id] => 90 [attribute_id] => 5 [name] => Керамический блок [material_modifier] => 1 [work_modifier] => 1 [options] => Array ( [0] => 380 мм [1] => 380 мм Thermo [2] => 440 мм [3] => 510 мм ) [days] => [23,23,24,25] [material_price] => [4510,5098,6093,8013] [work_price] => [4737,4937,5903,6958] [image] => https://akademik-stroy.ru/wp-content/uploads/materials/keramicheskij-blok.jpg [area_modifier] => 85.08 [parent_name] => Стены 2 этаж (несущие) [parent_id] => 5 [material_sum] => 483476 [work_sum] => 423175 [total_sum] => 906651 [total_days] => 23 [display_material_sum] => 483 476 [display_work_sum] => 423 175 [display_total_sum] => 906 651 ) 1
906 651
Работа:423 175
Материалы:483 476
Дни:23
stdClass Object ( [id] => 91 [attribute_id] => 5 [name] => Кирпич [material_modifier] => 1 [work_modifier] => 1 [options] => Array ( [0] => Кирпич 250 мм [1] => Кирпич 380 мм [2] => Кирпич 510 мм [3] => Кирпич 640 мм [4] => Кирпич 770 мм ) [days] => [30,30,31,33,36] [material_price] => [5500,7142,9206,10171,12235] [work_price] => [8736,10041,12018,15240,18462] [image] => https://akademik-stroy.ru/wp-content/uploads/materials/kirpich.jpg [area_modifier] => 85.08 [parent_name] => Стены 2 этаж (несущие) [parent_id] => 5 [material_sum] => 589604 [work_sum] => 780422 [total_sum] => 1370026 [total_days] => 30 [display_material_sum] => 589 604 [display_work_sum] => 780 422 [display_total_sum] => 1 370 026 ) 1
1 370 026
Работа:780 422
Материалы:589 604
Дни:30
stdClass Object ( [id] => 92 [attribute_id] => 5 [name] => Монолитные [material_modifier] => 1 [work_modifier] => 1 [options] => Array ( [0] => 150 мм [1] => 200 мм [2] => 250 мм [3] => 300 мм [4] => 350 мм [5] => 400 мм ) [days] => [45,46,47,49,50,53] [material_price] => [6545,7876,10175,12011,13908,15204] [work_price] => [5106,6444,7698,8552,9807,11461] [image] => https://akademik-stroy.ru/wp-content/uploads/materials/monolitnye.jpg [area_modifier] => 85.08 [parent_name] => Стены 2 этаж (несущие) [parent_id] => 5 [material_sum] => 701629 [work_sum] => 456139 [total_sum] => 1157768 [total_days] => 45 [display_material_sum] => 701 629 [display_work_sum] => 456 139 [display_total_sum] => 1 157 768 ) 1
1 157 768
Работа:456 139
Материалы:701 629
Дни:45
stdClass Object ( [id] => 93 [attribute_id] => 5 [name] => Клееный брус [material_modifier] => 1 [work_modifier] => 1 [options] => Array ( [0] => 160 мм [1] => 175 мм [2] => 200 мм [3] => 215 мм [4] => 240 мм [5] => 270 мм [6] => 282 мм ) [days] => [24,28,32,37,40,42,48] [material_price] => [16975,18773,19950,20545,21599,22159,23275] [work_price] => [4806,5287,5815,6397,7036,7740,8514] [image] => https://akademik-stroy.ru/wp-content/uploads/materials/kleenyj-brus.jpg [area_modifier] => 85.08 [parent_name] => Стены 2 этаж (несущие) [parent_id] => 5 [material_sum] => 1819734 [work_sum] => 429339 [total_sum] => 2249073 [total_days] => 24 [display_material_sum] => 1 819 734 [display_work_sum] => 429 339 [display_total_sum] => 2 249 073 ) 1
2 249 073
Работа:429 339
Материалы:1 819 734
Дни:24
stdClass Object ( [id] => 94 [attribute_id] => 5 [name] => Каркасные [material_modifier] => 1 [work_modifier] => 1 [options] => Array ( [0] => 150 мм [1] => 200 мм [2] => 250 мм [3] => 300 мм ) [days] => [15,16,17,18] [material_price] => [2379,2639,2898,3258] [work_price] => [2418,2686,2985,3716] [image] => https://akademik-stroy.ru/wp-content/uploads/materials/karkasnye.jpg [area_modifier] => 85.08 [parent_name] => Стены 2 этаж (несущие) [parent_id] => 5 [material_sum] => 255031 [work_sum] => 216010 [total_sum] => 471041 [total_days] => 15 [display_material_sum] => 255 031 [display_work_sum] => 216 010 [display_total_sum] => 471 041 ) 1
471 041
Работа:216 010
Материалы:255 031
Дни:15
stdClass Object ( [id] => 95 [attribute_id] => 5 [name] => СИП-панели [material_modifier] => 1 [work_modifier] => 1 [options] => Array ( [0] => 120 мм [1] => 170 мм [2] => 220 мм ) [days] => [7,7,7] [material_price] => [1210,1856,2292] [work_price] => [1410,1551,1706] [image] => https://akademik-stroy.ru/wp-content/uploads/materials/sip-paneli.jpg [area_modifier] => 85.08 [parent_name] => Стены 2 этаж (несущие) [parent_id] => 5 [material_sum] => 129713 [work_sum] => 125961 [total_sum] => 255674 [total_days] => 7 [display_material_sum] => 129 713 [display_work_sum] => 125 961 [display_total_sum] => 255 674 ) 1
255 674
Работа:125 961
Материалы:129 713
Дни:7
stdClass Object ( [id] => 96 [attribute_id] => 5 [name] => Сухой брус [material_modifier] => 1 [work_modifier] => 1 [options] => Array ( [0] => 150 мм [1] => 180 мм [2] => 200 мм ) [days] => [7,8,9] [material_price] => [6010,7190,8709] [work_price] => [3204,3845,4229] [image] => https://akademik-stroy.ru/wp-content/uploads/materials/suhoj-brus.jpg [area_modifier] => 85.08 [parent_name] => Стены 2 этаж (несущие) [parent_id] => 5 [material_sum] => 644277 [work_sum] => 286226 [total_sum] => 930503 [total_days] => 7 [display_material_sum] => 644 277 [display_work_sum] => 286 226 [display_total_sum] => 930 503 ) 1
930 503
Работа:286 226
Материалы:644 277
Дни:7
stdClass Object ( [id] => 97 [attribute_id] => 5 [name] => Профилированный брус [material_modifier] => 1 [work_modifier] => 1 [options] => Array ( [0] => 150 мм [1] => 180 мм [2] => 200 мм ) [days] => [7,8,9] [material_price] => [8190,9228,10051] [work_price] => [3845,4614,5075] [image] => https://akademik-stroy.ru/wp-content/uploads/materials/profilirovannyj-brus.jpg [area_modifier] => 85.08 [parent_name] => Стены 2 этаж (несущие) [parent_id] => 5 [material_sum] => 877975 [work_sum] => 343489 [total_sum] => 1221464 [total_days] => 7 [display_material_sum] => 877 975 [display_work_sum] => 343 489 [display_total_sum] => 1 221 464 ) 1
1 221 464
Работа:343 489
Материалы:877 975
Дни:7
stdClass Object ( [id] => 98 [attribute_id] => 5 [name] => Оцилиндрованное бревно [material_modifier] => 1 [work_modifier] => 1 [options] => Array ( [0] => 180 мм [1] => 220 мм [2] => 260 мм [3] => 320 мм ) [days] => [7,8,9,10] [material_price] => [75190,9532,10868,13116] [work_price] => [3845,4691,5535,6863] [image] => https://akademik-stroy.ru/wp-content/uploads/materials/ocilindrovannoe-brevno-1.jpg [area_modifier] => 85.08 [parent_name] => Стены 2 этаж (несущие) [parent_id] => 5 [material_sum] => 8060428 [work_sum] => 343489 [total_sum] => 8403917 [total_days] => 7 [display_material_sum] => 8 060 428 [display_work_sum] => 343 489 [display_total_sum] => 8 403 917 ) 1
8 403 917
Работа:343 489
Материалы:8 060 428
Дни:7
stdClass Object ( [id] => 99 [attribute_id] => 5 [name] => Срубы [material_modifier] => 1 [work_modifier] => 1 [options] => Array ( [0] => 260 мм [1] => 320 мм [2] => 360 мм [3] => 400 мм [4] => 500 мм ) [days] => [7,8,9,10,11] [material_price] => [16175,23709,26314,29069,32167] [work_price] => [4806,5911,6621,7349,9260] [image] => https://akademik-stroy.ru/wp-content/uploads/materials/suhoj-brus.jpg [area_modifier] => 85.08 [parent_name] => Стены 2 этаж (несущие) [parent_id] => 5 [material_sum] => 1733973 [work_sum] => 429339 [total_sum] => 2163312 [total_days] => 7 [display_material_sum] => 1 733 973 [display_work_sum] => 429 339 [display_total_sum] => 2 163 312 ) 1
2 163 312
Работа:429 339
Материалы:1 733 973
Дни:7
stdClass Object ( [id] => 194 [attribute_id] => 5 [name] => Брус [material_modifier] => 1 [work_modifier] => 1 [options] => Array ( [0] => 150 мм [1] => 180 мм [2] => 200 мм ) [days] => [10,13,15] [material_price] => [5127,6152,7367] [work_price] => [1602,1922,2115] [image] => https://akademik-stroy.ru/wp-content/uploads/materials/brus.jpg [area_modifier] => 85.08 [parent_name] => Стены 2 этаж (несущие) [parent_id] => 5 [material_sum] => 549619 [work_sum] => 143113 [total_sum] => 692732 [total_days] => 10 [display_material_sum] => 549 619 [display_work_sum] => 143 113 [display_total_sum] => 692 732 ) 1
692 732
Работа:143 113
Материалы:549 619
Дни:10
stdClass Object ( [id] => 195 [attribute_id] => 5 [name] => Газобетон [material_modifier] => 1 [work_modifier] => 1 [options] => Array ( [0] => 300 мм [1] => 375 мм [2] => 400 мм [3] => 500 мм [4] => 600 мм ) [days] => [29,31,35,37,44] [material_price] => [4298,5573,6356,7288,9119] [work_price] => [4538,5251,5926,6733,7195] [image] => https://akademik-stroy.ru/wp-content/uploads/materials/gazobeton.jpg [area_modifier] => 85.08 [parent_name] => Стены 2 этаж (несущие) [parent_id] => 5 [material_sum] => 460749 [work_sum] => 405398 [total_sum] => 866147 [total_days] => 29 [display_material_sum] => 460 749 [display_work_sum] => 405 398 [display_total_sum] => 866 147 ) 1
866 147
Работа:405 398
Материалы:460 749
Дни:29
stdClass Object ( [id] => 196 [attribute_id] => 5 [name] => Блок [material_modifier] => 1 [work_modifier] => 1 [options] => Array ( [0] => 300 мм [1] => 375 мм [2] => 400 мм [3] => 500 мм [4] => 600 мм ) [days] => [29,31,35,37,44] [material_price] => [2698,3973,4356,6588,7119] [work_price] => [5038,5851,6426,8733,9195] [image] => https://akademik-stroy.ru/wp-content/uploads/materials/blok.jpg [area_modifier] => 85.08 [parent_name] => Стены 2 этаж (несущие) [parent_id] => 5 [material_sum] => 289228 [work_sum] => 450065 [total_sum] => 739293 [total_days] => 29 [display_material_sum] => 289 228 [display_work_sum] => 450 065 [display_total_sum] => 739 293 ) 1
739 293
Работа:450 065
Материалы:289 228
Дни:29
stdClass Object ( [id] => 197 [attribute_id] => 5 [name] => Газосиликатный блок [material_modifier] => 1 [work_modifier] => 1 [options] => Array ( [0] => 300 мм [1] => 375 мм [2] => 400 мм [3] => 500 мм [4] => 600 мм ) [days] => [29,31,35,37,44] [material_price] => [4298,5573,6356,7288,9119] [work_price] => [4538,5251,5926,6733,7195] [image] => https://akademik-stroy.ru/wp-content/uploads/materials/gazosilikatnyj-blok.jpg [area_modifier] => 85.08 [parent_name] => Стены 2 этаж (несущие) [parent_id] => 5 [material_sum] => 460749 [work_sum] => 405398 [total_sum] => 866147 [total_days] => 29 [display_material_sum] => 460 749 [display_work_sum] => 405 398 [display_total_sum] => 866 147 ) 1
866 147
Работа:405 398
Материалы:460 749
Дни:29
stdClass Object ( [id] => 198 [attribute_id] => 5 [name] => Керамзитобетонный блок [material_modifier] => 1 [work_modifier] => 1 [options] => Array ( [0] => 300 мм [1] => 375 мм [2] => 400 мм [3] => 500 мм [4] => 600 мм ) [days] => [23,23,24,25,28] [material_price] => [3641,4298,5693,7613,9612] [work_price] => [5737,5737,6903,7958,8901] [image] => https://akademik-stroy.ru/wp-content/uploads/materials/keramzitobetonnyj-blok.jpg [area_modifier] => 85.08 [parent_name] => Стены 2 этаж (несущие) [parent_id] => 5 [material_sum] => 390318 [work_sum] => 512509 [total_sum] => 902827 [total_days] => 23 [display_material_sum] => 390 318 [display_work_sum] => 512 509 [display_total_sum] => 902 827 ) 1
902 827
Работа:512 509
Материалы:390 318
Дни:23
stdClass Object ( [id] => 199 [attribute_id] => 5 [name] => Деревянные [material_modifier] => 1 [work_modifier] => 1 [options] => Array ( [0] => 180 мм [1] => 220 мм [2] => 260 мм [3] => 320 мм ) [days] => [7,8,9,10] [material_price] => [7950,9458,11961,14472] [work_price] => [4037,4925,5812,7207] [image] => https://akademik-stroy.ru/wp-content/uploads/materials/derevyannye.jpg [area_modifier] => 85.08 [parent_name] => Стены 2 этаж (несущие) [parent_id] => 5 [material_sum] => 852246 [work_sum] => 360641 [total_sum] => 1212887 [total_days] => 7 [display_material_sum] => 852 246 [display_work_sum] => 360 641 [display_total_sum] => 1 212 887 ) 1
1 212 887
Работа:360 641
Материалы:852 246
Дни:7
stdClass Object ( [id] => 200 [attribute_id] => 5 [name] => Камень [material_modifier] => 1 [work_modifier] => 1 [options] => Array ( [0] => 300 мм [1] => 400 мм [2] => 500 мм [3] => 600 мм ) [days] => [25,27,31,34] [material_price] => [5262,6844,8330,9815] [work_price] => [8331,9135,10427,11069] [image] => https://akademik-stroy.ru/wp-content/uploads/materials/kamen.jpg [area_modifier] => 85.08 [parent_name] => Стены 2 этаж (несущие) [parent_id] => 5 [material_sum] => 564091 [work_sum] => 744242 [total_sum] => 1308333 [total_days] => 25 [display_material_sum] => 564 091 [display_work_sum] => 744 242 [display_total_sum] => 1 308 333 ) 1
1 308 333
Работа:744 242
Материалы:564 091
Дни:25
stdClass Object ( [id] => 201 [attribute_id] => 5 [name] => Каркасно-щитовые [material_modifier] => 1 [work_modifier] => 1 [options] => Array ( [0] => 150 мм [1] => 200 мм [2] => 250 мм [3] => 300 мм [4] => 350 мм [5] => 400 мм ) [days] => [15,16,17,18,19,20] [material_price] => [2379,2639,2898,3458,3601,4175] [work_price] => [2538,2820,3134,3483,4062,5642] [image] => https://akademik-stroy.ru/wp-content/uploads/materials/karkasno-shchitovye.jpg [area_modifier] => 85.08 [parent_name] => Стены 2 этаж (несущие) [parent_id] => 5 [material_sum] => 255031 [work_sum] => 226730 [total_sum] => 481761 [total_days] => 15 [display_material_sum] => 255 031 [display_work_sum] => 226 730 [display_total_sum] => 481 761 ) 1
481 761
Работа:226 730
Материалы:255 031
Дни:15
stdClass Object ( [id] => 202 [attribute_id] => 5 [name] => Рубленные [material_modifier] => 1 [work_modifier] => 1 [options] => Array ( [0] => 150 мм [1] => 200 мм [2] => 250 мм [3] => 300 мм [4] => 350 мм [5] => 400 мм ) [days] => [15,16,17,18,17,18] [material_price] => [35950,50267,60583,75900,80217,100533] [work_price] => [9612,12816,16020,19224,22428,25632] [image] => https://akademik-stroy.ru/wp-content/uploads/materials/rublennye.jpg [area_modifier] => 85.08 [parent_name] => Стены 2 этаж (несущие) [parent_id] => 5 [material_sum] => 3853869 [work_sum] => 858678 [total_sum] => 4712547 [total_days] => 15 [display_material_sum] => 3 853 869 [display_work_sum] => 858 678 [display_total_sum] => 4 712 547 ) 1
4 712 547
Работа:858 678
Материалы:3 853 869
Дни:15
stdClass Object ( [id] => 203 [attribute_id] => 5 [name] => Теплоблок [material_modifier] => 1 [work_modifier] => 1 [options] => Array ( [0] => 300 мм (с облицовкой, не покрашенный) [1] => 400 мм (с облицовкой, не покрашенный) [2] => 300 мм (с облицовкой, покрашенный) [3] => 400 мм (с облицовкой, покрашенный) ) [days] => [15,16,15,16] [material_price] => [2888,3729,3957,4258] [work_price] => [2564,3229,2949,3713] [image] => https://akademik-stroy.ru/wp-content/uploads/materials/teploblok.jpg [area_modifier] => 85.08 [parent_name] => Стены 2 этаж (несущие) [parent_id] => 5 [material_sum] => 309596 [work_sum] => 229052 [total_sum] => 538648 [total_days] => 15 [display_material_sum] => 309 596 [display_work_sum] => 229 052 [display_total_sum] => 538 648 ) 1
538 648
Работа:229 052
Материалы:309 596
Дни:15
stdClass Object ( [id] => 204 [attribute_id] => 5 [name] => Арболитовые блоки [material_modifier] => 1 [work_modifier] => 1 [options] => Array ( [0] => 300 мм [1] => 400 мм [2] => 600 мм ) [days] => [19,22,27] [material_price] => [3210,4475,5852] [work_price] => [4214,4788,5866] [image] => https://akademik-stroy.ru/wp-content/uploads/materials/arbolitovye-bloki.png [area_modifier] => 85.08 [parent_name] => Стены 2 этаж (несущие) [parent_id] => 5 [material_sum] => 344115 [work_sum] => 376453 [total_sum] => 720568 [total_days] => 19 [display_material_sum] => 344 115 [display_work_sum] => 376 453 [display_total_sum] => 720 568 ) 1
720 568
Работа:376 453
Материалы:344 115
Дни:19
stdClass Object ( [id] => 205 [attribute_id] => 5 [name] => Полистиролбетон [material_modifier] => 1 [work_modifier] => 1 [options] => Array ( [0] => 300 мм [1] => 400 мм [2] => 600 мм ) [days] => [29,31,35] [material_price] => [2798,4573,5256] [work_price] => [5038,5851,6426] [image] => https://akademik-stroy.ru/wp-content/uploads/materials/polistirolbeton.jpg [area_modifier] => 85.08 [parent_name] => Стены 2 этаж (несущие) [parent_id] => 5 [material_sum] => 299948 [work_sum] => 450065 [total_sum] => 750013 [total_days] => 29 [display_material_sum] => 299 948 [display_work_sum] => 450 065 [display_total_sum] => 750 013 ) 1
750 013
Работа:450 065
Материалы:299 948
Дни:29
stdClass Object ( [id] => 206 [attribute_id] => 5 [name] => Шлакоблок [material_modifier] => 1 [work_modifier] => 1 [options] => Array ( [0] => 400 мм [1] => 600 мм ) [days] => [15,16] [material_price] => [2391,3471] [work_price] => [2642,3662] [image] => https://akademik-stroy.ru/wp-content/uploads/materials/shlakoblok.jpg [area_modifier] => 85.08 [parent_name] => Стены 2 этаж (несущие) [parent_id] => 5 [material_sum] => 256317 [work_sum] => 236020 [total_sum] => 492337 [total_days] => 15 [display_material_sum] => 256 317 [display_work_sum] => 236 020 [display_total_sum] => 492 337 ) 1
492 337
Работа:236 020
Материалы:256 317
Дни:15
stdClass Object ( [id] => 245 [attribute_id] => 5 [name] => Теплая керамика [material_modifier] => 1 [work_modifier] => 1 [options] => Array ( [0] => 380 мм [1] => 380 мм Thermo [2] => 440 мм [3] => 510 мм ) [days] => [10,10,11,12] [material_price] => [4510,5098,6093,8013] [work_price] => [4737,4937,5903,6958] [image] => https://akademik-stroy.ru/wp-content/uploads/materials/teplaya-keramika.jpg [area_modifier] => 85.08 [parent_name] => Стены 2 этаж (несущие) [parent_id] => 5 [material_sum] => 483476 [work_sum] => 423175 [total_sum] => 906651 [total_days] => 10 [display_material_sum] => 483 476 [display_work_sum] => 423 175 [display_total_sum] => 906 651 ) 1
906 651
Работа:423 175
Материалы:483 476
Дни:10
stdClass Object ( [id] => 246 [attribute_id] => 5 [name] => Несъемная опалубка [material_modifier] => 1 [work_modifier] => 1 [options] => Array ( [0] => 380 мм [1] => 380 мм Thermo [2] => 440 мм [3] => 510 мм ) [days] => [10,10,11,12] [material_price] => [3302,3902,4108,5008] [work_price] => [2100,2100,2300,2534] [image] => https://akademik-stroy.ru/wp-content/uploads/materials/nesemnaya-opalubka.jpg [area_modifier] => 85.08 [parent_name] => Стены 2 этаж (несущие) [parent_id] => 5 [material_sum] => 353977 [work_sum] => 187601 [total_sum] => 541578 [total_days] => 10 [display_material_sum] => 353 977 [display_work_sum] => 187 601 [display_total_sum] => 541 578 ) 1
541 578
Работа:187 601
Материалы:353 977
Дни:10
stdClass Object ( [id] => 254 [attribute_id] => 5 [name] => Бревно [material_modifier] => 1 [work_modifier] => 1 [options] => Array ( [0] => 260 мм [1] => 320 мм [2] => 360 мм [3] => 400 мм [4] => 500 мм ) [days] => [7,8,9,10,11] [material_price] => [1874,24045,26930,30972,38825] [work_price] => [5046,6207,6952,7716,9723] [image] => https://akademik-stroy.ru/wp-content/uploads/materials/sruby.jpg [area_modifier] => 85.08 [parent_name] => Стены 2 этаж (несущие) [parent_id] => 5 [material_sum] => 200894 [work_sum] => 450779 [total_sum] => 651673 [total_days] => 7 [display_material_sum] => 200 894 [display_work_sum] => 450 779 [display_total_sum] => 651 673 ) 1
651 673
Работа:450 779
Материалы:200 894
Дни:7
Перекрытие второго этажа
stdClass Object ( [id] => 11 [attribute_id] => 6 [name] => Деревянные балки [material_modifier] => 1 [work_modifier] => 1 [options] => Array ( [0] => без утепления [1] => утепление 200 мм [2] => утепление 250 мм [3] => утепление 300 мм [4] => утепление 350 мм [5] => утепление 400 мм [6] => утепление 450 мм [7] => утепление 500 мм ) [days] => [8,9,9,9,11,12,13,14] [material_price] => [1634,2042,2344,2947,3149,3652,3354,3557] [work_price] => [1230,1339,1393,1426,1460,1513,1587,1620] [image] => https://akademik-stroy.ru/wp-content/uploads/materials/derevyannye-balki.png [area_modifier] => 85.08 [parent_name] => Перекрытие второго этажа [parent_id] => 6 [material_sum] => 175166 [work_sum] => 109881 [total_sum] => 285047 [total_days] => 8 [display_material_sum] => 175 166 [display_work_sum] => 109 881 [display_total_sum] => 285 047 ) 1
285 047
Работа:109 881
Материалы:175 166
Дни:8
stdClass Object ( [id] => 12 [attribute_id] => 6 [name] => Сборные ж/б плиты [material_modifier] => 1 [work_modifier] => 1 [options] => Array ( [0] => без утепления [1] => утепление 150 мм [2] => утепление 200 мм [3] => утепление 250 мм [4] => утепление 300 мм [5] => утепление 350 мм [6] => утепление 400 мм [7] => утепление 450 мм [8] => утепление 500 мм ) [days] => [13,15,15,15,15,15,15,15,15] [material_price] => [3067,5577,5928,6679,7730,8782,9833,10884,11935] [work_price] => [1520,1956,2102,2247,2392,2537,2684,2829,2974] [image] => https://akademik-stroy.ru/wp-content/uploads/materials/sbornye-zh-b-plity-2.jpg [area_modifier] => 85.08 [parent_name] => Перекрытие второго этажа [parent_id] => 6 [material_sum] => 328785 [work_sum] => 135788 [total_sum] => 464573 [total_days] => 13 [display_material_sum] => 328 785 [display_work_sum] => 135 788 [display_total_sum] => 464 573 ) 1
464 573
Работа:135 788
Материалы:328 785
Дни:13
stdClass Object ( [id] => 100 [attribute_id] => 6 [name] => Монолитная ж/б плита [material_modifier] => 1 [work_modifier] => 1 [options] => Array ( [0] => без утепления [1] => утепление 150 мм [2] => утепление 200 мм [3] => утепление 250 мм [4] => утепление 300 мм [5] => утепление 350 мм [6] => утепление 400 мм [7] => утепление 450 мм [8] => утепление 500 мм ) [days] => [18,20,20,20,20,20,20,20,20] [material_price] => [4837,6572,7224,7375,79426,8177,8728,9180,10031] [work_price] => [3348,3921,4112,4302,4493,4684,4875,5066,5256] [image] => https://akademik-stroy.ru/wp-content/uploads/materials/monolitnaya-zh-b-plita-2.jpg [area_modifier] => 85.08 [parent_name] => Перекрытие второго этажа [parent_id] => 6 [material_sum] => 518530 [work_sum] => 299090 [total_sum] => 817620 [total_days] => 18 [display_material_sum] => 518 530 [display_work_sum] => 299 090 [display_total_sum] => 817 620 ) 1
817 620
Работа:299 090
Материалы:518 530
Дни:18
Крыша (Скатная)
stdClass Object ( [id] => 164 [attribute_id] => 37 [name] => Металлочерепица [material_modifier] => 1 [work_modifier] => 1 [options] => Array ( ) [days] => [20] [material_price] => [6112] [work_price] => [5726] [image] => https://akademik-stroy.ru/wp-content/uploads/materials/metallocherepica.jpg [area_modifier] => 172.09 [parent_name] => Крыша (Скатная) [parent_id] => 37 [material_sum] => 1325286 [work_sum] => 1034657 [total_sum] => 2359943 [total_days] => 20 [display_material_sum] => 1 325 286 [display_work_sum] => 1 034 657 [display_total_sum] => 2 359 943 ) 1
2 359 943
Работа:1 034 657
Материалы:1 325 286
Дни:20
stdClass Object ( [id] => 165 [attribute_id] => 37 [name] => Гибкая черепица [material_modifier] => 1 [work_modifier] => 1 [options] => Array ( ) [days] => [20] [material_price] => [6980] [work_price] => [5950] [image] => https://akademik-stroy.ru/wp-content/uploads/materials/gibkaya-cherepica.jpg [area_modifier] => 172.09 [parent_name] => Крыша (Скатная) [parent_id] => 37 [material_sum] => 1513497 [work_sum] => 1075132 [total_sum] => 2588629 [total_days] => 20 [display_material_sum] => 1 513 497 [display_work_sum] => 1 075 132 [display_total_sum] => 2 588 629 ) 1
2 588 629
Работа:1 075 132
Материалы:1 513 497
Дни:20
stdClass Object ( [id] => 166 [attribute_id] => 37 [name] => Цементно-песчаная черепица [material_modifier] => 1 [work_modifier] => 1 [options] => Array ( ) [days] => [20] [material_price] => [10560] [work_price] => [9456] [image] => https://akademik-stroy.ru/wp-content/uploads/materials/cementno-peschanaya-cherepica.jpg [area_modifier] => 172.09 [parent_name] => Крыша (Скатная) [parent_id] => 37 [material_sum] => 2289761 [work_sum] => 1708647 [total_sum] => 3998408 [total_days] => 20 [display_material_sum] => 2 289 761 [display_work_sum] => 1 708 647 [display_total_sum] => 3 998 408 ) 1
3 998 408
Работа:1 708 647
Материалы:2 289 761
Дни:20
stdClass Object ( [id] => 167 [attribute_id] => 37 [name] => Композитная черепица [material_modifier] => 1 [work_modifier] => 1 [options] => Array ( ) [days] => [20] [material_price] => [9506] [work_price] => [8905] [image] => https://akademik-stroy.ru/wp-content/uploads/materials/kompozitnaya-cherepica.jpg [area_modifier] => 172.09 [parent_name] => Крыша (Скатная) [parent_id] => 37 [material_sum] => 2061218 [work_sum] => 1609085 [total_sum] => 3670303 [total_days] => 20 [display_material_sum] => 2 061 218 [display_work_sum] => 1 609 085 [display_total_sum] => 3 670 303 ) 1
3 670 303
Работа:1 609 085
Материалы:2 061 218
Дни:20
stdClass Object ( [id] => 168 [attribute_id] => 37 [name] => Керамическая черепица [material_modifier] => 1 [work_modifier] => 1 [options] => Array ( ) [days] => [20] [material_price] => [12750] [work_price] => [9456] [image] => https://akademik-stroy.ru/wp-content/uploads/materials/keramicheskaya-cherepica.jpg [area_modifier] => 172.09 [parent_name] => Крыша (Скатная) [parent_id] => 37 [material_sum] => 2764626 [work_sum] => 1708647 [total_sum] => 4473273 [total_days] => 20 [display_material_sum] => 2 764 626 [display_work_sum] => 1 708 647 [display_total_sum] => 4 473 273 ) 1
4 473 273
Работа:1 708 647
Материалы:2 764 626
Дни:20
stdClass Object ( [id] => 169 [attribute_id] => 37 [name] => Металлическая фальцевая [material_modifier] => 1 [work_modifier] => 1 [options] => Array ( ) [days] => [20] [material_price] => [8550] [work_price] => [8190] [image] => https://akademik-stroy.ru/wp-content/uploads/materials/metallicheskaya-falcevaya.jpg [area_modifier] => 172.09 [parent_name] => Крыша (Скатная) [parent_id] => 37 [material_sum] => 1853926 [work_sum] => 1479888 [total_sum] => 3333814 [total_days] => 20 [display_material_sum] => 1 853 926 [display_work_sum] => 1 479 888 [display_total_sum] => 3 333 814 ) 1
3 333 814
Работа:1 479 888
Материалы:1 853 926
Дни:20
stdClass Object ( [id] => 170 [attribute_id] => 37 [name] => Медная фальцевая [material_modifier] => 1 [work_modifier] => 1 [options] => Array ( ) [days] => [20] [material_price] => [20450] [work_price] => [16750] [image] => https://akademik-stroy.ru/wp-content/uploads/materials/mednaya-falcevaya.jpg [area_modifier] => 172.09 [parent_name] => Крыша (Скатная) [parent_id] => 37 [material_sum] => 4434243 [work_sum] => 3026633 [total_sum] => 7460876 [total_days] => 20 [display_material_sum] => 4 434 243 [display_work_sum] => 3 026 633 [display_total_sum] => 7 460 876 ) 1
7 460 876
Работа:3 026 633
Материалы:4 434 243
Дни:20
stdClass Object ( [id] => 171 [attribute_id] => 37 [name] => Зеленая кровля [material_modifier] => 1 [work_modifier] => 1 [options] => Array ( ) [days] => [20] [material_price] => [19850] [work_price] => [16780] [image] => https://akademik-stroy.ru/wp-content/uploads/materials/zelenaya-krovlya.jpg [area_modifier] => 172.09 [parent_name] => Крыша (Скатная) [parent_id] => 37 [material_sum] => 4304143 [work_sum] => 3032054 [total_sum] => 7336197 [total_days] => 20 [display_material_sum] => 4 304 143 [display_work_sum] => 3 032 054 [display_total_sum] => 7 336 197 ) 1
7 336 197
Работа:3 032 054
Материалы:4 304 143
Дни:20
stdClass Object ( [id] => 172 [attribute_id] => 37 [name] => Профлист [material_modifier] => 1 [work_modifier] => 1 [options] => Array ( ) [days] => [20] [material_price] => [3450] [work_price] => [3750] [image] => https://akademik-stroy.ru/wp-content/uploads/materials/proflist.jpg [area_modifier] => 172.09 [parent_name] => Крыша (Скатная) [parent_id] => 37 [material_sum] => 748075 [work_sum] => 677604 [total_sum] => 1425679 [total_days] => 20 [display_material_sum] => 748 075 [display_work_sum] => 677 604 [display_total_sum] => 1 425 679 ) 1
1 425 679
Работа:677 604
Материалы:748 075
Дни:20
Окна
stdClass Object ( [id] => 51 [attribute_id] => 26 [name] => Есть [material_modifier] => 1 [work_modifier] => 1 [options] => Array ( [0] => Профиль 58 мм, 3-камерный, стеклопакет 2-камерный до 32 мм [1] => Профиль 60 мм, 4-камерный, стеклопакет 2-камерный до 32 мм [2] => Профиль 70 мм, 5-камерный, стеклопакет 2-камерный до 40 мм [3] => Профиль 72 мм, 5-камерный, стеклопакет 2-камерный до 40 мм [4] => Алюминиевые окна Alutech профиль 72 мм, стеклопакет 2-камерный ) [days] => [3,3,3,3,3] [material_price] => [1339,2124,2867,3023,29596] [work_price] => [635,647,659,668,2579] [image] => https://akademik-stroy.ru/wp-content/uploads/materials/okna.jpg [area_modifier] => 208.69 [parent_name] => Окна [parent_id] => 26 [material_sum] => 352089 [work_sum] => 139144 [total_sum] => 491233 [total_days] => 3 [display_material_sum] => 352 089 [display_work_sum] => 139 144 [display_total_sum] => 491 233 ) 1
491 233
Работа:139 144
Материалы:352 089
Дни:3
stdClass Object ( [id] => 52 [attribute_id] => 26 [name] => Нет [material_modifier] => 2 [work_modifier] => 1 [options] => [days] => null [material_price] => null [work_price] => null [image] => https://akademik-stroy.ru/wp-content/uploads/materials/okna.jpg [area_modifier] => 208.69 [parent_name] => Окна [parent_id] => 26 [material_sum] => 0 [work_sum] => 0 [total_sum] => 0 [total_days] => 0 [display_material_sum] => 0 [display_work_sum] => 0 [display_total_sum] => 0 ) 1
0
Работа:0
Материалы:0
Дни:0
Двери входные
stdClass Object ( [id] => 53 [attribute_id] => 27 [name] => Есть [material_modifier] => 1 [work_modifier] => 1 [options] => Array ( ) [days] => [1] [material_price] => [10000] [work_price] => [5500] [image] => https://akademik-stroy.ru/wp-content/uploads/materials/dveri.jpg [area_modifier] => 1 [parent_name] => Двери входные [parent_id] => 27 [material_sum] => 12600 [work_sum] => 5775 [total_sum] => 18375 [total_days] => 1 [display_material_sum] => 12 600 [display_work_sum] => 5 775 [display_total_sum] => 18 375 ) 1
18 375
Работа:5 775
Материалы:12 600
Дни:1
stdClass Object ( [id] => 54 [attribute_id] => 27 [name] => Нет [material_modifier] => 1 [work_modifier] => 1 [options] => Array ( ) [days] => [0] [material_price] => [0] [work_price] => [0] [image] => https://akademik-stroy.ru/wp-content/uploads/materials/dveri.jpg [area_modifier] => 1 [parent_name] => Двери входные [parent_id] => 27 [material_sum] => 0 [work_sum] => 0 [total_sum] => 0 [total_days] => 0 [display_material_sum] => 0 [display_work_sum] => 0 [display_total_sum] => 0 ) 1
0
Работа:0
Материалы:0
Дни:0
Утепление кровли (Мансарда)
stdClass Object ( [id] => 25 [attribute_id] => 13 [name] => Нет [material_modifier] => 1 [work_modifier] => 1 [options] => Array ( ) [days] => [0] [material_price] => [0] [work_price] => [0] [image] => https://akademik-stroy.ru/wp-content/uploads/materials/mineralovata-krov.jpg [area_modifier] => 172.09 [parent_name] => Утепление кровли (Мансарда) [parent_id] => 13 [material_sum] => 0 [work_sum] => 0 [total_sum] => 0 [total_days] => 0 [display_material_sum] => 0 [display_work_sum] => 0 [display_total_sum] => 0 ) 1
0
Работа:0
Материалы:0
Дни:0
stdClass Object ( [id] => 26 [attribute_id] => 13 [name] => Минераловатный [material_modifier] => 1 [work_modifier] => 1 [options] => Array ( [0] => 50 мм [1] => 100 мм [2] => 150 мм [3] => 200 мм [4] => 250 мм [5] => 300 мм [6] => 350 мм [7] => 400 мм [8] => 450 мм [9] => 500 мм ) [days] => [5,5,6,6,6,7,7,7,8,8] [material_price] => [1158,1414,1772,2230,3602,4060,4974,5890,6408,7718] [work_price] => [650,846,846,1098,1318,1450,1596,1754,1930,2122] [image] => https://akademik-stroy.ru/wp-content/uploads/materials/mineralovata-krov.jpg [area_modifier] => 172.09 [parent_name] => Утепление кровли (Мансарда) [parent_id] => 13 [material_sum] => 251093 [work_sum] => 117451 [total_sum] => 368544 [total_days] => 5 [display_material_sum] => 251 093 [display_work_sum] => 117 451 [display_total_sum] => 368 544 ) 1
368 544
Работа:117 451
Материалы:251 093
Дни:5
stdClass Object ( [id] => 123 [attribute_id] => 13 [name] => Эковата (целлюлозная вата) [material_modifier] => 1 [work_modifier] => 1 [options] => Array ( [0] => 50 мм [1] => 100 мм [2] => 150 мм [3] => 200 мм [4] => 250 мм [5] => 300 мм [6] => 350 мм [7] => 400 мм [8] => 450 мм [9] => 500 мм ) [days] => [3,3,4,4,4,5,5,5,5,5] [material_price] => [820,1638,2458,3276,5734,6552,8190,9828,11466,13104] [work_price] => [234,304,304,396,474,522,574,632,694,764] [image] => https://akademik-stroy.ru/wp-content/uploads/materials/ehkovata-krov.jpg [area_modifier] => 172.09 [parent_name] => Утепление кровли (Мансарда) [parent_id] => 13 [material_sum] => 177803 [work_sum] => 42283 [total_sum] => 220086 [total_days] => 3 [display_material_sum] => 177 803 [display_work_sum] => 42 283 [display_total_sum] => 220 086 ) 1
220 086
Работа:42 283
Материалы:177 803
Дни:3
stdClass Object ( [id] => 124 [attribute_id] => 13 [name] => Экструдированный пенополистирол [material_modifier] => 1 [work_modifier] => 1 [options] => Array ( [0] => 50 мм [1] => 100 мм [2] => 150 мм [3] => 200 мм [4] => 250 мм [5] => 300 мм [6] => 350 мм [7] => 400 мм [8] => 450 мм [9] => 500 мм ) [days] => [3,3,4,4,4,5,5,5,5,6] [material_price] => [1146,2292,3438,4584,8020,9166,11458,13750,16040,18332] [work_price] => [390,508,508,660,790,870,958,1052,1158,1274] [image] => https://akademik-stroy.ru/wp-content/uploads/materials/epps-krov.jpg [area_modifier] => 172.09 [parent_name] => Утепление кровли (Мансарда) [parent_id] => 13 [material_sum] => 248491 [work_sum] => 70471 [total_sum] => 318962 [total_days] => 3 [display_material_sum] => 248 491 [display_work_sum] => 70 471 [display_total_sum] => 318 962 ) 1
318 962
Работа:70 471
Материалы:248 491
Дни:3
stdClass Object ( [id] => 125 [attribute_id] => 13 [name] => ПСБ (ППС-пенополистирол) [material_modifier] => 1 [work_modifier] => 1 [options] => Array ( [0] => 50 мм [1] => 100 мм [2] => 150 мм [3] => 200 мм [4] => 250 мм [5] => 300 мм [6] => 350 мм [7] => 400 мм [8] => 450 мм [9] => 500 мм ) [days] => [3,3,4,4,4,5,5,5,5,6] [material_price] => [476,954,1430,1906,3336,3814,4766,5720,6674,7626] [work_price] => [390,508,508,660,790,870,958,1052,1158,1274] [image] => https://akademik-stroy.ru/wp-content/uploads/materials/psb-krov.jpg [area_modifier] => 172.09 [parent_name] => Утепление кровли (Мансарда) [parent_id] => 13 [material_sum] => 103213 [work_sum] => 70471 [total_sum] => 173684 [total_days] => 3 [display_material_sum] => 103 213 [display_work_sum] => 70 471 [display_total_sum] => 173 684 ) 1
173 684
Работа:70 471
Материалы:103 213
Дни:3
stdClass Object ( [id] => 126 [attribute_id] => 13 [name] => ППУ (Пенополиуретан) [material_modifier] => 1 [work_modifier] => 1 [options] => Array ( [0] => 50 мм [1] => 100 мм [2] => 150 мм [3] => 200 мм [4] => 250 мм [5] => 300 мм [6] => 350 мм [7] => 400 мм [8] => 450 мм [9] => 500 мм ) [days] => [2,2,3,3,3,3,4,4,4,4] [material_price] => [2080,4160,6240,8320,14560,16640,20800,24960,29120,33280] [work_price] => [234,304,304,396,474,522,574,632,694,764] [image] => https://akademik-stroy.ru/wp-content/uploads/materials/ppu-krov.jpg [area_modifier] => 172.09 [parent_name] => Утепление кровли (Мансарда) [parent_id] => 13 [material_sum] => 451013 [work_sum] => 42283 [total_sum] => 493296 [total_days] => 2 [display_material_sum] => 451 013 [display_work_sum] => 42 283 [display_total_sum] => 493 296 ) 1
493 296
Работа:42 283
Материалы:451 013
Дни:2
stdClass Object ( [id] => 127 [attribute_id] => 13 [name] => PIR-плиты (пенополиизоцианурат) [material_modifier] => 1 [work_modifier] => 1 [options] => Array ( [0] => 50 мм [1] => 100 мм [2] => 150 мм [3] => 200 мм [4] => 250 мм [5] => 300 мм [6] => 350 мм [7] => 400 мм [8] => 450 мм [9] => 500 мм ) [days] => [3,3,4,4,4,5,5,5,5,6] [material_price] => [2646,5290,7936,10580,18516,21162,26452,31742,37032,42324] [work_price] => [390,508,508,660,790,870,958,1052,1158,1274] [image] => https://akademik-stroy.ru/wp-content/uploads/materials/pir-krov.jpg [area_modifier] => 172.09 [parent_name] => Утепление кровли (Мансарда) [parent_id] => 13 [material_sum] => 573741 [work_sum] => 70471 [total_sum] => 644212 [total_days] => 3 [display_material_sum] => 573 741 [display_work_sum] => 70 471 [display_total_sum] => 644 212 ) 1
644 212
Работа:70 471
Материалы:573 741
Дни:3
Мансардные окна
stdClass Object ( [id] => 27 [attribute_id] => 14 [name] => Нет [material_modifier] => 1 [work_modifier] => 1 [options] => Array ( ) [days] => [0] [material_price] => [0] [work_price] => [0] [image] => https://akademik-stroy.ru/wp-content/uploads/materials/mansardnye-okna-2.jpg [area_modifier] => 1 [parent_name] => Мансардные окна [parent_id] => 14 [material_sum] => 0 [work_sum] => 0 [total_sum] => 0 [total_days] => 0 [display_material_sum] => 0 [display_work_sum] => 0 [display_total_sum] => 0 ) 1
0
Работа:0
Материалы:0
Дни:0
stdClass Object ( [id] => 28 [attribute_id] => 14 [name] => Есть [material_modifier] => 1 [work_modifier] => 1 [options] => Array ( [0] => 55x78 [1] => 55x98 ) [days] => [6,7] [material_price] => [47480,68700] [work_price] => [17900,19500] [image] => https://akademik-stroy.ru/wp-content/uploads/materials/mansardnye-okna-2.jpg [area_modifier] => 1 [parent_name] => Мансардные окна [parent_id] => 14 [material_sum] => 59825 [work_sum] => 18795 [total_sum] => 78620 [total_days] => 6 [display_material_sum] => 59 825 [display_work_sum] => 18 795 [display_total_sum] => 78 620 ) 1
78 620
Работа:18 795
Материалы:59 825
Дни:6
Подшивка кровли
stdClass Object ( [id] => 29 [attribute_id] => 15 [name] => Нет [material_modifier] => 1 [work_modifier] => 1 [options] => Array ( ) [days] => [0] [material_price] => [0] [work_price] => [0] [image] => https://akademik-stroy.ru/wp-content/uploads/materials/sofit.jpg [area_modifier] => 172.09 [parent_name] => Подшивка кровли [parent_id] => 15 [material_sum] => 0 [work_sum] => 0 [total_sum] => 0 [total_days] => 0 [display_material_sum] => 0 [display_work_sum] => 0 [display_total_sum] => 0 ) 1
0
Работа:0
Материалы:0
Дни:0
stdClass Object ( [id] => 30 [attribute_id] => 15 [name] => Есть [material_modifier] => 1 [work_modifier] => 1 [options] => Array ( [0] => Софиты (ПВХ) [1] => Cedral [2] => ДПК [3] => Планкен ) [days] => [7,10,9,8] [material_price] => [1803,3213,3025,3150] [work_price] => [1529,2188,2075,1923] [image] => https://akademik-stroy.ru/wp-content/uploads/materials/sofit.jpg [area_modifier] => 172.09 [parent_name] => Подшивка кровли [parent_id] => 15 [material_sum] => 390951 [work_sum] => 276282 [total_sum] => 667233 [total_days] => 7 [display_material_sum] => 390 951 [display_work_sum] => 276 282 [display_total_sum] => 667 233 ) 1
667 233
Работа:276 282
Материалы:390 951
Дни:7
Водосточная система
stdClass Object ( [id] => 31 [attribute_id] => 16 [name] => Нет [material_modifier] => 1 [work_modifier] => 1 [options] => Array ( ) [days] => [0] [material_price] => [0] [work_price] => [0] [image] => https://akademik-stroy.ru/wp-content/uploads/materials/docke-standard-pvh.jpg [area_modifier] => 172.09 [parent_name] => Водосточная система [parent_id] => 16 [material_sum] => 0 [work_sum] => 0 [total_sum] => 0 [total_days] => 0 [display_material_sum] => 0 [display_work_sum] => 0 [display_total_sum] => 0 ) 1
0
Работа:0
Материалы:0
Дни:0
stdClass Object ( [id] => 32 [attribute_id] => 16 [name] => Есть [material_modifier] => 1 [work_modifier] => 1 [options] => Array ( [0] => Döcke Standard (ПВХ) [1] => Металлические Grand Line ) [days] => [7,7] [material_price] => [1842,2703] [work_price] => [1491,1529] [image] => https://akademik-stroy.ru/wp-content/uploads/materials/docke-standard-pvh.jpg [area_modifier] => 172.09 [parent_name] => Водосточная система [parent_id] => 16 [material_sum] => 399407 [work_sum] => 269415 [total_sum] => 668822 [total_days] => 7 [display_material_sum] => 399 407 [display_work_sum] => 269 415 [display_total_sum] => 668 822 ) 1
668 822
Работа:269 415
Материалы:399 407
Дни:7
Дополнительное утепление наружных стен
stdClass Object ( [id] => 33 [attribute_id] => 17 [name] => Нет [material_modifier] => 1 [work_modifier] => 1 [options] => Array ( ) [days] => [0] [material_price] => [0] [work_price] => [0] [image] => https://akademik-stroy.ru/wp-content/uploads/materials/mineralovata.jpg [area_modifier] => 257.17 [parent_name] => Дополнительное утепление наружных стен [parent_id] => 17 [material_sum] => 0 [work_sum] => 0 [total_sum] => 0 [total_days] => 0 [display_material_sum] => 0 [display_work_sum] => 0 [display_total_sum] => 0 ) 1
0
Работа:0
Материалы:0
Дни:0
stdClass Object ( [id] => 34 [attribute_id] => 17 [name] => Минераловатный [material_modifier] => 1 [work_modifier] => 1 [options] => Array ( [0] => 50 мм [1] => 100 мм [2] => 150 мм [3] => 200 мм [4] => 250 мм [5] => 300 мм ) [days] => [7,8,10,12,14,15] [material_price] => [3437,3613,3803,3915,4601,4830] [work_price] => [2325,2423,2523,2749,2859,3025] [image] => https://akademik-stroy.ru/wp-content/uploads/materials/mineralovata.jpg [area_modifier] => 257.17 [parent_name] => Дополнительное утепление наружных стен [parent_id] => 17 [material_sum] => 1113706 [work_sum] => 627816 [total_sum] => 1741522 [total_days] => 7 [display_material_sum] => 1 113 706 [display_work_sum] => 627 816 [display_total_sum] => 1 741 522 ) 1
1 741 522
Работа:627 816
Материалы:1 113 706
Дни:7
stdClass Object ( [id] => 128 [attribute_id] => 17 [name] => Эковата (целлюлозная вата) [material_modifier] => 1 [work_modifier] => 1 [options] => Array ( [0] => 50 мм [1] => 100 мм [2] => 150 мм [3] => 200 мм [4] => 250 мм [5] => 300 мм ) [days] => [3,4,5,6,7,8] [material_price] => [810,1319,1629,1838,2267,2676] [work_price] => [1225,1323,1423,1549,1659,1725] [image] => https://akademik-stroy.ru/wp-content/uploads/materials/ehkovata.jpg [area_modifier] => 257.17 [parent_name] => Дополнительное утепление наружных стен [parent_id] => 17 [material_sum] => 262468 [work_sum] => 330785 [total_sum] => 593253 [total_days] => 3 [display_material_sum] => 262 468 [display_work_sum] => 330 785 [display_total_sum] => 593 253 ) 1
593 253
Работа:330 785
Материалы:262 468
Дни:3
stdClass Object ( [id] => 129 [attribute_id] => 17 [name] => Экструдированный пенополистирол [material_modifier] => 1 [work_modifier] => 1 [options] => Array ( [0] => 50 мм [1] => 100 мм [2] => 150 мм [3] => 200 мм [4] => 250 мм [5] => 300 мм ) [days] => [5,6,7,8,9,10] [material_price] => [4560,4300,5119,6292,7010,8583] [work_price] => [1795,1954,2254,2330,2595,2735] [image] => https://akademik-stroy.ru/wp-content/uploads/materials/epps.jpg [area_modifier] => 257.17 [parent_name] => Дополнительное утепление наружных стен [parent_id] => 17 [material_sum] => 1477596 [work_sum] => 484701 [total_sum] => 1962297 [total_days] => 5 [display_material_sum] => 1 477 596 [display_work_sum] => 484 701 [display_total_sum] => 1 962 297 ) 1
1 962 297
Работа:484 701
Материалы:1 477 596
Дни:5
stdClass Object ( [id] => 130 [attribute_id] => 17 [name] => ПСБ (ППС-пенополистирол) [material_modifier] => 1 [work_modifier] => 1 [options] => Array ( [0] => 50 мм [1] => 100 мм [2] => 150 мм [3] => 200 мм [4] => 250 мм [5] => 300 мм ) [days] => [5,6,7,8,9,10] [material_price] => [4822,5200,5819,6292,7010,7583] [work_price] => [1795,1954,2254,2330,2595,2735] [image] => https://akademik-stroy.ru/wp-content/uploads/materials/psb.jpg [area_modifier] => 257.17 [parent_name] => Дополнительное утепление наружных стен [parent_id] => 17 [material_sum] => 1562493 [work_sum] => 484701 [total_sum] => 2047194 [total_days] => 5 [display_material_sum] => 1 562 493 [display_work_sum] => 484 701 [display_total_sum] => 2 047 194 ) 1
2 047 194
Работа:484 701
Материалы:1 562 493
Дни:5
stdClass Object ( [id] => 131 [attribute_id] => 17 [name] => ППУ (Пенополиуретан) [material_modifier] => 1 [work_modifier] => 1 [options] => Array ( [0] => 50 мм [1] => 100 мм [2] => 150 мм [3] => 200 мм [4] => 250 мм [5] => 300 мм ) [days] => [3,4,5,6,7,8] [material_price] => [2860,3400,4219,4592,5010,5583] [work_price] => [729,900,980,1120,1280,1530] [image] => https://akademik-stroy.ru/wp-content/uploads/materials/ppu.jpg [area_modifier] => 257.17 [parent_name] => Дополнительное утепление наружных стен [parent_id] => 17 [material_sum] => 926738 [work_sum] => 196851 [total_sum] => 1123589 [total_days] => 3 [display_material_sum] => 926 738 [display_work_sum] => 196 851 [display_total_sum] => 1 123 589 ) 1
1 123 589
Работа:196 851
Материалы:926 738
Дни:3
stdClass Object ( [id] => 132 [attribute_id] => 17 [name] => PIR-плиты (пенополиизоцианурат) [material_modifier] => 1 [work_modifier] => 1 [options] => Array ( [0] => 50 мм [1] => 100 мм [2] => 150 мм [3] => 200 мм [4] => 250 мм [5] => 300 мм ) [days] => [5,6,7,8,9,10] [material_price] => [8323,15645,20968,25900,29258,30581] [work_price] => [800,900,970,1150,1280,1330] [image] => https://akademik-stroy.ru/wp-content/uploads/materials/pir.jpg [area_modifier] => 257.17 [parent_name] => Дополнительное утепление наружных стен [parent_id] => 17 [material_sum] => 2696937 [work_sum] => 216023 [total_sum] => 2912960 [total_days] => 5 [display_material_sum] => 2 696 937 [display_work_sum] => 216 023 [display_total_sum] => 2 912 960 ) 1
2 912 960
Работа:216 023
Материалы:2 696 937
Дни:5
Наружная отделка фасада
stdClass Object ( [id] => 37 [attribute_id] => 19 [name] => Нет [material_modifier] => 1 [work_modifier] => 1 [options] => Array ( ) [days] => [0] [material_price] => [0] [work_price] => [0] [image] => https://akademik-stroy.ru/wp-content/uploads/materials/imitaciya-brusa.jpg [area_modifier] => 257.17 [parent_name] => Наружная отделка фасада [parent_id] => 19 [material_sum] => 0 [work_sum] => 0 [total_sum] => 0 [total_days] => 0 [display_material_sum] => 0 [display_work_sum] => 0 [display_total_sum] => 0 ) 1
0
Работа:0
Материалы:0
Дни:0
stdClass Object ( [id] => 38 [attribute_id] => 19 [name] => Имитация бруса [material_modifier] => 1 [work_modifier] => 1 [options] => Array ( [0] => Сосна [1] => Ель [2] => Лиственница ) [days] => [20,20,20] [material_price] => [2994,2762,4954] [work_price] => [1397,1231,1577] [image] => https://akademik-stroy.ru/wp-content/uploads/materials/imitaciya-brusa.jpg [area_modifier] => 257.17 [parent_name] => Наружная отделка фасада [parent_id] => 19 [material_sum] => 970158 [work_sum] => 377230 [total_sum] => 1347388 [total_days] => 20 [display_material_sum] => 970 158 [display_work_sum] => 377 230 [display_total_sum] => 1 347 388 ) 1
1 347 388
Работа:377 230
Материалы:970 158
Дни:20
stdClass Object ( [id] => 136 [attribute_id] => 19 [name] => Планкен [material_modifier] => 1 [work_modifier] => 1 [options] => Array ( [0] => Сосна [1] => Ель [2] => Лиственница ) [days] => [20,20,20] [material_price] => [3194,2862,5154] [work_price] => [1537,1354,1735] [image] => https://akademik-stroy.ru/wp-content/uploads/materials/planken.jpg [area_modifier] => 257.17 [parent_name] => Наружная отделка фасада [parent_id] => 19 [material_sum] => 1034965 [work_sum] => 415034 [total_sum] => 1449999 [total_days] => 20 [display_material_sum] => 1 034 965 [display_work_sum] => 415 034 [display_total_sum] => 1 449 999 ) 1
1 449 999
Работа:415 034
Материалы:1 034 965
Дни:20
stdClass Object ( [id] => 137 [attribute_id] => 19 [name] => Штукатурка [material_modifier] => 1 [work_modifier] => 1 [options] => Array ( [0] => Цементно-песчаная (минеральная) [1] => Мокрый фасад ) [days] => [35,35] [material_price] => [2231,3938] [work_price] => [1202,2422] [image] => https://akademik-stroy.ru/wp-content/uploads/materials/shtukaturka.jpg [area_modifier] => 257.17 [parent_name] => Наружная отделка фасада [parent_id] => 19 [material_sum] => 722920 [work_sum] => 324574 [total_sum] => 1047494 [total_days] => 35 [display_material_sum] => 722 920 [display_work_sum] => 324 574 [display_total_sum] => 1 047 494 ) 1
1 047 494
Работа:324 574
Материалы:722 920
Дни:35
stdClass Object ( [id] => 138 [attribute_id] => 19 [name] => Облицовочный кирпич [material_modifier] => 1 [work_modifier] => 1 [options] => Array ( [0] => Керамический [1] => Клинкерный [2] => Ручной формовки [3] => Гиперпрессованный [4] => Силикатный кирпич ) [days] => [45,45,45,45,45] [material_price] => [8174,9148,1040,1257,5876] [work_price] => [3240,3758,4536,4017,3369] [image] => https://akademik-stroy.ru/wp-content/uploads/materials/oblicovochnyj-kirpich.jpg [area_modifier] => 257.17 [parent_name] => Наружная отделка фасада [parent_id] => 19 [material_sum] => 2648656 [work_sum] => 874892 [total_sum] => 3523548 [total_days] => 45 [display_material_sum] => 2 648 656 [display_work_sum] => 874 892 [display_total_sum] => 3 523 548 ) 1
3 523 548
Работа:874 892
Материалы:2 648 656
Дни:45
stdClass Object ( [id] => 139 [attribute_id] => 19 [name] => Фасадная плитка [material_modifier] => 1 [work_modifier] => 1 [options] => Array ( [0] => Клинкерная [1] => Керамическая [2] => Плитка ручной формовки ) [days] => [40,40,40] [material_price] => [2974,1487,3470] [work_price] => [3007,2592,3629] [image] => https://akademik-stroy.ru/wp-content/uploads/materials/fasadnaya-plitka.jpg [area_modifier] => 257.17 [parent_name] => Наружная отделка фасада [parent_id] => 19 [material_sum] => 963678 [work_sum] => 811976 [total_sum] => 1775654 [total_days] => 40 [display_material_sum] => 963 678 [display_work_sum] => 811 976 [display_total_sum] => 1 775 654 ) 1
1 775 654
Работа:811 976
Материалы:963 678
Дни:40
stdClass Object ( [id] => 140 [attribute_id] => 19 [name] => Сайдинг [material_modifier] => 1 [work_modifier] => 1 [options] => Array ( [0] => Виниловый [1] => Металлический [2] => Фиброцементный ) [days] => [20,20,20] [material_price] => [1263,1944,4147] [work_price] => [1263,1944,2074] [image] => https://akademik-stroy.ru/wp-content/uploads/materials/sajding.jpg [area_modifier] => 257.17 [parent_name] => Наружная отделка фасада [parent_id] => 19 [material_sum] => 409255 [work_sum] => 341046 [total_sum] => 750301 [total_days] => 20 [display_material_sum] => 409 255 [display_work_sum] => 341 046 [display_total_sum] => 750 301 ) 1
750 301
Работа:341 046
Материалы:409 255
Дни:20
stdClass Object ( [id] => 141 [attribute_id] => 19 [name] => Камень [material_modifier] => 1 [work_modifier] => 1 [options] => Array ( [0] => Травертин [1] => Дагестанский [2] => Искусственный [3] => Натуральный [4] => Керамогранит ) [days] => [45,45,45,45,45] [material_price] => [4536,3888,2592,3240,2462] [work_price] => [3240,3240,2462,3110,1944] [image] => https://akademik-stroy.ru/wp-content/uploads/materials/kamen-1.jpg [area_modifier] => 257.17 [parent_name] => Наружная отделка фасада [parent_id] => 19 [material_sum] => 1469819 [work_sum] => 874892 [total_sum] => 2344711 [total_days] => 45 [display_material_sum] => 1 469 819 [display_work_sum] => 874 892 [display_total_sum] => 2 344 711 ) 1
2 344 711
Работа:874 892
Материалы:1 469 819
Дни:45
stdClass Object ( [id] => 142 [attribute_id] => 19 [name] => Термопанели [material_modifier] => 1 [work_modifier] => 1 [options] => Array ( ) [days] => [20] [material_price] => [6221] [work_price] => [2333] [image] => https://akademik-stroy.ru/wp-content/uploads/materials/termo.png [area_modifier] => 257.17 [parent_name] => Наружная отделка фасада [parent_id] => 19 [material_sum] => 2015817 [work_sum] => 629976 [total_sum] => 2645793 [total_days] => 20 [display_material_sum] => 2 015 817 [display_work_sum] => 629 976 [display_total_sum] => 2 645 793 ) 1
2 645 793
Работа:629 976
Материалы:2 015 817
Дни:20
stdClass Object ( [id] => 143 [attribute_id] => 19 [name] => Плитка HAUBERK [material_modifier] => 1 [work_modifier] => 1 [options] => Array ( ) [days] => [20] [material_price] => [2786] [work_price] => [1944] [image] => https://akademik-stroy.ru/wp-content/uploads/materials/hauberk.jpg [area_modifier] => 257.17 [parent_name] => Наружная отделка фасада [parent_id] => 19 [material_sum] => 902759 [work_sum] => 524935 [total_sum] => 1427694 [total_days] => 20 [display_material_sum] => 902 759 [display_work_sum] => 524 935 [display_total_sum] => 1 427 694 ) 1
1 427 694
Работа:524 935
Материалы:902 759
Дни:20
stdClass Object ( [id] => 144 [attribute_id] => 19 [name] => Фальцевый фасад [material_modifier] => 1 [work_modifier] => 1 [options] => Array ( ) [days] => [20] [material_price] => [3240] [work_price] => [2592] [image] => https://akademik-stroy.ru/wp-content/uploads/materials/falcevyj-fasad.jpg [area_modifier] => 257.17 [parent_name] => Наружная отделка фасада [parent_id] => 19 [material_sum] => 1049871 [work_sum] => 699914 [total_sum] => 1749785 [total_days] => 20 [display_material_sum] => 1 049 871 [display_work_sum] => 699 914 [display_total_sum] => 1 749 785 ) 1
1 749 785
Работа:699 914
Материалы:1 049 871
Дни:20
stdClass Object ( [id] => 145 [attribute_id] => 19 [name] => Комбинированный [material_modifier] => 1 [work_modifier] => 1 [options] => Array ( ) [days] => [20] [material_price] => [4629] [work_price] => [3499] [image] => https://akademik-stroy.ru/wp-content/uploads/materials/Kombinirovannyj.jpg [area_modifier] => 257.17 [parent_name] => Наружная отделка фасада [parent_id] => 19 [material_sum] => 1499954 [work_sum] => 944830 [total_sum] => 2444784 [total_days] => 20 [display_material_sum] => 1 499 954 [display_work_sum] => 944 830 [display_total_sum] => 2 444 784 ) 1
2 444 784
Работа:944 830
Материалы:1 499 954
Дни:20
stdClass Object ( [id] => 257 [attribute_id] => 19 [name] => Японские фиброцементные [material_modifier] => 1 [work_modifier] => 1 [options] => Array ( ) [days] => [20] [material_price] => [7043] [work_price] => [2993] [image] => https://akademik-stroy.ru/wp-content/uploads/materials/paneli.jpg [area_modifier] => 257.17 [parent_name] => Наружная отделка фасада [parent_id] => 19 [material_sum] => 2282173 [work_sum] => 808195 [total_sum] => 3090368 [total_days] => 20 [display_material_sum] => 2 282 173 [display_work_sum] => 808 195 [display_total_sum] => 3 090 368 ) 1
3 090 368
Работа:808 195
Материалы:2 282 173
Дни:20
stdClass Object ( [id] => 258 [attribute_id] => 19 [name] => Панели Каньон [material_modifier] => 1 [work_modifier] => 1 [options] => Array ( ) [days] => [20] [material_price] => [4543] [work_price] => [2592] [image] => https://akademik-stroy.ru/wp-content/uploads/materials/kanon.png [area_modifier] => 257.17 [parent_name] => Наружная отделка фасада [parent_id] => 19 [material_sum] => 1472087 [work_sum] => 699914 [total_sum] => 2172001 [total_days] => 20 [display_material_sum] => 1 472 087 [display_work_sum] => 699 914 [display_total_sum] => 2 172 001 ) 1
2 172 001
Работа:699 914
Материалы:1 472 087
Дни:20
Террасы, крыльца, навесы
stdClass Object ( [id] => 39 [attribute_id] => 20 [name] => Нет [material_modifier] => 1 [work_modifier] => 1 [options] => Array ( ) [days] => [0] [material_price] => [0] [work_price] => [0] [image] => https://akademik-stroy.ru/wp-content/uploads/materials/terrasy.jpg [area_modifier] => 30 [parent_name] => Террасы, крыльца, навесы [parent_id] => 20 [material_sum] => 0 [work_sum] => 0 [total_sum] => 0 [total_days] => 0 [display_material_sum] => 0 [display_work_sum] => 0 [display_total_sum] => 0 ) 1
0
Работа:0
Материалы:0
Дни:0
stdClass Object ( [id] => 40 [attribute_id] => 20 [name] => Есть [material_modifier] => 1 [work_modifier] => 1 [options] => Array ( ) [days] => [5] [material_price] => [10450] [work_price] => [1950] [image] => https://akademik-stroy.ru/wp-content/uploads/materials/terrasy.jpg [area_modifier] => 30 [parent_name] => Террасы, крыльца, навесы [parent_id] => 20 [material_sum] => 395010 [work_sum] => 61425 [total_sum] => 456435 [total_days] => 5 [display_material_sum] => 395 010 [display_work_sum] => 61 425 [display_total_sum] => 456 435 ) 1
456 435
Работа:61 425
Материалы:395 010
Дни:5
Балконы
stdClass Object ( [id] => 41 [attribute_id] => 21 [name] => Нет [material_modifier] => 1 [work_modifier] => 1 [options] => Array ( ) [days] => [0] [material_price] => [0] [work_price] => [0] [image] => https://akademik-stroy.ru/wp-content/uploads/materials/balkony.jpg [area_modifier] => 30 [parent_name] => Балконы [parent_id] => 21 [material_sum] => 0 [work_sum] => 0 [total_sum] => 0 [total_days] => 0 [display_material_sum] => 0 [display_work_sum] => 0 [display_total_sum] => 0 ) 1
0
Работа:0
Материалы:0
Дни:0
stdClass Object ( [id] => 42 [attribute_id] => 21 [name] => Есть [material_modifier] => 1 [work_modifier] => 1 [options] => Array ( ) [days] => [12] [material_price] => [3600] [work_price] => [1950] [image] => https://akademik-stroy.ru/wp-content/uploads/materials/balkony.jpg [area_modifier] => 30 [parent_name] => Балконы [parent_id] => 21 [material_sum] => 136080 [work_sum] => 61425 [total_sum] => 197505 [total_days] => 12 [display_material_sum] => 136 080 [display_work_sum] => 61 425 [display_total_sum] => 197 505 ) 1
197 505
Работа:61 425
Материалы:136 080
Дни:12
Отмостка
stdClass Object ( [id] => 43 [attribute_id] => 22 [name] => Нет [material_modifier] => 1 [work_modifier] => 1 [options] => Array ( ) [days] => [0] [material_price] => [0] [work_price] => [0] [image] => https://akademik-stroy.ru/wp-content/uploads/materials/uteplennaya.jpg [area_modifier] => 172.09 [parent_name] => Отмостка [parent_id] => 22 [material_sum] => 0 [work_sum] => 0 [total_sum] => 0 [total_days] => 0 [display_material_sum] => 0 [display_work_sum] => 0 [display_total_sum] => 0 ) 1
0
Работа:0
Материалы:0
Дни:0
stdClass Object ( [id] => 44 [attribute_id] => 22 [name] => Утепленная отмостка [material_modifier] => 1 [work_modifier] => 1 [options] => Array ( ) [days] => [15] [material_price] => [2550] [work_price] => [1750] [image] => https://akademik-stroy.ru/wp-content/uploads/materials/uteplennaya.jpg [area_modifier] => 172.09 [parent_name] => Отмостка [parent_id] => 22 [material_sum] => 552925 [work_sum] => 316215 [total_sum] => 869140 [total_days] => 15 [display_material_sum] => 552 925 [display_work_sum] => 316 215 [display_total_sum] => 869 140 ) 1
869 140
Работа:316 215
Материалы:552 925
Дни:15
stdClass Object ( [id] => 146 [attribute_id] => 22 [name] => Не утепленная отмостка [material_modifier] => 1 [work_modifier] => 1 [options] => Array ( ) [days] => [10] [material_price] => [1650] [work_price] => [1450] [image] => https://akademik-stroy.ru/wp-content/uploads/materials/ne-uteplennaya.jpg [area_modifier] => 172.09 [parent_name] => Отмостка [parent_id] => 22 [material_sum] => 357775 [work_sum] => 262007 [total_sum] => 619782 [total_days] => 10 [display_material_sum] => 357 775 [display_work_sum] => 262 007 [display_total_sum] => 619 782 ) 1
619 782
Работа:262 007
Материалы:357 775
Дни:10
Дренаж вокруг дома
stdClass Object ( [id] => 45 [attribute_id] => 23 [name] => Нет [material_modifier] => 1 [work_modifier] => 1 [options] => Array ( ) [days] => [0] [material_price] => [0] [work_price] => [0] [image] => https://akademik-stroy.ru/wp-content/uploads/materials/drenazh-2.jpg [area_modifier] => 172.09 [parent_name] => Дренаж вокруг дома [parent_id] => 23 [material_sum] => 0 [work_sum] => 0 [total_sum] => 0 [total_days] => 0 [display_material_sum] => 0 [display_work_sum] => 0 [display_total_sum] => 0 ) 1
0
Работа:0
Материалы:0
Дни:0
stdClass Object ( [id] => 46 [attribute_id] => 23 [name] => Есть [material_modifier] => 1 [work_modifier] => 1 [options] => Array ( ) [days] => [5] [material_price] => [2366] [work_price] => [1911] [image] => https://akademik-stroy.ru/wp-content/uploads/materials/drenazh-2.jpg [area_modifier] => 172.09 [parent_name] => Дренаж вокруг дома [parent_id] => 23 [material_sum] => 513028 [work_sum] => 345307 [total_sum] => 858335 [total_days] => 5 [display_material_sum] => 513 028 [display_work_sum] => 345 307 [display_total_sum] => 858 335 ) 1
858 335
Работа:345 307
Материалы:513 028
Дни:5
Автономная канализация (септики)
stdClass Object ( [id] => 47 [attribute_id] => 24 [name] => Нет [material_modifier] => 1 [work_modifier] => 1 [options] => Array ( ) [days] => [0] [material_price] => [0] [work_price] => [0] [image] => https://akademik-stroy.ru/wp-content/uploads/materials/septik.jpg [area_modifier] => 1 [parent_name] => Автономная канализация (септики) [parent_id] => 24 [material_sum] => 0 [work_sum] => 0 [total_sum] => 0 [total_days] => 0 [display_material_sum] => 0 [display_work_sum] => 0 [display_total_sum] => 0 ) 1
0
Работа:0
Материалы:0
Дни:0
stdClass Object ( [id] => 48 [attribute_id] => 24 [name] => Есть [material_modifier] => 1 [work_modifier] => 1 [options] => Array ( [0] => Для дачи на 4 человека [1] => Для дома на 5 человек [2] => Для дома на 6 человек [3] => Для дома на 7 человек [4] => Для дома на 10 человек ) [days] => [7,7,7,8,8] [material_price] => [196340,220500,240940,264200,293340] [work_price] => [50000,55000,60500,66550,73206] [image] => https://akademik-stroy.ru/wp-content/uploads/materials/septik.jpg [area_modifier] => 1 [parent_name] => Автономная канализация (септики) [parent_id] => 24 [material_sum] => 247388 [work_sum] => 52500 [total_sum] => 299888 [total_days] => 7 [display_material_sum] => 247 388 [display_work_sum] => 52 500 [display_total_sum] => 299 888 ) 1
299 888
Работа:52 500
Материалы:247 388
Дни:7
Внутренние (не несущие) перегородки
stdClass Object ( [id] => 49 [attribute_id] => 25 [name] => Нет [material_modifier] => 1 [work_modifier] => 1 [options] => Array ( ) [days] => [0] [material_price] => [0] [work_price] => [0] [image] => https://akademik-stroy.ru/wp-content/uploads/materials/gkl.jpg [area_modifier] => 257.17 [parent_name] => Внутренние (не несущие) перегородки [parent_id] => 25 [material_sum] => 0 [work_sum] => 0 [total_sum] => 0 [total_days] => 0 [display_material_sum] => 0 [display_work_sum] => 0 [display_total_sum] => 0 ) 1
0
Работа:0
Материалы:0
Дни:0
stdClass Object ( [id] => 147 [attribute_id] => 25 [name] => Каркасно-обшивные [material_modifier] => 1 [work_modifier] => 1 [options] => Array ( [0] => 75 мм (без шумоизоляции) [1] => 75 мм (с шумоизоляцией) ) [days] => [11,11] [material_price] => [580,970] [work_price] => [380,570] [image] => https://akademik-stroy.ru/wp-content/uploads/materials/gkl.jpg [area_modifier] => 257.17 [parent_name] => Внутренние (не несущие) перегородки [parent_id] => 25 [material_sum] => 187940 [work_sum] => 102611 [total_sum] => 290551 [total_days] => 11 [display_material_sum] => 187 940 [display_work_sum] => 102 611 [display_total_sum] => 290 551 ) 1
290 551
Работа:102 611
Материалы:187 940
Дни:11
stdClass Object ( [id] => 148 [attribute_id] => 25 [name] => Пазогребневые [material_modifier] => 1 [work_modifier] => 1 [options] => Array ( [0] => 80 мм [1] => 100 мм ) [days] => [5,5] [material_price] => [1022,1313] [work_price] => [600,700] [image] => https://akademik-stroy.ru/wp-content/uploads/materials/pazogrebnevye-bloki.jpg [area_modifier] => 257.17 [parent_name] => Внутренние (не несущие) перегородки [parent_id] => 25 [material_sum] => 331163 [work_sum] => 162017 [total_sum] => 493180 [total_days] => 5 [display_material_sum] => 331 163 [display_work_sum] => 162 017 [display_total_sum] => 493 180 ) 1
493 180
Работа:162 017
Материалы:331 163
Дни:5
stdClass Object ( [id] => 149 [attribute_id] => 25 [name] => Газобетонные [material_modifier] => 1 [work_modifier] => 1 [options] => Array ( [0] => 100 мм [1] => 200 мм ) [days] => [11,11] [material_price] => [1160,1920] [work_price] => [700,900] [image] => https://akademik-stroy.ru/wp-content/uploads/materials/gazobeton-2.jpg [area_modifier] => 257.17 [parent_name] => Внутренние (не несущие) перегородки [parent_id] => 25 [material_sum] => 375880 [work_sum] => 189020 [total_sum] => 564900 [total_days] => 11 [display_material_sum] => 375 880 [display_work_sum] => 189 020 [display_total_sum] => 564 900 ) 1
564 900
Работа:189 020
Материалы:375 880
Дни:11
stdClass Object ( [id] => 150 [attribute_id] => 25 [name] => Кирпичные [material_modifier] => 1 [work_modifier] => 1 [options] => Array ( [0] => 120 мм [1] => 250 мм [2] => 360 мм ) [days] => [7,7,7] [material_price] => [1785,3570,5355] [work_price] => [900,1600,1800] [image] => https://akademik-stroy.ru/wp-content/uploads/materials/kirpich-1.jpg [area_modifier] => 257.17 [parent_name] => Внутренние (не несущие) перегородки [parent_id] => 25 [material_sum] => 578401 [work_sum] => 243026 [total_sum] => 821427 [total_days] => 7 [display_material_sum] => 578 401 [display_work_sum] => 243 026 [display_total_sum] => 821 427 ) 1
821 427
Работа:243 026
Материалы:578 401
Дни:7
Электрика
stdClass Object ( [id] => 55 [attribute_id] => 28 [name] => Нет [material_modifier] => 1 [work_modifier] => 1 [options] => Array ( ) [days] => [0] [material_price] => [0] [work_price] => [0] [image] => https://akademik-stroy.ru/wp-content/uploads/materials/ehlektrika.jpg [area_modifier] => 208.69 [parent_name] => Электрика [parent_id] => 28 [material_sum] => 0 [work_sum] => 0 [total_sum] => 0 [total_days] => 0 [display_material_sum] => 0 [display_work_sum] => 0 [display_total_sum] => 0 ) 1
0
Работа:0
Материалы:0
Дни:0
stdClass Object ( [id] => 56 [attribute_id] => 28 [name] => Есть [material_modifier] => 1 [work_modifier] => 1 [options] => Array ( ) [days] => [10] [material_price] => [650] [work_price] => [950] [image] => https://akademik-stroy.ru/wp-content/uploads/materials/ehlektrika.jpg [area_modifier] => 208.69 [parent_name] => Электрика [parent_id] => 28 [material_sum] => 170917 [work_sum] => 208168 [total_sum] => 379085 [total_days] => 10 [display_material_sum] => 170 917 [display_work_sum] => 208 168 [display_total_sum] => 379 085 ) 1
379 085
Работа:208 168
Материалы:170 917
Дни:10
Сантехника, канализация в доме
stdClass Object ( [id] => 57 [attribute_id] => 29 [name] => Нет [material_modifier] => 1 [work_modifier] => 1 [options] => Array ( ) [days] => [0] [material_price] => [0] [work_price] => [0] [image] => https://akademik-stroy.ru/wp-content/uploads/materials/santekhnika-kanalizaciya-1.jpg [area_modifier] => 208.69 [parent_name] => Сантехника, канализация в доме [parent_id] => 29 [material_sum] => 0 [work_sum] => 0 [total_sum] => 0 [total_days] => 0 [display_material_sum] => 0 [display_work_sum] => 0 [display_total_sum] => 0 ) 1
0
Работа:0
Материалы:0
Дни:0
stdClass Object ( [id] => 58 [attribute_id] => 29 [name] => Есть [material_modifier] => 1 [work_modifier] => 1 [options] => Array ( ) [days] => [10] [material_price] => [600] [work_price] => [730] [image] => https://akademik-stroy.ru/wp-content/uploads/materials/santekhnika-kanalizaciya-1.jpg [area_modifier] => 208.69 [parent_name] => Сантехника, канализация в доме [parent_id] => 29 [material_sum] => 157770 [work_sum] => 159961 [total_sum] => 317731 [total_days] => 10 [display_material_sum] => 157 770 [display_work_sum] => 159 961 [display_total_sum] => 317 731 ) 1
317 731
Работа:159 961
Материалы:157 770
Дни:10
Отопление
stdClass Object ( [id] => 59 [attribute_id] => 30 [name] => Нет [material_modifier] => 1 [work_modifier] => 1 [options] => Array ( ) [days] => [0] [material_price] => [0] [work_price] => [0] [image] => https://akademik-stroy.ru/wp-content/uploads/materials/otoplenie-1.jpg [area_modifier] => 208.69 [parent_name] => Отопление [parent_id] => 30 [material_sum] => 0 [work_sum] => 0 [total_sum] => 0 [total_days] => 0 [display_material_sum] => 0 [display_work_sum] => 0 [display_total_sum] => 0 ) 1
0
Работа:0
Материалы:0
Дни:0
stdClass Object ( [id] => 60 [attribute_id] => 30 [name] => Есть [material_modifier] => 1 [work_modifier] => 1 [options] => Array ( ) [days] => [5] [material_price] => [610] [work_price] => [560] [image] => https://akademik-stroy.ru/wp-content/uploads/materials/otoplenie-1.jpg [area_modifier] => 208.69 [parent_name] => Отопление [parent_id] => 30 [material_sum] => 160399 [work_sum] => 122710 [total_sum] => 283109 [total_days] => 5 [display_material_sum] => 160 399 [display_work_sum] => 122 710 [display_total_sum] => 283 109 ) 1
283 109
Работа:122 710
Материалы:160 399
Дни:5
Теплые полы
stdClass Object ( [id] => 61 [attribute_id] => 31 [name] => Нет [material_modifier] => 1 [work_modifier] => 1 [options] => Array ( ) [days] => [0] [material_price] => [0] [work_price] => [0] [image] => https://akademik-stroy.ru/wp-content/uploads/materials/vodyanye.jpg [area_modifier] => 30 [parent_name] => Теплые полы [parent_id] => 31 [material_sum] => 0 [work_sum] => 0 [total_sum] => 0 [total_days] => 0 [display_material_sum] => 0 [display_work_sum] => 0 [display_total_sum] => 0 ) 1
0
Работа:0
Материалы:0
Дни:0
stdClass Object ( [id] => 151 [attribute_id] => 31 [name] => Водяные [material_modifier] => 1 [work_modifier] => 1 [options] => Array ( ) [days] => [9] [material_price] => [10200] [work_price] => [2500] [image] => https://akademik-stroy.ru/wp-content/uploads/materials/vodyanye.jpg [area_modifier] => 30 [parent_name] => Теплые полы [parent_id] => 31 [material_sum] => 385560 [work_sum] => 78750 [total_sum] => 464310 [total_days] => 9 [display_material_sum] => 385 560 [display_work_sum] => 78 750 [display_total_sum] => 464 310 ) 1
464 310
Работа:78 750
Материалы:385 560
Дни:9
stdClass Object ( [id] => 152 [attribute_id] => 31 [name] => Электро [material_modifier] => 1 [work_modifier] => 1 [options] => Array ( ) [days] => [5] [material_price] => [6300] [work_price] => [1500] [image] => https://akademik-stroy.ru/wp-content/uploads/materials/ehlektricheskij.jpg [area_modifier] => 30 [parent_name] => Теплые полы [parent_id] => 31 [material_sum] => 238140 [work_sum] => 47250 [total_sum] => 285390 [total_days] => 5 [display_material_sum] => 238 140 [display_work_sum] => 47 250 [display_total_sum] => 285 390 ) 1
285 390
Работа:47 250
Материалы:238 140
Дни:5
Черновая отделка стен
stdClass Object ( [id] => 63 [attribute_id] => 32 [name] => Нет [material_modifier] => 1 [work_modifier] => 1 [options] => Array ( ) [days] => [0] [material_price] => [0] [work_price] => [0] [image] => https://akademik-stroy.ru/wp-content/uploads/materials/shtukaturka-shpatlevka-1.jpg [area_modifier] => 208.69 [parent_name] => Черновая отделка стен [parent_id] => 32 [material_sum] => 0 [work_sum] => 0 [total_sum] => 0 [total_days] => 0 [display_material_sum] => 0 [display_work_sum] => 0 [display_total_sum] => 0 ) 1
0
Работа:0
Материалы:0
Дни:0
stdClass Object ( [id] => 153 [attribute_id] => 32 [name] => Штукатурка и шпатлевка [material_modifier] => 1 [work_modifier] => 1 [options] => Array ( ) [days] => [20] [material_price] => [1850] [work_price] => [2600] [image] => https://akademik-stroy.ru/wp-content/uploads/materials/shtukaturka-shpatlevka-1.jpg [area_modifier] => 208.69 [parent_name] => Черновая отделка стен [parent_id] => 32 [material_sum] => 486456 [work_sum] => 569724 [total_sum] => 1056180 [total_days] => 20 [display_material_sum] => 486 456 [display_work_sum] => 569 724 [display_total_sum] => 1 056 180 ) 1
1 056 180
Работа:569 724
Материалы:486 456
Дни:20
stdClass Object ( [id] => 154 [attribute_id] => 32 [name] => Гипсокортон на стены [material_modifier] => 1 [work_modifier] => 1 [options] => Array ( ) [days] => [15] [material_price] => [950] [work_price] => [2100] [image] => https://akademik-stroy.ru/wp-content/uploads/materials/gkl-1.jpg [area_modifier] => 208.69 [parent_name] => Черновая отделка стен [parent_id] => 32 [material_sum] => 249802 [work_sum] => 460161 [total_sum] => 709963 [total_days] => 15 [display_material_sum] => 249 802 [display_work_sum] => 460 161 [display_total_sum] => 709 963 ) 1
709 963
Работа:460 161
Материалы:249 802
Дни:15
stdClass Object ( [id] => 155 [attribute_id] => 32 [name] => Вагонка [material_modifier] => 1 [work_modifier] => 1 [options] => Array ( ) [days] => [15] [material_price] => [1250] [work_price] => [950] [image] => https://akademik-stroy.ru/wp-content/uploads/materials/vagonka.jpg [area_modifier] => 208.69 [parent_name] => Черновая отделка стен [parent_id] => 32 [material_sum] => 328687 [work_sum] => 208168 [total_sum] => 536855 [total_days] => 15 [display_material_sum] => 328 687 [display_work_sum] => 208 168 [display_total_sum] => 536 855 ) 1
536 855
Работа:208 168
Материалы:328 687
Дни:15
Черновая отделка полов
stdClass Object ( [id] => 65 [attribute_id] => 33 [name] => Нет [material_modifier] => 1 [work_modifier] => 1 [options] => Array ( ) [days] => [0] [material_price] => [0] [work_price] => [0] [image] => https://akademik-stroy.ru/wp-content/uploads/materials/styazhka.jpg [area_modifier] => 208.69 [parent_name] => Черновая отделка полов [parent_id] => 33 [material_sum] => 0 [work_sum] => 0 [total_sum] => 0 [total_days] => 0 [display_material_sum] => 0 [display_work_sum] => 0 [display_total_sum] => 0 ) 1
0
Работа:0
Материалы:0
Дни:0
stdClass Object ( [id] => 156 [attribute_id] => 33 [name] => Стяжка + наливные полы [material_modifier] => 1 [work_modifier] => 1 [options] => Array ( ) [days] => [10] [material_price] => [1000] [work_price] => [900] [image] => https://akademik-stroy.ru/wp-content/uploads/materials/styazhka.jpg [area_modifier] => 208.69 [parent_name] => Черновая отделка полов [parent_id] => 33 [material_sum] => 262949 [work_sum] => 197212 [total_sum] => 460161 [total_days] => 10 [display_material_sum] => 262 949 [display_work_sum] => 197 212 [display_total_sum] => 460 161 ) 1
460 161
Работа:197 212
Материалы:262 949
Дни:10
stdClass Object ( [id] => 157 [attribute_id] => 33 [name] => ОСБ на пол [material_modifier] => 1 [work_modifier] => 1 [options] => Array ( ) [days] => [7] [material_price] => [580] [work_price] => [350] [image] => https://akademik-stroy.ru/wp-content/uploads/materials/osb-1.jpg [area_modifier] => 208.69 [parent_name] => Черновая отделка полов [parent_id] => 33 [material_sum] => 152511 [work_sum] => 76694 [total_sum] => 229205 [total_days] => 7 [display_material_sum] => 152 511 [display_work_sum] => 76 694 [display_total_sum] => 229 205 ) 1
229 205
Работа:76 694
Материалы:152 511
Дни:7
Чистовая отделка стен и полов
stdClass Object ( [id] => 67 [attribute_id] => 34 [name] => Нет [material_modifier] => 1 [work_modifier] => 1 [options] => Array ( ) [days] => [0] [material_price] => [0] [work_price] => [0] [image] => https://akademik-stroy.ru/wp-content/uploads/materials/chistovaya-otdelka.jpg [area_modifier] => 208.69 [parent_name] => Чистовая отделка стен и полов [parent_id] => 34 [material_sum] => 0 [work_sum] => 0 [total_sum] => 0 [total_days] => 0 [display_material_sum] => 0 [display_work_sum] => 0 [display_total_sum] => 0 ) 1
0
Работа:0
Материалы:0
Дни:0
stdClass Object ( [id] => 68 [attribute_id] => 34 [name] => Есть [material_modifier] => 1 [work_modifier] => 1 [options] => Array ( ) [days] => [50] [material_price] => [6000] [work_price] => [3500] [image] => https://akademik-stroy.ru/wp-content/uploads/materials/chistovaya-otdelka.jpg [area_modifier] => 208.69 [parent_name] => Чистовая отделка стен и полов [parent_id] => 34 [material_sum] => 1577696 [work_sum] => 766936 [total_sum] => 2344632 [total_days] => 50 [display_material_sum] => 1 577 696 [display_work_sum] => 766 936 [display_total_sum] => 2 344 632 ) 1
2 344 632
Работа:766 936
Материалы:1 577 696
Дни:50
Отделка потолка
stdClass Object ( [id] => 69 [attribute_id] => 35 [name] => Нет [material_modifier] => 1 [work_modifier] => 1 [options] => Array ( ) [days] => [0] [material_price] => [0] [work_price] => [0] [image] => https://akademik-stroy.ru/wp-content/uploads/materials/mnogourovnevyj-gkl.jpg [area_modifier] => 208.69 [parent_name] => Отделка потолка [parent_id] => 35 [material_sum] => 0 [work_sum] => 0 [total_sum] => 0 [total_days] => 0 [display_material_sum] => 0 [display_work_sum] => 0 [display_total_sum] => 0 ) 1
0
Работа:0
Материалы:0
Дни:0
stdClass Object ( [id] => 70 [attribute_id] => 35 [name] => Есть [material_modifier] => 1 [work_modifier] => 1 [options] => Array ( [0] => Многоуровневый потолок из гипсокартона [1] => Многоуровневый потолок из гипсокартона и натяжного потолка [2] => Одноуровневый потолок из гипсокартона [3] => Одноуровневый натяжной потолок ) [days] => [10,10,1,1] [material_price] => [900,700,700,600] [work_price] => [1000,800,500,300] [image] => https://akademik-stroy.ru/wp-content/uploads/materials/mnogourovnevyj-gkl.jpg [area_modifier] => 208.69 [parent_name] => Отделка потолка [parent_id] => 35 [material_sum] => 236654 [work_sum] => 219125 [total_sum] => 455779 [total_days] => 10 [display_material_sum] => 236 654 [display_work_sum] => 219 125 [display_total_sum] => 455 779 ) 1
455 779
Работа:219 125
Материалы:236 654
Дни:10

Преимущества работы с нами

icon

7 этапов оплаты

icon

Независимый строительный надзор

icon

Экологически чистые материалы

icon

16 лет гарантии

icon

Онлайн-кабинет с веб-камерой

icon

Строители с опытом более 15 лет

icon

Собственное производство

Двухэтажный дом в Москве: идеальный проект на 16x13 м

В современном мире, когда вопрос выбора жилья стоит особенно остро, строительство собственного дома становится перспективным решением. Особенно в таком оживленном мегаполисе, как Москва. Компания "Академик Строй" предлагает уникальное решение – двухэтажный дом размером 16x13 м, общей полезной площадью 208.69 м². Этот проект сочетает в себе эстетичность, функциональность и комфорт, создавая идеальное жилище для семьи. Представьте себе просторный дом с четырьмя спальнями и двумя санузлами, максимально адаптированный под нужды вашей семьи. Такой проект не просто отвечает современным архитектурным тенденциям, он также учитывает особенности городского проживания, предлагая уютный уголок в столице. Уверен, вам интересно узнать все нюансы и детали этого проекта, который обещает стать настоящим оазисом уюта в Москве.

Планировка и конструкция: функциональность и комфорт

Когда речь идет о доме, помимо эстетического аспекта, всегда важна функциональность. Наш проект уделяет особое внимание разумной и эргономичной планировке. Общая жилая площадь составляет 174,31 m², что обеспечивает достаточно места для комфортной жизни каждого члена семьи. Основной изюминкой проекта является наличие четырех просторных спален, что идеально подходит для большой семьи или людей, часто принимающих гостей. Список удобств и особенностей дома:
  • Планировка вмещает просторную гостиную и кухню-столовую, что делает дом идеальным местом для проведения семейных вечеров и праздников.
  • На первом этаже предусмотрена дополнительная комната, которая может служить гостевой спальней, кабинетом или комнатой для занятий спортом.
  • Высота здания 8,80 м дарит чувство простора и света, благодаря высоким потолкам и панорамным окнам.
Помимо внутренних удобств, дом оснащен террасой, идеально подходящей для утреннего кофе или вечернего барбекю. Эта опция позволяет добавлять жизни на свежем воздухе в ваш повседневный распорядок.

Участок: выбор земли для вашего будущего дома

Один из ключевых аспектов успешного строительства – это правильно выбранный участок. Минимальная ширина участка для нашего проекта составит 24,13 м, а минимальная длина – 21 м. Важно учесть, что сам по себе участок будет влиять на ежедневную жизнь, ведь у вас будет возможность создать собственный уютный уголок с зелеными зонами, цветниками или огородом. Каждый домовладелец мечтает о своем небольшом саде с местом для отдыха. Поэтому правильно подобранный участок – это не только строительство дома, но и создание комфортной среды проживания. На участке можно разместить детскую игровую площадку, беседку или даже небольшой пруд.

Строительные особенности: структура и крыша

Двухэтажный дом 16x13 м в Москве от "Академик Строй" воплощает в себе надежные технические решения. Одной из таких особенностей является крыша сложной формы – двускатная, вальмовая. Угол наклона крыши составляет 22°. Это позволяет избежать накопления снега и воды, соответственно, исключает дополнительные нагрузки на конструкцию. Важным элементом является площадь застройки, равная 181 m². Это позволяет рационально использовать пространство на участке и оставляет достаточно места для дополнительных построек или рекреационных зон.

Процесс заказа проекта

Компания "Академик Строй" предлагает простую и удобную схему заказа проекта. Вам достаточно обратиться к нашим специалистам по телефону +7 (980) 800-47-93 или посетить наш офис в Москве. Мы предоставим полную консультацию по всем вопросам, связанным с проектированием и строительством, учтем ваши пожелания и особенности участка. Важные шаги в процессе заказа:
  1. Консультация и выбор проекта. Определяем бюджет и рассматриваем ваши пожелания.
  2. Разработка технической документации. Подготавливаем все необходимые чертежи и расчеты.
  3. Согласование проекта с учетом законодательных требований и норм.
  4. Начало строительства. Контроль качества на всех этапах.
Мы гарантируем полное сопровождение на каждом этапе: от идеи до реализации, а также последующее обслуживание и поддержку.

Цена и экономичность: инвестиции в будущее

Строительство собственного дома – это не только удовольствие от жизни в нем, но и важное инвестиционное решение. Стоимость проекта зависит от применяемых материалов, сложности работ и ряда других факторов. Однако, сотрудничая с "Академик Строй", вы можете быть уверены в отличном соотношении цены и качества. Инвестируя в строительство, вы не только решаете вопрос жилья, но и создаете капитал на будущее. Собственный дом в Москве – это не просто место жительства, это уверенность и стабильность для вашей семьи.

Технические характеристики и преимущества

Для вашего удобства представляем основные параметры и преимущества нашего проекта:
Характеристика Описание
Полезная площадь 208.69 м²
Этажей 2
Количество спален 4
Количество санузлов 2
Жилая площадь 174,31 m²
Высота здания 8,80 m
Минимальная ширина участка 24,13 m
Минимальная длина участка 21 m
Тип крыши двускатная, вальмовая
Проект предоставляет многочисленные преимущества, включая максимальную энергоэффективность, что в свою очередь снижает ежемесячные расходы на содержание дома. Выбирая наш проект, вы выбираете комфорт, безопасность и удовлетворение всех бытовых и эстетических потребностей. Таким образом, строительство двухэтажного дома 16x13 м в Москве с компанией "Академик Строй" – это не просто выгодное вложение в ваше благополучие, но и путь к мечте о собственном идеальном доме. Пусть ваш дом станет местом радости, уюта и безопасности!