Введение в проект двухэтажного дома 10x11 – оптимальное решение для большой семьи
Выбор проекта дома – один из самых важных этапов при строительстве собственного жилья. Для тех, кто мечтает о комфорте и функциональности в сочетании с компактными размерами, двухэтажный дом размером 10х11 метров с общей полезной площадью 180.2 м² становится оптимальным выбором. Такой дом идеально подходит для семей с большим составом, где важно не только достаточное количество спален, но и возможность организовать приватное пространство для каждого члена семьи.
В данной статье мы подробно рассмотрим основные характеристики этого проекта, его преимущества, технические параметры, а также обоснование стоимости — 6 233 754 рублей. Это поможет понять, почему именно такой дом часто выбирают для строительства, а также на что обратить внимание при планировании такого масштабного объекта.
Основные параметры и геометрия дома
Одним из ключевых аспектов удобства и функциональности двухэтажного дома является его размер и расположение на участке. Дом с габаритами 10х11 метров и полезной площадью 180,2 м² гармонично сочетает простор и компактность.
Размеры здания напрямую влияют на организацию внутреннего пространства и планировку, а также на стоимость строительных работ и материалов. Формат в 10 на 11 метров является классическим и позволяет рационально использовать каждый квадратный метр.
Габариты и площадь застройки
Площадь застройки дома составляет 124,5 м², что позволяет оптимально разместить здание на участке, не перегружая его. Такой проект требует минимум места и подходит для участков размерами не менее 17,65 метров по ширине и 19,05 по длине. Эти параметры дают возможность обеспечить комфортные отступы от границ соседних участков, что важно для соблюдения строительных норм и правил.
| Параметр | Значение |
|---|---|
| Размеры дома (Ш x Д) | 10 x 11 м |
| Площадь застройки | 124,50 м² |
| Полезная площадь | 180,2 м² |
| Жилая площадь | 151,2 м² |
| Минимальный размер участка (Ш x Д) | 17,65 x 19,05 м |
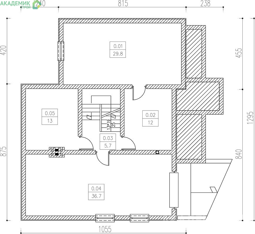
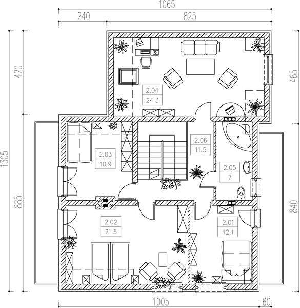
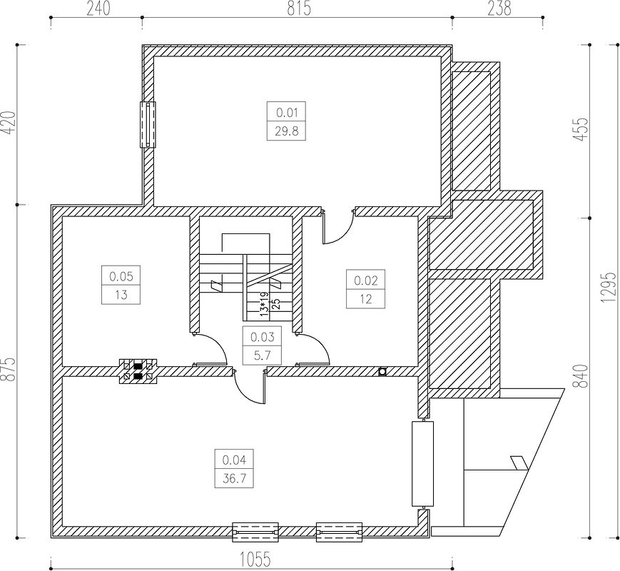
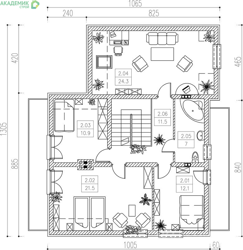
Планировка двухэтажного дома: функциональность и комфорт на каждом этаже
Общая площадь полезных помещений в 180,2 м² обеспечивает возможность обустроить просторное и эргономичное внутреннее пространство, подходящее для большой семьи. Дом спроектирован с учетом современных требований к комфорту и удобству, что особенно важно для семей с пятью и более спальнями.
Количество спален и жилое пространство
Одним из главных преимуществ проекта является наличие пяти и более спален. Такой подход позволяет создать индивидуальные комнаты для всех членов семьи, а также гостевые спальни или кабинеты.
Жилая площадь составляет значительные 151,2 м², что говорит о высоком уровне комфорта и достаточности пространства для отдыха, занятий и интимного общения. На первый взгляд, такая площадь кажется избыточной, но при детальном анализе она проявляет свою практичность и рациональное распределение комнат.
Санузлы – залог удобства в большом доме
Количество трех санузлов в доме – показатель ориентированности проекта на многолюдную семью. Наличие нескольких санузлов снижает очереди по утрам и вечером, что особенно актуально в доме с пятью и более спальнями.
Размещение санузлов обычно происходит с продуманным подходом: один – на первом этаже, два – на втором. Такой подход значительно повышает уровень комфорта и приватности для всех домочадцев.
Крыша и архитектурные особенности
Для обеспечения долговечности, эргономики и эстетической привлекательности выбран двускатный тип крыши с углом наклона 40°. Такая крыша обеспечивает хорошее стекание воды и снега, что особенно важно в условиях климатических особенностей России.
Преимущества двускатной крыши с углом 40°
- Высокая прочность и устойчивость к снеговым нагрузкам.
- Оптимальные условия для обустройства чердачного пространства.
- Простая конструкция снижает время и стоимость монтажных работ.
- Классический внешний вид, гармонично вписывающийся в любые архитектурные стили.
При проектировании двускатной крыши стоит также учитывать материалы и теплоизоляцию, ведь от этого зависит не только эстетика, но и энергоэффективность всего дома.
Стоимость дома 10x11 – как формируется цена 6 233 754 рублей
Цена — один из ключевых факторов при выборе проекта и реализации строительства. Стоимость 6 233 754 рублей за двухэтажный дом площадью 180,2 м² представляет собой сбалансированное соотношение качества, функционала и затрат.
При анализе стоимости важно учитывать несколько составляющих:
Основные компоненты стоимости
- Стоимость материалов: качественные стройматериалы, современная тепло- и звукоизоляция, надежные окна и двери.
- Работы по строительству: фундамент, возведение стен, монтаж кровли, внутренняя отделка.
- Проектные и инженерные решения: разработка архитектурного проекта, инженерия систем коммуникаций и безопасности.
Кроме того, важна экономия за счет оптимальной площади дома, что снижает расходы на отопление, отделку и обслуживание. В сравнении с большими по площади домами стоимость эксплуатации и строительства оказывается значительно разумнее.
Размещение дома на участке: требования и рекомендации
Для комфортного и законного использования земельного участка предлагается минимальная ширина участка 17,65 метров и длина 19,05 метров. Эти значения позволяют соблюсти нормативные отступы от границ участка и обеспечить дополнительное пространство для организации сада, зон отдыха или хозяйственных построек.
Тщательное планирование расположения дома значительно упрощает инженерные коммуникации и повышает безопасность проживания. Несоблюдение рекомендуемых размеров участка может привести к проблемам при регистрации недвижимости и согласовании строительных документов.
Преимущества правильного размещения дома
- Обеспечение достаточного естественного освещения помещений.
- Создание комфортной зоны отдыха на участке.
- Улучшение вентиляции и микроклимата вокруг здания.
- Возможность организации дорожек и подъездных путей без ущерба для озеленения.
Практические советы по строительству и выбору материалов
Выбирая проект с габаритами и площадью, как у двухэтажного дома 10х11 (180,2 м²), важно подходить к подбору материалов и подрядчиков ответственно. Качество строительных решений напрямую влияет на долговечность и комфорт жилья.
Какие материалы лучше выбрать для такого дома?
- Фундамент: бетонный монолитный или свайно-ленточный фундамент, обеспечивающий надежность и устойчивость конструкции.
- Стены: кирпич, газобетонные блоки или древесина — в зависимости от климатических условий и бюджета. Газобетон часто является оптимальным вариантом благодаря хорошей теплоизоляции и цене.
- Крыша: металлочерепица или мягкая кровля – выбор зависит от предпочтений и местных климатических особенностей.
- Окна и двери: современные энергосберегающие стеклопакеты и утепленные панорамные двери для повышения энергоэффективности.
Очень важно предусмотреть хорошую гидро- и пароизоляцию, а также качественную теплоизоляцию, что позволит сохранять тепло зимой и прохладу летом.
Технологии и этапы строительства
Для успешной реализации строительства стоит придерживаться классической последовательности этапов:
- Закладка фундамента.
- Возведение стен и перегородок.
- Устройство перекрытий и монтаж крыши.
- Установка окон и дверей.
- Внутренние инженерные работы (электрика, сантехника, отопление).
- Черновая и чистовая отделка.
- Облагораживание территории и фасадные работы.
Контроль каждого этапа позволит избежать ошибок и сэкономить средства на исправления и переделки в будущем.
Преимущества проживания в доме с пятью и более спальнями
Наличие пяти и более спален – это не просто показатель большого дома, это возможность для каждой семьи организовать личное пространство и обеспечить профильный подход к организации быта.
Для кого подходит такой дом?
- Большие семьи с несколькими детьми, где каждому подростку нужна своя комната.
- Семьи с пожилыми родственниками, которым необходима отдельная спальня.
- Люди, работающие дома, которые нуждаются в отдельном кабинете или творческой мастерской.
- Часто приезжающие гости, для которых предусмотрена индивидуальная комната.
Таким образом, большой дом с пятью и более спальнями – инвестиция в качество жизни, комфорт и гибкость использования внутреннего пространства.
Обеспечение комфорта и энергоэффективности в двухэтажном доме
Современный дом должен быть не только просторным, но и энергоэффективным. Именно поэтому при проектировании и строительстве двухэтажного дома 10х11 с полезной площадью 180,2 м² уделяется особое внимание теплоизоляции, вентиляции и системам отопления.
О Системах отопления и вентиляции
Для оптимального распределения тепла в большом доме с несколькими спальнями рекомендуется использовать комбинированные системы отопления, включающие газовые котлы, теплые полы на первом этаже и эффективные радиаторы на втором.
Вентиляция в доме организуется таким образом, чтобы обеспечивать свежий воздух, одновременно минимизируя теплопотери. Часто используются рекуператоры, которые сохраняют тепло, одновременно обеспечивая приток свежего воздуха.
Энергоэффективные решения
- Утепленные наружные стены и фасады.
- Качественные окна с двух- или трехслойными стеклопакетами.
- Использование современных теплоизоляционных материалов в крыше и перекрытиях.
- Автоматизированные системы управления температурой и освещением.
Заключительные рекомендации по выбору и строительству двухэтажного дома 10x11
Проект двухэтажного дома размерами 10 на 11 метров с площадью 180,2 м² – это разумное, вместе с тем эффективное решение для тех, кто ценит комфорт, пространство и функциональность. Благодаря продуманной планировке с пятью и более спальнями, трем санузлам, двускатной крыше с углом наклона в 40°, дом отлично подходит для проживания больших семей и идеален для загородного или дачного строительства.
Инвестиции в строительство такого дома с ориентировочной стоимостью около 6,2 миллионов рублей позволяют получить комфортное, энергоэффективное и эстетически привлекательное жилье, которое будет радовать вас и вашу семью многие годы.




