Почему одноэтажный дом 12х10 м – это идеальный выбор для вас?
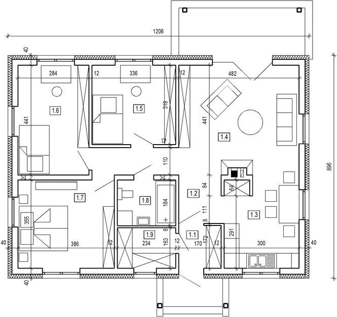
Когда речь заходит о строительстве собственного дома, выбор одноэтажных проектов 12х10 м — отличный вариант. Этот формат жилья завоевал популярность благодаря своей функциональности, комфорту и эстетической привлекательности. Особенно если вы рассматриваете этот проект в Москве, где каждый квадратный метр на вес золота. В нашей статье мы расскажем о всех преимуществах этого проекта, а также о том, как компания "Академик Строй" может помочь вам в его реализации. Многие задумываются о том, какого же размера дом будет оптимальным. 12 на 10 метров — это не просто цифры. Это пространство, которое грамотно спланировано и не оставляет лишних углов и закутков. При этом полезная площадь дома составляет 86.9 м², которая специально выделена под необходимые нужды владельцев.Функциональность и комфорт вашего будущего дома
Функциональность в проектировании домов играет ключевую роль. В проекте одноэтажного дома на 86.9 м² вы найдете все, что необходимо для современной и комфортной жизни. Например, три спальни позволяют с комфортом разместиться всей семье, а их простор позволяет вам чувствовать себя свободно, не стесняя движений. В таких условиях можно приспособить пространство как для взрослых, так и для детей. Один санузел может показаться не слишком удобным, но стоит заметить, что при грамотной организации пространства и встраивании современных решений даже один санузел может удовлетворять все потребности семьи. Площадь дома также предоставляет владельцам возможность для творчества в интерьере, с возможностью округлить площадь до 90 м² благодаря различным дизайнерским решениям.Преимущества дома без гаража
Для некоторых собственников отсутствие гаража может стать препятствием. Но давайте взглянем на это с другой стороны. Освобождённое пространство под домом позволяет увеличить полезную площадь жилых комнат или добавить дополнительные помещения, такие как кладовые или кабинеты. Кроме того, строительство дома без гаража может значительно снизить ваши расходы и позволить вам направить средства на более важные аспекты обустройства дома. В условиях городской застройки Москвы такое решение может оказаться самым рациональным. У вас будет возможность обустроить на участке парковочное место, заботясь о сохранении места для сада или зоны для отдыха на улице — террасы, например.Архитектурные особенности и мастерство строительства
Одноэтажный дом с двускатной крышей и углом наклона 30° – это классическое решение, которое не выходит из моды. Двухскатная крыша не только добавляет дому элегантности, но и практичности, позволяя воде и снегу легко стекать. Ее конструкция требует меньших вложений, чем более сложные дизайнерские решения, что особенно выгодно при строительстве в Москве. Высота здания всего 6,70 метра позволяет сохранить уют и защиту от ветров, особенно если вы планируете разместить дом на открытой местности. При этом минимальные размеры участка в 20,06 на 17,96 метров позволяют компактно распланировать строительство, не жертвуя окружающим пейзажем.Взгляд в будущее: долговечность и надежность стройматериалов
Строительство дома — это не только процесс возведения стен, но и выбор надежных и долговечных материалов, которые продолжат защищать ваше жилище долгие годы. Строительная компания "Академик Строй" тщательно подбирает строительные материалы, чтобы обеспечить вам высокое качество по доступной цене. Это позволяет избежать лишних хлопот и дает уверенность в дальнейшем проживании. Рассматривая различные проекты, вы можете заметить, что застройка 108 м² занимает оптимальную площадь, предоставляя изобилие вариантов для организационного распределения элементов дома и участка. Важность выбора правильного участка под застройку также является ключевым моментом, и наша компания готова оказать помощь в этом непростом вопросе.Возможность кастомизации вашего дома
Обратившись в компанию "Академик Строй", вы не просто получаете готовый проект дома. Мы предлагаем индивидуальный подход, чтобы ваш дом соответствовал вашим ожиданиям и требованиям. Вы можете выбрать материалы и дизайн интерьера, внести изменения в планировку для повышения комфорта и функциональности. Свобода выбора даст вам уверенность в том, что ваши желания учтены, а дом станет настоящим отражением вашего стиля. При проектировании мебели и оборудования в одноэтажном доме на 12х10 м, вы должны учесть каждую деталь. Важно не только грамотно распланировать пространство, но и обратить внимание на материалы, из которых сделана мебель, на ее цветовую гамму и возможности трансформации — функциональность в каждом элементе интерьера играет не последнюю роль.Готовый проект или индивидуальные доработки?
Каждый клиент имеет право выбора — воспользоваться готовым архитектурным решением или внести свои уникальные изменения для создания индивидуального проекта. Готовый проект одноэтажного дома 12х10 м включает в себя все необходимые документы и чертежи, которые позволяют быстро и без труда начать строительство. Итак, резюмируем основные моменты, которые будут полезны:- Простор и комфортный дизайн интерьера
- Качественные и проверенные строительные материалы
- Возможность создания уникального дизайна
- Экономическая эффективность без лишних затрат
Заказать проект дома от компании "Академик Строй"
Если вы задумываетесь о строительстве собственного дома в Москве, обращение в компанию "Академик Строй" — это гарантия надежного результата. Наша команда профессионалов поможет вам разработать проект дома вашей мечты, основываясь на индивидуальных предпочтениях и выделенном бюджете. Все процессы, начиная от разработки проекта, заканчивая удочкой ключей, мы можем взять на себя. Примерный бюджет и сроки строительства дома обсуждаются индивидуально. Это позволяет учесть все важные для вас аспекты и предложить оптимальное решение, сделав ваше проживание в новом доме максимально комфортным.Таблица с ключевыми параметрами проекта:
| Параметр | Значение |
|---|---|
| Полезная площадь | 86.9 м² |
| Размеры дома | 12x10 м |
| Количество этажей | 1 |
| Количество спален | 3 |
| Количество санузлов | 1 |
| Жилая площадь | 86.9 м² |
| Высота здания | 6.70 м |
| Минимальная ширина участка | 20.06 м |
| Минимальная длина участка | 17.96 м |
| Тип крыши | Двускатная |
| Угол наклона крыши | 30° |








