Общая характеристика двухэтажного дома 11x11 метров
Двухэтажный дом размером 11 на 11 метров с полезной площадью 172,41 квадратных метра представляет собой оптимальное решение для тех, кто ищет просторное и функциональное жилье для семьи из нескольких человек. Эта планировка обеспечивает комфортное размещение большого количества комнат, что особенно важно для семей с детьми или тех, кто любит принимать гостей.
Размеры дома в 11 на 11 метров удобно вписываются в типовые участки с минимальными габаритами 18,96 на 19,32 метра, что делает проект универсальным и подходящим под большинство загородных земельных участков. Высота здания 9,05 метра и двускатная крыша с углом наклона 45° придают дому классический и узнаваемый внешний облик, при этом обеспечивая эффективный отвод осадков и хорошую защиту от ветра.
Планировка и жилая площадь
Общая полезная площадь дома — 172,41 м², из которых более 151 м² занимают жилые помещения. Это говорит о высоком уровне комфортности внутри здания, поскольку практически вся площадь дома используется для жилых и функциональных нужд.
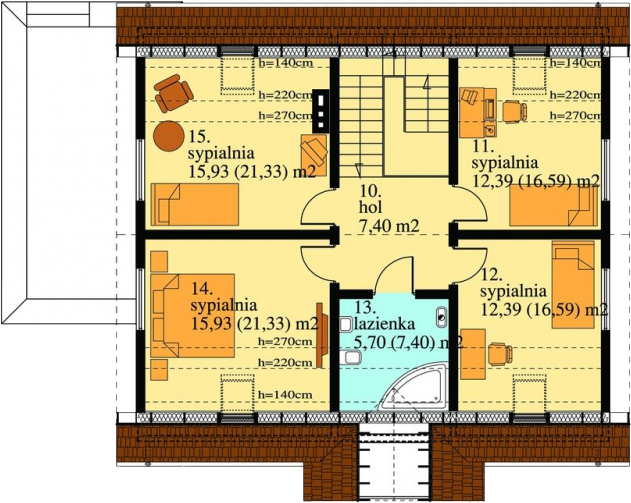
Дом предназначен для проживания семьи с пятью и более спальнями, что является идеальным вариантом для семей с несколькими детьми или тех, кто предпочитает иметь отдельные комнаты для работы, хобби и отдыха. Наличие двух санузлов — серьезный плюс для большой семьи, поскольку избавляет от необходимости ожидания и повышает удобство эксплуатации.
Этажность и функциональное распределение комнат
Двухэтажная планировка – это классика, которая позволяет рационально использовать площадь участка, сохраняя при этом приватность и разделение зон на дневные и ночные. На первом этаже, согласно опциям проекта, запланирована комната, которая может служить гостиной, кабинетом или дополнительной спальней для пожилых членов семьи. Это делает дом удобным для жизни в любом возрасте.
Второй этаж отведен под спальни, благодаря чему создаются условия для уединенного отдыха и сна. Также наличие второй санузлов позволяет организовать комфортный быт, особенно в утренние часы и вечером, когда множество членов семьи нуждаются в санузлах одновременно.
Архитектурные особенности и покровная структура
Двускатная крыша с углом наклона в 45° — одно из ключевых архитектурных решений проекта. Этот тип крыши является классическим и хорошо зарекомендовал себя в климатических условиях средней полосы России. Благодаря углу наклона обеспечивается эффективный сток осадков, предотвращается накопление снега, что существенно снижает нагрузку на конструкцию и продлевает срок службы кровли.
Высота здания достигает 9,05 метров, что при двух этажах обеспечивает комфортную высоту потолков и просторное внутреннее пространство. Такая высота способствует естественному освещению и хорошей вентиляции помещений, что особенно важно в жилых домах для поддержания здоровой атмосферы.
Строительные материалы и конструктив
Хотя конкретные материалы в техническом плане не указаны, реализация дома с такими параметрами обычно предусматривает использование современных и проверенных технологий. Обычно стены возводятся из газобетона или кирпича, что обеспечивает хорошую теплоизоляцию и долговечность. Кровля чаще всего выполняется из металлочерепицы или битумной черепицы, что также способствует долгосрочной эксплуатации и эстетичному внешнему виду.
Эксплуатационные характеристики и требования к участку
Дом площадью 172,41 м² требует земельного участка с минимальной шириной 18,96 м и длиной 19,32 м. Такие параметры участка позволяют разместить дом с необходимыми отступами от границ, зону для организации приусадебного хозяйства, места для отдыха, посадки сада и прочих элементов загородной жизни.
Важно учитывать, что минимальный размер участка по ширине и длине обусловлен не только размерами дома, но и требованиями строительных нормативов по отступам, пожарной безопасности, доступности подъезда и другим критериям. Соответственно, при выборе участка важно обращать внимание именно на эти размеры, чтобы проект соответствовал всем правилам и нормам.
Опции и дополнительные удобства
Проект предусматривает наличие комнаты на первом этаже, которая может выступать в роли кабинета, гостевой спальни, игровой или даже спортзала. Такой универсальный функционал обеспечивает гибкость использования пространства и позволяет адаптировать дом под конкретные потребности семьи.
Наличие террасы в опциональном исполнении создаёт дополнительную зону для отдыха на свежем воздухе, что особенно актуально в теплое время года. Терраса может использоваться как место для организации барбекю, вечерних посиделок с друзьями или просто для утреннего кофе с видом на сад.
Преимущества проекта без гаража
Отсутствие гаража в базовой комплектации дома делает его более бюджетным и упрощает архитектурное решение. Тем не менее, такая особенность не является ограничением, поскольку при необходимости гараж можно построить отдельно или заменить на навес для автомобиля. Это также даёт возможность более гибко использовать пространство участка в зависимости от личных предпочтений и нужд хозяев.
Экономическая сторона: стоимость строительства
Стоимость строительства двухэтажного дома 11x11 с полезной площадью 172,41 м² оценивается в 6 407 445 рублей. Это конкурентоспособное предложение, учитывая основные характеристики дома — количество комнат, площадь, качество и комфорт.
Цена включает все базовые строительные работы, вероятно, с учетом наружных и внутренних отделочных работ. Такой бюджет является приемлемым для большинства семей среднего класса, уверенных в потребности в просторном и полном жилом доме.
Составляющие стоимости
| Статья затрат | Описание | Примерная доля в стоимости, % |
|---|---|---|
| Фундамент | Закладка основания дома — бетонные работы и армирование | 15-20% |
| Стены и кладка | Возведение несущих конструкций, облицовка | 25-30% |
| Кровельные работы | Установка двускатной крыши с металлочерепицей | 10-15% |
| Инженерные коммуникации | Водоснабжение, канализация, электрика, отопление | 15-20% |
| Внутренняя отделка | Покрытие пола, отделка стен и потолков, сантехника | 15-20% |
| Прочее | Проектные работы, согласования, непредвиденные расходы | 5-10% |
Преимущества строительства дома 11x11 м
- Комфорт и простор. Большая площадь и количество комнат делает этот дом удобным для жизни большой семьи, обеспечивая уединение и личное пространство.
- Рациональное использование земли. Компактные габариты 11х11 метра позволяют эффективно использовать земельный участок, оставляя место для сада, дорожек и зон отдыха.
- Классический стиль. Двускатная крыша и простой геометрический силуэт дома легко вписываются в любой ландшафт, подходят для большинства архитектурных стилей.
- Удобство эксплуатации. Два санузла, несколько спален, дополнительная комната на первом этаже существенно повышают комфорт повседневной жизни.
- Возможности для персонализации. Терраса и опциональные пространства дают возможность адаптировать дом под индивидуальные потребности владельцев.
- Экономическая целесообразность. Стоимость строительства отвечает качеству и функционалу, делая этот проект разумным вложением в долгосрочное жилье.
Почему стоит выбрать такой проект для семьи
Если вы планируете строительство дома в ближайшем будущем, проект с размерами 11 на 11 метров и площадью около 172 квадратных метров является золотой серединой между компактностью и просторностью. Этот формат выгоден тем, что подходит для разных этапов жизни, начиная с расширенной молодой семьи и заканчивая жильём для родителей и детей, которые нуждаются в своем личном пространстве.
Большое количество спален позволяет избежать необходимости делить комнаты, а наличие двух санузлов значительно упрощает быт. Комната на первом этаже может выступить как дополнительная жилая зона, кабинет или гостевая — всё зависит от ваших предпочтений и образа жизни.
Особенности проектирования крыши и фасада
Двускатная крыша с угол наклона 45° — оптимальное решение, сочетающее простоту и функциональность. Такой уклон крыши способствует хорошему стоку воды и снега, что особенно важно для регионов с осадками. Кроме того, двускатная крыша облегчает монтаж окон мансардного типа или создания чердачного пространства, которое при желании можно использовать под хранение или обустроить как жилую зону.
Фасад дома, благодаря квадратной форме и симметрии, легко отделать в любом стиле — от классики до модерна. Это позволяет вписать дом в любую архитектурную концепцию, подбирая соответствующие материалы отделки, окна и двери.
Рекомендации по выбору кровельных материалов
- Металлочерепица. Легкий и долговечный материал, устойчивый к атмосферным воздействиям. Отличается длительным сроком службы и простотой монтажа.
- Битумная черепица. Отличается богатством текстур и цветов, создаёт приятный внешний вид крыши, хорошо подходит для сложной кровли.
- Керамическая черепица. Традиционный и экологичный материал, более тяжелый, но очень долговечный и красивый.
Особенности внутреннего обустройства и организации пространства
Высокая жилая площадь позволяет продумать удобную организацию помещений при помощи различных дизайнерских решений. Важно уделить внимание разделению зоны дневного отдыха и приватной ночной зоны, обеспечив комфортное пребывание для всех членов семьи.
Просторная кухня-гостиная, оснащенная современным оборудованием, станет центром семейных встреч и праздников. Функциональные спальни на втором этаже позволят каждому члену семьи иметь своё личное пространство.
Примерная компоновка комнат
| Помещение | Этаж | Примерная площадь, м² | Назначение |
|---|---|---|---|
| Гостиная / кухня | Первый | 35-40 | Общая зона для семьи и гостей |
| Комната (кабинет/гостевая) | Первый | 12-15 | Гибкое использование |
| Спальня 1 | Второй | 18-20 | Основная спальня |
| Спальня 2 | Второй | 14-16 | Для детей или гостей |
| Спальня 3-5+ | Второй | 12-15 каждая | Дополнительные комнаты |
| Санузлы (2 штуки) | Первый и второй | 5-7 каждая | Для удобства всей семьи |
Ландшафтное планирование и зона отдыха
Владельцы дома с таким размером и планировкой участка смогут обустроить уютное пространство вокруг дома. Терраса, как одна из опций, идеально подходит для создания летней зоны отдыха, которая может быть дополнена зоной барбекю, легкой садовой мебелью и зелёными насаждениями. Это предоставляет возможность расширить жилое пространство на свежий воздух, наслаждаясь природой и отдыхом.
Равномерное распределение зон отдыха, огорода, технических построек и дорожек вокруг дома позволяет создать не только функциональный, но и эстетически привлекательный приусадебный участок.
Перспективы и возможности модернизации
Проект дома 11х11 с двумя этажами и полезной площадью более 170 м² создаёт базу для дальнейшей модернизации и развития. При необходимости можно добавить навес или отдельный гараж, увеличить террасу, воплотить мансардное жилище или обустроить подвал для хранения.
Современные технологии строительства позволяют внедрять энергоэффективные системы отопления, воду и электричество, обеспечивая комфортное проживание и экономию ресурсов. Этот дом является отличной платформой для создания уютного, долговечного и стильного семейного гнезда.



