Двухэтажный дом 13x11 - 162.37 м2 за руб.

ID-24966

Стоимость дома 5470864 руб.
154 м2 Полезная
площадь
13 x 11 м Размеры
2 этажа Этажей
26 м2 Террасы
и балконы
1Без
гаража
3 Количество
спален
2 Количество
санузлов

Планировки

План первого этажа

floor image
  • 1. Прихожая 7,17 m²
  • 2. Гараж на 1 машину 17,23 m²
  • 3. Котельная 8,62 m²
  • 4. Холл 8,90 m²
  • 5. Гостиная 33,92 m²
  • 6. Кухня 12,85 m²
  • 7. Ванная комната 5,14 m²
  • План первого этажа 93,83 m²

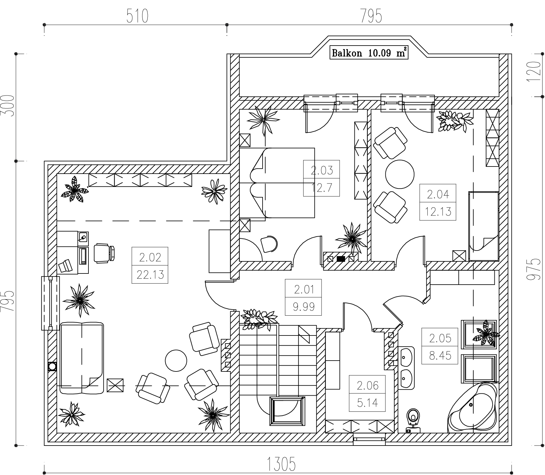
План мансарды

floor image
  • 1. Коридор 9,99 m²
  • 2. Комната 22,13 m²
  • 3. Комната 12,70 m²
  • 4. Комната 12,13 m²
  • 5. Ванная комната 6,45 m²
  • 6. Гардероб 5,14 m²
  • План мансарды 68,54 m²

Фасады

Передний
Задний
Левый
Правый
Передний
Задний
Левый
Правый

Подробная информация

Жилая площадь
138,52 m²
icon

Сумма площади всех жилых помещений, за вычетом пов. гараж, котельная, чердак, подвал. Учитывается в 100%, для помещений высотой более 2,2 м, в 50% для помещений с высотой 2,2-1,4 м и не включается для более низких помещений (меньше 1,4 м).

Площадь застройки
121,76 m²
icon

Площадь застройки здания определяется как площадь горизонтального сечения по внешнему обводу здания на уровне цоколя, включая выступающие части.

Угол наклона крыши
40°
icon

Наклон ската крыши в градусах. Внимание! В некоторых проектах возникает более чем один наклон крыши.

Мин. ширина участка
21,05 m
icon

Наименьшая возможная ширина участка, необходимая для строительства выбранного дома. Состоит из длины фасада дома плюс с обеих сторон три метра отступ.

Мин. длина участка
18,95 m
icon

Наименьшая возможная длина участка, необходимая для строительства выбранного дома. Состоит из длины фасада дома плюс с обеих сторон три метра отступ.

Материалы и опции
Общие
Цена, руб.
Площадь м²
160
Ежемесячный платёж, руб
Количество спален
3
Гараж
1
Количество санузлов
2
Ширина
13
Глубина
11
Тип крыши

Площади дома

№ п/п Наименование Ед. из. Строительная площадь Полезная площадь
1 1 этаж м2 115.63 93.83
2 2 этаж м2 84.46 68.54
3 Итого м2 200.09 162.37

ПРИГЛАШАЕМ НА ДЕНЬ ОТКРЫТЫХ ДВЕРЕЙ СТРОЯЩЕГОСЯ ДОМА

ХОЧУ ПОЕХАТЬ
День открытых дверей

Калькулятор опций

0

В ипотеку от 18 268 ₽/мес.

Фундамент
stdClass Object ( [id] => 1 [attribute_id] => 1 [name] => Ленточный монолитный ж/б [material_modifier] => 1 [work_modifier] => 1 [options] => Array ( [0] => размер 200 х 700 мм [1] => размер 300 х 900 мм [2] => размер 400 х 1 000 мм [3] => размер 500 х 1 100 мм [4] => размер 600 х 1 200 мм ) [days] => [20,21,22,25,30] [material_price] => [2823,3630,4475,5210,12047] [work_price] => [2154,2826,3731,4577,5293] [image] => https://akademik-stroy.ru/wp-content/uploads/materials/lentochnyj-monolitnyj-zh-b.jpg [area_modifier] => 115.63 [parent_name] => Фундамент [parent_id] => 1 [material_sum] => 411294 [work_sum] => 261520 [total_sum] => 672814 [total_days] => 20 [display_material_sum] => 411 294 [display_work_sum] => 261 520 [display_total_sum] => 672 814 ) 1
672 814
Работа:261 520
Материалы:411 294
Дни:20
stdClass Object ( [id] => 2 [attribute_id] => 1 [name] => Забивные Ж/Б сваи [material_modifier] => 1 [work_modifier] => 1 [options] => Array ( [0] => 150х150х3000мм [1] => 150х150х4000мм [2] => 200х200х3000мм [3] => 200х200х4000мм [4] => 200х200х5000мм [5] => 200х200х6000мм ) [days] => [2,2,2,2,2,2] [material_price] => [1990,2850,3255,4360,5120,6837] [work_price] => [1002,1185,1336,1438,1574,1839] [image] => https://akademik-stroy.ru/wp-content/uploads/materials/zabivnye-zh-b-svai.png [area_modifier] => 115.63 [parent_name] => Фундамент [parent_id] => 1 [material_sum] => 289931 [work_sum] => 121654 [total_sum] => 411585 [total_days] => 2 [display_material_sum] => 289 931 [display_work_sum] => 121 654 [display_total_sum] => 411 585 ) 1
411 585
Работа:121 654
Материалы:289 931
Дни:2
stdClass Object ( [id] => 71 [attribute_id] => 1 [name] => Свайно-ростверковый ж/б [material_modifier] => 1 [work_modifier] => 1 [options] => Array ( [0] => ростверк 200х300 мм [1] => ростверк 300х600 мм [2] => ростверк 400х900 мм [3] => ростверк 500х1200 мм ) [days] => [20,23,25,27] [material_price] => [3018,3474,7109,9792] [work_price] => [2024,3012,5635,7022] [image] => https://akademik-stroy.ru/wp-content/uploads/materials/svajno-rostverkovyj-monolitnyj-zh-b-3.png [area_modifier] => 115.63 [parent_name] => Фундамент [parent_id] => 1 [material_sum] => 439704 [work_sum] => 245737 [total_sum] => 685441 [total_days] => 20 [display_material_sum] => 439 704 [display_work_sum] => 245 737 [display_total_sum] => 685 441 ) 1
685 441
Работа:245 737
Материалы:439 704
Дни:20
stdClass Object ( [id] => 72 [attribute_id] => 1 [name] => Монолитная ж/б плита [material_modifier] => 1 [work_modifier] => 1 [options] => Array ( [0] => 200 мм [1] => 300 мм [2] => 400 мм [3] => 500 мм [4] => 600 мм ) [days] => [30,33,35,37,40] [material_price] => [5348,8555,12788,14388,15189] [work_price] => [4314,4881,7037,8061,10230] [image] => https://akademik-stroy.ru/wp-content/uploads/materials/monolitnaya-zhb-plita.png [area_modifier] => 115.63 [parent_name] => Фундамент [parent_id] => 1 [material_sum] => 779170 [work_sum] => 523769 [total_sum] => 1302939 [total_days] => 30 [display_material_sum] => 779 170 [display_work_sum] => 523 769 [display_total_sum] => 1 302 939 ) 1
1 302 939
Работа:523 769
Материалы:779 170
Дни:30
stdClass Object ( [id] => 73 [attribute_id] => 1 [name] => Утепленная шведская плита [material_modifier] => 1 [work_modifier] => 1 [options] => Array ( [0] => 200 мм [1] => 300 мм [2] => 400 мм [3] => 500 мм [4] => 600 мм ) [days] => [32,37,39,42,45] [material_price] => [10249,12692,13760,14936,16230] [work_price] => [5960,7337,8072,8878,9765] [image] => https://akademik-stroy.ru/wp-content/uploads/materials/uteplennaya-shvedskaya-plita.jpg [area_modifier] => 115.63 [parent_name] => Фундамент [parent_id] => 1 [material_sum] => 1493216 [work_sum] => 723613 [total_sum] => 2216829 [total_days] => 32 [display_material_sum] => 1 493 216 [display_work_sum] => 723 613 [display_total_sum] => 2 216 829 ) 1
2 216 829
Работа:723 613
Материалы:1 493 216
Дни:32
stdClass Object ( [id] => 75 [attribute_id] => 1 [name] => Ленточный из ФБС [material_modifier] => 1 [work_modifier] => 1 [options] => Array ( [0] => толщ. 300 мм [1] => толщ. 400 мм [2] => толщ. 500 мм [3] => толщ. 600 мм ) [days] => [20,20,20,20] [material_price] => [3675,4902,6126,7350] [work_price] => [2451,3264,4083,4902] [image] => https://akademik-stroy.ru/wp-content/uploads/materials/lentochnyj-iz-fbs.png [area_modifier] => 115.63 [parent_name] => Фундамент [parent_id] => 1 [material_sum] => 535425 [work_sum] => 297580 [total_sum] => 833005 [total_days] => 20 [display_material_sum] => 535 425 [display_work_sum] => 297 580 [display_total_sum] => 833 005 ) 1
833 005
Работа:297 580
Материалы:535 425
Дни:20
stdClass Object ( [id] => 76 [attribute_id] => 1 [name] => Цокольный этаж из ФБС [material_modifier] => 1 [work_modifier] => 1 [options] => Array ( [0] => толщ. 300 мм [1] => толщ. 400 мм [2] => толщ. 500 мм [3] => толщ. 600 мм ) [days] => [30,32,34,36] [material_price] => [20916,23299,26680,29060] [work_price] => [17524,18700,19873,21046] [image] => https://akademik-stroy.ru/wp-content/uploads/materials/cokolnyj-ehtazh-iz-fbs.jpg [area_modifier] => 115.63 [parent_name] => Фундамент [parent_id] => 1 [material_sum] => 3047332 [work_sum] => 2127615 [total_sum] => 5174947 [total_days] => 30 [display_material_sum] => 3 047 332 [display_work_sum] => 2 127 615 [display_total_sum] => 5 174 947 ) 1
5 174 947
Работа:2 127 615
Материалы:3 047 332
Дни:30
stdClass Object ( [id] => 77 [attribute_id] => 1 [name] => Цокольный этаж монолитный ж/б [material_modifier] => 1 [work_modifier] => 1 [options] => Array ( [0] => толщ. 200 мм [1] => толщ. 300 мм [2] => толщ. 400 мм [3] => толщ. 500 мм [4] => толщ. 600 мм ) [days] => [40,42,44,46,48] [material_price] => [25421,29148,32275,35602,37326] [work_price] => [20441,21907,23375,24841,26306] [image] => https://akademik-stroy.ru/wp-content/uploads/materials/cokolnyj-etazh-zh-b.jpg [area_modifier] => 115.63 [parent_name] => Фундамент [parent_id] => 1 [material_sum] => 3703682 [work_sum] => 2481772 [total_sum] => 6185454 [total_days] => 40 [display_material_sum] => 3 703 682 [display_work_sum] => 2 481 772 [display_total_sum] => 6 185 454 ) 1
6 185 454
Работа:2 481 772
Материалы:3 703 682
Дни:40
stdClass Object ( [id] => 191 [attribute_id] => 1 [name] => Винтовые сваи [material_modifier] => 1 [work_modifier] => 1 [options] => Array ( [0] => 57х200мм [1] => 76х250мм [2] => 108х300мм [3] => 133х350мм ) [days] => [1,1,2,2] [material_price] => [1200,1300,1450,1600] [work_price] => [400,600,900,1100] [image] => https://akademik-stroy.ru/wp-content/uploads/materials/vintovye-svai.png [area_modifier] => 115.63 [parent_name] => Фундамент [parent_id] => 1 [material_sum] => 174833 [work_sum] => 48565 [total_sum] => 223398 [total_days] => 1 [display_material_sum] => 174 833 [display_work_sum] => 48 565 [display_total_sum] => 223 398 ) 1
223 398
Работа:48 565
Материалы:174 833
Дни:1
Перекрытие цоколя
stdClass Object ( [id] => 3 [attribute_id] => 2 [name] => Деревянные балки [material_modifier] => 1 [work_modifier] => 1 [options] => Array ( [0] => без утепления [1] => утепление 200 мм [2] => утепление 250 мм [3] => утепление 300 мм [4] => утепление 350 мм [5] => утепление 400 мм [6] => утепление 450 мм [7] => утепление 500 мм ) [days] => [8,9,9,9,11,12,13,14] [material_price] => [1634,2042,2344,2947,3149,3652,3354,3557] [work_price] => [1230,1339,1393,1426,1460,1513,1587,1620] [image] => https://akademik-stroy.ru/wp-content/uploads/materials/derevyannye-balki.png [area_modifier] => 115.63 [parent_name] => Перекрытие цоколя [parent_id] => 2 [material_sum] => 238064 [work_sum] => 149336 [total_sum] => 387400 [total_days] => 8 [display_material_sum] => 238 064 [display_work_sum] => 149 336 [display_total_sum] => 387 400 ) 1
387 400
Работа:149 336
Материалы:238 064
Дни:8
stdClass Object ( [id] => 4 [attribute_id] => 2 [name] => Сборные ж/б плиты [material_modifier] => 1 [work_modifier] => 1 [options] => Array ( [0] => без утепления [1] => утепление 150мм [2] => утепление 200мм [3] => утепление 250мм [4] => утепление 300мм [5] => утепление 350мм [6] => утепление 400мм [7] => утепление 450мм [8] => утепление 500мм ) [days] => [13,15,15,15,15,15,15,15,15] [material_price] => [3067,5577,5928,6679,7730,8782,9833,10884,11935] [work_price] => [1520,1956,2102,2247,2392,2537,2684,2829,2974] [image] => https://akademik-stroy.ru/wp-content/uploads/materials/sbornye-zh-b-plity-2.jpg [area_modifier] => 115.63 [parent_name] => Перекрытие цоколя [parent_id] => 2 [material_sum] => 446843 [work_sum] => 184545 [total_sum] => 631388 [total_days] => 13 [display_material_sum] => 446 843 [display_work_sum] => 184 545 [display_total_sum] => 631 388 ) 1
631 388
Работа:184 545
Материалы:446 843
Дни:13
stdClass Object ( [id] => 78 [attribute_id] => 2 [name] => Монолитная ж/б плита [material_modifier] => 1 [work_modifier] => 1 [options] => Array ( [0] => без утепления [1] => утепление 150 мм [2] => утепление 200 мм [3] => утепление 250 мм [4] => утепление 300 мм [5] => утепление 350 мм [6] => утепление 400 мм [7] => утепление 450 мм [8] => утепление 500 мм ) [days] => [18,20,20,20,20,20,20,20,20] [material_price] => [4837,6572,7224,7375,79426,8177,8728,9180,10031] [work_price] => [3348,3921,4112,4302,4493,4684,4875,5066,5256] [image] => https://akademik-stroy.ru/wp-content/uploads/materials/monolitnaya-zh-b-plita-2.jpg [area_modifier] => 115.63 [parent_name] => Перекрытие цоколя [parent_id] => 2 [material_sum] => 704721 [work_sum] => 406486 [total_sum] => 1111207 [total_days] => 18 [display_material_sum] => 704 721 [display_work_sum] => 406 486 [display_total_sum] => 1 111 207 ) 1
1 111 207
Работа:406 486
Материалы:704 721
Дни:18
Стены 1 этаж (несущие)
stdClass Object ( [id] => 6 [attribute_id] => 3 [name] => Пеноблок [material_modifier] => 1 [work_modifier] => 1 [options] => Array ( [0] => 300 мм [1] => 400 мм [2] => 500 мм [3] => 600 мм ) [days] => [29,31,34,39] [material_price] => [3000,4000,4500,4937] [work_price] => [5033,5805,6400,8710] [image] => https://akademik-stroy.ru/wp-content/uploads/materials/penoblok.jpg [area_modifier] => 115.63 [parent_name] => Стены 1 этаж (несущие) [parent_id] => 3 [material_sum] => 437081 [work_sum] => 611064 [total_sum] => 1048145 [total_days] => 29 [display_material_sum] => 437 081 [display_work_sum] => 611 064 [display_total_sum] => 1 048 145 ) 1
1 048 145
Работа:611 064
Материалы:437 081
Дни:29
stdClass Object ( [id] => 79 [attribute_id] => 3 [name] => Керамический блок [material_modifier] => 1 [work_modifier] => 1 [options] => Array ( [0] => 380 мм [1] => 380 мм Thermo [2] => 440 мм [3] => 510 мм ) [days] => [23,23,24,25] [material_price] => [4510,5098,6093,8013] [work_price] => [4737,4937,5903,6958] [image] => https://akademik-stroy.ru/wp-content/uploads/materials/keramicheskij-blok.jpg [area_modifier] => 115.63 [parent_name] => Стены 1 этаж (несущие) [parent_id] => 3 [material_sum] => 657079 [work_sum] => 575126 [total_sum] => 1232205 [total_days] => 23 [display_material_sum] => 657 079 [display_work_sum] => 575 126 [display_total_sum] => 1 232 205 ) 1
1 232 205
Работа:575 126
Материалы:657 079
Дни:23
stdClass Object ( [id] => 80 [attribute_id] => 3 [name] => Кирпич [material_modifier] => 1 [work_modifier] => 1 [options] => Array ( [0] => Кирпич 250 мм [1] => Кирпич 380 мм [2] => Кирпич 510 мм [3] => Кирпич 640 мм [4] => Кирпич 770 мм ) [days] => [30,30,31,33,36] [material_price] => [5500,7142,9206,10171,12235] [work_price] => [8736,10041,12018,15240,18462] [image] => https://akademik-stroy.ru/wp-content/uploads/materials/kirpich.jpg [area_modifier] => 115.63 [parent_name] => Стены 1 этаж (несущие) [parent_id] => 3 [material_sum] => 801316 [work_sum] => 1060651 [total_sum] => 1861967 [total_days] => 30 [display_material_sum] => 801 316 [display_work_sum] => 1 060 651 [display_total_sum] => 1 861 967 ) 1
1 861 967
Работа:1 060 651
Материалы:801 316
Дни:30
stdClass Object ( [id] => 81 [attribute_id] => 3 [name] => Монолитные [material_modifier] => 1 [work_modifier] => 1 [options] => Array ( [0] => 150 мм [1] => 200 мм [2] => 250 мм [3] => 300 мм [4] => 350 мм [5] => 400 мм ) [days] => [45,46,47,49,50,53] [material_price] => [6545,7876,10175,12011,13908,15204] [work_price] => [5106,6444,7698,8552,9807,11461] [image] => https://akademik-stroy.ru/wp-content/uploads/materials/monolitnye.jpg [area_modifier] => 115.63 [parent_name] => Стены 1 этаж (несущие) [parent_id] => 3 [material_sum] => 953566 [work_sum] => 619927 [total_sum] => 1573493 [total_days] => 45 [display_material_sum] => 953 566 [display_work_sum] => 619 927 [display_total_sum] => 1 573 493 ) 1
1 573 493
Работа:619 927
Материалы:953 566
Дни:45
stdClass Object ( [id] => 82 [attribute_id] => 3 [name] => Клееный брус [material_modifier] => 1 [work_modifier] => 1 [options] => Array ( [0] => 160 мм [1] => 175 мм [2] => 200 мм [3] => 215 мм [4] => 240 мм [5] => 270 мм [6] => 282 мм ) [days] => [24,28,32,37,40,42,48] [material_price] => [16975,18773,19950,20545,21599,22159,23275] [work_price] => [4806,5287,5815,6397,7036,7740,8514] [image] => https://akademik-stroy.ru/wp-content/uploads/materials/kleenyj-brus.jpg [area_modifier] => 115.63 [parent_name] => Стены 1 этаж (несущие) [parent_id] => 3 [material_sum] => 2473152 [work_sum] => 583504 [total_sum] => 3056656 [total_days] => 24 [display_material_sum] => 2 473 152 [display_work_sum] => 583 504 [display_total_sum] => 3 056 656 ) 1
3 056 656
Работа:583 504
Материалы:2 473 152
Дни:24
stdClass Object ( [id] => 83 [attribute_id] => 3 [name] => Каркасные [material_modifier] => 1 [work_modifier] => 1 [options] => Array ( [0] => 150 мм [1] => 200 мм [2] => 250 мм [3] => 300 мм ) [days] => [15,16,17,18] [material_price] => [2379,2639,2898,3258] [work_price] => [2418,2686,2985,3716] [image] => https://akademik-stroy.ru/wp-content/uploads/materials/karkasnye.jpg [area_modifier] => 115.63 [parent_name] => Стены 1 этаж (несущие) [parent_id] => 3 [material_sum] => 346606 [work_sum] => 293573 [total_sum] => 640179 [total_days] => 15 [display_material_sum] => 346 606 [display_work_sum] => 293 573 [display_total_sum] => 640 179 ) 1
640 179
Работа:293 573
Материалы:346 606
Дни:15
stdClass Object ( [id] => 84 [attribute_id] => 3 [name] => СИП-панели [material_modifier] => 1 [work_modifier] => 1 [options] => Array ( [0] => 120 мм [1] => 170 мм [2] => 220 мм ) [days] => [7,7,7] [material_price] => [1210,1856,2292] [work_price] => [1410,1551,1706] [image] => https://akademik-stroy.ru/wp-content/uploads/materials/sip-paneli.jpg [area_modifier] => 115.63 [parent_name] => Стены 1 этаж (несущие) [parent_id] => 3 [material_sum] => 176289 [work_sum] => 171190 [total_sum] => 347479 [total_days] => 7 [display_material_sum] => 176 289 [display_work_sum] => 171 190 [display_total_sum] => 347 479 ) 1
347 479
Работа:171 190
Материалы:176 289
Дни:7
stdClass Object ( [id] => 85 [attribute_id] => 3 [name] => Сухой брус [material_modifier] => 1 [work_modifier] => 1 [options] => Array ( [0] => 150 мм [1] => 180 мм [2] => 200 мм ) [days] => [7,8,9] [material_price] => [6010,7190,8709] [work_price] => [3204,3845,4229] [image] => https://akademik-stroy.ru/wp-content/uploads/materials/suhoj-brus.jpg [area_modifier] => 115.63 [parent_name] => Стены 1 этаж (несущие) [parent_id] => 3 [material_sum] => 875620 [work_sum] => 389002 [total_sum] => 1264622 [total_days] => 7 [display_material_sum] => 875 620 [display_work_sum] => 389 002 [display_total_sum] => 1 264 622 ) 1
1 264 622
Работа:389 002
Материалы:875 620
Дни:7
stdClass Object ( [id] => 86 [attribute_id] => 3 [name] => Профилированный брус [material_modifier] => 1 [work_modifier] => 1 [options] => Array ( [0] => 150 мм [1] => 180 мм [2] => 200 мм ) [days] => [7,8,9] [material_price] => [8190,9228,10051] [work_price] => [3845,4614,5075] [image] => https://akademik-stroy.ru/wp-content/uploads/materials/profilirovannyj-brus.jpg [area_modifier] => 115.63 [parent_name] => Стены 1 этаж (несущие) [parent_id] => 3 [material_sum] => 1193232 [work_sum] => 466827 [total_sum] => 1660059 [total_days] => 7 [display_material_sum] => 1 193 232 [display_work_sum] => 466 827 [display_total_sum] => 1 660 059 ) 1
1 660 059
Работа:466 827
Материалы:1 193 232
Дни:7
stdClass Object ( [id] => 87 [attribute_id] => 3 [name] => Оцилиндрованное бревно [material_modifier] => 1 [work_modifier] => 1 [options] => Array ( [0] => 180 мм [1] => 220 мм [2] => 260 мм [3] => 320 мм ) [days] => [7,8,9,10] [material_price] => [75190,9532,10868,13116] [work_price] => [3845,4691,5535,6863] [image] => https://akademik-stroy.ru/wp-content/uploads/materials/ocilindrovannoe-brevno-1.jpg [area_modifier] => 115.63 [parent_name] => Стены 1 этаж (несущие) [parent_id] => 3 [material_sum] => 10954717 [work_sum] => 466827 [total_sum] => 11421544 [total_days] => 7 [display_material_sum] => 10 954 717 [display_work_sum] => 466 827 [display_total_sum] => 11 421 544 ) 1
11 421 544
Работа:466 827
Материалы:10 954 717
Дни:7
stdClass Object ( [id] => 88 [attribute_id] => 3 [name] => Срубы [material_modifier] => 1 [work_modifier] => 1 [options] => Array ( [0] => 260 мм [1] => 320 мм [2] => 360 мм [3] => 400 мм [4] => 500 мм ) [days] => [7,8,9,10,11] [material_price] => [37975,46709,52314,58069,73167] [work_price] => [4806,5911,6621,7349,9260] [image] => https://akademik-stroy.ru/wp-content/uploads/materials/sruby.jpg [area_modifier] => 115.63 [parent_name] => Стены 1 этаж (несущие) [parent_id] => 3 [material_sum] => 5532722 [work_sum] => 583504 [total_sum] => 6116226 [total_days] => 7 [display_material_sum] => 5 532 722 [display_work_sum] => 583 504 [display_total_sum] => 6 116 226 ) 1
6 116 226
Работа:583 504
Материалы:5 532 722
Дни:7
stdClass Object ( [id] => 174 [attribute_id] => 3 [name] => Брус [material_modifier] => 1 [work_modifier] => 1 [options] => Array ( [0] => 150 мм [1] => 180 мм [2] => 200 мм ) [days] => [7,8,9] [material_price] => [5127,6152,7367] [work_price] => [1602,1922,2115] [image] => https://akademik-stroy.ru/wp-content/uploads/materials/brus.jpg [area_modifier] => 115.63 [parent_name] => Стены 1 этаж (несущие) [parent_id] => 3 [material_sum] => 746972 [work_sum] => 194501 [total_sum] => 941473 [total_days] => 7 [display_material_sum] => 746 972 [display_work_sum] => 194 501 [display_total_sum] => 941 473 ) 1
941 473
Работа:194 501
Материалы:746 972
Дни:7
stdClass Object ( [id] => 175 [attribute_id] => 3 [name] => Газобетон [material_modifier] => 1 [work_modifier] => 1 [options] => Array ( [0] => 300 мм [1] => 375 мм [2] => 400 мм [3] => 500 мм [4] => 600 мм ) [days] => [29,31,35,37,44] [material_price] => [4298,5573,6356,7288,9119] [work_price] => [4538,5251,5926,6733,7195] [image] => https://akademik-stroy.ru/wp-content/uploads/materials/gazobeton.jpg [area_modifier] => 115.63 [parent_name] => Стены 1 этаж (несущие) [parent_id] => 3 [material_sum] => 626192 [work_sum] => 550965 [total_sum] => 1177157 [total_days] => 29 [display_material_sum] => 626 192 [display_work_sum] => 550 965 [display_total_sum] => 1 177 157 ) 1
1 177 157
Работа:550 965
Материалы:626 192
Дни:29
stdClass Object ( [id] => 176 [attribute_id] => 3 [name] => Блок [material_modifier] => 1 [work_modifier] => 1 [options] => Array ( [0] => 300 мм [1] => 375 мм [2] => 400 мм [3] => 500 мм [4] => 600 мм ) [days] => [29,31,35,37,44] [material_price] => [2698,3973,4356,6588,7119] [work_price] => [5038,5851,6426,8733,9195] [image] => https://akademik-stroy.ru/wp-content/uploads/materials/blok.jpg [area_modifier] => 115.63 [parent_name] => Стены 1 этаж (несущие) [parent_id] => 3 [material_sum] => 393082 [work_sum] => 611671 [total_sum] => 1004753 [total_days] => 29 [display_material_sum] => 393 082 [display_work_sum] => 611 671 [display_total_sum] => 1 004 753 ) 1
1 004 753
Работа:611 671
Материалы:393 082
Дни:29
stdClass Object ( [id] => 177 [attribute_id] => 3 [name] => Газосиликатный блок [material_modifier] => 1 [work_modifier] => 1 [options] => Array ( [0] => 300 мм [1] => 375 мм [2] => 400 мм [3] => 500 мм [4] => 600 мм ) [days] => [29,31,35,37,44] [material_price] => [4298,5573,6356,7288,9119] [work_price] => [4538,5251,5926,6733,7195] [image] => https://akademik-stroy.ru/wp-content/uploads/materials/gazosilikatnyj-blok.jpg [area_modifier] => 115.63 [parent_name] => Стены 1 этаж (несущие) [parent_id] => 3 [material_sum] => 626192 [work_sum] => 550965 [total_sum] => 1177157 [total_days] => 29 [display_material_sum] => 626 192 [display_work_sum] => 550 965 [display_total_sum] => 1 177 157 ) 1
1 177 157
Работа:550 965
Материалы:626 192
Дни:29
stdClass Object ( [id] => 178 [attribute_id] => 3 [name] => Керамзитобетонный блок [material_modifier] => 1 [work_modifier] => 1 [options] => Array ( [0] => 300 мм [1] => 375 мм [2] => 400 мм [3] => 500 мм [4] => 600 мм ) [days] => [23,23,24,25,28] [material_price] => [3641,4298,5693,7613,9612] [work_price] => [5737,5737,6903,7958,8901] [image] => https://akademik-stroy.ru/wp-content/uploads/materials/keramzitobetonnyj-blok.jpg [area_modifier] => 115.63 [parent_name] => Стены 1 этаж (несущие) [parent_id] => 3 [material_sum] => 530471 [work_sum] => 696538 [total_sum] => 1227009 [total_days] => 23 [display_material_sum] => 530 471 [display_work_sum] => 696 538 [display_total_sum] => 1 227 009 ) 1
1 227 009
Работа:696 538
Материалы:530 471
Дни:23
stdClass Object ( [id] => 179 [attribute_id] => 3 [name] => Деревянные [material_modifier] => 1 [work_modifier] => 1 [options] => Array ( [0] => 180 мм [1] => 220 мм [2] => 260 мм [3] => 320 мм ) [days] => [7,8,9,10] [material_price] => [7950,9458,11961,14472] [work_price] => [4037,4925,5812,7207] [image] => https://akademik-stroy.ru/wp-content/uploads/materials/derevyannye.jpg [area_modifier] => 115.63 [parent_name] => Стены 1 этаж (несущие) [parent_id] => 3 [material_sum] => 1158266 [work_sum] => 490138 [total_sum] => 1648404 [total_days] => 7 [display_material_sum] => 1 158 266 [display_work_sum] => 490 138 [display_total_sum] => 1 648 404 ) 1
1 648 404
Работа:490 138
Материалы:1 158 266
Дни:7
stdClass Object ( [id] => 181 [attribute_id] => 3 [name] => Камень [material_modifier] => 1 [work_modifier] => 1 [options] => Array ( [0] => 300 мм [1] => 400 мм [2] => 500 мм [3] => 600 мм ) [days] => [25,27,31,34] [material_price] => [5262,6844,8330,9815] [work_price] => [8331,9135,10427,11069] [image] => https://akademik-stroy.ru/wp-content/uploads/materials/kamen.jpg [area_modifier] => 115.63 [parent_name] => Стены 1 этаж (несущие) [parent_id] => 3 [material_sum] => 766641 [work_sum] => 1011479 [total_sum] => 1778120 [total_days] => 25 [display_material_sum] => 766 641 [display_work_sum] => 1 011 479 [display_total_sum] => 1 778 120 ) 1
1 778 120
Работа:1 011 479
Материалы:766 641
Дни:25
stdClass Object ( [id] => 182 [attribute_id] => 3 [name] => Каркасно-щитовые [material_modifier] => 1 [work_modifier] => 1 [options] => Array ( [0] => 150 мм [1] => 200 мм [2] => 250 мм [3] => 300 мм [4] => 350 мм [5] => 400 мм ) [days] => [15,16,17,18,19,20] [material_price] => [2379,2639,2898,3458,3601,4175] [work_price] => [2538,2820,3134,3483,4062,5642] [image] => https://akademik-stroy.ru/wp-content/uploads/materials/karkasno-shchitovye.jpg [area_modifier] => 115.63 [parent_name] => Стены 1 этаж (несущие) [parent_id] => 3 [material_sum] => 346606 [work_sum] => 308142 [total_sum] => 654748 [total_days] => 15 [display_material_sum] => 346 606 [display_work_sum] => 308 142 [display_total_sum] => 654 748 ) 1
654 748
Работа:308 142
Материалы:346 606
Дни:15
stdClass Object ( [id] => 183 [attribute_id] => 3 [name] => Рубленные [material_modifier] => 1 [work_modifier] => 1 [options] => Array ( [0] => 150 мм [1] => 200 мм [2] => 250 мм [3] => 300 мм [4] => 350 мм [5] => 400 мм ) [days] => [15,16,17,18,17,18] [material_price] => [35950,50267,60583,75900,80217,100533] [work_price] => [9612,12816,16020,19224,22428,25632] [image] => https://akademik-stroy.ru/wp-content/uploads/materials/rublennye.jpg [area_modifier] => 115.63 [parent_name] => Стены 1 этаж (несущие) [parent_id] => 3 [material_sum] => 5237692 [work_sum] => 1167007 [total_sum] => 6404699 [total_days] => 15 [display_material_sum] => 5 237 692 [display_work_sum] => 1 167 007 [display_total_sum] => 6 404 699 ) 1
6 404 699
Работа:1 167 007
Материалы:5 237 692
Дни:15
stdClass Object ( [id] => 185 [attribute_id] => 3 [name] => Теплоблок [material_modifier] => 1 [work_modifier] => 1 [options] => Array ( [0] => 300 мм (с облицовкой, не покрашенный) [1] => 400 мм (с облицовкой, не покрашенный) [2] => 300 мм (с облицовкой, покрашенный) [3] => 400 мм (с облицовкой, покрашенный) ) [days] => [15,16,15,16] [material_price] => [2888,3729,3957,4258] [work_price] => [2564,3229,2949,3713] [image] => https://akademik-stroy.ru/wp-content/uploads/materials/teploblok.jpg [area_modifier] => 115.63 [parent_name] => Стены 1 этаж (несущие) [parent_id] => 3 [material_sum] => 420764 [work_sum] => 311299 [total_sum] => 732063 [total_days] => 15 [display_material_sum] => 420 764 [display_work_sum] => 311 299 [display_total_sum] => 732 063 ) 1
732 063
Работа:311 299
Материалы:420 764
Дни:15
stdClass Object ( [id] => 186 [attribute_id] => 3 [name] => Арболитовые блоки [material_modifier] => 1 [work_modifier] => 1 [options] => Array ( [0] => 300 мм [1] => 400 мм [2] => 600 мм ) [days] => [19,22,27] [material_price] => [3210,4475,5852] [work_price] => [4214,4788,5866] [image] => https://akademik-stroy.ru/wp-content/uploads/materials/arbolitovye-bloki.png [area_modifier] => 115.63 [parent_name] => Стены 1 этаж (несущие) [parent_id] => 3 [material_sum] => 467677 [work_sum] => 511628 [total_sum] => 979305 [total_days] => 19 [display_material_sum] => 467 677 [display_work_sum] => 511 628 [display_total_sum] => 979 305 ) 1
979 305
Работа:511 628
Материалы:467 677
Дни:19
stdClass Object ( [id] => 187 [attribute_id] => 3 [name] => Полистиролбетон [material_modifier] => 1 [work_modifier] => 1 [options] => Array ( [0] => 300 мм [1] => 400 мм [2] => 600 мм ) [days] => [29,31,35] [material_price] => [2798,4573,5256] [work_price] => [5038,5851,6426] [image] => https://akademik-stroy.ru/wp-content/uploads/materials/polistirolbeton.jpg [area_modifier] => 115.63 [parent_name] => Стены 1 этаж (несущие) [parent_id] => 3 [material_sum] => 407651 [work_sum] => 611671 [total_sum] => 1019322 [total_days] => 29 [display_material_sum] => 407 651 [display_work_sum] => 611 671 [display_total_sum] => 1 019 322 ) 1
1 019 322
Работа:611 671
Материалы:407 651
Дни:29
stdClass Object ( [id] => 188 [attribute_id] => 3 [name] => Шлакоблок [material_modifier] => 1 [work_modifier] => 1 [options] => Array ( [0] => 400 мм [1] => 600 мм ) [days] => [15,16] [material_price] => [2391,3471] [work_price] => [2642,3662] [image] => https://akademik-stroy.ru/wp-content/uploads/materials/shlakoblok.jpg [area_modifier] => 115.63 [parent_name] => Стены 1 этаж (несущие) [parent_id] => 3 [material_sum] => 348354 [work_sum] => 320769 [total_sum] => 669123 [total_days] => 15 [display_material_sum] => 348 354 [display_work_sum] => 320 769 [display_total_sum] => 669 123 ) 1
669 123
Работа:320 769
Материалы:348 354
Дни:15
stdClass Object ( [id] => 189 [attribute_id] => 3 [name] => Теплая керамика [material_modifier] => 1 [work_modifier] => 1 [options] => Array ( [0] => 380 мм [1] => 380 мм Thermo [2] => 440 мм [3] => 510 мм ) [days] => [23,23,24,25] [material_price] => [4510,5098,6093,8013] [work_price] => [4737,4937,5903,6958] [image] => https://akademik-stroy.ru/wp-content/uploads/materials/teplaya-keramika.jpg [area_modifier] => 115.63 [parent_name] => Стены 1 этаж (несущие) [parent_id] => 3 [material_sum] => 657079 [work_sum] => 575126 [total_sum] => 1232205 [total_days] => 23 [display_material_sum] => 657 079 [display_work_sum] => 575 126 [display_total_sum] => 1 232 205 ) 1
1 232 205
Работа:575 126
Материалы:657 079
Дни:23
stdClass Object ( [id] => 190 [attribute_id] => 3 [name] => Несъемная опалубка [material_modifier] => 1 [work_modifier] => 1 [options] => Array ( [0] => 200 мм [1] => 250 мм [2] => 300 мм [3] => 350 мм ) [days] => [15,17,19,21] [material_price] => [3302,3902,4108,5008] [work_price] => [2100,2100,2300,2534] [image] => https://akademik-stroy.ru/wp-content/uploads/materials/nesemnaya-opalubka.jpg [area_modifier] => 115.63 [parent_name] => Стены 1 этаж (несущие) [parent_id] => 3 [material_sum] => 481081 [work_sum] => 254964 [total_sum] => 736045 [total_days] => 15 [display_material_sum] => 481 081 [display_work_sum] => 254 964 [display_total_sum] => 736 045 ) 1
736 045
Работа:254 964
Материалы:481 081
Дни:15
stdClass Object ( [id] => 251 [attribute_id] => 3 [name] => Бревно [material_modifier] => 1 [work_modifier] => 1 [options] => Array ( [0] => 260 мм [1] => 320 мм [2] => 360 мм [3] => 400 мм [4] => 500 мм ) [days] => [7,8,9,10,11] [material_price] => [1874,24045,26930,30972,38825] [work_price] => [5046,6207,6952,7716,9723] [image] => https://akademik-stroy.ru/wp-content/uploads/materials/sruby.jpg [area_modifier] => 115.63 [parent_name] => Стены 1 этаж (несущие) [parent_id] => 3 [material_sum] => 273030 [work_sum] => 612642 [total_sum] => 885672 [total_days] => 7 [display_material_sum] => 273 030 [display_work_sum] => 612 642 [display_total_sum] => 885 672 ) 1
885 672
Работа:612 642
Материалы:273 030
Дни:7
Перекрытие первого этажа
stdClass Object ( [id] => 7 [attribute_id] => 4 [name] => Деревянные балки [material_modifier] => 1 [work_modifier] => 1 [options] => Array ( [0] => без утепления [1] => утепление 200 мм [2] => утепление 250 мм [3] => утепление 300 мм [4] => утепление 350 мм [5] => утепление 400 мм [6] => утепление 450 мм [7] => утепление 500 мм ) [days] => [8,9,9,9,11,12,13,14] [material_price] => [1634,2042,2344,2947,3149,3652,3354,3557] [work_price] => [1230,1339,1393,1426,1460,1513,1587,1620] [image] => https://akademik-stroy.ru/wp-content/uploads/materials/derevyannye-balki.png [area_modifier] => 115.63 [parent_name] => Перекрытие первого этажа [parent_id] => 4 [material_sum] => 238064 [work_sum] => 149336 [total_sum] => 387400 [total_days] => 8 [display_material_sum] => 238 064 [display_work_sum] => 149 336 [display_total_sum] => 387 400 ) 1
387 400
Работа:149 336
Материалы:238 064
Дни:8
stdClass Object ( [id] => 8 [attribute_id] => 4 [name] => Сборные ж/б плиты [material_modifier] => 1 [work_modifier] => 1 [options] => Array ( [0] => без утепления [1] => утепление 150 мм [2] => утепление 200 мм [3] => утепление 250 мм [4] => утепление 300 мм [5] => утепление 350 мм [6] => утепление 400 мм [7] => утепление 450 мм [8] => утепление 500 мм ) [days] => [13,15,15,15,15,15,15,15,15] [material_price] => [3067,5577,5928,6679,7730,8782,9833,10884,11935] [work_price] => [1520,1956,2102,2247,2392,2537,2684,2829,2974] [image] => https://akademik-stroy.ru/wp-content/uploads/materials/sbornye-zh-b-plity-2.jpg [area_modifier] => 115.63 [parent_name] => Перекрытие первого этажа [parent_id] => 4 [material_sum] => 446843 [work_sum] => 184545 [total_sum] => 631388 [total_days] => 13 [display_material_sum] => 446 843 [display_work_sum] => 184 545 [display_total_sum] => 631 388 ) 1
631 388
Работа:184 545
Материалы:446 843
Дни:13
stdClass Object ( [id] => 89 [attribute_id] => 4 [name] => Монолитная ж/б плита [material_modifier] => 1 [work_modifier] => 1 [options] => Array ( [0] => без утепления [1] => утепление 150 мм [2] => утепление 200 мм [3] => утепление 250 мм [4] => утепление 300 мм [5] => утепление 350 мм [6] => утепление 400 мм [7] => утепление 450 мм [8] => утепление 500 мм ) [days] => [18,20,20,20,20,20,20,20,20] [material_price] => [4837,6572,7224,7375,79426,8177,8728,9180,10031] [work_price] => [3348,3921,4112,4302,4493,4684,4875,5066,5256] [image] => https://akademik-stroy.ru/wp-content/uploads/materials/monolitnaya-zh-b-plita-2.jpg [area_modifier] => 115.63 [parent_name] => Перекрытие первого этажа [parent_id] => 4 [material_sum] => 704721 [work_sum] => 406486 [total_sum] => 1111207 [total_days] => 18 [display_material_sum] => 704 721 [display_work_sum] => 406 486 [display_total_sum] => 1 111 207 ) 1
1 111 207
Работа:406 486
Материалы:704 721
Дни:18
Стены 2 этаж (несущие)
stdClass Object ( [id] => 10 [attribute_id] => 5 [name] => Пеноблок [material_modifier] => 1 [work_modifier] => 1 [options] => Array ( [0] => 300 мм [1] => 400 мм [2] => 500 мм [3] => 600 мм ) [days] => [29,31,34,39] [material_price] => [3000,4000,4500,4937] [work_price] => [5033,5805,6400,8710] [image] => https://akademik-stroy.ru/wp-content/uploads/materials/penoblok.jpg [area_modifier] => 84.46 [parent_name] => Стены 2 этаж (несущие) [parent_id] => 5 [material_sum] => 319259 [work_sum] => 446342 [total_sum] => 765601 [total_days] => 29 [display_material_sum] => 319 259 [display_work_sum] => 446 342 [display_total_sum] => 765 601 ) 1
765 601
Работа:446 342
Материалы:319 259
Дни:29
stdClass Object ( [id] => 90 [attribute_id] => 5 [name] => Керамический блок [material_modifier] => 1 [work_modifier] => 1 [options] => Array ( [0] => 380 мм [1] => 380 мм Thermo [2] => 440 мм [3] => 510 мм ) [days] => [23,23,24,25] [material_price] => [4510,5098,6093,8013] [work_price] => [4737,4937,5903,6958] [image] => https://akademik-stroy.ru/wp-content/uploads/materials/keramicheskij-blok.jpg [area_modifier] => 84.46 [parent_name] => Стены 2 этаж (несущие) [parent_id] => 5 [material_sum] => 479952 [work_sum] => 420091 [total_sum] => 900043 [total_days] => 23 [display_material_sum] => 479 952 [display_work_sum] => 420 091 [display_total_sum] => 900 043 ) 1
900 043
Работа:420 091
Материалы:479 952
Дни:23
stdClass Object ( [id] => 91 [attribute_id] => 5 [name] => Кирпич [material_modifier] => 1 [work_modifier] => 1 [options] => Array ( [0] => Кирпич 250 мм [1] => Кирпич 380 мм [2] => Кирпич 510 мм [3] => Кирпич 640 мм [4] => Кирпич 770 мм ) [days] => [30,30,31,33,36] [material_price] => [5500,7142,9206,10171,12235] [work_price] => [8736,10041,12018,15240,18462] [image] => https://akademik-stroy.ru/wp-content/uploads/materials/kirpich.jpg [area_modifier] => 84.46 [parent_name] => Стены 2 этаж (несущие) [parent_id] => 5 [material_sum] => 585308 [work_sum] => 774735 [total_sum] => 1360043 [total_days] => 30 [display_material_sum] => 585 308 [display_work_sum] => 774 735 [display_total_sum] => 1 360 043 ) 1
1 360 043
Работа:774 735
Материалы:585 308
Дни:30
stdClass Object ( [id] => 92 [attribute_id] => 5 [name] => Монолитные [material_modifier] => 1 [work_modifier] => 1 [options] => Array ( [0] => 150 мм [1] => 200 мм [2] => 250 мм [3] => 300 мм [4] => 350 мм [5] => 400 мм ) [days] => [45,46,47,49,50,53] [material_price] => [6545,7876,10175,12011,13908,15204] [work_price] => [5106,6444,7698,8552,9807,11461] [image] => https://akademik-stroy.ru/wp-content/uploads/materials/monolitnye.jpg [area_modifier] => 84.46 [parent_name] => Стены 2 этаж (несущие) [parent_id] => 5 [material_sum] => 696516 [work_sum] => 452815 [total_sum] => 1149331 [total_days] => 45 [display_material_sum] => 696 516 [display_work_sum] => 452 815 [display_total_sum] => 1 149 331 ) 1
1 149 331
Работа:452 815
Материалы:696 516
Дни:45
stdClass Object ( [id] => 93 [attribute_id] => 5 [name] => Клееный брус [material_modifier] => 1 [work_modifier] => 1 [options] => Array ( [0] => 160 мм [1] => 175 мм [2] => 200 мм [3] => 215 мм [4] => 240 мм [5] => 270 мм [6] => 282 мм ) [days] => [24,28,32,37,40,42,48] [material_price] => [16975,18773,19950,20545,21599,22159,23275] [work_price] => [4806,5287,5815,6397,7036,7740,8514] [image] => https://akademik-stroy.ru/wp-content/uploads/materials/kleenyj-brus.jpg [area_modifier] => 84.46 [parent_name] => Стены 2 этаж (несущие) [parent_id] => 5 [material_sum] => 1806473 [work_sum] => 426210 [total_sum] => 2232683 [total_days] => 24 [display_material_sum] => 1 806 473 [display_work_sum] => 426 210 [display_total_sum] => 2 232 683 ) 1
2 232 683
Работа:426 210
Материалы:1 806 473
Дни:24
stdClass Object ( [id] => 94 [attribute_id] => 5 [name] => Каркасные [material_modifier] => 1 [work_modifier] => 1 [options] => Array ( [0] => 150 мм [1] => 200 мм [2] => 250 мм [3] => 300 мм ) [days] => [15,16,17,18] [material_price] => [2379,2639,2898,3258] [work_price] => [2418,2686,2985,3716] [image] => https://akademik-stroy.ru/wp-content/uploads/materials/karkasnye.jpg [area_modifier] => 84.46 [parent_name] => Стены 2 этаж (несущие) [parent_id] => 5 [material_sum] => 253172 [work_sum] => 214435 [total_sum] => 467607 [total_days] => 15 [display_material_sum] => 253 172 [display_work_sum] => 214 435 [display_total_sum] => 467 607 ) 1
467 607
Работа:214 435
Материалы:253 172
Дни:15
stdClass Object ( [id] => 95 [attribute_id] => 5 [name] => СИП-панели [material_modifier] => 1 [work_modifier] => 1 [options] => Array ( [0] => 120 мм [1] => 170 мм [2] => 220 мм ) [days] => [7,7,7] [material_price] => [1210,1856,2292] [work_price] => [1410,1551,1706] [image] => https://akademik-stroy.ru/wp-content/uploads/materials/sip-paneli.jpg [area_modifier] => 84.46 [parent_name] => Стены 2 этаж (несущие) [parent_id] => 5 [material_sum] => 128768 [work_sum] => 125043 [total_sum] => 253811 [total_days] => 7 [display_material_sum] => 128 768 [display_work_sum] => 125 043 [display_total_sum] => 253 811 ) 1
253 811
Работа:125 043
Материалы:128 768
Дни:7
stdClass Object ( [id] => 96 [attribute_id] => 5 [name] => Сухой брус [material_modifier] => 1 [work_modifier] => 1 [options] => Array ( [0] => 150 мм [1] => 180 мм [2] => 200 мм ) [days] => [7,8,9] [material_price] => [6010,7190,8709] [work_price] => [3204,3845,4229] [image] => https://akademik-stroy.ru/wp-content/uploads/materials/suhoj-brus.jpg [area_modifier] => 84.46 [parent_name] => Стены 2 этаж (несущие) [parent_id] => 5 [material_sum] => 639582 [work_sum] => 284140 [total_sum] => 923722 [total_days] => 7 [display_material_sum] => 639 582 [display_work_sum] => 284 140 [display_total_sum] => 923 722 ) 1
923 722
Работа:284 140
Материалы:639 582
Дни:7
stdClass Object ( [id] => 97 [attribute_id] => 5 [name] => Профилированный брус [material_modifier] => 1 [work_modifier] => 1 [options] => Array ( [0] => 150 мм [1] => 180 мм [2] => 200 мм ) [days] => [7,8,9] [material_price] => [8190,9228,10051] [work_price] => [3845,4614,5075] [image] => https://akademik-stroy.ru/wp-content/uploads/materials/profilirovannyj-brus.jpg [area_modifier] => 84.46 [parent_name] => Стены 2 этаж (несущие) [parent_id] => 5 [material_sum] => 871577 [work_sum] => 340986 [total_sum] => 1212563 [total_days] => 7 [display_material_sum] => 871 577 [display_work_sum] => 340 986 [display_total_sum] => 1 212 563 ) 1
1 212 563
Работа:340 986
Материалы:871 577
Дни:7
stdClass Object ( [id] => 98 [attribute_id] => 5 [name] => Оцилиндрованное бревно [material_modifier] => 1 [work_modifier] => 1 [options] => Array ( [0] => 180 мм [1] => 220 мм [2] => 260 мм [3] => 320 мм ) [days] => [7,8,9,10] [material_price] => [75190,9532,10868,13116] [work_price] => [3845,4691,5535,6863] [image] => https://akademik-stroy.ru/wp-content/uploads/materials/ocilindrovannoe-brevno-1.jpg [area_modifier] => 84.46 [parent_name] => Стены 2 этаж (несущие) [parent_id] => 5 [material_sum] => 8001690 [work_sum] => 340986 [total_sum] => 8342676 [total_days] => 7 [display_material_sum] => 8 001 690 [display_work_sum] => 340 986 [display_total_sum] => 8 342 676 ) 1
8 342 676
Работа:340 986
Материалы:8 001 690
Дни:7
stdClass Object ( [id] => 99 [attribute_id] => 5 [name] => Срубы [material_modifier] => 1 [work_modifier] => 1 [options] => Array ( [0] => 260 мм [1] => 320 мм [2] => 360 мм [3] => 400 мм [4] => 500 мм ) [days] => [7,8,9,10,11] [material_price] => [16175,23709,26314,29069,32167] [work_price] => [4806,5911,6621,7349,9260] [image] => https://akademik-stroy.ru/wp-content/uploads/materials/suhoj-brus.jpg [area_modifier] => 84.46 [parent_name] => Стены 2 этаж (несущие) [parent_id] => 5 [material_sum] => 1721337 [work_sum] => 426210 [total_sum] => 2147547 [total_days] => 7 [display_material_sum] => 1 721 337 [display_work_sum] => 426 210 [display_total_sum] => 2 147 547 ) 1
2 147 547
Работа:426 210
Материалы:1 721 337
Дни:7
stdClass Object ( [id] => 194 [attribute_id] => 5 [name] => Брус [material_modifier] => 1 [work_modifier] => 1 [options] => Array ( [0] => 150 мм [1] => 180 мм [2] => 200 мм ) [days] => [10,13,15] [material_price] => [5127,6152,7367] [work_price] => [1602,1922,2115] [image] => https://akademik-stroy.ru/wp-content/uploads/materials/brus.jpg [area_modifier] => 84.46 [parent_name] => Стены 2 этаж (несущие) [parent_id] => 5 [material_sum] => 545613 [work_sum] => 142070 [total_sum] => 687683 [total_days] => 10 [display_material_sum] => 545 613 [display_work_sum] => 142 070 [display_total_sum] => 687 683 ) 1
687 683
Работа:142 070
Материалы:545 613
Дни:10
stdClass Object ( [id] => 195 [attribute_id] => 5 [name] => Газобетон [material_modifier] => 1 [work_modifier] => 1 [options] => Array ( [0] => 300 мм [1] => 375 мм [2] => 400 мм [3] => 500 мм [4] => 600 мм ) [days] => [29,31,35,37,44] [material_price] => [4298,5573,6356,7288,9119] [work_price] => [4538,5251,5926,6733,7195] [image] => https://akademik-stroy.ru/wp-content/uploads/materials/gazobeton.jpg [area_modifier] => 84.46 [parent_name] => Стены 2 этаж (несущие) [parent_id] => 5 [material_sum] => 457391 [work_sum] => 402443 [total_sum] => 859834 [total_days] => 29 [display_material_sum] => 457 391 [display_work_sum] => 402 443 [display_total_sum] => 859 834 ) 1
859 834
Работа:402 443
Материалы:457 391
Дни:29
stdClass Object ( [id] => 196 [attribute_id] => 5 [name] => Блок [material_modifier] => 1 [work_modifier] => 1 [options] => Array ( [0] => 300 мм [1] => 375 мм [2] => 400 мм [3] => 500 мм [4] => 600 мм ) [days] => [29,31,35,37,44] [material_price] => [2698,3973,4356,6588,7119] [work_price] => [5038,5851,6426,8733,9195] [image] => https://akademik-stroy.ru/wp-content/uploads/materials/blok.jpg [area_modifier] => 84.46 [parent_name] => Стены 2 этаж (несущие) [parent_id] => 5 [material_sum] => 287120 [work_sum] => 446785 [total_sum] => 733905 [total_days] => 29 [display_material_sum] => 287 120 [display_work_sum] => 446 785 [display_total_sum] => 733 905 ) 1
733 905
Работа:446 785
Материалы:287 120
Дни:29
stdClass Object ( [id] => 197 [attribute_id] => 5 [name] => Газосиликатный блок [material_modifier] => 1 [work_modifier] => 1 [options] => Array ( [0] => 300 мм [1] => 375 мм [2] => 400 мм [3] => 500 мм [4] => 600 мм ) [days] => [29,31,35,37,44] [material_price] => [4298,5573,6356,7288,9119] [work_price] => [4538,5251,5926,6733,7195] [image] => https://akademik-stroy.ru/wp-content/uploads/materials/gazosilikatnyj-blok.jpg [area_modifier] => 84.46 [parent_name] => Стены 2 этаж (несущие) [parent_id] => 5 [material_sum] => 457391 [work_sum] => 402443 [total_sum] => 859834 [total_days] => 29 [display_material_sum] => 457 391 [display_work_sum] => 402 443 [display_total_sum] => 859 834 ) 1
859 834
Работа:402 443
Материалы:457 391
Дни:29
stdClass Object ( [id] => 198 [attribute_id] => 5 [name] => Керамзитобетонный блок [material_modifier] => 1 [work_modifier] => 1 [options] => Array ( [0] => 300 мм [1] => 375 мм [2] => 400 мм [3] => 500 мм [4] => 600 мм ) [days] => [23,23,24,25,28] [material_price] => [3641,4298,5693,7613,9612] [work_price] => [5737,5737,6903,7958,8901] [image] => https://akademik-stroy.ru/wp-content/uploads/materials/keramzitobetonnyj-blok.jpg [area_modifier] => 84.46 [parent_name] => Стены 2 этаж (несущие) [parent_id] => 5 [material_sum] => 387474 [work_sum] => 508774 [total_sum] => 896248 [total_days] => 23 [display_material_sum] => 387 474 [display_work_sum] => 508 774 [display_total_sum] => 896 248 ) 1
896 248
Работа:508 774
Материалы:387 474
Дни:23
stdClass Object ( [id] => 199 [attribute_id] => 5 [name] => Деревянные [material_modifier] => 1 [work_modifier] => 1 [options] => Array ( [0] => 180 мм [1] => 220 мм [2] => 260 мм [3] => 320 мм ) [days] => [7,8,9,10] [material_price] => [7950,9458,11961,14472] [work_price] => [4037,4925,5812,7207] [image] => https://akademik-stroy.ru/wp-content/uploads/materials/derevyannye.jpg [area_modifier] => 84.46 [parent_name] => Стены 2 этаж (несущие) [parent_id] => 5 [material_sum] => 846036 [work_sum] => 358013 [total_sum] => 1204049 [total_days] => 7 [display_material_sum] => 846 036 [display_work_sum] => 358 013 [display_total_sum] => 1 204 049 ) 1
1 204 049
Работа:358 013
Материалы:846 036
Дни:7
stdClass Object ( [id] => 200 [attribute_id] => 5 [name] => Камень [material_modifier] => 1 [work_modifier] => 1 [options] => Array ( [0] => 300 мм [1] => 400 мм [2] => 500 мм [3] => 600 мм ) [days] => [25,27,31,34] [material_price] => [5262,6844,8330,9815] [work_price] => [8331,9135,10427,11069] [image] => https://akademik-stroy.ru/wp-content/uploads/materials/kamen.jpg [area_modifier] => 84.46 [parent_name] => Стены 2 этаж (несущие) [parent_id] => 5 [material_sum] => 559980 [work_sum] => 738818 [total_sum] => 1298798 [total_days] => 25 [display_material_sum] => 559 980 [display_work_sum] => 738 818 [display_total_sum] => 1 298 798 ) 1
1 298 798
Работа:738 818
Материалы:559 980
Дни:25
stdClass Object ( [id] => 201 [attribute_id] => 5 [name] => Каркасно-щитовые [material_modifier] => 1 [work_modifier] => 1 [options] => Array ( [0] => 150 мм [1] => 200 мм [2] => 250 мм [3] => 300 мм [4] => 350 мм [5] => 400 мм ) [days] => [15,16,17,18,19,20] [material_price] => [2379,2639,2898,3458,3601,4175] [work_price] => [2538,2820,3134,3483,4062,5642] [image] => https://akademik-stroy.ru/wp-content/uploads/materials/karkasno-shchitovye.jpg [area_modifier] => 84.46 [parent_name] => Стены 2 этаж (несущие) [parent_id] => 5 [material_sum] => 253172 [work_sum] => 225077 [total_sum] => 478249 [total_days] => 15 [display_material_sum] => 253 172 [display_work_sum] => 225 077 [display_total_sum] => 478 249 ) 1
478 249
Работа:225 077
Материалы:253 172
Дни:15
stdClass Object ( [id] => 202 [attribute_id] => 5 [name] => Рубленные [material_modifier] => 1 [work_modifier] => 1 [options] => Array ( [0] => 150 мм [1] => 200 мм [2] => 250 мм [3] => 300 мм [4] => 350 мм [5] => 400 мм ) [days] => [15,16,17,18,17,18] [material_price] => [35950,50267,60583,75900,80217,100533] [work_price] => [9612,12816,16020,19224,22428,25632] [image] => https://akademik-stroy.ru/wp-content/uploads/materials/rublennye.jpg [area_modifier] => 84.46 [parent_name] => Стены 2 этаж (несущие) [parent_id] => 5 [material_sum] => 3825785 [work_sum] => 852421 [total_sum] => 4678206 [total_days] => 15 [display_material_sum] => 3 825 785 [display_work_sum] => 852 421 [display_total_sum] => 4 678 206 ) 1
4 678 206
Работа:852 421
Материалы:3 825 785
Дни:15
stdClass Object ( [id] => 203 [attribute_id] => 5 [name] => Теплоблок [material_modifier] => 1 [work_modifier] => 1 [options] => Array ( [0] => 300 мм (с облицовкой, не покрашенный) [1] => 400 мм (с облицовкой, не покрашенный) [2] => 300 мм (с облицовкой, покрашенный) [3] => 400 мм (с облицовкой, покрашенный) ) [days] => [15,16,15,16] [material_price] => [2888,3729,3957,4258] [work_price] => [2564,3229,2949,3713] [image] => https://akademik-stroy.ru/wp-content/uploads/materials/teploblok.jpg [area_modifier] => 84.46 [parent_name] => Стены 2 этаж (несущие) [parent_id] => 5 [material_sum] => 307340 [work_sum] => 227383 [total_sum] => 534723 [total_days] => 15 [display_material_sum] => 307 340 [display_work_sum] => 227 383 [display_total_sum] => 534 723 ) 1
534 723
Работа:227 383
Материалы:307 340
Дни:15
stdClass Object ( [id] => 204 [attribute_id] => 5 [name] => Арболитовые блоки [material_modifier] => 1 [work_modifier] => 1 [options] => Array ( [0] => 300 мм [1] => 400 мм [2] => 600 мм ) [days] => [19,22,27] [material_price] => [3210,4475,5852] [work_price] => [4214,4788,5866] [image] => https://akademik-stroy.ru/wp-content/uploads/materials/arbolitovye-bloki.png [area_modifier] => 84.46 [parent_name] => Стены 2 этаж (несущие) [parent_id] => 5 [material_sum] => 341607 [work_sum] => 373710 [total_sum] => 715317 [total_days] => 19 [display_material_sum] => 341 607 [display_work_sum] => 373 710 [display_total_sum] => 715 317 ) 1
715 317
Работа:373 710
Материалы:341 607
Дни:19
stdClass Object ( [id] => 205 [attribute_id] => 5 [name] => Полистиролбетон [material_modifier] => 1 [work_modifier] => 1 [options] => Array ( [0] => 300 мм [1] => 400 мм [2] => 600 мм ) [days] => [29,31,35] [material_price] => [2798,4573,5256] [work_price] => [5038,5851,6426] [image] => https://akademik-stroy.ru/wp-content/uploads/materials/polistirolbeton.jpg [area_modifier] => 84.46 [parent_name] => Стены 2 этаж (несущие) [parent_id] => 5 [material_sum] => 297762 [work_sum] => 446785 [total_sum] => 744547 [total_days] => 29 [display_material_sum] => 297 762 [display_work_sum] => 446 785 [display_total_sum] => 744 547 ) 1
744 547
Работа:446 785
Материалы:297 762
Дни:29
stdClass Object ( [id] => 206 [attribute_id] => 5 [name] => Шлакоблок [material_modifier] => 1 [work_modifier] => 1 [options] => Array ( [0] => 400 мм [1] => 600 мм ) [days] => [15,16] [material_price] => [2391,3471] [work_price] => [2642,3662] [image] => https://akademik-stroy.ru/wp-content/uploads/materials/shlakoblok.jpg [area_modifier] => 84.46 [parent_name] => Стены 2 этаж (несущие) [parent_id] => 5 [material_sum] => 254449 [work_sum] => 234300 [total_sum] => 488749 [total_days] => 15 [display_material_sum] => 254 449 [display_work_sum] => 234 300 [display_total_sum] => 488 749 ) 1
488 749
Работа:234 300
Материалы:254 449
Дни:15
stdClass Object ( [id] => 245 [attribute_id] => 5 [name] => Теплая керамика [material_modifier] => 1 [work_modifier] => 1 [options] => Array ( [0] => 380 мм [1] => 380 мм Thermo [2] => 440 мм [3] => 510 мм ) [days] => [10,10,11,12] [material_price] => [4510,5098,6093,8013] [work_price] => [4737,4937,5903,6958] [image] => https://akademik-stroy.ru/wp-content/uploads/materials/teplaya-keramika.jpg [area_modifier] => 84.46 [parent_name] => Стены 2 этаж (несущие) [parent_id] => 5 [material_sum] => 479952 [work_sum] => 420091 [total_sum] => 900043 [total_days] => 10 [display_material_sum] => 479 952 [display_work_sum] => 420 091 [display_total_sum] => 900 043 ) 1
900 043
Работа:420 091
Материалы:479 952
Дни:10
stdClass Object ( [id] => 246 [attribute_id] => 5 [name] => Несъемная опалубка [material_modifier] => 1 [work_modifier] => 1 [options] => Array ( [0] => 380 мм [1] => 380 мм Thermo [2] => 440 мм [3] => 510 мм ) [days] => [10,10,11,12] [material_price] => [3302,3902,4108,5008] [work_price] => [2100,2100,2300,2534] [image] => https://akademik-stroy.ru/wp-content/uploads/materials/nesemnaya-opalubka.jpg [area_modifier] => 84.46 [parent_name] => Стены 2 этаж (несущие) [parent_id] => 5 [material_sum] => 351398 [work_sum] => 186234 [total_sum] => 537632 [total_days] => 10 [display_material_sum] => 351 398 [display_work_sum] => 186 234 [display_total_sum] => 537 632 ) 1
537 632
Работа:186 234
Материалы:351 398
Дни:10
stdClass Object ( [id] => 254 [attribute_id] => 5 [name] => Бревно [material_modifier] => 1 [work_modifier] => 1 [options] => Array ( [0] => 260 мм [1] => 320 мм [2] => 360 мм [3] => 400 мм [4] => 500 мм ) [days] => [7,8,9,10,11] [material_price] => [1874,24045,26930,30972,38825] [work_price] => [5046,6207,6952,7716,9723] [image] => https://akademik-stroy.ru/wp-content/uploads/materials/sruby.jpg [area_modifier] => 84.46 [parent_name] => Стены 2 этаж (несущие) [parent_id] => 5 [material_sum] => 199430 [work_sum] => 447494 [total_sum] => 646924 [total_days] => 7 [display_material_sum] => 199 430 [display_work_sum] => 447 494 [display_total_sum] => 646 924 ) 1
646 924
Работа:447 494
Материалы:199 430
Дни:7
Крыша (Скатная)
stdClass Object ( [id] => 164 [attribute_id] => 37 [name] => Металлочерепица [material_modifier] => 1 [work_modifier] => 1 [options] => Array ( ) [days] => [20] [material_price] => [6112] [work_price] => [5726] [image] => https://akademik-stroy.ru/wp-content/uploads/materials/metallocherepica.jpg [area_modifier] => 115.63 [parent_name] => Крыша (Скатная) [parent_id] => 37 [material_sum] => 890481 [work_sum] => 695202 [total_sum] => 1585683 [total_days] => 20 [display_material_sum] => 890 481 [display_work_sum] => 695 202 [display_total_sum] => 1 585 683 ) 1
1 585 683
Работа:695 202
Материалы:890 481
Дни:20
stdClass Object ( [id] => 165 [attribute_id] => 37 [name] => Гибкая черепица [material_modifier] => 1 [work_modifier] => 1 [options] => Array ( ) [days] => [20] [material_price] => [6980] [work_price] => [5950] [image] => https://akademik-stroy.ru/wp-content/uploads/materials/gibkaya-cherepica.jpg [area_modifier] => 115.63 [parent_name] => Крыша (Скатная) [parent_id] => 37 [material_sum] => 1016943 [work_sum] => 722398 [total_sum] => 1739341 [total_days] => 20 [display_material_sum] => 1 016 943 [display_work_sum] => 722 398 [display_total_sum] => 1 739 341 ) 1
1 739 341
Работа:722 398
Материалы:1 016 943
Дни:20
stdClass Object ( [id] => 166 [attribute_id] => 37 [name] => Цементно-песчаная черепица [material_modifier] => 1 [work_modifier] => 1 [options] => Array ( ) [days] => [20] [material_price] => [10560] [work_price] => [9456] [image] => https://akademik-stroy.ru/wp-content/uploads/materials/cementno-peschanaya-cherepica.jpg [area_modifier] => 115.63 [parent_name] => Крыша (Скатная) [parent_id] => 37 [material_sum] => 1538527 [work_sum] => 1148067 [total_sum] => 2686594 [total_days] => 20 [display_material_sum] => 1 538 527 [display_work_sum] => 1 148 067 [display_total_sum] => 2 686 594 ) 1
2 686 594
Работа:1 148 067
Материалы:1 538 527
Дни:20
stdClass Object ( [id] => 167 [attribute_id] => 37 [name] => Композитная черепица [material_modifier] => 1 [work_modifier] => 1 [options] => Array ( ) [days] => [20] [material_price] => [9506] [work_price] => [8905] [image] => https://akademik-stroy.ru/wp-content/uploads/materials/kompozitnaya-cherepica.jpg [area_modifier] => 115.63 [parent_name] => Крыша (Скатная) [parent_id] => 37 [material_sum] => 1384965 [work_sum] => 1081169 [total_sum] => 2466134 [total_days] => 20 [display_material_sum] => 1 384 965 [display_work_sum] => 1 081 169 [display_total_sum] => 2 466 134 ) 1
2 466 134
Работа:1 081 169
Материалы:1 384 965
Дни:20
stdClass Object ( [id] => 168 [attribute_id] => 37 [name] => Керамическая черепица [material_modifier] => 1 [work_modifier] => 1 [options] => Array ( ) [days] => [20] [material_price] => [12750] [work_price] => [9456] [image] => https://akademik-stroy.ru/wp-content/uploads/materials/keramicheskaya-cherepica.jpg [area_modifier] => 115.63 [parent_name] => Крыша (Скатная) [parent_id] => 37 [material_sum] => 1857596 [work_sum] => 1148067 [total_sum] => 3005663 [total_days] => 20 [display_material_sum] => 1 857 596 [display_work_sum] => 1 148 067 [display_total_sum] => 3 005 663 ) 1
3 005 663
Работа:1 148 067
Материалы:1 857 596
Дни:20
stdClass Object ( [id] => 169 [attribute_id] => 37 [name] => Металлическая фальцевая [material_modifier] => 1 [work_modifier] => 1 [options] => Array ( ) [days] => [20] [material_price] => [8550] [work_price] => [8190] [image] => https://akademik-stroy.ru/wp-content/uploads/materials/metallicheskaya-falcevaya.jpg [area_modifier] => 115.63 [parent_name] => Крыша (Скатная) [parent_id] => 37 [material_sum] => 1245682 [work_sum] => 994360 [total_sum] => 2240042 [total_days] => 20 [display_material_sum] => 1 245 682 [display_work_sum] => 994 360 [display_total_sum] => 2 240 042 ) 1
2 240 042
Работа:994 360
Материалы:1 245 682
Дни:20
stdClass Object ( [id] => 170 [attribute_id] => 37 [name] => Медная фальцевая [material_modifier] => 1 [work_modifier] => 1 [options] => Array ( ) [days] => [20] [material_price] => [20450] [work_price] => [16750] [image] => https://akademik-stroy.ru/wp-content/uploads/materials/mednaya-falcevaya.jpg [area_modifier] => 115.63 [parent_name] => Крыша (Скатная) [parent_id] => 37 [material_sum] => 2979438 [work_sum] => 2033643 [total_sum] => 5013081 [total_days] => 20 [display_material_sum] => 2 979 438 [display_work_sum] => 2 033 643 [display_total_sum] => 5 013 081 ) 1
5 013 081
Работа:2 033 643
Материалы:2 979 438
Дни:20
stdClass Object ( [id] => 171 [attribute_id] => 37 [name] => Зеленая кровля [material_modifier] => 1 [work_modifier] => 1 [options] => Array ( ) [days] => [20] [material_price] => [19850] [work_price] => [16780] [image] => https://akademik-stroy.ru/wp-content/uploads/materials/zelenaya-krovlya.jpg [area_modifier] => 115.63 [parent_name] => Крыша (Скатная) [parent_id] => 37 [material_sum] => 2892022 [work_sum] => 2037285 [total_sum] => 4929307 [total_days] => 20 [display_material_sum] => 2 892 022 [display_work_sum] => 2 037 285 [display_total_sum] => 4 929 307 ) 1
4 929 307
Работа:2 037 285
Материалы:2 892 022
Дни:20
stdClass Object ( [id] => 172 [attribute_id] => 37 [name] => Профлист [material_modifier] => 1 [work_modifier] => 1 [options] => Array ( ) [days] => [20] [material_price] => [3450] [work_price] => [3750] [image] => https://akademik-stroy.ru/wp-content/uploads/materials/proflist.jpg [area_modifier] => 115.63 [parent_name] => Крыша (Скатная) [parent_id] => 37 [material_sum] => 502644 [work_sum] => 455293 [total_sum] => 957937 [total_days] => 20 [display_material_sum] => 502 644 [display_work_sum] => 455 293 [display_total_sum] => 957 937 ) 1
957 937
Работа:455 293
Материалы:502 644
Дни:20
Окна
stdClass Object ( [id] => 51 [attribute_id] => 26 [name] => Есть [material_modifier] => 1 [work_modifier] => 1 [options] => Array ( [0] => Профиль 58 мм, 3-камерный, стеклопакет 2-камерный до 32 мм [1] => Профиль 60 мм, 4-камерный, стеклопакет 2-камерный до 32 мм [2] => Профиль 70 мм, 5-камерный, стеклопакет 2-камерный до 40 мм [3] => Профиль 72 мм, 5-камерный, стеклопакет 2-камерный до 40 мм [4] => Алюминиевые окна Alutech профиль 72 мм, стеклопакет 2-камерный ) [days] => [3,3,3,3,3] [material_price] => [1339,2124,2867,3023,29596] [work_price] => [635,647,659,668,2579] [image] => https://akademik-stroy.ru/wp-content/uploads/materials/okna.jpg [area_modifier] => 162.37 [parent_name] => Окна [parent_id] => 26 [material_sum] => 273941 [work_sum] => 108260 [total_sum] => 382201 [total_days] => 3 [display_material_sum] => 273 941 [display_work_sum] => 108 260 [display_total_sum] => 382 201 ) 1
382 201
Работа:108 260
Материалы:273 941
Дни:3
stdClass Object ( [id] => 52 [attribute_id] => 26 [name] => Нет [material_modifier] => 2 [work_modifier] => 1 [options] => [days] => null [material_price] => null [work_price] => null [image] => https://akademik-stroy.ru/wp-content/uploads/materials/okna.jpg [area_modifier] => 162.37 [parent_name] => Окна [parent_id] => 26 [material_sum] => 0 [work_sum] => 0 [total_sum] => 0 [total_days] => 0 [display_material_sum] => 0 [display_work_sum] => 0 [display_total_sum] => 0 ) 1
0
Работа:0
Материалы:0
Дни:0
Двери входные
stdClass Object ( [id] => 53 [attribute_id] => 27 [name] => Есть [material_modifier] => 1 [work_modifier] => 1 [options] => Array ( ) [days] => [1] [material_price] => [10000] [work_price] => [5500] [image] => https://akademik-stroy.ru/wp-content/uploads/materials/dveri.jpg [area_modifier] => 1 [parent_name] => Двери входные [parent_id] => 27 [material_sum] => 12600 [work_sum] => 5775 [total_sum] => 18375 [total_days] => 1 [display_material_sum] => 12 600 [display_work_sum] => 5 775 [display_total_sum] => 18 375 ) 1
18 375
Работа:5 775
Материалы:12 600
Дни:1
stdClass Object ( [id] => 54 [attribute_id] => 27 [name] => Нет [material_modifier] => 1 [work_modifier] => 1 [options] => Array ( ) [days] => [0] [material_price] => [0] [work_price] => [0] [image] => https://akademik-stroy.ru/wp-content/uploads/materials/dveri.jpg [area_modifier] => 1 [parent_name] => Двери входные [parent_id] => 27 [material_sum] => 0 [work_sum] => 0 [total_sum] => 0 [total_days] => 0 [display_material_sum] => 0 [display_work_sum] => 0 [display_total_sum] => 0 ) 1
0
Работа:0
Материалы:0
Дни:0
Утепление кровли (Мансарда)
stdClass Object ( [id] => 25 [attribute_id] => 13 [name] => Нет [material_modifier] => 1 [work_modifier] => 1 [options] => Array ( ) [days] => [0] [material_price] => [0] [work_price] => [0] [image] => https://akademik-stroy.ru/wp-content/uploads/materials/mineralovata-krov.jpg [area_modifier] => 115.63 [parent_name] => Утепление кровли (Мансарда) [parent_id] => 13 [material_sum] => 0 [work_sum] => 0 [total_sum] => 0 [total_days] => 0 [display_material_sum] => 0 [display_work_sum] => 0 [display_total_sum] => 0 ) 1
0
Работа:0
Материалы:0
Дни:0
stdClass Object ( [id] => 26 [attribute_id] => 13 [name] => Минераловатный [material_modifier] => 1 [work_modifier] => 1 [options] => Array ( [0] => 50 мм [1] => 100 мм [2] => 150 мм [3] => 200 мм [4] => 250 мм [5] => 300 мм [6] => 350 мм [7] => 400 мм [8] => 450 мм [9] => 500 мм ) [days] => [5,5,6,6,6,7,7,7,8,8] [material_price] => [1158,1414,1772,2230,3602,4060,4974,5890,6408,7718] [work_price] => [650,846,846,1098,1318,1450,1596,1754,1930,2122] [image] => https://akademik-stroy.ru/wp-content/uploads/materials/mineralovata-krov.jpg [area_modifier] => 115.63 [parent_name] => Утепление кровли (Мансарда) [parent_id] => 13 [material_sum] => 168713 [work_sum] => 78917 [total_sum] => 247630 [total_days] => 5 [display_material_sum] => 168 713 [display_work_sum] => 78 917 [display_total_sum] => 247 630 ) 1
247 630
Работа:78 917
Материалы:168 713
Дни:5
stdClass Object ( [id] => 123 [attribute_id] => 13 [name] => Эковата (целлюлозная вата) [material_modifier] => 1 [work_modifier] => 1 [options] => Array ( [0] => 50 мм [1] => 100 мм [2] => 150 мм [3] => 200 мм [4] => 250 мм [5] => 300 мм [6] => 350 мм [7] => 400 мм [8] => 450 мм [9] => 500 мм ) [days] => [3,3,4,4,4,5,5,5,5,5] [material_price] => [820,1638,2458,3276,5734,6552,8190,9828,11466,13104] [work_price] => [234,304,304,396,474,522,574,632,694,764] [image] => https://akademik-stroy.ru/wp-content/uploads/materials/ehkovata-krov.jpg [area_modifier] => 115.63 [parent_name] => Утепление кровли (Мансарда) [parent_id] => 13 [material_sum] => 119469 [work_sum] => 28410 [total_sum] => 147879 [total_days] => 3 [display_material_sum] => 119 469 [display_work_sum] => 28 410 [display_total_sum] => 147 879 ) 1
147 879
Работа:28 410
Материалы:119 469
Дни:3
stdClass Object ( [id] => 124 [attribute_id] => 13 [name] => Экструдированный пенополистирол [material_modifier] => 1 [work_modifier] => 1 [options] => Array ( [0] => 50 мм [1] => 100 мм [2] => 150 мм [3] => 200 мм [4] => 250 мм [5] => 300 мм [6] => 350 мм [7] => 400 мм [8] => 450 мм [9] => 500 мм ) [days] => [3,3,4,4,4,5,5,5,5,6] [material_price] => [1146,2292,3438,4584,8020,9166,11458,13750,16040,18332] [work_price] => [390,508,508,660,790,870,958,1052,1158,1274] [image] => https://akademik-stroy.ru/wp-content/uploads/materials/epps-krov.jpg [area_modifier] => 115.63 [parent_name] => Утепление кровли (Мансарда) [parent_id] => 13 [material_sum] => 166965 [work_sum] => 47350 [total_sum] => 214315 [total_days] => 3 [display_material_sum] => 166 965 [display_work_sum] => 47 350 [display_total_sum] => 214 315 ) 1
214 315
Работа:47 350
Материалы:166 965
Дни:3
stdClass Object ( [id] => 125 [attribute_id] => 13 [name] => ПСБ (ППС-пенополистирол) [material_modifier] => 1 [work_modifier] => 1 [options] => Array ( [0] => 50 мм [1] => 100 мм [2] => 150 мм [3] => 200 мм [4] => 250 мм [5] => 300 мм [6] => 350 мм [7] => 400 мм [8] => 450 мм [9] => 500 мм ) [days] => [3,3,4,4,4,5,5,5,5,6] [material_price] => [476,954,1430,1906,3336,3814,4766,5720,6674,7626] [work_price] => [390,508,508,660,790,870,958,1052,1158,1274] [image] => https://akademik-stroy.ru/wp-content/uploads/materials/psb-krov.jpg [area_modifier] => 115.63 [parent_name] => Утепление кровли (Мансарда) [parent_id] => 13 [material_sum] => 69350 [work_sum] => 47350 [total_sum] => 116700 [total_days] => 3 [display_material_sum] => 69 350 [display_work_sum] => 47 350 [display_total_sum] => 116 700 ) 1
116 700
Работа:47 350
Материалы:69 350
Дни:3
stdClass Object ( [id] => 126 [attribute_id] => 13 [name] => ППУ (Пенополиуретан) [material_modifier] => 1 [work_modifier] => 1 [options] => Array ( [0] => 50 мм [1] => 100 мм [2] => 150 мм [3] => 200 мм [4] => 250 мм [5] => 300 мм [6] => 350 мм [7] => 400 мм [8] => 450 мм [9] => 500 мм ) [days] => [2,2,3,3,3,3,4,4,4,4] [material_price] => [2080,4160,6240,8320,14560,16640,20800,24960,29120,33280] [work_price] => [234,304,304,396,474,522,574,632,694,764] [image] => https://akademik-stroy.ru/wp-content/uploads/materials/ppu-krov.jpg [area_modifier] => 115.63 [parent_name] => Утепление кровли (Мансарда) [parent_id] => 13 [material_sum] => 303043 [work_sum] => 28410 [total_sum] => 331453 [total_days] => 2 [display_material_sum] => 303 043 [display_work_sum] => 28 410 [display_total_sum] => 331 453 ) 1
331 453
Работа:28 410
Материалы:303 043
Дни:2
stdClass Object ( [id] => 127 [attribute_id] => 13 [name] => PIR-плиты (пенополиизоцианурат) [material_modifier] => 1 [work_modifier] => 1 [options] => Array ( [0] => 50 мм [1] => 100 мм [2] => 150 мм [3] => 200 мм [4] => 250 мм [5] => 300 мм [6] => 350 мм [7] => 400 мм [8] => 450 мм [9] => 500 мм ) [days] => [3,3,4,4,4,5,5,5,5,6] [material_price] => [2646,5290,7936,10580,18516,21162,26452,31742,37032,42324] [work_price] => [390,508,508,660,790,870,958,1052,1158,1274] [image] => https://akademik-stroy.ru/wp-content/uploads/materials/pir-krov.jpg [area_modifier] => 115.63 [parent_name] => Утепление кровли (Мансарда) [parent_id] => 13 [material_sum] => 385506 [work_sum] => 47350 [total_sum] => 432856 [total_days] => 3 [display_material_sum] => 385 506 [display_work_sum] => 47 350 [display_total_sum] => 432 856 ) 1
432 856
Работа:47 350
Материалы:385 506
Дни:3
Мансардные окна
stdClass Object ( [id] => 27 [attribute_id] => 14 [name] => Нет [material_modifier] => 1 [work_modifier] => 1 [options] => Array ( ) [days] => [0] [material_price] => [0] [work_price] => [0] [image] => https://akademik-stroy.ru/wp-content/uploads/materials/mansardnye-okna-2.jpg [area_modifier] => 1 [parent_name] => Мансардные окна [parent_id] => 14 [material_sum] => 0 [work_sum] => 0 [total_sum] => 0 [total_days] => 0 [display_material_sum] => 0 [display_work_sum] => 0 [display_total_sum] => 0 ) 1
0
Работа:0
Материалы:0
Дни:0
stdClass Object ( [id] => 28 [attribute_id] => 14 [name] => Есть [material_modifier] => 1 [work_modifier] => 1 [options] => Array ( [0] => 55x78 [1] => 55x98 ) [days] => [6,7] [material_price] => [47480,68700] [work_price] => [17900,19500] [image] => https://akademik-stroy.ru/wp-content/uploads/materials/mansardnye-okna-2.jpg [area_modifier] => 1 [parent_name] => Мансардные окна [parent_id] => 14 [material_sum] => 59825 [work_sum] => 18795 [total_sum] => 78620 [total_days] => 6 [display_material_sum] => 59 825 [display_work_sum] => 18 795 [display_total_sum] => 78 620 ) 1
78 620
Работа:18 795
Материалы:59 825
Дни:6
Подшивка кровли
stdClass Object ( [id] => 29 [attribute_id] => 15 [name] => Нет [material_modifier] => 1 [work_modifier] => 1 [options] => Array ( ) [days] => [0] [material_price] => [0] [work_price] => [0] [image] => https://akademik-stroy.ru/wp-content/uploads/materials/sofit.jpg [area_modifier] => 115.63 [parent_name] => Подшивка кровли [parent_id] => 15 [material_sum] => 0 [work_sum] => 0 [total_sum] => 0 [total_days] => 0 [display_material_sum] => 0 [display_work_sum] => 0 [display_total_sum] => 0 ) 1
0
Работа:0
Материалы:0
Дни:0
stdClass Object ( [id] => 30 [attribute_id] => 15 [name] => Есть [material_modifier] => 1 [work_modifier] => 1 [options] => Array ( [0] => Софиты (ПВХ) [1] => Cedral [2] => ДПК [3] => Планкен ) [days] => [7,10,9,8] [material_price] => [1803,3213,3025,3150] [work_price] => [1529,2188,2075,1923] [image] => https://akademik-stroy.ru/wp-content/uploads/materials/sofit.jpg [area_modifier] => 115.63 [parent_name] => Подшивка кровли [parent_id] => 15 [material_sum] => 262686 [work_sum] => 185638 [total_sum] => 448324 [total_days] => 7 [display_material_sum] => 262 686 [display_work_sum] => 185 638 [display_total_sum] => 448 324 ) 1
448 324
Работа:185 638
Материалы:262 686
Дни:7
Водосточная система
stdClass Object ( [id] => 31 [attribute_id] => 16 [name] => Нет [material_modifier] => 1 [work_modifier] => 1 [options] => Array ( ) [days] => [0] [material_price] => [0] [work_price] => [0] [image] => https://akademik-stroy.ru/wp-content/uploads/materials/docke-standard-pvh.jpg [area_modifier] => 115.63 [parent_name] => Водосточная система [parent_id] => 16 [material_sum] => 0 [work_sum] => 0 [total_sum] => 0 [total_days] => 0 [display_material_sum] => 0 [display_work_sum] => 0 [display_total_sum] => 0 ) 1
0
Работа:0
Материалы:0
Дни:0
stdClass Object ( [id] => 32 [attribute_id] => 16 [name] => Есть [material_modifier] => 1 [work_modifier] => 1 [options] => Array ( [0] => Döcke Standard (ПВХ) [1] => Металлические Grand Line ) [days] => [7,7] [material_price] => [1842,2703] [work_price] => [1491,1529] [image] => https://akademik-stroy.ru/wp-content/uploads/materials/docke-standard-pvh.jpg [area_modifier] => 115.63 [parent_name] => Водосточная система [parent_id] => 16 [material_sum] => 268368 [work_sum] => 181025 [total_sum] => 449393 [total_days] => 7 [display_material_sum] => 268 368 [display_work_sum] => 181 025 [display_total_sum] => 449 393 ) 1
449 393
Работа:181 025
Материалы:268 368
Дни:7
Дополнительное утепление наружных стен
stdClass Object ( [id] => 33 [attribute_id] => 17 [name] => Нет [material_modifier] => 1 [work_modifier] => 1 [options] => Array ( ) [days] => [0] [material_price] => [0] [work_price] => [0] [image] => https://akademik-stroy.ru/wp-content/uploads/materials/mineralovata.jpg [area_modifier] => 200.09 [parent_name] => Дополнительное утепление наружных стен [parent_id] => 17 [material_sum] => 0 [work_sum] => 0 [total_sum] => 0 [total_days] => 0 [display_material_sum] => 0 [display_work_sum] => 0 [display_total_sum] => 0 ) 1
0
Работа:0
Материалы:0
Дни:0
stdClass Object ( [id] => 34 [attribute_id] => 17 [name] => Минераловатный [material_modifier] => 1 [work_modifier] => 1 [options] => Array ( [0] => 50 мм [1] => 100 мм [2] => 150 мм [3] => 200 мм [4] => 250 мм [5] => 300 мм ) [days] => [7,8,10,12,14,15] [material_price] => [3437,3613,3803,3915,4601,4830] [work_price] => [2325,2423,2523,2749,2859,3025] [image] => https://akademik-stroy.ru/wp-content/uploads/materials/mineralovata.jpg [area_modifier] => 200.09 [parent_name] => Дополнительное утепление наружных стен [parent_id] => 17 [material_sum] => 866514 [work_sum] => 488470 [total_sum] => 1354984 [total_days] => 7 [display_material_sum] => 866 514 [display_work_sum] => 488 470 [display_total_sum] => 1 354 984 ) 1
1 354 984
Работа:488 470
Материалы:866 514
Дни:7
stdClass Object ( [id] => 128 [attribute_id] => 17 [name] => Эковата (целлюлозная вата) [material_modifier] => 1 [work_modifier] => 1 [options] => Array ( [0] => 50 мм [1] => 100 мм [2] => 150 мм [3] => 200 мм [4] => 250 мм [5] => 300 мм ) [days] => [3,4,5,6,7,8] [material_price] => [810,1319,1629,1838,2267,2676] [work_price] => [1225,1323,1423,1549,1659,1725] [image] => https://akademik-stroy.ru/wp-content/uploads/materials/ehkovata.jpg [area_modifier] => 200.09 [parent_name] => Дополнительное утепление наружных стен [parent_id] => 17 [material_sum] => 204212 [work_sum] => 257366 [total_sum] => 461578 [total_days] => 3 [display_material_sum] => 204 212 [display_work_sum] => 257 366 [display_total_sum] => 461 578 ) 1
461 578
Работа:257 366
Материалы:204 212
Дни:3
stdClass Object ( [id] => 129 [attribute_id] => 17 [name] => Экструдированный пенополистирол [material_modifier] => 1 [work_modifier] => 1 [options] => Array ( [0] => 50 мм [1] => 100 мм [2] => 150 мм [3] => 200 мм [4] => 250 мм [5] => 300 мм ) [days] => [5,6,7,8,9,10] [material_price] => [4560,4300,5119,6292,7010,8583] [work_price] => [1795,1954,2254,2330,2595,2735] [image] => https://akademik-stroy.ru/wp-content/uploads/materials/epps.jpg [area_modifier] => 200.09 [parent_name] => Дополнительное утепление наружных стен [parent_id] => 17 [material_sum] => 1149637 [work_sum] => 377120 [total_sum] => 1526757 [total_days] => 5 [display_material_sum] => 1 149 637 [display_work_sum] => 377 120 [display_total_sum] => 1 526 757 ) 1
1 526 757
Работа:377 120
Материалы:1 149 637
Дни:5
stdClass Object ( [id] => 130 [attribute_id] => 17 [name] => ПСБ (ППС-пенополистирол) [material_modifier] => 1 [work_modifier] => 1 [options] => Array ( [0] => 50 мм [1] => 100 мм [2] => 150 мм [3] => 200 мм [4] => 250 мм [5] => 300 мм ) [days] => [5,6,7,8,9,10] [material_price] => [4822,5200,5819,6292,7010,7583] [work_price] => [1795,1954,2254,2330,2595,2735] [image] => https://akademik-stroy.ru/wp-content/uploads/materials/psb.jpg [area_modifier] => 200.09 [parent_name] => Дополнительное утепление наружных стен [parent_id] => 17 [material_sum] => 1215691 [work_sum] => 377120 [total_sum] => 1592811 [total_days] => 5 [display_material_sum] => 1 215 691 [display_work_sum] => 377 120 [display_total_sum] => 1 592 811 ) 1
1 592 811
Работа:377 120
Материалы:1 215 691
Дни:5
stdClass Object ( [id] => 131 [attribute_id] => 17 [name] => ППУ (Пенополиуретан) [material_modifier] => 1 [work_modifier] => 1 [options] => Array ( [0] => 50 мм [1] => 100 мм [2] => 150 мм [3] => 200 мм [4] => 250 мм [5] => 300 мм ) [days] => [3,4,5,6,7,8] [material_price] => [2860,3400,4219,4592,5010,5583] [work_price] => [729,900,980,1120,1280,1530] [image] => https://akademik-stroy.ru/wp-content/uploads/materials/ppu.jpg [area_modifier] => 200.09 [parent_name] => Дополнительное утепление наружных стен [parent_id] => 17 [material_sum] => 721044 [work_sum] => 153159 [total_sum] => 874203 [total_days] => 3 [display_material_sum] => 721 044 [display_work_sum] => 153 159 [display_total_sum] => 874 203 ) 1
874 203
Работа:153 159
Материалы:721 044
Дни:3
stdClass Object ( [id] => 132 [attribute_id] => 17 [name] => PIR-плиты (пенополиизоцианурат) [material_modifier] => 1 [work_modifier] => 1 [options] => Array ( [0] => 50 мм [1] => 100 мм [2] => 150 мм [3] => 200 мм [4] => 250 мм [5] => 300 мм ) [days] => [5,6,7,8,9,10] [material_price] => [8323,15645,20968,25900,29258,30581] [work_price] => [800,900,970,1150,1280,1330] [image] => https://akademik-stroy.ru/wp-content/uploads/materials/pir.jpg [area_modifier] => 200.09 [parent_name] => Дополнительное утепление наружных стен [parent_id] => 17 [material_sum] => 2098340 [work_sum] => 168076 [total_sum] => 2266416 [total_days] => 5 [display_material_sum] => 2 098 340 [display_work_sum] => 168 076 [display_total_sum] => 2 266 416 ) 1
2 266 416
Работа:168 076
Материалы:2 098 340
Дни:5
Наружная отделка фасада
stdClass Object ( [id] => 37 [attribute_id] => 19 [name] => Нет [material_modifier] => 1 [work_modifier] => 1 [options] => Array ( ) [days] => [0] [material_price] => [0] [work_price] => [0] [image] => https://akademik-stroy.ru/wp-content/uploads/materials/imitaciya-brusa.jpg [area_modifier] => 200.09 [parent_name] => Наружная отделка фасада [parent_id] => 19 [material_sum] => 0 [work_sum] => 0 [total_sum] => 0 [total_days] => 0 [display_material_sum] => 0 [display_work_sum] => 0 [display_total_sum] => 0 ) 1
0
Работа:0
Материалы:0
Дни:0
stdClass Object ( [id] => 38 [attribute_id] => 19 [name] => Имитация бруса [material_modifier] => 1 [work_modifier] => 1 [options] => Array ( [0] => Сосна [1] => Ель [2] => Лиственница ) [days] => [20,20,20] [material_price] => [2994,2762,4954] [work_price] => [1397,1231,1577] [image] => https://akademik-stroy.ru/wp-content/uploads/materials/imitaciya-brusa.jpg [area_modifier] => 200.09 [parent_name] => Наружная отделка фасада [parent_id] => 19 [material_sum] => 754828 [work_sum] => 293502 [total_sum] => 1048330 [total_days] => 20 [display_material_sum] => 754 828 [display_work_sum] => 293 502 [display_total_sum] => 1 048 330 ) 1
1 048 330
Работа:293 502
Материалы:754 828
Дни:20
stdClass Object ( [id] => 136 [attribute_id] => 19 [name] => Планкен [material_modifier] => 1 [work_modifier] => 1 [options] => Array ( [0] => Сосна [1] => Ель [2] => Лиственница ) [days] => [20,20,20] [material_price] => [3194,2862,5154] [work_price] => [1537,1354,1735] [image] => https://akademik-stroy.ru/wp-content/uploads/materials/planken.jpg [area_modifier] => 200.09 [parent_name] => Наружная отделка фасада [parent_id] => 19 [material_sum] => 805250 [work_sum] => 322915 [total_sum] => 1128165 [total_days] => 20 [display_material_sum] => 805 250 [display_work_sum] => 322 915 [display_total_sum] => 1 128 165 ) 1
1 128 165
Работа:322 915
Материалы:805 250
Дни:20
stdClass Object ( [id] => 137 [attribute_id] => 19 [name] => Штукатурка [material_modifier] => 1 [work_modifier] => 1 [options] => Array ( [0] => Цементно-песчаная (минеральная) [1] => Мокрый фасад ) [days] => [35,35] [material_price] => [2231,3938] [work_price] => [1202,2422] [image] => https://akademik-stroy.ru/wp-content/uploads/materials/shtukaturka.jpg [area_modifier] => 200.09 [parent_name] => Наружная отделка фасада [parent_id] => 19 [material_sum] => 562465 [work_sum] => 252534 [total_sum] => 814999 [total_days] => 35 [display_material_sum] => 562 465 [display_work_sum] => 252 534 [display_total_sum] => 814 999 ) 1
814 999
Работа:252 534
Материалы:562 465
Дни:35
stdClass Object ( [id] => 138 [attribute_id] => 19 [name] => Облицовочный кирпич [material_modifier] => 1 [work_modifier] => 1 [options] => Array ( [0] => Керамический [1] => Клинкерный [2] => Ручной формовки [3] => Гиперпрессованный [4] => Силикатный кирпич ) [days] => [45,45,45,45,45] [material_price] => [8174,9148,1040,1257,5876] [work_price] => [3240,3758,4536,4017,3369] [image] => https://akademik-stroy.ru/wp-content/uploads/materials/oblicovochnyj-kirpich.jpg [area_modifier] => 200.09 [parent_name] => Наружная отделка фасада [parent_id] => 19 [material_sum] => 2060775 [work_sum] => 680706 [total_sum] => 2741481 [total_days] => 45 [display_material_sum] => 2 060 775 [display_work_sum] => 680 706 [display_total_sum] => 2 741 481 ) 1
2 741 481
Работа:680 706
Материалы:2 060 775
Дни:45
stdClass Object ( [id] => 139 [attribute_id] => 19 [name] => Фасадная плитка [material_modifier] => 1 [work_modifier] => 1 [options] => Array ( [0] => Клинкерная [1] => Керамическая [2] => Плитка ручной формовки ) [days] => [40,40,40] [material_price] => [2974,1487,3470] [work_price] => [3007,2592,3629] [image] => https://akademik-stroy.ru/wp-content/uploads/materials/fasadnaya-plitka.jpg [area_modifier] => 200.09 [parent_name] => Наружная отделка фасада [parent_id] => 19 [material_sum] => 749785 [work_sum] => 631754 [total_sum] => 1381539 [total_days] => 40 [display_material_sum] => 749 785 [display_work_sum] => 631 754 [display_total_sum] => 1 381 539 ) 1
1 381 539
Работа:631 754
Материалы:749 785
Дни:40
stdClass Object ( [id] => 140 [attribute_id] => 19 [name] => Сайдинг [material_modifier] => 1 [work_modifier] => 1 [options] => Array ( [0] => Виниловый [1] => Металлический [2] => Фиброцементный ) [days] => [20,20,20] [material_price] => [1263,1944,4147] [work_price] => [1263,1944,2074] [image] => https://akademik-stroy.ru/wp-content/uploads/materials/sajding.jpg [area_modifier] => 200.09 [parent_name] => Наружная отделка фасада [parent_id] => 19 [material_sum] => 318419 [work_sum] => 265349 [total_sum] => 583768 [total_days] => 20 [display_material_sum] => 318 419 [display_work_sum] => 265 349 [display_total_sum] => 583 768 ) 1
583 768
Работа:265 349
Материалы:318 419
Дни:20
stdClass Object ( [id] => 141 [attribute_id] => 19 [name] => Камень [material_modifier] => 1 [work_modifier] => 1 [options] => Array ( [0] => Травертин [1] => Дагестанский [2] => Искусственный [3] => Натуральный [4] => Керамогранит ) [days] => [45,45,45,45,45] [material_price] => [4536,3888,2592,3240,2462] [work_price] => [3240,3240,2462,3110,1944] [image] => https://akademik-stroy.ru/wp-content/uploads/materials/kamen-1.jpg [area_modifier] => 200.09 [parent_name] => Наружная отделка фасада [parent_id] => 19 [material_sum] => 1143586 [work_sum] => 680706 [total_sum] => 1824292 [total_days] => 45 [display_material_sum] => 1 143 586 [display_work_sum] => 680 706 [display_total_sum] => 1 824 292 ) 1
1 824 292
Работа:680 706
Материалы:1 143 586
Дни:45
stdClass Object ( [id] => 142 [attribute_id] => 19 [name] => Термопанели [material_modifier] => 1 [work_modifier] => 1 [options] => Array ( ) [days] => [20] [material_price] => [6221] [work_price] => [2333] [image] => https://akademik-stroy.ru/wp-content/uploads/materials/termo.png [area_modifier] => 200.09 [parent_name] => Наружная отделка фасада [parent_id] => 19 [material_sum] => 1568397 [work_sum] => 490150 [total_sum] => 2058547 [total_days] => 20 [display_material_sum] => 1 568 397 [display_work_sum] => 490 150 [display_total_sum] => 2 058 547 ) 1
2 058 547
Работа:490 150
Материалы:1 568 397
Дни:20
stdClass Object ( [id] => 143 [attribute_id] => 19 [name] => Плитка HAUBERK [material_modifier] => 1 [work_modifier] => 1 [options] => Array ( ) [days] => [20] [material_price] => [2786] [work_price] => [1944] [image] => https://akademik-stroy.ru/wp-content/uploads/materials/hauberk.jpg [area_modifier] => 200.09 [parent_name] => Наружная отделка фасада [parent_id] => 19 [material_sum] => 702388 [work_sum] => 408424 [total_sum] => 1110812 [total_days] => 20 [display_material_sum] => 702 388 [display_work_sum] => 408 424 [display_total_sum] => 1 110 812 ) 1
1 110 812
Работа:408 424
Материалы:702 388
Дни:20
stdClass Object ( [id] => 144 [attribute_id] => 19 [name] => Фальцевый фасад [material_modifier] => 1 [work_modifier] => 1 [options] => Array ( ) [days] => [20] [material_price] => [3240] [work_price] => [2592] [image] => https://akademik-stroy.ru/wp-content/uploads/materials/falcevyj-fasad.jpg [area_modifier] => 200.09 [parent_name] => Наружная отделка фасада [parent_id] => 19 [material_sum] => 816847 [work_sum] => 544565 [total_sum] => 1361412 [total_days] => 20 [display_material_sum] => 816 847 [display_work_sum] => 544 565 [display_total_sum] => 1 361 412 ) 1
1 361 412
Работа:544 565
Материалы:816 847
Дни:20
stdClass Object ( [id] => 145 [attribute_id] => 19 [name] => Комбинированный [material_modifier] => 1 [work_modifier] => 1 [options] => Array ( ) [days] => [20] [material_price] => [4629] [work_price] => [3499] [image] => https://akademik-stroy.ru/wp-content/uploads/materials/Kombinirovannyj.jpg [area_modifier] => 200.09 [parent_name] => Наружная отделка фасада [parent_id] => 19 [material_sum] => 1167033 [work_sum] => 735121 [total_sum] => 1902154 [total_days] => 20 [display_material_sum] => 1 167 033 [display_work_sum] => 735 121 [display_total_sum] => 1 902 154 ) 1
1 902 154
Работа:735 121
Материалы:1 167 033
Дни:20
stdClass Object ( [id] => 257 [attribute_id] => 19 [name] => Японские фиброцементные [material_modifier] => 1 [work_modifier] => 1 [options] => Array ( ) [days] => [20] [material_price] => [7043] [work_price] => [2993] [image] => https://akademik-stroy.ru/wp-content/uploads/materials/paneli.jpg [area_modifier] => 200.09 [parent_name] => Наружная отделка фасада [parent_id] => 19 [material_sum] => 1775635 [work_sum] => 628813 [total_sum] => 2404448 [total_days] => 20 [display_material_sum] => 1 775 635 [display_work_sum] => 628 813 [display_total_sum] => 2 404 448 ) 1
2 404 448
Работа:628 813
Материалы:1 775 635
Дни:20
stdClass Object ( [id] => 258 [attribute_id] => 19 [name] => Панели Каньон [material_modifier] => 1 [work_modifier] => 1 [options] => Array ( ) [days] => [20] [material_price] => [4543] [work_price] => [2592] [image] => https://akademik-stroy.ru/wp-content/uploads/materials/kanon.png [area_modifier] => 200.09 [parent_name] => Наружная отделка фасада [parent_id] => 19 [material_sum] => 1145351 [work_sum] => 544565 [total_sum] => 1689916 [total_days] => 20 [display_material_sum] => 1 145 351 [display_work_sum] => 544 565 [display_total_sum] => 1 689 916 ) 1
1 689 916
Работа:544 565
Материалы:1 145 351
Дни:20
Террасы, крыльца, навесы
stdClass Object ( [id] => 39 [attribute_id] => 20 [name] => Нет [material_modifier] => 1 [work_modifier] => 1 [options] => Array ( ) [days] => [0] [material_price] => [0] [work_price] => [0] [image] => https://akademik-stroy.ru/wp-content/uploads/materials/terrasy.jpg [area_modifier] => 30 [parent_name] => Террасы, крыльца, навесы [parent_id] => 20 [material_sum] => 0 [work_sum] => 0 [total_sum] => 0 [total_days] => 0 [display_material_sum] => 0 [display_work_sum] => 0 [display_total_sum] => 0 ) 1
0
Работа:0
Материалы:0
Дни:0
stdClass Object ( [id] => 40 [attribute_id] => 20 [name] => Есть [material_modifier] => 1 [work_modifier] => 1 [options] => Array ( ) [days] => [5] [material_price] => [10450] [work_price] => [1950] [image] => https://akademik-stroy.ru/wp-content/uploads/materials/terrasy.jpg [area_modifier] => 30 [parent_name] => Террасы, крыльца, навесы [parent_id] => 20 [material_sum] => 395010 [work_sum] => 61425 [total_sum] => 456435 [total_days] => 5 [display_material_sum] => 395 010 [display_work_sum] => 61 425 [display_total_sum] => 456 435 ) 1
456 435
Работа:61 425
Материалы:395 010
Дни:5
Балконы
stdClass Object ( [id] => 41 [attribute_id] => 21 [name] => Нет [material_modifier] => 1 [work_modifier] => 1 [options] => Array ( ) [days] => [0] [material_price] => [0] [work_price] => [0] [image] => https://akademik-stroy.ru/wp-content/uploads/materials/balkony.jpg [area_modifier] => 30 [parent_name] => Балконы [parent_id] => 21 [material_sum] => 0 [work_sum] => 0 [total_sum] => 0 [total_days] => 0 [display_material_sum] => 0 [display_work_sum] => 0 [display_total_sum] => 0 ) 1
0
Работа:0
Материалы:0
Дни:0
stdClass Object ( [id] => 42 [attribute_id] => 21 [name] => Есть [material_modifier] => 1 [work_modifier] => 1 [options] => Array ( ) [days] => [12] [material_price] => [3600] [work_price] => [1950] [image] => https://akademik-stroy.ru/wp-content/uploads/materials/balkony.jpg [area_modifier] => 30 [parent_name] => Балконы [parent_id] => 21 [material_sum] => 136080 [work_sum] => 61425 [total_sum] => 197505 [total_days] => 12 [display_material_sum] => 136 080 [display_work_sum] => 61 425 [display_total_sum] => 197 505 ) 1
197 505
Работа:61 425
Материалы:136 080
Дни:12
Отмостка
stdClass Object ( [id] => 43 [attribute_id] => 22 [name] => Нет [material_modifier] => 1 [work_modifier] => 1 [options] => Array ( ) [days] => [0] [material_price] => [0] [work_price] => [0] [image] => https://akademik-stroy.ru/wp-content/uploads/materials/uteplennaya.jpg [area_modifier] => 115.63 [parent_name] => Отмостка [parent_id] => 22 [material_sum] => 0 [work_sum] => 0 [total_sum] => 0 [total_days] => 0 [display_material_sum] => 0 [display_work_sum] => 0 [display_total_sum] => 0 ) 1
0
Работа:0
Материалы:0
Дни:0
stdClass Object ( [id] => 44 [attribute_id] => 22 [name] => Утепленная отмостка [material_modifier] => 1 [work_modifier] => 1 [options] => Array ( ) [days] => [15] [material_price] => [2550] [work_price] => [1750] [image] => https://akademik-stroy.ru/wp-content/uploads/materials/uteplennaya.jpg [area_modifier] => 115.63 [parent_name] => Отмостка [parent_id] => 22 [material_sum] => 371519 [work_sum] => 212470 [total_sum] => 583989 [total_days] => 15 [display_material_sum] => 371 519 [display_work_sum] => 212 470 [display_total_sum] => 583 989 ) 1
583 989
Работа:212 470
Материалы:371 519
Дни:15
stdClass Object ( [id] => 146 [attribute_id] => 22 [name] => Не утепленная отмостка [material_modifier] => 1 [work_modifier] => 1 [options] => Array ( ) [days] => [10] [material_price] => [1650] [work_price] => [1450] [image] => https://akademik-stroy.ru/wp-content/uploads/materials/ne-uteplennaya.jpg [area_modifier] => 115.63 [parent_name] => Отмостка [parent_id] => 22 [material_sum] => 240395 [work_sum] => 176047 [total_sum] => 416442 [total_days] => 10 [display_material_sum] => 240 395 [display_work_sum] => 176 047 [display_total_sum] => 416 442 ) 1
416 442
Работа:176 047
Материалы:240 395
Дни:10
Дренаж вокруг дома
stdClass Object ( [id] => 45 [attribute_id] => 23 [name] => Нет [material_modifier] => 1 [work_modifier] => 1 [options] => Array ( ) [days] => [0] [material_price] => [0] [work_price] => [0] [image] => https://akademik-stroy.ru/wp-content/uploads/materials/drenazh-2.jpg [area_modifier] => 115.63 [parent_name] => Дренаж вокруг дома [parent_id] => 23 [material_sum] => 0 [work_sum] => 0 [total_sum] => 0 [total_days] => 0 [display_material_sum] => 0 [display_work_sum] => 0 [display_total_sum] => 0 ) 1
0
Работа:0
Материалы:0
Дни:0
stdClass Object ( [id] => 46 [attribute_id] => 23 [name] => Есть [material_modifier] => 1 [work_modifier] => 1 [options] => Array ( ) [days] => [5] [material_price] => [2366] [work_price] => [1911] [image] => https://akademik-stroy.ru/wp-content/uploads/materials/drenazh-2.jpg [area_modifier] => 115.63 [parent_name] => Дренаж вокруг дома [parent_id] => 23 [material_sum] => 344712 [work_sum] => 232017 [total_sum] => 576729 [total_days] => 5 [display_material_sum] => 344 712 [display_work_sum] => 232 017 [display_total_sum] => 576 729 ) 1
576 729
Работа:232 017
Материалы:344 712
Дни:5
Автономная канализация (септики)
stdClass Object ( [id] => 47 [attribute_id] => 24 [name] => Нет [material_modifier] => 1 [work_modifier] => 1 [options] => Array ( ) [days] => [0] [material_price] => [0] [work_price] => [0] [image] => https://akademik-stroy.ru/wp-content/uploads/materials/septik.jpg [area_modifier] => 1 [parent_name] => Автономная канализация (септики) [parent_id] => 24 [material_sum] => 0 [work_sum] => 0 [total_sum] => 0 [total_days] => 0 [display_material_sum] => 0 [display_work_sum] => 0 [display_total_sum] => 0 ) 1
0
Работа:0
Материалы:0
Дни:0
stdClass Object ( [id] => 48 [attribute_id] => 24 [name] => Есть [material_modifier] => 1 [work_modifier] => 1 [options] => Array ( [0] => Для дачи на 4 человека [1] => Для дома на 5 человек [2] => Для дома на 6 человек [3] => Для дома на 7 человек [4] => Для дома на 10 человек ) [days] => [7,7,7,8,8] [material_price] => [196340,220500,240940,264200,293340] [work_price] => [50000,55000,60500,66550,73206] [image] => https://akademik-stroy.ru/wp-content/uploads/materials/septik.jpg [area_modifier] => 1 [parent_name] => Автономная канализация (септики) [parent_id] => 24 [material_sum] => 247388 [work_sum] => 52500 [total_sum] => 299888 [total_days] => 7 [display_material_sum] => 247 388 [display_work_sum] => 52 500 [display_total_sum] => 299 888 ) 1
299 888
Работа:52 500
Материалы:247 388
Дни:7
Внутренние (не несущие) перегородки
stdClass Object ( [id] => 49 [attribute_id] => 25 [name] => Нет [material_modifier] => 1 [work_modifier] => 1 [options] => Array ( ) [days] => [0] [material_price] => [0] [work_price] => [0] [image] => https://akademik-stroy.ru/wp-content/uploads/materials/gkl.jpg [area_modifier] => 200.09 [parent_name] => Внутренние (не несущие) перегородки [parent_id] => 25 [material_sum] => 0 [work_sum] => 0 [total_sum] => 0 [total_days] => 0 [display_material_sum] => 0 [display_work_sum] => 0 [display_total_sum] => 0 ) 1
0
Работа:0
Материалы:0
Дни:0
stdClass Object ( [id] => 147 [attribute_id] => 25 [name] => Каркасно-обшивные [material_modifier] => 1 [work_modifier] => 1 [options] => Array ( [0] => 75 мм (без шумоизоляции) [1] => 75 мм (с шумоизоляцией) ) [days] => [11,11] [material_price] => [580,970] [work_price] => [380,570] [image] => https://akademik-stroy.ru/wp-content/uploads/materials/gkl.jpg [area_modifier] => 200.09 [parent_name] => Внутренние (не несущие) перегородки [parent_id] => 25 [material_sum] => 146226 [work_sum] => 79836 [total_sum] => 226062 [total_days] => 11 [display_material_sum] => 146 226 [display_work_sum] => 79 836 [display_total_sum] => 226 062 ) 1
226 062
Работа:79 836
Материалы:146 226
Дни:11
stdClass Object ( [id] => 148 [attribute_id] => 25 [name] => Пазогребневые [material_modifier] => 1 [work_modifier] => 1 [options] => Array ( [0] => 80 мм [1] => 100 мм ) [days] => [5,5] [material_price] => [1022,1313] [work_price] => [600,700] [image] => https://akademik-stroy.ru/wp-content/uploads/materials/pazogrebnevye-bloki.jpg [area_modifier] => 200.09 [parent_name] => Внутренние (не несущие) перегородки [parent_id] => 25 [material_sum] => 257660 [work_sum] => 126057 [total_sum] => 383717 [total_days] => 5 [display_material_sum] => 257 660 [display_work_sum] => 126 057 [display_total_sum] => 383 717 ) 1
383 717
Работа:126 057
Материалы:257 660
Дни:5
stdClass Object ( [id] => 149 [attribute_id] => 25 [name] => Газобетонные [material_modifier] => 1 [work_modifier] => 1 [options] => Array ( [0] => 100 мм [1] => 200 мм ) [days] => [11,11] [material_price] => [1160,1920] [work_price] => [700,900] [image] => https://akademik-stroy.ru/wp-content/uploads/materials/gazobeton-2.jpg [area_modifier] => 200.09 [parent_name] => Внутренние (не несущие) перегородки [parent_id] => 25 [material_sum] => 292452 [work_sum] => 147066 [total_sum] => 439518 [total_days] => 11 [display_material_sum] => 292 452 [display_work_sum] => 147 066 [display_total_sum] => 439 518 ) 1
439 518
Работа:147 066
Материалы:292 452
Дни:11
stdClass Object ( [id] => 150 [attribute_id] => 25 [name] => Кирпичные [material_modifier] => 1 [work_modifier] => 1 [options] => Array ( [0] => 120 мм [1] => 250 мм [2] => 360 мм ) [days] => [7,7,7] [material_price] => [1785,3570,5355] [work_price] => [900,1600,1800] [image] => https://akademik-stroy.ru/wp-content/uploads/materials/kirpich-1.jpg [area_modifier] => 200.09 [parent_name] => Внутренние (не несущие) перегородки [parent_id] => 25 [material_sum] => 450022 [work_sum] => 189085 [total_sum] => 639107 [total_days] => 7 [display_material_sum] => 450 022 [display_work_sum] => 189 085 [display_total_sum] => 639 107 ) 1
639 107
Работа:189 085
Материалы:450 022
Дни:7
Электрика
stdClass Object ( [id] => 55 [attribute_id] => 28 [name] => Нет [material_modifier] => 1 [work_modifier] => 1 [options] => Array ( ) [days] => [0] [material_price] => [0] [work_price] => [0] [image] => https://akademik-stroy.ru/wp-content/uploads/materials/ehlektrika.jpg [area_modifier] => 162.37 [parent_name] => Электрика [parent_id] => 28 [material_sum] => 0 [work_sum] => 0 [total_sum] => 0 [total_days] => 0 [display_material_sum] => 0 [display_work_sum] => 0 [display_total_sum] => 0 ) 1
0
Работа:0
Материалы:0
Дни:0
stdClass Object ( [id] => 56 [attribute_id] => 28 [name] => Есть [material_modifier] => 1 [work_modifier] => 1 [options] => Array ( ) [days] => [10] [material_price] => [650] [work_price] => [950] [image] => https://akademik-stroy.ru/wp-content/uploads/materials/ehlektrika.jpg [area_modifier] => 162.37 [parent_name] => Электрика [parent_id] => 28 [material_sum] => 132981 [work_sum] => 161964 [total_sum] => 294945 [total_days] => 10 [display_material_sum] => 132 981 [display_work_sum] => 161 964 [display_total_sum] => 294 945 ) 1
294 945
Работа:161 964
Материалы:132 981
Дни:10
Сантехника, канализация в доме
stdClass Object ( [id] => 57 [attribute_id] => 29 [name] => Нет [material_modifier] => 1 [work_modifier] => 1 [options] => Array ( ) [days] => [0] [material_price] => [0] [work_price] => [0] [image] => https://akademik-stroy.ru/wp-content/uploads/materials/santekhnika-kanalizaciya-1.jpg [area_modifier] => 162.37 [parent_name] => Сантехника, канализация в доме [parent_id] => 29 [material_sum] => 0 [work_sum] => 0 [total_sum] => 0 [total_days] => 0 [display_material_sum] => 0 [display_work_sum] => 0 [display_total_sum] => 0 ) 1
0
Работа:0
Материалы:0
Дни:0
stdClass Object ( [id] => 58 [attribute_id] => 29 [name] => Есть [material_modifier] => 1 [work_modifier] => 1 [options] => Array ( ) [days] => [10] [material_price] => [600] [work_price] => [730] [image] => https://akademik-stroy.ru/wp-content/uploads/materials/santekhnika-kanalizaciya-1.jpg [area_modifier] => 162.37 [parent_name] => Сантехника, канализация в доме [parent_id] => 29 [material_sum] => 122752 [work_sum] => 124457 [total_sum] => 247209 [total_days] => 10 [display_material_sum] => 122 752 [display_work_sum] => 124 457 [display_total_sum] => 247 209 ) 1
247 209
Работа:124 457
Материалы:122 752
Дни:10
Отопление
stdClass Object ( [id] => 59 [attribute_id] => 30 [name] => Нет [material_modifier] => 1 [work_modifier] => 1 [options] => Array ( ) [days] => [0] [material_price] => [0] [work_price] => [0] [image] => https://akademik-stroy.ru/wp-content/uploads/materials/otoplenie-1.jpg [area_modifier] => 162.37 [parent_name] => Отопление [parent_id] => 30 [material_sum] => 0 [work_sum] => 0 [total_sum] => 0 [total_days] => 0 [display_material_sum] => 0 [display_work_sum] => 0 [display_total_sum] => 0 ) 1
0
Работа:0
Материалы:0
Дни:0
stdClass Object ( [id] => 60 [attribute_id] => 30 [name] => Есть [material_modifier] => 1 [work_modifier] => 1 [options] => Array ( ) [days] => [5] [material_price] => [610] [work_price] => [560] [image] => https://akademik-stroy.ru/wp-content/uploads/materials/otoplenie-1.jpg [area_modifier] => 162.37 [parent_name] => Отопление [parent_id] => 30 [material_sum] => 124798 [work_sum] => 95474 [total_sum] => 220272 [total_days] => 5 [display_material_sum] => 124 798 [display_work_sum] => 95 474 [display_total_sum] => 220 272 ) 1
220 272
Работа:95 474
Материалы:124 798
Дни:5
Теплые полы
stdClass Object ( [id] => 61 [attribute_id] => 31 [name] => Нет [material_modifier] => 1 [work_modifier] => 1 [options] => Array ( ) [days] => [0] [material_price] => [0] [work_price] => [0] [image] => https://akademik-stroy.ru/wp-content/uploads/materials/vodyanye.jpg [area_modifier] => 30 [parent_name] => Теплые полы [parent_id] => 31 [material_sum] => 0 [work_sum] => 0 [total_sum] => 0 [total_days] => 0 [display_material_sum] => 0 [display_work_sum] => 0 [display_total_sum] => 0 ) 1
0
Работа:0
Материалы:0
Дни:0
stdClass Object ( [id] => 151 [attribute_id] => 31 [name] => Водяные [material_modifier] => 1 [work_modifier] => 1 [options] => Array ( ) [days] => [9] [material_price] => [10200] [work_price] => [2500] [image] => https://akademik-stroy.ru/wp-content/uploads/materials/vodyanye.jpg [area_modifier] => 30 [parent_name] => Теплые полы [parent_id] => 31 [material_sum] => 385560 [work_sum] => 78750 [total_sum] => 464310 [total_days] => 9 [display_material_sum] => 385 560 [display_work_sum] => 78 750 [display_total_sum] => 464 310 ) 1
464 310
Работа:78 750
Материалы:385 560
Дни:9
stdClass Object ( [id] => 152 [attribute_id] => 31 [name] => Электро [material_modifier] => 1 [work_modifier] => 1 [options] => Array ( ) [days] => [5] [material_price] => [6300] [work_price] => [1500] [image] => https://akademik-stroy.ru/wp-content/uploads/materials/ehlektricheskij.jpg [area_modifier] => 30 [parent_name] => Теплые полы [parent_id] => 31 [material_sum] => 238140 [work_sum] => 47250 [total_sum] => 285390 [total_days] => 5 [display_material_sum] => 238 140 [display_work_sum] => 47 250 [display_total_sum] => 285 390 ) 1
285 390
Работа:47 250
Материалы:238 140
Дни:5
Черновая отделка стен
stdClass Object ( [id] => 63 [attribute_id] => 32 [name] => Нет [material_modifier] => 1 [work_modifier] => 1 [options] => Array ( ) [days] => [0] [material_price] => [0] [work_price] => [0] [image] => https://akademik-stroy.ru/wp-content/uploads/materials/shtukaturka-shpatlevka-1.jpg [area_modifier] => 162.37 [parent_name] => Черновая отделка стен [parent_id] => 32 [material_sum] => 0 [work_sum] => 0 [total_sum] => 0 [total_days] => 0 [display_material_sum] => 0 [display_work_sum] => 0 [display_total_sum] => 0 ) 1
0
Работа:0
Материалы:0
Дни:0
stdClass Object ( [id] => 153 [attribute_id] => 32 [name] => Штукатурка и шпатлевка [material_modifier] => 1 [work_modifier] => 1 [options] => Array ( ) [days] => [20] [material_price] => [1850] [work_price] => [2600] [image] => https://akademik-stroy.ru/wp-content/uploads/materials/shtukaturka-shpatlevka-1.jpg [area_modifier] => 162.37 [parent_name] => Черновая отделка стен [parent_id] => 32 [material_sum] => 378484 [work_sum] => 443270 [total_sum] => 821754 [total_days] => 20 [display_material_sum] => 378 484 [display_work_sum] => 443 270 [display_total_sum] => 821 754 ) 1
821 754
Работа:443 270
Материалы:378 484
Дни:20
stdClass Object ( [id] => 154 [attribute_id] => 32 [name] => Гипсокортон на стены [material_modifier] => 1 [work_modifier] => 1 [options] => Array ( ) [days] => [15] [material_price] => [950] [work_price] => [2100] [image] => https://akademik-stroy.ru/wp-content/uploads/materials/gkl-1.jpg [area_modifier] => 162.37 [parent_name] => Черновая отделка стен [parent_id] => 32 [material_sum] => 194357 [work_sum] => 358026 [total_sum] => 552383 [total_days] => 15 [display_material_sum] => 194 357 [display_work_sum] => 358 026 [display_total_sum] => 552 383 ) 1
552 383
Работа:358 026
Материалы:194 357
Дни:15
stdClass Object ( [id] => 155 [attribute_id] => 32 [name] => Вагонка [material_modifier] => 1 [work_modifier] => 1 [options] => Array ( ) [days] => [15] [material_price] => [1250] [work_price] => [950] [image] => https://akademik-stroy.ru/wp-content/uploads/materials/vagonka.jpg [area_modifier] => 162.37 [parent_name] => Черновая отделка стен [parent_id] => 32 [material_sum] => 255733 [work_sum] => 161964 [total_sum] => 417697 [total_days] => 15 [display_material_sum] => 255 733 [display_work_sum] => 161 964 [display_total_sum] => 417 697 ) 1
417 697
Работа:161 964
Материалы:255 733
Дни:15
Черновая отделка полов
stdClass Object ( [id] => 65 [attribute_id] => 33 [name] => Нет [material_modifier] => 1 [work_modifier] => 1 [options] => Array ( ) [days] => [0] [material_price] => [0] [work_price] => [0] [image] => https://akademik-stroy.ru/wp-content/uploads/materials/styazhka.jpg [area_modifier] => 162.37 [parent_name] => Черновая отделка полов [parent_id] => 33 [material_sum] => 0 [work_sum] => 0 [total_sum] => 0 [total_days] => 0 [display_material_sum] => 0 [display_work_sum] => 0 [display_total_sum] => 0 ) 1
0
Работа:0
Материалы:0
Дни:0
stdClass Object ( [id] => 156 [attribute_id] => 33 [name] => Стяжка + наливные полы [material_modifier] => 1 [work_modifier] => 1 [options] => Array ( ) [days] => [10] [material_price] => [1000] [work_price] => [900] [image] => https://akademik-stroy.ru/wp-content/uploads/materials/styazhka.jpg [area_modifier] => 162.37 [parent_name] => Черновая отделка полов [parent_id] => 33 [material_sum] => 204586 [work_sum] => 153440 [total_sum] => 358026 [total_days] => 10 [display_material_sum] => 204 586 [display_work_sum] => 153 440 [display_total_sum] => 358 026 ) 1
358 026
Работа:153 440
Материалы:204 586
Дни:10
stdClass Object ( [id] => 157 [attribute_id] => 33 [name] => ОСБ на пол [material_modifier] => 1 [work_modifier] => 1 [options] => Array ( ) [days] => [7] [material_price] => [580] [work_price] => [350] [image] => https://akademik-stroy.ru/wp-content/uploads/materials/osb-1.jpg [area_modifier] => 162.37 [parent_name] => Черновая отделка полов [parent_id] => 33 [material_sum] => 118660 [work_sum] => 59671 [total_sum] => 178331 [total_days] => 7 [display_material_sum] => 118 660 [display_work_sum] => 59 671 [display_total_sum] => 178 331 ) 1
178 331
Работа:59 671
Материалы:118 660
Дни:7
Чистовая отделка стен и полов
stdClass Object ( [id] => 67 [attribute_id] => 34 [name] => Нет [material_modifier] => 1 [work_modifier] => 1 [options] => Array ( ) [days] => [0] [material_price] => [0] [work_price] => [0] [image] => https://akademik-stroy.ru/wp-content/uploads/materials/chistovaya-otdelka.jpg [area_modifier] => 162.37 [parent_name] => Чистовая отделка стен и полов [parent_id] => 34 [material_sum] => 0 [work_sum] => 0 [total_sum] => 0 [total_days] => 0 [display_material_sum] => 0 [display_work_sum] => 0 [display_total_sum] => 0 ) 1
0
Работа:0
Материалы:0
Дни:0
stdClass Object ( [id] => 68 [attribute_id] => 34 [name] => Есть [material_modifier] => 1 [work_modifier] => 1 [options] => Array ( ) [days] => [50] [material_price] => [6000] [work_price] => [3500] [image] => https://akademik-stroy.ru/wp-content/uploads/materials/chistovaya-otdelka.jpg [area_modifier] => 162.37 [parent_name] => Чистовая отделка стен и полов [parent_id] => 34 [material_sum] => 1227517 [work_sum] => 596710 [total_sum] => 1824227 [total_days] => 50 [display_material_sum] => 1 227 517 [display_work_sum] => 596 710 [display_total_sum] => 1 824 227 ) 1
1 824 227
Работа:596 710
Материалы:1 227 517
Дни:50
Отделка потолка
stdClass Object ( [id] => 69 [attribute_id] => 35 [name] => Нет [material_modifier] => 1 [work_modifier] => 1 [options] => Array ( ) [days] => [0] [material_price] => [0] [work_price] => [0] [image] => https://akademik-stroy.ru/wp-content/uploads/materials/mnogourovnevyj-gkl.jpg [area_modifier] => 162.37 [parent_name] => Отделка потолка [parent_id] => 35 [material_sum] => 0 [work_sum] => 0 [total_sum] => 0 [total_days] => 0 [display_material_sum] => 0 [display_work_sum] => 0 [display_total_sum] => 0 ) 1
0
Работа:0
Материалы:0
Дни:0
stdClass Object ( [id] => 70 [attribute_id] => 35 [name] => Есть [material_modifier] => 1 [work_modifier] => 1 [options] => Array ( [0] => Многоуровневый потолок из гипсокартона [1] => Многоуровневый потолок из гипсокартона и натяжного потолка [2] => Одноуровневый потолок из гипсокартона [3] => Одноуровневый натяжной потолок ) [days] => [10,10,1,1] [material_price] => [900,700,700,600] [work_price] => [1000,800,500,300] [image] => https://akademik-stroy.ru/wp-content/uploads/materials/mnogourovnevyj-gkl.jpg [area_modifier] => 162.37 [parent_name] => Отделка потолка [parent_id] => 35 [material_sum] => 184128 [work_sum] => 170489 [total_sum] => 354617 [total_days] => 10 [display_material_sum] => 184 128 [display_work_sum] => 170 489 [display_total_sum] => 354 617 ) 1
354 617
Работа:170 489
Материалы:184 128
Дни:10

Преимущества работы с нами

icon

7 этапов оплаты

icon

Независимый строительный надзор

icon

Экологически чистые материалы

icon

16 лет гарантии

icon

Онлайн-кабинет с веб-камерой

icon

Строители с опытом более 15 лет

icon

Собственное производство

Радость двухэтажного дома: проект 13х11 - 162.37 м²

Когда речь заходит о строительстве дома, понятно, что один из ключевых моментов, который волнует всех, кто планирует строительство, — это выбор идеального проекта. В этой статье мы рассмотрим проект двухэтажного дома размером 13x11 метров с полезной площадью 162.37 м², который вы можете заказать у компании "Академик Строй". Это решение подходит для большой семьи, требующей комфорта и уюта без излишеств. Почему же именно этот проект набирает популярность в Москве? Давайте разберемся во всех деталях и узнаем больше о его преимуществах.

Идеальные пропорции: размер дома и планировка

Размеры дома 13 x 11 метров позволяют с легкостью разместиться на участке и благоприятствуют организации внутреннего пространства. Это дает владельцам возможность максимально эффективно использовать каждый квадратный метр. Двухэтажная планировка обеспечивает не только функциональное, но и стильное зонирование помещения. С просторными комнатами и удобно размещенными зонами, дом идеально вписывается в повседневный ритм жизни семьи. Первый этаж может включать помещение для гостиной и кухни, создавая место для встреч и общения. Второй этаж предпочтительно отвести под приватные зоны.

Количество спален и санузлов: комфорт для всей семьи

Принимая во внимание количество спален, важно отметить, что данный проект предлагает три удобные и просторные спальни. Это позволяет каждому члену семьи обладать личным пространством. Особенно это ценно для семей с детьми, где необходимо учитывать их потребности и образ жизни. Два санузла — это ещё одно преимущество дома. Исключение утренних очередей у ванной комнаты — важный момент, который особенно оценят семьи с детьми или когда в доме много гостей. Это всего лишь один из штрихов, который делает проект удобным и продуманным.

Эффективное использование пространства: жилая площадь

С 138.52 m² жилой площади, проект гарантирует, что все пространство будет использовано разумно. Все дома создают ощущение комфорта и уюта, но именно этот план позволяет сочетать эстетичное оформление с практичностью. Просторные жилые помещения и продуманная планировка создают оптимальные условия для жизни.
Элементы проекта Параметры
Полезная площадь 162.37 м²
Жилая площадь 138.52 m²
Площадь застройки 121.76 m²

Архитектурные особенности: крыша и фасад

Крыша — важный элемент каждого дома, и в данном проекте используется двускатная крыша с углом наклона в 40°. Это не только улучшает эстетический вид здания, но и функционально оправдано в условиях московской погоды. Благодаря этому, минимизируется риск скопления снега зимой. Двускатная крыша позволяет обеспечить обязательное количество света в доме, создавая большие окна и продуманное расположение источников света. Её дизайн гораздо устойчивее к ветровой нагрузке и различным климатическим изменениям.

Участок: параметры для строительства

Что касается участка, минимальные размеры, необходимые для строительства — это ширина 21.05 м и длина 18.95 м. Такой размер встречается во многих московских районах, что делает проект доступным для широкой аудитории. Площадь застройки составляет 121.76 m², что подтверждает рациональное и компактное использование гостевой и жилой зоны. Зонирование территории позволяет расположить на участке не только парковочные места, но и, при необходимости, создать уютный сад для отдыха всей семьёй.

Заказать проект сейчас: как начинается мечта

Компания "Академик Строй" предлагает вам приобрести этот проект по конкурентоспособной цене. Наши специалисты помогут сделать ваш проект уникальным и соответствующим именно вашим требованиям. Вас ждут консультации профессиональных архитекторов и инженеров, которые с радостью помогут определить лучшие решения для вашего дома. Зачем откладывать мечту о собственном доме? Вы можете легко купить проект по телефону +7 (980) 800-47-93, и мы будем рады помочь вам на всех этапах строительства — от оформления документов до достижения финальной стадии строительства. Мы уверены, что ваш новый дом станет уютным уголком, где каждый член вашей семьи будет чувствовать себя комфортно, а также местом для тёплых встреч с друзьями и родственниками. Пусть этот проект станет началом вашего нового этапа жизни. Такой подход к планированию и строительству дома делает его идеальным решением для вашей семьи, сохраняя баланс между финансовыми возможностями и комфортом, который поистине может стать вашим домом мечты.