Планирование строительства двухэтажного дома в Москве
Если вы давно мечтали о собственном доме в столице, то двухэтажный дом 16x14 метров - это отличный вариант для тех, кто ценит простор и функциональность. Вас интересует возможность строительства, но не знаете, с чего начать? Давайте вместе разберем, почему проект от компании "Академик Строй" соответствует идеалу мечты о собственном уголке в самом сердце России. Дом площадью 137,1 м2 предусматривает не только комфорт, но и возможность реализовать все ваши запросы на просторное и удобное жилье. Этот проект включает в себя множество привлекательных особенностей: варианты крыши, расход материала, возможность установки камина и, конечно, грамотно распределенные жилые зоны.Что стоит учесть при выборе проекта дома? Параметры и планировка
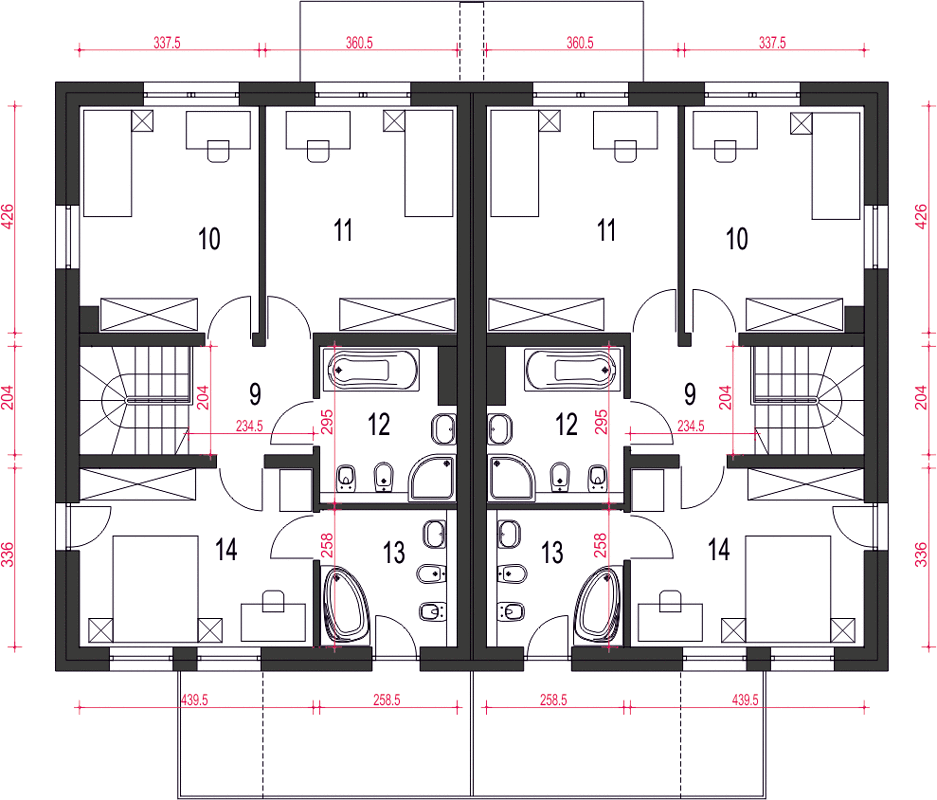
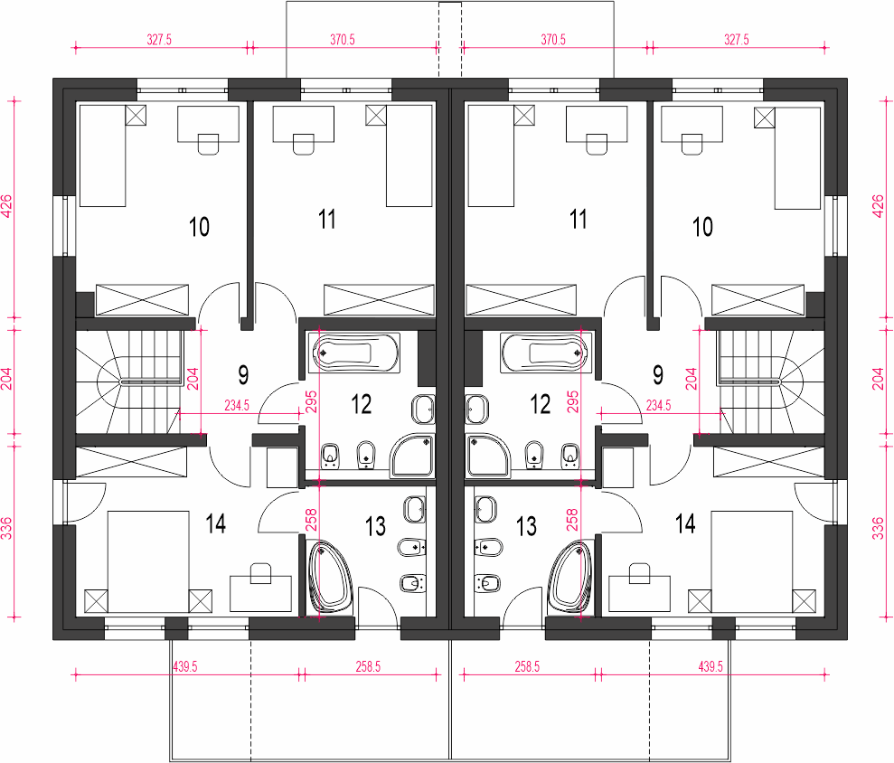
Подходящий проект дома начинается с понимания его размеров и других экономических показателей. Двухэтажный дом 16x14 м - компактный, но вместительный. Четыре спальни и два санузла – это именно то, что нужно для комфортабельного проживания всей семьи. Жилая площадь в 237,80 м² позволяет сохранять простор, при этом нет необходимости в урезании личного пространства домочадцев. Высота здания в 9 метров и двухскатная крыша придают дому современный облик, сохраняют тепло и позволяют эффективно экономить на отоплении. Угол наклона крыши в 22 градуса – типичный выбор для российских климатических условий, обеспечивая надёжную защиту от осадков.Преимущества сотрудничества с "Академик Строй"
Среди предложений рынка выбрать действительно лучшее не так просто. Компания "Академик Строй" предлагает современные и надежные решения по привлекательной цене. Гибкость и разнообразие проектов, возможность доработок "под ключ" делает их работу востребованной. Вы всегда можете рассчитывать на качественный результат. Плюсом является возможность обустройства камина или специально оборудованной комнаты на первом этаже. Терраса, как дополнение, создаёт идеальное место для отдыха на свежем воздухе.Грамотная планировка – ключ к комфортному проживанию
Прежде чем двигаться дальше, важно рассмотреть планировку будущего дома. Проект предусматривает всестороннее изучение каждого помещения: где располагаются спальни, как распределены зоны, сколько м² занимают жилые пространства и зоны отдыха.
Каждодневный комфорт обеспечивают две ванные комнаты. Это привычная роскошь, которую компания "Академик Строй" считает обязательной. Недостаток времени утром или поздний вечер - теперь это не проблема.
Выбор участка для постройки
Выбор участка не менее важен, чем сам проект. Минимальная ширина участка для дома 16x14 м - 23,70 м, а минимальная длина - 21,50 м. Исходя из этого, вы можете подобрать подходящее место для строительства своего будущего дома. Найти нужный вариант в Москве может оказаться вызовом, но цель оправдывает средства. Таблица для наглядного представления минимальных размеров участка:| Параметр | Минимум |
|---|---|
| Ширина участка | 23,70 м |
| Длина участка | 21,50 м |
Экономика строительства дома
Один из важных этапов планирования – расчет экономической составляющей. Строительство дома – это инвестиция, поэтому важно взвесить все расходы заранее. Учитывайте не только стоимость строительно-монтажных работ, но и расходы на обустройство участка и постройку дополнительных элементов, таких как терраса или внешняя отделка. Таблица возможных затрат:| Элемент | Примерная стоимость |
|---|---|
| Материалы | Условно: рублевая ставка |
| Работы | Отдельная договоренность |
| Дополнительные элементы | По потребности |
Особенности процесса проектирования
Проектирование дома — это комплексный процесс, который включает в себя не только выбор материалов, но и грамотное распределение пространства. Когда вы решаете купить готовый проект, важно понимать, что вам понадобится согласовать план с профессионалами. "Академик Строй" предоставляет возможность учесть все ваши потребности и внести изменения в проект.Оптимизация пространства
Комната на первом этаже – это не просто дань моде, но и полезное пространство для жизни. Будь это кабинет, игровая зона для детей или гостевая спальня — решать вам. Абсолютно все параметры проекта составлены так, чтобы оптимизировать использование каждого квадратного метра.
- Рациональное применение пространства
- Грамотно распределенные световые зоны
- Функциональные проходы и соединения между комнатами
- места для хранения
- служебные помещения
- борьба с ненужными потерями тепла через окна и двери



