Введение в проект: двухэтажный дом 15х14
Представьте себе уютный двухэтажный дом, который сочетает в себе современный дизайн и функциональность. Именно таким должен быть дом вашей мечты. Сейчас я расскажу, как заказать проект великолепного дома площадью 152.8 м² в Москве от компании "Академик Строй". Это проект, где каждая деталь продумана до мелочей, чтобы обеспечить комфорт и стиль вашей семье. Размеры дома - 15 на 14 метров - делают его достаточно просторным, но в то же время легко вписывающимся в большинство участков. Расположите такой дом в любой точки Москвы или Подмосковья, и вы получите уникальное пространство для жизни, с видом на уютный сад или живописный ландшафт. Звучит как мечта? Нет, это реальность, доступная каждому.Планировка и архитектура
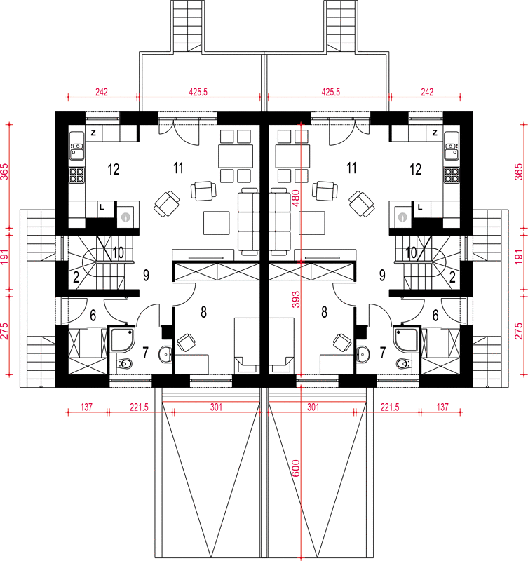
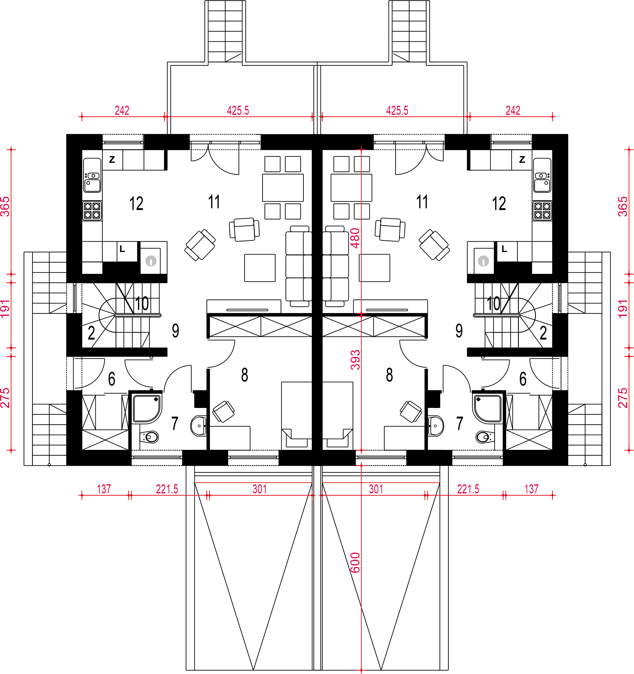
Планировка дома включает два просторных этажа, что позволяет разместить здесь все необходимые помещения для комфортного проживания. Несмотря на кажущуюся простоту, каждый квадратный метр этого дома подвергался тщательному проектированию, чтобы обеспечить максимум полезной площади. Дом включает в себя четыре спальные комнаты и три оборудованных санузла, что делает его идеальным для большой семьи или приема гостей. Каждая спальня просторна и светла, с местом для хранения и возможностью организации уютного личного кабинета. Спальные комнаты размещены таким образом, что каждому члену семьи достается свой уголок покоя и уединения, что немаловажно в современном мире.Жилая и полезная площадь
С общей жилищной площадью 208.20 м², этот дом предоставляет больше, чем достаточно места для всех членов семьи. Это чудесное место для вечерних встреч с близкими, уютного отдыха после тяжелого рабочего дня или проведения праздничных торжеств. Основное внимание при проектировании уделялось функциональности, что нашло отражение в расположении комнат и их размерах. Помимо личных пространств, в доме найдется место и для просторной гостиной, лучшего уголка для общения и сбора всей семьи. Здесь невозможно чувствовать себя стесненно.| Параметр | Значение |
|---|---|
| Полезная площадь | 152.8 м² |
| Жилая площадь | 208.20 м² |
| Количество спален | 4 |
| Количество санузлов | 3 |
Архитектурные особенности и крыша
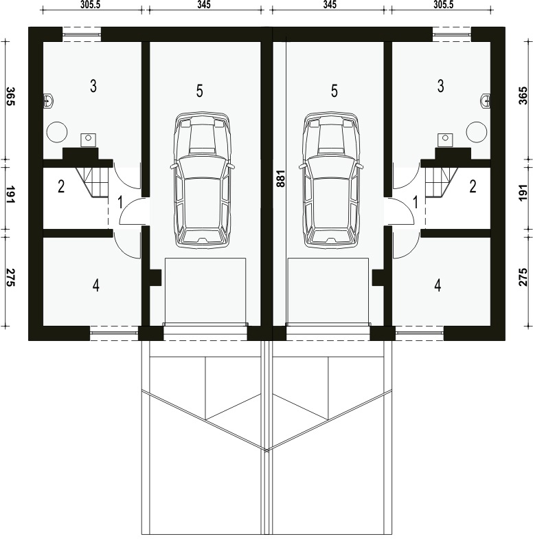
Высота здания составляет 9,80 метров, что добавляет ему статности и величественности, не теряя при этом ощущения домашнего уюта. Это действительно важно для тех, кто хочет получить одновременно статусный и надежный дом. Тип двускатной крыши - это классическое архитектурное решение, проверенное временем. Благодаря углу наклона в 40°, крыша обеспечивает отличное отведение дождевой воды и снега, что так важно в нашем климате. Площадь крыши составляет 195,60 м², что обеспечивает дополнительное визуальное расширение пространства.Земельный участок: размер и планирование
Для размещения такого дома потребуется земельный участок с минимальной шириной и длиной 22,70м и 21,60м соответственно. Это дает возможность расположить дом на участке таким образом, чтобы оставить место для других элементов сада, что будет создавать атмосферу единства с природой. Приятно, когда проект дома предоставляет не только комфортные условия проживания внутри, но и позволяет создавать идеальные условия для отдыха на собственном участке. Проектирование ландшафтных элементов может стать отличным дополнением к вашему новому дому.Преимущества двухэтажных домов
Зачем выбирать двухэтажный дом? В современном мире, где цена на земельные участки постоянно растет, необходимо эффективно использовать каждую сотку. Именно здесь двухэтажный дом становится идеальным решением. Вы получаете практически в два раза больше полезной площади, не тратя много средств и места на расширение фундамента и крыши. Большинство людей выбирают двухэтажные дома за их универсальность. Это отличное решение для как небольших семей, так и для тех, кто любит принимать гостей. В вашем распоряжении будут и помещения для личного уединения, и общие зоны для общения и досуга.В список преимуществ двухэтажных домов также входят:
- Экономия площади земельного участка.
- Лучшее разделение зон: дневные и ночные зоны можно грамотно разделить по этажам.
- Возможность вариативного дизайна и внешнего облика дома.
- Чувство уединения, даже в условиях плотного городского строительства.
Особенности тепло- и водоизоляции
При строительстве особое внимание уделяется системам тепло- и водоизоляции. Это не только делает проживание комфортным, но и позволяет существенно экономить на коммунальных расходах. Хорошо продуманная изоляция помогает поддерживать стабильную, комфортную температуру внутри дома независимо от времени года. Для дома в Москве это особенно актуально, учитывая разнообразие и непредсказуемость погодных условий. Использование современных материалов и технологий в этом проекте позволяет снизить затраты на отопление и неизменно сохранять тепло в любых условиях.Как заказать проект
Заказать проект просто. Компания "Академик Строй" предлагает вам воспользоваться комфортными условиями заказа. Для этого достаточно набрать номер: +7 (980) 800-47-93. Специалисты компании готовы предоставить всю необходимую информацию, помочь с выбором лучших решений и учесть ваши персональные пожелания. Выбирая надежного партнера для строительства, вы выбираете уверенность в будущем комфорте вашего дома. Пусть дом станет не просто местом проживания, но и источником гордости для вас и вашей семьи.Экономические аспекты и оптимизация бюджета
Экономия бюджета – вопрос, который волнует каждого застройщика. К счастью, проект дома от компании "Академик Строй" позволяет оптимизировать затраты, не жертвуя качеством. Это достигается за счет оптимальной планировки, продуманных технических решений и использования только лучших материалов. Важно помнить, что хорошая экономика проекта не предполагает покупку самых дешевых материалов. Главное – это баланс между качеством, надежностью и стоимостью. Вдумчивый подход к каждой детали – это не только инвестиция в ваш комфорт, но и в будущее.Некоторые экономические советы:
- Тщательно изучите предложение компании и выберите наиболее подходящие для вас опции.
- Рассмотрите возможность приобретения материалов по скидкам и акциям.
- Ведите строгий учет расходов на всех этапах строительства.
- Привлеките опытных специалистов для контроля стройки и грамотного управления процессом.
Почему стоит выбрать "Академик Строй"?
Компания "Академик Строй" зарекомендовала себя как надежный партнёр в области проектирования и строительства частных домов. Обладая многолетним опытом и обширными техническими знаниями, специалисты компании готовы воплотить ваше видение идеального дома в реальность. Вы можете быть уверены в качестве, современных стандартах проектирования и индивидуальном подходе. Ваша мечта о собственном доме, где всё будет учтено до мелочей, станет зримой уже сегодня. Выбирайте компанию, которая создает комфорт и уют, ведь это именно то, что делает дом местом, где хочется быть.Телефон для связи: +7 (980) 800-47-93.











