Общая характеристика двухэтажного дома 12х9 – 125.1 м²
Одним из наиболее популярных проектов загородных домов является двухэтажный дом размером 12х9 метров с полезной площадью 125.1 м². Такая площадь предоставляет комфортное жилье для семьи из 3-5 человек, сочетая разумное зонирование и современный архитектурный стиль. Дом включает в себя два этажа, что позволяет эффективно использовать площадь участка и оптимизировать внутреннее пространство, создавая максимально удобные и функциональные помещения.
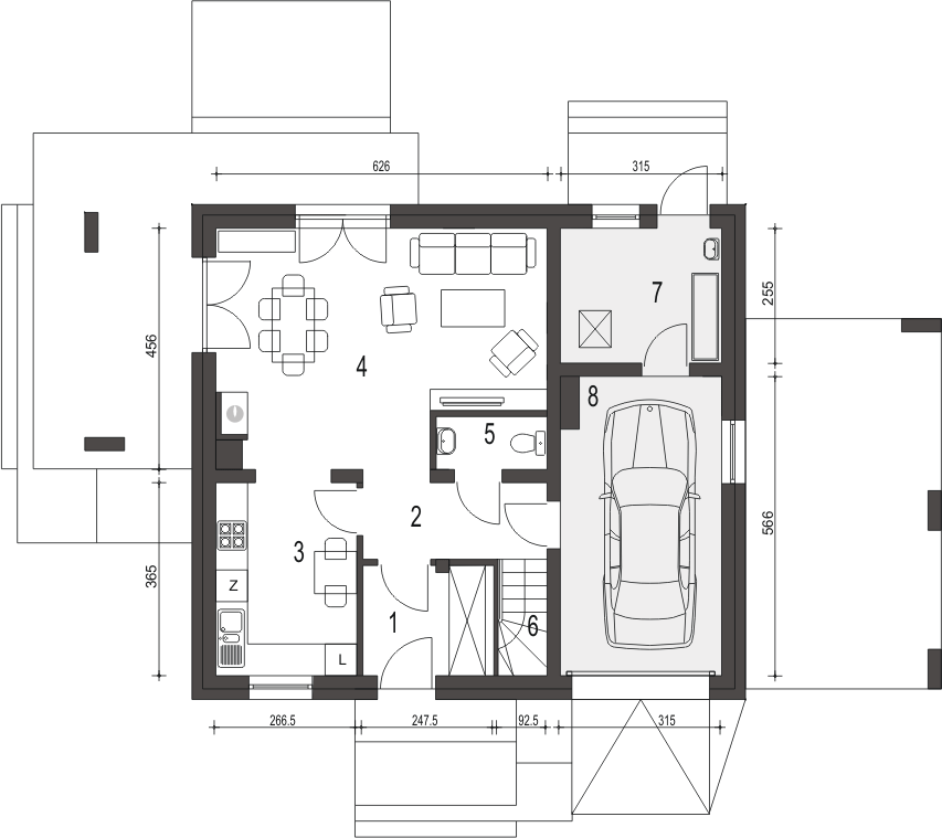
Планировка данного дома разработана таким образом, чтобы удовлетворить потребности современного образа жизни, включая в себя три спальни и два санузла. Высокие потолки и правильное расположение комнат создают ощущение простора и уюта. Это выгодное решение для тех, кто ценит сочетание практичности и эстетики в своем будущем доме.
Планы и размеры: почему именно 12х9 метров?
Размеры дома 12 метров в длину и 9 метров в ширину — это оптимальное соотношение, позволяющее максимально эффективно использовать земельный участок при сохранении удобной планировки. Минимальные размеры участка под строительство такого дома составляют 19,8 метра по ширине и 17,4 метра по длине. Эти параметры тесно связаны с необходимостью оставить место для зоны отдыха, зеленых насаждений или даже небольшого огорода.
| Параметр | Значение |
|---|---|
| Размеры дома | 12 x 9 м |
| Полезная площадь | 125.1 м² |
| Минимальная ширина участка | 19.8 м |
| Минимальная длина участка | 17.4 м |
Наличие двух этажей помогает значительно увеличить жилую площадь, не увеличивая при этом размеры фундамента и наружные стены, что существенно снижает стоимость строительства и облегчает проектировку коммуникаций. При наличии ограничений по площади земельного участка, именно вертикальное развитие дома является одним из лучших решений.
Внутреннее зонирование и жилые помещения
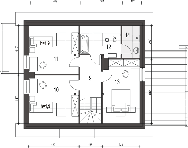
Двухэтажный дом 12х9 создаёт комфорт для всех членов семьи за счёт тщательно продуманной внутренней планировки. В доме предусмотрено 3 спальни, что идеально подходит как для семей с детьми, так и для приема гостей. Каждая спальня обладает достаточным пространством для отдыха, хранения вещей и организации личного пространства.
Количество санузлов — 2, что значительно повышает удобство семьи. Обычно один из санузлов располагается на первом этаже, рядом с гостиной и кухней, а второй — на втором этаже, рядом с спальнями. Такое распределение снижает очереди и обеспечивает приватность жильцов.
Жилая площадь и полезность пространства
Из общей полезной площади 125.1 м² жилая площадь занимает 98,5 м². Такая пропорция говорит о том, что значительная часть дома отведена именно под жилые комнаты, в то время как оставшееся пространство предназначено для зон общего пользования, кухонного помещения, коридоров и технических помещений. Важно отметить, что соотношение жилой площади к общей полезной — ключевой показатель качества жилых условий.
| Показатель | Площадь (м²) |
|---|---|
| Полезная площадь | 125,1 |
| Жилая площадь | 98,5 |
| Площадь застройки | 98,5 |
| Площадь крыши | 167 |
Технические параметры дома
Одной из важных характеристик является высота здания — 8,4 метра, включая высоту аттиковой стены 0,73 метра. Аттиковая стена служит элементом фасада, который придает дому завершённый и современный облик, а также выполняет функцию защиты крыши от ветровых воздействий и влаги. Высота потолков на обоих этажах позволяет создать ощущение свободы и простора внутри помещений.
Крыша дома — двускатная с углом наклона 40°. Это классическое решение, которое гарантирует хорошую защиту от осадков и способствует естественному стоку воды и снега. Двускатная крыша также облегчает техническое обслуживание и ремонт в будущем, а площадь крыши составляет внушительные 167 м². Огромное внимание уделено выбору кровельных материалов, что определит долговечность и энергоэффективность здания.
Форма и конструкция крыши
Двускатная крыша с углом наклона 40° идеально подходит для регионов с выраженными сезонными изменениями климата. Угол наклона обеспечивает быстрый сток дождевой и талой воды, предотвращая образование наледи и протечек. Такой дизайн удобен и для монтажа солнечных панелей, если будущие жильцы захотят сделать дом энергоэффективным и экономичным в плане потребления электроэнергии.
Опциональные возможности и дополнительные преимущества
Проект двухэтажного дома 12х9 предусматривает наличие дополнительных опций, которые делают проживание более комфортным и эстетичным. Среди них — камин, навес для машины и терраса.
- Камин: Добавляет уют и тепло, становится центром гостиной и местом сближения семьи и друзей в прохладные вечера. Каминные системы также способствуют дополнительному отоплению дома.
- Навес для машины: Практичное решение для защиты автомобиля от непогоды, снижение износа автомобиля и обеспечение удобного подъезда к дому.
- Терраса: Идеальное место для отдыха на свежем воздухе, проведения семейных ужинов и приема гостей в теплое время года. Террасу можно использовать как зону барбекю или место для цветочных композиций.
Все эти опции включаются в проект по желанию заказчика и позволяют создать индивидуальное пространство, учитывающее все потребности семьи.
Стоимость строительства и инвестиционная привлекательность
Цена дома площадью 125.1 м² по проекту составляет 4 865 436 рублей. Эта сумма включает в себя материалы, работы по возведению конструкций, монтаж кровли и базовый уровень отделочных работ. Такая цена является конкурентоспособной и отражает высокое качество используемых материалов и технологий строительства.
Инвестиции в строительство двухэтажного дома площадью 125 м² оправданы благодаря возможности получения комфортного жилья с рациональным распределением пространства и заложенными перспективами для дальнейшего расширения. Дом такого размера позволяет в будущем адаптировать помещения под изменяющиеся нужды семьи – например, организовать кабинет для работы или детскую игровую комнату.
Таблица стоимости и основных компонентов
| Статья расходов | Стоимость (руб.) |
|---|---|
| Фундамент и несущие конструкции | 1 200 000 |
| Возведение стен | 1 100 000 |
| Кровельные работы | 850 000 |
| Отделочные работы | 1 200 000 |
| Установка инженерных систем | 515 436 |
| Итого | 4 865 436 |
Полезные советы по выбору и строительству
При выборе проекта дома с размерами 12х9 важно учитывать несколько ключевых факторов. Во-первых, необходимо точно определить размеры и конфигурацию земельного участка, чтобы дом не только комфортно разместился, но и оставалось место для обустройства придомовой территории.
Во-вторых, следует внимательно отнестись к планировке комнат: примером может служить расположение спален и санузлов. Рассмотрите возможность объединения гостиной с кухней для расширения общего пространства, а также зонирование с учетом звукоизоляции спальни от общественных зон.
В-третьих, при выборе материалов и конструкции обращайте внимание на энергоэффективность и долговечность. Дом с двойными стенами, правильной теплоизоляцией и качественной кровлей будет экономичнее в эксплуатации и комфортнее для проживания.
Основные рекомендации для строительства дома 12x9
- Тщательно подберите фундамент в зависимости от типа грунта на участке.
- Используйте современные теплоизоляционные материалы для снижения теплопотерь.
- Планируйте рациональную систему вентиляции и отопления, учитывая климат региона.
- Обязательно включите в проект схемы расположения коммуникаций, чтобы избежать трудностей на стадии отделки.
- Продумайте освещение помещений и использование естественного света.
Эстетика и эргономика в дизайне дома
Двухэтажный дом с двускатной крышей и высотой 8,4 метра имеет привлекательный и классический внешний вид, который удачно вписывается в ландшафт как городских пригородов, так и загородных территорий. Простые геометрические формы дома легко комбинируются с различными отделочными материалами: облицовочным камнем, декоративной штукатуркой или деревянными элементами.
Незабываемая деталь – камин, который не только практичен, но и служит стильным акцентом, создающим атмосферу уюта и тепла в гостиной. Терраса и навес для машины делают дом более функциональным и позволяют организовать дополнительные зоны активности и отдыха.
Элементы, подчеркивающие комфорт и стиль
- Высокие окна, позволяющие хорошо освещать внутренние помещения.
- Двускатная крыша в 40°, которая гармонично дополнена аттиковыми стенами.
- Выдержанные цветовые решения и натуральные материалы отделки фасада.
- Рационально размещённые входные группы, навесы и дополнительные ступени.
В итоге, дом 12х9 с полезной площадью 125.1 м² представляет собой современное и продуманное жильё, сочетающее удобство, функциональность и эстетику. Это выгодное вложение для тех, кто планирует комфортную жизнь за городом с высоким уровнем комфорта и гармоничным дизайном.



