Двухэтажный дом 17x11 - 195 м2 за руб.

ID-41529

Стоимость дома 6650779 руб.
154 м2 Полезная
площадь
17 x 11 м Размеры
2 этажа Этажей
26 м2 Террасы
и балконы
2Без
гаража
4 Количество
спален
2 Количество
санузлов

Планировки

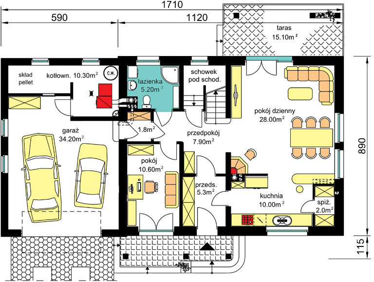
План первого этажа

floor image
  • 1. Прихожая 5,30 m²
  • 2. Кухня 10 m²
  • 3. Кладовая 2 m²
  • 4. Гостиная + столовая 28 m²
  • 5. Коридор 7,90 m²
  • 6. Кладовая
  • 7. Ванная комната 5,20 m²
  • 8. Коридор 1,80 m²
  • 9. Комната 10,60 m²
  • 10. Котельная 10,30 m²
  • 11. Гараж на 2 машины 34,20 m²
  • План первого этажа 115,30 m²

План мансарды

floor image
  • 1. Коридор 7,10 m²
  • 2. Комната 14,80 m²
  • 3. Комната 14,60 m²
  • 4. Комната 10,40 m²
  • 5. Гардероб 4,10 m²
  • 6. Кладовая 8,50 m²
  • 7. Чердак 12,90 m²
  • 8. Ванная комната 7,30 m²
  • План мансарды 79,70 m²

Разрезы

Вертикальный разрез
Вертикальный разрез

Фасады

Передний
Задний
Левый
Правый
Передний
Задний
Левый
Правый

Подробная информация

Жилая площадь
123,20 m²
icon

Сумма площади всех жилых помещений, за вычетом пов. гараж, котельная, чердак, подвал. Учитывается в 100%, для помещений высотой более 2,2 м, в 50% для помещений с высотой 2,2-1,4 м и не включается для более низких помещений (меньше 1,4 м).

Площадь застройки
169,40 m²
icon

Площадь застройки здания определяется как площадь горизонтального сечения по внешнему обводу здания на уровне цоколя, включая выступающие части.

Объем брутто
926,80 m³
icon

Как правило, это сумма объема всех помещений в здании, подсчитанных по внешнему контуру стены (с утеплением).

Площадь крыши
278,10 m²
icon

Угол наклона крыши
42°
icon

Наклон ската крыши в градусах. Внимание! В некоторых проектах возникает более чем один наклон крыши.

Высота здания
8,55 m
icon

Высота измеряется от поверхности земли до самой высокой точки кровли (конька), за исключением дымоходов.

Мин. ширина участка
25,10 m
icon

Наименьшая возможная ширина участка, необходимая для строительства выбранного дома. Состоит из длины фасада дома плюс с обеих сторон три метра отступ.

Мин. длина участка
19 m
icon

Наименьшая возможная длина участка, необходимая для строительства выбранного дома. Состоит из длины фасада дома плюс с обеих сторон три метра отступ.

Материалы и опции
Общие
Цена, руб.
Площадь м²
250
Площадь от и до
Ежемесячный платёж, руб
Количество спален
4
Гараж
2
Количество санузлов
2
Тип крыши
Ширина
17
Глубина
11

Площади дома

№ п/п Наименование Ед. из. Строительная площадь Полезная площадь
1 1 этаж м2 142.08 115.3
2 2 этаж м2 98.21 79.7
3 Итого м2 240.29 195

ПРИГЛАШАЕМ НА ДЕНЬ ОТКРЫТЫХ ДВЕРЕЙ СТРОЯЩЕГОСЯ ДОМА

ХОЧУ ПОЕХАТЬ
День открытых дверей

Калькулятор опций

0

В ипотеку от 21 753 ₽/мес.

Фундамент
stdClass Object ( [id] => 1 [attribute_id] => 1 [name] => Ленточный монолитный ж/б [material_modifier] => 1 [work_modifier] => 1 [options] => Array ( [0] => размер 200 х 700 мм [1] => размер 300 х 900 мм [2] => размер 400 х 1 000 мм [3] => размер 500 х 1 100 мм [4] => размер 600 х 1 200 мм ) [days] => [20,21,22,25,30] [material_price] => [2823,3630,4475,5210,12047] [work_price] => [2154,2826,3731,4577,5293] [image] => https://akademik-stroy.ru/wp-content/uploads/materials/lentochnyj-monolitnyj-zh-b.jpg [area_modifier] => 142.08 [parent_name] => Фундамент [parent_id] => 1 [material_sum] => 505376 [work_sum] => 321342 [total_sum] => 826718 [total_days] => 20 [display_material_sum] => 505 376 [display_work_sum] => 321 342 [display_total_sum] => 826 718 ) 1
826 718
Работа:321 342
Материалы:505 376
Дни:20
stdClass Object ( [id] => 2 [attribute_id] => 1 [name] => Забивные Ж/Б сваи [material_modifier] => 1 [work_modifier] => 1 [options] => Array ( [0] => 150х150х3000мм [1] => 150х150х4000мм [2] => 200х200х3000мм [3] => 200х200х4000мм [4] => 200х200х5000мм [5] => 200х200х6000мм ) [days] => [2,2,2,2,2,2] [material_price] => [1990,2850,3255,4360,5120,6837] [work_price] => [1002,1185,1336,1438,1574,1839] [image] => https://akademik-stroy.ru/wp-content/uploads/materials/zabivnye-zh-b-svai.png [area_modifier] => 142.08 [parent_name] => Фундамент [parent_id] => 1 [material_sum] => 356251 [work_sum] => 149482 [total_sum] => 505733 [total_days] => 2 [display_material_sum] => 356 251 [display_work_sum] => 149 482 [display_total_sum] => 505 733 ) 1
505 733
Работа:149 482
Материалы:356 251
Дни:2
stdClass Object ( [id] => 71 [attribute_id] => 1 [name] => Свайно-ростверковый ж/б [material_modifier] => 1 [work_modifier] => 1 [options] => Array ( [0] => ростверк 200х300 мм [1] => ростверк 300х600 мм [2] => ростверк 400х900 мм [3] => ростверк 500х1200 мм ) [days] => [20,23,25,27] [material_price] => [3018,3474,7109,9792] [work_price] => [2024,3012,5635,7022] [image] => https://akademik-stroy.ru/wp-content/uploads/materials/svajno-rostverkovyj-monolitnyj-zh-b-3.png [area_modifier] => 142.08 [parent_name] => Фундамент [parent_id] => 1 [material_sum] => 540285 [work_sum] => 301948 [total_sum] => 842233 [total_days] => 20 [display_material_sum] => 540 285 [display_work_sum] => 301 948 [display_total_sum] => 842 233 ) 1
842 233
Работа:301 948
Материалы:540 285
Дни:20
stdClass Object ( [id] => 72 [attribute_id] => 1 [name] => Монолитная ж/б плита [material_modifier] => 1 [work_modifier] => 1 [options] => Array ( [0] => 200 мм [1] => 300 мм [2] => 400 мм [3] => 500 мм [4] => 600 мм ) [days] => [30,33,35,37,40] [material_price] => [5348,8555,12788,14388,15189] [work_price] => [4314,4881,7037,8061,10230] [image] => https://akademik-stroy.ru/wp-content/uploads/materials/monolitnaya-zhb-plita.png [area_modifier] => 142.08 [parent_name] => Фундамент [parent_id] => 1 [material_sum] => 957403 [work_sum] => 643580 [total_sum] => 1600983 [total_days] => 30 [display_material_sum] => 957 403 [display_work_sum] => 643 580 [display_total_sum] => 1 600 983 ) 1
1 600 983
Работа:643 580
Материалы:957 403
Дни:30
stdClass Object ( [id] => 73 [attribute_id] => 1 [name] => Утепленная шведская плита [material_modifier] => 1 [work_modifier] => 1 [options] => Array ( [0] => 200 мм [1] => 300 мм [2] => 400 мм [3] => 500 мм [4] => 600 мм ) [days] => [32,37,39,42,45] [material_price] => [10249,12692,13760,14936,16230] [work_price] => [5960,7337,8072,8878,9765] [image] => https://akademik-stroy.ru/wp-content/uploads/materials/uteplennaya-shvedskaya-plita.jpg [area_modifier] => 142.08 [parent_name] => Фундамент [parent_id] => 1 [material_sum] => 1834784 [work_sum] => 889137 [total_sum] => 2723921 [total_days] => 32 [display_material_sum] => 1 834 784 [display_work_sum] => 889 137 [display_total_sum] => 2 723 921 ) 1
2 723 921
Работа:889 137
Материалы:1 834 784
Дни:32
stdClass Object ( [id] => 75 [attribute_id] => 1 [name] => Ленточный из ФБС [material_modifier] => 1 [work_modifier] => 1 [options] => Array ( [0] => толщ. 300 мм [1] => толщ. 400 мм [2] => толщ. 500 мм [3] => толщ. 600 мм ) [days] => [20,20,20,20] [material_price] => [3675,4902,6126,7350] [work_price] => [2451,3264,4083,4902] [image] => https://akademik-stroy.ru/wp-content/uploads/materials/lentochnyj-iz-fbs.png [area_modifier] => 142.08 [parent_name] => Фундамент [parent_id] => 1 [material_sum] => 657901 [work_sum] => 365650 [total_sum] => 1023551 [total_days] => 20 [display_material_sum] => 657 901 [display_work_sum] => 365 650 [display_total_sum] => 1 023 551 ) 1
1 023 551
Работа:365 650
Материалы:657 901
Дни:20
stdClass Object ( [id] => 76 [attribute_id] => 1 [name] => Цокольный этаж из ФБС [material_modifier] => 1 [work_modifier] => 1 [options] => Array ( [0] => толщ. 300 мм [1] => толщ. 400 мм [2] => толщ. 500 мм [3] => толщ. 600 мм ) [days] => [30,32,34,36] [material_price] => [20916,23299,26680,29060] [work_price] => [17524,18700,19873,21046] [image] => https://akademik-stroy.ru/wp-content/uploads/materials/cokolnyj-ehtazh-iz-fbs.jpg [area_modifier] => 142.08 [parent_name] => Фундамент [parent_id] => 1 [material_sum] => 3744399 [work_sum] => 2614300 [total_sum] => 6358699 [total_days] => 30 [display_material_sum] => 3 744 399 [display_work_sum] => 2 614 300 [display_total_sum] => 6 358 699 ) 1
6 358 699
Работа:2 614 300
Материалы:3 744 399
Дни:30
stdClass Object ( [id] => 77 [attribute_id] => 1 [name] => Цокольный этаж монолитный ж/б [material_modifier] => 1 [work_modifier] => 1 [options] => Array ( [0] => толщ. 200 мм [1] => толщ. 300 мм [2] => толщ. 400 мм [3] => толщ. 500 мм [4] => толщ. 600 мм ) [days] => [40,42,44,46,48] [material_price] => [25421,29148,32275,35602,37326] [work_price] => [20441,21907,23375,24841,26306] [image] => https://akademik-stroy.ru/wp-content/uploads/materials/cokolnyj-etazh-zh-b.jpg [area_modifier] => 142.08 [parent_name] => Фундамент [parent_id] => 1 [material_sum] => 4550888 [work_sum] => 3049470 [total_sum] => 7600358 [total_days] => 40 [display_material_sum] => 4 550 888 [display_work_sum] => 3 049 470 [display_total_sum] => 7 600 358 ) 1
7 600 358
Работа:3 049 470
Материалы:4 550 888
Дни:40
stdClass Object ( [id] => 191 [attribute_id] => 1 [name] => Винтовые сваи [material_modifier] => 1 [work_modifier] => 1 [options] => Array ( [0] => 57х200мм [1] => 76х250мм [2] => 108х300мм [3] => 133х350мм ) [days] => [1,1,2,2] [material_price] => [1200,1300,1450,1600] [work_price] => [400,600,900,1100] [image] => https://akademik-stroy.ru/wp-content/uploads/materials/vintovye-svai.png [area_modifier] => 142.08 [parent_name] => Фундамент [parent_id] => 1 [material_sum] => 214825 [work_sum] => 59674 [total_sum] => 274499 [total_days] => 1 [display_material_sum] => 214 825 [display_work_sum] => 59 674 [display_total_sum] => 274 499 ) 1
274 499
Работа:59 674
Материалы:214 825
Дни:1
Перекрытие цоколя
stdClass Object ( [id] => 3 [attribute_id] => 2 [name] => Деревянные балки [material_modifier] => 1 [work_modifier] => 1 [options] => Array ( [0] => без утепления [1] => утепление 200 мм [2] => утепление 250 мм [3] => утепление 300 мм [4] => утепление 350 мм [5] => утепление 400 мм [6] => утепление 450 мм [7] => утепление 500 мм ) [days] => [8,9,9,9,11,12,13,14] [material_price] => [1634,2042,2344,2947,3149,3652,3354,3557] [work_price] => [1230,1339,1393,1426,1460,1513,1587,1620] [image] => https://akademik-stroy.ru/wp-content/uploads/materials/derevyannye-balki.png [area_modifier] => 142.08 [parent_name] => Перекрытие цоколя [parent_id] => 2 [material_sum] => 292520 [work_sum] => 183496 [total_sum] => 476016 [total_days] => 8 [display_material_sum] => 292 520 [display_work_sum] => 183 496 [display_total_sum] => 476 016 ) 1
476 016
Работа:183 496
Материалы:292 520
Дни:8
stdClass Object ( [id] => 4 [attribute_id] => 2 [name] => Сборные ж/б плиты [material_modifier] => 1 [work_modifier] => 1 [options] => Array ( [0] => без утепления [1] => утепление 150мм [2] => утепление 200мм [3] => утепление 250мм [4] => утепление 300мм [5] => утепление 350мм [6] => утепление 400мм [7] => утепление 450мм [8] => утепление 500мм ) [days] => [13,15,15,15,15,15,15,15,15] [material_price] => [3067,5577,5928,6679,7730,8782,9833,10884,11935] [work_price] => [1520,1956,2102,2247,2392,2537,2684,2829,2974] [image] => https://akademik-stroy.ru/wp-content/uploads/materials/sbornye-zh-b-plity-2.jpg [area_modifier] => 142.08 [parent_name] => Перекрытие цоколя [parent_id] => 2 [material_sum] => 549057 [work_sum] => 226760 [total_sum] => 775817 [total_days] => 13 [display_material_sum] => 549 057 [display_work_sum] => 226 760 [display_total_sum] => 775 817 ) 1
775 817
Работа:226 760
Материалы:549 057
Дни:13
stdClass Object ( [id] => 78 [attribute_id] => 2 [name] => Монолитная ж/б плита [material_modifier] => 1 [work_modifier] => 1 [options] => Array ( [0] => без утепления [1] => утепление 150 мм [2] => утепление 200 мм [3] => утепление 250 мм [4] => утепление 300 мм [5] => утепление 350 мм [6] => утепление 400 мм [7] => утепление 450 мм [8] => утепление 500 мм ) [days] => [18,20,20,20,20,20,20,20,20] [material_price] => [4837,6572,7224,7375,79426,8177,8728,9180,10031] [work_price] => [3348,3921,4112,4302,4493,4684,4875,5066,5256] [image] => https://akademik-stroy.ru/wp-content/uploads/materials/monolitnaya-zh-b-plita-2.jpg [area_modifier] => 142.08 [parent_name] => Перекрытие цоколя [parent_id] => 2 [material_sum] => 865924 [work_sum] => 499468 [total_sum] => 1365392 [total_days] => 18 [display_material_sum] => 865 924 [display_work_sum] => 499 468 [display_total_sum] => 1 365 392 ) 1
1 365 392
Работа:499 468
Материалы:865 924
Дни:18
Стены 1 этаж (несущие)
stdClass Object ( [id] => 6 [attribute_id] => 3 [name] => Пеноблок [material_modifier] => 1 [work_modifier] => 1 [options] => Array ( [0] => 300 мм [1] => 400 мм [2] => 500 мм [3] => 600 мм ) [days] => [29,31,34,39] [material_price] => [3000,4000,4500,4937] [work_price] => [5033,5805,6400,8710] [image] => https://akademik-stroy.ru/wp-content/uploads/materials/penoblok.jpg [area_modifier] => 142.08 [parent_name] => Стены 1 этаж (несущие) [parent_id] => 3 [material_sum] => 537062 [work_sum] => 750843 [total_sum] => 1287905 [total_days] => 29 [display_material_sum] => 537 062 [display_work_sum] => 750 843 [display_total_sum] => 1 287 905 ) 1
1 287 905
Работа:750 843
Материалы:537 062
Дни:29
stdClass Object ( [id] => 79 [attribute_id] => 3 [name] => Керамический блок [material_modifier] => 1 [work_modifier] => 1 [options] => Array ( [0] => 380 мм [1] => 380 мм Thermo [2] => 440 мм [3] => 510 мм ) [days] => [23,23,24,25] [material_price] => [4510,5098,6093,8013] [work_price] => [4737,4937,5903,6958] [image] => https://akademik-stroy.ru/wp-content/uploads/materials/keramicheskij-blok.jpg [area_modifier] => 142.08 [parent_name] => Стены 1 этаж (несущие) [parent_id] => 3 [material_sum] => 807384 [work_sum] => 706685 [total_sum] => 1514069 [total_days] => 23 [display_material_sum] => 807 384 [display_work_sum] => 706 685 [display_total_sum] => 1 514 069 ) 1
1 514 069
Работа:706 685
Материалы:807 384
Дни:23
stdClass Object ( [id] => 80 [attribute_id] => 3 [name] => Кирпич [material_modifier] => 1 [work_modifier] => 1 [options] => Array ( [0] => Кирпич 250 мм [1] => Кирпич 380 мм [2] => Кирпич 510 мм [3] => Кирпич 640 мм [4] => Кирпич 770 мм ) [days] => [30,30,31,33,36] [material_price] => [5500,7142,9206,10171,12235] [work_price] => [8736,10041,12018,15240,18462] [image] => https://akademik-stroy.ru/wp-content/uploads/materials/kirpich.jpg [area_modifier] => 142.08 [parent_name] => Стены 1 этаж (несущие) [parent_id] => 3 [material_sum] => 984614 [work_sum] => 1303271 [total_sum] => 2287885 [total_days] => 30 [display_material_sum] => 984 614 [display_work_sum] => 1 303 271 [display_total_sum] => 2 287 885 ) 1
2 287 885
Работа:1 303 271
Материалы:984 614
Дни:30
stdClass Object ( [id] => 81 [attribute_id] => 3 [name] => Монолитные [material_modifier] => 1 [work_modifier] => 1 [options] => Array ( [0] => 150 мм [1] => 200 мм [2] => 250 мм [3] => 300 мм [4] => 350 мм [5] => 400 мм ) [days] => [45,46,47,49,50,53] [material_price] => [6545,7876,10175,12011,13908,15204] [work_price] => [5106,6444,7698,8552,9807,11461] [image] => https://akademik-stroy.ru/wp-content/uploads/materials/monolitnye.jpg [area_modifier] => 142.08 [parent_name] => Стены 1 этаж (несущие) [parent_id] => 3 [material_sum] => 1171691 [work_sum] => 761734 [total_sum] => 1933425 [total_days] => 45 [display_material_sum] => 1 171 691 [display_work_sum] => 761 734 [display_total_sum] => 1 933 425 ) 1
1 933 425
Работа:761 734
Материалы:1 171 691
Дни:45
stdClass Object ( [id] => 82 [attribute_id] => 3 [name] => Клееный брус [material_modifier] => 1 [work_modifier] => 1 [options] => Array ( [0] => 160 мм [1] => 175 мм [2] => 200 мм [3] => 215 мм [4] => 240 мм [5] => 270 мм [6] => 282 мм ) [days] => [24,28,32,37,40,42,48] [material_price] => [16975,18773,19950,20545,21599,22159,23275] [work_price] => [4806,5287,5815,6397,7036,7740,8514] [image] => https://akademik-stroy.ru/wp-content/uploads/materials/kleenyj-brus.jpg [area_modifier] => 142.08 [parent_name] => Стены 1 этаж (несущие) [parent_id] => 3 [material_sum] => 3038878 [work_sum] => 716978 [total_sum] => 3755856 [total_days] => 24 [display_material_sum] => 3 038 878 [display_work_sum] => 716 978 [display_total_sum] => 3 755 856 ) 1
3 755 856
Работа:716 978
Материалы:3 038 878
Дни:24
stdClass Object ( [id] => 83 [attribute_id] => 3 [name] => Каркасные [material_modifier] => 1 [work_modifier] => 1 [options] => Array ( [0] => 150 мм [1] => 200 мм [2] => 250 мм [3] => 300 мм ) [days] => [15,16,17,18] [material_price] => [2379,2639,2898,3258] [work_price] => [2418,2686,2985,3716] [image] => https://akademik-stroy.ru/wp-content/uploads/materials/karkasnye.jpg [area_modifier] => 142.08 [parent_name] => Стены 1 этаж (несущие) [parent_id] => 3 [material_sum] => 425890 [work_sum] => 360727 [total_sum] => 786617 [total_days] => 15 [display_material_sum] => 425 890 [display_work_sum] => 360 727 [display_total_sum] => 786 617 ) 1
786 617
Работа:360 727
Материалы:425 890
Дни:15
stdClass Object ( [id] => 84 [attribute_id] => 3 [name] => СИП-панели [material_modifier] => 1 [work_modifier] => 1 [options] => Array ( [0] => 120 мм [1] => 170 мм [2] => 220 мм ) [days] => [7,7,7] [material_price] => [1210,1856,2292] [work_price] => [1410,1551,1706] [image] => https://akademik-stroy.ru/wp-content/uploads/materials/sip-paneli.jpg [area_modifier] => 142.08 [parent_name] => Стены 1 этаж (несущие) [parent_id] => 3 [material_sum] => 216615 [work_sum] => 210349 [total_sum] => 426964 [total_days] => 7 [display_material_sum] => 216 615 [display_work_sum] => 210 349 [display_total_sum] => 426 964 ) 1
426 964
Работа:210 349
Материалы:216 615
Дни:7
stdClass Object ( [id] => 85 [attribute_id] => 3 [name] => Сухой брус [material_modifier] => 1 [work_modifier] => 1 [options] => Array ( [0] => 150 мм [1] => 180 мм [2] => 200 мм ) [days] => [7,8,9] [material_price] => [6010,7190,8709] [work_price] => [3204,3845,4229] [image] => https://akademik-stroy.ru/wp-content/uploads/materials/suhoj-brus.jpg [area_modifier] => 142.08 [parent_name] => Стены 1 этаж (несущие) [parent_id] => 3 [material_sum] => 1075915 [work_sum] => 477986 [total_sum] => 1553901 [total_days] => 7 [display_material_sum] => 1 075 915 [display_work_sum] => 477 986 [display_total_sum] => 1 553 901 ) 1
1 553 901
Работа:477 986
Материалы:1 075 915
Дни:7
stdClass Object ( [id] => 86 [attribute_id] => 3 [name] => Профилированный брус [material_modifier] => 1 [work_modifier] => 1 [options] => Array ( [0] => 150 мм [1] => 180 мм [2] => 200 мм ) [days] => [7,8,9] [material_price] => [8190,9228,10051] [work_price] => [3845,4614,5075] [image] => https://akademik-stroy.ru/wp-content/uploads/materials/profilirovannyj-brus.jpg [area_modifier] => 142.08 [parent_name] => Стены 1 этаж (несущие) [parent_id] => 3 [material_sum] => 1466180 [work_sum] => 573612 [total_sum] => 2039792 [total_days] => 7 [display_material_sum] => 1 466 180 [display_work_sum] => 573 612 [display_total_sum] => 2 039 792 ) 1
2 039 792
Работа:573 612
Материалы:1 466 180
Дни:7
stdClass Object ( [id] => 87 [attribute_id] => 3 [name] => Оцилиндрованное бревно [material_modifier] => 1 [work_modifier] => 1 [options] => Array ( [0] => 180 мм [1] => 220 мм [2] => 260 мм [3] => 320 мм ) [days] => [7,8,9,10] [material_price] => [75190,9532,10868,13116] [work_price] => [3845,4691,5535,6863] [image] => https://akademik-stroy.ru/wp-content/uploads/materials/ocilindrovannoe-brevno-1.jpg [area_modifier] => 142.08 [parent_name] => Стены 1 этаж (несущие) [parent_id] => 3 [material_sum] => 13460574 [work_sum] => 573612 [total_sum] => 14034186 [total_days] => 7 [display_material_sum] => 13 460 574 [display_work_sum] => 573 612 [display_total_sum] => 14 034 186 ) 1
14 034 186
Работа:573 612
Материалы:13 460 574
Дни:7
stdClass Object ( [id] => 88 [attribute_id] => 3 [name] => Срубы [material_modifier] => 1 [work_modifier] => 1 [options] => Array ( [0] => 260 мм [1] => 320 мм [2] => 360 мм [3] => 400 мм [4] => 500 мм ) [days] => [7,8,9,10,11] [material_price] => [37975,46709,52314,58069,73167] [work_price] => [4806,5911,6621,7349,9260] [image] => https://akademik-stroy.ru/wp-content/uploads/materials/sruby.jpg [area_modifier] => 142.08 [parent_name] => Стены 1 этаж (несущие) [parent_id] => 3 [material_sum] => 6798315 [work_sum] => 716978 [total_sum] => 7515293 [total_days] => 7 [display_material_sum] => 6 798 315 [display_work_sum] => 716 978 [display_total_sum] => 7 515 293 ) 1
7 515 293
Работа:716 978
Материалы:6 798 315
Дни:7
stdClass Object ( [id] => 174 [attribute_id] => 3 [name] => Брус [material_modifier] => 1 [work_modifier] => 1 [options] => Array ( [0] => 150 мм [1] => 180 мм [2] => 200 мм ) [days] => [7,8,9] [material_price] => [5127,6152,7367] [work_price] => [1602,1922,2115] [image] => https://akademik-stroy.ru/wp-content/uploads/materials/brus.jpg [area_modifier] => 142.08 [parent_name] => Стены 1 этаж (несущие) [parent_id] => 3 [material_sum] => 917840 [work_sum] => 238993 [total_sum] => 1156833 [total_days] => 7 [display_material_sum] => 917 840 [display_work_sum] => 238 993 [display_total_sum] => 1 156 833 ) 1
1 156 833
Работа:238 993
Материалы:917 840
Дни:7
stdClass Object ( [id] => 175 [attribute_id] => 3 [name] => Газобетон [material_modifier] => 1 [work_modifier] => 1 [options] => Array ( [0] => 300 мм [1] => 375 мм [2] => 400 мм [3] => 500 мм [4] => 600 мм ) [days] => [29,31,35,37,44] [material_price] => [4298,5573,6356,7288,9119] [work_price] => [4538,5251,5926,6733,7195] [image] => https://akademik-stroy.ru/wp-content/uploads/materials/gazobeton.jpg [area_modifier] => 142.08 [parent_name] => Стены 1 этаж (несущие) [parent_id] => 3 [material_sum] => 769431 [work_sum] => 676997 [total_sum] => 1446428 [total_days] => 29 [display_material_sum] => 769 431 [display_work_sum] => 676 997 [display_total_sum] => 1 446 428 ) 1
1 446 428
Работа:676 997
Материалы:769 431
Дни:29
stdClass Object ( [id] => 176 [attribute_id] => 3 [name] => Блок [material_modifier] => 1 [work_modifier] => 1 [options] => Array ( [0] => 300 мм [1] => 375 мм [2] => 400 мм [3] => 500 мм [4] => 600 мм ) [days] => [29,31,35,37,44] [material_price] => [2698,3973,4356,6588,7119] [work_price] => [5038,5851,6426,8733,9195] [image] => https://akademik-stroy.ru/wp-content/uploads/materials/blok.jpg [area_modifier] => 142.08 [parent_name] => Стены 1 этаж (несущие) [parent_id] => 3 [material_sum] => 482998 [work_sum] => 751589 [total_sum] => 1234587 [total_days] => 29 [display_material_sum] => 482 998 [display_work_sum] => 751 589 [display_total_sum] => 1 234 587 ) 1
1 234 587
Работа:751 589
Материалы:482 998
Дни:29
stdClass Object ( [id] => 177 [attribute_id] => 3 [name] => Газосиликатный блок [material_modifier] => 1 [work_modifier] => 1 [options] => Array ( [0] => 300 мм [1] => 375 мм [2] => 400 мм [3] => 500 мм [4] => 600 мм ) [days] => [29,31,35,37,44] [material_price] => [4298,5573,6356,7288,9119] [work_price] => [4538,5251,5926,6733,7195] [image] => https://akademik-stroy.ru/wp-content/uploads/materials/gazosilikatnyj-blok.jpg [area_modifier] => 142.08 [parent_name] => Стены 1 этаж (несущие) [parent_id] => 3 [material_sum] => 769431 [work_sum] => 676997 [total_sum] => 1446428 [total_days] => 29 [display_material_sum] => 769 431 [display_work_sum] => 676 997 [display_total_sum] => 1 446 428 ) 1
1 446 428
Работа:676 997
Материалы:769 431
Дни:29
stdClass Object ( [id] => 178 [attribute_id] => 3 [name] => Керамзитобетонный блок [material_modifier] => 1 [work_modifier] => 1 [options] => Array ( [0] => 300 мм [1] => 375 мм [2] => 400 мм [3] => 500 мм [4] => 600 мм ) [days] => [23,23,24,25,28] [material_price] => [3641,4298,5693,7613,9612] [work_price] => [5737,5737,6903,7958,8901] [image] => https://akademik-stroy.ru/wp-content/uploads/materials/keramzitobetonnyj-blok.jpg [area_modifier] => 142.08 [parent_name] => Стены 1 этаж (несущие) [parent_id] => 3 [material_sum] => 651815 [work_sum] => 855869 [total_sum] => 1507684 [total_days] => 23 [display_material_sum] => 651 815 [display_work_sum] => 855 869 [display_total_sum] => 1 507 684 ) 1
1 507 684
Работа:855 869
Материалы:651 815
Дни:23
stdClass Object ( [id] => 179 [attribute_id] => 3 [name] => Деревянные [material_modifier] => 1 [work_modifier] => 1 [options] => Array ( [0] => 180 мм [1] => 220 мм [2] => 260 мм [3] => 320 мм ) [days] => [7,8,9,10] [material_price] => [7950,9458,11961,14472] [work_price] => [4037,4925,5812,7207] [image] => https://akademik-stroy.ru/wp-content/uploads/materials/derevyannye.jpg [area_modifier] => 142.08 [parent_name] => Стены 1 этаж (несущие) [parent_id] => 3 [material_sum] => 1423215 [work_sum] => 602256 [total_sum] => 2025471 [total_days] => 7 [display_material_sum] => 1 423 215 [display_work_sum] => 602 256 [display_total_sum] => 2 025 471 ) 1
2 025 471
Работа:602 256
Материалы:1 423 215
Дни:7
stdClass Object ( [id] => 181 [attribute_id] => 3 [name] => Камень [material_modifier] => 1 [work_modifier] => 1 [options] => Array ( [0] => 300 мм [1] => 400 мм [2] => 500 мм [3] => 600 мм ) [days] => [25,27,31,34] [material_price] => [5262,6844,8330,9815] [work_price] => [8331,9135,10427,11069] [image] => https://akademik-stroy.ru/wp-content/uploads/materials/kamen.jpg [area_modifier] => 142.08 [parent_name] => Стены 1 этаж (несущие) [parent_id] => 3 [material_sum] => 942007 [work_sum] => 1242852 [total_sum] => 2184859 [total_days] => 25 [display_material_sum] => 942 007 [display_work_sum] => 1 242 852 [display_total_sum] => 2 184 859 ) 1
2 184 859
Работа:1 242 852
Материалы:942 007
Дни:25
stdClass Object ( [id] => 182 [attribute_id] => 3 [name] => Каркасно-щитовые [material_modifier] => 1 [work_modifier] => 1 [options] => Array ( [0] => 150 мм [1] => 200 мм [2] => 250 мм [3] => 300 мм [4] => 350 мм [5] => 400 мм ) [days] => [15,16,17,18,19,20] [material_price] => [2379,2639,2898,3458,3601,4175] [work_price] => [2538,2820,3134,3483,4062,5642] [image] => https://akademik-stroy.ru/wp-content/uploads/materials/karkasno-shchitovye.jpg [area_modifier] => 142.08 [parent_name] => Стены 1 этаж (несущие) [parent_id] => 3 [material_sum] => 425890 [work_sum] => 378629 [total_sum] => 804519 [total_days] => 15 [display_material_sum] => 425 890 [display_work_sum] => 378 629 [display_total_sum] => 804 519 ) 1
804 519
Работа:378 629
Материалы:425 890
Дни:15
stdClass Object ( [id] => 183 [attribute_id] => 3 [name] => Рубленные [material_modifier] => 1 [work_modifier] => 1 [options] => Array ( [0] => 150 мм [1] => 200 мм [2] => 250 мм [3] => 300 мм [4] => 350 мм [5] => 400 мм ) [days] => [15,16,17,18,17,18] [material_price] => [35950,50267,60583,75900,80217,100533] [work_price] => [9612,12816,16020,19224,22428,25632] [image] => https://akademik-stroy.ru/wp-content/uploads/materials/rublennye.jpg [area_modifier] => 142.08 [parent_name] => Стены 1 этаж (несущие) [parent_id] => 3 [material_sum] => 6435798 [work_sum] => 1433957 [total_sum] => 7869755 [total_days] => 15 [display_material_sum] => 6 435 798 [display_work_sum] => 1 433 957 [display_total_sum] => 7 869 755 ) 1
7 869 755
Работа:1 433 957
Материалы:6 435 798
Дни:15
stdClass Object ( [id] => 185 [attribute_id] => 3 [name] => Теплоблок [material_modifier] => 1 [work_modifier] => 1 [options] => Array ( [0] => 300 мм (с облицовкой, не покрашенный) [1] => 400 мм (с облицовкой, не покрашенный) [2] => 300 мм (с облицовкой, покрашенный) [3] => 400 мм (с облицовкой, покрашенный) ) [days] => [15,16,15,16] [material_price] => [2888,3729,3957,4258] [work_price] => [2564,3229,2949,3713] [image] => https://akademik-stroy.ru/wp-content/uploads/materials/teploblok.jpg [area_modifier] => 142.08 [parent_name] => Стены 1 этаж (несущие) [parent_id] => 3 [material_sum] => 517012 [work_sum] => 382508 [total_sum] => 899520 [total_days] => 15 [display_material_sum] => 517 012 [display_work_sum] => 382 508 [display_total_sum] => 899 520 ) 1
899 520
Работа:382 508
Материалы:517 012
Дни:15
stdClass Object ( [id] => 186 [attribute_id] => 3 [name] => Арболитовые блоки [material_modifier] => 1 [work_modifier] => 1 [options] => Array ( [0] => 300 мм [1] => 400 мм [2] => 600 мм ) [days] => [19,22,27] [material_price] => [3210,4475,5852] [work_price] => [4214,4788,5866] [image] => https://akademik-stroy.ru/wp-content/uploads/materials/arbolitovye-bloki.png [area_modifier] => 142.08 [parent_name] => Стены 1 этаж (несущие) [parent_id] => 3 [material_sum] => 574657 [work_sum] => 628661 [total_sum] => 1203318 [total_days] => 19 [display_material_sum] => 574 657 [display_work_sum] => 628 661 [display_total_sum] => 1 203 318 ) 1
1 203 318
Работа:628 661
Материалы:574 657
Дни:19
stdClass Object ( [id] => 187 [attribute_id] => 3 [name] => Полистиролбетон [material_modifier] => 1 [work_modifier] => 1 [options] => Array ( [0] => 300 мм [1] => 400 мм [2] => 600 мм ) [days] => [29,31,35] [material_price] => [2798,4573,5256] [work_price] => [5038,5851,6426] [image] => https://akademik-stroy.ru/wp-content/uploads/materials/polistirolbeton.jpg [area_modifier] => 142.08 [parent_name] => Стены 1 этаж (несущие) [parent_id] => 3 [material_sum] => 500900 [work_sum] => 751589 [total_sum] => 1252489 [total_days] => 29 [display_material_sum] => 500 900 [display_work_sum] => 751 589 [display_total_sum] => 1 252 489 ) 1
1 252 489
Работа:751 589
Материалы:500 900
Дни:29
stdClass Object ( [id] => 188 [attribute_id] => 3 [name] => Шлакоблок [material_modifier] => 1 [work_modifier] => 1 [options] => Array ( [0] => 400 мм [1] => 600 мм ) [days] => [15,16] [material_price] => [2391,3471] [work_price] => [2642,3662] [image] => https://akademik-stroy.ru/wp-content/uploads/materials/shlakoblok.jpg [area_modifier] => 142.08 [parent_name] => Стены 1 этаж (несущие) [parent_id] => 3 [material_sum] => 428039 [work_sum] => 394144 [total_sum] => 822183 [total_days] => 15 [display_material_sum] => 428 039 [display_work_sum] => 394 144 [display_total_sum] => 822 183 ) 1
822 183
Работа:394 144
Материалы:428 039
Дни:15
stdClass Object ( [id] => 189 [attribute_id] => 3 [name] => Теплая керамика [material_modifier] => 1 [work_modifier] => 1 [options] => Array ( [0] => 380 мм [1] => 380 мм Thermo [2] => 440 мм [3] => 510 мм ) [days] => [23,23,24,25] [material_price] => [4510,5098,6093,8013] [work_price] => [4737,4937,5903,6958] [image] => https://akademik-stroy.ru/wp-content/uploads/materials/teplaya-keramika.jpg [area_modifier] => 142.08 [parent_name] => Стены 1 этаж (несущие) [parent_id] => 3 [material_sum] => 807384 [work_sum] => 706685 [total_sum] => 1514069 [total_days] => 23 [display_material_sum] => 807 384 [display_work_sum] => 706 685 [display_total_sum] => 1 514 069 ) 1
1 514 069
Работа:706 685
Материалы:807 384
Дни:23
stdClass Object ( [id] => 190 [attribute_id] => 3 [name] => Несъемная опалубка [material_modifier] => 1 [work_modifier] => 1 [options] => Array ( [0] => 200 мм [1] => 250 мм [2] => 300 мм [3] => 350 мм ) [days] => [15,17,19,21] [material_price] => [3302,3902,4108,5008] [work_price] => [2100,2100,2300,2534] [image] => https://akademik-stroy.ru/wp-content/uploads/materials/nesemnaya-opalubka.jpg [area_modifier] => 142.08 [parent_name] => Стены 1 этаж (несущие) [parent_id] => 3 [material_sum] => 591127 [work_sum] => 313286 [total_sum] => 904413 [total_days] => 15 [display_material_sum] => 591 127 [display_work_sum] => 313 286 [display_total_sum] => 904 413 ) 1
904 413
Работа:313 286
Материалы:591 127
Дни:15
stdClass Object ( [id] => 251 [attribute_id] => 3 [name] => Бревно [material_modifier] => 1 [work_modifier] => 1 [options] => Array ( [0] => 260 мм [1] => 320 мм [2] => 360 мм [3] => 400 мм [4] => 500 мм ) [days] => [7,8,9,10,11] [material_price] => [1874,24045,26930,30972,38825] [work_price] => [5046,6207,6952,7716,9723] [image] => https://akademik-stroy.ru/wp-content/uploads/materials/sruby.jpg [area_modifier] => 142.08 [parent_name] => Стены 1 этаж (несущие) [parent_id] => 3 [material_sum] => 335485 [work_sum] => 752782 [total_sum] => 1088267 [total_days] => 7 [display_material_sum] => 335 485 [display_work_sum] => 752 782 [display_total_sum] => 1 088 267 ) 1
1 088 267
Работа:752 782
Материалы:335 485
Дни:7
Перекрытие первого этажа
stdClass Object ( [id] => 7 [attribute_id] => 4 [name] => Деревянные балки [material_modifier] => 1 [work_modifier] => 1 [options] => Array ( [0] => без утепления [1] => утепление 200 мм [2] => утепление 250 мм [3] => утепление 300 мм [4] => утепление 350 мм [5] => утепление 400 мм [6] => утепление 450 мм [7] => утепление 500 мм ) [days] => [8,9,9,9,11,12,13,14] [material_price] => [1634,2042,2344,2947,3149,3652,3354,3557] [work_price] => [1230,1339,1393,1426,1460,1513,1587,1620] [image] => https://akademik-stroy.ru/wp-content/uploads/materials/derevyannye-balki.png [area_modifier] => 142.08 [parent_name] => Перекрытие первого этажа [parent_id] => 4 [material_sum] => 292520 [work_sum] => 183496 [total_sum] => 476016 [total_days] => 8 [display_material_sum] => 292 520 [display_work_sum] => 183 496 [display_total_sum] => 476 016 ) 1
476 016
Работа:183 496
Материалы:292 520
Дни:8
stdClass Object ( [id] => 8 [attribute_id] => 4 [name] => Сборные ж/б плиты [material_modifier] => 1 [work_modifier] => 1 [options] => Array ( [0] => без утепления [1] => утепление 150 мм [2] => утепление 200 мм [3] => утепление 250 мм [4] => утепление 300 мм [5] => утепление 350 мм [6] => утепление 400 мм [7] => утепление 450 мм [8] => утепление 500 мм ) [days] => [13,15,15,15,15,15,15,15,15] [material_price] => [3067,5577,5928,6679,7730,8782,9833,10884,11935] [work_price] => [1520,1956,2102,2247,2392,2537,2684,2829,2974] [image] => https://akademik-stroy.ru/wp-content/uploads/materials/sbornye-zh-b-plity-2.jpg [area_modifier] => 142.08 [parent_name] => Перекрытие первого этажа [parent_id] => 4 [material_sum] => 549057 [work_sum] => 226760 [total_sum] => 775817 [total_days] => 13 [display_material_sum] => 549 057 [display_work_sum] => 226 760 [display_total_sum] => 775 817 ) 1
775 817
Работа:226 760
Материалы:549 057
Дни:13
stdClass Object ( [id] => 89 [attribute_id] => 4 [name] => Монолитная ж/б плита [material_modifier] => 1 [work_modifier] => 1 [options] => Array ( [0] => без утепления [1] => утепление 150 мм [2] => утепление 200 мм [3] => утепление 250 мм [4] => утепление 300 мм [5] => утепление 350 мм [6] => утепление 400 мм [7] => утепление 450 мм [8] => утепление 500 мм ) [days] => [18,20,20,20,20,20,20,20,20] [material_price] => [4837,6572,7224,7375,79426,8177,8728,9180,10031] [work_price] => [3348,3921,4112,4302,4493,4684,4875,5066,5256] [image] => https://akademik-stroy.ru/wp-content/uploads/materials/monolitnaya-zh-b-plita-2.jpg [area_modifier] => 142.08 [parent_name] => Перекрытие первого этажа [parent_id] => 4 [material_sum] => 865924 [work_sum] => 499468 [total_sum] => 1365392 [total_days] => 18 [display_material_sum] => 865 924 [display_work_sum] => 499 468 [display_total_sum] => 1 365 392 ) 1
1 365 392
Работа:499 468
Материалы:865 924
Дни:18
Стены 2 этаж (несущие)
stdClass Object ( [id] => 10 [attribute_id] => 5 [name] => Пеноблок [material_modifier] => 1 [work_modifier] => 1 [options] => Array ( [0] => 300 мм [1] => 400 мм [2] => 500 мм [3] => 600 мм ) [days] => [29,31,34,39] [material_price] => [3000,4000,4500,4937] [work_price] => [5033,5805,6400,8710] [image] => https://akademik-stroy.ru/wp-content/uploads/materials/penoblok.jpg [area_modifier] => 98.21 [parent_name] => Стены 2 этаж (несущие) [parent_id] => 5 [material_sum] => 371234 [work_sum] => 519005 [total_sum] => 890239 [total_days] => 29 [display_material_sum] => 371 234 [display_work_sum] => 519 005 [display_total_sum] => 890 239 ) 1
890 239
Работа:519 005
Материалы:371 234
Дни:29
stdClass Object ( [id] => 90 [attribute_id] => 5 [name] => Керамический блок [material_modifier] => 1 [work_modifier] => 1 [options] => Array ( [0] => 380 мм [1] => 380 мм Thermo [2] => 440 мм [3] => 510 мм ) [days] => [23,23,24,25] [material_price] => [4510,5098,6093,8013] [work_price] => [4737,4937,5903,6958] [image] => https://akademik-stroy.ru/wp-content/uploads/materials/keramicheskij-blok.jpg [area_modifier] => 98.21 [parent_name] => Стены 2 этаж (несущие) [parent_id] => 5 [material_sum] => 558088 [work_sum] => 488482 [total_sum] => 1046570 [total_days] => 23 [display_material_sum] => 558 088 [display_work_sum] => 488 482 [display_total_sum] => 1 046 570 ) 1
1 046 570
Работа:488 482
Материалы:558 088
Дни:23
stdClass Object ( [id] => 91 [attribute_id] => 5 [name] => Кирпич [material_modifier] => 1 [work_modifier] => 1 [options] => Array ( [0] => Кирпич 250 мм [1] => Кирпич 380 мм [2] => Кирпич 510 мм [3] => Кирпич 640 мм [4] => Кирпич 770 мм ) [days] => [30,30,31,33,36] [material_price] => [5500,7142,9206,10171,12235] [work_price] => [8736,10041,12018,15240,18462] [image] => https://akademik-stroy.ru/wp-content/uploads/materials/kirpich.jpg [area_modifier] => 98.21 [parent_name] => Стены 2 этаж (несущие) [parent_id] => 5 [material_sum] => 680595 [work_sum] => 900861 [total_sum] => 1581456 [total_days] => 30 [display_material_sum] => 680 595 [display_work_sum] => 900 861 [display_total_sum] => 1 581 456 ) 1
1 581 456
Работа:900 861
Материалы:680 595
Дни:30
stdClass Object ( [id] => 92 [attribute_id] => 5 [name] => Монолитные [material_modifier] => 1 [work_modifier] => 1 [options] => Array ( [0] => 150 мм [1] => 200 мм [2] => 250 мм [3] => 300 мм [4] => 350 мм [5] => 400 мм ) [days] => [45,46,47,49,50,53] [material_price] => [6545,7876,10175,12011,13908,15204] [work_price] => [5106,6444,7698,8552,9807,11461] [image] => https://akademik-stroy.ru/wp-content/uploads/materials/monolitnye.jpg [area_modifier] => 98.21 [parent_name] => Стены 2 этаж (несущие) [parent_id] => 5 [material_sum] => 809908 [work_sum] => 526533 [total_sum] => 1336441 [total_days] => 45 [display_material_sum] => 809 908 [display_work_sum] => 526 533 [display_total_sum] => 1 336 441 ) 1
1 336 441
Работа:526 533
Материалы:809 908
Дни:45
stdClass Object ( [id] => 93 [attribute_id] => 5 [name] => Клееный брус [material_modifier] => 1 [work_modifier] => 1 [options] => Array ( [0] => 160 мм [1] => 175 мм [2] => 200 мм [3] => 215 мм [4] => 240 мм [5] => 270 мм [6] => 282 мм ) [days] => [24,28,32,37,40,42,48] [material_price] => [16975,18773,19950,20545,21599,22159,23275] [work_price] => [4806,5287,5815,6397,7036,7740,8514] [image] => https://akademik-stroy.ru/wp-content/uploads/materials/kleenyj-brus.jpg [area_modifier] => 98.21 [parent_name] => Стены 2 этаж (несущие) [parent_id] => 5 [material_sum] => 2100565 [work_sum] => 495597 [total_sum] => 2596162 [total_days] => 24 [display_material_sum] => 2 100 565 [display_work_sum] => 495 597 [display_total_sum] => 2 596 162 ) 1
2 596 162
Работа:495 597
Материалы:2 100 565
Дни:24
stdClass Object ( [id] => 94 [attribute_id] => 5 [name] => Каркасные [material_modifier] => 1 [work_modifier] => 1 [options] => Array ( [0] => 150 мм [1] => 200 мм [2] => 250 мм [3] => 300 мм ) [days] => [15,16,17,18] [material_price] => [2379,2639,2898,3258] [work_price] => [2418,2686,2985,3716] [image] => https://akademik-stroy.ru/wp-content/uploads/materials/karkasnye.jpg [area_modifier] => 98.21 [parent_name] => Стены 2 этаж (несущие) [parent_id] => 5 [material_sum] => 294388 [work_sum] => 249345 [total_sum] => 543733 [total_days] => 15 [display_material_sum] => 294 388 [display_work_sum] => 249 345 [display_total_sum] => 543 733 ) 1
543 733
Работа:249 345
Материалы:294 388
Дни:15
stdClass Object ( [id] => 95 [attribute_id] => 5 [name] => СИП-панели [material_modifier] => 1 [work_modifier] => 1 [options] => Array ( [0] => 120 мм [1] => 170 мм [2] => 220 мм ) [days] => [7,7,7] [material_price] => [1210,1856,2292] [work_price] => [1410,1551,1706] [image] => https://akademik-stroy.ru/wp-content/uploads/materials/sip-paneli.jpg [area_modifier] => 98.21 [parent_name] => Стены 2 этаж (несущие) [parent_id] => 5 [material_sum] => 149731 [work_sum] => 145400 [total_sum] => 295131 [total_days] => 7 [display_material_sum] => 149 731 [display_work_sum] => 145 400 [display_total_sum] => 295 131 ) 1
295 131
Работа:145 400
Материалы:149 731
Дни:7
stdClass Object ( [id] => 96 [attribute_id] => 5 [name] => Сухой брус [material_modifier] => 1 [work_modifier] => 1 [options] => Array ( [0] => 150 мм [1] => 180 мм [2] => 200 мм ) [days] => [7,8,9] [material_price] => [6010,7190,8709] [work_price] => [3204,3845,4229] [image] => https://akademik-stroy.ru/wp-content/uploads/materials/suhoj-brus.jpg [area_modifier] => 98.21 [parent_name] => Стены 2 этаж (несущие) [parent_id] => 5 [material_sum] => 743705 [work_sum] => 330398 [total_sum] => 1074103 [total_days] => 7 [display_material_sum] => 743 705 [display_work_sum] => 330 398 [display_total_sum] => 1 074 103 ) 1
1 074 103
Работа:330 398
Материалы:743 705
Дни:7
stdClass Object ( [id] => 97 [attribute_id] => 5 [name] => Профилированный брус [material_modifier] => 1 [work_modifier] => 1 [options] => Array ( [0] => 150 мм [1] => 180 мм [2] => 200 мм ) [days] => [7,8,9] [material_price] => [8190,9228,10051] [work_price] => [3845,4614,5075] [image] => https://akademik-stroy.ru/wp-content/uploads/materials/profilirovannyj-brus.jpg [area_modifier] => 98.21 [parent_name] => Стены 2 этаж (несущие) [parent_id] => 5 [material_sum] => 1013468 [work_sum] => 396498 [total_sum] => 1409966 [total_days] => 7 [display_material_sum] => 1 013 468 [display_work_sum] => 396 498 [display_total_sum] => 1 409 966 ) 1
1 409 966
Работа:396 498
Материалы:1 013 468
Дни:7
stdClass Object ( [id] => 98 [attribute_id] => 5 [name] => Оцилиндрованное бревно [material_modifier] => 1 [work_modifier] => 1 [options] => Array ( [0] => 180 мм [1] => 220 мм [2] => 260 мм [3] => 320 мм ) [days] => [7,8,9,10] [material_price] => [75190,9532,10868,13116] [work_price] => [3845,4691,5535,6863] [image] => https://akademik-stroy.ru/wp-content/uploads/materials/ocilindrovannoe-brevno-1.jpg [area_modifier] => 98.21 [parent_name] => Стены 2 этаж (несущие) [parent_id] => 5 [material_sum] => 9304356 [work_sum] => 396498 [total_sum] => 9700854 [total_days] => 7 [display_material_sum] => 9 304 356 [display_work_sum] => 396 498 [display_total_sum] => 9 700 854 ) 1
9 700 854
Работа:396 498
Материалы:9 304 356
Дни:7
stdClass Object ( [id] => 99 [attribute_id] => 5 [name] => Срубы [material_modifier] => 1 [work_modifier] => 1 [options] => Array ( [0] => 260 мм [1] => 320 мм [2] => 360 мм [3] => 400 мм [4] => 500 мм ) [days] => [7,8,9,10,11] [material_price] => [16175,23709,26314,29069,32167] [work_price] => [4806,5911,6621,7349,9260] [image] => https://akademik-stroy.ru/wp-content/uploads/materials/suhoj-brus.jpg [area_modifier] => 98.21 [parent_name] => Стены 2 этаж (несущие) [parent_id] => 5 [material_sum] => 2001569 [work_sum] => 495597 [total_sum] => 2497166 [total_days] => 7 [display_material_sum] => 2 001 569 [display_work_sum] => 495 597 [display_total_sum] => 2 497 166 ) 1
2 497 166
Работа:495 597
Материалы:2 001 569
Дни:7
stdClass Object ( [id] => 194 [attribute_id] => 5 [name] => Брус [material_modifier] => 1 [work_modifier] => 1 [options] => Array ( [0] => 150 мм [1] => 180 мм [2] => 200 мм ) [days] => [10,13,15] [material_price] => [5127,6152,7367] [work_price] => [1602,1922,2115] [image] => https://akademik-stroy.ru/wp-content/uploads/materials/brus.jpg [area_modifier] => 98.21 [parent_name] => Стены 2 этаж (несущие) [parent_id] => 5 [material_sum] => 634439 [work_sum] => 165199 [total_sum] => 799638 [total_days] => 10 [display_material_sum] => 634 439 [display_work_sum] => 165 199 [display_total_sum] => 799 638 ) 1
799 638
Работа:165 199
Материалы:634 439
Дни:10
stdClass Object ( [id] => 195 [attribute_id] => 5 [name] => Газобетон [material_modifier] => 1 [work_modifier] => 1 [options] => Array ( [0] => 300 мм [1] => 375 мм [2] => 400 мм [3] => 500 мм [4] => 600 мм ) [days] => [29,31,35,37,44] [material_price] => [4298,5573,6356,7288,9119] [work_price] => [4538,5251,5926,6733,7195] [image] => https://akademik-stroy.ru/wp-content/uploads/materials/gazobeton.jpg [area_modifier] => 98.21 [parent_name] => Стены 2 этаж (несущие) [parent_id] => 5 [material_sum] => 531854 [work_sum] => 467961 [total_sum] => 999815 [total_days] => 29 [display_material_sum] => 531 854 [display_work_sum] => 467 961 [display_total_sum] => 999 815 ) 1
999 815
Работа:467 961
Материалы:531 854
Дни:29
stdClass Object ( [id] => 196 [attribute_id] => 5 [name] => Блок [material_modifier] => 1 [work_modifier] => 1 [options] => Array ( [0] => 300 мм [1] => 375 мм [2] => 400 мм [3] => 500 мм [4] => 600 мм ) [days] => [29,31,35,37,44] [material_price] => [2698,3973,4356,6588,7119] [work_price] => [5038,5851,6426,8733,9195] [image] => https://akademik-stroy.ru/wp-content/uploads/materials/blok.jpg [area_modifier] => 98.21 [parent_name] => Стены 2 этаж (несущие) [parent_id] => 5 [material_sum] => 333863 [work_sum] => 519521 [total_sum] => 853384 [total_days] => 29 [display_material_sum] => 333 863 [display_work_sum] => 519 521 [display_total_sum] => 853 384 ) 1
853 384
Работа:519 521
Материалы:333 863
Дни:29
stdClass Object ( [id] => 197 [attribute_id] => 5 [name] => Газосиликатный блок [material_modifier] => 1 [work_modifier] => 1 [options] => Array ( [0] => 300 мм [1] => 375 мм [2] => 400 мм [3] => 500 мм [4] => 600 мм ) [days] => [29,31,35,37,44] [material_price] => [4298,5573,6356,7288,9119] [work_price] => [4538,5251,5926,6733,7195] [image] => https://akademik-stroy.ru/wp-content/uploads/materials/gazosilikatnyj-blok.jpg [area_modifier] => 98.21 [parent_name] => Стены 2 этаж (несущие) [parent_id] => 5 [material_sum] => 531854 [work_sum] => 467961 [total_sum] => 999815 [total_days] => 29 [display_material_sum] => 531 854 [display_work_sum] => 467 961 [display_total_sum] => 999 815 ) 1
999 815
Работа:467 961
Материалы:531 854
Дни:29
stdClass Object ( [id] => 198 [attribute_id] => 5 [name] => Керамзитобетонный блок [material_modifier] => 1 [work_modifier] => 1 [options] => Array ( [0] => 300 мм [1] => 375 мм [2] => 400 мм [3] => 500 мм [4] => 600 мм ) [days] => [23,23,24,25,28] [material_price] => [3641,4298,5693,7613,9612] [work_price] => [5737,5737,6903,7958,8901] [image] => https://akademik-stroy.ru/wp-content/uploads/materials/keramzitobetonnyj-blok.jpg [area_modifier] => 98.21 [parent_name] => Стены 2 этаж (несущие) [parent_id] => 5 [material_sum] => 450554 [work_sum] => 591602 [total_sum] => 1042156 [total_days] => 23 [display_material_sum] => 450 554 [display_work_sum] => 591 602 [display_total_sum] => 1 042 156 ) 1
1 042 156
Работа:591 602
Материалы:450 554
Дни:23
stdClass Object ( [id] => 199 [attribute_id] => 5 [name] => Деревянные [material_modifier] => 1 [work_modifier] => 1 [options] => Array ( [0] => 180 мм [1] => 220 мм [2] => 260 мм [3] => 320 мм ) [days] => [7,8,9,10] [material_price] => [7950,9458,11961,14472] [work_price] => [4037,4925,5812,7207] [image] => https://akademik-stroy.ru/wp-content/uploads/materials/derevyannye.jpg [area_modifier] => 98.21 [parent_name] => Стены 2 этаж (несущие) [parent_id] => 5 [material_sum] => 983770 [work_sum] => 416297 [total_sum] => 1400067 [total_days] => 7 [display_material_sum] => 983 770 [display_work_sum] => 416 297 [display_total_sum] => 1 400 067 ) 1
1 400 067
Работа:416 297
Материалы:983 770
Дни:7
stdClass Object ( [id] => 200 [attribute_id] => 5 [name] => Камень [material_modifier] => 1 [work_modifier] => 1 [options] => Array ( [0] => 300 мм [1] => 400 мм [2] => 500 мм [3] => 600 мм ) [days] => [25,27,31,34] [material_price] => [5262,6844,8330,9815] [work_price] => [8331,9135,10427,11069] [image] => https://akademik-stroy.ru/wp-content/uploads/materials/kamen.jpg [area_modifier] => 98.21 [parent_name] => Стены 2 этаж (несущие) [parent_id] => 5 [material_sum] => 651144 [work_sum] => 859097 [total_sum] => 1510241 [total_days] => 25 [display_material_sum] => 651 144 [display_work_sum] => 859 097 [display_total_sum] => 1 510 241 ) 1
1 510 241
Работа:859 097
Материалы:651 144
Дни:25
stdClass Object ( [id] => 201 [attribute_id] => 5 [name] => Каркасно-щитовые [material_modifier] => 1 [work_modifier] => 1 [options] => Array ( [0] => 150 мм [1] => 200 мм [2] => 250 мм [3] => 300 мм [4] => 350 мм [5] => 400 мм ) [days] => [15,16,17,18,19,20] [material_price] => [2379,2639,2898,3458,3601,4175] [work_price] => [2538,2820,3134,3483,4062,5642] [image] => https://akademik-stroy.ru/wp-content/uploads/materials/karkasno-shchitovye.jpg [area_modifier] => 98.21 [parent_name] => Стены 2 этаж (несущие) [parent_id] => 5 [material_sum] => 294388 [work_sum] => 261720 [total_sum] => 556108 [total_days] => 15 [display_material_sum] => 294 388 [display_work_sum] => 261 720 [display_total_sum] => 556 108 ) 1
556 108
Работа:261 720
Материалы:294 388
Дни:15
stdClass Object ( [id] => 202 [attribute_id] => 5 [name] => Рубленные [material_modifier] => 1 [work_modifier] => 1 [options] => Array ( [0] => 150 мм [1] => 200 мм [2] => 250 мм [3] => 300 мм [4] => 350 мм [5] => 400 мм ) [days] => [15,16,17,18,17,18] [material_price] => [35950,50267,60583,75900,80217,100533] [work_price] => [9612,12816,16020,19224,22428,25632] [image] => https://akademik-stroy.ru/wp-content/uploads/materials/rublennye.jpg [area_modifier] => 98.21 [parent_name] => Стены 2 этаж (несущие) [parent_id] => 5 [material_sum] => 4448618 [work_sum] => 991194 [total_sum] => 5439812 [total_days] => 15 [display_material_sum] => 4 448 618 [display_work_sum] => 991 194 [display_total_sum] => 5 439 812 ) 1
5 439 812
Работа:991 194
Материалы:4 448 618
Дни:15
stdClass Object ( [id] => 203 [attribute_id] => 5 [name] => Теплоблок [material_modifier] => 1 [work_modifier] => 1 [options] => Array ( [0] => 300 мм (с облицовкой, не покрашенный) [1] => 400 мм (с облицовкой, не покрашенный) [2] => 300 мм (с облицовкой, покрашенный) [3] => 400 мм (с облицовкой, покрашенный) ) [days] => [15,16,15,16] [material_price] => [2888,3729,3957,4258] [work_price] => [2564,3229,2949,3713] [image] => https://akademik-stroy.ru/wp-content/uploads/materials/teploblok.jpg [area_modifier] => 98.21 [parent_name] => Стены 2 этаж (несущие) [parent_id] => 5 [material_sum] => 357374 [work_sum] => 264401 [total_sum] => 621775 [total_days] => 15 [display_material_sum] => 357 374 [display_work_sum] => 264 401 [display_total_sum] => 621 775 ) 1
621 775
Работа:264 401
Материалы:357 374
Дни:15
stdClass Object ( [id] => 204 [attribute_id] => 5 [name] => Арболитовые блоки [material_modifier] => 1 [work_modifier] => 1 [options] => Array ( [0] => 300 мм [1] => 400 мм [2] => 600 мм ) [days] => [19,22,27] [material_price] => [3210,4475,5852] [work_price] => [4214,4788,5866] [image] => https://akademik-stroy.ru/wp-content/uploads/materials/arbolitovye-bloki.png [area_modifier] => 98.21 [parent_name] => Стены 2 этаж (несущие) [parent_id] => 5 [material_sum] => 397220 [work_sum] => 434550 [total_sum] => 831770 [total_days] => 19 [display_material_sum] => 397 220 [display_work_sum] => 434 550 [display_total_sum] => 831 770 ) 1
831 770
Работа:434 550
Материалы:397 220
Дни:19
stdClass Object ( [id] => 205 [attribute_id] => 5 [name] => Полистиролбетон [material_modifier] => 1 [work_modifier] => 1 [options] => Array ( [0] => 300 мм [1] => 400 мм [2] => 600 мм ) [days] => [29,31,35] [material_price] => [2798,4573,5256] [work_price] => [5038,5851,6426] [image] => https://akademik-stroy.ru/wp-content/uploads/materials/polistirolbeton.jpg [area_modifier] => 98.21 [parent_name] => Стены 2 этаж (несущие) [parent_id] => 5 [material_sum] => 346237 [work_sum] => 519521 [total_sum] => 865758 [total_days] => 29 [display_material_sum] => 346 237 [display_work_sum] => 519 521 [display_total_sum] => 865 758 ) 1
865 758
Работа:519 521
Материалы:346 237
Дни:29
stdClass Object ( [id] => 206 [attribute_id] => 5 [name] => Шлакоблок [material_modifier] => 1 [work_modifier] => 1 [options] => Array ( [0] => 400 мм [1] => 600 мм ) [days] => [15,16] [material_price] => [2391,3471] [work_price] => [2642,3662] [image] => https://akademik-stroy.ru/wp-content/uploads/materials/shlakoblok.jpg [area_modifier] => 98.21 [parent_name] => Стены 2 этаж (несущие) [parent_id] => 5 [material_sum] => 295873 [work_sum] => 272444 [total_sum] => 568317 [total_days] => 15 [display_material_sum] => 295 873 [display_work_sum] => 272 444 [display_total_sum] => 568 317 ) 1
568 317
Работа:272 444
Материалы:295 873
Дни:15
stdClass Object ( [id] => 245 [attribute_id] => 5 [name] => Теплая керамика [material_modifier] => 1 [work_modifier] => 1 [options] => Array ( [0] => 380 мм [1] => 380 мм Thermo [2] => 440 мм [3] => 510 мм ) [days] => [10,10,11,12] [material_price] => [4510,5098,6093,8013] [work_price] => [4737,4937,5903,6958] [image] => https://akademik-stroy.ru/wp-content/uploads/materials/teplaya-keramika.jpg [area_modifier] => 98.21 [parent_name] => Стены 2 этаж (несущие) [parent_id] => 5 [material_sum] => 558088 [work_sum] => 488482 [total_sum] => 1046570 [total_days] => 10 [display_material_sum] => 558 088 [display_work_sum] => 488 482 [display_total_sum] => 1 046 570 ) 1
1 046 570
Работа:488 482
Материалы:558 088
Дни:10
stdClass Object ( [id] => 246 [attribute_id] => 5 [name] => Несъемная опалубка [material_modifier] => 1 [work_modifier] => 1 [options] => Array ( [0] => 380 мм [1] => 380 мм Thermo [2] => 440 мм [3] => 510 мм ) [days] => [10,10,11,12] [material_price] => [3302,3902,4108,5008] [work_price] => [2100,2100,2300,2534] [image] => https://akademik-stroy.ru/wp-content/uploads/materials/nesemnaya-opalubka.jpg [area_modifier] => 98.21 [parent_name] => Стены 2 этаж (несущие) [parent_id] => 5 [material_sum] => 408605 [work_sum] => 216553 [total_sum] => 625158 [total_days] => 10 [display_material_sum] => 408 605 [display_work_sum] => 216 553 [display_total_sum] => 625 158 ) 1
625 158
Работа:216 553
Материалы:408 605
Дни:10
stdClass Object ( [id] => 254 [attribute_id] => 5 [name] => Бревно [material_modifier] => 1 [work_modifier] => 1 [options] => Array ( [0] => 260 мм [1] => 320 мм [2] => 360 мм [3] => 400 мм [4] => 500 мм ) [days] => [7,8,9,10,11] [material_price] => [1874,24045,26930,30972,38825] [work_price] => [5046,6207,6952,7716,9723] [image] => https://akademik-stroy.ru/wp-content/uploads/materials/sruby.jpg [area_modifier] => 98.21 [parent_name] => Стены 2 этаж (несущие) [parent_id] => 5 [material_sum] => 231897 [work_sum] => 520346 [total_sum] => 752243 [total_days] => 7 [display_material_sum] => 231 897 [display_work_sum] => 520 346 [display_total_sum] => 752 243 ) 1
752 243
Работа:520 346
Материалы:231 897
Дни:7
Крыша (Скатная)
stdClass Object ( [id] => 164 [attribute_id] => 37 [name] => Металлочерепица [material_modifier] => 1 [work_modifier] => 1 [options] => Array ( ) [days] => [20] [material_price] => [6112] [work_price] => [5726] [image] => https://akademik-stroy.ru/wp-content/uploads/materials/metallocherepica.jpg [area_modifier] => 142.08 [parent_name] => Крыша (Скатная) [parent_id] => 37 [material_sum] => 1094175 [work_sum] => 854228 [total_sum] => 1948403 [total_days] => 20 [display_material_sum] => 1 094 175 [display_work_sum] => 854 228 [display_total_sum] => 1 948 403 ) 1
1 948 403
Работа:854 228
Материалы:1 094 175
Дни:20
stdClass Object ( [id] => 165 [attribute_id] => 37 [name] => Гибкая черепица [material_modifier] => 1 [work_modifier] => 1 [options] => Array ( ) [days] => [20] [material_price] => [6980] [work_price] => [5950] [image] => https://akademik-stroy.ru/wp-content/uploads/materials/gibkaya-cherepica.jpg [area_modifier] => 142.08 [parent_name] => Крыша (Скатная) [parent_id] => 37 [material_sum] => 1249565 [work_sum] => 887645 [total_sum] => 2137210 [total_days] => 20 [display_material_sum] => 1 249 565 [display_work_sum] => 887 645 [display_total_sum] => 2 137 210 ) 1
2 137 210
Работа:887 645
Материалы:1 249 565
Дни:20
stdClass Object ( [id] => 166 [attribute_id] => 37 [name] => Цементно-песчаная черепица [material_modifier] => 1 [work_modifier] => 1 [options] => Array ( ) [days] => [20] [material_price] => [10560] [work_price] => [9456] [image] => https://akademik-stroy.ru/wp-content/uploads/materials/cementno-peschanaya-cherepica.jpg [area_modifier] => 142.08 [parent_name] => Крыша (Скатная) [parent_id] => 37 [material_sum] => 1890460 [work_sum] => 1410684 [total_sum] => 3301144 [total_days] => 20 [display_material_sum] => 1 890 460 [display_work_sum] => 1 410 684 [display_total_sum] => 3 301 144 ) 1
3 301 144
Работа:1 410 684
Материалы:1 890 460
Дни:20
stdClass Object ( [id] => 167 [attribute_id] => 37 [name] => Композитная черепица [material_modifier] => 1 [work_modifier] => 1 [options] => Array ( ) [days] => [20] [material_price] => [9506] [work_price] => [8905] [image] => https://akademik-stroy.ru/wp-content/uploads/materials/kompozitnaya-cherepica.jpg [area_modifier] => 142.08 [parent_name] => Крыша (Скатная) [parent_id] => 37 [material_sum] => 1701772 [work_sum] => 1328484 [total_sum] => 3030256 [total_days] => 20 [display_material_sum] => 1 701 772 [display_work_sum] => 1 328 484 [display_total_sum] => 3 030 256 ) 1
3 030 256
Работа:1 328 484
Материалы:1 701 772
Дни:20
stdClass Object ( [id] => 168 [attribute_id] => 37 [name] => Керамическая черепица [material_modifier] => 1 [work_modifier] => 1 [options] => Array ( ) [days] => [20] [material_price] => [12750] [work_price] => [9456] [image] => https://akademik-stroy.ru/wp-content/uploads/materials/keramicheskaya-cherepica.jpg [area_modifier] => 142.08 [parent_name] => Крыша (Скатная) [parent_id] => 37 [material_sum] => 2282515 [work_sum] => 1410684 [total_sum] => 3693199 [total_days] => 20 [display_material_sum] => 2 282 515 [display_work_sum] => 1 410 684 [display_total_sum] => 3 693 199 ) 1
3 693 199
Работа:1 410 684
Материалы:2 282 515
Дни:20
stdClass Object ( [id] => 169 [attribute_id] => 37 [name] => Металлическая фальцевая [material_modifier] => 1 [work_modifier] => 1 [options] => Array ( ) [days] => [20] [material_price] => [8550] [work_price] => [8190] [image] => https://akademik-stroy.ru/wp-content/uploads/materials/metallicheskaya-falcevaya.jpg [area_modifier] => 142.08 [parent_name] => Крыша (Скатная) [parent_id] => 37 [material_sum] => 1530628 [work_sum] => 1221817 [total_sum] => 2752445 [total_days] => 20 [display_material_sum] => 1 530 628 [display_work_sum] => 1 221 817 [display_total_sum] => 2 752 445 ) 1
2 752 445
Работа:1 221 817
Материалы:1 530 628
Дни:20
stdClass Object ( [id] => 170 [attribute_id] => 37 [name] => Медная фальцевая [material_modifier] => 1 [work_modifier] => 1 [options] => Array ( ) [days] => [20] [material_price] => [20450] [work_price] => [16750] [image] => https://akademik-stroy.ru/wp-content/uploads/materials/mednaya-falcevaya.jpg [area_modifier] => 142.08 [parent_name] => Крыша (Скатная) [parent_id] => 37 [material_sum] => 3660975 [work_sum] => 2498832 [total_sum] => 6159807 [total_days] => 20 [display_material_sum] => 3 660 975 [display_work_sum] => 2 498 832 [display_total_sum] => 6 159 807 ) 1
6 159 807
Работа:2 498 832
Материалы:3 660 975
Дни:20
stdClass Object ( [id] => 171 [attribute_id] => 37 [name] => Зеленая кровля [material_modifier] => 1 [work_modifier] => 1 [options] => Array ( ) [days] => [20] [material_price] => [19850] [work_price] => [16780] [image] => https://akademik-stroy.ru/wp-content/uploads/materials/zelenaya-krovlya.jpg [area_modifier] => 142.08 [parent_name] => Крыша (Скатная) [parent_id] => 37 [material_sum] => 3553563 [work_sum] => 2503308 [total_sum] => 6056871 [total_days] => 20 [display_material_sum] => 3 553 563 [display_work_sum] => 2 503 308 [display_total_sum] => 6 056 871 ) 1
6 056 871
Работа:2 503 308
Материалы:3 553 563
Дни:20
stdClass Object ( [id] => 172 [attribute_id] => 37 [name] => Профлист [material_modifier] => 1 [work_modifier] => 1 [options] => Array ( ) [days] => [20] [material_price] => [3450] [work_price] => [3750] [image] => https://akademik-stroy.ru/wp-content/uploads/materials/proflist.jpg [area_modifier] => 142.08 [parent_name] => Крыша (Скатная) [parent_id] => 37 [material_sum] => 617622 [work_sum] => 559440 [total_sum] => 1177062 [total_days] => 20 [display_material_sum] => 617 622 [display_work_sum] => 559 440 [display_total_sum] => 1 177 062 ) 1
1 177 062
Работа:559 440
Материалы:617 622
Дни:20
Окна
stdClass Object ( [id] => 51 [attribute_id] => 26 [name] => Есть [material_modifier] => 1 [work_modifier] => 1 [options] => Array ( [0] => Профиль 58 мм, 3-камерный, стеклопакет 2-камерный до 32 мм [1] => Профиль 60 мм, 4-камерный, стеклопакет 2-камерный до 32 мм [2] => Профиль 70 мм, 5-камерный, стеклопакет 2-камерный до 40 мм [3] => Профиль 72 мм, 5-камерный, стеклопакет 2-камерный до 40 мм [4] => Алюминиевые окна Alutech профиль 72 мм, стеклопакет 2-камерный ) [days] => [3,3,3,3,3] [material_price] => [1339,2124,2867,3023,29596] [work_price] => [635,647,659,668,2579] [image] => https://akademik-stroy.ru/wp-content/uploads/materials/okna.jpg [area_modifier] => 195 [parent_name] => Окна [parent_id] => 26 [material_sum] => 328992 [work_sum] => 130016 [total_sum] => 459008 [total_days] => 3 [display_material_sum] => 328 992 [display_work_sum] => 130 016 [display_total_sum] => 459 008 ) 1
459 008
Работа:130 016
Материалы:328 992
Дни:3
stdClass Object ( [id] => 52 [attribute_id] => 26 [name] => Нет [material_modifier] => 2 [work_modifier] => 1 [options] => [days] => null [material_price] => null [work_price] => null [image] => https://akademik-stroy.ru/wp-content/uploads/materials/okna.jpg [area_modifier] => 195 [parent_name] => Окна [parent_id] => 26 [material_sum] => 0 [work_sum] => 0 [total_sum] => 0 [total_days] => 0 [display_material_sum] => 0 [display_work_sum] => 0 [display_total_sum] => 0 ) 1
0
Работа:0
Материалы:0
Дни:0
Двери входные
stdClass Object ( [id] => 53 [attribute_id] => 27 [name] => Есть [material_modifier] => 1 [work_modifier] => 1 [options] => Array ( ) [days] => [1] [material_price] => [10000] [work_price] => [5500] [image] => https://akademik-stroy.ru/wp-content/uploads/materials/dveri.jpg [area_modifier] => 1 [parent_name] => Двери входные [parent_id] => 27 [material_sum] => 12600 [work_sum] => 5775 [total_sum] => 18375 [total_days] => 1 [display_material_sum] => 12 600 [display_work_sum] => 5 775 [display_total_sum] => 18 375 ) 1
18 375
Работа:5 775
Материалы:12 600
Дни:1
stdClass Object ( [id] => 54 [attribute_id] => 27 [name] => Нет [material_modifier] => 1 [work_modifier] => 1 [options] => Array ( ) [days] => [0] [material_price] => [0] [work_price] => [0] [image] => https://akademik-stroy.ru/wp-content/uploads/materials/dveri.jpg [area_modifier] => 1 [parent_name] => Двери входные [parent_id] => 27 [material_sum] => 0 [work_sum] => 0 [total_sum] => 0 [total_days] => 0 [display_material_sum] => 0 [display_work_sum] => 0 [display_total_sum] => 0 ) 1
0
Работа:0
Материалы:0
Дни:0
Утепление кровли (Мансарда)
stdClass Object ( [id] => 25 [attribute_id] => 13 [name] => Нет [material_modifier] => 1 [work_modifier] => 1 [options] => Array ( ) [days] => [0] [material_price] => [0] [work_price] => [0] [image] => https://akademik-stroy.ru/wp-content/uploads/materials/mineralovata-krov.jpg [area_modifier] => 142.08 [parent_name] => Утепление кровли (Мансарда) [parent_id] => 13 [material_sum] => 0 [work_sum] => 0 [total_sum] => 0 [total_days] => 0 [display_material_sum] => 0 [display_work_sum] => 0 [display_total_sum] => 0 ) 1
0
Работа:0
Материалы:0
Дни:0
stdClass Object ( [id] => 26 [attribute_id] => 13 [name] => Минераловатный [material_modifier] => 1 [work_modifier] => 1 [options] => Array ( [0] => 50 мм [1] => 100 мм [2] => 150 мм [3] => 200 мм [4] => 250 мм [5] => 300 мм [6] => 350 мм [7] => 400 мм [8] => 450 мм [9] => 500 мм ) [days] => [5,5,6,6,6,7,7,7,8,8] [material_price] => [1158,1414,1772,2230,3602,4060,4974,5890,6408,7718] [work_price] => [650,846,846,1098,1318,1450,1596,1754,1930,2122] [image] => https://akademik-stroy.ru/wp-content/uploads/materials/mineralovata-krov.jpg [area_modifier] => 142.08 [parent_name] => Утепление кровли (Мансарда) [parent_id] => 13 [material_sum] => 207306 [work_sum] => 96970 [total_sum] => 304276 [total_days] => 5 [display_material_sum] => 207 306 [display_work_sum] => 96 970 [display_total_sum] => 304 276 ) 1
304 276
Работа:96 970
Материалы:207 306
Дни:5
stdClass Object ( [id] => 123 [attribute_id] => 13 [name] => Эковата (целлюлозная вата) [material_modifier] => 1 [work_modifier] => 1 [options] => Array ( [0] => 50 мм [1] => 100 мм [2] => 150 мм [3] => 200 мм [4] => 250 мм [5] => 300 мм [6] => 350 мм [7] => 400 мм [8] => 450 мм [9] => 500 мм ) [days] => [3,3,4,4,4,5,5,5,5,5] [material_price] => [820,1638,2458,3276,5734,6552,8190,9828,11466,13104] [work_price] => [234,304,304,396,474,522,574,632,694,764] [image] => https://akademik-stroy.ru/wp-content/uploads/materials/ehkovata-krov.jpg [area_modifier] => 142.08 [parent_name] => Утепление кровли (Мансарда) [parent_id] => 13 [material_sum] => 146797 [work_sum] => 34909 [total_sum] => 181706 [total_days] => 3 [display_material_sum] => 146 797 [display_work_sum] => 34 909 [display_total_sum] => 181 706 ) 1
181 706
Работа:34 909
Материалы:146 797
Дни:3
stdClass Object ( [id] => 124 [attribute_id] => 13 [name] => Экструдированный пенополистирол [material_modifier] => 1 [work_modifier] => 1 [options] => Array ( [0] => 50 мм [1] => 100 мм [2] => 150 мм [3] => 200 мм [4] => 250 мм [5] => 300 мм [6] => 350 мм [7] => 400 мм [8] => 450 мм [9] => 500 мм ) [days] => [3,3,4,4,4,5,5,5,5,6] [material_price] => [1146,2292,3438,4584,8020,9166,11458,13750,16040,18332] [work_price] => [390,508,508,660,790,870,958,1052,1158,1274] [image] => https://akademik-stroy.ru/wp-content/uploads/materials/epps-krov.jpg [area_modifier] => 142.08 [parent_name] => Утепление кровли (Мансарда) [parent_id] => 13 [material_sum] => 205158 [work_sum] => 58182 [total_sum] => 263340 [total_days] => 3 [display_material_sum] => 205 158 [display_work_sum] => 58 182 [display_total_sum] => 263 340 ) 1
263 340
Работа:58 182
Материалы:205 158
Дни:3
stdClass Object ( [id] => 125 [attribute_id] => 13 [name] => ПСБ (ППС-пенополистирол) [material_modifier] => 1 [work_modifier] => 1 [options] => Array ( [0] => 50 мм [1] => 100 мм [2] => 150 мм [3] => 200 мм [4] => 250 мм [5] => 300 мм [6] => 350 мм [7] => 400 мм [8] => 450 мм [9] => 500 мм ) [days] => [3,3,4,4,4,5,5,5,5,6] [material_price] => [476,954,1430,1906,3336,3814,4766,5720,6674,7626] [work_price] => [390,508,508,660,790,870,958,1052,1158,1274] [image] => https://akademik-stroy.ru/wp-content/uploads/materials/psb-krov.jpg [area_modifier] => 142.08 [parent_name] => Утепление кровли (Мансарда) [parent_id] => 13 [material_sum] => 85214 [work_sum] => 58182 [total_sum] => 143396 [total_days] => 3 [display_material_sum] => 85 214 [display_work_sum] => 58 182 [display_total_sum] => 143 396 ) 1
143 396
Работа:58 182
Материалы:85 214
Дни:3
stdClass Object ( [id] => 126 [attribute_id] => 13 [name] => ППУ (Пенополиуретан) [material_modifier] => 1 [work_modifier] => 1 [options] => Array ( [0] => 50 мм [1] => 100 мм [2] => 150 мм [3] => 200 мм [4] => 250 мм [5] => 300 мм [6] => 350 мм [7] => 400 мм [8] => 450 мм [9] => 500 мм ) [days] => [2,2,3,3,3,3,4,4,4,4] [material_price] => [2080,4160,6240,8320,14560,16640,20800,24960,29120,33280] [work_price] => [234,304,304,396,474,522,574,632,694,764] [image] => https://akademik-stroy.ru/wp-content/uploads/materials/ppu-krov.jpg [area_modifier] => 142.08 [parent_name] => Утепление кровли (Мансарда) [parent_id] => 13 [material_sum] => 372363 [work_sum] => 34909 [total_sum] => 407272 [total_days] => 2 [display_material_sum] => 372 363 [display_work_sum] => 34 909 [display_total_sum] => 407 272 ) 1
407 272
Работа:34 909
Материалы:372 363
Дни:2
stdClass Object ( [id] => 127 [attribute_id] => 13 [name] => PIR-плиты (пенополиизоцианурат) [material_modifier] => 1 [work_modifier] => 1 [options] => Array ( [0] => 50 мм [1] => 100 мм [2] => 150 мм [3] => 200 мм [4] => 250 мм [5] => 300 мм [6] => 350 мм [7] => 400 мм [8] => 450 мм [9] => 500 мм ) [days] => [3,3,4,4,4,5,5,5,5,6] [material_price] => [2646,5290,7936,10580,18516,21162,26452,31742,37032,42324] [work_price] => [390,508,508,660,790,870,958,1052,1158,1274] [image] => https://akademik-stroy.ru/wp-content/uploads/materials/pir-krov.jpg [area_modifier] => 142.08 [parent_name] => Утепление кровли (Мансарда) [parent_id] => 13 [material_sum] => 473689 [work_sum] => 58182 [total_sum] => 531871 [total_days] => 3 [display_material_sum] => 473 689 [display_work_sum] => 58 182 [display_total_sum] => 531 871 ) 1
531 871
Работа:58 182
Материалы:473 689
Дни:3
Мансардные окна
stdClass Object ( [id] => 27 [attribute_id] => 14 [name] => Нет [material_modifier] => 1 [work_modifier] => 1 [options] => Array ( ) [days] => [0] [material_price] => [0] [work_price] => [0] [image] => https://akademik-stroy.ru/wp-content/uploads/materials/mansardnye-okna-2.jpg [area_modifier] => 1 [parent_name] => Мансардные окна [parent_id] => 14 [material_sum] => 0 [work_sum] => 0 [total_sum] => 0 [total_days] => 0 [display_material_sum] => 0 [display_work_sum] => 0 [display_total_sum] => 0 ) 1
0
Работа:0
Материалы:0
Дни:0
stdClass Object ( [id] => 28 [attribute_id] => 14 [name] => Есть [material_modifier] => 1 [work_modifier] => 1 [options] => Array ( [0] => 55x78 [1] => 55x98 ) [days] => [6,7] [material_price] => [47480,68700] [work_price] => [17900,19500] [image] => https://akademik-stroy.ru/wp-content/uploads/materials/mansardnye-okna-2.jpg [area_modifier] => 1 [parent_name] => Мансардные окна [parent_id] => 14 [material_sum] => 59825 [work_sum] => 18795 [total_sum] => 78620 [total_days] => 6 [display_material_sum] => 59 825 [display_work_sum] => 18 795 [display_total_sum] => 78 620 ) 1
78 620
Работа:18 795
Материалы:59 825
Дни:6
Подшивка кровли
stdClass Object ( [id] => 29 [attribute_id] => 15 [name] => Нет [material_modifier] => 1 [work_modifier] => 1 [options] => Array ( ) [days] => [0] [material_price] => [0] [work_price] => [0] [image] => https://akademik-stroy.ru/wp-content/uploads/materials/sofit.jpg [area_modifier] => 142.08 [parent_name] => Подшивка кровли [parent_id] => 15 [material_sum] => 0 [work_sum] => 0 [total_sum] => 0 [total_days] => 0 [display_material_sum] => 0 [display_work_sum] => 0 [display_total_sum] => 0 ) 1
0
Работа:0
Материалы:0
Дни:0
stdClass Object ( [id] => 30 [attribute_id] => 15 [name] => Есть [material_modifier] => 1 [work_modifier] => 1 [options] => Array ( [0] => Софиты (ПВХ) [1] => Cedral [2] => ДПК [3] => Планкен ) [days] => [7,10,9,8] [material_price] => [1803,3213,3025,3150] [work_price] => [1529,2188,2075,1923] [image] => https://akademik-stroy.ru/wp-content/uploads/materials/sofit.jpg [area_modifier] => 142.08 [parent_name] => Подшивка кровли [parent_id] => 15 [material_sum] => 322775 [work_sum] => 228102 [total_sum] => 550877 [total_days] => 7 [display_material_sum] => 322 775 [display_work_sum] => 228 102 [display_total_sum] => 550 877 ) 1
550 877
Работа:228 102
Материалы:322 775
Дни:7
Водосточная система
stdClass Object ( [id] => 31 [attribute_id] => 16 [name] => Нет [material_modifier] => 1 [work_modifier] => 1 [options] => Array ( ) [days] => [0] [material_price] => [0] [work_price] => [0] [image] => https://akademik-stroy.ru/wp-content/uploads/materials/docke-standard-pvh.jpg [area_modifier] => 142.08 [parent_name] => Водосточная система [parent_id] => 16 [material_sum] => 0 [work_sum] => 0 [total_sum] => 0 [total_days] => 0 [display_material_sum] => 0 [display_work_sum] => 0 [display_total_sum] => 0 ) 1
0
Работа:0
Материалы:0
Дни:0
stdClass Object ( [id] => 32 [attribute_id] => 16 [name] => Есть [material_modifier] => 1 [work_modifier] => 1 [options] => Array ( [0] => Döcke Standard (ПВХ) [1] => Металлические Grand Line ) [days] => [7,7] [material_price] => [1842,2703] [work_price] => [1491,1529] [image] => https://akademik-stroy.ru/wp-content/uploads/materials/docke-standard-pvh.jpg [area_modifier] => 142.08 [parent_name] => Водосточная система [parent_id] => 16 [material_sum] => 329756 [work_sum] => 222433 [total_sum] => 552189 [total_days] => 7 [display_material_sum] => 329 756 [display_work_sum] => 222 433 [display_total_sum] => 552 189 ) 1
552 189
Работа:222 433
Материалы:329 756
Дни:7
Дополнительное утепление наружных стен
stdClass Object ( [id] => 33 [attribute_id] => 17 [name] => Нет [material_modifier] => 1 [work_modifier] => 1 [options] => Array ( ) [days] => [0] [material_price] => [0] [work_price] => [0] [image] => https://akademik-stroy.ru/wp-content/uploads/materials/mineralovata.jpg [area_modifier] => 240.3 [parent_name] => Дополнительное утепление наружных стен [parent_id] => 17 [material_sum] => 0 [work_sum] => 0 [total_sum] => 0 [total_days] => 0 [display_material_sum] => 0 [display_work_sum] => 0 [display_total_sum] => 0 ) 1
0
Работа:0
Материалы:0
Дни:0
stdClass Object ( [id] => 34 [attribute_id] => 17 [name] => Минераловатный [material_modifier] => 1 [work_modifier] => 1 [options] => Array ( [0] => 50 мм [1] => 100 мм [2] => 150 мм [3] => 200 мм [4] => 250 мм [5] => 300 мм ) [days] => [7,8,10,12,14,15] [material_price] => [3437,3613,3803,3915,4601,4830] [work_price] => [2325,2423,2523,2749,2859,3025] [image] => https://akademik-stroy.ru/wp-content/uploads/materials/mineralovata.jpg [area_modifier] => 240.3 [parent_name] => Дополнительное утепление наружных стен [parent_id] => 17 [material_sum] => 1040648 [work_sum] => 586632 [total_sum] => 1627280 [total_days] => 7 [display_material_sum] => 1 040 648 [display_work_sum] => 586 632 [display_total_sum] => 1 627 280 ) 1
1 627 280
Работа:586 632
Материалы:1 040 648
Дни:7
stdClass Object ( [id] => 128 [attribute_id] => 17 [name] => Эковата (целлюлозная вата) [material_modifier] => 1 [work_modifier] => 1 [options] => Array ( [0] => 50 мм [1] => 100 мм [2] => 150 мм [3] => 200 мм [4] => 250 мм [5] => 300 мм ) [days] => [3,4,5,6,7,8] [material_price] => [810,1319,1629,1838,2267,2676] [work_price] => [1225,1323,1423,1549,1659,1725] [image] => https://akademik-stroy.ru/wp-content/uploads/materials/ehkovata.jpg [area_modifier] => 240.3 [parent_name] => Дополнительное утепление наружных стен [parent_id] => 17 [material_sum] => 245250 [work_sum] => 309086 [total_sum] => 554336 [total_days] => 3 [display_material_sum] => 245 250 [display_work_sum] => 309 086 [display_total_sum] => 554 336 ) 1
554 336
Работа:309 086
Материалы:245 250
Дни:3
stdClass Object ( [id] => 129 [attribute_id] => 17 [name] => Экструдированный пенополистирол [material_modifier] => 1 [work_modifier] => 1 [options] => Array ( [0] => 50 мм [1] => 100 мм [2] => 150 мм [3] => 200 мм [4] => 250 мм [5] => 300 мм ) [days] => [5,6,7,8,9,10] [material_price] => [4560,4300,5119,6292,7010,8583] [work_price] => [1795,1954,2254,2330,2595,2735] [image] => https://akademik-stroy.ru/wp-content/uploads/materials/epps.jpg [area_modifier] => 240.3 [parent_name] => Дополнительное утепление наружных стен [parent_id] => 17 [material_sum] => 1380668 [work_sum] => 452905 [total_sum] => 1833573 [total_days] => 5 [display_material_sum] => 1 380 668 [display_work_sum] => 452 905 [display_total_sum] => 1 833 573 ) 1
1 833 573
Работа:452 905
Материалы:1 380 668
Дни:5
stdClass Object ( [id] => 130 [attribute_id] => 17 [name] => ПСБ (ППС-пенополистирол) [material_modifier] => 1 [work_modifier] => 1 [options] => Array ( [0] => 50 мм [1] => 100 мм [2] => 150 мм [3] => 200 мм [4] => 250 мм [5] => 300 мм ) [days] => [5,6,7,8,9,10] [material_price] => [4822,5200,5819,6292,7010,7583] [work_price] => [1795,1954,2254,2330,2595,2735] [image] => https://akademik-stroy.ru/wp-content/uploads/materials/psb.jpg [area_modifier] => 240.3 [parent_name] => Дополнительное утепление наружных стен [parent_id] => 17 [material_sum] => 1459996 [work_sum] => 452905 [total_sum] => 1912901 [total_days] => 5 [display_material_sum] => 1 459 996 [display_work_sum] => 452 905 [display_total_sum] => 1 912 901 ) 1
1 912 901
Работа:452 905
Материалы:1 459 996
Дни:5
stdClass Object ( [id] => 131 [attribute_id] => 17 [name] => ППУ (Пенополиуретан) [material_modifier] => 1 [work_modifier] => 1 [options] => Array ( [0] => 50 мм [1] => 100 мм [2] => 150 мм [3] => 200 мм [4] => 250 мм [5] => 300 мм ) [days] => [3,4,5,6,7,8] [material_price] => [2860,3400,4219,4592,5010,5583] [work_price] => [729,900,980,1120,1280,1530] [image] => https://akademik-stroy.ru/wp-content/uploads/materials/ppu.jpg [area_modifier] => 240.3 [parent_name] => Дополнительное утепление наружных стен [parent_id] => 17 [material_sum] => 865945 [work_sum] => 183938 [total_sum] => 1049883 [total_days] => 3 [display_material_sum] => 865 945 [display_work_sum] => 183 938 [display_total_sum] => 1 049 883 ) 1
1 049 883
Работа:183 938
Материалы:865 945
Дни:3
stdClass Object ( [id] => 132 [attribute_id] => 17 [name] => PIR-плиты (пенополиизоцианурат) [material_modifier] => 1 [work_modifier] => 1 [options] => Array ( [0] => 50 мм [1] => 100 мм [2] => 150 мм [3] => 200 мм [4] => 250 мм [5] => 300 мм ) [days] => [5,6,7,8,9,10] [material_price] => [8323,15645,20968,25900,29258,30581] [work_price] => [800,900,970,1150,1280,1330] [image] => https://akademik-stroy.ru/wp-content/uploads/materials/pir.jpg [area_modifier] => 240.3 [parent_name] => Дополнительное утепление наружных стен [parent_id] => 17 [material_sum] => 2520021 [work_sum] => 201852 [total_sum] => 2721873 [total_days] => 5 [display_material_sum] => 2 520 021 [display_work_sum] => 201 852 [display_total_sum] => 2 721 873 ) 1
2 721 873
Работа:201 852
Материалы:2 520 021
Дни:5
Наружная отделка фасада
stdClass Object ( [id] => 37 [attribute_id] => 19 [name] => Нет [material_modifier] => 1 [work_modifier] => 1 [options] => Array ( ) [days] => [0] [material_price] => [0] [work_price] => [0] [image] => https://akademik-stroy.ru/wp-content/uploads/materials/imitaciya-brusa.jpg [area_modifier] => 240.3 [parent_name] => Наружная отделка фасада [parent_id] => 19 [material_sum] => 0 [work_sum] => 0 [total_sum] => 0 [total_days] => 0 [display_material_sum] => 0 [display_work_sum] => 0 [display_total_sum] => 0 ) 1
0
Работа:0
Материалы:0
Дни:0
stdClass Object ( [id] => 38 [attribute_id] => 19 [name] => Имитация бруса [material_modifier] => 1 [work_modifier] => 1 [options] => Array ( [0] => Сосна [1] => Ель [2] => Лиственница ) [days] => [20,20,20] [material_price] => [2994,2762,4954] [work_price] => [1397,1231,1577] [image] => https://akademik-stroy.ru/wp-content/uploads/materials/imitaciya-brusa.jpg [area_modifier] => 240.3 [parent_name] => Наружная отделка фасада [parent_id] => 19 [material_sum] => 906517 [work_sum] => 352484 [total_sum] => 1259001 [total_days] => 20 [display_material_sum] => 906 517 [display_work_sum] => 352 484 [display_total_sum] => 1 259 001 ) 1
1 259 001
Работа:352 484
Материалы:906 517
Дни:20
stdClass Object ( [id] => 136 [attribute_id] => 19 [name] => Планкен [material_modifier] => 1 [work_modifier] => 1 [options] => Array ( [0] => Сосна [1] => Ель [2] => Лиственница ) [days] => [20,20,20] [material_price] => [3194,2862,5154] [work_price] => [1537,1354,1735] [image] => https://akademik-stroy.ru/wp-content/uploads/materials/planken.jpg [area_modifier] => 240.3 [parent_name] => Наружная отделка фасада [parent_id] => 19 [material_sum] => 967073 [work_sum] => 387808 [total_sum] => 1354881 [total_days] => 20 [display_material_sum] => 967 073 [display_work_sum] => 387 808 [display_total_sum] => 1 354 881 ) 1
1 354 881
Работа:387 808
Материалы:967 073
Дни:20
stdClass Object ( [id] => 137 [attribute_id] => 19 [name] => Штукатурка [material_modifier] => 1 [work_modifier] => 1 [options] => Array ( [0] => Цементно-песчаная (минеральная) [1] => Мокрый фасад ) [days] => [35,35] [material_price] => [2231,3938] [work_price] => [1202,2422] [image] => https://akademik-stroy.ru/wp-content/uploads/materials/shtukaturka.jpg [area_modifier] => 240.3 [parent_name] => Наружная отделка фасада [parent_id] => 19 [material_sum] => 675498 [work_sum] => 303283 [total_sum] => 978781 [total_days] => 35 [display_material_sum] => 675 498 [display_work_sum] => 303 283 [display_total_sum] => 978 781 ) 1
978 781
Работа:303 283
Материалы:675 498
Дни:35
stdClass Object ( [id] => 138 [attribute_id] => 19 [name] => Облицовочный кирпич [material_modifier] => 1 [work_modifier] => 1 [options] => Array ( [0] => Керамический [1] => Клинкерный [2] => Ручной формовки [3] => Гиперпрессованный [4] => Силикатный кирпич ) [days] => [45,45,45,45,45] [material_price] => [8174,9148,1040,1257,5876] [work_price] => [3240,3758,4536,4017,3369] [image] => https://akademik-stroy.ru/wp-content/uploads/materials/oblicovochnyj-kirpich.jpg [area_modifier] => 240.3 [parent_name] => Наружная отделка фасада [parent_id] => 19 [material_sum] => 2474907 [work_sum] => 817501 [total_sum] => 3292408 [total_days] => 45 [display_material_sum] => 2 474 907 [display_work_sum] => 817 501 [display_total_sum] => 3 292 408 ) 1
3 292 408
Работа:817 501
Материалы:2 474 907
Дни:45
stdClass Object ( [id] => 139 [attribute_id] => 19 [name] => Фасадная плитка [material_modifier] => 1 [work_modifier] => 1 [options] => Array ( [0] => Клинкерная [1] => Керамическая [2] => Плитка ручной формовки ) [days] => [40,40,40] [material_price] => [2974,1487,3470] [work_price] => [3007,2592,3629] [image] => https://akademik-stroy.ru/wp-content/uploads/materials/fasadnaya-plitka.jpg [area_modifier] => 240.3 [parent_name] => Наружная отделка фасада [parent_id] => 19 [material_sum] => 900462 [work_sum] => 758711 [total_sum] => 1659173 [total_days] => 40 [display_material_sum] => 900 462 [display_work_sum] => 758 711 [display_total_sum] => 1 659 173 ) 1
1 659 173
Работа:758 711
Материалы:900 462
Дни:40
stdClass Object ( [id] => 140 [attribute_id] => 19 [name] => Сайдинг [material_modifier] => 1 [work_modifier] => 1 [options] => Array ( [0] => Виниловый [1] => Металлический [2] => Фиброцементный ) [days] => [20,20,20] [material_price] => [1263,1944,4147] [work_price] => [1263,1944,2074] [image] => https://akademik-stroy.ru/wp-content/uploads/materials/sajding.jpg [area_modifier] => 240.3 [parent_name] => Наружная отделка фасада [parent_id] => 19 [material_sum] => 382409 [work_sum] => 318674 [total_sum] => 701083 [total_days] => 20 [display_material_sum] => 382 409 [display_work_sum] => 318 674 [display_total_sum] => 701 083 ) 1
701 083
Работа:318 674
Материалы:382 409
Дни:20
stdClass Object ( [id] => 141 [attribute_id] => 19 [name] => Камень [material_modifier] => 1 [work_modifier] => 1 [options] => Array ( [0] => Травертин [1] => Дагестанский [2] => Искусственный [3] => Натуральный [4] => Керамогранит ) [days] => [45,45,45,45,45] [material_price] => [4536,3888,2592,3240,2462] [work_price] => [3240,3240,2462,3110,1944] [image] => https://akademik-stroy.ru/wp-content/uploads/materials/kamen-1.jpg [area_modifier] => 240.3 [parent_name] => Наружная отделка фасада [parent_id] => 19 [material_sum] => 1373401 [work_sum] => 817501 [total_sum] => 2190902 [total_days] => 45 [display_material_sum] => 1 373 401 [display_work_sum] => 817 501 [display_total_sum] => 2 190 902 ) 1
2 190 902
Работа:817 501
Материалы:1 373 401
Дни:45
stdClass Object ( [id] => 142 [attribute_id] => 19 [name] => Термопанели [material_modifier] => 1 [work_modifier] => 1 [options] => Array ( ) [days] => [20] [material_price] => [6221] [work_price] => [2333] [image] => https://akademik-stroy.ru/wp-content/uploads/materials/termo.png [area_modifier] => 240.3 [parent_name] => Наружная отделка фасада [parent_id] => 19 [material_sum] => 1883582 [work_sum] => 588651 [total_sum] => 2472233 [total_days] => 20 [display_material_sum] => 1 883 582 [display_work_sum] => 588 651 [display_total_sum] => 2 472 233 ) 1
2 472 233
Работа:588 651
Материалы:1 883 582
Дни:20
stdClass Object ( [id] => 143 [attribute_id] => 19 [name] => Плитка HAUBERK [material_modifier] => 1 [work_modifier] => 1 [options] => Array ( ) [days] => [20] [material_price] => [2786] [work_price] => [1944] [image] => https://akademik-stroy.ru/wp-content/uploads/materials/hauberk.jpg [area_modifier] => 240.3 [parent_name] => Наружная отделка фасада [parent_id] => 19 [material_sum] => 843540 [work_sum] => 490500 [total_sum] => 1334040 [total_days] => 20 [display_material_sum] => 843 540 [display_work_sum] => 490 500 [display_total_sum] => 1 334 040 ) 1
1 334 040
Работа:490 500
Материалы:843 540
Дни:20
stdClass Object ( [id] => 144 [attribute_id] => 19 [name] => Фальцевый фасад [material_modifier] => 1 [work_modifier] => 1 [options] => Array ( ) [days] => [20] [material_price] => [3240] [work_price] => [2592] [image] => https://akademik-stroy.ru/wp-content/uploads/materials/falcevyj-fasad.jpg [area_modifier] => 240.3 [parent_name] => Наружная отделка фасада [parent_id] => 19 [material_sum] => 981001 [work_sum] => 654000 [total_sum] => 1635001 [total_days] => 20 [display_material_sum] => 981 001 [display_work_sum] => 654 000 [display_total_sum] => 1 635 001 ) 1
1 635 001
Работа:654 000
Материалы:981 001
Дни:20
stdClass Object ( [id] => 145 [attribute_id] => 19 [name] => Комбинированный [material_modifier] => 1 [work_modifier] => 1 [options] => Array ( ) [days] => [20] [material_price] => [4629] [work_price] => [3499] [image] => https://akademik-stroy.ru/wp-content/uploads/materials/Kombinirovannyj.jpg [area_modifier] => 240.3 [parent_name] => Наружная отделка фасада [parent_id] => 19 [material_sum] => 1401559 [work_sum] => 882850 [total_sum] => 2284409 [total_days] => 20 [display_material_sum] => 1 401 559 [display_work_sum] => 882 850 [display_total_sum] => 2 284 409 ) 1
2 284 409
Работа:882 850
Материалы:1 401 559
Дни:20
stdClass Object ( [id] => 257 [attribute_id] => 19 [name] => Японские фиброцементные [material_modifier] => 1 [work_modifier] => 1 [options] => Array ( ) [days] => [20] [material_price] => [7043] [work_price] => [2993] [image] => https://akademik-stroy.ru/wp-content/uploads/materials/paneli.jpg [area_modifier] => 240.3 [parent_name] => Наружная отделка фасада [parent_id] => 19 [material_sum] => 2132465 [work_sum] => 755179 [total_sum] => 2887644 [total_days] => 20 [display_material_sum] => 2 132 465 [display_work_sum] => 755 179 [display_total_sum] => 2 887 644 ) 1
2 887 644
Работа:755 179
Материалы:2 132 465
Дни:20
stdClass Object ( [id] => 258 [attribute_id] => 19 [name] => Панели Каньон [material_modifier] => 1 [work_modifier] => 1 [options] => Array ( ) [days] => [20] [material_price] => [4543] [work_price] => [2592] [image] => https://akademik-stroy.ru/wp-content/uploads/materials/kanon.png [area_modifier] => 240.3 [parent_name] => Наружная отделка фасада [parent_id] => 19 [material_sum] => 1375520 [work_sum] => 654000 [total_sum] => 2029520 [total_days] => 20 [display_material_sum] => 1 375 520 [display_work_sum] => 654 000 [display_total_sum] => 2 029 520 ) 1
2 029 520
Работа:654 000
Материалы:1 375 520
Дни:20
Террасы, крыльца, навесы
stdClass Object ( [id] => 39 [attribute_id] => 20 [name] => Нет [material_modifier] => 1 [work_modifier] => 1 [options] => Array ( ) [days] => [0] [material_price] => [0] [work_price] => [0] [image] => https://akademik-stroy.ru/wp-content/uploads/materials/terrasy.jpg [area_modifier] => 30 [parent_name] => Террасы, крыльца, навесы [parent_id] => 20 [material_sum] => 0 [work_sum] => 0 [total_sum] => 0 [total_days] => 0 [display_material_sum] => 0 [display_work_sum] => 0 [display_total_sum] => 0 ) 1
0
Работа:0
Материалы:0
Дни:0
stdClass Object ( [id] => 40 [attribute_id] => 20 [name] => Есть [material_modifier] => 1 [work_modifier] => 1 [options] => Array ( ) [days] => [5] [material_price] => [10450] [work_price] => [1950] [image] => https://akademik-stroy.ru/wp-content/uploads/materials/terrasy.jpg [area_modifier] => 30 [parent_name] => Террасы, крыльца, навесы [parent_id] => 20 [material_sum] => 395010 [work_sum] => 61425 [total_sum] => 456435 [total_days] => 5 [display_material_sum] => 395 010 [display_work_sum] => 61 425 [display_total_sum] => 456 435 ) 1
456 435
Работа:61 425
Материалы:395 010
Дни:5
Балконы
stdClass Object ( [id] => 41 [attribute_id] => 21 [name] => Нет [material_modifier] => 1 [work_modifier] => 1 [options] => Array ( ) [days] => [0] [material_price] => [0] [work_price] => [0] [image] => https://akademik-stroy.ru/wp-content/uploads/materials/balkony.jpg [area_modifier] => 30 [parent_name] => Балконы [parent_id] => 21 [material_sum] => 0 [work_sum] => 0 [total_sum] => 0 [total_days] => 0 [display_material_sum] => 0 [display_work_sum] => 0 [display_total_sum] => 0 ) 1
0
Работа:0
Материалы:0
Дни:0
stdClass Object ( [id] => 42 [attribute_id] => 21 [name] => Есть [material_modifier] => 1 [work_modifier] => 1 [options] => Array ( ) [days] => [12] [material_price] => [3600] [work_price] => [1950] [image] => https://akademik-stroy.ru/wp-content/uploads/materials/balkony.jpg [area_modifier] => 30 [parent_name] => Балконы [parent_id] => 21 [material_sum] => 136080 [work_sum] => 61425 [total_sum] => 197505 [total_days] => 12 [display_material_sum] => 136 080 [display_work_sum] => 61 425 [display_total_sum] => 197 505 ) 1
197 505
Работа:61 425
Материалы:136 080
Дни:12
Отмостка
stdClass Object ( [id] => 43 [attribute_id] => 22 [name] => Нет [material_modifier] => 1 [work_modifier] => 1 [options] => Array ( ) [days] => [0] [material_price] => [0] [work_price] => [0] [image] => https://akademik-stroy.ru/wp-content/uploads/materials/uteplennaya.jpg [area_modifier] => 142.08 [parent_name] => Отмостка [parent_id] => 22 [material_sum] => 0 [work_sum] => 0 [total_sum] => 0 [total_days] => 0 [display_material_sum] => 0 [display_work_sum] => 0 [display_total_sum] => 0 ) 1
0
Работа:0
Материалы:0
Дни:0
stdClass Object ( [id] => 44 [attribute_id] => 22 [name] => Утепленная отмостка [material_modifier] => 1 [work_modifier] => 1 [options] => Array ( ) [days] => [15] [material_price] => [2550] [work_price] => [1750] [image] => https://akademik-stroy.ru/wp-content/uploads/materials/uteplennaya.jpg [area_modifier] => 142.08 [parent_name] => Отмостка [parent_id] => 22 [material_sum] => 456503 [work_sum] => 261072 [total_sum] => 717575 [total_days] => 15 [display_material_sum] => 456 503 [display_work_sum] => 261 072 [display_total_sum] => 717 575 ) 1
717 575
Работа:261 072
Материалы:456 503
Дни:15
stdClass Object ( [id] => 146 [attribute_id] => 22 [name] => Не утепленная отмостка [material_modifier] => 1 [work_modifier] => 1 [options] => Array ( ) [days] => [10] [material_price] => [1650] [work_price] => [1450] [image] => https://akademik-stroy.ru/wp-content/uploads/materials/ne-uteplennaya.jpg [area_modifier] => 142.08 [parent_name] => Отмостка [parent_id] => 22 [material_sum] => 295384 [work_sum] => 216317 [total_sum] => 511701 [total_days] => 10 [display_material_sum] => 295 384 [display_work_sum] => 216 317 [display_total_sum] => 511 701 ) 1
511 701
Работа:216 317
Материалы:295 384
Дни:10
Дренаж вокруг дома
stdClass Object ( [id] => 45 [attribute_id] => 23 [name] => Нет [material_modifier] => 1 [work_modifier] => 1 [options] => Array ( ) [days] => [0] [material_price] => [0] [work_price] => [0] [image] => https://akademik-stroy.ru/wp-content/uploads/materials/drenazh-2.jpg [area_modifier] => 142.08 [parent_name] => Дренаж вокруг дома [parent_id] => 23 [material_sum] => 0 [work_sum] => 0 [total_sum] => 0 [total_days] => 0 [display_material_sum] => 0 [display_work_sum] => 0 [display_total_sum] => 0 ) 1
0
Работа:0
Материалы:0
Дни:0
stdClass Object ( [id] => 46 [attribute_id] => 23 [name] => Есть [material_modifier] => 1 [work_modifier] => 1 [options] => Array ( ) [days] => [5] [material_price] => [2366] [work_price] => [1911] [image] => https://akademik-stroy.ru/wp-content/uploads/materials/drenazh-2.jpg [area_modifier] => 142.08 [parent_name] => Дренаж вокруг дома [parent_id] => 23 [material_sum] => 423563 [work_sum] => 285091 [total_sum] => 708654 [total_days] => 5 [display_material_sum] => 423 563 [display_work_sum] => 285 091 [display_total_sum] => 708 654 ) 1
708 654
Работа:285 091
Материалы:423 563
Дни:5
Автономная канализация (септики)
stdClass Object ( [id] => 47 [attribute_id] => 24 [name] => Нет [material_modifier] => 1 [work_modifier] => 1 [options] => Array ( ) [days] => [0] [material_price] => [0] [work_price] => [0] [image] => https://akademik-stroy.ru/wp-content/uploads/materials/septik.jpg [area_modifier] => 1 [parent_name] => Автономная канализация (септики) [parent_id] => 24 [material_sum] => 0 [work_sum] => 0 [total_sum] => 0 [total_days] => 0 [display_material_sum] => 0 [display_work_sum] => 0 [display_total_sum] => 0 ) 1
0
Работа:0
Материалы:0
Дни:0
stdClass Object ( [id] => 48 [attribute_id] => 24 [name] => Есть [material_modifier] => 1 [work_modifier] => 1 [options] => Array ( [0] => Для дачи на 4 человека [1] => Для дома на 5 человек [2] => Для дома на 6 человек [3] => Для дома на 7 человек [4] => Для дома на 10 человек ) [days] => [7,7,7,8,8] [material_price] => [196340,220500,240940,264200,293340] [work_price] => [50000,55000,60500,66550,73206] [image] => https://akademik-stroy.ru/wp-content/uploads/materials/septik.jpg [area_modifier] => 1 [parent_name] => Автономная канализация (септики) [parent_id] => 24 [material_sum] => 247388 [work_sum] => 52500 [total_sum] => 299888 [total_days] => 7 [display_material_sum] => 247 388 [display_work_sum] => 52 500 [display_total_sum] => 299 888 ) 1
299 888
Работа:52 500
Материалы:247 388
Дни:7
Внутренние (не несущие) перегородки
stdClass Object ( [id] => 49 [attribute_id] => 25 [name] => Нет [material_modifier] => 1 [work_modifier] => 1 [options] => Array ( ) [days] => [0] [material_price] => [0] [work_price] => [0] [image] => https://akademik-stroy.ru/wp-content/uploads/materials/gkl.jpg [area_modifier] => 240.3 [parent_name] => Внутренние (не несущие) перегородки [parent_id] => 25 [material_sum] => 0 [work_sum] => 0 [total_sum] => 0 [total_days] => 0 [display_material_sum] => 0 [display_work_sum] => 0 [display_total_sum] => 0 ) 1
0
Работа:0
Материалы:0
Дни:0
stdClass Object ( [id] => 147 [attribute_id] => 25 [name] => Каркасно-обшивные [material_modifier] => 1 [work_modifier] => 1 [options] => Array ( [0] => 75 мм (без шумоизоляции) [1] => 75 мм (с шумоизоляцией) ) [days] => [11,11] [material_price] => [580,970] [work_price] => [380,570] [image] => https://akademik-stroy.ru/wp-content/uploads/materials/gkl.jpg [area_modifier] => 240.3 [parent_name] => Внутренние (не несущие) перегородки [parent_id] => 25 [material_sum] => 175611 [work_sum] => 95880 [total_sum] => 271491 [total_days] => 11 [display_material_sum] => 175 611 [display_work_sum] => 95 880 [display_total_sum] => 271 491 ) 1
271 491
Работа:95 880
Материалы:175 611
Дни:11
stdClass Object ( [id] => 148 [attribute_id] => 25 [name] => Пазогребневые [material_modifier] => 1 [work_modifier] => 1 [options] => Array ( [0] => 80 мм [1] => 100 мм ) [days] => [5,5] [material_price] => [1022,1313] [work_price] => [600,700] [image] => https://akademik-stroy.ru/wp-content/uploads/materials/pazogrebnevye-bloki.jpg [area_modifier] => 240.3 [parent_name] => Внутренние (не несущие) перегородки [parent_id] => 25 [material_sum] => 309439 [work_sum] => 151389 [total_sum] => 460828 [total_days] => 5 [display_material_sum] => 309 439 [display_work_sum] => 151 389 [display_total_sum] => 460 828 ) 1
460 828
Работа:151 389
Материалы:309 439
Дни:5
stdClass Object ( [id] => 149 [attribute_id] => 25 [name] => Газобетонные [material_modifier] => 1 [work_modifier] => 1 [options] => Array ( [0] => 100 мм [1] => 200 мм ) [days] => [11,11] [material_price] => [1160,1920] [work_price] => [700,900] [image] => https://akademik-stroy.ru/wp-content/uploads/materials/gazobeton-2.jpg [area_modifier] => 240.3 [parent_name] => Внутренние (не несущие) перегородки [parent_id] => 25 [material_sum] => 351222 [work_sum] => 176621 [total_sum] => 527843 [total_days] => 11 [display_material_sum] => 351 222 [display_work_sum] => 176 621 [display_total_sum] => 527 843 ) 1
527 843
Работа:176 621
Материалы:351 222
Дни:11
stdClass Object ( [id] => 150 [attribute_id] => 25 [name] => Кирпичные [material_modifier] => 1 [work_modifier] => 1 [options] => Array ( [0] => 120 мм [1] => 250 мм [2] => 360 мм ) [days] => [7,7,7] [material_price] => [1785,3570,5355] [work_price] => [900,1600,1800] [image] => https://akademik-stroy.ru/wp-content/uploads/materials/kirpich-1.jpg [area_modifier] => 240.3 [parent_name] => Внутренние (не несущие) перегородки [parent_id] => 25 [material_sum] => 540459 [work_sum] => 227084 [total_sum] => 767543 [total_days] => 7 [display_material_sum] => 540 459 [display_work_sum] => 227 084 [display_total_sum] => 767 543 ) 1
767 543
Работа:227 084
Материалы:540 459
Дни:7
Электрика
stdClass Object ( [id] => 55 [attribute_id] => 28 [name] => Нет [material_modifier] => 1 [work_modifier] => 1 [options] => Array ( ) [days] => [0] [material_price] => [0] [work_price] => [0] [image] => https://akademik-stroy.ru/wp-content/uploads/materials/ehlektrika.jpg [area_modifier] => 195 [parent_name] => Электрика [parent_id] => 28 [material_sum] => 0 [work_sum] => 0 [total_sum] => 0 [total_days] => 0 [display_material_sum] => 0 [display_work_sum] => 0 [display_total_sum] => 0 ) 1
0
Работа:0
Материалы:0
Дни:0
stdClass Object ( [id] => 56 [attribute_id] => 28 [name] => Есть [material_modifier] => 1 [work_modifier] => 1 [options] => Array ( ) [days] => [10] [material_price] => [650] [work_price] => [950] [image] => https://akademik-stroy.ru/wp-content/uploads/materials/ehlektrika.jpg [area_modifier] => 195 [parent_name] => Электрика [parent_id] => 28 [material_sum] => 159705 [work_sum] => 194513 [total_sum] => 354218 [total_days] => 10 [display_material_sum] => 159 705 [display_work_sum] => 194 513 [display_total_sum] => 354 218 ) 1
354 218
Работа:194 513
Материалы:159 705
Дни:10
Сантехника, канализация в доме
stdClass Object ( [id] => 57 [attribute_id] => 29 [name] => Нет [material_modifier] => 1 [work_modifier] => 1 [options] => Array ( ) [days] => [0] [material_price] => [0] [work_price] => [0] [image] => https://akademik-stroy.ru/wp-content/uploads/materials/santekhnika-kanalizaciya-1.jpg [area_modifier] => 195 [parent_name] => Сантехника, канализация в доме [parent_id] => 29 [material_sum] => 0 [work_sum] => 0 [total_sum] => 0 [total_days] => 0 [display_material_sum] => 0 [display_work_sum] => 0 [display_total_sum] => 0 ) 1
0
Работа:0
Материалы:0
Дни:0
stdClass Object ( [id] => 58 [attribute_id] => 29 [name] => Есть [material_modifier] => 1 [work_modifier] => 1 [options] => Array ( ) [days] => [10] [material_price] => [600] [work_price] => [730] [image] => https://akademik-stroy.ru/wp-content/uploads/materials/santekhnika-kanalizaciya-1.jpg [area_modifier] => 195 [parent_name] => Сантехника, канализация в доме [parent_id] => 29 [material_sum] => 147420 [work_sum] => 149468 [total_sum] => 296888 [total_days] => 10 [display_material_sum] => 147 420 [display_work_sum] => 149 468 [display_total_sum] => 296 888 ) 1
296 888
Работа:149 468
Материалы:147 420
Дни:10
Отопление
stdClass Object ( [id] => 59 [attribute_id] => 30 [name] => Нет [material_modifier] => 1 [work_modifier] => 1 [options] => Array ( ) [days] => [0] [material_price] => [0] [work_price] => [0] [image] => https://akademik-stroy.ru/wp-content/uploads/materials/otoplenie-1.jpg [area_modifier] => 195 [parent_name] => Отопление [parent_id] => 30 [material_sum] => 0 [work_sum] => 0 [total_sum] => 0 [total_days] => 0 [display_material_sum] => 0 [display_work_sum] => 0 [display_total_sum] => 0 ) 1
0
Работа:0
Материалы:0
Дни:0
stdClass Object ( [id] => 60 [attribute_id] => 30 [name] => Есть [material_modifier] => 1 [work_modifier] => 1 [options] => Array ( ) [days] => [5] [material_price] => [610] [work_price] => [560] [image] => https://akademik-stroy.ru/wp-content/uploads/materials/otoplenie-1.jpg [area_modifier] => 195 [parent_name] => Отопление [parent_id] => 30 [material_sum] => 149877 [work_sum] => 114660 [total_sum] => 264537 [total_days] => 5 [display_material_sum] => 149 877 [display_work_sum] => 114 660 [display_total_sum] => 264 537 ) 1
264 537
Работа:114 660
Материалы:149 877
Дни:5
Теплые полы
stdClass Object ( [id] => 61 [attribute_id] => 31 [name] => Нет [material_modifier] => 1 [work_modifier] => 1 [options] => Array ( ) [days] => [0] [material_price] => [0] [work_price] => [0] [image] => https://akademik-stroy.ru/wp-content/uploads/materials/vodyanye.jpg [area_modifier] => 30 [parent_name] => Теплые полы [parent_id] => 31 [material_sum] => 0 [work_sum] => 0 [total_sum] => 0 [total_days] => 0 [display_material_sum] => 0 [display_work_sum] => 0 [display_total_sum] => 0 ) 1
0
Работа:0
Материалы:0
Дни:0
stdClass Object ( [id] => 151 [attribute_id] => 31 [name] => Водяные [material_modifier] => 1 [work_modifier] => 1 [options] => Array ( ) [days] => [9] [material_price] => [10200] [work_price] => [2500] [image] => https://akademik-stroy.ru/wp-content/uploads/materials/vodyanye.jpg [area_modifier] => 30 [parent_name] => Теплые полы [parent_id] => 31 [material_sum] => 385560 [work_sum] => 78750 [total_sum] => 464310 [total_days] => 9 [display_material_sum] => 385 560 [display_work_sum] => 78 750 [display_total_sum] => 464 310 ) 1
464 310
Работа:78 750
Материалы:385 560
Дни:9
stdClass Object ( [id] => 152 [attribute_id] => 31 [name] => Электро [material_modifier] => 1 [work_modifier] => 1 [options] => Array ( ) [days] => [5] [material_price] => [6300] [work_price] => [1500] [image] => https://akademik-stroy.ru/wp-content/uploads/materials/ehlektricheskij.jpg [area_modifier] => 30 [parent_name] => Теплые полы [parent_id] => 31 [material_sum] => 238140 [work_sum] => 47250 [total_sum] => 285390 [total_days] => 5 [display_material_sum] => 238 140 [display_work_sum] => 47 250 [display_total_sum] => 285 390 ) 1
285 390
Работа:47 250
Материалы:238 140
Дни:5
Черновая отделка стен
stdClass Object ( [id] => 63 [attribute_id] => 32 [name] => Нет [material_modifier] => 1 [work_modifier] => 1 [options] => Array ( ) [days] => [0] [material_price] => [0] [work_price] => [0] [image] => https://akademik-stroy.ru/wp-content/uploads/materials/shtukaturka-shpatlevka-1.jpg [area_modifier] => 195 [parent_name] => Черновая отделка стен [parent_id] => 32 [material_sum] => 0 [work_sum] => 0 [total_sum] => 0 [total_days] => 0 [display_material_sum] => 0 [display_work_sum] => 0 [display_total_sum] => 0 ) 1
0
Работа:0
Материалы:0
Дни:0
stdClass Object ( [id] => 153 [attribute_id] => 32 [name] => Штукатурка и шпатлевка [material_modifier] => 1 [work_modifier] => 1 [options] => Array ( ) [days] => [20] [material_price] => [1850] [work_price] => [2600] [image] => https://akademik-stroy.ru/wp-content/uploads/materials/shtukaturka-shpatlevka-1.jpg [area_modifier] => 195 [parent_name] => Черновая отделка стен [parent_id] => 32 [material_sum] => 454545 [work_sum] => 532350 [total_sum] => 986895 [total_days] => 20 [display_material_sum] => 454 545 [display_work_sum] => 532 350 [display_total_sum] => 986 895 ) 1
986 895
Работа:532 350
Материалы:454 545
Дни:20
stdClass Object ( [id] => 154 [attribute_id] => 32 [name] => Гипсокортон на стены [material_modifier] => 1 [work_modifier] => 1 [options] => Array ( ) [days] => [15] [material_price] => [950] [work_price] => [2100] [image] => https://akademik-stroy.ru/wp-content/uploads/materials/gkl-1.jpg [area_modifier] => 195 [parent_name] => Черновая отделка стен [parent_id] => 32 [material_sum] => 233415 [work_sum] => 429975 [total_sum] => 663390 [total_days] => 15 [display_material_sum] => 233 415 [display_work_sum] => 429 975 [display_total_sum] => 663 390 ) 1
663 390
Работа:429 975
Материалы:233 415
Дни:15
stdClass Object ( [id] => 155 [attribute_id] => 32 [name] => Вагонка [material_modifier] => 1 [work_modifier] => 1 [options] => Array ( ) [days] => [15] [material_price] => [1250] [work_price] => [950] [image] => https://akademik-stroy.ru/wp-content/uploads/materials/vagonka.jpg [area_modifier] => 195 [parent_name] => Черновая отделка стен [parent_id] => 32 [material_sum] => 307125 [work_sum] => 194513 [total_sum] => 501638 [total_days] => 15 [display_material_sum] => 307 125 [display_work_sum] => 194 513 [display_total_sum] => 501 638 ) 1
501 638
Работа:194 513
Материалы:307 125
Дни:15
Черновая отделка полов
stdClass Object ( [id] => 65 [attribute_id] => 33 [name] => Нет [material_modifier] => 1 [work_modifier] => 1 [options] => Array ( ) [days] => [0] [material_price] => [0] [work_price] => [0] [image] => https://akademik-stroy.ru/wp-content/uploads/materials/styazhka.jpg [area_modifier] => 195 [parent_name] => Черновая отделка полов [parent_id] => 33 [material_sum] => 0 [work_sum] => 0 [total_sum] => 0 [total_days] => 0 [display_material_sum] => 0 [display_work_sum] => 0 [display_total_sum] => 0 ) 1
0
Работа:0
Материалы:0
Дни:0
stdClass Object ( [id] => 156 [attribute_id] => 33 [name] => Стяжка + наливные полы [material_modifier] => 1 [work_modifier] => 1 [options] => Array ( ) [days] => [10] [material_price] => [1000] [work_price] => [900] [image] => https://akademik-stroy.ru/wp-content/uploads/materials/styazhka.jpg [area_modifier] => 195 [parent_name] => Черновая отделка полов [parent_id] => 33 [material_sum] => 245700 [work_sum] => 184275 [total_sum] => 429975 [total_days] => 10 [display_material_sum] => 245 700 [display_work_sum] => 184 275 [display_total_sum] => 429 975 ) 1
429 975
Работа:184 275
Материалы:245 700
Дни:10
stdClass Object ( [id] => 157 [attribute_id] => 33 [name] => ОСБ на пол [material_modifier] => 1 [work_modifier] => 1 [options] => Array ( ) [days] => [7] [material_price] => [580] [work_price] => [350] [image] => https://akademik-stroy.ru/wp-content/uploads/materials/osb-1.jpg [area_modifier] => 195 [parent_name] => Черновая отделка полов [parent_id] => 33 [material_sum] => 142506 [work_sum] => 71663 [total_sum] => 214169 [total_days] => 7 [display_material_sum] => 142 506 [display_work_sum] => 71 663 [display_total_sum] => 214 169 ) 1
214 169
Работа:71 663
Материалы:142 506
Дни:7
Чистовая отделка стен и полов
stdClass Object ( [id] => 67 [attribute_id] => 34 [name] => Нет [material_modifier] => 1 [work_modifier] => 1 [options] => Array ( ) [days] => [0] [material_price] => [0] [work_price] => [0] [image] => https://akademik-stroy.ru/wp-content/uploads/materials/chistovaya-otdelka.jpg [area_modifier] => 195 [parent_name] => Чистовая отделка стен и полов [parent_id] => 34 [material_sum] => 0 [work_sum] => 0 [total_sum] => 0 [total_days] => 0 [display_material_sum] => 0 [display_work_sum] => 0 [display_total_sum] => 0 ) 1
0
Работа:0
Материалы:0
Дни:0
stdClass Object ( [id] => 68 [attribute_id] => 34 [name] => Есть [material_modifier] => 1 [work_modifier] => 1 [options] => Array ( ) [days] => [50] [material_price] => [6000] [work_price] => [3500] [image] => https://akademik-stroy.ru/wp-content/uploads/materials/chistovaya-otdelka.jpg [area_modifier] => 195 [parent_name] => Чистовая отделка стен и полов [parent_id] => 34 [material_sum] => 1474200 [work_sum] => 716625 [total_sum] => 2190825 [total_days] => 50 [display_material_sum] => 1 474 200 [display_work_sum] => 716 625 [display_total_sum] => 2 190 825 ) 1
2 190 825
Работа:716 625
Материалы:1 474 200
Дни:50
Отделка потолка
stdClass Object ( [id] => 69 [attribute_id] => 35 [name] => Нет [material_modifier] => 1 [work_modifier] => 1 [options] => Array ( ) [days] => [0] [material_price] => [0] [work_price] => [0] [image] => https://akademik-stroy.ru/wp-content/uploads/materials/mnogourovnevyj-gkl.jpg [area_modifier] => 195 [parent_name] => Отделка потолка [parent_id] => 35 [material_sum] => 0 [work_sum] => 0 [total_sum] => 0 [total_days] => 0 [display_material_sum] => 0 [display_work_sum] => 0 [display_total_sum] => 0 ) 1
0
Работа:0
Материалы:0
Дни:0
stdClass Object ( [id] => 70 [attribute_id] => 35 [name] => Есть [material_modifier] => 1 [work_modifier] => 1 [options] => Array ( [0] => Многоуровневый потолок из гипсокартона [1] => Многоуровневый потолок из гипсокартона и натяжного потолка [2] => Одноуровневый потолок из гипсокартона [3] => Одноуровневый натяжной потолок ) [days] => [10,10,1,1] [material_price] => [900,700,700,600] [work_price] => [1000,800,500,300] [image] => https://akademik-stroy.ru/wp-content/uploads/materials/mnogourovnevyj-gkl.jpg [area_modifier] => 195 [parent_name] => Отделка потолка [parent_id] => 35 [material_sum] => 221130 [work_sum] => 204750 [total_sum] => 425880 [total_days] => 10 [display_material_sum] => 221 130 [display_work_sum] => 204 750 [display_total_sum] => 425 880 ) 1
425 880
Работа:204 750
Материалы:221 130
Дни:10

Преимущества работы с нами

icon

7 этапов оплаты

icon

Независимый строительный надзор

icon

Экологически чистые материалы

icon

16 лет гарантии

icon

Онлайн-кабинет с веб-камерой

icon

Строители с опытом более 15 лет

icon

Собственное производство

Двухэтажный дом 17х11 - 195 м2 в Москве: идеальный выбор для комфортной жизни

Выбор проекта частного дома — это всегда интересный и важный этап на пути к своей мечте. Если вам нужен просторный, функциональный и стильный двухэтажный дом в московском регионе, то проект дома размером 17 на 11 метров с общей полезной площадью 195 м² от компании «Академик Строй» – это действительно тот вариант, который заслуживает внимания. В этой статье я подробно расскажу, почему именно этот проект станет отличным решением для вашей семьи, какие у него основные параметры, и какие преимущества вы получите, заказав проект именно у профессионалов с многолетним опытом.

Основные характеристики дома и почему они важны

Подходя к выбору проекта, люди часто сосредотачиваются на внешнем виде или количестве комнат, забывая о технических параметрах, которые определяют комфорт и удобство эксплуатации дома. Давайте внимательно рассмотрим ключевые характеристики дома 17x11 – 195 м², чтобы понять, что именно вы получаете.

Полезная площадь 195 м² – пространство для всех

195 квадратных метров полезной площади – это достаточно большой размер для того, чтобы ваша семья ни в чем не испытывала дефицита места. Такой дом отлично подойдет как для большой семьи с детьми, так и для тех, кто любит принимать гостей или организовывать домашние мероприятия. Просторные комнаты, удобная планировка, достаточное количество жилых зон – все это создает ощущение свободы и комфорта.

Габариты и этажность: 17 на 11 метров, 2 этажа

Основные размеры дома – 17 метров в длину и 11 метров в ширину, а также два полноценных этажа – позволяют разместить все необходимые помещения, не «растягивая» строение слишком широко, что особенно важно при ограниченной площади земельного участка. Такой формат удобен с точки зрения отопления, ремонта и общей эксплуатации.

Жилая площадь и планировка

Жилая площадь составляет 123,20 м². Это означает, что из общего пространства около 2/3 отведены именно под жилые комнаты – спальни, гостиную, кабинет. В доме предусмотрено четыре спальни, что дает возможность организовать удобное пространство для всех членов семьи, включая возможность выделить детские комнаты, кабинет или гостевые спальни.

Планировка и зонирование: комфорт на каждом этаже

Планировка – это сердце любого дома, от того, как продуман каждый квадратный метр, зависит удобство жизни, функциональность и даже настроение жильцов.

Четыре спальни – пространство для семьи и гостей

Наличие 4 спален – это большой плюс для семей с несколькими детьми, а также для тех, кто часто принимает гостей. Каждая спальня может иметь свое назначение: детская, родительская, гостевая комната и кабинет или даже спортзал. Этажность позволяет грамотно распределить приватные и общие зоны.

Два санузла – удобство без очередей

С двумя санузлами ни одна утренняя суета не превратится в гонку за ванной комнатой. Как правило, один санузел располагается на первом этаже, а второй – на втором, что обеспечивает комфортное использование для всех жильцов.

Отдельная комната на первом этаже

Опция, которую обязательно стоит отметить — наличие дополнительной комнаты на первом этаже. Это может быть отличный кабинет для работы из дома, гостевая, игровая или даже мастерская. Такая гибкость особенно ценна в современных условиях, когда домашний офис стал неотъемлемой частью жизни многих людей.

Крыша и внешний архитектурный стиль

Внешняя архитектура дома формирует первое впечатление и влияет на общую эстетику участка. Не менее важны и практические характеристики крыши.

Тип крыши: двускатная и ее преимущества

Двускатная крыша в проекте с углом наклона 42° – классический и очень функциональный вариант. Такая конструкция хорошо защищает от снега и дождя, проста в строительстве и в дальнейшем обслуживании. Кроме того, она позволяет организовать под крышей чердачное пространство, которое можно использовать как кладовку или дополнительную жилую зону.

Площадь крыши и объем здания

Площадь крыши составляет внушительные 278,10 м², а объем здания – 926,80 м³. Это значит, что дом будет выглядеть солидно и обеспечит хорошие показатели теплоизоляции и вентиляции при правильном строительстве. Высота здания – 8,55 метра – обеспечивает комфортный внутренний объем помещений.

Требования к участку и условия строительства

Чтобы дом соответствовал всем ожиданиям, важно правильно выбрать земельный участок и учитывать его особенности.

Минимальные размеры участка

Для того, чтобы разместить дом с габаритами 17x11 м, потребуется участок с минимальной шириной 25,10 м и длиной 19 м. Это важно учитывать при выборе или покупке территории, чтобы обеспечить комфортное размещение дома с необходимыми отступами для нормальной вентиляции, освещения и ландшафтного дизайна.

Отсутствие гаража и его плюсы

В проекте отсутствует гараж, что может быть как плюсом, так и минусом в зависимости от ваших потребностей. Отсутствие гаража дает возможность использовать площадь участка более гибко – например, обустроить зону отдыха, бассейн или разместить дополнительные строения. При этом, если хотите гараж, вы всегда можете добавить его в проект как отдельное строение.

Уют и дополнительные опции для дома вашей мечты

Что делают дом действительно теплым и живым? Конечно же, детали и дополнительные опции, которые создают комфорт и наслаждение от быта.

Камин – душа дома

Наличие камина в проекте – это не только выигрышный архитектурный элемент, но и отличный способ создавать уютную атмосферу в холодное время года. Камин станет центром гостиной, где семья будет собираться вечерами, наслаждаясь теплом и расслабляющей атмосферой.

Терраса – место для отдыха на свежем воздухе

Хотя в списке параметров нет информации о террасах и балконах, в данном проекте предусмотрена терраса. Это отличное дополнение для активного отдыха, барбекю с друзьями или просто наслаждения утренним кофе на природе. Терраса расширяет жилое пространство и позволяет вам быть максимально близко к природе, не покидая границы дома.

Почему стоит заказать проект у компании «Академик Строй»?

Собираясь строить дом, всегда важно выбирать профессионалов с проверенной репутацией, чтобы не тратить время и деньги впустую. Компания «Академик Строй» – именно тот партнер, который понимает ваши мечты и знает, как их воплотить в реальность.

Преимущества сотрудничества

  • Индивидуальный подход к каждому клиенту и внимательное отношение к пожеланиям.
  • Опытная команда архитекторов и инженеров, гарантирующая высокое качество проектирования.
  • Оптимальные цены, которые делают строительство доступным для вас.
  • Полная документация, соответствующая всем нормам и требованиям Москвы и Московской области.
  • Гарантии и поддержка на всех этапах реализации проекта.

Как заказать проект и что нужно знать

Заказать проект дома 17x11 м площадью 195 м² в Москве очень просто. Вы можете позвонить по номеру +7 (980) 800-47-93, и специалисты компании подробно расскажут о всех деталях, включая условия оформления, стоимость и возможные варианты адаптации под ваши потребности.

Обзор ключевых параметров двухэтажного дома 17х11 м, 195 м²

Для наглядности предлагаю таблицу с самыми важными техническими характеристиками, которые стоит иметь под рукой при обсуждении и принятии решения.
Параметр Значение Комментарий
Полезная площадь 195 м² Общее комфортное пространство для семьи
Размеры дома 17 x 11 м Удобная площадь застройки
Этажность 2 этажа Оптимальное разделение жилых и общих зон
Количество спален 4 Для большой семьи или гостей
Количество санузлов 2 Увеличивает комфорт и приватность
Жилая площадь 123,20 м² Основные жилые комнаты
Площадь застройки 169,40 м² Площадь основания и первого этажа
Объем брутто 926,80 м³ Внутренний объем здания
Площадь крыши 278,10 м² Крыша с двойным скатом для надежности
Угол наклона крыши 42° Оптимальный для защиты от осадков
Высота здания 8,55 м Комфортная высота для двух этажей с чердаком
Минимальная ширина участка 25,10 м Для правильного размещения дома
Минимальная длина участка 19 м Учитывайте при покупке участка
Тип крыши Двускатная Классическая форма
Опции Камин, комната на первом этаже, терраса Дополнительный уровень комфорта

Какие преимущества именно московский регион дает для частного дома такого типа

Построить такой дом в Москве и области – значит максимально выгодно использовать особенности климата и инфраструктуры. Московский регион предоставляет отличные возможности для подключения к коммуникациям, транспортной доступности и развитой социальной среде. Помимо этого, проект от «Академик Строй» учитывает местные нормы и требования к строительству, что существенно упрощает получение всех разрешений и согласований.

Почему важно соблюдать строительные стандарты в Москве

Нормы качества, энергоэффективности и безопасности в Москве одни из самых строгих в России. Проект, разработанный профессионалами, соответствует этим требованиям, что дает гарантию надежности и комфорта на долгие годы. Особенно это актуально для двухэтажных домов с большими площадями и объемами.

Стоимость проекта и как правильно распорядиться бюджетом

Отдельный важный аспект – цена проекта и последующее строительство. Компания «Академик Строй» предлагает отличное соотношение цены и качества, позволяя вам не только приобрести готовый проект, но и сэкономить на реализации.

Примерное распределение бюджета

  • Проектирование – 10-15% от стоимости строительства
  • Фундамент и каркас – 30-35%
  • Кровля и внешняя отделка – 15-20%
  • Внутренняя отделка и инженерные системы – 30-35%
Понимание этих показателей поможет вам грамотно планировать расходы и не выходить за рамки бюджета.

Как правильно подготовиться к строительству дома 17x11 с экспертами «Академик Строй»

Перед тем, как вы запустите процесс строительства, стоит уделить внимание нескольким моментам, чтобы все прошло гладко и без сюрпризов.

Подготовка участка под застройку

Первым делом нужно выбрать земельный участок с необходимыми параметрами и выполнить его подготовку — очистку, возможно, выравнивание и монтаж коммуникаций. Минимальные размеры участка позволяют вам не тратить лишних средств на большие площади земли.

Согласование и получение разрешений

«Академик Строй» поможет вам пройти все необходимые этапы согласования проекта в государственных инстанциях, что избавит вас от бюрократических сложностей и сэкономит время.

Выбор подрядчиков и контроль строительства

При строительстве двухэтажного дома очень важно соблюдать технологии. Предлагаемая компания готова предоставить квалифицированных подрядчиков и специалистов, которые возьмут на себя контроль качества на всех этапах.

Основные советы для тех, кто выбирает проект для строительства

Если вы только в начале пути, хочу поделиться парой рекомендаций, которые помогут сделать правильный выбор:
  1. Оцените реальную потребность в количестве комнат и площади, чтобы не переплачивать за лишнее.
  2. Учитывайте особенности участка — форма, размеры, ориентация по сторонам света.
  3. Проверьте готовность компании предоставить полную документацию и поддержку.
  4. Задумайтесь о вариантах расширения или изменения планировки проекта под ваши нужды.
  5. Обязательно учитывайте климатические условия региона — «Академик Строй» учитывает этот момент при проектировании.

Заключительные мысли

Проект двухэтажного дома 17х11 м с полезной площадью 195 м² – это отличный выбор для тех, кто хочет совместить комфорт, функциональность и эстетическую привлекательность. Компания «Академик Строй» предлагает не просто проект — а готовое решение, проверенное временем и реализованное в самых разных условиях Москвы и Подмосковья. Позвоните нам по телефону +7 (980) 800-47-93, чтобы получить профессиональную консультацию, узнать подробности по стоимости и адаптации проекта именно под ваш участок и ваши потребности. Настоящий дом — это ваша крепость, место силы и уюта. Доверьте создание своего идеального пространства настоящим профессионалам, и результат превзойдет все ожидания.